ΠΠ΅Π±ΠΎΠ»ΡΡΠΈΠ΅ Π΄ΠΎΠΌΠ° Ρ Π³Π°ΡΠ°ΠΆΠΎΠΌ β ΠΡΠΎΠ΅ΠΊΡΡ Π½Π΅Π±ΠΎΠ»ΡΡΠΈΡ Π΄ΠΎΠΌΠΎΠ² Ρ Π³Π°ΡΠ°ΠΆΠΎΠΌ 100, 150 ΠΊΠ².ΠΌ Ρ ΡΠΎΡΠΎ ΠΈ ΡΠ΅Π½Π°ΠΌΠΈ
ΠΡΠΎΠ΅ΠΊΡΡ Π΄ΠΎΠΌΠΎΠ² ΠΈ ΠΊΠΎΡΡΠ΅Π΄ΠΆΠ΅ΠΉ Ρ Π³Π°ΡΠ°ΠΆΠΎΠΌ ΠΏΠΎΠ΄ ΠΎΠ΄Π½ΠΎΠΉ ΠΊΡΡΡΠ΅ΠΉ Π² ΠΠΎΡΠΊΠ²Π΅: ΠΊΠ°ΡΠ°Π»ΠΎΠ³, ΡΠΎΡΠΎ
21 ΠΠ°ΡΡΠ° 2018 2018-03-21
2018
ΠΡΠ΅ΠΌΡ ΡΡΠ΅Π½ΠΈΡ 8 ΠΌΠΈΠ½ΡΡ
ΠΡΠΎΡΠΈΡΠ°ΡΡ ΠΏΠΎΠ·ΠΆΠ΅ΠΡΠΏΡΠ°Π²ΠΈΠΌ ΠΌΠ°ΡΠ΅ΡΠΈΠ°Π» Π½Π° ΠΏΠΎΡΡΡ
Π Π°ΡΠΏΠ΅ΡΠ°ΡΠ°ΡΡ
ΠΡΠΎΠ΅ΠΊΡΡ Π΄ΠΎΠΌΠΎΠ² Ρ Π³Π°ΡΠ°ΠΆΠΎΠΌ ΡΠ²Π΅ΡΠ΅Π½Π½ΠΎ Π·Π°Π½ΠΈΠΌΠ°ΡΡ ΡΠ²ΠΎΡ Π½ΠΈΡΡ Π½Π° ΡΡΠ½ΠΊΠ΅ Π·Π°Π³ΠΎΡΠΎΠ΄Π½ΠΎΠΉ Π½Π΅Π΄Π²ΠΈΠΆΠΈΠΌΠΎΡΡΠΈ, ΠΊΠ°ΠΊ ΠΎΠ±ΡΠ°Π·ΡΠΈΠΊΠΈ ΡΠ°ΡΠΈΠΎΠ½Π°Π»ΡΠ½ΠΎΠ³ΠΎ ΠΏΠΎΠ΄Ρ ΠΎΠ΄Π° ΠΊ ΠΈΡΠΏΠΎΠ»ΡΠ·ΠΎΠ²Π°Π½ΠΈΡ ΠΏΠΎΠ»Π΅Π·Π½ΠΎΠΉ ΠΏΠ»ΠΎΡΠ°Π΄ΠΈ. ΠΠΎ ΠΏΡΠ΅ΠΆΠ΄Π΅ ΡΠ΅ΠΌ ΠΏΡΠΈΠ½ΡΡΡ ΠΎΠΊΠΎΠ½ΡΠ°ΡΠ΅Π»ΡΠ½ΠΎΠ΅ ΡΠ΅ΡΠ΅Π½ΠΈΠ΅ ΠΈ ΠΎΡΡΠ°Π½ΠΎΠ²ΠΈΡΡΡΡ Π½Π° ΡΠ°ΠΊΠΎΠΌ ΠΏΡΠΎΠ΅ΠΊΡΠ΅, Π½Π°Π΄ΠΎ Π²Π½ΠΈΠΌΠ°ΡΠ΅Π»ΡΠ½ΠΎ ΠΈΠ·ΡΡΠΈΡΡ Π²ΡΠ΅ Π΅Π³ΠΎ ΠΎΡΠΎΠ±Π΅Π½Π½ΠΎΡΡΠΈβ¦
Π‘ΠΎΠ²ΡΠ΅ΠΌΠ΅Π½Π½ΡΠΉ ΡΠ°ΡΡΠ½ΡΠΉ ΠΊΠΎΡΡΠ΅Π΄ΠΆ β ΡΡΠΎ ΡΠ΄ΠΎΠ±Π½ΠΎΠ΅ ΠΈ ΠΊΠΎΠΌΡΠΎΡΡΠ½ΠΎΠ΅ ΠΆΠΈΠ»ΡΠ΅, ΠΏΡΠΈ ΠΎΠ±ΡΡΡΡΠΎΠΉΡΡΠ²Π΅ ΠΊΠΎΡΠΎΡΠΎΠ³ΠΎ ΡΡΡΠ΅Π½Ρ ΠΏΡΠΈΠ½ΡΠΈΠΏΡ ΡΠ°ΡΠΈΠΎΠ½Π°Π»ΡΠ½ΠΎΡΡΠΈ Π² ΡΠ°ΡΠΏΡΠ΅Π΄Π΅Π»Π΅Π½ΠΈΠΈ ΠΏΡΠΎΡΡΡΠ°Π½ΡΡΠ²Π°. Π‘Π΅Π³ΠΎΠ΄Π½Ρ Π±ΠΎΠ»ΡΡΠΎΠΉ ΠΏΠΎΠΏΡΠ»ΡΡΠ½ΠΎΡΡΡΡ ΠΏΠΎΠ»ΡΠ·ΡΡΡΡΡ Π΄ΠΎΠΌΠ° Ρ Π³Π°ΡΠ°ΠΆΠΎΠΌ ΠΏΠΎΠ΄ ΠΎΠ΄Π½ΠΎΠΉ ΠΊΡΡΡΠ΅ΠΉ, ΠΏΡΠΎΠ΅ΠΊΡΡ ΠΊΠΎΡΠΎΡΡΡ Π°ΠΊΡΠΈΠ²Π½ΠΎ ΡΠΎΠ·Π΄Π°ΡΡΡΡ Π°ΡΡ ΠΈΡΠ΅ΠΊΡΠΎΡΠ°ΠΌΠΈ.

ΠΠΎΠΌ Ρ Π³Π°ΡΠ°ΠΆΠΎΠΌ Π·Π°Π½ΠΈΠΌΠ°Π΅Ρ ΠΌΠ΅Π½ΡΡΠ΅ ΠΌΠ΅ΡΡΠ°, ΡΠ΅ΠΌ Π΄Π²Π΅ ΠΎΡΠ΄Π΅Π»ΡΠ½ΡΠ΅ ΠΏΠΎΡΡΡΠΎΠΉΠΊΠΈ. ΠΡΠΎΠΌΠ΅ ΡΠΎΠ³ΠΎ, ΠΏΡΠΈ ΡΠΎΠ²ΠΌΠ΅ΡΠ΅Π½ΠΈΠΈ ΠΏΡΠΈΡΡΡΠΎΠΉΠΊΠΈ Ρ ΠΆΠΈΠ»ΡΠΌ Π·Π΄Π°Π½ΠΈΠ΅ΠΌ ΠΏΠΎΡΠ²Π»ΡΠ΅ΡΡΡ Π΄ΠΎΠΏΠΎΠ»Π½ΠΈΡΠ΅Π»ΡΠ½ΡΠΉ Π²Π½ΡΡΡΠ΅Π½Π½ΠΈΠΉ Π²Ρ ΠΎΠ΄, ΡΡΠΎ ΡΡΡΠ΅ΡΡΠ²Π΅Π½Π½ΠΎ ΠΏΠΎΠ²ΡΡΠ°Π΅Ρ ΠΊΠΎΠΌΡΠΎΡΡΠ°Π±Π΅Π»ΡΠ½ΠΎΡΡΡ ΠΏΡΠΎΠΆΠΈΠ²Π°Π½ΠΈΡ. ΠΠ΄Π½Π°ΠΊΠΎ Π΄ΠΎΠΌΠ° Ρ ΠΏΡΠΈΡΡΡΠΎΠ΅Π½Π½ΡΠΌΠΈ Π°Π²ΡΠΎΠΌΠΎΠ±ΠΈΠ»ΡΠ½ΡΠΌΠΈ Π±Π»ΠΎΠΊΠ°ΠΌΠΈ ΠΈΠΌΠ΅ΡΡ Π½Π΅ ΡΠΎΠ»ΡΠΊΠΎ Π΄ΠΎΡΡΠΎΠΈΠ½ΡΡΠ²Π°, Π½ΠΎ ΠΈ Π½Π΅Π΄ΠΎΡΡΠ°ΡΠΊΠΈ.
ΠΠ»ΡΡΡ ΠΈ ΠΌΠΈΠ½ΡΡΡ ΠΊΠΎΡΡΠ΅Π΄ΠΆΠ΅ΠΉ Ρ Π³Π°ΡΠ°ΠΆΠΎΠΌ
Π ΠΏΠ»ΡΡΠ°ΠΌ ΠΌΠΎΠΆΠ½ΠΎ ΠΎΡΠ½Π΅ΡΡΠΈ ΡΠ°ΠΊΠΈΠ΅ ΡΠ°ΠΊΡΠΎΡΡ:
-
Π²ΠΎΠ·ΠΌΠΎΠΆΠ½ΠΎΡΡΡ ΡΠ°Π΄ΠΈΡΡΡΡ Π² ΠΌΠ°ΡΠΈΠ½Ρ, Π½Π΅ Π²ΡΡ ΠΎΠ΄Ρ Π½Π° ΡΠ»ΠΈΡΡ;
- ΡΠΊΠΎΠ½ΠΎΠΌΠΈΡ ΠΌΠ°ΡΠ΅ΡΠΈΠ°Π»ΠΎΠ² ΠΏΡΠΈ ΡΡΡΠΎΠΈΡΠ΅Π»ΡΡΡΠ²Π΅;
-
Π²ΠΎΠ·ΠΌΠΎΠΆΠ½ΠΎΡΡΡ Π±ΡΡΡΡΠΎ ΠΈ Π½Π΅Π΄ΠΎΡΠΎΠ³ΠΎ ΠΏΠΎΠ΄Π²Π΅ΡΡΠΈ Π² ΠΏΡΠΈΡΡΡΠΎΠΉΠΊΡ ΠΊΠΎΠΌΠΌΡΠ½ΠΈΠΊΠ°ΡΠΈΠΈ;
-
ΡΠΊΠΎΠ½ΠΎΠΌΠΈΡ ΠΏΡΠΎΡΡΡΠ°Π½ΡΡΠ²Π° ΡΡΠ°ΡΡΠΊΠ°;
-
Π² Π½Π΅ΠΎΡΠ°ΠΏΠ»ΠΈΠ²Π°Π΅ΠΌΠΎΠΌ ΠΏΡΠΈΡΡΡΠΎΠ΅Π½Π½ΠΎΠΌ Π³Π°ΡΠ°ΠΆΠ΅ ΡΠ΅ΠΏΠ»Π΅Π΅, ΡΠ΅ΠΌ Π² ΠΎΡΠ΄Π΅Π»ΡΠ½ΠΎ ΡΡΠΎΡΡΠ΅ΠΌ.
ΠΠ΅Π»ΡΠ·Ρ Π·Π°Π±ΡΠ²Π°ΡΡ ΠΈ ΠΎ Π²Π°ΠΆΠ½ΡΡ ΠΌΠΈΠ½ΡΡΠ°Ρ :
-
ΡΠ²Π»ΡΡΡΡ ΠΏΠΎΠΆΠ°ΡΠΎΠΎΠΏΠ°ΡΠ½ΡΠΌ ΠΏΠΎΠΌΠ΅ΡΠ΅Π½ΠΈΠ΅ΠΌ, ΠΏΡΠΈΡΡΡΠΎΠ΅Π½Π½ΡΠΉ Π³Π°ΡΠ°ΠΆ ΡΡΠ΅Π±ΡΠ΅Ρ ΠΎΡΠΎΠ±ΡΡ ΠΌΠ΅Ρ ΠΏΠΎ Π·Π°ΡΠΈΡΠ΅ Π΄ΠΎΠΌΠ° ΠΎΡ Π²ΠΎΠ·Π³ΠΎΡΠ°Π½ΠΈΡ;
-
ΠΎΡΠ°ΠΏΠ»ΠΈΠ²Π°Π΅ΠΌΠ°Ρ ΠΏΡΠΈΡΡΡΠΎΠΉΠΊΠ° Π΄ΠΎΠ²ΠΎΠ»ΡΠ½ΠΎ Π΄ΠΎΡΠΎΠ³ΠΎ ΠΎΠ±Ρ ΠΎΠ΄ΠΈΡΡΡ Π² Π·ΠΈΠΌΠ½ΠΈΠΉ ΠΏΠ΅ΡΠΈΠΎΠ΄;
-
ΠΏΡΠΈΡΡΡΠΎΠΉΠΊΠ° Π·Π°Π½ΠΈΠΌΠ°Π΅Ρ ΠΏΠ»ΠΎΡΠ°Π΄Ρ, ΠΊΠΎΡΠΎΡΡΡ ΠΌΠΎΠΆΠ½ΠΎ ΠΎΡΠ²Π΅ΡΡΠΈ ΠΏΠΎΠ΄ ΠΆΠΈΠ»ΡΠ΅ ΠΏΠΎΠΌΠ΅ΡΠ΅Π½ΠΈΡ ΠΏΠ΅ΡΠ²ΠΎΠ³ΠΎ ΡΡΠ°ΠΆΠ°;
ΠΏΡΠΈΡΡΡΠΎΠΉΠΊΠ° ΠΎΠ±ΡΠ·Π°ΡΠ΅Π»ΡΠ½ΠΎ Π΄ΠΎΠ»ΠΆΠ½Π° Π±ΡΡΡ ΠΎΠ±Π΅ΡΠΏΠ΅ΡΠ΅Π½Π° Π½Π°Π΄Π΅ΠΆΠ½ΠΎΠΉ Π²Π΅Π½ΡΠΈΠ»ΡΡΠΈΠ΅ΠΉ, ΡΡΠΌΠΎΠΈΠ·ΠΎΠ»ΡΡΠΈΠ΅ΠΉ ΠΈ Π³ΠΈΠ΄ΡΠΎΠΈΠ·ΠΎΠ»ΡΡΠΈΠ΅ΠΉ.
ΠΡΠΎΠ±Π΅Π½Π½ΠΎΡΡΠΈ ΠΏΡΠΎΠ΅ΠΊΡΠΈΡΠΎΠ²Π°Π½ΠΈΡ Π΄ΠΎΠΌΠ° Ρ Π³Π°ΡΠ°ΠΆΠΎΠΌ
Π‘ΡΡΠ΅ΡΡΠ²ΡΠ΅Ρ ΠΌΠ½ΠΎΠΆΠ΅ΡΡΠ²ΠΎ Π²Π°ΡΠΈΠ°Π½ΡΠΎΠ² Π°ΡΡ ΠΈΡΠ΅ΠΊΡΡΡΠ½ΡΡ ΡΠ΅ΡΠ΅Π½ΠΈΠΉ Π΄Π»Ρ ΠΊΠΎΡΡΠ΅Π΄ΠΆΠ΅ΠΉ Ρ ΠΏΡΠΈΡΡΡΠΎΠΉΠΊΠ°ΠΌΠΈ Π΄Π»Ρ Π°Π²ΡΠΎΡΡΠ°Π½ΡΠΏΠΎΡΡΠ°. Π Π»ΡΠ±ΠΎΠΌ ΡΠ»ΡΡΠ°Π΅ ΠΏΡΠΎΠ΅ΠΊΡ ΡΠ°ΠΊΠΎΠ³ΠΎ Π΄ΠΎΠΌΠ° Π΄ΠΎΠ»ΠΆΠ΅Π½ Π±ΡΡΡ Π΄Π΅ΡΠ°Π»ΡΠ½ΠΎ ΠΏΡΠΎΠ΄ΡΠΌΠ°Π½.

ΠΠ΅Π·ΠΎΠΏΠ°ΡΠ½ΠΎΡΡΡ
ΠΡΠ΅ΠΆΠ΄Π΅ Π²ΡΠ΅Π³ΠΎ, Π½Π΅ΠΎΠ±Ρ ΠΎΠ΄ΠΈΠΌΠΎ ΡΡΠΈΡΡΠ²Π°ΡΡ ΡΠ°Π½ΠΈΡΠ°ΡΠ½ΡΠ΅ ΠΈ ΠΏΡΠΎΡΠΈΠ²ΠΎΠΏΠΎΠΆΠ°ΡΠ½ΡΠ΅ Π½ΠΎΡΠΌΡ, ΠΏΡΠΈ ΠΊΠΎΡΠΎΡΡΡ ΠΌΠΎΠΆΠ½ΠΎ ΡΠΎΠ²ΠΌΠ΅ΡΠ°ΡΡ Π°Π²ΡΠΎΠΌΠΎΠ±ΠΈΠ»ΡΠ½ΡΠ΅ ΠΈ ΠΆΠΈΠ»ΡΠ΅ ΠΏΠΎΠΌΠ΅ΡΠ΅Π½ΠΈΡ. ΠΡΠ΅ ΠΏΡΠΎΠ΅ΠΊΡΡ ΠΊΠΎΡΡΠ΅Π΄ΠΆΠ΅ΠΉ Ρ Π³Π°ΡΠ°ΠΆΠΎΠΌ ΡΠ°Π·ΡΠ°Π±Π°ΡΡΠ²Π°ΡΡΡΡ ΡΠ°ΠΊΠΈΠΌ ΠΎΠ±ΡΠ°Π·ΠΎΠΌ, ΡΡΠΎΠ±Ρ Π·Π°ΠΏΠ°Ρ ΠΈ, Π³ΠΎΡΡΡΠΈΠ΅ Π²Π΅ΡΠ΅ΡΡΠ²Π° ΠΈ Π²Π»Π°Π³Π° ΠΈΠ· ΠΏΡΠΈΡΡΡΠΎΠΉΠΊΠΈ Π½Π΅ ΠΏΠΎΠΏΠ°Π΄Π°Π»ΠΈ Π² ΠΆΠΈΠ»ΡΡ ΡΠ°ΡΡΡ Π·Π΄Π°Π½ΠΈΡ.
Π€ΡΠ½Π΄Π°ΠΌΠ΅Π½Ρ
ΠΡΠ»ΠΈ ΠΏΡΠΈΠ½ΡΡΠΎ ΡΠ΅ΡΠ΅Π½ΠΈΠ΅ ΡΡΡΠΎΠΈΡΡ Π΄ΠΎΠΌ Ρ Π³Π°ΡΠ°ΠΆΠΎΠΌ ΠΏΠΎΠ΄ ΠΎΠ΄Π½ΠΎΠΉ ΠΊΡΡΡΠ΅ΠΉ, Π½Π΅ΠΎΠ±Ρ ΠΎΠ΄ΠΈΠΌΠΎ Π²Π΅ΡΡΠΈ ΡΡΡΠΎΠΈΡΠ΅Π»ΡΡΡΠ²ΠΎ ΠΏΠΎ ΡΠΎΠΎΡΠ²Π΅ΡΡΡΠ²ΡΡΡΠ΅ΠΌΡ ΠΏΡΠΎΠ΅ΠΊΡΡ. ΠΠ²ΡΠΎΠΌΠΎΠ±ΠΈΠ»ΡΠ½ΡΠΉ Π±Π»ΠΎΠΊ ΠΈ Π΄ΠΎΠΌ Π½ΡΠΆΠ½ΠΎ Π²ΠΎΠ·Π²ΠΎΠ΄ΠΈΡΡ ΠΎΠ΄Π½ΠΎΠ²ΡΠ΅ΠΌΠ΅Π½Π½ΠΎ, Π½Π° Π΅Π΄ΠΈΠ½ΠΎΠΌ ΡΡΠ½Π΄Π°ΠΌΠ΅Π½ΡΠ½ΠΎΠΌ ΠΎΡΠ½ΠΎΠ²Π°Π½ΠΈΠΈ. ΠΠΎΡΡΡΠΎΠΈΡΡ ΠΏΠΎΠΌΠ΅ΡΠ΅Π½ΠΈΠ΅ Π΄Π»Ρ Π°Π²ΡΠΎΠΌΠΎΠ±ΠΈΠ»Ρ ΠΌΠΎΠΆΠ½ΠΎ ΠΈ ΠΏΠΎΡΠ»Π΅ ΠΎΠΊΠΎΠ½ΡΠ°Π½ΠΈΡ ΡΡΡΠΎΠΈΡΠ΅Π»ΡΡΡΠ²Π° ΠΊΠΎΡΡΠ΅Π΄ΠΆΠ°, Π½ΠΎ Π² ΡΡΠΎΠΌ ΡΠ»ΡΡΠ°Π΅ ΠΌΠΎΠ³ΡΡ Π²ΠΎΠ·Π½ΠΈΠΊΠ½ΡΡΡ ΠΏΡΠΎΠ±Π»Π΅ΠΌΡ Ρ ΡΡΠΎΠ²Π½Π΅ΠΌ ΡΡΠ½Π΄Π°ΠΌΠ΅Π½ΡΠ° ΠΈ Ρ ΡΠΎΠ΅Π΄ΠΈΠ½ΠΈΡΠ΅Π»ΡΠ½ΡΠΌΠΈ ΡΠ²Π°ΠΌΠΈ Π½Π°ΡΡΠΆΠ½ΡΡ ΡΡΠ΅Π½.
ΠΠ΅Π½ΡΠΈΠ»ΡΡΠΈΡ
Π ΠΏΡΠΎΠ΅ΠΊΡΠ°Ρ Π΄ΠΎΠΌΠΎΠ² Ρ Π³Π°ΡΠ°ΠΆΠΎΠΌ ΠΏΡΠ΅Π΄ΡΡΠΌΠ°ΡΡΠΈΠ²Π°Π΅ΡΡΡ ΠΊΠ°ΡΠ΅ΡΡΠ²Π΅Π½Π½Π°Ρ ΠΏΡΠΈΠ½ΡΠ΄ΠΈΡΠ΅Π»ΡΠ½Π°Ρ Π²Π΅Π½ΡΠΈΠ»ΡΡΠΈΡ. ΠΠ΅ ΡΠΎΠ»ΡΠΊΠΎ ΠΏΡΠΈΡΡΡΠΎΠΉΠΊΠ°, Π½ΠΎ ΠΈ ΠΎΡΠ½ΠΎΠ²Π½Π°Ρ ΡΠ°ΡΡΡ Π·Π΄Π°Π½ΠΈΡ Π΄ΠΎΠ»ΠΆΠ½Π° Ρ ΠΎΡΠΎΡΠΎ Π²Π΅Π½ΡΠΈΠ»ΠΈΡΠΎΠ²Π°ΡΡΡΡ, ΠΈΠ½Π°ΡΠ΅ Π² ΠΊΠΎΠΌΠ½Π°ΡΠ°Ρ Π±ΡΠ΄Π΅Ρ Π½Π΅Π±Π»Π°Π³ΠΎΠΏΡΠΈΡΡΠ½ΡΠΉ ΠΌΠΈΠΊΡΠΎΠΊΠ»ΠΈΠΌΠ°Ρ Ρ ΡΡΡΠΎΡΡΡΡ ΠΈ ΠΏΠΎΡΡΠΎΡΠΎΠ½Π½ΠΈΠΌΠΈ Π·Π°ΠΏΠ°Ρ Π°ΠΌΠΈ.
ΠΠΎΠ΄ΡΠ΅Π·Π΄
ΠΠ»Ρ ΠΊΠΎΡΡΠ΅Π΄ΠΆΠ° Ρ Π³Π°ΡΠ°ΠΆΠΎΠΌ Π½Π΅ΠΎΠ±Ρ ΠΎΠ΄ΠΈΠΌΠΎ Ρ ΠΎΡΠΎΡΠΎ ΠΏΡΠΎΠ΄ΡΠΌΠ°ΡΡ ΠΏΠ»Π°Π½ΠΈΡΠΎΠ²ΠΊΡ ΡΡΠ°ΡΡΠΊΠ°, ΡΡΠΎΠ±Ρ ΠΏΠΎΠ»ΡΡΠΈΡΡ ΡΠ΄ΠΎΠ±Π½ΡΠΉ Π·Π°Π΅Π·Π΄ Π΄Π»Ρ Π°Π²ΡΠΎΠΌΠΎΠ±ΠΈΠ»Ρ.

ΠΠ°ΡΠΈΠ°Π½ΡΡ Π΄ΠΎΠΌΠΎΠ² Ρ Π³Π°ΡΠ°ΠΆΠΎΠΌ
ΠΠ΄Π½ΠΎΡΡΠ°ΠΆΠ½ΡΠΉ Π΄ΠΎΠΌ
ΠΡΠΎΠ±Π΅Π½Π½ΠΎΡΡΡ ΡΡΠΎΠΉ ΠΏΠΎΡΡΡΠΎΠΉΠΊΠΈ Π² ΡΠΎΠΌ, ΡΡΠΎ Π² Π½Π΅ΠΉ Π²ΡΠ΅ ΠΏΠΎΠΌΠ΅ΡΠ΅Π½ΠΈΡ ΡΠ°ΡΠΏΠΎΠ»ΠΎΠΆΠ΅Π½Ρ Π½Π° ΠΎΠ΄Π½ΠΎΠΌ ΡΡΠΎΠ²Π½Π΅. ΠΠΎΡΡΠ°ΠΆΠ½ΠΎΠ΅ Π·ΠΎΠ½ΠΈΡΠΎΠ²Π°Π½ΠΈΠ΅ ΠΈΡΠΊΠ»ΡΡΠ΅Π½ΠΎ, ΠΏΠΎΡΡΠΎΠΌΡ ΠΎΡΠ΅Π½Ρ Π²Π°ΠΆΠ½ΠΎ ΠΏΡΠ°Π²ΠΈΠ»ΡΠ½ΠΎ ΡΠ°Π·ΡΠ°Π±ΠΎΡΠ°ΡΡ ΠΏΠ»Π°Π½ΠΈΡΠΎΠ²ΠΊΡ, ΡΡΠΎΠ±Ρ Π³Π°ΡΠ°ΠΆ Π½Π΅ ΡΠΎΡΠ΅Π΄ΡΡΠ²ΠΎΠ²Π°Π» Ρ Π³ΠΎΡΡΠΈΠ½ΠΎΠΉ ΠΈ ΡΠΏΠ°Π»ΡΠ½ΡΠΌΠΈ. ΠΠ³ΠΎ ΠΌΠΎΠΆΠ½ΠΎ ΠΎΡΠ΄Π΅Π»ΠΈΡΡ ΠΏΠΎΠΌΠ΅ΡΠ΅Π½ΠΈΡΠΌΠΈ ΡΠ΅Ρ Π½ΠΈΡΠ΅ΡΠΊΠΎΠ³ΠΎ Π½Π°Π·Π½Π°ΡΠ΅Π½ΠΈΡ. ΠΠ½ΡΡΡΠ΅Π½Π½ΠΈΠΉ Π²Ρ ΠΎΠ΄ ΠΆΠ΅Π»Π°ΡΠ΅Π»ΡΠ½ΠΎ ΠΎΡΠ΄Π΅Π»ΠΈΡΡ Π±ΡΡΠ΅ΡΠ½ΠΎΠΉ Π·ΠΎΠ½ΠΎΠΉ Π² Π²ΠΈΠ΄Π΅ ΡΠ°ΠΌΠ±ΡΡΠ° ΠΈΠ»ΠΈ ΠΊΠΎΡΠΈΠ΄ΠΎΡΠ°.

ΠΠ° Π½Π°ΡΠ΅ΠΌ ΡΠ°ΠΉΡΠ΅ ΠΡ ΠΌΠΎΠΆΠ΅ΡΠ΅ ΠΎΠ·Π½Π°ΠΊΠΎΠΌΠΈΡΡΡΡ Ρ ΡΠ°ΠΌΡΠΌΠΈ ΠΏΠΎΠΏΡΠ»ΡΡΠ½ΡΠΌΠΈ ΠΏΡΠΎΠ΅ΠΊΡΠ°ΠΌΠΈ, ΠΊΠΎΡΠΎΡΡΠ΅ Π΅ΡΡΡ Π½Π° Π²ΡΡΡΠ°Π²ΠΊΠ΅ ΠΎΡ ΡΡΡΠΎΠΈΡΠ΅Π»ΡΠ½ΡΡ ΠΊΠΎΠΌΠΏΠ°Π½ΠΈΠΉ, ΠΏΡΠ΅Π΄ΡΡΠ°Π²Π»Π΅Π½Π½ΡΡ Π½Π° Π²ΡΡΡΠ°Π²ΠΊΠ΅ Π΄ΠΎΠΌΠΎΠ² Β«ΠΠ°Π»ΠΎΡΡΠ°ΠΆΠ½Π°Ρ Π‘ΡΡΠ°Π½Π°Β».
ΠΠ²ΡΡ ΡΡΠ°ΠΆΠ½ΡΠΉ Π΄ΠΎΠΌ
ΠΡΠΎΠ΅ΠΊΡ Π΄Π²ΡΡ ΡΡΠ°ΠΆΠ½ΠΎΠ³ΠΎ Π΄ΠΎΠΌΠ° Ρ Π³Π°ΡΠ°ΠΆΠΎΠΌ ΡΠΎΠΆΠ΅ ΠΈΠΌΠ΅Π΅Ρ ΡΠ²ΠΎΠΈ Π½ΡΠ°Π½ΡΡ. Π‘ΠΏΠ°Π»ΡΠ½ΠΈ Π² ΡΠ°ΠΊΠΈΡ Π΄ΠΎΠΌΠ°Ρ ΠΎΠ±ΡΡΠ½ΠΎ ΡΠ°Π·ΠΌΠ΅ΡΠ°ΡΡ Π½Π° Π²ΡΠΎΡΠΎΠΌ ΡΡΠΎΠ²Π½Π΅. Π‘ΠΎΡΠ΅Π΄ΡΡΠ²ΠΎΠ²Π°ΡΡ Ρ Π°Π²ΡΠΎΠΌΠΎΠ±ΠΈΠ»ΡΠ½ΡΠΌ Π±Π»ΠΎΠΊΠΎΠΌ ΠΌΠΎΠΆΠ΅Ρ Π³ΠΎΡΡΠΈΠ½Π°Ρ, Π½ΠΎ Π΅Π΅ ΠΎΡΠ΄Π΅Π»ΡΡΡ ΠΏΡΠΈΡ ΠΎΠΆΠ΅ΠΉ ΠΈΠ»ΠΈ ΠΊΡΡ Π½Π΅ΠΉ. ΠΠ΄Π½Π°ΠΊΠΎ Π΅ΡΡΡ Π·Π΄Π΅ΡΡ Π΄ΡΡΠ³Π°Ρ ΡΠ»ΠΎΠΆΠ½ΠΎΡΡΡ β ΠΏΠΎΠΌΠ΅ΡΠ΅Π½ΠΈΠ΅ ΠΏΠΎΠ΄ Π°Π²ΡΠΎΠΌΠΎΠ±ΠΈΠ»Ρ Π·Π°Π½ΠΈΠΌΠ°Π΅Ρ Π·Π½Π°ΡΠΈΡΠ΅Π»ΡΠ½ΡΡ ΡΠ°ΡΡΡ Π½ΠΈΠΆΠ½Π΅Π³ΠΎ ΡΡΠΎΠ²Π½Ρ, ΠΈ Π΅Π³ΠΎ Π½ΡΠΆΠ½ΠΎ Π·Π°ΠΏΡΠΎΠ΅ΠΊΡΠΈΡΠΎΠ²Π°ΡΡ ΡΠ°ΠΊ, ΡΡΠΎΠ±Ρ ΠΎΡΡΠ°Π»ΠΎΡΡ Π΄ΠΎΡΡΠ°ΡΠΎΡΠ½ΠΎ ΠΌΠ΅ΡΡΠ° Π΄Π»Ρ ΠΏΠΎΠ»Π½ΠΎΡΠ΅Π½Π½ΠΎΠΉ Π·ΠΎΠ½Ρ Π΄Π½Π΅Π²Π½ΠΎΠ³ΠΎ ΠΏΡΠ΅Π±ΡΠ²Π°Π½ΠΈΡ.

ΠΠ°ΡΠ°ΠΆ Π² ΡΠΎΠΊΠΎΠ»Π΅
ΠΡΠΎΡ Π²Π°ΡΠΈΠ°Π½Ρ ΠΏΠΎΠ·Π²ΠΎΠ»ΡΠ΅Ρ ΡΠΎΡ ΡΠ°Π½ΠΈΡΡ Π²ΡΡ ΡΠ΅ΡΡΠΈΡΠΎΡΠΈΡ ΠΏΠ΅ΡΠ²ΠΎΠ³ΠΎ ΡΡΠ°ΠΆΠ° Π΄Π»Ρ ΠΆΠΈΠ»ΠΎΠΉ Π·ΠΎΠ½Ρ. ΠΠΎ ΠΈΡΠΏΠΎΠ»ΡΠ·ΡΠ΅ΡΡΡ ΠΎΠ½ ΡΠ΅Π΄ΠΊΠΎ, ΡΠ°ΠΊ ΠΊΠ°ΠΊ ΡΠ²ΡΠ·Π°Π½ Ρ Π²ΡΡΠΎΠΊΠΈΠΌΠΈ Π·Π°ΡΡΠ°ΡΠ°ΠΌΠΈ ΠΏΡΠΈ ΡΡΡΠΎΠΈΡΠ΅Π»ΡΡΡΠ²Π΅. Π ΡΠΎΠΌΡ ΠΆΠ΅ Π·Π°Π΅Π·Π΄ Π² ΠΏΠΎΠ΄Π·Π΅ΠΌΠ½ΡΠΉ Π³Π°ΡΠ°ΠΆ Π·Π°Π½ΠΈΠΌΠ°Π΅Ρ ΠΌΠ½ΠΎΠ³ΠΎ ΠΌΠ΅ΡΡΠ° Π½Π° ΡΡΠ°ΡΡΠΊΠ΅.

ΠΠ° Π½Π°ΡΠ΅ΠΌ ΡΠ°ΠΉΡΠ΅ ΠΡ ΠΌΠΎΠΆΠ΅ΡΠ΅ Π½Π°ΠΉΡΠΈ ΠΊΠΎΠ½ΡΠ°ΠΊΡΡ ΡΡΡΠΎΠΈΡΠ΅Π»ΡΠ½ΡΡ ΠΊΠΎΠΌΠΏΠ°Π½ΠΈΠΉ, ΠΊΠΎΡΠΎΡΡΠ΅ ΠΏΡΠ΅Π΄Π»Π°Π³Π°ΡΡ ΡΡΠ»ΡΠ³Ρ ΡΡΡΠΎΠΈΡΠ΅Π»ΡΡΡΠ²Π° ΠΌΠ°Π»ΡΡ ΡΠΎΡΠΌ. ΠΠ°ΠΏΡΡΠΌΡΡ ΠΏΠΎΠΎΠ±ΡΠ°ΡΡΡΡ Ρ ΠΏΡΠ΅Π΄ΡΡΠ°Π²ΠΈΡΠ΅Π»ΡΠΌΠΈ ΠΌΠΎΠΆΠ½ΠΎ ΠΏΠΎΡΠ΅ΡΠΈΠ² Π²ΡΡΡΠ°Π²ΠΊΡ Π΄ΠΎΠΌΠΎΠ² Β«ΠΠ°Π»ΠΎΡΡΠ°ΠΆΠ½Π°Ρ Π‘ΡΡΠ°Π½Π°Β».
Π Π°Π·ΠΌΠ΅ΡΡ
ΠΠΈΠ½ΠΈΠΌΠ°Π»ΡΠ½ΡΠ΅ ΡΠ°Π·ΠΌΠ΅ΡΡ ΠΏΠΎΠΌΠ΅ΡΠ΅Π½ΠΈΡ Π΄Π»Ρ Π°Π²ΡΠΎΠΌΠΎΠ±ΠΈΠ»Ρ β 3 ΠΌ ΡΠΈΡΠΈΠ½Π°, 5 ΠΌ Π΄Π»ΠΈΠ½Π°, 2 ΠΌ Π²ΡΡΠΎΡΠ°. ΠΠ°ΡΠ°ΠΆ Π΄ΠΎΠ»ΠΆΠ΅Π½ Π±ΡΡΡ ΡΠΎΡΠ°Π·ΠΌΠ΅ΡΠ΅Π½ ΠΎΡΠ½ΠΎΠ²Π½ΠΎΠΉ ΡΠ°ΡΡΠΈ Π·Π΄Π°Π½ΠΈΡ. ΠΠ»Ρ Π±ΠΎΠ»ΡΡΠΎΠ³ΠΎ ΠΎΡΠΎΠ±Π½ΡΠΊΠ° Π»ΡΡΡΠ΅ Π·Π°ΠΏΡΠΎΠ΅ΠΊΡΠΈΡΠΎΠ²Π°ΡΡ ΠΏΡΠΈΡΡΡΠΎΠΉΠΊΡ Π½Π° 2 ΠΈΠ»ΠΈ 3 Π°Π²ΡΠΎΠΌΠΎΠ±ΠΈΠ»Ρ, ΠΈ Ρ Π΄ΠΎΠΏΠΎΠ»Π½ΠΈΡΠ΅Π»ΡΠ½ΡΠΌ ΠΌΠ΅ΡΡΠΎΠΌ Π΄Π»Ρ Ρ ΡΠ°Π½Π΅Π½ΠΈΡ ΠΈΠ½ΡΡΡΡΠΌΠ΅Π½ΡΠΎΠ².
Π ΠΏΡΠΎΡΡΠΎΡΠ½ΠΎΠΌ Π³Π°ΡΠ°ΠΆΠ΅ ΠΌΠΎΠΆΠ½ΠΎ ΠΎΠ±ΡΡΡΡΠΎΠΈΡΡ ΡΠ΅Π»ΡΡ ΡΠ΅Ρ Π½ΠΈΡΠ΅ΡΠΊΡΡ Π·ΠΎΠ½Ρ Ρ ΠΊΠ»Π°Π΄ΠΎΠ²ΠΎΠΉ, ΠΊΠΎΡΠ΅Π»ΡΠ½ΠΎΠΉ ΠΈ ΠΌΠ°ΡΡΠ΅ΡΡΠΊΠΎΠΉ. Π Π½Π΅Π±ΠΎΠ»ΡΡΠΎΠΌ Π΄ΠΎΠΌΠ΅ Π»ΡΡΡΠ΅ ΠΈΠΌΠ΅ΡΡ Π½Π΅Π±ΠΎΠ»ΡΡΠΎΠ΅ ΠΏΠΎΠΌΠ΅ΡΠ΅Π½ΠΈΠ΅ Π΄Π»Ρ ΠΌΠ°ΡΠΈΠ½Ρ, ΠΈ ΠΎΡΡΠ°Π²ΠΈΡΡ Π±ΠΎΠ»ΡΡΠ΅ ΠΏΡΠΎΡΡΡΠ°Π½ΡΡΠ²Π° Π΄Π»Ρ Π΄Π½Π΅Π²Π½ΠΎΠΉ Π·ΠΎΠ½Ρ ΠΏΠ΅ΡΠ²ΠΎΠ³ΠΎ ΡΡΠ°ΠΆΠ°.
ΠΠ°ΡΠ΅ΡΠΈΠ°Π»Ρ
ΠΠΎΠΌ Ρ Π³Π°ΡΠ°ΠΆΠΎΠΌ ΠΌΠΎΠΆΠ½ΠΎ ΠΏΠΎΡΡΡΠΎΠΈΡΡ ΠΈΠ· Π»ΡΠ±ΠΎΠ³ΠΎ ΡΡΡΠΎΠΈΡΠ΅Π»ΡΠ½ΠΎΠ³ΠΎ ΠΌΠ°ΡΠ΅ΡΠΈΠ°Π»Π°. ΠΡΠ±ΠΎΡ Π·Π°Π²ΠΈΡΠΈΡ ΠΎΡ ΡΠ΅Π½Ρ ΠΈ ΡΠ΅Ρ Π½ΠΈΡΠ΅ΡΠΊΠΈΡ Ρ Π°ΡΠ°ΠΊΡΠ΅ΡΠΈΡΡΠΈΠΊ ΡΠ°Π·Π»ΠΈΡΠ½ΡΡ ΡΡΠ΅Π½ΠΎΠ²ΡΡ ΠΌΠ°ΡΠ΅ΡΠΈΠ°Π»ΠΎΠ².
ΠΡΠ»ΠΈ Π½ΡΠΆΠ½ΠΎ Π±ΡΡΡΡΠΎ ΠΏΠΎΡΡΡΠΎΠΈΡΡ ΡΠΊΠΎΠ½ΠΎΠΌΠΈΡΠ½ΡΠΉ Π΄ΠΎΠΌ, ΡΡΠΎΠΈΡ ΡΠ°ΡΡΠΌΠΎΡΡΠ΅ΡΡ Π²Π°ΡΠΈΠ°Π½ΡΡ ΡΠΎΠ²ΡΠ΅ΠΌΠ΅Π½Π½ΡΡ ΠΏΠΎΡΠΈΡΡΡΡ Π±Π΅ΡΠΎΠ½ΠΎΠ². ΠΠ»Ρ Π·Π°ΡΡΡΠΎΠΉΡΠΈΠΊΠΎΠ², ΡΠ΅Π½ΡΡΠΈΡ ΡΡΠ°Π΄ΠΈΡΠΈΠΈ ΠΈ ΡΠ΅ΡΠΏΠ΅ΠΊΡΠ°Π±Π΅Π»ΡΠ½ΠΎΡΡΡ Π±ΠΎΠ»ΡΡΠ΅ ΠΏΠΎΠ΄ΠΎΠΉΠ΄Π΅Ρ ΠΊΠΈΡΠΏΠΈΡ. ΠΠΎ Π΅ΡΠ»ΠΈ ΡΡΠ°ΡΡΠΎΠΊ ΠΎΡΠ»ΠΈΡΠ°Π΅ΡΡΡ ΡΠ»Π°Π±ΡΠΌ Π³ΡΡΠ½ΡΠΎΠΌ ΠΈΠ»ΠΈ Π²ΡΡΠΎΠΊΠΈΠΌΠΈ Π³ΡΡΠ½ΡΠΎΠ²ΡΠΌΠΈ Π²ΠΎΠ΄Π°ΠΌΠΈ, Π»ΡΡΡΠ΅ Π²ΠΌΠ΅ΡΡΠΎ ΠΊΠ»Π°ΡΡΠΈΡΠ΅ΡΠΊΠΎΠ³ΠΎ ΠΊΠΈΡΠΏΠΈΡΠ° Π²ΡΠ±ΡΠ°ΡΡ Π»Π΅Π³ΠΊΠΈΠ΅ ΠΏΠΎΡΠΈΠ·ΠΎΠ²Π°Π½Π½ΡΠ΅ Π±Π»ΠΎΠΊΠΈ. Π‘Π°ΠΌΡΠ΅ Π±ΡΠ΄ΠΆΠ΅ΡΠ½ΡΠ΅ Π΄ΠΎΠΌΠ° ΡΡΡΠΎΡΡΡΡ ΠΏΠΎ ΠΊΠ°ΡΠΊΠ°ΡΠ½ΠΎΠΉ ΡΠ΅Ρ Π½ΠΎΠ»ΠΎΠ³ΠΈΠΈ.

ΠΡΠ΄Π΅Π»ΡΠ½ΠΎ ΡΠ»Π΅Π΄ΡΠ΅Ρ ΠΎΠ±ΡΡΠ΄ΠΈΡΡ Π²Π°ΡΠΈΠ°Π½Ρ Π΄ΠΎΠΌΠ° Ρ Π³Π°ΡΠ°ΠΆΠΎΠΌ ΠΈΠ· Π±ΡΡΡΠ° ΠΈΠ»ΠΈ Π±ΡΠ΅Π²Π½Π°. ΠΠ΅ΡΠ΅Π²ΠΎ, ΠΊΠ°ΠΊ ΠΈΠ·Π²Π΅ΡΡΠ½ΠΎ, ΡΠ²Π»ΡΠ΅ΡΡΡ ΠΌΠ°ΡΠ΅ΡΠΈΠ°Π»ΠΎΠΌ Π³ΠΎΡΡΡΠΈΠΌ. ΠΠΎ Π² ΠΊΠ°ΡΠ΅ΡΡΠ²Π΅ ΡΡΠ΅Π½ΠΎΠ²ΠΎΠ³ΠΎ ΠΌΠ°ΡΠ΅ΡΠΈΠ°Π»Π° Π² ΡΠΎΠ²ΡΠ΅ΠΌΠ΅Π½Π½ΠΎΠΌ ΡΡΡΠΎΠΈΡΠ΅Π»ΡΡΡΠ²Π΅ ΠΈΡΠΏΠΎΠ»ΡΠ·ΡΠ΅ΡΡΡ Π³ΠΎΡΠΎΠ²ΡΠΉ Π±ΡΡΡ ΠΈΠ»ΠΈ Π±ΡΠ΅Π²Π½ΠΎ ΡΠΎ ΡΠΏΠ΅ΡΠΈΠ°Π»ΡΠ½ΠΎΠΉ ΠΏΡΠΎΡΠΈΠ²ΠΎΠΏΠΎΠΆΠ°ΡΠ½ΠΎΠΉ ΠΏΡΠΎΠΏΠΈΡΠΊΠΎΠΉ. ΠΡΠΈ ΡΡΠΎΠΌ ΡΠ°ΠΌ Π³Π°ΡΠ°ΠΆ, Π΅ΡΠ»ΠΈ ΠΎΠ½ ΠΏΡΠΈΡΡΡΠΎΠ΅Π½ ΠΊ Π΄ΠΎΠΌΡ, Π½Π΅Π·Π°Π²ΠΈΡΠΈΠΌΠΎ ΠΎΡ ΠΌΠ°ΡΠ΅ΡΠΈΠ°Π»Π°, Π΄ΠΎΠΏΠΎΠ»Π½ΠΈΡΠ΅Π»ΡΠ½ΠΎ Π·Π°ΡΠΈΡΠ°Π΅ΡΡΡ ΠΎΡ Π²ΠΎΠ·Π³ΠΎΡΠ°Π½ΠΈΡ. ΠΡΠΎ ΠΎΠ·Π½Π°ΡΠ°Π΅Ρ, ΡΡΠΎ ΠΏΡΠΈ ΠΆΠ΅Π»Π°Π½ΠΈΠΈ ΠΌΠΎΠΆΠ½ΠΎ ΠΏΠΎΡΡΡΠΎΠΈΡΡ Π΄Π΅ΡΠ΅Π²ΡΠ½Π½ΡΠΉ ΠΊΠΎΡΡΠ΅Π΄ΠΆ Ρ Π³Π°ΡΠ°ΠΆΠΎΠΌ. Π‘ΡΠΎΠΈΡ ΠΎΡΠΌΠ΅ΡΠΈΡΡ, ΡΡΠΎ Π΄Π»Ρ ΠΌΠ°ΠΊΡΠΈΠΌΠ°Π»ΡΠ½ΠΎΠΉ Π±Π΅Π·ΠΎΠΏΠ°ΡΠ½ΠΎΡΡΠΈ Π½Π΅ΠΊΠΎΡΠΎΡΡΠ΅ Π°ΡΡ ΠΈΡΠ΅ΠΊΡΠΎΡΡ ΡΠΎΠ·Π΄Π°ΡΡ ΠΏΡΠΎΠ΅ΠΊΡΡ Π΄Π΅ΡΠ΅Π²ΡΠ½Π½ΡΡ Π΄ΠΎΠΌΠΎΠ² Ρ ΠΊΠ°ΠΌΠ΅Π½Π½ΡΠΌΠΈ ΠΏΡΠΈΡΡΡΠΎΠΉΠΊΠ°ΠΌΠΈ ΠΏΠΎΠ΄ Π°Π²ΡΠΎΠΌΠΎΠ±ΠΈΠ»ΠΈ.
ΠΡΠ°ΠΏΡ ΡΡΡΠΎΠΈΡΠ΅Π»ΡΡΡΠ²Π°
Π Π°Π·ΡΠ°Π±ΠΎΡΠΊΠ° ΠΏΡΠΎΠ΅ΠΊΡΠ° β ΡΡΠΎ ΡΠ°ΠΌΡΠΉ ΠΏΠ΅ΡΠ²ΡΠΉ ΠΈ ΠΎΡΠ½ΠΎΠ²Π½ΠΎΠΉ ΡΡΠ°ΠΏ ΡΡΡΠΎΠΈΡΠ΅Π»ΡΡΡΠ²Π° Π»ΡΠ±ΠΎΠ³ΠΎ Π΄ΠΎΠΌΠ°. ΠΠ°Π»Π΅Π΅ ΡΠ»Π΅Π΄ΡΡΡ ΡΠ°ΠΊΠΈΠ΅ ΠΏΡΠΎΡΠ΅ΡΡΡ:
-
Π·Π΅ΠΌΠ»ΡΠ½ΡΠ΅ ΡΠ°Π±ΠΎΡΡ;
-
Π·Π°ΠΊΠ»Π°Π΄ΠΊΠ° ΡΡΠ½Π΄Π°ΠΌΠ΅Π½ΡΠ°;
-
Π²ΠΎΠ·Π²Π΅Π΄Π΅Π½ΠΈΠ΅ ΠΊΠ°ΡΠΊΠ°ΡΠ° ΠΏΠΎΡΡΡΠΎΠΉΠΊΠΈ;
-
ΠΏΠΎΠ΄Π²Π΅Π΄Π΅Π½ΠΈΠ΅ ΠΊΠΎΠΌΠΌΡΠ½ΠΈΠΊΠ°ΡΠΈΠΉ
-
ΠΊΡΠΎΠ²Π΅Π»ΡΠ½ΡΠ΅ ΡΠ°Π±ΠΎΡΡ;
-
ΡΠ°ΡΠ°Π΄Π½ΡΠ΅ ΡΠ°Π±ΠΎΡΡ;
-
Π²Π½ΡΡΡΠ΅Π½Π½ΡΡ ΠΎΡΠ΄Π΅Π»ΠΊΠ°.
ΠΠ±ΡΡΡΡΠΎΠΉΡΡΠ²ΠΎ ΠΏΡΠΈΡΡΡΠΎΠ΅Π½Π½ΠΎΠ³ΠΎ Π³Π°ΡΠ°ΠΆΠ°
ΠΠ°ΡΠ°ΠΆ Π΄ΠΎΠ»ΠΆΠ΅Π½ ΠΈΠΌΠ΅ΡΡ ΡΠ΄ΠΎΠ±Π½ΡΠΉ Π·Π°Π΅Π·Π΄ ΠΈ ΡΠ°Π·ΠΌΠ΅ΡΡ, ΡΠΎΠΎΡΠ²Π΅ΡΡΡΠ²ΡΡΡΠΈΠ΅ ΠΏΠ°ΡΠ°ΠΌΠ΅ΡΡΠ°ΠΌ Π°Π²ΡΠΎΠΌΠΎΠ±ΠΈΠ»Ρ. ΠΠ»Π°Π²Π½ΡΠΌ ΡΠ»Π΅ΠΌΠ΅Π½ΡΠΎΠΌ Π΅Π³ΠΎ ΠΎΠ±ΡΡΡΡΠΎΠΉΡΡΠ²Π° ΡΡΠΈΡΠ°ΡΡΡΡ Π²ΠΎΡΠΎΡΠ°. Π‘Π΅ΠΉΡΠ°Ρ Π²ΡΠ΅ ΡΠ°ΡΠ΅ Π΄ΠΎΠΌΠΎΠ²Π»Π°Π΄Π΅Π»ΡΡΡ ΡΡΡΠ°Π½Π°Π²Π»ΠΈΠ²Π°ΡΡ Π½Π°Π΄Π΅ΠΆΠ½ΡΠ΅ ΠΈ ΡΠ΄ΠΎΠ±Π½ΡΠ΅ Π°Π²ΡΠΎΠΌΠ°ΡΠΈΠ·ΠΈΡΠΎΠ²Π°Π½Π½ΡΠ΅ ΡΠΈΡΡΠ΅ΠΌΡ.

Π¨ΠΈΡΠΈΠ½Π° Π²ΠΎΡΠΎΡ Π΄ΠΎΠ»ΠΆΠ½Π° Π±ΡΡΡ Π½Π΅ ΠΌΠ΅Π½Π΅Π΅ 2,5 ΠΌ. ΠΠΎΠΆΠ½ΠΎ ΠΏΠΎΡΡΠ°Π²ΠΈΡΡ Π²ΠΎΡΠΎΡΠ° Π½Π΅ΠΌΠ½ΠΎΠ³ΠΎ ΡΠΈΡΠ΅. ΠΠ°ΡΠ°ΠΆ Π΄Π»Ρ Π΄Π²ΡΡ Π°Π²ΡΠΎΠΌΠΎΠ±ΠΈΠ»Π΅ΠΉ ΠΎΠ±ΠΎΡΡΠ΄ΡΠ΅ΡΡΡ Π²ΠΎΡΠΎΡΠ°ΠΌΠΈ Π΄Π²ΠΎΠΉΠ½ΠΎΠΉ ΡΠΈΡΠΈΠ½Ρ. ΠΡΡΠΎΡΠ° Π²ΠΎΡΠΎΡ ΡΡΠ°Π½Π΄Π°ΡΡΠ½Π°Ρ β 2,1 ΠΌ.
ΠΠ΅ΠΊΠΎΡΠΎΡΡΠ΅ Π΄ΠΎΠΌΠΎΠ²Π»Π°Π΄Π΅Π»ΡΡΡ ΠΏΡΠ΅Π΄ΠΏΠΎΡΠΈΡΠ°ΡΡ ΠΈΠΌΠ΅ΡΡ ΠΏΡΠΈΡΡΡΠΎΠ΅Π½Π½ΡΡ ΠΊΡΡΡΡΡ ΠΏΠ°ΡΠΊΠΎΠ²ΠΊΡ Π±Π΅Π· Π²Π½ΡΡΡΠ΅Π½Π½Π΅Π³ΠΎ Π²Ρ ΠΎΠ΄Π° Π² Π΄ΠΎΠΌ. Π ΡΡΠΎΠΌ ΡΠ»ΡΡΠ°Π΅ ΡΠ½ΠΈΠΆΠ°Π΅ΡΡΡ ΡΠΈΡΠΊ ΠΏΠΎΠΏΠ°Π΄Π°Π½ΠΈΡ Π½Π΅ΠΏΡΠΈΡΡΠ½ΡΡ Π·Π°ΠΏΠ°Ρ ΠΎΠ² Π² ΠΊΠΎΠΌΠ½Π°ΡΡ ΠΈ ΡΠΊΠΎΠ½ΠΎΠΌΠΈΡΡΡ ΠΏΡΠΎΡΡΡΠ°Π½ΡΡΠ²ΠΎ Π΄ΠΎΠΌΠ°. ΠΡ ΠΎΠ΄ ΠΏΠ»Π°Π½ΠΈΡΡΠ΅ΡΡΡ Ρ ΡΠ»ΠΈΡΡ, ΠΎΠ±ΡΡΠ½ΠΎ ΠΏΠΎΠ΄ ΠΎΠ΄Π½ΠΈΠΌ ΠΊΠΎΠ·ΡΡΡΠΊΠΎΠΌ Ρ ΠΎΡΠ½ΠΎΠ²Π½ΡΠΌ ΠΊΡΡΠ»ΡΡΠΎΠΌ Π΄ΠΎΠΌΠ°.
Π§Π°ΡΡΠΎ ΠΊΠΎΡΡΠ΅Π΄ΠΆΠ½ΡΠ΅ Π³Π°ΡΠ°ΠΆΠΈ ΠΏΡΠΎΠ΅ΠΊΡΠΈΡΡΡΡΡΡ Ρ ΠΎΡΠ΄Π΅Π»ΡΠ½ΡΠΌ Π²ΡΡ ΠΎΠ΄ΠΎΠΌ Π²ΠΎ Π²Π½ΡΡΡΠ΅Π½Π½ΠΈΠΉ Π΄Π²ΠΎΡ, ΡΡΠΎΠ±Ρ Π² Π½Π΅ΠΌ ΡΠ΄ΠΎΠ±Π½Π΅Π΅ Π±ΡΠ»ΠΎ ΡΠΊΠ»Π°Π΄ΡΠ²Π°ΡΡ ΡΠ°Π΄ΠΎΠ²ΡΠΉ ΠΈΠ½Π²Π΅Π½ΡΠ°ΡΡ, Π° ΡΠ°ΠΊΠΆΠ΅ ΡΠ°Π΄ΠΎΠ²ΡΡ ΠΌΠ΅Π±Π΅Π»Ρ, Π²Π΅Π»ΠΎΡΠΈΠΏΠ΅Π΄Ρ, ΠΊΠΎΠ»ΡΡΠΊΠΈ ΠΈ Ρ. Π΄. ΠΠ»Ρ ΠΏΠΎΠ²ΡΡΠ΅Π½ΠΈΡ ΡΡΠ½ΠΊΡΠΈΠΎΠ½Π°Π»ΡΠ½ΠΎΡΡΠΈ ΠΏΡΠΈΡΡΡΠΎΠΉΠΊΠΈ ΠΆΠ΅Π»Π°ΡΠ΅Π»ΡΠ½ΠΎ ΠΎΠ±ΠΎΡΡΠ΄ΠΎΠ²Π°ΡΡ Π΅Π³ΠΎ Π²ΡΠ΅Π²ΠΎΠ·ΠΌΠΎΠΆΠ½ΡΠΌΠΈ ΡΡΠ΅Π»Π»Π°ΠΆΠ°ΠΌΠΈ ΠΈ ΠΏΠΎΠ»ΠΊΠ°ΠΌΠΈ.
ΠΡΠΎ ΠΌΠΎΠΆΠ΅Ρ Π±ΡΡΡ ΠΈΠ½ΡΠ΅ΡΠ΅ΡΠ½ΠΎ! Π ΡΡΠ°ΡΡΠ΅ ΠΏΠΎ ΡΠ»Π΅Π΄ΡΡΡΠ΅ΠΉ ΡΡΡΠ»ΠΊΠ΅ ΡΠΈΡΠ°ΠΉΡΠ΅ ΠΏΡΠΎ ΠΏΡΠΎΠ΅ΠΊΡ ΠΎΡΠΎΠΏΠ»Π΅Π½ΠΈΡ ΡΠ°ΡΡΠ½ΠΎΠ³ΠΎ Π΄ΠΎΠΌΠ°.
ΠΡΠ°ΡΠΈΠ²ΡΠ΅ ΠΈ ΠΏΡΠ°ΠΊΡΠΈΡΠ½ΡΠ΅ ΠΏΡΠΎΠ΅ΠΊΡΡ Π΄ΠΎΠΌΠΎΠ² Ρ Π³Π°ΡΠ°ΠΆΠΎΠΌ







ΠΡΠ΅ Π½Π΅ΡΠΊΠΎΠ»ΡΠΊΠΎ ΠΏΡΠΎΠ΅ΠΊΡΠΎΠ² Π΄ΠΎΠΌΠΎΠ² Ρ Π³Π°ΡΠ°ΠΆΠΎΠΌ ΠΌΠΎΠΆΠ½ΠΎ ΡΠ²ΠΈΠ΄Π΅ΡΡ Π² ΡΠ»Π΅Π΄ΡΡΡΠ΅ΠΌ Π²ΠΈΠ΄Π΅ΠΎ:
ΠΡΠΎ ΠΌΠΎΠΆΠ΅Ρ Π±ΡΡΡ ΠΈΠ½ΡΠ΅ΡΠ΅ΡΠ½ΠΎ! Π ΡΡΠ°ΡΡΠ΅ ΠΏΠΎ ΡΠ»Π΅Π΄ΡΡΡΠ΅ΠΉ ΡΡΡΠ»ΠΊΠ΅ ΡΠΈΡΠ°ΠΉΡΠ΅ ΠΏΡΠΎ ΡΠ΅Ρ Π½ΠΎΠ»ΠΎΠ³ΠΈΠΈ ΡΡΡΠΎΠΈΡΠ΅Π»ΡΡΡΠ²Π°.
ΠΡΠ±ΠΈΡΠ°ΡΡ ΠΈΠ»ΠΈ Π½Π΅Ρ
ΠΡΠΎΠ΅ΠΊΡ Π΄ΠΎΠΌΠ° Ρ Π³Π°ΡΠ°ΠΆΠΎΠΌ ΠΈ ΡΠ΅ΡΡΠ°ΡΠΎΠΉ, ΡΡΠΎ ΠΎΠ΄ΠΈΠ½ ΠΈΠ· Π½Π°ΠΈΠ±ΠΎΠ»Π΅Π΅ Π²ΠΎΡΡΡΠ΅Π±ΠΎΠ²Π°Π½Π½ΡΡ ΡΠ΅Π³ΠΎΠ΄Π½Ρ ΡΠ°Π·Π½ΠΎΠ²ΠΈΠ΄Π½ΠΎΡΡΠ΅ΠΉ Π°ΡΡ ΠΈΡΠ΅ΠΊΡΡΡΠ½ΡΡ ΡΠ°Π·ΡΠ°Π±ΠΎΡΠΎΠΊ. ΠΡΠ΅ ΡΠ°ΡΠ΅ ΡΠ°ΡΡΠ½ΡΠ΅ Π·Π°ΡΡΡΠΎΠΉΡΠΈΠΊΠΈ ΠΏΡΠ΅Π΄ΠΏΠΎΡΠΈΡΠ°ΡΡ Π²ΠΎΠ·Π²ΠΎΠ΄ΠΈΡΡ ΠΊΠΎΡΡΠ΅Π΄ΠΆΠΈ Ρ ΠΏΠΎΠ»Π½ΡΠΌ Π½Π°Π±ΠΎΡΠΎΠΌ ΡΠ΄ΠΎΠ±ΡΡΠ², Π²ΠΊΠ»ΡΡΠ°Ρ Π°Π²ΡΠΎΠΌΠΎΠ±ΠΈΠ»ΡΠ½ΡΠΉ Π±Π»ΠΎΠΊ ΠΈ ΠΎΡΠΊΡΡΡΡΡ Π·ΠΎΠ½Ρ ΠΎΡΠ΄ΡΡ Π° Π² Π΅Π΄ΠΈΠ½ΠΎΠΉ ΠΏΠΎΡΡΡΠΎΠΉΠΊΠ΅. ΠΡΠΎ Π½Π΅ ΡΠΎΠ»ΡΠΊΠΎ ΠΎΡΠ΅Π½Ρ ΡΠ΄ΠΎΠ±Π½ΠΎ, Π½ΠΎ ΠΈ Π΄ΠΎΡΡΠ°ΡΠΎΡΠ½ΠΎ ΡΡΡΠ΅ΡΠΈΡΠ½ΠΎ, ΡΠ°ΠΊ ΠΊΠ°ΠΊ ΠΎΠ΄ΠΈΠ½ Π±ΠΎΠ»ΡΡΠΎΠΉ Π΄ΠΎΠΌ Ρ ΡΠ°Π·Π»ΠΈΡΠ½ΡΠΌΠΈ Π°ΡΡ ΠΈΡΠ΅ΠΊΡΡΡΠ½ΡΠΌΠΈ Π΄ΠΎΠΏΠΎΠ»Π½Π΅Π½ΠΈΡΠΌΠΈ Π²ΡΠ³Π»ΡΠ΄ΠΈΡ Π»ΡΡΡΠ΅, ΡΠ΅ΠΌ Π½Π΅ΡΠΊΠΎΠ»ΡΠΊΠΎ ΠΏΠΎΡΡΡΠΎΠ΅ΠΊ ΡΠ°Π·Π½ΠΎΠ³ΠΎ ΡΠΎΡΠΌΠ°ΡΠ°.
ΠΡ Π° ΠΏΡΠΈΠ½ΡΡΡ ΠΎΠΊΠΎΠ½ΡΠ°ΡΠ΅Π»ΡΠ½ΠΎΠ΅ ΡΠ΅ΡΠ΅Π½ΠΈΠ΅ ΠΌΠΎΠΆΠ΅ΡΠ΅ ΡΠΎΠ»ΡΠΊΠΎ Π²Ρ ΡΠ°ΠΌΠΈ β Π² Π·Π°Π²ΠΈΡΠΈΠΌΠΎΡΡΠΈ ΠΎΡ ΡΠΎΠ³ΠΎ, ΠΊΠ°ΠΊΠΈΠ΅ ΠΏΠ»ΡΡΡ ΠΈ ΠΌΠΈΠ½ΡΡΡ Π΄ΠΎΠΌΠΎΠ² Ρ Π³Π°ΡΠ°ΠΆΠΎΠΌ ΠΎΠΊΠ°ΠΆΡΡΡΡ Π΄Π»Ρ Π²Π°Ρ Π±ΠΎΠ»Π΅Π΅ Π·Π½Π°ΡΠΈΠΌΡΠΌΠΈ.
ΠΡΠΎΡΠΈΡΠ°ΡΡ ΠΏΠΎΠ·ΠΆΠ΅ΠΡΠΏΡΠ°Π²ΠΈΠΌ ΠΌΠ°ΡΠ΅ΡΠΈΠ°Π» Π½Π° ΠΏΠΎΡΡΡ
Π Π°ΡΠΏΠ΅ΡΠ°ΡΠ°ΡΡm-strana.ru
ΠΠΎΡΠΎΠ²ΡΠ΅ ΠΏΡΠΎΠ΅ΠΊΡΡ Π΄ΠΎΠΌΠΎΠ² Ρ Π³Π°ΡΠ°ΠΆΠΎΠΌ ΠΎΡ Π°ΡΡ ΠΈΡΠ΅ΠΊΡΡΡΠ½ΠΎΠ³ΠΎ Π±ΡΡΠΎ Π’Π΅ΡΡΠΈΡΠΎΡΠΈΡ
ΠΡΠΎΠ΅ΠΊΡ Π΄ΠΎΠΌΠ° Ρ ΠΏΡΠΈΡΡΡΠΎΠ΅Π½Π½ΡΠΌ Π³Π°ΡΠ°ΠΆΠΎΠΌ β Π½Π°ΠΈΠ±ΠΎΠ»Π΅Π΅ ΡΠ΄ΠΎΠ±Π½ΡΠΉ ΠΈ ΠΎΠΏΡΠΈΠΌΠ°Π»ΡΠ½ΡΠΉ Π²Π°ΡΠΈΠ°Π½Ρ
ΠΠ½ΠΎΠ³ΠΈΠ΅ Π·Π°ΡΡΡΠΎΠΉΡΠΈΠΊΠΈ ΡΠ΅ΡΡΠ΅Π·Π½ΠΎ ΡΠ°ΡΡΠΌΠ°ΡΡΠΈΠ²Π°ΡΡ ΡΠΎΠ»ΡΠΊΠΎ ΡΠ΅ ΡΠΈΠΏΠΎΠ²ΡΠ΅ ΠΏΡΠΎΠ΅ΠΊΡΡ Π΄ΠΎΠΌΠΎΠ², ΠΊΠΎΡΠΎΡΡΠ΅ ΠΏΡΠ΅Π΄ΡΡΠΌΠ°ΡΡΠΈΠ²Π°ΡΡ Π½Π°Π»ΠΈΡΠΈΠ΅ ΠΏΡΠΈΡΡΡΠΎΠ΅Π½Π½ΠΎΠ³ΠΎ Π³Π°ΡΠ°ΠΆΠ°. ΠΠ»Ρ Π½ΠΈΡ Π½Π°Π»ΠΈΡΠΈΠ΅ Π³Π°ΡΠ°ΠΆΠ° ΡΠ²Π»ΡΠ΅ΡΡΡ ΠΎΠ±ΡΠ·Π°ΡΠ΅Π»ΡΠ½ΡΠΌ ΡΡΠ»ΠΎΠ²ΠΈΠ΅ΠΌ ΠΏΡΠΈ ΡΡΡΠΎΠΈΡΠ΅Π»ΡΡΡΠ²Π΅ ΠΆΠΈΠ»ΡΡ. ΠΠΎΠ»ΡΡΠΈΠ½ΡΡΠ²ΠΎ ΠΊΠΎΡΡΠ΅Π΄ΠΆΠ΅ΠΉ Π΄Π»Ρ ΠΏΠΎΡΡΠΎΡΠ½Π½ΠΎΠ³ΠΎ ΠΏΡΠΎΠΆΠΈΠ²Π°Π½ΠΈΡ ΡΠ΅Π³ΠΎΠ΄Π½Ρ ΡΡΡΠΎΠΈΡΡΡ Π·Π° Π³ΠΎΡΠΎΠ΄ΡΠΊΠΎΠΉ ΡΠ΅ΡΡΠΎΠΉ, ΠΏΠΎΡΠΊΠΎΠ»ΡΠΊΡ Π² ΡΠ°ΠΌΠΎΠΌ Π³ΠΎΡΠΎΠ΄Π΅ ΡΡΠ°ΡΡΠΊΠΈ ΠΏΠΎΠ΄ ΡΠ°ΡΡΠ½ΡΠ΅ Π·Π°ΡΡΡΠΎΠΉΠΊΠΈ ΡΠΆΠ΅ Π½Π΅ Π²ΡΠ΄Π΅Π»ΡΡΡ. ΠΠ²ΡΠΎΠΌΠΎΠ±ΠΈΠ»Ρ Π² ΡΡΠΎΠΌ ΡΠ»ΡΡΠ°Π΅ ΠΏΠΎΠΌΠΎΠ³Π°Π΅Ρ ΡΠ΅ΡΠΈΡΡ ΡΡΠ°Π½ΡΠΏΠΎΡΡΠ½ΡΡ ΠΏΡΠΎΠ±Π»Π΅ΠΌΡ, Π° Π΅ΠΌΡ ΠΎΠ±ΡΠ·Π°ΡΠ΅Π»ΡΠ½ΠΎ Π½ΡΠΆΠ΅Π½ Π³Π°ΡΠ°ΠΆ. ΠΠΎΡΡΠΎΠΌΡ Π³ΠΎΡΠΎΠ²ΡΠ΅ ΠΏΡΠΎΠ΅ΠΊΡΡ Π΄ΠΎΠΌΠΎΠ² Ρ Π³Π°ΡΠ°ΠΆΠΎΠΌ β ΡΠ°ΠΌΡΠ΅ Π²ΠΎΡΡΡΠ΅Π±ΠΎΠ²Π°Π½Π½ΡΠ΅ ΡΡΠ΅Π΄ΠΈ ΠΎΠΏΡΠ΅Π΄Π΅Π»Π΅Π½Π½ΠΎΠΉ ΡΠ°ΡΡΠΈ Π·Π°ΡΡΡΠΎΠΉΡΠΈΠΊΠΎΠ².
Π Π½Π°ΡΠ΅ΠΌ ΠΊΠ°ΡΠ°Π»ΠΎΠ³Π΅ ΠΏΡΠ΅Π΄ΡΡΠΌΠΎΡΡΠ΅Π½Ρ ΡΠ°Π·Π»ΠΈΡΠ½ΡΠ΅ Π²Π°ΡΠΈΠ°Π½ΡΡ ΠΏΡΠΎΠ΅ΠΊΡΠΎΠ², ΠΊΠΎΡΠΎΡΡΠ΅ Π²ΠΊΠ»ΡΡΠ°ΡΡ Π² ΡΠ΅Π±Ρ:
- ΠΡΠΎΠ΅ΠΊΡΡ ΠΎΠ΄Π½ΠΎΡΡΠ°ΠΆΠ½ΡΡ Π΄ΠΎΠΌΠΎΠ² Ρ Π³Π°ΡΠ°ΠΆΠΎΠΌ;
- ΠΡΠΎΠ΅ΠΊΡΡ Π΄Π²ΡΡ ΡΡΠ°ΠΆΠ½ΡΡ Π΄ΠΎΠΌΠΎΠ² Ρ Π³Π°ΡΠ°ΠΆΠΎΠΌ;
- ΠΡΠΎΠ΅ΠΊΡΡ ΠΌΠ°Π½ΡΠ°ΡΠ΄Π½ΡΡ Π΄ΠΎΠΌΠΎΠ² Ρ Π³Π°ΡΠ°ΠΆΠΎΠΌ;
- ΠΡΠΎΠ΅ΠΊΡΡ Π΄Π°ΡΠ½ΡΡ Π΄ΠΎΠΌΠΎΠ² Ρ Π³Π°ΡΠ°ΠΆΠΎΠΌ.
ΠΠ΅ΠΎΠ±Ρ ΠΎΠ΄ΠΈΠΌΡΡ ΠΊΠΎΠ½ΡΡΠ»ΡΡΠ°ΡΠΈΡ ΠΏΠΎ Π»ΡΠ±ΡΠΌ Π²ΠΎΠΏΡΠΎΡΠ°ΠΌ, ΠΊΠ°ΡΠ°ΡΡΠΈΡ ΡΡ Π³ΠΎΡΠΎΠ²ΡΡ ΠΏΡΠΎΠ΅ΠΊΡΠΎΠ², ΠΡ ΠΌΠΎΠΆΠ΅ΡΠ΅ ΠΏΠΎΠ»ΡΡΠΈΡΡ ΠΏΠΎ ΡΠΊΠ°Π·Π°Π½Π½ΡΠΌ Π½Π° ΡΠ°ΠΉΡΠ΅ ΡΠ΅Π»Π΅ΡΠΎΠ½Π°ΠΌ ΠΈΠ»ΠΈ Π»ΡΠ±ΡΠΌ Π΄ΡΡΠ³ΠΈΠΌ ΠΊΠΎΠ½ΡΠ°ΠΊΡΠ°ΠΌ.
ΠΡΠ΅ΠΈΠΌΡΡΠ΅ΡΡΠ²Π° ΠΏΡΠΎΠ΅ΠΊΡΠΎΠ², ΠΏΡΠ΅Π΄ΡΡΠΌΠ°ΡΡΠΈΠ²Π°ΡΡΠΈΡ ΠΏΡΠΈΡΡΡΠΎΠ΅Π½Π½ΡΠΉ Π³Π°ΡΠ°ΠΆ
ΠΡΠΈΡΡΡΠΎΠ΅Π½Π½ΡΠΉ ΠΊ Π΄ΠΎΠΌΡ Π³Π°ΡΠ°ΠΆ, Π²ΠΎ ΠΌΠ½ΠΎΠ³ΠΈΡ ΡΠ»ΡΡΠ°ΡΡ Π½Π°ΠΌΠ½ΠΎΠ³ΠΎ ΠΏΡΠ°ΠΊΡΠΈΡΠ½Π΅Π΅, ΡΠ΅ΠΌ ΠΎΡΠ΄Π΅Π»ΡΠ½ΠΎΡΡΠΎΡΡΠΈΠΉ, ΠΈ ΠΎΡΠ½ΠΎΠ²Π½ΠΎΠ΅ Π΅Π³ΠΎ ΠΏΡΠ΅ΠΈΠΌΡΡΠ΅ΡΡΠ²ΠΎ β ΡΡΠΎ ΡΠ΄ΠΎΠ±ΡΡΠ²ΠΎ Π² ΡΠΊΡΠΏΠ»ΡΠ°ΡΠ°ΡΠΈΠΈ. ΠΡ ΠΎΠ΄ Π² Π³Π°ΡΠ°ΠΆ ΠΌΠΎΠΆΠ½ΠΎ ΠΏΡΠ΅Π΄ΡΡΠΌΠΎΡΡΠ΅ΡΡ Π½Π΅ ΡΠΎΠ»ΡΠΊΠΎ ΡΠ΅ΡΠ΅Π· Π²ΠΎΡΠΎΡΠ° Ρ ΡΠ»ΠΈΡΡ, Π½ΠΎ ΠΈ ΠΏΡΡΠΌΠΎ ΠΈΠ· Π΄ΠΎΠΌΠ°, Π½Π°ΠΏΡΠΈΠΌΠ΅Ρ, ΡΠ΅ΡΠ΅Π· Π΄Π²Π΅ΡΡ Π² ΠΏΡΠΈΡ ΠΎΠΆΠ΅ΠΉ, ΡΡΠΎ ΠΎΡΠΎΠ±Π΅Π½Π½ΠΎ Π°ΠΊΡΡΠ°Π»ΡΠ½ΠΎ Π² Π΄ΠΎΠΆΠ΄Π»ΠΈΠ²ΡΡ ΠΈΠ»ΠΈ Ρ ΠΎΠ»ΠΎΠ΄Π½ΡΡ ΠΏΠΎΠ³ΠΎΠ΄Ρ.
ΠΡΠΎΠ΅ΠΊΡΡ Π΄ΠΎΠΌΠΎΠ² Ρ Π³Π°ΡΠ°ΠΆΠΎΠΌ ΠΏΠΎΠ·Π²ΠΎΠ»ΡΡΡ ΠΈΡΠΏΠΎΠ»ΡΠ·ΠΎΠ²Π°ΡΡ Π΅Π΄ΠΈΠ½ΡΡ ΡΠΈΡΡΠ΅ΠΌΡ ΠΎΡΠΎΠΏΠ»Π΅Π½ΠΈΡ. ΠΡΠΏΠ°Π΄Π°Π΅Ρ Π½Π΅ΠΎΠ±Ρ ΠΎΠ΄ΠΈΠΌΠΎΡΡΡ ΠΏΡΠΎΠΊΠ»Π°Π΄ΡΠ²Π°ΡΡ ΡΡΡΠ±Ρ Π΄Π»Ρ ΠΎΡΠΎΠΏΠ»Π΅Π½ΠΈΡ ΠΎΡΠ΄Π΅Π»ΡΠ½ΠΎΡΡΠΎΡΡΠ΅Π³ΠΎ Π³Π°ΡΠ°ΠΆΠ°, ΠΈΠ»ΠΈ ΠΎΠ±ΡΡΡΡΠ°ΠΈΠ²Π°ΡΡ Π΄ΠΎΠΏΠΎΠ»Π½ΠΈΡΠ΅Π»ΡΠ½ΡΡ ΠΊΠΎΡΠ΅Π»ΡΠ½ΡΡ, ΡΡΠΎ ΡΠΎΠ²ΡΠ΅ΠΌ Π½Π΅Π²ΡΠ³ΠΎΠ΄Π½ΠΎ. Π’Π°ΠΊΠΆΠ΅ Π² ΠΏΡΠΈΡΡΡΠΎΠ΅Π½Π½ΠΎΠΌ Π³Π°ΡΠ°ΠΆΠ΅ ΠΌΠΎΠΆΠ½ΠΎ Ρ ΡΠ°Π½ΠΈΡΡ ΡΠ°Π·Π»ΠΈΡΠ½ΡΠΉ ΠΈΠ½Π²Π΅Π½ΡΠ°ΡΡ ΠΈ ΠΈΠ½ΡΡΡΡΠΌΠ΅Π½ΡΡ, Π΄ΠΎΡΡΡΠΏ ΠΊ ΠΊΠΎΡΠΎΡΡΠΌ Π±ΡΠ΄Π΅Ρ Π±ΠΎΠ»Π΅Π΅ ΡΠ΄ΠΎΠ±Π½ΡΠΌ.
ΠΠΎΠ½ΡΠ°Π²ΠΈΠ»ΡΡ ΠΏΡΠΎΠ΅ΠΊΡ Π΄ΠΎΠΌΠ° Π±Π΅Π· Π³Π°ΡΠ°ΠΆΠ°, Π½ΠΎ ΠΡ Ρ ΠΎΡΠΈΡΠ΅, ΡΡΠΎΠ±Ρ ΠΎΠ½ Π±ΡΠ» Ρ Π³Π°ΡΠ°ΠΆΠΎΠΌ? ΠΠ°ΠΊΠ°ΠΆΠΈΡΠ΅ Π°Π΄Π°ΠΏΡΠ°ΡΠΈΡ ΠΏΡΠΎΠ΅ΠΊΡΠ°
ΠΡΠ»ΠΈ Π½ΠΈ ΠΎΠ΄Π½ΠΎ ΠΏΡΠ΅Π΄Π»Π°Π³Π°Π΅ΠΌΠΎΠ΅ ΡΠ΅ΡΠ΅Π½ΠΈΠ΅ ΠΠ°ΠΌ Π½Π΅ ΠΏΠΎΠ΄ΠΎΡΠ»ΠΎ, Π½ΠΎ ΠΏΠΎΠ½ΡΠ°Π²ΠΈΠ»ΡΡ ΠΊΠ°ΠΊΠΎΠΉ-Π»ΠΈΠ±ΠΎ ΠΏΡΠΎΠ΅ΠΊΡ Π΄ΠΎΠΌΠ° Π±Π΅Π· Π³Π°ΡΠ°ΠΆΠ°, ΡΠΎ ΠΡ ΠΌΠΎΠΆΠ΅ΡΠ΅ Π·Π°ΠΊΠ°Π·Π°ΡΡ Π°Π΄Π°ΠΏΡΠ°ΡΠΈΡ Π³ΠΎΡΠΎΠ²ΠΎΠ³ΠΎ ΠΏΡΠΎΠ΅ΠΊΡΠ°, ΠΈ Π½Π°ΡΠΈ Π°ΡΡ ΠΈΡΠ΅ΠΊΡΠΎΡΡ ΠΏΡΠ΅Π΄ΠΎΡΡΠ°Π²ΡΡ ΠΠ°ΠΌ ΡΠΎΡΠ½ΠΎ ΡΠ°ΠΊΠΎΠΉ ΠΆΠ΅ ΠΏΡΠΎΠ΅ΠΊΡ, Π½ΠΎ ΡΠΆΠ΅ Ρ ΠΏΡΠΈΡΡΡΠΎΠ΅Π½Π½ΡΠΌ Π³Π°ΡΠ°ΠΆΠΎΠΌ. ΠΠ΄Π°ΠΏΡΠ°ΡΠΈΡ ΠΏΡΠΎΠ΅ΠΊΡΠ° ΠΏΡΠ΅Π΄ΡΡΠΌΠ°ΡΡΠΈΠ²Π°Π΅Ρ ΡΠ°ΠΌΡΠ΅ ΡΠ°Π·Π»ΠΈΡΠ½ΡΠ΅ ΠΈΠ·ΠΌΠ΅Π½Π΅Π½ΠΈΡ, Π½Π°ΠΏΡΠΈΠΌΠ΅Ρ, Π½Π° ΠΊΡΡΡΠ΅ Π³Π°ΡΠ°ΠΆΠ° ΠΌΠΎΠΆΠ½ΠΎ Π·Π°ΠΏΠ»Π°Π½ΠΈΡΠΎΠ²Π°ΡΡ ΡΠ΅ΡΡΠ°ΡΡ, Π²ΡΡ ΠΎΠ΄ Π½Π° ΠΊΠΎΡΠΎΡΡΡ Π±ΡΠ΄Π΅Ρ ΡΠ΅ΡΠ΅Π· Π΄Π²Π΅ΡΡ Π½Π° Π²ΡΠΎΡΠΎΠΌ ΡΡΠ°ΠΆΠ΅ Π΄ΠΎΠΌΠ°.
ΠΠ°ΠΆΠ΄ΡΠΉ ΠΏΡΠΎΠ΅ΠΊΡ Π΄ΠΎΠΌΠ° Ρ Π³Π°ΡΠ°ΠΆΠΎΠΌ ΡΠ½Π°Π±ΠΆΠ°Π΅ΡΡΡ ΠΏΠΎΠ»Π½ΠΎΠΉ Π΄ΠΎΠΊΡΠΌΠ΅Π½ΡΠ°ΡΠΈΠ΅ΠΉ, ΠΊΠΎΡΠΎΡΡΡ ΠΌΡ ΠΏΡΠ΅Π΄ΠΎΡΡΠ°Π²Π»ΡΠ΅ΠΌ Π² ΡΠ°ΠΌΠΊΠ°Ρ Π΄Π΅ΡΡΠ΅Π»ΡΠ½ΠΎΡΡΠΈ Π½Π°ΡΠ΅Π³ΠΎ Π±ΡΡΠΎ.Β
www.territoria.by
ΠΠ΅Π±ΠΎΠ»ΡΡΠΎΠΉ Π΄ΠΎΠΌ Ρ Π³Π°ΡΠ°ΠΆΠΎΠΌ ΠΈ ΠΌΠ°Π½ΡΠ°ΡΠ΄ΠΎΠΉ. ΠΠ°ΠΊ ΡΠΎΠ·Π΄Π°ΡΡ ΠΏΡΠΎΠ΅ΠΊΡ

ΠΠ΅Π±ΠΎΠ»ΡΡΠΎΠΉ Π΄ΠΎΠΌ Ρ ΠΌΠ°Π½ΡΠ°ΡΠ΄ΠΎΠΉ ΠΈ Π³Π°ΡΠ°ΠΆΠΎΠΌ
ΠΡΠΎΠ΅ΠΊΡ Π½Π΅Π±ΠΎΠ»ΡΡΠΎΠ³ΠΎ Π΄ΠΎΠΌΠ° Ρ Π³Π°ΡΠ°ΠΆΠΎΠΌ ΠΈ ΠΌΠ°Π½ΡΠ°ΡΠ΄ΠΎΠΉ ΡΠ°ΡΡΠΎ ΡΠ²Π»ΡΠ΅ΡΡΡ Π²Π°ΠΆΠ½ΡΠΌ ΡΡΠ°ΠΏΠΎΠΌ Ρ Π²Π»Π°Π΄Π΅Π»ΡΡΠ΅Π² ΡΠ²ΠΎΠΈΡ
ΡΡΠ°ΡΡΠΊΠΎΠ². ΠΠ½ΠΎΠ³ΠΈΠ΅Β ΠΆΠ΅Π»Π°ΡΡ ΠΈΠΌΠ΅ΡΡ Π±Π»Π°Π³ΠΎΡΡΡΡΠΎΠ΅Π½Π½ΠΎΠ΅ ΠΈ ΡΠ΄ΠΎΠ±Π½ΠΎΠ΅ ΠΆΠΈΠ»ΠΈΡΠ΅, ΡΠ°ΡΠΏΠΎΠ»ΠΎΠΆΠ΅Π½Π½ΠΎΠ΅ Π·Π° ΠΏΡΠ΅Π΄Π΅Π»Π°ΠΌΠΈ Π³ΠΎΡΠΎΠ΄Π°, ΠΏΠΎΠ΄Π°Π»ΡΡΠ΅ ΠΎΡ Π΅Π³ΠΎ ΡΡΠ΅ΡΡ, Π½ΠΎ Π΄ΠΎΡΡΠ°ΡΠΎΡΠ½ΠΎ Π±Π»ΠΈΠ·ΠΊΠΎ. ΠΠ΄Π½Π°ΠΊΠΎ ΠΏΠ΅ΡΠ΅Π΄ Π½Π°ΡΠ°Π»ΠΎΠΌ ΡΡΡΠΎΠΈΡΠ΅Π»ΡΡΡΠ²Π° ΠΏΠΎΠ½Π°Π΄ΠΎΠ±ΠΈΡΡΡ ΠΏΡΠ°Π²ΠΈΠ»ΡΠ½ΠΎ Π²ΡΠ±ΡΠ°ΡΡ ΠΏΡΠΎΠ΅ΠΊΡ Π½Π΅Π±ΠΎΠ»ΡΡΠΎΠ³ΠΎ Π΄ΠΎΠΌΠ° Ρ ΠΌΠ°Π½ΡΠ°ΡΠ΄ΠΎΠΉ ΠΈ Π³Π°ΡΠ°ΠΆΠΎΠΌ, ΠΎΠ½ Π±ΠΎΠ»ΡΡΠ΅ Π²ΡΠ΅Π³ΠΎ Π²ΠΎΡΡΡΠ΅Π±ΠΎΠ²Π°Π½ Π΄Π»Ρ ΡΠ΅ΠΌΡΠΈ, ΠΈΠΌΠ΅ΡΡΠ΅ΠΉ ΡΡΠ΅Π΄Π½ΠΈΠΉ Π΄ΠΎΡΡΠ°ΡΠΎΠΊ. Π‘ΡΠ°ΡΡΡ ΠΏΠΎΠ΄ΡΠΊΠ°ΠΆΠ΅Ρ, ΠΊΠ°ΠΊ ΡΠΎΠ·Π΄Π°ΡΡ ΠΏΡΠΎΠ΅ΠΊΡ Π΄Π»Ρ ΡΠ²ΠΎΠ΅Π³ΠΎ ΡΡΠ°ΡΡΠΊΠ°.
ΠΠΎΠ½ΡΡΡΡΠΊΡΠΈΠ²Π½ΡΠ΅ ΠΎΡΠΎΠ±Π΅Π½Π½ΠΎΡΡΠΈ ΡΠ°ΠΊΠΈΡ ΡΡΡΠΎΠ΅Π½ΠΈΠΉ
ΠΠΎΠΌ Ρ Π³Π°ΡΠ°ΠΆΠΎΠΌ ΠΈ ΠΌΠ°Π½ΡΠ°ΡΠ΄ΠΎΠΉ Π½Π΅Π±ΠΎΠ»ΡΡΠΎΠΉ ΠΏΠ»ΠΎΡΠ°Π΄ΠΈ β ΡΡΠΎ Π΄ΠΎΡΡΠ°ΡΠΎΡΠ½ΠΎ ΡΠ΄ΠΎΠ±Π½ΡΠΉ ΡΠΎΠ²ΡΠ΅ΠΌΠ΅Π½Π½ΡΠΉ ΠΏΡΠΎΠ΅ΠΊΡ. Π Π½Π΅ΠΌ Π½Π° ΠΏΠ΅ΡΠ²ΠΎΠΌ ΡΡΠ°ΠΆΠ΅ ΡΠ°Π·ΠΌΠ΅ΡΠ°Π΅ΡΡΡ Π³Π°ΡΠ°ΠΆ, Π° Π½Π° Π²ΡΠΎΡΠΎΠΌ Π·ΠΎΠ½Π° Π΄Π»Ρ ΠΏΡΠΎΠΆΠΈΠ²Π°Π½ΠΈΡ.
ΠΡΠΎΡ Π²Π°ΡΠΈΠ°Π½Ρ ΠΎΡΠ»ΠΈΡΠ½ΠΎ ΠΏΠΎΠ΄ΠΎΠΉΠ΄Π΅Ρ Π΄Π»Ρ Π΄Π°ΡΠ½ΠΎΠ³ΠΎ Π΄ΠΎΠΌΠΈΠΊΠ° ΠΈΠ»ΠΈ Π½Π΅Π±ΠΎΠ»ΡΡΠΎΠ³ΠΎ Π·Π°Π³ΠΎΡΠΎΠ΄Π½ΠΎΠ³ΠΎ ΡΡΡΠΎΠ΅Π½ΠΈΡ, Π³Π΄Π΅ Π½Π΅ Π½ΡΠΆΠ½ΠΎ ΠΈΠΌΠ΅ΡΡ Π±ΠΎΠ»ΡΡΠΎΠ΅ ΡΠ²ΠΎΠ±ΠΎΠ΄Π½ΠΎΠ΅ ΠΏΡΠΎΡΡΡΠ°Π½ΡΡΠ²ΠΎ Π½Π°Π΄ ΠΆΠΈΠ»ΡΠΌ ΠΏΠΎΠΌΠ΅ΡΠ΅Π½ΠΈΠ΅ΠΌ. ΠΡΠΎΠΌΠ΅ ΡΡΠΎΠ³ΠΎ ΠΌΠΎΠΆΠ½ΠΎ Π²ΡΠΏΠΎΠ»Π½ΠΈΡΡ ΠΏΡΠΎΠ΅ΠΊΡ Π΄ΠΎΠΌΠ° Ρ Π³Π°ΡΠ°ΠΆΠΎΠΌ ΠΈ ΠΌΠ°Π½ΡΠ°ΡΠ΄ΠΎΠΉ 10Ρ 10 Π² ΠΎΠ΄ΠΈΠ½ ΡΡΠ°ΠΆ, Π³Π΄Π΅ Π±Π°Π»ΠΊΠΎΠ½ Π±ΡΠ΄Π΅Ρ ΠΈΡΠΏΠΎΠ»ΡΠ·ΠΎΠ²Π°ΡΡΡΡ ΠΊΠ°ΠΊ Π½Π΅ΠΆΠΈΠ»ΠΎΠ΅ ΠΏΠΎΠΌΠ΅ΡΠ΅Π½ΠΈΠ΅, Π½Π°ΠΏΡΠΈΠΌΠ΅Ρ, ΠΊΠ°ΠΊ ΡΠ΅ΡΠ΄Π°ΠΊ.
ΠΡΠ΅ΠΈΠΌΡΡΠ΅ΡΡΠ²Π° ΡΠ°ΠΊΠΎΠΉ ΠΊΠΎΠ½ΡΡΡΡΠΊΡΠΈΠΈ:
- ΠΠΊΠΎΠ½ΠΎΠΌΠΈΡ ΠΏΡΠΈ ΡΠ°ΡΡΠ΅ΡΠ΅ Π·Π° ΠΊΠΎΠΌΠΌΡΠ½Π°Π»ΡΠ½ΡΠ΅ ΡΡΠ»ΡΠ³ΠΈ. Π‘ΠΈΡΡΠ΅ΠΌΠ° ΠΎΡΠΎΠΏΠ»Π΅Π½ΠΈΡ ΡΡΡΡΠ°ΠΈΠ²Π°Π΅ΡΡΡ ΠΏΠΎ Π²ΡΠ΅ΠΌΡ Π·Π΄Π°Π½ΠΈΡ, Π° ΡΡΠΎ ΠΏΠΎΠ·Π²ΠΎΠ»ΠΈΡ Π·Π½Π°ΡΠΈΡΠ΅Π»ΡΠ½ΠΎ ΡΠ½ΠΈΠ·ΠΈΡΡ ΡΠ΅ΠΏΠ»ΠΎΠΏΠΎΡΠ΅ΡΠΈ. ΠΠ΅ ΠΏΠΎΠ½Π°Π΄ΠΎΠ±ΠΈΡΡΡ ΠΏΡΠΎΠΊΠ»Π°Π΄ΡΠ²Π°ΡΡ Π»ΠΈΡΠ½ΠΈΠ΅ ΡΡΡΠ±Ρ Π΄Π»Ρ Π²ΠΎΠ΄ΠΎΠΏΡΠΎΠ²ΠΎΠ΄Π° ΠΈ ΠΊΠ°Π½Π°Π»ΠΈΠ·Π°ΡΠΈΠΈ β Π² Π³Π°ΡΠ°ΠΆ Π½Π΅Ρ ΠΎΡΠΎΠ±ΠΎΠΉ Π½Π΅ΠΎΠ±Ρ ΠΎΠ΄ΠΈΠΌΠΎΡΡΠΈ Π² ΠΎΠ±ΡΡΡΡΠΎΠΉΡΡΠ²Π΅ ΠΌΠΎΠΉΠΊΠΈ.
- ΠΠ΅Π·ΠΎΠΏΠ°ΡΠ½ΠΎΡΡΡ. ΠΡΡΡΠΎΠ΅Π½Π½ΡΠΉ Π² Π½Π΅Π±ΠΎΠ»ΡΡΠΎΠΌ Π΄ΠΎΠΌΠ΅ Π³Π°ΡΠ°ΠΆ ΠΎΡΠ΅Π½Ρ ΡΠ΄ΠΎΠ±Π΅Π½: Π² Π½Π΅Π³ΠΎ ΠΌΠΎΠΆΠ½ΠΎ ΠΏΠΎΠΏΠ°ΡΡΡ Π½Π΅ΠΏΠΎΡΡΠ΅Π΄ΡΡΠ²Π΅Π½Π½ΠΎ ΠΈΠ· ΠΆΠΈΠ»ΠΎΠ³ΠΎ ΠΏΠΎΠΌΠ΅ΡΠ΅Π½ΠΈΡ. ΠΠ΅ΡΡΠΎ, Π³Π΄Π΅ Ρ ΡΠ°Π½ΠΈΡΡΡ ΠΌΠ°ΡΠΈΠ½Π°, Π±ΡΠ΄Π΅Ρ ΠΈΠΌΠ΅ΡΡ ΠΌΠ°ΠΊΡΠΈΠΌΠ°Π»ΡΠ½ΡΡ Π·Π°ΡΠΈΡΡ ΠΎΡ ΠΏΠΎΡΡΠΎΡΠΎΠ½Π½Π΅Π³ΠΎ ΠΏΡΠΎΠ½ΠΈΠΊΠ½ΠΎΠ²Π΅Π½ΠΈΡ ΠΊ ΡΡΠ°Π½ΡΠΏΠΎΡΡΡ.
- ΠΠΊΠΎΠ½ΠΎΠΌΠΈΡ ΠΏΡΠΎΡΡΡΠ°Π½ΡΡΠ²Π°. ΠΡΠΎΠ΅ΠΊΡ Π΄ΠΎΠΌΠ° Ρ ΠΌΠ°Π½ΡΠ°ΡΠ΄ΠΎΠΉ ΠΈ Π³Π°ΡΠ°ΠΆΠΎΠΌ 10Ρ 10 ΠΎΠ΄Π½ΠΎΡΡΠ°ΠΆΠ½ΡΠΉ ΠΈΠ»ΠΈ Π΄Π²ΡΡ ΡΡΠ°ΠΆΠ½ΡΠΉ ΠΏΠΎΠΏΡΠ»ΡΡΠ΅Π½ Π±Π»Π°Π³ΠΎΠ΄Π°ΡΡ Π½Π΅Π±ΠΎΠ»ΡΡΠΎΠΉ Π·Π°Π½ΠΈΠΌΠ°Π΅ΠΌΠΎΠΉ ΠΏΠ»ΠΎΡΠ°Π΄ΠΈ Π½Π° ΡΡΠ°ΡΡΠΊΠ΅. ΠΠΎΠ΄ΠΎΠ±Π½ΠΎΠ΅ Π°ΡΡ ΠΈΡΠ΅ΠΊΡΡΡΠ½ΠΎΠ΅ ΡΠ΅ΡΠ΅Π½ΠΈΠ΅ ΠΏΠΎΠ½ΡΠ°Π²ΠΈΡΡΡ Π²Π»Π°Π΄Π΅Π»ΡΡΠ°ΠΌ Π΄Π²ΠΎΡΠΎΠ² ΠΏΠ»ΠΎΡΠ°Π΄ΡΡ Π΄ΠΎ 6 ΡΠΎΡΠΎΠΊ, ΠΊΠΎΡΠΎΡΡΠΌ Ρ ΠΎΡΠ΅ΡΡΡ ΠΏΠΎΡΡΡΠΎΠΈΡΡ Π΄ΠΎΠΌ Ρ ΡΠ΅ΡΡΠ°ΡΠΎΠΉ, Π±Π°Π½Π΅ΠΉ, Π° ΠΌΠΎΠΆΠ΅Ρ Π΄Π°ΠΆΠ΅ Π±Π°ΡΡΠ΅ΠΉΠ½ΠΎΠΌ. ΠΡΠΈ ΡΡΠΎΠΌ Π·Π½Π°ΡΠΈΡΠ΅Π»ΡΠ½ΠΎ ΠΌΠ΅Π½ΡΡΠ΅ ΡΡΠ°Π½ΠΎΠ²ΠΈΡΡΡ ΠΈΡΠΏΠΎΠ»ΡΠ·ΠΎΠ²Π°Π½ΠΈΠ΅ ΠΆΠΈΠ»ΠΎΠΉ ΠΏΠ»ΠΎΡΠ°Π΄ΠΈ. ΠΠ°ΡΠ°ΠΆ Π»Π΅Π³ΠΊΠΎ ΡΠΎΠ²ΠΌΠ΅ΡΠ°Π΅ΡΡΡ Ρ ΠΊΠΎΡΠ΅Π»ΡΠ½ΠΎΠΉ ΠΈΠ»ΠΈ ΡΡΡΡΠ°ΠΈΠ²Π°Π΅ΡΡΡ Π΄ΠΎΠΏΠΎΠ»Π½ΠΈΡΠ΅Π»ΡΠ½ΡΠΉ ΠΏΠΎΠ΄Π·Π΅ΠΌΠ½ΡΠΉ ΠΏΠ°ΡΠΊΠΈΠ½Π³.
- ΠΡΠΈ Π²ΡΠ΅ΠΌΠ΅Π½Π½ΠΎΠΌ ΠΎΡΡΡΡΡΡΠ²ΠΈΠΈ ΡΠ²ΠΎΠ΅Π³ΠΎ ΡΡΠ°Π½ΡΠΏΠΎΡΡΠ°, Π΅ΡΡΡ ΡΠΌΡΡΠ» ΡΠ°ΡΡΠΌΠ°ΡΡΠΈΠ²Π°ΡΡ ΠΏΡΠΎΠ΅ΠΊΡ Π΄ΠΎΠΌΠ° 10Ρ 10 Ρ ΠΌΠ°Π½ΡΠ°ΡΠ΄ΠΎΠΉ ΠΈ Π³Π°ΡΠ°ΠΆΠΎΠΌ, Π° Π³Π°ΡΠ°ΠΆΠ½ΠΎΠ΅ ΠΏΠΎΠΌΠ΅ΡΠ΅Π½ΠΈΠ΅ ΠΈΡΠΏΠΎΠ»ΡΠ·ΠΎΠ²Π°ΡΡ ΠΊΠ°ΠΊ Π΄ΠΎΠΌΠ°ΡΠ½ΡΡ ΠΌΠ°ΡΡΠ΅ΡΡΠΊΡΡ, ΡΡΠΎ ΡΠ²Π΅Π»ΠΈΡΠΈΠ²Π°Π΅Ρ ΡΠ΄ΠΎΠ±ΡΡΠ²ΠΎ ΠΏΡΠΈ Π½Π°Π»ΠΈΡΠΈΠΈ Π·Π΄Π΅ΡΡ ΡΠ²Π΅ΡΠ° ΠΈ Π²ΠΎΠ΄Ρ.
- ΠΠΊΠΎΠ½ΠΎΠΌΡΡΡΡ ΡΡΠ΅Π΄ΡΡΠ² Π½Π° ΠΎΠ±ΡΡΡΡΠΎΠΉΡΡΠ²ΠΎ ΠΊΡΠΎΠ²Π»ΠΈ, ΡΡΠ½Π΄Π°ΠΌΠ΅Π½ΡΠ° (ΡΠΌ. ΠΠ°ΠΊΠΎΠΉ Π½ΡΠΆΠ΅Π½ ΡΡΠ½Π΄Π°ΠΌΠ΅Π½Ρ Π΄Π»Ρ Π³Π°ΡΠ°ΠΆΠ°: ΠΎΠΏΡΠ΅Π΄Π΅Π»ΡΠ΅ΠΌ ΠΈ Π΄Π΅Π»Π°Π΅ΠΌ).

ΠΠ±ΡΡΡΡΠΎΠΉΡΡΠ²ΠΎ ΡΠΏΠ°Π»ΡΠ½ΠΈ Π½Π° ΠΌΠ°Π½ΡΠ°ΡΠ΄Π΅
ΠΠ΄Π½Π°ΠΊΠΎ Ρ ΡΠ°ΠΊΠΎΠΉ ΠΊΠΎΠΌΠΏΠ°ΠΊΡΠ½ΠΎΠΉ ΠΏΠΎΡΡΡΠΎΠΉΠΊΠΈ ΠΈΠΌΠ΅ΡΡΡΡ ΠΈΒ Π½Π΅Π΄ΠΎΡΡΠ°ΡΠΊΠΈ:
- ΠΡΠ΅Π½Ρ Π½ΠΈΠ·ΠΊΠΈΠΉ ΡΡΠΎΠ²Π΅Π½Ρ ΠΎΡ ΠΏΡΠΎΠ½ΠΈΠΊΠ½ΠΎΠ²Π΅Π½ΠΈΡ ΡΡΠΌΠ° Π² ΠΆΠΈΠ»ΠΎΠ΅ ΠΏΠΎΠΌΠ΅ΡΠ΅Π½ΠΈΠ΅. Π§Π°ΡΡΠΎ, Π²ΡΠ΅ ΡΡΠΌΡ ΠΎΡ ΠΏΡΠΎΠ²Π΅Π΄Π΅Π½ΠΈΡ ΡΠ΅ΠΌΠΎΠ½ΡΠ½ΡΡ ΡΠ°Π±ΠΎΡ Π² Π³Π°ΡΠ°ΠΆΠ½ΠΎΠΌ ΠΏΠΎΠΌΠ΅ΡΠ΅Π½ΠΈΠΈ Π±ΡΠ΄ΡΡ ΡΠ»ΡΡΠ½Ρ Π² ΠΆΠΈΠ»ΡΡ ΠΊΠΎΠΌΠ½Π°ΡΠ°Ρ .
- ΠΠ΅ ΡΠ»ΠΈΡΠΊΠΎΠΌ Ρ ΠΎΡΠΎΡΠ°Ρ Π±Π΅Π·ΠΎΠΏΠ°ΡΠ½ΠΎΡΡΡ ΠΊΠΎΡΡΠ΅Π΄ΠΆΠ΅ΠΉ. Π Π³Π°ΡΠ°ΠΆΠ΅ ΠΎΠ±ΡΡΠ½ΠΎ ΠΌΠ½ΠΎΠ³ΠΎ Ρ ΡΠ°Π½ΠΈΡΡΡ ΡΠ°Π·Π½ΡΡ ΠΏΠΎΠΆΠ°ΡΠΎΠΎΠΏΠ°ΡΠ½ΡΡ Π²Π΅ΡΠ΅ΡΡΠ².
Π‘ΠΎΠ²Π΅Ρ: Π ΡΠ΅Π»ΡΡ Π±Π΅Π·ΠΎΠΏΠ°ΡΠ½ΠΎΡΡΠΈ Π½Π΅Π»ΡΠ·Ρ ΡΠΎΠ²ΠΌΠ΅ΡΠ°ΡΡ Π΄Π΅ΡΠ΅Π²ΡΠ½Π½ΡΠΉ Π΄ΠΎΠΌΠΈΠΊ Ρ ΠΏΠΎΠ΄ΡΠΎΠ±Π½ΡΠΌ ΠΏΠΎΠΌΠ΅ΡΠ΅Π½ΠΈΠ΅ΠΌ, Π³Π΄Π΅ Π±ΡΠ΄ΡΡ Π½Π°Ρ ΠΎΠ΄ΠΈΡΡΡΡ ΡΠΎΡΠΎΠ», Π±Π΅Π½Π·ΠΈΠ½ ΠΈ Π΄ΡΡΠ³ΠΈΠ΅, Π³ΠΎΡΡΡΠ΅ ΡΠΌΠ°Π·ΠΎΡΠ½ΡΠ΅ ΡΠΎΡΡΠ°Π²Ρ.
Π‘ΠΎΡΡΠ°Π²Π»ΡΡ ΠΏΡΠΎΠ΅ΠΊΡ Π»ΡΠ±ΠΎΠ³ΠΎ ΠΆΠΈΠ»ΠΎΠ³ΠΎ Π΄ΠΎΠΌΠ°, Π½Π΅ΠΎΠ±Ρ ΠΎΠ΄ΠΈΠΌΠΎ ΡΡΠΈΡΡΠ²Π°ΡΡ:
- Π‘ΠΊΠΎΠ»ΡΠΊΠΎ ΡΠ΅Π»ΠΎΠ²Π΅ΠΊ Π² Π½Π΅ΠΌ Π±ΡΠ΄Π΅Ρ ΠΏΡΠΎΠΆΠΈΠ²Π°ΡΡ ΠΏΠΎΡΡΠΎΡΠ½Π½ΠΎ.
- ΠΡΠΎΠ±Π΅Π½Π½ΠΎΡΡΠΈ Π±ΡΠ΄ΡΡΠΈΡ Π΅Π³ΠΎ Π²Π»Π°Π΄Π΅Π»ΡΡΠ΅Π². Π’Π°ΠΊ, Π½Π°ΠΏΡΠΈΠΌΠ΅Ρ:
- ΠΏΠΎΠΆΠΈΠ»ΠΎΠΌΡ ΡΠ΅Π»ΠΎΠ²Π΅ΠΊΡ ΡΡΡΠ΄Π½ΠΎ Π±ΡΠ΄Π΅Ρ ΠΌΠ½ΠΎΠ³ΠΎ ΡΠ°Π· Π² Π΄Π΅Π½Ρ ΠΏΠΎΠ΄Π½ΠΈΠΌΠ°ΡΡΡΡ ΠΏΠΎ Π»Π΅ΡΡΠ½ΠΈΡΠ΅;
- Π΄Π΅ΡΡΠΌ Π½Π°Π»ΠΈΡΠΈΠ΅ Π±ΠΎΠ»ΡΡΠΎΠΉ ΠΊΠΎΠΌΠ½Π°ΡΡ, Π΄Π°ΠΆΠ΅ Π΅ΡΠ»ΠΈ ΠΎΠ½Π° Π½Π° ΠΌΠ°Π½ΡΠ°ΡΠ΄Π΅, ΠΎΡΠ΅Π½Ρ ΠΏΠΎΠ½ΡΠ°Π²ΠΈΡΡΡ.
ΠΠΎΠΌΠΈΠΌΠΎ ΡΡΠΎΠ³ΠΎ ΡΡΠ°Π·Ρ Π½Π΅ΠΎΠ±Ρ ΠΎΠ΄ΠΈΠΌΠΎ ΠΎΠΏΡΠ΅Π΄Π΅Π»ΠΈΡΡ, ΠΊΠ°ΠΊΠ°Ρ ΠΏΡΠΈΠΌΠ΅ΡΠ½Π°Ρ ΡΠ΅Π½Π° Π±ΡΠ΄Π΅Ρ Π²ΡΠ΅Π³ΠΎ ΡΠΎΠΎΡΡΠΆΠ΅Π½ΠΈΡ, ΡΡΠΎ Π·Π°Π²ΠΈΡΠΈΡ ΠΎΡ ΠΏΡΠΎΠ΅ΠΊΡΠ° ΠΈ Π²ΡΠ±ΠΎΡΠ° ΠΌΠ°ΡΠ΅ΡΠΈΠ°Π»ΠΎΠ² Π΄Π»Ρ ΡΡΡΠΎΠΈΡΠ΅Π»ΡΡΡΠ²Π°:
- ΠΠ°ΡΠΊΠ°ΡΠ½ΡΠ΅ Π΄ΠΎΠΌΠ° ΠΈΠΌΠ΅ΡΡ ΠΌΠ΅Π½ΡΡΡΡ ΡΡΠΎΠΈΠΌΠΎΡΡΡ. ΠΡ ΡΡΡΠΎΠΈΡΠ΅Π»ΡΡΡΠ²ΠΎ ΠΌΠΎΠΆΠ½ΠΎ Π²ΡΠΏΠΎΠ»Π½ΠΈΡΡ ΠΈ ΡΠ²ΠΎΠΈΠΌΠΈ ΡΡΠΊΠ°ΠΌΠΈ Ρ ΠΏΡΠΈΠ³Π»Π°ΡΠ΅Π½ΠΈΠ΅ΠΌ Π½Π΅Π±ΠΎΠ»ΡΡΠΎΠ³ΠΎ ΠΊΠΎΠ»ΠΈΡΠ΅ΡΡΠ²Π° ΠΏΠΎΠΌΠΎΡΠ½ΠΈΠΊΠΎΠ².
- ΠΠΎΠΌΠ° ΠΈ ΠΊΠΎΡΡΠ΅Π΄ΠΆΠΈ ΠΈΠ· Π±Π΅ΡΠΎΠ½Π½ΡΡ Π±Π»ΠΎΠΊΠΎΠ² ΠΈΠ»ΠΈ ΠΊΠΈΡΠΏΠΈΡΠ° Π±ΡΠ΄ΡΡ Π΄ΠΎΡΠΎΠΆΠ΅, Π½ΠΎ ΠΈ Π½Π°Π΄Π΅ΠΆΠ½ΠΎΡΡΡ ΠΈΡ Π·Π½Π°ΡΠΈΡΠ΅Π»ΡΠ½ΠΎ Π²ΡΡΠ΅ β ΠΎΠ½ΠΈ ΠΏΡΠΎΡΠ»ΡΠΆΠ°Ρ ΠΌΠ½ΠΎΠ³ΠΈΠΌ ΠΏΠΎΠΊΠΎΠ»Π΅Π½ΠΈΡΠΌ Π½Π°ΡΠ»Π΅Π΄Π½ΠΈΠΊΠΎΠ².
- ΠΡΠ΅Π½Ρ Π²ΠΎΡΡΡΠ΅Π±ΠΎΠ²Π°Π½Ρ ΠΏΡΠΎΠ΅ΠΊΡΡ Π΄Π΅ΡΠ΅Π²ΡΠ½Π½ΡΡ ΡΡΡΠΎΠ΅Π½ΠΈΠΉΒ Ρ Π³Π°ΡΠ°ΠΆΠΎΠΌ ΠΈ ΠΌΠ°Π½ΡΠ°ΡΠ΄ΠΎΠΉ, ΠΊΠΎΡΠΎΡΡΠ΅ ΠΎΡΠ»ΠΈΡΠ°ΡΡΡΡ ΡΠΊΠΎΠ»ΠΎΠ³ΠΈΡΠ΅ΡΠΊΠΎΠΉ ΡΠΈΡΡΠΎΡΠΎΠΉ, Π° ΠΏΠΎ ΡΠ²ΠΎΠ΅ΠΉ Π½Π°Π΄Π΅ΠΆΠ½ΠΎΡΡΠΈ Π½Π΅ Ρ ΡΠΆΠ΅ ΠΎΡΡΠ°Π»ΡΠ½ΡΡ Π²Π°ΡΠΈΠ°Π½ΡΠΎΠ².
ΠΠ΅ΡΠΊΠΎΠ»ΡΠΊΠΎ ΡΠΎΠ²Π΅ΡΠΎΠ² ΠΏΠΎ Π²ΡΠ±ΠΎΡΡ ΠΏΡΠΎΠ΅ΠΊΡΠΎΠ² Π΄ΠΎΠΌΠ°
ΠΡΠΈ Π»ΡΠ±ΠΎΠΌ ΠΈΡΠΏΠΎΠ»ΡΠ·ΡΠ΅ΠΌΠΎΠΌ ΠΏΡΠΎΠ΅ΠΊΡΠ΅ ΠΆΠΈΠ»ΠΎΠ³ΠΎ Π΄ΠΎΠΌΠ° Ρ ΠΌΠ°Π½ΡΠ°ΡΠ΄ΠΎΠΉ ΠΈ Π³Π°ΡΠ°ΠΆΠΎΠΌ, Π² Π½Π΅ΠΌ Π΄ΠΎΠ»ΠΆΠ½Ρ Π±ΡΡΡ ΠΏΡΠ΅Π΄ΡΡΠΌΠΎΡΡΠ΅Π½Ρ:
- ΠΠΎΠΌΠ½Π°ΡΡ Π΄Π»Ρ ΠΈΡΠΏΠΎΠ»ΡΠ·ΠΎΠ²Π°Π½ΠΈΡ Π² Π΄Π½Π΅Π²Π½ΠΎΠ΅ Π²ΡΠ΅ΠΌΡ ΡΡΡΠΎΠΊ. ΠΡΡΡΠ΅ Π²ΡΠ΅Π³ΠΎ, ΠΊΠΎΠ³Π΄Π° ΠΎΠ½ΠΈ Π΄ΠΎΡΡΠ°ΡΠΎΡΠ½ΠΎ ΠΏΡΠΎΡΡΠΎΡΠ½ΡΠ΅ ΠΈ ΡΠ°ΡΠΏΠΎΠ»ΠΎΠΆΠ΅Π½Ρ Π½Π° Π½ΠΈΠΆΠ½Π΅ΠΌ ΡΡΠ°ΠΆΠ΅. ΠΡΠΎ ΡΠ°ΠΊΠΈΠ΅ ΠΏΠΎΠΌΠ΅ΡΠ΅Π½ΠΈΡ ΠΊΠ°ΠΊ:
- Π³ΠΎΡΡΠΈΠ½Π°Ρ;
- ΠΊΡΡ Π½Ρ;
- ΡΠΎΠ²ΠΌΠ΅ΡΠ΅Π½Π½ΡΠΉ ΡΠ°Π½ΡΠ·Π΅Π»;
- ΠΏΠΎΠ΄ΡΠΎΠ±Π½ΡΠ΅ ΠΏΠΎΠΌΠ΅ΡΠ΅Π½ΠΈΡ ΡΠ°Π·Π½ΠΎΠ³ΠΎ ΡΠΎΠ΄Π°;
- ΠΊΠ°Π±ΠΈΠ½Π΅Ρ.
- ΠΠ»Ρ ΠΌΠ°Π½ΡΠ°ΡΠ΄Ρ ΠΎΡΡΠ°ΡΡΡΡ, ΡΠ°ΡΠ΅ Π²ΡΠ΅Π³ΠΎ, Π»ΠΈΡΡ ΡΠΏΠ°Π»ΡΠ½ΠΈ. ΠΠ΅ ΡΠ΅ΡΡΠΈΡΠΎΡΠΈΡ ΠΎΠ±ΡΡΠ½ΠΎ ΠΌΠ΅Π½ΡΡΠ΅ ΠΏΠ»ΠΎΡΠ°Π΄ΠΈ ΠΏΠ΅ΡΠ²ΠΎΠ³ΠΎ ΡΡΠ°ΠΆΠ°.
ΠΡΠΈΠΌΠ΅ΡΠ½ΡΠΉ ΠΏΠ»Π°Π½ Π΄ΠΎΠΌΠ° ΠΌΠΎΠΆΠ½ΠΎ ΡΠ²ΠΈΠ΄Π΅ΡΡ Π½Π° ΡΠΎΡΠΎ.

ΠΠ»Π°Π½ ΠΏΠ΅ΡΠ²ΠΎΠ³ΠΎ ΡΡΠ°ΠΆΠ° ΠΊΠΎΡΡΠ΅Π΄ΠΆΠ°
- Π§Π°ΡΡΠΎ ΠΏΡΠΈ ΠΏΠ»Π°Π½ΠΈΡΠΎΠ²Π°Π½ΠΈΠΈ Π΄ΠΎΠΌΠ° Π½Π°ΠΌΠ΅ΡΠ°ΡΡΡΡ ΡΠ°Π·ΠΌΠ΅ΡΠ΅Π½ΠΈΠ΅ ΡΠ΅ΡΡΠ°ΡΡ, Π³Π°ΡΠ΄Π΅ΡΠΎΠ±Π½ΡΡ ΠΏΠΎΠΌΠ΅ΡΠ΅Π½ΠΈΠΉ, ΠΌΠΈΠ½ΠΈ-ΡΠ°ΡΠ½Ρ. ΠΠ»Ρ ΡΡΠΎΠ³ΠΎ Π²ΠΏΠΎΠ»Π½Π΅ Π΄ΠΎΡΡΠ°ΡΠΎΡΠ½ΠΎ Π±ΡΠ΄Π΅Ρ Π΄ΠΎΠΌΠ°, ΠΏΠ»ΠΎΡΠ°Π΄Ρ ΠΊΠΎΡΠΎΡΠΎΠ³ΠΎ 120 ΠΊΠ²Π°Π΄ΡΠ°ΡΠ½ΡΡ ΠΌΠ΅ΡΡΠΎΠ², Π° Ρ ΠΊΠΎΠΌΡΠΎΡΡΠΎΠΌ ΠΏΡΠΎΠΆΠΈΠ²Π°ΡΡ Π² Π½Π΅ΠΌ ΡΠΌΠΎΠΆΠ΅Ρ ΡΠ΅ΠΌΡΡ ΠΈΠ· 5 ΡΠ΅Π»ΠΎΠ²Π΅ΠΊ.
- ΠΡΠ°Π²ΠΈΠ»ΡΠ½ΠΎ Π²ΡΠ±ΡΠ°Π½Π½Π°Ρ ΡΡ Π΅ΠΌΠ° ΠΊΡΠ΅ΠΏΠ»Π΅Π½ΠΈΠΉ, ΠΌΠ΅ΠΆΠ΄Ρ ΡΡΠ°ΠΆΠ½ΡΡ ΠΏΠ΅ΡΠ΅ΠΊΡΡΡΠΈΠΉ ΠΏΠΎΠ·Π²ΠΎΠ»ΠΈΡ Π²ΡΠ΅ ΠΌΠ°Π½ΡΠ°ΡΠ΄Π½ΠΎΠ΅ ΠΏΡΠΎΡΡΡΠ°Π½ΡΡΠ²ΠΎ ΠΈΡΠΏΠΎΠ»ΡΠ·ΠΎΠ²Π°ΡΡ Π±Π΅Π· ΡΡΡΠ΅ΡΡΠ²Π΅Π½Π½ΡΡ Π½Π΅ΡΠ΄ΠΎΠ±ΡΡΠ².
Π‘ΠΎΠ²Π΅Ρ: ΠΡΠΈ Π½Π°Π»ΠΈΡΠΈΠΈ ΡΠΊΠΎΡΠ΅Π½Π½ΠΎΠ³ΠΎ ΠΏΠΎΡΠΎΠ»ΠΊΠ° Π½Π° ΠΌΠ°Π½ΡΠ°ΡΠ΄Π½ΠΎΠΌ ΡΡΠ°ΠΆΠ΅, ΠΊΠΎΠ³Π΄Π° ΠΎΠ½ Π½Π°ΡΠΈΠ½Π°Π΅ΡΡΡ ΠΎΡ ΠΏΠΎΠ»Π°, Π½Π° ΡΡΠΎΠ²Π½Π΅ 1,5 ΠΌΠ΅ΡΡΠΎΠ² ΡΠ»Π΅Π΄ΡΠ΅Ρ Π²ΠΏΠ»ΠΎΡΠ½ΡΡ ΠΊ ΡΡΠ΅Π½Π΅ ΡΠΌΠΎΠ½ΡΠΈΡΠΎΠ²Π°ΡΡ Π²ΡΡΡΠΎΠ΅Π½Π½ΡΠΉ ΡΠΊΠ°Ρ ΠΈΠ»ΠΈ ΠΏΠΎΡΡΠ°Π²ΠΈΡΡ ΠΊΡΠΎΠ²Π°ΡΡ, ΡΡΠΎ ΡΡΠΊΠΎΠ½ΠΎΠΌΠΈΡ ΠΏΡΠΎΡΡΡΠ°Π½ΡΡΠ²ΠΎ.
- Π ΠΏΡΠΎΠ΅ΠΊΡΠ΅ Π΄ΠΎΠ»ΠΆΠ½ΠΎ Π±ΡΡΡ ΡΠ΅ΡΠΊΠΎ ΡΠΏΠ»Π°Π½ΠΈΡΠΎΠ²Π°Π½ΠΎ ΡΠ°Π·ΠΌΠ΅ΡΠ΅Π½ΠΈΠ΅ ΡΠ΄ΠΎΠ±Π½ΠΎΠΉ Π»Π΅ΡΡΠ½ΠΈΡΡ Π½Π° ΠΌΠ°Π½ΡΠ°ΡΠ΄Π½ΡΠΉ ΡΡΠ°ΠΆ.
- ΠΡΠΎΠΈΠ·Π²Π΅Π΄Π΅Π½Ρ ΡΠ°ΡΡΠ΅ΡΡ Π½Π°Π³ΡΡΠ·ΠΊΠΈ Π½Π° ΠΏΠ΅ΡΠ΅ΠΊΡΡΡΠΈΠ΅ Π΄Π»Ρ Π²ΡΠΎΡΠΎΠ³ΠΎ ΡΡΠ°ΠΆΠ°.
- Π£ΡΡΡΠΎΠΉΡΡΠ²ΠΎ ΡΠ΅ΠΏΠ»ΠΎΠΈΠ·ΠΎΠ»ΡΡΠΈΠΈ Π΄Π»Ρ ΡΡΠ΅Π½ ΠΈ ΠΏΠΎΡΠΎΠ»ΠΊΠΎΠ². Π’Π°ΠΊΠΎΠ΅ ΡΠ΅ΡΠ΅Π½ΠΈΠ΅ ΠΏΠΎΠ·Π²ΠΎΠ»ΠΈΡ ΡΡΠΊΠΎΠ½ΠΎΠΌΠΈΡΡ Π½Π° ΠΏΡΠΎΠ²Π΅Π΄Π΅Π½ΠΈΠΈ ΠΊΡΠΎΠ²Π΅Π»ΡΠ½ΡΡ ΡΠ°Π±ΠΎΡ. ΠΡΠ»ΠΈ ΡΠ΅ΠΏΠ»ΠΎΠΈΠ·ΠΎΠ»ΡΡΠΈΡ Π²ΡΠΏΠΎΠ»Π½ΡΠ΅ΡΡΡ ΡΠΏΠ»ΠΎΡΠ½ΡΠΌ ΡΠ»ΠΎΠ΅ΠΌ Π½Π° Π²ΡΠ΅ΠΌ ΠΏΠΎΡΠΎΠ»ΠΊΠ΅, ΡΠΎ ΠΈ ΠΏΠ΅ΡΠ΅ΠΊΡΡΡΠΈΠ΅ ΠΌΠΎΠΆΠ½ΠΎ Π±ΡΠ΄Π΅Ρ Π½Π΅ ΡΠ»ΠΈΡΠΊΠΎΠΌ ΡΠΈΠ»ΡΠ½ΠΎ ΡΡΠ΅ΠΏΠ»ΡΡΡ.
ΠΠ°ΠΊ Π²ΠΎΠ·Π²Π΅ΡΡΠΈ Π΄ΠΎΠΌ Ρ Π³Π°ΡΠ°ΠΆΠΎΠΌ ΠΈ ΠΌΠ°Π½ΡΠ°ΡΠ΄ΠΎΠΉ
ΠΠ»Ρ ΠΏΡΠΈΠΌΠ΅ΡΠ° ΡΠ°ΡΡΠΌΠ°ΡΡΠΈΠ²Π°Π΅ΡΡΡ ΡΡΡΠΎΠΈΡΠ΅Π»ΡΡΡΠ²ΠΎ ΠΈ ΠΏΠ»Π°Π½ΠΈΡΠΎΠ²ΠΊΠ° Π΄ΠΎΠΌΠ° Ρ Π³Π°ΡΠ°ΠΆΠΎΠΌ ΠΈ ΠΆΠΈΠ»ΠΎΠΉ ΠΌΠ°Π½ΡΠ°ΡΠ΄ΠΎΠΉ ΡΠ²ΠΎΠΈΠΌΠΈ ΡΡΠΊΠ°ΠΌΠΈ ΠΈΠ· ΠΏΠ΅Π½ΠΎΠ±Π»ΠΎΠΊΠΎΠ².
Π’ΠΈΠΏΠΎΠ²Π°Ρ ΡΠ΅Ρ Π½ΠΎΠ»ΠΎΠ³ΠΈΡ ΡΡΡΠΎΠΈΡΠ΅Π»ΡΡΡΠ²Π° Π²ΠΊΠ»ΡΡΠ°Π΅Ρ Π² ΡΠ΅Π±Ρ ΠΏΡΠΎΠ²Π΅Π΄Π΅Π½ΠΈΠ΅ ΡΠ°ΠΊΠΈΡ ΡΠ°Π±ΠΎΡ:
- Π£ΡΡΡΠΎΠΉΡΡΠ²ΠΎ ΡΡΠ½Π΄Π°ΠΌΠ΅Π½ΡΠ°: ΡΠΎΠΎΡΡΠΆΠ΅Π½ΠΈΠ΅ ΡΠΎΠΊΠΎΠ»Ρ ΠΈΠ»ΠΈ ΠΏΠΎΠ΄Π²Π°Π»Π°.
- ΠΠΎΠ·Π²Π΅Π΄Π΅Π½ΠΈΠ΅ ΡΡΠ΅Π½.
- ΠΠ±ΡΡΡΡΠΎΠΉΡΡΠ²ΠΎ ΠΌΠ°Π½ΡΠ°ΡΠ΄Ρ.
- Π‘ΡΡΠΎΠΈΡΠ΅Π»ΡΡΡΠ²ΠΎ ΠΊΡΠΎΠ²Π»ΠΈ.
- ΠΡΠΏΠΎΠ»Π½Π΅Π½ΠΈΠ΅ ΠΎΡΠ΄Π΅Π»ΠΎΡΠ½ΡΡ ΡΠ°Π±ΠΎΡ.
ΠΠ»Ρ ΡΡΠ°Π²Π½ΠΈΡΠ΅Π»ΡΠ½ΠΎ Π»Π΅Π³ΠΊΠΎΠ³ΠΎ ΡΡΡΠΎΠ΅Π½ΠΈΡ ΠΈΠ· ΠΏΠ΅Π½ΠΎΠ±Π΅ΡΠΎΠ½Π° ΠΌΠΎΠΆΠ½ΠΎ ΡΡΡΡΠ°ΠΈΠ²Π°ΡΡ Π»Π΅Π½ΡΠΎΡΠ½ΡΠΉ ΡΡΠ½Π΄Π°ΠΌΠ΅Π½Ρ.
ΠΠ»Ρ ΡΡΠΎΠ³ΠΎ:
- ΠΠ»Π°Π½ΠΈΡΡΠ΅ΡΡΡ ΠΈ ΡΠ°Π·ΠΌΠ΅ΡΠ°Π΅ΡΡΡ ΡΡΠ°ΡΡΠΎΠΊ.
- ΠΡΠΊΠ°ΠΏΡΠ²Π°Π΅ΡΡΡ ΡΡΠ°Π½ΡΠ΅Ρ ΠΏΠΎ ΡΠ°Π·ΠΌΠ΅ΡΠ°ΠΌ, ΡΠ°Π²Π½ΡΠΌ Π³Π°Π±Π°ΡΠΈΡΠ°ΠΌ Π±Π»ΠΎΠΊΠΎΠ².
- ΠΠ±ΡΡΡΠ°ΠΈΠ²Π°Π΅ΡΡΡ ΠΎΠΏΠ°Π»ΡΠ±ΠΊΠ°, Π΄Π»Ρ Π·Π°Π»ΠΈΠ²ΠΊΠΈ ΠΎΡΠ½ΠΎΠ²Π°Π½ΠΈΡ.
- Π£ΠΊΠ»Π°Π΄ΡΠ²Π°Π΅ΡΡΡ ΠΈΠ· ΠΏΠ΅ΡΠΊΠ° ΠΈ ΡΠ΅Π±Π΅Π½ΠΊΠΈ ΠΏΠΎΠ΄ΡΡΠΊΠ° ΡΠ»ΠΎΠ΅ΠΌ 20-30 ΡΠ°Π½ΡΠΈΠΌΠ΅ΡΡΠΎΠ², ΡΡΠΎ Π·Π°Π²ΠΈΡΠΈΡ ΠΎΡ Π³Π»ΡΠ±ΠΈΠ½Ρ ΠΏΡΠΎΠΌΠ΅ΡΠ·Π°Π½ΠΈΡ Π·Π΅ΠΌΠ»ΠΈ ΠΈ ΡΠ°Π·ΠΌΠ΅ΡΠΎΠ² ΡΡΠ½Π΄Π°ΠΌΠ΅Π½ΡΠ°.
- Π£ΠΊΠ»Π°Π΄ΡΠ²Π°Π΅ΡΡΡ Π³ΠΈΠ΄ΡΠΎΠΈΠ·ΠΎΠ»ΡΡΠΈΠΎΠ½Π½ΡΠΉ ΡΠ»ΠΎΠΉ.
- ΠΠ΅ΡΠ΅Π΄ Π·Π°Π»ΠΈΠ²ΠΊΠΎΠΉ ΡΡΠ½Π΄Π°ΠΌΠ΅Π½ΡΠ° ΠΏΠΎΠ΄Π³ΠΎΡΠ°Π²Π»ΠΈΠ²Π°Π΅ΡΡΡ Π°ΡΠΌΠ°ΡΡΡΠ°, ΡΡΠΎΠ±Ρ ΠΏΡΠΈΠ΄Π°ΡΡ ΠΊΠΎΠ½ΡΡΡΡΠΊΡΠΈΠΈ Π±ΠΎΠ»ΡΡΡΡ ΠΆΠ΅ΡΡΠΊΠΎΡΡΡ.
- ΠΠΎ ΡΠ³Π»Π°ΠΌ ΡΡΡΠΎΠ΅Π½ΠΈΡ Π΄Π΅Π»Π°Π΅ΡΡΡ ΠΎΠ±Π²ΡΠ·ΠΊΠ°, Π° Π·Π°ΡΠ΅ΠΌ ΠΏΡΠΎΠ²ΠΎΠ»ΠΎΠΊΠ° ΠΏΠΎ Π²ΡΠ΅ΠΌΡ ΠΏΠ΅ΡΠΈΠΌΠ΅ΡΡΡ Π·Π΄Π°Π½ΠΈΡ ΡΠ²Π°ΡΠΈΠ²Π°Π΅ΡΡΡ ΠΌΠ΅ΠΆΠ΄Ρ ΡΠΎΠ±ΠΎΠΉ.
- ΠΠ°Π»ΠΈΠ²Π°Π΅ΡΡΡ Π³ΠΎΡΠΎΠ²ΡΠΉ ΠΊΠ°ΡΠΊΠ°Ρ ΡΠ°ΡΡΠ²ΠΎΡΠΎΠΌ.
- Π‘ΠΌΠ΅ΡΡ ΠΎΡΡΠ°Π΅ΡΡΡ Π΄Π»Ρ Π·Π°ΡΡΡΠ²Π°Π½ΠΈΡ ΠΏΡΠΈΠΌΠ΅ΡΠ½ΠΎ Π½Π° 10 Π΄Π½Π΅ΠΉ, ΡΡΠΎ Π·Π°Π²ΠΈΡΠΈΡ ΠΎΡ ΡΠ΅Π·ΠΎΠ½Π° ΠΈ ΠΎΡΠΎΠ±Π΅Π½Π½ΠΎΡΡΠ΅ΠΉ ΠΊΠ»ΠΈΠΌΠ°ΡΠ° ΠΊΠΎΠ½ΠΊΡΠ΅ΡΠ½ΠΎΠ³ΠΎ ΡΠ΅Π³ΠΈΠΎΠ½Π°.
Π‘ΡΠ΅Π½Ρ ΠΌΠΎΠ³ΡΡ Π²ΠΎΠ·Π²ΠΎΠ΄ΠΈΡΡΡΡ ΠΈΠ· Π±Π»ΠΎΠΊΠΎΠ² Π³Π°Π·ΠΎΠ±Π΅ΡΠΎΠ½Π°, ΠΏΠ΅Π½ΠΎΠ±Π΅ΡΠΎΠ½Π°, Π±Π΅ΡΠΎΠ½Π½ΡΡ Π±Π»ΠΎΠΊΠΎΠ², ΠΈΡΠΏΠΎΠ»ΡΠ·ΠΎΠ²Π°ΡΡΡΡ Π΄Π΅ΡΠ΅Π²ΡΠ½Π½ΡΠΉ ΡΡΡΠ±, Π½ΠΎ Π² ΡΡΠΎΠΌ ΡΠ»ΡΡΠ°Π΅ ΡΠ²Π΅Π»ΠΈΡΠΈΠ²Π°Π΅ΡΡΡ ΠΏΠΎΠΆΠ°ΡΠΎΠ±Π΅Π·ΠΎΠΏΠ°ΡΠ½ΠΎΡΡΡ.
ΠΠ½ΡΡΡΡΠΊΡΠΈΡ ΠΏΠΎ ΠΌΠΎΠ½ΡΠ°ΠΆΡ ΡΡΠ΅Π½:
- ΠΠΈΠ΄ΡΠΎΠΈΠ·ΠΎΠ»ΠΈΡΡΠ΅ΡΡΡ ΠΎΡΠ½ΠΎΠ²Π°Π½ΠΈΠ΅ ΠΈΠ»ΠΈ ΠΌΠ΅ΡΡΠΎ ΡΡΡΠΊΠΎΠ²ΠΊΠΈ ΡΡΠ½Π΄Π°ΠΌΠ΅Π½ΡΠ° ΠΈ ΡΡΠ΅Π½.

Π£ΡΡΡΠΎΠΉΡΡΠ²ΠΎ Π³ΠΈΠ΄ΡΠΎΠΈΠ·ΠΎΠ»ΡΡΠΈΠΈ
- ΠΠ΅ΡΠ²ΡΠΉ ΡΠ»ΠΎΠΉ ΡΠΎΠΎΡΡΠΆΠ°Π΅ΡΡΡ ΠΈΠ· ΠΎΡΠΈΠ»ΠΈΠ½Π΄ΡΠΎΠ²Π°Π½Π½ΠΎΠ³ΠΎ Π±ΡΡΡΠ°.
Π‘ΠΎΠ²Π΅Ρ: Π’Π°ΠΊΡΡ ΡΠ΅Ρ Π½ΠΎΠ»ΠΎΠ³ΠΈΡ ΡΠ»Π΅Π΄ΡΠ΅Ρ ΠΈΡΠΏΠΎΠ»ΡΠ·ΠΎΠ²Π°ΡΡ ΠΏΡΠΈ ΡΠΎΠΎΡΡΠΆΠ΅Π½ΠΈΠΈ ΠΊΠ°ΠΌΠ΅Π½Π½ΡΡ Π΄ΠΎΠΌΠΎΠ² ΠΈΠ»ΠΈ Π½Π΅Π±ΠΎΠ»ΡΡΠΈΡ ΠΊΠΈΡΠΏΠΈΡΠ½ΡΡ Π·Π΄Π°Π½ΠΈΠΉ Ρ Π±Π°Π»ΠΊΠΎΠ½ΠΎΠΌ ΠΈΠ»ΠΈ Π²Π΅ΡΠ°Π½Π΄ΠΎΠΉ.
- ΠΠΎΠ²Π΅ΡΡ Π±ΡΡΡΠ° ΠΌΠΎΠ½ΡΠΈΡΡΡΡΡΡ ΡΡΠΎΠΉΠΊΠΈ ΠΈ Π΄ΡΡΠ³ΠΈΠ΅ ΡΠ»Π΅ΠΌΠ΅Π½ΡΡ Π΄Π»Ρ ΠΆΠ΅ΡΡΠΊΠΎΡΡΠΈ ΠΊΠΎΠ½ΡΡΡΡΠΊΡΠΈΠΈ. ΠΠ½ΠΈ ΡΠ°ΡΠΏΠΎΠ»Π°Π³Π°ΡΡΡΡ ΡΡΡΠΎΠ³ΠΎ ΠΊ ΡΡΠ½Π΄Π°ΠΌΠ΅Π½ΡΡ ΠΏΠΎΠ΄ ΠΏΡΡΠΌΡΠΌ ΡΠ³Π»ΠΎΠΌ.
- Π£ΡΡΠ°Π½Π°Π²Π»ΠΈΠ²Π°ΡΡΡΡ Π΄ΠΎΠΏΠΎΠ»Π½ΠΈΡΠ΅Π»ΡΠ½ΡΠ΅ ΡΠ»Π΅ΠΌΠ΅Π½ΡΡ Π΄Π»Ρ ΠΏΡΠΎΡΠ½ΠΎΡΡΠΈ.
- Π‘ΡΠ°Π²ΡΡΡΡ Π±Π΅ΡΠΎΠ½Π½ΡΠ΅ Π±Π»ΠΎΠΊΠΈ.
- ΠΡΠΏΠΎΠ»Π½ΡΠ΅ΡΡΡ ΠΎΡΠ΄Π΅Π»ΠΊΠ° ΡΡΠ΅Π½. Π€Π°ΡΠ°Π΄Ρ ΠΌΠΎΠΆΠ½ΠΎ ΠΏΠΎΠΊΡΡΡΡ ΠΊΠ»ΠΈΠ½ΠΊΠ΅ΡΠ½ΠΎΠΉ ΠΏΠ»ΠΈΡΠΊΠΎΠΉ, ΠΈΠΌΠ΅ΡΡΠ΅ΠΉ ΠΏΡΠ΅ΠΊΡΠ°ΡΠ½ΡΠ΅ ΠΏΠΎΠΊΠ°Π·Π°ΡΠ΅Π»ΠΈ ΡΡΠΎΠΉΠΊΠΎΡΡΠΈ ΠΊ Π²Π½Π΅ΡΠ½ΠΈΠΌ Π°Π³ΡΠ΅ΡΡΠΈΠ²Π½ΡΠΌ ΡΠ°ΠΊΡΠΎΡΠ°ΠΌ ΠΈ Π»Π΅Π³ΠΊΠΎ ΠΏΠΎΠ΄Π΄Π°ΡΡΠ΅ΠΉΡΡ ΠΌΠΎΠΉΠΊΠ΅.
ΠΡΠΈ Π²ΠΎΠ·Π²Π΅Π΄Π΅Π½ΠΈΠΈ ΠΊΡΡΡΠΈ Π½Π΅ΠΎΠ±Ρ ΠΎΠ΄ΠΈΠΌΠΎ:
- Π Π°Π·ΡΠ°Π±ΠΎΡΠ°ΡΡ ΡΠ΅ΡΡΠ΅ΠΆΠΈ, Ρ ΡΡΠ΅ΡΠΎΠΌ Π½ΡΠΆΠ½ΠΎΠΉ Π²ΡΡΠΎΡΡ ΠΏΠΎΡΠΎΠ»ΠΊΠ° ΡΠΏΠ°Π»ΡΠ½ΡΡ ΠΊΠΎΠΌΠ½Π°Ρ ΠΈΠ»ΠΈ ΡΠ΅ΡΡΠ°ΡΡ ΠΈ Π΄ΡΡΠ³ΠΈΡ ΠΎΡΠΎΠ±Π΅Π½Π½ΠΎΡΡΠ΅ΠΉ ΠΏΠΎΠΌΠ΅ΡΠ΅Π½ΠΈΠΉ.
- ΠΠ°ΡΠΊΠ°Ρ ΠΊΡΠΎΠ²Π»ΠΈ ΡΠΎΠΎΡΡΠΆΠ°Π΅ΡΡΡ Ρ ΠΏΠΎΠΌΠΎΡΡΡ ΡΡΡΠΎΠΏΠΈΠ»ΡΠ½ΠΎΠΉ ΠΊΠΎΠ½ΡΡΡΡΠΊΡΠΈΠΈ, ΡΠΎΡΡΠΎΡΡΠ΅ΠΉ ΠΈΠ· Π½Π°ΠΊΠ»ΠΎΠ½Π½ΡΡ Π±Π°Π»ΠΎΠΊ, ΠΊΠΎΡΠΎΡΡΠ΅ ΠΎΠΏΠΈΡΠ°ΡΡΡΡ Π½Π° Π½Π°ΡΡΠΆΠ½ΡΡ ΡΠ°ΡΡΡ ΡΡΠ΅Π½Ρ ΠΈ Π½Π΅ΡΡΡΡΡ Π±Π°Π»ΠΊΡ, ΡΠ°ΡΠΏΠΎΠ»ΠΎΠΆΠ΅Π½Π½ΡΡ Π² ΡΠ΅Π½ΡΡΠ΅ ΠΏΠΎΡΡΡΠΎΠΉΠΊΠΈ.
- Π£ΠΊΠ»Π°Π΄ΡΠ²Π°ΡΡΡΡ Π½ΠΈΠΆΠ½ΠΈΠ΅ ΡΡΡΠΎΠΏΠΈΠ»ΡΠ½ΡΠ΅ Π΄ΠΎΡΠΊΠΈ, ΠΎΠ½ΠΈ Π±ΡΠ΄ΡΡ ΡΠ²Π»ΡΡΡΡΡ ΠΏΠ΅ΡΠ΅ΠΊΡΡΡΠΈΠ΅ΠΌ ΠΌΠ΅ΠΆΠ΄Ρ ΠΊΡΡΡΠ΅ΠΉ ΠΈ ΠΏΠ΅ΡΠ²ΡΠΌ ΡΡΠ°ΠΆΠΎΠΌ.
Π‘ΠΎΠ²Π΅Ρ: ΠΠ»Ρ ΡΠ²Π΅Π»ΠΈΡΠ΅Π½ΠΈΡ Π½Π°Π΄Π΅ΠΆΠ½ΠΎΡΡΠΈ ΠΊΠΎΠ½ΡΡΡΡΠΊΡΠΈΠΈ Π½Π° ΡΡΠ΅Π½Π΅ Π½Π΅ΠΎΠ±Ρ ΠΎΠ΄ΠΈΠΌΠΎ ΡΡΡΡΠΎΠΈΡΡ Π΄ΠΎΠΏΠΎΠ»Π½ΠΈΡΠ΅Π»ΡΠ½ΡΠΉ Π°ΡΠΌΠΈΡΡΡΡΠΈΠΉ ΠΏΠΎΡΡ.
- ΠΡΠΏΠΎΠ»Π½ΡΠ΅ΡΡΡ ΠΏΠΎΠΊΡΡΡΠΈΠ΅ ΠΏΠΎ ΡΠ²ΠΎΠ΅ΠΌΡ ΡΡΠΌΠΎΡΡΠ΅Π½ΠΈΡ.
- ΠΠΎΡΠ»Π΅ ΠΎΠΊΠΎΠ½ΡΠ°Π½ΠΈΡ Π²ΡΠ΅Ρ ΡΡΡΠΎΠΈΡΠ΅Π»ΡΠ½ΡΡ ΡΠ°Π±ΠΎΡ ΡΡΡΠ°Π½Π°Π²Π»ΠΈΠ²Π°ΡΡΡΡ Π΄Π²Π΅ΡΠΈ, Π²ΠΎΡΠΎΡΠ° Π΄Π»Ρ Π³Π°ΡΠ°ΠΆΠ°.
ΠΠ°ΠΊΠΎΠΉ ΠΏΡΠΎΠ΅ΠΊΡ Π΄ΠΎΠΌΠ° Ρ Π³Π°ΡΠ°ΠΆΠΎΠΌ ΠΈ ΠΌΠ°Π½ΡΠ°ΡΠ΄ΠΎΠΉ Π²ΡΠ±ΡΠ°ΡΡ Π΄Π»Ρ ΡΠ²ΠΎΠ΅Π³ΠΎ ΡΡΠ°ΡΡΠΊΠ°, ΠΊΠ°ΠΊ ΠΏΡΠ°Π²ΠΈΠ»ΡΠ½ΠΎ Π²ΡΠΏΠΎΠ»Π½ΠΈΡΡ Π²ΡΠ΅ ΡΡΡΠΎΠΈΡΠ΅Π»ΡΠ½ΡΠ΅ ΡΡΠ°ΠΏΡ ΠΏΠΎΠΊΠ°ΠΆΠ΅Ρ Π²ΠΈΠ΄Π΅ΠΎ.
1pogarazham.ru
ΠΡΠΎΠ΅ΠΊΡΡ ΠΎΠ΄Π½ΠΎΡΡΠ°ΠΆΠ½ΡΡ ΠΈ Π΄Π²ΡΡ ΡΡΠ°ΠΆΠ½ΡΡ Π΄ΠΎΠΌΠΎΠ² Ρ Π³Π°ΡΠ°ΠΆΠΎΠΌ Ρ ΠΌΠ°Π½ΡΠ°ΡΠ΄ΠΎΠΉ ΠΈ Π±Π΅Π· Π½Π΅Π΅
ΠΠΎΠΏΡΠ»ΡΡΠ½ΠΎΡΡΡ ΠΌΠ°Π»ΠΎΡΡΠ°ΠΆΠ½ΠΎΠ³ΠΎ ΠΆΠΈΠ»ΡΡ, ΡΠ°ΡΠΏΠΎΠ»Π°Π³Π°ΡΡΠ΅Π³ΠΎΡΡ Π² ΠΏΡΠΈΠ³ΠΎΡΠΎΠ΄Π½ΡΡ ΠΏΠΎΡΡΠ»ΠΊΠ°Ρ , Π²ΠΎΠ·ΡΠ°ΡΡΠ°Π΅Ρ Ρ ΠΊΠ°ΠΆΠ΄ΡΠΌ Π³ΠΎΠ΄ΠΎΠΌ. ΠΠ°ΡΡΡΠΎΠΉΠΊΠ° ΡΠ°ΠΊΠΈΡ ΠΏΠΎΡΠ΅Π»Π΅Π½ΠΈΠΉ Π²Π΅Π΄ΡΡΡΡ ΠΈ ΡΡΡΠΎΠΈΡΠ΅Π»ΡΠ½ΡΠΌΠΈ ΠΎΡΠ³Π°Π½ΠΈΠ·Π°ΡΠΈΡΠΌΠΈ, ΠΈ Π² ΠΈΠ½Π΄ΠΈΠ²ΠΈΠ΄ΡΠ°Π»ΡΠ½ΠΎΠΌ ΠΏΠΎΡΡΠ΄ΠΊΠ΅. ΠΠΎΡΠΎΠ²ΡΠΉ ΠΈΠ»ΠΈ ΠΎΡΠΈΠ³ΠΈΠ½Π°Π»ΡΠ½ΡΠΉ ΠΏΡΠΎΠ΅ΠΊΡ Π΄ΠΎΠΌΠ° Ρ Π³Π°ΡΠ°ΠΆΠΎΠΌ ΠΏΠΎ ΠΌΠ΅ΡΠ΅ ΡΠ΅Π°Π»ΠΈΠ·Π°ΡΠΈΠΈ ΠΏΠΎΠΌΠΎΠΆΠ΅Ρ Π² ΡΠ΅ΡΠ΅Π½ΠΈΠΈ ΡΡΠ°Π·Ρ ΠΊΠ°ΠΊ ΠΌΠΈΠ½ΠΈΠΌΡΠΌ Π΄Π²ΡΡ ΠΏΡΠΎΠ±Π»Π΅ΠΌ. ΠΠ°ΡΡΠ΄Ρ Ρ Π±Π»Π°Π³ΠΎΡΡΡΡΠΎΠ΅Π½Π½ΡΠΌ ΠΆΠΈΠ»ΡΡΠΌ Π²Π»Π°Π΄Π΅Π»Π΅Ρ ΠΏΠΎΠ»ΡΡΠ°Π΅Ρ ΠΏΠΎΠΌΠ΅ΡΠ΅Π½ΠΈΠ΅ Π΄Π»Ρ ΡΡΠ°Π½ΡΠΏΠΎΡΡΠ½ΠΎΠ³ΠΎ ΡΡΠ΅Π΄ΡΡΠ²Π°.

ΠΠ΄Π΅Ρ ΠΎΠ±ΡΠ΅Π΄ΠΈΠ½Π΅Π½ΠΈΡ Π΄ΠΎΠΌΠ° ΠΈ Π³Π°ΡΠ°ΠΆΠ° Π²Π΅ΡΡΠΌΠ° ΡΠ΄Π°ΡΠ½Π°Ρ ΠΈ ΠΏΠΎΠ·Π²ΠΎΠ»ΡΠ΅Ρ ΠΈΡΠΏΠΎΠ»ΡΠ·ΠΎΠ²Π°ΡΡ Π·Π΅ΠΌΠ΅Π»ΡΠ½ΡΠΉ ΡΡΠ°ΡΡΠΎΠΊ
Π½Π°ΠΈΠ»ΡΡΡΠΈΠΌ ΠΎΠ±ΡΠ°Π·ΠΎΠΌ. ΠΡΡΡΠΎΠ΅Π½Π½ΠΎΠ΅ ΡΠ΅Ρ Π½ΠΈΡΠ΅ΡΠΊΠΎΠ΅ ΠΏΠΎΠΌΠ΅ΡΠ΅Π½ΠΈΠ΅ ΠΈΠΌΠ΅Π΅Ρ ΡΡΠ΄ ΠΏΡΠ΅ΠΈΠΌΡΡΠ΅ΡΡΠ² ΠΏΠ΅ΡΠ΅Π΄ ΠΎΡΠ΄Π΅Π»ΡΠ½ΠΎ ΡΡΠΎΡΡΠΈΠΌ ΡΠΎΠΎΡΡΠΆΠ΅Π½ΠΈΠ΅ΠΌ. ΠΠΎ-ΠΏΠ΅ΡΠ²ΡΡ , Π·Π°ΡΡΠ°ΡΡ Π½Π° Π΅Π³ΠΎ ΡΡΡΠΎΠΈΡΠ΅Π»ΡΡΡΠ²ΠΎ Π·Π½Π°ΡΠΈΡΠ΅Π»ΡΠ½ΠΎ ΠΌΠ΅Π½ΡΡΠ΅. ΠΠΎ-Π²ΡΠΎΡΡΡ , Π³Π°ΡΠ°ΠΆ, ΡΠ²Π»ΡΡΡΠΈΠΉΡΡ ΡΠ°ΡΡΡΡ Π΄ΠΎΠΌΠ°, ΡΠ΄ΠΎΠ±Π΅Π½ Π² ΠΏΠ»Π°Π½Π΅ ΠΏΠΎΠ²ΡΠ΅Π΄Π½Π΅Π²Π½ΠΎΠ³ΠΎ ΠΈΡΠΏΠΎΠ»ΡΠ·ΠΎΠ²Π°Π½ΠΈΡ ΠΎΡΠΎΠ±Π΅Π½Π½ΠΎ Π² Ρ ΠΎΠ»ΠΎΠ΄Π½ΠΎΠ΅ Π²ΡΠ΅ΠΌΡ Π³ΠΎΠ΄Π°. ΠΠ΅Ρ Π½Π΅ΠΎΠ±Ρ ΠΎΠ΄ΠΈΠΌΠΎΡΡΠΈ Π²ΡΡ ΠΎΠ΄ΠΈΡΡ Π½Π° ΡΠ»ΠΈΡΡ Π΄Π»Ρ ΡΠΎΠ³ΠΎ, ΡΡΠΎΠ±Ρ ΠΏΠΎΠΏΠ°ΡΡΡ ΠΊ Π°Π²ΡΠΎΠΌΠΎΠ±ΠΈΠ»Ρ. ΠΠ΅ΡΠ½ΡΡΡΡΡ ΠΊ ΠΎΠ³Π»Π°Π²Π»Π΅Π½ΠΈΡΠ‘ΠΎΠ΄Π΅ΡΠΆΠ°Π½ΠΈΠ΅ ΠΌΠ°ΡΠ΅ΡΠΈΠ°Π»Π°
ΠΠ±Π·ΠΎΡ ΠΏΡΠΎΠ΅ΠΊΡΠΎΠ² ΠΆΠΈΠ»ΡΡ Π΄ΠΎΠΌΠΎΠ² ΡΠΎ Π²ΡΡΡΠΎΠ΅Π½Π½ΡΠΌ Π³Π°ΡΠ°ΠΆΠΎΠΌ: Π΄ΠΎΡΡΠΎΠΈΠ½ΡΡΠ²Π° ΠΈ ΠΎΡΠΎΠ±Π΅Π½Π½ΠΎΡΡΠΈ
Π Π°Π·Π½ΠΎΠΎΠ±ΡΠ°Π·Π½ΡΠ΅ ΠΏΡΠΎΠ΅ΠΊΡΡ Π΄ΠΎΠΌΠΎΠ² Ρ ΠΌΠ°Π½ΡΠ°ΡΠ΄ΠΎΠΉ ΠΈ Π³Π°ΡΠ°ΠΆΠΎΠΌ ΠΏΡΠ΅Π΄Π»Π°Π³Π°ΡΡΡΡ Π°ΡΡ ΠΈΡΠ΅ΠΊΡΡΡΠ½ΡΠΌΠΈ Π±ΡΡΠΎ ΠΈ Π΄ΡΡΠ³ΠΈΠΌΠΈ ΡΠΏΠ΅ΡΠΈΠ°Π»ΠΈΠ·ΠΈΡΠΎΠ²Π°Π½Π½ΡΠΌΠΈ ΠΎΡΠ³Π°Π½ΠΈΠ·Π°ΡΠΈΡΠΌΠΈ. ΠΡΠ½ΠΎΠ²Π½ΠΎΠ΅ Π΄ΠΎΡΡΠΎΠΈΠ½ΡΡΠ²ΠΎ ΡΠ°ΠΊΠΎΠ³ΠΎ ΠΆΠΈΠ»ΡΡ ΡΠΎΡΡΠΎΠΈΡ Π² Π½Π°ΠΈΠ±ΠΎΠ»Π΅Π΅ ΠΏΠΎΠ»Π½ΠΎΠΌ ΠΈΡΠΏΠΎΠ»ΡΠ·ΠΎΠ²Π°Π½ΠΈΠΈ Π²ΡΠ΅Π³ΠΎ Π²Π½ΡΡΡΠ΅Π½Π½Π΅Π³ΠΎ ΠΏΡΠΎΡΡΡΠ°Π½ΡΡΠ²Π° ΡΡΡΠΎΠ΅Π½ΠΈΡ. ΠΡΠΈ ΡΡΠ°Π²Π½ΠΈΡΠ΅Π»ΡΠ½ΠΎ Π½Π΅Π±ΠΎΠ»ΡΡΠΈΡ Π½Π°ΡΡΠΆΠ½ΡΡ ΡΠ°Π·ΠΌΠ΅ΡΠ°Ρ Π² Π΄ΠΎΠΌΠ°Ρ ΡΠ°ΠΊΠΎΠΉ ΠΊΠΎΠΌΠΏΠΎΠ½ΠΎΠ²ΠΊΠΈ Π΅ΡΡΡ Π²ΡΠ΅ Π½Π΅ΠΎΠ±Ρ ΠΎΠ΄ΠΈΠΌΠΎΠ΅. ΠΠ°ΡΠΈΠ°Π½ΡΠΎΠ² ΡΠ°Π·ΠΌΠ΅ΡΠ΅Π½ΠΈΡ ΠΆΠΈΠ»ΡΡ ΠΈ ΡΠ»ΡΠΆΠ΅Π±Π½ΡΡ ΠΏΠΎΠΌΠ΅ΡΠ΅Π½ΠΈΠΉ Π²Π΅Π»ΠΈΠΊΠΎΠ΅ ΠΌΠ½ΠΎΠΆΠ΅ΡΡΠ²ΠΎ.
ΠΡΠΎΠ΅ΠΊΡ Π΄ΠΎΠΌΠ° Ρ Π³Π°ΡΠ°ΠΆΠΎΠΌ ΠΈ ΠΌΠ°Π½ΡΠ°ΡΠ΄ΠΎΠΉ Π² ΡΡΠΈΠ»Π΅ ΡΠ°Π»Π΅ΠΠ°ΡΠ°ΠΆΠ½ΡΠΉ Π±ΠΎΠΊΡ ΠΌΠΎΠΆΠ΅Ρ ΡΠ°Π·ΠΌΠ΅ΡΠ°ΡΡΡΡ Π² ΠΏΡΠΈΡΡΡΠΎΠΉΠΊΠ΅ ΠΊ Π΄ΠΎΠΌΡ, ΡΠ°ΡΠΏΠΎΠ»ΠΎΠΆΠ΅Π½Π½ΠΎΠΉ Π²Π΄ΠΎΠ»Ρ ΠΎΠ΄Π½ΠΎΠΉ ΠΈΠ· ΡΡΠ΅Π½ ΠΊΠΎΡΡΠ΅Π΄ΠΆΠ° ΠΏΠΎΠ΄ ΠΎΠ΄Π½ΠΎΠΉ ΠΊΡΡΡΠ΅ΠΉ Ρ Π½ΠΈΠΌ. ΠΡΡΠ³ΠΎΠΉ Π²Π°ΡΠΈΠ°Π½Ρ: ΡΠ΅Ρ Π½ΠΈΡΠ΅ΡΠΊΠΎΠ΅ ΠΏΠΎΠΌΠ΅ΡΠ΅Π½ΠΈΠ΅ ΠΌΠΎΠΆΠ΅Ρ ΡΠ»ΡΠΆΠΈΡΡ ΠΎΡΠ½ΠΎΠ²Π°Π½ΠΈΠ΅ΠΌ Π΄Π»Ρ ΠΆΠΈΠ»ΡΡ ΠΊΠΎΠΌΠ½Π°Ρ ΠΌΠ°Π½ΡΠ°ΡΠ΄Π½ΠΎΠ³ΠΎ ΡΡΠ°ΠΆΠ°. ΠΠ±ΡΠΈΠΌ Π΄Π»Ρ Π²ΡΠ΅Ρ ΠΏΠΎΠ΄ΠΎΠ±Π½ΡΡ ΠΏΡΠΎΠ΅ΠΊΡΠΎΠ² ΡΠ²Π»ΡΠ΅ΡΡΡ ΡΠ°ΡΠΏΡΠ΅Π΄Π΅Π»Π΅Π½ΠΈΠ΅ ΠΏΠΎΠΌΠ΅ΡΠ΅Π½ΠΈΠΉ ΠΏΠΎ ΡΡΠΎΠ²Π½ΡΠΌ Π² ΡΠΎΠΎΡΠ²Π΅ΡΡΡΠ²ΠΈΠΈ Ρ ΠΈΡ ΡΡΠ½ΠΊΡΠΈΡΠΌΠΈ.
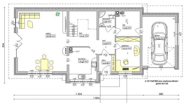
ΠΠ»Π°Π½ ΠΏΠ΅ΡΠ²ΠΎΠ³ΠΎΒ ΡΡΠ°ΠΆΠ° Π΄ΠΎΠΌΠ° Ρ Π³Π°ΡΠ°ΠΆΠΎΠΌ ΠΈ ΠΌΠ°Π½ΡΠ°ΡΠ΄ΠΎΠΉΠΠ° ΠΏΠ΅ΡΠ²ΠΎΠΌ ΡΡΠ°ΠΆΠ΅ ΠΎΠ±ΡΡΠ½ΠΎ Π½Π°Ρ ΠΎΠ΄ΠΈΡΡΡ ΠΊΡΡ Π½Ρ, ΡΡΠΎΠ»ΠΎΠ²Π°Ρ, Π³ΠΎΡΡΠΈΠ½Π°Ρ, ΡΠ°Π½ΠΈΡΠ°ΡΠ½ΡΠΉ ΡΠ·Π΅Π», Π½Π° Π²ΡΠΎΡΠΎΠΌ: ΡΠΏΠ°Π»ΡΠ½ΠΈ ΠΈ Π²Π°Π½Π½ΡΠ΅ ΠΊΠΎΠΌΠ½Π°ΡΡ.
ΠΠ»Π°Π½ ΠΌΠ°Π½ΡΠ°ΡΠ΄Π½ΠΎΠ³ΠΎ ΡΡΠ°ΠΆΠ°ΠΠ΄Π½ΠΎΡΡΠΎΠ²Π½Π΅Π²ΡΠ΅ ΠΆΠΈΠ»ΡΠ΅ ΡΡΡΠΎΠ΅Π½ΠΈΡ Ρ Π³Π°ΡΠ°ΠΆΠ½ΡΠΌΠΈ Π±ΠΎΠΊΡΠ°ΠΌΠΈ
ΠΠΎΡΠΎΠ²ΡΠ΅ ΠΏΡΠΎΠ΅ΠΊΡΡ ΠΎΠ΄Π½ΠΎΡΡΠ°ΠΆΠ½ΡΡ Π΄ΠΎΠΌΠΎΠ² Ρ Π³Π°ΡΠ°ΠΆΠΎΠΌ ΡΡΠ΅Π·Π²ΡΡΠ°ΠΉΠ½ΠΎ ΠΏΠΎΠΏΡΠ»ΡΡΠ½Ρ Ρ Π½Π°ΡΠ΅Π»Π΅Π½ΠΈΡ Π½Π°ΡΠ΅ΠΉ ΡΡΡΠ°Π½Ρ. ΠΡΠ½ΠΎΠ²Π½ΠΎΠ΅ ΠΈΡ Π΄ΠΎΡΡΠΎΠΈΠ½ΡΡΠ²ΠΎ: ΠΏΡΠΎΡΡΠΎΡΠ° ΡΠ΅Π°Π»ΠΈΠ·Π°ΡΠΈΠΈ ΠΈ ΠΊΠ°ΠΊ ΡΠ»Π΅Π΄ΡΡΠ²ΠΈΠ΅ ΠΎΡΠ½ΠΎΡΠΈΡΠ΅Π»ΡΠ½ΠΎ Π½Π΅Π²ΡΡΠΎΠΊΠ°Ρ ΡΡΠΎΠΈΠΌΠΎΡΡΡ. ΠΠ΄Π½ΠΎΡΡΠ°ΠΆΠ½ΡΠ΅ ΡΡΡΠΎΠ΅Π½ΠΈΡ ΠΈΠΌΠ΅ΡΡ ΠΌΠ΅Π½ΡΡΠΈΠΉ Π²Π΅Ρ, ΡΡΠΎ ΡΠΏΠΎΡΠΎΠ±ΡΡΠ²ΡΠ΅Ρ ΡΠ½ΠΈΠΆΠ΅Π½ΠΈΡ Π½Π°Π³ΡΡΠ·ΠΊΠΈ Π½Π° ΡΡΠ½Π΄Π°ΠΌΠ΅Π½Ρ ΠΈ Π³ΡΡΠ½Ρ. ΠΡΠΎ ΠΎΠ±ΡΡΠΎΡΡΠ΅Π»ΡΡΡΠ²ΠΎ ΠΏΠΎΠ·Π²ΠΎΠ»ΡΠ΅Ρ ΠΎΠ±Ρ ΠΎΠ΄ΠΈΡΡΡΡ ΠΎΠ±Π»Π΅Π³ΡΡΠ½Π½ΡΠΌΠΈ Π΄ΠΎ ΠΎΠΏΡΠ΅Π΄Π΅Π»ΡΠ½Π½ΠΎΠ³ΠΎ ΡΡΠΎΠ²Π½Ρ ΠΎΡΠ½ΠΎΠ²Π°Π½ΠΈΡΠΌΠΈ.
ΠΡΠΈ ΡΠ°ΡΠΏΠΎΠ»ΠΎΠΆΠ΅Π½ΠΈΠΈ Π²ΡΠ΅Ρ ΠΏΠΎΠΌΠ΅ΡΠ΅Π½ΠΈΠΉ Π½Π° ΠΎΠ΄Π½ΠΎΠΌ ΡΡΠΎΠ²Π½Π΅ ΠΎΡΠΏΠ°Π΄Π°Π΅Ρ Π½Π΅ΠΎΠ±Ρ ΠΎΠ΄ΠΈΠΌΠΎΡΡΡ Π² Π΄ΠΎΡΠΎΠ³ΠΎΡΡΠΎΡΡΠΈΡ Π»Π΅ΡΡΠ½ΠΈΡΠ½ΡΡ ΠΏΠ΅ΡΠ΅Ρ ΠΎΠ΄Π°Ρ . ΠΠ°ΠΊ ΡΠ»Π΅Π΄ΡΡΠ²ΠΈΠ΅, Π²ΡΡ ΠΏΠΎΠ»Π΅Π·Π½Π°Ρ ΠΏΠ»ΠΎΡΠ°Π΄Ρ Π΄ΠΎΠΌΠ° ΠΌΠΎΠΆΠ΅Ρ ΠΈΡΠΏΠΎΠ»ΡΠ·ΠΎΠ²Π°ΡΡΡΡ Π±ΠΎΠ»Π΅Π΅ ΡΠ°ΡΠΈΠΎΠ½Π°Π»ΡΠ½ΠΎ. Π‘Ρ Π΅ΠΌΠ° ΡΠ°Π·ΠΌΠ΅ΡΠ΅Π½ΠΈΡ ΠΏΠΎΠΌΠ΅ΡΠ΅Π½ΠΈΠΉ ΡΠ°Π·Π½ΠΎΠ³ΠΎ Π½Π°Π·Π½Π°ΡΠ΅Π½ΠΈΡ ΡΠ°Π·ΡΠ°Π±Π°ΡΡΠ²Π°Π΅ΡΡΡ ΡΠ°ΠΊΠΈΠΌ ΠΎΠ±ΡΠ°Π·ΠΎΠΌ, ΡΡΠΎΠ±Ρ ΠΌΠ΅ΠΆΠ΄Ρ ΠΆΠΈΠ»ΡΠΌΠΈ ΠΊΠΎΠΌΠ½Π°ΡΠ°ΠΌΠΈ ΠΈ Π³Π°ΡΠ°ΠΆΠΎΠΌ ΡΠ°ΡΠΏΠΎΠ»Π°Π³Π°Π»ΠΈΡΡ ΠΊΡΡ Π½ΠΈ ΠΈ ΡΠ°Π½ΡΠ·Π»Ρ. Π’Π°ΠΊΠΎΠΉ ΠΏΠΎΠ΄Ρ ΠΎΠ΄ ΡΠ²ΠΎΠ΄ΠΈΡ ΠΊ ΠΌΠΈΠ½ΠΈΠΌΡΠΌΡ Π½Π΅Π³Π°ΡΠΈΠ²Π½ΠΎΠ΅ Π²Π»ΠΈΡΠ½ΠΈΠ΅ ΠΎΡ ΡΠΎΡΠ΅Π΄ΡΡΠ²Π° Ρ Π³Π°ΡΠ°ΠΆΠ½ΡΠΌ Π±ΠΎΠΊΡΠΎΠΌ.
ΠΡΠΈΠΌΠ΅Ρ ΠΏΠ»Π°Π½ΠΈΡΠΎΠ²ΠΊΠΈ ΠΈ ΡΠ°ΡΠΏΠΎΠ»ΠΎΠΆΠ΅Π½ΠΈΡ ΠΏΠΎΠΌΠ΅ΡΠ΅Π½ΠΈΠΉ Π² ΠΎΠ΄Π½ΠΎΡΡΠ°ΠΆΠ½ΠΎΠΌ Π΄ΠΎΠΌΠ΅ Ρ Π³Π°ΡΠ°ΠΆΠΎΠΌΠΠ½ΠΎΠ³ΠΎΡΡΠΎΠ²Π½Π΅Π²ΡΠ΅ Π΄ΠΎΠΌΠ° Ρ Π³Π°ΡΠ°ΠΆΠΎΠΌ: Π²Π°ΡΠΈΠ°Π½ΡΡ ΠΈΡΠΏΠΎΠ»Π½Π΅Π½ΠΈΡ
ΠΠ³ΡΠ°Π½ΠΈΡΠ΅Π½Π½ΡΠ΅ ΡΠ°Π·ΠΌΠ΅ΡΡ Π·Π΅ΠΌΠ΅Π»ΡΠ½ΡΡ ΡΡΠ°ΡΡΠΊΠΎΠ² Π½Π΅ Π²ΡΠ΅Π³Π΄Π° ΠΏΠΎΠ·Π²ΠΎΠ»ΡΡΡ ΠΏΠΎΠΌΠ΅ΡΡΠΈΡΡ ΠΆΠΈΠ»ΡΡ, ΠΏΠ»ΠΎΡΠ°Π΄Ρ ΠΊΠΎΡΠΎΡΠΎΠ³ΠΎ Π±ΡΠ»Π° Π±Ρ Π΄ΠΎΡΡΠ°ΡΠΎΡΠ½ΠΎΠΉ Π΄Π»Ρ ΠΊΠΎΠΌΡΠΎΡΡΠ½ΠΎΠ³ΠΎ ΡΠ°Π·ΠΌΠ΅ΡΠ΅Π½ΠΈΡ Π²ΡΠ΅ΠΉ ΡΠ΅ΠΌΡΠΈ. Π Π°Π·Π½ΠΎΠΎΠ±ΡΠ°Π·Π½ΡΠ΅ ΠΏΡΠΎΠ΅ΠΊΡΡ Π΄Π²ΡΡ ΡΡΠ°ΠΆΠ½ΡΡ Π΄ΠΎΠΌΠΎΠ² Ρ Π³Π°ΡΠ°ΠΆΠΎΠΌ β ΠΎΡΠ»ΠΈΡΠ½Π°Ρ Π²ΠΎΠ·ΠΌΠΎΠΆΠ½ΠΎΡΡΡ Π΄Π»Ρ ΡΠ°Π·ΡΠ΅ΡΠ΅Π½ΠΈΡ ΡΡΠΎΠΉ ΠΏΡΠΎΠ±Π»Π΅ΠΌΡ. ΠΡΠΈ ΡΠΎΡ ΡΠ°Π½Π΅Π½ΠΈΠΈ Π²Π½Π΅ΡΠ½ΠΈΡ Π³Π°Π±Π°ΡΠΈΡΠΎΠ² Π·Π΄Π°Π½ΠΈΡ Π΅Π³ΠΎ Π²Π½ΡΡΡΠ΅Π½Π½Π΅Π΅ ΠΏΡΠΎΡΡΡΠ°Π½ΡΡΠ²ΠΎ ΡΠ²Π΅Π»ΠΈΡΠΈΠ²Π°Π΅ΡΡΡ ΠΊΠ°ΠΊ ΠΌΠΈΠ½ΠΈΠΌΡΠΌ Π²Π΄Π²ΠΎΠ΅.

Π‘ΡΡΠ΅ΡΡΠ²ΡΡΡ ΡΠ°Π·Π½ΡΠ΅ ΠΊΠΎΠΌΠΏΠΎΠ½ΠΎΠ²ΠΎΡΠ½ΡΠ΅ ΡΡ Π΅ΠΌΡ ΠΌΠ½ΠΎΠ³ΠΎΡΡΠΎΠ²Π½Π΅Π²ΡΡ ΡΡΡΠΎΠ΅Π½ΠΈΠΉ. Π Π±ΠΎΠ»ΡΡΠΈΠ½ΡΡΠ²Π΅ ΡΠ²ΠΎΠ΅ΠΌ ΠΎΠ½ΠΈ ΠΊΠ°ΡΠ°ΡΡΡΡ, ΠΏΡΠ΅ΠΆΠ΄Π΅ Π²ΡΠ΅Π³ΠΎ, ΡΠ°ΡΠΏΠΎΠ»ΠΎΠΆΠ΅Π½ΠΈΡ Π³Π°ΡΠ°ΠΆΠ½ΠΎΠ³ΠΎ Π±ΠΎΠΊΡΠ°. ΠΠΎΠ³ΠΈΠΊΠ° Π΄ΠΈΠΊΡΡΠ΅Ρ Π½Π΅ΠΎΠ±Ρ ΠΎΠ΄ΠΈΠΌΠΎΡΡΡ ΡΠ°Π·ΠΌΠ΅ΡΠ΅Π½ΠΈΡ ΡΠ΅Ρ Π½ΠΈΡΠ΅ΡΠΊΠΈΡ ΠΏΠΎΠΌΠ΅ΡΠ΅Π½ΠΈΠΉ Π½Π° Π½ΠΈΠΆΠ½ΠΈΡ ΡΡΠ°ΠΆΠ°Ρ Π΄ΠΎΠΌΠΎΠ². ΠΡΡΡΠΎΠ΅Π½Π½ΡΠ΅ Π³Π°ΡΠ°ΠΆΠΈ ΠΌΠΎΠ³ΡΡ Π½Π°Ρ ΠΎΠ΄ΠΈΡΡΡΡ ΠΊΠ°ΠΊ Π½Π° ΡΡΠΎΠ²Π½Π΅ Π·Π΅ΠΌΠ»ΠΈ, ΡΠ°ΠΊ ΠΈ Π½ΠΈΠΆΠ΅ Π΅Π³ΠΎ Π² ΠΏΠΎΠ΄Π²Π°Π»ΡΠ½ΡΡ ΠΏΠΎΠΌΠ΅ΡΠ΅Π½ΠΈΡΡ . Π’Π°ΠΊΠΈΠ΅ ΠΏΡΠΎΠ΅ΠΊΡΡ ΡΡΠ΅Π·Π²ΡΡΠ°ΠΉΠ½ΠΎ ΠΏΠΎΠΏΡΠ»ΡΡΠ½Ρ Ρ Π½Π°ΡΠ΅Π»Π΅Π½ΠΈΡ, ΠΈ Π΄Π°ΡΡ Π²ΠΎΠ·ΠΌΠΎΠΆΠ½ΠΎΡΡΡ ΠΏΠΎΡΡΡΠΎΠΈΡΡ Π΄ΠΎΡΡΠΎΠΉΠ½ΠΎΠ΅ ΠΆΠΈΠ»ΡΡ Π½Π° Π½Π΅Π±ΠΎΠ»ΡΡΠΎΠΉ ΠΏΠ»ΠΎΡΠ°Π΄ΠΊΠ΅.
ΠΠ²ΡΡ ΡΡΠΎΠ²Π½Π΅Π²ΡΠ΅ Π΄ΠΎΠΌΠ° Ρ Π³Π°ΡΠ°ΠΆΠΎΠΌ Π² ΡΠΎΠΊΠΎΠ»ΡΠ½ΠΎΠΌ ΡΡΠ°ΠΆΠ΅ β ΠΎΠ΄ΠΈΠ½ ΠΈΠ· ΡΠ°ΠΌΡΡ Π²ΠΎΡΡΡΠ΅Π±ΠΎΠ²Π°Π½Π½ΡΡ Π²Π°ΡΠΈΠ°Π½ΡΠΎΠ² ΠΈΡΠΏΠΎΠ»Π½Π΅Π½ΠΈΡ.
ΠΠΎΠΊΡ ΠΈ ΡΠ»ΡΠΆΠ΅Π±Π½ΡΠ΅ ΠΏΠΎΠΌΠ΅ΡΠ΅Π½ΠΈΡ: ΠΊΠΎΡΠ΅Π»ΡΠ½Π°Ρ, ΠΊΡΡ Π½Ρ, ΡΠ°Π½ΡΠ·Π΅Π», Π° ΡΠ°ΠΊΠΆΠ΅ Π³ΠΎΡΡΠΈΠ½Π°Ρ ΡΠ»ΡΠΆΠ°Ρ ΠΎΡΠ½ΠΎΠ²Π°Π½ΠΈΠ΅ΠΌ Π΄Π»Ρ ΡΠ°ΡΠΏΠΎΠ»ΠΎΠΆΠ΅Π½Π½ΡΡ Π²ΡΡΠ΅ ΡΠΏΠ°Π»Π΅Π½, Π΄Π΅ΡΡΠΊΠΈΡ ΠΈ Π²Π°Π½Π½ΡΡ ΠΊΠΎΠΌΠ½Π°Ρ.
ΠΡΠΈΠΌΠ΅Ρ ΡΠΈΠΏΠΎΠ²ΠΎΠΉ ΠΏΠ»Π°Π½ΠΈΡΠΎΠ²ΠΊΠΈ Π΄ΠΎΠΌΠ° Ρ Π³Π°ΡΠ°ΠΆΠΎΠΌ Π² ΡΠΎΠΊΠΎΠ»ΡΠ½ΠΎΠΌ ΡΡΠ°ΠΆΠ΅ΠΠ΅ΡΠ΅ΠΌΠ΅ΡΠ΅Π½ΠΈΠ΅ Π»ΡΠ΄Π΅ΠΉ ΠΌΠ΅ΠΆΠ΄Ρ ΡΡΠΎΠ²Π½ΡΠΌΠΈ ΠΎΡΡΡΠ΅ΡΡΠ²Π»ΡΠ΅ΡΡΡ ΠΏΠΎ Π»Π΅ΡΡΠ½ΠΈΡΠ°ΠΌ. ΠΠ°ΡΠΈΠ°Π½ΡΠΎΠ² Π·Π΄Π΅ΡΡ ΠΌΠ½ΠΎΠΆΠ΅ΡΡΠ²ΠΎ: ΠΎΡ ΠΏΡΠΎΡΡΡΡ ΠΏΡΡΠΌΡΡ ΠΌΠ°ΡΡΠ΅ΠΉ, ΡΡΡΠ°Π½ΠΎΠ²Π»Π΅Π½Π½ΡΡ Π² ΠΎΠ±ΠΎΡΠΎΠ±Π»Π΅Π½Π½ΡΡ ΠΏΠΎΠΌΠ΅ΡΠ΅Π½ΠΈΡΡ , Π΄ΠΎ ΠΎΡΠΈΠ³ΠΈΠ½Π°Π»ΡΠ½ΡΡ Π²ΠΈΠ½ΡΠΎΠ²ΡΡ ΡΠΎΠΎΡΡΠΆΠ΅Π½ΠΈΠΉ.
ΠΡΡ ΠΈΡΠ΅ΠΊΡΡΡΠ½ΡΡ ΡΠ΅ΡΠ΅Π½ΠΈΠΉ, ΡΠ΅Π°Π»ΠΈΠ·ΠΎΠ²Π°Π½Π½ΡΡ Π² ΠΏΡΠΎΠ΅ΠΊΡΠ°Ρ Π΄ΠΎΠΌΠΎΠ² Ρ Π²ΡΡΠΎΠΊΠΈΠΌ ΡΠΎΠΊΠΎΠ»Π΅ΠΌ,Β ΠΌΠ½ΠΎΠΆΠ΅ΡΡΠ²ΠΎ. ΠΠ°ΠΊ Π²Π°ΡΠΈΠ°Π½Ρ: Π½Π° Π³Π°ΡΠ°ΠΆΠ½ΠΎΠΌ Π±ΠΎΠΊΡΠ΅ ΠΌΠΎΠΆΠ΅Ρ Π±ΡΡΡ ΡΠ°ΡΠΏΠΎΠ»ΠΎΠΆΠ΅Π½Π° ΠΊΡΡΡΠ°Ρ ΡΠ΅ΡΡΠ°ΡΠ°, ΠΊΠΎΡΠΎΡΠ°Ρ ΠΈΡΠΏΠΎΠ»ΡΠ·ΡΠ΅ΡΡΡ Π² ΡΡΠΏΠ»ΠΎΠ΅ Π²ΡΠ΅ΠΌΡ Π³ΠΎΠ΄Π°. ΠΡΠΊΡΡΡΡΠΉ Π°ΡΡ ΠΈΡΠ΅ΠΊΡΡΡΠ½ΡΠΉ ΡΠ»Π΅ΠΌΠ΅Π½Ρ ΠΏΡΠΈΠ΄Π°Π΅Ρ Π΄ΠΎΠΌΡ ΠΎΠΏΡΠ΅Π΄Π΅Π»ΡΠ½Π½ΡΠΉ ΡΠ°ΡΠΌ ΠΈ Π΄Π΅Π»Π°Π΅Ρ Π΅Π³ΠΎ Π»ΡΠ³ΠΊΠΈΠΌ ΠΈ Π²ΠΎΠ·Π΄ΡΡΠ½ΡΠΌ. ΠΠ»ΠΎΡΠ°Π΄ΠΊΠ° ΡΠ΅ΡΡΠ°ΡΡ ΠΈΡΠΏΠΎΠ»ΡΠ·ΡΠ΅ΡΡΡ Π² ΠΎΡΠ½ΠΎΠ²Π½ΠΎΠΌ Π΄Π»Ρ ΠΎΡΠ΄ΡΡ Π°, ΠΏΡΠΈΡΠΌΠ° ΠΏΠΈΡΠΈ ΠΈ ΡΠ°Π΅ΠΏΠΈΡΠΈΠΉ.
ΠΡΠΎΠ΅ΠΊΡ Π΄Π²ΡΡ
ΡΡΠ°ΠΆΠ½ΠΎΠ³ΠΎ Π΄ΠΎΠΌΠ° Ρ Π³Π°ΡΠ°ΠΆΠΎΠΌ ΠΈ ΡΠ΅ΡΡΠ°ΡΠΎΠΉ, ΡΠ°ΡΠΏΠΎΠ»ΠΎΠΆΠ΅Π½Π½ΠΎΠΉ Π½Π°Π΄ Π½ΠΈΠΌΠ‘ΠΏΠ΅ΡΠΈΠ°Π»ΠΈΠ·ΠΈΡΠΎΠ²Π°Π½Π½ΡΠ΅ Π±ΡΡΠΎ ΠΏΡΠ΅Π΄Π»Π°Π³Π°ΡΡ Π³ΠΎΡΠΎΠ²ΡΠ΅ ΠΏΡΠΎΠ΅ΠΊΡΡ, Π° ΡΠ°ΠΊΠΆΠ΅Β Π·Π°Π½ΠΈΠΌΠ°ΡΡΡΡ ΡΠ°Π·ΡΠ°Π±ΠΎΡΠΊΠΎΠΉ ΠΈΠ½Π΄ΠΈΠ²ΠΈΠ΄ΡΠ°Π»ΡΠ½ΡΡ ΠΏΡΠΎΠ΅ΠΊΡΠΎΠ². ΠΠ±ΡΡΠ½ΠΎ Π² Ρ ΠΎΠ΄Π΅ ΠΏΡΠ΅Π΄Π²Π°ΡΠΈΡΠ΅Π»ΡΠ½ΡΡ ΠΏΠ΅ΡΠ΅Π³ΠΎΠ²ΠΎΡΠΎΠ² ΠΊΠ»ΠΈΠ΅Π½ΡΡ ΠΏΠΎΠΊΠ°Π·ΡΠ²Π°ΡΡ ΡΠΈΠΏΠΎΠ²ΡΠ΅ ΡΠ°Π·ΡΠ°Π±ΠΎΡΠΊΠΈ, Π½Π°ΠΈΠ±ΠΎΠ»Π΅Π΅ ΠΏΠΎΠ΄Ρ ΠΎΠ΄ΡΡΠΈΠ΅ ΠΏΠΎ Ρ Π°ΡΠ°ΠΊΡΠ΅ΡΠΈΡΡΠΈΠΊΠ°ΠΌ ΠΊ ΡΡΠ΅Π±ΠΎΠ²Π°Π½ΠΈΡΠΌ Π·Π°ΠΊΠ°Π·ΡΠΈΠΊΠ°. Π£ ΡΠ΅ΡΡΡΠ·Π½ΡΡ ΠΎΡΠ³Π°Π½ΠΈΠ·Π°ΡΠΈΠΉ Π΅ΡΡΡ Π΄Π΅ΡΡΡΠΊΠΈ ΠΈ Π΄Π°ΠΆΠ΅ ΡΠΎΡΠ½ΠΈ Π³ΠΎΡΠΎΠ²ΡΡ ΠΏΡΠΎΠ΅ΠΊΡΠΎΠ², ΠΊΠΎΡΠΎΡΡΠ΅ Π΄Π»Ρ ΡΠ΄ΠΎΠ±ΡΡΠ²Π° ΡΠ²ΠΎΠ΄ΡΡΡΡ Π² ΠΊΠ°ΡΠ°Π»ΠΎΠ³ΠΈ ΠΈΠ»ΠΈ ΠΊΠΎΠ»Π»Π΅ΠΊΡΠΈΠΈ ΡΠΎ Π·Π²ΡΡΠ½ΡΠΌΠΈ Π½Π°Π·Π²Π°Π½ΠΈΡΠΌΠΈ.
Π ΠΌΠ½ΠΎΠ³ΠΎΡΡΠΎΠ²Π½Π΅Π²ΡΡ ΠΆΠΈΠ»ΡΡ ΡΡΡΠΎΠ΅Π½ΠΈΡΡ Π³Π°ΡΠ°ΠΆΠ½ΡΠ΅ Π±ΠΎΠΊΡΡ ΠΌΠΎΠ³ΡΡ ΡΠ°Π·ΠΌΠ΅ΡΠ°ΡΡΡΡ Π½ΠΈΠΆΠ΅ ΡΡΠΎΠ²Π½Ρ Π·Π΅ΠΌΠ»ΠΈ Π² ΠΏΠΎΠ΄Π²Π°Π»Π΅.
Π‘ΡΡΠΎΠΈΡΠ΅Π»ΡΡΡΠ²ΠΎ ΡΠ°ΠΊΠΈΡ Π΄ΠΎΠΌΠΎΠ² ΠΎΠ±ΡΡΠ½ΠΎ ΠΏΡΠΎΠΈΠ·Π²ΠΎΠ΄ΠΈΡΡΡ Π² ΡΠ΅Π»ΡΡ Π½Π°ΠΈΠ±ΠΎΠ»Π΅Π΅ ΠΏΠΎΠ»Π½ΠΎΠ³ΠΎ ΠΈΡΠΏΠΎΠ»ΡΠ·ΠΎΠ²Π°Π½ΠΈΡ ΠΎΡΠ²Π΅Π΄ΡΠ½Π½ΠΎΠΉ ΠΏΠ»ΠΎΡΠ°Π΄ΠΊΠΈ ΠΏΡΠΈ ΠΎΠ³ΡΠ°Π½ΠΈΡΠ΅Π½ΠΈΡΡ ΠΏΠΎ ΠΎΠ±ΡΠ΅ΠΉ Π²ΡΡΠΎΡΠ΅. ΠΡΠΎΠ΅ΠΊΡ ΠΎΡΠ΄Π΅Π»ΡΠ½ΠΎΠ³ΠΎ ΠΆΠΈΠ»ΠΈΡΠ° Ρ Π³Π°ΡΠ°ΠΆΠΎΠΌ, ΡΠ°ΡΠΏΠΎΠ»ΠΎΠΆΠ΅Π½Π½ΡΠΌ Π² ΠΏΠΎΠ΄Π²Π°Π»ΡΠ½ΠΎΠΌ ΠΏΠΎΠΌΠ΅ΡΠ΅Π½ΠΈΠΈ, ΠΏΡΠ΅Π²ΠΎΡΡ ΠΎΠ΄Π½ΠΎ Π²ΠΏΠΈΡΡΠ²Π°Π΅ΡΡΡ Π² ΡΠ»ΠΎΠΆΠ½ΡΠΉ ΡΠ΅Π»ΡΠ΅Ρ ΡΡΠ°ΡΡΠΊΠ°, Π½Π°ΠΏΡΠΈΠΌΠ΅Ρ, Π½Π° ΡΠΊΠ»ΠΎΠ½Π΅ Ρ ΠΎΠ»ΠΌΠ°.
ΠΡΠΎΠ΅ΠΊΡ Π΄ΠΎΠΌΠ° Ρ Π³Π°ΡΠ°ΠΆΠΎΠΌ Π² ΡΠΎΠΊΠΎΠ»ΡΠ½ΠΎΠΌ ΡΡΠ°ΠΆΠ΅, ΡΠ°ΡΠΏΠΎΠ»ΠΎΠΆΠ΅Π½Π½ΠΎΠ³ΠΎ Π½Π° ΡΠΊΠ»ΠΎΠ½Π΅ΠΡΠΎΠ±ΠΎΠ΅ Π²Π½ΠΈΠΌΠ°Π½ΠΈΠ΅ Π² ΠΏΡΠΎΡΠ΅ΡΡΠ΅ ΠΏΡΠΎΠ²Π΅Π΄Π΅Π½ΠΈΡ ΡΡΡΠΎΠΈΡΠ΅Π»ΡΠ½ΡΡ ΡΠ°Π±ΠΎΡ Π½Π΅ΠΎΠ±Ρ ΠΎΠ΄ΠΈΠΌΠΎ ΡΠ΄Π΅Π»ΠΈΡΡ Π³ΠΈΠ΄ΡΠΎΠΈΠ·ΠΎΠ»ΡΡΠΈΠΈ. Π ΠΏΡΠΎΠ΅ΠΊΡΠ΅ Π·Π°ΠΊΠ»Π°Π΄ΡΠ²Π°Π΅ΡΡΡ ΠΊΠΎΠΌΠΏΠ»Π΅ΠΊΡ ΠΌΠ΅ΡΠΎΠΏΡΠΈΡΡΠΈΠΉ, Π½Π°ΠΏΡΠ°Π²Π»Π΅Π½Π½ΡΡ Π½Π° ΡΠΎΠ·Π΄Π°Π½ΠΈΠ΅ Π΄ΡΠ΅Π½Π°ΠΆΠ½ΠΎΠΉ ΡΠΈΡΡΠ΅ΠΌΡ ΠΈ Π½Π°Π½Π΅ΡΠ΅Π½ΠΈΡ Π½Π° ΡΡΠ΅Π½Ρ ΠΏΠΎΠΊΡΡΡΠΈΠΉ, ΠΏΡΠ΅ΠΏΡΡΡΡΠ²ΡΡΡΠΈΡ ΠΏΡΠΎΠ½ΠΈΠΊΠ½ΠΎΠ²Π΅Π½ΠΈΡ Π²Π»Π°Π³ΠΈ. Π Π·Π°Π³Π»ΡΠ±Π»Π΅Π½Π½ΡΡ Π³Π°ΡΠ°ΠΆΠ½ΡΡ ΠΏΠΎΠΌΠ΅ΡΠ΅Π½ΠΈΡΡ Π½Π΅ΠΎΠ±Ρ ΠΎΠ΄ΠΈΠΌΠΎ ΠΏΡΠ΅Π΄ΡΡΠΌΠΎΡΡΠ΅ΡΡ ΡΡΡΠ΅ΠΊΡΠΈΠ²Π½ΡΡ ΡΠΈΡΡΠ΅ΠΌΡ Π²Π΅Π½ΡΠΈΠ»ΡΡΠΈΠΈ. ΠΠΎΠ΄Π΄Π΅ΡΠΆΠ°Π½ΠΈΠ΅ ΠΎΠΏΡΠΈΠΌΠ°Π»ΡΠ½ΠΎΠ³ΠΎ ΡΠ΅ΠΌΠΏΠ΅ΡΠ°ΡΡΡΠ½ΠΎ-Π²Π»Π°ΠΆΠ½ΠΎΡΡΠ½ΠΎΠ³ΠΎ ΡΠ΅ΠΆΠΈΠΌΠ° Π½Π΅ΠΎΠ±Ρ ΠΎΠ΄ΠΈΠΌΠΎ Π΄Π»Ρ ΠΎΠ±Π΅ΡΠΏΠ΅ΡΠ΅Π½ΠΈΡ ΡΠΎΡ ΡΠ°Π½Π½ΠΎΡΡΠΈ Π°Π²ΡΠΎΠΌΠΎΠ±ΠΈΠ»Ρ.
Π‘ΠΏΠ΅ΡΠΈΡΠΈΠΊΠ° Π΄ΠΎΠΌΠΎΠ², ΠΎΠ±ΠΎΡΡΠ΄ΠΎΠ²Π°Π½Π½ΡΡ Π³Π°ΡΠ°ΠΆΠΎΠΌ ΠΈΠ· ΡΠ°Π·Π½ΡΡ ΠΌΠ°ΡΠ΅ΡΠΈΠ°Π»ΠΎΠ²
Π‘ΡΡΠΎΠΈΡΠ΅Π»ΡΠ½ΡΠ΅ ΡΠ΅Ρ Π½ΠΎΠ»ΠΎΠ³ΠΈΠΈ ΠΏΡΠ΅Π΄ΠΏΠΎΠ»Π°Π³Π°ΡΡ ΠΈΡΠΏΠΎΠ»ΡΠ·ΠΎΠ²Π°Π½ΠΈΠ΅ ΠΌΠ°ΡΠ΅ΡΠΈΠ°Π»ΠΎΠ² Ρ ΡΠ°Π·Π½ΡΠΌΠΈ ΡΠ²ΠΎΠΉΡΡΠ²Π°ΠΌΠΈ ΠΈ Ρ Π°ΡΠ°ΠΊΡΠ΅ΡΠΈΡΡΠΈΠΊΠ°ΠΌΠΈ. ΠΠ΄Π½ΠΈΠΌΠΈ ΠΈΠ· ΡΠ°ΠΌΡΡ Π΄ΠΎΡΡΡΠΏΠ½ΡΡ ΠΈ ΠΎΡΡΠΎΠ³ΠΎ ΠΏΡΠΈΠ²Π»Π΅ΠΊΠ°ΡΠ΅Π»ΡΠ½ΡΡ Π΄Π»Ρ ΠΊΠ»ΠΈΠ΅Π½ΡΠ° ΡΠ²Π»ΡΡΡΡΡ Π΄Π΅ΡΠ΅Π²ΡΠ½Π½ΡΠ΅ Π΄ΠΎΠΌΠ° Ρ Π³Π°ΡΠ°ΠΆΠΎΠΌ ΠΈΠ· ΠΏΡΠΎΡΠΈΠ»ΠΈΡΠΎΠ²Π°Π½Π½ΠΎΠ³ΠΎ Π±ΡΡΡΠ° ΠΈΠ»ΠΈ ΠΎΡΠΈΠ»ΠΈΠ½Π΄ΡΠΎΠ²Π°Π½Π½ΡΡ Π±ΡΡΠ²Π΅Π½. ΠΠΈΠ»ΠΎΠΌΠ°ΡΠ΅ΡΠΈΠ°Π»Ρ Π΅ΡΡΠ΅ΡΡΠ²Π΅Π½Π½ΠΎΠΉ Π²Π»Π°ΠΆΠ½ΠΎΡΡΠΈ ΡΠΎΠ·Π΄Π°ΡΡ Π²ΠΎ Π²Π½ΡΡΡΠ΅Π½Π½ΠΈΡ ΠΏΠΎΠΌΠ΅ΡΠ΅Π½ΠΈΡΡ ΠΎΡΠΎΠ±ΡΠΉ ΠΌΠΈΠΊΡΠΎΠΊΠ»ΠΈΠΌΠ°Ρ, ΡΠΏΠΎΡΠΎΠ±ΡΡΠ²ΡΡΡΠΈΠΉ ΡΠΎΡ ΡΠ°Π½Π΅Π½ΠΈΡ ΠΈ ΠΏΠΎΠ΄Π΄Π΅ΡΠΆΠ°Π½ΠΈΡ Π·Π΄ΠΎΡΠΎΠ²ΡΡ.
Π£ΡΠ»ΡΠ³ΠΈ ΠΏΠΎ Π²ΠΎΠ·Π²Π΅Π΄Π΅Π½ΠΈΡ Π΄ΠΎΠΌΠΎΠ² ΠΈΠ· Π΄ΡΠ΅Π²Π΅ΡΠΈΠ½Ρ ΠΏΡΠ΅Π΄Π»Π°Π³Π°ΡΡ ΠΌΠ½ΠΎΠ³ΠΈΠ΅ ΠΊΠΎΠΌΠΏΠ°Π½ΠΈΠΈ. ΠΡΠΈ Π²ΡΠ±ΠΎΡΠ΅ ΠΏΠΎΠ΄ΡΡΠ΄ΡΠΈΠΊΠ° ΠΏΡΠ΅Π΄ΠΏΠΎΡΡΠ΅Π½ΠΈΠ΅ ΠΎΡΠ΄Π°ΡΡΡΡ ΡΠ΅ΠΌ ΠΏΡΠ΅Π΄ΠΏΡΠΈΡΡΠΈΡΠΌ, ΡΡΠΎ ΠΈΠΌΠ΅ΡΡ ΡΠΎΠ±ΡΡΠ²Π΅Π½Π½ΠΎΠ΅ ΡΠΎΠ²ΡΠ΅ΠΌΠ΅Π½Π½ΠΎΠ΅ ΠΏΡΠΎΠΈΠ·Π²ΠΎΠ΄ΡΡΠ²ΠΎ. ΠΡΠΎΠ΅ΠΊΡΡ Π΄Π΅ΡΠ΅Π²ΡΠ½Π½ΡΡ Π΄ΠΎΠΌΠΎΠ² ΡΠΎ Π²ΡΡΡΠΎΠ΅Π½Π½ΡΠΌΠΈ Π³Π°ΡΠ°ΠΆΠ½ΡΠΌΠΈ Π±ΠΎΠΊΡΠ°ΠΌΠΈ ΠΌΠΎΠ³ΡΡ Π±ΡΡΡ ΠΊΠ°ΠΊ ΡΠΈΠΏΠΎΠ²ΡΠΌ, ΡΠ°ΠΊ ΠΈ ΡΠ°Π·ΡΠ°Π±Π°ΡΡΠ²Π°ΡΡΡΡ Π² ΡΠΎΠΎΡΠ²Π΅ΡΡΡΠ²ΠΈΠΈ Ρ ΠΏΠΎΠΆΠ΅Π»Π°Π½ΠΈΡΠΌΠΈ Π·Π°ΠΊΠ°Π·ΡΠΈΠΊΠ°. Π‘ΡΡΠΎΠΈΡΠ΅Π»ΡΠ½ΡΠΉ ΠΌΠ°ΡΠ΅ΡΠΈΠ°Π» Π΄ΠΎΠΏΡΡΠΊΠ°Π΅Ρ Π²ΠΎΠ·Π²Π΅Π΄Π΅Π½ΠΈΠ΅ ΠΎΠ΄Π½ΠΎΡΡΠΎΠ²Π½Π΅Π²ΠΎΠ³ΠΎΒ ΠΈΠ»ΠΈΒ ΠΌΠ½ΠΎΠ³ΠΎΡΡΠ°ΠΆΠ½ΠΎΠ³ΠΎ Π±Π»Π°Π³ΠΎΡΡΡΡΠΎΠ΅Π½Π½ΠΎΠ³ΠΎ ΠΆΠΈΠ»ΠΈΡΠ°.
ΠΡΠΈΠΌΠ΅Ρ ΠΏΡΠΎΠ΅ΠΊΡΠ° Π΄Π²ΡΡ
ΡΡΠ°ΠΆΠ½ΠΎΠ³ΠΎ Π΄Π΅ΡΠ΅Π²ΡΠ½Π½ΠΎΠ³ΠΎ Π΄ΠΎΠΌΠ° Ρ Π³Π°ΡΠ°ΠΆΠΎΠΌΠΡΠΈΠ³ΠΈΠ½Π°Π»ΡΠ½ΡΠ΅ ΠΏΡΠΎΠ΅ΠΊΡΡ Π΄ΠΎΠΌΠΎΠ² Ρ Π³Π°ΡΠ°ΠΆΠΎΠΌ ΠΈΠ· Π±ΡΡΡΠ° ΡΠ΅Π»ΡΠ½ΠΎΠ³ΠΎ ΠΈΠ»ΠΈ ΠΊΠ»Π΅ΡΠ½ΠΎΠ³ΠΎ ΠΌΠ½ΠΎΠ³ΠΎΠΎΠ±ΡΠ°Π·Π½Ρ ΠΏΠΎ Π°ΡΡ ΠΈΡΠ΅ΠΊΡΡΡΠ½ΡΠΌ ΡΠ΅ΡΠ΅Π½ΠΈΡΠΌ. ΠΡΠ±ΠΎΡ ΠΌΠΎΠΆΠ½ΠΎ ΡΠ΄Π΅Π»Π°ΡΡ ΠΈΠ· ΡΠΈΡΠ»Π° Π³ΠΎΡΠΎΠ²ΡΡ ΡΠ°Π·ΡΠ°Π±ΠΎΡΠΎΠΊ ΠΈΠ»ΠΈ ΡΠ΄Π΅Π»Π°ΡΡ Π·Π°ΠΊΠ°Π· Π½Π° ΠΏΡΠΎΠ΅ΠΊΡΠΈΡΠΎΠ²Π°Π½ΠΈΠ΅ Π² ΠΈΠ½Π΄ΠΈΠ²ΠΈΠ΄ΡΠ°Π»ΡΠ½ΠΎΠΌ ΠΏΠΎΡΡΠ΄ΠΊΠ΅. Π’Π΅Ρ Π½ΠΈΡΠ΅ΡΠΊΠΎΠ΅ Π·Π°Π΄Π°Π½ΠΈΠ΅ Π² ΡΠ°ΠΊΠΎΠΌ ΡΠ»ΡΡΠ°Π΅ ΡΠΎΡΠΌΠΈΡΡΠ΅ΡΡΡ Π½Π° ΠΎΡΠ½ΠΎΠ²Π΅ ΠΏΠΎΠΆΠ΅Π»Π°Π½ΠΈΠΉ Π·Π°ΠΊΠ°Π·ΡΠΈΠΊΠ° ΠΈ Ρ ΡΡΡΡΠΎΠΌ ΡΡΠ΅Π±ΠΎΠ²Π°Π½ΠΈΠΉ Π½ΠΎΡΠΌΠ°ΡΠΈΠ²Π½ΡΡ Π΄ΠΎΠΊΡΠΌΠ΅Π½ΡΠΎΠ².
Π’Π΅Ρ Π½ΠΎΠ»ΠΎΠ³ΠΈΡ ΡΡΡΠΎΠΈΡΠ΅Π»ΡΡΡΠ²Π° Π΄ΠΎΠΌΠΎΠ² ΠΈΠ· Π±ΡΡΡΠ° ΠΈΠΌΠ΅Π΅Ρ ΡΡΠ΄ ΠΎΡΠΎΠ±Π΅Π½Π½ΠΎΡΡΠ΅ΠΉ. ΠΠ·Π³ΠΎΡΠΎΠ²Π»Π΅Π½ΠΈΠ΅ ΠΏΠΎΠ»Π½ΠΎΠ³ΠΎ ΠΊΠΎΠΌΠΏΠ»Π΅ΠΊΡΠ° Π΄Π΅ΡΠ°Π»Π΅ΠΉ ΠΎΡΡΡΠ΅ΡΡΠ²Π»ΡΠ΅ΡΡΡ Π½Π° Π΄Π΅ΡΠ΅Π²ΠΎΠΎΠ±ΡΠ°Π±Π°ΡΡΠ²Π°ΡΡΠ΅ΠΌ ΠΏΡΠ΅Π΄ΠΏΡΠΈΡΡΠΈΠΈ. Π‘ΠΎΠ²ΡΠ΅ΠΌΠ΅Π½Π½ΠΎΠ΅ Π²ΡΡΠΎΠΊΠΎΡΠΎΡΠ½ΠΎΠ΅ ΠΎΠ±ΠΎΡΡΠ΄ΠΎΠ²Π°Π½ΠΈΠ΅ ΠΏΠΎΠ·Π²ΠΎΠ»ΡΠ΅Ρ ΠΏΡΠΎΠΈΠ·Π²ΠΎΠ΄ΠΈΡΡ ΡΠ»Π΅ΠΌΠ΅Π½ΡΡ Ρ Π½Π΅ΠΎΠ±Ρ ΠΎΠ΄ΠΈΠΌΡΠΌΠΈ Π΄ΠΎΠΏΡΡΠΊΠ°ΠΌΠΈ. ΠΠ°ΡΠ°Π»Π»Π΅Π»ΡΠ½ΠΎ ΠΏΡΠΎΠΈΠ·Π²ΠΎΠ΄ΡΡΠ²Ρ ΡΠ±ΠΎΡΠΎΡΠ½ΠΎΠ³ΠΎ ΠΊΠΎΠΌΠΏΠ»Π΅ΠΊΡΠ° ΠΎΡΡΡΠ΅ΡΡΠ²Π»ΡΠ΅ΡΡΡ ΠΏΠΎΠ΄Π³ΠΎΡΠΎΠ²ΠΊΠ° ΠΎΡΠ½ΠΎΠ²Π°Π½ΠΈΡ: Π»Π΅Π½ΡΠΎΡΠ½ΠΎΠ³ΠΎ ΠΈΠ»ΠΈ ΠΏΠ»ΠΈΡΠ½ΠΎΠ³ΠΎ. Π‘Π±ΠΎΡΠΎΡΠ½ΡΠΉ ΠΏΡΠΎΡΠ΅ΡΡ Π½Π° Π³ΠΎΡΠΎΠ²ΠΎΠΌ ΡΡΠ½Π΄Π°ΠΌΠ΅Π½ΡΠ΅ Π·Π°Π½ΠΈΠΌΠ°Π΅Ρ Π½Π΅ΠΌΠ½ΠΎΠ³ΠΎ Π²ΡΠ΅ΠΌΠ΅Π½ΠΈ.

ΠΡΡΠ³ΠΎΠΉ Π²Π°ΡΠΈΠ°Π½Ρ ΠΈΡΠΏΠΎΠ»ΡΠ·ΠΎΠ²Π°Π½ΠΈΡ Π΄ΡΠ΅Π²Π΅ΡΠΈΠ½Ρ Π² ΠΈΠ½Π΄ΠΈΠ²ΠΈΠ΄ΡΠ°Π»ΡΠ½ΠΎΠΌ ΠΆΠΈΠ»ΠΈΡΠ½ΠΎΠΌ ΡΡΡΠΎΠΈΡΠ΅Π»ΡΡΡΠ²Π΅: Π΄ΠΎΠΌΠ° Ρ ΠΏΡΠΎΡΡΡΠ°Π½ΡΡΠ²Π΅Π½Π½ΡΠΌΠΈ ΠΊΠ°ΡΠΊΠ°ΡΠ°ΠΌΠΈ. ΠΡΠ° ΡΠ΅Ρ Π½ΠΎΠ»ΠΎΠ³ΠΈΡ Π΄Π°Π²Π½ΠΎ ΠΈ ΡΡΠΏΠ΅ΡΠ½ΠΎ ΠΏΡΠΈΠΌΠ΅Π½ΡΠ΅ΡΡΡ Π² ΡΠ°Π·Π²ΠΈΡΡΡ ΡΡΡΠ°Π½Π°Ρ Π‘ΠΊΠ°Π½Π΄ΠΈΠ½Π°Π²ΠΈΠΈ, Π‘Π΅Π²Π΅ΡΠ½ΠΎΠΉ ΠΠΌΠ΅ΡΠΈΠΊΠΈ ΠΈ ΠΠ²ΡΠΎΠΏΡ. Π Π ΠΎΡΡΠΈΠΈ ΠΏΡΠΎΠ΅ΠΊΡΡ ΠΊΠ°ΡΠΊΠ°ΡΠ½ΡΡ Π΄ΠΎΠΌΠΎΠ² Ρ Π³Π°ΡΠ°ΠΆΠΎΠΌ ΡΡΠ°Π½ΠΎΠ²ΡΡΡΡ Π²ΡΡ Π±ΠΎΠ»Π΅Π΅ ΠΏΠΎΠΏΡΠ»ΡΡΠ½ΡΠΌΠΈ. ΠΠ±ΡΡΡΠ½Π΅Π½ΠΈΠ΅ ΠΏΡΠΎΡΡΠΎΠ΅: Π² ΡΡΠ°Π²Π½Π΅Π½ΠΈΠΈ Ρ Π΄ΡΡΠ³ΠΈΠΌΠΈ ΡΠΏΠΎΡΠΎΠ±Π°ΠΌΠΈ ΡΡΡΠΎΠΈΡΠ΅Π»ΡΡΡΠ²Π° ΡΡΠΎΡ ΡΠ°ΠΌΡΠΉ Π½Π΅Π΄ΠΎΡΠΎΠ³ΠΎΠΉ.
ΠΠ°ΡΠΊΠ°ΡΠ½ΠΎΠ΅ ΡΡΡΠΎΠ΅Π½ΠΈΠ΅ ΠΏΠΎΡΡΠ°Π²Π»ΡΠ΅ΡΡΡ Π² Π²ΠΈΠ΄Π΅ ΡΠ±ΠΎΡΠΎΡΠ½ΠΎΠ³ΠΎ ΠΊΠΎΠΌΠΏΠ»Π΅ΠΊΡΠ° ΠΏΡΠΎΠΌΡΡΠ»Π΅Π½Π½ΠΎΠ³ΠΎ ΠΈΠ·Π³ΠΎΡΠΎΠ²Π»Π΅Π½ΠΈΡ. ΠΠ°Π»ΡΠΉ Π²Π΅Ρ ΡΠ°ΠΊΠΈΡ Π·Π΄Π°Π½ΠΈΠΉ ΠΏΠΎΠ·Π²ΠΎΠ»ΡΠ΅Ρ ΠΈΡΠΏΠΎΠ»ΡΠ·ΠΎΠ²Π°ΡΡ ΠΎΠ±Π»Π΅Π³ΡΡΠ½Π½ΡΠ΅, Π°, ΡΠ»Π΅Π΄ΠΎΠ²Π°ΡΠ΅Π»ΡΠ½ΠΎ, Π½Π΅Π΄ΠΎΡΠΎΠ³ΠΈΠ΅ ΠΎΡΠ½ΠΎΠ²Π°Π½ΠΈΡ. Π¨ΠΈΡΠΎΠΊΠΎΠ΅ ΠΏΡΠΈΠΌΠ΅Π½Π΅Π½ΠΈΠ΅ ΠΏΠΎΠ»ΡΡΠΈΠ»ΠΈ ΡΡΠΎΠ»Π±ΡΠ°ΡΡΠ΅ ΠΈ ΡΠ²Π°ΠΉΠ½ΠΎ-ΡΠΎΡΡΠ²Π΅ΡΠΊΠΎΠ²ΡΠ΅ ΡΡΠ½Π΄Π°ΠΌΠ΅Π½ΡΡ. ΠΠ΅ΡΡΡΠΈΠ΅ ΠΊΠ°ΡΠΊΠ°ΡΡ ΠΈΠ·Π³ΠΎΡΠ°Π²Π»ΠΈΠ²Π°ΡΡΡΡ ΠΈΠ· ΠΏΡΡΠΌΠΎΡΠ³ΠΎΠ»ΡΠ½ΠΎΠ³ΠΎ Π±ΡΡΡΠ° ΡΠ°Π·Π½ΠΎΠ³ΠΎ ΡΠ΅ΡΠ΅Π½ΠΈΡ ΠΈ ΡΡΠΈΠ»ΠΈΠ²Π°ΡΡΡΡ ΡΡΠ°Π»ΡΠ½ΡΠΌΠΈ Π½Π°ΠΊΠ»Π°Π΄ΠΊΠ°ΠΌΠΈ Π² ΠΌΠ΅ΡΡΠ°Ρ ΡΠΎΠ΅Π΄ΠΈΠ½Π΅Π½ΠΈΠΉ. Π£ΡΠ΅ΠΏΠ»Π΅Π½ΠΈΠ΅ ΠΊΠ°ΡΠΊΠ°ΡΠ½ΠΎΠ³ΠΎ Π΄ΠΎΠΌΠ° ΠΎΡΡΡΠ΅ΡΡΠ²Π»ΡΠ΅ΡΡΡ ΠΌΠ°ΡΠ°ΠΌΠΈ ΠΈΠ· ΠΌΠΈΠ½Π΅ΡΠ°Π»ΡΠ½ΠΎΠ³ΠΎ Π²ΠΎΠ»ΠΎΠΊΠ½Π° ΠΈΠ»ΠΈ ΠΏΠ΅Π½ΠΎΠΏΠ»Π°ΡΡΠΎΠΌ.
ΠΠΎΠΌΠΈΠΌΠΎ Π΄ΡΠ΅Π²Π΅ΡΠΈΠ½Ρ Π² ΡΡΡΠΎΠΈΡΠ΅Π»ΡΡΡΠ²Π΅ ΡΠ°ΡΡΠ½ΡΡ Π΄ΠΎΠΌΠΎΠ² ΠΈΡΠΏΠΎΠ»ΡΠ·ΡΡΡΡΡ ΡΡΠ°Π΄ΠΈΡΠΈΠΎΠ½Π½ΡΠ΅ ΠΈ ΠΈΠ½Π½ΠΎΠ²Π°ΡΠΈΠΎΠ½Π½ΡΠ΅ ΠΌΠ°ΡΠ΅ΡΠΈΠ°Π»Ρ. Π Π΅ΡΡ ΠΈΠ΄ΡΡ ΠΎ ΠΊΠΈΡΠΏΠΈΡΠ΅ ΠΈ Π±Π»ΠΎΠΊΠ°Ρ , ΠΏΡΠΎΠΈΠ·Π²Π΅Π΄ΡΠ½Π½ΡΡ ΡΠ°Π·Π½ΡΠΌΠΈ ΡΠΏΠΎΡΠΎΠ±Π°ΠΌΠΈ. ΠΠ΄Π½ΠΎ- ΠΈ Π΄Π²ΡΡ ΡΡΠ°ΠΆΠ½ΡΠ΅ Π΄ΠΎΠΌΠ° Ρ Π³Π°ΡΠ°ΠΆΠΎΠΌ ΠΈΠ· ΠΏΠ΅Π½ΠΎΠ±Π»ΠΎΠΊΠΎΠ² ΠΏΡΠ΅Π²ΠΎΡΡ ΠΎΠ΄Π½ΠΎ Π·Π°ΡΠ΅ΠΊΠΎΠΌΠ΅Π½Π΄ΠΎΠ²Π°Π»ΠΈ ΡΠ΅Π±Ρ Π½Π° ΡΠ΅ΡΡΠΈΡΠΎΡΠΈΠΈ Π½Π°ΡΠ΅ΠΉ ΡΡΡΠ°Π½Ρ, ΠΎΡΠΎΠ±Π΅Π½Π½ΠΎ Π² ΡΠ΅Π²Π΅ΡΠ½ΡΡ ΡΠΈΡΠΎΡΠ°Ρ . ΠΠ½Π΅ΡΠ³ΠΎΡΠ±Π΅ΡΠ΅ΠΆΠ΅Π½ΠΈΠ΅ Π² ΡΠ°ΠΊΠΈΡ ΡΡΡΠΎΠ΅Π½ΠΈΡΡ ΠΏΠΎΠ΄Π½ΡΡΠΎ Π½Π° ΡΠΎΠ²Π΅ΡΡΠ΅Π½Π½ΠΎ Π½ΠΎΠ²ΡΠΉ ΡΡΠΎΠ²Π΅Π½Ρ.
ΠΡΠΎΠ΅ΠΊΡ Π΄Π²ΡΡ
ΡΡΠ°ΠΆΠ½ΠΎΠ³ΠΎ Π΄ΠΎΠΌΠ° Ρ Π³Π°ΡΠ°ΠΆΠΎΠΌ ΠΈΠ· ΠΏΠ΅Π½ΠΎΠ±Π»ΠΎΠΊΠΎΠ²ΠΠ°ΡΠ΅ΡΠΈΠ°Π» ΠΎΠ±Π»Π°Π΄Π°Π΅Ρ Π΄ΠΎΡΡΠ°ΡΠΎΡΠ½ΠΎΠΉ ΠΏΡΠΎΡΠ½ΠΎΡΡΡΡ Π² ΡΠΎΡΠ΅ΡΠ°Π½ΠΈΠΈ Ρ ΠΎΡΠ½ΠΎΡΠΈΡΠ΅Π»ΡΠ½ΠΎ ΠΌΠ°Π»ΡΠΌ ΡΠ΄Π΅Π»ΡΠ½ΡΠΌ Π²Π΅ΡΠΎΠΌ. ΠΠ΅Π½ΠΎΠ±Π»ΠΎΠΊ ΠΈΡΠΏΠΎΠ»ΡΠ·ΡΠ΅ΡΡΡ Π΄Π»Ρ Π²ΠΎΠ·Π²Π΅Π΄Π΅Π½ΠΈΡ Π½Π΅ΡΡΡΠΈΡ ΡΡΠ΅Π½ ΠΈ ΠΏΠ΅ΡΠ΅Π³ΠΎΡΠΎΠ΄ΠΎΠΊ ΠΊΠ°ΠΊ ΠΎΠ΄Π½ΠΎ- ΡΠ°ΠΊ ΠΈ Π΄Π²ΡΡ ΡΡΠΎΠ²Π½Π΅Π²ΡΡ Π΄ΠΎΠΌΠΎΠ². ΠΠΌΠ΅ΡΡΠ΅ Ρ ΡΠ΅ΠΌ ΠΏΡΠ΅Π΄Π΅Π»ΡΠ½Π°Ρ Π½Π°Π³ΡΡΠ·ΠΊΠ° Π½Π° ΡΡΠ½Π΄Π°ΠΌΠ΅Π½ΡΡ Ρ ΡΠ°ΠΊΠΈΡ ΡΡΡΠΎΠ΅Π½ΠΈΠΉ Π·Π½Π°ΡΠΈΡΠ΅Π»ΡΠ½ΠΎ Π½ΠΈΠΆΠ΅. ΠΠ°Π»ΠΈΡΠΎ Π²ΠΎΠ·ΠΌΠΎΠΆΠ½ΠΎΡΡΡ ΡΠΊΠΎΠ½ΠΎΠΌΠΈΠΈ ΠΌΠ°ΡΠ΅ΡΠΈΠ°Π»ΠΎΠ² ΠΈ ΠΎΠ±ΡΠ΅Π΅ ΡΠ½ΠΈΠΆΠ΅Π½ΠΈΠ΅ ΡΠΈΠ½Π°Π½ΡΠΎΠ²ΡΡ ΠΈ ΡΡΡΠ΄ΠΎΠ²ΡΡ Π·Π°ΡΡΠ°Ρ ΠΏΡΠΈ ΡΡΡΠΎΠΈΡΠ΅Π»ΡΡΡΠ²Π΅.
ΠΡΠΎΠ΅ΠΊΡΡ ΠΊΠΈΡΠΏΠΈΡΠ½ΡΡ Π΄ΠΎΠΌΠΎΠ² ΠΈ ΠΊΠΎΡΡΠ΅Π΄ΠΆΠ΅ΠΉ Ρ Π³Π°ΡΠ°ΠΆΠΎΠΌ ΠΌΠΎΠΆΠ½ΠΎ ΠΎΡΠ½Π΅ΡΡΠΈ ΠΊ ΠΊΠ°ΡΠ΅Π³ΠΎΡΠΈΠΈ ΠΊΠ»Π°ΡΡΠΈΡΠ΅ΡΠΊΠΈΡ . Π ΡΠΈΠ»Ρ ΠΎΡΠΎΠ±Π΅Π½Π½ΠΎΡΡΠ΅ΠΉ ΡΠ΅Ρ Π½ΠΎΠ»ΠΎΠ³ΠΈΠΈ ΠΈ Π±ΠΎΠ»ΡΡΠΈΡ Π·Π°ΡΡΠ°Ρ ΡΡΡΠ½ΠΎΠ³ΠΎ ΡΡΡΠ΄Π° ΡΠ°ΠΊΠΈΠ΅ ΡΡΡΠΎΠ΅Π½ΠΈΡ ΠΏΠΎΠ»ΡΡΠ°ΡΡΡΡ Π΄ΠΎΡΡΠ°ΡΠΎΡΠ½ΠΎ Π΄ΠΎΡΠΎΠ³ΠΈΠΌΠΈ. ΠΡΡ ΠΈΡΠ΅ΠΊΡΡΡΠ½ΡΠ΅ Π±ΡΡΠΎ ΠΈ ΠΈΠ½ΡΠ΅ ΠΏΠΎΠ΄ΠΎΠ±Π½ΡΠ΅ ΠΎΡΠ³Π°Π½ΠΈΠ·Π°ΡΠΈΠΈ ΠΏΡΠ΅Π΄Π»Π°Π³Π°ΡΡ ΡΠΈΠΏΠΎΠ²ΡΠ΅ ΠΏΡΠΎΠ΅ΠΊΡΡ ΠΊΠΎΡΡΠ΅Π΄ΠΆΠ΅ΠΉ ΠΈ Π΄ΠΎΠΌΠΎΠ² ΠΈΠ· ΡΡΠΎΠ³ΠΎ ΠΌΠ°ΡΠ΅ΡΠΈΠ°Π»Π° ΠΈ Π²Π΅Π΄ΡΡ ΡΠ°Π·ΡΠ°Π±ΠΎΡΠΊΡ Π΄ΠΎΠΊΡΠΌΠ΅Π½ΡΠ°ΡΠΈΠΈ ΠΏΠΎΠ΄ Π·Π°ΠΊΠ°Π·. ΠΡΠΎΡΠ΅ΡΡ ΡΡΠΎΡ Π΄ΠΎΠ²ΠΎΠ»ΡΠ½ΠΎ ΡΠ»ΠΎΠΆΠ½ΠΎΠ΅, ΠΎΠ΄Π½Π°ΠΊΠΎ ΠΏΡΠΈΠΌΠ΅Π½Π΅Π½ΠΈΠ΅ ΡΠΏΠ΅ΡΠΈΠ°Π»ΡΠ½ΠΎΠ³ΠΎ ΠΏΡΠΎΠ³ΡΠ°ΠΌΠΌΠ½ΠΎΠ³ΠΎ ΠΎΠ±Π΅ΡΠΏΠ΅ΡΠ΅Π½ΠΈΡ ΠΏΠΎΠ·Π²ΠΎΠ»ΡΠ΅Ρ Π΅Π³ΠΎ ΠΈΠ½ΡΠ΅Π½ΡΠΈΡΠΈΡΠΈΡΠΎΠ²Π°ΡΡ.
Π‘ΠΏΠ΅ΡΠΈΠ°Π»ΠΈΡΡΡ Π°Π³Π΅Π½ΡΡΡΠ²Π° ΡΠΎΠ³Π»Π°ΡΠΎΠ²ΡΠ²Π°ΡΡ Ρ Π·Π°ΠΊΠ°Π·ΡΠΈΠΊΠΎΠΌ Π² ΠΏΡΠΎΡΠ΅ΡΡΠ΅ ΠΏΠ΅ΡΠ΅Π³ΠΎΠ²ΠΎΡΠΎΠ² ΠΎΠ±ΡΠΈΠ΅ ΡΡΠ΅Π±ΠΎΠ²Π°Π½ΠΈΡ ΠΊ ΡΡΡΠΎΠ΅Π½ΠΈΡ. ΠΠ±ΡΠ΅ΠΌΠ½ΠΎ-Π°ΡΡ ΠΈΡΠ΅ΠΊΡΡΡΠ½Π°Ρ ΠΊΠΎΠ½ΡΠ΅ΠΏΡΠΈΡ ΠΏΡΠ΅Π΄Π»Π°Π³Π°Π΅ΡΡΡ ΠΈΡΡ ΠΎΠ΄Ρ ΠΈΠ· ΠΏΡΠ΅Π΄ΠΏΠΎΡΡΠ΅Π½ΠΈΠΉ ΠΊΠ»ΠΈΠ΅Π½ΡΠ°. Π ΠΏΡΠΎΡΠ΅ΡΡΠ΅ ΠΎΠ±ΡΡΠΆΠ΄Π΅Π½ΠΈΡ ΠΎΠΏΡΠ΅Π΄Π΅Π»ΡΠ΅ΡΡΡ ΠΎΠ±ΡΠ°Ρ ΠΏΠ»Π°Π½ΠΈΡΠΎΠ²ΠΊΠ° ΠΈ Π²Π·Π°ΠΈΠΌΠ½ΠΎΠ΅ ΡΠ°ΡΠΏΠΎΠ»ΠΎΠΆΠ΅Π½ΠΈΠ΅ ΠΏΠΎΠΌΠ΅ΡΠ΅Π½ΠΈΠΉ Π² Π΄ΠΎΠΌΠ΅. ΠΠ±ΡΡΠ½ΠΎ Π²ΡΠ΄Π΅Π»ΡΠ΅ΡΡΡ Π½Π΅ΡΠΊΠΎΠ»ΡΠΊΠΎ Π·ΠΎΠ½: ΡΠ΅Ρ Π½ΠΈΡΠ΅ΡΠΊΠ°Ρ, ΡΠ»ΡΠΆΠ΅Π±Π½Π°Ρ ΠΈ ΠΆΠΈΠ»Π°Ρ. ΠΠΎΠΌΠ½Π°ΡΡ ΡΠ°Π·ΠΌΠ΅ΡΠ°ΡΡΡΡ ΡΠ°ΠΊΠΈΠΌ ΠΎΠ±ΡΠ°Π·ΠΎΠΌ, ΡΡΠΎΠ±Ρ ΡΠ΄Π΅Π»Π°ΡΡ ΠΏΡΠΎΠΆΠΈΠ²Π°Π½ΠΈΠ΅ Π² Π΄ΠΎΠΌΠ΅ ΠΌΠ°ΠΊΡΠΈΠΌΠ°Π»ΡΠ½ΠΎ ΠΊΠΎΠΌΡΠΎΡΡΠ½ΡΠΌ ΠΈ ΡΠ΄ΠΎΠ±Π½ΡΠΌ.Π ΠΊΠ°ΡΠ΅ΡΡΠ²Π΅ Π²Π°ΡΠΈΠ°Π½ΡΠ° ΠΊΠ»ΠΈΠ΅Π½ΡΠ°ΠΌ ΠΏΡΠ΅Π΄Π»Π°Π³Π°ΡΡΡΡ ΠΊΠΎΡΡΠ΅Π΄ΠΆΠΈ Ρ Π³Π°ΡΠ°ΠΆΠΎΠΌ ΠΊΠ»Π°ΡΡΠΈΡΠ΅ΡΠΊΠΎΠ³ΠΎ Π²ΠΈΠ΄Π° ΠΈΠ· ΠΊΡΠ°ΡΠ½ΠΎΠ³ΠΎ ΠΊΠΈΡΠΏΠΈΡΠ° ΠΈΠ»ΠΈ ΡΠΎΠ²ΡΠ΅ΠΌΠ΅Π½Π½ΠΎΠ³ΠΎ Π³Π°Π·ΠΎΡΠΈΠ»ΠΈΠΊΠ°ΡΠ½ΡΡ Π±Π»ΠΎΠΊΠΎΠ². ΠΡΠΈΠ²Π»Π΅ΠΊΠ°ΡΠ΅Π»ΡΠ½ΠΎΡΡΡ ΡΡΠΈΡ Π½Π΅Π±ΠΎΠ»ΡΡΠΈΡ ΠΏΠΎ ΠΏΠ»ΠΎΡΠ°Π΄ΠΈ ΡΡΡΠΎΠ΅Π½ΠΈΠΉ ΠΎΠΏΡΠ΅Π΄Π΅Π»ΡΠ΅ΡΡΡ, ΠΏΡΠ΅ΠΆΠ΄Π΅ Π²ΡΠ΅Π³ΠΎ, ΠΎΡΠ½ΠΎΡΠΈΡΠ΅Π»ΡΠ½ΠΎ Π½Π΅Π²ΡΡΠΎΠΊΠΎΠΉ ΡΡΠΎΠΈΠΌΠΎΡΡΡΡ. ΠΠΎΠ»ΡΡΠΎΡΠ°ΡΡΠ°ΠΆΠ½ΡΠ΅ ΡΡΡΠΎΠ΅Π½ΠΈΡ ΠΎΠ±ΠΎΡΡΠ΄ΡΡΡΡΡ Π³Π°ΡΠ°ΠΆΠ½ΡΠΌΠΈ Π±ΠΎΠΊΡΠ°ΠΌΠΈ, ΡΠ°ΡΡΡΠΈΡΠ°Π½Π½ΡΠΌΠΈ ΠΎΠ±ΡΡΠ½ΠΎ Π½Π° ΡΠ°Π·ΠΌΠ΅ΡΠ΅Π½ΠΈΠ΅ ΠΎΠ΄Π½ΠΎΠ³ΠΎ Π»Π΅Π³ΠΊΠΎΠ²ΠΎΠ³ΠΎ Π°Π²ΡΠΎΠΌΠΎΠ±ΠΈΠ»Ρ.

ΠΠ° ΠΏΠ΅ΡΠ²ΠΎΠΌ ΡΡΠΎΠ²Π½Π΅ ΠΏΠΎΠΌΠΈΠΌΠΎ ΡΠ΅Ρ Π½ΠΈΡΠ΅ΡΠΊΠΎΠ³ΠΎ ΠΏΠΎΠΌΠ΅ΡΠ΅Π½ΠΈΡ Π½Π°Ρ ΠΎΠ΄ΡΡΡΡ ΠΊΠΎΡΠ΅Π»ΡΠ½Π°Ρ, ΡΠ°Π½ΡΠ·Π΅Π» ΠΈ Π³ΠΎΡΡΠΈΠ½Π°Ρ. ΠΡΠΎΡΠΎΠΉ ΡΡΠ°ΠΆ ΠΎΡΠ²Π΅Π΄ΡΠ½ ΠΏΠΎΠ΄ ΡΠΏΠ°Π»ΡΠ½ΠΈ, ΠΈΡ ΠΊΠΎΠ»ΠΈΡΠ΅ΡΡΠ²ΠΎ ΠΎΠΏΡΠ΅Π΄Π΅Π»ΡΠ΅ΡΡΡ ΠΏΡΠΎΠ΅ΠΊΡΠΎΠΌ. Π‘ΡΠ΅Π½Ρ Π² ΡΠ°ΠΊΠΈΡ ΠΏΠΎΠΌΠ΅ΡΠ΅Π½ΠΈΡΡ Π² Π²Π΅ΡΡ Π½Π΅ΠΉ ΡΠ°ΡΡΠΈ ΠΈΠΌΠ΅ΡΡ ΡΠΊΠΎΡΠ΅Π½Π½ΡΡ ΠΊΠΎΠ½ΡΡΡΡΠΊΡΠΈΡ, ΠΏΠΎΠ²ΡΠΎΡΡΡ Π½Π°ΠΊΠ»ΠΎΠ½ ΡΠΊΠ°ΡΠ° ΠΊΡΡΡΠΈ. ΠΠ½ΡΠΎΠ»ΡΡΠΈΡ ΠΏΠΎΠΌΠ΅ΡΠ΅Π½ΠΈΠΉ ΠΏΡΠΎΠΈΡΡ ΠΎΠ΄ΠΈΡ ΡΠ΅ΡΠ΅Π· ΠΎΠΊΠ½Π° ΠΎΠ±ΡΡΠ½ΠΎΠ³ΠΎ Π²ΠΈΠ΄Π°, ΡΡΡΠ°Π½ΠΎΠ²Π»Π΅Π½Π½ΡΠ΅ Π² Π½ΠΈΡΠ°Ρ , Π»ΠΈΠ±ΠΎ ΡΠΏΠ΅ΡΠΈΠ°Π»ΡΠ½ΡΠ΅ β ΠΌΠ°Π½ΡΠ°ΡΠ΄Π½ΠΎΠ³ΠΎ ΡΠΈΠΏΠ°.
ΠΠ±ΡΠ·Π°ΡΠ΅Π»ΡΠ½ΡΠΌ ΡΠ»Π΅ΠΌΠ΅Π½ΡΠΎΠΌ ΠΊΠ»Π°ΡΡΠΈΡΠ΅ΡΠΊΠΎΠ³ΠΎ Π°Π½Π³Π»ΠΈΠΉΡΠΊΠΎΠ³ΠΎ ΠΊΠΎΡΡΠ΅Π΄ΠΆΠ° ΡΠ²Π»ΡΠ΅ΡΡΡ ΠΊΠ°ΠΌΠΈΠ½. Π Π½Π°ΡΠ΅ Π²ΡΠ΅ΠΌΡ ΠΎΠ½ Π½Π΅ ΠΈΡΠΏΠΎΠ»ΡΠ·ΡΠ΅ΡΡΡ Π΄Π»Ρ ΠΏΠΎΡΡΠΎΡΠ½Π½ΠΎΠ³ΠΎ ΠΎΡΠΎΠΏΠ»Π΅Π½ΠΈΡ Π΄ΠΎΠΌΠ°, Π° ΡΡΡΠ°Π½Π°Π²Π»ΠΈΠ²Π°Π΅ΡΡΡ Π·Π°ΡΠ°ΡΡΡΡ Π΄Π»Ρ ΡΠΎΠ·Π΄Π°Π½ΠΈΡ ΠΎΠΏΡΠ΅Π΄Π΅Π»ΡΠ½Π½ΠΎΠ³ΠΎ Π°Π½ΡΡΡΠ°ΠΆΠ°. ΠΡΠΊΡΡΡΡΠΉ ΠΎΠ³ΠΎΠ½Ρ, ΡΠ°Π·Π²Π΅Π΄ΡΠ½Π½ΡΠΉ Π² ΠΊΠ°ΠΌΠΈΠ½Π΅, Π½Π°ΠΏΠΎΠ»Π½ΡΠ΅Ρ ΠΏΠΎΠΌΠ΅ΡΠ΅Π½ΠΈΠ΅ ΠΆΠΈΠ²ΡΠΌ ΡΠ΅ΠΏΠ»ΠΎΠΌ. Π ΠΏΡΠΎΡ Π»Π°Π΄Π½ΠΎΠ΅ Π²ΡΠ΅ΠΌΡ Π³ΠΎΠ΄Π° ΠΎΡΠΎΠ±Π΅Π½Π½ΠΎ ΠΏΡΠΈΡΡΠ½ΠΎ ΠΏΡΠΎΠ²Π΅ΡΡΠΈ Π²Π΅ΡΠ΅Ρ Π² ΠΊΡΠ΅ΡΠ»Π΅ Ρ Π±ΠΎΠΊΠ°Π»ΠΎΠΌ Π²ΠΈΠ½Π° Π·Π° ΡΠΎΠ·Π΅ΡΡΠ°Π½ΠΈΠ΅ΠΌ ΠΏΠ»Π°ΠΌΠ΅Π½ΠΈ.
ΠΡΠΎΠ΅ΠΊΡ Π΄Π²ΡΡ
ΡΡΠ°ΠΆΠ½ΠΎΠ³ΠΎ Π΄ΠΎΠΌΠ° Π² Π°Π½Π³Π»ΠΈΠΉΡΠΊΠΎΠΌ ΡΡΠΈΠ»Π΅ Ρ Π³Π°ΡΠ°ΠΆΠΎΠΌΠΠ΅ΡΠ½ΡΡΡΡΡ ΠΊ ΠΎΠ³Π»Π°Π²Π»Π΅Π½ΠΈΡΠΡΠΎΠ΅ΠΊΡΡ Π΄ΠΎΠΌΠΎΠ² Π΄Π»Ρ Π½Π΅Π±ΠΎΠ»ΡΡΠΈΡ ΡΡΠ°ΡΡΠΊΠΎΠ²
ΠΠΎ ΠΌΠ½ΠΎΠ³ΠΈΡ ΡΠ»ΡΡΠ°ΡΡ ΠΎΠ±ΡΠ΅Π΅ Π°ΡΡ ΠΈΡΠ΅ΠΊΡΡΡΠ½ΠΎΠ΅ ΡΠ΅ΡΠ΅Π½ΠΈΠ΅ ΠΎΠΏΡΠ΅Π΄Π΅Π»ΡΠ΅ΡΡΡ ΡΠ°Π·ΠΌΠ΅ΡΠ°ΠΌΠΈ ΠΏΠ»ΠΎΡΠ°Π΄ΠΊΠΈ, ΠΎΡΠ²Π΅Π΄ΡΠ½Π½ΠΎΠΉ ΠΏΠΎΠ΄ ΡΡΡΠΎΠΈΡΠ΅Π»ΡΡΡΠ²ΠΎ. ΠΡΠΎΠ΅ΠΊΡ Π΄ΠΎΠΌΠ° Π΄Π»Ρ ΡΠ·ΠΊΠΎΠ³ΠΎ ΡΡΠ°ΡΡΠΊΠ° Ρ Π³Π°ΡΠ°ΠΆΠΎΠΌ ΠΏΡΠ΅Π΄ΡΡΠΌΠ°ΡΡΠΈΠ²Π°Π΅Ρ ΠΏΠ»Π°Π½ΠΈΡΠΎΠ²ΠΊΡ, ΠΌΠ°ΠΊΡΠΈΠΌΠ°Π»ΡΠ½ΠΎ ΠΎΠ±Π»Π΅Π³ΡΠ°ΡΡΡΡ Π²ΡΠ΅Π·Π΄ ΠΈ Π²ΡΠ΅Π·Π΄ ΡΡΠ°Π½ΡΠΏΠΎΡΡΠ°. ΠΡΠΈ ΡΠ°Π·ΡΠ°Π±ΠΎΡΠΊΠ΅ Π·Π΄Π°Π½ΠΈΡ Π΅ΠΌΡ ΠΏΡΠΈΠ΄Π°ΡΡΡΡ Π²ΡΡΡΠ½ΡΡΠ°Ρ ΡΠΎΡΠΌΠ°, ΡΡΡΠΎΠ΅Π½ΠΈΠ΅ ΠΎΡΠΈΠ΅Π½ΡΠΈΡΡΠ΅ΡΡΡ Π²Π΄ΠΎΠ»Ρ Π΄Π»ΠΈΠ½Π½ΠΎΠΉ ΡΡΠΎΡΠΎΠ½Ρ ΡΡΠ°ΡΡΠΊΠ°.
Π ΡΠΎΡΡΠ΅ Π΅Π³ΠΎ ΡΠ°Π·ΠΌΠ΅ΡΠ°Π΅ΡΡΡ Π³Π°ΡΠ°ΠΆΠ½ΡΠΉ Π±ΠΎΠΊΡ, Π²ΠΎΡΠΎΡΠ° ΠΊΠΎΡΠΎΡΠΎΠ³ΠΎ ΠΌΠΎΠ³ΡΡ Π²ΡΡ ΠΎΠ΄ΠΈΡΡ Π½Π΅ΠΏΠΎΡΡΠ΅Π΄ΡΡΠ²Π΅Π½Π½ΠΎ Π½Π° ΡΠ»ΠΈΡΡ. ΠΡ ΠΎΠ΄ Π² Π΄ΠΎΠΌ ΡΡΡΡΠ°ΠΈΠ²Π°Π΅ΡΡΡ ΠΈ ΠΈΠ· ΡΠ΅Ρ Π½ΠΈΡΠ΅ΡΠΊΠΎΠ³ΠΎ ΠΏΠΎΠΌΠ΅ΡΠ΅Π½ΠΈΡ, ΠΈ ΡΠΎ Π΄Π²ΠΎΡΠ°. ΠΠΎ Π²Π½ΡΡΡΠ΅Π½Π½Π΅ΠΌ ΠΏΠ΅ΡΠ΅Ρ ΠΎΠ΄Π΅ ΡΡΡΠ°Π½Π°Π²Π»ΠΈΠ²Π°ΡΡΡΡ ΠΊΠ°ΡΠ΅ΡΡΠ²Π΅Π½Π½ΡΠ΅ Π΄Π²Π΅ΡΠΈ Ρ Ρ ΠΎΡΠΎΡΠΈΠΌΠΈ ΡΠΏΠ»ΠΎΡΠ½ΠΈΡΠ΅Π»ΡΠ½ΡΠΌΠΈ ΡΠ»Π΅ΠΌΠ΅Π½ΡΠ°ΠΌΠΈ. ΠΠ΅ΡΠ΅ΠΊΡΡΡΠΈΠ΅ Π½Π°Π΄ Π³Π°ΡΠ°ΠΆΠΎΠΌ ΠΌΠΎΠΆΠ΅Ρ ΡΠ»ΡΠΆΠΈΡΡ ΠΎΡΠ½ΠΎΠ²Π°Π½ΠΈΠ΅ΠΌ Π΄Π»Ρ ΡΠΏΠ°Π»Π΅Π½, ΠΊΠ°Π±ΠΈΠ½Π΅ΡΠΎΠ² ΠΈΠ»ΠΈ Π΄Π΅ΡΡΠΊΠΈΡ . Π¨ΠΈΡΠΈΠ½Π° Π±ΠΎΠΊΡΠ°, ΠΊΠ°ΠΊ ΠΏΡΠ°Π²ΠΈΠ»ΠΎ, Π½Π΅ ΠΌΠ΅Π½Π΅Π΅ 4 ΠΌΠ΅ΡΡΠΎΠ², ΡΡΠΎ Π²ΠΏΠΎΠ»Π½Π΅ Π΄ΠΎΡΡΠ°ΡΠΎΡΠ½ΠΎ Π΄Π»Ρ ΠΏΡΠΎΡΡΠΎΡΠ½ΠΎΠΉ ΠΈ ΡΠ΄ΠΎΠ±Π½ΠΎΠΉ ΠΊΠΎΠΌΠ½Π°ΡΡ.
ΠΡΠΈΠΌΠ΅Ρ ΠΏΡΠΎΠ΅ΠΊΡΠ° ΠΎΠ΄Π½ΠΎΡΡΠ°ΠΆΠ½ΠΎΠ³ΠΎ Π΄ΠΎΠΌΠ° Ρ Π³Π°ΡΠ°ΠΆΠΎΠΌ ΠΈ ΠΌΠ°Π½ΡΠ°ΡΠ΄ΠΎΠΉ Π΄Π»Ρ ΡΠ·ΠΊΠΎΠ³ΠΎ ΡΡΠ°ΡΡΠΊΠ°ΠΡΠΎΠ±Π΅Π½Π½ΠΎ ΠΏΠΎΠΏΡΠ»ΡΡΠ½Ρ ΠΏΡΠΎΠ΅ΠΊΡΡ Π½Π΅Π±ΠΎΠ»ΡΡΠΈΡ Π΄ΠΎΠΌΠΎΠ² Ρ Π³Π°ΡΠ°ΠΆΠΎΠΌ, ΠΏΡΠ΅ΠΆΠ΄Π΅ Π²ΡΠ΅Π³ΠΎ ΠΏΠΎΡΠΎΠΌΡ, ΡΡΠΎ ΠΎΠ½ΠΈ Π΄ΠΎΡΡΡΠΏΠ½Ρ Π΄Π»Ρ ΡΠΈΡΠΎΠΊΠΎΠ³ΠΎ ΠΊΡΡΠ³Π° Π½Π°ΡΠΈΡ ΡΠΎΠ³ΡΠ°ΠΆΠ΄Π°Π½. ΠΠ°ΡΡΠ°ΡΡ Π½Π° ΡΡΡΠΎΠΈΡΠ΅Π»ΡΡΡΠ²ΠΎ ΡΠ°ΠΊΠΎΠ³ΠΎ ΠΆΠΈΠ»ΡΡ ΠΏΠΎΠΊΡΡΠ²Π°ΡΡΡΡ Π·Π° ΡΡΡΡ ΡΠΎΠ±ΡΡΠ²Π΅Π½Π½ΡΡ ΠΈ ΠΏΡΠΈΠ²Π»Π΅ΡΡΠ½Π½ΡΡ ΡΡΠ΅Π΄ΡΡΠ². Π Π½Π°ΡΠ΅ΠΉ ΡΡΡΠ°Π½Π΅ Π°ΠΊΡΠΈΠ²Π½ΠΎ ΡΠ°Π·Π²ΠΈΠ²Π°Π΅ΡΡΡ ΡΠΈΡΡΠ΅ΠΌΠ° ΠΈΠΏΠΎΡΠ΅ΡΠ½ΠΎΠ³ΠΎ ΠΊΡΠ΅Π΄ΠΈΡΠΎΠ²Π°Π½ΠΈΡ. ΠΠ°Π½ΠΊΠΈ ΠΏΡΠ΅Π΄Π»Π°Π³Π°ΡΡ Π΄ΠΎΠ²ΠΎΠ»ΡΠ½ΠΎ Π²ΡΠ³ΠΎΠ΄Π½ΡΠ΅ ΠΏΡΠΎΠ³ΡΠ°ΠΌΠΌΡ Π·Π°ΠΈΠΌΡΡΠ²ΠΎΠ²Π°Π½ΠΈΠΉ Π΄Π»Ρ ΡΠΈΠ½Π°Π½ΡΠΈΡΠΎΠ²Π°Π½ΠΈΡ ΡΡΡΠΎΠΈΡΠ΅Π»ΡΠ½ΡΡ ΡΠ°Π±ΠΎΡ ΠΈ ΠΏΡΠΈΠΎΠ±ΡΠ΅ΡΠ΅Π½ΠΈΡ ΠΌΠ°ΡΠ΅ΡΠΈΠ°Π»ΠΎΠ².
Π’ΠΈΠΏΠΎΠ²ΠΎΠΉ ΠΏΡΠΎΠ΅ΠΊΡ Π½Π΅Π±ΠΎΠ»ΡΡΠΎΠ³ΠΎ ΠΎΠ΄Π½ΠΎΡΡΠ°ΠΆΠ½ΠΎΠ³ΠΎ Π΄ΠΎΠΌΠ° Ρ Π³Π°ΡΠ°ΠΆΠΎΠΌΠΠ΅ΡΠ½ΡΡΡΡΡ ΠΊ ΠΎΠ³Π»Π°Π²Π»Π΅Π½ΠΈΡΠΠΈΠ»ΠΎΠΉ ΠΊΠΎΠΌΠΏΠ»Π΅ΠΊΡ Ρ Π³Π°ΡΠ°ΠΆΠΎΠΌ ΠΈ Π±Π°Π½Π΅ΠΉ
ΠΠ»Π°Π³ΠΎΡΡΡΡΠΎΠ΅Π½Π½ΡΠΉ Π΄ΠΎΠΌ ΠΏΡΠ΅Π΄ΠΏΠΎΠ»Π°Π³Π°Π΅Ρ Π½Π°Π»ΠΈΡΠΈΠ΅ Π²Π°Π½Π½ΠΎΠΉ ΠΊΠΎΠΌΠ½Π°ΡΡ ΠΈ ΡΠ°Π½ΡΠ·Π»Π°. Π ΠΏΠΎΡΠ»Π΅Π΄Π½Π΅Π΅ Π²ΡΠ΅ΠΌΡ ΡΡΠ°Π»Π° ΠΌΠΎΠ΄Π½ΠΎΠΉ ΡΠ΅Π½Π΄Π΅Π½ΡΠΈΡ ΡΡΡΠΎΠΈΡΠ΅Π»ΡΡΡΠ²Π° ΡΠ°ΡΡΠ½ΡΡ ΠΆΠΈΠ»ΡΡ ΡΡΡΠΎΠ΅Π½ΠΈΠΉ Ρ ΠΏΠΎΠ»Π½ΡΠΌ ΠΊΠΎΠΌΠΏΠ»Π΅ΠΊΡΠΎΠΌ ΡΠ»ΡΠΆΠ΅Π±Π½ΡΡ ΠΈ ΡΠ΅Ρ Π½ΠΈΡΠ΅ΡΠΊΠΈΡ ΠΏΠΎΠΌΠ΅ΡΠ΅Π½ΠΈΠΉ. Π’Π°ΠΊΠΈΠ΅ Π΄ΠΎΠΌΠ° Ρ Π±Π°Π½Π΅ΠΉ ΠΈ Π³Π°ΡΠ°ΠΆΠΎΠΌ ΠΎΡΠ΅Π½Ρ ΡΠ΄ΠΎΠ±Π½Ρ ΠΈ ΠΏΡΠ°ΠΊΡΠΈΡΠ½Ρ. ΠΡΠΈ ΠΏΡΠΎΠ΅ΠΊΡΠΈΡΠΎΠ²Π°Π½ΠΈΠΈ Π΄Π»Ρ ΡΡΠΈΡ ΡΠ΅Π»Π΅ΠΉ ΠΏΡΠ΅Π΄ΡΡΠΌΠ°ΡΡΠΈΠ²Π°ΡΡΡΡ ΠΎΡΠ΄Π΅Π»ΡΠ½ΡΠ΅ ΠΏΠΎΠΌΠ΅ΡΠ΅Π½ΠΈΡ Ρ ΡΠΎΠΎΡΠ²Π΅ΡΡΡΠ²ΡΡΡΠΈΠΌΠΈ Ρ Π°ΡΠ°ΠΊΡΠ΅ΡΠΈΡΡΠΈΠΊΠ°ΠΌΠΈ ΠΈ ΡΠ²ΠΎΠΉΡΡΠ²Π°ΠΌΠΈ.
Π ΡΠ°ΡΡΠ½ΡΡ ΠΆΠΈΠ»ΡΡ Π΄ΠΎΠΌΠ°Ρ ΠΌΠΎΠΆΠ΅Ρ Π±ΡΡΡ ΠΎΠ±ΠΎΡΡΠ΄ΠΎΠ²Π°Π½Π° ΡΡΡΡΠΊΠ°Ρ Π±Π°Π½Ρ ΠΈΠ»ΠΈ ΡΠΈΠ½ΡΠΊΠ°Ρ ΡΠ°ΡΠ½Π° Ρ ΠΏΠ°ΡΠΈΠ»ΠΊΠΎΠΉ, ΠΏΡΠ΅Π΄Π±Π°Π½Π½ΠΈΠΊΠΎΠΌ ΠΈ ΠΊΠΎΠΌΠ½Π°ΡΠΎΠΉ ΠΎΡΠ΄ΡΡ Π°. Π Π½ΠΈΡ ΡΡΡΠ°Π½Π°Π²Π»ΠΈΠ²Π°ΡΡΡΡ ΡΡΡΠ΅ΠΊΡΠΈΠ²Π½ΡΠ΅ ΡΠΈΡΡΠ΅ΠΌΡ Π²ΠΎΠ·Π΄ΡΡ ΠΎΠΎΠ±ΠΌΠ΅Π½Π° ΠΈ ΠΏΠ΅ΡΠΈ Ρ ΠΊΠ°ΠΌΠ΅Π½ΠΊΠΎΠΉ. Π’Π΅Ρ Π½ΠΎΠ»ΠΎΠ³ΠΈΠΈ ΡΡΡΠΎΠΈΡΠ΅Π»ΡΡΡΠ²Π° ΠΈ ΠΎΡΠ΄Π΅Π»ΠΊΠΈ ΠΎΠ·Π΄ΠΎΡΠΎΠ²ΠΈΡΠ΅Π»ΡΠ½ΡΡ ΠΊΠΎΠΌΠΏΠ»Π΅ΠΊΡΠΎΠ² ΠΏΡΠ΅Π΄ΠΏΠΎΠ»Π°Π³Π°ΡΡ ΠΏΡΠΈΠΌΠ΅Π½Π΅Π½ΠΈΠ΅ ΠΌΠ°ΡΠ΅ΡΠΈΠ°Π»ΠΎΠ², ΠΊΠΎΡΠΎΡΡΠ΅ ΠΏΡΠΈ Π½Π°Π³ΡΠ΅Π²Π΅ Π½Π΅ Π²ΡΠ΄Π΅Π»ΡΡΡ Π²ΡΠ΅Π΄Π½ΡΡ Π²Π΅ΡΠ΅ΡΡΠ². ΠΠ°ΠΈΠ»ΡΡΡΠΈΠΌ ΠΌΠ°ΡΠ΅ΡΠΈΠ°Π»ΠΎΠΌ ΡΠ²Π»ΡΠ΅ΡΡΡ ΡΠ΅Π»ΡΠ½Π°Ρ Π΄ΡΠ΅Π²Π΅ΡΠΈΠ½Π°.
ΠΡΠΈΠΌΠ΅Ρ ΠΏΠ»Π°Π½ΠΈΡΠΎΠ²ΠΊΠΈ Π½Π΅Π±ΠΎΠ»ΡΡΠΎΠ³ΠΎ Π΄ΠΎΠΌΠ° Ρ Π³Π°ΡΠ°ΠΆΠΎΠΌ ΠΈ ΡΠ°ΡΠ½ΠΎΠΉΠΡΠΎΠ΅ΠΊΡΠΎΠ² Π΄ΠΎΠΌΠΎΠ², ΠΊΠΎΡΠΎΡΡΠ΅ ΠΎΠ±ΠΎΡΡΠ΄ΠΎΠ²Π°Π½Ρ Π³Π°ΡΠ°ΠΆΠ°ΠΌΠΈ, Π²Π΅Π»ΠΈΠΊΠΎΠ΅ ΠΌΠ½ΠΎΠΆΠ΅ΡΡΠ²ΠΎ. Β ΠΠΎΠΆΠ½ΠΎ Π½Π°ΠΉΡΠΈ Π±ΠΎΠ»ΡΡΠΎΠ΅ ΠΊΠΎΠ»ΠΈΡΠ΅ΡΡΠ²ΠΎ ΠΎΠΏΠΈΡΠ°Π½ΠΈΠΉ Ρ ΡΠΎΡΠΎ ΠΈ ΡΠ΅ΡΡΠ΅ΠΆΠ°ΠΌΠΈ, Π²ΡΠΏΠΎΠ»Π½Π΅Π½Π½ΡΠΌΠΈ Π² ΡΠ°Π·Π½ΡΡ ΠΏΡΠΎΠ΅ΠΊΡΠΈΡΡ . ΠΠ·ΠΎΠ±ΡΠ°ΠΆΠ΅Π½ΠΈΡ Π΄ΠΎΠ±Π°Π²Π»ΡΡΡ Π½Π°Π³Π»ΡΠ΄Π½ΠΎΡΡΠΈ ΠΈ ΠΏΠΎΠ·Π²ΠΎΠ»ΡΡΡ ΠΏΡΠ΅Π΄ΡΡΠ°Π²ΠΈΡΡ, ΠΊΠ°ΠΊ Π±ΡΠ΄Π΅Ρ Π²ΡΠ³Π»ΡΠ΄Π΅ΡΡ ΡΠΎΡ ΠΈΠ»ΠΈ ΠΈΠ½ΠΎΠΉ Π΄ΠΎΠΌ Π½Π° ΠΊΠΎΠ½ΠΊΡΠ΅ΡΠ½ΠΎΠΌ ΡΡΠ°ΡΡΠΊΠ΅. Π‘ΠΎΠ²ΡΠ΅ΠΌΠ΅Π½Π½ΡΠ΅ ΠΏΡΠΎΠ³ΡΠ°ΠΌΠΌΠ½ΡΠ΅ ΡΡΠ΅Π΄ΡΡΠ²Π° ΠΏΠΎΠ·Π²ΠΎΠ»ΡΡΡ ΡΠΎΠ·Π΄Π°Π²Π°ΡΡ Π² ΡΠΎΠΌ ΡΠΈΡΠ»Π΅ ΠΈ ΠΎΠ±ΡΡΠΌΠ½ΡΠ΅ ΠΈΠ·ΠΎΠ±ΡΠ°ΠΆΠ΅Π½ΠΈΡ Π² 3D.
ΠΠ° ΡΡΠΎΠΌ Π²ΠΈΠ΄Π΅ΠΎ ΠΌΠΎΠΆΠ΅ΡΠ΅ ΠΏΠΎΡΠΌΠΎΡΡΠ΅ΡΡ Π½Π° ΠΏΡΠΎΠ΅ΠΊΡ ΠΏΡΠΎΡΡΠΎΡΠ½ΠΎΠ³ΠΎ Π΄ΠΎΠΌΠ° Ρ Π³Π°ΡΠ°ΠΆΠΎΠΌ Π½Π° Π΄Π²Π΅Β ΠΌΠ°ΡΠΈΠ½Ρ ΠΈ Π»Π΅ΡΠ½Π΅ΠΉ ΠΊΡΡ Π½Π΅ΠΉ
Β ΠΡΠ±ΠΎΡ Π½Π°ΠΈΠ±ΠΎΠ»Π΅Π΅ ΠΏΠΎΠ΄Ρ ΠΎΠ΄ΡΡΠ΅Π³ΠΎ ΠΏΡΠΎΠ΅ΠΊΡΠ° ΠΏΠΎΠ΄ ΡΡΠ»ΠΎΠ²ΠΈΡ Π·Π΅ΠΌΠ΅Π»ΡΠ½ΠΎΠ³ΠΎ ΡΡΠ°ΡΡΠΊΠ° ΠΈ ΡΠ΄ΠΎΠ±Π½ΠΎΠ³ΠΎ Π΄Π»Ρ ΠΏΠΎΡΡΠΎΡΠ½Π½ΠΎΠ³ΠΎ ΠΏΡΠΎΠΆΠΈΠ²Π°Π½ΠΈΡ β Π΄Π΅Π»ΠΎ Π΄ΠΎΠ²ΠΎΠ»ΡΠ½ΠΎ ΡΠ»ΠΎΠΆΠ½ΠΎΠ΅. ΠΡΠΎΠ·Π½Π°Π½ΠΎ ΠΎΡΠ΄Π°ΡΡ ΠΏΡΠ΅Π΄ΠΏΠΎΡΡΠ΅Π½ΠΈΠ΅ ΠΎΠ΄Π½ΠΎΠΌΡ ΠΈΠ· Π³ΠΎΡΠΎΠ²ΡΡ ΠΏΡΠΎΠ΅ΠΊΡΠΎΠ² ΠΌΠΎΠΆΠ½ΠΎ Π»ΠΈΡΡ ΠΏΠΎΡΠ»Π΅ Π΄ΠΎΡΠΊΠΎΠ½Π°Π»ΡΠ½ΠΎΠ³ΠΎ ΠΈΠ·ΡΡΠ΅Π½ΠΈΡ Π±ΠΎΠ»ΡΡΠΎΠ³ΠΎ ΠΈΡ ΠΊΠΎΠ»ΠΈΡΠ΅ΡΡΠ²Π°.proekt-sam.ru
ΠΡΠΎΠ΅ΠΊΡΡ ΠΎΠ΄Π½ΠΎΡΡΠ°ΠΆΠ½ΡΡ Π΄ΠΎΠΌΠΎΠ² Ρ Π³Π°ΡΠ°ΠΆΠΎΠΌ ΠΏΠΎΠ΄ ΠΎΠ΄Π½ΠΎΠΉ ΠΊΡΡΡΠ΅ΠΉ
Π‘Π°ΠΌΡΠ΅ ΡΠ°ΡΠΏΡΠΎΡΡΡΠ°Π½Π΅Π½Π½ΡΠ΅ ΠΏΡΠΎΠ΅ΠΊΡΡ Π·Π°Π³ΠΎΡΠΎΠ΄Π½ΡΡ Π΄ΠΎΠΌΠΎΠ² β ΡΡΠΎ ΠΏΡΠΎΠ΅ΠΊΡΡ ΠΎΠ΄Π½ΠΎΡΡΠ°ΠΆΠ½ΡΡ Π΄ΠΎΠΌΠΎΠ² Ρ Π³Π°ΡΠ°ΠΆΠΎΠΌ. Π’Π°ΠΊΠΎΠΉ ΠΈΠ½ΡΠ΅ΡΠ΅Ρ ΠΈΠΌΠ΅Π½Π½ΠΎ ΠΊ ΡΡΠΈΠΌ ΠΏΡΠΎΠ΅ΠΊΡΠ°ΠΌ ΠΎΠ±ΡΡΡΠ½ΡΠ΅ΡΡΡ ΠΏΡΠΎΡΡΠΎ: Ρ ΠΌΠ½ΠΎΠ³ΠΈΡ ΡΠ΅ΠΌΠ΅ΠΉ Π΅ΡΡΡ ΡΠ²ΠΎΠΉ Π°Π²ΡΠΎΠΌΠΎΠ±ΠΈΠ»Ρ, Π° ΠΎΠ΄Π½ΠΎΡΡΠ°ΠΆΠ½ΡΠΉ Π΄ΠΎΠΌ Π² ΠΏΠ»Π°Π½Π΅ ΡΠ΄ΠΎΠ±ΡΡΠ²Π° ΠΈ ΡΠΊΠΎΠ½ΠΎΠΌΠΈΠΈ Π±ΡΠ΄ΠΆΠ΅ΡΠ° ΠΏΡΠΈ ΡΡΡΠΎΠΈΡΠ΅Π»ΡΡΡΠ²Π΅ Π²ΡΠ΅Π³Π΄Π° Π±ΡΠ» ΠΏΡΠ΅Π΄ΠΏΠΎΡΡΠΈΡΠ΅Π»ΡΠ½Π΅Π΅ ΠΌΠ°Π»ΠΎΡΡΠ°ΠΆΠ½ΡΡ ΠΊΠΎΡΡΠ΅Π΄ΠΆΠ΅ΠΉ. ΠΠΎ ΠΈ Π² ΠΌΠ½ΠΎΠ³ΠΎΠΎΠ±ΡΠ°Π·ΠΈΠΈ ΡΡΠΈΡ ΠΏΡΠΎΠ΅ΠΊΡΠΎΠ² Π΅ΡΡΡ ΡΠ²ΠΎΡ ΠΏΡΠΎΠ±Π»Π΅ΠΌΠ°: Π²ΡΠ±ΡΠ°ΡΡ ΠΏΡΠΎΠ΅ΠΊΡ Π΄ΠΎΠΌΠ° Ρ ΠΎΡΠ΄Π΅Π»ΡΠ½ΡΠΌ Π³Π°ΡΠ°ΠΆΠΎΠΌ, Ρ Π³Π°ΡΠ°ΠΆΠΎΠΌ ΠΏΠΎΠ΄ Π΄ΠΎΠΌΠΎΠΌ ΠΈΠ»ΠΈ Ρ ΠΏΡΠΈΡΡΡΠΎΠΉΠΊΠΎΠΉ Π΄Π»Ρ Π°Π²ΡΠΎΠΌΠΎΠ±ΠΈΠ»Ρ? Β ΠΡΠΈΠΌΠ΅Ρ ΡΠ°ΠΊΠΎΠ³ΠΎ ΠΏΡΠΎΠ΅ΠΊΡΠ° Π½Π° ΡΠΈΡΡΠ½ΠΊΠ΅ Π½ΠΈΠΆΠ΅ ΠΏΡΠ΅ΠΊΡΠ°ΡΠ½ΠΎ ΠΎΡΡΠ°ΠΆΠ°Π΅Ρ Π²ΡΠ΅ ΠΏΡΠ΅ΠΈΠΌΡΡΠ΅ΡΡΠ²Π° ΡΠ°ΡΠΏΠΎΠ»ΠΎΠΆΠ΅Π½ΠΈΡ ΠΏΠΎΠΌΠ΅ΡΠ΅Π½ΠΈΠΉ, Π²ΠΊΠ»ΡΡΠ°Ρ ΠΏΡΠΈΡΡΡΠΎΠ΅Π½Π½ΡΠΉ Π³Π°ΡΠ°ΠΆ Π½Π° Π΄Π²Π° Π°Π²ΡΠΎΠΌΠΎΠ±ΠΈΠ»Ρ:
ΠΡΠΎΠ΅ΠΊΡ ΠΎΠ΄Π½ΠΎΡΡΠ°ΠΆΠ½ΠΎΠ³ΠΎ ΠΊΠΎΡΡΠ΅Π΄ΠΆΠ° Ρ Π³Π°ΡΠ°ΠΆΠΎΠΌ Π½Π° Π΄Π²Π° Π°Π²ΡΠΎΠΌΠΎΠ±ΠΈΠ»ΡΠΠΎΡΡΠΎΠΈΠ½ΡΡΠ²Π° ΠΈ Π½Π΅Π΄ΠΎΡΡΠ°ΡΠΊΠΈ ΠΏΡΠΎΠ΅ΠΊΡΠ°
ΠΠΎΠΌ ΠΈ Π³Π°ΡΠ°ΠΆ ΠΏΠΎΠ΄ ΠΎΠ΄ΠΈΠ½ ΠΈΠ»ΠΈ Π½Π΅ΡΠΊΠΎΠ»ΡΠΊΠΎ Π°Π²ΡΠΎΠΌΠΎΠ±ΠΈΠ»Π΅ΠΉ, ΠΏΠΎΡΡΡΠΎΠ΅Π½Π½ΡΠ΅ ΠΏΠΎΠ΄ ΠΎΠ΄Π½ΠΎΠΉ ΠΊΡΡΡΠ΅ΠΉ ΠΈ Π½Π° ΠΎΠ΄Π½ΠΎΠΌ ΡΡΠ½Π΄Π°ΠΌΠ΅Π½ΡΠ΅ β ΡΡΠΎ ΡΠ°ΠΌΡΠΉ ΠΏΡΠ°ΠΊΡΠΈΡΠ½ΡΠΉ ΠΈ ΡΠΊΠΎΠ½ΠΎΠΌΠΈΡΠ½ΡΠΉ Π²Π°ΡΠΈΠ°Π½Ρ Π°ΡΡ ΠΈΡΠ΅ΠΊΡΡΡΠ½ΠΎΠ³ΠΎ ΡΠ΅ΡΠ΅Π½ΠΈΡ ΠΏΡΠΎΠ±Π»Π΅ΠΌΡ. ΠΠΎΡ ΠΏΡΠ΅ΠΈΠΌΡΡΠ΅ΡΡΠ²Π° ΠΏΡΠΎΠ΅ΠΊΡΠ° Π΄ΠΎΠΌΠ° Ρ Π³Π°ΡΠ°ΠΆΠΎΠΌ ΠΏΠΎΠ΄ ΠΎΠ΄Π½ΠΎΠΉ ΠΊΡΡΡΠ΅ΠΉ:
- ΠΠ° Π½Π΅Π±ΠΎΠ»ΡΡΠΎΠΌ Π·Π΅ΠΌΠ΅Π»ΡΠ½ΠΎΠΌ ΡΡΠ°ΡΡΠΊΠ΅ Π·Π°Π½ΠΈΠΌΠ°Π΅Ρ ΠΌΠ°Π»ΠΎ ΠΌΠ΅ΡΡΠ°, ΡΡΠΎ ΠΏΠΎΠ·Π²ΠΎΠ»ΡΠ΅Ρ ΡΠ°Π·ΠΌΠ΅ΡΡΠΈΡΡ Π½Π° ΠΎΡΠ²ΠΎΠ±ΠΎΠΆΠ΄Π΅Π½Π½ΠΎΠΉ ΡΠ΅ΡΡΠΈΡΠΎΡΠΈΠΈ Π΄ΡΡΠ³ΠΈΠ΅ ΠΏΠΎΡΡΡΠΎΠΉΠΊΠΈ;
- ΠΠ°ΡΠ°ΠΆ ΠΌΠΎΠΆΠ΅Ρ Π±ΡΡΡ ΠΎΡΠ°ΠΏΠ»ΠΈΠ²Π°Π΅ΠΌΡΠΌ, ΠΏΡΠΈΡΠ΅ΠΌ Π±Π΅Π· ΠΎΡΠΎΠ±ΡΡ Π·Π°ΡΡΠ°Ρ: Π΄ΠΎΡΡΠ°ΡΠΎΡΠ½ΠΎ Π΅Π³ΠΎ ΡΠΈΡΡΠ΅ΠΌΡ ΡΠ°Π΄ΠΈΠ°ΡΠΎΡΠΎΠ² ΠΏΠΎΠ΄ΠΊΠ»ΡΡΠΈΡΡ ΠΊ ΠΎΡΠΎΠΏΠΈΡΠ΅Π»ΡΠ½ΠΎΠΉ ΡΠΈΡΡΠ΅ΠΌΠ΅ Π΄ΠΎΠΌΠ°. ΠΠ΅ΠΆΠ΄Ρ Π΄ΠΎΠΌΠΎΠΌ ΠΈ Π³Π°ΡΠ°ΠΆΠΎΠΌ Π½Π΅Ρ ΡΠ»ΠΈΡΠ½ΠΎΠ³ΠΎ ΠΏΡΠΎΡΡΡΠ°Π½ΡΡΠ²Π°, ΠΏΠΎΡΡΠΎΠΌΡ ΠΊΠΎΠΌΠΌΡΠ½ΠΈΠΊΠ°ΡΠΈΠΈ ΠΏΡΠΎΠΊΠ»Π°Π΄ΡΠ²Π°ΡΡΡΡ Π±Π΅Π· Π»ΠΈΡΠ½ΠΈΡ Π·Π°ΡΡΠ°Ρ Π½Π° ΡΡΠ΅ΠΏΠ»Π΅Π½ΠΈΠ΅ ΠΈ Π·Π°Π³Π»ΡΠ±Π»Π΅Π½ΠΈΠ΅ Π² Π³ΡΡΠ½Ρ. ΠΠΎΡΠ΅ΡΠΈ ΡΠ΅ΠΏΠ»Π° ΠΏΡΠΈ ΡΡΠΎΠΌ Π±ΡΠ΄Ρ Π½Π΅Π·Π½Π°ΡΠΈΡΠ΅Π»ΡΠ½ΡΠΌΠΈ;
- Π’Π°ΠΊΠΆΠ΅ ΠΎΡ Π΄ΠΎΠΌΠ° ΠΌΠΎΠΆΠ½ΠΎ ΠΏΡΠΎΡΡΠ½ΡΡΡ Π²ΠΎΠ΄ΠΎΠΏΡΠΎΠ²ΠΎΠ΄Π½ΡΠ΅ ΡΡΡΠ±Ρ ΠΈ ΠΊΠ°Π½Π°Π»ΠΈΠ·Π°ΡΠΈΡ, ΡΡΠΎ Π² Π³Π°ΡΠ°ΠΆΠ΅ Π½ΠΈΠΊΠΎΠ³Π΄Π° Π½Π΅ ΠΏΠΎΠΌΠ΅ΡΠ°Π΅Ρ: ΡΠ΅ΠΌΠΎΠ½Ρ Π°Π²ΡΠΎΠΌΠΎΠ±ΠΈΠ»Ρ β Π³ΡΡΠ·Π½ΠΎΠ΅ Π΄Π΅Π»ΠΎ;
- ΠΠΊΠΎΠ½ΠΎΠΌΠΈΡ ΡΡΡΠΎΠΉΠΌΠ°ΡΠ΅ΡΠΈΠ°Π»ΠΎΠ²: ΡΡΠ½Π΄Π°ΠΌΠ΅Π½Ρ, ΡΡΠ΅Π½Ρ ΠΈ ΠΊΡΠΎΠ²Π»Ρ Π±ΡΠ΄ΡΡ ΠΎΠ±ΡΠΈΠΌΠΈ ΠΈ Ρ Π΄ΠΎΠΌΠ°, ΠΈ Ρ Π³Π°ΡΠ°ΠΆΠ°, ΠΏΠΎΡΡΠΎΠΌΡ ΡΠ΅Π½Π° ΡΡΡΠΎΠΈΡΠ΅Π»ΡΡΡΠ²Π°, ΡΠ°ΡΡ ΠΎΠ΄Ρ Π½Π° ΡΡΡΠΎΠΉΠΌΠ°ΡΠ΅ΡΠΈΠ°Π»Ρ ΠΈ ΠΎΡΠ΄Π΅Π»ΠΊΡ Ρ ΡΠ°ΠΊΠΎΠ³ΠΎ ΠΏΡΠΎΠ΅ΠΊΡΠ° ΠΆΠΈΠ»ΠΎΠ³ΠΎ Π΄ΠΎΠΌΠ° Ρ ΠΏΡΠΈΡΡΡΠΎΠ΅Π½Π½ΡΠΌ Π³Π°ΡΠ°ΠΆΠΎΠΌ Π±ΡΠ΄ΡΡ Π½Π°ΠΌΠ½ΠΎΠ³ΠΎ ΠΌΠ΅Π½ΡΡΠ΅, ΡΠ΅ΠΌ Ρ ΠΏΡΠΎΠ΅ΠΊΡΠ° Ρ ΡΠ°Π·Π΄Π΅Π»ΡΠ½ΡΠΌΠΈ ΡΡΡΠΎΠ΅Π½ΠΈΡΠΌΠΈ.
ΠΠΈΠ·ΡΠ°Π»ΠΈΠ·Π°ΡΠΈΡ ΠΏΡΠΎΠ΅ΠΊΡΠ°Π§ΡΠΎ Π΅ΡΠ΅ ΠΌΠΎΠΆΠ½ΠΎ Π΄ΠΎΠ±Π°Π²ΠΈΡΡ ΠΊ ΠΏΡΠ΅ΠΈΠΌΡΡΠ΅ΡΡΠ²Π°ΠΌ, ΠΊΠΎΡΠΎΡΡΠ΅ ΠΈΠΌΠ΅ΡΡ ΠΏΡΠΎΠ΅ΠΊΡΡ Π΄ΠΎΠΌΠΎΠ² 8 Ρ 10 ΠΌ Ρ Π³Π°ΡΠ°ΠΆΠΎΠΌ Π² Π²ΠΈΠ΄Π΅ ΠΏΡΠΈΡΡΡΠΎΠΉΠΊΠΈ:
- ΠΠ°ΠΊ Π²ΠΈΠ΄Π½ΠΎ ΠΈΠ· ΠΏΠ΅ΡΠ²ΠΎΠ³ΠΎ ΡΠΈΡΡΠ½ΠΊΠ°, ΠΏΠ»Π°Π½ ΠΎΠ±ΡΠ΅Π΄ΠΈΠ½Π΅Π½Π½ΡΡ ΡΡΡΠΎΠ΅Π½ΠΈΠΉ ΠΎΠ±Π΅ΡΠΏΠ΅ΡΠΈΠ²Π°Π΅Ρ ΡΠ²ΠΎΠ±ΠΎΠ΄Π½ΠΎΠ΅ ΠΏΠΎΠΏΠ°Π΄Π°Π½ΠΈΠ΅ ΠΈΠ· ΠΆΠΈΠ»ΠΎΠΉ Π·ΠΎΠ½Ρ Π² Π³Π°ΡΠ°ΠΆ, Π½Π΅ Π²ΡΡ ΠΎΠ΄Ρ Π½Π° ΡΠ»ΠΈΡΡ, ΠΈ Π·ΠΈΠΌΠΎΠΉ ΡΡΠΎ ΠΎΠ³ΡΠΎΠΌΠ½ΠΎΠ΅ ΠΏΡΠ΅ΠΈΠΌΡΡΠ΅ΡΡΠ²ΠΎ;
- ΠΠ΄ΠΈΠ½Π°Ρ ΡΠΈΡΡΠ΅ΠΌΠ° ΠΏΠΎΠΆΠ°ΡΠΎΠ±Π΅Π·ΠΎΠΏΠ°ΡΠ½ΠΎΡΡΠΈ ΠΈ ΠΎΡ ΡΠ°Π½Ρ ΡΡΡΠ΅ΡΡΠ²Π΅Π½Π½ΠΎ ΡΠΏΡΠΎΡΠ°Π΅ΡΡΡ, ΡΠ°ΠΊΠΆΠ΅ ΠΏΡΠΎΡΡΠΎΠ΅ Π²ΠΈΠ·ΡΠ°Π»ΡΠ½ΠΎΠ΅ ΠΈ ΡΠ»ΡΡ ΠΎΠ²ΠΎΠ΅ Π½Π°Π±Π»ΡΠ΄Π΅Π½ΠΈΠ΅ Π·Π° Π³Π°ΡΠ°ΠΆΠΎΠΌ ΠΈ Π΅Π³ΠΎ ΡΠΎΠ΄Π΅ΡΠΆΠΈΠΌΡΠΌ ΠΏΡΠΎΠΈΡΡ ΠΎΠ΄ΠΈΡ Π΅ΡΡΠ΅ΡΡΠ²Π΅Π½Π½ΠΎ;
- Π§ΡΠΎ ΠΊΠ°ΡΠ°Π΅ΡΡΡ ΠΎΠ΄Π½ΠΎΡΡΠ°ΠΆΠ½ΠΎΠ³ΠΎ Π΄ΠΎΠΌΠ°, ΡΠΎ Π΅Π³ΠΎ ΠΏΡΠ΅ΠΈΠΌΡΡΠ΅ΡΡΠ²Π° ΠΎΡΠ΅Π²ΠΈΠ΄Π½Ρ: Π΄Π»Ρ Π΄Π΅ΡΠ΅ΠΉ ΠΈ ΡΡΠ°ΡΠΈΠΊΠΎΠ² ΠΏΠ΅ΡΠ΅Π΄Π²ΠΈΠΆΠ΅Π½ΠΈΠ΅ ΠΏΠΎ Π΄ΠΎΠΌΡ Π±Π΅Π· Π»Π΅ΡΡΠ½ΠΈΡ Π³ΠΎΡΠ°Π·Π΄ΠΎ ΡΠ΄ΠΎΠ±Π½Π΅Π΅ ΠΈ Π±Π΅Π·ΠΎΠΏΠ°ΡΠ½Π΅Π΅;
- ΠΡΠ»ΠΈ Π³Π°ΡΠ°ΠΆ ΡΠ΄Π΅Π»Π°ΡΡ ΠΏΡΠΎΡΡΠΎΡΠ½Π΅Π΅, ΡΠΎ Π² Π½Π΅ΠΌ ΠΌΠΎΠΆΠ½ΠΎ Π΄ΠΎΠΏΠΎΠ»Π½ΠΈΡΠ΅Π»ΡΠ½ΠΎ ΠΎΠ±ΠΎΡΡΠ΄ΠΎΠ²Π°ΡΡ ΡΠ°ΡΠ½Ρ, Π±ΠΈΠ»Π»ΠΈΠ°ΡΠ΄Π½ΡΡ ΠΈΠ»ΠΈ ΡΠΏΠΎΡΡΠ·Π°Π», ΡΡΠΎ ΡΠ°ΠΊΠΆΠ΅ ΠΎΡΠ²ΠΎΠ±ΠΎΠΆΠ΄Π°Π΅Ρ ΠΏΠ»ΠΎΡΠ°Π΄Ρ Π² Π΄ΠΎΠΌΠ΅ ΠΈΠ»ΠΈ Π½Π° ΡΡΠ°ΡΡΠΊΠ΅;
- Π’Π°ΠΊ ΠΊΠ°ΠΊ Π΄Π΅ΡΠ΅Π²ΡΡ Π½Π° ΡΡΠ°ΡΡΠΊΠ΅ ΡΠ΅Π΄ΠΊΠΎ ΠΏΡΠ΅Π²ΡΡΠ°ΡΡ Π²ΡΡΠΎΡΡ Π΄Π²ΡΡ ΡΡΠ°ΠΆΠ½ΠΎΠ³ΠΎ Π΄ΠΎΠΌΠ°, ΠΏΡΠΎΠ΅ΠΊΡ ΠΎΠ΄Π½ΠΎΡΡΠ°ΠΆΠ½ΠΎΠ³ΠΎ ΡΡΡΠΎΠ΅Π½ΠΈΡ ΠΏΡΠ΅ΠΊΡΠ°ΡΠ½ΠΎ Π²ΠΏΠΈΡΠ΅ΡΡΡ Π² Π»Π°Π½Π΄ΡΠ°ΡΡ, Π½Π΅ Π½Π°ΡΡΡΠ°Ρ, Π° Π΄ΠΎΠΏΠΎΠ»Π½ΡΡ Π΅Π³ΠΎ.
ΠΡΠΎΠ΅ΠΊΡ Π΄ΠΎΠΌΠ° Ρ Π³Π°ΡΠ°ΠΆΠΎΠΌ Π½Π° ΠΎΠ΄ΠΈΠ½ Π°Π²ΡΠΎΠΌΠΎΠ±ΠΈΠ»ΡΠΠ΅Π΄ΠΎΡΡΠ°ΡΠΊΠΈ:
- ΠΠΎΠΌ Ρ Π³Π°ΡΠ°ΠΆΠΎΠΌ ΠΎΠ΄Π½ΠΎΡΡΠ°ΠΆΠ½ΡΠΉ Π±ΠΎΠ»ΡΡΠ΅ ΠΏΠΎΠ΄ΠΎΠΉΠ΄Π΅Ρ Π΄Π»Ρ ΠΌΠ°Π»Π΅Π½ΡΠΊΠΈΡ ΡΡΠ°ΡΡΠΊΠΎΠ² Π±Π΅Π· ΡΠΊΠ»ΠΎΠ½Π° ΠΈ ΠΎΠ²ΡΠ°Π³ΠΎΠ². ΠΡΠΈ ΡΠ»ΠΎΠΆΠ½ΠΎΠΌ ΡΠ΅Π»ΡΠ΅ΡΠ΅ Π½Π΅ΠΎΠ±Ρ ΠΎΠ΄ΠΈΠΌΠΎ ΡΠ°Π·ΡΠ°Π²Π½ΠΈΠ²Π°ΡΡ Π³ΡΡΠ½Ρ, Π° ΡΡΠΎ β Π΄ΠΎΠΏΠΎΠ»Π½ΠΈΡΠ΅Π»ΡΠ½ΡΠ΅ Π·Π°ΡΡΠ°ΡΡ Π½Π° ΡΡΡΠΎΠΈΡΠ΅Π»ΡΡΡΠ²ΠΎ. ΠΡΠ»ΠΈ ΡΡΠ°ΡΡΠΎΠΊ Π±ΠΎΠ»ΡΡΠΎΠΉ, ΡΠΎ ΡΡΠΎΡ Π½Π΅Π΄ΠΎΡΡΠ°ΡΠΎΠΊ ΠΏΡΠ΅Π²ΡΠ°ΡΠ°Π΅ΡΡΡ Π² ΠΏΡΠ΅ΠΈΠΌΡΡΠ΅ΡΡΠ²ΠΎ, ΡΠ°ΠΊ ΠΊΠ°ΠΊ ΡΠΈΡΠΎΠΊΠΈΠΉ Π΄ΠΎΠΌ Ρ Π³Π°ΡΠ°ΠΆΠΎΠΌ ΠΏΠΎΠ·Π²ΠΎΠ»ΡΠ΅Ρ ΡΠΎΠ·Π΄Π°Π²Π°ΡΡ ΠΈΠ½ΡΠ΅ΡΠ΅ΡΠ½ΡΠ΅ ΠΊΠΎΠΌΠΏΠΎΠ·ΠΈΡΠΈΠΈ;
- ΠΠ΄Π½ΠΎΡΡΠ°ΠΆΠ½ΡΠΉ Π΄ΠΎΠΌ β ΡΡΠΎ ΠΌΠ°Π»Π΅Π½ΡΠΊΠ°Ρ ΠΏΠ»ΠΎΡΠ°Π΄Ρ, ΠΌΠ°ΠΊΡΠΈΠΌΡΠΌ 10 Ρ 10 ΠΌΠ΅ΡΡΠΎΠ², ΠΈ Π½Π° Π½Π΅Π±ΠΎΠ»ΡΡΠΎΠΌ ΡΡΠ°ΡΡΠΊΠ΅ ΡΠ°ΡΡΠΈΡΠΈΡΡ Π΄ΠΎΠΌ Π½Π΅ ΠΏΠΎΠ»ΡΡΠΈΡΡΡ Π±Π΅Π· ΡΡΠ΅Π·Π°Π½ΠΈΡ ΠΏΠ»ΠΎΡΠ°Π΄ΠΈ Π΄Π²ΠΎΡΠ°. ΠΠΎΡΡΠΎΠΌΡ Π΄Π»Ρ ΡΠ°ΡΡΠΈΡΠ΅Π½ΠΈΡ ΠΏΠΎΠ»Π΅Π·Π½ΠΎΠΉ ΠΏΠ»ΠΎΡΠ°Π΄ΠΈ Π΄ΠΎΠΌΠ° ΠΏΡΠ΅Π΄ΠΏΠΎΡΡΠΈΡΠ΅Π»ΡΠ½Π΅Π΅ ΡΡΡΠΎΠΈΡΡ ΠΌΠ°Π½ΡΠ°ΡΠ΄Ρ, Π° Π½Π΅ Π²Π΅ΡΠ°Π½Π΄Ρ ΠΈΠ»ΠΈ ΡΠ΅ΡΡΠ°ΡΡ. Π’Π°ΠΊΠΆΠ΅ ΠΌΠΎΠΆΠ½ΠΎ ΠΎΠ±ΡΡΡΡΠΎΠΈΡΡ ΠΆΠΈΠ»ΠΎΠΉ ΡΠΎΠΊΠΎΠ»Ρ ΠΈΠ»ΠΈ ΠΏΠΎΠ΄Π·Π΅ΠΌΠ½ΡΠΉ Π³Π°ΡΠ°ΠΆ, ΡΡΠΎ ΡΠΎΠΆΠ΅ Π½Π΅ ΡΠ΄Π΅Π»Π°Π΅Ρ ΠΏΡΠΎΠ΅ΠΊΡ Π΄Π΅ΡΠ΅Π²Π»Π΅.
ΠΡΠΎΠ±Π΅Π½Π½ΠΎΡΡΠΈ ΠΏΡΠΎΠ΅ΠΊΡΠΈΡΠΎΠ²Π°Π½ΠΈΡ
Π‘ΡΡΠ΅ΡΡΠ²ΡΠ΅Ρ Π²ΡΠ΅Π³ΠΎ Π΄Π²Π° ΠΏΡΡΠΈ ΡΠΎΡΡΠ°Π²ΠΈΡΡ ΠΏΡΠΎΠ΅ΠΊΡ Π΄ΠΎΠΌΠ° Ρ Π³Π°ΡΠ°ΠΆΠΎΠΌ, ΡΠ΅ΡΡΠ΅ΠΆΠΈ ΠΊΠΎΡΠΎΡΠΎΠ³ΠΎ Π²Π°ΠΌ ΠΏΠΎΠ½ΡΠ°Π²ΡΡΡΡ: ΡΠ΄Π΅Π»Π°ΡΡ Π²ΡΠ΅ ΡΠ°ΠΌΠΎΡΡΠΎΡΡΠ΅Π»ΡΠ½ΠΎ ΠΈΠ»ΠΈ ΠΎΠ±ΡΠ°ΡΠΈΡΡΡΡ Π² ΡΠΎΠΎΡΠ²Π΅ΡΡΡΠ²ΡΡΡΡΡ ΡΡΡΠΎΠΈΡΠ΅Π»ΡΠ½ΡΡ ΠΎΡΠ³Π°Π½ΠΈΠ·Π°ΡΠΈΡ Π·Π° ΡΠ°Π·ΡΠ°Π±ΠΎΡΠΊΠΎΠΉ ΠΈΠ½Π΄ΠΈΠ²ΠΈΠ΄ΡΠ°Π»ΡΠ½ΠΎΠ³ΠΎ ΠΏΡΠΎΠ΅ΠΊΡΠ°. ΠΠΎ Π²ΡΠΎΡΠΎΠΌ ΡΠ»ΡΡΠ°Π΅ Π²Ρ ΠΏΠΎΠ»ΡΡΠΈΡΠ΅:
- ΠΠΎΠ»Π½ΠΎΠ΅ ΡΠ΅Ρ Π½ΠΈΡΠ΅ΡΠΊΠΎΠ΅ ΠΎΠΏΠΈΡΠ°Π½ΠΈΠ΅ ΠΎΠ±ΡΠ΅ΠΊΡΠ°;
- ΠΠΎΠ»Π½ΡΠ΅ ΡΠ΅ΡΡΠ΅ΠΆΠΈ Ρ ΠΎΠΏΠΈΡΠ°Π½ΠΈΡΠΌΠΈ;
- ΠΠ»Π°Π½ ΡΡΡΠΎΠ΅Π½ΠΈΡ ΡΠΎ Π²ΡΠ΅ΠΌΠΈ ΠΏΠΎΠ΄ΡΠΎΠ±Π½ΠΎΡΡΡΠΌΠΈ.
ΠΡΠΈ ΠΆΠ΅ ΠΏΡΠ½ΠΊΡΡ Π²ΠΊΠ»ΡΡΠ°Π΅Ρ Π² ΡΠ΅Π±Ρ ΠΈ ΡΠΈΠΏΠΎΠ²ΡΠ΅ ΠΏΡΠΎΠ΅ΠΊΡΡ Π΄ΠΎΠΌΠΎΠ² ΠΎΠ΄Π½ΠΎΡΡΠ°ΠΆΠ½ΡΡ
Ρ Π³Π°ΡΠ°ΠΆΠΎΠΌ.
Π’ΠΈΠΏΠΎΠ²ΠΎΠΉ ΠΏΡΠΎΠ΅ΠΊΡ Π΄ΠΎΠΌΠ° Ρ Π³Π°ΡΠ°ΠΆΠΎΠΌ
ΠΡΠ»ΠΈ Π²Ρ Π²ΡΠ±Π΅ΡΠ΅ΡΠ΅ ΡΠΈΠΏΠΎΠ²ΠΎΠΉ ΠΏΡΠΎΠ΅ΠΊΡ, ΡΠΎ ΡΡΠΎ ΠΌΠΎΠΆΠ΅Ρ Π±ΡΡΡ ΠΊΠ°ΠΊ ΠΏΡΠΎΡΡΠΎΠΉ ΠΏΡΠΎΠ΅ΠΊΡ 6 Ρ 10 ΠΌ, ΡΠ°ΠΊ ΠΈ ΠΎΡΠ΅Π½Ρ ΡΠ»ΠΎΠΆΠ½ΡΠΉ ΠΈ ΠΊΡΠ°ΡΠΈΠ²ΡΠΉ ΠΏΡΠΎΠ΅ΠΊΡ, Π½ΠΎ Π½ΡΠΆΠ½ΠΎ ΠΏΠΎΠΌΠ½ΠΈΡΡ, ΡΡΠΎ ΡΠΈΠΏΠΎΠ²ΡΠ΅ ΡΠ°Π·ΡΠ°Π±ΠΎΡΠΊΠΈ Π½Π΅ Π²ΡΠ΅Π³Π΄Π° ΠΏΠΎΠ΄ΠΎΠΉΠ΄ΡΡ ΠΈΠΌΠ΅Π½Π½ΠΎ Π΄Π»Ρ Π²Π°ΡΠ΅Π³ΠΎ ΡΡΠ°ΡΡΠΊΠ° ΠΈ Π²Π°ΡΠΈΡ ΡΠΈΠ½Π°Π½ΡΠΎΠ²ΡΡ Π²ΠΎΠ·ΠΌΠΎΠΆΠ½ΠΎΡΡΠ΅ΠΉ. ΠΠΎΡΠΎΠ²ΡΠ΅ ΡΠ΅ΡΠ΅Π½ΠΈΡ Π»ΡΡΡΠ΅ ΠΈΡΠΏΠΎΠ»ΡΠ·ΠΎΠ²Π°ΡΡ Π½Π° ΡΡΠ°ΡΡΠΊΠ°Ρ Ρ ΡΠΎΠ²Π½ΡΠΌ ΡΠ΅Π»ΡΠ΅ΡΠΎΠΌ ΠΈ Π±Π΅Π· ΠΎΡΠΎΠ±Π΅Π½Π½ΠΎΡΡΠ΅ΠΉ Π»Π°Π½Π΄ΡΠ°ΡΡΠ° ΠΈ Π³ΡΡΠ½ΡΠ°. ΠΠ½Π°ΡΠ΅ ΠΏΡΠΎΠ΅ΠΊΡ ΠΏΡΠΈΠ΄Π΅ΡΡΡ ΠΊΠΎΡΡΠ΅ΠΊΡΠΈΡΠΎΠ²Π°ΡΡ.
ΠΡΠΈ ΡΠ°ΠΌΠΎΡΡΠΎΡΡΠ΅Π»ΡΠ½ΠΎΠΉ ΡΠ°Π·ΡΠ°Π±ΠΎΡΠΊΠ΅ ΠΏΡΠΎΠ΅ΠΊΡΠ°, Π΅ΡΠ»ΠΈ Π²Ρ Π½Π΅ Π°ΡΡ
ΠΈΡΠ΅ΠΊΡΠΎΡ, ΠΏΡΠΎΡΠ΅ Π²ΡΠ΅Π³ΠΎ Π²ΠΎΡΠΏΠΎΠ»ΡΠ·ΠΎΠ²Π°ΡΡΡΡ ΠΊΠΎΠΌΠΏΡΡΡΠ΅ΡΠ½ΠΎΠΉ ΠΏΡΠΎΠ³ΡΠ°ΠΌΠΌΠΎΠΉ, Π½Π°ΠΏΡΠΈΠΌΠ΅Ρ, ArchiCAD. Π’Π°ΠΊΠΎΠΉ ΡΠΌΠ΅Π»ΡΠΉ ΠΏΠΎΠ΄Ρ
ΠΎΠ΄ ΠΏΠΎΠ·Π²ΠΎΠ»ΠΈΡ Π²Π°ΠΌ ΠΏΡΠ΅ΡΠ²ΠΎΡΠΈΡΡ Π² ΠΆΠΈΠ·Π½Ρ Π²ΡΠ΅ Π²Π°ΡΠΈ ΡΠ°Π½ΡΠ°Π·ΠΈΠΈ, Π²ΠΏΠ»ΠΎΡΡ Π΄ΠΎ ΠΌΠ΅Π»ΡΡΠ°ΠΉΡΠΈΡ
Π΄Π΅ΡΠ°Π»Π΅ΠΉ, Π° ΠΏΡΠΎΠ΅ΠΊΡ ΠΏΠΎΠ»ΡΡΠΈΡΡΡ ΠΎΡΠΈΠ³ΠΈΠ½Π°Π»ΡΠ½ΡΠΌ ΠΈ ΡΠ½ΠΈΠΊΠ°Π»ΡΠ½ΡΠΌ.
Π Π°Π·ΡΠ°Π±ΠΎΡΠΊΠ° ΠΏΡΠΎΠ΅ΠΊΡΠ° Π² ΠΏΡΠΎΠ³ΡΠ°ΠΌΠΌΠ΅ ArchiCAD
ΠΠ»Π°Π²Π½ΡΠ΅ ΠΏΡΠ°Π²ΠΈΠ»Π° ΠΏΡΠΈ ΡΠΎΠ·Π΄Π°Π½ΠΈΠΈ ΠΏΡΠΎΠ΅ΠΊΡΠ° ΠΎΠ΄Π½ΠΎΡΡΠ°ΠΆΠ½ΠΎΠ³ΠΎ Π΄ΠΎΠΌΠ° Ρ Π³Π°ΡΠ°ΠΆΠΎΠΌ:
- ΠΡΠ°Π²ΠΈΠ»ΡΠ½Π°Ρ ΠΏΠ»Π°Π½ΠΈΡΠΎΠ²ΠΊΠ° ΠΈΠ½ΠΆΠ΅Π½Π΅ΡΠ½ΡΡ ΠΊΠΎΠΌΠΌΡΠ½ΠΈΠΊΠ°ΡΠΈΠΉ;
- ΠΠ°ΠΊΡΠΈΠΌΠ°Π»ΡΠ½Π°Ρ ΡΡΠ½ΠΊΡΠΈΠΎΠ½Π°Π»ΡΠ½ΠΎΡΡΡ Π³Π°ΡΠ°ΠΆΠ½ΠΎΠ³ΠΎ ΠΏΠΎΠΌΠ΅ΡΠ΅Π½ΠΈΡ;
- Π Π°ΡΠΈΠΎΠ½Π°Π»ΠΈΠ·ΠΈΡΠΎΠ²Π°Π½Π½ΠΎΠ΅ ΠΎΠ±ΡΠ΅Π΅ ΡΠ²ΠΎΠ±ΠΎΠ΄Π½ΠΎΠ΅ ΠΏΡΠΎΡΡΡΠ°Π½ΡΡΠ²ΠΎ;
- ΠΡΠ°Π²ΠΈΠ»ΡΠ½Π°Ρ ΠΏΠ»Π°Π½ΠΈΡΠΎΠ²ΠΊΠ°, ΠΏΡΠ΅Π΄ΡΡΠΌΠ°ΡΡΠΈΠ²Π°ΡΡΠ°Ρ ΡΠ°Π·Π΄Π΅Π»Π΅Π½ΠΈΠ΅ ΠΈ ΠΌΠ°ΠΊΡΠΈΠΌΠ°Π»ΡΠ½ΠΎΠ΅ ΡΠ΄Π°Π»Π΅Π½ΠΈΠ΅ ΠΆΠΈΠ»ΠΎΠΉ ΠΈ Ρ ΠΎΠ·ΡΠΉΡΡΠ²Π΅Π½Π½ΠΎΠΉ ΡΠ°ΡΡΠΈ;
- Π Π°Π·Π±ΠΈΠ²ΠΊΠ° ΠΈ Π±Π»Π°Π³ΠΎΡΡΡΡΠΎΠΉΡΡΠ²ΠΎ ΠΏΡΠΈΡΡΠ°Π΄Π΅Π±Π½ΠΎΠ³ΠΎ ΡΡΠ°ΡΡΠΊΠ° ΠΈ Π°Π²ΡΠΎΠΌΠΎΠ±ΠΈΠ»ΡΠ½ΠΎΠ³ΠΎ ΠΏΠΎΠ΄ΡΠ΅Π·Π΄Π°.
ΠΡΠΎΠ΅ΠΊΡ Π΄ΠΎΠΌΠ° ΠΈ Π³Π°ΡΠ°ΠΆΠ° Π½Π° ΡΠ°Π·Π½ΡΡ
ΡΡΠΎΠ²Π½ΡΡ
ΠΠ°ΠΆΠ΅ ΠΌΠ½ΠΎΠΆΠ΅ΡΡΠ²ΠΎ Π°ΡΡ ΠΈΡΠ΅ΠΊΡΡΡΠ½ΡΡ ΠΈ Π΄ΠΈΠ·Π°ΠΉΠ½Π΅ΡΡΠΊΠΈΡ Π²Π°ΡΠΈΠ°Π½ΡΠΎΠ² ΠΏΡΠΎΠ΅ΠΊΡΠΎΠ² ΠΌΠΎΠΆΠ½ΠΎ ΡΡΠ»ΠΎΠ²Π½ΠΎ ΠΏΠΎΠ΄Π΅Π»ΠΈΡΡ Π½Π° Π΄Π²Π° ΠΊΠ»Π°ΡΡΠ°:
- ΠΠ°ΡΠ°ΠΆ-ΠΏΡΠΈΡΡΡΠΎΠΉΠΊΠ° ΠΊ ΠΆΠΈΠ»ΡΡ;
- ΠΠΎΠ΄Π·Π΅ΠΌΠ½ΡΠΉ Π³Π°ΡΠ°ΠΆ.
ΠΡΠΈ ΡΡΡΠΎΠΈΡΠ΅Π»ΡΡΡΠ²Π΅ ΠΏΠΎΠ΄Π·Π΅ΠΌΠ½ΠΎΠ³ΠΎ Π³Π°ΡΠ°ΠΆΠ° Π·Π½Π°ΡΠΈΡΠ΅Π»ΡΠ½ΠΎ Π²ΠΎΠ·ΡΠ°ΡΡΠ°ΡΡ Π·Π°ΡΡΠ°ΡΡ Π½Π° Π·Π΅ΠΌΠ»Π΅ΡΠΎΠΉΠ½ΡΠ΅ ΡΠ°Π±ΠΎΡΡ ΠΏΠ»ΡΡ Π²ΡΠ²ΠΎΠ· Π³ΡΡΠ½ΡΠ°, ΡΠ³Π»ΡΠ±Π»Π΅Π½ΠΈΠ΅, ΡΡΠΈΠ»Π΅Π½ΠΈΠ΅ ΠΈ Π³ΠΈΠ΄ΡΠΎΠΈΠ·ΠΎΠ»ΡΡΠΈΡ ΡΡΠ½Π΄Π°ΠΌΠ΅Π½ΡΠ°. Π’Π°ΠΊΠΆΠ΅ ΠΏΠΎΠ½Π°Π΄ΠΎΠ±ΠΈΡΡΡ ΠΏΡΠ°Π²ΠΈΠ»ΡΠ½ΠΎ ΠΎΠ±ΠΎΡΡΠ΄ΠΎΠ²Π°ΡΡ Π²ΡΠ΅Π·Π΄ Π² Π³Π°ΡΠ°ΠΆ Ρ ΡΠ³Π»ΠΎΠΌ Π½Π°ΠΊΠ»ΠΎΠ½Π° 12Β°. ΠΠΌΠ΅Π½Π½ΠΎ ΠΎΡΠ΄Π΅Π»ΡΠ½ΡΠΉ Π²ΡΠ΅Π·Π΄ Π½Π°ΠΌΠ½ΠΎΠ³ΠΎ ΡΠΌΠ΅Π½ΡΡΠΈΡ ΠΏΠ»ΠΎΡΠ°Π΄Ρ Π²Π°ΡΠ΅Π³ΠΎ ΡΡΠ°ΡΡΠΊΠ° ΠΈ ΠΏΠΎΡΡΠ΅Π±ΡΠ΅Ρ Π΄ΠΎΠΏΠΎΠ»Π½ΠΈΡΠ΅Π»ΡΠ½ΠΎΠΉ Π·Π°ΡΠΈΡΡ ΠΎΡ ΡΠ½Π΅Π³Π°, Π΄ΠΎΠΆΠ΄Ρ, Π½Π°Π»Π΅Π΄ΠΈ, ΠΈ Ρ.Π΄.
ΠΡΡ ΠΈΡΠ΅ΠΊΡΡΡΠ½ΡΠ΅ ΡΠ΅ΡΠ΅Π½ΠΈΡ
ΠΡΠΎΡΡΠ΅ΠΉΡΠΈΠΉ ΠΏΡΠΎΠ΅ΠΊΡ ΠΈΠΌΠ΅Π΅Ρ ΠΏΡΡΠΌΠΎΡΠ³ΠΎΠ»ΡΠ½ΡΡ ΡΠΎΡΠΌΡ Ρ ΠΏΡΠΈΠΌΡΠΊΠ°ΡΡΠΈΠΌ Π³Π°ΡΠ°ΠΆΠΎΠΌ ΠΊ Π±ΠΎΠΊΠΎΠ²ΠΎΠΉ ΡΡΠ΅Π½Π΅ ΠΆΠΈΠ»ΠΎΠ³ΠΎ ΡΡΡΠΎΠ΅Π½ΠΈΡ (ΡΠΌ. ΡΠΈΡΡΠ½ΠΎΠΊ Π½ΠΈΠΆΠ΅). ΠΡΠ΅ΠΈΠΌΡΡΠ΅ΡΡΠ²Π° ΡΠ°ΠΊΠΎΠ³ΠΎ Π²Π°ΡΠΈΠ°Π½ΡΠ° β ΠΌΠ°ΠΊΡΠΈΠΌΠ°Π»ΡΠ½ΠΎΠ΅ ΠΈΡΠΏΠΎΠ»ΡΠ·ΠΎΠ²Π°Π½ΠΈΠ΅ ΠΏΡΠΎΡΡΡΠ°Π½ΡΡΠ²Π°.
ΠΡΡΠΌΠΎΡΠ³ΠΎΠ»ΡΠ½ΡΠΉ ΠΏΡΠΎΠ΅ΠΊΡ
Π’ΠΎ ΠΆΠ΅ ΡΠ°ΠΌΠΎΠ΅ ΠΎΡΠ½ΠΎΡΠΈΡΡΡ ΠΈ ΠΊ ΠΏΡΠΎΠ΅ΠΊΡΠ°ΠΌ ΠΊΠ²Π°Π΄ΡΠ°ΡΠ½ΠΎΠΉ ΡΠΎΡΠΌΡ, Π½ΠΎ Π² ΠΏΠ»Π°Π½Π΅ Π΄ΠΈΠ·Π°ΠΉΠ½Π° ΠΏΡΠΈΠ΄Π΅ΡΡΡ ΠΏΠΎΡΡΡΠ΄ΠΈΡΡΡΡ, ΡΠ°ΠΊ ΠΊΠ°ΠΊ Π΄ΠΎΠ²ΠΎΠ»ΡΠ½ΠΎ ΡΡΡΠ΄Π½ΠΎ ΠΎΡΠ΄Π΅Π»Π°ΡΡ ΠΏΡΠΎΡΡΡΠ΅ ΡΠΎΡΠΌΡ ΠΊΠ°ΠΊ-ΡΠΎ ΠΎΡΠΈΠ³ΠΈΠ½Π°Π»ΡΠ½ΠΎ. Π ΡΠΎΠΌΡ ΠΆΠ΅ ΠΏΠΎΠ΄ΡΠΎΠ±Π½ΡΠ΅ ΠΏΠΎΠΌΠ΅ΡΠ΅Π½ΠΈΡ Π² ΠΊΠ²Π°Π΄ΡΠ°ΡΠ½ΡΡ ΠΏΡΠΎΠ΅ΠΊΡΠ°Ρ ΠΏΡΠΎΡΠ΅ ΡΠ°ΡΠΏΠΎΠ»ΠΎΠΆΠΈΡΡ Π² ΠΎΠ΄Π½ΠΎΠΌ ΠΈΠ· ΡΠ³Π»ΠΎΠ² ΠΎΠ±ΡΠ΅Π³ΠΎ ΡΡΡΠΎΠ΅Π½ΠΈΡ, ΡΡΠΎΠ±Ρ ΠΎΡΡΠ°Π»ΠΎΡΡ Π±ΠΎΠ»ΡΡΠ΅ ΡΠ²ΠΎΠ±ΠΎΠ΄Π½ΠΎΠ³ΠΎ ΠΌΠ΅ΡΡΠ° Π΄Π»Ρ ΠΆΠΈΠ»ΡΡ ΠΊΠΎΠΌΠ½Π°Ρ Π΄ΠΎΠΌΠ°. Π’Π°ΠΊΠΈΠ΅ ΠΏΡΠΎΠ΅ΠΊΡΡ ΠΏΡΠ΅Π΄ΡΡΠΌΠ°ΡΡΠΈΠ²Π°ΡΡ ΡΡΡΠΎΠΈΡΠ΅Π»ΡΡΡΠ²ΠΎ ΡΠ΅ΡΡΡΠ΅Ρ ΡΠΊΠ°ΡΠ½ΠΎΠΉ ΠΊΡΡΡΠΈ, ΡΡΠΎ ΡΠ°ΠΌΠΎ ΠΏΠΎ ΡΠ΅Π±Π΅ Π΄ΠΎΡΠΎΠ³ΠΎ.
ΠΠ»Π°Π½ ΠΈ ΠΌΠ΅ΡΡΠΎ Π΄ΠΎΠΌΠ° Π½Π° ΡΡΠ°ΡΡΠΊΠ΅
- Π’Π°ΠΊΠΈΠ΅ ΠΏΡΠΎΠ΅ΠΊΡΡ ΠΏΡΠ΅Π΄ΠΏΠΎΠ»Π°Π³Π°ΡΡ ΡΠ°Π·ΠΌΠ΅ΡΠ΅Π½ΠΈΠ΅ Π·Π΄Π°Π½ΠΈΡ Π½Π° Π²ΠΎΠ·Π²ΡΡΠ΅Π½Π½ΠΎΡΡΠΈ ΡΡΠ°ΡΡΠΊΠ°, Π΅ΡΠ»ΠΈ ΠΎΠ½Π° ΡΡΡΠ΅ΡΡΠ²ΡΠ΅Ρ, Π΄Π»Ρ ΠΌΠ°ΠΊΡΠΈΠΌΠ°Π»ΡΠ½ΠΎΠ³ΠΎ ΠΈ Π±ΠΎΠ»Π΅Π΅ ΠΏΡΠΎΠ΄ΠΎΠ»ΠΆΠΈΡΠ΅Π»ΡΠ½ΠΎΠ³ΠΎ Π΅ΡΡΠ΅ΡΡΠ²Π΅Π½Π½ΠΎΠ³ΠΎ ΠΎΡΠ²Π΅ΡΠ΅Π½ΠΈΡ. ΠΡΠ»ΠΈ Π²Π°Ρ ΡΡΠ°ΡΡΠΎΠΊ ΡΠ°ΡΠΏΠΎΠ»ΠΎΠΆΠ΅Π½ Π² Π½ΠΈΠ·ΠΈΠ½Π΅ ΠΈΠ»ΠΈ ΠΈΠΌΠ΅Π΅Ρ ΡΠΎΠ²Π½ΡΡ ΠΏΠΎΠ²Π΅ΡΡ Π½ΠΎΡΡΡ, ΡΠΎ Π΄ΠΎΠΌ ΡΡΡΠΎΠΈΡΡΡ Π½Π° ΡΠ΅Π²Π΅ΡΠΎ-Π²ΠΎΡΡΠΎΠΊΠ΅, ΡΡΠΎΠ±Ρ Π΄ΠΎΠΌ ΠΎΡΠ²Π΅ΡΠ°Π»ΡΡ ΡΠΎΠ»Π½ΡΠ΅ΠΌ ΠΌΠ°ΠΊΡΠΈΠΌΠ°Π»ΡΠ½ΠΎ Π΄ΠΎΠ»Π³ΠΎ;
- Π€Π°ΡΠ°Π΄ Π΄ΠΎΠΌΠ° Π΄ΠΎΠ»ΠΆΠ΅Π½ Π²ΡΡ ΠΎΠ΄ΠΈΡΡ Π½Π° ΡΠ³, ΠΏΡΠΈ ΡΡΠΎΠΌ ΠΏΡΠΎΠ΅ΠΊΡ Π΄ΠΎΠΌΠ° Ρ Π³Π°ΡΠ°ΠΆΠΎΠΌ ΠΌΠΎΠΆΠ½ΠΎ Π΄ΠΎΠΏΠΎΠ»Π½ΠΈΡΡ ΡΠ΅ΡΡΠ°ΡΠΎΠΉ;
- Π§Π΅ΠΌ Π±Π»ΠΈΠΆΠ΅ Π²ΡΠ΅Π·Π΄ Π² Π³Π°ΡΠ°ΠΆ ΠΊ Π²ΠΎΡΠΎΡΠ°ΠΌ, ΡΠ΅ΠΌ Π»ΡΡΡΠ΅;
- ΠΠ΅ΡΠ΅Π΄ Π²ΡΠ΅Π·Π΄ΠΎΠΌ Π½Π΅ΠΎΠ±Ρ ΠΎΠ΄ΠΈΠΌΠΎ ΠΎΠ±ΠΎΡΡΠ΄ΠΎΠ²Π°ΡΡ ΠΏΠ°ΡΠΊΠΎΠ²ΠΊΡ Π΄Π»Ρ ΠΊΡΠ°ΡΠΊΠΎΠ²ΡΠ΅ΠΌΠ΅Π½Π½ΠΎΠΉ ΡΡΠΎΡΠ½ΠΊΠΈ ΠΈΠ»ΠΈ Π΄Π»Ρ Π΄ΡΡΠ³ΠΈΡ Π°Π²ΡΠΎΠΌΠΎΠ±ΠΈΠ»Π΅ΠΉ.
Π Π°ΡΠΏΠΎΠ»ΠΎΠΆΠ΅Π½ΠΈΠ΅ Π΄ΠΎΠΌΠ° Ρ Π³Π°ΡΠ°ΠΆΠΎΠΌ Π½Π° ΡΡΠ°ΡΡΠΊΠ΅ΠΠ½ΡΡΡΠ΅Π½Π½ΡΡ ΠΏΠ»Π°Π½ΠΈΡΠΎΠ²ΠΊΠ° Π΄ΠΎΠΌΠ° ΠΈ Π³Π°ΡΠ°ΠΆΠ°:
- ΠΠ°ΡΠ°ΠΆ Ρ ΠΏΠΎΠ΄ΡΠΎΠ±Π½ΡΠΌΠΈ ΠΏΠΎΠΌΠ΅ΡΠ΅Π½ΠΈΡΠΌΠΈ Π΄ΠΎΠ»ΠΆΠ΅Π½ Π½Π°Ρ ΠΎΠ΄ΠΈΡΡΡΡ ΡΠΎ ΡΡΠΎΡΠΎΠ½Ρ ΡΠ΅Π²Π΅ΡΠ°;
- ΠΠΎΡΡΠΈΠ½Π°Ρ Π² Π΄ΠΎΠΌΠ΅ Π΄ΠΎΠ»ΠΆΠ½Π° ΡΠ°ΡΠΏΠΎΠ»Π°Π³Π°ΡΡΡΡ Ρ ΡΠΆΠ½ΠΎΠΉ ΡΡΠΎΡΠΎΠ½Ρ;
- ΠΠΎΡΡΠΎΠΊ ΠΈΠ΄Π΅Π°Π»ΡΠ½ΠΎ ΠΏΠΎΠ΄ΠΎΠΉΠ΄Π΅Ρ Π΄Π»Ρ ΡΠΏΠ°Π»Π΅Π½, Π΄Π΅ΡΡΠΊΠΈΡ ΠΈ Π³ΠΎΡΡΠ΅Π²ΡΡ ΠΊΠΎΠΌΠ½Π°Ρ.
- ΠΠ° Π·Π°ΠΏΠ°Π΄Π΅ β ΡΡΠΎΠ»ΠΎΠ²Π°Ρ, ΠΎΠ±ΡΠ°Ρ ΠΈΠ»ΠΈ ΠΈΠ³ΡΠΎΠ²Π°Ρ ΠΊΠΎΠΌΠ½Π°ΡΠ°.
Π‘Π»Π΅Π΄ΠΈΡΠ΅ Π·Π° ΠΏΡΠ°Π²ΠΈΠ»ΡΠ½ΡΠΌ ΡΠ°ΡΡΠ΅ΡΠΎΠΌ ΠΏΠ»ΠΎΡΠ°Π΄ΠΈ Π³Π°ΡΠ°ΠΆΠ°, ΡΡΠΎΠ±Ρ ΠΎΡΠΊΡΡΠ²Π°ΡΡΠΈΠ΅ΡΡ Π΄Π²Π΅ΡΠΈ Π°Π²ΡΠΎΠΌΠΎΠ±ΠΈΠ»Ρ Π½Π΅ Π·Π°Π΄Π΅Π²Π°Π»ΠΈ ΡΡΠ΅Π½Ρ ΠΈ ΠΏΠΎΠ·Π²ΠΎΠ»ΡΠ»ΠΈ ΡΠ²ΠΎΠ±ΠΎΠ΄Π½ΠΎ Π²ΡΠΉΡΠΈ ΠΈΠ· ΠΌΠ°ΡΠΈΠ½Ρ.
ΠΠ»Ρ ΠΌΠ°ΠΊΡΠΈΠΌΠ°Π»ΡΠ½ΠΎ ΠΊΠΎΠΌΡΠΎΡΡΠ½ΠΎΠ³ΠΎ ΠΏΡΠΎΠΆΠΈΠ²Π°Π½ΠΈΡ Π² ΡΠ°ΠΊΠΎΠΌ Π΄ΠΎΠΌΠ΅ ΠΈ Π΄Π»Ρ ΠΎΠΏΡΠΈΠΌΠ°Π»ΡΠ½ΠΎ ΡΠ΄ΠΎΠ±Π½ΠΎΠΉ ΡΠΊΡΠΏΠ»ΡΠ°ΡΠ°ΡΠΈΠΈ Π³Π°ΡΠ°ΠΆΠ° ΡΠ΅ΠΊΠΎΠΌΠ΅Π½Π΄ΡΠ΅ΡΡΡ ΠΎΠ±ΡΡΡΡΠΎΠΈΡΡ Π½Π΅Π±ΠΎΠ»ΡΡΠΎΠΉ ΡΠ°ΠΌΠ±ΡΡ ΠΌΠ΅ΠΆΠ΄Ρ ΠΏΡΠΈΡΡΡΠΎΠΉΠΊΠΎΠΉ ΠΈ ΠΆΠΈΠ»ΡΠΌΠΈ ΠΏΠΎΠΌΠ΅ΡΠ΅Π½ΠΈΡΠΌΠΈ. Π’Π°ΠΌΠ±ΡΡΠ½Π°Ρ ΠΏΡΠΈΡΡΡΠΎΠΉΠΊΠ° ΡΠΎΠΊΡΠ°ΡΠΈΡ ΠΏΠΎΡΠ΅ΡΠΈ ΡΠ΅ΠΏΠ»Π° Π² Π½Π΅ΠΎΡΠ°ΠΏΠ»ΠΈΠ²Π°Π΅ΠΌΠΎΠΌ Π³Π°ΡΠ°ΠΆΠ΅, ΠΈ ΡΡΠ°Π½Π΅Ρ ΠΏΡΠ΅ΠΏΡΡΡΡΠ²ΠΈΠ΅ΠΌ Π΄Π»Ρ ΠΏΡΠΎΠ½ΠΈΠΊΠ½ΠΎΠ²Π΅Π½ΠΈΡ ΠΏΠΎΡΡΠΎΡΠΎΠ½Π½ΠΈΡ
ΡΡΠΌΠΎΠ² Π² Π΄ΠΎΠΌ ΠΈΠ· Π³Π°ΡΠ°ΠΆΠ°. Π’Π°ΠΊΠΆΠ΅ Π³Π°ΡΠ°ΠΆ β ΠΎΡΠ΅Π½Ρ ΡΠ΄ΠΎΠ±Π½ΠΎΠ΅ ΠΌΠ΅ΡΡΠΎ Π΄Π»Ρ ΡΠ°ΡΠΏΠΎΠ»ΠΎΠΆΠ΅Π½ΠΈΡ ΠΊΠΎΡΠ»Π° ΠΈ Π΄ΡΡΠ³ΠΎΠ³ΠΎ ΠΎΡΠΎΠΏΠΈΡΠ΅Π»ΡΠ½ΠΎΠ³ΠΎ ΠΎΠ±ΠΎΡΡΠ΄ΠΎΠ²Π°Π½ΠΈΡ, ΠΏΠΎΠ΄Π°Π»ΡΡΠ΅ ΠΎΡ ΠΏΠ΅ΡΠ΅Ρ
ΠΎΠ΄Π° ΠΌΠ΅ΠΆΠ΄Ρ ΠΏΠΎΠΌΠ΅ΡΠ΅Π½ΠΈΡΠΌΠΈ.
ΠΡΠ΅ ΠΎΠ΄ΠΈΠ½ ΠΏΡΠΎΠ΅ΠΊΡ
Π‘ΡΠΈΠ»Ρ Π΄ΠΈΠ·Π°ΠΉΠ½Π° Π΄ΠΎΠΌΠ° Π² ΠΎΠ΄ΠΈΠ½ ΡΡΠ°ΠΆ Ρ ΠΏΡΠΈΡΡΡΠΎΠΉΠΊΠΎΠΉ-Π³Π°ΡΠ°ΠΆΠΎΠΌ ΠΌΠΎΠΆΠ½ΠΎ Π²ΡΠ±ΠΈΡΠ°ΡΡ Π»ΡΠ±ΠΎΠ³ΠΎ Π½Π°ΠΏΡΠ°Π²Π»Π΅Π½ΠΈΡ β ΡΡΠΎ Π·Π°Π²ΠΈΡΠΈΡ ΡΠΎΠ»ΡΠΊΠΎ ΠΎΡ Ρ ΠΎΠ·ΡΠΈΠ½Π°. ΠΡΠΈ ΡΡΠΎΠΌ Π½ΡΠΆΠ½ΠΎ ΡΡΠΈΡΡΠ²Π°ΡΡ Π°ΡΡ ΠΈΡΠ΅ΠΊΡΡΡΡ Π΄ΠΎΠΌΠ°, ΡΠΎΡΠΌΡ ΠΊΡΠΎΠ²Π»ΠΈ, ΡΠΊΡΡΠ΅ΡΡΠ΅Ρ ΠΏΡΠΈΡΡΠ°Π΄Π΅Π±Π½ΠΎΠ³ΠΎ ΡΡΠ°ΡΡΠΊΠ°. ΠΡΠ»ΠΈ Ρ Π²Π°Ρ Π±ΠΎΠ»ΡΡΠΎΠΉ ΡΡΠ°ΡΡΠΎΠΊ, ΡΠΎ Π΄ΠΈΠ·Π°ΠΉΠ½ ΡΠ΅ΠΊΠΎΠΌΠ΅Π½Π΄ΡΠ΅ΡΡΡ Π² ΠΊΠ»Π°ΡΡΠΈΡΠ΅ΡΠΊΠΎΠΌ ΠΈΠ»ΠΈ ΡΡΠ°ΡΠΈΠ½Π½ΠΎΠΌ ΡΡΠΈΠ»Π΅, Π½Π° ΠΌΠ°Π»Π΅Π½ΡΠΊΠΎΠΌ ΡΡΠ°ΡΡΠΊΠ΅ Π»ΡΡΡΠ΅ Π±ΡΠ΄Π΅Ρ Π²ΡΠ³Π»ΡΠ΄Π΅ΡΡ Π΄ΠΎΠΌ Π² ΠΌΠΈΠ½ΠΈΠΌΠ°Π»ΠΈΡΡΠΈΡΠ΅ΡΠΊΠΎΠΌ ΡΡΠΈΠ»Π΅ ΠΈΠ»ΠΈ Ρ Π°ΠΉ-ΡΠ΅ΠΊ.
ΠΠ΅Π²Π°ΠΆΠ½ΠΎ, ΡΠΈΠΏΠΎΠ²ΠΎΠΉ ΠΏΡΠΎΠ΅ΠΊΡ ΠΎΠ΄Π½ΠΎΡΡΠ°ΠΆΠ½ΠΎΠ³ΠΎ Π΄ΠΎΠΌΠ° Ρ Π³Π°ΡΠ°ΠΆΠΎΠΌ Π²Ρ Π²ΡΠ΄Π΅ΡΠ΅ΡΠ΅, ΠΈΠ»ΠΈ Π·Π°ΠΊΠ°ΠΆΠ΅ΡΠ΅ ΠΈΠ½Π΄ΠΈΠ²ΠΈΠ΄ΡΠ°Π»ΡΠ½ΡΠΉ Π²Π°ΡΠΈΠ°Π½Ρ ΡΠΎ ΡΠ²ΠΎΠΈΠΌΠΈ ΡΠ΅ΡΠ΅Π½ΠΈΡΠΌΠΈ. ΠΡΠ»ΠΈ Π²Ρ Π±ΡΠ΄Π΅ΡΠ΅ ΠΏΡΠΈΠ΄Π΅ΡΠΆΠΈΠ²Π°ΡΡΡΡ Π½Π°ΡΠΈΡ
ΡΠ΅ΠΊΠΎΠΌΠ΅Π½Π΄Π°ΡΠΈΠΉ, ΡΠΎ Π² ΡΠ΅Π·ΡΠ»ΡΡΠ°ΡΠ΅ ΠΏΠΎΠ»ΡΡΠΈΡΠ΅ ΠΊΠΎΠΌΡΠΎΡΡΠ½ΡΠΉ ΠΈ ΡΡΠ½ΠΊΡΠΈΠΎΠ½Π°Π»ΡΠ½ΡΠΉ Π·Π°Π³ΠΎΡΠΎΠ΄Π½ΡΠΉ Π΄ΠΎΠΌ Ρ ΡΠ΄ΠΎΠ±Π½ΡΠΌ Π³Π°ΡΠ°ΠΆΠΎΠΌ.
jsnip.ru
