План дома с подвалом: готовые и типовые. Каталог содержит планировки, планы и чертежи
Проекты домов с подвалом: фото, планировка и чертежи
- Из газобетона
- Каркасные
- Из кирпича
- Из бревна
- Из бруса
- Москва: +7 (495) 505-63-05
СПб: +7 (812) 309-53-00- Россия: +7 (800) 333-53-00
- +7-981-873-67-07
ПН–ПТ, 10:00–19:00
+7 (800) 333-53-00
Заказать звонок
Заказать звонок
ГлавнаяКаталог проектов домовПроекты домов с подвалом
с мансардойодноэтажныес гаражомдвухэтажныекирпичные
Проекты домов с подвалом
Открыть фильтр Открыть фильтрПодбор по параметрам: Фильтр по параметрам:
Выбрано проектов: 0Показать
Проектов не найдено
Категория
Материал стенГазобетон
Кирпич
Брус
Бревно
Каркас
Всего этажей в домеС мансардным этажом
Без мансардного этажа
С цокольным этажом
Без цокольного этажа
Общая площадь (м²) Всего спален Кол-во спален на 1 этаже Кол-во спален на 2 этаже Кол-во санузлов Кухня и гостинаяС кухней-гостиной
Отдельная кухня
Большая гостиная
Большая кухня
Сортировка по
с мансардойодноэтажныес гаражомдвухэтажныекирпичные
AS-004 — проект большого трехэтажного дома из кирпича с гаражом и бассейном
| Площадь: | 204. 7 м² |
| Габариты: | 11.1 х 14.5 |
| Спален: | 3 |
61 400
AS-2158 — проект трехэтажного дома из газобетона с подвалом и террасой
| Площадь: | 94.1 м² |
| Габариты: | 6.2 х 6.2 |
| Спален: | 2 |
21 600
AS-2380F — проект трехэтажного каркасного дома с подвалом и террасой
| Площадь: | 102.7 м² |
| Габариты: | 7. 8 х 8.8 |
| Спален: | 3 |
23 600
AS-2319 — проект двухэтажного дома из газобетона с подвалом и чердаком
| Площадь: | 81.8 м² |
| Габариты: | 10 х 12 |
| Спален: | 2 |
18 800
AS-2435 — проект трехэтажного дома из газобетона с баней и бассейном
| Площадь: | 379.02 м² |
| Габариты: | 14.4 х 18.5 |
| Спален: | 5 |
113 700
AS-2241 — проект трехэтажного дома из кирпича с гаражом и подвалом
| Площадь: | 146. 2 м² |
| Габариты: | 8.5 х 8.5 |
| Спален: | 2 |
38 000
AS-118 — проект четырехэтажного дома из кирпича с гаражом и подвалом
| Площадь: | 485.1 м² |
| Габариты: | 17.95 х 21.33 |
| Спален: | 4 |
145 500
AS-2071-3 — проект двухэтажного дома из газобетона с цоколем и подвалом
| Площадь: | 107. 6 м² |
| Габариты: | 8.2 х 10.3 |
| Спален: | 2 |
24 700
AS-678 — проект одноэтажного дома из кирпича с баней и гаражом
| Площадь: | 327.4 м² |
| Габариты: | 22 х 32.5 |
| Спален: | 3 |
98 200
AS-2506 — проект трехэтажного дома из газобетона с подвалом и панорамными окнами
| Площадь: | 475 м² |
| Габариты: | 15. 7 х 20.9 |
| Спален: | 8 |
142 500
AS-2380 — проект трехэтажного дома из газобетона с котельной и террасой
| Площадь: | 102.7 м² |
| Габариты: | 7.8 х 8.8 |
| Спален: |
23 600
AS-2442 — проект двухэтажного дома из газобетона с подвалом и гаражом
| Площадь: | 142 м² |
| Габариты: | 12 х 12 |
| Спален: | 2 |
36 900
AS-396 — проект трехэтажного дома из бруса с подвалом и навесом для машины
| Площадь: | 122. 6 м² |
| Габариты: | 8 х 9.4 |
| Спален: | 2 |
28 200
AS-2301 — проект четырехэтажного дома из газобетона с мансардой и котельной
| Площадь: | 217.2 м² |
| Габариты: | 9.5 х 9.5 |
| Спален: | 3 |
65 200
AS-1284 — проект трехэтажного дома из кирпича с котельной и бассейном
| Площадь: | 484.![]() |
| Габариты: | 17 х 19 |
| Спален: | 7 |
145 400
AS-183 — проект трехэтажного дома из кирпича с гаражом и балконом
| Площадь: | 181.3 м² |
| Габариты: | 10.7 х 13.9 |
| Спален: | 4 |
54 400
AS-2553 — проект двухэтажного дома из газобетона с баней и гаражом
| Площадь: | 144 м² |
| Габариты: | 9 х 20. 5 |
| Спален: | 0 |
37 400
AS-2200 — проект трехэтажного дома из газобетона с бассейном и баней
| Площадь: | 521.2 м² |
| Габариты: | 13.2 х 13.6 |
| Спален: | 5 |
156 400
AS-2275 — проект трехэтажного дома из газобетона с балконом и мансардой
| Площадь: | 175.4 м² |
| Габариты: | 14. 1 х 14.8 |
| Спален: | 5 |
52 600
AS-2392 — проект трехэтажного дома из газобетона с подвалом и панорамными окнами
| Площадь: | 145.5 м² |
| Габариты: | 9.6 х 9.6 |
| Спален: | 4 |
37 800
AS-083 — проект трехэтажного дома из кирпича с чердаком и гаражом
| Площадь: | 229.4 м² |
| Габариты: | 10 х 12. 2 |
| Спален: | 5 |
68 800
AS-2321 — проект дома из газобетона с мансардой и гаражом
| Площадь: | 142 м² |
| Габариты: | 9.6 х 10 |
| Спален: | 3 |
36 900
AS-2434 — проект трехэтажного дома из кирпича с котельной и подвалом
| Площадь: | 187.7 м² |
| Габариты: | 8.9 х 9.9 |
| Спален: | 5 |
56 300
Проект трехэтажного дома из газобетона с цоколем и мансардой
| Площадь: | 324. 5 м² |
| Габариты: | 11.67 х 11.82 |
| Спален: | 4 |
97 400
Чтобы занести проект в избранное и пользоваться другими привилегиями сайта, необходимо войти или зарегистрироваться!
Проект добавлен в сравнение
Перейти к сравнению проектовПродолжить
Спасибо за заказ!
Мы перезвоним вам в ближайшее время
Заказать звонок
Мы перезвоним вам в ближайшее времяНажимая кнопку «Жду звонка», вы соглашаетесь с обработкой персональных данных.
Спасибо!
Ваша заявка принята в работу.
Спасибо!
Ваша заявка принята в работу.
Регистрация
Вы зарегистрированы.
Информация для сброса Вашего пароля была отправлена на указанный e-mail.
Сброс пароля
Вы вышли!
Будем рады видеть Вас снова.
чертежи, проекты одноэтажных и двухэтажных коттеджей с мансардой и гаражом
Подвалом принято называть все заглубляемые помещения, хотя в более точном определении – это этаж, отметка пола которого ниже уровня грунта более чем наполовину высоты стен. Если меньше – то это цокольный этаж, который даже может быть и наземным.
Благодаря наличию дополнительной площади есть возможность освободить верхние этажи от технических и вспомогательных помещений, увеличив тем самым количество жилых комнат. Именно поэтому план дома с подвалом и вызывает такой интерес у частных застройщиков.
Стиль лофт идеально вписывается в подвальное помещениеВернуться к оглавлению
Содержание материала
- 1 Подвал под домом – за и против
- 1.
1 Варианты обустройства подвала - 1.2 Как лучше устроить подвал
- 1.
- 2 Проекты и их особенности
- 2.1 Одноэтажный дом 7х8 с гаражом в цоколе
- 2.2 Одноэтажный коттедж с гаражом в цоколе
- 2.3 Двухэтажный дом с подвалом
- 3 Видео: особенности строительства дома с подвалом
- 4 Фотогалерея: проекты домов с подвалом
Подвал под домом – за и против
По поводу экономической целесообразности обустройства подвальных помещений под домом ведутся нескончаемые баталии. Одни видят в этом сплошную выгоду, так как появляется возможность устроить сауну или бассейн, вынести туда бойлер ГВС, санузлы, прачечную, и даже гараж. Другие считают, что это сплошные расходы, и гораздо проще и дешевле предусмотреть второй наземный этаж.
Читайте также:
- проекты домов и коттеджей с бассейном;
- проекты домов с цокольным гаражом;
- проекты и планировка частных домов с сауной.
Постараемся рассудить, кто из них прав — но сначала взгляните, как можно обустроить подвал.
Варианты обустройства подвала
Как лучше устроить подвал
Самый выгодный с финансовой точки зрения подвал тот, который устроен в границах ленточного фундамента. Есть ещё вариант на монолитной ленте — он более дорогой, но и более надёжный. На фото снизу представлены оба.
Варианты устройства подвала под домомПодвал можно устроить только в стенах существующего фундамента, если он ленточный, или на заглублённой монолитной плите с возведением цокольных стен (о возведении и монтаже плитного фундамента читайте в статье). В первом случае стены подвала отдельно возводить не нужно – требуется только устроить полы по грунту.
Но их заливают и выполняют гидроизоляцию в любом случае, даже в доме без подвала. Остаётся только одна конструкция, которую приходится обустраивать дополнительно – перекрытие.
Это не слишком большая плата за то, что в доме появится 80 или 100 квадратов лишней площади (в зависимости от размера дома в плане).
Пол и стены есть – остаётся только перекрытиеНе считая перекрытия, основные расходы пойдут на внутреннюю отделку и оборудование помещений.
Но если они вам нужны для комфортного проживания, вы осознанно идёте на эти траты.
При отсутствии подвала всё то же самое приходится делать в наземном варианте. Но для этого нужна дополнительная площадь участка, что является в городах самым больным вопросом.
Второй или мансардный этаж (варианты планировки дома с мансардой смотрите по ссылке), не может в полной мере заменить цокольный, так как про гараж или бассейн в таком случае придётся точно забыть.
Целесообразность устройства подвального этажа налицо и противопоказание здесь только одно – неблагоприятные гидрогеологические условия.
Если сказать наиболее просто, чтобы было понятно каждому – это такие условия, в которых нельзя проектировать ленточный фундамент, а нужны сваи или столбы с надземным ростверком (о строительстве фундамента с ростверком читайте в статье), либо можно предусмотреть только поверхностную плиту.
К таким условиям относятся торфяные и скальные грунты, высокий уровень вод, пересекающийся с уровнем промерзания, когда практически любой грунт становится пучинистым.
В подобных ситуациях да – заглублённый этаж был бы одной сплошной проблемой.
В остальных случаях можно спокойно выбирать проект одноэтажного дома с подвалом и воплощать его в жизнь. Каким будет уровень заглубления цокольных стен, зависит от местных условий, ведь любой проект необходимо привязать к местности.
Если, к примеру, в вашем районе грунт промерзает всего на 110 см, зачем вам заглублять стены на всю высоту? Достаточно будет лишь незначительно опустить подошву фундамента ниже УГП, точное значение определяется по формуле.
Чем выше над землёй окажутся цокольные стенки, тем проще обеспечить заглубляемым помещениям естественное освещение и вентиляцию. А соответственно, вы будете меньше нести расходов на электроэнергию в процессе эксплуатации.
Рекомендуем прочесть статьи на нашем сайте:
- вентиляция подвала и погреба в доме;
- проектирование освещения здания.

Вернуться к оглавлению
Проекты и их особенности
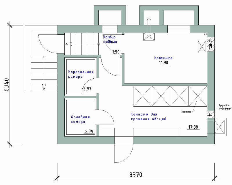
Правильная планировка подвала в частном доме заключается в первую очередь в том, чтобы минимизировать расходы на прокладку трубопроводов. Ведь все вводы коммуникаций – канализация, водоснабжение — и даже иногда сам источник водоснабжения находятся в подвале.
ХВС организовано из мини-скважины находится прямо в подвале домаЭто является одной из основных причин устройства в нём помещений, в которых устанавливается водоразборное оборудование: отопительные котлы и бойлеры, гидроаккумуляторы, ванные и душевые кабины, сауны и бассейны.
Иногда кроме этих помещений в подвале больше нет ничего, но если позволяет площадь этажа, план подвала частного дома может включать в себя и несколько «сухих» помещений.
Одноэтажный дом 7х8 с гаражом в цоколе
Перед нами проект дома с мансардой и подвалом, предназначенный для застройки небольшого по площади или узкого дачного участка (проекты домов для узких участков представлены в статье).
В этом проекте санузел ни на одном этаже не предусмотрен, «удобства» будут во дворе. Это домик с размерами 7,6*8,6 м в плане, но благодаря наличию подвала и мансарды его общая площадь составляет почти 150 кв.м.
- Согласно проекту, который можно скачать бесплатно, стены наземного этажа можно возводить из любых видов блоков: керамических, шлако- или керамзитобетонных, пеноблока или кирпича.
- Перекрытия по желанию заказчика могут быть спроектированы в трёх вариантах: сборные из плит ПК, монолитные и балочные.
- Кровельное покрытие может предусматриваться любое – главное, чтобы крыша выполнялась в утеплённом варианте, потому что под нею располагается мансарда (об утеплении мансарды рассказано в статье).
- Тип фундамента не указывается, так как его всё равно нужно проектировать в соответствии с конкретными условиями строительства. Для дачного дома проще всего предусмотреть сборный вариант, из блоков ФБС (читайте на нашем сайте: блоки для строительства фундамента).

Примечание: если грунт сухой, плиту пола можно даже не заливать, а оставить его земляным, так как кроме гаража и ещё одного помещения, используемого как погреб, в подвале комнат больше нет.
Терраса в этом доме не предусмотрена, в гостиной, располагаемой на первом этаже, имеется камин (проекты печей и каминов ищите в статье). К ней примыкает довольно большая проходная кухня, из которой ведёт лестница на мансарду.
План первого этажаНа верхнем уровне, по традиции, распланированы приватные помещения. Это две большие спальни, в которые можно попасть из маленького коридорчика.
Жилой мансардный этаж — чертёжОдноэтажный коттедж с гаражом в цоколе
Для строительства этого коттеджа, размеры которого в плане составляют 17*14,4 метра, нужен участок с минимальными параметрами 25*22,5 м. Особенность этого здания состоит в том, что оно приспособлено для рельефа с перепадом, за счёт которого очень удобно строить цокольный этаж (меньше объём земляных работ).
Так как перепад рельефа составляет порядка 85 см, здание с одной стороны заглублено всего на 65 см, а с другой отметка пола подвала составляет -2,52 м при том, что уровень земли с этой стороны находится на отметке -1,5 м.
Поэтажная схема домаЦокольные помещения располагаются не под всем домом, а только в пониженной части, поэтому площадь подвала составляет всего 48 м2, тогда как площадь наземного этажа – более 150 м2. Внизу располагается только гараж на одну машину, котельная, прихожая и кладовка.
Чертеж дома с подвалом в пониженной части рельефаВсе остальные комнаты находятся в наземном этаже. Это большая кухня-столовая и отдельно от неё гостиная с камином, две спальни, санузел. Имеется большая терраса, которая находится с той стороны, где рельеф участка выше.
План жилого этажаДом рассчитан на строительство из газобетона с кирпичной облицовкой, но могут применяться и любые другие блоки — как бетонные, так и керамические.
Тип перекрытий, как и вариант покрытия кровли, по желанию заказчика может быть выполнен в любом варианте.
Двухэтажный дом с подвалом
Дом в два этажа до 300 м2 рассчитан на проживание большой семьи. Он спроектирован в стиле провинциального классического дома, имеет на входе просторную террасу, подвал площадью до 100 кв.м, но гараж здесь не предусмотрен.
Двухэтажный дом с подваломНаличие подвала и второго этажа позволило на относительно небольшой площади застройки (в плане 13*10,52), получить целых 294 м2 общей площади. В типовом варианте дом строится из камня или кирпича, но на специализированных сайтах масса проектов, по которым можно возводить подобные дома из бруса или бревна, по каркасным и другим технологиям.
Читайте на нашем ресурсе:
- строительство частного дома из природного камня;
- проекты домов из клеёного бруса.
Вот планы этажей с экспликациями помещений:
- Самое удобное то, что в подвале есть отдельный вход в приямке, как это делается в многоэтажных домах, но в него можно попасть не только с улицы, но и из дома.

- В подвале располагаются только технические, подсобные помещения и кинозал. Это наилучшее место для кинотеатра, так как будучи отсеченным от жилых помещений и хорошо звукоизолированный, он не будет мешать тем, кто в момент просмотра отдыхает или занимается другими делами.
- Под первый этаж традиционно отводится гостевая зона. Здесь тамбур и примыкающий к нему холл ведут в гостиную со столовой зоной, отдельную кухню, в которой так же есть обеденная зона, гардеробную и гостевую спальню.
- На втором этаже находятся три спальни и кабинет, который при необходимости можно превратить в детскую или ещё одну гостевую комнату. Санузлы есть на обоих этажах, но внизу он маленький, с душевым поддоном, а внизу более просторный, с ванной.
Вернуться к оглавлению
Видео: особенности строительства дома с подвалом
Вернуться к оглавлению
Фотогалерея: проекты домов с подвалом
Вариантов проектов может быть много – и не только по площади и планировке, но и по архитектурному стилю. Предлагаем вашему вниманию галерею с изображениями фасадов таких домов:
Представленные типовые проекты — лишь капля в море из того, что проектировщики предлагают сегодня частным заказчикам. Однако прежде, чем принимать решение о строительстве дома с подвалом, нужно сто раз подумать – и уж тем более, если собираетесь обойтись без проекта.
Проекты домов с подвалом | archon.com.ua
— 3500 UAH
Дом в зефирантесе 5 (П)
односемейный коттедж одноэтажный с жилой мансардой
Полезная площадь:
143.
44 м2
Общая площадь: 336.82 м2
Цена: 25 920 UAH 22 420 UAH
— 3500 UAH
Дом в люцерне (П) вер.2
односемейный коттедж одноэтажный с жилой мансардой
Полезная площадь: 130.54 м2
Общая площадь: 293.65 м2
Цена: 23 610 UAH 20 110 UAH
— 3500 UAH
Дом в хлорофитуме (П)
односемейный коттедж одноэтажный с жилой мансардой
Полезная площадь:
111.
37 м2
Общая площадь: 257.99 м2
Цена: 22 080 UAH 18 580 UAH
— 3500 UAH
Дом в майоране 2 (П)
односемейный коттедж одноэтажный с жилой мансардой
Полезная площадь: 148.44 м2
Общая площадь: 327.00 м2
Цена: 25 070 UAH 21 570 UAH
— 3500 UAH
Дом в люцерне (ГП)
односемейный коттедж одноэтажный с жилой мансардой
Полезная площадь:
114.
17 м2
Общая площадь: 260.41 м2
Цена: 22 080 UAH 18 580 UAH
— 3500 UAH
Резиденция в персимонах 2
односемейный коттедж одноэтажный с жилой мансардой
Полезная площадь: 381.92 м2
Общая площадь: 866.75 м2
Цена: 59 500 UAH 56 000 UAH
— 3500 UAH
Дом в рододендронах 5 (ВПН)
односемейный коттедж одноэтажный с жилой мансардой
Полезная площадь:
121.
94 м2
Общая площадь: 281.72 м2
Цена: 23 610 UAH 20 110 UAH
— 3500 UAH
Дом в гейджее (Г2П)
односемейный коттедж одноэтажный с жилой мансардой
Полезная площадь: 133.39 м2
Общая площадь: 342.37 м2
Цена: 26 420 UAH 22 920 UAH
— 3500 UAH
Дом под личи 5 (П)
односемейный коттедж одноэтажный с жилой мансардой
Полезная площадь:
137.
57 м2
Общая площадь: 244.38 м2
Цена: 25 070 UAH 21 570 UAH
— 3500 UAH
Дом в рододендронах (ПН)
односемейный коттедж одноэтажный с жилой мансардой
Полезная площадь: 102.18 м2
Общая площадь: 235.87 м2
Цена: 22 080 UAH 18 580 UAH
— 3500 UAH
Дом в хлорофитуме 6 (ПТ)
односемейный коттедж одноэтажный с жилой мансардой
Полезная площадь:
132.
2 м2
Общая площадь: 291.78 м2
Цена: 23 610 UAH 20 110 UAH
— 3500 UAH
Дом в кортландах (Г2П)
односемейный коттедж одноэтажный с жилой мансардой
Полезная площадь: 150.28 м2
Общая площадь: 417.16 м2
Цена: 29 140 UAH 25 640 UAH
— 3500 UAH
Дом в айдаредах 3 (П)
односемейный коттедж одноэтажный с жилой мансардой
Полезная площадь:
152.
11 м2
Общая площадь: 345.17 м2
Цена: 26 420 UAH 22 920 UAH
— 3500 UAH
Дом в малиновках 4 (П)
односемейный коттедж одноэтажный с жилой мансардой
Полезная площадь: 137.65 м2
Общая площадь: 294.94 м2
Цена: 23 610 UAH 20 110 UAH
— 3500 UAH
Дом в малиновках (П)
односемейный коттедж одноэтажный с жилой мансардой
Полезная площадь:
120.
56 м2
Общая площадь: 262.11 м2
Цена: 22 080 UAH 18 580 UAH
— 3500 UAH
Дом в серебрянках 2 (Г2П)
односемейный коттедж одноэтажный с жилой мансардой
Полезная площадь: 160.77 м2
Общая площадь: 423.18 м2
Цена: 29 140 UAH 25 640 UAH
— 3500 UAH
Вилла Юлия 11 (ПБ)
коттедж для сблокированной застройки двухэтажный
Полезная площадь:
147.
31 м2
Общая площадь: 296.56 м2
Цена: 25 070 UAH 21 570 UAH
— 3500 UAH
Дом в орлишках 2 (Г2П)
односемейный коттедж одноэтажный с жилой мансардой
Полезная площадь: 164.04 м2
Общая площадь: 402.9 м2
Цена: 29 140 UAH 25 640 UAH
— 3500 UAH
Дом в брунерах 2 (П)
односемейный коттедж одноэтажный с жилой мансардой
Полезная площадь:
149.
58 м2
Общая площадь: 352.97 м2
Цена: 25 070 UAH 21 570 UAH
— 3500 UAH
Дом в гвоздиках (П)
односемейный коттедж одноэтажный с жилой мансардой
Полезная площадь: 142.16 м2
Общая площадь: 342.61 м2
Цена: 25 070 UAH 21 570 UAH
— 3500 UAH
Дом в аурорах (Г2П)
односемейный коттедж одноэтажный с жилой мансардой
Полезная площадь:
134.
81 м2
Общая площадь: 345.99 м2
Цена: 25 070 UAH 21 570 UAH
— 3500 UAH
Дом в сливах (ГП)
односемейный коттедж одноэтажный с жилой мансардой
Полезная площадь: 152.67 м2
Общая площадь: 408.04 м2
Цена: 29 140 UAH 25 640 UAH
— 3500 UAH
Дом в сливах 2 (П)
односемейный коттедж одноэтажный с жилой мансардой
Полезная площадь:
162.
1 м2
Общая площадь: 351.58 м2
Цена: 26 420 UAH 22 920 UAH
— 3500 UAH
Дом в коммифорах 2 (П)
односемейный коттедж одноэтажный с жилой мансардой
Полезная площадь: 129.7 м2
Общая площадь: 384.15 м2
Цена: 29 140 UAH 25 640 UAH
Проекты домов с подвалом являются интересным предложением для инвесторов с участком со склоном, а также для людей, ищущих дом с дополнительным этажом в подвале. Наше предложение готовых проектов с подвалом очень разнообразно с точки зрения площади дома, количества этажей, дизайна внешних фасадов, а также цели и возможностей развития дополнительного уровня дома.
В большом предложении одноэтажных, двухэтажных домов и домов с мансардой вы можете выбрать среди проектов с полным или частичным подвалом. Коллекции проектов домов из рядовой и сблокированной застройки также были обогащены вариантом дополнительного этажа в подвале.
Подвал повышает функциональность дома
Проекты домов с подвалом ARCHON+ предполагают разные назначение и расположение поверхности подвала, в зависимости от потребностей инвестора. При выборе проекта с подвалом, который будет реализовываться на прекрасном участке с уклоном земли, владельцы небольших или узких участков также должны учитывать такой вариант. Строительство дома с повалом идеальный вариант для сложных участков. Стоимость строительства домов может увеличится за счёт сложности самого подвала, но несмотря на это, подвал это замечательный вариант. Это очень хорошее решение для строительства небольшого дома и размещения некоторых комнат в подвале. Чаще всего застройщики решают организовать в подвале хозяйственную зону с котельной, стиральной, сушильной комнатой и дополнительными складскими помещениями для инструментов.
Дополнительное свободное пространство, которое будет создано на первом этаже, значительно повысит комфорт и функциональность дома. Он может использоваться по-разному, например, для дополнительного помещения или для увеличения поверхности других помещений первого этажа. В нашем предложении Вы найдете проекты домов с гаражом в подвале, которые также очень хороши на небольших участках земли. Меньшая площадь фасада дома с подвалом позволит вам создать место для сада и зоны отдыха на свежем воздухе.
Дополнительные возможности и преимущества этажа в подвале
Варианты домов с подвалом также предназначены для домов и коттеджей с большой и не очень большой жилой площадью. Кроме их практического назначения, они также служат для повышения комфорта жизни. Аранжировка в подвале зон отдыха в виде домашнего СПА с сауной, джакузи или тренажерного зала позволит жителям расслабиться. Подвал также может действовать как отдельная социальная зона для встречи с друзьями у бильярда, с отдельным разделом для домашнего кинотеатра или музыкальной комнаты.
Подвал — идеальное место для мастерской или части дома для ведения бизнеса. Это также способствует созданию соответствующих условий для старения вина, которое сохранит свою ценность гораздо дольше. Дополнительное преимущество реализации дома по проекту с подвалом — это естественное регулирование температуры дома. Летом подвал остынет, а зимой нагреется. Кроме того, это повышает эффективность системы вентиляции здания. Хорошими вариантами также являются проекты с гаражом.
Проект дома с подвалом — проверьте условия на участке
Прежде чем выбрать проект дома с подвалом, необходимо проверить тип почвы и уровень грунтовых вод участка. Стоит рассмотреть возможность введения в эксплуатацию специализированного анализа, который позволит должным образом заложить здание, а также надлежащее выполнение и защиту фундаментов при наличии правильного участка.
Вы можете создать подвал для каждого проекта дома из коллекции ARCHON+. Наши консультанты по проектам подготовят заманчивое предложение для оформления выбранного дома с подвалом или с цокольным этажом и ответят на вопросы.
Такой, какой вы будете хотеть: c мансардой, в один или два этажа, в стиле современном или классическом, с балконом и террасой. Заказать проект дома с подвалом, можно заказать прямо на нашем сайте.
Удобная планировка и проекты дома с подвалом
Сегодня практически в любом частном доме есть подвал или гараж. Нередко требуются оба помещения. Планировка таких сооружений имеет много привлекательных преимуществ:
Планировка подвального этажа в современном доме
- Общая система отопления для всех жилых и нежилых комнат дома. Не требуется покупать дополнительный электрический обогреватель для гаража или подвала.
- Удобный вход в подвал из внутреннего пространства дома. Сходить за маринадами не будет обременительным при любых погодных условиях, и не нужно переобуваться и переодеваться.
- Обустройство подвала и гаража под землёй, если площадь дачного участка невелика.
- Строительство проводится в сжатые сроки.
- Тёплый гараж – зона комфорта для автолюбителя.

Проекты домов с подвалами и гаражами имеют и недостатки:
- Требуется организовать высококачественную систему вентиляции. Только в этом случае выхлопные газы не будут попадать в жилые помещения.
- Фундамент потребует больших капиталовложений по сравнению со строительством одного гаража. Необходимо при его возведении соблюдать определённые правила.
- Если вы выбрали проект с гаражом в подвале, тогда въезд осложняется из-за пандуса.
Проект и планировка дома с подвалом и гаражом
- Двухэтажные дома с мансардой должны иметь хорошую гидроизоляцию фундамента.
- Перед заливкой основания следует организовать смотровую яму.
- Естественного освещения недостаточно, поэтому требуется продумать, как будут освещаться помещения подвала с гаражом.
Вернуться к оглавлению
Содержание материала
- 1 Возводим дома с мансардой, гаражом и подвалом
- 1.1 Строим подвальное помещение в одноэтажном доме
- 2 Проектирование двухэтажных домов с подвалами
Возводим дома с мансардой, гаражом и подвалом
Можно строить дома с одним, двумя и большим количеством этажей.
К популярным проектам относятся одноэтажные дома, где есть подвал или гараж. Дома 6 на 6 с мансардой также считаются востребованными.
Нужно ли вам подвальное помещение, требуется решить при заливке фундамента. Такой вариант считается удобным. Обустройство подвала – оптимальное решение для разгрузки территории от различных хозяйственных построек.
Планировка всех этажей коттеджа с подвалом, гаражом и мансардой
Практичный хозяин сможет разместить здесь котельную, кладовую или бойлерную. Если в доме есть подвал, можно обустроить «тёплые полы». Их легко сделать, когда система отопления является автономной. Строительство подвала необходимо начинать при закладке основания будущего сооружения.
Комплексного подхода требует возведение жилого сооружения с мансардой. Помещение мансарды может быть непростым местом для складирования ненужных вещей. Здесь можно оборудовать мастерскую или кабинет. Планировку мансарды нередко используют как комнату для гостей. В процессе строительства мастер должен учитывать, что на фундамент будет оказываться дополнительная нагрузка, поэтому важно хорошо укрепить основание.
Строим подвальное помещение в одноэтажном доме
Начинать строительные работы рекомендуется после того, когда вы уже знаете, на какой глубине залегают подземные воды. Этот показатель влияет на глубину основания под будущее сооружение.
Важно, чтобы вода не появлялась в доме после дождя. Избавиться от неё сложно. Легче избежать проблем, сделав высокий фундамент. Главное, грамотно выполнить расчёты и чертежи.
Этапы работ:
- План должен отображать, где будет располагаться подземный гараж в доме и жилые помещения.
- Определитесь со списком материалов и их количеством. Необходимо рассчитать стоимость будущего строения.
- Подготовьте строительный участок под застройку. Уберите с него растительность. Поверхность необходимо выровнять. Если на месте строительства – болото, то осушите его. Для этого лучше обратиться за помощью специалистов, которые подскажут, какой способ является наиболее эффективным.

Схема устройства подвального этажа
Если фронт работы небольшой, тогда неровности и небольшую траву вы сможете убрать своими руками. Механизированные средства требуются, когда дачный участок является проблемным.
Составление плана жилого дома 10х10 рекомендуется доверить профессионалам из строительной компании. Тогда хозяин может быть уверен, что будут учтены все нюансы при планировании.
При выборе типа фундамента необходимо принимать во внимание структуру грунта. Стены основания не должны быть меньше 30 см.
Выполнив разметку, роют котлован и траншею под фундамент ленточного типа. Подвал может занимать одну часть дома, другую можно отвести под гараж. Подвальное помещение, предназначенное для хранения маринадов и солений, по высоте должно достигать 2 м. Когда его используют в качестве кабинета или мастерской, потребуется углубиться на 2,5 – 3 м.
Для сооружения опалубки мастеру нужны следующие материалы и инструменты:
- доски с брусьями;
- уровень;
- пила;
- саморезы.

Проект и планировки первого этажа и подвала коттеджа
Вместе с установкой деревянной опалубки укладывают для изоляции:
- пенопласт;
- пенополиуретан;
- твёрдые материалы.
Не рекомендуется использовать минеральную вату. Спустя некоторое время она может напитаться влагой.
Для изготовления бетона жилого дома применяют:
- цемент М 400;
- щебень;
- воду;
- песок.
Оптимальным способом приготовления раствора считается использование бетономешалки. Заливать стены подвала и фундамента следует одновременно. Перерывы делать нельзя, чтобы постройка получилась качественной. До заливки основания жилого сооружения нужно засыпать песок со щебнем в котлован.
После этого смесь равномерно распределяют по дну. Бетон должен хорошо просохнуть. На это требуется от 15 до 21 дня.
Вернуться к оглавлению
Проектирование двухэтажных домов с подвалами
Двухэтажная дача по сравнению с одноэтажными строениями больше по размерам и высоте.
Вариант планировки подвального этажа с сауной, комнатой отдыха и котельной
Такие сооружения обычно состоят из 2 этажей и мансарды. Полезная площадь строения увеличивается. Чертежи помогают точно определить нагрузку на фундамент. Подвал в основном предназначается для хранения продуктов питания. Иногда подвальное помещение переоборудуется в сауну.
При этом его нужно изолировать от жилых комнат в доме. Полноценный 2 этаж – это большая нагрузка на фундамент. Конусовидная форма сооружения даёт возможность уменьшить нагрузку на стены подвального помещения. Заказывая чертежи в строительной компании, не забудьте сказать о своём пожелании.
Фундамент с подвальными стенами может быть построен из различных материалов:
- бетона;
- газобетона;
- кирпича;
- широких строительных блоков.
Чтобы строение получилось достаточно прочным, его армируют.
Для связки используются специальные крючки, которые выступают над боковой поверхностью основания. Хозяин сам решает, какой вариант наиболее подходящий. При проектировании нужно принимать во внимание размеры и планировка участка, потребности владельца и его финансовые возможности. Современные строительные материалы позволяют сократить сроки строительства и облегчить процесс возведения сооружений.
Проекты кирпичных домов с подвалом и коттеджей с цоколем
Настроить поиск
Тип строения
…
Жилой дом Баня Гараж Прочее
Стеновой материал
…
Газобетон Кирпич Дерево Каркас Прочее
Общая площадь
.
.. м2
ручной ввод: от до м2 и более
Число этажей
…
Мансарда
…
Без мансарды С мансардой
Цокольный этаж
…
Без цоколя С цоколем
Подобрать
Сбросить фильтры
Число комнат
…
Помещения
…
Бассейн Второй свет Кухня-столовая Зимний сад Котельная Лоджия Терраса Сауна
Длина
.
.. м
Ширина
… м
Число гаражей
…
По коду Сначала новые Сначала небольшие Сначала большие Сначала дешевые Сначала дорогие Сначала малоэтажные Сначала многоэтажные По популярности
Найдено проектов: 341
47-30 51 800 ₽- 198.47 м2
- Кирпич
- 2 этажа + Ц
Подробнее Проект двухэтажного дома с цоколем 9×9 метров, общей площадью 198 м2, из кирпича, c террасой, котельной и кухней-столовой
42-04 75 900 ₽- 471.7 м2
- Кирпич
- 2 этажа + Ц
Подробнее Проект двухэтажного дома с цоколем 17×16 метров, общей площадью 471 м2, из кирпича, c террасой, котельной и кухней-столовой
47-79 57 500 ₽- 286.72 м2
- Кирпич
- 2 этажа + Ц
Подробнее Проект двухэтажного дома с цоколем 11×13 метров, общей площадью 286 м2, из кирпича, c террасой, котельной и кухней-столовой
47-37 101 200 ₽- 484.
25 м2 - Кирпич
- 2 этажа + Ц
Подробнее Проект двухэтажного дома с цоколем 19×16 метров, общей площадью 484 м2, из кирпича, c гаражом, террасой, котельной и кухней-столовой
45-98 44 100 ₽- 154.72 м2
- Кирпич
- 2 этажа + Ц
Подробнее Проект двухэтажного дома с цоколем 11×12 метров, общей площадью 154 м2, из кирпича, c террасой, котельной и кухней-столовой
45-34 53 200 ₽- 326.33 м2
- Кирпич
- 2 этажа + Ц
Подробнее Проект двухэтажного дома с цоколем 14×15 метров, общей площадью 326 м2, из кирпича, со вторым светом, c террасой, котельной, лоджией и кухней-столовой
46-71 57 000 ₽- 291.94 м2
- Кирпич
- 2 этажа + Ц
Подробнее Проект двухэтажного дома с цоколем 17×12 метров, общей площадью 291 м2, из кирпича, c гаражом, террасой, котельной и кухней-столовой
43-18 50 600 ₽- 293.
5 м2 - Кирпич
- 2 этажа + Ц
Подробнее Проект двухэтажного дома с цоколем 17×12 метров, общей площадью 293 м2, из кирпича, c гаражом, террасой, котельной и кухней-столовой
45-25 59 500 ₽- 408.62 м2
- Кирпич
- 2 этажа + Ц
Подробнее Проект двухэтажного дома с цоколем 15×14 метров, общей площадью 408 м2, из кирпича, со вторым светом, c гаражом, террасой, котельной и кухней-столовой
46-26 51 800 ₽- 236.95 м2
- Кирпич
- 2 этажа + Ц
Подробнее Проект двухэтажного дома с цоколем 19×12 метров, общей площадью 236 м2, из кирпича, со вторым светом, c террасой, котельной и кухней-столовой
39-33 57 000 ₽- 350.8 м2
- Кирпич
- 2 этажа + Ц
Подробнее Проект двухэтажного дома с цоколем 15×18 метров, общей площадью 350 м2, из кирпича, со вторым светом, c террасой, котельной, лоджией и кухней-столовой
41-31 38 000 ₽- 162.
66 м2 - Кирпич
- 1 этаж + М + Ц
Подробнее Проект бани 18×5 метров, общей площадью 162 м2, из кирпича, c котельной
43-06 43 100 ₽- 206.52 м2
- Кирпич
- 2 этажа + Ц
Подробнее Проект двухэтажного дома с цоколем 10×10 метров, общей площадью 206 м2, из кирпича, c террасой, котельной и кухней-столовой
30-24 58 200 ₽- 398.3 м2
- Кирпич
- 2 этажа + Ц
Подробнее Проект двухэтажного дома с цоколем 14×13 метров, общей площадью 398 м2, из кирпича, c бассейном и котельной
43-20 43 100 ₽- 214.85 м2
- Кирпич
- 2 этажа + Ц
Подробнее Проект двухэтажного дома с цоколем 10×10 метров, общей площадью 214 м2, из кирпича, c котельной и кухней-столовой
45-07 63 300 ₽- 342.
62 м2 - Кирпич
- 2 этажа + Ц
Подробнее Проект двухэтажного дома с цоколем 16×17 метров, общей площадью 342 м2, из кирпича, c гаражом, террасой, котельной и кухней-столовой
30-86 50 600 ₽- 569 м2
- Кирпич
- 2 этажа + Ц
Подробнее Проект двухэтажного дома с цоколем 19×14 метров, общей площадью 569 м2, из кирпича, со вторым светом, c бассейном, зимним садом и котельной
41-01 107 600 ₽- 702.9 м2
- Кирпич
- 2 этажа + Ц
Подробнее Проект двухэтажного дома с цоколем 33×16 метров, общей площадью 702 м2, из кирпича, c гаражом, бассейном, зимним садом, террасой и котельной
44-83 63 300 ₽- 428.59 м2
- Кирпич
- 2 этажа + Ц
Подробнее Проект двухэтажного дома с цоколем 14×14 метров, общей площадью 428 м2, из кирпича, c котельной и кухней-столовой
42-02 57 000 ₽- 349.
97 м2 - Кирпич
- 2 этажа + Ц
Подробнее Проект двухэтажного дома с цоколем 15×15 метров, общей площадью 349 м2, из кирпича, c террасой, котельной и кухней-столовой
видео-инструкция по монтажу своими руками, особенности одноэтажных, двухэтажных коттеджей с мансардой, из бруса, цена, фото
Сегодня можно найти готовые проекты домов с подвалом самой разной конфигурации. Они могут включать в себя один или несколько этажей, цокольное помещение, мансарду и т.д. При этом широкий ассортимент доступных материалов и технологий позволяет реализовать самые разные инженерные решения без ущерба для качества и долговечности возводимых зданий.
В нашей статье мы постараемся проанализировать основные характеристики, которыми обладает типовой проект дома с подвалом, а также остановимся на его достоинствах и недостатках.
Под первым этажом можно разместить весьма обширные площади
Содержание
Обзор сооружений
Общая планировка
При разработке плана будущего дома мы стремимся максимально эффективно использовать отведенную площадь.
Именно с этой целью осуществляется постройка подпольных помещений – подвалов, полуподвалов, цокольных этажей и т.д.
При условии соблюдения строительных норм мы получаем существенный прирост полезного пространства, которое можно использовать для решения самых разных задач.
- Проекты одноэтажных домов с подвалом являются весьма распространенными. Небольшие габариты самого дома делают обустройство дополнительного помещения весьма желательным. Зачастую в таких домах подвал используется не только как подсобное помещение, но и как место расположения коммуникаций, отопительных приборов и т.д.
Проект дома 8х10 с подвалом: модель подземной части
Обратите внимание!
Популярной также является комбинация «одноэтажный дом + цокольный этаж».
При этом подпольное помещение располагается таким образом, что ниже уровня грунта размещается только его часть, как правило – не более половины высоты.
- Проекты двухэтажных домов с подвалом также вполне практичны.
И хоть в данном случае недостаток жизненного пространства ощущается не так остро (два этажа все-таки!), лишним подпольное помещение не будет. Основным недостатком подобного решения является достаточно высокая цена, ведь затраты на возведение верхних этажей будут немаленькими даже сами по себе.
Высотные отметки при планировке с мансардой
- Достаточно часто реализуются также проекты домов с мансардой и подвалом. В этом случае закладывается только один «полноценный» этаж, на котором размещается прихожая, гостиная и кухня с санузлом. Технические службы и кладовые располагаются под полом, а на мансарду выносятся все спальни и кабинеты.
Проектная документация
Применяемые технологии
Заливка монолитных стен
При строительстве домов с подвальными помещениями и цокольными этажами чаще всего применяется единая технологическая схема:
- Выборка грунта осуществляется с таким расчетом, чтобы вместить не только подземную часть здания, но и достаточно мощный (до полуметра) гидроизоляционный слой из мембран, песка и гравия.

Обратите внимание!
Проектировка и возведение подвалов в обводненных грунтах весьма затруднительны.
Если есть возможность, то располагать подобное строение нужно либо в относительно сухой местности, либо на возвышенности.
- Пол в подвале чаще всего делают бетонным, с дощатым настилом или керамической облицовкой. Глинобитные полы обустраивают крайне редко, поскольку они не обладают должным уровнем водостойкости.
- Стены могут являться как частью монолитного заглубленного фундамент ленточного типа, так и отдельными конструкциями. Во втором случае для возведения стен используются крупноразмерные бетонные блоки, пенобетон, кирпич и т.д.
- При кладке стен из пеноблока или кирпича обязательным является армирование. Также инструкция предусматривает обустройство монолитного ростверка под перекрытием, на котором обустраивается пол первого этажа.
Обустройство монолитного ростверка
Обратите внимание!
Проекты домов из бруса с подвалом, а также некоторые другие варианты предполагают обязательное обустройство кирпичного цоколя высотой от 30 см.
- Подвальное помещение обязательно гидроизолируется как изнутри, так и снаружи. Также желательным является его утепление, особенно тогда, когда подвал нужно использовать не только в качестве склада.
Варианты использования подвальных помещений
Пространство, расположенное под полом первого этажа, может быть использовано самыми разными способами:
- Чаще всего здесь располагаются кладовые. В них могут храниться как ненужные вещи, так и нескоропортящиеся продукты – консервация, овощи, соленья и т.д. Практически каждый типовой проект дома с полуподвалом разрабатывается с расчетом именно на такое использование.
Обратите внимание!
Для обустройства винного погреба – а его делают довольно часто – необходимо обеспечить постоянный контроль температуры и влажности.
Несмотря на кажущуюся простоту, задача эта весьма трудоемкая и затратная.
- Еще одно популярное решение – размещение здесь технических служб.
Установив под полом бойлер для воды или отопительный котел, мы получим существенный выигрыш в полезной площади. Естественно, само помещение необходимо спланировать и оборудовать таким образом, чтобы обеспечить удобный доступ для обслуживания и наладки аппаратуры.
Для котла (на фото) под полом самое место
- Мастерская под полом первого этажа – решение, знакомое нам по голливудским фильмам. Несмотря на всю его привлекательность, у нас оно используется довольно редко.
Обратите внимание!
Если вы все же решите обустроить мастерскую, необходимо позаботиться о качественной приточно-вытяжной вентиляции.
- А вот жилые помещения стоит размещать в цокольном этаже. Конечно, можно модифицировать проект дома с мансардой и подвалом таким образом, чтобы гостиная или одна из спален были перемещены на нижний уровень, но добиться оптимального микроклимата в такой ситуации будет куда сложнее. Да и со светом проблема: небольшие окошки под потолком естественное освещение никак не обеспечат.

Вариант размещения зоны отдыха в цоколе
Впрочем, при необходимости подвал можно переоборудовать своими руками с какой угодной целью. Главное, чтобы ресурсы это позволяли!
Достоинства и недостатки
К плюсам, которыми обладает дом с оборудованным подпольным помещением, можно отнести:
- Высокую сейсмоустойчивость за счет большого объема подземной части.
- Более эффективную теплоизоляцию нижней части здания, особенно в случае утепления подвала или установки там отопительных приборов.
- Дополнительную полезную площадь, которую можно использовать несколькими различными способами.
Утеплим подпольные помещения – будет теплее и в самом доме
Есть у такого решения и недостатки:
- Как мы отмечали выше, строить дом с большим подвалом можно только там, где есть соответствующие почвенные условия. Конечно, при необходимости можно провести комплекс мероприятий по водопонижению, но их трудоемкость и стоимость весьма ощутимо ударят по бюджету.

Работы по водоотведению и водопонижению весьма затратны
- Сама постройка и оборудование подпольного помещения тоже удорожают проект. Причем наиболее затратными статьями расходов будут гидроизоляция, утепление и обустройство вентиляции.
Как видите, основные недостатки лежат именно в финансовой плоскости. Так что перед началом работ стоит взвесить свои возможности и трезво оценить: сможем ли мы обустроить полноценный подвал, или достаточно будет ограничиться простым погребом.
Вывод
Реализовать даже самый простой проект одноэтажного дома с подвалом – задача довольно сложная, которая по силам только опытной бригаде мастеров. И даже если вы не собираетесь выполнять все работы самостоятельно, рекомендует внимательно изучить видео в этой статье: информация, изложенная в нем, поможет вам спланировать стройку и контролировать качество всех операций.
Планы домов с фундаментом подвала
Мин. Квадратные футы500 кв. футов 1000 кв. футов 1500 кв. футов 2000 кв. футов 2500 кв. футов 3000 кв. футов 3500 кв. футов 4000 кв. футов 4500 кв. Футов 5000+ кв. футов
Количество историй1 История1 ½ История2 История3 ИсторияРаздельный уровень
Спальни1 Спальня2 Спальня3 Спальня4+ Спальни
Максимум. Квадратные футы500 кв. футов 1000 кв. футов 1500 кв. футов 2000 кв. футов 2500 кв. футов 3000 кв. футов 3500 кв. футов 4000 кв. футов 4500 кв. Футов 5000+ кв. футов
Ванные комнаты1 Ванная2½ Ванная3 Ванная3½ Ванная4 Ванная4½ Ванная5+ Ванных
Архитектурный стильПланы каркасных домовПланы домов в акадском стилеПроекты домов Adobe и SouthwesternПланы домов искусств и ремеселПланы домов на пляже и в прибрежных районахПланы домов в бермеПланы коттеджейПланы коттеджей и коттеджейПланы домов в Кейп-Код и Новой АнглииПланы колониальных домовПланы современных домовПланы загородных французских домовПланы загородных домовПланы домов ремесленниковПланы домов в начале АмерикиАнглийский коттеджный дом PlansEuropean House PlansFarmhouse PlansFlorida House PlansGeorgian House PlansGreek Revival House PlansItalian House PlansLake House PlansLog Cabin House PlansLog House PlansLowcountry House PlansLuxury House PlansMediterranean House PlansModern Farmhouse PlansModern House PlansMountain House PlansMulti-Family House PlansNeoclassical House PlansPlantation House PlansPrairie House PlansRanch House PlansRustic House PlansSaltbox House PlansSanta Fe House ПланыПланы Черепичных ДомовПланы Южных ДомовПланы Южного Плантационного ДомаПланы Юго-Западного ДомаПланы Испанского ДомаПланы Дома Солнечного ПоясаTraditio План Дома НалаПланы Тюдоровского ДомаПланы Дома Для ОтдыхаПланы Викторианского ДомаПланы Дома На Побережье
Найдено планов: 19 000+
Нужны дополнительные опции?
Расширенный поиск
Нужен визуал?
См.
360° Walk Arounds
Нужна оценка?
Получите отчет о затратах на создание
Готовы сделать это своим?
Настройте свой план этажа
домой | Результаты поиска
| Количество планов на странице |
| сортировать результаты по | БестселлерыКвадратные футы с подогревомКоличество спаленКоличество ванных комнат |
| Сравнить до 4 планов |
| |||||||||||
| |||||||||||
| |||||||||||
| |||||||||||
| |||||||||||
| |||||||||||
| |||||||||||
| |||||||||||
| |||||||||||
| |||||||||||
| 1–10 из 6960 1 2 3 4 5 . .. | |||||||||||
| Сравнить до 4 планов |
Наша коллекция планов домов с подвалами включает в себя множество различных стилей дизайна домов и предлагает подробные планы этажей, которые позволяют покупателю визуализировать внешний вид всего дома вплоть до мельчайших деталей. Благодаря большому разнообразию планов, мы уверены, что вы найдете идеальный план дома, соответствующий вашим потребностям и стилю.
Планы домов и поэтажных планов с незавершенным отапливаемым подвалом
Планы дома Драммонда
По коллекции
Планы по типу фундамента
Планы незавершенного цокольного этажа
Ознакомьтесь с нашей подборкой проектов одно-, двухэтажных и многоквартирных домов с незавершенным (незастроенным) подвалом.
в будущем вы можете доработать соответствующие помещения, необходимые вашей семье, такие как игровая комната, театр, тренажерный зал, домашний офис, дополнительные спальни и т. д.
Подписаться на эту коллекцию Чтобы получать новости, которые будут добавлены в эту подборку, подпишитесь!
Наши клиенты, которым нравится эта коллекция, также ищут:
Готовые планы цокольного дома Дом и коттедж на берегу моря
Показать варианты1-й уровень
2-й уровень
Детали
1-й уровень
2-й уровень
Детали
1-й уровень
Подвал
Детали
1-й уровень
2-й уровень
Подвал
Детали
1-й уровень
2-й уровень
Подвал
Детали
1-й уровень
2-й уровень
Подвал
Детали
1-й уровень
Подвал
Детали
1-й уровень
Детали
1-й уровень
Подвал
Детали
1-й уровень
1 уровень вариант 1
Детали
1-й уровень
Подвал
Детали
1-й уровень
2-й уровень
Подвал
Детали
1-й уровень
Детали
1-й уровень
2-й уровень
Подвал
Детали
1-й уровень
2-й уровень
Детали
1-й уровень
Подвал
Детали
1-й уровень
2-й уровень
Детали
1-й уровень
2-й уровень
Детали
1-й уровень
2-й уровень
Подвал
Детали
1-й уровень
2-й уровень
Детали
Тенденция дизайна: планы домов на склоне холма с планами цокольного этажа
За последние несколько лет в Соединенных Штатах резко возросло желание строить дома на склонах холмов.
С увеличением количества подразделений и ростом города, происходящим в пересеченной местности, или с теми, кто строит на сельской местности, стремящейся получить максимальную отдачу от вашего участка, планы склонов с подвалами становятся все более популярными.
Проекты домов с выходом на цокольный этаж предлагают множество строительных решений, несмотря на уклон участка. С правильным архитектурным стилем эти дома могут оказаться приятными жилыми помещениями. Эти планы подвальных домов бывают разных квадратных метров и стилей. Прежде чем мы погрузимся в некоторые из наших любимых планов домов с дневным светом в подвалах, давайте взглянем на преимущества планов семейных домов с выходом в подвал.
Хотя строительство может быть сложным, пусть это вас не пугает. Работая с этой уникальной функцией на своем участке под застройку, вы можете превратить пространство, которое в противном случае было бы потеряно из-за фундамента, в удобное жилое пространство. Первым преимуществом включения подвала с выходом является использование видов.
Если вы строите в живописном районе и вокруг вашего дома есть гора, озеро, река или другая природная красота, добавление подвала с выходом к вашим планам дома на набережной или живописному участку может помочь вам максимально использовать ваши виды. Как они это делают? Дополнительное жилое пространство на открытом воздухе предлагается за счет создания балконов или приподнятых палуб над основным этажом с таким же большим пространством внутреннего дворика, доступ к которому осуществляется из подвального помещения. Для тех, кто любит развлекаться вне дома, дизайн этого дома может предусматривать летние кухни, патио для барбекю или камины, а также много места для уличной мебели.
Подвалы с выходом на улицу также обеспечивают дополнительное жилое пространство, такое как комнаты отдыха или семейные комнаты на нижнем этаже. Кроме того, те, у кого есть большие семьи или кто принимает гостей на длительный срок, получат возможность дополнительных спален. Или, поскольку работа на дому становится для некоторых потенциальной долгосрочной рабочей ситуацией, дополнительная спальня в подвальном помещении может быть обставлена как домашние офисы с преимуществом ощущения оторванности от повседневных дел, которые происходят на главном этаже.
пол.
План современного дома – Карбондейл 47582 (показан выше)
Карбондейл предлагает домовладельцам действительно современный дизайн. Угловые односкатные крыши в сочетании с кедровым сайдингом, камнем и панельным сайдингом создают привлекательный фасад. Внутри план этажа открытый. На первом этаже есть гибкая комната прямо у входа, которая может служить гостевой комнатой, пещерой для мужчин, домашним офисом или чем-то еще, что нужно домовладельцу. Апартаменты владельцев также находятся на первом этаже и наполнены естественным светом из окон, расположенных вдоль двух стен. Ванная хозяев роскошна, с отдельной ванной и душевой кабиной, а также двумя раковинами и большой гардеробной. На цокольном этаже есть дополнительная семейная комната с баром с напитками и камином, а также две дополнительные спальни. Открытый доступ и жизнь изобилуют на обоих уровнях. С основного этажа большая крытая палуба со сводчатым потолком является продолжением большого зала. Это отражено на цокольном этаже, где семейная комната может открываться на большую крытую террасу.
План дома ремесленника – Аспен-Гроув 86311
Аспен-Гроув – это великолепный план дома ремесленника, в котором предусмотрен выход на подвал. С улицы дом кажется одноуровневым. Многие оценят особенности гаража, включая пристроенный гараж на 3 машины и отличный план этажа. Внутри входа находится домашний офис, который при желании может служить гостевой комнатой. Главная спальня также находится на первом этаже и представляет собой роскошное убежище с отдельным выходом на заднюю палубу, а также с ванной комнатой с душевой кабиной, двумя туалетными столиками и большой гардеробной. Из большой комнаты лестница ведет вниз на нижний уровень, выход из подвального этажа. Дополнительные места для хранения в изобилии на уровне выхода. Большая семейная комната заполняет ядро плана цокольного этажа, освещенного дневным светом, вместе с двумя дополнительными спальнями и студией для занятий.
План дома на ранчо – тосканский 92653
План дома в тосканском стиле – это очаровательный дизайн дома на ранчо.
Основной этаж предлагает популярную планировку в стиле великолепной комнаты, а также главную спальню на первом этаже. На первом этаже есть два открытых пространства. В солярий можно попасть из столовой, и это идеальное место для тех, кто живет в жарком климате или там, где насекомые вызывают беспокойство. Солярий позволяет наслаждаться отдыхом на свежем воздухе, будучи защищенным от непогоды. За солярием находится палуба, когда температура более комфортная. Из фойе лестница ведет на цокольный этаж. План цокольного этажа предлагает две дополнительные спальни, полноценную ванную комнату, много места для хранения вещей, а также большую семейную комнату с баром с напитками. Дополнительные возможности для жизни на свежем воздухе можно получить в семейном номере с обширным патио, созданным солярием и палубой наверху.
План коттеджного дома – Bayview 44361
План очаровательного коттеджного дома Bayview одинаково хорошо подходит как для круглогодичного проживания, так и для отдыха.
С переднего крыльца есть два варианта: один — войти прямо на кухню, другой — пройти через прихожую. В любом случае, вы окажетесь в большой комнате, где сводчатые потолки проходят через столовую и гостиную. В солярий можно попасть из столовой. Заполняя план основного этажа, главная спальня имеет собственную ванную комнату и прямой выход на улицу. План цокольного этажа предлагает две дополнительные спальни, одна из которых представляет собой двухъярусную комнату, которая отлично подходит для тех, кто хочет использовать этот дизайн в качестве дома для отдыха. Мини-кухня находится в кладовой от большой семейной комнаты. Экранированное крыльцо или крытая веранда, доступная из подвала, добавляют защищенности на открытом воздухе.
Очевидно, что предложение проектов домов с подвалами охватывает широкий спектр стилей и размеров. Каждый план имеет общие тенденции дизайна, такие как открытая планировка и множество открытых пространств, доступных с обоих уровней. Хотя многие конструктивные особенности этих планов домов могут быть схожими, каждый из них может быть адаптирован нашими строителями к образу жизни домовладельцев, что делает их дома уникальными.
Чтобы продолжить поиск и найти больше вдохновения, ознакомьтесь с коллекцией планов домов с уклоном от The House Plan Company.
Планы подвальных этажей: примеры и соображения
Онлайн-конструктор планов подвальных этажей
от Cedreo позволяет быстро создавать потрясающие планировки.
Начните бесплатно Запросите демонстрацию
Быстрое составление профессионального плана цокольного этажа
Составление точного плана цокольного этажа еще никогда не было таким быстрым. С Cedreo вы можете использовать простые элементы управления перетаскиванием, чтобы рисовать стены, размещать элементы дизайна и указывать точные размеры вашего плана этажа. . Весь макет вашего подвала можно составить за несколько кликов, готовый к преобразованию в профессиональный 3D-рендеринг и фотореалистичную визуализацию.
Начать рисовать сейчас
Типы планов подвальных этажей
Быстро рисуйте готовые планы подвальных этажей в 2D и 3D.
Получите максимальную ясность для своих строительных и дизайнерских проектов с помощью традиционных чертежей подвала и иммерсивных, реалистичных моделей.
2D-планы подвала
Быстро рисуйте чертежи подвала с видом сверху вниз. Вставить маркеры для дверей и окон очень просто — все можно настроить в соответствии с вашим реальным масштабом и размерами.
Добавьте символы для мебели и бытовой техники, чтобы улучшить читаемость. Цветовое кодирование, маркировка и импорт существующих планов ускоряют процесс и упрощают разработку полированных 2D-планов этажей. .
Узнать больше
3D-планы подвала
2D-чертежи подвала можно быстро преобразовать в реалистичные 3D-планы этажей . Когда вы рисуете в 2D, средство 3D-просмотра будет обновляться в режиме реального времени.
Всю работу выполняет наша онлайн-система, поэтому нет необходимости в наличии на вашем компьютере мощной видеокарты или мощного процессора. Уточните такие детали, как освещение, декор и материалы, чтобы максимально реалистично представить предлагаемый вами дизайн.
Узнать больше
Примеры планов цокольного этажа
Cedreo позволяет создавать красивые макеты для любого типа дизайна цокольного этажа.
Планы этажей подвалов
План подвального этажа с лестницей в середине
План простых подвальных этажей
Планы этажа подвалов дневного света
План этажа прямоугольного этажа
2 спальни.
Проектирование цокольного этажа требует тщательного рассмотрения нескольких ключевых факторов. Твердое представление о том, как вы будете подходить к каждому пункту, гарантирует, что ваш макет соответствует потребностям клиента и обеспечивает максимальную функциональность.
Сначала спланируйте планировку
Подвалы часто бывают тесными помещениями. Для наиболее эффективного использования имеющегося пространства необходимо тщательное планирование. Подумайте о том, как клиент намеревается использовать пространство, каковы будут наиболее распространенные схемы движения и какие части комнаты должны быть наиболее доступными.
Это поможет вам разработать функциональную планировку. Возможно, потребуется оценить несколько версий, чтобы найти макет, наиболее подходящий для потока трафика. Быстрое редактирование Cedreo позволяет легко изменить макет и выяснить, что работает лучше всего.
Определите высоту потолка
Высота потолка является важным фактором для подвалов не только с точки зрения соответствия строительным нормам, но и с точки зрения комфорта. Принимая решение о высоте вашего потолка, не забывайте о воздуховодах или трубопроводах, которые могут проходить и уменьшать открытое вертикальное пространство. Если эти инженерные коммуникации предназначены для покрытия подвесным потолком, это дополнительное пространство необходимо учитывать в высоте потолка.
Определение требований к открытому пространству
Выходы являются важным элементом безопасности в подвальных помещениях. Сверьтесь с вашими местными строительными нормами, чтобы определить, сколько места вам нужно выделить для окна, которое можно открыть и вылезти из него в случае экстренной эвакуации.
Коды дадут вам рекомендации относительно того, насколько далеко нижний подоконник может быть от пола, насколько широким должно быть окно и другие важные измерения.
Фактор потребностей в хранении
Подвальные помещения часто используются в качестве складских помещений, даже если их основная функция заключается в другом. Убедитесь, что ваш проект обеспечивает все необходимое для хранения вашего клиента, принимая во внимание остальную часть пространства для хранения, доступного в доме, и требует ли собственный режим использования подвала каких-либо помещений для хранения.
Подумайте об освещении
Затопленная конструкция подвалов часто затрудняет доступ дневного света. Ваш дизайн должен учитывать, как наилучшим образом использовать возможности естественного освещения, доступные через окна, и, возможно, даже ландшафтный дизайн. В плане дизайна также необходимо будет предусмотреть искусственное освещение в виде встроенных светильников или отдельных светильников.
Поскольку высота потолков в подвале часто ниже, возможно, вам придется избегать подвесных светильников.
Измерение существующих размеров стен
Если вы работаете с существующим подвалом, вам необходимо получить точные размеры помещения, чтобы убедиться, что ваш план этажа идеально соответствует. Cedreo позволяет вам рисовать стены и выбирать размеры, чтобы вы могли убедиться, что ваша планировка соответствует масштабу. Получите расчеты площади и размеры углов стены, созданные в одно мгновение, что даст вам полный обзор измерений проекта в любой момент времени.
Натяжные стены
Элементы управления Cedreo с помощью щелчка и перетаскивания позволяют с легкостью рисовать стены. Добавьте угловые углы, щелкнув левой кнопкой мыши, чтобы сохранить плавный и цельный процесс черчения. Когда вы рисуете, размеры вашего плана обновляются в реальном времени. Если вы обнаружите, что вам нужно расширить часть, которую вы уже нарисовали, просто щелкните стену и перетащите ее в нужное место.
Типы стен можно указать в конце процесса, чтобы проинформировать клиентов о характеристиках стен, таких как изоляция или гидроизоляция.
Добавить дверные проемы
Выберите из коллекции более 650 отверстий, чтобы они соответствовали нужному стилю и функции. После размещения двери вы можете выбрать направление открывания, ориентацию и выравнивание по внутренней или внешней стене. Вы можете настроить размер дверных проемов в соответствии с размерами дверей, которые вы планируете использовать в сборке.
Добавить лестницу
Размещение лестницы в проекте является важной частью чертежа плана цокольного этажа. Выберите нужный тип лестницы и быстро задайте ориентацию всего за несколько кликов. Будьте внимательны при планировании дверных проемов и общей компоновки, чтобы обеспечить легкий доступ как к верхней, так и к нижней части лестницы.
Мебель и отделка
Выбор предметов мебели и украшений из обширной библиотеки продуктов, состоящей из более чем 3000 настраиваемых моделей.
Каждая часть может быть изменена в соответствии с вашими желаемыми размерами, и даже могут быть выбраны определенные материалы, чтобы придать им реалистичные текстуры, отделку и цвета.
Модели можно размещать на плане этажа с помощью элементов управления перетаскиванием, на земле или на стенах. Элементы управления столкновением можно переключать, чтобы обеспечить плавное вращение и размещение элементов, когда вы работаете над заполнением своего дизайна.
Завершение размеров
Убедитесь, что размеры вашего плана этажа идеальны и видны на чертеже, выбрав, где должны отображаться измерения. Это позволяет вам легко сообщать клиентам о масштабах вашего проекта, чтобы у них было четкое представление о том, насколько большим будет пространство после его постройки. Измерения будут отображаться в загруженном файле, который готов к печати.
Создавайте потрясающие 2D- и 3D-планы подвальных этажей онлайн… за 9 минут1010
Cedreo используют тысячи строителей домов
, ремонтники и дизайнеры интерьеров, чтобы воплотить в жизнь планы цокольного этажа.
Вам не нужно обладать навыками 3D-дизайна, чтобы создавать профессиональные макеты подвала.
Начните бесплатно сегодня
Планы домов с подвалами
95 Планы
План 1410 The Norcutt
- 4600 sq.ft.
Спальни:
4Ванны:
3Half Baths:
1
Истории:
1Ширина:
77′-0 «Глубина:
65′-0.Plan 2374 The Clearfield
- 3148 кв. футов.
спальни:
4Ванные:
3Половина ванны:
1
Старии:
2 5Стари0002 Ширина:
53′-6 «Глубина:
73′-0″
Склонный лот.
Bedrooms:
3Baths:
3Half Baths:
1
Stories:
1Width:
73′-0″Depth:
51 фут-0″
Великолепное ранчо на северо-западе с большими гибкими пространствами
План этажей
План 1416 Сент-Луис
- 4126 кв.
футов.
Bedrooms:
4Baths:
3Half Baths:
1
Stories:
1Width:
73′-0″Depth:
70 футов-6 дюймов
Теплые деревенские штрихи в современном дизайне дома
Планы этажей
План 1346 The Trenton
- 3528 кв. футов.
спальни:
3Ванные:
2Половина ванны:
1
И. 51′-0″
Высококлассный дом с пространством для будущего
Планы этажей
План 1411 The Tasseler
- 4732 кв. футов.
Спальни:
4Ванны:
3Half Baths:
2
Истории:
1Ширина:
130′-3 «Глубина:
79′-3″
.
Планы этажей
План 1330 The Cormac
- 3242 кв.
фута.
спальни:
4Ванные:
4
Истории:
1WIW0615
Глубина:
58′-8 «
Современная компоновка, вечная элегантность
Планы этажей
План 2371A. Hayfield
- 3155 кв. Футов. 3
Half Baths:
1
Stories:
2Width:
89′-6″Depth:
48′-8″
Farmhouse with Elevator
Floor Планы
План 1253 The Alamosa
- 2835 кв. футов.
Bedrooms:
5Baths:
3
Stories:
1Width:
57′-6″Depth:
60′-6″
Большой семейный план с игровой комнатой
Планы этажей
План 1337A The Beaverton
- 3626 кв. футов.
Спальни:
4Ванные комнаты:
3Половина ванны:
1
Истории:
1Ширина:
61′-0Глубина:
61′-6 «.

Планы этажей
План 1411D The Timbersedge
- 5155 кв. футов.
Спальни:
4Ванные:
3Полуванные:
1
- 9:00602 Этажи 9:00615 Этажи0003 1
Ширина:
124′-4 «Глубина:
84′-3″
Северо-западный стиль.
Bedrooms:
3Baths:
2Half Baths:
1
Stories:
1Width:
101′-11″Depth:
73 фута-6 дюймов
Восхитительные удобства Богатый дом в стиле ранчо
Планы этажей
План 1323 The Paysholme
- 3506 кв. футов.
Bedrooms:
4Baths:
3Half Baths:
1
Stories:
1Width:
81′-2″Depth:
55 футов-11 дюймов
Открытая планировка с кухней для гурманов
Планы этажей
Планировка 1201J The Dawson
- 2964 кв.
футов
Bedrooms:
4Baths:
3
Stories:
1Width:
59′-6″Depth:
55′-6″
План одноэтажного подвала с дневным освещением
Планы этажей
План 22213 The Renard
- 2988 кв. футов
Спальни:
4Ванны:
4
Этажи:
2Ширина:
37 футов 0 дюймовГлубина:
58 футов 0 дюймов
Настоящий капитан! Дизайн, представленный в популярном телешоу «Гримм»
План этажей
План 1415 Бремен
- 4925 кв. футов.
Bedrooms:
5Baths:
3Half Baths:
1
Stories:
1Width:
92′-6″Depth:
80′-0″
Immense Living Spaces in a Plan for Sloped Lots
Floor Plans
Plan 23101 The Ontario
- 3026 sq.
ft.
Bedrooms:
4Baths:
3Half Baths:
1
Stories:
2Width:
41′-0″Depth:
52′-0″
Gorgeous NW Современный дом с дневным светом в подвале
План этажей
План 1244 The Brandywine
- 2795 кв. футов.
Bedrooms:
3Baths:
2Half Baths:
1
Stories:
1Width:
50′-0″Depth:
56 футов-6 дюймов
Дом, в котором можно наслаждаться природой
Планы этажей
План 2467 The Hendrick
- 5266 кв. футов.
спальни:
5Ванные:
3Половина ванны:
2
И. 78 футов-8 дюймов
Красивое горное ранчо с прекрасным выходом на улицу
Планы этажей
План 1324 The Lenhart
- 3423 кв.
фута.
Спальни:
3Ванные комнаты:
2Half Baths:
1
Истории:
1Ширина:
83′-0Глубина:
56′-6 «. -наклонный Участок
Планы этажей
План 1201GD The Arlington
- 2898 кв.футов.
Спальни:
3Ванные:
2Полуванные:
1
- 9:00925 Этажи0003 1
Ширина:
67′-0 «Глубина:
46′-0″
Европейский план Великий для наклоны
Планы по этажам
План 1137 Саммер
- 9062. .
Bedrooms:
3Baths:
2
Stories:
1Width:
50′-0″Depth:
50′-0″
Открытая планировка мастера с высокими потолками
План этажей
План 1231B Мюнхен
- 2933 кв.
футов.
Bedrooms:
4Baths:
3
Stories:
1Width:
62′-0″Depth:
50′-0″
Роскошный дом с красивой открытой территорией
Планы этажей
План 1337 The Ashwood
- 3602 кв. футов
Спальни:
4Baths:
3Half Baths:
1
Stories:
1Width:
60′-0″Depth:
59′-6″
Роскошь внутри и снаружи, идеальна для участков с уклоном и больших открытых пространств
Планы этажей
План 1143 The Wandell
- 1999 кв. футов.
Спальни:
3Ванные:
2Полуванные:
1
Истории:
1Ширина:
40′-0 «Глубина:
52′-6″
3 КОЛЛАНСКАЯ ПЛАНИЯ КОЛЛЕМА ДЛЯ ПЛАНА ДЛЯ АНЦИОПА 9000 9000 2
3 МОЛЕДСКА План 1221CC The Newmarket
- 2905 кв.
футов.
Bedrooms:
4Baths:
3
Stories:
1Width:
45′-0″Depth:
58′-0 «
Обманчиво просторные коттеджа
Планы этажей
План 1329 Сикамор
- 3565 кв.
Истории:
1Ширина:
60′-0 «Глубина:
59′-0″
Стиль лоджа.0614
Bedrooms:
3Baths:
3Half Baths:
1
Stories:
1Width:
83′-6″Depth:
62′-0″
План склона холма с многочисленными встроенными модулями
Планы этажей
План 1332 The Thompson
- 3097 кв. футов.
Спальни:
3Ванные комнаты:
2Half Baths:
1
Истории:
1Ширина:
72′-0Глубина:
56′-6 «7
- 9061 Комната
План этажей
План 1326 The Mensing
- 3459 кв.
футов.
Спальни:
4Ванные комнаты:
3
Этажи:
1 Ширина 90:000003 70′-0″
- 3459 кв.
Глубина:
53′-0″
Традиционный план с открытым патио Футов».
168 результатов
Все планы цокольного дома с выходом из дома$1001 — $1500$1501 — $1501 — $2000$151 — $2$2001 — $2500$2501+- 2250 кв. Ft.01 1/2 Этаж1 Этаж1.5 Этаж105′ — 120′ Ширина220’+ Глубина220’+ Ширина2751 — 2000 Кв. футов 1994199519961997199819992 Ванна3 Спальни Планы Дома2 Автомобиль2 Этаж2 Этаж Большая Комната200020012001 — 2250 Кв. футов 200220032004200520062007200820112012201320142015201620172018201 — 2500 кв. футов 2501 — 2750 кв. Ft.272751 — 3000 кв.м. Ft.3 Bath4 Bedroom House Plan3 Car3 Story3001 — 3250 кв. футов 3251 — 3500 кв. футов 3501 — 4000 кв. Ft.4 ВаннаяПланы дома с 5 спальнями4 Car4001 — 5000 кв. Ft.41 — 5 кв. 45 футов — 60 футов Глубина 55 футов — 60 футов Ширина 5 Ванная комната 5 Планы дома 5 автомобилей 5000+ кв.
Футов 5001+ кв. Ft.6 Bath6 Планы дома 60′ — 75′ Глубина 60′ — 75′ Ширина 75′ — 90′ Depth75′ — 90′ Width990′ — 105′ Depth90′ — 105′ WidthAngled GarageBasementBathBonus RoomCabinCarCountry FrenchCraftsmans House PlansDaylightDenEuropeanFarmhouseFormal Dining RoomHillsideLoftLuxuryMain Floor MasterModernMother-In-Law SuiteMulti-FamilyNarrowOfficeOpen-ConceptOpen-Floor PlanOutdoor SpacePrairieRanch House PlansRR AvailableSmallSplitSplit BedroomsSunroomTraditionalTuscanUniqueWalk-In PantryWalkoutWaterfrontYes
FeaturedBest ПродажаПо алфавиту: A-ZПо алфавиту: Z-APЦена: от низкой до высокойЦена: от высокой до низкой
Идеальный вариант для участков с крутым уклоном. Подвальные помещения с выходом на улицу предлагают дополнительное жилое пространство с раздвижными стеклянными дверями и полноразмерными окнами, обеспечивающими плавный переход из подвала на задний двор. Эти дома подходят для большинства размеров участков и многих детей архитектурных стилей, и вы найдете их в наших коллекциях стилей.
Как я могу определить, в каком из ваших планов есть готовый выходной подвал?
Мы отличаем наши планы цокольных этажей от LL в конце номера плана. Сказав это, мы можем легко изменить любой из наших планов, включив в него подвальное помещение, независимо от стиля, если у вас есть наклонный участок, который позволяет это сделать. Просто позвоните нам по телефону 1-800-725-6852 и обсудим любой план. Наши планы LL будут иметь готовый план подвала, включенный в комплект, а также включенный в цену, указанную на нашем веб-сайте.
Что такое подвал дневного света?
Подвал с дневным освещением — это подвал дома, в котором часть нижнего уровня находится над землей и может вместить полноразмерные окна. Часть подвала, которая полностью находится под землей в подвале дневного света, считается фактическим подвалом. Участок должен иметь достаточный уклон, чтобы окна были полностью открыты и находились в пределах нормы.
Что такое подвал?
Подвал с выходом на улицу похож на подвал с дневным освещением в том смысле, что часть подвала находится над землей, но в нем есть место для полноразмерных окон И двери патио.
Участок для цокольного этажа также должен иметь уклон, но в большей степени, чем участок для цокольного этажа с дневным освещением. Преимущество наличия выходного подвала заключается в том, что внешнее пространство становится пригодным для использования дверями внутреннего дворика. Как правило, нижний уровень выхода выходит на какой-то внутренний дворик, где устроено дополнительное жилое пространство. Бассейны, пруды, патио в саду и гидромассажные ванны — это лишь некоторые из множества вариантов, для которых наши клиенты используют это открытое пространство.
Что дешевле построить дом с готовым подвалом или двухэтажный дом?
Существует множество факторов, которые необходимо учитывать при принятии решения о надстройке или опрокидывании фундамента. Каков твой удел? Достаточно ли уклона, чтобы получить полное дневное освещение окон и, возможно, дверь для полноценного выхода? Сколько земляных работ нужно сделать, чтобы сделать участок пригодным для подвала? Насколько высоки/низки ваши местные затраты на материалы и рабочую силу? Можно ли в вашем районе выкопать подвал?
Давайте ответим на эти вопросы по очереди.
- 1. Каков ваш участок? Если ваш участок имеет наклон к задней части, он, скорее всего, идеально подходит для готового нижнего уровня. Ранчо с готовым подвалом, как правило, дешевле построить, чем двухэтажное, и мы наблюдаем недавний всплеск наших планов домов ранчо с готовыми нижними уровнями.
- 2. Имеет ли он достаточный уклон? Если вы собираетесь закончить нижний уровень, вам понадобится достаточно света, поступающего через окна и двери, поэтому вам понадобится достаточный уклон, чтобы иметь возможность использовать окна с полным дневным светом и / или окна и двери патио, поэтому проверьте с местным подрядчиком, чтобы узнать, возможно ли это. У соседей есть готовый нижний уровень? Если это так, шансы, вероятно, довольно высоки, что ваш участок также может вместить более низкий уровень.
- 3. Земляные работы? Участку потребуются некоторые земляные работы, независимо от того, нужно ли вам копать подвал, просто знайте, что земляные работы, бетон и рабочая сила будут стоить дороже, чтобы построить проход, но, как правило, это в целом дешевле.
Обратитесь к местному подрядчику, чтобы убедиться, что в некоторых районах страны может быть выше в зависимости от почвы. - 4. Материальные и трудовые затраты? В каждой части страны есть разные рыночные ставки на строительство дома, поэтому лучше всего обсудить стоимость материалов и рабочей силы с местным подрядчиком.
- 5. Можно ли копать в вашем районе? Некоторые части страны построены на твердой скале, в то время как в других есть очень хорошая почва для копания. Опять же, проверьте окрестности. Если у них есть подвалы, скорее всего, ваш участок тоже подойдет.
Повысит ли стоимость моего дома отделка подвала?
Да. Большинство людей в первую очередь думают о потребностях в хранении, когда они думают о дополнительном пространстве в подвале, но если вы можете разместить окна и, возможно, дверь во внутренний дворик, ваш нижний уровень — идеальное место для повышения ценности и жилой площади вашего дома. Мы видим все, от дополнительных спален, игровых комнат, тренажерных комнат, семейных комнат, баров и многого другого на готовых нижних этажах, так что предела нет.

7 м²
8 х 8.8
2 м²
6 м²
7 х 20.9
6 м²
5
1 х 14.8
2
5 м²









..