Планировка и строительство частного дома – План постройки частного дома, с чего его начать и что включить, этапы планирования
Необходим ли план строительства частного дома и его особенности
Приобрести недвижимость в наше время — дело довольно затратное. Понадобится длительный срок для того, чтобы подобрать идеальную планировку и расположение, особенно, если речь идет не про квартиру, а про частный дом. В таком случае, идеальный вариант — самостоятельное возведение дома на участке. Но возникает вопрос, с чего начинать строительство? Как ничего не упустить? Именно с этими проблемами поможет справиться план строительства частного дома. О том мы сейчас и поговорим.
Можно ли обойтись без плана строительства и зачем он нужен?
На этот вопрос можно с точностью ответить, что без плана строительства частного дома обойтись никак нельзя. В противном случае, процесс строительства окажется либо затяжным, либо неорганизованным. Составление плана упорядочит ваши дальнейшие действия, полностью обрисует дальнейшую картину, а именно:
Необходимые стройматериалы для создания нужной вам постройки.
Все требуемые затраты, что позволит сразу же определиться с решением финансового вопроса.
Приблизительные временные затраты на постройку
Результат всего процесса.
По стандарту, план постройки дома включает в себя основные ступени строительства, на которые планируется опираться в дальнейшем. Отсюда вытекает целостная и понятная картина создания будущего дома.
Важно: План строительства необходим как для постройки большого коттеджа, так и для маленького домика и даже сарайчика. План — первая ступень любого строительства.
Видео с рекомендациями по организации строительного процесса:
к содержанию ↑Какие пункты включает в себя план строительства?
К созданию плана нужно подойти очень скрупулезно, ведь исключительно от него будет зависеть дальнейший ход стройки. Заниматься составлением плана можно самостоятельно или вместе со специалистом из строительной конторы. Итак, с чего же начать и чем завершить процесс?
План постройки дома начинается с важного решения в плане затрат и ответственности — кто будет строить дом? Если вы можете полагаться на свои силы, тогда постройкой лучше всего заняться самостоятельно. В противном случае, поручить это дело нужно профессионалу-застройщику. Если строительством будет заниматься специальная компания, то в обязательном порядке с ней необходимо заключить договор, где будут прописаны полностью все условия, а также особенности именно вашего плана строительства.
Решение вопроса документации. Для того, чтобы получить разрешение на строительство дома, пусть даже на собственном участке, нужно оформить некоторые соответствующие документы. Этот процесс может занимать от полутора-двух недель до месяца, поэтому разобраться с проблемой следует заранее. Полученное разрешение считается действительным в течение 3 лет.
После того, как разрешение получено, приходит время для измерительных работ и разметок. Застройщик обмеряет участок целиком и вместе с заказчиком делит его на части, соответствующие расположению дома, сада, каких-либо других местных надстроек. Далее осуществляется создание чертежей, проектирование будущего дома, приблизительный расчет смет. Приблизительный — так как от дополнительных расходов никто не застрахован. Максимально точную оценку может дать только опытный архитектор.
Следующий пункт — это сам процесс строительства, более подробно о котором мы будем говорить далее. Он занимает от нескольких месяцев до 2-3 лет.
Последний пункт — сдача застройщиком готового дома в использование.
Таким образом, мы рассмотрели план постройки частного дома, который вы можете сделать самостоятельно, пока что безо всяких расчетов.
к содержанию ↑Как строится дом?
Знать, какие существуют основные этапы строительства, необходимо не только в том случае, когда намечается самостоятельная постройка дома, но и когда на объекте работает бригада строителей. Это знание значительно облегчает процесс и дает приблизительную ориентировку на сроки строительства. Итак, с чего же начинается и как продвигается строительство дома?
Видео с этапами строительства частного дома:
Подготовительный. К этому этапу относится составление плана постройки дома (а также других сооружений на местности — по желанию), расчеты, оформление соответствующих документов и т.д.
Обращаем внимание садоводов! Учитывая то, что строительство дома может растянуться на месяцы, лучше произвести высадку до начала строительства, чтобы деревья уже начали расти и развиваться!
Нулевой. Первое дело здесь — закладка фундамента. Процесс бесспорно важный, так как от него зависят безопасность и практичность дома. Сюда входит и проведение канализации и водопровода, а также остальных необходимых коммуникаций.
На этом же этапе создается подвал, если он был указан в плане.
Основной. Наконец-то дом начинает вырастать. Из заложенного фундамента появляются стены, этажи, навесы и крыша. Внутри также происходят изменения — пустое пространство делится на комнаты, монтируются лестницы.
К этому этапу также относится установка дверей и окон, ворот для гаража (если пространство для него оборудовано).
В самом конце оформляется внешний вид дома на выбор заказчика — это может быть сайдинг, декоративный камень, кирпич и другие варианты дизайна. Постройка близится к финалу.
Этап проведения различных коммуникаций. Сюда относятся так называемые «блага цивилизации» — электричество, вода, канализация и отопление. Ко вторичным коммуникациям можно отнести следующие второстепенные и необязательные установки — газ (при возможности), интернет и кабельное ТВ, системы кондиционирования, системы сигнализации и видеонаблюдения.
Этап внутреннего ремонта и дизайна. Самый интересный этап, когда предстоит отделка и дизайн комнат. Здесь, в первую очередь, следует побеспокоиться об оформлении стен и потолка. После следует установка дверей между комнатами и осветительного оборудования. По окончании данного этапа, дом уже можно обставлять мебелью и предметами интерьера. Остаются последние штрихи.
Заключительный. Этот этап можно отложить, так как дом уже совсем готов для жилья. Останется только огородить участок воротами или забором, оформить ландшафтный дизайн, поудобнее устроить дорожки, ведущие к дому.
Знаете ли вы… Что процесс укладки фундамента можно назвать одним из самых продолжительных? Это связано с тем, что готовому фундаменту необходимо «настояться», чтобы в дальнейшем не дать осадку. Иногда этот процесс может занимать до года.
к содержанию ↑Строительство по минутам: график работ
Предугадать со 100% точностью, когда дом будет готов к сдаче невозможно. Но приблизительные сведения на этот счет способен дать график строительства. Он может представлять собой календарь или табель, с отмеченными в нем датами тех или иных работ, их взаимосвязь, приблизительную продолжительность. Расчеты производятся с учетом погодных условий, выходных дней и других факторов, которые могут повлиять на процесс строительства и его длительность.
В графике для наглядности указываются абсолютно все предстоящие работы — какое количество окон и дверей предстоит вмонтировать, сколько комнат оборудовать и т.д. В зависимости от масштаба работ, количество столбцов в графике может варьироваться. Например, может указываться необходимое оборудование, количество рабочих и многое другое.
karkasnik.su
Строительство частного дома своими руками
Если вы стали владельцем земельного участка, то вас можно поздравить, так как сделали уверенный шаг к мечте о собственном семейном очаге. Но, чтобы построить непревзойденный частный дом своими руками необходимо вооружится всеми необходимыми знаниями, затратить немало сил, труда и вложить в работу частичку своей души. Какие существуют нормы, правила и технологии строительства? Какие для этого потребуются документы? Какие расходы вас ожидают при строительстве частного дома? Об этом всем далее в статье. Coswick массивная доска отличный выбор для создания любого интерьера в частном доме.
Оглавление
- С чего начать?
- Документы для строительства частного дома
- Нормы строительства частного дома
- Проекты строительства частных домов
- Технологии строительства частных домов
- Расчет стоимости строительства частного дома
С чего начать?
И так… вы решили строить собственный частный дом своими руками. Здесь нужно иметь общий план строительства частного дома и следовать полезному зову всем известной поговорке: «готовьте сани летом, а телегу зимой», а точнее начинать возводить здание нужно всеоружии.
Следует отметить, что земля под строительство частного дома должна быть максимально подходящей для строительства. Перед началом строительных работ необходимо изучить ее все территориально-технические характеристики и выяснить, приемлема ли ее стоимость.
Далее нужно определиться, будете ли вы пользоваться услугами застройщика или сооружать дом сами. В первом случае необходимо подписать договор на строительство частного дома и чтобы была полностью подготовленная бригада строителей, которые готовы по первому зову сразу же приступить к работе. Далее следует собрать все требуемые документы, дабы избежать неприятностей с бюрократией. И, конечно же, особое внимание следует уделить проекту строительства частного дома.

В постройке дома своими руками есть много положительных моментов. Во-первых, значительно уменьшаются финансовые затраты, если сравнить с покупкой такого же уже готового дома. Во-вторых, вы сможете сами контролировать процесс стройки и будете полностью уверенны в качестве произведенной работы.
Документы для строительства частного дома
При строительстве частного дома вы обязательно озадачитесь вопросом: что необходимо для оформления строительства частного дома, и какие хлопоты вас при этом ожидают?
Безусловно, этот выполнение этого процесса лучше доверить профессионалам, так как не имея надлежащих познаний в этом вопросе можно потратить очень много времени и нервов. Но общее представление о этой процедуре у вас должно обязательно быть.
Разрешение на строительство частного дома
Первый документ, который вам необходим, — это разрешение на строительство. Этот документ является подтверждением того, что требования градостроительного плана и данные проектной документации соответствуют. Он позволяет осуществлять строительные работы согласно плану.
Для того чтобы его получить, нужно предоставить следующий набор документов органам архитектуры и градостроительства:
- акт, который подтверждает право пользования земельным участком( договор купли-продажи, завещания, дарения или же мены;
- решение о выделении территории под строительные работы;
- проект строительства частного дома;
- план застройки всего земельного участка;
- чертежи других, расположенных на участке, построек.
Также нужно заблаговременно подготовить ходатайство из районной администрации о том, что земельный участок не находится в аресте и не обременен.
В основном процесс получения разрешения на строительство занимает около десяти календарных дней, а срок его действия становит не более трех лет.

Проектно-сметная документация
После получения разрешения идет этап подготовки и в дальнейшем согласования проектно-сметной документации планируемого частного дома.
Для разработки проектно-сметной документации можно прибегнуть к помощи проектно-строительной организации или частных архитекторов и инженеров.
Во время согласования проектно-сметной документации ведутся проверки по соответствию конструкторских решений строительным нормативам, а также в случае постройке сооружений с различными художественными решениями рассматривается общее сочетание с окружающей архитектурой.
Для того, чтобы могла быть проведена проверка, а в дальнейшем и согласование проектно-сметной документации, она должна включать следующее:
- эскизы и разрезы частного дома с техническо-экономическими данными;
- полный план всего участка с указанием и проектом других воздвижений.
Всю эту документацию следует согласовать с коммунальными, пожарными, санитарно-эпидемиологическими службами.

Строительный паспорт
Следующий этап – это обмер всего частного участка и разбиение габаритов всех построек. Этой стадией занимаются органы градостроительства и архитектуры вместе с самим застройщиком.
По завершению этого этапа составляется акт в трех копиях, предназначенных для застройщика, органов градостроительства и архитектуры и БТИ. После этого застройщик получает строительный паспорт, который включает в себя:
- проект частного дома;
- проект всех построек на земельном участке;
- выписка о предоставлении застройщику земельного участка;
- пояснительная записка, сформированная проектным учреждением;
- акт и составленная карта всех границ частного сектора.
Нормы строительства частного дома
Существуют специальные нормы строительства частного дома, которые в полной мере должны соблюдаться застройщиком.
Во — первых, расстояние между будущим домом и дорогой должно составлять минимум 5 метров. Для соблюдения пожарной безопасности дистанция между двумя жилыми сооружениями должна находиться в границах от 6 до 15 метров – все зависит от коэффициента огнестойкости домов.
Во-вторых, есть специальные ограничения, связанные с общей площадью и высотой помещений в частном доме. Например, общая площадь спальной комнаты должна быть минимум 8 м2, для жилой комнаты этот показатель равен более 12 м2, для кухни – более 6 м2, а для ванной комнаты – не менее 1,8 м2. Эти параметры были установлены согласно санитарно-гигиенических норм. Также существуют границы, связанные с размерами подъемов и проходов. Лестница между двумя этажами должна быть шириной более 0,9 метров, такому же параметру равны минимальные размеры коридора. Минимальная высота этажа равна 2,5 метра, а в случае мансарда она составляет 2,3 метра. Если же в доме планируется сооружения подвала, то его высота должна составлять не менее 2 метров.
Зная все нормы и правила строительства частного дома можно избежать много проблем и ошибок.
Проекты строительства частных домов
Параллельно со сбором всех требуемых документов можно заняться работой с проектом частного дома.
Проектирование частного дома не регулируется какими-то нормативными актами, поэтому любой человек, зная основы проектирования, сможет без проблемы создать эскиз дома, что будет вполне достаточно для получения разрешительных документов на строительство.

Нет необходимости в проекте, если планируется возведение небольшого дачного домика, и нет необходимости в подведении всех коммуникаций. В этом случае владелец сам выберет правильное решение для постройки уютного дачного домика.
В том случае, если планируется строительство частного дома для постоянного проживания с полным комплектом городских коммуникаций, то оптимальным вариантом будет заказ или покупка проекта дома.
Как правило, обычный проект строительства частного дома, цена которого зависит от сложности задания, включает в себя:
- план частного строительного сектора;
- план фундамента дома;
- план всех помещений в доме;
- общая схема всех сантехнических принадлежностей;
- схема электропроводки;
- план крыши частного дома.
Могут быть включены и другие дополнительные схемы, но это зависит от дизайнерской структуры дома.
Строительство частного дома — фото готовых проектов представленно ниже.





Главная задача при рассмотрении проекта частного дома – это определить длительность строительных работ. Поэтому проект дома следует в полной мере детализировать, в противном случае могут возникнуть разнообразные нестыковки и вопросы, что может привести к увеличению срока строительных работ и дополнительным нервам и затратам владельца земельного участка.
Технологии строительства частных домов
Для постройки высоконадежного частного дома нужно знать технологии строительства частных домов, иначе неизученные подводные камни в большинстве случаев приводят к отрицательным итогам в будущем.
Частный дом из кирпича
Кирпич является прочным и высокозащищенным от возгорания материалом, поэтому такой дом дает ощущение некой безопасности. Однако минус этого строительного материала – это теплопроводность, что приводит к необходимости возведения толстых стен и фундамента глубокого заложения, а вследствие чего и к увеличению затрат на материалы. Дом из кирпича поглощает много тепла на обогревание самих стен.

Дом из сэндвич-панелей
Дома, построенные по такой технологии, являются абсолютно безопасными, энергоэффективными, теплосберегающими благодаря замковому скреплению панелей, что позволяет значительно сэкономить на обогреве жилища.
Такие панели имеют относительно низкий вес и исключают необходимость в закладке фундаменте, но при всем этом способны обеспечить высокую прочность и надежность.

Частный дом из дерева
Частный дом, возведенный по этой технологии, имеет много преимуществ.
Во-первых, дерево очень хорошо пропускает воздух, именно поэтому такие здания очень хорошо вентилируются. Помимо этого, дома из дерева являются экологично чистыми, так как дерево – это природный материал, а само строительство не требует использования тяжелой техники.
Во-вторых, древесина является отличным теплоизоляционным материалом и несложной в обработке, что позволяет уменьшить растраты на обогреве дома и на самом строительстве соответственно.
Во-третьих, дерево «не настаивает» на внутренней отделке, потому что деревянные срубы обладают изысканным видом и могут быть основой дизайна.

Технология Термодом
Данная технология подразумевает использование блоков из пенополистирола, которые являются сверхпрочными, экологично безопасными и теплосберегающими. Также пенополистирол исключает появление различных бактерий и плесени, а возгоранию подвергается только после двухчасового контакта с огнем. Стена из данного материала в основном имеет толщину 25 сантиметров, которая по своим технологичным характеристикам сравнивается с кирпичной стеной 50 сантиметров. При возведении дома по такой технологии не требуется возведение тяжелого фундамента.

Расчет стоимости строительства частного дома
Перед началом строительства дома крайне важно запланировать все растраты, чтобы впоследствии не оказаться с опустошенным кошельком и с недостроенным домом.
Стоимость строительства частного дома в первую очередь зависит от изначального проекта строительства, качества материалов строения и сложности постройки.
Расчет стоимости частного дома можно произвести как с помощью специализированных служб, так и самому.

Изначально необходимо определить точные габариты будущего жилья, например, общий размер дома и каждого помещения отдельно. Также следует быть осведомленным в таких параметрах, как: высота и толщина стен, высота фундамента, тип крыши и кровельного материала, а также обо всех видах коммуникаций в доме.
Далее следует составить детальный план строительства частного дома, который включает: проект дома, кровли и фасада, планировку всех комнат и общий план территории частного участка.
Затем можно обратиться к специалистам, которые на основе проекта дома произведут детальный расчет стоимости строительства частного дома на основе бытующих расценок материалов и услуг бригады строителей.

Если же вы желаете произвести расчет самостоятельно, то для этого существуют специальные программы, которые значительно облегчают данный процесс. Но, стоит учесть, что иногда программные расценки могут отличаться от реальных цен. Еще один способ оценки строительных затрат – это составить самому весь список требуемых работ и материалов, а затем узнать ценовую политику в местных фирмах и таким способом рассчитать все расходы на строительство дома.
Примите во внимание, что в процессе строительства могут повыситься цены на материалы и услуги, поэтому лучше в будущий дом вложить еще 20% финансов от сметной рассчитанной суммы.
Строительство частного дома — видео посвящено основным критериям по выбору проекта дома.
strport.ru
Нужен ли проект на жилой дом для получения разрешения на строительство?
Часто нам задают вопрос: можно ли строить частный дом без проекта не возникнет ли проблем при получении разрешения на его строительство?
Ответ на этот вопрос можно найти в градостроительном кодексе. Открываем статью 48, пункт 3,4 и 5. Там написано следующее:
Градостроительный кодекс. Статья 48 «Архитектурно-строительное проектирование»
- пункт 3. Осуществление подготовки проектной документации не требуется при строительстве, реконструкции, капитальном ремонте объектов индивидуального жилищного строительства (отдельно стоящих жилых домов с количеством этажей не более чем три, предназначенных для проживания одной семьи). Застройщик по собственной инициативе вправе обеспечить подготовку проектной документации применительно к объектам индивидуального жилищного строительства.
- Пункт 4. Виды работ по подготовке проектной документации, которые оказывают влияние на безопасность объектов капитального строительства, должны выполняться только индивидуальными предпринимателями или юридическими лицами, имеющими выданные саморегулируемой организацией свидетельства о допуске к таким видам работ. Иные виды работ по подготовке проектной документации могут выполняться любыми физическими или юридическими лицами.
- Пункт 5. Лицами, осуществляющими подготовку проектной документации, могут являться застройщик либо привлекаемое на основании договора застройщиком или заказчиком физическое или юридическое лицо, соответствующие требованиям, предусмотренным частью 4 настоящей статьи. Договором о подготовке проектной документации может быть предусмотрено задание на выполнение инженерных изысканий, обеспечение технических условий.
На основании этих пунктов можно сделать вывод, что проект или проектная документация на строительство индивидуального жилого дома не требуется при соблюдении двух условий:
- Количество этажей будущего дома не превышает 3-х
- Дом предназначен для проживания не более одной семьи
Таким образом, в большинстве случаев для частной застройки проектная документация не требуется. Хотя заметим, что отсутствие проекта на дом может добавить вам головной боли при строительстве из-за различных недопониманий между подрядчиком и заказчиком, т.е. вами. Но это тема отдельного разговора.
Второй вопрос, часто волнующий застройщика: можно ли получить разрешение на строительство при отсутствии проектной документации?
Опять же, давайте заглянем в статью 51-ю градостроительного кодекса:
Статья 51. Выдача разрешений на строительство.
- пункт 1. Разрешение на строительство представляет собой документ, подтверждающий соответствие проектной документации требованиям градостроительного плана земельного участка и дающий застройщику право осуществлять строительство, реконструкцию объектов капитального строительства, а также их капитальный ремонт, за исключением случаев, предусмотренных настоящим Кодексом.
- пункт 9. В целях строительства, реконструкции, капитального ремонта объекта индивидуального жилищного строительства застройщик направляет в уполномоченные на выдачу разрешений на строительство в соответствии с частями 4-6 настоящей статьи федеральный орган исполнительной власти, орган исполнительной власти субъекта Российской Федерации или орган местного самоуправления заявление о выдаче разрешения на строительство. К указанному заявлению прилагаются следующие документы:
- пункт 10. Не допускается требовать иные документы для получения разрешения на строительство, за исключением указанных в частях 7 и 9 настоящей статьи документов.
- пункт 11. Уполномоченные на выдачу разрешений на строительство федеральный орган исполнительной власти, орган исполнительной власти субъекта Российской Федерации или орган местного самоуправления в течение десяти дней со дня получения заявления о выдаче разрешения на строительство:
- пункт 14. Отказ в выдаче разрешения на строительство может быть оспорен застройщиком в судебном порядке.
- пункт 15. Выдача разрешения на строительство осуществляется уполномоченными на выдачу разрешения на строительство федеральным органом исполнительной власти, органом исполнительной власти субъекта Российской Федерации или органом местного самоуправления без взимания платы.
- пункт 18. Застройщик в течение десяти дней со дня получения разрешения на строительство обязан безвозмездно передать в федеральный орган исполнительной власти, орган исполнительной власти субъекта Российской Федерации или орган местного самоуправления, выдавшие разрешение на строительство, сведения о площади, о высоте и об этажности планируемого объекта капитального строительства, о сетях инженерно-технического обеспечения, один экземпляр копии результатов инженерных изысканий и по одному экземпляру копий разделов проектной документации, предусмотренных пунктами 2, 8-10 части 12 статьи 48 настоящего Кодекса, или один экземпляр копии схемы планировочной организации земельного участка с обозначением места размещения объекта индивидуального жилищного строительства для размещения в информационной системе обеспечения градостроительной деятельности.
- пункт 19. Разрешение на строительство выдается на срок, предусмотренный проектом организации строительства объекта капитального строительства. Разрешение на индивидуальное жилищное строительство выдается на десять лет.
Подводя итоги, заметим, что проект на жилой дом не требуется для получения разрешения на строительство. Единственное, что вам нужно будет заказать в проектной организации или отделе местного архитектурного бюро – это схему планировочной организации земельного участка. Такая схема представляет собой план вашего участка с указанием границ участка, красной линии застройки, границы допустимых зон строительства жилых зданий, допустимых зон размещения хозяйственных построек и т.д. Предполагаемые габаритные размеры вашего будущего дома при этом, вы конечно же должны будете указать. Всё, иная проектная документация для получения разрешения на строительство не требуется.
kapitel-1.ru
Подробный план строительства частного дома
Грамотно составленный план строительства частного дома позволяет будущим владельцам значительно сэкономить на материалах и получить в результате настоящий дом мечты.
Если вы планируете заниматься строительством самостоятельно, не привлекая рабочих и дизайнеров со стороны, план строительства будет для вас первым помощником и главной опорой.
Несомненно, строительство домов под ключ имеет свои преимущества. Это, в первую очередь, избавление будущих владельцев от необходимости самостоятельно разбираться в процессах стройки, закупать лично все строительные материалы и так далее.
Однако если вы строите дом своими руками, вы можете лично контролировать весь процесс его возведения. Когда все, от цементного состава, до последнего гвоздя, собственноручно куплено, гордость за готовый результат не знает границ.
Опять же, самостоятельное строительство предполагает наличие грамотного плана, следуя которому, вы проведете работу без проблем.
Что включает план строительства дома? На этот вопрос однозначного ответа вы не найдете. Расширенные планы включают в себя все, от геологических исследований почвы, до планировки и примерной меблировки комнат.
Если не увлекаться, то в план достаточно включить несколько пунктов:
- смета на строительные материалы, используемые в работе;
- планировка дома от крыльца до чердака;
- План поверхностного зонирования дома.
Оставим инженерно-геологические изыскания за границами нашего плана. Такую работу, если, конечно, вы хотите, чтобы ваш дом прослужил не одно десятилетие, стоит доверять исключительно профессионалам.
Изыскания такого рода позволяют оптимально выбрать технологию строительства, тип фундамента и способы его укрепления. Зная, какие слабые стороны имеет почва на вашем участке, и насколько глубоко пролегают подземные воды, вы сможете сделать свой дом надежным и крепким.
В зависимости от плана, составляется также и смета строительства. Естественно, все до последнего гвоздя вы предугадать и внести в свой план не сможете. Оно и не нужно. Главное здесь – определиться с основными материалами и их количеством.
Четкий план позволит вам не совершить необдуманных и ненужных покупок, следуйте составленной смете и вам удастся сэкономить значительную сумму.
Основное место в плане строительства частного дома занимает его планировка и разделение на комнаты. Если есть желание, после зонирования можно даже приблизительно набросать план интерьера помещений и основных его элементов.
Но сначала стоит продумать до мелочей основной план, чтобы ваш дом был уютным и комфортным.
Этапы планирования дома
Любой дом начинается с входной двери, любое планирование также начинается с входа. Здесь в плане вы определяете, необходимо ли вашему дому крыльцо, терраса или веранда перед входом.
Прихожая, гардеробная или кладовая тоже, как правило, располагаются у входа, но уже с внутренней стороны. Своеобразной кладовой или подсобным помещением может служить тамбур между входными дверями дома.
Его организация – это обязательное условие, если вы хотите дополнительно защитить жилище от холодов зимой. Такой тамбур послужит определенным буфером, которых задержит холодный воздух.

Если дом одноэтажный, стоит особенно тщательно продумать наличие тех или иных комнат в нем. Если семья большая, то жилых комнат должно быть много, желательно, по одной на каждого члена семьи.
Существует определенная формула расчета количества комнат для семьи:
- N + 1. N здесь – это количество предполагаемых жильцов, а 1 – количество комнат.
Таким образом, целесообразнее всего сделать план на одну жилую комнату больше, чем число жильцов в этом доме. В дальнейшем «лишняя» комната может стать гостиной или комнатой для гостей, что тоже имеет свои преимущества.
Если дом предполагает два этажа, справиться с определением количества комнат будет несколько проще. В этом случае, как правило, жилые комнаты не общего пользования переносятся на второй этаж, а на первом выделяют место для общих комнат и хозяйственных помещений.
Итак, постарайтесь на первом этаже уместить как можно больше функциональных комнат, обслуживающих и общего пользования. Сюда мы относим:
- гостиную комнату;
- кухню;
- столовую;
- санузел;
- котельную, если в ней есть необходимость;
- гардеробную комнату;
- кладовку или бытовую комнату;
- спальную комнату для гостей или одного из членов семьи.
Такая планировка позволит вам сэкономить полезную площадь второго этажа и сделать жилые индивидуальные комнаты просторнее.
Не забудьте про лестницы и холл, который станет центром дома, откуда ведут двери или коридоры в другие комнаты. Лестничная площадка редко бывает функциональной. Здесь вы можете только постараться украсить ее в силу возможностей.
А вот загромождать лестницу и площадки функционалом не стоит – это окажется неудобным в процессе дальнейшей эксплуатации.
proecty-domov.ru
Планировка и обустройство частного дома на участке снаружи и внутри: Советы +Фото
Каждый живущий в доме должен иметь свой уголок, и это не обязательно должна быть отдельная комната.
В каркасном доме с правильно продуманной планировкой гости из прихожей легко попадут в гостиную и не будут ходить в поисках туалета.
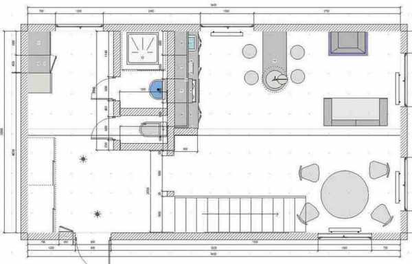
Планировка каркасного дома
Необходимо правильно спланировать частный дом, чтобы он был комфортным и уютным, в этом помогут стандартные правила планировки:
- Внутреннее пространство каркасного дома принято условно делить на две зоны — жилую и хозяйственную. При этом жилую зону также можно разделить на две – дневная и вечерняя.
Далее, дневные и вечерние зоны можно разделить на помещения для взрослых, детей и гостей. Дневная зона состоит из: прихожей, гостиной, холла, столовой, туалета и веранды.
Вечерние зоны – это спальня, гардеробная, расширенный санузел.
Хозяйственная зона — это кухня, кладовая, гараж, прачечная, котельная, мастерская.
При расположении комнат, следует обратить особое внимание на положение солнца в определенные часы, и обязательно на вид из окна.
- Строительство каркасного дома с меньшим количеством холлов и коридоров существенно снизит стоимость общей жилой площади.
Количество холлов и площадь коридоров можно уменьшить, например: сделать какие-либо комнаты проходными и устроить в спальне рабочий уголок.
Более удачным вариантом считается планировка, при которой кухонная зона, являясь хозяйственным помещением, будет примыкать к жилой зоне столовой и одной из общих комнат.
В каркасном доме с маленькой площадью помещения дневной зоны: кухня, столовая, гостиная и даже прихожая или холл, размещают в общем открытом пространстве, которое не разделено перегородками.
- Очень важно, чтобы семейные пары и прочие взрослые члены семьи имели в каркасном доме свои комнаты.
Самая большая из комнат — это гостиная, она будет общим помещением, где все жильцы будут собираться для отдыха. Очень удобно иметь в каркасном доме еще одну дополнительную комнату — гостевую спальню либо кабинет. И главное помнить, что правильно спланировать строительство дома – это залог успеха.
- Если в каркасном доме живет несколько поколений, то нужно сделать территорию каждой семьи с отдельными входами, санузлами, ванными комнатами и спальнями. И помещения для пожилых родителей располагайте лучше на первых этажах.
- В каркасном доме лучше делать две входных двери, одна будет располагаться с въезда на участок, вторая с террасы, либо с противоположной стороны дома, для различных хозяйственных нужд. Определенно на количество и расположение входов будет влиять состав семьи.
Лестница обязательно должна освещаться естественным освещением. Поэтому, особой разницы нет, куда ее ориентировать, но окна, которые освещают все лестничное пространство, должны обязательно присутствовать.- Необходимо правильно спланировать дом и предусмотреть возможность в будущем расширения площади по мере роста семьи и взросления детей. Увеличить размер можно за счет определенной пристройки к каркасному дому или устройства мансарды. В разных случаях вариант такого расширения необходимо предусмотреть заранее.
- Камин, как правило, располагают в столовой или гостиной. Установка камина в построенном каркасном доме потребует монтажа каминной трубы и дымохода, а это не всегда можно сделать.
- Простой каркасный дом прямоугольной формы с маленьким количеством углов без выступов, различных эркеров и балконов гораздо экономнее в строительстве. Данный дом обладает минимальными тепловыми потерями через наружные ограждения. Форма такого дома идет в виде прямоугольника с соотношением всех сторон не больше 1:1,5.
- Установка простой односкатной крыши удешевляет все строительство.
- Правильная и грамотная ориентация каркасного дома по солнцу и ветру уменьшит затраты на отопительную и кондиционируемую систему.Жилые комнаты в каркасном доме ориентируют в основном на юг, чтобы по максимуму использовать тепловую энергию солнца. Хозяйственные комнаты располагают с северной стороны.
Проектирование и установка простых, коротких коммуникаций каркасного дома в значительной степени снижает затраты на строительство и повышает надежность. Для более удобного проведения инженерных коммуникаций санузлы в двухэтажных домах следует располагать друг над другом, а на первых этажах комнаты санузла и котельной — поближе к кухонной зоне.- Для каркасного дома эконом класса устанавливайте встроенный гараж, а не отдельно стоящий: его гораздо легче отапливать и в нем может разместиться часть коммуникационных систем каркасного дома, экономя всю площадь. Помимо этого, можно попадать в гараж на прямую из дома, не выходя на улицу.
- При строительстве каркасного дома откажитесь от подвала: стоимость цокольного этажа и качественной гидроизоляционной системы подвала в несколько раз выше стоимости строительства одного этажа.Вместо этого лучше запланируйте вместительную кладовую на первом этаже. Планировка и дизайн участка также в значительной степени влияют на итоговую стоимость строительства.
- Рассматривая готовый проект, обратите особое внимание на конструктивные решения, которые будут обеспечивать звукоизоляцию помещений ночных зон.
Для хорошей и качественной звукоизоляции между комнатами дневной зоны и спальни необходимо наличие двух линий дверей и небольшой коридор.
Если спальные комнаты располагаются на верхнем этаже, то плавающий пол на специальном железобетонном перекрытии — это необходимое условие для хорошей звукоизоляционной зоны ночного отдыха.
- Стройте энергоэффективный каркасный дом.
При выборе готового проекта проверяйте основные параметры каркасного дома, указывающие его степень энергоэффективности. Необходимо оценить среднегодовое количество потребляемой энергии, нужной для отопления, нагрева воды, вентиляционных и кондиционированных систем.
- Всю систему отопления оборудуйте специальными терморегуляторами, которые позволят программировать нужную температуру в каждой комнате отдельно. Понижение температуры в комнате на один градус дает экономию около 5 % от всей отопительной энергии.
Использование для отопления каркасного дома теплых полов также позволяет экономить тепло в доме.
- Входная дверь в каркасный дом с улицы при строительстве должна быть отделена специальным тепловым шлюзом — тамбуром. Благодаря определенному открыванию в тамбуре двух дверей прохладный воздух с улицы не проникнет в дом.
- Если при строительстве дома планируется балкон, то он должен иметь самостоятельную внешнюю опору в виде определенных столбов.
- Следует помнить что, чем больше площадь остекления дома (понарамное остекление), тем выше расходы на отопление.
- Лиственные деревья на территории дома с большими кронами могут создавать определенную тень в летнее время и существенно снижать потребление энергии на кондиционирование порядка 50%.
В зимнее время лиственные деревья теряют свою крону, и солнечный свет хорошо попадает на поверхность дома и его стен нагревая их, обеспечивая ему отличную тепловую энергию и помогая уменьшать затраты на отопление.
Хвойные же деревья помогут оградить каркасный дом от холодных ветров в зимнее время и не дадут ему охлаждаться.
- При строительстве каркасного дома выбирайте экологически безопасные материалы.
Более 50 % всех материалов используемых в строительстве на внутреннем рынке не являются безопасными для нашего здоровья. Многие из них не проходят даже самую простую экологическую экспертизу.
Особенности в планировке трехэтажного каркасного дома
Сложность трехэтажных каркасных домов останавливает многих строителей в России, чтобы приступить к строительству таких домов, но план такого дома нужно спланировать, предварительно все рассчитав.
При строительстве вы задумались, как правильно спланировать дом. В трехэтажных домах границей между дневной и вечерней зоной считается лестница.
Комнаты дневной зоны, обычно располагают на первых этажах. Ночные зоны, спальни, ванные комнаты, гардеробные и санузлы располагают на верхних этажах каркасного дома.
Хотя, данное разделение комнат по этажам не всегда возможно и удобно. Иногда на первом этаже делают еще одну дополнительную спальню. А на нижних этажах располагают спальню для родителей либо гостей.
Санузлы и ванные комнаты в доме
В многоэтажном каркасном доме санузлы и ванные комнаты должны быть на каждом этаже. На первом этаже туалет и ванну устанавливают так, чтобы ими удобно было воспользоваться гостям. И лучше всего, если вход в туалет не будет виден из гостиной.
В ванной комнате на нижнем этаже должен быть и душ для быстрого принятия водных процедур. Данный санузел значительно снижает нагрузку в утренние и вечерние часы.
Если в каркасном доме на первом этаже располагается спальня, то санузел устанавливается рядом с ней, таким образом, чтобы из спальни в туалет не требовалось ходить через всю гостиную. Этим же туалетом могут пользоваться и ваши гости.
В большой ванной комнате в зоне спален, удобно размещать оборудование для СПА процедур — например, кедровая бочка, сауна, финская баня, джакузи или купель.
Помещения хозяйственного назначения
Котельная на первом этаже домаКотельную обычно устанавливают на первом этаже каркасного дома. Достаточно часто для установки котла выделяют специальное помещение в пристроенном к каркасному дому гараже. В котельную, работающую на твердом топливе, необходимо сделать вход снаружи, со стороны склада, где храниться топливо.
Кладовая продуктовая комната располагается возле кухни.
В каркасном доме будет удобно иметь две гардеробные — непосредственно у входа и в зоне спальни.
Около гардеробной зоны удобно иметь сушилку, стиральную машину и гладильную доску. Не размещайте прачечную в пристроенном гараже. Так как появиться необходимость носить грязное белье по лестницам, и это не понравится хозяйке дома.
Окна в каркасном доме
Понарамные окнаУвеличенная площадь остекления в комнатах существенно может повысить затраты на строительство и использование каркасного дома:
- Стоимость конструкции блока с остеклением гораздо выше, чем финансовые затраты на строительство стены похожей площади.
- Расходы на отопление в зимнее время значительно увеличатся.
Но многие собственники решают пренебречь экономической выгодой ради эстетичного вида, который присутствует в уютной залитой светом гостиной с идеальным видом в сад через огромные окна от пола до потолка.
Наиболее часто огромные окна и стеклянные двери для выхода на террасу, сад или балкон обустраивают не только из гостиной комнаты, но и из спальни, и кухонной зоны.С наружной стороны каркасного дома на окна устанавливайте специальные рольставни. Закрытые рольставни защищают окна от взлома, и в сильные морозы снизят теплопотери через окна, а в жаркое время снизят перегрев каркасного дома солнечными лучами. Установку и монтаж рольставен на окна предусматривайте заранее, на стадии составления проекта каркасного дома.
ТОП 9 магазинов, где я выгодно закупаюсь
ТОП 7 по товарам и мебели для дома:
7 лучших строительных и мебельных магазинов!
- Akson.ru- это интернет-гипермаркет строительных и отделочных материалов!
- homex.ru- HomeX.ru предлагает большой выбор качественных отделочных, материалов, света и сантехники от лучших производителей с быстрой доставкой по Москве и России.
- Instrumtorg.ru – это интернет – магазин строительного, автомобильного, крепежного, режущего и другого инструмента, необходимого каждому мастеру.
- Qpstol.ru — «Купистол» стремится предоставить лучший сервис своим клиентам. 5 звёзд на ЯндексМаркет.
- Lifemebel.ru- гипермаркет мебели с оборотом более 50 000 000 в месяц!
- Ezakaz.ru- Представленная на сайте мебель изготавливается на собственной фабрике в Москве, а так же проверенными производителями из Китая, Индонезии, Малайзии и Тайваня.»
- Mebelion.ru- – крупнейший интернет-магазин по продаже мебели, светильников, интерьерного декора и других товаров для красивого и уютного дома.
domsdelat.ru
