Проект частного жилого дома – эскизный проект, архитектурный и архитектурно строительный проект, конструктивный и инженерный раздел (водоснабжение и канализация, отопление, электрика)
Бесплатные типовые проекты жилых загородных домов и коттеджей
Строительство дома всегда начинается с составления его проекта, работы по которому относятся к одним из самых важных этапов возведения здания. На сегодняшний день многие строительные компании готовые предложить своим клиентам бесплатно уже полностью готовые простые типовые проекты домов, которые можно использовать для строительства своего дома.

Возведение дома с проектирования, калькуляции и подготовки чёткой сметы, в проект заносится информация, крайне важная для многих этапов работ. Определяется подходящее расположение инженерных коммуникаций: водоснабжения, электричества, вентиляционных и отопительных систем. Разрабатывается схема закладки фундамента, перекрытий кровельной системы, а также рассчитывается квадратура каждого отдельно взятого помещения.
Типовой проект дома представляет собой результат работы не одного человека, а целой команды людей. Большая часть работы выполняется архитектором, который сначала создает эскизные наброски плана в виде рисунка и чертежа. Кроме этого, проект дома обязательно включает в себя техническую документацию, в которой прописаны все виды и типы работ, используемые при строительстве проектируемого коттеджа.

В задачу архитектора входит тщательная прорисовка отдельных планов на каждый этаж здания, рассмотрение различных возможных решений для фасадов во всех плоскостях, создание трёхмерных моделей проектируемого дома, разработка схем всех инженерно-коммуникационных систем.
Помимо архитектора, в проектировании дома активно участвует конструктор, чьей задачей является устранение возможных ошибок архитектора и воплощение в жизнь его задумок. При закладке фундамента конструктором производятся необходимые расчёты, изучается грунт на участке, после чего предоставляется вся необходимая информация о наиболее подходящем типе, который в данном месте станет самым безопасным и эффективным. Помимо этого, конструктор отвечает за изучение кровли и перекрытий, а также создает качественные таблицы расчётов и чертежи, которые в дальнейшем станут одной из самых важных частей проекта.
Вернуться к оглавлениюСодержание материала
Выбор и покупка типового проекта дома
Прежде чем заказывать проект в каком-либо агентстве, следует внимательно ознакомиться с портфолио специалистов. В идеале портфолио должно содержать типовые проекты домов с фотографиями готовых возведённых строений, чтобы была возможность оценить возможный результат сотрудничества.
Вернуться к оглавлениюПреимущества типовых проектов
Главной особенностью любого типового проекта является осмысленность планировки. В любой типовой проект можно внести необходимые небольшие изменения в соответствии с вашими требованиями и особенностями земельного участка.
Отдавая предпочтение готовому типовому проекту, вы экономите не только свои средства, но и время, так как подготовка рабочей документации в этом случае занимает всего несколько дней. На внесение корректировок и изменений так же уйдёт не много времени. Будущий владелец дома может начинать строительство своего коттеджа сразу после покупки проекта и «привязки» его к участку.

Типовые проекты домов и коттеджей стоят не слишком дорого, хотя конечная стоимость, конечно, зависит от общей площади и сложности объекта, а также наличия инженерных коммуникаций. Но все же, в сравнении со стоимостью индивидуальных проектов, расценки на типовые существенно ниже.
Готовый проект дома должен включать в себя несколько частей-разделов, где чётко прописаны архитектурные и конструктивные решения. В документах обязательно должно находиться описание вентиляции и отопления, канализации и водоснабжения. Электроснабжение должно находиться в отдельном разделе. Каждый раздел проектной документации должен включать в себя полное описание объекта, иметь разрезы, чертежи, планы, а также спецификации материалов и изделий.
Вариант плана удобного одноэтажного дома 10×8Подбирая проект будущего дома, обратите внимание, что стоимость многоэтажных построек незначительно превышает стоимость одноэтажных зданий. Причина заключается в том, что при строительстве многоэтажных зданий используется один и тот же фундамент и кровля. При этом стоит учитывать, что в многоэтажных домах коммуникации работают несколько надёжнее.
Типовой проект двухэтажного дома с гаражомВ большинстве случаев, готовый проект всегда немного отличается от задуманного, так как технические нормы не всегда позволяют воплотить в жизнь те или иные детали.
Если вы решите найти в интернете и бесплатно скачать типовой проект загородного дома, то будьте готовы ко всяким неожиданностям и неприятным сюрпризам во время строительства, которые вам придётся решать самим…
На этом видео вы можете посмотреть, с какими сложностями столкнулся заказчик, который использовал типовой проект дома из газоблоков.
proekt-sam.ru
Проект индивидуального дома. Как разработать проект дома
Проект подготавливается перед началом любого строительства. Неважно будет ли это большой загородный коттедж или скромный по размеру дачный домик, все замыслы и мечты сначала реализуются на бумаге. Благодаря разработке проекта загородного дома довольно точно подсчитывается итоговая стоимость всех материалов и работ, что позволит завершить строительство в запланированные сроки и наслаждаться жизнью в новом доме.
Содержание:
- Этапы разработки проекта частного дома
- Разработка проектов домов и коттеджей
- На что обратить внимание при разработке индивидуального проекта дома
- Особенности разработки проекта деревянного дома
- Программы для разработки проекта дома
На сегодняшний день большое количество фирм предоставляет услуги по расчету индивидуальных проектов или продает уже готовые. Но цены на них очень высоки, и большинство самозастройщиков, пытаясь сэкономить, не придают этому большого значения. Действительно, разработать проект дома можно и самостоятельно, но при этом надо знать, на что именно следует обращать внимание.
Этапы разработки проекта частного дома
Перед началом работы непосредственно над проектом дома, потребуется определиться с назначением дома.
- Будет ли это летняя дача, или же строится основательный дом для круглогодичного проживания.
- Количество жильцов. Просчитывается количество комнат для членов семьи, а также принимаются во внимание и те, кто будет посещать дом наездами.

- Определиться о наличие других построек на участке. Будет ли отдельный гараж и на какое количество машин рассчитан, расположение бани, скважины, септика и прочих объектов, которые влияют на габариты дома и его оптимальное месторасположение на участке.

- На месторасположение дома будет влиять и образ жизни его владельцев. Желая создать уединенную зону отдыха, закрытую от посторонних глаз, дом располагают в начале участка, загораживая им внутренний двор. Или наоборот, сдвигают его вглубь, открывая на обозрение красивый фасад и ухоженный ландшафт.
- Наличие наклона на участке и геодезические исследования также внесут свои коррективы.
Все это учитывается и на основе полученных данных разрабатывает генплан участка. С его помощью получится хорошо сэкономить время и деньги. Ориентируясь по разметке, сразу же подготавливается стоянка для машин, устанавливается септик, бурится скважина и т. д.
Разработка проектов домов и коттеджей
Теперь начинается стадия разработки проекта дома. Уже известны его примерные габариты и расположение на участке.
Создание эскизного проекта
Эскизный проект под силу сделать самостоятельно, и в соответствии с ним профессиональный архитектор делает наброски планировки, пространственных и стилевых решений.

Данные чертежи включают в себя план застройки, кровли и этажей дома. Также отображается внешний вид фасада, продольный и поперечный разрез здания. На нем же отмечается, из каких материалов будет построен дом, конструктивные особенности всех элементов. И уже на основе подробного эскизного проекта создается рабочий, который станет руководством для строителей.
Разработка рабочего проекта жилого дома
Архитектурный этап проектирования
Архитектурный проект один из самых приятных моментов в планировании дома. В нем прорисовывается расположение всех комнат и их размеры, продумываются дополнительные помещения, а также отмечаются места, где будут располагаться окна и двери.

Конструктивный этап проектирования
На этом этапе рассчитываются все элементы дома. Какой применить вид фундамента и насколько его заглубить. Какой сделать «пирог» стен, выбираются межэтажные перекрытия, рассчитывается расположение стропил и наличие дымохода. В итоге создается набор чертежей с конструкцией стен, с планом стропильной системы, межэтажной лестницы, перемычек, балок и т. д. Все материалы должны быть точно просчитаны, чтобы можно было закупить все необходимое количество сразу.
Инженерно-технический проект
Это важный раздел, который не всегда можно встретить на планах зданий, но без него не получится построить качественный дом под ключ. Он включает в себя расчет и проектирование систем канализации, водоснабжения, вентиляционной системы, схемы отопления и электрооборудования.

Данный проект должен содержать в себе поэтапные работы по прокладке коммуникаций необходимых для жизнеобеспечения. В рабочем проекте подробно указывается вся информация о расчетной мощности здания, о разводке электросети и о системе заземления для защиты от молнии. Отдельным разделом заносится установка охранной системы дома.
Дизайн-проект дома

Это завершающий этап проектирования. На нем определяются с цветовой гаммой фасадов, крыши, стен, отделкой внутренних помещений. Желательно продумать еще на стадии проектирования и стилистический дизайн комнат, расположение мебели.
Создание проекта собственными руками для частного застройщика более рационально в том случае, если и все работы по строительству он будет выполнять самостоятельно. Получив на руки проект от архитектора, непрофессионалу будет в нем сложно разобраться и понять в точности все, что там нарисовано.
На что обратить внимание при разработке индивидуального проекта дома
Подходить к проекту следует комплексно, учитывая вся конструктивные и инженерные особенности здания. Чтобы построить дом своей мечты, еще на этапе приобретения земельного участка, необходимо позаботиться о возможности обустройства водопровода, электричества и канализации. Но как бы тщательно ни разрабатывался проект дома, непрофессионал все равно не учтет всех нюансов. И при строительстве неизбежно возникнут моменты, когда придется на ходу переделывать или додумывать отдельные конструктивные элементы.
Современные материалы и доступность информации несколько упрощают работу для частных застройщиков. Так, в сети выложено большое количество бесплатных типовых проектов. Но следует понимать, что качественную работу никто бесплатно не даст на всеобщее пользование. Все эти проекты требуют серьезной доработки или являются неполными.
Вторым вариантом является покупка готового домокомплекта с завода. Он представляет собой пирог из двух панелей OSB плит, а между ними слоя пенопласта. Выбрав определенный проект каркасного дома у завода-изготовителя, его производят с учетом всех дверных и оконных проемов, а за дополнительные деньги, и межкомнатных перегородок.

Заказчику остается только собрать его по прилагаемой инструкции на подобии конструктора. Но в любом случае отправной точкой в разработке любого проекта служит бюджет строительства.
Особенности разработки проекта деревянного дома
При создании проекта рубленого или брусового дома, придется учесть ряд нюансов, которые повлияют на конечный результат:
- брус или бревно для дома, как правило, имеют длину 6 м. При строительстве просторного дома этого зачастую недостаточно и появляется необходимость в состыковке бревен между собой. Сделать это на открытой стене невозможно, поэтому рассчитываются данные стыки на перерубах, которые дополнительно утепляются;
- для обеспечения правильной усадки и жесткости всего дома, стыки размещаются в шахматном порядке в каждом последующем венце бревен. При этом их потребуется распределить по нескольким соседним перерубам;
- способ сборки бревенчатого дома подразумевает только четное количество углов;
- при проектировании принимается во внимание правильное распределение нагрузок на все несущие элементы;
- исходя из изначальной длины материала в 6 м, проект должен создаваться с учетом минимального количества отходов;
- бревенчатые перегородки второго этажа следует размещать только над несущими стенами, во всех остальных случаях они заменяются более легкими столбами из бруса или обрезных досок;
- при мансардном втором этаже, лестница не должна примыкать к стене, на которую опирается скат крыши.
Программы для разработки проекта дома
Современные программы значительно упрощают задачу по самостоятельному проектированию дома. С их помощью создаются 3D модели, которые можно рассматривать со всех ракурсов приближая или отдаляя. Большинство из них адаптированы для простых пользователей и обходятся бесплатно. Рассмотрим несколько самых популярных программ.
Пожалуй, самой популярной программой является Google SketchUp. Она наиболее проста в использовании, но при этом многофункциональна.

С ее помощью можно создать 3D проект дома, дизайн интерьера и ландшафтный дизайн. Она содержит множество текстур и очень удобна для проектирования конструкций, которые требуют расчета с точностью до миллиметра. Кроме этого, она абсолютно бесплатна.
Не менее популярна и Arcone. Но работать с ней получится только после освоения обучающего материала. Она позволяет создавать 3D модели домов и внутренних помещений. Она показывает освещение комнаты, соответствующее расположению окон.

Особенно важно для разработки проекта то, что с помощью программы создаются горизонтальные и вертикальные разрезы здания. Лицензионная версия доступна только платно.
Еще одна востребованная программа – это ArchiCAD. Ею пользуются не только любители, но и профессионалы. Это целый набор инструментов для проектирования зданий и дизайна. Она позволяет не только создавать красивые модели, но и вести всю строительно-техническую документацию. Лицензионная версия также не бесплатна.

Подводя итоги, хочется сказать, что разработка проектов строительства домов дело кропотливое и довольно сложное. Эскизную часть можно создать и самостоятельно, но не торопясь и тщательно продумывая и просматривая всевозможные варианты. А вот рабочую часть лучше всего доверить профессионалам. Не обойтись без помощи архитектора и при подготовке проекта для администрации района, для выдачи разрешения на строительство.
strport.ru
Индивидуальное проектирование жилых загородных домов
Быстрый ритм городской жизни периодически наводит людей на мысли об отдыхе в спокойном и уютном местечке, подальше от пыли и шума мегаполисов. В большинстве случаев, решением этой проблемы становится строительство собственного домика в сельской местности, где жизнь течёт тихо и размерено. При этом далеко не последним желанием человека является возведение не просто надёжного и комфортного жилища, а полностью отражающего его природу – оригинальную и необычную.
Готовый проект домаПроектирование индивидуального плана для загородных домов процесс очень сложный, творческий, трудоёмкий и не очень дешёвый. Если не принимать во внимание интерьер, который тоже может потребовать отдельного проекта, стоимость всего проекта будет составлять около 10 процентов от всего строительства вашего будущего дома или коттеджа.
Но всё равно индивидуальное проектирование загородных домов, а также различные эксперименты и поиски на экранах компьютера и бумаге, даже если вы пригласите хорошего архитектора, будут обходиться намного дешевле всевозможных экспериментов уже в реальном процессе всего строительства. Если у вас уже есть хороший готовый проект, то вы будете застрахованы от неприятных неожиданностей по ценам, срокам, а также конечной сдачи готового дома.
Оригинальный индивидуальный проект домаИ все ваши деньги, потраченные на такой индивидуальный проект, непременно окупятся.
Вернуться к оглавлениюСодержание материала
Индивидуальное проектирование домов или готовый проект
Все люди делятся на тех, кто предпочитает стабильность и традиционность, и тех, кто хочет подчёркнуть свою индивидуальность, в том числе, и в выборе своего будущего жилья. У каждого из вариантов есть свои достоинства, и поэтому только вам решать, что для вас лучше: уже готовый и полностью разработанный проект или же создание своего, уникального жилья.
В чём заключаются плюсы индивидуального проектирования?
- Во время работы над проектом всегда есть возможность внесения необходимых изменений в соответствии с вашими желаниями или потребностями.
- Разработка проектной документации осуществляется в строгом соответствии с геологией и геодезией вашего земельного участка.
- Создание проекта будет проходить под присмотром личного архитектора, который всегда подскажет, как именно воплотить в реальность ваши мечты и пожелания.
- В процессе работы можно сразу же обратиться к дизайнерам ландшафта и интерьера.
Свои достоинства есть и у полностью разработанных вариантов:
- Если вы приобретаете готовый проект, то вы экономите не только деньги, но и время.
- Готовый проект можно рассмотреть во всех деталях уже при первом ознакомлении.
- При покупке готового проекта строительство можно начинать почти сразу же.
Если вы решили заняться строительством своего коттеджа, то, прежде всего, необходимо чётко определиться с тем, что вы хотите получить в итоге. Следует тщательно оценить площадь вашего земельного участка, чтобы в дальнейшем правильно распределить его на зоны с максимально грамотным использованием имеющейся территории.

Многие строительные компании при необходимости могут предоставить уже готовые проекты, где всё подробно расписано, что позволит составить вам примерное представление будущего результата. В том случае, если ни один из готовых вариантов вас не устроит, можно всегда заняться созданием индивидуального проекта, где под руководством профессионального архитектора можно разработать действительно подходящий для вашего участка проект.
После оформления заказа специалисты выезжают на строительный участок, чтобы провести оценку расположения и особенностей рельефа. В обязательном порядке проводят топографическую съёмку участка (её стоимость рассчитывается отдельно). Вместе с заказчиком прорабатываются все наиболее важные детали будущего дома: используемые при строительстве материалы, размер здания, его индивидуальное оформление, стиль фасада и помещений.
Этапы проектирования
Проектирование индивидуальных жилых домов и коттеджей в архитектурном плане делится на этапы, каждый из которых согласовывается между заказчиком и строительной компанией, обсуждаются возможные варианты.
В состав архитектурного проекта входят три части: концепция проекта, эскиз, рабочая концепция.
Концепция архитектурного проекта
Чтобы понять, что будет представлять собой дом, который решено построить, существует предварительная разработка его концепции. Сделать это очень важно, потому что дает возможность избежать непредвиденных сложностей при дальнейшем проектировании.
Концепция – это материалы, которые позволяют провести правильную оценку архитектурного проекта и максимально чётко определить требования к планируемым проектным работам. Пока ещё не определяются точные размеры и привязки, но уже определяется дальнейший ход и направление работы.
Архитектурный проект дома с чертежами и планомПроектирование дома начинается с создания плана дома. При этом учитываются не только пожелания заказчиков, но и ряд других моментов, которые включают: подвод коммуникаций, общую планировку строительного участка, конструктивные элементы и многое другое.
Как только эта стадия завершена, заказчик может ознакомиться с компьютерными изображениями, рисунками карандашом и т. д.
Вернуться к оглавлениюЭтапы индивидуального проектирования домов
- Первым этапом являются архитектурные идеи или же существенные проектные предложения. На первом этапе именно заказчик будет определять в общем решении характер будущего дома. Часто случается, что вся идея на индивидуальное проектирование загородных домов будет сводиться к паре рисунков, сделанных от руки.

- Далее нужно будет разбить все архитектурные постройки на несколько частей. Часто в состав такого эскизного проекта входят: поэтажный план дома, фасады, решения цветовой гаммы, размер помещения, площадь всего дома, план для кровли, также в проекте обозначаются основные строительные материалы.
- Дополнительно для некоторых планов домов определяются свои особенности, которые будут учитываться при проектировании и строительстве фундамента, различные конструкции для стен, решения по общему инженерному оборудованию и т.п. Иногда выдаётся специальная номенклатура, а также уже готовые эскизы нестандартных изделий, которые будут использованы при создании проекта загородного дома, к примеру: балюстрады, элементы архитектурных фасадов или кровли, нестандартные кованые или столярные изделия.
Индивидуальный проект кирпичного домаВернуться к оглавлениюЭскизный проект индивидуального жилого дома
Изготовление эскиза – это разработка функционала здания, тех элементов, которые характеризуют его жизнедеятельность, а также его дальнейшее утверждение у заказчика – хозяина жилья.
В эскизном проекте прорисовывается максимально чётко выбранный заказчиком замысел (план). Это то, какими будут фасад дома, конструктивные особенности планировки, разрезы (изображение объекта в нескольких плоскостях). Идет подбор того, какие цвета будут использоваться, какую форму примут детали дома, какие материалы и конструкции будут использоваться и т.д. Выполняется также трёхмерное изображение дома. Крайне важный этап – это представление поэтажного плана, который отражает то, как будут выглядеть помещения.
пример поэтажного плана дома 10х11При разработке эскизного проекта определяется внешний облик будущего жилья, конструкторские подходы и то, каким образом будет оформлен интерьер.
Вернуться к оглавлениюГде найти готовые индивидуальные проекты
Но нужно понимать, что индивидуальные проекты загородных домов делаются часто даже не под конкретного заказчика. Архитекторы нередко при помощи такого проекта будут стремиться показывать собственный творческий потенциал, а также выкладывать такие индивидуальные проекты в своё портфолио и находить с их помощью будущих потенциальных заказчиков и клиентов.
Поэтому вам не обязательно заказывать и ждать, когда будет готов такой проект. Можно найти такие индивидуальные проекты, которые тщательно разработаны, но в реальной жизни ни разу не использовались.
Вернуться к оглавлениюРабочий (строительный) проект дома
Индивидуальный проект дома – финальный этап разработки, рабочий чертёж проекта. Он является детальной основой, от которой отталкиваются при проведении строительных и монтажных работ.
В строительный проект дома входят:
- Архитектурный раздел, отражающий поэтажную планировку, вертикальные сечения дома, пояснительную часть о проекте, что и где будет располагаться.
- Конструктивный раздел – это архитектурные решения, схемы расчетов фундамента, перекрытий, где будут расположены лестницы, чертежи тех или иных узлов строительства (их соединение друг с другом), конструкции системы стропил.
- Инженерный раздел, относящийся к водоснабжению, канализации здания, расчёты того, как должны быть устроены вентиляция и электроосвещение, газоснабжение и тепловое отопление. Проще говоря, он отражает систему расположения труб и сетей.

После того как индивидуальный проект дома готов, он будет являться основанием для того, чтобы получить разрешение на строительство. Однако такое разрешение требуется не всегда, например, оно не нужно, если на земельном участке ведётся дачное хозяйство.
Чтобы получить разрешение на строительные работы, понадобятся определённые документы, которые предусмотрены п.9 ст.51 ГрК. Сюда входит непосредственно само заявление, градостроительный план, документы, указывающие на то, что вы являетесь владельцем земельного участка и его схема с обозначенным местом будущей стройки.
Проект дома с планом участкаЭта же статья определяет, что выдающая такое разрешение инстанция не имеет права требовать каких-либо других документов, и проект самого дома представлять не нужно. После подачи соответствующего заявления разрешение на строительство жилья вам должны выдать в течение 10 рабочих дней.
proekt-sam.ru
Индивидуальное проектирование жилых домов и коттеджей
Если у вас есть желание построить дом, то наверняка есть представление о том, каким он должен быть. Если типовые проекты не подходят, то самое время задуматься об индивидуальном. Желательно заказывать его у специалиста. Индивидуальное проектирование позволяет учесть пожелания клиента. Хоть такая работа будет стоить дорого, зато есть полная уверенность, что такого жилья больше ни у кого нет.

Нередко индивидуальное проектирование приходится выполнять вынужденно. К примеру, был приобретен нестандартный участок, из-за чего ни один проект с ним не может выглядеть гармонично. А иногда изменений, желаемых заказчиком, очень много, поэтому проще и дешевле выполнить новый проект.
Этапы работы
Проектирование дома индивидуально предполагает выполнение следующих этапов:
- создание технического задания;
- договор на проекты;
- оформление эскиза;
- проработка разделов.

Помимо этого, есть возможность заказать сооружения дополнительных объектов, например гаража, мастерской, бани. Иногда требуется создание визуального проекта в 3D. В итоге заказчику выдается полный перечень документации, в который входят архитектурные и конструктивные разделы.
Состав индивидуального проекта
Когда закончен процесс индивидуального проектирования, то клиенту предоставляется:
- генеральный план;
- поэтажные планы;
- планы фасадов;
- разрезы здания;
- чертежи;
- расчет перекрытия.
Благодаря этим элементам можно начинать строительство дома. Он будет иметь индивидуальные черты, которых нет ни в каких других объектах. Индивидуальное проектирование позволяет создать дом мечты.
Особенности работы
Индивидуальное проектирование предполагает создание инструкции, где расписаны правила возведения объекта. Хоть частные дома меньше по размерам, этажам, все же без этого строить их нельзя. Причем это нужно делать не только из-за надежности, но и для соблюдения законодательства. В нашей стране для строительных работ необходимо получить разрешение, а для этого требуется проект.

Проектирование считается сложной работой, в которой принимает участие архитектор, специалисты в сфере дизайна, ландшафта, инжиниринга. Ведь дом представлен не только стенами, но и внутренним наполнением, где должны быть необходимые коммуникации.
Современные технологии
Хоть сейчас есть множество программ, выполняющих проектирование домов, все же руководить этим процессом может только специалист. Грамотно подобрать параметры машина не может. К тому же придать объекту уют и комфорт способен человек.

Все же следует понимать, что компьютеризация процесса внесла большой вклад в эту сферу. Эта работа ускоряет процесс, а также улучшает визуализацию. Изображения, выполненные в 3D-формате, практически не отличаются от фотографий. Это позволяет создавать много проектов. Компании предлагают и готовые варианты, что обходится намного дешевле, и на это не потратится много времени.
Услуги компаний
Сейчас проектирование индивидуальных жилых домов выполняет множество фирм. Обязательно учитываются пожелания заказчика. Многие выбирают нестандартную форму помещения. А чтобы функционально разместить все на такой территории, требуется индивидуальный подход.
Эта работа предполагает выезд специалиста на место. При желании выполняются геодезические и геологические изыскания. Особенно это важно в том случае, если грунтовые воды находятся недалеко к поверхности земли или на участке есть дисперсные грунты. К задаче специалистов относится учет этих особенностей для правильного проектирования дома.
Структура документации
После выполнения работы клиент получает документацию, где обозначены знаки индивидуального проектирования. Это позволяет возвести качественный объект, для которого не потребуются доработки. Документация включает несколько частей:
- архитектурная;
- техническая;
- инженерная.
В каждом разделе есть конкретные сведения, благодаря которым складывается впечатление о внешнем виде будущего здания. Архитектурная часть включает планировку, визуализацию фасадов, разрезы дома, чертежи, местонахождение дверей и окон, а также спецификацию.
В техническом разделе присутствуют расчеты. Там обозначены нагрузки на стены и крышу, параметры фундамента. От этого определяется надежность дома. Помимо расчетов в нем присутствуют чертежи, которых состоят из параметров помещений объекта.
Инженерный раздел включает чертежи и схемы коммуникаций. Дом вводится в эксплуатацию тогда, когда есть канализация, освещение, отопление. Также этот раздел включает спецификацию по инженерным системам.

Проект может состоять и из дополнительных разделов, например, многие включают дизайн интерьера. Все зависит от желания заказчика. Индивидуальное проектирование является комплексным процессом. Не получится выполнить эту работу только с домом, не учитывая его расположение на участке. Поэтому в проект надо включать дополнительные разделы, поскольку справиться с этой работой сможет не каждый.
Преимущества и недостатки процедуры
У проектирования только единственный минус – это стоимость. Такая услуга обходится намного дороже по сравнению с типовыми проектами. Но плюсов все равно больше:
- учитывается земельный участок и климат;
- дом будет уникальным;
- есть возможность воплотить мечту в реальность.
Для возведения каждого дома важен индивидуальный подход. Проектированию нужно уделить много времени, чтобы потом не пришлось исправлять ошибки. А готовые проекты могут требовать множества корректировок и адаптаций. Чем их больше, тем выше стоимость проекта. В итоге цена может приравниваться к индивидуальному проектированию.
Принципы работы
В проектах есть несколько этапов, порядок которых строго утверждается, и этапы не могут меняться местами. Специалист выполняет техническое задание, после чего с заказчиком оформляется договор. Затем создается эскиз, который должен быть согласован с заказчиком, только тогда проект считается готовым.

У клиента есть право выбора строительных материалов для будущего дома. Для коттеджей обычно применяется природный камень или красный кирпич. Также сейчас используется газобетон, который имеет экономичные и энергосберегающие характеристики. Все пожелания нужно в проект включать сразу, иначе потом это сделать будет невозможно. Заказывая услуги у специалистов, клиент получает готовый план, по которому можно приступать к строительству. Готовый объект не будет иметь схожесть ни с какими другими домами, что и является главным преимуществом.
fb.ru
Проекты индивидуальных жилых домов застройщикам на заметку
Помните из детства: «Что нам стоит дом построить…»? И ведь
строили! Халабуды под деревьями, конструкции из стульев, покрытые одеялами и
покрывалами, домики под обеденным столом и всякие другие укромные хибарки. Они
мало походили на дома из бруса
как на современных фото, вернее сказать, вообще на них не походили, но были очень
уютными, а самое главное – своими. Строили их, обустраивали, играли и жили там
счастливо. Правда, недолго. Пока мама не позовет. Или пока дом не развалится. А
он обычно разваливался, так как мы и понятия такого не имели как проекты индивидуальных жилых домов. Но заполучить свой
уголок, даже в банальном интерьере
кухни в хрущевке, хотелось очень-очень
сильно.

Время прошло, а вот желание иметь свое жилье – нет. Оно выросло
и окрепло, и доросло до осознания необходимости начинать самое настоящее
строительство своего дома. Что ж, приступим.
Но, перед тем как приступить к застройке, нужно хорошо себе
представлять каким будет дом, или другими словами, нужно выбрать проект. От
этого будет зависеть расположение строения на участке, его конструкция,
материалы, из которых будет построен дом, внутренняя планировка. Конечно, здесь
многое зависит от материальных возможностей заказчика, но даже при самом
скромном бюджете на строительство можно получить хороший результат.

Строительство домов может быть как по типовому, так ииндивидуальному проекту. Примеры типовых проектов, в которых имеются рабочие
чертежи, сметы, пояснительные записки, можно найти в проектных институтах, а
также в сети интернет и на полках книжных магазинов в разделе литературы по
строительству. Но сегодня мало кто соглашается возводить здание по устаревшим
рабочим чертежам или эскизным наброскам, не отредактированным в соответствии со
всеми последними нормативами Госстроя. Поэтому неудивительно, что проекты индивидуальных жилых домов выбирают большинство
заказчиков
Следует знать, что во многих случаях есть факторы, которые может
учесть лишь проектировщик со стажем. Например, информация о плотности и рельефе
грунта, учет климатической зоны или наличие подземных вод может существенным
образом сменить планировку и внешний дизайн вашего дома. Да и для того, чтобы планировать
жилище в соответствии со всеми пожеланиями членов семьи, тоже необходимо
обладать определенной свободой, которую может дать только индивидуальный
проект.

Конечно, большинство обсуждений проекта будет касаться
расположения комнат в доме. И тут в основу должен быть положен принцип
зонирования помещений. Все довольно просто. Помещения, в которых человек
проводит определенное время и которые предназначены для конкретных целей,
выделяются в отдельную зону:
- зона отдыха – спальни, детские, гостевые;
- дневная зона – кабинеты, гостиные, столовые;
- хозяйственная зона – кухни, гаражи, мастерские, тренажерные
залы, санузлы, душевые и ванные комнаты, гардеробные.
В проекте индивидуального жилого
дома смешивать зоны не рекомендуется, но связать некоторые из них между
собой просто необходимо. Кухня должна иметь прямой выход в столовую или
гостиную. Из спален делают выходы в туалетные комнаты и душевые.
В больших домах на каждом этаже можно расположить свою зону.
Но и здесь тоже есть свои тонкости. Хозпомещения располагаются либо на первом,
либо на нулевом этаже. Первый этаж отдан под помещения дневной зоны, а выше
располагаются спальные комнаты. Некоторые из хозяйственных помещений вообще
могут быть вынесены за пределы дома и быть отдельно стоящими постройками.
На стадии проектирования нужно учесть и дополнительные
специфические элементы интерьера – камины, печи, очаги, дополнительное кухонное
оборудование, домашний кинотеатр и др. Эти интерьерные изыски предъявляют
особые требования не только к размерам помещений, конструктивным особенностям и
строительным материалам, но и к незаметным на первый взгляд факторам, таким как
системы отопления, кондиционирование и вентиляция коттеджа, звукоизоляция
конструкций, электропроводка.

Одним из непременных условий по работе над проектом индивидуального жилого дома, должен быть учет
требований пожарной безопасности. Это касается как планировки здания, так и
материалов, из которых будет оно сделано. Не стоит игнорировать требования, которые
предъявляются к помещениям с тепловыми агрегатами горячего водоснабжения и отопления,
для работы которых используется газ.
Работая над созданием индивидуального проекта, можно учесть также
некоторые архитектурные нюансы и общие моменты:
- Например, фасады и контуры здания играют
немаловажную роль в сохранении тепла. Чем больше выступающих элементов на
чертеже, тем больше будут теплопотери. - При определении формы крыши следует
руководствоваться не только эстетическими характеристиками, но и учитывать силу
ветра, характерную для данного района, наличие снежных зим и то, планируется ли
использовать внутреннюю ее часть как мансарду. - Стоит заранее обратить внимание на системы вентиляции
и воздухообмена в домах, имеющих гараж, сауну, бассейн, парную и позаботиться о
механической вентиляции этих помещений. - При проектировании просто необходима продуманная система
водоотвода сточных вод. Такая правильная конструкция сливной или канализационной
ямы требует расчета потребляемой воды всеми жильцами дома. - Постарайтесь внести в проекты
индивидуальных жилых домов солнечные коллекторы, тепловые насосы и ветрогенераторы.
Системы энергосбережения помогут чувствовать себя настоящим хозяином в своем
комфортном доме.

.
postroika.biz
инструкция как сделать своими руками, видео и фото

Авторский чертеж коттеджа, который вы можете применить при строительстве своего дома
Хотите узнать, как сделать проект дома самостоятельно без помощи специалистов? Я расскажу, какие факторы влияют на разработку чертежа индивидуального жилого дома. Также вы узнаете, какое программное обеспечение можно применить для разработки эскизного проекта. И наконец, вы сможете ознакомиться с кратким обзором интересных проектов.
Что нужно учесть при проектировании строительных объектов
| Факторы, влияющие на планирование коттеджей | |
| Климатические факторы. Перед тем, как создать проект дома нужно узнать количество атмосферных осадков, среднегодовую температуру, число солнечных дней в году и силу ветра, характерные для местности. От перечисленных условий зависит:
| |
![]() | Геодезические особенности. Создание проекта дома должно выполняться в соответствии с геодезическими параметрами, так как они определяют:
|
| Сейсмическая активность региона. Сейсмическая активность определяет архитектурные особенности и габариты жилого дома, а также влияет на выбор строительных материалов. | |
| Наличие необходимой инфраструктуры. Нужно учесть такие моменты, как наличие подъездных путей, возможность подключения объекта к централизованной системе водопровода и канализации. | |
| Эксплуатационные особенности. Начиная индивидуальное проектирование домов, нужно иметь четкое представление о том, как будет использоваться недвижимость — сезонно или круглогодично. В соответствии с эксплуатационными особенностями, предусматривается отопительная система и система вентиляции помещений. | |
| Бюджет, отведенный на строительство. Высокая стоимость строительных материалов и высокая цена аренды спецтехники требуют разрабатывать проект загородного дома в соответствии с объективным расчетом своих материальных возможностей. Есть немало примеров того, как незавершенное строительство дома продается из-за несоответствия проекта и материальных возможностей заказчика. | |
Обзор авторских проектов, которые можно применить при индивидуальном строительстве
| Иллюстрации | Описание авторских проектов |
![]() | Дом из кедра (Cedar House). На фото модернистский коттедж, спроектированный и построенный в Польше. Характерная особенность архитектуры — кубические формы в сочетании с плоской кровлей и внешней отделкой натуральной древесиной.
|
![]() | Минимализм и простота по-японски. Этот минималистский дом спроектирован в Японии. Поэтому постройка компактная — всего 150 м 2, но вмещает все необходимое для комфортного проживания, даже гараж на два автомобиля. Дом выполнен по каркасной технологии и эксплуатируется своими хозяевами круглогодично. |
![]() | Загородный дом в этническом стиле. Это строение спроектировано архитекторами студии Doomo (Польша). Дом построен и эксплуатируется в качестве полноценного коттеджа. Архитектурное исполнение объекта выполнено в характерном для сельской Польши этническом стиле. Дом, несмотря на внутреннюю современность и функциональность, гармонирует с окружающей средой, как бы сливаясь с ландшафтом. |
![]() | Индивидуальный проект дома архитектора Алексея Ильина. Здание построено и эксплуатируется в Подмосковье. Каркасное строение прямоугольное двухэтажное. За счет характерного остекления, монохромного оформления объекта и малого уклона кровли, постройка воспринимается одноэтажной. Дом, несмотря на кажущуюся компактность, большой и вполне подходит для комфортного проживания семьи из 4-5 человек. |
Обзор программ для самостоятельной разработки архитектурных проектов
| Иллюстрации | Описание программного обеспечения |
| ArchiCAD. Это программное обеспечение предназначено для профессионального использования в проектных бюро. Программа объединяет в себе большой перечень функций, среди которых моделирование отдельных элементов в конструкции дома, моделирование объёмного эскиза всего здания в целом, моделирование дизайна интерьера и экстерьера. | |
![]() | К3-Коттедж. Это отечественное программное обеспечение специально разработано для проектирования загородных домов. Разработка проектной документации на этом ПО выполняется в полном соответствии со строительными нормами и стандартами. Поэтому с домом, построенным по самостоятельно сделанным чертежам, не будет трудностей при постановке на учет в кадастровых организациях. |
| Google Sketchup. Если стоит вопрос, где сделать проект дома для постройки бесплатно, то эта программа для вас! Приложение бесплатное и рассчитано на новичков. Google Sketchup — оптимальный выбор, если приложение нужно для создания разового проекта своими руками. Набор инструментов в бесплатной версии программы более чем достаточен для того, чтобы самому нарисовать эскиз своего будущего дома с указанием размеров. | |
![]() | VisiCon. Очень простая программа, предназначенная для планирования интерьеров, поможет вам разработать концепцию домов и коттеджей изнутри.
|
Подведём итоги
Теперь вы знаете, как правильно составить проект дома, не обращаясь к профессионалам. Дополнительную информацию вы сможете найти, посмотрев видео в этой статье. Интересующие вопросы можно задать в комментариях.
Добавить в избранное Версия для печатиkursremonta.ru
Бесплатные проекты и строительство одноэтажных домов и коттеджей
При индивидуальной застройке спорят между собой одноэтажные частные дома и здания прочей этажности. Если ещё в начале 2000-х годов побеждал принцип «чем выше дом, тем лучше», то уже сегодня переосмысление ценностей происходит в пользу первого варианта.

Возведённые двух и трёхэтажные махины смотрятся очень эффектно и дорого, однако, их эксплуатация обходится в копеечку. В то время как одноэтажные домики, даже при равной площади, достаточно экономичны в эксплуатации и на порядок удобнее. А при желании могут и выглядеть не менее впечатляюще, особенно если на этапе планировки тщательно разработать дизайн-проект.
Вернуться к оглавлениюСодержание материала
Основные достоинства одноэтажных домов
Одноэтажные дома – жильё, проверенное временем. История частной застройки насчитывает не один век, и львиная доля созданных руками человека строений имеет всего один этаж. Были, конечно, исключения, когда среди всех надворных построек возвышался хозяйский дом в полтора (цоколь + этаж или этаж + мансарда) два этажа. Но это лишь подтверждает правило.
Большой одноэтажный дом с мансардой в старинном стилеПроекты одноэтажных домов обладают рядом преимуществ, которые заставляют современных строителей всё чаще останавливать свой выбор на таких решениях.
- Малый вес сооружения за счёт отсутствия второго и третьего этажей позволяет не тратиться на заливку мощного фундамента. Появляется возможность использовать почти все виды доступных фундаментов: монолитную плиту, столбчатый, ленточный, свайный. При этом делать его не очень массивным и заглубленным. На видео рассказано про технологию установки фундамента для дома
- Более простыми в разработке и детализации являются проекты одноэтажных домов, а значит, и за работу инженерам-конструкторам не придётся переплачивать.
- Заниматься строительством одноэтажного дома намного проще, чем возводить высокую конструкцию. Практически отпадает необходимость в изготовлении лесов, внешних и внутренних, аренды спецтехники для проведения высотных работ. В процессе можно обойтись подручными материалами и инструментами: козлами, стремянками.
- Проводить строительные и отделочные работы могут одновременно несколько человек. Не нужно ждать, пока будет готов первый этаж, и уже потом начинать заниматься вторым и третьим. Значительно сокращается время на строительство дома.
- Дальнейшая эксплуатация и техническое обслуживание одноэтажного дома в разы проще, чем такой же площади, разбитой на несколько этажей.
- В одноэтажных домах отсутствует такой обязательный для остальных коттеджей элемент, как лестница. Что позволяет провести любую планировку помещений без каких-либо пространственных ограничений и сэкономить место. Удобная и безопасная лестница в доме стоит довольно дорого и занимает много места. И не все типы межэтажных лестниц позволяют эффективно использовать подлестничное пространство.
- Жить на одном этаже намного комфортнее, чем постоянно бегать по лестнице. Даже грамотное зонирование домов в несколько этажей не позволяет полностью решить эту проблему.
Ну и, конечно, такие конструкции намного дешевле высотных аналогов. Поэтому проекты одноэтажных домов эконом класса встречаются на рынке гораздо чаще и намного удобнее в эксплуатации, чем эконом-проекты двухэтажных домов.
При проектировании загородного дома очень важно продумать вопрос безопасности жилища. Оптимальный вариант – это специальные охранные системы для загородных домов и коттеджей. Для установки такой системы лучше всего обратиться к профессионалам. Рекомендуем обратить внимание на компанию «КРона». Охранные системы для домов – как раз их профиль. Всю информацию вы можете узнать на странице охранная сигнализация для дома.
Проект европейского одноэтажного домаНа видео показана разработка проекта одноэтажного дома в графическом редакторе
Вернуться к оглавлениюКому подойдут одноэтажные дома
Несмотря на свою практичность, не каждая семья будет комфортно чувствовать себя в одноэтажном доме. И не на каждом участке может быть сооружен такой дом. Нужно понимать, что у одноэтажного дома получается очень большое пятно застройки. Например, дом до 100 кв. м может занимать площадь на участке равную 10 на 10 метрам.

На видео показана разработка проекта одноэтажного дома в графическом редакторе Вернуться к оглавлению
Варианты планировки одноэтажных домов
Кажущаяся простота одноэтажного дома – впечатление обманчивое. При желании его запросто можно превратить в интересный внешне объект, и удобное с точки зрения пользования жильё. При этом материалы изготовления могут быть совершенно разные.
Классический одноэтажный дом небольшой площади
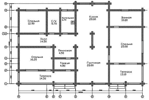
Проект небольшого одноэтажного домаСам по себе такой домик будет хорошо смотреться, если сделать его из бревна. Природный материал даже самую обыкновенную коробку превращает в дом, привлекающий внимание. Наиболее распространёнными являются проекты, находящиеся в размерах 10х 10 м. При небольшой площади внутренняя планировка вполне функциональна:
- холл,
- гостиная,
- кухня,
- санузел,
- спальня.
Можно добавить ещё одну спальню, но для этого уменьшить остальные помещения. Кухню и гостиную можно объединить, создав единое пространство. Санузел может быть как совместный, так и раздельный. А вместо классической ванны можно использовать душевую кабину и сауну.
Одноэтажный дом с террасой
Разнообразить внутреннюю планировку и придать уникальность внешнему облику здания поможет терраса. В большинстве проектов одноэтажных деревянных домов ей приписывают функции веранды. Обязательно с крышей, открытое или застеклённое пространство, утеплённое или с естественной температурой, с обязательными элементами ограждения – она придаст вашему дому дополнительное очарование.
Планировка дома с террасойКроме функциональной зоны за пределами дома, терраса накладывает определённый отпечаток и на внутреннюю планировку.
- Вход в дом может осуществляться как с террасы, так и с отдельного самостоятельного крыльца;
- Входов в дом может быть два: основной и на террасу или парадный и служебный;
- Выход на террасу может осуществляться из разных помещений. Чаще всего для этих целей выбирают кухню/столовую и гостиную или каминный зал;
- В небольших домах с террасой, особенно предназначенных для сезонного проживания, столовой зоны вообще может не быть, в качестве неё предлагается использовать террасу.

Интересным и свежим решением является планировка дома с террасой, но без холла. Его функцию перекладывают на гостиную. Главная комната становится центральной и в то же время проходной. Из неё можно попасть на кухню, в спальни, санузел, выйти на террасу. В основное время пользоваться стоит вторым входом, отделённым от гостиной тамбуром.
Одноэтажный дом с гаражом
Такое решение чаще всего встречается среди проектов одноэтажных домов из кирпича или из газобетона. Заливается один общий фундамент и выкладывается один общий периметр.
Одноэтажный дом с гаражомПо желанию встроенный гараж можно делать отапливаемым – он будет составлять часть дома, а можно оставить холодным пристроем. Такое помещение можно использовать не только по прямому назначению, то есть просто парковать там машину. В холодном гараже можно организовать удобное место для хранения сезонных вещей, спортинвентаря, садового инструмента, а также приспособить для прочих хозяйственных нужд. А если гараж полностью отапливаемый, то варианты использования просто безграничны:
- в гараже можно обустроить домашний кинотеатр;
- сделать тренажерный зал;
- превратить в игровую зону, поставив стол для бильярда или настольного тенниса;
- оборудовать в небольшой производственный цех;
- создать тусовочную зону с хорошей стереосистемой и светом.
Проект одноэтажного дома с гаражомНаличие гаража может отражаться и во внутренней планировке дома. Например, попадать в дом можно не только через главный вход, но и из гаража. А при необходимости увеличить жилую площадь можно с помощью незначительных трудозатрат: сделать помещение гаража полноценной частью дома. А учитывая, что гараж может быть рассчитан не на одну, а на две машины, присоединенная площадь может оказаться существенной.
Одноэтажный дом-усадьба
Чаще всего встречаются проекты одноэтажных каркасных домов такого типа. Обусловлено это простотой и покладистостью данного материала, а также большими возможностями для конструирования. Небольшой вес, а также неприхотливость в работе делают каркасники просто находкой для строителей при реализации проектов больших домов.
Дом-усадьба – именно большой дом. Его размеры превышают пятно застройки 10х12 метров, а площадь начинается от 150-200 квадратных метров.
Планировка большого одноэтажного деревянного дома с саунойТакой дом органично будет смотреться только на очень просторном участке. Стандартные наделы в 8-10 соток будут для него тесноваты. Зато это отличное решение для большой семьи.
Современная усадьба объединяет в себе почти все возможные элементы декора и дополнительные функциональные возможности. Такой дом строится, как правило, с тёплым гаражом на две машины. Снаружи уникальность внешнему виду придает одна или две террасы, также может присутствовать полноценное крыльцо, в том числе крытое. Не редкость и наличие эркера.
Проект большого одноэтажного дома с гаражом на две машиныВнутренняя планировка продумана для мелочей. Наличие больших площадей позволяет воплотить в жизнь самые смелые дизайнерские решения.
- Оба входа – главный и из гаража – ведут в прихожую. Перед каждым из них расположен небольшой тамбур. Он не позволяет проникать холодному воздуху непосредственно в помещение.
- Дополнительные выходы могут вести на террасы. Как правило, они не оборудованы переходными зонами, так как используются в основном в тёплое время года.
- В доме есть просторная гостиная. Часто она бывает объединена с каминным залом или просто камин служит якорным элементом декора в ней.
- Кухня в доме-усадьбе должна быть просторная, так как ей будут пользоваться несколько человек одновременно. Она может быть выделена в самостоятельное помещение, а может быть объединена с гостиной.
- Санузлы расположены таким образом, что один небольшой находится в шаговой доступности от гостиной, а второй – основной – располагается ближе к спальням. Причём санузлы могут быть полностью разделены. Один – туалет, второй – ванна. А могут дублировать функции друг друга. Например, в небольшом расположиться туалет и душевая, а во втором – ванная, туалет и биде.
- Число спальных комнат варьируется, но обычно их не меньше трёх. Все они занимаются или домочадцами или одна из них отводится под гостевую комнату.
- На большой площади наверняка найдётся место для размещения встроенных кладовок и гардероба. Причём реализовывать эти идеи можно как в местах общего пользования, так и в каждой спальне. Это позволит освободить пространство самих комнат, не загромождать их мебелью.
Один существенный минус одноэтажных домов большой площади – это система больших неиспользуемых коридоров. Пространство, соединяющее разные помещения, как правило, не используется, а полезная площадь просто пропадает. Как ни крути, избежать этих потерь практически невозможно. Длинные вытянутые переходы с ломаными линиями, или круглые-квадратные помещения с множеством дверей – неизбежное решение усадебных домов.

Какой тип дома выбрать для строительства – решение исключительно индивидуальное. Только взвесив все плюсы и минусы построек различного вида, оценив имеющийся участок и соотнеся это с потребностями проживающих, можно сделать правильный выбор. У каждого дома, будь то одноэтажный или многоэтажный, есть свои достоинства и недостатки. Чем-то жертвовать придётся в любом случае.
proekt-sam.ru








