Проект дома 12 10 двухэтажный: Проекты домов 12 на 10 в два этажа. Дом 12 на 10 м в 2 этажа. Проекты домов 12х10 двухэтажные
готовые и типовые. Каталог содержит планировки, планы и чертежи
| Категория проектов | Дома 10 на 12 от 76 м2 |
| Стоимость проектов | От 30600₽ |
| Площадь проектов | От 76 м2 |
| Этажность проектов | Одноэтажные, мансардные, двухэтажные |
| Формат документации | Печатный |
Выбор любого проекта для строительства собственного дома довольно трудоемкий процесс. Поэтому мы подготовили вам подробную инструкцию, которая поможет упорядочить ваши действия.
1. Участки, на которых удобно реализовать проекты коттеджей 10 на 12.
В идеале проект коттеджа 10х12 нужно выбирать уже после покупки земли. Существующие условия на участке способны ограничить ваш выбор, как именно – мы рассказали ЗДЕСЬ.
Впрочем, если вам очень сильно приглянулся, например, проект дома из пеноблоков 10х12, можно выбирать необходимые условия именно для этого проектного решения.
План дома 10х12 позволит расположить его на участке практически любой формы, если его площадь превышает 4 стоки.
2. Как дорого стоят в реализации проекты частного дома 12 10?
Разумеется, у застройщиков пользуются спросом именно те проекты домов 10 на 12, которые соответствуют их финансовым возможностям. Точную сумму реализации любого из проектов вам, можно получить только при заказе Тендерного предложения. Проект двухэтажного дома 10 12 будет стоить по-разному в зависимости от используемой технологии, региона застройки и применяемых материалов. Но в принципе все проекты домов из газобетона 10х12 или иных материалов можно классифицировать по стоимости.
3. План дома 10 на 12: выбираем этажность дома своей мечты
Если вы еще точно не определились сколько же этажей вы хотите построить, выбирайте варианты с учетом всех их преимуществ:
- Одноэтажный дом 10 на 12 является сосредоточением всех процессов в одной плоскости. В любую часть дома можно добраться комфортно, подъемы по лестнице не станут преградой.
Но затраты на строительство такого дома выше, чем для мансардного такой же площади, поскольку у дома будет больше размер кровли и фундамента, а значит повышаются самые затратные разделы сметы. - Проекты домов 10х12 с мансардой самые экономически выгодные в реализации (при отсутствии «кукушек» и эндов). Они порадуют разграничением общей и личной зон в доме. К тому же такое жилье станет лучше удерживать тепло. Благодаря своей компактности такие коттеджи лучше подойдут для участков небольшого размера. Но нужно продумать, как обыграть в интерьере кровельные скосы и низкую аттиковую стену.
- Если проект дома 10х12 двухэтажный, то у вас появится два полноценных просторных готовых к проживанию этажа. Но в сравнении с мансардным домом такой же площади, он будет дороже.
- Проект дома 10х12 в один этаж с чердаком, подходящим для последующего благоустройства мансарды с успехом сможет заменить проекты домов 10х12 с мансардой или одноэтажные коттеджи. Разделив строительство на этапы, можно упорядочить финансовые потребности, завершив чердак, когда потребуется.

Выбирая проект дома 10 на 12, важно помнить, что и мансардные, и одно-двух этажные дома, имеющие в плане одинаковый размер, будут иметь разную площадь.
4. План дома 10х12 с прицелом на будущее
Отлично, если вы знаете необходимый набор комнат и помещений, на основании которых и ищете план дома 10 на 12. Но останется ли он таким же удобным и через несколько лет? Кажущиеся сейчас такими необходимыми большая гостиная или кухонная кладовая, или наоборот совмещенные санузлы могут с течением времени вовсе показаться иными. Задумайтесь, останутся ли жить с вами под одной крышей дети или, может быть, переедут к вам пожилые родители.
5. Можно ли внести изменения, например, в проект кирпичного дома 10х12?
В абсолютно каждый типовой проект, будь то проект кирпичного дома 10 12 или из любых других материалов для кладки, можно дополнить любыми изменениями, но только такими, которые влияют на прочность и надежность конструкций.
Если вы бы хотели приобрести конкретный проект дома 10х12 с гаражом, но вас не устраивает, к примеру, что терраса в нем предусмотрена открытого типа, а вы хотели бы закрытую, наши проектировщики легко внесут необходимые изменения в проект.
Мы будем рады, если наша статья помогла принять вам решение при выборе проекта дома 10х12!
Z500 – это интернациональное архитектурное бюро, цель которого – помочь клиентам из проектированием и реализацией дома их мечты. Команда Z500 поможет вам создать индивидуальное, эргономичное, экологичное и уютное жилище для вас и вашей семьи. Обратите внимание, что все проекты адаптированные под действующие СНиПы и СП.
ПОПУЛЯРНЫЕ ВОПРОСЫ:
Какая приблизительная цена за 1 м2 строительства коробки одноэтажного дома?
Средняя стоимость постройки одноэтажного дома по проекту Z500 составляет 23000-25000 руб за 1 м2. Обратите внимание также на общую площадь дома, которая указана на странице проекта.
Какой проект одноэтажного дома клиенты выбирают чаще всего?
Это проект Z273 – компактный одноэтажный дом с тремя спальнями и многоскатной крышей.
Какие услуги предполагаются за суму, указанную на сайте проекта?
Это стоимость проекта, которая предусматривает выполнение архитектурно-строительного раздела.
Инженерный раздел есть возможность заказать дополнительно за отдельную плату. Наглядно посмотреть проектную документацию можно здесь.
Автор статьи: Роберт Воганов, ведущий эксперт компании Z500
Проект дома 10 на 12 двухэтажный (153 фото) — фото
Дом zx10
Двухэтажный дом с жилым цокольным этажом
Проект коттедж двухэтажный 8-10
Проекты домов 2 этажа без
Дом 9 на 12 двухэтажный
Дом 12х12 двухэтажный
Дом с панорамными окнами двухэтажный с бассейном
Планировка дома 9 на 13 двухэтажный
Гараж в стиле Райта
Двухэтажный дом из газобетона с гаражом
Кирпичный дом
Планировка дома 10х10 с мансардой
Двухэтажный дом из кирпича
Дом квадратный двухэтажный
Фасады двухэтажных домов с гаражом
Проекты двухэтажных домов 10х10
2х этажный дом 12х12
Двухэтажный дом из бруса с балконом
Двухэтажный дом
Дом 10 на 10 2 этажа фасады
Двухэтажный дом 10.
5 на 10.5
Проекты длинных двухэтажных домов
Проекты домов из кирпича
Двухэтажный дом с гаражом в Узбекистане
Цоколь дома
Планировки двухэтажных домов 10х10
Проект дома 10х12 двухэтажный
Фасад дома 10 на 10 двухэтажный
Кирпичный небольшой двухэтажный дом с балконом
Двухэтажный кирпичный дом с террасой
Дом 10х10 двухэтажный
Дом с гаражом
Двухэтажный дом из светлого кирпича
Дом 5 на 11 двухэтажный
Проекты домов на 4 спальни 2 этажа
Каркасник 8х8 двухэтажный
Семья в коттедже
План дома с мансардой
Проект коттедж двухэтажный 10 на 10
Красивый двухэтажный дом с гаражом
Проекты двухэтажных домов на 12 сотках
Фасад двухэтажного дома с террасой
Двухэтажный дом на 5 сотках
Проекты домов 10 на 12 двухэтажный
Проект дома 8х12 двухэтажный из пеноблоков
Проект дома 11 на 11 двухэтажный
Дом 8 на 10 двухэтажный с гаражом
Проекты частных домов
Проекты домов из газосиликатных блоков 10х12
Дом 2х этажный с гаражом 10х10
Проекты домов Казахстан
Проект u-117-1p
Фасад дома
Мансардный дом 10х10
Дом с цоколем и террасой
Проекты простых домов двухэтажных
Проекты домов 9х12 двухэтажный
Двухэтажный коттедж 10х10
Двухэтажный коттедж 10х10
Проекты двухэтажных домов с террасой
Праект двух етажний дома
Чертежи двухэтажных домов
Загородный дом 10 на 12
Фасады домов
БЭНПАН бп106
Двухэтажный дом из газобетона
Двухэтажный кирпичный дом с гаражом
Двухэтажный дом с четырехскатной крышей проект с балконом
Кирпичный дом с эркером
Проекты домов 11 на 11 двухэтажный
Красный двухэтажный дом
Проект каменного двухэтажного дома
Проекты домов с цокольным этажом двухэтажные
Готовый дом двухэтажный
Дом 12 на 12 двухэтажный с гаражом
Проект двухэтажного дома из газобетона
Проекты домов из облицовочного кирпича
Каркасный дом 12х12
Дом 10х10 двухэтажный
Проект двухэтажных коттеджей 11 на 12
Дом 9х9 двухэтажный с террасой
Загородный дом 10 на 12
Клагы двух этажных домов
Двухэтажный дом с эркером и гаражом
Проекты двухэтажных
Двухэтажный дом из кирпича 10х10
Двухэтажный дом с четырехскатной крышей
Двухэтажный дом с цоколем и гаражом
Проекты домов 11 на 11 с мансардой
Фасады домов с цокольным этажом
БП 133 БЭНПАН
Двухэтажный дом стильный планировка
Проекты двухэтажных домов из газобетона 10х10
Планировка дома с цоколем
Двухэтажный коттедж
Новация 164-2
Двухэтажный коттедж с гаражом
Коттедж 250 м2
Каркасный дом 12х12 двухэтажный
Проект дома на 6 сотках двухэтажный
Проекты 1 этажных домов с мансардой
Дом 10 на 12 двухэтажный
Проекты двух этажныз домов
Проекты двух етажных домов
Проекты двухэтажных домов
Квадратный дом из кирпича
Двухэтажный коттедж с гаражом
Проекты домов и коттеджей 10х10 2 этажа
Вальмовая крыша двухэтажного дома
Каменный дом проекты 10х10
Цокольный этаж в особняке
Планировка дома 10х10 двухэтажный
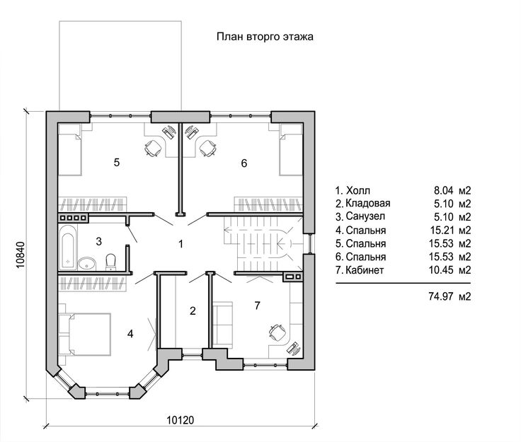
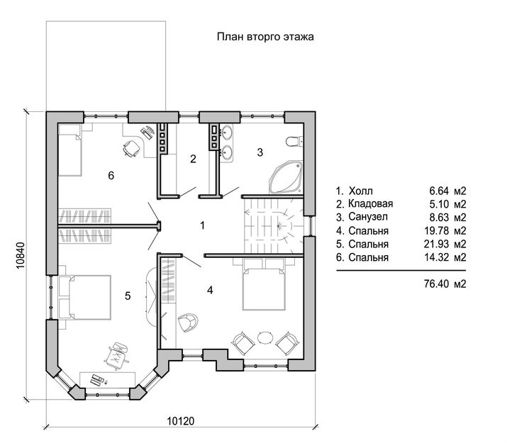
Проект дома 10 на 12 двухэтажный
Проект коттеджа 240
Проекты кирпичных домов
Проекты двухэтажных домов
Двухэтажный дом с верандой и балконом проект
Двухэтажный дом с гаражом проект 100кв.
м
Проект дома 10х15 двухэтажный
2х этажный дом с балконом
Фасад дома
Планы домов двухэтажных
Готовый проект двухэтажного дома
Дом с эркером
Дом zx10
Проект блочных двухэтажных домов бесплатно
Планировка 2 этажного дома 10х12
Кирпичные дома 10на10 с мансардой
Проект двухэтажный дом малинки
Проекты кирпичных домов 10х10
Двухэтажный коттедж с балконом
Проекты домов с цокольным этажом
Проект дома 8х11 двухэтажный
Проект дома 12х12 двухэтажный планировка
Проект дома 8х10 двухэтажный с мансардой
Планировка дома с эркером
Квадратный кирпичный дом проект
Фасад дома
Дом 2 этажа
Дом с эркером двухэтажный проект
Двухэтажный дом с гаражом и террасой из газобетона
Проекты 2 этажных домов 10×15
Кирпичный дом в английском стиле
Дом кирпичный двухэтажный
Дом в стиле Райта проект 150-200 кв
Проекты двухэтажных домов в стиле прерий
Каркасный дом 10 на 12
Проекты дома 200 кв.
м два этажа
Проекты двухэтажных домов для Крыма
Дом 10 на 15 с мансардой
Планировка дома 12х14 двухэтажный
Небольшой двухэтажный дом из кирпича
Чертеж дома 10 на 10 двухэтажный
Готовые проекты двухэтажных загородных домов 12 на 12 метров
Опции:
Одноэтажные с гаражом и террасой
С цоколем и мансардой
С балконом
Со вторым светом
С сауной
С эркером
С бассейном
С верандой
Кирпич
Газобетон
Особняки
Дома из керамоблоков
Двухэтажные
Недорогие дачные дома
Одноэтажные
Одноэтажные с мансардой
Двухэтажные 10 на 10
Одноэтажные с гаражом
С мансардой
С гаражом
С мансардой и гаражом
Таунхаусы
С цокольным этажом
С мансардой из пеноблоков
С мансардой до 150 кв м
С гаражом до 150 кв м
Двухэтажные до 150 кв м
Двухэтажные дома с гаражом
Из пеноблоков с гаражом
Двухэтажные 12 на 12
Двухэтажные из пеноблоков
Дома с бассейном и сауной
Дома с цокольным этажом и мансардой
Дома с цокольным этажом и гаражом
С большими окнами
Одноэтажные дома из пеноблоков
Одноэтажные дома до 150 кв м
с эркером и мансардой
из пеноблоков с эркером
10х10 с мансардой
Квадратные 10х10
Дома до 150м2 с террасой
Гаражи
Строительство одноэтажного дома из кирпича
Проекты домов из бруса
Баня
Беседки
Дома из оцилиндрованного Бревна
Проекты домов для узкого участка
Проекты домов из кирпича
Проекты домов с эркером и гаражом
Проекты домов с эркером
Проекты домов с бассейном
Площадь:
До 100 кв м
До 150 кв м
от 150 до 200 кв м
от 320 до 550 м.
от 550 до 850 м.кв.
более 850 кв. м.
Одноэтажные до 150 м2
Проекты домов с мансардой до 100 м2
Двухэтажные до 150 м2
Одноэтажные
До 70 м2
Одноэтажные до 80 кв.м.
Одноэтажные кирпичные до 100 кв.
м.
До 120 кв м
одноэтажные дома до 170 кв м
из пеноблоков
Габариты:
9 х 9
10 х 10
11 х 11
12 х 12
Квадратные
Узкие
Угловые
8 х 8
8 х 10
6 х 6
6 х 8
6 х 10
6х6
7х7
Стиль:
Классические
Европейский
Шале
Хай-тек
Скандинавские
Стиль Райта
Американский
С плоской крышей
Современный
Фахверк
Прованс
Барнхаус
Дом 10 на 12 (110 фото): эксклюзивные дизайн-проекты частных домов
Дом 10 на 12 — лучшие типовые проекты.
110 красивых домов с идеальной планировкой. Инструкция по возведению дома 10х12Иметь свой уголок — мечта многих, а если у вас большая семья и вы планируете построить собственный просторный особняк, эта статья несомненно будет для вас полезна. Обладая достаточно большим участком земли, владелец часто задумывается какую планировку для дома лучше выбрать.
Среди клиентов многочисленной популярностью пользуются проекты домов 10 на 12 метров. Несмотря на габаритные размеры таких зданий, разместить все запланированные комнаты бывает труднее, чем в небольших домиках.
Чтобы эффективно использовать всё пространство, нужно выбрать максимально выгодный вариант проекта для вашего дома. Для начала следует определиться каким вы хотите видеть свой будущий дом.
Оглавление статьи:
Варианты домов
Для этого можно ознакомиться с распространенными вариантами:
- строить одноэтажный дом 10 на 12 комфортно тем, что способ разделения в таком случае горизонтальный.
В любую комнату можно добраться очень быстро и лестница не станет преградой; - дом в 120 квадратов с мансардой порадуют дополнительной территорией, к тому же экономически выгоден. Такое сооружение является очень теплое и благодаря своей вместительности станет хорошим вариантом, если площадь участка небольшая;
- выбирая двухэтажный дом 10х12, появляется уже 2 полноценных этажа
- на замену одноэтажных домов или домов с мансардой смело приходят проекты зданий с чердаком. Удобно распределять бюджет выделенный на строительство, например, сначала завершить ремонт в основной части дома, а позже завершить чердак.
Основным фактором в конструкции является фундамент, потому что именно он будет держать на себе нагрузку всего дома. При низком фундаменте по периметру, не будет возможности позже возвести второй этаж и дом может казаться тесным.
Большие дома, безусловно, обходятся дороже, во-первых, это большее количество материалов, во-вторых, если участок земли небольшой, такой дом займет почти всю площадь.
План дома 10 на 12 может быть совершенно разнообразным.
Множество стилей исполнения, количество этажей, наличие гаража, террасы или мансарды, всё это можно спроектировать индивидуально или использовать уже готовые проекты. Безусловно какой дом возводить каждый хозяин решает в первую очередь исходя из бюджета.
Рассмотрим преимущества каждого варианта частных домов 10х12 подробнее.
Преимущества и недостатки одноэтажного дома
В первую очередь, такой дом требует меньше расходов на материалы для строительства и отделочных работ.
Одноэтажное здание облегчает работу со стенами и фундаментом, а это самая дорогая часть в строительстве.
Кроме того, этот тип удобнее и быстрее конструировать, эксплуатация и ремонт займут ощутимо меньше средств и времени в сравнении, например, с двух- или трехэтажным домом.
Почувствовать экономию можно и во время монтажа систем отопления и электричества, ведь для инженеров потребуется намного меньше схем для такого вида помещения.
Данный тип жилья не предусматривает наличие лестниц, поэтому площадь рациональнее используется и безопасно, если в семье маленькие дети или пенсионеры.
Основной минус в таких жилищах будет связан с монтажом крыши, за счет большой площади.
Двухэтажные дома 10х12
Планировка двухэтажного дома требует правильное отношение к фундаменту, так его задача вдвойне усложняется.
На первом этаже профессионалы рекомендуют размещать кухню, гостиную, уборную, гостевые комнаты. Второй этаж обычно занимают своё место спальни, кабинеты, детские комнаты.
Грамотная планировка дома 10х12 метров обеспечит достаточно свободной территории, для того правильно разместить лестницу между этажами и использовать место возле неё. С такой задачей с легкостью справятся профессиональные дизайнеры и строители.
Чем выгодны мансардные дома
Всё большей популярностью стали пользоваться проекты мансардных домов. По сравнению с двухэтажными домами, стоимость таких коттеджей намного ниже.
Площадь мансардного помещения зависит от габаритов дома, но не должен выходить за рамки основной части здания.
Вынос такого этажа возможен если есть надлежащие опоры: колоны, стены или подвески. Чердачное помещение радует и разнообразием геометрических форм: треугольная или ломаная крыша, симметрична или асимметрична, можно использовать всю территорию или её часть.
Преимущества и недостатки такого проекта:
- увеличение жилого помещения за счёт чердака;
- выгодно экономически, так как расходы помимо кровли уходят только на утепление и отделочные работы;
- здание имеет красивый завершенный вид, визуально выглядит более статусным, в сравнении с одноэтажным типом;
- подкровельное пространство значительно теплее фасадного;
- скошенный потолок позволит дать волю в дизайне интерьера, а за счёт мансардных окон — комнаты станут намного светлее;
- при этом минус в том, что теряется часть площади;
- процесс тепло- и гидроизоляции имеет более сложную технологию.

Какие материалы для строительства выбрать
Выбор строительных материалов — один из важных этапов строительства. Деревянные дома всё чаще можно увидеть в пригородах города. Такой материал хорош в эксплуатации и внешне смотрится очень стильно, идеальное решение в небольших бесшумных районах. Например брус из клёна остается стойким при любой погоде, экологически чистый материал создаст уют в каждом доме.
Использовать кирпичи или бетонные блоки для жилища также хорошая идея. Двухэтажные дома из таких материалов обойдутся намного дешевле, нежели из дерева, но в прочности и морозостойкости ни сколько не уступают древесине.
Минус всё же имеется — отопить и сохранить тепло в таком строении будет труднее, особенно зимой, необходимо будет хорошо продумать систему отопления. Идеальное решение для стен кирпичных домов станут специальные теплоизолирующие материалы.
Обладателю автомобиля необходимо задуматься о сохранности своего железного коня, предусмотрев место для гаража.
Увеличить площадь жилья можно с помощью дополнительной пристройки, если участок не позволяет увеличить территорию в ширь, используют площадь под самим сооружением.
На стадии проектирования предусмотреть подвал или погреб, а также полноценный цокольный этаж. Спектр использования его также велик, например, подземный гараж, спортзал, мини кинотеатр, бильярд, библиотеку и многое другое.
Не зависимо от того, какой коттедж планируете построить: один или два этажа, из блоков или кирпича, возможно, также дополнительные элементы(мансарда, эркер, гараж), строительство не станет в тягость, выбрав правильный проект дома на начальной стадии.
Залог комфортного и удобного проживания — правильно разработанная планировка, которая учитывает все потребности клиента — количество членов семьи, их возраст, увлечения и род деятельности.
Подобрать подходящий вариант планировок помогут многочисленные фото домов 10 на 12, но не стоит забывать, что профессиональные конструкторы и архитекторы могут рассчитать и упорядочить все необходимые процессы, связанные со строительством дома и его реализацией.
Воплотить в жизнь самые смелые идеи будет намного легче.
Фото домов 10 на 12
Вам понравилась статья?
варианты готовых проектов с фото-примерами
Что лучше предпочесть – одноэтажный дом или в несколько этажей? На каком именно варианте следует остановиться, подыскивая для себя наиболее удобный проект будущего жилья? В большинстве случаев, с такими вопросами сталкиваются владельцы больших земельных участков, которые обладают возможностью выбора: компактная планировка одноэтажного дома или высокий коттедж в несколько этажей, оставляющий значительное свободное пространство на территории участка?
Естественно, первый вариант планировки займёт большую площадь, зато позволит расположить все помещения с максимальным удобством.
Необходимо отметить тот факт, что на сегодняшний день удобная планировка одноэтажного дома становится все более популярной, и это объясняется новыми веяниями в архитектуре и дизайне. Сейчас общая концепция загородной жизни подразумевает сочетание коттеджа и прилегающего к нему участка в качестве одного единого целого.
Простой план небольшого одноэтажного дома из бруса 6×6
Планировка одноэтажного дома 6×9 предоставляет огромную свободу в проектировании и дизайнерских решениях.
Простой план одноэтажного дома 6×9
В некоторых случаях план предусматривает наличие мансардного второго этажа, благодаря чему полезную площадь здания можно несколько увеличить. Как правило, в подобные проекты включены террасы и веранды.
Планировка дома 8х10
Планировка одноэтажного дома 8×10 с прямоугольной формой смотрится довольно-таки неплохо, но при этом является менее выгодной, чем вариант коттеджа квадратной формой.
Нередко здания 8×10 оснащены мансардой и цокольным этажом (помните о том, что проектирование цоколя всегда должно быть строго индивидуальным). Подобный план дома отлично подойдёт как для частных коттеджей в черте города, так и для загородного жилья. Вариант с наличием мансарды станет идеальным вариантом для больших семей.
Читайте также
Дома с плоской крышей — 85 фото современных проектов
План одноэтажного дома 8×10
Планировка дома 9х9
Планировка одноэтажного дома 9х9 предназначена уже для вполне обширного строения, в котором может свободно расположиться не один человек, а целая семья. Как правило, такие сооружения обладают несколькими жилыми помещениями и несколькими подсобными. Благодаря тому, что существующее пространство весьма значительно, перед проектировщиком возникает много возможностей для реализации тех или иных замыслов.
План одноэтажного дома 9×9
Планировка дома 10х10
Планировка одноэтажного дома 10х10, которая идеально подходит для проживания нескольких человек, подразумевает проведение долгих строительных работ.
Такие дома имеют несколько комнатам, которые спланированы с максимальным удобством для проживающих в них людей. Кроме этого, данные сооружения радуют пространством, увеличенным за счёт протяженности стен.
План дома из бруса 10×10
Планировка дома 10х12
Планировка одноэтажного дома 10х12 позволяет получить здание с большой площадью и габаритами, близкими к квадратным. Использование имеющейся площади можно сделать максимально полезным и рациональным, если обустроить цокольный этаж и мансарду.
Проекты с подобными размерами идеально подойдут для строительства как в черте города, так и за его пределами. Для большего удобства проживающих людей, планировки следует с особой тщательностью. Как правило, на первом этаже располагают кухню, ванную комнату и туалет, прихожую, гостиную и комнату для отдыха.
План деревянного дома 10×12
Второй этаж (если вы всё-таки решили предпочесть многоэтажный вариант дома) используется для жилых помещений, что очень удобно при постоянном проживании.
Если план подразумевает наличие цокольного этажа, то в нём можно разместить мастерские, гараж и зону отдыха.
Жилые строения в один этаж имеют ряд особенностей, по отношению к другим типам построек:
- Экономичность. Поскольку одноэтажное строение не требует дорогостоящего фундамента. В зависимости от вида стройматериала достаточно возвести ленточную, УШП или монолитную основу. Кроме того, снижаются расходы на основное строительство, которое ведется без использования сложных подъемных и вспомогательных технических средств. Легко и просто выполняются отделочные работы.
- Простота и удобство эксплуатации, ведь все комнаты, помещения расположены на одном этаже, что позволяет проводить оперативно уборку. Отсутствие лестниц способствует снижения до минимума возможность получения травм, особенно если будут проживать малые дети или пожилые люди.
- Снижение расходов на теплоснабжение, поскольку прогреваются помещения на одном этаже быстро, и долго сохраняется комфортный температурный режим.

Преимущества сотрудничества с «СК ОСНОВА»
К преимуществам строительной компании относится:
- возведение загородной одноэтажной недвижимости в СПб и Ленинградской области комплексно, от подготовки проектной документации, до вручения ключей от готового объекта;
- наличие разнообразных стройматериалов (кирпич, газобетон, пеноблоки, древесина), применение современных технологий при разработке проектов и строительстве;
- выполнение всего комплекса работ со строгим соблюдением действующих СНиПов, ГОСТов при постоянном мониторинге качества на каждом этапе, что является гарантией надежности и прочности построек.
Обращайтесь в компанию «Основа» для грамотного проектирования, оперативного возведения частных одноэтажных домов 10х12 со всеми современными коммуникациями и удобствами. С ценами, фото готовых объектов можно познакомиться на сайте компании. Предусмотрена возможность заказать коттедж с гаражом, верандой, террасой, мансардой, обустроенным цокольным этажом.
Выбор любого проекта для строительства собственного дома довольно трудоемкий процесс. Поэтому мы подготовили вам подробную инструкцию, которая поможет упорядочить ваши действия.
1.Участки, на которых удобно реализовать проекты коттеджей 10 на 12.
Впрочем, если вам очень сильно приглянулся, например, проект дома из пеноблоков 10х12, можно выбирать необходимые условия именно для этого проектного решения.
План дома 10х12 позволит расположить его на участке практически любой формы, если его площадь превышает 4 стоки.
2.Как дорого стоят в реализации проекты частного дома 12 10?
Разумеется, у застройщиков пользуются спросом именно те проекты домов 10 на 12, которые соответствуют их финансовым возможностям. Точную сумму реализации любого из проектов вам, можно получить только при заказе Тендерного предложения. Проект двухэтажного дома 10 12 будет стоить по-разному в зависимости от используемой технологии, региона застройки и применяемых материалов. Но в принципе все проекты домов из газобетона 10х12 или иных материалов можно классифицировать по стоимости, подробнее об этом мы написали в ЭТОМ материале.
3.План дома 10 на 12: выбираем этажность дома своей мечты
Если вы еще точно не определились сколько же этажей вы хотите построить, выбирайте варианты с учетом всех их преимуществ:
- Одноэтажный дом 10 на 12 является сосредоточением всех процессов в одной плоскости. В любую часть дома можно добраться комфортно, подъемы по лестнице не станут преградой. Но затраты на строительство такого дома выше, чем для мансардного такой же площади, поскольку у дома будет больше размер кровли и фундамента, а значит повышаются самые затратные разделы сметы.
- Проекты домов 10х12 с мансардой самые экономически выгодные в реализации (при отсутствии «кукушек» и эндов). Они порадуют разграничением общей и личной зон в доме. К тому же такое жилье станет лучше удерживать тепло. Благодаря своей компактности такие коттеджи лучше подойдут для участков небольшого размера. Но нужно продумать, как обыграть в интерьере кровельные скосы и низкую аттиковую стену.
- Если проект дома 10х12 двухэтажный, то у вас появится два полноценных просторных готовых к проживанию этажа.
Но в сравнении с мансардным домом такой же площади, он будет дороже. - Проект дома 10х12 в один этаж с чердаком, подходящим для последующего благоустройства мансарды с успехом сможет заменить проекты домов 10х12 с мансардой или одноэтажные коттеджи. Разделив строительство на этапы, можно упорядочить финансовые потребности, завершив чердак, когда потребуется.
Выбирая проект дома 10 на 12, важно помнить, что и мансардные, и одно-двух этажные дома, имеющие в плане одинаковый размер, будут иметь разную площадь.
4.План дома 10х12 с прицелом на будущее
Отлично, если вы знаете необходимый набор комнат и помещений, на основании которых и ищете план дома 10 на 12. Но останется ли он таким же удобным и через несколько лет? Кажущиеся сейчас такими необходимыми большая гостиная или кухонная кладовая, или наоборот совмещенные санузлы могут с течением времени вовсе показаться иными. Задумайтесь, останутся ли жить с вами под одной крышей дети или, может быть, переедут к вам пожилые родители.
5.Можно ли внести изменения, например, в проект кирпичного дома 10х12?
В абсолютно каждый типовой проект, будь то проект кирпичного дома 10 12 или из любых других материалов для кладки, можно дополнить любыми изменениями, но только такими, которые влияют на прочность и надежность конструкций.
Если вы бы хотели приобрести конкретный проект дома 10х12 с гаражом, но вас не устраивает, к примеру, что терраса в нем предусмотрена открытого типа, а вы хотели бы закрытую, наши проектировщики легко внесут необходимые изменения в проект.
Мы будем рады, если наша статья помогла принять вам решение при выборе проекта дома 10х12!
Размер имеет значение
Большое значение имеет размер дома. Если фундамент заложить слишком маленький по периметру, то дом получится тесным, а достроить второй этаж не получится, так как его нагрузки не выдержит все тот же фундамент. Сильно большие дома тоже имеют свои недостатки. Во-первых, их строительство дорого обходится, во-вторых, они занимают много места на участке, а в третьих большой дом сложнее и дороже отопить.
Поэтому, прежде чем что либо строить, надо все тщательно взвесить, рассчитать и принять решение. Оптимальный размер дома — это такой размер, при котором на строительство дома хватит сил, денег и места. Предлагаем вашему вниманию
Дом с такими габаритами занимает всего чуть больше сотки земли, что совсем не много, даже если участок маленький. Внутри же получается приблизительно 100 кв. жилой площади. Если строить одноэтажный дом, то получиться небольшой, компактный домик, для маленькой семьи из двух-трех человек. Но, если все же семья нуждается в доме побольше, то можно сделать мансарду или второй этаж. Так и места всем хватит, и земля свободная еще останется. роекты домов 10 на 12 могут быть самыми разнообразными. Разный стиль исполнения, этажность, цвет, наличие балконов, террас и эркеров. Все это делает каждый дом уникальным и неповторимым. А вот создавать проект дома 10 на 12 с этажностью выше двух этажей, точно не стоит. При небольшом периметре получится башня, а не дом.
Только все эти нюансы должны обсуждаться еще до начала строительства. Для этого делается проект. Именно в нем и ведутся все расчеты по нагрузкам, рисуются планы дома, чертятся схемы в разрезах по основным осям.
- прямо пропорционально зависит от сложности и размера дома. Как правило, чем больше этажей, а соответственно и перекрытий, тем сложнее получается проектирование и толще проектная документация. Если же домик компактный и не высокий, то и стоимость его проекта будет небольшой.
Что такое проект дома?
На сегодняшний день рынок проектных услуг перенасыщен. И не исключение. Предложения превышают спрос. Но, качественных услуг, на самом деле, не так и много. К сожалению, многие фирмы относятся недобросовестно к своей работе. Точно так же много клиентов, которые просто не понимают что такое проект дома, и как он должен выглядеть, покупают что угодно, только не проект. А иногда и вовсе качают с интернета фото плана и считают, что у них уже есть проект.
Но это далеко не так. Проектная документация это не просто фото дома и поэтажный план, это еще и схемы, чертежи, расчеты, спецификации, пояснительные записки. П, точно так же как и любого другого, должен дать строителям полную информацию о том, из чего и как строить.
Выполненные кваллифицированными специалистами.
Проект дома 10 на 12 метров, имеющий прямоугольную форму, отличается высокими показателями сохранения тепла в доме, уменьшает расходы на строительство, минимизирует вероятность возникновения ошибок на этапе проектирования и составления документации. Здания 10 на 12строятся из пеноблоков, бруса, бревна или камня, что обеспечивает высокие технические характеристики готового жилья.
Одноэтажный проект 10 на 12
Одноэтажный проект дома 10 на 12 с отличной планировкой разрабатывается с учетом специальной строительной документации. Архитектурный раздел включает планировку внутреннего пространства с подробным описанием, конструктивный содержит фундаментные схемы, планы лестничных проемов, а инженерный показывает расположение коммуникационных систем дома.
Основное преимущество одноэтажного дома 10 на 12 – отсутствие лестниц. Часто, они затрудняют движение престарелых людей и малышей, забирают часть жилой площади и обходятся владельцам дома достаточно дорого.
Двухэтажный дом 10 на 12
Двухэтажный проект дома 6 на 6 для постоянного проживания занимает меньше места на участке. Запроектированный по всем правилам дом сможет снизить стоимость строительства, возведения стен и крыш. Он обеспечит комфортные условия проживания на протяжении длительного времени.
Проект дома 10 на 12 с мансардой
При проектировании здания берутся в учет не только пожелания заказчика, но и состав семьи. Проект дома 10 на 12 с мансардой идеально подойдет для перспективных семей, любящих принимать гостей.
В мансарде можно оборудовать гостевую комнату – за счет необычной формы потолка, наличия наклоненных окон, пространство будет организовано удачно и продуманно. Улучшить мансардное помещение можно с помощью качественной конструкции утепления и гидроизоляции – эти системы положительно отразятся на микроклимате и создадут необходимый уют.
| Брус под усадку | Брус под ключ | Брус ПРЕМИУМ | Каркас под крышу | Каркас под ключ | Каркас ПРЕМИУМ | |
| Фундамент в подарок | Свайно-винтовой | |||||
| Обвязка | Состоит из двух венцов. Первый венец из бруса150х150 мм. Второй венец из бруса150х100 мм. Лаги из бруса 40х150 мм с шагом 600 мм. | Состоит из двух венцов. Первый венец из бруса150х150 мм. Второй венец из бруса150х100 мм. Лаги из бруса 40х150 мм с шагом 600 мм. | Состоит из двух венцов. Первый венец из бруса200х200 мм. Второй венец из бруса150х150 мм. Лаги из бруса 50х150 мм с шагом 600 мм. Обработка обвязки антисептиком. | Состоит из двух венцов. Первый венец из бруса150х150 мм. Второй венец из бруса150х100 мм. Лаги из бруса40х150 мм с шагом 600 мм. | Состоит из двух венцов. Первый венец из бруса150х150 мм. Второй венец из бруса150х100 мм. Лаги из бруса 40х150 ммс шагом 600 мм. | Состоит из двух венцов. Первый венец из бруса200х200 мм. Второй венец из бруса150х150 мм. Лаги из бруса 100х150 мм с шагом 600 мм. Обработка обвязки антисептиком. |
| Черновой пол | Черновой пол из обрезной доски 20 мм. Черепные бруски 40х50 мм. | Черновой пол из обрезной доски 20 мм. Черепные бруски 40х50 мм. | Черновой пол из обрезной доски 20 мм. Черепные бруски 40х50 мм. | Черновой пол из обрезной доски 20 мм. Черепные бруски 40х50 мм. | Черновой пол из обрезной доски 20 мм. Черепные бруски 40х50 мм. | |
| Стены первого этажа | Профилированный брус92х142 мм (с наружной части полукруглый, изнутри прямой), толщина 92 мм. Сборка сруба на металлические нагеля. Межвенцовый утеплитель «Джут». Углы собираются в «тёплый угол». Высота потолка 2400 (+/- 50) мм. | Профилированный бруса92х142 мм (с наружной части полукруглый, изнутри прямой), толщина92 мм. Сборка сруба на металлические нагеля. Межвенцовый утеплитель«Джут». Углы собираются в «тёплый угол». Высота потолка 2400 (+/- 50) мм. | Профилированный брус142х142 мм (с наружной части полукруглый, изнутри прямой), толщина142 мм. Брус камерной сушки. Сборка сруба на пружинный узел «Сила». Межвенцовый утеплитель«Джут». Запил углов в «тёплый угол». Высота потолка 2600 (+/- 50) мм. | |||
| Стены второго этажа | Мансардный этаж Фронтоны каркасные из бруса40х100 мм. Снаружи обшиты евровагонкой хвойных пород. 1,5 или полноценный второй этаж Высота потолка 2200 (+/- 50) мм. | Мансардный этаж Фронтоны каркасные из бруска 40х100 мм. Снаружи обшиты евровагонкой хвойных пород. 1,5 или полноценный второй этаж Стены выполнены из такого же бруса, что и стены первого этажа. ![]() Высота потолка 2200 (+/- 50) мм. | Мансардный этаж Фронтоны выполнены из такого же бруса, что и капитальные стены. 1,5 или полноценный второй этаж Высота потолка 2400 (+/- 50) мм. | |||
| Перегородки | Первый этаж Из профилированного бурса92х142 мм (прямой с обеих сторон). Второй этаж | Первый этаж Из профилированного бурса 92х142 мм (прямой с обеих сторон). Второй этаж | Первый и второй этаж Из профилированного бурса 142х142 мм (прямой с обеих сторон). Брус камерной сушки. | Каркасные из доски 40х100 мм. | Каркасные из бруса40х100 мм, обшиты Евровагонкой хвойных пород. | Из доски 50х100 мм. Обшивка ОСБ или Евровагонка. |
| Межэтажное перекрытие | Брус 40х150 мм с шагом 500 мм. | Брус 40х150 мм с шагом500 мм. | Брус 50х150 мм с шагом не более 500 мм. | Брус 40х150 мм с шагом500 мм. | Брус 40х150 мм с шагом500 мм. | Брус 50х150 мм. |
| Стропильная система | Выполнена из бруса 40х100 мм, 40х150 мм. | Выполнена из бруса40х100 мм, 40х150 мм. | Выполнена из бруска50х100 мм, 50х150 мм.![]() | Выполнена из бруса 40х100 мм, 40х150 мм. | Выполнена из бруса40х100 мм, 40х150 мм. | Выполнена из бруса50х100 мм, 50х150 мм. |
| Обрешетка | Из обрезной доски 20 мм, не сплошная. | Из обрезной доски 20 мм, не сплошная. | Из обрезной доски 20 мм, сплошная. | Из обрезной доски 20 мм, не сплошная. | Из обрезной доски 20 мм, не сплошная. | Из обрезной доски 20 мм, сплошная. |
| Кровля | Однулин. Свесы крыши 350 мм. Не обшиваются. | Ондулин (цвет на выбор: красный, зелёный, коричневый). Свесы крыши 350 мм. | Металлочерпица«Moterrey». Свесы крыши 500 мм. ![]() | Ондулин (цвет на выбор: красный, зелёный, коричневый). Свесы крыши350 мм. | Ондулин (цвет на выбор: красный, зелёный, коричневый). Свесы крыши 350 мм. | Металлочерепица. Свесы крыши 500 мм. |
| Гидро-пароизоляция | Нет. | По наружной стороне ветро-гидроизоляция «А». Внутри паро-гидроизоляция «В». | По наружной стороне ветро-гидроизоляция «А». Внутри паро-гидроизоляция «В». | По наружной стороне ветро-гидроизоляция «А». | По наружной стороне ветро-гидроизоляция «А». Внутри: паро-гидроизоляция «В». | По наружной стороне ветро-гидроизоляция «А». Внутри: паро-гидроизоляция «В». |
| Утепление | Нет. | Минеральная вата толщиной 100 мм. Утепляется пол, потолок, мансарда (перегородки мансардного этажа, полы и кровля террас, балконов не утепляются). | Минеральная вата толщиной 150 мм.![]() | Нет. | Минеральная вата толщиной 100 мм. | Утепление наружных вертикальных стен ― плитным утеплителем толщиной 150 мм. Горизонтальные плоскости утеплены рулонным минеральным утеплителем толщиной150 мм. В перегородки укладывается звукоизоляция толщиной 100 мм. |
| Чистовой пол | Нет | Шпунтовая доска толщиной 36 мм. Камерная сушка. | Шпунтовая доска толщиной 36 мм. Камерная сушка. | Нет. | Шпунтовая доска толщиной 36 мм. Камерной сушки. | Шпунтовая доска толщиной 36 мм. Камерной сушки. |
| Отделка потолка и каркасных стен | Нет. | Евровагонка хвойных пород. | Евровагонка хвойных пород. | |||
| Окна, двери | В оконных и дверных проёмах остаётся 1-2 полноценных венца, которые будут выпиливаться при чистовой отделке после окончания процесса усадки.![]() | |||||
| Двери | Нет. | Деревянные, филенчатые, с петлями без фурнитуры. Дверные проёмы, усиленные ройками. | Входная дверь металлическая (Россия). Межкомнатные двери МДФ. Дверные проёмы, усиленные ройками. | Входная ― деревянная, филенчатая, с петлями без фурнитуры. | Деревянные, филенчатые, с петлями без фурнитуры. | Входная дверь металлическая. Межкомнатные двери МДФ. |
| Лестница | Нет. | Деревянная. Одномаршевая или двухмаршевая (на усмотрение заказчика), с резными балясами и столбами, фигурные перила, ступени. | Деревянная. Одномаршевая или двухмаршевая (на усмотрение заказчика), с резными балясами и столбами, фигурные перила, ступени. | Нет. | Деревянная. Одномаршевая или двухмаршевая (на усмотрение заказчика), с резными балясами и столбами, фигурные перила, ступени. | Деревянная. Одномаршевая или двухмаршевая (на усмотрение заказчика), с резными балясами и столбами, фигурные перила, ступени. |
| Наличник и плинтус | Нет. | Наличник выполнен из вагонки. Плинтус – деревянный, стыкованный. | Наличник гладкий. Плинтус ― деревянный. | Нет. | Наличник выполнен из вагонки. Плинтус – деревянный, стыкованный. | Наличник гладкий. Плинтус ― деревянный. |
| Окна | Деревянные, одинарные с двойным остеклением, с фурнитурой. Оконные проёмы, усиленные ройками. | ПВХ двухкамерные. Оконные проёмы, усиленные ройками. | Деревянные, одинарные с двойным остеклением, с фурнитурой. | Деревянные, одинарные с двойным остеклением, с фурнитурой. | ПВХ двухкамерные. | |
| Стены | Каркас из бруса 40х100 мм. Наружная отделка ― евровагонка хвойных пород. Высота потолка 2400 (+/- 50) мм. | Каркас из бруса 40х100 мм. Наружная и внутренняя отделка ― Евровагонка хвойных пород. Высота потолка 2400 (+/- 50) мм. | Каркас из доски50х150 мм. На углах и в местах примыкания стен брус150х100 мм. Обшивка блок-хаус на ОСБ. | |||
| Отделка потолка и стен | Нет. | Евровагонка хвойных пород. | ||||
| Черновой пол под утеплитель | Черновой пол из доски20 мм. Черепные бруски40х50 мм. Обработка чернового пола антисептиком. | |||||
| Отделка потолка | Евровагонка хвойных пород или ОСБ. |
12 вопросов по плану дома, на которые нужно ответить перед покупкой
Как найти идеальный план
От простого и классического одноэтажного дома до огромных и тщательно продуманных, у большинства людей есть определенные представления об их идеальном дом.
Образы рисовались в их воображении задолго до того, как первый кусок кирпича или дерева был заложен в фундамент. Ты? Если это так, продолжайте читать.
Мы составили анкету по плану дома, чтобы помочь вам сосредоточиться и ответить на важные вопросы в процессе принятия решения о плане этажа.
4 вопроса, на которые нужно ответить еще до того, как вы приступите к работе
Прежде чем приступить к выбору желаемой планировки дома, задайте себе несколько основных вопросов, чтобы убедиться, что строительство дома вашей мечты идет именно по вашему плану. идти.
- Ваш супруг на 100% согласен на строительство?
Конечно, есть много вещей, по которым супруги расходятся во мнениях, и все у них получается. Это наверное не из таких. Вы и ваш партнер столкнетесь с необходимостью принимать множество решений при выборе планов дома и строительстве нового дома, а стресс, связанный с важным выбором, может сильно повредить вашим отношениям.
Это необходимо, чтобы вы были в этом начинании вместе. - Когда вы хотите переехать?
Время, необходимое для строительства дома , зависит от размера конструкции и строителя, но в целом фактическое строительство нового дома, не включая обеспечение безопасности земли , получение разрешений и т. д., занимает от трех до шесть месяцев. - Где вы хотите жить и есть ли в наличии земля?
Выберите целевое место для жизни и учтите ограничения в дизайне дома. Наряду с требованиями к размеру некоторые разработчики Сообщества, регулируемые ассоциацией домовладельцев требуют определенного уклона крыши, материалов внешней отделки и т. д. Вы также должны знать топографию участка. - Вы планируете быть генеральным подрядчиком?
Этот ключевой вопрос зависит от вашего бюджета (можете ли вы позволить себе стоимость GC ?) и, что, возможно, более важно, от ваших строительных возможностей и знаний о тонкостях жилищного бизнеса.
Вопросы, которые следует задать себе при выборе плана дома
Если вы уверены в ответах на приведенные выше вопросы и решили, что это год для дома вашей мечты, вот несколько важных вопросов, которые помогут вам найти правильный проект дома, чтобы построить дом, который соответствует вашим потребностям.
Размышляя о своем идеальном доме, возможно, вы представляете что-то вроде этого дома в стиле кантри с 4 спальнями? Представьте, что вы накрываетесь стеганым одеялом и свернувшись калачиком на диване в общей комнате (план № 141–1211).
Каков мой бюджет?
С таким количеством «весёлых» тем для обсуждения, почему мы должны начать с этой? Потому что это, вероятно, самое важное и будет иметь значение на протяжении всего процесса поиска плана дома и принятия решений.
Есть много соображений, когда вы решаете построить дом. Но создание бюджета на строительство дома — это первый важный шаг к хорошему планированию и предотвращению неожиданностей при строительстве дома: это то, сколько дома вы можете себе позволить, что будет соответствовать размеру дома.
Стоимость компонентов вашего дома зависит от:
- региона страны, в которой вы живете
- размер и тип дома
- стоимость и особенности строительного участка
- качество выбранных строительных материалов.
Поговорите со своим дизайнером интерьера (или решите со своим супругом, если у вас нет дизайнера интерьера) о том, как вы будете обустраивать/декорировать новый дом, потому что бюджет означает не только размер вашего дома, но и то, что вы хочу поставить в него. Если вам нужны гранитные столешницы или экологически чистые технологии, возможно, вам придется уменьшить размер вашего дома.
Поговорите со строителями о ценах: бюджете строительства, возможных изменениях в проекте, финансировании, оборудовании и перерасходе средств. Это даст вам четкое представление об инвестициях, которые вы будете делать.
Когда у вас будет примерное представление о сумме денег, которую вам придется потратить, спросите себя:
- Могу ли я претендовать на получение кредита на строительство? Прежде чем выбрать кредитора для работы, убедитесь, что ваш кредит в порядке.
Кроме того, примите во внимание любые возможные изменения финансовых обстоятельств в течение срока кредита. - Достаточно ли у меня денег на сбережениях? Не стоит полностью полагаться на кредитные компании при строительстве дома. Вы должны убедиться, что у вас достаточно денег для финансирования других расходов, которые могут возникнуть в процессе.
После определения вашего бюджета и финансирования вы должны понимать, что строительство дома вашей мечты требует тщательного планирования и хорошего понимания процесса. Вот краткий обзор типичного контрольного списка по строительству дома из The Plan Collection 9.0004 .
Вам может понравиться внешний вид этого 2-этажного французского колониального дома с 4 спальнями, показанного вверху (план № 106-1181) … но ваш бюджет диктует уменьшение масштаба и переход на этот восхитительный 1-этажный, Внизу показана квартира в стиле Craftsman с 3 спальнями, которая предлагает гибкое пространство для расширения (план № 109-1013).
Что мне нужно?
А теперь кое-что повеселее! Установив свой бюджет, вы должны ответить на ряд вопросов об образе жизни, чтобы определить свои потребности и образ жизни семьи, которые различаются в зависимости от жизненных циклов членов семьи.
Итак, перед тем, как выбрать план этажа, мы рекомендуем пройти опросник по плану дома:
- Вы женаты?
- Вы планируете создать семью?
- Сколько детей у вас есть или планируете иметь?
- Как часто у вас будут ночевать гости?
- Возможно ли, что в будущем вы будете ухаживать за престарелыми родителями или внуками?
- Вы предпочитаете официально развлекаться в помещении или на открытом воздухе в непринужденной обстановке?
- Вам нужен домашний офис?
- Где вы видите центральную или координационную точку дома – кухню или гостиную?
- Какой уровень конфиденциальности вам требуется (от других жильцов и/или соседей)?
- Как вы планируете проводить время на свежем воздухе в своей собственности?
- Если конфиденциальность важна, рассмотрите проект дома в форме буквы L или U.

- Окна также являются важным элементом обеспечения конфиденциальности от окон и дворов ваших соседей. Вы выбираете фактический план дома в зависимости от личных предпочтений и потребностей вашей семьи.
- Есть ли у вас хобби, которые требуют дополнительного места?
- Вам нужна комната для грязных проектов или шумной музыки?
- Вам требуется много места для хранения коллекций (фарфор, куклы, антиквариат и т. д.)?
- Вам нравится садоводство, поэтому вам понадобится прихожая и половина ванны, чтобы войти и выйти из дома?
- У вас есть домашние животные?
Как только вы получите четкое представление об образе жизни вашей семьи, попробуйте составить список того, что действительно нужно вам и вашей семье.
- Сколько спален, сколько ванных комнат, сколько места для хранения? Подумайте здесь минимум. С чем бы вы могли жить в случае необходимости?
- Теперь подумайте об индивидуальных потребностях. Папе нужен офис, маме нужна мастерская, Джимми нужно место для игр, а Сьюзи нужна собственная ванная.

Запишите все эти необходимые аспекты дома в упорядоченный список и держите его под рукой. Когда вы, наконец, определитесь с конфигурацией дома своей мечты, этот список поможет вам определить, что является абсолютной необходимостью при поиске плана этажа. Имейте в виду, что важно убедиться, что дом останется пригодным для продажи будущим покупателям, если вы решите его продать.
Этот очаровательный 1,5-этажный дом в европейском стиле с внутренним двором и крытой верандой включает в себя четыре спальни, 3,5 ванные комнаты, три гаража, открытую веранду для гриля и большую комнату, которая переходит в кухню, столовую, и жилое пространство. Представьте, что семья отдыхает и проводит время вместе в уютной гостиной (, план № 153-1987 ).
Чего я хочу?
Здесь у вас есть свобода мечтать – да! — но имейте в виду ваш бюджет — тьфу. Опять же, не забудьте соизмерить свои потребности, такие как гранитные столешницы и лепнина, с размером вашего дома.
Например, вы не часто видите дома площадью более 5000 квадратных футов со столешницами из формики и виниловыми полами.
Давайте поговорим о размере.
Когда дело доходит до , насколько большим или маленьким должен быть ваш дом , согласно новому исследованию Бюро переписи населения США 2017 Характеристики нового дома г. Средняя площадь нового дома составила 2 631 кв. фут, что немного ниже рекордного показателя 2015 года в 2 687 кв. фута для дома на одну семью.
Найдите план дома, который позволит вам расширяться. В наши дни даже в «стартовых» домах есть бонусные комнаты, которые могут выполнять несколько функций — например, домашние офисы, хобби/гостевые/семейные/игровые комнаты. Стиль открытого пола имеет наибольший смысл, потому что он позволяет семье свободно смешиваться и смешиваться; родители наблюдают за маленькими детьми.
Размер является чрезвычайно важной частью головоломки, потому что вы не хотите оглядываться назад с сожалением после сборки и желать, чтобы у вас было место для большего.
С другой стороны, вам не нужен дом с избытком ненужного пространства, которое вы не знаете, как заполнить. Потратьте время на вопрос о размере, чтобы убедиться, что вы понимаете, насколько большим или маленьким вы хотите стать.
Так много вариантов. Архитектурные стили!
Еще одним важным требованием является архитектурный стиль. Архитектура в США — это разнообразное представление нашего мультикультурного общества. Каждый регион, штат, город или небольшой городок имеет свой неповторимый архитектурный стиль, сложившийся на протяжении веков.
Некоторые архитектурные стили неизбежно увеличивают стоимость строительства вашего дома и должны учитываться в вашем бюджете. Например, проекты домов на ранчо довольно легко построить с точки зрения их простой архитектуры по сравнению со многими планами домов в классическом средиземноморском или испанском архитектурных стилях, характерных для Флориды или Калифорнии. Планы в современном стиле также могут быть дорогими, в зависимости от дизайна.
Есть еще несколько факторов, которые необходимо учитывать при выборе стиля дома.
- Вы бы предпочли одно- или двухэтажный дом?
- Вы рассматриваете полноценный цокольный или плитный фундамент?
Вверху: Этот 1-этажный дом в традиционном стиле для начинающих может стать домом навечно благодаря свободному пространству, которое он предлагает. В нем есть три большие спальни, две полноценные ванные комнаты, дополнительная комната, чердак в гараже и место для дополнительного патио или террасы сзади (план № 142-1051). Низ: Этот 1-этажный дом в стиле горного ранчо имеет пять спален и четыре ванные комнаты, а также подвал с незавершенным пространством — идеально подходит для будущих нужд и гибкого пространства (план № 163-1055).
Гараж также можно переоборудовать в рабочие помещения или чердак со спальными помещениями, кухней и ванной комнатой. Это пространство пригодится, когда взрослые дети решат вернуться в семейный дом.
Потенциальное ограничение? Ваш участок под застройку.
География и ландшафт вашего участка могут повлиять на стиль плана дома, который вы выберете. Вы представляете себе лужайку для занятий спортом на открытом воздухе или хотите бассейн и/или джакузи? А как насчет выращивания огорода?
Планы домов на плоских участках менее затратны в строительстве, тогда как на участках с наклоном можно разместить подвал или гараж под домом, освещенные дневным светом. Если вы выберете узкий участок, дизайн дома должен будет подниматься, а не расширяться. Более широкие неглубокие участки могут вместить широкий одноэтажный дом. И многие из них с захватывающим видом потребуют больших панорамных окон и, возможно, просторной открытой террасы.
Еще один фактор, хотя и обыденный, сколько машин вы собираетесь разместить? Будет ли достаточно места на подъездной дорожке для приема гостей или парковки автомобилей по мере роста вашей семьи?
Если вы еще не приобрели участок под застройку, вот несколько вещей, которые следует учитывать при поиске.
- Выбрав стиль, размер и план дома в соответствии с вашим бюджетом, вы можете использовать эту информацию, чтобы найти подходящий участок под застройку. Хороший совет — перечислить плюсы и минусы того, что вам нравилось и не нравилось в местах, где вы жили в прошлом. Затем составьте список пожеланий с важными атрибутами, которые вы ищете, и возьмите этот список с собой, когда начнете проверять расположение участков. При поиске идеального участка под застройку оценивайте каждый участок на основе качеств из вашего списка.
- Соседство имеет значение. Как говорится в поговорке в сфере недвижимости: «Место, место, место». Проверьте ближайший район и прилегающие районы, прежде чем совершить серьезное и долгосрочное вложение своих денег, времени и усилий.
- Участок под застройку находится рядом с оживленной улицей?
- В районе много шума?
- Нравится ли вам сообщество и его жители?
- Предлагает ли район вещи, в которых вы нуждаетесь и хотите?
- Рассмотрим школы, центры отдыха/центры, церкви, продуктовые магазины, больницы и т.
д. - Прежде всего, будете ли вы и ваша семья вписываться в жизнь ваших соседей и будете ли счастливы, живя там?
Вверху: Если вам нравится жить в доме в стиле фермы, это восхитительный выбор — с его великолепным крыльцом и каменными колоннами, уютным фойе, выходящим в столовую, приватной палуба и другие удобства, включая дополнительное пространство (план № 165-109).0). Внизу: Этот дом во французском стиле имеет жилую площадь более 5700 кв. футов, что делает его идеальным для растущих семей и развлечений (план № 161-1022).
Как расставить приоритеты?
При строительстве дома вам, вероятно, придется пойти на компромисс в некоторых вещах, так что будьте готовы. Что действительно важнее всего? Думайте в долгосрочной перспективе. Что тогда будет для вас важно? Вам не нужно ничего вычеркивать из своего списка, но будьте готовы, когда придет время принятия решения.
Верх: Этот 1-этажный дом в европейском стиле имеет фасад из камня и кирпича, бочкообразные арки и деревянные балки. Внизу: Большой зал с кухней просторный и идеально подходит для небольших и крупных мероприятий. Для расширения предусмотрен цокольный этаж с комнатой отдыха, баром и помещением для еще двух спален (план №135-1060).
Что нужно знать о кодах?
Очень важно сообщить местному строительному отделу о своих строительных намерениях. Они оценят ваши планы и посоветуют, что вам нужно сделать, чтобы ваш дом соответствовал местным нормам. Тогда вы сможете получить разрешение на строительство . Это для защиты не только вас, но и ваших соседей, посетителей, подразделения и местного самоуправления.
Строительные нормы и правила различаются в зависимости от региона, поэтому местным строителям, инженерам или архитекторам могут потребоваться дополнительные (обычно незначительные) изменения планов для учета местных требований.
Любой, кто покупает план дома в Интернете, должен работать со своим строителем (или местным инженером или архитектором), чтобы убедиться, что план соответствует условиям строительной площадки и соответствует местным нормам. Интернет-сайты являются хорошей отправной точкой, особенно для людей, желающих построить роскошный дом.
Рекомендуется иметь хотя бы базовые знания местных норм и правил. Ограничения по лотам, например, значительны. Они будут определять не только ширину и глубину вашего дома, но и высоту. Подумайте также о своем фундаменте. Если вы можете построить подвал, вы можете поискать дома поменьше. Квадратные футы в недостроенном подвале не считаются, пока они не будут закончены и не отапливаются.
Еще один момент – при подсчете общей площади – подъезды, подвалы, чердаки и террасы считаются незавершенными площадями; поэтому они не учитываются в общей отапливаемой/охлаждаемой площади вашего нового дома.
Как найти свой план?
Теперь, когда вы ответили на важные вопросы, коллекция планов содержит более 22 000 планов всех различных архитектурных стилей для просмотра.
У нас есть планы соответствовать любому региону в США или Канаде. Используйте расширенный поиск для получения дополнительных параметров, чтобы сузить критерии поиска и потратить время на тщательный просмотр результатов. Не пропускайте карандашные рисунки. Их может быть немного сложнее визуализировать, но многие из них являются скрытыми сокровищами.
Сколько наборов отпечатков вам понадобится? Если вы собираетесь работать с банком, подрядчиком или любыми местными чиновниками, чтобы построить дом своей мечты, вам нужно будет предоставить им копии ваших чертежей. Большинство строителей советуют иметь от пяти до восьми копий комплекта планов дома, соответствующих вашим требованиям к строительству. Вы можете либо приобрести набор планов из пяти или восьми копий, либо заказать воспроизводимый образец, файл PDF или файл автоматизированного проектирования (CAD) и сделать столько копий набора, сколько вам нужно.
Во время поиска вы обнаружите, что идете на компромисс, и вы будете рады, что отдали предпочтение своим желаниям и потребностям.
Если вам нужна помощь в поиске, позвоните нам .
Верх: Этот дом в стиле ранчо с 4 спальнями, двускатной крышей и кирпичным фасадом. Внизу: Большая комната и гостиная с кухней находятся между тремя спальнями в одном крыле дома и главной спальней в другой части дома. В доме есть множество удобств, в том числе домашний кинотеатр, торжественная столовая, веранда для гриля и два камина (план № 153-1210).
Как насчет моих оставшихся без ответа вопросов?
Если у вас есть дополнительные вопросы, связанные с планом дома, помните, что большая часть необходимой вам информации предоставлена для каждого плана на нашем веб-сайте. Внимательно прочитайте спецификации. У нас также есть статья Часто Задаваемых Вопросов , в которой можно найти ответы на многие другие вопросы. Если вы не можете найти ответ на свой вопрос или проблему на сайте или просто не уверены в ответе, не стесняйтесь , позвоните или напишите нам .
Мы будем рады помочь вам любым возможным способом.
Пришло время действовать — теперь вы готовы найти идеальный план дома для вашего нового дома мечты!
План дома 2 спальни, 2 санузла, гараж, 1703-В1
Планы дома Драммонда
Найдите свой план
Деталь плана дома — Джошуа 2 1703-V1
Современный уникальный план 2-х этажного дома, главная спальня на втором этаже с собственной большой террасой, гараж и многое другое!
Изменить этот план
Другая полезная информация по этому плану
Логин
Адрес электронной почты: Пароль:Вы забыли пароль? Кликните сюда.
Создать учетную запись
Вот краткое описание наших различных тарифных планов.
Пожалуйста, выберите пакет плана, который соответствует вашим потребностям. При необходимости вы можете изменить пакет на следующем шаге.
ВЕРСИЯ ПЛАНА В PDF:
Полная цифровая версия плана (формат PDF), отправленная по электронной почте (исходный формат плана 18″ x 24″ или 24″ x 36″)
5 копий плана + PDF:
Включает: 5 копий плана, план в формате PDF (уменьшенная версия), список материалов.
Тип фундамента
Доступны дополнительные типы фундамента, может взиматься плата. Пожалуйста, укажите свой выбор в форме онлайн-заказа или обратитесь к нашему представителю по обслуживанию клиентов при размещении заказа на план дома.
Если желаемый тип фундамента недоступен, обратитесь в нашу службу поддержки клиентов, чтобы получить бесплатное предложение по модификации плана.
Тип фундамента
Доступно дополнительных типов фундамента по цене от 245 долларов США.
Пожалуйста, просмотрите и укажите свой выбор в онлайн-форме заказа или нашему представителю по обслуживанию клиентов при размещении заказа на план дома.
Для получения информации звоните по бесплатному телефону: 1-800-567-5267.
Объяснение типов бонусных ячеек
НЕДОСТРОЕННАЯ БОНУСНАЯ КОМНАТА
Бонусные комнаты часто планируются над гаражом и доступны из дома. Они предназначены для преобразования в офис, прачечную, ванную комнату, библиотечный уголок или даже дополнительную спальню, для которой домовладельцы должны убедиться, что у них есть окна, соответствующие действующим нормам и стандартам.
СКЛАДСКОЕ ПОМЕЩЕНИЕ
Наши складские помещения, которые часто располагаются над гаражом, используются только в качестве складских помещений и обычно доступны из гаража по выдвижной лестнице.
Вам нравится этот план, но вы хотите изменить его в соответствии с вашими потребностями?
Чтобы добавить гараж, еще одну спальню, отделку подвала или любую другую модификацию, нажмите здесь и сообщите нам о ваших желаемых изменениях и получите бесплатную смету для модификации вашего плана.
Щелкните здесь, чтобы получить дополнительную информацию о нашей службе редактирования плана в Интернете или в одном из наших 26 региональных офисов.
Задать вопрос по этому плану
Спасибо! Ваш вопрос отправлен нам. Мы свяжемся с вами как можно скорее, обычно в течение следующих 48 часов.
Ошибка с google reCaptcha! Попробуйте еще раз
Имя:
Электронная почта:
Телефон (День):
Мобильный телефон:
Почтовый индекс / Почтовый индекс:
Комментарий
План поиска
Технический вопрос
Общий вопрос
Информация о наших рекламных программах
Ваше сообщение:
Добавить фото
К сожалению, ваш браузер не поддерживает отправку файлов.
Для информации по телефону: 1-800-567-5267
Условия использования
Важное уведомление об авторских правах! Пожалуйста, обратите внимание на эти условия авторского права перед печатью:
Распечатывая этот план дома, коттеджа или гаража или план(ы) этажа, вы подтверждаете, что каждый план дома на этом веб-сайте является исключительной собственностью Drummond House.
Планы и защищен канадским законом об авторском праве. Вы знаете, что эти отпечатки нельзя использовать для строительства или даже для получения разрешения на строительство. Графические изображения этих
модели предлагаются компанией Drummond House Plans с единственной целью — дать вам возможность отметить модификации модели, а затем передать ее одному из канадских дилеров Drummond House Plans для
модификация плана.
Покупка плана дома, коттеджа или гаража в Drummond House Plans обязательна , если вы хотите построить любую из наших моделей.
Покупка плана позволяет построить
единый блок; вы не можете перепродать или передать свой проект кому-либо после того, как дом, коттедж или гараж будут построены. Если вы желаете построить такой же дом, дачу или гараж больше
чем один раз, вам необходимо получить лицензию для этого. Пожалуйста, свяжитесь с нами, для более подробной информации.
Все планы от Drummond House Plans могут быть изменены только лицензированным канадским дилером Drummond House Plan. Если любое другое коммерческое или физическое лицо, не связанное с Планы Drummond House изменяют план Drummond House от вашего имени. Пожалуйста, убедитесь, что у этого бизнеса или физического лица есть лицензия на изменение этого конкретного плана, иначе вы будете привлечены к ответственности. на том же уровне, что и компания или физическое лицо, которые изменили или воспроизвели план.
Для получения более подробной информации, не стесняйтесь обращаться к вам по электронной почте или по телефону 1-800-567-1413.
Я согласен соблюдать вышеуказанные условия и не воспроизводить, не изменять и не строить модели из планов дома Драммонда без предварительного приобретения полного плана дома.
Имя:
Электронная почта:
Я прочитал и принимаю эти условия
Я также хотел бы получать информационный бюллетень Drummond House Plans
Я также хотел бы получать полезные советы и другие предложения от Drummond House Plans
Отправить это другу
Спасибо! Этот план был отправлен вашему другу.
Ошибка с google reCaptcha! Попробуйте еще раз
Ваш e-mail:
Кому:
Адреса не будут использоваться в рекламных целях.
Сообщение:Здравствуйте, я нашел этот план дома на DrummondHousePlans.
com и подумал, что он может вас заинтересовать.
Вы можете отредактировать это сообщение: осталось 251 символ
Отправить мне копию этого письма
Я хочу получать информационный бюллетень Drummond House Plans
Я также хотел бы получать полезные советы и другие предложения от Drummond House Plans
Этот план является частью коллекции экологических планов домов и поэтому имеет структуру стен с лучшей энергоэффективностью. Чтобы обеспечить превосходную изоляцию для каждого из наших экологических домов, стены сделаны из двойного каркаса 2×4 на расстоянии 24 дюйма друг от друга. Таким образом, необходимое количество древесины аналогично количеству традиционного дома, в котором используются блоки 2×6, расположенные через каждые 16 дюймов. Кроме того, эти две стены также расположены в шахматном порядке, чтобы максимально сократить тепловые мосты, то есть непрерывные элементы, которые создают потери тепла изнутри наружу дома.
В качестве изоляционного материала, используемого в этом разрезе стены, используется целлюлоза. Это на 100% переработанный материал, который идеально облегает все полости в стенах для оптимальной изоляции. Для получения дополнительной информации или для покупки традиционной строительной версии, пожалуйста, свяжитесь с нашей службой поддержки клиентов.
12 тонких домов, которые используют каждый дюйм по максимуму
- Дом шириной 1,8 метра от YUUA Architects. Фотография сделана Тошихиро Собаджимой .
- Дом Love2 от Такеши Хосаки. Фотография сделана Кодзи Фудзи Накаса и партнеры .
- Крошечный дом в Кобе от FujiwaraMuro Architects. Фотография сделана Тошиюки Яно .
- Стартовый дом №1, 3106 Сент-Томас, офис Джонатана Тейта. Фотография Уильяма Крокера .
- SkinnyScar от Гвендолин Хьюсман и Мэриджн Ботерман. Фотография сделана архитекторами
- Дом Минами-танабэ от FujiwaraMuro Architects.
Фотография сделана Тошиюки Яно . - Дом 304, Киентрук О. Фотография Хироюки Оки
- 3500-миллиметровый дом от AGo Architects. Фотография сделана Кафином Ное’маном .
- Дом W от KC Design Studio.
- Крошечная башня от ISA. Фотография Сэма Обертера
- Дышащий дом от Vo Trong Nghia Architects. Фотография сделана Хироюки Оки .
- Дом Пираха от Estudio BRA Arquitetura. Фотография сделана Майрой Акаябой
Семи Хань | Оставить комментарий
В условиях ограниченного пространства в городах архитекторы проектируют дома, способные втиснуться в самые узкие щели. Мы собрали 12 тонких домов шириной четыре метра или меньше, чтобы показать, что размер — это еще не все.
Дом шириной 1,8 м, 1,8 м, Токио, Япония, архитектор YUUA Architects
В Японии тощие дома называют «ложами угря» из-за их длинной и тонкой формы.
Построенный на участке в одном из самых густонаселенных районов Токио, YUUA Architects спроектировали это ложе из угрей, чтобы оно поместилось между двумя существующими зданиями.
Двухуровневые полы создают естественные перегородки для помещений шириной всего 1,8 метра. Вместо внутренних стен японская студия добавила эти дополнительные «плавающие» полы, чтобы разграничить разные зоны дома.
Подробнее о Дом шириной 1,8 м ›
Дом Love2, 2,5 метра, Токио, Япония, автор: Такеши Хосака
Одноэтажное жилище Такеши Хосаки имеет скромную площадь 19 квадратных метров, но включает в себя все необходимое для него, его жены и их любимых занятий в свободное время.
Плоские световые люки в верхней части изогнутых крыш обеспечивают доступ дневного света в дом, а высокие потолки придают компактному дому ощущение простора.
Подробнее о Love2 House ›
Крошечный дом в Кобе, 2,5 метра, Кобе, Япония, архитектор FujiwaraMuro Architects
Японская студия FujiwaraMuro Architects разместила крошечный дом в Кобе между двумя старыми жилыми домами.
Расположенный в стороне от главной улицы, дом имеет даже гараж на участке шириной 2,5 метра.
С атриумом тройной высоты, позволяющим солнечному свету проникать на нижние этажи, студия построила складские помещения и стеллажи по всей длине стен атриума, чтобы использовать все доступное пространство.
Подробнее о Tiny House в Кобе ›
Starter Home No1, 3,2 метра, Луизиана, США, офис Джонатана Тейта
Starter Home No1 — первый дом в программе, предназначенной для новых покупателей в Луизиане. Местная студия Office of Jonathan Tate (OJT) изготовила жилища, спроектированные таким образом, чтобы их можно было адаптировать для каждого жильца.
В ответ на строгие строительные нормы компания OJT установила для трехэтажного дома наклонную крышу, чтобы дом соответствовал нормам по высоте.
Подробнее о Starter Home No1 ›
SkinnyScar, 3,4 метра, Роттердам, Нидерланды, Гвендолин Хьюсман и Марин Ботерман
В стране, известной своими рядами узких домов, SkinnyScar спрятался за фасадом шириной 3,4 метра из узорчатого черного кирпича в Роттердаме.
Внутренние объемы отделены от ограждающих стен, что позволяет видам и дневному свету проходить сквозь трехэтажный дом, в котором живут построившие его архитекторы.
Подробнее о SkinnyScar ›
Дом в Минами-танабэ, 3,5 метра, Осака, Япония, архитектор FujiwaraMuro Architects
Компания FujiwaraMuro Architects спроектировала двухуровневые этажи и лестницы для разделения пространства дома шириной 3,5 метра в Минами-танабэ, Осака. Эти расположенные в шахматном порядке и ступенчатые циркуляционные пространства предназначены для поощрения жителей бродить по ним.
Занавес из нержавеющей стали на застекленном фасаде дома пропускает естественный свет, сохраняя конфиденциальность.
Подробнее о Дом в Минами-танабэ ›
Дом 304, 3,5 метра, Хошимин, Вьетнам, Kientruc O
D-образный атриум в этом доме шириной 3,5 метра от Kientruc O пропускает дневной свет в подсобные помещения из узкого фасада, выходящего на улицу.
Полукруглая планировка также помогает проветривать три этажа дома.
Тропическая зелень украшает атриум, высаженный в местах, созданных там, где полы отступают от передней стены.
Подробнее о доме 304 ›
3500-миллиметровый дом, 3,5 метра, Джакарта, Индонезия, AGo Architects
AGo Architects разработали клиновидный дом с мебелью и лестницами, которые служат нескольким целям для экономии места. Книжные полки служат в качестве сидения, а также включают в себя встроенное хранилище.
Сужающийся западный фасад метко названного 3500-миллиметрового дома покрыт сплошным остеклением с металлической сеткой, натянутой на стекло как вторая кожа. На первом этаже узкий проем представляет собой балконную платформу для жильцов.
Узнать больше о 3500 мм для дома ›
House W, 3,7 метра, Тайбэй, Тайвань, студия KC Design Studio
В рамках реконструкции существующего дома шириной 3,7 метра местная студия KC Design Studio добавила перфорированный металлический фасад и световой колодец, чтобы свет проникал в дом W.
Мебель придвинута к стенам, чтобы максимизировать жилую площадь при открытой планировке, а стеклянные перегородки на лестничных клетках обеспечивают проникновение дневного света на нижние этажи.
Подробнее о доме W ›
Tiny Tower, 3,6 метра, Филадельфия, США, ISA
Пятиэтажная крошечная башня расположена в пивоварне Филадельфии, где быстро заполняются пустующие участки. ISA разработала ступенчатую структуру, которая послужит прототипом жилья, которое можно построить на других небольших пустырях.
Ванные комнаты и кухни занимают первый этаж, который находится ниже уровня земли, чтобы соответствовать высоте здания. Вместо обычного двора в доме шириной 3,6 метра есть сад у окон, мини-терраса и настил на крыше.
Подробнее о Tiny Tower ›
Breathing House, 3,9 метра, Хошимин, Вьетнам, Vo Trong Nghia Architects
В густонаселенном районе Vo Trong Nghia Architects укрыли Breathing House зеленой вуалью из лиан, чтобы защитить интерьер и обеспечить уединение жителей.
Аккуратно расположенные микропустоты в шахматном плане позволяют дневному свету достигать всех уровней. Эти многочисленные маленькие дворики также помогают вентиляции проходить через глубокий и узкий участок.
Подробнее о Breathing House ›
Pirajá House, четыре метра, Сан-Паулу, Бразилия, Estúdio BRA Arquitetura
Estúdio BRA Arquitetura провела капитальный ремонт устаревшего семейного дома на этом узком участке в Бразилии, снеся большую часть его и заменив двухэтажным жилым домом с консольным верхним уровнем.
Застекленные двери закрывают оба конца первого этажа и пропускают дневной свет через открытую планировку, которая имеет структурные цилиндрические колонны вместо внутренних стен.
Подробнее о Доме Пирая ›
Подпишитесь на нашу рассылку
Ваша электронная почтаDezeen Debate
Наш самый популярный информационный бюллетень, ранее известный как Dezeen Weekly.
Рассылается каждый четверг и содержит подборку лучших комментариев читателей и самых обсуждаемых историй. Плюс периодические обновления услуг Dezeen и последние новости.
Рассылается каждый вторник и содержит подборку самых важных новостей. Плюс периодические обновления услуг Dezeen и последние новости.
Dezeen DailyЕжедневный информационный бюллетень, содержащий последние новости от Dezeen.
Dezeen JobsЕжедневные обновления последних вакансий в области дизайна и архитектуры, рекламируемых на Dezeen Jobs. Плюс редкие новости.
Dezeen AwardsНовости о нашей программе Dezeen Awards, включая сроки подачи заявок и объявления. Плюс периодические обновления.
Dezeen Events Guide Новости от Dezeen Events Guide, справочника, посвященного ведущим событиям, связанным с дизайном, происходящим по всему миру. Плюс периодические обновления.
Мы будем использовать ваш адрес электронной почты только для отправки вам запрошенных вами информационных бюллетеней. Мы никогда не передадим ваши данные кому-либо еще без вашего согласия. Вы можете отказаться от подписки в любое время, нажав на ссылку отказа от подписки в нижней части каждого письма или написав нам по адресу [email protected].
Для получения более подробной информации см. наше уведомление о конфиденциальности.
Спасибо!
Вскоре вы получите приветственное письмо, поэтому проверьте свой почтовый ящик.
Вы можете отказаться от подписки в любое время, щелкнув ссылку внизу каждого информационного бюллетеня.
Технические отчеты о расследовании строительных происшествий
- Строительная промышленность
- Технические отчеты о расследовании строительных происшествий
На этой веб-странице представлены оригинальные расследования обрушений и других происшествий, проведенные Управлением строительства OSHA.
Многие из этих инцидентов привели к одному или
больше рабочих со смертельным исходом, и большинство из них привело к многомиллионным потерям имущества, судебным искам или мировым соглашениям. Каждое расследование проводилось по запросу
Полевой офис OSHA или Государственный план OSHA в рамках проверки правоприменения. В связи с характером расследований обрушений конструкций и других происшествий, эти отчеты
может содержать профессиональное мнение инженера-исследователя, мнение о первопричине инцидента, а также фактические данные и выводы.
Наша цель — помочь работодателям, рабочим, инженерам-строителям, руководителям проектов и регулирующим органам выявить проблемы в проектировании строительства, управлении проектами и управление изменениями полевой инженерии. Надеемся, что эта информация поможет снизить количество инцидентов, смертельных случаев и серьезных травм в будущем.
Некоторые фотографии, схемы, расчеты, таблицы, рисунки и другие нетекстовые элементы удалены из размещенных версий и не отображаются.
Текст
в остальном каждый отчет идентичен исходному документу. Оригинал документа является частью досье OSHA и хранится в соответствующем территориальном отделении или
Государственный план.
- По дате
- Расширенный поиск
Июль 2019: (PDF)
- Строящийся пешеходный мост рухнул и упал на юго-западную 8-ю улицу возле юго-западной 109-й авеню в Майами, Флорида. Мост строился, чтобы соединить кампус ПФР с городом Суитуотер. Мост на этом этапе строительства состоял из одной бетонной фермы длиной около 174 футов и весом около 9 тонн.30 тонн. Бетонный мост был отлит в близлежащем месте за пределами площадки, а затем перевезен на его окончательное место. В момент обрушения автомобилисты ждали под мостом сигнала светофора. Один сотрудник и пять автомобилистов получили смертельные травмы, а еще один сотрудник навсегда остался инвалидом.

- Строящийся пешеходный мост рухнул и упал на юго-западную 8-ю улицу возле юго-западной 109-й авеню в Майами, Флорида. Мост строился, чтобы соединить кампус ПФР с городом Суитуотер. Мост на этом этапе строительства состоял из одной бетонной фермы длиной около 174 футов и весом около 9 тонн.30 тонн. Бетонный мост был отлит в близлежащем месте за пределами площадки, а затем перевезен на его окончательное место. В момент обрушения автомобилисты ждали под мостом сигнала светофора. Один сотрудник и пять автомобилистов получили смертельные травмы, а еще один сотрудник навсегда остался инвалидом.
Октябрь 2018 г.: (PDF)
- Проект предусматривал усиление 1,89 КОЗК.Башня связи высотой 1 фут к северу от Фордленда, штат Миссури. Башня потребовала структурных изменений для поддержки замены линии электропередачи. Однако предложенная диагональная процедура замены имела недостатки, поскольку она ставила под угрозу эффективность интегрированных окружающих раскосов и несущую способность опор башни. На момент обрушения подрядчик выполнял структурные модификации башни.
Июнь 2018: (PDF)
- Чтобы отремонтировать поврежденную или смещенную подземную дренажную трубу, сотрудники вручную вырыли траншею рядом с недавно установленным бетонным барьером длиной более 130 футов. Бетонное ограждение рухнуло в траншею, пока рабочие копали траншею.
Два сотрудника в окопе погибли.
- Чтобы отремонтировать поврежденную или смещенную подземную дренажную трубу, сотрудники вручную вырыли траншею рядом с недавно установленным бетонным барьером длиной более 130 футов. Бетонное ограждение рухнуло в траншею, пока рабочие копали траншею.
Апрель 2017: (PDF)
- Две строительные леса, известные как погрузочные платформы Doka Xclimb 60, рухнули, и несколько обломков платформы упали на землю с 48-го этажа строящегося высотного жилого дома в центре Майами. Подрядчик гидравлически поднимался по двум лесам вместе, с 47-го этажа на 48-й, и оба леса рухнули.
Январь 2017 г.: (PDF)
- Гусеничный кран Manitowoc MLC300, забивавший сваи вибрационным молотом для строительства нового моста Таппан Зи, рухнул и упал на существующий мост Таппан Зи. Инцидент произошел на стороне округа Рокленд. Стрела крана длиной 256 футов упала на существующий мост (северный и южный полосы межштатной автомагистрали I-87 / I-287).

- Гусеничный кран Manitowoc MLC300, забивавший сваи вибрационным молотом для строительства нового моста Таппан Зи, рухнул и упал на существующий мост Таппан Зи. Инцидент произошел на стороне округа Рокленд. Стрела крана длиной 256 футов упала на существующий мост (северный и южный полосы межштатной автомагистрали I-87 / I-287).
Август 2016 г.: (PDF)
- Колледж Майами-Дейд (MDC) решил снести гараж, связанный с инцидентом 2012 года, и построить новое строение. Во время строительства нового гаража на четвертом уровне нового гаража обрушились две сборные двутавровые балки.
июля 2016: (PDF)
- Гусеничный кран Liebherr высотой около 570 футов рухнул в нижнем Манхэттене, в результате чего погиб один автомобилист. Крановщик пытался сложить кран при сильном ветре, когда кран внезапно рухнул и перевернулся. Кран имел поворотную стрелу длиной 371 фут и стрелу длиной 194 фута. Ни на стреле, ни на крюках стрелы не было нагрузки.
Август 2015: (PDF)
- Строилось 12-этажное здание со стальным каркасом и бетонными плитами перекрытий, а снаружи здания должны были быть облицованы стеклянными навесными стенами.
Строительство было почти завершено 23 марта 2015 года, когда во время разборки обрушилась одна из рабочих площадок мачты. Мачта, поддерживающая платформу, частично обрушилась. В момент инцидента на платформе возле 9-го этажа находились четыре сотрудника.этаж. Все четверо упали на землю вместе с упавшей мачтой и платформой. Трое погибли, а четвертый упал на крышу переносного туалета и получил тяжелые травмы.
- Строилось 12-этажное здание со стальным каркасом и бетонными плитами перекрытий, а снаружи здания должны были быть облицованы стеклянными навесными стенами.
Май 2015 г.: (PDF)
- Инцидент на стройке произошел в понедельник, 19 января 2015 г., недалеко от центра Цинциннати, примерно в 22:30. когда центральный и восточный пролеты сносимого рампового моста внезапно упали с высоты 15–20 футов на южную автомагистраль между штатами I-75, идущую на юг, в результате чего погиб мастер и был ранен оператор экскаватора. Во время инцидента бетонная плита снималась с настила рампы в рамках сноса моста через рампу на Хоппл-стрит.
Работы по сносу начались днем ранее, но их пришлось остановить из-за опасений, что некоторые стальные балки выйдут из строя. Работы возобновились после того, как были проведены ремонтные мероприятия, рекомендованные инженерами. Эти меры оказались недостаточными, и инцидент произошел.
- Инцидент на стройке произошел в понедельник, 19 января 2015 г., недалеко от центра Цинциннати, примерно в 22:30. когда центральный и восточный пролеты сносимого рампового моста внезапно упали с высоты 15–20 футов на южную автомагистраль между штатами I-75, идущую на юг, в результате чего погиб мастер и был ранен оператор экскаватора. Во время инцидента бетонная плита снималась с настила рампы в рамках сноса моста через рампу на Хоппл-стрит.
Апрель 2015 г.: (PDF)
- 13 ноября 2014 г., примерно в 10:30, пешеходный мост, строящийся в Техническом колледже Уэйка в кампусе Северного Уэйка, Роли, Северная Каролина, внезапно обрушился, в результате чего погиб рабочий. Четверо сотрудников получили ранения. Во время обрушения на металлический настил заливали бетон, чтобы обеспечить пешеходную поверхность. Через несколько часов другой подобный мост, также строящийся в квартале от первого инцидента, рухнул примерно в 12:30 в середине следующей ночи. Во втором инциденте никто не пострадал. Во время второго инцидента строительные работы не велись.
Оба моста были частью расширения кампуса Northern Wake, которое шло полным ходом.
- 13 ноября 2014 г., примерно в 10:30, пешеходный мост, строящийся в Техническом колледже Уэйка в кампусе Северного Уэйка, Роли, Северная Каролина, внезапно обрушился, в результате чего погиб рабочий. Четверо сотрудников получили ранения. Во время обрушения на металлический настил заливали бетон, чтобы обеспечить пешеходную поверхность. Через несколько часов другой подобный мост, также строящийся в квартале от первого инцидента, рухнул примерно в 12:30 в середине следующей ночи. Во втором инциденте никто не пострадал. Во время второго инцидента строительные работы не велись.
Март 2015 г.: (PDF)
- Инцидент со смертельным исходом произошел 30 декабря 2014 года примерно в 8:30 утра на сборочном заводе Ford в Канзас-Сити (KCAP) в Клейкомо, штат Миссури. Инцидент произошел, когда сварные швы на кронштейне, удерживающем предохранительный штифт, поддерживающий вес тележки, внезапно вышли из строя, в результате чего тележка соскользнула со штифта и упала, придавив работника, работавшего под тележкой.
Октябрь 2014 г.: (PDF)
- Во время «Акта с повешенными волосами» в Ringling Bros. и Barnum & На шоу Bailey Circus в Провиденсе, Род-Айленд, восемь артистов были подвешены к волосам, чтобы их тела могли свободно танцевать в хореографической акробатической манере.
Внезапно во время выступления металлический аппарат, поддерживавший исполнителей, рухнул на пол. Двое исполнителей получили тяжелые травмы. Всего пострадали девять сотрудников. Этот инцидент произошел из-за того, что карабин, используемый для поддержки исполнителей, вышел из строя из-за неправильной нагрузки.
- Во время «Акта с повешенными волосами» в Ringling Bros. и Barnum & На шоу Bailey Circus в Провиденсе, Род-Айленд, восемь артистов были подвешены к волосам, чтобы их тела могли свободно танцевать в хореографической акробатической манере.
Август 2014 г.: (PDF)
- 25 марта 2014 года в Блейне, штат Канзас, обрушились две башни связи, принадлежащие Union Pacific Railroad (Railroad), в результате чего погибли двое рабочих. Проект заключался в демонтаже старой башни связи со всеми ее принадлежностями (например, антеннами, тарелками, коаксиальными кабелями и т. д.). Старая башня располагалась рядом с недавно построенной башней. Во время инцидента на старой башне поднимали стержень для джина, чтобы опустить тарелку диаметром 10 футов, когда оснастка стержня для джина внезапно вышла из строя, в результате чего стержень для джина высотой 60 футов упал вниз, что привело к обрушению.
обеих башен. Один сотрудник находился примерно в 20 футах ниже вершины более старой башни высотой 250 футов и занимался отсоединением антенны диаметром 10 футов, а другой сотрудник находился на той же башне примерно в 80 футах от вершины. Один рабочий скончался на месте, второй скончался в больнице. На месте происшествия находились еще два сотрудника, которые не пострадали.
- 25 марта 2014 года в Блейне, штат Канзас, обрушились две башни связи, принадлежащие Union Pacific Railroad (Railroad), в результате чего погибли двое рабочих. Проект заключался в демонтаже старой башни связи со всеми ее принадлежностями (например, антеннами, тарелками, коаксиальными кабелями и т. д.). Старая башня располагалась рядом с недавно построенной башней. Во время инцидента на старой башне поднимали стержень для джина, чтобы опустить тарелку диаметром 10 футов, когда оснастка стержня для джина внезапно вышла из строя, в результате чего стержень для джина высотой 60 футов упал вниз, что привело к обрушению.
Июль 2014: (PDF)
- 1 февраля 2014 г., примерно в 11:37, телекоммуникационная вышка высотой 340 футов (вышка сотовой связи) внезапно обрушилась во время работ по модернизации/строительству. Четверо рабочих работали на башне, снимая ее диагонали. При этом временные опоры не устанавливались. В результате обрушения башни двое сотрудников погибли, еще двое получили тяжелые ранения. Вышка сотовой связи упала на растяжки соседней вышки сотовой связи меньшего размера и привела к ее обрушению, в результате чего погиб пожарный, спасавший раненых сотрудников на земле.
Обрушение меньшей башни не рассматривается в этом расследовании.
- 1 февраля 2014 г., примерно в 11:37, телекоммуникационная вышка высотой 340 футов (вышка сотовой связи) внезапно обрушилась во время работ по модернизации/строительству. Четверо рабочих работали на башне, снимая ее диагонали. При этом временные опоры не устанавливались. В результате обрушения башни двое сотрудников погибли, еще двое получили тяжелые ранения. Вышка сотовой связи упала на растяжки соседней вышки сотовой связи меньшего размера и привела к ее обрушению, в результате чего погиб пожарный, спасавший раненых сотрудников на земле.
Июль 2014: (PDF)
- Массовый обвал произошел на заводе по производству пищевых добавок для кормов для животных. Было девять бункеров высотой 8 футов x 8 футов x 27 футов каждый, установленных над крышей здания. При заполнении одного из бункеров известняком несущая конструкция рухнула, и весь завод пришлось остановить. Первоначально объект был построен около 1972. Два сотрудника погибли и тринадцать получили ранения.
Апрель 2014 г.: (PDF)
- 2 ноября 2013 г., примерно в 13:30. Инцидент произошел на строительной площадке проекта расширения взлетно-посадочной полосы Ft. В международном аэропорту Лодердейл-Голливуд, когда пять сборных железобетонных балок соскользнули со своих опор, а еще пять балок соскользнули со своих опор, но остались над изгибами бетона.
Балки упали примерно на 25 футов на железнодорожные пути, принадлежащие компании Florida East Coast Railways, которая несколько раз в день обслуживает поезда, перевозящие товары по Флориде. Балки были установлены всего пару дней назад и должны были поддерживать реальную взлетно-посадочную полосу, состоящую из бетонной плиты с пост-напряжением. Один сотрудник получил легкие травмы, но вероятность гибели нескольких человек была очевидна.
- 2 ноября 2013 г., примерно в 13:30. Инцидент произошел на строительной площадке проекта расширения взлетно-посадочной полосы Ft. В международном аэропорту Лодердейл-Голливуд, когда пять сборных железобетонных балок соскользнули со своих опор, а еще пять балок соскользнули со своих опор, но остались над изгибами бетона.
Март 2014 г.: (PDF)
- 13 ноября 2013 г. произошел инцидент на строительной площадке гаража в г. Форт. Лодердейл, Флорида, где внезапно обрушились две сборные стены весом около 34 тонн каждая. Стены были возведены менее чем за час до их падения. Два сотрудника получили травмы, хотя этот инцидент мог привести к многочисленным жертвам. Гараж строился как часть более крупного проекта по строительству новых многоквартирных домов для сдачи в аренду.
Весь комплекс назывался RD Flagler Village.
- 13 ноября 2013 г. произошел инцидент на строительной площадке гаража в г. Форт. Лодердейл, Флорида, где внезапно обрушились две сборные стены весом около 34 тонн каждая. Стены были возведены менее чем за час до их падения. Два сотрудника получили травмы, хотя этот инцидент мог привести к многочисленным жертвам. Гараж строился как часть более крупного проекта по строительству новых многоквартирных домов для сдачи в аренду.
Октябрь 2013 г.: (PDF)
- Инцидент на строительстве произошел 23 мая 2013 г., примерно в 13:45, когда двутавр из предварительно напряженного бетона частично обрушился во время подъема домкратом, в результате чего один сотрудник погиб, а другой был ранен. Двойной тройник имел длину 60 футов и ширину 9 футов, глубину 2 фута 3 дюйма и толщину плиты 4 дюйма. Вес двойного тройника составлял примерно 42 800 фунтов. Местом происшествия стал гараж Westlake в торговом центре Westfield Montgomery Mall в Бетесде, штат Мэриленд.
Октябрь 2013 г.: (PDF)
- 28 мая 2013 года на месте вышки сотовой связи Verizon Wireless в Джорджтауне, штат Массачусетс, произошел строительный инцидент.
Вышка сотовой связи высотой 300 футов была оборудована опорой для замены старых антенн на новые. В то время как джиновый столб высотой примерно 40 футов поднимался, оснастка блока джинного полюса внезапно вышла из строя, в результате чего погибли два рабочих, находившихся на башне.
- 28 мая 2013 года на месте вышки сотовой связи Verizon Wireless в Джорджтауне, штат Массачусетс, произошел строительный инцидент.
Август 2013 г.: (PDF)
- Инцидент произошел 31 марта 2013 г. в машинном зале энергоблока 1 электростанции Arkansas Nuclear One в Лондоне/Расселвилле, штат Арканзас. Во время планового останова на перегрузку энергоблока №1 предварительно планировалась замена статора турбины. Пока старый статор турбины демонтировали и перевозили на платформу трейлера, временный мостовой кран, поддерживающий старый статор, внезапно вышел из строя и рухнул, в результате чего погиб сотрудник. Еще восемь сотрудников получили ранения. Статор турбины весил более миллиона фунтов.
Июль 2013: (PDF)
- 18 апреля 2013 года во время строительства розничного магазина Goodwill в Хендерсонвилле, штат Теннесси, произошло частичное обрушение каменной стены.
В результате обрушения стены двое сотрудников погибли, один пострадал. Расследование и оценка были основаны на информации, предоставленной Управлением по охране труда штата Теннесси. Проект состоял из строительства одноэтажного розничного магазина Goodwill, примерно 170 футов в ширину и 180 футов в длину.
- 18 апреля 2013 года во время строительства розничного магазина Goodwill в Хендерсонвилле, штат Теннесси, произошло частичное обрушение каменной стены.
Март 2013 г.: (PDF)
- Часть строящегося гаража внезапно обрушилась, в результате чего четыре сотрудника оказались в ловушке и погибли, а еще трое получили ранения. Шестиэтажный гараж имел размеры 305 футов x 390 футов и высоту 62 фута и строился из сборных железобетонных элементов конструкции. Обрушение произошло на площади 122 на 132 фута. Тяжелые упавшие бетонные куски весили примерно 3300 тонн.
Июль 2012 г.: (PDF)
- Проект состоял из сноса двухэтажного складского здания 1920 года постройки в рамках расширения Колумбийского университета.
При сносе здание самопроизвольно частично обрушилось. Один сотрудник погиб, двое сотрудников получили ранения. Здание использовалось как склад и коммерческий гараж.
- Проект состоял из сноса двухэтажного складского здания 1920 года постройки в рамках расширения Колумбийского университета.
Май 2012 г.: (PDF)
- Парадный пролёт строящейся пятиэтажки внезапно обрушился. В момент происшествия на третий этаж заливали бетон. Здание представляло собой гибридную конструкцию из несущего легкого металлического каркаса с внутренними стальными прокатными фасонными балками и колоннами и каменными стенами в основе. Один рабочий погиб, двое ранены.
Март 2012 г.: (PDF)
- 500-тонный мобильный кран Liebherr рухнул во время грозы и проливного дождя, когда его опускали на землю. Телескопическая стрела крана составляла 152 фута, а присоединенная решетчатая стрела — 276 футов в длину.
Кран доставлял материалы по зданию собора, пострадавшему от землетрясения. Кран опрокинулся, перевернулся и упал во всю длину. Пострадал один рабочий.
- 500-тонный мобильный кран Liebherr рухнул во время грозы и проливного дождя, когда его опускали на землю. Телескопическая стрела крана составляла 152 фута, а присоединенная решетчатая стрела — 276 футов в длину.
Январь 2012 г.: (PDF)
- Системно-инженерное металлическое здание (предварительно спроектированное здание) рухнуло во время строительства, в результате чего один рабочий погиб, а другой был ранен. Проект состоял из возведения четырех зданий длиной от 35 до 300 футов и шириной от 20 до 150 футов. Строительный блок должен был стать новым производственным предприятием.
Октябрь 2011 г.: (PDF)
- Восточная стена бетонного уравнительного бассейна высотой 30 футов внезапно отделилась от остальной конструкции под действием гидростатического давления и упала на одноэтажную диспетчерскую, в результате чего погибли два сотрудника.

- Восточная стена бетонного уравнительного бассейна высотой 30 футов внезапно отделилась от остальной конструкции под действием гидростатического давления и упала на одноэтажную диспетчерскую, в результате чего погибли два сотрудника.
Август 2011 г.: (PDF)
- Частично возведенный сборный железобетонный каркас гаража на 3300 автомобилей внезапно обрушился. Конструкция конструкции была гибридной: сборные железобетонные колонны и балки, а также монолитные перекрытия с постнапряжением. Сложенная рама была примерно 65 футов в длину, 56 футов в ширину и 80 футов в высоту и весила около 900 тонн. Двое рабочих пострадали.
Июнь 2009 г.: (PDF)
- Строящийся стальной пешеходный мост спиральной формы длиной примерно 575 футов и шириной от 11 до 18 футов рухнул. В момент инцидента настил моста заливали бетоном. Обрушение было огромным, затронуло более семидесяти процентов моста. На момент обрушения весь несущий каркас моста поддерживался пятнадцатью временными опорными опорами.
Один рабочий погиб, 18 ранены.
- Строящийся стальной пешеходный мост спиральной формы длиной примерно 575 футов и шириной от 11 до 18 футов рухнул. В момент инцидента настил моста заливали бетоном. Обрушение было огромным, затронуло более семидесяти процентов моста. На момент обрушения весь несущий каркас моста поддерживался пятнадцатью временными опорными опорами.
Январь 2009 г.: (PDF)
- Кран был собран на месте с 420-футовой стрелой, 240-футовой мачтой, 61-футовым лонжероном и 836 000 фунтов основного противовеса, прикрепленного к лонжерону. Дополнительные 836 000 фунтов вспомогательного противовеса должны были быть прикреплены к его подвескам, подвешенным к оконечности мачты на расстоянии 105 футов от оси крана. В такой конфигурации кран будет иметь грузоподъемность в миллион фунтов при максимальном вылете стрелы 160 футов. Инцидент произошел во время установки вспомогательного противовеса. Четверо рабочих погибли, шестеро получили ранения.
Май 2008 г.: (PDF)
- Инцидент произошел во время строительства пятиэтажного монолитного бетонного паркинга.
Конструктивная конструкция состояла из монолитных плит с односторонним натяжением и балок с постнапряжением. Колонны также были отлиты на место. На момент происшествия велась заливка бетоном 6-го этажа. Ниже третьего уровня не было повторных берегов. Один рабочий погиб, 21 ранен.
- Инцидент произошел во время строительства пятиэтажного монолитного бетонного паркинга.
Октябрь 2007 г.: (PDF)
- Новое здание медицинского кабинета строилось, когда рухнули длинные деревянные фермы крыши. Рабочие установили фермы за несколько часов до инцидента и устанавливали временные и постоянные связи и прогоны во время инцидента. Незадолго до инцидента три связки 2×6, которые должны были использоваться в качестве прогонов и раскосов, были размещены над верхним поясом центральных ферм. Двое рабочих серьезно пострадали.
Август 2006 г.: (PDF)
- Двое строителей упали на землю с двадцатого этажа и погибли, когда распалубочная платформа, на которой они работали, вышла из строя.
Инцидент произошел во время строительства 22-этажного многоквартирного дома. Платформа опиралась на несущий каркас, опирающийся на бетонную плиту 19-го этажа и на нижнюю сторону плиты 20-го этажа. В момент аварии на платформе находились еще трое сотрудников, но они смогли ухватиться за перила и сетку и были спасены.
- Двое строителей упали на землю с двадцатого этажа и погибли, когда распалубочная платформа, на которой они работали, вышла из строя.
Апрель 2004 г.: (PDF)
- Гараж, являющийся частью проекта расширения казино и курорта Tropicana, обрушился во время строительства. Десятиэтажный гараж спроектирован как монолитная бетонная конструкция с филигранной системой сборных полов. На момент происшествия на 8-м этаже велась заливка бетоном. Обрушение привело к обрушению пяти уровней внешнего отсека. Четверо рабочих погибли, 20 получили ранения.
Январь 2004 г.: (PDF)
- Башня с оттяжками высотой 1000 футов была модифицирована для добавления новой антенны HDTV и дополнительного оборудования.
Должны были быть выполнены установка горизонтальных раскосов и замена верхней 14-футовой секции новой 6-футовой башни. Бригада разместила гусеницу и опору на одной стороне башни, чтобы поднять новую антенну. Грузовой трос был прикреплен к блоку на башне примерно в тридцати футах над основанием. Когда грузовой трос был натянут, башня рухнула, в результате чего погибли три сотрудника.
- Башня с оттяжками высотой 1000 футов была модифицирована для добавления новой антенны HDTV и дополнительного оборудования.
Март 2003 г.: (PDF)
- Антенная башня KDUH-TV высотой 1965 футов была заключена по контракту на замену некоторых диагоналей и стоек башни для поддержки новой телевизионной антенны высокой четкости и другого оборудования. Башня состояла из 63 секций, каждая высотой 30 футов. Экипаж заменял существующие диагонали новыми диагоналями, когда башня рухнула. Трое рабочих погибли.
Май 2000 г.: (PDF)
- Арматурная стальная клетка высотой 44 фута и весом 80 тонн упала и убила одного из двух рабочих, работавших в верхней части клетки.
Погибший рабочий оказался зажат между обрушившимся арматурным каркасом и поверхностью бетонного основания. В момент инцидента двое рабочих устанавливали горизонтальные шпалы. Скорость ветра в момент происшествия была около 25 м/с.
- Арматурная стальная клетка высотой 44 фута и весом 80 тонн упала и убила одного из двух рабочих, работавших в верхней части клетки.
Апрель 1998 г.: (PDF)
- Антенная башня высотой 1889 футов, состоящая из 64 секций высотой 30 футов каждая, реконструировалась путем замены отдельных горизонтальных и диагональных элементов и растяжек. Рабочие находились на высоте 1480 футов над основанием, заменяя существующие диагональные элементы, когда башня рухнула. Трое рабочих погибли.
Январь 1998 г.: (PDF)
- В международном аэропорту Портленда в Портленде, штат Орегон, велось строительство, чтобы добавить четыре дополнительных уровня парковки, чтобы преобразовать существующий двухэтажный гараж из сборного железобетона в семиуровневую парковочную структуру.
Два частично завершенных отсека из конструкционной стали, большинство из которых были возведены в тот же день, обрушились, в результате чего погибли три металлурга.
- В международном аэропорту Портленда в Портленде, штат Орегон, велось строительство, чтобы добавить четыре дополнительных уровня парковки, чтобы преобразовать существующий двухэтажный гараж из сборного железобетона в семиуровневую парковочную структуру.
Март 1997 г.: (PDF)
- Антенная вышка высотой 1462 фута рухнула во время «прыжка» через джин с гусеницей возле вершины башни, чтобы заменить существующую антенну. Рабочие упали на землю вместе с падающими секциями башни. Трое рабочих погибли.
19 июня96: (PDF)
- Строящаяся стальная конструкция размером 176 футов x 312 футов и высотой 130 футов рухнула на строительной площадке Олимпийского водного центра в Атланте, штат Джорджия. Структура была дополнением к существующей структуре пула. Непосредственно перед обрушением бригада монтажников соорудила стальную раму и пару стальных балок длиной 176 футов от существующей конструкции до возведенной стальной рамы.
Разрушение произошло через 15-30 минут после того, как кран был освобожден от парных балок. В результате инцидента никто не пострадал.
- Строящаяся стальная конструкция размером 176 футов x 312 футов и высотой 130 футов рухнула на строительной площадке Олимпийского водного центра в Атланте, штат Джорджия. Структура была дополнением к существующей структуре пула. Непосредственно перед обрушением бригада монтажников соорудила стальную раму и пару стальных балок длиной 176 футов от существующей конструкции до возведенной стальной рамы.
Июнь 1995 г.: (PDF)
- Строящийся проект здания представлял собой 31-этажный жилой комплекс. Пятеро сотрудников наносили штукатурку на стены фасции, когда обрушилась платформа мачтового подъема (подмостки). Три сотрудника находились на модифицированной консольной секции настила, которая была соединена с удлинителями платформы, прикрепленными к основной платформе. Консольная палуба вышла из строя, и в результате трое сотрудников упали примерно на 75 футов и получили смертельные травмы. Двое других сотрудников, работавших на платформе, смогли ухватиться за конструкцию и получили лишь легкие травмы.
Октябрь 1994 г.: (PDF)
- Радиовышка высотой 350 футов обрушилась на заключительном этапе строительства.
Три FM-антенны уже были подняты и закреплены на верхних секциях башни. В день инцидента двое рабочих, находившихся возле верхней части башни, начали опускать шест с верхней части башни на землю. Штанга внезапно упала и ударилась о коаксиальный кабель, после чего башня рухнула. Оба рабочих, привязанные к рушащейся башне, упали на землю, в результате чего один рабочий погиб, а другой получил серьезные травмы. Конструкция башни состояла из 25 предварительно изготовленных стальных секций высотой 10 или 20 футов каждая.
- Радиовышка высотой 350 футов обрушилась на заключительном этапе строительства.
Март 1992 г.: (PDF)
- Рабочий-строитель погиб, а двое рабочих получили ранения, когда их рабочая платформа, находящаяся на высоте около 230 футов над землей, столкнулась с обрушившейся стальной стойкой во время возведения вантовой конструкции крыши в куполе Джорджии в Атланте, штат Джорджия. Рабочие поднимали центральную ферму на место для окончательного соединения диагонального троса с нижним стыком центральной фермы.
Строители использовали гидравлические насосы для подачи нагрузки на временные подъемные пряди, чтобы сделать постоянное диагональное кабельное соединение с центральной фермой.
- Рабочий-строитель погиб, а двое рабочих получили ранения, когда их рабочая платформа, находящаяся на высоте около 230 футов над землей, столкнулась с обрушившейся стальной стойкой во время возведения вантовой конструкции крыши в куполе Джорджии в Атланте, штат Джорджия. Рабочие поднимали центральную ферму на место для окончательного соединения диагонального троса с нижним стыком центральной фермы.
Май 1991: (PDF)
- Конструкционная стальная опорная система открытого котлована размером 150 футов x 208 футов на глубину 47 футов рухнула, вызвав обвал грунта объемом в несколько тысяч кубических ярдов. Раскопки проводились для строительства 12-этажного офисного здания с четырьмя уровнями подземной парковки. Обрушение привело к тому, что внутренняя система поддержки соскользнула и упала в открытую выемку. Во время инцидента строительство было остановлено на день и, следовательно, не привело ни к гибели, ни к травмам, хотя и могло привести к значительным человеческим жертвам.
Май 1990: (PDF)
- Башенный кран рухнул в центре финансового района Сан-Франциско, штат Калифорния.
Погибли четверо строителей, занимавшихся подъемом крана, и один человек на улице под краном. Кран модели SN 355, подъемный башенный кран с подъемной стрелой, имел максимальный вылет 192 фута и максимальную грузоподъемность 17 000 фунтов с двумя тросами. Высота крана в день обрушения составляла 29 м.8 футов и состоял из 15 одинаковых секций, добавленных на разных этапах. В день инцидента велся процесс восхождения, чтобы добавить еще одну секцию башни.
- Башенный кран рухнул в центре финансового района Сан-Франциско, штат Калифорния.
Апрель 1903: (PDF)
- тест
Наверх
На этой веб-странице публикуются только избранные отчеты. Для помощи с любым из отчетов, рисунков или иллюстраций, пожалуйста, свяжитесь с Управлением строительства по телефону (202) 693-2020.Основные моменты
- OSHA считает, что инженеры-строители должны указать порядок и способ замены существующих диагоналей и стоек опор сотовой связи.
Решение рабочих, занятых модернизацией башен на месте, часто оказывалось катастрофическим. (октябрь 2018 г.) - OSHA считает, что подрядчики и инженеры должны учитывать турбулентные ветры, вызывающие подъем и вихри в районах, подверженных тропическим штормам и ураганам. OSHA рекомендует анализ, основанный на расчетах вычислительной гидродинамики (CFD). (сентябрь 2018 г.)
- OSHA считает, что подрядчик не уложил стрелу и гусек перед лицом надвигающегося ветра в соответствии с инструкциями производителя крана, что привело к обрушению крана. (июль 2016 г.)
- OSHA считает, что подрядчики должны проявлять максимальную осторожность и надзор во время демонтажа подъемных платформ мачты, чтобы не перегружать платформы, вызывая отказ мачты. (август 2015 г.)
Дополнительная информация
- Министерство труда США объявляет об инициативе по повышению осведомленности об опасностях и решениях, связанных с рытьем траншей и земляных работ, выпуск новостей OSHA (28 ноября 2018 г.
) - Министерство труда США цитирует пять подрядчиков за нарушения техники безопасности после обрушения пешеходного моста во Флориде, пресс-релиз OSHA (18 сентября 2018 г.)
- Министерство труда США цитирует производителя кранов в Пенсильвании за то, что оно подвергло сотрудников опасности после смертельного обрушения крана, пресс-релиз DOL (6 августа 2018 г.)
- Министерство труда США цитирует подрядчика телекоммуникационной вышки после трех погибших на рабочем месте в Майами, пресс-релиз Управления по охране труда (OSHA) (27 марта 2018 г.)
- OSHA считает, что перегрузка привела к падению цирка в Провиденсе, штат Род-Айленд, в цирке Ringling Bros. и Barnum & Bailey Circus, признанном серьезным нарушением техники безопасности. Региональный выпуск новостей OSHA (4 ноября 2014 г.).
- Министерство труда США и Федеральная комиссия по связи объявляют о создании рабочей группы по предотвращению несчастных случаев в телекоммуникационной отрасли. Пресс-релиз OSHA (14 октября 2014 г.
). - Обрушение конструкций во время строительства — извлеченные уроки, (1990–2008 гг.) (PDF) . журнал СТРУКТУРА. Управление OSHA расследовало 96 обрушений конструкций во время строительства с человеческими жертвами и травмами с 1990 по 2008 год. Ошибки при строительстве привели к 80% обрушений конструкций, а остальные 20% происшествий связаны с недостатками конструкции. (декабрь 2010 г.).
Первый напечатанный на 3D-принтере двухэтажный бетонный дом в США
Саша Живкович стоял на 4-метровой платформе и смотрел вниз на ленты бетона, которые выдавливались в непрерывном движении, одна за другой каждые семь минут, в конечном итоге образуя заднюю часть стена будущего двухэтажного дома, напечатанного на 3D-принтере в США
Это было упражнение в точности, над которым Живкович, архитектор и эксперт по робототехнике, и его команда работали в течение ряда лет. Этот очень современный дом, строящийся в старом тихом районе долины Спринг-Бранч, с использованием технологий и методов строительства, которые все еще находятся в зачаточном состоянии, не будет похож ни на что другое в Хьюстоне.
БОЛЬШЕ ОТ ДИАН КОУЕН: Архитектор Майкл Хсу возвращается в Хьюстон с продуманным современным стилем
Живкович и Лесли Лок — супружеская пара, которые также являются деловыми партнерами в своей архитектурной фирме HANNAH Design Office в северной части штата Нью-Йорк — работают доцентами в архитектурной школе Корнельского университета. Лок руководит своей Лабораторией инноваций в сельском городском строительстве, а Живковик руководит Лабораторией роботизированного строительства, двумя видами исследований, которые объединились в этом новом проекте в Хьюстоне, городе, где Лок закончила бывшую среднюю школу Роберта Э. Ли третьей в своем классе ( теперь средняя школа Маргарет Лонг Уиздом), прежде чем поступить в колледж Уэллсли и Массачусетский технологический институт.
Супружеская пара занималась проектированием и планированием этого нового дома, напечатанного на 3D-принтере, и работала с хьюстонской компанией PERI 3D Construction над разработкой программы печати.
Другая фирма из Хьюстона, CIVE, взяла на себя функции инженера и генерального подрядчика.
Это карусель. Используйте кнопки «Далее» и «Назад» для навигации по
. 1of22Стажер в Пери Асджад Хан наблюдает за строительством первого в США двухэтажного бетонного дома, напечатанного на 3D-принтере. Дом расположен на улице Эмнора-лейн в долине Спринг-Бранч.
Thomas B. Shea/For the ChronicleПоказать большеПоказать меньше2из22Детальный вид строительства первого в США двухэтажного бетонного дома, напечатанного на 3D-принтере. Дом расположен на Эмнора-лейн в долине Спринг-Бранч.
Thomas B. Shea/For the ChronicleПоказать большеПоказать меньше3из22Сотрудники Peri наблюдают за строительством первого в США двухэтажного бетонного дома, напечатанного на 3D-принтере. Дом расположен на Эмнора-лейн в долине Спринг-Бранч.
Thomas B. Shea/For the ChronicleПоказать большеПоказать меньше4из22 Стажер в Пери Асджад Хан наблюдает за строительством первого в США двухэтажного дома из цемента, напечатанного на 3D-принтере.
Дом расположен по адресу 10503 Emnoral Lane, Хьюстон.
Сотрудники Peri наблюдают за строительством первого в США двухэтажного бетонного дома, напечатанного на 3D-принтере. Дом расположен на улице Эмнора-лейн в долине Спринг-Бранч.
Thomas B. Shea/For the ChronicleПоказать большеПоказать меньше6из22Бетон Quikrete постоянно смешивают, поскольку он печатается на 3D-принтере при строительстве нового дома в долине Спринг-Бранч в Хьюстоне.
Thomas B. Shea/For the ChronicleПоказать большеПоказать меньше7из 22Рабочие Peri наблюдают за строительством первого в США двухэтажного бетонного дома, напечатанного на 3D-принтере. Дом расположен на Эмнора-лейн в долине Спринг-Бранч.
Thomas B. Shea/For the ChronicleПоказать большеПоказать меньше8из22 Рабочие Peri наблюдают за строительством первого в США двухэтажного бетонного дома, напечатанного на 3D-принтере. Дом расположен на Эмнора-лейн в долине Спринг-Бранч.
Детальный вид строительства первого в США двухэтажного бетонного дома, напечатанного на 3D-принтере. Дом расположен на Эмнора-лейн в долине Спринг-Бранч.
Thomas B. Shea/For the ChronicleПоказать большеПоказать меньше10 из 22Стажер в Пери Асджад Хан наблюдает за строительством первого в США двухэтажного бетонного дома, напечатанного на 3D-принтере. Дом расположен на Эмнора-лейн в долине Спринг-Бранч.
Thomas B. Shea/For the ChronicleПоказать большеПоказать меньше11из22Стажер в Пери Асджад Хан наблюдает за строительством первого в США двухэтажного бетонного дома, напечатанного на 3D-принтере. Дом расположен на улице Эмнора-лейн в долине Спринг-Бранч.
Thomas B. Shea/For the ChronicleПоказать большеПоказать меньше12из22 Стажер в Пери Асджад Хан наблюдает за строительством первого в США двухэтажного бетонного дома, напечатанного на 3D-принтере. Дом расположен на Эмнора-лейн в долине Спринг-Бранч.
Стажер в Пери Асджад Хан наблюдает за строительством первого в США двухэтажного бетонного дома, напечатанного на 3D-принтере. Дом расположен на Эмнора-лейн в долине Спринг-Бранч.
Thomas B. Shea/For the ChronicleПоказать большеПоказать меньше14из22Оператор снимает строительство первого в США двухэтажного бетонного дома, напечатанного на 3D-принтере. Дом расположен на Эмнора-лейн в долине Спринг-Бранч.
Thomas B. Shea/For the ChronicleПоказать большеПоказать меньше15 из 22Оператор снимает строительство первого в США двухэтажного бетонного дома, напечатанного на 3D-принтере. Дом расположен на Эмнора-лейн в долине Спринг-Бранч.
Thomas B. Shea/For the ChronicleПоказать большеПоказать меньше16из22 Член городского совета Эдвард Поллард от округа J наблюдает за строительством первого в США двухэтажного бетонного дома, напечатанного на 3D-принтере. Дом расположен на Эмнора-лейн в долине Спринг-Бранч.
Член городского совета Эдвард Поллард от округа J беседует со СМИ, поскольку в США строится первый двухэтажный бетонный дом, напечатанный на 3D-принтере. Дом расположен на улице Эмнора. Переулок в долине Спринг-Бранч.
Thomas B. Shea/For the ChronicleПоказать большеПоказать меньше18 из 22Член городского совета Эдвард Поллард от округа J наблюдает за строительством первого в США двухэтажного бетонного дома, напечатанного на 3D-принтере. Дом расположен на Эмнора-лейн в долине Спринг-Бранч.
Thomas B. Shea/For the ChronicleПоказать большеПоказать меньше19 из 22Член городского совета Эдвард Поллард от округа J наблюдает за строительством первого в США двухэтажного бетонного дома, напечатанного на 3D-принтере. Дом расположен на Эмнора-лейн в долине Спринг-Бранч.
Thomas B. Shea/For the ChronicleПоказать большеПоказать меньше20из22 Художник показывает, как будет выглядеть напечатанный на 3D-принтере бетонный дом в долине Спринг-Бранч, когда он будет готов.
Член городского совета Эми Пек от округа А и член городского совета Эдвард Поллард от округа J разговаривают со СМИ на строительной площадке первого двухэтажного бетонного дома, напечатанного на 3D-принтере в США. Дом расположен на Эмнора-лейн в Спринг-Бранч Долина.
Thomas B. Shea/For the ChronicleПоказать большеПоказать меньше22из22Визуализация художника показывает, как будет выглядеть напечатанный на 3D-принтере бетонный дом в долине Спринг-Бранч, когда он будет готов. Предоставлено HANNAHSПоказать большеПоказать меньше Компания Quikrete разработала коммерческий сорт бетона, который достаточно влажный, чтобы его можно было выдавливать из принтера в виде лент, но при этом достаточно прочный, чтобы сохранять свою форму во время высыхания.
Бинг Тиан, директор по исследованиям и разработкам Quikrete, сказал, что его фирма пять лет работала над формулой, которая будет работать с 3D-принтерами.
«Большинство людей знают Quikrete, покупая пакеты с ним в Home Depot или Lowe’s для проектов «сделай сам», — сказал Тиан. «Это больше похоже на создание чего-то, что можно выдавить из тюбика, например зубной пасты. Его нужно откачивать, и слой за слоем плотность все еще сохраняется. Для этого требуется много химии».
За годы лабораторных испытаний они работали над смесями и практиковались в их экструзии с помощью чрезвычайно низкотехнологичных методов.
«Сначала мы понятия не имели, как это сделать. У нас нет принтера, поэтому мы не могли его проверить. Мы купили колбасный пистолет и начали с него — серьезно, колбасный пистолет», — сказал Тиан.
Первые проекты 3D-домов Quikrete были реализованы совместно с Alquist 3D: два одноэтажных дома Habitat for Humanity в Вильямсбурге и Ричмонде, штат Вирджиния.
сообщество печатного жилья для бездомных в Остине. Первый из его домов площадью 400 квадратных футов был завершен в марте 2020 года.
Этот дом в Хьюстоне предназначен для неназванного домовладельца, который покупает дом за неизвестную сумму и участвовал в его создании, как обычно делал бы домовладелец. Он будет намного больше, чем другие, уже построенные в США, с площадью 4000 квадратных футов на двух этажах.
У него будут полные стены из бетона, напечатанного на 3D-принтере, а также высокий бетонный дымоход и другие части дома, которые также будут двухэтажными, напечатанными на 3D-принтере. Когда бетонные работы будут завершены, дом будет закончен традиционными методами строительства для соединения бетонных частей, а также для потолков, некоторых внутренних стен и отделки в таких комнатах, как кухня и ванные комнаты.
Рифленые края слоев бетонной печати останутся такими, какие они есть — вероятно, с простым защитным внешним покрытием — материал и способ его нанесения служат частью эстетики, задуманной архитекторами.
ДОПОЛНИТЕЛЬНЫЙ ДИЗАЙН ДОМА: Пустые питомцы Sugar Land строят дом мечты с крытой баскетбольной площадкой, плавательным бассейном и собачьей комнатой
3D-печать не нова; на самых ранних стадиях принтеры казались дорогими новинками, способными воспроизвести что угодно. Теперь вы можете купить настольные 3D-принтеры на amazon.com по цене от 200 до 400 долларов и использовать их для изготовления всего, от игрушек и прототипов продуктов до оружия и его частей, таких как «переключатели» Glock, которые попали в заголовки заголовков в начале этого года из-за их возможность превратить полуавтоматическое огнестрельное оружие в пулемет.
Для строительной отрасли 3D-принтеры работают по той же концепции, но это совершенно разные и гораздо более дорогие машины. 3D-принтер PERI, используемый в доме в Хьюстоне, представляет собой огромную конструкцию с рамой размером 40 на 50 футов и высотой 30 футов. Он управляется компьютерной программой, которая сообщает машине, как выполнять спецификации архитекторов.
Бетон смешивается в бункере на земле, а затем перекачивается через трубу вверх, где он выдавливается в виде лент шириной около 2 ½ дюймов и высотой ¾ дюйма. Каждая лента бетона прилегает к предыдущей, оставляя после себя ребристый рисунок.
Задняя стена дома — часть гостиной — была достроена в начале этой недели, с карманами, в которых в конечном итоге будут полки. Поскольку каждый слой имеет высоту всего ¾ дюйма, а машине требуется не менее семи минут для создания слоя, на печать этой 22-футовой стены уйдет более 40 часов.
Еще одна часть печати для гостиной уже готова, осталось отверстие для камина. В целом на дом уйдет около 220 часов бетонной печати. Ожидается, что оставшаяся часть работ будет завершена к середине 2023 года9.0007
В процессе создания бетонных секций дома принтер будет перемещаться три раза, сказал Живкович. Теоретически печатная машина может работать 24 часа в сутки, хотя они сократили ее до нескольких часов в день с учетом жары для ее операторов и шума для соседей.
И Живкович, и Лок говорят, что 3D-печать бетоном — это будущее жилищного строительства. Массивные принтеры не многочисленны и недешевы, но со временем они будут множиться и дешеветь — как и все высокотехнологичные продукты.
Поскольку стоимость пиломатериалов и других материалов становится все выше и труднее достать, бетон является хорошей заменой в Хьюстоне, поскольку он более долговечен и устойчив, чем дерево, которое может гнить или поддаваться воздействию термитов или насекомых в наших условиях. жаркий, влажный климат, говорили они. Он также лучше переносит затопление и сильный ветер.
Создание двухэтажной структуры, напечатанной на 3D-принтере, сложнее, чем одноэтажной, и Лок сказал, что их цель состоит в том, чтобы усовершенствовать эту более крупную структуру, а затем масштабировать ее для создания многоквартирного жилья.
HANNAH Office Design, фирма, соучредителями которой являются Лок и Живкович, также создала нашумевшую хижину Ashen Cabin, небольшую одноэтажную хижину в Нью-Йорке, в основании которой использовалась бетонная 3D-печать, а отделка была выполнена из плит из древесина ясеня, зараженная жуками-ясенями Emerald – нахождение продуктивного использования для деревьев, которые в противном случае могли бы быть срублены и сожжены – их разрушение способствует выбросу парниковых газов.
По данным исследования 2019 года, на долю самого бетона приходится 8 процентов всех выбросов углекислого газа.исследование Массачусетского технологического института, но Лок сказал, что точность 3D-печати снижает расточительную опалубку. Без 3D-печати бетонная конструкция была бы сделана из бетонных блоков или с использованием формованных форм, которые заполняются бетоном и дают им высохнуть.
БОЛЬШЕ ОТ ДИАН КОУЕН: После 9 лет накоплений женщина из Хьюстона завершает реконструкцию дома в Гарден Оукс
«Речь идет о том, как мы можем строить по-другому и лучше в будущем. На строительную отрасль приходится большая часть (мирового) углеродного следа», — сказал Лок. «Нам нужно переосмыслить то, как мы используем материалы — это не только социальная точка зрения, но и точка зрения дизайна. Как мы можем разработать новые материалы и методы, которые позволят нам строить и думать по-другому?»
3D-принтер также позволяет более точно создавать пространства, в том числе полые полости, созданные для изоляции или электрических и водопроводных линий, — сказал Лок, который вместе с Живковичем все лето провел в Хьюстоне, готовясь к строительству дома.
Лок тоже будет здесь всю осень.
«Мы все еще в стадии строительства, поэтому я не знаю, какой будет окончательная стоимость, — сказал Лок. — Мы не стремились построить самое быстрое или самое доступное строительство. Наша цель — использовать его как ценную возможность обучения для создания хорошего дизайна и производительности. Следующий шаг для нас — сосредоточиться на стоимости, экономии материала и… посмотреть, как мы можем снизить затраты и повысить эффективность».
Сколько стоит построить дом на Филиппинах?
Вы планируете обосноваться на Филиппинах, но не можете придумать, с чего начать?
Самая важная вещь, которую вы должны иметь в виду, это то, что решение построить свой дом — это первый шаг к его строительству.
Если вы читаете это, у вас хорошее начало.
Содержимое
- 0.1 Составление плана расходов
- 0.2 Понимание искусства калькуляции
- 1 Черновая отделка – Дом без отделки
- 2 Базовая отделка – Стандартный дом
- 3 Полуэлегантная отделка – Весь дом
- 4 Элегантная отделка – The Dream House
- 5 Выбор подходящего подрядчика для работы
- 5.
1 Вот несколько полезных советов, о которых следует помнить, прежде чем нанимать подрядчика:- 5.1.1 Найдите лицензированного подрядчика, с которым можно вести дела на законных основаниях. ты.
- 5.1.2 Выберите подрядчика, специализирующегося на жилых проектах.
- 5.1.3 Держите ваши варианты открытыми.
- 5.1.4 Не отказывайтесь от своего бюджета.
- 5.1.5 Не продвигайтесь вперед, не заключив контракт.
- 5.1.6 Не бойтесь задавать вопросы.
- 5.1.7 Попросите портфолио подрядчика и проведите небольшую проверку биографических данных.
- 5.1.8 Обязательно узнайте, кто работает в вашем доме.
- 5.1.9 Доверяйте процессу и доверяйте людям, которых вы выбрали для работы.
- 5.1.10 Думай как местный.
- 5.1.11 Следуйте своему чутью.
- 5.
- 6 Все готово и готово к работе
Строительство дома — это ценное долгосрочное вложение.
После того, как вы решили, сколько вы готовы инвестировать (ваш бюджет) в свой дом, все остальное последует.
Тем не менее, именно вы будете задавать темп для них в зависимости от разработанного вами плана затрат.
План затрат определяет общую стоимость проекта.
Другими словами, план расходов — это ваш бюджет, который будет охватывать весь процесс строительства от начала до конца и служить основой для расчета денежных потоков на протяжении всего завершения проекта.
Это также облегчит вам понимание вашего бюджета, так как вы будете сравнивать сводку расходов с вашим планом затрат по мере продвижения.
Понимание искусства расчета себестоимостиЕсть четыре типа домов, которые вы можете выбрать в зависимости от вашего бюджета.
В строительстве эти четыре типа определяются как черновая отделка, базовая отделка, полуэлегантная отделка и элегантная отделка.
Все типы имеют одну общую черту: все они пригодны для жизни; что отличает их друг от друга, так это уровень завершения, чтобы сделать ваш дом удобным местом для проживания.
Мы будем экстраполировать это на протяжении всей этой статьи.
Средние дома на Филиппинах обычно строятся площадью от 40 м² (квадратный метр) до 120 м².
Минимальная площадь, необходимая по закону на Филиппинах, составляет 40 м².
Примеры расчетов будут предоставлены позже, и для этого мы используем 100 м² площади вашего дома.
Черновая отделка – дом без отделкиДома без покрытия довольно распространены на Филиппинах.
Это экономически оправданный выбор, особенно если вы планируете строить свой дом поэтапно.
Это подходящая отправная точка для бюджетных домов, независимо от того, планируете ли вы жить в них во время строительства или нет.
Стоимость параметра (исходя из площади дома) для черновой отделки составит от 8 000 до 10 000 ₽ за квадратный метр.
Черновая отделка относится к скелетной и мышечной структуре вашего дома.
Он включает в себя бетонные стены, крышу, дверной проем, окна, раковину, туалет и ванную комнату.
Минус здесь в том, что все сделано грубо, отсюда и название.
Поверхности все еще неровные или неровные; вы можете четко видеть первоначальный проект, например, где находится ванная комната, с какой стороны дома будет кухня, где, скорее всего, будет лестница и т. д.
Штукатурка все еще видна, и вы можете легко распознать проводку крепится за стенами, включая некоторые отверстия для будущих взносов.
Теперь вернемся к вашему образцу дома площадью 100 м², это ваша общая площадь участка .
В идеале общее правило в строительстве состоит в том, чтобы использовать 60% общей площади участка для вашего 9Площадь здания 0169 – это площадь, которую будет занимать дом.
Остальные 40% будут смещением или отступом — это очень важно, потому что это ваша «доплата» за линию собственности вашего участка, особенно если ваше местоположение находится рядом с основными дорогами или районами, которые могут быть застроены в будущем.
Вам необходимо определить общую площадь вашего дома, чтобы определить общую стоимость проекта .
Отличается от Общая стоимость строительства , которая представляет собой общую сводку затрат на общую стоимость вашего проекта плюс другие сборы, такие как проектирование, профессиональные услуги и т. д.)
Ниже приведена разбивка, показывающая общую площадь вашего дома, которая составляет 120 м².
| Таблица 1. Общая площадь этажа (площадь здания) | |
| Процентиль общей площади участка | 60% |
| Общая площадь дома | 100 м² |
| Соотношение площади пола (например, двухэтажный дом, бунгало) | 2 |
| **Для расчетов возьмем двухэтажный дом | |
| Процентиль общей площади участка x Общая площадь дома x Коэффициент площади пола | |
| 60% x 100 м² x 2 = общая площадь пола | 120 м² |
Теперь, когда у вас есть общая площадь дома, вы можете приступить к оценке общей стоимости проекта.
Для этого примера можно предположить, что прочие расходы в общей стоимости строительства составляют 10%.
Ниже приведен пример расчета общей стоимости проекта.
| Таблица 2. Общая стоимость проекта и общая стоимость строительства только для дома без покрытия | |
| Общая площадь | 120 м² |
| Параметр Стоимость черновой отделки (от 8 000 до 10 000 руб.) | 10 000 (за м²) |
| Дизайн, профессиональные гонорары и т. д. (10%) | 10% |
| Общая площадь пола x Параметр Стоимость на м² = Общая стоимость строительства | |
| 120 м² x 10 000 = общая стоимость строительства | ₽1 200 000 |
| Общая стоимость строительства x проектирование, гонорары специалистов и т. д. (10%) = прочие гонорары | |
| ₽1 200 000 x 10% = Прочие сборы | ₽120 000 |
| Общая стоимость строительства + другие сборы = общая стоимость проекта | |
| 1 200 000 ₽ + 120 000 ₽ = Общая стоимость проекта | ₽1 320 000 |
Таким образом, строительство двухэтажного дома площадью 120 м² обойдется вам примерно в 1 320 000 ₽.
В эту сумму не входят ландшафтный дизайн, ворота или заборы и даже предоставленные владельцем материалы (OSM), такие как осветительные приборы, бытовая техника и т.п.
Если у вас есть более высокий бюджет для вашего дома, вы можете построить другие типы домов, чтобы сделать процесс более эффективным как для вас, так и для вашего подрядчика(ов).
Базовая отделка – Стандартный домОсновное различие между простыми и стандартными домами заключается в разделении и плитке.
Дом-полуфабрикат может подойти вам, если вы еще не определились с тем, как будете персонализировать свой дом.
Базовая отделка позволит вам переехать, но также даст вам больше времени для внесения изменений или корректировок в план вашего дома.
Базовая отделка на Филиппинах будет стоить от 10 000 до 13 000 ₽ за квадратный метр.
Всегда помните, что эти суммы являются приблизительными, они могут варьироваться в зависимости от предпочитаемого вами дизайна, материалов и трудозатрат.
Если вы пробовали искать дома для аренды на Филиппинах, вы обнаружите, что большинство квартир-студий обычно имеют простую отделку.
В основном для основной отделки, возможно, уже уложена керамическая или гранитная плитка; стены уже покрашены, а также установлены оконные рамы.
Потолок уже может иметь свой дизайн, такой как купол, бухта, навес, собор или кессонные потолки, и это лишь некоторые из них.
Вот пример разбивки для вас.
| Таблица 3. Общая стоимость проекта и общая стоимость строительства только для базовой отделки | |
| Общая площадь | 120 м² |
| Параметр Стоимость черновой отделки | 13 000 (за м²) |
| Дизайн, профессиональные гонорары и т. д. (10%) | 10% |
| Общая площадь пола x Параметр Стоимость на м² = Общая стоимость строительства | |
| 120 м² x 13 000 = общая стоимость строительства | ₽1 560 000 |
Общая стоимость строительства x проектирование, гонорары специалистов и т. д. (10%) = прочие гонорары | |
| ₽1 560 000 x 10% = Прочие сборы | ₽156 000 |
| Общая стоимость строительства + другие сборы = общая стоимость проекта | |
| 1 560 000 ₽ + 156 000 ₽ = Общая стоимость проекта | ₽1 716 000 |
Базовая отделка вашего двухэтажного дома площадью 120 м² обойдется вам в 1 716 000 рублей.
Благодаря этому варианту у вас теперь есть почти готовый дом со всеми основными функциями, которые могут вам понадобиться.
Сюда входят длиннопролетные кровли; наружные стены, алюминиевые рамы для дверей и окон, а также ваша ванная комната и раковина уже облицованы.
Полуэлегантная отделка – Дом в сбореЕсли вы планируете довести строительство до конца, то это лучший вариант для вас.
Полуэлегантная отделка – это уже готовый дом.
Напольное покрытие из винила, керамической плитки или однородной плитки; шкафы уже установлены и покрашены и так далее.
Не хватает только вас и ваших приборов.
Для полуэлегантной отделки стоимость исходящего параметра колеблется от 14 000 до 18 000 ₽ за квадратный метр.
В зависимости от того, где находится ваш участок на Филиппинах, вы заметите, что большинство жилых районов и построек полуэлегантны.
Внутренние подразделения дома более заметны, включая несколько спален, таких как комната для гостей, игровая и хозяйская спальня; раздвижные окна и другие сложные функции, которые вы не можете увидеть в доме со стандартной отделкой.
| Таблица 4. Общая стоимость проекта и общая стоимость строительства для Semi-Elegant | |
| Общая площадь | 120 м² |
| Параметр Стоимость черновой отделки | 18 000 (за м²) |
| Дизайн, профессиональные гонорары и т. д. (10%) | 10% |
| Общая площадь пола x Параметр Стоимость на м² = Общая стоимость строительства | |
| 120 м² x 18 000 = общая стоимость строительства | ₽2 160 000 |
Общая стоимость строительства x проектирование, гонорары специалистов и т. д. (10%) = прочие гонорары | |
| ₽2 160 000 x 10% = Прочие сборы | ₽216 000 |
| Общая стоимость строительства + другие сборы = общая стоимость проекта | |
| 2 160 000 ₽ + 216 000 ₽ = Общая стоимость проекта | ₽2 376 000 |
Теперь вы ясно видите огромную разницу между домом без отделки и целым домом.
Полуэлегантная отделка обойдется вам примерно в 2 376 000 ₽, чтобы построить двухэтажный дом площадью 120 м².
Элегантная отделка – дом мечтыЕсли бюджет не является поводом для беспокойства, и вы накопили более чем достаточно для строительства дома на Филиппинах, то вам определенно стоит выбрать дом своей мечты. №
Элегантная отделка — это больше, чем просто дом, он также обладает всеми необходимыми дополнительными функциями.
Сюда входят функции пожарной сигнализации, защитные дверные замки и все механические приспособления для роскошного дома.
Этот вид отделки будет стоить вам от 18 000 до 25 000 ₽ за квадратный метр.
Элегантная отделка образца двухэтажного дома площадью 120 м² также весьма необычна, так как это обычное дело для больших участков.
Если вы видели некоторые из их туров по домам знаменитостей в Интернете, вы можете иметь представление о том, какие элегантно отделанные дома обычно строятся на Филиппинах.
| Таблица 5. Общая стоимость проекта и общая стоимость строительства элегантной отделки | |
| Общая площадь | 120 м² |
| Параметр Стоимость черновой отделки | 25 000 (за м²) |
| Дизайн, профессиональные гонорары и т. д. (10%) | 10% |
| Общая площадь пола x Параметр Стоимость на м² = Общая стоимость строительства | |
| 120 м² x 18 000 = общая стоимость строительства | ₽3 000 000 |
Общая стоимость строительства x проектирование, гонорары специалистов и т. д. (10%) = прочие гонорары | |
| ₽3 000 000 x 10% = Прочие сборы | 300 000 ₽ |
| Общая стоимость строительства + другие сборы = общая стоимость проекта | |
| 3 000 000 ₽ + 300 000 ₽ = Общая стоимость проекта | ₽3 300 000 |
Теоретически, элегантный готовый дом на Филиппинах обойдется вам примерно в 3 300 000 ₽, чтобы построить свой двухэтажный дом площадью 120 м².
Вот и все. Это четыре распространенных варианта отделки дома, которые вы можете изучить, чтобы построить свой дом на Филиппинах.
Однако они так же важны, как и знание того, что нужно учитывать, прежде чем нанять подрядчика для строительства дома. Эти советы могут вам помочь.
Выбор подходящего подрядчика для работыВот несколько полезных советов, о которых следует помнить, прежде чем нанимать подрядчика:
Найдите лицензированного подрядчика, который может вести с вами дела на законных основаниях.

- Это даст вам уверенность в том, что профессионалы позаботятся о вашем бизнесе вместо вас.
Выберите подрядчика, специализирующегося на жилых проектах.
- Тот, у кого больше опыта в проектах того же типа, что и у вас, лучше, чем тот, у кого больше опыта в других специализациях.
Держите ваши варианты открытыми.
- Попробуйте договориться о встрече хотя бы с двумя-тремя подрядчиками и сравните их возможности, расценки и предложения.
Не отказывайтесь от своего бюджета.
- Это как выйти замуж. Если вы вложите слишком много денег в день своей свадьбы, на последующие дни у вас не останется ничего.
- Определите максимальный бюджет и стремитесь к меньшему.
- Это хороший способ привести себя в порядок и дать себе и своему подрядчику разумную скидку на непредвиденные обстоятельства.
Не продвигайтесь вперед, не заключив контракт.
- Если вам нужно читать это снова и снова, сделайте это.
Компромисс является частью ведения бизнеса. - Вы должны убедиться, что ваши деньги окупятся.
Не бойтесь задавать вопросы.
- Последнее, что вам нужно, — это несоответствие между вашими ожиданиями и видением подрядчика. Жизненно важно, чтобы вы оба продолжали двигаться вперед, находясь на одной волне.
Попросите портфолио подрядчика и проведите небольшую проверку биографических данных.
- Это также может помочь вам увидеть, на что способен ваш подрядчик.
- Вы также можете собрать идеи и сделать их источником вдохновения для улучшения ваших планов по дому.
Обязательно узнайте, кто работает в вашем доме.
- Большинство подрядчиков нанимают субподрядчиков.
- Наем субподрядчиков на самом деле является хорошей идеей, так как у них может быть больше знаний и опыта для их конкретной чашки чая.
Доверяйте процессу и доверяйте людям, которых вы выбрали для работы.

- Вы и ваш подрядчик всегда должны работать как одна команда с одной целью — построить крепкий и удивительный дом, в котором вы сможете построить свой дом.
Думай как местный.
- Всегда помните, что ваш новый дом отличается от предыдущего.
- Так или иначе, все будет по-другому.
- Попробуйте проехать по окрестностям и посмотреть, что у них общего.
- Вы также можете спросить своих будущих соседей, как обстоят дела в разное время года – спросите, что происходит в районе, когда идет дождь и т. д.
Следуйте своему чутью.
- Иногда слишком много размышлений и слишком много вариантов могут заставить ваш разум сбиться с пути.
- Будьте тверды в своих целях и планах. Принимайте необходимые решения, если это необходимо. Т
- здесь будет больше, чем просто ряд вопросов или проблем, с которыми вы столкнетесь на этом пути.
- Просто наберитесь терпения и работайте рука об руку со своим подрядчиком, чтобы решить одну проблему за раз.


Но затраты на строительство такого дома выше, чем для мансардного такой же площади, поскольку у дома будет больше размер кровли и фундамента, а значит повышаются самые затратные разделы сметы.
В любую комнату можно добраться очень быстро и лестница не станет преградой;

Но в сравнении с мансардным домом такой же площади, он будет дороже.





Это необходимо, чтобы вы были в этом начинании вместе.
Кроме того, примите во внимание любые возможные изменения финансовых обстоятельств в течение срока кредита.

д.
Фотография сделана Тошиюки Яно
Два сотрудника в окопе погибли.
Строительство было почти завершено 23 марта 2015 года, когда во время разборки обрушилась одна из рабочих площадок мачты. Мачта, поддерживающая платформу, частично обрушилась. В момент инцидента на платформе возле 9-го этажа находились четыре сотрудника.этаж. Все четверо упали на землю вместе с упавшей мачтой и платформой. Трое погибли, а четвертый упал на крышу переносного туалета и получил тяжелые травмы.
Работы по сносу начались днем ранее, но их пришлось остановить из-за опасений, что некоторые стальные балки выйдут из строя. Работы возобновились после того, как были проведены ремонтные мероприятия, рекомендованные инженерами. Эти меры оказались недостаточными, и инцидент произошел.
Оба моста были частью расширения кампуса Northern Wake, которое шло полным ходом.
Внезапно во время выступления металлический аппарат, поддерживавший исполнителей, рухнул на пол. Двое исполнителей получили тяжелые травмы. Всего пострадали девять сотрудников. Этот инцидент произошел из-за того, что карабин, используемый для поддержки исполнителей, вышел из строя из-за неправильной нагрузки.
обеих башен. Один сотрудник находился примерно в 20 футах ниже вершины более старой башни высотой 250 футов и занимался отсоединением антенны диаметром 10 футов, а другой сотрудник находился на той же башне примерно в 80 футах от вершины. Один рабочий скончался на месте, второй скончался в больнице. На месте происшествия находились еще два сотрудника, которые не пострадали.
Обрушение меньшей башни не рассматривается в этом расследовании.
Балки упали примерно на 25 футов на железнодорожные пути, принадлежащие компании Florida East Coast Railways, которая несколько раз в день обслуживает поезда, перевозящие товары по Флориде. Балки были установлены всего пару дней назад и должны были поддерживать реальную взлетно-посадочную полосу, состоящую из бетонной плиты с пост-напряжением. Один сотрудник получил легкие травмы, но вероятность гибели нескольких человек была очевидна.
Весь комплекс назывался RD Flagler Village.
Вышка сотовой связи высотой 300 футов была оборудована опорой для замены старых антенн на новые. В то время как джиновый столб высотой примерно 40 футов поднимался, оснастка блока джинного полюса внезапно вышла из строя, в результате чего погибли два рабочих, находившихся на башне.
В результате обрушения стены двое сотрудников погибли, один пострадал. Расследование и оценка были основаны на информации, предоставленной Управлением по охране труда штата Теннесси. Проект состоял из строительства одноэтажного розничного магазина Goodwill, примерно 170 футов в ширину и 180 футов в длину.
При сносе здание самопроизвольно частично обрушилось. Один сотрудник погиб, двое сотрудников получили ранения. Здание использовалось как склад и коммерческий гараж.
Кран доставлял материалы по зданию собора, пострадавшему от землетрясения. Кран опрокинулся, перевернулся и упал во всю длину. Пострадал один рабочий.
Один рабочий погиб, 18 ранены.
Конструктивная конструкция состояла из монолитных плит с односторонним натяжением и балок с постнапряжением. Колонны также были отлиты на место. На момент происшествия велась заливка бетоном 6-го этажа. Ниже третьего уровня не было повторных берегов. Один рабочий погиб, 21 ранен.
Инцидент произошел во время строительства 22-этажного многоквартирного дома. Платформа опиралась на несущий каркас, опирающийся на бетонную плиту 19-го этажа и на нижнюю сторону плиты 20-го этажа. В момент аварии на платформе находились еще трое сотрудников, но они смогли ухватиться за перила и сетку и были спасены.
Должны были быть выполнены установка горизонтальных раскосов и замена верхней 14-футовой секции новой 6-футовой башни. Бригада разместила гусеницу и опору на одной стороне башни, чтобы поднять новую антенну. Грузовой трос был прикреплен к блоку на башне примерно в тридцати футах над основанием. Когда грузовой трос был натянут, башня рухнула, в результате чего погибли три сотрудника.
Погибший рабочий оказался зажат между обрушившимся арматурным каркасом и поверхностью бетонного основания. В момент инцидента двое рабочих устанавливали горизонтальные шпалы. Скорость ветра в момент происшествия была около 25 м/с.
Два частично завершенных отсека из конструкционной стали, большинство из которых были возведены в тот же день, обрушились, в результате чего погибли три металлурга.
Разрушение произошло через 15-30 минут после того, как кран был освобожден от парных балок. В результате инцидента никто не пострадал.
Три FM-антенны уже были подняты и закреплены на верхних секциях башни. В день инцидента двое рабочих, находившихся возле верхней части башни, начали опускать шест с верхней части башни на землю. Штанга внезапно упала и ударилась о коаксиальный кабель, после чего башня рухнула. Оба рабочих, привязанные к рушащейся башне, упали на землю, в результате чего один рабочий погиб, а другой получил серьезные травмы. Конструкция башни состояла из 25 предварительно изготовленных стальных секций высотой 10 или 20 футов каждая.
Строители использовали гидравлические насосы для подачи нагрузки на временные подъемные пряди, чтобы сделать постоянное диагональное кабельное соединение с центральной фермой.
Погибли четверо строителей, занимавшихся подъемом крана, и один человек на улице под краном. Кран модели SN 355, подъемный башенный кран с подъемной стрелой, имел максимальный вылет 192 фута и максимальную грузоподъемность 17 000 фунтов с двумя тросами. Высота крана в день обрушения составляла 29 м.8 футов и состоял из 15 одинаковых секций, добавленных на разных этапах. В день инцидента велся процесс восхождения, чтобы добавить еще одну секцию башни.
Решение рабочих, занятых модернизацией башен на месте, часто оказывалось катастрофическим. (октябрь 2018 г.)
)
).