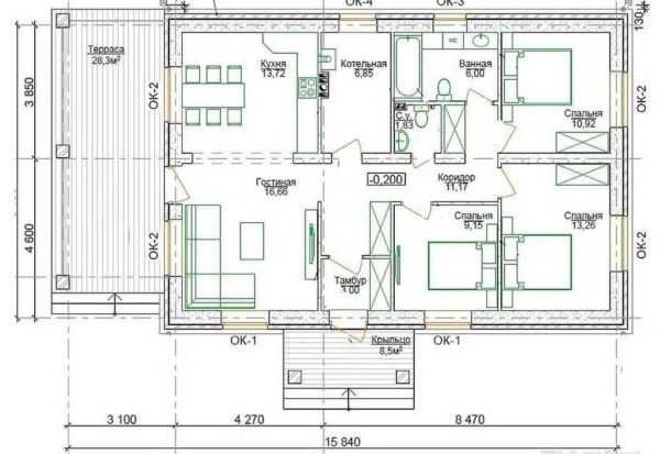
ΠΡΠΎΠ΅ΠΊΡ Π΄ΠΎΠΌΠ° ΠΎΠ΄Π½ΠΎΡΡΠ°ΠΆΠ½ΠΎΠ³ΠΎ 12 Π½Π° 12 Ρ ΡΡΠ΅ΠΌΡ Ρ ΡΠΏΠ°Π»ΡΠ½ΡΠΌΠΈ ΠΈ Π³ΠΎΡΡΠΈΠ½ΠΎΠΉ β ΠΠ»Π°Π½ΠΈΡΠΎΠ²ΠΊΠ° ΠΎΠ΄Π½ΠΎΡΡΠ°ΠΆΠ½ΠΎΠ³ΠΎ Π΄ΠΎΠΌΠ° 12 Π½Π° 12 Ρ ΡΡΠ΅ΠΌΡ ΡΠΏΠ°Π»ΡΠ½ΡΠΌΠΈ: ΡΠ°Π·Π»ΠΈΡΠ½ΡΠ΅ Π²Π°ΡΠΈΠ°Π½ΡΡ ΠΏΡΠΎΠ΅ΠΊΡΠΎΠ²
ΠΠ»Π°Π½ΠΈΡΠΎΠ²ΠΊΠ° ΠΎΠ΄Π½ΠΎΡΡΠ°ΠΆΠ½ΠΎΠ³ΠΎ Π΄ΠΎΠΌΠ° 12 Π½Π° 12 Ρ ΡΡΠ΅ΠΌΡ ΡΠΏΠ°Π»ΡΠ½ΡΠΌΠΈ: ΡΠ°Π·Π»ΠΈΡΠ½ΡΠ΅ Π²Π°ΡΠΈΠ°Π½ΡΡ ΠΏΡΠΎΠ΅ΠΊΡΠΎΠ²
ΠΠ»Π°Π½ΠΈΡΠΎΠ²ΠΊΡ ΠΎΠ΄Π½ΠΎΡΡΠ°ΠΆΠ½ΠΎΠ³ΠΎ Π΄ΠΎΠΌΠ° 12 Π½Π° 12 Ρ ΡΡΠ΅ΠΌΡ ΡΠΏΠ°Π»ΡΠ½ΡΠΌΠΈ ΡΠ°ΡΡΠΎ Π²ΡΠ±ΠΈΡΠ°ΡΡ ΡΠ΅ΠΌΡΠΈ Ρ Π΄Π΅ΡΡΠΌΠΈ. Π’Π°ΠΊΠΎΠ΅ ΠΆΠΈΠ»ΡΠ΅ ΠΏΠΎΠ΄ΠΎΠΉΠ΄Π΅Ρ Π΄Π»Ρ ΠΆΠΈΠ»ΡΡΠΎΠ² ΠΏΠΎΠΆΠΈΠ»ΠΎΠ³ΠΎ Π²ΠΎΠ·ΡΠ°ΡΡΠ°, ΠΌΠ°Π»ΠΎΠΏΠΎΠ΄Π²ΠΈΠΆΠ½ΡΡ ΠΈ Ρ ΠΎΠ³ΡΠ°Π½ΠΈΡΠ΅Π½Π½ΡΠΌΠΈ Π²ΠΎΠ·ΠΌΠΎΠΆΠ½ΠΎΡΡΡΠΌΠΈ. Π Π΄ΠΎΠΌΠ΅ Π½Π΅Ρ Π»Π΅ΡΡΠ½ΠΈΡ, ΠΏΠΎΡΡΠΎΠΌΡ ΠΏΠ΅ΡΠ΅ΠΌΠ΅ΡΠ΅Π½ΠΈΠ΅ ΠΌΠ°ΠΊΡΠΈΠΌΠ°Π»ΡΠ½ΠΎ Π±Π΅Π·ΠΎΠΏΠ°ΡΠ½ΠΎ.
ΠΠ±ΡΠΈΠ΅ ΠΏΡΠΈΠ½ΡΠΈΠΏΡ ΠΏΠ»Π°Π½ΠΈΡΠΎΠ²ΠΊΠΈ
ΠΠ΅ΠΎΠ±Ρ ΠΎΠ΄ΠΈΠΌΠΎ Π² ΠΏΠ»Π°Π½Π΅ ΠΎΠ΄Π½ΠΎΡΡΠ°ΠΆΠ½ΠΎΠ³ΠΎ Π΄ΠΎΠΌΠ° Ρ ΡΡΠ΅ΠΌΡ ΡΠΏΠ°Π»ΡΠ½ΡΠΌΠΈ ΡΡΠ΅ΡΡΡ ΡΠ»Π΅Π΄ΡΡΡΠΈΠ΅ Π½ΡΠ°Π½ΡΡ:
- ΠΡΠ»ΠΈ Π² ΡΠ΅Π³ΠΈΠΎΠ½Π΅ Ρ ΠΎΠ»ΠΎΠ΄Π½ΡΠ΅ Π·ΠΈΠΌΡ, ΡΠ»Π΅Π΄ΡΠ΅Ρ Π·Π°Π΄ΡΠΌΠ°ΡΡΡΡ ΠΎ ΡΠ°ΠΌΠ±ΡΡΠ΅. Π’ΠΎΠ³Π΄Π° ΠΌΠΎΡΠΎΠ·Π½ΡΠΉ Π²ΠΎΠ·Π΄ΡΡ Π½Π΅ ΡΡΠ°Π½Π΅Ρ ΠΏΡΠΎΠ½ΠΈΠΊΠ°ΡΡ Π² ΡΡΠΈ ΠΆΠΈΠ»ΡΠ΅ ΠΊΠΎΠΌΠ½Π°ΡΡ ΠΏΡΠΈ ΠΊΠ°ΠΆΠ΄ΠΎΠΌ ΠΎΡΠΊΡΡΡΠΈΠΈ Π΄Π²Π΅ΡΠΈ. ΠΡΠ»ΠΈ ΠΎΠ½ Π½Π΅ Π²ΠΏΠΈΡΡΠ²Π°Π΅ΡΡΡ Π² ΡΡΠ΅Π½Ρ, ΡΡΠΎΠΈΡ Π΅Π³ΠΎ Π²ΡΠ½Π΅ΡΡΠΈ, ΡΠΎΠ·Π΄Π°Π² ΠΏΡΠΈΡΡΡΠΎΠΉΠΊΡ;
- ΠΡΠ΅ ΠΊΠΎΠΌΠ½Π°ΡΡ, Π³Π΄Π΅ Π½ΡΠΆΠ½ΠΎ ΠΏΡΠΎΠ²ΠΎΠ΄ΠΈΡΡ Π²ΠΎΠ΄Ρ (ΠΊΠΎΡΠ΅Π»ΡΠ½Π°Ρ, ΡΠ°Π½ΡΠ·Π΅Π», ΠΎΠ±Π΅Π΄Π΅Π½Π½Π°Ρ Π·ΠΎΠ½Π°), Π΄ΠΎΠ»ΠΆΠ½Ρ Π½Π°Ρ ΠΎΠ΄ΠΈΡΡΡΡ ΡΡΠ΄ΠΎΠΌ. Π’Π°ΠΊ ΠΌΠΎΠΆΠ½ΠΎ ΡΡΠΊΠΎΠ½ΠΎΠΌΠΈΡΡ Π·Π° ΡΡΠ΅Ρ ΠΌΠ΅Π½ΡΡΠ΅Π³ΠΎ ΠΊΠΎΠ»ΠΈΡΠ΅ΡΡΠ²Π° ΠΌΠ°ΡΠ΅ΡΠΈΠ°Π»ΠΎΠ²;
- ΠΡΠ»ΠΈ Π² Π·Π΄Π°Π½ΠΈΠΈ ΡΠ΅ΡΡΡΠ΅ ΠΈ Π±ΠΎΠ»Π΅Π΅ ΠΆΠΈΠ»ΡΡΠ°, Π»ΡΡΡΠ΅ ΠΏΡΠ΅Π΄ΡΡΠΌΠΎΡΡΠ΅ΡΡ Π΄Π²Π° ΡΠ°Π½ΡΠ·Π»Π°. ΠΠΎΠΆΠ½ΠΎ ΡΠ΄Π΅Π»Π°ΡΡ ΠΎΠ΄ΠΈΠ½ ΠΈΠ· Π½ΠΈΡ ΠΌΠ°Π»Π΅Π½ΡΠΊΠΈΠΌ, ΠΏΠΎΡΡΠ°Π²ΠΈΠ² ΡΠΎΠ»ΡΠΊΠΎ ΡΠ°ΠΊΠΎΠ²ΠΈΠ½Ρ ΠΈ ΡΠ½ΠΈΡΠ°Π·. ΠΡΠΎ ΡΠ΄ΠΎΠ±Π½ΠΎ, Π΄Π°ΠΆΠ΅ Π΅ΡΠ»ΠΈ ΠΎΠ½ΠΈ Π±ΡΠ΄ΡΡ Π½Π°Ρ ΠΎΠ΄ΠΈΡΡΡΡ ΡΡΠ΄ΠΎΠΌ;
- ΠΠ»Ρ ΠΊΠΎΡΠ»Π° ΠΏΠΎΡΡΠ΅Π±ΡΠ΅ΡΡΡ ΠΊΠΎΡΠ΅Π»ΡΠ½Π°Ρ. ΠΠ»Π°Π²Π½ΠΎΠ΅ ΡΡΠ΅ΡΡΡ, ΡΡΠΎ ΠΏΡΠΈ Π²ΡΡΠΎΡΠ΅ ΠΏΠΎΡΠΎΠ»ΠΊΠΎΠ² Π½Π΅ ΠΌΠ΅Π½ΡΡΠ΅ 3 ΠΌ, ΠΎΠ±ΡΠ΅ΠΌ ΠΊΠΎΠΌΠ½Π°ΡΡ Π΄ΠΎΠ»ΠΆΠ΅Π½ ΡΠΎΡΡΠ°Π²Π»ΡΡΡ Π½Π΅ ΠΌΠ΅Π½ΡΡΠ΅ 15 ΠΊΡΠ±. ΠΌ. ΠΠ°ΠΆΠ½ΠΎ ΠΏΡΠ΅Π΄ΡΡΠΌΠΎΡΡΠ΅ΡΡ Π½Π°Π»ΠΈΡΠΈΠ΅ ΠΎΠΊΠ½Π°;
- ΠΠΎΠΊΠ°Π»ΠΈΠ·Π°ΡΠΈΡ ΠΊΡΡΠΏΠ½ΠΎΠΉ ΠΌΠ΅Π±Π΅Π»ΠΈ Π½ΡΠΆΠ½ΠΎ ΡΡΠ΅ΡΡΡ Π½Π° ΡΠ΅ΡΡΠ΅ΠΆΠ΅ Π·Π°ΡΠ°Π½Π΅Π΅. ΠΡΠΎ ΡΠΊΠ°ΡΡ ΠΈ ΠΊΡΠΎΠ²Π°ΡΠΈ Π² ΡΠΏΠ°Π»ΡΠ½ΡΡ , ΠΌΠΎΠΉΠΊΠ° ΠΈ ΠΌΠ΅Π±Π΅Π»Ρ Π² ΠΎΠ±Π΅Π΄Π΅Π½Π½ΠΎΠΉ Π·ΠΎΠ½Π΅.
ΠΡΠΈ Π½ΡΠ°Π½ΡΡ ΡΠ»Π΅Π΄ΡΠ΅Ρ ΡΡΠΈΡΡΠ²Π°ΡΡ ΠΏΡΠΈ ΠΏΠ»Π°Π½ΠΈΡΠΎΠ²ΠΊΠ΅, Π½ΠΎ ΠΏΡΠΈ Π½Π΅ΠΎΠ±Ρ ΠΎΠ΄ΠΈΠΌΠΎΡΡΠΈ ΠΌΠΎΠΆΠ½ΠΎ ΡΠΊΠΎΡΡΠ΅ΠΊΡΠΈΡΠΎΠ²Π°ΡΡ. Π Π΅ΡΠ΅Π½ΠΈΡ Π½Π°Ρ ΠΎΠ΄ΡΡΡΡ ΡΠ°Π·Π½ΡΠ΅ ΠΏΠΎΠ΄ ΠΊΠΎΠ½ΠΊΡΠ΅ΡΠ½ΡΠ΅ Π·Π°ΠΏΡΠΎΡΡ, Π²ΠΊΡΡΡ ΠΈ ΡΠΈΠ½Π°Π½ΡΡ.
Π§Π°ΡΡΠΎ ΠΏΡΠΎΠ΅ΠΊΡΡ ΠΎΠ΄Π½ΠΎΡΡΠ°ΠΆΠ½ΡΡ Π΄ΠΎΠΌΠΎΠ² Ρ ΡΡΠ΅ΠΌΡ ΡΠΏΠ°Π»ΡΠ½ΡΠΌΠΈ ΠΏΠ»Π°Π½ΠΈΡΡΡΡ ΡΠ°ΠΊ, ΡΡΠΎ Π²ΡΠ΅ ΠΆΠΈΠ»ΡΠ΅ ΠΊΠΎΠΌΠ½Π°ΡΡ ΡΠ°ΡΠΏΠΎΠ»Π°Π³Π°ΡΡΡΡ Π½Π° ΠΎΠ΄Π½ΠΎΠΉ ΡΡΠΎΡΠΎΠ½Π΅ ΠΏΠΎΡΡΡΠΎΠΉΠΊΠΈ. ΠΡΠΎ ΡΠ΄ΠΎΠ±Π½ΠΎ ΡΠ΅ΠΌ, ΡΡΠΎ ΡΡΠΌ ΠΈΠ· ΠΎΠ±Π΅Π΄Π΅Π½Π½ΠΎΠΉ Π·ΠΎΠ½Ρ ΠΈ Π³ΠΎΡΡΠΈΠ½ΠΎΠΉ Π½Π΅ ΠΌΠ΅ΡΠ°Π΅Ρ ΠΎΡΠ΄ΡΡ Π°ΡΡ Π² ΡΠΏΠ°Π»ΡΠ½Π΅. ΠΠΎΡΠΈΠ΄ΠΎΡ ΡΠΎΠ΅Π΄ΠΈΠ½ΡΠ΅Ρ Π²ΡΠ΅ ΠΏΠΎΠΌΠ΅ΡΠ΅Π½ΠΈΡ, ΠΏΠΎΡΡΠΎΠΌΡ ΠΏΡΠΎΡ ΠΎΠ΄Π½ΡΠ΅ ΠΏΠΎΠΌΠ΅ΡΠ΅Π½ΠΈΡ ΠΎΡΡΡΡΡΡΠ²ΡΡΡ.

ΠΠ΅ΠΊΠΎΡΠΎΡΡΠ΅ Π»ΡΠ΄ΠΈ Π½Π΅ ΠΆΠ΅Π»Π°ΡΡ ΡΠ°ΡΠΏΠΎΠ»Π°Π³Π°ΡΡ ΡΠ²ΠΎΡ ΡΠΏΠ°Π»ΡΠ½Ρ ΡΡΠ΄ΠΎΠΌ Ρ Π΄Π΅ΡΡΠΊΠΎΠΉ. ΠΠ΅ΠΎΠ±Ρ ΠΎΠ΄ΠΈΠΌΠΎ ΠΎΠΏΡΠ΅Π΄Π΅Π»ΠΈΡΡΡΡ, ΡΡΠ΄ΠΎΠΌ Π±ΡΠ΄ΡΡ Π½Π°Ρ ΠΎΠ΄ΠΈΡΡΡΡ Π΄Π΅ΡΠΈ ΠΈΠ»ΠΈ ΡΠ»Π΅Π΄ΡΠ΅Ρ ΠΈΡ ΡΠΏΠ°Π»ΡΠ½Ρ ΡΠΏΠ»Π°Π½ΠΈΡΠΎΠ²Π°ΡΡ ΠΏΠΎΠ΄Π°Π»ΡΡΠ΅ Π΄Π»Ρ Π±ΠΎΠ»Π΅Π΅ ΠΊΠΎΠΌΡΠΎΡΡΠ½ΠΎΠ³ΠΎ ΠΏΡΠΎΠΆΠΈΠ²Π°Π½ΠΈΡ.
ΠΡΠ»ΠΈ ΠΏΠ»ΠΎΡΠ°Π΄Ρ ΠΎΠ΄Π½ΠΎΡΡΠ°ΠΆΠ½ΠΎΠ³ΠΎ Π·Π΄Π°Π½ΠΈΡ ΠΎΠ³ΡΠ°Π½ΠΈΡΠ΅Π½Π°, ΠΌΠΎΠΆΠ½ΠΎ ΡΠΏΠ»Π°Π½ΠΈΡΠΎΠ²Π°ΡΡ ΠΏΡΠΈΡΡΡΠΎΠΉΠΊΡ Π΄ΠΎΠΏΠΎΠ»Π½ΠΈΡΠ΅Π»ΡΠ½ΡΡ ΠΊΠΎΠΌΠ½Π°Ρ. ΠΡΠΎ Ρ ΠΎΠ·ΡΠΉΡΡΠ²Π΅Π½Π½ΡΠ΅ Π±Π»ΠΎΠΊΠΈ ΠΈΠ»ΠΈ ΡΠ΅ΡΡΠ°ΡΠ° Π΄Π»Ρ ΠΎΡΠ΄ΡΡ Π°. ΠΠ»Ρ Ρ ΠΎΡΠΎΡΠ΅ΠΉ ΠΎΡΠ²Π΅ΡΠ΅Π½Π½ΠΎΡΡΠΈ ΡΡΠΎΠΈΡ ΠΏΡΠ΅Π΄ΡΡΠΌΠΎΡΡΠ΅ΡΡ, ΡΡΠΎΠ±Ρ ΡΠ΅ΡΡΠ°ΡΠ° Π²ΡΡ ΠΎΠ΄ΠΈΠ»Π° Π½Π° ΡΠ³ ΠΈΠ»ΠΈ Π½Π° Π²ΠΎΡΡΠΎΠΊ. ΠΠ°ΠΆΠ½ΠΎ ΡΠΏΠ»Π°Π½ΠΈΡΠΎΠ²Π°ΡΡ ΡΠ΄ΠΎΠ±Π½ΡΠΉ ΠΏΡΠΎΡ ΠΎΠ΄, ΠΎΠ±ΡΡΠ½ΠΎ Π΅Π³ΠΎ Π΄Π΅Π»Π°ΡΡ ΠΈΠ· Π³ΠΎΡΡΠΈΠ½ΠΎΠΉ.
Π§ΡΠΎΠ±Ρ ΡΡΡΠ΅ΠΊΡΠΈΠ²Π½ΠΎ ΡΠ°ΡΡΠΈΡΠΈΡΡ ΠΏΠΎΠ»Π΅Π·Π½ΠΎΠ΅ ΠΏΡΠΎΡΡΡΠ°Π½ΡΡΠ²ΠΎ, ΠΏΠΎΡΡΠ΅Π±ΡΠ΅ΡΡΡ ΠΎΠ±ΡΠ΅Π΄ΠΈΠ½ΠΈΡΡ Π½Π΅ΠΊΠΎΡΠΎΡΡΠ΅ Π·ΠΎΠ½Ρ, ΡΠ±ΡΠ°Π² ΡΡΠ΅Π½Ρ. Π‘Π»Π΅Π΄ΡΠ΅Ρ ΠΏΠ΅ΡΠ΅Π΄ ΡΡΠΈΠΌ ΠΎΡΠ΅Π½ΠΈΡΡ ΠΏΠ»ΠΎΡΠ°Π΄Ρ ΠΏΠΎΠΌΠ΅ΡΠ΅Π½ΠΈΠΉ, ΠΎΠΏΡΠ΅Π΄Π΅Π»ΠΈΠ² ΠΊΠΎΠΌΠ½Π°ΡΡ, ΠΊΠΎΡΠΎΡΡΠ΅ ΠΌΠΎΠΆΠ½ΠΎ ΡΠΎΠ²ΠΌΠ΅ΡΡΠΈΡΡ. Π§Π°ΡΡΠΎ ΠΎΠ±ΡΠ΅Π΄ΠΈΠ½ΡΡΡ Π³ΠΎΡΡΠΈΠ½ΡΡ ΠΈ ΠΊΡΡ Π½Ρ. ΠΡΠΏΠΎΠ»ΡΠ·ΡΡΡ Π΄Π»Ρ ΡΠ°ΡΡΠΈΡΠ΅Π½ΠΈΡ ΠΏΡΠΎΡΡΡΠ°Π½ΡΡΠ²Π° Π΄ΠΎΠΌΠ° Ρ ΡΡΠ΅ΠΌΡ ΠΆΠΈΠ»ΡΠΌΠΈ Π·ΠΎΠ½Π°ΠΌΠΈ ΠΊΡΡΡΡ, ΠΊΠΎΡΠΎΡΠ°Ρ ΠΈΠ³ΡΠ°Π΅Ρ ΡΠΎΠ»Ρ ΡΠ΅ΡΠ΄Π°ΠΊΠ°.
ΠΠ΅ΡΠ΅Π΄ ΡΡΡΠΎΠΈΡΠ΅Π»ΡΡΡΠ²ΠΎΠΌ ΠΎΠ΄Π½ΠΎΡΡΠ°ΠΆΠ½ΠΎΠ³ΠΎ ΠΆΠΈΠ»ΡΡ Ρ ΡΡΠ΅ΠΌΡ ΡΠΏΠ°Π»ΡΠ½ΡΠΌΠΈ ΡΠ»Π΅Π΄ΡΠ΅Ρ ΡΡΠ΅ΡΡΡ Π½ΡΠ°Π½ΡΡ ΠΏΡΠΎΠ΅ΠΊΡΠΈΡΠΎΠ²Π°Π½ΠΈΡ ΠΊΠ°ΠΆΠ΄ΠΎΠ³ΠΎ ΠΏΠΎΠΌΠ΅ΡΠ΅Π½ΠΈΡ:
- Π Π°Π·ΠΌΠ΅Ρ ΠΏΡΠΎΡΡΡΠ°Π½ΡΡΠ²Π°, Π²ΡΠΏΠΎΠ»Π½ΡΡΡΠ΅Π³ΠΎ ΡΠΎΠ»Ρ Π³ΠΎΡΡΠΈΠ½ΠΎΠΉ ΡΠ°ΡΡΡΠΈΡΡΠ²Π°ΡΡ Π² Π·Π°Π²ΠΈΡΠΈΠΌΠΎΡΡΠΈ ΠΎΡ ΠΊΠΎΠ»ΠΈΡΠ΅ΡΡΠ²Π° ΠΆΠΈΠ»ΡΡΠΎΠ² ΠΈ Π²ΠΎΠ·ΠΌΠΎΠΆΠ½ΡΡ Π³ΠΎΡΡΠ΅ΠΉ;
- ΠΠ»ΠΎΡΠ°Π΄Ρ ΠΊΡΡ Π½ΠΈ Π·Π°Π²ΠΈΡΠΈΡ ΠΎΡ ΠΏΠ»Π°Π½ΠΈΡΡΠ΅ΠΌΠΎΠΉ ΡΠ΅Ρ Π½ΠΈΠΊΠΈ ΠΈ ΠΌΠ΅Π±Π΅Π»ΠΈ;
- Π ΡΠΏΠ°Π»ΡΠ½Π΅ Π½ΡΠΆΠ½ΠΎ ΠΎΡΡΠ°Π²ΠΈΡΡ ΡΡΠ°ΡΡΠΎΠΊ Π΄Π»Ρ Π³Π°ΡΠ΄Π΅ΡΠΎΠ±Π½ΠΎΠΉ. ΠΠ½ΠΎΠ³Π΄Π° Π³Π°ΡΠ΄Π΅ΡΠΎΠ±Π½ΡΡ Π΄Π΅Π»Π°ΡΡ ΠΏΡΠΈ Π²Ρ ΠΎΠ΄Π΅. Π Π°Π·ΠΌΠ΅ΡΡ ΡΠΏΠ°Π»Π΅Π½ ΠΌΠΎΠΆΠ½ΠΎ ΡΠ²Π΅Π»ΠΈΡΠΈΡΡ, ΡΠΌΠ΅Π½ΡΡΠΈΠ² Π΄ΡΡΠ³ΠΈΠ΅ ΠΊΠΎΠΌΠ½Π°ΡΡ, Π½Π°ΠΏΡΠΈΠΌΠ΅Ρ, ΠΊΠΎΡΠ΅Π»ΡΠ½ΡΡ;
- ΠΠΎΡΠ΅Π»ΡΠ½ΡΡ ΠΏΠ»Π°Π½ΠΈΡΡΡΡ, ΡΡΠΈΡΡΠ²Π°Ρ ΠΌΠΎΡΠ½ΠΎΡΡΡ ΠΎΡΠΎΠΏΠ»Π΅Π½ΠΈΡ ΠΈ ΡΠ΅Ρ Π½ΠΈΡΠ΅ΡΠΊΠΈΠ΅ Ρ Π°ΡΠ°ΠΊΡΠ΅ΡΠΈΡΡΠΈΠΊΠΈ.
ΠΠ²ΡΠΊΠΎΠΈΠ·ΠΎΠ»ΡΡΠΈΠΈ Π½ΡΠΆΠ½ΠΎ ΡΠ΄Π΅Π»ΠΈΡΡ ΠΎΡΠΎΠ±ΠΎΠ΅ Π²Π½ΠΈΠΌΠ°Π½ΠΈΠ΅, ΠΈΠ½Π°ΡΠ΅ ΠΎΡΠ΄ΡΡ Π² ΠΎΠ΄Π½ΠΎΡΡΠ°ΠΆΠ½ΠΎΠΌ Π΄ΠΎΠΌΠ΅ Π±ΡΠ΄Π΅Ρ Π·Π°ΡΡΡΠ΄Π½ΠΈΡΠ΅Π»Π΅Π½. Π Π΅ΡΠ°Π΅ΡΡΡ Π²ΠΎΠΏΡΠΎΡ Π½Π° ΡΡΠ°ΠΏΠ΅ ΠΏΡΠΎΠ΅ΠΊΡΠΈΡΠΎΠ²Π°Π½ΠΈΡ β Π·Π°ΠΊΠ»Π°Π΄ΡΠ²Π°Π΅ΡΡΡ ΡΡΠΌΠΎΠΈΠ·ΠΎΠ»ΡΡΠΈΠΎΠ½Π½ΡΠΉ ΡΠ»ΠΎΠΉ.
Π Π°ΡΠΏΡΠΎΡΡΡΠ°Π½Π΅Π½Π½ΡΠ΅ ΠΏΡΠΎΠ΅ΠΊΡΡ
ΠΡΠΈ ΠΏΡΠΎΠ΅ΠΊΡΠΈΡΠΎΠ²Π°Π½ΠΈΠΈ ΠΎΠ΄Π½ΠΎΡΡΠ°ΠΆΠ½ΠΎΠ³ΠΎ Π΄ΠΎΠΌΠ° ΡΡΠΈ ΡΠΏΠ°Π»ΡΠ½ΠΈ ΠΌΠΎΠ³ΡΡ ΡΠ°ΡΠΏΠΎΠ»ΠΎΠΆΠΈΡΡ ΡΡΠ΄ΠΎΠΌ, Π½ΠΎ ΠΈΠ½ΠΎΠ³Π΄Π° Π΄Π΅ΡΡΠΊΡΡ ΠΏΠ»Π°Π½ΠΈΡΡΡΡ ΠΎΡΠ΄Π΅Π»ΡΠ½ΠΎ. Π§Π°ΡΡΠΎ ΠΏΡΠΈ ΠΏΠ»Π°Π½ΠΈΡΠΎΠ²ΠΊΠ΅ Π΄ΠΎΠΌΠ° Π²ΠΎΠ·Π²ΠΎΠ΄ΡΡ ΡΠ΅ΡΡΠ°ΡΡ Π΄Π»Ρ ΡΠ²Π΅Π»ΠΈΡΠ΅Π½ΠΈΡ ΠΏΡΠΎΡΡΡΠ°Π½ΡΡΠ²Π°, ΠΎΡΠ²ΠΎΠ΄ΡΡ ΠΌΠ΅ΡΡΠΎ Π΄Π»Ρ Π³Π°ΡΠ°ΠΆΠ° ΠΈΠ»ΠΈ Π°Π²ΡΠΎΠ½Π°Π²Π΅ΡΠ°. ΠΡΡΡ ΠΌΠ½ΠΎΠ³ΠΎ Π²Π°ΡΠΈΠ°Π½ΡΠΎΠ², ΠΊΠΎΡΠΎΡΡΠ΅ Π·Π°Π²ΠΈΡΡΡ ΠΎΡ ΠΏΡΠ΅Π΄ΠΏΠΎΡΡΠ΅Π½ΠΈΠΉ ΠΈ ΡΠΈΠ½Π°Π½ΡΠΎΠ²ΡΡ Π²ΠΎΠ·ΠΌΠΎΠΆΠ½ΠΎΡΡΠ΅ΠΉ Ρ ΠΎΠ·ΡΠ΅Π².
ΠΡΠ»ΠΈ ΠΏΠ»Π°Π½ΠΈΡΡΠ΅ΡΡΡ ΡΠ°Π·ΠΌΠ΅ΡΠ΅Π½ΠΈΠ΅ Π³Π°ΡΠ°ΠΆΠ°, Π»ΡΡΡΠ΅ Π²Π½Π΅ΡΡΠΈ ΠΊΠΎΡΡΠ΅ΠΊΡΠΈΠ²Ρ Π² ΠΏΠ»Π°Π½ΠΈΡΠΎΠ²ΠΊΡ, ΡΡΠΎΠ±Ρ Π²Ρ ΠΎΠ΄Π½Π°Ρ Π΄Π²Π΅ΡΡ Π½Π°Ρ ΠΎΠ΄ΠΈΠ»Π°ΡΡ Π±Π»ΠΈΠΆΠ΅ ΠΊ ΡΡΠΎΡΠ½ΠΊΠ΅. Π’ΠΎΠ³Π΄Π° ΡΠ΄Π°ΡΡΡΡ ΡΠΎΠ΅Π΄ΠΈΠ½ΠΈΡΡ Π½Π°Π²Π΅Ρ ΠΊΡΡΠ»ΡΡΠ° ΠΈ ΡΡΠΎΡΠ½ΠΊΠΈ. ΠΠΎΠΆΠ½ΠΎ ΠΏΡΠ΅Π΄ΡΡΠΌΠΎΡΡΠ΅ΡΡ ΠΌΠ΅ΡΡΠΎ ΠΏΠΎΠ΄ Π΄Π²Π° Π°Π²ΡΠΎΠΌΠΎΠ±ΠΈΠ»Ρ. ΠΠ°ΠΆΠ΅ Π΅ΡΠ»ΠΈ ΠΌΠ°ΡΠΈΠ½Π° Π² ΡΠ΅ΠΌΡΠ΅ ΠΎΠ΄Π½Π°, ΡΡΠΎΡ ΡΡΠ°ΡΡΠΎΠΊ ΠΏΡΠΈΠ³ΠΎΠ΄ΠΈΡΡΡ Π΄Π»Ρ Π³ΠΎΡΡΠ΅ΠΉ. Π Π°ΡΡ ΠΎΠ΄ Π½Π° ΡΡΡΠΎΠΈΡΠ΅Π»ΡΡΡΠ²ΠΎ Π½Π΅ Π±ΡΠ΄Π΅Ρ Π½Π°ΠΌΠ½ΠΎΠ³ΠΎ Π²ΡΡΠ΅.
ΠΠΎΠ΄ Π½Π°Π²Π΅ΡΠΎΠΌ ΠΌΠΎΠΆΠ½ΠΎ ΠΎΠ±ΡΡΡΡΠΎΠΈΡΡ Π·ΠΎΠ½Ρ Π΄Π»Ρ Ρ ΡΠ°Π½Π΅Π½ΠΈΡ ΠΈΠ½Π²Π΅Π½ΡΠ°ΡΡ, Π·Π°ΠΏΠ°ΡΠ° ΡΡΡ ΠΈΡ Π΄ΡΠΎΠ². ΠΠΏΡΠΈΠΌΠ°Π»ΡΠ½ΡΠΉ ΡΠ°Π·ΠΌΠ΅Ρ ΡΡΠΎΠ³ΠΎ ΡΡΠ°ΡΡΠΊΠ° β 8Ρ 9 ΠΌ. ΠΠΈΠ½ΠΈΠΌΠ°Π»ΡΠ½ΡΠ΅ Π³Π°Π±Π°ΡΠΈΡΡ β ΡΡΠΎ Π½Π° 2 ΠΌ ΡΠΈΡΠ΅ ΠΈ Π½Π° 1,5 ΠΌ Π΄Π»ΠΈΠ½Π½Π΅Π΅ ΠΌΠ°ΡΠΈΠ½Ρ. ΠΡΠ»ΠΈ ΡΠΏΠ°Π»ΡΠ½Ρ Π²Π·ΡΠΎΡΠ»ΡΡ Π½ΡΠΆΠ½ΠΎ ΡΠ°ΡΠΏΠΎΠ»ΠΎΠΆΠΈΡΡ Π½Π° ΡΠ°ΡΡΡΠΎΡΠ½ΠΈΠΈ ΠΎΡ Π΄Π΅ΡΡΠΊΠΈΡ , Π»ΡΡΡΠ΅ Π²ΡΠ±ΡΠ°ΡΡ Π²ΡΡΡΠ½ΡΡΡΡ ΠΏΡΡΠΌΠΎΡΠ³ΠΎΠ»ΡΠ½ΡΡ ΡΠΎΡΠΌΡ Π·Π΄Π°Π½ΠΈΡ.
1 ΠΏΡΠΎΠ΅ΠΊΡ

ΠΠ΄Π½ΠΎΡΡΠ°ΠΆΠ½ΡΠΉ ΠΏΡΠΎΠ΅ΠΊΡ Π΄ΠΎΠΌΠ° Ρ 3 ΡΠΏΠ°Π»ΡΠ½ΡΠΌΠΈ ΠΏΠ»ΠΎΡΠ°Π΄ΡΡ 111 ΠΊΠ². ΠΌ. ΠΠΎΠΌ Π΄Π»Ρ ΠΎΠ΄Π½ΠΎΠΉ ΡΠ΅ΠΌΡΠΈ, Π±Π΅Π· ΠΏΠΎΠ΄Π²Π°Π»Π° ΠΈ ΡΠΎΠΊΠΎΠ»Ρ. Π Π·Π΄Π°Π½ΠΈΠΈ Π΅ΡΡΡ ΠΊΡΡ Π½Ρ, ΡΠΎΠ²ΠΌΠ΅ΡΠ΅Π½Π½Π°Ρ Ρ Π³ΠΎΡΡΠΈΠ½ΠΎΠΉ, Π²Π°Π½Π½Π°Ρ, Π³Π°ΡΠ΄Π΅ΡΠΎΠ±Π½Π°Ρ ΠΈ ΠΊΠΎΡΠ΅Π»ΡΠ½Π°Ρ.
2 ΠΏΡΠΎΠ΅ΠΊΡ

Π ΠΊΠΎΡΡΠ΅Π΄ΠΆΠ΅ 12Ρ 12 Ρ ΠΎΠ΄Π½ΠΈΠΌ ΡΡΠ°ΠΆΠΎΠΌ ΡΡΠΈ ΠΆΠΈΠ»ΡΠ΅ ΠΊΠΎΠΌΠ½Π°ΡΡ ΡΠ°ΡΠΏΠΎΠ»Π°Π³Π°ΡΡΡΡ ΡΡΠ΄ΠΎΠΌ. ΠΠ° ΠΏΡΠΎΡΠΈΠ²ΠΎΠΏΠΎΠ»ΠΎΠΆΠ½ΠΎΠΉ ΡΡΠΎΡΠΎΠ½Π΅ β ΠΊΡΡ Π½Ρ-ΡΡΠΎΠ»ΠΎΠ²Π°Ρ ΠΈ Π³ΠΎΡΡΠΈΠ½Π°Ρ, Π² ΡΠ΅Π½ΡΡΠ΅ β Π²Π°Π½Π½Π°Ρ, Ρ ΠΎΠ»Π», ΡΠ°ΠΌΠ±ΡΡ Π½Π΅Π±ΠΎΠ»ΡΡΠΈΡ ΡΠ°Π·ΠΌΠ΅ΡΠΎΠ².
3 ΠΏΡΠΎΠ΅ΠΊΡ

Π ΠΎΠ΄Π½ΠΎΡΡΠ°ΠΆΠ½ΠΎΠΌ Π·Π΄Π°Π½ΠΈΠΈ 12Ρ 12 ΡΡΠΈ ΠΆΠΈΠ»ΡΡ ΠΏΠΎΠΌΠ΅ΡΠ΅Π½ΠΈΡ, Π΄Π²Π° ΠΈΠ· Π½ΠΈΡ ΠΎΡΠ΄Π΅Π»Π΅Π½Ρ Π²Π°Π½Π½ΠΎΠΉ, Π΄Π²Π° ΡΠ°ΡΠΏΠΎΠ»ΠΎΠΆΠ΅Π½Ρ Π²ΠΎΠ·Π»Π΅ Π΄ΡΡΠ³ Π΄ΡΡΠ³Π°. ΠΠΎΡΡΠΈΠ½Π°Ρ ΠΎΠ±ΡΠ΅Π΄ΠΈΠ½Π΅Π½Π° Ρ ΠΊΡΡ Π½Π΅ΠΉ, ΡΡΠ΄ΠΎΠΌ Ρ ΠΎΠ»Π», ΡΠ°ΠΌΠ±ΡΡ, Π΅ΡΡΡ ΠΊΡΡΠ»ΡΡΠΎ.
ΠΠΎΠ΄Π²Π΅Π΄Π΅ΠΌ ΠΈΡΠΎΠ³ΠΈ
ΠΡΠΈ ΠΏΡΠΎΠ΅ΠΊΡΠΈΡΠΎΠ²Π°Π½ΠΈΠΈ ΠΆΠΈΠ»ΠΎΠ³ΠΎ ΠΎΠ΄Π½ΠΎΡΡΠ°ΠΆΠ½ΠΎΠ³ΠΎ Π·Π΄Π°Π½ΠΈΡ Ρ ΡΡΠ΅ΠΌΡ ΠΆΠΈΠ»ΡΠΌΠΈ Π·ΠΎΠ½Π°ΠΌΠΈ ΡΠ»Π΅Π΄ΡΠ΅Ρ ΡΡΠΈΡΡΠ²Π°ΡΡ Π»ΠΈΡΠ½ΡΠ΅ ΠΏΡΠ΅Π΄ΠΏΠΎΡΡΠ΅Π½ΠΈΡ, Π½Π΅ ΠΏΡΠ΅Π½Π΅Π±ΡΠ΅Π³Π°Ρ ΠΏΠΎΡΡΠ΅Π±Π½ΠΎΡΡΡΠΌΠΈ ΠΊΠ°ΠΆΠ΄ΠΎΠ³ΠΎ ΡΠ»Π΅Π½Π° ΡΠ΅ΠΌΡΠΈ, ΡΠ΅Ρ Π½ΠΈΡΠ΅ΡΠΊΠΈΠΌΠΈ ΡΡΠ΅Π±ΠΎΠ²Π°Π½ΠΈΡΠΌΠΈ, ΠΏΡΠ°Π²ΠΈΠ»Π°ΠΌΠΈ Π±Π΅Π·ΠΎΠΏΠ°ΡΠ½ΠΎΡΡΠΈ. Π’ΡΠ°ΡΠ΅Π»ΡΠ½Π°Ρ ΠΏΠ»Π°Π½ΠΈΡΠΎΠ²ΠΊΠ° ΠΏΠΎΠ·Π²ΠΎΠ»ΡΠ΅Ρ ΡΠΎΠ·Π΄Π°ΡΡ Π΄ΠΎΠΌ ΠΌΠ΅ΡΡΡ, ΠΊΠΎΡΠΎΡΡΠΉ Π±ΡΠ΄Π΅Ρ ΠΊΠΎΠΌΡΠΎΡΡΠ½ΡΠΌ, ΡΠ΄ΠΎΠ±Π½ΡΠΌ ΠΈ ΡΠΎΠΎΡΠ²Π΅ΡΡΡΠ²ΠΎΠ²Π°ΡΡ Π²ΡΠ΅ΠΌ Π½ΠΎΡΠΌΠ°ΠΌ.
skedraft.ru
ΠΡΠΎΠ΅ΠΊΡΡ ΠΎΠ΄Π½ΠΎΡΡΠ°ΠΆΠ½ΡΡ Π΄ΠΎΠΌΠΎΠ² Ρ ΡΡΠ΅ΠΌΡ ΡΠΏΠ°Π»ΡΠ½ΡΠΌΠΈ: 14 Π²Π°ΡΠΈΠ°Π½ΡΠΎΠ²
ΠΠ»Π°Π²Π½Π°Ρ Β» Π Π°Π·Π½ΠΎΠ΅ Β» ΠΠ»Π°Π½ΠΈΡΠΎΠ²ΠΊΠ° 1-ΡΡΠ°ΠΆΠ½ΠΎΠ³ΠΎ Π΄ΠΎΠΌΠ° Ρ ΡΡΠ΅ΠΌΡ ΡΠΏΠ°Π»ΡΠ½ΡΠΌΠΈ β Π²ΡΠ±ΠΈΡΠ°Π΅ΠΌ ΠΏΡΠΎΠ΅ΠΊΡ ΠΏΠΎ Π²ΠΊΡΡΡ
Π‘ΠΎΠ±ΠΈΡΠ°ΡΡΡ ΡΡΡΠΎΠΈΡΡ Π΄ΠΎΠΌ, ΠΌΠΎΠΆΠ½ΠΎ Π·Π°ΠΊΠ°Π·Π°ΡΡ Π΅Π³ΠΎ ΠΏΡΠΎΠ΅ΠΊΡΠΈΡΠΎΠ²Π°Π½ΠΈΠ΅ ΡΠΏΠ΅ΡΠΈΠ°Π»ΠΈΡΡΡ, Π° ΠΌΠΎΠΆΠ½ΠΎ ΠΏΠΎΠΏΡΡΠ°ΡΡΡΡ ΠΏΠ΅ΡΠ΅Π΄Π΅Π»Π°ΡΡ ΠΎΠ΄ΠΈΠ½ ΠΈΠ· ΠΈΠΌΠ΅ΡΡΠΈΡ ΡΡ Π²Π°ΡΠΈΠ°Π½ΡΠΎΠ² ΠΏΠΎΠ΄ ΡΠ²ΠΎΠΈ ΡΡΠ΅Π±ΠΎΠ²Π°Π½ΠΈΡ. Π Π»ΡΠ±ΠΎΠΌ ΡΠ»ΡΡΠ°Π΅, Π½Π°Π΄ΠΎ ΡΠ΅ΡΠΊΠΎ ΠΏΡΠ΅Π΄ΡΡΠ°Π²Π»ΡΡΡ ΡΠ΅Π³ΠΎ Π²Ρ Ρ ΠΎΡΠΈΡΠ΅. ΠΡΠ΅Π½Ρ ΠΆΠ΅Π»Π°ΡΠ΅Π»ΡΠ½ΠΎ, ΡΡΠΎΠ±Ρ Π²Π°ΡΠΈ ΠΆΠ΅Π»Π°Π½ΠΈΡ Π±ΡΠ»ΠΈ Ρ ΠΎΡΠΎΡΠΎ ΠΏΡΠΎΠ΄ΡΠΌΠ°Π½Π½ΡΠΌΠΈ. ΠΠ΅ Π²ΡΠ΅, ΡΡΠΎ ΠΊΠ°ΠΆΠ΅ΡΡΡ ΠΏΡΠΈΠ²Π»Π΅ΠΊΠ°ΡΠ΅Π»ΡΠ½ΡΠΌ ΠΊΠ°ΠΊ ΠΈΠ΄Π΅Ρ, ΡΠ΄ΠΎΠ±Π½ΠΎ Π² ΡΠΊΡΠΏΠ»ΡΠ°ΡΠ°ΡΠΈΠΈ. Π ΡΠ°ΠΊΠΈΠ΅ Β«ΠΌΠ΅Π»ΠΎΡΠΈΒ» Π½Π°Π΄ΠΎ Π·Π½Π°ΡΡ. Π§Π°ΡΡΡ ΠΈΠ½ΡΠΎΡΠΌΠ°ΡΠΈΠΈ ΡΠ°Π·Π±Π΅ΡΠ΅ΠΌ, ΠΏΡΡΠ°ΡΡΡ Π½Π°ΠΉΡΠΈ ΠΏΠΎΠ΄Ρ ΠΎΠ΄ΡΡΠΈΠΉ ΠΏΡΠΎΠ΅ΠΊΡ ΠΎΠ΄Π½ΠΎΡΡΠ°ΠΆΠ½ΠΎΠ³ΠΎ Π΄ΠΎΠΌΠ° Ρ ΡΡΠ΅ΠΌΡ ΡΠΏΠ°Π»ΡΠ½ΡΠΌΠΈ. ΠΠΎΡΠ΅ΠΌΡ ΡΠ°ΠΊ? ΠΠΎΡΠΎΠΌΡ ΡΡΠΎ ΡΡΠΎ Π½Π°ΠΈΠ±ΠΎΠ»Π΅Π΅ ΡΠ°ΡΠΏΡΠΎΡΡΡΠ°Π½Π΅Π½Π½ΡΠΉ Π²Π°ΡΠΈΠ°Π½Ρ, ΠΊΠΎΡΠΎΡΡΠΉ ΠΏΠΎΠ΄Ρ ΠΎΠ΄ΠΈΡ Π΄Π»Ρ ΡΠ΅ΠΌΠ΅ΠΉ ΠΈΠ· 4 ΡΠ΅Π»ΠΎΠ²Π΅ΠΊ. ΠΠΌΠ΅Π½Π½ΠΎ ΡΠ°ΠΊΠΈΡ Π±ΠΎΠ»ΡΡΠΈΠ½ΡΡΠ²ΠΎ.Β
ΠΠ±ΡΠΈΠ΅ ΠΏΡΠΈΠ½ΡΠΈΠΏΡ ΠΏΠ»Π°Π½ΠΈΡΠΎΠ²ΠΊΠΈ
Π‘ΠΎΠ΄Π΅ΡΠΆΠ°Π½ΠΈΠ΅ ΡΡΠ°ΡΡΠΈ
ΠΠΎΠ³Π΄Π° Π²Ρ ΠΈΡΠΈΡΠ΅ Π³ΠΎΡΠΎΠ²ΡΠ΅ ΠΏΡΠΎΠ΅ΠΊΡΡ ΠΎΠ΄Π½ΠΎΡΡΠ°ΠΆΠ½ΡΡ Π΄ΠΎΠΌΠΎΠ² Ρ ΡΡΠ΅ΠΌΡ ΡΠΏΠ°Π»ΡΠ½ΡΠΌΠΈ ΠΈΠ»ΠΈ ΠΏΡΡΠ°Π΅ΡΠ΅ΡΡ ΡΠΎΠ·Π΄Π°ΡΡ Π½Π° ΠΎΡΠ½ΠΎΠ²Π΅ Π½Π°ΠΉΠ΄Π΅Π½Π½ΠΎΠ³ΠΎ ΡΠ²ΠΎΠΉ, Π²Π°ΠΆΠ½ΠΎ ΠΏΠΎΠΌΠ½ΠΈΡΡ Π½Π΅ΡΠΊΠΎΠ»ΡΠΊΠΎ ΠΌΠΎΠΌΠ΅Π½ΡΠΎΠ².
- ΠΠ»Ρ ΡΡΠ»ΠΎΠ²ΠΈΠΉ ΠΊΠ»ΠΈΠΌΠ°ΡΠ° Ρ Ρ ΠΎΠ»ΠΎΠ΄Π½ΡΠΌΠΈ Π·ΠΈΠΌΠ°ΠΌΠΈ Π½Π°Π»ΠΈΡΠΈΠ΅ ΡΠ°ΠΌΠ±ΡΡΠ° ΠΊΡΠ°ΠΉΠ½Π΅ ΠΆΠ΅Π»Π°ΡΠ΅Π»ΡΠ½ΠΎ. Π ΡΡΠΎΠΌ ΡΠ»ΡΡΠ°Π΅ Ρ ΠΎΠ»ΠΎΠ΄Π½ΡΠΉ Π²ΠΎΠ·Π΄ΡΡ ΠΏΡΠΈ ΠΊΠ°ΠΆΠ΄ΠΎΠΌ ΠΎΡΠΊΡΡΠ²Π°Π½ΠΈΠΈ Π΄Π²Π΅ΡΠ΅ΠΉ Π½Π΅ Π±ΡΠ΄Π΅Ρ ΠΏΠΎΠΏΠ°Π΄Π°ΡΡ Π² ΠΆΠΈΠ»ΡΠ΅ ΠΏΠΎΠΌΠ΅ΡΠ΅Π½ΠΈΡ. ΠΡΠ»ΠΈ ΡΠ°ΠΌΠ±ΡΡ ΡΠΎΠ²ΡΠ΅ΠΌ ΡΠΆ Π½Π΅ Π²ΠΏΠΈΡΡΠ²Π°Π΅ΡΡΡ Π² ΠΏΡΠ΅Π΄Π΅Π»Π°Ρ ΡΡΠ΅Π½, Π΅Π³ΠΎ ΠΌΠΎΠΆΠ½ΠΎ Π²ΡΠ½Π΅ΡΡΠΈ ΠΈ ΡΠ΄Π΅Π»Π°ΡΡ Π² Π²ΠΈΠ΄Π΅ ΠΏΡΠΈΡΡΡΠΎΠΉΠΊΠΈ. ΠΠ΅ ΡΠ°ΠΌΠΎΠ΅ ΠΈΠ·ΡΡΠ½ΠΎΠ΅ ΡΠ΅ΡΠ΅Π½ΠΈΠ΅, Π½ΠΎ ΠΈΠΌΠ΅Π΅Ρ ΠΏΡΠ°Π²ΠΎ Π½Π° ΡΡΡΠ΅ΡΡΠ²ΠΎΠ²Π°Π½ΠΈΠ΅.
- ΠΡΠ΅ ΠΏΠΎΠΌΠ΅ΡΠ΅Π½ΠΈΡ, Π³Π΄Π΅ ΡΡΠ΅Π±ΡΠ΅ΡΡΡ ΠΏΠΎΠ΄Π²Π΅Π΄Π΅Π½ΠΈΠ΅ Π²ΠΎΠ΄Ρ/ΠΊΠ°Π½Π°Π»ΠΈΠ·Π°ΡΠΈΠΈ (ΠΊΡΡ
Π½Ρ, Π²Π°Π½Π½Π°, ΡΡΠ°Π»Π΅Ρ, ΠΊΠΎΡΠ΅Π»ΡΠ½Π°Ρ) ΡΠ°ΡΠΏΠΎΠ»Π°Π³Π°ΡΡ Π»ΡΡΡΠ΅ ΡΡΠ΄ΠΎΠΌ. Π’Π°ΠΊ ΠΈΠ½ΠΆΠ΅Π½Π΅ΡΠ½ΡΠ΅ ΡΠΈΡΡΠ΅ΠΌΡ Π±ΡΠ΄ΡΡ ΠΏΡΠΎΡΠ΅, ΠΌΠ΅Π½ΡΡΠ΅ ΠΏΠΎΡΡΠ΅Π±ΡΠ΅ΡΡΡ ΠΌΠ°ΡΠ΅ΡΠΈΠ°Π»ΠΎΠ², ΠΏΠΎΠ»ΡΡΠΈΡΡΡ Π·Π½Π°ΡΠΈΡΠ΅Π»ΡΠ½ΠΎ Π΄Π΅ΡΠ΅Π²Π»Π΅.

ΠΡΠΈ ΠΏΠ»Π°Π½ΠΈΡΠΎΠ²Π°Π½ΠΈΠΈ Π΄ΠΎΠΌΠ° Π½Π°Π΄ΠΎ ΠΏΡΠΈΠ΄Π΅ΡΠΆΠΈΠ²Π°ΡΡΡΡ ΠΎΠΏΡΠ΅Π΄Π΅Π»Π΅Π½Π½ΡΡ ΠΏΡΠ°Π²ΠΈΠ»
- ΠΡΠΈ ΠΏΡΠΎΠΆΠΈΠ²Π°Π½ΠΈΠΈ Π² Π΄ΠΎΠΌΠ΅ 4 ΠΈ Π±ΠΎΠ»Π΅Π΅ ΡΠ΅Π»ΠΎΠ²Π΅ΠΊ, ΠΆΠ΅Π»Π°ΡΠ΅Π»ΡΠ½ΠΎ ΠΈΠΌΠ΅ΡΡ Π΄Π²Π° ΡΠ°Π½ΡΠ·Π»Π°. ΠΡ ΡΡΠΎ ΠΎΡΠ΅Π½ΠΈΡΠ΅. ΠΡΡΡΡ Π΄Π°ΠΆΠ΅ ΠΎΠ΄ΠΈΠ½ Π±ΡΠ΄Π΅Ρ ΡΠΎΠ²ΡΠ΅ΠΌ Π½Π΅Π±ΠΎΠ»ΡΡΠΎΠΉ β ΡΠΎΠ»ΡΠΊΠΎ ΡΠ½ΠΈΡΠ°Π· ΠΈ ΡΠ°ΠΊΠΎΠ²ΠΈΠ½Π°. ΠΠ°ΠΆΠ΅ Π΅ΡΠ»ΠΈ ΡΠ°ΡΠΏΠΎΠ»Π°Π³Π°ΡΡΡΡ ΠΎΠ½ΠΈ ΡΠ΅ΡΠ΅Π· ΡΡΠ΅Π½ΠΊΡ, ΡΡΠΎ ΠΎΡΠ΅Π½Ρ ΡΠ΄ΠΎΠ±Π½ΠΎ.
- ΠΡΠΈ ΡΠ°Π·ΠΌΠ΅ΡΠ΅Π½ΠΈΠΈ Π² Π΄ΠΎΠΌΠ΅ ΠΊΠΎΡΠ»Π°, Π½Π΅ΠΎΠ±Ρ ΠΎΠ΄ΠΈΠΌΠ° ΠΊΠΎΡΠ΅Π»ΡΠ½Π°Ρ.Β Π’ΡΠ΅Π±ΠΎΠ²Π°Π½ΠΈΡ ΠΊ ΠΊΠΎΡΠ΅Π»ΡΠ½ΡΠΌ Π² ΡΠ°ΡΡΠ½ΠΎΠΌ Π΄ΠΎΠΌΠ΅ ΠΌΠΎΠΆΠ½ΠΎ ΠΏΠΎΡΠΌΠΎΡΡΠ΅ΡΡ ΡΡΡ, Π½ΠΎ ΠΎΡΠ½ΠΎΠ²Π½ΠΎΠ΅, ΡΡΠΎ Π½Π°Π΄ΠΎ ΠΏΠΎΠΌΠ½ΠΈΡΡ β Β ΠΏΡΠΈ Π²ΡΡΠΎΡΠ΅ ΠΏΠΎΡΠΎΠ»ΠΊΠΎΠ² Π½Π΅ ΠΌΠ΅Π½Π΅Π΅ 3 ΠΌΠ΅ΡΡΠΎΠ² ΠΎΠ±ΡΠ΅ΠΌ ΠΏΠΎΠΌΠ΅ΡΠ΅Π½ΠΈΡ Π΄ΠΎΠ»ΠΆΠ΅Π½ Π±ΡΡΡ Π½Π΅ ΠΌΠ΅Π½Π΅Π΅ 15 ΠΊΡΠ±ΠΎΠ² ΠΈ Π² ΠΏΠΎΠΌΠ΅ΡΠ΅Π½ΠΈΠΈ ΠΎΠ±ΡΠ·Π°ΡΠ΅Π»ΡΠ½ΠΎ Π΄ΠΎΠ»ΠΆΠ½ΠΎ Π±ΡΡΡ ΠΎΠΊΠ½ΠΎ.
- Π‘ΡΠ°Π·Ρ ΠΏΡΠΎΡΠΈΡΠΎΠ²ΡΠ²Π°ΠΉΡΠ΅ ΡΠ°ΡΠΏΠΎΠ»ΠΎΠΆΠ΅Π½ΠΈΠ΅ ΠΊΡΡΠΏΠ½ΠΎΠ³Π°Π±Π°ΡΠΈΡΠ½ΠΎΠΉ ΠΌΠ΅Π±Π΅Π»ΠΈ. ΠΠΎ Π²ΡΡΠΊΠΎΠΌ ΡΠ»ΡΡΠ°Π΅, ΠΏΠΎΠ»ΠΎΠΆΠ΅Π½ΠΈΠ΅ ΠΊΡΠΎΠ²Π°ΡΠ΅ΠΉ ΠΈ ΡΠΊΠ°ΡΠΎΠ² Π² ΡΠΏΠ°Π»ΡΠ½ΡΡ , ΡΠ°ΡΠΏΠΎΠ»ΠΎΠΆΠ΅Π½ΠΈΠ΅ ΠΌΠ΅Π±Π΅Π»ΠΈ ΠΈ ΠΌΠΎΠΉΠΊΠΈ Π½Π° ΠΊΡΡ Π½Π΅.
ΠΡΠΎ ΡΠ΅ ΠΏΡΠΈΠ½ΡΠΈΠΏΡ, ΠΊΠΎΡΠΎΡΡΡ ΠΆΠ΅Π»Π°ΡΠ΅Π»ΡΠ½ΠΎ ΠΏΡΠΈΠ΄Π΅ΡΠΆΠΈΠ²Π°ΡΡΡΡ. ΠΠΎ ΠΈ ΡΡΠΎ Π½Π΅ Π΄ΠΎΠ³ΠΌΠ°. ΠΡΠ΅ ΠΌΠΎΠΆΠ½ΠΎ ΡΠ΅ΡΠΈΡΡ (ΠΊΡΠΎΠΌΠ΅ ΡΡΠ΅Π±ΠΎΠ²Π°Π½ΠΈΠΉ ΠΊ ΠΊΠΎΡΠ΅Π»ΡΠ½ΡΠΌ). Π Π΅ΡΠ΅Π½ΠΈΡ, Π΄Π΅ΠΉΡΡΠ²ΠΈΡΠ΅Π»ΡΠ½ΠΎ ΡΡΡΠ΅ΡΡΠ²ΡΡΡ ΡΠ°Π·Π½ΡΠ΅, ΠΏΠΎΠ΄ ΡΠ°Π·Π½ΡΠ΅ Π·Π°ΠΏΡΠΎΡΡ ΠΈ Π²ΠΊΡΡΡ. Π’ΡΠ΅Π±ΡΠ΅ΡΡΡ ΡΠΎΠ»ΡΠΊΠΎ ΠΆΠ΅Π»Π°Π½ΠΈΠ΅ ΠΈ ΠΎΠΏΡΠ΅Π΄Π΅Π»Π΅Π½Π½Π°Ρ ΡΡΠΌΠΌΠ°.
ΠΡΠ»ΠΈ Π²ΡΠ΅ ΡΡΠΈ ΡΠΏΠ°Π»ΡΠ½ΠΈ ΡΠ°Π·ΠΌΠ΅ΡΡΠΈΡΡ ΡΡΠ΄ΠΎΠΌ
ΠΠ½ΠΎΠ³ΠΈΠ΅Β ΠΏΡΠΎΠ΅ΠΊΡΡ ΠΎΠ΄Π½ΠΎΡΡΠ°ΠΆΠ½ΡΡ Π΄ΠΎΠΌΠΎΠ² Ρ ΡΡΠ΅ΠΌΡ ΡΠΏΠ°Π»ΡΠ½ΡΠΌΠΈ ΡΠΏΠ»Π°Π½ΠΈΡΠΎΠ²Π°Π½Ρ ΡΠ°ΠΊΠΈΠΌ ΠΎΠ±ΡΠ°Π·ΠΎΠΌ, ΡΡΠΎ Π²ΡΠ΅ ΡΠΏΠ°Π»ΡΠ½ΠΈ Π½Π°Ρ ΠΎΠ΄ΡΡΡΡ Π² ΠΎΠ΄Π½ΠΎΠΉ ΡΡΠΎΡΠΎΠ½Π΅ Π΄ΠΎΠΌΠ°. Π‘ ΠΎΠ΄Π½ΠΎΠΉ ΡΡΠΎΡΠΎΠ½Ρ ΡΡΠΎ ΡΠ΄ΠΎΠ±Π½ΠΎ. ΠΡΠ½ΠΎΡΠΈΡΠ΅Π»ΡΠ½ΠΎ ΡΡΠΌΠ½ΡΠ΅ ΠΏΠΎΠΌΠ΅ΡΠ΅Π½ΠΈΡ β Π³ΠΎΡΡΠΈΠ½Π°Ρ ΠΈ ΠΊΡΡ Π½Ρ ΠΎΠΊΠ°Π·ΡΠ²Π°ΡΡΡΡ Π² ΠΏΡΠΎΡΠΈΠ²ΠΎΠΏΠΎΠ»ΠΎΠΆΠ½ΠΎΠΉ ΡΡΠΎΡΠΎΠ½Π΅. Π‘ Π΄ΡΡΠ³ΠΎΠΉ ΡΡΠΎΡΠΎΠ½Ρ, Π½Π΅ Π²ΡΠ΅ΠΌ Π½ΡΠ°Π²ΠΈΡΡΡ ΡΠ°ΠΊΠΎΠ΅ ΡΠ°ΡΠΏΠΎΠ»ΠΎΠΆΠ΅Π½ΠΈΠ΅ β ΠΎΠΏΠ°ΡΠ°ΡΡΡΡ ΡΡΠΎ Π΄Π΅ΡΠΈ ΠΌΠΎΠ³ΡΡ ΠΎΠΊΠ°Π·Π°ΡΡΡΡ ΡΠ²ΠΈΠ΄Π΅ΡΠ΅Π»ΡΠΌΠΈ Π½Π΅Π½ΡΠΆΠ½ΡΡ ΡΡΠ΅Π½.

ΠΡΠΈΠΌΠ΅Ρ ΠΏΠ»Π°Π½ΠΈΡΠΎΠ²ΠΊΠΈ ΠΎΠ΄Π½ΠΎΡΡΠ°ΠΆΠ½ΠΎΠ³ΠΎ Π΄ΠΎΠΌΠ° Ρ ΡΡΠ΅ΠΌΡ ΡΠΏΠ°Π»ΡΠ½ΡΠΌΠΈ Π½Π° 110 ΠΊΠ²Π°Π΄ΡΠ°ΡΠ½ΡΡ ΠΌΠ΅ΡΡΠΎΠ²
Π ΠΏΡΠΈΠ²Π΅Π΄Π΅Π½Π½ΠΎΠΌ Π²ΡΡΠ΅ ΠΏΡΠΎΠ΅ΠΊΡΠ΅ ΠΈΠΌΠ΅Π½Π½ΠΎ ΡΠ°ΠΊ ΠΏΠ»Π°Π½ΠΈΡΠΎΠ²ΠΊΠ° ΠΈ ΡΠ΄Π΅Π»Π°Π½Π°: Π²ΡΠ΅ ΡΡΠΈ ΡΠΏΠ°Π»ΡΠ½ΠΈ Π½Π°Ρ ΠΎΠ΄ΡΡΡΡ Π² ΠΏΡΠ°Π²ΠΎΠΉ ΡΡΠΎΡΠΎΠ½Π΅ Π΄ΠΎΠΌΠ° ΠΈ ΠΈΠΌΠ΅ΡΡ ΠΏΡΠΈΠΌΠ΅ΡΠ½ΠΎ ΠΎΠ΄ΠΈΠ½Π°ΠΊΠΎΠ²ΡΡ ΠΏΠ»ΠΎΡΠ°Π΄Ρ. ΠΠ· ΠΏΠΎΠ»ΠΎΠΆΠΈΡΠ΅Π»ΡΠ½ΡΡ ΠΌΠΎΠΌΠ΅Π½ΡΠΎΠ² β Π²ΡΠ΅ ΡΠΏΠ°Π»ΡΠ½ΠΈ ΠΎΡ Π³ΠΎΡΡΠΈΠ½ΠΎΠΉ Π΄Π°Π»Π΅ΠΊΠΎ. ΠΡΠΈ ΡΠ°ΠΊΠΎΠΌ ΡΠ°ΡΠΏΠΎΠ»ΠΎΠΆΠ΅Π½ΠΈΠΈ ΠΊΠΎΠΌΠ½Π°Ρ ΠΌΠΎΠΆΠ½ΠΎ Π² Π³ΠΎΡΡΠΈΠ½ΠΎΠΉ ΡΠΏΠΎΠΊΠΎΠΉΠ½ΠΎ ΡΠΌΠΎΡΡΠ΅ΡΡ ΡΠ΅Π»Π΅Π²ΠΈΠ·ΠΎΡ, ΠΏΡΠΈΠ½ΠΈΠΌΠ°ΡΡ Π³ΠΎΡΡΠ΅ΠΉ, Π½Π΅ Π±ΠΎΡΡΡ ΠΏΠΎΠΌΠ΅ΡΠ°ΡΡ ΠΎΡΠ΄ΡΡ Ρ.
ΠΠ· Π½Π΅Π΄ΠΎΡΡΠ°ΡΠΊΠΎΠ² β ΡΡΠ°Π»Π΅Ρ ΠΈ Π²Π°Π½Π½Π°Ρ Π½Π°Ρ ΠΎΠ΄ΡΡΡΡ Π΄Π°Π»Π΅ΠΊΠΎ ΠΎΡ ΠΊΡΡ Π½ΠΈ ΠΈ ΠΊΠΎΡΠ΅Π»ΡΠ½ΠΎΠΉ. ΠΠ΅ ΡΠ°ΠΌΡΠΉ ΡΠ΄ΠΎΠ±Π½ΡΠΉ Π²Π°ΡΠΈΠ°Π½Ρ Π΄Π»Ρ ΠΏΡΠΎΠΊΠ»Π°Π΄ΠΊΠΈ ΠΊΠΎΠΌΠΌΡΠ½ΠΈΠΊΠ°ΡΠΈΠΉ. ΠΠ· Π΄ΡΡΠ³ΠΈΡ ΠΎΡΠΎΠ±Π΅Π½Π½ΠΎΡΡΠ΅ΠΉ β Π΄Π»ΠΈΠ½Π½ΡΠΉ ΠΊΠΎΡΠΈΠ΄ΠΎΡ ΡΠΎ ΠΌΠ½ΠΎΠΆΠ΅ΡΡΠ²ΠΎΠΌ Π΄Π²Π΅ΡΠ΅ΠΉ. ΠΡΡ ΠΏΠ»ΠΎΡΠ°Π΄Ρ Π½ΠΈΠΊΠ°ΠΊ Π½Π΅ ΠΈΡΠΏΠΎΠ»ΡΠ·ΡΠ΅ΡΡ, ΡΠ°ΠΊ ΠΊΠ°ΠΊ ΡΠ²ΠΎΠ±ΠΎΠ΄Π½ΡΠ΅ ΠΏΡΠΎΡΡΠ΅Π½ΠΊΠΈ ΠΎΡΠ΅Π½Ρ ΠΌΠ°Π»Π΅Π½ΡΠΊΠΈΠ΅.
ΠΡΠΎΠ΅ΠΊΡ ΠΎΠ΄Π½ΠΎΡΡΠ°ΠΆΠ½ΠΎΠ³ΠΎ Π΄ΠΎΠΌΠ° Ρ ΡΡΠ΅ΠΌΡ ΡΠΏΠ°Π»ΡΠ½ΡΠΌΠΈ ΠΈ ΡΠ΅ΡΡΠ°ΡΠΎΠΉ
ΠΡΠΈ ΠΏΠ»Π°Π½ΠΈΡΠΎΠ²Π°Π½ΠΈΠΈ ΡΠ΅ΡΡΠ°ΡΡ, ΠΎΠ±ΡΠ°ΡΠ°ΡΡ Π²Π½ΠΈΠΌΠ°Π½ΠΈΠ΅ Π½Π°Π΄ΠΎ ΡΡΠ°Π·Ρ Π½Π° Π½Π΅ΡΠΊΠΎΠ»ΡΠΊΠΎ ΠΌΠΎΠΌΠ΅Π½ΡΠΎΠ². ΠΠ΅ΡΠ²ΡΠΉ β Π΄Π»Ρ ΠΎΠΏΡΠΈΠΌΠ°Π»ΡΠ½ΠΎΠΉ ΠΎΡΠ²Π΅ΡΠ΅Π½Π½ΠΎΡΡΠΈ Π»ΡΡΡΠ΅, Π΅ΡΠ»ΠΈ ΡΠ΅ΡΡΠ°ΡΠ° Π²ΡΡ ΠΎΠ΄ΠΈΡ Π½Π° ΡΠ³ ΠΈΠ»ΠΈ Π²ΠΎΡΡΠΎΠΊ. ΠΡΠΎΡΠΎΠ΅ β ΠΈΠ· ΠΊΠ°ΠΊΠΎΠ³ΠΎ ΠΏΠΎΠΌΠ΅ΡΠ΅Π½ΠΈΡ Π±ΡΠ΄Π΅Ρ Π²ΡΡ ΠΎΠ΄. Π§Π°ΡΠ΅ Π²ΡΠ΅Π³ΠΎ Π΄Π΅Π»Π°ΡΡ Π²ΡΡ ΠΎΠ΄ Π½Π° ΡΠ΅ΡΡΠ°ΡΡ ΠΈΠ· Π³ΠΎΡΡΠΈΠ½ΠΎΠΉ. ΠΡΠΎ ΡΠ°ΠΌΡΠΉ Π»ΠΎΠ³ΠΈΡΠ½ΡΠΉ ΡΠ»ΡΡΠ°ΠΉ. ΠΡΠΎΡΠΎΠΉ Π²Π°ΡΠΈΠ°Π½Ρ β Π²ΡΡ ΠΎΠ΄ ΠΈΠ· ΠΊΠΎΡΠΈΠ΄ΠΎΡΠ°, ΠΊΠΎΡΠΎΡΡΠΉ, ΠΊΠ°ΠΊ ΠΏΡΠ°Π²ΠΈΠ»ΠΎ, ΠΏΡΠΈΠΌΡΠΊΠ°Π΅Ρ ΠΊ Π³ΠΎΡΡΠΈΠ½ΠΎΠΉ ΠΈΠ»ΠΈ ΠΊΡΡ Π½Π΅ (Π³ΠΎΡΠ°Π·Π΄ΠΎ Ρ ΡΠΆΠ΅, Π½ΠΎ Π²ΠΎΠ·ΠΌΠΎΠΆΠ½ΠΎ). ΠΠ±ΡΠ°ΡΠΈΡΠ΅ Π²Π½ΠΈΠΌΠ°Π½ΠΈΠ΅, ΡΡΠΎ ΠΎΡΠ΅Π½Ρ ΡΠ΄ΠΎΠ±Π½ΠΎ, Π΅ΡΠ»ΠΈ ΡΡΠ΄ΠΎΠΌ Ρ Π²Ρ ΠΎΠ΄ΠΎΠΌ Π½Π° ΡΠ΅ΡΡΠ°ΡΡ Π½Π°Ρ ΠΎΠ΄ΠΈΡΡΡ ΠΊΡΡ Π½Ρ β Π·Π°Π½ΠΎΡΠΈΡΡ/Π²ΡΠ½ΠΎΡΠΈΡΡ Π±Π»ΡΠ΄Π°, Π½Π°ΠΏΠΈΡΠΊΠΈ ΠΈ Ρ.ΠΏ. ΠΠ΅Π΄Ρ ΡΠ΅ΡΡΠ°ΡΠ° ΡΠ°ΡΡΠΎ ΠΈΡΠΏΠΎΠ»ΡΠ·ΡΠ΅ΡΡΡ ΠΈΠΌΠ΅Π½Π½ΠΎ Π΄Π»Ρ ΠΏΠΎΡΠΈΠ΄Π΅Π»ΠΎΠΊ Π½Π° ΠΎΡΠΊΡΡΡΠΎΠΌ Π²ΠΎΠ·Π΄ΡΡ Π΅.
ΠΡΠΈ Π΄Π²Π° ΠΌΠΎΠΌΠ΅Π½ΡΠ° ΡΠΆΠ΅ ΡΠ°ΡΡΠΈΡΠ½ΠΎ ΠΎΠΏΡΠ΅Π΄Π΅Π»ΡΡΡ ΠΏΠ»Π°Π½ΠΈΡΠΎΠ²ΠΊΡ Π²Π°ΡΠ΅Π³ΠΎ Π΄ΠΎΠΌΠ° β Π³ΠΎΡΡΠΈΠ½Π°Ρ Π΄ΠΎΠ»ΠΆΠ½Π° ΠΈΠΌΠ΅ΡΡ Π²ΡΡ ΠΎΠ΄ Π½Π° ΡΠΆΠ½ΡΡ ΠΈΠ»ΠΈ Π²ΠΎΡΡΠΎΡΠ½ΡΡ ΡΡΠΎΡΠΎΠ½Ρ. ΠΠ½Π°ΡΠΈΡ Π΅Π΅ ΠΏΠΎΠ»ΠΎΠΆΠ΅Π½ΠΈΠ΅ ΠΎΠΏΡΠ΅Π΄Π΅Π»Π΅Π½ΠΎ. Π Π³ΠΎΡΡΠΈΠ½ΠΎΠΉ Π΄ΠΎΠ»ΠΆΠ½Π° ΠΏΡΠΈΠΌΡΠΊΠ°ΡΡ ΠΊΡΡ Π½Ρ, Π° Π΅ΡΠ΅ ΠΆΠ΅Π»Π°ΡΠ΅Π»ΡΠ½ΠΎ Π²ΡΠ΅ ΠΏΠΎΠΌΠ΅ΡΠ΅Π½ΠΈΡ, ΠΏΠΎΠ΄ΠΊΠ»ΡΡΠ°Π΅ΠΌΡΠ΅ ΠΊ ΡΠ΅Ρ Π½ΠΈΡΠ΅ΡΠΊΠΈΠΌ ΠΊΠΎΠΌΠΌΡΠ½ΠΈΠΊΠ°ΡΠΈΡΠΌ Β«ΡΠΎΠ±ΠΈΡΠ°ΡΡΒ» Π² ΠΎΠ΄Π½ΠΎΠΉ Π·ΠΎΠ½Π΅ β¦ Β Π’ΠΎ Π΅ΡΡΡ, Π²Ρ ΠΏΡΠ°ΠΊΡΠΈΡΠ΅ΡΠΊΠΈ ΡΠ΅ΡΠΈΠ»ΠΈ, Π³Π΄Π΅ Π½Π°Ρ ΠΎΠ΄ΡΡΡΡ Π³ΠΎΡΡΠΈΠ½Π°Ρ, ΠΊΡΡ Π½Ρ, ΡΠ΅Ρ Π½ΠΈΡΠ΅ΡΠΊΠΈΠ΅ ΠΏΠΎΠΌΠ΅ΡΠ΅Π½ΠΈΡ. ΠΡΡΠ°Π»ΠΎΡΡ ΡΠ°ΡΠΏΠΎΠ»ΠΎΠΆΠΈΡΡ ΡΠΏΠ°Π»ΡΠ½ΠΈ ΠΈ ΠΎΡΠ³Π°Π½ΠΈΠ·ΠΎΠ²Π°ΡΡ ΡΠ΄ΠΎΠ±Π½ΡΠΉ ΠΏΡΠΎΡ ΠΎΠ΄.

Π‘ ΡΠ΅ΡΡΠ°ΡΡ Π΄ΠΎΠ»ΠΆΠ΅Π½ ΠΎΡΠΊΡΡΠ²Π°ΡΡΡΡ ΠΈΠ½ΡΠ΅ΡΠ΅ΡΠ½ΡΠΉ Π²ΠΈΠ΄
ΠΠΎ ΡΡΠΎ Π΅ΡΠ΅ Π½Π΅ Π²ΡΠ΅, ΡΡΠΎ Π½Π°Π΄ΠΎ ΡΡΠ΅ΡΡΡ ΠΏΡΠΈ ΠΏΠ»Π°Π½ΠΈΡΠΎΠ²Π°Π½ΠΈΠΈ ΡΠ΅ΡΡΠ°ΡΡ. ΠΡΡΡ ΡΡΠ΅ΡΠΈΠΉ ΠΌΠΎΠΌΠ΅Π½Ρ β Π΅Π΅ ΡΠ°Π·ΠΌΠ΅Ρ. Π’ΡΡ ΠΏΠΎΠ΄Ρ ΠΎΠ΄ ΠΈΠ½Π΄ΠΈΠ²ΠΈΠ΄ΡΠ°Π»ΡΠ½ΡΠΉ β ΠΊΠΎΠΌΡ-ΡΠΎ ΡΡΠ΅Π±ΡΠ΅ΡΡΡ ΠΌΠ½ΠΎΠ³ΠΎ ΠΌΠ΅ΡΡΠ°, ΠΊΠΎΠΌΡ-ΡΠΎ Π΄ΠΎΡΡΠ°ΡΠΎΡΠ½ΠΎ ΠΏΠΎΠΌΠ΅Π½ΡΡΠ΅. ΠΠ½ΡΠ΅ΡΠ΅ΡΠ½ΡΠΉ Π²Π°ΡΠΈΠ°Π½Ρ β Π-ΠΎΠ±ΡΠ°Π·Π½Π°Ρ ΡΠ΅ΡΠ°ΡΡΠ°, ΠΊΠΎΡΠΎΡΠ°Ρ ΠΎΡ Π²Π°ΡΡΠ²Π°Π΅Ρ ΡΠΆΠ½ΡΡ ΠΈ Π²ΠΎΡΡΠΎΡΠ½ΡΡ ΡΡΠ΅Π½Ρ ΡΡΡΠΎΠ΅Π½ΠΈΡ. ΠΡΠ»ΠΈ Π΅Π΅ ΠΎΡΡΠ΅ΠΊΠ»ΠΈΡΡ, ΠΌΠΎΠΆΠ½ΠΎ ΠΏΡΠ΅Π²ΡΠ°ΡΠΈΡΡ Π² Π»Π΅ΡΠ½ΠΈΠΉ ΡΠ°Π΄β¦ ΠΡΠ»ΠΈ Π²Π°ΠΌ ΡΡΠΎ ΠΈΠ½ΡΠ΅ΡΠ΅ΡΠ½ΠΎ.
Π ΡΠ΅ΡΠ²Π΅ΡΡΡΠΉ ΠΌΠΎΠΌΠ΅Π½Ρ, Π½Π° ΠΊΠΎΡΠΎΡΡΠΉ ΡΠΎΠΆΠ΅ ΡΡΠΎΠΈΡ ΠΎΠ±ΡΠ°ΡΠΈΡΡ Π²Π½ΠΈΠΌΠ°Π½ΠΈΠ΅ ΠΏΡΠΈ ΡΠ°Π·ΡΠ°Π±ΠΎΡΠΊΠ΅ ΠΏΠ»Π°Π½ΠΈΡΠΎΠ²ΠΊΠΈ Π΄ΠΎΠΌΠ°. Π’Π΅ΡΡΠ°ΡΠ° ΠΈΠ½ΡΠ΅Π½ΡΠΈΠ²Π½ΠΎ ΠΈΡΠΏΠΎΠ»ΡΠ·ΡΠ΅ΡΡΡ ΠΈ ΡΠ²Π»ΡΠ΅ΡΡΡ Π»ΡΠ±ΠΈΠΌΡΠΌ ΠΌΠ΅ΡΡΠΎΠΌ ΠΎΡΠ΄ΡΡ Π°, Π΅ΡΠ»ΠΈ Ρ Π½Π΅Π΅ ΠΎΡΠΊΡΡΠ²Π°Π΅ΡΡΡ Π²ΠΈΠ΄ Π½Π° ΡΠ°Π΄, ΠΊΡΠ°ΡΠΈΠ²ΠΎ ΠΎΡΠΎΡΠΌΠ»Π΅Π½Π½ΡΠΉ Π·Π°Π΄Π½ΠΈΠΉ Π΄Π²ΠΎΡ, Π½Π° ΡΠ΅ΡΠΊΡ ΠΈ Ρ.ΠΏ. ΠΡΠ»ΠΈ ΠΆΠ΅ Π²Π·Π³Π»ΡΠ΄ ΡΠΏΠΈΡΠ°Π΅ΡΡΡ Π² Π·Π°Π±ΠΎΡ ΡΠΎΡΠ΅Π΄Π°, Π½ΠΈΠΊΠΎΠΌΡ ΡΡΠΎ Π½Π΅ ΠΈΠ½ΡΠ΅ΡΠ΅ΡΠ½ΠΎ. ΠΡΠΈ ΡΠ°ΠΊΠΎΠΌ ΠΏΠΎΠ»ΠΎΠΆΠ΅Π½ΠΈΠΈ ΡΠ΅ΡΡΠ°ΡΠ° Π½Π΅ ΠΈΡΠΏΠΎΠ»ΡΠ·ΡΠ΅ΡΡΡ, ΠΏΠΎΡΡΠ΅ΠΏΠ΅Π½Π½ΠΎ ΠΏΡΠ΅Π²ΡΠ°ΡΠ°Π΅ΡΡΡ Π² Β«ΡΠ΅Ρ Π½ΠΈΡΠ΅ΡΠΊΠΎΠ΅ ΠΏΠΎΠΌΠ΅ΡΠ΅Π½ΠΈΠ΅Β» β ΠΏΠΎΡΡΠ°Π²ΠΈΡΡ Π³Π°Π·ΠΎΠ½ΠΎΠΊΠΎΡΠΈΠ»ΠΊΡ, ΡΡΡΠΈΠ»ΠΊΡ, ΠΈ Ρ.Π΄. ΠΡΠΎ ΠΎΠΏΡΠ΅Π΄Π΅Π»ΡΠ΅Ρ Π΅ΡΠ΅ ΠΈ ΠΏΠΎΠ»ΠΎΠΆΠ΅Π½ΠΈΠ΅ Π΄ΠΎΠΌΠ° Π½Π° ΡΡΠ°ΡΡΠΊΠ΅. Π’ΠΎ Π΅ΡΡΡ, Π±ΠΎΠ»ΡΡΡΡ ΡΠ°ΡΡΡ Π·Π°Π΄Π°Ρ ΠΏΠΎ ΠΏΠ»Π°Π½ΠΈΡΠΎΠ²ΠΊΠ΅ Π΄ΠΎΠΌΠ° Π²Ρ ΡΠ΅ΡΠΈΠ»ΠΈ.
ΠΠ°ΡΠΈΠ°Π½Ρ 1: Β Ρ ΡΠ΅ΡΡΠ°ΡΠΎΠΉ Π²Π΄ΠΎΠ»Ρ Π²ΡΠ΅ΠΉ ΠΊΠΎΡΠΎΡΠΊΠΎΠΉ ΡΡΠ΅Π½Ρ
ΠΠ°Π²Π°ΠΉΡΠ΅ ΡΠ°ΡΡΠΌΠΎΡΡΠΈΠΌ Π½Π΅ΡΠΊΠΎΠ»ΡΠΊΠΎ ΠΏΡΠΎΠ΅ΠΊΡΠΎΠ² ΠΎΠ΄Π½ΠΎΡΡΠ°ΠΆΠ½ΡΡ Π΄ΠΎΠΌΠΎΠ² Ρ ΡΡΠ΅ΠΌΡ ΡΠΏΠ°Π»ΡΠ½ΡΠΌΠΈ ΠΈ ΡΠ΅ΡΡΠ°ΡΠ°ΠΌΠΈ. Π ΠΏΡΠ΅Π΄ΡΡΠ°Π²Π»Π΅Π½Π½ΠΎΠΌ Π²Π°ΡΠΈΠ°Π½ΡΠ΅ Π²ΡΡ ΠΎΠ΄ Π½Π° ΡΠ΅ΡΡΠ°ΡΡ ΡΠ΄Π΅Π»Π°Π½ ΠΈΠ· Π³ΠΎΡΡΠΈΠ½ΠΎΠΉ. Π‘ΡΠ΄Π° ΠΆΠ΅ Π²ΡΡ ΠΎΠ΄ΠΈΡ ΠΊΡΡ ΠΎΠ½Π½ΠΎΠ΅ ΠΎΠΊΠ½ΠΎ. ΠΡΠ»ΠΈ ΡΠ΄Π΅Π»Π°ΡΡ ΡΠΈΡΠΎΠΊΠΈΠΉ ΠΏΠΎΠ΄ΠΎΠΊΠΎΠ½Π½ΠΈΠΊ, ΠΎΡΠΊΡΡΠ²Π°ΡΡΠ΅Π΅ΡΡ ΠΏΠΎΠ»Π½ΠΎΡΡΡΡ ΠΎΠΊΠ½ΠΎ, ΠΌΠΎΠΆΠ½ΠΎ ΠΏΠ΅ΡΠ΅Π΄Π°Π²Π°ΡΡ Π±Π»ΡΠ΄Π° ΡΠ΅ΡΠ΅Π· ΠΎΠΊΠ½ΠΎ.
ΠΡΠ΅ ΡΠ΅Ρ Π½ΠΈΡΠ΅ΡΠΊΠΈΠ΅ ΠΏΠΎΠΌΠ΅ΡΠ΅Π½ΠΈΡ ΡΠΎΠ±ΡΠ°Π½Ρ Π² ΠΎΠ΄Π½ΠΎΠΌ ΠΌΠ΅ΡΡΠ΅ ΠΈ ΡΠ°ΡΠΏΠΎΠ»ΠΎΠΆΠ΅Π½Ρ Π²ΠΎΠ·Π»Π΅ ΠΊΡΡ Π½ΠΈ. Π‘ΠΏΠ°Π»ΡΠ½ΠΈ Π½Π°Ρ ΠΎΠ΄ΡΡΡΡ Π² ΠΏΡΠΎΡΠΈΠ²ΠΎΠΏΠΎΠ»ΠΎΠΆΠ½ΠΎΠΌ ΠΊΠΎΠ½ΡΠ΅ Π΄ΠΎΠΌΠ°, ΡΡΠΎ, Π² ΠΎΠ±ΡΠ΅ΠΌ-ΡΠΎ, ΡΠ΄ΠΎΠ±Π½ΠΎ β ΠΌΠΎΠΆΠ½ΠΎ ΠΏΡΠΈΠ½ΠΈΠΌΠ°ΡΡ Π³ΠΎΡΡΠ΅ΠΉ ΠΈΠ»ΠΈ ΡΠΌΠΎΡΡΠ΅ΡΡ ΡΠ΅Π»Π΅Π²ΠΈΠ·ΠΎΡ Π² Π³ΠΎΡΡΠΈΠ½ΠΎΠΉ ΠΈ Π½Π΅ ΠΌΠ΅ΡΠ°ΡΡ ΡΠ΅ΠΌ, ΠΊΡΠΎ ΡΠ΅ΡΠΈΠ» ΠΎΡΠ΄ΠΎΡ Π½ΡΡΡ.

ΠΡΠΎΠ΅ΠΊΡ ΠΎΠ΄Π½ΠΎΡΡΠ°ΠΆΠ½ΠΎΠ³ΠΎ Π΄ΠΎΠΌΠ° Ρ 3 ΡΠΏΠ°Π»ΡΠ½ΡΠΌΠΈ ΠΈ ΡΠ΅ΡΡΠ°ΡΠΎΠΉ
ΠΠΎΠΏΠΎΠ»Π½ΠΈΡΠ΅Π»ΡΠ½Π°Ρ Π½Π΅ΡΡΡΠ°Ρ ΡΡΠ΅Π½Π° Π² ΡΡΠΎΠΌ ΠΏΡΠΎΠ΅ΠΊΡΠ΅ ΠΎΠ΄Π½Π° β ΠΏΠΎΡΡΠΈ ΠΏΠΎΡΠ΅ΡΠ΅Π΄ΠΈΠ½Π΅ Π²Π΄ΠΎΠ»Ρ Π΄Π»ΠΈΠ½Π½ΠΎΠΉ ΡΡΠΎΡΠΎΠ½Ρ Π΄ΠΎΠΌΠ°. ΠΡΡ Π½Ρ-Π³ΠΎΡΡΠΈΠ½Π°Ρ Π΅Π΄ΠΈΠ½Π°, Π½ΠΎ ΠΌΠΎΠΆΠ½ΠΎ ΡΡΡΠ°Π½ΠΎΠ²ΠΈΡΡ ΠΏΠ΅ΡΠ΅Π³ΠΎΡΠΎΠ΄ΠΊΡ ΠΈ ΡΠ°Π·Π΄Π΅Π»ΠΈΡΡ ΠΏΠΎΠΌΠ΅ΡΠ΅Π½ΠΈΡ. Π ΡΡΠΎΠΌ ΡΠ»ΡΡΠ°Π΅ ΠΏΡΠΈΠ΄Π΅ΡΡΡ Π²ΡΠ΄Π΅Π»ΠΈΡΡ ΡΠ°ΡΡΡ Π³ΠΎΡΡΠΈΠ½ΠΎΠΉ, Π½ΠΎ, ΠΏΡΠΈ Π΄Π°Π½Π½ΠΎΠΉ ΠΏΠ»ΠΎΡΠ°Π΄ΠΈ β ΠΏΠΎΡΡΠΈ 17 ΠΌΠ΅ΡΡΠΎΠ² β ΡΡΠΎ Π½Π΅ ΠΎΡΠ΅Π½Ρ ΠΊΡΠΈΡΠΈΡΠ½ΠΎ.
Π‘ΠΏΠ°Π»ΡΠ½ΠΈ, Π² ΡΡΠΎΠΌ ΠΏΡΠΎΠ΅ΠΊΡΠ΅, ΠΈΠΌΠ΅ΡΡ ΡΠ°Π·Π½ΡΠ΅ ΡΠ°Π·ΠΌΠ΅ΡΡ: 9, 11, 13 ΠΌΠ΅ΡΡΠΎΠ². Π£Π΄ΠΎΠ±Π½ΠΎ ΡΡΠΎ ΠΈΠ»ΠΈ Π½Π΅Ρ β ΡΠ΅ΡΠ°ΡΡ Π²Π°ΠΌ. ΠΡΠΈ ΠΆΠ΅Π»Π°Π½ΠΈΠΈ, ΡΠ°Π·ΠΌΠ΅ΡΡ ΡΠΏΠ°Π»Π΅Π½ ΠΌΠΎΠΆΠ½ΠΎ ΡΠ²Π΅Π»ΠΈΡΠΈΡΡ Π·Π° ΡΡΠ΅Ρ ΡΠΌΠ΅Π½ΡΡΠ΅Π½ΠΈΡ ΠΏΠ»ΠΎΡΠ°Π΄ΠΈ ΠΊΠΎΡΠ΅Π»ΡΠ½ΠΎΠΉ (ΠΏΡΠΈ 3-Ρ ΠΌΠ΅ΡΡΠΎΠ²ΡΡ ΠΏΠΎΡΠΎΠ»ΠΊΠ°Ρ Π΄ΠΎΡΡΠ°ΡΠΎΡΠ½ΠΎ ΠΏΠ»ΠΎΡΠ°Π΄ΠΈ Π² 5 ΠΊΠ²Π°Π΄ΡΠ°ΡΠΎΠ², ΡΠ°ΠΊ ΡΡΠΎ ΡΠ΅ΡΡΡΡ Π΅ΡΡΡ). Π‘Π°ΠΌΡΡ ΠΌΠ°Π»Π΅Π½ΡΠΊΡΡ ΡΠΏΠ°Π»ΡΠ½Ρ ΠΌΠΎΠΆΠ½ΠΎ ΡΠ²Π΅Π»ΠΈΡΠΈΡΡ, Π΅ΡΠ»ΠΈ ΠΏΠ΅ΡΠ΅Π½Π΅ΡΡΠΈ ΡΠΊΠ°Ρ Π½Π° Π΄ΡΡΠ³ΡΡ ΡΡΠ΅Π½Ρ, ΡΠ΄Π²ΠΈΠ½ΡΠ² ΠΏΠ΅ΡΠ΅Π³ΠΎΡΠΎΠ΄ΠΊΡ, ΠΎΡΠ³ΠΎΡΠ°ΠΆΠΈΠ²Π°ΡΡΡΡ Π³ΠΎΡΡΠΈΠ½ΡΡ. ΠΡΡΠ°ΡΠΈ, ΡΡΠΎΡ ΠΏΡΠΎΠ΅ΠΊΡ ΠΎΠ΄Π½ΠΎΡΡΠ°ΠΆΠ½ΠΎΠ³ΠΎ Π΄ΠΎΠΌΠ° Ρ ΡΡΠ΅ΠΌΡ ΡΠΏΠ°Π»ΡΠ½ΡΠΌΠΈ ΠΈΠΌΠ΅Π΅Ρ Π΅ΡΠ΅ ΠΎΠ΄ΠΈΠ½ ΠΏΠ»ΡΡ β Π³Π°ΡΠ΄Π΅ΡΠΎΠ±Π½ΡΡ ΠΏΡΠΈ Π²Ρ ΠΎΠ΄Π΅. ΠΡΠΎ Π΄Π΅ΠΉΡΡΠ²ΠΈΡΠ΅Π»ΡΠ½ΠΎ ΡΠ΄ΠΎΠ±Π½ΠΎ.
ΠΠ°ΡΠΈΠ°Π½Ρ 2: Ρ ΠΊΠΎΡΠΎΡΠΊΠΎΠΉ ΡΠ΅ΡΡΠ°ΡΠΎΠΉ Π²Π΄ΠΎΠ»Ρ Π΄Π»ΠΈΠ½ΠΎΠΉ ΡΡΠΎΡΠΎΠ½Ρ Π΄ΠΎΠΌΠ°
Π Π°ΡΡΠΌΠΎΡΡΠΈΠΌ Π΅ΡΠ΅ ΠΎΠ΄ΠΈΠ½ Π²Π°ΡΠΈΠ°Π½Ρ ΠΏΠ»Π°Π½ΠΈΡΠΎΠ²ΠΊΠΈ ΠΎΠ΄Π½ΠΎΡΡΠ°ΠΆΠ½ΠΎΠ³ΠΎ Π΄ΠΎΠΌΠ° Ρ ΡΡΠ΅ΠΌΡ ΡΠΏΠ°Π»ΡΠ½ΡΠΌΠΈ ΠΈ ΡΠ΅ΡΡΠ°ΡΠΎΠΉ. Β ΠΠ½ ΠΎΡΠ»ΠΈΡΠ°Π΅ΡΡΡ ΠΏΠΎΠ»ΠΎΠΆΠ΅Π½ΠΈΠ΅ΠΌ Β«Π²Π»Π°ΠΆΠ½ΠΎΠ³ΠΎΒ» Π±Π»ΠΎΠΊΠ° Β β ΠΊΡΡ Π½ΠΈ/Π²Π°Π½Π½ΠΎΠΉ/ΠΊΠΎΡΠ΅Π»ΡΠ½ΠΎΠΉ/ΡΡΠ°Π»Π΅ΡΠ°. ΠΠ½ΠΈ ΠΏΠ΅ΡΠ΅Π½Π΅ΡΠ΅Π½Ρ Π½Π° ΠΏΡΠΎΡΠΈΠ²ΠΎΠΏΠΎΠ»ΠΎΠΆΠ½ΡΡ ΡΡΠΎΡΠΎΠ½Ρ. ΠΠ»ΠΎΡΠ°Π΄ΠΈ ΡΠΏΠ°Π»ΡΠ½ΡΡ ΠΊΠΎΠΌΠ½Π°Ρ Β«Π²ΡΡΠΎΠ²Π½Π΅Π½ΡΒ» Π·Π° ΡΡΠ΅ΡΒ ΡΠΌΠ΅Π½ΡΡΠ΅Π½ΠΈΡ ΠΏΠ»ΠΎΡΠ°Π΄ΠΈ ΠΊΡΡ Π½ΠΈ. ΠΠ±ΡΠ°ΡΠΈΡΠ΅ Π²Π½ΠΈΠΌΠ°Π½ΠΈΠ΅: ΡΠ°ΠΌΠ±ΡΡ ΡΠ΄Π΅Π»Π°Π½ Π²ΡΠ½ΠΎΡΠ½ΠΎΠΉ. ΠΡΠΎ ΡΠΎΠΆΠ΅ Π²Π½Π΅ΡΠ»ΠΎ ΡΠ²ΠΎΠΉ Π²ΠΊΠ»Π°Π΄ Π² ΡΠΎ, ΡΡΠΎ ΠΏΡΠΈ ΠΎΡΠ½ΠΎΡΠΈΡΠ΅Π»ΡΠ½ΠΎ Π½Π΅Π±ΠΎΠ»ΡΡΠΈΡ ΡΠ°Π·ΠΌΠ΅ΡΠ°Ρ Π΄ΠΎΠΌΠ° β 10*14 ΠΌΠ΅ΡΡΠΎΠ² (ΠΏΠ»ΠΎΡΠ°Π΄Ρ 140 ΠΊΠ²Π°Π΄ΡΠ°ΡΠ½ΡΡ ΠΌΠ΅ΡΡΠΎΠ²) β ΡΠ°Π·ΠΌΠ΅ΡΡ Π²ΡΠ΅Ρ ΠΊΠΎΠΌΠ½Π°Ρ ΡΠΎΠ»ΠΈΠ΄Π½ΡΠ΅, ΡΠΈΡΠΈΠ½Π° ΠΊΠΎΡΠΈΠ΄ΠΎΡΠ° β 1,7 ΠΌΠ΅ΡΡΠ°, ΡΡΠΎ ΡΠΎΠΆΠ΅ Π½Π΅ΠΏΠ»ΠΎΡ ΠΎ.

ΠΡΠΎΠ΅ΠΊΡ ΠΎΠ΄Π½ΠΎΡΡΠ°ΠΆΠ½ΠΎΠ³ΠΎ Π΄ΠΎΠΌΠ° Ρ ΡΡΠ΅ΠΌΡ ΡΠΏΠ°Π»ΡΠ½ΡΠΌΠΈ ΠΈ ΡΠ΅ΡΡΠ°ΡΠΎΠΉ
Π’Π΅ΡΡΠ°ΡΠ° ΠΈΠΌΠ΅Π΅Ρ Π²ΡΡ ΠΎΠ΄ ΠΈΠ· Π³ΠΎΡΡΠΈΠ½ΠΎΠΉ, Π·Π°Π½ΠΈΠΌΠ°Π΅Ρ ΡΠΎΠ»ΡΠΊΠΎ ΡΠ°ΡΡΡ Π΄Π»ΠΈΠ½Π½ΠΎΠΉ ΡΡΠ΅Π½Ρ. ΠΡΠ»ΠΈ ΡΡΠΎΡ Π²Π°ΡΠΈΠ°Π½Ρ ΠΎΠ±ΡΠ³ΡΠ°ΡΡ, ΠΏΠΎΠ»ΡΡΠΈΡΡΡ ΠΎΡΠ΅Π½Ρ Π½Π΅ΠΏΠ»ΠΎΡ ΠΎ. ΠΠ°ΠΏΡΠΈΠΌΠ΅Ρ, ΡΡΠ΄ΠΎΠΌ ΠΌΠΎΠΆΠ½ΠΎ ΠΏΠΎΡΡΠ°Π²ΠΈΡΡ ΠΏΡΡΠ΄, ΡΡΡΠ°Π½ΠΎΠ²ΠΈΡΡ ΡΠΎΠ½ΡΠ°Π½, ΡΠ°Π·Π±ΠΈΡΡ ΠΊΡΠ°ΡΠΈΠ²ΡΡ ΠΊΠ»ΡΠΌΠ±Ρ.
Π‘ ΠΌΠ΅ΡΡΠΎΠΌ ΠΏΠΎΠ΄ Π°Π²ΡΠΎΠ½Π°Π²Π΅Ρ ΠΈΠ»ΠΈ Π³Π°ΡΠ°ΠΆ
ΠΡΠ»ΠΈ ΡΡΠ΄ΠΎΠΌ Ρ Π΄ΠΎΠΌΠΎΠΌ Π½Π°Π΄ΠΎ ΡΠ°Π·ΠΌΠ΅ΡΡΠΈΡΡ Π½Π°Π²Π΅Ρ Π΄Π»Ρ ΠΌΠ°ΡΠΈΠ½Ρ ΠΈΠ»ΠΈ Π³Π°ΡΠ°ΠΆ, ΠΌΠΎΠΆΠ½ΠΎ ΠΈΠ·ΠΌΠ΅Π½ΠΈΡΡ ΠΏΠ»Π°Π½ΠΈΡΠΎΠ²ΠΊΡ ΡΠ°ΠΊ ΡΡΠΎΠ±Ρ Π²Ρ ΠΎΠ΄ Π² Π΄ΠΎΠΌ Π±ΡΠ» Π±Π»ΠΈΠΆΠ΅ ΠΊ ΠΌΠ΅ΡΡΡ ΡΡΠΎΡΠ½ΠΊΠΈ. Π’ΠΎΠ³Π΄Π° Π΅ΡΡΡ Π²ΠΎΠ·ΠΌΠΎΠΆΠ½ΠΎΡΡΡ ΠΎΠ±ΡΠ΅Π΄ΠΈΠ½ΠΈΡΡ Π½Π°Π²Π΅Ρ ΡΡΠΎΡΠ½ΠΊΠΈ ΠΈ ΠΊΡΡΠ»ΡΡΠ°. ΠΠΎΠ»ΡΡΠΈΡΡΡ ΠΌΠΎΠΆΠ΅Ρ ΠΎΡΠ΅Π½Ρ Π΄Π°ΠΆΠ΅ ΠΈΠ½ΡΠ΅ΡΠ΅ΡΠ½ΠΎ.
ΠΡΠΈ ΠΏΠ»Π°Π½ΠΈΡΠΎΠ²Π°Π½ΠΈΠΈ Π½Π°Π²Π΅ΡΠ° Π»ΡΡΡΠ΅ Π½Π°ΠΉΡΠΈ ΠΌΠ΅ΡΡΠΎ ΠΏΠΎΠ΄ Π΄Π²Π΅ ΠΌΠ°ΡΠΈΠ½Ρ. ΠΠ°ΠΆΠ΅ Π΅ΡΠ»ΠΈ ΠΌΠ°ΡΠΈΠ½Π° Ρ Π²Π°Ρ ΠΎΠ΄Π½Π°, ΠΊ Π²Π°ΠΌ Π±ΡΠ΄ΡΡ ΠΏΡΠΈΠ΅Π·ΠΆΠ°ΡΡ Π³ΠΎΡΡΠΈ ΠΈ Π½Π°ΠΌΠ½ΠΎΠ³ΠΎ ΡΠ΄ΠΎΠ±Π½Π΅Π΅, Π΅ΡΠ»ΠΈ Π΅Π΅ ΠΌΠΎΠΆΠ½ΠΎ ΠΏΠΎΡΡΠ°Π²ΠΈΡΡ ΠΏΠΎΠ΄ ΠΊΡΡΡΡ. Π Π°ΡΡ ΠΎΠ΄Ρ Π½Π° ΠΎΠ±ΡΡΡΡΠΎΠΉΡΡΠ²ΠΎ Π½Π΅ ΡΠ»ΠΈΡΠΊΠΎΠΌ ΠΎΡΠ»ΠΈΡΠ°ΡΡΡΡ, Π° Π²ΡΠ΅Π³Π΄Π° Π½Π°Π΄ΠΎ ΡΠΌΠΎΡΡΠ΅ΡΡ Π½Π° ΠΏΠ΅ΡΡΠΏΠ΅ΠΊΡΠΈΠ²Ρ. ΠΠΎΠΆΠ΅Ρ ΠΈ Ρ Π²Π°Ρ ΠΏΠΎΡΠ²ΠΈΡΡΡ Π²ΡΠΎΡΠ°Ρ ΠΌΠ°ΡΠΈΠ½Π°.

ΠΡΠΎΠ΅ΠΊΡ 1 ΡΡΠ°ΠΆΠ½ΠΎΠ³ΠΎ Π΄ΠΎΠΌΠ° ΡΡΡΠ΅ΠΌΡ ΡΠΏΠ°Π»ΡΠ½ΡΠΌΠΈ ΠΈ Π½Π°Π²Π΅ΡΠΎΠΌ Π΄Π»Ρ ΠΌΠ°ΡΠΈΠ½Ρ
Π§Π΅ΠΌ Ρ ΠΎΡΠΎΡ Π΅ΡΠ΅ Π½Π°Π²Π΅Ρ Π΄Π»Ρ ΠΌΠ°ΡΠΈΠ½Ρ? ΠΠΎΠ΄ Π½ΠΈΠΌ ΠΌΠΎΠΆΠ½ΠΎ ΠΎΠ±ΠΎΡΡΠ΄ΠΎΠ²Π°ΡΡ ΠΌΠ΅ΡΡΠΎ Π΄Π»Ρ Ρ ΡΠ°Π½Π΅Π½ΠΈΡ Π²ΡΡΠΊΠΎΠ³ΠΎ ΠΈΠ½Π²Π΅Π½ΡΠ°ΡΡ: Π°Π²ΡΠΎΠΌΠΎΠ±ΠΈΠ»ΡΠ½ΠΎΠ³ΠΎ, ΡΠ°Π΄ΠΎΠ²ΠΎΠ³ΠΎ. Π’Π°ΠΌ ΠΆΠ΅ ΠΌΠΎΠΆΠ½ΠΎ ΠΎΡΠ³ΠΎΡΠΎΠ΄ΠΈΡΡ ΠΌΠ΅ΡΡΠΎ ΠΏΠΎΠ΄ Π΄ΡΠΎΠ²Π½ΠΈΠΊ ΠΈΠ»ΠΈ ΠΏΠΎΠ»Π΅Π½Π½ΠΈΡΡ β ΡΡΠΎΠ±Ρ ΠΈΠΌΠ΅ΡΡ Π²ΠΎΠ·Π»Π΅ Π΄ΠΎΠΌΠ° Π·Π°ΠΏΠ°Ρ ΡΡΡ ΠΈΡ Π΄ΡΠΎΠ². ΠΠΎΠΎΠ±ΡΠ΅, ΠΈΡΠΏΠΎΠ»ΡΠ·ΠΎΠ²Π°ΡΡ ΡΡΡ Π·ΠΎΠ½Ρ ΠΌΠΎΠΆΠ½ΠΎ ΠΏΠΎ-ΡΠ°Π·Π½ΠΎΠΌΡ. Π ΠΎΠΏΡΠΈΠΌΠ°Π»ΡΠ½ΡΠ΅ ΡΠ°Π·ΠΌΠ΅ΡΡ Π΅Π΅ β 8*9 ΠΌΠ΅ΡΡΠΎΠ² ΠΈΠ»ΠΈ ΠΎΠΊΠΎΠ»ΠΎ ΡΠΎΠ³ΠΎ. ΠΡΠΎ, Π΅ΡΠ»ΠΈ ΠΏΠ»ΠΎΡΠ°Π΄Ρ ΡΡΠ°ΡΡΠΊΠ° ΠΏΠΎΠ·Π²ΠΎΠ»ΡΠ΅Ρ. ΠΡΠ»ΠΈ Π½Π΅Ρ, ΠΌΠΎΠΆΠ½ΠΎ ΠΈΡΡ ΠΎΠ΄ΠΈΡΡ ΠΈΠ· ΠΌΠΈΠ½ΠΈΠΌΠ°Π»ΡΠ½ΡΡ Π³Π°Π±Π°ΡΠΈΡΠΎΠ² β Π½Π° 2 ΠΌΠ΅ΡΡΠ° ΡΠΈΡΠ΅ ΠΈ Π½Π° 1,5 Π΄Π»ΠΈΠ½Π½Π΅Π΅ Π²Π°ΡΠ΅Π³ΠΎ Π°Π²ΡΠΎ.
ΠΡΠ΅Π΄ΡΡΠ°Π²Π»Π΅Π½Π½ΡΠΉ Π²ΡΡΠ΅ ΠΏΡΠΎΠ΅ΠΊΡ ΠΎΠ΄Π½ΠΎΡΡΠ°ΠΆΠ½ΠΎΠ³ΠΎ Π΄ΠΎΠΌΠ° Ρ ΡΡΠ΅ΠΌΡ ΡΠΏΠ°Π»ΡΠ½ΡΠΌΠΈ ΠΈΠΌΠ΅Π΅Ρ ΠΏΠ»ΠΎΡΠ°Π΄Ρ 100 ΠΊΠ²Π°Π΄ΡΠ°ΡΠ½ΡΡ ΠΌΠ΅ΡΡΠΎΠ², Π²ΡΠΏΠΎΠ»Π½Π΅Π½ Π² Π²ΠΈΠ΄Π΅ ΠΏΡΡΠΌΠΎΡΠ³ΠΎΠ»ΡΠ½ΠΈΠΊΠ° ΡΠΎ ΡΡΠΎΡΠΎΠ½Π°ΠΌΠΈ 8,8*12 ΠΌΠ΅ΡΡΠΎΠ². Π Π°ΡΠΏΠΎΠ»ΠΎΠΆΠ΅Π½ΠΈΠ΅ ΡΠΏΠ°Π»Π΅Π½ Π²ΡΠ΅ ΡΠ°ΠΊΠΎΠ΅-ΠΆΠ΅ β ΠΎΠ΄Π½ΠΈΠΌ Π±Π»ΠΎΠΊΠΎΠΌ, Π²ΡΠ΅ ΡΠ΅Ρ Π½ΠΈΡΠ΅ΡΠΊΠΈΠ΅ ΠΏΠΎΠΌΠ΅ΡΠ΅Π½ΠΈΡ ΡΠ°ΠΊΠΆΠ΅ ΡΠ²Π΅Π΄Π΅Π½Ρ Π² ΠΎΠ΄Π½ΠΎΠΌ ΠΌΠ΅ΡΡΠ΅. ΠΡΠΈ ΡΠ°ΠΊΠΎΠΉ ΠΏΠ»Π°Π½ΠΈΡΠΎΠ²ΠΊΠ΅ ΠΊΠΎΡΠΈΠ΄ΠΎΡ ΠΏΠΎΠ»ΡΡΠ°Π΅ΡΡΡ ΡΠΎΠ²ΡΠ΅ΠΌ Π½Π΅Π±ΠΎΠ»ΡΡΠΈΠΌ, ΡΡΠΎ ΠΌΠ½ΠΎΠ³ΠΈΡ ΠΎΠ±ΡΠ°Π΄ΡΠ΅Ρ, Π½ΠΎ ΡΡΠΎ Π±ΡΠ΄Π΅Ρ Β«ΠΏΡΠΎΡ ΠΎΠ΄Π½Π°ΡΒ» Π·ΠΎΠ½Π°, Π² ΠΊΠΎΡΠΎΡΠΎΠΉ Π½ΠΈΡΠ΅Π³ΠΎ Π½Π΅ ΠΏΠΎΡΡΠ°Π²ΠΈΡΡ.
ΠΡΠ»ΠΈ Π½Π°Π΄ΠΎ ΡΠΏΠ°Π»ΡΠ½Ρ ΡΠΎΠ΄ΠΈΡΠ΅Π»Π΅ΠΉ ΡΠ°Π·ΠΌΠ΅ΡΡΠΈΡΡ ΠΎΡΠ΄Π΅Π»ΡΠ½ΠΎ
ΠΡΠΈ Π²ΡΠ±ΠΎΡΠ΅ ΠΏΠ»Π°Π½ΠΈΡΠΎΠ²ΠΊΠΈ ΠΌΠ½ΠΎΠ³ΠΈΠ΅ ΡΡΠΈΡΠ°ΡΡ, ΡΡΠΎ ΡΠΏΠ°Π»ΡΠ½Ρ ΡΠΎΠ΄ΠΈΡΠ΅Π»Π΅ΠΉ Π½Π°Π΄ΠΎ ΡΠ°ΡΠΏΠΎΠ»Π°Π³Π°ΡΡ Π½Π° Π½Π΅ΠΊΠΎΡΠΎΡΠΎΠΌ ΡΠ°ΡΡΡΠΎΡΠ½ΠΈΠΈ ΠΎΡ Π΄Π΅ΡΡΠΊΠΈΡ . Π ΡΡΠΎΠΌ ΡΠ»ΡΡΠ°Π΅ ΠΏΠΎΠ΄Ρ ΠΎΠ΄ ΠΊ ΠΏΠ»Π°Π½ΠΈΡΠΎΠ²ΠΊΠ΅ ΠΌΠ΅Π½ΡΠ΅ΡΡΡ β ΠΎΠΏΡΠΈΠΌΠ°Π»ΡΠ½Π° Π²ΡΡΡΠ½ΡΡΠ°Ρ ΠΏΡΡΠΌΠΎΡΠ³ΠΎΠ»ΡΠ½Π°Ρ ΡΠΎΡΠΌΠ° Π΄ΠΎΠΌΠ°. ΠΠ»ΠΈΠ½Π½ΡΡ ΡΡΠΎΡΠΎΠ½Ρ Π΄Π΅Π»ΡΡ Π½Π° ΡΡΠΈ ΡΠ°ΡΡΠΈ Π΄Π²Π΅ Π½Π΅ΡΡΡΠΈΠ΅ ΡΡΠ΅Π½Ρ.

Π’Π°ΠΊΠΎΠΉ, Π΄ΠΎΠΌ Ρ Π-ΠΎΠ±ΡΠ°Π·Π½ΠΎΠΉ ΠΏΠ»Π°Π½ΠΈΡΠΎΠ²ΠΊΠΎΠΉ ΠΏΠΎ ΡΡΠΎΠΈΠΌΠΎΡΡΠΈ Π²ΡΡ ΠΎΠ΄ΠΈΡ Π±ΠΎΠ»Π΅Π΅ Π΄ΠΎΡΠΎΠ³ΠΈΠΌ, ΡΠ΅ΠΌ ΠΏΡΡΠΌΠΎΡΠ³ΠΎΠ»ΡΠ½ΡΠΉ ΠΈΠ»ΠΈ ΠΊΠ²Π°Π΄ΡΠ°ΡΠ½ΡΠΉ
ΠΠ°ΡΠΈΠ°Π½Ρ 1: Π±Π΅Π· ΠΊΠΎΡΠΈΠ΄ΠΎΡΠ°
ΠΡΠ»ΠΈ ΡΠ°Π·Π΄Π΅Π»ΠΈΡΡ Π΄ΠΎΠΌ Π½Π° ΡΡΠΈ ΡΠ°ΡΡΠΈ, Π΅ΡΡΡ Π²ΠΎΠ·ΠΌΠΎΠΆΠ½ΠΎΡΡΡ ΡΠ°Π·ΡΠ°Π±ΠΎΡΠ°ΡΡ ΠΏΠ»Π°Π½ΠΈΡΠΎΠ²ΠΊΡ Π΄ΠΎΠΌΠ° Ρ ΡΡΠ΅ΠΌΡ ΡΠΏΠ°Π»ΡΠ½ΡΠΌΠΈ Π±Π΅Π· ΠΊΠΎΡΠΈΠ΄ΠΎΡΠ°. ΠΠ΄Π½Π° ΡΡΠ΅ΡΡ Π΄ΠΎΠΌΠ° Π΄Π΅Π»ΠΈΡΡΡ Π½Π° Π΄Π²Π΅ ΡΠΏΠ°Π»ΡΠ½ΠΈ Π΄Π»Ρ Π΄Π΅ΡΠ΅ΠΉ, ΡΡΠ΅Π΄Π½ΡΡ ΡΠ°ΡΡΡ Π·Π°Π½ΠΈΠΌΠ°Π΅Ρ ΡΠΎΠ²ΠΌΠ΅ΡΠ΅Π½Π½Π°Ρ ΠΊΡΡ Π½Ρ/Π³ΠΎΡΡΠΈΠ½Π°Ρ, ΠΏΠΎΡΠ»Π΅Π΄Π½ΡΡ ΡΡΠ΅ΡΡ Π΄Π΅Π»ΠΈΡΡΡ ΠΌΠ΅ΠΆΠ΄Ρ Π²Ρ ΠΎΠ΄Π½ΠΎΠΉ Π³ΡΡΠΏΠΏΠΎΠΉ/ΡΠ°Π½ΡΠ·Π»ΠΎΠΌ ΠΈ ΡΠΏΠ°Π»ΡΠ½Π΅ΠΉ ΡΠΎΠ΄ΠΈΡΠ΅Π»Π΅ΠΉ.
Π’Π°ΠΌ Π³Π΄Π΅ ΡΠ°ΡΠΏΠΎΠ»ΠΎΠΆΠ΅Π½Π° ΡΠΏΠ°Π»ΡΠ½Ρ Π΄Π»Ρ ΡΠΎΠ΄ΠΈΡΠ΅Π»Π΅ΠΉ, ΠΈΠ· ΠΊΡΡ Π½ΠΈ/Π³ΠΎΡΡΠΈΠ½ΠΎΠΉ ΠΎΡΠ³Π°Π½ΠΈΠ·ΠΎΠ²Π°Π½ Π²Ρ ΠΎΠ΄ Π² ΡΠ°Π½ΡΠ·Π΅Π». ΠΠ°ΡΠΊΠΎΠ»ΡΠΊΠΎ ΡΠ΄Π°ΡΠ½ΠΎ ΡΠ°ΠΊΠΎΠ΅ ΡΠ΅ΡΠ΅Π½ΠΈΠ΅? ΠΠ»ΡΡ ΡΡΡ Π²ΠΈΠ΄ΠΈΡΡΡ ΡΠ°ΠΊΠΎΠΉ β Π±ΠΎΠ»ΡΡΠ°Ρ ΠΊΡΡ Π½Ρ/Π³ΠΎΡΡΠΈΠ½Π°Ρ. ΠΠΎ ΠΎΠ½Π° β ΠΏΠΎΠ»Π½ΠΎΡΡΡΡ ΠΏΡΠΎΡ ΠΎΠ΄Π½Π°Ρ. Π’ΠΎ Π΅ΡΡΡ, ΡΠ΅Π΄ΠΈΠ½ΠΈΡΡΡΡ Π² Π½Π΅ΠΉ ΡΠΎΡΠ½ΠΎ Π½Π΅ ΠΏΠΎΠ»ΡΡΠΈΡΡΡ. ΠΠΎΠ·ΠΌΠΎΠΆΠ½ΠΎ, Π²Π°ΠΌ Π½ΡΠ°Π²ΠΈΡΡΡ ΡΠ°ΠΊΠ°Ρ ΠΈΠ΄Π΅Ρ. Π₯ΠΎΡΡ, ΡΡΠΎΠ±Ρ ΠΎΡΠ΅Π½ΠΈΡΡ ΡΠ΄ΠΎΠ±ΡΡΠ²ΠΎ/Π½Π΅ΡΠ΄ΠΎΠ±ΡΡΠ²ΠΎ, ΡΡΠΎΠΈΡ ΠΏΠΎΠΆΠΈΡΡ Π² ΡΠ°ΠΊΠΎΠΌ Π΄ΠΎΠΌΠ΅. ΠΠ±ΡΡΠ½ΠΎ ΡΡΠΎ Π΄Π°Π»Π΅ΠΊΠΎ Π½Π΅ Π²ΡΠ΅ΠΌ Π½ΡΠ°Π²ΠΈΡΡΡ, Ρ ΠΎΡΡ Π½Π° ΡΡΠ°Π΄ΠΈΠΈ Β«ΠΈΠ΄Π΅ΠΈΒ» Π²ΡΠ΅ ΠΊΠ°Π·Π°Π»ΠΎΡΡ Π·Π°ΠΌΠ°Π½ΡΠΈΠ²ΡΠΌ.

Π Π°ΡΠΏΠΎΠ»ΠΎΠΆΠ΅Π½ΠΈΠ΅ ΠΊΠΎΠΌΠ½Π°Ρ Π² ΠΎΠ΄Π½ΠΎΡΡΠ°ΠΆΠ½ΠΎΠΌ Π΄ΠΎΠΌΠ΅ Ρ ΡΡΠ΅ΠΌΡ ΡΠΏΠ°Π»ΡΠ½ΡΠΌΠΈ β ΠΊΠΎΠΌΠ½Π°ΡΠ° ΡΠΎΠ΄ΠΈΡΠ΅Π»Π΅ΠΉ ΡΠ°ΡΠΏΠΎΠ»ΠΎΠΆΠ΅Π½Π° ΠΎΡΠ΄Π΅Π»ΡΠ½ΠΎ
ΠΠ±ΡΠ°ΡΠΈΡΠ΅ Π²Π½ΠΈΠΌΠ°Π½ΠΈΠ΅, ΡΡΠΎ ΡΡΠΎΡ ΠΏΡΠΎΠ΅ΠΊΡ ΠΎΠ΄Π½ΠΎΡΡΠ°ΠΆΠ½ΠΎΠ³ΠΎ Π΄ΠΎΠΌΠ° Ρ ΡΡΠ΅ΠΌΡ ΡΠΏΠ°Π»ΡΠ½ΡΠΌΠΈ Π½Π΅ ΠΈΠΌΠ΅Π΅Ρ ΠΊΠΎΡΠ΅Π»ΡΠ½ΠΎΠΉ. ΠΡΠ»ΠΈ ΠΎΠ½Π° Π½Π΅ΠΎΠ±Ρ ΠΎΠ΄ΠΈΠΌΠ°, Π²ΡΠ΄Π΅Π»ΠΈΡΡ Π΅Π΅ ΠΌΠΎΠΆΠ½ΠΎ Π·Π° ΡΡΠ΅Ρ ΡΠΌΠ΅Π½ΡΡΠ΅Π½ΠΈΡ ΠΏΠ»ΠΎΡΠ°Π΄ΠΈ ΠΊΡΡ Π½ΠΈ/Π³ΠΎΡΡΠΈΠ½ΠΎΠΉ. ΠΠΎ ΡΠΎΠ³Π΄Π° Π½Π°Π΄ΠΎ Π±ΡΠ΄Π΅Ρ ΠΏΡΠΎΠ΄ΡΠΌΡΠ²Π°ΡΡ ΠΏΠ»Π°Π½ΠΈΡΠΎΠ²ΠΊΡ, ΠΊΠ°ΠΊ ΠΎΡΠ³Π°Π½ΠΈΠ·ΠΎΠ²Π°ΡΡ Π²Ρ ΠΎΠ΄ Π² Π½Π΅Π΅. ΠΠΎΠ·ΠΌΠΎΠΆΠ½ΡΠΉ, Π½ΠΎ Π½Π΅ ΠΎΡΠ΅Π½Ρ ΡΠ΄ΠΎΠ±Π½ΡΠΉ Π²Π°ΡΠΈΠ°Π½Ρ β ΠΈΠ· ΠΊΡΡ Π½ΠΈ, Π΅ΡΠ»ΠΈ ΠΎΠ½Π° Π±ΡΠ΄Π΅Ρ ΡΠ°ΡΠΏΠΎΠ»ΠΎΠΆΠ΅Π½Π° Π²ΠΎΠ·Π»Π΅ Π²Π°Π½Π½ΠΎΠΉ. ΠΡΠΎΡΠΎΠΉ β Ρ ΡΠ»ΠΈΡΡ. ΠΠΎ ΡΠΎΠ³Π΄Π° ΡΠΆ, ΠΌΠΎΠΆΠ½ΠΎ ΡΠ΄Π΅Π»Π°ΡΡ ΠΏΡΠΈΡΡΡΠΎΠΉΠΊΡ ΠΊ Π΄ΠΎΠΌΡ. Π₯ΠΎΡΡ, ΡΡΠΎ ΠΎΠΏΡΠ΅Π΄Π΅Π»ΡΠ΅ΡΡΡ ΡΠ°Π·ΠΌΠ΅ΡΠ°ΠΌΠΈ Π΄ΠΎΠΌΠ°.
ΠΠ°ΡΠΈΠ°Π½Ρ 2: Ρ ΠΊΠΎΡΠΈΠ΄ΠΎΡΠΎΠΌ
ΠΠ»Π°Π½ΠΈΡΠΎΠ²ΠΊΡ Ρ Π΄Π²ΡΠΌΡ Π΄Π΅ΡΡΠΊΠΈΠΌΠΈ ΠΈ Π²ΡΠ½Π΅ΡΠ΅Π½Π½ΠΎΠΉ ΠΏΠΎΠ΄Π°Π»ΡΡΠ΅ ΡΠΏΠ°Π»ΡΠ½Π΅ΠΉ ΡΠΎΠ΄ΠΈΡΠ΅Π»Π΅ΠΉ ΠΌΠΎΠΆΠ½ΠΎ ΡΠ΅Π°Π»ΠΈΠ·ΠΎΠ²Π°ΡΡ Π² ΠΊΠ²Π°Π΄ΡΠ°ΡΠ½ΠΎΠΌ Π΄ΠΎΠΌΠ΅ (Π½Π° ΡΠΈΡΡΠ½ΠΊΠ΅ Π½ΠΈΠΆΠ΅). ΠΠΈΠ½ΠΈΠΌΠ°Π»ΡΠ½ΠΎ Π²ΠΎΠ·ΠΌΠΎΠΆΠ½ΡΠ΅ ΡΠ°Π·ΠΌΠ΅ΡΡ β 12*12 ΠΌΠ΅ΡΡΠΎΠ². ΠΠΎ ΠΏΠ»ΠΎΡΠ°Π΄ΠΈ ΡΡΠΎ ΡΡΡΡ Π±ΠΎΠ»ΡΡΠ΅ 140 ΠΊΠ²Π°Π΄ΡΠ°ΡΠΎΠ². Π ΡΡΠΎΠΌ ΡΠ»ΡΡΠ°Π΅ Π³Π°Π±Π°ΡΠΈΡΡ Π²ΡΠ΅Ρ ΠΏΠΎΠΌΠ΅ΡΠ΅Π½ΠΈΡ Π±Π»ΠΈΠ·ΠΊΠΈ ΠΊ ΠΎΠΏΡΠΈΠΌΠ°Π»ΡΠ½ΡΠΌ (ΠΊΠ²Π°Π΄ΡΠ°ΡΠ½ΡΠ΅, ΠΈΠΌΠ΅ΡΡ ΠΏΠ»ΠΎΡΠ°Π΄Ρ Π±ΠΎΠ»Π΅Π΅ 10 ΠΊΠ²Π°Π΄ΡΠ°ΡΠ½ΡΡ ΠΌΠ΅ΡΡΠΎΠ²). ΠΠΎΡΡΠΈΠ½Π°Ρ ΡΠΎΠ²ΠΌΠ΅ΡΠ΅Π½Π° Ρ ΠΊΡΡ Π½Π΅ΠΉ Π½ΠΎ Π½Π΅ ΡΠ²Π»ΡΠ΅ΡΡΡ ΠΏΡΠΎΡ ΠΎΠ΄Π½ΠΎΠΉ.
ΠΡΠΈ Π²ΠΎΠ·ΠΌΠΎΠΆΠ½ΠΎΡΡΠΈ/ΠΆΠ΅Π»Π°Π½ΠΈΠΈ ΠΌΠΎΠΆΠ½ΠΎ ΡΠ΄Π΅Π»Π°ΡΡ ΠΈ Π² ΠΏΡΡΠΌΠΎΡΠ³ΠΎΠ»ΡΠ½ΠΎΠΌ Π΄ΠΎΠΌΠ΅, ΠΏΡΠΎΡΡΠΎ ΠΊΠ²Π°Π΄ΡΠ°Ρ Π±ΠΎΠ»Π΅Π΅ ΠΏΡΠ΅Π΄ΠΏΠΎΡΡΠΈΡΠ΅Π»Π΅Π½, ΡΠ°ΠΊ ΠΊΠ°ΠΊ ΡΡΠΎΠΈΠΌΠΎΡΡΡ ΠΊΠ²Π°Π΄ΡΠ°ΡΠ½ΠΎΠ³ΠΎ ΠΌΠ΅ΡΡΠ° ΠΆΠΈΠ»ΡΡ ΠΏΠΎΠ»ΡΡΠ°Π΅ΡΡΡ Π½Π΅ΠΌΠ½ΠΎΠ³ΠΎ Π½ΠΈΠΆΠ΅. ΠΠ°Π΄ΠΎ ΡΠΊΠ°Π·Π°ΡΡ, ΡΡΠΎ Π²ΡΠΈΠ³ΡΡΡ ΡΠΎΠ²ΡΠ΅ΠΌ Π½Π΅Π±ΠΎΠ»ΡΡΠΎΠΉ, ΡΠ°ΠΊ ΡΡΠΎ Π½Π΅ ΡΡΠΎΠΈΡ Π½Π° ΡΡΠΎΠΌ ΠΎΡΠΎΠ±ΠΎ Π·Π°ΠΌΠΎΡΠ°ΡΠΈΠ²Π°ΡΡΡΡ. ΠΡΡΡΠ΅ ΠΈΡΡ ΠΎΠ΄ΠΈΡΡ ΠΈΠ· ΡΠ΄ΠΎΠ±ΡΡΠ²Π°, Π²Π΅Π΄Ρ ΠΏΡΠΎΠ΅ΠΊΡ ΠΎΠ΄Π½ΠΎΡΡΠ°ΠΆΠ½ΠΎΠ³ΠΎ Π΄ΠΎΠΌΠ° Ρ ΡΡΠ΅ΠΌΡ ΡΠΏΠ°Π»ΡΠ½ΡΠΌΠΈ Π²ΡΠ±ΠΈΡΠ°Π΅ΡΠ΅ Π΄Π»Ρ ΡΠΎΠ±ΡΡΠ²Π΅Π½Π½ΠΎΠΉ ΠΆΠΈΠ·Π½ΠΈ.

ΠΡΠΎΠ΅ΠΊΡ ΠΊΠ²Π°Π΄ΡΠ°ΡΠ½ΠΎΠ³ΠΎ ΠΎΠ΄Π½ΠΎΡΡΠ°ΠΆΠ½ΠΎΠ³ΠΎ Π΄ΠΎΠΌΠ° Ρ ΡΡΠ΅ΠΌΡ ΡΠΏΠ°Π»ΡΠ½ΡΠΌΠΈ
Π Π΄Π°Π½Π½ΠΎΠΌ Π²Π°ΡΠΈΠ°Π½ΡΠ΅ ΠΏΠ»Π°Π½ΠΈΡΠΎΠ²ΠΊΠΈ ΡΠΏΠ°Π»ΡΠ½Ρ ΡΠΎΠ΄ΠΈΡΠ΅Π»Π΅ΠΉ Π²ΠΎΠΎΠ±ΡΠ΅ ΠΎΠ±ΠΎΡΠΎΠ±Π»Π΅Π½Π°. ΠΠΎΡΡΠΎΠΈΠ½ΡΡΠ²ΠΎ ΠΏΡΠΈΠ²Π΅Π΄Π΅Π½Π½ΠΎΠ³ΠΎ Π²Π°ΡΠΈΠ°Π½ΡΠ° β Π² Π΄Π΅ΡΡΠΊΠΈΡ Π΅ΡΡΡ ΠΌΠ΅ΡΡΠΎ ΠΏΠΎΠ΄Β Π³Π°ΡΠ΄Π΅ΡΠΎΠ±Π½ΡΠ΅. ΠΡΡΡ ΡΡΡ ΠΈ Π½Π΅Π΄ΠΎΡΡΠ°ΡΠΎΠΊ β Β«ΠΌΠΎΠΊΡΡΠ΅Β» ΠΏΠΎΠΌΠ΅ΡΠ΅Π½ΠΈΡ Π½Π°Ρ ΠΎΠ΄ΡΡΡΡ Π½Π° ΠΏΡΠΎΡΠΈΠ²ΠΎΠΏΠΎΠ»ΠΎΠΆΠ½ΡΡ ΠΊΡΠ°ΡΡ Π΄ΠΎΠΌΠ°. Π£ΡΡΡΠΎΠΉΡΡΠ²ΠΎ ΠΈΠ½ΠΆΠ΅Π½Π΅ΡΠ½ΡΡ ΡΠΈΡΡΠ΅ΠΌ Π±ΡΠ΄Π΅Ρ ΡΠ»ΠΎΠΆΠ½Π΅Π΅ (ΠΊΡΠΎΠΌΠ΅ ΠΊΠ°Π½Π°Π»ΠΈΠ·Π°ΡΠΈΠΈ ΠΈ Π²ΠΎΠ΄ΠΎΠΏΡΠΎΠ²ΠΎΠ΄Π° ΠΏΡΠΈΠ΄Π΅ΡΡΡ Π΄ΡΠΌΠ°ΡΡ Π΅ΡΠ΅ ΠΈ ΠΎΠ± ΠΎΡΠ΄Π΅Π»ΡΠ½ΠΎΠΉ Π²Π΅Π½ΡΠΈΠ»ΡΡΠΈΠΈ).
ΠΠ΅ Π²ΡΠ΅ΠΌ Π½ΡΠ°Π²ΠΈΡΡΡ ΠΈΠ΄Π΅Ρ ΠΎΠ±ΡΠ΅Π΄ΠΈΠ½Π΅Π½ΠΈΡ ΠΊΡΡ Π½ΠΈ ΠΈ Π³ΠΎΡΡΠΈΠ½ΠΎΠΉ. Π Π΄Π°Π½Π½ΠΎΠΌ ΡΠ»ΡΡΠ°Π΅ ΠΌΠΎΠΆΠ½ΠΎ Π»Π΅Π³ΠΊΠΎ ΠΏΡΠΎΠ±Π»Π΅ΠΌΡ ΡΠ΅ΡΠΈΡΡ, ΡΡΡΠ°Π½ΠΎΠ²ΠΈΠ² ΠΏΠ΅ΡΠ΅Π³ΠΎΡΠΎΠ΄ΠΊΡ. ΠΡ ΠΎΠ΄ Π² ΠΊΡΡ Π½Ρ ΠΌΠΎΠΆΠ΅Ρ Π±ΡΡΡ ΠΊΠ°ΠΊ ΠΈΠ· ΠΊΠΎΡΠΈΠ΄ΠΎΡΠ°, ΡΠ°ΠΊ ΠΈ ΠΈΠ· Π³ΠΎΡΡΠΈΠ½ΠΎΠΉ.
ΠΠΎ, Π΅ΡΠ»ΠΈ Π½Π΅ Π²Π½ΠΎΡΠΈΡΡ Π΄ΡΡΠ³ΠΈΡ ΠΈΠ·ΠΌΠ΅Π½Π΅Π½ΠΈΠΉ, Π²Ρ ΠΎΠ΄ Π² Π³ΠΎΡΡΠΈΠ½ΡΡ ΡΠΎΠ»ΡΠΊΠΎ ΡΠ΅ΡΠ΅Π· ΠΊΡΡ Π½Ρ, ΡΡΠΎ Π½Π΅ΡΠ΄ΠΎΠ±Π½ΠΎ. Π Π΅ΡΠΈΡΡ ΠΏΡΠΎΠ±Π»Π΅ΠΌΡ ΠΌΠΎΠΆΠ½ΠΎ ΡΠ΄Π΅Π»Π°Π² Π½Π΅ΠΊΠΎΡΠΎΡΡΠ΅ ΡΡΠ°Π½ΡΡΠΎΡΠΌΠ°ΡΠΈΠΈ. ΠΠ΅ΡΠ²Π°Ρ β Β«ΡΡΠΎΠΏΠ»Π΅Π½Π½Π°ΡΒ» Π²Ρ ΠΎΠ΄Π½Π°Ρ Π·ΠΎΠ½Π° ΡΡΠ°Π½ΠΎΠ²ΠΈΡΡΡ Β«Π½ΠΎΡΠΌΠ°Π»ΡΠ½ΠΎΠΉΒ», Π² ΠΏΠ»ΠΎΡΠ°Π΄ΠΈ ΡΡΠ΅Π½, ΡΠ°Π·Π΄Π΅Π»ΡΡΡΠ°Ρ ΠΊΠΎΡΠΈΠ΄ΠΎΡ ΠΏΠ΅ΡΠ΅Π³ΠΎΡΠΎΠ΄ΠΊΠ° ΡΠ±ΠΈΡΠ°Π΅ΡΡΡ. ΠΠ±ΡΠ°Π·ΡΠ΅ΡΡΡ Π±ΠΎΠ»ΡΡΠ°Ρ Π²Ρ ΠΎΠ΄Π½Π°Ρ Π·ΠΎΠ½Π°, Π½ΠΎ Π±Π΅Π· ΡΠ΅ΠΏΠ»ΠΎΠ³ΠΎ ΡΠ°ΠΌΠ±ΡΡΠ°. ΠΠ°ΡΠΎ ΠΏΠΎΠ»ΡΡΠ°Π΅ΠΌ Π΄ΠΎΠΏΠΎΠ»Π½ΠΈΡΠ΅Π»ΡΠ½ΠΎΠ΅ Π±ΠΎΠ»ΡΡΠΎΠ΅ ΠΏΠΎ ΠΏΠ»ΠΎΡΠ°Π΄ΠΈ ΠΏΠΎΠΌΠ΅ΡΠ΅Π½ΠΈΠ΅, ΠΊΠΎΡΠΎΡΠΎΠ΅ ΠΌΠΎΠΆΠ½ΠΎ Π½Π΅ΠΏΠ»ΠΎΡ ΠΎ ΠΎΠ±ΠΎΡΡΠ΄ΠΎΠ²Π°ΡΡ. ΠΡΠ°Π²Π΄Π°, ΡΡΠΎ ΡΠΆΠ΅ Π΄ΡΡΠ³ΠΎΠΉ ΠΏΡΠΎΠ΅ΠΊΡ ΠΎΠ΄Π½ΠΎΡΡΠ°ΠΆΠ½ΠΎΠ³ΠΎ Π΄ΠΎΠΌΠ° Ρ ΡΡΠ΅ΠΌΡ ΡΠΏΠ°Π»ΡΠ½ΡΠΌΠΈ (ΡΠΌΠΎΡΡΠΈΡΠ΅ Π½ΠΈΠΆΠ΅).
ΠΠ· ΡΡΠΎΠΉ Π·ΠΎΠ½Ρ ΠΌΠΎΠΆΠ½ΠΎ ΡΠ΄Π΅Π»Π°ΡΡ Π²Ρ ΠΎΠ΄ Π² Π³ΠΎΡΡΠΈΠ½ΡΡ. ΠΠ½ ΠΏΠΎΠ»ΡΡΠ°Π΅ΡΡΡ ΡΡΠ΄ΠΎΠΌ ΡΠΎ Π²Ρ ΠΎΠ΄ΠΎΠΌ, ΡΡΠΎ Π²ΠΏΠΎΠ»Π½Π΅ Π»ΠΎΠ³ΠΈΡΠ½ΠΎ. ΠΡΠ°Π²Π΄Π°, ΡΡΠ½ΠΊΡΠΈΠΎΠ½Π°Π»ΡΠ½ΠΎΠΉ ΠΎΡΡΠ°Π΅ΡΡΡ ΡΠΎΠ»ΡΠΊΠΎ ΡΠ°ΡΡΡ ΠΏΠΎΠΌΠ΅ΡΠ΅Π½ΠΈΡ, Π½ΠΎ Β«ΡΡΠ΅ΡΠ±Β» ΠΌΠΎΠΆΠ½ΠΎ ΠΌΠΈΠ½ΠΈΠΌΠΈΠ·ΠΈΡΠΎΠ²Π°ΡΡ, ΠΏΡΠΈΠ±Π»ΠΈΠ·ΠΈΠ² Π΄Π²Π΅ΡΠΈ.

ΠΠ΄ΠΈΠ½ ΠΈΠ· Π²Π°ΡΠΈΠ°Π½ΡΠΎΠ²
ΠΠΎΠΆΠ½ΠΎ ΠΏΠΎΠΉΡΠΈ Π΅ΡΠ΅ Π΄Π°Π»ΡΡΠ΅ β ΡΠ±ΡΠ°ΡΡ ΠΏΠ΅ΡΠ΅Π³ΠΎΡΠΎΠ΄ΠΊΡ, ΠΎΡΠ΄Π΅Π»ΡΡΡΡΡ Π³ΠΎΡΡΠΈΠ½ΡΡ ΠΎΡ ΠΊΠΎΡΠΈΠ΄ΠΎΡΠ°. Π‘ΡΠ΅Π½Π° ΡΡΡ Π½Π΅ΡΡΡΠ°Ρ ΡΠ°ΠΊ ΡΡΠΎ ΠΏΠΎΡΡΠ΅Π±ΡΠ΅ΡΡΡ ΡΡΡΠ°Π½ΠΎΠ²ΠΊΠ° ΠΊΠΎΠ»ΠΎΠ½. ΠΠΎ ΠΏΠ»Π°Π½ΠΈΡΠΎΠ²ΠΊΠ° Π΄ΠΎΠΌΠ° Π±ΡΠ΄Π΅Ρ Π² ΡΠΎΠ²ΡΠ΅ΠΌΠ΅Π½Π½ΠΎΠΌ ΡΡΠΈΠ»Π΅ β ΠΎΡ Π²Ρ ΠΎΠ΄Π° Π΅Π΄ΠΈΠ½ΠΎΠ΅ ΠΏΡΠΎΡΡΡΠ°Π½ΡΡΠ²ΠΎ, Π²ΡΠΏΠΎΠ»Π½ΡΡΡΠ΅Π΅ ΡΠΎΠ»Ρ Π³ΠΎΡΡΠΈΠ½ΠΎΠΉ ΠΈ ΠΎΠ±ΡΠ΅ΠΉ ΠΊΠΎΠΌΠ½Π°ΡΡ. ΠΠ»Ρ ΠΌΠ½ΠΎΠ³ΠΈΡ ΡΡΠΎ ΠΊΠ°ΠΆΠ΅ΡΡΡ ΡΠ΄ΠΎΠ±Π½ΡΠΌ.
ΠΡΡ Π²Π°ΡΠΈΠ°Π½ΡΡ
ΠΠΌΠ΅Ρ ΠΎΠΏΡΠ΅Π΄Π΅Π»Π΅Π½Π½ΡΠΉ Π½Π°Π±ΠΎΡ ΠΏΠΎΠΌΠ΅ΡΠ΅Π½ΠΈΠΉ ΠΈ ΡΡΠ΅Π±ΠΎΠ²Π°Π½ΠΈΡ ΠΏΠΎ ΠΈΡ ΡΠ°ΡΠΏΠΎΠ»ΠΎΠΆΠ΅Π½ΠΈΡ, ΡΠ»ΠΈΡΠΊΠΎΠΌ ΠΌΠ½ΠΎΠ³ΠΎ Π²Π°ΡΠΈΠ°Π½ΡΠΎΠ² Π½Π΅ ΠΏΠΎΠ»ΡΡΠΈΡΡ. ΠΡΠΈΠ²Π΅Π΄Π΅Π½Π½ΡΠ΅ Π½ΠΈΠΆΠ΅ ΠΏΠ»Π°Π½ΠΈΡΠΎΠ²ΠΊΠΈ ΠΎΡΠ»ΠΈΡΠ°ΡΡΡΡ Π² Π½Π΅ΠΊΠΎΡΠΎΡΡΡ Π΄Π΅ΡΠ°Π»ΡΡ . ΠΠΎΠΆΠ΅Ρ, ΠΎΠ΄ΠΈΠ½ ΠΈΠ· Π½ΠΈΡ Π²Π°ΠΌ ΠΈ ΠΏΠΎΠ΄ΠΎΠΉΠ΄Π΅Ρ.

ΠΠ΄Π½ΠΎΡΡΠ°ΠΆΠ½ΡΠΉ Π΄ΠΎΠΌ Ρ ΡΡΠ΅ΠΌΡ ΡΠΏΠ°Π»ΡΠ½ΡΠΌΠΈ, ΡΡΠΊΠ΅ΡΠΎΠΌ ΠΈ ΡΠ΅ΡΡΠ°ΡΠΎΠΉ
Β

ΠΡΠΎΠ΅ΠΊΡ ΠΎΠ΄Π½ΠΎΡΡΠ°ΠΆΠ½ΠΎΠ³ΠΎ Π΄ΠΎΠΌΠ° Ρ ΡΡΠ΅ΠΌΡ ΡΠΏΠ°Π»ΡΠ½ΡΠΌΠΈ ΠΈ ΡΠ΅ΡΡΠ°ΡΠΎΠΉ (90 ΠΊΠ². ΠΌ.)
Β

ΠΠ»ΠΎΡΠ°Π΄Ρ 130 ΠΊΠ². ΠΌ, Π΅ΡΡΡ ΠΊΠ»Π°Π΄ΠΎΠ²ΠΊΠ° ΡΠΎ Π²Ρ ΠΎΠ΄ΠΎΠΌ ΠΈΠ· ΠΊΡΡ Π½ΠΈ
Β

ΠΡΠ»ΠΈ Π½ΡΠΆΠ½Ρ ΡΠ°Π·Π΄Π΅Π»ΡΠ½Π°Ρ ΠΊΡΡ Π½Ρ ΠΈ Π³ΠΎΡΡΠΈΠ½Π°Ρ. ΠΡΠ°ΠΊΡΠΈΡΠ½ΠΎΠ΅ ΡΠ°ΡΠΏΠΎΠ»ΠΎΠΆΠ΅Π½ΠΈΠ΅ Ρ Π½Π΅Π±ΠΎΠ»ΡΡΠΈΠΌ ΠΊΠΎΡΠΈΠ΄ΠΎΡΠΎΠΌ
Β

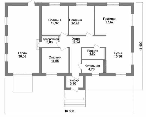
ΠΠ΄Π½ΠΎΡΡΠ°ΠΆΠ½ΡΠΉ Π΄ΠΎΠΌ ΠΏΠ»ΠΎΡΠ°Π΄ΡΡ 160 ΠΊΠ². ΠΌ, Ρ ΡΡΠ΅ΠΌΡ ΡΠΏΠ°Π»ΡΠ½ΡΠΌΠΈ ΠΈ ΠΊΠ°Π±ΠΈΠ½Π΅ΡΠΎΠΌ, ΠΊΠΎΡΠ΅Π»ΡΠ½ΠΎΠΉ ΠΈ Π½Π΅Π±ΠΎΠ»ΡΡΠΎΠΉ ΡΠ³Π»ΠΎΠ²ΠΎΠΉ Π²Π΅ΡΠ°Π½Π΄ΠΎΠΉ
stroychik.ru
ΡΠ΅Π»Π΅ΡΠΎΠΎΠ±ΡΠ°Π·Π½ΠΎΡΡΡ, ΠΎΠΏΡΠΈΠΌΠ°Π»ΡΠ½ΡΠ΅ ΠΏΠ»Π°Π½ΠΈΡΠΎΠ²ΠΊΠΈ ΠΈ ΡΠ΅Ρ Π½ΠΈΡΠ΅ΡΠΊΠΈΠ΅ Π½ΠΎΡΠΌΠ°ΡΠΈΠ²Ρ
14 ΠΠ°Ρ 2018 2018-05-14
2402
ΠΡΠ΅ΠΌΡ ΡΡΠ΅Π½ΠΈΡ 9 ΠΌΠΈΠ½ΡΡ
ΠΡΠΎΡΠΈΡΠ°ΡΡ ΠΏΠΎΠ·ΠΆΠ΅ΠΡΠΏΡΠ°Π²ΠΈΠΌ ΠΌΠ°ΡΠ΅ΡΠΈΠ°Π» Π½Π° ΠΏΠΎΡΡΡ
Π Π°ΡΠΏΠ΅ΡΠ°ΡΠ°ΡΡ
ΠΠ΅Π»Π°Π½ΠΈΠ΅ ΡΠ΄Π΅Π»Π°ΡΡ ΡΠ²ΠΎΠ΅ ΠΆΠΈΠ»ΡΠ΅ ΠΌΠ°ΠΊΡΠΈΠΌΠ°Π»ΡΠ½ΠΎ ΠΊΠΎΠΌΡΠΎΡΡΠ½ΡΠΌ, ΡΠ΄ΠΎΠ±Π½ΡΠΌ, ΠΏΡΠ°ΠΊΡΠΈΡΠ½ΡΠΌ Π½Π° ΠΏΡΠ°ΠΊΡΠΈΠΊΠ΅ Π² ΠΏΠΎΠ»Π½ΠΎΠΉ ΠΌΠ΅ΡΠ΅ Π½Π΅ Π²ΡΠ΅Π³Π΄Π° ΡΠ΅Π°Π»ΠΈΠ·ΡΠ΅ΡΡΡ. ΠΡΠΈΡΠΈΠ½ΠΎΠΉ Π½Π΅ΡΠ΄Π°Ρ, Ρ Π°ΡΠ°ΠΊΡΠ΅ΡΠ½ΡΡ ΠΎΡΠΈΠ±ΠΎΠΊ Π·Π°ΡΠ°ΡΡΡΡ ΡΡΠ°Π½ΠΎΠ²ΠΈΡΡΡ Π½Π΅ΠΏΠΎΠ½ΠΈΠΌΠ°Π½ΠΈΠ΅ ΡΠ»Π΅ΠΌΠ΅Π½ΡΠ°ΡΠ½ΡΡ ΠΏΡΠΈΠ½ΡΠΈΠΏΠΎΠ² ΠΏΠΎΡΡΡΠΎΠ΅Π½ΠΈΡ ΠΏΡΠΎΡΡΡΠ°Π½ΡΡΠ²Π°. ΠΠ΅Π·Π΄ΡΠΌΠ½ΠΎΠ΅ ΠΊΠΎΠΏΠΈΡΠΎΠ²Π°Π½ΠΈΠ΅ ΡΠ²ΠΈΠ΄Π΅Π½Π½ΡΡ Π² ΡΠ΅Π»Π΅ΠΏΠ΅ΡΠ΅Π΄Π°ΡΠ°Ρ ΠΈ Π½Π° ΡΠ΅ΠΌΠ°ΡΠΈΡΠ΅ΡΠΊΠΈΡ ΡΠ°ΠΉΡΠ°Ρ ΠΈΠ½ΡΠ΅ΡΡΠ΅ΡΠΎΠ² Π½Π΅ ΠΏΡΠΈΠ²ΠΎΠ΄ΠΈΡ ΠΊ Π΄ΠΎΡΡΠΈΠΆΠ΅Π½ΠΈΡ ΡΠ΅Π»Π΅ΠΉ.
ΠΠ΅Π»Π°Π½ΠΈΠ΅ ΡΠ΄Π΅Π»Π°ΡΡ ΡΠ²ΠΎΠ΅ ΠΆΠΈΠ»ΡΠ΅ ΠΌΠ°ΠΊΡΠΈΠΌΠ°Π»ΡΠ½ΠΎ ΠΊΠΎΠΌΡΠΎΡΡΠ½ΡΠΌ, ΡΠ΄ΠΎΠ±Π½ΡΠΌ, ΠΏΡΠ°ΠΊΡΠΈΡΠ½ΡΠΌ Π½Π° ΠΏΡΠ°ΠΊΡΠΈΠΊΠ΅ Π² ΠΏΠΎΠ»Π½ΠΎΠΉ ΠΌΠ΅ΡΠ΅ Π½Π΅ Π²ΡΠ΅Π³Π΄Π° ΡΠ΅Π°Π»ΠΈΠ·ΡΠ΅ΡΡΡ. ΠΡΠΈΡΠΈΠ½ΠΎΠΉ Π½Π΅ΡΠ΄Π°Ρ, Ρ Π°ΡΠ°ΠΊΡΠ΅ΡΠ½ΡΡ ΠΎΡΠΈΠ±ΠΎΠΊ Π·Π°ΡΠ°ΡΡΡΡ ΡΡΠ°Π½ΠΎΠ²ΠΈΡΡΡ Π½Π΅ΠΏΠΎΠ½ΠΈΠΌΠ°Π½ΠΈΠ΅ ΡΠ»Π΅ΠΌΠ΅Π½ΡΠ°ΡΠ½ΡΡ ΠΏΡΠΈΠ½ΡΠΈΠΏΠΎΠ² ΠΏΠΎΡΡΡΠΎΠ΅Π½ΠΈΡ ΠΏΡΠΎΡΡΡΠ°Π½ΡΡΠ²Π°. ΠΠ΅Π·Π΄ΡΠΌΠ½ΠΎΠ΅ ΠΊΠΎΠΏΠΈΡΠΎΠ²Π°Π½ΠΈΠ΅ ΡΠ²ΠΈΠ΄Π΅Π½Π½ΡΡ Π² ΡΠ΅Π»Π΅ΠΏΠ΅ΡΠ΅Π΄Π°ΡΠ°Ρ ΠΈ Π½Π° ΡΠ΅ΠΌΠ°ΡΠΈΡΠ΅ΡΠΊΠΈΡ ΡΠ°ΠΉΡΠ°Ρ ΠΈΠ½ΡΠ΅ΡΡΠ΅ΡΠΎΠ² Π½Π΅ ΠΏΡΠΈΠ²ΠΎΠ΄ΠΈΡ ΠΊ Π΄ΠΎΡΡΠΈΠΆΠ΅Π½ΠΈΡ ΡΠ΅Π»Π΅ΠΉ. ΠΠ°ΡΡΡΠ΅Π½ΠΈΠ΅ ΡΠ²Π΅ΡΠΎΠ²ΠΎΠ³ΠΎ Π±Π°Π»Π°Π½ΡΠ°, ΠΈΠ·ΠΌΠ΅Π½Π΅Π½ΠΈΠ΅ ΠΌΠ°ΡΡΡΠ°Π±Π° ΠΈ ΡΠΎΠΎΡΠ½ΠΎΡΠ΅Π½ΠΈΡ ΡΠ°Π·ΠΌΠ΅ΡΠΎΠ² ΡΠ»Π΅ΠΌΠ΅Π½ΡΠΎΠ² Π΄Π΅ΠΊΠΎΡΠ° ΠΈ ΠΊΠΎΠ½ΡΡΡΡΠΊΡΠΈΠ²Π½ΡΡ Π΄Π΅ΡΠ°Π»Π΅ΠΉ Π·Π΄Π°Π½ΠΈΡ Π΄ΠΈΡΠΊΡΠ΅Π΄ΠΈΡΠΈΡΡΠ΅Ρ ΠΈΠ·Π½Π°ΡΠ°Π»ΡΠ½ΡΡ ΠΈΠ΄Π΅Ρ. Π§Π°ΡΡΠΎ Π½Π΅ΡΠ΄Π°ΡΠ½ΠΎΠ΅ ΡΠ΅ΡΠ΅Π½ΠΈΠ΅ ΠΏΠΎΡΠ²Π»ΡΠ΅ΡΡΡ Π½Π° ΡΡΠ°Π΄ΠΈΠΈ ΠΏΡΠΎΠ΅ΠΊΡΠΈΡΠΎΠ²Π°Π½ΠΈΡ. ΠΠ°ΠΏΡΠΈΠΌΠ΅Ρ, ΠΊΠ°ΠΊ ΠΎΠΏΡΠΈΠΌΠ°Π»ΡΠ½ΠΎ ΡΠ°ΡΠΏΠΎΠ»ΠΎΠΆΠΈΡΡ ΠΈ ΠΎΡΠ΄Π΅Π»Π°ΡΡ Π΄ΠΎΠΌ Ρ ΡΡΠ΅ΠΌΡ ΡΠΏΠ°Π»ΡΠ½ΡΠΌΠΈ, ΡΠ΅Π»ΠΎΠ²Π΅ΠΊΡ, Π½Π΅ ΠΈΠΌΠ΅ΡΡΠ΅ΠΌΡ Π°ΡΡ ΠΈΡΠ΅ΠΊΡΡΡΠ½ΠΎΠ³ΠΎ ΠΈΠ»ΠΈ Π΄ΠΈΠ·Π°ΠΉΠ½Π΅ΡΡΠΊΠΎΠ³ΠΎ ΠΎΠ±ΡΠ°Π·ΠΎΠ²Π°Π½ΠΈΡ, ΠΏΡΠΎΠ΄ΡΠΌΠ°ΡΡ Π½Π΅ ΡΠ°ΠΊ ΠΏΡΠΎΡΡΠΎ.

Π ΠΊΠ°ΠΊΠΈΡ ΡΠ»ΡΡΠ°ΡΡ ΡΠ΅Π»Π΅ΡΠΎΠΎΠ±ΡΠ°Π·Π½ΠΎ ΡΡΡΠΎΠΈΡΡ ΠΆΠΈΠ»ΡΠ΅ Ρ ΡΡΠ΅ΠΌΡ ΡΠΏΠ°Π»ΡΠ½ΡΠΌΠΈ
ΠΠΏΡΠΈΠΌΠ°Π»ΡΠ½ΡΠΌ Π²Π°ΡΠΈΠ°Π½ΡΠΎΠΌ ΠΏΠΎ ΠΎΠΏΡΠ΅Π΄Π΅Π»Π΅Π½ΠΈΡ Π½Π°Π·Π½Π°ΡΠ΅Π½ΠΈΡ ΠΊΠΎΠΌΠ½Π°ΡΡ ΡΡΠ°Π½Π΅Ρ ΡΡΠ°Π΄ΠΈΡ ΠΏΡΠΎΠ΅ΠΊΡΠΈΡΠΎΠ²Π°Π½ΠΈΡ. ΠΠ° ΡΡΠΎΠΌ ΡΡΠ°ΠΏΠ΅ Π΅ΡΡΡ Π²ΠΎΠ·ΠΌΠΎΠΆΠ½ΠΎΡΡΡ Π²Π½Π΅ΡΡΠΈ ΡΠ΅Ρ Π½ΠΈΡΠ΅ΡΠΊΠΈΠ΅ ΠΊΠΎΡΡΠ΅ΠΊΡΠΈΠ²Ρ, ΠΈΠ·ΠΌΠ΅Π½ΠΈΡΡ ΠΊΠΎΠ½ΡΡΡΡΠΊΡΠΈΠ²Π½ΡΠ΅ ΡΠ»Π΅ΠΌΠ΅Π½ΡΡ, ΠΏΠΎΠ΄Π²Π΅ΡΡΠΈ Π½Π΅ΠΎΠ±Ρ ΠΎΠ΄ΠΈΠΌΡΠ΅ ΠΈΠ½ΠΆΠ΅Π½Π΅ΡΠ½ΡΠ΅ ΠΊΠΎΠΌΠΌΡΠ½ΠΈΠΊΠ°ΡΠΈΠΈ. ΠΠΈΠ»ΡΠ΅ Ρ Π΄Π²ΡΠΌΡ ΡΠΏΠ°Π»ΡΠ½ΡΠΌΠΈ ΡΠ²Π»ΡΠ΅ΡΡΡ ΠΏΡΠΈΠ²ΡΡΠ½ΡΠΌ Π²Π°ΡΠΈΠ°Π½ΡΠΎΠΌ ΠΏΠ»Π°Π½ΠΈΡΠΎΠ²ΠΊΠΈ. ΠΠΎΡΠ°Π·Π΄ΠΎ ΡΠ΅ΠΆΠ΅ Π²ΡΡΡΠ΅ΡΠ°ΡΡΡΡ Π²Π°ΡΠΈΠ°Π½ΡΡ Ρ Π±ΠΎΠ»ΡΡΠΈΠΌ ΠΊΠΎΠ»ΠΈΡΠ΅ΡΡΠ²ΠΎΠΌ ΠΊΠΎΠΌΠ½Π°Ρ Π΄Π»Ρ ΠΎΡΠ΄ΡΡ Π°. Π Π°ΡΠΏΠΎΠ»ΠΎΠΆΠ΅Π½ΠΈΠ΅ ΠΏΠΎΠΌΠ΅ΡΠ΅Π½ΠΈΠΉ Π·Π°Π²ΠΈΡΠΈΡ ΠΎΡ ΡΠ΅Π»Π΅Π²ΠΎΠ³ΠΎ Π½Π°Π·Π½Π°ΡΠ΅Π½ΠΈΡ. Π‘ΠΏΠ°Π»ΡΠ½ΠΈ ΠΌΠΎΠ³ΡΡ Π±ΡΡΡ:
- ΠΠ΅ΡΡΠΊΠΈΠΌΠΈ.
- ΠΠ»Ρ ΠΏΠΎΠΆΠΈΠ»ΡΡ Π»ΡΠ΄Π΅ΠΉ.
- ΠΠΎΡΡΠ΅Π²ΡΠΌΠΈ.
- ΠΠ»Ρ ΡΠ΅ΠΌΠ΅ΠΉΠ½ΡΡ ΠΏΠ°Ρ.
- ΠΠ΄Π½ΠΎΠΌΠ΅ΡΡΠ½ΡΠΌΠΈ.

ΠΠ°ΠΆΠ΄Π°Ρ ΡΠΏΠ°Π»ΡΠ½Ρ ΠΈΠ· Π²ΡΡΠ΅ΠΏΠ΅ΡΠ΅ΡΠΈΡΠ»Π΅Π½Π½ΡΡ Π²Π°ΡΠΈΠ°Π½ΡΠΎΠ² ΠΈΠΌΠ΅Π΅Ρ ΡΠ²ΠΎΠΈ ΠΎΡΠΎΠ±Π΅Π½Π½ΠΎΡΡΠΈ ΠΏΠΎ ΡΠΏΠΎΡΠΎΠ±Ρ ΠΎΡΠ΄Π΅Π»ΠΊΠΈ, Π½Π°Π»ΠΈΡΠΈΡ Π½Π΅ΠΎΠ±Ρ ΠΎΠ΄ΠΈΠΌΡΡ ΡΡΠ½ΠΊΡΠΈΠΉ, ΠΌΠ΅Π±Π΅Π»ΠΈ, Π²ΡΡ ΠΎΠ΄Ρ Π² ΠΎΠ±ΡΡΡ Π·ΠΎΠ½Ρ. ΠΠ½ΠΎΠ³Π΄Π° ΡΡΠ°Π·Ρ ΡΡΠΈ ΠΏΠΎΠΊΠΎΠ»Π΅Π½ΠΈΡ ΠΎΠ΄Π½ΠΎΠΉ ΡΠ΅ΠΌΡΠΈ ΠΌΠΎΠ³ΡΡ ΠΏΡΠΎΠΆΠΈΠ²Π°ΡΡ Π½Π° ΠΎΠ΄Π½ΠΎΠΉ ΠΏΠ»ΠΎΡΠ°Π΄ΠΈ. ΠΠ°Π΄Π°ΡΠ° Π΄ΠΈΠ·Π°ΠΉΠ½Π΅ΡΠ° ΡΠ΄Π΅Π»Π°ΡΡ ΠΆΠΈΠ·Π½Ρ ΠΊΠ°ΠΆΠ΄ΠΎΠ³ΠΎ ΠΎΠ±ΠΈΡΠ°ΡΠ΅Π»Ρ ΠΊΠΎΠΌΡΠΎΡΡΠ½ΠΎΠΉ. Π£Π΄Π°ΡΠ½ΡΠΌΠΈ ΠΏΡΠΎΠ΅ΠΊΡΠ°ΠΌΠΈ ΠΎΠ΄Π½ΠΎΡΡΠ°ΠΆΠ½ΡΡ Π΄ΠΎΠΌΠΎΠ² Ρ ΡΡΠ΅ΠΌΡ ΡΠΏΠ°Π»ΡΠ½ΡΠΌΠΈ ΠΌΠΎΠΆΠ½ΠΎ ΡΡΠΈΡΠ°ΡΡ ΡΠΎΠ»ΡΠΊΠΎ ΡΠ΅, Π³Π΄Π΅ Π²ΡΠΏΠΎΠ»Π½Π΅Π½Ρ Π·Π°Π΄Π°ΡΠΈ ΡΠ΅Ρ Π½ΠΈΡΠ΅ΡΠΊΠΎΠ³ΠΎ ΠΈ ΡΡΡΠ΅ΡΠΈΡΠ΅ΡΠΊΠΎΠ³ΠΎ ΠΏΠΎΡΡΡΠΎΠ΅Π½ΠΈΡ ΠΏΡΠΎΡΡΡΠ°Π½ΡΡΠ²Π°.Β Β Β Β
ΠΠΏΡΠΈΠΌΠ°Π»ΡΠ½ΠΎΠ΅ ΡΠ°ΡΠΏΠΎΠ»ΠΎΠΆΠ΅Π½ΠΈΠ΅ ΡΠΏΠ°Π»ΡΠ½ΡΡ ΠΊΠΎΠΌΠ½Π°Ρ
ΠΡΠ»ΠΈ Π² Π΄ΠΎΠΌΠ΅ Π΄Π²Π° ΠΈ Π±ΠΎΠ»Π΅Π΅ ΡΡΠ°ΠΆΠ΅ΠΉ, ΡΠΎ ΡΠΏΠ΅ΡΠΈΠ°Π»ΠΈΡΡΡ ΡΠ΅ΠΊΠΎΠΌΠ΅Π½Π΄ΡΡΡ ΠΊΠΎΠΌΠ½Π°ΡΡ ΠΎΡΠ΄ΡΡ Π° Π΄Π΅Π»Π°ΡΡ Π½Π°Π²Π΅ΡΡ Ρ. ΠΠΎΠ³Π΄Π° ΠΆΠ΅ Π² Π½Π°Π»ΠΈΡΠΈΠΈ Π²ΡΠ΅Π³ΠΎ ΠΎΠ΄ΠΈΠ½ ΡΡΠΎΠ²Π΅Π½Ρ, ΠΏΡΠΎΠ΅ΠΊΡΠΈΡΠΎΠ²Π°ΡΡ ΡΡΠΈ ΡΠΏΠ°Π»ΡΠ½ΠΈ Π³ΠΎΡΠ°Π·Π΄ΠΎ ΡΠ»ΠΎΠΆΠ½Π΅Π΅. ΠΠ΅ Π΄Π΅Π»Π°ΡΡ ΠΈΡ ΠΏΡΠΎΡ ΠΎΠ΄Π½ΡΠΌΠΈ ΠΈ Π½Π΅ ΡΠ°ΡΠΏΠΎΠ»Π°Π³Π°ΡΡ Π² ΡΠ΅Π½ΡΡΠ΅ ΠΆΠΈΠ»ΡΡ. ΠΠΎ Π²ΡΠ΅ΠΌ ΠΏΡΠ°Π²ΠΈΠ»Π°ΠΌ, ΠΏΠΎΠΌΠ΅ΡΠ΅Π½ΠΈΡ Π΄Π»Ρ ΠΎΡΠ΄ΡΡ Π° ΠΈ ΡΠ½Π° Π΄ΠΎΠ»ΠΆΠ½Ρ ΠΈΠΌΠ΅ΡΡ ΠΎΠΊΠ½Π°. ΠΡΡΠ΅ΡΡΠ²Π΅Π½Π½ΡΠΉ ΡΠ²Π΅Ρ ΠΈ ΠΏΡΠΈΡΠΎΠΊ ΡΠ²Π΅ΠΆΠ΅Π³ΠΎ Π²ΠΎΠ·Π΄ΡΡ Π° Π² ΠΊΠΎΠΌΠ½Π°ΡΡ β ΠΆΠΈΠ·Π½Π΅Π½Π½ΠΎ Π½Π΅ΠΎΠ±Ρ ΠΎΠ΄ΠΈΠΌΠΎΠ΅ ΡΡΠ»ΠΎΠ²ΠΈΠ΅. Π Π»ΡΠ±ΠΎΠΌ ΡΠ»ΡΡΠ°Π΅ ΠΎΠ΄Π½Π° ΠΈΠ· ΡΡΠ΅Π½ Π±ΡΠ΄Π΅Ρ Π½Π΅ΡΡΡΠ΅ΠΉ. ΠΠ²Π°Π»ΠΈΡΠΈΡΠΈΡΠΎΠ²Π°Π½Π½ΡΠ΅ ΠΏΡΠΎΠ΅ΠΊΡΠΈΡΠΎΠ²ΡΠΈΠΊΠΈ, Π°ΡΡ ΠΈΡΠ΅ΠΊΡΠΎΡΡ ΠΈ Π΄ΠΈΠ·Π°ΠΉΠ½Π΅ΡΡ ΡΠΎΠ²Π΅ΡΡΡΡ ΠΎΠ±ΡΠ°ΡΠΈΡΡ Π²Π½ΠΈΠΌΠ°Π½ΠΈΠ΅ Π½Π° Π½Π΅ΠΊΠΎΡΠΎΡΡΠ΅ Π²Π°ΠΆΠ½ΡΠ΅ ΡΠ°ΠΊΡΠΎΡΡ ΠΏΡΠΈ ΠΏΠ»Π°Π½ΠΈΡΠΎΠ²ΠΊΠ΅ ΡΠΏΠ°Π»Π΅Π½.

ΠΠ΅ΡΡΠΊΠΈΠ΅
Π Π°ΡΠΏΠΎΠ»Π°Π³Π°ΡΡ ΠΈΡ ΠΆΠ΅Π»Π°ΡΠ΅Π»ΡΠ½ΠΎ Π½Π° Π²ΠΎΡΡΠΎΡΠ½ΠΎΠΉ ΡΡΠ΅Π½Π΅ Π΄ΠΎΠΌΠ°. Π’ΠΎΠ³Π΄Π° Ρ ΡΡΡΠ° ΠΏΠΎΠΌΠ΅ΡΠ΅Π½ΠΈΠ΅ Π±ΡΠ΄Π΅Ρ Π½Π°ΠΏΠΎΠ»Π½ΡΡΡΡΡ Π΅ΡΡΠ΅ΡΡΠ²Π΅Π½Π½ΡΠΌ ΡΠ²Π΅ΡΠΎΠΌ, Π·Π°ΡΡΠΆΠ°Ρ ΡΠ΅Π±Π΅Π½ΠΊΠ° ΡΠ½Π΅ΡΠ³ΠΈΠ΅ΠΉ Π½Π° ΡΠ΅Π»ΡΠΉ Π΄Π΅Π½Ρ. ΠΠΎΡΠ»Π΅ ΠΎΠ±Π΅Π΄Π° ΡΠΎΠ»Π½ΡΠ΅ ΠΏΠ΅ΡΠ΅ΠΌΠ΅ΡΠ°Π΅ΡΡΡ Π½Π° ΠΏΡΠΎΡΠΈΠ²ΠΎΠΏΠΎΠ»ΠΎΠΆΠ½ΡΡ ΡΡΠΎΡΠΎΠ½Ρ, ΠΈ Π² Π΄Π΅ΡΡΠΊΠΎΠΉ Π½Π΅ Π±ΡΠ΄Π΅Ρ ΠΏΠ΅ΡΠ΅Π³ΡΠ΅Π²Π°. Π‘Π²Π΅ΡΠ° Π΄ΠΎΡΡΠ°ΡΠΎΡΠ½ΠΎ. ΠΠΎΠΌΡΠΎΡΡΠ½ΡΠ΅ ΡΡΠ»ΠΎΠ²ΠΈΡ Π΄Π»Ρ ΠΈΠ³Ρ ΠΈ ΠΏΠΎΡΠ»Π΅ΠΎΠ±Π΅Π΄Π΅Π½Π½ΠΎΠ³ΠΎ ΡΠ½Π°. Π Π°ΡΠΏΠΎΠ»ΠΎΠΆΠ΅Π½ΠΈΠ΅ ΠΎΡΠ½ΠΎΡΠΈΡΠ΅Π»ΡΠ½ΠΎ Π΄ΡΡΠ³ΠΈΡ ΠΏΠΎΠΌΠ΅ΡΠ΅Π½ΠΈΠΉ ΠΎΠ±ΡΠ΅ΠΉ ΠΆΠΈΠ»ΠΎΠΉ ΠΏΠ»ΠΎΡΠ°Π΄ΠΈ Π½Π΅ ΠΈΠΌΠ΅Π΅Ρ ΠΏΡΠΈΠ½ΡΠΈΠΏΠΈΠ°Π»ΡΠ½ΡΡ ΠΎΠ³ΡΠ°Π½ΠΈΡΠ΅Π½ΠΈΠΉ, Π½ΠΎ Π½Π΅ ΠΆΠ΅Π»Π°ΡΠ΅Π»ΡΠ½ΠΎ Π΄Π΅Π»Π°ΡΡ Π·Π° ΡΠΌΠ΅ΠΆΠ½ΠΎΠΉ ΡΡΠ΅Π½ΠΎΠΉ Π³ΠΎΡΡΠΈΠ½ΡΡ, Π³Π΄Π΅ ΡΡΡΠ°Π½ΠΎΠ²Π»Π΅Π½ Π΄ΠΎΠΌΠ°ΡΠ½ΠΈΠΉ ΠΊΠΈΠ½ΠΎΡΠ΅Π°ΡΡ Π»ΠΈΠ±ΠΎ Π΄ΡΡΠ³ΠΈΠ΅ ΠΎΠ±ΠΈΡΠ°ΡΠ΅Π»ΠΈ Π΄ΠΎΠΌΠ° ΠΌΠΎΠ³ΡΡ ΠΏΡΠΎΠΈΠ·Π²ΠΎΠ΄ΠΈΡΡ ΡΡΠΌ ΠΏΠΎΡΠ»Π΅ ΡΠΊΠ»Π°Π΄ΠΊΠΈ Π΄Π΅ΡΠ΅ΠΉ Π½Π° Π½ΠΎΡΡ.Β Β
ΠΠ° Π½Π°ΡΠ΅ΠΌ ΡΠ°ΠΉΡΠ΅ ΠΡ ΠΌΠΎΠΆΠ΅ΡΠ΅ Π½Π°ΠΉΡΠΈ ΠΊΠΎΠ½ΡΠ°ΠΊΡΡ ΡΡΡΠΎΠΈΡΠ΅Π»ΡΠ½ΡΡ ΠΊΠΎΠΌΠΏΠ°Π½ΠΈΠΉ, ΠΊΠΎΡΠΎΡΡΠ΅ ΠΏΡΠ΅Π΄Π»Π°Π³Π°ΡΡ ΡΡΠ»ΡΠ³Ρ ΠΏΡΠΎΠ΅ΠΊΡΠΈΡΠΎΠ²Π°Π½ΠΈΡ Π΄ΠΎΠΌΠΎΠ². ΠΠ°ΠΏΡΡΠΌΡΡ ΠΏΠΎΠΎΠ±ΡΠ°ΡΡΡΡ Ρ ΠΏΡΠ΅Π΄ΡΡΠ°Π²ΠΈΡΠ΅Π»ΡΠΌΠΈ ΠΌΠΎΠΆΠ½ΠΎ ΠΏΠΎΡΠ΅ΡΠΈΠ² Π²ΡΡΡΠ°Π²ΠΊΡ Π΄ΠΎΠΌΠΎΠ² Β«ΠΠ°Π»ΠΎΡΡΠ°ΠΆΠ½Π°Ρ Π‘ΡΡΠ°Π½Π°Β».

ΠΠΎΠΌΠ½Π°ΡΡ Π΄Π»Ρ ΡΡΠΏΡΡΠΆΠ΅ΡΠΊΠΈΡ ΠΏΠ°Ρ
Π ΠΎΡΠ»ΠΈΡΠΈΠ΅ ΠΎΡ Π΄Π΅ΡΡΠΊΠΈΡ , ΡΠΏΠ°Π»ΡΠ½Ρ Π΄Π»Ρ Π²Π·ΡΠΎΡΠ»ΡΡ Π½Π΅ ΠΎΠ±ΡΠ·Π°ΡΠ΅Π»ΡΠ½ΠΎ Π΄Π΅Π»Π°Π΅ΡΡΡ ΡΠΎ ΡΡΠΎΡΠΎΠ½Ρ Π²ΠΎΡΡΠΎΡΠ½ΠΎΠΉ ΡΡΠ΅Π½Ρ. ΠΠΈΠ·Π°ΠΉΠ½Π΅ΡΡ ΡΠ΅ΠΊΠΎΠΌΠ΅Π½Π΄ΡΡΡ Π΅Π΅ ΠΏΠ»Π°Π½ΠΈΡΠΎΠ²Π°ΡΡ Π½Π° ΡΠΆΠ½ΠΎΠΉ, ΡΠ³ΠΎ-Π·Π°ΠΏΠ°Π΄Π½ΠΎΠΉ ΡΡΠΎΡΠΎΠ½Π΅. ΠΡΡΠΌΡΡ ΡΠΎΠ»Π½Π΅ΡΠ½ΡΡ Π»ΡΡΠ΅ΠΉ Π»ΠΈΠ±ΠΎ Π²ΠΎΠΎΠ±ΡΠ΅ Π½Π΅ Π±ΡΠ΄Π΅Ρ, Π»ΠΈΠ±ΠΎ ΠΎΠ½ΠΈ Π±ΡΠ΄ΡΡ ΠΏΠΎΡΠ²Π»ΡΡΡΡΡ Π½Π° ΠΊΠΎΡΠΎΡΠΊΠΈΠΉ ΠΏΠ΅ΡΠΈΠΎΠ΄ Π²ΡΠ΅ΠΌΠ΅Π½ΠΈ. ΠΠ΄Π΅Π°Π»ΡΠ½ΡΠ΅ ΡΡΠ»ΠΎΠ²ΠΈΡ Π΄Π»Ρ ΠΎΡΠ΄ΡΡ Π° Π² Π»ΡΠ±ΠΎΠ΅ Π²ΡΠ΅ΠΌΡ ΡΡΡΠΎΠΊ, Π΅ΡΠ»ΠΈ Π²ΠΎΠ·Π½ΠΈΠΊΠ°Π΅Ρ ΡΠ°ΠΊΠ°Ρ Π½Π΅ΠΎΠ±Ρ ΠΎΠ΄ΠΈΠΌΠΎΡΡΡ. ΠΠ΅Π»Π°ΡΠ΅Π»ΡΠ½ΠΎ Π±Π»ΠΈΠ·ΠΊΠΎΠ΅ ΡΠ°ΡΠΏΠΎΠ»ΠΎΠΆΠ΅Π½ΠΈΠ΅ Π²Π°Π½Π½ΠΎΠΉ ΠΈ ΡΡΠ°Π»Π΅ΡΠ½ΠΎΠΉ ΠΊΠΎΠΌΠ½Π°ΡΡ. ΠΠΎΠΆΠ½ΠΎ ΡΠ°ΡΠΏΠΎΠ»ΠΎΠΆΠΈΡΡ ΡΠΏΠ°Π»ΡΠ½Ρ Π΄Π»Ρ Π²Π·ΡΠΎΡΠ»ΡΡ Π±Π»ΠΈΠΆΠ΅ ΠΊ ΠΊΡΡ Π½Π΅, ΡΡΠΎΠ±Ρ Π½Π΅ ΡΡΠ΅Π²ΠΎΠΆΠΈΡΡ Π΄ΡΡΠ³ΠΈΡ ΡΠ»Π΅Π½ΠΎΠ² ΡΠ΅ΠΌΡΠΈ ΡΠ°Π½Π½ΠΈΠΌΠΈ Π·Π°Π²ΡΡΠ°ΠΊΠ°ΠΌΠΈ ΠΈ ΠΏΠΎΠ·Π΄Π½ΠΈΠΌΠΈ Π²Π΅ΡΠ΅ΡΠ½ΠΈΠΌΠΈ ΡΠ°Π·Π³ΠΎΠ²ΠΎΡΠ°ΠΌΠΈ.Β Β

Π‘ΠΏΠ°Π»ΡΠ½Ρ Π΄Π»Ρ Π»ΡΠ΄Π΅ΠΉ ΡΡΠ°ΡΡΠ΅Π³ΠΎ ΠΏΠΎΠΊΠΎΠ»Π΅Π½ΠΈΡ
ΠΠ΅ΡΠ²ΠΎΡΡΠ΅ΠΏΠ΅Π½Π½ΠΎΠ΅ Π·Π½Π°ΡΠ΅Π½ΠΈΠ΅ ΠΏΡΠΈ ΠΏΠ»Π°Π½ΠΈΡΠΎΠ²Π°Π½ΠΈΠΈ ΠΊΠΎΠΌΠ½Π°ΡΡ Π΄Π»Ρ ΠΏΠΎΠΆΠΈΠ»ΡΡ ΡΠ»Π΅Π½ΠΎΠ² ΡΠ΅ΠΌΡΠΈ ΠΈΠΌΠ΅Π΅Ρ ΠΌΠ°ΠΊΡΠΈΠΌΠ°Π»ΡΠ½ΠΎ ΠΊΠΎΠΌΡΠΎΡΡΠ½ΠΎΠ΅ Π΄ΠΎΡΡΡΠΏΠ½ΠΎΠ΅ ΠΌΠ΅ΡΡΠΎΠΏΠΎΠ»ΠΎΠΆΠ΅Π½ΠΈΠ΅. ΠΠΎΠΌΠ΅ΡΠ΅Π½ΠΈΠ΅ ΡΠ°ΡΠΏΠΎΠ»Π°Π³Π°ΡΡ ΡΡΡΠΎΠ³ΠΎ Π½Π° ΠΎΠ΄Π½ΠΎΠΌ ΡΡΠΎΠ²Π½Π΅ Ρ ΠΎΠ±ΡΠ΅ΠΉ ΠΆΠΈΠ»ΠΎΠΉ Π·ΠΎΠ½ΠΎΠΉ. ΠΠΈΠΊΠ°ΠΊΠΈΡ ΠΏΠΎΠ΄ΠΈΡΠΌΠΎΠ², ΡΡΡΠΏΠ΅Π½Π΅ΠΉ, ΠΏΡΠΈΡΡΡΠΏΠΎΠ². ΠΠ°ΠΆΠ½ΠΎ ΠΌΠ½Π΅Π½ΠΈΠ΅ ΡΠ°ΠΌΠΈΡ ΠΎΠ±ΠΈΡΠ°ΡΠ΅Π»Π΅ΠΉ ΡΠΏΠ°Π»ΡΠ½ΠΈ. Π ΡΡΠΎΠΌ Π²ΠΎΠ·ΡΠ°ΡΡΠ΅ ΠΆΠ΅Π»Π°ΡΠ΅Π»ΡΠ½ΠΎ ΠΎΠ±Π΅ΡΠΏΠ΅ΡΠΈΡΡ Π»ΡΠ΄ΡΠΌ ΡΡΠ°ΡΡΠ΅Π³ΠΎ ΠΏΠΎΠΊΠΎΠ»Π΅Π½ΠΈΡ ΡΠ°ΠΊΠΈΠ΅ ΡΡΠ»ΠΎΠ²ΠΈΡ, ΠΎ ΠΊΠΎΡΠΎΡΡΡ ΠΎΠ½ΠΈ ΡΠ°ΠΌΠΈ Π²ΡΡΠΊΠ°Π·Π°Π»ΠΈΡΡ. ΠΡΠ»ΠΈ ΠΎΠ½ΠΈ Π½Π΅ Ρ ΠΎΡΡΡ ΠΏΡΡΠΌΠΎΠ³ΠΎ ΡΠΎΠ»Π½Π΅ΡΠ½ΠΎΠ³ΠΎ ΠΈΠ·Π»ΡΡΠ΅Π½ΠΈΡ, ΡΠΎ ΠΊΠΎΠΌΠ½Π°ΡΡ ΡΠ°ΡΠΏΠΎΠ»Π°Π³Π°ΡΡ Π½Π° ΡΠ΅Π²Π΅ΡΠ½ΠΎΠΉ ΠΈΠ»ΠΈ ΡΠΆΠ½ΠΎΠΉ ΡΡΠΎΡΠΎΠ½Π΅. Π‘ΠΎΠ»Π½ΡΠ΅ Ρ ΡΡΡΠ° Π±ΡΠ΄Π΅Ρ Π½Π° Π²ΠΎΡΡΠΎΡΠ½ΠΎΠΉ ΡΡΠΎΡΠΎΠ½Π΅, ΠΏΠΎΡΠ»Π΅ ΠΏΠΎΠ»ΡΠ΄Π½Ρ Π½Π° Π·Π°ΠΏΠ°Π΄Π½ΠΎΠΉ ΡΠ°ΡΡΠΈ Π΄ΠΎΠΌΠ°.

ΠΠΎΡΡΠ΅Π²ΡΠ΅ ΠΊΠΎΠΌΠ½Π°ΡΡ
ΠΡΠΎ ΠΏΠΎΠΌΠ΅ΡΠ΅Π½ΠΈΡ Π²ΡΠ΅ΠΌΠ΅Π½Π½ΠΎΠ³ΠΎ ΠΏΡΠΎΠΆΠΈΠ²Π°Π½ΠΈΡ, Π° Π·Π½Π°ΡΠΈΡ ΡΠ°ΠΊΠΈΡ ΡΡΠ΅Π±ΠΎΠ²Π°Π½ΠΈΠΉ, ΠΊΠ°ΠΊ Π΄Π»Ρ ΠΊΠΎΠΌΠ½Π°Ρ Ρ ΠΏΠΎΡΡΠΎΡΠ½Π½ΡΠΌΠΈ ΠΎΠ±ΠΈΡΠ°ΡΠ΅Π»ΡΠΌΠΈ, Π½Π΅Ρ. Π Π°ΡΠΏΠΎΠ»ΠΎΠΆΠΈΡΡ Π³ΠΎΡΡΠ΅Π²ΡΡ ΡΠΏΠ°Π»ΡΠ½Ρ ΠΌΠΎΠΆΠ½ΠΎ Π² Π»ΡΠ±ΠΎΠΌ ΡΠ΄ΠΎΠ±Π½ΠΎΠΌ ΠΌΠ΅ΡΡΠ΅ Π΄ΠΎΠΌΠ°, Π½ΠΎ Π½Π΅ ΠΆΠ΅Π»Π°ΡΠ΅Π»ΡΠ½ΠΎ Π΄Π΅Π»Π°ΡΡ Π΅Π΅ ΡΠΌΠ΅ΠΆΠ½ΠΎΠΉ Ρ Π΄Π΅ΡΡΠΊΠΎΠΉ ΠΈΠ»ΠΈ ΠΊΠΎΠΌΠ½Π°ΡΠΎΠΉ ΠΎΡΠ΄ΡΡ Π° Π΄Π»Ρ ΠΏΠΎΠΆΠΈΠ»ΡΡ Π»ΡΠ΄Π΅ΠΉ. ΠΠ°ΠΆΠ½Π΅Π΅ ΠΎΠ±ΠΎΡΡΠ΄ΠΎΠ²Π°ΡΡ Π΅Π΅ ΠΌΠΈΠ½ΠΈΠΌΠ°Π»ΡΠ½ΡΠΌ Π½Π°Π±ΠΎΡΠΎΠΌ ΠΌΠ΅Π±Π΅Π»ΠΈ. ΠΡΠΎΠ²Π°ΡΡ, ΡΠΊΠ°Ρ Π΄ΠΎΠ»ΠΆΠ½Ρ Π±ΡΡΡ ΠΎΠ±ΡΠ·Π°ΡΠ΅Π»ΡΠ½ΠΎ. Π ΠΊΠ°ΡΠ΅ΡΡΠ²Π΅ Π΄ΠΎΠΏΠΎΠ»Π½ΠΈΡΠ΅Π»ΡΠ½ΡΡ ΠΎΠΏΡΠΈΠΉ ΠΌΠΎΠΆΠ½ΠΎ ΡΡΡΠ°Π½ΠΎΠ²ΠΈΡΡ ΡΠ°ΠΌ ΡΠ΅Π»Π΅Π²ΠΈΠ·ΠΎΡ, Π½Π΅Π±ΠΎΠ»ΡΡΠΎΠΉ Ρ ΠΎΠ»ΠΎΠ΄ΠΈΠ»ΡΠ½ΠΈΠΊ, ΠΊΠΎΠ½Π΄ΠΈΡΠΈΠΎΠ½Π΅Ρ. Π ΡΠΎΠ²ΡΠ΅ΠΌΠ΅Π½Π½ΡΡ ΡΠ΅Π°Π»ΠΈΡΡ ΡΠΎ ΠΌΠ½ΠΎΠΆΠ΅ΡΡΠ²ΠΎΠΌ Π³Π°Π΄ΠΆΠ΅ΡΠΎΠ² Π² ΠΊΠΎΠΌΠ½Π°ΡΠ΅ ΡΠ΅ΠΊΠΎΠΌΠ΅Π½Π΄ΡΠ΅ΡΡΡ Π½Π΅ ΠΌΠ΅Π½Π΅Π΅ Π΄Π²ΡΡ ΡΠΎΠ·Π΅ΡΠΎΠΊ.

ΠΡΠΎ ΠΌΠΎΠΆΠ΅Ρ Π±ΡΡΡ ΠΈΠ½ΡΠ΅ΡΠ΅ΡΠ½ΠΎ! Π ΡΡΠ°ΡΡΠ΅ ΠΏΠΎ ΡΠ»Π΅Π΄ΡΡΡΠ΅ΠΉ ΡΡΡΠ»ΠΊΠ΅ ΡΠΈΡΠ°ΠΉΡΠ΅ ΠΏΡΠΎ ΡΠ±ΠΎΡΠ½ΡΠ΅ Π΄ΠΎΠΌΠ°.
ΠΠΎΡΠΌΠ°ΡΠΈΠ²Ρ ΠΏΠΎ ΠΌΠΈΠ½ΠΈΠΌΠ°Π»ΡΠ½ΠΎΠΉ ΠΏΠ»ΠΎΡΠ°Π΄ΠΈ ΠΈ ΠΎΠ±ΡΠ΅ΠΌΡ ΡΠΏΠ°Π»ΡΠ½ΠΈ
Π‘ΠΎΠ³Π»Π°ΡΠ½ΠΎ ΠΎΠ±ΡΠ΅ΡΡΡΠΎΠΈΡΠ΅Π»ΡΠ½ΡΠΌ ΠΏΡΠ°Π²ΠΈΠ»Π°ΠΌ, Π½Π° ΠΊΠ°ΠΆΠ΄ΠΎΠ³ΠΎ ΠΎΠ±ΠΈΡΠ°ΡΠ΅Π»Ρ ΠΏΠΎΠΌΠ΅ΡΠ΅Π½ΠΈΡ Π΄ΠΎΠ»ΠΆΠ½ΠΎ ΠΏΡΠΈΡ ΠΎΠ΄ΠΈΡΡΡΡ Π½Π΅ ΠΌΠ΅Π½Π΅Π΅ 28 ΠΌ3 Π²ΠΎΠ·Π΄ΡΡ Π°, ΡΠΎ Π΅ΡΡΡ Π² ΡΡΠ΅Π΄Π½Π΅ΠΌ 9 ΠΌ2 ΠΈ Π±ΠΎΠ»Π΅Π΅. ΠΠΎΡΠΌΡ Π΄Π΅ΠΉΡΡΠ²ΡΡΡ Π½Π° Π²ΡΠ΅Ρ ΡΠ»Π΅Π½ΠΎΠ² ΡΠ΅ΠΌΡΠΈ, Π½Π΅Π·Π°Π²ΠΈΡΠΈΠΌΠΎ ΠΎΡ ΠΈΡ Π²ΠΎΠ·ΡΠ°ΡΡΠ°. Π’Π°ΠΊΠΈΠΌ ΠΎΠ±ΡΠ°Π·ΠΎΠΌ, Π΅ΡΠ»ΠΈ ΡΠΎΡΡΠ°Π²Π»ΡΠ΅ΡΡΡ ΠΏΡΠΎΠ΅ΠΊΡ ΠΎΠ΄Π½ΠΎΡΡΠ°ΠΆΠ½ΠΎΠ³ΠΎ Π΄ΠΎΠΌΠ° 10 ΠΌ Π½Π° 12 ΠΌ Ρ ΡΡΠ΅ΠΌΡ ΡΠΏΠ°Π»ΡΠ½ΡΠΌΠΈ, Π° ΠΏΡΠΎΠΆΠΈΠ²Π°ΡΡ Π·Π΄Π΅ΡΡ Π±ΡΠ΄ΡΡ 6 ΡΠ΅Π»ΠΎΠ²Π΅ΠΊ, ΡΠΎ ΠΌΠΈΠ½ΠΈΠΌΠ°Π»ΡΠ½Π°Ρ ΠΏΠ»ΠΎΡΠ°Π΄Ρ ΠΏΠΎΠ΄ ΡΠΏΠ°Π»ΡΠ½ΠΈ Π±ΡΠ΄Π΅Ρ ΡΠΎΡΡΠ°Π²Π»ΡΡΡ 54 ΠΌ2. ΠΠ»Ρ ΠΎΠΏΡΠΈΠΌΠΈΠ·Π°ΡΠΈΠΈ ΠΏΡΠΎΡΡΡΠ°Π½ΡΡΠ²Π° Π½Π΅ΠΊΠΎΡΠΎΡΡΠ΅ ΡΡΠ½ΠΊΡΠΈΠΈ Π΄ΠΎΠΏΡΡΠΊΠ°Π΅ΡΡΡ ΡΠΎΠ²ΠΌΠ΅ΡΠ°ΡΡ. Π ΡΠΏΠ°Π»ΡΠ½Π΅ Π²Π·ΡΠΎΡΠ»ΡΡ ΠΌΠΎΠΆΠ½ΠΎ ΡΡΡΡΠΎΠΈΡΡ ΠΊΠ°Π±ΠΈΠ½Π΅Ρ, Π° Π΄Π΅ΡΡΠΊΡΡ ΡΠΏΠ°Π»ΡΠ½Ρ Π·ΠΎΠ½ΠΈΡΠΎΠ²Π°ΡΡ Π½Π° Π΄Π²Π΅ ΡΠ°ΡΡΠΈ β Π΄Π»Ρ ΠΎΡΠ΄ΡΡ Π° ΠΈ ΠΈΠ³ΡΠΎΠ²ΡΡ. Π‘Π°ΠΌΠΎΠΉ Π±ΠΎΠ»ΡΡΠΎΠΉ ΠΊΠΎΠΌΠ½Π°ΡΠΎΠΉ Π΄Π΅Π»Π°ΡΡ Π»ΠΈΠ±ΠΎ ΠΏΠΎΠΌΠ΅ΡΠ΅Π½ΠΈΠ΅ Π΄Π»Ρ Π΄Π΅ΡΠ΅ΠΉ, ΡΡΠΎΠ±Ρ ΠΎΠ±Π΅ΡΠΏΠ΅ΡΠΈΡΡ ΠΈΠΌ ΠΏΡΠΎΡΡΡΠ°Π½ΡΡΠ²ΠΎ Π΄Π»Ρ ΡΡΠ΅Π±Ρ, ΠΎΡΠ΄ΡΡ Π°, ΡΠ°Π·Π²Π»Π΅ΡΠ΅Π½ΠΈΠΉ, Π»ΠΈΠ±ΠΎ ΠΌΠ΅ΡΡΠΎ ΠΎΠ±ΠΈΡΠ°Π½ΠΈΡ ΡΠ΅ΠΌΠ΅ΠΉΠ½ΠΎΠΉ ΠΏΠ°ΡΡ, Π³Π΄Π΅ Π½Π°Π²Π΅ΡΠ½ΡΠΊΠ° Π±ΡΠ΄Π΅Ρ ΡΡΡΠ°Π½ΠΎΠ²Π»Π΅Π½ Π³Π°ΡΠ΄Π΅ΡΠΎΠ±, Π²ΠΎΠ·ΠΌΠΎΠΆΠ½ΠΎ, ΠΊΠ°Π±ΠΈΠ½Π΅Ρ, ΠΌΠ΅ΡΡΠΎ Π΄Π»Ρ Π»ΡΠ±ΠΈΠΌΡΡ Π·Π°Π½ΡΡΠΈΠΉ.

ΠΠ°ΡΠΈΠ°Π½ΡΡ ΠΏΠ»Π°Π½ΠΈΡΠΎΠ²ΠΊΠΈ Π΄ΠΎΠΌΠ° Ρ ΡΡΠ΅ΠΌΡ ΡΠΏΠ°Π»ΡΠ½ΡΠΌΠΈ
ΠΠ½Π°Π»ΠΈΠ· ΠΏΡΠΎΠ΅ΠΊΡΠΎΠ² ΠΏΠΎΠΊΠ°Π·ΡΠ²Π°Π΅Ρ, ΡΡΠΎ ΡΠ°ΡΠΏΠΎΠ»ΠΎΠΆΠ΅Π½ΠΈΠ΅ ΠΊΠΎΠΌΠ½Π°Ρ ΠΎΡΠ΄ΡΡ Π° ΠΌΠΎΠΆΠ΅Ρ Π±ΡΡΡ ΡΠ°ΠΌΡΠΌ ΡΠ°Π·Π½ΠΎΠΎΠ±ΡΠ°Π·Π½ΡΠΌ. Π§Π°ΡΡΠΎ ΠΈΡΠΏΠΎΠ»ΡΠ·ΡΠ΅ΡΡΡ Π²Π°ΡΠΈΠ°Π½Ρ Ρ ΡΠ°Π·ΠΌΠ΅ΡΠ΅Π½ΠΈΠ΅ΠΌ Π²ΡΠ΅Ρ ΡΠΏΠ°Π»Π΅Π½ ΠΏΠΎ ΠΎΠ΄Π½ΠΎΠΉ ΡΡΠ΅Π½Π΅. Π ΡΡΠΎΠΌ ΡΠ»ΡΡΠ°Π΅ ΠΈΠΌΠ΅ΡΡΡΡ ΡΠ²ΠΎΠΈ ΠΏΠ»ΡΡΡ ΠΈ ΠΌΠΈΠ½ΡΡΡ. Π ΠΏΡΠ΅ΠΈΠΌΡΡΠ΅ΡΡΠ²Π°ΠΌ ΡΠΌΠ΅Π»ΠΎ ΠΌΠΎΠΆΠ½ΠΎ ΠΎΡΠ½Π΅ΡΡΠΈ ΡΠ΄Π°Π»Π΅Π½Π½ΠΎΡΡΡ ΠΎΡ Π²Ρ ΠΎΠ΄Π½ΠΎΠΉ Π΄Π²Π΅ΡΠΈ ΠΈ ΡΠ°ΠΌΠ±ΡΡΠ°, ΡΡΠΎ ΠΎΡΠΎΠ±Π΅Π½Π½ΠΎ Π°ΠΊΡΡΠ°Π»ΡΠ½ΠΎ Π΄Π»Ρ ΡΠ΅Π³ΠΈΠΎΠ½ΠΎΠ² Ρ ΡΡΡΠΎΠ²ΡΠΌ ΠΊΠ»ΠΈΠΌΠ°ΡΠΎΠΌ. Π ΠΌΠΈΠ½ΡΡΠ°ΠΌ ΠΌΠΎΠΆΠ½ΠΎ ΠΎΡΠ½Π΅ΡΡΠΈ ΡΠΎ, ΡΡΠΎ ΠΏΡΠΈ Π½Π΅Π΄ΠΎΡΡΠ°ΡΠΎΡΠ½ΠΎΠΉ Π·Π²ΡΠΊΠΎΠΈΠ·ΠΎΠ»ΡΡΠΈΠΈ Π½Π΅ΠΊΠΎΡΠΎΡΡΠ΅ ΡΠ»Π΅Π½Ρ ΡΠ΅ΠΌΡΠΈ Π±ΡΠ΄ΡΡ ΠΌΠ΅ΡΠ°ΡΡ Π΄ΡΡΠ³ΠΈΠΌ. ΠΠΏΡΠΎΡΠ΅ΠΌ, ΡΡΡΡΠ°Π½ΡΠ΅ΡΡΡ ΡΡΠΎΡ Π½Π΅Π΄ΠΎΡΡΠ°ΡΠΎΠΊ ΠΏΡΠΎΡΡΠΎ. ΠΡΠΈ ΠΏΡΠΎΠ΅ΠΊΡΠΈΡΠΎΠ²Π°Π½ΠΈΠΈ Π·Π°ΠΊΠ»Π°Π΄ΡΠ²Π°Π΅ΡΡΡ ΠΌΠΎΠ½ΡΠ°ΠΆ ΡΡΠΌΠΎΠΈΠ·ΠΎΠ»ΡΡΠΈΠΎΠ½Π½ΠΎΠ³ΠΎ ΡΠ»ΠΎΡ.

ΠΠΎΠ³Π΄Π° Π΄Π΅Π»Π°Π΅ΡΡΡ ΠΏΠ»Π°Π½ΠΈΡΠΎΠ²ΠΊΠ° ΠΎΠ΄Π½ΠΎΡΡΠ°ΠΆΠ½ΠΎΠ³ΠΎ Π΄ΠΎΠΌΠ° 10 ΠΌ Π½Π° 12 ΠΌ Ρ ΡΡΠ΅ΠΌΡ ΡΠΏΠ°Π»ΡΠ½ΡΠΌΠΈ Π»ΠΈΠ±ΠΎ ΠΆΠΈΠ»ΡΡ Ρ ΠΏΠΎΡ ΠΎΠΆΠΈΠΌΠΈ Π³Π°Π±Π°ΡΠΈΡΠ°ΠΌΠΈ, ΡΠΎ ΡΡΠΎΠΈΡ ΠΏΡΠΈΡΠ»ΡΡΠ°ΡΡΡΡ ΠΊ Π΅ΡΠ΅ ΠΎΠ΄Π½ΠΎΠΌΡ ΡΠΎΠ²Π΅ΡΡ ΠΏΡΠΎΡΠ΅ΡΡΠΈΠΎΠ½Π°Π»ΠΎΠ². ΠΠ°ΡΡΠΎΡΡΠ΅Π»ΡΠ½ΠΎ ΡΠ΅ΠΊΠΎΠΌΠ΅Π½Π΄ΡΠ΅ΡΡΡ ΠΊΠ°ΠΊ ΠΌΠΈΠ½ΠΈΠΌΡΠΌ Π΄Π²Π΅ ΡΡΠ°Π»Π΅ΡΠ½ΡΠ΅ ΠΊΠΎΠΌΠ½Π°ΡΡ, Π΄Π°ΠΆΠ΅ Π΅ΡΠ»ΠΈ ΠΎΠ΄Π½Π° ΠΈΠ· Π½ΠΈΡ Π±ΡΠ΄Π΅Ρ ΡΠΎΠ²ΡΠ΅ΠΌ Π½Π΅Π±ΠΎΠ»ΡΡΠΎΠΉ. ΠΠΎΡΡΠ°ΡΠΎΡΠ½ΠΎ ΡΡΡΠ°Π½ΠΎΠ²ΠΈΡΡ ΡΡΠ΄Π° ΡΠ½ΠΈΡΠ°Π· ΠΈ ΡΠ°ΠΊΠΎΠ²ΠΈΠ½Ρ. ΠΡΠΎ Π΄Π΅ΠΉΡΡΠ²ΠΈΡΠ΅Π»ΡΠ½ΠΎ Π±ΡΠ²Π°Π΅Ρ ΠΎΡΠ΅Π½Ρ Π½ΡΠΆΠ½ΠΎ Π² ΠΎΡΠ΄Π΅Π»ΡΠ½ΡΠ΅ ΠΏΠ΅ΡΠΈΠΎΠ΄Ρ ΡΠ΅ΠΌΠ΅ΠΉΠ½ΠΎΠΉ ΠΆΠΈΠ·Π½ΠΈ. ΠΡΠΊΠ°Π·Π°Π²ΡΠΈΡΡ ΠΎΡ ΡΡΠΎΠΉ ΠΈΠ΄Π΅ΠΈ, ΠΌΠΎΠΆΠ½ΠΎ Π²ΠΏΠΎΡΠ»Π΅Π΄ΡΡΠ²ΠΈΠΈ ΡΠΈΠ»ΡΠ½ΠΎ ΠΏΠΎΠΆΠ°Π»Π΅ΡΡ ΠΎ ΡΠ°ΠΊΠΎΠΌ ΡΠ΅ΡΠ΅Π½ΠΈΠΈ.
ΠΠ±Π·ΠΎΡ Π²ΠΈΠ·ΡΠ°Π»ΠΈΠ·Π°ΡΠΈΠΈ ΠΏΡΠΎΠ΅ΠΊΡΠ° Π΄ΠΎΠΌΠ° Ρ ΡΡΠ΅ΠΌΡ ΡΠΏΠ°Π»ΡΠ½ΡΠΌΠΈ — Π² ΡΡΠΎΠΌ Π²ΠΈΠ΄Π΅ΠΎ:
ΠΠ°ΠΊ ΡΠ»ΡΡΡΠΈΡΡ ΡΡΠ½ΠΊΡΠΈΠΎΠ½Π°Π»ΡΠ½ΠΎΡΡΡ Π΄ΠΎΠΌΠ° Ρ ΡΡΠ΅ΠΌΡ ΡΠΏΠ°Π»ΡΠ½ΡΠΌΠΈΒ Β
Π‘ΠΎΠ²ΡΠ΅ΠΌΠ΅Π½Π½ΡΠΉ ΠΏΠΎΠ΄Ρ ΠΎΠ΄ ΠΊ ΡΠΎΡΠΌΠΈΡΠΎΠ²Π°Π½ΠΈΡ ΠΆΠΈΠ»ΠΎΠ³ΠΎ ΠΏΡΠΎΡΡΡΠ°Π½ΡΡΠ²Π° Ρ Π°ΡΠ°ΠΊΡΠ΅ΡΠ΅Π½ ΡΠ΅Π°Π»ΠΈΠ·Π°ΡΠΈΠ΅ΠΉ ΠΎΡΠΈΠ³ΠΈΠ½Π°Π»ΡΠ½ΡΡ ΠΈΠ΄Π΅ΠΉ ΡΠ΅Ρ Π½ΠΈΡΠ΅ΡΠΊΠΎΠ³ΠΎ ΠΈ ΡΡΡΠ΅ΡΠΈΡΠ΅ΡΠΊΠΎΠ³ΠΎ ΠΏΠ»Π°Π½Π°. Π¨ΠΈΡΠΎΠΊΠΈΠΉ Π²ΡΠ±ΠΎΡ ΠΎΡΠ΄Π΅Π»ΠΎΡΠ½ΡΡ ΠΌΠ°ΡΠ΅ΡΠΈΠ°Π»ΠΎΠ², ΠΌΠ΅Ρ Π°Π½ΠΈΠ·ΠΌΠΎΠ², ΡΠ»Π΅ΠΌΠ΅Π½ΡΠΎΠ² ΠΌΠ΅Π±Π΅Π»ΠΈ ΠΈ Π°ΠΊΡΠ΅ΡΡΡΠ°ΡΠΎΠ² ΠΏΠΎΠ·Π²ΠΎΠ»ΡΠ΅Ρ ΡΠΎΡΠΌΠΈΡΠΎΠ²Π°ΡΡ ΠΏΡΠ°ΠΊΡΠΈΡΠ½ΡΠ΅, ΠΊΠΎΠΌΡΠΎΡΡΠ½ΡΠ΅ ΠΏΡΠΎΡΡΡΠ°Π½ΡΡΠ²Π°. ΠΠΎΠ±ΠΈΡΡΡΡ Π·Π°ΠΌΠ΅ΡΠ½ΡΡ ΡΠ΅Π·ΡΠ»ΡΡΠ°ΡΠΎΠ² ΠΌΠΎΠΆΠ½ΠΎ ΠΊΠ°ΠΊ Π² ΡΠΆΠ΅ Π³ΠΎΡΠΎΠ²ΠΎΠΌ Π΄ΠΎΠΌΠ΅, ΡΠ°ΠΊ ΠΈ Π² ΠΏΡΠΎΠ΅ΠΊΡΠΈΡΡΠ΅ΠΌΠΎΠΌ. ΠΠΎ Π²ΡΠΎΡΠΎΠΌ Π²Π°ΡΠΈΠ°Π½ΡΠ΅ Π²ΠΎΠ·ΠΌΠΎΠΆΠ½ΠΎΡΡΠ΅ΠΉ Π±ΠΎΠ»ΡΡΠ΅, ΠΏΠΎΡΠΊΠΎΠ»ΡΠΊΡ ΠΎΡΡΡΡΡΡΠ²ΡΠ΅Ρ ΡΡΠ°ΠΏ ΠΏΠ΅ΡΠ΅ΠΏΠ»Π°Π½ΠΈΡΠΎΠ²ΠΊΠΈ. ΠΡΠ΅ ΠΊΠΎΠΌΠΌΡΠ½ΠΈΠΊΠ°ΡΠΈΠΎΠ½Π½ΡΠ΅ ΠΌΠ°ΡΡΡΡΡΡ ΠΈ ΠΊΠΎΠ½ΡΡΡΡΠΊΡΠΈΠ²Π½ΡΠ΅ ΡΠ»Π΅ΠΌΠ΅Π½ΡΡ Π²ΡΠΏΠΎΠ»Π½ΡΡΡΡΡ ΠΏΠΎ ΠΏΠ»Π°Π½Ρ.Β Β
Π’ΡΠ°Π»Π΅ΡΠ½Π°Ρ ΠΊΠΎΠΌΠ½Π°ΡΠ° Π² ΡΠΏΠ°Π»ΡΠ½Π΅
ΠΠΎΠ·ΠΌΠΎΠΆΠ½Ρ Π΄Π²Π° Π²Π°ΡΠΈΠ°Π½ΡΠ° ΠΏΠΎ ΠΈΡΠΏΠΎΠ»Π½Π΅Π½ΠΈΡ. ΠΡΠ»ΠΈ Π·Π° ΠΎΠ΄Π½ΠΎΠΉ ΡΡΠ΅Π½ΠΎΠΉ ΡΠΆΠ΅ Π΅ΡΡΡ ΡΡΠ°Π»Π΅ΡΠ½Π°Ρ ΠΊΠΎΠΌΠ½Π°ΡΠ°, ΡΠΎ ΠΌΠΎΠΆΠ½ΠΎ ΡΠ΄Π΅Π»Π°ΡΡ Π²ΡΠΎΡΠΎΠΉ Π²Ρ ΠΎΠ΄ ΡΡΠ΄Π° ΠΈΠ· ΡΠΏΠ°Π»ΡΠ½ΠΈ. ΠΠ΅Π±ΠΎΠ»ΡΡΠ°Ρ ΠΏΠ΅ΡΠ΅ΠΏΠ»Π°Π½ΠΈΡΠΎΠ²ΠΊΠ° ΠΏΠΎΠΌΠ΅ΡΠ΅Π½ΠΈΠΉ Π½Π΅ ΡΠΈΠ»ΡΠ½ΠΎ ΡΠ΄Π°ΡΠΈΡ ΠΏΠΎ ΡΠ΅ΠΌΠ΅ΠΉΠ½ΠΎΠΌΡ Π±ΡΠ΄ΠΆΠ΅ΡΡ, Π½ΠΎ ΡΡΡΠ΅ΡΡΠ²Π΅Π½Π½ΠΎ ΠΏΠΎΠ²ΡΡΠΈΡ ΠΊΠΎΠΌΡΠΎΡΡ ΠΈ ΡΠ΄ΠΎΠ±ΡΡΠ²ΠΎ ΠΏΠΎΠ»ΡΠ·ΠΎΠ²Π°Π½ΠΈΡ. ΠΡΠΎΡΠΎΠΉ Π²Π°ΡΠΈΠ°Π½Ρ ΠΏΡΠ΅Π΄ΡΡΠΌΠ°ΡΡΠΈΠ²Π°Π΅Ρ ΠΏΡΠΎΠΊΠ»Π°Π΄ΠΊΡ Π²ΡΠ΅Ρ Π½Π΅ΠΎΠ±Ρ ΠΎΠ΄ΠΈΠΌΡΡ ΠΊΠΎΠΌΠΌΡΠ½ΠΈΠΊΠ°ΡΠΈΠΉ β Π²ΠΎΠ΄ΠΎΡΠ½Π°Π±ΠΆΠ΅Π½ΠΈΠ΅, ΠΊΠ°Π½Π°Π»ΠΈΠ·Π°ΡΠΈΡ, Π²Π΅Π½ΡΠΈΠ»ΡΡΠΈΡ. ΠΠΎΠ»Π΅Π΅ Π·Π°ΡΡΠ°ΡΠ½ΡΠΉ ΡΠΏΠΎΡΠΎΠ±. ΠΠΎ ΠΎΠ½ Π΄Π°Π΅Ρ ΠΏΠΎΠ»Π½ΡΡ Π½Π΅Π·Π°Π²ΠΈΡΠΈΠΌΠΎΡΡΡ ΠΏΠΎΠ»ΡΠ·ΠΎΠ²Π°ΡΠ΅Π»ΡΠΌ, ΠΊΠΎΡΠΎΡΡΠ΅ ΠΌΠΎΠ³ΡΡ Π½Π΅ ΠΏΠΎΠ΄ΡΡΡΠ°ΠΈΠ²Π°ΡΡΡΡ ΠΏΠΎΠ΄ Π½ΡΠΆΠ΄Ρ Π΄ΡΡΠ³ΠΈΡ ΠΎΠ±ΠΈΡΠ°ΡΠ΅Π»Π΅ΠΉ Π΄ΠΎΠΌΠ°. ΠΠ΅Π· ΠΌΠΎΠ½ΡΠ°ΠΆΠ° ΡΡΡΠ΅ΠΊΡΠΈΠ²Π½ΠΎΠΉ ΡΠΈΡΡΠ΅ΠΌΡ Π²Π΅Π½ΡΠΈΠ»ΡΡΠΈΠΈ ΡΡΡΠ°Π½Π°Π²Π»ΠΈΠ²Π°ΡΡ Π²Π°Π½Π½Ρ, Π΄ΡΡΠ΅Π²ΡΡ ΠΊΠ°Π±ΠΈΠ½Ρ Π² ΡΠΏΠ°Π»ΡΠ½Π΅ Π½Π΅ ΡΠ΅ΠΊΠΎΠΌΠ΅Π½Π΄ΡΠ΅ΡΡΡ. ΠΠΎΠ²ΡΡΠ΅Π½Π½Π°Ρ Π²Π»Π°ΠΆΠ½ΠΎΡΡΡ β ΡΠΎΡΠ½ΠΎ Π½Π΅ Π»ΡΡΡΠ΅Π΅ ΡΡΠ»ΠΎΠ²ΠΈΠ΅ Π΄Π»Ρ ΠΎΡΠ΄ΡΡ Π° ΠΈ ΡΠ½Π°.Β Β Β Β Β

ΠΡΡ ΠΎΠ΄ Π½Π° ΡΠ»ΠΈΡΡ ΠΈΠ· ΡΠΏΠ°Π»ΡΠ½ΠΈ
ΠΡΠ° ΠΈΠ΄Π΅Ρ Π²ΡΠ΅ ΡΠ°ΡΠ΅ ΠΏΡΠΈΠΌΠ΅Π½ΡΠ΅ΡΡΡ Π½Π° ΠΏΡΠ°ΠΊΡΠΈΠΊΠ΅. Π₯ΠΎΡΠΎΡΠΎ Π·Π°ΡΠΈΡΠ΅Π½Π½ΡΠΉ ΡΡΠ°ΡΡΠΎΠΊ Π²ΠΎΠΊΡΡΠ³ Π΄ΠΎΠΌΠ° Π΄Π΅Π»Π°Π΅Ρ Π²ΡΡ ΠΎΠ΄ Π±Π΅Π·ΠΎΠΏΠ°ΡΠ½ΡΠΌ. ΠΠΌΠΎΠ½ΡΠΈΡΠΎΠ²Π°ΡΡ Π΄ΠΎΠΏΠΎΠ»Π½ΠΈΡΠ΅Π»ΡΠ½ΡΡ Π΄Π²Π΅ΡΡ ΠΌΠΎΠΆΠ½ΠΎ Π² Π»ΡΠ±ΡΡ ΡΠΏΠ°Π»ΡΠ½Ρ. ΠΠ½ΡΠ΅ΡΠ΅ΡΠ½ΡΠΌ Π²ΡΠ³Π»ΡΠ΄ΠΈΡ ΡΡΠΎ ΡΠ΅ΡΠ΅Π½ΠΈΠ΅ ΠΊΠ°ΠΊ Π² Π΄Π΅ΡΡΠΊΠΎΠΉ ΠΊΠΎΠΌΠ½Π°ΡΠ΅, ΡΠ°ΠΊ ΠΈ Π² ΠΏΠΎΠΌΠ΅ΡΠ΅Π½ΠΈΠΈ Π΄Π»Ρ ΡΠ΅ΠΌΠ΅ΠΉΠ½ΠΎΠΉ ΠΏΠ°ΡΡ ΠΈ ΠΏΠΎΠΆΠΈΠ»ΡΡ Π»ΡΠ΄Π΅ΠΉ. Π£ΡΡΡΠΎΠΉΡΡΠ²ΠΎ Π΄ΠΎΠΏΠΎΠ»Π½ΠΈΡΠ΅Π»ΡΠ½ΠΎΠ³ΠΎ Π²Ρ ΠΎΠ΄Π° Π½Π΅ ΡΡΠ΅Π±ΡΠ΅Ρ Π±ΠΎΠ»ΡΡΠΈΡ Π²Π»ΠΎΠΆΠ΅Π½ΠΈΠΉ. ΠΠΎΠΆΠ½ΠΎ ΠΈΡΠΏΠΎΠ»ΡΠ·ΠΎΠ²Π°ΡΡ Π΄Π»Ρ ΡΡΠΎΠΉ ΡΠ΅Π»ΠΈ ΠΎΠΊΠΎΠ½Π½ΡΠΉ ΠΏΡΠΎΠ΅ΠΌ, ΡΠ°ΡΡΠΈΡΠΈΠ² Π΅Π³ΠΎ Π΄ΠΎ Π½ΡΠΆΠ½ΠΎΠ³ΠΎ ΡΠ°Π·ΠΌΠ΅ΡΠ°. ΠΠΎΠΏΡΠ»ΡΡΠ½ΡΠΌ Π²Π°ΡΠΈΠ°Π½ΡΠΎΠΌ ΡΡΠ°Π½ΠΎΠ²ΠΈΡΡΡ ΡΡΠ΅ΠΊΠ»ΡΠ½Π½Π°Ρ Π΄Π²Π΅ΡΡ Β«Π² ΠΏΠΎΠ»Β», ΠΈΠ»ΠΈ, ΠΊΠ°ΠΊ Π΅Π΅ ΡΠ°ΡΡΠΎ Π½Π°Π·ΡΠ²Π°ΡΡ, ΡΡΠ°Π½ΡΡΠ·ΡΠΊΠ°Ρ. ΠΠ±ΡΠΈΠΉ ΠΏΠ»Π°Π½ ΠΎΠ΄Π½ΠΎΡΡΠ°ΠΆΠ½ΠΎΠ³ΠΎ Π΄ΠΎΠΌΠ° Ρ 3 ΡΠΏΠ°Π»ΡΠ½ΡΠΌΠΈ Π½Π΅ ΠΈΠ·ΠΌΠ΅Π½ΠΈΡΡΡ, Π° Π²ΠΎΡ ΡΡΠ½ΠΊΡΠΈΠΎΠ½Π°Π»ΡΠ½ΠΎΡΡΡ Π΅Π³ΠΎ ΡΡΡΠ΅ΡΡΠ²Π΅Π½Π½ΠΎ ΠΏΠΎΠ²ΡΡΠΈΡΡΡ.

Π’ΡΠ°Π½ΡΡΠΎΡΠΌΠΈΡΡΠ΅ΠΌΠ°Ρ ΠΊΠΎΠΌΠ½Π°ΡΠ°
ΠΠ·ΠΌΠ΅Π½Π΅Π½ΠΈΡ Π½Π°Π·Π½Π°ΡΠ΅Π½ΠΈΡ ΠΊΠΎΠΌΠ½Π°ΡΡ Π² Π±ΠΎΠ»ΡΡΠΈΠ½ΡΡΠ²Π΅ ΡΠ»ΡΡΠ°Π΅Π² ΠΎΠ±Π΅ΡΠΏΠ΅ΡΠΈΠ²Π°Π΅ΡΡΡ ΡΠΏΠ΅ΡΠΈΠ°Π»ΡΠ½ΠΎΠΉ ΠΌΠ΅Π±Π΅Π»ΡΡ ΠΈ ΠΈΠ½ΠΆΠ΅Π½Π΅ΡΠ½ΡΠΌΠΈ ΠΊΠΎΠ½ΡΡΡΡΠΊΡΠΈΡΠΌΠΈ. Π’ΡΠ°Π½ΡΡΠΎΡΠΌΠΈΡΠΎΠ²Π°ΡΡ ΠΏΡΠΎΡΡΡΠ°Π½ΡΡΠ²ΠΎ ΠΌΠΎΠΆΠ½ΠΎ Ρ ΠΏΠΎΠΌΠΎΡΡΡ:
- ΠΎΡΠΊΠΈΠ΄Π½ΡΡ , ΡΠ°Π·Π΄Π²ΠΈΠΆΠ½ΡΡ ΠΊΡΠΎΠ²Π°ΡΠ΅ΠΉ;
- ΡΡΠ°Π½ΡΡΠΎΡΠΌΠΈΡΡΡΡΠΈΡ ΡΡ ΡΡΠΎΠ»ΠΎΠ²;
- ΡΠ°Π·Π΄Π²ΠΈΠΆΠ½ΡΡ , ΠΎΡΠΊΠ°ΡΠ½ΡΡ , ΠΌΠΎΠ±ΠΈΠ»ΡΠ½ΡΡ ΠΏΠ΅ΡΠ΅Π³ΠΎΡΠΎΠ΄ΠΎΠΊ;
ΠΡΠΎΠΌΠ΅ ΡΠΎΠ³ΠΎ, Π² ΡΠΎΠ²ΡΠ΅ΠΌΠ΅Π½Π½ΠΎΠΌ ΠΈΠ½ΡΠ΅ΡΡΠ΅ΡΠ΅ ΡΠΈΡΠΎΠΊΠΎ ΠΈΡΠΏΠΎΠ»ΡΠ·ΡΠ΅ΡΡΡ Π²ΡΡΡΠΎΠ΅Π½Π½Π°Ρ ΡΠ΅Ρ Π½ΠΈΠΊΠ°. ΠΡΠΎΠ΅ΠΊΡΠΎΡΡ, ΠΌΡΠ·ΡΠΊΠ°Π»ΡΠ½ΡΠ΅ ΡΠ΅Π½ΡΡΡ. ΠΡΠΎΠΈΠ·Π²ΠΎΠ΄ΠΈΡΠ΅Π»ΠΈ Π΄Π΅ΡΡΠΊΠΎΠ³ΠΎ ΠΈ ΡΠΏΠΎΡΡΠΈΠ²Π½ΠΎΠ³ΠΎ ΠΈΠ½Π²Π΅Π½ΡΠ°ΡΡ ΡΠ°ΠΊΠΆΠ΅ ΠΏΡΠ΅Π΄Π»Π°Π³Π°ΡΡ Π±ΠΎΠ³Π°ΡΡΠΉ Π°ΡΡΠΎΡΡΠΈΠΌΠ΅Π½Ρ ΠΏΡΠΎΠ΄ΡΠΊΡΠΈΠΈ Ρ ΠΈΠ·ΠΌΠ΅Π½ΡΡΡΠΈΠΌΠΈΡΡ ΠΊΠ°ΡΠ΅ΡΡΠ²Π°ΠΌΠΈ. ΠΠ΅ΡΡΠΊΠ°Ρ ΠΈΠ³ΡΠΎΠ²Π°Ρ Π·ΠΎΠ½Π° ΠΌΠΎΠΆΠ΅Ρ Π² ΡΡΠΈΡΠ°Π½Π½ΡΠ΅ ΠΌΠΈΠ½ΡΡΡ Π±ΡΡΡ ΠΈΠ·ΠΌΠ΅Π½Π΅Π½Π° Π»ΠΈΠ±ΠΎ Π²ΠΎΠΎΠ±ΡΠ΅ ΡΠ±ΡΠ°Π½Π°. ΠΠ΅ΠΊΠΎΡΠΎΡΡΠ΅ ΠΌΠΎΠ΄Π΅Π»ΠΈ ΡΡΠ΅Π½Π°ΠΆΠ΅ΡΠΎΠ² Π²ΡΠΏΡΡΠΊΠ°ΡΡΡΡ Π² ΡΠ½ΠΈΠ²Π΅ΡΡΠ°Π»ΡΠ½ΠΎΠΌ ΠΈΡΠΏΠΎΠ»Π½Π΅Π½ΠΈΠΈ. ΠΠ½ΠΈ Π½Π΅ Π·Π°Π½ΠΈΠΌΠ°ΡΡ ΠΌΠ½ΠΎΠ³ΠΎ ΠΌΠ΅ΡΡΠ° ΠΈ ΠΌΠΎΠ³ΡΡ Ρ ΡΠ°Π½ΠΈΡΡΡΡ Π² ΠΎΠ³ΡΠ°Π½ΠΈΡΠ΅Π½Π½ΠΎΠΌ ΠΏΡΠΎΡΡΡΠ°Π½ΡΡΠ²Π΅, ΠΊΠΎΠ³Π΄Π° Π½Π΅ ΠΈΡΠΏΠΎΠ»ΡΠ·ΡΡΡΡΡ ΠΏΠΎ ΠΏΡΡΠΌΠΎΠΌΡ Π½Π°Π·Π½Π°ΡΠ΅Π½ΠΈΡ.

ΠΡΠΎ ΠΌΠΎΠΆΠ΅Ρ Π±ΡΡΡ ΠΈΠ½ΡΠ΅ΡΠ΅ΡΠ½ΠΎ! Π ΡΡΠ°ΡΡΠ΅ ΠΏΠΎ ΡΠ»Π΅Π΄ΡΡΡΠ΅ΠΉ ΡΡΡΠ»ΠΊΠ΅ ΡΠΈΡΠ°ΠΉΡΠ΅ ΠΏΡΠΎ ΡΠΊΠ°Π½Π΄ΠΈΠ½Π°Π²ΡΠΊΠΈΠ΅ Π΄ΠΎΠΌΠ°.
ΠΠ°ΠΊΠ»ΡΡΠ΅Π½ΠΈΠ΅
Π Π΅Π·ΡΠΌΠΈΡΡΡ ΠΈΠ½ΡΠΎΡΠΌΠ°ΡΠΈΡ, ΠΌΠΎΠΆΠ½ΠΎ ΡΡΠ²Π΅ΡΠΆΠ΄Π°ΡΡ, ΡΡΠΎ ΡΠΎΠ²ΡΠ΅ΠΌΠ΅Π½Π½ΡΠ΅ ΡΠ΅Ρ Π½ΠΎΠ»ΠΎΠ³ΠΈΠΈ ΠΈ ΠΎΡΠΈΠ³ΠΈΠ½Π°Π»ΡΠ½ΡΠ΅ ΠΈΠ΄Π΅ΠΈ Π΄Π»Ρ Π΄ΠΎΠΌΠ° Ρ ΡΡΠ΅ΠΌΡ ΡΠΏΠ°Π»ΡΠ½ΡΠΌΠΈ ΡΠ΄Π΅Π»Π°ΡΡ ΠΆΠΈΠ·Π½Ρ Π΅Π³ΠΎ ΠΎΠ±ΠΈΡΠ°ΡΠ΅Π»Π΅ΠΉ ΠΊΠΎΠΌΡΠΎΡΡΠ½ΠΎΠΉ, Π½Π°ΡΡΡΠ΅Π½Π½ΠΎΠΉ ΠΈ ΠΏΠΎΠ»Π΅Π·Π½ΠΎΠΉ. ΠΠ»Ρ ΡΡΠΎΠ³ΠΎ Π½ΡΠΆΠ½ΠΎ Π°Π΄Π°ΠΏΡΠΈΡΠΎΠ²Π°ΡΡ ΠΎΠ±ΡΠ΅ΡΡΡΠΎΠΈΡΠ΅Π»ΡΠ½ΡΠ΅ Π½ΠΎΡΠΌΡ ΠΊ ΠΊΠΎΠ½ΠΊΡΠ΅ΡΠ½ΠΎΠΉ ΠΊΠΎΠ½ΡΠΈΠ³ΡΡΠ°ΡΠΈΠΈ ΡΡΡΠΎΠ΅Π½ΠΈΡ, ΠΈΡΠΏΠΎΠ»ΡΠ·ΠΎΠ²Π°ΡΡ Π²ΡΠ΅ ΠΈΠΌΠ΅ΡΡΠΈΠ΅ΡΡ ΠΏΡΠ΅ΠΈΠΌΡΡΠ΅ΡΡΠ²Π° ΠΈ Π½ΠΈΠ²Π΅Π»ΠΈΡΠΎΠ²Π°ΡΡ Π½Π΅Π΄ΠΎΡΡΠ°ΡΠΊΠΈ.
ΠΡΠΎΡΠΈΡΠ°ΡΡ ΠΏΠΎΠ·ΠΆΠ΅ΠΡΠΏΡΠ°Π²ΠΈΠΌ ΠΌΠ°ΡΠ΅ΡΠΈΠ°Π» Π½Π° ΠΏΠΎΡΡΡ
Π Π°ΡΠΏΠ΅ΡΠ°ΡΠ°ΡΡm-strana.ru
Π²Π°ΡΠΈΠ°Π½ΡΡ Ρ ΡΡΠ΅ΠΌΡ ΡΠΏΠ°Π»ΡΠ½ΡΠΌΠΈ, Π·Π°Π»ΠΎΠΌ, ΠΊΠ°Π±ΠΈΠ½Π΅ΡΠΎΠΌ ΠΈ ΡΠΎΠΊΠΎΠ»Π΅ΠΌ (ΡΠΎΡΠΎ) Β» ΠΠ½ΡΠ΅Ρ-Π΅Ρ.ΡΡ

Π‘ΡΡΠΎΠΈΡΠ΅Π»ΡΡΡΠ²ΠΎ Π½ΠΎΠ²ΠΎΠ³ΠΎ Π΄ΠΎΠΌΠ° Π΄Π΅Π»ΠΎ Π½Π΅ ΠΏΡΠΎΡΡΠΎΠ΅, ΡΡΠ΅Π±ΡΡΡΠ΅Π΅ ΠΎΡΠΎΠ±ΠΎ ΡΡΠ°ΡΠ΅Π»ΡΠ½ΡΠΉ ΠΏΠΎΠ΄Ρ
ΠΎΠ΄ ΠΈ ΠΏΠΎΠ΄Π³ΠΎΡΠΎΠ²ΠΊΡ, Π²Π΅Π΄Ρ Π½Π΅ΠΈΡΠΏΡΠ°Π²ΠΈΠΌΡΡ ΠΎΡΠΈΠ±ΠΊΡ ΠΌΠΎΠΆΠ½ΠΎ ΡΠΎΠ²Π΅ΡΡΠΈΡΡ Π΅ΡΠ΅ Π½Π° ΡΡΠ°Π΄ΠΈΠΈ ΠΏΡΠΎΠ΅ΠΊΡΠΈΡΠΎΠ²ΠΊΠΈ Π·Π΄Π°Π½ΠΈΡ, Π½Π΅ Π³ΠΎΠ²ΠΎΡΡ ΡΠΆΠ΅ ΠΎ Π²ΡΠ±ΠΎΡΠ΅ ΡΡΡΠΎΠΈΡΠ΅Π»ΡΠ½ΡΡ
ΠΌΠ°ΡΠ΅ΡΠΈΠ°Π»ΠΎΠ² ΠΈ, ΡΠΎΠ±ΡΡΠ²Π΅Π½Π½ΠΎ, ΡΠ°ΠΌΠΎΠ³ΠΎ ΡΡΡΠΎΠΈΡΠ΅Π»ΡΡΡΠ²Π°. Π‘ΠΎΠ²ΡΠ΅ΠΌΠ΅Π½Π½ΡΠ΅ ΡΠΏΠ΅ΡΠΈΠ°Π»ΠΈΡΡΡ ΠΏΠΎ ΠΏΡΠΎΠ΅ΠΊΡΠΈΡΠΎΠ²ΠΊΠ΅ ΠΆΠΈΠ»ΡΡ
Π΄ΠΎΠΌΠΎΠ² ΠΌΠΎΠ³ΡΡ ΠΏΡΠ΅Π΄Π»ΠΎΠΆΠΈΡΡ ΠΠ°ΠΌ ΠΎΠ³ΡΠΎΠΌΠ½ΠΎΠ΅ ΠΊΠΎΠ»ΠΈΡΠ΅ΡΡΠ²ΠΎ ΠΊΠ°ΠΊ ΡΡΠ°Π½Π΄Π°ΡΡΠ½ΡΡ
, ΡΠ°ΠΊ ΠΈ ΠΈΠ½Π΄ΠΈΠ²ΠΈΠ΄ΡΠ°Π»ΡΠ½ΡΡ
ΡΠΈΠΏΠΎΠ² ΠΏΠ»Π°Π½ΠΈΡΠΎΠ²ΠΊΠΈ ΠΠ°ΡΠ΅Π³ΠΎ Π΄ΠΎΠΌΠ°, ΠΎΡΡΠ°Π»ΠΊΠΈΠ²Π°ΡΡΡ ΠΎΡ ΠΏΠΎΡΡΠ΅Π±Π½ΠΎΡΡΠ΅ΠΉ ΠΊΠ»ΠΈΠ΅Π½ΡΠ°, ΠΊΠΎΠ»ΠΈΡΠ΅ΡΡΠ²Π° ΡΠ»Π΅Π½ΠΎΠ² ΡΠ΅ΠΌΡΠΈ, Π΄ΠΎΡΡΡΠΏΠ½ΡΡ
ΡΠ΅ΡΡΡΡΠΎΠ², Π° ΡΠ°ΠΊΠΆΠ΅ ΡΠ°ΠΌΠΎΠΉ Π³Π΅ΠΎΠ»ΠΎΠΊΠ°ΡΠΈΠΈ Π΄ΠΎΡΡΡΠΏΠ½ΠΎΠ³ΠΎ Π΄Π»Ρ ΡΡΡΠΎΠΉΠΊΠΈ ΡΡΠ°ΡΡΠΊΠ°.
ΠΡΠ»ΠΈ ΠΆΠ΅ ΠΎΠΊΠΎΠ½ΡΠ°ΡΠ΅Π»ΡΠ½ΠΎ ΡΠ΅ΡΠ΅Π½ΠΎ, ΡΡΠΎ ΡΡΡΠΎΠΈΡΡΡΡ Π±ΡΠ΄Π΅Ρ ΠΎΠ΄Π½ΠΎΡΡΠ°ΠΆΠ½ΡΠΉ Π΄ΠΎΠΌ, ΠΈ ΠΠ°Ρ ΡΡΠ°ΡΡΠΎΠΊ ΠΏΠΎΠ·Π²ΠΎΠ»ΡΠ΅Ρ ΡΠ°ΡΠΏΠΎΠ»ΠΎΠΆΠΈΡΡ ΠΏΠΎΡΡΡΠΎΠΉΠΊΡ Π»ΡΠ±ΠΎΠ³ΠΎ ΡΠΈΠΏΠ°, ΡΠΎΠ³Π΄Π° ΡΡΠΎΠΈΡ Π·Π°Π΄ΡΠΌΠ°ΡΡΡΡ ΠΈ ΠΎ Π΅Π³ΠΎ ΠΏΠ»Π°Π½ΠΈΡΠΎΠ²ΠΊΠ΅. ΠΠΎΠΆΠ°Π»ΡΠΉ, Π½Π°ΠΈΠ±ΠΎΠ»Π΅Π΅ ΡΠ½ΠΈΠ²Π΅ΡΡΠ°Π»ΡΠ½ΡΠΌ Π²Π°ΡΠΈΠ°Π½ΡΠΎΠΌ Π΄Π»Ρ ΠΎΠ΄Π½ΠΎΡΡΠ°ΠΆΠ½ΠΎΠ³ΠΎ Π΄ΠΎΠΌΠ°, Π½Π° ΡΠ΅Π³ΠΎΠ΄Π½ΡΡΠ½ΠΈΠΉ Π΄Π΅Π½Ρ, ΡΠ²Π»ΡΠ΅ΡΡΡ Π΄ΠΎΠΌ 12 Π½Π° 12, ΡΠ°ΠΊΠ°Ρ ΠΏΠ»ΠΎΡΠ°Π΄Ρ ΠΏΠΎΠ·Π²ΠΎΠ»ΠΈΡ ΡΠΎΡ
ΡΠ°Π½ΠΈΡΡ ΡΠ²ΠΎΠ±ΠΎΠ΄Π½ΠΎΠ΅ ΠΏΡΠΎΡΡΡΠ°Π½ΡΡΠ²ΠΎ Π΄ΠΎΠΌΠ° ΠΌΠ°ΠΊΡΠΈΠΌΠ°Π»ΡΠ½ΡΠΌ, Π±Π΅Π· Π»ΠΈΡΠ½ΠΈΡ
ΠΏΠΎΡΠ΅ΡΡ. ΠΡΠ»ΠΈΡΠ½ΡΠΌ Π²Π°ΡΠΈΠ°Π½ΡΠΎΠΌ Π±ΡΠ΄Π΅Ρ ΠΎΠ΄Π½ΠΎΡΡΠ°ΠΆΠ½ΡΠΉ Π΄ΠΎΠΌ Ρ ΡΡΠ΅ΠΌΡ ΡΠΏΠ°Π»ΡΠ½ΡΠΌΠΈ, Π·Π°Π»ΠΎΠΌ ΠΈ ΠΊΠ°Π±ΠΈΠ½Π΅ΡΠΎΠΌ.
ΠΡΠ°ΠΏ ΠΏΠ»Π°Π½ΠΈΡΠΎΠ²ΠΊΠΈ
ΠΡΠ΅Π΄ΡΡΠ°Π²ΡΡΠ΅ ΡΠ΅Π±Π΅ Π±ΠΎΠ»ΡΡΠΎΠΉ ΠΊΠΎΠΌΡΠΎΡΡΠ½ΡΠΉ Π΄ΠΎΠΌ, Π² ΠΊΠΎΡΠΎΡΠΎΠΌ ΠΌΠΎΠΆΠ΅Ρ ΡΠ°Π·ΠΌΠ΅ΡΡΠΈΡΡΡΡ Π±ΠΎΠ»ΡΡΠ°Ρ ΡΠ΅ΠΌΡΡ ΠΈ Π²ΡΠ΅ ΡΡΠΎ Π½Π° ΠΏΠ΅ΡΠ²ΠΎΠΌ ΡΡΠ°ΠΆΠ΅, ΡΡΠΎ ΠΈ Π΅ΡΡΡ Π΄ΠΎΠΌ ΠΏΠ»ΠΎΡΠ°Π΄ΡΡ 12 Π½Π° 12. Π’Π°ΠΊΠΎΠΉ Π΄ΠΎΠΌ ΠΈΠΌΠ΅Π΅Ρ Π±ΠΎΠ»ΡΡΠΎΠ΅ ΠΏΡΠ΅ΠΈΠΌΡΡΠ΅ΡΡΠ²ΠΎ, Π΅ΡΠ»ΠΈ ΡΡΠ°Π²Π½ΠΈΡΡ Π΅Π³ΠΎ Ρ Π΄ΡΡΠ³ΠΈΠΌΠΈ ΠΏΠ»Π°Π½ΠΈΡΠΎΠ²ΠΊΠ°ΠΌΠΈ:
- Π±ΠΎΠ»ΡΡΠΎΠΉ ΠΊΠΎΠΌΡΠΎΡΡΠ°Π±Π΅Π»ΡΠ½ΡΠΉ Π΄ΠΎΠΌ Π±Π΅Π· ΠΏΠΎΡΠ΅ΡΡ ΠΊΠ²Π°Π΄ΡΠ°ΡΠΎΠ² ΠΆΠΈΠ»ΠΎΠΉ ΠΏΠ»ΠΎΡΠ°Π΄ΠΈ;
- ΡΠ»Π΅Π½Ρ ΡΠ΅ΠΌΡΠΈ Ρ ΠΎΠ³ΡΠ°Π½ΠΈΡΠ΅Π½Π½ΡΠΌΠΈ ΡΠΈΠ·ΠΈΡΠ΅ΡΠΊΠΈΠΌΠΈ Π²ΠΎΠ·ΠΌΠΎΠΆΠ½ΠΎΡΡΡΠΌΠΈ ΠΌΠΎΠ³ΡΡ ΡΠ²ΠΎΠ±ΠΎΠ΄Π½ΠΎ ΠΏΠ΅ΡΠ΅ΠΌΠ΅ΡΠ°ΡΡΡΡ ΠΏΠΎ Π²ΡΠ΅ΠΌ ΠΊΠΎΠΌΠ½Π°ΡΠ°ΠΌ Π΄ΠΎΠΌΠ°;
- Π·Π° ΡΡΠ΅Ρ ΡΠΎΠ³ΠΎ, ΡΡΠΎ Π½ΠΈΠΊΡΠΎ Π½Π΅ Π±ΡΠ΄Π΅Ρ ΠΆΠΈΡΡ Π½Π° Π²ΡΠΎΡΠΎΠΌ ΡΡΠ°ΠΆΠ΅, Π·Π½Π°ΡΠΈΡΠ΅Π»ΡΠ½ΠΎ ΡΠΎΠΊΡΠ°ΡΠ°ΡΡΡΡ ΠΏΠΎΡΡΠΎΡΠΎΠ½Π½ΠΈΠ΅ ΡΡΠΌΡ Π² Π΄ΠΎΠΌΠ΅;
- Π½Π΅ Π½ΡΠΆΠ½ΠΎ ΡΡΡΠΎΠΈΡΡ ΠΏΠ΅ΡΠ²ΡΠΉ ΡΡΠ°ΠΆ ΠΈΠ· Π΄ΠΎΡΠΎΠ³ΠΈΡ ΠΈ ΠΏΡΠΎΡΠ½ΡΡ ΠΌΠ°ΡΠ΅ΡΠΈΠ°Π»ΠΎΠ², ΡΡΠΎ Π·Π½Π°ΡΠΈΡΠ΅Π»ΡΠ½ΠΎ ΡΠΎΠΊΡΠ°ΡΠΈΡ ΡΠ°ΡΡ ΠΎΠ΄Ρ ΠΏΡΠΈ ΡΠΈΠ½Π°Π½ΡΠΈΡΠΎΠ²Π°Π½ΠΈΠΈ ΡΡΡΠΎΠΉΠΊΠΈ;
- Π½Π΅ Π½ΡΠΆΠ½ΠΎ ΡΡΠ°Π²ΠΈΡΡ ΠΌΠΎΡΠ½ΡΠ΅ Π½Π°ΡΠΎΡΡ Π΄Π»Ρ ΠΎΠ±Π΅ΡΠΏΠ΅ΡΠ΅Π½ΠΈΡ Π²ΡΡΠΎΠΊΠΈΠΌ Π΄Π°Π²Π»Π΅Π½ΠΈΠ΅ΠΌ Π²ΠΎΠ΄ΠΎΠ½Π°ΠΏΠΎΡΠ½ΡΠ΅ ΡΡΡΠ±Ρ;
- Π·Π½Π°ΡΠΈΡΠ΅Π»ΡΠ½ΠΎ ΠΏΡΠΎΡΠ΅ ΠΎΠ±ΠΎΠ³ΡΠ΅ΡΡ Π΄ΠΎΠΌ Ρ ΠΏΠΎΠΌΠΎΡΡΡ ΠΏΠ΅ΡΠΈ ΠΈΠ»ΠΈ Π΄ΡΡΠ³ΠΈΡ ΠΎΡΠΎΠΏΠΈΡΠ΅Π»ΡΠ½ΡΡ ΡΠΈΡΡΠ΅ΠΌ, Π²Π΅Π΄Ρ ΠΏΠ»ΠΎΡΠ°Π΄Ρ Π΄ΠΎΠΌΠ° ΠΈΠΌΠ΅Π΅Ρ ΠΏΡΠ°Π²ΠΈΠ»ΡΠ½ΡΡ ΡΠΎΠ²Π½ΡΡ ΡΠΎΡΠΌΡ, Π±Π΅Π· ΠΎΠ΄ΠΈΠ½ΠΎΡΠ½ΡΡ ΠΎΡΠ΄Π°Π»Π΅Π½Π½ΡΡ ΠΊΠΎΠΌΠ½Π°Ρ.

ΠΡΡΡΠ΅ Π²ΡΠ΅Π³ΠΎ ΡΠΏΠ°Π»ΡΠ½ΠΈ ΡΠ°ΡΠΏΡΠ΅Π΄Π΅Π»ΠΈΡΡ ΠΏΠΎ Π½Π°Π·Π½Π°ΡΠ΅Π½ΠΈΡ, ΡΡΠΎ ΠΌΠΎΠΆΠ΅Ρ Π±ΡΡΡ ΡΠΏΠ°Π»ΡΠ½Ρ Π΄Π»Ρ ΡΠΎΠ΄ΠΈΡΠ΅Π»Π΅ΠΉ, Π΄Π΅ΡΡΠΊΠ°Ρ ΡΠΏΠ°Π»ΡΠ½Ρ ΠΈ ΡΠΏΠ°Π»ΡΠ½Ρ Π΄Π»Ρ Π³ΠΎΡΡΠ΅ΠΉ, ΡΠ°ΠΊΠΆΠ΅ Π² ΠΏΠΎΡΠ»Π΅Π΄Π½Π΅ΠΉ ΡΠΏΠ°Π»ΡΠ½Π΅ ΠΌΠΎΠ³ΡΡ ΠΆΠΈΡΡ Π±Π°Π±ΡΡΠΊΠΈ ΠΈ Π΄Π΅Π΄ΡΡΠΊΠΈ, Π΅ΡΠ»ΠΈ ΡΠ°ΠΊΠΈΠ΅ ΠΈΠΌΠ΅ΡΡΡΡ, Π»ΠΈΠ±ΠΎ ΡΠΏΠ°Π»ΡΠ½Ρ Π΄Π»Ρ ΡΠΎΠ΄ΠΈΡΠ΅Π»Π΅ΠΉ ΠΈ Π΄Π²Π΅ Π΄Π΅ΡΡΠΊΠΈΡ ΡΠΏΠ°Π»ΡΠ½ΠΈ, Π΅ΡΠ»ΠΈ Π² ΡΠ΅ΠΌΡΠ΅ Π±ΠΎΠ»ΡΡΠ΅ ΠΎΠ΄Π½ΠΎΠ³ΠΎ ΡΠ΅Π±Π΅Π½ΠΊΠ°.
ΠΠ»Π°Π³ΠΎΠ΄Π°ΡΡ ΡΠΎΠΌΡ, ΡΡΠΎ Π΄ΠΎΠΌ ΠΈΠΌΠ΅Π΅Ρ ΠΊΠΎΠΌΠΏΠ°ΠΊΡΠ½ΡΡ ΡΠΎΠ²Π½ΡΡ ΠΈ ΠΏΡΠ°Π²ΠΈΠ»ΡΠ½ΡΡ ΡΠΎΡΠΌΡ, Π³ΠΎΡΡΠ΅Π²Π°Ρ ΠΊΠΎΠΌΠ½Π°ΡΠ° ΠΌΠΎΠΆΠ΅Ρ Π±ΡΡΡ Π΄ΠΎΠ²ΠΎΠ»ΡΠ½ΠΎ ΠΏΡΠΎΡΡΠΎΡΠ½ΠΎΠΉ ΠΈ Π·Π°Π½ΠΈΠΌΠ°ΡΡ Π·Π½Π°ΡΠΈΡΠ΅Π»ΡΠ½ΡΡ ΡΠ°ΡΡΡ Π΄ΠΎΠΌΠ°.
ΠΡΠΈΡ ΠΈ Π·Π°Π»Ρ Π»ΡΡΡΠ΅ ΡΡΡΠΎΠΈΡΡ Ρ Π²ΠΎΡΡΠΎΡΠ½ΠΎΠΉ ΡΡΠΎΡΠΎΠ½Ρ, ΡΡΠΎΠ±Ρ ΠΎΠ½ΠΈ Π±ΡΠ»ΠΈ ΡΠ²Π΅ΡΠ»ΡΠΌΠΈ ΠΈ, Π² ΡΠΎ ΠΆΠ΅ Π²ΡΠ΅ΠΌΡ, Π½Π΅ Π΄ΠΎΠΏΡΡΠΊΠ°Π»ΠΈ ΡΠ°Π½Π½ΠΈΠ΅ ΡΠΎΠ»Π½Π΅ΡΠ½ΡΠ΅ Π»ΡΡΠΈ Π² ΡΠΏΠ°Π»ΡΠ½ΡΡ Π·ΠΎΠ½Ρ Π΄ΠΎΠΌΠ°.
Π‘ΠΎΠ²Π΅Ρ. ΠΡΠΈ ΠΏΠ»Π°Π½ΠΈΡΠΎΠ²ΠΊΠ΅ ΡΡΡΡΠΊΡΡΡΡ Π΄ΠΎΠΌΠ° ΠΏΡΠΎΠ΅ΠΊΡΠΈΡΡΠΉΡΠ΅ ΡΠ°ΠΊ, ΡΡΠΎΠ±Ρ ΠΈΠ·Π±Π΅ΠΆΠ°ΡΡ Π»ΠΈΡΠ½ΠΈΡ Π½Π΅Π½ΡΠΆΠ½ΡΡ ΠΊΠΎΡΠΈΠ΄ΠΎΡΠΎΠ² ΠΈ Π±Π΅ΡΠΏΠΎΠ»Π΅Π·Π½ΡΡ ΠΏΠ΅ΡΠ΅Ρ ΠΎΠ΄ΠΎΠ², ΡΡΠΎ ΠΌΠΎΠΆΠ΅Ρ ΠΏΠΎΠ³Π»ΠΎΡΠΈΡΡ Π·Π½Π°ΡΠΈΡΠ΅Π»ΡΠ½ΡΡ ΡΠ°ΡΡΡ ΠΆΠΈΠ»ΠΎΠΉ ΡΠ΅ΡΡΠΈΡΠΎΡΠΈΠΈ, ΡΡΠΎΠ³ΠΎ Π½ΡΠΆΠ½ΠΎ ΠΈΠ·Π±Π΅Π³Π°ΡΡ.
ΠΠΎΡΡΠ΅Π²ΡΡ ΠΊΠΎΠΌΠ½Π°ΡΡ ΠΈ ΠΊΡΡ Π½Ρ Π½ΡΠΆΠ½ΠΎ ΡΠ°Π·ΠΌΠ΅ΡΠ°ΡΡ ΡΡΠ΄ΠΎΠΌ, Π²Π΅Π΄Ρ ΡΡΠΎ ΡΡΠ»ΠΎΠ²Π½ΠΎ Β«Π·ΠΎΠ½Ρ ΡΡΠΌΠ°Β», Π° ΠΎΡΠΈΡ ΠΈ ΡΠΏΠ°Π»ΡΠ½ΠΈ Π»ΡΡΡΠ΅ ΡΡΡΠΎΠΈΡΡ Π² Π΄Π°Π»ΡΠ½Π΅ΠΉ ΡΠ°ΡΡΠΈ Π΄ΠΎΠΌΠ°. Π’Π°ΠΊΠΆΠ΅ Π½Π΅ Π½ΡΠΆΠ½ΠΎ ΠΏΠ΅ΡΠ΅Ρ ΠΎΠ΄Π½ΡΠ΅ Π·ΠΎΠ½Ρ Π΄Π΅Π»Π°ΡΡ ΠΏΡΡΡΡΠΌΠΈ, ΠΏΡΡΠΊΠ°ΠΉ ΡΡΠΎ Π±ΡΠ΄ΡΡ ΠΎΠ±ΡΠΈΠ΅ ΠΊΠΎΠΌΠ½Π°ΡΡ, ΡΠ°ΠΊΠΈΠ΅ ΠΊΠ°ΠΊ ΠΊΡΡ Π½Ρ, Π³ΠΎΡΡΠΈΠ½Π°Ρ ΠΈΠ»ΠΈ Π³Π°ΡΠ΄Π΅ΡΠΎΠ±Π½Π°Ρ.
Π’ΠΎΠ½ΠΊΠΎΡΡΠΈ ΠΏΡΠΎΠ΅ΠΊΡΠΈΡΠΎΠ²ΠΊΠΈ ΠΈ Π΄ΠΈΠ·Π°ΠΉΠ½Π°
ΠΠ°Π²Π°ΠΉΡΠ΅ ΡΠ°ΡΡΠΌΠΎΡΡΠΈΠΌ Π±ΠΎΠ»Π΅Π΅ ΠΊΠΎΠ½ΠΊΡΠ΅ΡΠ½ΡΠ΅ ΠΏΡΠΈΠΌΠ΅ΡΡ ΡΠ°ΡΠΏΡΠ΅Π΄Π΅Π»Π΅Π½ΠΈΡ ΠΊΠΎΠΌΠ½Π°Ρ ΠΈ ΠΆΠΈΠ»ΡΡ Π·ΠΎΠ½ Π² ΠΎΠ΄Π½ΠΎΡΡΠ°ΠΆΠ½ΠΎΠΌ Π΄ΠΎΠΌΠ΅ 12 Π½Π° 12 Ρ ΡΡΠ΅ΠΌΡ ΡΠΏΠ°Π»ΡΠ½ΡΠΌΠΈ, Π³ΠΎΡΡΠΈΠ½ΠΎΠΉ ΠΈ ΠΎΡΠΈΡΠΎΠΌ.
ΠΠ°ΡΠΈΠ°Π½Ρ β1
- ΠΡ ΠΎΠ΄Π½Π°Ρ Π΄Π²Π΅ΡΡ;
- ΠΠ°Π»Π΅Π½ΡΠΊΠΈΠΉ ΠΊΠΎΡΠΈΠ΄ΠΎΡΡΠΈΠΊ Π΄Π»Ρ ΠΎΠ±ΡΠ²ΠΈ;
- ΠΠ²Π΅ΡΡ Π² Π»Π΅Π²ΡΡ ΡΠ°ΡΡΡ Π΄ΠΎΠΌΠ°, ΠΏΡΠΎΡ ΠΎΠ΄Π½Π°Ρ ΠΊΡΡ Π½Ρ, ΠΈΠ· Π΄ΡΡΠ³ΠΎΠ³ΠΎ Π΅Π΅ ΠΊΠΎΠ½ΡΠ° Π΅ΡΠ΅ ΠΎΠ΄Π½Π° Π΄Π²Π΅ΡΡ, ΠΊΠΎΡΠΎΡΠ°Ρ Π²Π΅Π΄Π΅Ρ Π² Π³ΠΎΡΡΠΈΠ½ΡΡ;
- ΠΠ²Π΅ΡΡ Π² ΠΏΡΠ°Π²ΡΡ ΡΠ°ΡΡΡ Π΄ΠΎΠΌΠ°, ΡΠ·ΠΊΠΈΠΉ ΠΏΡΠΎΡ ΠΎΠ΄Π½ΠΎΠΉ ΠΊΠΎΡΠΈΠ΄ΠΎΡΡΠΈΠΊ, Π² ΠΊΠΎΡΠΎΡΠΎΠΌ ΡΠ°Π·ΠΌΠ΅ΡΠ΅Π½Ρ Π²Π΄ΠΎΠ»Ρ ΠΏΡΠΎΡ ΠΎΠ΄Π° ΡΡΠ°Π»Π΅Ρ ΠΈ Π²Π°Π½Π½Π°Ρ ΠΊΠΎΠΌΠ½Π°ΡΠ°. ΠΡΠ΅ ΠΎΠ΄Π½Π° Π΄Π²Π΅ΡΡ ΠΈ ΠΏΠΎΠ²ΠΎΡΠΎΡ Π½Π°Π»Π΅Π²ΠΎ, Π²Π΄ΠΎΠ»Ρ ΡΠ°ΠΊΠΎΠ³ΠΎ ΠΆΠ΅ ΠΊΠΎΡΠΈΠ΄ΠΎΡΡΠΈΠΊΠ° ΠΏΠΎΠ΄ΡΡΠ΄ ΡΡΠΈ ΡΠΏΠ°Π»ΡΠ½ΠΈ ΠΈ ΠΎΡΠΈΡ ΠΌΠ΅ΠΆΠ΄Ρ ΡΠΏΠ°Π»ΡΠ½ΡΠΌΠΈ ΠΈ Π³ΠΎΡΡΠΈΠ½ΠΎΠΉ, ΡΡΠΎΠ±Ρ Π·Π°Π³Π»ΡΡΠΈΡΡ Π²ΠΎΠ·ΠΌΠΎΠΆΠ½ΡΠΉ ΡΡΠΌ;
- ΠΠ²Π΅ΡΡ ΠΏΡΡΠΌΠΎ, ΠΊΠΎΡΠ΅Π»ΡΠ½Π°Ρ ΠΊΠΎΠΌΠ½Π°ΡΠΊΠ°, ΠΊΠΎΡΠΎΡΠ°Ρ ΡΠ²Π»ΡΠ΅ΡΡΡ ΡΠ΅Π½ΡΡΠ°Π»ΡΠ½ΡΠΌ ΠΎΡΠΎΠΏΠΈΡΠ΅Π»ΡΠ½ΡΠΌ ΡΠ·Π»ΠΎΠΌ Π²ΡΠ΅Π³ΠΎ ΡΡΡΠΎΠ΅Π½ΠΈΡ.

ΠΠ°ΡΠΈΠ°Π½Ρ β2
- ΠΡ ΠΎΠ΄Π½Π°Ρ Π΄Π²Π΅ΡΡ;
- ΠΠΎΠ»ΡΡΠ°Ρ ΠΏΡΠΎΡ ΠΎΠ΄Π½Π°Ρ ΠΊΡΡ Π½Ρ;
- Π ΡΠ΄ΠΎΠΌ Ρ ΠΊΡΡ Π½Π΅ΠΉ Π²Π°Π½Π½Π°Ρ ΠΊΠΎΠΌΠ½Π°ΡΠ°;
- ΠΡΡΠ³ΠΎΠΉ Π²Ρ ΠΎΠ΄ ΠΊΡΡ Π½ΠΈ Π²ΡΠ²ΠΎΠ΄ΠΈΡ Π² Π±ΠΎΠ»ΡΡΡΡ Π³ΠΎΡΡΠ΅Π²ΡΡ ΠΊΠΎΠΌΠ½Π°ΡΡ;
- ΠΠΎΡΡΠ΅Π²Π°Ρ ΠΊΠΎΠΌΠ½Π°ΡΠ° ΠΈΠΌΠ΅Π΅Ρ Π²ΡΠΎΡΠΎΠΉ Π²ΡΡ ΠΎΠ΄ Π² ΠΌΠΈΠ½ΠΈ ΠΊΠΎΡΠΈΠ΄ΠΎΡΡΠΈΠΊ, ΠΊΠΎΡΠΎΡΡΠΉ ΠΈΠΌΠ΅Π΅Ρ ΡΠ΅ΡΡΡΠ΅ Π΄Π²Π΅ΡΠΈ Π² ΡΠΏΠ°Π»ΡΠ½ΠΈ ΠΈ ΠΎΡΠΈΡ;
ΠΠ°ΡΠΈΠ°Π½Ρ β3
- ΠΡ ΠΎΠ΄Π½Π°Ρ Π΄Π²Π΅ΡΡ;
- ΠΠΎΠ»ΡΡΠ°Ρ ΠΏΡΠΎΡ ΠΎΠ΄Π½Π°Ρ ΠΊΡΡ Π½Ρ;
- ΠΠ· Π½Π΅Π΅ Π²ΡΡ ΠΎΠ΄ Π² ΠΌΠ°Π»Π΅Π½ΡΠΊΠΈΠΉ ΠΏΡΠΎΡ ΠΎΠ΄Π½ΠΎΠΉ ΠΊΠΎΡΠΈΠ΄ΠΎΡΡΠΈΠΊ, Π² ΠΊΠΎΡΠΎΡΠΎΠΌ, ΡΠ»Π΅Π²Π° β Π²Ρ ΠΎΠ΄ Π² ΡΡΠ°Π»Π΅Ρ, ΠΏΡΡΠΌΠΎ β Π²Ρ ΠΎΠ΄ Π² Π²Π°Π½Π½ΡΡ ΠΊΠΎΠΌΠ½Π°ΡΡ, Π½Π°ΠΏΡΠ°Π²ΠΎ β Π²Ρ ΠΎΠ΄ Π² Π³ΠΎΡΡΠ΅Π²ΡΡ ΠΊΠΎΠΌΠ½Π°ΡΡ;
- Π Π³ΠΎΡΡΠ΅Π²ΠΎΠΉ ΠΊΠΎΠΌΠ½Π°ΡΠ΅ Π΅ΡΠ΅ ΡΡΠΈ Π΄Π²Π΅ΡΠΈ Π² ΡΠΏΠ°Π»ΡΠ½ΠΈ;
- ΠΠ΄Π½Π° ΠΈΠ· ΡΠΏΠ°Π»Π΅Π½, ΡΠ°Π·Π΄Π΅Π»Π΅Π½Π° Π½Π° ΡΠΏΠ°Π»ΡΠ½ΡΡ Π·ΠΎΠ½Ρ ΠΈ ΠΎΡΠΈΡ ΡΠΎΠ½ΠΊΠΈΠΌ Π½Π΅Π΄ΠΎΡΠΎΠ³ΠΈΠΌ ΠΌΠ°ΡΠ΅ΡΠΈΠ°Π»ΠΎΠΌ, Π½Π°ΠΏΡΠΈΠΌΠ΅Ρ, ΠΏΠ»Π°ΡΡΠΈΠΊΠΎΠΌ ΠΈΠ»ΠΈ ΠΌΠ°ΡΠ΅ΡΠΈΠ°Π»ΠΎΠΌ ΠΈΠ· ΡΠΎΠ½ΠΊΠΎΠΉ ΠΏΡΠ΅ΡΡΠΎΠ²Π°Π½Π½ΠΎΠΉ Π΄ΡΠ΅Π²Π΅ΡΠΈΠ½Ρ.
ΠΡΡ Π½Ρ ΠΈ Π³ΠΎΡΡΠ΅Π²Π°Ρ ΠΊΠΎΠΌΠ½Π°ΡΠ° Π΄ΠΎΠ»ΠΆΠ½Ρ Π±ΡΡΡ ΡΠ°ΠΌΡΠΌΠΈ Π±ΠΎΠ»ΡΡΠΈΠΌΠΈ ΠΈ ΠΏΡΠΎΡΡΠΎΡΠ½ΡΠΌΠΈ, ΠΏΠΎΡΠΊΠΎΠ»ΡΠΊΡ ΡΡΠΎ ΠΎΠ±ΡΠΈΠ΅ ΠΊΠΎΠΌΠ½Π°ΡΡ. ΠΠΎΠ»ΡΡΡΡ ΡΠ°ΡΡΡ Π²ΡΠ΅ΠΌΠ΅Π½ΠΈ ΡΠ΅ΠΌΡΡ ΠΏΡΠΎΠ²ΠΎΠ΄ΠΈΡ ΠΈΠΌΠ΅Π½Π½ΠΎ ΡΡΡ, Π° ΡΠ°ΠΊΠΆΠ΅ ΠΏΡΠΈΠ½ΠΈΠΌΠ°ΡΡ Π³ΠΎΡΡΠ΅ΠΉ ΠΎΠ±ΡΡΠ½ΠΎ ΡΡΡ ΠΆΠ΅. ΠΠ±Π΅ ΡΡΠΈ ΠΊΠΎΠΌΠ½Π°ΡΡ ΡΠ΄ΠΎΠ±Π½Π΅Π΅ ΡΠ΄Π΅Π»Π°ΡΡ ΠΏΡΠΎΡ ΠΎΠ΄Π½ΡΠΌΠΈ, ΡΡΠΎΠ±Ρ ΠΈΠ· Π½ΠΈΡ Π±ΡΠ» Π΄ΠΎΡΡΡΠΏ ΠΊΠΎ Π²ΡΠ΅ΠΌ ΠΎΡΡΠ°Π»ΡΠ½ΡΠΌ Π·ΠΎΠ½Π°ΠΌ Π΄ΠΎΠΌΠ°, ΡΠ°ΠΊΠΆΠ΅ ΡΡΠΎ ΠΏΠΎΠ·Π²ΠΎΠ»ΠΈΡ ΡΠ°Π·ΠΌΠ΅ΡΡΠΈΡΡ ΠΈΡ Π² ΡΠ΅Π½ΡΡΠ°Π»ΡΠ½ΠΎΠΉ ΡΠ°ΡΡΠΈ.
ΠΠ½ΠΈΠΌΠ°Π½ΠΈΠ΅! ΠΠ΅ΡΠ΅Ρ ΠΎΠ΄Π½ΡΠ΅ ΠΊΠΎΡΠΈΠ΄ΠΎΡΡΠΈΠΊΠΈ ΡΠ»Π΅Π΄ΡΠ΅Ρ ΠΈΠ·Π±Π΅Π³Π°ΡΡ ΠΈ, Π² ΠΈΠ΄Π΅Π°Π»Π΅, ΠΎΠ±Ρ ΠΎΠ΄ΠΈΡΡΡΡ Π±Π΅Π· Π½ΠΈΡ . ΠΠ΄Π½Π°ΠΊΠΎ, ΡΡΠΎ ΠΌΠΎΠΆΠ΅Ρ ΠΏΡΠΈΠ²Π΅ΡΡΠΈ ΠΊ ΠΏΡΠΎΠ½ΠΈΠΊΠ½ΠΎΠ²Π΅Π½ΠΈΡ ΡΡΠΌΠ° ΠΈΠ· ΠΎΠ±ΡΠΈΡ ΠΊΠΎΠΌΠ½Π°Ρ Π² Π»ΠΈΡΠ½ΡΠ΅ ΠΊΠΎΠΌΠ½Π°ΡΡ.

Π Π΅ΡΠΈΡΡ ΡΡΡ ΠΏΡΠΎΠ±Π»Π΅ΠΌΡ ΠΌΠΎΠΆΠ½ΠΎ Ρ ΠΏΠΎΠΌΠΎΡΡΡ ΡΡΠΌΠΎΠΏΠΎΠ΄Π°Π²Π»ΡΡΡΠΈΡ ΠΌΠ°ΡΠ΅ΡΠΈΠ°Π»ΠΎΠ² Π² ΡΠΏΠ°Π»ΡΠ½ΠΎΠΉ Π·ΠΎΠ½Π΅ Π»ΠΈΠ±ΠΎ ΠΆΠ΅ Π²ΡΠ΅-ΡΠ°ΠΊΠΈ Π²ΠΎΡΠΏΠΎΠ»ΡΠ·ΠΎΠ²Π°ΡΡΡΡ ΠΊΠΎΡΠΈΠ΄ΠΎΡΡΠΈΠΊΠ°ΠΌΠΈ. Π‘Π΄Π΅Π»Π°ΡΡ ΠΈΡ ΡΠ»Π΅Π΄ΡΠ΅Ρ ΠΊΠ°ΠΊ ΠΌΠΎΠΆΠ½ΠΎ ΠΌΠ΅Π½ΡΡΠ΅, ΡΠΎΠ»ΡΠΊΠΎ ΡΡΠΎΠ± ΠΎΠ³ΡΠ°Π΄ΠΈΡΡ ΡΠΏΠ°Π»ΡΠ½ΡΡ Π·ΠΎΠ½Ρ ΠΎΡ Π²ΠΎΠ·ΠΌΠΎΠΆΠ½ΠΎΠ³ΠΎ ΡΡΠΌΠ°.
Π‘ΡΡΠ΅ΡΡΠ²ΡΠ΅Ρ Π±ΠΎΠ»ΡΡΠΎΠ΅ ΠΌΠ½ΠΎΠΆΠ΅ΡΡΠ²ΠΎ Π²Π°ΡΠΈΠ°ΡΠΈΠΉ ΠΏΡΠΈ ΠΏΠ»Π°Π½ΠΈΡΠΎΠ²ΠΊΠ΅ ΠΎΠ΄Π½ΠΎΡΡΠ°ΠΆΠ½ΠΎΠ³ΠΎ Π΄ΠΎΠΌΠ° 12 Π½Π° 12 Ρ ΡΡΠ΅ΠΌΡ ΡΠΏΠ°Π»ΡΠ½ΡΠΌΠΈ, Π³ΠΎΡΡΠΈΠ½ΠΎΠΉ ΠΊΠΎΠΌΠ½Π°ΡΠΎΠΉ ΠΈ ΠΎΡΠ΄Π΅Π»ΡΠ½ΡΠΌ ΠΎΡΠΈΡΠΎΠΌ. ΠΠΏΡΡΠ½ΡΠ΅ ΠΏΡΠΎΠ΅ΠΊΡΠΈΡΠΎΠ²ΡΠΈΠΊΠΈ ΠΏΡΠ΅Π΄Π»ΠΎΠΆΠ°Ρ ΠΠ°ΠΌ ΡΠ°ΠΌΡΠ΅ Π½Π΅ΠΎΠ±ΡΡΠ½ΡΠ΅ Π΄ΠΈΡΠΏΠΎΠ·ΠΈΡΠΈΠΈ ΠΊΠΎΠΌΠ½Π°Ρ ΠΈ Π·ΠΎΠ½. ΠΠ΄Π½ΠΎΠ²ΡΠ΅ΠΌΠ΅Π½Π½ΠΎ Ρ ΠΏΡΠΎΠ΅ΠΊΡΠΈΡΠΎΠ²ΠΊΠΎΠΉ ΡΠ»Π΅Π΄ΡΠ΅Ρ Π΄ΡΠΌΠ°ΡΡ ΠΈ ΠΎ ΠΌΠ°ΡΠ΅ΡΠΈΠ°Π»Π°Ρ , ΠΊΠΎΡΠΎΡΡΠ΅ Π½Π΅ΠΎΠ±Ρ ΠΎΠ΄ΠΈΠΌΡ Π΄Π»Ρ ΡΠΎΠΉ ΠΈΠ»ΠΈ ΠΈΠ½ΠΎΠΉ Π·ΠΎΠ½Ρ, Π° ΡΠ°ΠΊΠΆΠ΅ ΡΠΈΡΡΠ΅ΠΌΠ°Ρ ΠΎΡΠΎΠΏΠ»Π΅Π½ΠΈΡ. ΠΠ΅Π΄Ρ ΠΎΡ Π²ΡΠ±ΠΎΡΠ° Π²Π°ΡΠΈΠ°Π½ΡΠ° ΠΌΠΎΠΆΠ΅Ρ ΠΈΠ·ΠΌΠ΅Π½ΠΈΡΡΡΡ ΠΈ ΡΠ°ΡΠΏΠΎΠ»ΠΎΠΆΠ΅Π½ΠΈΠ΅ ΡΠ°ΠΌΠΈΡ Π·ΠΎΠ½ ΠΈ ΠΊΠΎΠΌΠ½Π°Ρ.
ΠΠ»Π°Π²Π½ΠΎΠ΅ Π½Π΅ ΡΠΎΡΠΎΠΏΠΈΡΡΡΡ ΡΠΎ ΡΡΡΠΎΠΈΡΠ΅Π»ΡΡΡΠ²ΠΎΠΌ, Π»ΡΡΡΠ΅ 100 ΡΠ°Π· ΠΏΠ΅ΡΠ΅ΡΠΌΠΎΡΡΠΈΡΠ΅ ΡΠ²ΠΎΠΈ ΡΠ΅ΡΠ΅Π½ΠΈΡ, Π²Π΅Π΄Ρ Π²ΠΊΡΡΡ ΠΈ ΠΆΠ΅Π»Π°Π½ΠΈΡ ΡΠΎ Π²ΡΠ΅ΠΌΠ΅Π½Π΅ΠΌ ΠΌΠ΅Π½ΡΡΡΡΡ. Π‘ΠΎΠ·Π΄Π°ΠΉΡΠ΅ ΠΏΡΠΎΠ΅ΠΊΡ ΠΈ ΠΎΡΠ»ΠΎΠΆΠΈΡΠ΅ Π΅Π³ΠΎ Π½Π° ΠΏΠ°ΡΡ Π½Π΅Π΄Π΅Π»Ρ, Π΅ΡΠ»ΠΈ Π½Π° ΠΏΡΠΎΡΡΠΆΠ΅Π½ΠΈΠΈ ΡΡΠΎΠ³ΠΎ Π²ΡΠ΅ΠΌΠ΅Π½ΠΈ ΠΡ Π½Π΅ ΠΈΠ·ΠΌΠ΅Π½ΠΈΡΠ΅ ΡΠ²ΠΎΠ΅ ΠΌΠ½Π΅Π½ΠΈΠ΅ ΠΎΡΠ½ΠΎΡΠΈΡΠ΅Π»ΡΠ½ΠΎ ΠΏΡΠΎΠ΅ΠΊΡΠ° ΠΈ ΠΠ°ΠΌ Π²ΡΠ΅ Π±ΡΠ΄Π΅Ρ Π½ΡΠ°Π²ΠΈΡΡΡΡ, ΡΠΎ ΡΡΠΎ Π±ΡΠ΄Π΅Ρ ΠΎΠ·Π½Π°ΡΠ°ΡΡ, ΡΡΠΎ ΠΏΡΠΈΡΠ»ΠΎ Π²ΡΠ΅ΠΌΡ ΠΈ Π΄Π»Ρ ΡΠ°ΠΌΠΎΠΉ ΡΡΡΠΎΠΉΠΊΠΈ.
ΠΠ»Π°Π½ΠΈΡΠΎΠ²ΠΊΠ° ΠΎΠ΄Π½ΠΎΡΡΠ°ΠΆΠ½ΠΎΠ³ΠΎ Π΄ΠΎΠΌΠ°: Π²ΠΈΠ΄Π΅ΠΎ
inter-er.ru
110+ ΡΠΎΠΏΠΎΠ²ΡΡ ΠΏΡΠΎΠ΅ΠΊΡΠΎΠ² ΠΎΠ΄Π½ΠΎΡΡΠ°ΠΆΠ½ΠΎΠ³ΠΎ Π΄ΠΎΠΌΠ° Ρ ΡΡΠ΅ΠΌΡ ΡΠΏΠ°Π»ΡΠ½ΡΠΌΠΈ [#2019]

ΠΠ΄Π½ΠΎΡΡΠ°ΠΆΠ½ΡΠΉ ΡΠ΅ΠΌΠ΅ΠΉΠ½ΡΠΉ Π΄ΠΎΠΌ Ρ ΡΡΠ΅ΠΌΡ ΡΠΏΠ°Π»ΡΠ½ΡΠΌΠΈ
ΠΡΠ°ΠΌΠΎΡΠ½ΠΎ ΡΠΎΡΡΠ°Π²Π»Π΅Π½Π½ΡΠΉ ΠΏΡΠΎΠ΅ΠΊΡ ΠΎΠ΄Π½ΠΎΡΡΠ°ΠΆΠ½ΠΎΠ³ΠΎ Π΄ΠΎΠΌΠ° Ρ ΡΡΠ΅ΠΌΡ ΡΠΏΠ°Π»ΡΠ½ΡΠΌΠΈ ΠΏΠΎΠ·Π²ΠΎΠ»ΡΠ΅Ρ Π³Π°ΡΠΌΠΎΠ½ΠΈΡΠ½ΠΎ ΡΠ°Π·ΠΌΠ΅ΡΡΠΈΡΡ ΠΊΠΎΠΌΠ½Π°ΡΡ Π΄Π»Ρ ΡΠΎΠ·Π΄Π°Π½ΠΈΡ ΠΊΠΎΠΌΡΠΎΡΡΠ½ΡΡ ΡΡΠ»ΠΎΠ²ΠΈΠΉ. Π‘Π΅Π³ΠΎΠ΄Π½Ρ Π½Π΅Π±ΠΎΠ»ΡΡΠΈΠ΅ Π·Π΄Π°Π½ΠΈΡ ΠΈΠΌΠ΅ΡΡ Π±ΠΎΠ»ΡΡΡΡ ΠΏΠΎΠΏΡΠ»ΡΡΠ½ΠΎΡΡΡ, ΡΠ°ΠΊ ΠΊΠ°ΠΊ ΡΠΏΠΎΡΠΎΠ±Π½Ρ ΠΏΠΎΠ»Π½ΠΎΡΡΡΡ ΡΠ΄ΠΎΠ²Π»Π΅ΡΠ²ΠΎΡΠΈΡΡ Π²ΡΠ΅ ΡΡΠ΅Π±ΠΎΠ²Π°Π½ΠΈΡ ΡΠΎΠ²ΡΠ΅ΠΌΠ΅Π½Π½ΠΎΠ³ΠΎ ΡΠ΅Π»ΠΎΠ²Π΅ΠΊΠ°. ΠΠΎΡΡΡΠΎΠΈΡΡ ΠΎΠ΄Π½ΠΎΡΡΠ°ΠΆΠ½ΡΠΉ Π΄ΠΎΠΌ ΠΌΠΎΠΆΠ½ΠΎ ΠΈΠ· ΡΠ°Π·Π»ΠΈΡΠ½ΡΡ ΡΡΡΠΎΠΈΡΠ΅Π»ΡΠ½ΡΡ ΠΌΠ°ΡΠ΅ΡΠΈΠ°Π»ΠΎΠ², ΠΈΡΠΏΠΎΠ»ΡΠ·ΡΡ ΠΌΠ½ΠΎΠ³ΠΎΡΠΈΡΠ»Π΅Π½Π½ΡΠ΅ ΡΡΠΈΠ»ΠΈ ΠΎΡΠΎΡΠΌΠ»Π΅Π½ΠΈΡ.
Π‘ΠΎΠ΄Π΅ΡΠΆΠ°Π½ΠΈΠ΅:

ΠΠΎΠΌ Ρ ΡΡΠ΅ΠΌΡ ΡΠΏΠ°Π»ΡΠ½ΡΠΌΠΈ ΠΈ ΡΡΠΊΠΈΠΌ ΡΠ°ΡΠ°Π΄ΠΎΠΌ

Π£ΡΡΠ½ΡΠΉ Π·Π°Π³ΠΎΡΠΎΠ΄Π½ΡΠΉ ΠΎΠ΄Π½ΠΎΡΡΠ°ΠΆΠ½ΡΠΉ Π΄ΠΎΠΌ Π² ΡΠΎΠ²ΡΠ΅ΠΌΠ΅Π½Π½ΠΎΠΌ ΡΡΠΈΠ»Π΅

ΠΡΠΎΡΡΠΎΡΠ½Π°Ρ ΡΠΏΠ°Π»ΡΠ½Ρ ΠΎΠ΄Π½ΠΎΡΡΠ°ΠΆΠ½ΠΎΠ³ΠΎ Π΄ΠΎΠΌΠ° Π² ΡΡΠΈΠ»Π΅ ΠΊΠ°Π½ΡΡΠΈ

Π‘ΠΎΠ²ΡΠ΅ΠΌΠ΅Π½Π½ΡΠΉ ΠΎΠ΄Π½ΠΎΡΡΠ°ΠΆΠ½ΡΠΉ Π΄ΠΎΠΌ Ρ Π±ΠΎΠ»ΡΡΠΈΠΌΠΈ ΠΎΠΊΠ½Π°ΠΌΠΈ
ΠΠΎΠΌΡΠΎΡΡΠ½ΡΠΉ ΠΎΠ΄Π½ΠΎΡΡΠ°ΠΆΠ½ΡΠΉ Π΄ΠΎΠΌ Π΄Π»Ρ ΡΠ΅ΠΌΡΠΈ
ΠΠ΄Π½ΠΎΡΡΠ°ΠΆΠ½ΡΠΉ Π΄ΠΎΠΌ Ρ ΡΡΠ΅ΠΌΡ ΠΊΠΎΠΌΠ½Π°ΡΠ°ΠΌΠΈ ΠΏΡΠ΅Π΄Π½Π°Π·Π½Π°ΡΠ΅Π½ Π΄Π»Ρ ΠΎΠ΄Π½ΠΎΠ²ΡΠ΅ΠΌΠ΅Π½Π½ΠΎΠ³ΠΎ ΠΏΡΠΎΠΆΠΈΠ²Π°Π½ΠΈΡ Π² Π½Π΅ΠΌ ΠΏΠΎΠ»Π½ΠΎΡΠ΅Π½Π½ΠΎΠΉ ΡΠ΅ΠΌΡΠΈ. ΠΠΈΠ»ΡΠ΅ ΠΊΠΎΠΌΠ½Π°ΡΡ ΡΠ΄ΠΈΠ²ΡΡ ΡΠ²ΠΎΠΈΠΌΠΈ ΠΏΡΠΎΡΡΠΎΡΠ½ΡΠΌΠΈ ΡΠΎΡΠΌΠ°ΠΌΠΈ, Π±ΠΎΠ»ΡΡΠΈΠ΅ ΠΎΠΊΠ½Π° ΠΏΡΠΈΠ±Π°Π²ΡΡ ΡΠ²Π΅Ρ ΠΈ ΡΡΡ. ΠΡΠΎΠ΅ΠΊΡ Π΄ΠΎΠΌΠ° ΡΠ°ΡΡΡΠΈΡΠ°Π½ Π½Π° 4-Ρ ΡΠ΅Π»ΠΎΠ²Π΅ΠΊ, Π½ΠΎ ΠΈ Π±ΠΎΠ»ΡΡΠ΅Π΅ ΠΊΠΎΠ»ΠΈΡΠ΅ΡΡΠ²ΠΎ Π»ΡΠ΄Π΅ΠΉ Π½Π΅ Π±ΡΠ΄Π΅Ρ ΡΡΠ²ΡΡΠ²ΠΎΠ²Π°ΡΡ ΡΠ΅Π±Ρ ΡΡΠ΅ΡΠ½Π΅Π½Π½ΠΎ. Π ΡΠ°ΠΊΠΎΠΌ Π΄ΠΎΠΌΠ΅ ΠΎΡΠ΅Π½Ρ ΠΏΡΠΎΡΡΠΎ ΡΠ°Π·ΠΌΠ΅ΡΡΠΈΡΡ Π³ΠΎΡΡΠ΅ΠΉ, ΠΏΡΠΎΠ²ΠΎΠ΄ΠΈΡΡ Π²ΡΡΡΠ΅ΡΠΈ Π΄ΡΡΠ·Π΅ΠΉ ΠΈ ΡΠΎΠ΄Π½ΡΡ . ΠΠ΅Π±ΠΎΠ»ΡΡΠΎΠΉ Π΄ΠΎΠΌ ΠΏΠΎΠ·Π²ΠΎΠ»ΡΠ΅Ρ ΡΡΠ²ΡΡΠ²ΠΎΠ²Π°ΡΡ ΡΠ΅Π±Ρ Π² Π½Π΅ΠΌ ΠΊΠΎΠΌΡΠΎΡΡΠ½ΠΎ Π² Π»ΡΠ±ΠΎΠ΅ Π²ΡΠ΅ΠΌΡ Π³ΠΎΠ΄Π°.
ΠΠΎΡΡΠΎΠΈΠ½ΡΡΠ²Π° ΠΎΠ΄Π½ΠΎΡΡΠ°ΠΆΠ½ΠΎΠ³ΠΎ Π΄ΠΎΠΌΠ°
Π‘ΡΡΠΎΠΈΡΠ΅Π»ΡΡΡΠ²ΠΎ ΠΎΠ΄Π½ΠΎΡΡΠ°ΠΆΠ½ΠΎΠ³ΠΎ Π΄ΠΎΠΌΠ° ΠΈΠΌΠ΅Π΅Ρ ΠΌΠ½ΠΎΠ³ΠΎ ΠΏΡΠ΅ΠΈΠΌΡΡΠ΅ΡΡΠ²:
- ΠΊΠΎΠΌΡΠΎΡΡΠ½ΠΎΠ΅ ΠΈΡΠΏΠΎΠ»ΡΠ·ΠΎΠ²Π°Π½ΠΈΠ΅ ΠΊΠΎΠΌΠ½Π°Ρ, ΡΠ°ΡΠΏΠΎΠ»ΠΎΠΆΠ΅Π½Π½ΡΡ Π½Π° ΠΎΠ΄Π½ΠΎΠΌ ΡΡΠ°ΠΆΠ΅, ΠΈΡΠΊΠ»ΡΡΠ°Π΅Ρ ΠΏΠΎΡΡΠ΅Π±Π½ΠΎΡΡΡ ΡΠΏΡΡΠΊΠ°ΡΡΡΡ ΠΈ ΠΏΠΎΠ΄Π½ΠΈΠΌΠ°ΡΡΡΡ ΠΏΠΎ Π»Π΅ΡΡΠ½ΠΈΡΠ΅, ΡΡΠΎ Π½Π΅ Π²ΡΠ΅Π³Π΄Π° Π²ΠΎΠ·ΠΌΠΎΠΆΠ½ΠΎ. Π ΠΏΡΠΈΠΌΠ΅ΡΡ, ΡΠ΅ΠΌΡΡΠΌ Ρ ΠΌΠ°Π»Π΅Π½ΡΠΊΠΈΠΌΠΈ Π΄Π΅ΡΡΠΌΠΈ Π΄ΠΎΠΌΠ° Π² Π½Π΅ΡΠΊΠΎΠ»ΡΠΊΠΎ ΡΡΠ°ΠΆΠ΅ΠΉ ΠΌΠΎΠ³ΡΡ Π½Π΅ΡΡΠΈ ΠΎΠΏΠ°ΡΠ½ΠΎΡΡΡ, Π° Π΄Π»Ρ Π»ΡΠ΄Π΅ΠΉ Π² Π²ΠΎΠ·ΡΠ°ΡΡΠ΅ ΡΡΡΠΏΠ΅Π½ΡΠΊΠΈ β ΠΎΡΠ΅Π½Ρ ΡΠ»ΠΎΠΆΠ½Π°Ρ ΠΏΡΠ΅Π³ΡΠ°Π΄Π°;

ΠΠ΅Π±ΠΎΠ»ΡΡΠΎΠΉ ΡΠ°ΡΡΠ½ΡΠΉ Π΄ΠΎΠΌ ΠΌΠΎΠΆΠ΅Ρ Π²ΠΌΠ΅ΡΡΠΈΡΡ ΡΠΎΠ»ΡΠΊΠΎ ΠΌΠ°Π»Π΅Π½ΡΠΊΠΈΠ΅ ΡΠΏΠ°Π»ΡΠ½ΠΈ

Π£ΡΡΠ½Π°Ρ Π·ΠΎΠ½Π° ΠΎΡΠ΄ΡΡ Π° Π²ΠΎ Π΄Π²ΠΎΡΠ΅ Π·Π°Π³ΠΎΡΠΎΠ΄Π½ΠΎΠ³ΠΎ Π΄ΠΎΠΌΠ°
- ΡΡΡΠΎΠΈΡΠ΅Π»ΡΡΡΠ²ΠΎ ΠΎΠ΄Π½ΠΎΡΡΠ°ΠΆΠ½ΠΎΠ³ΠΎ Π΄ΠΎΠΌΠ° ΡΠ²Π»ΡΠ΅ΡΡΡ ΡΠΊΠΎΠ½ΠΎΠΌΠΈΡΠ΅ΡΠΊΠΈ Π²ΡΠ³ΠΎΠ΄Π½ΡΠΌ ΠΌΠ΅ΡΠΎΠΏΡΠΈΡΡΠΈΠ΅ΠΌ. ΠΡΠΎΡΡΡΠ΅ ΡΠΎΡΠΌΡ Π·Π΄Π°Π½ΠΈΡ, ΡΡΡΠ°Π½ΠΎΠ²ΠΊΠ° Π΄Π²ΡΡΠΊΠ°ΡΠ½ΠΎΠΉ ΠΊΡΠΎΠ²Π»ΠΈ ΡΠΏΠΎΡΠΎΠ±ΡΡΠ²ΡΡΡ ΡΠΎΠΊΡΠ°ΡΠ΅Π½ΠΈΡ ΡΠ°ΡΡ ΠΎΠ΄ΠΎΠ² Π΄Π΅Π½Π΅ΠΆΠ½ΡΡ ΡΡΠ΅Π΄ΡΡΠ² Π½Π° ΡΡΡΠΎΠΈΡΠ΅Π»ΡΡΡΠ²ΠΎ;
- Π½Π΅ΡΡΡΠΈΠ΅ ΡΡΠ΅Π½Ρ Π·Π°Π½ΠΈΠΌΠ°ΡΡ Π½Π΅Π·Π½Π°ΡΠΈΡΠ΅Π»ΡΠ½ΡΡ ΠΏΠ»ΠΎΡΠ°Π΄Ρ Π² Π΄ΠΎΠΌΠ΅, ΡΡΠΎ ΡΠΏΠΎΡΠΎΠ±ΡΡΠ²ΡΠ΅Ρ ΠΏΠ»Π°Π½ΠΈΡΠΎΠ²Π°Π½ΠΈΡ ΡΠ°Π·ΠΌΠ΅ΡΠ΅Π½ΠΈΡ ΠΊΠΎΠΌΠ½Π°Ρ ΠΏΠΎ ΠΈΠ½Π΄ΠΈΠ²ΠΈΠ΄ΡΠ°Π»ΡΠ½ΡΠΌ ΡΡΠ΅Π±ΠΎΠ²Π°Π½ΠΈΡΠΌ. Π ΠΏΡΠΈΠΌΠ΅ΡΡ, ΠΊΡΡ Π½Ρ ΠΌΠΎΠΆΠ½ΠΎ ΡΠ΄Π΅Π»Π°ΡΡ Π±ΠΎΠ»Π΅Π΅ Π·Π°ΠΊΡΡΡΠΎΠΉ ΠΈΠ»ΠΈ, Π½Π°ΠΎΠ±ΠΎΡΠΎΡ, ΠΏΡΠΎΡΡΠΎΡΠ½ΠΎΠΉ ΠΈ ΡΠ²Π΅ΡΠ»ΠΎΠΉ, Π° ΠΏΡΠΈ Π½Π΅ΠΎΠ±Ρ ΠΎΠ΄ΠΈΠΌΠΎΡΡΠΈ Π΄Π²Π΅ ΠΆΠΈΠ»ΡΠ΅ ΠΊΠΎΠΌΠ½Π°ΡΡ ΡΠΎΠ΅Π΄ΠΈΠ½ΡΡΡΡΡ Π² ΠΎΠ΄Π½Ρ;

Π‘ΠΎΠ²ΡΠ΅ΠΌΠ΅Π½Π½ΡΠΉ ΠΎΠ΄Π½ΠΎΡΡΠ°ΠΆΠ½ΡΠΉ Π΄ΠΎΠΌ Ρ Π±ΠΎΠ»ΡΡΠΈΠΌ Π±Π°ΡΡΠ΅ΠΉΠ½ΠΎΠΌ Π²ΠΎ Π΄Π²ΠΎΡΠ΅

ΠΡΠΎΡΡΠΎΡΠ½Π°Ρ ΡΠΏΠ°Π»ΡΠ½Ρ Ρ Π²ΡΡ ΠΎΠ΄ΠΎΠΌ Π½Π° ΡΠ΅ΡΡΠ°ΡΡ

Π‘ΡΠΈΠ»ΡΠ½ΡΠΉ ΠΎΠ΄Π½ΠΎΡΡΠ°ΠΆΠ½ΡΠΉ Π΄ΠΎΠΌ Π² ΡΠΊΠ°Π½Π΄ΠΈΠ½Π°Π²ΡΠΊΠΎΠΌ ΡΡΠΈΠ»Π΅

ΠΡΠΎΡΡΠΎΡΠ½Π°Ρ Π΄Π΅ΡΡΠΊΠ°Ρ ΠΊΠΎΠΌΠ½Π°ΡΠ° Π² ΡΡΠΈΠ»Π΅ ΡΠ΅Π±Π±ΠΈ-ΡΠΈΠΊ Π±ΡΠ΄Π΅Ρ ΡΠΌΠ΅ΡΡΠ½Π° ΡΠΎΠ»ΡΠΊΠΎ Π² Π±ΠΎΠ»ΡΡΠΎΠΌ Π΄ΠΎΠΌΠ΅

ΠΠ΄Π½ΠΎΡΡΠ°ΠΆΠ½ΡΠΉ Π΄ΠΎΠΌ ΠΌΠΎΠΆΠ½ΠΎ ΡΠ΄Π΅Π»Π°ΡΡ Π±ΠΎΠ»Π΅Π΅ ΠΎΡΠΈΠ³ΠΈΠ½Π°Π»ΡΠ½ΡΠΌ ΠΏΠΎ Π΄ΠΈΠ·Π°ΠΉΠ½Ρ Π·Π° ΡΡΠ΅Ρ ΠΌΠΈΠ½ΠΈΠΌΠ°Π»ΡΠ½ΠΎΠ³ΠΎ ΠΊΠΎΠ»ΠΈΡΠ΅ΡΡΠ²Π° Π½Π΅ΡΡΡΠΈΡ ΡΡΠ΅Π½
- ΠΏΡΠΎΠ΅ΠΊΡ ΠΏΠΎΠ·Π²ΠΎΠ»ΡΠ΅Ρ ΡΠ°Π·ΠΌΠ΅ΡΡΠΈΡΡ ΠΊΠ°ΠΌΠΈΠ½ Π² Π΄ΠΎΠΌΠ΅, ΠΊΠΎΡΠΎΡΡΠΉ ΠΌΠΎΠΆΠ½ΠΎ ΠΈΡΠΏΠΎΠ»ΡΠ·ΠΎΠ²Π°ΡΡ ΠΈ Π² ΠΊΠ°ΡΠ΅ΡΡΠ²Π΅ Π΄ΠΎΠΏΠΎΠ»Π½ΠΈΡΠ΅Π»ΡΠ½ΠΎΠΉ ΡΠΈΡΡΠ΅ΠΌΡ ΠΎΡΠΎΠΏΠ»Π΅Π½ΠΈΡ;
- Π²ΠΎΠ·ΠΌΠΎΠΆΠ½ΠΎΡΡΡ ΠΏΠΎΡΡΡΠΎΠΈΡΡ Π΄ΠΎΠΌ Ρ ΠΊΡΡΡΠΎΠΉ ΡΠ΅ΡΡΠ°ΡΠΎΠΉ, Π±Π»Π°Π³ΠΎΠ΄Π°ΡΡ ΠΊΠΎΡΠΎΡΠΎΠΉ ΠΎΡΠ΄ΡΡ ΠΏΡΠΈΠ½Π΅ΡΠ΅Ρ Π·Π½Π°ΡΠΈΡΠ΅Π»ΡΠ½ΠΎ Π±ΠΎΠ»ΡΡΠ΅ ΡΠ΄ΠΎΠ²ΠΎΠ»ΡΡΡΠ²ΠΈΡ, ΠΎΡΠΎΠ±Π΅Π½Π½ΠΎ Π² Π½Π΅ΠΏΠΎΠ³ΠΎΠ΄Ρ;
- ΡΠ°Π·Π½ΠΎΠΎΠ±ΡΠ°Π·ΠΈΠ΅ ΠΏΡΠΎΠ΅ΠΊΡΠΎΠ² ΠΎΠ΄Π½ΠΎΡΡΠ°ΠΆΠ½ΡΡ Π΄ΠΎΠΌΠΎΠ² ΠΏΠΎΠ·Π²ΠΎΠ»ΡΠ΅Ρ ΠΈΡ ΡΠ°Π·ΠΌΠ΅ΡΠ°ΡΡ Π½Π° ΡΠ°Π·Π½ΡΡ ΠΏΠΎ ΡΠΎΡΠΌΠ°ΠΌ ΠΈ ΡΠ°Π·ΠΌΠ΅ΡΠ°ΠΌ ΡΡΠ°ΡΡΠΊΠ°Ρ ;
- Π²ΠΎΠ·ΠΌΠΎΠΆΠ½ΠΎΡΡΡ ΠΎΠ±ΡΡΡΡΠΎΠΈΡΡ ΠΊΠ»Π°Π΄ΠΎΠ²ΡΡ Π² Π΄ΠΎΠΌΠ΅ ΡΡΡΠ΅ΡΡΠ²Π΅Π½Π½ΠΎ ΡΠΏΡΠΎΡΠ°Π΅Ρ Π΄ΠΎΡΡΡΠΏ ΠΊ Π·Π°ΠΏΠ°ΡΠ°ΠΌ, ΠΊΠΎΡΠΎΡΡΠ΅ ΠΌΠΎΠΆΠ½ΠΎ Π΄Π΅ΡΠΆΠ°ΡΡ Π²ΡΠ΅Π³Π΄Π° ΠΏΠΎΠ΄ ΡΡΠΊΠΎΠΉ;
- Π²ΠΎΠ·Π²Π΅Π΄Π΅Π½ΠΈΠ΅ Π΄ΠΎΠΌΠΎΠ² Π² ΡΠ°Π·Π½ΡΡ ΡΡΠΈΠ»ΡΡ ΠΈ Π½Π°ΠΏΡΠ°Π²Π»Π΅Π½ΠΈΡΡ ΠΏΠΎΠ·Π²ΠΎΠ»ΡΠ΅Ρ Π²ΡΠ±ΡΠ°ΡΡ ΡΠ°ΠΌΡΠΉ ΠΏΠΎΠ΄Ρ ΠΎΠ΄ΡΡΠΈΠΉ Π²Π°ΡΠΈΠ°Π½Ρ ΡΡΡΠΎΠΈΡΠ΅Π»ΡΡΡΠ²Π° ΡΠΎΠ³Π»Π°ΡΠ½ΠΎ ΠΈΠ½Π΄ΠΈΠ²ΠΈΠ΄ΡΠ°Π»ΡΠ½ΡΠΌ ΡΡΠ΅Π±ΠΎΠ²Π°Π½ΠΈΡΠΌ.

ΠΠ΄Π½ΠΎΡΡΠ°ΠΆΠ½ΡΠΉ Π΄ΠΎΠΌ Ρ ΡΠ΅ΡΠ½ΡΠΌ ΡΠ°ΡΠ°Π΄ΠΎΠΌ

Π‘ΠΏΠ°Π»ΡΠ½Ρ ΠΎΠ΄Π½ΠΎΡΡΠ°ΠΆΠ½ΠΎΠ³ΠΎ Π΄ΠΎΠΌΠ° Π² ΡΡΠΈΠ»Π΅ Π»ΠΎΡΡ

ΠΠ΄Π½ΠΎΡΡΠ°ΠΆΠ½ΡΠΉ Π΄ΠΎΠΌ ΡΠ²Π»ΡΠ΅ΡΡΡ Π±ΠΎΠ»Π΅Π΅ ΠΏΠΎΠ΄Ρ ΠΎΠ΄ΡΡΠΈΠΌ Π²Π°ΡΠΈΠ°Π½ΡΠΎΠΌ Π΄Π»Ρ ΠΌΠΎΠ»ΠΎΠ΄ΠΎΠΉ ΡΠ΅ΠΌΡΠΈ Ρ ΠΌΠ°Π»Π΅Π½ΡΠΊΠΈΠΌΠΈ Π΄Π΅ΡΡΠΌΠΈ

ΠΠ΅Π±ΠΎΠ»ΡΡΠ°Ρ ΠΈ Π² ΡΠΎ ΠΆΠ΅ Π²ΡΠ΅ΠΌΡ ΡΡΡΠ½Π°Ρ ΡΠΏΠ°Π»ΡΠ½Ρ Π·Π°Π³ΠΎΡΠΎΠ΄Π½ΠΎΠ³ΠΎ Π΄ΠΎΠΌΠ°
ΠΡΠΎΠ΅ΠΊΡ ΠΎΠ΄Π½ΠΎΡΡΠ°ΠΆΠ½ΠΎΠ³ΠΎ Π΄ΠΎΠΌΠ° Ρ ΡΡΠ΅ΠΌΡ ΡΠΏΠ°Π»ΡΠ½ΡΠΌΠΈ: ΡΡΠΈΠ»ΠΈ ΡΡΡΠΎΠΈΡΠ΅Π»ΡΡΡΠ²Π°
ΠΡΠΎΠ΅ΠΊΡΡ ΠΎΠ΄Π½ΠΎΡΡΠ°ΠΆΠ½ΡΡ Π΄ΠΎΠΌΠΎΠ² Ρ ΡΡΠ΅ΠΌΡ ΡΠΏΠ°Π»ΡΠ½ΡΠΌΠΈ, Π²ΠΏΠ΅ΡΠ°ΡΠ»ΡΡΡΠΈΠ΅ ΡΠ²ΠΎΠ΅ΠΉ ΠΊΠΎΠΌΡΠΎΡΡΠ°Π±Π΅Π»ΡΠ½ΠΎΡΡΡΡ, ΠΌΠΎΠΆΠ½ΠΎ Π²ΠΎΠ·Π²Π΅ΡΡΠΈ Π² ΡΠ°Π·Π½ΡΡ ΡΡΠΈΠ»ΡΡ . ΠΡΡ ΠΎΠ΄Ρ ΠΈΠ· ΠΈΠ½Π΄ΠΈΠ²ΠΈΠ΄ΡΠ°Π»ΡΠ½ΡΡ ΡΡΠ΅Π±ΠΎΠ²Π°Π½ΠΈΠΉ Π·Π°ΠΊΠ°Π·ΡΠΈΠΊΠ° ΠΏΠΎΠ΄Π±ΠΈΡΠ°Π΅ΡΡΡ ΠΈ Π½Π°ΠΏΡΠ°Π²Π»Π΅Π½Π½ΠΎΡΡΡ Π² ΡΡΡΠΎΠΈΡΠ΅Π»ΡΡΡΠ²Π΅.
Π‘ΡΡΠΎΠΈΡΠ΅Π»ΡΡΡΠ²ΠΎ Π΄ΠΎΠΌΠ° Π² Π°ΠΌΠ΅ΡΠΈΠΊΠ°Π½ΡΠΊΠΎΠΌ ΡΡΠΈΠ»Π΅
ΠΠ»Π°Π²Π½ΠΎΠΉ ΠΎΡΠ»ΠΈΡΠΈΡΠ΅Π»ΡΠ½ΠΎΠΉ ΡΠ΅ΡΡΠΎΠΉ ΡΡΠΎΠ³ΠΎ Π½Π°ΠΏΡΠ°Π²Π»Π΅Π½ΠΈΡ ΡΠ²Π»ΡΠ΅ΡΡΡ Π΄Π΅ΠΌΠΎΠ½ΡΡΡΠ°ΡΠΈΡ Π±ΠΎΠ³Π°ΡΡΡΠ²Π° Π΄ΠΎΠΌΠ°. ΠΠ΄Π½ΠΎΡΡΠ°ΠΆΠ½ΡΠ΅ Π΄ΠΎΠΌΠ° Π² Π°ΠΌΠ΅ΡΠΈΠΊΠ°Π½ΡΠΊΠΎΠΌ ΡΡΠΈΠ»Π΅ β ΡΡΠΎ ΠΊΠΎΠΌΠΏΠ»Π΅ΠΊΡ ΡΠ»Π΅ΠΌΠ΅Π½ΡΠΎΠ², ΡΠΊΠΎΠΌΠ±ΠΈΠ½ΠΈΡΠΎΠ²Π°Π½Π½ΡΡ Π² Π΅Π΄ΠΈΠ½ΠΎΠ΅ Π·Π΄Π°Π½ΠΈΠ΅. ΠΠΌΠ΅ΡΠΈΠΊΠ°Π½ΡΠΊΠΈΠΉ ΡΡΠΈΠ»Ρ β ΡΡΠΎ:
- ΠΏΡΠΎΡΡΠΎΡΠ½ΡΠ΅ ΡΠΎΡΠΌΡ. ΠΠΎΠΌΠ½Π°ΡΡ Π² ΡΠ°ΠΊΠΈΡ Π΄ΠΎΠΌΠ°Ρ Π±ΠΎΠ»ΡΡΠΈΠ΅ ΠΈ ΡΠ²Π΅ΡΠ»ΡΠ΅;
- ΡΡΡΠΎΠ³Π°Ρ ΡΠΈΠΌΠΌΠ΅ΡΡΠΈΡ Π»ΠΈΠ½ΠΈΠΉ, Π° ΡΠΎΠΎΡΠ²Π΅ΡΡΡΠ²Π΅Π½Π½ΠΎ, ΠΈ ΡΠ°ΡΠΏΠΎΠ»ΠΎΠΆΠ΅Π½ΠΈΡ ΠΏΠΎΠΌΠ΅ΡΠ΅Π½ΠΈΠΉ;

ΠΠ»Π°ΡΡΠΈΡΠ΅ΡΠΊΠΈΠΉ Π°ΠΌΠ΅ΡΠΈΠΊΠ°Π½ΡΠΊΠΈΠΉ ΡΡΠΈΠ»Ρ Π² ΠΎΡΠΎΡΠΌΠ»Π΅Π½ΠΈΠΈ ΠΎΠ΄Π½ΠΎΡΡΠ°ΠΆΠ½ΠΎΠ³ΠΎ Π΄ΠΎΠΌΠ°

Π€Π°ΡΠ°Π΄ ΡΠ΅ΠΌΠ½ΠΎΠ³ΠΎ ΡΠ²Π΅ΡΠ° ΡΠΌΠΎΡΡΠΈΡΡΡ ΠΎΡΠ΅Π½Ρ ΠΈΠ½ΡΠ΅ΡΠ΅ΡΠ½ΠΎ
- Π½Π°Π»ΠΈΡΠΈΠ΅ ΠΊΠ°ΡΠΊΠ°Π΄Π½ΠΎΠΉ ΠΊΡΠΎΠ²Π»ΠΈ, ΠΈΠ΄Π΅Π°Π»ΡΠ½ΠΎ ΠΏΠΎΠ΄ΡΠ΅ΡΠΊΠΈΠ²Π°ΡΡΠ΅ΠΉ ΠΊΠ°ΠΆΠ΄ΡΠΉ ΡΠ»Π΅ΠΌΠ΅Π½Ρ ΠΊΠΎΠ½ΡΡΡΡΠΊΡΠΈΠΈ;
- ΡΠΈΡΠΎΠΊΠ°Ρ Π»Π΅ΡΡΠ½ΠΈΡΠ°, ΡΠΊΡΠ°ΡΠ°ΡΡΠ°Ρ Π²Ρ ΠΎΠ΄ Π² Π΄ΠΎΠΌ.
ΠΠΎΠΌ Π² Π°ΠΌΠ΅ΡΠΈΠΊΠ°Π½ΡΠΊΠΎΠΌ ΡΡΠΈΠ»Π΅ Π²ΡΠ΅ΠΌ ΡΠ²ΠΎΠΈΠΌ Π²Π½Π΅ΡΠ½ΠΈΠΌ Π²ΠΈΠ΄ΠΎΠΌ Π³ΠΎΠ²ΠΎΡΠΈΡ ΠΎΠ± ΡΡΠΏΠ΅ΡΠ½ΠΎΠΉ ΠΆΠΈΠ·Π½ΠΈ Π΅Π³ΠΎ Ρ ΠΎΠ·ΡΠ΅Π², ΠΎΠ± ΠΈΡ Π΄ΠΎΡΡΠ°ΡΠΊΠ΅ ΠΈ Π±ΠΎΠ³Π°ΡΡΡΠ²Π΅.

Π‘Π²Π΅ΡΠ»Π°Ρ ΠΏΡΠΎΡΡΠΎΡΠ½Π°Ρ ΡΠΏΠ°Π»ΡΠ½Ρ ΠΎΠ΄Π½ΠΎΡΡΠ°ΠΆΠ½ΠΎΠ³ΠΎ Π΄ΠΎΠΌΠ°
Π‘ΡΡΠΎΠΈΡΠ΅Π»ΡΡΡΠ²ΠΎ Π΄ΠΎΠΌΠ° Π² Π°Π½Π³Π»ΠΈΠΉΡΠΊΠΎΠΌ ΡΡΠΈΠ»Π΅
ΠΠΎΠΌ Π² Π°Π½Π³Π»ΠΈΠΉΡΠΊΠΎΠΌ ΡΡΠΈΠ»Π΅ Π΄Π΅ΠΌΠΎΠ½ΡΡΡΠΈΡΡΠ΅Ρ ΡΠ΄Π΅ΡΠΆΠ°Π½Π½ΠΎΡΡΡ ΠΈ ΡΡΠΎΠ½ΡΠ΅Π½Π½ΠΎΠ΅ Π±Π»Π°Π³ΠΎΡΠΎΠ΄ΡΡΠ²ΠΎ. ΠΡΠ΅ Π² Π½Π΅ΠΌ Π³ΠΎΠ²ΠΎΡΠΈΡ ΠΎΠ± Π°ΡΠΈΡΡΠΎΠΊΡΠ°ΡΠΈΠ·ΠΌΠ΅. ΠΡΠΎΠ±Π΅Π½Π½ΡΠΌΠΈ ΠΎΡΠ»ΠΈΡΠΈΡΠΌΠΈ ΡΠ°ΠΊΠΎΠ³ΠΎ Π½Π°ΠΏΡΠ°Π²Π»Π΅Π½ΠΈΡ ΡΠ²Π»ΡΡΡΡΡ:
- ΠΏΡΡΠΌΠΎΡΠ³ΠΎΠ»ΡΠ½ΡΠ΅ ΡΠΎΡΠΌΡ ΠΈ ΡΠΎΡΠ½ΡΠ΅ Π»ΠΈΠ½ΠΈΠΈ;
- ΡΡΡΠ°Π½ΠΎΠ²ΠΊΠ° Π½Π΅Π±ΠΎΠ»ΡΡΠΈΡ ΠΎΠΊΠΎΠ½Π½ΡΡ ΠΏΡΠΎΠ΅ΠΌΠΎΠ² ΠΎΠ΄ΠΈΠ½Π°ΠΊΠΎΠ²ΡΡ ΡΠΎΡΠΌ ΠΈ ΡΠ°Π·ΠΌΠ΅ΡΠΎΠ²;
- ΠΈΡΠΏΠΎΠ»ΡΠ·ΠΎΠ²Π°Π½ΠΈΠ΅ ΠΊΠΈΡΠΏΠΈΡΠ½ΠΎΠΉ ΠΊΠ»Π°Π΄ΠΊΠΈ Π΄Π»Ρ ΡΡΠ΅Π½;
- ΠΎΡΡΡΡΡΡΠ²ΠΈΠ΅ Π΄ΠΎΠΏΠΎΠ»Π½ΠΈΡΠ΅Π»ΡΠ½ΡΡ Π΄Π΅ΠΊΠΎΡΠ°ΡΠΈΠ²Π½ΡΡ ΡΠ»Π΅ΠΌΠ΅Π½ΡΠΎΠ² Π½Π° ΡΡΠ΅Π½Π°Ρ , ΠΎΠΊΠ½Π°Ρ ΠΈ Π΄Π²Π΅ΡΡΡ ;
- ΠΈΡΠΏΠΎΠ»ΡΠ·ΠΎΠ²Π°Π½ΠΈΠ΅ Π½ΠΈΠ·ΠΊΠΎΡΠ°ΡΠΏΠΎΠ»ΠΎΠΆΠ΅Π½Π½ΡΡ Π»Π΅ΡΡΠ½ΠΈΡ.
ΠΡΠΈ ΡΡΡΠΎΠΈΡΠ΅Π»ΡΡΡΠ²Π΅ ΠΎΠ΄Π½ΠΎΡΡΠ°ΠΆΠ½ΠΎΠ³ΠΎ Π΄ΠΎΠΌΠ° Π² Π°Π½Π³Π»ΠΈΠΉΡΠΊΠΎΠΌ ΡΡΠΈΠ»Π΅ ΠΈΡΠΏΠΎΠ»ΡΠ·ΡΠ΅ΡΡΡ ΡΠΎΠ»ΡΠΊΠΎ ΠΊΡΠ°ΡΠ½ΡΠΉ ΠΊΠΈΡΠΏΠΈΡ. Π’Π°ΠΊΠΆΠ΅ ΠΎΡΠΎΠ±ΠΎΠ΅ Π²Π½ΠΈΠΌΠ°Π½ΠΈΠ΅ ΡΠ΄Π΅Π»ΡΠ΅ΡΡΡ ΠΎΡΠΎΡΠΌΠ»Π΅Π½ΠΈΡ ΡΠ°ΡΠ°Π΄Π°. ΠΠ°ΠΊ ΠΏΡΠ°Π²ΠΈΠ»ΠΎ, ΠΎΠ½ ΡΠΎΠ·Π΄Π°Π΅ΡΡΡ Π² ΡΡΡΠΎΠ³ΠΎΠΌ Π½Π°ΠΏΡΠ°Π²Π»Π΅Π½ΠΈΠΈ Ρ ΠΌΠΈΠ½ΠΈΠΌΠ°Π»ΡΠ½ΡΠΌ ΠΊΠΎΠ»ΠΈΡΠ΅ΡΡΠ²ΠΎΠΌ Π΄ΠΎΠΏΠΎΠ»Π½ΠΈΡΠ΅Π»ΡΠ½ΡΡ ΡΠΊΡΠ°ΡΠ΅Π½ΠΈΠΉ. ΠΠΎΠ΄ΡΠ΅ΡΠΊΠ½ΡΡΡ ΠΏΡΠ΅ΠΈΠΌΡΡΠ΅ΡΡΠ²Π° Π°Π½Π³Π»ΠΈΠΉΡΠΊΠΎΠ³ΠΎ ΡΡΠΈΠ»Ρ, ΡΠ΄Π΅Π»Π°ΡΡ Π΅Π³ΠΎ Π±ΠΎΠ»Π΅Π΅ ΡΠ·Π½Π°Π²Π°Π΅ΠΌΡΠΌ ΠΏΠΎΠΌΠΎΠ³Π°Π΅Ρ Π»Π°Π½Π΄ΡΠ°ΡΡΠ½ΠΎΠ΅ ΠΎΡΠΎΡΠΌΠ»Π΅Π½ΠΈΠ΅ Π΄Π²ΠΎΡΠΈΠΊΠ°, Π° ΠΈΠΌΠ΅Π½Π½ΠΎ ΡΠΎΠ·Π΄Π°Π½ΠΈΠ΅ ΠΊΠ»ΡΠΌΠ± ΠΈ Π³Π°Π·ΠΎΠ½Π°.

Π‘ΠΎΠ²ΡΠ΅ΠΌΠ΅Π½Π½ΡΠΉ ΠΎΠ΄Π½ΠΎΡΡΠ°ΠΆΠ½ΡΠΉ Π΄ΠΎΠΌ Ρ Π±ΠΎΠ»ΡΡΠΈΠΌΠΈ ΠΎΠΊΠ½Π°ΠΌΠΈ Π² Π°Π½Π³Π»ΠΈΠΉΡΠΊΠΎΠΌ ΡΡΠΈΠ»Π΅

ΠΠ½Π³Π»ΠΈΠΉΡΠΊΠΈΠΉ ΡΡΠΈΠ»Ρ Π² ΠΎΡΠΎΡΠΌΠ»Π΅Π½ΠΈΠΈ ΠΎΠ΄Π½ΠΎΡΡΠ°ΠΆΠ½ΠΎΠ³ΠΎ Π΄ΠΎΠΌΠ° ΠΈΠ· ΠΊΠΈΡΠΏΠΈΡΠ°
ΠΡΠΏΠΎΠ»ΡΠ·ΠΎΠ²Π°Π½ΠΈΠ΅ Π³ΠΎΡΠΈΡΠ΅ΡΠΊΠΎΠ³ΠΎ ΡΡΠΈΠ»Ρ Π² ΡΡΡΠΎΠΈΡΠ΅Π»ΡΡΡΠ²Π΅ ΠΎΠ΄Π½ΠΎΡΡΠ°ΠΆΠ½ΡΡ Π΄ΠΎΠΌΠΎΠ²
ΠΠΎΡΠΈΡΠ΅ΡΠΊΠΈΠΉ ΡΡΠΈΠ»Ρ ΠΎΡΠΎΡΠΌΠ»Π΅Π½ΠΈΡ Π·Π΄Π°Π½ΠΈΠΉ Π²ΠΎΠ·Π½ΠΈΠΊ Π΅ΡΠ΅ Π² XII Π²Π΅ΠΊΠ΅ Π² ΠΠ²ΡΠΎΠΏΠ΅. ΠΠ³ΠΎ ΡΠΈΡΠΎΠΊΠΎ ΠΏΡΠΈΠΌΠ΅Π½ΡΠ»ΠΈ ΠΏΡΠΈ Π²ΠΎΠ·Π²Π΅Π΄Π΅Π½ΠΈΠΈ Ρ ΡΠ°ΠΌΠΎΠ², ΡΠ΅ΡΠΊΠ²Π΅ΠΉ, ΡΠΎΠ±ΠΎΡΠΎΠ². ΠΠΎΠ·ΠΆΠ΅ ΡΠ°ΡΡΠ½ΡΠ΅ Π΄ΠΎΠΌΠ° ΠΈ ΡΠΎΠΎΡΡΠΆΠ΅Π½ΠΈΡ ΡΡΠ°Π»ΠΈ Π²ΠΎΠ·Π²ΠΎΠ΄ΠΈΡΡΡΡ Π² Π³ΠΎΡΠΈΡΠ΅ΡΠΊΠΎΠΌ ΡΡΠΈΠ»Π΅. ΠΡΠΎΠ±Π΅Π½Π½ΠΎΡΡΡΠΌΠΈ Π³ΠΎΡΠΈΡΠ΅ΡΠΊΠΎΠ³ΠΎ ΡΡΠΈΠ»Ρ ΡΠ²Π»ΡΡΡΡΡ:
- Π½Π°Π»ΠΈΡΠΈΠ΅ Π±Π°ΡΠ΅Π½ ΠΈ ΠΊΠΎΠ»ΠΎΠ½Π½ Π² Π΄ΠΈΠ·Π°ΠΉΠ½Π΅ Π·Π΄Π°Π½ΠΈΡ;
- ΠΈΡΠΏΠΎΠ»ΡΠ·ΠΎΠ²Π°Π½ΠΈΠ΅ Π±ΠΎΠ³Π°ΡΠΎ ΡΠΊΡΠ°ΡΠ΅Π½Π½ΠΎΠ³ΠΎ ΡΠ°ΡΠ°Π΄Π° Ρ ΠΏΡΠΈΠΌΠ΅Π½Π΅Π½ΠΈΠ΅ΠΌ Π΄Π΅ΠΊΠΎΡΠΈΡΡΡΡΠΈΡ ΡΠ»Π΅ΠΌΠ΅Π½ΡΠΎΠ²;
- ΠΏΡΠΈΠΌΠ΅Π½Π΅Π½ΠΈΠ΅ Π²ΠΈΡΡΠ°ΠΆΠ΅ΠΉ.

Π¨ΠΈΠΊΠ°ΡΠ½ΡΠΉ Π·Π°Π³ΠΎΡΠΎΠ΄Π½ΡΠΉ Π΄ΠΎΠΌ Π² Π³ΠΎΡΠΈΡΠ΅ΡΠΊΠΎΠΌ ΡΡΠΈΠ»Π΅
ΠΠΎΡΠΈΡΠ΅ΡΠΊΠΈΠΉ ΡΡΠΈΠ»Ρ β ΡΡΠΎ Π²ΡΠ΄Π΅Π»Π΅Π½ΠΈΠ΅ Π²Π΅ΡΡΠΈΠΊΠ°Π»ΡΠ½ΡΡ Π»ΠΈΠ½ΠΈΠΉ. ΠΠΌΠ΅Π½Π½ΠΎ ΠΏΠΎΡΡΠΎΠΌΡ Π΄ΠΎΠΌΠ° ΡΠΊΡΠ°ΡΠ°ΡΡ Π²ΡΡΡΠ½ΡΡΡΠΌΠΈ ΡΡΠΎΠ½ΡΠΎΠ½Π°ΠΌΠΈ, ΡΠ·ΠΊΠΈΠΌΠΈ Π±Π°ΡΠ½ΡΠΌΠΈ ΠΈΠ»ΠΈ ΠΊΠΎΠ»ΠΎΠ½Π½Π°ΠΌΠΈ.
Π‘ΡΡΠΎΠΈΡΠ΅Π»ΡΡΡΠ²ΠΎ ΠΎΠ΄Π½ΠΎΡΡΠ°ΠΆΠ½ΠΎΠ³ΠΎ Π΄ΠΎΠΌΠ° Π² Π΅Π²ΡΠΎΠΏΠ΅ΠΉΡΠΊΠΎΠΌ ΡΡΠΈΠ»Π΅
ΠΠ° ΡΠ΅Π³ΠΎΠ΄Π½Ρ Π΅Π²ΡΠΎΠΏΠ΅ΠΉΡΠΊΠΈΠΉ ΡΡΠΈΠ»Ρ ΠΏΠΎΠ»ΡΠ·ΡΠ΅ΡΡΡ ΠΎΠ³ΡΠΎΠΌΠ½ΠΎΠΉ ΠΏΠΎΠΏΡΠ»ΡΡΠ½ΠΎΡΡΡΡ. Π’Π°ΠΊΠΎΠ΅ Π½Π°ΠΏΡΠ°Π²Π»Π΅Π½ΠΈΠ΅ ΠΈΠ΄Π΅Π°Π»ΡΠ½ΠΎ Π³Π°ΡΠΌΠΎΠ½ΠΈΡΡΠ΅Ρ Ρ ΠΏΡΠΈΡΠΎΠ΄ΠΎΠΉ, ΠΈΠΌΠ΅Π½Π½ΠΎ ΠΏΠΎΡΡΠΎΠΌΡ Π΅Π³ΠΎ ΠΈΡΠΏΠΎΠ»ΡΠ·ΡΡΡ, ΠΊΠ°ΠΊ ΠΏΡΠ°Π²ΠΈΠ»ΠΎ, ΠΏΡΠΈ ΡΡΡΠΎΠΈΡΠ΅Π»ΡΡΡΠ²Π΅ Π·Π°Π³ΠΎΡΠΎΠ΄Π½ΡΡ Π΄ΠΎΠΌΠΎΠ² ΠΈ ΠΊΠΎΡΡΠ΅Π΄ΠΆΠ΅ΠΉ. ΠΠ»Π°Π²Π½ΡΠΌ ΠΎΡΠ»ΠΈΡΠΈΠ΅ΠΌ Π΅Π²ΡΠΎΠΏΠ΅ΠΉΡΠΊΠΎΠ³ΠΎ ΡΡΠΈΠ»Ρ ΡΠ²Π»ΡΠ΅ΡΡΡ ΠΏΡΠΈΠΌΠ΅Π½Π΅Π½ΠΈΠ΅ ΡΡΡΠΎΠ³ΠΈΡ Π³Π΅ΠΎΠΌΠ΅ΡΡΠΈΡΠ΅ΡΠΊΠΈΡ ΡΠΎΡΠΌ. ΠΠΎ ΠΌΠ½ΠΎΠ³ΠΈΡ ΡΠ»ΡΡΠ°ΡΡ Π·Π΄Π°Π½ΠΈΡ ΡΡΡΠΎΡΡ Π² Π²ΠΈΠ΄Π΅ ΠΊΠ²Π°Π΄ΡΠ°ΡΠ°. ΠΡΠΎΡΠΌΠ»ΡΡΡ ΡΡΡΠΎΠ΅Π½ΠΈΡ Ρ ΠΏΠΎΠΌΠΎΡΡΡ Π½Π°ΡΡΡΠ°Π»ΡΠ½ΠΎΠ³ΠΎ ΠΊΠ°ΠΌΠ½Ρ ΠΈΠ»ΠΈΒ ΡΠ°ΠΉΠ΄ΠΈΠ½Π³Π° ΠΏΠΎΠ΄ ΠΊΠ°ΠΌΠ΅Π½Ρ, ΠΊΠΎΡΠΎΡΡΠΌ ΠΎΠ±Π»ΠΈΡΠΎΠ²ΡΠ²Π°ΡΡ ΡΠΎΠΊΠΎΠ»Ρ.

ΠΠΎΠ»ΡΡΠΎΠΉ ΡΠ΅ΠΌΠ΅ΠΉΠ½ΡΠΉ Π΄ΠΎΠΌ Ρ ΡΡΠ΅ΠΌΡ ΡΠΏΠ°Π»ΡΠ½ΡΠΌΠΈ ΠΈ ΡΠΎΡΠΊΠΎΡΠ½ΡΠΌ ΡΠ°ΡΠ°Π΄ΠΎΠΌ

ΠΡΠΎΠ΅ΠΊΡ ΠΎΠ΄Π½ΠΎΡΡΠ°ΠΆΠ½ΠΎΠ³ΠΎ Π΄ΠΎΠΌΠ° Π² Π΅Π²ΡΠΎΠΏΠ΅ΠΉΡΠΊΠΎΠΌ ΡΡΠΈΠ»Π΅ Ρ ΠΎΡΠΊΡΡΡΠΎΠΉ ΡΠ΅ΡΡΠ°ΡΠΎΠΉ

Π‘ΠΎΠ²ΡΠ΅ΠΌΠ΅Π½Π½ΡΠΉ ΠΎΠ΄Π½ΠΎΡΡΠ°ΠΆΠ½ΡΠΉ Π΄ΠΎΠΌ Ρ ΡΡΠ΅ΠΌΡ ΡΠΏΠ°Π»ΡΠ½ΡΠΌΠΈ ΠΏΠΎ ΠΈΠ½Π΄ΠΈΠ²ΠΈΠ΄ΡΠ°Π»ΡΠ½ΠΎΠΌΡ ΠΏΡΠΎΠ΅ΠΊΡΡ
Π ΠΊΡΠΎΠ²Π»Π΅ ΡΠ°ΠΊΠΆΠ΅ ΡΡΡΠ΅ΡΡΠ²ΡΡΡ ΠΎΡΠΎΠ±Π΅Π½Π½ΡΠ΅ ΡΡΠ΅Π±ΠΎΠ²Π°Π½ΠΈΡ. ΠΠ½Π°, ΠΊΠ°ΠΊ ΠΏΡΠ°Π²ΠΈΠ»ΠΎ, ΠΌΠΎΠ½ΡΠΈΡΡΠ΅ΡΡΡ Π΄Π²ΡΡΠΊΠ°ΡΠ½ΠΎΠΉ ΠΈΠ· ΠΊΡΠ°ΡΠ½ΠΎΠΉ Π½Π°ΡΡΡΠ°Π»ΡΠ½ΠΎΠΉ ΡΠ΅ΡΠ΅ΠΏΠΈΡΡ. ΠΠ²ΡΠΎΠΏΠ΅ΠΉΡΠΊΠΈΠΉ ΡΡΠΈΠ»Ρ ΠΏΡΠ΅Π΄ΡΡΠΌΠ°ΡΡΠΈΠ²Π°Π΅Ρ ΡΡΡΠ°Π½ΠΎΠ²ΠΊΡ Π½Π΅Π±ΠΎΠ»ΡΡΠΈΡ ΠΏΡΡΠΌΠΎΡΠ³ΠΎΠ»ΡΠ½ΡΡ ΠΈΠ»ΠΈ Π°ΡΠΎΡΠ½ΡΡ ΠΎΠΊΠΎΠ½.
ΠΡΠΏΠΎΠ»ΡΠ·ΠΎΠ²Π°Π½ΠΈΠ΅ ΠΈΡΠ°Π»ΡΡΠ½ΡΠΊΠΎΠ³ΠΎ ΡΡΠΈΠ»Ρ ΡΡΡΠΎΠΈΡΠ΅Π»ΡΡΡΠ²Π°
ΠΡΠ°Π»ΡΡΠ½ΡΠΊΠΈΠΉ ΡΡΠΈΠ»Ρ ΡΡΡΠΎΠΈΡΠ΅Π»ΡΡΡΠ²Π° ΠΈΠ΄Π΅Π°Π»ΡΠ½ΠΎ ΠΏΠΎΠ΄Ρ ΠΎΠ΄ΠΈΡ Π»ΡΠ΄ΡΠΌ, ΠΊΠΎΡΠΎΡΡΠ΅ ΠΏΡΠ΅Π²ΡΡΠ΅ Π²ΡΠ΅Π³ΠΎ ΡΠ΅Π½ΡΡ ΠΊΠ°ΡΠ΅ΡΡΠ²ΠΎ ΠΆΠΈΠ·Π½ΠΈ ΠΈ Π΅ΡΡΠ΅ΡΡΠ²Π΅Π½Π½ΡΡ ΠΊΡΠ°ΡΠΎΡΡ ΠΎΠΊΡΡΠΆΠ°ΡΡΠ΅ΠΉ ΠΈΡ ΠΎΠ±ΡΡΠ°Π½ΠΎΠ²ΠΊΠΈ. ΠΡΠΎΡ ΡΡΠΈΠ»Ρ ΡΠ»Π°Π²ΠΈΡΡΡ ΡΠ²ΠΎΠΈΠΌΠΈ ΠΏΡΠΎΠ΅ΠΊΡΠ°ΠΌΠΈ, Π½Π°ΠΏΠΎΠ»Π½Π΅Π½Π½ΡΠΌΠΈ ΠΏΡΠΎΡΡΠΎΡΠΎΠΉ ΠΈ Π΄ΠΎΡΡΡΠΏΠ½ΠΎΡΡΡΡ. ΠΡΠΈ ΡΡΡΠΎΠΈΡΠ΅Π»ΡΡΡΠ²Π΅ ΡΠ°ΠΊΠΈΡ Π΄ΠΎΠΌΠΎΠ² ΡΠΈΡΠΎΠΊΠΎ ΠΈΡΠΏΠΎΠ»ΡΠ·ΡΡΡΡΡ Π½Π°ΡΡΡΠ°Π»ΡΠ½ΡΠ΅ ΡΡΡΠΎΠΈΡΠ΅Π»ΡΠ½ΡΠ΅ ΠΌΠ°ΡΠ΅ΡΠΈΠ°Π»Ρ: Π΄Π΅ΡΠ΅Π²ΡΠ½Π½ΡΠ΅ ΡΠ»Π΅ΠΌΠ΅Π½ΡΡ, ΠΊΠ°ΠΌΠ΅Π½Ρ ΠΏΡΠΈΡΠΎΠ΄Π½ΠΎΠ³ΠΎ ΠΏΡΠΎΠΈΡΡ ΠΎΠΆΠ΄Π΅Π½ΠΈΡ, ΠΊΠΎΠ²Π°Π½ΡΠ΅ ΠΈΠ·Π΄Π΅Π»ΠΈΡ ΠΈ Π΄Π΅ΠΊΠΎΡΠΈΡΡΡΡΠΈΠ΅ Π΄Π΅ΡΠ°Π»ΠΈ.

Π¨ΠΈΠΊΠ°ΡΠ½ΡΠΉ Π·Π°Π³ΠΎΡΠΎΠ΄Π½ΡΠΉ ΠΎΡΠΎΠ±Π½ΡΠΊ Ρ ΠΊΠΎΠΌΡΠΎΡΡΠ°Π±Π΅Π»ΡΠ½ΠΎΠΉ Π·ΠΎΠ½ΠΎΠΉ ΠΎΡΠ΄ΡΡ Π°
Π₯Π°ΡΠ°ΠΊΡΠ΅ΡΠ½ΡΠΌΠΈ ΠΎΡΠΎΠ±Π΅Π½Π½ΠΎΡΡΡΠΌΠΈ ΡΠ°ΠΊΠΎΠ³ΠΎ ΡΡΡΠΎΠΈΡΠ΅Π»ΡΡΡΠ²Π° ΡΠ²Π»ΡΡΡΡΡ ΠΏΠΎΡΡΠΈ ΠΏΠ»ΠΎΡΠΊΠ°Ρ ΠΊΡΠΎΠ²Π»Ρ, Π½ΠΈΠ·ΠΊΠΈΠ΅ ΡΠΊΠ°ΡΡ, ΡΡΡΠ°Π½ΠΎΠ²ΠΊΠ° ΠΊΠΎΠ»ΠΎΠ½Π½ ΠΈΠ»ΠΈ Π±Π°ΡΠ½ΠΈ ΡΡΡΠΎΠ³ΠΈΡ Π³Π΅ΠΎΠΌΠ΅ΡΡΠΈΡΠ΅ΡΠΊΠΈΡ ΡΠΎΡΠΌ.
ΠΠ·ΡΡΠΊΠ°Π½Π½Π°Ρ ΠΊΠ»Π°ΡΡΠΈΠΊΠ°
ΠΡΠΈ ΡΡΡΠΎΠΈΡΠ΅Π»ΡΡΡΠ²Π΅ Π΄ΠΎΠΌΠ° Π² ΠΊΠ»Π°ΡΡΠΈΡΠ΅ΡΠΊΠΎΠΌ ΡΡΠΈΠ»Π΅ ΠΎΡΠΎΠ±Π΅Π½Π½ΠΎΠ΅ Π²Π½ΠΈΠΌΠ°Π½ΠΈΠ΅ ΡΠ΄Π΅Π»ΡΠ΅ΡΡΡ ΠΏΡΠΎΠΏΠΎΡΡΠΈΠΎΠ½Π°Π»ΡΠ½ΠΎΡΡΠΈ Π²ΡΠ΅Ρ ΡΠ»Π΅ΠΌΠ΅Π½ΡΠΎΠ² ΠΈ ΠΈΡ Π³Π°ΡΠΌΠΎΠ½ΠΈΠΈ ΠΌΠ΅ΠΆΠ΄Ρ ΡΠΎΠ±ΠΎΠΉ. ΠΡΠ΅ Π² ΡΠ°ΠΊΠΈΡ Π΄ΠΎΠΌΠ°Ρ Π³ΠΎΠ²ΠΎΡΠΈΡ ΠΎ Π±Π»Π°Π³ΠΎΡΠΎΠ΄ΡΡΠ²Π΅: ΠΎΠ΄Π½ΠΎΡΠΊΠ°ΡΠ½Π°Ρ ΠΊΡΠΎΠ²Π»Ρ, ΠΎΠ±Π»ΠΈΡΠΎΠ²Π°Π½Π½Π°Ρ ΡΠ΅ΡΠ΅ΠΏΠΈΡΠ΅ΠΉ, ΠΎΠ±ΡΡΡΡΠΎΠΉΡΡΠ²ΠΎ ΠΊΠΎΠ»ΠΎΠ½Π½ ΠΈ ΠΈΡ ΡΠΊΡΠ°ΡΠ΅Π½ΠΈΠ΅ Ρ ΠΏΠΎΠΌΠΎΡΡΡ Π³ΠΈΠΏΡΠΎΠ²ΠΎΠΉ Π»Π΅ΠΏΠΊΠΈ, ΡΡΡΠ°Π½ΠΎΠ²ΠΊΠ° ΠΌΠ΅ΡΠ°Π»Π»ΠΈΡΠ΅ΡΠΊΠΈΡ ΡΠ΅ΡΠ΅ΡΠΎΠΊ Π½Π° ΠΎΠΊΠ½Π° ΠΈ ΠΎΡΠ΄Π΅Π»ΠΊΠ° ΡΡΡΠΊΠ°ΡΡΡΠΊΠΎΠΉ ΡΠ°ΡΠ°Π΄Π°.
ΠΠΈΠ½ΠΈΠΌΠ°Π»ΠΈΠ·ΠΌ ΠΊΠ°ΠΊ ΡΡΠΈΠ»Ρ ΡΡΡΠΎΠΈΡΠ΅Π»ΡΡΡΠ²Π° ΠΎΠ΄Π½ΠΎΡΡΠ°ΠΆΠ½ΠΎΠ³ΠΎ Π΄ΠΎΠΌΠ°
ΠΠΈΠ½ΠΈΠΌΠ°Π»ΠΈΠ·ΠΌ Π²ΠΎΠ·Π½ΠΈΠΊ Π² ΡΠ΅ΡΠ΅Π΄ΠΈΠ½Π΅ XX ΡΡΠΎΠ»Π΅ΡΠΈΡ. ΠΡΠΈ ΡΡΡΠΎΠΈΡΠ΅Π»ΡΡΡΠ²Π΅ Π΄ΠΎΠΌΠ° ΠΈΡΠΏΠΎΠ»ΡΠ·ΡΡΡΡΡ ΡΠΎΠ»ΡΠΊΠΎ ΡΠ°ΠΌΡΠ΅ Π½Π΅ΠΎΠ±Ρ ΠΎΠ΄ΠΈΠΌΡΠ΅ Π΄Π»Ρ ΠΊΠΎΠΌΡΠΎΡΡΠ½ΠΎΠΉ ΠΆΠΈΠ·Π½ΠΈ ΡΠ»Π΅ΠΌΠ΅Π½ΡΡ, ΠΊΠΎΡΠΎΡΡΠ΅ Π²ΡΠΏΠΎΠ»Π½ΡΡΡ ΡΠ²ΠΎΠΈ ΡΡΠ½ΠΊΡΠΈΠΈ. ΠΠΈΠΊΠ°ΠΊΠΎΠ³ΠΎ Π΄Π΅ΠΊΠΎΡΠ° ΠΈ ΡΠΊΡΠ°ΡΠ΅Π½ΠΈΠΉ. ΠΠ°ΠΆΠ΄ΡΠΉ ΠΏΡΠ΅Π΄ΠΌΠ΅Ρ ΠΎΠ±Π»Π°Π΄Π°Π΅Ρ ΡΠ²ΠΎΠ΅ΠΉ ΡΡΠ½ΠΊΡΠΈΠΎΠ½Π°Π»ΡΠ½ΠΎΡΡΡΡ, Π±Π΅Π· ΠΊΠΎΡΠΎΡΠΎΠΉ ΠΏΡΠΎΡΡΠΎ Π½Π΅ ΠΎΠ±ΠΎΠΉΡΠΈΡΡ. ΠΡΠ½ΠΎΠ²Π½ΡΠΌΠΈ Ρ Π°ΡΠ°ΠΊΡΠ΅ΡΠΈΡΡΠΈΠΊΠ°ΠΌΠΈ ΠΌΠΈΠ½ΠΈΠΌΠ°Π»ΠΈΠ·ΠΌΠ° ΡΠ²Π»ΡΡΡΡΡ ΠΈΡΠΏΠΎΠ»ΡΠ·ΠΎΠ²Π°Π½ΠΈΠ΅ ΠΎΠ΄Π½ΠΎΡΠΎΠ½Π½ΠΎΠ³ΠΎ ΡΡΡΠΎΠΈΡΠ΅Π»ΡΡΡΠ²Π°, ΠΏΡΠΈΠΌΠ΅Π½Π΅Π½ΠΈΠ΅ ΡΡΡΠΎΠ³ΠΈΡ Π³Π΅ΠΎΠΌΠ΅ΡΡΠΈΡΠ΅ΡΠΊΠΈΡ Π»ΠΈΠ½ΠΈΠΉ, ΠΏΡΠ°Π²ΠΈΠ»ΡΠ½ΠΎΠ΅ ΡΠ²Π΅ΡΠΎΠ²ΠΎΠ΅ ΠΎΡΠΎΡΠΌΠ»Π΅Π½ΠΈΠ΅ ΠΈ ΠΏΠΎΠ»Π½Π°Ρ Π»Π°ΠΊΠΎΠ½ΠΈΡΠ½ΠΎΡΡΡ Π²ΠΎ Π²ΡΠ΅ΠΌ.

ΠΠΈΠ½ΠΈΠΌΠ°Π»ΠΈΡΡΠΈΡΠ½ΡΠΉ ΠΎΠ΄Π½ΠΎΡΡΠ°ΠΆΠ½ΡΠΉ Π΄ΠΎΠΌ ΡΠ΅ΡΠ½ΠΎΠ³ΠΎ ΡΠ²Π΅ΡΠ° Ρ ΠΎΠ³ΡΠΎΠΌΠ½ΡΠΌΠΈ ΠΎΠΊΠ½Π°ΠΌΠΈ

ΠΡΠΎΠ΅ΠΊΡ ΡΡΠΈΠ»ΡΠ½ΠΎΠ³ΠΎ ΠΎΠ΄Π½ΠΎΡΡΠ°ΠΆΠ½ΠΎΠ³ΠΎ Π΄ΠΎΠΌΠ° Ρ ΡΡΠ΅ΠΌΡ ΡΠΏΠ°Π»ΡΠ½ΡΠΌΠΈ Π² ΡΡΠΈΠ»Π΅ ΠΌΠΈΠ½ΠΈΠΌΠ°Π»ΠΈΠ·ΠΌ
Π‘ΡΡΠΎΠΈΡΡΡ Π΄ΠΎΠΌ Π² ΡΡΠΈΠ»Π΅ ΠΌΠΈΠ½ΠΈΠΌΠ°Π»ΠΈΠ·ΠΌΠ°, ΠΊΠ°ΠΊ ΠΏΡΠ°Π²ΠΈΠ»ΠΎ, ΡΠΎΠ»ΡΠΊΠΎ ΠΈΠ· Π½Π°ΡΡΡΠ°Π»ΡΠ½ΡΡ ΠΌΠ°ΡΠ΅ΡΠΈΠ°Π»ΠΎΠ². ΠΡΠΈ Π²ΠΎΠ·Π²Π΅Π΄Π΅Π½ΠΈΠΈ ΡΠ°ΡΡΠ½ΠΎΠ³ΠΎ Π΄ΠΎΠΌΠ° ΠΈΠ»ΠΈ Π°Π΄ΠΌΠΈΠ½ΠΈΡΡΡΠ°ΡΠΈΠ²Π½ΠΎΠ³ΠΎ Π·Π΄Π°Π½ΠΈΡ ΠΈΡΠΏΠΎΠ»ΡΠ·ΡΡΡΡΡ Π½Π°ΡΡΡΠ°Π»ΡΠ½Π°Ρ Π΄ΡΠ΅Π²Π΅ΡΠΈΠ½Π°, ΠΊΠ°ΠΌΠ΅Π½Ρ, ΠΌΡΠ°ΠΌΠΎΡ.

Π‘ΡΠΈΠ»ΡΠ½Π°Ρ Π±Π΅Π»Π°Ρ ΡΠΏΠ°Π»ΡΠ½Ρ Π² ΡΡΠΈΠ»Π΅ ΠΌΠΈΠ½ΠΈΠΌΠ°Π»ΠΈΠ·ΠΌ
Π‘ΡΡΠΎΠΈΡΠ΅Π»ΡΡΡΠ²ΠΎ Π΄ΠΎΠΌΠ° Π² ΡΡΠΈΠ»Π΅ ΠΏΡΠΎΠ²Π°Π½Ρ
ΠΡΠΎΠ±Π΅Π½Π½ΠΎΡΡΡΠΌΠΈ ΡΡΠΈΠ»Ρ ΠΏΡΠΎΠ²Π°Π½Ρ ΡΡΠΈΡΠ°Π΅ΡΡΡ ΠΈΠ·ΡΡΠΊΠ°Π½Π½Π°Ρ ΡΡΠΎΠ½ΡΠ΅Π½Π½ΠΎΡΡΡ Π² ΠΊΠΎΠΌΠ±ΠΈΠ½Π°ΡΠΈΠΈ Ρ Π½Π΅ΠΆΠ½ΠΎΡΡΡΡ. ΠΡΠΈ ΡΡΡΠΎΠΈΡΠ΅Π»ΡΡΡΠ²Π΅ ΡΠ°ΠΊΠΎΠ³ΠΎ Π΄ΠΎΠΌΠ°, ΠΊΠ°ΠΊ ΠΏΡΠ°Π²ΠΈΠ»ΠΎ, ΠΏΡΠ°ΠΊΡΠΈΡΠ΅ΡΠΊΠΈ ΠΎΡΡΡΡΡΡΠ²ΡΡΡ ΡΠΎΠΊΠΎΠ»Ρ ΠΈ ΠΊΡΡΠ»ΡΡΠΎ. ΠΠΎΠΌ Π² ΡΡΠΈΠ»Π΅ ΠΏΡΠΎΠ²Π°Π½Ρ Π²ΠΎΠ·Π²ΠΎΠ΄ΡΡ ΠΈΠ· ΠΊΠΈΡΠΏΠΈΡΠ° ΠΈΠ»ΠΈ Π½Π°ΡΡΡΠ°Π»ΡΠ½ΠΎΠ³ΠΎ ΠΊΠ°ΠΌΠ½Ρ, ΡΠ°ΠΊΠΆΠ΅ ΠΈΡΠΏΠΎΠ»ΡΠ·ΡΠ΅ΡΡΡ ΡΡΡΠΊΠ°ΡΡΡΠΊΠ° ΡΠ²Π΅ΡΠ»ΡΡ ΠΎΡΡΠ΅Π½ΠΊΠΎΠ². ΠΠ»Π°Π²Π½ΡΠΌ ΡΠ»Π΅ΠΌΠ΅Π½ΡΠΎΠΌ Π½Π°ΠΏΡΠ°Π²Π»Π΅Π½ΠΈΡ ΡΠ²Π»ΡΠ΅ΡΡΡ Π²Ρ ΠΎΠ΄Π½Π°Ρ Π΄Π²Π΅ΡΡ, ΠΊΠΎΡΠΎΡΠ°Ρ Π² ΠΎΠ±ΡΠ·Π°ΡΠ΅Π»ΡΠ½ΠΎΠΌ ΠΏΠΎΡΡΠ΄ΠΊΠ΅ ΡΠΎΠ·Π΄Π°Π΅ΡΡΡ ΠΎΡΠ΅Π½Ρ ΠΌΠΎΡΠ½ΠΎΠΉ, Ρ Π½Π°Π²Π΅ΡΠ½ΡΠΌΠΈ ΠΏΠ΅ΡΠ»ΡΠΌΠΈ.
ΠΠΎΡΡΡΠΎΠΈΡΡ ΠΎΠ΄Π½ΠΎΡΡΠ°ΠΆΠ½ΡΠΉ Π΄ΠΎΠΌ ΠΌΠΎΠΆΠ½ΠΎ ΠΈ Π² ΠΈΠ½ΡΡ ΡΡΠΈΠ»ΡΡ . ΠΡΠΈ Π²ΡΠ±ΠΎΡΠ΅ Π½Π°ΠΏΡΠ°Π²Π»Π΅Π½ΠΈΡ ΡΠΏΠ΅ΡΠΈΠ°Π»ΠΈΡΡΡ ΡΠ΅ΠΊΠΎΠΌΠ΅Π½Π΄ΡΡΡ Π²Π½ΠΈΠΌΠ°ΡΠ΅Π»ΡΠ½ΠΎ ΡΠ°ΡΡΠΌΠΎΡΡΠ΅ΡΡ Π²ΠΎΠ·ΠΌΠΎΠΆΠ½ΡΠ΅ Π²Π°ΡΠΈΠ°Π½ΡΡ ΡΡΡΠΎΠΈΡΠ΅Π»ΡΡΡΠ²Π°, Π²Π΅Π΄Ρ Π΄ΠΎΠΌ Π΄ΠΎΠ»ΠΆΠ΅Π½ ΡΠΎΠΎΡΠ²Π΅ΡΡΡΠ²ΠΎΠ²Π°ΡΡ ΠΈΠ½Π΄ΠΈΠ²ΠΈΠ΄ΡΠ°Π»ΡΠ½ΡΠΌ ΠΏΠΎΡΡΠ΅Π±Π½ΠΎΡΡΡΠΌ ΡΠ΅ΠΌΡΠΈ, Π±ΡΡΡ ΠΊΠΎΠΌΡΠΎΡΡΠ½ΡΠΌ Π΄Π»Ρ Π²ΡΠ΅Ρ Π΅Π΅ ΡΠ»Π΅Π½ΠΎΠ², Π³Π°ΡΠΌΠΎΠ½ΠΈΡΠ½ΠΎ Π²ΠΏΠΈΡΡΠ²Π°ΡΡΡΡ Π² Π»Π°Π½Π΄ΡΠ°ΡΡ ΡΡΠ°ΡΡΠΊΠ°. ΠΠΌΠ΅Π½Π½ΠΎ ΠΏΠΎΡΡΠΎΠΌΡ ΠΏΡΠΈ ΡΠΎΠ·Π΄Π°Π½ΠΈΠΈ ΠΏΡΠΎΠ΅ΠΊΡΠ° ΡΡΡΠΎΠΈΡΠ΅Π»ΡΡΡΠ²Π° Π·Π΄Π°Π½ΠΈΡ ΡΡΠΎΠΈΡ ΠΎΠ±ΡΠ°ΡΠΈΡΡΡΡ Π·Π° ΠΏΠΎΠΌΠΎΡΡΡ ΠΊ ΡΠΏΠ΅ΡΠΈΠ°Π»ΠΈΡΡΠ°ΠΌ, ΠΊΠΎΡΠΎΡΡΠ΅ Π²Π»Π°Π΄Π΅ΡΡ ΡΠΎΠ½ΠΊΠΎΡΡΡΠΌΠΈ ΡΠΎΠ·Π΄Π°Π½ΠΈΡ ΠΏΡΠΎΠ΅ΠΊΡΠΎΠ² ΠΈ ΡΠΌΠ΅Π½ΠΈΠ΅ΠΌ Π²ΡΠ±ΠΈΡΠ°ΡΡ ΡΠ°ΠΌΡΠΉ Π»ΡΡΡΠΈΠΉ Π²Π°ΡΠΈΠ°Π½Ρ.

ΠΡΠ°ΡΠΈΠ²ΡΠΉ ΠΎΠ΄Π½ΠΎΡΡΠ°ΠΆΠ½ΡΠΉ Π΄ΠΎΠΌΠΈΠΊ Π² ΡΡΠΈΠ»Π΅ ΠΏΡΠΎΠ²Π°Π½Ρ
Π‘Π΅Π³ΠΎΠ΄Π½Ρ ΡΠ°ΠΊΠΆΠ΅ ΠΏΠΎΠ»ΡΠ·ΡΡΡΡΡ ΠΎΠ³ΡΠΎΠΌΠ½ΠΎΠΉ ΠΏΠΎΠΏΡΠ»ΡΡΠ½ΠΎΡΡΡΡ Π³ΠΎΡΠΎΠ²ΡΠ΅ ΠΏΡΠΎΠ΅ΠΊΡΡ ΡΡΡΠΎΠΈΡΠ΅Π»ΡΡΡΠ²Π° Π΄ΠΎΠΌΠΎΠ² Π² ΠΎΠ΄ΠΈΠ½ ΠΈΠ»ΠΈ Π½Π΅ΡΠΊΠΎΠ»ΡΠΊΠΎ ΡΡΠ°ΠΆΠ΅ΠΉ.
ΠΠΎΡΠΎΠ²ΡΠ΅ ΠΏΡΠΎΠ΅ΠΊΡΡ ΠΎΠ΄Π½ΠΎΡΡΠ°ΠΆΠ½ΡΡ ΡΠ°ΡΡΠ½ΡΡ Π΄ΠΎΠΌΠΎΠ²
ΠΡΠΎΠ±Π΅Π½Π½ΠΎΡΡΡΡ Π³ΠΎΡΠΎΠ²ΡΡ ΠΏΡΠΎΠ΅ΠΊΡΠΎΠ² ΡΡΡΠΎΠΈΡΠ΅Π»ΡΡΡΠ²Π° ΠΎΠ΄Π½ΠΎΡΡΠ°ΠΆΠ½ΡΡ Π΄ΠΎΠΌΠΎΠ² ΡΠ²Π»ΡΠ΅ΡΡΡ ΠΈΡ ΠΏΡΠΈΠ΅ΠΌΠ»Π΅ΠΌΠ°Ρ ΡΡΠΎΠΈΠΌΠΎΡΡΡ ΠΈ Π²ΠΎΠ·ΠΌΠΎΠΆΠ½ΠΎΡΡΡ Π²ΠΈΠ·ΡΠ°Π»ΡΠ½ΠΎ ΠΏΡΠ΅Π΄ΡΡΠ°Π²ΠΈΡΡ, ΠΊΠ°ΠΊ Π±ΡΠ΄Π΅Ρ ΡΠΌΠΎΡΡΠ΅ΡΡΡΡ Π·Π΄Π°Π½ΠΈΠ΅. ΠΠ½ΠΎΠ³ΠΈΠ΅ ΡΡΠΈΡΠ°ΡΡ, ΡΡΠΎ ΡΡΡΠΎΠΈΡΠ΅Π»ΡΡΡΠ²ΠΎ ΠΏΠΎ Π³ΠΎΡΠΎΠ²ΡΠΌ ΠΏΡΠΎΠ΅ΠΊΡΠ°ΠΌ Π½Π΅ ΠΈΠΌΠ΅Π΅Ρ ΠΈΠ½Π΄ΠΈΠ²ΠΈΠ΄ΡΠ°Π»ΡΠ½ΠΎΡΡΠΈ. ΠΠΎ ΡΡΠΎ ΡΠΎΠ²ΡΠ΅ΠΌ Π½Π΅ ΡΠ°ΠΊ, Π²Π΅Π΄Ρ Π³ΠΎΡΠΎΠ²ΡΠ΅ ΠΏΡΠΎΠ΅ΠΊΡΡ β ΡΡΠΎ ΠΎΡΠ½ΠΎΠ²Π°, Π° ΠΎΡΠΎΡΠΌΠ»Π΅Π½ΠΈΠ΅ ΠΈΠ½Π΄ΠΈΠ²ΠΈΠ΄ΡΠ°Π»ΡΠ½ΠΎ. ΠΡΠΈ Π²ΡΠ±ΠΎΡΠ΅ Π³ΠΎΡΠΎΠ²ΠΎΠ³ΠΎ ΠΏΡΠΎΠ΅ΠΊΡΠ° ΡΠ°ΠΊΠΎΠ³ΠΎ Π΄ΠΎΠΌΠ° Π½Π΅ΠΎΠ±Ρ ΠΎΠ΄ΠΈΠΌΠΎ ΠΏΠΎΠ½ΠΈΠΌΠ°ΡΡ Π½Π΅ΠΊΠΎΡΠΎΡΡΠ΅ ΠΎΡΠΎΠ±Π΅Π½Π½ΠΎΡΡΠΈ:
- ΡΡΡΠΎΠΈΡΠ΅Π»ΡΡΡΠ²ΠΎ ΠΎΠ΄Π½ΠΎΡΡΠ°ΠΆΠ½ΠΎΠ³ΠΎ Π΄ΠΎΠΌΠ° ΠΌΠΎΠΆΠ΅Ρ ΠΎΠ±ΠΎΠΉΡΠΈΡΡ Π½Π΅Π½Π°ΠΌΠ½ΠΎΠ³ΠΎ Π΄ΠΎΡΠΎΠΆΠ΅, ΡΠ΅ΠΌ Π²ΠΎΠ·Π²Π΅Π΄Π΅Π½ΠΈΠ΅ Π΄Π²ΡΡ ΡΡΠ°ΠΆΠ½ΠΎΠ³ΠΎ Π΄ΠΎΠΌΠ° ΡΠ°ΠΊΠΎΠΉ ΠΆΠ΅ ΠΏΠ»ΠΎΡΠ°Π΄ΠΈ. Π‘Π²ΡΠ·Π°Π½ΠΎ ΡΡΠΎ Π² ΠΏΠ΅ΡΠ²ΡΡ ΠΎΡΠ΅ΡΠ΅Π΄Ρ Ρ ΡΠ΅ΠΌ, ΡΡΠΎ Π±ΠΎΠ»ΡΡΠΎΠΉ ΡΡΠ½Π΄Π°ΠΌΠ΅Π½Ρ ΠΈ ΠΊΡΠΎΠ²Π»Ρ ΡΠΏΠΎΡΠΎΠ±Π½Ρ ΠΏΠΎΠ²ΡΡΠΈΡΡ ΡΡΠΎΠΈΠΌΠΎΡΡΡ ΡΡΡΠΎΠΈΡΠ΅Π»ΡΡΡΠ²Π°, Π° Π²Π΅Π΄Ρ ΠΎΠ½ΠΈ ΡΠ²Π»ΡΡΡΡΡ ΠΎΠ΄Π½ΠΈΠΌΠΈ ΠΈΠ· Π²Π°ΠΆΠ½Π΅ΠΉΡΠΈΡ ΡΠ»Π΅ΠΌΠ΅Π½ΡΠΎΠ² ΠΊΠΎΠ½ΡΡΡΡΠΊΡΠΈΠΈ. ΠΠΊΠΎΠ½ΠΎΠΌΠΈΡΡ Π½Π° Π½ΠΈΡ Π½Π΅ ΡΠ΅ΠΊΠΎΠΌΠ΅Π½Π΄ΡΠ΅ΡΡΡ;

ΠΠ΄Π½ΠΎΡΡΠ°ΠΆΠ½ΡΠΉ Π΄ΠΎΠΌ ΠΏΠΎ Π³ΠΎΡΠΎΠ²ΠΎΠΌΡ ΠΏΡΠΎΠ΅ΠΊΡΡ ΡΡΡΠΎΠΈΡΡΡ Π·Π½Π°ΡΠΈΡΠ΅Π»ΡΠ½ΠΎ Π±ΡΡΡΡΠ΅Π΅
- ΠΎΠ΄Π½ΠΎΡΡΠ°ΠΆΠ½ΡΠ΅ Π΄ΠΎΠΌΠ°, ΠΏΠ»ΠΎΡΠ°Π΄Ρ ΠΊΠΎΡΠΎΡΡΡ ΠΏΡΠ΅Π²ΡΡΠ°Π΅Ρ 200 ΠΌΒ², ΡΠ²Π»ΡΡΡΡΡ ΠΌΠ΅Π½Π΅Π΅ ΠΊΠΎΠΌΡΠΎΡΡΠ°Π±Π΅Π»ΡΠ½ΡΠΌΠΈ, ΡΠ°ΠΊ ΠΊΠ°ΠΊ ΡΠ΅ΡΡΠ΅ΡΡΡ Π³Π°ΡΠΌΠΎΠ½ΠΈΡ ΡΠ°ΡΠΏΠΎΠ»ΠΎΠΆΠ΅Π½ΠΈΡ ΠΊΠΎΠΌΠ½Π°Ρ ΠΈΠ·-Π·Π° Π½Π΅ΠΎΠ±Ρ ΠΎΠ΄ΠΈΠΌΠΎΡΡΠΈ ΡΠΎΠ·Π΄Π°Π½ΠΈΡ Π½Π΅ΡΠΊΠΎΠ»ΡΠΊΠΈΡ ΠΊΠΎΡΠΈΠ΄ΠΎΡΠΎΠ². ΠΡΡΡΠΈΠΌΠΈ ΡΠ²Π»ΡΡΡΡΡ ΠΏΡΠΎΠ΅ΠΊΡΡ ΠΎΠ΄Π½ΠΎΡΡΠ°ΠΆΠ½ΡΡ Π΄ΠΎΠΌΠΎΠ² 100 ΠΌΒ² Π½Π° ΡΡΠΈ ΡΠΏΠ°Π»ΡΠ½ΠΈ;
- Π΄Π»Ρ Π²ΠΎΠ·Π²Π΅Π΄Π΅Π½ΠΈΡ ΠΎΠ΄Π½ΠΎΡΡΠ°ΠΆΠ½ΠΎΠ³ΠΎ Π΄ΠΎΠΌΠ° Π±ΠΎΠ»ΡΡΠΈΡ ΡΠ°Π·ΠΌΠ΅ΡΠΎΠ² ΠΏΠΎΡΡΠ΅Π±ΡΠ΅ΡΡΡ ΡΠΎΠΎΡΠ²Π΅ΡΡΡΠ²ΡΡΡΠΈΠΉ ΡΡΠ°ΡΡΠΎΠΊ Π·Π΅ΠΌΠ»ΠΈ;
- ΠΏΡΠΈ ΠΎΡΠΎΠΏΠ»Π΅Π½ΠΈΠΈ ΠΎΠ΄Π½ΠΎΡΡΠ°ΠΆΠ½ΠΎΠ³ΠΎ ΡΡΡΠΎΠ΅Π½ΠΈΡ ΠΎΠ±ΠΎΠ³ΡΠ΅Π²Π°Π΅ΡΡΡ ΠΈ ΡΠ΅ΡΠ΄Π°ΡΠ½ΠΎΠ΅ ΠΏΠΎΠΌΠ΅ΡΠ΅Π½ΠΈΠ΅. ΠΠΌΠ΅Π½Π½ΠΎ ΠΏΠΎΡΡΠΎΠΌΡ ΠΌΠ½ΠΎΠ³ΠΈΠ΅ Ρ ΡΠ΅Π»ΡΡ ΡΠ΅Π»Π΅ΡΠΎΠΎΠ±ΡΠ°Π·Π½ΠΎΠ³ΠΎ ΠΈΡΠΏΠΎΠ»ΡΠ·ΠΎΠ²Π°Π½ΠΈΡ ΡΠ²ΠΎΠ±ΠΎΠ΄Π½ΡΡ ΠΏΠ»ΠΎΡΠ°Π΄Π΅ΠΉ ΠΎΠ±ΡΡΡΡΠ°ΠΈΠ²Π°ΡΡ ΠΌΠ°Π½ΡΠ°ΡΠ΄Ρ.
ΠΠΎΡΠΎΠ²ΡΠ΅ ΠΏΡΠΎΠ΅ΠΊΡΡ ΠΎΠ΄Π½ΠΎΡΡΠ°ΠΆΠ½ΡΡ Π΄ΠΎΠΌΠΎΠ² ΠΌΠΎΠΆΠ½ΠΎ ΠΏΡΠΈΠΎΠ±ΡΠ΅ΡΡΠΈ Π² ΡΠΏΠ΅ΡΠΈΠ°Π»ΠΈΠ·ΠΈΡΡΡΡΠ΅ΠΉΡΡ Π½Π° ΡΠ°ΠΊΠΈΡ ΡΡΠ»ΡΠ³Π°Ρ ΠΊΠΎΠΌΠΏΠ°Π½ΠΈΠΈ. ΠΠ±ΡΠ°ΡΠΈΠ²ΡΠΈΡΡ Π·Π° ΠΏΠΎΠΌΠΎΡΡΡ ΠΊ ΠΏΡΠΎΡΠ΅ΡΡΠΈΠΎΠ½Π°Π»Π°ΠΌ, Π²Ρ Π³Π°ΡΠ°Π½ΡΠΈΡΠΎΠ²Π°Π½Π½ΠΎ ΠΏΠΎΠ»ΡΡΠΈΡΠ΅ ΡΠΎΡ Π²Π°ΡΠΈΠ°Π½Ρ ΡΡΡΠΎΠΈΡΠ΅Π»ΡΡΡΠ²Π°, ΠΊΠΎΡΠΎΡΡΠΉ Π²Π°ΠΌ Π½Π΅ΠΎΠ±Ρ ΠΎΠ΄ΠΈΠΌ. ΠΠ΅Π½Π΅Π΄ΠΆΠ΅Ρ ΠΊΠΎΠΌΠΏΠ°Π½ΠΈΠΈ Ρ ΡΠ΄ΠΎΠ²ΠΎΠ»ΡΡΡΠ²ΠΈΠ΅ΠΌ ΠΏΠΎΠΌΠΎΠΆΠ΅Ρ Π²Π°ΠΌ ΠΏΠΎΠ΄ΠΎΠ±ΡΠ°ΡΡ ΡΠ°ΠΌΡΠΉ Π²ΡΠ³ΠΎΠ΄Π½ΡΠΉ Π²Π°ΡΠΈΠ°Π½Ρ ΡΡΡΠΎΠΈΡΠ΅Π»ΡΡΡΠ²Π°, ΡΠ»Π΅Π΄ΡΡ Π²ΡΠ΅ΠΌ ΠΏΠΎΠΆΠ΅Π»Π°Π½ΠΈΡΠΌ ΠΈ ΡΡΠ΅Π±ΠΎΠ²Π°Π½ΠΈΡΠΌ. Π‘ Π΅Π³ΠΎ ΠΏΠΎΠΌΠΎΡΡΡ ΠΎΡΠ΅Π½Ρ ΠΏΡΠΎΡΡΠΎ Π²ΡΠ±ΡΠ°ΡΡ ΠΏΡΠΎΠ΅ΠΊΡ ΠΎΠ΄Π½ΠΎΡΡΠ°ΠΆΠ½ΠΎΠ³ΠΎ Π΄ΠΎΠΌΠ° Ρ ΡΡΠ΅ΠΌΡ ΡΠΏΠ°Π»ΡΠ½ΡΠΌΠΈ 150 ΠΌΒ²Β Π΄Π»Ρ ΡΠ΅ΠΌΡΠΈ Ρ Π΄Π΅ΡΡΠΌΠΈ.

Π‘ΡΡΠΎΠΈΡΠ΅Π»ΡΡΡΠ²ΠΎ ΠΎΠ΄Π½ΠΎΡΡΠ°ΠΆΠ½ΠΎΠ³ΠΎ Π΄ΠΎΠΌΠ° ΠΏΠΎ Π³ΠΎΡΠΎΠ²ΠΎΠΌΡ ΠΏΡΠΎΠ΅ΠΊΡΡ β ΡΡΠΎ Π²ΡΠ΅Π³Π΄Π° Π±ΠΎΠ»Π΅Π΅ Π±ΡΠ΄ΠΆΠ΅ΡΠ½ΡΠΉ Π²Π°ΡΠΈΠ°Π½Ρ

Π‘Ρ Π΅ΠΌΠ°ΡΠΈΡΠ΅ΡΠΊΠΈΠΉ ΡΠ΅ΡΡΠ΅ΠΆ ΠΎΠ΄Π½ΠΎΡΡΠ°ΠΆΠ½ΠΎΠ³ΠΎ Π΄ΠΎΠΌΠ° Ρ Π³Π°ΡΠ°ΠΆΠΎΠΌ ΠΈ ΡΡΠ΅ΠΌΡ ΡΠΏΠ°Π»ΡΠ½ΡΠΌΠΈ
ΠΡΠ΅Π½Ρ Π²Π°ΠΆΠ½ΠΎ, ΡΡΠΎΠ±Ρ ΠΏΡΠΈ Π²ΡΠ±ΠΎΡΠ΅ ΠΏΡΠΎΠ΅ΠΊΡΠ° Π΄Π»Ρ ΡΡΡΠΎΠΈΡΠ΅Π»ΡΡΡΠ²Π° Π±ΡΠ»ΠΈ ΡΡΡΠ΅Π½Ρ ΠΆΠ΅Π»Π°Π½ΠΈΡ Π²ΡΠ΅Ρ ΡΠ»Π΅Π½ΠΎΠ² ΡΠ΅ΠΌΡΠΈ, Π²Π΅Π΄Ρ Π΄ΠΎΠΌ Π΄ΠΎΠ»ΠΆΠ΅Π½ Π±ΡΡΡ ΠΊΠΎΠΌΡΠΎΡΡΠ½ΡΠΌ Π΄Π»Ρ ΠΊΠ°ΠΆΠ΄ΠΎΠ³ΠΎ. ΠΠΌΠ΅Π½Π½ΠΎ ΠΏΠΎΡΡΠΎΠΌΡ ΡΠ΅ΠΊΠΎΠΌΠ΅Π½Π΄ΡΠ΅ΡΡΡ Π²ΡΠ±ΠΈΡΠ°ΡΡ Π³ΠΎΡΠΎΠ²ΡΠΉ ΠΏΡΠΎΠ΅ΠΊΡ ΠΏΠΎΡΠ»Π΅ ΠΈΠ·ΡΡΠ΅Π½ΠΈΡ Π²ΡΠ΅Ρ ΠΆΠ΅Π»Π°Π½ΠΈΠΉ Π΄ΠΎΠΌΠΎΡΠ°Π΄ΡΠ΅Π².
ΠΡΠΈ Π²ΡΠ±ΠΎΡΠ΅ Π³ΠΎΡΠΎΠ²ΠΎΠ³ΠΎ ΠΏΡΠΎΠ΅ΠΊΡΠ° ΠΌΠΎΠΆΠ½ΠΎ Π²Π½Π΅ΡΡΠΈ ΠΊΠΎΡΡΠ΅ΠΊΡΠΈΠ²Ρ. Π ΠΏΡΠΈΠΌΠ΅ΡΡ, ΡΠΈΠΏ ΡΡΠ½Π΄Π°ΠΌΠ΅Π½ΡΠ° ΠΌΠΎΠΆΠ΅Ρ Π±ΡΡΡ ΠΏΠΎΠ΄ΠΎΠ±ΡΠ°Π½ ΠΈΡΡ ΠΎΠ΄Ρ ΠΈΠ· ΠΎΡΠΎΠ±Π΅Π½Π½ΠΎΡΡΠ΅ΠΉ ΠΏΠΎΡΠ²Ρ, Π½Π° ΠΊΠΎΡΠΎΡΠΎΠΉ Π±ΡΠ΄Π΅Ρ ΠΏΡΠΎΠ²Π΅Π΄Π΅Π½ΠΎ ΡΡΡΠΎΠΈΡΠ΅Π»ΡΡΡΠ²ΠΎ. ΠΠ»Ρ ΠΎΠΏΡΠ΅Π΄Π΅Π»Π΅Π½ΠΈΡ Π»ΡΡΡΠ΅Π³ΠΎ ΠΎΡΠ½ΠΎΠ²Π°Π½ΠΈΡ Π½Π΅ΠΎΠ±Ρ ΠΎΠ΄ΠΈΠΌΠΎ ΠΏΡΠΎΠ²Π΅Π΄Π΅Π½ΠΈΠ΅ Π³Π΅ΠΎΠ΄Π΅Π·ΠΈΡΠ΅ΡΠΊΠΈΡ ΠΈΡΡΠ»Π΅Π΄ΠΎΠ²Π°Π½ΠΈΠΉ. ΠΡΠΎΠΌΠ΅ ΡΠΎΠ³ΠΎ, ΠΊΠΎΡΡΠ΅ΠΊΡΠΈΠ²Ρ ΠΌΠΎΠ³ΡΡ Π²Π½ΠΎΡΠΈΡΡΡΡ ΠΈ Π² ΡΠ°ΠΌΡ ΠΏΠ»Π°Π½ΠΈΡΠΎΠ²ΠΊΡ ΠΏΠΎΠΌΠ΅ΡΠ΅Π½ΠΈΡ. Π Π°ΡΠΏΠΎΠ»ΠΎΠΆΠ΅Π½ΠΈΠ΅ ΠΊΠΎΠΌΠ½Π°Ρ, ΠΈΡ Π²Π΅Π»ΠΈΡΠΈΠ½Π° ΠΌΠΎΠ³ΡΡ ΠΎΡΡ ΠΎΠ΄ΠΈΡΡ ΠΎΡ ΠΏΡΠ΅Π΄Π»ΠΎΠΆΠ΅Π½Π½ΠΎΠ³ΠΎ ΡΡΠ°Π½Π΄Π°ΡΡΠ° ΠΈ ΠΏΡΠΎΠ΅ΠΊΡΠΈΡΠΎΠ²Π°ΡΡΡΡ ΠΏΠΎ ΠΈΠ½Π΄ΠΈΠ²ΠΈΠ΄ΡΠ°Π»ΡΠ½ΡΠΌ ΡΡΠ΅Π±ΠΎΠ²Π°Π½ΠΈΡΠΌ.

ΠΠ»Π°Π½ ΡΠΈΠΏΠΎΠ²ΠΎΠ³ΠΎ ΠΎΠ΄Π½ΠΎΡΡΠ°ΠΆΠ½ΠΎΠ³ΠΎ Π΄ΠΎΠΌΠ° Π½Π° ΡΡΠΈ ΡΠΏΠ°Π»ΡΠ½ΠΈ
Π ΠΊΠΎΠΌΠΏΠ°Π½ΠΈΠΈ ΠΌΠΎΠΆΠ½ΠΎ ΡΠ·Π½Π°ΡΡ ΠΈ ΠΏΡΠΈΠ±Π»ΠΈΠ·ΠΈΡΠ΅Π»ΡΠ½ΡΡ ΡΡΠΎΠΈΠΌΠΎΡΡΡ ΡΡΡΠΎΠΈΡΠ΅Π»ΡΡΡΠ²Π°. ΠΡΠΈ ΡΠ°Π·ΡΠ°Π±ΠΎΡΠΊΠ΅ ΠΏΡΠΎΠ΅ΠΊΡΠ° ΠΎΠ±ΡΠ·Π°ΡΠ΅Π»ΡΠ½ΠΎ ΡΠΎΡΡΠ°Π²Π»ΡΠ΅ΡΡΡ ΡΠΌΠ΅ΡΠ°, ΠΎΠΏΡΠ΅Π΄Π΅Π»ΡΡΡΠ°Ρ ΠΊΠΎΠ»ΠΈΡΠ΅ΡΡΠ²ΠΎ ΡΡΠ΅Π±ΡΠ΅ΠΌΡΡ ΠΌΠ°ΡΠ΅ΡΠΈΠ°Π»ΠΎΠ². Π’Π°ΠΊΠΆΠ΅ ΠΌΠΎΠΆΠ½ΠΎ ΡΠ°ΡΡΠΌΠΎΡΡΠ΅ΡΡ ΠΏΡΠΎΠ΅ΠΊΡ ΠΎΠ΄Π½ΠΎΡΡΠ°ΠΆΠ½ΠΎΠ³ΠΎ Π΄ΠΎΠΌΠ° Ρ Π³Π°ΡΠ°ΠΆΠΎΠΌ Π½Π° ΡΡΠΈ ΡΠΏΠ°Π»ΡΠ½ΠΈ, ΠΊΠΎΡΠΎΡΡΠΉ, ΠΏΠΎ ΠΌΠ½Π΅Π½ΠΈΡ ΡΠΊΡΠΏΠ΅ΡΡΠΎΠ², ΡΠ²Π»ΡΠ΅ΡΡΡ ΡΠΊΠΎΠ½ΠΎΠΌΠΈΡΠ΅ΡΠΊΠΈ Π²ΡΠ³ΠΎΠ΄Π½ΡΠΌ.
ΠΠΎΡΡΡΠΎΠΈΡΡ Π΄ΠΎΠΌ ΠΏΠΎ Π³ΠΎΡΠΎΠ²ΠΎΠΌΡ ΠΏΡΠΎΠ΅ΠΊΡΡ ΠΌΠΎΠΆΠ½ΠΎ ΠΈΠ· ΡΠ°Π·Π½ΡΡ ΠΌΠ°ΡΠ΅ΡΠΈΠ°Π»ΠΎΠ². Π‘Π°ΠΌΡΠΌΠΈ ΠΏΠΎΠΏΡΠ»ΡΡΠ½ΡΠΌΠΈ Π½Π° ΡΠ΅Π³ΠΎΠ΄Π½Ρ ΡΠ²Π»ΡΡΡΡΡ ΡΡΠ°Π΄ΠΈΡΠΈΠΎΠ½Π½ΡΠ΅ ΠΊΠΈΡΠΏΠΈΡΠ½ΡΠ΅ Π΄ΠΎΠΌΠ°, Π½ΠΎ, ΡΠ΅ΠΌ Π½Π΅ ΠΌΠ΅Π½Π΅Π΅, ΠΊΠ΅ΡΠ°ΠΌΠ·ΠΈΡΠΎΠ±Π΅ΡΠΎΠ½Π½ΡΠ΅ ΠΈ Π³Π°Π·ΠΎΠ²ΡΠ΅ Π±Π»ΠΎΠΊΠΈ ΠΈΡΠΏΠΎΠ»ΡΠ·ΡΡΡΡΡ ΡΠ°ΠΊ ΠΆΠ΅ ΠΎΠ±ΡΠΈΡΠ½ΠΎ.

ΠΠ΄Π½ΠΎΡΡΠ°ΠΆΠ½ΡΠΉ Π΄ΠΎΠΌ Ρ ΡΡΠ΅ΠΌΡ ΡΠΏΠ°Π»ΡΠ½ΡΠΌΠΈ β ΠΎΡΠ΅Π½Ρ ΠΏΠΎΠΏΡΠ»ΡΡΠ½ΡΠΉ Π²Π°ΡΠΈΠ°Π½Ρ

ΠΡΠΎΠ΅ΠΊΡ ΠΎΠ΄Π½ΠΎΡΡΠ°ΠΆΠ½ΠΎΠ³ΠΎ Π΄ΠΎΠΌΠ° Ρ ΡΡΠ΅ΠΌΡ ΡΠΏΠ°Π»ΡΠ½ΡΠΌΠΈ ΠΏΠΎ Π³ΠΎΡΠΎΠ²ΠΎΠΌΡ ΠΏΡΠΎΠ΅ΠΊΡΡ
ΠΡΠΎΠ΅ΠΊΡ ΠΎΠ΄Π½ΠΎΡΡΠ°ΠΆΠ½ΠΎΠ³ΠΎ Π΄ΠΎΠΌΠ° 12 Ρ 12 Ρ ΡΡΠ΅ΠΌΡ ΡΠΏΠ°Π»ΡΠ½ΡΠΌΠΈ β ΡΡΠΎ ΡΠ°ΠΌΡΠΉ Π²ΠΎΡΡΡΠ΅Π±ΠΎΠ²Π°Π½Π½ΡΠΉ Π²Π°ΡΠΈΠ°Π½Ρ ΡΡΡΠΎΠΈΡΠ΅Π»ΡΡΡΠ²Π°, ΠΊΠΎΡΠΎΡΠΎΠΌΡ ΠΎΡΠ΄Π°ΡΡ ΠΏΡΠ΅Π΄ΠΏΠΎΡΡΠ΅Π½ΠΈΠ΅ ΠΌΠΎΠ»ΠΎΠ΄ΡΠ΅ ΡΠ΅ΠΌΡΠΈ ΠΈ Π»ΡΠ΄ΠΈ ΠΏΠΎΡΡΠ°ΡΡΠ΅. Π’Π°ΠΊΠΈΠ΅ Π΄ΠΎΠΌΠ° ΠΎΡΠ΅Π½Ρ ΡΠ΄ΠΎΠ±Π½Ρ ΠΈ ΠΊΠΎΠΌΡΠΎΡΡΠ°Π±Π΅Π»ΡΠ½Ρ, ΠΈΠΌΠ΅ΡΡ Π²ΡΠ΅ Π½Π΅ΠΎΠ±Ρ ΠΎΠ΄ΠΈΠΌΡΠ΅ Π΄Π»Ρ ΡΠΎΠ·Π΄Π°Π½ΠΈΡ ΡΡΡΠ° ΠΏΠΎΠΌΠ΅ΡΠ΅Π½ΠΈΡ. ΠΠ½ΠΈ Π½Π΅Π±ΠΎΠ»ΡΡΠΈΠ΅, Π° ΠΏΠΎΡΡΠΎΠΌΡ Π½Π΅ ΡΡΠ΅Π±ΡΡΡ ΡΠ»ΠΈΡΠΊΠΎΠΌ Π±ΠΎΠ»ΡΡΠΈΡ Π·Π°ΡΡΠ°Ρ Π½Π° ΠΎΡΠΎΠΏΠ»Π΅Π½ΠΈΠ΅. ΠΠΎΡΡΡΠΎΠΈΡΡ ΠΈΡ ΠΏΡΠΎΡΠ΅ Π²ΡΠ΅Π³ΠΎ, ΠΈΡΠΏΠΎΠ»ΡΠ·ΡΡ Π³ΠΎΡΠΎΠ²ΡΠ΅ ΠΏΡΠΎΠ΅ΠΊΡΠ½ΡΠ΅ ΡΠ΅ΡΠ΅Π½ΠΈΡ.
happymodern.ru
ΠΡΠΎΠ΅ΠΊΡ ΠΠ΄Π½ΠΎΡΡΠ°ΠΆΠ½ΠΎΠ³ΠΎ ΠΠΎΠΌΠ° Ρ Π’ΡΠ΅ΠΌΡ Π‘ΠΏΠ°Π»ΡΠ½ΡΠΌΠΈ: ΠΠ°ΠΆΠ½ΡΠ΅ ΠΡΠ°Π½ΡΡ

ΠΠΎΠΌ Ρ ΡΡΠ΅ΠΌΡ ΡΠΏΠ°Π»ΡΠ½ΡΠΌΠΈ ΠΎΠ΄Π½ΠΎΡΡΠ°ΠΆΠ½ΡΠΉ
ΠΠ΄Π½ΠΎΡΡΠ°ΠΆΠ½ΡΠΉ Π΄ΠΎΠΌ Ρ 3 ΡΠΏΠ°Π»ΡΠ½ΡΠΌΠΈ ΠΈΠΌΠ΅Π΅Ρ ΠΏΡΠ΅ΠΈΠΌΡΡΠ΅ΡΡΠ²Π° ΠΏΠ΅ΡΠ΅Π΄ Π΄Π²ΡΡ
ΡΡΠ°ΠΆΠ½ΡΠΌ ΡΠΎΠΎΡΡΠΆΠ΅Π½ΠΈΠ΅ΠΌ ΡΠ²ΠΎΠ΅ΠΉ Π΄ΠΎΡΡΡΠΏΠ½ΠΎΡΡΡΡ Π΄Π»Ρ Π»ΡΠ΄Π΅ΠΉ ΠΈΠΌΠ΅ΡΡΠΈΡ
ΠΎΠ³ΡΠ°Π½ΠΈΡΠ΅Π½Π½ΡΡ ΠΏΠΎΠ΄Π²ΠΈΠΆΠ½ΠΎΡΡΡ, ΠΏΠΎΠΆΠΈΠ»ΡΡ
ΠΈ Π΄Π΅ΡΠ΅ΠΉ.
ΠΠΎΠΌΠΈΠΌΠΎ ΡΡΠΎΠ³ΠΎ ΠΌΠ½ΠΎΠ³ΠΈΠ΅ Π²Π»Π°Π΄Π΅Π»ΡΡΡ Π·Π΅ΠΌΠ΅Π»ΡΠ½ΡΡ
ΡΡΠ°ΡΡΠΊΠΎΠ² ΠΏΡΠ΅Π΄ΠΏΠΎΡΠΈΡΠ°ΡΡ ΡΡΡΠΎΠΈΡΠ΅Π»ΡΡΡΠ²ΠΎ Π½Π΅ ΠΎΠ³ΡΠΎΠΌΠ½ΡΡ
ΠΌΠ½ΠΎΠ³ΠΎΡΡΠ°ΠΆΠ½ΡΡ
ΠΊΠΎΡΡΠ΅Π΄ΠΆΠ΅ΠΉ, Π° Π½Π΅Π±ΠΎΠ»ΡΡΠΈΡ
ΡΡΡΠ½ΡΡ
Π΄ΠΎΠΌΠΈΠΊΠΎΠ² Π² ΠΎΠ΄ΠΈΠ½ ΡΡΠ°ΠΆ. ΠΠ°ΠΊ ΡΠ΄Π΅Π»Π°ΡΡ ΠΏΡΠΎΠ΅ΠΊΡ ΠΎΠ΄Π½ΠΎΡΡΠ°ΠΆΠ½ΠΎΠ³ΠΎ Π΄ΠΎΠΌΠ° Π½Π° 3 ΡΠΏΠ°Π»ΡΠ½ΠΈ ΠΏΡΠ΅Π΄Π»Π°Π³Π°Π΅Ρ ΡΠ°ΡΡΠΌΠΎΡΡΠ΅ΡΡ ΡΡΠ° ΡΡΠ°ΡΡΡ.
Π‘ΠΎΠ΄Π΅ΡΠΆΠ°Π½ΠΈΠ΅ ΡΡΠ°ΡΡΠΈ
Π‘ ΡΠ΅Π³ΠΎ Π½Π°ΡΠΈΠ½Π°Π΅ΡΡΡ ΡΡΡΠΎΠΈΡΠ΅Π»ΡΡΡΠ²ΠΎ Π΄ΠΎΠΌΠ°
ΠΡΠ΅ΠΆΠ΄Π΅ ΡΠ΅ΠΌ ΠΏΡΠΈΡΡΡΠΏΠΈΡΡ ΠΊ ΡΡΡΠΎΠΈΡΠ΅Π»ΡΡΡΠ²Ρ Π»ΡΠ±ΠΎΠ³ΠΎ ΡΠΎΠΎΡΡΠΆΠ΅Π½ΠΈΡ Π½Π΅ΠΎΠ±Ρ
ΠΎΠ΄ΠΈΠΌΠΎ ΠΎΠ±Π΄ΡΠΌΠ°ΡΡ ΠΈ Π½Π°ΡΠ΅ΡΡΠΈΡΡ Π΅Π³ΠΎ ΠΏΡΠΎΠ΅ΠΊΡ.
Π ΡΡΠΎΠΌ ΡΠ»ΡΡΠ°Π΅ ΠΌΠΎΠΆΠ½ΠΎ:
- ΠΠΎΠ»ΡΡΠΈΡΡ ΠΌΠ°ΠΊΡΠΈΠΌΠ°Π»ΡΠ½ΡΠ΅ ΡΠ΄ΠΎΠ±ΡΡΠ²Π° ΠΎΡ ΡΡΠ°ΡΠ΅Π»ΡΠ½ΠΎ ΠΏΡΠΎΠ΄ΡΠΌΠ°Π½Π½ΠΎΠΉ ΠΏΠ»Π°Π½ΠΈΡΠΎΠ²ΠΊΠΈ Π΄ΠΎΠΌΠ°.
- Π§Π΅ΡΠΊΠΎ ΠΎΠΏΡΠ΅Π΄Π΅Π»ΠΈΡΡ Π½Π°Π±ΠΎΡ ΡΡΡΠΎΠΈΡΠ΅Π»ΡΠ½ΡΡ ΠΌΠ°ΡΠ΅ΡΠΈΠ°Π»ΠΎΠ², ΠΈΡ ΠΊΠΎΠ»ΠΈΡΠ΅ΡΡΠ²ΠΎ, Π²ΡΡΡΠ½ΡΠ΅ΡΡΡ ΠΏΡΠ΅Π΄Π²Π°ΡΠΈΡΠ΅Π»ΡΠ½Π°Ρ ΡΠ΅Π½Π° ΠΏΡΠΈΠΎΠ±ΡΠ΅ΡΠ΅Π½ΠΈΡ.
- ΠΠΎΠ΄ΡΡΠΈΡΠ°ΡΡ ΠΎΡΠΈΠ΅Π½ΡΠΈΡΠΎΠ²ΠΎΡΠ½ΠΎ ΡΠΊΠΎΠ½ΠΎΠΌΠΈΡΠ΅ΡΠΊΠΈΠΉ ΡΡΡΠ΅ΠΊΡ ΠΎΡ ΠΎΡΠΎΠΏΠ»Π΅Π½ΠΈΡ, ΠΈΡΠΏΠΎΠ»ΡΠ·ΠΎΠ²Π°Π½ΠΈΡ Π²ΠΎΠ΄Ρ ΠΈ ΡΠ»Π΅ΠΊΡΡΠΈΡΠ΅ΡΡΠ²Π°.
- ΠΠΊΠΎΠ½ΠΎΠΌΠΈΡ Π² ΠΈΡΠΏΠΎΠ»ΡΠ·ΠΎΠ²Π°Π½ΠΈΠΈ ΡΡΡΠΎΠΈΡΠ΅Π»ΡΠ½ΡΡ ΠΌΠ°ΡΠ΅ΡΠΈΠ°Π»ΠΎΠ².
- Π£ΠΌΠ΅Π½ΡΡΠ°ΡΡΡΡ ΡΠ°ΡΡ ΠΎΠ΄Ρ Π½Π° ΡΡΡΠΎΠΈΡΠ΅Π»ΡΡΡΠ²ΠΎ Π΄ΠΎΠΌΠ°, ΠΈ ΠΎΠ±Π»Π΅Π³ΡΠ°Π΅ΡΡΡ ΠΏΡΠΎΡΠ΅ΡΡ ΡΠ°Π±ΠΎΡΡ.
Π‘ΠΎΠ²Π΅Ρ: ΠΡΠΈ Π²ΡΠ±ΠΎΡΠ΅ ΠΏΡΠΎΠ΅ΠΊΡΠ° Π΄Π»Ρ ΡΡΡΠΎΠΈΡΠ΅Π»ΡΡΡΠ²Π° ΠΎΠ΄Π½ΠΎΡΡΠ°ΠΆΠ½ΠΎΠ³ΠΎ Π΄ΠΎΠΌΠ° Π½Π΅ΠΎΠ±Ρ ΠΎΠ΄ΠΈΠΌΠΎ ΡΡΠΈΡΡΠ²Π°ΡΡ, ΡΡΠΎ Π΄Π»Ρ Π½Π΅Π±ΠΎΠ»ΡΡΠΈΡ ΡΠ΅ΠΌΠ΅ΠΉ ΠΈΡΠΏΠΎΠ»ΡΠ·ΡΡΡΡΡ ΡΡΡΠΎΠ΅Π½ΠΈΡ ΠΏΠ»ΠΎΡΠ°Π΄ΡΡ Π΄ΠΎ 100 ΠΊΠ²Π°Π΄ΡΠ°ΡΠ½ΡΡ ΠΌΠ΅ΡΡΠΎΠ².
ΠΠ°ΠΊ ΠΏΡΠΎΠ΅ΠΊΡΠΈΡΡΠ΅ΡΡΡ ΠΎΠ΄Π½ΠΎΡΡΠ°ΠΆΠ½ΡΠΉ Π΄ΠΎΠΌ Ρ ΡΡΠ΅ΠΌΡ ΡΠΏΠ°Π»ΡΠ½ΡΠΌΠΈ
ΠΡΠΎΠ΅ΠΊΡΡ Π΄ΠΎΠΌΠΎΠ² ΠΎΠ΄Π½ΠΎΡΡΠ°ΠΆΠ½ΡΡ Ρ 3 ΡΠΏΠ°Π»ΡΠ½ΡΠΌΠΈ Π°Π΄Π°ΠΏΡΠΈΡΠΎΠ²Π°Π½Ρ ΠΊ ΡΠΎΠ²ΡΠ΅ΠΌΠ΅Π½Π½ΠΎΠΌΡ ΠΌΠΈΡΡ. ΠΠ½ΠΈ ΠΈΠ΄Π΅Π°Π»ΡΠ½ΠΎ ΡΠΌΠΎΡΡΡΡΡΡ Π² Π»Π΅ΡΠ½ΠΎΠΌ ΠΌΠ°ΡΡΠΈΠ²Π΅. ΠΡ ΠΏΠ»Π°Π½ΠΈΡΠΎΠ²ΠΊΠ° ΠΎΠ±Π΅ΡΠΏΠ΅ΡΠΈΠ²Π°Π΅Ρ Π΅ΠΆΠ΅Π΄Π½Π΅Π²Π½ΡΠΉ ΠΊΠΎΠΌΡΠΎΡΡ Π²ΡΠ΅ΠΉ ΡΠ΅ΠΌΡΠ΅.

Π£Π΄ΠΎΠ±Π½ΡΠΉ Π΄ΠΎΠΌ Ρ ΡΡΠ΅ΠΌΡ ΡΠΏΠ°Π»ΡΠ½ΡΠΌΠΈ
ΠΠ°Π΄ ΠΏΠ°ΡΠ°Π΄Π½ΡΠΌ ΠΏΡΠΎΡ ΠΎΠ΄ΠΎΠΌ ΡΠ°ΡΠΏΠΎΠ»ΠΎΠΆΠ΅Π½Π° ΠΊΡΠ°ΡΠΈΠ²ΠΎ ΡΠ°ΡΡΠΈΡΠ΅Π½Π½Π°Ρ ΠΊΡΡΡΠ°, ΠΏΡΠ΅Π΄ΡΡΠ°Π²Π»ΡΡΡΠ°Ρ ΡΠΎΠ±ΠΎΠΉ ΠΊΡΡΡΠΎΠ΅ ΠΊΡΡΠ»ΡΡΠΎ.
ΠΠ»Π°Π½ ΠΎΠ΄Π½ΠΎΡΡΠ°ΠΆΠ½ΠΎΠ³ΠΎ Π΄ΠΎΠΌΠ° Ρ ΡΡΠ΅ΠΌΡ ΡΠΏΠ°Π»ΡΠ½ΡΠΌΠΈ Π²ΠΊΠ»ΡΡΠ°Π΅Ρ Π² ΡΠ΅Π±Ρ:
- ΠΠΎΡΡΠΈΠ½ΡΡ β ΡΡΠΎ ΡΠ°ΠΌΠ°Ρ Π±ΠΎΠ»ΡΡΠ°Ρ ΠΊΠΎΠΌΠ½Π°ΡΠ°. ΠΠ΄Π΅ΡΡ ΡΠ°ΡΠΏΠΎΠ»ΠΎΠΆΠ΅Π½Ρ ΡΠΏΠ΅ΡΠΈΠ°Π»ΡΠ½ΡΠ΅ ΠΎΡΠ΄Π΅Π»Π΅Π½ΠΈΡ Π² ΡΡΠ΅Π½Π°Ρ , Π³Π΄Π΅ ΡΡΡΠ°Π½Π°Π²Π»ΠΈΠ²Π°ΡΡΡΡ ΡΠΊΠ°ΡΡ ΠΈ ΡΠ΅Π»Π΅Π²ΠΈΠ·ΠΎΡ. ΠΠ· Π³ΠΎΡΡΠΈΠ½ΠΎΠΉ Π΅ΡΡΡ Π²ΡΡ ΠΎΠ΄ Π² ΡΠ°Π΄.
- ΠΡΡ Π½Ρ. Π Π½Π΅ΠΉ Π½Π°Ρ ΠΎΠ΄ΠΈΡΡΡ ΠΊΠ»Π°Π΄ΠΎΠ²ΠΊΠ° ΠΈ Π±ΠΎΠ»ΡΡΠΎΠ΅ ΠΎΠΊΠ½ΠΎ, ΠΏΠΎΡΡΠ΅Π΄ΡΡΠ²ΠΎΠΌ ΠΊΠΎΡΠΎΡΠΎΠ³ΠΎ ΠΌΠΎΠΆΠ½ΠΎ ΡΠ»Π΅Π΄ΠΈΡΡ Π·Π° ΠΈΠ³ΡΠΎΠΉ Π΄Π΅ΡΠ΅ΠΉ, Π½Π°Ρ ΠΎΠ΄ΡΡΠΈΡ ΡΡ Π²ΠΎ Π΄Π²ΠΎΡΠ΅.
- Π’ΡΠΈ ΡΠΏΠ°Π»ΡΠ½ΠΈ, Π½ΠΎ ΠΏΡΠΈ Π½Π΅ΠΎΠ±Ρ ΠΎΠ΄ΠΈΠΌΠΎΡΡΠΈ ΠΌΠΎΠΆΠ½ΠΎ ΠΏΡΠΈΡΡΡΠΎΠΈΡΡ Π½Π° ΡΠ΅ΡΠ΄Π°ΠΊΠ΅ Π΅ΡΠ΅ ΠΎΠ΄Π½Ρ.
- ΠΡΠΎΡΡΠΎΡΠ½ΡΠΉ ΠΊΠΎΡΠΈΠ΄ΠΎΡ, ΡΠ΅ΡΠ΅Π· ΠΊΠΎΡΠΎΡΡΠΉ ΠΌΠΎΠΆΠ½ΠΎ ΠΏΡΠΎΠΉΡΠΈ Π² Π»ΡΠ±ΡΡ ΠΊΠΎΠΌΠ½Π°ΡΡ.
- ΠΠ΅ΠΆΠ΄Ρ Π³ΠΎΡΡΠΈΠ½ΠΎΠΉ ΠΈ ΠΊΡΡ Π½Π΅ΠΉ ΡΠ°ΡΠΏΠΎΠ»Π°Π³Π°Π΅ΡΡΡ ΠΊΠ°ΠΌΠΈΠ½, ΠΊΠΎΡΠΎΡΡΠΉ ΡΠ²ΡΠ·Π°Π½ Ρ ΠΎΡΠΎΠΏΠΈΡΠ΅Π»ΡΠ½ΠΎΠΉ ΡΠΈΡΡΠ΅ΠΌΠΎΠΉ, ΡΡΠΎ Π² Π·ΠΈΠΌΠ½Π΅Π΅ Π²ΡΠ΅ΠΌΡ ΠΎΠ±Π΅ΡΠΏΠ΅ΡΠΈΠ²Π°Π΅Ρ Π²ΡΠ΅ΠΌΡ Π΄ΠΎΠΌΡ ΠΏΠΎΠ»Π½ΠΎΡΠ΅Π½Π½ΠΎΠ΅ ΠΎΡΠΎΠΏΠ»Π΅Π½ΠΈΠ΅.
- Π ΠΏΠΎΠ΄ΡΠΎΠ±Π½ΠΎΠΌ ΠΏΠΎΠΌΠ΅ΡΠ΅Π½ΠΈΠΈ Π½Π°Ρ ΠΎΠ΄ΡΡΡΡ ΡΠ°Π½ΡΠ·Π΅Π» ΠΈ Π±ΠΎΠ»ΡΡΠ°Ρ Π²Π°Π½Π½Π°Ρ ΠΊΠΎΠΌΠ½Π°ΡΠ°.

ΠΠ»Π°Π½ Π΄ΠΎΠΌΠ° ΠΎΠ΄Π½ΠΎΡΡΠ°ΠΆΠ½ΡΠΉ Ρ 3 ΡΠΏΠ°Π»ΡΠ½ΡΠΌΠΈ
ΠΠ°ΠΊ ΡΠ²Π΅Π»ΠΈΡΠΈΡΡ ΡΡΠ½ΠΊΡΠΈΠΎΠ½Π°Π»ΡΠ½ΠΎΡΡΡ Π΄ΠΎΠΌΠ°
ΠΡΠ΅ΠΆΠ΄Π΅ ΡΠ΅ΠΌ ΠΎΠΏΡΠ΅Π΄Π΅Π»ΠΈΡΡ ΠΊΠ°ΠΊΠΈΠ΅ ΠΏΠΎΠΌΠ΅ΡΠ΅Π½ΠΈΡ ΠΌΠΎΠΆΠ½ΠΎ ΡΠΎΠ²ΠΌΠ΅ΡΡΠΈΡΡ Π½Π΅ΠΎΠ±Ρ ΠΎΠ΄ΠΈΠΌΠΎ, ΡΠ°ΡΡΠΌΠΎΡΡΠ΅ΡΡ ΠΊΠ°ΠΆΠ΄ΡΡ ΠΊΠΎΠΌΠ½Π°ΡΡ β Π΅Π΅ ΠΏΠΎΠ»Π΅Π·Π½ΡΡ ΠΏΠ»ΠΎΡΠ°Π΄Ρ:
- ΠΠΎΡΡΠΈΠ½Π°Ρ ΡΠ°ΡΡΡΠΈΡΡΠ²Π°Π΅ΡΡΡ Ρ ΡΡΠ΅ΡΠΎΠΌ Π²ΡΠ΅Ρ ΡΠ»Π΅Π½ΠΎΠ² ΡΠ΅ΠΌΡΠΈ ΠΈ ΠΌΠ°ΠΊΡΠΈΠΌΠ°Π»ΡΠ½ΠΎΠ³ΠΎ ΠΊΠΎΠ»ΠΈΡΠ΅ΡΡΠ²Π° Π³ΠΎΡΡΠ΅ΠΉ.
- Π Π°Π·ΠΌΠ΅Ρ ΠΊΡΡ Π½ΠΈ ΠΏΠ»Π°Π½ΠΈΡΡΠ΅ΡΡΡ Ρ ΡΠΎΡΠΊΠΈ Π·ΡΠ΅Π½ΠΈΡ Π΅Π΅ ΡΡΠ½ΠΊΡΠΈΠΎΠ½Π°Π»ΡΠ½ΠΎΡΡΠΈ. ΠΠ΄Π΅ΡΡ Π½ΡΠΆΠ½ΠΎ ΡΡΠΈΡΡΠ²Π°ΡΡ Π½Π΅ΠΎΠ±Ρ ΠΎΠ΄ΠΈΠΌΠΎΡΡΡ ΡΠ΄ΠΎΠ±ΡΡΠ²Π° ΠΏΡΠΈΠ³ΠΎΡΠΎΠ²Π»Π΅Π½ΠΈΡ ΠΏΠΈΡΠΈ.
- ΠΠΎΠ΄ Π³Π°ΡΠ΄Π΅ΡΠΎΠ±Ρ ΠΏΠ»ΠΎΡΠ°Π΄Ρ Π²ΡΠ΄Π΅Π»ΡΠ΅ΡΡΡ Π² ΠΊΠ°ΠΆΠ΄ΠΎΠΉ ΠΊΠΎΠΌΠ½Π°ΡΠ΅, Π° ΠΌΠΎΠΆΠ½ΠΎ ΡΡΡΡΠΎΠΈΡΡ ΠΎΠ±ΡΠΈΠΉ Π³Π°ΡΠ΄Π΅ΡΠΎΠ± ΡΠ²ΠΎΠΈΠΌΠΈ ΡΡΠΊΠ°ΠΌΠΈ.
- ΠΠΎΠ΄ ΠΊΠΎΡΠ΅Π»ΡΠ½ΡΡ ΠΏΠΎΠΌΠ΅ΡΠ΅Π½ΠΈΠ΅ ΡΠ°ΡΡΡΠΈΡΡΠ²Π°Π΅ΡΡΡ ΠΏΠΎΠ΄ ΠΊΠΎΡΠ΅Π» ΠΈ Π΅Π³ΠΎ ΡΠ΅Ρ Π½ΠΎΠ»ΠΎΠ³ΠΈΡΠ΅ΡΠΊΠΈΠ΅ ΡΡΠ΅Π±ΠΎΠ²Π°Π½ΠΈΡ.
ΠΡΠΈ ΡΠ°ΡΠΏΡΠ΅Π΄Π΅Π»Π΅Π½ΠΈΠΈ ΠΏΠΎΠΌΠ΅ΡΠ΅Π½ΠΈΠΉ ΠΏΠΎ ΡΠ°Π·ΠΌΠ΅ΡΠ°ΠΌ ΡΡΠΈΡΡΠ²Π°Π΅ΡΡΡ ΠΌΠ°ΡΡΠ° Π½ΡΠ°Π½ΡΠΎΠ², ΠΏΠΎΡΡΠΎΠΌΡ ΠΏΡΠΈΠΎΠ±ΡΠ΅ΡΡΠΈ ΠΏΡΠΎΠ΅ΠΊΡΡ ΠΎΠ΄Π½ΠΎΡΡΠ°ΠΆΠ½ΡΡ Π΄ΠΎΠΌΠΎΠ² Ρ ΡΡΠ΅ΠΌΡ ΡΠΏΠ°Π»ΡΠ½ΡΠΌΠΈ Π±Π΅ΡΠΏΠ»Π°ΡΠ½ΠΎ Π½Π΅ ΠΏΠΎΠ»ΡΡΠΈΡΡΡ. ΠΠ»Π°Π΄Π΅Π»Π΅Ρ ΡΡΠ°ΡΡΠΊΠ° ΠΏΠΎΠ½ΡΡΡ ΠΎΡΠ½ΠΎΠ²Π½ΡΠ΅ ΠΏΡΠΈΠ½ΡΠΈΠΏΡ ΠΈ ΡΠ°ΡΡΠΌΠΎΡΡΠ΅ΡΡ ΠΏΡΠΈΠΌΠ΅ΡΡ ΠΌΠΎΠΆΠ΅Ρ, Π½ΠΎ ΠΏΡΠ°Π²ΠΈΠ»ΡΠ½ΠΎ Π²ΡΠ΅ ΡΠ°ΡΡΡΠΈΡΠ°ΡΡ Π΄ΠΎΠ»ΠΆΠ΅Π½ ΠΏΡΠΎΠ΅ΠΊΡΠΈΡΠΎΠ²ΡΠΈΠΊ-ΠΏΡΠΎΡΠ΅ΡΡΠΈΠΎΠ½Π°Π».
Π‘Π°ΠΌΡΠΌΠΈ ΡΠ°ΡΠΏΡΠΎΡΡΡΠ°Π½Π΅Π½Π½ΡΠΌΠΈ ΠΎΠ±ΡΠ΅Π΄ΠΈΠ½Π΅Π½ΠΈΡΠΌΠΈ ΠΌΠΎΠ³ΡΡ Π±ΡΡΡ:
- Π‘ΠΎΠ²ΠΌΠ΅ΡΠ΅Π½ΠΈΠ΅ ΡΠ°Π½ΡΠ·Π»Π°.
- ΠΠΎΡΡΠΈΠ½ΠΎΠΉ ΠΈ ΠΊΡΡ Π½ΠΈ, ΠΈΠ»ΠΈ ΡΡΠΎΠ»ΠΎΠ²ΠΎΠΉ ΠΈ ΠΊΡΡ Π½ΠΈ, ΠΊΠ°ΠΊ ΠΏΠΎΠΊΠ°Π·Π°Π½ΠΎ Π½Π° ΡΠΎΡΠΎ. Π ΡΡΠΎΠΌ ΡΠ»ΡΡΠ°Π΅ ΠΏΠΎΠ΄ Π΄Π²Π΅ Π·ΠΎΠ½Ρ ΠΌΠΎΠΆΠ½ΠΎ Π²ΡΠ΄Π΅Π»ΠΈΡΡ ΠΎΠ΄Π½ΠΎ ΠΏΠΎΠΌΠ΅ΡΠ΅Π½ΠΈΠ΅.
- ΠΠΎΡΠ΅Π»ΡΠ½ΠΎΠΉ ΠΈ ΠΊΠ»Π°Π΄ΠΎΠ²ΠΊΠΈ. Π₯ΠΎΡΡ ΡΠ°ΠΊΠΎΠΉ Π²Π°ΡΠΈΠ°Π½Ρ ΠΈ Π½Π΅ΠΏΡΠ°Π²ΠΈΠ»ΡΠ½ΡΠΉ, Π½ΠΎ ΡΠ°ΡΡΠΎ Π²ΡΡΡΠ΅ΡΠ°Π΅ΡΡΡ Π² Π΄ΠΎΠΌΠ°Ρ .

Π‘ΠΎΠ²ΠΌΠ΅ΡΠ΅Π½ΠΈΠ΅ ΠΊΡΡ Π½ΠΈ ΠΈ ΡΡΠΎΠ»ΠΎΠ²ΠΎΠΉ
ΠΡΠΈ ΡΠ°ΠΊΠΎΠΌ ΡΠΎΠ²ΠΌΠ΅ΡΠ΅Π½ΠΈΠΈ ΠΌΠΎΠΆΠ½ΠΎ ΠΌΠ°ΠΊΡΠΈΠΌΠ°Π»ΡΠ½ΠΎ ΠΈΡΠΏΠΎΠ»ΡΠ·ΠΎΠ²Π°ΡΡ ΠΏΠ»ΠΎΡΠ°Π΄Ρ ΠΈ ΡΠ²Π΅Π»ΠΈΡΠΈΡΡ ΠΊΠΎΠ½ΠΊΡΠ΅ΡΠ½ΠΎ ΠΆΠΈΠ»ΡΡ ΠΊΠΎΠΌΠ½Π°ΡΡ Π² ΠΎΠ΄Π½ΠΎΡΡΠ°ΠΆΠ½ΠΎΠΌ Π΄ΠΎΠΌΠ΅ Ρ ΡΡΠ΅ΠΌΡ ΡΠΏΠ°Π»ΡΠ½ΡΠΌΠΈ.
Π ΡΡΠΎΠΌ ΡΠ»ΡΡΠ°Π΅:
Π’ΡΠΈ ΠΊΠΎΠΌΠ½Π°ΡΡ ΠΏΠΎΠ΄ ΠΏΠΎΠΌΠ΅ΡΠ΅Π½ΠΈΡ Π΄Π»Ρ ΡΠΏΠ°Π»Π΅Π½ β ΠΎΠΏΡΠΈΠΌΠ°Π»ΡΠ½Π°Ρ ΠΏΠ»Π°Π½ΠΈΡΠΎΠ²ΠΊΠ° Π΄Π»Ρ ΠΎΠ΄Π½ΠΎΡΡΠ°ΠΆΠ½ΠΎΠ³ΠΎ Π΄ΠΎΠΌΠ°. ΠΠΈΠ΄Π΅ΠΎ Π² ΡΡΠΎΠΉ ΡΡΠ°ΡΡΠ΅ ΡΠΌΠΎΠΆΠ΅Ρ ΠΏΠΎΠΌΠΎΡΡ ΠΏΠΎΠ½ΡΡΡ ΠΎΡΠ½ΠΎΠ²Π½ΡΠ΅ ΠΏΡΠΈΠ½ΡΠΈΠΏΡ ΡΠ°ΡΠΏΠΎΠ»ΠΎΠΆΠ΅Π½ΠΈΡ ΠΊΠΎΠΌΠ½Π°Ρ, Π½Π° ΠΊΠΎΡΠΎΡΡΠ΅ Π½Π΅ΠΎΠ±Ρ ΠΎΠ΄ΠΈΠΌΠΎ ΠΎΠ±ΡΠ°ΡΠ°ΡΡ Π²Π½ΠΈΠΌΠ°Π½ΠΈΠ΅ ΠΏΠ΅ΡΠ΅Π΄ Π½Π°ΡΠ°Π»ΠΎΠΌ ΠΏΡΠΎΠ΅ΠΊΡΠΈΡΠΎΠ²Π°Π½ΠΈΡ Π΄ΠΎΠΌΠΎΠ².
ΠΠ»Π°Π½ΠΈΡΠΎΠ²Π°Π½ΠΈΠ΅ ΡΠ²ΠΎΠ΅Π³ΠΎ Π΄ΠΎΠΌΠ° ΡΠ°Π·ΠΌΠ΅ΡΠ°ΠΌΠΈ 10Ρ 10 Ρ ΡΡΠ΅ΠΌΡ ΡΠΏΠ°Π»ΡΠ½ΡΠΌΠΈ
ΠΡΠΎΠ΅ΠΊΡ ΠΎΠ΄Π½ΠΎΡΡΠ°ΠΆΠ½ΠΎΠ³ΠΎ Π΄ΠΎΠΌΠ° 10Ρ 10 Ρ ΡΡΠ΅ΠΌΡ ΡΠΏΠ°Π»ΡΠ½ΡΠΌΠΈ
ΠΠ΄Π½ΠΎΡΡΠ°ΠΆΠ½ΡΠΉ Π΄ΠΎΠΌ 10Ρ 10 Ρ ΡΡΠ΅ΠΌΡ ΡΠΏΠ°Π»ΡΠ½ΡΠΌΠΈ Ρ ΠΎΡΠΎΡΠΎ ΠΏΠΎΠ΄Ρ ΠΎΠ΄ΠΈΡ Π΄Π»Ρ Π½Π΅Π±ΠΎΠ»ΡΡΠΎΠΉ ΡΠ΅ΠΌΡΠΈ, ΠΏΠ»Π°Π½ΠΈΡΡΡΡΠ΅ΠΉ ΡΠΎΠΆΠ΄Π΅Π½ΠΈΠ΅ Π΄Π΅ΡΠ΅ΠΉ.
Π’Π°ΠΊΠΎΠΉ Π΄ΠΎΠΌ ΠΌΠΎΠΆΠ½ΠΎ ΠΏΠΎΡΡΡΠΎΠΈΡΡ Π±ΡΡΡΡΠΎ ΠΈΠ»ΠΈ Π²ΡΠΏΠΎΠ»Π½ΠΈΡΡ ΠΊΠ°ΠΏΠΈΡΠ°Π»ΡΠ½ΠΎΠ΅ ΡΡΡΠΎΠΈΡΠ΅Π»ΡΡΡΠ²ΠΎ ΠΈΠ· Π½Π΅ΡΠΊΠΎΠ»ΡΠΊΠΈΡ Π²ΠΈΠ΄ΠΎΠ² ΠΌΠ°ΡΠ΅ΡΠΈΠ°Π»Π°:
- Β«ΠΠ°Π½Π°Π΄ΡΠΊΠ°Ρ ΡΠ΅Ρ Π½ΠΎΠ»ΠΎΠ³ΠΈΡΒ» ΠΏΠΎΠ·Π²ΠΎΠ»ΡΠ΅Ρ Π±ΡΡΡΡΠΎ Π²ΡΡΡΡΠΎΠΈΡΡ Π΄ΠΎΠΌ ΠΈ Π΄ΠΎΡΡΠ°ΡΠΎΡΠ½ΠΎ Π΄ΠΎΠ»Π³ΠΎΠ΅ Π²ΡΠ΅ΠΌΡ ΡΠΊΡΠΏΠ»ΡΠ°ΡΠΈΡΠΎΠ²Π°ΡΡ.
- ΠΡΡΡΡΠΎ Π²ΠΎΠ·ΠΌΠΎΠΆΠ½ΠΎ ΡΡΡΠΎΠΈΡΠ΅Π»ΡΡΡΠ²ΠΎ ΠΈΠ· ΠΏΠ΅Π½ΠΎΠ±Π»ΠΎΠΊΠΎΠ², ΡΡΠΎ ΠΏΠΎΠ·Π²ΠΎΠ»ΡΠ΅Ρ ΡΠΊΠΎΠ½ΠΎΠΌΠΈΡΡ Π²ΡΠ΅ΠΌΡ ΠΈ ΠΏΡΠΎΠ²ΠΎΠ΄ΠΈΡΡ ΡΡΠ΅ΠΏΠ»Π΅Π½ΠΈΠ΅ ΠΏΠΎ ΠΏΡΠΎΡΡΠΎΠΉ ΡΡ Π΅ΠΌΠ΅.
- Π‘ΡΡΠΎΠΈΡΠ΅Π»ΡΡΡΠ²ΠΎ ΠΈΠ· ΠΊΠΈΡΠΏΠΈΡΠ°. Π ΡΡΠΎΠΌ ΡΠ»ΡΡΠ°Π΅ ΡΡΡΠΎΠΈΡΡ ΠΎΠ΄ΠΈΠ½ ΡΡΠ°ΠΆ Π½Π°ΠΌΠ½ΠΎΠ³ΠΎ Π»Π΅Π³ΡΠ΅.
Π‘Π°ΠΌΡΠΉ ΠΏΡΠΎΡΡΠΎΠΉ Π²Π°ΡΠΈΠ°Π½Ρ Π΄Π»Ρ Π²ΠΎΠ·Π²Π΅Π΄Π΅Π½ΠΈΡ Π΄ΠΎΠΌΠ° Ρ ΡΡΠ΅ΠΌΡ ΡΠΏΠ°Π»ΡΠ½ΡΠΌΠΈ βΠΈΡΠΏΠΎΠ»ΡΠ·ΠΎΠ²Π°Π½ΠΈΠ΅ ΠΏΠ΅Π½ΠΎΠ±Π»ΠΎΠΊΠΎΠ² ΠΈΠ»ΠΈ ΠΊΠΈΡΠΏΠΈΡΠ°.
Π ΡΡΠΎΠΌ ΡΠ»ΡΡΠ°Π΅ Π½Π΅ΠΎΠ±Ρ ΠΎΠ΄ΠΈΠΌΠΎ:
- Π£Π»ΠΎΠΆΠΈΡΡ Π»Π΅Π½ΡΠΎΡΠ½ΡΠΉ ΡΡΠ½Π΄Π°ΠΌΠ΅Π½Ρ.
- Π‘Π΄Π΅Π»Π°ΡΡ ΠΆΠ΅Π»Π΅Π·ΠΎΠ±Π΅ΡΠΎΠ½Π½ΡΠ΅ ΠΏΠ΅ΡΠ΅ΠΊΡΡΡΠΈΡ.
- Π§Π΅ΡΠ΄Π°ΡΠ½ΡΠΉ Π²Π°ΡΠΈΠ°Π½Ρ ΡΡΠ΅Π±ΡΠ΅Ρ Π΄Π΅ΡΠ΅Π²ΡΠ½Π½ΡΡ ΡΡΡΠΎΠΏΠΈΠ», ΠΏΠ»ΠΎΡΠΊΠ°Ρ ΠΊΡΡΡΠ° β Π³ΠΈΠ΄ΡΠΎΠΈΠ·ΠΎΠ»ΡΡΠΈΡ ΠΆΠ΅Π»Π΅Π·ΠΎΠ±Π΅ΡΠΎΠ½Π½ΡΡ ΠΏΠ΅ΡΠ΅ΠΊΡΡΡΠΈΠΉ.
ΠΠ½ΡΡΡΡΠΊΡΠΈΡ ΠΏΡΠ΅Π΄Π»Π°Π³Π°Π΅Ρ, ΡΡΠΎ Π² Π΄ΠΎΠΌΠ΅ Ρ ΡΡΠ΅ΠΌΡ ΡΠΏΠ°Π»ΡΠ½ΡΠΌΠΈ Π΄ΠΎΠ»ΠΆΠ½Ρ Π±ΡΡΡ:
- ΠΠΎΡΡΠΈΠ½Π°Ρ.
- ΠΠ»Π°Π΄ΠΎΠ²ΠΊΠ°.
- ΠΡΠΈ Π½Π΅ΠΎΠ±Ρ ΠΎΠ΄ΠΈΠΌΠΎΡΡΠΈ Π½Π΅Π±ΠΎΠ»ΡΡΠΎΠ΅ ΠΏΠΎΠΌΠ΅ΡΠ΅Π½ΠΈΠ΅ ΠΏΠΎΠ΄ Π³Π°ΡΠ΄Π΅ΡΠΎΠ±.
- ΠΡΡ Π½Ρ.
- Π‘ΡΠΎΠ»ΠΎΠ²Π°Ρ.
- ΠΠ±ΡΠΈΠΉ ΠΈΠ»ΠΈ ΡΠ°Π·Π΄Π΅Π»ΡΠ½ΡΠΉ ΡΠ°Π½ΡΠ·Π΅Π».
Π‘ΠΎΠ²Π΅Ρ: ΠΡΠΈ ΠΏΠ»Π°Π½ΠΈΡΠΎΠ²Π°Π½ΠΈΠΈ ΡΠ²ΠΎΠ΅Π³ΠΎ ΠΆΠΈΠ»ΡΡ Π½Π΅ΠΎΠ±Ρ ΠΎΠ΄ΠΈΠΌΠΎ ΠΎΠ±ΡΠ°ΡΠΈΡΡ Π²Π½ΠΈΠΌΠ°Π½ΠΈΠ΅, ΡΡΠΎ Π½Π΅ΠΊΠΎΡΠΎΡΡΠ΅ ΠΊΠΎΠΌΠ½Π°ΡΡ ΠΌΠΎΠΆΠ½ΠΎ ΡΠΎΠ²ΠΌΠ΅ΡΡΠΈΡΡ, ΡΡΠΎ ΠΏΠΎΠ·Π²ΠΎΠ»ΠΈΡ ΡΠ²Π΅Π»ΠΈΡΠΈΡΡ ΡΡΠ½ΠΊΡΠΈΠΎΠ½Π°Π»ΡΠ½ΠΎΡΡΡ Π²ΡΠ΅Π³ΠΎ ΡΠΎΠΎΡΡΠΆΠ΅Π½ΠΈΡ ΠΈ ΠΈΡΠΏΠΎΠ»ΡΠ·ΠΎΠ²Π°ΡΡ Π²ΡΡ ΠΊΠ²Π°Π΄ΡΠ°ΡΡΡΡ Ρ ΠΌΠ°ΠΊΡΠΈΠΌΠ°Π»ΡΠ½ΠΎΠΉ ΠΏΠΎΠ»ΡΠ·ΠΎΠΉ.
Π‘ΡΡΠΎΠΈΡΠ΅Π»ΡΡΡΠ²ΠΎ ΠΊΠ°ΡΠΊΠ°ΡΠ½ΠΎΠ³ΠΎ Π΄ΠΎΠΌΠ°
ΠΡΠΎΠ±Π΅Π½Π½ΠΎΡΡΡΠΌΠΈ ΡΡΡΠΎΠΈΡΠ΅Π»ΡΡΡΠ²Π° ΠΊΠ°ΡΠΊΠ°ΡΠ½ΡΡ Π΄ΠΎΠΌΠΎΠ² ΡΠ²Π»ΡΡΡΡΡ ΠΈΡ :
- Π‘ΠΊΠΎΡΠΎΡΡΡ Π²ΠΎΠ·Π²Π΅Π΄Π΅Π½ΠΈΡ. ΠΠΎΡΡΠΈΠ³Π°Π΅ΡΡΡ Π±Π»Π°Π³ΠΎΠ΄Π°ΡΡ ΡΠΎΠΌΡ, ΡΡΠΎ ΠΊΠΎΠ½ΡΡΡΡΠΊΡΠΈΡ ΠΊΠΎΡΡΠ΅Π΄ΠΆΠ° Π²ΠΎΠ·Π²ΠΎΠ΄ΠΈΡΡΡ Π΄ΠΎΡΡΠ°ΡΠΎΡΠ½ΠΎ Π±ΡΡΡΡΠΎ.
- Π‘ΡΠΎΠΈΠΌΠΎΡΡΡ. ΠΡΠΎΡ ΠΏΠΎΠΊΠ°Π·Π°ΡΠ΅Π»Ρ ΡΠ½ΠΈΠΆΠ°Π΅ΡΡΡ Π·Π° ΡΡΠ΅Ρ ΡΠΌΠ΅Π½ΡΡΠ΅Π½ΠΈΡ Π·Π°ΡΡΠ°Ρ Π΄Π»Ρ Π²ΠΎΠ·Π²Π΅Π΄Π΅Π½ΠΈΡ ΡΡΠΆΠ΅Π»ΠΎΠ³ΠΎ ΡΡΠ½Π΄Π°ΠΌΠ΅Π½ΡΠ° ΠΈ ΠΏΡΠΈΠΌΠ΅Π½Π΅Π½ΠΈΡ Π΄ΠΎΡΠΎΠ³ΠΎΡΡΠΎΡΡΠΈΡ ΠΌΠ°ΡΠ΅ΡΠΈΠ°Π»ΠΎΠ², ΡΠΌΠ΅Π½ΡΡΠ΅Π½ΠΈΡ ΡΠΊΠΎΡΠΎΡΡΠΈ Π²ΠΎΠ·Π²Π΅Π΄Π΅Π½ΠΈΡ.
- ΠΠΎΠ½ΡΠ°ΠΆ ΠΊΠΎΠ½ΡΡΡΡΠΊΡΠΈΠΉ ΠΌΠΎΠΆΠ½ΠΎ ΠΏΡΠΎΠΈΠ·Π²ΠΎΠ΄ΠΈΡΡ ΠΊΡΡΠ³Π»ΡΠΉ Π³ΠΎΠ΄, ΡΡΠΎ Π½Π΅ ΠΎΡΡΠ°Π·ΠΈΡΡΡ Π½Π° ΠΊΠΎΠ½Π΅ΡΠ½ΠΎΠΌ ΡΠ΅Π·ΡΠ»ΡΡΠ°ΡΠ΅.
- ΠΠ°Π»ΡΠΉ Π²Π΅Ρ Π·Π΄Π°Π½ΠΈΡ Π½Π΅ Π΄Π°Π΅Ρ Π±ΠΎΠ»ΡΡΠΎΠΉ ΡΡΠ°Π΄ΠΊΠΈ, ΠΏΠΎΡΡΠΎΠΌΡ ΠΌΠΎΠΆΠ½ΠΎ Π½Π°ΡΠΈΠ½Π°ΡΡ ΠΎΡΠ΄Π΅Π»ΠΊΡ Π΄ΠΎΠΌΠ° ΡΡΠ°Π·Ρ ΠΏΠΎ ΠΎΠΊΠΎΠ½ΡΠ°Π½ΠΈΠΈ Π΅Π³ΠΎ ΠΌΠΎΠ½ΡΠ°ΠΆΠ°.
- ΠΡΠΈ ΠΈΠ·Π³ΠΎΡΠΎΠ²Π»Π΅Π½ΠΈΠΈ ΠΊΠ°ΡΠΊΠ°ΡΠ° Π² Π·Π°Π²ΠΎΠ΄ΡΠΊΠΈΡ ΡΡΠ»ΠΎΠ²ΠΈΡΡ Π²ΡΠ΅ ΠΌΠ°ΡΠ΅ΡΠΈΠ°Π»Ρ ΠΎΠ±ΡΠ°Π±Π°ΡΡΠ²Π°ΡΡΡΡ Π΄Π»Ρ Π·Π°ΡΠΈΡΡ ΠΎΡ Π΄Π΅ΠΉΡΡΠ²ΠΈΡ Π²Π»Π°Π³ΠΈ, Π²ΡΠ΅Π΄Π½ΡΡ Ρ ΠΈΠΌΠΈΡΠ΅ΡΠΊΠΈΡ Π²Π΅ΡΠ΅ΡΡΠ², ΡΡΠΎ ΠΏΡΠ΅Π΄ΠΎΡ ΡΠ°Π½ΡΠ΅Ρ Π΄ΠΎΠΌ ΠΎΡ ΠΏΠΎΡΠ²Π»Π΅Π½ΠΈΡ ΡΡΠ΅ΡΠΈΠ½ ΠΏΡΠΈ ΡΠΊΡΠΏΠ»ΡΠ°ΡΠ°ΡΠΈΠΈ.
Π Π ΠΎΡΡΠΈΠΈ ΠΏΡΠΈΠ½ΡΡΠΎ ΠΈΡΠΏΠΎΠ»ΡΠ·ΠΎΠ²Π°ΡΡ Π΄Π²Π΅ ΠΎΡΠ½ΠΎΠ²Π½ΡΡ ΡΠ΅Ρ Π½ΠΎΠ»ΠΎΠ³ΠΈΠΈ Π²ΠΎΠ·Π²Π΅Π΄Π΅Π½ΠΈΡ ΠΊΠ°ΡΠΊΠ°ΡΠ½ΡΡ Π΄ΠΎΠΌΠΎΠ²:
- ΠΠ°Π½Π°Π΄ΡΠΊΠ°Ρ, ΠΏΠΎΠ΄ΡΠ°Π·ΡΠΌΠ΅Π²Π°Π΅Ρ ΠΈΡΠΏΠΎΠ»ΡΠ·ΠΎΠ²Π°Π½ΠΈΠ΅ ΠΏΠ»ΠΎΡΠ½ΠΎΠ³ΠΎ ΡΡΠ΅ΠΏΠ»ΠΈΡΠ΅Π»Ρ ΡΠΈΠΏΠ° ΡΠΊΡΡΡΡΠ΄ΠΈΡΠΎΠ²Π°Π½Π½ΠΎΠ³ΠΎ ΠΏΠ΅Π½ΠΎΠΏΠΎΠ»ΠΈΡΡΠΈΡΠΎΠ»Π°.
- Π€ΠΈΠ½ΡΠΊΠ°Ρ, ΠΈΡΠΏΠΎΠ»ΡΠ·ΡΠ΅Ρ ΠΌΠΈΠ½ΠΈΡΠ°Π»ΠΎΠ²Π°ΡΠ½ΡΠ΅ ΡΡΠ΅ΠΏΠ»ΠΈΡΠ΅Π»ΠΈ Ρ Π½ΠΈΠ·ΠΊΠΎΠΉ ΠΏΠ»ΠΎΡΠ½ΠΎΡΡΡΡ ΠΈ ΠΏΡΠΈΠΌΠ΅Π½Π΅Π½ΠΈΠ΅ΠΌ Π±ΠΎΠ»Π΅Π΅ ΠΌΠ°ΡΡΠΈΠ²Π½ΠΎΠ³ΠΎ ΠΊΠ°ΡΠΊΠ°ΡΠ°.
Π Π»ΡΠ±ΠΎΠΌ ΡΠ»ΡΡΠ°Π΅ ΠΏΡΠΈ Π²ΡΠ±ΠΎΡΠ΅ ΡΠΎΠΉ ΠΈΠ»ΠΈ ΠΈΠ½ΠΎΠΉ ΡΠ΅Ρ Π½ΠΎΠ»ΠΎΠ³ΠΈΠΈ ΠΎΡΠ½ΠΎΠ²Π½ΡΠΌΠΈ ΠΊΡΠΈΡΠ΅ΡΠΈΡΠΌΠΈ Π΄ΠΎΠ»ΠΆΠ½Ρ Π±ΡΡΡ:
- ΠΠ°ΡΠ΅ΡΡΠ²ΠΎ ΡΡΡΠΎΠ΅Π½ΠΈΡ.
- ΠΠΎΠ»Π³ΠΎΠ²Π΅ΡΠ½ΠΎΡΡΡ ΡΠΊΡΠΏΠ»ΡΠ°ΡΠ°ΡΠΈΠΈ.
- ΠΠΊΠΎΠ½ΠΎΠΌΠΈΡ ΡΠ»Π΅ΠΊΡΡΠΎΡΠ½Π΅ΡΠ³ΠΈΠΈ.
- ΠΡΠΎΡΡΠΎΡΠ° ΠΊΠΎΠ½ΡΡΡΡΠΊΡΠΈΠΈ.
- ΠΠ΅ΡΠ΅Π²ΠΈΠ·Π½Π° Π΄ΠΎΠΌΠ°.
Π₯ΠΎΡΡ ΡΠ°ΠΊΠΈΠΌ ΠΊΡΠΈΡΠ΅ΡΠΈΡΠΌ Π΄ΠΎΠ»ΠΆΠ½Ρ ΠΎΡΠ²Π΅ΡΠ°ΡΡ Π²ΡΠ΅ Π΄ΠΎΠΌΠ°, Π½ΠΎ ΠΏΡΠΎΠ΅ΠΊΡ ΠΎΠ΄Π½ΠΎΡΡΠ°ΠΆΠ½ΠΎΠ³ΠΎ ΠΊΠ°ΡΠΊΠ°ΡΠ½ΠΎΠ³ΠΎ Π΄ΠΎΠΌΠ° Ρ ΡΡΠ΅ΠΌΡ ΡΠΏΠ°Π»ΡΠ½ΡΠΌΠΈ ΡΠ²Π»ΡΠ΅ΡΡΡ ΡΠ°ΠΌΡΠΌ Π΄ΠΎΡΡΡΠΏΠ½ΡΠΌ, Π²ΠΎ Π²ΡΠ΅Ρ ΠΎΡΠ½ΠΎΡΠ΅Π½ΠΈΡΡ .
ΠΠ΅Π΄ΠΎΡΡΠ°ΡΠΊΠΎΠΌ ΡΠ°ΠΊΠΎΠ³ΠΎ ΡΡΡΠΎΠΈΡΠ΅Π»ΡΡΡΠ²Π° ΠΏΡΠΈ ΠΈΡΠΏΠΎΠ»ΡΠ·ΠΎΠ²Π°Π½ΠΈΠΈ ΡΠΆΠ΅ Π³ΠΎΡΠΎΠ²ΡΡ ΠΊΠ°ΡΠΊΠ°ΡΠ½ΡΡ Π΄ΠΎΠΌΠΎΠ² β ΠΎΡΡΡΡΡΡΠ²ΠΈΠ΅ Π² ΡΡΠΎΡ ΠΌΠΎΠΌΠ΅Π½Ρ Π΄ΠΎΡΡΠ°ΡΠΎΡΠ½ΠΎΠΉ ΡΡΠΌΠΌΡ Π΄Π΅Π½Π΅Π³ ΠΈ ΠΎΠΏΡΠ΅Π΄Π΅Π»Π΅Π½Π½ΠΎΠ΅ ΠΎΠ³ΡΠ°Π½ΠΈΡΠ΅Π½ΠΈΠ΅ ΠΊΠΎΠ»ΠΈΡΠ΅ΡΡΠ²Π° ΠΌΠ°ΡΠ΅ΡΠΈΠ°Π»Π°. Π’ΠΎΠ³Π΄Π° ΠΊΠ°ΠΊ ΡΡΡΡΠ½Π°Ρ ΡΠ΅Ρ Π½ΠΎΠ»ΠΎΠ³ΠΈΡ ΠΏΡΠ΅Π΄ΠΎΡΡΠ°Π²Π»ΡΠ΅Ρ Π²ΠΎΠ·ΠΌΠΎΠΆΠ½ΠΎΡΡΡ ΠΏΠΎΡΡΠ°ΠΏΠ½ΠΎ ΠΎΡΠ²Π°ΠΈΠ²Π°ΡΡ ΠΈΠΌΠ΅ΡΡΠΈΠ΅ΡΡ ΡΡΠ΅Π΄ΡΡΠ²Π°.
Π§ΡΠΎΠ±Ρ ΡΠΏΠ°Π»ΡΠ½Ρ Π±ΡΠ»Π° ΡΠ΄ΠΎΠ±Π½ΠΎΠΉ ΠΈ ΡΡΠΏΠ»ΠΎΠΉ
Π‘ΠΏΠ°Π»ΡΠ½ΠΎΠ΅ ΠΏΠΎΠΌΠ΅ΡΠ΅Π½ΠΈΠ΅ Π΄ΠΎΠ»ΠΆΠ½ΠΎ Π±ΡΡΡ ΡΠ°ΠΌΡΠΌ ΡΡΠΏΠ»ΡΠΌ Π² Π΄ΠΎΠΌΠ΅ β ΠΈ ΡΡΠΎ ΠΏΠΎΠ½ΡΡΠ½ΠΎ. ΠΠΎΠΏΡΠΎΡ ΡΠ΅ΠΌ Π±ΠΎΠ»Π΅Π΅ Π°ΠΊΡΡΠ°Π»Π΅Π½, ΠΊΠΎΠ³Π΄Π° ΡΠΏΠ°Π»ΡΠ½ΠΈ ΡΠ°ΡΠΏΠΎΠ»ΠΎΠΆΠ΅Π½Ρ Π½Π° ΠΏΠ΅ΡΠ²ΠΎΠΌ ΡΡΠ°ΠΆΠ΅, ΠΏΠΎΠ» ΠΊΠΎΡΠΎΡΠΎΠ³ΠΎ Π±ΡΠ²Π°Π΅Ρ Π΄ΠΎΠ²ΠΎΠ»ΡΠ½ΠΎ Ρ ΠΎΠ»ΠΎΠ΄Π½ΡΠΌ Π² Π·ΠΈΠΌΠ½Π΅Π΅ Π²ΡΠ΅ΠΌΡ.
ΠΠ°Π½Π½ΠΎΠΉ ΠΏΡΠΎΠ±Π»Π΅ΠΌΠ΅ Π½ΡΠΆΠ½ΠΎ ΡΠ΄Π΅Π»ΠΈΡΡ ΠΎΡΠΎΠ±ΠΎΠ΅ Π²Π½ΠΈΠΌΠ°Π½ΠΈΠ΅: ΠΊΠ°ΠΊ Π² ΠΏΡΠΎΡΠ΅ΡΡΠ΅ ΡΡΡΠΎΠΈΡΠ΅Π»ΡΡΡΠ²Π°, ΡΠ°ΠΊ ΠΈ ΠΏΠΎ Ρ ΠΎΠ΄Ρ ΠΏΡΠΎΠΈΠ·Π²ΠΎΠ΄ΡΡΠ²Π° Π½Π°ΡΡΠΆΠ½ΡΡ ΠΈ Π²Π½ΡΡΡΠ΅Π½Π½ΠΈΡ ΠΎΡΠ΄Π΅Π»ΠΎΡΠ½ΡΡ ΡΠ°Π±ΠΎΡ. Π’ΠΎΠ³Π΄Π° Π½Π΅ ΡΠΎΠ»ΡΠΊΠΎ ΡΠΏΠ°Π»ΡΠ½ΠΈ, Π½ΠΎ ΠΈ ΠΎΡΡΠ°Π»ΡΠ½ΡΠ΅ ΠΊΠΎΠΌΠ½Π°ΡΡ Π±ΡΠ΄ΡΡ ΠΊΠΎΠΌΡΠΎΡΡΠ½ΡΠΌΠΈ ΠΈ ΡΡΡΠ½ΡΠΌΠΈ.
ΠΡΠ°ΠΊ:
- Π ΡΠ°ΡΡΠ½ΡΡ Π΄ΠΎΠΌΠ°Ρ ΠΎΡΠΎΠΏΠ»Π΅Π½ΠΈΠ΅ ΠΎΠ±ΡΡΡΡΠ°ΠΈΠ²Π°Π΅ΡΡΡ Π°Π²ΡΠΎΠ½ΠΎΠΌΠ½ΠΎ. Π ΠΊΠ°ΡΠ΅ΡΡΠ²Π΅ ΡΠ½Π΅ΡΠ³ΠΎΠ½ΠΎΡΠΈΡΠ΅Π»Ρ ΠΎΠ±ΡΡΠ½ΠΎ ΡΡΡΠ°Π½Π°Π²Π»ΠΈΠ²Π°ΡΡ ΡΠ²Π΅ΡΠ΄ΠΎΡΠΎΠΏΠ»ΠΈΠ²Π½ΡΡ ΠΈΠ»ΠΈ Π΄ΡΠΎΠ²ΡΠ½ΡΡ ΠΏΠ΅ΡΡ, Π³Π°Π·ΠΎΠ²ΡΠΉ ΠΊΠΎΡΡΠ». ΠΡ ΡΠ°Π±ΠΎΡΠ° Π±ΡΠ΄Π΅Ρ ΡΡΡΠ΅ΠΊΡΠΈΠ²Π½ΠΎΠΉ ΡΠΎΠ»ΡΠΊΠΎ Π² ΡΠΎΠΌ ΡΠ»ΡΡΠ°Π΅, ΠΊΠΎΠ³Π΄Π° ΡΠ΅ΠΏΠ»ΠΎΠΈΠ·ΠΎΠ»ΡΡΠΈΡ Π²ΡΠ΅Ρ ΠΊΠΎΠ½ΡΡΡΡΠΊΡΠΈΠΉ Π΄ΠΎΠΌΠ° Π²ΡΠΏΠΎΠ»Π½Π΅Π½Π° Π½Π° Π΄ΠΎΠ»ΠΆΠ½ΠΎΠΌ ΡΡΠΎΠ²Π½Π΅. Π ΠΏΡΠΎΡΠΈΠ²Π½ΠΎΠΌ ΡΠ»ΡΡΠ°Π΅, ΠΏΠ΅ΡΠ΅ΡΠ°ΡΡ ΠΎΠ΄ ΡΠΎΠΏΠ»ΠΈΠ²Π° ΡΠΈΠ»ΡΠ½ΠΎ ΡΠΊΠ°ΠΆΠ΅ΡΡΡ Π½Π° ΡΠ΅ΠΌΠ΅ΠΉΠ½ΠΎΠΌ Π±ΡΠ΄ΠΆΠ΅ΡΠ΅.
- Π ΡΡΡ ΡΠΆ Π½Π΅Π²Π°ΠΆΠ½ΠΎ, ΠΊΠ°ΠΊΠΎΠ²Ρ Π³Π°Π±Π°ΡΠΈΡΡ Π·Π΄Π°Π½ΠΈΡ: Π½Π΅Π±ΠΎΠ»ΡΡΠΎΠΉ ΠΊΠΎΡΡΠ΅Π΄ΠΆ ΠΈΠ»ΠΈ ΠΏΡΠΎΠ΅ΠΊΡ Π΄ΠΎΠΌΠ° Ρ 5 ΡΠΏΠ°Π»ΡΠ½ΡΠΌΠΈ β Π»ΠΈΡΠ½ΠΈΠ΅ ΡΠ°ΡΡ ΠΎΠ΄Ρ Π½ΠΈΠΊΠΎΠΌΡ Π½Π΅ Π½ΡΠΆΠ½Ρ. Π‘Π°ΠΌΡΠΌ ΠΎΠΏΡΠΈΠΌΠ°Π»ΡΠ½ΡΠΌ ΡΠ΅ΡΠ΅Π½ΠΈΠ΅ΠΌ Π² ΡΠ°ΠΊΠΎΠΌ ΡΠ»ΡΡΠ°Π΅, Π±ΡΠ»Π° Π±Ρ ΠΎΡΠ³Π°Π½ΠΈΠ·Π°ΡΠΈΡ Π΄ΠΎΠΏΠΎΠ»Π½ΠΈΡΠ΅Π»ΡΠ½ΠΎΠ³ΠΎ ΠΎΡΠΎΠΏΠ»Π΅Π½ΠΈΡ. Π ΡΡΡ Π΅ΡΡΡ Π΄Π²Π° Π²Π°ΡΠΈΠ°Π½ΡΠ°: ΠΈΡΠΏΠΎΠ»ΡΠ·ΠΎΠ²Π°ΡΡ ΠΏΠΎΡΠΎΠ»ΠΎΡΠ½ΡΠ΅ ΠΈΠ½ΡΡΠ°ΠΊΡΠ°ΡΠ½ΡΠ΅ ΠΎΠ±ΠΎΠ³ΡΠ΅Π²Π°ΡΠ΅Π»ΠΈ, ΠΈΠ»ΠΈ ΠΎΠ±ΡΡΡΡΠΎΠΈΡΡ ΡΠΈΡΡΠ΅ΠΌΡ ΡΡΠΏΠ»ΠΎΠ³ΠΎ ΠΏΠΎΠ»Π°. ΠΠ±ΠΎΠ³ΡΠ΅Π²Π°ΡΠ΅Π»ΠΈ Π½Π΅ ΡΠ»ΠΈΡΠΊΠΎΠΌ ΡΠ΄ΠΎΠ±Π½Ρ ΠΏΠΎ ΡΠΎΠΉ ΠΏΡΠΈΡΠΈΠ½Π΅, ΡΡΠΎ ΠΎΠ½ΠΈ Π·Π°Π²ΠΈΡΡΡ ΠΎΡ ΡΠ»Π΅ΠΊΡΡΠΈΡΠ΅ΡΠΊΠΎΠΉ ΡΠ΅ΡΠΈ.

ΠΠΎΠ½ΡΠ°ΠΆ ΠΈΠ½ΡΡΠ°ΠΊΡΠ°ΡΠ½ΠΎΠΉ ΠΏΠ»ΡΠ½ΠΊΠΈ ΠΏΠΎΠ΄ Π»Π°ΠΌΠΈΠ½Π°Ρ
- ΠΠ°Π±Π΅Π»ΡΠ½ΡΠ΅ ΠΈ ΠΏΠ»ΡΠ½ΠΎΡΠ½ΡΠ΅ ΠΏΠΎΠ»Ρ ΡΠΎΠΆΠ΅ Π·Π°Π²ΠΈΡΡΡ ΠΎΡ ΡΠ»Π΅ΠΊΡΡΠΈΡΠ΅ΡΡΠ²Π°, Π° Π²ΠΎΡ ΡΠ½Π΅ΡΠ³ΠΎΠ½ΠΎΡΠΈΡΠ΅Π»Π΅ΠΌ Π² Π²ΠΎΠ΄ΡΠ½ΡΡ Π½Π°ΠΏΠΎΠ»ΡΠ½ΡΡ ΡΠΈΡΡΠ΅ΠΌΠ°Ρ ΡΠ²Π»ΡΠ΅ΡΡΡ Π³ΠΎΡΡΡΠ°Ρ Π²ΠΎΠ΄Π°, ΠΏΠΎΠ΄ΠΎΠ³ΡΠ΅Π²Π°Π΅ΠΌΠ°Ρ Π²ΡΡ ΡΠ΅ΠΌ ΠΆΠ΅ Π±ΠΎΠΉΠ»Π΅ΡΠΎΠΌ. ΠΠΎ ΠΆΠ΅Π»Π°Π½ΠΈΡ Π·Π°ΠΊΠ°Π·ΡΠΈΠΊΠ°, ΡΡΠΏΠ»ΡΠ΅ ΠΏΠΎΠ»Ρ ΠΌΠΎΠ³ΡΡ Π±ΡΡΡ ΠΏΡΠ΅Π΄ΡΡΠΌΠΎΡΡΠ΅Π½Ρ Π² ΠΏΡΠΎΠ΅ΠΊΡΠ΅, ΠΈ Π²ΡΡΡΠΎΠ΅Π½Ρ Π² ΠΊΠΎΠ½ΡΡΡΡΠΊΡΠΈΡ ΠΏΠΎΠ»Π° ΠΏΠ΅ΡΠ²ΠΎΠ³ΠΎ ΡΡΠ°ΠΆΠ° Π΅ΡΡ Π½Π° ΡΡΠ°Π΄ΠΈΠΈ ΡΡΡΠΎΠΈΡΠ΅Π»ΡΡΡΠ²Π°.
- Π ΠΏΡΠΈΠΌΠ΅ΡΡ, ΠΏΡΠΎΠ΅ΠΊΡ Π΄ΠΎΠΌΠ° Ρ 4 ΡΠΏΠ°Π»ΡΠ½ΡΠΌΠΈ ΠΌΠΎΠΆΠ΅Ρ ΠΏΡΠ΅Π΄ΡΡΠΌΠ°ΡΡΠΈΠ²Π°ΡΡ ΠΏΠΎΠ΄ΠΎΠ³ΡΠ΅Π²Π°Π΅ΠΌΡΠ΅ ΠΏΠΎΠ»Ρ Π² ΠΊΠ°ΠΆΠ΄ΠΎΠΉ ΠΈΠ· Π½ΠΈΡ . ΠΡΠ±ΠΎΡ ΠΊΠΎΠ½ΠΊΡΠ΅ΡΠ½ΠΎΠ³ΠΎ Π²Π°ΡΠΈΠ°Π½ΡΠ° Π΄ΠΎΠΏΠΎΠ»Π½ΠΈΡΠ΅Π»ΡΠ½ΠΎΠ³ΠΎ ΠΏΠΎΠ΄ΠΎΠ³ΡΠ΅Π²Π°, Π·Π°Π²ΠΈΡΠΈΡ ΠΎΡ ΠΊΠΎΠ½ΡΡΡΡΠΊΡΠΈΠΈ Π΄ΠΎΠΌΠ°, Π° ΡΠ°ΠΊ ΠΆΠ΅ ΡΠ°Π·Π½ΠΎΠ²ΠΈΠ΄Π½ΠΎΡΡΠΈ ΠΌΠΎΠ½ΡΠΈΡΡΠ΅ΠΌΠΎΠ³ΠΎ Π½Π°ΠΏΠΎΠ»ΡΠ½ΠΎΠ³ΠΎ ΠΏΠΎΠΊΡΡΡΠΈΡ. ΠΠ°ΠΏΡΠΈΠΌΠ΅Ρ, ΡΡΠ΅ΡΠΆΠ½Π΅Π²ΡΠ΅ ΠΌΠ°ΡΡ Π»ΡΡΡΠ΅ ΠΌΠΎΠ½ΡΠΈΡΠΎΠ²Π°ΡΡ Π² Π±Π΅ΡΠΎΠ½Π½ΡΡ ΡΡΡΠΆΠΊΡ, Π° ΠΈΠ½ΡΡΠ°ΠΊΡΠ°ΡΠ½ΡΡ ΠΏΠ»ΡΠ½ΠΊΡ ΠΌΠΎΠΆΠ½ΠΎ Π·Π°ΠΊΠ»Π°Π΄ΡΠ²Π°ΡΡ Π² Π΄Π΅ΡΠ΅Π²ΡΠ½Π½ΡΠΉ ΠΏΠΎΠ», ΠΈ Π΄Π°ΠΆΠ΅ ΠΏΠΎΠ΄ ΠΊΠΎΠ²ΡΠΎΠ»ΠΈΠ½.

ΠΠΈΠ·Π°ΠΉΠ½ ΠΏΠΎΠ΄ΠΎΠΊΠΎΠ½Π½ΠΎΠΉ Π·ΠΎΠ½Ρ Π² ΡΠΏΠ°Π»ΡΠ½Π΅
- ΠΠΎΠ΄ΡΠ½ΡΠ΅ ΡΡΠΏΠ»ΡΠ΅ ΠΏΠΎΠ»Ρ ΡΠ½ΠΈΠ²Π΅ΡΡΠ°Π»ΡΠ½Ρ, ΠΈΡ ΠΌΠΎΠΆΠ½ΠΎ Π²ΠΏΠΈΡΠ°ΡΡ Π² Π»ΡΠ±ΡΡ Π½Π°ΠΏΠΎΠ»ΡΠ½ΡΡ ΠΊΠΎΠ½ΡΡΡΡΠΊΡΠΈΡ, ΠΈ ΠΊ ΡΠΎΠΌΡ ΠΆΠ΅, ΠΎΠ½ΠΈ Π²ΠΏΠΎΠ»Π½Π΅ ΠΌΠΎΠ³ΡΡ ΠΈΡΠΏΠΎΠ»ΡΠ·ΠΎΠ²Π°ΡΡΡΡ Π² ΠΊΠ°ΡΠ΅ΡΡΠ²Π΅ ΠΎΡΠ½ΠΎΠ²Π½ΠΎΠ³ΠΎ ΠΎΡΠΎΠΏΠ»Π΅Π½ΠΈΡ. Π’ΡΡ Π΄Π°ΠΆΠ΅ Π΅ΡΡΡ ΡΠ²ΠΎΠΈ ΠΏΠ»ΡΡΡ: ΡΡΠΎ ΠΈΠ·Π±Π°Π²ΠΈΡ ΠΎΡ Π½Π΅ΠΎΠ±Ρ ΠΎΠ΄ΠΈΠΌΠΎΡΡΠΈ ΡΡΡΠ°Π½ΠΎΠ²ΠΊΠΈ ΠΎΡΠΎΠΏΠΈΡΠ΅Π»ΡΠ½ΡΡ ΡΠ°Π΄ΠΈΠ°ΡΠΎΡΠΎΠ², ΠΊΠΎΡΠΎΡΡΠ΅ ΡΠ°ΠΊ ΡΡΠΎΠ΄ΡΡΡ ΠΈΠ½ΡΠ΅ΡΡΠ΅Ρ. Π’Π΅ΠΌ Π±ΠΎΠ»Π΅Π΅ ΡΡΠΎ ΠΏΠΎΠ΄ΠΎΠΊΠΎΠ½Π½ΡΡ Π·ΠΎΠ½Ρ ΠΌΠΎΠΆΠ½ΠΎ ΠΈΡΠΏΠΎΠ»ΡΠ·ΠΎΠ²Π°ΡΡ Π² Π΄ΠΈΠ·Π°ΠΉΠ½Π΅ ΠΊΠΎΠΌΠ½Π°ΡΡ Ρ Π³ΠΎΡΠ°Π·Π΄ΠΎ Π±ΠΎΠ»ΡΡΠ΅ΠΉ ΠΏΠΎΠ»ΡΠ·ΠΎΠΉ, ΡΡΡΡΠΎΠΈΠ² ΡΠ°ΠΌ Π»Π΅ΠΆΠ°Π½ΠΊΡ ΠΈΠ»ΠΈ ΠΎΠ±ΠΎΡΡΠ΄ΠΎΠ²Π°Π² ΡΠ΄ΠΎΠ±Π½ΠΎΠ΅ ΡΠ°Π±ΠΎΡΠ΅Π΅ ΠΌΠ΅ΡΡΠΎ.
- ΠΠ΄ΠΈΠ½ ΠΈΠ· Π²Π°ΡΠΈΠ°Π½ΡΠΎΠ² ΡΠ°ΠΊΠΎΠ³ΠΎ ΠΏΡΠ°ΠΊΡΠΈΡΠ½ΠΎΠ³ΠΎ ΠΈΡΠΏΠΎΠ»ΡΠ·ΠΎΠ²Π°Π½ΠΈΡ ΠΏΠΎΠ΄ΠΎΠΊΠΎΠ½Π½ΠΈΠΊΠ° Π²Ρ ΠΌΠΎΠΆΠ΅ΡΠ΅ Π²ΠΈΠ΄Π΅ΡΡ Π½Π° ΡΠΎΡΠΎ, ΠΏΡΠΈΠ²Π΅Π΄ΡΠ½Π½ΠΎΠΌ Π²ΡΡΠ΅. ΠΡΠ»ΠΈ ΠΆΠ΅ ΠΎΡΠΎΠΏΠ»Π΅Π½ΠΈΠ΅ Π² Π΄ΠΎΠΌΠ΅ ΠΎΠ±ΡΡΡΡΠΎΠ΅Π½ΠΎ ΡΡΠ°Π΄ΠΈΡΠΈΠΎΠ½Π½ΠΎ, ΠΈ Π²Ρ ΡΡΠ²ΡΡΠ²ΡΠ΅ΡΠ΅, ΡΡΠΎ Π΅ΡΡΡ Π½Π΅ΠΎΠ±Ρ ΠΎΠ΄ΠΈΠΌΠΎΡΡΡ Π΄ΠΎΠΏΠΎΠ»Π½ΠΈΡΠ΅Π»ΡΠ½ΠΎΠ³ΠΎ ΠΎΠ±ΠΎΠ³ΡΠ΅Π²Π°, ΡΡΡΠ°Π½ΠΎΠ²ΠΈΡΡ ΡΠΈΡΡΠ΅ΠΌΡ Π½Π°ΠΏΠΎΠ»ΡΠ½ΠΎΠ³ΠΎ ΠΎΠ±ΠΎΠ³ΡΠ΅Π²Π° ΠΌΠΎΠΆΠ½ΠΎ Π΄Π°ΠΆΠ΅ Π½Π΅ Π΄Π΅ΠΌΠΎΠ½ΡΠΈΡΡΡ ΠΏΠΎΠ». Π’ΠΎΠ»ΡΠΊΠΎ ΠΏΡΠΈΠ΄ΡΡΡΡ ΡΠ΄Π΅Π»Π°ΡΡ Π²ΡΠΎΡΠΎΠ΅ Π½Π°ΠΏΠΎΠ»ΡΠ½ΠΎΠ΅ ΠΏΠΎΠΊΡΡΡΠΈΠ΅.
- Π§ΡΠΎ ΠΊΠ°ΡΠ°Π΅ΡΡΡ ΠΈΠ½ΡΡΠ°ΠΊΡΠ°ΡΠ½ΡΡ ΠΏΠ»ΡΠ½ΠΎΡΠ½ΡΡ Π½Π°Π³ΡΠ΅Π²Π°ΡΠ΅Π»Π΅ΠΉ, ΡΠΎ ΠΈΡ ΠΌΠΎΠΆΠ½ΠΎ ΠΌΠΎΠ½ΡΠΈΡΠΎΠ²Π°ΡΡ Π½Π΅ ΡΠΎΠ»ΡΠΊΠΎ Π½Π° ΠΏΠΎΠ», Π½ΠΎ ΠΈ Π½Π° ΡΡΠ΅Π½Ρ, Π½Π°ΠΊΠ»ΠΎΠ½Π½ΡΠ΅ ΠΏΠΎΠ²Π΅ΡΡ Π½ΠΎΡΡΠΈ, ΠΈ Π΄Π°ΠΆΠ΅ Π½Π° ΠΏΠΎΡΠΎΠ»ΠΊΠΈ. Π Π½Π°ΡΠ΅ΠΉ ΡΡΡΠ°Π½Π΅ Π±ΠΎΠ»ΡΡΠΈΠ½ΡΡΠ²ΠΎ ΡΠ΅Π³ΠΈΠΎΠ½ΠΎΠ² ΠΈΠΌΠ΅ΡΡ ΡΠ°ΠΊΠΎΠΉ ΠΊΠ»ΠΈΠΌΠ°Ρ, ΡΡΠΎ Π΄ΠΎΠΏΠΎΠ»Π½ΠΈΡΠ΅Π»ΡΠ½ΡΠΉ ΠΏΠΎΠ΄ΠΎΠ³ΡΠ΅Π² ΠΏΠΎΠΌΠ΅ΡΠ΅Π½ΠΈΠΉ Π½ΠΈΠΊΠ°ΠΊ Π½Π΅ ΠΏΠΎΠΌΠ΅ΡΠ°Π΅Ρ. Π ΡΡΠΏΠ»ΡΠ΅ ΠΏΠΎΠ»Ρ ΠΊΠ°ΠΊ Π½ΠΈΡΡΠΎ Π΄ΡΡΠ³ΠΎΠ΅, ΠΏΠΎΠΌΠΎΠ³Π°ΡΡ ΡΠ΅ΡΠΈΡΡ Π΄Π°Π½Π½ΡΡ ΠΏΡΠΎΠ±Π»Π΅ΠΌΡ.

Π‘ΠΏΠ°Π»ΡΠ½Ρ Ρ ΠΏΡΠΈΠΌΡΠΊΠ°ΡΡΠΈΠΌ ΠΊ Π½Π΅ΠΉ ΡΠ°Π½ΡΠ·Π»ΠΎΠΌ
- ΠΠΎΠ΄ΠΎΠ³ΡΠ΅Π² ΠΏΠΎΠ»Π° Π²Π°ΠΆΠ΅Π½ Π½Π΅ ΡΠΎΠ»ΡΠΊΠΎ Π΄Π»Ρ ΡΠΏΠ°Π»Π΅Π½, Π½ΠΎ ΠΈ Π΄Π»Ρ ΡΠ°Π½ΡΠ·Π»ΠΎΠ², ΠΊΠΎΡΠΎΡΡΠ΅ Π½Π΅ΡΠ΅Π΄ΠΊΠΎ ΠΊ Π½ΠΈΠΌ ΠΏΡΠΈΠΌΡΠΊΠ°ΡΡ. Π Π±ΠΎΠ»ΡΡΠΎΠΌ Π΄ΠΎΠΌΠ΅ ΠΈΡ , ΠΊΠ°ΠΊ ΠΏΡΠ°Π²ΠΈΠ»ΠΎ, Π½Π΅ΡΠΊΠΎΠ»ΡΠΊΠΎ. Π ΠΏΡΠΈΠΌΠ΅ΡΡ, ΠΏΡΠΎΠ΅ΠΊΡ Π΄ΠΎΠΌΠ° Ρ ΠΏΡΡΡΡ ΡΠΏΠ°Π»ΡΠ½ΡΠΌΠΈ, ΠΌΠΎΠΆΠ΅Ρ ΠΏΡΠ΅Π΄ΡΡΠΌΠ°ΡΡΠΈΠ²Π°ΡΡ Π½Π΅ ΠΌΠ΅Π½Π΅Π΅ ΡΡΡΡ ΡΠ°Π½ΡΠ·Π»ΠΎΠ², ΠΊΠ°ΠΊ ΡΠΎΠ²ΠΌΠ΅ΡΠ΅Π½Π½ΡΡ , ΡΠ°ΠΊ ΠΈ ΡΠ°Π·Π΄Π΅Π»ΡΠ½ΡΡ . ΠΠ΄ΠΈΠ½ ΠΈΠ· Π½ΠΈΡ β ΡΡΠΎ Π³ΠΎΡΡΠ΅Π²ΠΎΠΉ ΡΡΠ°Π»Π΅Ρ, ΠΊΠΎΡΠΎΡΡΠΉ ΠΎΠ±ΡΡΠ½ΠΎ ΡΠ°ΡΠΏΠΎΠ»Π°Π³Π°Π΅ΡΡΡ Π½Π° ΠΏΠ΅ΡΠ²ΠΎΠΌ ΡΡΠ°ΠΆΠ΅, Π½Π΅Π΄Π°Π»Π΅ΠΊΠΎ ΠΎΡ Π²Ρ ΠΎΠ΄Π°.
- ΠΡΠΎΡΠΎΠΉ ΡΠ°Π½ΡΠ·Π΅Π», ΡΠΎΠ²ΠΌΠ΅ΡΠ΅Π½Π½ΡΠΉ Ρ Π²Π°Π½Π½ΠΎΠΉ, ΠΏΡΠ΅Π΄Π½Π°Π·Π½Π°ΡΠ΅Π½ Π΄Π»Ρ ΠΎΠ±ΡΠ΅Π³ΠΎ ΠΏΠΎΠ»ΡΠ·ΠΎΠ²Π°Π½ΠΈΡ. ΠΡ ΠΎΠ΄ Π² Π½Π΅Π³ΠΎ Π±ΡΠ΄Π΅Ρ ΠΈΠ· ΠΊΠΎΡΠΈΠ΄ΠΎΡΠ° ΠΈΠ»ΠΈ Ρ ΠΎΠ»Π»Π°. Π ΡΠΏΠ°Π»ΡΠ½ΡΠΌ ΠΏΡΠΈΠΌΡΠΊΠ°ΡΡ Π²Π°Π½Π½ΡΠ΅ ΠΊΠΎΠΌΠ½Π°ΡΡ Π΄Π»Ρ ΠΈΠ½Π΄ΠΈΠ²ΠΈΠ΄ΡΠ°Π»ΡΠ½ΠΎΠ³ΠΎ ΠΏΠΎΠ»ΡΠ·ΠΎΠ²Π°Π½ΠΈΡ ΠΈΡ ΠΎΠ±ΠΈΡΠ°ΡΠ΅Π»Π΅ΠΉ, ΠΈ Π²Ρ ΠΎΠ΄ Π² Π½ΠΈΡ ΠΎΡΡΡΠ΅ΡΡΠ²Π»ΡΠ΅ΡΡΡ ΡΠΎΠ»ΡΠΊΠΎ ΡΠ΅ΡΠ΅Π· ΠΈΠ·Π½ΡΡΡΠΈ ΠΊΠΎΠΌΠ½Π°ΡΡ. ΠΠ±ΡΡΠ½ΠΎ ΡΠ°ΠΊ ΠΎΠ±ΠΎΡΡΠ΄ΡΡΡ ΡΡΠΏΡΡΠΆΠ΅ΡΠΊΠΈΠ΅ ΠΈ Π³ΠΎΡΡΠ΅Π²ΡΠ΅ ΡΠΏΠ°Π»ΡΠ½ΡΠ΅ ΠΏΠΎΠΌΠ΅ΡΠ΅Π½ΠΈΡ.

ΠΡΠΎΠ΅ΠΊΡ Π΄ΠΎΠΌΠ° Ρ ΡΡΠ΅ΠΌΡ ΡΠΏΠ°Π»ΡΠ½ΡΠΌΠΈ
- ΠΡΠΎΠΌΠ΅ ΡΠΎΠ³ΠΎ, ΡΠΎΠ²ΡΠ΅ΠΌΠ΅Π½Π½ΡΠΉ ΠΏΡΠΎΠ΅ΠΊΡ 1 ΡΡΠ°ΠΆΠ½ΠΎΠ³ΠΎ Π΄ΠΎΠΌΠ° Ρ 3 ΡΠΏΠ°Π»ΡΠ½ΡΠΌΠΈ ΠΌΠΎΠΆΠ΅Ρ ΠΏΡΠ΅Π΄ΡΡΠΌΠ°ΡΡΠΈΠ²Π°ΡΡ ΡΠ°ΠΊΡΡ ΠΏΠ»Π°Π½ΠΈΡΠΎΠ²ΠΊΡ: Π²Π΅ΡΡΠΈΠ±ΡΠ»Ρ; ΠΎΡΠ΄Π΅Π»ΡΠ½Π°Ρ ΠΊΡΡ Π½Ρ; ΡΠ΅Ρ Π½ΠΈΡΠ΅ΡΠΊΠΎΠ΅ ΠΏΠΎΠΌΠ΅ΡΠ΅Π½ΠΈΠ΅, Π³Π΄Π΅ ΡΡΡΠ°Π½ΠΎΠ²Π»Π΅Π½ Π±ΠΎΠΉΠ»Π΅Ρ; Π³Π°ΡΠ΄Π΅ΡΠΎΠ±Π½Π°Ρ; Π±ΠΎΠ»ΡΡΠ°Ρ Π³ΠΎΡΡΠΈΠ½Π°Ρ-ΡΡΠΎΠ»ΠΎΠ²Π°Ρ Ρ Π²ΡΡ ΠΎΠ΄ΠΎΠΌ Π½Π° ΡΠ΅ΡΡΠ°ΡΡ.
Π‘ΠΏΠ°Π»ΡΠ½ΡΠ΅ ΠΏΠΎΠΌΠ΅ΡΠ΅Π½ΠΈΡ ΠΎΠ±ΡΡΠ½ΠΎ ΡΠΎΡΡΠ΅Π΄ΠΎΡΠΎΡΠ΅Π½Ρ Π² ΠΎΠ΄Π½ΠΎΠΉ ΡΠ°ΡΡΠΈ Π΄ΠΎΠΌΠ°, ΠΏΡΠΎΡΠΈΠ²ΠΎΠΏΠΎΠ»ΠΎΠΆΠ½ΠΎΠΉ ΡΡΠΎΠ»ΠΎΠ²ΠΎΠΉ ΠΈ ΠΊΡΡ Π½Π΅. ΠΡΡ ΠΎΡΠ΅Π½Ρ ΠΊΠΎΠΌΠΏΠ°ΠΊΡΠ½ΠΎ ΠΈ ΡΠ΄ΠΎΠ±Π½ΠΎ β ΠΎΡΡΠ°ΡΡΡΡ ΡΠΎΠ»ΡΠΊΠΎ ΠΏΠΎΠ΄ΡΠΌΠ°ΡΡ Π½Π°Π΄ Π΄ΠΈΠ·Π°ΠΉΠ½ΠΎΠΌ Π΄ΠΎΠΌΠ°, ΡΡΠΎΠ±Ρ Π΅Π³ΠΎ Π²Π½ΡΡΡΠ΅Π½Π½Π΅Π΅ ΡΠΎΠ΄Π΅ΡΠΆΠ°Π½ΠΈΠ΅ Π½Π΅ ΠΌΠΎΠ³Π»ΠΎ Π½ΠΈΠΊΠΎΠ³ΠΎ ΠΎΡΡΠ°Π²ΠΈΡΡ ΡΠ°Π²Π½ΠΎΠ΄ΡΡΠ½ΡΠΌ.
Π€ΠΈΠ½ΠΈΡΠ½Π°Ρ ΠΎΡΠ΄Π΅Π»ΠΊΠ° ΠΈ Π΄ΠΈΠ·Π°ΠΉΠ½ ΠΈΠ½ΡΠ΅ΡΡΠ΅ΡΠ°
ΠΠΎΠ½Π΅ΡΠ½ΠΎ, Ρ ΠΊΠ°ΠΆΠ΄ΠΎΠ³ΠΎ ΠΎΠ±ΠΈΡΠ°ΡΠ΅Π»Ρ ΡΠ²ΠΎΠΈ Π²ΠΊΡΡΡ ΠΈ ΠΏΡΠ΅Π΄ΠΏΠΎΡΡΠ΅Π½ΠΈΡ, Π²ΡΡΠ°Π·ΠΈΡΡ ΠΊΠΎΡΠΎΡΡΠ΅ ΠΎΠ½ ΠΌΠΎΠΆΠ΅Ρ ΡΠΎΠ»ΡΠΊΠΎ Π² ΠΎΡΠΎΡΠΌΠ»Π΅Π½ΠΈΠΈ ΡΠ²ΠΎΠ΅ΠΉ ΠΊΠΎΠΌΠ½Π°ΡΡ. Π‘ΠΏΠ°Π»ΡΠ½ΠΈ ΠΌΠΎΠ³ΡΡ, ΠΈ Π΄ΠΎΠ»ΠΆΠ½Ρ Π±ΡΡΡ ΡΠ°Π·Π½ΡΠΌΠΈ, Π° Π²ΠΎΡ ΠΎΡΡΠ°Π»ΡΠ½ΡΠ΅ ΠΏΠΎΠΌΠ΅ΡΠ΅Π½ΠΈΡ ΠΆΠ΅Π»Π°ΡΠ΅Π»ΡΠ½ΠΎ ΠΎΡΠ΄Π΅Π»Π°ΡΡ Π² Π΅Π΄ΠΈΠ½ΠΎΠΌ ΡΡΠΈΠ»Π΅ β ΡΠΎΠ»ΡΠΊΠΎ ΡΠ°ΠΊ ΠΌΠΎΠΆΠ½ΠΎ Π΄ΠΎΡΡΠΈΡΡ Π³Π°ΡΠΌΠΎΠ½ΠΈΠΈ.
ΠΡΠ°ΠΊ:
- ΠΡΠ±ΠΎΡ Π²Π°ΡΠΈΠ°Π½ΡΠ° Π΄ΠΈΠ·Π°ΠΉΠ½Π° ΠΎΡΡΡΠ΅ΡΡΠ²Π»ΡΠ΅ΡΡΡ Π² Π·Π°Π²ΠΈΡΠΈΠΌΠΎΡΡΠΈ ΠΎΡ Π½Π°Π·Π½Π°ΡΠ΅Π½ΠΈΡ ΠΈ ΠΏΠ»ΠΎΡΠ°Π΄ΠΈ ΠΊΠΎΠ½ΠΊΡΠ΅ΡΠ½ΠΎΠ³ΠΎ ΠΏΠΎΠΌΠ΅ΡΠ΅Π½ΠΈΡ. ΠΠ½ΠΎΠ³ΠΎΠ΅ Π·Π°Π²ΠΈΡΠΈΡ ΠΎΡ ΠΊΠΎΠ½ΡΡΡΡΠΊΡΠΈΠ²Π½ΡΡ ΠΎΡΠΎΠ±Π΅Π½Π½ΠΎΡΡΠ΅ΠΉ Π΄ΠΎΠΌΠ°, Π²Π΅Π΄Ρ Π² ΠΎΡΠ΄Π΅Π»ΠΊΠ΅ ΠΌΠΎΠ³ΡΡ ΡΡΠ°ΡΡΠ²ΠΎΠ²Π°ΡΡ ΠΈ Π½Π΅ΡΡΡΠΈΠ΅ Π±Π°Π»ΠΊΠΈ, ΠΈ Π΄Π΅ΡΠ΅Π²ΡΠ½Π½ΡΠ΅ ΡΡΠΎΠΉΠΊΠΈ ΠΊΠ°ΡΠΊΠ°ΡΠ°, ΠΈ Π±ΡΠ΅Π²Π΅Π½ΡΠ°ΡΠ°Ρ ΠΏΠΎΠ²Π΅ΡΡ Π½ΠΎΡΡΡ, ΠΈ ΠΊΠΈΡΠΏΠΈΡΠ½Π°Ρ ΠΊΠ»Π°Π΄ΠΊΠ°.

ΠΡΠΎΠ΅ΠΊΡ Π΄ΠΎΠΌΠ° Ρ 3 ΡΠΏΠ°Π»ΡΠ½ΡΠΌΠΈ Π² ΡΡΠΈΠ»Π΅ ΠΡΠΎΠ²Π°Π½Ρ: ΠΊΠΎΡΠΈΠ΄ΠΎΡ
- ΠΡΠ΅Π½Ρ Π²Π°ΠΆΠ½ΠΎ ΠΈ ΡΠΎ, Ρ ΠΊΠ°ΠΊΠΎΠΉ ΡΡΠΎΡΠΎΠ½Ρ: Π½Π°ΡΡΠΆΠ½ΠΎΠΉ ΠΈΠ»ΠΈ Π²Π½ΡΡΡΠ΅Π½Π½Π΅ΠΉ, Π±ΡΠ΄Π΅Ρ ΠΏΡΠΎΠΈΠ·Π²ΠΎΠ΄ΠΈΡΡΡΡ ΡΡΠ΅ΠΏΠ»Π΅Π½ΠΈΠ΅ ΡΡΠ΅Π½. Π’Π°ΠΊ ΡΡΠΎ, Π΄Π°ΡΡ Π΅Π΄ΠΈΠ½ΡΠ΅ ΡΠ΅ΠΊΠΎΠΌΠ΅Π½Π΄Π°ΡΠΈΠΈ Π½Π° Π²ΡΠ΅ ΡΠ»ΡΡΠ°ΠΈ ΠΆΠΈΠ·Π½ΠΈ ΠΏΡΠΎΡΡΠΎ Π½Π΅Π²ΠΎΠ·ΠΌΠΎΠΆΠ½ΠΎ: ΠΌΡ ΠΏΡΠ΅Π΄Π»Π°Π³Π°Π΅ΠΌ Π²Π°ΡΠΈΠ°Π½ΡΡ, Π° Π²Ρ ΡΠΆΠ΅ ΡΠ΅ΡΠ°Π΅ΡΠ΅, ΠΏΠΎΠ΄Ρ ΠΎΠ΄ΠΈΡ Π²Π°ΠΌ ΡΡΠΎ, ΠΈΠ»ΠΈ Π½Π΅Ρ. ΠΠΎΠΆΠ½ΠΎ ΠΎΠ±ΡΠ°ΡΠΈΡΡΡΡ Π·Π° ΠΏΠΎΠΌΠΎΡΡΡ ΠΈ ΠΊ ΠΏΡΠΎΡΠ΅ΡΡΠΈΠΎΠ½Π°Π»ΡΠ½ΠΎΠΌΡ Π΄ΠΈΠ·Π°ΠΉΠ½Π΅ΡΡ, Π΅ΡΠ»ΠΈ Π²Π°Ρ, ΠΊΠΎΠ½Π΅ΡΠ½ΠΎ, Π½Π΅ ΠΏΡΠ³Π°Π΅Ρ, ΡΡΠΎ ΡΠ΅Π½Π° ΡΠ΅ΠΌΠΎΠ½ΡΠ° ΠΏΡΠΈ ΡΡΠΎΠΌ Π·Π½Π°ΡΠΈΡΠ΅Π»ΡΠ½ΠΎ ΡΠ²Π΅Π»ΠΈΡΠΈΡΡΡ.
- ΠΡΠ»ΠΈ Π²Ρ Π½Π΅ ΡΠ°ΠΌΠΈ ΡΡΡΠΎΠΈΡΠ΅ Π΄ΠΎΠΌ, Π°, ΠΊ ΠΏΡΠΈΠΌΠ΅ΡΡ, ΠΏΠΎΠΊΡΠΏΠ°Π΅ΡΠ΅ ΠΊΠΎΡΡΠ΅Π΄ΠΆ Ρ ΡΠ΅ΡΠ½ΠΎΠ²ΠΎΠΉ ΠΎΡΠ΄Π΅Π»ΠΊΠΎΠΉ, Π·Π°ΡΡΡΠΎΠΉΡΠΈΠΊ ΠΌΠΎΠΆΠ΅Ρ ΠΏΡΠ΅Π΄Π»ΠΎΠΆΠΈΡΡ Π½Π° Π²ΡΠ±ΠΎΡ, ΠΈ, Π΅ΡΡΠ΅ΡΡΠ²Π΅Π½Π½ΠΎ, Π·Π° ΠΎΡΠ΄Π΅Π»ΡΠ½ΡΡ ΠΏΠ»Π°ΡΡ, Π΄ΠΈΠ·Π°ΠΉΠ½-ΠΏΡΠΎΠ΅ΠΊΡ Π½Π° ΠΎΡΠΎΡΠΌΠ»Π΅Π½ΠΈΠ΅ ΠΈΠ½ΡΠ΅ΡΡΠ΅ΡΠ°. ΠΡΠ»ΠΈ Π²Π°ΠΌ ΠΏΠΎΠ½ΡΠ°Π²ΠΈΡΡΡ ΠΊΠΎΠ½ΡΠ΅ΠΏΡΠΈΡ, Π½ΠΎ Π΅ΡΡΡ ΠΆΠ΅Π»Π°Π½ΠΈΠ΅ ΠΈΠ·ΠΌΠ΅Π½ΠΈΡΡ Π½Π΅ΠΊΠΎΡΠΎΡΡΠ΅ Π΄Π΅ΡΠ°Π»ΠΈ, ΠΈΠ»ΠΈ ΠΏΠΎΠΌΠ΅Π½ΡΡΡ ΡΠ²Π΅ΡΠΎΠ²ΡΡ Π³Π°ΠΌΠΌΡ, ΡΡΠΎ ΠΌΠΎΠΆΠ½ΠΎ ΡΠ΄Π΅Π»Π°ΡΡ ΠΏΠΎ ΡΠΎΠ³Π»Π°ΡΠΎΠ²Π°Π½ΠΈΡ. ΠΠ°ΠΊ Π³ΠΎΠ²ΠΎΡΠΈΡΡΡ: Β«ΠΡΠ±ΠΎΠΉ ΠΊΠ°ΠΏΡΠΈΠ·β¦Β».

ΠΡΠΎΠ΅ΠΊΡ Π΄ΠΎΠΌΠ° Ρ Π΄Π²ΡΠΌΡ ΡΠΏΠ°Π»ΡΠ½ΡΠΌΠΈ: Ρ ΠΎΠ»Π» ΠΈ Π³ΠΎΡΡΠΈΠ½Π°Ρ
- ΠΠΎΠ½Π΅ΡΠ½ΠΎ, ΠΏΡΠΎΠ΅ΠΊΡΡ Π΄ΠΎΠΌΠΎΠ² Ρ ΠΏΡΡΡΡ ΡΠΏΠ°Π»ΡΠ½ΡΠΌΠΈ, ΡΠ°ΠΊ ΠΈΠ»ΠΈ ΠΈΠ½Π°ΡΠ΅ ΠΏΡΠ΅Π΄ΠΏΠΎΠ»Π°Π³Π°ΡΡ ΡΡΠ°ΡΡΠΈΠ΅ Π΄ΠΈΠ·Π°ΠΉΠ½Π΅ΡΠ°, Π²Π΅Π΄Ρ ΠΊΡΠ°ΡΠΈΠ²ΠΎ ΠΎΡΠΎΡΠΌΠΈΡΡ ΠΈ ΡΡΡΠ½ΠΎ ΠΎΠ±ΡΡΠ°Π²ΠΈΡΡ ΡΠ°ΠΊΠΎΠΉ ΠΎΠ³ΡΠΎΠΌΠ½ΡΠΉ Π΄ΠΎΠΌ ΡΠ°ΠΌΠΎΡΡΠΎΡΡΠ΅Π»ΡΠ½ΠΎ Π΄ΠΎΠ²ΠΎΠ»ΡΠ½ΠΎ ΡΠ»ΠΎΠΆΠ½ΠΎ. Π£ΠΆ Π΅ΡΠ»ΠΈ Ρ ΡΠ΅Π»ΠΎΠ²Π΅ΠΊΠ° Π½Π°ΡΠ»ΠΈΡΡ ΡΡΠ΅Π΄ΡΡΠ²Π° Π½Π° ΠΏΠΎΠ΄ΠΎΠ±Π½ΠΎΠ΅ ΠΆΠΈΠ»ΡΡ, ΡΠΎ ΠΈ Π½Π° Π΅Π³ΠΎ Π΄ΠΈΠ·Π°ΠΉΠ½ Π΄Π΅Π½ΡΠ³ΠΈ Π½Π°ΠΉΠ΄ΡΡΡΡ. ΠΠ°ΡΠΈ ΠΏΠΎΠ΄ΡΠΊΠ°Π·ΠΊΠΈ Π΄Π»Ρ ΡΠ΅Ρ , ΠΊΡΠΎ ΡΠ°ΠΊΠΈΠΌ Π±ΡΠ΄ΠΆΠ΅ΡΠΎΠΌ Π½Π΅ ΡΠ°ΡΠΏΠΎΠ»Π°Π³Π°Π΅Ρ, ΡΡΠ°ΡΠ°ΡΡΡ Π²ΡΡ ΡΠ΄Π΅Π»Π°ΡΡ ΡΠ²ΠΎΠΈΠΌΠΈ ΡΡΠΊΠ°ΠΌΠΈ.
- ΠΡΠ»ΠΈ ΡΡΠ΅Π½Ρ Π΄ΠΎΠΌΠ° Π½ΡΠΆΠ΄Π°ΡΡΡΡ Π² ΡΡΠ΅ΠΏΠ»Π΅Π½ΠΈΠΈ, ΡΠΎ Π²ΡΠ±ΠΈΡΠ°ΡΡ ΡΠ»Π΅Π΄ΡΠ΅Ρ ΡΠ΅ Π²ΠΈΠ΄Ρ ΠΎΡΠ΄Π΅Π»ΠΎΡΠ½ΡΡ ΠΌΠ°ΡΠ΅ΡΠΈΠ°Π»ΠΎΠ², ΠΊΠΎΡΠΎΡΡΠ΅ ΠΌΠΎΠ½ΡΠΈΡΡΡΡΡΡ Π½Π° ΠΊΠ°ΡΠΊΠ°Ρ, Π² ΡΡΠ΅ΠΉΠΊΠΈ ΠΊΠΎΡΠΎΡΠΎΠ³ΠΎ ΠΌΠΎΠΆΠ½ΠΎ Π·Π°Π»ΠΎΠΆΠΈΡΡ ΡΡΠ΅ΠΏΠ»ΠΈΡΠ΅Π»Ρ. Π ΡΠ°ΠΊΠΎΠΌ ΡΠ»ΡΡΠ°Π΅, ΡΡΠ΅Π½Ρ ΠΌΠΎΠΆΠ½ΠΎ ΠΎΠ±ΡΠΈΡΡ Π³ΠΈΠΏΡΠΎΠΊΠ°ΡΡΠΎΠ½ΠΎΠΌ, ΠΏΠΎΠ΄ΠΎΠ±ΡΠ°Π² Π²Π°ΡΠΈΠ°Π½Ρ ΠΊΡΠ°ΡΠΈΠ²ΠΎΠΉ ΡΠΈΠ½ΠΈΡΠ½ΠΎΠΉ ΠΎΡΠ΄Π΅Π»ΠΊΠΈ. Π Π²Π°ΡΠΈΠ°Π½ΡΠΎΠ², Π±Π»Π°Π³ΠΎΠ΄Π°ΡΡ ΠΎΠ³ΡΠΎΠΌΠ½Π΅ΠΉΡΠ΅ΠΌΡ Π°ΡΡΠΎΡΡΠΈΠΌΠ΅Π½ΡΡ ΠΎΠ±ΠΎΠ΅Π² ΠΈ ΠΊΠΎΠ»Π΅ΡΠΎΠ² Π΄Π»Ρ Π²ΠΎΠ΄Π½ΠΎ-Π΄ΠΈΡΠΏΠ΅ΡΡΠΈΠΎΠ½Π½ΡΡ ΠΊΡΠ°ΡΠΎΠΊ, Π²Π΅Π»ΠΈΠΊΠΎΠ΅ ΠΌΠ½ΠΎΠΆΠ΅ΡΡΠ²ΠΎ.

ΠΡΠ΄Π΅Π»ΠΊΠ° ΡΠΏΠ°Π»ΡΠ½ΠΈ: ΡΠ΅Π»ΡΠ΅ΡΠ½ΡΠ΅ ΠΎΠ±ΠΎΠΈ ΠΈ ΡΡΡΡΠΊΡΡΡΠ½Π°Ρ ΠΊΡΠ°ΡΠΊΠ°
- ΠΠ»Π°Π²Π½ΠΎΠ΅, ΠΏΡΠ°Π²ΠΈΠ»ΡΠ½ΠΎ ΠΏΠΎΠ΄ΠΎΠ±ΡΠ°ΡΡ ΠΈ ΡΠΎΡΠ΅ΡΠ°ΡΡ ΠΎΡΡΠ΅Π½ΠΊΠΈ, Π½Π΅ ΡΠ΄Π΅Π»Π°ΡΡ ΠΈΠ½ΡΠ΅ΡΡΠ΅Ρ ΠΌΠΎΠ½ΠΎΡΠΎΠ½Π½ΡΠΌ. ΠΠ»Ρ ΡΡΠΎΠ³ΠΎ, ΠΎΠ΄Π½Π° ΡΡΠ΅Π½Π°, ΠΈΠ»ΠΈ Π΅Ρ ΠΎΡΠ΄Π΅Π»ΡΠ½ΡΠ΅ ΡΡΠ°ΡΡΠΊΠΈ, ΠΌΠΎΠ³ΡΡ Π±ΡΡΡ Π²ΡΠ΄Π΅Π»Π΅Π½Ρ ΠΊΠΎΠ½ΡΡΠ°ΡΡΠ½ΡΠΌ ΡΠ²Π΅ΡΠΎΠΌ, ΡΠ·ΠΎΡΠΎΠΌ, ΠΈΠ½ΡΠ΅ΡΡΠ΅ΡΠ½ΠΎΠΉ Π½Π°ΠΊΠ»Π΅ΠΉΠΊΠΎΠΉ. Π ΠΏΡΠΈΠ½ΡΠΈΠΏΠ΅, ΡΠ΄Π΅Π»Π°ΡΡ ΡΡΠΎ ΠΌΠΎΠΆΠ½ΠΎ Ρ ΠΏΠΎΠΌΠΎΡΡΡ Π»ΡΠ±ΡΡ ΠΎΡΠ΄Π΅Π»ΠΎΡΠ½ΡΡ ΠΌΠ°ΡΠ΅ΡΠΈΠ°Π»ΠΎΠ², ΠΌΠ½ΠΎΠ³ΠΈΠ΅ ΠΈΠ· ΠΊΠΎΡΠΎΡΡΡ ΡΠΎΠΆΠ΅ ΠΌΠΎΠ½ΡΠΈΡΡΡΡΡΡ Π½Π° ΠΎΠ±ΡΠ΅ΡΡΡΠΊΡ β ΡΡΠΎ ΡΠ°Π·Π»ΠΈΡΠ½ΡΠ΅ ΠΏΠ°Π½Π΅Π»ΠΈ, Π΄ΠΎΡΠΊΠ°, Π»Π°ΠΌΠΈΠ½Π°Ρ.
- ΠΡΠ΅ ΠΎΠ½ΠΈ ΠΏΡΠΈΠΌΠ΅Π½ΡΡΡΡΡ ΡΠΎΠ»ΡΠΊΠΎ Π΄Π»Ρ ΡΠΎΠ·Π΄Π°Π½ΠΈΡ Π°ΠΊΡΠ΅Π½ΡΠ°, ΠΊΠ°ΠΊ, Π²ΠΏΡΠΎΡΠ΅ΠΌ, ΠΈ ΠΎΠ±Π»ΠΈΡΠΎΠ²ΠΎΡΠ½ΡΠ΅ ΠΌΠ°ΡΠ΅ΡΠΈΠ°Π»Ρ, ΠΌΠΎΠ½ΡΠΈΡΡΡΡΠΈΠ΅ΡΡ Π½Π° ΠΊΠ»Π΅ΠΉ. Π Π½ΠΈΠΌ ΠΌΠΎΠΆΠ½ΠΎ ΠΎΡΠ½Π΅ΡΡΠΈ Π²ΡΠ΅ Π²ΠΈΠ΄Ρ ΡΡΠ»ΠΎΠ½Π½ΡΡ ΠΏΠΎΠΊΡΡΡΠΈΠΉ, ΠΏΠ°Π½Π΅Π»ΠΈ ΠΈΠ· Π³ΠΈΠΏΡΠ° ΠΈ Π±Π°ΠΌΠ±ΡΠΊΠ° Ρ 3Π ΡΡΡΠ΅ΠΊΡΠΎΠΌ, Π½Π°ΡΡΡΠ°Π»ΡΠ½ΡΠΉ ΠΈ Π΄Π΅ΠΊΠΎΡΠ°ΡΠΈΠ²Π½ΡΠΉ ΠΊΠ°ΠΌΠ΅Π½Ρ, ΠΊΠ΅ΡΠ°ΠΌΠΈΡΠ΅ΡΠΊΠ°Ρ ΠΏΠ»ΠΈΡΠΊΠ° ΠΈ ΡΠ°Π·Π»ΠΈΡΠ½ΡΠ΅ ΠΈΠΌΠΈΡΠ°ΡΠΈΠΈ ΠΏΠΎΠ΄ ΠΊΠΈΡΠΏΠΈΡ β Π΄Π°ΠΆΠ΅ Π½Π°ΡΡΠΆΠ½Π°Ρ ΠΠΠ₯ ΠΏΠ»ΡΠ½ΠΊΠ°.

ΠΠΈΠ·Π°ΠΉΠ½ ΡΡΠ΅Π½ Ρ 3Π ΠΏΠ°Π½Π΅Π»ΡΠΌΠΈ
- Π‘Π΅ΠΉΡΠ°Ρ ΡΠ°ΠΊΠΎΠ΅ ΠΌΠ½ΠΎΠΆΠ΅ΡΡΠ²ΠΎ Π½ΠΎΠ²ΠΈΠ½ΠΎΠΊ, ΠΊΡΠ°ΡΠΈΠ²ΡΡ ΡΠΎΠ²ΡΠ΅ΠΌΠ΅Π½Π½ΡΡ ΠΎΡΠ΄Π΅Π»ΠΎΡΠ½ΡΡ ΠΌΠ°ΡΠ΅ΡΠΈΠ°Π»ΠΎΠ², ΡΡΠΎ ΠΏΠΎΡΠΎΠΉ ΠΎΡΠ΅Π½Ρ ΡΡΡΠ΄Π½ΠΎ ΡΠ΄Π΅Π»Π°ΡΡ Π²ΡΠ±ΠΎΡ. ΠΠΎΠΏΡΡΡΠΈΠΌ, Π²Π°ΠΌ Π½ΡΠ°Π²ΠΈΡΡΡ ΠΏΡΠΎΡΡΠΎΡΠ°, ΠΌΠΈΠ½ΠΈΠΌΠ°Π»ΠΈΠ·ΠΌ, ΡΠΏΠ°ΡΡΠ°Π½ΡΠΊΠ°Ρ ΠΎΠ±ΡΡΠ°Π½ΠΎΠ²ΠΊΠ°. ΠΠ° ΠΏΠΎΠΌΠΎΡΡ ΠΏΡΠΈΠ΄ΡΡ ΠΏΠ°Π½Π΅Π»ΠΈ, Π½ΠΎ Π½Π΅ ΠΊΠ»Π°ΡΡΠΈΡΠ΅ΡΠΊΠΈΠ΅ ΠΈΠ· ΠΌΠ°ΡΡΠΈΠ²Π° Π΄Π΅ΡΠ΅Π²Π°, ΠΌΠΎΠ½ΡΠΈΡΡΡΡΠΈΠ΅ΡΡ Π² Π½ΠΈΠΆΠ½Π΅ΠΉ ΡΠ°ΡΡΠΈ ΡΡΠ΅Π½, Π° Π³Π»Π°Π΄ΠΊΠΈΠ΅, Ρ ΡΡΠΊΠΎ Π²ΡΡΠ°ΠΆΠ΅Π½Π½ΠΎΠΉ Π΄ΡΠ΅Π²Π΅ΡΠ½ΠΎΠΉ ΡΠ°ΠΊΡΡΡΠΎΠΉ.
- Π§Π°ΡΠ΅ Π²ΡΠ΅Π³ΠΎ, ΡΡΠΎ ΠΠΠ€, ΠΏΠΎΠΊΡΡΡΡΠΉ Π΄ΡΠ΅Π²Π΅ΡΠ½ΡΠΌ ΡΠΏΠΎΠ½ΠΎΠΌ, Π»ΠΈΠ±ΠΎ Π΄ΡΠ΅Π²Π΅ΡΠ½ΠΎ-ΠΏΠΎΠ»ΠΈΠΌΠ΅ΡΠ½ΡΠΉ ΠΊΠΎΠΌΠΏΠΎΠ·ΠΈΡ. Π’Π°ΠΊΠΈΠΌΠΈ ΠΏΠ°Π½Π΅Π»ΡΠΌΠΈ ΠΌΠΎΠΆΠ½ΠΎ ΠΎΡΠ΄Π΅Π»Π°ΡΡ ΡΡΠ΅Π½Ρ Π΄ΠΎ ΠΏΠΎΡΠΎΠ»ΠΊΠ°, Π½ΠΎ ΡΠΎΠ»ΡΠΊΠΎ ΠΎΠ΄Π½Ρ β Π΅ΡΠ»ΠΈ Π½Π΅ Ρ ΠΎΡΠΈΡΠ΅, ΡΡΠΎΠ±Ρ Π²Π°ΡΠ° ΡΠΏΠ°Π»ΡΠ½Ρ Π±ΡΠ»Π° ΠΏΠΎΡ ΠΎΠΆΠ° Π½Π° ΠΊΠΎΠ½ΡΠΎΡΡ. Π§ΡΠΎΠ±Ρ ΡΡΠΎΠ³ΠΎ Π½Π΅ ΡΠ»ΡΡΠΈΠ»ΠΎΡΡ, ΠΊΠΎΠ½ΡΠΈΠ³ΡΡΠ°ΡΠΈΠΈ ΠΎΠ±Π»ΠΈΡΠΎΠ²ΠΊΠΈ, Π΅Ρ ΡΠ°ΠΊΡΡΡΡ ΠΈ ΡΠ°ΡΡΠ²Π΅ΡΠΊΠΈ Π½ΡΠΆΠ½ΠΎ ΠΊΠΎΠΌΠ±ΠΈΠ½ΠΈΡΠΎΠ²Π°ΡΡ, ΠΊΠ°ΠΊ ΡΡΠΎ ΡΠ΄Π΅Π»Π°Π½ΠΎ Π½Π° ΠΏΡΠΈΠ²Π΅Π΄ΡΠ½Π½ΠΎΠΌ Π½Π°ΠΌΠΈ ΠΏΡΠΈΠΌΠ΅ΡΠ΅.

Π‘ΠΎΠ²ΡΠ΅ΠΌΠ΅Π½Π½Π°Ρ ΡΠΏΠ°Π»ΡΠ½Ρ: ΠΎΡΠ΄Π΅Π»ΠΊΠ° ΠΏΠ°Π½Π΅Π»ΡΠΌΠΈ
- ΠΡΠ΄Π΅Π»ΠΊΠ° ΡΡΠ΅Π½ ΠΌΠΎΠΆΠ΅Ρ Π±ΡΡΡ Π²ΡΠΏΠΎΠ»Π½Π΅Π½Π° ΡΠΎΠ²ΡΠ΅ΠΌ ΡΠΊΡΠΎΠΌΠ½ΠΎ ΠΈ Π½Π΅Π±ΡΠΎΡΠΊΠΎ, ΡΡΠΎΠ±Ρ ΠΏΠΎΠ΄ΡΠ΅ΡΠΊΠ½ΡΡΡ, Π½Π°ΠΏΡΠΈΠΌΠ΅Ρ, ΠΊΡΠ°ΡΠΎΡΡ ΠΏΠΎΡΠΎΠ»ΠΎΡΠ½ΠΎΠΉ ΠΊΠΎΠ½ΡΡΡΡΠΊΡΠΈΠΈ ΠΈΠ»ΠΈ ΡΠΈΠΊΠ°ΡΠ½ΠΎΠ³ΠΎ Π½Π°ΠΏΠΎΠ»ΡΠ½ΠΎΠ³ΠΎ ΠΏΠΎΠΊΡΡΡΠΈΡ. ΠΡΠΎ Π·Π½Π°ΡΠΈΡ, ΡΡΠΎ Π°ΠΊΡΠ΅Π½Ρ Π½Π΅ ΠΎΠ±ΡΠ·Π°ΡΠ΅Π»ΡΠ½ΠΎ Π΄Π΅Π»Π°ΡΡ ΠΈΠΌΠ΅Π½Π½ΠΎ Π½Π° ΡΡΠ΅Π½Π΅. Π Π΅ΡΠ»ΠΈ ΠΏΠΎΠ» Π½Π΅ΡΠ΅Π΄ΠΊΠΎ Π·Π°ΡΡΠ»Π°Π½ ΠΊΠΎΠ²ΡΠΎΠΌ, ΡΠΎ ΠΏΠΎΡΠΎΠ»ΠΎΠΊ Π²ΡΠ΅Π³Π΄Π° Π½Π° Π²ΠΈΠ΄Ρ.
- Π ΡΡΡ Π²Π°ΡΠΈΠ°Π½ΡΠΎΠ² Π²Π΅Π»ΠΈΠΊΠΎΠ΅ ΠΌΠ½ΠΎΠΆΠ΅ΡΡΠ²ΠΎ: Π³ΠΈΠΏΡΠΎΠΊΠ°ΡΡΠΎΠ½ ΠΈ Π½Π°ΡΡΠΆΠ½ΠΎΠ΅ ΠΏΠΎΠ»ΠΎΡΠ½ΠΎ, Π΄Π΅ΡΠ΅Π²ΠΎ ΠΈ ΡΡΠ΅ΠΊΠ»ΠΎ, Π³ΠΈΠΏΡΠΎΠ²ΡΠ΅ ΠΏΠ°Π½Π΅Π»ΠΈ ΠΈ Π»Π΅ΠΏΠ½ΠΈΠ½Π°, ΡΠ°Π·Π»ΠΈΡΠ½ΡΠ΅ ΠΊΠΎΠΌΠ±ΠΈΠ½Π°ΡΠΈΠΈ ΠΏΠΎΡΠΎΠ»ΠΎΡΠ½ΡΡ ΠΎΡΠ΄Π΅Π»ΠΎΡΠ½ΡΡ ΠΌΠ°ΡΠ΅ΡΠΈΠ°Π»ΠΎΠ². ΠΠ΄ΠΈΠ½ ΠΈΠ· ΡΠ°ΠΊΠΈΡ Π²Π°ΡΠΈΠ°Π½ΡΠΎΠ² Π²Ρ ΠΌΠΎΠΆΠ΅ΡΠ΅ Π²ΠΈΠ΄Π΅ΡΡ Π½Π° ΠΏΡΠΈΠΌΠ΅ΡΠ΅ ΡΠ½ΠΈΠ·Ρ. ΠΡΠ° ΡΠ»ΠΎΠΆΠ½Π°Ρ ΠΊΠΎΠ½ΡΡΡΡΠΊΡΠΈΡ Π²ΡΠΏΠΎΠ»Π½Π΅Π½Π° ΠΈΠ· Π³ΠΈΠΏΡΠΎΠΊΠ°ΡΡΠΎΠ½Π°, ΡΠΎ Π²ΡΡΠ°Π²ΠΊΠ°ΠΌΠΈ Π½Π°ΡΡΠΆΠ½ΠΎΠΉ Π³Π»ΡΠ½ΡΠ΅Π²ΠΎΠΉ ΠΏΠ»ΡΠ½ΠΊΠΈ ΠΈ ΠΎΡΡΠ΅ΠΊΠ»ΡΠ½Π½ΡΡ ΡΠ°ΠΌΠΎΠΊ Ρ ΡΠΎΡΠΎΠΏΠ΅ΡΠ°ΡΡΡ.

ΠΠΈΠ·Π°ΠΉΠ½Π΅ΡΡΠΊΠΈΠΉ ΠΏΠΎΠ΄Π²Π΅ΡΠ½ΠΎΠΉ ΠΏΠΎΡΠΎΠ»ΠΎΠΊ Π² ΡΡΠΎΠ»ΠΎΠ²ΠΎΠΉ
- ΠΠ½Π° ΠΈΠΌΠ΅Π΅Ρ ΠΈ ΠΏΡΠ°ΠΊΡΠΈΡΠ΅ΡΠΊΠΎΠ΅ Π·Π½Π°ΡΠ΅Π½ΠΈΠ΅: Π΄Π΅Π»ΠΈΡ ΠΏΠΎΠΌΠ΅ΡΠ΅Π½ΠΈΠ΅ Π³ΠΎΡΡΠΈΠ½ΠΎΠΉ-ΡΡΠΎΠ»ΠΎΠ²ΠΎΠΉ Π½Π° Π·ΠΎΠ½Ρ. ΠΠΎΠ½Π΅ΡΠ½ΠΎ, ΡΡΠΎ Π΄ΠΈΠ·Π°ΠΉΠ½Π΅ΡΡΠΊΠ°Ρ ΡΠ°Π±ΠΎΡΠ°, ΠΈ ΡΠ°ΠΊΠΎΠΉ ΠΏΠΎΡΠΎΠ»ΠΎΠΊ Π΄ΡΡΠ΅Π²ΠΎ ΡΡΠΎΠΈΡΡ Π½Π΅ Π±ΡΠ΄Π΅Ρ. ΠΠΎ Ρ ΠΎΡΡ Π±Ρ Π² ΠΎΠ΄Π½ΠΎΠΌ ΠΏΠΎΠΌΠ΅ΡΠ΅Π½ΠΈΠΈ, ΠΏΡΠ΅Π΄Π½Π°Π·Π½Π°ΡΠ΅Π½Π½ΠΎΠΌ Π΄Π»Ρ ΠΏΡΠΈΡΠΌΠ° Π³ΠΎΡΡΠ΅ΠΉ, ΠΏΠΎΡΠΎΠ»ΠΎΠΊ Π΄ΠΎΠ»ΠΆΠ΅Π½ ΠΏΠΎΡΠ°ΠΆΠ°ΡΡ Π²ΠΎΠΎΠ±ΡΠ°ΠΆΠ΅Π½ΠΈΠ΅. ΠΠ»Ρ ΠΎΡΡΠ°Π»ΡΠ½ΡΡ ΠΊΠΎΠΌΠ½Π°Ρ ΠΌΠΎΠΆΠ½ΠΎ Π²ΡΠ±ΡΠ°ΡΡ ΠΈ Π±ΠΎΠ»Π΅Π΅ ΡΠΊΡΠΎΠΌΠ½ΡΠ΅ Π²Π°ΡΠΈΠ°Π½ΡΡ.
ΠΠ΅ ΡΡΠΎΠΈΡ Π·Π°Π±ΡΠ²Π°ΡΡ ΠΈ ΠΎΠ± Π°ΠΊΡΠ΅ΡΡΡΠ°ΡΠ°Ρ : ΠΊΡΠ°ΡΠΈΠ²ΡΠ΅ ΡΡΠΎΡΡ, Π½Π°ΡΡΠ΅Π½Π½ΠΎΠ΅ ΠΏΠ°Π½Π½ΠΎ, ΠΊΠ°ΡΡΠΈΠ½Ρ ΠΈΠ»ΠΈ ΡΠΎΡΠΎΠ³ΡΠ°ΡΠΈΠΈ Π½Π° ΡΡΠ΅Π½Π΅ Π² ΠΎΡΠΈΠ³ΠΈΠ½Π°Π»ΡΠ½ΡΡ ΡΠ°ΠΌΠΊΠ°Ρ , ΡΠΏΠΎΡΠΎΠ±Π½Ρ ΠΎΠΆΠΈΠ²ΠΈΡΡ ΠΈ ΡΠΊΡΠ°ΡΠΈΡΡ Π»ΡΠ±ΡΡ ΠΊΠΎΠΌΠ½Π°ΡΡ β Π΄Π°ΠΆΠ΅ Π±Π΅Π· ΠΏΡΠΈΠΌΠ΅Π½Π΅Π½ΠΈΡ Π΄ΠΎΡΠΎΠ³ΠΈΡ ΠΌΠ°ΡΠ΅ΡΠΈΠ°Π»ΠΎΠ².
dizain.guru
![]() ![]() ![]() |
ΠΠ΅ΡΠ΅Π΄ ΠΠ°ΠΌΠΈ ΠΏΡΠΎΠ΅ΠΊΡ ΠΎΠ΄Π½ΠΎΡΡΠ°ΠΆΠ½ΠΎΠ³ΠΎ Π΄ΠΎΠΌΠ° 12 Π½Π° 12 Π² ΡΡΠΈΠ»Π΅ ΡΠΆΠ½ΠΎ — ΡΡΡΡΠΊΠΎΠΉ ΡΠ΅Π»ΡΡΠΊΠΎΠΉ Π°ΡΡ ΠΈΡΠ΅ΠΊΡΡΡΡ. ΠΠ½ Π±ΡΠ΄Π΅Ρ Π³Π°ΡΠΌΠΎΠ½ΠΈΡΠ½ΠΎ Π²ΡΠ³Π»ΡΠ΄Π΅ΡΡ ΠΈ Π½Π° ΠΎΡΠΊΡΡΡΠΎΠΌ ΡΡΠ°ΡΡΠΊΠ΅, ΠΈ Π² ΡΠ°Π΄Ρ.Β Π ΠΎΡΠ½ΠΎΠ²Π΅ Ρ ΡΠ΄ΠΎΠΆΠ΅ΡΡΠ²Π΅Π½Π½ΠΎΠ³ΠΎ ΡΠ΅ΡΠ΅Π½ΠΈΡ β ΠΊΠΎΠ½ΡΡΠ°ΡΡ ΡΡΠΊΠΈΡ Π΄Π΅ΡΠ΅Π²ΡΠ½Π½ΡΡ Π΄Π΅ΡΠ°Π»Π΅ΠΉ ΠΈ Π±Π΅Π»ΡΠ½Π½ΡΡ ΡΡΠ΅Π½, ΠΈ ΠΏΠΎΠ»ΠΎΠ³Π°Ρ ΠΊΡΡΡΠ° Β«ΠΊΠΎΠ½Π²Π΅ΡΡΠΎΠΌΒ», Ρ Π°ΡΠ°ΠΊΡΠ΅ΡΠ½Π°Ρ Π΄Π»Ρ ΡΠΆΠ½ΡΡ ΡΠ΅Π³ΠΈΠΎΠ½ΠΎΠ² Π ΠΎΡΡΠΈΠΈ. Π’Π΅Ρ
Π½ΠΈΠΊΠΎ β ΡΠΊΠΎΠ½ΠΎΠΌΠΈΡΠ΅ΡΠΊΠΈΠ΅ ΠΏΠΎΠΊΠ°Π·Π°ΡΠ΅Π»ΠΈ Π‘ΡΡΠΎΠΈΡΠ΅Π»ΡΠ½ΡΠ΅ ΠΌΠ°ΡΠ΅ΡΠΈΠ°Π»Ρ ΠΠ½Π°Π»ΠΎΠ³ΠΈ ΠΏΡΠΎΠ΅ΠΊΡΠ° |
![]() |
ΠΠ ΠΠ‘ΠΠΠΠΠ β ΠΏΡΠΎΠ΅ΠΊΡ ΠΎΠ΄Π½ΠΎΡΡΠ°ΠΆΠ½ΠΎΠ³ΠΎ Π΄ΠΎΠΌΠ° 12 Π½Π° 12 Ρ ΡΡΠ΅ΠΌΡ ΡΠΏΠ°Π»ΡΠ½ΡΠΌΠΈ ΠΈ ΡΠ°ΡΠ½ΠΎΠΉ, Π΄Π»Ρ ΠΊΡΡΠ³Π»ΠΎΠ³ΠΎΠ΄ΠΈΡΠ½ΠΎΠ³ΠΎ ΠΏΡΠΎΠΆΠΈΠ²Π°Π½ΠΈΡ. ΠΠΎΠΌΠΏΠ°ΠΊΡΠ½ΡΠΉ ΠΏΠ»Π°Π½ Π²ΠΌΠ΅ΡΡΠΈΠ» Π²ΡΡ Π½Π΅ΠΎΠ±Ρ ΠΎΠ΄ΠΈΠΌΠΎΠ΅ Π΄Π»Ρ Π±ΡΠ΄Π½ΠΈΡΠ½ΠΎΠΉ ΠΆΠΈΠ·Π½ΠΈ ΠΈ ΠΎΡΠ΄ΡΡ Π°: ΠΊΡΠ°ΡΠΈΠ²Π°Ρ Π³ΠΎΡΡΠΈΠ½Π°Ρ Ρ ΠΊΠ°ΠΌΠΈΠ½ΠΎΠΌ ΠΈ ΠΏΡΠΎΡΡΠΎΡΠ½ΠΎΠΉ ΠΊΡΡ Π½Π΅ΠΉ, ΡΡΠΈ ΡΠΏΠ°Π»ΡΠ½ΠΈ, ΠΊΠ»Π°Π΄ΠΎΠ²ΠΊΠ°, ΠΊΠΎΡΠ΅Π»ΡΠ½Π°Ρ ΠΈ Π΄Π°ΠΆΠ΅ ΡΠ°ΡΠ½Π°. ΠΠ»ΡΠ±ΠΈΠ½Ρ ΡΠ΅ΡΡΠ°ΡΡ ΠΌΠΎΠΆΠ½ΠΎ ΡΠ²Π΅Π»ΠΈΡΠΈΡΡ, ΠΊΠΎΡΡΠ΅ΠΊΡΠΈΡΠΎΠ²ΠΊΠ° ΡΠ΅ΡΡΠ΅ΠΆΠ΅ΠΉ Π΄Π»Ρ ΡΡΠΎΠ³ΠΎ Π½Π΅ ΠΎΠ±ΡΠ·Π°ΡΠ΅Π»ΡΠ½Π°. ΠΠ΅ΡΠΌΠΎΡΡΡ Π½Π° Π½Π΅Π±ΠΎΠ»ΡΡΡΡ ΠΏΠ»ΠΎΡΠ°Π΄Ρ ΠΊΠΎΡΡΠ΅Π΄ΠΆΠ°, Π² Π½ΡΠΌ ΡΠ΄Π°Π»ΠΎΡΡ ΡΠΎΠ±Π»ΡΡΡΠΈ ΠΏΡΠ°Π²ΠΈΠ»ΡΠ½ΠΎΠ΅ Π²Π·Π°ΠΈΠΌΠΎΡΠ°ΡΠΏΠΎΠ»ΠΎΠΆΠ΅Π½ΠΈΠ΅ ΠΏΠΎΠΌΠ΅ΡΠ΅Π½ΠΈΠΉ β ΠΆΠΈΠ»ΡΠ΅ ΠΊΠΎΠΌΠ½Π°ΡΡ ΡΠ΄Π°Π»Π΅Π½Ρ ΠΎΡ ΠΎΠ±ΡΠΈΡ ΠΊΠΎΠΌΠ½Π°Ρ, Π° ΠΏΡΠΈ ΠΆΠ΅Π»Π°Π½ΠΈΠΈ ΠΌΠΎΠΆΠ½ΠΎ ΡΠ°Π·Π΄Π΅Π»ΠΈΡΡ Ρ ΠΎΠ»Π» ΠΏΠ΅ΡΠ΅Π³ΠΎΡΠΎΠ΄ΠΊΠΎΠΉ Ρ Π΄Π²Π΅ΡΡΡ ΠΈ ΡΠΎΠ²ΡΠ΅ΠΌ ΠΈΠ·ΠΎΠ»ΠΈΡΠΎΠ²Π°ΡΡ Π»ΠΈΡΠ½ΡΠ΅ ΠΊΠΎΠΌΠ½Π°ΡΡ. Π‘ΠΏΠ΅ΡΠΈΡΠΈΠΊΠ° ΠΏΡΠΎΠ΅ΠΊΡΠ° Π² ΡΠΎΠΌ, ΡΡΠΎ ΠΎΠ½ ΡΠ°ΡΡΡΠΈΡΠ°Π½ Π½Π° ΡΡΡΠΎΠΈΡΠ΅Π»ΡΡΡΠ²ΠΎ Π² Π΄Π°Π»ΡΠ½Π΅ΠΌ ΠΊΠΎΠ½ΡΠ΅ ΡΡΠ°ΡΡΠΊΠ°, Ρ Π³ΡΠ°Π½ΠΈΡΡ Ρ ΡΠΎΡΠ΅Π΄ΡΠΌΠΈ. ΠΠΎΠΊΠΎΠ²ΠΎΠΉ ΡΠ°ΡΠ°Π΄, ΠΎΡΠΈΠ΅Π½ΡΠΈΡΠΎΠ²Π°Π½Π½ΡΠΉ Π½Π° ΡΡΠΆΠΎΠΉ ΡΡΠ°ΡΡΠΎΠΊ, Π½Π΅ ΠΈΠΌΠ΅Π΅Ρ ΠΎΠΊΠΎΠ½, Π° Π²Ρ ΠΎΠ΄ ΡΠΎΠ²ΠΌΠ΅ΡΡΠ½ Ρ ΡΠ΅ΡΡΠ°ΡΠΎΠΉ Π΄Π»Ρ ΠΎΡΠ΄ΡΡ Π°. ΠΠΎΡΡΠ΅Π΄ΠΆ ΠΏΡΠΎΡΡ Π² ΠΎΠ±ΡΠ»ΡΠΆΠΈΠ²Π°Π½ΠΈΠΈ, Π²Π΅Π΄Ρ ΠΎΠ½ ΡΠΏΡΠΎΠ΅ΠΊΡΠΈΡΠΎΠ²Π°Π½ ΡΠ°ΠΊ, ΡΡΠΎΠ±Ρ ΠΌΠ°ΠΊΡΠΈΠΌΠ°Π»ΡΠ½ΠΎ ΡΠΏΡΠΎΡΡΠΈΡΡ ΠΏΠΎΠ΄Π΄Π΅ΡΠΆΠ°Π½ΠΈΠ΅ Π² ΠΏΠΎΡΡΠ΄ΠΊΠ΅ ΠΈΠ½ΠΆΠ΅Π½Π΅ΡΠ½ΠΎΠ³ΠΎ ΠΎΠ±Π΅ΡΠΏΠ΅ΡΠ΅Π½ΠΈΡ ΠΈ ΠΌΠ΅Ρ Π°Π½ΠΈΠ·ΠΌΠΎΠ²: Π² Π½ΡΠΌ ΠΎΠ΄Π½Π° Π²Ρ ΠΎΠ΄Π½Π°Ρ Π΄Π²Π΅ΡΡ, ΠΎΠ΄Π½Π° ΠΎΡΡΠ΅ΠΊΠ»ΡΠ½Π½Π°Ρ (ΠΈΠ»ΠΈ Π½Π΅ ΠΎΡΡΠ΅ΠΊΠ»ΡΠ½Π½Π°Ρ) Π²Π΅ΡΠ°Π½Π΄Π°, ΠΎΠ΄ΠΈΠ½ ΡΠ°Π½ΡΠ΅Ρ Π½ΠΈΡΠ΅ΡΠΊΠΈΠΉ ΡΡΠΎΡΠΊ. ΠΡΡΡ ΠΏΠΎΠ³ΡΠ΅Π±, Π³Π΄Π΅ ΠΌΠΎΠΆΠ½ΠΎ ΠΏΠΎΡΡΠ°Π²ΠΈΡΡ Π±Π°ΠΊΠΈ Π΄Π»Ρ Π²ΠΎΠ΄Ρ, ΠΈ Ρ ΡΠ°Π½ΠΈΡΡ ΠΏΡΠΈΠΏΠ°ΡΡ. ΠΡΠΎΠ²Π»Ρ Ρ ΡΠ΅ΡΠ΄Π°ΠΊΠΎΠΌ, ΡΠ΅ΡΡΡΡΡ ΡΠΊΠ°ΡΠ½Π°Ρ. |
![]() |
Β«ΠΠ·ΡΠΌΠΈΠ½ΠΊΠ°Β» ΠΈΠ½ΡΠ΅ΡΡΠ΅ΡΠ° β ΠΊΠ°ΠΌΠΈΠ½ ΠΈ ΠΎΡΠ΄Π΅Π»Π°Π½Π½ΡΠ΅ ΠΊΠ°ΠΌΠ½Π΅ΠΌ ΠΈΠ»ΠΈ ΠΏΠ»ΠΈΡΠΊΠΎΠΉ ΡΡΠ΅Π½ΠΊΠΈ Π² Π³ΠΎΡΡΠΈΠ½ΠΎΠΉ ΠΈ Π½Π° Π²Π΅ΡΠ°Π½Π΄Π΅. ΠΠ°ΠΆΠ½ΡΠ΅ ΡΡΠΈΠ»ΠΈΡΡΠΈΡΠ΅ΡΠΊΠΈΠ΅ ΡΠ»Π΅ΠΌΠ΅Π½ΡΡ — Π±Π°Π»ΠΊΠΈ, ΠΎΠ±ΡΠ°ΠΌΠ»ΡΡΡΠΈΠ΅ ΠΏΠΎΡΠΎΠ»ΠΎΠΊ ΠΊΠ°ΠΆΠ΄ΠΎΠ³ΠΎ ΠΏΠΎΠΌΠ΅ΡΠ΅Π½ΠΈΡ, ΠΈ ΠΊΡΠ°ΡΠΈΠ²ΠΎ ΡΠΈΠΌΠΌΠ΅ΡΡΠΈΡΠ½ΠΎ ΡΠ°Π·Π»ΠΎΠΆΠ΅Π½Π½ΡΠ΅ ΠΏΠΎΡΠΎΠ»ΠΎΡΠ½ΡΠ΅ Π»Π°Π³ΠΈ. ΠΡΠ΅ ΠΎΡΠ½ΠΎΠ²Π½ΡΠ΅ Π΄Π΅ΡΠ°Π»ΠΈ ΠΈΠ½ΡΠ΅ΡΡΠ΅ΡΠ° ΠΏΡΠΎΠ΄ΡΠΌΠ°Π½Ρ ΠΈ ΠΎΡΡΠ°ΠΆΠ΅Π½Ρ Π² Π΄ΠΎΠΊΡΠΌΠ΅Π½ΡΠ°ΡΠΈΠΈ. Π‘ΡΠΈΠ»Ρ ΡΡΠΎΡΠΌΠΈΡΠΎΠ²Π°Π½ Π½Π° ΠΊΠΎΠ½ΡΡΠ°ΡΡΠ΅ ΠΎΡΡΡΠΊΠ°ΡΡΡΠ΅Π½Π½ΡΡ ΡΡΠ΅Π½ ΠΈ ΡΡΠΊΠΈΡ Π΄Π΅ΡΠ΅Π²ΡΠ½Π½ΡΡ Π΄Π΅ΡΠ°Π»Π΅ΠΉ (ΡΡΠ°Π²Π΅Π½, ΡΠ°ΠΌ, Π±Π°Π»ΠΎΠΊ ΠΈ Ρ.Π΄.). Π‘ΠΎΡΠ΅ΡΠ°Π½ΠΈΠ΅ Π² ΠΈΠ½ΡΠ΅ΡΡΠ΅ΡΠ΅ ΠΊΠΈΡΠΏΠΈΡΠ°, ΡΡΡΠΊΠ°ΡΡΡΠΊΠΈ ΠΈ Π΄Π΅ΡΠ΅Π²ΡΠ½Π½ΡΡ ΠΊΠΎΠ½ΡΡΡΡΠΊΡΠΈΠΉ ΠΏΠΎΡΠΎΠ»ΠΊΠ° ΡΠΎΠ·Π΄Π°ΡΡ ΠΎΡΡΡΠ΅Π½ΠΈΠ΅ ΠΏΡΠΎΡΡΠΎΡΠ½ΠΎΠ³ΠΎ Π»ΠΎΡΡ β ΠΏΠΎΠΌΠ΅ΡΠ΅Π½ΠΈΡ. |
![]() |
ΠΠΎΡΡΡΠΎΠΉΠΊΠ° Π½Π΅ ΠΈΠΌΠ΅Π΅Ρ Π²Π½ΡΡΡΠ΅Π½Π½ΠΈΡ ΠΊΠ°ΠΏΠΈΡΠ°Π»ΡΠ½ΡΡ ΡΡΠ΅Π½, ΠΏΠΎΡΡΠΎΠΌΡ ΠΏΠ»Π°Π½ΠΈΡΠΎΠ²ΠΊΠ° ΠΌΠΎΠΆΠ΅Ρ Π²Π°ΡΡΠΈΡΠΎΠ²Π°ΡΡΡΡ. ΠΠ°ΠΏΡΠΈΠΌΠ΅Ρ, Π²ΠΌΠ΅ΡΡΠΎ Π±Π°Π½Π½ΠΎΠ³ΠΎ ΠΊΠΎΠΌΠΏΠ»Π΅ΠΊΡΠ° ΠΌΠΎΠΆΠ½ΠΎ ΡΠ΄Π΅Π»Π°ΡΡ ΡΠ΅ΡΠ²ΡΡΡΡΡ ΠΊΠΎΠΌΠ½Π°ΡΡ ΠΈΠ»ΠΈ ΠΊΠ°Π±ΠΈΠ½Π΅Ρ, Π»ΠΈΠ±ΠΎ Π·Π° ΡΡΡΡ ΡΡΠΎΠ³ΠΎ ΠΏΡΠΎΡΡΡΠ°Π½ΡΡΠ²Π° ΡΠ°ΡΡΠΈΡΠΈΡΡ ΠΎΠ±ΡΠΈΠ΅ ΠΏΠΎΠΌΠ΅ΡΠ΅Π½ΠΈΡ, ΠΈΠ»ΠΈ ΡΠ΄Π΅Π»Π°ΡΡ ΠΈΠ·ΠΎΠ»ΠΈΡΠΎΠ²Π°Π½Π½ΡΡ ΠΊΡΡ Π½Ρ. Π’Π°ΠΊΠΆΠ΅ ΠΌΠΎΠΆΠ½ΠΎ Π²ΠΌΠ΅ΡΡΠΎ ΠΊΠ»Π°Π΄ΠΎΠ²ΠΊΠΈ ΠΏΡΠΈ ΠΊΡΡ Π½Π΅ Π²ΡΠΏΠΎΠ»Π½ΠΈΡΡ Π²ΡΠΎΡΠΎΠΉ ΡΠ°Π½ΡΠ·Π΅Π» ΡΠΎ Π²Ρ ΠΎΠ΄ΠΎΠΌ ΠΈΠ· Π³Π»Π°Π²Π½ΠΎΠΉ ΡΠΏΠ°Π»ΡΠ½ΠΈ. |
![]() |
ΠΠΎΡΠΎΠ²ΡΠΉ ΠΏΡΠΎΠ΅ΠΊΡ ΠΎΠ΄Π½ΠΎΡΡΠ°ΠΆΠ½ΠΎΠ³ΠΎ Π΄ΠΎΠΌΠ° 12 Π½Π° 12 Ρ ΡΡΠ΅ΠΌΡ ΡΠΏΠ°Π»ΡΠ½ΡΠΌΠΈ ΠΈ ΡΠ°ΡΠ½ΠΎΠΉ ΠΠ ΠΠ‘ΠΠΠΠΠ ΡΠΎΠ·Π΄Π°Π½ Π² 2014 Π³ΠΎΠ΄Ρ, ΠΎΡΠ΅Π½Ρ ΠΏΠΎΠΏΡΠ»ΡΡΠ΅Π½ Π±Π»Π°Π³ΠΎΠ΄Π°ΡΡ ΡΠ²ΠΎΠ΅ΠΉ ΡΠΊΠΎΠ½ΠΎΠΌΠΈΡΠ½ΠΎΡΡΠΈ ΠΈ ΠΏΡΠΎΠ΄ΡΠΌΠ°Π½Π½ΠΎΡΡΠΈ. ΠΡΠΎΠ΅ΠΊΡ ΡΠΎΠ΄Π΅ΡΠΆΠΈΡ Π΄Π²Π° ΡΠ°Π·Π΄Π΅Π»Π° — ΠΏΠ°ΡΠΏΠΎΡΡ Π΄Π»Ρ ΡΠΎΠ³Π»Π°ΡΠΎΠ²Π°Π½ΠΈΡ Π² ΠΈΠ½ΡΡΠ°Π½ΡΠΈΡΡ , ΠΈ ΡΡΡΠΎΠΈΡΠ΅Π»ΡΠ½ΠΎ β ΠΊΠΎΠ½ΡΡΡΡΠΊΡΠΈΠ²Π½ΡΠΉ ΡΠ°Π·Π΄Π΅Π» (ΡΠ°Π±ΠΎΡΠ°Ρ Π΄ΠΎΠΊΡΠΌΠ΅Π½ΡΠ°ΡΠΈΡ) Π΄Π»Ρ ΡΡΡΠΎΠΈΡΠ΅Π»ΡΡΡΠ²Π° Β«ΠΊΠΎΡΠΎΠ±ΠΊΠΈΒ» ΠΈΠ· ΠΏΠ΅Π½ΠΎΠ±Π»ΠΎΠΊΠ° ΠΈΠ»ΠΈ Π³Π°Π·ΠΎΠ±Π΅ΡΠΎΠ½Π° |
www.invapolis.ru







