Проект дома своими руками – макет на компьютере своими руками, как нарисовать в Зd
Проектирование дома своими руками
Многие из нас мечтают о собственном загородном доме, куда можно было бы приехать на выходные и отдохнуть от назойливой и шумной городской жизни. И если говорить о самостоятельном строительстве такого дома, то самым сложным этапом будет, пожалуй, подбор подходящего проекта, полностью соответствующего требованиям и пожеланиям будущего владельца. Самостоятельно спроектировать дом достаточно сложно, эта процедура требует определенных знаний и навыков.

Проектирование дома своими руками
Возможные варианты
Вначале нужно выяснить, каким должен быть загородный коттедж. Требований может быть достаточно много, но все они сводятся к трем важным моментам:
- полифункциональности;
- простоте конструкции;
- эстетичности.
В Интернете есть масса уже готовых проектов, как типовых, так индивидуальных. Но при выборе того или иного из них торопиться не стоит, прежде всего, стоит определиться – действительно ли так нужен именно индивидуальный проект?

Типовой проект
Важно! Такие проекты используются преимущественно для нестандартных участков, где строительство типового дома проблематично или даже невозможно.
Оптимальным вариантом (в плане времени и финансов) будет покупка стандартного проекта с последующей привязкой к конкретному участком опытным архитектором. Но это при условии, что потребуется лишь легкая корректировка, а если нужно полностью менять проект, то лучше сразу заказывать индивидуальный вариант.
Если планируется проектирование дома своими руками, то вряд ли получится обойтись без квалифицированного специалиста, т. к. при составлении могут возникнуть проблемы с многочисленными техническими деталями – количеством и месторасположением светильников, подводкой канализации, толщиной/высотой стен и проч. Исходя из этого, можно выделить лишь два возможных (читай: недорогостоящих) варианта.
- Можно обратиться к дизайнерам, которые сделают эскиз дома, но без каких-либо технических деталей. С таким эскизом можно без проблем построить небольшой дачный домик, но только самой примитивной планировки.
- Другой способ сэкономить – попросить помощи у студентов-проектировщиков, уже ознакомившихся с основами профессии.
Важно! Вне зависимости от того, кто и как составлял проект, строительство нужно доверить квалифицированному прорабу, способному «на глаз» определить, что именно нужно сделать для воплощения той или иной детали.
Если этого не сделать, то в случае разрушения дома винить будет некого, поскольку по закону прораб не может отвечать за соответствие проекта дома требованиям техники безопасности.

Проектирование дома
Составление проекта при помощи архитектора
Если к проектированию дома был привлечен архитектор, то нужно помнить об основных требованиях и по возможности выполнить их.
- Нужно предоставить архитектору план участка, результаты геологических исследований, детальное описание всех имеющихся элементов ландшафта (леса, проселочных дорог, водоемов и т. д.), способных повлиять на месторасположение дома.
- Также нужно уведомить исполнителя обо всех ограничениях, налагаемых управляющей компанией или законодательством. Это может быть, к примеру, запрет на строительство в водоохранной зоне, требования к прочности фасаду, высоте дома.
- В большинстве случаев вводы коммуникаций нужно подключать за свой счет. Это касается и газоснабжения, которым должны заниматься исключительно специализированные компании.
- До того как приступить к работе, архитектор предложит заказчику заполнить так называемый опросный лист, где будут указаны основные требования к проекту. Все эти моменты обоюдно согласовываются в письменном виде.
- Иногда архитектор сам предлагает внести определенные коррективы. Ярким примером таких коррективов может быть спальня для пожилых членов семьи, которую переносят со второго на первый этаж, чтобы не пришлось часто передвигаться по лестнице.
- Заказчики нередко пренебрежительно относятся к документам, что в корне неправильно. Необходимо тщательно изучать и заполнять опросный лист – это позволит значительно сократить время составления проекта.
- Создание индивидуального проекта занимает много времени – в среднем для этого нужно три месяца. Этот момент является дополнительным стимулом к самостоятельному составлению проекта.
Важно! Иногда заказчик после ознакомления с готовым проектом желает внести коррективы или дополнения. Разумеется, это тоже увеличит срок составления.

Составление проекта при помощи архитектора
Проект своими руками
Как говорилось ранее, проект дома с примитивной планировкой можно составить своими руками. Для создания эскиза «дома мечты» потребуются только бумага и карандаш, никакие специфические навыки или диплом архитектора не нужны. Ниже приведена последовательность основных действий.
Этап 1. Геологическая разведка
Геологоразведка
Проектирование должно начинаться с георазведки участка. Это позволит получить точную информацию о свойствах почвы и глубине залегания подземных вод (последнее необходимо при планировке фундамента и подвального помещения). Разведку желательно проводить весной, когда подземные воды поднимаются на самый высокий уровень.
Этап 2. Определение масштаба

Эскиз
Вначале берется лист бумаги в клеточку. Допустим, один метр участка – это две клеточки. В таком случае масштаб будет 1:100, то есть, 1 мм в проекте будет равняться 10 см в жизни.
Этап 3. Разметка контура участка
Далее нужно начертить контур участка со всеми прилегающими постройками, чтобы правильно определить месторасположение дома. На этом же этапе определяется количество этажей и будут ли другие сооружения во дворе. Если на участке уже есть какие-то объекты, которые не будут убираться (к примеру, бассейн), то они наносятся в первую очередь. Так проектирование будет проводиться с учетом свободного пространства.
Важно! Нужно быть готовым к многократному использованию рулетки, ведь все нужно сделать в соответствии с масштабом.

Схема первого этажа
Этап 4. Начало планировки
Допустим, в доме будут два этажа, две спальни, два туалета, гостиная, кухня и подвал.
Если рядом есть какие-нибудь сооружения, то нужно, чтобы между ними и домом было минимум три метра – это необходимо для пожарной безопасности.
Этап 5. Подвальное помещение
Далее нужно приступить к планировке подвального помещения. Если уровень подземных вод достаточно высок, то обустройство подвала увеличит общую стоимость примерно на треть. Поэтому желательно вместо этого просто сделать дополнительное помещение, но при условии, что площадь участка позволяет это.
Этап 6. Первый этаж
После определения высоты и вида фундамента решается вопрос со стройматериалом, который будет использован для возведения дома. Дальше рисуется холл, с ним стыкуются гостиная с кухней, а в образованном «кармане» размещается туалет.
Затем нужно посмотреть, что получилось. Сразу оговоримся, что расстраиваться при этом не стоит, ведь это лишь черновой эскиз.

Исправленный эскиз
Получилось достаточно хорошо, но кое-что можно подправить.
- Кухню и туалет нужно расположить по соседству – это облегчит планировку коммуникаций. В первом варианте проекта эти помещения расположены далеко друг от друга.
- В гостиной обычно собирается много людей, поэтому ее площадь должна быть соответствующей. Следует несколько уменьшить холл и расширить тем самым гостиную.
- Также нужна лестница на второй этаж, поэтому и для нее нужно подыскать место.
- На первом эскизе не было вспомогательных помещений – таких, к примеру, как котельная.
Возможно, потребуется изменение подвала. Во втором варианте эскиза появились некоторые изменения.
- Столовую поменяли местами с кухней, т. к. выход из гостиной должен вести именно в столовую, где будет собираться семья.
- Изменились размеры санузла. Ванную комнату было решено расположить на втором этаже, поэтому свободное пространство первого было сэкономлено в пользу котельной.
- Появилась лестница.
- Увеличилась гостиная.
Этап 7. Второй этаж

Схема 2 этажа
На втором этаже все намного проще. Туалет расположен в том же месте, чтобы не возникло проблем при подведении коммуникаций. Стена между спальней и комнатой отдыха несколько перемещается в пользу спален.
Также необходимо распланировать все окна и входную дверь.
Этап 8. Крыша
Этап 9. Термоизоляция
С целью снижения теплопотерь все нежилые помещения нужно разместить в северной части дома. Помимо того, термоизоляция во многом зависит от качества используемых для утепления материалов, а также от месторасположения окон.
Важно! Несмотря на то, что на бумаге дом выглядит идеально, будучи уже выстроенным он может уже не понравиться. Вместе с тем, по недоработанному и «сырому» эскизу можно построить вполне приличный коттедж, который прослужит не одно десятилетие.
Этап 10. Утверждения
Итак, проект практически готов, остается отнести его в архитектуру на утверждение. Скорее всего, в ведомстве предложат несколько его доработать – отказываться не стоит. Помимо самого проекта, в архитектуру нужно предоставить:
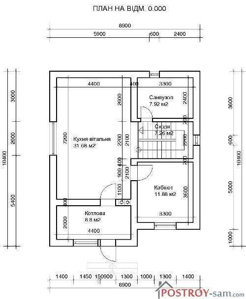
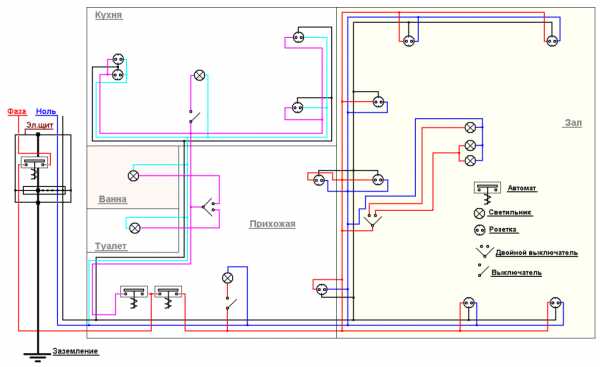
- схему разводки электросети;

План проводки дома
- схему водообеспечения;

Монтажная схема водоснабжения
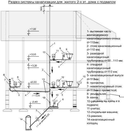
- канализационные приборы и их подключение;

Разводка канализации
- отопительное оборудование (из расчета общей площади дома).

Двухтрубная система отопления
Важно! Рисунки должны сопровождаться реальной сметой на стройматериалы.

Проект дома своими руками
Выводы
Проектирование дома, как и любое другое важное мероприятие, следует продумать заранее, т. к. от этого может зависеть будущее. В приведенном выше проекте уже учтена возможность роста численности семейства (на втором этаже две спальни – одна из них детская).
Видео – Проектирование дома своими руками
tolkostroyka.ru
Инструкция, как сделать проект дома своими руками
Если имеются денежные средства, то дом можно купить. Правда, это будет дом, построенный в соответствии с представлениями о комфорте других людей. А вам придется смириться с некоторыми его недостатками. Но есть другой вариант построить дом своей мечты. И начать следует с создания проекта дома.
Что такое проект дома
Планирование любого здания включает в себя всю информацию о будущей постройке: от способа закладки фундамента и расположения комнат до количества необходимых для строительства материалов. Благодаря проекту заказчик заранее знает, сколько будет затрачено денежных средств, и как в конечном итоге будет выглядеть его дом, а исполнитель может неуклонно следовать проекту, не отрываясь на уточнение нюансов и не производя самостоятельные расчеты расхода материалов.
Строить дом без проекта, конечно, можно, но не нужно. Владелец такого здания рискует получить отказ в оформлении дома в собственность. Впрочем, уже для получения разрешения на строительство непременно потребуется копия проектной документации.
Стандартный проект дома состоит из двух частей: архитектурно-строительной и инженерной. В первую входят подробные планы этажей, конструкции крыши, показаны все элементы здания в разрезе, дается список окон, приводятся подробные расчеты на прочность и т.д. В инженерной части проекта здания приводятся схемы водопроводной и канализационной систем, отопления и вентиляции, электрических сетей.
Как сделать проект дома
Можно создать проект будущего дома самостоятельно. Правда, для этого потребуется огромное количество времени и некоторые умению. Скорее всего, этот проект не подойдет для подачи в соответствующие органы для получения разрешения, поэтому самостоятельное проектирование часто заведомо обречено на провал.
Еще один бесплатный вариант найти уже готовый проект в Интернете. Возможно, его придется адаптировать с учетом особенностей вашей местности или ваших представлений о комфорте. И это вряд ли выйдет сделать самостоятельно.
Исправление и доработка готового проекта дома дело архитектора. Цена проектирования дома и цена исправления проекта здания сильно отличаются друг от друга, поэтому последнее легко можно назвать экономией.
Читайте также: Ремонт в маленькой ванной комнате
Наилучший, но в то же время самый затратный вариант индивидуальный проект дома. На пару-тройку месяцев архитектор поступает в ваше распоряжение, внимает каждому вашему слову и создает идеальное для вас жилище. При выборе архитектора не лишним будет посмотреть другие его работы, чтобы иметь представление об уровне мастерства специалиста и о его склонностях к определенным стилям.
Рекомендации по проектированию дома
Независимо от того, будете вы делать проектирование самостоятельно или закажете его архитектору, стоит учесть несколько важных рекомендаций специалистов:
- высоту потолка лучше делать на уровне 2,7-3 м
- площадь жилых комнат не должна быть менее 12 м2
- под кухню следует отвести не менее 12 м2
- гостиная самая большая комната в доме (от 20 м2)
- коридор уже 1,5 м2 будет неудобен
- площадь ванной комнаты должна составлять от 5 до 12 м2
- для туалета достаточно выделить площадь 1-1,5 м2
- при расчете общей площади дома на каждого члена семьи стоит отвести по 40-60 м2
- крыльцо лучше разместить на солнечной стороне
- на втором этаже пусть располагаются гостевые спальни, детские и малоиспользуемые комнаты
- планировать расстановку мебели лучше уже на этапе проектирования дома.
При составлении проекта дома многие вносят в него дополнительные помещения, такие как гладильные, бильярдные, библиотеки и т.д. Но стоит подумать, действительно ли такие комнаты нужны, часто ли они будут использоваться по назначению. Возможно, эту площадь стоит использовать более рационально.
Как своими руками сделать проект дома
5 (100%) 2 голос(ов)Понравилась статья — оцени!
Похожие записи
remontideas.ru
Как сделать проект дома своими руками
Индивидуальное строительство — процесс длительный и очень сложный, при этом практически невозможный без наличия качественно и грамотно составленного проекта. Так как большая часть людей, которые планируют стать обладателями частного жилья, возводят его самостоятельно, они также пытаются обойтись без помощи специалистов и разрабатывают планы и проекты собственноручно. Как показала статистика, в большинстве случаев они бывают неправильными, и комиссия попросту их не принимает. Для того чтобы вы в будущем не столкнулись с подобной ситуацией необходимо знать то, как сделать проект дома своими руками правильно, и на что стоит обратить особое внимание во время его создания.
Начальный этап
Готовый коттедж
Прежде всего, вам необходимо иметь четкое представление о том, какой дом вы планируете получить по окончанию строительства. Если ранее вам не приходилось сталкиваться с подобными работами, то постарайтесь изучить как можно больше литературы о создании и строительстве частных домов. Вооружитесь блокнотом и карандашом, так как для того, чтобы создать проект собственного дома, вам в обязательном порядке необходимо будет его нарисовать. Если вы не можете определиться с моделью и формой будущего строения, то просмотрите картинки готовых домов, возможно, что среди них вы найдете именно тот, который вам по вкусу, добавив или убрав некоторые его составляющие элементы. Если вы не любите рисовать и умеете пользоваться компьютерными программами, то сегодня создать проект будущего жилья вы вполне можете с их помощью.
После того как вы определитесь с внешним видом вашего строения, вам необходимо разработать его план. Именно он и является основной частью вашего проекта.
Первый этаж и основание дома
План первого этажа
Начните с того, что просчитайте габариты вашего будущего дома. Для этого вам необходимо учитывать территорию имеющегося у вас участка. Следующее на что стоит обратить внимание — это основные строительные материалы, которые будут использоваться для несущих конструкций. Дело в том, что именно от их веса будет в дальнейшем зависеть используемое вами основание или фундамент.
Основные помещения, которые расположены на первом этаже любого строения это:
- Прихожая комната, которая может быть совмещена с дополнительным помещением, например кладовой.
- Кухня, возможно, что вам захочется, чтобы она имела дополнительный выход на летнюю веранду.
- Центральная комната или гостиная.
- Спальня в зависимости от ваших личных потребностей может быть не одна.
- Санитарная комната, которая может быть совмещенной или разделенной.
После того как вы определитесь с количеством и формой ваших будущих комнат, вам стоит грамотно рассчитать их размеры. Все расчеты необходимо производить исходя из той площади, которую ранее вы выделили под застройку.
При нанесении чертежей не стоит забывать и о том, что в зависимости от используемых вами строительных материалов будет варьироваться толщина стен, которые будут играть роль перегородок.
Если вы планируете возводить многоэтажный дом, то план верхних помещений вы сможете подготовить только после того, как окончательно будет готов проект первого этажа, так как именно он является основным.
Фундамент под будущее строение
Фундамент под будущий дом
Для того чтобы определиться с тем, какой фундамент вы станете использовать, вам необходимо не только произвести массу расчетов, но и изучить имеющийся на вашем участке грунт, а также глубину протекания подземных вод. После того, как вы изучите все характеристики вашего участка, вам необходимо будет выбрать то, какой именно фундамент вы станете использовать. После чего произвести все расчеты, которые необходимы.
Основание дома должно быть немного шире вашего строения, а потому при расчете площади дома постарайтесь это учитывать.
Как только вы закончите с основными расчетами, вам стоит подготовить поэтапную смету используемых для строительства материалов, а это:
- несущие конструкции и внутренние перегородки;
- перекрытие, которое просто необходимо при конструировании многоэтажного строения;
- расчет кровли и используемые для нее материалы.
Эскиз фасада
Далее вам необходимо будет подготовить несколько эскизов фасадной части строения со всех сторон. Это необходимо не только для специальных служб, в которые вы понесете проект, но и для вас, так как с их помощью вы сможете полноценно представить всю конструкцию.
По окончанию основного проекта вам также нужно будет подготовить несколько дополнительных планов, которые включают в себя:
- схему проводки электрических систем,
- канализационное оборудование и его подводку к основному строению,
- систему водоснабжения,
- установку отопительных приборов из расчета площади вашего жилого помещения.
Стоит отметить, что и тут кроме рисунков вам понадобятся сметы на используемые материалы. Только после того как все расчеты будут завершены, вам необходимо будет согласовать проект, после чего вы с уверенностью можете приступать к строительству.
Видео
Что следует предусмотреть при создании проекта дома, можно узнать в следующем видеоматериале:
kakpravilnosdelat.ru
Как сделать проект дома своими руками
Спросите любого городского жителя – мечтает ли он о красивом загородном доме, куда можно приехать отдохнуть от суеты и загазованности большого мегаполиса. Он с уверенностью скажет – да. Когда возникает такая мысль, в голову сразу приходит идея спроектировать и построить дом собственными руками, чтобы потом с гордостью рассказывать друзьям, что это собственноручное творение. Но создавать проект дома – работа не такая легкая, как кажется на первый взгляд, все расчеты и создание самого проекта требуют определенных знаний, и не малой толики умения.
Уровень грунтовых водСоздавая проект самостоятельно, нужно учитывать много разных факторов – начиная с геологических особенностей участка, подготовленного под постройку и заканчивая планированием проведения всех необходимых коммуникаций. Как сделать проект дома своими руками, интересует множество будущих обладателей загородной недвижимости.
Этапы проектирования
На сегодня существует большое количество уже готовых проектов домов, сделанных квалифицированными специалистами. Но, как правило, за хороший проект нужно выложить хорошие деньги. Если есть хоть какие-то минимальные познания в области инженерии, то можно попробовать создать проект будущего дома. При этом значительно сэкономить. Единственное правило – весь план должен быть детально проработан и тщательно рассчитан. Итак, с чего начать в первую очередь.
Разведка местности
Проба почвы
Проектировку будущего дома лучше всего начать с геологических исследований местности того земельного участка, на котором планируется построить загородное владение. Геологоразведка поможет узнать доскональные данные о свойствах грунта на участке и высоту залегания грунтовых вод. Последнее очень важно при планировании и расчете фундамента и подвальных помещений.
Обратите внимание! Самое лучшее время для проведения геологических исследований – поздней осенью или ранней весной. В это время уровень залегания грунтовых вод является максимальным.
Планирование подвала
После того как геологическое исследование проведено и получено заключение, можно проводить планировку строительства будущего подвала. Но здесь есть один, но очень существенный момент – если уровень грунтовых вод достаточно высок, стоимость самого дома может резко возрасти, иногда почти до 25 – 30 процентов. Поэтому планируя подвал с такими условиями, целесообразней и дешевле будет построить другое дополнительное помещение, чем переплачивать за строительство дома.
Планировка
Отталкиваясь от того, каким будет фундамент, можно определиться, из какого материала будет построен дом. После этого можно приступать к самому проекту дома и составлению чертежей. Самое разумное в данной ситуации, не имея «продвинутых» инженерных знаний, остановиться на самом простом проекте дома. Плюс к тому же это послужит хорошей экономией, ведь чем больше фигурных выделок и изгибов, тем дороже обойдется строительство. Это напрямую касается и самой крыши дома – чем она рельефнее и сложнее, тем ненадежнее будет ее конструкция. Различные изгибы, сгибы и стыки со временем дадут течь, и придется вкладываться еще и в ремонт кровли.
Где будет гостиная
Кухня с выходом на террасу
Обратите внимание! При планировке внутренних помещений все нежилые комнаты и подсобные помещения, а также кухню и санузел, лучше всего расположить с северной части дома, а жилые, наоборот, с южной стороны, где намного теплее и светлее. Стоит учесть и тот факт, что на энергосберегаемость дома влияет и расположение окон, и их размер, а также, какими изоляционными материалами будет отделан дом.
Стоит немного рассказать о внутренних помещениях дома. От их правильной планировки зависит не только уют, но также тепло и удобство проживания. Поэтому прежде чем приступать к планировке дома, нужно тщательно просчитать габариты будущего строения, и только после этого планировать, сколько комнат будет в доме, и каково будет их назначение. Чтобы сэкономить пространство можно из прихожей сделать вход в маленькую кладовую. Кухня может иметь дополнительный выход и на летнюю веранду, поэтому некоторые, наоборот, планируют кухню с южной стороны. Санузел может быть совмещенным, опять же для экономии, или же раздельным. Спальных комнат планировать лучше несколько, чтобы не ютиться крючком на диване в гостиной. Вариантов масса, но самое важное просчитать их в самом начале проектирования, иначе впоследствии с определением местонахождения комнат и их назначением могут возникнуть большие проблемы, а исправить данное неудобство будет невозможно.
Расположение основных помещенийВот, в принципе, и все важные составляющие, необходимые для правильной планировки будущего загородного дома. И если есть желание, возможности и необходимые знания, спроектировать и создать загородный домне представляется чем-то невозможным или затруднительным.
Рекомендуем:
Видео
Получить советы по выбору готового проекта дома можно посмотрев видеоматериал:
stroysvoimirukami.ru
Проект дома своими руками: последовательность изготовления, чертежи
Как сделать проект дома своими руками? Для того чтобы начертить проект дома можно использовать два способа: взять карандаш, линейку и лист бумаги и вручную начертить план дома; второй способ — освоить любую бесплатную или платную программу и тоже начертить планы дома.
В данной статье я расскажу, как я делал проект в программе Аркон. Сразу скажу, что Аркон это платная программа, но в освоении довольно простая и можно сказать интуитивно понятна. Поэтому рекомендую именно эту программу, да и в Интернете можно бесплатно найти и скачать старую версию бесплатно.
Как я чертил проект дома своими руками?
В первую очередь нужно подумать, каким будет дом мечты и зафиксировать его эскиз на листочке бумаги. То есть берем и от руки прорисовываем планировку каждого этажа. Созываем семейное совещание и если нужно делаем поправки в соответствии с требованиями каждого члена семьи.
Теперь нужно решить с каких материалов будет строится дом. Исходя из этого будет ясно какими размерами будут наружные и внутренние стены и перегородки, а также перекрытия, крыша и кровля. И этот вопрос решен.
Уже можно приступать к чистовой зарисовке планов, разрезов и фасадов дома.
Чертить за компьютером значительно проще и быстрее, поправки вносятся быстро и если в процессе проектирования вы что-то решили изменить сделать это можно за считанные минуты. Тем более, что многие программы после построения плана выводят готовые фасады, поэтому время на составления проекта сокращается в разы по сравнению с ручным способом разработки проектной документации.
Проект дома своими руками сделать не так уж и сложно, главное выделить немного времени и набраться терпения. Ведь большинство частных застройщиков сначала строят, а потом делают проектную документацию, что приводит к дополнительным тратам на всевозможные переделки.
Пример эскизного проекта двухэтажного дома










postroy-sam.com
Как сделать проект дома своими руками

Индивидуальное строительство считается непростым делом, особенно для тех, кто плохо разбирается в этой сфере. Все начинается с составления проекта. Сделать это можно как самостоятельно, так и обратиться к специалистам. Первый вариант, разумеется, экономит деньги. Вот только такие непрофессионально составленные проекты комиссия может не принять. Чтобы такого не случилось, нужно знать все тонкости составления проекта и правила его оформления.
Начальная разработка

Для начала надо точно представлять, какой коттедж должен в итоге получиться. Если до этого у человека не было опыта в строительном деле, то стоит потратить пару дней на чтение соответствующей литературы о проектировании зданий и о том, какие они бывают.
Первые черновые наброски можно делать в обычном блокноте. Так постепенно можно формировать примерную форму и тип желанной постройки. Можно для начала ориентироваться на изображения домов в журналах и книгах. Не нужно бояться экспериментировать и добавлять или удалять разные составляющие.
В случае если нет особых навыков рисования, можно использовать специальные компьютерные программы для проектирования. На их освоение понадобится не так уж и много времени, зато они позволят создать проект более грамотно и быстро. Когда будет определен примерный внешний вид дома, пора приступать к разработке плана первых этажей.
Первый этаж дома

На этом этапе надо как следует произвести подсчет габаритов планируемого здания. На эти размеры влияет площадь земельного участка.
Важно учесть, какие стройматериалы будут применяться при строительстве несущих конструкций. Ведь вид фундамента будет зависеть в первую очередь от веса данных материалов.
Ниже перечислены помещения, которые присутствуют практически в любом доме на первом этаже:
- Прихожая. Иногда ее совмещают с другим небольшим помещением, например, с чуланом;
- Кухня. Многим хозяевам также хочется, чтобы через нее был доступ на веранду, где можно с удобством принимать пищу;
- Гостиная. Обычно это самое большое помещение;
- Спальня. Если семья большая, то спальня может быть не одна;
- Санитарное помещение.
Когда будет решено, сколько комнат будет в доме и какую они будут иметь конфигурацию, следует произвести расчет их площади. Данные расчеты делаются на основе уже распланированной общей площади дома.
При создании чертежа надо брать во внимание толщину стен и перегородок в доме. На эту толщину влияют используемые стройматериалы.
Второй этаж дома надо планировать только после того, как будет составлена разметка первого.
Фундамент здания

Когда будет решено, какой фундамент уложить под будущим строением, надо заняться множеством расчетов. В первую очередь во внимание надо взять тип грунта участка и уровень подземных вод.
Важно учесть, что основание строения обязано быть больше дома. Этот момент должен быть учтен при расчете общей площади.
После основных подсчетов переходят к составлению сметы. В ней указываются все стройматериалы, которые будут применяться при возведении дома.
Существуют три важных части строения, на которые в основном и уходят материалы:
- Несущие части здания и перегородки между комнатами;
- Перекрытие. Особенно актуально в случае, если строители будут возводить многоэтажное здание;
- Кровля.
Необходимо также сделать эскизы фасада дома. Сделать это надо с нескольких сторон. Это поможет наиболее полно представить, как новый дом будет выглядеть со стороны.
Кроме основного плана в проект включаются несколько дополнительных планов. На них отображают расположение электрической проводки, канализации, водоснабжения.
Хотите посмотреть проект дома Ландыши? Посетите сайт lps-dom.ru
postroy-prosto.ru
Как составить проект дома самостоятельно и стоит ли это делать?
Планируя сбежать от городской суеты и большую часть времени проводить в уютном загородном доме, очень многие люди хотят не просто купить уже готовое строение, а создать что-нибудь самостоятельно, используя для этого даже не типовой проект строительства, а свой собственный.
Делаем проект дома своими руками
Как составить проект дома самостоятельно и стоит ли это делать? При создании проекта своими руками всегда можно добиться того, что дом получится действительно уникальным и не похожим на другие. В нем удастся воплотить все задуманные фантазии и желания о количестве комнат, этажей и прихожих. Единственное, к чему заранее следует подготовиться – новшества и различные архитектурные приемы потребуют немалых финансовых затрат.

Если проект дома составляется без помощи профессионала, то следует помнить, что его начинают с выбора подходящего места расположения будущего строения. То есть составляется план участка. Для этих целей лучше использовать миллиметровую бумагу, на которой в масштабе рисуются границы участка и размещаются дом и остальные сооружения. Особое внимание нужно обратить на то, какой вид будет открываться из окон дома, расположение дома по отношению к сторонам света, продумать планировку.

После этого приступают к размышлениям о форме, дизайне и особенностях конструкции дома, а также о материалах, из которых он будет возводиться. Это очень важный момент в проектировании, поскольку именно строительные материалы повлияют на толщину стен, перекрытий, а также общую высоту здания. Далее переходят к обсуждениям о количестве комнат, а также об их расположении. В том случае, если дом будет иметь больше одного этажа, нужно не забыть о наличии лестницы. Ее разновидность зависит только от личных предпочтений хозяина. Главное, чтобы она была надежной и безопасной. Воплощая в жизнь все этапы проектирования сооружения, необходимо помнить о том, кто будет жить в нем (дети, пожилые люди), попытаться учесть все требования и пожелания каждого члена семьи. Все мысли и желания записываются и зарисовываются на бумаге. В итоге должны получиться планы фасадов (виды дома со всех сторон), планы этажей, план кровли.

Особо тщательно нужно подойти к разработке плана фундаментов. Для этого нужно знать: состав почвы, уровень залегания подземных вод, глубину промерзания грунта. На фундаменте не стоит экономить и лучше обратится за консультацией к специалисту.

После того как у нас есть окончательная планировка дома можно разрабатывать планы инженерных сетей. В итоге мы должны иметь планы электроснабжения дома, отопления, вентиляции, водоснабжения, канализации.
Не обладая достаточными знаниями в области архитектуры и инженерии, при составлении проекта дома в некоторых вопросах лучше прибегнуть к помощи мастера, который подскажет, как и где правильно сделать.

Чтобы составить проект дома самостоятельно да еще и быстро, можно обратиться за помощью к специальным компьютерным программам. Но не стоит надеяться, что они подскажут какой лучше выбрать материал для здания, габариты помещений или что-то другое. Все это нужно узнавать самому из нормативных документов. Достоинством таких помощников является также то, что они могут создать проект в наглядном и реалистическом виде. К примеру можно воспользоваться такими программами: ArchiCAD, ArCon, AutoCAD и другие.
Нужно также знать, что разработкой рабочего проекта дома занимается целая группа специалистов. Каждый делается определенный раздел. Одному же постичь все азы и тонкости проектирования просто не реально. Вы потратите очень много времени на то, чтобы изучить множество моментов. И это того не стоит.
Полностью завершенный проект здания можно воплощать в жизнь только после того, как его проверит специалист и скажет, все ли в порядке с вопросами пожарной и другой безопасности, а также правильно ли выполнены все расчеты.
Теперь Вы знаете, как составить проект дома самостоятельно. Но я бы рекомендовал делать эскизный проект дома, то есть самую простую стадию проектирования, где не нужно делать специальные расчеты. По-сути эскизный проект — это картинка ваших желаний.
postroy-sam.com




