Проект гостевого дома бани – проекты впечатляющих и стильных тандемов
Проекты гостевых домов с баней

Проекты для строительства бани с гостевой комнатой
Владельцам загородных домов часто приходится принимать у себя друзей и родственников с перспективой размещения их в своем доме на ночь. Как правило, это доставляет некоторые неудобства как хозяевам, так и гостям — нехватка мест, стеснение и прочие. Чтобы ваши гости всегда чувствовали себя уютно в вашем доме, вы можете построить для них комфортный гостевой домик.
Чтобы сэкономить значительное место на приусадебной территории и средства, затраченные на покупку материалов и возведение дома, можно совместить гостевой домик с баней. Это очень удобно не только для гостей, но и для владельцев домов — после бани не придется бежать по участку до дома по холодной улице, теперь можно отдохнуть и расслабиться в уютной комнате гостевого домика.
Комфорт и удобство в бане с гостевой комнатой
Гостевой домик, совмещенный с баней, является наиболее функциональным и бюджетным вариантом. Такой проект очень скоро превратится в излюбленное место для отдыха с дружной компанией. Часто комната в гостевом доме отводится под развлечения и активный отдых: караоке, бильярд, настольный теннис, тренажеры и прочее.
Проекты бани с гостевой комнатой






Проект гостевого дома-бани из бруса
Как правило, в гостевом домике, совмещенном с баней, первый этаж отводится под парилку и моечную, а мансарда или второй этаж — под комнату отдыха, спальню или тренажерный зал. У такого проекта достаточно много преимуществ:
- экономия места на территории участка;
- рациональное использование полезной площади;
- снижение нагрузки на фундамент;
- сокращение потерь тепла.
Отличным решением для тех, кто ценит простоту и изящество является гостевой дом-баня. Проекты гостевых домиков, совмещенных с баней достаточно просты в осуществлении. В проект можно включить все, что невыгодно или неудобно размещать в жилом доме. Например, библиотеку для уединенного отдыха с книгой, кабинет для работы, детский комплекс для веселого отдыха с детьми, бассейн или мини-спортзал.
При желании в проект можно внести пристрой к гостевому дому в виде уютной террасы, патио или беседки с мангалом и уютными диванами для комфортного отдыха на свежем воздухе.
На этапе разработки проекта, необходимо определиться с материалами для строительства. Наиболее уместным материалом для возведения бани с гостевой комнатой является дерево. Именно деревянный дом позволяет почувствовать близость с природой и ощутить всю прелесть загородного отдыха. Главным преимуществом строения из бруса является экологичность. Дерево представляет собой живую материю, заряженную особой энергетикой.
Строительство из бруса не ударит по карману хозяину дома. Для деревянного строения не требуются тяжелый и массивный фундамент, дополнительная теплоизоляция, наружная и внутренняя отделка стен — дерево само по себе имеет красивый и натуральный вид. Это значит, что бревенчатое строение обойдется гораздо выгоднее чем бетонное или кирпичное.
В проект необходимо включить местоположение бани с гостевой комнатой на участке. Следует с особой тщательностью выбирать место для ее размещения. Поскольку деревянное строение обладает повышенной пожарной опасностью, лучше не располагать его близко к жилому дому и другим строениям на участке. На этапе разработки проекта решите, с какой стороны будет располагаться вход в баню. Располагайте его так, чтобы в зимние месяцы вход не заносило снегом.
Особенности строительства банного комплекса из бруса
Для изготовления сруба гостевого дома-бани могут быть использованы:
- бревно ручной рубки;
- оцилиндрованное бревно;
- простой или профилированный брус.
По завершении строительства, необходимо дать брусу время на усадку. Существенная и более длительная по времени усадка сруба из бревен и обычного бруса. Профилированный сруб из клееного бруса даст меньшую усадку за достаточно короткое время. Это условие необходимо учитывать в процессе разработки проекта, при планировании скорейшей эксплуатации банного комплекса.
Распространенное мнение, что жилую комнату не стоит совмещать с баней по причине постоянной сырости и неприятных запахов, ошибочно. Возведение банного комплекса, совмещенного с гостевой комнатой, необходимо проводить с точным соблюдением всех санитарно-технических требований, тогда подобных явлений можно избежать. Кроме того, вы можете сделать пар в бане сухим, вместо влажного.
Каркасный банный комплекс с гостевой комнатой
Каркасный гостевой домик является хорошим вариантом, при необходимости его возведения за кратчайшие сроки с соблюдением всех строительных технологий и норм. Каркасные дома обладают рядом преимуществ:
- короткий срок возведения;
- каркасное строение не нуждается в дорогом и массивном фундаменте;
- экономичность и доступность стройматериалов;
- надежность и прочность конструкции;
конструкция бани — гостевого дома универсальна и многолика, она может быть оформлена в разнообразных стилях.
Что касается внутреннего интерьера домика с банным комплексом, то оптимальным вариантом для его отделки является дерево. Однако, к парилке и моечной должны предъявляться особые требования. Главной целью внутренней обшивки стен бани является сохранения пара внутри парилки. Поэтому в подобном строении необходима качественная внутренняя теплоизоляция. Как правило, стены парилки обшивают вагонкой из дерева липы и осины. В настоящее время приобрели большую популярность отделочные материалы из ели, ольхи и кедра.
Гостевой дом с баней

Сауна в доме. конечно, вещь очень удобная, но никакую сауну нельзя сравнить с настоящей баней, в которой простой процесс мытья превращается в настоящий ритуал отдыха души и тела.
Если вы хотите не просто баню. а настоящий домик с баней для гостей, одной парилки маловато – обязательно потребуется душевая с санузлом. Кроме этого, в комнате отдыха нужен камин и кухня. которые в зимнее время года будут как нельзя кстати.
Летними вечерами, конечно, приятно наслаждаться отдыхом после бани, находясь в тени навеса. Рядом с навесом можно поставить печь-барбекю. которая позволит заниматься приготовлением блюд прямо на свежем воздухе.

Гостевой дом-баня из бревна
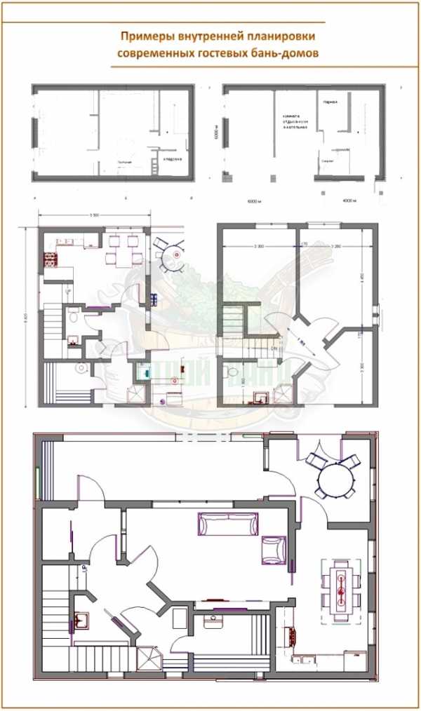
Планировочные решения гостевого дома-бани
В любом отдельно расположенном сооружении всегда можно найти место хотя бы для небольшой спальни, благодаря которой простая баня станет уютным гостевым домом. В идеале гостевая комната должна находиться на первом этаже, что позволит жить в таком домике достаточно продолжительное время.
Стоит отметить некоторые преимущества, которыми обладает гостевой дом в сравнении с обычной жилой постройкой. Например, если у вас остановятся друзья, то, отдыхая в отдельном гостевом домике, они не нарушат ваш покой. Кроме этого, они всегда смогут помочь с приготовлением пищи, ведь рядом будет находиться дровяная печь .

Пример планировки двухэтажного гостевого дома с баней
Естественно, если спальное место будет обустроено на нижнем этаже, то общая площадь здания существенно увеличится. Точно так же, как и увеличится стоимость проведения строительных работ, что является для многих людей решающим моментом в выборе той или иной планировки. Но, при желании, спальную комнату можно разместить где угодно, не отводя для неё слишком много места. Небольшая комната для отдыха с площадью в 10-15 кв. м нисколько не увеличит размеры всего сооружения и, соответственно, его стоимость. При этом баня станет более функциональной и уютной.
Планировка одноэтажного гостевого дома-бани 8х9 м
Строительство бань обычно происходит на загородных участках. там, где много свободного пространства. Гостевые дома с баней позволяют сохранить дополнительную площадь, не создавая неудобств во время перемещения из жилого дома в баню.
Проекты гостевых домов отлично подойдут для любой семьи. Место отдыха при желании можно дополнить барбекю, бильярдной, небольшим кинотеатром, баром или тренажёрным залом. Варианты зависят, прежде всего, от предпочтений самого хозяина дома.

Проект одноэтажного гостевого дома-бани из бруса с навесом для автомобиля
В последнее время всё более популярными становятся проекты деревянных гостевых домов с баней. Причина такой популярности древесины заключается в экологичности и красоте, а также достаточно невысокой стоимости. Естественно, вы можете найти ещё более экономичные проекты гостевых домов с баней (например, из пеноблоков), но при этом они будут менее уютные, чем из бревна.

Проект деревянного гостевого дома с баней
Строительство жилого помещения, совмещённого с баней, требует особого подхода к монтажным работам. В большинстве случаев, во время постройки отдают предпочтение простым брёвнам, утеплённым льняным или джутовым войлоком. Этот вариант является одним из наиболее экономных и надёжных. К самым популярным видам древесины относятся лиственница, сосна и ель, обладающие приятным запахом и высокими показателями качества и долговечности.
Большинство специалистов рекомендует обустраивать каркасно-щитовые постройки. способные удерживать влагу и великолепно сохранять тепло. Основным отличием гостевого домика с баней от полноценного жилого дома является проведение более качественной теплоизоляции помывочной и парной. Для лучшего прогрева помещений стены рекомендуется обшивать вагонкой из осины, ольхи, липы и кедра. Обшивка стен в бане – это момент, требующий большого внимания, поэтому всю работу нужно проводить очень качественно.

Проекты гостевых домов с баней
Перед началом строительства бани следует сделать детальный план будущего строения, опираясь на который, можно осуществить более точный расчёт необходимого количества стройматериалов.
Проект гостевого дома с баней из клеёного бруса
Гостевой дом – баня, выполненный с использованием клеёного бруса, представляет собой достаточно популярный вариант постройки. В летнее время года такой домик может легко заменить полноценный жилой дом, в котором можно жить, отдыхать и мыться. Кроме этого, такое сооружение всегда спасёт в тех случаях, если к вам на выходные неожиданно нагрянули родственники или друзья.
Стандартную планировку бани дополняют комнатой для отдыха и, при необходимости, просторной террасой или верандой, на которой можно поставить обеденный стол и уютные диваны или стулья. На мансардном этаже обустраивают спальное место, которое можно разделить на две отдельные комнаты при помощи простой перегородки.

Проект гостевого дома-бани с мансардой из клеёного бруса
Планировка гостевого дома-бани 6х6 метров
Гостевой дом-баня размером 6х6 метров требует определённых финансовых и временных затрат на строительство. Если сроки поджимают, то вы можете использовать сухой пиломатериал, который даёт усадку сруба всего 1%. Это значит, что вы можете начинать устанавливать все необходимые элементы (окна, двери и т.д.) сразу после возведения каркаса. В ином случае на усадку бани может потребоваться не менее одного года.
Гостевые дома-бани таких размеров обычно строят одноэтажные или с мансардным этажом. Сама баня обладает размером 4х6 метров, остальную площадь занимает встроенная терраса. Внутренние помещения включают в себя комнату отдыха 8-16 кв. м, помывочную 4 кв. м и парную площадью 5 кв. м. В двухэтажных сооружениях лестницу на верхний этаж лучше всего устанавливать в гостевой комнате, что исключит попадание влаги в верхние комнаты.
Типовой проект и планировка гостевого домика-бани 6х6 м
Кроме этого, в таких банях (в парной) обычно ставятся печи-каменки. которые лицевой частью выходят в комнату отдыха. На верхнем этаже рекомендуется ставить обогреватель на три колодца. Такая планировка представляет собой классический вариант, который можно видоизменять в зависимости от потребностей.
Проект: гостевой дом с баней и бассейном (фото)
Перед тем как начинать строительство загородной постройки для отдыха, необходимо составить проект. Гостевой дом с баней станет настоящим райским уголком для тех, кто проживает в городе и иногда предпочитает выехать отдохнуть на лоне природы.
Особенности гостевого домика с баней

Баня-домик, как правило, представляет собой постройку, в которой помимо стандартных удобств имеется еще и парилка. Здесь должны располагаться: кухня, санузел, спальня, система водопровода и канализации, а также отопления. Здесь можно не только отдыхать на выходных, но и жить в течение всего летнего периода.
В качестве отличия такой постройки от полноценного загородного домика выступает то, что гостевое здание с баней располагает парной, моечной, купелью, а также предбанником. Все это в проекте занимает больше половины площади. После составления проекта предстоит приобрести материалы, которые обязательно должны быть экологичными.
Следует учесть, составляя проект: гостевой дом с баней должен отапливаться в период зимних холодов, в противном случае трубы могут лопнуть, что нарушит работоспособность всей системы при необходимости ее запуска.
Особенности дизайна и планировки

Как правило, гостевые домики выстраиваются из бруса и имеют два этажа. Коммуникации хоть и должны быть, но их следует устанавливать по минимуму. Так, взамен ванны следует монтировать душевую кабинку, помещение кухни должно быть маленьким, как и прихожая, на все это выделяется минимум жилого пространства. Тогда как при составлении проекта в отношении остальной площади необходимо распределить ее следующим образом: 50% – купель, парилка, предбанник, бассейн, душевая, такая же площадь будет занята спальней и помещением для отдыха. Отделка везде должна быть в одном стиле.
С целью экономии не следует делать смежными парилку и жилую комнату. Это хоть и позволит сэкономить несколько квадратных метров, но отделка и мебель в помещении будут портиться.
Проект скромного домика с баней

Если вы рассматриваете бюджетный проект, гостевой дом с баней можно обустроить следующим образом. Для того чтобы получить санузел, в котором будет и горячая, и холодная вода, необходимо заблаговременно обустроить колодец, куда погружается специальный насос, снабженный фильтром. Помимо того, понадобится котел, заменить который можно накопительным водонагревателем. Последний устанавливается непосредственно в моечной, тогда как от нее предстоит отвести трубы в туалет и помещение кухни.
Проект домика-бани 6х6 м

Для того чтобы возвести домик, площадь которого будет равна 6х6 м, можно использовать в качестве основы каркас. Постройка будет иметь жилую мансарду. Каркасная технология стоит недорого, а реализовать возведение такого дома можно и самостоятельно. В наружных стенах предстоит врезать по паре укосин, расположив их в противоположных направлениях. Внутренние и наружные стены надежно должны быть скреплены, а поверху перевязаны доской, которая является частью верхней обвязки.
Если вам придется по душе такой проект, гостевой дом с баней в нижней части предстоит прикрепить к платформе, которая должна иметь сплошную конструкцию. Это сделает более прочным каркас. Сверху тоже предстоит установить сплошную платформу, которая станет частью перекрытия. Эта методика проведения строительства имеет одно важное преимущество, которое заключается в том, что после его завершения можно незамедлительно приступать к проведению отделочных работ. Конопатить нет необходимости, что требуется в случае возведения дома из бруса.
Особенности строительства каркасного дома-бани

Если вас устраивает описываемый проект гостевого дома с баней и бассейном, то предстоит еще соблюсти особенности возведения фундамента. В его качестве можно выбрать ленточное основание, которое сильно не заглубляется. В обязательном порядке предстоит сделать дополнительную поперечную ленту, которая должна расположиться между парилкой и моечной. Во внутреннем пространстве фундамента можно обустроить негабаритный технический подвал, который пригодится для монтажа системы водоснабжения и стока, расположить фильтры, всевозможные коммуникации, а также гидроаккумулятор.
Ввиду того, что в постройке обязательно должна быть комната гостевая, дом-баня, проект, фото которого представлено в статье, должен предполагать ее наличие, что указывает на необходимость обозначить все это в чертеже. Так, к слову о вышесказанном, можно отметить, что стойки стен, которые располагаются снаружи, должны обладать шириной в пределах 150 мм, а вот в отношении внутренних стен этот показатель должен быть эквивалентен 100 мм.
Для того чтобы сделать мансарду такой постройки пригодной для проживания в холодное время, ее стены, пол и потолок необходимо теплоизолировать, а вот применить для этого можно базальтовые плиты. В данном проекте пол первого этажа следует застелить керамогранитом, тогда как крыша должна быть перекрыта финской черепицей. Внутреннюю поверхность стен такого дома можно отделать вагонкой, а вот в роли наружной отделки подойдет блокхаус. В качестве наиболее подходящей лестницы будет та, что имеет забежные ступени. Мансарду можно разделить на две комнаты, одна из них станет холлом, а вот другая – спальней.
Если будет выстроен такой гостевой дом-баня из бревна, проекты которого представлены в статье, то в качестве габаритов парилки можно взять в расчет размеры 2х2,7 м, при этом высота потолка будет равна 2,55 м.
Утепление домика-бани

Для того чтобы полы были теплыми, под покрытие рекомендуется застелить маты системы «теплый пол», работу которых можно регулировать. На втором этаже следует поставить конвекторы.
Устройство бассейна в доме

Если бассейн должен стать частью вашего загородного дома с баней, то о его наличии необходимо позаботиться еще на этапе строительства, так как котлован должен быть подготовлен на этапе земельных работ. Первым шагом станет рытье котлована, в котором устанавливается несущий элемент в виде чаши.
Необходимо произвести гидроизоляционные работы. Только потом можно приступать к установке системы фильтрации и подогрева. Нужно предусмотреть и наличие лестницы, а также сливной системы. Если возведен будет гостевой дом-баня из бруса, проекты которого представлены в статье, в бассейне необходимо предусмотреть систему дезинфекции воды, а в самом помещении должна быть установлена система вентиляции. Не следует выбирать чашу излишне больших размеров, ее площадь не должна превышать предела 17-35 м 2. в противном случае обслуживание и строительство обойдутся излишне дорого.
В качестве наиболее подходящей глубины бассейна выступает показатель в 1,5 м. Необходимо будет сделать и мелководную часть, глубина которой не должна превысить 0,9 м. Располагать бассейн предпочтительнее в подвальной части постройки. Варианты размещения выше первого этажа довольно опасны, ведь гостевой домик – не капитальное здание. Бассейн весит значительно, он станет оказывать большую нагрузку на перекрытия.
Альтернативные проекты гостевых домов
Если вы все еще не выбрали проект бани-гостевого дома, кирпич может лечь в основу стен. Только в этом случае необходимо учесть, что нагрузка на фундамент окажется более значительной. Работы при самостоятельном выполнении потребуют гораздо больше трудовых затрат, а сама постройка будет стоить намного дороже. Стены дома придется дополнительно утеплять, ведь они не станут отличаться теплосбережением. В этом случае предпочтительнее выбрать проект, который предполагает возведение одного этажа, чтобы второй эне оказывал дополнительной нагрузки на фундамент. А вот основание предстоит делать заглубленным ленточным, от столбчатого лучше отказаться, если планируется устанавливать бассейн на цокольном этаже.
Некоторые выбирают проекты гостевых домов с баней из пеноблоков. Такая конструкция будет иметь незначительный вес и отличится не столь высокой ценой из-за низкой стоимости пенобетона.
9 знаменитых женщин, которые влюблялись в женщин Проявление интереса не к противоположному полу не является чем-то необычным. Вы вряд ли сможете удивить или потрясти кого-то, если признаетесь в том.
10 очаровательных звездных детей, которые сегодня выглядят совсем иначе Время летит, и однажды маленькие знаменитости становятся взрослыми личностями, которых уже не узнать. Миловидные мальчишки и девчонки превращаются в с.
20 фото кошек, сделанных в правильный момент Кошки — удивительные создания, и об этом, пожалуй, знает каждый. А еще они невероятно фотогеничны и всегда умеют оказаться в правильное время в правил.
Как выглядеть моложе: лучшие стрижки для тех, кому за 30, 40, 50, 60 Девушки в 20 лет не волнуются о форме и длине прически. Кажется, молодость создана для экспериментов над внешностью и дерзких локонов. Однако уже посл.
13 признаков, что у вас самый лучший муж Мужья – это воистину великие люди. Как жаль, что хорошие супруги не растут на деревьях. Если ваша вторая половинка делает эти 13 вещей, то вы можете с.
Топ-10 разорившихся звезд Оказывается, иногда даже самая громкая слава заканчивается провалом, как в случае с этими знаменитостями.
Источники: http://bane.guru/stroitelstvo-bani/proekty/proekty-dlya-stroitelstva-bani-s-gostevoy-komnatoy.html, http://proekt-sam.ru/banya-bassein/gostevoj-dom-s-banej.html, http://fb.ru/article/187880/proekt-gostevoy-dom-s-baney-i-basseynom-foto
v-banyu.ru
Проект гостевого дома с баней: фото вариантов :: SYL.ru
Реализацию проекта гостевого дома с баней можно выполнить практически на любом приусадебном участке. Два типа строений совмещаются в одном здании. Это является выгодным решением, особенно при достаточно ограниченном пространстве. Решившись строить подобное сооружение, можно не сомневаться, что это станет выгодным вложением средств.
Отправившись на дачу с семьей или друзьями, можно будет попариться в баньке, а затем отдохнуть в кругу родных и близких. Подобные проекты ныне пользуются большой популярностью. Если владельцы приусадебного участка обладают минимальными строительными навыками, они смогут создать подобное строение самостоятельно.
Особенности проекта
Проекты гостевого дома с баней (фото представлено далее) отличаются некоторыми особенностями. Постройка представляет собой обычную дачу, в которой помимо жилых помещений есть парная с предбанником. Здание не займет много места на участке.

При желании можно создавать двухэтажные дома. Строения с мансардой также пользуются большой популярностью. На первом этаже будет располагаться баня. Комнаты для отдыха следует обустроить на втором этаже. Существует множество одноэтажных гостевых домов с баней. Выбор зависит от бюджета строительства, а также предпочтений хозяев дома.
В процессе возведения представленного объекта необходимо выдержать единое стилевое решение для всех помещений. Материалы, из которых будет возводиться дом, должны быть экологически чистыми. Это главное требование при организации подобного строительства. Баня займет большую часть пространства дома.
Популярные проекты
Рассматривая лучшие проекты гостевых домов с баней, следует отметить наиболее популярные варианты. Большинство владельцев приусадебного участка выбирают двухэтажные виды построек. Также популярны здания с мансардой.

На первом месте по популярности в нашей стране находятся проекты представленных строений из пеноблоков. Это доступный, относительно недорогой материал. С ним легко работать даже непрофессионалу. Пеноблоки отличаются хорошими теплоизоляционными качествами. Именно поэтому представленный материал сегодня повсеместно востребован. Планировка в таком строении может быть самой разнообразной.
На втором месте по популярности идут проекты гостевых домов из древесины. В этом случае применяются бревна или клееный брус. Это красивый, экологически чистый материал. Он способен подчеркнуть атмосферу загородного дома, настроить гостей на отдых и умиротворение. Применяя подобный материал, особое внимание нужно уделять защите от пожара и гниения древесины.
Размещение на участке
Рассматривая проекты гостевого дома с баней, необходимо в первую очередь спланировать расположение постройки на участке. От этого во многом будет зависеть комфорт ее эксплуатации. Если на участке уже есть дом или другие постройки, новое здание должно находиться от них на расстоянии 6-15 м. При этом учитывается класс воспламеняемости материала, из которого сделаны все объекты.

Следует также решить еще несколько вопросов. Дверь гостевого дома не должна располагаться напротив входа в основное здание участка. Также следует предусмотреть наличие площади для парковки.
Если же гостевой домик будет возводиться одновременно с главным строением, необходимо создать общую систему их коммуникаций. Это позволит сэкономить средства семейного бюджета в процессе строительства. Желательно выделить возле гостевого дома отдельную зону для отдыха.
Планировка
Хозяева участка могут выбрать проект гостевого дома с баней и бассейном, мансардой, террасой и прочими дополнительными элементами. Однако в большинстве случаев необходимо сначала продумать планировку.

- I -помещение парной.
- II — предбанник.
- III — комната отдыха.
В одной половине дома должны располагаться парная, моечная, бассейн, душевая и предбанник (раздевалка). Вторая половина отводится для спален, гостевых комнат, прихожей, кухни. При этом внутренняя отделка этих двух частей должна сочетаться, гармонировать между собой.
Какой бы проект ни выбрали хозяева участка, они должны предусмотреть наличие определенных систем и помещений в гостевом доме. Здесь обязательно должна быть кухня, санузел, отдельная спальня. Необходимо предусмотреть наличие отопительной, канализационной, водопроводной систем. Также требуется качественная вентиляция во всех помещениях. Даже если постройка не будет эксплуатироваться в зимний период, необходимо продумать систему защиты коммуникаций от промерзания.
Составление сметы
Пересмотрев проекты гостевого дома-бани из бруса, пеноблоков, кирпича, необходимо составить расходную смету. К основным ее статьям будут относиться фундамент, материалы для внешних и внутренних стен, кровля. Также в ней учитывают затраты на утеплительные и гидроизоляционные материалы, крепежный материал (гвозди, скобы, саморезы и т. д.), окна, двери.

В помещении парной должна стоять печь. Существует множество моделей отопительного прибора для парной. Для сухой сауны можно приобрести электрическую открытую печь. Если же хозяева планируют создать русскую баню, необходимо сделать закрытую каменку. Она будет отапливаться дровами или иным видом топлива.
Далее просчитываются расходы на приобретение коммуникационных материалов (трубы, фитинги, вентиляционные каналы, электрические провода и все сопутствующие материалы). Отдельной статьей затрат в смете выступает декоративная отделка внутри и снаружи помещения. Точный расчет потребности в материалах позволит значительно сэкономить в процессе возведения строения.
Деревянный дом
Проект гостевого дома с баней может предполагать строительство здания из древесины. Одним из самых популярных решений становится возведение подобного объекта из бревна. Это экологичный, красивый материал. Он обладает относительно невысокой стоимостью.

Также может применяться в подобных целях клееный брус. Постройка из подобного материала может полностью соответствовать по своим функциям обычному загородному дому. Если расположить спальные помещения на втором этаже, а помещение парной под ними, в верхних комнатах воздух будет теплым. Находиться в таких помещениях будет комфортно.
Древесина способствует сохранению тепла. При правильной обработке и подготовке материала строение не потребует реставрации еще не один десяток лет. Это надежный, долговечный и прочный материал. Оформить внутреннее пространство парной также можно при помощи древесины. Лучше всего использовать вагонку. Сорт древесины не должен выделять смолы при нагреве.
Дом с мансардой
Популярностью сегодня также пользуются проекты гостевых домов-бань с мансардой. Такой вариант позволяет вписаться в ограниченный бюджет строительства. Помещение мансарды отводится для жилых комнат. Здесь располагаются спальня и гостиная. Поэтому имеющееся пространство потребуется разделить на две части.

Чтобы разграничить небольшое внутреннее пространство без возведения стен, в одной половине комнаты делают возвышение. Это будет спальное место. Организовать внутреннее пространство необходимо максимально правильно. Здесь не должно быть ничего лишнего. В нише под спальным местом можно сделать выдвижные ящики. Сюда будет складываться одежда, постельное белье и т. д.
Ставить в мансардном помещении комоды, шкафы категорически не рекомендуется. Они займут слишком много места. Возвышенное спальное место можно дополнительно ограничить при помощи ночников. В комнате можно поставить небольшие низкие диванчики. Лучшим вариантом станет японский стиль.
Отделка помещений
Выбирая проекты гостевых домов с баней из пеноблоков, древесины или кирпича, немаловажным вопросом является планировка отделочных работ. Стиль мансарды или комнат второго этажа может быть классическим, японским, средневековым, древнерусским и т. д. Выбор зависит от вкусовых предпочтений хозяев дома.
Рассмотрев особенности проектов гостевого дома с баней, каждый владелец приусадебного участка сможет выбрать наиболее подходящий вариант для себя.
www.syl.ru
пятерка лучших проектов и их реализация
Гостевой домик-баня – это настоящая отдушина для тех, кто живет и работает в городе. Отдых в подобной постройке, к примеру, под столицей стоит баснословных денег, но многие готовы их платить. Потому что выходные с дружной компанией, легким паром и замечательными условиями куда более приятны, чем даже полет на жаркие острова. И эту замечательную постройку можно возвести своими руками, на любом участке! А потому русским умельцам, которым редко что бывает не плечу, браться за такое строительство – сплошное удовольствие. А что да как – сейчас расскажем.
Баня-домик: дань моде или практичность?
Баня-домик для гостей – это не просто жилая постройка, в которую где-то вмонтирована парилка, а все остальное – отделка, планировка, дизайн помещений – ничем не отличаются от обычной дачи. Нет: баня-гостевой домик – это конструкция с одной концепцией стиля и архитектуры, где организующим и смысловым центром является как раз парная, и все вокруг подстраивается под нее и ее особый режим эксплуатации. В том числе и дизайн интерьера.
Но давайте сразу определимся с понятиями. Так, гостевая баня-дом отличается от обычной бани с комнатой отдыха тем, что в этой можно даже жить. Здесь есть:
- мини-кухня;
- полноценный санузел;
- отдельная спальня;
- хорошо налаженная система водопровода и отвода сточных вод;
- постоянное отопление и поддержание оптимальной температуры.
Сюда можно приехать с гостями и остаться на все выходные, или прожить минимум два летних месяца как на даче. Но от полноценного гостевого дома со встроенной где-то там сауной этот вариант отличается такими важными моментами:
- баня с моечной, купелью и предбанником – это точка отсчета для всего проекта;
- все это добро занимает больше половины всей жилой площади, а не ненужный «угол»;
- все материалы для постройки и отделки выбираются исключительно экологичные, т.к. баня-домик предназначена, в первую очередь, оздоравливать тело и дух.
Таким образом, гостевая баня-домик используется не постоянно, а периодически – как «в гости», а потому очень важно продумать, как она будет отапливаться в отсутствие хозяев, и как предупредить такие неприятные ситуации, как лопнувшие трубы.
Тонкости дизайна и планировки
Итак, каковы современные бани-домики для гостей? В большинстве случаев их строят из экологически чистого бруса, и в два этажа. Коммуникации и удобства должны быть, но в минимуме: душевая кабинка, санузел, мини-кухня и прихожая, и на все это выделяется как можно меньше квадратных метров. Как говорят дизайнеры, лишь бы было, но не отвлекало. А вот вся остальная площадь делится примерно в такой пропорции: 50% — на парилку, бассейн, купель, душевую и предбанник, и 50% — на гостевую спальню и просторную комнату отдыха. И все отделывается в едином задуманном стиле.
О том, как сделать поддон для душевой кабины своими руками, можно узнать из статьи https://stroy-banya.com/voda/poddon-dlya-dusha-svoimi-rukami.html
Планируя внутреннее пространство гостевой бани-домика, строго соблюдайте все строительные нормы, правила и рекомендации опытных строителей. Самое главное – сделать такую баню полностью пожаробезопасной и защитить мебель комнаты отдыха от лишнего пара и влаги. А потому, как бы ни хотелось сэкономить пару-тройку ценных квадратных метров на предбаннике, не делайте этого: между парилкой и выходом в жилую зону обязательно должен быть тамбур.

И, наконец, не поддавайтесь уговорам знакомых сделать в такой постройке что-то нестандартное против строительных правил, т.к. «у того и того такое есть, и все нормально, никто не сгорел». Помните: вы в первую очередь строите именно парную, и только во вторую – жилой домик.
А более подробно обо всех тонких нюансах проведения электрики, паро- и гидроизоляции русских бань вы можете прочитать на нашем сайте в этом же разделе. А теперь давайте рассмотрим более подробно, как построить разные гостевые бани-домики: как дорогие и фешенебельные, так и компактные и уютные.
Проект #1 — скромно, но со вкусом
В гостевом домике с баней принято устраивать отдельный полноценный санузел, с горячей и холодной водой. А для этого можете погрузить в вырытый заранее колодец специальный насос с фильтром, поставить котел или накопительный водонагреватель. Сам нагреватель ставьте прямо в моечной, а от нее уже отведите трубы в туалет и кухонную часть дома.
Да, на сами строительные материалы придется потратиться и немало. Но мы раскроем секреты 5 разных вариантов постройки гостевого домика-бани: начиная от бюджетного каркасника, возвести который можно самостоятельно за один отпуск, и заканчивая «барским» домом в два этажа, с бассейном и верандой.
Другие проекты бань с верандой можно увидеть в статье https://stroy-banya.com/proekty/proekty-ban-s-terrasoj.html
Вот, к примеру, отличный проект и его реализация:


Проект #2 — для тех, кто любит шикарный отдых
Идеальный вариант гостевого дома-бани для небольшой семьи, куда еще периодически будут наведываться гости – это 6х6 м площади и жилая мансарда. Каркасная технология – недорогая и под силу любому человеку. Для нее не нужна никакая дополнительная техника или бригада, такую баню можно строить не спеша и самостоятельно. Проверяя при этом каждый этап лично, будучи уверенным, что все сделано на совесть и никто ничего не крал, отчего потом ничего «случайно» не сломается и не прогниет.
Если вы хотите посмотреть на самые красивые бани мира, советуем ознакомиться со статьёй https://stroy-banya.com/bani_mira/samye-krasivye-bani-v-mire.html
Стройте такой дом-парную по технологии «Платформа». Ее суть в том, что даже еще не обшитые стены не будут шататься, потому что:
- В каждой наружной стене врезаются по две укосины в противоположных направлениях.
- Наружные стены крепко соединены с внутренними, и поверху перевязаны второй доской верхней обвязки друг с другом. Именно вторая доска дает нужный результат.
- Весь каркас снизу прибивается к общей сплошной платформе пола, и поверху также связан сплошной платформой верхнего перекрытия.
Эта технология хороша также тем, что сразу после постройки стен можно заниматься их отделкой: не нужна ни усадка, ни конопатка, как в случае срубов. Подробнее о данном проекте:
- Фундамент под такую постройку подходит даже ленточный малозаглубленный. Обязательно сделайте дополнительно еще одну поперечную ленту между моечной и парилкой. Внутри фундамента оборудуйте небольшой технический подвал: здесь вы сможете ввести и вывести воду, разместить фильтры, гидроаккумулятор и остальные коммуникации.
- Наружные стойки каркасных стен делайте шириной 150 мм, а внутренние стены – 100 мм.
- Потолок, пол и стены мансарды в такой бане утепляйте базальтовыми плитами, желательно «Роквул Лайт Баттс», а внутренние стены с перекрытием первого этажа – «Роквул Саунд Баттс», которые обеспечивают еще и хорошую звукоизоляцию.
- В этом проекте пол всего первого этажа выложивается практичным керамгранитом, а крыша – финской гибкой черепицей. Что касается отделки такого домика, то для внутренней традиционно подойдет вагонка, а в качестве наружной – блокхаус.
- Самая удобная лестница для бани-домика – поворотная с забежными ступенями. Мансарду же разделите минимум на две отдельные комнаты – хотя бы холл и гостевую спальню.
- Размеры парилки в этом проекте – 2х2,7 и высота потолка – 2,55 м. Общий объем в итоге – 13,8 куб.метров.
- Для зимнего домика-бани важно, чтобы и полы были теплыми. А для этого уложите под покрытие маты теплого пола с регулировкой температуры. Причем желательно с дистанционной регулировкой – ведь в гостевой дом приезжают не каждую неделю. Так, в ваше отсутствие температуру пола нужно задать в 5°С, а для выходных с друзьями – до +20°С.
- На втором этаже установите конвекторы. Все регуляторы температуры выведите в отдельный блок тамбура возле электрощитка. Туда же потом установите устройство для дистанционного включения-выключения. Так вы будете спокойны за свой домик-баню даже при долгом отсутствии.
Итог: достаточно жесткая конструкция каркаса, какая и нужна для гостевого дома-бани.




Проект #3 — отдых на славу (акцент на экстерьер)
Вот об этом моменте обычно известно меньше всего. Чем отделывать баню-гостевой дом? Понятно, что лучше современным сайдингом. Еще декор? Зачем… В итоге получается достаточно изнутри уютная и комфортная постройка, которая внешне все так же выглядит нелепо и дешево. И приезжать в такую не всегда будет желание – все-таки мы любим, когда наш глаз радует все.
А ведь достаточно только увидеть подобные проекты на глянцевых журналах, как становится понятно: готовые домики-бани из рекламы выглядят потрясающе и так манят потому, что у них продуман и экстерьер: внешний дизайн бани и окружающее ее пространство. А это: красиво оформленный пруд перед парной, стилизированная садовая мебель, хорошая подборка внешней отделки постройки и декорированных элементов и удачный светодизайн.
Даже без особых вложений вы можете значительно изменить участок, на котором стоит ваша баня: выложить с помощью трафарета «сельские» каменные дорожки, выстругать пару скамеек из коряг и покрыть их лаком, установить садовые качели, повесить стилизированные фонарики, выкопать неглубокий пруд (используя готовую чашу), посадить хвойные многолетние кустарники. А сам дом-баню отделать не ярким дешевым фасадом ядовитого цвета, котрый только в каталоге хоть как-то смотрится, и не «рваными» кирпичными кусками (на что мода уже давно прошло), а хотя бы придать ей вид настоящей русской парной: с сайдингом под качественный брус, резными элементами и соответствующим флюгелем. Поставить тот же барбекю на приделанную террасу и огромную бочку с водой.
Вот это и есть гостевая баня-дом – там, где хорошо отдыхать и во всем чувствуется настоящий русский дух! Присмотрите для себя, к примеру, вот такой проект:


Проект #4 — дом-баня с жилой мансардой
Нередко баню строят как еще и гостевой домик с одной только жилой мансардой. Что поделать, если на более обширную площадь и пристройки недостаточно запланированного бюджета. Но не беда: главное правильно организовать пространство, и далеко не одна только летняя спальня может быть на мансардном этаже.
Во-первых, сразу же разделите это помещение на две отдельные зоны. Поэтому, еще на этапе строительства «поднимите» вторую часть мансарды подиумом в три ступени – это и эффектно, и практично. Посередине сделайте те самые ступеньки, а справа и слева от них – вмонтированные выдвижные ящики. В них вы сможете хранить и постельное белье, и посуду, и все другое необходимое. Больше не нужно будет ни шкафов, ни громоздких комодов, а сама мансарда станет визуально намного большей.

Далее, на поднятой части организуйте зону отдыха: здесь может быть мягкая мебель, диваны, ночники, игрушки. Для того, чтобы прикрыть эту зону, используйте обычные японские ширмы или же установите раздвижные панели, которые сейчас в моде.
Вторую часть можно отвести для общения с гостями: здесь обустраивается бильярдная, крепится на кронштейн плазменный телевизор, устанавливается мини-бар. Мебель не ставьте громоздкую – подойдут только небольшие пуфы или мягкие безкаркасные кресла, а то и вовсе бросьте просто пледы на пол, ведь в выходные он всегда будет теплым из-за того, что под ним топится парилка.
А как строится такая баня, вы можете подробно рассмотреть на нашей фото-инструкции:


Проект #5 — современный стиль всему голова
В гостевой бане-доме весь дизайн интерьера – это единая концепция. Даже спальня, не говоря уже о комнате отдыха или предбаннике, должна быть подобной отделки и стиля, что и все остальное. Больше всего для этой цели подойдет вагонка из натуральной древесины, деревянный пол и мягкий текстиль.
Комната отдыха в таком здании предназначена в первую очередь для времяпровождения с родными и друзьями, а потому главные ее атрибуты – это большой массивный стол, огромный плазменный телевизор, шкура хищника на стене, деревянные полки грубой обработки и мягкая мебель.
Кухня в таком домике тоже может быть, но на нее тогда выделяется минимум пространства, и достаточно поставить всего пару-тройку модульных элементов. А вот таких помещений, как библиотека, детская, просторная ванная или гардеробная быть не должно.
Подробнее можете рассмотреть процесс строительства такой бани здесь:


По желанию, отдельно вы можете разместить в бане-домике бильярдную, бассейн, тренажерный зал и «японскую» мансарду, где нет никакой мебели, и ароматные травяные чаи пьют прямо на коврике посреди пола.
Да, и еще одно: строя гостевой дом-баню, сразу продумайте, где вы и ваши друзья смогут оставить на ночь свои автомобили. Это может быть отдельный просторный гараж, или же лучше выделить для этой цели добротный цоколь под самой баней. Ведь обычно только по окончанию масштабной и дорогой стройки многие новоиспеченные хозяева начинают вспоминать об этом немаловажном аспекте. И хватаются за голову.
Прислушивайтесь к нашим советам, экспериментируйте, планируйте – и мечта станет фешенебельной реальностью!
stroy-banya.com
Как выполнить проект гостевого дома с баней
Проекты гостевых домов с баней являются одними из самых востребованных в строительной индустрии. Дело в том, что к жителям пригородов достаточно часто приезжают гости и возникает необходимость их разместить. При этом обычно такие визиты сочетаются с праздничными мероприятиями или отдыхом. Поэтому совмещение подобного дома с баней является весьма уместным.
Назначение гостевого домика
Подбирая проект гостевого дома с баней, стоит всегда помнить об основном предназначении этого здания. Заключается оно во временном размещении гостей владельца земельного участка и загородного дома во время их визитов к нему. Конечно, можно поместить на время гостей и в основном здании, но это не всегда удобно, так как возникают различного рода бытовые вопросы, способные весьма испортить совместный отдых на природе.

Существует ещё один способ использования гостевого домика – сдача его в аренду. Дело в том, что тот же проект гостевой дом и баня с мансардой при нём позволяет человеку круглосуточно проживать в таком здании, при этом он может мыться и пользоваться горячее водой. В результате домовладелец получает дополнительный доход за счёт арендной платы в том время, когда его друзья и знакомые не пребывают у него в гостях.
Гостевой дом также иногда используют и как место отдыха членов семьи, особенно если она большая. Так, например, здесь можно оборудовать биллиардную, библиотеку или же рабочий кабинет хозяина дома. Такой ход позволяет задействовать пустующее помещение на время отсутствия в нём гостей, а в том случае, когда они приедут, имеется возможность быстро подготовить его для их приёма.

Названные особенности домика для гостей необходимо учитывать при подборе проекта. Например, проект бани с гостевым домом и верандой позволит вам разместить в одном месте и членов семьи, и ваших гостей на время проведения совместного отдыха. Другие варианты строительства данного здания предполагают комбинацию его с той же баней, увеличенную площадь комнат предназначенных для гостей, наличие крытого коридора соединяющего гостевой домик с основным зданием и т.д.
Особенности проектов гостевых домов
Проекты современных гостевых домов обычно подразделяются на категории в зависимости от того, из какого материала они изготовлены.

Так выделяют дома построенные из:
- кирпича;
- профилированного бруса;
- дерева;
- пеноблоков.
При этом стоит отметить, что среди россиян весьма популярны те архитектурные проекты строений, которые предусматривают строительство здания, оснащенного одной из дополнительных функций: баней, сауной или же площадкой для жарения барбекю.
Связанно это с тем, что домик для гостей – это, прежде всего, место отдыха, поэтому и обустроено оно должно быть соответствующим образом.
При выборе подходящего варианта строительства всегда стоит помнить о том, что данное здание обычно возводится на участке земли небольших размеров, поэтому его владельцу стоит обращать внимание на варианты, которые предусматривают строительство на маленьком клочке земли. Например, в таком случае подойдет гостевой дом с баней, проекты 6х8.
Дом такого размера вполне справится со своим предназначением, при этом вы сможете сэкономить землю для других нужд. Кроме того, не имеет смысла слишком расстраивать ваш домик для гостей, так как нахождение на одном участке двух полноценных жилых домов нецелесообразно.
Популярные проекты домов для гостей
Несмотря на большое количество разработанных стандартных проектов лишь некоторые из них пользуются большой популярностью у домовладельцев. Так, например, проекты гостевых домов с баней из пеноблоков в России одни из самых востребованных.
Связанно такое положение дел с тем, что такие дома дёшевы в строительстве, имеют хорошие показатели по теплозащищённости, а также могут быть возведены самостоятельно без привлечения профессиональных строителей. Кроме того, пеноблоки доступны практически во всех регионах страны, так как они могут выпускаться прямо на месте, а не завозится издалека.
Проект гостевого дома с баней из блоков может предусматривать разные варианты размещения внутренних помещений, а также отделки фасада. Связанно это с тем, что пеноблок легко обрабатывается и сочетается практически со всеми существующими на сегодня видами отделочных материалов. В связи с перечисленными факторами гостевые дома из блоков – практически идеальный вариант для строительства.
Вторые по востребованности проекты домов для гостей — проект гостевой дом с баней из дерева. Такие дома прекрасно вписываются в атмосферу загорода. Они прекрасно выглядят, хорошо держат тепло, при этом относительно дёшевы в строительстве и эксплуатации. Однако достаточно большим минусом таких домов является высокая степень пожароопасности, а также их подверженность гниению.
Отдельно стоит упомянуть дома, построенные из профилированного бруса которые в последнее время быстро входят в моду. Дело в том, что проект гостевого дома и бани из бревна предусматривает достаточно сложную технологию возведения здания из такого материала, а вот строения из бруса возводятся очень легко. Домик из профилированного бруса поступает в уже готовом виде как комплект, вам останется только собрать его на месте, предварительно подготовив фундамент. Это очень удобно, когда сроки строительства ограничены.

Проекты гостевого дома с баней из кирпича также входят в тройку наиболее популярных. Они долговечны, также прекрасно выглядят и позволяют воплотить в жизнь практически все пожелания хозяина домовладения. Существует огромное количество вариантов таких домов, начиная от швейцарского, и заканчивая строениями в стиле хай-тек. При этом большинство из них можно построить самостоятельно в том случае, когда вы имеете понятие о базовых навыках проведения строительных работ.
Размещение гостевого домика на участке
Перед тем как полностью утвердиться в выборе вашего проекта, необходимо решить, где именно будет находиться на участке гостевой домик. Дело в том, что правила Пожарного надзора предусматривают строительство как основных, так и вспомогательных зданий на расстоянии от 6 до 15 метров от строений. Непосредственное расстояние определяется в зависимости от класса огнестойкости используемого при строительстве материала.

Кроме того, выбирая проект, в обязательном порядке учитывают несколько обстоятельств:
- Вход в гостевой домик не делают напротив дверей основного дома.
- В обязательном порядке необходимо будет предусмотреть наличие парковочных мест на том участке, где он будет возводиться.
- Если вы собираетесь заложить проект его строительства в проект возведения основного здания, имеет смысл спроектировать совместные коммуникации с тем, чтобы сэкономить на их проведении в дальнейшем.
- К планировке такого здания необходимо подходить, учитывая её особенности. Так, обычный дом для гостей одноэтажный имеет комнаты небольшого размера, а кухня и гостиная обычно объединяются.
- В том случае, когда использования помещений дома планируется исключительно летом, его стены можно не утеплять. Если же в нём будут проживать круглый год, стоит произвести утепление стандартным образом.
Кроме того, можно выделить в районе этого строения отдельную зону отдыха. Её можно огородить или же отделить от остального участка при помощи приёмов ландшафтного дизайна.
Место расположения бани
Также ответственно стоит подойти и к подбору места расположения бани, если вы захотите её построить отдельно от дома. Дело в том, что далеко не все домохозяева возводят помещения для гостей, совмещённые с баней. Некоторые предпочитают возводить её отдельно.

К плюсам такого подхода относиться простота строительства такой бани, а также отсутствие в гостевом домике различных запахов, связанных с застоем воды в данном помещении. Кроме того, в этом случае можно не заботиться о подключении её к централизованной системе канализации, а создать автономную.
Если же вы решите оборудовать парную вместе с основным помещение домика, то вы сможете сделать это несколькими способами. Во-первых, это может быть баня с бассейном, что очень удобно, так как рядом будет находиться комната для отдыха после принятия водных и банных процедур.
Во-вторых, стоит заранее решить, из чего данное сооружение будет возводиться. Лучше всего будет, если его вы выполните в одном стиле с гостевым домиком, в этом случае весь комплекс будет хорошо смориться со стороны. Кроме того, единый проект строительства позволяет значительно повысить энергоэффективность здания, что позволит экономить на его отоплении.
В-третьих, если поблизости находится естественный водоём, имеет смысл оборудовать спуск к нему. Такой шаг в несколько раз повысит уровень комфорта при принятии банных процедур, а также позволит не возводить дополнительно бассейн, тратя на это средства.
Принципы заказа проекта
Определившись с проектом, можно приступать к его заказу. Для этого необходимо будет подобрать подрядчика, который согласиться построить вам гостевой дом. Второй вариант – строительство его самостоятельно. При этом вам в этом случае нужно будет овладеть хотя бы минимальными знаниями в этой области.
Если же вы решили нанять подрядчика, то первое с чего стоит начать – так это выяснение его репутации. Сделать это можно посредством интернета. Так, обычно серьёзные строительные компании имеют свои сайты, на которых размещают информацию и наличие у них разрешительной документации на ведение дел в строительной сфере. Кроме того, можно изучить форумы, где клиенты оставляют отзывы о тех или иных строительных компаниях.

Далее нужно будет уточнить стоимость всего строительства, учитывая стоимость выбранного вами проекта. При этом учитывается не только цена работы, но и строительного материала. Обычно цена готового проекта объявляется сразу, но если вы решите отойти от него, вам придётся дополнительно оплачивать ваши пожелания, например, возведение веранды.
Некоторые строительные компании предлагают для своих клиентов онлайн-калькуляторы, которые помогают им рассчитать стоимость возведения гостевого дома. Кроме того, данный момент можно уточнить, позвонив менеджеру компании, который ответит на все имеющиеся у вас вопросы.
Следующим этапом заказа проекта станет приобретение строительных материалов. Конечно, можно поручить это строителям, но в таком случае вы не сможете сэкономить, а подобная экономия может составить 20% от стоимости всего строения. Достигается такая цифра за счёт сравнения стоимости стройматериалов в разных строительных магазинах и покупки наиболее дешёвых.

Иногда скидку можно получить и непосредственно в строительной компании. Дело в том, что некоторые фирмы при заказе строительства у них жилого дома по хорошей цене предлагают бонус – возведение домика для гостей бесплатно. Эту возможность стоит оговорить заранее, так как после заключения договора вам такую скидку могут и не предоставить.
Обговорив цену, стоит перейти к процессу заключения договора со строительной компанией. В нём должны быть прописаны все моменты проведения тех или иных работ, а также условия оплаты за них.
Опытные строители советуют производить выплаты поэтапно, по ходу выполнения той или иной операции. Таким образом, вы сможете избежать той ситуации, когда у вас возьмут деньги, а работы не выполнят. Кроме того, поэтапная оплата работ позволяет вам планировать этот процесс, что даёт возможность финансировать стройку в кредит.

Также стоит лично контролировать этапы строительства, а не приезжать тогда, когда дом уже возведён. В этом случае вы сможете внести некоторые коррективы в этапы выполнения некоторых технологических операций или же, например, заменить строительный или отделочный материал на другой.
Окончание строительства необходимо будет оформить актом приёма-передачи возведённого объекта, в котором будет указанно, что вы не имеете претензий к качеству выполненных вами работ. Только поле этого можно будет принимать в нём первых гостей и передавать подрядчику сумму окончательного расчета.
banyabest.ru
Гостевой домик с баней проекты

Проекты для строительства бани с гостевой комнатой
Владельцам загородных домов часто приходится принимать у себя друзей и родственников с перспективой размещения их в своем доме на ночь. Как правило, это доставляет некоторые неудобства как хозяевам, так и гостям — нехватка мест, стеснение и прочие. Чтобы ваши гости всегда чувствовали себя уютно в вашем доме, вы можете построить для них комфортный гостевой домик.
Чтобы сэкономить значительное место на приусадебной территории и средства, затраченные на покупку материалов и возведение дома, можно совместить гостевой домик с баней. Это очень удобно не только для гостей, но и для владельцев домов — после бани не придется бежать по участку до дома по холодной улице, теперь можно отдохнуть и расслабиться в уютной комнате гостевого домика.
Комфорт и удобство в бане с гостевой комнатой
Гостевой домик, совмещенный с баней, является наиболее функциональным и бюджетным вариантом. Такой проект очень скоро превратится в излюбленное место для отдыха с дружной компанией. Часто комната в гостевом доме отводится под развлечения и активный отдых: караоке, бильярд, настольный теннис, тренажеры и прочее.
Проекты бани с гостевой комнатой






Проект гостевого дома-бани из бруса
Как правило, в гостевом домике, совмещенном с баней, первый этаж отводится под парилку и моечную, а мансарда или второй этаж — под комнату отдыха, спальню или тренажерный зал. У такого проекта достаточно много преимуществ:
- экономия места на территории участка;
- рациональное использование полезной площади;
- снижение нагрузки на фундамент;
- сокращение потерь тепла.
Отличным решением для тех, кто ценит простоту и изящество является гостевой дом-баня. Проекты гостевых домиков, совмещенных с баней достаточно просты в осуществлении. В проект можно включить все, что невыгодно или неудобно размещать в жилом доме. Например, библиотеку для уединенного отдыха с книгой, кабинет для работы, детский комплекс для веселого отдыха с детьми, бассейн или мини-спортзал.
При желании в проект можно внести пристрой к гостевому дому в виде уютной террасы, патио или беседки с мангалом и уютными диванами для комфортного отдыха на свежем воздухе.
На этапе разработки проекта, необходимо определиться с материалами для строительства. Наиболее уместным материалом для возведения бани с гостевой комнатой является дерево. Именно деревянный дом позволяет почувствовать близость с природой и ощутить всю прелесть загородного отдыха. Главным преимуществом строения из бруса является экологичность. Дерево представляет собой живую материю, заряженную особой энергетикой.
Строительство из бруса не ударит по карману хозяину дома. Для деревянного строения не требуются тяжелый и массивный фундамент, дополнительная теплоизоляция, наружная и внутренняя отделка стен — дерево само по себе имеет красивый и натуральный вид. Это значит, что бревенчатое строение обойдется гораздо выгоднее чем бетонное или кирпичное.
В проект необходимо включить местоположение бани с гостевой комнатой на участке. Следует с особой тщательностью выбирать место для ее размещения. Поскольку деревянное строение обладает повышенной пожарной опасностью, лучше не располагать его близко к жилому дому и другим строениям на участке. На этапе разработки проекта решите, с какой стороны будет располагаться вход в баню. Располагайте его так, чтобы в зимние месяцы вход не заносило снегом.
Особенности строительства банного комплекса из бруса
Для изготовления сруба гостевого дома-бани могут быть использованы:
- бревно ручной рубки;
- оцилиндрованное бревно;
- простой или профилированный брус.
По завершении строительства, необходимо дать брусу время на усадку. Существенная и более длительная по времени усадка сруба из бревен и обычного бруса. Профилированный сруб из клееного бруса даст меньшую усадку за достаточно короткое время. Это условие необходимо учитывать в процессе разработки проекта, при планировании скорейшей эксплуатации банного комплекса.
Распространенное мнение, что жилую комнату не стоит совмещать с баней по причине постоянной сырости и неприятных запахов, ошибочно. Возведение банного комплекса, совмещенного с гостевой комнатой, необходимо проводить с точным соблюдением всех санитарно-технических требований, тогда подобных явлений можно избежать. Кроме того, вы можете сделать пар в бане сухим, вместо влажного.
Каркасный банный комплекс с гостевой комнатой
Каркасный гостевой домик является хорошим вариантом, при необходимости его возведения за кратчайшие сроки с соблюдением всех строительных технологий и норм. Каркасные дома обладают рядом преимуществ:
- короткий срок возведения;
- каркасное строение не нуждается в дорогом и массивном фундаменте;
- экономичность и доступность стройматериалов;
- надежность и прочность конструкции;
конструкция бани — гостевого дома универсальна и многолика, она может быть оформлена в разнообразных стилях.
Что касается внутреннего интерьера домика с банным комплексом, то оптимальным вариантом для его отделки является дерево. Однако, к парилке и моечной должны предъявляться особые требования. Главной целью внутренней обшивки стен бани является сохранения пара внутри парилки. Поэтому в подобном строении необходима качественная внутренняя теплоизоляция. Как правило, стены парилки обшивают вагонкой из дерева липы и осины. В настоящее время приобрели большую популярность отделочные материалы из ели, ольхи и кедра.
Фото и готовые проекты гостевых домов с баней
Гостевой дом на дачном или загородном участке – это идеальное решение проблем с размещением внезапно нагрянувших родственников или компании друзей, не успевшей вовремя вернуться домой. Кроме того, такое строение позволяет затевать любые празднества, шумные вечеринки, не причиняя никакого дискомфорта тем, кто не хочет или не может в них участвовать. Если же здание оснастить еще и баней, цены ему не будет. Такое совмещенное решение обеспечивает сразу несколько преимуществ:
- компактные размеры, простое размещение на участке без необходимости выделять место сразу под два строения;
- практичность, отсутствие необходимости перебегать из парилки в жилище по лютому морозу, подвергая риску свое здоровье;
- экономичность. Вам не придется сооружать дополнительный фундамент, а также тратиться на кровлю. Кроме того, гостевой дом, снабженный банькой гораздо проще и дешевле отапливать.
Но строительство подобного объекта потребует от вас преодоления некоторых трудностей и ответственного подхода. Чтобы строение соответствовало вашим требованиям, а также действующим строительным нормам, понадобиться на каждом этапе внимательно следить за качеством работ.
Этап первый: выбираем проект
Гостевой дом, оснащенный русской баней или модной ныне сауной, – довольно популярное строение, чем и объясняется обилие проектных решений на рынке. Причем многие компании, предлагающие полный комплекс услуг по строительству, дают вам возможность выбора – уже готовая проектная документация, либо ее разработка с нуля. Для тех, кто хочет сэкономить средства откроем небольшой секрет – все стандартные проекты в любом случае адаптируются под требования заказчика, поэтому приобретать дорогой эксклюзив нет никакого смысла. Тем более что переделка готового решения займет гораздо меньше времени.
Если же вас интересует именно уникальный проект с бассейном, с какими-либо архитектурными изысками, специалисты с радостью разработают его, составив заодно полную смету.
Если говорить о конкретных решениях, то самым популярным сегодня является гостевой дом, выстроенный в два этажа с баней на первом из них и несколькими спальнями на втором. Все дополнительные компоненты, вроде просторного холла со сплошным остеклением или балконов в каждой комнате – это уже детали, обязательно оговариваемые с вами.
Этап второй: из чего строить
Выбор материалов является частью первого этапа, но мы вполне сознательно вынесли его в отдельную главу. Из чего нынче лучше всего построить дом для размещения гостей на своем участке? Можно предложить несколько вариантов:
- традиционное строение из бревна. Это очень теплый и экологически чистый дом, который не требует ни наружной, ни внутренней отделки (впрочем, с баней такой номер не пройдет – отделочные работы в ней просто необходимы). Недостатки – необходимость в мощном ленточном фундаменте и довольно продолжительное строительство;
- гостевой домик из бруса – клееного или профилированного. Такому строению прочный фундамент не нужен, что уже дает реальную экономию. Кроме того, здание требует лишь минимальных отделочных работ, так как использование бруса обеспечивает эффектный внешний вид и идеально ровную и гладкую поверхность стен. Еще одно преимущество – высокая скорость реализации проекта, обеспечиваемая производством и подгонкой отдельных деталей в заводских условиях. На участок доставляется своеобразный конструктор, который остается правильно собрать.
Такие материалы, как кирпич, натуральный камень, пеноблоки и прочие мы рассматривать не будем. Все они требуют капитального строительства и в результате у вас получится не легкий и простой домик (даже с баней), а вполне себе жилое строение для использования круглый год. Это совсем не недостаток, однако на возведение подобного объекта уйдет много времени и денег.
Этап третий: строительство
Для того чтобы построить гостевой дом, снабженный комфортной баней, можно привлечь своих родственников и знакомых. Но гораздо проще обратиться к компаниям, которые осуществляют возведение подобных строений под ключ. Они возьмут на себя и подбор проекта, соответствующего как вашим пожеланиям, так и особенностям участка, а также разработают подходящее дизайнерское решение.
Такой подход позволит сэкономить и время, и деньги, получить в конечном итоге красивое и надежное здание для гостей, который в течение многих лет будет радовать вас максимальным комфортом для отдыха и сезонного либо круглогодичного проживания.
Читайте также по теме:
Проекты домов с банями под одной крышей
С развитием банной культуры и появлением просторных комнат для отдыха в помещении с парной пришла идея проживания в бане. Такой образ жизни придется по душе многим российским мужчинам, особенно, если оборудовать помещение всем необходимым: небольшим холодильником и диваном, а также имеет подключение к водопроводу. Тем не менее, проживать в спартанских условиях для солидного семейного человека не слишком удобно, поэтому все более популярными становятся проекты домов с встроенными банями.
Такие дома удовлетворяют все бытовые потребности человека. Они могут иметь несколько спален, подключенный к канализации санузел, гараж, гостиную, кухню, гардероб и походить скорее на обычный жилой дом, нежели на баню. Но наличие парилки и печи для бани всегда придает помещению дополнительной привлекательности.
Существует также и другой, более холостяцкий вариант дома-бани, где основной акцент сделан на неотъемлемые атрибуты бани (парную, душевую, тамбур, комнату отдыха, бильярдную и даже бассейн) с жилой комнатой, которая скорее напоминает квартиру-студию.
Изготовлены такие помещения могут быть как с традиционных для бани материалов – дерева и бруса, так и из кирпича либо даже натурального камня на выбор клиента.
Дачный дом из оцилиндрованного бревна
Двухэтажный дачный домик из оцилиндрованного бревна выглядит очень мило и по-деревенски. Кроме того, дом оснащен дополнительным бонусом – собственной баней.
На первом этаже здания стандартно находятся парилка, ванная комната и гостиная, которая совмещена с кухней. Второй этаж вмещает в себя две уютных спальни разных размеров, которые соединены общим балконом и небольшой коридор.
Гостевой дом с баней и бильярдной (133,3 м2)
Милый и просторный угловой деревянный коттедж является классическим пристанищем холостяка. Несмотря на кажущуюся внешнюю уютность и основательность постройки, основной акцент в доме сделан именно на развлекательные элементы.
В доме присутствует просторная терраса с печью-барбекю, бильярдная, парная с бассейном. обширный гардероб и лишь небольшое внимание уделено непосредственно жилой площади. Хозяевам дома предлагается разместиться в квартире-студии площадью чуть более 20 метров квадратных, которая будет одновременно совмещать в себе кухню, спальню, кабинет и гостиную. Существует возможность обустроить также мансардную комнату на втором этаже.
Баня из бруса с мансардой и террасой
Первый этаж бани из бруса с мансардной представляет из себя классический вариант русской бани с комнатой отдыха, парной и помывочной.
Однако, если установить в комнате отдыха кухонную технику, а комнату на мансардам этаже использовать в качестве спальни, в таком доме вполне можно жить постоянно.
Готовый проект одноэтажного жилого дома с баней (148,1 м2)
Данный проект одноэтажного жилого дома с баней отличается от других материалом постройки и соответственно фундаментальностью. Построив такой дом из кирпича на своем участке, вы можете рассчитывать, что он будет радовать вас и вашу семью своей уютностью долгие десятилетия.
Дом вмещает в себя 3 спальни разных размеров, кухню, гардероб, просторную гостиную и террасу, один санузел, а также топочную, парилку и помывочную комнаты.
Готовый проект гостевого дома с баней (229 м2)
Если вы с детства мечтали о собственном сказочном домике или являетесь родителем мечтательного ребенка, данный проект – идеальное решение для вас.
Один дом объединяет в себе баню, жилое помещение и гараж, кроме того здесь имеется настоящее подземелье (подвальный этаж).
В доме присутствует большая терраса, общая комната, прихожая, три ванных комнаты и три спальни, кухня, парилка и дополнительная комната отдыха.
Данный проект рассчитан на проживание большой семьи, а также подойдет для человека, который часто приглашает гостей.
Дом с баней из профилированного бруса 6х9
Профилированный брус – один из самых популярных материалов для изготовления домов и бань сегодня. Компактный двухэтажный дом с баней идеально подойдет для удобного проживания небольшой семьи или одного человека.
Деревянная баня с мансардой, тремя спальнями и террасой – проект «Север»
Невероятно красивый деревянный дом с баней и мансардой, представленный в данном проекте, не мог быть спроектирован ни в одной другой стране мира, поскольку он имеет исконно русский экстерьер.
На первом основ ном этаже дома размещается парная, ванная комната, гостиная и свободная комната, которая может служить отдельной кухней, спальней, кабинетом либо мастерской.
Лестница, расположенная в гостиной комнате ведет в просторный холл второго, мансардного этажа, на котором расположены две одинаковых по площади и строению спальни.
Проект бани из клееного бруса Николо-Прозорово
Двухэтажная баня из клееного бруса, которая окрашена в яркие привлекательные цвета, внутри условно разделена на два блока: развлекательный и жилой.
Этот проект представляет один из немногих домов с баней, которые является по большей степени баней, чем домом. Большой акцент в проекте сделан на вместительную парилку, комнату отдыха и другие необходимые для комфортного времяпровождения в бане помещения.
Второй этаж состоит из комнаты отдыха и бильярдной, которые не разделены между собой четкой границей и представляются скорее одной большой развлекательной комнатой.
Источники: http://bane.guru/stroitelstvo-bani/proekty/proekty-dlya-stroitelstva-bani-s-gostevoy-komnatoy.html, http://banyaprofi.ru/planirovki/foto-i-gotovye-proekty-gostevyx-domov-s-banej.html, http://proekt-banya.ru/article/proekty-domov-s-banyami
v-banyu.ru
Бани с гостевым домом
Проекты бань с гостевым домом
Пусть Вашим гостям всегда будет максимально комфортно оставаться у Вас!
Баня с гостевым домом является уже, наверное, обязательным элементом практически любого современного загородного коттеджа. При этом, к сожалению, наличие нескольких отдельных построек на участке вряд ли можно назвать оптимальным решением с точки зрения финансовых расходов на их возведение. Значительно более интересным вариантом в данном случае является строительство бани с гостевым домом. Подобный банный комплекс намного функциональнее, удобнее и требует меньших денежных затрат на своё возведение. Он может быть, как одноэтажным, так и состоять из двух этажей. Всё зависит исключительно от наличия свободного пространства на участке, финансовых возможностей, и, конечно же, Ваших предпочтений.
Интересным решением является строительство бани с гостевым домиком в качестве первого объекта на участке. В данном случае она может стать временным местом, в котором Вы сможете полноценно жить в процессе строительства Вашего основного дома. Стоит добавить, что нередко банные комплексы с гостевым блоком могут включать в себя бильярдные комнаты, зоны барбекю, тренажерный зал, зимний сад и множество других подобных помещений. Это действительно оптимальное решение, которое не имеет недостатков и значительно расширяет функциональность Вашего загородного дома. Так, например, в такой бане Вы сможете не только разместить своих гостей, но и предоставить отличное место для шикарного отдыха своим уже взрослым детям.
Заказать строительство банного комплекса с гостевым домом Вы можете в компании «Брусбани». На этой странице мы подготовили для Вас целый ряд действительно интересных и продуманных до мельчайших деталей проектов, которые станут настоящим украшением Вашего загородного коттеджа. В случае необходимости квалифицированные специалисты нашей компании могут внести соответствующие дополнения либо разработать для Вас проект бани с гостевым блоком в индивидуальном порядке. Все работы специалисты компании «Брусбани» выполняют «под ключ» с полной гарантией высокого качества. Доверьте строительство своей бани опытным профессионалам!
www.brusbani.ru
Проекты гостевых домов с баней из бруса и бревна
Сауна в доме, конечно, вещь очень удобная, но никакую сауну нельзя сравнить с настоящей баней, в которой простой процесс мытья превращается в настоящий ритуал отдыха души и тела.
Если вы хотите не просто баню, а настоящий домик с баней для гостей, одной парилки маловато – обязательно потребуется душевая с санузлом. Кроме этого, в комнате отдыха нужен камин и кухня, которые в зимнее время года будут как нельзя кстати.
Летними вечерами, конечно, приятно наслаждаться отдыхом после бани, находясь в тени навеса. Рядом с навесом можно поставить печь-барбекю, которая позволит заниматься приготовлением блюд прямо на свежем воздухе.
Гостевой дом-баня из бревна Вернуться к оглавлениюСодержание материала
Планировочные решения гостевого дома-бани
В любом отдельно расположенном сооружении всегда можно найти место хотя бы для небольшой спальни, благодаря которой простая баня станет уютным гостевым домом. В идеале гостевая комната должна находиться на первом этаже, что позволит жить в таком домике достаточно продолжительное время.
Стоит отметить некоторые преимущества, которыми обладает гостевой дом в сравнении с обычной жилой постройкой. Например, если у вас остановятся друзья, то, отдыхая в отдельном гостевом домике, они не нарушат ваш покой. Кроме этого, они всегда смогут помочь с приготовлением пищи, ведь рядом будет находиться дровяная печь.
Пример планировки двухэтажного гостевого дома с банейЕстественно, если спальное место будет обустроено на нижнем этаже, то общая площадь здания существенно увеличится. Точно так же, как и увеличится стоимость проведения строительных работ, что является для многих людей решающим моментом в выборе той или иной планировки. Но, при желании, спальную комнату можно разместить где угодно, не отводя для неё слишком много места. Небольшая комната для отдыха с площадью в 10-15 кв. м нисколько не увеличит размеры всего сооружения и, соответственно, его стоимость. При этом баня станет более функциональной и уютной.
Планировка одноэтажного гостевого дома-бани 8х9 мСтроительство бань обычно происходит на загородных участках, там, где много свободного пространства. Гостевые дома с баней позволяют сохранить дополнительную площадь, не создавая неудобств во время перемещения из жилого дома в баню.
Проекты гостевых домов отлично подойдут для любой семьи. Место отдыха при желании можно дополнить барбекю, бильярдной, небольшим кинотеатром, баром или тренажёрным залом. Варианты зависят, прежде всего, от предпочтений самого хозяина дома.
Проект одноэтажного гостевого дома-бани из бруса с навесом для автомобиляВ последнее время всё более популярными становятся проекты деревянных гостевых домов с баней. Причина такой популярности древесины заключается в экологичности и красоте, а также достаточно невысокой стоимости. Естественно, вы можете найти ещё более экономичные проекты гостевых домов с баней (например, из пеноблоков), но при этом они будут менее уютные, чем из бревна.
Проект деревянного гостевого дома с банейСтроительство жилого помещения, совмещённого с баней, требует особого подхода к монтажным работам. В большинстве случаев, во время постройки отдают предпочтение простым брёвнам, утеплённым льняным или джутовым войлоком. Этот вариант является одним из наиболее экономных и надёжных. К самым популярным видам древесины относятся лиственница, сосна и ель, обладающие приятным запахом и высокими показателями качества и долговечности.
Большинство специалистов рекомендует обустраивать каркасно-щитовые постройки, способные удерживать влагу и великолепно сохранять тепло. Основным отличием гостевого домика с баней от полноценного жилого дома является проведение более качественной теплоизоляции помывочной и парной. Для лучшего прогрева помещений стены рекомендуется обшивать вагонкой из осины, ольхи, липы и кедра. Обшивка стен в бане – это момент, требующий большого внимания, поэтому всю работу нужно проводить очень качественно.

Проекты гостевых домов с баней
Перед началом строительства бани следует сделать детальный план будущего строения, опираясь на который, можно осуществить более точный расчёт необходимого количества стройматериалов.
Проект гостевого дома с баней из клеёного бруса
Гостевой дом – баня, выполненный с использованием клеёного бруса, представляет собой достаточно популярный вариант постройки. В летнее время года такой домик может легко заменить полноценный жилой дом, в котором можно жить, отдыхать и мыться. Кроме этого, такое сооружение всегда спасёт в тех случаях, если к вам на выходные неожиданно нагрянули родственники или друзья.
Стандартную планировку бани дополняют комнатой для отдыха и, при необходимости, просторной террасой или верандой, на которой можно поставить обеденный стол и уютные диваны или стулья. На мансардном этаже обустраивают спальное место, которое можно разделить на две отдельные комнаты при помощи простой перегородки.
Проект гостевого дома-бани с мансардой из клеёного брусаПланировка гостевого дома-бани 6х6 метров
Гостевой дом-баня размером 6х6 метров требует определённых финансовых и временных затрат на строительство. Если сроки поджимают, то вы можете использовать сухой пиломатериал, который даёт усадку сруба всего 1%. Это значит, что вы можете начинать устанавливать все необходимые элементы (окна, двери и т.д.) сразу после возведения каркаса. В ином случае на усадку бани может потребоваться не менее одного года.
Гостевые дома-бани таких размеров обычно строят одноэтажные или с мансардным этажом. Сама баня обладает размером 4х6 метров, остальную площадь занимает встроенная терраса. Внутренние помещения включают в себя комнату отдыха 8-16 кв. м, помывочную 4 кв. м и парную площадью 5 кв. м. В двухэтажных сооружениях лестницу на верхний этаж лучше всего устанавливать в гостевой комнате, что исключит попадание влаги в верхние комнаты.
Типовой проект и планировка гостевого домика-бани 6х6 мКроме этого, в таких банях (в парной) обычно ставятся печи-каменки, которые лицевой частью выходят в комнату отдыха. На верхнем этаже рекомендуется ставить обогреватель на три колодца. Такая планировка представляет собой классический вариант, который можно видоизменять в зависимости от потребностей.
proekt-sam.ru
