Проекты дачных небольших домов с мансардой – красивые примеры маленьких коттеджей, малогабаритные варианты из газобетона и кирпича
с верандой, мансардой, двухэтажных (22 проекта)
Купить дачный участок — это только начало. Его надо распланировать, подобрать оптимальный домик, разработать общую концепцию его оформления. В этой статье будем рассматривать самые разные проекты дачных домов. От самых маленьких на одну комнату, до очень даже вместительных — на 100 квадратов полезной площади.
С верандой и террасой
Содержание статьи
При выборе планировки дачного дома часто стараются найти проект с верандой или террасой. Подобная крытая площадка хороша не только для отдыха или трапез на открытом воздухе. В дождливый или жаркий день под навесом можно провернуть немало дел, которые из-за большого количества мусора в помещениях не сделаешь.

Отдых на даче не менее важен, чем работа. А что может быть приятнее, чем отдых на открытом воздухе
На общем фундаменте
Проекты дачных домов с верандой есть небольшой площади: самые маленькие имеют размеры 6*4 метра, причем веранда занимает 2 метра по длинной стороне, а собственно дом — 4*4 метра или 16 квадратных метров (с учетом толщины стен и того меньше).

Проект дачного дома 6*4 с верандой и санузлом
Представленный выше проект предусматривает зимнее использование дачи. Для сохранения тепла в домике, есть вход через тамбур. Вход через веранду может использоваться в летнее время. Хорош он и тем, что есть в нем санузел — небольшая душевая кабинка, с умывальников и унитазом. Если канализации на даче нет, можно рассмотреть вариант биотуалета.
Еще один вариант — одна комната, в которой отведено место под несколько кухонных шкафчиков и плиту, стоит небольшой обеденный стол и есть спальное место. Такая планировка идеальна для проживания одного человека. Неплохо в ней себя будут чувствовать двое. В данном варианте санузла нет, так что придется строить туалет отдельно.
Проект маленького дачного дома с верандой под общей крышей
Планировка дачного дома маленькой площади (до 40 метров) совсем проста: обычно это две комнаты, первая из которых используется как кухня и столовая одновременно. Чаще всего она является проходной. Вторая комната жилая. Более-менее комфортно разместить тут можно два спальных места. Так что проекты дачных домов с мансардой 6*4 метра рассчитаны на проживание 1-2 человек.

Проект дачного дома с санузлом и открытой террасой под односкатной крышей
Если бюджет строительства сильно ограничен, рассмотреть проекты дачных домов с односкатной крышей. Они непривычны для нашей станы, но стоимость кровли при небольшой площади намного меньше. Только надо выбрать правильный угол уклона кровли (с учетом величины снежного покрова).

Дачный дом с зарытой зимней верандой 8*8 метров, проект с планировкой
Дачный дом средних размеров представлен на фото выше. Проект интересен тем, что веранда тут изначально «зимняя», застекленная. Большинство обладателей открытых веранд приходят к необходимости ее застеклить, а для приятного времяпровождения на воздухе построить беседку. В данном проекте веранда является продолжением гостиной, но тут может быть установлена перегородка. В общем и целом, удобный и комфортный дом с традиционной планировкой, все комнаты отдельные, есть санузел, выгороженный коридор. Все условия для круглогодичного проживания.
На отдельном фундаменте
Обратите внимание, что приведенные выше проекты дачных домов с верандой имеют общий фундамент. Это надежно, так как даже при весеннем пучении почвы подвижек не будет. Но затраты на фундамент получаются значительные. Потому обоснован такой подход на сложных грунтах, склонных к пучению. В на нормальных грунтах можно можно делать веранду на отдельном, несвязной и облегченном (обычно — столбчатом или свайном) фундаменте. Один такой проект представлен ниже.

План дачного дома 4*8 с пристроенной верандой
Вообще, веранду можно пристроить к любой постройке. Ее можно закладывать на этапе проектирования, а можно пристроить после (как бывает очень часто).

Небольшой дачный дом 6*4,5 с верандой на отдельном фундаменте
Веранда может занимать полностью одну из сторон дома, может охватывать два или даже три его стороны. Но есть варианты и с небольшой открытой площадкой (как на фото выше). Фундамент в этом случае может быть отдельный, но большой экономии не будет. Например, в приведенном выше проекте «выиграли» лишь 1,1 метра «основного фундамента.

Одноэтажный дом 7*7,5 с пристроенной террасой
Мы настолько привыкли к комфорту, что даже на даче не желаем иметь «удобства во дворе». Для многих основным критерием выбора является наличие санузла. Даже необходимость оборудования индивидуальной канализации их не пугает. Не все проекты дачных домов маленькой площади могут похвастаться таким «излишеством», но в некоторых санузел (туалет и душ) присутствует.
С мансардой
Идея увеличить жилую площадь за счет мансардного этажа приходит часто. Считается что расходы на строительство при этом не сильно возрастают, так как большая часть надстройки — видоизмененная кровля. В действительности же если мансарда будет эксплуатироваться круглый год, разница в ценнике на двухэтажный дом и одноэтажный с мансардой будет небольшой. Ведь надо учесть, что площадь помещений мансардного этажа значительно меньше, а затраты будут велики, так как требуется хорошая тепло-, звуко-, пароизоляция.
Для кого-то дом мечты выглядит так
Мансарды под двускатной крышей
Действительно дешево обойдется дачный дом с летней мансардой. Но при этом надо учесть, что в солнечные дни без утеплителя там будет слишком жарко, так что теплоизоляция все-таки необходима, но не настолько «серьезнае» как для зимней эксплуатации.

Дачный дом 6*6 с верандой и мансардой
Действительно дешево обойдется дачный дом с летней мансардой. Но при этом надо учесть, что в солнечные дни без утеплителя там будет слишком жарко, так что теплоизоляция все-таки необходима, но не настолько «серьезная» как для зимней эксплуатации.
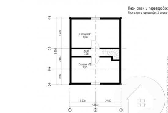
Небольшой дачный дом 5*4 на две жилых комнаты с мансардой
Проекты дачных домов, представленные выше, предназначены для сезонного посещения. В них предусмотрены только жилые комнаты. В комнате первого этажа можно организовать кухонный уголок.
Ниже приведена планировка маленького садового или дачного дома размером 5 на 5 метров с выделенной кухней. Обратите внимание на то что крыльцо пристроено и на плане его нет.

План дачи 5*5 с мансардой и кухней
Все эти домики спроектированы как каркасные. С небольшими изменениями эти проекты подойдут для домов из любого другого материала. Только надо будет учесть толщину стен, правильно выбрать фундамент.

Дача с крытой верандой и мансардой 6*10 метров: поэтажная планировка
При желании крытую веранду можно сделать открытой. Хотя, обычно происходит наоборот. Построив открытую, ее остекляют или выгоняют до половины стены, ставят одинарные рамы. Если хочется свежего воздуха, окна всегда можно распахнуть, а площадь можно отвести под летнюю столовую или кухню.
Как увеличить площадь мансардного этажа
Все проекты дачных домов с мансардным этажом сделаны под двускатную крышу. Это хорошо в том плане, что снег на таких крутых скатах задерживаться не будет. Второй плюс — несложная стропильная система. Минус — малая площадь «полноценной» комнаты на верху. Слишком много неэффективного пространства по краям. Там можно сделать шкафы, но для жилья эта площадь непригодна.

Если крыша мансарды двускатная, много площади теряется
Если вам важно увеличить жилую площадь, кровлю можно сделать ломаной. Она сложнее в устройстве и дороже, но площадь помещений на мансардном этаже значительно больше.

Проект дома для дачи 7*7 с мансардой под ломанной крышей и эркером
Еще один способ увеличить площадь — стены выгнать выше уровня первого этажа. Говорят, построить «полтора этажа». Этот вариант хорош для дач, которые посещаются и в холодное время года. Крышу можно делать как вам нравится, но большая площадь комнат все также получается под ломанной.

Пример «полуторного этажа»
При выборе проекта дачного дома с мансардой для периодического посещения лучше делать мансарду холодной, а перекрытие делать утепленным. На лестнице, которая ведет на второй этаж, надо предусмотреть дверь/крышку, которая будет отгораживать верхний ярус. В противном случае на отопление уходить будет много топлива и времени. Зимой людей, обычно, меньше, посещения кратковременные. Разогревать оба этажа слишком долго и дорого, так что решение неплохое.
Проекты двухэтажных дачных домов
Строительство двухэтажного дома не такая уж дорогая затея. Фундамент то все равно нужен один, пусть и более мощный, но его стоимость возрастает не в два раза, а процентов на 60%. Размеры и утепление кровли от этажности вообще не зависят, так что тут увеличения вложений не требуется. Добавляются расходы на стены — их площадь в два раза больше, но в целом стоимость квадратного метра площади получается дешевле, чем при строительстве аналогичного одноэтажного жилища. Потому многие ищут проекты двухэтажных дач.

Проект небольшого двухэтажного дома для дачи с пристроенным гаражом: жилая площадь 100 кв. м, общая 127 кв. м, гараж на одну машину
Приведенный выше проект разработан для газобетонных или керамических строительных блоков. Подходит для вытянутых в длинну участков. Пристроенный гараж очень удобен при использвоании — из гаража стазу можно попасть в дом. Еще плюс: такой вариант экономит место на участке, а его на даче всегда мало, какой бы величины участок у вас ни был.
В данном варианте планировки с тыльной стороны дома предполагается просторная терраса. В общую площадь дома она не входит. Интересный дизайн делает дом непохожим на другие: большое окно на полтора этажа, кубической формы гараж и навес перед домом — не слишком влияют на ценник, но делают дом уникальным.

Проект двухэтажного дачного дома с пристроенным сбоку гаражом
Еще один проект дачи на два этажа с пристроенным сбоку гаражом представлен выше. Этот вариант больше подходит для квадратных или широких участков. Пятно застройки в плане — 10*10 метров, жилая площадь — 108 квадратных метров. Необычный облик этому дому придают высокие окна второго этажа. Свою лепту вносит и подбор отделочных материалов, сочетание светло-бежевого и коричневого цветов. В общем и целом интересный проект.

Проект дачи с балконом по периметру второго этажа
Нестандартного вида двухэтажный дом с балконом, который опоясывает все здание. С тыльной стороны находится обширная открытая терраса. Кровля четырехскатная, что усложняет конструкцию, но придает постройке особый колорит.
С баней
Для многих дача ассоциируется с баней. Баню, конечно, можно построить отдельно, но это долго и дорого. В дачном доме средних размеров вполне можно отвести помещение под парилку. Ее обычно делают со входом из ванной/санузла, так как водные процедуры необходимы. Для истинных парильщиков рядом еще должен быть выход на улицу: чтобы можно было быстро охладиться в речке или уличном бассейне.

Проект дачного дома с баней/сауной в скандинавском стиле
Минимальные размеры парилки — 2*2 метра, оптимальные — 3*3 Такие помещения можно вписать даже в дома небольшой площади, но при этом количество жилой площади уменьшится. Если комнат все-таки должно быть достаточно, можно рассмотреть вариант с мансардным этажом. Один из таких примеров на фото ниже.

Проект дачного дома с баней и мансардой
Обратите внимание на планировку. Первое, на чем стоит акцентировать внимание: печка установлена так, что топится она из соседнего помещения. В данном случае это комната отдыха. Вариант не слишком хорош, так как вход находится далеко. Носить дрова придется через комнату, что неудобно и,обычно, чревато большим количеством мусора.
Еще один недостаток: в приведенном варианте нет кухни. Для дачной жизни это солидный недостаток. Кухонный уголок можно организовать в большой комнате, на спальни разместить исключительно наверху. Еще вариант планировки — сделать кухню в нынешней «топочной/комнате отдыха». Отдыхать же удобнее в большом помещении. После принятия душа туда заходить удобно.
Небольшие и недорогие
Небольшие дачи проектируются обычно под самые недорогие технологии строительства. В нашей стране — это каркасная технология и деревянные дома. Примерно в той же категории дома из пористых строительных блоков (пенобетона, газобетона). Но они все-таки не так популярны.

Небольшой каркасный домик для дачи
Проекты дачных домов под каркасную технологию
Маленькие дачные домики строят обычно по каркасной технологии. Каркасники можно строить самостоятельно, можно купить готовые — сборные. Это две технологии, которые при минимальных затратах средств и времени позволяют иметь неплохое дачное жилье.

Одноэтажный дачный дом 5*5 метров: проект с планировкой
Для оптимизации бюджета постройки дачного домика, ищите проекты фундамент которых на плане представляет собой прямоугольник или квадрат. Наличие любых выступов ведет к удорожанию квадратного метра. Мало того, что возрастают затраты на фундамент, увеличивается площадь стен, а, значит, и затраты на них. Дороже получается и кровля — сложнее стропильная система, больше сложных узлов.

Планировка дачного дома 6*4 с кухней, туалетом, летней верандой
Еще один момент для тех, кто планирует посещать дачу в зимнее время. Чтобы при хождении туда-сюда из дома не «убегал» теплый воздух, желательно вход делать с тамбуром. Если площадь не позволяет сделать его встроенным, делайте пристройку. Это намного сократит расход топлива и время на прогревание дома.
Брус и бревно
Один из самых распространенных строительных материалов в нашей стане: брус и бревно. Плюс в том, что возводится небольшой дачный домик очень быстро. Минус — с длительной усадке (от полугода до года, в зависимости от начальной влажности бревна и климатических условий). До окончания периода активной усадки проводить отделочные работы не стоит, что оттягивает возможность эксплуатации постройки. Это не касается выстояных срубов (готовых комплектов) или клееного бруса. Но цена солидно (раза в два) на такие варианты выше.

Маленький дачный дом из бруса 4*4 — совсем простой проект
Если говорить о самых маленьких дачных домиках, то размеры они имеют 4 на 4 метра. Меньше делать просто не имеет смысла. Планировка в таком случае совсем проста: это всего-то навсего одна комната. Отличаться они могут только ориентацией по сторонам света, количеством и располодением окон. Еще двери могут быть расположены посередине или сбоку. Все. Варианты закончились.
Чуть больше по площади будет домик 6*4 метра. Тут в «чистом» виде имеем около 22 квадратов площади место 14-15 в предыдущем варианте. Планировка все также не отличается разнообразием, но уже можно выгородить кухонную зону.

План дачного дома 6*4
Если говорить об оптимальных расходах, то приведенные выше проекты дачных домов — не самый лучший вариант. Дело в том, что брусовые или бревенчатые дачи лучше делать 6*6 в плане. Дело в том, что стандартная длина и бруса, и бревен — 6 метров. Если стены вашего дома меньше, надо или искать нестандарт подходящей длины, или отпиливать лишнее от стандартных. Да, нестандарт стоит намного меньше, но искать его придется по разным лесопилкам. Даже на самой большой лесопилке найти брус или бревна 4-5 метровой длины в достаточном для постройки количестве более чем затруднительно. Так что придется «утюжить» все недалеко расположенные. Каково при этом будет качество материала сказать затруднительно. Хотя, если у вас «не горит» можно покупать те же нестандартные бревна на протяжении нескольких лет, складывать их в штабеля, доводя до эксплуатационной влажности. В общем и целом — это хороший план. Вот только времени на реализацию требует много.
stroychik.ru
проекты, фото лучших идей и советы специалистов
Строения с мансардным этажом – практичная и очень привлекательная идея для индивидуального участка. Расходы на обустройство жилого чердака меньше, чем на строительство полноценного этажа, в доме появятся дополнительные квадратные метры. Для дачного участка самый оптимальный вариант – дом с мансардой. Проекты, фото удачных интерьеров и рекомендации опытных строителей – в нашем материале.

Даже небольшая мансарда преобразит фасад дома и сделает его неповторимым
Содержание статьи
Определение мансарды
Под мансардой понимается жилое пространство под крышей. Кровля для обустройства жилого чердака должна иметь двойной скат, такой, чтобы высота чердачного пространства была не менее человеческого роста в самой высокой точке.

Оптимальной считается высота в два метра двадцать сантиметров
Важно! Высокий потолок должен занимать не менее половины площади. Меньшие размеры будут вызывать у человека дискомфортные ощущения.
Наружная стена жилого чердака состоит из двух плоскостей: наклонной и вертикальной. Вертикальная часть строится из основного материала дома, наклонная – состоит из стропил крови и внутренней обшивки.

Соотношение вертикальной и наклонной части зависит от проекта
К сведению! Мансарда в градостроительных нормативах считается жилым этажом.
При строительстве частного дома многие владельцы задумываются над вопросом: отдать предпочтение полноценному этажу или мансарде?
Преимущества и недостатки дачных домов с мансардой: проекты с полным этажом или жилой чердак?
Главным аргументом в пользу мансардного этажа всегда приводится дешевизна его обустройства. Так ли это на самом деле? Снижение расходов обусловлено использованием каркасной конструкции кровли. На практике, чем больше кровля и, соответственно, больше площадь каркаса для обшивки, тем выгоднее мансарда.
Но следует помнить, каким бы просторным не был чердак, он в любом случае занимает меньше полезной площади, чем настоящий этаж. Получается, чтобы сделать мансардное помещение годным для проживания, необходимо предусмотреть такую площадь первого этажа, чтобы она превышала чердачную минимум в два раза.

Ещё один момент, усложняющий задачу: жилой чердак требует обустройства кровли сложной конфигурации и врезки особенных чердачных окон
Чтобы в мансардном помещении создать нормальный микроклимат, необходимо предусмотреть систему вентиляции с принудительной подачей воздуха. Все эти расходы лягут дополнительным бременем при строительстве. И на деле экономия не будет такой уж значительной.
Сторонники мансардного строительства отмечают, что дома с такими «фигурными» крышами выглядят привлекательно. А дизайнеры добавляют, что обустройство жилого чердака имеет множество оригинальных решений.

Одно из таких решений, к примеру, установка больших окон прямо в наклонной части крыши. Если разместить в таком помещении спальню, по ночам можно любоваться звёздным небом не вставая с постели
Рачительные хозяева не любят, когда что-то пропадает зря. В том числе – чердачное пространство. Некоторые превращают его в свалку ненужных вещей. Но на самом деле здесь может разместиться полноценный рабочий кабинет, мастерская, спальня или даже детская комната.
Противники такой рачительности напоминают, что активная эксплуатация пространства под кровлей ухудшает состояние конструкции крыши и значительно усложняет её ремонт.
Точка зрения эксперта
Ярослава Галайко
Ведущий дизайнер и руководитель студии Ecologica Interiors
Задать вопрос«Психологи предупреждают, что низкие потолки мансарды заставляют человека чувствовать себя в замкнутом пространстве, неблагоприятно воздействуя на его психику. Особо впечатлительные натуры даже могут ощущать приступы удушья из-за низких потолков и скошенных стенок. Стоит задуматься об этом факте, планируя детскую комнату на чердаке.»
Сторонники полноценного второго этажа приводят такое сравнение:
| Мансарда | Второй этаж |
|---|---|
| Ограничена в планировке наклонными конструкциями | Имеет полноценные варианты планировки |
| Сложности с обустройством полноценных окон | Отсутствие проблем с организацией естественного освещения |
| Конструкция стенок и потолка мансарды не позволяет беспрепятственно ремонтировать кровлю | Ремонтопригодность крыши и простота конструкции кровли |
| Необходимость в обустройстве сложной кровли | Использование крыши простой формы |
| Потребность в принудительной вентиляции | Использование естественной вентиляции |
| Сильный нагрев помещения в жаркие дни | Сохранение оптимальной температуры благодаря наличию чердачного пространства |
Не смотря на все эти споры и разногласия, проекты дачных домов с мансардой и верандой или гаражом пользуются большой популярностью. Это неудивительно, ведь набирающее огромную популярность каркасное строительство предлагает множество вариантов именно таких строений, с большой полезной площадью и разнообразными планировками. Рассмотрим фото проекты домов с мансардами подробнее.
Статья по теме:
Проекты дачных домиков для 6 соток. Фото-примеры красивых и компактных дачных домиков с рекомендациями по выбору планировки в отдельной публикации нашего портала.
Советы по строительству одноэтажного дома с мансардой: фото оригинальных идей
Обустройством жилого чердака чаще всего озабочены владельцы небольших дачных коттеджей. Прежде чем решиться на такой проект, попросите погостить у своих знакомых, владельцев подобной конструкции. Вдруг вы внезапно почувствуете приступ клаустрофобии или напротив окажетесь под впечатлением от чердачных окон, через которые можно наблюдать облака?

Если сомневаетесь в целесообразности организации жилой комнат в этом месте, подумайте об альтернативных вариантах
Здесь при желании можно разместить гардероб, творческую мастерскую, котельное помещение, тренажёрный зал.
Вот варианты организации чердачного пространства:




Особенным спросом пользуется проект одноэтажного дома с гаражом и мансардой. Такая планировка чрезвычайно удобна. Особенно такой вариант оценят жители северных регионов, которые знают, что такое прогревать машину в морозный день. Когда гараж под одной крышей с домом, даже если в нем нет центрального отопления, температура будет значительно выше, чем на улице. А сам автомобиль будет надёжно защищён от всех капризов погоды.

При строительстве по такому проекту необходимо предусмотреть все меры безопасности: наличие тамбурного помещения и качественной системы вентиляции
Как выглядят проекты домов с мансардой из пеноблоков
Проекты домов с мансардой из пеноблоков, фото которых вам представлены, пользуются большой популярностью у застройщиков индивидуального жилья. Причины такой востребованности в том, что дома из этого материала очень функциональны и выглядят основательно и роскошно. Стоимость возведения такой конструкции ниже, чем расходы на строительство кирпичного дома.

За счёт мансардного этажа полезная площадь дома значительно увеличивается и при этом расходы в целом меньше, чем на возведение полноценного второго этажа из пеноблоков
К сведению! Пеноблочный дом, после возведения первого этажа, уже готов к заселению. Обустроить мансарду можно позже.
Преимущества конструкций из пеноблоков:
- идеальные геометрические формы блоков позволяют создавать прочную и ровную кладку с минимальными швами в несколько миллиметров;
- размеры блоков превосходят размеры кирпича, так что строительство будет вестись ускоренными темпами;
- вспененный бетон отличается высокими показателями энергосбережения и не требует дополнительных утеплителей;
- материал не выделяет токсичные для человеческого организма соединения;
- пенобетон не горюч, не поддерживает развитие плесени и не боится насекомых;
- блоки не деформируются от воздействия влаги или перепада температур;
- материал имеет длительный срок эксплуатации.
Технология строительства конструкций с мансардой имеет некоторые отличительные особенности. Прежде всего, каркас мансарды изготавливается из тщательно просушенной древесины.

Качественный древесный материал не деформируется в процессе эксплуатации
Важно правильно подобрать утеплитель. Для мансард подходят минеральная вата или базальтовые плиты. Эти утеплители хорошо зарекомендовали себя на практике.
Снаружи и внутри кровля обшивается разными материалами. Снаружи укладывается металлочерепица или мягкая кровля. С внутренней стороны каркас обшивается фанерой или плитами OSB.
Точка зрения эксперта
Ярослава Галайко
Ведущий дизайнер и руководитель студии Ecologica Interiors
Задать вопрос«Типовые проекты очень удобны и стоят дешевле индивидуальных. Но в рамках индивидуального проектирования можно предусмотреть многие нюансы: например, обустройство удобных лестниц для пожилых людей и инвалидов или размещение зимнего сада или рабочего кабинета в мансарде.»
В типовых проектах редко закладывается декоративная обработка фасада.

Чем оформить стены решает сам застройщик
Пеноблоки можно просто покрасить, оштукатурить или использовать для отделки фасадные материала: плитку, сайдинг, камень.
Самые лучшие проекты домов с мансардой: фото с чертежами
Хороший проект жилого дома должен учитывать многие факторы:
- климат местности, в которой будет вестись строительство;
- особенности грунта и ландшафта участка;
- сочетание отделки дома с окружающими его строениями и местностью;
- организация максимально комфортных условий проживания для всех членов семьи с учётом их возраста и индивидуальных запросов.
Готовый проект дома с мансардой разрабатывают профессиональные архитекторы с участием специалистов узкого профиля. Важно продумать не только расположение комнат, но и особенности размещения инженерных сетей.
Для дачного участка подходят проекты небольшой площади, 36 – 40 квадратных метров. Этого пространства вполне достаточно для размещения кухни и просторной гостиной на первом этаже и двух компактных спален или рабочего кабинета в мансарде. Дома с площадью свыше 60 квадратных метров вмещают в себя просторную гостиную, спальню и кухню на первом этаже и комнаты на втором.

Пример проекта дома площадью 70 квадратных метров
Для больших домов идеальным было бы строительство террасы, на которую можно выйти с мансардного этажа. Сверху будет открываться великолепный вид на природу.

Здесь можно комфортно отдохнуть и использовать крытую террасу для семейных обедов или дружеских посиделок
Идея! Если дом предусмотрен для круглогодичного проживания, часть крыши можно застеклить и использовать площадь для зимнего сада.
Дачный дом с мансардой: планировка 6х6
Распланировать дом с минимальной площадью не просто. Проект дачного дома 6х6 с мансардой – оптимальный выбор. В этом случае у вас не 36, а как минимум 50 квадратных метров полезной площади.

Пример планировки дома 6х6
Если дача нужна лишь для сезонного посещения, такого пространства вполне достаточно для небольшой семьи. Со временем к дому можно сделать пристройку, если количество членов семьи увеличится. Что следует учитывать в проекте дома с мансардой 6х6:
- максимальное использование каждого сантиметра площади;
- количество людей, одновременно посещающих дом;
- возраст членов семьи;
- периодичность посещения дачного участка.
При планировке дома 6 на 6 с мансардой важно использовать все пространство с максимальной пользой. Традиционно по центру располагают просторную гостиную, имеющую выход в санузел и кухню. Все эти комнаты полностью займут первый этаж. Чтобы не было тесно, подбирают компактную мебель.

Оптимальным выбором станут предметы-трансформеры, легко превращающиеся в спальные места. Если у вас на даче припозднятся гости, разместить их на ночлег будет не сложно
Кухня должна иметь два входа: из комнаты и со двора. Сервировка стола в летней беседке значительно упростится, да и готовить в жаркий день будет легче, настежь открыв выход в сад.
Спальные комнаты в этом варианте размещаются в мансарде. Здесь можно сделать две полноценные спальни для хозяев и детей.
Для санузла достаточно четырёх квадратных метров. Если дача посещается только летом, летний душ можно организовать во дворе. Любители попариться ставят на участке баньку. Если не предусматривать душ или ванную в доме, можно оставить для туалета три квадратных метра. Стиральную машину при этом устанавливают в кухне.
Каркасные дома с мансардой (проекты 6х6) не предусматривают внутренних лестниц. Их размещают снаружи. Этот приём тоже позволяет значительно сэкономить пространство. Для хранения вещей в доме следует предусмотреть компактные антресоли.
Вот примерный план дома с мансардой 6 на 6:

Проект 6х6
Специфика планировки домов 9 на 9 с мансардой: фото удачных решений
Дом общей площадью восемьдесят квадратных метров – популярный проект. Строители отмечают, что этот проект имеет оптимальное соотношение затрат и комфорта проживания. Классическая планировка включает в себя спальню, кухню, гостиную и санузел на первом этаже и ещё две-три комнаты на мансарде. Их можно использовать как дополнительные спальни или организовать в них рабочий кабинет, творческую мастерскую и просторный гардероб.

Пример классической планировки дома 9х9
Ещё один вариант расположения комнат – в планировке дома 8 на 10 с мансардой. Фото пример такой планировки:

Планировка дома 8х10
Что следует знать о планировке дома 10 на 10 с мансардой: фото лучших идей
Сто квадратных метров на первом этаже и ещё семьдесят на втором – в таком доме может постоянно проживать большое семейство. Здесь найдётся место для отдельных комнат детям, спальни родителям, рабочему кабинету, просторной гостиной и кухне. Со стороны дом не выглядит огромным. Проекты дома 10х10 с мансардой из пеноблока производят впечатление компактностью размещения на участке. Но это как раз тот случай, когда внешнее впечатление обманчиво.
Здесь достаточно места не только для размещения санузлов на каждом этаже, но и даже для организации сауны или баньки прямо в доме. Удобная лестница с широким проходом позволит без труда поднять громоздкую мебель.

Подлестничное пространство следует использовать для хранения вещей
В таком доме обычно предусматривают отдельное помещение для котла. Если в доме из пеноблоков есть цокольный этаж, прачечная, приборы отопления, кладовая для хранения инвентаря и домашних закаток размещаются здесь.
Пример планировки:

Планировка дома 10х10
Статья по теме:
Проекты каркасных домов. В статье мы подробно рассмотрим в чем же преимущество данных конструкций, разновидности технологий, средние цены возведения, оригинальные проекты, полезные советы и многое другое.
Примеры оформления интерьеров домов с мансардой внутри: фото
Даже маленькую мансарду можно обставить так, что в ней поместится все самое необходимое. Наклонные плоскости потолков частично скрадывают общую площадь, но можно использовать их для стильного оформления комнаты.

Если выкрасить стропила в контрастные тона – они станут стильной деталью интерьера
Проекты небольших домов с мансардой обычно предполагают размещение на втором этаже спальной комнаты. В дачном варианте логично использовать отделку натуральным деревом.

Чтобы комната не казалась тёмной, ставят светлую мебель и используют светлые аксессуары и текстиль
Если мансарда занимает значительную площадь, задача упрощается. Ниши между стропилами можно использовать в качестве элементов зонирования. В одной – разместить кровать, в другой – рабочий стол у окна или диванчик для отдыха. К вопросу размещения детской комнаты на мансардном этаже стоит подойти особенно внимательно.

Напомним, что скошенные потолки могут вызывать дискомфортные ощущения у ребёнка. Следует максимально компенсировать этот фактор при помощи умелого использования цветов и материалов
Если на мансарде будет располагаться рабочий кабинет, важно продумать освещение.

Максимум естественного света и удобная мебель станут дополнительным стимулом к творчеству
Ещё одна идея планировки дома с мансардой (фото ниже) – размещение гардероба. Здесь можно выстроить компактные и удобные системы хранения.

Гардеробная на чердаке
Дом с мансардой: фото, проекты и главные выводы
Итак, мы подробно рассмотрели все особенности конструкции с мансардным этажом. В чем их преимущества? Мансарду можно обустроить уже после того, как выстроен и заселён первый этаж. Планируя строительство, просто предусмотрите крышу необходимой формы. Это может быть задел на будущее.

Мансардный этаж можно пристроить в любой момент
Использование качественных материалов и проверенного утеплителя – залог успеха. Мансардный этаж минимум в полтора раза увеличит полезную площадь дома. Здесь можно разместить комнаты с разным назначением. Согласитесь, лучше использовать это пространство с пользой, чем превращать его в пыльный чердак!
Понравилась статья?
Сохраните, чтобы не потерять!
homemyhome.ru
Проекты дачных домов мансардой 6х8 + фото
Многие застройщики предпочитают проекты дачных домов с мансардой домам с полноценным вторым этажом. Дома с мансардой имеют некоторые важные преимущества, такие строения можно приспособить как для круглогодичного, так и для сезонного проживания.

Преимущества дома с мансардой
Чем дачный дом с мансардой лучше, чем обычный двухэтажный?
- Мансарда вместо второго этажа значительно снижает расходы на отопление зимой.
- Построить второй этаж дороже, чем сделать мансарду.
- Над вторым этажом нужно будет возводить чердак, который, как правило, мало используется, но содержать это дополнительное помещение тоже нужно.
- Мансарда со скошенными потолками, образованными скатами крыши, позволяет создать интересный неповторимый интерьер.
- В мансарде можно сделать окна необычной формы (полукруглые, треугольные), дополнительно оборудовать балкон.
Из чего строить
Для строительства небольших частных домов сейчас можно выбрать различные материалы. Чаще всего используют
- готовые каркасно-щитовые блоки,
- пеноблоки,
- дерево: бревно или брус,
- кирпич.
Каждый из этих материалов имеет свои плюсы и минусы.
Каркасно-щитовые панели
Такие дома собираются, как конструктор. Все детали изготавливаются на заказ по индивидуальному проекту, также есть готовые проекты типовых дачных домиков с мансардой разных размеров: 6х6, 6х8, 9х9 и так далее. Каркасно-щитовые блоки весят немного, поэтому для сборки дома не понадобится тяжелая техника, а фундамент можно делать облегченным. Еще один важный плюс — ровные стены и отсутствие усадки. Для отделки можно использовать практически любые материалы.

Дерево
Деревянные дома строят из ошкуренного или оцилиндрованного бревна. Последнее более ровное, но не имеет естественной защиты от влаги. Минус данного материала — сильная усадка. Чтобы сократить время работ, используют бревна камерной сушки. Деревянные дома экологичны, в них устанавливается здоровый микроклимат. Дерево красиво выглядит, поэтому внутри можно обойтись минимальной отделкой. Важно! Чем толще бревно, тем лучше его теплоизолирующие свойства. Для дома, где живут круглый год, диаметр бревен должен быть не меньше 25 см.

Также для строительства используют профилированный брус. По сравнению с бревном, строить из него проще, он уже обработан, просушен, поэтому не дает усадки. Брус сохраняет внешний вид и экологичность натурального дерева. Можно построить красивый дом по проекту с мансардой и верандой.
Пеноблоки
Этот материал сравнительно недорог, поэтому часто используется для строительства небольших дачных домов с мансардой. Пеноблоки весят немного, а благодаря их крупному размеру строительство идет быстро. Благодаря наличию воздуха внутри, они хорошо держат тепло. Для отделки стен из пеноблоков можно использовать разные материалы.

Конструкция крыши мансарды
Вне зависимости от размеров дачи, мансарда устроена примерно одинаково. Это помещение находится непосредственно под крышей, через которую постоянно происходит теплообмен, причем более интенсивно, чем через стены. Поэтому важно правильно утеплить и гидроизолировать крышу. Зимой именно сюда поднимается весь влажный воздух при отоплении нижнего этажа. Лучше использовать площадь второго этажа можно, если предусмотреть в проекте не двускатную, а так называемую ломаную крышу. Для более интересного внешнего вида можно сделать крышу сложной формы, например, такую.

Обычно в качестве утеплителя используется минеральная вата, ее закладывают между стропилами, снизу делают обрешетку из досок. Чтобы утеплитель выполнял свою функцию, он должен оставаться сухим. Поэтому на обрешетку крепится пароизолирующая пленка или фольгоизол. Под верхним перекрытием располагается, наоборот, паропропускающая пленка, которая будет способствовать отводу влаги из утеплителя. Сверху делают контробрешетку и поперечную обрешетку, на них монтируют кровельный материал. Обычно стропила делают из бруса размером 150 мм, а нижнюю обрешетку из доски 22 мм. Также важно утеплить фронтоны и ендовы (внутренние углы-желоба между скатами), если они есть. Все слои тепло- и гидроизоляции показаны на рисунке.

Что важно знать при планировании
Первое, на что стоит обратить внимание при создании проекта дома 6х6 или 6х8 с мансардой — это то, предназначена она для круглогодичного или только сезонного проживания. Также важно количество жильцов и возможность приезда гостей. В последнем случае в план нужно будет включить гостевую спальню и, возможно, отдельный санузел. Санузлы лучше делать совмещенными, а не в виде отдельных ванной и туалета. В небольших домах лучше не делать коридор, достаточно небольшой прихожей, а комнаты могут сообщаться непосредственно. Место под скатами крыши можно использовать для устройства шкафов, кладовок.
Чертить проект дачи с мансардой вы можете как на бумаге, так и в современных компьютерных программах. С их помощью можно создать трехмерную модель домика, как на видео.
Дом 6х6 метров

Как правило, такого размера делают дачные или садовые домики. Дом 6х6 — это не очень большое строение, поэтому важно, чтобы изнутри он не выглядел тесным и загроможденным.
Планировка первого этажа
Приведем пример проекта дачного дома 6х6 с мансардой. На первом этаже располагаются три главных помещения: это прихожая, кухня-столовая и санузел. Прихожую часто делают достаточно большой и располагают в ней лестницу. Средний размер комнат — 3х3 метра. Можно расположить на первом этаже гостиную, тогда кухня станет отдельным помещением, также можно оборудовать кабинет.

Важно использовать подлестничное пространство — оно может составлять до 2 м3, поэтому там можно оборудовать место для хранения вещей. Лестницу делают шириной как минимум 1 м — это позволит безопасно разойтись на ней двум людям. Под большой лестницей можно даже сделать библиотеку, как на фотографии.

Планировка второго этажа
В мансарде нужно распланировать комнаты таким образом, чтобы лестница выходила не в какую-то из них, а в небольшой общий холл. Это поможет создать нужную уединенность, особенно если вы планируете гостевые комнаты. Ниже представлен проект второго этажа дачного дома с мансардой, в которой расположены три спальни. В этом варианте в мансарде санузел не предусмотрен.

Дом 6х8

Площадь этого дома больше, что позволяет вместить все необходимые помещения. Его планировка ненамного отличается от планировки дома 6х6.
Планировка первого этажа
На первом этаже можно разместить столовую, прихожую, санузел. Это базовый вариант, учитывая индивидуальные предпочтения, можно сделать здесь кабинет, гостиную и другие комнаты. В проекте, показанном на фото, часть площади отводится под террасу.

Планировка второго этажа
В представленном ниже на фото проекте дачного дома с мансардой размером 6х8 мансарда находится не над всем первым этажом, часть которого занимает прихожая и веранда.

Террасы и веранды

Недостающую площадь можно компенсировать, если построить рядом террасу или веранду. Веранда или терраса может составлять часть дома.

На самом деле, каждый проект разрабатывается с учетом нужд и пожеланий владельца. Совершенно необязательно следовать типовым проектам, важно лишь учитывать некоторые общие рекомендации.
bouw.ru
Планировка небольших домов для дачи
Купить дачный участок — это только начало. Его надо распланировать, подобрать оптимальный домик, разработать общую концепцию его оформления. В этой статье будем рассматривать самые разные проекты дачных домов. От самых маленьких на одну комнату, до очень даже вместительных — на 100 квадратов полезной площади.
С верандой и террасой
При выборе планировки дачного дома часто стараются найти проект с верандой или террасой. Подобная крытая площадка хороша не только для отдыха или трапез на открытом воздухе. В дождливый или жаркий день под навесом можно провернуть немало дел, которые из-за большого количества мусора в помещениях не сделаешь.

Отдых на даче не менее важен, чем работа. А что может быть приятнее, чем отдых на открытом воздухе
На общем фундаменте
Проекты дачных домов с верандой есть небольшой площади: самые маленькие имеют размеры 6*4 метра, причем веранда занимает 2 метра по длинной стороне, а собственно дом — 4*4 метра или 16 квадратных метров (с учетом толщины стен и того меньше).

Проект дачного дома 6*4 с верандой и санузлом
Представленный выше проект предусматривает зимнее использование дачи. Для сохранения тепла в домике, есть вход через тамбур. Вход через веранду может использоваться в летнее время. Хорош он и тем, что есть в нем санузел — небольшая душевая кабинка, с умывальников и унитазом. Если канализации на даче нет, можно рассмотреть вариант биотуалета.
Еще один вариант — одна комната, в которой отведено место под несколько кухонных шкафчиков и плиту, стоит небольшой обеденный стол и есть спальное место. Такая планировка идеальна для проживания одного человека. Неплохо в ней себя будут чувствовать двое. В данном варианте санузла нет, так что придется строить туалет отдельно.

Проект маленького дачного дома с верандой под общей крышей
Планировка дачного дома маленькой площади (до 40 метров) совсем проста: обычно это две комнаты, первая из которых используется как кухня и столовая одновременно. Чаще всего она является проходной. Вторая комната жилая. Более-менее комфортно разместить тут можно два спальных места. Так что проекты дачных домов с мансардой 6*4 метра рассчитаны на проживание 1-2 человек.

Проект дачного дома с санузлом и открытой террасой под односкатной крышей
Если бюджет строительства сильно ограничен, рассмотреть проекты дачных домов с односкатной крышей. Они непривычны для нашей станы, но стоимость кровли при небольшой площади намного меньше. Только надо выбрать правильный угол уклона кровли (с учетом величины снежного покрова).

Дачный дом с зарытой зимней верандой 8*8 метров, проект с планировкой
Дачный дом средних размеров представлен на фото выше. Проект интересен тем, что веранда тут изначально «зимняя», застекленная. Большинство обладателей открытых веранд приходят к необходимости ее застеклить, а для приятного времяпровождения на воздухе построить беседку. В данном проекте веранда является продолжением гостиной, но тут может быть установлена перегородка. В общем и целом, удобный и комфортный дом с традиционной планировкой, все комнаты отдельные, есть санузел, выгороженный коридор. Все условия для круглогодичного проживания.
На отдельном фундаменте
Обратите внимание, что приведенные выше проекты дачных домов с верандой имеют общий фундамент. Это надежно, так как даже при весеннем пучении почвы подвижек не будет. Но затраты на фундамент получаются значительные. Потому обоснован такой подход на сложных грунтах, склонных к пучению. В на нормальных грунтах можно можно делать веранду на отдельном, несвязной и облегченном (обычно — столбчатом или свайном) фундаменте. Один такой проект представлен ниже.

План дачного дома 4*8 с пристроенной верандой
Вообще, веранду можно пристроить к любой постройке. Ее можно закладывать на этапе проектирования, а можно пристроить после (как бывает очень часто).

Небольшой дачный дом 6*4,5 с верандой на отдельном фундаменте
Веранда может занимать полностью одну из сторон дома, может охватывать два или даже три его стороны. Но есть варианты и с небольшой открытой площадкой (как на фото выше). Фундамент в этом случае может быть отдельный, но большой экономии не будет. Например, в приведенном выше проекте «выиграли» лишь 1,1 метра «основного фундамента.

Одноэтажный дом 7*7,5 с пристроенной террасой
Мы настолько привыкли к комфорту, что даже на даче не желаем иметь «удобства во дворе». Для многих основным критерием выбора является наличие санузла. Даже необходимость оборудования индивидуальной канализации их не пугает. Не все проекты дачных домов маленькой площади могут похвастаться таким «излишеством», но в некоторых санузел (туалет и душ) присутствует.
С мансардой
Идея увеличить жилую площадь за счет мансардного этажа приходит часто. Считается что расходы на строительство при этом не сильно возрастают, так как большая часть надстройки — видоизмененная кровля. В действительности же если мансарда будет эксплуатироваться круглый год, разница в ценнике на двухэтажный дом и одноэтажный с мансардой будет небольшой. Ведь надо учесть, что площадь помещений мансардного этажа значительно меньше, а затраты будут велики, так как требуется хорошая тепло-, звуко-, пароизоляция.

Для кого-то дом мечты выглядит так
Мансарды под двускатной крышей
Действительно дешево обойдется дачный дом с летней мансардой. Но при этом надо учесть, что в солнечные дни без утеплителя там будет слишком жарко, так что теплоизоляция все-таки необходима, но не настолько «серьезнае» как для зимней эксплуатации.

Дачный дом 6*6 с верандой и мансардой
Действительно дешево обойдется дачный дом с летней мансардой. Но при этом надо учесть, что в солнечные дни без утеплителя там будет слишком жарко, так что теплоизоляция все-таки необходима, но не настолько «серьезная» как для зимней эксплуатации.
Небольшой дачный дом 5*4 на две жилых комнаты с мансардой
Проекты дачных домов, представленные выше, предназначены для сезонного посещения. В них предусмотрены только жилые комнаты. В комнате первого этажа можно организовать кухонный уголок.
Ниже приведена планировка маленького садового или дачного дома размером 5 на 5 метров с выделенной кухней. Обратите внимание на то что крыльцо пристроено и на плане его нет.

План дачи 5*5 с мансардой и кухней
Все эти домики спроектированы как каркасные. С небольшими изменениями эти проекты подойдут для домов из любого другого материала. Только надо будет учесть толщину стен, правильно выбрать фундамент.

Дача с крытой верандой и мансардой 6*10 метров: поэтажная планировка
При желании крытую веранду можно сделать открытой. Хотя, обычно происходит наоборот. Построив открытую, ее остекляют или выгоняют до половины стены, ставят одинарные рамы. Если хочется свежего воздуха, окна всегда можно распахнуть, а площадь можно отвести под летнюю столовую или кухню.
Как увеличить площадь мансардного этажа
Все проекты дачных домов с мансардным этажом сделаны под двускатную крышу. Это хорошо в том плане, что снег на таких крутых скатах задерживаться не будет. Второй плюс — несложная стропильная система. Минус — малая площадь «полноценной» комнаты на верху. Слишком много неэффективного пространства по краям. Там можно сделать шкафы, но для жилья эта площадь непригодна.

Если крыша мансарды двускатная, много площади теряется
Если вам важно увеличить жилую площадь, кровлю можно сделать ломаной. Она сложнее в устройстве и дороже, но площадь помещений на мансардном этаже значительно больше.

Проект дома для дачи 7*7 с мансардой под ломанной крышей и эркером
Еще один способ увеличить площадь — стены выгнать выше уровня первого этажа. Говорят, построить «полтора этажа». Этот вариант хорош для дач, которые посещаются и в холодное время года. Крышу можно делать как вам нравится, но большая площадь комнат все также получается под ломанной.

Пример «полуторного этажа»
При выборе проекта дачного дома с мансардой для периодического посещения лучше делать мансарду холодной, а перекрытие делать утепленным. На лестнице, которая ведет на второй этаж, надо предусмотреть дверь/крышку, которая будет отгораживать верхний ярус. В противном случае на отопление уходить будет много топлива и времени. Зимой людей, обычно, меньше, посещения кратковременные. Разогревать оба этажа слишком долго и дорого, так что решение неплохое.
Проекты двухэтажных дачных домов
Строительство двухэтажного дома не такая уж дорогая затея. Фундамент то все равно нужен один, пусть и более мощный, но его стоимость возрастает не в два раза, а процентов на 60%. Размеры и утепление кровли от этажности вообще не зависят, так что тут увеличения вложений не требуется. Добавляются расходы на стены — их площадь в два раза больше, но в целом стоимость квадратного метра площади получается дешевле, чем при строительстве аналогичного одноэтажного жилища. Потому многие ищут проекты двухэтажных дач.

Проект небольшого двухэтажного дома для дачи с пристроенным гаражом: жилая площадь 100 кв. м, общая 127 кв. м, гараж на одну машину
Приведенный выше проект разработан для газобетонных или керамических строительных блоков. Подходит для вытянутых в длинну участков. Пристроенный гараж очень удобен при использвоании — из гаража стазу можно попасть в дом. Еще плюс: такой вариант экономит место на участке, а его на даче всегда мало, какой бы величины участок у вас ни был.
В данном варианте планировки с тыльной стороны дома предполагается просторная терраса. В общую площадь дома она не входит. Интересный дизайн делает дом непохожим на другие: большое окно на полтора этажа, кубической формы гараж и навес перед домом — не слишком влияют на ценник, но делают дом уникальным.

Проект двухэтажного дачного дома с пристроенным сбоку гаражом
Еще один проект дачи на два этажа с пристроенным сбоку гаражом представлен выше. Этот вариант больше подходит для квадратных или широких участков. Пятно застройки в плане — 10*10 метров, жилая площадь — 108 квадратных метров. Необычный облик этому дому придают высокие окна второго этажа. Свою лепту вносит и подбор отделочных материалов, сочетание светло-бежевого и коричневого цветов. В общем и целом интересный проект.

Проект дачи с балконом по периметру второго этажа
Нестандартного вида двухэтажный дом с балконом, который опоясывает все здание. С тыльной стороны находится обширная открытая терраса. Кровля четырехскатная, что усложняет конструкцию, но придает постройке особый колорит.
С баней
Для многих дача ассоциируется с баней. Баню, конечно, можно построить отдельно, но это долго и дорого. В дачном доме средних размеров вполне можно отвести помещение под парилку. Ее обычно делают со входом из ванной/санузла, так как водные процедуры необходимы. Для истинных парильщиков рядом еще должен быть выход на улицу: чтобы можно было быстро охладиться в речке или уличном бассейне.

Проект дачного дома с баней/сауной в скандинавском стиле
Минимальные размеры парилки — 2*2 метра, оптимальные — 3*3 Такие помещения можно вписать даже в дома небольшой площади, но при этом количество жилой площади уменьшится. Если комнат все-таки должно быть достаточно, можно рассмотреть вариант с мансардным этажом. Один из таких примеров на фото ниже.

Проект дачного дома с баней и мансардой
Обратите внимание на планировку. Первое, на чем стоит акцентировать внимание: печка установлена так, что топится она из соседнего помещения. В данном случае это комната отдыха. Вариант не слишком хорош, так как вход находится далеко. Носить дрова придется через комнату, что неудобно и,обычно, чревато большим количеством мусора.
Еще один недостаток: в приведенном варианте нет кухни. Для дачной жизни это солидный недостаток. Кухонный уголок можно организовать в большой комнате, на спальни разместить исключительно наверху. Еще вариант планировки — сделать кухню в нынешней «топочной/комнате отдыха». Отдыхать же удобнее в большом помещении. После принятия душа туда заходить удобно.
Небольшие и недорогие
Небольшие дачи проектируются обычно под самые недорогие технологии строительства. В нашей стране — это каркасная технология и деревянные дома. Примерно в той же категории дома из пористых строительных блоков (пенобетона, газобетона). Но они все-таки не так популярны.

Небольшой каркасный домик для дачи
Проекты дачных домов под каркасную технологию
Маленькие дачные домики строят обычно по каркасной технологии. Каркасники можно строить самостоятельно, можно купить готовые — сборные. Это две технологии, которые при минимальных затратах средств и времени позволяют иметь неплохое дачное жилье.

Одноэтажный дачный дом 5*5 метров: проект с планировкой
Для оптимизации бюджета постройки дачного домика, ищите проекты фундамент которых на плане представляет собой прямоугольник или квадрат. Наличие любых выступов ведет к удорожанию квадратного метра. Мало того, что возрастают затраты на фундамент, увеличивается площадь стен, а, значит, и затраты на них. Дороже получается и кровля — сложнее стропильная система, больше сложных узлов.

Планировка дачного дома 6*4 с кухней, туалетом, летней верандой
Еще один момент для тех, кто планирует посещать дачу в зимнее время. Чтобы при хождении туда-сюда из дома не «убегал» теплый воздух, желательно вход делать с тамбуром. Если площадь не позволяет сделать его встроенным, делайте пристройку. Это намного сократит расход топлива и время на прогревание дома.
Брус и бревно
Один из самых распространенных строительных материалов в нашей стане: брус и бревно. Плюс в том, что возводится небольшой дачный домик очень быстро. Минус — с длительной усадке (от полугода до года, в зависимости от начальной влажности бревна и климатических условий). До окончания периода активной усадки проводить отделочные работы не стоит, что оттягивает возможность эксплуатации постройки. Это не касается выстояных срубов (готовых комплектов) или клееного бруса. Но цена солидно (раза в два) на такие варианты выше.

Маленький дачный дом из бруса 4*4 — совсем простой проект
Если говорить о самых маленьких дачных домиках, то размеры они имеют 4 на 4 метра. Меньше делать просто не имеет смысла. Планировка в таком случае совсем проста: это всего-то навсего одна комната. Отличаться они могут только ориентацией по сторонам света, количеством и располодением окон. Еще двери могут быть расположены посередине или сбоку. Все. Варианты закончились.
Чуть больше по площади будет домик 6*4 метра. Тут в «чистом» виде имеем около 22 квадратов площади место 14-15 в предыдущем варианте. Планировка все также не отличается разнообразием, но уже можно выгородить кухонную зону.

План дачного дома 6*4
Если говорить об оптимальных расходах, то приведенные выше проекты дачных домов — не самый лучший вариант. Дело в том, что брусовые или бревенчатые дачи лучше делать 6*6 в плане. Дело в том, что стандартная длина и бруса, и бревен — 6 метров. Если стены вашего дома меньше, надо или искать нестандарт подходящей длины, или отпиливать лишнее от стандартных. Да, нестандарт стоит намного меньше, но искать его придется по разным лесопилкам. Даже на самой большой лесопилке найти брус или бревна 4-5 метровой длины в достаточном для постройки количестве более чем затруднительно. Так что придется «утюжить» все недалеко расположенные. Каково при этом будет качество материала сказать затруднительно. Хотя, если у вас «не горит» можно покупать те же нестандартные бревна на протяжении нескольких лет, складывать их в штабеля, доводя до эксплуатационной влажности. В общем и целом — это хороший план. Вот только времени на реализацию требует много.
dekormyhome.ru
особенности небольших домиков из бруса, фото и видео
Времена, когда дача ассоциировалась с грядками и постоянными работами, а единственным строением был вагончик или небольшой сарай, давно прошли. В наши дни загородный участок стал местом для отдыха всей семьей, при этом очень важен комфорт и удобство, чтобы пребывание на даче ничем не отличалось от жизни в городе. Рассмотрим, какие факторы следует учитывать при выборе конкретного проекта и на что стоит обратить особое внимание.

На фото: уютный дачный домик с мансардным этажом – отличное решение для любой семьи
Какие факторы являются основополагающими при выборе проекта
Можно найти разнообразные проекты небольших дачных домов с мансардой, чтобы сделать правильный выбор, необходимо учесть несколько важных нюансов:
| Размер | Это один из основных моментов, который ни в коем случае не стоит упускать из вида. В первую очередь следует учесть размер участка, чтобы расположение строения соответствовало всем основным противопожарным нормам |
| Планировка | Этот пункт целиком и полностью зависит от ваших предпочтений. При этом важно учитывать и ориентировочное количество отдыхающих на даче, чтобы после постройки не оказалось, что спальных мест слишком мало |
| Материал возведения | Чаще всего используется вариант из дерева или из пеноблоков. Все зависит от личных предпочтений, финансовых возможностей и доступности того или иного материала в вашем районе. Можно использовать и кирпич, но цена этого варианта будет гораздо выше |
| Особенности использования | Если постройка будет служить дачным домиком на летний период, то возводится более легкая конструкция, если же предполагается пребывание и в зимний период, то необходимо провести качественные теплоизоляционные работы и продумать систему отопления |
| Коммуникации | Очень важно предусмотреть подведение всех необходимых сетей: электроснабжения, водопровода и канализации. При этом если централизованные коммуникации отсутствуют, будьте готовы к дополнительным затратам по устройству септика и скважины |
Самые продвинутые программы и агентства предложат увидеть проект в 3D проекции
Обзор некоторых вариантов
На самом деле, проектов тысячи, и рассмотренные нами эскизы служат своего рода ориентиром, по которому можно определиться с конкретным решением именно для вашего случая.
Дом из бруса 6х8
Проекты дачных домов из бруса с мансардой подразделяются в основном по размеру и планировке помещений первого этажа, мансардный этаж практически всегда отводится под спальни, что позволяет освободить место на первом уровне.

Такой проект достаточно прост и осуществим своими руками
У этого варианта есть множество положительных особенностей:
- Материалом изготовления служит натуральная древесина – экологичный материал, который помогает обеспечить хорошие условия для проживания. В таком доме всегда сохраняются оптимальные показатели влажности и температуры. Кроме того, дерево отлично удерживает тепло, что очень важно, если вы собираетесь бывать на даче и в зимний период. (См. также статью Инфракрасные обогреватели для дачи: особенности.)
- При достаточно компактных размерах дома 6х8 все помещения достаточно просторны, что обеспечивает комфортное пребывание даже довольно большого количества людей. Лестница также весьма широкая, что также немаловажно для удобства передвижения.
- В строении достаточно удобная планировка без проходных комнат. Просторная прихожая и еще более просторный холл больше напоминают полноценный жилой дом, чем загородный домик.
Важно!
Стоит обратить внимание, что в проекте отсутствует санузел, поэтому лучше всего уменьшить какое-либо из помещений, иначе придется делать пристройку или и вовсе строить отдельно стоящие сооружения.
Дом из блоков 6х8.5

Хороший проект для строения из пенобетона
Этот проект дачного домика с мансардой, верандой и балконом имеет целый ряд несомненных преимуществ:
- Просторная веранда может быть как закрытой, так и открытой. Все зависит от ваших предпочтений, если вам нравятся террасы, то можно не утеплять конструкцию, но лучше сделать ее с большими окнами, которые можно открывать в летний период.
- Также достаточно просторный и балкон на втором этаже, особенно актуален он в местах с красивыми видами – на лес, озеро и так далее.
- Просторная прихожая совмещена с санузлом, который также немал, что очень важно для дачного домика.
- Гостиная совмещена с кухней, это позволяет добиться просторного помещения, в котором может расположиться даже большая компания.
- Главное достоинство рассматриваемого варианта – наличие трех спален на мансардном этаже, в таком домике всем хватит места.
Совет!
Чтобы еще больше увеличить полезную площадь, можно сделать и цокольный этаж, в котором будут расположены технические помещения, дачная сауна или даже спортзал.

Цокольный этаж позволяет значительно увеличить полезную площадь
Если вы решили разработать проект своими силами, то все равно делать это лучше на основании уже имеющихся решений. Они должны быть как своего рода инструкция, чтобы упростить весь рабочий процесс.
Важно учитывать следующие рекомендации:
- Проект должен быть достаточно простым, чем сложнее дом, тем выше затраты на его строительство и тем дольше длится работа.
- Важно, чтобы документация соответствовала всем установленным нормам и требованиям, поэтому лучше заблаговременно проконсультироваться со специалистами или обратиться с готовым проектом. Это позволит вовремя найти ошибки и исправить их еще до начала работ.

Построить уютный домик на даче не так и сложно
Вывод
От выбора проекта зависит комфорт вашего пребывания на даче, не стоит забывать этот фактор, так как исправить что-то впоследствии гораздо дороже, чем сделать все как положено еще на этапе постройки. Видео в этой статье поможет разобраться в вопросе еще лучше.
Добавить в избранное Версия для печати9dach.ru
Проекты дачных домиков с мансардой
Любое задуманное дело начинается с мысли. Мысль, планы – основа всех дел, зерно, из которого вырастает красивое дерево. Строительство любого дома, промышленного здания и т.д. берет свое начало с проекта, плана, который в будущем будет реализовываться. Проекты дачных домов, которые будут рассмотрены этой статье, разделены на два типа – деревянные и кирпичные. Все продемонстрированные проекты отвечают современным нормам строительства, эргономики и энергосбережения.
Содержание:
- Классификация по стройматериалам
- Деревянные дома
- Кирпичные дома
Классификация по стройматериалам
Проекты дачных домиков с мансардой можно классифицировать по основному используемому строительному материалу.
- Проекты кирпичных домов.
- Проекты домов из керамических поризованных камней.
- Проекты домов из блоков газобетона, пеноблоков.
- Проекты деревянных домов.
- Проекты каркасных домов.
Из всех перечисленных для дачной постройки лучше всего подойдут кирпичные и деревянные дома. Рассмотрим чертежи и модели таких домиков с мансардой.
Деревянные дома
Площадь: 63 м2.

Домик с уютной террасой и жилой мансардой рассчитан на небольшую семью. Площадь дома не дает разместить большое количество комнат, что усложняет вопрос ночлега для гостей.
Чертеж показывает планировку первого этажа. Большая комната в 10,5 кв. метров может служить не как жилой комнатой, так и столовой, т.к. кухня сама по себе маленькая.
На чертеже видно, что мансарда разбита на две большие спальни, которые расположены напротив друг друга.
Планировка такого дома не предполагает санузла, что делает жилище крайне неудобным. Но это возмещается быстротой постройки этого простого здания.
Площадь: 72 м2.

Модель дачи сделана подтип старинных русских изб. Она рассчитана на семью из 3-4-х человек. Согласно первого чертежа, нижний этаж дачи рассчитан на семью из 3-4-х человек (читайте также Дизайн маленькой однокомнатной квартиры — Фото). Общей гостиной и кухне отведено больше половины помещения первого этажа, остальное на санузел и прихожую.
План-схема второго этажа содержит разметку жилого помещения, где расположены две спальни и холл.
Все строение сделано из деревянного бруса, поэтому станет прекрасным выходом при знойной погоде.
Площадь: 110 м2.
Вашему вниманию представлен дачный дом семейного типа с мансардой. Постройка больше 100 кв.м. рассчитана на большую семью или много гостей. Такой дом может принять 10-12 человек, которые свободно разместятся по спальням на мансарде и первом этаже.

Планировка дома непроста. Этажи имеют много мелких комнат, которые можно будет объединять.
Планировка первого этажа предусматривает большую гостиную, санузел, комнату и раздевалку. Кухни нет, но за счет большой площади гостиной, можно создать кухню со столовой.
Мансарда имеет почти равные три спальни и большой санузел, куда можно установить ванну. Просторные спальни в процессе ремонта можно переделать в детские игровые комнаты или рабочий кабинет.

Дачный домик построен из деревянного бруса, утеплен, а наружные стены покрыты строительной смесью для наружных работ.
Кирпичные дома
Площадь: 34,55 м2.
Маленький дачный домик в светлых тонах и с контрастной крышей смотрится на дачном участке очень мило. Он не рассчитан на размещение больших групп людей. Такой себе островок романтики для двоих.

Планировка первого этажа предусматривает одной спальни, кухни и маленькой ванной комнаты.
Мансарда имеет одну спальню и мезонин с окном на улицу.

Площадь: 98,5 м2.
Дачный домик неправильной формы с наполовину жилой мансардой станет прекрасным решением между выбором цены и качества.

Первый этаж дома предполагает две одинаковые спальни, большой холл, гостиную, среднюю по площади кухню и санузел. В каждой комнате имеется по окну. Такая проектировка сэкономит электроэнергию и придаст комнатам живую и светлую атмосферу.
Второй этаж не может похвастаться таким изобилием комнат, поэтому жилая мансарда имеет всего лишь одну спальню. Остальную часть второго этажа можно считать чердачным помещением.

Площадь: 108 м2.
В представленной небольшом доме с двускатной крышей свободно может разместиться семья из 4-5 человек. Планировка дома довольно проста, следовательно, и реализация ее не затратит много времени.

На первом этаже расположена большая гостиная, которая плавно перетекает в кухню и подсобное помещение. Маленький санузел с душевой кабинкой и унитазом. Также имеются две небольшие спальни. Гостиная комната почти полностью застеклена и весь день она будет светлой и просторной.
В мансардной части находится большая ванная комната, комната отдыха и две спальни.

Такой дачный домик будет прекрасным подарком своей семье. В нем не только хозяева, но и гости будут себя чувствовать в полном комфорте.
Мы рассмотрели модели и планы небольших кирпичных и деревянных домов с мансардой. Как видите, спланировать жильё можно каким угодно способом. И вместить в него можно все, что душе угодно. Главное — точно знать, чего именно она хочет!
Читайте также Фронтоны домов — фото, Дизайн маленькой прихожей в хрущевке, фото, Утепление мансарды изнутри, видео
nashprorab.com
бесплатно чертежи и фото — 10 лучших бесплатных проектов домов
Дома с мансардой – это воплощение комфортной и приятной загородной жизни. Такие коттеджи допускают большую свободу в выборе материалов, дизайна и планировки дома. В этой статье вы найдете необходимые рекомендации, а также проекты домов с мансардой, бесплатные чертежи и фото.
Особенности дома с мансардой
Одна из самых главных особенностей дома с мансардой – хорошая теплоизоляция, так как верхняя часть конструкции подвержена перепаду температур. Не менее важно позаботиться и о гидроизоляции помещения. Подбирайте для мансардного этажа легкие материалы. Это касается и кровли, и внутренней отделки, и даже мебели. Не стоит перегружать фундамент и стены из-за возможного появления трещин.
Небольшую площадь мансарды лучше всего сформировать цельным пространством, но при необходимости создания внутренних перегородок стоит отдать предпочтение гипсокартону. Этот материал не нанесет дополнительной нагрузки на основание дома.
Еще один важный момент – окна. Их монтаж на наклонной поверхности потребует немало затрат, однако результат стоит того.

Преимущества и недостатки домов с мансардой
У домов с мансардой появляется все больше поклонников благодаря следующим преимуществам:
- экономия на строительно-монтажных работах;
- правильное использование чердачного этажа увеличивает функциональную площадь дома в два раза;
- простота в обеспечении мансарды коммуникациями. Достаточно провести их с нижнего этажа;
- снижение потери тепла через крышу;
- при строительстве мансарды нет необходимости выселения жильцов из дома, они могут оставаться на первом этаже до окончания работ;
- возможность обустройства в доме помещения нежилого типа: бильярдная, мастерская и т.д.;
- простор для фантазии. Необычное пространство мансарды позволяет проявить творческий подход к дизайну помещения.
Но при этом у домов такого типа имеются и недостатки:
- несоблюдение обязательных правил технологии строительства и необдуманный подбор материалов повлечет за собой потерю тепла, конденсацию влаги и промерзание.
- немалая стоимость мансардных окон (больше в 1,5-2 раза обычных), складывающаяся из специфики профиля и стоимости монтажных работ;
- снежной зимой возможно нарушение естественного освещения мансарды.
Как построить дом с мансардой?
Создавая проект дома с мансардой, необходимо учитывать особенности данной постройки. При соблюдении следующих правил вы получите красивый и надежный прочный дом.
- Расчет дополнительной нагрузки. Нельзя произвольно пристроить мансарду к одноэтажному дому, так как это повлечет за собой трещины с последующим разрушением основания. Если вы решили достроить мансарду на уже существующие стены, позаботьтесь об их укреплении.
- Расчет высоты мансарды. Минимальное значение высоты от пола до потолка 2,5 м.
- Правильная конструкция крыши. При ее проектировании следует учесть, что двускатная конструкция добавит лишь 67% площади основания дома. Так называемая «ломаная» крыша прибавит примерно 90% от площади первого этажа. А вот подъем крыши на 1,5 м может увеличить площадь на 100%.
- Предусмотрите связь коммуникаций между основой и мансардой;
- Продумайте планировку лестницы, места для внутренних перегородок и окон;
- Очень важно соблюсти противопожарные требования, план эвакуации с мансарды.
Полезно: Грамотная планировка дома с мансардой
Проекты одноэтажного дома с мансардой: чертежи и фото
В одноэтажных домах мансарда чаще всего выступает в качестве мастерской или кабинета. Нередко на этом уровне располагают спальню, что обусловлено комфортным расположением в помещении с невысокими потолками, а также дополнительной изоляцией и прекрасным видом на звездное небо из окон. Мы подобрали 10 лучших проектов домов с мансардой, ниже представлены бесплатные чертежи и фото, а также их описание.
Готовые проекты домов с мансардой 8 на 10
Проект №1. Проект этого дома предусматривает функциональное помещение на мансардном уровне, в котором размещена спальня, санузел и две дополнительные комнаты, которые по своему усмотрению можно обустроить под гостиные или детские. Уютный каркасный дом предполагает выполнение из кирпича и керамзитобетона. Большие окна делают внутреннее пространство дома хорошо освещенным. Здание полностью соответствует всем требованиям жилого дома.


Проект №2. Уютный коттедж в эко стиле с большой столовой-гостиной на первом этаже. Проект позволяет разместить на мансарде три комнаты, санузел и небольшой холл, а также выход на балкон. Предусмотрен удобный широкий лестничный узел. На первом этаже располагается также второй выход на веранду. Такой дом прекрасно подойдет большой семье для комфортного загородного отдыха.



Проекты домов с мансардой 9 на 9
Проект №3. Небольшой и в то же время функциональный одноэтажный дом с гостиной-столовой и кабинетом на первом этаже. Пространство мансарды занимает три смежные комнаты и санузел. В простую форму здания вносят разнообразие эркер в гостиной и мансардное окно с плоской кровлей. Дом отлично подойдет как для отдыха, так и для работы.



Проект №4. Компактный дом в деревенском стиле. На первом этаже расположены гостиная с обеденной зоной, кухня и туалет. На мансарду можно подняться по удобной широкой лестнице. Здесь предусмотрены три спальни и ванная комната.



Проект №5. Функциональный одноэтажный дом с мансардой подходит для большой семьи. Проект предусматривает просторную столовую, кабинет, санузел и кухню на первом этаже, а также три смежные комнаты и ванную на мансардном уровне. Форму дома дополняет эркер на первом этаже в гостиной-столовой и выход на балкон, а также окно с еще одним дополнительным балконом и двускатной крышей.



Проекты домов с мансардой 9 на 10
Проект №6. Бюджетный проект дома с мансардой отлично подойдет для жизни и отдыха. На первом этаже расположена большая вместительная гостиная (48,6 м2), которая может одновременно выступать и в роли столовой. На мансарде – три спальни, санузел и просторный балкон.



Проект №7. Простой одноэтажный дом с функциональной планировкой предназначен для семьи из пяти человек. Простая форма дополняется эркером и балконом. Вход через прихожую ведет в холл, где расположены лестница на мансарду и двери во все помещения первого этажа: гостиная, санузел, кухня и детская. На мансардном уровне – три спальни, просторная ванная комната, а также две гардеробные, одна из которых примыкает к большой спальне.



Проекты домов с мансардой и гаражом
Проект №8. Выбрав проект дома с мансардой и гаражом, вы сэкономите деньги на строительных работах за счет совмещения капитальных стен. Кроме того, решение «два в одном» снижает затраты на отопление гаража благодаря теплым стенам дома. И к тому же нет необходимости выходить на улицу в плохую погоду, чтобы попасть в гараж, — основная часть дома соединена с гаражом через кладовую. Большие окна делают дом светлым, а две небольшие террасы поспособствуют приятному отдыху на воздухе.



Проект №9. Проект этого уютного дома предусматривает монтаж дома-близнеца в зеркальном дизайне. Отличительной чертой этой простой постройки является крыша гаража, которая проходит над входной террасой и поддерживается тремя деревянными балками. Внешняя отделка дома выделяется деревянным обрамлением классических оконных проемов. На первом этаже расположены гостиная, кухня, совмещенная со столовой, и санузел, мансардный уровень занимают две спальни и ванная.
Гараж напрямую связан с домом при помощи складной лестницы, которая экономит пространство для хранения инструментов и прочих необходимых вещей.



Проект двухэтажного дома с мансардой: чертежи и фото
Двухэтажные дома с мансардой имеют презентабельный внешний вид. Такие дома предназначены для комфортного загородного или дачного отдыха. Как правило, планировка двухэтажного дома с мансардой предусматривает расположение комнат общего пользования на первом уровне (это могут быть гостиная, столовая, кухня), а личные апартаменты – на втором этаже (спальни хозяев, ванная комната, детские). Выбирая материалы, можно остановиться на бетоне, кирпиче или дереве. Возможны комбинированные варианты, где один этаж выполнен из бруса, а другой – из кирпича. Ниже представлен проект №10, заключительный в нашей подборке.


home-ideas.ru
