Проекты домов деревянных 6 на 6 – Дома из бруса 6×6, проекты домов 6 на 6, цены.
Деревянный дом 6 на 6, проект, план и стоимость.
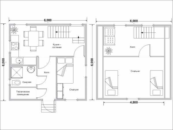
Проект дома Д65


Проживая в большом городе, многие его жители мечтают поселиться в тихом месте, где нет машин, растет чудесный зеленый лес, пахнут травы и цветы, а воздух просто удивительно чистый. После тесной городской квартиры купить деревянный дом 6 на 6 в два этажа с прилегающим к нему благоустроенным земельным участком станет абсолютно верным решением для семьи. У загородного жилья имеется масса весомых преимуществ. Прежде всего, такие строительные объекты стоят дешевле жилья в городе, построены из натурального профилированного бруса, стоят на отличном столбчатом фундаменте и имеют надежную крышу над головой, покрытую металлочерепицей. Окна в постройке пластиковые, щели между брусом заделаны природным материалом. Поселившись в таком доме, можно вдоволь наслаждаться тишиной, поскольку отсутствуют соседи за стеной. Да и прилегающий участок земли надежно огражден, так что никто посторонний не сможет проникнуть на частную территорию. Здесь можно построить уютную беседку и выращивать овощи и фрукты к семейному столу.
План первого этажа предусматривает наличие террасы 4,5 кв. м, прихожей 4,5 кв. м, кухни 9 кв. м и гостиной 18, 00 кв. м. На втором этаже балкон площадью 3, 75 кв. м и спальня 13,5 квадратных метра.
- Проект: Д-65
- Размеры: 6×6 м.
- Этажность: один этаж + мансарда
- Площадь: 59,0 кв.м.
- Цена брус 100х150 мм: 391.000 руб
- Цена брус 150х150 мм: 420.000 руб
- Цена брус 150х200 мм: 496.000 руб
- Цена сруб «под усадку» 150х150 мм: 000.000 руб
| Фундамент: | В базовом варианте дом устанавливается на столбчатый фундамент. Возможен вариант фундамента: свайно-винтовой и ленточный (рассчитывается отдельно) |
|---|---|
| Обвязка | Брус 100х150 мм на ребро |
| Половые лаги: | Брус 100х150 мм, через 90-100 см. |
| Стены 1-го этажа: | Строганный профилированный брус 95х145 (145х145мм, 190х145мм), на джутовом полотне, перегородки – строганный профилированный брус 95х145 мм, без утеплителя. |
| Джут: | Межвенцовый утеплитель «джут», джутовое волокно прокладывается между рядами бруса |
| Тип рубки: | Тип рубки стен сруба «в пол дерева» |
| Стены 2-го этажа: | Каркасно-щитовые (брус 40х100), внутри обшиваются сухой вагонкой, с утеплением на 50мм |
| Фронтоны: | Каркасно-щитовые(с двух сторон обшиты вагонкой) Внутри сухой, снаружи естественной влажности. |
| Утепление: | Пол 1 этажа — 100мм, (2-й этаж (мансарда) (пол,потолок,стены) мансарда) – утепление 50 мм (мин. вата ursa или её аналоги), с парогидроизоляцией изоспан |
| Углы внутри: | На все стыки потолка,стен и пола прибивается плинтус |
| Окна: | Деревянные с двойным остеклением, с фурнитурой, обналиченные, размером 1,0х1,2 м. |
| Двери: | Входная – металлическая. Филенчатые, обналиченные, без фурнитуры, размером 2х0,8 м. |
| Стропила: | Стропила из доски 40х100(150мм) с шагом не более 0,9м. |
| Кровля: | Ондулин (на выбор: красный, зеленый, коричневый). |
| Обрешётка: | Обрезная доска 40х100мм, обрешетка выполняется из обрезной доски 20 мм с шагом не более 400мм |
| Пол: | Двойной: черновой – обрезная доска 20 мм. (укладывается сплошником), чистовой – шпунтованная доска 28 мм, с парогидроизоляцией изоспан и утеплением «ursa» (100 мм). |
| Высота: | Высота первого этажа – 2,38-2,4 м. (17 венцов), второй этаж – 2,3 м. |
| Потолки: | Потолки подшиваются сухой вагонкой, сорт B |
| Лестница: | Лестница деревянная на второй этаж одномаршевая с перилами и балясинами из вагонки |
| Карнизы: | Карнизы, поднебесники подшиваются вагонкой. |
| Наличники: | Наличники на оконные или дверные проёмы с двух сторон |
| Углы снаружи: | Углы стен снаружи прикрываются наличниками |
Подробнее о комплектации сруба «под усадку»
Дополнительные услуги:
Двойная обвязка
Ройки(обсада) в дверные и оконные проёмы
Антисептирование нижней обвязки и черновых полов
Пароизоляция под кровлю
Сборка на деревянные нагеля
Сухой брус камерной сушки
Замена кровли (ондулин) на металлочерепицу, профнастил.
Замена деревянных окон на пластиковые ПВХ
Подробнее смотрите
Смотрите перечень материалов, применяемых в строительстве
Смотрите подробно ответы на часто задаваемые вопросы по строительству
Собственное производство профилированного бруса
domato.ru
| БАЗОВАЯ КОМПЛЕКТАЦИЯ ДОМА ИЗ БРУСА | |
| Фундамент: | Не входит в стоимость дома, рассчитывается индивидуально, в зависимости от пожеланий Клиента и планировки проекта |
| Основание: | ДВОЙНОЕ: первый ряд обрезной брус 150х100 мм или 200х100 мм, второй ряд обрезной брус 100х150 мм, 150х150 мм или 200х150 мм, зависит от того, из какого бруса будет собираться сам дом. Брус естественной влажности |
| Половые лаги: | Доска естественной влажности 40х150 мм, с шагом 0,6 м. |
| Черновой пол: | Обрезная доска естественной влажности 20х100 мм. |
| Чистовой пол: | Шпунтованная доска, толщиной 36 мм. |
| Стены 1-го этажа: | Профилированный брус естественной влажности 95х145 мм, 145х145 мм или 195х145 мм, в зависимости от выбранной толщины. Возможность прострожки бруса в наружной стороны под блок-хаус или прямой с фасками. Вид бруса внутри прямой с фасками. |
| Перегородки 1-го этажа: | Профилированный брус естественной влажности 95х145 мм. Вид бруса с обоих сторон прямой с фасками. Впиливаются в основные стены дома. |
| Межвенцовый утеплитель: | Льноджутовое волокно, шириной в зависимости от ширины бруса. |
| Сборка угловых соединений: | Осуществляется методом «шип-паз» (ТЕПЛЫЙ УГОЛ). |
| Сборка венцов сруба: | Венцы сруба собираются на металлические нагеля (гвозди 200 мм). |
| Межэтажное перекрытие: | Брус естественной влажности 40х150 мм, с шагом 0,6 м. |
| Стены 2-го этажа (при его наличии): | Каркасно-щитовые. Собирается каркас из доски 40х150 мм. |
| Перегородки 2-го этажа: | Собирается каркас из доски 40х100 мм. |
| Фронтоны: | Каркасно-щитовые. Собирается каркас из доски 40х150 мм, обшивается вагонкой, хвойных пород дерева, толщиной 14-16 мм. |
| Утепление: | Пол, межэтажное перекрытие и мансарда по внешнему периметру в толщину 50 мм, утеплитель минеральная рулонная вата Изовер или ее аналоги. |
| Пароизоляция: | Однослойная мембрана с ветрозащитными и влагозащитными свойствами, марки Наноизол, либо ее аналогами, монтируется с двух сторон от утеплителя. |
| Внутренняя отделка: | Потолок 1-го этажа, стены, потолок и перегородки 2-го этажа обшиваются вагонкой хвойных пород дерева, толщиной 12-16 мм. Вагонка камерной сушки. |
| Стропила и обрешетка: | Стропила изготавливаются из бруса 40х150 мм. Обрешетка из ОБРЕЗНОЙ ДОСКИ 20х100 мм, с шагом 0,6 м. |
| Кровля: | Волнистые листы Ондулин, с возможностью выбора цвета: красный, коричневый, зеленый. Под ондулин настилается однослойная мембрана с ветрозащитными и влагозащитными свойствами, марки Изоспан, либо ее аналогами. |
| Углы и поднебесники: | Подшиваются вагонкой хвойных пород дерева, толщиной 14-16 мм. |
| Внутренняя и внешняя отделка выполняется оцинкованными гвоздями. | |
| Высота этажей: | Высота 1-го этажа 2,3 м (плюс-минус 5 см, 17 венцов бруса), высота второго этажа (при его наличии) 2,2 м. |
| Окна: | Деревянные, размером 1х1,2 м, с двойным остеклением, распашные. |
| Двери: | Деревянные, филенчатые, размером 0,8х2,1 м. |
| Лестница (при ее наличии): | Деревянная, тетива изготавливается из бруса, ступени впиливаются в тетиву, устанавливаются резные перила и точеные балясины. |
sk-domostroi.ru
Дома из бруса 6×6, проекты и цены.
Все чаще в строительстве индивидуального жилья используются природные материалы, в частности, дерево. Древесина не только долговечна, но и обладает рядом других существенных преимуществ, по равнению с искусственными строительными материалами. Профилированный брус чаще всего используется застройщиками, которые оценили его высокую теплопроводность, экологическую безопасность, внешнюю красоту готовых строений и удобство монтажа. В пользу строительства дома из бруса 6 свидетельствует и его низкая себестоимость. В процессе возведения такого загородного объекта используются только качественные природные материалы. Ленточный неглубокий фундамент вполне подойдет для такого легкого строения. Брус стандартного размера быстро укладывается в готовые пазы. Благодаря готовой форме бруса, дополнительные отделочные работы не потребуются. Разработчики проекта позаботились и об удобной планировке дома для комфортного проживания нем. В качестве древесины для изготовления бруса используют дерево хвойных пород, которое является отличным антисептиком. Надежная крыша над деревянным домом покрывается современным кровельным материалом ондулином или металлочерепицей
Строим такие домики на выбор:
- из профилированного бруса
- из клееного бруса
- под ключ
- под усадку
Достоинства популярного размера дома
+ Брус по стенам не стыкуется (так как материал стандартной 6,0 м. длины)
+
+ Огромный выбор планировок и вариаций проектов
+ Не нужны тяжёлые и дорогие фундаменты
+ Сжатые сроки сборки
+ Легко спланировать внутреннее пространство, благодаря квадратной форме
+ Дом без труда помещается на дачном участке в 6-8 соток
Одноэтажный дом имеет площадь в 36 кв.м., а вот дом с мансардой уже 63 кв.м., полуторный или двухэтажный все 72 кв.м., поэтому и здесь есть выбор какой тип дома строить при всё тех же типовых размерах. Срок сборки строений, таких размеров, обычно равен 12-18 дням. А большой каталог проектов с чертежами этажей и фасадами, точно позволит вам выбрать домик своей мечты.
pestovodoma.ru
Проекты домов из бруса 6 на 6 – «Брусовые технологии»
ПО ВОПРОСАМ СТРОИТЕЛЬСТВА ДОМОВ ИЗ БРУСА РАЗМЕРОМ 6 НА 6 МЫ ОТВЕТИМ ПО:- телефоны: 8 (800) 700-58-56, +7 (921) 202-87-97, +7 (926) 340-96-74
- эл.почта: [email protected]
Если вы планируете строительство в городской черте или на садовом массиве, экономия пространства на участке становится одной из ключевых задач. Решить её помогут проекты домов из бруса 6 на 6. Такие дома занимают мало места, но при правильном подходе к строительству весьма комфортны. Это отличный вариант для узкого участка или участка со сложным рельефом, где сложно выбрать большую ровную площадку для фундамента.
Как увеличить полезную площадь дома 6 на 6
- Выбирайте проект 1,5- или 2-этажного дома. Если экономия на первом месте, то подойдёт проект с мансардой, который сокращает затраты на строительные материалы.
- Тщательно продумывайте планировку. Отказавшись от коридоров, вы увеличите площадь дома. Делить пространство на зоны лучше мебелью и лёгкими перегородками.
- Делите постройку на активную и пассивную части. Активная зона – это гостиная и кухня, пассивная включает спальни. Кухню с гостиной можно объединить, это поможет не только добавить объём, но и сократить длину коммуникаций.
Дома из бруса 6 на 6 в первую очередь предназначены для летнего проживания небольшой семьи. Однако при соответствующем утеплении стен вы вполне можете жить в нём и зимой.
Проекты домов 6 на 6 в «Брусовых технологиях»
Мы предлагаем проекты домов из бруса 6 на 6, созданные нашими специалистами. Все проекты разработаны специально для деревянного строительства, отвечают строительным нормам и требованиям, адаптированы для возведения в средней полосе РФ. Чтобы упростить выбор, мы подготовили подробные описания проектов, эскизы и планировочные решения.
«Брусовые технологии» – строительная, а не проектная компания. Стоимость, указанная в каталоге, включает стоимость самого проекта и строительства из наших пиломатериалов.
При необходимости мы готовы доработать выбранный вами проект: перенести окна, изменить планировку, увеличить площадь. Все доработки обсуждаются индивидуально и оплачиваются отдельно. Часть из них, например перенос дверей и окон, мы готовы сделать бесплатно.
brus-teh.ru
видео-инструкция по монтажу своими руками, проекты, планировка, фото и цена
Все фото из статьи
Об уютном загородном доме мечтает практически каждый житель мегаполиса, однако, строительство, как правило, требует больших вложений и отнимает много времени. Поэтому отличным решением являются деревянные дома 6 на 6, которые вполне доступны и в то же время комфортабельны. Ниже мы ознакомимся с достоинствами и недостатками таких домов, а также некоторыми особенностями типовых проектов.

Деревянный дом 6х6
Основные качества деревянных домов
Достоинства
Прежде чем отдать предпочтение в пользу деревянных домов рекомендуем ознакомиться с их плюсами и минусами.
Среди положительных качеств можно выделить следующие моменты:
- Невысокая цена, так как дерево является доступным материалом.
- Высокая скорость возведения – даже если заниматься строительством самостоятельно, можно вложиться в два месяца. Если профессиональная же бригада может сократить сроки в несколько раз.
- Хорошие теплоизоляционные свойства, благодаря чему такие дома сохраняют прохладу в летнее время. Правда, для эксплуатации зимой их все же лучше утеплять.
- Экологичность –дерево не только является экологичным материалом, но и оказывает благоприятное воздействие на здоровье человека.
- Привлекательный внешний вид – даже без отделки стены смотрятся очень привлекательно.
Именно с этими качествами связана большая популярность деревянных домов.

Дом 6х6 на столбчатом фундаменте
Недостатки
Конечно, для объективности следует ознакомиться не только с достоинствами, но и некоторыми недостатками деревянных строений, к которым относится:
- Пожароопасность, так как древесина является горючим материалом. Правда, этот недостаток устраняется путем обработки стен антипиреном. Однако, следует учитывать, что использование химии снижает экологичность дома.
- Неустойчивость к влаге – данная проблема также решается путем обработки поверхности специальными пропитками.

На фото — защитная пропитка для дерева
- Низкий уровень шумоизоляции, поэтому при отделке жилья своими руками необходимо применять некоторые дополнительные меры.
- Дерево нуждается в периодической обработке, иначе срок эксплуатации дома сильно сокращается.
- Деревянный дом из бруса дает усадку. Чтобы предотвратить это явление можно возводить стены из клееного бруса, однако, использование данного материала приведет к значительному удорожанию строительства.
Обратите внимание! Заниматься отделкой и утеплением деревянного дома можно только после того, как он даст усадку.
Несмотря на все эти недостатки, деревянное жилье можно сделать комфортным и долговечным. Главное, чтобы строго соблюдалась инструкция и современная технология на каждом этапе строительства, начиная от фундамента, и заканчивая возведением кровли.

План деревянного мансардного дома 6х6
Особенности проектов
В первую очередь следует отметить, что проекты деревянных домов 6х6 м являются одними из наиболее распространенных.
Связано это со следующими их достоинствами:
- Дом занимает не много места на участке;
- На строительство компактного дома требуется меньше средств;
- Полезного пространства в доме 6х6 м вполне достаточно для комфортного проживания в нем семьи из 4-5 человек;
- Возможность использовать облегченный фундамент, что также позволяет сэкономить на строительстве.
Как правило, проекты деревянных домов 6 на 6 м содержат мансардный этаж. Такое решение позволяет практически в два раза увеличить полезную площадь здания, при этом расходы на строительство увеличиваются совсем незначительно.
Обратите внимание! При строительстве мансардных домов необходимо уделить особое внимание утеплению мансарды. Причем теплоизоляционный материал, применяемый для этих целей, должен быть паропроницаемым. Поэтому лучше всего использовать минеральную вату.

Трехмерный деревянный дом с террасой
Как правило, планировка деревянного дома 6х6 с мансардой следующая:
| Этаж | Комнаты |
| Первый | Включает в себя:
|
| Мансардный | Может содержать одну большую или две небольших спальни. |
Также в таком доме можно найти место для веранды. Правда, для обустройства места отдыха на свежем воздухе больше подходят деревянные дома 6х7м.
Увеличение стен на один метр незначительно скажется на стоимости строительства, но при этом существенно расширит полезное пространство дома. Благодаря этому можно обустроить просторную террасу.

Проект деревянного дома 6х7 м с пристроенной террасой
Правда, веранду и террасу можно выполнить в виде пристройки. В таком случае размеры самого дома значения вообще не имеют.
Надо сказать, что проект будущего жилья можно подготовить самостоятельно в соответствии со всеми индивидуальными пожеланиями или воспользоваться существующими, которые вы можете найти на нашем портале. Как правило, типовые проекты выполнены с учетом наиболее оптимального использования жилого пространства. Поэтому в большинстве случаев можно остановиться на одном из существующих вариантов.
Вот, пожалуй, и все основные особенности деревянных домов, размером 6 на 6 метров.
Вывод
Дома из дерева 6х6 м являются отличным решением для небольших участков площадью около 9 соток, а также в случаях ограниченного бюджета. Такое жилье можно использовать как для сезонного проживания, к примеру, на даче, так и постоянного. Единственное, во втором случае необходимо выполнить утепление дома.
Ознакомиться с дополнительной полезной информацией по обозначенной теме можно из видео в этой статье.
rubankom.com
