Проекты двухэтажных домов с цокольным этажом – Проекты домов с цокольным этажом

Проекты двухэтажных домов с цокольным этажом
Возведение своего дачного домика дает удивительные возможности самостоятельно принимать решения, сколько этажей будет в доме, какова площадь, будет ли гаражное помещение, цокольный этаж или подвал, дающие дополнительные возможности. Многим нравится красота строения – цоколь выкладывается камнем натурального происхождения. Многие стараются в большом помещении, расположенном под домом, обустроить бассейн, теннисную комнату, тренажерный зал.
Содержание:
- Типовые проекты
- Применение подвальных помещений
- Материал для обустройства
- Полезные советы
Типовые проекты
Готовые проекты двухэтажных домов имеют массу вариантов.

Приведем несколько примеров.

К примеру, дом, общая площадь которого достигает двухсот семидесяти пяти квадратных метров.

Особенность его в том, что имеется большое количество оконных проемов арочного типа, что дает хорошую освещенность и возможность для проветривания помещений.

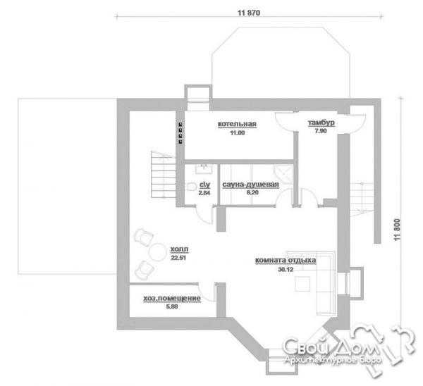
Первый этаж отводится под гаражный бокс, санитарный узел, тамбур, зал, крыльцо, кухню и террасу, большую гостиную. На втором размещаются спальни, гардеробная и ванная комнаты. Цокольный этаж отведен под котельную, сауну и душевое помещение.

Еще один вариант – дом на два этажа с мансардой и гаражом на пару транспортных средств.

В таком строении может свободно разместиться до шести человек. Общая площадь дома, в которую не входит цокольная зона, занимает три сотни квадратных метров.

Проектные решения таких домов востребованы, так как в случае необходимости вся площадь может быть использована с пользой. Ведь определение «цокольный этаж» означает прекрасное решение из ситуации, если площадь участка под застройку не позволяет исполнить все задуманное. Кроме того, отличная гидроизоляция дает возможность в остальных помещениях сохранять тепло и сухость.
В качестве примера можно привести проектное решение, общая площадь которого составляет триста шестьдесят квадратных метров, из них третья часть приходится на жилые комнаты. Высота объекта достигает почти десяти метров, фундаментную основу составляют железобетонные плиты.
Еще одно решение – дом с мансардой и подвальным помещением. Строится из газобетона, стены отделываются штукатуркой или деревянными панелями.

Перегородки выполняются из блоков, забутовываются кирпичом. Пол в подвале заливается по монолитным плитам, крыша устраивается на несколько скатов. Оконные блоки изготавливаются из металлопластика.

Применение подвальных помещений

Они предназначены для хранения овощей на зимний период. Система отопления здесь не предусматривается, поверхности стен отделываются не самыми лучшими утеплителями.
Но предусматривается отопление и вентилирование, то появляется возможность для оборудования здесь мастерских, спортзалов, саун, бассейнов. По соседству вполне можно выделить место под помещения бытового предназначения.

Опытные мастера не рекомендуют устраивать в подвале гараж, и этому есть свои причины:
- высокий уровень влажности будет влиять на резину и металл автомобиля;
- есть вероятность проникновения в комнаты малоприятных запахов;
- в воздухе будут присутствовать свинцовые ионы, содержащиеся в горючем и выхлопах.
Материал для обустройства
Рекомендуется рассматривать варианты, которые отлично противостоят воздействию влаги. Для отделки можно воспользоваться гипсокартоном, крепящимся по металлической каркасной основе. Не страшна сырость и керамоплитке, пластику, некоторым красящим составам, минеральным штукатурным растворам.

Если при обустройстве гидроизоляционного слоя не соблюдены все требования, то на стенах появится грибок, сырые пятна.

Для пола отлично подойдет керамогранит либо плитка. Под ними можно спрятать инженерные сети, систему теплого пола.
Полезные советы
В большинстве случаев цокольный этаж не отличается высокими потолками, так что их следует «приподнять» зрительно. Для этого потолок можно устроить в несколько уровней, устроить на стенах вертикальные рисунки.

Стены лучше всего выкрасить светлыми тонами, чтобы помещение казалось объемным.
Важная роль отводится освещению. Неплохим решением будет применить декоративные панели со встроенной подсветкой, способные создать приятную атмосферу, имитируя день.
Правильно используя цокольный этаж, можно сэкономить неплохую денежную сумму на строительстве подсобных объектов на участке, коммуникационных линий и элементов благоустройства.
nashprorab.com
Готовые типовые проекты домов с цокольным этажом
Данная категория строений неизменно пользуется высоким спросом среди покупателей. Соответственно, высок он и на проектную документацию этого типа. Главным минусом таких домов можно назвать дорогостоящие строительные работы и высокие затраты на содержание подвала. Однако подвальное помещение раз и навсегда решает проблему размещения кладовок, котельных и прочих подсобок. Проекты домов с цокольным этажом позволяют размещать ниже уровня земли не только мастерскую, но даже бассейн с сауной и спортзалом. При этом планировку верхних этажей будет проще организовать по своему вкусу.
Преимущества цоколя
Итак, первый вопрос, который удается решить при выборе дома с подвалом, это разгрузка верхних этажей от помещений, которые не имеют непосредственно жилого назначения. Фактически вы получаете дополнительный этаж для хранения бытовых мелочей, продуктов питания, инструментов, помещения коммуникационных узлов и прочих нужд. Если грунтовые воды на вашем участке залегают глубоко, цокольный этаж обойдется дешевле полноценного. Но при высоком уровне грунтовых вод проекты домов с цокольным этажом выбирать нерационально, так как строительство такого здания будет дороже.
Еще одна полезная функция подвала, может быть, не совсем актуальна для наших природных условий. Тем не менее, не стоит сбрасывать со счетов тот факт, что наличие таких помещений дает хозяевам дома чувство защищенности на случай стихийного бедствия или техногенной катастрофы. Гораздо спокойнее чувствует себя тот, у кого в распоряжении есть собственное надежное укрытие, хотя вряд ли этот критерий станет основным, по которому вы оцениваете проекты домов с цокольным этажом.
Важные моменты при строительстве
Такие строений, безусловно, имеют и свои слабые стороны. Однако своевременно позаботившись о том, чтобы свести их минимуму, вы в итоге можете получить комфортное, уютное и безопасное жилье, о котором всегда мечтали. К примеру, в подвале либо вовсе отсутствует естественное освещение, либо света поступает очень мало. Рассматривая проекты домов с цокольным этажом, очень важно уточнить у архитектора, каким образом решается эта проблема.
Если вы заказываете индивидуальный проект, все эти вопросы вам предстоит обсудить с проектировщиком перед началом работ. Кроме того, квалифицированный специалист обязательно будет опираться на результаты исследования грунта. Возможно, именно из-за этих результатов от подвала придется отказаться в пользу обычного строения. Если компания предлагает вам готовые проекты домов с цокольным этажом, не согласуясь с заключениями по вашему участку, от сотрудничества с такой фирмой лучше отказаться.
www.evastroy.ru
Проекты домов с цокольным этажом и особенности их строительства
Для многих людей проекты домов с цокольным этажом вызывают особый интерес, так как эта часть здания, по их мнению, представляет собой идеальную конструкцию фундамента. С этим мнением можно смело согласиться – как правило, цокольный этаж изготавливается из монолитной железобетонной плиты (которая используется при строительстве фундамента), благодаря чему отличается высокой устойчивостью и выносливостью.
Кроме этого, фундамент с цокольным этажом способен обеспечить дополнительную площадь (где можно поместить прачечную, спортзал или любые другие помещения) и придать респектабельность всему зданию.
В цокольном этаже этого дома расположены небольшая баня, бассейн и подсобные помещенияВернуться к оглавлениюСодержание материала
Когда рекомендуется строить дом с цоколем
Несмотря на вышеуказанные достоинства, среди людей бытует мнение о том, что проекты коттеджей с цокольным этажом не слишком экономичны. Естественно, в процессе возведения подвала здания потребуются дополнительные затраты, но этот момент ничуть не влияет на их популярность. Помимо того, что на полученной дополнительной площади можно расположить все подсобные помещения, цокольный этаж способен сделать полы в комнатах первого этажа намного теплее, а сами помещения – комфортными и сухими.
Проект загородного дома с цокольным этажом идеально подойдёт для дачной застройки, так как подвал здания станет отличным местом для хранения различных инструментов или урожая.
Наличие цокольного этажа способно значительно повлиять на этажность здания, что можно отнести к положительному моменту, так как при ИЖС высота дома не превышает двух этажей (если не считать мансарды). Нижний этаж коттеджа (подвальный или цокольный) относится к категории надземных этажей, соответственно, учитывается при установке этажности здания (в том случае, если верх его перекрытия превышает отметку земли более чем на два метра).
На этом небольшом видео вы можете посмотреть пример проекта дома с цокольным этажом из брёвен.
Чтобы разобраться более точно, в качестве сравнительных примеров можно привести характеристики подпола и подземного этажа. В соответствии со строительными нормами часть сооружения, у которой уровень пола ниже планировочной отметки земли больше, чем на половину высоты помещения, называется этажом. При этом стены вполне могут быть образованы конструкциями фундамента, в результате чего провести границы между ними становится просто.
Под первым надземным этажом подразумевается та часть сооружения, пол которой располагается на уровне планировочной земли. В том случае, если отдельные части коттеджа обладают разным числом надземных этажей, его этажность следует определять по максимальному числу этажей во всём сооружении.
Проект двухэтажного дома с цокольным этажомПлан дома с цокольным этажом отличается самыми различными вариантами архитектуры дома. Цокольный этаж по своей площади может отличаться от размеров основной постройки. В том случае, если его площадь превышает размеры первого и второго этажей, то его потолочное покрытие, в большинстве случаев, выступает в качестве эксплуатируемой кровли, на которой располагаются террасы.
При открытой террасе, не имеющей навеса, гидроизоляция крыши цокольного этажа должна производиться с особой тщательностью. В том случае, если крыша все же присутствует, пусть даже и полупрозрачная, владелец коттеджа может не задаваться вопросами обеспечения дополнительной защиты цоколя от влаги.
Благодаря разнообразию нестандартных архитектурных решений, некоторые проекты домов из газобетона предусматривают возможность постройки цокольного этажа, по своей площади меньше, чем площадь основной постройки. Способов реализации этого варианта великое множество, и в этом вопросе все зависит от пожеланий будущего владельца коттеджа.
Вернуться к оглавлениюКонструктивные особенности домов с цокольным этажом
По своей конструкции фундаменты цокольных этажей практически ничем не отличаются от тех сооружений, проект которых не подразумевает наличие подвальных или полуподвальных помещений. Ленточный фундамент, в большинстве случаев, укладывается таким способом, при котором его подошва располагается на несколько сантиметров ниже отметки пола.
Примерно в 80% фундамент и стены цокольного этажа изготавливаются из сборных готовых бетонных блоков, в некоторых случаях фундамент могут возводить с использованием бетона или кирпича. Если грунт не обладает особой прочностью, блоки ставят на железобетонные подушки, которая укладывается на песчаную подготовку толщиной в пределах 150 мм.
Если грунт не слишком насыщен влагой, для строительства стен желательно применять облегчённые блоки с пустотами, в особенности, когда предполагается отопление помещения цокольного этажа. Цоколь обязательно должен быть оснащён вентиляционными отверстиями, необходимыми для естественной вентиляции замкнутого пространства.
Одной из наиболее часто встречающихся ошибок при строительстве цокольного этажа является перестраховка по прочности, в результате чего строительство конструкции обходится весьма дорого.
Иногда смета на строительство цоколя по своей стоимости может приравниваться к смете на возведение всех остальных частей коттеджа, вместе взятых. В этом случае решение многих вопросов зависит от строительной компании и опытности архитектора – если за работу взялись действительно профессионалы, то возможность построения качественной конструкции по разумной цене вполне реальна.
Единственный момент, на котором точно не стоит экономить – гидроизоляция стен и фундамента цокольного этажа. Сырость может сгубить любое помещение, каким бы прочным оно ни задумывалось при создании проекта. Чтобы избежать впитывания влаги цоколем, вокруг здания необходимо возвести отмостку.
Технические помещения в цокольном этаже
Человек, который не разбирается в строительстве, вряд ли сможет заметить разницу между стандартным цокольным этажом и высоким подполом, в то время как для владельцев дома разница весьма заметна. Основное отличие заключается в том, что в цокольных этажах существует возможность размещения газовых котельных (чего нельзя сказать о подвалах). Помимо этого, здесь нередко находятся санузлы, постирочные, кладовые и другие полезные помещения.
В недавнем времени были достаточно популярны проекты домов с цокольным этажом и гаражом, располагающимся в цоколе, но в настоящее время этот вариант становится все менее востребован из-за своей не экологичности. Причина заключается в том, что от специфических «автомобильных» запахов в доме в этом случае можно избавиться только при наличии сверхмощной системы вентиляции.
Помимо этого, если гараж находится значительно ниже уровня почвы, то въездной путь обладает большим уклоном, что не совсем удобно, особенно, в зимнее время – ледяная корка мешает как въехать в гараж, так и выехать из него. В этом случае решить проблему поможет дорожка с небольшим уклоном, протяжённость которой будет составлять несколько десятков метров. При этом стоит учитывать то, что она может несколько испортить окружающий ландшафт, поэтому следует заранее тщательно продумать этот вопрос.
Проект дома с цокольным этажом и гаражомВернуться к оглавлениюСтроительство дома с цокольным этажом – основные рекомендации
- Для начала необходимо определить качество почвы, на которой будет возводиться проект одноэтажного дома с цокольным этажом. Для этого следует вырыть траншею достаточной глубины и исследовать срез земли. Подходящая почва будет лёгкой по весу, она представляет собой песок без крупных «прожилок» глины.
- Затем следует вырыть котлован под дом с глубиной примерно один метр. После этого требуется перейти к обустройству основания дома, которое представляет собой толстую стяжку. Толщина данного элемента конструкции будет зависеть от всего веса здания в целом.
Как правило, толщина основания составляет порядка 10 сантиметров, хотя эта цифра может изменяться в зависимости от качества почвы: при малосжимаемом грунтом под стены цоколя рекомендуется засыпать «подушки». То есть, каждый отдельный случай является строго индивидуальным. После окончательного определения толщины основания пора приступать к заливанию стяжки. - Периметр будущего дома, по которому планируется возведение несущих стен, следует уложить фундаментными блоками, которые должны прилегать плотно друг к другу. Необходимо оставить отверстия для проводок, труб и окон. Фундаментные блоки скрепляются между собой при помощи цементного раствора. Высота строения должна быть более одного метра.
- К дому подводится электричество, газ и вода. Затем выполняется установка окон и дверей, а также внутренняя и внешняя отделка дома.
proekt-sam.ru
Проекты одноэтажных и двухэтажных домов с цокольным этажом и гаражом
По устоявшемуся мнению, проекты домов, в которые включен цокольный этаж, считаются непрактичными и мало используются в будущем. Однако сегодня это помещение может приносить ощутимую пользу, так как в цоколе можно оборудовать мастерскую, подвал, бойлерную или гараж.
Проект трехэтажного дома с гаражом в цокольном этажеНа практике получается, что содержание подобного дополнения к собственному дому действительно требует некоторых вложений, но гараж экономит время, сохраняет автомобиль в целости, защищает от непогоды, а также позволяет использовать его в качестве склада для негорючих материалов. Постепенно люди понимают все прелести наличия в доме цокольного гаража, потому сегодня спрос на подобные проекты пошел в рост.
Вернуться к оглавлениюСодержание материала
Какие возможности дает цокольный этаж
Современные проекты домов, включающие в себя наличие «нулевого» этажа, который принято называть цокольным, позволяют собственникам значительно расширить имеющееся у них пространство. Гараж является сегодня не просто пристройкой к дому или в случае с цоколем его частью, но возможностью экономии, так как человек освобожден от необходимости платить аренду.
Вариант проекта дома с цокольным гаражомЕму также не придется искать подходящее место для стоянки, кроме того, если автомобиль находится на загородном участке, он полностью защищен от воздействий окружающей среды. Пользоваться гаражом в доме легче, чем может показаться, поскольку он не нарушает общей гармонии, которую дарит внешний облик дома, обстановка и интерьер не страдают от подобного соседства, а комфорт, наоборот, значительно улучшается.
Цокольный этаж с гаражом, включенным в проект дома, делают полы в помещениях первого этажа значительно теплее, так как холодные потоки не проникают в дом.
Непосредственно помещения, находящиеся на первом этаже, становятся сухими, их не поражает плесень или сырость, что часто можно встретить в загородных домах.
Вернуться к оглавлениюИспользование гаража на цокольном этаже
Современные проекты европейских домов, снабженные цокольным этажом, одинаково хорошо подходят как для дачного проживания, так и для строительства капитальных домов, рассчитанных на круглогодичное проживание.
Планировка всех этажей трехэтажного дома с цокольным гаражомГараж, который располагается на цокольном этаже, позволяет:
- Экономить;
- Сделать дом теплее;
- Защитить имущество от порчи и кражи;
- Снизить вероятность появления в доме сырости или плесени.
Если же приобретение автомобиля только планируется, то гараж можно использовать в качестве временного хранилища хозяйственных принадлежностей или овощей. В любом случае этот элемент в проекте загородного строения не будет являться излишеством. Кроме того, пользоваться гаражом в отсутствие машины можно, как кабинетом, дополнительным жилым помещением, например, комнатой для гостей или для хобби.

Визуальные преимущества расположения гаража на цокольном этаже дома
Дом, в проекте которого реализован цокольный этаж, обычно предусматривает отделку фасада, что придает строению визуально солидность и создает общую эстетически приятную картину, которая выгодно подчеркивает вкусы владельца. Для отделки фасада используются натуральные и искусственные материалы в большинстве случаев — камень.
Дом, в котором нет полноценного подвала, часто вызывает некоторый дискомфорт, многие желают создать цоколь, чтобы на этом этаже разместить если не гараж, то помещение, которое будет отвечать потребностям владельца.
Правила создания цокольного этажа и гаража в нем
Желая обзавестись цокольным этажом для создания в нем гаража или уже имея это помещение частью плана застройки, важно помнить, что есть нормы и правила, следовать которым необходимо, поскольку нарушение требований повлечет невозможность использования помещений. На этом этаже нельзя будет не только проживать, но и делать технические помещения из-за повышенной влажности.
Поэтому прежде чем приступать к работам, необходимо исследовать грунт на количество воды в нем. Если показатель будет слишком высок, то от проекта дома с гаражом в цоколе придется отказаться. Причина проста: автомобиль быстро подвергнется коррозии, находясь в постоянной сырости, а строительство специальных систем обойдется дороже, чем постройка отдельного гаража. Проекты, где дом имеет цокольный этаж, обязательно должны включать:
Проект дома в современном стиле с цокольным гаражом на два автоЕсли все эти требования реализованы, то пользование гаражом в доме станет приятным и не принесет проблем. Еще одним важным моментом является то, что возведение домов с цокольным гаражом внутри должно производиться исключительно профессионалами, так как нюансов в этом деле очень и очень много. Следует помнить, что стоимость домов с углубленным этажом будет выше, чем аналогичных без такового, пусть даже общая площадь последнего будет больше.
Объясняется это необходимостью подстройки и корректировки проекта к определенным условиям участка, где строится дом. Важно помнить, что этаж, пол которого расположен на отметке земли, а потолок выше, чем поверхность земли более чем на два метра, по нормативам цоколем не является.
Постройка цокольного этажа с гаражомГараж может считаться цокольным, если отметка пола будет располагаться ниже планировочной отметки земли. Кроме того, цоколем считается тот этаж, у которого верх перекрытия находится выше средней планировочной отметки земли, но не более чем на два метра. Все остальные варианты не считаются цоколем и, соответственно, цокольным гаражом.
Вернуться к оглавлениюВажные моменты в строительстве домов с цокольным гаражом
Существует несколько юридических нюансов, которые учитываются в проектах домов с цоколем в качестве гаража или дополнительного этажа.
Так, в том случае, если дом возводится для постоянного проживания, важно помнить, что имеются ограничения по этажности: он может состоять не более чем из двух этажей и одной мансарды, причем не имеет значения, подвальный или цокольный этаж будет первым по счету.
В том случае, если перекрытие цокольного этажа выше планировочного уровня земли на два метра, то он учитывается в общей этажности здания.
Оборудование въезда в гараж на цокольном этажеВ том случае, если высота перекрытий цокольного этажа менее двух метров, то отсчет начинается с полноценного первого этажа. Важно учитывать, что можно просто увеличить площадь дома, пристроив обычный гараж к коттеджу.
Вернуться к оглавлениюГараж в цоколе: каким он должен быть
Проекты, которые предполагают на цокольном этаже наличие гаража, включают особую технологию с несколькими главными параметрами, определяющими то, каким с технологической точки зрения должен быть гараж.
Правильно оборудованный гараж имеет:
- Вентиляцию / вытяжку;
- Пожаробезопасную дверь;
- Внутреннюю отопительную систему.
Вентиляция необходима для очистки помещения от выхлопных газов, а также от паров горючего, если оно будет там находиться. Важно помнить, что отделку гаража внутри следует производить из устойчивых к огню и нагреванию материалов. Дверь должна быть не только противопожарной, но и плотно закрывающейся.
3D планировка цокольного этажа с гаражом и котельнойОчень важное условие безопасности — проекты домов должны предусматривать коридор / тамбур между жилым помещением и гаражом на цокольном этаже. Это необходимо для того, чтобы обезопасить людей от выхлопов и паров бензина, а также специфических запахов.
Гаражные ворота
В том случае, если проект предусматривает гараж непосредственно в доме, важно не забыть о том, что выездные ворота являются такой же необходимой его частью, как если бы он находился в обычном помещении. Сегодня можно приобрести следующие виды гаражных ворот:
- наборные;
- секционные;
- щитовые.
Наборные ворота изготовлены из специального металлического полого каркаса, секции составляются из сэндвич-панелей, щитовые же производятся из различных материалов, среди которых металл, дерево и даже пластик.
Смонтированные ворота в цокольном гаражеГаражные ворота для дома имеют различный способ открывания / закрывания:
- распашные;
- щиты;
- раскатные;
- закатные;
- роллетные.
Каждый из этих типов имеет свои преимущества и недостатки. Способ открывания должен подбираться специалистом, исходя из имеющегося проекта застройки, а также с учетом пожелания владельца цокольного гаража.
Заключение и итоги
Гараж в доме — это безусловное удобство современной жизни. Для того чтобы получить не просто некое помещение, которое будет приносить лишь хлопоты и занимать время на содержание, необходимо возвести его по всем нормам и правилам, которые диктуют строительные технологии. Внутренний дизайн гаража и его отделка полностью зависят от того, какие функции он будет выполнять, поскольку одним лишь хранением автомобиля они не ограничиваются.
Проект двухэтажного дома с цокольным гаражомПри разумном и правильном подходе гараж в цоколе может стать одновременно еще и удобной мастерской или кладовкой для технических и садовых инструментов. Сегодня многие склоняются к выбору покрытия пола обычной плиткой для улицы, которую используют и для уличной парковки.
proekt-sam.ru
