Проекты каркасных домов и коттеджей бесплатно чертежи и фото – Проекты каркасных домов бесплатно чертежи и фото
Каркасный дом по готовому проекту качаем мы бесплатно. |
Проектирование дома необходимо для его надёжного и качественного строительства. Мы предлагаем скачать проект каркасного дома бесплатно – с чертежами, эскизами и подробными описаниями процесса выполнения работ. Это поможет вам возвести строение грамотно, а также оптимизировать растраты на приобретение строительных материалов. В предлагаемых схемах предоставляется их полный перечень, деталировка, по которой можно определить объём строительных закупок и денежных затрат.
Итак, вы нашли готовый проект каркасного дома, скачать бесплатно с чертежами можно на нашем сайте. Что должно быть в готовом проекте? И насколько можно полагаться на полученную проектную документацию?
Скачать проект каркасного дома
Проекты каркасных домов и коттеджей бесплатно в полной комплектации состоят из двух больших разделов – архитектурной и конструктивной частей. Каждый из них имеет графическую и текстовую информацию, предоставляет рисунки и описания.
Архитектурный раздел
В архитектурной части предлагаются эскизы будущего строения – визуальные изображения фасадной и боковой сторон с основными размерами. Также в архитектурной части содержится поэтажная план-схема, так называемый поперечный разрез, в котором тоже обязательно наносятся основные размеры.
Двухэтажная постройка в разрезе.Кроме чертежей, в архитектурную часть входят описания внутренних помещений, оконных и дверных проёмов. Их оформляют в виде таблиц, в которых перечислены планируемые помещения и комнаты, или оконные и дверные проёмы. В строительной терминологии перечни в форме таблиц называют спецификациями. Они располагаются на отдельных листах и оформляются внутри чертёжной рамочки.
План первого этажа.Архитектурный раздел проекта предоставляет информацию касательно общей постройки дома и его внешнего вида.
План второго этажа с обозначением помещений.Конструктивный раздел
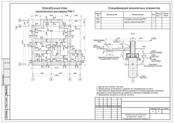
В конструктивной части данные конкретизируются под отдельные строительные этапы, это особенно важно, если вы собрались строить каркасный дом под ключ. Предоставляются схемы, чертежи и описания отдельно по сооружению фундамента, отдельно – по сборке каркаса, кровли, стен. Конструктивный раздел также состоит из графической и описательной частей. В графическую часть входят несколько схем и эскизов, которые дают представление о будущем фундаменте. Количество этих схем определяется конструкцией будущего основания. К примеру, для свайно-ростверкового фундамента будут приведены:
- Схема свайного поля.
- Схема опалубки ростверка.
- Схема армирования ростверка.
- Эскиз в формате D3.
Опалубочный план монолитного ростверка.А для ленточного фундамента будут приведены:
- Схема поля расположения ленты;
- Схема армирования ленты.
На заметку Рассматривая проекты каркасных домов бесплатно, чертежи и необходимые схемы для строительства каркасного дома должны присутствовать в полном объеме.
Далее конструктивная часть проекта каркасного строительства будет содержать схемы складывания стен, в которых будет изображён стеновой пирог. А также перечислены материалы, из которых он складывается. Также здесь будут приведены схемы укладывание плит стеновой обшивки, в которых прорисовывается порядок их расположения и чередования. Эта информация необходима для правильного сооружения и утепления внутренних и наружных стен.
Кроме чертежа стены в разрезе, в конструктивной части предоставляются схемы укладывания балок межэтажного перекрытия и пола. Они регламентируют не только порядок укладывания бруса, досок, панелей, а также их размеры.
Схема перекрытия пола.Иногда при каркасном строительстве используются полностью готовые к сборке строительные элементы. Их изготавливают на заводе и поставляют на участок в готовом к сборке виде. В таком случае при изготовлении их маркируют, а цифры маркировки приводят в конструктивной части проекта на схемах и чертежах.
Здесь же, в конструктивной части, приводится чертёж будущей стропильной системы, также с указанием размеров стропил, расстояний между ними и местами их креплений.
Отдельная часть конструктивного раздела посвящается способам крепления. Эта часть называется проектом узлов каркасной конструкции. При этом под узлами понимают различные соединения и крепления опор и стеновых панелей друг с другом. В данной части приводятся сборочные чертежи и эскизы каждой будущей стены, в которых детализированы места стыков и креплений.
Схема стены каркасника.Информация из конструктивного раздела является подробной детализацией процесса строительства. Её можно использовать как для правильного обустройства пола и кровли, так и для определения количества строительных материалов.
Приведенное описание архитектурной и конструктивной частей одинаково для различных проектов. Хотите ли вы скачать проект каркасного дома с мансардой бесплатно или скачать проектные документы для строительства двухэтажной постройки с верандой, в ваших чертежах должны присутствовать эскизы внешнего вида и поэтажные его разрезы, а также схемы заливки фундамента, сборки стен, кровли, пола, межэтажных перекрытий.
На заметку Главная ценность в том, что готовые проекты каркасного дома бесплатно – огромное количество чертежей и схем, которые дают наглядное представление о строительстве, позволяют строить самому и контролировать процесс, если работу выполняют наёмные рабочие.
Проект каркасных домов
Часто возникает вопрос – уж если проект так необходим, имеет ли смысл искать его бесплатные варианты или лучше приобрести документ за деньги? Будет ли содержать готовый бесплатный проект всё, что необходимо для строительства? Можно ли доверять его данным, будут ли надёжны полученные расчёты? В ожидании какого-либо подвоха или из-за обывательского недоверия рождается сомнение – можно ли пользоваться таким заманчивым предложением?
Фасад каркасника.Мы предлагаем каркасные дома, проекты, фото бесплатно. При этом предоставляем за оплату услуги по строительству домов, а также помощь в закупке строительных материалов. Мы не зарабатываем на проектировании, и предлагаем вам сэкономить на заказе проекта и выбрать типовое решение из имеющихся в наличии проектных решений. Это позволит нам выполнить работу качественно, а вам – получить гарантированно надёжное жильё за оптимально небольшие деньги.
Типовое проектирование – хорошее решение для многих заказчиков. Однако для 10% возводимых домов оно не подходит. Скачать готовые проекты каркасных домов бесплатно не стоит тем, кто хочет построить уникальное архитектурное сооружение, использовать оригинальные нестандартные решения.
На заметку Банк готовых проектов предоставляет настолько широкий выбор, что всё реже находится заказчиков, которые не могут найти в нём подходящий для индивидуального строительства вариант.
Сборка каркасной постройки
Скачивая проекты каркасных домов бесплатно, чертежи и фото присутствуют, но не всегда можно понять, в какой последовательности необходимо выполнять работы. А также насколько важно выполнять все требования проекта. Остановимся на сборке каркаса подробнее, и поясним, что важно для сооружения прочной несущей конструкции будущего дома.
Любые чертежи проектов каркасных домов, бесплатных или заказанных за оплату, содержат схему сооружения каркаса в виде нескольких чертежей. Они описывают один из наиболее ответственных этапов строительства – сборку опор будущего дома. От правильности сборки зависит прочность, надёжность и долговечность всего строения. Для того чтобы сложить каркас правильно, необходимо следующее:
- Строго придерживаться указанных в чертежах и спецификациях размеров. От этого зависит прочность всего строения, его надёжность и безопасность проживания в будущем доме.
- Выполнять рекомендации по способам крепления – соединять соседние элементы каркасных стоек именно так, как указано в проекте. От этого также зависит прочность, а значит надёжность, безопасность и долговечность строения.
Способы крепления.Для крепления каркасных элементов используют два основных варианта — соединение металлическими скобами и гвоздями, а также врезку двух соседних деревянных балок друг в друга. Врезка соседних деревянных элементов образует более прочное соединение, поэтому её обязательно используют для сырого строевого леса. Крепить такой лес наружными скобами противопоказано – может произойти их деформация и разрыв.
А вот высушенный лес можно крепить снаружи. Он не даёт сильного коробления, которое способно деформировать крепёжный металл. При этом позволяет собирать каркас без наличия профессиональных умений и навыков врезки дерева.
Инженерные коммуникации
Проекты каркасных домов бесплатно иногда могут быть без данных о прокладываемых инженерных коммуникациях. Это связано с тем, что водопровод, электроснабжение и газ часто требуют подготовки собственных проектов. Как правило, ими занимаются те организации, которые обеспечивают городское или поселковое электро-, водо- и газоснабжение. Поэтому даже в заказной проектной документации на каркасные дома нет схем прокладывания труб канализации и водопровода, электрических кабелей и расположения электроприборов, а также газовых труб и газового оборудования.
Заказ проекта электроснабжения производят в организации, которая поставляет потребителям электрический ток. Этот проект готовится по месту жительства заказчика. При этом зачастую проект можно заказать только в данной государственной организации и нельзя получить его в другом проектном месте.
Аналогичная ситуация с проектом газоснабжения. Поставщик газа – монополист на выпуск и подписание газовых проектов для жилого дома. Что касается прокладывания водопровода и канализационного слива, то здесь зачастую проектом не пользуются. Просто приобретают и прокладывают трубы заданного диаметра.
1karkasnydom.ru
| Комплектации каркасного дома | «Силовой каркас» | «Без отделки» | «С отделкой (Зимний)» |
| Высота помещений | Высота 1 этажа — 2,5 м, высота 2 этажа — 2,4 м | ||
| Толщина каркаса | 150 мм | ||
| Обвязка дома (Двойная) | 1 ряд — брус 150х150 мм, 2 ряд — доска 40х150 мм | ||
| Лаги первого этажа | Доска 40х150 мм (шаг 59 см) | ||
| Черновой пол | — | — | Обрезная доска 20х100 |
| Чистовой пол | — | — | Шпунтованная доска, толщиной 36 мм, принудительной сушки |
| Наружные стены дома 1 этажа | Доска 40х150 мм (шаг 59 см) | ||
| Перегородки 1 этажа | Доска 40х100 мм (шаг 59 см) | ||
| Межэтажное перекрытие | Доска 40х150 мм (шаг 59 см) | ||
| Каркас фронтонов | Доска 40х150 мм (шаг 59 см) | ||
| Стропила | Доска 40х200 мм (шаг 59 см) | ||
| Наружные стены 2 этажа (при наличии) | Доска 40х150 мм (шаг 59 см) | ||
| Перегородки 2 этажа | Доска 40х100 мм (шаг 59 см) | ||
| Подкровельная обрешетка | Доска 20х100 мм (шаг не более 30-35 мм) | ||
| Вентиляционная контррейка | Рейка 20х50 мм | ||
| Подкровельная пленка | Мембранная пленка Изоспан АМ | ||
| Вентилируемый фасад дома | — | Рейка 20х50 мм | |
| Ветро-влагозащита наружных стен | — | Мембранная пленка Изоспан А | |
| Внешняя отделка | — | Имитация бруса 20х140 мм, сорт В, камерной сушки | |
| Пароизоляция | — | — | Мембранная пленка Изоспан В |
| Внутренняя отделка | — | — | Стены, перегородки — вагонка; потолок — вагонка (вагонка сорт В, камерной сушки) |
| Утепление: Пол 1 этажа | — | — | Rockwool Лайтс Баттс 150 мм |
| Утепление: Внешний контур дома | — | — | Rockwool Лайтс Баттс 150 мм |
| Потолок мансардного этажа | — | — | Rockwool Лайтс Баттс 200 мм |
| Межэтажное перекрытие | — | — | Rockwol Лайт Баттс 150 мм |
| Перегородки 1 и 2 этажей | — | — | Rockwool Лайт Баттс 100 мм |
| Кровля | Волнистые листы Ондулин (цвет: красный, коричневый, зеленый) | ||
| Поднебесники | — | Имитация бруса 20х135 мм, ширина — 40 см | |
| Окна | — | Окна ПВХ | |
| Входная дверь | — | Металлическая, производство Россия | |
| Межкомнатные двери | — | — | Деревянные, филенчатые |
| Лестница на второй этаж | — | — | Тетива — строганный брус 100х150 мм, ступени — 30х200 мм, поручень — деревянный фигурный, балясины — точеные фигурные |
mir-dach.ru
Бесплатные проекты каркасных домов
Бесплатные проекты каркасных домов от компании ООО «Проектстрой-П»
Если вы решили построить собственное жилье, но у вас ограниченный бюджет, то оптимальным вариантом будет типовой проект. Огромный выбор готовых и совершенно бесплатных решений вы найдете в компании ООО «ПРОЕКТСТРОЙ-П». Ассортимент настолько широкий, что выбрать оптимально подходящее решение сможет самый взыскательный клиент, который хочет получить в итоге комфортное жилье за небольшую сумму денег.


Преимущества заказа готового бесплатного проекта в компании ООО «ПРОЕКТСТРОЙ-П»
- Типовые бесплатные проекты в компании ООО «ПРОЕКТСТРОЙ-П» максимально хорошо разработаны и проверены временем. Наши специалисты учли всю нюансы и вложили накопленный опыт, что привело к улучшению качеств готовых решений.
- Если вы закажете проект в другой организации, а строительство в нашей, то возможно выявление дефектов, которые допустил архитектор при разработке каркасного дома. Устранить их по факту строительства будет гораздо сложнее и затратнее. Поэтому лучше заказывать дом под ключ в одной фирме.
- Все бесплатные проекты каркасных домов, которые представлены в нашем каталоге, можно индивидуализировать по собственному вкусу. Наши архитекторы помогут вам улучшить типовой проект еще на этапе оформления документации и утверждения плана.
- Далеко не каждая фирма предлагает широкий ассортимент готовых решений, которые доработаны до мелочей. Компания ООО «ПРОЕКТСТРОЙ-П» позаботилась о своих клиентах! У нас вы найдете то, что давно искали и за приемлемую плату!

Что представляют из себя бесплатные проекты каркасных домов
Типовые проекты, которые представляют многие организации, мало чем отличаются от индивидуальных. Разница лишь во внешнем виде фасадов, планировке, квадратуре и еще некоторых несущественных деталях. Если вы не располагаете деньгами, которые необходимы для разработки плана, вам оптимально подойдет именно бесплатное решение.


Дом получится комфортабельным, теплым и уютным, ведь вы внесете вы него частичку себя. Несмотря на то, что проект бесплатный, вы можете изменить расположение комнат, а также индивидуально выбрать вариант отделки фасада. Небольшие нюансы очень сильно изменяют облик здания, придавая ему изюминку и отличие от других аналогичных строений. Если вы решили построить дом, обратитесь в нашу фирму для консультации. Компания ООО «ПРОЕКТСТРОЙ-П» работает качественно и быстро!
Позвоните нам
+7(495)665-15-42
И мы ответим на все Ваши вопросы
proectstroy-p.ru
