Септик дома – Септик для частного дома как выбрать
Септик для частного дома постоянного проживания
Проживая в квартире и имея доступ к центральной канализации, мы чаще всего не задумываемся о том, как устроена и организована система удаления отходов жизнедеятельности человека. Но в случае постройки частного, отдельно стоящего дома, вопрос, звучащий, как «выбор оптимального септика для загородного дома» выходит на одно из главенствующих мест в создании условий комфортного проживания.

Общая схема организации канализационных стоков
Подбор лучшего септика
Удобнее всего разделять септики, предназначенные для установки в частном жилом фонде, на виды в зависимости от:
- принципа действия:
- материалов, которые были использованы при его производстве;
- форме емкостей и способам установки и монтажа.
В целом на даче или капитальном частном доме вполне можно устанавливать любые виды септиков, начиная от самых простейших накопительных, до сложных систем, осуществляющих полноценную очистку. Выбор септика зависит только от ваших финансовых возможностей и личных требований и пожеланий к работе данной системы.
Далее мы подробно рассмотрим все основные виды конструктивных решений, и вы сможете принять взвешенное решение о том, какой септик лучше для дома с постоянным проживанием.
Накопительные (выгребные) резервуары
Этот септик для загородного дома представляет собой просто более совершенную выгребную яму. Все отходы поступают в герметичную камеру, где происходит их разделение на фракции (тяжелые остаются на дне, легкие – на поверхности).
Это простейшая система, не требующая сложных манипуляций при установке и монтаже, отлично справляется со своими задачами, но при этом имеет один существенный недостаток. Это необходимость частой очистки ассенизатором. По этой причине лучше всего накопительные резервуары проявляют себя при установке в домах с малым количество проживающих (1-2, максимум четыре человека) и там, где люди живут не круглый год.
В ином случае лучше присмотреться к более сложным системам, которые обеспечивают некоторую самостоятельную очистку.
Переливные септики
Эти системы представляют собой отстойники с почвенной доочисткой стоковых вод. Они предназначены не только для сбора и накопления отходов, также производят частичную переработку и очистку.
Переливные септики рассчитаны на дома с постоянным проживанием при умеренном потреблении воды. Услугами ассенизатором при работе данных систем нужно будет пользоваться намного реже, максимум два-три раза в году.
Как работает переливный септик
Они состоят из двух камер, одна из которых принимает домовые стоки, а другая – играет функцию отстойника.
После того, как происходит разделение на фракции в первой камере, жидкие отходы поступают во вторую. В ней с помощью специальных бактерий происходит очистка и частичная переработка органических веществ. Вода здесь очищается вплоть до 70%.

Процесс монтажа септика на участке
В дальнейшем эту воду можно использовать для полива приусадебных растений или просто произвести ее сброс в водоем. Перед сбросом вода обязательно должна пройти дополнительную очистку, протекая через специальную породу. Можно ее обустроить с помощью гравия или щебня с добавлением песка. Такая порода будет работать по принципу механического фильтра очистки, и в водоем будет попадать практически чистая вода.
Этот тип септика обладает несколькими однозначными преимуществами:
- он очень прост в обслуживании и установке;
- обладает длительным интервалом времени действия;
- большая часть стоковых отходов перерабатывается внутри системы.
Но помимо плюсов, также есть и минусы. Переливный септик для дома нельзя установить в глинистой почве, которая не позволит организовать нормальный сброс воды из-за своей очень низкой пропускной способности. Также если первый водоносный горизонт находится неглубоко, то это тоже может создать проблемы при организации очистной системы.
Биохимические септики
Эти септики представляют собой системы глубокой биологической переработки отходов. Септик отлично подходит для дома постоянного проживания и способен перерабатывать большие объемы поступающих стоков, может очищать воду практически на 100%.
Конструктивно они состоят из трех камер:
- первая камера предназначена для сепарации поступающих веществ из домовых стоков;
- во второй камере происходит биологическая очистка воды при помощи бактерий;
- и третья камера предназначена для химической дезинфекции при помощи специальных химических реагентов.
Биохимические септики превосходят свои предыдущие аналоги практически по всем параметрам:
- очистка сточных вод происходит выше, чем у прочих аналогов, практически на 100%;
- при работе данных систем нет никаких неприятных запахов;
- для установки и монтажа не имеет никакого значения тип грунта на земельном участке;
- очень быстрая установка и монтаж;
- система практически не требует обслуживания.
Эти септики для загородного дома требуют очистки от сухого остатка не чаще, чем раз в 5-8 лет, в зависимости от количества проживающих людей в доме и активности пользования канализацией. Это наиболее удачные септики для дачи с высоким уровнем потребления воды.
Единственным недостатком биохимических септиков является их высокая стоимость, которая значительно больше, чем у более простых аналогов. Но для дома с постоянным местом жительства этот вариант все равно будет наиболее удачным.

Септик, установленный на поверхности
Также, так как для нормального функционирования микрофлоры бактерий внутри системы нужно постоянное поступление питательных веществ, то необходимо помнить, что нельзя устанавливать септики с биологическими фильтрами в домах, где люди не проживают на ПМЖ, и имеются длительные перерывы в использовании канализации.
Разобравшись с основными типами организации систем септиков, далее следует обратить внимание на те или иные параметры, исходя из которых стоит выбирать ту или иную систему.
Производительность системы в целом
Небольшой дом, где проживает 1-2 человека, очень сильно отличается по объему производимых отходов от капитального дома или коттеджа, где проживает целое многочисленное семейство. Также следует учитывать, помимо дома, такие дополнительные моменты, как наличие бассейна, стиральных или посудомоечных машин.
Обычно расчет производится исходя из следующих параметров:
- Стоковые воды объемом до 1 куб. метра. В этом случае будет достаточно обычного накопительного септика, устройство более дорогой и сложной системы особого смысле не имеет;
- Стоковые воды объемом от 1го до 10 куб. метров. При таком объеме уже очень желательна установка как минимум двухкамерного септика. Особенно, если потребление ближе к верхней границе этого диапазона;
- Стоковые воды объемом более 10 куб. метров. При этом объеме настоятельно рекомендуется монтаж септика с глубокой биологической очисткой. В противном случае эксплуатация канализационной системы будет однозначно сопряжена с некоторыми неудобствами.
Важно! Правильно рассчитывайте объемы поступающих отходов. СНиП устанавливает четкий минимальный объем септика, который должен вмещать стоки, поступающие в течение трех дней.

Внешний вид уже установленного септика
Имейте в виду! Неправильный расчет или излишнее желание сэкономить средства приведут к тому, что придется излишне часто пользоваться услугами ассенизаторов. Эта процедура обычно достаточно дорогостоящая. По итогу ваш малообъемный септик может получиться дороже, чем даже трехкамерные системы биохимической очистки.
Материалы, из которых изготовлены септики
Также немаловажным фактором при выборе септика в дом будет являться материал изготовления очистных систем.
Здесь можно пойти несколькими путями, которые отличаются друг от друга соотношением стоимости и трудозатрат на организацию.
Септики, изготовленные на месте, какой лучше выбрать? Обычно они делаются из следующих материалов.
Кирпич
Можно выбрать септик, сделанный из этого самого простого и дешевого материала. Однако из-за особенностей кирпичной кладки достаточно сложно обеспечить его полную герметичность, из-за чего канализационные стоки могут просачиваться в грунт и далее в водоносный слой. Во избежание протекания можно использовать цементные растворы или специальные мастики.
Железобетон
Несколько более трудоемкий в работе материал, но при этом крайне надежный. Для объемных сборных конструкций чаще всего используют железобетонные кольца. При использовании колец главной задачей будет обеспечение полной герметичности стыков между ними.

Септик, сделанный из бетонных колец
Подручные материалы
Как ни странно, но изготовить нормальный септик вполне возможно, используя подручные материалы, которые большинство людей просто находят у себя дома. Единственное – объем такого септика будет вряд ли составлять более 300 литров, что подойдет либо для дачного участка, либо для дома с очень небольшим объемом стоковых вод. Схемы изготовления подобной система – это тема для отдельной статьи, но при желании вы всегда сможете найти их в большом количестве на специализированных форумах в интернете.
Естественно, самым надежным, быстрым и удобным способом (и самым дорогостоящим) является приобретение и установка уже готовой системы, обычно изготовленной из пластика или стекловолокна.
Мы рекомендуем приобретать именно такие септики, т.к.:
- они обеспечивают абсолютную надежность и герметичность в работе;
- вы можете подобрать любые линейки объемов, начиная от маленького дачного домика и заканчивая коттеджем на 5 человек с бассейном и системами орошения;
- уже готовые септики обеспечивают быстрый монтаж и моментальный ввод в эксплуатацию;
- они уже укомплектованы всеми необходимыми системами очистки и фильтрации; вам не нужно ни о чем дополнительно думать.

Готовые септики, выполненные из пластика
Обратите внимание! Септики, изготовленные из полимерных материалов, в обязательном порядке необходимо монтировать в бетонированных котлованах и обеспечивать крепление емкости к стенам этого котлована. Делается это для защиты септика от всплытия при воздействии грунтовыми водами, а также защиты от разрушения при движении грунта.
Как устанавливают септики
В целом можно выделить два вида монтажа, в зависимости от принципа конструкции септика:
- вертикальные системы;
- горизонтальные системы.
Вертикальные септики устанавливаются с углублением в грунт и представляют собой наиболее удачную конструкцию в случае, если вы не хотите видеть у себя на участке дополнительных элементов. Он будет полностью находиться в земле. Минусом здесь является то, что если на земельном участке движение подземных грунтовых вод происходит близко к поверхности, то в этой ситуации, чтобы установить такое изделие, потребуются дополнительные усилия по монтажу, особая спецтехника и т.п.
Горизонтальные септики устанавливаются на поверхности и не требуют наличия тяжелой техники или каких-либо больших усилий при монтаже. Но при этом, если вы делаете систему для постоянного проживания круглогодично, то, скорее всего, это будет довольно объемное устройство, которое займет значительное место на приусадебном участке. Плюс, если вы планируете какой-либо ландшафтный дизайн, то вписать в него наличие септика также будет проблематично.
Какой септик выбрать
В итоге можно однозначно сказать, выбор того, какой септик лучше для загородного дома, – дело крайне ответственное, которое будет существенно влиять на качество проживания в целом.
Важно! Очень внимательно относитесь к точности расчета потребностей по обработке стоковых вод, и какой в итоге выбрать септик. Лучше установить сейчас систему с запасом, чем позже заниматься полной перестройкой, что к тому же однозначно выйдет много затратнее.
Но с другой стороны, когда вы точно понимаете, что расход у вас минимальный, и точно не планируется никакого увеличения, то нет никакого смысла переплачивать за сложные системы, которые будет работать на десять процентов от возможного потенциала.
В небольшом дачном домике, в котором не планируется длительного проживания, можно сделать своими руками небольшой септик, к примеру, из автомобильных покрышек или иных материалов, которые вы нашли у себя на даче или в гараже. Этот вариант, скорее всего, обойдется вообще практически бесплатно. Только не забудьте, как следует, позаботиться о хорошей герметизации.
Также не стоит гоняться за наиболее дорогими импортными моделями. Наши российские производители делают продукцию отличного качества, ни в чем не уступающую зарубежным аналогам.
Одним из наиболее популярных производителей на нашем рынке на данный момент является продукция отечественной компании «Топол-Эко Нева», которая работает с 2001 года. Основными моделями, из которых вы можете выбрать оптимальный септик, который подходит именно вам, являются:
- ТОПАС;
- ЮБАС;
- АСТРА;
- ТОПОЛ;
- ЕВРОБИОН;
- БИОКСИ;
- ТАНК;
- и множество других.
Линейки этого производителя полностью покрывают все любые возможные потребности, начиная от маленьких домиков до больших семей на 4-5 чел. Также присутствуют специальные септики, рассчитанные для обеспечения жизни людям, которые проживают значительно большими группами (от 10 и более человек).
Следуйте этим простым советам, пообщайтесь со специалистами, обратитесь на любой тематический форум, и вопрос «как выбрать септик», вы решите совершенно без каких-либо проблем.
Видео
Вконтакте
Одноклассники
aqueo.ru
Септик для дома своими руками: как выбрать и установить?
Септик – это один из ключевых элементов автономной системы канализации. Поэтому от того, насколько правильно будет выбрана схема септика и его производительность, будет зависеть эффективность работы всей системы. Если бюджет на сооружение местной канализации ограничен, то выгоднее всего построить септик для дома своими руками. В этом случае, затраты на строительство будут минимальны, но вот трудозатраты на осуществление этого проекта будут значительны.
В большинстве случаев, постройка местной канализации – это единственный вариант решения проблемы отведения и утилизации стоков. Сегодня есть возможность приобрести готовые модели септиков разной производительности, однако, все они достаточно дорого стоят.
В том случае, если нужно решить вопрос с минимальной затратой средств, стоит построить септик своими руками для дома. Конечно, при выборе этого варианта придется потрудиться, но зато можно будет сэкономить внушительную сумму.
Для чего нужен септик и что это за установка?
По сути, септик – это отстойник, в котором стоки проходят механическое и биологическое очищение. На выходе вода очищена недостаточно для того, чтобы ее можно было сбросить на грунт, поэтому применяют почвенную доочистку. Для этого необходимо предусмотреть строительство одного из нижеперечисленных сооружений:

- Поля подземной фильтрации;
- Фильтрующие траншеи;
- Песчано-гравийный фильтр – инфильтратор;
- Фильтрующий колодец.
Какими они бывают?
Все септики похожи по устройству, отличаются они только числом камер. Для частного дома, предназначенного для постоянного проживания семьи, строят одно-, двух- или трехкамерный септик. Как выбрать наиболее подходящий вариант? Тут все зависит от количества стоков.
Однокамерная модель строится в том случае, если в сутки в доме расходуется не более кубометра воды. В том случае, если расход воды больше, необходима двухкамерная модель. Трехкамерный строят, если расход воды в сутки составляет 10 кубометров и более.

Как выбирать объем камер?
Очень важно не только правильно подобрать количество камер, но и их рассчитать объем. Если объем недостаточен, то вода будет находиться в очистной установке недолго и не успеет достаточно очиститься. Но и чрезмерно большой объем – это не лучшее решение. В этом случае, возникают следующие проблемы:
- Осадок выпадает неравномерно;
- Сильно усложняется задача извлечения твердого осадка;
Совет! Для того чтобы сосредоточить накопление основной массы осадка в одной камере, первая камера-накопитель должна иметь самый большой объем. Тут происходит выпадение в осадок большей части твердых включений.
Чтобы построить эффективно работающий самодельный септик, выполняют несложный расчет, подсчитывая, сколько воды в доме расходуется за трое суток. Именно такое количество жидкости должен вместить в себя септик.
Конечно, нет необходимости вымерять каждый литр израсходованной воды, достаточно просто умножить число людей, которые живут в доме, на 600, так как именно примерно такое количество воды использует каждый домочадец за трое суток.
Совет! Выбирая объем очистной установки, важно учесть все обстоятельства, которые могут привести к увеличению расхода воды в доме. Это и частые визиты гостей, и наличие домашних собак, которых придется регулярно мыть, и планируемое увеличение членов семьи.
Зная объем септика, можно будет легко подсчитать его будущие параметры, то есть, длину, глубину и ширину. Рассчитать их можно по простым геометрическим формулам, в зависимости от формы септика.
Совет! Если планируется построить камеры прямоугольного или квадратного сечения, то объем рассчитывается по формуле V = a x b x c, где буквами a, b и c обозначены длина, ширина и высота котлована. Если же камера будет выполнена в форме цилиндра, то объем можно рассчитать по формуле V = 3,14 x D² / 4 x H, где буквами D и H обозначены диаметр и высота цилиндра соответственно.
Выбор места установки
После того, как будет определен объем камер, нужно выбрать место установки септика. Делать это необходимо с учетом санитарно-эпидемиологических норм. К примеру, устанавливать септик под домом или в непосредственной близости к нему категорически запрещено.

Расстояние от дома до септика должно быть больше пяти метров. Эта мера предосторожности необходима для защиты фундамента от подмывания, выходящими из септика водами. Кроме того, необходимо:
- Размещать септик на максимальном расстоянии от колодца или водозаборной скважины. Минимальное расстояние между этими объектами должно быть 30-50 метров в зависимости от степени проницаемости грунта;
- Нельзя устанавливать установку вплотную к забору с соседним участком, нужно отступить от ограды не менее чем на метр;
- Поскольку из септика нужно будет регулярно откачивать твердые отходы, то важно расположить его так, чтобы к нему могла подъехать машина ассенизаторов.
Из чего можно построить самодельный септик?
Самодельный септик для дома строят из самых разных материалов. Главное, чтобы камеры получились герметичными, а материал, из которых сооружаются камеры, не разрушался под действием стоков. По этой причине наиболее востребованными вариантами строительства являются:
- Сооружение монолитных конструкций из бетона;
- Строительство сборных камер из колодезных колец;
- Строительство с использованием еврокубов.
- Кирпичные отстойники.
Рассмотрим эти варианты подробнее.

Монолитный септик
Этот вариант хорош тем, что септик получается весьма надежным, полностью герметичным и прочным. К недостаткам варианта следует отнести трудоемкость его сооружения и длительный срок постройки, так как приходится долго ждать, пока застынет залитый бетон. Этапы сооружения:
- Подготавливается котлован необходимого размера;
- На дне котлована выполняется подсыпка слоя песка высотой 20 см, который следует хорошо утрамбовать;
- Затем выполняется заливка дна септика. Одновременно производится и закладка армирующих элементов. Важно, чтобы поверх металлической арматуры был слой бетона высотой не менее 3 см;
- После высыхания слоя бетона на дне, выполняется заливка стен будущего септика. Для выполнения этой работы необходимо построить опалубку. Важно не забыть оставить отверстия для входной и выводной трубы;
- Следующий этап – заливка межкамерной перегородки с отверстием для переливной трубы. Если строится двухкамерный септик, то размер первой камеры должен составлять 75% его общего объема. При сооружении трехкамерной установки, на первую камеру должно приходиться половина общего объема, а на вторую и третью – по 25%;

- На последнем этапе заливается верхнее перекрытие. При этом необходимо оставить отверстия для очистки (они закрываются люками) и установки труб вентиляции.
Совет! Если вентиляция камер не будет сделана, то хозяевам придется столкнуться с таким неприятным явлением, как запах из септика.
Из бетонных колец
Построить этот вариант септика намного проще. В этом случае, камеры собираются из установленных друг на друга колодезных колец. Для выполнения этой работы нужно использовать спецтехнику.
Основная сложность постройки септика из колец заключается в том, что камеры нужно сделать герметичными, для этого применяют затирку мест стыков цементным раствором и обработку гидроизоляционной мастикой. В качестве нижнего элемента камеры стоит взять кольцо, имеющее дно.
Из еврокубов
Этот вариант является, пожалуй, самым простым. Еврокубы – это пластиковые емкости, которые изначально являются герметичными. Они имеют небольшой вес, поэтому использование спецтехники не является обязательным. Необходимо только выполнить подключение труб – входящих, переливных, вентиляционных и установить подготовленные еврокубы в котлован.

Недостатком данного варианта является ограниченный объем камер, еврокуб вмещает 1000 литров жидкости. Поэтому такой вариант септика для индивидуального жилья возможен только при относительно небольшом расходе воды. Для увеличения производительности такой очистной установки можно установить больше камер, но тогда на установку септика потребуется выделить больше места на участке, что не всегда приемлемо.
Из кирпича
Септик с кирпичными камерами хорош тем, что его можно построить самостоятельно без привлечения спецтехники. При этом размер и форма камер может быть любой. Однако кирпичные отстойники имеют существенный недостаток, так как кладка не является абсолютно герметичной.
Чтобы исключить проникновение загрязненных стоков в грунт, придется потратить немало времени на выполнение гидроизоляции камер изнутри. Камеры нужно будет оштукатурить раствором, а затем дополнительно обработать гидроизоляционной мастикой в несколько слоев.
Итак, самодельный септик – это дешевый вариант обустройства местной канализации для дачи или дома для постоянного проживания семьи. А работать такое самодельное очистное сооружение (при условии, что оно сделано правильно) будет не менее эффективно, чем выпущены промышленностью.
septikmaster.ru
как выбрать, видео, обзор цен
Добавить в закладки Версия для печатиДля любого частного и загородного дома дренажная система является обязательной частью канализации. Установить септик для частного дома можно своими руками, главное – правильно его выбрать и при монтаже строго следовать инструкции производителя и требования ГОСТ.
Содержание статьи
Как выбрать
Септики классифицируются по типу действия, материалам, из которых они изготовлены и объему. По принципу работы накопительные дренажные колодцы делятся на две обширные категории:
- Отстойники;
- Автономные модели или all-in.
Отстойный канализационный колодец может состоять из одной или нескольких емкостей. Его конструкция является самой простой среди всех остальных видов. К нему подключено две трубы: входящая, по которой стоки из канализации поступают в емкость, и исходящая – через неё очищенная вода переправляется для дальнейшего использования. Для периодической откачки собирающегося на дне сора нужно использовать дренажные насосы или специальные машины. Чаще всего очистка емкости требуется не чаще раза в 5 лет.
Конструкция стандартного отстойникаАвтономный септик – это устройство, которое состоит из нескольких камер, в которых установлены специальные бактериальные фильтры. Благодаря работе микроорганизмов он не нуждается в дополнительной чистке, разве что изредка нужно устранять налет с фильтров и компрессоров. Такой биосептик является самым популярным среди владельцев частных загородных домов и коттеджей, благодаря тому, что значительно экономит время на обслуживание, является очень долговечным и надежным.
Автономная станцияПо материалам септики классифицируются на:
- Пластиковые, выполненные из ПВХ и других видов пластмассы;
- Бетонные (произведенные из бетонных колец или забетонированных ям).
Пластиковый септик в зависимости от толщины стенок может использоваться для любых погодных условий. Для защиты пластика от деформаций под воздействием перепадов температур и давлением земельных масс необходимо использовать специальную металлическую решетку. Она позволяет фиксировать емкость в определенном положении, одновременно защищая её от негативного влияния внешних факторов.
Фото: пластиковый септикБетонный септик – это очень дешевый вариант для частного и загородного дома. Он состоит из одного или нескольких бетонных колец, которые можно купить на заводе-производителе или сделать самостоятельно. После выкапывания траншей и ямы для монтажа емкости, в неё устанавливаются эти кольца, к ним подводится канализация. Далее, стенки фиксируются при помощи дополнительно раствора или прессовки землей. Этот колодец очень дешевый, но он не является самым надежным. Высокий уровень грунтовых вод может повредить его конструкцию.
Фото: колодец из бетонных колецПомимо типа, конструкции и материала, чтобы правильно выбрать септик для частного дома, нужно знать потребный объем жидкости, которую он может очистить. В зависимости от объема, для небольшой семьи (трех взрослых человек) может использоваться как однокамерный, так и двухкамерный колодец, с емкостью до 2 кубов.
Однокамерная модельРасчет потребления жидкости производится по принципу, что на одного человека в сутки уходит 200 литров. Большинство септиков очищают и отстаивают стоки в течение 3 дней. Иными словами, емкости должно хватить на 3 дня очистки и потребления (учтите, что постоянно количество воды будет увеличиваться). Скажем, на семью из четырех человек выходит такой объем:
4 * 200 * 3 = 2400 л = 2,4 куба.
Видео по теме:
[relatedYouTubeVideos max=”3″]
Конечно, эти нормы не являются точными. Специалисты утверждают, что лучше подобрать септик с небольшим превышением расчетных показателей. Тогда уровень очистки воды будет немного выше, и в фильтрационный отсек уже попадет вода, требующая минимальной доочистки. Это продлит его срок действия и эффективность работы.
Септик танкКаждый производитель указывает размер своего септика и количество человек, проживающих в частном доме, для обеспечения максимальной очистки. Рассмотрим параметры самых известных из них:
| Название | 1–2 человека | 3–4 | 6–8 |
| Топас от ТОПОЛ-ЭКО | Топас 4, производительность 0,8 кубов за сутки | Топас 6, рассчитан на 1,15 кубов за 24 часа | |
| Танк | Танк 1, используется для очистки 0,6 кубов | Танк 2, производительность 0,9 | Танк 8, применяется для крупных коттеджей или нескольких домов, 1,2 куба |
| Астра от Юнилос | Астра 3, очищает до 0,6 кубов | Астра 5, 1 куб | Астра 8 миди, 1 (от модели №5 отличается размером накопительного бака и залповым сбросом) |
Устройство
Практически все виды септиков для загородного дома имеют однотипный принцип работы. Изначально загрязненная вода из канализации попадает в бак доочистки, его еще называют емкостью грубой очистки. Здесь стоки находятся приблизительно сутки. За это время под воздействием гравитационных сил и различных фильтров от них отсеиваются твердые частицы, которые впоследствии оседают на дно.
Конструкция многокамерного колодцаВода после этого при помощи компрессора или естественным путем (благодаря разноуровневым трубам) перемещается в следующую емкость – вторичной очистки. В ней установлены более мелкие фильтры. В зависимости от типа септика, это могут быть:
- Сетки из специального металла, который не подается агрессивному воздействию;
- Био-фильтры. Они состоят из колоний бактерий, которые расселены на тканевых насадках или просто насыпаны в бак.
Из этой емкости вода либо перемещается в канализацию для дальнейшей перекачки (повторного использования в виде технической) или проходит доочистку грунтом.
Принцип работыУстановка
Монтаж септика начинается с проекта. На этом этапе специалистами рассчитывается потребная глубина для установки колодца, его расстояние от дома и при наличии водоема, расстояние от него. ГОСТ указано, что от фасада частного дома септик должен располагаться через 10 метров, а от водоема – на расстоянии 50.
Правила установкиУчитывая, что многие дренажные колодцы подмываются грунтовыми водами, обязательно учитываются климатические особенности региона, УГВ и промерзания грунта. Когда все эти показания рассчитаны, начинается раскопка траншей и ямы под колодец:
- Яма должна превышать размер септика на 5–10 сантиметров. Этого расстояния должно хватить на утрамбовку колодца грунтом или заливку бетоном либо глиной. Если УГВ слишком высокий, то рекомендуется вообще сделать опалубку, в которую нужно залить раствор. Тогда подушка из второго пункта не понадобится;
- На дно ямы насыпается щебнево-песчаная подушка, её высота должна быть минимум 20 сантиметров. Она хорошо утрамбовывается, и уплотняется;
- Далее, подключаются все трубы от канализации частного дома, и устанавливается насос для септика. Схема его подсоединения к сети зависит от марки и типа этого устройства;
- Все места подключения труб герметизируются, устанавливается крышка и фильтры, в емкость при необходимости засыпаются бактерии;
- Для первого запуска используется чистая вода, которая выстаивается сутки, после возможна работа на полную мощность.
Для того чтобы почистить септик потребуется полностью отключить его от системы водоснабжения частного дома. В зависимости от типа конструкции можно самостоятельно прочистить колодец или необходимо будет вызывать ассенизаторскую машину.
Обзор цен
Стоимость септика для частного дома зависит от его объема и типа работы, также цена варьируется по маркам устройств. Рассмотрим, сколько стоит септик Танк 5:
| Город | Цена, у. е. |
| Белгород | 1500 |
| Екатеринбург | 1500 |
| Краснодар | 1500 |
| Сочи | 1500 |
| Москва | 1500 |
| Воронеж | 1500 |
| СПб | 1500 |
В стоимость входит монтаж и два инфильтратора.
www.kanalizaciya-stroy.ru
Септик для дома – как сделать правильно
Для частного дома утилизации стоков – большой вопрос. В современных условиях выгребная яма не решение проблемы. Нужно обустраивать канализацию по правилам с учетом требований законодательства. Должна производиться полноценная очистка сточных вод, прежде чем они уйдут в грунт (будут сброшены на рельеф). Иначе возможно заражение окружающей среды и людей, и очень серьезные последствия. Рассмотрим подробнее как сделать канализацию на основе септика, какие основные нюансы существуют в этом деле, и что нельзя упустить из виду.
Варианты обустройства канализации на основе септика
Возможны следующие варианты.
- Канализация на основе бессточного септика. Это значит, что стоки просто будут накапливаться в герметичной емкости и затем увозится ассенизационной машиной. Экономически целесообразно когда стоков не много.
- Очистные сооружения для дома и затем сброс очищенной воды на рельеф.
Второй пункт может реализовываться следующим образом:
- Канализация для дома на основе анаэробного метода очистки сточных вод. Анаэробные бактерии живут без кислорода, процесс переработки стоков идет медленно, но устойчиво. Требуется большой септик и фильтрация в грунте. Система должна лишь изредка обслуживаться – чистка, вывоз и др.
- Канализация для дома на основе аэробного метода очистки. Аэробные бактерии потребляют кислород, живут при определенном тепловом и газовом режиме, но работают в разы быстрее. Нужна биостанция очистки, которая работает от электричества. Нужен контроль за ее работой, возникают ограничения в количестве и видах стоков. Возможна аварийность, перезапуски. Обычно система дороже, чем первый вариант. Но зато она компкатней и не зависит от качества грунтов на участке, может применяться где угодно.
Чаще всего для небольших и средних домов строятся анаэробные септики – дешевле и практичнее.

В каких случаях септик не применяется
Есть варианты, когда анаэробный септик сделать нельзя. Большой беды в этом случае нет, так как всегда выручит станция биоочистки.
В следующих случаях септик для дома применяться не может.
- Проблема с фильтрацией. На участке глина, поэтому фильтрация практически отсутствует, увеличение площади поля фильтрации здесь не помогает.
- Грунтовые воды стоят высоко – выше 1,5 метра от поверхности земли. Тогда фильтрацию в грунте обустраивать недопустимо.
- Площадь участка ограничена и разместить септик и другие объекты не получается. Трубы, септик и поле фильтрации (дренажный колодец) должны быть не ближе 30 метров до водовода, колодца, родника. До жилого дома должно быть не менее 3 метров (лучше 5 метров по условию подтопления фундамента), от границы участка – 2 метра, от деревьев, насаждений – 3 метра.
Как подключается
Стоки из дома поступают в септик, где под воздействием бактерий происходит их первичная очистка. Нормальная работа септика, если в нем из воды удаляется 70% загрязнений, причем самых сложных – тяжелого осадка и труднорасщепляемых жиров. Из септика должна поступать прозрачная жидкость буроватого цвета, без запаха сероводорода. Остальные загрязнения очищаются аэробным способом в дренажной системе и оттуда перераспределяются в грунт
Дренажная система может быть:
— полем фильтрации – для слабофильтрущих грунтов,
— фильтрационным колодцем – для песчанистых грунтов.
В обоих случаях стоки проходят через слой насыпного грунта – песок с гравием, где и происходит окончательный распад.
Не нормальная работа септика приводит к большому сбросу загрязнений на фильтрацию, поэтому происходит ее заиловка и система прекращает работать – сбросы в грунт не уходят. Нужно в первую очередь обеспечить нормальную работу септика. Септик для дома должен иметь определенный объем, уменьшать который не рекомендуется.
Можно дополнительно ознакомится с обустройством поля фильтрации

Как устроена и как работает канализация
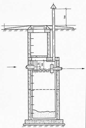
Септик – большая емкость, закопанная в грунте.
На рисунке приведена типичная конструкция септика для дома из железобетонных колец. Входа оформляются тройниками для направления потока жидкости. Обратите внимание – вход жидкости выше чем ее выход. Смотровой люк – над тройником входа для чистки, труба проветривания – над тройником выхода.
Септик из бетона, кирпичной кладки обязательно гидроизолируется изнутри. Этим не допускается попадание неочищенных стоков в грунт, что крайне опасно и может привести к заражению. И наоборот, при поднятии грунтовых вод, (дождевые стоки) не происходит их попадание в септик, что может нарушить всю работу системы. Применяется обмазочная гидроизоляция изнутри септика его днища и стен, а также снаружи. На дне поверх гидроизоляции делают небольшую стяжку, чтобы при разбитии осадка не повредить оболочку.
Канализационные стоки наполняют септик, жир всплывает наверх и постепенно образует сплошную корку, которая препятствует поступлению кислорода. Тяжелый осадок и частицы от распада постепенно скапливается на дне образуя иловые отложения.
Анаэробы делают свое дело – медленно, но верно, разрушают сложную органику на простейшие безвредные элементы. В новый септик рекомендуется добавить специальные анаэробные бактерии (продаются) чтобы он быстро включился в работу.
В септике постоянно выделяется газ, он выводится либо отдельной трубой (см. рисунок) либо может по сливному трубопроводу отводится на общий вентиляционный стояк дома выше крыши дома, что предпочтительнее.

Какой объем потребуется
Нормы, регламентирующие строительство и работу очистных сооружений в разных странах, отличаются. Ниже рассмотрим, как должна быть устроена канализационная система для частного дома согласно нормам принятым в Российской Федерации.
Стоки, попавшие в септик должны находиться в нем не менее 3-х суток. Тогда обеспечивается приемлемый уровень очистки. Норма расхода воды на одного человека — 150 л сутки. Тогда трехсуточный объем на одного — 0,45 м куб. А для семьи из четырех человек — минимум это 1,8 м куб.
Но минимум — не лучше решение, а худшее.
Рекомендуется перестраховаться и подержать стоки еще как минимум сутки — чтобы сложные составы в большом количестве успели переработаться. Также необходим запас объема под донные иловые отложения — не меньше 20%. Высота воды в септике — не менее 1,2 метра.
Из всего этого вытекает минимально-рекомендуемый объем септика на семью из 4 человек уже 2,6 метра кубических.
Количество камер на степень очистки влияет меньше. Гораздо важнее объем септика. Наличие второй камеры актуально для больших септиков, где чрезмерное увеличение одной камеры приводит к проблемам и при строительстве и при очистке. Но для семьи до 5 человек оптимальным по экономическим соображениям будет однокамерный септик.
Септики из пластика обычно двухкамерные удлиненной формы. Такие проще изготовить и установить.
Нужно иметь в виду, что строительные организации попросту навязывают выгодные только им дорогие (но не нужные) двух и трех камерные септики из железобетона.
Как выбирать пластиковый септик — читайте на сайте.

Техника безопасности при эксплуатации
Не допускается ненормальная работа септика, например, вследствие недоочистки или закрытия перепускных проходов, так как это может привести к заражению местности.
Важно помнить, что в септике постоянно выделяется опасные газы. Они вытесняют воздух из септика и малыми порциями выводятся через вентиляцию. Запрещается спускаться в септик, даже если он очищен (частично очищен) от стоков. Нахождение в этой атмосфере даже очень короткое время приводит к летальным исходам.
Перед спуском в септик человека он должен проветриваться средствами вентиляции с 10-кратным обменом объема воздуха.
Верхний люк септика должен запираться таким образом, чтобы случайный человек не мог его открыть. На люке помимо замка должна быть и дополнительная защита от открывания детьми!
Из чего лучше сделать отстойник
Выкладка септика из бетонных, кирпичных блоков обойдется дороже.
Оптимальная конструкция — септик из двух железобетонных колец диаметром 1,5 метра, общим объемом 2,7 метра кубических — на семью до 5 человек, проживающую в частном доме.
Построить такой септик не сложно по технологии заглубления колец вручную. Только на бетонные кольца снаружи нужно не забыть нанести гидроизоляцию, а затем ее выполнить и внутри.
Пластиковые септики проще, быстрее установить. Но они менее надежные, пытаются всплывать, может быть нарушена герметичность…
Важно правильно расположить входящий и выходящий трубопроводы. На них в септике надеваются тройники, которым обеспечивается нормальная подача жидкости и ее забор ниже находящейся сверху корки. Верхние открытые отводы тройников обеспечивают вентиляцию по стоковому трубопроводу, а также их прочистку сверху длинномерным инструментом.
Где расположить
Во первых, должен обеспечиваться подъезд к септику ассенизационной машины. Иногда об этом забывают, и получается курьез…
Оптимально септик располагать не дальше чем 10 метров от дома, чтобы заглубление по уклону трубы оказалось не слишком большим, но и не ближе 5 метров. Уклон сливного трубопровода лучше увеличить до 3%, это ускорит движение стоков и уменьшит вероятность подмерзания в зимнее время. Стоки выходят из дома с температурой не ниже +15 градусов, поэтому трубопровод находящийся даже в промерзающей зоне не перемерзает. Но перестраховаться лучше утеплением, чем заглублением. Обкладка сверху септика и траншеи с трубопроводом листами экструдированного пенополистирола толщиной 5 см, позволит теплу земли прогревать конструкцию и предотвратит замораживание на оптимальной глубине закладки, чаще плита перекрытия верхнего кольца септика располагается 0,6 – 1,0 метров от уровня земли.
Отдельные герметичные конструкции септика можно располагать рядом с домом, или непосредственно в доме. Но отсутствие протечек должно гарантироваться фирмой установщиком.
Читайте также – обустройство канализации внутри дома
Мы рассмотрели важные моменты обустройства септика для дома. Конечно, все нюансы описать затруднительно. В большинстве случаев для монтажа септика приглашают хотя бы одного специалиста, чтобы он руководил такой специфичной работой. В любом случае, если большинство работ сделать своими руками, то септик для дома обойдется гораздо дешевле.
stroy-block.com.ua
Как выбрать септик для частного дома из различных вариантов
ПОДЕЛИТЕСЬ
В СОЦСЕТЯХ
Насущный вопрос, как выбрать септик для частного дома, все актуальнее встает перед владельцами загородной недвижимости. Вся причина в том, что даже сельский житель сегодня очень сильно избалован благами цивилизации и стремится обеспечить себе комфортное проживание даже за пределами городской среды. Пользование теплым туалетом, душем и сантехническими бытовыми приборами практически в любом месте стало возможным с появлением дешевых материалов для устройства автономной канализации. Основным ее компонентом является сооружение для накопления и обезвреживания бытовых стоков из дома, которое называют септиком.

Резервуар септика закрывается крышкой, которая при необходимости легко снимается
Какие бывают септики для использования в загородных домах
Самым дешевым и простым вариантом септика является большой бак или любая герметичная емкость, в который входит труба канализационного слива. Эта емкость закопана в землю ниже глубины промерзания грунта. Чаще всего это более 1,5 м от поверхности. По сути, такое устройство является обычной выгребной ямой, только в нем не нарушена герметичность, и вода не поступает в окружающий емкость грунт.
Так как подобные системы относятся к накопительным, то жидкая вода в них остается. В случае даже минимума бытовых приборов и душа, наполнение происходит достаточно быстро, поэтому требуется регулярная откачка, которая стоит денег. Тем не менее, из-за относительной доступности такого вида септика в сельской местности люди поголовно его используют для оборудования своих домов.

Канализация в частном доме с использованием септика
Полезный совет! Проблему необходимости частой откачки накопительного септика можно решить простым и логичным способом – увеличением объема емкости. Удобнее всего закопать резервуар, равный по объему цистерне ассенизаторской машины. Это примерно 5 – 6 м³ для цистерны на базе автомобиля ГАЗ или ЗИЛ и 8 – 10 м³ на базе КАМАЗа. Из опыта можно сказать, что заполнение 8-кубовой емкости семьей из 4 человек с использованием всех сантехнических приборов происходит за 3 недели.

Монтажные размеры очистного септика на примере модели Rostok
Если еще у вас существует вопрос, как выбрать септик для частного дома, цена которого минимальна – ответ прост. Это накопительная емкость. Стоимость такого резервуара из металла кустарного производства равняется примерно 60 у.е. за 1 м³. То есть, емкость объемом 5 м³ будет стоить 300 у.е, еще около 100 у.е. уйдет на оплату работы экскаватора, хотя эта статья расходов одинакова для всех видов септиков. В дальнейшем придется постоянно следить, чтобы емкость не переполнялась и платить ассенизатору примерно по 7 у.е. за вывоз нечистот.

Устройство септика
Второй вариант септиков предусматривает организацию разделения стоков на разные по плотности составляющие. При этом более твердые отходы накапливаются в резервуаре, а жидкие после отстаивания просто уходят в грунт. Вода после такой предварительной очистки не пригодна даже для технического использования в качестве полива для растений. При этом она достаточно безопасна для грунта, проходя через который фильтруется до попадания в водоносные слои.

Монтаж септика во дворе частного дома
Преимуществом, и значимым, таких септиков является то, что они, имея приемлемую стоимость, требуют не такого пристального внимания и обслуживания, как накопительные емкости. Недостатком таких локальных станций является то, что их запрещено устанавливать на участке, где достаточно высокий уровень подземных вод или глинистый грунт, который не способен фильтровать стоки.
Кроме того, запрещено их закапывать на тех участках, где водоснабжение осуществляется из скважины или колодца. Поэтому, перед тем как выбрать септик для частного дома, цена на который не превосходит разумные пределы, а эффективность достаточно высока, необходимо досконально изучить особенности грунтов на своем участке. Важна также глубина, где залегают грунтовые воды.

Очищенные фильтрами жидкости могут использоваться для полива растений
Локальная очистная станция
Если у вас есть материальные средства и вы желаете оборудовать свой загородный дом современными средствами очистки сточных вод, вам необходимо приобрести локальную очистную станцию. О вариантах, как выбрать септик для частного дома, цена которого может превышать 200 у.е, читайте далее.

Устройство и схема работы септика
В локальной очистной станции производится полное очищение сточных вод путем отстоя и фильтрации до такого состояния, что допустимо их направление, например, для поливки растений. Очистка производится в них не только в многоступенчатой системе механической фильтрацией, а и с помощью биологически активных препаратов, представляющих собой колонии анаэробных бактерий, которые перерабатывают продукты метаболизма и органические примеси.

Пример автономной системы очистки стоков на участке, где преобладает плохопроницаемый грунт
Каких-либо недостатков такие установки лишены, кроме цены, непосильной широким слоям населения. Кроме того, аэрация в этих устройствах производится с помощью электровентиляции, что делает невозможным использование такой системы в местностях, где случаются длительные перебои с электроснабжением.
Полезный совет! Использование многоступенчатых очистных установок с биологическим фильтром предполагает постепенное накопление субстрата. Причем он является превосходным удобрением для любых сельскохозяйственных культур. Необходимо позаботиться о его выемке из емкости и перемещении на огород, что можно делать весной и осенью.

Септик с тремя камерами очистки
Как выбрать септик для частного дома
Кроме указанных выше критериев, существуют и другие, по которым можно разделить существующие септики на виды. Так, способ размещения в котловане тоже является немаловажным аргументом в вопросе, как выбрать септик для частного дома. Ведь существуют участки совсем небольшие или до соседского забора всего 2 – 3 метра. В такой ситуации можно предпочесть выбор септика с вертикальным расположением.
Для него, конечно, придется копать котлован более глубокий, зато он прекрасно сэкономит пространство вширь. Однако такой вариант установки не подойдет, по понятным причинам, на участках, где подземные воды находятся поблизости к поверхности. Здесь будет предпочтительной установка горизонтального устройства.

Схема монтажа трехкамерного септика с колодцем
Полезный совет! Нужно держать в голове то, что септик должен находиться более чем в 50 м от источника водоснабжения, не меньше 5 м от дома, даже соседского. Соблюдения этих правил обеспечит вашу санитарную безопасность.

Пример использования септика на собственном участке
Отличаются стокоочистители и по тому материалу, из которого изготовлен их корпус. Сегодня кроме металлических и бетонных сооружений различают:
- полиэтиленовые септики. Они являются наиболее покупаемыми из-за своей поразительно низкой стоимости и легкости. При этом, пластик не очень хорошо переносит неблагоприятные условия, особенно перепады температуры. Хотя современные виды полимеров вполне могут конкурировать по этим показателям с металлами. Если же вы не ведаете, как выбрать септики для частного дома, цена на которые ниже, остановитесь на этом варианте. Современные полиэтиленовые стокоочистители являются неплохим бюджетным вариантом для каждого загородного дома или коттеджа. Они вполне способны переносить температурные скачки и губительное влияние агрессивных химических компонентов стоков. Производят их в любой форме по бесшовной технологии из многослойного пластика, что в разы увеличивает надежность и прочность емкости;

Схема движения стоков внутри септика
- полипропиленовый септик славится своей высокой прочностью и слабой восприимчивостью к очень высоким значениям температуры. Он способен принять в себя жидкость с температурой до 140 градусов. Если вы решили установить у себя очень долговечный вариант септика, который практически не поддается коррозии, то полипропиленовый вариант в самый раз;

Пример расположения септика, фильтра и колодцев на участке загородного дома
- очиститель из стеклопластика еще более долговечен, чем полипропиленовый. Материал для его изготовления производят из смолы. Стенки таких контейнеров укрепляют армированием. Для этого используется стекловолокно. Если вы не предполагаете, как выбрать септик для частного дома, где в процессе эксплуатации домохозяйства используется много химических веществ, то этот вариант подойдет как нельзя лучше. Химические свойства стекловолокна настолько уникальны, что позволяют использовать этот материал даже в очень неприветливой среде. Поэтому такие очистные станции часто эксплуатируют на автомойках.
Схема для обустройства септика своими руками
Мы рассмотрели несколько аспектов, которые должны помочь дать ответ на вопрос, как выбрать септики для частного дома. Конечно, многое зависит от личных предубеждений и местных условий, поэтому каждый делает свой выбор сам, а статья дает только ориентиры для этого.
Статья по теме:
Септик из бетонных колец своими руками, схема строительства. Самостоятельное устройство для частного загородного дома, коттеджа или дачи. Нюансы укладки бетонных колец в котлованы для очистных устройств.
Септики для частного дома (видео)
ОЦЕНИТЕМАТЕРИАЛ Загрузка… ПОДЕЛИТЕСЬ
В СОЦСЕТЯХ
СМОТРИТЕ ТАКЖЕ
REMOO В ВАШЕЙ ПОЧТЕremoo.ru
виды, варианты строительства, организация повышенной очистки сточных вод
Водоснабжение, газоснабжение, электроснабжение, канализационная система — это именно те составляющие, которые делают жизнь в загородном доме полноценной, уютной и комфортной. В наше время продаётся очень много загородных участков, к которым уже проведённые все коммуникации, остаётся только к ним подсоединиться.Но, как правило, такие участки предлагаются в современных коттеджных поселках и их стоимость достаточно высокая. К счастью, в наше время существует большие количество технологий и оборудования, позволяющие жить в загородном доме полностью в автономном режиме, ни от кого не завися, как на атомной подводной лодке. Касается это и устройства системы канализации. Здесь можно пойти двумя путями. Купить готовый септик или построить его самостоятельно.
Виды септиков для загородного дома
Септик для дома может быть:
- однокамерным;
- двухкамерным;
- трехкамерным
Септик — это станция для очистки сточных вод. В нем происходят процессы, с помощью которых опасные для нашего организма и окружающей среды загрязненные сточные воды, очищаются, превращаясь в технически пригодную водную массу и удобрения. Канализационные отходы, попадающие в очистное сооружение, является благотворной средой для жизни аэробных биоорганизмов, питающихся органикой.
Тяжелые и крупные органические отходы, попадая в септик, оседают на донном основание, где за них и берутся аэробные микроорганизмы, перерабатывая все в биологический ил. Это уже безопасное и полностью инертное вещество. В результате такого такой очистки получается очищенная водная масса, которую можно использовать для полива огорода.
Однокамерный септик
Этот вид септика можно назвать эволюционным продолжением выгребной ямы. Устроить его можно с помощью автомобильных покрышек, полимерных бочек, использовать железобетонные кольца или еврокубы, выложить из кирпича, выставить опалубку и залить бетоном. Глухого дна в таком септике нет, вместо него устраивается подушка из гравия и песка. Попадающие в септик сточные воды, при прохождении через созданную подушку, фильтруются, частично очищаются и затем уже попадают в грунт.Эффективность от такого септика не очень высокая и использовать такую конструкцию можно только на удаленном расстоянии от источника чистой питьевой воды, например, колодца. Отличается от обычной выгребной ямы тем, что в данном случае происходит скопление отходов и вызывать ассенизаторскую машину приходится намного реже.
Двухкамерный септик
Более технологичное, а значит и эффективное решение — это двухкамерный септик. Состоит такой септик из двух основных элементов — первая камера служит в качестве отстойника, а во второй происходит уже фильтрация сточных вод. Перелив из камеры — отстойника в фильтрационную, расположен на уровне 1/3 от ее верхнего края. Крупные органические включения, мелкие камни, песок осаживаются на дно камеры — отстойника под силой собственного веса, где их и начинают перерабатывать биологические организмы.
Частично освобожденные от примесей сточные воды попадают в фильтрационную камеру, проходят через слой песка и гравия и уже очищенные уходят в окружающий грунт. Эффективность работы такого септика можно увеличить за счет добавки в него специальной «биозакваски». При устройстве двухкамерного септика уже нет каких-либо строгих правил по месту выбора его установки.Трехкамерный септик
Самое высокоэффективное решение для загородного дома. Эта конструкция уже на равных может конкурировать с заводскими септиками среднего ценового уровня. Для сооружения самого септика пойдут любые подручные материалы и изделия, в том числе ЖБИ или покрышки от автомобиля. Канализационные отходы сначала попадают в первую очистную камеру. В этой камере оседают крупные по размерам вещества, песка, пыли. Затем, происходит плавный перелив очищенной водной массы во второе очистное сооружение.
Это уже биореактор, в котором и происходит основной процесс очистки. Именно здесь находится среда обитания аэробных биологических микроорганизмов. В третьей камере на дне устроена уже фильтрующая подушка из гравия и песка. При устройстве септика своими руками, стоит учитывать тот факт, что биологические организмы выделяют большое количество газа, поэтому обязательно потребуется хорошая вытяжка, которую можно сделать из пластиковой или асбестоцементной трубы D :100 мм. Когда потребуется эта труба может использоваться в качестве канала для откачки скопившихся отходов.Септик, состоящий из трех камер, принято рекламировать, как относительно несложную конструкцию без необходимости откачки отходов. Все дело в том, что при грамотном подходе к решению устройства септика в домашних условиях, в течение ближайших пяти лет не будет необходимости осуществлять обслуживание очистительного сооружения и вызовом ассенизаторской машины.
Повышенная очистка сточных вод
Далеко не все септики заводского изготовления могут эффективно справиться с очисткой сточных вод. Самодельное очистное сооружение может с этим справляться еще хуже, а решением проблемы может стать использование инфильтратора. Его использование позволяет значительно улучшить степень очистки, а в грунт будет уходить уже практически совершенно чистая вода. Если объем сточных вод большой, то можно установить несколько инфильтраторов.
По своему внешнему виду — это перевернутое корыто, к которому подведены водоводная и вентиляционные трубы. В заводском исполнении — это изделие из высокопрочного пластика с толстыми стенами, имеющего форму разрезанной по длине бочки. Самостоятельно сделать такой инфильтратор можно из металлической или пластиковой бочки, в некоторых случаях может быть использована разрезанная вдоль 100 миллиметровая поливинилхлоридная водопроводная труба.В заводских септиках аэратор используется для насыщения отходов кислородом. Аэробные микроорганизмы эффективно разлагают органику, которая есть в воде, тем самым работая на повышение эффективности очистительной станции. Чтобы изготовить аэратор самостоятельно, все, что вам потребуется — это труба ПВХ диаметром 50 мм. Технология изготовления:
- один конец трубы потребуется заглушить, на второй устанавливается переходник для подачи воздуха;
- по всей поверхности трубы, используя двухмиллиметровое сверло, просверливаем отверстия. Их должно быть не меньше 200−300 штук;
- подаем воздух и если появились пузырьки, то ваш аэратор начал функционировать;
- в качестве компрессора можно применять старый пылесос или купить современную воздуходувку.
Устройство самодельного септика на удаленном загородном участке — это прекрасное решение для тех, кто стеснен в денежных средствах и не может купить высокотехнологичное заводское изделие. Все что для этого нужно — это ваше желание, а подручные материалы для строительства септика в домашнем хозяйстве обязательно найдутся.
Строим септик своими руками (видео)
septik.guru
Какие септики для частного дома лучше и почему
Жизнь в загородном коттедже очаровательна. Здесь нет докучливых соседей и постоянного грохота машин, чистый воздух и красивые ландшафты вокруг. Но, в загородной жизни есть свои нюансы.
И одной из самых первых задач, которые приходится решать является канализация. Центральной системы, как правило, в таких поселках нет, поэтому используются септики для загородного дома.
Они представлены на рынке достаточно широко, что позволяет подобрать модель в соответствии с количеством проживающих в доме.
Содержание:
- Немного о системе канализации в загородном доме
- Устройство и принцип работы септика
- Виды и их отличия
- Обзор популярной продукции
- Критерии правильного выбора
- Как произвести монтаж оборудования
Канализация в частном доме
Вопрос обустройства участка начинается с создания комфортных условий и, в частности, установки септиков для частного дома. Это связано с тем, что современный человек использует большое количество химических препаратов, которые оказывают губительное влияние на природу и окружающую среду.
Поэтому установка классического варианта сельского туалета с обычной выгребной ямой не может использоваться в частном доме.
Многие скажут, что ведь раньше такие домики были на каждом участке. Но, во-первых, в то время не было такого количества моющих и чистящих средств. Во-вторых, использовался такой туалет только по своей основной функции. В него не попадала вода из душа и стиральной машины. Есть и еще масса причин, по которым вместо выгребной ямы приходится устанавливать один из видов герметичных септиков для частного дома.
Устройство и принцип действия местной канализации
Септик – это локальная установка, которая служит для сбора, отстаивания и очистки всех стоков. Она является главным элементом автономной канализации и обычно устанавливается в загородных домах, расположенных в коттеджных поселках. Септик для частного дома, изображенный на фото – это только одна из разновидностей местной канализации, которая может быть выполнена с использованием различных конструкций.
схема устройства септика для частного дома
Самым простым вариантом является установка обычной накопительной емкости. Такого рода канализация – это в своем роде аналог выгребной ямы, с той лишь разницей, что она полностью герметична и представляет опасности для окружающей среды. Однако используются такие септики очень редко в виду необходимости контролировать уровень сточных вод и регулярно оплачивать их откачку.
Наиболее практичным считается вариант с установкой, которая может не только накапливать отходы, но и производить первичную их очистку. Но для использования даже в качестве воды для полива они еще непригодны.
Идеальным вариантом считается использование локальных очистных станций. В них очистка стоков выполняется при помощи биологических препаратов. Сооружения такого вида отличаются принудительной аэрацией и требуют подключения к электросети, что не позволит использовать их в местности, где часто бывают сбои в подаче электроэнергии.
Смотрим видео, устройство канализации для загородного дома:
Как видите, устройство септика в частном доме может быть выполнено различными способами. Поэтому выбирать модель нужно с учетом конкретных условий эксплуатации. А для этого необходимо знать, как работает эта установка.
Любая модель канализационного септика является герметичным резервуаром. Он может состоять из нескольких камер и функционирует следующим образом. Стоки по канализационным трубам подаются в первую емкость, используемую для отстаивания. В ней происходит разделение массы на тяжелые фракции, опускающиеся на дно и легкие – аккумулирующиеся на поверхности. В процесс разложения стоков возникают газы, вывод которых осуществляется через вентиляционную трубу.
Смотрим видео про модель из бетонных колец:
Осветленная в результате отстаивания масса переливается во вторую камеру, где процесс продолжается. В этом резервуаре происходит также очистка стоков при помощи бактерий. И последней становится емкость из которой очищенная вода попадает на фильтрационные поля. Однако их может и не быть, если канализационный септик, выбранный для частного дома оснащен биологическим фильтром глубокой очистки.
Виды септиков
Классификация очистных устройств осуществляется по различным признакам:
- Способу работы
- Материалу изготовления
- Расположению
- Форме
Установка такого оборудования может выполняться одним из двух вариантов, в зависимости от формы: горизонтально или вертикально. Есть отличия и в способе расположения, он бывает как подземным, так и поверхностным.
Смотрим видео какие бывают виды:
Отличаются септики для частного дома и по материалу изготовления. Они могут выполняться из:
- Бетона
- Кирпича
- Металла
- Пластика
Но все же главное отличие заключается в различных принципах работы. Они могут быть чисто накопительными, которые требуют регулярной откачки стоков. Есть модели с системой почвенной фильтрации, но все же самыми эффективными считаются септики с глубокой биоочисткой. Они являются энергозависимыми и не могут работать без подключения к электросети.
Лучшая модель — какая она
Чтобы иметь представление о достоинствах и недостатках в работе очистных систем нужно рассмотреть характеристики нескольких моделей. Только так можно составить собственное мнение, на основе которого и будет осуществляться покупка септиков для загородного дома.
смотрим видео, модель Топаз, устройство и схема работы оборудования:
Начнем с модели Топас М – это септик с функциями доочистки и обеззараживания воды. Использование этого септика позволяет доводить стоки до условно чистого состояния в соответствии с санитарными нормативами.

модель Топас М
Комплекс – это несколько связанных между собой очистных емкостей. Выпускаются модификации септика производительностью до 450 м² в сутки. Работа системы осуществляется в автоматическом режиме.
А контроль за процессом очистки осуществляется из блока управления, который обычно располагают в служебном помещении.Корпус резервуаров выполнен из полипропилена и может быть утеплен влагостойким материалом.
Емкости имеют высокий предел прочности, что позволяет устанавливать их без использования усиления в любой почве.
Очистка стоков осуществляется с применением прогрессивных технологий и основана на биохимическом методе разложения органики микроорганизмами. Это позволяет избежать загнивания и значительно уменьшить загрязнение.
Устройство модели Топаз М
Достоинствами септиков Топас М для частного дома, как отмечено в отзывах, являются:
- Прохождение процесса без контакта с окружающей средой,
- Высокая надежность оборудования,
- Степень очистки согласно существующим нормативам,
- Свободную эксплуатацию в любых грунтах и при отрицательных температурах,
- Получение технической воды и ила в качестве удобрения.
Из недостатков стоит отметить высокую стоимость.
Для сравнения рассмотрим еще одну модель септика Vortex 5 Combi. Она относится с очистительным системам нового поколения и рассчитана для эксплуатации семьей из 5 человек. Эта модель септика не загрязняет окружающую среду и способна стабильно работать даже в условиях «плывуна».
Смотрим видео монтаж и установка:
Она характеризуется высоким уровнем очистки стоков, достигающим 99%. И в то же время схема септика в частном доме предельно проста. Он отлично справится как с серыми, так и черными стоками, попадающими в резервуар по общей трубе. В этой очистительной системе используется комбинированный метод очистки, состоящий из нескольких видов.
В первичном резервуаре отфильтровываются крупные фракции и оседают на дно. Жидкие стоки поступают во вторую емкость, где также происходит процесс осаждения, но уже мелких фракций.
Третий резервуар происходит механическая и биоочистка. Последняя основана на разложении бактериями стоков на органику и осветленную воду при интенсивном нагнетании в емкости кислорода.
Смотрим видео, отзывы потребителей о продукции:
Такой принцип работы позволяет избежать неприятных запахов. При этом производительность септика составляет до 1000 литров в сутки. Из технического обслуживания вам потребуется выкачивание ила не чаще одного раза в полугодие, и проверка работоспособности комплектующих через 5 лет. Если сравнивать с аналогичными системами, то затраты на Vortex 5 Combi.будут на 50, а то и 70% дешевле.
Делаем правильный расчет
Чтобы автономная канализация работала эффективно при минимальных затратах необходимо еще до ее приобретения и установки узнать необходимый объем стоков для конкретной семьи. Он рассчитывается по следующей формуле: количество жильцов умножается на 3 дня и на 200 литров. Почему именно 3 суток? Это время необходимое для очистки стоков современным септиком.
Подставив в формулу количество членов семьи, вы узнаете оборудование какого объема вам необходимо.
Монтаж септика модели танк Танк
Установка очистных систем весьма трудоемкая. Выполнить ее самостоятельно можно, но для этого потребуется привлечение спецтехники и друзей или близких. Да и времени может понадобиться много.
Поэтому лучше доверить монтажные работы профессионалам. Конечно, для этого потребуется большая сумма денег, но она окупится в процессе эксплуатации оборудования. Так что выбирайте – длительный, трудоемкий и в итоге не бесплатный путь или быстрый профессиональный монтаж с ощутимыми затратами. Лучше всего остановиться на втором варианте.
vashbiotualet.ru
