Теплый пол в двухэтажном доме – Тёплый пол на втором этаже
Тёплый пол на втором этаже
Построив частный дом, владелец получает возможность не только жить за городом, но и обустраивать свое жилье по собственному вкусу. Уровень комфорта может быть повышен благодаря предметам мебели, необычному дизайну или теплому полу.

Двухэтажное строение позволяет сделать теплый пол на втором этаже, при этом при правильном монтаже не будет распространенной ошибки, когда первый этаж перегревается, а на втором слишком прохладно. Рассмотрим подробнее, как сделать теплый пол на первом этаже с обогревом второго без лишних расходов ресурсов.
Читайте в статье:
Какую систему отопления выбрать для второго этажа дома?
Для обогрева основных и вспомогательных помещений в доме нужно выбрать правильную схему разводки. Это предполагает выбор оптимального варианта системы отопления по множеству параметров: тип теплоносителя, характеристики подогрева пола, площадь дома и необходимые параметры тепла.
Наибольшую популярность приобрела система водяного теплого пола, как альтернатива электрической или воздушной.
За основу принимают общую схему отопления дома с 2 этажами, которую переделывают по необходимости. Рекомендуется привлечь специалиста, поскольку изменение существующего проекта или создание нового своими руками слишком ответственное мероприятие, чтобы допустить возможность ошибки.

Система отопления жилого дома – комплекс оборудования, в состав которого входит трубопровод и котел, несколько радиаторов, датчики, терморегуляторы, фитинги и многое другое. Правильный расчет и сочетание этих устройств позволяет устроить максимальный уровень теплового комфорта.
Системы разводки для двухэтажных домов
Существующие схемы разводки систем отопления:
- с одной или двумя трубами;
- с разводкой верхнего или нижнего типа;
- со стояками, расположенными вертикально или горизонтально;
- с движением воды по магистрали или по тупиковой ветке;
- с циркуляцией естественного или принудительного типа.
Тёплые полы в двухэтажном доме будут наиболее производительными при выборе разводки с принудительным типом циркуляции теплоносителя. Комплекс оборудования состоит из коллектора и трубопровода, расширительного бачка, котла и отопительных приборов. Насос обеспечивает подачу воды.
Профессионалы обычно делают коллекторные разводки, однотрубные или двухтрубные схемы. При выборе системы с одной трубой, регулировать тепло в разных комнатах будет довольно сложно – перекрыть один радиатор отдельно от остальных невозможно.

Двухтрубная схема универсальна и идеально впишется в двухэтажный дом, позволив установить циркуляционный насос для контура теплого пола. Мощности обогрева хватит для полотенцесушителей на каждом этаже и других приборов.
Выбор места для расширительного бака
Как правильно выбрать место для расширительного бака? Этот вопрос часто возникает у владельцев, которые планируют провести тёплые полы на второй этаж своими руками. При наличии чердака и подвала отопительный контур нужно делать с нижней и верхней разводкой.
Расширительный бак для отопленияСпециалисты рекомендуют учитывать несколько особенностей:
- Вариант с нижней разводкой труб предполагает установку бака в подвале. Оттуда вода будет поступать в систему благодаря насосу;
- При верхней разводке котел ставят на чердаке, откуда по стояку горячий теплоноситель будет подаваться в батареи и отопительное оборудование.
Выбор комплектующих для теплого пола частного дома
Водяной теплый пол делается из множества труб, соединенных фитингами и другими элементами. Рекомендуется выбрать металлопластиковые трубы из-за их долговечности и надежности. Монтаж этих материалов не требует привлечения специалистов, поэтому все работы могут быть выполнены собственноручно.
Трубы из металлопластика доступны по цене, прочны и неуязвимы к коррозии, полимерный контур не засоряется, соединения контура проводится резьбовыми соединениями, поэтому нет необходимости покупать паяльник.
Недостатком считается коэффициент расширения от нагрева, поскольку неправильный монтаж вызывает сбой работы системы.
Существует аналог – полипропилен, но в работе с ним потребуется паяльник и опыт проведения таких работ. Нельзя допустить огрех и недочетов в работе. Трубы из стали используются очень редко, поскольку ржавеют.
Трубопровод из нержавейки или оцинковки требует соединений резьбового типа, выполняемых специальным оборудованием. Медные трубы очень долговечны и надежны, но стоят дорого.

Котел покупается исходя из финансовой возможности, при этом ориентируются на тот вид топлива, которое более доступно и недорого при условии регулярного потребления. Все чаще в частных домах используется газ, как топливо с высокими показателями экологичности.
При небольших размерах котла его можно установить в кладовке или другом малоиспользуемом помещении дома. Подвесные модели размещаются на стене, что экономит полезную площадь. Большие котлы располагаются снаружи, в пристройке или отдельном строении.
Установка коллекторной системы
В обогреве жилых домов с двумя и более этажами часто используется двухтрубная коллекторная система, когда прямая и обратная подача теплоносителя в коллектор расположена в специальном шкафу. Коллектор подающего типа собирает воду и передает ее порциями по трубам на стене к радиатору.
Главное достоинство этого варианта – возможность замаскировать установку и не портить интерьер.
Отопление коллекторного типа проводится на одном этаже или на двух, но при двухэтажном варианте придется сделать на 2 этаже расширительный бак. Трубы с горячей водой устанавливают под потолком или подоконником, на радиаторах делают регулирующие краны.
Монтаж предполагает использование лучевой или коллекторной схемы, при которых настраивается разная температура в каждой комнате дома. Радиаторы соединяют с коллекторами, обустраивая циркуляцию принудительного типа.
Так удастся минимизировать разницу температур на выходе и входе и сделать систему обогрева компактной.
Краны шарового типа позволят исключить из общего контура отдельный радиатор, а работа системы остается стабильной. Установка системы коллекторного типа означает, что каждый контур независим и может быть оснащен отдельным насосом, автоматическим оборудованием и несколькими кранами.
Система теплого пола на втором этаже
Отапливаемый жилой дом должен быть с рациональным разделением тепла. Нередки случаи, когда на первом этаже жара, а на втором – холодно. Чтобы не допускать подобной ошибки рекомендуется сделать теплый пол и включить его в общую схему отопления.Теплые потоки поднимаются кверху, на второй этаж, а холодный остается внизу, где нагревается напольным покрытием.
Когда проводить укладку системы теплого пола? На стадии капитального ремонта или при строительстве, поскольку контур находится внутри стяжки из цемента с песком.
Если обогрев пола делается после ремонта или строительства, алюминиевые пластины для распределения тепла помогут сделать равномерное распределение тепла. Коллекторное подключение на одном этаже нескольких помещений позволяет добиться максимального комфорта зимой, тепловые потоки равномерно прогревают помещение, а для функционирования системы нужна не очень горячая вода.
Готовая отопительная система должна соответствовать нормам теплотехники, для этого стоит проконсультироваться с профессионалами.

Заключение
Обогрев пола в жилом доме может доставить владельцу удобство и комфорт проживания, если на начальном этапе был учтен объем отапливаемого помещения, стяжка – ее вид и толщина, климат местности проживания хозяина дома, а также собственные предпочтения владельца.
seti.guru
Стоить ли делать теплый пол на втором этаже
Практически все современные дома строят двухэтажные. После возведения стен и крыши владельцы задумываются об обогреве второго этажа. Каким сделать отопление, с помощью радиаторов или теплого пола? Все знают как работает система отопления с помощью радиаторов или батарей. Рассмотрим вариант обогрева второго этажа с помощью теплых полов.
Теплый пол на втором этаже

Укладка стяжки для водяного теплого водяного пола на втором этаже. Фото: kitchenremont.ru
Для того, чтобы начинать монтаж теплых полов необходимо учесть следующее:
- объем помещения
- толщина и вид стяжки пола
- особенности климатической зоны
- индивидуальные предпочтения
2 вида теплых полов
- Водяной.
- Электрический.
Для того, чтобы понять стоит ли вообще начинать монтаж теплых полов, рассмотрим каждый вид, выясним преимущества и недостатки и определимся.
1. Водяной пол на втором этаже

Теплый пол монтируется на бетонной стяжке под напольным покрытием. Фото: remtambov.ru
Самый популярный вид теплых полов в частных домах или коттеджах. Водяной теплый пол представляет собой замкнутое пространство из пластиковых труб, которые подключаются к общей отопительной системе.

Можно использовать любое напольное покрытие с теплым водяным полом. Фото: www.zaggo.ru
Преимущества водяного теплого пола
- Равномерный обогрев всего этажа.
- Безопасно в плане того, что невозможно получить ожог.
- Регулирование температуры.
- Возможность использовать любые напольные покрытия.
- Комфортность.
Недостатки водяного теплого пола
- Процесс монтажа долгий и сложный.
- При неправильном монтаже возможны протечки.
- Может снизиться давление в общей системе из-за установки котла, который не рассчитан на большую площадь.
- Регулировка осуществляется только с помощью смесителей.
2. Электрический теплый пол

Электрический пол устанавливают в частных или загородных домах, где нет возможности провести газ. Фото: i.ytimg.com
Электрический теплый пол тоже популярен среди теплых полов.
Основой электрического теплого пола является электрический кабель, который состоит из нескольких секций с муфтами для соединения. Терморегулятор в электрическом полу управляет всей системой обогрева.

Лучше всего использовать плитку как напольное покрытие. Фото: chebo.pro
Греющий кабель монтируется в цементно-песчаную стяжку пола или под покрытие.
Преимущества электрического теплого пола
- Длительный срок эксплуатации при правильном монтаже.
- Равномерный обогрев всего помещения.
- Установка не только дома, но и в офисах.
- Удобная регулировка системы с помощью терморегулятора.
- Для установки не требует приобретения доп.оборудования.
Недостатки электрического теплого пола
- Высокий расход электроэнергии в кВт.
- Не стоит использовать в ванных комнатах(может ударить током).
- Установка заземления.
- Не все виды напольных покрытий можно использовать.
- Снижение высоты потолка при монтаже пола.
Быстрее получится установить электрический пол, его монтаж займет не более одного дня. В отличие от электрического установка водяного пола займет от четырех дней.
При повреждении теплого пола в обоих видах система полностью выходит из строя, учитывайте все правила, чтобы такого не произошло.
Менее затратным вариантом можно считать электрический пол, так как не надо покупать дополнительного оборудования, несмотря на то, что есть затраты на расход электроэнергии.
rubankom.com
Укладывают ли теплые полы на втором этаже дома? Их виды, особенности, преимущества и недостатки
Нередко частные дома строят двухэтажными. Обустройству полов второго этажа придается важное значение, ведь конструкция должна быть качественной, выдерживать все нагрузки. Еще при строительстве возникает вопрос об отоплении – как сделать второй этаж теплым, комфортным. Решает эту задачу обустроенный водяной теплый пол на втором этаже.
Укладка теплого пола на втором этажеМожно ли укладывать теплый пол на второй этаж дома?
Теплый пол для многих считается обязательным, такая система отопления обеспечивает комфорт жильцам дома. Особенно актуальны обогреваемые полы, если пол отделан плиткой, керамогранитом и другими “холодными” материалами.
На втором этаже допускается создание теплого пола, который обеспечивает равномерный прогрев любого помещения. Однако иногда хозяева сталкиваются со сложностями.
Часто выбирают водяную конструкцию теплого пола, которая состоит из труб, уложенных на основание пола, и залитых сверху бетонной стяжкой. Такую конструкцию используют, как основной вид отопления. Дополнительно делают электрический, инфракрасный теплый пол, которые укладывают на любое основание.
Теплый пол делают на второй этаж строения независимо от того, какой пол: бетонный или деревянный, главное – правильно выбрать тип конструкции. А нужен ли теплый пол, решает владелец дома самостоятельно, изучив положительные, негативные стороны системы.
Преимущества, недостатки теплого пола
Система отопления в виде теплых полов имеет и положительные, и отрицательные моменты. Выделяются достоинства, которые присущи всем видам конструкций для отопления пола:
Комфорт проживания- высокий уровень комфорта: по полу приятно ходить, сидеть на нем, играть детям;
- сравнительно низкая температура теплоносителя;
- нет радиаторов, требующих дополнительного декорирования;
- возможность терморегулирования;
- теплый пол на 20% экономичнее радиаторов;
- конструкция медленно набирает тепло, но и медленно его отдает, поэтому температура в доме стабильней, равномерней;
- нет сквозняков в помещении.
Каждой конструкции присущи свои плюсы, к примеру, для электрических полов характерен быстрый нагрев и точная регулировка температуры, у водяных систем нет электромагнитного излучения.
Но у теплого пола, кроме множества положительных характеристик, отмечаются и недостатки. Электрический пол имеет некоторые ограничения по финишному напольному покрытию. В зимнее время существенно повышается расход электроэнергии, присутствует электромагнитное излучение. Кабели не располагают под сантехническим оборудованием.
К недостаткам водяного теплого пола относят возможность протечки трубопровода при нарушении технологии укладки. После установки водяного отопления пол поднимается за счет бетонной стяжки минимум на 10 см. Для обустройства системы требуется дополнительное оборудование (водяной насос), обустройство коллекторного шкафа. Управление температурой затруднительно.
Устройство теплого пола в частном доме
При создании обогреваемого пола в загородном доме можно столкнуться с некоторыми сложностями.
При обустройстве отопления не стоит использовать металлические трубы – они подвергаются коррозии, чем уменьшают срок эксплуатации, приводят к протечкам. Лучше использовать альтернативные варианты: полибутиленовые, металлопластиковые трубы – срок использования достигает 50 лет.
Для функционирования системы водяных теплых полов придется приобрести коллекторный шкаф, соответствующие запчасти к нему. Коллекторный ящик устанавливают ближе к центру помещения в нижней части стены, что обеспечит равномерный нагрев пола.
Подключение к коллекторуВнимание! Если коллектор находится на первом этаже, то для водяного пола на второй этаж трубы выводят выше верхней ветки, а на каждую трубку устанавливают автоматический воздухоотводчик – система не завоздушиться, будет правильно функционировать.
К нему подключают подающую и возвратную трубу. Функция первой трубы – подача горячего теплоносителя в систему контуров, а второй – перемещение остывшей воды к котлу, где та снова подогревается. Чтобы вся система домового отопления работала, устанавливают насос, который перекачивает воду.
Системы обустройства водяных полов
Для обустройства системы теплых полов с водяным теплоносителем используют два вида. Первая технология заключается в укладке труб с последующим покрытием их слоем стяжки из бетона. Такая технология требует больших затрат. Да и вес пола намного увеличивается за счет бетона, что дает большую нагрузку на второй этаж.
Теплый пол без бетонаВторая технология устройства водяного пола практичней, проще, легче, так как стяжка не применяется, не требует времени на застывание, нагрузки на перекрытие значительно меньше. Способ более затратный, но именно его чаще используют для устройства деревянных полов на второй этаж.
При укладке теплоизоляционный материал (полистирол, минвата) укладывают между деревянными лагами. Деревянные доски (толщиной 28 мм и более) укладывают, оставляя пазовое пространство в 2 см, куда размещают компоненты обогреваемого пола (контуры, алюминиевые пластины). Далее устанавливают деревянное черновое покрытие, делают финишную отделку.
Внимание! На каждую ветку труб устанавливают вентили, которые смогут в любой момент остановить подачу воды в контур для проведения ремонта, экономии средств на отоплении.
Пол с подогревом обстроить на втором этаже возможно, только при выполнении работ требуется соблюдать технологию. А главное – правильно подобрать вид системы обогреваемых полов, учитывая конструкцию основания, вид напольного финишного покрытия, обеспечить безопасность и требуемый уровень прогрева.
Устройство теплого пола на втором этаже:
Вконтакте
Google+
laminatepol.ru
Теплый пол на втором этаже деревянного дома
В процессе постройки и обустройства двухэтажного дома из древесины важно правильно выбрать способ обогрева второго этажа. Стандартные радиаторы не всегда дают приемлемый уровень тепла, приходится повышать температуру котла, но это чревато дискомфортом и лишними тратами — на первом этаже слишком жарко, а общий расход ресурсов возрастает.
Оптимальным решением проблемы станет водяной пол 2 этажа в деревянном доме. Его монтаж, при правильных расчетах, учитывающих теплопотерю здания и среднегодовые температуры холодного сезона в конкретном регионе, решает массу проблем:
- Снижаются текущие коммунальные расходы, за счет понижения температуры теплоносителя в системе отопления.
- Тепло равномерно распределяется по всей площади помещений.
- Повышается коэффициент безопасности, надежности и долговечности.
Благодаря этим выгодам, система «теплый пол» в подавляющем большинстве случаев предпочтительнее радиаторного или комбинированного отопления.
Теплый пол с температурным датчикомЧто необходимо учесть заранее
Совет: Чтобы уменьшить ущерб в случае прорыва трубы «теплого пола», следует каждый контур снабдить перекрывающим вентилем.
Чтобы понять, как можно сделать в деревянном доме на втором этаже водяное отопление в полу, следует знать, что существует ряд факторов, оказывающих прямое влияние на схему монтажа, способ укладки труб и выбор материалов для работы.
- Теплый пол имеет одно ограничение, которое определяет весь ход будущего монтажа: один контур способен обогреть не более 30м2 площади. Превышение этого значения ведет за собой неоправданные траты на поддержание необходимого уровня давления и температуры в сети, поэтому при расчетах общая площадь разбивается на сектора, каждый из которых отапливается отдельно, но с подключением к общему распределителю.
- Технология монтажа предусматривает прокладку демпферной ленты, которая будет «гасить» температурные расширения, подвижки строительной конструкции и предохранит напольное покрытие от деформации. В небольших помещениях лента прокладывается возле стен, при внушительной площади, отапливаемой несколькими контурами — дополнительно оборудуется демпфер, разделяющий каждый из них.
- «Теплый пол» плохо сочетается с паркетом. У толстой доски слишком низкая теплопроводность и для поддержания нормальной температуры потребуется излишняя мощность нагревания котла. Идеальным вариантом станут напольные плиты из керамогранита, ламинат без подложки или линолеум. Они в достаточной степени пропускают тепло и долго удерживают его, распределяя по всему помещению.
- Для водяного отопления специалисты не рекомендуют выбирать металлические трубы. Срок их службы существенно ниже металлопластиковых и полипропиленовых аналогов, при более высокой массе и стоимости. Хотя в пользу первого варианта говорит высокая теплопроводность металла, что сказывается на общей температуре в комнате.

Теплый пол в разрезе
Принимая во внимание данные факторы, легко избежать лишних трат на обустройство и поддержание функционирования всей системы.
к оглавлению ↑Выбор схемы укладки
Существует четыре основных варианта схемы теплого водяного пола в 2х-этажном деревянном доме: «улитка», «двойная змейка», «змейка» и комбинированная система. Выбор определенного способа монтажа зависит от площади помещения и наличия в нем холодных зон.
- «Улитка». Трубы укладываются по спирали, где «горячая линия» чередуется с «холодной», что позволяет равномерно распределить тепло по всей комнате.
- «Двойная змейка». Является разновидностью предыдущей схемы, где трубы чередуются, но они монтируются «петлями». Обычно применяются в длинных и узких комнатах, где укладка спиралью невыгодна из-за ограничения ширины, что не позволяет соблюсти необходимую величину шага между линиями.
- «Змейка». Используется, если в комнате присутствуют места, которые сильнее других охлаждаются, например возле окон. Это последовательная схема, которая позволяет сконцентрировать трубы с нагретым теплоносителем в зонах с более низкой температурой.
- Комбинированная система. В ней часть труб укладывается спирально, а часть — последовательно. Чаще всего ее применяют в помещениях неправильной формы.
Выбор определенной схемы зависит от совокупности ряда факторов, куда входит геометрия отапливаемой комнаты, материал и толщина стен (от чего зависит теплопотеря), диаметр используемых труб и сходные факторы.

Различные схемы укладки
к оглавлению ↑Подключение отопительного контура
Теперь рассмотрим, как сделать водяной теплый пол на втором этаже деревянного дома частью единой системы. Ее главным элементом является нагревательный котел, мощность которого должна превышать аналогичный показатель горизонтальных радиаторов на 15-20%. Котел соединяется с расширительным баком, который нивелирует увеличение давления в системе, забирая излишки образовавшегося в процессе эксплуатации газа и выводя их.
Совет: Если в комнате будет располагаться массивная мебель, которую не планируется двигать, то прокладывать под ней трубы не обязательно.
Следующий крупный узел — коллектор. Он монтируется в той же комнате, что и «теплый пол», в специальном шкафу, который располагается в доступном месте, чтобы хозяин всегда имел возможность перекрыть поступление воды или отрегулировать температуру.
Между котлом и коллектором находятся терморегулятор и насос, которые отвечают за поддержание указанной температуры воды в системе и ее принудительную циркуляцию по трубам.
Помимо указанных элементов в системе используются температурные датчики, смесители и прочие части отопительного контура, необходимые для обеспечения правильного функционирования.

Процесс прокладки системы
к оглавлению ↑Обустройство теплого пола в деревянном полу
В отличие от бетонных или кирпичных, дома из дерева способны выдержать существенно меньшую нагрузку. Особенно это касается перекрытий между этажами. Поэтому предъявляются определенные требования к конструкции.
Совет: Для «теплого пола» рекомендуется выбирать электрический отопительный котел. Он существенно облегчает процедуру тонкой настройки температуры в помещении и обладает лучшим балансом отношения стоимости покупки и расходов на поддержание функционирования.
Рассмотрим, как сделать водяной теплый пол на втором этаже частного дома в перекрытии балки:
- На черновое покрытие пола монтируются лаги. Рекомендуется брать брус 150х50 мм с шагом 600 мм. Это обеспечит должную прочность без существенного увеличения стоимости.
- Чтобы уменьшить теплопотери, между лагами укладывается слой утеплителя, который предотвращает рассеивание тепла вокруг трубы, направляя его вверх. Для этого рекомендуется брать минеральную вату, пенополистерол или другой утеплитель малого веса, который защищается слоем пароизоляции от образования конденсата.
- Сверху настилается теплоотражающий экран из фольги, который предотвратит перегрев нижней части перекрытий.
- Трубы прокладываются в гофрированном металле, сетке, крепятся на специальных фиксаторах, которые надежно удерживают их в определенном положении или монтируются в пропиленных в лагах инженерных каналах.
- Четвертый слой — теплораспределяющие пластины, которые изготавливаются из алюминия или оцинкованной стали. Они позволяют равномерно нагреть всю площадь помещения без резкого перепада температур в отдельных зонах.

Теплый пол в перекрытии между этажами
После обустройства такого «пирога», необходимо провести «прогонку», чтобы убедиться в отсутствии течей. Для этого в систему нагнетается воздух под давлением около четырех атмосфер. Если проверка не обнаружила микротрещины — трубы заполняются водой под давлением в 0,6 МПа, которое удерживается в течение получаса. После этого давление поднимается до 1 МПа и поддерживается два часа. В случае отсутствия влаги вне отопительного контура, помещение застилается чистовым напольным покрытием.
При соблюдении правил монтажа, использовании качественных расходных материалов и верных расчетах мощности системы, «теплый пол» на втором этаже деревянного частного дома способен обеспечить комфортное проживание жильцам, заменив стандартные настенные радиаторы.
ventilationpro.ru
Схемы отопления в двухэтажном доме
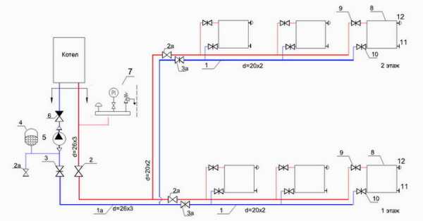
В небольших двухэтажных домах отопление чаще делают опираясь на опыт создания и здравый смысл, проектные же расчеты не выполняются, так как в лицензированных организациях это довольно дорого. Тем не менее, самостоятельно созданное отопление в двухэтажном доме (или с мансардным этажом) обычно отлично работает и вполне надежно. Как это делается, какие схемы применяются — рассмотрим далее… подберем трубы, насосы, обратим внимание на нюансы…
Как делается разводка для двух этажей с помощью тупиковой схемы
Наиболее часто применяется и просто реализуется тупиковая двухтрубная схема для двух этажей. Для небольшого частного дома – два плеча на первом этаже и одно плечо на мансардном этаже. Если второй этаж полноценный — там, соответственно, тоже 2 плеча… В каждом простом (не ветвящемся) тупике рекомендуется до 5 шт. радиаторов. Таким образом для 2х тупиков на этаж — до 10 шт радиаторов, обычно это полностью устраивает по отапливаемой площади до 250 м кв.

Схема легко совмещается с теплым полом на первом этаже. Не требует глубоких балансировок, обеспечивает расход теплоносителя через все радиаторы с разницей не более 20%, что приемлемо, при этом наиболее дешева, может применяться и для прокладки труб по стенам с перебуриванием перегородок, и для прокладки под полом. Важно, что нет необходимости обходить дверные проемы — тупики располагают так, чтобы они заканчивались возле дверей…

На практике зачастую тупиковую разводку дробят для удобства подключения и укорачивания разводки под полом – один тупик делят еще на 2 — 3 ответвления, если их длина и тепловая нагрузка приблизительно одинаковые, по 2 – 3 радиатора в каждом ответвлении. Таким образом, в одном тупике может быть установлено без глубокой балансировки более 5 радиаторов.
Схема отопление двухэтажного здания, тупиковая с разветвлением тупиков на несколько ветвей. Здесь используются несколько стояков для подключения радиаторов второго этажа. Но по дизайнерским соображениям подобные схемы часто бракуются, их несложно заменить разводкой гибких труб над отшивкой потолка.
Петля Тихельмана – попутная схема для каждого этажа
На больших площадях, когда количество радиаторов на этаже больше 10 шт., при условии, если трубы прокладываются под полом, может оказаться практичней попутная схема разводки с замыканием полного кольца труб по контуру дома.
Ее не нужно балансировать, она самонастраивающаяся, если сделана по правилам. Тупиковая же схема, при больших площадях может оказаться громоздкой с 3 – 4 ветвящимися плечами на этаж, трудно настраиваемой, с включением балансировочных кранов на ветвях (каждый радиатор должен получать примерно одинаковое количество теплоносителя в единицу времени).
Основные правила создания петли Тихельмана:
- Все радиаторы желательно размещать на одном уровне, с примерно одинаковой длиной подключающих отводов, и приблизительно одной мощности.
- В кольце для магистралей используется один и тот же диаметр труб по всей длине.
- Не следует в одной петле объединять разные этажи, для каждого этажа делается своя попутная схема.

Лучевая схема получила распространение
Лучевая схема получила большее распространение в квартирах, когда разводку в каждую комнату проще сделать под полом через дверные проходы, а не перебуривать железобетонные конструкции по периметру всего помещения.
Все радиаторы подключаются длинными лучами к одному распределительному коллектору, который стараются установить в центре помещения, чтобы сделать одинаковыми длину труб и уменьшить их общую протяженность.
При этом регулировка расхода может настраиваться на самом коллекторе, на котором для удобства балансировки устанавливаются и ротаметры. Но система получается дороже по материалам. Сказывается применение теплоизоляционных кожухов на трубах и коллектора с регулирующей арматурой. В частных домах лучами иногда делают разводку на втором этаже, при этом пропускают их под отшивкой потолка, как и при других схемах подключения.

Однотрубные схемы – только в самых коротких тупиках
До сих пор есть заблуждение, что однотрубные схемы получатся проще и дешевле. На самом деле они дороже, так как диаметр трубы требуется большой, а также нужен значительный расход теплоносителя по кольцевой трубе, что влечет мощный насос и расход электроэнергии. Если этого не будет сделано, то последние радиаторы в кольце «замерзнут»… Этот недостаток также пытаются устранять глубокими балансировками, применением последних радиаторов «в два раза толще», — ненужные сложности и расходы…
С современными легко-монтируемыми и дешевыми трубами «ленинградка» «однотрубка» потеряла актуальность, которая была у нее ранее, когда стальные дорогие трубы было не просто сварить в систему, и каждый стык был дорог и значим…
Но в самых коротких кольцах до 3 шт. радиаторов, можно применить и однотрубную схему, это окажется проще и дешевле, возможно осуществить при обычном диаметре труб и с обычным насосом в системе, при этом разница нагрева радиаторов не столь заметна, балансировка не требуется.
Применяется на мансардных этажах, в отдельных ветвях отопления частных домов.

Самотечная для двухэтажного дома
Раньше, когда электроснабжение было не стабильным, а трубы применялись стальные и большого диаметра, о теплых полах еще не задумывались, самотек оказывался подходящим выбором. Сейчас же недостатки самотечной схемы для двух этажей слишком значимы:
- Система выйдет дороже в 2 раза за счет диаметра труб — минимум 50 мм от котла и 40 мм по плечам…
- Нельзя подключить дополнительные контуры работающие под давлением, например удаленные гараж и оранжерея, и главное, – теплый пол.
- Не выйдет оперативно регулировать температуру в каждой комнате автоматическими термоголовками на радиаторах, поэтому значительная экономия, путем автоматического отключения лишних комнат станет малодоступной…
Но самотечная схема нередко используется и сейчас на дачах, в «медвежьих» углах, там, где вообще нет электричества.
Сейчас подобные схемы самотечного отопления дополняют еще циркуляционным насосом на обратке, включенным параллельно байпасу. Насос помогает циркуляции теплоносителя, при отключении электроэнергии, жидкость идет через байпас.
Теплый пол в двухэтажном доме
Теплый пол дорог в создании, поэтому от него иногда отказываются. Но при недешевых энерогоносителях и при высоких потолках он может окупится и за какие-то 12 лет, ведь экономия на энергоносителях с ним может достигать и 20%.
Существуют две разновидности:
- Трубопровод заделывается в толстую (от 8 см толщиной) стяжку, которая распределяет тепло. Рекомендуется делать на первом этаже, как наиболее комфортную систему отопления.
- Теплораспределение от труб осуществляется металло-листами, которые накрываются тонкой сухой стяжкой из листов гипсоволокна или чего-то подобного. Такое возможно и на втором этаже.
На 2 этаже от подогрева полов в основном все же отказываются — напольное покрытие там и так не холодное за счет подогрева снизу воздухом, при этом звуко и теплоизоляция по перекрытию не делается, – это обычное экономичное решение при строительстве двухэтажных домов.
Но на 1 этаже создание тяжелой теплостабилизирующей нагреваемой стяжки рекомендуется. Это на уровень поднимает комфортность в холодное время. Радиаторы остаются обязательными для оперативного изменения температур в доме и для подогрева с самые холодные месяцы, но мощность радиаторов можно уменьшить на 1/2 — 2/3 от номинала, и таким образом получить экономию.
Схема включения теплого пола параллельно радиаторам, как дополнительная тупиковая ветвь. При длинах контуров теплого пола до 40 метров, они могут включаться в радиаторную сеть в любом месте через краны РТЛ без общего смесительного узла, которым готовится нужная температура теплоносителя.
Обычные правила создания отопления для двух этажей – насосы, трубы, краны…
- Как правило, ветвь отопления для второго (мансардного) этажа подключается стояками через тройники, а циркуляция в ней обеспечивается общим насосом. Для зданий общей площадью до 300 м кв. достаточно одного насоса 25-80, а для домов до 150 м кв. — и 25-40.
- Самую короткую ветвь в отоплении всего дома (обычно это мансардный этаж) чаще снабжают балансировочным краном на обратке, с помощью которого выравнивается количество теплоносителя по ветвям.
- Существенное усложнение схемы с выравниванием давления у котла (установка гидрострелки, системы первично-вторичных колец…) необходимо лишь в случае, если к трем обычным контурам (радиаторы, бойлер, теплый пол), добавляется еще что-то удаленное, например, гараж, теплица, собачья будка…. Тогда, вероятно и каждый этаж большой площади целесообразно обеспечить своим циркуляционным насосом минимальной мощности.
Типичная схема отопления с одним дополнительным насосом в контуре радиаторного отопления для двух этажей.- Опытные строители применяют металлопластиковые трубы, которые обладают несколькими важными преимуществами: качество стыков с фитингами у них контролируется, трубы могут укладываться с изгибами под полом (под перекрытием второго этажа), трубы могут закрываться и замоноличиваться, и не пропускают кислород в систему.
- При выборе диаметра труб для двухэтажного дома исходят из имеющихся в наличии — внутренние стандартные диаметры труб (металлопластиковых) — 12, 16, 20 мм (соответствующие им наружные – 16, 20, 26 мм). Для небольших домов обычно внутренний диаметр главной магистрали от котла до первого разветвления – 20 мм, в плечах до предпоследнего радиатора в тупике – 16 мм, для подключения 1 – 3 шт. радиаторов – 12 мм. В большой петле Тихельмана – 20 мм, в лучевой схеме – 12 мм, в теплом полу – 12 мм.
teplodom1.ru
Системы водяного отопления загородного двухэтажного дома
Производим проектирование и монтаж системы загородного отопления — в том числе «теплого пола» для двухэтажного частного дома. Компания ООО «НеваКомфортСтрой» работает в Санкт-Петербурге и области, где уже успела заработать себе прекрасную репутацию. К нам обращаются за качественными инженерными системами коммуникаций!
Узнайте стоимость монтажа всех инженерных систем в Вашем доме уже сегодня!
Звоните 8 (812) 989-72-17
ИЛИ
Вы оплачиваете только ремонт. Остальное — бесплатно:
Примерные цены на монтаж теплого пола (без учета стоимости материалов)
|
№ п/п |
Наименование работ |
Ед. изм. |
Цена |
|
1 |
Монтаж бетонной системы теплого водяного пола
|
м2 |
от 360 руб |
|
2 |
Монтаж полистирольной настильной системы теплого водяного пола шаг 150мм
|
м2 |
от 390 руб |
|
3 |
Монтаж полистирольной настильной системы теплого водяного пола шаг 300мм
|
м2 |
от 350 руб |
|
4 |
Монтаж деревянной системы теплого водяного пола шаг 150мм
|
м2 |
950 руб |
|
5 |
Монтаж деревянной системы теплого водяного пола шаг 300мм
|
м2 |
850 руб |
|
6 |
Монтаж коллекторного шкафа (без штробления)
|
шт |
1500 руб |
|
7 |
Монтаж распределительного коллектора (коллекторной группы)
|
шт |
3500 руб |
|
8 |
Монтаж смесительной группы
|
шт |
1500 руб |
* в монтаж входит раскладка утеплителя, арматурной сетки и прокладка магистральной трубы до петли теплого пола.
ПРИМЕРЫ РАБОТ
КАК МЫ РАБОТАЕМ:
- НЕТ СКРЫТЫХ ПЛАТЕЖЕЙ.
Конечная стоимость разработки и монтажа теплого водяного пола в вашем доме уточняется еще перед работами. И далее цена остается на прежнем уровне, не возникает необходимость доплат.
Компания предоставляет реальную гарантию по выполненным работам. Наши клиенты уже знают: мы несем абсолютную ответственность за разработку и монтаж, и всегда рядом, когда от нас требуется помощь.
- ВЫСОКИЙ ИНЖЕНЕРНЫЙ УРОВЕНЬ.
Персонал компании — это инженеры с внушительным опытом работ и достаточным уровнем знаний, постоянно обучающиеся и совершенствующие свои навыки. Это — залог качества наших услуг.
- ФИКСИРОВАННЫЕ СРОКИ МОНТАЖА.
Работы по обустраиванию системы отопления загородного дома не растянутся на неопределенный срок — дело в том, что время выполнения указывается еще в договоре, и в дальнейшем мы неукоснительно его соблюдаем.
- КОМПЛЕКСНЫЙ ПОДХОД ПО ВСЕМ РАЗДЕЛАМ ИЗ ОДНИХ РУК.
Мы осуществляем каждый этап наших работ самостоятельно, от разработки до пуско-наладочных мероприятий и сдачи готовых систем. Это становится возможным благодаря нашему штату, укомплектованному работниками всех необходимых специализаций.
- ИСПОЛНИТЕЛЬНАЯ СХЕМА.
После выполненных работ мы отдаем клиенту исполнительную схему. В ней отмечается расположение всех элементов проведенных коммуникаций.
- ПРОФЕССИОНАЛЬНОЕ ПРОЕКТИРОВАНИЕ.
Мы проведем детальный, тщательный расчет теплого водяного пола для ваших помещений. Проектирование каждого раздела — это добросовестная работа наших инженеров. А клиент получает сметы без переплат и безукоризненно работающие коммуникации.
Монтаж «теплого пола» для частного дома
Система отопления «теплый пол» для двухэтажного дома — это не какое-то излишество, а возможность с наибольшим комфортом обустроить жизнь в загородном жилье.
Причем многие в данном случае выбирают именно водяной вариант: этот вид обеспечения тепла наиболее экономен. Безусловно, если вы не хотите разводить масштабных работ и лишь утеплить полы, например, на балконе в городской квартире, электрические нагревательные маты будут лучшим выходом — они куда проще с точки зрения монтажа и не будут «есть» много энергии. Но если речь зашла уже о больших площадях загородного дома, «теплый пол» с теплоносителем будет самым рациональным решением.
Кроме того, если вы только начинаете проектировать отопительную систему, вы можете включить в схему и эту коммуникацию. Особенно удобно, если отопление у вас обеспечивается так же, как и во множестве других коттеджей — то есть от единого котла (для которого может быть обустроен также контур ГВС) с разводящими трубами, которые подают воду в радиаторы.
Система обеспечивает комфорт, экономию и функциональность. Хотя, разумеется, монтаж теплого пола имеет и ряд сложностей:
- Временные и трудовые затраты на его обустройство достаточно высоки. Это и расчет, и непосредственно укладка, подключение и т. д. — на все это может уйти немало времени.
- Требуются профессиональные мастера, которые сведут риск будущих протечек к нулю (иначе придется демонтировать напольное покрытие для ремонта).
- Безусловно, этот вид отопления необходимо комбинировать и с другими разновидностями — тепла от пола не хватит на всё помещение.
Учтя последний нюанс и то, что для работы требуются профессионалы, — следует обращаться к профессионалам в компанию ООО «НеваКомфортСтрой», которые обеспечат лучший результат работ.
Теплый пол в двухэтажном доме
Перед тем как приступить к монтажу, следует грамотно продумать и спроектировать схему отопления.
Такая система может быть однотрубной и двухтрубной, с принудительной и естественной циркуляцией. Напомним: в случае одной магистрали теплоноситель проходит через все батареи последовательно (постепенно охлаждаясь), в случае двух — параллельно, возвращаясь тут же к котлу на новый цикл нагрева. Разводка системы водяного отопления первого вида считается наиболее простой в монтаже, но менее эффективной.
Для коттеджа с двумя этажами логично обустроить теплый пол внизу. На первом этаже, который ближе всего находится с землей, хотя напрямую с ней не контактирует — должна быть проложена качественная теплозоляция — все же пол является наиболее холодным. Поэтому прокладывается система его нагрева. Какие еще особенности есть у дома с двумя этажами в плане устройства отопления?
- Высота. Котел устанавливается в самой нижней точке или, по крайней мере, на первом этаже дома, но ему, следовательно, нужно поднимать теплоноситель вверх.
- Площадь. Мощность нужно рассчитывать так, чтобы ее хватало на обогрев всех помещений.
- Изолированность. Два этажа — это обычно большое количество отдельных комнат. Перегородки мешают равномерному распределению тепла.
Итак, устройство отопления двухэтажного дома — это может быть непростой задачей. Но только не для профессионалов. Обращайтесь в нашу компанию!
nevaks.ru
Укладывают ли теплые полы на втором этаже дома? их виды, особенности, преимущества и недостатки
Часто приватные дома возводят двухэтажными. Обустройству полов второго этажа придается приоритетное значение, ведь конструкция обязана быть высококачественной, держать все нагрузки. Еще во время строительства появляется вопрос о теплоснабжении – как выполнить второй этаж тёплым, удобным. Решает данную задачу обустроенный теплый гидравлический пол на втором этаже.

Кладка пола с подогревом на втором этаже
Можно ли класть пол с подогревом на второй этаж дома?
Пол с подогревом для большинства считается непременным, такая отопительная система обеспечивает комфорт жильцам дома. Весьма популярны обогреваемые полы, если пол отделан плиткой, керамическим гранитом и прочими «холодными» материалами.
На втором этаже разрешается создание пола с подогревом, который обеспечивает одинаковый прогрев каждого помещения. Но порой владельцы встречаются со сложностями.
Нередко подбирают водяную конструкцию пола с подогревом, состоящая из труб, уложенных на напольное основание, и залитых сверху стяжкой из бетона. Подобную конструкцию применяют, как главный вид теплоснабжения. Дополнительно выполняют электрический, инфрокрасный пол с подогревом, которые кладут на любое основание.
Пол с подогревом выполняют на второй этаж сооружения неважно, какой пол: бетонный или древесный, основное – правильно подобрать вид конструкции. А необходим ли пол с подогревом, решает хозяин дома собственноручно, изучив позитивные, отрицательные стороны системы.
Плюсы, недостатки пола с подогревом
Отопительная система в виде полов с подогревом имеет и позитивные, и негативные факторы. Выделяются хорошие качества, которые характерны всем видам конструкций для отапливания пола:

Удобство проживания
- большой уровень удобства: по полу приятно ходить, сидеть на нем, играть детям;
- сравнительно низкая температура носителя тепла;
- нет радиаторов, требующих добавочного декора;
- возможность терморегулирования;
- пол с подогревом на 20% экономнее радиаторов;
- конструкция потихоньку набирает тепло, но и потихоньку его отдает, благодаря этому температура в доме стабильней, равномерней;
- нет сквозняков в помещении.
Каждой конструкции характерны собственные плюсы, например, для полов с подогревом свойственен быстрый нагрев и точная температурная регулировка, у гидравлических систем нет электромагнитного излучения.
Но у пола с подогревом, не считая большинства позитивных параметров, отмечаются и недостатки. Пол с подогревом имеет определенные ограничения по завершальному покрытию пола. В зимнее время значительно увеличивается расход электрической энергии, есть электромагнитное излучение. Кабели не располагают под оборудованием сантехническим.
К минусам водяного пола с подогревом можно отнести возможность протечки трубопровода при нарушении технологии укладки. После того как произошла установка традиционного отопления пол подымается за счёт стяжки из бетона минимум на десять сантиметров. Для обустраивания системы требуется оборудование дополнительного характера (водяной насос), оборудование ящика для коллекторов. Управление температурой трудно.
Приспособление пола с подогревом в приватном доме
При разработке обогреваемого пола в доме за городом можно соприкоснуться с определенными проблемами.
При обустраивании теплоснабжения не нужно применять трубы из металла – они подвержены ржавчине, чем уменьшают эксплуатационный срок, приводят к протечкам. Лучше применять другие варианты: полибутиленовые, трубы из металлопластика – срок применения может достигать 50 лет.
Для работы системы теплых гидравлических полов понадобится приобрести шкаф для коллектора, подходящие запасные части к нему. Коллекторный ящик устанавливают ближе до центра помещения в части стены внизу, что обеспечит одинаковый нагрев пола.

Подключение к коллектору
Внимание! Если коллектор находится на нижнем этаже, то для гидравлического пола на второй этаж трубы выводят выше верхней ветви, а на каждую трубку устанавливают автоматизированный отводчик воздуха – система не завоздушиться, будет правильно работать.
К нему подсоединяют подающую и возвратную трубу. Функция первой трубы – подача горячего носителя тепла в систему контуров, а второй – перемещение охладившейся воды к котлу, где та опять подогревается. Чтобы вся система домового теплоснабжения работала, устанавливают насос, который перекачивает воду.
Системы благоустройства гидравлических теплых полов
Для обустраивания системы полов с подогревом с водяным носителем тепла применяют несколько видов. Первая методика заключается в укладывании труб с дальнейшим покрытием их слоем цементно-песчаные стяжки. Эта технология требует больших затрат. Да и вес пола существенно увеличивается за счёт бетона, что даёт высокую нагрузку на второй этаж.

Пол с подогревом без бетона
Вторая методика устройства гидравлического пола практичней, легче, легче, так как стяжка не используется, не просит времени на застывание, нагрузки на перекрытие намного меньше. Метод наиболее дорогой, но именно его очень часто применяют для устройства полов из дерева на второй этаж.
При укладывании материал для теплоизоляции (полистирол, минеральная вата) кладут между древесными брусками из древесины. Доски из дерева (толщиной 28 мм и более) кладут, оставляя пазовое пространство в 2 см, куда устанавливают элементы обогреваемого пола (контуры, пластины из алюминия). Дальше устанавливают деревянное черновое покрытие, выполняют чистовую отделку.
Внимание! На каждую ветку труб устанавливают вентили, которые смогут практически в любое время остановить подачу воды в контур с целью проведения ремонта, экономии средств на отоплении.
Теплый пол обстроить на втором этаже возможно, только при производстве работ требуется исполнять технологию. А основное – по правилам выбрать вид системы обогреваемых полов, беря во внимание конструкцию основания, вид напольного завершального покрытия, гарантировать безопасность и необходимый уровень прогрева.
Приспособление пола с подогревом на втором этаже:
ПЛЮСЫ и МИНУСЫ КАБЕЛЯ и МАТА для ТЕПЛОГО ПОЛА.
offthevylc.ru
