Жилой двухэтажный дом – Двухэтажные жилые дома рядовой застройки (блокированные дома) | Типы зданий | Строительное проектирование
Проект двухэтажного жилого дома «Бюджетный-2» — загородный дом с «растущими» возможностями
Двухэтажный загородный жилой дом «Бюджетный 2» мы старались сделать вместительным и удобным для проживающих, поэтому дом подойдет людям, которые по достоинству оценят эти качества.
Проект двухэтажного жилого дома «Бюджетный-2» — визуализация





План 1-ого этажа

План 1-ого этажа
План 2-ого этажа

План 2-ого этажа
Дом при минимальных габаритах имеет шесть жилых комнат
Возведение данного строения может быть осуществлено на участке площадью от 5-6 соток, дом занимает всего одну сотку, а, с учетом террасы и летней веранды, — 1,35 соток.
Фасады данного жилища выполнены в ярких, преимущественно теплых тонах. Хотя это далеко не единственное декоративное решение для этого проекта. Благодаря таким элементам, как летняя терраса и веранда, в виде многогранного эркера, а также, благодаря неординарной форме подшивки свесов кровли, дом имеет характерную выразительность и индивидуальность.
Дом относится к классу бюджетных, поэтому при проектировании мы уделили особое внимание экономичности решений (нет сложной кровли, мансардных окон и пр.) и потенциальной возможности поэтапной реализации проекта: возведение дома, а затем, по необходимости, — пристройка летней веранды и террасы.
Также дом пригоден для поэтапного ввода помещений в эксплуатацию: введение в эксплуатацию помещений первого этажа, а затем, по мере необходимости, — ввод в эксплуатацию 2-го этажа (назовем этот принцип: «растущим домом»).
На первом этаже дома находится кухня-студия, то есть кухня и столовая расположены в едином объеме с гостиной. Хотя, по желанию, можно легко это большое помещение разделить на два с различным назначением.
В доме предусмотрен холодный тамбур, что для наших широт очень важно и необходимо. Прихожая с тамбуром образуют центральную входную зону, которая открыта для входа во все помещения первого этажа, а также через входную зону обеспечен быстрый доступ посредством удобной трехмаршевой лестницы ко всем помещениям второго этажа. Совмещенный санузел первого этажа расположен близко к центру дома. Водонесущие коммуникации санузлов и кухни выполнены компактно. При проживании большой семьи санузел первого этажа возможно разделить на туалет и ванную комнату.
На втором этаже дома удобный холл совмещен с коридором, который функционально объединяет три просторные спальни. Здесь также предусмотрены совмещенный санузел и кладовая, которую можно еще использовать в качестве гардеробной.
Особого внимания заслуживает летняя веранда. В теплое время года на ней может быть организована столовая с видовыми окнами, обращенными на приусадебный участок. Также для посиделок предусмотрена открытая летняя терраса, которая совмещена с крыльцом жилого дома.
Отопление и горячее водоснабжение в доме предусмотрено посредством турбированного двухконтурного газового котла, устанавливаемого в кухне. При желании, установка газового котельного оборудования или твердотопливного котла может быть выполнена в отдельном помещении. Для этого достаточно сделать несложную замену назначения помещений: кабинет станет котельной.
Дополнительным источником тепла и уюта в этом доме является камин, расположенный на первом этаже в зоне гостиной.
Проект учитывает энергосберегающие технологии. Срок строительства дома 6-8 месяцев.
Технические характеристики
- площадь застройки дома (с верандой и террасой) – 135.0 м²
- строительный объем – 961.35 м³
- общая площадь помещений – 165.14 м²
- площадь жилых помещений – 95.08 м²
- высота этажей (от пола до потолка) – 1-й этаж — 2.700 м; 2-й этаж — от 1.500 до 2.700 м
- количество этажей – 2
- наличие подвала – отсутствует
Конструктивное исполнение
- кровля – двускатная, чердачная
- стропильная система – деревянная
- чердачное перекрытие — деревянное
- перекрытие — сборное ж/б с монолитным участком
- стены – газобетонные блоки
- перегородки – кирпич
- лестница – металлическая, обшитая древесиной
- фундаменты – монолитные ж/б
Видео: облет жилого дома «Бюджетный-2» снаружи
Видео: облет загородного дома «Бюджетный-2» внутри
Надеемся, что Вы захотите реализовать этот проект на своем участке.
gidproekt.com
Проекты больших двухэтажных домов
Проекты двухэтажных домов, домов имеющих три и более уровня с полезной площадью менее 170 кв.м.
Двухэтажный жилой дом 7,2 х 11 м.
Классический двухэтажный дом с размерами в плане -7,2м х 11м. Общая площадь — 186 кв.м. Здание с двухскатной кровлей уклоном в 30°. На первом этаже расположены: гостиная, гостевая спальня, кухня, санузел, кладовая, гараж и котельная. На втором этаже 3 спальни и ванная комната. Имеется второй выход из кухни через котельную. Маленький гараж 17,6 кв.м. только для установки машины.
Скачать – dwg(acad2007) — 4,8Mb (reih.zip)

Проекты двух экономичных небольших домов
Первый дом — Размеры дома в плане -9 х 9 м. Общая площадь 102 кв.м.

Второй дом — Размеры дома в плане — 7 х 10 м. Общая площадь дома 150 кв.м. Дом расположен на склоне.

Скачать – dwg(acad2007) 1,46Mb (2 ekonomproekta.zip)
Коттедж «Малиновка»
Проект для базы отдыха «Малиновка». Размеры в плане — 14,4 х 11,3 м. На первом этаже прихожая, холл, кухня-столовая, топочная, санузел, гараж на две машины. На втором этаже четыре спальни, гардероб, бельевая, ванная комната, открытый балкон. В проекте поэтажные планы, план кровли, планы перекрытий, вентканалы, узлы кровли, терраса.
Скачать – dwg 41,72 Mb ( 11_14for visitors.zip; догружен альбомом схем отопления для коттеджей)

Дом «Южный ветер»
Скачать с depositfiles — dwg 3,7 Mb (114?120.zip)

Жилой дом «Белгород»
Проект для белгородской области. Размеры в плане 11,6 х 12,7 м. Планы, фасады и сечения.
Скачать — dwg 1,5Mb (116-127.zip)

Двухэтажный дом
Размеры в плане 14,2 х 11,4м. Планы и фасады.
Скачать — dwg 3,8Mb (142-114.zip)

Двухэтажный жилой дом со стенами из блоков несъемной опалубки
общая площадь — 188,7 кв.м., жилая площадь — 78,3 кв.м. Размеры в плане 11,6 х 12,8 м. Планы, фасады, фундаменты, перекрытия, разрезы, цветовые решения, узлы, арматура.
Скачать – dwg 8,74Mb (dom24.zip)

Индивидуальный жилой дом Иркутск 2010 г.
Очень функциональный и сравнительно небольшой проект с размерами в плане 12,3 х 10,36 м. Площадь 1 этажа 101,8 кв.м. площадь второго этажа 60,4 кв.м., площадь мансардного этажа 64,6 кв.м. В проекте планы этажей, фасады, разрезы, план кровли, экспликация полов, спецификация проёмов, планы перегородок, вентшахты, стропильная система, внутренняя отделка, балконы, террасы, водослив. 50 листов.
Скачать – pdf 8,3Mb (AS.zip)
Загородный дом — Шале
Площадь застройки –246.0 м2. Строительный объем – 1630 м3. Полезная площадь – 283.3 м2 (включая навес и веранду). Жилая площадь – 118.1 м2.
На 1-м этаже несущие стены и монолитные железобетонные перекрытия. В мансардном этаже – сруб из бревен. Монолитные ленточные фундаменты глубокого заложения. Подвальное помещение отсутствует. Перекрытия на 1-м этаже монолитные железобетонные, в мансардном этаже отсутствуют. Крыша деревянная стропильная конструкция из бруса с обрешеткой по прогонам.
Скачать – dwg 4,58Mb (chale.zip)

Загородный жилой дом
Проект для московской обл. Размеры в плане — 10,7х11,9 Строительный объем — 1150 м3. Полезная площадь– 248.71 м2.( включая крыльцо и балкон) Жилая площадь – 90.40 м2
Скачать – dwg(acad2007) 1,3Mb (haus165.zip)

Двухэтажный дом с гаражом
Проект из Таллина — Kaariku. Размеры в плане 13,6 х 10,2 и гараж.
Фасады, планы, генплан.
Скачать – dwg 3,16Mb (Kaariku11x14.zip)
Индивидуальный жилой дом К-103Ж
Архитектурной студии Г.Б. Соколова, Санкт-Петербург 2005 г. Площадь застройки — 83,86 кв.м. Общая площадь 196,47 кв.м. Фасады, планы, разрезы. Планы стропил и кровли. Вент. каналы, лестницы, планы перемычек, столярные изделия. Планы фундамента (монолит). Планы перекрытий. Крыльцо. Проект водоснабжения и канализации. Проект отопления и вентиляции. Проект электроснабжения.
Проект очень выгоден для строительства на территории Белоруси в связи с указом №639
Скачать – pdf 4,7 Mb (kottedg_9x11_k103.zip)

Коттедж 03-04АР «Акватерм» Киев 2004 г.
Двухэтажный жилой дом с размерами в плане 13,20 х 10,2 м. (размеры даны в осях). Площадь застройки здания -145,6 кв.м. Общая площадь — 565,41 кв.м. Жилая площадь – 162,6 кв.м. Поэтажные планы, лестницы, узлы.
Скачать – dwg 4,88 Mb (kottedg_11x13_kiev.zip)

Двухэтажный жилой дом 7,4 х 10,1 м.
Поэтажные планы, перекрытия.
Скачать – dwg(acad2007) 5,3Mb (netstroj.zip)

Двухэтажный жилой дом 13,8 х 10,8 м.
Планы, фасады, фундамент, перекрытия, стропила, пояснительная записка.
Скачать — dwg 3,9Mb (proekt138_108.zip)

Двухэтажный жилой дом с подвалом (проект для Тюмени) Тула 2008 г.
Проект больше предназначен для курсовой работы. Пояснительная записка с расчетом — 12 листов. Площадь дома в плане — 13,2 х 12 м. В проекте (pdf) план 1, 2 этажа, подвала, план фундаментов, кровли разрезы, узлы, стропильная система.
Скачать –pdf 5,36Mb (tula.zip)

Двухэтажный жилой дом «Варна»
Размеры в плане 11,7 х 11,7. Планы, фасады, схема кровли.
Скачать — dwg 6,8Mb (varna.zip)

Поделитесь с друзьями
giesgrat.ru
красивые двухэтажные дома на фото
Двухэтажный дом, в первую очередь, это отличная возможность получения большого жилого пространства на небольшом участке. Средний земельный участок занимает примерно 8 соток, если на нем расположить большой жилой дом площадью в 150 квадратных метров, то он будет выглядеть здесь слишком громоздко. Если же на территории еще расположить хозпостройки и гараж, то места на сад или огород не останется вовсе. Кроме того, создать идеальный большой одноэтажный дом, избежав при этом строительства проходных комнат вовсе нереально, ведь только холлы и коридоры могут «украсть» до 30% от общей площади дома.


Двухэтажный дом – идеальный вариант, когда нужно большое жилое пространство, но при этом элегантность и внешняя сдержанность. Построив двухэтажный дом, можно рядом пристроить гараж и еще и на огород или сад места будет вдоволь.
Достоинства двухэтажных домов:
- Эстетическая оригинальность и привлекательность – с помощью такого дома можно воплотить в жизнь разные архитектурные идеи и приемы. Фасады таких домов зачастую выглядят очень солидно и оригинально, намного симпатичнее, чем у одноэтажных. В целом же в голове людей сложился такой принцип, что двухэтажный дом «круче», ведь крыша у него сложнее, а архитектурно он более выразительный и манящий.
- Зонирование пространства – в большинстве случаев двухэтажные дома грамотно зонируют, оставляя первый этаж под «дневную» жизнь (кухня, гостиная, подсобка и прочее) и «ночную» (спальни для хозяев и их детей). Проще говоря, имея двухэтажный дом, человек всегда сможет подняться наверх для того, чтобы уединится и побыть в тишине, немного расслабившись. В одноэтажном доме это сделать намного труднее, к тому же не исключено, что спальня станет «околопроходной».
- Шикарный вид – который может открываться с балкона второго этажа, террасы. Зачастую люди строят заборы, высота которых достигает 3 метров, если дом одноэтажный, то кроме забора ничего интересного и не увидишь, в отличие от двухэтажного дома, лишающего дискомфорта ограниченного пространства.
- Широкий выбор материалов – дом может быть построен из любого материала, что оказался наиболее привлекательным. Для строительства внушительного дома подойдет кирпич, брус, газобетон, специальные обработанные бревна или же дома каркасной технологии.

Достоинств много, но и от недостатков никуда не деться, ведь они тоже есть:
- Обязательная установка лестница – подняться на второй этаж при ее отсутствии невозможно, а значит, придется жертвовать жилой площадью для ее установки. Лестница является большой проблемой для людей пожилого возраста, ведь постоянно вверх и вниз не набегаешься (если дом для пенсионеров, то на второй этаж лучше перенести гостевые комнаты). Кроме всего прочего в двухэтажных домах именно лестница является местом, где происходит большинство травм и несет в себе опасность.
- Теплоизоляция – если ее уровень одинаковый в обоих типах домов, то в двухэтажном доме будет прохладнее на 10-15%.
- Экстренные ситуации – если в доме произошло возгорание, и начался пожар, то провести эвакуацию намного проще в одноэтажном доме, что повышает уровень безопасности.
- Установка санузлов – если они расположены друг над другом, то все хорошо, но если такое расположение невозможно из-за планировки, то возникает большая проблема – разводка труб канализации. Кроме этого нужно заняться системой вентиляции на первом этаже, в кирпичном доме этим заниматься особенно трудно и скорее всего, придется жертвовать качеством теплоизоляции. Система вентиляции в двухэтажном доме стоит гораздо дороже.

Особого внимания требуют инженерные системы. В одноэтажном доме их проведение простое, в частности можно задействовать чердак. В двухэтажном доме это гораздо труднее, так как придется прокладывать системы коммуникации в межэтажном перекрытии, а это сильно влияет на трудность конструкции и осложняет процесс ремонта систем при возникновении поломок.
В связи с вышеуказанной проблемой нужно делать чертеж таким образом, чтобы к системам был прямой доступ через контрольные люки, расположенные в самых критичных для возможных поломок местах.

Для того, чтобы отопить такой дом необходимо установить насос принудительной циркуляции воды, а вот в одноэтажном доме достаточно использования «самотека». Основная проблема двухэтажного дома кроется в создании сложной системы вентиляции. Если устанавливать качественные металлопластиковые окна и хорошо утеплить дом, то придется сооружать трудную вытяжную установки с много узловой разводкой. Данный процесс не только сложный, но еще и очень затратный по финансам. Единственное, что обойдется в одну и ту же сумму это проведение электрической разводки, все остальное в двухэтажном доме гораздо труднее и дороже.
Если сооружать камин, то это создаст дополнительные трудности. Установив камин на первом этаже такого дома придется тщательно продумать как будет проходить дымоход через второй этаж, кроме того потребуется обеспечение пожаробезопасности перекрытия между этажами. Если же установить камин на втором этаже, то нужно делать железобетонное основание, что также не дешево.

www.remontbp.com
Проект жилого двухэтажного дома «Успешный»
Этот просторный двухэтажный дом является отличным решением для постоянного проживания семьи из 4…6 человек. Проект двухэтажного дома «Успешный» можно возвести на участке площадью 6 соток и более.
Визуализация проекта двухэтажного дома «Успешный»





План 1-ого и 2-ого этажей дома «Успешный»

План 1-ого этажа

План 2-ого этажа
Планировка дома удобная и рациональная.
На первом этаже дома отсутствует коридор. Дом имеет 5 жилых комнат. Основные и вспомогательные помещения просторные. Расположение помещений в плане соответствует целям функционального зонирования. В доме имеется один вход (выход).
Вблизи такого дома можно не планировать строительство беседки, так как просторная терраса с навесом у входа в дом ее полностью функционально заменяет.
На второй этаж предусмотрена удобная двухмаршевая лестница без забежных ступеней. Спальня для владельцев дома выполнена в виде мастер-спальни, что повышает уровень комфортности проживания.
Второй этаж — полноценный (мансарда отсутствует). Дом имеет холодный чердак, на котором можно хранить нужные, но нечасто используемые вещи.
Отопление дома возможно осуществлять от котла любого типа. Дополнительное отопление выполняется от современного камина с закрытой топкой, расположенного в гостиной дома.
На первом этаже дома предусмотрено изолированное техническое помещений, где можно установить котельное и другое оборудование (гидрофор, оборудование для водоподготовки и пр.).
Проект дома в полной мере учитывает современные требования по энергосбережению. Дом относится к классу бюджетного жилья.
Технические характеристики
- площадь застройки — 136,44 м²
- строительный объем — 764,10 м³
- общая площадь помещений — 167,55 м²
- площадь жилых помещений – 97,80 м²
- площадь террасы — 17,60 м²
- высота этажей (от пола до потолка) – 2,70 м
- количество этажей – 2
- наличие подвала – отсутствует
Конструктивное исполнение
- кровля – двускатная, чердачная
- стропильная система — деревянная
- стены – из газобетонных блоков
- перегородки – кирпичные
- лестница — деревянная
- фундаменты – монолитные ж.б. ленты, блоки ФБС
Облет двухэтажного жилого дома «Успешный»
Пусть реализация двухэтажного дома «Успешный» принесет вам и вашим близким успех и счастье!
gidproekt.com
Жилой двухэтажный дом: проект жилого двухэтажного дома
Если Вы ищите проект просторного двухэтажного жилого дома, то обратите внимание на представленный эскизный проект. Возможно, с помощью данного проекта Вы сможете реализовать свою давнюю мечту — иметь собственный жилой двухэтажный дом повышенной комфортности.
Общая площадь дома: 189.9 м2
Этажность: два этажа, цоколь
Материал: газобетон
Проект жилого двухэтажного дома из газобетона: общие данные
| Общая площадь двухэтажного жилого дома: | 189.9 м2 |
| Жилая площадь двухэтажного дома из кирпича: | 81.7 м2 |
| Наружные стены (тип материала): |
газобетон |
| Внутренние стены (тип материала): |
газобетон |
| Кровельное покрытие жилого дома: | металлочерепица или гибкая кровля |
| Основание под кровельное покрытие: | стропильная система |
| Фундамент: | монолитный |
| Язык проекта: | русский |
| Формат проекта: | dwg-файлы |
Проект жилого дома из газоблоков
В состав проекта двухэтажного жилого дома из газобетона входят следующие материалы: фасад, план фундамента, разрезы, план цоколя, план кровли, план первого и второго этажа, план стропильных схем.
Почему лучше строить жилой двухэтажный дом из газобетона?
Новейшие строительные материалы помогают достичь значительную экономию средств в ходе строительства жилых домов, в том числе в рамках их эксплуатации. Среди таковых, планы жилых домов из газоблоков выступают одними из самых запрашиваемых и популярных. Это достигается практичностью и доступностью газоблоков, а также значительными энергоэффективными характеристиками.
Газобетон – искусственный стройматериал, создаваемый из смеси воды, кварца, цемента, газообразователя. В следствие температурного влияния и давления отмеченный материал формируется в специальные блоки, из которых в дальнейшем и возводят жилые двухэтажные дома из газосиликатных блоков. Благодаря присутствия пористой структуры, его ещё именуют ячеистый бетон. Обозначенный конструкционный материал обладает потрясающей теплоизоляцией, впрочем различная плотность пор в газоблоках оказывает воздействие на их показатели прочности, в результате газоблоки разделяют таким образом:
— Конструкционный газобетон — параметр плотности в пределах 1000 – 1200 кг/м3. Применяется в постройке внешних стен и перегородок, а также для укрепления стен.
— Конструкционно-теплоизоляционный газобетон с плотностью 500 – 900 кг/м3. Достаточно для постройки коттеджей до трёх этажей — отлично для строительства жилого двухэтажного дома.
— Теплоблоки — 300-450 кг/м3 — задействуется преимущественно в качестве теплоизоляционного материала.
Достоинства двухэтажных жилых домов из газобетона
Посредством лёгкости данного вида материала, проектирование жилых двухэтажных домов из газобетона не нуждается в закладке весомого фундамента. Газобетонные блоки проще транспортировать, а их габариты и объем дают возможность существенно быстрее строить стены, понижая трудовые затраты и временные затраты. Помимо этого не нужна сложная стройтехника. Непосредственно готовый газобетон просто можно пилить, сверлить, разрезать, что позволяет легко делать соответствующи углы, проводить коммуникации.
Следует обозначить, что проекты жилых домов из газоблоков характеризуются небольшой толщиной стен, так как данный материал превосходно удерживает тепло. Так, стена из ячеистого бетона по толщине 0,5 м эквивалента по теплоизоляции каменной стене толщиной в 1 м. Разумеется, такого рода мощных стен из кирпича уже не возводят, а для их теплоизоляции применяют полистирол или эко вату. А коттеджи из газоблоков буквально не нуждаются в термоизоляции, что опять таки обеспечивает снижение их стоимости. Ну и,, для отопления коттеджи из газоблоков требуется существенно меньше энергии.
Итак, Вы можете скачать проект двухэтажного жилого дома.
planlook.ru
Чертежи индивидуального двухэтажного дома: проект жилого двухэтажного дома
Представляем Вашему вниманию готовый рабочий проект жилого двухэтажного дома, отличающийся современной планировкой и эффективными конструкторскими решениями. Примечательно еще и то, что этот жилой дом построить можно из газобетона.
Общая площадь дома: 137.5 м2
Этажность: два этажа
Материал: кирпич или газоблоки
Индивидуальный жилой двухэтажный: общие данные жилого двухэтажного дома
| Общая площадь дома двухэтажного жилого: | 137.5 м2 |
| Жилая площадь двухэтажного жилого дома: | 63.1 м2 |
| Наружные стены (тип материала): |
кирпич или газобетон |
| Внутренние стены (тип материала): |
кирпич или ячеистый бетон |
| Тип кровли: | стропильная |
| Гараж: | НЕТ |
| Фундамент: | монолитный, ж/б |
Проект жилого дома из газобетона
В состав проекта строительства жилого индивидуального дома входят следующие материалы: кладочные планы, цветные изображения перспективы проекта, планы этажей, план кровли, фасад в осях, разрезы, узлы, кровля и др.
Предлагаем Вашему вниманию еще один проект красивого жилого двухэтажного дома. Этот индивидуальный жилой дом отличается современной планировкой, эффективными архитектурными решениями, экономичным энергопотреблением.
Внешний вид жилого двухэтажного дома
Прежде заметим, что от традиционного особняка представленный проект двухэтажного жилого дома отличают, только лишь, пожалуй, меньшие размеры. За счет удачно просчитанным пропорциям высоты, ширины и длины внешне дом совершено не кажется большим, и одновременно маленьким его не назовешь – возможно, это именно то, что Вы ищите. При этом по углам облицовочный кирпич превосходно сочетается с гладкой отделкой фасадов.
Никаких нареканий к визуальному восприятию этого жилого двухэтажного дома нет: геометрические формы и цветовые решения идеальны, дом смотрится стильно, современно и цепляет взгляд.
Внутренняя планировка жилого индивидуального дома
Вход в дом начинается с красивого крыльца, которое хоть и не представляет собой полноценную террасу, тем не менее со своей основной функцией – защиты входа от осадков – превосходно справляется, и еще подчеркивает индивидуальную неповторимость дома.
В прихожей имеется ниша для установки шкафа-купе, что безусловный плюс, однако само помещение не отделено от гостиной дверью и не имеет окон для солнечного освещения. Мы подчеркивает это ради объективности анализа, однако сетовать на сам проект из-за этих нюансов не будем.
Зато гостиная просторная, превосходна освещена естественным светом, тут и докопаться не к чему. Кухня и столовая также удачно вписались и отлично используют пространство.
Отметим и другие преимущества первого этажа: отдельная котельная и гардероб – очень неплохо. Находящаяся в глубине дома спальня и санузел рядом с ней – это также достоинства.
Планировка второго этажа тоже отличается удобством и, возможно, даже лучше, нежели пространственные решения этажа первого. Три спальни, две из которых имеют собственные гардеробы. Можно организовать детскую в одной из них – правильное решение для двухэтажного жилого дома.
Общее впечатление по проекту жилого индивидуального дома
В общем, несмотря на определенные нюансы планировки, этот проект индивидуального жилого дома можно назвать достойным Вашего внимания. Если и нужны какие-то изменения, то они совершенно несущественные и быстро реализуемые, при этом серьезных недостатков у проекта не имеется.
planlook.ru
Двухэтажный жилой дом
Федеральное агентство Российской федерации по строительству и жилищно-коммунальному хозяйству
Ижевский Монтажный Техникум
Специальность: 2902-01
Предмет: Архитектура зданий
Контрольная работа по теме:
«двухэтажный жилой дом»
Разработал проект:
Студент группы СЗС-24
Кораблев Д.И.
Руководитель проекта:
Гейко Л.Д.
2005
Введение
В настоящее время наряду с ведением новых технологий по монолитному строительству и укрупненной сборке ведется строительство с использованием мелких штучных материалов. Обусловлено это тем, что развивается строительство не только высотных, но и малоэтажных зданий, а так же тем, что конечные конструкции обладают рядом положительных качеств: прочностью, долговечностью, стойкостью к агрессивным средам и атмосферным осадкам, возможностью возводить здания практически любой формы и конструкции.
В последние годы сделаны определенные шаги по реконструкции и перепрофилированию существующих и созданию новых строительных материалов и изделий, отвечающих современным требованиям по качеству и конкурентоспособности на строительном рынке.
В данной контрольной работе разработан двухэтажный жилой дом, на восемь семей. Здание выполнено из кирпича. В соответствии с функциональным назначением в помещении обеспечивается надлежащая освещенность, температура и влажность внутреннего воздуха, звукоизоляция помещения.
По техническим требованиям в помещении обеспечена вентиляция, отопление, водо- и газоснабжение, канализация, теле- и радиофикация. Выполнена отделка помещения для благоустройства здания.
1. Архитектурно-конструктивная часть
1.1 Объемно-планировочное решение
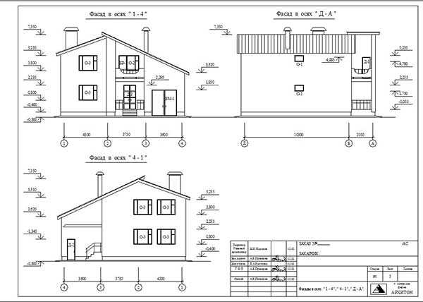
Жилой дом имеет в плане квадратную форму и габаритные размеры по координационным осям «1-2» – 10,8 метра, по осям «А-В» – 10,8 метров. Конструктивная схема здания – бескаркасная с несущими поперечными стенами. Количество этажей – 2. Высота этажа – 2,8 метра. Крыша – совмещенная с наружным неорганизованным водоотводом. Пожарная лестница расположена с восточной стороны здания.
1.2 Конструктивное решение
Фундаменты в здании приняты ленточные. Они состоят из железобетонных фундаментных подушек под наружные стены (рисунок 1.1) и внутренние стены (рисунок 1.2), принятых по серии 1.112-5, и бетонных фундаментных блоков под наружные и внутренние стены (рисунок 1.3), принятых по ГОСТ 13579-78. Их марки указаны в таблице 1.1
Рисунок 1.1
Рисунок 1.2
Рисунок 1.3
Таблица 1.1
Плиты перекрытия и покрытия приняты многопустотные с круглыми пустотами (рисунок 1.4) по серии 1.141-1. Их марки указаны в таблице 1.2.

Рисунок 1.4
Таблица 1.2
Стены наружные толщиной 510 мм выполнены из обыкновенного глиняного кирпича. Стены внутренние толщиной 380мм выполнены из обыкновенного глиняного кирпича.
Перегородки в здании выполнены из обыкновенного глиняного кирпича толщиной 120 мм.
Лестницы:
а) Деревянная внутри здания.
б) Металлическая пожарная с восточной стороны.
Козырьки приняты по серии 1.238-1-1 (рисунок 1.5). Их марка указана в таблице 1.3.
Рисунок 1.5
Таблица 1.3
Парапетные плиты приняты по серии 1.238-1-1 (рисунок 1.6). Их марка указана в таблице 1.4.
Рисунок 1.6
Таблица 1.4
Карнизные плиты приняты по серии ИИ03-02 (рисунок 1.7). Их марки указаны в таблице 1.5.
Рисунок 1.7
Рисунок 1.8
Таблица 1.5
Наружные двери приняты полуторопольные по ГОСТ 24698-86. Их марки ДН 21-10 (рисунок 1.8). Внутренние двери приняты по ГОСТ 6629-86. Их марки ДГ 21-9; ДГ 21-7 (рисунок 1.8).
Рисунок 1.9
Окна приняты с тройным остеклением по ГОСТ 16289-86. Их марки ОРС 15-15 (рисунок 1.9).
Рисунок 1.10
Таблица 1.6 — Спецификация сборных железобетонных элементов
1.3 Наружная и внутренняя отделка здания
Для придания декоративности стеновой поверхности фасада здания лицевые швы расшивают, уплотняют раствор специальным инструментом – расшивкой, придавая швам форму валика дугой.
Окна и двери здания окрашиваются водоотталкивающей эмалью.
Ведомость отделки помещений, площадь, м2
Экспликация полов
mirznanii.com
