Навес для дачи своими руками из поликарбоната – 90 фото лучших современных идей для дома и сада
Навесы для дачи из поликарбоната
Приобретая дачу, мы стремимся быть поближе к природе и свежему воздуху, поэтому, приезжая туда, нам хочется чаще бывать на улице. Но пребывание там не всегда оказывается комфортным, ведь летом палящие лучи солнца или дождь не позволят долго быть на свежем воздухе, и нам снова приходится уходить в дом. Чтобы обеспечить себе комфортное пребывание на даче в жаркий полдень или под проливным дождем, достаточно просто соорудить навес или беседку из поликарбоната. Сделать это довольно просто и своими руками.

Варианты навесов
Вариантов навесов из поликарбоната всего два – можно сделать отдельно стоящий или примыкающий навесы. Рассмотрим более подробно каждый из них.
- Отдельно стоящая конструкция. Как понятно из названия, этот вид навеса располагается сам по себе в любом месте участка. Это обособленная конструкция, которую можно назвать беседкой, имеющая все необходимые для комфортного отдыха приспособления. Там можно расположить стол, стулья и прочие детали интерьера. Крышей для беседки отлично послужит поликарбонат. Он позволит создать беседку любой формы и дизайна.
- Приставной навес. Данный вид навеса крепится одним краем к стене какого-либо здания (бани, дачного домика), а второй край поддерживают каменные, деревянные или металлические столбы.
Приставной навес из поликарбоната для дачи обычно используют для защиты от дождя крыльца самого дома или бани. Также его можно сделать над террасой, или соорудить этот навес из поликарбоната возле гаража, чтобы защитить от дождя и солнца автомобиль.

Какой поликарбонат используют для строительства
Для устройства навеса для дачи из поликарбоната можно выбрать различные материалы, главное, чтобы они были легкими, влагостойкими и прочными. Всем этим требованиям отвечает поликарбонат. К тому же, он достаточно недорого стоит и ему можно придать более интересную форму, сделав крышу беседки или навес не просто плоскими. Если вы решили сделать конструкцию из поликарбоната самостоятельно, прежде всего, нужно выбрать один из его видов:
- Монолитный поликарбонат. Этот вариант выглядит как стекло, может быть прозрачным или цветным. Но литой поликарбонат значительно превосходит стекло по прочности, его можно использовать для придания прочности конструкции, которая будет вынуждена выдерживать больший нагрузки.
- Профилированный поликарбонат. Листы этого вида имеют волнообразную форму, по прочности он не уступает монолитному. Из него можно не только делать навесы или беседки, но также встраивать его в крыши, для оборудования световых окон. Так как шаг и размер волны совпадает с волнами на металлочерепице, два этих материала очень легко сочетать между собой.
- Сотовый поликарбонат. Этот вариант чаще всего используется для строительства, как частной, так и коммерческой недвижимости. Он самый недорогой из представленных и очень легкий. Сделать крышу беседки или навес из такого поликарбоната можно самостоятельно, не прибегая к помощи профессионалов.
Какой поликарбонат выбрать для навеса на дачу решать только вам.

Основные этапы строительства навеса
Строительство навеса для дачи из поликарбоната можно условно разделить на несколько этапов. Поговорим о каждом подробнее.
Проектирование конструкции
Прежде всего, необходимо выбрать место для будущего навеса или беседки. Далее определить, какие нагрузки планируется нести конструкции, учесть особенности местности и климата. Ну и главное, необходимо продумать саму форму конструкции, размеры, основные и декоративные элементы. Этап проектирования позволить предотвратить возможные деформации в процессе эксплуатации, а также рассчитать количество поликарбоната, необходимое для возведения крыши беседки или навеса.

Обустройство площадки под навес или беседку
Начиная строительство беседки или навеса из поликарбоната для дачи, следует разметить место будущего строительства. Дальше нужно наметить периметр и установить границы, отметив их колышками. Площадку выравнивают. По периметру вкапывают опоры беседки или навеса. Расстояние между ними должно быть 1-1,5 метра. В качестве опор используют каменные или деревянные столбы, или металлические трубы. Вкопанные опоры заливают бетоном.
Внимание! Если используется дерево, то его необходимо сначала обработать специальным антисептиком, предотвращающим гниение. Металлические столбы можно покрасить, чтобы они не ржавели.
Через пару дней, когда опоры в земле устоятся, а бетон хорошо схватится, на территории площадки снимают грунт слоем 15-20 сантиметров. Вместо него на дно укладывают щебенку или песок и плотно утрамбовывают.

Финишным покрытием можно сделать:
- тротуарную плитку;
- бетонную стяжку;
- газонную решетку.
Если вы решили сделать основанием вашего навеса или беседки бетонную стяжку, начать нужно с опалубки. После этого, щебеночную или песочную подушку заливают раствором бетона толщиной около 5 сантиметров, далее укладывается армирующая сетка и заливается таким же слоем раствора. Опалубку можно снять через пару дней, когда бетон подсохнет. Но перед использованием площадка должна высохнуть в течение 2-3 недель (в зависимости от погоды), за это время бетон затвердеет и высохнет окончательно.
Укладывать плитку можно прямо на гравийный слой, слегка утаптывая и пристукивая резиновым молотком. Чтобы покрытие не расползалось, нужно обрамить края площадки навеса или беседки, проще всего это сделать бордюрным камнем. Уложив плитку, ее нужно полить водой. Кроме обычной тротуарной плитки можно использовать камень, клинкерный кирпич или брусчатку.
Сделав выбор в пользу газона, нужно использовать газонную решетку, которая предохранит траву от вытаптывания.

Установка каркаса
К закладным деталям крепят вертикальные опорные стойки. Чтобы сделать каркас из металлических опор, необходимо будет воспользоваться электросваркой. Швы, полученные в местах обвязки, зачищают и окрашивают.
Сделав опоры из дерева, перекладины каркаса удобнее будет сделать из этого же материала. Все деревянные элементы обрабатываются грунтовками против гниения, после чего окрашиваются.

Укладка поликарбонатных листов
Качественный монтаж кровли беседки или навеса из поликарбоната дает гарантию дальнейшей надежности и долгой эксплуатации. Произвести монтаж поликарбоната, можно используя следующие инструменты:
- циркулярка;
- строительный нож;
- шуруповерт;
- дрель.
Для резки поликарбоната толщиной до 8 мм. можно обойтись строительным ножом. Толстые панели режутся циркуляционной пилой с частыми, мелкими, неразведенными зубьями. Оборудуйте себе место для работы, это должна быть ровная и твердая поверхность.

Панели поликарбоната обклеены с наружной стороны специальной транспортной пленкой. На ней производители панелей обычно печатают инструкцию по монтажу. Нарезать и просверливать поликарбонат, можно не снимая защитный слой. Вы сможете снять пленку после того, как сделаете все работы по монтажу навеса или кровли беседки.
Совет! Чтобы сделать лист поликарбоната выгнутым, профессионалы советуют поместить его края в профиль, который необходимо будет аккуратно сгибать, предварительно сделав небольшие надрезы профиля.
Вырезанные листы поликарбоната крепят на каркас и закрепляют термошайбами диаметром 30 миллиметров.

Отверстия для саморезов нужно сделать на пару миллиметров больше диаметра самого самореза, и размещать их таким образом, чтобы они не приходились на ребра жесткости. Расстояние между отверстиями должно быть около 30 сантиметров. Фиксируйте поликарбонат аккуратно, не перетягивайте, иначе можно сломать хрупкий материал. Панели соединяются между собой посредством Н-образных профилей. Края поликарбоната заводятся внутрь профиля на 2 сантиметра.
Чтобы сделать навес или кровлю беседки правильно, нужно не забывать и о компрессионных зазорах, так как конструкция находится на улице, и будет подвергаться изменениям температуры, соответственно листы будут расширяться и сужаться. Технические зазоры нужно сделать 3-5 миллиметров.
В заключение работы следует позаботиться об открытых торцах поликарбоната. Их необходимо сделать закрыть специальными накладками из алюминия или пластика с микрофильтрами, и замазать герметиком. Это необходимо сделать, чтобы воспрепятствовать проникновения насекомых и мусора в пустоты панели, а также исключить образование внутри них конденсата.

Заключение
Решив сделать навес на даче из поликарбоната своими руками, вы обязательно добьетесь успеха. Это не трудная работа, с которой вы легко справитесь, при наличии необходимых инструментов. Можете попросить родственников о помощи, чтобы было удобнее справляться с габаритными листами. Потратив немного времени и сил, вы соорудите удобный навес или комфортную беседку.
Дополнительно о том, как правильно выполнить монтаж сотовых панелей из поликарбоната узнаем в следующем видео
bouw.ru
Как сделать навес из поликарбоната для дачи своими руками
Оригинальные козырьки, просторные павильоны и полупрозрачные навесы сегодня украшают подворья многих участков. Постройки, оформленные современным строительным материалом — поликарбонатом, смотрятся весьма привлекательно, гармонично вписываясь в архитектурный ансамбль. Владельцы частных домов все чаще обустраивают навесы из поликарбоната своими руками, создавая живописные арочные сооружения. Полуматовые и прозрачные навесы из цветного полимерной основы, помимо прямого назначения, становятся эффектным украшением парадной зоны, детской площадки или внутреннего дворика.
Поликарбонат – универсальный кровельный материал. Выступая достойной альтернативной дереву, стеклу или металлу, он служит основой для возведения навесов, которые довольно широко применяются в загородном строительстве.
Вариант #1 — козырек над балконом
Обустраивая балкон пластиковым прозрачным навесом, свободно пропускающим солнечные лучи, можно создать настоящую оранжерею, которая будет выступать украшением дома в течение всего года.

Устройство навеса из поликарбоната защитит стены дома и пристроенной к ней площадки от развития плесени и грибков и продлит срок службы деревянных элементов постройки
Вариант #2 — навес для автомобиля
Довольно жесткие сооружения способны противостоять сильным порывам ветра, полупрозрачная крыша создает небольшую тень.

Прямоугольные и дугообразные навесы способны отлично защитить автомобиль не только от снега и дождя, но и других внешних факторов, оказывающих негативное воздействие
Статья в тему: Стоянка для машины на даче: примеры устройства открытых и закрытых площадок
Вариант #3 — навес для беседки или патио
Поликарбонат идеален в качестве кровельного материала для обустройства беседки, крытой площадки для отдыха, патио или барбекю.
Полуматовая или прозрачная крыша будет давать рассеянную тень, благодаря которой внутри беседки будет создаваться слегка приглушенное интересное освещение
Вариант #4 — навес над крыльцом
Благодаря широкому разнообразию цветовой палитры поликарбоната и особой структуре материала, легко принимающего любые формы, всегда можно создать конструкцию, которая идеально впишется в архитектурную композицию уже существующего строения.

Красиво оформленный навес защитит парадную часть дома и примыкающую к нему веранду с крыльцом от палящих солнечных лучей в летние месяцы и непогоды в холодное время года
А ещё из поликарбоната можно сделать беседку, об этом читайте: https://diz-cafe.com/postroiki/besedka-iz-polikarbonata-svoimi-rukami.html
В загородном строительстве для обустройства навесов чаще всего применяют сотовый поликарбонат. Прочные панели, состоящие из нескольких слоев пластика, которые соединены между посредством вертикальных ребер жесткости, обладают отличными качественными характеристиками. Помимо того, что они имеют эстетичный внешний вид, поликарбонатные панели довольно легко монтируются и гнутся, принимая дугообразную форму. Благодаря особой структуре материала поликарбонат способен защитить от негативного воздействия УФ-излучения.
Выбирая материал для обустройства навеса, следует руководствоваться прежде всего предназначением и типом будущей постройки.

При расчете навеса из поликарбоната нужно учитывать: ветровую и снеговую нагрузку, шаг обрешетки и радиус изгиба
Грамотный расчет позволит предупредить лишние расходы: приобретая слишком тонкие листы, потребуется более частый шаг обрешетки, в то же время установка максимально прочных панелей также повлечет дополнительные затраты.
При выборе поликарбонатных панелей необходимо учитывать толщину материала:
- Панели толщиной в 4 мм предназначены для возведения теплиц и парников.
- Сотовые панели толщиной в 6-8 мм предназначены для сооружения перегородок, навесов, козырьков и крыш.
- Из листов толщиной в 10 мм возводят шумозащитные барьеры, их применяют для строительства вертикальных поверхностей.
- Самые толстые панели толщиной в 16 мм, отличаются повышенной прочностью. Их применяют для кровли больших площадей.
Палитра оттенков сотового поликарбоната достаточно широка, что позволяет выбрать вариант, которые оптимально подойдет для обустройства той или иной постройки.

Зеленые и синие полупрозрачные панели из пластика украсят навес над бассейном. Коричневые и вишневые оттенки навеса дополнят живописную картину увитых зеленью построек
О том, как сделать павильон для бассейна из этого материала, можно узнать здесь: https://diz-cafe.com/voda/pavilon-dlya-bassejna-svoimi-rukami.html
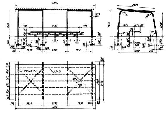
Этап #1 — проектирование строительной конструкции
Определившись с местом размещения строительной конструкции, следует разработать проект для навеса. Проектирование, которое выполняют перед тем, как сделать навес из поликарбоната, позволяет не только грамотно рассчитать необходимо количество материалов во время строительства, но и предупредить возникновение возможных деформаций в процессе эксплуатации.

Проектируя основание и надземную часть конструкции навеса, нужно прежде всего измерить параметры площадки и на основе этого сделать расчет каркаса с учетом продольного и поперечного шагов
Разрабатывая проект, следует учитывать также климатические особенности местности и нагрузки, создаваемые внешними факторами.
Для установки поликарбонатных листов толщиной менее 8 мм достаточно шага в 600-700 мм. При обустройстве более тяжеловесных панелей продольные шаги выполняют размером в 700 мм, а поперечные — до 1 метра
Этап #2 — возведение площадки под навес
Площадку под обустройство навеса намечают с помощью колышков и выравнивают. По периметру площадки на расстоянии в 1-1,5 метра с помощью бура выкапывают ямки под установку опорных стоек, в качестве которых чаще всего применяют деревянные брусья или металлические столбы.
Опоры заглубляют непосредственно в грунт на 50-150 см, выравнивают с помощью строительного уровня и бетонируют, либо закрепляют на специально вкопанные по такому же принципу закладные детали
При использовании в качестве опорных стоек деревянных брусьев, нижнюю часть столбов обрабатывают битумом или любым защитным составом, препятствующем гниение древесины.
Выждав пару дней, пока опоры устоятся, а бетон наберет достаточную прочность, со всей территории отмеченной площадки снимают слой грунта толщиной 15-20 см. Дно образовавшегося котлована устилают песочной или щебеночной «подушкой» и утрамбовывают.
На этом этапе строительства желательно предусмотреть обустройство канавок и размещение дренажных труб для отвода дождевой воды.
В качестве финального покрытия можно использовать:
- бетонную стяжку;
- тротуарную плитку;
- газонную решетку.
Для укладки этого покрытия по периметру площадки устанавливают опалубку. Дно котлована, устланное гравийной «подушкой», заливают бетонным раствором толщиной в 5 см, сверху которого сразу же укладывают сетку из арматуры и повторно заливают таким же слоем бетона. Опалубку снимают через 2-3 дня, когда бетон застынет. Сама же залитая бетоном площадка должна отстояться не менее 2-3 недель: за этот период бетон наберет необходимую прочность и естественным путем избавится от излишков влаги.
Бетонная стяжка хорошо подходит для ровных участков, почва которых не подвержена смещениям

Тротуарная плитка больше подходит для «плывучих» и пучинистых грунтов. В отличие от бетонной стяжки, устланная тротуарная плитка не образует монолитный слой, давая тем самым земле «дышать»
Плитку укладывают непосредственно на песочную «подушку», утрамбовывая элементы с помощью резинового молоточка, не повреждающего поверхность покрытия. В качестве обрамления, которое не даст покрытию расползтись за пределы площадки, лучше использовать бордюрный камень. Выложив плитку, поверхность площадки поливают водой. В качестве покрытия можно также применять натуральный камень, клинкерный кирпич или брусчатку.

Любители натуральных материалов могут остановить свой выбор на газонной решетке, сквозь ячейки которой прорастает трава
Полимерный материал, выступающий основой для решетки, будет обеспечивать водоотведение и оберегать газон от вытаптывания, сохраняя его привлекательный внешний в течение всего сезона.
Этап #3 — установка каркаса
Вертикальные опорные стойки крепят к закладным деталям. При строительстве каркаса из металлических столбов, верхнюю обвязку по периметру и вертикальным стойкам конструкции выполняют посредством электросварки. После этого с помощью вертикальных распорок выполняют крепление поперечных элементов каркаса к несущим балкам.

Чаще всего поперечным элементам придают дуго- и куполообразные, одно- и двускатные формы. Помимо презентабельного внешнего вида арочные конструкции препятствуют скоплению снега, грязи и опавшей листвы
Все сварочные швы каркаса зачищают, грунтуют и окрашивают.
Также поликарбонат отлично подойдёт для постройки теплицы, подробнее можно узнать из материала: https://diz-cafe.com/postroiki/teplica-iz-polikarbonata-varianty-konstrukcij-i-primer-postrojki-svoimi-rukami.html
Этап #4 — укладка поликарбонатных листов
От качества монтажа кровли навеса из поликарбоната напрямую зависит надежность и долговечность постройки.
Для укладки поликарбонатных панелей потребуются инструменты:
- строительный нож;
- циркуляционная пила;
- дрель;
- шуруповерт.
Листы толщиной до 8 мм можно резать с помощью строительного ножа, а более толстые панели – циркуляционной пилой с дисками, имеющими мелкие неразведенные зубья. Все работы по нарезке листов следует проводить только на твердой и ровной поверхности.

Раскрой листов нужно выполнять с учетом ориентации воздушных каналов. Те должны соответствовать направлению изгиба или уклона
Наружная сторона панели, защищающая от УФ-излучения, покрыта специальной транспортной пленкой, на которой производитель наносит изображения с инструкцией по монтажу. Все работы по нарезке и просверливанию отверстий можно проводить не снимая защитную пленку, удалив ее с поверхности панелей лишь после монтажа навеса.
Совет. Чтобы выгнуть пластиковую панель дугой, нужно прикрепить к ней вдоль линии каналов профиль, в котором сделать небольшие надрезы и согнуть, придавая желаемую форму.
Подогнанные по размеру листы поликарбоната укладывают на каркас и фиксируют саморезами и термошайбами диаметром в 30 мм.

Такие термошайбы, имеющие силиконовое основание, способны обеспечить отличную герметизацию швов
Отверстия для крепления, диаметр которых должен на 2-3 мм превышать размер саморезов и термошайб, нужно размещать между ребрами жесткости на расстоянии в 30 см друг от друга. Фиксируя листы к каркасу, главное – не перетянуть, чтоб не сломать края отверстий в пластиковой панели. Сами листы скрепляют между собой с использованием Н-образных профилей, под которые заводят края панелей на 20 мм, оставляя небольшие зазоры.
Соединяя листы из поликарбоната между собой, нужно соблюдать правило обустройства компрессионных швов: оставлять 3-5 мм зазоры для возможности смещения листов при температурных перепадах.

Края и открытые торцы поликарбонатных панелей закрывают специальными накладками, алюминиевыми или перфорированными лентами с микрофильтрами, а затем проклеивают герметиком
Такая обработка будет препятствовать проникновению в пустые полости панелей мусора, пыли и мелких насекомых, а также не допускать скопление конденсата.
Навес готов. Уход за конструкцией заключается лишь в своевременном очищении поверхности с использованием обычной воды без применения моющих средств, которые могут повредить защитный слой поликарбонатных панелей.
Оцените статью: Поделитесь с друзьями!diz-cafe.com
Как сделать навес из поликарбоната своими руками (25 фото): пошаговая инструкция
Сотовый поликарбонат — лучший материал для строительства козырьков и арок для дома, гаражей для автомобилей и навесов на даче. Он имеет небольшой вес, отлично держит тепло, хорошо пропускает солнечный свет. В отличие от стекла, не нуждается в специальных инструментах и навыках для монтажа.
Преимущества поликарбоната
- Разнообразие форм, расцветок и прозрачности.
- Длительный срок эксплуатации.
- Привлекательный внешний вид.
- Возможность установки своими руками.
- Приемлемая цена.
Благодаря таким свойствам материал получил широкое применение в строительстве козырьков:
- Навесы перед домом — защищают крыльцо и вход от солнца и осадков. Благодаря разнообразию палитры, такой козырек впишется в экстерьер любого здания. Также с его помощью можно построить изящную декоративную конструкцию.
- Козырьки для автомобиля — защищают машину от дождя и снега, ультрафиолетового излучения, опавших листьев. Конструкция может иметь арочную или прямоугольную форму.
- Навесы из поликарбоната для бассейна — благодаря им бассейн можно использовать в любое время года. Такая конструкция защищает воду от загрязнения и предотвращает её цветение.
- Навесы из поликарбоната, пристроенные к дому, позволяют обустроить террасу, веранду или летнюю кухню.
Установка навеса
Выбор материала
Козырек из поликарбоната лучше сделать из пустотелых листов — они хорошо гнутся, удерживают тепло, мало весят. По сравнению с сотовым, монолитный поликарбонат отличается большей прочностью. Однако строительство из такого материала имеет меньшую рентабельность. К тому же полнотелый поликарбонат имеет плохую теплоизоляцию.
При выборе материала учитывают его цвет. Прозрачный пластик хорошо пропускает свет, зато цветной вариант выглядит намного привлекательней. При выборе поликарбоната для козырька также учитывают толщину листов. Чем больше этот параметр, тем прочней и надежней будет конструкция. В целом для навеса для автомобиля или на дачу достаточно толщины 6-8 мм.
Варианты навесов для козырька дома:
- По форме скатов — прямые и арочные.
- По количеству скатов — односкатные, двускатные, многоскатные.
Замеры и расчеты
Проектируя конструкцию, рассчитывают поперечные и продольные шаги каркаса. Для продольных несущих опор оптимальный шаг — 700 мм. Чтобы высчитать шаг для поперечных опор, учитывают толщину листа. Так, для панелей толщиной 8-16 мм шаг должен быть не больше 1 м. Если материал тоньше 8 мм, шаг не должен быть больше 700 мм.
Также рекомендуем прочитать:
Проектирование конструкции
Строительство навесов из поликарбоната начинают с разработки каркаса. Его рассчитывают, исходя из размера навеса. Он должен выдерживать нагрузку выпавшего снега и резких порывов ветра. Толщина стоек будет зависеть от материала изготовления — дерева или металла. Для кровли дома или гаража выбирают материал определенной прозрачности и толщины.
Подготовка основания
Производится разметка территории, в местах монтажа несущих стоек вкапываются и заливаются бетоном закладные элементы. С участка удаляется верхний 10-сантиметровый слой грунта. Образовавшуюся выемку заполняют щебнем или песком, после чего утрамбовывают. На этом этапе продумывается система отвода воды. Перед тем как приступить к монтажу конструкции навеса из поликарбоната, площадку выкладывают плиткой, бетонной стяжкой или кладут газонную решетку.
Монтаж каркаса
К предварительно установленным закладным деталям монтируются стальные стойки, которые затем соединяют между собой по периметру. После этого к балкам крепится каркас арочной или двускатной крыши. Соединение осуществляется за счет болтов или сварки. Если используются метизы, дополнительно придется в стойках просверливать отверстия.
Установка листов поликарбоната
На этом этапе работ потребуется дрель, шуруповерт, строительный нож, циркулярная пила. Чтобы предотвратить повреждение материала, его разрезают, не снимая защитной пленки. Тонкие листы до 8 мм можно резать ножом, более толстые — циркулярной пилой с мелкими зубьями. Листы монтируют стороной, имеющей УФ-защиту, наружу — на неё нанесена полиэтиленовая пленка с инструкцией по установке.
Листы не должны примыкать друг другу вплотную — нужно оставить запас 5 мм на тепловое расширение. Этот фактор также учитывают при создании отверстий под саморезы — они должны быть на 2-3 мм шире самого крепежа. Для фиксации листов лучше использовать термошайбы диаметром 30 мм. Такие метизы имеют основание в виде уплотнительного резинового кольца. Благодаря последнему, полностью предотвращается попадание воды в соединение. Сверху шляпка дополнительно защищается пластмассовым колпачком.
Навес из поликарбоната делают аккуратно, не перетягивая саморезы — в противном случае пластик лопнет. Чтобы этого избежать, термошайбы вкручивают между ребрами жесткости. Вкручивание производят строго перпендикулярно к листу — таким образом можно избежать деформации материала.
Если навес возле дома имеет арочную форму, изгиб материала осуществляют вдоль линии каналов. Фиксируются листы саморезами с минимальным шагом 30-40 см. Соседние листы соединяются между собой алюминиевым или пластиковым Н-образным профилем. Перед его монтажом отдирают пленку от краев пластика примерно на 5 см.
Снаружи используют сплошную соединительную ленту, изнутри — перфорированную. Такая мера защищает поликарбонат от попадания грязи, воды и насекомых. Стыки влагоизолируют герметиком. Он предотвращает возникновение конденсата в пустотах поликарбоната. После завершения установки козырька, с него снимают защитную пленку.
Инструменты
Циркулярная пила — разрез можно сделать любой моделью, главное, использовать 125 круг для резки металла. Чтобы сделать ровный рез, нужна сноровка.- Строительный нож — подходящий вариант для листов толщиной до 8 мм. Для работы этим инструментом не нужен опыт, главное, делать движения медленно и аккуратно.
- Пила — используют только специалисты, поскольку при неправильных движениях материал вдоль линии реза может крошиться. Чтобы обеспечить качественный рез, необходимо прочно закрепить материал.
- Электрический лобзик — инструмент с мелкими зубьями отлично режет пластик. Имея сноровку, им можно резать даже сложные декоративные формы.
- Лазер — наилучший способ резки поликарбоната. Из-за дороговизны оборудования, выполнить процедуру можно только в специализированных мастерских. Лазерная установка делает ровный рез за минимальное время.
Как правильно сгибать поликарбонат
Чтобы сделать навес, нередко приходится гнуть листы пластика. Часто неправильное сгибание приводит к тому, что они лопаются. Важно изгиб делать вдоль линии пустотных каналов. Для сгибания один конец листа неподвижно фиксируют, а второй медленно сгибают. Делать это нужно с учетом инструкции изготовителя, ведь для материала конкретного сорта и толщины существует минимально допустимый радиус деформации.
Срок службы
В среднем на поликарбонат производители дают гарантийный срок службы 10 лет. На практике конструкция из этого материала прослужит гораздо дольше, но для этого нужно сделать монтаж по всем правилам. Козырек дома будет долговечным, если материал правильно хранился в защитной пленке, аккуратно транспортировался и регулярно обслуживался. Как правило, вариант с толстым поликарбонатом дольше служит, чем с тонким.
Правила ухода
Чтобы очистить поверхность козырька дома от грязи, нужно вымыть её водой, при этом даже необязательно использовать моющие средства. Для очистки применяют обычную мягкую ткань или губку. Нельзя применять абразивную бытовую химию, щелочные растворы и другие едкие вещества. Также не допускается производить чистку острыми предметами — высок риск повредить защитный УФ-слой.
Перед тем как построить навес своими руками, внимательно прочитайте инструкцию изготовителя. От правильности монтажа зависит долговечность конструкции. Если установить поликарбонат не по правилам, в нем появятся трещины, в пустоты попадет грязь и вода. Постепенно такая конструкция разрушится. Придерживаясь простых правил, вы сможете своими руками сделать красивый гараж, навес для дома или что-то другое — ограничить вас может только полет собственной фантазии.
Конструкции навесов из поликарбоната
landshaftnik.com
Навесы для дачи своими руками
Многие россияне, приезжая на дачи после тяжелой трудовой недели, желают как можно дольше проводить свое время на воздухе. Это не всегда возможно, полуденная жара или нежданный дождь загоняют в дом, туда, где можно спрятаться. Хорошо иметь на даче место, защищенное от жарких солнечных лучей. С этой ролью отлично справится навес. В данной статье мы рассмотрим, как сделать навесы для дачи своими руками из профнастила, поликарбоната, дерева и ткани.
Виды
Решив сделать навес на даче, вы должны выбрать его дизайн. Существует множество видов этой конструкции:
Пристроенный навес из поликарбоната- Пристроенные. Такие навесы располагаются вплотную к стене дачного домика. Три стороны у них открытые, а четвертая закрытая. Такие навесы играют роль веранды или террасы, козырька над входом в дом;
- Навесы бывают отдельно стоящими. Они выполняют функцию беседки, а также крытой стоянки для автомобиля.
Автомобильный навес с кровлей из металлочерепицыКрыши навесов бывают прямые, наклонные, односкатные, двухскатные, волнообразные. Материал для их изготовления используется самый различный.
Из поликарбоната
Форма и размеры дачных навесовНаиболее современной и простой в монтаже является крыша навеса из поликарбоната. Материал обладает отменными характеристиками. Он хорошо выдерживает перепады температур, сохраняет свои свойства под воздействием атмосферных осадков, солнечных лучей. Поликарбонат хорошо гнется, поэтому из него можно построить крышу любой формы.
Обратите внимание! Монтируются листы поликарбоната с помощью саморезов, снабженных резиновыми шайбами. Они препятствуют растрескиванию материала. Навес из поликарбоната может быть любой площади. Главное, чтобы был установлен прочный каркас. Его изготавливают из дерева или металла.
Правила крепления поликарбоната саморезамиНавес из поликарбоната, примыкающий к одной из стен дома, монтируется быстро и просто. Его крыша должна находиться под небольшим углом, тогда атмосферные осадки будут попадать в почву.
- Чтобы уберечь все деревянные детали навеса от поражения гнилью, обработайте их грунтовкой и покрасьте краской.
- Для опорных столбов конструкции возьмите пять деревянных брусков размером 90х90 мм. Чтобы крыша навеса была с наклоном, передние опоры сделайте высотой в 2 м, а заднюю расположите на стене дома на высоте в 2,4 м.
- На подготовленном участке, сделайте разметку, там будут находиться вертикальные опоры. Выкопайте ямы на глубину 50 см, сделайте подушку из щебня, вертикально вставьте брус и залейте яму цементным раствором.
- На стене дома горизонтально закрепите брус, на нем будут монтироваться стропила. Другой брус будет соединять между собой вертикальные стойки (сделать это можно и с помощью металлического уголка).
- Далее монтируйте стропила, делайте обрешетку крыши навеса.
- Листы поликарбоната крепите саморезами к обрешетке. Навес готов.
Из профнастила
Для машины из профнастилаНавесы из профнастила, чаще всего используется для парковки автомобилей на даче. Такие конструкции стоят отдельно и не примыкают к стене дома. Крыша навеса держится на вертикально установленных металлических столбах. На них монтируются основные балки и обрешетка, сверху к ней крепятся листы профнастила.
Для изготовления отдельно стоящего навеса из металлопрофиля потребуются несколько стоек, сделанных из металлической трубы. Выкопайте ямы глубиной в 60 см. Их количество зависит от количества стоек-опор и размеров навеса. Стойки располагайте с длиной шага в 1 м. На дне ямы выложите подушку из щебня, установите стойку вертикально, залейте яму бетоном.
Подшитый навес из профнастилаДождавшись, когда бетон полностью просохнет, продолжайте монтаж навеса. Следующим этапом работы будет установка горизонтальных балок, делайте это с помощью сварки. Обрешетка на таких навесах выполняется из металлических труб небольшого диаметра. С помощью саморезов монтируйте листы кровельного материала на обрешетку.
Отсутствие сварочного аппарата часто является препятствием строительства навеса из металлопрофиля. Крепеж с помощью болтовых соединений доставит много хлопот.
Из ткани
Съемный тканевый навесНавесы, сделанные с использованием ткани, выглядят оригинально и живописно. Конструкция такого навеса ничем не отличается от навесов, рассмотренных выше.
Обратите внимание! По окончанию дачного сезона, тканевый тент убирается в подсобное помещение до следующего сезона.
Строительство навеса на дачном участке не доставит вам много хлопот, если вы правильно распланируете все работы, позаботитесь о наличии всех нужных инструментов и материалов. Чтобы быстро построить навес, нужно попросить помощи у родственников или друзей. Одному эту работу выполнять неудобно. После окончания работ у вас на участке появится удобный навес для вашего отдыха или отличное место парковки для автомобиля.
Видео
Фото
С помощью разъемного профиля
С помощью неразъемного профиля
Алюминиевый профиль с гидроизоляцией
Схема металлокаркасного навеса
Отдельностоящий навес с прямой крышей
Особенности крепления профнастила
Навес из ткани
Навес из поликарбоната
Монтаж металлочерепицы
Конструкция навеса
Чертеж деревянного каркаса навесаstroysvoimirukami.ru
Навес из поликарбоната своими руками
Современный приусадебный участок, неважно, относится он к коттеджу или простому дачному домику, трудно представить без навеса, например, над машиной хозяина. Эта конструкция нынче выполняет не только практичную функцию, но и эстетичную. При этом самым распространённым материалом, используемым для навесов, является поликарбонат. Изготовить из него конструкцию можно своими руками.
Преимущества и недостатки поликарбоната
Выбор подобных листовых заготовок при монтаже навесных конструкций обоснован множеством преимуществ.
- поликарбонат пропускает свет, но в то же время защищает от вредного воздействия ультрафиолета;
- он негорючий, что исключает опасность пожара;
- листы имеют различную раскраску, можно выбрать цвет по вкусу;
- конструкции из данных заготовок выглядят эстетично;
- поликарбонат имеет малый вес;
- он гибкий, но вместе с тем ударопрочный;
- хорошо сохраняет тепло внутри общей конструкции;
- с ним легко и приятно работать (режется он канцелярским ножом, а прикручивается к каркасу саморезами).

Разнообразная цветовая гамма позволяет подобрать такой лист поликарбоната, который идеально впишется в ландшафтный дизайн
Правда, недостатки у поликарбоната также есть. Они могут проявиться при монтаже и эксплуатации навесной конструкции. А именно:
- со временем подобный материал способен растрескаться, из-за чего придётся заменять отдельные листы;
- если нарушить правила монтажа, поликарбонат также разрушится;
- тонкие листы могут не выдержать пласты снега, если плохо продуман каркас.
Итак, достоинств у описываемого материала явно больше, поэтому его применение в навесах логично. Но прежде чем начать сооружать подобную конструкцию, необходимо определиться с размерами и составить эскиз.
Подготовительные работы: какой толщины материал использовать
Перед выбором размеров конструкции рекомендуется определиться с видом листов для монтажа. То есть сначала нужно выбрать цвет и толщину заготовок. Сотовый поликарбонат продаётся в листах разной толщины (от 4 мм до 12 мм). При покупке для дачного строительства материал могут порезать (в зависимости от того, какого размера будет постройка).
Толщина детали для изготовления навеса выбирается по следующему принципу — конструкция должна выдержать снег. Но на это в большей мере влияет не столько качество поликарбоната, сколько надёжность каркаса. Следовательно, можно использовать даже самые тонкие листы. Это позволит и значительно удешевить навес.

Поликарбонат — очень пластичный материал, поэтому легко можно сделать навес любой формы своими руками
Как выбрать размер конструкции: составление чертежа
Самое сложное — определиться с размерами планируемой конструкции. Есть несколько вариантов:
- Если навес делается над крыльцом, ширина конструкции должна быть такой, чтобы последняя слева и справа от входной двери выступала на 30 см. В этом случае капли дождя не попадут на пол и входящего человека. Длина изделия принимается равной расстоянию от стены дома до ребра первой ступеньки крыльца.
- Если навес будет находиться над машиной, то его габариты должны соответствовать размерам автомобиля, при этом дополнительно нужно добавить на каждый параметр минимум по 30 см.
- То же самое касается и бассейна. Навес над ним нужно делать немного больше.
После определения размеров необходимо нарисовать чертёж.

На чертеже навеса из поликарбоната нужно обозначить все размеры навеса
Со стороны фасада навес часто делают арочным. В этом случае радиус изгиба сотового поликарбоната должен быть равен высоте пристроя.
Как сделать расчёт материала
Расчёт количества необходимых материалов можно произвести, пользуясь построенным чертежом. Предположим, у нас будет создана конструкция без арочных элементов. Пусть это будет навес над крыльцом. При этом ширина входной двери — 80 см. Согласно рекомендациям специалистов, принимаем ширину навеса равной H = 80 + 30 + 30 = 140 см или 1,4 м.
Допустим, расстояние от ребра первой ступени крыльца до стены дома 1 м. Значит, и длина навеса такая же.
Для каркаса идеально подойдёт профильная квадратная труба с сечением 25 х 25 мм. Достаточно установить три подпирающих поликарбонат отрезка длиной 1 м каждый и соединить их поперечно на краю навеса.

Размер навеса зависит от многих параметров, например, от того, где он будет располагаться
Опоры конструкции можно сделать из обычной стальной трубы диаметром 32 мм. Достаточно установить в землю два столба высотой до уровня верхнего ребра входной двери (не менее 2 м). Не забудьте добавить на вкопку в землю 0,5 м.
Необходимые инструменты
Для работы с поликарбонатом нужны:
- нож канцелярский;
- шуруповёрт;
- болгарка;
- рулетка.
Пошаговая инструкция по устройству навеса из поликарбоната
Процесс изготовления навеса зависит от многих параметров, в частности от расположения относительно стен дома.
Как правильно пристроить навес к частному дому над крыльцом
Первый вариант — пристроенная к частному дому конструкция. Вся работа выполняется в несколько шагов:
- Для основных элементов каркаса лучше использовать металлическую профильную трубу с сечением в виде квадрата из простой стали размером 25 х 25 мм. Её нужно разрезать болгаркой. Согласно проведённому расчёту, необходимо отрезать 3 профиля по 1 м и кусок длиной 1,4 м. Также надо подготовить две трубы по 2,5 м.

Резка металла болгаркой требует соблюдения строгих мер безопасности
- В углы крыльца, то есть по краям ребра первой ступени, закапываются две трубы на 0,5 м в землю строго вертикально. Желательно забетонировать основания этих столбов. Для чего в равных частях соединить цемент, песок, щебень, смешать с водой и залить раствором ямы, в которые вставлены трубы.
- Концы отрезков квадратного профиля длиной 3 м на равных расстояниях крепятся на стене дома выше входной двери на 20 см. Для крепления используются металлические уголки, крупные саморезы и шуруповёрт. Если дом кирпичный, придётся взять перфоратор, просверлить дырки для саморезов и предварительно вставить в отверстия пластиковые дюбели. Нужно постараться, чтобы два крайних отрезка передними концами оперлись на трубчатые столбы.
- Укладывается поперечный профиль. Он должен концами также опереться на трубчатые столбы. Для его перпендикулярного соединения с отрезками длиной 1 м используются металлические уголки и саморезы. В результате у каркаса должен получиться небольшой уклон.
- Вырезается лист сотового поликарбоната нужного размера из цельной заготовки. Для этой операции подойдёт канцелярский нож. Вдоль сот лист режется легко. В поперечном направлении придётся приложить немного усилий.

Поликарбонат можно резать и электролобзиком
- Крепится поликарбонат саморезами на профилях с помощью шуруповёрта. При этом линии сот необходимо класть параллельно стене дома, иначе лист будет прогибаться от снега и ломаться.
Монтаж арочного навеса вокруг бассейна на даче
Второй вариант — расположение навеса над бассейном. Тут есть свои особенности, поскольку на стену дома он опираться не будет. Последовательность работ следующая:
- Сначала устанавливаются столбы по углам бассейна по ранее описанной технологии. Материал — труба диаметром 32 мм. Но при этом нужно отступить от углов в каждом случае на 30 см по воображаемой диагонали бассейна.
- Далее на эти столбы монтируется каркас из профиля. Здесь желательно применять арочные элементы. Для их изготовления лучше воспользоваться услугами строительной организации, так как самостоятельная сборка такого каркаса весьма затруднительна.
- Концы скелета для крыши лучше приварить к столбам с помощью электродов и сварочного аппарата.
- Листы сотового поликарбоната нужно стелить поочерёдно, пока не заполнится всё пространство, аккуратно стыкуя между собой.

Навес над бассейном убережет воду от засорения
Аналогичным образом происходит устройство навеса над патио, мангалом, открытой зоной отдыха и любым другим элементом архитектуры придомовой территории.
Видео: навес из поликарбоната для машины своими руками
Навес из поликарбоната прослужит долго, если регулярно за ним ухаживать. Необходимо просматривать состояние креплений, а также сохранность листов сотового поликарбоната. Мелкий ремонт заключается в замене саморезов или части покрытия.
Живу в Тюмени, работал инженером в строительной отрасли, но по велению души — писатель. Поэтому с удовольствием пишу на строительно-ремонтные темы. Оцените статью: Поделитесь с друзьями!legkovmeste.ru
Как сделать навес из поликарбоната своими руками: чертежи, инструкции
Поликарбонат – это современный материал широкого применения.
Самыми распространенными конструкциями из него являются теплицы и навесы. Навес из поликарбоната – это универсальная конструкция, позволяющая не только защитить автомобиль от осадков, но и принести еще много пользы.
Мало кто знает, что использовать навес из поликарбоната можно и для защиты бассейна.
На ролике покупной навес из поликарбоната для бассейна:
Практически на всех дачных участках он есть. Так же навес используется в качестве беседки, которая позволяет, несмотря на плохую погоду, собираться на свежем воздухе.
Для любителей шашлыков такую конструкцию можно установить над мангалом. Кроме этого в последние годы их стали использовать и над балконами.

Навес из поликарбоната — отличное укрытие для бассейна
Какой поликарбонат используют для строительства?
Виды поликарбоната:
- Монолитный (литой). Отличается эстетичным видом. Очень напоминает стекло, как бесцветное, так и цветное. Но только внешне, так как по прочности значительно его превосходит. Применяется для конструкций, которые должны выдерживать большие нагрузки.
- Сотовый. Самый распространенный вид, который используется для частного и коммерческого строительства. Имеет низкую стоимость и легкий вес. Монтаж этого вида можно производить даже одному. Именно этот вид позволяет изготавливать конструкции любой сложности, благодаря своей гибкости и пластичности.
- Профилированный. Имеет волнообразную форму и не уступает своими характеристиками монолитному поликарбонату. Удобен для использования на крышах, т.к. размеры волн совпадают в металлочерепицей, поэтому установка светового окна пройдет легко и быстро.
Как выбрать материал для навеса
В первую очередь стоит задуматься о необходимой толщине. От предназначения навеса и зависит выбор поликарбоната.
Чем он толще, тем дольше он будет служить. Но тут тоже есть несколько нюансов. Существуют стандартные величины от 4-х до 25 мм.
Самые тонкие предназначаются в основном для покрытия теплиц. Но для навеса подходит поликарбонат, имеющий толщину не менее 8 мм.
Кроме этого следует учитывать и радиус изгиба, и частоту обрешетки (т.е. расстояние между опорами), и структуру панели. Так же роль играют технические показатели, среди которых будут светопроницаемость, вес и другие требуемые характеристики.

На фото навес для авто из литого поликарбоната
Достоинства и недостатки навесов из поликарбоната
Основными плюсами таких навесов считаются:
- способность переносить резкие перепады температур и практически любые тепловые воздействия;
- небольшой вес облицовочного покрытия позволяет сооружать самые сложные конструкции;
- высокая пластичность и гибкость;
- достаточная степень прозрачности;
- противостояние ударам и механическим воздействиям;
- простота и легкость монтажа;
- противостояние воздействиям большинства химических и биохимических веществ.
Минусов немного, но все-таки они есть:
- высокая восприимчивость ультрафиолета;
- склонность к расширению под воздействие высоких температур;
- неспособность противостоять абразивным воздействиям;
- цена.
Многие производители уже нашли решение первой проблемы и стали покрывать листы поликарбоната специальным покрытием. Оно значительно уменьшает процент проникновения солнечных лучей.
Пошаговая инструкция по изготовлению конструкции
Выбор поликарбоната уже позади, и теперь пришло время заняться проектированием и изготовлением самого навеса. Этот процесс состоит из следующих этапов.
Создаем чертеж
Прежде чем строить навес из поликарбоната своими руками, нужно разработать чертеж.

Проектирование — первый шаг к успеху
От этого этапа зависит результат. Правильный чертеж – это залог отличного результата.
При составлении чертежа появляется возможность рассчитать необходимое количество материалов, определиться с расположением будущего навеса и приобрести все дополнительные материалы сразу.
Если вы решили спроектировать навес самостоятельно, то обратите внимание на схемы. В фото-подборке ниже представлены чертежи, которые могут пригодиться вам в проектировании навеса:
Это самые распространенные и востребованные виды конструкций, но на этом не стоит останавливаться, если вы хотите оригинальный дизайн.
Подготовка площади
Необходимо подготовить территорию:
- На этом этапе производятся замеры участка, на котором планируется установить навес. Тут главное не забыть о высоте.
- Убедитесь в том, что под навесом нет низины, в которой может скапливаться дождевая и талая вода. Об этом часто забывают и в дальнейшем испытывают некоторые неудобства.
- Если навес будет устанавливаться на опоры, то необходимо расчистить под них место (удалить корни и растительность).
- Не забывайте и о выравнивании поверхности. Это сделать сразу намного проще, чем во время строительства.
- Наметьте границы будущей конструкции при помощи колышек и натянутых веревок, как показано на картинке.

Размечаем границы будущей конструкции
Строительство каркаса
Для такого легкого материала, как поликарбонат он может быть выполнен не только из металла, но и из дерева. Если навес предназначен просто в качестве беседки, то вполне достаточно каркаса из деревянного бруса, а вот если для автомобиля, то тут лучше обратить внимание на металлический профиль.
Для установки основы из металла понадобятся навыки сварки, хотя и тут есть выход. Сегодня продаются и сборные конструкции, которые не уступают в прочности и надежности. Они соединяются при помощи болтов, но и цена их уже на порядок дороже.

Строительство каркаса для навеса из поликарбоната — важнейший этап возведения конструкции
Советы и нюансы возведения каркаса:
- Для металлического каркаса следует подбирать профиль с квадратным сечением 60х60 – 100х100мм. Размер зависит от будущих нагрузок.
- В качестве прогонов вполне достаточно профилированной трубы 40х40 или 60х60мм., а для обрешетки 20х20 или 40х20мм.
- На начальном этапе подготовки ямы засыпается песчаная «подушка» и по уровню вертикально устанавливаются опоры.
- Затем они заливаются бетоном или гравием с цементным раствором.
- Высыхать конструкция будет около 4 дней (в это время ее необходимо периодически поливать водой во избежание растрескивания).
- Теперь можно приступить к обвязке опор. Чаще всего ее выполняют по верху, но при необходимости дополнительной жесткости конструкции возможно и применение нижней или средней обвязки.

Установка опор
Облицовка
Этот этап является завершающим и требует аккуратности. Разрезать поликарбонат следует ножовкой или циркулярной пилой. При этом следует делать небольшой запас (10-15см.), который позволит избежать трещин при вибрировании листа.
При нарезке лучше неподвижно фиксировать материал и не снимать защитной пленки. Это позволит не только избежать повреждений, но и потом определить лицевую сторону.

Облицовка навеса
К обрешетке конструкции крепят стыковочный профиль в тех местах, в которых будет стык листов поликарбоната. К нему и крепится сам материал. Лучшим вариантом является предварительное просверливание заготовок на пару миллиметров больше, чем пресс-шайбы.
После того, как вы закрепили листы, стыковочный профиль необходимо закрыть специальной крышкой.
При креплении материала необходимо оставить зазор на стыках в 2-3мм., чтобы не дать возможности поликарбонату деформироваться при нагревании. Края листов лучше закрыть торцевым профилем или защитной лентой, чтобы обеспечить материалу максимальный срок эксплуатации.
На видео пошагово показано, как сделать навес для машины из сотового поликарбоната своими руками:
Что нужно помнить
Безопасность конструкции – это главное условие при установке навеса из из поликарбоната своими руками.
Поэтому делая расчеты на этапе проектирования, следует все предположительные нагрузки умножить на 1,5. Этим вы гарантируете себе то, что установка не обвалится под воздействием сильного ветра и тяжести выпавшего снега.
Если вы сомневаетесь в точности своих расчетов, то можно обратиться к профессиональным конструкторам, которые подготовят вам проект навеса.
В нем будут произведены все необходимые расчеты. Такой подход не мешает вам в дальнейшем самостоятельно заняться монтажом. Но и тут не следует забывать о технике безопасности.
Уход за строением
Навесы из поликарбоната стали очень популярными, так как требуют минимум затрат. Но что делать, когда он прослужил вам уже несколько месяцев и слегка потерял привлекательный вид?
Тут все намного проще, чем многие думают. Уход за высокотехнологичным материалом осуществляется при помощи мягкой губки и любого моющего средства без абразивных и щелочных элементов.

Навес для автомобилей
Достаточно просто протереть средством поверхность и ополоснуть ее чистой водой.
Так же возможно использование спиртосодержащих средств для удаления сильных загрязнений, но их использование возможно только на внутренней стороне листа.
Если на материале появились неглубокие царапины, то замаскировать их можно прозрачным герметиком. Он отлично скроет повреждения и не ухудшит функциональности поликарбоната.
При серьезных же повреждениях придется прибегнуть к полной замене листа. Но и тут сложностей не возникнет, так как снимается облицовка так же просто, как и устанавливается.
Придерживайтесь вышеперечисленных советов и тогда навес будет радовать вас и ваших близких долгие годы, не требуя дополнительного обслуживания.
1decor.org
Монтаж навеса из поликарбоната для дачи своими руками: фото, видео
Поликарбонат является достаточно выгодным стройматериалом, поскольку используется для строительства самых различных конструкций. В данном случае мы поговорим о навесах, для сооружения которых может применяться поликарбонат.
На фото показаны различные варианты навесов.

Зона отдыха на даче
Первая часть настоящей статьи предназначена для тех, у кого есть машина.
Навес для автомобиля
Дача обычно располагается на некотором удалении от постоянного места проживания человека, а это означает, что добирается он туда посредством транспорта. Хорошо, когда есть собственный автомобиль, ведь это в разы облегчает задачу.
Зачастую дача характеризуется не только отдаленностью от города, наличием огорода и свежим воздухом вокруг, но и отсутствием гаража, так как многие дачники не считают необходимостью устанавливать это помещение на дачном участке.

Навес для машины
Автомобиль, штука, конечно, выносливая и не боится немножко промокнуть под дождем или оказаться наедине с палящими солнечными лучами. Однако машина останется вам очень благодарна, если вы соорудите для нее специальный навес. Для этого, кстати, очень хорошо подойдет поликарбонат, упомянутый выше.
На фото показано, как может выглядеть автомобильный навес.

Монтаж
Автомобильные навесы из поликарбоната являются достаточно недорогими и удобными сооружениями для временной стоянки автотранспорта. Устанавливаются они очень просто и все работы легко выполняются своими руками.
- Прежде, чем начать монтировать навес, необходимо определиться с его размерами. Этот показатель зависит от количества машин, которые этот навес накроет собою.
- Затем надо построить саму площадку для размещения транспорта. Автомобильные площадки на дачных участках обычно выкладывают плиткой или просто отливают из бетона.
- Следующим этапом является сборка каркаса, на который потом будет укладываться поликарбонат. Каркасы зачастую имеют большую площадь, нежели сами автомобильные площадки. Это зависит от того, какую форму возымеет навес.
- Далее осуществляется монтаж опорных стоек. Они обеспечат устойчивость конструкции. Очень важно, чтобы расстояние между указанными элементами не превышало двух метров.
- После этого закрепляются поперечные опоры. Как уже отмечалось ранее, автомобильные навесы имеют различные формы, от чего и зависит изгиб данных элементов сооружения. Соединяются они при помощи специальных распорок.
- Теперь необходимо подготовить к установке поликарбонат. Панели стройматериала подгоняются под нужные размеры путем обрезания. Кроме этого, поликарбонат должен принять, соответствующую конструкции, форму. С этой целью к листам материала прикрепляется профиль, на котором делаются надрезы. По этим надрезам профиль изгибается, а вместе с ним и сам поликарбонат.

Монтаж сотового поликарбоната производится посредством саморезов. На края панелей необходимо наклеить специальную ленту. А по выполнению всех этих манипуляций можно смело сказать, что монтаж навеса из поликарбоната успешно завершен. И самое главное, все работы произведены своими руками.

Навес типа беседка
Дача — это такое место, где можно не только поработать, но и отдохнуть. Прекрасным местом для отдыха является беседка. Здесь можно просто тихо посидеть, наслаждаясь дивными запахами, которые источает природа вне города. Послушать нежный шелест листвы, что так гармонично сливается с завораживающим пением соловья. Или проводить теплое солнышко, пожелав ему спокойной ночи, а затем всю ночь любоваться звездами, томно тлеющими в темно-синем небе.

Конечно же, дача прекрасно подойдет для такого вот времяпровождения. Это означает, что беседку необходимо соорудить в обязательном порядке. Для этих целей сгодится дерево, металл и поликарбонат, чтобы сделать привлекательный навес.
На фото показан навес, накрывающий беседку.

Монтаж
Ваша дача преобразится в тот самый миг, когда на участке появится красивая беседка. И особенно приятно, если она будет сделана своими руками.
Монтаж начинается с выбора места под конструкцию. Затем заливается фундамент или сооружается специальная площадка, а также устанавливаются несущие столбы. Далее делается каркас. Его можно собрать отдельно, а потом закрепить на столбах, а можно выполнять данные действия последовательно. Крепление осуществляется при помощи болтов или сварки.

Теперь, когда остов у беседки есть, сооружается и сам навес. Поперечные рейки металлического профиля соединяются между собой, затем на них нашивается поликарбонат, панелям которого необходимо предварительно предать соответствующие размеры и форму. После этого навес крепится на положенное место болтами или сваркой.
Конструкция готова и ваша дача имеет более респектабельный вид.
Эпилог
Если вы введете в поисковик слова: “поликарбонат монтаж инструкция”, он выдаст вам нужную информацию, однако можно обойтись и без этого, ведь в конце данной статьи имеется видео, которое поможет разобраться с вопросами по монтажу навесов.
Автор:
Антон Ермолов
propolikarbonat.ru

Циркулярная пила — разрез можно сделать любой моделью, главное, использовать 125 круг для резки металла. Чтобы сделать ровный рез, нужна сноровка.
