Π‘Π΄Π΅Π»Π°ΡΡ ΡΠ²ΠΎΠΈΠΌΠΈ ΡΡΠΊΠ°ΠΌΠΈ ΠΏΠΎΠ»ΠΎΠΊ Π² Π±Π°Π½Π΅ ΡΠ²ΠΎΠΈΠΌΠΈ ΡΡΠΊΠ°ΠΌΠΈ ΡΡ Π΅ΠΌΠ° β ΠΊΠ°ΠΊ ΡΠ΄Π΅Π»Π°ΡΡ ΡΠ²ΠΎΠΈΠΌΠΈ ΡΡΠΊΠ°ΠΌΠΈ, ΠΏΠΎΡΠ°Π³ΠΎΠ²ΠΎΠ΅ ΡΡΠΊΠΎΠ²ΠΎΠ΄ΡΡΠ²ΠΎ, ΡΠ΅ΡΡΠ΅ΠΆΠΈ Π΄Π»Ρ ΠΈΠ·Π³ΠΎΡΠΎΠ²Π»Π΅Π½ΠΈΡ ΠΈ ΡΠ°Π·ΠΌΠ΅ΡΡ ΠΏΠΎΠ»ΠΎΠΊ Π² ΠΏΠ°ΡΠΈΠ»ΠΊΠ΅
ΠΠΎΠ»ΠΎΠΊ Π² Π±Π°Π½Ρ ΡΠ²ΠΎΠΈΠΌΠΈ ΡΡΠΊΠ°ΠΌΠΈ ΡΠΎΡΠΎ ΡΠ΅ΡΡΠ΅ΠΆΠΈ
ΠΠΎΠ»ΠΎΠΊ Π² Π±Π°Π½Ρ β ΡΠ΅ΡΡΠ΅ΠΆΠΈ
Π€ΠΈΠ½ΡΠΊΠ°Ρ ΡΠ°ΡΠ½Π° ΠΈΠΌΠ΅Π΅Ρ Π²ΡΡΠΎΠΊΡΡ ΡΠ΅ΠΌΠΏΠ΅ΡΠ°ΡΡΡΡ β ΠΎΡ 90Β° Π‘ Π΄ΠΎ 110Β° Π‘, Π²Π»Π°ΠΆΠ½ΠΎΡΡΡ 10-25%. ΠΡΠ±ΠΈΡΠ΅Π»ΠΈ ΡΡΡΡΠΊΠΎΠΉ Π±Π°Π½ΠΈ ΠΏΡΠ΅Π΄ΠΏΠΎΡΠΈΡΠ°ΡΡ Π±ΠΎΠ»Π΅Π΅ Π½ΠΈΠ·ΠΊΡΡ ΡΠ΅ΠΌΠΏΠ΅ΡΠ°ΡΡΡΡ ΠΎΡ 40Β° Π‘ Π΄ΠΎ 70Β° Π‘, Π² ΡΠΎΡΠ΅ΡΠ°Π½ΠΈΠΈ Ρ Π²ΡΡΠΎΠΊΠΎΠΉ Π²Π»Π°ΠΆΠ½ΠΎΡΡΡΡ 60-80%.

ΠΠΎΠ»ΠΊΠΈ Π² ΡΠ°ΡΠ½Π΅
Π ΡΡΡΠΊΠ°Ρ Π±Π°Π½Ρ ΠΎΡΠ»ΠΈΡΠ°Π΅ΡΡΡ ΠΎΡ ΡΠΈΠ½ΡΠΊΠΎΠΉ ΡΠ°ΡΠ½Ρ Π½Π΅ ΡΠΎΠ»ΡΠΊΠΎ ΠΏΠΎΠΊΠ°Π·Π°ΡΠ΅Π»ΡΠΌΠΈ ΡΠ΅ΠΌΠΏΠ΅ΡΠ°ΡΡΡΡ, Π²Π»Π°ΠΆΠ½ΠΎΡΡΠΈ Π² ΠΏΠ°ΡΠ½ΠΎΠΉ. ΠΡΠΈΠ½ΡΠΈΠΏΠΈΠ°Π»ΡΠ½Π°Ρ ΡΠ°Π·Π½ΠΈΡΠ° ΠΌΠ΅ΠΆΠ΄Ρ Π½ΠΈΠΌΠΈ β ΡΠ°Π·Π»ΠΈΡΠ½Π°Ρ ΡΠΊΠΎΡΠΎΡΡΡ Π΄Π²ΠΈΠΆΠ΅Π½ΠΈΡ Π½Π°Π³ΡΠ΅ΡΠΎΠ³ΠΎ Π²ΠΎΠ·Π΄ΡΡΠ½ΠΎΠ³ΠΎ ΠΏΠΎΡΠΎΠΊΠ°, ΠΈΡΠΏΠΎΠ»ΡΠ·ΠΎΠ²Π°Π½ΠΈΠ΅ Π±Π΅ΡΡΠ·ΠΎΠ²ΡΡ ΠΈ Π΄ΡΠ±ΠΎΠ²ΡΡ Π²Π΅Π½ΠΈΠΊΠΎΠ² Π² ΡΡΡΡΠΊΠΎΠΉ ΠΏΠ°ΡΠΈΠ»ΠΊΠ΅.

ΠΠ°ΠΊ ΡΠ΄Π΅Π»Π°ΡΡ ΠΏΠΎΠ»ΠΊΠΈ Π΄Π»Ρ Π±Π°Π½ΠΈ ΡΠ²ΠΎΠΈΠΌΠΈ ΡΡΠΊΠ°ΠΌΠΈ
ΠΠΎΡ Π»ΠΎΠΏΡΠ²Π°Ρ Π²Π΅Π½ΠΈΠΊΠΎΠΌ ΠΏΠ°ΡΠΈΠ»ΡΡΠΈΠΊΠ°, Π»Π΅ΠΆΠ°ΡΠ΅Π³ΠΎ Π½Π° ΠΏΠΎΠ»ΠΊΠ΅ ΡΡΡΡΠΊΠΎΠΉ ΠΏΠ°ΡΠ½ΠΎΠΉ β Π±Π°Π½ΡΠΈΠΊ ΠΈΠ·ΡΠ΅Π΄ΠΊΠ° Π΄ΠΎΠ±Π°Π²Π»ΡΠ΅Ρ ΡΠ΅ΠΌΠΏΠ΅ΡΠ°ΡΡΡΡ, ΠΏΠΎΠ»ΠΈΠ²Π°Ρ Π²ΠΎΠ΄ΠΎΠΉ ΡΠ°ΡΠΊΠ°Π»Π΅Π½Π½ΡΠ΅ ΠΊΠ°ΠΌΠ½ΠΈ ΠΊΠ°ΠΌΠ΅Π½ΠΊΠΈ. ΠΠ±ΠΆΠΈΠ³Π°ΡΡΠΈΠΉ Π²Π»Π°ΠΆΠ½ΡΠΉ ΠΏΠ°Ρ, Π²ΡΡΡΠ²Π°ΡΡΡ ΠΈΠ· ΠΏΡΠΈΠΎΡΠΊΡΡΡΠΎΠΉ Π΄Π²Π΅ΡΡΡ ΠΊΠ°ΠΌΠ΅Π½ΠΊΠΈ, Π±ΡΡΡΡΠΎ ΠΏΠΎΠ΄Π½ΠΈΠΌΠ°Π΅ΡΡΡ ΠΊ ΠΏΠΎΡΠΎΠ»ΠΊΡ ΠΈ ΠΌΠ΅Π΄Π»Π΅Π½Π½ΠΎ ΠΎΡΡΡΠ²Π°Ρ, ΠΎΡΠ΅Π΄Π°Π΅Ρ β ΠΏΠΎΡΡΠ΅ΠΏΠ΅Π½Π½ΠΎ Π½Π°ΠΏΠΎΠ»Π½ΡΠ΅Ρ ΠΏΠ°ΡΠ½ΡΡ.
ΠΡΡΠΎΠΊΠΎΠ΅ ΡΠΎΠ΄Π΅ΡΠΆΠ°Π½ΠΈΠ΅ Π²Π»Π°Π³ΠΈ Π·Π°ΠΌΠ΅Π΄Π»ΡΠ΅Ρ ΠΏΡΠΎΡΠ΅ΡΡ Π΄Π²ΠΈΠΆΠ΅Π½ΠΈΡ Π²ΠΎΠ·Π΄ΡΡΠ½ΡΡ ΠΌΠ°ΡΡ Π² ΡΡΡΡΠΊΠΎΠΉ Π±Π°Π½Π΅, ΡΡΠΎ ΠΎΠ±ΡΡΠ»Π°Π²Π»ΠΈΠ²Π°Π΅Ρ Π½ΡΠ°Π½ΡΡ Π² ΡΡΡΡΠΎΠΉΡΡΠ²Π΅ ΠΏΠΎΠ»ΠΊΠΎΠ²:
- ΡΡΠ΅Π±ΡΡΡΡΡ Π±ΠΎΠ»ΡΡΠΈΠ΅ ΡΠ°ΡΡΡΠΎΡΠ½ΠΈΡ ΠΌΠ΅ΠΆΠ΄Ρ Π΄ΠΎΡΠΊΠ°ΠΌΠΈ Π»Π΅ΠΆΠ°Π½ΠΎΠΊ;
- Π΄Π΅Π»Π°Π΅ΡΡΡ Π½Π°ΠΊΠ»ΠΎΠ½ ΡΠΈΠ΄Π΅Π½ΠΈΠΉ Π΄Π»Ρ ΡΠ»ΠΈΠ²Π° Π²ΠΎΠ΄Ρ;
- Π΄Π»Ρ ΠΎΠ±Π»Π΅Π³ΡΠ΅Π½ΠΈΡ ΡΠ±ΠΎΡΠΊΠΈ ΠΏΠΎΠ»Π° Π±Π°Π½ΠΈ Π±ΠΎΠΊΠΎΠ²ΡΠ΅ ΡΡΠ΅Π½ΠΊΠΈ Π½Π΅ Π·Π°ΡΠΈΠ²Π°ΡΡ Π»ΠΈΠ±ΠΎ Π΄Π΅Π»Π°ΡΡ ΠΈΡ ΡΡΡΠΌΠ½ΡΠΌΠΈ;
- Π½ΡΠΆΠ΅Π½ ΡΠΈΡΠΎΠΊΠΈΠΉ ΠΎΡΡΡΡΠΏ Π»Π°Π²ΠΊΠΈ ΠΎΡ ΡΡΠ΅Π½Ρ ΠΏΠ°ΡΠ½ΠΎΠΉ.
Π Π°Π·Π»ΠΈΡΠΈΡ Π² ΠΎΡΠ½ΠΎΠ²Π½ΡΡ ΡΠ°Π·ΠΌΠ΅ΡΠ°Ρ , Π²ΡΡΠΎΡΠ΅ ΠΈ ΡΡΡΡΠΎΠΉΡΡΠ²Π΅ ΠΏΠΎΠ»ΠΊΠΎΠ² Π΄ΠΎΠ±Π°Π²Π»ΡΡΡ ΡΠ°ΠΊΠΆΠ΅ ΠΎΡΠΎΠ±Π΅Π½Π½ΠΎΡΡΠΈ ΡΠ°ΠΌΠΎΠ³ΠΎ ΠΏΡΠΎΡΠ΅ΡΡΠ° ΠΏΠ°ΡΠ΅Π½ΠΈΡ.
ΠΠΠΠΠ: Π² ΡΡΡΡΠΊΠΎΠΉ ΠΏΠ°ΡΠΈΠ»ΠΊΠ΅ Π½Π΅ΠΎΠ±Ρ ΠΎΠ΄ΠΈΠΌΠΎ ΡΠΎΠ±Π»ΡΡΡΠΈ ΡΠΎΠΎΡΠ½ΠΎΡΠ΅Π½ΠΈΠ΅ Π²ΡΡΠΎΡΡ ΡΡΡΡΠΎΠΉΡΡΠ²Π° ΠΏΠΎΠ»ΠΊΠ° ΠΈ ΡΠ°ΡΡΡΠΎΡΠ½ΠΈΡ Π΄ΠΎ ΠΏΠΎΡΠΎΠ»ΠΊΠ°.
ΠΡΡΠΎΡΠ° Π²Π΅ΡΡ Π½Π΅Π³ΠΎ Π»Π΅ΠΆΠ°ΠΊΠ° Π΄Π΅Π»Π°Π΅ΡΡΡ ΡΠ°ΠΊ, ΡΡΠΎΠ±Ρ ΠΌΠ΅ΠΆΠ΄Ρ ΠΌΠ°ΠΊΡΡΠΊΠΎΠΉ Π³ΠΎΠ»ΠΎΠ²Ρ ΡΠΈΠ΄ΡΡΠ΅Π³ΠΎ Π½Π° Π²Π΅ΡΡ Π½Π΅ΠΉ Π»Π°Π²ΠΊΠ΅ ΡΠ΅Π»ΠΎΠ²Π΅ΠΊΠ° ΠΈ ΠΏΠΎΡΠΎΠ»ΠΊΠΎΠΌ Π±ΡΠ»ΠΎ ΡΠ°ΡΡΡΠΎΡΠ½ΠΈΠ΅ Π² ΠΎΠ΄ΠΈΠ½ ΠΌΠ΅ΡΡ β Π΄Π»Ρ Π½ΠΎΡΠΌΠ°Π»ΡΠ½ΠΎΠ³ΠΎ ΡΠ°Π·ΠΌΠ°Ρ Π° ΡΡΠΊΠΈ Π±Π°Π½ΡΠΈΠΊΠ° Ρ Π²Π΅Π½ΠΈΠΊΠΎΠΌ, Π½Π°Π±ΠΈΡΠ°ΡΡΠΈΠΌ ΡΠ΅ΠΌΠΏΠ΅ΡΠ°ΡΡΡΡ Π² ΠΎΠ±Π»Π°ΠΊΠ΅ ΠΏΠ°ΡΠ°.
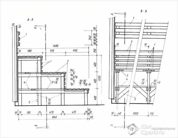
Π§Π΅ΡΡΠ΅ΠΆ Π±Π°Π½Π½ΡΡ ΠΏΠΎΠ»ΠΎΠΊΠΎΠ² Π΄Π»Ρ ΡΡΡΡΠΊΠΎΠΉ ΠΏΠ°ΡΠ½ΠΎΠΉ
Π Π΅Π³Π»Π°ΠΌΠ΅Π½ΡΠΈΡΡΠ΅ΡΡΡ Π΄Π»ΠΈΠ½Π° ΠΏΠΎΠ»ΠΎΠΊ, ΠΊΠΎΡΠΎΡΠ°Ρ Π΄ΠΎΠ»ΠΆΠ½Π° Π±ΡΡΡ Π½Π΅ ΠΌΠ΅Π½Π΅Π΅ 220 ΡΠΌ, ΡΠ°ΠΊ ΠΊΠ°ΠΊ ΠΆΠ΅Π»Π°ΡΠ΅Π»ΡΠ½ΠΎ ΠΏΡΠΈΠ½ΠΈΠΌΠ°ΡΡ Π±Π°Π½Π½ΡΡ ΠΏΡΠΎΡΠ΅Π΄ΡΡΡ Π»ΡΠΆΠ°, ΠΏΠΎΠ΄ΡΡΠ°Π²ΠΈΠ² ΡΠ΅Π»ΠΎ ΠΏΠΎΠ΄ ΠΌΠ°ΡΡΠΈΡΡΡΡΠΈΠ΅ ΡΠ΄Π°ΡΡ, ΠΏΠΎΠ³Π»Π°ΠΆΠΈΠ²Π°Π½ΠΈΡ Π±Π΅ΡΠ΅Π·ΠΎΠ²ΡΠΌ Π²Π΅Π½ΠΈΠΊΠΎΠΌ.
Π’ΡΠ°Π΄ΠΈΡΠΈΠΎΠ½Π½Π°Ρ ΡΡΡΡΠΊΠ°Ρ Π±Π°Π½Ρ ΠΈΠΌΠ΅Π΅Ρ Π²ΡΠ΅Π³ΠΎ ΠΎΠ΄Π½Ρ ΠΈΠ»ΠΈ Π΄Π²Π΅ ΡΡΡΠΏΠ΅Π½ΠΈ ΠΏΠΎΠ»ΠΊΠΎΠ², ΡΠ°ΡΠΏΠΎΠ»ΠΎΠΆΠ΅Π½Π½ΡΡ Π²Π΄ΠΎΠ»Ρ ΠΎΠ΄Π½ΠΎΠΉ ΠΈΠ· ΡΡΠ΅Π½ ΠΏΠ°ΡΠ½ΠΎΠΉ, Π½Π° ΡΠΈΡΠΎΠΊΡΡ (Π½Π΅ ΠΌΠ΅Π½Π΅Π΅ 90 ΡΠΌ) Π²Π΅ΡΡ Π½ΡΡ Π»Π°Π²ΠΊΡ Π»ΠΎΠΆΠΈΡΡΡ ΠΏΠ°ΡΠΈΠ»ΡΡΠΈΠΊ.
ΠΠΠΠΠ: Π»Π°Π²ΠΊΠΈ ΡΠΈΠ½ΡΠΊΠΎΠΉ ΠΏΠ°ΡΠ½ΠΎΠΉ ΠΎΠ±ΡΠ·Π°ΡΠ΅Π»ΡΠ½ΠΎ ΠΎΠ±ΠΎΡΡΠ΄ΡΡΡΡΡ ΡΠΏΠΈΠ½ΠΊΠ°ΠΌΠΈ ΠΈΠ· Π΄ΠΎΡΠΎΠΊ, ΡΡΠΎΠ±Ρ ΡΠΈΠ΄ΡΡΠΈΠΉ Ρ
superbany.ru
ΠΠ°ΠΊ ΡΠ΄Π΅Π»Π°ΡΡ ΠΏΠΎΠ»ΠΎΠΊ Π² Π±Π°Π½Π΅ ΡΠ²ΠΎΠΈΠΌΠΈ ΡΡΠΊΠ°ΠΌΠΈ +ΡΠ΅ΡΡΠ΅ΠΆΠΈ, ΡΠΎΡΠΎ
Β
Π§ΡΠΎΠ±Ρ Ρ ΠΊΠΎΠΌΡΠΎΡΡΠΎΠΌ ΠΈ ΠΏΠΎΠ»ΡΠ·ΠΎΠΉ ΠΏΠΎΠΏΠ°ΡΠΈΡΡΡ Π² Π±Π°Π½Π΅, Π½Π΅ΠΎΠ±Ρ ΠΎΠ΄ΠΈΠΌΠΎ ΡΡΡΠ°Π½ΠΎΠ²ΠΈΡΡ ΠΏΠΎΠ»ΠΎΠΊ, ΡΠΎΠ±Π»ΡΠ΄Π°Ρ ΠΎΠΏΡΠ΅Π΄Π΅Π»Π΅Π½Π½ΡΠ΅ Π½ΠΎΡΠΌΡ. ΠΠ°ΡΠ΅ΡΠΈΠ°Π» Π΄Π»Ρ Π½Π°ΡΡΠΈΠ»Π° ΡΠΎΠΆΠ΅ Π½ΡΠΆΠ½ΠΎ Π²ΡΠ±ΠΈΡΠ°ΡΡ Ρ ΡΠΌΠΎΠΌ. Π Π΄Π°Π½Π½ΠΎΠΉ ΡΡΠ°ΡΡΠ΅ ΠΌΡ ΡΠ°ΡΡΠΊΠ°ΠΆΠ΅ΠΌ ΠΊΠ°ΠΊ ΡΠ΄Π΅Π»Π°ΡΡ ΠΏΠΎΠ»ΠΎΠΊ Π² Π±Π°Π½Π΅ ΡΠ²ΠΎΠΈΠΌΠΈ ΡΡΠΊΠ°ΠΌΠΈ, Π΄Π°Π΄ΠΈΠΌ ΠΏΠΎΡΠ°Π³ΠΎΠ²ΠΎΠ΅ ΡΡΠΊΠΎΠ²ΠΎΠ΄ΡΡΠ²ΠΎ, Π° ΡΠ°ΠΊΠΆΠ΅ ΡΠ΅ΡΡΠ΅ΠΆΠΈ, ΡΠΎΡΠΎ ΠΈ Π²ΠΈΠ΄Π΅ΠΎ ΠΈΠ½ΡΡΡΡΠΊΡΠΈΠΈ.
ΠΠ°ΡΠ΅ΡΠΈΠ°Π» Π΄Π»Ρ ΠΏΠΎΠ»ΠΊΠ°

ΠΡΠΌΠΎΡΡΠ΅ΡΠ° Π² ΠΏΠ°ΡΠ½ΠΎΠΉ ΠΎΡΠ»ΠΈΡΠ°Π΅ΡΡΡ Π²ΡΡΠΎΠΊΠΎΠΉ ΡΠ΅ΠΌΠΏΠ΅ΡΠ°ΡΡΡΠΎΠΉ ΠΈ Π²Π»Π°ΠΆΠ½ΠΎΡΡΡΡ, ΡΠ°ΠΊΠΎΠ΅ ΡΠΎΡΠ΅ΡΠ°Π½ΠΈΠ΅ Π²ΡΠ΄Π΅ΡΠΆΠΈΡ Π½Π΅ ΠΊΠ°ΠΆΠ΄ΡΠΉ ΠΌΠ°ΡΠ΅ΡΠΈΠ°Π». Π’ΡΠ°Π΄ΠΈΡΠΈΠΎΠ½Π½ΠΎ Π΄Π»Ρ Π±Π°Π½Π½ΠΎΠ³ΠΎ Π½Π°ΡΡΠΈΠ»Π° ΠΈΡΠΏΠΎΠ»ΡΠ·ΡΠ΅ΡΡΡ Π΄Π΅ΡΠ΅Π²ΠΎ. ΠΠΎΠ΄Ρ ΠΎΠ΄ΡΡΠΈΠΉ ΡΠΎΡΡ Π΄ΡΠ΅Π²Π΅ΡΠΈΠ½Ρ Π΄ΠΎΠ»ΠΆΠ΅Π½ ΠΎΠ±Π»Π°Π΄Π°ΡΡ ΠΎΠΏΡΠ΅Π΄Π΅Π»Π΅Π½Π½ΡΠΌΠΈ ΡΠ²ΠΎΠΉΡΡΠ²Π°ΠΌΠΈ:
- Π½ΠΈΠ·ΠΊΠ°Ρ ΡΠ΅ΠΏΠ»ΠΎΠΏΡΠΎΠ²ΠΎΠ΄Π½ΠΎΡΡΡ, Π³Π°ΡΠ°Π½ΡΠΈΡΡΡΡΠ°Ρ ΠΊΠΎΠΌΡΠΎΡΡΠ½ΡΡ Π΄Π»Ρ ΡΠ΅Π»ΠΎΠ²Π΅ΠΊΠ° ΡΠ΅ΠΌΠΏΠ΅ΡΠ°ΡΡΡΡ Π½Π°ΡΡΠΈΠ»Π°;
- ΡΡΡΠΎΠΉΡΠΈΠ²ΠΎΡΡΡ ΠΊ Π²Π»Π°Π³Π΅;
- ΠΌΠΈΠ½ΠΈΠΌΠ°Π»ΡΠ½ΠΎΠ΅ ΠΊΠΎΠ»ΠΈΡΠ΅ΡΡΠ²ΠΎ ΡΠΌΠΎΠ»Ρ Π² ΡΡΡΡΠΊΡΡΡΠ΅ Π΄ΡΠ΅Π²Π΅ΡΠΈΠ½Ρ.
ΠΠΏΡΡΠ½ΡΠ΅ ΠΌΠ°ΡΡΠ΅ΡΠ° ΡΠ΅ΠΊΠΎΠΌΠ΅Π½Π΄ΡΡΡ Π΄Π»Ρ ΠΏΠΎΠ»ΠΊΠΎΠ² Π»ΠΈΠΏΡ, ΠΎΡΠΈΠ½Ρ, ΠΊΠ»Π΅Π½, ΡΠΎΠΏΠΎΠ»Ρ, Π°Π±Π°ΡΠΈ. Π₯Π²ΠΎΠΉΠ½ΡΠ΅ ΠΏΠΎΡΠΎΠ΄Ρ Ρ ΠΎΡΠΎΡΠΎ ΠΏΠ΅ΡΠ΅Π½ΠΎΡΡΡ Π²Π»Π°Π³Ρ, Π½ΠΎ ΠΏΡΠΈ Π²ΡΡΠΎΠΊΠΎΠΉ ΡΠ΅ΠΌΠΏΠ΅ΡΠ°ΡΡΡΠ΅ Π½Π° ΠΈΡ ΠΏΠΎΠ²Π΅ΡΡ Π½ΠΎΡΡΠΈ Π½Π°ΡΠΈΠ½Π°Π΅Ρ Π²ΡΡΡΡΠΏΠ°ΡΡ ΡΠΌΠΎΠ»Π°. ΠΡΠΎ ΠΌΠΎΠΆΠ΅Ρ ΠΏΡΠΈΠ²Π΅ΡΡΠΈ ΠΊ ΠΎΠΆΠΎΠ³Ρ, ΠΏΠΎΡΡΠΎΠΌΡ ΠΎΡΠ»ΠΈΡΠ½ΡΡ Π΄ΡΠ΅Π²Π΅ΡΠΈΠ½Ρ ΡΠΎΡΠ½Ρ ΠΈΠ»ΠΈ Π΅Π»ΠΈ Π»ΡΡΡΠ΅ ΠΈΡΠΏΠΎΠ»ΡΠ·ΠΎΠ²Π°ΡΡ Π΄Π»Ρ ΠΌΠ΅Π±Π΅Π»ΠΈ Π² ΠΊΠΎΠΌΠ½Π°ΡΠ΅ ΠΎΡΠ΄ΡΡ Π° ΠΈΠ»ΠΈ ΠΌΠΎΠ΅ΡΠ½ΠΎΠΉ.
ΠΠΈΠΏΠ° β ΠΏΡΠΈ Π½Π°Π³ΡΠ΅Π²Π°Π½ΠΈΠΈ ΠΎΡ Π½Π΅Π΅ ΠΈΡΡ ΠΎΠ΄ΠΈΡ ΠΎΡΠΎΠ±ΡΠΉ Π°ΡΠΎΠΌΠ°Ρ ΠΈ ΡΠ΅Π»Π΅Π±Π½ΡΠ΅ ΠΈΡΠΏΠ°ΡΠ΅Π½ΠΈΡ. ΠΠ΅ΡΠ΅Π²ΠΎ Π±ΡΡΡΡΠΎ Π²ΡΡΡΡ Π°Π΅Ρ, Π½Π΅ ΡΡΠ΅ΡΠΊΠ°Π΅ΡΡΡ, Π»Π΅Π³ΠΊΠΎ ΠΎΠ±ΡΠ°Π±Π°ΡΡΠ²Π°Π΅ΡΡΡ. Π ΠΆΠ°ΡΠΊΠΎΠΉ ΠΈ Π²Π»Π°ΠΆΠ½ΠΎΠΉ Π°ΡΠΌΠΎΡΡΠ΅ΡΠ΅ ΠΌΠ°ΡΠ΅ΡΠΈΠ°Π» ΠΈΠ·ΠΌΠ΅Π½ΡΠ΅Ρ ΡΠ²Π΅Ρ ΠΎΡ ΡΠ²Π΅ΡΠ»ΠΎΠ³ΠΎ ΠΊ ΡΠ΅ΠΌΠ½ΠΎΠΌΡ.
ΠΡΠΈΠ½Π° β ΡΠ°ΡΠΏΡΠΎΡΡΡΠ°Π½Π΅Π½Π½ΡΠΉ Π²ΡΠ±ΠΎΡ Π΄Π»Ρ ΠΏΠΎΠ»ΠΊΠΎΠ², Π±Π»Π°Π³ΠΎΠ΄Π°ΡΡ ΡΠΎΡΠ΅ΡΠ°Π½ΠΈΡ ΠΏΡΠΎΡΠ½ΠΎΡΡΠΈ ΠΈ Π½ΠΈΠ·ΠΊΠΎΠΉ ΡΠ΅Π½Ρ. ΠΠΎΡΠΊΠΈ ΡΠΎΡ ΡΠ°Π½ΡΡΡ ΡΠ°Π·ΠΌΠ΅ΡΡ ΠΏΡΠΈ ΡΠΊΠ°ΡΠΊΠ°Ρ ΡΠ΅ΠΌΠΏΠ΅ΡΠ°ΡΡΡΡ ΠΈ Π½Π΅ Π΄Π΅ΡΠΎΡΠΌΠΈΡΡΡΡΡΡ. ΠΠΎ ΡΠ·ΡΡΠ΅ΡΠΊΠΈΠΌ ΠΏΠΎΠ²Π΅ΡΡΡΠΌ ΠΎΡΠΈΠ½Π° ΠΎΡΠ²ΠΎΠ±ΠΎΠΆΠ΄Π°Π΅Ρ ΠΎΡ Π½Π΅Π³Π°ΡΠΈΠ²Π° ΠΈ ΠΈΠ·Π»Π΅ΡΠΈΠ²Π°Π΅Ρ Π΄ΡΡΠ΅Π²Π½ΡΠ΅ ΡΡΠ°Π²ΠΌΡ. ΠΠ½Π΅ΡΠ½Π΅ ΠΌΠ°ΡΠ΅ΡΠΈΠ°Π» ΡΠΎΡ ΡΠ°Π½ΡΠ΅ΡΡΡ Π½Π°Π΄ΠΎΠ»Π³ΠΎ, Π° Π²Π½ΡΡΡΠ΅Π½Π½ΡΡ ΡΠ°ΡΡΡ Π΄ΠΎΡΠΎΠΊ ΠΏΠΎΠ΄Π²Π΅ΡΠΆΠ΅Π½Π° Π³Π½ΠΈΠ΅Π½ΠΈΡ.
ΠΠ±Π°ΡΠΈ β Π΄ΠΎΡΠΎΠ³ΠΎΡΡΠΎΡΡΠ°Ρ Π°ΡΡΠΈΠΊΠ°Π½ΡΠΊΠ°Ρ Π΄ΡΠ΅Π²Π΅ΡΠΈΠ½Π° ΠΈΠΌΠ΅Π΅Ρ ΠΊΡΠ°ΡΠΈΠ²ΡΠΉ ΠΆΠ΅Π»ΡΠΎΠ²Π°ΡΡΠΉ ΠΈΠ»ΠΈ ΠΊΡΠ΅ΠΌΠΎΠ²ΡΠΉ ΠΎΡΡΠ΅Π½ΠΎΠΊ, ΡΠΎΡ ΡΠ°Π½ΡΠ΅Ρ ΡΠ²ΠΎΠΉ Π²ΠΈΠ΄ Π²ΡΡΠΎΠΊΠΎΠ΅ ΠΊΠ°ΡΠ΅ΡΡΠ²ΠΎ Π½Π° Π΄ΠΎΠ»Π³ΠΈΠΉ ΠΏΡΠΎΠΌΠ΅ΠΆΡΡΠΎΠΊ Π²ΡΠ΅ΠΌΠ΅Π½ΠΈ. ΠΠΌΠ΅Π΅Ρ Π½ΠΈΠ·ΠΊΡΡ ΡΠ΅ΠΏΠ»ΠΎΠΏΡΠΎΠ²ΠΎΠ΄Π½ΠΎΡΡΡ, Π³ΠΈΠ±ΠΊΠΈΠΉ ΠΈ ΠΏΡΠΎΡΠ½ΡΠΉ ΠΌΠ°ΡΠ΅ΡΠΈΠ°Π» ΡΠ»ΡΠΆΠΈΡ ΡΠ΄ΠΎΠ±Π½ΡΠΌ Π½Π°ΡΡΠΈΠ»ΠΎΠΌ. ΠΡΡΠΎΠΊΠ°Ρ ΡΠ΅Π½Π° Π·Π°ΡΡΠ±Π΅ΠΆΠ½ΠΎΠ³ΠΎ Π΄Π΅ΡΠ΅Π²Π° Π΄Π΅Π»Π°Π΅Ρ Π΅Π³ΠΎ Π΄ΠΎΡΡΡΠΏΠ½ΡΠΌ Π»ΠΈΡΡ Π΄Π»Ρ ΠΎΠ³ΡΠ°Π½ΠΈΡΠ΅Π½Π½ΠΎΠ³ΠΎ ΠΊΡΡΠ³Π° Π»ΡΠ΄Π΅ΠΉ.
ΠΠ»Π΅Π½ β ΠΏΠΎΠΊΠ°Π·ΡΠ²Π°Π΅Ρ ΠΎΡΠ»ΠΈΡΠ½ΡΡ ΡΡΠΎΠΉΠΊΠΎΡΡΡ ΠΊ Π²Π»Π°Π³Π΅ ΠΈ Π½Π°Π³ΡΠ΅Π²Π°Π½ΠΈΡ.
Π Π°ΡΠΏΠΎΠ»ΠΎΠΆΠ΅Π½ΠΈΠ΅
ΠΠ΅ΡΡΠ°Π½Π΄Π°ΡΡΠ½ΠΎΠ΅ ΡΠ°ΡΠΏΠΎΠ»ΠΎΠΆΠ΅Π½ΠΈΠ΅ ΠΏΠΎΠ»ΠΊΠΎΠ²
ΠΠΎΠ»ΠΈΡΠ΅ΡΡΠ²ΠΎ ΡΡΡΡΠΎΠ² Π² ΠΏΠ°ΡΠΈΠ»ΠΊΠ΅ Π²Ρ Π²ΡΠ±ΠΈΡΠ°Π΅ΡΠ΅ ΡΠ°ΠΌΠΎΡΡΠΎΡΡΠ΅Π»ΡΠ½ΠΎ, Π΅ΡΠ»ΠΈ Π»ΡΠ΄Π΅ΠΉ Π² Π±Π°Π½Ρ Π±ΡΠ΄Π΅Ρ Ρ ΠΎΠ΄ΠΈΡΡ Π½Π΅ΠΌΠ½ΠΎΠ³ΠΎ, Π΄ΠΎΡΡΠ°ΡΠΎΡΠ½ΠΎ 1β2 ΡΡΡΡΠ°. Π’ΡΠΈ ΡΡΡΡΠ° ΠΌΠΎΠΆΠ½ΠΎ ΠΏΠΎΠΌΠ΅ΡΡΠΈΡΡ Π² Π²ΡΡΠΎΠΊΠΎΠΉ ΠΊΠΎΠΌΠ½Π°ΡΠ΅, ΠΌΠ΅ΠΆΠ΄Ρ Π²Π΅ΡΡ Π½ΠΈΠΌ Π½Π°ΡΡΠΈΠ»ΠΎΠΌ ΠΈ ΠΏΠΎΡΠΎΠ»ΠΊΠΎΠΌ Π΄ΠΎΠ»ΠΆΠ½ΠΎ ΠΎΡΡΠ°Π²Π°ΡΡΡΡ Π½Π΅ ΠΌΠ΅Π½ΡΡΠ΅ ΠΌΠ΅ΡΡΠ°. ΠΠΎΠ»ΠΊΠΈ ΡΠ°ΡΠΏΠΎΠ»Π°Π³Π°ΡΡΡΡ Π²Π΄ΠΎΠ»Ρ ΡΡΠ΅Π½, Π½Π° ΠΊΠΎΡΠΎΡΡΡ ΠΎΡΡΡΡΡΡΠ²ΡΡΡ ΠΎΠΊΠ½Π°. ΠΠ΅ΠΆΠ°Π½ΠΊΠΈ ΡΠ°Π·ΠΌΠ΅ΡΠ°ΡΡ:
- ΡΡΡΠΏΠ΅Π½ΡΠ°ΡΠΎ Π²Π΄ΠΎΠ»Ρ ΠΎΠ΄Π½ΠΎΠΉ ΡΡΠ΅Π½Ρ;
- ΠΏΠ΅ΡΠΏΠ΅Π½Π΄ΠΈΠΊΡΠ»ΡΡΠ½ΠΎ Π½Π° ΡΠΌΠ΅ΠΆΠ½ΡΡ ΡΡΠ΅Π½Π°Ρ ;
- ΠΏΠ°ΡΠ°Π»Π»Π΅Π»ΡΠ½ΠΎ Π΄ΡΡΠ³ Π΄ΡΡΠ³Ρ Π½Π° ΠΏΡΠΎΡΠΈΠ²ΠΎΠΏΠΎΠ»ΠΎΠΆΠ½ΡΡ ΡΡΠ΅Π½Π°Ρ , Π²Π΅ΡΡ Π½ΠΈΠΉ ΡΡΠ΄ ΠΎΡΠΊΠΈΠ΄ΡΠ²Π°Π΅ΡΡΡ Π΄Π»Ρ ΡΠ΄ΠΎΠ±ΡΡΠ²Π°.
Π Π°Π·ΠΌΠ΅ΡΡ
Π Π°Π·ΠΌΠ΅ΡΡ ΠΏΠΎΠ»ΠΊΠΎΠ² Π·Π°Π²ΠΈΡΡΡ ΠΎΡ ΡΡΡΡΠ°: Π²Π΅ΡΡ Π½ΠΈΠΉ Π²ΡΠΏΠΎΠ»Π½ΡΠ΅ΡΡΡ ΡΠΈΡΠΈΠ½ΠΎΠΉ Π² 90 ΡΠΌ, ΡΡΠ΅Π΄Π½ΠΈΠΉ ΠΈ Π½ΠΈΠΆΠ½ΠΈΠΉ β 80 ΡΠΌ. ΠΠ»ΠΈΠ½Π° ΠΌΠΎΠΆΠ΅Ρ ΠΊΠΎΠ»Π΅Π±Π°ΡΡΡΡ ΠΎΡ 150 Π΄ΠΎ 180 ΡΠΌ, ΡΡΠΎ Π·Π°Π²ΠΈΡΠΈΡ ΠΎΡ ΡΠ°Π·ΠΌΠ΅ΡΠ° ΠΏΠ°ΡΠ½ΠΎΠΉ.
ΠΡΡΠΎΡΠ° ΠΏΠΎΠ»ΠΊΠΎΠ² Π΄ΠΎΠ»ΠΆΠ½Π° Π±ΡΡΡ ΡΠ΄ΠΎΠ±Π½ΠΎΠΉ Π΄Π»Ρ ΡΠΈΠ΄ΡΡΠ΅Π³ΠΎ ΡΠ΅Π»ΠΎΠ²Π΅ΠΊΠ° β Π²Π΅ΡΡ Π½ΠΈΠΉ ΠΏΠΎΠ»ΠΎΠΊ ΠΊΡΠ΅ΠΏΠΈΡΡΡ Π½Π° Π²ΡΡΠΎΡΠ΅ 120 ΡΠΌ, ΠΊΠΎΠΌΡΠΎΡΡΠ½Π°Ρ Π²ΡΡΠΎΡΠ° ΡΡΠ΅Π΄Π½Π΅Π³ΠΎ Π½Π°ΡΡΠΈΠ»Π° 70β80 ΡΠΌ, Π½ΠΈΠΆΠ½ΠΈΠΉ ΠΊΡΠ΅ΠΏΠΈΡΡΡ Π½Π° ΡΡΠΎΠ²Π½Π΅ 40 ΡΠΌ.
ΠΠΎΠ½ΡΠ°ΠΆ

ΠΠ΅ΡΠ΅Π΄ ΡΠ΅ΠΌ, ΠΊΠ°ΠΊ ΡΠ΄Π΅Π»Π°ΡΡ ΠΏΠΎΠ»ΠΊΠΈ, Π±ΡΡΡΠΊΠΈ ΠΈ Π΄ΠΎΡΠΊΠΈ, ΠΏΡΠ΅Π΄Π½Π°Π·Π½Π°ΡΠ΅Π½Π½ΡΠ΅ Π΄Π»Ρ Π½ΠΈΡ , ΡΡΠ°ΡΠ΅Π»ΡΠ½ΠΎ ΡΠ»ΠΈΡΡΡΡΡΡ ΠΈ ΠΎΠ±ΡΠ°Π±Π°ΡΡΠ²Π°ΡΡΡΡ ΡΠΏΠ΅ΡΠΈΠ°Π»ΡΠ½ΡΠΌ Π°Π½ΡΠΈΡΠ΅ΠΏΡΠΈΠΊΠΎΠΌ Π½Π° Π½Π°ΡΡΡΠ°Π»ΡΠ½ΠΎΠΉ ΠΎΡΠ½ΠΎΠ²Π΅. ΠΠ°ΡΠΊΠ°Ρ ΠΏΠΎΠ»ΠΊΠ° ΡΠΎΠΎΡΡΠΆΠ°ΡΡ ΠΈΠ· Π±ΡΡΡΠΊΠΎΠ², ΠΎΠΏΠΎΡΠ½ΡΠ΅ ΡΡΠΎΠΉΠΊΠΈ Π΄Π΅Π»Π°ΡΡ ΡΠ΅ΡΠ΅Π½ΠΈΠ΅ΠΌ 50Γ70 ΠΌΠΌ.
- ΠΠΎΠ»ΠΎΠΆΠ΅Π½ΠΈΠ΅ Π·Π°Π΄Π½ΠΈΡ ΡΡΠΎΠ΅ΠΊ ΡΠ°Π·ΠΌΠ΅ΡΠ°Π΅ΡΡΡ Π½Π° ΡΡΠ΅Π½Π΅, ΠΎΠ½ΠΈ ΡΠΈΠΊΡΠΈΡΡΡΡΡΡ ΠΊ ΠΏΠΎΠ²Π΅ΡΡ Π½ΠΎΡΡΠΈ ΡΠ°ΠΌΠΎΡΠ΅Π·Π°ΠΌΠΈ.
- ΠΠΎΡΠΈΠ·ΠΎΠ½ΡΠ°Π»ΡΠ½ΡΠ΅ Π±Π°Π»ΠΊΠΈ, ΠΎΠ±ΡΠ°Π·ΡΡΡΠΈΠ΅ ΡΠ°ΠΌΡ ΠΊ ΠΊΠΎΡΠΎΡΠΎΠΉ Π±ΡΠ΄Π΅Ρ ΠΊΡΠ΅ΠΏΠΈΡΡΡΡ Π½Π°ΡΡΠΈΠ» ΠΈΠ· Π΄ΠΎΡΠΎΠΊ, ΠΏΡΠΈΠΊΡΡΡΠΈΠ²Π°ΡΡΡΡ ΡΠΎΡΡΠ°ΠΌΠΈ ΠΊ ΠΏΡΠΎΡΠΈΠ²ΠΎΠΏΠΎΠ»ΠΎΠΆΠ½ΡΠΌ ΡΡΠ΅Π½Π°ΠΌ. ΠΠΎΠΏΠ΅ΡΠ΅ΡΠ½ΡΠ΅ ΡΠ°ΡΡΠΈ, ΡΠ°Π²Π½ΡΠ΅ ΡΠΈΡΠΈΠ½Π΅ ΠΏΠΎΠ»ΠΊΠ°, ΠΊΡΠ΅ΠΏΡΡΡΡ ΠΊ ΡΡΠ΅Π½Π°ΠΌ ΠΏΠΎ Π²ΡΠ΅ΠΉ Π΄Π»ΠΈΠ½Π΅. ΠΠ΅ΠΆΠ΄Ρ ΡΡΠ΅Π½ΠΎΠΉ ΠΈ ΠΏΡΠΈΠΌΡΠΊΠ°ΡΡΠΈΠΌ ΠΏΡΠΎΠ΄ΠΎΠ»ΡΠ½ΡΠΌ Π±ΡΡΡΠΊΠΎΠΌ, Π½Π΅ΠΎΠ±Ρ ΠΎΠ΄ΠΈΠΌΠΎ ΠΏΡΠΈΠΊΡΠ΅ΠΏΠΈΡΡ Π½Π΅Π±ΠΎΠ»ΡΡΠΈΠ΅ Π·Π°Π³ΠΎΡΠΎΠ²ΠΊΠΈ ΡΠΎΠ»ΡΠΈΠ½ΠΎΠΉ 10 ΡΠΌ, ΡΡΠΎΠ±Ρ ΠΎΡΡΠ°Π»ΡΡ Π·Π°Π·ΠΎΡ Π΄Π»Ρ ΡΡΠΎΠΊΠ° Π²ΠΎΠ΄Ρ. ΠΠΎΡΠΈΠ·ΠΎΠ½ΡΠ°Π»ΡΠ½Π°Ρ ΠΏΠ»ΠΎΡΠΊΠΎΡΡΡ Π±Π°Π»ΠΎΠΊ ΠΏΡΠΎΠ²Π΅ΡΡΠ΅ΡΡΡ ΡΡΠΎΠ²Π½Π΅ΠΌ.
- ΠΠ°Π΄Π½ΡΡ Π±Π°Π»ΠΊΠ° ΠΊΡΠ΅ΠΏΠΈΡΡΡ ΡΠ°ΠΌΠΎΡΠ΅Π·Π°ΠΌΠΈ ΠΊ Π²Π΅ΡΡΠΈΠΊΠ°Π»ΡΠ½ΡΠΌ ΡΡΠΎΠΉΠΊΠ°ΠΌ.
- ΠΠ΅ΡΠ΅Π΄Π½ΠΈΠ΅ Π²Π΅ΡΡΠΈΠΊΠ°Π»ΡΠ½ΡΠ΅ ΡΡΠΎΠΉΠΊΠΈ ΡΡΡΠ°Π½Π°Π²Π»ΠΈΠ²Π°ΡΡΡΡ ΠΏΠ°ΡΠ°Π»Π»Π΅Π»ΡΠ½ΠΎ Π·Π°Π΄Π½ΠΈΠΌ, ΠΏΠΎΠ΄ ΡΠΎΡΡΡ ΠΏΠΎΠ΄ΠΊΠ»Π°Π΄ΡΠ²Π°Π΅ΡΡΡ ΡΠ΅Π·ΠΈΠ½Π°. ΠΡΠ°Π²ΠΈΠ»ΡΠ½ΠΎΡΡΡ ΡΡΡΠ°Π½ΠΎΠ²ΠΊΠΈ ΡΠ»Π΅Π΄ΡΠ΅Ρ ΠΏΡΠΎΠ²Π΅ΡΡΡΡ Ρ ΠΏΠΎΠΌΠΎΡΡΡ ΡΡΠΎΠ²Π½Ρ.
- ΠΠ΅ΡΠ΅Π΄Π½ΡΡ Π±Π°Π»ΠΊΠ° ΡΠΎΠ΅Π΄ΠΈΠ½ΡΠ΅ΡΡΡ ΡΠΎ ΡΡΠΎΠΉΠΊΠ°ΠΌΠΈ.
- Π Π±Π°Π»ΠΊΠ°Ρ Π²ΡΠΏΠΈΠ»ΠΈΠ²Π°ΡΡΡΡ ΠΏΠ°Π·Ρ Π΄Π»Ρ ΠΊΡΠ΅ΠΏΠ»Π΅Π½ΠΈΡ ΠΏΠΎΠΏΠ΅ΡΠ΅ΡΠΈΠ½, Π½Π° ΡΠ°ΡΡΡΠΎΡΠ½ΠΈΠΈ Π² 60 ΡΠΌ Π΄ΡΡΠ³ ΠΎΡ Π΄ΡΡΠ³Π°.
- ΠΠ΅ΡΠ΅ΠΊΠ»Π°Π΄ΠΈΠ½Ρ ΡΠΊΠ»Π°Π΄ΡΠ²Π°ΡΡΡΡ Π² ΠΏΠ°Π·Ρ ΠΈ ΡΠΈΠΊΡΠΈΡΡΡΡΡΡ ΡΠ°ΠΌΠΎΡΠ΅Π·Π°ΠΌΠΈ.
- ΠΠ»Ρ Π½Π°Π΄Π΅ΠΆΠ½ΠΎΡΡΠΈ Π²Π΅ΡΡΠΈΠΊΠ°Π»ΡΠ½ΡΠ΅ ΡΡΠΎΠΉΠΊΠΈ ΡΠΎΠ΅Π΄ΠΈΠ½ΡΡΡΡΡ ΠΏΠΎΡΠ΅ΡΠ΅Π΄ΠΈΠ½Π΅ Π±ΡΡΡΡΡΠΌΠΈ.
- ΠΠ»ΠΈΠ½Π° ΠΈΡΠΏΠΎΠ»ΡΠ·ΡΠ΅ΠΌΡΡ Π΄ΠΎΡΠΎΠΊ ΡΠ°Π²Π½ΡΠ΅ΡΡΡ Π΄Π»ΠΈΠ½Π΅ ΠΏΠΎΠ»ΠΊΠ°, ΡΠΈΡΠΈΠ½Π° β 120 ΠΌΠΌ, ΡΠΎΠ»ΡΠΈΠ½Π° β 22 ΠΌΠΌ. ΠΠ½ΠΈ ΠΏΡΠΈΠΊΡΡΡΠΈΠ²Π°ΡΡΡΡ ΠΊ ΡΠ°ΠΌΠ΅ Π½Π°ΡΡΠΈΠ»Π° Ρ ΠΎΠ±ΡΠ°ΡΠ½ΠΎΠΉ ΡΡΠΎΡΠΎΠ½Ρ ΠΈΠ»ΠΈ Π³ΠΎΠ»ΠΎΠ²ΠΊΠΈ ΡΠ°ΠΌΠΎΡΠ΅Π·ΠΎΠ² ΡΡΠ°ΠΏΠ»ΠΈΠ²Π°ΡΡΡΡ Π² Π΄Π΅ΡΠ΅Π²ΠΎ. ΠΠ΅ΡΡΠ° Π²ΠΊΡΡΡΠΈΠ²Π°Π½ΠΈΡ Π·Π°ΠΌΠ°Π·ΡΠ²Π°ΡΡ ΡΠΏΠ΅ΡΠΈΠ°Π»ΡΠ½ΠΎΠΉ ΠΌΠ°ΡΡΠΈΠΊΠΎΠΉ, ΡΡΠΎΠ±Ρ Π½Π΅ Π΄ΠΎΠΏΡΡΡΠΈΡΡ ΠΎΠΆΠΎΠ³Π°. ΠΠ΅ΠΆΠ΄Ρ ΠΏΠ»Π°Π½ΠΊΠ°ΠΌΠΈ ΠΎΡΡΠ°Π²Π»ΡΠ΅ΡΡΡ ΡΠ΅Π»Ρ Π² 1β2 ΡΠΌ Π΄Π»Ρ ΡΡΠ΅ΠΊΠ°Π½ΠΈΡ Π²ΠΎΠ΄Ρ.
Π‘Π°ΠΌΠΎΡΠ΅Π·Ρ ΠΏΠΎ Π΄Π΅ΡΠ΅Π²Ρ
ΠΡΠΏΠΎΠ»ΡΠ·ΠΎΠ²Π°Π½ΠΈΠ΅ ΡΠ°ΠΌΠΎΡΠ΅Π·ΠΎΠ² Π²ΠΌΠ΅ΡΡΠΎ Π³Π²ΠΎΠ·Π΄Π΅ΠΉ ΠΏΠΎΠ·Π²ΠΎΠ»ΡΠ΅Ρ Π½Π°Π΄Π΅ΠΆΠ½ΠΎ Π·Π°ΠΊΡΠ΅ΠΏΠΈΡΡ ΠΊΠΎΠ½ΡΡΡΡΠΊΡΠΈΡ ΠΈ ΠΎΡΡΠ°Π²Π»ΡΠ΅Ρ Π²ΠΎΠ·ΠΌΠΎΠΆΠ½ΠΎΡΡΡ ΡΠ°Π·ΠΎΠ±ΡΠ°ΡΡ ΠΏΠΎΠ»ΠΎΠΊ Π΄Π»Ρ ΠΏΡΠΎΡΡΡΠΊΠΈ ΠΈΠ»ΠΈ Π·Π°ΠΌΠ΅Π½Ρ ΡΠ»Π΅ΠΌΠ΅Π½ΡΠ°.
Π’Π°ΠΊ ΠΈΠ·Π³ΠΎΡΠ°Π²Π»ΠΈΠ²Π°Π΅ΡΡΡ ΠΏΠΎΠ»ΠΎΠΊ Π΄Π»Ρ Π±Π°Π½ΠΈ, Π΅ΡΠ»ΠΈ Π²Ρ ΡΠΎΠ±ΠΈΡΠ°Π΅ΡΠ΅ΡΡ ΡΠ΄Π΅Π»Π°ΡΡ Π½Π΅ΡΠΊΠΎΠ»ΡΠΊΠΎ ΡΡΡΡΠΎΠ², ΡΠΎ ΠΎΠ½ΠΈ Π²ΡΠΏΠΎΠ»Π½ΡΡΡΡΡ ΠΏΠΎ ΡΡ ΠΎΠΆΠ΅ΠΉ ΡΡ Π΅ΠΌΠ΅: ΡΠΎΠ±ΠΈΡΠ°Π΅ΡΡΡ ΠΊΠ°ΡΠΊΠ°Ρ Π΄Π»Ρ Π²Π΅ΡΡ Π½Π΅Π³ΠΎ ΠΈ ΠΊ Π½Π΅ΠΌΡ ΠΊΡΠ΅ΠΏΠΈΡΡΡ ΠΎΡΠ½ΠΎΠ²Π° Π΄Π»Ρ Π½ΠΈΠΆΠ½Π΅Π³ΠΎ ΠΏΠΎΠ»ΠΊΠ°.
ΠΠΈΠ΄Π΅ΠΎ
ΠΠΎΡΠΌΠΎΡΡΠΈΡΠ΅ Π²ΠΈΠ΄Π΅ΠΎ, Π² ΠΊΠΎΡΠΎΡΠΎΠΌ ΡΠΎΠ΄Π΅ΡΠΆΠΈΡΡΡ ΠΏΠΎΠ΄ΡΠΎΠ±Π½ΠΎΠ΅ ΠΎΠΏΠΈΡΠ°Π½ΠΈΠ΅ ΡΠ±ΠΎΡΠΊΠΈ ΠΏΠΎΠ»ΠΊΠ° Π΄Π»Ρ ΠΏΠ°ΡΠ½ΠΎΠΉ:
Π€ΠΎΡΠΎ
ΠΡΠ° ΠΏΠΎΠ΄Π±ΠΎΡΠΊΠ° ΡΠΎΡΠΎΠ³ΡΠ°ΡΠΈΠΉ ΠΈ ΡΠΈΡΡΠ½ΠΊΠΎΠ² ΠΏΠΎΠΌΠΎΠΆΠ΅Ρ Π²Π°ΠΌ Π±ΠΎΠ»Π΅Π΅ ΡΡΠ½ΠΎ ΠΏΡΠ΅Π΄ΡΡΠ°Π²ΠΈΡΡ ΠΏΠΎΡΡΠ΄ΠΎΠΊ Π²ΡΠΏΠΎΠ»Π½Π΅Π½ΠΈΡ ΡΠ°Π±ΠΎΡ:
ΠΠ°ΡΠΈΠ½Π°Π΅ΠΌ Π΄Π΅Π»Π°ΡΡ ΠΊΠ°ΡΠΊΠ°Ρ
ΠΠ·Π³ΠΎΡΠΎΠ²Π»Π΅Π½ΠΈΠ΅ Π½ΠΈΠΆΠ½Π΅Π³ΠΎ ΡΡΠ΄Π°
Π£ΡΡΡΠΎΠΉΡΡΠ²ΠΎ ΠΊΠ°ΡΠΊΠ°ΡΠ°

ΠΠΎΠ΄Π³ΠΎΠ½ΠΊΠ° ΠΈ Π·Π°ΠΊΡΠ΅ΠΏΠ»Π΅Π½ΠΈΠ΅
ΠΠ°ΡΡΠΈΠ» ΠΈΠ· Π΄ΠΎΡΠΎΠΊ Π³ΠΎΡΠΎΠ²
ΠΠ°ΠΊΠ»ΡΡΠΈΡΠ΅Π»ΡΠ½Π°Ρ ΠΎΡΠ΄Π΅Π»ΠΊΠ°
Π Π°Π±ΠΎΡΠ° Π·Π°Π²Π΅ΡΡΠ΅Π½Π°
Π§Π΅ΡΡΠ΅ΠΆΠΈ
ΠΠ° ΠΏΡΠ΅Π΄Π»ΠΎΠΆΠ΅Π½Π½ΡΡ Π½Π°ΠΌΠΈ ΡΠ΅ΡΡΠ΅ΠΆΠ°Ρ ΡΠΊΠ°Π·Π°Π½Ρ ΡΠ°Π·ΠΌΠ΅ΡΡ ΠΏΠΎΠ»ΠΊΠΎΠ² ΠΈ ΠΎΡΠΎΠ±Π΅Π½Π½ΠΎΡΡΠΈ ΠΈΡ ΠΊΠΎΠ½ΡΡΡΡΠΊΡΠΈΠΈ:
Π§Π΅ΡΡΠ΅ΠΆ ΠΎΠΏΠΎΡΡ ΠΏΠΎΠ»ΠΊΠ°
Π Π°ΡΠΏΠΎΠ»ΠΎΠΆΠ΅Π½ΠΈΠ΅ ΠΏΠΎΠ»ΠΊΠΎΠ²


ΠΠ°ΡΠΈΠ°Π½Ρ ΡΠ΅ΡΡΠ΅ΠΆΠ° ΠΏΠΎΠ»ΠΎΠΊΠ° Π² Π±Π°Π½Ρ
ΠΠ΅ΡΡ
Π½ΠΈΠΉ ΠΈ Π½ΠΈΠΆΠ½ΠΈΠΉ ΠΏΠΎΠ»ΠΎΠΊ
Π Π°ΡΡΡΠ°Π½ΠΎΠ²ΠΊΠ° ΠΏΠΎΠ»ΠΊΠΎΠ² ΠΈ Π»Π°Π²ΠΎΠΊ
kakpravilnosdelat.ru
ΠΠΎΠ»ΠΎΠΊ Π² Π±Π°Π½Π΅ ΡΠ²ΠΎΠΈΠΌΠΈ ΡΡΠΊΠ°ΠΌΠΈ: ΡΠ°Π·ΠΌΠ΅ΡΡ, ΡΡΡΡΠΎΠΉΡΡΠ²ΠΎ, ΠΎΠΏΠΈΡΠ°Π½ΠΈΠ΅
ΠΠ°Π½Π½ΡΠ΅ ΠΏΡΠΎΡΠ΅Π΄ΡΡΡ ΡΠ°ΡΡΠ»Π°Π±Π»ΡΡΡ, ΠΎΠ·Π΄ΠΎΡΠ°Π²Π»ΠΈΠ²Π°ΡΡ ΠΎΡΠ³Π°Π½ΠΈΠ·ΠΌ, Π±Π»Π°Π³ΠΎΡΠ²ΠΎΡΠ½ΠΎ Π²Π»ΠΈΡΡΡ Π½Π° Π½Π΅ΡΠ²Π½ΡΡ ΡΠΈΡΡΠ΅ΠΌΡ, ΡΠΏΠΎΡΠΎΠ±ΡΡΠ²ΡΡΡ Π·Π΄ΠΎΡΠΎΠ²ΠΎΠΌΡ ΡΠ½Ρ. ΠΠ±Π»Π°Π΄Π°Ρ Π²ΡΠ΅ΠΌΠ΅Π½Π΅ΠΌ Π²ΠΊΡΠΏΠ΅ Ρ Π½Π΅ΠΎΠ±Ρ ΠΎΠ΄ΠΈΠΌΡΠΌΠΈ Π·Π½Π°Π½ΠΈΡΠΌΠΈ, Π²Ρ ΡΠΌΠΎΠΆΠ΅ΡΠ΅ ΠΏΠΎΡΡΡΠΎΠΈΡΠ΅ Π±Π°Π½Ρ Π½Π° ΡΠ²ΠΎΠ΅ΠΌ Π΄Π°ΡΠ½ΠΎΠΌ ΡΡΠ°ΡΡΠΊΠ΅. ΠΠ°Π½Π½Π°Ρ ΡΡΠ°ΡΡΡ ΠΏΠΎΠΌΠΎΠΆΠ΅Ρ Ρ ΠΎΠ·ΡΠΈΠ½Ρ ΡΠ΄Π΅Π»Π°ΡΡ ΠΏΠΎΠ»ΠΊΠΈ Π² ΡΠ°ΡΠ½Π΅, Π±Π°Π½Π΅, ΠΎΠ±ΡΡΡΡΠΎΠΈΡΡ ΠΏΠΎΠΌΠ΅ΡΠ΅Π½ΠΈΠ΅ ΠΈΠ·Π½ΡΡΡΠΈ.

ΠΡΠ΄Π΅Π»ΠΊΠ° Π±Π°Π½ΠΈ ΠΈΠ·Π½ΡΡΡΠΈ ΡΠ²ΠΎΠΈΠΌΠΈ ΡΡΠΊΠ°ΠΌΠΈ
Π§ΡΠΎ ΡΠ°ΠΊΠΎΠ΅ Π±Π°Π½Π½ΡΠΉ ΠΏΠΎΠ»ΠΎΠΊ? ΠΠ°ΠΊ ΡΠ΄Π΅Π»Π°ΡΡ ΠΏΠΎΠ»ΠΊΠΈ Π² Π±Π°Π½Π΅ ΡΠ²ΠΎΠΈΠΌΠΈ ΡΡΠΊΠ°ΠΌΠΈ?

ΠΠΎΠ½ΡΡΡΡΠΊΡΠΈΡ ΠΏΠΎΠ»ΠΊΠΈ Π΄Π»Ρ Π±Π°Π½ΠΈ Π² ΠΏΠ°ΡΠΈΠ»ΠΊΠ΅ Π·Π°Π²ΠΈΡΠΈΡ ΠΎΡ ΡΠ°Π·ΠΌΠ΅ΡΠΎΠ² ΠΏΠ»ΠΎΡΠ°Π΄ΠΈ ΠΈ Π²ΡΡΠΎΡΡ ΠΏΠΎΠΌΠ΅ΡΠ΅Π½ΠΈΡ
ΠΠΎΠ»ΠΎΠΊ ΠΏΡΠ΅Π΄ΡΡΠ°Π²Π»ΡΠ΅Ρ ΡΠΎΠ±ΠΎΠΉ Π΄Π΅ΡΠ΅Π²ΡΠ½Π½ΡΠΉ Π½Π°ΡΡΠΈΠ» Π½Π° ΠΏΡΡΠΌΠΎΡΠ³ΠΎΠ»ΡΠ½ΠΎΠΌ ΠΊΠ°ΡΠΊΠ°ΡΠ΅ ΠΈΠ· Π±ΡΡΡΠ°. ΠΠ°ΡΠ΅ΡΠΈΠ°Π» ΡΡΠ°ΡΠ΅Π»ΡΠ½ΡΠΌ ΠΎΠ±ΡΠ°Π·ΠΎΠΌ Π³ΠΎΡΠΎΠ²ΡΡ ΠΊ ΡΠ°Π±ΠΎΡΠ΅ β ΠΏΠΎΠ΄Π²Π΅ΡΠ³Π°ΡΡ ΡΠ»ΠΈΡΠΎΠ²ΠΊΠ΅, ΡΡΠ°ΡΠΈΠ²Π°ΡΡ ΡΠ³Π»Ρ, ΠΎΠ±ΡΠ°Π±Π°ΡΡΠ²Π°ΡΡ ΡΠΏΠ΅ΡΠΈΠ°Π»ΡΠ½ΠΎΠΉ ΠΏΡΠΎΠΏΠΈΡΠΊΠΎΠΉ. Π£ΡΠ»ΠΎΠ²ΠΈΡ Π΄Π»Ρ ΡΠΊΡΠΏΠ»ΡΠ°ΡΠ°ΡΠΈΠΈ Π΄Π΅ΡΠ΅Π²ΡΠ½Π½ΡΡ ΠΊΠΎΠ½ΡΡΡΡΠΊΡΠΈΠΉ Π² Π±Π°Π½Π΅ ΡΡΡΠ΄Π½ΠΎ Π½Π°Π·Π²Π°ΡΡ Π±Π»Π°Π³ΠΎΠΏΡΠΈΡΡΠ½ΡΠΌΠΈ. ΠΠΎΠ²ΡΠ΅ΠΌΡ ΠΏΡΠΎΠ²Π΅Π΄Π΅Π½Π½Π°Ρ ΠΏΡΠΎΡΠΈΠ»Π°ΠΊΡΠΈΡΠ΅ΡΠΊΠ°Ρ ΠΎΠ±ΡΠ°Π±ΠΎΡΠΊΠ° Π³Π°ΡΠ°Π½ΡΠΈΡΡΠ΅Ρ Π΄ΠΎΡΠΊΠ°ΠΌ ΡΠ²Π΅Π»ΠΈΡΠ΅Π½ΠΈΠ΅ ΡΡΠΎΠΊΠ° ΡΠΊΡΠΏΠ»ΡΠ°ΡΠ°ΡΠΈΠΈ.

ΠΠ»Ρ ΠΈΠ·Π³ΠΎΡΠΎΠ²Π»Π΅Π½ΠΈΡ ΠΏΠΎΠ»ΠΊΠΎΠ² ΠΈ ΡΠΊΠ°ΠΌΠ΅ΠΉ-Π»Π΅ΠΆΠ°ΠΊΠΎΠ² ΡΠ΅ΠΊΠΎΠΌΠ΅Π½Π΄ΡΠ΅ΡΡΡ ΠΈΡΠΏΠΎΠ»ΡΠ·ΠΎΠ²Π°ΡΡ Π΄ΡΠ΅Π²Π΅ΡΠΈΠ½Ρ Π»ΠΈΡΡΠ²Π΅Π½Π½ΡΡ ΠΏΠΎΡΠΎΠ΄
ΠΠ°ΡΠΊΠ°Ρ ΡΠΎΠ±ΠΈΡΠ°Π΅ΡΡΡ ΠΈΠ· Π²Π΅ΡΡΠΈΠΊΠ°Π»ΡΠ½ΡΡ ΠΎΠΏΠΎΡΠ½ΡΡ ΡΡΠΎΠ΅ΠΊ ΠΈ Π΄ΠΎΡΠΎΠΊ-ΠΏΠ΅ΡΠ΅ΠΌΡΡΠ΅ΠΊ. ΠΠ»Ρ Π΄ΠΎΠΏΠΎΠ»Π½ΠΈΡΠ΅Π»ΡΠ½ΠΎΠΉ Π½Π°Π΄Π΅ΠΆΠ½ΠΎΡΡΠΈ ΡΠ°ΠΌΡ ΠΊΡΠ΅ΠΏΡΡ ΠΊ ΡΡΠ΅Π½Π΅. ΠΠ° ΠΎΡΠ½ΠΎΠ²Ρ ΡΡΡΠ°Π½Π°Π²Π»ΠΈΠ²Π°Π΅ΡΡΡ Π½Π°ΡΡΠΈΠ» ΠΈΠ· ΡΠ·ΠΊΠΈΡ Π΄ΠΎΡΠ΅ΡΠ΅ΠΊ. ΠΡΡΠ°Π²ΡΡΠ΅ Π½Π΅Π±ΠΎΠ»ΡΡΠΈΠ΅ ΡΠ΅Π»ΠΈ ΠΌΠ΅ΠΆΠ΄Ρ Π΄ΠΎΡΠΊΠ°ΠΌΠΈ Π΄Π»Ρ ΡΡΠ΅ΠΊΠ°Π½ΠΈΡ Π²ΠΎΠ΄Ρ. ΠΠΎΠ΄Ρ ΠΎΠ΄ΡΡΠΈΠΉ ΡΠ°Π³ β 1 ΡΠΌ. ΠΠ»Ρ Π΅ΡΡΠ΅ΡΡΠ²Π΅Π½Π½ΠΎΠΉ Π²Π΅Π½ΡΠΈΠ»ΡΡΠΈΠΈ ΠΌΠ΅ΠΆΠ΄Ρ ΡΡΠ΅Π½ΠΎΠΉ ΠΈ ΠΏΠΎΠ»ΠΎΠΊΠΎΠΌ ΡΠΎΡ ΡΠ°Π½ΡΡΡ Π·Π°Π·ΠΎΡ Π² 8-10 ΡΠΌ. ΠΠ°ΡΡΠΈΠ» ΠΌΠΎΠΆΠ½ΠΎ ΡΠΏΡΠΎΠ΅ΠΊΡΠΈΡΠΎΠ²Π°ΡΡ ΡΠΎΡΡΠ°Π²Π½ΡΠΌ. Π’Π°ΠΊΠΎΠΉ Π²ΠΈΠ΄ Π΄ΠΎΡΡΠ°ΡΠΎΡΠ½ΠΎ ΡΠ΄ΠΎΠ±Π΅Π½ β ΡΠ»Π΅ΠΌΠ΅Π½ΡΡ ΠΊΠΎΠ½ΡΡΡΡΠΊΡΠΈΠΈ Π»Π΅Π³ΠΊΠΎ ΡΠ°Π·ΠΎΠ±ΡΠ°ΡΡ Π΄Π»Ρ ΠΏΡΠΎΠΌΡΠ²ΠΊΠΈ Ρ ΠΏΠΎΡΠ»Π΅Π΄ΡΡΡΠ΅ΠΉ ΠΏΡΠΎΡΡΡΠΊΠΎΠΉ Π½Π° ΡΠ»ΠΈΡΠ΅.

Π’ΠΈΠΏΡ Π½Π°ΡΡΠΈΠ»ΠΎΠ² Π΄Π»Ρ ΠΏΠΎΠ»ΠΎΠΊΠΎΠ²
Π‘Π΄Π΅Π»Π°ΠΉΡΠ΅ ΡΠ°ΡΡΠ΅ΡΡ, ΡΡ Π΅ΠΌΡ, ΡΠ΅ΡΡΠ΅ΠΆΠΈ ΠΏΠΎΠ»ΠΊΠΈ Π² Π±Π°Π½Π΅ ΠΈΠ»ΠΈ ΡΠ°ΡΠ½Π΅, ΡΡΡΠΈΡΠ΅ Π²ΡΠ΅ ΠΎΡΠΎΠ±Π΅Π½Π½ΠΎΡΡΠΈ ΠΊΠΎΠ½ΡΡΡΡΠΊΡΠΈΠΈ, Π²ΡΠ±Π΅ΡΠΈΡΠ΅ ΠΌΠ°ΡΠ΅ΡΠΈΠ°Π»Ρ Π΄Π»Ρ ΡΠ°Π±ΠΎΡΡ, ΠΏΠΎΠ΄Π³ΠΎΡΠΎΠ²ΡΡΠ΅ ΠΈΠ½ΡΡΡΡΠΌΠ΅Π½Ρ. ΠΡΡΠ°Π½ΠΎΠ²ΠΈΠΌΡΡ Π½Π° ΠΊΠ°ΠΆΠ΄ΠΎΠΌ ΡΡΠ°ΠΏΠ΅ ΠΏΠΎΠ΄ΡΠΎΠ±Π½Π΅Π΅.

Π§Π΅ΡΡΠ΅ΠΆ Π±Π°Π½Π½ΡΡ ΠΏΠΎΠ»ΠΎΠΊΠΎΠ² Π΄Π»Ρ ΡΡΡΡΠΊΠΎΠΉ ΠΏΠ°ΡΠ½ΠΎΠΉ
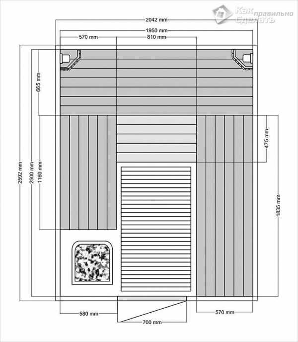
ΠΠΏΡΠ΅Π΄Π΅Π»ΠΈΠ²ΡΠΈΡΡ Ρ ΡΠ°Π·ΠΌΠ΅ΡΠΎΠΌ ΠΈ ΠΊΠΎΠ»ΠΈΡΠ΅ΡΡΠ²ΠΎΠΌ ΠΏΠΎΠ»ΠΎΠΊ Π² ΠΏΠ°ΡΠ½ΠΎΠΉ, ΠΏΠ΅ΡΠ΅Ρ ΠΎΠ΄ΠΈΡΠ΅ ΠΊ ΡΠ΅ΡΡΠ΅ΠΆΠ°ΠΌ. ΠΡΠΎΡΡΠΎΠΉ ΡΠΏΠΎΡΠΎΠ± β Π²ΠΎΠ·ΡΠΌΠΈΡΠ΅ ΠΊΠ°ΡΠ°Π½Π΄Π°Ρ, Π»ΠΈΠ½Π΅ΠΉΠΊΡ ΠΈ ΡΡ Π΅ΠΌΠ°ΡΠΈΡΠ½ΠΎ ΠΈΠ·ΠΎΠ±ΡΠ°Π·ΠΈΡΠ΅ Π½Π° Π»ΠΈΡΡΠ΅ ΠΈΠ»ΠΈ ΠΌΠΈΠ»Π»ΠΈΠΌΠ΅ΡΡΠΎΠ²ΠΎΠΉ Π±ΡΠΌΠ°Π³Π΅ ΠΏΠΎΠΌΠ΅ΡΠ΅Π½ΠΈΠ΅ ΠΏΠ°ΡΠ½ΠΎΠΉ Π² Π½ΡΠΆΠ½ΠΎΠΌ ΠΌΠ°ΡΡΡΠ°Π±Π΅. ΠΠ±ΠΎΠ·Π½Π°ΡΡΡΠ΅ Π½Π° ΡΡ Π΅ΠΌΠ΅ β ΡΠ°ΡΠΏΠΎΠ»ΠΎΠΆΠ΅Π½ΠΈΠ΅ ΠΎΠΊΠΎΠ½, Π΅ΡΠ»ΠΈ ΠΎΠ½ΠΈ Π΅ΡΡΡ, ΠΏΠ΅ΡΠΈ, Π΄Π²Π΅ΡΠ½ΠΎΠ³ΠΎ ΠΏΡΠΎΠ΅ΠΌΠ°. Π‘ΠΏΠ΅ΡΠΈΠ°Π»ΠΈΡΡΡ Π½Π°ΡΡΠ°ΠΈΠ²Π°ΡΡ: ΠΎΠΊΠ½Π° Π² ΠΏΠ°ΡΠ½ΠΎΠΉ β ΡΠ»Π΅ΠΌΠ΅Π½Ρ Π½Π΅ΠΎΠ±ΡΠ·Π°ΡΠ΅Π»ΡΠ½ΡΠΉ ΠΈΠ·-Π·Π° Π±ΠΎΠ»ΡΡΠΈΡ ΡΠ΅ΠΏΠ»ΠΎΠΏΠΎΡΠ΅ΡΡ ΠΈ ΡΡΠ°Π²ΠΌΠΎΠΎΠΏΠ°ΡΠ½ΠΎΡΡΠΈ.

ΠΠΎΡΠ»Π΅Π΄ΠΎΠ²Π°ΡΠ΅Π»ΡΠ½ΠΎΡΡΡ ΡΠΎΠΎΡΡΠΆΠ΅Π½ΠΈΡ ΠΏΡΠΎΡΡΠ΅ΠΉΡΠ΅Π³ΠΎ Π±Π°Π½Π½ΠΎΠ³ΠΎ ΠΏΠΎΠ»ΠΎΠΊΠ°
Π Π΅ΠΊΠΎΠΌΠ΅Π½Π΄ΡΠ΅ΠΌΡΠ΅ ΡΠ°Π·ΠΌΠ΅ΡΡ Π΄Π»Ρ Π±Π°Π½Π½ΡΡ ΠΏΠΎΠ»ΠΎΠΊ Π² ΠΏΠ°ΡΠΈΠ»ΠΊΠ΅
Π Π°Π·ΠΌΠ΅ΡΡ ΠΏΠΎΠ»ΠΎΠΊ ΠΌΠΎΠ³ΡΡ ΡΡΡΠ΅ΡΡΠ²Π΅Π½Π½ΠΎ ΠΎΡΠ»ΠΈΡΠ°ΡΡΡΡ Π² Π΄Π²ΡΡ ΡΠ°Π·Π½ΡΡ Π±Π°Π½ΡΡ . ΠΠ°Π±Π°ΡΠΈΡΡ Π½Π°ΠΏΡΡΠΌΡΡ Π·Π°Π²ΠΈΡΡΡ ΠΎΡ ΠΎΠ±ΡΠ΅ΠΉ ΠΏΠ»ΠΎΡΠ°Π΄ΠΈ ΠΏΠ°ΡΠ½ΠΎΠΉ. Π£Π΄ΠΎΠ±Π½ΡΠΌΠΈ ΡΡΠΈΡΠ°ΡΡ ΡΠ°ΠΊΠΈΠ΅ ΡΠ°Π·ΠΌΠ΅ΡΡ.
- ΠΠ»ΠΈΠ½Π° β ΠΎΡ 150 ΡΠΌ ΠΈ Π±ΠΎΠ»Π΅Π΅ (ΡΡΠΎΠ±Ρ Π½Π° ΠΏΠΎΠ»ΠΊΠ΅ ΠΌΠΎΠΆΠ½ΠΎ Π±ΡΠ»ΠΎ Ρ ΠΊΠΎΠΌΡΠΎΡΡΠΎΠΌ ΡΠΈΠ΄Π΅ΡΡ ΠΈ Π»Π΅ΠΆΠ°ΡΡ, Π΅Π΅ Π΄Π»ΠΈΠ½Π° ΡΠΎΡΡΠ°Π²Π»ΡΠ΅Ρ 180 ΡΠΌ). ΠΡΠ»ΠΈ Π²Π°Ρ ΡΠΎΡΡ Π²ΡΡΠ΅ ΡΡΠ΅Π΄Π½Π΅Π³ΠΎ, Π΄Π»ΠΈΠ½Ρ ΠΏΠΎΠ»ΠΊΠΈ Π΄ΠΎΠΏΡΡΡΠΈΠΌΠΎ ΡΠ²Π΅Π»ΠΈΡΠΈΡΡ Π΄ΠΎ 2 ΠΌΠ΅ΡΡΠΎΠ² ΠΈ Π±ΠΎΠ»ΡΡΠ΅.
- ΠΡΡΠΎΡΠ° β Π½ΠΈΠΆΠ½ΡΡ ΠΏΠΎΠ»ΠΊΠ°-ΡΡΡΠΏΠ΅Π½ΡΠΊΠ° Π΄ΠΎΠ»ΠΆΠ½Π° ΠΎΡΡΡΡΠΏΠ°ΡΡ ΠΎΡ ΠΏΠΎΠ»Π° Π±ΠΎΠ»Π΅Π΅, ΡΠ΅ΠΌ Π½Π° 25-30 ΡΠΌ. ΠΠΎΡΡΡΠΈΠΉ Π²ΠΎΠ·Π΄ΡΡ Π»Π΅Π³ΡΠ΅ Ρ ΠΎΠ»ΠΎΠ΄Π½ΠΎΠ³ΠΎ, ΡΠ΅ΠΌ Π±ΠΎΠ»ΡΡΠ΅ ΡΠ°ΡΡΡΠΎΡΠ½ΠΈΠ΅ ΠΎΡ ΠΏΠΎΠ»Π° Π΄ΠΎ ΠΏΠΎΠ»ΠΎΠΊ, ΡΠ΅ΠΌ Π»ΡΡΡΠ΅. Π Π·Π°Π²ΠΈΡΠΈΠΌΠΎΡΡΠΈ ΠΎΡ Π²ΡΡΠΎΡΡ ΠΏΠΎΡΠΎΠ»ΠΊΠΎΠ² Π² ΠΏΠ°ΡΠ½ΠΎΠΉ, ΠΏΡΠΎΠΈΠ·Π²ΠΎΠ΄ΠΈΡΡΡ ΡΠ°ΡΡΠ΅Ρ ΠΊΠΎΠ»ΠΈΡΠ΅ΡΡΠ²Π° ΠΈ Π³Π°Π±Π°ΡΠΈΡΠΎΠ² ΠΏΠΎΠ»ΠΎΠΊ. Π Π°ΡΡΡΠΎΡΠ½ΠΈΠ΅ ΠΎΡ Π²Π΅ΡΡ Π½Π΅Π³ΠΎ ΡΡΡΡΠ° Π΄ΠΎ ΠΏΠΎΡΠΎΠ»ΠΊΠ° Π΄ΠΎΠ»ΠΆΠ½ΠΎ Π±ΡΡΡ Π±ΠΎΠ»Π΅Π΅ 1ΠΌ.
- Π¨ΠΈΡΠΈΠ½Π° β Π΄Π»Ρ ΡΠ΄ΠΎΠ±Π½ΠΎΠ³ΠΎ ΡΠΈΠ΄Π΅Π½ΠΈΡ β Π½Π΅ ΠΌΠ΅Π½Π΅Π΅ 60ΡΠΌ. ΠΡΠ±ΠΈΡΠ΅ ΠΏΠ°ΡΠΈΡΡΡΡ Π»Π΅ΠΆΠ°? ΠΠΈΠ½ΠΈΠΌΠ°Π»ΡΠ½Π°Ρ ΡΠΈΡΠΈΠ½Π° ΠΏΠΎΠ»ΠΊΠΈ β 90 ΡΠΌ.

Π Π°ΡΡΠ΅Ρ ΡΠ°Π·ΠΌΠ΅ΡΠ° Π±Π°Π½Π½ΡΡ ΡΠΈΠ΄Π΅Π½ΠΈΠΉ, ΡΠ΅Π·Π»ΠΎΠ½Π³ΠΎΠ², Π»Π΅ΠΆΠ°Π½ΠΎΠΊ
ΠΠΏΡΠ΅Π΄Π΅Π»ΠΈΡΠ΅ΡΡ Ρ Π²ΡΠ±ΠΎΡΠΎΠΌ ΠΏΠ΅ΡΠΈ. ΠΡΠ»ΠΈ ΡΠ°Π·ΠΌΠ΅ΡΡ ΠΏΠΎΠΌΠ΅ΡΠ΅Π½ΠΈΡ ΠΏΠΎΠ·Π²ΠΎΠ»ΡΡΡ ΠΏΠΎΡΡΠ°Π²ΠΈΡΡ ΠΊΠΈΡΠΏΠΈΡΠ½ΡΡ, ΠΎΡΡΠ°Π½ΠΎΠ²ΠΈΡΠ΅ ΡΠ²ΠΎΠΉ Π²ΡΠ±ΠΎΡ Π½Π° Π½Π΅ΠΉ. Π’Π°ΠΊΠ°Ρ ΠΏΠ΅ΡΡ Π΄ΠΎΠ»Π³ΠΎ ΡΠΎΡ ΡΠ°Π½ΡΠ΅Ρ ΡΠ΅ΠΏΠ»ΠΎ, ΠΏΠΎΡΡΠΈ ΠΈΡΠΊΠ»ΡΡΠ°Π΅Ρ Π²ΠΎΠ·ΠΌΠΎΠΆΠ½ΠΎΡΡΡ ΡΠ»ΡΡΠ°ΠΉΠ½ΠΎΠ³ΠΎ ΠΎΠΆΠΎΠ³Π° ΠΎΠ± Π΅Π΅ ΠΏΠΎΠ²Π΅ΡΡ Π½ΠΎΡΡΡ, ΡΠ»Π΅Π΄ΠΎΠ²Π°ΡΠ΅Π»ΡΠ½ΠΎ, ΠΏΠΎΠ»ΠΎΠΊ Π΄ΠΎΠΏΡΡΠΊΠ°Π΅ΡΡΡ ΡΠ°ΡΠΏΠΎΠ»Π°Π³Π°ΡΡ Π² Π½Π΅ΠΏΠΎΡΡΠ΅Π΄ΡΡΠ²Π΅Π½Π½ΠΎΠΉ Π±Π»ΠΈΠ·ΠΎΡΡΠΈ.
ΠΡΠ±Π΅ΡΠΈΡΠ΅ ΡΠΎΡΠΌΡ ΠΏΠΎΠ»ΠΎΠΊ, Π½Π°Π±ΡΠΎΡΠ°ΠΉΡΠ΅ ΡΡΠΊΠΈΠ·Ρ. Π£ΡΡΠΈΡΠ΅ Π·Π½Π°ΡΠΈΠΌΡΠ΅ ΠΎΡΠΎΠ±Π΅Π½Π½ΠΎΡΡΠΈ ΠΊΠΎΠ½ΡΡΡΡΠΊΡΠΈΠΈ β ΡΠΎΠΎΡΠ½ΠΎΡΠ΅Π½ΠΈΠ΅ Π΄Π»ΠΈΠ½Ρ, Π²ΡΡΠΎΡΡ, ΡΠΈΡΠΈΠ½Ρ ΠΏΠΎΠ»ΠΎΠΊΠ°. Π’Π°ΠΊ Π²Ρ ΠΏΠΎΠ»ΡΡΠΈΡΠ΅ Π½Π°ΠΈΠ±ΠΎΠ»Π΅Π΅ ΠΏΠΎΠ»Π½ΠΎΠ΅ ΠΏΡΠ΅Π΄ΡΡΠ°Π²Π»Π΅Π½ΠΈΠ΅, ΠΊΠ°ΠΊ Π±ΡΠ΄Π΅Ρ Π²ΡΠ³Π»ΡΠ΄Π΅ΡΡ Π²Π°ΡΠ° ΠΏΠ΅ΡΡΠΎΠ½Π°Π»ΡΠ½Π°Ρ ΠΏΠ°ΡΠ½Π°Ρ ΠΏΠΎΡΠ»Π΅ ΠΎΠΊΠΎΠ½ΡΠ°Π½ΠΈΡ ΡΠ°Π±ΠΎΡ.

Π Π°ΡΡΠ΅Ρ Π²ΡΡΠΎΡΡ ΠΏΠΎΠ»ΠΊΠΎΠ² Π΄Π»Ρ ΠΏΠ°ΡΠΈΠ»ΠΊΠΈ Π² ΡΠΈΠ½ΡΠΊΠΎΠΉ ΡΠ°ΡΠ½Π΅ ΠΈ ΡΡΡΡΠΊΠΎΠΉ Π±Π°Π½Π΅
Π’ΠΈΠΏΡ Π±Π°Π½Π½ΡΡ ΠΏΠΎΠ»ΠΎΠΊ.
- ΠΡΠΏΠ΅ β Π΄Π²Π΅ ΠΏΠΎΠ»ΠΊΠΈ ΡΠ°ΡΠΏΠΎΠ»Π°Π³Π°ΡΡΡΡ ΠΎΠ΄Π½Π° Π½Π°Π΄ Π΄ΡΡΠ³ΠΎΠΉ. ΠΡΠΎΡ Π²Π°ΡΠΈΠ°Π½Ρ ΠΈΠ΄Π΅Π°Π»Π΅Π½, ΠΊΠΎΠ³Π΄Π° ΠΏΠΎΠΌΠ΅ΡΠ΅Π½ΠΈΠ΅ Π΄Π»Ρ ΠΏΠ°ΡΠΈΠ»ΠΊΠΈ Π½Π΅Π±ΠΎΠ»ΡΡΠΎΠ΅. ΠΠ»Ρ Π±ΠΎΠ»ΡΡΠ΅ΠΉ ΡΠΊΠΎΠ½ΠΎΠΌΠΈΠΈ ΠΏΡΠΎΡΡΡΠ°Π½ΡΡΠ²Π° Π²Π΅ΡΡ
Π½ΠΈΠΉ ΡΡΡΡ ΡΠ½Π°Π±ΠΆΠ°ΡΡ ΠΏΡΠΎΡΡΡΠΌ ΠΌΠ΅Ρ
Π°Π½ΠΈΠ·ΠΌΠΎΠΌ. ΠΡΠΈ Π½Π΅ΠΎΠ±Ρ
ΠΎΠ΄ΠΈΠΌΠΎΡΡΠΈ ΠΏΠΎΠ»ΠΊΡ ΡΠΊΠ»Π°Π΄ΡΠ²Π°ΡΡ, ΠΊΠ°ΠΊ Π² ΠΏΠΎΠ΅Π·Π΄Π΅.

ΠΠΎΠ»ΠΎΠΊ-ΠΊΡΠΏΠ΅ Π² ΠΏΠ°ΡΠ½ΠΎΠΉ ΠΏΠΎ ΡΠΈΠ½ΡΠΊΠΎΠΉ ΡΠ΅Ρ Π½ΠΎΠ»ΠΎΠ³ΠΈΠΈ
- Π‘ΡΡΠΏΠ΅Π½ΡΠ°ΡΡΠ΅ β ΠΏΠΎΠ»ΠΊΠΈ Π² Π±Π°Π½Π΅ ΡΠ°Π·ΠΌΠ΅ΡΠ°ΡΡΡΡ Π²Π΄ΠΎΠ»Ρ ΠΎΠ΄Π½ΠΎΠΉ ΡΡΠ΅Π½Ρ. ΠΡ
ΠΌΠΎΠΆΠ΅Ρ Π±ΡΡΡ, ΠΊΠ°ΠΊ Π΄Π²Π΅, ΡΠ°ΠΊ ΠΈ ΡΡΠΈ, Π² Π·Π°Π²ΠΈΡΠΈΠΌΠΎΡΡΠΈ ΠΎΡ Π²ΡΡΠΎΡΡ ΠΏΠΎΡΠΎΠ»ΠΊΠ°. ΠΠΈΠΆΠ½ΡΡ ΡΡΡΠΏΠ΅Π½Ρ Π±ΡΠ΄Π΅Ρ ΡΠ°ΠΌΠΎΠΉ ΠΏΡΠΎΡ
Π»Π°Π΄Π½ΠΎΠΉ, Π²Π΅ΡΡ
Π½ΡΡ β Π΄Π»Ρ Π»ΡΠ±ΠΈΡΠ΅Π»Π΅ΠΉ ΠΏΠΎΠ³ΠΎΡΡΡΠ΅Π΅.

Π‘ΡΡΠΏΠ΅Π½ΡΠ°ΡΠ°Ρ ΠΊΠΎΠ½ΡΡΡΡΠΊΡΠΈΡ ΠΏΠΎΠ»ΠΎΠΊ Ρ ΠΎΡΠΎΡΠ° Π² ΠΏΠ°ΡΠΈΠ»ΠΊΠ΅ ΠΏΡΠΎΡΡΠΎΡΠ½ΠΎΠΉ Π±Π°Π½ΠΈ Π΄Π»Ρ Π±ΠΎΠ»ΡΡΠΎΠΉ ΡΠ΅ΠΌΡΠΈ
- Β«ΠΒ»-ΠΎΠ±ΡΠ°Π·Π½ΡΠΉ ΡΠΈΠΏ. ΠΠ°Π·Π²Π°Π½ΠΈΠ΅ Π³ΠΎΠ²ΠΎΡΠΈΡ ΡΠ°ΠΌΠΎ Π·Π° ΡΠ΅Π±Ρ. Π―ΡΡΡΡ ΡΠ°ΡΠΏΠΎΠ»Π°Π³Π°ΡΡΡΡ Π½Π° Π΄Π²ΡΡ
ΡΠΌΠ΅ΠΆΠ½ΡΡ
ΡΡΠ΅Π½Π°Ρ
, ΠΎΠ±ΡΠ°Π·ΡΡ ΡΠΎΠ±ΠΎΠΉ Π±ΡΠΊΠ²Ρ Β«ΠΒ».

Π-ΠΎΠ±ΡΠ°Π·Π½ΡΠΉ ΠΏΠΎΠ»ΠΎΠΊ Π² ΠΏΠ°ΡΠΈΠ»ΠΊΠ΅

ΠΠΎΠ»ΠΊΠ° Ρ Π²ΡΠ΄Π²ΠΈΠΆΠ½ΠΎΠΉ Π»Π°Π²ΠΊΠΎΠΉ-Π»Π΅ΠΆΠ°ΠΊΠΎΠΌ
ΠΠ½ΡΡΡΡΠΌΠ΅Π½ΡΡ
ΠΠ»Ρ ΡΠ±ΠΎΡΠΊΠΈ ΠΏΠΎΠ»ΠΎΠΊΠ° ΠΏΠΎΠ½Π°Π΄ΠΎΠ±ΡΡΡΡ ΡΠ»Π΅Π΄ΡΡΡΠΈΠ΅ ΠΈΠ½ΡΡΡΡΠΌΠ΅Π½ΡΡ:
- Π ΡΠ»Π΅ΡΠΊΠ°
- Π¨ΡΡΡΠΏΠΎΠ²Π΅ΡΡ, Π΄ΡΠ΅Π»Ρ
- ΠΠΎΠΆΠΎΠ²ΠΊΠ° ΠΏΠΎ Π΄Π΅ΡΠ΅Π²Ρ, ΡΠ»ΠΈΡΠΎΠ²Π°Π»ΡΠ½Π°Ρ ΠΌΠ°ΡΠΈΠ½ΠΊΠ°, ΡΡΠ°ΠΌΠ΅ΡΠΊΠ°
- ΠΠ΅ΡΠ΅Π²ΡΠ½Π½ΡΠΉ ΠΌΠΎΠ»ΠΎΡΠΎΠΊ (ΠΊΠΈΡΠ½ΠΊΠ°), ΠΎΠ±ΡΡΠ½ΡΠΉ ΠΌΠΎΠ»ΠΎΡΠΎΠΊ

ΠΠ°Π±ΠΎΡ ΠΈΠ½ΡΡΡΡΠΌΠ΅Π½ΡΠΎΠ² Π΄Π»Ρ ΡΠ±ΠΎΡΠΊΠΈ ΠΏΠΎΠ»ΠΎΠΊΠ° ΡΠ²ΠΎΠΈΠΌΠΈ ΡΡΠΊΠ°ΠΌΠΈ
ΠΡΠ±ΠΎΡ ΠΌΠ°ΡΠ΅ΡΠΈΠ°Π»Π°
ΠΡΠ½ΠΎΠ²Π½ΡΠ΅ ΠΊΡΠΈΡΠ΅ΡΠΈΠΈ.
- Π’Π΅ΠΏΠ»ΠΎΠΏΡΠΎΠ²ΠΎΠ΄Π½ΠΎΡΡΡ. ΠΡΠ΅Π²Π΅ΡΠΈΠ½Π° Π΄ΠΎΠ»ΠΆΠ½Π° ΠΎΠ±Π»Π°Π΄Π°ΡΡ Π½ΠΈΠ·ΠΊΠΎΠΉ ΡΠ΅ΠΏΠ»ΠΎΠΏΡΠΎΠ²ΠΎΠ΄Π½ΠΎΡΡΡΡ, ΠΈΠ½Π°ΡΠ΅ Π½Π° ΠΏΠΎΠ»ΠΊΡ Π±ΡΠ΄Π΅Ρ Π½Π΅Π²ΠΎΠ·ΠΌΠΎΠΆΠ½ΠΎ ΠΏΡΠΈΡΠ΅ΡΡΡ.
- ΠΠΎΠ»Π³ΠΎΠ²Π΅ΡΠ½ΠΎΡΡΡ, ΠΏΡΠ°ΠΊΡΠΈΡΠ½ΠΎΡΡΡ.
- ΠΡΡΠΎΠΊΠ°Ρ ΡΡΠΎΠΉΠΊΠΎΡΡΡ ΠΊ Π²Π»Π°Π³Π΅, Π±ΠΎΠ»ΡΡΠΈΠΌ ΡΠ΅ΠΌΠΏΠ΅ΡΠ°ΡΡΡΠ°ΠΌ, ΠΎΡΡΡΡΡΡΠ²ΠΈΠ΅ ΠΈΠ·ΡΡΠ½ΠΎΠ².
- Π Π°ΡΠΊΠ°Π»ΡΠ²Π°Π½ΠΈΠ΅, ΡΠ°ΡΡΠ΅ΠΏΠ»Π΅Π½ΠΈΠ΅.

ΠΠΎΠΏΠ΅ΡΠ΅ΡΠ½ΠΎΠ΅ ΠΊΡΠ΅ΠΏΠ»Π΅Π½ΠΈΠ΅ ΠΎΠ±ΡΠΈΠ²ΠΊΠΈ Π»Π΅ΠΆΠ°Π½ΠΎΠΊ

ΠΠ°ΡΠΈΠ°Π½Ρ ΠΏΡΠΎΠ΄ΠΎΠ»ΡΠ½ΠΎΠ³ΠΎ ΠΊΡΠ΅ΠΏΠ»Π΅Π½ΠΈΡ Π΄ΠΎΡΠΎΠΊ ΠΎΠ±ΡΠΈΠ²ΠΊΠΈ Π±Π°Π½Π½ΡΡ Π»Π΅ΠΆΠ°ΠΊΠΎΠ²
ΠΠ΅ΠΊΠΎΡΠΎΡΡΠ΅ ΠΏΠΎΡΠΎΠ΄Ρ, Π² ΡΡΠ»ΠΎΠ²ΠΈΡΡ Π²ΡΡΠΎΠΊΠΎΠΉ Π²Π»Π°ΠΆΠ½ΠΎΡΡΠΈ, ΡΠ°ΡΡΡΠ΅ΡΠΊΠΈΠ²Π°ΡΡΡΡ ΡΠ°ΡΠ΅ Π΄ΡΡΠ³ΠΈΡ . Β Π§ΡΠΎΠ±Ρ ΠΈΠ·Π±Π΅ΠΆΠ°ΡΡ ΡΠ°ΡΡΡΠ΅ΡΠΊΠΈΠ²Π°Π½ΠΈΡ Π±Π°Π½Π½ΡΡ ΠΏΠΎΠ»ΠΊΠΎΠ² ΠΏΡΠΈ Π·Π°Π±ΠΈΠ²Π°Π½ΠΈΠΈ Π³Π²ΠΎΠ·Π΄Π΅ΠΉ, ΠΈΡΠΏΠΎΠ»ΡΠ·ΡΠΉΡΠ΅ ΡΡΡΡΠΏΡ ΠΈΠ»ΠΈ Π·Π°ΡΠ°Π½Π΅Π΅ ΠΏΡΠΎΡΠ²Π΅ΡΠ»ΠΈΡΠ΅ ΠΎΡΠ²Π΅ΡΡΡΠΈΡ. ΠΡΠ΄Π°ΠΉΡΠ΅ ΠΏΡΠ΅Π΄ΠΏΠΎΡΡΠ΅Π½ΠΈΠ΅ Π΄Π΅ΡΠ΅Π²ΡΠ½Π½ΡΠΌ ΡΡΠΈΡΡΠ°ΠΌ.

ΠΠ°ΡΠΊΠ°Ρ Π±Π°Π½Π½ΡΡ ΠΏΠΎΠ»ΠΎΠΊ (ΠΎΠ΄ΠΈΠ½ ΠΈΠ· Π²Π°ΡΠΈΠ°Π½ΡΠΎΠ²)
Π£ΡΡΡΠ°Π½ΠΈΡΠ΅ Π·Π°ΡΡΠ΅Π½ΠΈΡΡ ΠΈ ΡΠ°ΡΡΠ΅ΠΏΡ, ΠΏΠΎΡΠ²ΠΈΠ²ΡΠΈΠ΅ΡΡ Π² ΠΏΡΠΎΡΠ΅ΡΡΠ΅ ΡΠ°Π±ΠΎΡΡ, ΠΈΠ½Π°ΡΠ΅ Π»ΡΠ±ΠΈΡΠ΅Π»ΡΠΌ ΠΏΠ°ΡΠΈΡΡΡΡ Π³Π°ΡΠ°Π½ΡΠΈΡΠΎΠ²Π°Π½Ρ Π·Π°Π½ΠΎΠ·Ρ. ΠΠ΅ ΠΈΡΠΏΠΎΠ»ΡΠ·ΡΠΉΡΠ΅ ΠΌΡΠ³ΠΊΠΈΠ΅ ΠΏΠΎΡΠΎΠ΄Ρ Π΄Π΅ΡΠ΅Π²ΡΠ΅Π², ΠΊΠΎΡΠΎΡΡΠ΅ ΠΎΡΠΎΠ±Π΅Π½Π½ΠΎ ΠΏΠΎΠ΄Π΄Π°ΡΡΡΡ ΡΠ°ΡΡΠ΅ΠΏΠ»Π΅Π½ΠΈΡ.

Π‘Ρ Π΅ΠΌΠ° ΠΌΠΎΠ½ΡΠ°ΠΆΠ° ΠΏΠΎΠ»ΠΎΠΊ ΡΠ²ΠΎΠΈΠΌΠΈ ΡΡΠΊΠ°ΠΌΠΈ
ΠΠ°ΠΏΠ°Ρ
ΠΡΠΏΠΎΠ»ΡΠ·ΡΠΉΡΠ΅ Π΄ΡΠ΅Π²Π΅ΡΠΈΠ½Ρ Π»ΠΈΡΡΠ²Π΅Π½Π½ΡΡ ΠΏΠΎΡΠΎΠ΄. Π‘Π΄Π΅Π»Π°Π² Π²ΡΠ±ΠΎΡ Π²ΡΠ΅-ΡΠ°ΠΊΠΈ Π² ΠΏΠΎΠ»ΡΠ·Ρ Ρ Π²ΠΎΠΉΠ½ΡΡ ΠΏΠΎΡΠΎΠ΄, ΠΏΠΎΠΊΡΠΏΠ°ΠΉΡΠ΅ Π±ΡΡΡ, Π·Π°Π³ΠΎΡΠΎΠ²Π»Π΅Π½Π½ΡΠΉ Π·ΠΈΠΌΠΎΠΉ ΠΈ ΠΏΡΠΈΠ²Π΅Π·Π΅Π½Π½ΡΠΉ ΠΈΠ· ΡΠ΅Π²Π΅ΡΠ½ΡΡ ΡΠ°ΠΉΠΎΠ½ΠΎΠ² ΡΡΡΠ°Π½Ρ. ΠΡΠΎ ΠΌΠ°ΡΠ΅ΡΠΈΠ°Π» Ρ Π±ΠΎΠ»ΡΡΠ΅ΠΉ ΠΏΠ»ΠΎΡΠ½ΠΎΡΡΡΡ. Π£ Π΄ΡΠ΅Π²Π΅ΡΠΈΠ½Ρ ΠΏΠΈΡ ΡΡ ΠΊΡΠ°ΡΠΈΠ²Π°Ρ ΡΠ΅ΠΊΡΡΡΡΠ°, ΡΠ²Π΅Ρ ΠΈ ΠΎΡΡΡΡΡΡΠ²ΡΡΡ ΡΠΌΠΎΠ»ΡΠ½ΡΠ΅ ΠΊΠ°ΡΠΌΠ°Π½Ρ, ΡΠ΅Π³ΠΎ Π½Π΅Π»ΡΠ·Ρ ΡΠΊΠ°Π·Π°ΡΡ ΠΏΡΠΎ Π²ΡΠ΅ Π²ΠΈΠ΄Ρ ΡΠΎΡΠ΅Π½. ΠΠ΅ΡΠ΅Π²ΠΎ Ρ ΡΠ΅Π·ΠΊΠΈΠΌ Π°ΡΠΎΠΌΠ°ΡΠΎΠΌ, ΠΊΠ°ΠΊΠΈΠΌ ΠΎΠ±Π»Π°Π΄Π°ΡΡ Π½Π΅ΠΊΠΎΡΠΎΡΡΠ΅ Π²ΠΈΠ΄Ρ ΠΏΠΈΡ Ρ, ΡΠ²Π΅Π΄Π΅Ρ Π½Π° Β«Π½Π΅ΡΒ» ΡΡΠΈΠ»ΠΈΡ ΠΏΠΎ Π±Π»Π°Π³ΠΎΡΡΡΡΠΎΠΉΡΡΠ²Ρ ΠΏΠ°ΡΠΈΠ»ΠΊΠΈ. Π‘ΠΌΠΎΠ»ΠΈΡΡΡΠ΅ Π²ΠΈΠ΄Ρ ΡΠΎΠ·Π΄Π°Π΄ΡΡ Π·Π°ΠΌΠ΅ΡΠ°ΡΠ΅Π»ΡΠ½ΡΠΉ βΠ΄ΡΠ΅Π²Π΅ΡΠ½ΡΠΉβ Π·Π°ΠΏΠ°Ρ Π² ΡΠ°ΡΠ½Π΅, ΠΊΠΎΡΠΎΡΡΠΉ Π±ΡΠ΄Π΅Ρ ΡΠΏΠΎΡΠΎΠ±ΡΡΠ²ΠΎΠ²Π°ΡΡ ΡΠ°ΡΡΠ»Π°Π±Π»Π΅Π½ΠΈΡ. ΠΡΠΈ ΡΡΠΎΠΌ ΡΡΡΠΈΡΠ΅, Π΅ΡΠ»ΠΈ Π΄ΡΠ΅Π²Π΅ΡΠΈΠ½Π° ΡΠΎΡΠ½Ρ Π½Π΅ ΠΏΡΠΎΡΠ»Π° ΡΠΏΠ΅ΡΠΈΠ°Π»ΡΠ½ΡΡ ΠΎΠ±ΡΠ°Π±ΠΎΡΠΊΡ (ΠΎΠ±Π΅ΡΡΠΌΠΎΠ»ΠΈΠ²Π°Π½ΠΈΠ΅), ΠΏΠΎΠ΄ Π²ΠΎΠ·Π΄Π΅ΠΉΡΡΠ²ΠΈΠ΅ΠΌ Π³ΠΎΡΡΡΠ΅Π³ΠΎ Π²ΠΎΠ·Π΄ΡΡ Π° ΡΠΌΠΎΠ»Π° ΠΏΡΠΎΡΡΡΠΏΠΈΡ Π½Π°ΡΡΠΆΡ. ΠΠΎΠ³Π΄Π° ΡΠ°Π±ΠΎΡΠ° Π½Π°Π΄ ΠΏΠ°ΡΠ½ΠΎΠΉ Π±ΡΠ΄Π΅Ρ Π·Π°ΠΊΠΎΠ½ΡΠ΅Π½Π°, ΠΏΠΎΡΠΈΠ»ΡΠ½Π΅Π΅ ΠΏΡΠΎΡΠΎΠΏΠΈΡΠ΅ ΠΏΠ°ΡΠΈΠ»ΠΊΡ Π² ΡΠ΅ΡΠ΅Π½ΠΈΠ΅ ΡΠ°ΡΠ°, ΡΠΎΡΠΊΠΎΠ±Π»ΠΈΡΠ΅ Ρ ΠΏΠΎΠ»ΠΎΠΊ Π²ΡΠ΄Π΅Π»ΠΈΠ²ΡΡΡΡΡ ΠΈΠ· ΡΠΌΠΎΠ»ΡΠ½ΡΡ ΠΊΠ°ΡΠΌΠ°Π½ΠΎΠ² ΡΠΌΠΎΠ»Ρ. ΠΠ΅ΠΉΡΡΠ²ΠΈΠ΅ ΠΏΠΎΠ²ΡΠΎΡΠΈΡΡ Π½Π΅ΡΠΊΠΎΠ»ΡΠΊΠΎ ΡΠ°Π·.

ΠΠΎΡΠ»Π΅ ΠΎΠΊΠΎΠ½ΡΠ°Π½ΠΈΡ ΡΡΡΠΎΠΈΡΠ΅Π»ΡΡΡΠ²Π° Π±Π°Π½Π½ΡΡ Π»Π΅ΠΆΠ°Π½ΠΎΠΊ ΠΈΡ Π½ΡΠΆΠ½ΠΎ ΠΏΡΠΎΠΏΠΈΡΠ°ΡΡ Π·Π°ΡΠΈΡΠ½ΡΠΌ ΡΠ°ΡΡΠ²ΠΎΡΠΎΠΌ
ΠΡΠ°ΡΠΊΠΈΠΉ ΠΎΠ±Π·ΠΎΡ ΠΏΠΈΠ»ΠΎΠΌΠ°ΡΠ΅ΡΠΈΠ°Π»ΠΎΠ² Π΄Π»Ρ ΡΠ°ΡΠ½Ρ ΠΈ Π±Π°Π½ΠΈ
ΠΡΠΈΠ½Π° β Π΄Π΅ΠΌΠΎΠΊΡΠ°ΡΠΈΡΠ½Π°Ρ ΡΡΠΎΠΈΠΌΠΎΡΡΡ ΠΌΠ°ΡΠ΅ΡΠΈΠ°Π»Π°; Π½Π΅ ΡΠ°ΡΡΡΠ΅ΡΠΊΠΈΠ²Π°Π΅ΡΡΡ ΠΏΡΠΈ Π²ΡΡΡΡ Π°Π½ΠΈΠΈ; ΡΠΎ Π²ΡΠ΅ΠΌΠ΅Π½Π΅ΠΌ ΡΡΠ°Π½ΠΎΠ²ΠΈΡΡΡ Π±ΠΎΠ»Π΅Π΅ ΡΠ²Π΅ΡΠ»ΠΎΠΉ; Π½Π΅ Π±ΠΎΠΈΡΡΡ Π²Π»Π°Π³ΠΈ; Π½Π΅ Π²ΡΠ΄Π΅Π»ΡΠ΅Ρ ΡΠΌΠΎΠ»Ρ. ΠΠ΅Π΄ΠΎΡΡΠ°ΡΠΊΠΈ ΠΌΠ°ΡΠ΅ΡΠΈΠ°Π»Π° β Π½ΠΈΠ·ΠΊΠ°Ρ ΡΡΡΠΎΠΉΡΠΈΠ²ΠΎΡΡΡ ΠΊ Π³Π½ΠΈΠ΅Π½ΠΈΡ, ΠΏΡΠΈ ΠΏΠΎΡΡΠΎΡΠ½Π½ΠΎΠΌ ΠΊΠΎΠ½ΡΠ°ΠΊΡΠ΅ Ρ Π²ΠΎΠ΄ΠΎΠΉ ΡΠ΅ΠΌΠ½Π΅Π΅Ρ, Π²ΡΠ΄Π΅Π»ΡΠ΅Ρ Π³ΠΎΡΡΠΊΠΎΠ²Π°ΡΡΠΉ Π°ΡΠΎΠΌΠ°Ρ ΠΏΡΠΈ Π½Π°Π³ΡΠ΅Π²Π΅.
ΠΡΠΈΠ½Π° β ΠΏΡΠΈΠΌΠ΅Π½ΡΠ΅ΡΡΡ Π΄Π»Ρ ΠΈΠ·Π³ΠΎΡΠΎΠ²Π»Π΅Π½ΠΈΡ Π±Π°Π½Π½ΡΡ ΠΏΠΎΠ»ΠΊΠΎΠ², ΡΠ°ΠΊ ΠΊΠ°ΠΊ Π½Π΅ Π²ΡΠ΄Π΅Π»ΡΠ΅Ρ ΡΠΌΠΎΠ»Ρ ΠΏΡΠΈ Π½Π°Π³ΡΠ΅Π²Π°Π½ΠΈΠΈ
ΠΠΈΡΡΠ²Π΅Π½Π½ΠΈΡΠ° β Π΄ΡΠ΅Π²Π΅ΡΠΈΠ½Π° ΡΠΎΠ΄Π΅ΡΠΆΠΈΡ ΠΊΠ°ΠΌΠ΅Π΄Ρ, ΠΏΠΎΡΡΠΎΠΌΡ ΠΎΡΠ΅Π½Ρ Π΄ΠΎΠ»Π³ΠΎΠ²Π΅ΡΠ½Π°. ΠΠ°ΡΠ΅ΡΠΈΠ°Π» ΠΎΠ±Π»Π°Π΄Π°Π΅Ρ Π²ΡΡΠΎΠΊΠΎΠΉ ΡΡΡΠΎΠΉΡΠΈΠ²ΠΎΡΡΡΡ ΠΊ Π²ΠΎΠ·Π΄Π΅ΠΉΡΡΠ²ΠΈΡ Π²ΡΡΠΎΠΊΠΈΡ ΡΠ΅ΠΌΠΏΠ΅ΡΠ°ΡΡΡ ΠΈ Π²Π»Π°Π³ΠΈ. ΠΠΌΠ΅Π΅Ρ ΡΠ΅Π½Π½ΡΠ΅ Π»Π΅ΡΠ΅Π±Π½ΡΠ΅ ΡΠ²ΠΎΠΉΡΡΠ²Π°: Π½Π° ΠΏΡΠΎΡΡΠΆΠ΅Π½ΠΈΠΈ Π²ΡΠ΅Π³ΠΎ ΡΡΠΎΠΊΠ° ΠΈΡΠΏΠΎΠ»ΡΠ·ΠΎΠ²Π°Π½ΠΈΡ Π±ΡΠ΄Π΅Ρ Π²ΡΠ΄Π΅Π»ΡΡΡ ΡΠΈΡΠΎΠ½ΡΠΈΠ΄Ρ. ΠΡΠ°ΡΠΈΠ²Π°Ρ ΡΠ΅ΠΊΡΡΡΡΠ°, ΠΎΠ±ΡΠΈΡΠ½Π°Ρ ΡΠ²Π΅ΡΠΎΠ²Π°Ρ Π³Π°ΠΌΠΌΠ°. ΠΠ΅Π΄ΠΎΡΡΠ°ΡΠΊΠΈ β Π²ΡΡΠΎΠΊΠ°Ρ ΠΏΠ»ΠΎΡΠ½ΠΎΡΡΡ, ΠΌΠ½ΠΎΠ³ΠΎ ΡΠΌΠΎΠ»ΡΠ½ΡΡ ΠΊΠ°ΡΠΌΠ°Π½ΠΎΠ², ΡΡΡΠ΄Π½ΠΎ ΠΏΠΎΠ΄Π΄Π°Π΅ΡΡΡ ΠΎΠ±ΡΠ°Π±ΠΎΡΠΊΠ΅, ΡΠ΅Π½Π°.

ΠΠΈΡΡΠ²Π΅Π½ΠΈΡΠ° β ΠΎΡΠ΅Π½Ρ ΠΏΡΠΎΡΠ½Π°Ρ ΠΈ Π΄ΠΎΠ»Π³ΠΎΠ²Π΅ΡΠ½Π°Ρ ΠΈ ΠΎΡΠ»ΠΈΡΠ½ΠΎ ΠΏΠΎΠ΄Ρ ΠΎΠ΄ΠΈΡ Π΄Π»Ρ ΠΏΠΎΠ»ΠΎΠΊ
ΠΡΠ± β Π»ΡΡΡΠΈΠΉ Π²ΡΠ±ΠΎΡ ΠΈΠ· Π»ΠΈΡΡΠ²Π΅Π½Π½ΡΡ ΠΏΠΎΡΠΎΠ΄ Π΄Π΅ΡΠ΅Π²ΡΠ΅Π². ΠΡΠ»ΠΈ ΠΌΠ°ΡΠ΅ΡΠΈΠ°Π»ΡΠ½ΠΎΠ΅ ΠΏΠΎΠ»ΠΎΠΆΠ΅Π½ΠΈΠ΅ ΠΏΠΎΠ·Π²ΠΎΠ»ΡΠ΅Ρ, ΡΠ°ΡΡΠΌΠΎΡΡΠΈΡΠ΅ Π°ΡΡΠΈΠΊΠ°Π½ΡΠΊΠΈΠΉ Π΄ΡΠ± Π°Π±Π°ΡΠΈ β Ρ Π½Π΅Π³ΠΎ ΠΎΡΠ΅Π½Ρ Π½ΠΈΠ·ΠΊΠ°Ρ ΡΠ΅ΠΏΠ»ΠΎΠΏΡΠΎΠ²ΠΎΠ΄Π½ΠΎΡΡΡ, ΡΠΈΠ΄Ρ Π½Π° ΡΠ°ΠΊΠΎΠΉ ΠΏΠΎΠ»ΠΊΠ΅ ΡΠ»ΠΎΠΆΠ½ΠΎ ΠΎΠ±ΠΆΠ΅ΡΡΡΡ. ΠΡΠΈΠ²Π»Π΅ΠΊΠ°Π΅Ρ Π²Π½Π΅ΡΠ½ΠΈΠΌ Π²ΠΈΠ΄ΠΎΠΌ, ΠΏΠΎΡΠΈΡΡΠΎΠΉ ΡΡΡΡΠΊΡΡΡΠΎΠΉ, Π²ΡΠ±ΠΎΡΠΎΠΌ ΡΠ²Π΅ΡΠ°, Π²ΡΡΠΎΠΊΠΎΠΉ Π°Π΄Π°ΠΏΡΠ°ΡΠΈΠ΅ΠΉ Π΄ΡΠ΅Π²Π΅ΡΠΈΠ½Ρ ΠΏΠΎΠ΄ ΠΏΡΠΈΠΌΠ΅Π½Π΅Π½ΠΈΠ΅ Π² ΠΏΠ°ΡΠ½ΠΎΠΉ. ΠΠ΅Π΄ΠΎΡΡΠ°ΡΠΎΠΊ ΠΎΠ΄ΠΈΠ½ β Π²ΡΡΠΎΠΊΠ°Ρ ΡΠ΅Π½Π°.

ΠΠ±Π°Ρ β ΡΠ°ΠΌΡΠΉ Π΄ΠΎΡΠΎΠ³ΠΎΠΉ ΠΈ ΠΊΡΠ°ΡΠΈΠ²ΡΠΉ ΠΌΠ°ΡΠ΅ΡΠΈΠ°Π» Π΄Π»Ρ ΠΈΠ·Π³ΠΎΡΠΎΠ²Π»Π΅Π½ΠΈΡ Π±Π°Π½Π½ΡΡ Π»Π΅ΠΆΠ°ΠΊΠΎΠ²
ΠΠΈΠΏΠ° β ΠΎΠ±Π»Π°Π΄Π°Π΅Ρ Π·Π°ΠΌΠ΅ΡΠ°ΡΠ΅Π»ΡΠ½ΡΠΌ Π·Π°ΠΏΠ°Ρ ΠΎΠΌ, Π½ΠΈΠ·ΠΊΠΎΠΉ ΡΠ΅ΠΏΠ»ΠΎΠΏΡΠΎΠ²ΠΎΠ΄Π½ΠΎΡΡΡΡ. ΠΠ°ΡΠ΅ΡΠΈΠ°Π» ΡΠΎΠ΄Π΅ΡΠΆΠΈΡ ΡΠ΅Π»Π΅Π±Π½ΡΠ΅ ΡΡΠΈΡΠ½ΡΠ΅ ΠΌΠ°ΡΠ»Π°, ΡΡΠΎ ΡΠΏΠΎΡΠΎΠ±ΡΡΠ²ΡΠ΅Ρ ΠΏΡΠΎΡΠΈΠ»Π°ΠΊΡΠΈΠΊΠ΅ ΠΏΡΠΎΡΡΡΠ΄Π½ΡΡ Π·Π°Π±ΠΎΠ»Π΅Π²Π°Π½ΠΈΠΉ. ΠΠ΅Π³ΠΎΠΊ Π² ΠΎΠ±ΡΠ°Π±ΠΎΡΠΊΠ΅. ΠΠ°Π½ΠΈΠΌΠ°Π΅Ρ ΡΡΠ΅Π΄Π½ΡΡ ΡΠ΅Π½ΠΎΠ²ΡΡ Π½ΠΈΡΡ. ΠΠ΅Π΄ΠΎΡΡΠ°ΡΠΊΠΈ β ΡΡΠ΅Π΄Π½ΡΡ ΠΏΡΠΎΡΠ½ΠΎΡΡΡ, Π±ΡΡΡΡΠΎ ΡΠ΅ΠΌΠ½Π΅Π΅Ρ, Π»Π΅Π³ΠΊΠΎ ΠΏΠΎΠ΄Π΄Π°Π΅ΡΡΡ Π³Π½ΠΈΠ΅Π½ΠΈΡ. ΠΠΎΠ»ΠΎΠΊΠΈ ΠΈΠ· Π»ΠΈΠΏΡ Π½Π΅ΠΎΠ±Ρ ΠΎΠ΄ΠΈΠΌΠΎ ΡΡΠ°ΡΠ΅Π»ΡΠ½ΠΎ ΠΏΡΠΎΡΡΡΠΈΠ²Π°ΡΡ.
ΠΠΈΠΏΠ° β ΠΎΡΠ»ΠΈΡΠ½ΡΠΉ ΠΌΠ°ΡΠ΅ΡΠΈΠ°Π» Π΄Π»Ρ ΠΈΠ·Π³ΠΎΡΠΎΠ²Π»Π΅Π½ΠΈΡ Π±Π°Π½Π½ΡΡ Π»Π΅ΠΆΠ°ΠΊΠΎΠ²
ΠΠ°Π½Π°Π΄ΡΠΊΠΈΠΉ ΠΊΠ΅Π΄Ρ (Π½Π΅ ΠΏΡΡΠ°ΡΡ Ρ ΡΠΈΠ±ΠΈΡΡΠΊΠΈΠΌ) β ΡΠ½ΠΈΠΊΠ°Π»Π΅Π½ ΠΏΠΎ ΡΠ²ΠΎΠΈΠΌ ΡΠ²ΠΎΠΉΡΡΠ²Π°ΠΌ. ΠΠ°ΡΡΠΈΠ» ΠΈΠ· ΠΊΠ΅Π΄ΡΠ° Π½Π΅ ΡΠΌΠΎΠ»ΠΈΡ, Π½Π΅ ΠΎΠ±ΠΆΠΈΠ³Π°Π΅Ρ, Π΄ΡΠ΅Π²Π΅ΡΠΈΠ½Π° Ρ ΠΎΡΠΎΡΠ° Π² ΠΎΠ±ΡΠ°Π±ΠΎΡΠΊΠ΅, ΠΎΠ±Π»Π°Π΄Π°Π΅Ρ Π²ΡΡΠΎΠΊΠΎΠΉ ΡΡΡΠΎΠΉΡΠΈΠ²ΠΎΡΡΡΡ ΠΊ Π³Π½ΠΈΠ΅Π½ΠΈΡ ΠΈ ΡΠ°ΡΡΡΠ΅ΡΠΊΠΈΠ²Π°Π½ΠΈΡ. Π’Π΅ΡΠ°ΠΏΠ΅Π²ΡΠΈΡΠ΅ΡΠΊΠΈΠΉ ΡΡΡΠ΅ΠΊΡ ΠΎΡ ΠΊΠ΅Π΄ΡΠΎΠ²ΡΡ ΡΠΌΠΎΠ» ΠΎΡΠ΅Π½Ρ ΠΏΠΎΠ»Π΅Π·Π΅Π½ Π΄Π»Ρ Π²Π΅ΡΡ Π½ΠΈΡ Π΄ΡΡ Π°ΡΠ΅Π»ΡΠ½ΡΡ ΠΏΡΡΠ΅ΠΉ. ΠΡΠ»ΠΈ Π΄ΠΎΡΠΊΠΈ Π½Π΅ ΠΏΠΎΠ΄Π±ΠΈΡΠ°ΡΡ ΠΏΠΎ ΡΠ²Π΅ΡΡ, ΠΏΠΎΠ»ΡΡΠΈΡΡΡ ΠΏΠΎΠ»ΠΎΠΊ Ρ ΠΈΠ·ΡΠΌΠΈΡΠ΅Π»ΡΠ½ΠΎΠΉ ΠΈΠ³ΡΠΎΠΉ ΠΎΡΡΠ΅Π½ΠΊΠΎΠ². ΠΠ΅Π΄ΠΎΡΡΠ°ΡΠΊΠΈ ΠΌΠ°ΡΠ΅ΡΠΈΠ°Π»Π° β ΡΠ΅Π½Π°.

ΠΠ°Π½Π°Π΄ΡΠΊΠΈΠΉ ΠΊΠ΅Π΄Ρ β Π·Π°ΠΌΠ΅ΡΠ°ΡΠ΅Π»ΡΠ½ΠΎ ΠΏΠΎΠ΄Ρ ΠΎΠ΄ΠΈΡ Π΄Π»Ρ ΠΏΠΎΠ»ΠΎΠΊ, ΠΎΡΠ²Π΅ΡΠ°Π΅Ρ Π²ΡΠ΅ΠΌ ΡΡΠ΅Π±ΠΎΠ²Π°Π½ΠΈΡΠΌ, Π½ΠΎ Π΄ΠΎΡΠΎΠ³ΠΎΠΉ ΠΌΠ°ΡΠ΅ΡΠΈΠ°Π»
ΠΡΠΈ ΠΏΠΎΠΊΡΠΏΠΊΠ΅ ΠΌΠ°ΡΠ΅ΡΠΈΠ°Π»Π° ΡΠ»Π΅Π΄ΡΠ΅Ρ Π·Π°ΠΊΠ»Π°Π΄ΡΠ²Π°ΡΡ Π² ΡΠΌΠ΅ΡΡ Π΄ΠΎΠΏΠΎΠ»Π½ΠΈΡΠ΅Π»ΡΠ½ΡΠ΅ 15 ΠΏΡΠΎΡΠ΅Π½ΡΠΎΠ² Π½Π° Π½Π΅ΠΏΡΠ΅Π΄Π²ΠΈΠ΄Π΅Π½Π½ΡΠ΅ ΡΠ°ΡΡ ΠΎΠ΄Ρ β ΠΏΠΎΡΡΠ°, Π±ΡΠ°ΠΊ ΠΈ Ρ.Π΄.

Π‘ΠΎΡΠ΅ΡΠ°Π½ΠΈΠ΅ Π½Π΅ΡΠΊΠΎΠ»ΡΠΊΠΈΡ ΠΏΠΎΡΠΎΠ΄ Π΄Π΅ΡΠ΅Π²Π° ΠΎΠ΄Π½ΠΎΠ²ΡΠ΅ΠΌΠ΅Π½Π½ΠΎ
ΠΠ΅ΡΠ΅ΡΠΈΡΠ»Π΅Π½Π½ΡΠ΅ ΠΏΠΎΡΠΎΠ΄Ρ Π΄Π°Π²Π½ΠΎ ΡΡΠ°Π»ΠΈ ΡΠ°Π²ΠΎΡΠΈΡΠ°ΠΌΠΈ Ρ ΡΠ΅Ρ , ΠΊΡΠΎ ΡΡΡΠΎΠΈΡ Π±Π°Π½ΠΈ ΠΈ ΡΠ°ΡΠ½Ρ. ΠΠ· ΡΠ°ΠΊΠΎΠΉ Π΄ΡΠ΅Π²Π΅ΡΠΈΠ½Ρ ΠΈΠ·Π³ΠΎΡΠ°Π²Π»ΠΈΠ²Π°ΡΡ ΡΡΠΎΠΉΠΊΠΈ, ΡΠΏΠΈΠ½ΠΊΠΈ Π΄Π»Ρ Π»Π΅ΠΆΠ°ΠΊΠΎΠ², ΡΠ°ΠΌΠΈ ΠΏΠΎΠ»ΠΊΠΈ ΠΈ Π½Π΅ΠΌΠ°Π»ΠΎ ΠΈΠ½ΠΎΠ³ΠΎ, Π±Π΅Π· ΡΠ΅Π³ΠΎ Π² Π±Π°Π½Π΅ ΠΎΠ±ΠΎΠΉΡΠΈΡΡ Π½Π΅Π²ΠΎΠ·ΠΌΠΎΠΆΠ½ΠΎ. ΠΠ΅ ΡΡΠΎΠΈΡ Π·Π°Π±ΡΠ²Π°ΡΡ β Π²ΡΡ Π²Π½ΡΡΡΠ΅Π½Π½ΡΡ ΠΎΡΠ΄Π΅Π»ΠΊΡ ΠΏΠ°ΡΠ½ΠΎΠΉ (ΠΏΠΎ ΡΠ΅ΠΊΠΎΠΌΠ΅Π½Π΄Π°ΡΠΈΠΈ ΠΎΠΏΡΡΠ½ΡΡ ΠΌΠ°ΡΡΠ΅ΡΠΎΠ²) ΡΠ»Π΅Π΄ΡΠ΅Ρ Π΄Π΅Π»Π°ΡΡ ΠΈΠ· ΠΎΠ΄Π½ΠΎΠ³ΠΎ Π²ΠΈΠ΄Π° Π΄Π΅ΡΠ΅Π²Π°. Π’ΠΎΠ³Π΄Π° Π±Π°Π½Ρ ΠΏΠΎΠ»ΡΡΠΈΡ ΠΏΡΠΈΡΡΠ½ΡΠΉ Π²Π½Π΅ΡΠ½ΠΈΠΉ Π²ΠΈΠ΄ ΠΈ Π±ΡΠ΄Π΅Ρ ΡΠ°Π΄ΠΎΠ²Π°ΡΡ ΡΠ²ΠΎΠ΅Π³ΠΎ Π²Π»Π°Π΄Π΅Π»ΡΡΠ° Π΄ΠΎΠ»Π³ΠΈΠ΅ Π³ΠΎΠ΄Ρ.

Π¨ΠΈΠΊΠ°ΡΠ½Π°Ρ Π±Π°Π½Ρ ΠΈΠ· ΠΊΠ°Π½Π°Π΄ΡΠΊΠΎΠ³ΠΎ ΠΊΠ΅Π΄ΡΠ°
ΠΠΈΠ΄Π΅ΠΎ: Π£Π½ΠΈΠΊΠ°Π»ΡΠ½ΡΠΉ ΠΌΠΎΠ½ΡΠ°ΠΆ Π΄Π²ΡΡ ΡΡΡΡΠ½ΡΡ ΠΏΠΎΠ»ΠΊΠΎΠ² Π² ΠΏΠ°ΡΠ½ΠΎΠΉ
‘; blockSettingArray[9][«setting_type»] = 1; blockSettingArray[9][«element»] = «h3»; blockSettingArray[9][«elementPosition»] = 1; blockSettingArray[9][«elementPlace»] = 8; blockSettingArray[10] = []; blockSettingArray[10][«minSymbols»] = 0; blockSettingArray[10][«minHeaders»] = 0; blockSettingArray[10][«text»] = ‘
‘; blockSettingArray[10][«setting_type»] = 1; blockSettingArray[10][«element»] = «h3»; blockSettingArray[10][«elementPosition»] = 1; blockSettingArray[10][«elementPlace»] = 9; blockSettingArray[11] = []; blockSettingArray[11][«minSymbols»] = 0; blockSettingArray[11][«minHeaders»] = 0; blockSettingArray[11][«text»] = ‘
‘; blockSettingArray[11][«setting_type»] = 1; blockSettingArray[11][«element»] = «h3»; blockSettingArray[11][«elementPosition»] = 1; blockSettingArray[11][«elementPlace»] = 10; blockSettingArray[12] = []; blockSettingArray[12][«minSymbols»] = 0; blockSettingArray[12][«minHeaders»] = 0; blockSettingArray[12][«text»] = ‘
‘; blockSettingArray[12][«setting_type»] = 1; blockSettingArray[12][«element»] = «h3»; blockSettingArray[12][«elementPosition»] = 1; blockSettingArray[12][«elementPlace»] = 11; blockSettingArray[13] = []; blockSettingArray[13][«minSymbols»] = 0; blockSettingArray[13][«minHeaders»] = 0; blockSettingArray[13][«text»] = ‘
‘; blockSettingArray[13][«setting_type»] = 1; blockSettingArray[13][«element»] = «h3»; blockSettingArray[13][«elementPosition»] = 1; blockSettingArray[13][«elementPlace»] = 12; blockSettingArray[14] = []; blockSettingArray[14][«minSymbols»] = 0; blockSettingArray[14][«minHeaders»] = 0; blockSettingArray[14][«text»] = ‘
‘; blockSettingArray[14][«setting_type»] = 1; blockSettingArray[14][«element»] = «h4»; blockSettingArray[14][«elementPosition»] = 1; blockSettingArray[14][«elementPlace»] = 1; blockSettingArray[15] = []; blockSettingArray[15][«minSymbols»] = 0; blockSettingArray[15][«minHeaders»] = 0; blockSettingArray[15][«text»] = ‘
‘; blockSettingArray[15][«setting_type»] = 1; blockSettingArray[15][«element»] = «h4»; blockSettingArray[15][«elementPosition»] = 1; blockSettingArray[15][«elementPlace»] = 2; blockSettingArray[16] = []; blockSettingArray[16][«minSymbols»] = 0; blockSettingArray[16][«minHeaders»] = 0; blockSettingArray[16][«text»] = ‘
‘; blockSettingArray[16][«setting_type»] = 1; blockSettingArray[16][«element»] = «h4»; blockSettingArray[16][«elementPosition»] = 1; blockSettingArray[16][«elementPlace»] = 3; blockSettingArray[17] = []; blockSettingArray[17][«minSymbols»] = 0; blockSettingArray[17][«minHeaders»] = 0; blockSettingArray[17][«text»] = ‘
‘; blockSettingArray[17][«setting_type»] = 1; blockSettingArray[17][«element»] = «h4»; blockSettingArray[17][«elementPosition»] = 1; blockSettingArray[17][«elementPlace»] = 4; blockSettingArray[18] = []; blockSettingArray[18][«minSymbols»] = 0; blockSettingArray[18][«minHeaders»] = 0; blockSettingArray[18][«text»] = ‘
‘; blockSettingArray[18][«setting_type»] = 1; blockSettingArray[18][«element»] = «h4»; blockSettingArray[18][«elementPosition»] = 1; blockSettingArray[18][«elementPlace»] = 5; blockSettingArray[19] = []; blockSettingArray[19][«minSymbols»] = 0; blockSettingArray[19][«minHeaders»] = 0; blockSettingArray[19][«text»] = ‘
‘; blockSettingArray[19][«setting_type»] = 1; blockSettingArray[19][«element»] = «h4»; blockSettingArray[19][«elementPosition»] = 1; blockSettingArray[19][«elementPlace»] = 6; blockSettingArray[20] = []; blockSettingArray[20][«minSymbols»] = 0; blockSettingArray[20][«minHeaders»] = 0; blockSettingArray[20][«text»] = ‘
‘; blockSettingArray[20][«setting_type»] = 1; blockSettingArray[20][«element»] = «h2»; blockSettingArray[20][«elementPosition»] = 1; blockSettingArray[20][«elementPlace»] = 1; blockSettingArray[21] = []; blockSettingArray[21][«minSymbols»] = 0; blockSettingArray[21][«minHeaders»] = 0; blockSettingArray[21][«text»] = ‘
‘; blockSettingArray[21][«setting_type»] = 3; blockSettingArray[21][«element»] = «p»; blockSettingArray[21][«directElement»] = «#toc_container»; blockSettingArray[21][«elementPosition»] = 0; blockSettingArray[21][«elementPlace»] = 1; blockSettingArray[22] = []; blockSettingArray[22][«minSymbols»] = 0; blockSettingArray[22][«minHeaders»] = 0; blockSettingArray[22][«text»] = ‘
‘; blockSettingArray[22][«setting_type»] = 3; blockSettingArray[22][«element»] = «p»; blockSettingArray[22][«directElement»] = «social»; blockSettingArray[22][«elementPosition»] = 0; blockSettingArray[22][«elementPlace»] = 1; blockSettingArray[23] = []; blockSettingArray[23][«minSymbols»] = 0; blockSettingArray[23][«minHeaders»] = 0; blockSettingArray[23][«text»] = ‘
‘; blockSettingArray[23][«setting_type»] = 3; blockSettingArray[23][«element»] = «p»; blockSettingArray[23][«directElement»] = «social»; blockSettingArray[23][«elementPosition»] = 0; blockSettingArray[23][«elementPlace»] = 2; blockSettingArray[25] = []; blockSettingArray[25][«minSymbols»] = 0; blockSettingArray[25][«minHeaders»] = 0; blockSettingArray[25][«text»] = ‘
‘; blockSettingArray[25][«setting_type»] = 3; blockSettingArray[25][«element»] = «p»; blockSettingArray[25][«directElement»] = «#nav_menu-2»; blockSettingArray[25][«elementPosition»] = 1; blockSettingArray[25][«elementPlace»] = 1; blockSettingArray[26] = []; blockSettingArray[26][«minSymbols»] = 0; blockSettingArray[26][«minHeaders»] = 0; blockSettingArray[26][«text»] = ‘
‘; blockSettingArray[26][«setting_type»] = 3; blockSettingArray[26][«element»] = «p»; blockSettingArray[26][«directElement»] = «widget_construct»; blockSettingArray[26][«elementPosition»] = 1; blockSettingArray[26][«elementPlace»] = 1; blockSettingArray[27] = []; blockSettingArray[27][«minSymbols»] = 0; blockSettingArray[27][«minHeaders»] = 0; blockSettingArray[27][«text»] = ‘
‘; blockSettingArray[27][«setting_type»] = 1; blockSettingArray[27][«element»] = «h2»; blockSettingArray[27][«elementPosition»] = 1; blockSettingArray[27][«elementPlace»] = 1; var jsInputerLaunch = 15;
berkem.ru
ΠΠΎΠ»ΠΎΠΊ Π² Π±Π°Π½Π΅ ΡΠ²ΠΎΠΈΠΌΠΈ ΡΡΠΊΠ°ΠΌΠΈ

ΠΡΠΎ ΡΡΡΠΎΠ΅Π½ΠΈΠ΅, ΠΊΠ°ΠΊ ΠΈ Π»ΡΠ±ΠΎΠ΅ Π΄ΡΡΠ³ΠΎΠ΅, Π½ΡΠΆΠ΄Π°Π΅ΡΡΡ Π² ΠΎΠΏΡΠ΅Π΄Π΅Π»Π΅Π½Π½ΠΎΠΌ ΠΎΡΠΎΡΠΌΠ»Π΅Π½ΠΈΠΈ ΠΈ ΠΌΠ΅Π±Π»ΠΈΡΠΎΠ²ΠΊΠ΅. ΠΠ΅ΠΊΠΎΡΠΎΡΡΠ΅ ΠΏΡΠ΅Π΄ΠΌΠ΅ΡΡ Π²Π΅ΡΡΠΌΠ° ΡΠΏΠ΅ΡΠΈΡΠΈΡΠ΅ΡΠΊΠΈΠ΅, Π½ΠΎ Π±Π΅Π· Π½ΠΈΡ Π² Π±Π°Π½Π΅ Π½Π΅ ΠΎΠ±ΠΎΠΉΡΠΈΡΡ. ΠΠ°ΠΏΡΠΈΠΌΠ΅Ρ, ΠΏΠΎΠ»ΠΎΠΊ. ΠΠ΅Π· Π½Π΅Π³ΠΎ ΠΏΠ°ΡΠΈΠ»ΠΊΠ° ΠΏΡΠΎΡΡΠΎ Π½Π΅ΠΌΡΡΠ»ΠΈΠΌΠ°. ΠΠ°ΠΊ ΠΈ ΠΈΠ· ΡΠ΅Π³ΠΎ Π΅Π³ΠΎ Π»ΡΡΡΠ΅ ΠΈΠ·Π³ΠΎΡΠΎΠ²ΠΈΡΡ ΡΠ²ΠΎΠΈΠΌΠΈ ΡΡΠΊΠ°ΠΌΠΈ, ΠΎΠΏΡΠΈΠΌΠ°Π»ΡΠ½ΡΠ΅ ΡΠ°Π·ΠΌΠ΅ΡΡ ΠΈ ΡΠ΅ΡΡΠ΅ΠΆΠΈ β Π²ΡΠ΅ ΡΡΠΎ ΠΈ ΡΡΠ°Π½Π΅Ρ ΠΏΡΠ΅Π΄ΠΌΠ΅ΡΠΎΠΌ ΡΠ°ΡΡΠΌΠΎΡΡΠ΅Π½ΠΈΡ Π² ΡΡΠ°ΡΡΠ΅.
Π£ΡΡΡΠΎΠΉΡΡΠ²ΠΎ ΠΏΠΎΠ»ΠΎΠΊΠ° Π΄ΠΎΡΡΠ°ΡΠΎΡΠ½ΠΎ ΠΏΡΠΎΡΡΠΎΠ΅ β Π»Π°Π²ΠΊΠ° (ΡΠΈΠ΄Π΅Π½ΡΠ΅) ΠΈ ΠΎΠΏΠΎΡΠ½Π°Ρ ΡΠ°ΡΡΡ. Π₯ΠΎΡΡ Π² Π±Π°Π½ΡΡ Π½Π΅ΡΠ΅Π΄ΠΊΠΎ ΡΡΡΠ°Π½Π°Π²Π»ΠΈΠ²Π°ΡΡΡΡ Π±ΠΎΠ»Π΅Π΅ ΡΠ»ΠΎΠΆΠ½ΡΠ΅, ΠΌΠ½ΠΎΠ³ΠΎΡΡΡΡΠ½ΡΠ΅ ΠΊΠΎΠ½ΡΡΡΡΠΊΡΠΈΠΈ. ΠΠΈΠ½Π΅ΠΉΠ½ΡΠ΅ ΡΠ°Π·ΠΌΠ΅ΡΡΒ ΠΏΠΎΠ»ΠΎΠΊΠ° Π²ΡΠ±ΠΈΡΠ°ΡΡΡΡ ΡΠΎΠΎΠ±ΡΠ°Π·Π½ΠΎ Π³Π°Π±Π°ΡΠΈΡΠ°ΠΌ ΠΏΠΎΠΌΠ΅ΡΠ΅Π½ΠΈΡ, ΠΏΠΎΡΡΠΎΠΌΡ Π³ΠΎΠ²ΠΎΡΠΈΡΡ ΠΎ ΠΊΠ°ΠΊΠΎΠΌ-ΡΠΎ ΡΡΠ°Π½Π΄Π°ΡΡΠ΅ Π±Π΅ΡΡΠΌΡΡΠ»Π΅Π½Π½ΠΎ. ΠΠ»Π°Π²Π½ΠΎΠ΅, ΡΡΠΎΠ±Ρ ΠΏΡΠΈΠ½ΠΈΠΌΠ°ΡΡΠΈΠΉ Π±Π°Π½Π½ΡΠ΅ ΠΏΡΠΎΡΠ΅Π΄ΡΡΡ ΡΡΠ²ΡΡΠ²ΠΎΠ²Π°Π» ΡΠ΅Π±Ρ ΠΌΠ°ΠΊΡΠΈΠΌΠ°Π»ΡΠ½ΠΎ ΠΊΠΎΠΌΡΠΎΡΡΠ½ΠΎ, Π° Π½Π΅ ΠΈΡΠΏΡΡΡΠ²Π°Π» ΠΊΠ°ΠΊΠΈΡ -Π»ΠΈΠ±ΠΎ Π½Π΅ΡΠ΄ΠΎΠ±ΡΡΠ².
ΠΡΡ ΠΎΠ΄Ρ ΠΈΠ· ΡΡΠΎΠ³ΠΎ, ΠΏΠΎΠ»ΠΎΠΊ Π² Π±Π°Π½Π΅ ΠΌΠΎΠΆΠ΅Ρ Π±ΡΡΡ ΡΠ°ΠΌΡΡ ΡΠ°Π·Π½ΠΎΠΎΠ±ΡΠ°Π·Π½ΡΡ ΠΈΡΠΏΠΎΠ»Π½Π΅Π½ΠΈΠΉ. ΠΠ»Ρ ΠΏΡΠΎΡΡΠΎΡΠ½ΡΡ ΠΏΠ°ΡΠΈΠ»ΠΎΠΊ Π»Π°Π²ΠΊΠ° ΠΊΠΎΠ½ΡΡΡΡΠΈΡΡΠ΅ΡΡΡ Π΄Π»ΠΈΠ½Π½Π΅Π΅, ΡΠΎ ΡΠΏΠΈΠ½ΠΊΠΎΠΉ, Ρ ΡΠ°ΡΡΠ΅ΡΠΎΠΌ Π½Π° Π½Π΅ΡΠΊΠΎΠ»ΡΠΊΠΈΡ ΡΠ΅Π»ΠΎΠ²Π΅ΠΊ, Π° Π΄Π»Ρ ΡΡΠ°Π²Π½ΠΈΡΠ΅Π»ΡΠ½ΠΎ Π½Π΅Π±ΠΎΠ»ΡΡΠΈΡ Π΄ΠΎΡΡΠ°ΡΠΎΡΠ½ΠΎ Π»ΠΈΡΡ ΠΎΠ΄Π½ΠΎΠ³ΠΎ ΠΊΠΎΡΠΎΡΠΊΠΎΠ³ΠΎ ΡΠΈΠ΄Π΅Π½ΡΡ. ΠΡΠ°ΠΊΡΠΈΡΠ΅ΡΠΊΠΈ Π²ΡΠ΅, ΡΡΠΎ Π΄Π΅Π»Π°Π΅ΡΡΡ ΡΠ²ΠΎΠΈΠΌΠΈ ΡΡΠΊΠ°ΠΌΠΈ, ΡΠΎΠ±ΠΈΡΠ°Π΅ΡΡΡ ΠΏΠΎ ΠΈΠ½Π΄ΠΈΠ²ΠΈΠ΄ΡΠ°Π»ΡΠ½ΡΠΌ ΡΠ΅ΡΡΠ΅ΠΆΠ°ΠΌ ΠΈ ΡΠ°Π·ΠΌΠ΅ΡΠ°ΠΌ, ΠΎΠΏΡΠ΅Π΄Π΅Π»Π΅Π½Π½ΡΠΌ ΡΠ°ΠΌΠΎΡΡΠΎΡΡΠ΅Π»ΡΠ½ΠΎ, Ρ ΡΡΠ΅ΡΠΎΠΌ ΡΠ΅ΠΊΠΎΠΌΠ΅Π½Π΄Π°ΡΠΈΠΉ ΡΠΏΠ΅ΡΠΈΠ°Π»ΠΈΡΡΠΎΠ².

Π Π°Π·ΡΠ°Π±ΠΎΡΠ°ΡΡ ΠΈΡ Π΄Π»Ρ ΠΏΠΎΠ»ΠΎΠΊΠ° Π½Π΅ΡΠ»ΠΎΠΆΠ½ΠΎ, Π΅ΡΠ»ΠΈ ΠΏΠΎΠ½ΡΡΡ ΠΏΡΠΎΡΠ΅ΡΡ Π΅Π³ΠΎ ΠΈΠ·Π³ΠΎΡΠΎΠ²Π»Π΅Π½ΠΈΡ ΠΈ Π½Π΅ΠΊΠΎΡΠΎΡΡΠ΅ ΠΎΡΠΎΠ±Π΅Π½Π½ΠΎΡΡΠΈ, Π² ΡΠΎΠΌ ΡΠΈΡΠ»Π΅, ΠΈ ΠΏΠΎ Π²ΡΠ±ΠΎΡΡ ΠΏΠΈΠ»ΠΎΠΌΠ°ΡΠ΅ΡΠΈΠ°Π»ΠΎΠ². ΠΠΎΡΡΠΎΠΌΡ Π½ΠΈΠΆΠ΅ΠΏΡΠΈΠ²Π΅Π΄Π΅Π½Π½ΡΠ΅ Π»ΠΈΠ½Π΅ΠΉΠ½ΡΠ΅ ΠΏΠ°ΡΠ°ΠΌΠ΅ΡΡΡ ΡΠ»Π΅Π΄ΡΠ΅Ρ ΡΠ°ΡΡΠΌΠ°ΡΡΠΈΠ²Π°ΡΡ Π»ΠΈΡΡ ΠΊΠ°ΠΊ ΠΏΡΠΈΠΌΠ΅Ρ ΡΠΎΠΎΡΠ²Π΅ΡΡΡΠ²ΠΈΡ ΡΠ°Π·ΠΌΠ΅ΡΠΎΠ² ΠΎΡΠ΄Π΅Π»ΡΠ½ΡΡ ΠΊΠΎΠ½ΡΡΡΡΠΊΡΠΈΠ²Π½ΡΡ ΡΠ»Π΅ΠΌΠ΅Π½ΡΠΎΠ². Π ΡΠΏΡΠΎΠ΅ΡΠΈΡΠΎΠ²Π°ΡΡ ΠΈΡ Π½Π° ΡΠΎΠ±ΡΡΠ²Π΅Π½Π½ΡΡ Π±Π°Π½Ρ, ΡΠΎΠ±Π»ΡΠ΄Π°Ρ ΠΏΡΠΈΠ½ΡΠΈΠΏ ΠΌΠ°ΡΡΡΠ°Π±ΠΈΡΠΎΠ²Π°Π½ΠΈΡ, Π΄ΠΎΡΡΠ°ΡΠΎΡΠ½ΠΎ ΠΏΡΠΎΡΡΠΎ.
ΠΠ°ΡΠΈΠ°Π½ΡΡ ΠΏΠΎΠ»ΠΎΠΊΠ° Π΄Π»Ρ Π±Π°Π½ΠΈ
ΠΠ΅ΡΠΊΠΎΠ»ΡΠΊΠΎ ΠΏΡΠΈΠΌΠ΅ΡΠΎΠ² ΠΏΠΎΠΌΠΎΠ³ΡΡ Π»ΡΡΡΠ΅ ΠΏΠΎΠ½ΡΡΡ, ΡΡΠΎ ΠΈΠΌΠ΅Π½Π½ΠΎ ΠΏΡΠ΅Π΄ΡΡΠΎΠΈΡ ΠΊΠΎΠ½ΡΡΡΡΠΈΡΠΎΠ²Π°ΡΡ ΠΈ ΡΠΎΠ±ΠΈΡΠ°ΡΡ.
ΠΠΈΠ½Π΅ΠΉΠ½ΡΠ΅ ΠΏΠ°ΡΠ°ΠΌΠ΅ΡΡΡ β Π² ΡΠΌ.
Β ΠΠ±ΡΠΊΠ½ΠΎΠ²Π΅Π½Π½ΡΠΉ Π΄Π΅ΡΠ΅Π²ΡΠ½Π½ΡΠΉ Π»Π΅ΠΆΠ°ΠΊ.Β 
ΠΠ»Ρ Π½Π΅Π±ΠΎΠ»ΡΡΠΎΠΉ Π΄ΠΎΠΌΠ°ΡΠ½Π΅ΠΉ Π±Π°Π½ΡΠΊΠΈ, ΡΠ°ΡΡΡΠΈΡΠ°Π½Π½ΠΎΠΉ Π½Π° ΠΎΠ΄Π½ΠΎΠ²ΡΠ΅ΠΌΠ΅Π½Π½ΡΡ ΠΏΠΎΠΌΡΠ²ΠΊΡ 2 β 3 ΡΠ΅Π»ΠΎΠ²Π΅ΠΊ (Π° ΠΏΠΎΠ΄ΠΎΠ±Π½ΡΠ΅ Π»Π΅ΠΆΠ°ΠΊΠΈ Π² ΠΎΡΠ½ΠΎΠ²Π½ΠΎΠΌ ΠΈ Π²ΡΡΡΠ΅ΡΠ°ΡΡΡΡ Π² ΡΠ°ΡΡΠ½ΠΎΠΌ ΡΠ΅ΠΊΡΠΎΡΠ΅), Π²ΠΏΠΎΠ»Π½Π΅ Π΄ΠΎΡΡΠ°ΡΠΎΡΠ½ΠΎ. Π₯ΠΎΡΡ ΡΡΠΎ ΠΈ Π½Π΅ ΠΏΠΎΠ»ΠΎΠΊ Π² ΠΏΠΎΠ»Π½ΠΎΠΌ ΡΠΌΡΡΠ»Π΅ ΡΠ»ΠΎΠ²Π°, Π½ΠΎ ΡΠ²ΠΎΠ΅ΠΌΡ ΠΏΡΠ΅Π΄Π½Π°Π·Π½Π°ΡΠ΅Π½ΠΈΡ Π»Π°Π²ΠΊΠ° ΠΏΠΎΠ»Π½ΠΎΡΡΡΡ ΡΠΎΠΎΡΠ²Π΅ΡΡΡΠ²ΡΠ΅Ρ.
Β ΠΠΎΠ½ΡΡΡΡΠΊΡΠΈΠΈ ΠΏΠΎΠ²ΠΎΡΠΎΡΠ½ΡΠ΅ ΠΈ ΠΌΠ½ΠΎΠ³ΠΎΡΡΠΎΠ²Π½Π΅Π²ΡΠ΅.Β 
ΠΠ΄Π½Π°ΠΊΠΎ ΡΠ²ΠΎΠΈΠΌΠΈ ΡΡΠΊΠ°ΠΌΠΈ ΡΠΎΠ±ΡΠ°ΡΡ ΡΠ°ΠΊΠΎΠΉ ΠΏΠΎΠ»ΠΎΠΊ Π³ΠΎΡΠ°Π·Π΄ΠΎ ΡΠ»ΠΎΠΆΠ½Π΅Π΅, Π΄Π° ΠΈ ΡΠ°ΡΡ ΠΎΠ΄ ΠΏΠΈΠ»ΠΎΠΌΠ°ΡΠ΅ΡΠΈΠ°Π»ΠΎΠ² ΡΡΡΠ΅ΡΡΠ²Π΅Π½Π½ΠΎ Π²ΠΎΠ·ΡΠ°ΡΡΠ΅Ρ, ΠΏΠΎΡΡΠΎΠΌΡ ΠΈ Π²ΡΠΉΠ΄Π΅Ρ Π΄ΠΎΡΠΎΠΆΠ΅. Π¦Π΅Π»Π΅ΡΠΎΠΎΠ±ΡΠ°Π·Π½ΠΎ ΠΌΠΎΠ½ΡΠΈΡΠΎΠ²Π°ΡΡ Π² Π³Π°Π±Π°ΡΠΈΡΠ½ΡΡ Π±Π°Π½ΡΡ , ΠΊΠΎΡΠΎΡΡΠ΅ Π½Π΅ΡΠ΅Π΄ΠΊΠΎ Π²ΠΎΠ·Π²ΠΎΠ΄ΡΡΡΡ Π½Π° ΠΏΡΠΈΠ»Π΅Π³Π°ΡΡΠ΅ΠΉ ΠΊ Π·Π°Π³ΠΎΡΠΎΠ΄Π½ΡΠΌ Π΄ΠΎΠΌΠ°ΠΌ ΡΠ΅ΡΡΠΈΡΠΎΡΠΈΠΈ, Π° Π² ΡΡΠ°Π²Π½ΠΈΡΠ΅Π»ΡΠ½ΠΎ Π½Π΅Π±ΠΎΠ»ΡΡΠΈΡ ΡΡΡΠΎΠ΅Π½ΠΈΡΡ Π²ΡΡΠ΄ Π»ΠΈ ΠΈΠΌΠ΅Π΅Ρ ΡΠΌΡΡΠ». ΠΠ΅Π΄Ρ ΠΏΠΎΠ»Π΅Π·Π½Π°Ρ ΠΏΠ»ΠΎΡΠ°Π΄Ρ ΠΏΠ°ΡΠΈΠ»ΠΊΠΈ ΠΏΠΎΡΠ»Π΅ ΡΡΡΠ°Π½ΠΎΠ²ΠΊΠΈ ΡΠ°ΠΊΠΎΠ³ΠΎ ΠΏΠΎΠ»ΠΎΠΊΠ° ΡΡΡΠ΅ΡΡΠ²Π΅Π½Π½ΠΎ ΡΠΌΠ΅Π½ΡΡΠΈΡΡΡ.
ΠΠΎΡΠ°Π³ΠΎΠ²ΠΎΠ΅ ΡΡΠΊΠΎΠ²ΠΎΠ΄ΡΡΠ²ΠΎ ΠΏΠΎ ΠΈΠ·Π³ΠΎΡΠΎΠ²Π»Π΅Π½ΠΈΡ ΠΏΠΎΠ»ΠΎΠΊΠ° Π² Π±Π°Π½Π΅
ΠΡΠ΅ ΠΏΡΠΈΠ²Π΅Π΄Π΅Π½Π½ΡΠ΅ Π½ΠΈΠΆΠ΅ ΡΠ΅ΠΊΠΎΠΌΠ΅Π½Π΄Π°ΡΠΈΠΈ ΠΎΠ΄Π½ΠΎΡΠΈΠΏΠ½Ρ Π΄Π»Ρ Π²ΡΠ΅Ρ ΠΊΠΎΠ½ΡΡΡΡΠΊΡΠΈΠΉ, Π½Π΅Π·Π°Π²ΠΈΡΠΈΠΌΠΎ ΠΎΡ ΡΠΎΡΠΌΡ, ΠΊΠΎΠ½ΡΠΈΠ³ΡΡΠ°ΡΠΈΠΈ ΠΈ ΡΠΎΠΌΡ ΠΏΠΎΠ΄ΠΎΠ±Π½ΠΎΠ΅.
ΠΡΠ±ΠΎΡ Π΄ΡΠ΅Π²Π΅ΡΠΈΠ½Ρ
ΠΠ°Π½Ρ Ρ Π°ΡΠ°ΠΊΡΠ΅ΡΠΈΠ·ΡΠ΅ΡΡΡ ΠΏΠΎΡΡΠΎΡΠ½Π½ΡΠΌΠΈ ΠΏΠ΅ΡΠ΅ΠΏΠ°Π΄Π°ΠΌΠΈ ΡΠ΅ΠΌΠΏΠ΅ΡΠ°ΡΡΡΡ, Π΅Π΅ Π²ΡΡΠΎΠΊΠΈΠΌΠΈ Π·Π½Π°ΡΠ΅Π½ΠΈΡΠΌΠΈ ΠΈ ΠΈΠ·Π±ΡΡΠΎΡΠ½ΠΎΠΉ Π²Π»Π°ΠΆΠ½ΠΎΡΡΡΡ Π² ΠΏΠ°ΡΠΈΠ»ΠΊΠ΅. Π£ΠΆΠ΅ ΠΏΠΎΠ½ΡΡΠ½ΠΎ, ΡΡΠΎ Π»ΡΠ±ΠΎΠ΅ Π΄Π΅ΡΠ΅Π²ΠΎ Π΄Π»Ρ ΠΏΠΎΠ»ΠΎΠΊΠ° Π½Π΅ ΠΏΠΎΠ΄Ρ ΠΎΠ΄ΠΈΡ. ΠΡΠΎΠΌΠ΅ ΡΡΡΠΎΠΉΡΠΈΠ²ΠΎΡΡΠΈ ΠΊ Π²Π½Π΅ΡΠ½ΠΈΠΌ ΡΠ°ΠΊΡΠΎΡΠ°ΠΌ, ΡΠ»Π΅Π΄ΡΠ΅Ρ ΡΡΠΈΡΡΠ²Π°ΡΡ ΠΈ ΠΎΡΠΎΠ±Π΅Π½Π½ΠΎΡΡΠΈ ΠΏΠΎΡΠΎΠ΄. Π₯Π²ΠΎΠΉΠ½ΡΠ΅ Π΄Π»Ρ ΠΏΠΎΠ»ΠΎΠΊΠ° Π½Π΅ ΠΈΡΠΏΠΎΠ»ΡΠ·ΡΡΡΡΡ ΠΏΠΎ Π½Π΅ΡΠΊΠΎΠ»ΡΠΊΠΈΠΌ ΠΏΡΠΈΡΠΈΠ½Π°ΠΌ.
ΠΠΎ-ΠΏΠ΅ΡΠ²ΡΡ , Π½Π΅ ΠΊΠ°ΠΆΠ΄ΡΠΉ ΡΠ΅Π»ΠΎΠ²Π΅ΠΊ Π²ΡΠ΄Π΅ΡΠΆΠΈΡ ΡΠ΅ΡΠΏΠΊΠΈΠΉ, ΡΠΏΠ΅ΡΠΈΡΠΈΡΠ΅ΡΠΊΠΈΠΉ Π·Π°ΠΏΠ°Ρ , ΠΊΠΎΡΠΎΡΡΠΉ ΠΈΡΡ ΠΎΠ΄ΠΈΡ ΠΎΡ ΡΠ°Π·ΠΎΠ³ΡΠ΅ΡΠΎΠΉ Π΄ΡΠ΅Π²Π΅ΡΠΈΠ½Ρ. ΠΠΎ-Π²ΡΠΎΡΡΡ , ΠΏΡΠΈ ΠΏΠΎΠ²ΡΡΠ΅Π½ΠΈΠΈ ΡΠ΅ΠΌΠΏΠ΅ΡΠ°ΡΡΡΡ Π½Π° ΠΏΠΎΠ²Π΅ΡΡ Π½ΠΎΡΡΡΡ Π²ΡΠ΅Ρ ΡΠ°ΡΡΠ΅ΠΉ ΠΏΠΎΠ»ΠΎΠΊΠ° Π½Π°ΡΠ½Π΅Ρ Π²ΡΠ΄Π΅Π»ΡΡΡΡΡ ΡΠΌΠΎΠ»Π°. ΠΡΡΠ΄ Π»ΠΈ ΠΊΠΎΠΌΡ ΠΏΠΎΠ½ΡΠ°Π²ΠΈΡΡΡ ΡΠΈΡΡΠ΅ΠΌΠ°ΡΠΈΡΠ΅ΡΠΊΠΈ Β«ΠΏΡΠΈΠ»ΠΈΠΏΠ°ΡΡΒ» ΡΠΎ ΠΊ Π΅Π³ΠΎ ΡΠΈΠ΄Π΅Π½ΡΡ, ΡΠΎ ΠΊ ΡΠΏΠΈΠ½ΠΊΠ΅.
Π Π΅ΠΊΠΎΠΌΠ΅Π½Π΄Π°ΡΠΈΠΈ:
- ΠΡΡΡΠΈΠΌΠΈ ΠΏΠΎΡΠΎΠ΄Π°ΠΌΠΈ Π΄Π΅ΡΠ΅Π²Π° Π΄Π»Ρ ΠΈΠ·Π³ΠΎΡΠΎΠ²Π»Π΅Π½ΠΈΡ ΠΏΠΎΠ»ΠΎΠΊΠ° (ΠΈΠ· Π΄ΠΎΡΡΡΠΏΠ½ΡΡ ΠΏΠΎ ΡΠ΅Π½Π΅) ΡΡΠΈΡΠ°ΡΡΡΡ ΠΊΠ»Π΅Π½, ΠΎΡΠΈΠ½Π°, Π±Π΅ΡΠ΅Π·Π°, Π»ΠΈΠΏΠ°, ΡΠΎΠΏΠΎΠ»Ρ. ΠΡΠΎΠ±Π΅Π½Π½ΠΎΡΡΠΈ ΠΊΠ°ΠΆΠ΄ΠΎΠΉ Π΄ΡΠ΅Π²Π΅ΡΠΈΠ½Ρ (Π²Π»ΠΈΡΠ½ΠΈΠ΅ Π½Π° ΠΎΡΠ³Π°Π½ΠΈΠ·ΠΌ, ΡΡΡΠΎΠΉΡΠΈΠ²ΠΎΡΡΡ ΠΊ Π³Π½ΠΈΠ»ΠΈ ΠΈ ΡΠΎΠΌΡ ΠΏΠΎΠ΄ΠΎΠ±Π½ΠΎΠ΅) β ΠΎΡΠ΄Π΅Π»ΡΠ½Π°Ρ ΡΠ΅ΠΌΠ°, ΠΏΠΎΡΡΠΎΠΌΡ ΠΏΠ΅ΡΠ΅Π΄ ΡΠ΅ΠΌ, ΠΊΠ°ΠΊ ΠΏΡΠΈΠ½ΡΡΡ ΡΠ΅ΡΠ΅Π½ΠΈΠ΅ ΠΎ ΠΏΠΎΠΊΡΠΏΠΊΠ΅ ΡΠΎΠ³ΠΎ ΠΈΠ»ΠΈ ΠΈΠ½ΠΎΠ³ΠΎ ΠΏΠΈΠ»ΠΎΠΌΠ°ΡΠ΅ΡΠΈΠ°Π»Π°, ΠΆΠ΅Π»Π°ΡΠ΅Π»ΡΠ½ΠΎ ΠΎΠ·Π½Π°ΠΊΠΎΠΌΠΈΡΡΡΡ. ΠΠΎΡΠ»Π΅ ΡΡΠΎΠ³ΠΎ ΠΌΠΎΠΆΠ½ΠΎ Π²ΡΠ±ΡΠ°ΡΡ Π½Π° ΡΠ²ΠΎΠ΅ ΡΡΠΌΠΎΡΡΠ΅Π½ΠΈΠ΅ ΠΎΠΏΡΠΈΠΌΠ°Π»ΡΠ½ΡΠΉ Π²Π°ΡΠΈΠ°Π½Ρ.
- ΠΡΠ΅Π²Π΅ΡΠΈΠ½Ρ ΠΏΡΠΈΠ΄Π΅ΡΡΡ ΠΎΠ±ΡΠ°Π±Π°ΡΡΠ²Π°ΡΡ ΠΏΡΠ΅ΠΏΠ°ΡΠ°ΡΠ°ΠΌΠΈ, ΠΏΡΠ΅Π΄ΠΎΡ ΡΠ°Π½ΡΡΡΠΈΠΌΠΈ ΠΎΡ Π³Π½ΠΈΠ΅Π½ΠΈΡ β ΠΏΠΎΠ΄ΡΠΎΠ±Π½Π΅Π΅ ΠΎ Π½ΠΈΡ ΡΠΈΡΠ°ΠΉΡΠ΅ Π·Π΄Π΅ΡΡ. Π‘ ΡΡΠ΅ΡΠΎΠΌ ΡΠΏΠ΅ΡΠΈΡΠΈΠΊΠΈ ΡΠΊΡΠΏΠ»ΡΠ°ΡΠ°ΡΠΈΠΈ ΠΊΠΎΠ½ΡΡΡΡΠΊΡΠΈΠΈ, ΡΠ»Π΅Π΄ΡΠ΅Ρ ΠΏΡΠΈΠΎΠ±ΡΠ΅ΡΠ°ΡΡ ΡΠΎΡΡΠ°Π²Ρ, Π² ΠΌΠ°ΡΠΊΠΈΡΠΎΠ²ΠΊΠ΅ ΠΊΠΎΡΠΎΡΡΡ ΠΏΡΠΈΡΡΡΡΡΠ²ΡΠ΅Ρ ΠΎΠ±ΠΎΠ·Π½Π°ΡΠ΅Π½ΠΈΠ΅ FC ΠΠ½ΠΈ ΡΡΠΈΡΠ°ΡΡΡΡ Π½Π°ΠΈΠ±ΠΎΠ»Π΅Π΅ Π±Π΅Π·ΠΎΠΏΠ°ΡΠ½ΡΠΌΠΈ Π² ΠΏΠ»Π°Π½Π΅ ΡΠΎΠ΄Π΅ΡΠΆΠ°Π½ΠΈΡ ΡΠΎΠΊΡΠΈΡΠ½ΡΡ ΠΊΠΎΠΌΠΏΠΎΠ½Π΅Π½ΡΠΎΠ².
Π Π°ΡΠΏΠΎΠ»ΠΎΠΆΠ΅Π½ΠΈΠ΅ ΠΏΠΎΠ»ΠΎΠΊΠ° Π² ΠΏΠ°ΡΠ½ΠΎΠΉ
Π§ΡΠΎΠ±Ρ Π³ΡΠ°ΠΌΠΎΡΠ½ΠΎ ΠΏΠΎΠ΄ΠΎΠ±ΡΠ°ΡΡ ΡΠ°Π·ΠΌΠ΅ΡΡ ΠΈΠ·Π΄Π΅Π»ΠΈΡ ΠΈ ΡΠΎΡΡΠ°Π²ΠΈΡΡ ΡΠ΅ΡΡΠ΅ΠΆ, Π½ΡΠΆΠ½ΠΎ ΠΎΠΏΡΠ΅Π΄Π΅Π»ΠΈΡΡΡΡ Ρ ΠΌΠ΅ΡΡΠΎΠΌ ΡΡΡΠ°Π½ΠΎΠ²ΠΊΠΈ ΠΏΠΎΠ»ΠΎΠΊΠ°, Π° ΡΠ°ΠΊΠΆΠ΅ ΠΎΡΠΎΠ±Π΅Π½Π½ΠΎΡΡΡΠΌΠΈ Π΅Π³ΠΎ ΠΊΠΎΠ½ΡΡΡΡΠΊΡΠΈΠΈ.
Π Π΅ΠΊΠΎΠΌΠ΅Π½Π΄Π°ΡΠΈΠΈ:
- ΠΠ»Ρ ΠΏΠ°ΡΠ½ΠΎΠΉ Π²ΡΡΡΠ½ΡΡΠΎΠΉ ΡΠΎΡΠΌΡ ΡΠ΅Π»Π΅ΡΠΎΠΎΠ±ΡΠ°Π·Π½ΠΎ ΡΡΡΠ°Π½Π°Π²Π»ΠΈΠ²Π°ΡΡ ΠΏΠΎΠ»ΠΎΠΊ Π²Π΄ΠΎΠ»Ρ ΡΡΠ΅Π½Ρ, Π½Π° ΠΊΠΎΡΠΎΡΠΎΠΉ Π½Π΅Ρ ΠΎΠΊΠΎΠ½Π½ΠΎΠ³ΠΎ ΠΏΡΠΎΠ΅ΠΌΠ°. ΠΠ°ΠΊ Π²Π°ΡΠΈΠ°Π½Ρ β ΡΠ³Π»ΠΎΠΌ, Ρ ΠΏΡΠΈΠΌΡΠΊΠ°Π½ΠΈΠ΅ΠΌ (ΡΠ°ΡΡΠΈΡΠ½ΡΠΌ) ΠΊ ΡΠΌΠ΅ΠΆΠ½ΡΠΌ ΡΡΠ΅Π½Π°ΠΌ.
- ΠΡΠΈ Π΄ΠΎΡΡΠ°ΡΠΎΡΠ½ΠΎΠΉ ΡΠΈΡΠΈΠ½Π΅ ΠΏΠΎΠΌΠ΅ΡΠ΅Π½ΠΈΡ ΠΏΠΎΠ»ΠΊΠΈ, ΠΊΠ°ΠΊ ΠΏΡΠ°Π²ΠΈΠ»ΠΎ, ΡΠ°ΡΠΏΠΎΠ»Π°Π³Π°ΡΡΡΡ Π΄ΡΡΠ³ Π½Π°ΠΏΡΠΎΡΠΈΠ² Π΄ΡΡΠ³Π°. ΠΡ ΡΡΡΠ°Π½ΠΎΠ²ΠΊΠ° Π²Π΄ΠΎΠ»Ρ ΠΏΡΠΎΡΠΈΠ²ΠΎΠΏΠΎΠ»ΠΎΠΆΠ½ΡΡ ΡΡΠ΅Π½ Π½Π°ΠΌΠ½ΠΎΠ³ΠΎ ΡΠ΄ΠΎΠ±Π½Π΅Π΅, Π΅ΡΠ»ΠΈ ΡΡΠΎ ΠΏΡΠΎΡΡΠΎ Π»Π΅ΠΆΠ°ΠΊ. ΠΠ»Ρ ΠΊΠΎΠ½ΡΡΡΡΠΊΡΠΈΠΈ ΠΌΠ½ΠΎΠ³ΠΎΡΡΡΠΏΠ΅Π½ΡΠ°ΡΠΎΠΉ Π²ΡΠ±ΡΠ°ΡΡ ΠΌΠ΅ΡΡΠΎ Π·Π½Π°ΡΠΈΡΠ΅Π»ΡΠ½ΠΎ ΠΏΡΠΎΡΠ΅. ΠΠ΄Π½Π°ΠΊΠΎ Π΄Π»Ρ ΡΠΊΡΠΎΠΌΠ½ΠΎΠΉ ΠΏΠΎ ΡΠ°Π·ΠΌΠ΅ΡΠ°ΠΌ Π±Π°Π½ΡΠΊΠΈ Π΄Π΅Π»Π°ΡΡ Π±ΠΎΠ»Π΅Π΅ Π΄Π²ΡΡ ΡΡΠΎΠ²Π½Π΅ΠΉ Π½Π΅ ΡΠ΅ΠΊΠΎΠΌΠ΅Π½Π΄ΡΠ΅ΡΡΡ. ΠΡΠ»ΠΈ ΠΏΠΎΡΠΎΠ»ΠΊΠΈ Π½ΠΈΠ·ΠΊΠΈΠ΅, ΡΠΎ ΠΈΡΠΏΠΎΠ»ΡΠ·ΠΎΠ²Π°Π½ΠΈΠ΅ 3-Π³ΠΎ ΡΡΡΡΠ° ΠΏΠΎΠ΄ Π²ΠΎΠΏΡΠΎΡΠΎΠΌ. ΠΠΎ ΡΡΡΠΈ, Π½Π°Π΄ΠΎΠ±Π½ΠΎΡΡΠΈ Π² Π½Π΅ΠΌ Π½Π΅Ρ.

Π Π°Π·ΠΌΠ΅ΡΡ
Π£ΠΆΠ΅ ΠΎΡΠΌΠ΅ΡΠ΅Π½ΠΎ, ΡΡΠΎ ΠΎΠ½ΠΈ ΠΎΠΏΡΠ΅Π΄Π΅Π»ΡΡΡΡΡ ΠΏΡΠΎΠΈΠ·Π²ΠΎΠ»ΡΠ½ΠΎ, Π½ΠΎ Π΅ΡΡΡ ΠΎΡΠ΄Π΅Π»ΡΠ½ΡΠ΅ ΡΠ΅ΠΊΠΎΠΌΠ΅Π½Π΄Π°ΡΠΈΠΈ, ΠΊΠΎΡΠΎΡΡΠ΅ ΠΆΠ΅Π»Π°ΡΠ΅Π»ΡΠ½ΠΎ ΡΡΠ΅ΡΡΡ.
- ΠΡΡΠΎΡΠ° ΡΡΠ΅Π»Π»Π°ΠΆΠ΅ΠΉ. ΠΠ½Π° Π΄ΠΎΠ»ΠΆΠ½Π° Π±ΡΡΡ ΡΠ΄ΠΎΠ±Π½ΠΎΠΉ Π΄Π»Ρ ΡΠΈΠ΄Π΅Π½ΠΈΡ, Π° ΡΠ°ΠΊΠΆΠ΅ Π΄Π»Ρ ΠΏΠ΅ΡΠ΅ΠΌΠ΅ΡΠ΅Π½ΠΈΡ Ρ ΡΡΡΡΠ° Π½Π° ΡΡΡΡ. ΠΠ»Ρ Π½ΠΈΠΆΠ½Π΅Π³ΠΎ β 40, ΡΡΠ΅Π΄Π½Π΅Π³ΠΎ β 75Β±5, Π²Π΅ΡΡ Π½Π΅Π³ΠΎ β 115Β±5.
- Π¨ΠΈΡΠΈΠ½Π° Π»Π°Π²ΠΎΠΊ. Π ΠΏΡΠ΅Π΄Π΅Π»Π°Ρ 80 β 90. ΠΠΎΡΡΠ°ΡΠΎΡΠ½ΠΎ, ΡΡΠΎΠ±Ρ ΠΈ Π»Π΅ΠΆΠ°ΡΡ Π±ΡΠ»ΠΎ ΡΠ΄ΠΎΠ±Π½ΠΎ, ΠΈ Π½Π΅ Β«ΡΠΊΡΠ°Π΄ΡΠ²Π°ΡΡΒ» ΠΏΠΎΠ»Π΅Π·Π½ΠΎΠ΅ ΠΏΡΠΎΡΡΡΠ°Π½ΡΡΠ²ΠΎ Π² ΠΏΠ°ΡΠΈΠ»ΠΊΠ΅.

ΠΠ°Π³ΠΎΡΠΎΠ²ΠΊΠΈ Π΄Π»Ρ ΠΏΠΎΠ»ΠΎΠΊΠ°:
- ΠΠΎΡΠΊΠ° β ΡΠΎΠ»ΡΠΈΠ½Π° Π½Π΅ ΠΌΠ΅Π½Π΅Π΅ 20 ΡΠΌ.
- ΠΡΡΡ β ΡΠΎ ΡΡΠΎΡΠΎΠ½ΠΎΠΉ 50 ΠΈΠ»ΠΈ 70 ΠΌΠΌ, Π² Π·Π°Π²ΠΈΡΠΈΠΌΠΎΡΡΠΈ ΠΎΡ Π³Π°Π±Π°ΡΠΈΡΠΎΠ² ΠΈ ΠΊΠΎΠ»ΠΈΡΠ΅ΡΡΠ²Π° ΡΡΡΡΠΎΠ² ΠΏΠΎΠ»ΠΊΠ°.

ΠΠΈΠ½Π΅ΠΉΠ½ΡΠ΅ ΡΠ°Π·ΠΌΠ΅ΡΡ ΠΏΠΎΠ΄Π±ΠΈΡΠ°ΡΡΡΡ Π² ΡΠΎΠΎΡΠ²Π΅ΡΡΡΠ²ΠΈΠΈ Ρ ΡΠΎΡΡΠ°Π²Π»Π΅Π½Π½ΡΠΌ ΡΠ΅ΡΡΠ΅ΠΆΠΎΠΌ.
Π‘Π±ΠΎΡΠΊΠ° ΠΊΠΎΠ½ΡΡΡΡΠΊΡΠΈΠΈ
ΠΡΠ»ΠΈ ΠΎΠΏΡΠ΅Π΄Π΅Π»Π΅Π½Ρ Π²ΡΠ΅ ΡΠ°Π·ΠΌΠ΅ΡΡ ΠΈ Π³ΡΠ°ΠΌΠΎΡΠ½ΠΎ ΡΠΎΡΡΠ°Π²Π»Π΅Π½ ΡΠ΅ΡΡΠ΅ΠΆ, ΡΠΎ ΡΠ»ΠΎΠΆΠ½ΠΎΠ³ΠΎ Π½ΠΈΡΠ΅Π³ΠΎ Π½Π΅Ρ. Π€ΠΎΡΠΎ Π²ΡΠ΅ Ρ ΠΎΡΠΎΡΠΎ ΠΏΠΎΡΡΠ½ΡΡΡ.

Π Π΅ΠΊΠΎΠΌΠ΅Π½Π΄Π°ΡΠΈΠΈ
- ΠΠ»Ρ ΡΠΊΡΠ΅ΠΏΠ»Π΅Π½ΠΈΡ ΠΊΠΎΠ½ΡΡΡΡΠΊΡΠΈΠ²Π½ΡΡ ΡΠ°ΡΡΠ΅ΠΉ Π³Π²ΠΎΠ·Π΄ΠΈ Π»ΡΡΡΠ΅ Π½Π΅ ΠΈΡΠΏΠΎΠ»ΡΠ·ΠΎΠ²Π°ΡΡ. Π-ΠΏΠ΅ΡΠ²ΡΡ , Π½Π΅ ΡΠ°ΠΊΡ, ΡΡΠΎ Π²ΡΠ΅ ΠΈΡ ΠΏΠΎΠ»ΡΡΠΈΡΡΡ Π·Π°Π±ΠΈΡΡ ΠΏΠ΅ΡΠΏΠ΅Π½Π΄ΠΈΠΊΡΠ»ΡΡΠ½ΠΎ ΠΎΡΠΈ Π΄Π΅ΡΠ΅Π²ΡΠ½Π½ΠΎΠΉ Π·Π°Π³ΠΎΡΠΎΠ²ΠΊΠΈ. ΠΠ½Π°ΡΠΈΡ, ΠΊΠΎΠ½ΡΠΈΠΊΠΈ Π³Π΄Π΅-Π½ΠΈΠ±ΡΠ΄Ρ Π΄Π° Π²ΡΠ»Π΅Π·ΡΡ. ΠΠΎΠ·Π½ΠΈΠΊΠ½ΡΡ ΠΏΡΠΎΠ±Π»Π΅ΠΌΡ Ρ ΠΈΡ ΠΎΡΠΊΡΡΡΠ²Π°Π½ΠΈΠ΅ΠΌ ΠΈΠ»ΠΈ Π·Π°Π³ΠΈΠ±ΠΎΠΌ. ΠΠΎ-Π²ΡΠΎΡΡΡ , Π³Π²ΠΎΠ·Π΄ΠΈ ΡΠ°ΡΠΊΠ°Π»ΡΠ²Π°ΡΡ Π΄ΡΠ΅Π²Π΅ΡΠΈΠ½Ρ, Π΅ΡΠ»ΠΈ ΠΎΠ½Π° ΡΡΡ Π°Ρ. Π-ΡΡΠ΅ΡΡΠΈΡ , ΡΠ΅ΠΌΠΎΠ½ΡΠΎΠΏΡΠΈΠ³ΠΎΠ΄Π½ΠΎΡΡΡ ΡΠ°ΠΊΠΎΠΉ ΠΊΠΎΠ½ΡΡΡΡΠΊΡΠΈΠΈ Π½ΠΈΠ·ΠΊΠ°Ρ. ΠΠΎΡΡΠΎΠΌΡ ΡΠΎΠ»ΡΠΊΠΎ ΡΡΡΡΠΏΡ ΠΈΠ»ΠΈ ΡΠ°ΠΌΠΎΡΠ΅Π·Ρ, Ρ ΠΏΡΠ΅Π΄Π²Π°ΡΠΈΡΠ΅Π»ΡΠ½ΡΠΌ ΡΠ²Π΅ΡΠ»Π΅Π½ΠΈΠ΅ΠΌ ΠΎΡΠ²Π΅ΡΡΡΠΈΠΉ ΠΈ ΡΠ°ΡΠΎΠΊ. Π ΡΡΠΎΠΌ ΡΠ»ΡΡΠ°Π΅ Π±ΡΠ΄Π΅Ρ Π΄ΠΎΡΡΠ°ΡΠΎΡΠ½ΠΎ ΠΏΡΠΎΡΡΠΎ Π·Π°ΠΌΠ΅Π½ΠΈΡΡ ΠΊΠ°ΠΊΡΡ-Π»ΠΈΠ±ΠΎ Π΄ΠΎΡΠΊΡ ΠΈΠ»ΠΈ Π±ΡΡΡΠΎΠΊ.
- ΠΠΎΠ»ΠΎΠΊ β ΠΊΠΎΠ½ΡΡΡΡΠΊΡΠΈΡ, ΠΏΠΎ ΠΎΠΏΡΠ΅Π΄Π΅Π»Π΅Π½ΠΈΡ ΠΏΠΎΡΡΠΎΡΠ½Π½ΠΎ ΠΈΡΠΏΡΡΡΠ²Π°ΡΡΠ°Ρ Π΄ΠΈΠ½Π°ΠΌΠΈΡΠ΅ΡΠΊΠΈΠ΅ Π½Π°Π³ΡΡΠ·ΠΊΠΈ. Π‘Π»Π΅Π΄ΠΎΠ²Π°ΡΠ΅Π»ΡΠ½ΠΎ, Π½Π΅ ΡΡΠΎΠΈΡ ΠΎΠ³ΡΠ°Π½ΠΈΡΠΈΠ²Π°ΡΡΡΡ Π»ΠΈΡΡ ΠΌΠ΅ΡΠΈΠ·ΠΎΠΌ. ΠΠ»Ρ Π±ΠΎΠ»Π΅Π΅ Π½Π°Π΄Π΅ΠΆΠ½ΠΎΠΉ ΡΠΈΠΊΡΠ°ΡΠΈΠΈ Π²ΡΠ΅Ρ ΡΠ°ΡΡΠ΅ΠΉ Π½ΡΠΆΠ½ΠΎ ΠΈΡΠΏΠΎΠ»ΡΠ·ΠΎΠ²Π°ΡΡ ΠΈ Π΄ΠΎΠΏΠΎΠ»Π½ΠΈΡΠ΅Π»ΡΠ½ΡΠΉ ΠΊΡΠ΅ΠΏΠ΅ΠΆ Π² Π²ΠΈΠ΄Π΅ Π°Π»ΡΠΌΠΈΠ½ΠΈΠ΅Π²ΡΡ ΠΏΠ»Π°ΡΡΠΈΠ½ ΡΠ°Π·Π»ΠΈΡΠ½ΠΎΠΉ ΠΊΠΎΠ½ΡΠΈΠ³ΡΡΠ°ΡΠΈΠΈ ΠΈΠ»ΠΈ ΡΠ³ΠΎΠ»ΠΊΠΎΠ². Π‘ΡΠ°Π»Ρ Π΄Π»Ρ ΡΡΠΈΡ ΡΠ΅Π»Π΅ΠΉ Π½Π΅ ΠΏΠΎΠ΄Ρ ΠΎΠ΄ΠΈΡ Π²Π²ΠΈΠ΄Ρ Π½Π΅Π΄ΠΎΡΡΠ°ΡΠΎΡΠ½ΠΎΠΉ ΡΡΡΠΎΠΉΡΠΈΠ²ΠΎΡΡΠΈ ΠΊ ΠΊΠΎΡΡΠΎΠ·ΠΈΠΈ.
- ΠΠ»Π΅ΠΌΠ΅Π½ΡΡ ΠΊΡΠ΅ΠΏΠ΅ΠΆΠ° Π½ΡΠΆΠ½ΠΎ Π²Π²ΠΎΡΠ°ΡΠΈΠ²Π°ΡΡ ΡΠ°ΠΊ, ΡΡΠΎΠ±Ρ ΡΠ»ΡΠΏΠΊΠ° Π±ΡΠ»Π° ΡΡΠΎΠΏΠ»Π΅Π½Π° ΠΏΠΎΠ»Π½ΠΎΡΡΡΡ, ΠΏΡΠΈΡΠ΅ΠΌ Ρ ΡΡΠ»ΡΠ½ΠΎΠΉ ΡΡΠΎΡΠΎΠ½Ρ Π΄ΠΎΡΠΊΠΈ ΠΈΠ»ΠΈ Π±ΡΡΡΠ°. ΠΡΠΎ ΠΌΠ΅ΡΡΠΎ ΠΏΠΎΡΠΎΠΌ Π·Π°Π΄Π΅Π»ΡΠ²Π°Π΅ΡΡΡ ΠΌΠ°ΡΡΠΈΠΊΠΎΠΉ. ΠΠ½Π°ΡΠ΅ Π½Π΅ ΠΈΠ·Π±Π΅ΠΆΠ°ΡΡ ΠΎΠΆΠΎΠ³ΠΎΠ² ΠΏΡΠΈ Π²ΡΡΠΎΠΊΠΎΠΉ ΡΠ΅ΠΌΠΏΠ΅ΡΠ°ΡΡΡΠ΅ Π² ΠΏΠ°ΡΠΈΠ»ΠΊΠ΅.
- ΠΡΠΈ ΡΠ±ΠΎΡΠΊΠ΅ ΡΡΠ΅Π»Π»Π°ΠΆΠ΅ΠΉ ΠΌΠ΅ΠΆΠ΄Ρ Π΄ΠΎΡΠΊΠ°ΠΌΠΈ Π½Π΅ΠΎΠ±Ρ ΠΎΠ΄ΠΈΠΌΠΎ ΠΎΡΡΠ°Π²Π»ΡΡΡ Π½Π΅Π±ΠΎΠ»ΡΡΠΈΠ΅ ΡΠ΅Π»ΠΈ. ΠΡΠ»ΠΈ ΠΈΡ ΡΠΊΠ»Π°Π΄ΡΠ²Π°ΡΡ Π²ΠΏΠ»ΠΎΡΠ½ΡΡ, ΡΠΎ Π½Π° Π»Π°Π²ΠΊΠ΅ ΠΏΠΎΡΡΠΎΡΠ½Π½ΠΎ Π±ΡΠ΄Π΅Ρ ΡΠΊΠ°ΠΏΠ»ΠΈΠ²Π°ΡΡΡΡ Π²Π»Π°Π³Π°.
ΠΠ»Ρ ΠΌΡΠΆΡΠΈΠ½Ρ, ΠΊΠΎΡΠΎΡΡΠΉ ΠΏΡΠΈΠ²ΡΠΊ Π²ΡΠ΅ ΡΠ°Π±ΠΎΡΡ ΠΏΠΎ Ρ ΠΎΠ·ΡΠΉΡΡΠ²Ρ Π²ΡΠΏΠΎΠ»Π½ΡΡΡ ΡΠ²ΠΎΠΈΠΌΠΈ ΡΡΠΊΠ°ΠΌΠΈ, ΡΠ΅ΠΊΠΎΠΌΠ΅Π½Π΄Π°ΡΠΈΠΉ Π²ΠΏΠΎΠ»Π½Π΅ Π΄ΠΎΡΡΠ°ΡΠΎΡΠ½ΠΎ, ΡΠ΅ΠΌ Π±ΠΎΠ»Π΅Π΅ ΡΡΠΎ Π½ΠΈΡΠ΅Π³ΠΎ ΡΠ»ΠΎΠΆΠ½ΠΎΠ³ΠΎ Π² ΠΈΠ·Π³ΠΎΡΠΎΠ²Π»Π΅Π½ΠΈΠΈ Π΄Π΅ΡΠ΅Π²ΡΠ½Π½ΠΎΠ³ΠΎ ΠΏΠΎΠ»ΠΊΠ° Π½Π΅Ρ.
woodguide.ru
ΠΏΠΎΡΠ°Π³ΠΎΠ²ΠΎΠ΅ ΡΡΠΊΠΎΠ²ΠΎΠ΄ΡΡΠ²ΠΎ, ΡΠ΅ΡΡΠ΅ΠΆΠΈ ΠΈ ΡΠ°Π·ΠΌΠ΅ΡΡ
ΠΠ»Ρ ΠΏΠΎΠ»ΡΡΠ΅Π½ΠΈΡ ΠΌΠ°ΠΊΡΠΈΠΌΠ°Π»ΡΠ½ΠΎΠ³ΠΎ ΡΡΡΠ΅ΠΊΡΠ° ΠΎΡ ΠΏΡΠ΅Π±ΡΠ²Π°Π½ΠΈΡ Π² ΠΏΠ°ΡΠΈΠ»ΠΊΠ΅ Π½Π΅ΠΎΠ±Ρ ΠΎΠ΄ΠΈΠΌΠΎ ΠΏΡΠ°Π²ΠΈΠ»ΡΠ½ΠΎ ΠΎΠ±ΡΡΡΡΠΎΠΈΡΡ Π±Π°Π½Ρ. ΠΠ»Π°Π²Π½ΡΠΌΠΈ ΡΡΠ΅Π±ΠΎΠ²Π°Π½ΠΈΡΠΌΠΈ ΡΠ²Π»ΡΡΡΡΡ ΠΊΠΎΠΌΡΠΎΡΡ, Π±Π΅Π·ΠΎΠΏΠ°ΡΠ½ΠΎΡΡΡ ΠΈ ΠΏΠΎΠ»ΠΎΠΆΠΈΡΠ΅Π»ΡΠ½ΠΎΠ΅ Π²Π»ΠΈΡΠ½ΠΈΠ΅ Π½Π° ΡΠΎΡΡΠΎΡΠ½ΠΈΠ΅ Π·Π΄ΠΎΡΠΎΠ²ΡΡ. ΠΠΎΡΡΠΎΠΌΡ ΠΏΡΠ΅Π΄ΠΏΠΎΡΠΈΡΠ°ΡΡ Π΄Π΅Π»Π°ΡΡ ΠΏΠΎΠ»ΠΎΠΊ Π² Π±Π°Π½Π΅ ΡΠ²ΠΎΠΈΠΌΠΈ ΡΡΠΊΠ°ΠΌΠΈ. ΠΠΎΡΠ°Π³ΠΎΠ²ΠΎΠ΅ ΡΡΠΊΠΎΠ²ΠΎΠ΄ΡΡΠ²ΠΎ, ΡΠΎΡΠΎ, ΡΠ΅ΡΡΠ΅ΠΆΠΈ ΠΈ ΡΠ°Π·ΠΌΠ΅ΡΡ ΠΏΠΎΠΌΠΎΠ³ΡΡ ΠΈΠ·Π³ΠΎΡΠΎΠ²ΠΈΡΡ ΠΎΠΏΡΠΈΠΌΠ°Π»ΡΠ½ΡΡ ΠΊΠΎΠ½ΡΡΡΡΠΊΡΠΈΡ.
Π‘ΠΎΠ΄Π΅ΡΠΆΠ°Π½ΠΈΠ΅ ΡΡΠ°ΡΡΠΈ
Π’ΡΠ΅Π±ΠΎΠ²Π°Π½ΠΈΡ ΠΊ Π±Π°Π½Π½ΡΠΌ ΠΏΠΎΠ»ΠΊΠ°ΠΌ
ΠΠΎΠ»ΠΊΠΈ ΠΏΡΠ΅Π΄Π½Π°Π·Π½Π°ΡΠ΅Π½Ρ Π΄Π»Ρ ΡΠ΄ΠΎΠ±Π½ΠΎΠ³ΠΎ ΡΠ°ΡΠΏΠΎΠ»ΠΎΠΆΠ΅Π½ΠΈΡ ΠΎΡΠ΄ΡΡ Π°ΡΡΠΈΡ , Π° ΡΠ°ΠΊΠΆΠ΅ ΠΈΠ·ΠΌΠ΅Π½Π΅Π½ΠΈΡ Π²Π»ΠΈΡΠ½ΠΈΡ ΡΠ΅ΠΌΠΏΠ΅ΡΠ°ΡΡΡΡ Π½Π° ΠΎΡΠ³Π°Π½ΠΈΠ·ΠΌ Π² Π·Π°Π²ΠΈΡΠΈΠΌΠΎΡΡΠΈ ΠΎΡ Π²ΡΡΠΎΡΡ. Π Π·Π°Π²ΠΈΡΠΈΠΌΠΎΡΡΠΈ ΠΎΡ ΠΊΠΎΠ½ΡΡΡΡΠΊΡΠΈΠΈ ΡΡΠΎ ΠΌΠΎΠ³ΡΡ Π±ΡΡΡ ΡΡΠ°Π΄ΠΈΡΠΈΠΎΠ½Π½ΡΠ΅ Π»Π΅ΠΆΠ°Π½ΠΊΠΈ, ΡΠ°ΡΠΊΠ»Π°Π΄Π½ΡΠ΅ ΡΠ΅Π·Π»ΠΎΠ½Π³ΠΈ ΠΈΠ»ΠΈ Π½Π΅Π±ΠΎΠ»ΡΡΠΈΠ΅ ΠΌΠΎΠ±ΠΈΠ»ΡΠ½ΡΠ΅ ΡΠΊΠ°ΠΌΠ΅ΠΉΠΊΠΈ. ΠΠΎ ΡΠ°ΡΠ΅ Π²ΡΠ΅Π³ΠΎ ΠΏΡΠ΅Π΄ΠΏΠΎΡΡΠ΅Π½ΠΈΡ ΠΎΡΠ΄Π°Π΅ΡΡΡ ΡΡΠ°ΡΠΈΠΎΠ½Π°ΡΠ½ΡΠΌ ΠΊΠΎΠ½ΡΡΡΡΠΊΡΠΈΡΠΌ, Π½Π° ΠΊΠΎΡΠΎΡΡΡ ΠΌΠΎΠΆΠ½ΠΎ ΡΠΈΠ΄Π΅ΡΡ ΠΈ Π»Π΅ΠΆΠ°ΡΡ.

ΠΠ΅Π·Π°Π²ΠΈΡΠΈΠΌΠΎ ΠΎΡ Π²ΡΠ±ΡΠ°Π½Π½ΠΎΠΉ ΠΊΠΎΠ½ΡΠΈΠ³ΡΡΠ°ΡΠΈΠΈ ΠΏΠΎΠ»ΠΎΠΊ Π² Π±Π°Π½Π΅ Π΄ΠΎΠ»ΠΆΠ΅Π½ ΠΎΡΠ²Π΅ΡΠ°ΡΡ ΡΠ»Π΅Π΄ΡΡΡΠΈΠΌ ΡΡΠ΅Π±ΠΎΠ²Π°Π½ΠΈΡΠΌ:
- ΠΌΠ°ΡΠ΅ΡΠΈΠ°Π» ΠΈΠ·Π³ΠΎΡΠΎΠ²Π»Π΅Π½ΠΈΡ Π½Π΅ ΠΈΠ·ΠΌΠ΅Π½ΡΠ΅Ρ ΡΠ²ΠΎΠΈΡ ΡΠ²ΠΎΠΉΡΡΠ² (ΡΠ°Π·ΠΌΠ΅ΡΡ, ΠΏΡΠΎΡΠ½ΠΎΡΡΡ) ΠΏΡΠΈ Π²ΠΎΠ·Π΄Π΅ΠΉΡΡΠ²ΠΈΠΈ Π²ΡΡΠΎΠΊΠΈΡ ΡΠ΅ΠΌΠΏΠ΅ΡΠ°ΡΡΡ ΠΈ Π²Π»Π°ΠΆΠ½ΠΎΡΡΠΈ;
- ΠΎΡΡΡΡΡΡΠ²ΠΈΠ΅ Π²ΡΠ΅Π΄Π½ΡΡ ΡΠ°ΠΊΡΠΎΡΠΎΠ², Π²Π»ΠΈΡΡΡΠΈΡ Π½Π° Π·Π΄ΠΎΡΠΎΠ²ΡΠ΅ ΠΎΡΠ΄ΡΡ Π°ΡΡΠΈΡ β ΠΈΡΠΏΠ°ΡΠ΅Π½ΠΈΡ, Π²ΠΎΠ·ΠΌΠΎΠΆΠ½ΠΎΡΡΡ ΠΏΠΎΠ»ΡΡΠΈΡΡ ΡΡΠ°Π²ΠΌΡ ΠΈ Ρ.Π΄.
- ΡΠ²ΠΎΠ΅Π²ΡΠ΅ΠΌΠ΅Π½Π½ΠΎΠ΅ ΡΠ΄Π°Π»Π΅Π½ΠΈΠ΅ Π²Π»Π°Π³ΠΈ Ρ ΠΏΠΎΠ²Π΅ΡΡ Π½ΠΎΡΡΠΈ;
- ΡΠ΄ΠΎΠ±Π½Π°Ρ ΠΊΠΎΠ½ΡΡΡΡΠΊΡΠΈΡ, ΠΏΠΎΠ·Π²ΠΎΠ»ΡΡΡΠ°Ρ ΡΠ°Π·ΠΌΠ΅ΡΡΠΈΡΡΡΡ Π² ΠΏΠ°ΡΠΈΠ»ΠΊΠ΅ Ρ ΠΌΠ°ΠΊΡΠΈΠΌΠ°Π»ΡΠ½ΡΠΌ ΠΊΠΎΠΌΡΠΎΡΡΠΎΠΌ.
Π’ΡΠ°Π΄ΠΈΡΠΈΠΎΠ½Π½ΡΠΉ ΠΏΠΎΠ»ΠΎΠΊ ΠΏΡΠ΅Π΄ΡΡΠ°Π²Π»ΡΠ΅Ρ ΡΠΎΠ±ΠΎΠΉ ΡΠ±ΠΈΡΡΡ ΡΠΊΠ°ΠΌΠ΅ΠΉΠΊΡ, ΡΠΎΡΡΠΎΡΡΡΡ ΠΈΠ· ΠΎΠ΄Π½ΠΎΠ³ΠΎ ΠΈΠ»ΠΈ Π½Π΅ΡΠΊΠΎΠ»ΡΠΊΠΈΡ ΡΡΠΎΠ²Π½Π΅ΠΉ. Π‘Π΄Π΅Π»Π°ΡΡ Π΅Π΅ Π±ΡΠ΄Π΅Ρ Π½Π΅ΡΠ»ΠΎΠΆΠ½ΠΎ, Π½ΠΎ ΠΏΡΠΈ ΡΡΠΎΠΌ Π½Π΅ΠΎΠ±Ρ ΠΎΠ΄ΠΈΠΌΠΎ ΡΡΠ΅ΡΡΡ ΡΠΏΠ΅ΡΠΈΡΠΈΠΊΡ ΠΊΠΎΠ½ΡΡΡΡΠΊΡΠΈΠΈ ΠΈ ΠΏΡΠ°Π²ΠΈΠ»ΡΠ½ΠΎ ΠΏΠΎΠ΄ΠΎΠ±ΡΠ°ΡΡ ΡΠ°ΡΡ ΠΎΠ΄Π½ΡΠ΅ ΠΌΠ°ΡΠ΅ΡΠΈΠ°Π»Ρ.
ΠΡΠ±ΠΎΡ Π΄ΡΠ΅Π²Π΅ΡΠΈΠ½Ρ ΠΈ ΡΠ΅ΡΡΠ΅ΠΆΠ°
ΠΠ»Ρ ΠΈΠ·Π³ΠΎΡΠΎΠ²Π»Π΅Π½ΠΈΡ Π±Π°Π½Π½ΡΡ ΠΏΠΎΠ»ΠΎΠΊ ΠΈΡΠΏΠΎΠ»ΡΠ·ΡΠ΅ΡΡΡ Π΄ΡΠ΅Π²Π΅ΡΠΈΠ½Π°. ΠΠ½Π° ΠΏΡΠΎΡΡΠ° Π² ΠΎΠ±ΡΠ°Π±ΠΎΡΠΊΠ΅, Ρ ΠΏΠΎΠΌΠΎΡΡΡ ΡΠΏΠ΅ΡΠΈΠ°Π»ΡΠ½ΡΡ ΡΠΎΡΡΠ°Π²ΠΎΠ² ΠΌΠΎΠΆΠ½ΠΎ ΡΠΌΠ΅Π½ΡΡΠΈΡΡ ΡΡΠ΅ΠΏΠ΅Π½Ρ Π²Π»ΠΈΡΠ½ΠΈΡ Π½Π° Π½Π΅Π΅ Π²Π»Π°Π³ΠΈ ΠΈ ΡΠ΅Π·ΠΊΠΈΡ ΠΏΠ΅ΡΠ΅ΠΏΠ°Π΄ΠΎΠ² ΡΠ΅ΠΌΠΏΠ΅ΡΠ°ΡΡΡ. ΠΠΎ ΠΌΠ½ΠΎΠ³ΠΎΠ΅ Π·Π°Π²ΠΈΡΠΈΡ ΠΎΡ Π²ΡΠ±ΡΠ°Π½Π½ΡΡ ΡΠΎΡΡΠΎΠ² Π΄Π΅ΡΠ΅Π²Π°, ΡΠ°ΠΊ ΠΊΠ°ΠΊ ΠΎΠ½ΠΈ ΠΎΠ±Π»Π°Π΄Π°ΡΡ ΡΠ°Π·Π»ΠΈΡΠ½ΡΠΌΠΈ ΡΠ²ΠΎΠΉΡΡΠ²Π°ΠΌΠΈ. Π ΡΠΎΠΌ, ΠΊΠ°ΠΊΡΡ Π²Π°Π³ΠΎΠ½ΠΊΡ Π»ΡΡΡΠ΅ Π²ΡΠ΅Π³ΠΎ Π²ΡΠ±ΠΈΡΠ°ΡΡ Π΄Π»Ρ ΠΏΠ°ΡΠΈΠ»ΠΊΠΈ, ΡΠΈΡΠ°ΠΉΡΠ΅ Π·Π΄Π΅ΡΡ.

ΠΠΏΠΈΡΠ°Π½ΠΈΠ΅ ΡΠΊΡΠΏΠ»ΡΠ°ΡΠ°ΡΠΈΠΎΠ½Π½ΡΡ ΠΊΠ°ΡΠ΅ΡΡΠ² Π΄ΡΠ΅Π²Π΅ΡΠΈΠ½Ρ Π΄Π»Ρ Π±Π°Π½ΠΈ:
- ΠΠΈΠΏΠ°. ΠΠ±Π»Π°Π΄Π°Π΅Ρ Π»Π΅ΡΠ΅Π±Π½ΡΠΌΠΈ ΡΠ²ΠΎΠΉΡΡΠ²Π°ΠΌΠΈ, ΠΏΡΠΈ Π½Π°Π³ΡΠ΅Π²Π°Π½ΠΈΠΈ ΡΠΎΡΠΌΠΈΡΡΠ΅ΡΡΡ ΠΎΡΠΎΠ±ΡΠΉ Π°ΡΠΎΠΌΠ°Ρ. ΠΠΌΠ΅Π΅Ρ Ρ ΠΎΡΠΎΡΠΈΠ΅ ΠΌΠ΅Ρ Π°Π½ΠΈΡΠ΅ΡΠΊΠΈΠ΅ ΡΠ²ΠΎΠΉΡΡΠ²Π°, Π½ΠΎ ΡΠΎ Π²ΡΠ΅ΠΌΠ΅Π½Π΅ΠΌ ΡΠ΅ΠΌΠ½Π΅Π΅Ρ.
- ΠΡΠ±. ΠΠΏΡΠΈΠΌΠ°Π»ΡΠ½ΡΠΉ Π²Π°ΡΠΈΠ°Π½Ρ, ΡΠ°ΠΊ ΠΊΠ°ΠΊ ΠΌΠ°Π»ΠΎ Π²ΠΎΡΠΏΡΠΈΠΈΠΌΡΠΈΠ² ΠΊ Π²Π»Π°Π³Π΅ ΠΈ ΡΠ²Π΅ΡΠ΄. ΠΠΎΡΠ»Π΅Π΄Π½Π΅Π΅ ΠΊΠ°ΡΠ΅ΡΡΠ²ΠΎ Π½Π΅Π³Π°ΡΠΈΠ²Π½ΠΎ ΡΠΊΠ°Π·ΡΠ²Π°Π΅ΡΡΡ Π½Π° ΠΏΡΠΎΡΠ΅ΡΡΠ΅ ΠΎΠ±ΡΠ°Π±ΠΎΡΠΊΠΈ β ΠΈΠ½ΠΎΠ³Π΄Π° ΡΡΠ΅Π±ΡΡΡΡΡ ΡΠΏΠ΅ΡΠΈΠ°Π»ΡΠ½ΡΠ΅ ΠΈΠ½ΡΡΡΡΠΌΠ΅Π½ΡΡ.
- ΠΠ»Π΅Π½. ΠΡΡΡΠΈΠΉ ΠΏΠΎ ΠΏΠΎΠΊΠ°Π·Π°ΡΠ΅Π»ΡΠΌ ΡΠ΅Π½Ρ ΠΈ ΠΊΠ°ΡΠ΅ΡΡΠ²Π°. Π₯Π°ΡΠ°ΠΊΡΠ΅ΡΠΈΠ·ΡΠ΅ΡΡΡ ΠΌΠΈΠ½ΠΈΠΌΠ°Π»ΡΠ½ΡΠΌ ΡΠ΅ΠΌΠΏΠ΅ΡΠ°ΡΡΡΠ½ΡΠΌ ΡΠ°ΡΡΠΈΡΠ΅Π½ΠΈΠ΅ΠΌ, Π²ΠΎΠ΄Ρ Π²ΠΏΠΈΡΡΠ²Π°Π΅Ρ ΠΌΠΈΠ½ΠΈΠΌΠ°Π»ΡΠ½ΠΎ.
ΠΠ°ΡΡΠΎΡΡΠ΅Π»ΡΠ½ΠΎ Π½Π΅ ΡΠ΅ΠΊΠΎΠΌΠ΅Π½Π΄ΡΠ΅ΡΡΡ ΠΈΡΠΏΠΎΠ»ΡΠ·ΠΎΠ²Π°ΡΡ Ρ Π²ΠΎΠΉΠ½ΡΠ΅ ΠΏΠΎΡΠΎΠ΄Ρ, ΡΠ°ΠΊ ΠΊΠ°ΠΊ ΠΎΠ½ΠΈ ΡΠΎΠ΄Π΅ΡΠΆΠ°Ρ Π±ΠΎΠ»ΡΡΠΎΠ΅ ΠΊΠΎΠ»ΠΈΡΠ΅ΡΡΠ²ΠΎ ΡΠΌΠΎΠ». ΠΡΠΈ Π½Π°Π³ΡΠ΅Π²Π°Π½ΠΈΠΈ ΠΎΠ½ΠΈ Π²ΡΡΡΡΠΏΠ°ΡΡ Π½Π° ΠΏΠΎΠ²Π΅ΡΡ Π½ΠΎΡΡΠΈ, ΠΌΠΎΠ³ΡΡ ΡΡΠ°ΡΡ ΠΏΡΠΈΡΠΈΠ½ΠΎΠΉ ΠΏΠΎΡΠ²Π»Π΅Π½ΠΈΡ ΠΎΠΆΠΎΠ³ΠΎΠ² ΠΈ Π½Π΅ΠΏΡΠΈΡΡΠ½ΠΎΠ³ΠΎ Π·Π°ΠΏΠ°Ρ Π° Π² ΠΏΠ°ΡΠΈΠ»ΠΊΠ΅.
ΠΡΠ½ΠΎΠ²Π½ΡΠ΅ ΡΠ°Π·ΠΌΠ΅ΡΡ ΠΏΠΎΠ»ΠΎΠΊ Π΄Π»Ρ Π±Π°Π½ΠΈ β Π²ΡΡΠΎΡΠ° ΠΊΠ°ΠΆΠ΄ΠΎΠ³ΠΎ ΡΡΡΡΠ° ΠΈ ΡΠΈΡΠΈΠ½Π°. ΠΠ΅ΡΠ²ΠΎΠ΅ Π·Π°Π²ΠΈΡΠΈΡ ΠΎΡ Π²ΡΡΠΎΡΡ ΠΏΠΎΡΠΎΠ»ΠΊΠΎΠ² Π² ΠΏΠ°ΡΠΈΠ»ΠΊΠ΅. ΠΠ°ΠΆΠ½ΠΎ, ΡΡΠΎΠ±Ρ Π½Π°Ρ ΠΎΠ΄ΡΡΡ Π½Π° ΡΠ°ΠΌΠΎΠΉ Π²Π΅ΡΡ Π½Π΅ΠΉ ΠΏΠΎΠ»ΠΊΠ΅, ΡΠ΅Π»ΠΎΠ²Π΅ΠΊ Π½Π΅ ΠΊΠ°ΡΠ°Π»ΡΡ Π΄Π΅ΠΊΠΎΡΠ°ΡΠΈΠ²Π½ΠΎΠ³ΠΎ ΠΏΠΎΠΊΡΡΡΠΈΡ ΠΏΠΎΡΠΎΠ»ΠΊΠ°.

Π ΠΊΠ°ΡΠ΅ΡΡΠ²Π΅ ΠΎΡΠ½ΠΎΠ²Ρ Π΄Π»Ρ ΡΠ΅ΡΡΠ΅ΠΆΠ° ΠΌΠΎΠΆΠ½ΠΎ Π²Π·ΡΡΡ ΠΏΠΎΠ΄Ρ ΠΎΠ΄ΡΡΡΡ ΡΡ Π΅ΠΌΡ ΠΏΠΎΠ»ΠΎΠΊ Π΄Π»Ρ Π±Π°Π½ΠΈ. Π ΠΏΡΠΎΡΠ΅ΡΡΠ΅ Π΅Π΅ Π°Π΄Π°ΠΏΡΠ°ΡΠΈΠΈ ΡΠ΅ΠΊΠΎΠΌΠ΅Π½Π΄ΡΠ΅ΡΡΡ ΠΏΡΠΈΠ΄Π΅ΡΠΆΠΈΠ²Π°ΡΡΡΡ ΡΠ°ΠΊΠΈΡ ΡΠ΅ΠΊΠΎΠΌΠ΅Π½Π΄Π°ΡΠΈΠΉ:
- ΠΎΠΏΡΠΈΠΌΠ°Π»ΡΠ½Π°Ρ ΡΠΈΡΠΈΠ½Π° Π»Π΅ΠΆΠ°Π½ΠΎΠΊ Π²Π°ΡΡΠΈΡΡΠ΅ΡΡΡ ΠΎΡ 350 Π΄ΠΎ 800 ΠΌΠΌ;
- Π²ΡΡΠΎΡΡ Π»ΡΡΡΠ΅ Π²ΡΠ΅Π³ΠΎ ΡΠ΄Π΅Π»Π°ΡΡ ΠΎΠ΄ΠΈΠ½Π°ΠΊΠΎΠ²ΡΡ, ΠΎΠ½Π° Π½Π΅ Π΄ΠΎΠ»ΠΆΠ½Π° ΠΏΡΠ΅Π²ΡΡΠ°ΡΡ 500 ΠΌΠΌ;
- ΡΠ°ΡΡΡΠΎΡΠ½ΠΈΠ΅ ΠΌΠ΅ΠΆΠ΄Ρ ΠΏΠ»Π°Π½ΠΊΠ°ΠΌΠΈ, Π½Π΅ΠΎΠ±Ρ ΠΎΠ΄ΠΈΠΌΠΎ Π΄Π»Ρ ΡΠ΄Π°Π»Π΅Π½ΠΈΡ Π²Π»Π°Π³ΠΈ- 50 ΠΌΠΌ.
ΠΠ»ΠΈΠ½Π° Π·Π°Π²ΠΈΡΠΈΡ ΠΎΡ Π³Π°Π±Π°ΡΠΈΡΠΎΠ² ΠΏΠ°ΡΠΈΠ»ΠΊΠΈ. ΠΠ°ΠΆΠ½ΠΎ, ΡΡΠΎΠ±Ρ ΠΏΠΎΡΠ΅ΡΠΈΡΠ΅Π»ΠΈ ΠΈΠΌΠ΅Π»ΠΈ Π²ΠΎΠ·ΠΌΠΎΠΆΠ½ΠΎΡΡΡ ΡΠ²ΠΎΠ±ΠΎΠ΄Π½ΠΎ ΠΏΠ΅ΡΠ΅Π΄Π²ΠΈΠ³Π°ΡΡΡΡ ΠΏΠΎ ΠΏΠΎΠΌΠ΅ΡΠ΅Π½ΠΈΡ, Π½Π΅ Π½Π°Ρ ΠΎΠ΄ΡΡΡ Π² ΠΎΠΏΠ°ΡΠ½ΠΎΠΉ Π±Π»ΠΈΠ·ΠΎΡΡΠΈ ΠΎΡ ΠΊΠ°ΠΌΠ΅Π½ΠΊΠΈ. ΠΠ»Ρ ΡΡΠΎΠ³ΠΎ ΡΠ΅ΠΊΠΎΠΌΠ΅Π½Π΄ΡΠ΅ΡΡΡ ΡΠ΄Π΅Π»Π°ΡΡ Π½Π΅Π±ΠΎΠ»ΡΡΡΡ Π΄Π΅ΡΠ΅Π²ΡΠ½Π½ΡΡ ΠΎΠ³ΡΠ°ΠΆΠ΄Π°ΡΡΡΡ ΠΊΠΎΠ½ΡΡΡΡΠΊΡΠΈΡ.

ΠΠ΅Π³Π»Π°ΡΠ½ΠΎΠ΅ ΠΏΡΠ°Π²ΠΈΠ»ΠΎ β ΡΠ°ΡΡΡΠΎΡΠ½ΠΈΠ΅ ΠΌΠ΅ΠΆΠ΄Ρ ΠΏΠΎΠ»ΠΊΠΎΠΉ ΠΈ ΠΊΠ°ΠΌΠ΅Π½ΠΊΠΎΠΉ Π½Π΅ Π΄ΠΎΠ»ΠΆΠ½ΠΎ Π±ΡΡΡ ΠΌΠ΅Π½Π΅Π΅ 500 ΠΌΠΌ. ΠΡΠ΅ Π·Π°Π²ΠΈΡΠΈΡ ΠΎΡ ΠΌΠΎΡΠ½ΠΎΡΡΠΈ ΠΏΠ΅ΡΠΈ, ΠΌΠ°ΠΊΡΠΈΠΌΠ°Π»ΡΠ½ΠΎΠ³ΠΎ ΡΠ΅ΠΌΠΏΠ΅ΡΠ°ΡΡΡΠ½ΠΎΠ³ΠΎ ΡΠ΅ΠΆΠΈΠΌΠ° Π² ΠΏΠ°ΡΠΈΠ»ΠΊΠ΅.
ΠΠΎΡΡΠ΄ΠΎΠΊ ΡΠ±ΠΎΡΠΊΠΈ ΠΏΠΎΠ»ΠΎΠΊ
ΠΠ° ΠΏΠ΅ΡΠ²ΠΎΠΌ ΡΡΠ°ΠΏΠ΅ Π½Π΅ΠΎΠ±Ρ ΠΎΠ΄ΠΈΠΌΠΎ ΠΏΠΎΠ΄Π³ΠΎΡΠΎΠ²ΠΈΡΡ Π΄ΡΠ΅Π²Π΅ΡΠΈΠ½Ρ Π΄Π»Ρ ΠΈΠ·Π³ΠΎΡΠΎΠ²Π»Π΅Π½ΠΈΡ. ΠΠ»Ρ ΡΡΠΎΠ³ΠΎ Π΄Π΅Π»Π°ΡΡΡΡ Π·Π°ΠΌΠ΅ΡΡ ΠΏΠ°ΡΠΈΠ»ΠΊΠΈ ΠΈ Π½Π° ΠΎΡΠ½ΠΎΠ²Π΅ ΡΡΠΈΡ Π΄Π°Π½Π½ΡΡ ΠΈ Π²ΡΡΠ΅ΠΎΠΏΠΈΡΠ°Π½Π½ΡΡ ΡΠ΅ΠΊΠΎΠΌΠ΅Π½Π΄Π°ΡΠΈΠΉ ΡΠΎΡΡΠ°Π²Π»ΡΡΡΡΡ ΡΠ΅ΡΡΠ΅ΠΆΠΈ ΠΏΠΎΠ»ΠΎΠΊ. ΠΠ°ΡΠ΅ΠΌ ΠΏΡΠΈΡΡΡΠΏΠ°ΡΡ ΠΊ ΠΈΠ·Π³ΠΎΡΠΎΠ²Π»Π΅Π½ΠΈΡ ΠΊΠ°ΡΠΊΠ°ΡΠ°.

ΠΠ°ΡΠΊΠ°Ρ ΡΠΎΡΠΌΠΈΡΡΠ΅ΡΡΡ ΠΈΠ· Π±ΡΡΡΠΊΠΎΠ² 50*70 ΠΌΠΌ, Π³ΠΎΡΠΈΠ·ΠΎΠ½ΡΠ°Π»ΡΠ½ΡΠ΅ ΠΎΠΏΠΎΡΡ β 50*50 ΠΌΠΌ. ΠΡΠ΅Π΄Π²Π°ΡΠΈΡΠ΅Π»ΡΠ½ΠΎ Π·Π°Π³ΠΎΡΠΎΠ²ΠΊΠΈ ΠΏΡΠΎΡΡΡΠΈΠ²Π°ΡΡ (Π²Π»Π°ΠΆΠ½ΠΎΡΡΡ β Π΄ΠΎ 10%), ΡΠ»ΠΈΡΡΡΡ ΠΈ ΠΎΠ±ΡΠ°Π±Π°ΡΡΠ²Π°ΡΡ ΡΠΏΠ΅ΡΠΈΠ°Π»ΡΠ½ΡΠΌΠΈ ΠΏΡΠΎΠΏΠΈΡΠΊΠ°ΠΌΠΈ Π΄Π»Ρ Π±Π°Π½ΠΈ. ΠΠ»Ρ Π½Π°ΡΡΠΈΠ»Π° ΠΈΡΠΏΠΎΠ»ΡΠ·ΡΡΡ Π΄ΠΎΡΠΊΠΈ Ρ Π·Π°ΠΊΡΡΠ³Π»Π΅Π½ΠΈΡΠΌΠΈ ΠΏΠΎ ΠΊΡΠ°ΡΠΌ (Π²ΠΎ ΠΈΠ·Π±Π΅ΠΆΠ°Π½ΠΈΠ΅ ΠΏΠΎΠ»ΡΡΠ΅Π½ΠΈΡ ΡΡΠ°Π²ΠΌ) ΡΠΈΡΠΈΠ½ΠΎΠΉ ΠΎΡ 70 ΠΌΠΌ.

Π‘Π±ΠΎΡΠΊΠ° Π±Π°Π½Π½ΡΡ ΠΏΠΎΠ»ΠΎΠΊ ΡΠ²ΠΎΠΈΠΌΠΈ ΡΡΠΊΠ°ΠΌΠΈ.
- ΠΠΎΠ½ΡΠ°ΠΆ Π±ΠΎΠΊΠΎΠ²ΡΡ ΠΊΡΠ΅ΠΏΠ»Π΅Π½ΠΈΠΉ Π½Π° ΡΡΠ΅Π½Π΅. ΠΠ±ΡΡΠ½ΠΎ ΠΈΡΠΏΠΎΠ»ΡΠ·ΡΡΡ Π΄Π΅ΡΠ΅Π²ΡΠ½Π½ΡΠ΅ Π±ΡΡΡΠΊΠΈ, ΠΊΡΠ΅ΠΏΡΡΠΈΠ΅ΡΡ ΡΠ°ΠΌΠΎΡΠ΅Π·Π°ΠΌΠΈ.
- Π£ΡΡΠ°Π½ΠΎΠ²ΠΊΠ° Π²Π΅ΡΡΠΈΠΊΠ°Π»ΡΠ½ΡΡ ΡΡΠΎΠ΅ΠΊ. ΠΠ½ΠΈ ΠΌΠΎΠ½ΡΠΈΡΡΡΡΡΡ Π² ΡΠ΅ΡΠ½ΠΎΠ²ΠΎΠΉ ΠΏΠΎΠ» Ρ ΠΏΠΎΠΌΠΎΡΡΡ ΠΌΠ΅ΡΠ°Π»Π»ΠΈΡΠ΅ΡΠΊΠΈΡ ΡΠ³ΠΎΠ»ΠΊΠΎΠ², ΠΊΠΎΡΠΎΡΡΠ΅ ΠΏΠΎΡΠΎΠΌ Π±ΡΠ΄ΡΡ Π·Π°ΠΊΡΡΡΡ Π΄ΠΎΡΠ°ΡΡΠΌ Π½Π°ΡΡΠΈΠ»ΠΎΠΌ.
- ΠΠΎΠ½ΡΠ°ΠΆ Π³ΠΎΡΠΈΠ·ΠΎΠ½ΡΠ°Π»ΡΠ½ΡΡ ΠΎΠΏΠΎΡ. ΠΡΠ΅Π΄Π²Π°ΡΠΈΡΠ΅Π»ΡΠ½ΠΎ Π²ΡΡΠ΅Π·Π°ΡΡΡΡ ΠΊΡΠ΅ΠΏΠ΅ΠΆΠ½ΡΠ΅ ΠΏΠ°Π·Ρ.
- ΠΡΠ΅ΠΏΠ»Π΅Π½ΠΈΠ΅ ΠΎΡΠ½ΠΎΠ²Π½ΠΎΠ³ΠΎ Π½Π°ΡΡΠΈΠ»Π°. Π Π°ΡΡΡΠΎΡΠ½ΠΈΠ΅ ΠΌΠ΅ΠΆΠ΄Ρ Π΄ΠΎΡΠΊΠ°ΠΌΠΈ Π΄ΠΎΠ»ΠΆΠ½ΠΎ ΡΠΎΡΡΠ°Π²Π»ΡΡΡ Π½Π΅ ΠΌΠ΅Π½Π΅Π΅ 1 ΡΠΌ.
Π ΠΏΡΠΎΡΠ΅ΡΡΠ΅ ΠΈΠ·Π³ΠΎΡΠΎΠ²Π»Π΅Π½ΠΈΡ ΡΠ΅ΠΊΠΎΠΌΠ΅Π½Π΄ΡΠ΅ΡΡΡ ΠΈΡΠΏΠΎΠ»ΡΠ·ΠΎΠ²Π°ΡΡ Π΄Π΅ΡΠ΅Π²ΡΠ½Π½ΡΠ΅ Π³Π²ΠΎΠ·Π΄ΠΈ ΠΈΠ»ΠΈ ΡΡΠΈΡΡΡ. ΠΡΠ»ΠΈ ΡΡΠΎ Π½Π΅Π²ΠΎΠ·ΠΌΠΎΠΆΠ½ΠΎ β ΡΠ»Π΅Π΄ΡΠ΅Ρ ΠΏΡΠΈΠΌΠ΅Π½ΡΡΡ ΡΠ°ΠΌΠΎΡΠ΅Π·Ρ Ρ Π·Π°ΡΠΈΡΠ½ΡΠΌ ΠΏΠΎΠΊΡΡΡΠΈΠ΅ΠΌ. ΠΡΠ΅Π΄Π²Π°ΡΠΈΡΠ΅Π»ΡΠ½ΠΎ Π²ΡΡΠ²Π΅ΡΠ»ΠΈΠ²Π°Π΅ΡΡΡ ΠΎΡΠ²Π΅ΡΡΡΠΈΠ΅, ΡΡΠΎΠ±Ρ ΡΠ»ΡΠΏΠΊΠ° ΡΠ°ΠΌΠΎΡΠ΅Π·Π° Π½Π°Ρ ΠΎΠ΄ΠΈΠ»Π°ΡΡ Π½ΠΈΠΆΠ΅ ΡΡΠΎΠ²Π½Ρ Π΄ΠΎΡΠΊΠΈ. ΠΠΎΡΠ»Π΅ ΠΏΡΠΎΠ²Π΅ΡΠΊΠΈ Π½Π°Π΄Π΅ΠΆΠ½ΠΎΡΡΠΈ ΠΊΡΠ΅ΠΏΠ»Π΅Π½ΠΈΡ ΠΎΠ½Π° Π·Π°ΠΊΡΡΠ²Π°Π΅ΡΡΡ Π΄Π΅ΡΠ΅Π²ΡΠ½Π½ΠΎΠΉ Π΄Π΅ΠΊΠΎΡΠ°ΡΠΈΠ²Π½ΠΎΠΉ Π·Π°Π³Π»ΡΡΠΊΠΎΠΉ.
ΠΠΈΠ΄Π΅ΠΎΠΌΠ°ΡΠ΅ΡΠΈΠ°Π» ΠΏΠΎΠΌΠΎΠΆΠ΅Ρ ΠΏΡΠ°Π²ΠΈΠ»ΡΠ½ΠΎ Π²ΡΠ±ΡΠ°ΡΡ ΡΠ°Π·ΠΌΠ΅ΡΡ ΠΏΠΎΠ»ΠΎΠΊ Π΄Π»Ρ Π±Π°Π½ΠΈ:
dearhouse.ru
ΠΠΎΠ»ΠΎΠΊ ΠΈ ΠΌΠ΅Π±Π΅Π»Ρ Π΄Π»Ρ Π±Π°Π½ΠΈ ΡΠ²ΠΎΠΈΠΌΠΈ ΡΡΠΊΠ°ΠΌΠΈ: ΠΏΡΠΎΡΡΠΎ ΠΈ ΡΠ²Π»Π΅ΠΊΠ°ΡΠ΅Π»ΡΠ½ΠΎ
ΠΠΎΠ»ΠΎΠΊ ΡΠ²Π»ΡΠ΅ΡΡΡ Π½Π΅ΠΎΠ±Ρ ΠΎΠ΄ΠΈΠΌΡΠΌ ΡΠ»Π΅ΠΌΠ΅Π½ΡΠΎΠΌ Π±Π°Π½ΠΈ, ΡΠ°ΠΊ ΠΊΠ°ΠΊ ΠΏΠΎΠ·Π²ΠΎΠ»ΡΠ΅Ρ ΠΏΠ°ΡΠΈΡΡΡΡ Ρ ΠΊΠΎΠΌΡΠΎΡΡΠΎΠΌ ΠΈ ΡΠ΄ΠΎΠ±ΡΡΠ²ΠΎΠΌ. ΠΠ·Π³ΠΎΡΠΎΠ²ΠΈΡΡ ΠΌΠ΅Π±Π΅Π»Ρ Π΄Π»Ρ ΠΏΠ°ΡΠΈΠ»ΠΊΠΈ ΠΌΠΎΠΆΠ½ΠΎ ΠΈ ΡΠ°ΠΌΠΎΡΡΠΎΡΡΠ΅Π»ΡΠ½ΠΎ, ΡΠ»Π΅Π΄ΡΠ΅Ρ Π»ΠΈΡΡ ΡΡΠ΅ΡΡΡ ΠΎΠΏΡΠ΅Π΄Π΅Π»ΡΠ½Π½ΡΠ΅ Π½ΠΎΡΠΌΡ ΠΈ ΠΏΡΠ°Π²ΠΈΠ»Π°, Π° ΡΠ°ΠΊΠΆΠ΅ ΡΠΎΠ±Π»ΡΡΡΠΈ ΡΡΠ°ΠΏΡ ΡΠ°Π±ΠΎΡΡ. Π Π°Π·Π±Π΅ΡΡΠΌΡΡ, ΠΊΠ°ΠΊ ΡΠΎΠ·Π΄Π°ΡΡ ΡΠ²ΠΎΠΈΠΌΠΈ ΡΡΠΊΠ°ΠΌΠΈ ΠΊΠ°ΡΠ΅ΡΡΠ²Π΅Π½Π½ΡΡ Π±Π°Π½Π½ΡΡ ΠΌΠ΅Π±Π΅Π»Ρ.
ΠΠΎΠ»ΠΎΠΊ: ΡΡΡΡΠΎΠΉΡΡΠ²ΠΎ ΠΈ ΠΎΠΏΠΈΡΠ°Π½ΠΈΠ΅ ΠΊΠΎΠ½ΡΡΡΡΠΊΡΠΈΠΈ
Π Π±Π°Π½Π΅, Π² ΠΏΠΎΠΌΠ΅ΡΠ΅Π½ΠΈΠΈ ΠΏΠ°ΡΠΈΠ»ΠΊΠΈ, ΠΏΡΠΈΡΡΡΡΡΠ²ΡΠ΅Ρ ΡΠΏΠ΅ΡΠΈΠ°Π»ΡΠ½Π°Ρ ΠΊΠΎΠ½ΡΡΡΡΠΊΡΠΈΡ Π² Π²ΠΈΠ΄Π΅ Π½Π΅ΡΠΊΠΎΠ»ΡΠΊΠΈΡ Π»Π°Π²ΠΎΠΊ. ΠΡΠΎ ΠΈ Π΅ΡΡΡ ΠΏΠΎΠ»ΠΎΠΊ. Π¨ΠΈΡΠΎΠΊΠΈΠΉ ΠΈ ΡΠ΄ΠΎΠ±Π½ΡΠΉ ΠΊΠ°ΡΠΊΠ°Ρ ΠΏΠΎΠΊΡΡΡ Π½Π°ΡΡΠΈΠ»ΠΎΠΌ, ΠΎΠ±ΡΡΠ½ΠΎ ΠΏΡΠ΅Π΄ΡΡΠ°Π²Π»ΡΡΡΠΈΠΌ ΡΠΎΠ±ΠΎΠΉ Π΄Π΅ΡΠ΅Π²ΡΠ½Π½ΡΠ΅ ΡΠ΅ΠΉΠΊΠΈ. ΠΠ°ΡΠΊΠ°Ρ ΡΠ²Π»ΡΠ΅ΡΡΡ ΠΎΡΠ½ΠΎΠ²Π°Π½ΠΈΠ΅ΠΌ, ΠΏΠΎΡΡΠΎΠΌΡ Π΄ΠΎΠ»ΠΆΠ΅Π½ Π±ΡΡΡ ΠΎΡΠ΅Π½Ρ Π½Π°Π΄ΡΠΆΠ΅Π½. ΠΠ»Ρ ΠΎΠ±ΡΡΡΡΠΎΠΉΡΡΠ²Π° ΡΡΠΎΠΉ ΡΠΈΡΡΠ΅ΠΌΡ ΡΠ°ΡΡΠΎ ΠΏΡΠΈΠΌΠ΅Π½ΡΠ΅ΡΡΡ Π±ΡΡΡ, ΠΈΠΌΠ΅ΡΡΠΈΠΉ ΡΠ΅ΡΠ΅Π½ΠΈΠ΅ 5Ρ 5 ΡΠΌ. Π’Π°ΠΊΠΈΠ΅ ΡΠΎΠΎΡΡΠΆΠ΅Π½ΠΈΡ ΠΌΠΎΠ³ΡΡ Π±ΡΡΡ ΡΡΡΠ°Π½ΠΎΠ²Π»Π΅Π½Ρ Π² Π½Π΅ΡΠΊΠΎΠ»ΡΠΊΠΎ ΡΡΠΎΠ²Π½Π΅ΠΉ. ΠΠ»Ρ ΠΌΠ°Π»Π΅Π½ΡΠΊΠΎΠ³ΠΎ ΠΏΠΎΠΌΠ΅ΡΠ΅Π½ΠΈΡ ΠΎΠΏΡΠΈΠΌΠ°Π»Π΅Π½ ΠΎΠ΄ΠΈΠ½ ΠΏΠΎΠ»ΠΎΠΊ.

ΠΠ΅ΡΠ΅Π²ΡΠ½Π½ΡΠΉ ΠΏΠΎΠ»ΠΎΠΊ Π² Π±Π°Π½Π΅ ΡΠΎΠ·Π΄Π°ΡΡ ΠΊΠΎΠΌΡΠΎΡΡΠ½ΡΡ ΠΎΠ±ΡΡΠ°Π½ΠΎΠ²ΠΊΡ ΠΈ ΡΠ»ΡΠΆΠΈΡ Π΄Π»Ρ ΡΠ΄ΠΎΠ±ΡΡΠ²Π° ΠΏΠ°ΡΡΡΠΈΡ ΡΡ
ΠΠ±ΡΡΡΡΠΎΠΈΡΡ ΠΏΠΎΠ»ΠΎΠΊ Π² Π±Π°Π½Π΅ ΠΌΠΎΠΆΠ½ΠΎ Π΄Π²ΡΠΌΡ ΡΠΏΠΎΡΠΎΠ±Π°ΠΌΠΈ. ΠΠ΄ΠΈΠ½ ΠΈΠ· ΠΌΠ΅ΡΠΎΠ΄ΠΎΠ² ΠΏΡΠ΅Π΄ΠΏΠΎΠ»Π°Π³Π°Π΅Ρ ΡΡΡΠ°Π½ΠΎΠ²ΠΊΡ Π²Π΅ΡΡΠΈΠΊΠ°Π»ΡΠ½ΡΡ ΡΡΠΎΠ΅ΠΊ, ΠΊΠΎΡΠΎΡΡΠ΅ ΡΠΎΠ΅Π΄ΠΈΠ½ΡΡΡΡΡ ΠΏΠ΅ΡΠ΅ΠΌΡΡΠΊΠ°ΠΌΠΈ. Π ΠΈΠ½ΠΎΠΌ ΡΠ»ΡΡΠ°Π΅ ΠΊΠΎΠ½ΡΡΡΡΠΊΡΠΈΡ ΡΠΎΠΎΡΡΠΆΠ°Π΅ΡΡΡ ΠΏΠΎ ΡΠΈΠΏΡ Π»Π΅ΡΡΠ½ΠΈΡΠ½ΡΡ ΠΊΠΎΡΠΎΡΡΠΎΠ² (ΠΊΠΎΡΠΎΡΡ β Π½Π΅ΡΡΡΠ°Ρ Π±Π°Π»ΠΊΠ°, ΠΊΠΎΡΠΎΡΠ°Ρ ΡΠ»ΡΠΆΠΈΡ ΠΎΠΏΠΎΡΠΎΠΉ Π΄Π»Ρ Π²ΡΠ΅Π³ΠΎ Π»Π΅ΡΡΠ½ΠΈΡΠ½ΠΎΠ³ΠΎ ΠΌΠ°ΡΡΠ°). ΠΠ·ΡΠ΅Π΄ΠΊΠ° ΠΈΠ·Π΄Π΅Π»ΠΈΡ ΡΠ°ΠΊΠΆΠ΅ ΠΊΡΠ΅ΠΏΡΡΡΡ Π½Π° ΠΊΠ°ΡΠΊΠ°Ρ, Π½Π΅ ΠΈΠΌΠ΅ΡΡΠΈΠΉ ΠΎΠΏΠΎΡ. ΠΡΠΈ ΡΡΠΎΠΌ ΠΏΠΎΠ»ΠΊΠΈ Π½Π°ΠΏΠΎΠΌΠΈΠ½Π°ΡΡ ΡΡΠΎΠ»ΠΈΠΊΠΈ Π² Π²Π°Π³ΠΎΠ½Π°Ρ ΠΏΠΎΠ΅Π·Π΄ΠΎΠ².
ΠΠ°Π·Π½Π°ΡΠ΅Π½ΠΈΠ΅ ΠΈ ΠΎΡΠΎΠ±Π΅Π½Π½ΠΎΡΡΠΈ
ΠΠΎΠ»ΠΎΠΊ Π² Π±Π°Π½Π΅ ΡΠ°ΡΡΠΎ ΠΈΠΌΠ΅Π΅Ρ Π΄Π²Π° ΡΡΠΎΠ²Π½Ρ. ΠΠ° Π½ΠΈΠΆΠ½Π΅ΠΌ ΠΌΠΎΠΆΠ½ΠΎ ΡΠΈΠ΄Π΅ΡΡ, Π° Π½Π° Π²Π΅ΡΡ Π½Π΅ΠΌ Π»Π΅Π³ΠΊΠΎ ΠΈ Ρ ΡΠ΄ΠΎΠ±ΡΡΠ²ΠΎΠΌ Π»Π΅ΠΆΠ°ΡΡ. Π’Π΅ΠΌΠΏΠ΅ΡΠ°ΡΡΡΠ° Π²ΠΎΠ·Π΄ΡΡ Π° Π½Π° ΠΏΠΎΡΠ»Π΅Π΄Π½Π΅ΠΌ ΡΡΠΎΠ²Π½Π΅ Π±ΠΎΠ»Π΅Π΅ Π²ΡΡΠΎΠΊΠ°Ρ, ΡΡΠΎ ΠΎΠΏΡΠΈΠΌΠ°Π»ΡΠ½ΠΎ Π΄Π»Ρ Π»ΡΠ±ΠΈΡΠ΅Π»Π΅ΠΉ ΠΏΠΎΠΏΠ°ΡΠΈΡΡΡΡ Π² Π±Π°Π½Π΅ Β«ΠΏΠΎΠ³ΠΎΡΡΡΠ΅Π΅Β». ΠΠ°ΠΆΠ½ΠΎ ΠΏΡΠ°Π²ΠΈΠ»ΡΠ½ΠΎ ΡΠΊΠΎΠ½ΡΡΡΡΠΈΡΠΎΠ²Π°ΡΡ ΠΏΠΎΠ»ΠΎΠΊ, Π²Π΅Π΄Ρ ΠΎΡ ΡΡΠΎΠ³ΠΎ Π·Π°Π²ΠΈΡΠΈΡ ΡΡΡΠ΅ΠΊΡΠΈΠ²Π½ΠΎΡΡΡ ΠΏΠ°ΡΠΈΠ»ΠΊΠΈ.
ΠΡΠΎΠ±Π΅Π½Π½ΠΎΡΡΠΈ ΡΠΎΠΎΡΡΠΆΠ΅Π½ΠΈΡ Π±Π°Π½Π½ΠΎΠ³ΠΎ ΠΏΠΎΠ»ΠΊΠ° Π·Π°ΠΊΠ»ΡΡΠ°ΡΡΡΡ Π² ΡΠ»Π΅Π΄ΡΡΡΠ΅ΠΌ:
- Π¨ΠΈΡΠΈΠ½Π° Π²Π΅ΡΡ Π½Π΅Π³ΠΎ ΡΡΠΎΠ²Π½Ρ Π²Π°ΠΆΠ½Π°, Π²Π΅Π΄Ρ ΠΎΠ½ ΠΈΡΠΏΠΎΠ»ΡΠ·ΡΠ΅ΡΡΡ Π΄Π»Ρ Π»Π΅ΠΆΠ°Π½ΠΈΡ. ΠΡΠ°Π²ΠΈΠ»ΡΠ½ΡΠ΅ Π³Π°Π±Π°ΡΠΈΡΡ ΠΏΠΎΠ»ΠΊΠ° ΠΎΠ±Π΅ΡΠΏΠ΅ΡΠ°Ρ Π±Π΅Π·ΠΎΠΏΠ°ΡΠ½ΠΎΡΡΡ ΠΈ ΠΊΠΎΠΌΡΠΎΡΡ.
- Π£ΡΠΎΠ²Π΅Π½Ρ, ΠΈΡΠΏΠΎΠ»ΡΠ·ΡΡΡΠΈΠΉΡΡ Π΄Π»Ρ ΡΠΈΠ΄Π΅Π½ΠΈΡ, ΠΈΠΌΠ΅Π΅Ρ ΠΌΠ΅Π½ΡΡΠΈΠ΅ ΡΠ°Π·ΠΌΠ΅ΡΡ. ΠΡΠΎ Π½Π΅ΠΎΠ±Ρ ΠΎΠ΄ΠΈΠΌΠΎ Π΄Π»Ρ ΡΠ΄ΠΎΠ±ΡΡΠ²Π° ΠΏΠ°ΡΠΈΠ»ΡΡΠΈΠΊΠ°.
- ΠΠ±ΡΠ°Ρ ΡΡΠ°Π½Π΄Π°ΡΡΠ½Π°Ρ Π²ΡΡΠΎΡΠ° ΠΊΠΎΠ½ΡΡΡΡΠΊΡΠΈΠΈ ΡΠΎΡΡΠ°Π²Π»ΡΠ΅Ρ 70 ΡΠΌ. ΠΠΈΠΆΠ½ΠΈΠΉ ΡΡΠΎΠ²Π΅Π½Ρ Π²ΠΎΠ·Π²ΡΡΠ°Π΅ΡΡΡ Π½Π°Π΄ ΠΏΠΎΠ»ΠΎΠΌ Π½Π° 40 ΡΠΌ, Π²ΡΡΠΎΡΠ° Π²Π΅ΡΡ Π½Π΅Π³ΠΎ ΡΡΠΎΠ²Π½Ρ β 30 ΡΠΌ.
- ΠΠ»Ρ ΡΠ΄ΠΎΠ±ΡΡΠ²Π° ΠΏΠ°ΡΠΈΠ»ΡΡΠΈΠΊΠ° ΠΌΠΎΠΆΠ½ΠΎ ΠΏΡΠ΅Π΄ΡΡΠΌΠΎΡΡΠ΅ΡΡ Π½ΠΈΠ·ΠΊΡΡ ΡΠΊΠ°ΠΌΠ΅ΠΉΠΊΡ, ΠΊΠΎΡΠΎΡΠ°Ρ ΠΈΠΌΠ΅Π΅Ρ ΠΌΠ΅Π½ΡΡΡΡ Π²ΡΡΠΎΡΡ, ΡΠ΅ΠΌ Π½ΠΈΠΆΠ½ΠΈΠΉ ΡΡΠΎΠ²Π΅Π½Ρ.
ΠΠΎΠ΄Π³ΠΎΡΠΎΠ²ΠΊΠ° ΠΊ ΡΠΎΠΎΡΡΠΆΠ΅Π½ΠΈΡ
Π‘ΠΎΠ·Π΄Π°Π½ΠΈΠ΅ ΠΏΠΎΠ»ΠΊΠ° Π² Π»ΡΠ±ΠΎΠΉ Π±Π°Π½Π΅ ΡΡΠ΅Π±ΡΠ΅Ρ ΡΠ°Π·ΡΠ°Π±ΠΎΡΠΊΠΈ ΡΠ΅ΡΡΠ΅ΠΆΠ°. ΠΠ°ΠΆΠ΅ ΠΏΡΠΎΡΡΠ°Ρ ΡΡ Π΅ΠΌΠ° ΠΏΠΎΠ·Π²ΠΎΠ»ΡΠ΅Ρ ΠΎΠΏΡΠ΅Π΄Π΅Π»ΠΈΡΡ Π²ΡΠ΅ ΠΏΠ°ΡΠ°ΠΌΠ΅ΡΡΡ ΠΈ ΠΎΡΠΎΠ±Π΅Π½Π½ΠΎΡΡΠΈ ΠΌΠΎΠ½ΡΠ°ΠΆΠ° ΠΊΠΎΠ½ΡΡΡΡΠΊΡΠΈΠΈ. Π§Π΅ΡΡΡΠΆ Π²ΠΊΠ»ΡΡΠ°Π΅Ρ Π² ΡΠ΅Π±Ρ ΠΈΠ·ΠΎΠ±ΡΠ°ΠΆΠ΅Π½ΠΈΠ΅ ΠΊΠ°ΡΠΊΠ°ΡΠ° Π±ΡΠ΄ΡΡΠ΅Π³ΠΎ ΠΈΠ·Π΄Π΅Π»ΠΈΡ. ΠΡΠΈ ΡΡΠΎΠΌ ΠΎΡΡΠ°ΠΆΠ°ΡΡΡΡ ΠΌΠ΅ΡΡΠ° ΠΊΡΠ΅ΠΏΠ»Π΅Π½ΠΈΡ Π½Π°ΡΡΠΈΠ»Π° ΠΈ ΠΌΠ΅ΡΠΎΠ΄ ΡΠΈΠΊΡΠ°ΡΠΈΠΈ ΠΎΡΠ½ΠΎΠ²Ρ ΠΏΠΎΠ»ΠΊΠ°.

Π§Π΅ΡΡΠ΅ΠΆ Π±ΡΠ΄ΡΡΠ΅Π³ΠΎ ΠΈΠ·Π΄Π΅Π»ΠΈΡ Π»Π΅Π³ΠΊΠΎ ΡΠΎΡΡΠ°Π²ΠΈΡΡ ΡΠ²ΠΎΠΈΠΌΠΈ ΡΡΠΊΠ°ΠΌΠΈ β Π΄ΠΎΡΡΠ°ΡΠΎΡΠ½ΠΎ ΡΠ΅ΡΡΠ°Π΄Π½ΠΎΠ³ΠΎ Π»ΠΈΡΡΠ° ΠΈ ΠΎΠ±ΡΡΠ½ΠΎΠΉ Π»ΠΈΠ½Π΅ΠΉΠΊΠΈ
Π’Π°ΠΊ ΠΊΠ°ΠΊ Π½Π° ΡΠ΅ΡΡΠ΅ΠΆΠ΅ ΠΎΡΡΠ°ΠΆΠ°ΡΡΡΡ ΠΏΠ°ΡΠ°ΠΌΠ΅ΡΡΡ Π²ΡΠ΅Ρ ΡΠ»Π΅ΠΌΠ΅Π½ΡΠΎΠ², Π½ΡΠΆΠ½ΠΎ Π·Π°ΡΠ°Π½Π΅Π΅ ΠΎΠΏΡΠ΅Π΄Π΅Π»ΠΈΡΡ ΠΏΠΎΠΊΠ°Π·Π°ΡΠ΅Π»ΠΈ Π΄Π»ΠΈΠ½Ρ, ΡΠΈΡΠΈΠ½Ρ, Π²ΡΡΠΎΡΡ ΠΊΠΎΠ½ΡΡΡΡΠΊΡΠΈΠΈ ΠΈ ΠΏΡ. ΠΡΠΈ ΡΠΎΠ·Π΄Π°Π½ΠΈΠΈ ΠΏΠΎΠ»ΠΊΠ° ΡΠ²ΠΎΠΈΠΌΠΈ ΡΡΠΊΠ°ΠΌΠΈ ΠΌΠΎΠΆΠ½ΠΎ ΡΡΠΈΡΡΠ²Π°ΡΡ ΡΡΠ°Π½Π΄Π°ΡΡΠ½ΡΠ΅ Π½ΠΎΡΠΌΡ ΠΈΠ»ΠΈ ΠΆΠ΅ Π½Π΅ΠΌΠ½ΠΎΠ³ΠΎ ΠΈΠ·ΠΌΠ΅Π½ΠΈΡΡ ΠΈΡ Π² Π·Π°Π²ΠΈΡΠΈΠΌΠΎΡΡΠΈ ΠΎΡ Π»ΠΈΡΠ½ΡΡ ΠΏΡΠ΅Π΄ΠΏΠΎΡΡΠ΅Π½ΠΈΠΉ, ΠΏΠ»ΠΎΡΠ°Π΄ΠΈ ΠΏΠ°ΡΠΈΠ»ΠΊΠΈ ΠΈ Π΄ΡΡΠ³ΠΈΡ ΡΠ°ΠΊΡΠΎΡΠΎΠ². Π¨ΠΈΡΠΈΠ½Π° Π½Π°ΡΡΠΈΠ»Π° Π²Π΅ΡΡ Π½Π΅Π³ΠΎ ΡΡΠΎΠ²Π½Ρ ΠΌΠΎΠΆΠ΅Ρ ΡΠΎΡΡΠ°Π²Π»ΡΡΡ 50β70 ΡΠΌ, Π½ΠΈΠΆΠ½ΠΈΠΉ ΠΏΠΎΠ»ΠΎΠΊ ΠΈΠΌΠ΅Π΅Ρ ΠΌΠ΅Π½ΡΡΠΈΠ΅ Π³Π°Π±Π°ΡΠΈΡΡ. Π Π°ΡΠΏΠΎΠ»ΠΎΠΆΠ΅Π½ΠΈΠ΅ ΠΏΠΎΠ»ΠΊΠ° ΡΠ°ΠΊΠΆΠ΅ ΠΌΠΎΠΆΠ΅Ρ Π±ΡΡΡ Π»ΡΠ±ΡΠΌ. ΠΡΠ°ΠΊΡΠΈΡΠ½ΡΠΌ Π²Π°ΡΠΈΠ°Π½ΡΠΎΠΌ ΡΠ²Π»ΡΠ΅ΡΡΡ ΡΡΡΠ°Π½ΠΎΠ²ΠΊΠ° ΠΊΠΎΠ½ΡΡΡΡΠΊΡΠΈΠΈ Ρ ΡΡΠ΅Π½Ρ, ΠΏΡΠΎΡΠΈΠ²ΠΎΠΏΠΎΠ»ΠΎΠΆΠ½ΠΎΠΉ Π²Ρ ΠΎΠ΄Ρ Π² ΠΏΠ°ΡΠΈΠ»ΠΊΡ. Π£Π³Π»ΠΎΠ²ΠΎΠΉ ΠΏΠΎΠ»ΠΎΠΊ Π½Π΅ ΠΌΠ΅Π½Π΅Π΅ ΡΠ΄ΠΎΠ±Π΅Π½ ΠΈ Π·Π°Π½ΠΈΠΌΠ°Π΅Ρ ΠΏΡΠΎΡΡΡΠ°Π½ΡΡΠ²ΠΎ Ρ Π΄Π²ΡΡ ΡΡΠ΅Π½.

Π£Π³Π»ΠΎΠ²ΠΎΠΉ ΠΏΠΎΠ»ΠΎΠΊ Ρ Π΄Π²ΡΠΌΡ ΡΡΠΎΠ²Π½ΡΠΌΠΈ Π²ΡΡΠΎΡΡ ΡΠΌΠ΅ΡΡΠ΅Π½ Π² ΠΌΠ°Π»Π΅Π½ΡΠΊΠΎΠΉ Π±Π°Π½Π΅
ΠΠ°ΡΠ΅ΡΠΈΠ°Π» Π΄Π»Ρ ΠΏΠΎΠ»ΠΊΠ° Π² Π±Π°Π½Π΅
ΠΠ»Ρ ΠΈΠ·Π³ΠΎΡΠΎΠ²Π»Π΅Π½ΠΈΡ ΠΏΠΎΠ»ΠΊΠ° Π² Π±Π°Π½Π΅ ΠΈΡΠΏΠΎΠ»ΡΠ·ΡΡΡ Π΄ΠΎΡΠΊΠΈ ΠΈΠ· Π»ΠΈΠΏΡ ΠΈΠ»ΠΈ ΠΎΡΠΈΠ½Ρ. ΠΡΠΈ ΠΌΠ°ΡΠ΅ΡΠΈΠ°Π»Ρ Π΄ΠΎΡΡΠ°ΡΠΎΡΠ½ΠΎ ΡΠ°ΡΠΏΡΠΎΡΡΡΠ°Π½Π΅Π½Ρ ΠΈ ΠΎΡΠ»ΠΈΡΠ°ΡΡΡΡ ΠΏΡΠ°ΠΊΡΠΈΡΠ½ΠΎΡΡΡΡ, Π½ΠΎ ΡΠΎ Π²ΡΠ΅ΠΌΠ΅Π½Π΅ΠΌ ΡΠ΅ΠΌΠ½Π΅ΡΡ. ΠΡΠ»ΠΈ ΠΆΠ΅ Π½Π΅ΠΎΠ±Ρ ΠΎΠ΄ΠΈΠΌΠΎ ΡΠΎΠ·Π΄Π°ΡΡ Π² Π±Π°Π½Π΅ ΠΊΠΎΠ½ΡΡΠ°ΡΡΠ½ΡΡ ΠΎΡΠ΄Π΅Π»ΠΊΡ Ρ ΠΈΡΠΏΠΎΠ»ΡΠ·ΠΎΠ²Π°Π½ΠΈΠ΅ΠΌ ΡΡΠΌΠ½ΡΡ ΠΈ ΡΠ²Π΅ΡΠ»ΡΡ Π΄ΠΎΡΠΎΠΊ, ΡΡΠΎΠΈΡ ΠΏΡΠΈΠΎΠ±ΡΠ΅ΡΡΠΈ ΡΠ΅ΡΠΌΠΎΠΎΠ±ΡΠ°Π±ΠΎΡΠ°Π½Π½ΡΠΉ ΠΌΠ°ΡΠ΅ΡΠΈΠ°Π». Π’Π°ΠΊΠΈΠ΅ Π΄ΠΎΡΠΊΠΈ ΠΈΠΌΠ΅ΡΡ ΡΡΠΌΠ½ΡΠΉ ΡΠ²Π΅Ρ, ΠΊΠΎΡΠΎΡΡΠΉ ΠΏΠΎΠ»ΡΡΠ°Π΅ΡΡΡ Π² ΡΠ΅Π·ΡΠ»ΡΡΠ°ΡΠ΅ ΠΎΠ±ΠΆΠΈΠ³Π° Π΄ΡΠ΅Π²Π΅ΡΠΈΠ½Ρ Π² ΠΎΡΠΎΠ±ΠΎΠΉ ΠΊΠ°ΠΌΠ΅ΡΠ΅. Π§Π°ΡΡΠΎ ΠΌΠ΅Π±Π΅Π»Ρ ΠΈ Π²ΡΠ΅ ΡΠ»Π΅ΠΌΠ΅Π½ΡΡ ΠΏΠ°ΡΠΈΠ»ΠΊΠΈ Π²ΡΠΏΠΎΠ»Π½ΡΡΡ ΠΈΠ· ΡΠ²Π΅ΡΠ»ΠΎΠΉ Π΄ΡΠ΅Π²Π΅ΡΠΈΠ½Ρ. ΠΡΠΈ ΡΡΠΎΠΌ Π½Π΅Π»ΡΠ·Ρ ΠΎΠ±ΡΠ°Π±Π°ΡΡΠ²Π°ΡΡ ΠΏΠΎΠ²Π΅ΡΡ Π½ΠΎΡΡΠΈ ΠΊΡΠ°ΡΠΊΠΎΠΉ ΠΈΠ»ΠΈ Π»Π°ΠΊΠΎΠΌ.

ΠΠ»Π΅ΠΌΠ΅Π½ΡΡ ΠΏΠ°ΡΠΈΠ»ΠΊΠΈ, Π²ΡΠΏΠΎΠ»Π½Π΅Π½Π½ΡΠ΅ ΠΈΠ· Π΄ΡΠ΅Π²Π΅ΡΠΈΠ½Ρ, Π½Π΅Π»ΡΠ·Ρ ΠΎΠ±ΡΠ°Π±Π°ΡΡΠ²Π°ΡΡ ΠΊΡΠ°ΡΠΊΠΎΠΉ ΠΈ Π»Π°ΠΊΠΎΠΌ
ΠΡ ΠΊΠ°ΡΠ΅ΡΡΠ²Π° ΠΌΠ°ΡΠ΅ΡΠΈΠ°Π»Π° Π΄Π»Ρ ΠΌΠ΅Π±Π΅Π»ΠΈ ΠΈ ΠΏΠΎΠ»ΠΊΠ° Π²Π½ΡΡΡΠΈ ΠΏΠ°ΡΠΈΠ»ΠΊΠΈ Π·Π°Π²ΠΈΡΠΈΡ ΠΊΠΎΠΌΡΠΎΡΡΠ½Π°Ρ ΡΠΊΡΠΏΠ»ΡΠ°ΡΠ°ΡΠΈΡ ΠΈ Π΄ΠΎΠ»Π³ΠΎΠ²Π΅ΡΠ½ΠΎΡΡΡ ΠΊΠΎΠ½ΡΡΡΡΠΊΡΠΈΠΈ. ΠΠΎΡΡΠΎΠΌΡ ΠΏΡΠΈ Π²ΡΠ±ΠΎΡΠ΅ ΠΈ ΠΏΠΎΠ΄Π³ΠΎΡΠΎΠ²ΠΊΠ΅ ΠΌΠ°ΡΠ΅ΡΠΈΠ°Π»Π°, ΡΠΎ Π΅ΡΡΡ Π΄Π΅ΡΠ΅Π²ΡΠ½Π½ΡΡ Π΄ΠΎΡΠΎΠΊ, ΡΠ»Π΅Π΄ΡΠ΅Ρ ΡΡΠΈΡΡΠ²Π°ΡΡ ΡΠ°ΠΊΠΈΠ΅ ΠΎΡΠΎΠ±Π΅Π½Π½ΠΎΡΡΠΈ:
- ΡΠΎΠ»ΡΠΈΠ½Π° Π΄ΠΎΡΠΎΠΊ Π΄ΠΎΠ»ΠΆΠ½Π° Π±ΡΡΡ Π² 4 ΡΠ°Π·Π° ΠΌΠ΅Π½ΡΡΠ΅ ΠΈΡ ΡΠΈΡΠΈΠ½Ρ;
- ΠΎΡΡΡΡΠ΅ ΠΊΡΠ°Ρ Π·Π°ΠΊΡΡΠ³Π»ΡΡΡ, Π° Π²ΡΠ΅ ΠΏΠΎΠ²Π΅ΡΡ Π½ΠΎΡΡΠΈ ΠΌΠ°ΡΠ΅ΡΠΈΠ°Π»Π° ΡΡΠ°ΡΠ΅Π»ΡΠ½ΠΎ ΡΠ»ΠΈΡΡΡΡ;
- ΠΎΡΠΈΠ½ΠΎΠ²ΡΠ΅ ΠΈΠ»ΠΈ Π»ΠΈΠΏΠΎΠ²ΡΠ΅ Π΄ΠΎΡΠΊΠΈ Π½Π΅ Π΄ΠΎΠ»ΠΆΠ½Ρ Π±ΡΡΡ Π³Π½ΠΈΠ»ΡΠΌΠΈ ΠΈΠ»ΠΈ Π΄Π΅ΡΠΎΡΠΌΠΈΡΠΎΠ²Π°Π½Π½ΡΠΌΠΈ.
ΠΠ»Ρ ΠΏΠΎΠ»ΠΊΠ° ΠΌΠΎΠΆΠ½ΠΎ ΡΠ°ΠΊΠΆΠ΅ ΠΈΡΠΏΠΎΠ»ΡΠ·ΠΎΠ²Π°ΡΡ ΡΠ°ΠΊΠΈΠ΅ ΠΏΠΎΡΠΎΠ΄Ρ Π΄ΡΠ΅Π²Π΅ΡΠΈΠ½Ρ, ΠΊΠ°ΠΊ ΡΠΎΠΏΠΎΠ»Ρ, ΠΎΠ»ΡΡ Π°, ΠΎΡΠΈΠ½Π°, Π»ΠΈΠΏΠ°, Π°Π±Π°ΡΠΈ (Π°ΡΡΠΈΠΊΠ°Π½ΡΠΊΠΈΠΉ Π΄ΡΠ±). ΠΠΎΠ½ΡΡΡΡΠΊΡΠΈΡ ΠΏΠΎΠ»ΠΊΠ° Π±ΡΠ΄Π΅Ρ ΡΡΡΠΎΠΉΡΠΈΠ²ΠΎΠΉ ΠΊ ΡΠ΅ΠΌΠΏΠ΅ΡΠ°ΡΡΡΠ½ΡΠΌ Π²ΠΎΠ·Π΄Π΅ΠΉΡΡΠ²ΠΈΡΠΌ ΠΈ Π²ΡΡΠΎΠΊΠΎΠΉ Π²Π»Π°ΠΆΠ½ΠΎΡΡΠΈ, Π΅ΡΠ»ΠΈ ΡΡΠΈΡΡΠ²Π°ΡΡ ΡΠ²ΠΎΠΉΡΡΠ²Π° ΡΠ°Π·Π»ΠΈΡΠ½ΡΡ ΠΏΠΎΡΠΎΠ΄ Π΄ΡΠ΅Π²Π΅ΡΠΈΠ½Ρ.
Π Π°ΡΡΡΡ ΠΌΠ°ΡΠ΅ΡΠΈΠ°Π»Π°
ΠΠ»Ρ ΠΎΠ±ΡΡΡΡΠΎΠΉΡΡΠ²Π° ΠΏΠ°ΡΠΈΠ»ΠΊΠΈ ΡΠ»Π΅Π΄ΡΠ΅Ρ ΠΏΡΠΈΠΎΠ±ΡΠ΅ΡΡΠΈ ΠΌΠ°ΡΠ΅ΡΠΈΠ°Π» Ρ Ρ ΠΎΡΠΎΡΠΈΠΌ Π·Π°ΠΏΠ°ΡΠΎΠΌ, ΡΡΠΎΠ±Ρ ΡΠ΄Π΅Π»Π°ΡΡ ΠΏΠΎΠ»ΠΎΠΊ ΠΊΠ°ΡΠ΅ΡΡΠ²Π΅Π½Π½ΡΠΌ ΠΈ ΡΠ΄ΠΎΠ±Π½ΡΠΌ. ΠΡΠ΅Π΄Π²Π°ΡΠΈΡΠ΅Π»ΡΠ½ΡΠΉ ΡΠ°ΡΡΡΡ ΠΏΠΎΠ·Π²ΠΎΠ»ΡΠ΅Ρ ΠΎΠΏΡΠ΅Π΄Π΅Π»ΠΈΡΡ ΠΊΠΎΠ»ΠΈΡΠ΅ΡΡΠ²ΠΎ ΠΌΠ°ΡΠ΅ΡΠΈΠ°Π»Π°, Π½Π΅ΠΎΠ±Ρ ΠΎΠ΄ΠΈΠΌΠΎΠ΅ Π΄Π»Ρ ΡΠ°Π±ΠΎΡΡ. ΠΠ»Ρ ΡΡΠΎΠ³ΠΎ Π½ΡΠΆΠ½ΠΎ ΡΡ Π΅ΠΌΠ°ΡΠΈΡΠ½ΠΎ Π½Π°ΡΠΈΡΠΎΠ²Π°ΡΡ ΠΏΠ»Π°Π½ ΠΏΠΎΠΌΠ΅ΡΠ΅Π½ΠΈΡ, ΠΎΠ±ΠΎΠ·Π½Π°ΡΠΈΡΡ Π½Π° Π½ΡΠΌ ΡΠ°ΡΠΏΠΎΠ»ΠΎΠΆΠ΅Π½ΠΈΠ΅ ΠΏΠΎΠ»ΠΊΠ°, ΠΏΡΠΎΡΡΠ°Π²ΠΈΡΡ ΡΠ°Π·ΠΌΠ΅ΡΡ ΠΊΠΎΠ½ΡΡΡΡΠΊΡΠΈΠΈ ΠΈ ΡΡΠ΅Π½. Π Π½Π΅Π±ΠΎΠ»ΡΡΠΎΠΌ ΠΏΠΎΠΌΠ΅ΡΠ΅Π½ΠΈΠΈ Π΄Π»ΠΈΠ½Π° Π²Π΅ΡΡ Π½Π΅Π³ΠΎ ΠΏΠΎΠ»ΠΊΠ° Π΄ΠΎΠ»ΠΆΠ½Π° Π±ΡΡΡ Π½Π΅ ΠΌΠ΅Π½Π΅Π΅ Π΄Π²ΡΡ ΠΌΠ΅ΡΡΠΎΠ² (ΡΡΠΎ ΠΏΠΎΠ·Π²ΠΎΠ»ΠΈΡ ΠΏΠ°ΡΠΈΡΡΡΡ Ρ ΠΊΠΎΠΌΡΠΎΡΡΠΎΠΌ). ΠΠΎΡΡΠΎΠΌΡ Π΄Π»Ρ ΠΎΠ±ΡΡΡΡΠΎΠΉΡΡΠ²Π° Π½Π°ΡΡΠΈΠ»Π° ΠΈΡΠΏΠΎΠ»ΡΠ·ΡΡΡ ΡΠ΅Π»ΡΠ½ΡΠ΅ Π΄ΠΎΡΠΊΠΈ, Π΄Π»ΠΈΠ½Π° ΠΊΠΎΡΠΎΡΡΡ Π½Π΅ ΠΌΠ΅Π½Π΅Π΅ 2 ΠΌΠ΅ΡΡΠΎΠ². ΠΠ΅ΠΆΠ΄Ρ Π΄ΠΎΡΠΊΠ°ΠΌΠΈ Π½Π°ΡΡΠΈΠ»Π° Π΄ΠΎΠ»ΠΆΠ½ΠΎ Π±ΡΡΡ ΡΠ°ΡΡΡΠΎΡΠ½ΠΈΠ΅ ΠΎΠΊΠΎΠ»ΠΎ 2 ΡΠΌ, ΡΡΠΎ Π½Π΅ΠΎΠ±Ρ ΠΎΠ΄ΠΈΠΌΠΎ Π΄Π»Ρ ΡΠ΅ΠΌΠΏΠ΅ΡΠ°ΡΡΡΠ½ΠΎΠ³ΠΎ ΡΠ°ΡΡΠΈΡΠ΅Π½ΠΈΡ ΠΌΠ°ΡΠ΅ΡΠΈΠ°Π»Π°.

ΠΠ° ΡΡ Π΅ΠΌΠ΅ Π±ΡΠ΄ΡΡΠ΅Π³ΠΎ ΠΏΠΎΠ»ΠΊΠ° ΠΎΠ±ΠΎΠ·Π½Π°ΡΠ°ΡΡ ΡΠ°Π·ΠΌΠ΅ΡΡ Π²ΡΠ΅Ρ Π΄Π΅ΡΠ°Π»Π΅ΠΉ ΠΈ ΡΠ°ΡΡΡΠΎΡΠ½ΠΈΡ ΠΌΠ΅ΠΆΠ΄Ρ Π½ΠΈΠΌΠΈ
ΠΠ»Ρ ΡΠΎΠ·Π΄Π°Π½ΠΈΡ ΠΊΠ°ΡΠΊΠ°ΡΠ° ΠΏΠΎΠ»ΠΊΠ° ΠΈΡΠΏΠΎΠ»ΡΠ·ΡΡΡ Π±ΡΡΡΠΊΠΈ, ΡΠ΅ΡΠ΅Π½ΠΈΠ΅ ΠΊΠΎΡΠΎΡΡΡ Π΄ΠΎΠ»ΠΆΠ½ΠΎ Π±ΡΡΡ Π½Π΅ ΠΌΠ΅Π½Π΅Π΅ 50Ρ 70 ΠΌΠΌ. ΠΠ»Ρ ΡΠΎΠ·Π΄Π°Π½ΠΈΡ Π½Π°ΡΡΠΈΠ»Π° ΠΏΡΠΈΠΌΠ΅Π½ΡΡΡ ΠΏΠ»Π°Π½ΠΊΠΈ ΡΠΎΠ»ΡΠΈΠ½ΠΎΠΉ 22 ΡΠΌ. Π Π°ΡΡΡΠΎΡΠ½ΠΈΠ΅ ΠΌΠ΅ΠΆΠ΄Ρ ΠΎΠΏΠΎΡΠ°ΠΌΠΈ ΠΊΠ°ΡΠΊΠ°ΡΠ° ΠΌΠΎΠΆΠ΅Ρ ΡΠΎΡΡΠ°Π²Π»ΡΡΡ Π½Π΅ ΠΌΠ΅Π½Π΅Π΅ 60 ΡΠΌ. ΠΠΎ ΡΡΠΎΠΌΡ ΠΏΡΠΈΠ½ΡΠΈΠΏΡ Π²ΡΡΠΈΡΠ»ΡΠ΅ΡΡΡ ΠΊΠΎΠ»ΠΈΡΠ΅ΡΡΠ²ΠΎ ΠΎΠΏΠΎΡ, Π½Π΅ΠΎΠ±Ρ ΠΎΠ΄ΠΈΠΌΡΡ Π΄Π»Ρ ΠΏΠΎΠ»ΠΊΠ°. ΠΠΎΠ»ΠΈΡΠ΅ΡΡΠ²ΠΎ ΠΌΠ°ΡΠ΅ΡΠΈΠ°Π»Π° Π΄ΠΎΠ»ΠΆΠ½ΠΎ Π±ΡΡΡ ΠΏΠΎΠ΄Π³ΠΎΡΠΎΠ²Π»Π΅Π½ΠΎ Ρ Π½Π΅Π±ΠΎΠ»ΡΡΠΈΠΌ Π·Π°ΠΏΠ°ΡΠΎΠΌ. ΠΡΠΈ ΡΠ°ΡΡΡΡΠ΅ ΡΡΠΈΡΡΠ²Π°ΡΡΡΡ ΡΠ΅Ρ Π½ΠΎΠ»ΠΎΠ³ΠΈΡΠ΅ΡΠΊΠΈΠ΅ ΠΎΡΡΡΡΠΏΡ.
ΠΠ½ΡΡΡΡΠΌΠ΅Π½ΡΡ
Π‘ΠΎΠ·Π΄Π°Π½ΠΈΠ΅ ΡΠ²ΠΎΠΈΠΌΠΈ ΡΡΠΊΠ°ΠΌΠΈ ΠΏΠΎΠ»ΠΊΠ° Π² ΠΏΠ°ΡΠΈΠ»ΠΊΠ΅ ΠΏΡΠ΅Π΄ΠΏΠΎΠ»Π°Π³Π°Π΅Ρ ΠΏΠΎΠ΄Π³ΠΎΡΠΎΠ²ΠΊΡ Π½Π΅ ΡΠΎΠ»ΡΠΊΠΎ ΠΌΠ°ΡΠ΅ΡΠΈΠ°Π»ΠΎΠ², Π½ΠΎ ΠΈ ΠΈΠ½ΡΡΡΡΠΌΠ΅Π½ΡΠΎΠ². Π‘ΡΡΠΎΠΈΡΠ΅Π»ΡΠ½ΡΠΉ ΡΡΠΎΠ²Π΅Π½Ρ, ΡΡΠ»Π΅ΡΠΊΠ°, ΡΠ³ΠΎΠ»ΡΠ½ΠΈΠΊ, Π»ΠΈΠ½Π΅ΠΉΠΊΠ° ΠΈ ΠΊΠ°ΡΠ°Π½Π΄Π°Ρ ΠΏΠΎΠ·Π²ΠΎΠ»ΡΡ ΡΠ΄Π΅Π»Π°ΡΡ ΠΊΠΎΠ½ΡΡΡΡΠΊΡΠΈΡ ΠΌΠ°ΠΊΡΠΈΠΌΠ°Π»ΡΠ½ΠΎ ΡΠΎΠ²Π½ΠΎΠΉ. ΠΠ»Ρ ΡΠ°Π±ΠΎΡΡ ΡΠ°ΠΊΠΆΠ΅ Π½Π΅ΠΎΠ±Ρ ΠΎΠ΄ΠΈΠΌΡ:
- Π΄ΡΠ΅Π»Ρ ΡΠ»Π΅ΠΊΡΡΠΈΡΠ΅ΡΠΊΠ°Ρ, ΡΡΡΡΠΏΠΎΠ²ΡΡΡ, ΠΊΠΎΠΌΠΏΠ»Π΅ΠΊΡ ΡΠ²ΡΡΠ»;
- Π½ΠΎΠΆΠΎΠ²ΠΊΠ° ΠΏΠΎ Π΄Π΅ΡΠ΅Π²Ρ, Π½Π°Π±ΠΎΡ ΠΎΡΠ²ΡΡΡΠΎΠΊ ΠΈ ΠΊΠΈΡΠ½ΠΊΠ°;
- ΡΠ°ΠΌΠΎΡΠ΅Π·Ρ ΠΈ Π΄Π΅ΡΠ΅Π²ΡΠ½Π½ΡΠ΅ ΡΡΠΈΡΡΡ, ΠΌΠΎΠ»ΠΎΡΠΎΠΊ, Π°Π±ΡΠ°Π·ΠΈΠ²Π½Π°Ρ ΡΠΊΡΡΠΊΠ° Π΄Π»Ρ ΡΠ°Π·Π½ΡΡ Π²ΠΈΠ΄ΠΎΠ² ΠΎΠ±ΡΠ°Π±ΠΎΡΠΊΠΈ.
ΠΠΎΡΠ°Π³ΠΎΠ²Π°Ρ ΠΈΠ½ΡΡΡΡΠΊΡΠΈΡ: ΡΠΎΠΎΡΡΠΆΠ΅Π½ΠΈΠ΅ ΠΏΠΎΠ»ΠΊΠ° Π² Π±Π°Π½Π΅
ΠΠ΅ΡΠ΅Π΄ ΡΠΎΠΎΡΡΠΆΠ΅Π½ΠΈΠ΅ΠΌ ΠΊΠΎΠ½ΡΡΡΡΠΊΡΠΈΠΈ Π² ΠΏΠ°ΡΠΈΠ»ΠΊΠ΅ Π²Π°ΠΆΠ½ΠΎ ΡΡΠΈΡΡΠ²Π°ΡΡ Π½Π΅ΠΊΠΎΡΠΎΡΡΠ΅ ΠΌΠΎΠΌΠ΅Π½ΡΡ ΠΏΡΠΎΡΠ΅ΡΡΠ°, Π·Π°ΠΊΠ»ΡΡΠ°ΡΡΠΈΠ΅ΡΡ Π² ΡΠ»Π΅Π΄ΡΡΡΠ΅ΠΌ:
- ΠΠ΅ΠΆΠ΄Ρ ΡΡΠ΅Π½Π°ΠΌΠΈ ΠΏΠ°ΡΠ½ΠΎΠΉ ΠΈ ΠΏΠΎΠ»ΠΊΠ°ΠΌΠΈ Π΄ΠΎΠ»ΠΆΠ½Π° ΠΎΡΡΠ°ΡΡΡΡ Π²Π΅Π½ΡΠΈΠ»ΡΡΠΈΠΎΠ½Π½Π°Ρ ΡΠ΅Π»Ρ Π² 10 ΡΠΌ. ΠΡΠΈ ΡΡΠ°ΡΠΈΠΎΠ½Π°ΡΠ½ΠΎΠΌ ΠΊΡΠ΅ΠΏΠ»Π΅Π½ΠΈΠΈ ΡΡΡΠΏΠ΅Π½Π΅ΠΉ ΠΊ ΡΡΠ΅Π½Π°ΠΌ ΡΡΠΎΡ Π·Π°Π·ΠΎΡ ΠΎΠ±Π΅ΡΠΏΠ΅ΡΠΈΠ²Π°ΡΡ ΠΏΡΡΡΠΌ ΡΡΡΠ°Π½ΠΎΠ²ΠΊΠΈ ΠΎΡΡΠ΅Π·ΠΊΠΎΠ² Π±ΡΡΡΠ°. Π‘Π½Π°ΡΠ°Π»Π° ΠΊ ΡΡΠ΅Π½Π΅ ΠΊΡΠ΅ΠΏΡΡ Π½Π°ΡΠ΅Π·Π°Π½Π½ΡΠΉ Π½Π° ΠΎΡΡΠ΅Π·ΠΊΠΈ Π±ΡΡΡ, Π·Π°ΡΠ΅ΠΌ ΠΊ Π½Π΅ΠΌΡ ΠΏΡΠΈΠ²ΠΈΠ½ΡΠΈΠ²Π°ΡΡ ΡΠ°ΠΌΠΎΡΠ΅Π·Π°ΠΌΠΈ Ρ ΡΡΠΎΠΏΠ»Π΅Π½Π½ΡΠΌΠΈ Π² ΠΌΠ°ΡΡΠΈΠ² Π³ΠΎΠ»ΠΎΠ²ΠΊΠ°ΠΌΠΈ ΡΠ»Π΅ΠΌΠ΅Π½ΡΡ ΠΊΠ°ΡΠΊΠ°ΡΠ°.
- Π Π½ΠΈΠΆΠ½Π΅ΠΉ ΠΏΠΎΠ²Π΅ΡΡ Π½ΠΎΡΡΠΈ Π½ΠΎΠΆΠ΅ΠΊ Π²ΡΠ΅Ρ ΡΡΠ°ΡΠΈΠΎΠ½Π°ΡΠ½ΡΡ ΡΡΡΠΏΠ΅Π½Π΅ΠΉ ΠΈ ΠΏΠ΅ΡΠ΅Π½ΠΎΡΠ½ΡΡ Π»Π°Π²ΠΎΠΊ Π½ΡΠΆΠ½ΠΎ ΠΏΡΠΈΠ±ΠΈΡΡ ΡΠ΅Π·ΠΈΠ½ΠΎΠ²ΡΠ΅ ΠΏΡΠΎΠΊΠ»Π°Π΄ΠΊΠΈ.
- ΠΠΌΠ΅ΡΡΠΎ ΡΠ°ΠΌΠΎΡΠ΅Π·ΠΎΠ² Π² ΠΊΠ°ΡΠ΅ΡΡΠ²Π΅ ΠΊΡΠ΅ΠΏΠ΅ΠΆΠ° Π΄ΠΎΡΠΎΠΊ Π½Π°ΡΡΠΈΠ»Π° ΡΠΎΠ²Π΅ΡΡΡΡ ΠΏΡΠΈΠΌΠ΅Π½ΡΡΡ Π΄Π΅ΡΠ΅Π²ΡΠ½Π½ΡΠ΅ ΡΡΠΈΡΡΡ, Π·Π°Π±ΠΈΠ²Π°Π΅ΠΌΡΠ΅ Π² Π²ΡΡΠ²Π΅ΡΠ»Π΅Π½Π½ΡΠ΅ ΠΏΠΎΠ΄ Π½ΠΈΡ ΠΎΡΠ²Π΅ΡΡΡΠΈΡ, ΠΈΠ»ΠΈ Π΄Π΅ΡΠ΅Π²ΡΠ½Π½ΡΠ΅ Π³Π²ΠΎΠ·Π΄ΠΈ. ΠΡΠ»ΠΈ Π½Π΅ Π½Π°ΡΠ»ΠΎΡΡ Π½ΠΈΡΠ΅Π³ΠΎ, ΠΊΡΠΎΠΌΠ΅ ΡΠ°ΠΌΠΎΡΠ΅Π·ΠΎΠ², ΠΊΡΠ΅ΠΏΠ»Π΅Π½ΠΈΠ΅ Π»ΡΡΡΠ΅ Π²ΡΠΏΠΎΠ»Π½ΡΡΡ Ρ ΡΡΠ»ΡΠ½ΠΎΠΉ ΡΡΠΎΡΠΎΠ½Ρ, ΡΡΠΎΠ±Ρ ΠΌΠ΅ΡΠ°Π»Π»ΠΈΡΠ΅ΡΠΊΠΈΠ΅ Π΄Π΅ΡΠ°Π»ΠΈ Π½Π΅ ΠΎΠ±ΠΆΠΈΠ³Π°Π»ΠΈ ΠΏΠΎΠ»ΡΠ·ΠΎΠ²Π°ΡΠ΅Π»Π΅ΠΉ. ΠΠ΅ΡΠ°Π»Π» Π·Π½Π°ΡΠΈΡΠ΅Π»ΡΠ½ΠΎ ΡΠΈΠ»ΡΠ½Π΅Π΅ ΠΈ Π±ΡΡΡΡΠ΅Π΅ Π½Π°Π³ΡΠ΅Π²Π°Π΅ΡΡΡ, ΡΠ΅ΠΌ Π΄ΡΠ΅Π²Π΅ΡΠΈΠ½Π°. ΠΡΠ»ΠΈ Π½Π΅Ρ Π²ΡΡ ΠΎΠ΄Π° ΠΈ ΠΊΡΠ΅ΠΏΠΈΡΡ ΠΏΡΠΈΠ΄ΡΡΡΡ ΡΠ½Π°ΡΡΠΆΠΈ, ΠΌΠ΅ΡΠ°Π»Π»ΠΈΡΠ΅ΡΠΊΠΈΠ΅ ΡΠ»ΡΠΏΠΊΠΈ ΠΎΠ±ΡΠ·Π°ΡΠ΅Π»ΡΠ½ΠΎ Π·Π°Π³Π»ΡΠ±Π»ΡΠΉΡΠ΅.
- ΠΠ΅ΠΆΠ΄Ρ Π΄ΠΎΡΠ΅ΡΠΊΠ°ΠΌΠΈ Π²ΡΠ΅Ρ ΡΠ»Π΅ΠΌΠ΅Π½ΡΠΎΠ² Π½Π°ΡΡΠΈΠ»Π° ΡΠΈΠ΄Π΅Π½ΠΈΠΉ-Π»Π΅ΠΆΠ°Π½ΠΎΠΊ Π΄ΠΎΠ»ΠΆΠ΅Π½ ΠΎΡΡΠ°Π²Π°ΡΡΡΡ Π·Π°Π·ΠΎΡ ΡΠΈΡΠΈΠ½ΠΎΠΉ ΠΌΠΈΠ½ΠΈΠΌΡΠΌ 1 ΡΠΌ.
Π‘Π²ΠΎΠΈΠΌΠΈ ΡΡΠΊΠ°ΠΌΠΈ ΠΏΠΎΡΡΡΠΎΠΈΡΡ ΠΏΠΎΠ»ΠΎΠΊ Π² ΠΏΠ°ΡΠΈΠ»ΠΊΠ΅ Π½Π΅ΡΠ»ΠΎΠΆΠ½ΠΎ. ΠΡΠΎΡΡΠ°Ρ Π΄Π²ΡΡ ΡΡΠΎΠ²Π½Π΅Π²Π°Ρ ΠΊΠΎΠ½ΡΡΡΡΠΊΡΠΈΡ Π½Π΅ ΡΡΠ΅Π±ΡΠ΅Ρ ΠΏΡΠΈΠΌΠ΅Π½Π΅Π½ΠΈΡ ΡΠ»ΠΎΠΆΠ½ΡΡ ΠΈΠ½ΡΡΡΡΠΌΠ΅Π½ΡΠΎΠ², Π½ΠΎ Π²ΡΠ΅ ΠΌΠ°ΡΠ΅ΡΠΈΠ°Π»Ρ, ΡΠ΅ΡΡΠ΅ΠΆΠΈ ΠΈ ΠΊΡΠ΅ΠΏΠ»Π΅Π½ΠΈΡ Π΄ΠΎΠ»ΠΆΠ½Ρ Π±ΡΡΡ ΠΊΠ°ΡΠ΅ΡΡΠ²Π΅Π½Π½ΡΠΌΠΈ, Π²Π΅Π΄Ρ ΠΎΡ ΡΡΠΎΠ³ΠΎ Π·Π°Π²ΠΈΡΠΈΡ Π΄ΠΎΠ»Π³ΠΎΠ²Π΅ΡΠ½ΠΎΡΡΡ ΠΏΠΎΠ»ΠΊΠ°.

ΠΠ΅ΡΠ΅Π²ΡΠ½Π½ΡΠ΅ ΡΠ»Π΅ΠΌΠ΅Π½ΡΡ ΠΏΠΎΠ»ΠΊΠ° Π½ΡΠΆΠ½ΠΎ Ρ ΠΎΡΠΎΡΠΎ ΠΎΡΡΠ»ΠΈΡΠΎΠ²Π°ΡΡ, ΡΠ³Π»Π°Π΄ΠΈΡΡ ΡΠ³Π»Ρ ΠΈ ΡΠΎΡΡΡ
ΠΠΎΠ½ΡΠ°ΠΆ ΠΏΠΎΠ»ΠΊΠ° Π½Π°ΡΠΈΠ½Π°Π΅ΡΡΡ Ρ ΡΠΎΠ·Π΄Π°Π½ΠΈΡ ΠΊΠ°ΡΠΊΠ°ΡΠ°, ΠΊΠΎΡΠΎΡΡΠΉ Π΄ΠΎΠ»ΠΆΠ΅Π½ Π±ΡΡΡ ΠΎΡΠ΅Π½Ρ Π½Π°Π΄ΡΠΆΠ½ΡΠΌ. ΠΠ»Ρ ΠΊΠ°ΡΠΊΠ°ΡΠ° ΠΈΡΠΏΠΎΠ»ΡΠ·ΡΡΡ Π±ΡΡΡΠΊΠΈ Ρ ΡΠ΅ΡΠ΅Π½ΠΈΠ΅ΠΌ 50Ρ 70 ΠΌΠΌ. ΠΠ»Π°Π½ΠΊΠΈ Π½Π°ΡΡΠΈΠ»Π° ΠΈ ΡΠ»Π΅ΠΌΠ΅Π½ΡΡ ΠΊΠ°ΡΠΊΠ°ΡΠ° Π½Π°ΡΠ΅Π·Π°ΡΡ ΠΏΠΎ Π½ΡΠΆΠ½ΡΠΌ ΡΠ°Π·ΠΌΠ΅ΡΠ°ΠΌ ΠΈ Π² Π½Π΅ΠΎΠ±Ρ ΠΎΠ΄ΠΈΠΌΠΎΠΌ ΠΊΠΎΠ»ΠΈΡΠ΅ΡΡΠ²Π΅. ΠΡΠ΅ Π΄Π΅ΡΠ΅Π²ΡΠ½Π½ΡΠ΅ ΡΠ»Π΅ΠΌΠ΅Π½ΡΡ Π½ΡΠΆΠ½ΠΎ ΠΏΡΠ΅Π΄Π²Π°ΡΠΈΡΠ΅Π»ΡΠ½ΠΎ Ρ ΠΎΡΠΎΡΠΎ ΠΎΡΡΠ»ΠΈΡΠΎΠ²Π°ΡΡ, ΡΠ³Π»Π°Π΄ΠΈΡΡ ΡΠ³Π»Ρ ΠΈ ΡΠΎΡΡΡ. ΠΠ°ΡΠ΅ΠΌ ΠΌΠ°ΡΠ΅ΡΠΈΠ°Π» ΠΏΠΎΠΊΡΡΠ²Π°ΡΡ Π°Π½ΡΠΈΡΠ΅ΠΏΡΠΈΡΠ΅ΡΠΊΠΎΠΉ ΠΆΠΈΠ΄ΠΊΠΎΡΡΡΡ, ΠΏΡΠ΅Π΄ΠΎΡΠ²ΡΠ°ΡΠ°ΡΡΠ΅ΠΉ Π³Π½ΠΈΠ΅Π½ΠΈΠ΅.
ΠΠ°Π»Π΅Π΅ ΠΊΠΎΠΌΠΏΠ»Π΅ΠΊΡ ΡΠ°Π±ΠΎΡ ΠΏΡΠ΅Π΄ΠΏΠΎΠ»Π°Π³Π°Π΅Ρ ΡΠ»Π΅Π΄ΡΡΡΠΈΠ΅ Π΄Π΅ΠΉΡΡΠ²ΠΈΡ:
- ΠΠ»Ρ ΠΊΠ°ΡΠΊΠ°ΡΠ° Π½ΡΠΆΠ½ΠΎ ΡΡΡΠ°Π½ΠΎΠ²ΠΈΡΡ Π΄Π΅ΡΠ΅Π²ΡΠ½Π½ΡΠ΅ ΡΡΠΎΠ»Π±Ρ ΠΎΠΏΠΎΡ Π²Π΅ΡΡΠΈΠΊΠ°Π»ΡΠ½ΠΎ, ΡΠΎΠ±Π»ΡΠ΄Π°Ρ ΡΠ°ΡΡΡΠΎΡΠ½ΠΈΠ΅ Π² 60 ΡΠΌ Π΄ΡΡΠ³ ΠΎΡ Π΄ΡΡΠ³Π°. ΠΡΠΏΠΎΠ»Π½ΡΠ΅ΡΡΡ Π³ΠΎΡΠΈΠ·ΠΎΠ½ΡΠ°Π»ΡΠ½Π°Ρ ΠΎΠ±Π²ΡΠ·ΠΊΠ°, Π΄Π»Ρ ΠΏΡΠΎΡΠ½ΠΎΡΡΠΈ ΠΊΠ°ΡΠΊΠ°Ρ ΠΏΡΠΈΠΊΡΠ΅ΠΏΠ»ΡΡΡ ΠΊ ΠΎΠ±ΡΠΈΠ²ΠΊΠ΅ ΡΡΠ΅Π½.

ΠΡΠ½ΠΎΠ²Π° Π±Π°Π½Π½ΠΎΠ³ΠΎ ΠΏΠΎΠ»ΠΊΠ° β ΡΡΡΠΎΠΉΡΠΈΠ²ΡΠΉ Π΄Π΅ΡΠ΅Π²ΡΠ½Π½ΡΠΉ ΠΊΠ°ΡΠΊΠ°Ρ
- ΠΠΎΠ΄ ΡΠ³Π»ΠΎΠΌ Π² 3 Π³ΡΠ°Π΄ΡΡΠ° Π½ΡΠΆΠ½ΠΎ ΠΏΡΠΈΠΊΡΠ΅ΠΏΠΈΡΡ ΡΠΎΠ½ΠΊΠΈΠ΅ Π΄ΠΎΡΠΊΠΈ Π΄Π»Ρ ΡΠΊΠ°ΠΌΠ΅ΠΉΠΊΠΈ. ΠΠ»Ρ ΡΡΠΎΠ³ΠΎ ΠΏΡΠΈΠΌΠ΅Π½ΡΡΡ Π΄ΡΠ±ΠΎΠ²ΡΠ΅ ΠΊΠ»ΠΈΠ½ΡΡ. ΠΠ°Π»Π΅Π΅ ΡΠΈΠΊΡΠΈΡΡΡΡ Π½Π°ΡΡΠΈΠ» ΠΏΠΎΠ»ΠΊΠ°, ΠΎΡΡΠ°Π²Π»ΡΡ Ρ ΡΡΠ΅Π½ Π·Π°Π·ΠΎΡ Π² 10 ΡΠΌ. ΠΡΠΎΠΌΠ΅ΠΆΡΡΠΎΠΊ Π½Π΅ΠΎΠ±Ρ
ΠΎΠ΄ΠΈΠΌ Π΄Π»Ρ Π΅ΡΡΠ΅ΡΡΠ²Π΅Π½Π½ΠΎΠΉ Π²Π΅Π½ΡΠΈΠ»ΡΡΠΈΠΈ. ΠΠ΅ΠΆΠ΄Ρ Π½ΠΈΠΆΠ½ΠΈΠΌ ΠΊΡΠ°Π΅ΠΌ ΠΏΠΎΠ»ΠΊΠ° ΠΈ ΠΏΠΎΠ²Π΅ΡΡ
Π½ΠΎΡΡΡΡ ΠΏΠΎΠ»Π° Π½ΡΠΆΠ½ΠΎ ΠΎΠ±ΡΡΡΡΠΎΠΈΡΡ Π³ΠΈΠ΄ΡΠΎΠΈΠ·ΠΎΠ»ΡΡΠΈΠΎΠ½Π½ΡΠΉ ΡΠ»ΠΎΠΉ.

ΠΠ΅ΠΆΠ΄Ρ ΠΏΠ»Π°Π½ΠΊΠ°ΠΌΠΈ Π½Π°ΡΡΠΈΠ»Π° Π΄ΠΎΠ»ΠΆΠ½ΠΎ Π±ΡΡΡ Π½Π΅Π±ΠΎΠ»ΡΡΠΎΠ΅ ΡΠ°ΡΡΡΠΎΡΠ½ΠΈΠ΅
- ΠΠΏΠΎΡΠ½ΡΠ΅ ΡΡΠΎΠΉΠΊΠΈ ΠΊΠ°ΡΠΊΠ°ΡΠ° ΠΌΠΎΠΆΠ½ΠΎ Π·Π°ΠΊΡΠ΅ΠΏΠΈΡΡ ΠΌΠ΅ΡΠ°Π»Π»ΠΈΡΠ΅ΡΠΊΠΈΠΌΠΈ ΡΠ³ΠΎΠ»ΠΊΠ°ΠΌΠΈ. ΠΠ»Π°Π½ΠΊΠΈ Π½Π°ΡΡΠΈΠ»Π° Π΄ΠΎΠ»ΠΆΠ½Ρ Π±ΡΡΡ ΡΠ΅Π»ΡΠ½ΡΠΌΠΈ Π΄Π»Ρ ΠΊΠ°ΠΆΠ΄ΠΎΠ³ΠΎ ΠΈΠ· ΡΠΈΠ΄Π΅Π½ΠΈΠΉ.
ΠΡΠ΄Π΅Π»ΠΊΠ° ΠΈ ΠΏΠΎΠΊΡΠ°ΡΠΊΠ°
Π‘ΠΈΠ΄Π΅Π½ΠΈΡ ΠΈ ΠΌΠ΅Π±Π΅Π»Ρ Π² ΠΏΠ°ΡΠΈΠ»ΠΊΠ΅ Π½Π΅Π»ΡΠ·Ρ ΠΏΠΎΠΊΡΡΠ²Π°ΡΡ ΠΎΠ±ΡΡΠ½ΡΠΌΠΈ Π»Π°ΠΊΠ°ΠΌΠΈ ΠΈΠ»ΠΈ ΠΊΡΠ°ΡΠΊΠ°ΠΌΠΈ. Π‘ΠΎΡΡΠ°Π²Ρ Π±ΡΡΡΡΠΎ ΠΏΠΎΡΠ΅ΡΡΡΡ ΡΠ²ΠΎΡ ΡΡΡΠ΅ΠΊΡΠΈΠ²Π½ΠΎΡΡΡ, Π° ΡΠ°ΠΊΠΆΠ΅, ΠΈΡΠΏΠ°ΡΡΡΡΡ, Π½Π°ΠΏΠΎΠ»Π½ΡΡ Π²ΠΎΠ·Π΄ΡΡ ΡΠΎΠΊΡΠΈΡΠ½ΡΠΌΠΈ Π²Π΅ΡΠ΅ΡΡΠ²Π°ΠΌΠΈ. ΠΡΠ°Π²ΠΈΠ»ΡΠ½Π°Ρ ΠΎΠ±ΡΠ°Π±ΠΎΡΠΊΠ° Π±Π°Π½Π½ΠΎΠΉ ΠΌΠ΅Π±Π΅Π»ΠΈ ΡΡΠ΅Π±ΡΠ΅Ρ ΠΏΡΠΈΠΌΠ΅Π½Π΅Π½ΠΈΡ Π°Π½ΡΠΈΡΠ΅ΠΏΡΠΈΡΠ΅ΡΠΊΠΈΡ ΠΈ Π΄ΡΡΠ³ΠΈΡ ΡΠΏΠ΅ΡΠΈΠ°Π»ΡΠ½ΡΡ ΡΡΠ΅Π΄ΡΡΠ², ΡΡΡΠΎΠΉΡΠΈΠ²ΡΡ ΠΊ ΠΏΠ΅ΡΠ΅ΠΏΠ°Π΄Π°ΠΌ ΡΠ΅ΠΌΠΏΠ΅ΡΠ°ΡΡΡ ΠΈ Π²Π»Π°ΠΆΠ½ΠΎΡΡΠΈ.

ΠΠ±ΡΠ°Π±ΠΎΡΠΊΠ° Π±Π°Π½Π½ΠΎΠΉ ΠΌΠ΅Π±Π΅Π»ΠΈ ΠΏΡΠΎΠ²ΠΎΠ΄ΠΈΡΡΡ Ρ ΠΏΡΠΈΠΌΠ΅Π½Π΅Π½ΠΈΠ΅ΠΌ ΡΠΏΠ΅ΡΠΈΠ°Π»ΡΠ½ΡΡ ΡΡΠ΅Π΄ΡΡΠ², ΡΡΡΠΎΠΉΡΠΈΠ²ΡΡ ΠΊ ΠΏΠ΅ΡΠ΅ΠΏΠ°Π΄Π°ΠΌ ΡΠ΅ΠΌΠΏΠ΅ΡΠ°ΡΡΡ ΠΈ Π²Π»Π°ΠΆΠ½ΠΎΡΡΠΈ
ΠΡΠΎΠΈΠ·Π²ΠΎΠ΄ΠΈΡΠ΅Π»ΠΈ ΠΏΡΠ΅Π΄Π»Π°Π³Π°ΡΡ ΠΎΠ±ΡΠΈΡΠ½ΡΠΉ Π°ΡΡΠΎΡΡΠΈΠΌΠ΅Π½Ρ ΡΡΠ΅Π΄ΡΡΠ² Π΄Π»Ρ ΠΎΠ±ΡΠ°Π±ΠΎΡΠΊΠΈ Π΄Π΅ΡΠ΅Π²ΡΠ½Π½ΡΡ ΠΏΠΎΠ²Π΅ΡΡ Π½ΠΎΡΡΠ΅ΠΉ ΠΈΠΌΠ΅Π½Π½ΠΎ Π² Π±Π°Π½Π΅ ΠΈΠ»ΠΈ ΡΠ°ΡΠ½Π΅. Π’Π°ΠΊΠΈΠ΅ ΠΏΡΠΎΠΏΠΈΡΠΊΠΈ Π·Π°ΡΠΈΡΠ°ΡΡ Π΄ΡΠ΅Π²Π΅ΡΠΈΠ½Ρ Π»ΡΠ±ΡΡ ΠΏΠΎΡΠΎΠ΄ ΠΎΡ ΠΎΠ±ΡΠ°Π·ΠΎΠ²Π°Π½ΠΈΡ ΠΏΠ»Π΅ΡΠ΅Π½ΠΈ, Π³ΡΠΈΠ±ΠΊΠ°, Π³Π½ΠΈΠ΅Π½ΠΈΡ ΠΈ Π΄ΡΡΠ³ΠΈΡ Π½Π΅ΠΏΡΠΈΡΡΠ½ΡΡ ΠΏΠΎΡΠ»Π΅Π΄ΡΡΠ²ΠΈΠΉ Π²Π»Π°ΠΆΠ½ΠΎΡΡΠΈ. ΠΡΠΈΠΌΠ΅Π½Π΅Π½ΠΈΠ΅ ΠΏΡΠΎΠΏΠΈΡΠΊΠΈ Π·Π°ΠΊΠ»ΡΡΠ°Π΅ΡΡΡ Π² ΡΠ»ΠΈΡΠΎΠ²ΠΊΠ΅ ΠΏΠΎΠ²Π΅ΡΡ Π½ΠΎΡΡΠΈ, ΡΠ΄Π°Π»Π΅Π½ΠΈΠΈ ΠΏΡΠ»ΠΈ, Π° Π·Π°ΡΠ΅ΠΌ Π½Π°Π½Π΅ΡΠ΅Π½ΠΈΠΈ ΡΠΎΡΡΠ°Π²Π° Π³ΡΠ±ΠΊΠΎΠΉ Π² Π½Π΅ΡΠΊΠΎΠ»ΡΠΊΠΎ ΡΠ»ΠΎΡΠ².
ΠΠ·Π³ΠΎΡΠΎΠ²Π»Π΅Π½ΠΈΠ΅ ΠΏΠΎΠ΄Π³ΠΎΠ»ΠΎΠ²Π½ΠΈΠΊΠ°
ΠΠΎΠ΄Π³ΠΎΠ»ΠΎΠ²Π½ΠΈΠΊ Π΄Π»Ρ ΠΏΠ°ΡΠΈΠ»ΠΊΠΈ ΠΎΠ±Π΅ΡΠΏΠ΅ΡΠΈΠ²Π°Π΅Ρ ΡΠ΄ΠΎΠ±ΡΡΠ²ΠΎ ΠΈ ΠΊΠΎΠΌΡΠΎΡΡ ΠΎΡΠ΄ΡΡ Π°ΡΡΠΈΠΌ Π² Π±Π°Π½Π΅, Π° Π΅Π³ΠΎ ΠΈΠ·Π³ΠΎΡΠΎΠ²Π»Π΅Π½ΠΈΠ΅ ΠΎΡΠ΅Π½Ρ ΠΏΡΠΎΡΡΠΎ. ΠΡΠ΅Π΄ΠΌΠ΅Ρ ΠΌΠΎΠΆΠ΅Ρ ΠΈΠΌΠ΅ΡΡ Π·Π°ΠΊΡΡΠ³Π»ΡΠ½Π½ΡΡ ΡΠΎΡΠΌΡ ΠΈΠ»ΠΈ Π±ΡΡΡ ΠΏΡΡΠΌΡΠΌ. ΠΠΎΡΠ»Π΅Π΄Π½ΠΈΠΉ Π²Π°ΡΠΈΠ°Π½Ρ Π»Π΅Π³ΠΊΠΎ ΡΠ΄Π΅Π»Π°ΡΡ ΡΠ²ΠΎΠΈΠΌΠΈ ΡΡΠΊΠ°ΠΌΠΈ, ΠΏΡΠ΅Π΄Π²Π°ΡΠΈΡΠ΅Π»ΡΠ½ΠΎ ΡΠ°ΡΡΡΠΈΡΠ°Π² ΠΊΠΎΠ»ΠΈΡΠ΅ΡΡΠ²ΠΎ ΠΌΠ°ΡΠ΅ΡΠΈΠ°Π»Π°.

Π‘Π΄Π΅Π»Π°ΡΡ ΠΏΡΡΠΌΠΎΠΉ ΠΏΠΎΠ΄Π³ΠΎΠ»ΠΎΠ²Π½ΠΈΠΊ ΡΠ²ΠΎΠΈΠΌΠΈ ΡΡΠΊΠ°ΠΌΠΈ ΠΎΡΠ΅Π½Ρ ΠΏΡΠΎΡΡΠΎ
ΠΠ»Ρ ΠΏΠΎΠ΄Π³ΠΎΠ»ΠΎΠ²Π½ΠΈΠΊΠ° ΡΠ»Π΅Π΄ΡΠ΅Ρ ΠΈΡΠΏΠΎΠ»ΡΠ·ΠΎΠ²Π°ΡΡ ΡΡ ΠΆΠ΅ Π΄ΡΠ΅Π²Π΅ΡΠΈΠ½Ρ, ΡΡΠΎ ΠΈ Π΄Π»Ρ ΡΠΈΠ΄Π΅Π½ΠΈΠΉ. ΠΡΠΈΠΌΠ΅ΡΠ½ΡΠΉ ΡΠ°Π·ΠΌΠ΅Ρ ΠΊΠ°ΡΠΊΠ°ΡΠ° ΠΌΠΎΠΆΠ΅Ρ ΡΠΎΡΡΠ°Π²Π»ΡΡΡ 40Ρ 40 ΡΠΌ. ΠΡΡΠΎΡΠ° ΠΏΠΎΠ΄Π³ΠΎΠ»ΠΎΠ²Π½ΠΈΠΊΠ° ΠΏΠΎΠ΄Π±ΠΈΡΠ°Π΅ΡΡΡ Π² Π·Π°Π²ΠΈΡΠΈΠΌΠΎΡΡΠΈ ΠΎΡ ΠΏΡΠ΅Π΄ΠΏΠΎΡΡΠ΅Π½ΠΈΠΉ ΠΏΠΎΠ»ΡΠ·ΠΎΠ²Π°ΡΠ΅Π»Π΅ΠΉ. ΠΠ°ΠΏΡΠΈΠΌΠ΅Ρ, Π²ΡΡΠΎΡΠ° Π² ΡΠ°ΠΌΠΎΠΉ Π²ΡΡΠΎΠΊΠΎΠΉ ΡΠΎΡΠΊΠ΅ ΡΠ°Π²Π½Π° ΡΠ³Π»Ρ Π² 30 Π³ΡΠ°Π΄ΡΡΠΎΠ². Π ΡΠ°ΠΊΠΆΠ΅ Π½Π΅ΠΎΠ±Ρ ΠΎΠ΄ΠΈΠΌΡ ΡΠ΅ΠΉΠΊΠΈ, Π΄Π»ΠΈΠ½Π° ΠΊΠΎΡΠΎΡΡΡ ΡΠ°Π²Π½Π° ΡΠΈΡΠΈΠ½Π΅ ΠΏΠΎΠ΄Π³ΠΎΠ»ΠΎΠ²Π½ΠΈΠΊΠ°, ΡΠΎ Π΅ΡΡΡ 40 ΡΠΌ. ΠΡΠΈ ΡΡΠΎΠΌ ΡΠΈΡΠΈΠ½Π° ΡΠ΅Π΅ΠΊ ΡΠΎΡΡΠ°Π²ΠΈΡ 5β7 ΡΠΌ.
ΠΠ»Ρ ΠΈΠ·Π³ΠΎΡΠΎΠ²Π»Π΅Π½ΠΈΡ ΠΏΠΎΠ΄Π³ΠΎΠ»ΠΎΠ²Π½ΠΈΠΊΠ° Π½Π΅ΠΎΠ±Ρ ΠΎΠ΄ΠΈΠΌΡ ΡΠ»Π΅Π΄ΡΡΡΠΈΠ΅ Π΄Π΅ΠΉΡΡΠ²ΠΈΡ:
- ΠΠ»Ρ ΠΈΠ·Π³ΠΎΡΠΎΠ²Π»Π΅Π½ΠΈΡ Π±ΠΎΠΊΠΎΠ²ΡΡ ΡΠ»Π΅ΠΌΠ΅Π½ΡΠΎΠ² Π½ΡΠΆΠ½ΠΎ Π²ΡΡΠ΅Π·Π°ΡΡ ΠΈΠ· Π±ΡΡΡΠΊΠΎΠ² ΠΎΠ΄ΠΈΠ½Π°ΠΊΠΎΠ²ΡΠ΅ ΡΠ»Π΅ΠΌΠ΅Π½ΡΡ ΡΡΠ΅ΡΠ³ΠΎΠ»ΡΠ½ΠΎΠΉ ΡΠΎΡΠΌΡ. Π£Π³ΠΎΠ» Π½Π°ΠΊΠ»ΠΎΠ½Π° Π΄ΠΎΠ»ΠΆΠ΅Π½ ΡΠΎΡΡΠ°Π²Π»ΡΡΡ Π½Π΅ ΠΌΠ΅Π½Π΅Π΅ 30 Π³ΡΠ°Π΄ΡΡΠΎΠ². Π Π΅ΠΉΠΊΠΈ Π½Π°ΡΠ΅Π·Π°ΡΡ ΠΏΠΎ Π½ΡΠΆΠ½ΡΠΌ ΡΠ°Π·ΠΌΠ΅ΡΠ°ΠΌ.
- Π Π΅ΠΉΠΊΠΈ ΠΊΡΠ΅ΠΏΡΡΡΡ Π½Π° Π±ΡΡΡΠΊΠ°Ρ ΠΏΠ°ΡΠ°Π»Π»Π΅Π»ΡΠ½ΠΎ Ρ ΠΏΠΎΠΌΠΎΡΡΡ ΡΠ°ΠΌΠΎΡΠ΅Π·ΠΎΠ². ΠΠ΅ΠΆΠ΄Ρ ΠΏΠ»Π°Π½ΠΊΠ°ΠΌΠΈ Π΄ΠΎΠ»ΠΆΠ½ΠΎ Π±ΡΡΡ Π½Π΅Π±ΠΎΠ»ΡΡΠΎΠ΅ ΡΠ°ΡΡΡΠΎΡΠ½ΠΈΠ΅. Π¨Π»ΡΠΏΠΊΠΈ ΡΠ°ΠΌΠΎΡΠ΅Π·ΠΎΠ² ΡΡΠ°ΡΠ΅Π»ΡΠ½ΠΎ ΡΠ³Π»ΡΠ±Π»ΡΡΡ, ΡΠ°ΠΊ ΠΊΠ°ΠΊ ΠΎΠ½ΠΈ ΠΌΠΎΠ³ΡΡ ΠΌΠ΅ΡΠ°ΡΡ ΠΊΠΎΠΌΡΠΎΡΡΠ½ΠΎΠΉ ΡΠΊΡΠΏΠ»ΡΠ°ΡΠ°ΡΠΈΠΈ.
- ΠΠΎΡΠΎΠ²ΠΎΠ΅ ΠΈΠ·Π΄Π΅Π»ΠΈΠ΅ Π½Π°ΡΠΈΡΠ°ΡΡ Π»ΡΠ½ΡΠ½ΡΠΌ ΠΌΠ°ΡΠ»ΠΎΠΌ, ΡΡΠΎΠ±Ρ ΠΏΡΠ΅Π΄ΠΎΡΠ²ΡΠ°ΡΠΈΡΡ ΡΠ°ΡΡΡΠ΅ΡΠΊΠΈΠ²Π°Π½ΠΈΠ΅ Π΄ΡΠ΅Π²Π΅ΡΠΈΠ½Ρ.
ΠΠΈΠ΄Π΅ΠΎ: ΠΏΠΎΠ»ΠΎΠΊ Π΄Π»Ρ ΠΏΠ°ΡΠ½ΠΎΠΉ ΡΠ²ΠΎΠΈΠΌΠΈ ΡΡΠΊΠ°ΠΌΠΈ
ΠΠ°Π²ΠΊΠΈ Π² Π±Π°Π½Π΅: Π½ΡΠΆΠ½Ρ ΠΈΠ»ΠΈ Π½Π΅Ρ?
ΠΠ΅ΠΎΠ±Ρ ΠΎΠ΄ΠΈΠΌΠΎΡΡΡ ΡΡΡΠ°Π½ΠΎΠ²ΠΊΠΈ Π² Π±Π°Π½Π΅ Π»Π°Π²ΠΎΠΊ ΠΈΠ»ΠΈ ΡΠΊΠ°ΠΌΠ΅Π΅ΠΊ, Π° ΡΠ°ΠΊΠΆΠ΅ Π²ΡΠ±ΠΎΡ ΠΈΡ ΡΠΈΠΏΠ° Π·Π°Π²ΠΈΡΡΡ ΠΎΡ ΠΏΠ»ΠΎΡΠ°Π΄ΠΈ ΠΏΠΎΠΌΠ΅ΡΠ΅Π½ΠΈΡ, Π»ΠΈΡΠ½ΡΡ ΠΏΡΠ΅Π΄ΠΏΠΎΡΡΠ΅Π½ΠΈΠΉ ΠΈ Π²ΠΎΠ·ΠΌΠΎΠΆΠ½ΠΎΡΡΠ΅ΠΉ Ρ ΠΎΠ·ΡΠΈΠ½Π° Π±Π°Π½ΠΈ. Π ΠΎΡΠ΅Π½Ρ ΠΌΠ°Π»Π΅Π½ΡΠΊΠΎΠΉ ΠΏΠ°ΡΠΈΠ»ΠΊΠ΅ ΡΠ°ΠΊΠ°Ρ ΠΌΠ΅Π±Π΅Π»Ρ Π½Π΅ΡΠΌΠ΅ΡΡΠ½Π°. Π ΡΡΠΎΠΌ ΡΠ»ΡΡΠ°Π΅ ΠΏΠΎΠ»ΠΎΠΊ ΡΠ²Π»ΡΠ΅ΡΡΡ Π°Π»ΡΡΠ΅ΡΠ½Π°ΡΠΈΠ²ΠΎΠΉ ΠΎΠ±ΡΡΠ½ΡΠΌ Π»Π°Π²ΠΊΠ°ΠΌ, ΠΊΠΎΡΠΎΡΡΠ΅ ΡΡΠΎΠΈΡ ΡΠ°Π·ΠΌΠ΅ΡΡΠΈΡΡ Π² ΠΏΡΠ΅Π΄Π±Π°Π½Π½ΠΈΠΊΠ΅.
Π ΠΏΡΠΎΡΡΠΎΡΠ½ΠΎΠΉ ΠΏΠ°ΡΠΈΠ»ΠΊΠ΅ Ρ ΡΡΡΠ΅ΠΊΡΠΈΠ²Π½ΡΠΌ ΠΎΠ±ΠΎΡΡΠ΄ΠΎΠ²Π°Π½ΠΈΠ΅ΠΌ ΠΌΠΎΠΆΠ½ΠΎ ΡΠ°Π·ΠΌΠ΅ΡΡΠΈΡΡ Π»Π°Π²ΠΊΡ. Π£Π½ΠΈΠ²Π΅ΡΡΠ°Π»ΡΠ½Ρ ΠΌΠ°Π»Π΅Π½ΡΠΊΠΈΠ΅ ΠΏΡΠΈΡΡΠ°Π²Π½ΡΠ΅ ΡΠΊΠ°ΠΌΠ΅ΠΉΠΊΠΈ, ΡΠ»ΡΠΆΠ°ΡΠΈΠ΅ ΠΎΠΏΠΎΡΠΎΠΉ Π΄Π»Ρ Π½ΠΎΠ³. ΠΡΠΈ ΡΠΎΠ·Π΄Π°Π½ΠΈΠΈ ΠΏΠΎΠ»ΠΊΠ° Π² Π΅Π³ΠΎ Π½ΠΈΠΆΠ½Π΅ΠΌ ΡΡΠΎΠ²Π½Π΅ ΠΌΠΎΠΆΠ½ΠΎ ΡΡΡΠ°Π½ΠΎΠ²ΠΈΡΡ Π²ΡΠ΄Π²ΠΈΠΆΠ½ΡΡ ΠΌΠ°Π»Π΅Π½ΡΠΊΡΡ ΡΠΊΠ°ΠΌΠ΅ΠΉΠΊΡ.
Π’Π°ΠΊΠΈΠΌ ΠΎΠ±ΡΠ°Π·ΠΎΠΌ, Π½Π΅ΠΎΠ±Ρ ΠΎΠ΄ΠΈΠΌΠΎΡΡΡ ΠΈΡΠΏΠΎΠ»ΡΠ·ΠΎΠ²Π°Π½ΠΈΡ Π»Π°Π²ΠΊΠΈ Π² ΠΏΠ°ΡΠ½ΠΎΠΉ ΡΠ²Π»ΡΠ΅ΡΡΡ ΡΡΠ³ΡΠ±ΠΎ ΠΈΠ½Π΄ΠΈΠ²ΠΈΠ΄ΡΠ°Π»ΡΠ½ΡΠΌ ΡΠ΅ΡΠ΅Π½ΠΈΠ΅ΠΌ.
Π§Π΅ΡΡΠ΅ΠΆΠΈ, ΡΠ°Π·ΠΌΠ΅ΡΡ ΠΈ ΠΌΠ°ΡΠ΅ΡΠΈΠ°Π» Π΄Π»Ρ Π»Π°Π²ΠΊΠΈ
ΠΠ°Π²ΠΊΠΈ Π΄Π»Ρ Π±Π°Π½ΠΈ ΠΈΠΌΠ΅ΡΡ ΡΠ°Π·Π½ΠΎΠΎΠ±ΡΠ°Π·Π½ΡΠ΅ ΠΊΠΎΠ½ΡΡΡΡΠΊΡΠΈΠΈ. Π‘Π²ΠΎΠΈΠΌΠΈ ΡΡΠΊΠ°ΠΌΠΈ Π»Π΅Π³ΠΊΠΎ ΡΠΎΠ·Π΄Π°ΡΡ ΠΏΡΠΎΡΡΠΎΠΉ Π²Π°ΡΠΈΠ°Π½Ρ, Π½ΠΎ Π² Π»ΡΠ±ΠΎΠΌ ΡΠ»ΡΡΠ°Π΅ Π½ΡΠΆΠ½ΠΎ ΠΈΡΠΏΠΎΠ»ΡΠ·ΠΎΠ²Π°ΡΡ ΡΠΎΡ ΠΌΠ°ΡΠ΅ΡΠΈΠ°Π», ΠΊΠΎΡΠΎΡΡΠΉ ΠΏΡΠΈΠΌΠ΅Π½ΡΠ»ΡΡ Π΄Π»Ρ ΡΠΎΠ·Π΄Π°Π½ΠΈΡ ΠΏΠΎΠ»ΠΊΠ°. Π Π²Π°ΠΆΠ½ΠΎ ΡΡΠ°ΡΠ΅Π»ΡΠ½ΠΎ ΠΎΡΡΠ»ΠΈΡΠΎΠ²Π°ΡΡ Π²ΡΠ΅ ΠΏΠΎΠ²Π΅ΡΡ Π½ΠΎΡΡΠΈ ΠΈ ΠΏΡΠΎΠ²Π΅ΡΡΠΈ ΠΎΠ±ΡΠ°Π±ΠΎΡΠΊΡ Π΄ΡΠ΅Π²Π΅ΡΠΈΠ½Ρ ΡΠΏΠ΅ΡΠΈΠ°Π»ΡΠ½ΡΠΌΠΈ ΡΠΎΡΡΠ°Π²Π°ΠΌΠΈ. ΠΡΠ΅Π΄Π²Π°ΡΠΈΡΠ΅Π»ΡΠ½ΠΎ ΡΠΎΠ·Π΄Π°ΡΡ ΡΠ΅ΡΡΡΠΆ ΠΈΠ»ΠΈ ΡΡ Π΅ΠΌΠ°ΡΠΈΡΠ½ΠΎΠ΅ ΠΈΠ·ΠΎΠ±ΡΠ°ΠΆΠ΅Π½ΠΈΠ΅ Π±ΡΠ΄ΡΡΠ΅Π³ΠΎ ΠΈΠ·Π΄Π΅Π»ΠΈΡ, Π½Π° ΠΊΠΎΡΠΎΡΠΎΠΌ ΡΠΊΠ°Π·ΡΠ²Π°ΡΡ ΡΠ°Π·ΠΌΠ΅ΡΡ ΠΊΠ°ΠΆΠ΄ΠΎΠΉ Π΄Π΅ΡΠ°Π»ΠΈ.

ΠΠ° ΡΠ΅ΡΡΠ΅ΠΆΠ΅ Π±ΡΠ΄ΡΡΠ΅ΠΉ Π»Π°Π²ΠΊΠΈ ΡΠΊΠ°Π·ΡΠ²Π°ΡΡΡΡ ΡΠ°Π·ΠΌΠ΅ΡΡ ΠΊΠ°ΠΆΠ΄ΠΎΠΉ Π΄Π΅ΡΠ°Π»ΠΈ
Π Π°Π·ΠΌΠ΅ΡΡ ΠΎΠΏΡΠ΅Π΄Π΅Π»ΡΡΡ ΠΈΠ½Π΄ΠΈΠ²ΠΈΠ΄ΡΠ°Π»ΡΠ½ΠΎ, Π½ΠΎ Π²ΡΡΠΎΡΠ° Π»Π°Π²ΠΊΠΈ Π΄Π»Ρ ΡΠΈΠ΄Π΅Π½ΡΡ ΠΌΠΎΠΆΠ΅Ρ Π±ΡΡΡ ΡΡΠ°Π½Π΄Π°ΡΡΠ½ΠΎΠΉ β 450 ΠΌΠΌ. ΠΠΎΡΠΊΠΈ Π΄Π»Ρ ΡΠΈΠ΄Π΅Π½ΡΡ Π΄ΠΎΠ»ΠΆΠ½Ρ Π±ΡΡΡ Π½Π΅ΠΌΠ½ΠΎΠ³ΠΎ ΡΠΎΠ½ΡΡΠ΅, ΡΠ΅ΠΌ Π½ΠΎΠΆΠΊΠΈ ΠΈ ΠΏΠΎΠΏΠ΅ΡΠ΅ΡΠ½ΡΠ΅ ΡΠ»Π΅ΠΌΠ΅Π½ΡΡ Π»Π°Π²ΠΊΠΈ. ΠΠ»Ρ ΡΠ°Π±ΠΎΡΡ Π½ΡΠΆΠ½Ρ ΡΡΠ»Π΅ΡΠΊΠ°, ΡΡΠΎΠ²Π΅Π½Ρ, Π½ΠΎΠΆΠΎΠ²ΠΊΠ° ΠΏΠΎ Π΄Π΅ΡΠ΅Π²Ρ, Π»ΠΎΠ±Π·ΠΈΠΊ, ΡΠ»ΠΈΡΠΎΠ²Π°Π»ΡΠ½Π°Ρ ΠΌΠ°ΡΠΈΠ½ΠΊΠ° ΠΈΠ»ΠΈ Π½Π°ΠΆΠ΄Π°ΡΠ½Π°Ρ Π±ΡΠΌΠ°Π³Π°, ΠΊΠΈΡΡΡ, ΡΡΡΡΠΏΠΎΠ²ΡΡΡ. ΠΠΎΠΌΠΏΠ»Π΅ΠΊΡ ΠΌΠ°Π½ΠΈΠΏΡΠ»ΡΡΠΈΠΉ ΠΏΠΎ ΡΠΎΠ·Π΄Π°Π½ΠΈΡ ΠΏΡΠΎΡΡΠΎΠΉ Π»Π°Π²ΠΊΠΈ ΠΏΡΠ΅Π΄ΠΏΠΎΠ»Π°Π³Π°Π΅Ρ ΡΠ»Π΅Π΄ΡΡΡΠΈΠ΅ Π΄Π΅ΠΉΡΡΠ²ΠΈΡ:
- ΠΠ· Π±ΡΡΡΠΊΠΎΠ² Ρ ΡΠ΅ΡΠ΅Π½ΠΈΠ΅ΠΌ 50Ρ 50 ΠΌΠΌ Π½ΡΠΆΠ½ΠΎ ΠΈΠ·Π³ΠΎΡΠΎΠ²ΠΈΡΡ Π½ΠΎΠΆΠΊΠΈ ΠΌΠ΅Π±Π΅Π»ΠΈ, ΠΎΡΡΠ»ΠΈΡΠΎΠ²Π°ΡΡ ΠΈ ΠΎΠΊΡΡΠ³Π»ΠΈΡΡ ΡΠ³Π»Ρ. Π‘ Π²Π½ΡΡΡΠ΅Π½Π½Π΅ΠΉ ΡΡΠΎΡΠΎΠ½Ρ ΡΠ»Π΅Π΄ΡΠ΅Ρ ΡΠ΄Π΅Π»Π°ΡΡ ΡΠΏΠ΅ΡΠΈΠ°Π»ΡΠ½ΡΠ΅ ΠΏΠ°Π·Ρ Π΄Π»Ρ ΡΡΡΠ°Π½ΠΎΠ²ΠΊΠΈ ΠΏΠΎΠΏΠ΅ΡΠ΅ΡΠ½ΡΡ ΡΠ»Π΅ΠΌΠ΅Π½ΡΠΎΠ², ΠΊΠΎΡΠΎΡΡΠ΅ ΡΡΡΠ°Π½Π°Π²Π»ΠΈΠ²Π°ΡΡ Π² ΠΎΡΠ²Π΅ΡΡΡΠΈΡ.
- ΠΠ΅ΡΡ Π½ΠΈΠ΅ ΡΠ°ΡΡΠΈ Π½ΠΎΠΆΠ΅ΠΊ ΡΠ»Π΅Π΄ΡΠ΅Ρ ΡΠΊΡΠ΅ΠΏΠΈΡΡ Π΄Π»ΠΈΠ½Π½ΡΠΌΠΈ Π±ΡΡΡΠΊΠ°ΠΌΠΈ, ΠΈΡΠΏΠΎΠ»ΡΠ·ΡΡ ΡΠ°ΠΌΠΎΡΠ΅Π·Ρ. ΠΠΎΡΠΊΠΈ ΡΠΈΠ΄Π΅Π½ΡΡ ΡΠΊΠ»Π°Π΄ΡΠ²Π°ΡΡ Π½Π° Π³ΠΎΡΠΈΠ·ΠΎΠ½ΡΠ°Π»ΡΠ½ΡΠ΅ Π±ΡΡΡΡΡ, Π·Π°ΠΊΡΠ΅ΠΏΠ»ΡΡΡ ΡΠ°ΠΌΠΎΡΠ΅Π·Π°ΠΌΠΈ, ΠΏΡΠ΅Π΄ΡΡΠΌΠΎΡΡΠ΅Π² Π½Π΅Π±ΠΎΠ»ΡΡΠΎΠ΅ ΡΠ°ΡΡΡΠΎΡΠ½ΠΈΠ΅ ΠΌΠ΅ΠΆΠ΄Ρ Π΄ΠΎΡΠΊΠ°ΠΌΠΈ.
- ΠΠΎΡΠΊΠΈ Π·Π°ΠΊΡΠ΅ΠΏΠ»ΡΡΡΡΡ Π½Π° ΡΠ°ΠΌΠΎΡΠ΅Π·Ρ ΠΈΠ»ΠΈ Π½Π°Π³Π΅Π»Ρ Ρ ΡΠ°Π³ΠΎΠΌ Π² 30β40 ΡΠΌ. Π¨Π»ΡΠΏΠΊΡ ΠΊΡΠ΅ΠΏΠ΅ΠΆΠ° Π½ΡΠΆΠ½ΠΎ ΡΠ³Π»ΡΠ±ΠΈΡΡ ΠΈ Π·Π°ΠΌΠ°Π·Π°ΡΡ ΡΠΌΠ΅ΡΡΡ ΠΊΠ»Π΅Ρ ΠΠΠ ΠΈ ΠΌΠ΅Π»ΠΊΠΈΡ ΠΎΠΏΠΈΠ»ΠΎΠΊ.
- ΠΠΎΡΠΎΠ²ΠΎΠ΅ ΠΈΠ·Π΄Π΅Π»ΠΈΠ΅ ΡΡΠ°ΡΠ΅Π»ΡΠ½ΠΎ ΡΠ»ΠΈΡΡΡΡ ΠΈ ΠΏΠΎΠΊΡΡΠ²Π°ΡΡ Π·Π°ΡΠΈΡΠ½ΡΠΌ ΡΠΎΡΡΠ°Π²ΠΎΠΌ.
ΠΠ΅Π±Π΅Π»Ρ, ΠΊΠΎΡΠΎΡΡΡ ΠΏΡΠ΅Π΄ΠΏΠΎΠ»Π°Π³Π°Π΅ΡΡΡ ΡΡΡΠ°Π½ΠΎΠ²ΠΈΡΡ Π² ΠΏΡΠ΅Π΄Π±Π°Π½Π½ΠΈΠΊΠ΅, ΠΌΠΎΠΆΠ½ΠΎ ΠΏΠΎΠΊΡΡΡΡ ΡΠΏΠ΅ΡΠΈΠ°Π»ΡΠ½ΡΠΌ Π»Π°ΠΊΠΎΠΌ, ΡΡΡΠΎΠΉΡΠΈΠ²ΡΠΌ ΠΊ Π²Π»Π°ΠΆΠ½ΠΎΡΡΠΈ. ΠΡΠΏΠΎΠ»ΡΠ·ΠΎΠ²Π°ΡΡ Π½Π΅ΠΏΠΎΠ΄Ρ ΠΎΠ΄ΡΡΠΈΠ΅ ΠΊΡΠ°ΡΠΊΠΈ ΠΈ ΡΠΎΡΡΠ°Π²Ρ Π½Π΅Π»ΡΠ·Ρ, ΡΠ°ΠΊ ΠΊΠ°ΠΊ ΠΈΠ·Π΄Π΅Π»ΠΈΠ΅ ΠΏΠΎΡΠ΅ΡΡΠ΅Ρ ΠΏΠ΅ΡΠ²ΠΎΠ½Π°ΡΠ°Π»ΡΠ½ΡΠΉ Π²Π½Π΅ΡΠ½ΠΈΠΉ Π²ΠΈΠ΄.
ΠΠΈΠ΄Π΅ΠΎ: Π»Π°Π²ΠΊΠ° Π΄Π»Ρ Π±Π°Π½ΠΈ ΡΠ²ΠΎΠΈΠΌΠΈ ΡΡΠΊΠ°ΠΌΠΈ
Π€ΠΎΡΠΎΠ³Π°Π»Π΅ΡΠ΅Ρ: Π²Π°ΡΠΈΠ°Π½ΡΡ ΠΌΠ΅Π±Π΅Π»ΠΈ Π΄Π»Ρ Π±Π°Π½ΠΈ
ΠΠ±ΡΡΡΡΠΎΠΉΡΡΠ²ΠΎ Π±Π°Π½ΠΈ ΠΏΡΠ΅Π΄ΠΏΠΎΠ»Π°Π³Π°Π΅Ρ ΡΡΠ°ΡΠ΅Π»ΡΠ½ΡΠΉ Π²ΡΠ±ΠΎΡ ΠΌΠ°ΡΠ΅ΡΠΈΠ°Π»ΠΎΠ² ΠΈ ΠΈΠ·ΡΡΠ΅Π½ΠΈΠ΅ ΡΠ΅Ρ Π½ΠΎΠ»ΠΎΠ³ΠΈΠΈ ΡΠΎΠ·Π΄Π°Π½ΠΈΡ Π²Π½ΡΡΡΠ΅Π½Π½ΠΈΡ ΠΊΠΎΠ½ΡΡΡΡΠΊΡΠΈΠΉ. ΠΡ ΠΊΠ°ΡΠ΅ΡΡΠ²Π° Π²ΡΠ΅Ρ ΡΠ»Π΅ΠΌΠ΅Π½ΡΠΎΠ² ΠΈ ΡΠΎΡΠ½ΠΎΡΡΠΈ Π΄Π΅ΠΉΡΡΠ²ΠΈΠΉ Π·Π°Π²ΠΈΡΠΈΡ Π±Π΅Π·ΠΎΠΏΠ°ΡΠ½ΠΎΡΡΡ ΠΈ ΡΡΡΠ΅ΠΊΡΠΈΠ²Π½ΠΎΡΡΡ Π±Π°Π½Π½ΠΎΠΉ ΠΌΠ΅Π±Π΅Π»ΠΈ.
ΠΡΠ΅Π½ΠΈΡΠ΅ ΡΡΠ°ΡΡΡ: ΠΠΎΠ΄Π΅Π»ΠΈΡΠ΅ΡΡ Ρ Π΄ΡΡΠ·ΡΡΠΌΠΈ! Π‘ΡΡΠΎΠΈΡΠ΅Π»ΡΡΡΠ²ΠΎ Π±Π°Π½ΠΈ-Π±ΠΎΡΠΊΠΈ ΡΠ²ΠΎΠΈΠΌΠΈ ΡΡΠΊΠ°ΠΌΠΈ ΠΠ°ΡΠ½ΠΈΠΊ ΠΈΠ· ΠΎΠΊΠΎΠ½Π½ΡΡ ΡΠ°ΠΌ: ΡΡΡΠΎΠΈΠΌ ΡΠ°ΠΌΠΎΡΡΠΎΡΡΠ΅Π»ΡΠ½ΠΎΒ ΠΡΠΎΡΠΌΠΎΡΡΠΎΠ²: 953Β Π ΡΠ±ΡΠΈΠΊΠ°: Π‘ΡΡΠΎΠΈΡΠ΅Π»ΡΡΡΠ²ΠΎ ΠΈ ΡΠ΅ΠΌΠΎΠ½Ρ
sazhaemvsadu.ru
ΠΠ°ΠΊ ΡΠ΄Π΅Π»Π°ΡΡ ΠΏΠΎΠ»ΠΊΠΈ Π² ΠΏΠ°ΡΠΈΠ»ΠΊΠ΅: ΠΈΠ½ΡΡΡΡΠΊΡΠΈΡ ΠΈ ΡΡΠ°ΠΏΡ ΡΠ°Π±ΠΎΡ

Π Π±Π°Π½Π΅ Π»ΡΠ±ΡΡ ΠΏΠΎΠΏΠ°ΡΠΈΡΡΡΡ ΠΏΠΎΡΡΠΈ Π²ΡΠ΅. Π§ΡΠΎΠ±Ρ ΡΡΠ° ΠΏΡΠΎΡΠ΅Π΄ΡΡΠ° Π±ΡΠ»Π° ΠΏΡΠΈΡΡΠ½ΠΎΠΉ, Π²Π°ΠΆΠ½ΠΎ Π½Π΅ ΡΠΎΠ»ΡΠΊΠΎ ΠΏΡΠ°Π²ΠΈΠ»ΡΠ½ΠΎ ΡΠ°ΡΡΡΠΈΡΠ°ΡΡ ΡΠ°Π·ΠΌΠ΅ΡΡ ΠΏΠ°ΡΠΈΠ»ΠΊΠΈ ΠΈ ΠΏΠΎΡΡΠ°Π²ΠΈΡΡ Ρ ΠΎΡΠΎΡΡΡ ΠΊΠ°ΠΌΠ΅Π½ΠΊΡ. ΠΡΠΆΠ½ΠΎ Π΅ΡΠ΅ ΠΈ ΡΠ΄Π΅Π»Π°ΡΡ ΡΠ΄ΠΎΠ±Π½ΡΠ΅ ΠΏΠΎΠ»ΠΊΠΈ, Π° ΡΠ°ΠΊΠΆΠ΅ ΡΠ°Π·ΠΌΠ΅ΡΡΠΈΡΡ ΠΈΡ Π½Π°ΠΈΠ±ΠΎΠ»Π΅Π΅ ΡΠ°ΡΠΈΠΎΠ½Π°Π»ΡΠ½ΠΎ. ΠΠ°Π»Π΅Π΅ Ρ Π²Π°ΠΌ ΡΠ°ΡΡΠΊΠ°ΠΆΡ, ΠΊΠ°ΠΊ ΠΏΡΠΎΠΈΠ·Π²ΠΎΠ΄ΠΈΡΡΡ ΡΠ±ΠΎΡΠΊΠ° ΠΏΠΎΠ»ΠΎΠΊ Π΄Π»Ρ Π±Π°Π½Π½ΠΎΠΉ ΠΏΠ°ΡΠΈΠ»ΠΊΠΈ ΠΏΠΎ Π²ΡΠ΅ΠΌ ΠΏΡΠ°Π²ΠΈΠ»Π°ΠΌ.
Π ΡΠ΅ΠΌ ΡΠ»Π΅Π΄ΡΠ΅Ρ Π·Π½Π°ΡΡ?
ΠΠΎΡΠΊΠΎΠ»ΡΠΊΡ Π±Π°Π½Ρ β ΠΏΠΎΠΌΠ΅ΡΠ΅Π½ΠΈΠ΅ Ρ ΠΎΡΠΎΠ±ΡΠΌ ΠΌΠΈΠΊΡΠΎΠΊΠ»ΠΈΠΌΠ°ΡΠΎΠΌ, ΠΌΠ°ΡΠ΅ΡΠΈΠ°Π»Ρ Π΄Π»Ρ Π½Π΅Π΅ ΠΏΡΠΈΠ΄Π΅ΡΡΡ ΠΏΠΎΠ΄Π±ΠΈΡΠ°ΡΡ, ΡΡΠΊΠΎΠ²ΠΎΠ΄ΡΡΠ²ΡΡΡΡ ΠΎΠΏΡΠ΅Π΄Π΅Π»Π΅Π½Π½ΡΠΌΠΈ ΠΏΡΠ°Π²ΠΈΠ»Π°ΠΌΠΈ. ΠΡΠ΅Π²Π΅ΡΠΈΠ½Π° Π΄Π»Ρ ΠΏΠΎΠ»ΠΎΠΊ Π΄ΠΎΠ»ΠΆΠ½Π° ΠΎΡΠ²Π΅ΡΠ°ΡΡ ΡΠ°ΠΊΠΈΠΌ ΡΡΠ΅Π±ΠΎΠ²Π°Π½ΠΈΡΠΌ:
- ΠΈΠΌΠ΅ΡΡ Π½ΠΈΠ·ΠΊΡΡ ΡΠ΅ΠΏΠ»ΠΎΠΏΡΠΎΠ²ΠΎΠ΄Π½ΠΎΡΡΡ,
- Π±ΡΡΡ ΡΡΡΠΎΠΉΡΠΈΠ²ΠΎΠΉ ΠΊ Π²ΠΎΠ·Π΄Π΅ΠΉΡΡΠ²ΠΈΡ Π²ΠΎΠ΄Ρ,
- Π½Π΅ Π²ΡΠ΄Π΅Π»ΡΡΡ ΡΠΌΠΎΠ»Ρ.
ΠΠ΄Π΅Π°Π»ΡΠ½ΠΎ ΠΏΠΎΠ΄ Π²ΡΠ΅ ΡΡΠΈ ΡΡΠΈ ΠΏΠ°ΡΠ°ΠΌΠ΅ΡΡΠ° ΠΏΠΎΠ΄Ρ ΠΎΠ΄ΠΈΡ Π²ΡΠ΅Π³ΠΎ Π΄Π²Π΅ ΡΠ°Π·Π½ΠΎΠ²ΠΈΠ΄Π½ΠΎΡΡΠΈ Π΄Π΅ΡΠ΅Π²Π° β Π»ΠΈΠΏΠ° ΠΈ ΠΎΡΠΈΠ½Π°.

Π‘Π°ΠΌΠΈ ΠΏΠΎΠ»ΠΊΠΈ Π² ΠΏΠ°ΡΠΈΠ»ΠΊΠ΅ Π½ΡΠΆΠ½ΠΎ Π±ΡΠ΄Π΅Ρ ΡΠ°ΡΡΡΠ°Π²ΠΈΡΡ ΡΠ°ΠΊ, ΡΡΠΎΠ±Ρ ΠΎΠ½ΠΈ Π½Π΅ ΠΌΠ΅ΡΠ°Π»ΠΈ Π²ΠΎΠ·Π΄ΡΡ ΠΎΠΎΠ±ΠΌΠ΅Π½Ρ ΠΈ ΠΏΠ΅ΡΠ΅Π΄Π²ΠΈΠΆΠ΅Π½ΠΈΡ Π»ΡΠ΄Π΅ΠΉ. Π Π°ΡΠΏΠΎΠ»Π°Π³Π°ΡΡΡΡ ΠΎΠ½ΠΈ ΠΌΠΎΠ³ΡΡ Π² Π΄Π²Π° ΠΈΠ»ΠΈ ΡΡΠΈ ΡΡΡΡΠ°.
Π‘ΠΎΡΡΠ°Π²Π»Π΅Π½ΠΈΠ΅ ΠΏΠ»Π°Π½Π° ΡΠ°Π±ΠΎΡ
ΠΡΠ΅ΠΆΠ΄Π΅ ΡΠ΅ΠΌ ΠΏΡΠΈΡΡΡΠΏΠ°ΡΡ ΠΊ ΡΠ±ΠΎΡΠΊΠ΅ ΠΏΠΎΠ»ΠΎΠΊ, ΠΊΡΠΏΠΈΡΠ΅ Π²ΡΠ΅ Π½Π΅ΠΎΠ±Ρ ΠΎΠ΄ΠΈΠΌΡΠ΅ ΠΌΠ°ΡΠ΅ΡΠΈΠ°Π»Ρ. ΠΠ°ΠΊΠΈΠ΅ ΠΈΠΌΠ΅Π½Π½ΠΎ, ΡΠΌΠΎΡΡΠΈΡΠ΅ Π² ΡΠ°Π±Π»ΠΈΡΠ΅.
| ΠΠ°ΡΠ΅ΡΠΈΠ°Π» | Π₯Π°ΡΠ°ΠΊΡΠ΅ΡΠΈΡΡΠΈΠΊΠΈ | ΠΡΠΏΠΎΠ»ΡΠ·ΠΎΠ²Π°Π½ΠΈΠ΅ |
| ΠΡΡΡ | 50Ρ 70ΠΌΠΌ | Π‘ΡΠΎΠΉΠΊΠΈ ΠΊΠ°ΡΠΊΠ°ΡΠ° ΠΈ ΠΏΠ΅ΡΠ΅ΠΌΡΡΠΊΠΈ |
| ΠΠΎΡΠΊΠ° | 22Ρ 120ΠΌΠΌ | Π‘ΠΈΠ΄Π΅Π½ΡΡ ΠΈ ΡΠΏΠΈΠ½ΠΊΠΈ |
| Π‘Π°ΠΌΠΎΡΠ΅Π·Ρ | Π‘ ΠΏΠ»Π°ΡΡΠΈΠΊΠΎΠ²ΡΠΌΠΈ ΠΊΠΎΠ»ΠΏΠ°ΡΠΊΠ°ΠΌΠΈ | ΠΡΠ΅ΠΏΠ»Π΅Π½ΠΈΠ΅ ΡΠ»Π΅ΠΌΠ΅Π½ΡΠΎΠ² |
| ΠΡΠΎΠΏΠΈΡΠΊΠ° | ΠΠ° ΠΎΡΠ½ΠΎΠ²Π΅ Π½Π°ΡΡΡΠ°Π»ΡΠ½ΡΡ ΠΌΠ°ΡΠ΅Π» | ΠΠ°ΡΠΈΡΠ° Π΄Π΅ΡΠ΅Π²Π° ΠΎΡ Π³Π½ΠΈΠ΅Π½ΠΈΡ |
| Π Π΅Π·ΠΈΠ½ΠΎΠ²ΡΠ΅ ΠΏΡΠΎΠΊΠ»Π°Π΄ΠΊΠΈ | 50Ρ 70ΠΌΠΌ | ΠΠΈΠ΄ΡΠΎΠΈΠ·ΠΎΠ»ΡΡΠΈΡ ΡΡΠΎΠ΅ΠΊ |
| ΠΠ΅ΡΠ΅Π²ΡΠ½Π½ΡΠ΅ Π±ΡΡΡΠΎΡΠΊΠΈ | Π¨ΠΈΡΠΈΠ½ΠΎΠΉ 100 ΠΌΠΌ | ΠΡΠΎΠΊΠ»Π°Π΄ΠΊΠ° ΠΌΠ΅ΠΆΠ΄Ρ ΡΡΠ΅Π½ΠΎΠΉ ΠΈ ΡΡΠΎΠΉΠΊΠ°ΠΌΠΈ |
Β
ΠΠ»Ρ ΡΠ°Π±ΠΎΡΡ ΠΏΠΎΠ½Π°Π΄ΠΎΠ±ΡΡΡΡ ΡΠ»Π΅Π΄ΡΡΡΠΈΠ΅ ΠΈΠ½ΡΡΡΡΠΌΠ΅Π½ΡΡ:
— Π½ΠΎΠΆΠΎΠ²ΠΊΠ°,
— ΡΡΠ±Π°Π½ΠΎΠΊ,
— Π½Π°ΠΆΠ΄Π°ΡΠΊΠ°,
— ΠΊΠΈΡΡΡ,
— ΡΡΡΡΠΏΠΎΠ²Π΅ΡΡ.
ΠΠΎΠ»ΠΈΡΠ΅ΡΡΠ²ΠΎ ΠΌΠ°ΡΠ΅ΡΠΈΠ°Π»Π° ΡΠ°ΡΡΡΠΈΡΡΠ²Π°ΠΉΡΠ΅, ΠΈΡΡ ΠΎΠ΄Ρ ΠΈΠ· ΡΠΎΠ³ΠΎ, ΡΡΠΎ:

- ΡΡΠΎΠΉΠΊΠΈ ΡΡΡΠ°Π½Π°Π²Π»ΠΈΠ²Π°ΡΡΡΡ Ρ ΡΠ°Π³ΠΎΠΌ 60ΡΠΌ,
- ΡΠΈΡΠΈΠ½Π° Π½ΠΈΠΆΠ½Π΅ΠΉ ΠΏΠΎΠ»ΠΊΠΈ Π΄ΠΎΠ»ΠΆΠ½Π° Π±ΡΡΡΒ ΠΌΠΈΠ½ΠΈΠΌΡΠΌ 40ΡΠΌ,
- Π²Π΅ΡΡ Π½ΡΡ β 90 ΡΠΌ,
- ΠΌΠΈΠ½ΠΈΠΌΠ°Π»ΡΠ½Π°Ρ Π΄Π»ΠΈΠ½Π° ΠΏΠΎΠ»ΠΊΠΈ β 150ΡΠΌ,
- ΠΏΡΠΎΡΠ΅Ρ ΠΈ ΠΌΠ΅ΠΆΠ΄Ρ Π΄ΠΎΡΠΊΠ°ΠΌΠΈ ΡΠΈΠ΄Π΅Π½ΡΡ Π΄Π»Ρ ΡΡΠΎΠΊΠ° Π²ΠΎΠ΄Ρ β 1ΡΠΌ.
- Π²ΡΡΠΎΡΠ° Π²Π΅ΡΡ Π½Π΅ΠΉ ΠΏΠΎΠ»ΠΊΠΈ β ΠΏΡΠΈΠΌΠ΅ΡΠ½ΠΎ 1.10ΠΌ,
- Π½ΠΈΠΆΠ½Π΅ΠΉ β 60ΡΠΌ.
Π‘ΠΎΠ²Π΅Ρ: Π ΠΏΡΠΎΡΠ΅ΡΡΠ΅ ΡΠ±ΠΎΡΠΊΠΈ Π½Π΅ Π·Π°Π±ΡΠ΄ΡΡΠ΅ ΠΎ ΡΠΎΠΌ, ΡΡΠΎ ΡΠΈΠ΄Π΅Π½ΡΠ΅ ΠΌΠΎΠ½ΡΠΈΡΡΠ΅ΡΡΡ Ρ ΡΠΊΠ»ΠΎΠ½ΠΎΠΌ Π² 2Π³Ρ Π΄Π»Ρ Π»ΡΡΡΠ΅Π³ΠΎ ΡΡΠΎΠΊΠ° Π²ΠΎΠ΄Ρ. ΠΡΡΠΎΡΠ° ΠΎΡ Π²Π΅ΡΡ Π½Π΅ΠΉ ΠΏΠΎΠ»ΠΊΠΈ Π΄ΠΎ ΠΏΠ΅ΡΠ΅ΠΊΡΡΡΠΈΡ ΠΏΠ°ΡΠΈΠ»ΠΊΠΈ — Π½Π΅ ΠΌΠ΅Π½ΡΡΠ΅ ΠΏΠΎΠ»ΡΡΠΎΡΠ° ΠΌΠ΅ΡΡΠΎΠ². Π Π»ΡΠ±ΠΎΠΌ ΡΠ»ΡΡΠ°Π΅ ΡΠΈΠ΄ΡΡΠΈΠΉ Π½Π° Π½Π΅ΠΉ ΡΠ΅Π»ΠΎΠ²Π΅ΠΊ Π½Π΅ Π΄ΠΎΠ»ΠΆΠ΅Π½ Π΄ΠΎΡΡΠ°Π²Π°ΡΡ Π΄ΠΎ ΠΏΠΎΡΠΎΠ»ΠΊΠ° ΠΏΠΎΠΌΠ΅ΡΠ΅Π½ΠΈΡ.
Paste a VALID AdSense code in Ads Elite Plugin options before activating it.
class=»eliad»>Π Π°ΡΠΏΠΎΠ»Π°Π³Π°ΡΡ ΠΏΠΎΠ»ΠΊΠΈ ΠΎΠ±ΡΡΠ½ΠΎ Π²Π΄ΠΎΠ»Ρ Π΄Π»ΠΈΠ½Π½ΠΎΠΉ ΡΡΠ΅Π½Ρ, ΡΡΠ΄ΠΎΠΌ Ρ ΠΊΠ°ΠΌΠ΅Π½ΠΊΠΎΠΉ. ΠΠ½ΠΎΠ³Π΄Π° ΠΎΠ½ΠΈ ΠΈΠΌΠ΅ΡΡ Π-ΠΎΠ±ΡΠ°Π·Π½ΡΡ ΡΠΎΡΠΌΡ, Π·Π°Π½ΠΈΠΌΠ°Ρ ΠΈ ΡΠΌΠ΅ΠΆΠ½ΡΡ ΡΡΠ΅Π½Ρ. ΠΡΠ»ΠΈ Π±Π°Π½Ρ ΠΎΡΠ΅Π½Ρ ΠΌΠ°Π»Π΅Π½ΡΠΊΠ°Ρ, Π½ΠΈΠΆΠ½ΡΡ ΠΏΠΎΠ»ΠΊΡ ΠΌΠΎΠΆΠ½ΠΎ ΡΠ΄Π΅Π»Π°ΡΡ ΠΎΡΠΊΠΈΠ΄Π½ΠΎΠΉ. ΠΡΠ΅Π½Ρ Π½Π΅ΠΏΠ»ΠΎΡ ΠΎ Π±ΡΠ΄Π΅Ρ ΡΡΡΠ°Π½ΠΎΠ²ΠΈΡΡ Π² ΠΏΠ°ΡΠΈΠ»ΠΊΠ΅ Π½Π΅Π²ΡΡΠΎΠΊΡΡ ΡΠΈΡΠΎΠΊΡΡ ΠΏΠΎΠ»ΠΊΡ, ΠΏΡΠ΅Π΄Π½Π°Π·Π½Π°ΡΠ΅Π½Π½ΡΡ Π΄Π»Ρ ΠΏΠΎΠΆΠΈΠ»ΡΡ ΡΠ»Π΅Π½ΠΎΠ² ΡΠ΅ΠΌΡΠΈ.
Π£ΡΡΠ°Π½ΠΎΠ²ΠΊΠ° ΠΊΠ°ΡΠΊΠ°ΡΠ° Π΄Π»Ρ ΠΏΠΎΠ»ΠΎΠΊ
Π‘ΠΎΠ±ΠΈΡΠ°ΡΡ ΠΏΠΎΠ»ΠΊΠΈ Π² ΠΏΠ°ΡΠΈΠ»ΠΊΠ΅ Π½Π°ΡΠΈΠ½Π°ΠΉΡΠ΅ Ρ Π²Π΅ΡΡ Π½Π΅Π³ΠΎ ΡΡΡΡΠ°. ΠΠΎΡΡΠ΄ΠΎΠΊ ΠΌΠΎΠ½ΡΠ°ΠΆΠ° ΡΠ²ΠΎΠΈΠΌΠΈ ΡΡΠΊΠ°ΠΌΠΈ ΠΊΠ°ΡΠΊΠ°ΡΠ° ΡΠ°ΠΊΠΎΠ²:
- Π‘ΠΎΠ±Π΅ΡΠΈΡΠ΅ Π½Π΅ΠΎΠ±Ρ ΠΎΠ΄ΠΈΠΌΠΎΠ΅ ΠΊΠΎΠ»ΠΈΡΠ΅ΡΡΠ²ΠΎ Π-ΠΎΠ±ΡΠ°Π·Π½ΡΡ ΡΡΠΎΠ΅ΠΊ. ΠΠ΅ΡΠ΅ΠΌΡΡΠΊΠΈ ΠΊΡΠ΅ΠΏΡΡ ΡΠ²Π΅ΡΡ Ρ ΡΡΠΎΠ΅ΠΊ.
- ΠΠ°Π»ΡΠ½ΠΈΠ΅ ΡΡΠΎΠΉΠΊΠΈ ΠΏΡΠΈΠ±Π΅ΠΉΡΠ΅ ΠΊ ΡΡΠ΅Π½Π΅ Π±Π°Π½ΠΈ ΡΠ΅ΡΠ΅Π· Π±ΡΡΡΠΎΡΠΊΠΈ ΡΠΎΠ»ΡΠΈΠ½ΠΎΠΉ 100ΠΌΠΌ, ΠΏΡΠ΅Π΄Π²Π°ΡΠΈΡΠ΅Π»ΡΠ½ΠΎ ΠΏΡΠΎΠ»ΠΎΠΆΠΈΠ² Π²Π½ΠΈΠ·Ρ ΠΏΠΎΠ΄ ΡΡΠΎΠΉΠΊΠ°ΠΌΠΈ ΠΊΡΡΠΊΠΈ ΡΠ΅Π·ΠΈΠ½Ρ.
- ΠΠ° Π²ΡΡΠΎΡΠ΅ Π² 60ΡΠΌ ΠΎΡ ΠΏΠΎΠ»Π° ΠΊ Π-ΠΎΠ±ΡΠ°Π·Π½ΡΠΌ ΡΡΠΎΠΉΠΊΠ°ΠΌ Π²Π΅ΡΡ Π½Π΅ΠΉ ΠΏΠΎΠ»ΠΊΠΈ Π·Π°ΠΊΡΠ΅ΠΏΠΈΡΠ΅ ΠΏΠ΅ΡΠ΅ΠΌΡΡΠΊΠΈ Π½ΠΈΠΆΠ½Π΅ΠΉ. ΠΡΡΡΡΠΏΠ°ΡΡ Π·Π° ΠΏΡΠ΅Π΄Π΅Π»Ρ ΠΏΠ»ΠΎΡΠΊΠΎΡΡΠΈ ΡΠΎΠ±ΡΠ°Π½Π½ΠΎΠ³ΠΎ ΠΊΠ°ΡΠΊΠ°ΡΠ° ΠΎΠ½ΠΈ Π΄ΠΎΠ»ΠΆΠ½Ρ Π½Π° 40-60ΡΠΌ. ΠΠΎ Π½ΠΈΠ·Ρ ΠΏΠΎΠ΄ΠΎΠΏΡΠΈΡΠ΅ ΠΈΡ ΡΡΠΎΠΉΠΊΠ°ΠΌΠΈ Π½ΠΈΠΆΠ½Π΅ΠΉ ΠΏΠΎΠ»ΠΊΠΈ. ΠΡ Π΄Π»ΠΈΠ½Π°,Β ΠΎΠ±ΡΡΠ½ΠΎ ΡΠΎΡΡΠ°Π²Π»ΡΠ΅ΡΒ 58-59ΡΠΌ Π΄Π»Ρ ΠΎΠ±Π΅ΡΠΏΠ΅ΡΠ΅Π½ΠΈΡ Π½Π΅Π±ΠΎΠ»ΡΡΠΎΠ³ΠΎ ΡΠΊΠ»ΠΎΠ½Π°.

ΠΠ°Π±ΠΈΠ²ΠΊΠ° Π΄ΠΎΡΠΎΠΊ
Π‘ΠΎΠ±ΡΠ°Π² ΠΊΠ°ΡΠΊΠ°Ρ, ΠΏΡΠΈΡΡΡΠΏΠ°ΠΉΡΠ΅ ΠΊ ΠΌΠΎΠ½ΡΠ°ΠΆΡ ΡΠΈΠ΄Π΅Π½ΠΈΠΉ ΠΈ ΡΠΏΠΈΠ½ΠΎΠΊ. ΠΠ°Π±ΠΈΠ²Π°ΡΡ Π΄ΠΎΡΠΊΠΈ Π½Π° Π½Π΅ΠΊΠΎΡΠΎΡΠΎΠΌ ΡΠ°ΡΡΡΠΎΡΠ½ΠΈΠΈ Π΄ΡΡΠ³ ΠΎΡ Π΄ΡΡΠ³Π°. Π Π°Π·ΡΠΌΠ΅Π΅ΡΡΡ, ΠΎΠ½ΠΈ Π΄ΠΎΠ»ΠΆΠ½Ρ ΠΈΠΌΠ΅ΡΡ Π°Π±ΡΠΎΠ»ΡΡΠ½ΠΎ Π³Π»Π°Π΄ΠΊΡΡ, Ρ ΠΎΡΠΎΡΠΎ ΠΎΠ±ΡΠ°Π±ΠΎΡΠ°Π½Π½ΡΡ ΠΏΠΎΠ²Π΅ΡΡ Π½ΠΎΡΡΡ.
ΠΠ°ΠΆΠ½ΠΎ: ΠΠ»Ρ ΠΌΠΎΠ½ΡΠ°ΠΆΠ° ΠΏΠΎΠ»ΠΎΠΊ ΠΈΡΠΏΠΎΠ»ΡΠ·ΡΠΉΡΠ΅ ΡΠΎΠ»ΡΠΊΠΎ ΡΠ°ΠΌΠΎΡΠ΅Π·Ρ Ρ ΠΊΠΎΠ»ΠΏΠ°ΡΠΊΠ°ΠΌΠΈ. Π’Π΅ΠΌΠΏΠ΅ΡΠ°ΡΡΡΠ° Π²ΠΎΠ·Π΄ΡΡ Π° Π² Π±Π°Π½Π΅ Π²ΠΎ Π²ΡΠ΅ΠΌΡ ΡΠΊΡΠΏΠ»ΡΠ°ΡΠ°ΡΠΈΠΈ ΠΎΡΠ΅Π½Ρ Π²ΡΡΠΎΠΊΠ°Ρ. Π‘Π»Π΅Π΄ΠΎΠ²Π°ΡΠ΅Π»ΡΠ½ΠΎ ΠΌΠ΅ΡΠ°Π»Π» Π±ΡΠ΄Π΅Ρ Π±ΡΡΡΡΠΎ Π½Π°Π³ΡΠ΅Π²Π°ΡΡΡΡ ΠΈ ΠΎ Π½Π΅Π³ΠΎ Π½Π΅ΡΠ»ΠΎΠΆΠ½ΠΎ ΠΎΠ±ΠΆΠ΅ΡΡΡΡ. ΠΠΎΠΆΠ½ΠΎ ΠΈΡΠΏΠΎΠ»ΡΠ·ΠΎΠ²Π°ΡΡ ΠΈ ΠΏΡΠΎΡΡΠΎ Π³Π²ΠΎΠ·Π΄ΠΈ, Π½ΠΎ Π² ΡΡΠΎΠΌ ΡΠ»ΡΡΠ°Π΅ ΠΈΡ ΠΏΡΠΈΠ΄Π΅ΡΡΡ ΡΡΠ°ΠΏΠ»ΠΈΠ²Π°ΡΡ Π² Π΄ΡΠ΅Π²Π΅ΡΠΈΠ½Ρ ΠΌΠΈΠ½ΠΈΠΌΡΠΌ Π½Π° 5ΠΌΠΌ, ΡΡΠΎ Π½Π΅ ΠΎΡΠΎΠ±Π΅Π½Π½ΠΎ ΡΠ΄ΠΎΠ±Π½ΠΎ.

ΠΠ±ΡΠ°Π±ΠΎΡΠΊΠ° ΠΌΠ°ΡΠ΅ΡΠΈΠ°Π»Π°
ΠΠΎΠΏΡΠΎΡ ΠΎ ΡΠΎΠΌ, ΠΊΠ°ΠΊ ΠΏΡΠ°Π²ΠΈΠ»ΡΠ½ΠΎ ΡΠ΄Π΅Π»Π°ΡΡ ΠΏΠΎΠ»ΠΊΠΈ Π² ΠΏΠ°ΡΠΈΠ»ΠΊΠ΅, ΡΠ²ΠΎΠ΄ΠΈΡΡΡ Π² ΡΠΎΠΌ ΡΠΈΡΠ»Π΅ ΠΈ ΠΊ ΡΠΎΠΌΡ, ΡΠ΅ΠΌ ΡΡΠΎΠΈΡ ΠΎΠ±ΡΠ°Π±ΠΎΡΠ°ΡΡ Π΄ΡΠ΅Π²Π΅ΡΠΈΠ½Ρ. ΠΠΎΠ²ΡΡΠ΅Π½Π½ΡΡ Π²Π»Π°ΠΆΠ½ΠΎΡΡΡ ΠΎΠ½Π° ΠΏΠ΅ΡΠ΅Π½ΠΎΡΠΈΡ ΠΎΡΠ΅Π½Ρ ΠΏΠ»ΠΎΡ ΠΎ. ΠΠ°ΠΊ ΠΈΠ»ΠΈ ΠΎΠ»ΠΈΡΡ Π² Π±Π°Π½Π΅ ΠΈΡΠΏΠΎΠ»ΡΠ·ΠΎΠ²Π°ΡΡ Π½Π΅Π»ΡΠ·Ρ. ΠΡΠΈ Π½Π°Π³ΡΠ΅Π²Π°Π½ΠΈΠΈ ΡΡΠΈ Π²Π΅ΡΠ΅ΡΡΠ²Π° Π½Π°ΡΠΈΠ½Π°ΡΡ ΡΠ°ΡΠΏΡΠΎΡΡΡΠ°Π½ΡΡΡ Π½Π΅ΠΏΡΠΈΡΡΠ½ΡΠΉ Β«Π°ΡΠΎΠΌΠ°ΡΒ». ΠΠΎΠΌΠΈΠΌΠΎ ΡΡΠΎΠ³ΠΎ, ΡΠΎΠΏΡΠΈΠΊΠΎΡΠ½ΠΎΠ²Π΅Π½ΠΈΠ΅ Ρ Π½ΠΈΠΌΠΈ ΠΌΠΎΠΆΠ΅Ρ Π²ΡΠ·ΡΠ²Π°ΡΡ Π°Π»Π»Π΅ΡΠ³ΠΈΡΠ΅ΡΠΊΠΈΠ΅ ΡΠ΅Π°ΠΊΡΠΈΠΈ.
ΠΠ±ΡΠ°Π±Π°ΡΡΠ²Π°ΡΡ Π΄Π΅ΡΠ΅Π²ΠΎ, ΠΏΡΠ΅Π΄Π½Π°Π·Π½Π°ΡΠ΅Π½Π½ΠΎΠ΅ Π΄Π»Ρ ΠΈΡΠΏΠΎΠ»ΡΠ·ΠΎΠ²Π°Π½ΠΈΡ Π² Π±Π°Π½Π΅, ΠΎΠ±ΡΡΠ½ΠΎ ΡΡΠ΅Π΄ΡΡΠ²Π°ΠΌΠΈ, ΠΎΡΠ½ΠΎΠ²Π½ΡΠΌ ΠΊΠΎΠΌΠΏΠΎΠ½Π΅Π½ΡΠΎΠΌ ΠΊΠΎΡΠΎΡΡΡ ΡΠ²Π»ΡΡΡΡΡ Π½Π°ΡΡΡΠ°Π»ΡΠ½ΡΠ΅ ΠΌΠ°ΡΠ»Π°. ΠΡΠΏΠΈΡΠ΅ ΡΠ°ΠΊΡΡ ΠΏΡΠΎΠΏΠΈΡΠΊΡ ΠΈ Ρ ΠΎΡΠΎΡΠ΅Π½ΡΠΊΠΎ ΠΏΡΠΎΠΌΠ°ΠΆΡΡΠ΅ Π²Π΅ΡΡ Π±ΡΡΡ ΠΈ Π΄ΠΎΡΠΊΠΈ.
ΠΡ ΡΡΠΎ ΠΆ, Π½Π°Π΄Π΅ΡΡΡ ΡΠ΅ΠΏΠ΅ΡΡ Π²Π°ΠΌ Π±ΠΎΠ»Π΅Π΅-ΠΌΠ΅Π½Π΅Π΅ ΠΏΠΎΠ½ΡΡΠ½ΠΎ, ΠΊΠ°ΠΊ ΡΠ΄Π΅Π»Π°ΡΡ ΠΏΠΎΠ»ΠΊΠΈ Π² ΠΏΠ°ΡΠΈΠ»ΠΊΠ΅. ΠΠ»Π°Π²Π½ΠΎΠ΅ β Π½Π΅ ΠΎΡΡΠ°Π²Π»ΡΠΉΡΠ΅ ΡΠ½Π°ΡΡΠΆΠΈ ΡΠ»ΡΠΏΠΊΠΈ Π³Π²ΠΎΠ·Π΄Π΅ΠΉ ΠΈ ΡΠ°ΠΌΠΎΡΠ΅Π·ΠΎΠ² ΠΈ ΠΎΠ±ΡΠ·Π°ΡΠ΅Π»ΡΠ½ΠΎ ΠΎΠ±ΡΠ°Π±ΠΎΡΠ°ΠΉΡΠ΅ Π΄ΡΠ΅Π²Π΅ΡΠΈΠ½Ρ ΠΌΠ°ΡΠ»ΠΎΠΌ.
ΠΠΈΠ΄Π΅ΠΎ ΠΏΠΎ ΡΠ΅ΠΌΠ΅: ΠΊΠ°ΠΊ ΡΠ΄Π΅Π»Π°ΡΡ ΠΏΠΎΠ»ΠΊΠΈ Π² ΠΏΠ°ΡΠΈΠ»ΠΊΠ΅ ΡΠ²ΠΎΠΈΠΌΠΈ ΡΡΠΊΠ°ΠΌΠΈ
Paste a VALID AdSense code in Ads Elite Plugin options before activating it.
class=»eliad»>postroju-dom.ru





