Арматура для плиты перекрытия – Армирование плиты перекрытия чертеж – раскладка арматуры в монолитной плите
Какую арматуру использовать для перекрытия в строительной индустрии?
Строительная отрасль за всю свою многовековую историю пережила огромнейшее количество изменений и доработок. Сегодня для строительства используются инновационные решения, которые в разы увеличивают качество работ и надежность самого строения в целом. Однако при этом возникает огромнейшее количество вопросов. Например, какую арматуру использовать для перекрытия? Решение именно этого вопроса во многом поможет существенно укрепить конструкцию, обеспечив ей длительный срок эксплуатации и отсутствие необходимости проведения регулярных ремонтных работ.

В данной конструкции монолитного перекрытия стальной профильный настил служит в качестве несъемной опалубки, что значительно усиливает конструкцию.
Существует огромное количество всевозможных типов перекрытий, но одной из самых надежных и распространенных является конструкция монолитного типа.
Говоря о монолитном варианте, можно сразу отметить высочайший уровень надежности и долговечности. Ведь в силу своей структуры оно способно выдержать огромные нагрузки, при этом следует учесть, что предварительно перед реализацией проекта необходимо как следует рассчитать все составляющие конструкции в целях последующей безопасности в процессе эксплуатации. О том, какую именно вариацию перекрытий использовать и какую арматуру выбрать для этого, постараемся рассказать в данной статье.
Как уже отметили выше, на сегодняшний день от того, насколько качественно и правильно строители перекроют этажи строения, будет в дальнейшем зависеть его уровень безопасности в процессе эксплуатации. Согласно мнению экспертов и ученых, работающих в данной отрасли, наиболее рентабельной и надежной является использование плит монолитного типа.
На самом деле, то, что именно такой тип плиты сегодня используется чаще всего, не удивительно. Опора такого рода представляет собой сплошную перегородку, которая за счет своей структуры обеспечивает высочайший уровень надежности.
От того, насколько качественно и правильно строители перекроют этажи строения, будет в дальнейшем зависеть его уровень безопасности в процессе эксплуатации.
Кроме того, необходимо позаботиться о правильности изготовления материала, который можно при этом использовать, и монтажа.
Сама же опора может быть довольно различной формы, в зависимости от сооружения. Как правило, это плита монолитного типа толщиной от 8 до 12 см. Конструкция перекрытия опирается на несущие стеновые поверхности.
И лучше всего для изготовления плиты использовать цемент марки 200. Ведь именно этот цемент отличается более высоким уровнем прочности — показателем, который особенно важен в данном случае. Ведь вес плиты составляет порядка 500 кг/кв.м.
Что же касается непосредственно самого монтажа, то он, согласно стандартам и правилам, производится за четыре основных этапа:
- монтаж балок на заранее подготовленные позиции;
- устройство опалубки;
- укладка арматуры для монолитного соединения;
- укладка самой плиты монолитного типа.
Что касается непосредственно арматуры, то для изготовления плит лучше всего использовать образцы диаметром от 6 до 12 мм. Здесь все зависит от того, насколько велика будет нагрузка на плиту монолитного перекрытия в процессе эксплуатации здания. Чем выше уровень нагрузки, тем больше диаметр. От того, насколько велика нагрузка, выбирается и количество арматуры при изготовлении плиты перекрытия.
В целом, для того чтобы определиться, какую арматуру использовать и какой тип перекрытия наиболее предпочтителен в том или ином случае, необходимо знать основные достоинства материала, о выборе которого идет речь.

Для изготовления плит лучше всего использоватьарматуры диаметром от 6 до 12 мм.
Достоинства монолитного перекрытия
В первую очередь, говоря о колонке «плюсы», необходимо заявить о том, что данный тип конструкции не требует дорогих работ разгрузочного и погрузочного типа. Кроме того, после установки плиты ее не нужно дорабатывать и доделывать — конструкция нуждается лишь в дальнейшей отделке, не более того.
Схема установки деревянной опалубки для монолитного перекрытия
Говоря о строительстве, тем более, когда речь идет о современном мире, такой аспект, как архитектура и дизайн, нельзя ни в коем случае сбрасывать со счетов. Так вот плита монолитного перекрытия способна решить множественные задачи, связанные с данным направлением строительных работ и проектами различного плана.
Справедливости ради нужно сказать и о недостатках данной конструкции. Что касается минусов, то это в первую очередь необходимость установки деревянной опалубки. Причем это необходимо реализовать абсолютно по всей площади плиты. С другой стороны, вовсе не обязательно выставлять всю сразу опалубку, достаточно реализовывать проект по пролетам, перемещая деревянную конструкцию.
Вернуться к оглавлению
Металлическая арматура
К основным достоинствам металлической арматуры относят следующее:
- очень высокая прочность по сравнению с неметаллическими аналогами;
- высокая устойчивость к различным воздействиям, в том числе и химическим;
- достаточная гибкость для проведения строительных работ;
- устойчивость к влияниям агрессивной среды в процессе эксплуатации;
- помимо того, подобная арматура бывает и термически упрочненной, что повышает срок годности строения конструкции с ее применением;
- возможность соединения при помощи электросварки.
Однако, несмотря на преимущества, имеются и минусы:
- наличием высокой плотности обуславливается значительная масса подобной системы;
- легко подвергается воздействию коррозии, что, соответственно, влияет на эксплуатационные сроки материалов.
Но, тем не менее, подобный вариант является надежным инструментом при создании долговечных сооружений. Свидетельством тому служит наличие возведенных в прошлом веке строений, функционирующих по сегодняшний день.
Металлическому варианту есть достойная альтернатива — стекловолоконная арматура.
Вернуться к оглавлению
Применение стекловолокна
Стекловолоконная арматура является строительным материалом, который использует в своем применении волокна сложного состава. Подобный вариант имеет как преимущества, так и недостатки.
Преимущества стекловолокна:
- Отсутствует электропроводимость. Конечно, металлы внутри сооружения можно использовать, чтобы обеспечить дополнительное общее заземление или заземление громоотводов, но присутствие постоянного тока увеличит скорости окисления, что, в свою очередь, повлияет на прочность стен. Используя стекловолокно, вы потеряете удобное заземление, но зато продлите эксплуатационный срок здания.
- Наличие высокой устойчивости к агрессивной среде. В случае с железом, даже и при защите бетоном, металл все равно будет окисляться, что повлияет на технические характеристики сооружения. Здесь же подобное полностью исключается.
- Присутствие высокой прочности на разрыв. Данный плюс позволит использование стекловолоконной арматуры в самом сложном и ответственном месте, где возможно большая усадка либо смещение (например, на заболоченных местах, глине и т.п.).
- Небольшой вес. Легкость конструкции не позволяет созданию дополнительных нагрузок на фундаменты, соответственно, значительно увеличивается срок эксплуатации.
Форма стеклопластиковой арматуре задается на основании чертежей при помощи арматурного стержня еще при изготовлении на заводе.
Недостатки стекловолокна:
- Такая арматура непригодна к сгибанию на строительных площадках. Форма задается на основании чертежей при помощи арматурного стержня еще при изготовлении на заводе.
- Исключается применение электросварки. Выход — стальные трубки. Но опять же они подлежат установке только в оборудованном для этих целей специальном цеху (на заводе). И только после этого можно будет что-то предпринять со свариванием деталей.
- Нагрев до 550°С размягчает связывающие композитные элементы, что полностью ведет к потере теплоизоляции и требует принятия дальнейших мер по ее дополнительному устройству.
- Модули упругостей в 3-5 раз меньше по сравнению со стальными конструкциями. Т.е., если имеется равный диаметр, стекловолоконная арматура обладает значительно большим прогибом, чем стальной аналог. Эти характеристики позволяют успешному использованию данного материала при строении дорожных оснований, фундаментов. Однако если применять данный вид при монтаже перекрытий, требуется проведение дополнительных расчетов (т.е. рассчитать количество, площадь, материал, диаметр и т.п.), которые в большинстве случаев способны выполнить только квалифицированные специалисты.
Вернуться к оглавлению
Монтажные работы: основные этапы
Монтаж необходимо делать после того, как произведены все расчеты и протестированы на прочность все составляющие. Лучше всего рассчитать все параметры несколько раз. Ведь в том случае, если ошибка выявится в процессе монтажа, исправить ее будет очень трудно.
Что касается монтажа арматуры, то он состоит из нескольких этапов:
- подготовка материала и устранение повреждений, полученных во время транспортировки;
- фиксация основания опалубки;
- обеспечение фиксированного положения и проверка оного на прочность;
- заливка бетоном.
Кроме того, существует много дополнительных аспектов, которые необходимо соблюдать при монтаже арматуры в плиты. Здесь перечислены лишь основные положения, которые требуют незамедлительного исполнения.
Схема способов вязки проволокой пересеченных стержней арматуры
Существует несколько способов вязки арматуры в плиту монолитного типа. Самым простым считается механическое крепление. Такой способ не требует использования специализированного оборудования, в частности, сварочного аппарата. Механическим способом стержни можно вязать посредством специальных кусачек, которые доступны в свободной продаже в многочисленных торговых точках строительного сегмента. Так же, когда речь идет о небольших конструкциях, можно использовать вязальный крючок, который используется в строительной индустрии (не путайте с аналогом для вязания одежды).
А вот когда речь идет о более масштабных сооружениях, без специальных армированных соединений уже не обойтись. Работы по монтажу такого типа каркасов более хлопотные и трудоемкие, поэтому здесь необходимо использовать лишь специализированный инструмент и лучше всего довериться специалистам данной области. Ведь речь идет о строении, которое впоследствии будет использовано в качестве места для проживания большого количества людей, поэтому безопасность здесь стоит на первом месте.
Вернуться к оглавлению
Какую арматуру использовать?
Что касается решения о том, какую именно арматуру использовать для плит перекрытия монолитного типа, то, с точки зрения материальной части, это однозначно сталь высочайшего качества. Для того чтобы не ошибиться в выборе, лучше всего пользоваться услугами строительной компании, которая уже вам известна либо же на слуху.
На самом деле подделок на рынке довольно много, немалое количество и низкокачественных материалов. Помимо этого, при изготовлении данного материала получается довольно большой процент брака, который также стараются реализовать. Даже если вам предоставляют гарантию, вы должны прекрасно понимать, что в случае низкокачественного материала никакие гарантии и компенсации не помогут вам исправить изъяны, которые характерны армированию плохого качества.
Ни в коем случае не экономьте и не приобретайте для сооружения плиты монолитного образца арматуру, бывшую в употреблении.
Поэтому, во избежание непредвиденных ситуаций, лучше всего не спешить при покупке и как следует посоветоваться с людьми, знающими данную отрасль. Лучше всего, если это будет независимый эксперт, который сможет дать более объективную оценку той или иной компании. Ни в коем случае не экономьте и не приобретайте для сооружения плиты монолитного образца арматуру, бывшую в употреблении.
Пожалуй, это главный совет, которого необходимо придерживаться. В противном случае ваша опора может просто-напросто не выдержать нагрузку.
Вернуться к оглавлению
Какие выводы можно сделать из всего вышеизложенного?
Итак, из вышеизложенного определились с главным: арматуру для монолитного изготовления такого материала, как монолитная опора перекрытия, необходимо приобретать только с условием знания данного продавца или компании-изготовителя.
Также при армировании перекрытий желательно сделать расчет диаметров, хоть это и дополнительный расход, но он непременно сэкономит средства на усилении конструкции и продлит эксплуатацию. Если есть сомнения по поводу проведения расчета данной конструкции, обратитесь лучше к специалистам. Профессионалы приведут вам подробный расчет стоимости, нюансы и аспекты, которые могут возникнуть при монтаже.
Но прежде узнайте отзывы о той или иной фирме, так как велика вероятность не просто не получить нужную информацию, а обратиться к обычным мошенникам, которые просто хотят денег и не выполнят свои обязанности в нужном объеме.
Монолитное перекрытие это довольно серьезное дело, от которого возможно в последующем будет зависеть безопасность людей.
Лучше всего обратиться за советом к близким или знакомым людям, которые либо уже имели дело с данной отраслью, либо имеют большой опыт работы в данном направлении. Можно прибегнуть к интернет-сети, посоветовавшись с людьми на многочисленных форумах.
В любом случае, для того чтобы опора соответствовала высочайшему качеству, а иначе в решении этого вопроса нельзя, необходимо как следует взвесить все «за» и «против» и лишь потом приступать к выбору и покупке.
Помните, что речь идет о довольно серьезном деле, от которого возможно в последующем будет зависеть безопасность людей.
Вернуться к оглавлению
Заключение. Что же делать?
Реалии строительной отрасли таковы, что сегодня без использования специальной техники и оборудования, высококачественного материала и опыта работы, реализовать проект на самом высоком уровне фактически невозможно. Обычный человек, не знающий это направление, его тонкости и основные требования стройки, просто не в силах даже осуществить закупку материала.
От того, насколько правильно удастся расчитать и правильно выбрать такой материал, как арматура для перекрытий, в дальнейшем будет зависеть и правильность, и скорость, и безопасность всего сооружения в целом.
В свою очередь именно этот компонент должен стоять особняком еще до начала строительных работ. В том случае если вы приняли решение нанять ту или иную бригаду, не лишним будет узнать их уровень квалификации.
Обязательно нужно правильно рассчитать смету. Ведь это своего рода гарантия того, что строительство будет завершено, в противном случае несоблюдение каких-либо договоренностей грозит подрядчику, то есть исполнителю заказа, наказанием, предусмотренным законом.
Но при этом помните и то, что с вашей стороны также должны быть соблюдены абсолютно все пункты и составляющие официального документа. Но, как правило, роль заказчика заключается лишь в том, чтобы своевременно осуществлять соответствующую плату в указанном объеме.
1popotolku.ru
Армирование монолитной плиты: расчет и вязка арматуры
Армирование монолитной плиты — это сложная и ответственная задача. Конструктивный элемент воспринимает серьезные изгибающие нагрузки, с которыми бетону не справится. По этой причине при заливке монтируют арматурные каркасы, которые усиливают плиту и не дают ей разрушаться под нагрузкой.
Как правильно армировать конструкцию? При выполнении задачи нужно соблюдать несколько правил. При строительстве частного дома обычно не разрабатывают подробный рабочий проект и не делают сложных расчетов. Из-за небольших нагрузок считаю, что достаточно соблюсти минимальные требования, которые представлены в нормативных документах. Также опытные строители могут заложить арматуру по примеру уже сделанных объектов.
Плита в здании может быть двух типов:
- фундаментная;
- перекрытия.
В общем случае армирование плиты перекрытия и фундаментной не имеет критических отличий. Но важно знать, что в первом случае потребуются стержни большего диаметра. Это вызвано тем, что под элементом фундамента есть упругое основание — земля, которое берет на себя часть нагрузок. А вот схема армирования плиты перекрытия не предполагает дополнительного усиления.
Армирование фундаментной плиты
Арматура в фундамент в этом случае укладывается неравномерно. Необходимо усилить конструкцию в местах наибольшего продавливания. Если толщина элемента не превышает 150 мм, то армирование для монолитной плиты фундамента выполняется одной сеткой. Такое бывает при строительстве небольших сооружений. Также тонкие плиты используются под крыльца.
Для жилого дома толщина фундамента обычно составляет 200—300 мм. Точное значение зависит от характеристик грунта и массы здания. В этом случае арматурные сетки укладываются в два слоя друг над другом. При монтаже каркасов необходимо соблюдать защитный слой бетона. Он позволяет предотвратить коррозию металла. При возведении фундаментов величина защитного слоя принимается равной 40 мм.
Диаметр армирования
Перед тем как вязать арматуру для фундамента, потребуется подобрать ее сечение. Рабочий стержни в плите располагаются перпендикулярно в обоих направлениях. Для соединения верхнего и нижнего ряда используют вертикальные хомуты. Общее сечение всех прутов в одном направлении должно составлять не менее 0,3% от площади сечения плиты в этом же направлении.
Пример армированияЕсли сторона фундамента не превышает 3 м, то минимально допустимый диаметр рабочих прутов назначается равным 10 мм. Во всех остальных случаях он составляет 12 мм. Максимально допустимое сечение — 40 мм. На практике чаще всего используют стержни от 12 до 16 мм.
Перед закупкой материалов рекомендуется посчитать массу необходимой арматуры для каждого диаметра. К полученному значению прибавляют примерно 5 % на неучтенные расходы.
Укладка металла по основной ширине
Схемы армирования монолитной плиты фундамента по основной ширине предполагают постоянные размеры ячейки. Шаг прутьев принимается одинаковым независимо от расположения в плите и направления. Обычно он находится в пределах 200—400 мм. Чем тяжелее здание, тем чаще армируют монолитную плиту. Для кирпичного дома рекомендуется назначать расстояние 200 мм, для деревянного или каркасного можно взять большее значение шага. При этом важно помнить, что расстояние между параллельными прутами не может превышать толщину фундамента более чем в полтора раза.
Обычно и для верхнего, и для нижнего армирования используют одинаковые элементы. Но если есть необходимость уложить пруты разного диаметра, то те, которые имеют большее сечение укладывают снизу. Такое армирование плиты фундамента позволяет усилить конструкцию в нижней части. Именно там возникают наибольшие изгибающие силы.
Основные армирующие элементыС торцов вязка арматуры для фундамента предполагает укладку П-образных стержней. Они необходимы для того, чтобы связать в одну систему верхнюю и нижнюю часть армирования. Также они предотвращают разрушение конструкции из-за крутящих моментов.
Зоны продавливания
Связанный каркас должен учитывать места, в которых изгиб ощущается больше всего. В жилом доме зонами продавливания будут участки, в которых опираются стены. Укладка металла в этой области осуществляется с меньшим шагом. Это значит, что потребуется больше прутов.
Например, если для основной ширины фундамента использован шаг 200 мм, то для зон продавливания рекомендуется уменьшить это значение до 100 мм.
При необходимости каркас плиты можно связать с каркасом монолитной стены подвала. Для этого на этапе возведения фундамента предусматривают выпуски металлических стержней.
Армирование монолитной плиты перекрытия
Расчет арматуры для плиты перекрытия в частном строительстве выполняется редко. Это достаточно сложная процедура, выполнить которую сможет не каждый инженер. Чтобы заармировать плиту перекрытия, нужно учесть ее конструкцию. Она бывает следующих типов:
- сплошное;
- ребристое:
- по профлисту.
Последний вариант рекомендуется при выполнении работ самостоятельно. В этом случае нет необходимости устанавливать опалубку. Кроме того, за счет использования металлического листа повышается несущая способность конструкции. Самая низкая вероятность ошибок достигается при изготовлении перекрытия по профлисту. Стоит отметить, что оно является одним из вариантов ребристой плиты.
Перекрытие с ребрами залить непрофессионалу может быть проблематично. Но такой вариант позволяет существенно сократить расход бетона. Конструкция в этом случае подразумевает наличие усиленных ребер и участков между ними.
Еще одни вариант — изготовит сплошную плиту перекрытия. В этом случае армирование и технология похожи на процесс изготовления плитного фундамента. Основное отличие — класс используемого бетона. Для монолитного перекрытия он не может быть ниже В25.
Стоит рассмотреть несколько вариантов армирования.
Перекрытие по профлисту
В этом случае рекомендуется взять профилированный лист марки Н-60 или Н-75. Они обладают хорошей несущей способностью. Материал монтируется так, чтобы при заливке образовались ребра, обращенные вниз. Далее проектируется монолитная плита перекрытия, армирование состоит из двух частей:
- рабочие стержни в ребрах;
- сетка в верхней части.
Армирование плиты перекрытия по профлистуНаиболее распространенный вариант, когда в ребрах устанавливают по одному стержню диаметром 12 или 14 мм. Для монтажа прутов подойдут инвентарные пластиковые фиксаторы. Если нужно перекрыть большой пролет, в ребро может устанавливаться каркас из двух стержней, которые связаны между собой вертикальным хомутом.
В верхней части плиты обычно укладывается противоусадочная сетка. Для ее изготовления используют элементы диаметром 5 мм. Размеры ячейки принимаются 100х100 мм.
Сплошная плита
Толщина перекрытия чаще всего принимается равной 200 мм. Армирующий каркас в этом случае включает в себя две сетки, расположенные друг над другом. Такие сетки нужно связать из стержней диаметром 10 мм. В середине пролета устанавливают дополнительные пруты усиливающей арматуры в нижней части. Длина такого элемента назначается 400 мм или более. Шаг дополнительных прутов принимают таким же, как шаг основных.

В местах опирания нужно тоже предусмотреть дополнительное армирование. Но располагают его в верхней части. Также по торцам плиты нужны П-образные хомуты, такие же как в фундаментной плите.
Пример армирования плиты перекрытияРасчет армирования плиты перекрытия по весу для каждого диаметра стоит выполнить до закупки материала. Это позволит избежать перерасхода средств. К полученной цифре прибавляют запас на неучтенные расходы, примерно 5%.
Вязка арматуры монолитной плиты
Для соединения элементов каркаса между собой пользуются двумя способами: сварка и связывание. Лучше вязать арматуру для монолитной плиты, поскольку сварка в условиях строительной площадки может привести к ослаблению конструкции.
Для выполнения работ используют отожженную проволоку, диаметром от 1 до 1,4 мм. Длину заготовок обычно принимают равной 20 см. Существует два типа инструмента для вязания каркасов:
- крючок;
- пистолет.
Способы вязки
Самый распространенный способ вязкиВторой вариант существенно ускорят процесс, снижает трудоемкость. Но для возведения дома своими руками большую популярность получил крючок. Для выполнения задачи рекомендуется заранее подготовить специальный шаблон по типу верстака. В качестве заготовки используют деревянную доску шириной от 30 до 50 мм и длинной до 3 м. На ней делают отверстия и углубления, которые соответствуют необходимому расположению арматурных прутов.
Общие рекомендации
- при соединении стержней по длине минимальный нахлест составляет 20 диаметров, но не меньше 250 мм;
- все зоны, в которых возможен изгиб, в обязательном порядке должны быть усилены;
- при выборе между сваркой и вязкой, лучше — второе;
- при необходимости использовать стержни разного диаметра, те, которые толще, располагают снизу.
domzastroika.ru
Армирование монолитной плиты перекрытия: расчет нагрузки, чертежи
Перекрытия и сваи
Для создания надежного перекрытия необходимо правильно сделать армирование, которое обеспечит прочность при нагрузках на изгиб и равномерно распределит давление на фундамент. Монолитные плиты перекрытия будут стоить дешевле, потому что не требуют наличия на участке грузоподъемной техники. Сделать предварительные расчеты для небольших пролетов можно самостоятельно по формулам нормативных документов
1
Виды перекрытий
В зависимости от конструкции каркаса перекрытия монтируются деревянные и железобетонные. Последние в свою очередь делятся на:
- стандартные железобетонные плиты различных конструкций;
- монолитное перекрытие.
Преимущество готовых армированных плит в профессиональном изготовлении согласно требованиям СНиП: меньший вес за счет наличия сформированных при заливке полостей. По количеству и форме внутреннего строения плита бывает:
- многопустотной – с круглыми продольными отверстиями;
- ребристой – сложный профиль поверхности;
- пустотной – узкие, фигурные панели используются как вставки.
Уже готовые плиты перекрытия оправдывают свое применение при крупном строительстве, например при возведении высотных домов. Но они имеют свои недостатки при укладке:
- наличие стыков;
- использование грузоподъемной техники;
- подходят только под стандартные размеры помещений;
- невозможность создавать фигурные перекрытия, отверстия для вытяжек и др.

Монтаж перекрытий из плит обходится дорого. Надо оплачивать транспортировку спецавтомобилем, загрузку и монтаж подъемным краном. Чтобы дважды не вызывать спецтехнику, желательно с машины плиты сразу монтировать на стены. Если рассматривать индивидуальное строительство небольших коттеджей и домов, то специалисты рекомендуют самостоятельное изготовление перекрытий. Заливка бетонным раствором производится непосредственно на месте. Предварительно сооружается опалубка обвязки и армированная сетка.
2
Преимущества и недостатки сплошного армированного перекрытия
Железобетонное перекрытие делается так же, как и готовые плиты из 2 материалов:
- железные прутья;
- цементный раствор.
Бетон имеет высокую твердость, но он хрупкий и не выдерживает деформаций, разрушается от ударов. Металл мягче, хорошо переносит деформации на изгиб и кручение. При совмещении этих двух материалов получаются прочные конструкции, переносящие любые нагрузки.

Преимущества:
- отсутствие швов и стыков;
- ровная сплошная поверхность;
- возможность делать перекрытия на любые формы и размеры помещений;
- монтаж и сборка арматуры проводится непосредственно на месте;
- железобетонный монолит упрочняет конструкцию, связывает воедино стены;
- не надо после монтажа заделывать стыки и выравнивать переходы;
- местная большая нагрузка на перекрытие равномерно распределяется на фундамент;
- легко сделать различные отверстия между этажами для лестниц и коммуникационные колодцы.
К недостаткам армирования относится большие трудозатраты по сборке арматурной сетки и длительный процесс высыхания и упрочнения бетона.
3
Расчет толщины плиты и количества рядов арматуры
Расчет параметров перекрытия должен делаться на основании требований СНиП. Расчетным размерам на прочность добавляется 30%, точнее цифры умножаются на коэффициент запаса прочности 1,3. При расчете учитываются только несущие стены и колонны, стоящие на фундаменте. Перегородки не могут служить опорой.
3.1
Толщина перекрытия
Примерный расчет толщины перекрытия относительно величины расстояния между стенами составляет соотношение 1:30 (соответственно толщина плиты и длина пролета). Классический пример из справочной литературы – ширина помещения 6 метров, то есть 6000 мм. Тогда перекрытие должно иметь толщину 200 мм.
Если расстояние между стенами 4 метра, по расчетам можно монтировать плиту 120 мм. На практике такое армирование монолитной плиты перекрытия подойдет только для нежилого чердака, на котором не будет громоздкой мебели. Остальные полы (потолки) желательно делать 150 мм с двумя рядами армированной сетки. Сэкономить можно на втором ряде, установив прут на 8 мм с шагом в 2 раза больше.
При величине пролета более 6 м прогибы и другие нагрузки значительно увеличиваются. Все размеры перекрытия и чертежи должны делать специалисты. Примерные расчеты не могут учесть всех нюансов.
3.2
Армирующая сетка
По рекомендации СНиП в жилых зданиях перекрытие должно иметь 2 ряда армирующей сетки. В зависимости от расчетной толщины верхний ряд может иметь меньшее поперечное сечение арматуры и больший размер ячеек сетки. Рекомендуемые специалистами размеры для пролетов 6 м и 4 м со стандартной нагрузкой жилого дома показаны в таблице.
Размер пролета, толщина плиты, уровень сетки | Нижний пруток, диаметр в мм | Верхний пруток, диаметр в мм | Размер ячейки |
6 м, 20 см, нижний | 12 | 12 или 10 | 200х200 мм |
6 м, 20 см, верхний | 8 | 8 | 200х200 мм |
До 6 м, 20 см, верхний | 10 | 10 | 400х400мм |
4 м, 15 см, нижний | 12 | 10 | 200х200 мм |
4 м, 15см, верхний | 8 | 8 | 300х300 |
Расчет ведется по максимальному расстоянию между стенами. Над помещениями одного этажа укладывается одинаковая толщина перекрытия, расчет делается по комнате с максимальными размерами. Расчетные значения округляются в большую сторону.
3.3
Стыки прутков
Сетка делается из катанки – горячекатаного проката круглого сечения низкоуглеродистой стали 3А. Это означает, что металл имеет высокую пластичность, хорошо будет удерживать бетонное перекрытие при больших стационарных нагрузках и вибрациях от землетрясений, работы тяжелой техники, слабого грунта.
Длины прута может быть недостаточно для создания сплошного перекрытия. Для этого делается стыковка методом наложения. Прокат укладывается рядом на расстоянии 10 диаметров и увязывается проволокой. Для прута толщиной 8 мм двойное соединение составляет 80 мм (8 см). Аналогично для проката Ф12 – стык 48 см. Стыковка прутков смещается, не должна быть на одной линии.
Для соединения можно использовать сварку, проложив шов вдоль. При этом теряется гибкость конструкции.
3.4
Монтаж сетки
Прутья сетки увязываются между собой проволокой 1,5–2 мм. Каждое пересечение прочно скручивается. Между сетками расстояние примерно 8 см. Оно обеспечивается нарезанным в размер прутом 8 мм. Увязка должна быть в местах пересечения на нижней сетке.

Под нижней арматурой необходимо оставить зазор для заливки слоя бетона от 2 см. Для этого на опалубку устанавливают пластиковые конические фиксаторы с интервалом в 1 м.
3.5
Обвязка и отверстия под вытяжки и лестницы
Для соединения перекрытия со стенами по периметру создается короб – боковая опалубка. Она устанавливается вертикально, служит границей растекания бетона. Вдоль нее проходит обвязка периметра, усиление углов. После застывания плиты этот короб снимается, остается ровный торец.
Опалубка устанавливается на расстоянии 2 см от торцов и продольных прутов после завершения сборки армирующей сетки и обеспечивает расположение металла внутри бетона. Удаленность ее от плоскости стены составляет 15 см для кирпичной кладки и шлакоблока. Газобетон менее прочный, нахлест перекрытия 20 см. Это расстояние на стене до заливки покрывается специальным составом, гасящим вибрацию. Такая прослойка значительно повышает прочность здания.
Аналогичная опалубка ставится в места, где должны оставаться отверстия. В основном это лестницы между этажами, выводы труб, системы вентиляции и проводов коммуникаций. Они закрываться сеткой и заливаться не будут.
4
Чертеж плиты перекрытия
Для правильной сборки перекрытия делается чертеж. По нему можно рассчитать расход всех материалов, от проволоки для обвязки до количества цемента.
Алгоритм действий:
- 1. Перед тем как составлять чертеж следует произвести замеры всех помещений и наружного периметра дома, если отсутствует проект. Они делаются от оси стены.
- 2. Отмечаются все отверстия, которые не будут заливаться.
- 3. Наносятся контуры всех несущих стен и части промежуточных. Делается подробная схема обвязки, сетки, упрочнения с указанием толщины прутка, мест стыковки и увязки.
- 4. На чертеже указывается размер ячеек и расположение крайнего продольного прута от края заливки.
- 5. Рассчитываются габариты профлиста под нижнюю плоскость плиты.

При создании схемы сетки в большинстве случаев количество ячеек имеет не целое число. Арматуру следует сместить и получить одинаковые уменьшенные размеры ячеек возле стен.
Остается просчитать материал. Длину прутка умножить на их количество. К полученному числу добавить расход на стыки и увеличить полученную цифру на 2%. Округлять при покупке в большую сторону.
По площади перекрытия рассчитывается количество пластиковых фиксаторов и сколько проката пойдет на вставки между сетками.
Расчет цементного состава производится исходя из толщины перекрытия и его площади.
Арматура сверху и снизу должна быть покрыта раствором толщиной минимум 20 мм. При доступе воздуха на поверхности металла образуется коррозия, и начнется разрушение. При создании перекрытия толще 15 см, с армированием в 2 слоя, больше раствора распределяют вверху.
Чертеж служит и для расчета количества опалубки, опорных колонн и деревянных балок для создания нижней поддерживающей плоскости – платформы под заливку перекрытия.
Поставить на фиксаторы прутья и связать все пересечения проволокой по силам любому застройщику. Для гарантии безопасности расчеты перекрытий и создание проекта дома лучше доверить профессионалам.
5
Процесс армирования монолитной плиты
После того как будут выполнены все расчеты и подготовлен чертеж, приступают к установке опалубки на всю длину перекрытия. Для нее чаще всего используются доски размерами 50х150 мм, брусья и фанера. Правильность возведения конструкций отслеживают с помощью уровня или нивелира. Следующим этапом является укладывание нижнего ряда арматуры согласно проекту. Все соединения металлического каркаса выполняют в шахматном порядке.
В итоге должно получиться так, чтобы все пространство между армированием и опалубкой было залито бетоном. Для этого сетка укладывается на подставки и скрепляется вязальной проволокой.
Для связывания элементов ни в коем случае нельзя использовать сварку.
На первый слой укладывается второй ряд арматуры. Все элементы располагают на специальные подставки.
Следующим шагом является залитие опалубки сначала жидким, а затем более густым слоем бетона (чаще всего марки М200). Первый слой должен по консистенции напоминать сметану, и с него тщательно убирают пузырьки воздуха движениями лопатой. Чтобы предотвратить растрескивание бетона, его смачивают водой первые 2-3 дня. Когда вся конструкция застынет (должно пройти не менее 30 дней), опалубку убирают.
obustroen.ru
Плиты перекрытия армирование: схемы и примеры
Любое здание возводится с использованием бетона. Для усиления применяют проволочную сетку или арматурный каркас. Распространены монолитные перекрытия, для формирования которых выполняется заливка бетонным раствором опалубки, установленной между несущими опорами. Для повышения нагрузочной способности нужно усилить бетонную плиту. Для этого выполняется дополнительное армирование плит перекрытий, которое должно соответствовать требованиям проекта. Важно выполнить расчеты с учетом расстояния между стенами, подобрать количество и диаметр армирования.
Что такое армирование монолитной плиты
Распространенным элементом жилых и производственных зданий является монолитное перекрытие, для усиления которого применяют арматуру большого диаметра. Для соединения элементов арматурной решетки или пространственного каркаса не рекомендуют использовать сварку, ослабляющую конструкцию. Места соединения стержней необходимо связывать отожженной проволокой. Часть монолита, укрепленная арматурой, способна воспринимать значительные нагрузки. Армирование перекрытия – это комплекс мероприятий по усилению бетонной конструкции.
Наиболее используемым перекрытием при строительстве индивидуальных малоэтажных строений являются железобетонные изделияПоследовательность действий следующая:
- Вначале разрабатывают проект и выполняют расчет армирования, учитывающий размеры перекрытия, величину действующих усилий. На основании расчетов разрабатывается схема усиления.
- После подготовки щитов опалубку устанавливают между капитальными стенами. При монтаже опалубочной конструкции устанавливают опорные элементы, повышающие нагрузочную способность опалубки.
- Далее нарезают заготовки, связывают каркас и устанавливают в щитовую опалубку. Изготовление и сборку металлоконструкции выполняют согласно предварительно разработанной проектной документации.
- На завершающей стадии осуществляется заливка в опалубку бетонного раствора. После бетонирования уплотняют сформированный бетонный массив. Для нормального набора твердости бетон периодически увлажняют.
При разработке схемы усиления бетонной плиты предусматривается установка дополнительных стальных прутков в проблемных участках:
- в зонах контакта монолитной плиты с опорными колоннами, капитальными стенами и арочными конструкциями;
- в местах сосредоточения усилий, связанных с установкой отопительных приборов, тяжелой мебели или массивного оборудования;
- по контуру выходных проемов на верхние этажи, а также вокруг отверстий для вентиляционных магистралей и дымоотводящих труб;
- в центральной части бетонной плиты, которая является одним из наиболее ослабленных участков перекрытия.
Для предотвращения коррозионных процессов арматурная решетка располагается на специальных подставках внутри бетонного массива, не доходя до поверхности 30-40 мм. С учетом этого фактора подбираются длины прута и обеспечивается неподвижность силовой конструкции при бетонировании. Владея технологией армирования несложно обеспечить повышенные прочностные свойства бетонного перекрытия, а также его продолжительный ресурс использования.
Расчет толщины армирования перекрытия зависит от его длиныКак правильно армировать – требования по усилению бетонной плиты
Армирование монолитной плиты перекрытия – ответственный процесс, к выполнению которого предъявляется комплекс требований.
При выполнении работ по формированию усиленной железобетонной конструкции перекрытия соблюдайте следующие рекомендации:
- используйте для соединения стальных прутков вязальную проволоку диаметром 1,2-1,6 мм. Использование электрической сварки недопустимо в связи с нарушением структуры металла в местах соединения;
- обеспечьте требуемую толщину бетонного массива перекрытия по отношению к расстоянию между капитальными стенами. Толщина железобетонной конструкции в 30 раз меньше расстояния между опорами. При этом минимальная толщина плиты составляет не менее 15 см;
- производите укладку элементов металлического каркаса с учетом размеров перекрытия по вертикали. При минимальной толщине плиты укладка арматуры выполняется одним слоем. При толщине больше 15 см выполняйте усиленное армирование двумя слоями;
- используйте для заливки в опалубку бетонную смесь с маркировкой М200 и выше. Бетон данных марок обладает хорошими эксплуатационными характеристиками, способен воспринимать значительные нагрузки и отличается доступной ценой;
- применяйте для изготовления стальной решетки арматурные прутья диаметром 0,8-1,2 см. При выполнении армирования двумя слоями используйте увеличенный размер сечения металлопрофиля в нижнем ряду. Возможен вариант использования покупной сетки;
- сооружайте опалубочную конструкцию из строганых досок или влагозащищенной фанеры. Тщательно герметизируйте стыковые участки. Для усиления опалубки применяйте деревянные столбы диаметром до 20 см или металлические стойки телескопического типа.
Соблюдение указанных требований при выполнении мероприятий по армированию обеспечит прочностные характеристики сооружаемого перекрытия.
Армированная платформа, выполненная с учетом технологических тонкостей, прослужит не один десяток летДополнительное армирование перекрытий – достоинства и слабые стороны
Необходимость усиления бетонных перекрытий связана с характеристиками бетона. Бетонный массив способен воспринимать повышенные сжимающие нагрузки, однако восприимчив к растягивающим усилиям и влиянию изгибающих моментов. Бетон не способен самостоятельно демпфировать нагрузки и требует дополнительного армирования. Для компенсации растягивающих усилий и сохранения целостности железобетонных конструкций выполняется дополнительное армирование плит перекрытий.
Бетонная плита, прочность которой увеличена за счет дополнительного армирования, — надежная конструкция, отличающаяся рядом достоинств. Основные преимущества:
- продолжительный ресурс эксплуатации. Благодаря увеличенному запасу прочности, срок использования усиленной железобетонной конструкции исчисляется десятилетиями;
- отсутствие стыковых швов, а также гладкая поверхность потолков и полов. Отсутствует необходимость в выполнении дорогих и трудоемких отделочных работ;
- уменьшенная масса монолитной конструкции перекрытия по сравнению с покупными железобетонными панелями. Это значительно снижает нагрузку на фундаментное основание;
- повышенные прочностные характеристики. Сочетание свойств стальной арматуры и бетона позволяет повысить прочность основания и обеспечить его целостность при повышенных нагрузках;
- увеличенная надежность железобетонной конструкции. Устойчивость к воздействию нагрузок, действующих в различных направлениях, достигается за счет армирования. Усиленные перекрытия способны воспринимать от 0,5 до 0,8 т на каждый квадратный метр поверхности;
- пожарная безопасность. Использование негорючих стройматериалов обеспечивает огнестойкость конструкции. Плита способна длительное время сохранять целостность под воздействием повышенной температуры и открытого огня;
Такая конструкция весит заметно ниже по сравнению с готовыми железобетонными плитами, однако, на ее прочность данный фактор не влияет- уменьшенный объем затрат по сравнению с использованием для формирования перекрытий стандартных панелей. Расходы на сооружение монолитного перекрытия существенно меньше по сравнению с аналогичной конструкцией сборного типа;
- отсутствие необходимости в использовании специальной грузоподъемной техники и такелажной оснастки. Для формирования монолитной плиты не требуется подъемный кран;
- равномерная передача усилий от монолитной плиты на несущие стены строения или опорные колонны. В результате выравнивания нагрузок снижается вероятность образования трещин.
Среди остальных достоинств следует отметить возможность заливки перекрытия нестандартной конфигурации. Это позволяет возводить строения различного уровня сложности с нестандартной планировкой. Серьезным плюсом является возможность выполнять межэтажные проемы и коммуникационные отверстия на этапе бетонирования.
Наряду с достоинствами имеются также и слабые стороны:
- повышенная трудоемкость выполнения мероприятий по сборке арматурного каркаса;
- увеличенная продолжительность процесса гидратации цемента и, соответственно, набора бетоном эксплуатационной прочности.
Профессиональные строители часто отдают предпочтение монолитным перекрытиям, которые наряду с указанными преимуществами устойчивы к воздействию повышенной влажности и надежно звукоизолируют помещение.
Какой используется материал для изготовления усиленных элементов перекрытия
Для формирования усиленных перекрытий необходимы следующие стройматериалы:
- бетонная смесь, изготовленная на основе цемента М300, мелкого песка и среднефракционного щебня;
- стальные прутки с рифленой поверхностью, изготовленные из арматурной стали класса А4.
Платформа находит свое применение для перекрытия большепролетных и сильно нагруженных конструкцийТакже потребуются следующие материалы, инструменты и оборудование:
- отожженная проволока для соединения арматурных стержней;
- специальное приспособление для связывания арматуры;
- влагостойкая фанера или доски для изготовления опалубки;
- оснастка для изгибания арматурных заготовок;
- болгарка или специальные кусачки для резки стержней.
Не забудьте подготовить рулетку, с помощью которой выполняются необходимые замеры.
Рассчитываем монолитную плиту под увеличенную нагрузку
Расчет цельной железобетонной плиты выполняется на основании предварительно разработанной схемы с учетом требований строительных норм и правил.
По результатам расчетов определяются следующие характеристики:
- толщина железобетонного перекрытия;
- сортамент арматуры и количество рядов усиления.
Остановимся отдельно на каждом виде расчетов.
Как рассчитывается толщина бетонной плиты
Толщину формируемой железобетонной конструкции перекрытия определяйте по следующему алгоритму:
- Произведите замер расстояния между несущими стенами.
- Разделите полученную величину на 30.
- Умножьте результат на коэффициент запаса, равный 1,2.
Например, для строения с расстоянием 600 см между капитальными стенами толщина плиты составит: 600:30х1,2=24 см. При проектировании нагруженных конструкций желательно доверить выполнение расчетов специалистам, которые учтут все нюансы.
Монолитная плита не поддерживает горение и способна выдержать воздействие открытого пламени длительное времяПодсчет количества рядов арматурных прутьев
Количество уровней армирования определяется в зависимости от толщины перекрытия:
- одноярусное усиление допускается при минимальной толщине железобетонной конструкции, равной 150 мм;
- двухуровневый арматурный каркас сооружается при увеличении толщины перекрытия выше указанного значения.
Диаметр верхней и нижней арматуры составляет 8-12 мм. При связывании стержней формируется решетка с ячейками в виде квадрата со стороной 200-400 мм.
Конструкция и чертеж верхнего перекрытия
Конструктивно монолитное перекрытие представляет собой сборную конструкцию из марочного бетона, внутри которого расположена силовая решетка. Схема армирования монолитной плиты перекрытия разрабатывается на этапе проектирования.
В ней представлена информация следующего характера:
- габариты армирующей решетки;
- размеры и сечения арматурных прутков;
- профиль используемых стержней;
- метод соединения арматуры;
- интервал между арматурными прутьями;
- конструктивные особенности пояса усиления.
На основании схемы рассчитывается количество стройматериалов и планируется очередность строительных мероприятий.
Применение данной технологии дает более широкие возможности в плане планировки внутренних помещенийДополнительное армирование плит перекрытий – подготовительные мероприятия
Планируя, как армировать монолитную плиту, следует тщательно подготовиться к выполнению работ:
- Выполнить прочностные расчеты.
- Разработать схему усиления.
- Определить потребность в стройматериалах.
- Подготовить материалы и инструмент.
- Нарезать арматурные заготовки.
- Приготовить щиты для сборки опалубки.
Следует обратить внимание на подготовку бетонного раствора в необходимом объеме.
Пример армирования монолитной плиты перекрытия
Рассмотрим, как правильно армировать монолитную плиту на примере перекрытия для строения с габаритами 6х6 м с толщиной железобетонной платформы 0,24 м.
Порядок действий:
- Соберите щитовую опалубку.
- Герметизируйте щели.
- Нарежьте арматуру.
- Свяжите двухъярусную решетку с ячейкой 20х20 см.
- Установите решетку в опалубке на специальные подставки.
После выполнения указанных операций произведите заливку бетона.
Как армировать плиту перекрытия – пошаговая инструкция
Армирование плиты – ответственная операция, выполняемая по следующему алгоритму:
- Нарежьте арматурные заготовки требуемых размеров.
- Свяжите силовую решетку нижнего яруса.
- Расположите ее с зазором 30-40 мм до поверхности опалубки.
- Надежно закрепите вертикальные прутки.
- Привяжите к ним арматуру верхнего уровня.
Для обеспечения жесткости фиксации элементов используйте вязальное приспособление. После обеспечения неподвижности арматурного каркаса приступайте к бетонированию.
Подводим итоги
Зная, как армировать плиту перекрытия, несложно самостоятельно выполнить работы и сэкономить при этом денежные средства. Важно правильно произвести расчеты и соблюдать технологию.
pobetony.expert
Расчет арматуры для плиты перекрытия: сравнение вариантов армирования
Наиболее известным железобетонным продуктом в постройке является плита перекрытия. При помощи подобных продуктов изготавливается механизм перекрытий корпусов и зданий квартирного и не квартирного назначения. Прочное начало установочного процесса гарантируется из-за расчета армирования посредством протяжки арматуры. В целях этого, для того чтобы совершить вычисление арматуры для плиты перекрытия, нужны сведения о масштабах и предполагаемом применении данного товара.

Крепкая основа конструкции перекрытия обеспечивается за счет ее армирования путем протяжки арматуры.
Основные нюансы, возникающие про работе в данной области согласно армированию:

Толщина плиты принимается в соотношении 1:30 к величине пролета.
- Толщина плиты перекрытия берется в балансе 1:30 к величине просвета. К примеру: в случае если промежуток среди несущими системами (стенками, колоннами) равен или больше 6 м, в таком случае полнота единого продукта будет 200 мм.
- В зависимости от вычисленных нагрузок на плиты, с целью армирования плиты перекрытия, используется железная обстановка сечением с 8 вплоть до 14 мм. Однако если соблюдены следующие условия:
- толщина продукта менее 150 мм, вероятна однослойная прокладка обостряющих компонентов;
- больше 150 мм — прокат помещается в 2 ряда: в нижний и верхний.
Армирование выполняется сетками, которые состоят из прутьев одного и того же разреза с величиной ячеек равной 150 х 150 мм либо 200 х 200, фасции соединяются трикотажной проволокой.
Дополнительное упрочнение, расчет пролета
Дополнительное упрочнение единичных усиленных мест (областей высокой перегрузкой и наличия отверстий) выполняется единичными железными прутьями протяженностью с 400 — 1500 мм, в зависимости от нагрузок и длины пролетов:
- нижняя часть сетки — посреди плиты;
- верхняя часть — располагается на опорах.
Используемый прокат влияет на рельеф перекрытия, фасции вмещаются в 2-ух либо 1 направленностях. Превосходством ажурного увеличения является вероятность сокращения толщины отделанного продукта близ одних и тех же площадей.

Опорная арматура предохраняет плиту от растрескивания в пристенных местах.
Расчет плиты арматуры для плиты перекрытия должен быть выполнен с абсолютной точностью, так как именно от этого процесса будет зависеть надежность всей конструкции в целом. Некоторый эксперты в сфере расчета арматуры для плиты перекрытия утверждают, что расчет должен быть составлен уникально практически для каждого случая, так как различны множество факторов, в том числе и размеры самой плиты.
Стоит учесть, что металлопрокат будет оказывать огромное влияние на несущую способность перекрытия. А преимуществом используемой сетки, является сокращение толщины всей конструкции в целом, но это после всех выполненных «черновых работ».
В абсолютно любой постройки лучшим гарантом качества выполнения работы, будет правильный и точный расчет арматуры для плиты перекрытия. И при выполнении самого расчета, необходимо соблюсти все нормы технологического прогресса, многие из которых указаны выше.
Вернуться к оглавлению
Расчет точных данных
Итак, для того чтобы произвести правильный расчет арматуры для плиты перекрытия, необходимо оттолкнуться от начальных данных, так как для каждого здания они уникальны и поэтому гораздо легче сравнивать и выводить точные данные размера, толщины, высоты, материала, класса материала и другие показатели относительно постройки.
Точный расчет арматуры для плиты перекрытия, исходная информация:

Компоненты армирования плиты перекрытия.
- Размеры постройки (первоначальный этап) плана 6х6 метров с учетом поперечных стен, показатели которой не должны равняться более 3 м.
- Вычисленная толщина плитки перекрытия равна 160 мм.
- Точная высота всего сечения перекрытия с учетом стальной арматуры равна — h0 = 14 cm2.
- Если брать арматуру, выполненную из углепластика, то данные равны — h0 = 14 cm2.
- Материал конструкции бетона марки В20 расчеты равны:
- Rb = 117 кг/см 2, Rbin = 14.3 кг/ см 2 Eb = 3.1*10 ‘5 kg/cm.
- Стальная арматура имеет класс — А-500С.
- Rs = 4500 kg/cm2, E2 = 5.5*10 ‘5 kg/cm.
- Арматура из стеклопластика имеет класс АКП-СП, то данные равны:
- Rs = 12 000 kg/cm2, E = 5.5*10 ‘5 kg/cm.
Вернуться к оглавлению
Сборка нагрузочных конструкций, их расчет
| №п.п. | Тип конструкций | Формулы для точного расчета | Данные нагрузок кг/м² | ||
| 2-й этаж. Отсутствуют данные | — | — | — | ||
| 1. | Плита (160) | g = 0.16m * 2.7 m/м ‘2 = 0.432 m/м ‘2 | 432 | 1.1 | 475 |
| 2. | Ц.-п. стяжки равны (30) | g = 0.03*1.8 m/м ‘2 = 0.054 m/м ‘2 | 54 | 1.1 | 60 |
| 3. | Керамические плитки | Отсутствуют данные | 27 | 1.1 | 30 |
| 4. | Показатели веса | Снип = 2,01 0,7 — 85* | 50 | 1,3 | 65 |
| 5. | Нагрузки, полезный тип | Снип = 2,01 0,7 — 85* | 150 | 1,3 | 200 |
| 6. | Вывод данных Отсутствуют данные | — | — | 830 | |
Вернуться к оглавлению
Расчет арматур для плиты перекрытия при деформации с использованием стальной арматуры
Вернуться к оглавлению
a. Подборка сечения, данные расчета

Определение максимальных данных по формуле:
M = g*l2/8 = 0.83 мн / m * (3m)2/ 8 = 0.93 тн * m
Определение коэффициента, где =1(м) по формуле:
A0 = M*y/ b*h02R6*y62 = 93 000 kg/cm * 0.95/ 100 cm*13cm2 * 117 kg/cm = 0.045, n=0.0975
Показатели площади сечения, где арматура имеет класс А-500С по формуле:
A2 = M*y/n*h0*R2 = 93 000 kg/cm * 0.95/ 0.975*13 cm* 4500 kg/cm2 = 1.55 cm2
Принимаются основные данные в нижней части всего армирования: Ø8 A-500С с учетом шага 200 (As=2.51см2)
Вернуться к оглавлению
b. Расчет арматуры для плиты перекрытия при прогибе
Наличие постоянной нагрузки на само перекрытие равное — 0.63 тн/м².
Наличие временной нагрузки на перекрытие — 0.2 тн/м².
Максимальные показатели данных длительных нагрузок на перекрытие:
Mdl = g*ll2/8 = 0.63mh/m*3m2/8 = 0.71 mh * M.
Максимальные показатели данных временных нагрузок на перекрытие
Mxp = g*l2/8 = 0.2 mh/m*3m2 / 8 = 0.22*m.

Армирование плит в зависимости от опирания
Коэффициент, который учитывает тип нагрузки и схему загружения S=5/48 — для балки, имеющей постоянные равномерные данные нагрузок y = y = 0.
Проектирование различных бетонных и железных конструкций из тяжелого материала.
Коэффициент для определения равен — k1, k2, k3.
Mn = f2/b*h0 * Ea/Eb = 2.51 cm2/100 cm * 13 cm * 2*10 ‘6 kg/cm / 3.1*10 ‘5 kg/cm2 = 0.012.
k1 = 0.64, k1 = 0.43, k2 = 0.10.
Неровности оси при одновременных действиях постоянных, длительных и не длительных нагрузок, которые вычисляются по формуле:
1/p = 1/Ea*Fa*H02 = Mkp/k1kp + M — k2 *b*n2*Rbin / k1 = 1/2*10’2 kg/cm * 2.51 cm2 *13’2 cm2 * 22 000 ru * cm/ 064 + 71000 kg*cm — 0.1*100cm * 16 cm2 * 14.3 kg/cm2 = 1/848380000 * 34 375 + 71000 — 36 608/ 0.43 = 0.000135 1/cm = 13.5*10′-5 1/cm.
Максимальные данные прогиба в середине пролета составляют:
f = 1/p *S*l2 = 13.5 * 10’-5 1/cm * 5/48 * 300’2 cm2 = 1.27 cm.
f = 1/200 = 300 cm/200 = 1.5 cm.
Fm = 1.27 cm = f = 1.5 cm.
Данные условия выполнены при принятом армировании, где (Ø8 A-500С с шагом 200).
Расчет арматуры для плиты перекрытия при деформации с использованием стеклопластиковой арматуры (АКП-СП).
Нагрузка на плитку и расчетные данные являются аналогичными.
Расчеты производится по деформациям для некоторых вариантов армирования.
Начальные данные, а также характеристика материалов представлена в исходных данных.
Вернуться к оглавлению
Расчет данных АКП-СП
Вернуться к оглавлению
c. При арматуре АКП-СП Ø 14, с шагом равным 200

A2 = 7.69 cm2.
Данные коэффициентов для точного определения данных k1pr * k2pr * k3pr.
M = Fa/b*h0 = Ea/Eb = 7.69cm2/100 cm * 14 cm * 550000 kg/cm2 / 3.1 * 10’2 kg/cm = 0.0098.
K 1rp = 0.664, k1 = 0.043, k2 = 0.10.
Кривые данные оси при одновременных действиях, постоянных, длительных, коротких нагрузок.
1/p = 1/Ea*Fa*h3 = Mkp/k1kp + M — k2 *b*n2*Rbin / k1 = 1/2*10’2 kg/cm * 2.51 cm2 *13’2 cm2 * 22 000 ru * cm/ 064 + 71000 kg*cm — 0.1*100cm * 16 cm2 * 14.3 kg/cm2 = 1/848380000 * 34 375 + 71000 — 36 608/ 0.43 = 0.000135 1/cm = 13.5*10′-5 1/cm.
Максимальные данные прогиба в середине пролетов составляют:
f = 1/p *S*l2 = 13.5 * 10′-5 1/cm * 5/48 * 300’2 cm2 = 1.29 cm.
f = 1/200 = 300 cm/200 = 1.5 cm.
Fm = 1.27 cm = f = 1.5 cm.
Условия выполнены, принятые армирования вычислены верно (Ø14 АКП-СП с учетом шага равным 200
Вернуться к оглавлению
d. Для арматур класса АКП-СП Ø 10, шагом равным 100

Продольный разрез плиты.
A2 = 7.86 cm2.
Данные коэффициентов равны — Kpr * k1 * k2.
M = Fa/b*h0 = Ea/Eb = 7.69cm2/100 cm * 14 cm * 550000 kg/cm2 / 3.1 * 10’2 kg/cm = 0.0098.
K 1rp = 0.664, k1 = 0.043, k2 = 0.10.
Данные кривизны оси пир постоянных, длительных, коротких нагрузок.
1/p = 1/Ea*Fa*h3 = Mkp/k1kp + M — k2 *b*n2*Rbin / k1 = 1/2*10’2 kg/cm * 2.51 cm2 *13’2 cm2 * 22 000 ru * cm/ 064 + 71000 kg*cm — 0.1*100cm * 16 cm2 * 14.3 kg/cm2 = 1/848380000 * 34 375 + 71000 — 36 608/ 0.43 = 0.000135 1/cm = 13.5*10′-5 1/cm.
Максимальные данные прогиба в середине пролетов составляют:
f = 1/p *S*l2 = 13.5 * 10′-5 1/cm * 5/48 * 300’2 cm2 = 1.29 cm.
f = 1/200 = 300 cm/200 = 1.5 cm.
Fm = 1.27 cm = f = 1.5 cm.
fm = 1.27 cm = f = 1.5 cm — условия выполнены, принятые армирования вычислены верно (Ø14 АКП-СП с учетом шага равным 100).
Вернуться к оглавлению
e. Для арматуры класса АКП-СПØ 8, с учетом шага равным 100, расчет

Данные вычисляются по формуле:
A2 = 5.05 cm2.
Коэффициенты для точных определений — k1*k2*k3.
M = Fa/b*h0 = Ea/Eb = 7.69cm2/100 cm * 14 cm * 550000 kg/cm2 / 3.1 * 10’2 kg/cm = 0.0098.
K 1rp = 0.664, k1 = 0.043, k2 = 0.10.
Кривизны оси пир одновременных действиях постоянных и длительных (и не длительных) нагрузок разного характера. Вычисляют по формуле:
1/p = 1/Ea*Fa*h3 = Mkp/k1kp + M — k2 *b*n2*Rbin / k1 = 1/2*10’2 kg/cm * 2.51 cm2 *13’2 cm2 * 22 000 ru * cm/ 064 + 71000 kg*cm — 0.1*100cm * 16 cm2 * 14.3 kg/cm2 = 1/848380000 * 34 375 + 71000 — 36 608/ 0.43 = 0.000135 1/cm = 0.00021 1/cm = 21*10′-5 1/cm.
Максимальные данные прогиба в середине пролетов составляют:
f = 1/p *S*l2 = 13.5 * 10′-5 1/cm * 5/48 * 300’2 cm2 = 2 cm.
f = 1/200 = 300 cm/200 = 1.5 cm.
Fm = 2 cm = f = 1.5 cm.
Все условия выполнены с использованием армирования, где (Ø8 АКП-СП с учетом шага равным 200).
Вернуться к оглавлению
Вывод
1. Армирования плиты межэтажных перекрытий с пролетом, который не превышает 3 метров с использованием стальных арматур, тогда данные будут составлять Ø8 A-500С с учетом шагом равным 200.
2. Армирования плиты с учетом различных пролетов и использовании арматуры, выполненной из стеклопластика, то данные могут быть нескольких вариантов:
- Ø14 АКП-СП с учетом шага равным 200;
- Ø10 АКП-СП с учетом шага равным 100.
3. Если использовать в качестве армирования сетки, материал которой Ø8 АКП-СП и даже с учетом шага равным 100, то максимальные данные прогибы плиты будут составлять больше всех существующих приделов, что не желательно.
Вернуться к оглавлению
Сравнение вариантов армирования, вывод расчета
| Тип арматуры | Расчет диаметра. | Показатели шага | Учетные данные AS | Данные прогиба (см) | Данные предельного прогиба (см) |
| А-500С | 8 | 200 | 2.51 | 1.27 | 1.5 |
| АКП-СП | 14 | 200 | 7.69 | 1.29 | |
| 10 | 100 | 7.86 | 1.30 | ||
| 8 | 100 | 5.05 | 2.00 |

Сравнительный этап «расчет плиты арматуры» довольно-таки прост. Ведь вы наверняка заметили, что формулы, использующиеся при выводе точных данных расчета, похоже и практически одинаковы во многих случаях.Данная методика вычисления принимается уже достаточно давно и не только в строительных тематиках, но и в продвижении статистики экономики и для более быстрого и точного расчета различных бухгалтерских данных.
Если рассматривать сравнение двух, совершенно различных типах арматуры, как показатель на функциональность, то расчет покажет, что АКП-СП в несколько раз превосходит своего соперника.Перед человеком открыто огромное количество возможностей, с использованием данного продукта. Однако это расчет показывает, что хоть и многочисленные возможности у А-500С, но качество выполнения работ скорее отличается в положительную сторону, что не наблюдается у АКП-СП.
Вернуться к оглавлению
Вычисление расчета нагрузки, показатели АКП-СП и А-500, сравнение
Нагрузка. При вычислении точного расчета нагрузки для АКП-СП, мы использовали формулу: A2 = 7.86 cm2. А для А-500 аналогичную, так как показатели были похожими: A2 =1.55 cm2. Единственным различием в данной формуле, — являются показатели данных размера. АКП-СП имеет немного больший размер, чем А-500, в соответствии при вычислении АКП-СП получают аналогичный результат: M = Fa/b*h0 = Ea/Eb = 7.69cm2/100 cm * 14 cm * 550000 kg/cm2 / 3.1 * 10’2 kg/cm = 0.0098, но при вычитывании коэффициентов получаем: М = 7,69, округлив = 7,7 cm. Поэтому при вычитывании коэффициентов у арматуры АКП-СП получают различные результаты: 1,3; 2; 1,29.
Также для вычисления более точного расчета в сфере показателей данных шагов, результаты которых округлены и сходны, применяли формулу для вычисления точного расчета. Формула является длиной, поэтому если не смотреть на результаты относительно сравнения, то запишем следующим образом: f = 1/p * S*L2. Интересно то, что данная формула использовалась для расчета данных при АКП-СП и А-500 одновременно.
Это показывает, что расчет имеет практически одинаковые значения, но разница образуется при коэффициенте L2, которая не имеет заметные отличия. Например, у А-500 данные равны 300, то уже АКП-СП имеет различия, так как показатели могут равняться 200, 150 и т.д.
Сравнения подобных продуктов никогда не может быть абсолютно точным, так как погрешности точно не выведены, а для рассмотрения наиболее точного расчета можно использовать методику коэффициентов, значения которых будут равны диаметру и длине товаров. Также за k1, k2, k3 можно брать показатели: 7,86, 2, 7,69, потому что в данном случае не имеет значения коэффициент k3, а самым значимым будет являться k1, ведь именно данный показатель используется для расчета самых различных данных в сфере сравнения АКП-СП и А-500.
Не стоит останавливаться только на АКП-СП, хоть он и является самым распространенным в строительном применении, но расчет А-500 не широк, хоть и продукт востребован. Это напрашивается на вывод:
- для наиболее узких целей в строительной тематик стоит использовать продукт А-500, показатели которого не широки, но практически идеализированы многими компаниями. Товар имеет высокие показатели шага арматуры, но обратно невысокие данные прогиба;
- АКП-СП следует использовать в наиболее крупном производстве и большой компании, которая будет иметь средства для покупки данного товара. АКП-СП является наиболее производимым и востребованным сегодня в сфере арматуры плит. Используется для множеств целей, имеют которые подобный характер, что и в нашем случае. Рекомендован производителями многих компаний и строительных организаций.
Следовательно, эксперты рекомендуют вам АКП-СП, так как мощнее показатели, а мелкие компании предпочитают А-500. И поэтому в зависимости от того, на сколько велика компания и имеет средств для приобретения товара, и будет зависеть продуктивность от продукта. Ведь стоит учитывать множество факторов, такие как, например, опыт в данной сфере. Сроки выполнения работы тоже повлияют на продуктивность выбранного вами товара.
Как вы уже и догадались, АКП-СП имеет большую стоимость, чем А-500. Фактически только преимущества для большой компании представляет АКП-СП, а ведь производители данного продукта изначально хотели издать данный товар для не больших целей, но некоторые компании, немного позже, подхватили данную идею и стали выпускать для более широкого применения, ведь и показатели можно у одного и того же прибора снять разные, если использовать АКП-СП:
- одновременно показатели данных AS достигают как почти 8, так и 5, что и показывает на применении больших и менее больших целей;
- еще одним преимуществом АКП-СП является наличие небольших шагов, которые могут не достигать и 200, а являться 100. Это важное отличие между А-500 и АКП-СП, так как А-500 не допустимы показатели шагов в размере, например, 100. Делают уникальным продукт и еще более необходимым в строительстве данные показатели.
Композитную арматуру используют в согласовании с условиями предназначенной документации с целью системо-строений и зданий разного назначения:
1. Арматура специализирована с целью употребления в индустриально-цивильном, качественном строительстве.
2. Использование в бетонированных системах строений и зданий разного назначения.
3. С целью применения в элементарных и сложных бетонах (армопенобетон, плиты перекрытия, в плитах покрытия, вадиных фундаментах).
4. В расслоенной кладке красновато-коричневых строений.
5. В свойстве дюбелей с целью крепления внешней термоизоляции стенок строений.
6. В свойстве сеток и стержней в системах.
7. В свойстве упругих взаимосвязей трехслойных неподвижных стенок строений и построек цивильного, промышленного и сельскохозяйственного возведения, подсоединяющих опорный покров, покрытый слоем крепкого утеплителя.
Также необходимо учитывать следующие особенности:
- Применение около берег-укреплении.
- Мореходные и при-портовые постройки.
- Дренаж, агролесомелиорация и водоотвод.
- Путевое основание и огораживания.
- Компоненты инфраструктуры хим производств.
- Продукты из бетонов с пред-напряженным и не напряженным армированием (осветительные опоры, опоры ЛЭП, изолирующие траверсы ЛЭП; путевые и тротуарные плиты, неблагопристойные плиты, поребрики, столбики и опоры; жд шпалы; усложненные изделия в целях коллекторов, трубопроводных и трассопроводных (теплоцентрали, проводные каналы) общественных конструкций.
- При возведение жилищ со снимаемой опалубки.
- Перспективно с целью формирования сейсмо-устойчивых корпусов и зданий.
Использование неметаллической арматуры повышает период работы систем в 2-3 раза согласно сопоставлению с использованием, тем более при действии на них враждебных слоев, в том числе и хлористые соли, щелочи и кислоты.
1popotolku.ru
Армирование монолитной плиты: расчет, вязка, расход арматуры
Армирование монолитной плиты перекрытия – обязательный технологический процесс. Арматура в составе бетонной конструкции принимает на себя нагрузку, повышает прочностные характеристики элемента.

Что нужно знать об армировании перекрытия
Здания со сложной архитектурой имеют в плане нестандартную форму, далёкую от квадрата. Заводские пустотные плиты перекрытия в этих условиях заменяют на монолитные конструкции. Монолитные перекрытия хорошо связывают в систему остальные несущие элементы здания, передают нагрузку стенам и фундаменту.
Армированием называется принцип совместного использования двух материалов для укрепления прочности. Общая работа монолитного бетона и металла позволяет устраивать прочные конструкции сложной формы, большого размера.
Преимущества армирования плиты перекрытия
Армирование повышает способность конструктивного элемента воспринимать нагрузки, выдерживая деформации больше расчётных значений. Суммарная нагрузка на квадратный метр перекрытия частного дома, учитывая временную и постоянную, составляет 400-450 кг.
Перекрытие работает на излом. При этом верхняя часть плиты перекрытия сжата, а нижняя, наоборот, растянута. Бетон легко переносит сжимающие деформации, нагрузку на растяжение принимает металлическая арматура.
Важно!Без армирующего каркаса в нижней части плиты происходит разрушение конструкции.

Технология заливки армированных монолитных плит не требует использования строительных машин при монтаже, перевозке. Все работы производятся на месте строительства, подходят для самостоятельного выполнения.
В частном доме с длиной пролёта до 6 м и опиранием плиты на стены по контуру рекомендованным считается размер ячейки сетки 20 х 20 см. Диаметр сечения нижней сетки принимают 12 мм, верхней сетки –10 мм.
Что представляет собой армирование монолитной плиты перекрытия
Армирование конструкции проводится установкой внутри стен/бортиков опалубки перекрытия арматурных прутов и сеток перед заполнением формы бетоном. Арматура укладывается прямо на опалубку согласно проекту.
Общий принцип армирования плиты:
- металлические пруты вязальной проволокой увязываются в сетки;
- формируют каркас по стенам. Перекрытие будет опираться на несущую стену, этот размер называют площадью опирания, определяется толщиной, материалом стены;
- нижняя сетка приподнимается от плоскости опалубки на 25-30 мм фиксаторами;
- верхняя сетка располагается относительно уровня бетона, отступая 25-30 мм;
- в месте примыкания плиты к стенам добавляется опорная арматура.

Опорная арматура нужна для предотвращения растрескивания бетона. Опорную площадь плиты перекрытия принимают согласно проекту, но не менее 80 мм.
Расстояние от края опалубки до сеток отступают для формирования защитного слоя из бетона. Сталь без защитного слоя под воздействием воздуха и влаги подвергается коррозии.
В местах с ослабленным сечением, большим количеством отверстий для прокладки инженерных коммуникаций, каркас усиливают. Для этого закладывают несколько дополнительных прямых прутов длиной 0,4-1,5 м.
Как самостоятельно произвести армирование бетонной плиты перекрытия
Армирование бетона – несложная работа для самостоятельного выполнения. Опираясь на данные проекта, подбирают сечение, длину и необходимое количество арматуры, мягкой вязальной проволоки. Соединение сваркой не применяют. Сварной шов не имеет необходимой пластичности, может быть поврёжден вибрацией при уплотнении бетона.
Фиксаторы для подъёма сетки над опалубкой можно сделать самостоятельно из обрезков арматуры.
Какую арматуру закладывают
Диаметр стержней зависит от принятой расчётной нагрузки, просчитывается во время стадии проектирования здания.
Диаметр арматуры, применяемой в частной индивидуальной застройке, обычно составляет 8-14 мм.
Рифлёное периодическое сечение стальных прутов повышает прочность изделия, хорошо сцепляется с застывающей бетонной смесью.
Обратите вниманиеКласс арматуры, предназначенной для строительства зданий и сооружений – АШ.
Расход арматуры
При покупке арматура измеряется в единицах веса – килограммах, тоннах. Подсчитывая расход арматуры, стороны перекрытия делят на шаг сетки и добавляют один стержень. Умножая количество в два раза, получают общее количество прутов разной длины, расположенных по длине, ширине перекрытия.
Зная эти величины, легко подсчитывается погонаж арматурных стержней. Умножив общую длину на удельный вес погонного метра прута, получают вес всех элементов. Обычно расход арматуры прописывается проектом строения.
Правила вязки
Для вязки арматурного каркаса применяют отожжёную стальную проволоку в небольших бухтах, ее заранее нарезают отрезками длиной 10 -20 см для более удобной работы, также будет необходим крючок для вязки проволоки.
Как правильно вязать — последовательность действий:
- отрезок проволоки протягивается под пересечением стержней;
- концы проволоки загибаются вверх;
- поворотом крючка в получившейся петле создаётся скрутка в несколько оборотов.
Длину арматурных прутов выбирают по размеру плиты.
Если избежать стыков невозможно, соединение стержней устраивается перехлёстом 40 — 70 см (в зависимости от толщины прута) в шахматном порядке.
Армирование бетонного элемента повышает прочность, жёсткость, долговечность конструкции для монолитного частного дома.
Знаете что-нибудь новое? Поделитесь, пожалуйста, информацией!
Полезные видео
На видео ниже — армирование плиты перекрытия монолитного коттеджа, шаг вязки, монолитные каркасы и прочее, смотрим:
Посмотрите пример армирования плиты перекрытия:
domavlad.ru
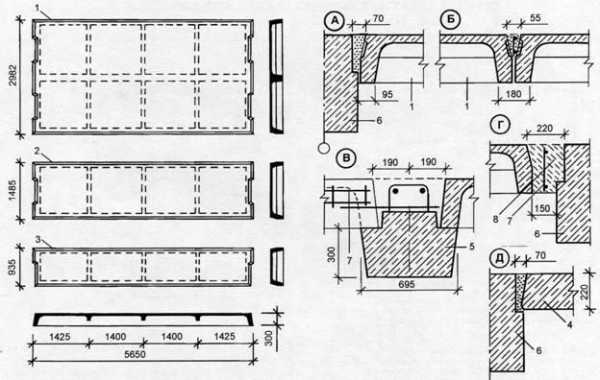
Расчет арматуры для плиты перекрытия |

Самым распространенным железобетонным изделием в строительстве является плита перекрытия. Посредством таких изделий производится устройство перекрытий зданий и сооружений жилого и не жилого назначения. Крепкая основа конструкции обеспечивается за счет ее армирования путем протяжки арматуры. Для того, чтобы произвести расчет арматуры для плиты перекрытия необходимы данные о ее размерах и предполагаемом использовании.
Основные аспекты работ по армированию
Толщина плиты принимается в соотношении 1:30 к величине пролета. Например: если пролет между несущими конструкциями (стенами, колоннами) равен 6-и метрам, то толщина монолитного изделия будет 200 мм.
В зависимости от расчетных нагрузок на плиту, для ее армирования применяется металлическая арматура сечением от 8 до 14 мм. При этом, если:
- толщина изделия меньше 150 мм, возможна однослойная укладка усиливающих элементов;
- более 150 мм – металлопрокат укладывается в два слоя: в нижней и верней части плиты.
Армирование производится сетками, состоящими из прутьев одинакового сечения с размером ячеек 150 х 150 мм или 200 х 200 мм, прутья связываются вязальной проволокой.
Дополнительное армирование отдельных напряженных участков (мест повышенной нагрузки и присутствия отверстий) производится отдельными металлическими прутьями длиной от 400 – 1500мм, в зависимости от нагрузок и длины пролетов:
- нижней сетки посредине плиты;
- верхней – на опорах.
Используемый металлопрокат оказывает влияние на несущую способность перекрытия, прутья укладываются в двух или одном (параллельно короткой стороне) направлениях. Преимуществом сетчатого усиления является возможность уменьшение толщины готового изделия при одинаковых площадях.
Опорная арматура предохраняет плиту от растрескивания в пристенных местах.
Венец является обязательным элементом перекрытия, в него заводят арматуру, он проходит сквозь все несущие стены строения.
Толщина готового изделия должна быть не меньше 60 мм толщиной, бетон играет защитную роль для металлопроката. При этом, чем толще плита, тем выше ее прочность и лучше звукоизоляция.
Как выполняется армирование
Верный расчет арматуры для плиты перекрытия является, безусловно, залогом качественного выполнения армирования. При этом, важно, также, все работы провести с соблюдением технологического процесса.
Установка опалубки считается самым важным этапом. Как правило, для опалубки используют доски и балки, которые предпочтительнее уложить на всю площадь плиты. Впоследствии используемую древесину можно применить при устройстве, например, крыши. Стойки опалубки необходимо тщательно закрепить с тем расчетом, что при заливке бетоном, нагрузка на конструкцию может достигать около 300 кг/м2.
На опалубку кладется лист ДВП, который можно использовать 2 раза, не менее 20 мм устанавливается защитный слой арматуры: под арматурную сетку подкладывают опоры.
Бетон марки М200 и выше заливается в подготовленное основание.
Демонтаж опалубки производится после приобретения бетоном 100% прочности. Ориентировочно, это происходит за 4 недели. Только после полного высыхания конструкция может быть подвержена предполагаемым нагрузкам.
stroymaster-base.ru
