Баня 5 на 3 внутри фото – Баня размером 3 на 5 — планировка внутри (48 фото): постройка площадью 3х5
Как распланировать баню изнутри — лучшие решения для типовых размеров
Раз есть участок, значит, должна быть баня. И точка. Примерно так думает абсолютное большинство хозяев, в чьем распоряжении находятся перспективные и не очень земельные участки. И их можно понять, ведь баня — это не только удовольствие для тела, но и для души. Однако количество получаемого удовольствия, как морального, так и физического, находится в очень строгой корреляции от планировки бани внутри: расположения ключевых функциональных зон, наличия или отсутствия просторного предбанника, обустройства комнаты для отдыха. Тут еще можно вспомнить и об удобной террасе, и о комнате для гостей на мансарде с уютным балкончиком, и даже о зоне барбекю с уже готовым к празднику мангалом. Как грамотно скомпоновать все эти зоны и добиться идеальной планировки бани внутри? Предлагаем вам полезные советы на этот счет с 70 фото уже готовых решений для самых разных размеров.
2 на 2
Планировка бани 2 на 2 чаще всего ограничена и безынтересна по вполне понятной причине — внутри есть серьезный

Разгуляться здесь точно не получится: есть компактная парилка, часть печи для удобства вынесена в предбанник, чтобы можно было ускорить растопку, а мойка благополучно интегрирована в саму парную. В тесноте да не в обиде, как говорится. Обычная высота для таких скромных проектов — 2 метра. Чаще всего этого более чем достаточно для того, чтобы создать в парной действительно комфортный уровень пара и получить от банной процедуры истинное удовольствие.

Один из верных способов сэкономить на квадратных метрах — компактная электрическая печь
. Конечно, любители старой доброй русской баньки тут начнут недовольно роптать, но ведь чувство комфорта должно быть на первом месте, верно? К тому же, большая печь абсолютна не нужна в банях 2 на 2 — в такую скромную внутреннюю планировку лучше вписать небольшую и современную электрическую печь, а освободившееся место с толком использовать для размещения еще одной скамейки.




3 на 3
От самых скромных размеров — к чуть менее скромным. На самом деле, особой разницы между планировкой внутри бани 3 на 3 и предыдущим вариантом нет — и по предложенным фото это очень легко заметить.



Разумным представляется объединение моечной и парилки в одном помещении. Все-таки для того, чтобы комфортно помыться, нужно пространство, а максимум, на что можно рассчитывать при таких стесненных условиях — это небольшой квадрат на 1,5 метра. Либо удлиненный вариант на 2 метра, но с метровой шириной. А вот объединение моечной и парной поможет добиться оптимального варианта:
- и насладиться великолепным паром;
- и удобно освежиться после банной процедуры.





На последнем фото предложен вариант оптимальной внутренней планировки бани для размера 3 на 3 с добавленным сверх этой площади крыльцом. Собственно, это распространенный вариант наращивания общей площади. Тем более, если участок позволяет. И пусть вы сделаете комнату отдыха меньше, но зато сможете пользоваться удобным крыльцом в любое время года.
3 на 4
Чем дальше — тем веселее. Планировки бани 3 на 4 внутри, конечно, не могут похвастаться такой вариативностью, как у решений с общей квадратурой полезной площади, превышающих 50 квадратных метров, но, тем не менее, позволяют грамотно распределить все необходимые функциональные зоны с единственно верной целью — сделать использование банного помещения действительно приятным и запоминающимся.
Разумеется, на общей площади в 12 квадратных метров трудно разместиться большой компании. Поэтому при размещении тех или иных зон следует учитывать наиболее вероятный факт: такой небольшой баней, скорее всего, будет пользоваться семья из 2-3 человек либо дружеская компания на столько же человек. Все, что свыше, так или иначе, но будет немного снижать уровень комфорта. Взглянем на варианты внутренней планировки бани 3 на 4 с объединенными мойкой и парилкой.




Если вы используете печь-каменку, то логично разместить ее между парной и предбанником, чтобы распространить тепло по всей площади постройки. К тому же, вынос топочной части в предбанник позволяет вам увеличивать температуру пара, даже не заходя в парную и не растрачивая, тем самым, тепло, которое так или иначе, но выходит через открытую дверь.
Особое внимание следует уделить оформлению парной:
- не располагайте верхний лежак чересчур высоко — есть риск, что человек будет ударяться головой о потолок, когда будет слазить;
- при обустройстве лежаков учитывайте, сколько человек будет регулярно пользоваться баней;
- не располагайте лежаки чересчур близко от печи в своем стремлении сэкономить место — это не только не приносит удовольствие, но даже опасно для жизни
Вариант планировки 3х4 с мойкой и парилкой отдельно
Если проявить смекалку и некоторую инженерную хитрость, то можно осуществить внутреннюю планировку бани 3х4 с раздельным размещением мойки и парилки. В этом есть немало плюсов:
- принимать душ в прохладном помещении куда приятнее;
- возможность раздельного и одновременного использования моечной и парной;
- температура в парной всегда высокая, а пар — сухой и приятный.
Посмотрите на то, какие есть варианты планировки бани 3х4 именно с раздельной интеграцией двух зон.





4 на 4
Наверное, один из самых сбалансированных вариантов. По крайней мере, в плане средств, которые пойдут на оформление этой бани, и того уровня комфорта, который она логично обещает. С одной стороны, на 16 квадратных метрах трудно воплотить все свои гениальные идеи касаемо планировки. Но вот с другой, при серьезной оптимизации пространства можно получить результат, который по своей функциональности будет мало в чем уступать и в 2 раза более крупным участкам.

На этом фото приведен, пожалуй, самый распространенный пример планировки бани 4 на 4 — внутри все продумано до мелочей. Как таковой комнаты отдыха здесь нет, а ее функцию благополучно берет на себя просторный предбанник. В принципе, это очень удобно: человек, выходя из парной или моечной, может присесть и поговорить со своими друзьями или родственниками, а обогревается комната будет от прилегающей к печи стены.





5 на 4
Задумываясь о планировке бани 5 на 4, можно с уверенностью говорить о том, что имеющейся внутри площади хватает для раздельного оформления моечной и парной. К тому же, остается еще вполне комфортный запас, который можно успешно использовать для оформления просторной комнаты отдыха. Предбанник и раздевалку можно спокойно соединить с ней — это распространенная практика для банных помещений подобного формата.






5 на 5
Пожалуй, классический вариант бани, который очень часто используется по сей день. Отказываться от такого формата не имеет смысла:
- хороший запас полезной площади;
- оптимальное использование каждого сантиметра;
- удобное разделение функциональных зон.
Стандартная планировка такой бани 5 на 5 показана на следующем фото, отражающем все те зоны, что находятся внутри: вход — предбанник — комната отдыха — вход в парную — разделение на моечную. При желании оформляется мансарда
, которую можно успешно использовать в качестве одноместной спальни. Хотя если с вами дети, то там могут спокойно разместиться и несколько ребятишек.





5 на 8
Одно из преимуществ крупноформатных банных помещений — это полная свобода действий с точки зрения планировки внутри. Наверняка, вы видели немало фото бань, в которых удобно организована и просторная комната для отдыха, и не менее просторная парилка, и удобный второй этаж — мансарда, где можно разместить бильярдную и даже выход на балкон. Конечно, обилие функциональных зон накладывает отпечаток на основательность подхода к строительству. Вам нужно продумать:
- вопросы тепло и гидроизоляции всех комнат;
- контролировать пожаробезопасность;
- грамотно организовать парное пространство.
Для того, чтобы справиться со всем этим, лучше всего обратиться к специалистам. Они подготовят вам проект планировки бани 5 на 8 под ключ. Впрочем, есть и иной вариант: подсмотреть уже готовые варианты.





6 на 6
В планировке бани 6 на 6 находится место всем необходимым помещениям:
- парной — она может занимать от 6 квадратных метров;
- мойке — от 5 квадратов;
- комнате отдыха и предбаннику — все вместе до 16 квадратов.
Такой размер предполагает и обустройство второго этажа — мансарды. А также вполне можно оформить и небольшую веранду, которой всегда приятно воспользоваться в любое время года. Если у вас в бане установлена железная печь, то ее можно обложить кирпичом — так теплый воздух в парной будет сохраняться куда дольше.





Еще несколько популярных размеров
6 на 4




6 на 3




8 на 8
Обратите внимание на фото планировки бани 8 на 8 — сразу видно, что внутри полно полезного пространства, которое требует от вас только одного: используйте его с толком! Очевидно, что столь крупные бани сегодня — это скорее исключение из правил. Соответственно, чем больше возможностей, тем сложнее в итоге придти к единственно верному решению. Целесообразно в таком случае обратиться к профессиональным специалистам, которые смогут выполнить планировку такой бани максимально качественно. Тем не менее, несколько хороших идей вы почерпнуть вполне можете — из фото, что расположены ниже.









Как правило, в таких больших банях можно сделать хамам: отвести под это дело отдельное помещение, оборудовать его нужными лежаками, поставить массажный столик. Женщины очень любят турецкую баню!
Заключение
Хороший способ выбрать удачную планировку бани — не только внимательно изучить сотни проектов и фото, но и определиться с тем, что вы ожидаете видеть внутри своего сооружения. Если вы планируете пользоваться баней лишь изредка, да и то, исключительно семьей, то совершенно не имеет смысла тратиться на оборудование ненужных зон, которыми все равно мало кто будет пользоваться. Если же вы страстный поклонник старой доброй баньки и не представляете себе выходных без классного пара, приятной компании и задушевных разговоров, то имеет смысл отнестись к планировке более чем серьезно. Ведь на кону не только ваш собственный комфорт — но и ваших гостей. Как там говорят про хозяев? Какой хозяин, такой и дом. Думается, это выражение обнаруживает свою актуальность и в случае с баней.
Фото: vk.com, forumhouse.ru, tutknow.ru, stroyday.ru, torgpoligrom.ru.
vbanepar.ru
Баня размером 3 на 3: фото планировок
Если площадь загородного участка не позволяет возвести большую постройку, вам будет интересна планировка бани 3 на 3 внутри, как на фото ниже. Выбрав один из простых вариантов, можно соорудить предбанник вместе с парилкой даже на маленькой территории. Но чтобы банная конструкция была функциональной и работала хорошо, важно учесть некоторые нюансы.
Проект бани 3 на 3: плюсы и минусы
Современные банные постройки включают в себя несколько помещений, хотя раньше достаточно было и одного. Отдельными комнатами могут быть: моечная, душевая, бассейн, предбанник, бильярдная зона, раздевалка, тамбур и т. д. Однако на маленькой площади реализовать все идеи сложно, поэтому следует все хорошо продумать и выбрать самые важные аспекты. Рассмотрим преимущества и недостатки маленьких построек.
| Плюсы | Минусы |
| Экономия на строительных материалах как для внутренней отделки, так и для возведения фундамента; | Баня рассчитана минимум на 2-3 человека одновременно; |
| Тратится меньше времени на работы по возведению бани; | Можно возвести только одноэтажную конструкцию; |
| Площади хватит даже на организацию небольшой комнаты для отдыха; | Может потребоваться дополнительное утепление стен, если баня стоит отдельно от жилого дома и не является пристройкой. |
| При желании можно построить веранду или террасу для чаепитий; | |
| Подходит для маленьких по площади дачных участков; | |
| Для обогрева бани потребуется самое простое и бюджетное оборудование. |
Обычно для внутренней отделки бани 3 на 3 используется липа, кедр или осина. Возводят постройку из профильного бруса, бревен, вагонки и срубов, а также керамзита, кирпича и массивных блоков. Однако считается, что объекты из бруса наиболее качественные и не подвержены усадки со временем. Для визуального расширения пространства прибегают к строительству небольшой веранды. Увеличив таким образом полезную площадь, можно организовать себе дополнительное место для отдыха.

Баня с выходом на мини-веранду
Бани могут разного типа:
- Постройки, которые прогреваются за счет сухого пара. При этом температура может достигать от 60 до 120 градусов. Однако помещения отличаются пониженной влажностью – до 25%;
- Сырые банные помещения с температурой до 60 градусов и высоким уровнем влажности;
- Водяные бани на горячей воде.

Пример внутренней планировки
Сегодня встречаются римские, ирландские, русские, финские бани, офуро и хаммамы. Рассмотрим каждый вид отдельно:
- Русские – самый распространенный тип банных построек, подразумевающий наличие предбанника, моечной и парной с большой печью;
- Ирландские – бани из 5 комнат, которые соединены друг с другом общим коридором посередине;
- Римские – включают 5 отдельных помещений, соединенных смежными стенами: предбанник, теплую, жаркую и парную комнату, а также разгрузочное помещение с более низкой температурой;
- Финские – это традиционные сауны. Состоят из одной комнаты с низкой влажностью и горячим паром;
- Хаммам – турецкая водяная баня, подходит для людей, не любящих слишком высокие температуры. Внутренняя планировка включает бассейн с горячей водой и еще несколько емкостей с более прохладной;
- Офуро – или японские бани в виде бочки с горячей водой и травяными отварами.
Территорию вокруг бани на участке можно оформить различным способом: посадить красивую живую изгородь, кустарники, выложить альпинарий, альпийскую горку или цветник. Строить банный дом не рекомендуется близко с сараем или гаражом, чтобы избежать возгорания.
Классический проект бани 3 на 3
Площадь 9 кв метров – не самый лучший размер для возведения бани. Но крупногабаритные конструкции не всегда необходимы, особенно они не уместны на маленьких участках.
Традиционная банная постройка состоит из нескольких частей:
- предбанника – помещение для отдыха. здесь важно позаботиться о комфорте, установив столешницу и удобные атрибуты мебели для сидения;
- парилки – должна быть установлена печь-каменка для выработки тепла и пара. Размещать парилку лучше между парилкой и предбанником вблизи входной двери. Здесь должны находиться лежанки или оборудованные полки для экономии пространства, на которых каждый человек должен помещаться полностью во весь рост;
- мойки – здесь будет находиться емкость с водой для охлаждения.
Место расположения выбирается таким образом, чтобы строение находилось на расстоянии от 15 метров от жилого дома. Это целесообразно с точки зрения соблюдения техники безопасности. Лучшим вариантом считается близость бани с естественным или искусственным водоемом: прудом, бассейном и т. д.
Основанием для банной постройки должен служить песчано-гравийный участок. В ином случае придется выкапывать яму 1,5 метра глубиной, а затем засыпать ее грунтом.

Рекомендации по устройству парилки:
- самая верхняя полка должна находиться не в сильной близости к поверхности потолка, чтобы было удобно спускаться, не ударившись головой о потолок;
- высота каждой полки должна быть рассчитана заранее, еще на этапе проектирования бани и создания чертежа;
- выбирать лавки нужно как высокие, так и низкие. Вторые будут использоваться новичками и людьми, которые не выносят высоких температур;
- печь нужно расположить таким образом, чтобы было удобно дотягиваться до нее, лежа на полке;
- лучше, если в парной будут достаточно низкие потолки и порожек у входной двери. Это нужно для того, чтобы комната быстро прогревалась, и пар не уходил сквозь дверные щели.
Важно рассчитывать не только ширину и высоту банной постройки, но и высоту потолков. Количество самих полок (лежаков) и их конфигурация зависит от пожеланий владельца и частоты использования помещения. Пример планировки бани 3 на 3 внутри показан на фото.

Упрощенный проект бани
Простейший вариант предполагает наличие двух одинаковых по размерам помещений: парилки и предбанника (раздевалки). Можно оборудовать небольшое крыльцо или мини-террасу, а также маленький тамбур (1 на 1).
Саму печь следует оборудовать на стене, соединяющей оба внутренних помещения, а в парилке предусмотрено оконное отверстие для проветривания комнаты.

Упрощенная планировка
С мансардой
Дополнить банную конструкцию можно мансардой, которая является неполноценным вторым этажом. Там можно разместить зону отдыха и просто оборудовать небольшую кладовую с отсеком для хранения вещей и хозяйственных инструментов. Площадь такой бани 3 на 3 может достигать 15 кв метров, для второго этажа можно выделить до 7 кв метров.

Где лучше разместить мойку
В одноэтажной бане 3 на 3 площадью 9 кв метров необходимо все разместить максимально удобно и компактно, чтобы всем было комфортно, и помещения функционировали по всем правилам. Комнату с мойкой лучше совместить с парным отделением. Чтобы мыться было удобнее, лучше пристроить к бане дополнительный утепленный предбанник. Баню можно обустроить по высшему разряду, не выходя при этом за рамки запланированного бюджета.

Внутренняя отделка и планировка
Сначала в бане необходимо провести все коммуникации, а в частности свет, если подразумевается наличие электроэнергии на дачной территории. Вытяжка оборудуется из комнаты отдыха или парной и может являться системой вентиляции, работающей при помощи механического запуска.
Затем происходит утепление парилки с использованием минеральной ваты или другого вида утеплителя. Чтобы пар отражался от стен, внутренние стены отделывают фольгированным изолоном. Поверхность потолка обшивается деревянной вагонкой из осины, дуба или липы.

Оконные и дверные проемы лучше расположить следующим образом:
- для двери следует спланировать место с южной стороны, так как снег здесь будет сходить раньше, чем на северной. Такой баней очень удобно пользоваться в зимнее и весеннее время;
- окна лучше делать на западной части постройки в предбаннике (тамбуре), парилке и помывочной. Таким образом, свет будет хорошо освещать внутреннее помещение парилки, что позволит значительно сэкономить на электроэнергии.
Отказываться от оконных проемов, даже в такой маленькой бане 3 на 3, не стоит. Окна – это дополнительное проветривание помещений, а не только источник естественного солнечного света. Оптимальный размер окна в маленькой конструкции – это 40 на 40 сантиметров.

Очень важно комфортно обустроить пространство предбанника: повесить крючки для одежды и полотенец, предусмотреть полочки для емкостей и ведер, а также подставку для обуви. Хорошей идеей будет разместить там небольшой столик и стулья (или лавочку).
Две самые важные комнаты – это парная и мойка. Для удобства можно оборудовать отдельный тамбур (1,5 м), отделив душевую (2,5 м) от парилки (2 м). предбанник при этом будет составлять 2 м, а общая площадь – 8 кв метров. Сюда поместиться даже небольшая дешевая кабинка, настенное зеркало и маленький угловой диван.

Мини-баня с верандой
Мы видим, что даже на самом маленьком загородном участке можно построить уютную современную баню, оснащенную всем необходимым. И это вовсе не тесная коморка, а полноценный банный домик и миниатюрная здравница.

Оригинальная мини-баня в виде деревянной бочки
Сегодня очень популярны маленькие бани 3 на 3, а также множество фото-примеров планировки, ведь помещения внутри компактные и уютные. Все пространство банной постройки при этом используется максимально эффективно, а также экономятся финансовые средства на строительство и отделку. Поэтому для возведения бани на своем участке вовсе не обязательно планировать грандиозную многоэтажную конструкцию, достаточно будет и небольшого помещения.
Источник
www.ujut-v-dome.ru
фото проектов, схемы и чертежи
Многие владельцы частных домов рано или поздно ловят себя на мысли о том, что на территории стоит возвести баню. Это отличная идея, сама баня, парилка и мойка планировка которых может быть самой разнообразной, подарит массу приятных эмоций и множество часов расслабления. Конечно же, к возведению такой конструкции на территории следует тщательно подготовиться. Баня имеет особую атмосферу и требования безопасности, поэтому продумать нужно все до мелочей.
Проект и планировка бани с моечной и парилкой


Очень важно учесть множество факторов, которые станут решающими в вопросе того, какой именно парной быть на придомовой территории участка. Вопросы эти следующие:
- Какое количество людей будет одновременно находиться в парилке. Если несколько, то вполне достаточно будет помещения 3Х4, если же планируется собирать в парной всех друзей, родственников и соседей, то стоит задуматься о большом помещении, в котором каждому будет комфортно.
Планировка двухэтажной бани с душевой - Сколько средств получится выделить на возведение данной конструкции. От этого напрямую зависит, какие покупать материалы, какие размеры парилки можно возвести, а также какая внутренняя отделка может быть в помещении.
- Самостоятельно вы будете строить баню или заказывать услуги профессионалов. Этот факт влияет на скорость появления строения на территории, а также на стоимость места для отдыха.
Оформление интерьера и дизайна комнаты отдыха в бане
Это лишь некоторые факты, которые обязательно нужно учесть в процессе подготовки к строительству места, где можно от души париться, купаться и просто приятно проводить время с задушевными разговорами.
Содержание материала
Что обязательно должно быть в бане
Следует понимать, что должно быть в помещении бани. Это:
Планировка с размерами бани с комнатой отдыха
Каждый может корректировать эти пространства, добавляя что-то свое. Тем не менее, каждое из помещений обязательно должно быть в бане, можно только добавить дополнительное.
Помимо этого, следует возводить строение с учетом требований безопасности, а именно, пожарной безопасности.
Пример отделки и оформления моечной комнаты
Какие материалы для строительства можно выбрать
Чаще всего можно встретить на территориях частных участков бани выполненные из древесины. Тем не менее, в зависимости от того, какая будет планировка бани 4х6 или других размеров, выбор материалов может разниться.
Вариант планировки бани 4 на 6 метров
Подборка вариантов планировок парилки в бане
Чаще всего ставку делают на следующие виды сырья для постройки:
- Каркасная баня. Такой материал может быть собран, как собственноручно, так и с помощью профессиональных строителей. В любом случае сборка достаточно проста, поэтому даже при самых малых навыках в подобном русле, можно воплотить идею и увидеть желаемый результат. Такой материал представляет собой готовые брусья, которые без особого труда можно собрать между собой.
Процесс сборки каркасной бани

- Брусчатка. Это сырье достаточно дорого стоит. При самостоятельном возведении парной из такого материала, нужно контролировать, чтобы каждый элемент был прочно соединен друг с другом. Потраченные деньги вернутся вместе с прекрасными эмоциями, которые возникают при виде такого благородного и богатого строения.
- Бревна. Если ставка сделана в пользу такого материала, то отпадает необходимость в дополнительных затратах на внутреннее и наружное утепление бани. Такое сырье считается надежным и долговечным. Главное, правильно ухаживать за материалом.
Проект и экстерьер бани из бревен

Каждый из представленных материалов достоин, служить основой для возведения бани Главное, следовать правилам и требованиям при самостоятельном построении здания.
Что обязательно должно быть в мойке
Планировка бани 3х5 или других параметров обязательно должна иметь в своих просторах такие помещения, как мойка и парилка, санузел, раздевалку.
Конечно же, по желанию каждый хозяин земельного надела может самостоятельно принимать решение о дополнении пространства неосновными помещениями. Например, бильярд, комната отдыха и многое другое, что только может прийти на ум.
В моечной обязательно должны присутствовать:
- Бассейн или душ с холодной водой;
- Раковина для умывания.
Пример размещения мойки в помещении парилки

Это те атрибуты, без которых в моечной не обойтись Главное, правильно сделать планировку, чтобы все детали располагались на необходимых местах и были комфортны для использования.
Планировка сауны с мойкой и террасой
Стоит также позаботиться о том, чтобы в моечной были преимущественны покрытия, которые выносливы к воздействию влаги и высоким температурам. Это может быть плитка, покрытая специальными растворами древесина.
Пример отделки плиткой мойки в бане


Как правило, душевая или бассейн размещаются таким образом, чтобы было удобно в них заходить после прогревания в парилке, то есть, рядом возле парной.
Что должно присутствовать в парилке
Если просторы бани три на четыре метра, то слишком не разгонишься в процессе обдумывания планировки помещения. В маленьких банях минимальных размеров предбанник, небольшая мойка и сама парная тоже достаточно компактна.
В парной для комфортного применения данного помещения обязательно должны быть ниши, на которых можно присесть. Часто такая конструкция выполнена в виде ступенек.
Чертеж и планировка компактной парилки
Это дает возможность вместить даже в самое маленькое по территории пространство, достаточно много людей. Планировка парной, как правило, стандартна. Обычно в дальнем левом или правом углу расположены источники подогрева. То есть, дрова или камни, на которые поливаются специальные смеси для достижения в помещении нужной температуры. Укладываются источники тепла на специальную жароустойчивую поверхность, благодаря чему становиться возможным, соблюдать технику безопасности.
Планировка и дизайн парилки в бане из дерева

Ниши располагаются под стенкой, обычно «V» образной формы. Посередине помещения парной, как правило, расположена деревянная подставка, которая обеспечивает комфорт при выходе из парилки.
Какая планировка может быть в помещении бани
Каждый самостоятельно выбирает внутреннюю отделку, материал для возведения бани. Этого не скажешь о самом пространстве в помещении. Более идеального плана придумать невозможно, поэтому именно такой стандарт берут во внимание все, кто решил обустроить баньку на территории участка.
Чертеж с размерами и планировка парилки
Варианты планировки парилки в бане
- При входе в парную располагается раздевалка. Это логично и правильно. Ведь вход в пространство парной в одежде и обуви это негигиенично и неправильно. Зайдя в помещение, сразу же следует облачиться в банную одежду или обернуться в простыню.
- Следующим помещением, которое должно быть в бане – это предбанник. Здесь, как правило, размещают столик для чаепития, могут устанавливать бильярд. В общем, на что хватит фантазии, то и воплощается.
Оформление и интерьер предбанника в бане из дерева
Пример отделки предбанника
- Следующим после предбанника является вход в парную. Возле парной, конечно же, размещается моечная или бассейн, в которых можно освежиться после принятия банных процедур.

Конечно, планировка может быть другой. Но именно такой вариант чаще всего используется в силу своего комфорта. В видео рассказывается о правильной проектировке и планировке бани.
На что следует обратить внимание
Планировать внутреннее пространство бани следует на этапе строительства. Именно так можно влить в планировку, интерьер все желаемые детали. Обязательно нужно взять во внимание следующие моменты:
- Планировка должна рассчитываться с учетом размеров пространства. Конечно, каждый владелец земельного надела может варьировать параметры каждого внутреннего помещения. Тем не менее, обычно предбанник по размеру самый большой, на втором месте парная, а мойка, как правило, самая маленькая. При возведении здания нужно четко просчитать, какое помещение, в какой зоне будет расположено, чтобы не допустить погрешностей.
Проект и планировка бани из бруса размером 6х3
Планировка бани с моечной и комнатой отдыха - Обязательно предварительно просчитать количество необходимых для работы материалов. Это поможет с максимально возможной скоростью попасть в готовое пространство бани. Если есть сомнения по поводу размеров парной, лучше приобрести больше материалов для возведения, нежели меньше.
Все эти нюансы могут быть решающими в процессе возведения строения. Самое важное – продумать в деталях каждое из помещений, прежде чем начнется строительство.
Вариант планировки бани с моечной размером 3х6 метров
Проект и планировка деревянной бани 4 на 4
Для чего обдумывать планировку
Некоторым может показаться пустой тратой времени обдумывание внутренней планировки помещения бани. Однако, это далеко не так. Качественно продуманная планировка, поможет сделать баню такой, как мечталось. Факторы, по которым становится понятно, что расположение каждого из помещений должно быть продуманным:
Вариант планировки бани 5 на 5 метров с санузлом

- Только в правильно спланированном помещении можно достичь физической и духовной гармонии;
- Обдуманное до мелочей пространство бани является безопасным для отдыха;
- В парной, где каждая деталь выполнена непросто так, а с предварительным обдумыванием, в любом случае будет красиво;
- Также проектирование внутреннего пространства поможет грамотно использовать каждый сантиметр застройки. А это, в свою очередь, поможет сэкономить личный бюджет.




Когда к важным моментам серьезный и продуманный подход, все получается на высочайшем уровне. Появление бани на территории участка поможет незабываемо проводить время с друзьями или родственниками, вести правильный образ жизни и укрепить здоровье. Поэтому, если хочется увидеть на территории своего частного сектора баньку, следует начать продумывать все нюансы предварительно.
proekt-sam.ru
Строительство бани 5 на 3 метра: выбор проекта
Практически каждый, у кого есть свой дом, старается разметить на участке баню. Оптимальным вариантом считается проект бани 5 на 3. В прежние времена баня была неотъемлемой частью любого хозяйства. Практически у каждого частного дома было сооружение с парилкой, в котором проводили гигиенические процедуры все члены семьи. В наше время острой необходимости в бане нет, так как у каждого имеется в доме ванная либо душ, однако многие все же предпочитают сооружать на свободном участке парную, где можно отдохнуть душой и телом.
Часто бани строят те, у кого имеется загородный дом либо дача. Сюда приезжают, чтобы отдохнуть от городской суеты и снять с себя напряжение, которое накопилось за день либо даже за неделю. Полноценно отдохнуть в бане можно лишь в том случае, если помещение правильно оборудовано. Для этого необходимо соблюдать все правила возведения сооружений такого типа, ведь только на первый взгляд баня кажется простым зданием.
К примеру, если парилка не будет держать температуру, нормально попариться в бане будет невозможно. Полностью расслабиться не получится и в том случае, если внутреннее обустройство бани, то есть интерьер бани проекта 3 на 5, фото которого можно найти на рис. 2, не будет удобным. В общем, чтобы построить и оборудовать хорошую баню, нужно учесть множество нюансов.
Особенности бани 5х3
Для того, чтобы построить на собственном участке баню, необходимо для начала составить ее проект. Его необходимо разработать с учетом размера свободного пространства на участке. Нужно помнить о том, что баня не должна находиться очень близко у воды либо прилегать к соседнему участку. Кроме того, это помещение должно быть видно из окна жилого здания. Это требования пожарной безопасности, которые нужно соблюдать не только ради галочки в документах, но и для сохранения жизни тех, кто будет использовать данное помещение.
Если свободного пространства на участке вполне достаточно, можно построить просторную и удобную баню 5х3. Эти проекты пользуются большой популярностью, так как баня выходит достаточно просторной, и в ней могут одновременно париться несколько человек, но в то же время здание не особо громоздкое. Проект бани 3 на 5, фото которой можно увидеть на рис. 1, относится к средним размерам, но при этом в такой бане может поместиться абсолютно все, что необходимо для комфортного и полноценного отдыха. Немалым спросом в последнее время пользуется проект бани 3 на 5 с террасой, на которой можно отдохнуть после гигиенических процедур.
Что касается материалов, то для бани 5х3 подойдет любой, но он должен соответствовать требованиям для данных помещений. Все дело в том, что материалы для строительства бани должны обладать высоким уровнем теплоизоляции. В противном случае придется много сил и денег тратить на утепление помещения.
В прежние времена парные чаще всего строили из дерева. На современных участках нередко встречаются проекты бани 5 на 3 из бруса. Кроме того, проекты 5х3 составляются и на основе пеноблоков. Стоит заметить, что проект бани 3 на 5 из блоков будет служить очень долго и хорошо выполнять свои функции, если правильно провести процедуру теплоизоляции. Пеноблоки нужно защитить от воздействия внешних факторов. В этом случае баня прослужит не одно десятилетие.
С древесиной работать несколько сложнее. Ее нужно выбирать очень тщательно, так как многие породы дерева при нагревании выделяют слишком много смолы. Таким образом, стены парной становятся опасными, так как об них можно легко обжечься. При выборе проекта бани 5 на 3 из бревна многие выбирают хвойные породы, но именно они являются наиболее смолистыми, хотя париться в такой парной будет очень полезно за счет эфирных масел, выделяемых древесиной.
Планировка бани 5х3
В банном помещении, вне зависимости от того, какого размера оно будет, должны быть определенные комнаты. Без них баня не будет полноценной.
Первое помещение, в которое заходит человек, является предбанником. Это своеобразная прихожая, где можно снять одежду. В ее интерьере обязательно должен быть удобный шкафчик для хранения вещей на то время, пока человек будет париться. Многие устанавливают здесь еще 1 ящик, в котором хранится топливо, то есть, дрова либо уголь.
Далее идет комната отдыха. Даже небольшие проекты бань должны включать в себя это помещение. Здесь, как правило, расположен столик и несколько удобных стульев для чаепития и отдыха с друзьями.
Следующей важной комнатой является мойка, или душевая. Здесь будут совершаться охлаждающие процедуры после того, как человек распарит тело. Интерьер данного помещения очень прост. Здесь должно быть несколько лавочек, душ и емкость с водой. В современных банях нередко вместо мойки просто устанавливают душевую кабину. Если речь именно о таком типе бани, то можно дополнить это помещение и стиральной машинкой, чтобы сэкономить место в доме.
Самым главным помещением в бане является парная. Именно ради ее посещения люди и строят подобные здания. Здесь, по традиции, должна быть установлена печь, оборудованы деревянные лавочки. В парилке главное – это горячий воздух. Здесь важен не столько внутренний интерьер, сколько правильная теплоизоляция. Нельзя забывать о том, что это помещение не только очень теплое, но и влажное. По этой причине количество электроприборов в данной комнате должно быть сведено к минимуму. Допускается пара лампочек в специальных плафонах, а также печка, работающая от электросети. Интерьер парной лучше сделать в простом деревенском стиле. Здесь ничего особенно придумывать не нужно, достаточно просто обработать стены деревом. Если баня была построена из деревянных бревен, их можно просто обработать специальными растворами, чтобы они лучше переносили высокие температуры и влажность.
Это основные комнаты, которые должны быть в каждой бане, даже самой компактной. Кроме того, иногда к бане пристраивают удобную террасу для чаепития на свежем воздухе. Встречаются и более продвинутые варианты с бассейнами, но такие строения далеко не каждому по карману. Если парной будет пользоваться небольшая семья, нет смысла выстраивать огромное помещение и тратить на это кучу денег. Даже в компактной бане проекта 3 на 5 из пеноблоков либо другого материала можно прекрасно отдохнуть и поправить здоровье.
Преимущества бани 5х3
Банная постройка – это важное для многих помещение. Здесь можно снять стресс и напряжение после тяжелого физического и умственного труда. Посещение бани будет особенно полезно городским жителям, которые часто подвержены стрессам, перерастающим в депрессию.
Далеко не у каждого имеется возможность построить для себя большую баню, но это вовсе и не обязательно для получения полноценного отдыха. К примеру, проект бани 3 на 5, фото которого можно увидеть на ри. 1, или даже 3х3, вполне подойдет для комфортного совершения гигиенических процедур. Если же места покажется недостаточно, можно объединить вместе предбанник и комнату для отдыха.
Небольшие компактные бани хорошо подойдут для отдыха небольшой семьи или маленькой компании друзей.
Как правило, в нормально оборудованной бане размером 5х3 могут одновременно париться до 3 человек.
Основным преимуществом такой парной является не только то, что баня может поместиться даже на небольшом участке, но и ее экономичность в плане строительства. Для бани 5х3 нет необходимости сооружать мощный фундамент, одноэтажное здание такого размера можно построить и на простой основе, так как на него будет оказываться небольшое давление.
В том случае, когда владелец участка решится построить баню из натурального дерева, он получит не только качественную парную, но и помещение, в котором можно вылечить немало болезней. Бревенчатые бани пользовались большой популярностью в прежние времена и считались панацеей от многих недугов. Парная из бревна будет стоить несколько дороже помещения из блоков, но вложенные средства обязательно окупятся длительным сроком эксплуатации здания и хорошим самочувствием людей, которые будут его использовать.
Если есть финансовая возможность и свободное пространство на участке, можно дополнить баню террасой. Она может заменить собой комнату для отдыха в хорошую погоду. На террасе можно отдыхать не только во время использования бани, но и в любой другой период. Она может быть использована как беседка для чаепитий. Если оборудовать террасу плетеными креслами-качалками и поставить несколько вазонов с цветами, такой отдых не оставит равнодушным никого.
Любая баня – это возможность прекрасно провести время и оздоровиться. Небольшие проекты под силу воплотить в жизнь практически каждому, у кого на участке имеется свободное место. Даже при умеренных вложениях, но правильном распределении финансов можно получить шикарную баню, которая станет настоящим предметом гордости всей семьи.
banyabest.ru
Баня 5 на 5 планировка внутри фото
Баня 4 на 5: проект и планировка
Рассмотрим вариант строительства бани самого популярного размера. Габариты 4х5 являются приближенными к идеалу. Согласно этому инструкция по выбору планировки и строительству бани подобного типа будет интересна многим.
Готовим проект сами
Приобрести готовый проект бани, разработанный специалистами и по нему ориентироваться при возведении – очень удобный вариант. Но не каждый сможет позволить себе это, поэтому придется все разрабатывать самостоятельно. Заявленные габариты позволяют немного поэкспериментировать с расположением комнат. Допускается даже создание отдельного помещения под установку распределительного щитка и небольшой котельной (по необходимости). Но для этого потребуется сделать перегородки между стенами, что зачастую сопряжено с повышением финансовых издержек.
Приступая к детальному моделированию помещений на схематическом рисунке, необходимо рассмотреть расположение следующих комнат и дополнительных элементов:
- предбанник с комнатой отдыха;
- моечное отделение и душевую комнату;
- парную и расположение печи в ней;
- установку вентиляционных продухов и дымоотвода в стене.
Планировка помещений
Чтобы в бане комфортно размещалась большая семья, планировку можно сделать, немного скорректировав внутреннее пространство. В этом случае допустимо немного увеличить площадь парилки, тем самым создав возможность парится в ней большему количеству людей. Не стоит сильно занижать габариты комнаты отдыха. Пожертвуйте парой квадратов моечного отделения. Тогда можно будет отдыхать большой компанией, париться, а принимать водные процедуры по очереди.

Как обустроить предбанник?
Это своеобразная воздушная подушка, между холодом на улице и теплом в моечном отделении. Поэтому отдельного внимания требует процедура утепления стен.Нельзя недооценивать его функциональность. Предбанник защищает помещения от холодов и позволяет отдохнуть после парной. Идеальный размер в бане с габаритами 4х5 – это метр в ширину и 3–3,5 в длину. При этом вход в баню можно сделать с одного края, отгородив само помещение еще одной дверью. Таким образом, холодный воздух не будет попадать в комнату отдыха.
Создать доsuperbany.ru
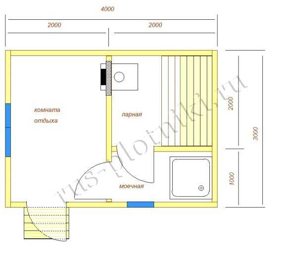
Баня 3 на 5: планировка внутри на фото
Если вы живёте в частном доме или у вас есть дачный участок, без бани не обойтись. При строительстве важно выбрать удачное место на участке, отделать постройку снаружи и, главное, продумать планировку помещения внутри. Ваша собственная сауна должна быть удобной и уютной. Фото вариантов планировки небольшой бани 3 на 5 помогут принять решение.
Даже в небольшой постройке можно уместить всё необходимое для гигиенических процедур и расслабляющего отдыха.

Чем выше уровень в многоярусной парилке, тем выше температура воздуха, но это на любителя.

Печь с баком для горячей воды удобно разместить в самой сауне.

В комнате отдыха должно быть только самое необходимое, чтобы не загромождать ценные квадратные метры.

Небольшое окошко — хорошая идея для проветривания и устранения влажности.

Важно продумать и расположение жаростойких и влагостойких светильников.

Встроенные потолочные светильники будут безопасным вариантом дополнительного освещения.

Если вы топите баню дровами, расположите печь в парной, а растопку делайте в предбаннике.

Если в постройке бетонный пол, выложите его плиткой и покройте керамику деревянной решёткой.

Вагонка — самый бюджетный материал для внутренней отделки.

При внутренней планировке сауны важно продумать каждую мелочь — сколько сделать ярусов, как расположить скамьи, где установить светильники, чем отделать пол и стены, как будет работать обогрев бани.
stroy-banya.com
Проект бани 5 на 5: фото, особенности составления и примеры

Своя собственная баня – это мечта многих. Но далеко не каждый может позволить себе возведение просторной бани 8 на 8. Даже если ваш участок или бюджет не дают возможности реализовать подобный проект, не стоит отчаиваться, небольшая баня может быть также функциональна и удобна. Если вы не можете похвастаться большой территорией и имеете скромный бюджет, обратите внимание на проект бани 5 на 5.
Проект бани 5х5 м небольшой, но при этом в бане таких размеров хватит места, чтобы разместить все нужные для комфортного отдыха помещения.
Проект бани 5 на 5: фото, особенности составления
Проект – это основа любого строительства. Прежде чем покупать материалы и начинать постройку, нужно правильно и максимально подробно составить проект бани.
Традиционно любая баня состоит из нескольких помещений: предбанника, парной, моечной и комнаты отдыха.

Предбанник представляет собой прихожую, где имеются шкафы и крючки для хранения одежды, нередко здесь выделяют место и для дров. Просторный тамбур делать не нужно, достаточно, чтобы в нем помещались 1-2 человека. Это неосновное помещение, в которое заходят редко и, как правило, по очереди. Площади 2х1,5 м будет вполне хватит.
Парная – это самое главное помещение. Здесь располагается печь для бани, а также полоки. Лучше сделать полоки таким образом, чтобы на них можно было не только сидеть, но и лежать, в таком случае в бане будет удобнее. Между полоком и печью должно хватать площади, чтобы можно было передвигаться. Высота парной должна быть такой, чтобы банщик мог беспрепятственно замахиваться веником.
В моечной принимают душ и ополаскиваются водой после похода в парную. Размеры моечной могут быть разными, в зависимости от того, что вы хотите в ней поставить. Если в ней будет лишь душевая кабина, то стоит сделать моечную размерами 2х2 м. Многие делают ее размером с парную, в этом случае здесь можно поставить лавку, ушаты, некоторые также устанавливают купель.
Комната отдыха – это место, где вы будете проводить время между заходами в парную. В ней должны располагаться стол и места для сидения (лавки, стулья, диваны). Здесь же нужно выделить место для раздевания. Комната отдыха должна быть просторной, важно, чтобы вся компания чувствовала себя здесь комфортно, и каждый мог свободно передвигаться.
Нередко комнату отдыха объединяют с предбанником для экономии места. Но учтите, что в таком случае, заходя в баню, вы будете заносить холодный воздух в комнату отдыха. Если летом это некритично, то зимой может приводить к дискомфорту.
Также в бане предусматривают дополнительные помещения, которые делают отдых еще комфортнее. К примеру, хорошим дополнением станет санузел, особенно если вы строите баню на участке, где других строений нет.

Если в комнате отдыха достаточно места, то можно добавить мини-кухню, в таком случае баня заменит полноценный дачный домик.
Особой популярностью пользуются проекты бань с террасой. Такие постройки особенно актуальны в летнее время, когда совсем не хочется сидеть в душном помещении, гораздо приятнее проводить время в беседке, дыша свежим воздухом и попивая ароматный чай. Если вы планируете ходить в баню только летом, то можно отказаться от комнаты отдыха и заменить ее на просторную террасу.

Чтобы увеличить полезную площадь бани, можно выбрать проект бани 5 на 5 с мансардой. В этом случае вы получите дополнительное помещение, где можно сделать комнату отдыха, игровую, тренажерный зал, место для SPA или спальню. Но учтите, что в этом случае стоимость постройки возрастет, а также сам процесс строительства усложнится.
Другой вариант – сделать полноценную двухэтажную баню. Преимуществом такой постройки является большая вместимость, при этом площадь участка, отведенная под строительство бани, не возрастет.
Простой проект бани 5 на 5 м
Бюджетный и несложный проект бани предусматривает парную, душевую, комнату отдыха и небольшое крыльцо. В этой бане средняя по вместимости парная, в которой поместится около 4-5 человек. Душевая просторная, поэтому в ней можно дополнительно поставить купель.
Такая планировка бани 5 на 5 подойдет для семейного похода в баню в летнее время года. В бане нет тамбура, поэтому зимой холод будет попадать в комнату отдыха.

Проект бани 5 на 5 м с террасой
Этот вариант создан для тех, кто ходит в баню только в теплое время. Здесь просторная парная (5,8 м), также просторная помывочная и небольшая раздевалка. Комната отдыха этим проектом не предусмотрена, вместо нее есть терраса.
Веранда имеет достаточно места для стола и лавок. После банных процедур вы сможете насладиться отдыхом на свежем воздухе. Но учтите, что в холода отдохнуть между заходами в парную будет негде.

Проект бани 5 на 5 м с санузлом
Баня с санузлом значительно удобнее, чем без. Кроме того, такая баня может использоваться и в качестве летнего или гостевого домика.
В этом проекте предусмотрены равные по размеру парилка и душевая комната, также имеются санузел, просторная комната отдыха и тамбур. Предбанник защищает комнату отдыха от холодного воздуха, а санузел избавляет от необходимости выходить в туалет на улицу, поэтому такой проект рекомендуем для тех, кто собирается ходить в баню не только летом, но и в холода.

Проект двухэтажной бани 5 на 5 м
Возведение двухэтажной бани дает возможность увеличить вместимость помещений и при этом сэкономить площадь участка. На первом этаже находятся комната отдыха, парная и моечная. Второй этаж представляет собой дополнительную комнату, в которой можно обустроить спальню, место для отдыха, тренажерный зал и т. д.

Выбираем материал для строительства бани 5х5 м
После того, как вы подобрали проект, нужно рассчитать количество материалов, которые потребуются для строительства бани своими руками.
Для возведения постройки существуют разные материалы, каждый из которых имеет как преимущества, так и недостатки.
Дерево
Этот материал использовали для строительства бани еще наши предки, несмотря на то, что прошло уже много лет, и на рынке появились другие, более современные материалы, популярность дерева ничуть не уменьшилась.
Этот материал помогает создать особую атмосферу, он сам по себе выглядит презентабельно, поэтому не нуждается во внешней и внутренней отделке. Дерево хорошо удерживает тепло.
Но этот материал подвержен грибку и плохо переносит влагу, поэтому его нужно специально обрабатывать. Кроме того, если вы решили строить баню из бревна, то нужно тщательно подбирать материал. Любые признаки болезни дерева (трещины, синева) говорят о том, что это бревно не подходит. Поэтому покупать материалы нужно только у проверенных продавцов, иначе большого количества брака не избежать.
Для строительства бани могут использоваться бревна, брус и оцилиндрованное бревно. Процесс возведения постройки из обычных бревен достаточно сложный, поэтому лучше выбрать два других материала.
Постройка бани из бруса или оцилиндрованного бревна не займет много времени и не вызовет сложностей, поэтому эти материалы прекрасно подходят для тех, кто собирается делать баню своими руками.

Кирпич
Из кирпича получаются надежные и прочные строения, которые могут простоять около 100 лет. Их преимуществом является высокая пожаробезопасность, что особенно актуально в банях, где уровень риска возникновения пожара высокий.
Но учтите, что строить баню из кирпича непросто, кроме того, это займет значительное количество времени. Подобная постройка достаточно тяжелая, поэтому придется потратиться на качественный и дорогой фундамент.

Газобетон
Построить баню из газобетона своими руками несложно: блоки имеют большие размеры, по этой причине возведение постройки проходит быстро. Материал легкий, для основания вполне подойдет простой фундамент. Газобетон, как и кирпич, является безопасным, с точки зрения пожароустойчивости, материалом. Кроме того, этот материал дешевле, чем другие, поэтому если вы имеете небольшой бюджет, обратите на него внимание.
Недостатком бани из газобетона является непрезентабельный вид, для нее потребуется сделать не только внутреннюю, но и внешнюю отделку.

Баня 5 на 5 м – это полноценное строение, которое будет иметь все необходимые помещения. Такая баня компактна, но при этом удобна. Постройка небольшой бани не вызовет серьезных трудностей, поэтому нет необходимости обращаться к специалистам, вы можете сделать баню своими руками.
1 104
Автор публикации
Комментарии: 0Публикации: 198Регистрация: 13-01-2017
postroitbanju.ru

Планировка двухэтажной бани с душевой
Процесс сборки каркасной бани

Проект и экстерьер бани из бревен

Оформление и интерьер предбанника в бане из дерева
Пример отделки предбанника

Проект и планировка бани из бруса размером 6х3
Планировка бани с моечной и комнатой отдыха