Баня двухэтажная из пеноблоков – Проект двухэтажной бани из пеноблоков своими руками
Проект двухэтажной бани из пеноблоков своими руками
Загородная жизнь подразумевает наличие на участке русской бани, которую можно использовать в любое время года. Для русского человека баня – это национальный вид отдыха, а не просто способ помыться и оздоровиться. На данный момент возведение бани из такого материала, как брус или бревна, пусть и своими руками, — очень дорогое удовольствие, которое могут позволить себе не все. Но найден выход из такой ситуации – это баня из пеноблоков.

Основные нюансы проекта бани из пеноблоков и преимущества сооружения
Для того чтобы правильно возвести своими руками баню из пеноблоков, нужно обязательно следовать технологии и алгоритму процесса. В первую очередь разрабатывается и утверждается проект бани, далее возводится фундамент, стены и крыша, на последнем этапе производится внешняя и внутренняя отделка помещения.

Пенобетон – это материал современного типа, который отвечает всем стандартам качества и прекрасно подходит для строительства бань, благодаря своим техническим характеристикам. Помимо этого, экологичность пенобетона доказана, и уступает только дереву. В вопросах отделки материал лучше поддается внутреннему или внешнему оформлению своими руками, чем, например, кирпич или бетон.

Основными преимуществами бань из пенобетона являются:
- Высокая теплоизоляция помещения
- Простота установки своими руками
- Легкий вес материала
- Пожароустойчивость
- Доступность материала
- Стандартные размеры блоков
- Отсутствие трансформации под воздействием высоких температур
- Экологичность и безопасность
- Отсутствие выделения вредных веществ в банных условиях

Двухэтажная, как и одноэтажная конструкция бани имеет ряд требований, которые обязательно нужно соблюдать при проектировании и дальнейшем строительстве:
- В проекте в обязательном порядке должны учитываться отверстия под вентиляцию.
- Отдельный дымоход из парной и от камина, если его установка планируется на втором этаже
- Схема инженерных коммуникаций. Особенное внимание нужно уделить электропроводке.
- Наличие отдельного источника теплоснабжения, например, газового котла или генератора, а также источников отопления, то есть радиаторов.
Важно! На момент проектирования обязательно должен быть выбран способ обогрева бани, помимо теплого воздуха из парной.

Разработка проекта и его виды
Любое строительство начинается с проектирования. Проект помогает учесть те факторы, которые будут влиять на готовую баню. Разработка проекта должна учитывать следующие факторы:
- Месторасположение бани
- Уровень грунтовых вод
- Инженерные коммуникации
- Водоснабжение
- Паро- и теплоизоляция
- Пожелания заказчика в индивидуальном порядке

Все эти нюансы четко просчитывают и подготавливается индивидуальный проект. Ни в коем случае нельзя допустить при проектировании просчетов. Это приведет к тому, что готовое сооружение не будет отвечать поставленным целям и требованиям.
На данный момент можно сделать такой проект бани, который не будет напоминать просто сооружение с четырьмя стенами, а будет более интересным, ведь баня так же, как и дом, должна привлекать внимание. В каталогах компаний, которые занимаются строительством бань, можно выбрать понравившийся проект среди представленных. Это может быть даже постройка двухэтажной бани с мансардой. Наиболее интересны проекты бань со встроенным гаражом, бильярдной, бани нестандартной формы. Все зависит только от пожеланий заказчика и бюджета. Но наиболее востребованными считаются бани 6*6 и 6*4. Также баню из пеноблоков легко построить и своими руками.

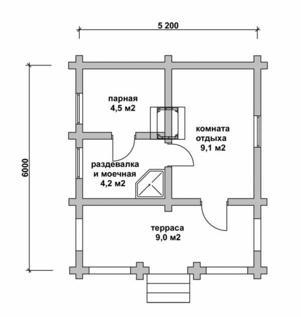
Проект бани из пеноблоков с террасой будет удобен для тех, кому не хватает свободного места для хранения или устройства комнаты отдыха. Так как баня – это место отдыха, то на веранде можно установить бильярд или другие развлечения. Выполняя такой проект бани нужно четко знать, что мансарду нужно строить также из пеноблоков, а не из какого-то другого материала. На грунтах пучинистого типа нельзя выполнять жесткую связку подошвы. Также во избежание деформации стен, нужно принять во внимание то, что сильная фиксация крыши и террасы не допускается. Такой проект представлен на фото. Человек попадает в помещение со стороны веранды, проходит в хорошо освещенную комнату отдыха. Далее можно наблюдать в левом углу душевую и парную. В правой части бани находится санузел.


Еще один интересный проект, но уже с открытой верандой, можно увидеть на фото ниже. Здесь представлена баня, состоящая из комнаты отдыха, парной и душевой. Печной обогрев проходит снизу до самого верха. Здесь возможны варианты зонирования помещений.


Следующий проект представляет собой двухэтажное строение. Это баня, которая больше походит на дом. Здесь можно выделить место для всего необходимого, чтобы провести отдых с комфортом. Навес служит для того, чтобы на нем можно было в солнечные дни отдохнуть или приготовить барбекю. Попасть в баню можно через прихожую, где легко можно разместить гардероб и зеркало. Она прекрасно защищает внутренние помещения от холода. Небольшой коридор предназначен для нужд бытового характера. Далее уже идет вход в комнату отдыха, где можно установить различную развлекательную аппаратуру. Справа есть вход в парилку, душевую и санузел. Второй этаж можно занять кухней – столовой, бильярдной, спальней или тренажерным залом.

Для бань с террасой должно быть обязательно два входа на террасу, который осуществляются с улицы и через баню.
В последнее время появились проекты бань с террасой, которая отделена от основного помещения дверями раздвижного типа. Это нужно для того, чтобы в теплые дни можно было выйти на открытое пространство.

Главным преимуществом проекта двухэтажной бани является ее компактность, то есть можно распределить все нужные помещения так, чтобы не занимать большую часть участка. Комнаты второго этажа будут теплыми и уютными за счет поднимаемого из парной на первом этаже теплого воздуха. В двухэтажной бане нередко устраивают бассейн, что делает ее полноценным СПА-комплексом со всеми удобствами. Да и внешний вид такого сооружения более презентабельный и богатый, чем у одноэтажной бани.


Вершиной проектирования двухэтажных бань стала баня с бассейном. Бассейн можно оборудовать под открытым небом, под навесом, на веранде. Такой проект позволит ощутить всю полноту и радость здорового отдыха, так как окунание в холодную воду после парной бодрит и придает сил, а также способствует закаливанию.
Основной проблемой таких проектов считается то, что сложно правильно оформить сток воды. Нужно обязательно предусмотреть дренажную систему.

Только при создании правильного проекта бани, который учтет все факторы, можно получить баню, которая прослужит долгие года и будет радовать хозяина. Проект будет также полезен и для подсчета материалов для бани, которые необходимы на постройку. Проект двухэтажной бани составлять довольно сложно, поэтому лучше воспользоваться услугами профессионала.

Строительство и отделка бани из пеноблоков
Баня из пеноблоков, будь она одноэтажной или двухэтажной, не требует мощного фундамента в силу своей легкости. Отличным вариантом для бани станет ленточный мелкозаглубленного типа. Таким образом, можно сэкономить довольно существенную сумму на возведении фундамента бани. На конструкцию основания обязательно нужно уложить гидроизолирующий материал, который устранит попадание влаги в баню.

После того как фундамент полностью застыл, можно приступать к возведению стен своими руками. Первый ряд лучше всего закреплять цементной смесью, а последующие — уже клеевыми растворами, во избежание слишком толстых швов между блоками.
Важно! Во время изготовления стен обязательно следить за горизонтальной и вертикальной укладкой.
Процесс возведения стен своими руками из такого материала, как пеноблоки происходит очень быстро благодаря тому, что материал легкий и подающийся обработке. Но, главное, нужно четко соблюдать проект.

После того, как достигнута необходимая высота стен бани, устанавливаются стропила для крыши и слой пенопласта. Особенно важна вентиляция в крыше бани, должно быть не менее двух вентиляционных отверстий. Снаружи крыша покрывается профнастилом, а по бокам обшивается рубероидом или другим материалом.

Вариантов изготовления крыши для бани великое множество. Они подходят для разных строений одноэтажных, двухэтажных, тех, что имеют мансарду. Для бани из пеноблока предпочтительно устраивать односкатную крышу.
Отделать баню из пеноблоков можно так, как того пожелает сам хозяин. Могут быть использованы такие материалы, как дерево, плитка, покрытие краской. Главное, что нужно сделать – это осуществить прокладку в бане гидроизоляционного материала. Пароизоляция внутри осуществляется с помощью установки мембранного покрытия. Внутренняя отделка осуществляется хвойными породами дерева (сосна, ель), а покрытие полимерной краской или керамической плиткой.
Для парной использовать лучше осину или липу, которые не имеют способности накаляться до предельных температур, но при этом удерживают температуру внутри помещения долгое время. Утеплять баню чрезмерно не нужно, так как основной материал и так довольно теплый.

Бани из пеноблоков завоевали огромную популярность в силу характеристик материала и невысокой стоимости. Первое, что необходимо сделать перед строительством – это разработка проекта бани, который выполнять должен только профессионал. Дальнейшая работа по возведению стен и фундамента более легкая, в сравнении с древесиной или кирпичами. Если самостоятельно построить такую баню нет возможности, то можно обратиться к специалистам, которые помогут произвести возведение любого сооружения, в том числе двухэтажной бани.
bouw.ru
73 фото как построить быстро и качественно
Пеноблоком называется материал для стройки с пористой основой, который изготавливают их цементно-песочного состава, смешанного с водой. По технологии производства в итоге получается неоднородный по структуре материал, благодаря чему вес элементов даже при их больших габаритах довольно мал.

Режется пеноблок обычной ножовкой. Крепятся элементы без труда. Именно за эти и другие положительные характеристики данный материал является очень популярным среди строителей.

Построить баню из пеноблоков можно довольно быстро и легко самостоятельно.

Строительство бани процесс очень ответственный, поэтому требует определенных знаний. Разобравшись в некоторых особенностях этого процесс и узнав основные этапы, возвести баню из пеноблоков возможно, сэкономив средства на найме мастеров.
Преимущества и недостатки пеноблоков
К неоспоримым достоинствам, отличающим и превозносящим пеноблочное сырье от всех остальных, относятся:
- малый вес элементов;
- простота применения;
- не дает усадку;
- притовопожарные характеристики;
- легко транстпортировать и хранить;
- невысокая цена.

Недостатки у пеноблока тоже есть, но их гораздо меньше, чем достоинств:
- менее экологичен в сравнении с древесиной;
- в порах внутри элемента может образовываться конденсат;
- относительно недолговечен.

При четком следовании инструкции, из пеноблочного сырья можно возвести прекрасную парную. Проекты бань из пеноблоков в открытом доступе есть в интернете.
Подготовительные работы
Площадку для будущей парной следует подбирать ровную, там, где грунт довольно плотный. Это место необходимо очистить от различного мусора, после чего можно переходить к работе на земле.

Строительство бани из пеноблоков осуществляется на фундаменте ленточного типа. Для его создания следует выкопать по всему периметру постройки яму, глубина которой от 0,5 до 1 м, в ширь — 30 см.

По всей траншее и в каждой углу забиваются прутки из металла с шагом 1 м. Затем натягивается веревочка. Обязательно следует проверять горизонтальность всей конструкции.

Фундаментальное обустройство
В момент сооружения банного фундамента стоит позаботиться о канализации. Стоит сделать канал, который уклонен в сторону нахождения ямы или иной точки сбора всех стоков.

Далее, при выкладке напольного покрытия, будет оставляться отверстие. Именно через него вода отводится в канализационные трубы.

После траншейное дно засыпается смесью из гравия и песка, этот слой уплотняется. Сверху укладывается арматурная сеточка. Из стальной проволоки делают горизонтальную связку.

Дальше устанавливается опалубка из досок 3 см толщиной и от 10 до 15 см шириной. Щели между уложенными досками не должны быть больше 2 мм. А высота опалубки выбирается так, чтобы будущий фундамент был ниже по уровню щитов на 5-7 см.

Заливается бетон ровными слоями. Затем нужно проделать в нем несколько отверстий, чтобы выходил воздух.
Опалубка остается до полнейшей просушки бетона, примерно от 3 до 5 недель. После демонтажа опалубки получившиеся пустые проемы заполняются раствором.

На уже просохший фундамент укладывается слой гидроизоляции в виде рубероида.

Возведение стен
Когда мы строим баню из пеноблоков, должны понимать, что кладка осуществляется аналогично обычному кирпичу, однако из-за больших габаритов пеноблочных элементов процесс осуществляется гораздо быстрее.

Вооружившись необходимым инвентарем, приступаем к кладке стен. С помощью уровня находится наивысший фундаментальный угол. С него и начнется кладка.

Для парной выбирается пеноблок маркировки М25. Скрепляются блоки обычным цементно-песчаным составом. Кладутся они на ребро.

После выкладки первого ряда элементов необходимо проверить все по уровню. От правильности кладки первого ряда зависят условия эксплуатации готового объекта.

Второй ряд укладывается со сдвигом. Крепятся элементы уже специальным клеевым составом для работы с пористыми материалами. Наносится он слоем в пол сантиметра.

Армирующая сетка с мелкой ячейкой кладется сверху каждого 3-го по счету ряда блоков.

В процессе укладки следует оставлять дверные и оконные проемы. После завершения этого этапа, постройку оставляют на трое суток.

Крыша парной
При построении бани из пеноблоков своими руками, крышу можно делать обычной двускатной. Выбирая длину стропильных ног, следует ориентироваться на угол уклона, показатель ширины парной и условия зоны климата.

Для территорий с преобладающей сырой погодой, рекомендуют делать угол уклона крыши 50 градусов.

Стропила связываются скобами, брусья фиксируются в метре друг от друга. Когда ноги стропил установлены, формируют обрешетку. Ее вид зависит от кровельного материала:
- для рубероидных полотен — двойная;
- шиферных листов –одинарная;
- для черепичных элементов – из бруса 5 на 5.
Крыша утепляется, покрывается материалом пароизоляции и влагозащитой. В конце настилается кровельный материал.

Отделка парной
Все пеноблочные элементы пропитываются составом с влагоотталкивающими свойствами и укрываются пленкой гидроизоляции. Далее парная утепляется:
- Фундамент утепляют с использованием минеральной ваты.
- Подпол засыпают керамзитом и шлаком.

В основании парной делается вентиляционное отверстие, чтобы лишняя влага не накапливалась.

Внутри баня отделывается древесными материалами. Отличным вариантом станет вагонка из сосновых пород. Все досочки обрабатываются антисептиком.

Для напольных поверхностей лучше выбирать керамические плиточные элементы.

Выбранный печной агрегат монтируется на пол, если это металлическая печь, и на отдельный фундамент в случае кирпичных моделей.

На фото бани из пеноблоков видно, что должное внимание следует уделить и внутреннему интерьерному обустройству, подобрав привлекательные удобные скамеечки, столы, полочки.

Фото бани из пеноблоков
















landshaftportal.ru
проект двухэтажной жилой бани с бассейном своими руками, баня с террасой и комнатой отдыха
Содержание:
Устанавливать бани из дерева стремятся не все, так как процесс их возведения является довольно кропотливым, да и поддерживать готовое сооружение в должном состоянии не так-то просто. Поэтому в последнее время потребители все больше обращают внимание на варианты бань из пеноблоков – более удобных в эксплуатации и строительстве. В этой статье мы расскажем, как построить баню из пеноблоков своими руками согласно типовым проектам, а также опишем достоинства и недостатки таких сооружений.

Пеноблок является относительно новым материалом, который в основе своей содержит вспененный или легкий ячеистый бетон. Изначально такие блоки отличались гигроскопичностью, но в современных материалах этот недостаток сведен к минимуму.
Различают три разновидности пеноблоков:
- Газобетон (газоблок, автоклавный пенобетон). Его получают путем добавления в жидкий бетонный раствор алюминиевой пудры. Вступая в реакцию, состав начинает вскипать и пузыриться. В таком состоянии заготовки подают в автоклав, где бетон окончательно затвердевает. Такой материал практически невозможно изготовить в домашних условиях по ряду причин. Промышленное производство позволяет выпускать блоки почти одинакового размера, что сокращает расход материала при строительстве и позволяет делать швы с минимальными зазорами.
- Пенобетон. Принцип производства таких блоков схож с предыдущим видом, но без термического воздействия. Разлитая по формам масса остывает естественным путем, что создает достаточно большой разбег в размерах. Однако такой материал можно изготовить самостоятельно.
- Силикатобетон. Это те же газобетонные блоки, но вместо алюминиевой пудры в них используют известь, придающую материалу белый цвет. Такие блоки имеют самую рыхлую структуру.
Одним из главных преимуществ всех этих материалов является их низкая стоимость. К тому же, благодаря большим габаритам и небольшому весу, строительство продвигается быстрыми темпами. Читайте также: «Какие блоки для бани лучше использовать при строительстве – обзор материалов».

Так что одному человеку вполне по силам построить баню из пеноблоков своими руками –проекты подобных сооружений можно найти в свободном доступе в интернете, либо заказать в специальном учреждении.
Типовые проекты блочных бань
Отметим, что любой проект дома бани из пеноблоков должен включать ряд обязательных помещений – парную, моечную и комнату для отдыха или предбанник. Как именно они будут располагаться, их размеры и функционал – будет определено, исходя из личных предпочтений заказчика и исходных параметров постройки. Впоследствии под все стены и перегородки будет залит фундамент согласно полученному проекту.
Стоит помнить, однако, что если баня из пеноблока с комнатой отдыха будет эксплуатироваться зимой, в предбаннике нужно соорудить небольшой тамбур, чтобы холод не проникал напрямую внутрь помещения. Он может быть внешним или внутренним – по желанию хозяев. Читайте также: «Проект банного комплекса – как всё грамотно спланировать».

Отдельно следует уделить внимание дверным проемам, чтобы дверь занимала в бане как можно меньше места. Что касается печи, то ее выбирают, исходя из параметров парной комнаты, а также того помещения, откуда она будет протапливаться – его тоже нужно нагреть.
Типовой проект бани из блоков 5×5,5 м
Согласно этому проекту площадь парилки составляет почти 6 м2, а моечного помещения – 5,7 м2. Обе эти комнаты оборудованы окнами, чтобы обеспечить вентиляцию в русской бане. Размещают окно в парилке напротив входной двери. По высоте окно располагают ниже, чем обычно – его верхний край должен быть на одном уровне с притолокой двери.

В предбаннике нужно разместить тамбур, если планируется использование бани зимой. По желанию его можно разместить внутри, либо пристроить снаружи. Как вариант, можно установить перегородку, но тогда потребуется переносить дверной проем в другое место (прочитайте: «Как сделать перегородки в бане своими руками – варианты монтажа»).
Блочная баня 6×6 метров
Проект бани из пеноблока с такими размерами позволяет компактно разместить все функциональные помещения для наибольшего комфорта посетителей.
Например, площади отдельных комнат бани могут быть такими:
- комната для релаксации – 11,2 м2;
- раздевалка – 1,7 м2;
- моечное отделение и санузел – 7 м2 и 1,8 м2 соответственно;
- парная – 5,3 м2.

Подача топлива в печку производится из комнаты отдыха. Парная оборудована двумя ярусами лежачих полков и небольшой скамьей для сидения.

Варианты банных проектов с размерами 6×3 м
Можно привести очень много похожих проектов с подобными размерами бани. Отличия в них будут заключаться в расположении печи и месте загрузки топлива в нее, размерах отдельных помещений и их размещении, а также наполнении инвентарем и аксессуарами.
Преимущества и недостатки блочных построек
Одним из положительных качеств пеноблоков является их низкая теплопроводность. По этому показателю стена в 30 см толщиной сравнима с кирпичным массивом в 1,7 метров. Следовательно, бани из газоблоков не нуждаются в дополнительном утеплении – исключение составляет лишь парилка, которую нужно утеплить изнутри.
Однако подобные показатели наблюдаются лишь при монтаже блоков на специальный клей с толщиной швов в 1 мм. А вот при укладке пенобетонных блоков на раствор цемента с толщиной швов в 10-12 мм, тепло будет уходить из помещения значительно быстрее, как раз сквозь цементную прослойку.
Стоит учитывать также и тот факт, что укладывать на клей можно лишь идеально ровные блоки, имеющие отклонения в размерах менее 1 мм. Следует искать именно такие блоки, иначе клея в 1 мм не хватит для выравнивания этих отклонений. По этой причине газобетон укладывают на раствор, а не на клей.
Пеноблоки примечательны еще и тем, что ими легко оперировать. При малых размерах у них малая масса – всего 10-14 кг. Поэтому с работой по возведению стен вполне можно справиться самому. Блоки можно легко разрезать даже незаостренной пилой. В них легко проделывать отверстия и штробы.

По возможности приобретайте блоки с шипами и пазами – так стены будут получаться максимально ровными.
Минусом газобетона считается то, что ввиду своей малой плотности, к ним сложно что-либо прибить. Приходится пользоваться особыми дюбелями. Положительным же качеством считается то, что готовая конструкция выходит легкой, и можно не предусматривать закладку массивного фундамента, а это – значительная экономия.
Дополнительно к недостаткам газобетона можно отнести его чрезмерную гигроскопичность. Поэтому дома с баней из пеноблоков должны обязательно отделываться паро- и гидроизоляцией снаружи и изнутри, а сами блоки дополнительно обрабатываются специальной пропиткой, и организовывается достаточная вентиляция.
Сооружение стен из газоблока
Если строительство двухэтажной бани из пеноблоков осуществляется в средней климатической полосе, то можно использовать материал толщиной в 25-30 см. А вот для возведения бани в северных широтах лучше воспользоваться блоками с толщиной от 35 см. Вместе с тем, теплопроводность газоблоков зависит еще и от их плотности. Чем более рыхлый материал, то есть в нем больше пор с воздухом, тем меньше тепла он выпускает наружу. Однако этот же показатель влияет и на прочность стен постройки.
Зачастую проектом двухэтажной бани из пеноблоков предусматривают сооружение стен из газоблоков марок D400 и D500. Они имеют оптимальный баланс между прочностью и гигроскопичностью. Толщина внешних стен из таких блоков составляет 30 см, а для внутренних перегородок достаточно ширины в 15-20 см.

Если вы хотите построить жилую баню из пеноблоков, стоит позаботиться об армировании каждого 3-4 ряда, чтобы все строение было более прочным и цельным.
В этих целях используют куски арматуры толщиной 12 мм. Их попарно укладывают в заранее прорезанные в блоках штробы.
Проделывать штробы нужно не ближе, чем в 5 см от ребра блока, а глубина ее должна составлять не менее 12 мм. В канал сначала заливают немного раствора, в который погружают арматуру так, чтобы она не выступала над поверхностью. Далее наносят клей и монтируют следующий ряд блоков.
Необходимость утепления
Сразу отметим, что необходимость утепления блочной бани зависит от режима ее эксплуатации. Если в планах париться в бане круглый год, то понадобится выполнить внешнее утепление стен. А вот для сезонного использования, летом в частности, в этом нет смысла, ведь все равно без протапливания в бане будет температура ниже нуля.
Кроме того, нужно позаботиться о внутренней теплоизоляции, чтобы при протапливании печи зимой, не нужно было прогревать еще и стены. Еще одним важным шагом в процессе утепления является укладка пароизоляции, о которой расскажем далее.
Устройство паро- и гидроизоляции стен
Чтобы газоблоки не так стремительно впитывали влагу, их можно покрыть специальными бетонными пропитками с добавлением полимеров, например, «Пенетроном». Такой состав можно нанести на стены бани в два слоя изнутри и снаружи, чтобы защитить их от осадков. Тем не менее, вентилируемый фасад несколько надежнее, ведь не только защищает от воды, но и позволяет выходить накопившемуся в порах материала пару.
А вот в моечной комнате и парилке понадобится оборудовать слой пароизоляции, функцию которой может выполнить специальный материал. Как правило, в парной используют Изоспан ФБ, то есть фольгу с бумажной или картонной основой, а вот для мойки вполне приемлема и обычная пленка.
Изоляционные мероприятия в парной
Стоит отметить, что использование пропитки для блочной конструкции может обойтись достаточно дорого, ведь ее расход достигает 7 литров на 1 м2. Как вариант, можно произвести шпаклевание стен с последующей пропиткой, но такой подход увеличит трудозатраты.
Некоторые проекты бань из пеноблоков с бассейном предусматривают прокладку качественной вентиляции внутри помещения, чтобы можно было обойтись без пропитки. Читайте также: «Как построить баню из пеноблока своими руками – пошаговое руководство».

Внутреннее утепление и изоляция стен парилки будет состоять из таких слоев:
- стартовая обрешетка;
- утеплитель – минеральная вата с минимумом формальдегида, толщиной в 5 см;
- фольгированная пароизоляция, проклеенная на стыках фольгированным скотчем;
- финишная обрешетка, обеспечивающая вентиляционный зазор в 3-5 см;
- вагонка.
При условии вентилируемого фасада, такой метод обеспечивает качественное утепление и просушку газоблоков снаружи. Главное, чтобы пароизоляция в парной была уложена с нахлестом в 10-15 см для надежности.
Рассматривая проекты бань из пеноблоков с террасой, можно обнаружить еще один метод гидроизоляции, при котором влагу удерживают внутри парилки при помощи специального каркаса.
В этом случае на блочные стены набивают один слой пароизоляции, а поверх него крепят обрешетку и зашивают черновую стену. По ней набивается еще один слой обрешетки, в зазорах которой кладут слой утеплителя и закрывают его вторым слоем пароизоляции. Далее устраивается обрешетка под обшивку вагонкой. Отметим, что такой метод сужает пространство на целых 20 см с каждой стороны, что не всегда приемлемо.

При любом из вариантов в стенах снаружи нужно предусмотреть по два вентиляционных окна с дверцами, доходящих до утеплителя, которые позволят высушивать все равно попадающий в него пар. Когда баня топится, эти окна закрывают, чтобы температура внутри не падала.
Нижняя часть стен изнутри на высоту в 10-15 см обшивается керамической плиткой, защищающей от брызг и прямого контакта с водой. Над плиткой можно разместить любой отделочный материал по выбору.
Самый простой и технологичный метод гидроизоляции – оклеивание парилки пеностеклом. Оно достаточно дорогое, однако, очень качественное и не выделяет никаких токсинов. Наиболее качественное пеностекло производят в Европе, чуть хуже – в Беларуси, а самое слабое – в Китае. Для обшивки понадобится специальный клей. Оптимальная толщина слоя – 50 мм.
Работы по гидроизоляции мойки
Для мойки процесс гидроизоции несколько упрощается. Если обшивать стены керамической плиткой, то потребуется лишь небольшая стартовая обработка. Для защиты от влаги стены оштукатуривают, закупоривая поры пенобетона, а потом наносят слой жидкой гидроизоляции на основе цемента.
Такая жидкая пропитка обладает свойствами полимеризации, то есть, проникая внутрь бетона, она создает кристаллическую решетку, препятствующую проникновению влаги.

Этой же пропиткой можно произвести внешнюю обработку стен. Однако затраты материала и средств на это будут достаточно велики. Кроме того, потребуется финишная отделка стен снаружи, поскольку внешний вид после пропитки получается совсем не презентабельный.
Чем отделать стены бани изнутри
Внутренняя отделка стен в постройках из пенобетонных блоков требует отдельного обсуждения. Не возникает вопросов в плане парилки или мойки – там оптимальными материалами будут вагонка и керамическая плитка соответственно.
Остается открытым только вопрос с отделкой помещения для релаксации или предбанника, а также тамбура. Зачастую, в русских банях при отделке этих помещений предпочтение отдают древесине – это и красиво, и выглядит тепло. В таком случае на стены потребуется монтаж пароизоляции, поверх которой крепится обрешетка и обрезная доска.

Вместе с тем, в тех строениях, где предусмотрена качественная вентиляция, пароизоляцией можно пренебречь. Чтобы поры газоблоков могли дышать и отдавать накопленный пар обратно, нужно нашить обрешетку, которая создаст вентиляционный канал в 2-3 см толщиной. Правда, направление обрешетки и движения воздушных потоков в данном случае – вертикальное, а доска нашивается горизонтально.
Монтаж кровли
Ввиду функциональных особенностей газобетонных блоков, возникает немало вопросов относительно установки кровельных конструкций на баню. Что-либо сложное или очень тяжелое соорудить не удастся.
Чтобы надежно закрепить кровлю в верхнем ряду блоков потребуется залить армированный пояс, состоящий из 4 арматурных прутьев, связанных в единый каркас, и залитых бетоном. Продольное армирование выполняют из ребристых прутьев диаметром 8-14 мм, а для поперечных стоек применяют гладкие прутья диаметров 6-8 мм. Поперечные стойки размещают с шагом в 100-150 мм. По высоте такое армирование достигает 20-30 см, исходя из климатических условий региона и ожидаемых нагрузок на кровельную конструкцию.

Существует несколько способов заливки армирующего пояса:
- Сначала по периметру стен нужно закрепить опалубку из необрезной доски, ДВП или плит ОСБ. Внизу опалубка прикручивается к блокам саморезами, а в верхней части соединяется поперечными брусками для надежности. Заливают раствор в опалубку так, чтобы от любого края армированного каркаса до стен было не менее 5 см бетона.
- Специальные пенобетонные блоки с U-образным рельефом могут служить в качестве несъемной опалубки. Для этого из них укладывают верхний ряд стен бани. Внутрь блоков сначала помещают слой влагостойкого утеплителя, устанавливают каркас и заливают слой бетона.
- Аналогичным способом можно изготовить армопояс из тонких стеновых блоков. На стену с краев кладут на клей блоки с размерами 50-60 см. С внутренней стороны блок прокладывают теплоизоляционным слоем, кладут арматуру и заливают цементный раствор.
Бетон для армирующего пояса должен быть марки М 200 или выше, при этом заливка осуществляется за один подход. Чтобы слой был однородным, и он получил повышенную прочность, из раствора должен быть выгнан весь лишний воздух. Если у вас есть виброустройство для бетона, то можно им воспользоваться.
В противном случае нужно взять арматуру и пронизать раствор в разных местах. В жаркую погоду бетон следует укрыть полиэтиленовой пленкой. Переходить к установке стропильной системы можно по прошествии как минимум четырех дней.
banyaspec.com
Проект бани двухэтажной — Строим баню или сауну
Проекты двухэтажных бань

Двухэтажные бани особенно привлекательны тем, что позволяют использовать второй этаж под жилое помещение. Это подходит тем, кто не проживает на даче постоянно, а только лишь приезжает на выходные-праздники.
Проекты двухэтажных бань можно разделить на простые и сложные.
— простые проекты – позволяют получить все необходимое для качественного проведения гигиенических процедур и полноценного отдыха, задействовав при этом небольшую площадь участка. В этом случае, первый этаж отдается под парную и моечную. А на втором можно обустроить жилое помещение.


— сложные проекты двухэтажных бань разработаны для людей, которые хотят подчеркнуть свое благосостояние. Здесь во главу всего поставлен комфорт и удобство пользователей. Первый этаж такой бани включает в себя парную, моечную, зону отдыха, которая может быть обустроена бассейном (фото). Различные хозяйственные помещения – дровницу, тамбур, санузел, прачечную и т.п. Часто здесь же организуют небольшой тренажерный зал. На втором этаже удобно располагать спальни, бильярдную, рабочий кабинет.




Двухэтажные бани обладают очевидными преимуществами, такими как:
- больше полезной площади и одновременная сохранность площади участка;
- сокращение расходов на отопление. На втором этаже теплее за счет влияния горячего воздуха, который поднимается из парной;
- презентабельный внешний вид.
Следует отметить, что проектируется второй этаж одновременно с первым. Поскольку в проекте должны быть учтены нормативы допустимых нагрузок. Кроме того, нужно продумать все коммуникации: провести водопровод, устроить в бане вентиляцию и многое другое. Их, в двухэтажном строении провести сложнее, нежели в одноэтажном. Ведь строение должно быть не только многофункциональным, но и в первую очередь безопасным и прочным.
Выбрав один из готовых проектов или создав вместе с архитектором свой собственный вы получите баню и жилые помещения, соединив, таким образом, воедино и приятное, и полезное.
Проекты двухэтажных бань: простые и сложные проекты, фото
Двухэтажные бани особенно привлекательны тем, что позволяют использовать второй этаж под жилое помещение.
Источник: banizhar.ru
Проекты двухэтажных бань: удобство и комфорт
Сегодня многие дачники и владельцы загородных участков предпочитают не только мыться и париться в бане, но и отдыхать. А полноценный досуг невозможен без комфортных условий – наличия санузла, кухни, гостиной. Проекты двухэтажных бань предполагают совмещение в себе нескольких функций.

Два этажа – практично для небольших участков
Совсем недавно в моду вошли бани, где на первом этаже расположен полный банный комплекс, санузел и кухня. А на втором полноценные жилые помещения – спальни и гостиная. Зачем строить на участке два одноэтажных дома и оставлять меньше свободной земли под сад и огород, когда можно построить один.
Преимущества двухэтажных бань

Фото полноценной жилой комнаты на втором этаже
Приступая к строительству, надо обдуманно подойти к выбору проекта. Если площадь участка не позволяет установить несколько хозяйственных построек и жилой дом, то двухэтажная баня – отличный выход.
Она обладает целым рядом преимуществ:
- Занимает меньше места на участке, но она более функциональна и вмещает большее количество помещений;
- Низкие затраты на отопление второго этажа – горячий воздух из парилки поднимается вверх и обогревает комнаты;
- Строение имеет презентабельный внешний вид;
- Можно установить внутри небольшой бассейн, для него просто найти место.
Многочисленные проекты двухэтажной бани предполагают и наличие полноценной системы коммуникаций. То есть в доме можно жить, если не постоянно, то непродолжительный период времени, в том числе и зимой.
Особенности размещения коммуникаций

Цена такого проекта зависит от уровня укомплектованности
Система инженерных коммуникаций сильно отличается от той, что применима к обычной бане или дому.
Тут важны многие факторы:
- Организация вентиляции второго этажа;
- Монтаж отопления – чаще всего используются радиаторы, равномерно установленные в комнатах. Они могут работать или от электрического котла или от банной печи, когда она не используется;
- Чертеж должен предполагать наличие котельной.
Проект двухэтажной бани с террасой предусматривает, что банный комплекс, расположенный на первом этаже, соседствует с гаражом и имеет с ним общую стену. Обязательный элемент – внутренняя лестница между этажами.

Баня с небольшой террасой
Обратите внимание! Для избавления от сточных вод необходимо установить септик или подключиться к коллектору. Если канализационные отходы будут расположены близко к источнику питьевой воды, то они загрязнят его отходами.
Этапы строительства двухэтажной бани

Собрать своими руками баню можно
После того как на участке выбрано подходящее место, пора приступать к многоступенчатому строительству. К нему надо подойти очень серьезно и ответственно, строго соблюдая технологию. Ведь баня сооружается не на один год и должна быть собрана правильно.
Строительство включает следующие обязательные этапы:
- Проектирование . От соблюдения всех норм и требований будет завесить долговечность конструкции;
- Проведение подготовительных работ и подбор строительных материалов . Дерево для бани должно быть хорошо просушенным и обработанным защитными составами, не иметь смолистых участков и сучков;
- Сооружение фундамента – ленточного или столбчатого . Закладывается он на глубину промерзания грунта, тип зависит от материала. Проект двухэтажной каркасной бани в силу легкости конструкции требует, например, простого столбчатого фундамента из асбестовых труб;

Основа – асбестовые трубы
- Сборка сруба на участке. Работа идет согласно нумерации, указанной на бревнах, профилированном или клееном брусе;
- Подготовка и монтаж кровли;
- Утепление пола и стен в бане при помощи джута, пеньки или льноватина;
- Монтаж дымохода, при этом учитываются такие показатели, как устойчивость к коррозии и огнеупорность. Важно и обеспечение полноценной тяги;
- Устанавливаются двери и окна в баню. По технике безопасности все двери должны открываться наружу;
- Обработка бани пропиткой, предотвращающей возникновение пожара, появление насекомых, способных повредить древесине;
- Внутренняя отделка помещений – монтаж каменки, чистовая отделка банного комплекса, декорирования жилых комнат.

Проект двухэтажной бани 6х6 с мансардой
Баня двухэтажная из пеноблоков

Баня из пеноблоков
Баня двухэтажная из пеноблоков несколько уступает по экологичности деревянным срубам.
Однако, она имеет некоторые плюсы:
- Быстро возводится;
- Имеет легкий вес;
- Не боится пожара;
- Внутреннюю отделку провести проще, чем в строениях из кирпича или бетона.
Проект двухэтажной бани 5х8 из пеноблоков
Инструкция к строительному материалу говорит о том, что необязательно сооружать мощный фундамент. Подойдет ленточный вариант, так как конструкция имеет небольшой вес. Чтобы защитить строение от влаги, исходящей от почвы, применяется рубероид. Внешние стены здания обязательно нуждаются в отделке, так как пеноблоки не относятся к декоративным материалам.
Примечание! Печь для бани из пеноблоков подойдет любая печь. Можно купить готовую в магазине или сложить каменку самостоятельно из кирпича.

Для начала тщательно продумайте план здания
Двухэтажная баня – отличный вариант для тех, кто хочет объединить комфортный отдых и гигиенические процедуры в одном месте. Никакая душевая кабина не заменит банные процедуры.
Зачем сооружать на участке два отдельных строения, когда все можно объединить в одном, да еще и устроить внутри бассейн.
Проекты двухэтажных бань 5х8, 6х6 с террасой: каркасной, видео-инструкция по монтажу своими руками, фото
Проекты двухэтажных бань 5х8, 6х6 с террасой: каркасной, видео-инструкция по монтажу своими руками, фото и цена
Источник: 9ban.ru
2 этажные бани из бревна или бруса: проекты, фото, чертежи
Когда вы задумали строительство бани, неминуемо возникает вопрос: «А может, стоит сделать ее двухэтажной?». Если позволяет бюджет и есть желание, можно строить два этажа: при незначительном удорожании стоимости (примерно на 25-30%) вы получаете почти двойную площадь. Почему почти? Потому что немалый кусок — по минимуму два квадрата — «съест» лестница. Тем не менее, перенеся комнату отдыха на второй этаж, вы сможете сделать остальные банные помещения более просторными. Но у такого решения есть минус: ноги с непривычки после беганины по лестнице могут «гудеть». Потому, наверное, комната отдыха на втором этаже располагается нечасто. Обычно там жилые или гостевые комнаты.
Проекты двухэтажных бань
Для каждого лучший проект — свой. У всех у нас разные привычки и представления о том, как правильно париться в бане. Кто-то предпочитает суховоздушную сауну и ему нужна небольшая парилка: быстрее нагревается. А кто-то предпочитает нежаркую русскую парную, да еще хорошо поработать веником. Тут парилка должна быть больше.
Тоже относительно моечной. Там может быть только душ да обливное ведро, и тогда большая площадь ни к чему. А иногда в моечной устанавливают купели, некоторые даже немалых размеров. А еще бывают мойки с высокими температурами — порядка 30-40°C. В них тогда ставят деревянные топчаны, типа полоков, и отдыхают во влажном и теплом воздухе, не выходя в прохладную (относительно этих помещений) комнату отдыха. Тогда и площади должны быть соответствующими.

Как можно менять планировку, исходя из своих предпочтений. Это проект бани 6 на 3, а в больших размерах возможностей еще больше
Но есть несколько правил, которые универсальны:
- Если планируете баню использовать и зимой, входная дверь не должна вести напрямую в комнату отдыха. Должен быть закрытый тамбур. Его можно пристроить, выгородить на веранде или в комнате отдыха. Размеры совсем небольшие — открыть двери и зайти, но так холодный воздух попадает в помещение намного меньше.
- Двери в парилке и моечной должны открываться наружу.
- Для русской бани в парилке должны быть окна. Именно так: два окна. Одно напротив двери размером 50*50 см, второе небольшое под полоком. Эти окна нужны не столько для освещения, сколько для вентиляции. Между заходами в парную необходимо основное окно и двери в парилку открыть, проветрить. Затем снова готовить парилку. А окошко под полоками помогает после бани проветрить саму проблемную область, где обычно и начинаются проблемы.
- В моечной окно тоже необходимо . Служит оно тоже для проветривания, а еще для эвакуации. Так что тут размеры должны быть чуть больше. Если вас смущает, что в них будут заглядывать, поставьте узорчатые или непрозрачные стекла. И проблема решена.
- На втором этаже при планировании помещений в первую очередь нужно определить где будет проходить дымоход, и как его огородить.
Основываясь на этих правилах, вы из любого проекта более-менее подходящего для вас, сможете сделать свой идеальный вариант планировки бани.
Проект первого этажа бани 6 на 6 + терраса
В этом варианте планировки бани уже выгорожен тамбур. В нем можно будет сделать или поставить шкаф для хранения верхней одежды или банных принадлежностей. Лестница находится в дальнем углу комнаты отдыха.

Проект планировки первого этажа двухэтажной бани из бруса
Площади помещений получаются такие:
План двухэтажной бани 6 на 6 с двумя входами
Интересный проект бани, подходит для размещения на широкой стороне участка. Имеется два крыльца с пристроенными тамбурами. Одно используется как котельная — оттуда топится банная печь, второе — для входа в комнату отдыха. Единственный минус в этой планировке — моечная от парилки находится через тамбур. Не самое лучшее решение: раздевшись придется проходить через помещение голышом, да еще и помещение холодное. Чтобы устранить его нужно сделать котельную длиннее, и тамбур перенести на место моечной. Это также устранит возможность появления сильного сквозняка — из двух дверей, расположенных напротив.

Интересный проект 2 этажной бани с двумя входами
В данной планировке площади помещений такие:
- парилка 5 м 2 ;
- моечная 5,6 м 2 ;
- тамбур 1 — 3,9 м 2 ;
- тамбур 2 — 2,5 м 2 ;
- комната отдыха 21 м 2 ;
- терраса 12 м 2 ;
- спальня на втором этаже — 34 м 2 ;
Планировка бани из бруса 5 на 5
За счет того, что по 20 см уходит на создание соединений по углам, «в чистом виде» размер внутренних помещений будет 5 на 5 метров, а по наружному, для фундамента — 5,4*5,4.
В этом проекте парилка имеет приличные размеры — 2,4 на 2,2 метра. В таком варианте можно поставить угловой широкий полок. Один человек сможет лежать, а еще двое — сидеть. Топится печь из комнаты отдыха, одной из стенок выходит в моечную. Рациональное расположение, позволяющее отопить все помещения. Единственное — мощность печи нужно будет брать с приличным запасом.

Проект двухэтажной бани
Площади помещений в таком варианте бани:
- парилка 5,3 м 2 ;
- моечная 3,6 м 2 ;
- тамбур — 3,6 м 2 ;
- комната отдыха 15 м 2 ;
- спальня на втором этаже 25 м 2
Особенности двухэтажных бань из бруса
До начала строительства двухэтажной бани придется продумать не только стандартный набор вопросов, насчет утепления и гидроизоляции, но добавятся еще новые:

Второй этаж из бруса или бревен не обязательно делать полностью. Выгнав его на некоторую высоту, остальное можно «добрать» кровлей». Получится баня в полтора этажа…
- Как сделать отопление второго этажа. Наиболее распространенный вариант — от трубы банной печи. Но топиться эта печь лишь время от времени, так что необходим второй источник тепла. Это может быть вторая дровяная печь, но уже отопительная. Причем дымоходы должны быть раздельными, иначе дым от верхней печи попадает вниз. В результате оба этажа оказываются задымленными. Часто в качестве источника тепла используют электрические обогреватели, но это если нет перебоев с электропитанием.
- Продумать систему вентиляции или герметичный люк. Если у вас русская баня, лучше и то и другое. Пар поднимается вверх. Его нужно или не пустить на второй этаж (люк) или эффективно вывести (система вентиляции).
И еще вам придется решить, будете вы делать полноценный второй этаж — выгонять стены на всю высоту. Ведь можно сделать мансарду — часть стены будет из бруса, а часть закроется кровлей. Первый вариант более дорогой но второй этаж получается такой же площади, как и первый. Второй — с мансардой — более экономный, но площадь помещений за счет скатов кровли получится меньше.

Так нужно скреплять стены, чтобы их не повело при усушке. Вместо железного бруса ставят еще деревянный
Если решите делать мансарду, ее можно тоже сделать по-разному — уложить несколько венцов — три-пять, а все остальное «добрать» крышей. Но тогда крыша должна иметь более сложную ломаную конструкцию. Второй вариант — полтора этажа — это когда из бруса возводят стенку метра на полтора, и только потом идет кровля. Тут можно сделать обычную двускатную кровлю, но с большим уклоном.
Есть еще более экономный вариант: первый этаж сделать из сруба, второй — по каркасной технологии. И в бане будет дерево, и нагрузка на фундамент будет не такой большой. Причем будет тепло. Отличный, да еще и недорогой вариант 2-х этажной бани.
Еще один совет, основанный на практике: перегородки внутри лучше делать каркасные. Во всяком случае, ту, через которую будет проходить печка (если топиться она будет из другой комнаты). Иначе весь брус будет порезан на небольшие куски, ведь чаще всего дальше идут двери в парную. В результате вся перегородка состоит из небольших сегментов, а скрепить их так, чтобы крепеж не мешал усадке (сделать обсаду) — та еще морока.
Планировка двухэтажной бани
По опыту многих обладателей бани самый оптимальный размер деревянной бани — 6*6 метров. Дело в размерах пиломатериалов: именно шестиметровые брусья, доски и другие пиломатериалы считаются стандартом. Потому проблем с материалами не возникает. Причем отходов получается тоже минимум.
Второй плюс такой бани — помещения получатся более-менее просторными. Это только на первый взгляд кажется, что площади будет много. В реале, разложив все на бумаге по полочкам, учтя толщину стен и перегородок, отделки, вы будете поражены, тем, что помещения получаются совсем миниатюрными.

Лестница займет, как минимум два квадратных метра
Разрабатывая планировку соей бани, так и поступите. Нарисуйте крупно в масштабе план бани. В том же масштабе прорисуйте простенки и стены, впишите лестницу, нарисуйте печку. А потом посчитайте, сколько «в чистом» виде останется площади. Чтобы это не было для вас неприятным сюрпризом по факту строительства.
Но не все могут финансово «потянуть» такую стройку. Тогда, исходя снова-таки из размеров материала, меньше отходов будет в бане из бруса 6*3 м. Проекты есть и для такого варианта, только в этом случае придется или делать совмещенную парилку с моечной, или переносить комнату отдыха на второй этаж.
С другой стороны, можно сэкономить на стройматериалах, если строить, например, баню 6*4 или 6*5. Все пиломаетриалы, которые имеют меньшую длину, чем 6 метров считаются нестандартом. Но такая длина тоже получается достаточно часто. И этот нестандарт продают по ценам, намного ниже. Что характерно, качество древесины при этом не ухудшается.

Так формуют чаши из бруса
Однако качественный материал нестандартной длины нужно искать. Если вас не пугает необходимость вести поиски, можно вполне ощутимо сэкономить. Только один момент: покупать стандарт и нестандарт желательно на одной лесопилке — параметры бруса или доски будут одинаковыми. Ни для кого не секрет, что есть определенные погрешности в геометрии пиломатериалов, размеры выдерживают с точностью до миллиметра далеко не все производители. Так что если часть материала закупить на одном предприятии, а часть — на другом, могут возникнуть проблемы со стыковкой.
Проекты двухэтажных бань из бруса и бревна: чертежи, фото, планировка
Если уж строить баню из бруса, то двухэтажную: при незначительном удорожании получаете еще почти столько же площади. Выбрать один из вариантов вам помогут
Источник: baniwood.ru
Подборка проектов двухэтажных бань

Одноэтажная небольшая банька с парилкой и предбанником? Это уже прошлое. Сегодня в бане хотят видеть место, где поправляют здоровье, получают удовольствие и проводят досуг. А потому строительство современной бани сегодня значительно отошло от каких-либо шаблонов – главным критерием проектирования стал комфорт. И в моду прочно вошли функциональные и экономные двухэтажные бани, где на первом этаж располагается стандартный банный комплекс, а на втором уже размещаются комната отдыха и другие жилые помещения.
И действительно, к чему строить отдельную баню и дом, если их можно легко и с огромной выгодой соединить во что-то одно? Так, многие проекты бань двухэтажных предусматривают такую конструкцию парной, в которой смело можно делать на втором этаже целое полноценное жилье. На первом: парилка, моечная, санузел, кухня и подсобные помещения, а на втором – гостиная, спальни, домашний кабинет и тренажерный зал. Возможности – неограниченны, если второй этаж бани делается действительно основательно.
Чем хороши двухэтажные бани?
Итак, для чего разрабатываются проекты? Какие преимущества для парной дает второй этаж? А вот какие:
- Двухэтажная баня обладает намного большей компактностью помещений и занимает на участке намного меньше места, чем одноэтажная той же суммарной площади.
- Второй этаж бани обогреть намного легче, чем первый – все благодаря поднимающемуся вверх горячему воздуху из парилки.
- Внешний вид двухэтажная баня имеет куда солиднее и презентабельная, чем обычная.
- Самым популярным сегодня считается вариант двухэтажной бани с бассейном – ведь именно в таком строительстве на него легко находится место.
В общем, преимущества проект двухэтажной бани из бруса имеет неоспоримые – но только выбирать его нужно непременно из уже готовых, разработанных профессионалами. Ведь это – второй этаж, что значит межэтажное перекрытие и определенные строительные нормы. Вот почему единственный проект, который можно составлять самостоятельно – это проект двухэтажной бани из пеноблоков ввиду легкости материала, да и то это нежелательно. Готовые, и только готовые.
Особенности размещения коммуникаций
Все инженерные и коммуникационные системы в двухэтажной бане серьезно отличаются и по своей сложности, и по своему назначению от тех, что бывают обычной парной. На этот раз важна каждая мелочь: как будет функционировать вентиляция для второго этажа, где именно будет расположен санузел, куда будет выходить дренаж, чем и как будет топиться такая баня. К слову, обогревается такой второй этаж не за счет теплого пола из-за поднимающегося в парилке горячего пара – здесь уже не то межэтажное перекрытие, что при оборудовании мансарды. В этом случае чаще всего ставятся радиаторы, которые могут работать попеременно от общей печи бани и во время ее неиспользования – от электрического котла, к примеру. Для этого проект обязательно должен предусматривать наличие отдельного котельного помещения, и желательно, что вся система отопления в такой бане управлялась с помощью пульта.
А вот самыми рациональными вариантами сегодня были признаны такие: первый этаж – это непосредственно баня и гараж, которые имеют одну общую стену и сами по себе занимают немало площади. А вот второй – это уже полноценный жилой дом, с небольшой террасой на втором этаже и внутренней лестницей на первый. Все в одном – и рационально, и экономно, и современно. В Финляндии, к примеру, жилой дом и даже городская квартира просто не представляется без хорошей сауны – вот и в России это становится нормальным.
Проекты двухэтажных бань из бруса и бревна: подборка вариантов
Все о проектировании двухэтажных бань: тонкости и нюансы, большая фотогалерея готовых бесплатных проектов и советы по их подбору. Проекты двухэтажных бань и многое другое.
Источник: stroy-banya.com
Бани, сауны и бассейны
Каждый владелец загородного участка хоть раз раздумывал о строительстве бани. И не исключено, что подыскивал приемлемые готовые проекты данных сооружений. В процессе отбора застройщики нередко отдают предпочтение двухэтажным баням из оцилиндрованного бревна, а также выбирают вариант строительства своими руками, так как бани от фирмы-застройщика – хлопотное и затратное дело. Но сегодня двухэтажные бани уже не удивляют никого: в коттеджных поселках все чаще встречаются шикарные просторные срубы под баню.
Проекты двухэтажной бани
Обдумывая процесс строительства и обустройства бани собственными силами, стоит позаботиться о подготовке надежного проекта. На сегодняшний день возрастает популярность проектов двухэтажной бани из кирпича, в которых кроме самой бани предусмотрена и жилая зона отдыха. Можно, конечно, построить простое одноэтажное строение, а потом возвести недалеко домик отдыха, но делать постройку 2 в 1 всегда дешевле.

При выборе двухэтажной бани после посещения парной на первом этаже получится отдохнуть на втором. Второй этаж можно применять под жилье, которое попросту располагается над банькой. Для оборудования жилого пространства принято использовать пристройку, террасу и даже беседку. При выборе любого решения вам удастся воссоздать одну постройку с несколькими функциональными назначениями. В двухэтажной бане можно использовать второй в качестве мастерской.
Для строительства просто необходимо грамотно подобрать проект двухэтажной бани 6 на 6, который должен соответствовать реалиям застройщика. Очень важно правильно определить габариты будущей бани. Размеры парилки и непосредственно самой баньки зависят от числа гостей, что будут принимать банные процедуры. Самые компактные двухэтажные бани с комфортом вместят семью, состоящую из 4-5 человек.

Если же вы желаете посещать такую баню большой компанией или проживать на втором этаже, то лучше выбрать постройку попросторнее.
На первом этаже при возведении двухэтажной бани должны остаться сама парная, предбанник и моечная комната. Все остальные помещения рекомендуется переместить на второй этаж: комната отдыха, спальня, чайная, бильярдный зал. На вторых этажах в последнее время принято устраивать домашний SPA-салон, гармонично дополняющий процедуры в парилке.
Здесь устанавливают вибромассажеры и тренажеры, чтобы превратить простую баню в настоящий оздоровительный комплекс. Обычно выбирают проекты двухэтажных бань с бассейном больших размеров, форма которого ограничивается исключительно фантазией.
Достоинства двухэтажных бань
Двухэтажная баня является не просто знаком уюта и комфорта, удобства и практичности, это демонстрация достатка, статуса и отменного вкуса хозяева. Если вы экономически грамотно, выгодно и рационально используете собственную территорию, воплотите в жизнь многофункциональный объект, что будете в дальнейшем использовать в соответствии с личными потребностями, нуждами и желаниями, вы получите комфорт, отличную организацию досуга и удобство высокого класса.

Если вы немного стеснены в денежных средствах, всегда можно на своем участке обустроить компактную двухэтажную баньку, в которой кроме традиционных гигиенических процедур получится дополнительно устроить склад для хранения инвентаря и спальное место. Снизить расходы можно, выбрав строительство двухэтажной бани с мансардой, — за счет «экономичной» конструкции мансарды по сравнению со строительством полноценного второго этажа, а также за счет использования каркасной технологии и удешевления строительства фундамента под легкое каркасное строение.
Если предостаточно свободных площадей и вы не планируете экономить, тогда вполне сможете объединить классическую баньку на дровах с финской сауной, построить полноценный бассейн и широкую террасу, устроить в дополнение ко всему несколько комнат отдыха, предусмотреть наличие отдельных санузлов, выделить бильярдную зону и тренажерный зал, обыграв все это в одном стиле.
Выбор места для бани
Вопросу расположения бани на земельном участке принято уделять особое внимание. Самым лучшим вариантом для размещения двухэтажной бани из клееного бруса считается место у какого-то водоема. Но подобные участки, к сожалению, выступают большой редкостью. Но если вы стали счастливым обладателем удивительного участка земли с выходом на озеро, то следует знать некоторые особенности такого расположения постройки.
Постройка не должна размещаться непосредственно у воды или в местах возможного затопления в период весеннего паводка. Баню следует строить минимум в 20-30 метрах от водоема. Грязная используемая вода из бани не должна выливаться в водоем. Если водоем далеко от вашего участка, то его получится заменить бассейном, установленным непосредственно перед баней.
Прекрасным местом для двухэтажной бани из бруса станет возвышенность, которая позволяет создать канализационную систему, функционирующую за счет естественного уклона. Существуют рекомендации, которые касаются правильного размещения бани. Вход в постройку должен быть с южной стороны, так как именно на южной стороне в зимние месяцы меньше снега, который тает быстрее.
Окна бани нужно сделать с западной или юго-западной стороны, потому что в вечернее время, когда чаще всего топят парную, здесь солнце, лучики которого проникают в маленькие оконца и поднимают гостям настроение. Также при размещении двухэтажной бани нужно учитывать розу ветров, чтобы жилье впоследствии не задувалось дымом.
Правила строительства двухэтажной бани
Начиная строить двухэтажную баню своими руками, определитесь, сколько гостей она будет принимать. Именно исходя из этих данных, принято составлять дальнейшие сметы затрат, чертить проекты, планировать площадь, калькулировать количество необходимых материалов, предполагать временной период всех строительных работ. Особенно тщательно подойдите к вопросам создания вентиляционной и канализационной систем двухэтажной постройки. Постарайтесь, чтобы грязные сточные воды в близлежащие водоемы не попадали и не загрязняли их.

Самым популярным материалом на сегодняшний день для строительства двухэтажных бань большого размера выступает брус, который является экологически чистым, простым в эксплуатации и установке природным материалом. Помните, что любые бани из древесины должны включать мероприятия по нейтрализации пожароопасности деревянных построек, по пропитке досок и бревен специальными составами, которые противостоят воспламенению.
Строительство двухэтажной бани
Свой дом для многих людей остается отдаленной перспективой, а вот дачный участок является настоящим. Если вы не планируете проживать на дачном участке постоянно, то не обязательно на нем возводить два строения, что будут простаивать большую часть времени. Так обычно возникает идея создать проект двухэтажной бани из бруса и потом соорудить баню-дачу для непродолжительных визитов на выходных.
В первую очередь разберитесь с фундаментом. Двухэтажная банька отличается большим весом, поэтому и требует создания достаточно заглубленного и мощного фундамента. Тем более если вы собрались использовать для облицовки постройки тяжелые материалы. Если двухэтажная баня имеет небольшие размеры, то достаточно хорошо утеплить стены, а если планируете построить огромную баню, то стоит задуматься о полноценном отоплении.

Обычно для подобной цели принято строить кирпичную печь. Хоть прогрев в этом случае занимает много времени, но он будет равномерным и сохранится на протяжении долгого времени. Так для парной будет хорошая температура, но очень важно, что без перегрева второго этажа. К слову сказать, создание обогрева второго этажа не нуждается в дополнительных затратах, так как это возможно сделать за счет дымоходного канала. Помните только об утеплении стен. Если хозяева планируют второй этаж эксплуатировать зимой, то простейшей кирпичной печи для качественного прогрева на оба этажа не хватит. В этом случае рекомендуется прибегнуть к газовому отоплению.
Если вы собрались хотя бы летом жить на втором этаже, то нужно подумать о водоотводе. Нельзя дренажный колодец размещать возле источника питьевой воды — скважины или колодца. Если расстояние небольшое, то все канализационные стоки попадут в грунтовую воду, из которой осуществляется забор питьевой воды. Оптимальным решением считается наличие коллектора, в который врезается труба. Если нет коллектора, то поодаль от бани проведите специальную трубу для слива воды в ров.

Попадать на второй этаж домика-бани принято через лестницу. Если вы будете часто посещать второй этаж, то наверняка хотите, чтобы лестница идеально подходила для этого. Поэтому стоит подумать об удобстве пользования лестницей. Обычно применяют витиеватые лестницы, что способны экономить пространство. Однако вместе с этим подъем по подобной лестнице комфортным не назовешь. На фото двухэтажных бань видно, что в качестве лестницы можно разместить громоздкие ступеньки.
Главное лестницу не ставить снаружи стены. Подобное решение в самой бане места не «украдет», но является крайне не удобным для использования: после парной вряд ли вы захотите подниматься по такой лестнице. Главное, чтобы лестница в вашей бане не скользила и на организм не создавала лишнего напряжения.
От бассейна не стоит отказываться, даже если ваш проект двухэтажной бани из бревна не предполагает его строительства. Дополнительную пристройку с бассейном можно сделать всегда, если место позволяет. В этом случае постройте рядом с домом-баней помещение наподобие летней веранды, при этом новое помещение должно иметь с баней одну общую стенку. Также можно прибегнуть к строительству бассейна под террасой. Закрепите для этого навес на прочные стойки, которые нужно вставить в землю. В результате после парилки вы будет плавать на свежем воздухе в прохладном бассейне.
Как вы видите, существует много различных проектов двухэтажных бань из кирпича, бруса и бревна. Согласно выбранному проекту можно в бане создать бассейн или разместить постройку возле водоема. Но помните, что самое идеальное расположение двухэтажной бани – это отдельно стоящая постройка на окраине участка возле водоема, окруженная растительностью и размещенная согласно всем правилам пожарной безопасности и санитарным нормам.
Двухэтажная баня своими руками, Строительный портал
Бани, сауны и бассейны Каждый владелец загородного участка хоть раз раздумывал о строительстве бани. И не исключено, что подыскивал приемлемые готовые проекты данных сооружений. В процессе
Источник: strport.ru
banya-ili-sauna.ru
фото, чертежи, особенности строительства своими руками
Далеко не все хотят ставить деревянные бани: мороки с ними очень уже много, причем и при строительстве, и при эксплуатации. Хоть и не «по феншую» использование не деревянных материалов, но бани из пеноблоков ведут себя в этом плане намного лучше. Главное при строительстве своими руками правильно выбрать проект, а потом все сделать по технологии . И никаких проблем не будет.
Пеноблоками называют пенобетоны или ячеистые легкие бетоны. Этот материал далеко не новинка, но с развитием технологий получает все более широкое распространение: новые материалы позволяют устранить недостатки, которые им присущи (гигроскопичность). Пеноблоки — это три разных материала, созданных по схожей технологии:

Бани из пеноблоков: пусть и не по фен-шую, но в эксплуатации без проблем
- Газобетон. При изготовлении в разведенный с водой цемент добавляется алюминиевая пудра. В результате химической реакции масса начинает пузыриться. На определенном этапе ее помещают в автоклав, где газобетон твердеет. Из-за особенностей технологии производство в частном порядке затруднительно — автоклавы недешевое оборудование. Потому делают их на предприятиях и именно в этой группе размеры блоков имеют самые незначительные отклонения. Хорошая геометрия позволяет шов при кладке делать минимальным, что уменьшает расходы на строительство. Иногда этот материал называют автоклавным пенобетоном а еще газоблоком.

Силикатобетон имеет белый цвет, газоблоки и пеноблоки — серый разных оттенков
- Пенобетон. Технология похожа, но без температурных воздействий. В цементный раствор добавляется пенообразователь, масса перемешивается, затем разливается в формы. Твердеет в естественных условиях. В этой технологии все просто и можно такой материал готовить на дому, но блоки получаются с достаточно большими припусками по размерам.
- Силикатобетон. Это газобетон, в котором в качестве вяжущего элемента используется известь. Отличается он цветом — он белый, имеет большую гигроскопичность среди всех представленных материалов.
Пенобетон любого типа хорош тем, что имеет относительно невысокую цену. Ко всему строится здание быстро, так как блоки имеют большие габариты и при этом весят чуть больше десяти килограммов. С переноской, укладкой легко справится один человек. Не удивительно, что все чаще бани ставят из пеноблоков: их можно построить своими руками. Нужен только проект, который можно немного изменив, реализовать самостоятельно. Ниже расположены готовые чертежи бань разных размеров и форматов.
Содержание статьи
Проекты бань из пеноблоков
Сразу оговоримся о том, что должно присутствовать в планировке хорошей бани. Традиционно на всех чертежах бань присутствуют парилка, мойка и комната отдыха. Распределение площадей при этом может быть самым разным: большая парилка и маленькая мойка, наоборот, просторная комната отдыха небольшие функциональные помещения. Выбираете то, что вам больше нравится и кажется более правильным: у всех разное представление о том, как все должно быть организовано. Причем не бойтесь передвигать перегородки так, как вам удобнее, под них потом поставите фундамент и все будет отлично.
Что несомненно, так это то, что при зимнем использовании бани вход должен быть не напрямую в комнату отдыха, а через тамбур. Если его в проекте бани, который вам понравился нет, его можно или выгородить — если позволяют площади и конфигурация, или пристроить снаружи.
Обратите внимание на положение дверей. Они должны располагаться так, чтобы отнимать как можно меньше места, ведь проходы никак нельзя эксплуатировать. Печь подбирают по объему парилки, но берут с запасом, особенно если топить ее будут из другого помещения. Тепло будет частично уходить на отопление этого помещения, а значит, нужна большая мощность. О выборе дровяной печи для бани читайте тут.
Подробнее о планировке бани читайте в статье «Оптимальная баня: какая она?»
Проект бани 5 на 5,5 из пеноблоков

Небольшая баня из пеноблоков. Трехмерный чертеж
В этом варианте планировки парилка имеет довольно большую площадь — чуть меньше 6 квадратов. Самое маленькое помещение — моечная — 5,7 м2. Обратите внимание: и в парилке и в моечной присутствует окно. Оно и должно быть в русской бане для обеспечения вентиляции между заходами в парилку. Располагаться оно должно на стене, противоположной входу. Но вот по уровню опустить его нужно будет ниже: верхний край окна должен находиться на одном уровне с притолокой двери. Подробнее о том, как располагать окна в бане читайте в статье «Банные окна: где ставить и каких размеров»
Относительно тамбура мы уже писали, если планируете париться и в зимнее время, или отгородите часть комнаты отдыха, или пристройте тамбур снаружи. Поставить перегородку при такой планировке будет проблематично: придется переносить двери в другой угол. Но это неплохой вариант. На фото ниже вы увидите реализацию данного проекта. Баня построена из газоблоков, планируется кровля из металлочерепицы.

Фото готового проекта бани из пеноблоков
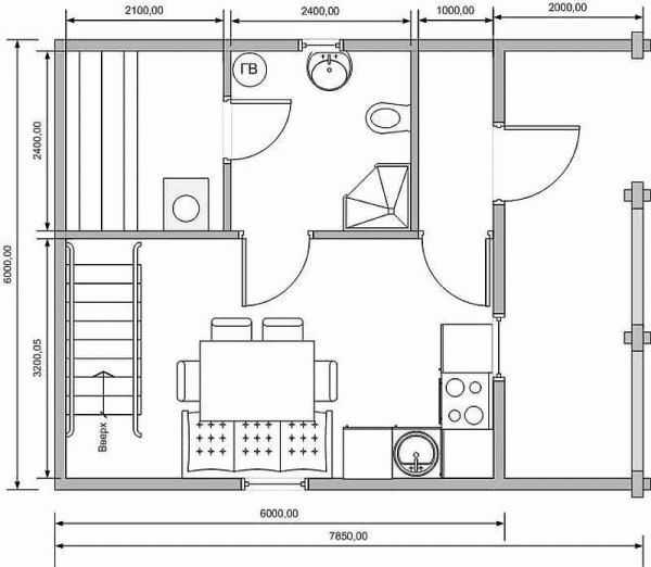
Проект бани 6 на 6 из пеноблоков
Хорошо продуманная планировка компактной и функциональной бани представлена на фото ниже. Проект нарисован с учетом толщины стен и простенков, есть «чистые» размеры помещений. На плане не отмечены входные двери и окна, тамбур будет пристроен снаружи.

Проект бани из газоблоков
Помещения получились с такими площадями:
- парилка — 5,3 м2;
- мойка — 7 м2;
- с/у — 1,8 м2;
- раздевалка — 1,7 м2;
- комнтата отдыхка — 11,2 м2;
Печка топится из комнаты отдыха, в парилке разместились двухъярусные полоки для лежания, и есть небольшая полка для сидения.

Чертеж бани из газоблоков с верандой
Планировка бани из пеноблоков 6 на 3 (несколько проектов)

Варианты планировки бани 6 на 3 из газоблоков
Это далеко не единственные варианты планировки бани 6 на 3. Как видите, отличаются они размерами парилки и душевой, а также расположением их относительно друг друга. В одном варианте также установлена печка, которая топится из парной, в двух других — из комнаты отдыха.
О том, как установить печь в бане читайте тут.
Достоинства и недостатки бань из пеноблоков
Пенобетонные блоки хороши тем, что строения из них получаются очень теплыми и легкими. Стена из газобетона толщиной в 30 см имеет характеристики по теплопроводности аналогичные массиву в 1,7 м из кирпича. Это значит, что при строительстве дома в дополнительном утеплении он не нуждается. При строительстве бань (при достаточной толщине стены) в утепления требует только парилка, и то изнутри.
Об утеплении парилки в бане читайте тут.

Для сравнения толщина стен из разных материалов представлена в виде диаграмм
Но нужно учитывать следующий момент: такие характеристики у стен, сложенных на тонком слое (1 мм) специального клея. Если использовать обычный цементно-песчаный раствор (толщина швов тогда 10-12 мм), показатели будут значительно хуже. Это потому, что раствор в данной паре в разы лучше проводит тепло, то есть через него оно и «вытекает».
Еще стоит учесть, что на клей класть можно только блоки идеальной геометрии с отклонениями в размерах не более 1 мм. Такие нужно поискать. В противном случае слоя клея в 1 мм явно недостаточно для коррекции этих отклонений. Вот и кладут газобетон на толстый слой раствора, а не клея (клей существенно дороже, но из-за малого расхода кладка получается экономичнее), а потом утепляют.
Хороши пеноблоки еще и тем, что с ними легко работать. При довольно больших размерах они имеют небольшой вес — 10-14 кг. Так что один человек легко справляется с кладкой. Режутся они ручной пилой, только лучше искать полотно по пенобетонам, а не по металлу — работать будет легче. При необходимости штробятся быстро и легко, можно даже ручным инструментом.

Режут пеноблоки прямо на месте пилой
Один совет: ищите блоки, которые имеют шип и паз. Так проще будет добиться герметичности соединений, и есть дополнительная гарантия того, что швы не будут светиться (при недостатке опыта такое случается).
Относительно невысокая плотность газобетонов это одновременно и достоинство и недостаток. Недостаток в том, что на такие стены что-либо прибить проблематично. Для крепежа используют специальные дюбеля, у которых увеличена поверхность распорных элементов. Достоинство: конструкция получается легкой, что позволяет делать менее массивные фундаменты. Менее массивные фундаменты — меньше затрат, ведь на этот цикл может приходиться до 50% стоимости всей стройки.
Второй серьезный минус газобетона — высокая гигроскопичность. Потому при строительстве бань из газобетона своими руками нужно сделать гидро- и пароизоляцию как изнутри, так и снаружи.

Характеристики пенобетонов, применяемых для частного домостроения
Среди пористых бетонов газоблоки больше других впитывают влагу, потому с этой точки зрения они — не лучший выбор для строительства бань. Но именно для его изготовления применяют более дорогостоящее оборудование — особенности технологии. И как результат блоки имеют лучшую геометрию. И на клей, а не на раствор, ставят чаще именно газоблоки, так как это позволяет геометрия материала. Так что с точки зрения теплопроводности этот материал предпочтительнее. А проблемы с гигроскопичностью решаются путем организации вентилируемого фасада и/или пропиткой для уменьшения гигроскопичности.
Стены бани из газоблоков
Для средней полосы России достаточно толщины блоков в 25-30 см, для регионов, расположенных севернее, может понадобиться 35 см и больше. Но вопрос тут больше в плотности. В этом материале чем меньше плотность, тем теплее стена: больше воздуха содержится в порах, и меньше бетона, через который утекает тепло. В то же время большее количество воздуха и меньшее количество бетона приводит к тому, что прочность такой стены немного ниже. Но нужно учесть, что изменения по теплопроводности и изменения по плотности не очень большие, но они есть.
Для малоэтажного строительства чаще всего используют газоблоки D400 или D500. Рекомендуемая толщина наружных стен в жилых помещениях — 300 мм, для перегородок используют тот же материал, но толщина их 150-200 мм.

Марки газоблоков и их характеристики
Еще одна особенность возведения стен бани из пеноблоков — необходимость армирования в каждом третьем-четвертом ряду. Эта мера делает конструкцию более прочной и монолитной.

Звукоизоляционные характеристики пенобетонов разных марок и их использование для разных типов стен
Для армирования используют по два ребристых прутка диаметром 12 мм. Для них в уложенных блоках вырезают штробы. Сделать это можно болгаркой, ручной дисковой пилой, электролобзиком или ручным штроборезом для газобетона.

Это ручной штроборез — один из инструментов, для работы с пеноблоками
Расстояние от края блока до штробы не менее 5 см, глубина — не менее 12 мм, чтобы прут не выступал над поверхностью. Штробу частично заполняют раствором, укладывают арматуру, поверх наносят слой клея и ставят следующий блок.

Обратите внимание что на углах и в местах примыкания стен прутки арматуры изгибают, а не отрезают
Утепление
Если в бане постоянно будет поддерживаться плюсовая температура, то утепление снаружи желательно: меньше расходы на поддержание того самого «+». Если баня будет нагреваться только периодически, то смысла в наружном в утеплении нет. Летом и так тепло, а зимой в неотапливаемом помещении все равно будет минус.
В неотапливаемой бане нужно делать хорошую внутреннюю теплоизоляцию. Тогда можно будет протопить помещение, не затрагивая стены. Подробнее слои утепления рассмотрены ниже, так как без пароизоляции они не работают так, как надо.
Гидроизоляция и пароизоляция стен
Проблема гигроскопичности газоблоков при строителстве бань решается сегодня довольно просто: есть пропитки на основе цемента с полимерными добавками, которые в разы уменьшают количество впитываемой материалом влаги (типа «Пенетрон«). Ими и можно промазать готовое здание изнутри и снаружи (в два слоя). Это будет защитой от воды в ее жидком состоянии. Но лучше снаружи сделать вентилируемый фасад: это надежнее в том плане, что и от осадков защищает, и дает возможность проветривать стену, высушивая имеющейся в ней пар.

Стены из пеноблоков промазывают пропитками для уменьшения гигроскопичности
Но в самых проблемных помещениях — парилке и моечной — нужна будет дополнительная защита от пара. Пароизоляцию изнутри сделают при помощи специальной пленки. Причем для парилки чаще берут фольгу на картонной или бумажной основе (Изоспан ФБ), для моечной можно обойтись обычной пароизоляцией.
Изоляция стен парилки
Можно сделать по-другому: без пропитки. Стоит она немало, а расход получается приличный — не менее 7 литров на квадратный метр. Для уменьшения расхода можно сначала стену зашпаклевать (дышащей шпаклевкой), а после обработать. Но при таком раскладе увеличивается трудоемкость.
Если сделать хорошую вентиляцию, и без пропитки проблем не будет. Например, пирог утепления и гидроизоляции в парилке из газобетона можно сделать таким (от стены, внутрь):
- обрешетка;
- теплоизолятор (базальтовая вата с минимальным выделением формальдегидов) толщиной 5 см;
- фольгированная бумага, проклеенная на стыках и в местах крепления фольгированным скотчем;
- контробрешетка, создающая вентзазор в 3-5 см;
- вагонка.
-

В парилке используют фольгированную пароизоляцию на бумажной или картонной основе
Если снаружи обеспечить нормальное вентилирование фасада, а не закрыть поры наглухо, работать такое утепление должно нормально, и просыхать будет неплохо. Важно только сделать пароизоляцию изнутри (от парилки) надежной. Для этого полотна пленки укладывают с нахлестом 10-15 см, и в местах стыка (получается две полосы) проклеивают их двухсторонним скотчем.
О том, как делать обрешетку читайте тут. Как прибить вагонку в бане написано тут.
Есть второй подход к теплоизоляции стен. Он основан на том, чтобы не допустить влагу к наружной стене. В этом случае рекомендуют внутри устроить каркас, который будет полностью отсекать стены от влажного воздуха.

В бане из пеноблоков должна быть хорошая система вентилчции
Для этого на стены набивается пароизоляция, на нее — обрешетка, потом черновая стена, еще одна обрешетка, между брусьями которой раскладывается утеплитель. Он закрывается еще одним слоем пароизоляционной пленки, поверх которой уже набивается обрешетка и отделка (вагонка). Этот каркас «съедает» порядка 20 см по периметру. Роскошь, которую не все могут себе позволить.
В обоих случаях для эффективной вентиляции утеплителя, закрытого со всех сторон пленками, необходимо сделать в каждой стене по два вентиляционных отверстия, закрываемых дверками. Отверстия не сквозные. Они не выходят в парилку (моечную), а заканчиваются в слое утеплителя. Чтобы не сбивать температуру, на время парения дверки закрывают. Открывают их для просушки после процедур, ведь пар внутрь все равно попадет, хоть и в меньших количествах.
При любом решении низ стены сантиметров на 10-15 оформляется керамической плиткой — она хорошо защищает от брызг, закрывая самую мокрую часть. А выше уже (но с напуском по высоте на плитку) идет обшивка.
Для гидроизоляции в парилке есть еще вариант — приклеить плиты пеностекла. Этот материал стоит довольно дорого, но гидроизоляция из него превосходная, а выделений никаких. Пеностекло есть: европейское, белорусское, китайское. Самое дорогое и качественное — европейское, самое дешевое и с низким качеством — китайское. «Сажают» его на специальный клей, мороки с приклеиванием нет: все легко и просто. Для достижения нужной степени гидроизоляции достаточно слоя в 50 мм.
Изоляция стен моечной
В мойке такой пирог городить не особо есть смысл: если стены отделать плиткой, уложенной на специальный клей, проблема решается проще. Правда, под нее все-таки необходима обработка: сначала наносится слой штукатурки для того чтобы закрыть поры газобетона, а потом слой тонкослойной гидрофобной гидроизоляции (это составы на основе цемента).

В моечной на стены лучше уложить плитку
Важно только хорошо стены промазать жидкой гидроизоляцией, соблюдая все рекомендации производителя. Работает эта обмазка просто: она проникает в поры бетона. Содержащиеся в ней полимеры начинают кристаллизоваться, вырастающие кристаллы препятствуют прохождению воды. Количество впитываемой воды становится меньше в разы.
Таким же составом можно обработать стены и снаружи. Но стоит такая пропитка немало, а расход получается большой. Причем, фасад еще нуждается в этом случае в отделке: не очень привлекательной получается поверхность.

В моечной и парилке на полу можно по стяжке сделать обмазочную гидроизоляцию (резиновой краской для бассейнов), а сверху положить плитку
Внутренняя отделка стен
С банями из газобетона вопросов возникает немало. В том числе и по отделке помещений. С парилкой решили — там однозначно требуется вагонка. В мойке целесообразнее уложить на стены плитку.
Остается в основном комната отдыха, иногда тамбур. Многим хотелось бы иметь деревянные стены. Так как влажность все равно будет повышенной, можно на стены закрепить пароизоляционную пленку. Сверху уже пойдет обрешетка, а к ней отделочная доска.

Под вагонкой лучше оставить вентзазор порядка 2-3 см
Если в бане продумана хорошая система вентиляции, то и без пароизоляции обойтись можно вполне: газобетон как впитывает пары, так их и отдает. Главное обеспечить ему такую возможность: организовать движение воздуха вдоль стен. Делают это при помощи обрешетки, которая обеспечивает зазор между материалом отделки и стеной в 2-3 см. Только набивается обрешетка вертикально — воздух циркулирует снизу-вверх без проблем. Так что вагонка набивается горизонтально.
Кровля
Довольно много вопросов возникает при строительстве бани из газобетона своими руками, связанных с устройством кровли. Ведь надежно закрепить сложную конструкцию к таким блокам не получится.
Потому над верхним рядом блоков устраивают армированный пояс: из четырех прутков арматуры вяжут каркас, который заливают бетонным раствором. Для продольной арматуры укладывают ребристый пруток 8-14 мм в диаметре, поперечные стойки делают из гладкого прутка 6-8 мм. Шаг установки поперечных стоек — 100-150 мм. Высота армопояса — 200-300 мм в зависимости от типа используемого кровельного материала, снеговых и ветровых нагрузок в регионе.
Как делают армирующий пояс под установку кровли на бане из пеноблоков
Сделать армопояс можно несколькими способами:
- По периметру стены (ширина не менее 200-300 мм) установить съемную опалубку из досок, ДВП, ОСБ и т.д. Нижняя часть щитов крепится саморезами к блокам, затем укладывается арматура и потом вверху края стягиваются поперечными брусками (чтобы раствор не распер опалубку). В эту конструкцию заливается раствор. Только обратите внимание, арматура со всех сторон должна быть залита бетоном слоем не менее 5 см толщины.
- Есть U-образные блоки. Из них выкладывают самый верхний ряд. Потом вдоль внутреннего края прокладывают слой утеплителя (который не боится влаги), затем устанавливают связанную арматуру. Заливают все бетонным раствором. В этом случае блоки играют роль несъемной опалубки.
- Практически ту же конструкцию можно сделать с использованием тонких стеновых блоков. По краям стены устанавливают на клей блоки толщиной 50-60 мм. Блок, направленный внутрь помещения, прокладывают слоем теплоизоляции, укладывают арматуру, заливают бетон.
Бетон для армопояса используют не ниже чем М 200, заливку производят за один раз. Для обеспечения однородности и повышения прочности из раствора нужно уделить лишний воздух. Если после заливки фундамента у вас остался вибратор для бетонов, можно использовать его. Если нет, берете штырь арматуры и хорошо штыкуете раствор. Если погода жаркая, бетон накрывают пленкой. Начинать работы по устройству стропильной системы можно не ранее чем через 4 дня.
baniwood.ru
4 преимуществ проекта двухэтажных бань [+10 ФОТО]
Сегодня многие дачники и владельцы загородных участков предпочитают не только мыться и париться в бане, но и отдыхать. А полноценный досуг невозможен без комфортных условий – наличия санузла, кухни, гостиной. Проекты двухэтажных бань предполагают совмещение в себе нескольких функций.

Два этажа – практично для небольших участков
Совсем недавно в моду вошли бани, где на первом этаже расположен полный банный комплекс, санузел и кухня. А на втором полноценные жилые помещения – спальни и гостиная. Зачем строить на участке два одноэтажных дома и оставлять меньше свободной земли под сад и огород, когда можно построить один.
Преимущества двухэтажных бань

Фото полноценной жилой комнаты на втором этаже
Приступая к строительству, надо обдуманно подойти к выбору проекта. Если площадь участка не позволяет установить несколько хозяйственных построек и жилой дом, то двухэтажная баня – отличный выход.
Она обладает целым рядом преимуществ:
- Занимает меньше места на участке, но она более функциональна и вмещает большее количество помещений;
- Низкие затраты на отопление второго этажа – горячий воздух из парилки поднимается вверх и обогревает комнаты;
- Строение имеет презентабельный внешний вид;
- Можно установить внутри небольшой бассейн, для него просто найти место.
Многочисленные проекты двухэтажной бани предполагают и наличие полноценной системы коммуникаций. То есть в доме можно жить, если не постоянно, то непродолжительный период времени, в том числе и зимой.
Особенности размещения коммуникаций

Цена такого проекта зависит от уровня укомплектованности
Система инженерных коммуникаций сильно отличается от той, что применима к обычной бане или дому.
Тут важны многие факторы:
- Организация вентиляции второго этажа;
- Монтаж отопления – чаще всего используются радиаторы, равномерно установленные в комнатах. Они могут работать или от электрического котла или от банной печи, когда она не используется;
- Чертеж должен предполагать наличие котельной.
Проект двухэтажной бани с террасой предусматривает, что банный комплекс, расположенный на первом этаже, соседствует с гаражом и имеет с ним общую стену. Обязательный элемент – внутренняя лестница между этажами.

Баня с небольшой террасой
Обратите внимание! Для избавления от сточных вод необходимо установить септик или подключиться к коллектору. Если канализационные отходы будут расположены близко к источнику питьевой воды, то они загрязнят его отходами.
Этапы строительства двухэтажной бани

Собрать своими руками баню можно
После того как на участке выбрано подходящее место, пора приступать к многоступенчатому строительству. К нему надо подойти очень серьезно и ответственно, строго соблюдая технологию. Ведь баня сооружается не на один год и должна быть собрана правильно.
Строительство включает следующие обязательные этапы:
- Проектирование. От соблюдения всех норм и требований будет завесить долговечность конструкции;
- Проведение подготовительных работ и подбор строительных материалов. Дерево для бани должно быть хорошо просушенным и обработанным защитными составами, не иметь смолистых участков и сучков;
- Сооружение фундамента – ленточного или столбчатого. Закладывается он на глубину промерзания грунта, тип зависит от материала. Проект двухэтажной каркасной бани в силу легкости конструкции требует, например, простого столбчатого фундамента из асбестовых труб;

Основа – асбестовые трубы
- Сборка сруба на участке. Работа идет согласно нумерации, указанной на бревнах, профилированном или клееном брусе;
- Подготовка и монтаж кровли;
- Утепление пола и стен в бане при помощи джута, пеньки или льноватина;
- Монтаж дымохода, при этом учитываются такие показатели, как устойчивость к коррозии и огнеупорность. Важно и обеспечение полноценной тяги;
- Устанавливаются двери и окна в баню. По технике безопасности все двери должны открываться наружу;
- Обработка бани пропиткой, предотвращающей возникновение пожара, появление насекомых, способных повредить древесине;
- Внутренняя отделка помещений – монтаж каменки, чистовая отделка банного комплекса, декорирования жилых комнат.

Проект двухэтажной бани 6х6 с мансардой
Баня двухэтажная из пеноблоков

Баня из пеноблоков
Баня двухэтажная из пеноблоков несколько уступает по экологичности деревянным срубам.
Однако, она имеет некоторые плюсы:
- Быстро возводится;
- Имеет легкий вес;
- Не боится пожара;
- Внутреннюю отделку провести проще, чем в строениях из кирпича или бетона.

Проект двухэтажной бани 5х8 из пеноблоков
Инструкция к строительному материалу говорит о том, что необязательно сооружать мощный фундамент. Подойдет ленточный вариант, так как конструкция имеет небольшой вес. Чтобы защитить строение от влаги, исходящей от почвы, применяется рубероид. Внешние стены здания обязательно нуждаются в отделке, так как пеноблоки не относятся к декоративным материалам.
Примечание! Печь для бани из пеноблоков подойдет любая печь. Можно купить готовую в магазине или сложить каменку самостоятельно из кирпича.
Вывод

Для начала тщательно продумайте план здания
Двухэтажная баня – отличный вариант для тех, кто хочет объединить комфортный отдых и гигиенические процедуры в одном месте. Никакая душевая кабина не заменит банные процедуры.
Зачем сооружать на участке два отдельных строения, когда все можно объединить в одном, да еще и устроить внутри бассейн. Видео в этой статье более полно продемонстрирует сведения по данной теме, смотрите!
9ban.ru
Проект двухэтажной бани из пеноблоков
Загородная жизнь подразумевает наличие на участке русской бани, которую можно использовать в любое время года. Для русского человека баня – это национальный вид отдыха, а не просто способ помыться и оздоровиться. На данный момент возведение бани из такого материала, как брус или бревна, пусть и своими руками, — очень дорогое удовольствие, которое могут позволить себе не все. Но найден выход из такой ситуации – это баня из пеноблоков.
Для того чтобы правильно возвести своими руками баню из пеноблоков, нужно обязательно следовать технологии и алгоритму процесса. В первую очередь разрабатывается и утверждается проект бани, далее возводится фундамент, стены и крыша, на последнем этапе производится внешняя и внутренняя отделка помещения.
Пенобетон – это материал современного типа, который отвечает всем стандартам качества и прекрасно подходит для строительства бань, благодаря своим техническим характеристикам. Помимо этого, экологичность пенобетона доказана, и уступает только дереву. В вопросах отделки материал лучше поддается внутреннему или внешнему оформлению своими руками, чем, например, кирпич или бетон.
Основными преимуществами бань из пенобетона являются:
Двухэтажная, как и одноэтажная конструкция бани имеет ряд требований, которые обязательно нужно соблюдать при проектировании и дальнейшем строительстве:
Важно! На момент проектирования обязательно должен быть выбран способ обогрева бани, помимо теплого воздуха из парной.
Любое строительство начинается с проектирования. Проект помогает учесть те факторы, которые будут влиять на готовую баню. Разработка проекта должна учитывать следующие факторы:
- Месторасположение бани
- Уровень грунтовых вод
- Инженерные коммуникации
- Водоснабжение
- Паро- и теплоизоляция
- Пожелания заказчика в индивидуальном порядке

Все эти нюансы четко просчитывают и подготавливается индивидуальный проект. Ни в коем случае нельзя допустить при проектировании просчетов. Это приведет к тому, что готовое сооружение не будет отвечать поставленным целям и требованиям.
На данный момент можно сделать такой проект бани, который не будет напоминать просто сооружение с четырьмя стенами, а будет более интересным, ведь баня так же, как и дом, должна привлекать внимание. В каталогах компаний, которые занимаются строительством бань, можно выбрать понравившийся проект среди представленных. Это может быть даже постройка двухэтажной бани с мансардой. Наиболее интересны проекты бань со встроенным гаражом, бильярдной, бани нестандартной формы. Все зависит только от пожеланий заказчика и бюджета. Но наиболее востребованными считаются бани 6*6 и 6*4. Также баню из пеноблоков легко построить и своими руками.

Проект бани из пеноблоков с террасой будет удобен для тех, кому не хватает свободного места для хранения или устройства комнаты отдыха. Так как баня – это место отдыха, то на веранде можно установить бильярд или другие развлечения. Выполняя такой проект бани нужно четко знать, что мансарду нужно строить также из пеноблоков, а не из какого-то другого материала. На грунтах пучинистого типа нельзя выполнять жесткую связку подошвы. Также во избежание деформации стен, нужно принять во внимание то, что сильная фиксация крыши и террасы не допускается. Такой проект представлен на фото. Человек попадает в помещение со стороны веранды, проходит в хорошо освещенную комнату отдыха. Далее можно наблюдать в левом углу душевую и парную. В правой части бани находится санузел.


Еще один интересный проект, но уже с открытой верандой, можно увидеть на фото ниже. Здесь представлена баня, состоящая из комнаты отдыха, парной и душевой. Печной обогрев проходит снизу до самого верха. Здесь возможны варианты зонирования помещений.


Следующий проект представляет собой двухэтажное строение. Это баня, которая больше походит на дом. Здесь можно выделить место для всего необходимого, чтобы провести отдых с комфортом. Навес служит для того, чтобы на нем можно было в солнечные дни отдохнуть или приготовить барбекю. Попасть в баню можно через прихожую, где легко можно разместить гардероб и зеркало. Она прекрасно защищает внутренние помещения от холода. Небольшой коридор предназначен для нужд бытового характера. Далее уже идет вход в комнату отдыха, где можно установить различную развлекательную аппаратуру. Справа есть вход в парилку, душевую и санузел. Второй этаж можно занять кухней – столовой, бильярдной, спальней или тренажерным залом.

Для бань с террасой должно быть обязательно два входа на террасу, который осуществляются с улицы и через баню.
В последнее время появились проекты бань с террасой, которая отделена от основного помещения дверями раздвижного типа. Это нужно для того, чтобы в теплые дни можно было выйти на открытое пространство.

Главным преимуществом проекта двухэтажной бани является ее компактность, то есть можно распределить все нужные помещения так, чтобы не занимать большую часть участка. Комнаты второго этажа будут теплыми и уютными за счет поднимаемого из парной на первом этаже теплого воздуха. В двухэтажной бане нередко устраивают бассейн, что делает ее полноценным СПА-комплексом со всеми удобствами. Да и внешний вид такого сооружения более презентабельный и богатый, чем у одноэтажной бани.


Вершиной проектирования двухэтажных бань стала баня с бассейном. Бассейн можно оборудовать под открытым небом, под навесом, на веранде. Такой проект позволит ощутить всю полноту и радость здорового отдыха, так как окунание в холодную воду после парной бодрит и придает сил, а также способствует закаливанию.
Основной проблемой таких проектов считается то, что сложно правильно оформить сток воды. Нужно обязательно предусмотреть дренажную систему.

Только при создании правильного проекта бани, который учтет все факторы, можно получить баню, которая прослужит долгие года и будет радовать хозяина. Проект будет также полезен и для подсчета материалов для бани, которые необходимы на постройку. Проект двухэтажной бани составлять довольно сложно, поэтому лучше воспользоваться услугами профессионала.

Строительство и отделка бани из пеноблоков
Баня из пеноблоков, будь она одноэтажной или двухэтажной, не требует мощного фундамента в силу своей легкости. Отличным вариантом для бани станет ленточный мелкозаглубленного типа. Таким образом, можно сэкономить довольно существенную сумму на возведении фундамента бани. На конструкцию основания обязательно нужно уложить гидроизолирующий материал, который устранит попадание влаги в баню.

После того как фундамент полностью застыл, можно приступать к возведению стен своими руками. Первый ряд лучше всего закреплять цементной смесью, а последующие — уже клеевыми растворами, во избежание слишком толстых швов между блоками.
Важно! Во время изготовления стен обязательно следить за горизонтальной и вертикальной укладкой.
Процесс возведения стен своими руками из такого материала, как пеноблоки происходит очень быстро благодаря тому, что материал легкий и подающийся обработке. Но, главное, нужно четко соблюдать проект.

После того, как достигнута необходимая высота стен бани, устанавливаются стропила для крыши и слой пенопласта. Особенно важна вентиляция в крыше бани, должно быть не менее двух вентиляционных отверстий. Снаружи крыша покрывается профнастилом, а по бокам обшивается рубероидом или другим материалом.

Вариантов изготовления крыши для бани великое множество. Они подходят для разных строений одноэтажных, двухэтажных, тех, что имеют мансарду. Для бани из пеноблока предпочтительно устраивать односкатную крышу.
Отделать баню из пеноблоков можно так, как того пожелает сам хозяин. Могут быть использованы такие материалы, как дерево, плитка, покрытие краской. Главное, что нужно сделать – это осуществить прокладку в бане гидроизоляционного материала. Пароизоляция внутри осуществляется с помощью установки мембранного покрытия. Внутренняя отделка осуществляется хвойными породами дерева (сосна, ель), а покрытие полимерной краской или керамической плиткой.
Для парной использовать лучше осину или липу, которые не имеют способности накаляться до предельных температур, но при этом удерживают температуру внутри помещения долгое время. Утеплять баню чрезмерно не нужно, так как основной материал и так довольно теплый.

Бани из пеноблоков завоевали огромную популярность в силу характеристик материала и невысокой стоимости. Первое, что необходимо сделать перед строительством – это разработка проекта бани, который выполнять должен только профессионал. Дальнейшая работа по возведению стен и фундамента более легкая, в сравнении с древесиной или кирпичами. Если самостоятельно построить такую баню нет возможности, то можно обратиться к специалистам, которые помогут произвести возведение любого сооружения, в том числе двухэтажной бани.
obrawa.ru


