Баня из блоков проект – проекты из газобетона и газоблока своими руками, плюсы и минусы газосиликатных блоков
Баня из блоков своими руками: Проекты и фото построек
Построить баню из газобетонных, керамзитобетонных, газосиликатных или арболитовых блоков дешевле и в разы быстрее, чем делать кладку из кирпича или сруба. Но, первым и главным этапом станет разработка проекта с учетом всех пожеланий хозяев и возможностей материала.
Проект бани из керамзитобетонных блоков
Керамзитобетонные блоки довольно часто используются для постройки бань. Дешевый и прочный материал выдерживает до 50-75 циклов замерзания, удобен в монтаже, так как очень легкий, не требует капитального фундамента. Всю коробку можно собрать своими руками и не имея опыта в строительных работах.
Минусом является прямолинейность конструкции (комнаты с вычурными изгибами создать невозможно) и высокая гигроскопичность. Но зато низкая теплоемкость довольно долго удерживает тепло, а экологический состав материала не несет никакого вреда здоровью при воздействии высоких температур.
Проекты бань из блоков своими руками с применением керамзитобетона на фото далее.

При возведении конструкция будет выглядеть так.

В завершенном варианте, в зависимости от типа наружной облицовки следующим образом.

План постройки керамзитобетонной коробки площадью 5х5 м.

Использовать керамзитобетонные блоки рекомендуется только при возведении одноэтажных бань с двускатной крышей. В качестве второго этажа возможно обустройство мансарды, но от постройки полноценного яруса лучше воздержаться.
Проект бани из газобетона
Газобетон – это ячеистый бетон с однородно распределенными сферическими порами (1-3 мм). Материал достаточно устойчив к механическим нагрузкам и температурным перепадам, не подвержен воздействию микроорганизмов. Благодаря малому весу легко создает необходимые конструкции (4х4, 6х6 и далее).
Проект бани из блоков газобетона.

Такая баня по твердости не будет уступать кирпичному строению или брусу, но обойдется, как минимум вполовину дешевле. Газоблок является натуральным материалом и при нагревании не испаряет токсинов. Коробке не страшны плесень, гнилостные процессы и жизнедеятельность грызунов. Все, что необходимо, хорошая гидроизоляция, так как материал очень гигроскопичен (быстро вбирает в себя влагу и длительное время ее испаряет).
Сама баня может быть одно- или двухэтажной, поскольку плотность газобетона (350-750 кг\м3) позволяет выдерживать перекрытия с достаточной весовой нагрузкой. Термоизоляция кровли в данном случае выигрывает, теплосберегающие функции газобетонных блоков очень высокие, но все же верхняя часть коробки должна быть усилена. Фасад – иметь вентилируемую конструкцию.
Как можно построить баню 6х6 м из газобетона с террасой, пример ниже.

План постройки бани из газосиликата
Газосиликат – это ячеистый бетон, отвердевший в автоклаве. Каждый блок состоит из алюминиевого порошка, воды, цемента, гипса, извести, в некоторых случаях – добавок, на усмотрение производителя.
Материал огнеупорный, морозоустойчивый, не боится механических повреждений, гнилостных процессов, быстро и легко монтируется, так как имеет малый вес. Имеет хорошую звукоизоляцию.
Баня из газосиликата может быть построена довольно быстро и качественно своими руками и без спецефических навыков. Схему проекта, как приведено ниже, можно считать универсальной. Дополнения, на усмотрение хозяев.

Внешний вид баня из газосиликатных блоков будет иметь такой, фото ниже.

Но, конечно, существует еще и арболит – достаточно недорогой и практичный материал. Проекты к таким сооружениям мало чем отличаются от вышеперечисленных, но дешевизна и прочность блоков делают его незаменимым в бюджетных постройках бань.

Если приложить усилия и правильно создать проект, все выглядит просто идеально.
Арболитные блоки хорошо удерживают тепло, быстро прогреваются, не подвержены гниению. Прочны и безопасны для здоровья человека. Степень хрупкости у них намного ниже, чем у керамзитобетона, а шумоизоляции выше в разы.
В отделке стен как изнутри, так и снаружи большее внимание следует уделить гидроизоляции.
В целом, построить баню из блоков любой консистенции намного выгоднее в материальном плане: сами детали коробки будут стоить не так дорого, разработать проект можно самостоятельно, не нужно привлекать специализированную бригаду рабочих и спецтехнику и времени на возведение постройки уйдет куда меньше.
Читайте также: Из какого блока лучше строить баню, Баня из шлакоблоков своими руками, Проекты бань из газосиликатных блоков, Проекты бань из керамзитобетонных блоков: Фото
banyagid.com
плюсы и минусы, особенности строительства
Владельцы дач и загородных домов не представляют отдых без банных процедур. Завершив возведение дома, хозяева приступают к оборудованию баньки. Баня традиционно строилась в виде сруба, однако повышенная цена на древесину заставляет искать альтернативные варианты. Используйте проверенное решение – баня из блоков! Ее несложно построить самостоятельно из недорогого, безвредного, легкого и простого в кладке материала. Рассмотрим свойства, характеристики блочных изделий, технологию постройки из них.
Как построить баню из пеноблоков своими рукамиО пользе банных процедур
Посещение бани – традиция, которой придерживается большинство людей. Оптимальное сочетание влаги и температуры, которое достигается только в правильно построенной и оборудованной бане, оказывает благотворное влияние на сердечно-сосудистую, дыхательную, нервную систему, а также опорно-двигательный аппарат. Доказано, что после водных процедур омолаживается кожа, приходит состояние бодрости, свежести, силы. Применение безопасных стройматериалов для постройки бани и правильное выполнение строительных работ обеспечит положительное воздействие на здоровье.
Баня своими руками из блоков – особенности материала
Стандартная планировка бани предусматривает предбанник, парную и моечную. Строение возводится на капитальном фундаменте, надежно теплоизолируется.
Для возведения стен используют различные стройматериалы:
- каркасные панели. При внешней привлекательности, утепленные сэндвич панели плохо пропускают пар. В помещении концентрируется конденсат, вызывающий ускоренное гниение;
- деревянный брус или бревна. Это традиционный материал, который обеспечивает комфортные условия. Однако он дорогой и подвержен разрушению при повышенной влажности;
- кирпич. Отличается прочностью и долговечностью. Расходы на постройку кирпичной бани довольно высокие, так как кирпичные стены нуждаются в массивном фундаменте;
- бетонные блоки. Имеют ячеистую структуру. Отличаются небольшой массой, увеличенным объемом, паропроницаемостью, повышенными теплоизолирующими характеристиками, а также доступной ценой.
Рассмотрим строительство бани из блоков более детально.
Особенности блочного стройматериала
Главная особенность материала – равномерно распределенные внутри бетонного массива воздушные ячейки.
Пористая структура влияет на характеристики:
- гигроскопичность. Незащищенный материал, активно поглощая влагу, нуждается в эффективной внешней и внутренней гидроизоляции. При замерзании влага кристаллизуется, увеличивая объем. Это может вызвать появление трещин;
- паропроницаемость. Благодаря повышенной концентрации воздушных ячеек и равномерному распределению их в массиве, стройматериал способен пропускать лишний пар, поддерживая комфортный уровень влажности в банном помещении;
- теплопроводность. Блочный материал обладает повышенными теплосберегающими характеристиками. При качественно выполненной теплоизоляции он поддерживает комфортную температуру;
- звукоизоляцию. Благодаря многочисленным воздушным порам, занимающим более половины объема изделия, блочный стройматериал препятствует проникновению внешнего шума внутрь помещения.
Остановимся подробно на преимуществах блочной бани.
Достоинства блоков
Пенополистиролбетон блоки для банПостроенная из пористого стройматериала, блочная баня имеет свои плюсы:
- не подвержена усадке в отличие от бревенчатых строений;
- может эксплуатироваться сразу после завершения строительных мероприятий;
- быстро строится, благодаря увеличенному размеру изделий;
- не требует мощного фундамента из-за небольшого веса стройматериала;
- может возводиться своими силами без посторонней помощи;
- требует небольших финансовых затрат по сравнению с брусом и кирпичом.
Поддержанию благоприятных условий также способствует:
- бактериологическая чистота. Состав и структура материала не позволяют развиваться бактериям, микроорганизмам и плесени;
- экологичность. Бетонные блоки не оказывают отрицательного влияния на здоровье окружающих, так как в стройматериале отсутствуют вредные примеси.
Блочный материал отличается:
- повышенными теплоизоляционными характеристиками;
- устойчивостью к влиянию отрицательной температуры;
- стойкостью к воздействию нагрева;
- длительным сроком эксплуатации;
- повышенным запасом прочности;
- хорошей обрабатываемостью.
Увеличенные габариты блочного материала и небольшой вес позволяют выполнять работы без привлечения наемных рабочих. Благодаря перечисленным достоинствам, многие принимают решение построить баню из блоков своими руками.
Слабые стороны блоков
Ячеистый материал имеет ряд недостатков:
- нуждается в надежной гидроизоляционной защите, препятствующей проникновению влаги в массив;
- отличается пониженной экологической чистотой в сравнении с натуральной древесиной.
Несмотря на слабые стороны блочного стройматериала, ему отдают предпочтение при недостатке средств и отсутствии возможности пользоваться услугами профессиональных строителей.
Разновидности материала для блочной бани
Построить баню из блоков своими руками можно, используя различные виды стройматериала:
Виды строительных блоков блоковПринимая решение о выборе блоков для постройки бани, изучите их характеристики, проанализируйте эксплуатационные свойства. Ориентируясь на коэффициент теплопроводности, можно отдать предпочтение газобетону.
Собираемся построить баню из блоков своими руками – технология работ
Процесс постройки предусматривает выполнение следующих работ:
- Подготовительных мероприятий.
- Возведение фундамента.
- Строительство коробки.
- Сооружение кровли.
- Осуществление облицовочных работ.
Рассмотрим детально особенности каждого этапа.
Подготовительные работы
Готовясь к предстоящему строительству и определившись с выбором стройматериалов, необходимо выполнить следующие мероприятия:
- Выбрать на участке удобное место для строительства.
- Определиться с размерами строения, а также разработать проект.
Проект бани из строительных блоков
- Согласовать проектную документацию в необходимых инстанциях.
- Рассчитать потребность в стройматериалах.
- Подготовить необходимые инструменты.
На подготовительной стадии важно продумать варианты отделки и определиться с типом фундамента.
Постройка фундамента
Для легких газоблоков подойдет мелкозаглубленная ленточная основа.
При ее сооружении соблюдайте указанную последовательность действий:
- Подготовьте площадку.
- Произведите разметку.
- Выкопайте траншею на глубину 0,6 м.
- Смонтируйте опалубку.
- Засыпьте в приямок песчано-щебеночную подушку.
- Уплотните подсыпку, поливая водой.
- Установите в приямок арматурный каркас.
- Подготовьте бетонную смесь.
- Забетонируйте фундамент в один прием.
Ленточный фундамент для бани из газосиликатных блоковНе подвергайте фундамент нагрузкам до окончательного застывания бетона. Через 4 недели демонтируйте опалубку и гидроизолируйте поверхность основы.
Как построить из блоков баню – строительство стен
Постройка коробки – ответственная операция, с которой можно справиться самостоятельно:
- Проверьте горизонтальности основы.
- Уложите угловые блоки.
- Натяните шнур, выложите на цементный раствор первый ряд.
- Сделайте штроборезом канавку для арматуры.
- Удалите мусор, уложите стальные прутки.
- Подготовьте клеевой состав и нанесите на поверхность.
- Уложите следующий уровень кладки.
Осуществляйте укладку, производя армирование с промежутком в 4 ряда. Установите мауэрлат для крепления кровельной конструкции.
Монтаж кровли и напольного покрытия
Последовательность действий по монтажу крыши:
- Уложите опорные балки.
- Закрепите стропильные брусья.
- Зафиксируйте обрешетку.
Крыша бани своими руками: поэтапное строительство
- Постелите пароизоляционное покрытие.
- Уложите утеплитель.
- Произведите монтаж кровельного покрытия.
Процесс обустройства пола:
- Спланируйте грунт внутри фундамента.
- Засыпьте подушку из песка, уплотните ее.
- Постелите гидроизоляционную прослойку.
- Насыпьте керамзит и залейте стяжку.
При выполнении стяжки обеспечьте уклон для стока воды.
Чистовая отделка блочной бани
Работа по отделке банного помещения предусматривает:
- качественную внутреннюю облицовку;
- наружную отделку.
Отделочные мероприятия внутри помещения требуют крепления обрешетки, установки теплоизоляционного материала, а также защиты с помощью пароизоляционной мембраны.
Возможны различные варианты внутренней отделки, которая крепится к утепленному и пароизолированному каркасу:
- деревянная вагонка. Она насытит помещение неповторимым ароматом во время банных процедур;
- соляные блоки. Это оригинальный вариант отделки, оказывающий благотворное влияние на органы дыхания.
Наружные отделочные мероприятия включают:
- Установку внешней гидроизоляции.
- Крепление теплоизоляционных вентилируемых панелей.
- Монтаж финишной отделки.
Выбор отделочного материала производите индивидуально, с учетом финансовых возможностей и личных предпочтений.
Подводим итоги
Имея представление, как построить из блоков баню, окончательно определитесь с выбором материала, детально ознакомьтесь с технологией. Важно ответственно подойти к разработке проекта и своевременно приобрести стройматериалы в необходимом количестве. Нужно терпение, базовые навыки выполнения строительных работ, и самостоятельно построенное помещение неоднократно порадует во время отдыха.
pobetony.expert
4 этапа создания проекта бани из блоков [+6 ФОТО]
В последнее время стало модным строительство частных бань-срубов из оцилиндрованного бревна или клееного бруса, хотя эта задача по плечу не каждому. Тут и умение нужно и немалое количество денег, к тому же не всякий может похвастаться огромным земельным участком и деревянным бревенчатым домом.
А на маленьком клочке земли можно пристроить баню к основному строению возведенному, как правило, из легких и практичных материалов. Но какой славянин откажется от собственной бани? Поэтому многие, по-прежнему, возводят эту русскую достопримечательность в своих владениях из кирпича и блоков.

При строительстве бани из блока перекрытия лучше все же делать из железобетонных плит, в том случае, если планируется второй этаж или мансарда
Демократичный вариант
Итак, обсудим в этой статье проект бани из блоков, радующий многообразием выбора основного строительного материала:
- Шлакоблок.
- Пеноблок.
- Керамзито- бетонный блок.
- Газосиликатный блок.
Вы всегда сможете выбрать тот или иной вид блоков доступный в вашем регионе. Существенную экономию на основной закупке составят и невысокая цена блоков и стоимость ближайшей удобной доставки. Наряду с этим вы сможете строить своими руками и легко самостоятельно справитесь с расчетом количества блоков необходимого для вашей задумки.
Строим баню сами
Проектирование
Каждую стройку, уважающий себя мастер, начинает с проекта будущего здания. Для начала можно рассмотреть проекты строительства бани из блоков, предложенные на строительных сайтах и форумах в интернете, можно даже заглянуть в какую-нибудь организацию. Не лишним будет совет товарища, прошедшего такую стройку с экскурсией в эксплуатируемую баню.
Обратите внимание на проекты бани из блоков,пристраиваемой к существующим домам или хозпостройкам, гаражам. Для владельцев небольших участков это надежда не отказываться от мечты попариться, не выходя со двора. Думается, что найдут своих почитателей интересные проекты бани из блоков с мансардой. (см. также статью Баня с верандой: как построить самому)

На фото – проект бани из строительного блока, воссозданный на компьютере
Итак, вы ознакомились с типовыми проектами, получили рекомендации и наставления «бывалых», время приступать к проектированию собственной бани.
Процесс проектирования состоит из нескольких этапов:
- Выбор местоположения бани на участке.
Примечание!
Желательно чтобы был доступ воды не через весь участок.
- Выверка габаритов постройки.

Фундамент для такой бани лучше возводить монолитный ленточный
- Планировка помещений.

Вам должно быть комфортно и не тесно в бане
- Разработка проекта.
И это при условии, что подготовительный этап (проверка грунта) выполнялся при строительстве дома, и вы все знаете про грунты и подземные воды на вашем участке.
Важно!
На этапе проектирования принимаем также решение об основном строительном материале для возведения стен бани.
Краткая рекомендация по блокам
Для несведущих приведем краткую характеристику блоков подходящих для этих целей, а вам, решать на котором из них остановиться.
- Газосиликатные блоки, пожалуй, самые востребованный строительный материал на сегодняшний день. Изготавливают газосиликатные блоки из смеси песка, силикатного вяжущего компонента и пенообразователей. Их основными преимуществами являются:
- Самый малый вес из подобных изделий.
- Идеально четкая геометрия.
- Возможность укладывать на клей.
К сведению!
Монтаж газосиликатных блоков с помощью специального клея позволяет добиваться минимальной толщины шва, что повышает физико-технические характеристики кладки.
Кроме того существенно экономит средства и трудозатраты на приготовлении или доставке раствора (при классическом методе кладки) и отсутствии необходимости в дополнительной отделке.
При этом стоит отметить наиболее низкие показатели среди аналогов из других материалов:
- Теплопроводности.
- Прочности.
- Морозостойкости.
- Высокая гигроскопичность.
- Шлакоблок – самый доступный по цене материал, широко использующийся в строительстве, особенно частном. Представляет собой соединение металлургических или топливных шлаков с вяжущими веществами. Этот довольно легкий для своих габаритов блок обладает высокой прочностью и водопоглощением.
Важно!
При покупке шлакоблока будьте внимательны – они могут быть токсичными, что неблагоприятно скажется на здоровье людей проводящих время в такой постройке.
Тем более при постоянном воздействии высоких температур, присущих бане.
- Пеноблоки производятся путем автоклавного твердения массы из цемента, песка, пенообразователей, пластификаторов и вяжущими составляющими. Эти блоки прочные, но обладают низкой морозоустойчивостью и высоким водопоглощением, что потребует дополнительных затрат на утепление и гидроизоляцию стен бани.
- Керамзитобетонные блоки изготавливают методом вибропрессования керамзита мелкой фракции, что обеспечивает наиболее выгодные показатели:
- Прочности.
- Водопоглощения.
- Морозостойкости.
- Надежности.
- Долговечности.
- Отсутствием усадки.

Над дверными и оконными проемами обязательно крепятся либо металлические уголки, либо железобетонные блоки
При кладке блоков выбранных вами для устройства бани соблюдайте правила, которые содержит инструкция по выполнению кладочных работ, и наслаждайтесь готовым результатом долгие годы.
Не забывайте про качество клея – одна из важных составляющих, если вы сэкономите на этом материале, то в скором времени придется тратиться на ремонт стен и повторное оштукатуривание поверхности.
Вывод
Мы рассказали вам о выборе и проектировании бани из строительных блоков для того, чтобы вам было понятно, что это приемлемо и доступно. Однако есть множество нюансов, касающихся установки печей в таких сооружениях, по этому поводу вам лучше проконсультироваться со специалистом, который предложит вам наиболее огнеупорные материалы для отделки стен. (см. также статью Особенности конструкции печей для бани)
В представленном видео в этой статье вы найдете дополнительную информацию по данной теме.

Печь обкладывается огнеупорным кирпичом
9ban.ru
Баня из блоков: подготовка и строительство
Строительство бани из блоков в последнее время находит свое достойное место в стройиндустрии, что связано, прежде всего, с повышением качества изделий. Предлагается несколько видов качественного материала, поэтому придется подумать, какие блоки использовать при строительстве бани с учетом индивидуальных особенностей строения и климата. Для проведения самостоятельных работ необходимо подобрать нужный проект строительства бани из блоков, а для оценки своих возможностей разрабатывается смета на строительство бани из блоков, включающая все затраты на материалы, комплектующие и инструмент.
Особенности блочного строительства
Строительные блоки имеют разный состав, но принципиально они представляют собой вспененный бетон, т.е. бетонный элемент, в котором искусственно образовано большое количество воздушных или газовых пор. В этот материал обладает пониженным удельным весом, что позволяет делать блоки значительного размера, а применение крупных элементов при кладке ускоряет работу.
Важным преимуществом любых блоков является достаточно высокая теплоизоляционная способность из-за наличия воздушного наполнения. Кроме того, можно выделить и ряд других положительных качеств: высокая морозостойкость, огнестойкость, достаточная прочность и долговечность, высокая технологичность и легкая обрабатываемость, практически полное отсутствие усадки. Строительство бани из бетонных блоков производится быстро без ожиданий окончания усадки, и позволяет получить прочное теплое сооружение.
Блоки для строительства бани своими руками имеют и ряд недостатков, которые необходимо учитывать при их использовании. Прежде всего, блоки боятся влаги. В этом случае резко ухудшаются теплоизоляционные характеристики, а при замерзании накопившейся в порах воды может вообще произойти разрушение материала. Это обстоятельство требует надежной гидроизоляции, причем с обеих сторон (снаружи и внутри помещения). Кроме того, бетонные блоки имеют пониженную прочность на сжатие, что особенно важно учитывать при креплении кровли, для чего применяются специальные опорные элементы.
Какие бывают блоки
С учетом того, что вспененные блоки имеют несколько разновидностей, надо решить вопрос, какие блоки лучше для строительства бани. Можно выделить следующие основные типы изделий для блочного строительства:
- Газобетон представляет собой, так называемый, ячеистый бетон на основе цемента и кварцевого песка, в котором при добавлении пенообразователя в результате химической реакции образуются газовые поры, равномерно распределенные по всему объему. В зависимости от количества и объема таких пор различается несколько разновидностей: низкой плотности для теплоизоляции и высокой плотности для несущих стен с повышенной прочностью. Какой газобетонный блок лучше для строительства бани, следует решать с учетом его плотности. Для строительства небольших бань вполне подойдет теплоизоляционный газобетон с плотностью порядка 500-600 кг/см3, но при необходимости повышенной прочности следует использовать материал с плотностью 900-1000 кг/см3.

- Пенобетон является одной из разновидностей газобетона, в котором пена добавляется в состав, что несколько улучшает его характеристики, в частности понижает гигроскопичность.
- Газосиликатные блоки изготавливаются с добавлением извести (более 20%), что обеспечивает белый цвет материалу. Они производятся только в автоклавах, что повышает их стабильность по размерам. Строительство бани из газосиликатных блоков своими руками ограничивается повышенной гигроскопичностью, что требует надежной гидроизоляции.
- Шлакоблоки изготавливаются с добавлением в песочно-цементную бетонную массу шлака. Такой материал значительно дешевле других ячеистых бетонов, но имеет не такую гладкую поверхность, больший разброс размеров и способность выделять вредные вещества из шлака при воздействии высоких температур.
- Арболитовые блоки (народное название – деревобетон) получается при смешивании цементной основы с древесными опилками. С учетом этого материал приобретает многие свойства древесины. Как правило, арболит имеет крупнопористую структуру, что повышает теплоизоляционные свойства, но снижает водостойкость. Важное преимущество – обеспечение дышащего эффекта, т.е. способность пропускать воздух через себя. Кроме того, материал экологически чист даже при высокой температуре. Строительство бани из арболитовых блоков в последнее время становится популярным.
- Керамзитобетон представляет собой газобетон, в котором используется наполнитель из керамзита (вспененная глина со специальным обжигом). По сравнению с рассмотренными материалами, керамзитобетон имеет самое низкое водопоглощение, в результате чего строительство бани из керамзитобетонных блоков своими руками широко распространено.
Необходимый инструмент
При строительстве бани из газоблоков необходимо заранее позаботиться о следующем инструменте:
- болгарка;
- циркулярная пила;
- электродрель;
- шуруповерт;

- ножовка;
- стамеска;
- совковая и штыковая лопаты;
- мастерок;
- шпатель;
- емкость для раствора;
- миксер строительный;
- киянка, молоток;
- рулетка, отвес, уровень строительный.
Специфика блочного строительства
Когда осуществляется строительство бани из блоков, поэтапное описание работ выглядит следующим образом:
- Возведение фундамента. Наиболее распространенным видом при блочном строительстве бани является бетонный ленточный фундамент. Ширина ленты, чаще всего, составляет 30-35 см. С учетом достаточно малого веса газоблоков может использоваться мелкое заглубление ленты – порядка 60-70 см. На дно траншеи обязательно укладывается подушка из песка и щебня общей толщиной 15-20 см. Затем монтируется опалубка в виде параллельных деревянных щитов. Внутри опалубки крепится армирующий пояс из двух рядов арматуры диаметром 12-14 мм с поперечными и вертикальными связками через 1,5-1,8 м. Заливка фундамента производится бетоном марки не ниже М300. На боковые стенки накладывается гидроизоляционный слой из битумной мастики, а сверху постилается гидроизоляция из рубероида. Важная особенность фундамента под газоблоки – фундамент поднимается выше уровня земли на высоту не менее 30 см для формирования цоколя, тем самым ограничивая воздействие почвенной влаги на нижний слой кладки.

- Строительство бани из керамзитобетонных или иных блоков производится в виде рядовой укладки с увязкой рядов, т.е. шов между блоками в одном ряду должен соседствовать со срединой блока в нижнем и верхнем от него ряду. Первый ряд блоков ложится на песчано-цементный раствор, который имеет наилучшее сцепление с фундаментом. В последующих рядах в качестве скрепляющего раствора рекомендуется использовать готовый клеевой состав, специально предназначенный для этих целей. С его помощью обеспечивается шов толщиной всего 1,5-2 мм, что исключает снижение теплоизоляционных свойств на стыках. Наиболее распространенная блочная кладка осуществляется шириной в полблока.
- Возведение кровли. Особенностью ячеистого бетона является недостаточная прочность на сжатие. Если произвести крепление стропил крыши непосредственно к блокам, то риск их разрушения достаточно высок. Для повышения надежности кровельного перекрытия необходимо равномерно распределить нагрузки от массы крыши и снега не ней. Эта задача решается с помощью крепления мауэрлата – балки сверху верхнего ряда блоков по всему периметру бани. В качестве такого элемента используется брус размером не менее 15х15 см. Уже к мауэрлату крепятся стропильные фермы, выполнение из деревянного бруса не менее 10х10 см.

- Сама крыша может быть односкатной или двухскатной в зависимости от размеров строения. Скат крыши определяется количеством снега, характерного для данной местности. Уклон ската может составлять от 10 до 600. Край крыши выпускается за границы стен на 40-60 см. Кровельный материал накладывается по обрешетке, которая крепится к стропилам. Под кровельным покрытием обязательно укладываются слои паро-, гидро- и теплоизоляции.
Особенности отделки бани
Низкая влагостойкость газобетонных блоков требует тщательной отделки стен как с наружной, так и с внутренней стороны. Наружная отделка часто заключается в штукатурке песчано-цементным раствором собственного приготовления или готовой цементной штукатурной смесью для внешних работ. Предварительно на поверхность стены накладывается грунтовочный состав для блоков. Поверх грунтовки укладывается монтажная сетка из стекловолокна. Штукатурка формируется из 2-3 слоев общей толщиной 25-30 мм. Верхний финишный слой предусматривает тщательное разравнивание.
Современным способом наружной отделки блочной стены считается установка сайдинг-панелей. Особо популярен сайдинг с имитацией под дерево. Панели крепятся на обрешетку их деревянного бруса или алюминиевого профиля. В ячейки обрешетки укладывается вначале пароизоляция со слоем фольги (фольгой внутрь), затем, теплоизоляция из минеральной ваты или пенополистирола, а также гидроизоляция из рубероида.
Внутренняя обшивка блочной стены, как правило, производится вагонкой. При этом при отделке стен в парилке не следует использовать древесину хвойных пород. Оптимальный вариант – вагонка из липы, ясеня, березы, тополя. В других помещениях бани для обшивки можно использовать более дешевую вагонку из хвойной древесины.
Облицовка стен производится с использованием обрешетки из деревянного бруса.
Под обрешеткой и в её ячейки укладывается последовательно: теплоизоляция, гидроизоляция и паровой экран. В качестве внутренней теплоизоляции рекомендуется базальтовая минеральная вата. Применять пенополистирол (пенопласт) внутри парилки нельзя из-за риска вредных выделений. В качестве пароизоляции хорошо зарекомендовал себя Изоспан со слоем алюминиевой фольги. Между паровым экраном и вагонкой следует обеспечить воздушный вентиляционный зазор шириной 1,5-2 мм для исключения скопления конденсата.
Строительство бани из блоков — достаточно трудоемкое и затратное мероприятие. Для его проведения нужно выбрать оптимальный тип материала. Все работы можно осуществить своими силами, соблюдая все рекомендации и установленные нормы.
banyabest.ru
Баня из блоков — Проект и достоинства блочной конструкции
Традиционным материалом для строительства бани считается дерево. Среди его достоинств – экологичность, долговечность, хорошие теплоизоляционные свойства, его внешняя эстетичность. Но современные строительные материалы и технологии ни в чем не уступают традиционным способам возведения бани. Одним из вариантов, заслуживающих рассмотрения в качестве альтернативы деревянной постройке, являются блочные материалы.
Виды блоков
Рынок строительных материалов предоставляет широкий выбор блоков, пригодных для возведения бани. Наибольшую популярность у застройщиков завоевали композитные блоки. Благодаря синтезу положительных качеств двух и более материалов они обеспечивают высокую эксплуатационную эффективность строения. Блоки могут быть:
- газобетонные,
- керамзитобетонные,
- газосиликатные.
К основным их преимуществам можно отнести следующие качества:
- малый вес блока,
- удобная форма и размеры,
- простота установки,
- низкая теплопроводность,
- доступная стоимость.
Газобетон – это разновидность ячеистого бетона с воздушными порами диаметром около 3мм, полученными добавлением газообразующей смеси в первоначальный состав из цемента, песка и гипса. Чем равномернее распределены сферы воздуха по объему, тем качественнее газобетонный блок. Также к качественным показателям относятся количество незамкнуты пор (поверхность блока должна быть ровной) и величина ячеек воздуха (чем больше ячейка, тем выше теплоизоляционные свойства). См. Проект бани из газобетона.

Керамзитобетонный блок состоит из бетона и пористого наполнителя — керамзита. Керамзит в блоке выполняет те же функции что и воздушные сферы в составе газобетона – облегчают вес блока и улучшают свойства материала сохранять тепло внутри здания.
В газосиликатных блоках газообразующие добавки добавляют в смесь извести, песка и воды. Блок, полученный таким образом легкий. Порог его термостойкости составляет 400°С.
Поскольку все вышеописанные материалы относятся к пористым, а значит обладают низкой влагостойкостью, то при строительстве бани особое внимание стоит уделить влагоизоляции стен. Слой влаго- и пароизоляции должен быть выполнен без разрывов на поверхности.

На фото выше показана парная, стены и потолок которой, обшиты фольгой поверх уложенного слоя утеплителя. Нарушение правила сплошного покрытия приведет к тому, что несущие стены отсыреют, набирая в себя воду будут тяжелеть и давить на фундамент, несущая способность которого наверняка рассчитывается на легкие блоки.
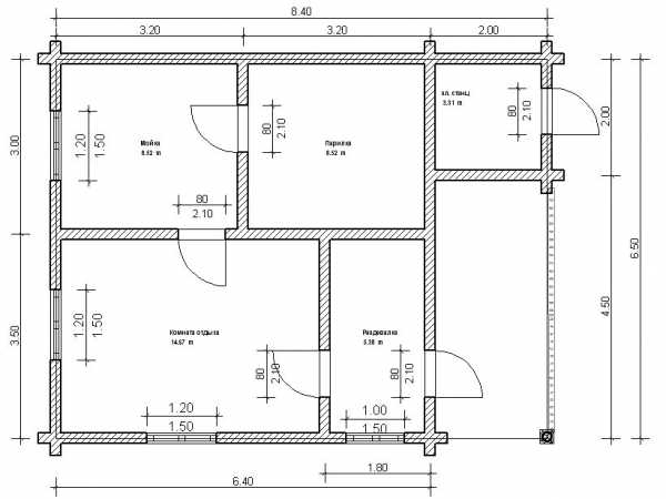
Проект бани из блоков 6х6
Рассмотрим проект бани из блоков размерами 5 на 5, при желании заказчика можно пропорционально увеличить размеры квадрата до 6 на 6 м:
Строение сложено из блоков ячеистого пенобетона. Фундамент под стены из блочных материалов обычно заливают ленточный. Это наиболее технологичное сочетание, ведь для кладки и заливки фундамента используются одинаковые компоненты смеси. Фундамент низкий – основная его часть находится под землей. Так же нужно учесть необходимость возведения фундамента под печь. Пространство около печки обкладывают огнеупорным кирпичом в целях обеспечения пожарной безопасности в помещении парной.
Примерное расположение комнат в такой бане представлено на фото ниже.

Комната для отдыха является и раздевалкой, в ней же находится топка. Поскольку сама баня очень компактная, то в помывочной предположительно будет размещен душ или душевая кабина. Перегородки выполнены из пенобетонных блоков специального типа, предназначенного для возведения стен внутренних помещений. В каждой комнате бани предусмотрено окно, это естественная вентиляция и освещение.

Основные функции стен бани (помимо несущей) – это эффективное удержание тепла, создаваемого печью. Для обеспечения этой функции использование ячеистых композитных и других видов блоков наиболее целесообразно. Главное достоинство применения строительных блоков – это цена. В итоге баня обойдется дешевле конструкции из бруса.
Каменная кладка считается делом профессионалов, но тем не менее многие собственники самостоятельно справляются с задачей возведения строения из блоков. Материалы и оборудование для строительных работ такого типа всегда можно найти в магазинах – оно доступно всем.

Любителям деревянной бани ничто не помещает создать уют внутри бани отделав парную деревянной вагонкой. Создать атмосферу традиционной русской бани можно и в каменных стенах, тем более, что они находятся за слоями вагонки, изоляции и утеплителя, а сэкономленные средства можно потратить на хорошую печь, ведь именно жаркая печь – сердце бани.
Читайте также: Проекты бань из газосиликатных блоков, Проект бани из пеноблоков — Фото, Баня из пеноблоков своими руками, Проекты бань из шлакоблока
banyagid.com
Проекты бань из газосиликатных блоков
Проекты бань из газосиликатных блоков: особенности и реализация
Иметь собственную баню или сауну – мечта многих. Но кое-что очень часто становится на пути, это цена. Классическая постройка из сруба потребует покупки дорогих строительных материалов и, возможно, найма специалистов из-за сложности строительных работ.
Но технологии не стоят на месте, и на сегодняшний день можно найти более дешёвую замену дереву и даже кирпичу. Одним из таких чудо заменителей является газосиликат. Проекты бани из газосиликатных блоков позволят воплотить вашу мечту в реальность с весьма ограниченным бюджетом.

Фото газосиликатной бани
Характеристика

Газосиликатный блок
Изготовление происходит так:
- С помощью специального оборудования соединяют пудру на основе алюминия и портландцемент.
- Далее добавляют воду, обычный цемент и кварцевый песок.
Получившиеся образцы имеют следующие достоинства:
Преимущества
- Низкая стоимость. Отсутствие дорогих компонентов и дополнительных процессов обработки, которые требуют кирпич и дерево, делают себестоимость данного материала минимальной.
- Высокая теплоизоляция. Для бани это очень ощутимый показатель, позволяющий сэкономить ещё и на утеплителе для бани.
- Маленьки
superbany.ru
Баня из блоков своими руками
Содержание статьи

Традиционная баня — небольшая постройка, возведенная с использованием натуральных экологичных материалов. В ней должно быть тепло и уютно. С древних времен баню строили из дерева. И именно строение из дерева приходит на ум в первую очередь при упоминании этого излюбленного нашим народом места досуга.
Но для многих своя баня может навсегда остаться предметом мечты, если рассматривать в качестве материала для ее сооружения только древесину. Натуральные строительные материалы сейчас достаточно дороги.
Выручить в этой ситуации может строительство бани из блоков. По стоимости они обойдутся гораздо дешевле, а по качеству станут достойной заменой древесине. Этот материал не содержит вредных для здоровья человека и окружающей среды веществ. Блоки подходят для строительства зданий разного назначения. В этом они универсальны.
Информация. При соблюдении правил строительства из них можно построить долговечное сооружение, влажность в котором будет постоянно высокой. Для этого нужно лишь позаботиться о гидроизоляции стен.

Плюсы и минусы
Возведение бани из блоков своими руками имеет ряд преимуществ:
- усадка нового сооружения будет минимальной, что выгодно отличает этот стройматериал от дерева;
- попариться в бане можно будет практически сразу после окончания работ по возведению и отделке;
- строительство происходит в рекордно быстрые сроки;
- все работы можно осуществить самостоятельно, однако предпочтительнее будет попросить о подмоге еще одного человека;
- баня из блоков обойдется в 2 раза дешевле, чем подобное по размерам строение из древесины;
- блоки по своему химическому составу абсолютно инертны, не выделяют газов;
- строительный материал является устойчивым к огню и не подвержен гниению.
У блоков из цемента имеются свои недостатки, которые заключаются в следующем:
- они вбирают в себя воду, поэтому стены из них нужно хорошо изолировать от влаги;
- в стенах из этого материала собирается конденсат, что устраняется с помощью надежных пароизоляционных материалов;
- по сравнению с кирпичом блоки относительно недолговечны, а с деревом — менее экологичны;
- стройматериал не является очень легким, благодаря чему затраты на устройство фундамента будут больше.
Из каких строить
На этапе подготовки к строительным работам необходимо рассчитать количество блоков, которое потребуется. В продаже можно найти блоки 600×300×200 мм, используемые для сооружения несущих стен, и блоки 600×300×100 мм, применяемые для возведения перегородок внутри здания.

Баня будет стоять долго, если к выбору материала для ее постройки отнестись внимательно.
Следует выбрать подходящую марку бетона по плотности и максимально допустимой нагрузке на квадратный дециметр.
При постройке бани из блоков своими руками необходимо брать во внимание время, которое прошло с момента производства стройматериала.
Блоки окончательно затвердевают на 28 сутки, прошедшие со дня их изготовления. Применять в строительстве блоки раньше этого срока не желательно.
Как сделать качественно
Нужно озаботиться тщательным выбором материала для строительство, обратив внимание на следующие моменты:
- Производитель. Известные компании заботятся о своей репутации. У них имеются все необходимые сертификаты, подтверждающие высокие эксплуатационное свойства продукции. Регулярно проводятся исследования, нацеленные на контроль качества;
- Стоимость. Если цена ниже, чем у конкурентов, то этот факт должен вызвать подозрения в качестве стройматериала. Обычно скидку предоставляют по причине либо близости производства, либо оптового количества заказа, либо низкого сорта материала;
- Складские условия. Блоки должны храниться в сухом месте, в которое не может проникнуть влага;
- Упаковка. Должна быть не повреждена.
Информация. Обнаружить непригодность стройматериала можно также с помощью простого осмотра. То, как они выглядят, может многое рассказать об их качестве.
При осмотре блоков почерпнуть нужную информацию можно по следующим признакам.
- По внутренней поверхности. Ее можно изучить, если разбить блок на части. Стройматериал изнутри должен быть такой же, как и снаружи. Поры не должны соединяться, иначе блоки будут поглощать влагу;
- Размер пор. Чем они больше, тем прочность стройматериала меньше;
- Цвет. Поскольку цемент является преобладающим в составе блоков, то их поверхность должна быть окрашена в монотонный серый оттенок. Слишком светлый стройматериал произведен с нарушением стандартов, так как в нем недостаточно цемента;
- Форма. Если при сложении вместе двух блоков между ними обнаруживаются зазоры, то при строительстве бани потребуется слишком много смеси или клея;
- Вес. Этот показатель также должен оставаться в пределах норм.
Для испытания блока на прочность нужно попытаться отломить часть его края, надавив рукой. Если от него отпал кусочек, это указывает на плохое качество материала.
Информация. Еще один способ проверить блок — вручную проколоть его крупным гвоздем. Если гвоздь входит без сильного давления, то использовать этот стройматериал для бани не рекомендуется.
Выбор размера и планировки
Важным подготовительным этапом является подбор подходящего проекта бани. На специализированных форумах и строительных порталах можно найти огромное количество разработанных и уже опробованных кем-то проектов.
Внимание! Возможно, кто-то из знакомых совсем недавно построил баню из блоков у себя на участке и может дать ценные рекомендации.

Если размер садового участка невелик, то хорошим вариантом может стать проект бани в виде пристройки из блоков к гаражу или постройке хозяйственного назначения. Представляют интерес и бани с мансардой, сооруженные с помощью этого стройматериала. После изучения типовых проектов и рекомендаций специалистов можно начинать проектирование будущего строения.
Информация. Источник воды не должен находиться на большом отдалении от будущей бани.
Еще при возведении дома владельцы участка узнают все о том, как проходят грунтовые воды. Эта информация пригодится и при поиске подходящего места для бани.
В ходе проектирования необходимо учесть следующие факторы:
- Правильное расположение бани на приусадебном участке;
- Согласование размеров строения и внутренняя планировка;
- Создание проекта.
Внимание! При определении оптимальных размеров бани из блоков и планировки необходимо учитывать количество людей, которое одновременно будет париться в бане.
Как построить: этапы

Строительство бани из блочного материала начинается с правильного устройства фундамента.
Как правило, закладывается ленточный фундамент мелкого заглубления. После того как эти работы будут завершены, нужно выждать два дня до абсолютного затвердевания цемента.
Возведение стен производят на гидроизоляционный материал, уложенный на фундамент.
С помощью нивелира находят самый высокий угол постройки, от которого производится дальнейшее строительство стен из блоков.
Этот стройматериал обладает отличными теплоизоляционными свойствами, однако может происходить утечка тепла из бани через материалы для стыков, не обладающие такими качествами — так называемые мостики холода.

Укладка первого ряда считается наиболее важным этапом постройки бани из блоков.
Они скрепляются друг с другом с помощью простого раствора цемента с песком.
Кладка ряда завершается тщательным выравниванием поверхности и компенсацией всех изменений высоты основания здания, а также всевозможных неровностей.
Аккуратность при исполнении работ на этом этапе обеспечивает успех всего последующего хода строительства. Блоки необходимо устанавливать с помощью киянки с наконечником из резины.
Информация. Каждый шаг следует выверять, используя лазерный нивелир. Возведение стен можно облегчить, если протянуть леску промеж углов строения.
Второй ряд и следующие за ним укладываются с помощью специального клея. Он продается, как правило, в сухом виде. Этот клей растворяют в воде во время строительных работ. Изготовление клея занимает не больше 10 минут. Клеевую смесь следует накладывать слоем, толщина которого не должна превышать 0,5 см. Расход этого стройматериала производится в минимальных количествах.
Важно! Блоки при укладке устанавливаются на ребро. При этом швы стараются делать наименьшими, чтобы тепло через них не уходило.

Размешивают клей с водой в небольшой таре с помощью дрели. На нее устанавливают насадку в виде венчика.
Стыки благодаря использованию этого клея практически отсутствуют.
Поверхность стен бани из блочного материала не имеет «мостиков холода» при применении данной технологии.
Профессиональные строители рекомендуют укладывать блоки в 3 ряда.
Между ними нужно размещать армирующий слой, представляющий собой сетку из стали с мелкими ячейками. Эта мера обусловлена необходимостью дополнительного укрепления строящегося объекта.
До того, как построить баню из блоков, правильно будет заранее продумать, где будут находиться окна и двери. В этом вопросе можно руководствоваться собственными соображениями. Для перекрытия таких проемов в стенах из блоков нужно залить бетоном опалубку. Допустимо использовать также наборные детали промышленного изготовления.
По завершении возведения стен бани рекомендуется сделать перерыв. Через 4 дня можно приступать к установке кровли.
Важно! Клей быстро отвердевает. Необходимо успеть наложить его по всему ребру блока, поверх установить другой блок и тут же подогнать с помощью киянки.
Подготовка к покрытию кровлей
Предпочтительным вариантом конструкции кровли для бани из блоков станет двускатная крыша, имеющая конек.
Для соединения стропил в коньке подойдет стыковка методом шип-паз. Их длина будет зависеть от ширины строения и климата местности. Также следует принять во внимание уклон скатов. Для климатических зон с преобладанием высокой влажности воздуха уклон для кровли необходимо предусматривать в районе 60°.

Стропильные ноги связываются с помощью скоб. При фиксации брусьев необходимо соблюдать интервал не более 1 м.
Для сооружения конструкции из стропил наиболее значимым фактором является правильный подбор материала.
Нужно проследить за тем, чтобы его качество не вызывало нареканий.
Когда мы строим баню из блоков своими руками, нужно убедиться, что пиломатериал для каркаса крыши не имеет никаких дефектов и содержит минимум сучков.
Лаги пола
В качестве устройства пола для парной можно воспользоваться одним из двух методов:
- заливка бетоном;
- размещение досок на лаги.
Внимание! На создание пола из бетона уйдет больше денежных средств, времени и сил. Но прослужит он гораздо дольше деревянного.

Более экономным способом является настил пола из древесных материалов. В этом случае он будет подлежать ремонту уже через 7-10 лет.
Дело в том, что деревянные полы в банях быстро сгнивают от избытка влажности.
Для сооружения такого пола необходимо будет установить лаги. Для них подойдет брус с сечением 150×50 см.
Построить баню из блоков своими руками — задача несложная. Стены из этого материала собираются быстро благодаря их небольшому весу и крупному по сравнению с тем же кирпичом размеру.
Стоимость сырья позволяет взяться за дело даже с небольшим бюджетом. А разнообразие на современном строительном рынке материалов для паро- и гидроизоляции скомпенсирует все недостатки блоков как стройматериала для бани.
rubanya.com

Какие бывают блоки