Баня каркасная проекты – проекты бань размером 3х4 и пошаговая инструкция изготовления своими руками, отзывы владельцев
Проекты каркасных бань, варианты под ключ, фото и видео
Баня не относится к капитальным строениям, но её функциональные особенности не позволяют приступить к постройке без проекта. Каркасная технология идеально подходит для этого вида строения: быстро возводится, применяются экологически чистые материалы, не требует больших материальных и людских ресурсов, легко проектируется.
Проектируем самостоятельно
Готовую проектную документацию бани из бруса с мансардой или любой другой можно приобрести в специальных бюро или выполнить самостоятельно. Во втором случае в помощь придет любой типовой проект для выбранного размера строения.
Перед началом проектирования бани на основе каркаса решаются ключевые вопросы:
- найти самое рациональное месторасположение здания, с учетом удобства и простоты для подведения водо-канализационных, осветительных коммуникаций;
- спланировать размеры будущего здания;
- на выбранном месте, изучить состав почвы и перепады поверхности грунта. Эти факторы станут решающими в выборе типа фундамента;
- решить необходимость возведения 2-х этажей, мансарды и постройку внешних элементов, таких как веранда, терраса;
- определить тип крыши. Рассматриваются варианты односкатной, двускатной, многоскатной конструкции.

Размещение каркасной бани на участке
При выборе количества скатов крыши, учитывается размеры бани, климатические особенности местности, расстояние до других построек, тип покрытия.
Готовый проект станет помощником в рациональном распределении пространств, выборе строительных материалов. Определиться с предпочтениями помогут и фото бань.
Предварительно продумать внутреннюю планировку бани с точки зрения функциональности. Определить место установки печки. От него зависит, как будут располагаться дымоходы и вентиляция.
Проектирование каркасной бани
На этапе проектирования решается вопрос выбора материалов, из которых будет возводиться строение и обсчитывается примерная стоимость строительства. Чем более подробно разработан проект каркасной бани своими руками, тем легче вносить в него коррективы при возникновении непредвиденных обстоятельств.
Вариант 4*5 м
Строение размером в 20 м2 компактно, подходит для бани состоящей из трех помещений:
При определении размеров внутренних помещений расчет делается не для «чистого» размера, а с учетом толщины перегородок и стен.

Проект каркасной бани 4 на 5 метров
Наиболее подходящая площадь для комнаты отдыха 7-8,5 м2, для парной – до 5 м2, для санузла – не менее 2,2 м2. Небольшие размеры строения не предполагают предбанника. В парной располагается каменка и вся основная поверхность печи. В комнату отдыха выносится топка, играющая роль еще и отопительного прибора. Чтобы в баню с улицы не попадал холодный воздух, необходимо предусмотреть наличие закрытого крыльца.
Расходные материалы и элементы бани 4*5 м:
- Фундамент ленточный заглубленный на 70 см и высотой цоколя 40 см. Для его обустройства требуется подушка из гравия толщиной до 20 см.
- Каркас состоит из стоек и обвязки по верхнему и нижнему краю строения. Оптимально использовать доски 100*50 мм.
- Крыша двускатная со стропильной системой из доски 150*50 мм. Шаг укладки 580 мм.

Строительство каркасной бани
Обшивка выбирается в зависимости от требуемого уровня теплоизоляции.
Вариант 6*6 м
Размер 6*6 м дает пространство для фантазии. В проект такой бани можно включить такие помещения:
- террасу или тамбур;
- комнату отдыха и спальную;
- парилку;
- полноценный санузел;
- моечную.
Линейные размеры предполагают использование пиломатериалов стандартной длины, что удешевляет строительство из-за малого количества отходов.

Каркасная баня 6 на 6 метров с балконом и террасой
Моечную комнату можно сделать предельно большой с прямым выходом из парилки и в ней разместить лежаки для отдыха. В другом варианте проекта предполагается разделить моечную и парную небольшим коридором соединенным с комнатой отдыха. В этом случае в комната для мытья будет несколько меньше.
Вариант 6*3 м с террасой
Проект бани 6*3 м с террасой встречается в двух вариантах:
- Терраса не входит в площадь строения и ей размер планируется отдельно. В этом случае общий размер здания увеличится на площадь веранды.
- Терраса является частью общего здания. Тогда все внутренние помещения будут иметь меньший размер.

Каркасная баня с террасой
Небольшие размеры бани не позволят обустроить полноценный санузел. Печь будет топиться из комнаты для отдыха.
Выбрать печь компактную, возможно модель будет узкая и вытянутая вверх.
Вынос террасы за фундамент основного строения позволит выделить небольшое пространство от комнаты отдыха для тамбура. Тогда возможно попариться и в зимнее время. Примерные размеры внутренних помещений:
- комната-парилка – 3,5 м2;
- душевая/моечная – 1,8 м2;
- комната релакса – 8,5 м2;
- тамбур – 2,6 м2;
- выносная терраса – 11 м2.

Каркасная баня с выносом террасы
Для формирования каркаса понадобится брус 100*150 мм. Их него делается обвязка и устанавливаются лаги пола. Для крыши используют брус 150*40 мм для потолочного перекрытия. Стропильная система укладывается из обрезной доски. Для этого подходит доска с размером 100*50 мм. Материал для обшивки и кровли выбирается в зависимости от личных предпочтений и климатических условий.
Вариант 4*4 м с террасой
Такой размер строения предполагает только выносную, пристроенную террасу, но под общей крышей и на общем фундаменте.
Площадь 4*4 м подход больше для сухих саун. Для русских бань не самый комфортный вариант.

Каркасная баня с террасой
Проект предполагает разделение общего пространства на две части по 8 м2 и добавление террасы размером до 6 м2:
- Релаксационное помещение после парной, оно же предбанник.
- Парилка и мойка.
Комнату-парную стоит сделать больше моечной. Тогда в ней возможно будет разместить два человека.
Вариант 5,4*6,3 м
Баня с общей площадью 34 м2 может иметь встроенную террасу.
- для отдыха в 11-12 м2;
- для парилки – 5 м2;
- для санитарных нужд – до 6 м2.

Проект каркасной бани
Все остальное пространство будет занимать терраса. Удобно часть террасы сделать закрытой, что бы теплый воздух сразу не выходил на улицу.
Если веранда не предполагается, тогда делается предбанник площадью 5,4 м2 и можно спланировать наличие санузла.
Основные плюсы каркасной технологии
Преимущества каркасных строений:
- конструкция простая и возможно проектирование, строительство своими руками;
- здание не дает усадки и к отделочным работам, установке оборудования приступают сразу после основного строительства;
- стройка проходит быстро, без ограничений по времени года;
- легкость конструкции дает возможность устанавливать любой тип фундамента;
- материалы для обшивки подходят любые. Все зависит от материальных возможностей;
- экологичность постройки;
- экономическая выгода в сравнении с каменными, кирпичными зданиями.

Строительство каркасной бани
Для выполнения работ не требуется привлечения тяжелой техники и целой бригады работников. Подойдут простые строительные инструменты и максимум один помощник.
Какие минусы учитываем при строительстве
Как у всех зданий из дерева, у каркасной бани будет повышенная пожароопасность. В проекте следует учесть дополнительную обработку специальными составами, которые позволят снизить горючесть. С точки зрения устойчивости к горению подбираются материалы для утепления.
При строительстве каркасных бань нельзя экономить на качестве электромонтажных работ. Электропроводка укладывается в негорючие кожухи. При установке любых электрических приборов, требуется заземление.
Повышенная влажность в бане может привести к разрушению минеральных утеплителей, если их не закрыть пароизоляцией. Поэтому, в качестве утеплителя рекомендуется использовать более функциональные материалы.
Все перечисленные недостатки ведут к удорожанию строительства.
Необходимые материалы.
Здание, построенное на основе каркаса, состоит из таких элементов:
- каркас из бруса;
- обшивка из отделочных материалов с внутренней и внешней стороны;
- прокладки утеплителя, пароизоляции между частями обшивки;
- фундамент любого типа. Наиболее часто используют мелкозаглубленный ленточный или свайный. В зависимости от проекта можно использовать другие типы.
Каждый элемент может удешевить или наоборот сделать более дорогим конечный продукт, за счет выбранных материалов.
Для сборки каркаса, стропильной системы лаг пола используют брус из высококачественных пород деревьев параметрами 100*150 мм. Повысить устойчивость конструкции можно применением брусков 150*150 мм. Современные технологии предлагают клееный брус. Для остальных элементов выбираются брусья меньшего размера. Для обрешетки подойдет любой пиломатериал или фанера.
В качестве кровельного материала можно использовать:
- рубероид;
- профнастил;
- фальцевое покрытие;
- металлочерепица;
- еврошифер.
Керамическая черепица сильно тяжелая и создаст дополнительное усилие на фундамент.

Вариант соединения бруса при строительстве бани
Пол кроме лаг имеет черновое покрытие. Это может быть фанера, любой вид доски, специальные плиты. В качестве внешней обшивки хорошо себя зарекомендовали материалы, имитирующие натуральное бревно. Внутри можно использовать различные типы вагонки.
Все деревянные элементы обязательно обрабатываются антипиренами и антибактериальными смесями.
Утеплители выбираются устойчивые к гниению и горению. В основном это минеральные ваты. Слой утеплителя определяется климатом региона, где ведется строительство. Если выбираются другие виды, необходимо ознакомиться с инструкцией, чтобы они были устойчивы к действию высокой температуры, не поддерживали горение.
Дополнительно приобретаются крепежные материалы и внутренняя отделка. Принцип выбора: легкие, устойчивые к действию влаги, пожаробезопасные.
Каркасная баня своими руками, видео
Построить каркасную баню не сложно. Если ответственно подойти к этапу планирования, стройка пройдет быстро и с минимальными затратами. И уже через несколько недель, можно заходить и получать удовольствие.
landsdecor.com
Проекты каркасных бань, чертежи, схемы видео
Каркасная технология строительства применяется не только при возведении жилых домов – бани, гаражи, сараи и другие хозяйственные постройки, в строительстве которых используются каркасные элементы, все больше завоевывают благосклонность индивидуальных застройщиков по понятным причинам. Даже проекты каркасных бань – это теплые и долговечные постройки, а скорость их возведения такова, что париться в новой бане можно будет уже через 2-3 недели после начала строительства. И, конечно, дешевизна материалов и рабочего процесса не оставляет равнодушным никого при планировании объектов недвижимости на участке.
Типовые проекты каркасной баниПримеры индивидуальных проектов каркасных бань
Ниже вы видите индивидуальный проект каркасной бани 6х4 метров, на котором видно, что, кроме парилки площадью 7,65 м2, в строении есть просторная комната для отдыха, компактный санузел и тамбур с крыльцом. Каркас бани стоит на ленточном мелкозаглубленном основании (МЗЛФ) глубиной 0,7 м, фундамент имеет продолжение в виде цоколя высотой 0,4 м, полная высота МЗЛФ – 1,1 м, слой щебня или гравия под подошвой фундамента – 0,2 м. Тамбур не позволяет холодным воздушным массам проникать внутрь при открывании дверей.
Простой проект каркасной бани размером 4 х 6 метровОбщая площадь бани — 24 м2, площадь и размеры помещений:
- Помещение для отдыха — 12 м2;
- Парилкой на 7,65 м2;
- Санузел 4,35 м2
Из каких стройматериалов собирается каркас бани:
- Вертикальные стойки, верхний и нижний обвязочный пояс — доска 100 х 50 мм;
- Балки чернового пола — доска 150 — 50 мм;
- Стропила — доска 150 — 50 мм.
Этот проект каркасной бани предусматривает каменку, установленную и протапливаемую в парилке, и такое тесное расположение обусловлено исключительно размерами бани. Параллельный вариант расположения печки – тоже в парилке, но с удлиненной топочной камерой, что позволит закладывать дрова из помещения для отдыха. Такое решение позволит отапливать не только парилку, но и комнату отдыха.
Проект бани с мансардой
Типовые проектные решения для каркасных бань вряд ли будут предлагать такой вариант — проект каркасной бани с мансардой. Это – сугубо частное решение, обусловленное маленькими размерами земельного участка и желанием разместить на нем как можно больше полезных площадей. Нижний этаж бани имеет стандартный набор помещений: комнату для отдыха, парилку, террасу, мойку и предбанник (на чертеже проекта — прихожая). И, конечно, винтовую лестницу на мансардный этаж.
Каркасная баня с мансардой
Такая каркасная баня 6х4 также довольно тесная, но мансарда расширяет ее возможности. Кроме того, стандартный размер строения позволяет использовать стандартные пиломатериалы длиной 300 или 600 см, что минимизирует количество отходов. Баню можно ставить на столбчатый, ленточный или свайный фундамент, так как ее масса незначительна в силу каркасного варианта рамы.
Проект является более функциональным, так как после парилки можно не только отдохнуть в отдельном помещении, но и просто принять душ в моечной. Парилка связана с моечным помещением отдельной дверью, поэтому в душевой будет довольно высокая температура и влажность. Кроме того, в моечной можно обустроить пару лежанок, что еще больше повысит комфортность отдыха после парной.
Общая площадь этого проекта вместе с мансардой — 42 м2. Размеры и площадь помещений:
- Комната отдыха — 10 м2;
- Прихожая — 2,25 м2;
- Моечная — 3 м2;
- Парилка — 5 м2;
- Мансарда – 18 м2.
Проект бани с террасой
Типовые проекты каркасных бань с террасой чаще всего просто делят общую площадь пополам, оставляя мало места под функциональные помещения. Поэтому индивидуальное проектирование в этом случае предпочтительнее, и одно из решений показано ниже. Баня довольно просторная (114 м2), так как при размерах 6 х 4 террасу устроить очень сложно.
Подобные проекты бань каркасного типа стараются оснастить более широкими возможностями, так как сделать это позволяет дополнительная площадь. Так, чертежи этого проекта отображают наличие бассейна, совмещенного с парилкой, и коридора, а также сауны и отдельного топочного помещения, гостиной, и, естественно, просторной террасы, на которую приятно выйти после парилки.
Баня с террасойТак как топочное отделение отгорожено от остальных помещений, в нем можно устроить не просто каменку, а оборудовать небольшую систему отопления, которая будет охватывать те помещения, которые не обогреваются от парилки. Так как таких помещений много, отопление лишним не будет, тем более – для зимней террасы. Согласно схемы этого проекта, терраса как раз предназначена для зимней эксплуатации, поэтому она отделена прихожей и коридором, которые также необходимо подключить к отопительной системе.
Даже каркасные бани с террасой легко возводятся своими силами, без привлечения спецтехники и дополнительных рабочих рук.
Общая площадь бани, построенной по проекту выше — 114 м2. Площадь и размеры помещений:
- Сауна — 11,74 м2;
- Душевое помещение – 10,45 м2;
- Парилка с бассейном – 8,22 м2;
- Терраса – 33,83 м2;
- Прихожая (предбанник) – 3,33 м2;
- Коридор – 5,29 м2;
- Топочное помещение – 4,72 м2;
- Санузел – 4,72 м2;
- Гостиная (комната для отдыха) – 18,88 м2.
Стройматериалы:
- Обвязка – брус 100 х 150 мм;
- Черновой пол — брус 150 х 100 мм;
- Перекрытие потолка — доска 150 х 40 мм;
- Стропильная система — доска 100 х 50 мм;
- Материал для кровли — профнастил, листовой оцинкованный металл, металлочерепица, шифер, ондулин.
Маленькая баня с террасой
Размеры этой мини-бани — 4 х 4 м, размеры террасы – 4 х 1,5 м. Для семьи из 3-4 человек это – вполне приемлемые габариты. Функциональность бани от размеров не страдает – есть мойка, парилка на два человека, комната для отдыха, и остается достаточно места для веранды или террасы, во влажных помещениях оборудованы окна с форточками (одно – в парилке, одно – в моечном помещении).
Парилка идеально подходит для одного человека, так как лежачий полок – только один, на втором можно только сидеть, что в понятии русской бани является не совсем полноценным отдыхом. Размеры моечной некритичны, так как в ней всегда будет находиться только один человек. Поэтому площадь моечного помещения принесена в жертву размерам террасы и комнаты отдыха.
Баня размером 4 х 4 м с террасой размером 4 х 1,5 мПлощадь всех помещений:
- Помещение для отдыха – 5,67 м2;
- Мойка — 3,04 м2;
- Парилка — 3,61 м2;
- Терраса — 6 м2.
Строительные материалы:
- Обвязочный брус – 100 х 150 мм;
- Черновой пол — брус 150 х 100 мм;
- Перекрытие потолка бани – доска 150 х 40 мм;
- Стропила – доска обрезная сечением 100 х 50 мм;
- Материал для кровли — профнастил, листовой оцинкованный металл, металлочерепица, шифер, ондулин.
Каркасная баня 5,4*6,3 м
Все каркасные бани проекты которых представлены здесь, рассчитаны на самостоятельное строительство с минимальными трудовыми и финансовыми затратами. Например, план бани, представленный ниже, упрощен до минимума, и этим привлекает застройщиков, желающих иметь баню на маленьком участке. Но даже такое небольшое строение можно оборудовать пристройкой – террасой размером .2 х 5,4 м, по длине короткой стороны бани.
Баня с минимальным функционаломПараметры:
- Общая площадь бани — 22,2 м2;
- Парилка – 5,0 м2;
- Площадь комнаты для отдыха — 11,3 м2;
- Моечное помещение — 5,9 м2;
- Терраса — 10,8 м2.
Достоинства строительства бань на каркасной основе
Каркасное проектирование включает в себя брусовую раму, обшитую отделочными пиломатериалами изнутри и снаружи. Все свободное пространство внутри каркаса забивается слоями паро- и теплоизоляции. Такая форма строительства идеально подходит для частных застройщиков, потому что автоматически попадает в разряд малобюджетных. Кроме того, строительство можно еще удешевить, если использовать не промышленные материалы для теплоизоляции, а народные приемы утепления стружкой, опилками, и т.д.
Из-за маленького веса строения появляются дополнительные преимущества, как-то: фундамент, на котором будет стоять каркасная баня проекты которой описаны выше, можно строить облегченным – незаглубленным или мелкозаглубленным, свайным или столбчатым, что совсем дешево по сравнению с фундаментами других типов и мощностей. Конечно, если застройщик хочет перестраховаться, то баня прекрасно будет эксплуатироваться и на плитном, и на ленточном монолитном основании, но стоимость проекта возрастет намного.
Схема стены каркасной баниПри строительстве небольшой каркасной бани понадобятся вполне стандартные инструменты: пила или ножовка по дереву (можно заменить болгаркой), молоток, саморезы по дереву или гвозди, шуруповерт или мощные отвертки, отвес и строительный уровень. При возможности механизировать строительный процесс конечный результат только приблизится. Основное преимущество каркасного строительства – это работа для одного человека, а это – экономия семейного бюджета.
Недостатки
Высокая пожароопасность — главный недостаток каркасной бани, который частично минимизируется пропиткой древесины антипиреновыми растворами. Из-за повышенной пожароопасности электропроводку необходимо прокладывать в самозатухающем гофрированном шланге, что сделает смету несколько больше.
Скелет каркасной баниОтрицательное влияние на постройку оказывает и постоянно высокая влажность в помещениях, поэтому, кроме антипиренов, древесину пропитывают и антисептиками, отсекающими возможность появления плесени и других грибковых заболеваний. В дополнение в антисептической защите в пространстве каркаса укладываются слои паро-и гидроизоляции.
jsnip.ru
Каркасные бани проекты своими руками
Бани из бревен и кирпича всем хороши. За исключением, разве что сложности возведения и довольно высокой стоимости строительных работ. Отличной альтернативой традиционным баням являются более современные каркасные конструкции. Каркасное строительство не требует наличия многочисленных подробнейших чертежей и покупки дорогостоящих материалов.

Каркасные бани проекты своими руками
В среднем на покупку строительных материалов для возведения каркасной бани требуется в 2 раза меньше денег, если сравнивать с другими упоминавшимися ранее вариантами. При желании парильню можно построить своими руками, что является дополнительным преимуществом.

Проект каркасно-щитовой бани
Содержание пошаговой инструкции:
Подготовка проекта и материалов
Работа по строительству каркасной бани начинается с подготовки проекта. Однако еще до начала составления необходимой проектной документации вы должны сделать следующее:
- выбрать оптимальную конструкцию бани. Парилка может представлять собой отдельно стоящее здание либо же пристройку к дому или другому строению;
- выбрать место для строительства бани;
- определить особенности грунта на строительной площадке.
В зависимости от этого будут меняться требования к фундаменту.

Проектирование каркасной бани
Однако в подавляющем большинстве случаев каркасные бани строят на столбчатых основаниях, т.к. такие фундаменты одинаково хорошо себя проявляют при использовании практически в любых грунтах.
Приступайте к подготовке проекта. В состав традиционной бани входит тамбурное помещение, предбанник, умывальник и непосредственно парилка. Также отметьте в проекте место установки печи (если это будет парное помещение, печку рекомендуется разместить в ближайшем к двери углу).

Каркасная баня своими руками
В проектной документации должна отражаться информация о типе вентиляционной системы, особенностях дымохода, кровли и других значимых элементов.
Настоятельно рекомендуется заранее определить оптимальные габариты всех помещений и отразить их в чертежах. К примеру, стандартные габариты парилки составляют 240х200 см, высота потолка – 220 см. Такой баней смогут одновременно удобно пользоваться несколько человек.

План каркасной бани 4х5м 20м/кв
При желании можете дополнять проект на свое усмотрение. К примеру, владельцы довольно часто оборудуют в своих банях комнаты отдыха и бильярдные.
Правильно составленный проект – гарантия легкого и успешного строительства. Чем более подробной и точной будет проектная документация, тем проще вам будет ориентироваться при выполнении работы. Если вы не можете самостоятельно справиться с решением каких-либо вопросов, лучше выделите деньги и закажите проект у специалистов. Лучше заплатить один раз, чем в дальнейшем тратить огромные деньги на исправление разного рода дефектов.

Схема-проект бани с террасой
На этапе составления проекта просчитайте нужное количество материалов. В данном отношении все индивидуально и зависит от размеров будущей бани и ее планировки. Непосредственно каркас собирается из брусков, досок для устройства обрешетки и досок для пола. Вместо дощатого настила пол можно отделать керамической плиткой. В этом моменте ориентируйтесь на свои личные предпочтения, однако в случае с баней древесина является самым предпочтительным вариантом.

Каркасные бани своими руками
Также понадобятся защитные материалы и материал для обшивки стен.
Чаще всего стены обшиваются вагонкой. Для внешней обшивки традиционно используют вагонку из лиственницы, для внутренней – из хвойных пород.
Доски обшивки крепятся в вертикальном положении.

Удельная теплоемкость производимого кирпича
Что нужно знать о защитных материалах?
Строительство бани неотъемлемо связано с устройством разнообразных защитных материалов. Избыточная влага и высокая температура оказывают неблагоприятное воздействие на элементы конструкции, поэтому без использования специальных материалов не обойтись.
Для защиты от влаги используются разнообразные материалы. Чаще всего это полиэтилен, пергамин и рубероид. Пароизоляция размещается между теплоизоляционны
м материалом и обшивкой. От использования рубероида по возможности нужно отказываться, т.к. под воздействием высокой температуры он выделяет неприятный запах.
Отдельного внимания заслуживает вопрос теплоизоляции. При грамотном выборе и правильной укладке утеплителя будут существенно снижены потери тепла, а следовательно и затраты на обогрев бани.

Минвата
Чаще всего для утепления каркасных бань используется минвата. Не менее популярным является стекловолокно. Возможно и применение других материалов. К примеру, потолки иногда утепляют пенопластом, а полы – керамзитом или другими засыпками.
Устройство фундамента для каркасной бани
Готовый каркас имеет небольшую массу, поэтому фундамент для бани может быть самым простым. Лучший вариант – столбчатое основание. Функцию опор в данном случае будут выполнять плиты из асбоцемента, залитые бетоном.

Устройство фундамента для каркасной бани
Первый этап. Купите асбестоцементные трубы. Оптимальный вариант – изделия диаметром 10 см и длиной 4 м. Количество труб подбирается индивидуально. Опоры обязательно должны присутствовать под каждым углом бани. В отдельных ситуациях, к примеру, когда стены имеют большую длину, 1-2 дополнительные опоры устанавливаются и под стенами парной.
Второй этап. Подготовьте ямы диаметром 20 см и глубиной порядка 150 см. Для этой работы удобнее всего использовать бензиновый бур. При отсутствии такого инструмента используйте любые доступные средства.
Третий этап. Разрежьте трубы на 2 части одинаковой длины. Разместите полученные куски в скважинах. Засыпьте пространство вокруг труб песком. Тщательно утрамбуйте засыпку.
Четвертый этап. Приготовьте бетонный раствор. Используйте стандартную смесь из 1 части цемента, 2-3 частей песка, 4-5 частей мелкой щебенки и воды.
Пятый этап. Заполните трубы готовым бетонным раствором.
Подготовка нижней обвязки

Каркасная баня своими руками
Нижняя обвязка собирается из обрезных досок шириной 15 см и толщиной 5 мм. Доски сбиваются друг с другом, после чего в обвязку врезаются лаги. Для изготовления лаг тоже используются доски.
Рассматриваемая конструкция требует качественной влагозащиты. Под лаги и обвязку следует уложить один из упоминавшихся ранее гидроизоляционны

Каркасная баня
Закрепите обвязку и лаги на трубах фундамента. Для этого используйте металлические пластины. Обработайте готовую конструкцию хорошим антисептическим средством. Оно предотвратит гниение древесины и будет защищать материал от грызунов и насекомых.

Обшивка бани ОСП
Возведение стен каркасной бани

Каркасная баня своими руками
Первый этап. Разметьте место для каркасных стоек.
Второй этап. Установите пару угловых стоек.
Третий этап. Установите несколько промежуточных стоек.
Четвертый этап. Обшейте часть каркаса ОСП (ориентировано-с

Из чего состоят стены каркасной бани
Пятый этап. Установите еще несколько промежуточных стоек и обшейте полученную часть каркаса. Повторяйте до тех пор, пока не будет получена целостная конструкция. Не забудьте оставить проемы для дверей и желаемого количества окон.
Обустройство кровельной конструкции

Обустройство кровельной конструкции
Изготовьте шаблон для сборки стропильных конструкций. Все элементы стропильной системы собираются внизу, на земле, и уже в готовом виде поднимаются вверх. Каждый элемент стропильной конструкции должен быть установлен над своей стойкой.
Для большего удобства можете настелить на балки временное перекрытие из обыкновенных досок.
Лучше, чтобы кровля каркасной бани была вентилируемой. Уложите между контрбрусом и стропилами ондулин или другой подходящий по свойствам материал. Обрешетку прибивайте непосредственно к брусу.
Закройте фронтоны предварительно подготовленными листами. Обычно используются уже знакомые вам ОСП.
Обустройство кровельной конструкции

Каркасные бани
В завершении выполняется установка окон и дверей, после чего можно приступать к финишной отделке бани.
Финишная отделка
Каркасная баня должна быть не только крепкой, надежной и долговечной, но и красивой. Для придания объекту необходимых внешних качеств выполняются соответствующие отделочные работы. Снаружи стены каркасной бани рекомендуется обшить досками из древесины лиственных пород. Под обшивку уложите слой влагоизоляционно

Отделка бани деревом
Внутренняя обшивка бани будет обеспечивать дополнительную защиту элементов строения от неблагоприятных воздействий. Так, для сборки чернового потолка подойдут все те же ОСП. Прикрепите их к балкам перекрытий со стороны помещения. Для внутренней обшивки стен прекрасно подходит хвойная вагонка.
Сердцем любой бани является печь. Установка этого элемента должна быть выполнена в соответствии с требованиями противопожарной безопасности. Как правило, используется стандартная система, в соответствии с которой в предбаннике размещается нагревательный котел, а непосредственно в парилке обустраивается печь каменка.
Стену, разделяющую парилку и комнату отдыха, выложите из строительного кирпича.
Разделите полученную каркасную конструкцию на зоны в соответствии с предварительно подготовленным проектом. Материал для перегородок выбирайте в соответствии с условиями конкретного помещения. К примеру, бильярдную и комнату отдыха можно разделить даже обыкновенными гипсокартонными перегородками из влагостойких листов.
Те же стены, которые будут подвергаться воздействию влаги и/или высокой температуры, нужно выкладывать из более устойчивых материалов, обычно это кирпич. Обшейте перегородки вагонкой, блокхаузом или другим подобным материалом. Обшивка придаст стенам более привлекательный внешний вид.
Для финишной обивки потолка лучше всего использовать вагонку из липы. Такая же древесина наилучшим образом подходит для изготовления банных полок.

Каркасная баня – самое подходящее решение в современных условиях
Таким образом, в самостоятельном строительстве каркасной бани нет ничего сложного. Потратив сравнительно немного денег и времени, вы получите надежную, безопасную, долговечную и в целом замечательную по своим эксплуатационным свойствам конструкцию.
Удачной работы!
Читайте также на нашем сайте статью — щитовая баня своими руками.
Видео – Каркасные бани проекты своими руками
svoimi-rykami.ru
Проекты каркасных бань
Каркасные технологии на сегодняшний день бьют рекорды по популярности. По этой методике теперь строят не только дома, но и хозяйственные помещения, производственные объекты и многое другое. Большим спросом пользуются проекты каркасных бань разного размера и планировки, которые можно изготовить своими руками на территории загородного участка.

С чего начать
Прежде чем приступить к строительству каркасной бани своими руками, необходимо тщательно спланировать расположение и тип будущей постройки. На что следует обратить внимание:
- важно решить, будет ли каркасная баня пристройкой к дому или хозпостройке или станет отдельным объектом;
- подобрать место для строительства с учётом пролегания инженерных сетей и наметить пути прохождения коммуникаций;
- разобраться с особенностями грунта для определения типа фундамента бани;
- разработать или купить готовый проект с учётом индивидуальных требований (наличия мансарды, крыльца, чердака).
Совет! Чем подробнее разработан проект, тем легче будет его реализовать своими руками.
Готовый проект каркасной бани можно купить во многих строительных организациях, в них же можно заказать индивидуальную разработку. Минимальный размер площади бани – 3х4 метра. Оптимальной считается площадь 5х5 метров.

Проект своими руками
Чтобы напрасно не ломать голову над созданием чертежей с нуля, можно взять за основу любой готовый проект, с планировкой, соответствующей необходимой площадки застройки и просто внести в неё коррективы. К примеру, планировка каркасной бани размером 5 на 5 метров, как на фото:

Что будет важно для будущего индивидуального проекта:
- разумная внутренняя планировка бани;
- снижение расходов на строительство и содержание объекта;
- небольшие сроки работ;
- максимально облегчённый, но надёжный фундамент.
Внутренние помещения каркасной бани должны быть спроектированы так, чтобы вмещать необходимые предметы мебели. К примеру, планируя парную в бане важно заранее определиться с размерами печи и лавочек. В комнате отдыха нужно предусмотреть пространство, достаточное для установки стола и кресел или диванов. Необходимо продумать наличие предбанника, который предотвратит попадание холодного воздуха в зимнее время. В помывочной важно заранее определиться с габаритами душа и наличием бассейна или бочки.
Для каркасной бани на даче идеальным было бы наличие веранды или террасы размером 3х4 метра, на которой летом можно отдыхать после парной. Для некоторых важно наличие тёплого чердака, на котором удобно хранить и сушить веники.
Так и рождаются самые разные чертежи для бани каркасного типа с одинаковой площадью. Примеры чертежей на следующих фото:



Немного о преимуществах каркасных конструкций
Строение бани каркасного типа состоит из несущей конструкции из бруса или металла, обшитой листами ОСБ. Между внутренним и наружным слоем обшивки укладывается утеплитель и пароизоляционные материалы.
Совет! При желании, можно максимально удешевить строительство, используя в качестве утеплителя опилки, солому и другие доступные материалы.
Каркасная баня из таких строительных материалов весит совсем немного, а потому не требует основательного фундамента. Его легко изготовить своими руками, используя свайную или ростверковую технологию.
Таким образом, очевидны плюсы каркасного строительства:
- минимальные затраты на обустройство фундамента;
- все работы могут быть выполнены своими руками, без использования тяжёлой специальной техники;
- короткие сроки строительства.

Есть у этой технологии и свои минусы, о которых нельзя не упомянуть. Главный недостаток – повышенная пожароопасность конструкций. Именно поэтому специалисты настоятельно рекомендуют тщательно обрабатывать все детали огнеупорными составами и использовать для электропроводки специальные негорючие кожухи.
Важно! В каркасной бане нужно особое внимание уделить влагоизоляции стен, потому что минераловатные утеплители очень чувствительны к пару и теряют свои свойства при малейшем проникновении воды.
Пароизоляцию нужно делать очень тщательно, не экономя на материалах.
Бани, изготовленные в заводских условиях
Взяться за строительство каркасной конструкции своими руками решится не каждый. Можно выйти из положения, сделав выбор в пользу готового комплекта. В состав готовой бани входят:
- монтажный брус;
- комплект крепежей;
- материал для пола;
- внешние и внутренние стеновые панели;
- кровля;
- комплект технических документов.
В пакете документов должны быть чертежи проекта и подробная инструкция по сборке.
Чертёж бани размером 3х4 метра с верандой:

Комплект готовой бани производится на заводе в соответствии со строительными нормами и правилами. В документации должно быть указано, что панели и каркас прошли специальную обработку антипиренами.
Материалы для бани
Если планируется построить каркасную баню своими руками, понадобятся следующие материалы:
- Материалы для каркаса бани: брус с сечением 10 на 15 сантиметров или 15 на 15. Для поперечных опор и укосов понадобится брус 8 на 8.
- Для кровли: брус 15 на 15, кровельный материал (ондулин, мягкая кровля, металлопрофиль). Не рекомендуется использовать керамическую черепицу, она слишком тяжёлая для каркасных стен.
- Материалы для обрешётки стен и крыши бани: рейки или доска толщиной 2 сантиметра.
- Для стен каркасной конструкции: ОСБ панели. Они же понадобятся для покрытия крыши мягкой черепицей.
- Материалы для пола бани– обрезная доска с обработкой антипиреном и противогрибковыми средствами.
- Материалы для внутренней и наружной обшивки: вагонка (обычно используется для обшивки внутри помещений), и имитация бруса для наружного оформления строения.
- Для утепления конструкции бани: негорючая минеральная вата. Толщина слоя зависит от климата региона. Оптимальным считается применение базальтовой ваты толщиной слоя от пятнадцати до двадцати пяти сантиметров.

Кроме перечисленного, потребуются саморезы и гвозди разных размеров. Учитывая повышенную влажность помещений бани, лучше использовать оцинкованные крепежи.
Алгоритм строительства
Для каркасной бани легче всего установить своими руками столбчатый фундамент. Для него потребуются трубы из асбестоцемента диаметром 20 сантиметров и длиной два метра. Их заглубляют в полутораметровые скважины и заливают бетонно-щебеночной смесью. Количество столбов зависит от размеров бани, для маленького помещения 3х4 достаточно 12 штук, для бани 5х5 – около 18.
После установки опорных столбов, на них закрепляется обвязка из бруса. Детали скрепляются между собой гвоздями. Под обвязку обязательно монтируется гидроизоляция из рубероида. Как на фото:

Важно! Чтобы материал обвязки прочно «сидел» на фундаменте, его крепят к столбам при помощи металлических уголков и пластин.
На обвязку крепятся доски — лаги для будущего пола бани.
Каркас основания нужно тщательно обработать средствами от гнили и насекомых, противопожарной пропиткой.
Монтаж стен бани выполняется в следующей последовательности:
- на углах закрепляются угловые стойки и между ними – промежуточные;
- к стойкам крепятся при помощи саморезов листы обшивки, начиная с угла;
- в процессе монтажа оформляются оконные и дверные проёмы

Важно! Правильное положение каждого листа нужно проверять при помощи строительного уровня.
Стропильная конструкция крыши каркасной бани собирается на земле и затем поднимается наверх. Затем производится крепление обрешётки и укладка кровельного материала.
После того, как основной каркас установлен, осуществляется монтаж окон и дверей.
Таким образом, на строительство каркасной бани своими руками в среднем потребуется:
- 3 дня на установку фундамента;
- 3 дня на установку обвязки и стен;
- 2 дня на стропильную конструкцию;
- 2 дня на монтаж кровли, дверных и оконных конструкций, отделку.

Внутренняя отделка каркасной бани
Для наружной отделки каркасной бани используется имитация брёвен или обычный сайдинг.
Внутренняя отделка требует особого подхода. Прежде всего – нужно правильно выбрать вагонку. Для комнаты отдыха и предбанника подойдёт сосновая вагонка. Она не требовательна к уходу и выглядит довольно привлекательно, как на этом фото:

Помещение в парной и душевой лучше отделать липой или лиственницей. Эти породы выдерживают высокие температуры и сохраняют при этом цвет и форму. Кроме этих пород, для бани можно использовать:
- кедр – выделяет при нагревании эфирные вещества, благотворно влияющие на организм;
- абаши – тропическое дерево, отличается минимальной теплопроводностью;
- осина – устойчива к гниению и образованию плесневого налёта, выделяет при нагревании вещества, полезные для здоровья.
Важно! Вагонка монтируется на пароизолирующий слой так, чтобы оставалось небольшое пространство между деревом и фольгой.

Советы мастера
- Важно особенно тщательно выполнить пароизоляцию на стыках стен и пола каркасной бани – от этого зависит долговечность всей конструкции.
- Для дополнительного утепления бани снаружи под обшивку закрепляется дополнительный гидроизоляционный и теплоизоляционный материал.
- Внутренняя обшивка бани не покрывается лаком или краской, они будут выделять токсины при нагревании.
Потолки и полы бани нужно утеплить на совесть теми же материалами, что применялись на стенах.

Баня каркасного типа – доступное и практичное решение для загородного участка. Ее не сложно построить самостоятельно или купить в готовом варианте. Если подойти к разработке проекта и строительству с душой и фантазией, этот объект станет предметом зависти соседей и любимым местом отдыха для домочадцев.
bouw.ru
Каркасные бани проекты своими руками
Бани из бревен и кирпича всем хороши. За исключением, разве что сложности возведения и довольно высокой стоимости строительных работ. Отличной альтернативой традиционным баням являются более современные каркасные конструкции. Каркасное строительство не требует наличия многочисленных подробнейших чертежей и покупки дорогостоящих материалов.

Каркасные бани проекты своими руками
В среднем на покупку строительных материалов для возведения каркасной бани требуется в 2 раза меньше денег, если сравнивать с другими упоминавшимися ранее вариантами. При желании парильню можно построить своими руками, что является дополнительным преимуществом.

Проект каркасно-щитовой бани
Подготовка проекта и материалов
Работа по строительству каркасной бани начинается с подготовки проекта. Однако еще до начала составления необходимой проектной документации вы должны сделать следующее:
- выбрать оптимальную конструкцию бани. Парилка может представлять собой отдельно стоящее здание либо же пристройку к дому или другому строению;
- выбрать место для строительства бани;
- определить особенности грунта на строительной площадке.
В зависимости от этого будут меняться требования к фундаменту.

Проектирование каркасной бани
Однако в подавляющем большинстве случаев каркасные бани строят на столбчатых основаниях, т.к. такие фундаменты одинаково хорошо себя проявляют при использовании практически в любых грунтах.
Приступайте к подготовке проекта. В состав традиционной бани входит тамбурное помещение, предбанник, умывальник и непосредственно парилка. Также отметьте в проекте место установки печи (если это будет парное помещение, печку рекомендуется разместить в ближайшем к двери углу).

Каркасная баня своими руками
В проектной документации должна отражаться информация о типе вентиляционной системы, особенностях дымохода, кровли и других значимых элементов.
Настоятельно рекомендуется заранее определить оптимальные габариты всех помещений и отразить их в чертежах. К примеру, стандартные габариты парилки составляют 240х200 см, высота потолка – 220 см. Такой баней смогут одновременно удобно пользоваться несколько человек.

План каркасной бани 4х5м 20м/кв
При желании можете дополнять проект на свое усмотрение. К примеру, владельцы довольно часто оборудуют в своих банях комнаты отдыха и бильярдные.
Правильно составленный проект – гарантия легкого и успешного строительства. Чем более подробной и точной будет проектная документация, тем проще вам будет ориентироваться при выполнении работы. Если вы не можете самостоятельно справиться с решением каких-либо вопросов, лучше выделите деньги и закажите проект у специалистов. Лучше заплатить один раз, чем в дальнейшем тратить огромные деньги на исправление разного рода дефектов.

Схема-проект бани с террасой
На этапе составления проекта просчитайте нужное количество материалов. В данном отношении все индивидуально и зависит от размеров будущей бани и ее планировки. Непосредственно каркас собирается из брусков, досок для устройства обрешетки и досок для пола. Вместо дощатого настила пол можно отделать керамической плиткой. В этом моменте ориентируйтесь на свои личные предпочтения, однако в случае с баней древесина является самым предпочтительным вариантом.

Каркасные бани своими руками
Также понадобятся защитные материалы и материал для обшивки стен.
Чаще всего стены обшиваются вагонкой. Для внешней обшивки традиционно используют вагонку из лиственницы, для внутренней – из хвойных пород.
Доски обшивки крепятся в вертикальном положении.

Удельная теплоемкость производимого кирпича
Что нужно знать о защитных материалах?
Строительство бани неотъемлемо связано с устройством разнообразных защитных материалов. Избыточная влага и высокая температура оказывают неблагоприятное воздействие на элементы конструкции, поэтому без использования специальных материалов не обойтись.
Для защиты от влаги используются разнообразные материалы. Чаще всего это полиэтилен, пергамин и рубероид. Пароизоляция размещается между теплоизоляционным материалом и обшивкой. От использования рубероида по возможности нужно отказываться, т.к. под воздействием высокой температуры он выделяет неприятный запах.
Отдельного внимания заслуживает вопрос теплоизоляции. При грамотном выборе и правильной укладке утеплителя будут существенно снижены потери тепла, а следовательно и затраты на обогрев бани.

Минвата
Чаще всего для утепления каркасных бань используется минвата. Не менее популярным является стекловолокно. Возможно и применение других материалов. К примеру, потолки иногда утепляют пенопластом, а полы – керамзитом или другими засыпками.
Устройство фундамента для каркасной бани
Готовый каркас имеет небольшую массу, поэтому фундамент для бани может быть самым простым. Лучший вариант – столбчатое основание. Функцию опор в данном случае будут выполнять плиты из асбоцемента, залитые бетоном.

Устройство фундамента для каркасной бани
Первый этап. Купите асбестоцементные трубы. Оптимальный вариант – изделия диаметром 10 см и длиной 4 м. Количество труб подбирается индивидуально. Опоры обязательно должны присутствовать под каждым углом бани. В отдельных ситуациях, к примеру, когда стены имеют большую длину, 1-2 дополнительные опоры устанавливаются и под стенами парной.
Второй этап. Подготовьте ямы диаметром 20 см и глубиной порядка 150 см. Для этой работы удобнее всего использовать бензиновый бур. При отсутствии такого инструмента используйте любые доступные средства.
Третий этап. Разрежьте трубы на 2 части одинаковой длины. Разместите полученные куски в скважинах. Засыпьте пространство вокруг труб песком. Тщательно утрамбуйте засыпку.
Четвертый этап. Приготовьте бетонный раствор. Используйте стандартную смесь из 1 части цемента, 2-3 частей песка, 4-5 частей мелкой щебенки и воды.
Пятый этап. Заполните трубы готовым бетонным раствором.
Подготовка нижней обвязки

Каркасная баня своими руками
Нижняя обвязка собирается из обрезных досок шириной 15 см и толщиной 5 мм. Доски сбиваются друг с другом, после чего в обвязку врезаются лаги. Для изготовления лаг тоже используются доски.
Рассматриваемая конструкция требует качественной влагозащиты. Под лаги и обвязку следует уложить один из упоминавшихся ранее гидроизоляционных материалов.

Каркасная баня
Закрепите обвязку и лаги на трубах фундамента. Для этого используйте металлические пластины. Обработайте готовую конструкцию хорошим антисептическим средством. Оно предотвратит гниение древесины и будет защищать материал от грызунов и насекомых.

Обшивка бани ОСП
Возведение стен каркасной бани

Каркасная баня своими руками
Первый этап. Разметьте место для каркасных стоек.
Второй этап. Установите пару угловых стоек.
Третий этап. Установите несколько промежуточных стоек.
Четвертый этап. Обшейте часть каркаса ОСП (ориентировано-стружечные плиты). Для фиксации обшивки используйте шурупы.

Из чего состоят стены каркасной бани
Пятый этап. Установите еще несколько промежуточных стоек и обшейте полученную часть каркаса. Повторяйте до тех пор, пока не будет получена целостная конструкция. Не забудьте оставить проемы для дверей и желаемого количества окон.
Обустройство кровельной конструкции

Обустройство кровельной конструкции
Изготовьте шаблон для сборки стропильных конструкций. Все элементы стропильной системы собираются внизу, на земле, и уже в готовом виде поднимаются вверх. Каждый элемент стропильной конструкции должен быть установлен над своей стойкой.
Для большего удобства можете настелить на балки временное перекрытие из обыкновенных досок.
Лучше, чтобы кровля каркасной бани была вентилируемой. Уложите между контрбрусом и стропилами ондулин или другой подходящий по свойствам материал. Обрешетку прибивайте непосредственно к брусу.
Закройте фронтоны предварительно подготовленными листами. Обычно используются уже знакомые вам ОСП.
Обустройство кровельной конструкции

Каркасные бани
В завершении выполняется установка окон и дверей, после чего можно приступать к финишной отделке бани.
Финишная отделка
Каркасная баня должна быть не только крепкой, надежной и долговечной, но и красивой. Для придания объекту необходимых внешних качеств выполняются соответствующие отделочные работы. Снаружи стены каркасной бани рекомендуется обшить досками из древесины лиственных пород. Под обшивку уложите слой влагоизоляционного материала и утеплителя.

Отделка бани деревом
Внутренняя обшивка бани будет обеспечивать дополнительную защиту элементов строения от неблагоприятных воздействий. Так, для сборки чернового потолка подойдут все те же ОСП. Прикрепите их к балкам перекрытий со стороны помещения. Для внутренней обшивки стен прекрасно подходит хвойная вагонка.
Сердцем любой бани является печь. Установка этого элемента должна быть выполнена в соответствии с требованиями противопожарной безопасности. Как правило, используется стандартная система, в соответствии с которой в предбаннике размещается нагревательный котел, а непосредственно в парилке обустраивается печь каменка.
Стену, разделяющую парилку и комнату отдыха, выложите из строительного кирпича.
Разделите полученную каркасную конструкцию на зоны в соответствии с предварительно подготовленным проектом. Материал для перегородок выбирайте в соответствии с условиями конкретного помещения. К примеру, бильярдную и комнату отдыха можно разделить даже обыкновенными гипсокартонными перегородками из влагостойких листов.
Те же стены, которые будут подвергаться воздействию влаги и/или высокой температуры, нужно выкладывать из более устойчивых материалов, обычно это кирпич. Обшейте перегородки вагонкой, блокхаузом или другим подобным материалом. Обшивка придаст стенам более привлекательный внешний вид.
Для финишной обивки потолка лучше всего использовать вагонку из липы. Такая же древесина наилучшим образом подходит для изготовления банных полок.

Каркасная баня – самое подходящее решение в современных условиях
Таким образом, в самостоятельном строительстве каркасной бани нет ничего сложного. Потратив сравнительно немного денег и времени, вы получите надежную, безопасную, долговечную и в целом замечательную по своим эксплуатационным свойствам конструкцию.
Удачной работы!
Читайте также на нашем сайте статью — щитовая баня своими руками.
Видео – Каркасные бани проекты своими руками
tolkostroyka.ru
Проекты бань каркасного типа — Всё о бане

Баня каркасная своими руками – Проекты
Появление современных эффективных технологий утепления существенно упростило и удешевило технологию строительства бани – то, что веками строилось из деревянных бревен, стало возможным возводить по каркасной технологии. Каркасные бани очень существенно – до 2 раз – дешевле традиционных бревенчатых конструкций, намного легче и быстрее строятся и, что самое главное, — их не нужно несколько месяцев отстаивать для усадки и усушки перед использованием.
Проекты каркасных бань
Даже самая простая баня обычно включает в себя три помещения – комнату отдыха, парилку и моечную крохотного размера, где можно предусмотреть простейший душ. Минимально возможные размеры ее – 3 на 4 метра, поэтому одновременно пользоваться такой баней могут не более 2 человек с приемлемым уровнем комфорта, но прямое свое назначение – возможность попариться и помыться – она выполняет. Фото проекта такой каркасной бани смотрите ниже:

Чуть больше комфорта в бане вы получите, если сделаете себе ее немного больше, например, 4 х 4 метра. Ниже можно видеть проект такой каркасной бани – помещение моечной значительно больше, но главная изюминка этого проекта – открытая терраса, которая пристраивается к бане дополнительно. Здесь в хорошую погоду можно отлично отдохнуть после парилки.

Каркасная баня с наружными размерами 4 х 5 м позволяет с достаточным комфортом расположиться в ней семью из 3-4 человек.

Увеличение размеров бани до 6х4 позволяет удачно скомпоновать и расположить встроенную террасу внутри основного периметра наружных стен.

Еще один проект каркасной бани, похожий на предыдущий, но с немного большими размерами.

Существует также масса проектов каркасных бань с размерами намного большими, чем приведенные выше, в том числе двухэтажные, совмещенные с гаражами, с каминами… Выбрать сможет каждый по своему вкусу и размеру кошелька. Однако необходимо помнить, что древесина является живым и нестабильным в зависимости от условий хранения и использования материалом, подверженным воздействию огня, влаги и насекомых.
Решаясь на строительство каркасной бани нужно тщательно отбирать используемый материал. Брусы и доски должны быть не только правильных геометрических размеров, но и качественно высушенные, без признаков гнили или поражения насекомыми.
Перед непосредственной сборкой всей конструкции бани или в процессе сборки, все дерево нужно обработать специальными антисептическими составами, которые сделают конструкцию вашей бани безопасную с точки зрения пожарной безопасности. Наружная поверхность стен здания также нуждается в защите от влаги и ультрафиолетового излучения, для чего предусмотрены самые разнообразные пропитки и лаки.
Правильно собранная и обработанная конструкция вашей бани способно будет прослужить нескольким поколениям вашей семьи
Технология строительства каркасной бани своими руками
Конструкция каркасной бани значительно более легкая по сравнению с бревенчатой, поэтому фундамент достаточно сделать самый простой и малозатратный – столбчатый. Его изготавливают с помощью асбестоцементных труб, вкопанных вертикально на глубину не менее 1 – 1,5 метров (в зависимости от глубины промерзания грунта в вашей местности) и залитых внутри цементно-песчаной смесью.
Схема расположения труб должна быть тщательно соотнесена с проектом расположения будущих комнат вашей бани. Конкретные проекты каркасных бань, построенных своими руками, вы могли видеть выше. Главное, что нужно помнить застройщику – трубы столбчатого фундамента должны располагаться более или менее равномерно по периметру стен, а также обязательно по углам и местам пересечения внутренних и наружных стен между собой.
На столбчатый фундамент делается обвязка из доски или бруса большого сечения, которую для прочности и надежности можно прикрепить к фундаментным столбам с помощью вмурованных в цемент металлических уголков. Обвязка крепится по периметру внешних стен и в месте будущих внутренних стен, после чего в нее врезаются лаги из бруса, на которые укладывается половая доска.
Далее последовательно размечаются, прирезаются и устанавливаются вертикальные основные и вспомогательные брусы, начиная от угла и по всему периметру, причем расстояние между ними должно быть на 1-2 см меньше толщины утеплителя, который будет укладываться между ними враспор. Верхние части брусов скрепляем обвязкой, на которую укладываем части стропильной системы и сами стропила.
Утеплитель
После этого можно приступать к закладке утеплителя в стены, для чего обычно используют базальтовую или каменную вату в плитах, плотностью не менее 45 кг/куб.м. С одной стороны, наружной, к брусьям степлером крепится ветробарьер, стена обшивается плитой ОСБ, между брусами укладывается утеплитель, на него паробарьер, и все закрывается такой же плитой, или обшивается вагонкой. Утеплитель боится увлажнения, поэтому при монтаже уделяйте особенное внимание герметичности всех стыков и соединений, куда может проникнуть вода. Для более подробного изучения рекомендуем статью Как утеплить баню изнутри .
После окончания обшивки стен делается стропильная система, обрешетка и укладывается кровельное покрытие. В случае, если проектом предусмотрено строительство бани с мансардой, межстропильное пространство заполняется таким же утеплителем и обшивается гипсокартонномили плитами ОСБ-3.
Окончательная отделка
Снаружи стены каркасных бань могут быть отделаны блок-хаусом – широкими полукруглыми планками, имитирующими сруб, внутри – лучший вариант для отделки – вагонка. К отделке помещения парилки стоит подойти особенно ответственно – влага, проникающая в утеплитель, значительно ухудшает его теплоизолирующие свойства. Защищать его в парилке необходимо специальной отражающей пароизоляцией, которая, к тому же, будет помогать сохранить нужную температуру. Пароизоляция монтируется сразу после укладки утеплителя между брусами, отражающей стороной внутрь помещения, после чего ее можно будет закрыть деревянной вагонкой.
Бесплатные проекты для строительства каркасной бани
Сегодня многие владельцы частного жилья отдают предпочтение в пользу строительства каркасной бани. Это и неудивительно, ведь это очень надёжное, долговечное и комфортное строение, при строительстве которого можно существенно сэкономить стройматериалы не в ущерб надёжности. К тому же каркасная баня своими руками. проекты которых можно видеть на фото позволяет сэкономить не только деньги, но и время, возвести её можно всего за месяц.
Идеи и варианты проектов каркасной бани
Технология каркасного строительства даёт возможность сделать строение экономным. Временные затраты на строительство такой бани небольшие, при этом строение получается красивым, прочным и долговечным. Ниже мы рассмотрим несколько проектов каркасных бань. каждый из которых отличается своими преимуществами. Их строительство позволит не только облагородить территорию, но и обеспечит комфортный отдых вам, вашей семье и друзьям.
Проект бани с прилегающей террасой открытого типа
Данный проект каркасной бани отлично подойдёт для строительства строения на небольшом участке. Здесь мы предусмотрим всё необходимое для проведения полноценного отдыха. Итак, размеры строения будут такими: по короткой стороне бани они составляют 6.55 метров, а по длине – 6.68 метров .
По длинной стороне будет расположена терраса открытого типа, её площадь составляет 9.68 квадратных метров, с неё предусмотрен вход, который будет вести в комнату отдыха, где есть раздевалка и окно. С комнаты отдыха вход ведёт в душевую и в парную (4.37 квадратных метров). Каркасная баня, проект которой здесь предложен имеет небольшие размеры, но при этом она очень удобная и уютная, в ней может комфортно отдохнуть сразу три-четыре человека.
Чтобы построит баню такого типа нам потребуются следующие стройматериалы:
- Брус деревянный. Его мы будем использовать для создания каркаса бани.
- Утеплитель. Можно взять минеральную вату.
- Цементно — стружечные плиты (ЦСП ) или ориентированно-стружечные плиты (ОСП). Они нам потребуются для наружной обшивки стен.
- Евро – шифер. Его мы будем использовать для внешней отделки фасада.
- Битумная черепица. Она нам необходима для устройства кровли. Данный материал имеет привлекательный внешний вид и невысокую цену.
- Пароизоляционные мембраны и балки. Эти материалы необходимы для создания конструкции крыши.
Готовая конструкция будет компактной и очень красивой. Такой проект бани отлично впишется в любой ландшафтный дизайн. Строительство такой бани своими руками будет быстрым и недорогим.
Проект каркасной бани с душевой, террасой и дровяником
Этот проект позволит нам построить баню с удобной планировкой и большой террасой, где можно будет комфортно отдохнуть. Размеры такого строения по короткой стороне составляют 8.24 метра, а по длинной- 9.47 метр а. По проекту баня будет иметь террасу, её площадь составляет 15.44 квадратных метров. Дровник площадью на 4.6 квадратных метров располагается у входа в строение. От входа мы попадаем в уютную прихожую, а уже оттуда в небольшой предбанник.
В проекте предусмотрена комната отдыха, её площадь составляет 18.05 квадратных метров, душевая и парная на 3 квадратных метров. Представленная здесь планировка является наиболее оптимальной, тут имеется всё необходимое для полноценного отдыха в комфортных условиях. В такой бане может отдыхать небольшая компания.
Возведение такой бани может быть выполнено по каркасно-панельной или же по каркасно-щитовой технологии. Строительство этого типа бани своими руками не займёт много времени, однако для этого нам потребуется наличие следующих комплектующих:
- Лёгкий железобетонный столбчатый фундамент.
- Металлочерепица. Она нужна для создания кровли.
- Каркасные стены.
- Утеплитель. Подойдёт минеральная вата.
- Окна металлопластиковые.
- Внешняя дверь. Можно приобрести металлическую.
- Внутренние двери должны быть изготовлены строго из дерева.
- Лестница из дерева.
- Для фасадной облицовки строения можно использовать облицовочный кирпич или вагонку виниловую.
- Для внутренней отделки помещений можно применить вагонку. А вот облицовку санузла лучше всего делать с использование плитки керамической.
- Для отделки террасы подойдёт натуральная доска, предварительно обработанная.
Этот проект отличается максимальным удобством для отдыха. В такой бане может комфортно отдохнуть вся семья или небольшая компания.
Проект бюджетной каркасной бани своими руками
Такой проект бани является самым простым и недорогим. Здесь предусмотрена комната отдыха, парная и душевая. Данный проект представляет классическую планировку без прилегающей террасы, но зато есть небольшое крыльцо. Длинная сторона составляет пять метров, короткая – четыре метра. Общая площадь строения составляет всего двадцать квадратных метров. По короткой стороне расположен вход, вдоль неё располагается комната отдыха. С главного входа мы сразу оказываемся в комнате отдыха, отсюда попадаем в душевое помещение, а с него уже в парную.
Так как в данном проекте не предусмотрена прихожая, но она необходима, в этом случае можно визуально разделить комнату на две части с помощью вешалки для одежды. В каждом помещении располагаются окна, в душевой – небольшое окошко, которое располагается под потолком, в парной – окошко имеет чуть большие размеры. Этот проект предусматривает обычную двускатную крышу. которая сверху покрыта металлочерепицей. Стены снаружи можно отделать натуральным бревном, будет смотреться очень красиво.
Данный тип бани не нуждается в устройстве тяжёлого, дорогостоящего фундамента, что позволяет существенно сэкономить деньги на строительстве каркасной бани своими руками. Фундамент можно сделать столбчатым. его основой служат винтовые свои из металла, которые заливаются бетоном. Преимущество данного типа фундамента состоит также в том, что его можно делать на любом грунте. Крышу лучше делать вентилируемой – между контробрешёткой и стропилами укладывается паропроницаемая мембрана в один слой. Материал для кровли можно приобретать любой, но лучше если это будет ондулин или металлочерепица.
Для строительства такой бани своими руками нам потребуются следующие стройматериалы:
- Бетон, гравий, сваи металлические винтовые, песок. Данные материалы нам потребуются для создания фундамента.
- Рубероид.
- Брус из дерева. Из него мы будем создавать каркас.
- Гидроизоляционная и пароизоляционная мембрана.
- Утеплитель. Подойдёт минеральная вата.
- Пергамин для устройства внутренней теплоизоляции.
- Утеплитель фольгированный.
- Вагонка. Этот материала нам потребуется для внутренней обшивки.
- Цементно — стружечные плиты (ЦСП) или ориентированно-стружечные плиты (ОСП). Их мы будем использовать для обшивки стен.
- Крепёжные элементы.
Процесс возведения каркасной бани своими руками предусматривает следующее:
- Делаем на участке фундамент (основание его будет столбчатым).
- После того как будут поставлены столбы необходимо сделать железобетонный ростверк, его сверху накрываем гидроизоляцией – слой рубероида. На готовый ростверк кладём лаги под незначительным уклоном – для чернового пола. Уклон необходим для обеспечения свободного стока воды.
- Каркас стен делаем из бруса. Брус нужно предварительно обработать специальными антипиринами и септиками.
- Стеновые панели нужно собирать на предварительно очищенной от грязи и камней земле.
Пол черновой обшиваем досками, далее начинаем поднимать стеновые панели и устанавливать их на места. Нужно сделать временный крепёж с помощью распорок, потом их уберём. Стеновые балки между собой закрепляются при помощи брусков или саморезов, также можно использовать зубчатые пластины из металла.- Ориентировано — стружечными плитами зашиваем стены, которые находятся наружи, заблаговременно нужно предусмотреть прокладку нужных инженерных сетей, таких как канализация, электрика и другие. В гофре прокладываем электрические кабеля.
- Между стойками кладём утеплитель минеральную вату. Её следует класть очень плотно, чтобы не было зазоров и полостей.
- Выполняем внутреннюю обшивку стен с помощью цементно – стружечных плит. Такие плиты отличаются высокой устойчивостью к воздействию влаги.
Делаем перекрытие потолка строения, выполняем сборку стопил, потом их поднимаем наверх и устанавливаем.- Как только крыша будет готова, начинаем укладывать кровельный материал, одновременно занимаемся установкой внутренних перегородок.
- В том месте где будет расположена печка нужно сделать кирпичный экран. В случае если печка будет иметь большой вес, тогда во время строительства фундамента нужно будет делать бетонную подушку под печку.
- Как только каменка будет готова, можно выполнять отделочные работы. Для этого следует дополнительно обшить каркас следующими материалами: фольгированный материал (один слой), минеральная вата и пергамин. Далее устанавливаем вагонку.
При строительстве каркасной бани своими руками нужно обязательно предусмотреть чтобы внутри помещения были расположены вытяжные отверстия, они позволяют создать в помещении нужный теплообмен и обеспечивают вывод лишней влаги.- На последнем этапе можно приступать к отделке фасада. Внешнюю отделку можно выполнить из любого материала: блок – хаус, сайдинг виниловый и другие.
Все вышеперечисленные проекты строительства каркасных бань позволяют своими руками возвести надёжное и недорогое строение, которое прослужит вам долгие годы.
Каркасные бани своими руками: фото








Проекты бань по каркасной технологии, их строительство своими руками
Строительство домов и бань по каркасной технологии становится все более популярным. Все потому, что методика такова, что даже в одиночку можно построить, не только баню, а даже приличных размеров дом. При том, что строение получается теплым (при достаточном утеплении), оно еще и легкое, и недорогое. Пожалуй, единственный его недостаток — высокая пожароопасность, но это — беда любого деревянного строения, а не только каркасника.
Проекты каркасных бань своими руками
Часто строительство стопориться из-за того, что вы не знаете, как правильно распланировать баню, чтобы было удобно и безопасно. В этом могут помочь готовые проекты планировок. Идеально, если какой-то из них подходит вам полностью: не нужно ломать голову. Хотя при необходимости можно внести коррективы. А иногда достаточно просто идеи, чтобы у вас все «встало на место» и вырисовался план вашей каркасной бани, которую вы будете строить своими руками. Для этого мы отобрали несколько проектов каркасных бань разного размера с различным расположением комнат.
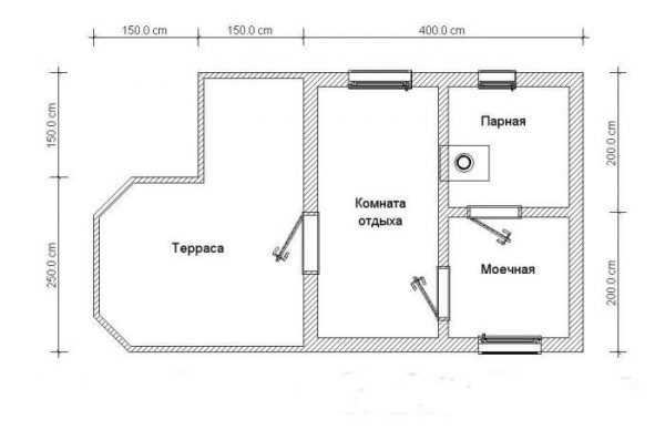
Планировка бани 4*5 м
Это баня с обширной комнатой отдыха, небольшим санузлом и парилкой на 4,8м 2. Фундамент — ленточный мелкозаглубленный — глубина 70 см, цоколь высотой 40 см (общая высота фундамента с цоколем 110 см), гравийная подушка 20 см. есть небольшое крыльцо, которое при круглогодичном использовании можно обшить и превратить в тамбур. Тогда холодный воздух не будет попадать в помещения при каждом открывании дверей.

Готовый чертеж каркасной бани 4*5 м
Общая площадь 20 м 2. помещения и их размеры:
- Комната отдыха 8,5 м 2 ;
- Парилкой на 4,8 м 2 ;
- Санузел 2,2 м 2
Необходимые материалы для создания каркаса:
- стойки, нижняя и верхняя обвязки выполняются из доски 100*50 мм;
- половые балки — из доски 150*50 мм с шагом 0,58 м;
- стропильная система — из доски 150*50 мм с шагом 0,58 м.
В этом проекте бани достаточно просторная комната отдыха и при таких небольших габаритах здания — 5 на 4 метра довольно просторная парная — «в чистом» размере 4,8 квадрата. Печка по проекту топится из парилки, что для такого небольшого помещения проблематично: кислорода и так будет не очень много. В этом варианте можно, оставив ее на том же месте, поставить банную печь с удлиненной топкой. В этом случае дрова будут закладываться из комнаты отдыха, а каменка и основное «тело печи» будет находиться в парилке. При таком расположении печи решается заодно и проблема отопления комнаты отдыха.
Проект каркасной бани 6*6 м
На фото представлена планировка довольно солидной по размерам бани 6 на 6 метров. Предусмотрена небольшая веранда, предбанник, полный набор необходимых помещений.

Проект бани 6 на 6 по каркасной технологии
Этот вариант хорош тем, что практически в любом помещении использоваться могут пиломатериалы стандартной длины: 6 или 3 метра. Это удобно, так как остается мало отходов. Фундамент может быть свайным, столбчатым. Подойдет малозаглубленная лента или плита.
Но есть некоторые замечания по планировке. Моечное помещение по данному проекту каркасной бани получается просторным. Это вариант для тех, кто предпочитает после парной отдыхать не в прохладной (относительно парилки, конечно) комнате отдыха, а продолжать расслабляться во влажной и теплой атмосфере моечной. Тогда в ней поддерживают температуру порядка 30-35°C и довольно высокую влажность (за счет повышенной мощности печи и открытой двери в парилку). А еще устанавливают лежаки, похожие на полки в парной. Тогда большая мойка оправдана.
Нужны большие размеры моечной если вы планируете в ней установить купель. Если же тут будет только душ и несколько небольших лавок, то можно или выгородить раздевалку или увеличить размеры парилки.

План бани после изменений — с выделенный тамбур
Второе замечание касается входа. Если в баню планируют приезжать зимой, в ней должен быть вход выгороженный — не напрямую в комнату отдыха. И данный вариант легко реализовать. Нужно только окно и двери поменять местами и поставить перегородку.
Общая площадь 36 м 2. Помещения и их размеры:
- веранда 4,5 м 2 ;
- комната отдыха 13,5 м 2 ;
- мойка 9 м 2 ;
- парилка 9 м 2 .
Каркасная баня 6*3 м с террасой
Этот вариант разработан строительной кампанией «Каркас». Сама баня имеет небольшие размеры — 6 на 3 метра. Но к фронтальной части пристроена обширная терраса, размерами чуть меньше бани: 2 на 6 метров. Помещения в этом проекте бани совсем небольшие, в парилке поместиться не более трех человек сидя, а если один будет лежать, то только двое. Причем «лежачий» полок может находиться только напротив двери и размер у него будет небольшой — высокому человеку уже не лечь (2 метра, минус толщина обшивки с двух сторон минимум по 15 см, итого длина полока получится 1,7 м).
В этом варианте планировки бани печь поставить можно только в углу на входе в парилку. Топиться она будет из комнаты отдыха, но выбирать нужно будет какую-то высокую и узкую модель — очень уж мало места получается под ее установку. Можно попробовать вписать печи «Компакт», «Оса», «Шилка» и «Бирюса» от Термофора. есть еще небольшие печи Варвара — модели «Паленица» и «Мини». если нужна надежная недорогая печь под кирпичный экран, можно попробовать вписать «Жара Малютка». Есть и другие небольшие печи и немало. Нужно определиться с максимальными размерами, которые «встанут» в выделенное пространство или сдвигать немного двери. Вообще, по-хорошему, было бы неплохо сдвинуть стену как минимум на полметра. Увеличив размеры функциональных помещений, ведь летом, скорее всего комната отдыха плавно переместиться на веранду.
И еще один нюанс: если планируете баню использовать и зимой, то необходимо тамбур или предбанник. В данном варианте можно вход на веранду перенести и выгородить часть площади, сделав вход в помещение через тамбур.

Проект каркасной бани с террасой. Хорош тем, что легко реализуется своими руками
Общая площадь 18 м 2. Помещения и их размеры:
- комната отдыха 11,07 м 2 ;
- мойка 1,61 м 2 ;
- парилка 3,48 м 2 ;
- терраса 11,21 м 2 .
Материалы ключевых узлов:
- обвязка бани из бруса 100*150 мм;
- лаги пола 150*100 мм с шагом 90 см;
- потолочное перекрытие — 150*40 мм через 60-70см;
- стропильные ноги обрезная доска 100*50 мм;
- кровельный материал — металлочерепица, профнастил, ондулин.
Баня 4*4 м с террасой
Сама баня имеет размеры 4 на 4 метра. К ней пристроена терраса 4*1,5 метра. Эта планировка бани отличается тем, что парилка и моечная комната имеют одинаковые размеры. В парилке одновременно комфортно будут себя чувствовать два, максимум, три человека. Если планируется суховоздушная сауна, эта планировка подходит без вопросов.
Для русской парной вариант не самый лучший: тут хотя бы один человек лежит, а для комфортного парения в русской бане полок должен иметь размер не менее 2,1*0,7 м (а лучше 2,2*0,8 м). В моечной, если не собираетесь там ставить лежаки для отдыха после парилки, обычно только моются. Ее размеры лучше немного уменьшить, расширив парилку. Тогда хоть один полноценный полок можно вписать. Хотя печь все равно нудна будет маленькая: во-первых объем парилки небольшой, а во-вторых места особо нет.

Небольшая каркасная баня с террасой. Готовый чертеж
Размеры помещений в базовом проекте бани такие:
- общая площадь 16 м 2;
- комната отдыха 8 м 2 ;
- мойка 4 м 2 ;
- парилка 4 м 2 ;
- терраса 6 м 2 .
Материалы ключевых узлов:
- обвязка бани из бруса 100*150 мм;
- лаги пола 150*100 мм с шагом 90 см;
- потолочное перекрытие — 150*40 мм через 60-70см;
- стропильные ноги обрезная доска 100*50 мм;
- кровельный материал — металлочерепица, профнастил, ондулин.
Каркасная баня 5,4*6,3 м
В этом проекте каркасной бани, парилка имеет площадь 5 квадратных метров. Также пристроена терраса размером 2*5,4 метров.

Вариант небольшой каркасной бани с открытой верандой
Общая площадь 22,2 м 2. Помещения и их размеры:
- комната отдыха 11,3 м 2 ;
- мойка 5,9 м 2 ;
- парилка 5 м 2 ;
- терраса 10,8 м 2 .
О планировке бань и выборе размеров помещений, расположении полоков читайте в статье «Оптимальная баня: какая она?»
Преимущества каркасных строений
Каркасное здание представляет собой скелет из бруса, обшитый с двух сторон отделочными материалами. Между ними укладывается пароизоляция и утеплитель. Сразу становится понятным, что при необходимости стройка может быть малобюджетной. Ведь есть возможность использовать недорогие теплоизоляционные материалы (солому, опилки и т.д.) которые, несмотря на доступность, хорошо удерживают тепло.
Понятно, что вес стен при такой технологии очень небольшой. А это ведет к тому, что фундамент можно делать облегченный. При строительстве бань чаще всего делают свайный или свайно-ростверковый, ленточный. Но также подходит монолитная плита или фундамент из блоков.

Так схематично выглядят стены зданий, возводимых по каркасной технологии
Облегченный фундамент — меньшие затраты на материалы и стройку, ведь основание иногда «тянет» на половину стоимости всей стройки. А в таком варианте затрат будет относительно немного.
Для строительства каркасного дома не требуется сложной техники. Все что необходимо — пила, молоток, гвозди, саморезы, шуруповерт, отвес и уровень для проверки вертикальности стен. Если есть другая техника — используйте на здоровье, но это — тот минимум, которым можно обойтись.
Немаловажным плюсом является то, что работать можно одному, лишь изредка приглашая помощников для некоторых операций. Яркий пример представлен в видео: женщина сама, своими явно не атлетическими руками, уже почти достроила по каркасной технологии небольшой двухэтажный дом.
Недостатки
О повышенной пожароопасности каркасных строений уже писали. И это — основной недостаток домов, построенных по этой технологии. Потому желательно все материалы обрабатывать антипиренами (средствами, снижающими горючесть материалов).
Горючесть стен ведет к тому, что вся электропроводка должна укладываться в металлических коробах или специальных негорючих гофрированных рукавах. По этой причине электромонтажные работы становятся сложнее, и дороже — добавляется стоимость кожухов и гофрорукавов.
Каркасная баня имеет дополнительные минусы: высокая влажность вносит свои коррективы. Придется уделить повышенное внимание пароизоляции стен. При использовании минеральной ваты нужно будет оградить утеплитель от влаги очень тщательно: при намокании он теряет свои свойства. Причем при высыхании, восстанавливает их лишь частично. Если он мокрым замерзнет, то просто рассыпается. Потому, пароизоляцию (не «гидро», а именно «паро») выбираем качественную и надежную. При укладке соблюдаем технологию вплоть до мелочей (нахлесты, приклеивание стыков и мест крепления и т.д.).
Необходимые материалы
Основа каркасного дома — рамы, собранные из деревянного бруса. В зависимости от планируемых размеров бани для их сборки используют брус 100*150 или 150*150 мм. Для укосин, и поперечин, которые прибиваются между вертикальными стойками, подойдут бруски меньшей толщины.
При устройстве кровли для мауэрлата понадобится примерно такой же брус — 150*150 мм или около того. Для стропильных ног все те же бруски 100*150 или 150*150 мм. Зависит конфигурации выбранной кровли и веса кровельного материала. Кстати, очень тяжелый кровельный материал — типа керамической черепицы — использовать для каркасников нежелательно — слишком велика нагрузка на стены.

Бруса нужно будет много и разного
Еще нужны будут рейки для создания обрешетки, контробрешетки, и всяких вспомогательных работ. Причем их нужно будет много: обрешетка нужна и на стены с двух сторон и на кровлю. Хотя, в некоторых вариантах, снаружи щиты обшивают фанерой (как в видео выше). Вариантов строительства очень много, как и используемых материалов.
Еще потребуется материал чернового пола. Что это будет — необрезная или обрезная доска, фанера или другой плитный материал — решать вам. Но всю древесину необходимо будет обработать. И антипиренами — для снижения горючести, и защитными антибактериальными составами. О том, чем обработать древесину внутри бани читайте тут.
Материалы обшивки каркаса внутри и снаружи подбираются исходя из личных предпочтений или назначения строения. Если говорить о каркасных банях, то обычно внутри все обшивается вагонкой (в моечной кладут плитку), а снаружи имитацией бруса или блокхаусом.
В качестве утеплителя для бани желательно использовать минеральные ваты: они не горят. Толщина слоя утепления зависит от региона. Для средней полосы России для бань применяется в основном базальтовая вата, слоем в 15-25 см. Если вас беспокоит возможность выделения формальдегида (об этом много писали), то можно брать нетканые маты. В них эмиссия вредных веществ минимальна.

Чаще утепляют каркасные бвни минеральными ватами
Хорошо себя зарекомендовал как утеплитель и пенополиуретан (не пенопласт). Он кроме низкой теплопроводности еще и звукоизолятор, что при каркасном строительстве немаловажно. Есть несколько «но»:
- в парилке его использовать нельзя — не позволяют температурные режимы;
- он плавится и поддерживает горение;
- стоит этот утеплитель немало (речь идет об экструдированном пенополистироле).
Еще потребуется много гвоздей и саморезов. Для строительства бани желательно использовать оцинкованные: чтобы они не ржавели и не оставляли на древесине некрасивые потеки. Нужны они будут разных размеров и диаметров — для сборки рамы большие, для обрешетки и обшивки поменьше.
О том, какой крепеж использовать при строительстве бани читайте в статье «Крепеж для бани и сауны»
Из всего сказанного выше, надеемся, вы сделали вывод, что каркасную баню можно построить своими руками. Чтобы уверится в этом, посмотрите видео. По каркасной технологии построен дом с участием только одного человека. В нем более подробно описана технология сооружения некоторых узлов.
Если вы подобрали проект каркасной бани, решили строить ее своими руками, но не имеете представление, как действовать, рекомендуем посмотреть видео. В нем опытный американский плотник Ларри Хон рассказывает и показывает технологию возведения стен каркасного дома. Видео очень подробное, и занимает больше часа, но к концу просмотра технология каркасного строительства вам будет ясна.
Источники: http://banyagid.com/stroitelstvo/banja-karkasnaja-svoimi-rukami-proekty.html, http://bane.guru/stroitelstvo-bani/proekty/besplatnye-proekty-dlya-stroitelstva-karkasnoy-bani.html, http://baniwood.ru/proekty-karkasnyx-ban.html
v-banyu.ru
Бесплатные проекты для строительства каркасной бани
Сегодня многие владельцы частного жилья отдают предпочтение в пользу строительства каркасной бани. Это и неудивительно, ведь это очень надёжное, долговечное и комфортное строение, при строительстве которого можно существенно сэкономить стройматериалы не в ущерб надёжности. К тому же каркасная баня своими руками, проекты которых можно видеть на фото позволяет сэкономить не только деньги, но и время, возвести её можно всего за месяц.
Идеи и варианты проектов каркасной бани
Технология каркасного строительства даёт возможность сделать строение экономным. Временные затраты на строительство такой бани небольшие, при этом строение получается красивым, прочным и долговечным. Ниже мы рассмотрим несколько проектов каркасных бань, каждый из которых отличается своими преимуществами. Их строительство позволит не только облагородить территорию, но и обеспечит комфортный отдых вам, вашей семье и друзьям.
Проект бани с прилегающей террасой открытого типа
Данный проект каркасной бани отлично подойдёт для строительства строения на небольшом участке. Здесь мы предусмотрим всё необходимое для проведения полноценного отдыха. Итак, размеры строения будут такими: по короткой стороне бани они составляют 6.55 метров, а по длине – 6.68 метров.
По длинной стороне будет расположена терраса открытого типа, её площадь составляет 9.68 квадратных метров, с неё предусмотрен вход, который будет вести в комнату отдыха, где есть раздевалка и окно. С комнаты отдыха вход ведёт в душевую и в парную (4.37 квадратных метров). Каркасная баня, проект которой здесь предложен имеет небольшие размеры, но при этом она очень удобная и уютная, в ней может комфортно отдохнуть сразу три-четыре человека.
Чтобы построит баню такого типа нам потребуются следующие стройматериалы:
- Брус деревянный. Его мы будем использовать для создания каркаса бани.
- Утеплитель. Можно взять минеральную вату.
- Цементно — стружечные плиты (ЦСП) или ориентированно-стружечные плиты (ОСП). Они нам потребуются для наружной обшивки стен.
- Евро – шифер. Его мы будем использовать для внешней отделки фасада.
- Битумная черепица. Она нам необходима для устройства кровли. Данный материал имеет привлекательный внешний вид и невысокую цену.
- Пароизоляционные мембраны и балки. Эти материалы необходимы для создания конструкции крыши.
Готовая конструкция будет компактной и очень красивой. Такой проект бани отлично впишется в любой ландшафтный дизайн. Строительство такой бани своими руками будет быстрым и недорогим.
Проект каркасной бани с душевой, террасой и дровяником
Этот проект позволит нам построить баню с удобной планировкой и большой террасой, где можно будет комфортно отдохнуть. Размеры такого строения по короткой стороне составляют 8.24 метра, а по длинной- 9.47 метра. По проекту баня будет иметь террасу, её площадь составляет 15.44 квадратных метров. Дровник площадью на 4.6 квадратных метров располагается у входа в строение. От входа мы попадаем в уютную прихожую, а уже оттуда в небольшой предбанник.
В проекте предусмотрена комната отдыха, её площадь составляет 18.05 квадратных метров, душевая и парная на 3 квадратных метров. Представленная здесь планировка является наиболее оптимальной, тут имеется всё необходимое для полноценного отдыха в комфортных условиях. В такой бане может отдыхать небольшая компания.
Возведение такой бани может быть выполнено по каркасно-панельной или же по каркасно-щитовой технологии. Строительство этого типа бани своими руками не займёт много времени, однако для этого нам потребуется наличие следующих комплектующих:
- Лёгкий железобетонный столбчатый фундамент.
- Металлочерепица. Она нужна для создания кровли.
- Каркасные стены.
- Утеплитель. Подойдёт минеральная вата.
- Окна металлопластиковые.
- Внешняя дверь. Можно приобрести металлическую.
- Внутренние двери должны быть изготовлены строго из дерева.
- Лестница из дерева.
- Для фасадной облицовки строения можно использовать облицовочный кирпич или вагонку виниловую.
- Для внутренней отделки помещений можно применить вагонку. А вот облицовку санузла лучше всего делать с использование плитки керамической.
- Для отделки террасы подойдёт натуральная доска, предварительно обработанная.
Этот проект отличается максимальным удобством для отдыха. В такой бане может комфортно отдохнуть вся семья или небольшая компания.
Проект бюджетной каркасной бани своими руками
Такой проект бани является самым простым и недорогим. Здесь предусмотрена комната отдыха, парная и душевая. Данный проект представляет классическую планировку без прилегающей террасы, но зато есть небольшое крыльцо. Длинная сторона составляет пять метров, короткая – четыре метра. Общая площадь строения составляет всего двадцать квадратных метров. По короткой стороне расположен вход, вдоль неё располагается комната отдыха. С главного входа мы сразу оказываемся в комнате отдыха, отсюда попадаем в душевое помещение, а с него уже в парную.
Так как в данном проекте не предусмотрена прихожая, но она необходима, в этом случае можно визуально разделить комнату на две части с помощью вешалки для одежды. В каждом помещении располагаются окна, в душевой – небольшое окошко, которое располагается под потолком, в парной – окошко имеет чуть большие размеры. Этот проект предусматривает обычную двускатную крышу, которая сверху покрыта металлочерепицей. Стены снаружи можно отделать натуральным бревном, будет смотреться очень красиво.
Данный тип бани не нуждается в устройстве тяжёлого, дорогостоящего фундамента, что позволяет существенно сэкономить деньги на строительстве каркасной бани своими руками. Фундамент можно сделать столбчатым, его основой служат винтовые свои из металла, которые заливаются бетоном. Преимущество данного типа фундамента состоит также в том, что его можно делать на любом грунте. Крышу лучше делать вентилируемой – между контробрешёткой и стропилами укладывается паропроницаемая мембрана в один слой. Материал для кровли можно приобретать любой, но лучше если это будет ондулин или металлочерепица.
Для строительства такой бани своими руками нам потребуются следующие стройматериалы:
- Бетон, гравий, сваи металлические винтовые, песок. Данные материалы нам потребуются для создания фундамента.
- Рубероид.
- Брус из дерева. Из него мы будем создавать каркас.
- Гидроизоляционная и пароизоляционная мембрана.
- Утеплитель. Подойдёт минеральная вата.
- Пергамин для устройства внутренней теплоизоляции.
- Утеплитель фольгированный.
- Вагонка. Этот материала нам потребуется для внутренней обшивки.
- Цементно — стружечные плиты (ЦСП) или ориентированно-стружечные плиты (ОСП). Их мы будем использовать для обшивки стен.
- Крепёжные элементы.
Процесс возведения каркасной бани своими руками предусматривает следующее:
- Делаем на участке фундамент (основание его будет столбчатым).
- После того как будут поставлены столбы необходимо сделать железобетонный ростверк, его сверху накрываем гидроизоляцией – слой рубероида. На готовый ростверк кладём лаги под незначительным уклоном – для чернового пола. Уклон необходим для обеспечения свободного стока воды.
- Каркас стен делаем из бруса. Брус нужно предварительно обработать специальными антипиринами и септиками.
- Стеновые панели нужно собирать на предварительно очищенной от грязи и камней земле.
Пол черновой обшиваем досками, далее начинаем поднимать стеновые панели и устанавливать их на места. Нужно сделать временный крепёж с помощью распорок, потом их уберём. Стеновые балки между собой закрепляются при помощи брусков или саморезов, также можно использовать зубчатые пластины из металла.- Ориентировано — стружечными плитами зашиваем стены, которые находятся наружи, заблаговременно нужно предусмотреть прокладку нужных инженерных сетей, таких как канализация, электрика и другие. В гофре прокладываем электрические кабеля.
- Между стойками кладём утеплитель минеральную вату. Её следует класть очень плотно, чтобы не было зазоров и полостей.
- Выполняем внутреннюю обшивку стен с помощью цементно – стружечных плит. Такие плиты отличаются высокой устойчивостью к воздействию влаги.
Делаем перекрытие потолка строения, выполняем сборку стопил, потом их поднимаем наверх и устанавливаем.- Как только крыша будет готова, начинаем укладывать кровельный материал, одновременно занимаемся установкой внутренних перегородок.
- В том месте где будет расположена печка нужно сделать кирпичный экран. В случае если печка будет иметь большой вес, тогда во время строительства фундамента нужно будет делать бетонную подушку под печку.
- Как только каменка будет готова, можно выполнять отделочные работы. Для этого следует дополнительно обшить каркас следующими материалами: фольгированный материал (один слой), минеральная вата и пергамин. Далее устанавливаем вагонку.
При строительстве каркасной бани своими руками нужно обязательно предусмотреть чтобы внутри помещения были расположены вытяжные отверстия, они позволяют создать в помещении нужный теплообмен и обеспечивают вывод лишней влаги.- На последнем этапе можно приступать к отделке фасада. Внешнюю отделку можно выполнить из любого материала: блок – хаус, сайдинг виниловый и другие.
Итог
Все вышеперечисленные проекты строительства каркасных бань позволяют своими руками возвести надёжное и недорогое строение, которое прослужит вам долгие годы.
Каркасные бани своими руками: фото
bane.guru
