Бетономешалки своими руками чертежи – чертежи и устройства самодельных бетономешалок
Бетономешалка своими руками — современные конструкции и их особенности (90 фото)
Ни одна стройплощадка не может быть организована без бетона. Замешивать раствор при помощи обычной строительной лопаты и большой емкости весьма проблематично и физически затруднительно. А если объемы работ большие — то такой процесс лишен целесообразности.

Значительно удобнее использовать бетономешалку. В каждом строительном магазине продаётся такой агрегат. Кто-то в целях экономии денег сооружает сей агрегат для замеса цементного раствора своими силами. Посмотрите фото бетономешалки, выполненной своими руками, дабы понимать какими они могут быть.
Как сделать бетономешалку своими силами?
Изготавливая бетономешалку своими силами у вас появляется возможность обзавестись собственным оборудованием с минимальным расходом финансов. Рассмотрим в деталях процесс изготовления бетономешалки.

На самом деле конструкция довольно простая – замес тут механический. Все очень хорошо видно на чертежах бетономешалок. Основное преимущество агрегата — работа с большими объемами цемента.

Привод здесь не обязательно должен быть ручным или механическим, можно установить электродвигатель. Чтобы выгрузить бетон из мешалки, бадью наклоняют в одну из сторон.
Механическая бетономешалка
Есть здесь и минус, характерный для всех подобных бетономешалок с использованием цилиндрической емкости под цемент — замес цемента в углах неаккуратный и некачественный. При превышении оборотов свыше 35 в минуту, смесь разлетается.

Решить вторую проблему можно, если вместо вырезанного отверстия приварить обратно отрезанный элемент и сделать люк. Для замешивания раствора в такой бетономешалке требуется не больше 5 мин., на сухой уходит от 1 до 12 мин.

Инструкция как сделать бетономешалку приводится ниже. Эта конструкция, как и представленная ранее выше, может быть с электрическим приводом и без него. Преимущество: однородность всего цемента, скорость замеса смеси и качественный бетон на выходе.

Для изготовления подойдет старая бочка, несмотря на невзрачный внешний вид, она не будет ничем уступать современным бетономешалкам промышленного производства. В данном случае, на скорость замешивания влияют больше обороты, а не время. Достаточно прокрутить смесь несколько раз, как она уже полностью готова.
Из минусов можно выделить весьма сложную схему самой конструкции бетономешалки. Чтобы изготовить даже самый простой ручной вариант, нужно будет запастись сразу десятком различных элементов и запчастей.

Все внимание нужно сосредоточить при изготовлении бетономешалки на разгрузочном люке, посмотрите как плотно прилегают шпингалеты, уплотнители и петли. Каждый элемент должен быть крепким и надежным, обладать высоким качеством. Ну а если питание поблизости для электрической мешалки отсутствует, то подобный агрегат окажется просто незаменимым.

Подобные конструкции можно встретить и в сфере промышленного производства. Это свидетельствует о том, что самодельная бетономешалка не уступает ничем фабричным образцам.

Электрическая бетономешалка
Еще один вариант бетономешалки подразумевает использование электродвигателя. Это самая популярная конструкция, которую любят копировать друг у друга домашние кустарные мастера. Никаких особых пояснений по этому поводу не требуется. Схема доступна на фотографии ниже.
Есть огромное количество конструкторских решений и видов электрической бетономешалки. Даже детальные чертежи представлены в большом количестве.

Поговорим об этом агрегате в паре слов. Как правильно сделать бетономешалку своими руками:
- Горловая часть и днище конструкции укрепляются при помощи сварных планок;
- Идеальным выбором будет рамный миксер, сваренный с основанием;
- Обратите внимание, чтобы ось и емкость вращались вместе — рама станет сложнее, но при этом увеличиться её надежность, и будет отсутствовать необходимость в уплотнителях на днище. Последний момент влияет на срок эксплуатации готового устройства.

Электрическая бетономешалка с перфоратором
Несмотря на наличие хорошего дорогого перфоратора с отличными показателями параметров в 1-1,5 киловатта, и ударной функцией, не так просто изготовить качественную бетономешалку.

Наиболее часто встречающиеся ошибки:
Неправильно выбранная по габаритам емкость. Она не должна быть чрезмерно круглой формы, иметь вытянутые очертания.

Неправильное расположение вибратора значительно ухудшает качественные показатели замешивания. Его высота до дна должна соответствовать диаметру. Раствор должен быть залит в том же объеме, что и радиус вибратора.
Плоский вибратор не самое лучшее решение. Такой инструмент не сможет создать необходимые волнообразные возмущения на поверхности смеси и она просто не будет должным образом перемешена.

Посмотрите на изображение ниже, чтобы понимать какой именно следует применять или покупать. Наиболее подходящая модификация имеет пару тарелок (блюдец).

Вибратор больших размеров. На каждый последующий киловатт мощности прибавляется 15-20 см в диаметре. Наш агрегат сможет спокойно работать с тарелками на 25 сантиметров.

Фото бетономешалки своими руками











































Также рекомендуем посетить:
mojdominfo.ru
Бетономешалка своими руками — наглядные инструкции фото и чертежи

Можете ли вы представить себе стройку, на которой отсутствует даже маленькая бетономешалка? Без такого агрегата приготовление хорошего цементного раствора становится практически невозможным. Когда возникает необходимость построить небольшое сооружение или просто что-то «подлатать», бетонирование становится востребованной задачей. Вот лишь короткий список ситуаций, в которых не обойтись без данного инструмента: заливка садовых дорожек, обустройство фундамента для беседки, установка забора и так далее. Одним словом, бетон нужен везде – разница только в масштабах мероприятия. Для бытовых нужд покупать промышленный аппарат бессмысленно – покупка обойдется вам непомерно дорого. Альтернативным решением станет самодельная бетономешалка своими руками. Благодаря данной статье, вы научитесь делать ее самостоятельно из подручных материалов.
Содержание:
Показать все содержаниеЧетыре принципа смешивания бетона
Самодельная бетономешалкаПо факты, приготовить свой раствор можно и без специальных приспособлений. Работать «по старой методике» многим даже нравится. Но много ли успеваешь сделать таким способом? Создать сухую смесь для строительства, используя обычную дрель либо миксер, еще можно. Но когда дело доходит до песка с цементом, они оказываются бессильны.
Самый простой и распространенный принцип смешивания называется принудительным. Все компоненты замешиваются в емкости, которая является неподвижной. Для этого обычно используется механический привод. Рабочий барабан при этом может располагаться вертикально или горизонтально.
Чертеж бетономешалки горизонтальнойНесмотря на то, что даже малый бетоносмеситель принудительного действия может оказаться весьма эффективным, свои недостатки у него тоже имеются:
- Появляются «мертвые зоны» в емкости. Это особенно касается пространства возле стен.
- Сложность конструкции. Узлы вращения должны быть герметично защищены от воздействия раствора, которое может оказаться агрессивным.
- Практически невозможно приготовить в таком агрегате раствор, в состав которого входят средний и крупный наполнитель.
Второй по счету принцип называется гравитационным. В этом случае все компоненты перемешиваются благодаря силе тяжести. В промышленности данный способ используется редко, так как требует много времени и сил. В качестве емкостей чаще всего идут в ход бочки, которые сделаны из металла. О том, как они изготавливаются, как сделать подставку, будет рассказано ниже.
Большинство современных бетономешалок используют комбинированный принцип, сочетающий в себе первые два способа. Они обладают следующими преимуществами:
- Строгая герметизация не нужна. Барабан сверху открыт, необходимости в узлах вращения нет, поскольку любой контакт с раствором исключается.
- Детали изнашиваются гораздо реже.
- Простота и надежность эксплуатации.
- Ограничений на состав раствора тоже нет – это может быть щебенка, керамзит, гравий и так далее.
Четвертый принцип смешивания называется вибрационным. В последнее время некоторые умельцы занимаются перемешиванием раствора при помощи вибрации. Если говорить о масштабных объемах, результаты могут быть самыми ошеломительными. Обычно вибрационный принцип перемешивания используется, когда нужно изготовить точную железобетонную конструкцию с хорошими эксплуатационными характеристиками.
Рекомендуем также прочитать
Мангал из газового баллона своими руками
Дровница — роскошь или необходимость
В обычных условиях редуктор и привод заменяет мощнейший перфоратор (допустимый минимум 1,3 кВт). Его вибрационное действие должно быть независимым. Прижимать патрон не нужно.
Редуктор бетономешалки фотоВ целом, вибрационное замешивание позволяет создать практически идеальную бетонную смесь. Однако для приготовления «тяжелого» раствора он тоже не оптимален.
Бетономешалка из молочного бидона (фляги)
Бетономешалка своими руками из молочного бидонаСтоит понимать, что доступ к электричеству есть далеко не на каждом дачном участке. Следовательно, вполне логичной будет самоделка ручного типа и небольшого объема. Бетономешалка из молочной фляги своими руками – очень простой и незамысловатый вариант. Вам понадобится сам бидон, обрезки труб или любой другой металлолом похожей формы. Сделать ее можно за 2-3 часа, основной спектр работ приходится на варку рамы.
- Взяв круглую трубу, выгните ручку, как показано на рисунке. Вверху приварите водопроводные муфты. Их диаметр внутри должен превышать диаметр трубы, которая используется для ручки.
- Пропустите трубку через флягу, сделав отверстия, а затем приварите к корпусу.
- Крайне важно найти центр тяжести бетономешалки своими руками, чтобы крутить ее было легко. Чтобы упростить конструкцию, вы можете обойтись без использования муфты. Прорежьте в станине дугообразные выемки и уложите на них ось.
Агрегат хоть и простой, но не самый надежный. Поэтому для изготовления лучше использовать какие-то другие чертежи.
Большая бочка
Бетономешалка из большой бочки 200 литровБолее практичным вариантом считается бетономешалка из 200 литровой бочки. Почему именно двести литров? Такой объем принято считать оптимальным для замеса бетона за раз. Вариант пластика отметается сразу – такие бочки не прослужат вам долго.
Самодельная бетономешалка из бочки изготавливается следующим образом:
- Подготовка бочки, у которой есть крышка и дно. Если крышка отсутствует, она приваривается отдельно. Не нашли емкость? Можете сделать ее самостоятельно. Самодельный вариант ничем не уступает заводской бочке. Потребуются плотные листы металла толщиной от 1,5 до 2 мм, вальцы, эффективный аппарат для сварки и деревянный молоток.
- К крышке и дну прикрепляем фланцы, на которых имеются подшипники. Сбоку вырезаем люк, куда и будет производиться засыпка компонентов раствора. Небольшая хитрость – для бетономешалки из бочки такое отверстие следует делать поближе к торцу, который в процессе прокрутки будет находиться ниже.
- Знать, как сделать бетономешалку своими руками – еще половина дела. Не менее важно наладить правильное перемешивание раствора. Для этого к стенкам внутри нужно приварить лопасти (угол от 30 до 40 градусов). Такой угол крайне важен, чтобы в процессе перемешивания содержимое «выталкивалось» наружу. В принципе, закрепить лопасти вы можете и на вале.
Как делают основание для бетономешалки профессионалы?
Естественно, ручная бетономешалка своими руками должна иметь устойчивую основу. Это необходимо, чтобы конструкция не начала переворачиваться во время перемешивания. При небольшой загрузке остова из деревянного бруса будет вполне достаточно (сечение 10 на 10 или 15 на 15 см). Оптимальные варианты соединения: «в шип» или «в полдерева». Они необходимы, чтобы конструкция не получила повреждения от вибрации. Когда сборка закончена, все стыки проклеиваются и стягиваются саморезами.
Нужен более прочный, долговечный агрегат? Тогда вам точно подойдет рама из металлического уголка. Сварочный аппарат есть далеко не у всех, но вы можете выполнить фиксацию заклепками или болтами.
При необходимости, к основанию прикручиваются колеса. Такое устройство бетономешалки позволит вам не только переворачивать, но и перемещать ее.
Что касается двигателей, бетономешалка из бочки своими руками может быть оснащена мотором от скутера или автомобиля. Хорошим вариантом будет и бетономешалка из стиральной машины. Преимущество данного варианта в том, что он рассчитан на длительную работу и сможет прослужить несколько лет.
Как сделать бетономешалку своими руками видео
Ниже вы можете познакомиться с фото чертежей, позволяющих все сделать самому:
Самодельная бетономешалка чертежи
Чертеж самодельной бетономешалки
Чертеж самодельной бетономешалки из бочки
С какой скоростью мешать бетон?
Мы не будем подробно рассматривать процесс замешивания бетона – это тема отдельной статьи. Отметим лишь тот факт, что момент кручения играет далеко не последнюю роль.
Вот почему редуктор «стиралки» лучше обычного мотора от скутера или авто. Он выдерживает практически любую нагрузку и может работать на невысоких оборотах. 25 полных циклов (оборотов) в минуту достаточно.
Для обеспечения такого количества редуктор может иметь разную схему. Самый простой, типичный вариант, когда редуктор сделан из ремня и шкива. Бетоносмеситель своими руками с моторчиком от мопеда отличается мобильностью. Редуктор удобен и компактен, для функционирования не нужна электроэнергия. Даже если у вас большая территория, сделанный аппарат перемещается по ней без лишних забот и хлопот.
Редуктор в данном случае должен быть цепным, иначе конструкция будет плохо функционировать.
Чертежи бетономешалки видео
Четыре распространенные ошибки при изготовлении бетономешалки
Чертеж самодельной бетономешалкиПри создании такого агрегата, как бетономешалка ручная, люди часто допускают ошибки. Вот наиболее распространенные из них:
- Емкость. Стоит ли говорить о том, что она должна быть не только объемной, но и качественной. Любые дырки, отверстия, коррозия исключены.
- Инструкция. Мы рассказали вам о том, какой должна быть схема изготовления. Четко следуйте ей, чтобы получить нужный результат. Любые отклонения в работе могут привести к тому, что даже самодельная бетономешалка из старенькой стиральной машины получится некачественной.
- Рама. Даже не пытайтесь сварить металлическую раму с чугуном. Вы существенно усложните свой нелегкий труд.
- Не перегружайте конструкцию лишним весом. Если предполагается замес небольшого количества бетона, бочка на 300 литров вам точно не нужна.
Абсолютно любой человек может сберечь солидную сумму денег, если знает, как делается бетономешалка своими руками – фото и видео к инструкции прилагаются. Вам понадобится минимум строительным материалов, инструменты, немного внимательности и находчивости. И последний совет в завершение. Если есть такая возможность, желательно привлечь к работе еще одного (а лучше двух) людей. Некоторые этапы нужно выполнять единовременно, а делать это в одиночку не очень удобно.
Самодельная бетономешалка из бочки видео
lanshaft.com
Бетономешалка своими руками: особенности изготовления, чертеж бетоносмесителя
Для выполнения строительных мероприятий и благоустройства территории применяются цементные и бетонные растворы. Процесс ручного приготовления смесей трудоемкий и продолжительный. Он не гарантирует однородность рабочей смеси. А приобретать для разового замеса дорогой бетоносмеситель нецелесообразно. Выход из сложившейся ситуации – бетономешалка своими руками. Она позволит при минимальных расходах самостоятельно подготовить раствор с однородной консистенцией.
Пример бетономешалки, подходящей для домаУстройство бетономешалки бытовой и классификация смесителей
Агрегаты, предназначенные для перемешивания бетонных растворов, предлагаются предприятиям и изготавливаются домашними умельцами в различных вариантах. Рассмотрим конструкцию мешалки, которая состоит из следующих узлов:
- металлической рамы или станины, объединяющей узлы в единую конструкцию. Рама воспринимает динамические и статические нагрузки, обеспечивая устойчивость оборудования. Для тяжелых агрегатов станина стационарная, а для малогабаритных смесителей оснащается колесами, облегчающими транспортировку. Для изготовления металлической рамы можно использовать уголок или стальной профиль другого сечения;
- рабочего органа, предназначенного для повышения однородности замеса. Активатор, контактирующий с перемешиваемым раствором, воздействует на компоненты смеси. В результате бетонный раствор приобретает однородную консистенцию. В качестве перемешивающих органов используют лопатки сложной конфигурации, специальные лопасти, шнеки и другие разновидности активаторов;
- резервуара, в котором перемешивается бетон. Такая емкость называется бочкой и может изготавливаться из различных материалов. Для самостоятельного изготовления рабочей емкости можно использовать утратившие актуальность и работоспособность бытовые устройства – начиная от стиральных машин и заканчивая металлическими бочками. Используемые емкости отличаются размерами и объемом, влияющими на производительность;
- разгрузочного устройства, облегчающего и ускоряющего слив подготовленного раствора. Конструкция сливного механизма определяется компоновкой бетоносмесителя, конструкцией и габаритами бочки, а также массой бетонного раствора. Применяются различные технические решения для облегчения процесса разгрузки;
- приводной станции. В качестве движущего агрегата используют электрический двигатель. Передача крутящего момента от электромотора может осуществляться через понижающий редуктор или ременную передачу. Передаточное отношение и мощность трансмиссии должны обеспечивать возможность беспрепятственного вращения тяжелой емкости, наполненной раствором.
Бетоносмеситель отличается не только вариантом конструктивного исполнения, но и способами смешивания. По принципу работы растворосмесители делятся на следующие виды:
- гравитационные. Отличительная черта данных механизмов — наличие вращающейся емкости и неподвижного винтового активатора. Перемешиваемая цементная смесь под влиянием гравитации без приложения усилий падает на винтовую ось. Равномерное смешивание ингредиентов обеспечивается в результате воздействия лопаток, приваренных внутри вращающегося резервуара. Гравитационный способ перемешивания позволяет приготовить бетон с требуемой степенью подвижности;
- принудительные. Они смешивают цементный раствор внутри стационарно закрепленного резервуара за счет воздействия подвижных элементов. Эксплуатационные характеристики и однородность рабочего раствора, приготовленного в таких мешалках значительно выше, если сравнивать с гравитационными агрегатами. Принудительный принцип смешивания в частном домостроении применяется редко. Он актуален в бетоносмесителях, предназначенных для промышленного использования.
Гравитационные бетономешалки 120лПо продолжительности работы мешалки делятся на следующие разновидности:
- периодического действия, применяемые для частного использования. Они комплектуются электродвигателем небольшой мощности;
- постоянного функционирования. Они применяются для промышленных целей и оснащены мощным электрическим приводом.
Остановимся более детально на конструкции устройств, самостоятельное изготовление которых довольно простое.
Самодельная бетономешалка своими руками – популярные конструкции
Самодельная бетономешалка из бочкиПланируя самостоятельное изготовление, целесообразно ознакомиться с проверенными на практике конструкциями. Возможны различные схемы устройств, из которых наиболее популярны следующие агрегаты:
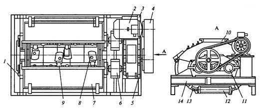
- механическая машина-бетономешалка. Она представляет собой разрезанную вдоль продольной оси бочку, шарнирно закрепленную на металлической раме. Внутри емкости расположен подвижный вал с лопастями. Передача крутящего момента от электродвигателя осуществляется через клиноременную передачу и редуктор. Выгрузка подготовленного раствора осуществляется путем наклона бадьи. Достоинство этого растворосмесителя — сокращенная продолжительность замеса. Недостаток агрегата — разбрызгивание раствора при повышенной скорости вращения;
- бетономешалка из бочки, оснащенная активатором. По компоновочному решению этот вариант растворосмесителя похож на ранее описанный. Главное отличие – применение целой бочки, в которой выполнен герметичный люк для загрузки ингредиентов и выгрузки раствора. Передача крутящего момента может осуществляться как вручную, так и с помощью электропривода. В данном варианте вращается емкость, внутри которой закреплены продольные гребенки. Качество замеса определяется количеством оборотов, а не продолжительностью перемешивания. Несмотря на сложность конструкции, такие механизмы изготавливаются серийно;
- бетономешалка самодельная с миксером. Планируя сделать своими руками бетономешалку, стоит обратить внимание на этот вариант. Несмотря на сложность конструкции такого растворосмесителя, над ним стоит потрудиться. Устройство обеспечивает повышенную однородность перемешивания бетонной смеси за счет дополнительной степени свободы. Емкость с активатором закреплена на металлической раме и может вращаться относительно продольной оси. Рама в сборе с резервуаром имеет дополнительную степень свободы за счет шарнирного крепления на несущей станине агрегата. Важно обеспечить герметичность резервуара и удобство выгрузки;
- бытовые бетономешалки вибрационного типа. Для создания растворосмесителя с вибрационным принципом действия потребуется перфоратор повышенной мощности, в патроне которого закреплен металлический вал. Перфоратор следует жестко зафиксировать на станине, обеспечив соосное расположение вала с центром емкости. С противоположной стороны вала следует жестко закрепить автомобильный диск, диаметр которого меньше внутреннего размера бочки. Затем вертикально установленная бочка заполняется ингредиентами. Компоненты цементно-бетонной смеси под вибрационным воздействием равномерно перемешиваются. Решая, как сделать бетономешалку своими руками из автомобильного диска, воспользуйтесь этим вариантом.
Для самостоятельного изготовления бетономешалки подойдет любой вариант конструкции.
Бетономешалка самодельная с миксеромБетономешалка своими руками – плюсы и минусы
Независимо от того, будет ли изготавливаться большая бетономешалка или малогабаритный смеситель, до начала изготовления ознакомьтесь с достоинствами и недостатками самодельных устройств.
Преимущества самостоятельно изготовленных растворосмесителей:
- экономия денежных средств по сравнению с приобретением готового агрегата;
- повышенное качество подготавливаемой цементно-бетонной смеси;
- сокращенная продолжительность смешивания ингредиентов бетонного раствора;
- удобство разгрузки подготовленной смеси путем наклона бочки смесителя;
- возможность изготовления смесительного устройства с ручным приводом;
- широкий выбор материалов и емкостей для самостоятельного изготовления.
Чертеж. Самосвальная бетономешалкаПроблемные моменты, связанные с самостоятельным изготовлением растворомешалок:
- сложность изготовления в бытовых условиях без профессиональной подготовки;
- необходимость подгонки узлов и элементов для обеспечения безотказной работы;
- разбрызгивания цементного раствора при повышенной частоте перемешивания.
Бетономешалка своими руками – плюсы и минусыАнализируя достоинства и недостатки, многие застройщики отдают предпочтение самостоятельному изготовлению бетоносмесителей. При этом необходимо учесть, что если будет изготавливаться бетономешалка из бочки своими руками, чертежи необходимо использовать только проверенные на практике.
Как сделать бетономешалку из бочки своими руками
Размышляя, как сделать бетономешалку своими руками, чертежи или эскизы подготовьте заранее. Можно для изготовления заэскизировать натурный образец, который положительно зарекомендовал себя в условиях эксплуатации. Рассмотрим особенности самостоятельного изготовления различных вариантов.
Как сделать бетономешалку ручной конструкции и с электроприводом
Ручной вариант растворосмесителя – самый простой. Он лучше всего подойдет для приготовления небольших объемов смеси и более дешевый, чем электрические модели. Процесс перемешивания осуществляется путем заполнения резервуара компонентами с последующей передачей крутящего момента путем поворота рукоятки.
Конструкция ручного устройства представляет собой металлическую раму, на которой в шарнирных опорах закреплен поворотный вал с емкостью для перемешивания. С одной из сторон приводного вала закреплена рукоятка.
Алгоритм сборки предусматривает выполнение следующих операций:
- Сварку металлоконструкции. Она состоит из двух треугольных боковин, соединенных перемычками. В верхней части расположены втулки крепления поворотного вала.
- Подготовку смесительного резервуара. В качестве емкости можно использовать бочку, молочный бидон или корпус стиралки. Внутри необходимо закрепить лопасти.
- Установку емкости на поворотном валу. Важно обеспечить жесткое соединение и герметизировать зазоры на участках крепления вала.
- Фиксацию рукоятки для смешивания и контроль герметичности смесителя. Для испытаний необходимо заполнить емкость водой и убедиться в отсутствии течи.
Подготовка смесительного резервуараСоблюдая указанную последовательность операций, легко может быть изготовлена бетономешалка своими руками. Чертежи или эскизы можно подкорректировать, предусмотрев возможность использования молочного бидона или другой емкости.
Если с противоположной от рукоятки стороны вала закрепить шкив клиноременной передачи или звездочку цепного привода, то можно обеспечить передачу крутящего момента от редуктора, соединенного с электродвигателем. Бетономешалка своими руками из бочки, приводимая в движение от электромотора, обеспечит повышенную эффективность смешивания.
Самодельная бетономешалка с двигателем от стиральной машины
Используя мотор мощностью 0,18 кВт с частотой вращения 1500 об./мин., можно собрать электропривод растворосмесителя. Для передачи крутящего момента используется стартерная шестерня и маховик от легкового автомобиля.
Передвижная бетономешалка из стиральной машины своими руками изготавливается в указанном порядке:
- Сварите раму с осями для шестеренчатой передачи.
- Закрепите колеса.
- Установите на осях шестерни привода.
- Прикрепите двигатель со шкивом.
- Соберите ременную передачу.
- Закрепите бочку на торце маховика.
Остается подключить электропитание и проверить, как работает самодельная бетономешалка из стиральной машины.
Заключение
Руководствуясь приведенными рекомендациями несложно изготовить бетоносмеситель своими руками. До начала самостоятельного изготовления важно определиться с конструкцией устройства. Разбираясь, как сделать бетономешалку своими руками, чертежи подготовьте в первую очередь. Они помогут не допустить ошибок.
pobetony.expert
как сделать из бочки, стиральной машины и не только, инструкции с чертежами, фото и видео
Бетоносмесительная машина, или бетономешалка, или бетоньерка — строительное устройство, предназначенное для самостоятельного приготовления качественной строительной смеси. Такая машина может быть стационарной и мобильной, отличающейся назначением и принципом действия. На сегодняшний день бетономешалка, сделанная своими руками, является хорошим вариантом практичного и удобного агрегата. Его изготовление потребует минимальных финансовых затрат.
Виды бетономешалок и принцип их работы
Бетономешалка — техническое устройство, широко применяемое в условиях современного строительства для приготовления бетонного или другого раствора на основе цемента, и представленное очень разными видами или формами. Вне зависимости от типовых характеристик и конструктивных особенностей, основной функцией бетоносмесительной машины или миксера является получение максимальной эффективности в процессе смешивания всех составляющих.
Бетономесители непрерывного действия
Бетономешалки непрерывного действия имеют принудительный процесс смешивания всех составляющих. С конструктивной точки зрения такие агрегаты одинаковы, а основные отличия заключаются в размерах, производительности и форме лопастей для смешивания.

Принцип работы бетономешалки непрерывного действия заключается в принудительном процессе смешивания компонентов раствора
Непрерывные бетоносмесительные машины осуществляют полный набор всех технологических процессов, представленных загрузкой и смешиванием отдельных компонентов, а также выгрузкой готовой смеси из агрегата, что обеспечивается не только производственным, но и контрольным оборудованием.

На схеме показано устройство агрегата непрерывного действия
- 8 — непрерывный поток компонентов смеси подаётся внутрь корыта;
- 7 — лопасти, закреплённые на валах внутри корыта под углом 40–45°;
- 6 — валы внутри корыта;
- 5 — разгрузочный затвор;
- 4 — зубчатая пара;
- 3 — редуктор;
- 2 — ремённая передача.
Принцип действия миксера основан на загрузке непрерывного потока компонентов ленточными питателями или конвейерами. Одновременная подача сыпучих составляющих и воды позволяет получить в смесительной ёмкости однородный и качественный раствор, который выводится через выгрузочное отверстие и может загружаться непосредственно в специальное транспортное средство.
Технические показатели производительности непрерывных смесителей зависят от объёма раствора, который перемещается за определённое время в направлении оси, а также от размера и угла лопастной части с частотой их вращения. Преимущества такого варианта бетономешалки представлены возможностью готовить растворы и жёсткие бетоны в значительном количестве, а также полной статичностью корпуса. К недостаткам можно отнести необходимость постоянной подачи компонентов, и невозможность получить небольшой объём раствора.
Циклического действия
Установки циклического действия отличаются загрузкой новых составляющих смеси только после полной выгрузки уже готового раствора. Такой вариант миксерного оборудования является более мобильным, а уровень производительности определяется качеством загружаемых компонентов и общим объёмом смесительного резервуара.

Циклические бетономешалки более мобильные
Основная функция циклического устройства заключается в получении высококачественных бетонов подвижного, формовочного и жёсткого типа с наличием специальных добавок. Агрегаты такого вида могут иметь цилиндрический или корытообразный корпус с валом вертикальной или горизонтальной направленности.

Перемешивание раствора происходит при помощи лопастных валов
- 1 — подшипник;
- 2 — электрический двигатель;
- 3 — рамная конструкция;
- 4 — передача клиноременного типа;
- 5 — редуктор;
- 6 — муфта;
- 7 — корпус агрегата;
- 8 — лопастная часть;
- 9 — держатель;
- 10 — отверстие для загрузки;
- 11 — вал;
- 12 — пневматический цилиндр;
- 13 — затвор;
- 14 — выгрузочное отверстие агрегата.
Принцип действия обеспечивается вращением лопастей на валах во взаимном направлении, что вызывает включение электрического двигателя и клиноременной передачи. Благодаря предельно равномерному расположению лопастей на валах, такие элементы идеально входят в свободные промежутки. Смешиваемые компоненты доставляются внутрь работающего миксера сквозь отверстие замочного типа, после чего происходит перемешивание при помощи лопастных валов и выгрузка готовой смеси через разгрузочное отверстие, управляемое пневматическим цилиндром.
Преимущества наиболее современных моделей заключаются в высоком качестве смешивания за относительно небольшой временной промежуток и в возможности применения компонентов с разными показателями плотности, в результате чего получается высококачественный готовый состав. Основные минусы циклического оборудования представлены дороговизной и технической сложностью трансмиссии, что предполагает обеспечение регулярного и грамотного технического обслуживания агрегата.
Гравитационные
Вариант строительной машины, отличающийся перемешиванием бетонных смесей за счёт силы тяжести. Гравитационные миксеры представляют собой барабан, который вращается вокруг оси горизонтального или наклонного типа. Обязательным условием функционирования является строго определённое количество лопастных вращений, которое предупреждает переизбыток центробежной силы внутри барабана.

Преимуществами бетономешалки такого типа является простота установки и производительность
Гравитационные строительные миксеры, как правило, предназначены для приготовления смесей, объём которых не превышает один кубический метр. Современная установка мобильного типа очень легко транспортируется. Самыми популярными и распространёнными гравитационными моделями являются бетоносмесительные установки в виде традиционных автобетономешалок.

Частота вращения в бетономешалке такого типа составляе 20 оборотов в минуту
- 1 — загрузочный ковш;
- 2 — пара подъёмных барабанов;
- 3 — самотормозящийся редуктор червячного типа;
- 4 — фланцевый электрический двигатель;
- 5 — смесительный барабан с лопастями;
- 6 — штурвал агрегата;
- 7 — выходной вал трёхступенчатого редуктора цилиндроконического типа;
- 8 — концы каната, которыми охватывается ковш;
- 9 и 10 — концевые выключатели для отключения электрического двигателя;
- 11 — траверса;
- 12 — фланцевый электрический двигатель;
- 13 — одноступенчатый редуктор;
- 14 — фиксирующее устройство.
Принцип действия: лопастными элементами внутри барабана в процессе их равномерного вращения осуществляется подхватывание, подъём и сброс вниз приготавливаемого раствора. Стандартная частота вращения в гравитационной бетоносмесительной технике ограничивается 20 оборотами в минуту.
Несомненные преимущества любого гравитационного миксера представлены оптимальным соотношением веса установки и общего рабочего объёма ёмкости, простотой и надёжностью конструкции, возможностью использования крупных заполнителей, а также очень низкой энергонагруженностью такого оборудования. К серьёзным недостаткам таких моделей можно отнести низкие показатели универсальности и риск неполучения однородных жёстких смесей.
Принудительные
Бетоносмесительные агрегаты принудительного действия используются в производстве не только подвижных, но и жёстких бетонов формовочного типа, а также позволяют изготавливать лёгкие бетоны со значительным объёмом всевозможных добавок. Принудительные миксеры могут быть оснащены горизонтальным или вертикальным валом, который помещается в корытообразный или цилиндрический корпус.

В такой бетономешалке можно приготовить растворы с различными показателями плотности
В принудительных смесителях обеспечивается качественное перемешивание всех компонентов, а благодаря универсальности конструкции значительно облегчается изготовление бетонов, а также растворов, имеющих различные показатели плотности и уровень подвижности.

Внуть барабана бетономешалки загружаются все компоненты, благодаря лопастям они перемешиваются, и получается качественный раствор
- 1 — корпус смесителя;
- 2 — рамная конструкция;
- 3 — электрический двигатель;
- 4 — пульт управления агрегатом;
- 5 — затвор секторного типа;
- 6 — рукоять привода для открытия затвора;
- 7 — защитный элемент;
- 8 — редуктор привода для валов;
- 9 — защита ремённой передачи;
- 10 — предохранительная муфта;
- 11 — смесительный вал.
Принцип действия базируется на загрузке всех компонентов внутрь барабана и способности лопастей в процессе вращения перемешивать составные части с получением однородной и высококачественной массы готового раствора.
Преимущества принудительных строительных миксеров представлены высоким качеством смешивания, надёжностью оборудования и его способностью функционировать даже в тяжёлых условиях, а также незначительными габаритами и лёгкостью транспортировки. К недостаткам относятся отсутствие максимального соотношения веса оборудования к полезному объёму миксера, а также слишком высокая установленная мощность электрического привода.
Как сделать бетономешалку своими руками
Безусловно, замешивание может выполняться в корыте при помощи обычной лопаты, но такой подход очень трудозатратный, не позволяющий получить достаточное количество однородной и качественной смеси, а расход компонентов в этом случае значительно возрастает.
Самостоятельное изготовление бетономешалки не вызывает сложностей даже при отсутствии профессиональных знаний и специальных навыков в данной сфере. Достаточно ознакомиться со схемой изготовления, подготовить необходимый материал и набор инструментов, а также строго придерживаться пошаговой инструкции.
Из бочки
Конструкция имеет своеобразную траекторию движения, в виде оси вращения, идущей через резервуар строго наискось. Простые растворомешалки способны хорошо функционировать при температурном режиме не ниже плюс 2оС, так как конструкцией не обеспечивается прогрев приготавливаемой смеси.

Конструкция такой бетономешалка довольно проста
- 1 — металлическая бочка;
- 2 — основание из металлического уголка;
- 3 — вал из трубы;
- 4 — система подшипников;
- 5, 6 — ручка и рукоятка;
- 7 — люковая крышка;
- 8 — замковое соединение;
- 9 — резиновый уплотнитель;
- 10 — петля.
Приготавливаемый раствор перемещается между двумя стенками, что обеспечивает простоту и эффективность регулярной эксплуатации. Бочковой миксер способен за двадцать оборотов очень хорошо перемешивать около трёх вёдер бетонного раствора.
Материалы и инструменты:
- металлическая бочка;
- комплект метизов, представленных болтами, гайками и шайбами;
- подшипники;
- арматура для ручки;
- стандартный металлический уголок;
- сварочный аппарат;
- электрическая дрель;
- «болгарка» или ножовка для работы с металлом;
- гаечные ключи;
- уровень, рулетка и маркёр.
Пошаговый процесс изготовления:
- Просверлить отверстия на торцах бочки под установку вала.
- Установить на наружной части крышек подшипники под поворотную рукоятку.
- Вырезать отверстие для беспрепятственного извлечения готового раствора.
- Уплотнить дверцу резиной.
- Зафиксировать дверцу откидными петлями на шарнирных задвижках.
- Сварить из металлических уголков опорную рамную конструкцию.
- Оснастить вал лопастями из стального листа.
- Установить вал и поворотные ручки.
- Расположить бочку на опорной металлической конструкции.
При желании конструкцию может дополнить электрический двигатель, редуктор для понижения крутящего момента, клиновидный ремень и влагозащитный выключатель, а также система проводов. В работе такая модель бетономешалки менее устойчива, поэтому нуждается в обязательном обеспечении качественной дополнительной фиксации.
Из стиральной машины
Строительный миксер, изготовленный на основе стиральной машины, отличается достаточно высокой производительностью. В процессе барабанного вращения необходима стабильная устойчивость, но наличие определённого диссонанса объясняется составляющими раствора, постоянно смещающими центр тяжести. По этой причине нужно решить вопрос надёжного основания или каркаса для установки бетонного миксера, выполненного с использованием стиральной машины.
Самая устойчивая геометрическая фигура — треугольник, который выдерживает значительные нагрузки и хорошо сохраняет своё положение. Преимущества бетономешалки, самостоятельно собираемой на основе стиральной машины, представлены индивидуальным подбором высоты, но оптимальным вариантом является конструкция с нижней точкой расположения ёмкости на уровне 50–80 см. Объём готового цементного раствора напрямую зависит от размеров бака стиральной машины.

Чтобы обеспечить устойчивость, нужно сделать надёжное основание для бетономешалки
Материалы и инструменты:
- сварочный аппарат;
- электрическая дрель;
- стандартный набор отвёрток;
- ножовка для работы с металлом;
- ёмкость из стиральной машины;
- металлические уголки или труба для изготовления рамного каркаса;
- стальной лист для изготовления лопастей.
При желании изготовить самостоятельно шнековую бетономешалку необходимо сделать специальный вал.
Пошаговый процесс изготовления:
- Заделать сливное отверстие в рабочей стиральной машины активаторного типа.
- Изготовить поворотный механизм из металлических уголков или трубы.
- Установить стиральную машину на поворотный опрокидываемый механизм.
- Установить раму на «ножки» высотой полметра для обеспечения максимальной устойчивости конструкции.
Важно не выполнять жёсткое крепление резервуара по периметру рамы, а установка на навес должна позволять осуществлять опрокидывание с упором на рамное основание. Фиксируется такая конструкция на основе стиральной машины активаторного типа всего четырьмя металлическими уголками. Работоспособность готового строительного миксера обеспечивается подключением агрегата к сети 220 В.
Из фляги
Традиционные фляги из-под молока или краски способны стать отличной базой, используемой в изготовлении компактной бетономешалки. Технологические возможности позволяют выполнить раму на основе металлических уголков или труб, а также обычных деревянных брусков. Как правило, внутри такого миксера одномоментно можно изготовить три ведра бетонного раствора.

Компактная бетономешалка, позволяющая приготовить три ведра раствора за один приём
Флягу необходимо располагать в наклонном положении, используя с этой целью четыре обычные вращающиеся опоры или рамную конструкцию с углом в 20–30° по отношению к горизонту. Таким образом, устройству обеспечивается вращение агрегата в соответствии с продольной осью.
Фотогалерея: составные элементы самодельной бетономешалки на основе фляги
Самодельную ручную бетономешалку можно изготовить в течение пары часов, используя с этой целью молочную флягу и практически любой металлический лом.
Материалы и инструменты:
- сварочный аппарат;
- электрическая дрель;
- отвёртки;
- ножовка для работы с металлами;
- металлическая фляга;
- металлические уголки для изготовления рамного каркаса.
Пошаговый процесс изготовления:
- Высверлить отверстия для установки рукояти.
- Пропустить ось, оснащённую ручкой, через просверленные во фляге отверстия.
- Изготовить опорную металлическую конструкцию рамы.
- Установить агрегат на раму.
Лёгкая эксплуатация строительного миксера обеспечивается обязательной сбалансированностью такого агрегата, поэтому ось пропускается только через центр тяжести. Втулками для оси могут послужить обычные водопроводные муфты, а упоры выполняются приваркой к осевой части гаек, смазанных литолом или солидолом. Такой вариант в работе очень прост, но большое количество раствора промешивается недостаточно хорошо и быстро.
Варианты бетономешалок для самостоятельного изготовления (с чертежами)
Существует несколько легко выполнимых самостоятельно вариантов строительных миксеров, которые доказали свою высокую эффективность в приготовлении бетонных растворов разного объёма.
Механический вариант
Главным преимуществом является достаточно большой объем, а для оснащения может быть использован как электрический, так и ручной привод. Выгрузка готового состава выполняется традиционным наклоном конструкции набок.

—
Основной минус такой цилиндрической бадьи заключается в недостаточно качественном перемешивании раствора в угловых зонах и риском разбрызгивания смеси при слишком большой оборотистости конструкции. Модель способна замешать простую смесь в течение пяти минут, а перемешивание сухих компонентов занимает не более десяти минут.
Комбинированный горизонтальный вариант с гребёнками
Электрическая или ручная конструкция на основе цилиндрического резервуара с высокой однородностью и отличной скоростью смешивания. Устройство также имеет высокую скорость и качество процедуры изготовления раствора. Для замешивания одной партии раствора достаточно выполнить всего четыре оборота ручки.

Бетономешалки комбинированного типа обладают хорошей скоростью смешивания
Недостаток состоит в конструкционной сложности и большом количестве составных частей, а повышенного внимания требует установка разгрузочного люка с высококачественными и очень надёжными уплотнителями, шпингалетами и петлями.

Гребёнки изготавливаются из обычных металлических уголков
Для изготовления гребёнки следует использовать металлические уголки, которые надёжно фиксируются на основании.

Для надёжности и устойчивости под бетономешалку рекомендуется сделать основание
Для сваривания боковых стоек используются подкосы, швеллера, разрезанные на отдельные элементы, а также прочные металлические уголки.
Электрический вариант
Наиболее распространённая и востребованная конструкция строительного миксера, чаще всего выполняемая своими руками. На сегодняшний день известно огромное количество вариаций такого агрегата, которые могут иметь некоторые различия в плане конструкции и технических характеристик.
Такой строительный миксер способе обеспечить немалый выход готового раствора
Оптимальным вариантом принято считать использование цилиндрического резервуара, в котором донную часть и горловину в обязательном порядке необходимо укреплять привариваемыми крест-накрест планками. Для такой рамной электрической бетоносмесительной конструкции, надёжно приваренной на оси, характерна высокая производительность и достаточный выход готового раствора.
Некоторую сложность может вызывать сборка ёмкости, вращаемой вместе с осевым элементом, что обусловлено необходимостью выполнить высокопрочную рамную конструкцию. Тем не менее именно благодаря такой технической особенности, электрическая бетономешалка может эксплуатироваться максимально продолжительное время.
Вибрационный вариант
При наличии перфоратора с показателями мощности 1,0–1,3 кВт и ударного принудительного механизма, вполне можно выполнить самодельную вибрационную бетоносмесительную машину.
В данной конструкции нужно учесть, что расстояние до донной части должно соответствовать радиусу агрегата
При изготовлении такой конструкции необходимо помнить, что используемый резервуар должен быть круглым и высоким, не очень широким, располагающимся на оси. Стандартное расстояние до донной части должно соответствовать радиусу агрегата. Категорически нельзя использовать любые плоские ёмкости, изготовленные из листового металла. В таком резервуаре отсутствует необходимое для смешивания раствора возбуждение волн. Оптимальным вариантом является использование пары металлических тарелок, сложенных вместе, а диаметр вибратора должен быть четверть метра на каждые 1,3 кВт мощности.
Современный бочковый вариант
Интересная с точки зрения технических характеристик конструкция, которая легко может быть выполнена в соответствии с расположенными ниже пошаговыми иллюстрациями. Необходимо подготовить двухсотлитровую бочку, электрический двигатель на 250 Вт и 1430 оборотов, а также колесо от обычного мотоцикла, два ремня и парочку сваренных друг с другом колец. Шкив надёжно приваривается к донной части резервуара. Рамная конструкция изготавливается на основе швеллера и прочной металлической трубы.
Фотогалерея: изготовление бетономешалки из обычной бочки
Видео: самодельная бетономешалка в работе
Видео: изготовление бетономесильного агрегата из бочки
Таким образом, стандартная готовая конструкция изготовленного самостоятельно строительного миксера представлена стационарной или передвижной станиной, замешивающими рабочими элементами, резервуаром для непосредственного процесса смешивания и разгрузочным механизмом. Также к важным частям конструкции относятся трансмиссия и бензиновый или электрический движущий агрегат.
Выполнить самостоятельно эффективный бетоносмесительный агрегат совсем несложно, но следует помнить, что расстояние от шестерней до шкивов должно быть максимально грамотно выверено ещё до выполнения монтажных работ. Невозможность подключения к бетономешалке заземляющего контракта нивелируется электрификацией устройства посредством стандартного УЗО, а все движущиеся внутренние части должны в обязательном порядке оснащаться защитными кожухами. Стартовый запуск бетоносмесительной машины осуществляется в холостом режиме, но приготовление первого бетонного раствора не должно составлять загрузку устройства на полный объём.
Оцените статью: Поделитесь с друзьями!stanok.guru
виды бетоносмесителей, тонкости сборки самодельных агрегатов
Для благоустройства дачного участка часто нужны цементный раствор или бетон. Мастера становятся перед выбором — месить вручную (а это тяжело и неэффективно, поскольку раствор быстро застывает) или приобретать промышленную бетономешалку, что неоправданно при нерегулярных работах. Поэтому многие дачники предпочитают сделать бетономешалку своими руками, так как это несложно и целесообразно.
Принципы смешивания бетона
Всего существуют несколько вариантов замешивания строительного раствора в бетоносмесителе. А именно:
- Гравитационный способ.
- Принудительно-механический.
- Принудительно-вибрационный.
- Комбинированный гравитационно-механический.

Самый простой способ приготовления бетонного раствора — это перемешивание лопатой в неподвижном корыте. Самый неоправданный и некачественный способ. Мало того, что раствор сам по себе быстро застывает, так еще проблематично перемешать смесь до однородной массы.
Иногда мастера размешивают раствор дрелью с насадкой миксера в ведре. Этот вариант несколько лучше, но имеет свои очень серьезные недостатки. В первую очередь, дрель не рассчитана на продолжительную беспрерывную работу, со всеми вытекающими последствиями. Кроме того, технология такого вида замешивания требует постоянного вращения и перемещения инструмента в смеси. Это ненадежно, сложно и утомительно.
Гравитационное перемешивание
При гравитационном способе бадья с раствором расшатывается или переваливается, а раствор сам себя перемешивает. То есть, компоненты самостоятельно перемещаются в ёмкости под воздействием силы тяжести. Качество готовой продукции не очень хорошее и большого объема трудно достичь. Тем не менее многие мастера в бытовых условиях этот вариант смешивания применяют.
Достоинством этого вида смешивания является простота конструкции бетономешалки. Поэтому устройства такого типа часто создаются в гаражах, дачах и на мелких предприятиях.
Принудительно-механический
Принудительно-механический способ является самым простым и распространенным. Его отличительная черта — это неподвижно стоящая ёмкость. Компоненты чаще всего замешиваются механическим приводом в барабане. Барабан может иметь горизонтальное или вертикальное расположение. Суть этого способа наглядно раскрывается на примере использования дрели в ведре.
При ограниченных объемах этот способ может быть оправданным, но имеет свои особенности:
- Возле стен ёмкости в большинстве случаев проявляются необработанные зоны.
- Раствор может быть агрессивным, поэтому взаимодействующие со смесью узлы прибора должны быть герметично спрятаны. Это усложняет конструкцию и требует дополнительного внимания.
- Если наполнитель раствора средне- и крупнозернистый, то по данной методике сложно перемешать компоненты.
Комбинированный вид смешивания
Многие сделанные самодельные бетономешалки своими руками используют комбинированный способ. Он одновременно объединяет в себе предыдущие два способа и имеет ряд преимуществ:
- Нет необходимости в плотной герметизации узлов вращения, поскольку нет контакта с раствором. Барабан сверху не закрыт.
- Детали конструкций этого типа служат дольше, поскольку механизм надежен и прост.
- Состав компонента может быть любым, вплоть до гравия, щебенки, керамзита и так далее.
Вибрационный способ
В последнее время набирает популярность вибрационный способ приготовления бетона. Этот метод позволяет качественно перемешивать большие объемы смеси и его применяют в случаях, когда надо изготовить железобетонную деталь с отличными и точными эксплуатационными параметрами.
В принципе, вибрационное смешивание может практически идеально перемешать компоненты. Единственное ограничение — это приготовление «тяжелого» раствора. Для использования этого вида перемешивания, требуются значительные энергозатраты. Примерно на двадцать литров смеси нужна мощность вибратора в 1,3 киловатта. В бытовых условиях вместо привода и редуктора используют очень мощный перфоратор. Прижимать патрон нет необходимости, а вибрации должны быть независимыми.
Чертежи и конструкции бетономешалок
Перед началом сборки нужно подготовить рабочий инструмент, определиться с материалами и подготовить емкость необходимого объема. Не рекомендуется подбирать маленькую тару, поскольку в ней раствор может застыть раньше необходимого времени, а если приготовленной смеси окажется недостаточно, то весь процесс придется повторить сначала. Оптимальный объем ёмкости — это двести литров.
Общим требованием является прочность, надежность и устойчивость конструкции. Необходимо максимально ответственно изготавливать подобные сооружения, так как малейший просчет или неаккуратность приведет к поломке или даже к травмам работника.
Простейшая бетономешалка из бидона
В случае экономии электричества и времени можно собрать ручную бетономешалку из обычного молочного бидона. Весь процесс сборки занимает несколько часов и самый ответственный момент — это сварка рамы. Немного терпения — и простое гравитационное бетоносмесительное оборудование готово.
Для изготовления этой бетономешалки потребуется, собственно бидон или другая похожая ёмкость, несколько труб или толстых прутьев.
Несмотря на простоту конструкции, в бидоне можно перемешивать даже сухой концентрат для стяжки. Ось внутри бидона рассекает смесь при вращении.
Порядок действий:
На трубе-заготовке выгибается ручка. Водопроводные муфты привариваются в верхней части. Внутренний диаметр муфт должен быть больше, чем диаметр или поперечное сечение ручки. Чтобы избежать сильного люфта на ручку с обеих сторон от муфты можно приварить гайки.- В бидоне проделываются отверстия, через которые пропускается труба и приваривается к корпусу. Часто корпусы бидонов изготовлены из алюминия, а ручки стальные. Соединить их можно только при помощи холодной сварки. В крайнем случае можно приварить уголки к ручке обычной сваркой. А уголки, в свою очередь, приклепать или закрепить с помощью болтов к поверхности ёмкости.
- Желательно определить центр тяжести. Тогда будет легче вращать барабан со смесью. Для определения центра тяжести тару размещают на ребре какого-нибудь предмета и смещают влево вправо.

Муфту можно не использовать, тем самым еще больше упростив конструкцию. Вместо муфт можно вырезать дугообразные углубления и разместить ось в них. Вращение будет неравномерным и со скрипом, но замесит неплохо. За один цикл работы в сорокалитровом бидоне получают около трёх ведер раствора. Иногда вместо бидона используют бочку. При этом возникает проблема как фиксировать крышку. Этот вопрос оригинально решается, если ручки прикрепить к бочке без крышки на разных уровнях. Один конец ручки около днища, другой — около верха. В итоге ёмкость размещается под тупым углом по отношению к поверхности земли и раствор не выливается при вращении. Но качество замеса при таком способе страдает.
Бетономешалка из бочки
Самодельная бетономешалка своими руками из бочки способна заменить заводскую модель и смешать равномерную хорошую смесь. Все материалы, необходимые для сборки, можно найти в гараже или дачном участке. Агрегат может быть как с ручным приводом, так и механическим.
Перечень необходимых деталей для сборки:
Бочка или другая, похожая по форме тара. Идеальный вариант — это стандартная двухсотлитровая бочка для транспортировки нефтепродуктов или горючего.- Труба с диаметром тридцать два миллиметра и толстыми стенками. Это будущие втулки для вала, поэтому требуется две детали сантиметров по двадцать. При электрическом варианте бетономешалки потребуются электродвигатель, подшипники и привод.
- Металлический прут для оси. Ось должна достаточно плотно входить во втулки, соответственно диаметр оси должен быть около трёх сантиметров. Длина оси равна полутора метрам. Ось смазывается солидолом для плавного вращения.
- Шестидесятимиллиметровый швеллер. Необходимо два метровых отрезка — это опорные элементы будущей станины. Распоркой для основных упоров служат два прута по пятьдесят сантиметров. Сваренные вместе, они придают устойчивость и прочность всему агрегату.
- Руль от любой машины. Чем больше руль, тем легче проворачивать весь механизм.
- Посредине бадьи располагается люк, через который происходит засыпка сухих компонентов. Его лучше всего закрепить на петлях, способные выдержать значительные нагрузки. К люку удобно присоединить ручку для удобства закрытия и открытия. Ручка может быть какой угодно.
- Металлический квадрат с размером стороны двадцать сантиметров. Он будет размещен внутри тары.

Из инструментов нужны болгарка, чтобы разрезать метал, и сварочный аппарат для прочного соединения деталей.
После подготовительных работ вопрос как сделать своими руками бетономешалку, уже не вопрос.
Сначала центруется бочка и сажается на ось. Затем конструируются внутренние элементы, которые будут помогать перемешивать бетон.
При помощи дрели или сварочного прибора в вверху и внизу бочки просверливаются два отверстия. Через них протягивается металлическая ось диаметром тридцать миллиметров, и эта конструкция плотно сваривается. Таким образом, вал и бадья надежно прикреплены друг к другу.
В центре бочки вдоль длинного края вырезается прямоугольник. Он будет люком для засыпки компонентов раствора. Ориентировочные размеры люка составляют примерно девяносто на тридцать сантиметров. В случае маленького люка им будет неудобно пользоваться. А если его сделать слишком большим, то прочность конструкции снизится.
Из металлического квадрата конструируют лопасти и крепят в бочке. Одна сторона приваривается к стенке, а другая — к оси. Для хорошего перемешивания хватает четыре или пять лопастей, равномерно расположенных внутри бочки.
Прямоугольник, полученный от вырезания люка, приваривается к петлям, которые крепятся к бочке. В результате должен получиться закрываемый люк. После чего к крышке люка присоединяют защелку или фиксатор. Главной задачей крышки является не раскрыться во время работы устройства.

Затем сваривается рама. К длинному швеллеру приваривается второй длиною пятьдесят миллиметров. То же самое делается и со второй опорой.
К другому краю швеллера приваривается труба, в которую будет вставляться ось бетономешалки.
Затем когда металлическая ось заходит во втулки, с обоих концов привариваются стопорные кольца. Их роль выполняют толстые шайбы из металла.
После чего приваривается руль к одному из краёв оси.
Если собирается электрическая модель, то необходимо собрать и подключить соответствующий узел, состоящий из мотора и приводной системы.
Хитрости эксплуатации самодельных устройств
По принципу действия самодельные бетономешалки похожи на промышленные образцы и выполняют те же функции. Но для получения комфорта домашние устройства надо немного по-другому эксплуатировать.
Советы при работе:
Втулки надо регулярно смазывать солидолом. Это существенно уменьшит силу трения и вращать рукоятку сможет любой неподготовленный человек. Кроме того, если забывать смазывать, то оси очень быстро стираются.- Если к распоркам станины приварить по одному колесу от стиральной машины или ненужной садовой тачки, то получится легко перемещаемая конструкция.
- Чем сильнее угол наклона, тем проще управляться с оборудованием. Максимальный угол наклона — сорок пять градусов. Если угол будет превышать это значение, то смесь будет смешиваться неравномерно.
- Если есть необходимость собрать электрическую бетономешалку, то электродвигатель можно использовать от стиральной машины с числом передачи один к восьми. А вместо руля подойдет маховик.
- Если бочка долго не используется, то её поверхность надо смазать отработанной смесью. В этом случае агрегат прослужит намного дольше.
При сборке и эксплуатации самодельных конструкций нельзя забывать про соблюдение техники безопасности. Это касается правил работы с электроинструментом и обычным инвентарём. Выполнение привычных несложных инструкций предотвратит неприятные ситуации и позволит избежать травмирование.
tokar.guru
Самодельная бетономешалка своими руками чертежи
Индивидуальное домохозяйство в частном секторе всегда перманентно – постоянно возникают новые задачи и проблемы, требующие не только смекалки, но и использования средств механизации. К таким средствам относится бетоносмеситель, который рачительный хозяин постарается не приобрести, а изготовить своими силами. Не все домашние мастера знают, как сделать бетономешалку своими руками, и инновационные решения этой задачи порождают много оригинальных и необычных решений. Чаще всего самодельные бетономешалки используют принцип принудительного механического замешивания. Это означает, что раствор в емкости перемешивается и гравитационным способом (переваливанием при вращении), и лопастями, закрепленными в резервуаре.
Типы самодельных бетономешалок
Все самостоятельно сконструированные бетоносмесители можно классифицировать и разделить на механические, электрические и автономные агрегаты. Также разделение конструкций проводится и по типу привода, и по типу выгрузки раствора. Самый простой чертеж бетономешалки включает в себя резервуар для раствора, раму, не которой он крепится, и механизм вращения емкости.
Чертеж бетономешалкиЛюбая самодельная бетономешалка своими руками имеет в составе конструкции редуктор. Он может быть реализован любым путем – ременной передачей, шестеренчатой или цепной системой, трансмиссией без ремней (контактный привод): главное условия для редуктора – обеспечить медленное вращение резервуара, около 25-40 оборотов в минуту. В движение барабан устройства может приводиться руками, электродвигателем или бензиновым (дизельным) двигателем. Также бетономешалки могут иметь стационарное или мобильное исполнение – это зависит от фантазии изобретателя и строительной необходимости.
Выгрузка раствора организуется по-разному. Это может быть резервуар без крышки с выгрузкой бетона через край бадьи простым наклоном бетономешалки, если ось вращения проходит в вертикальной плоскости. Также емкость может быть закреплена горизонтально, и тогда бетон выгружается через срезанный верхний край бочки (бадьи). Для этого бадью нужно тоже просто наклонить, что обеспечивается конструкцией агрегата.
При вертикально расположенном резервуаре необходимость в люке отпадает – раствор выгружается опрокидыванием в подставленную емкость. Преимущество конструкции без люка в том, что не требуется герметизировать крышку, а значит, не нужно усложнять устройство. Загружать вертикальный резервуар можно на 60-70%, в то время как наклонную или горизонтальную емкость – на 30-50%, чтобы жидкий раствор не разбрызгивался.
Любую самодельную бетономешалку нет смысла делать больше, чем на 1 куб – вес бетона при объеме раствора 1м3 будет около 1,6 тонны, что сильно затруднит и перемешивание, и выгрузку раствора. Самая распространенная конструкция – бетономешалка из стиральной машины или из металлической 200-литровой бочки для ГСМ.

Следующая конструктивная особенность бетоносмесителя, изготовленного в домашних условиях – конструкция узла перемешивания. Она может быть разной: лопасти привариваются к дну резервуара, если барабан вращается во вертикали; лопасти крепятся к стенкам вращающейся емкости, и при этом емкость может вращаться как в вертикальной, так и в горизонтальной плоскости; лопасти вращаются горизонтально или вертикально в неподвижно закрепленном резервуаре. Чтобы выбрать подходящую конструкцию, следует тщательно изучить чертежи разных бетономешалок, сопоставить их со своими возможностями и наличием деталей.
Вертикальная бетона мешалка
Ручная бетономешалка
Механический ручной привод вращения бетоносмесителя, сделанный из подручных деталей и узлов – самое простое конструкторское решение, и в его основе лежит принцип коловорота – резервуар вращается при помощи изогнутой ручки, как на любом колодце. Такая самодельная бетономешалка требует приложения значительных усилий, поэтому емкость делается небольшого объема, что уменьшает производительность агрегата. Преимущество конструкции – простота и экономичность изготовления, автономность и возможная мобильность. Недостатки – маленький объем резервуара и ручной труд.

Электрический бетоносмеситель
Бетономешалка с электрическим приводом распространена среди домашних мастеров более широко, так как значительно облегчает ручной труд – достаточно загрузить компоненты раствора в емкость в правильной пропорции, а электропривод перемешает смесь за считанные минуты. Выгрузка бетона в бетономешалке в любых конструкциях обычно происходит вываливанием смеси в корыто, остатки вычищаются лопатой. Выгрузку не автоматизируют в силу небольшого приготавливаемого объема бетонного раствора.

Самая простая конструкция редуктора с электроприводом – на шкивах. Шкивы можно взять от любого автомобиля или старой стиральной машинки – главное, подобрать нужное количество и пропорции передач, чтобы обеспечить медленное вращение барабана. Часто в силу недоступности деталей передачу вращения на барабан делают из комбинации шкивов, цепной или ременной передачи, и т.д. Преимущества электрической бытовой бетономешалки очевидны: минимум ручного труда, высокая скорость приготовления раствора, надежность, экологичность и экономия трудозатрат. Недостаток один – необходимо наличие электричества на стройплощадке.
Мощность электродвигателя рассчитывается по-разному: для наклонной или вертикальной бетономешалки – 0,2 кВт на 1 литр раствора, для горизонтального резервуара – 0,15 кВт на 1 л.

Бензиновый двигатель в бетономешалке
Бетономешалка с приводом от ДВС или дизельного маломощного двигателя имеет преимущество только в том, что для ее работы не нужно подводить электричество. Чаще всего такая самодельная бетономешалка принудительного действия конструируется мобильной – на колесиках. Привод на барабан делается любой, а сама емкость может изготавливаться довольно большого объема, так как мощность любого, даже маломощного двигателя, будет достаточной для качественного замешивания раствора в резервуаре объемом в 1 куб или больше.

Передача вращения на первый шкив трансмиссии должна быть цепной, так как на выходе ДВС установлена зубчатая шестеренка. Такая конструкция удобна тем, что ремонт своими руками можно провести для всех без исключения узлов и деталей, не обращаясь в различные сервисы и мастерские.
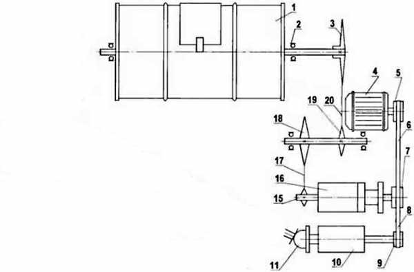
Бетономешалка из стиральной машины
Изготовить самодельную бетономешалку проще всего из барабана и других деталей стиральной машинки, так как в емкости для стирки уже предусмотрено крепление шкива. Останется только сделать свой каркас и закрепить на нам двигатель для перемешивания раствора. Преимущества самодельной бетономешалки в том, что пропорции и состав раствора могут быть любыми – с песком, мелким гравием, наполнителями или керамзитом. Структурная схема такого бетоносмесителя приведена ниже:
Схема бетономешалки
Электродвигатель, шкив, резервуар, ремень – все это берется от стиральной машинки. Остается только самому сделать люк для выгрузки раствора, и металлическую раму, на которой будет устанавливаться бетономешалка. Чтобы понизить соотношение оборотов двигателя и барабана, используется система из нескольких шкивов, диаметр которых подбирается индивидуально, в зависимости от оборотов электродвигателя.
Внутри резервуара (а он сделан из нержавеющей стали) крепятся лопасти для перемешивания смеси. Так как стенки нержавеющей емкости довольно тонкие (около 1,5 мм), то при помощи сварки лопасти закрепить очень сложно – проще сделать все на болтовых соединениях. Сливное отверстие в резервуаре необходимо спилить и заглушить металлической заплаткой на болтах. Так как конструкция бетономешалки будет делаться с вращением всего барабана, то лопасти должны быть изогнутыми и крепиться по диагонали на длину двух третей резервуара. Лопасти обязательно должны крепиться строго симметрично относительно друг друга и оси барабана – от этого зависит разбалансировка и вибрация барабана при перемешивании раствора, а значит, и срок эксплуатации бетономешалки. Минимальный зазор между лопастями и стенками емкости, особенно по углам, обеспечит отсутствие «мертвых зон», где раствор не перемешивается.
Люк для выгрузки раствора при вращающемся барабане можно не делать, а выгружаться раствор будет через верхнюю часть емкости. Для этого необходимо предусмотреть опрокидывание бетономешалки шарнирным поворотом на раме. Емкость для выгруженного раствора должна быть немного больше объема резервуара бетономешалки.
Чтобы раствор меньше разбрызгивался, а также с целью увеличить объем приготавливаемого раствора, на нержавеющий резервуар можно наварить грушевидную металлическую насадку, сужающуюся к концу емкости.
Самое надежное изготовление рамы – из металлического уголка со стороной 45 мм. Раму можно изготовить при помощи сварки, или стянуть на болтах. Деревянный каркас будет разбухать от воды, рассыхаться и деформироваться в процессе эксплуатации, поэтому такая конструкция применяется очень редко. Бетономешалка из стиральной машины имеет небольшую емкость, но для частного хозяйства в большинстве случаев не нужно много бетонного раствора сразу. К тому же, такая бетономешалка обойдется почти бесплатно, за исключением нескольких деталей, которых может не оказаться под рукой.
Техника безопасности
- Постоянная вибрация при работе бетономешалки создает опасность ослабления болтовых соединений, поэтому перед каждым использованием бетоносмесителя проверяйте все места креплений и сварных швов.
- Перед включением бетономешалки проверьте ее устойчивость и надежность установки на грунте.
- Не оставляйте работающий агрегат без присмотра.
- Пользуйтесь средствами защиты – очками, рукавицами, одевайте плотную рабочую одежду.
- Не проверяйте готовность раствора при работающей бетономешалке!
Главные преимущества самодельной бетономешалки – дешевизна и экономичность, доступность деталей для ремонта и обслуживания, а в некоторых вариантах конструкции – мобильность и автономность работы.
okbeton.ru
Бетономешалка своими руками — принудительная и ручная
Когда планируются масштабные строительные работы, не последний вопрос, который надо решить, где взять растворосмеситель – если перемешивать раствор вручную, то потерянное время никак не компенсирует экономию от отказа купить бетоносмеситель. Уменьшить затраты поможет некоторый навык сварочных и слесарных работ и инструкция, как сделать бетономешалку своими руками.

Основные принципы работы растворосмесителей
По принципу действия бетономешалка, сделанная своими руками нечем не отличается от промышленных аналогов – различия будут только в используемых материалах и размерах. Вдобавок, ремонт бетономешалки своими руками будет выполнять проще, так как самостоятельно сделанный механизм знаешь от и до.
Исходя из объема планируемых работ и имеющихся в наличии комплектующих, готовое устройство может перемешивать бетон в бетономешалке принудительным способом, гравитационным или комбинированным. Последний используется чаще всего благодаря простоте изготовления устройства и высокому качеству его работы.
Принудительное перемешивание раствора
По такому принципу действует строительный миксер или дрель со специальной насадкой – в раствор опускается венчик и вращаясь перемешивает его компоненты. Но подходят такие инструменты больше для гипсовых штукатурок – песок и цемент, особенно с добавление щебня, имеют гораздо больший вес, поэтому в лучшем случае просто не получится качественной смеси, а в худшем – делая раствор можно самому сжечь двигатель дрели или ее редуктор.
Для приготовления бетона используется несколько видоизмененная конструкция – через центр емкости проходит вал, на который насажены лопасти, перемешивающие компоненты смеси. Также хорошие результаты показывают рамочные смесители, которые разбивают комья раствора, превращая его в однородную смесь. Некоторые строители убеждены, что только такая мешалка для арболита сможет качественно приготовить арболитовый раствор.

Преимущества и недостатки
Этот способ показывает отличные результаты на производстве, но перед тем, как использовать его в домашних условиях, следует взвесить плюсы и минусы конструкции.
Преимущество есть только одно – такой бетоносмеситель выдаст максимально однородный раствор за минимальное время.
Недостатков у такого устройства гораздо больше:
- Сложность конструкции. Надо обеспечить герметичность места, где вал проходит через емкость для замешивания. От этого зависит, как часто понадобится замена подшипника, который обычно устанавливается в этом месте. Также надо уменьшать «мертвые зоны», которые находятся возле стенок емкости – лопасти или рама должны свободно вращаться, но при этом проходить достаточно близко от поверхности, чтобы не оставлять там не перемешанные части раствора.
- Нужны качественные детали. Бетонный раствор достаточно тяжелый сам по себе, а добавление в него щебня или других включений требует от бетоносмесителя дополнительных мощностей. Как итог, чтобы получилась хорошая бетономешалка, нужно вспоминать или осваивать основы сопромата.
- Конструкция не рассчитана на приготовление раствора включающего средние и крупные фракции щебня или керамзита – они попросту будут застревать между лопастями и стенками.
- Большой расход электроэнергии. Опять же все завязано на плотность и вес бетона, в котором будут вращаться лопасти. По этой же причине самодельная бетономешалка принудительного действия обязательно должна быть с двигателем – если пытаться вращать вал вручную, то с тем же успехом можно использовать лопаты.
Если качество раствора и скорость его замеса важнее, то принудительная бетономешалка своими руками может быть сделана по следующим схемам.

Детали и устройство
Конструкция состоит из таких составляющих:
- Несущая станина. Ее исполнение в каждом случае индивидуально.
- Барабан для замеса, с гладкими внутренними стенками.
- Рабочий вал. На него крепятся рамы или лопатки, перемешивающие раствор.
- Электродвигатель.
- Понижающий редуктор.
- Муфта. Передает усилие с редуктора на вал. Может выполнять роль предохранителя при заклинивании.
- Люк для высыпания готового раствора.
- Рычаг для открытия люка (или поворота барабана).
Бетономешалки принудительного действия, собранные своими руками требуют особенного внимания к способу, которым будет проводиться выгрузка приготовленного раствора. Это лючок в дне емкости для перемешивания или приспособление для ее полного переворачивания, чтобы готовая смесь высыпалась через отделение для загрузки. Какой из методов подойдет больше, желательно решить заранее.
Наглядно принудительная бетономешалка на видео:
Гравитационное перемешивание
При использовании этого способа крутится сама емкость в которую засыпаны компоненты раствора. Перемешивание происходит благодаря постоянному пересыпанию песка и цемента сверху вниз. Самое сложно в этой конструкции – обеспечить герметичное закрывание крышки, чтобы через нее не просачивалась вода.
Самое главное преимущество конструкции – ее простота. Такая растворомешалка своими руками может быть сделана из обыкновенного бидона, подойдет даже ненужный и прохудившийся. Воду из него не пить, поэтому дырку можно заделывать любыми способами, а горловина портится редко и необходимую герметичность все равно обеспечивает.

Применяться такие устройства могут и при строительстве в тех местах, где нет электричества – такая самодельная бетономешалка, сделанная своими руками не обязательно должна комплектоваться электроприводом, хотя его наличие значительно упростит работу.
Работающей по тому же принципу, но более распространенной является самодельная бетономешалка из бочки. Для нее проще найти емкость, она вместительнее и перемешивание раствора позволяет выполнять тщательнее. Как показала практика, лучше перемешивается раствор в бочке, закрепленной в противоположных углах.

Детали и устройство
Комплектующие используются следующие:
- Железная бочка подходящих размеров. Некоторые умельцы приспосабливают для этих целей и пластиковые емкости.
- Рама. Тут ограничений нет – полный простор для фантазии. Главное, чтобы свой готовый раствор было удобно высыпать.
- Вал, на котором держится емкость, способный выдержать вес бочки с цементом.
- Подшипники.
- Ручка. Чем она длиннее, тем легче вращать вал.
- Рукоять.
- Крышка для слива готового раствора.
- Фиксаторы, прижимающие крышку к горловине.
- Уплотнители.
- Петли для открывания крышки.
Как работает бетономешалка из бочки, сделанная своими руками, наглядно на следующем видео:
Комбинированные бетономешалки
Наиболее распространенные устройства – раствор перемешивают за счет гравитационного воздействия, плюс, разбивание комьев лопастями или штырями, приваренными к корпусу бочки. Подходит для приготовления арболита своими руками. Требуют больше времени для приготовления раствора, чем принудительные смесители, но обладают обширным перечнем преимуществ:
- Конструкция максимально простая, надежная и неприхотливая в эксплуатации.
- На вал, вращающий бочку, создается меньшее усилие, что позволяет использовать не такие мощные электродвигатели, как для принудительного перемешивания. Как итог – значительно меньший износ комплектующих.
- Не требуется герметизировать никаких стыков – раствор перемешивается внутри бочки, а все узлы механизма находятся снаружи.
- Есть возможность замешивать растворы с любыми размерами фракций щебня, керамзита и прочих наполнителей.
Простейшая комбинированная ручная бетономешалка сделанная своими руками из железной бочки – это тот же ручной бетоносмеситель, но с наваренными изнутри лопастями или гребенками. При необходимости к ней можно присоединить электродвигатель.

Самостоятельное изготовление
Заводская бетономешалка или сделанная своими руками состоит из трех основных компонентов: бадья, в которой перемешивается раствор, рама для крепления компонентов и привод – ручной или электрический (в некоторых случаях используются двигатели от мопеда или скутера).
На видео самодельная бадья для комбинированного смешивания раствора установлена на трактор Т-16:
Бадья для раствора
Во-первых, надо обдумать ее размер, учитывая что загружаться она будет на 30-40%. Больше нельзя, так как раствор будет выплескиваться и плохо перемешиваться.
Во-вторых, внимание надо обратить на форму – она должна быть грушевидной. Сверху, чтобы не выплескивалась вода и раствор, снизу – чтобы частицы бетона не забивались в углы между стенкой и дном.
Почти готовая бадья это пластиковая бочка нужных размеров – кроме того, что она подходит по форме, дополнительным плюсом будет ее вес.

Как вариант, может быть сделана бетономешалка из стиральной машины – если на чердаке завалялась старая советская круглая «стиралка», то с нее снимается бак для белья, который специально создан, чтобы внутри него крутилась жидкость. Дно усиливается, верх сужается и бак готов.
Если ничего подходящего нет, то грушу для бетономешалки можно сделать из стального листа, сечением 2-3 мм. Для днища следует взять металл потолще – порядка 5 мм – на него будет идти основная нагрузка от привода.
При диаметре 500 мм и высоте 400 получается компактная бадья, в которой, тем не менее, можно за раз приготовить 30 литров раствора.
Подробнее про конструкцию расскажут следующие чертежи:

Качественно сделать грушу для бетоносмесителя можно и не используя лопасти. На показанной схеме вместо них внутрь емкости наварены рассекатели раствора из 16 мм арматурного прута, которые дополнительно укрепляют конструкцию. Такая конструкция это отличная мешалка для арболита.
Крепление к валу происходит через ступицу от автомобильного колеса, которая приваривается или прикручивается ко дну. Если автомобильных запчастей в гараже не завалялось, то крепеж придется изготавливать вручную по чертежу.
Несущая рама
В ее конструкции могут быть самые различные вариации – здесь полная свобода действий, главное правило ее изготовления, чтобы она надежно удерживала все комплектующие и давала свободный доступ для загрузки-выгрузки бетона.
Основные различия инженерной мысли заключаются в способе выливания готового раствора, для чего делают подвижной саму бадью, либо конструируют определенным образом всю раму.

Для бадьи, изготовленной из стального листа, оптимальной будет рама, обеспечивающая ее наклон. Сама емкость присоединяется к приводу редуктора (15), на который усилие через муфту (16) приходит от двигателя (17).
Все это крепится на подрамнике (18) и поворачивается на шарнире (14). Для разных видов растворов рабочий наклон бадьи можно регулировать, для чего к подрамнику приваривается ушко (22) через которое проходит сектор (10), удерживаемый в нужном положении штырем (23).
Основных положений сектора нужно как минимум три:
Наклон 50% – для тяжелых растворов.
Наклон 30% – для легких смесей (например, штукатурных).
Горизонтальное положение чтобы промывать емкость.

Электродвигатель и редуктор
Редко эти детали покупаются отдельно – проще всего воспользоваться тем, что есть под рукой. Электродвигатель подойдет от стиральной машины, электрическая схема оттуда же, а редукторы собирают из велосипедных колес, ременных или цепных передач. Ближе всего к заводской конструкции это приваренный к днищу маховик, который крутится от «родного» бенедикса автомобильного стартера, насаженного на вал.
Все расчеты делаются отталкиваясь от следующих соображений:
- Мощность двигателя подбирается по соотношению 20 Ватт на литр раствора.
- Количество оборотов, что выдает редуктор для бадьи, должно находиться в пределах 30-50 за минуту. Меньшее количество увеличит время перемешивания, а большее будет разбрызгивать раствор или вообще вызовет центробежные силы, из-за которых перемешивание не будет происходить.

Коротко о главном
Ручная бетономешалка, собранная своими руками это вполне решаемая задача для человека, знающего как правильно работать со сварочным аппаратом и владеющего навыками слесарных работ.
Если будет делаться мешалка своими руками из бочки, то можно подобрать пластиковую емкость, которая уже полностью готова для монтажа.
При сборке надо помнить о мощности двигателя, оптимальном количестве оборотов и тщательной центровке механизма.
zamesbetona.ru
