Бытовки планировка: План бытовки (49 фото) — фото
какие есть и какую лучше выбрать?
Планировка бытовки: какие есть и какую лучше выбрать?Содержание
- Стандартная (пустышка)
- Распашонка
- Бытовка с тамбуром
Существует несколько наиболее распространенных вариантов планировки бытовок, каждый из которых решает определенные задачи, имеет свои преимущества и недостатки.В этой статье рассмотрим такие виды как: стандартная бытовка, распашонка и с тамбуром.
Стандартная (пустышка)
В этом варианте внутренние перегородки отсутствуют, почему строители ее и называют пустышкой. Конструктивно это одно большое помещение, предназначенное для разных целей: проживание, складские работы и прочие хозяйственные нужды. Полезная площадь до 13 м2.
Это наиболее оптимальный вариант для проживания рабочих, если объект удален от жилой местности. Такая бытовка спокойно размещает до 6 человек. Помещение может быть обшито утеплителем внутри снаружи.
Преимущество такой бытовки – максимальная полезная площадь и универсальность.
В отсутствие дополнительных перегородок, такая конструкция монтируется достаточно быстро и по требованию владельца не может быть дополнена разными элементами каркаса. Считается самым недорогим вариантом.
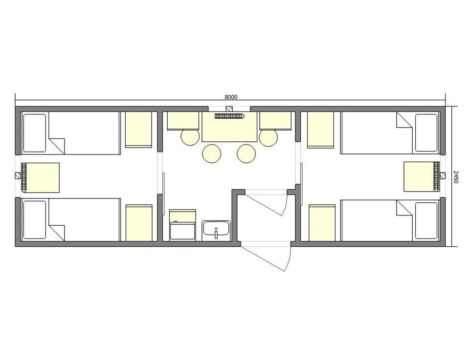
Распашонка
Бытовка распашонка выступает в качестве компактной, многофункциональной и универсальной конструкции. Применение таких бытовок возможно на дачном участке, стройплощадке или удаленном промышленном объекте. Внутреннее пространство разделяется перегородками на две отдельные комнаты. Коридор может использоваться в качестве раздевалки или небольшого склада. Две комнаты могут быть использоваться для проживания, рабочего места прораба или менеджера.
Для размещения рабочей силы или формирования офисного помещения бытовка изготавливается из металла с прочным сварным металлическим каркасом. Наружная обшивка – оцинкованный или покрытый полимером профлист. По всему периметру закладывается утеплитель (минеральная вата) и паро-гидроизоляция. Внутренняя часть бытовки распашонки обшивается любым доступным строительным материалом в зависимости от назначения помещения (ДВП, МДВ, ЛДСП, панели ПВХ).
Дачный вариант изготавливается из древесины. Основание каркаса обшивается деревом. Полозья обрабатываются специальным составом от гниения при контакте с землей. Чтобы придать прочность и устойчивость полу, производится настил обрезной доской.
Преимущество такого варианта бытовки – универсальность. Она может быть использована в любых целях: для строительства и проживания. Это самый оптимальный вариант для дачного участка: наличие душа и туалета позволяет назвать бытовку небольшим садовым домиком. Все необходимые помещения с такой бытовкой можно расположить под одной крышей.
Бытовка с тамбуром
Конструкция имеет большую комнату и тамбур, который блокирует холодный уличный воздух и задерживает грязь с улицы. В период похолодания такая бытовка – оптимальный вариант для проживания. Такая конструкция обогревается электрическими приборами, а тамбур – сохраняет тепло в помещении. Две двери препятствуют проникновению холодного воздуха, в результате чего снижается расход электроэнергии для обогрева.
В период тепла и дождей тамбур – надежная защита основной комнаты от грязи и пыли.
Достоинства такого вида планировки:
- Оптимальный вариант для использования в холодное время года.
- Тамбур может быть увеличен на всю ширину бытовки, что позволит организовать в нем раздевалку или дровник.
Виды бытовок, размеры и планировка дачных и строительных вагончиков
Бытовой называют универсальное мобильное сооружение, которое монтируется за считанные часы и имеет широкую область применения. В зависимости от желания владельца бытовка может служить летним домиком, складом, офисом, пунктом охраны и полноценным зимним жилым объектом. Блок-контейнеры могут представлять собой простое служебное сооружение или быть эстетически привлекательным комфортабельным жилищем со всеми удобствами – все зависит от желаний владельца.
Уникальность бытовок в том, что они имеют разные размеры и планировку. Несколько конструкций соединенных воедино представляют собой большое сооружение с множеством комнат, иногда в несколько этажей.
При этом мобильный объект не требует регистрации в государственный реестр, так как считается имуществом для временного проживания.
Бытовки по типу строения
Распашонка | Стандартная | С тамбуром |
Виды планировки бытовок
Планировка бытовки в зависимости от конструктивных особенностей может быть следующих модификаций.
- Стандартная конструкция состоит из одной большой комнаты, двери и окон. Строители такую бытовку называют «пустышка».
- Бытовка распашонка представляет собой два изолированных помещения, разделенных центральным коридором и двумя дверями.
- Бытовка с тамбуром – это отдельное большое помещение с открытым или закрытым тамбуром.
Блок контейнер, состоящий из нескольких изолированных секций, позволит разместить в одном сооружении комнату для отдыха, склад для инвентаря или создать зону для хозяйственных нужд. Это позволит людям со скромным семейным бюджетом прилично сэкономить на покупке нескольких конструкций.
Перед тем как приобретать или арендовать блок-контейнер нужно определиться с функциональной особенностью конструкции: областью применения, размером, планировкой. А также постоянно или временно будет использоваться сооружение. Проанализировав полученные результаты необходимо выбрать материал, из которого будет изготовлена бытовка (металлическая, деревянная, комбинированная). И только после этого оформлять покупку.
Габариты конструкции могут повлиять на комфорт нахождения людей внутри помещения. Например, металлический блок-контейнер 2,5 м в высоту отлично подойдет для пребывания в нем высоких мужчин, а 2 м создаст им некоторые неудобства. Длина контейнера – это наиболее значимый показатель, который может варьироваться от 2 до 10 м (стандартным считается 6 м). В зависимости от длины и ширины вагончика можно определить планировку всего сооружения. Исходя из планируемого срока пребывания (летом, зимой) следует выбрать материал, из которого изготовлен блок-контейнер. Дерево будет защищать в сильную жару, а металлическая обшивка спасать от холода и влаги в зимний период времени.
Виды строительных бытовок
Строительные бытовки могут выполнять различные функции: для отдыха рабочих, для складирования инструментов, для штаба, для работы прорабов. В зависимости от их назначения выбираются размеры, планировка и внутренняя отделка. Например, бытовка для отдыха сотрудников представляет собой металлическую конструкцию с простым, уютным интерьером. Прорабская бытовка требует оформления в деловом стиле с железной дверью и антивандальным покрытием стен.
Штабной вагончик представляет собой большое респектабельное сооружение из нескольких, иногда в несколько этажей, для свободной и слаженной работы всего персонала. Стоит учитывать, что строительные блок-контейнеры обязательно должны быть каркасного типа, так как часто перевозятся с объекта на объект. Стоимость строительной бытовки зависит, прежде всего, от размера и вида конструкции, внутренней и наружной отделки.
Характеристики стандартной бытовки
- Размер — 6м – длина; 2,4м – ширина; 2,5м – высота.

- Вес стандартной бытовки — 2,2 до 2,5 тонн.
- Каркас — металлический (профиль 100х50х3мм, гнутый угол 90х90х3 мм).
- Наружная отделка — оцинкованный или окрашенный профнастил С-8.
- Утепление — Isover, 50-100мм.
- Пароизоляция — техническая пленка.
- Черновой пол — необрезная доска хвойных пород 25мм.
- Внутренняя отделка стен, потолка — Оргалит, вагонка.
- Чистовой пол — Линолеум.
- Окно — 800х800мм.
- Размер — 6м – длина; 2,4м – ширина; 2,5м – высота.
Виды бытовок для дачи
Бытовки на дачном участке – это, прежде всего, сооружения для комфортного отдыха в летний период времени. Поэтому часто дачные домики изготавливают из дерева, которое имеет природную дышащую основу. Благодаря этому в жаркие летние дни в помещении прохладно.
Железные конструкции больше подходят для зимнего использования, ведь железо не пропускает влагу и холод. К тому же железную бытовку легко можно утеплить изнутри. Размеры бытовок выбираются индивидуально, с учетом функциональности сооружения.
Например, для создания в одной конструкции спальной комнаты, кухни и санузла – длина сооружения не должна быть меньше 5 м, а для простой комнаты отдыха подойдет и меньшая по площади бытовка.
Видео обзор бытовки
Предыдущая статья | Следующая статья
План дома в стиле каюты — 2 спальни 2 ванные комнаты 1200 кв. футов План #924-14
Получите персональную помощь
- Дом /
- Стиль /
- Кабина
Основные характеристики
1200
кв. футов
2
Кровати
2
Ванны
1
Полы 3 0
0
Выберите параметры набора планов Что включено?
Набор PDF — $1600.00 Набор из 5 копий — $1700.
00
Набор из 8 копий — $1800.00
Набор CAD — 2100,00 $Мгновенная загрузка после оформления заказа
Выберите параметры фундамента Crawlspace — +$0.00 Плита — +$0.00 Подвал — +$250.00
Выберите параметры кадрирования
| Правое чтение в обратном направлении | 150,00 $ | |
| Выберите этот вариант, чтобы изменить планы и сделать текст и размеры читаемыми. | ||
| Аудио Видео Дизайн | $100,00 | |
Получите накладной лист с рекомендуемым размещением аудио- и видеокомпонентов. | ||
| Полный список материалов | 450,00 $ | |
| Полный список строительных материалов, необходимых для строительства инфраструктуры вашего нового дома, а также наложение материалов, показанных непосредственно в вашем PDF-файле (от фундамента до крыши с внутренними и внешними материалами), а также подробный подробный перечень дверей и окон с указанием всех размеров и типы. Пожалуйста, подождите 5-7 рабочих дней для завершения. Обратите внимание, что полный список доступен только при покупке в формате PDF. Полный список можно упорядочить независимо от того, какие дополнительные параметры плана вы выбрали. | ||
| Руководство по строительству | 39,00 $ | |
Изучите основные идеи строительства с помощью этих четырех подробных схем, на которых обсуждаются электрические, сантехнические, механические и структурные темы. | ||
| 012345678910 | Зеркальные перевернутые наборы$100.00 Печатные наборы, в которых план отображается в обратном порядке, текст и размеры отображаются в обратном порядке. | |
| Гараж на 2 машины | 150,00 $ | |
| Добавляет дополнительный гаражный отсек | ||
Итого
$1600,00
Гарантия лучшей ценыИли заказать по телефону: 1-800-913-2350
Вау! Отчеты о стоимости строительства всего 4,99 доллара США с кодом CTBHOLIDAY (ограничение 1)
В этом отчете будут представлены оценки затрат на основе местоположения и строительных материалов.
Получить отчет о затратах на строительство
Получите персональную помощь
Пожалуйста, позвоните мне как можно скорее.
Когда вы хотите начать строительство? — Выберите -0-3 месяца3-6 месяцев6-12 месяцевБолее одного годаНеобходимо продать дом
У вас много? — Выберите -NoYesIn ProcessMultiple Lots
Вы работаете со строителем? — Выберите -NoYesOwner / Builder
Где вы планируете строить?
— Select Country -USACanadaEuropeOther- Select State -AlabamaAlaskaArizonaArkansasCaliforniaColoradoConnecticutDelawareDistrict of ColumbiaFloridaGeorgiaHawaiiIdahoIllinoisIndianaIowaKansasKentuckyLouisianaMaineMarylandMassachusettsMichiganMinnesotaMississippiMissouriMontanaNebraskaNevadaNew HampshireNew JerseyNew MexicoNew YorkNorth CarolinaNorth DakotaOhioOklahomaOregonPennsylvaniaRhode IslandSouth CarolinaSouth DakotaTennesseeTexasUtahVermontVirginiaWashingtonWest VirginiaWisconsinWyomingAmerican SamoaArmed Forces AmericasArmed Forces EMEAArmed Forces PacificFederated States of MicronesiaGuamMarshall IslandsNorthern Mariana IslandsPalauPuerto RicoVirgin IslandsAlbertaBritish ColumbiaManitobaNew BrunswickNewfoundland and LabradorNova ScotiaNorthwest TerritoriesNunavutOntarioPrince Edward IslandQuebecSaskatchewanYukonUnited States Minor Outlying IslandsOutside of США/Канада
Пришлите и мне свой информационный бюллетень!
Телефон: 1-800-913-2350
Время работы: Пн-Пт 8:30-8:30 (восточноевропейское время)
Видеть
Условия
и Политика конфиденциальности.
Спасибо за вопрос.
Мы свяжемся с вами в ближайшее время.
- Дом /
- Стиль /
- Кабина
Основные характеристики
1200
кв. футов
2
Кровати
2
Ванны
1
Этажи
0
Гаражи
Описание плана
Этот план можно изменить!
Расскажите нам о ваших желаемых изменениях, чтобы мы могли подготовить смету на услуги дизайна. Нажмите кнопку, чтобы отправить запрос на расценки, или позвоните по телефону 1-800-913-2350.
Изменить этот план
Планы этажей
План этажа — основной этаж
Реверс
Преимущество программы BUILDER
PRO BUILDERS:
Присоединяйтесь к клубу и сэкономьте 5% на первом заказе, а также эксклюзивные скидки и многое другое.
ПРИСОЕДИНЯЙТЕСЬ БЕСПЛАТНО
Нажмите, чтобы получить отчет о тенденциях
План этажа — Другой этаж
Реверс
Полные характеристики и функции
Основные особенности
Спальни: 2
Ван0003
Высота : 18 футов
Ширина : 43 фута 5 дюймов
Площадь
Общая площадь : 1200 кв.
футов
Основной этаж : 1200 кв. футов
5 Не включать гаражи, подъезды, бонусные комнаты или палубы.
Потолок
Нижний потолок: 12 ‘
Основной потолок: 9′
Верхний потолок FT: 16 ‘
ROOP
: 16′
ROOP
: 16 ‘
ROOP
: 16′
ROOP
: 16 ‘
4/12
Обрамление крыши: 2 «x10»
Вторичное шаг: 2/12
Внешняя стенка. Этаж Главная спальня
Раздельные спальни
Гардеробная
Дополнительные удобства
Кабинет в кабинете Компьютер
Большая гостиная
Прачечная на первом этаже
Storage Area
Lot Characteristics
Suited For Sloping Lot
Suited For View Lot
Outdoor Spaces
Covered Front Porch
Covered Rear Porch
Wrap Around Porch
More
Empty Nester
Подходит для загородного дома
Подходит для инвалидных колясок
Что входит в этот набор планов
См. пример набора планов
- Титульный лист
- План плитного фундамента
- План основания Crawlspace
- План сантехники
- Поэтажный план
- План строительства крыши
- План крыши
- Разделы
- Высоты
- Электрический план
- План ОВиК
- План мебели
- Расписание дверей и окон
- Детали конструкции
- Технические характеристики сантехники
- Электрические характеристики
- Механические характеристики
*Ознакомьтесь с важной информацией перед покупкой
Цены
Варианты плана
Набор PDF
Лучшая цена!1600,00 $
Наборы планов в формате PDF лучше всего подходят для быстрой электронной доставки и недорогой местной печати.
5 комплектов копий
1700,00 $
5 печатных наборов планов отправлены вам по почте.
8 наборов копий
$1800,00
8 комплектов печатных планов отправлены вам по почте.
Набор САПР
2100,00 $
Для использования профессиональными дизайнерами для внесения существенных изменений в план вашего дома и недорогой локальной печати.
Варианты фундамента
Подполье
0,00 $
Идеально подходит для полунаклонных или ровных участков, дом можно строить вне уклона, обычно 18–48 дюймов.
Плита
0,00 $
Идеально подходит для однослойного бетона, заливаемого прямо на ровную площадку.
Подвал
250,00 $
Идеально подходит для ровных участков, нижнего этажа дома, частично или полностью под землей.
*Подготовка платных вариантов может занять некоторое время. Пожалуйста, позвоните, чтобы подтвердить.
Варианты обрамления
Деревянный 2×6
0,00 $
Деревянный 2×6
*Подготовка платных вариантов может занять некоторое время. Пожалуйста, позвоните, чтобы подтвердить.
Дополнительные опции
Правое чтение в обратном порядке
150,00 $
Выберите этот вариант, чтобы перевернуть планы и сделать текст и размеры читаемыми.
Дизайн аудио-видео
100,00 $
Получите накладной лист с рекомендуемым размещением аудио- и видеокомпонентов.
Подробный список материалов
450,00 долларов США
Полный список строительных материалов, необходимых для строительства инфраструктуры вашего нового дома, а также наложение материалов, показанных непосредственно в вашем PDF-файле (от фундамента до крыши с внутренними и внешними материалами), и подробный, детализированный график дверей и окон, показывающий все размеры и типы. Пожалуйста, подождите 5-7 рабочих дней для завершения.
Обратите внимание, что полный список доступен только при покупке в формате PDF. Полный список можно упорядочить независимо от того, какие дополнительные параметры плана вы выбрали.
Руководство по строительству
$39,00
Ознакомьтесь с основными идеями строительства с помощью этих четырех подробных схем, на которых обсуждаются электрические, сантехнические, механические и структурные темы.
Зеркальные перевернутые наборы
$100,00
Зеркальный перевернутый набор — это печатная копия вашего дома, в результате чего получается такое же изображение, которое вы бы увидели, если бы поднесли рисунок к зеркалу. Все, включая текст, отстало от оригинального дизайна. Эти виды чертежей обычно используются для более выгодной переориентации исходного плана на участке либо потому, что домовладелец предпочитает такой способ, либо из-за ограничений самого участка. Примечание. Комплекты зеркального переворота доступны только с набором из 5 или 8 копий.
С набором Воспроизводимый, PDF или CAD вы можете печатать зеркальные копии локально. Кроме того: выбрано 5 наборов копий, следует разрешить выбор только 4 зеркальных наборов. Выбрано 8 наборов копий, должно быть разрешено выбирать только 7 зеркальных наборов.
Гараж на 2 машины
150,00 $
Добавляет дополнительное место в гараже
Если вы не купите «неограниченный» набор планов или лицензию на многократное использование, вы можете построить только один дом из набора планов. Пожалуйста, позвоните, чтобы подтвердить, если вы собираетесь строить более одного раза. Лицензии плана не подлежат передаче и не могут быть перепроданы.
План дома в стиле каюты — 1 Спальни 1 Ванная комната 384 кв.фута План #25-4565
Получите персональную помощь
- Дом /
- Стиль /
- Кабина
Основные характеристики
384
кв.
футов
1
Кровати
1
Ванны
1
Полы
Выберите параметры набора планов Что включено?
Набор из 5 копий — $567,00 Набор из 8 копий — $610,00 Набор PDF — $742.00 Воспроизводимый набор — $742,00 Набор САПР — $1378,00Мгновенная загрузка после оформления заказа
Выберите параметры фундамента Пирс — +$0.00
| Правое чтение в обратном направлении | 150,00 $ | |
| Выберите этот вариант, чтобы изменить планы и сделать текст и размеры читаемыми. | ||
| 012345678910 | Дополнительные строительные наборы$50. Дополнительные печатные копии плана (можно заказать во время покупки и в течение 90 дней с даты покупки). | |
| Аудио Видео Дизайн | 100,00 $ | |
| Получите накладной лист с рекомендуемым размещением аудио- и видеокомпонентов. | ||
| Руководство по строительству | $39,00 | |
Изучите основные идеи строительства с помощью этих четырех подробных схем, на которых обсуждаются электрические, сантехнические, механические и структурные темы. | ||
| Дизайн освещения | 100,00 $ | |
| Получите накладной лист с предполагаемым размещением осветительных приборов. | ||
| Список материалов | 95,00 $ | |
Таблица строительных материалов, необходимых для строительства инфраструктуры вашего нового дома. Обратите внимание, что списки материалов не будут отражать такие дополнения, как альтернативные варианты фундамента и каркаса. | ||
| Лицензия на неограниченное использование | 250,00 $ | |
| Позволяет строить этот дом столько раз, сколько вы хотите. | ||
Итого
$567,00
Гарантия лучшей ценыИли заказать по телефону: 1-800-913-2350
Вау! Стоимость создания отчетов всего $4,99 с кодом CTBHOLIDAY (Ограничение 1)
В этом отчете будет представлена смета расходов, основанная на местоположении и строительных материалах.
Получить отчет о затратах на строительство
Получите персональную помощь
Пожалуйста, позвоните мне как можно скорее.
Когда вы хотите начать строительство? — Выберите -0-3 месяца3-6 месяцев6-12 месяцевБолее одного годаНеобходимо продать дом
У вас много? — Выберите -NoYesIn ProcessMultiple Lots
Вы работаете со строителем? — Выберите -NoYesOwner/Builder
Где вы планируете строить?
— Select Country -USACanadaEuropeOther- Select State -AlabamaAlaskaArizonaArkansasCaliforniaColoradoConnecticutDelawareDistrict of ColumbiaFloridaGeorgiaHawaiiIdahoIllinoisIndianaIowaKansasKentuckyLouisianaMaineMarylandMassachusettsMichiganMinnesotaMississippiMissouriMontanaNebraskaNevadaNew HampshireNew JerseyNew MexicoNew YorkNorth CarolinaNorth DakotaOhioOklahomaOregonPennsylvaniaRhode IslandSouth CarolinaSouth DakotaTennesseeTexasUtahVermontVirginiaWashingtonWest VirginiaWisconsinWyomingAmerican SamoaArmed Forces AmericasArmed Forces EMEAArmed Forces PacificFederated States of MicronesiaGuamMarshall IslandsNorthern Mariana IslandsPalauPuerto RicoVirgin IslandsAlbertaBritish ColumbiaManitobaNew BrunswickNewfoundland and LabradorNova ScotiaNorthwest TerritoriesNunavutOntarioPrince Edward IslandQuebecSaskatchewanYukonUnited States Minor Outlying IslandsOutside of США/Канада
Пришлите и мне свой информационный бюллетень!
Телефон: 1-800-913-2350
Время работы: Пн-Пт 8:30-8:30 (восточноевропейское время)
Видеть
Условия
и Политика конфиденциальности.
Спасибо за вопрос.
Мы свяжемся с вами в ближайшее время.
- Дом /
- Стиль /
- Кабина
Основные характеристики
384
кв. футов
1
Кровати
1
Ванны
1
Этажи
0
Гаражи
Описание плана
Этот небольшой коттедж с передней верандой имеет ширину 24 фута и глубину 16 футов, а его жилая площадь составляет 384 квадратных фута. Коттедж имеет открытую площадку с центральным камином, которая включает в себя гостиную и кухню, а также спальню и ванную комнату.
Этот план можно настроить!
Расскажите нам о ваших желаемых изменениях, чтобы мы могли подготовить смету на услуги дизайна. Нажмите кнопку, чтобы отправить запрос на расценки, или позвоните по телефону 1-800-913-2350.
Изменить этот план
Планы этажей
План этажа — основной этаж
Реверс
BUILDER Advantage Program
PRO BUILDERS:
Вступайте в клуб и сэкономьте 5% на первом заказе, а также получите эксклюзивные скидки и многое другое.
ПРИСОЕДИНЯЙТЕСЬ БЕСПЛАТНО
Нажмите, чтобы получить отчет о тенденциях
Полные характеристики и характеристики
Основные характеристики
Bedrooms : 1
Baths : 1
Stories: 1
Garages: 0
Dimension
Depth : 16′
Height : 16′ 10″
Width : 24′
Area
Общая площадь: 384 кв. фт
Подвал: 0 кв. фут
Гараж: 0 кв. фут
Нижний этаж: 0 кв.
* Общая площадь в квадратных футах обычно включает только кондиционированные помещения и не включает гаражи, веранды, бонусные комнаты или террасы.
Поток
Основной потолок: 8 ‘
Крыша
Первичная высота: 6/12
РАРВЕР СТОРОНА: 0
.
Наружная отделка стен : Черепица
Каркас : Дерево — 2 x 6
Изоляция : R20
Что включено в этот набор планов
См.
пример набора планов
Обратите внимание, что в этом плане нет 90 Формат PDF или CAD для строительства в Квебеке или Онтарио.
- Внешние фасады:
- План фундамента: Различные изометрические виды с размерами, а также актуальная информация для построения фундамента.
- Планы этажей: Чертеж каждого этажа дома с указанием размеров комнат и расположения окон и лестниц.
- Вид в разрезе: Вертикальный разрез дома, показывающий структуру, изоляцию, типичную конфигурацию стен и другие детали.
- Четыре подробных внешних фасада, показывающие окончательный вид каждой стороны дома.
*Ознакомьтесь с важной информацией перед покупкой
Цены
Варианты плана
5 наборов копий
567,00 $
5 печатных наборов планов, отправленных вам по почте
8 наборов копий
610,00 $
8 печатных наборов планов отправлены вам по почте.
Набор PDF
Лучшая цена!742,00 $
Наборы планов в формате PDF лучше всего подходят для быстрой электронной доставки и недорогой местной печати.
Воспроизводимый набор
742,00 $
Для недорогой локальной печати/ внесения незначительных корректировок вручную. 1 печатный комплект, обычно на бумаге Bond.
Набор САПР
1378,00 $
Для использования профессиональными дизайнерами для внесения существенных изменений в план вашего дома и недорогой локальной печати.
Варианты фундамента
Пирс
0,00 $
Идеально подходит для участков, где дом должен стоять над землей. Фундамент пирса состоит из деревянных столбов или бетонных пирсов, соединенных балками для поддержки дома. На некоторых участках может потребоваться бурение глубоко в скале для поддержки столбов.
*Подготовка платных вариантов может занять некоторое время.
Пожалуйста, позвоните, чтобы подтвердить.
Дополнительные опции
Реверс справа
150,00 $
Выберите этот вариант, чтобы изменить планы и сделать текст и размеры читаемыми.
Дополнительные конструкторы
50,00 $
Дополнительные печатные копии плана (можно заказать во время покупки и в течение 90 дней с даты покупки).
Дизайн аудио-видео
100,00 $
Получите накладной лист с рекомендуемым размещением аудио- и видеокомпонентов.
Руководство по сборке
39,00 $
Узнайте об основных идеях строительства с помощью этих четырех подробных схем, на которых обсуждаются электрические, сантехнические, механические и структурные темы.
Дизайн освещения
$100,00
Получите накладной лист с рекомендуемым размещением осветительных приборов.
Список материалов
95,00 $
Таблица строительных материалов, необходимых для строительства инфраструктуры вашего нового дома.

00/каждый