Чертеж бочки бани – Баня бочка своими руками — как сделать +чертежи, схемы, фото

Баня бочка своими руками — как сделать +чертежи, схемы, фото
Постройка полноценного банного строения на используемом в летнее время дачном участке не всегда целесообразна, поскольку затраты на его изготовление достаточно велики. Иногда предпочтительнее воспользоваться бюджетным вариантом бани, изготавливаемой с нуля буквально в течение пары дней. При этом внешне такое строение может иметь вполне законченный и привлекательный вид (за счёт использования специальных приёмов наружной отделки).
В статье мы расскажем о том, как сделать баню бочку своими руками, какие материалы использовать, а также чертежи, схемы, фото и видео инструкции.
Внутреннее устройство
Продольные размеры таких сооружений колеблются в пределах от 2 до 6 метров; причём самые миниатюрные постройки обычно состоят лишь из одной парной с печью.
Строения больших габаритов могут включать в себя моечную, комнату отдыха, а также импровизированное крыльцо с навесом.
Материал
Можно использовать шпунтованные доскиДля сооружения бани бочки вы можете использовать древесину таких известных пород как пихта, ель или лиственница. С учетом особых условий эксплуатации на дачном участке (осадки, резкие перепады наружных температур, а также высокая влажность) лучше всего воспользоваться влагоустойчивыми сортами древесины. К таким породам можно отнести кедр и лиственницу, высокая стоимость которых вполне окупается возможностью длительной их эксплуатации.
Но такое соединение удобнее Что касается формы заготовок для изготовления импровизированной бани, то в качестве таковых может применяться хорошо обструганная обрезная доска со специальным соединением типа «шип в паз».
Для удобства сборки конструкции желательно придать наборным элементам округлые очертания, выбрав часть материала по специальному шаблону. При использовании обычных плоских досок следует подбирать заготовки небольшой ширины, радиальный размер которых позволяет максимально приблизить форму сооружения к кругу.
Основание
Основание для бани бочки
Необходимости в фундаменте, как правило, нет. Достаточно подготовить ровную площадку и разместить на ней специальное основание, служащее надежной опорой для сооружения округлой формы.
В качестве такой площадки могут использоваться:
- полностью забетонированный или заасфальтированный участок;
- забетонированная площадка с выложенной по стяжке тротуарной плиткой;
- обычная хорошо утрамбованная грунтовая поверхность с уложенным на неё деревянным щитом;
Помимо этого для подготовки ровной площадки может использоваться старая железобетонная плита подходящего размера.

При сборке опорного основания постарайтесь придерживаться следующих рекомендаций:
- Для его обустройства должна применяться качественная обрезная доска толщиной не менее 5 см, предварительно обработанная специальной пропиткой или любым другим составом, защищающим древесину от гниения.
- Расстояние между поперечными опорными досками должно быть не более 1,5 метров, а общее их количество должно выбираться исходя из размеров бани.
- В процессе сборки на досках-поперечинах делают округлую выемку, в точности повторяющую контуры устанавливаемой на них конструкции (при подготовке выемки обязательно следите за тем, чтобы невыбранная часть доски составляла не менее 10 см с каждой ее стороны).
- Для придания сооружению дополнительной жесткости при сборке конструкции следует воспользоваться металлическими заготовками, устанавливаемыми в угловых соединениях и в местах сочленения отдельных элементов основания.
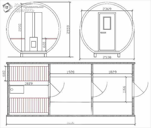
Порядок сборки
Размеры большой бани бочки
Сборка корпуса бани начинается с установки перегородок, фиксируемых на поперечинах основания. При их обустройстве не следует забывать о специальных проемах, предназначенных для установки дверных и оконных блоков, а также об обработке древесного материала специальной защитной пропиткой.
Сборка
Затем на уже готовое овальное основание укладывается несколько досок нужной длины, соединяемых между собой по способу «шип в паз». По завершении подготовки части окружности, достаточной для фиксации торцовых перегородок, последние устанавливаются на место и надежно закрепляются. После этого вы можете спокойно продолжить формирование окружности из досок с опорой на перегородки.
Интерьер
Внутреннее обустройство
Что касается наружной отделки строения, то ее функцию может выполнять традиционная мягкая кровля, монтируемая на верхнем секторе бани. При ее обустройстве эта часть бочки сначала закрывается гидроизолирующим материалом (полиэтиленовой пленкой, например), а затем застилается рубероидом или битумной черепицей.
Видео
Сборка бани-бочки:
Фото
На фото можно увидеть различные выполнения бани бочки:
Баня бочка на колесах
На озере
Баня обложенная камнями
С душем на улице
С двухскатной крышей
С иллюминатором\
Со стеклянной дверью
У бассейна
В частном доме

Баня бочка в лесу
Возле дома
Баня бочка возле ели
Мини баня бочка во дворе
Схемы
А теперь, вы можете ознакомиться со схемами и чертежами изготовления бани бочки:












kakpravilnosdelat.ru
Баня-бочка своими руками, чертежи
Почему бы не построить баню на своем участке? Все бы хорошо, только многих останавливает то, что сам процесс строительства занимает уйму времени, на проект бани и постройку уходит море денег и еще столько же уходит на внутреннюю отделку и оборудование. Да и участок не резиновый, мало-мальски приличная баня — это уже 10-15 квадратов как минимум. Так что же, так и жить без бани всю жизнь?
Содержание:
- Если жизни нет без бани
- Японская и финская баня-бочка. В чем разница?
- Мобильная баня-бочка
- Материалы для бани-бочки
- Формы и конструкции
Если жизни нет без бани

Нечего подобного. Если уж совсем без бани никак, а с местом или с деньгами напряженка, тогда можно рассмотреть довольно оригинальный, недорогой, компактный и интересный вариант — баня-бочка своими руками Чертежи и фото мы приложим к тексту, а остальное постараемся рассказать на словах. Вначале — что это вообще такое, баня-бочка? Откровенно говоря, никто толком не может сказать, откуда появились такие конструкции, но некоторые предположения все же есть.

Дело в том, что в Японии их традиционная баня, сенто, не совсем похожа на нашу. Они не парятся в нашем понимании в парилке, а принимают горячую ванну, причем со строго контролируемой температурой — 55 градусов. Сенто — это коллективная баня и выглядит она, как огромный глубокий таз или бочка. Публика, предварительно вымывшись, забирается в такую бочку-купель для бани и парится, параллельно беседуя на отвлеченные японские темы.

Японская и финская баня-бочка. В чем разница?

Но все японцы имеют время посещать общественную баню. Те, кто жить не может без хорошего пропаривания, устанавливают миниатюрный аналог сенто, который называется фуро, прямо у себя дома. А это уже настоящая бочка с крышкой, в которую просовывают голову, предварительно заполнив бочку водой с температурой 55 градусов.

Вероятно, финны подсмотрели эту конструкцию и решили, что было бы неплохо для экономии времени и средств построить такую же бочку, только установить ее горизонтально и раз в пять увеличить в размерах. Тогда купель для бани превратится в настоящую баню, с парилкой, тамбуром и зоной отдыха, а выглядит финская баня-бочка примерно так.
Мобильная баня-бочка

Соорудить такую конструкцию своими руками сможет человек, абсолютно далекий от деревянного зодчества, да и в готовом виде стоит баня-бочка тысяч триста-четыреста. Нет трехсот тысяч, чтобы иметь собственную мобильную баню с парилкой? Не страшно, тогда ее можно собрать своими руками, причем быстро и без особенных временных затрат и особенных инструментов.

Поскольку баня-бочка целиком собирается из хорошего дерева, то все целебные свойства традиционной бани в полной мере сохраняются. С точки зрения технологии — это прочная конструкция, которая не занимает много места, она может быть транспортирована в любое место на земном шаре на обычном прицепе для легкового автомобиля или в крайнем случае, в кузове полуторатонного грузовичка. Какие перспективы открываются перед владельцем такого чуда, объяснять, надеемся, не нужно.

Материалы для бани-бочки

Интерьер бани-бочки — спартанская роскошь. То есть там есть все, что необходимо для принятия банных процедур и даже немного больше:
- одна или две круглых перегородки или овальных, если планируется овальная баня-бочка;
- столик со скамейками в помещении для отдыха;
- несколько окон;
- полноценная печка;
- раздевалка;
- полки, чтобы всласть попариться;
- естественно, двери.

Кроме того, интерьер такой бани может впитать любые дизайнерские фантазии, поскольку сам подход к конструкции и оформлению постройки нетрадиционный. Но только в том случае, если материалы, используемые для оформления интерьера — все то же дерево: кедр, липа, береза, сосна или ель. К плюсам бани-бочки также относят отсутствие углов, как таковых и очень равномерный прогрев, чему способствует круглое или овальное сечение кедровой бани бочки или бани бочки из другого дерева.

Формы и конструкции

Конструкция такой бани продумана до мелочей, это хорошо видно на чертежах. Нет никакой необходимости возводить дорогостоящий фундамент, поскольку баня прекрасно себя чувствует на ровной утрамбованной площадке, в крайнем случае, на монолитной бетонной плите перекрытия, достать которую не проблема. На основание устанавливаются балки-полозья, на которые и опирается основная конструкция бани-бочки. Эти балки нужны не только для надежной фиксации конструкции, но и для того, чтобы у поверхности бани не было контакта с почвой.

Из плохих и некачественных материалов баню-бочку не построишь. Зато хороших лесоматериалов нужно будет самый минимум. Доски должны иметь либо специальный радиальный профиль, либо профиль, рассчитанный на соединение шип-паз. Как правило, пользуются доской толщиной 4,5 и шириной 9 см. для монтажа бочки будут необходимы стальные обручи, которые стягивают и прочно фиксируют всю конструкцию.

Собственно, вот и все хитрости, которые необходимо знать о бане-бочке, а хорошая древесина и правильно сделанная печка сами позаботятся об оптимальном микроклимате в вашей новой бане. Удачных экспериментов!
nashprorab.com
размеры доски, чертежи, какая печь нужна, как построить, сборка круглой бани, как утеплить, изготовление на фото и видео
Содержание:
Сделать в своем доме баню для личного пользования, вероятно, хотели бы многие хозяева, однако в силу ряда причин это не всегда возможно осуществить. Тем не менее, если использовать проект компактной бани-бочки, то многие из ограничений можно обойти. Далее в статье с фото мы подробно опишем, как построить баню-бочку своими руками, и при этом иметь возможность наслаждаться приятным отдыхом не выходя из дома.

Помимо своих небольших размеров, позволяющих оборудовать такую баню и в доме, и на даче, она имеет и другие преимущества (прочитайте также: «Варианты бани для дачи – какую выбрать или построить»). В частности, презентабельность, натуральность, а также экономичность при эксплуатации делают проекты бани-бочки все более востребованными среди потребителей. В то же время, это вполне функциональное помещение, содержащее все необходимое для полноценного времяпрепровождения в бане.
Выбор древесины для круглой бани
Изготовление бани-бочки требует тщательного подхода к выбору древесины, которая будет использована при строительстве, поскольку никакой дополнительной внутренней обшивки не будет.
Категорически нельзя использовать для строительства хвойные породы древесины, содержащие много смолы, которая при нагревании может обжигать кожу и негативно влиять на дыхательную систему.
Исключение составляет только древесина кедра. Такая доска для бани-бочки будет одним из лучших вариантов, ведь он оказывает оздоравливающее воздействие на организм за счет содержания эфирных масел и других компонентов. Кроме того, кедровая древесина не трескается и не изменяет формы при нагревании, устойчива к высокой влажности и атакам бактерий. Да и красивая фактурная поверхность придает помещению особую эстетику и шарм.
Очень хороша для изготовления бань-бочек древесина дуба, которая отличается большой прочностью, долговечностью и твердостью. А под воздействием влаги дуб становится еще крепче. Тем не менее, дубовые доски стоят достаточно дорого, поэтому их применяют чаще для изготовления предметов мебели в бане, чем для возведения стен.

Внешний вид дубовой древесины весьма привлекателен – глубокий темный оттенок в сочетании с красивой фактурой. Все эти показатели в сочетании с лечебными свойствами дуба делают его весьма подходящим для бань.
Тем не менее, чаще всего сборку бани-бочки производят из липы. Она придает помещению приятный аромат и особую целебную атмосферу. Липа обладает веществами, позволяющими излечивать заболевания дыхательных путей, почек и печени, приводить в порядок кожные покровы, омолаживать и очищать их.
Примечательно, что липа хорошо аккумулирует тепло. Кроем того, она не дает сильной усадки и удобна в обработке. Читайте также: «Какая бочка сауна лучше подойдёт для дома и дачи».
Однако из-за низкой плотности древесины липа весьма подвержена грибковым заболеваниям и гнили, поэтому такая баня прослужит меньше, чем из более твердых сортов древесины.

Осиновая древесина также подходит для строительства бани бочки. По своим характеристикам она схожа с липой, правда, при правильной заготовке не подвержена растрескиванию, не деформируется и не так подвержена влажности, а, наоборот, со временем становится прочнее.
Такая древесина является наиболее дешевой из всех представленных вариантов, то есть относится к экономклассу.
Хотя для строительства традиционных бань зачастую применяют березу, ольху или пихту, для бани-бочки они не подходят по ряду причин.
Какие бывают бани-бочки
В зависимости от предпочтений и функционального назначения, бани-бочки можно разделить на три большие группы:
- Финская баня с сухим паром и высокой температурой. Предпочтительно, чтобы рядом с парилкой в такой бане находилась купель или деревянное ведро с холодной водой.
- Русская парная с влажным густым паром и вениками. Такая баня включает два помещения – собственно моечную и парилку.
- Японская традиционная баня-бочка – офуро. Это своего рода большая деревянная ванна, которая постоянно подогревается встроенной в нее печью.
Русская баня
Использование русской бани включает два этапа, следовательно, оно состоит из таких помещений:
- Парилка – в ней густой влажный пар образуется за счет выплескивания воды или травяных настоев на разогретые камни.
- Моечная комната – тут, после предварительного распаривания и массажа вениками, принимают душ, смывая пот и налипшие листья, и постепенно охлаждаясь.
Во время установки бани-бочки такого типа предусматривают небольшой наклон, чтобы вода могла стекать из системы отвода стоков, обустроенной в полу, и не застаивалась.

Печь для бани-бочки в данном случае устанавливают между помещениями так, что сетка с каменкой выходит в сторону парилки, а бак для нагрева располагается в моечном помещении.
При этом сама топка располагается также в моечной, за защитным экраном. Поскольку места в бане-бочке не так много, печка должна быть компактной. Вокруг нее на стены нужно обязательно установить жаростойкие панели для защиты дерева от возгорания.
Сухая парная
Обустроить парную с сухим легким паром можно в одном помещении, предусмотрев на выходе емкость с водой, в которую можно будет окунуться. Если рядом нет речки или бассейна, то придется построить купель, поскольку охладиться и ополоснуться нужно обязательно.
Такая финская баня из бочки своими руками строится намного проще, чем полноценная крупногабаритная конструкция. Она должна быть практически герметичной, без трещин или щелей. Отверстие для отвода воды не требуется. Правда, нужно предусмотреть вентиляционный затвор под потолком или в полу со специальной задвижкой, которую в случае необходимости можно открыть.

В такой бане бочке располагают только лежанки, которые можно сделать широкими – на них будет вполне комфортно расположиться, а также печку с каменкой. При желании на раскаленные камни в терапевтических целях можно капнуть эфирное масло или настой трав.
Сауна в виде бочки может быть расположена как вертикально, так и горизонтально. В последнем варианте места внутри получается значительно больше.
Офуро
Достаточно новый для России вид бани. Это традиционная японская баня в виде бочки с подогревом. Она весьма проста в использовании и размещении.
В бане офуро нет крыши, однако, ею можно пользоваться независимо от времени года.
Устанавливают офуро на деревянном помосте, а внутри бочки располагают сиденья из дерева и закрытую перегородкой печку, чтобы не получить ожогов.
Согласно японской философии в такой бане у человека восстанавливается эмоциональное и физическое здоровье, он приходит в гармонию с собой и окружающим миром (прочитайте: «Японская баня – виды и особенности»).

Как правило, офуро имеет эллипсоидную форму, которая позволяет разместить печь самым безопасным для человека образом. Как вариант, внутрь бочки могут быть подведены трубы для подогрева, а сама печь вынесена за пределы бани.
Однако подобная конструкция потребует больше времени и ресурсов для разогрева и поддержания температуры.
Длительность процедур в бане офуро обычно составляет 10-20 минут. После такой ванны кожу нужно растереть жесткой перчаткой, выполняя массаж, сходный с русскими вениками.
Предварительные работы с материалом для бани
Даже если вы знаете, как сделать баню бочку своими руками, предварительную подготовку материала для работы все равно нужно произвести.
Если вы владеете навыками и оборудованием для самостоятельной обработки древесины, доски для бани следует закупить с параметрами 90-95 мм ширины и 45-50 мм толщины.
В противном случае следует предоставить мастеру чертежи бани-бочки с указанием размеров, согласно которым он подготовит нужное количество материала, который будет идеально подогнан и обработан.
Стоит отметить, что количество досок напрямую зависит от размеров бани-бочки. Чтобы подсчитать этот показатель, следует выполнить чертеж в масштабе, вычислив длину окружности и разделив ее на ширину одной доски. Длина досок влияет на размер будущего помещения. Как правило, круглые бани занимают от 2,5 до 6 метров в зависимости от типа и планировки внутри строения.

Помимо этого, нужно подготовить древесину для задней и передней стенки с дверным проемом. Подставки под бочку выполняются из прочных деревянных брусьев, выточенных под нужную форму согласно чертежам. Для прочности всей конструкции стены нужно будет стянуть полосами из железа, которые напоминают обручи на бочках.
Подгонку оконных рам и дверного полотна нужно производить как можно тщательнее, чтобы обеспечить конструкции герметичность. Лавки и пол внутри бани-бочки также выполняются из древесины, так что их нужно будет обтесать и отшлифовать.
Чтобы обеспечить термоизоляцию печи, следует приобрести специальный материал, например минерит. Поскольку баня должна дышать и проветриваться, в ней предусматривают специальное окно.
Еще до того, как сделать круглую баню, нужно определиться с типом дымохода, а также материалом, из которого он будет изготовлен.
В случае с русской баней, перед строительством нужно подготовить трубы для отвода стоков, емкости для нагрева воды, а также поддоны, если вы решили оборудовать душ.

В зависимости от типа будущей крыши, производится заготовка материала для нее. Можно использовать мягкий кровельный материал, уложенный прямо поверх потолка бочки. Более сложная двускатная крыша потребует установки жестких опор.
Крепление всех элементов будет производиться нержавеющими саморезами или гвоздями.
В некоторых случаях в банях-бочках перед входом обустраивают небольшую веранду, для которой тоже потребуются стройматериалы.
Отвод стоков из бани
Поскольку в бане с моечным помещением будет образовываться большое количество грязной воды, ее нужно правильно отводить. Если пользоваться баней нечасто, то можно обойтись отверстием в полу. Однако для интенсивной эксплуатации бани-бочки такой способ не годится, так как излишняя влага под строением приведет к появлению грибка, гниению и порче пола, неприятному запаху.
Поэтому изначально баню устанавливают под уклоном в сторону отводящего отверстия, соединенного с трубой, по которой стоки уходят в сливную яму. Эту трубу следует тщательно утеплить, чтобы в зимнее время она не трескалась и вода в ней не замерзала.

Для удобства передвижения в круглой бане на полу устраивают настил в виде решетки. Сквозь щели в такой решетке вода будет свободно стекать в сторону отлива, а доски смогут хорошо просыхать, да и строение приобретет законченный вид.
Пошаговая инструкция строительства
После того, как заготовка материалов закончена, древесину нужно обработать защитными антисептическими пропитками, тщательно просушить, после чего можно начинать сборку строения.
Закладка основы
Перед тем, как сделать баню-бочку, нужно уложить балки для основы, на которые придется вся нагрузка по поддержанию постройки над поверхностью.
Укладку балок основы производят так:
- Подготавливают нужное количество балок 3,5-4 см толщины и 30-35 см ширины – от 2 до 4 штук в зависимости от длины постройки. В них согласно чертежам вырезают выемки, в которые будут уложены и закреплены доски нижней части бочки для бани.
- Далее балки расставляют на равном расстоянии друг от друга, расположив их таким образом, чтобы первая поддерживала стенку с дверным проемом, а последняя находилась под задней стеной.
- В конце все уложенные балки следует скрепить в единый жесткий каркас, чтобы при установке и эксплуатации бани они не могли сместиться в стороны.
Работа с передней и задней стенками
На следующем этапе принимаются за изготовление днищ будущей бочки, то есть передней и задней ее стенок. Они должны быть гладкими и ровными, без щелей и дефектов. На них нужно нанести разметку под окошки и дверной проем. В зависимости от расположения проемов, на стенках будут закрепляться бруски, по которым будут нашивать доски боков самой бочки. Эти бруски фиксируют поперек конструкции.

Прежде всего, собирают каркас из брусков и нашивают на него доску, чтобы получить квадрат. Вычислив его середину, на поверхности чертят окружность и выпиливают по контуру круг. Аналогично размечают обе стенки.
Далее в каждом круге делают разметку под одно или два окошка и дверной проем, после чего выпиливают отверстия. Если необходимо, полученные отверстия укрепляют брусками.
Разметка досок для боковых стен бани
Дальнейшие действия будут связаны с подготовкой и разметкой досок для боковых стен бани-бочки. В тех местах, где к обшивке будут примыкать передняя и задняя панели, нужно прорезать специальные пазы, совпадающие по ширине с толщиной досок в стенках, а по глубине достигающие 8-10 мм. В эти углубления будут вставлены, так называемые, днища.
А если баня будет состоять из двух смежных комнат, в месте перегородки между ними в досках обшивки также нужно предусмотреть пазы для закрепления стенки.
Оконные и дверные рамы
Поскольку окна и двери должны закрываться абсолютно герметично и не выпускать воздух из парной, не каждый сможет справиться с такой задачей самостоятельно. Поэтому рекомендуется делать заказ на уже готовые окна и стеклянные двери, которые будут произведены с соблюдением всех стандартов.
Таким образом, вы получите качественные изделия, чтобы внутри бани-бочки можно было создать оптимальный микроклимат и получить максимальную пользу от процесса.
Как собрать баню-бочку
Сборка круглой бани начинается с установки опорных балок на подготовленное место, распложенное несколько под уклоном, к которому подведены коммуникации для отвода стоков. К ним впоследствии подключат отлив изнутри бани.
В каждой из вырезанных выемок основы отмечается центр, к которому прикрепляется первая доска бани.
Далее с каждой из сторон последовательно закрепляют оставшиеся доски до заполнения дуги основы. При этом следует обращать внимание, чтобы пазы, расположенные на досках, образовывали единый контур. Таким образом, будет обшит пол строения.
Следующий шаг – это фиксация в пазах передней и задней стенок бани. Они должны стоять крепко и не требовать дополнительной поддержки. На этом этапе уже можно определить форму будущей постройки.
После установки стен и внутренней перегородки переходят к обшивке боковин. Все последующие доски закрепляют как раз на стенки. Они выкладываются и фиксируются параллельно с обеих сторон бочки.

Когда крепление досок будет завершено, все строение нужно стянуть металлической лентой. Такие обода можно установить в нескольких местах от двух до четырех. В обоих концах лент проделывают отверстия и, вставив в них болты с гайками, закручивают их, стягивая концы.
После этого можно монтировать окна и двери.

На последней стадии строительства следует организовать крышу. Она может быть из гибкой черепицы или мягкого листового металла, уложенного прямо поверх бочки на гидроизоляционную подложку. Как вариант, можно обустроить двускатную крышу с покрытием из профнастила или металлочерепицы.
Если снаружи постройки по обеим сторонам от входной двери установить лавки, получится импровизированная веранда.
Внутренние работы в круглой бане
Все деревянные элементы внутри конструкции бани, как стены и пол, так и мебель, желательно покрыть льняным маслом, чтобы древесина была менее подвержена воздействию влаги.
Уже полностью готовую постройку бани нужно заполнить необходимой мебелью и функциональными деталями:
- В полу делают выемку для коммутации с трубами для слива воды.
- На пол укладывают дощатый настил для удобства передвижения – он должен быть съемным.
- По бокам размещают полки.
- Поверхности возле печи – пол, потолок и стены – обшивают слоем термоизоляции.
- Монтируют печку и дымоход. В месте соприкосновения с потолком трубу покрывают термоизоляцией.
- Подключают бак для подогрева воды, если конструкцией предусмотрена установка его отдельно от дымохода.
- Подводят трубы водоснабжения – если есть возможность и необходимость.
- В случае установки душа, монтируют поддон и соответствующее сантехническое оборудование.
- Устанавливают столик, если позволяет место.
- Прокладывают проводку с гидроизоляцией и подключают ее к электросети.
- Возле бани размещают купель для ополаскивания после пребывания в парилке.

Если вы хотите париться не только летом, но и зимой, стоит подумать о том, как утеплить баню-бочку снаружи, чтобы тепло из нее не уходило слишком быстро. К тому же, утепление позволит сэкономить на топливе для прогрева бани в зимнее время. Однако при проведении такой процедуры нужно соблюсти все нормативы и уложить слои паро- и гидроизоляционных материалов.
Отметим, что процесс построения бани-бочки не настолько прост, как может показаться. Поэтому если вы не уверены в своих навыках, но хотите, чтобы баня была качественной и уютной, лучше заказать изготовление бани-бочки в строительных фирмах. После доставки и установки сооружения на вашем участке, нужно будет лишь подключить систему коммуникаций. А дальше – можно затапливать печь и пользоваться парной.
banyaspec.com
плюсы и минусы, чертеж, как построить
Капитальная баня из бревен или бруса на плите или ленточном фундаменте обходится довольно дорого и строится долго. Баня- бочка – это быстро возводимое строение, она не требует серьезного фундамента и капитальных затрат. Несколько дней плотницких работ — и владелец может наслаждаться русской парной, финской сауной или японской офуро. Такую баню можно построить своим руками, обладая лишь средними строительными навыками.
Особенности конструкции
Главная особенность бани- бочки- это ее бочкообразная, или цилиндрическая форма. Два торцевых щита круглой формы диаметром 2,5- 3 метра обшиваются досками, образуя цилиндрический корпус. Доски стягиваются бандажной лентой. Минимальный контакт с землей обеспечивает хорошую теплоизоляцию. Внутри бочки настилается пол, ставятся скамьи, банная печка, а при необходимости- перегородки.
Легкий дачный вариант этим и ограничивается, в 2- метровой бочке с минимальными удобствами может париться 1-2 человека. Более продвинутые конструкции длиной до 12 метров подключаются к электро-, водоснабжению и дренажу, имеют парилку, мыльню, душевую, принудительную вентиляцию и зону отдыха. Они могут принять до 5-6 человек.
Двери в перегородках делают деревянные, в дорогих моделях- из затемненного или матового стекла. Иногда вместо небольшого окна в торцевом щите его целиком или полностью выполняют из закаленного стекла или стеклопакета.
К баням бочкам можно отнести и миниатюрные одноместные купели из полубочки, стоящей вертикально. Офуро, или японская баня с подогревом, набирает популярность за пределами родной страны.
Виды и размеры
В такой бане можно оборудовать следующие виды оздоровительных процедур:
- Традиционная русская парная с зоной для помывки. Парилка заполняется влажным паром при температуре до 85оС. Особое удовольствие доставляет отхлестать себя или товарища березовым или дубовым веником. После парной в моечной зоне нужно обязательно окатиться ведром холодной воды. Такая баня потребляет много воды, следует продумать способ отведения ее в дренаж.
- Финская сауна. Здесь используется сухой и очень горячий пар- до 120оС. Необходимо продумать систему вентиляции и теплоизоляции, чтобы быстро прогревать помещение до требуемой высокой температуры. Если пространство позволяет, то устанавливают купель для окунания. В противном случае оборудуют обливную купель- подвешенное под потолком ведро с водой.
- Офуро. Одноместная мини-баня с подогревом из Японии. Полубочку размещают вертикально, в ней устанавливают сиденье и систему подогрева воды. Офуро часто размещается на открытом воздухе, в этом случае бочка закрывается сверху крышкой с вырезом для головы.
Японская баня ОфуроОт размера конструкции зависит ее вместимость и возможность размещения дополнительных удобств и помещений. Сама парилка занимает 2 м, и такова длина минимального модуля.
- Мини- от 2 до 2,5 м, в парную влезает 2 (лежа на полках) до 4 (сидя) человек средней комплекции. Весит такая баня до полутонны.
- Стандарт- длиной до 3,5 метров. Кроме парной, помещается скромный предбанник, помогающий разместить одежду и сохранить тепло. Весит такая конструкция около тонны.
- Макси- длиной до 6 метров, имеет полноценное мыльное отделение и предбанник увеличенной длины, который можно использовать как место отдыха.
- Мега- стыкуются два шестиметровых модуля, между ними тамбур. Сс одной стороны- баня с парной, помывочной и душевой комнатами, с другой- комната отдыха
Несмотря на большие размеры отдельных моделей, они не требуют мощных фундаментов и могут устанавливаться на легкие опорные конструкции размером с железнодорожную шпалу.
Преимущества и недостатки
Бани в форме бочки обладают рядом достоинств. Среди них:
- малые габариты, баня помещается даже на самом маленьком участке в садоводстве между грядкой и теплицей;
- мобильность, конструкция перевозится в кузове любого грузовика, а версии Мини- и в прицепе легкового автомобиля;
- устанавливается на любую ровную площадку с организованным стоком без капитального фундамента;
- скорость постройки, сборка занимает день-два;
- отсутствие углов обеспечивает быстрый прогрев до 80оС (до часа) и долгое сохранение тепла;
- достаточный комфорт, несмотря на малые габариты, округлые стены служат как естественные спинки кресел;
- оригинальный и эстетичный внешний вид;
- простой уход, отсутствие углов облегчает уборку;
- экономичность при постройке и во время эксплуатации.
Среди преимуществ бани-бочки скорость постройки и простой уходК недостаткам можно отнести:
- проблемы с дополнительной теплоизоляцией;
- теснота в малых моделях;
- невозможность пропитки досок обшивки сильнодействующими средствами, предотвращающими гниение и поражение грибком;
- сложность замены пришедших в негодность досок обшивки, особенно на полу.
Достоинства конструкции значительно перевешивают ее недостатки в том случае, когда требуется недорогая, компактная, быстровозводимая и мобильная баня.
Особенности технологии самостоятельного изготовления
Несмотря на кажущуюся простоту конструкции, постройка бани — бочки своими руками потребует от владельца определенных навыков. Среди них:
- работа с чертежами;
- инженерно-строительные расчеты;
- земляные работы для подготовки площадки;
- плотницкие и столярные работы для сборки и обустройства бани;
- монтажные работы для установки печи и дымохода, подключения к коммуникациям.
Кроме того, необходимо наличие времени. Сборка бани из подготовленного комплекта силами Опытная бригада может собрать баню из подготовленного комплекта за день, а вот самому придется повозиться, в том числе с подбором и подготовкой материалов.
Подготовка материала и инструментов
Подавляющее большинство бань, собранных своими руками, делают из дерева. при выборе материала обычно останавливаются на лиственных породах, таких, как дуб, бук, лиственница, кедр или липа. Применение дерева хвойных пород не рекомендуется, поскольку при нагреве они обильно выделяют смолу. Их можно использовать только для несущих конструкций и наружной обшивки при условии устройства достаточной теплоизоляции.
Для соединения конструктивных элементов применяются металлические детали, такие, как саморезы, уголки, бандажные ленты для обтягивания бани- бочки. Нужно внимательно следить за тем, чтобы они не выступали над поверхностью дерева. Прикосновение с ним может вызвать серьезный ожог. Верхнюю часть цилиндра- бочки для защиты от осадков покрывают мягкой кровлей или металлопрофилем.
Печь-каменку в такой бане устанавливают металлическую, со встроенным баком для нагрева воды. Для самых компактных вариантов бочек, где на счету каждый квадратный сантиметр, выбирают вариант с баком, размещенным на дымоходе.
Все электрооборудование должно быть приспособлено для работы во влажных помещениях, обязательна установка устройств зарядового отключения (УЗО) для защиты от поражения электротоком.
Для сборки бани потребуются:
- шпунтованные доски толщиной-25-30мм, шириной 80-90 мм;
- брус 100*100 для устройства опорных конструкций;
- доски длиной до 2 метров для устройства банной мебели»;
- двери и окна;
- фурнитура и крепежные изделия;
- металлическая лента с бандажными креплениями;
- кровельные материалы;
- сантехническое оборудование: сливы, краны, трубы, фитинги; раковины и т.п.;
- провода и электроустановочные элементы: светильники, выключатели и т.п.
Для изготовления бани-бочки понадобятся шпунтованные доскиПри сборке потребуются следующие инструменты и принадлежности
- аккумуляторный или сетевой шуруповерт;
- циркулярная пила;
- электролобзик;
- ручной плотницкий инструмент: долото, топор, киянка, ножовка и т.п.;
- измерительный инструмент: рулетка, уголок, уровень;
- инструмент для земляных работ: лопата, тачка, ведра.
- малярный инструмент.
На полу обычно устраивают решетчатый настил, он облегчает ходьбу по вогнутому полу и обеспечивает вентиляцию его досок.
Баню устанавливают с небольшим уклоном для обеспечения слива воды. В конце уклона оборудуют решетку слива, к ней снаружи подсоединяется дренажная труб, ведущая в отдельный канализационный колодец или в общую канализацию. Бани минимального размера без водопровода допускается не подключать к канализации, небольшое количество стоков может рассеиваться в щебеночно-песочной полушке площадки. Но в этом случае в бане можно будет только париться и окатываться водой, мыло и шампуни могут повредить насаждениям.
Особо тщательно нужно следить за качеством теплоизоляции возле печки и дымохода- нарушение правил может привести к пожару.
Чертежи и расчет материала
Прежде чем начать подбирать и закупать материал для строительства бани — бочки своими руками, потребуются чертежи объекта в трех проекциях. Можно также построить его трехмерную параметрическую модель в одной из доступных в сети бесплатных конструкторских программ для домашнего строительства. Такие программы содержат еще и модуль расчета количества потребного материала и позволяют сэкономить массу времени.
Чертеж бани-бочкиДля тех, кто решил действовать по старинке и чертит и считать вручную, опытные мастера предлагают ряд рекомендаций:
- Выбор длины постройки. Лесоматериалы поставляются со стандартной длиной в 6 метров, поэтому максимально эффективное использование материала получится при длине, равной 2 или 3 метра, так, чтобы доска распиливалась на 2 или 3 части. Промежуточные значение приведут к появлению большого количества остатков. Остатки из досок пойдут на торцевые стенки. Обработанные доски поставляются также длиной 3 и 2,2 и 2 метра, это нужно учитывать при проектировании внутренней отделки и мебели.
- Выбор диаметра. Средний рост составляет около 175 см, высота стандартной банной двери- 170 см, поэтому минимальный диаметр- 2 метра. С повышением диаметра растут как комфорт, так и затраты на материалы и отопление. Редко встречаются бани бочки диаметром более 2,5 м.
- Планирование помещений. Все двери должны открываться наружу. Если кто-либо потеряет сознание от высокой температуры или влажности, его тело не должно заблокировать дверь и помешать прийти на помощь. Двери во внутренних перегородках размещаются по центру, чтобы округлость потолка не помешала их полному открыванию.
- Печь обычно устанавливают в торце, так, чтобы мимо нее не приходилось ходить. Если печь размещается у внутренней перегородки для топки снаружи, следует предусмотреть защитную деревянную решетку- ограждение.
Количество досок для обшивки рассчитывается, исходя из длины окружности
где D- диаметр бочки. Длину окружности нужно разделить на ширину доски и получить их количество.
Пошаговые этапы постройки
Опытные мастера описали, как построить баню бочку своими руками. Строительство разбивается на следующие этапы:
- Устройство площадки. Бочку можно установить на любую ровную поверхность- асфальт, бетонную плиту, тротуарную плитку. Можно устроить и песчано- гравийную подушку. Следует выбрать котлован глубиной 0,2 м, длиной, равной длине бочки и шириной, равной диаметру плюс 0,5 м. Углубление засыпается песком на 10 см и трамбуется, сверху крупным щебнем. Обустраивается сливная яма или подключение к общей канализации.
- Установка подставок. Их делают из доски 150*50мм или бруса100*150. В опорах пропиливается вырез с радиусом, равным радиусу бочки. Опоры скрепляю друг с другом продольными лагами.
- Устанавливаются доски пола, до заполнения выемки в опорах. Следует добиваться полного вхождения шипа шпунтового соединения в паз по всей длине доски.
- Установка торцевых стен и внутренних перегородок. Обычно сначала на земле сбивают щиты, а потом отпиливают их лобзиком по окружности. Проемы для дверей оставляют заранее, проемы для окон выпиливают по месту после сборки.
- Каркас бочки обшивается досками до верха. Стальными бандажными лентами, проходящими не далее 0,5 м от торцевых или внутренних стенок, вся конструкция скрепляется окончательно.
- Устанавливаются двери и окна, уплотняются стыки торцевых стен с помощью герметика. Рядом с печкой следует применять термостойкий герметик.
- Монтируется мягкая кровля.
- Монтируется печка, дымоход и банная мебель.
- Устанавливается сантехническое и электрическое оборудование.
Готовая баня-бочка сделанная своими рукамиНа этом строительство бани-бочки своими руками завершается, можно переходить к деталям внутреннего обустройства.
Нюансы обустройства
Внутреннее обустройство бани- бочки определяется потребностями и возможностями ее владельца. Если баню планируется использовать только в теплое время года- утепление не потребуется. В противном случае необходимо утеплить стены базальтовой ватой, а в нижней части лучше применить не боящийся влаги пеноплекс.
Кроме полков в парилке необходимо сделать скамейки и столик в предбаннике. Если есть комната отдыха, ее также лучше укомплектовать деревянной мебелью, не боящейся влаги.
Поверхности стен и мебели можно пропитать льняным маслом или специальными составами для бань.
Обязательно следует оборудовать печь защитными решетками- ограждениями, исключающими ожоги.
Для отдыха в летний период у входа оборудуют навес-веранду. Для этого доски крыши и стен выпускают над входной торцевой стеной.
Советы по эксплуатации
Уход за баней- бочкой достаточно прост. самое главное- каждый раз качественно проветривать помещения после использования. Остаточная влага в застоявшемся воздухе может привести к появлению плесени и грибка.
Время от времени следует обновлять пропитку поверхностей льняным маслом. Это поможет продлить срок их службы.
Нужно внимательно следить за образованием нагара и сажи в дымоходе, особенно при использовании смолистых дров. Раз в сезон дымоход следует прочищать.
Также раз в сезон следует проверять состояние электрооборудования с замером сопротивления изоляции.
Изготовление бани-бочки своими руками- серьезное испытание строительно-монтажных навыков домашнего мастера. Возведенная быстро и недорого, к тому же сделанная своими руками баня сможет долго радовать семью и друзей приятным отдыхом и полезными для здоровья процедурами.
stroypomochnik.ru
пошаговая инструкция + 45 фотографий и видео
Немало владельцев загородных домов грезит об уютной и компактной бане, которая не будет занимать много места и аккуратно впишется в любой ландшафт приусадебного участка. Оптимальным вариантом в условиях ограниченного пространства станет миниатюрная баня-бочка, о которой вы, возможно, где-то уже слышали. Сегодня мы обсудим возможные модели мобильных конструкций, расскажем о технологии возведения, включая этап проектирования, обозначим материалы изготовления и отделки, а также поделимся всеми нюансами обустройства.
Содержание материала
Паримся по-новому в бане-бочке. Ее ключевые преимущества
Что только не готовы изобрести люди, только бы обустроить на своем приусадебном участке миниатюрную и удобную баню, при этом сильно не потратившись. Таким шедевром архитектуры стала баня-бочка — чрезвычайно простая в повседневной эксплуатации, удобная и компактная конструкция, способная только одним своим видом кардинально преобразить участок возле дома. А аромат натуральной древесины и целебные свойства бани, о которых знают все, принесут немало приятных мгновений расслабления и оздоровления. Да, ради этого можно и потрудиться!

Баня-бочка на приусадебном участке (рис.1)
Сравнивая баню-бочку с традиционными парными, стоит отметить несколько ее преимуществ:
- Относительно легкий вес. Сооружение, изготовленное из лиственницы, весит всего 1,5 тонны, в то время как стационарная модель из кирпича – до 5 тонн.
- Мобильность. В любое время можно изменить месторасположение конструкции на участке.

Баню-бочку можно взять с собой на природу, уместив в кузов машины (рис.2)
- Высокая скорость обогрева. Чтобы прогреть помещение бани до 90ºС потребуется всего четверть часа (в летний период).
- Компактность. Для возведения и установки бани-бочки на участке понадобится всего 8-10м², что очень удобно, если вы располагаете совсем небольшой территорией.
- Необычные архитектурные решения и неординарная отделка. В такой баньке не только приятно расслабиться, но ее можно использовать как отдельный декоративный элемент в рамках имеющейся территории.

Оригинальная баня-бочка как центральный элемент ландшафта (рис. 3)
- Экономичность строительства. Возведение любой иной бани вам обойдется в разы дороже: достаточно вспомнить расходы на фундаментные работы и затраты на материалы.

Баня-бочка-крупный цилиндр, уложенный набок (рис.4)
- Эргономичность пространства. Несмотря на свою малогабаритность, внутри легко умещается до 6 человек.
- Стойкий эффект термоса, который обеспечивается многослойностью сооружения, ее округлой геометрией и качественной теплоизоляцией. Все это в конечном счете обеспечивают экономичное потребление топливных ресурсов и электроэнергии.

Необычное изобретение жителей Скандинавии (рис.5)
Разновидность бань-бочек
Что и говорить, в нашей стране подобную парную пока воспринимают как этакое ноу-хау, несмотря на то, что в Европе и Скандинавии такие конструкции уже стали привычными. По сути, баня-бочка – это бочкообразный сруб, оснащенный мобильной печкой-парогенератором, продуктивно работающим как на дровах, так и на электроэнергии.

Планировка бани-бочки поражает воображение (рис.6)
Существует несколько видов бань-бочек:
1. Обычная русская баня, совмещающая в себе парную и моечную.
2. Парная на сухом паре, которая будет идеальна гармонировать с купелью с прохладной водой.
3. Офуро (японская разновидность), очень похожая на купель, но оснащенная системой подогрева от печи.

Бани-бочки из одного и нескольких помещений (рис. 7)
Русская баня
Привычная и знакомая всем обычная баня, состоящая из парной и моечной.

Русская баня-бочка (рис. 8)
Поскольку русская баня предполагает использование воды, то проект конструкции бочки должен предусматривать организацию системы водоотвода. Исключить возможность застоя воды поможет незначительный наклон строения.

Незначительный уклон бани-бочки (рис. 9)
При проектировании и строительстве русской баньки следует расположить печку между парной и моечной. Часть печи, оборудованная баком для прогрева воды, должна выходить в моечную. В парном отделении будет располагаться емкость с камнями, нагреваемыми от топки. Чтобы не обжечься в моечной о конструкцию топки, ее следует огородить.

Печь-центральный элемент бани (рис. 10)
Сама печка должна быть небольших размеров, поскольку пространство в бане-бочке очень ограничено. Со всех сторон печка обшивается жаростойкими материалами.
Парная на сухом паре
Это баня с одним помещением и расположенным неподалеку бассейном, естественным водоемом или купелью.

Баня с купелью (рис. 11)
Бочка — сауна
Эксперты утверждают, что организовать бочку-сауну на порядок легче, чем обычную парилку. Все, что потребуется для обеспечения герметичности сооружения – это отсутствие щелей в стенах и на поверхности пола. На крыше нередко выполняется небольшое отверстие, которое частично или полностью (в зависимости от желания) закрывается на задвижку.
Водоотвод в сауне делать не нужно. Помещение оборудуется широкими лавками и печью с нагреваемой каменкой.

Бочка-сауна (рис. 12)
В бочку-сауну можно устанавливать и электрическую печь.
Интересно. Подобная сауна может быть размещена на участке как вертикально, так и горизонтально. При последнем варианте площадь помещения удваивается!
Баня офуро из Японии
Японская разновидность бани очень проста в использовании, а ее главная особенность заключается в отсутствии крыши, что не мешает наслаждаться гармонией огня, воды и воздуха даже зимой.

Японская экзотика (рис. 13)
Бочка чуть вытянутой формы размещаются на настиле из древесины. Внутри конструкция укомплектована всеми необходимыми удобствами: печью и деревянными лавками. Печка нередко выносится на безопасное расстояние и оснащается специальной перегородкой, защищающей от ожогов.

Особенности бани офуро (рис. 14)
Однако при этом для прогрева воды в бане и поддержания ее на одном уровне понадобится больше времени, а значит, увеличится расход топлива.
Выбираем материал
Эксплуатационные свойства и удобство бани-бочки во многом зависит от той древесины, из которой она будет построена. Если для строительства обычной бани в ход идет практически любой материал и только для внутренней отделки подбирается дерево, то в нашем случае вопрос с выбором подходящей древесиной лучше решать сразу.

Древесина для бани-бочки (рис. 15)
К выбору древесины отнеситесь очень серьезно!
Например, не стоит рассматривать хвойные породы. Они обогащены смолистыми составляющими, которые при нагревании дерева выделяются и нередко обжигают кожу.
- Единственное хвойное дерево, из которого получается отличная баня, — это кедр. Кедровый массив славится эффектом ароматерапии и оздоравливающими свойствами. Он совершенно нечувствителен к высоким температурам (не деформируется, не трескается), устойчив к влаге и воздействию микроорганизмов. Кедр отличается красивой фактурной поверхностью и цветовыми оттенками. Это материал с хорошими эстетическими качествами.

Баня из кедра (рис. 16)
Липа – наиболее подходящий материал для постройки, ведь она создает целебный микроклимат в помещении, благотворно воздействует и на дыхательные пути, и на состояние внутренних органов. Древесину легко обрабатывать, она не дает усадку. Постройки, сделанные из нее, мгновенно прогреваются и долго держат тепло. Главный недостаток липы – недолговечность: древесина нередко подвергается поражению грибками и гниению.

Сооружение из липы (рис. 18)
- Осина обладает схожими с липой характеристиками. Однако лучше переносит избыток влаги, не трескается, не деформируется и более доступна по цене. Осина считается бюджетным материалом.
А вот береза, пихта и ольха не предназначены для строительства бани-бочки.
Многообразие решений — одно из преимуществ бань (рис. 19)
Подготовка материала
Недостаточно знать, какое дерево лучше использовать для строительства бани-бочки. Важно, чтобы древесина была качественной и предварительно обработанной.

Древесину важно подогнать (рис. 20 )
Первым делом все доски, отобранные для бани, необходимо подогнать под один размер. Если древесина будет обрабатываться самостоятельно, то выбирать лучше доски шириной 90 мм и толщиной 50 мм.
Если же вы не располагаете собственным деревообрабатывающим оборудованием, то лучше обратиться к мастеру, который на основе чертежа изготовит пиломатериал нужных размеров. Еще раз отметим кропотливость процесса изготовления заготовок для бани: все доски должны быть одинаковых размеров.

Приблизительная схема бани-бочки (рис. 21)
В зависимости от предполагаемого диаметра бочки рассчитывается количество досок. Для более точного расчета делается чертеж, на котором вычерчивается окружность. Затем она в точности разделяется на ширину доски. Длина досок предопределяет размер помещения (2,5-6 метров).
- Для сооружения днища (задней и передней стенки с дверным проемом) также понадобятся доски.
- Чтобы сделать подставки для бани-бочки, используйте деревянные брусья.
- Конструкция бочки стягивается железными полосками, напоминающими обручи на традиционной бочке.
- Для изготовления лавок и пола вновь понадобятся доски.
- Элементы внутреннего обустройства бани-бочки,

Элементы внутреннего обустройства бани-бочки (рис. 22)
- Жаростойкий материал (минерит) для изоляции печи.
- Выбираются материалы для сооружения дымоотводной трубы и водоотвода.
- С учетом строения крыши подбирается кровельный материал (это может быть мягкая или жесткая кровля).
- Монтаж не обходится без крепежных элементов (гвозди, саморезы из нержавейки).

Баня-бочка может быть оснащена и небольшой верандой при входе (рис. 23)
Баня-бочка своими руками: пошаговая инструкция

Технология изготовления бани-бочки (рис. 24)
Работа с основанием
Так как вес готовой конструкции не слишком большой, то вполне можно обойтись без изготовления фундамента. Самое главное – отыскать твердую и ровную площадку, где в дальнейшем будет размещаться баня-бочка, соорудить надежное основание, благодаря которому и будет удерживаться наше сооружение.
С ролью площадки прекрасно справится заасфальтированный или замощенный тротуарной плиткой участок. На худой конец подойдет и утрамбованная поверхность, покрытая дерном.

Основание для бани (рис. 25)
Для создания основания используют качественные обрезные доски толщиной от 5 мм. Опорные доски фиксируются на расстоянии 1,5 метра, поэтому их количество напрямую определяется габаритами сооружения. На поперечных планках выполняются выемки округлой формы, соответствующие контурам будущей бани. Для нанесения контуров используют лекала из картона. Ширина оставшейся части планки должна превышать 10 см.

Создание основания бани-бочки (рис. 26)
Все подготовленные доски максимально прочно фиксируются между собой на шурупы, а для придания дополнительной жесткости используются металлические уголки. Они крепятся по углам конструкции и на участках стыка поперечных и продольных планок.
Для скрепления элементов бани-бочки удобно пользоваться шурупами и шуруповертом.

Для скрепления элементов бани-бочки удобно пользоваться шурупами и шуруповертом (рис. 27)
Внимание! Перед скреплением всех деталей, не забудьте обработать их специальной пропиткой. После сборки сделать это качественно будет проблематично!
Сооружение передней и задней стенки
Приступая к следующему этапу, следует помнить о нескольких моментах.
Обе стенки должны быть идеальной формы.
Задняя стенка должна предусматривать наличие окошек (одного или двух в зависимости от проекта), а передняя – дверной проем. Месторасположение этих элементов определяет область размещения брусков, на которые фиксируются доски. Их крепят поперек конструкции.

Изготовление дверного проема — задача не из легких (рис. 28)
Используя бруски и доски делается равносторонний квадрат. Определяется его середина, а затем расчерчивается окружность, которая аккуратно выпиливается электролобзиком.
В готовой окружности производится разметки дверей и окон, также выпиливается. Для надежности полученные отверстия можно укрепить по периметру деревянными брусками.
Стены бани-бочки: подготовка досок
На этом этапе готовятся доски для обшивки стен бани-бочки. На каждой доске на уровне установки передней и задней стенки выполняются пазы. Их ширина сравнима с толщиной досок, из которых изготовлены стенки, а глубина составляет 8-10 мм. Эти пазы позволят зафиксировать «днища» бани. Если парная будет состоять из двух комнат, то вырезать пазы придется не в двух местах, а в трех, ведь разделяющая перегородка будет также зафиксирована в них.

Баня с перегородкой (рис. 29)
Создание окон и дверей
Абсолютная герметичность закрывающихся помещений – один из самых важных моментов при самостоятельном изготовлении.

Абсолютная герметичность закрывающихся помещений _ один из самых важных моментов при самостоятельном изготовлении (рис. 30)
Эту кропотливую и точную работу все же лучше доверить мастеру, снабдив его всеми расчетами и размерами.
Этап сборки бани
Основа под парную монтируется на твердое основание с небольшим уклоном. К нему же заранее нужно подвести сливную трубу.

Монтаж опорных элементов (рис. 31 )
На основе в подготовленных дугах отмечается середина. К ней будет крепиться первая доска бани-бочки.

Первая доска связывает опоры воедино (рис. 32)
С двух сторон от первой доски устанавливаются остальные по всей длине дуги основы.
Внимание! Обязательно следите за тем, чтобы все вырезанные пазы образовали одно углубление. Таким образом закрывается пол.

Монтаж стенок бани-бочки (рис. 33)
Следующий шаг – монтаж в пазы закрепленных досок задней и передней стенок. Убедитесь в том, что они вошли плотно и могут стоять без поддержки! Благодаря этим стенкам, будет формироваться геометрия постройки.
Последующие доски крепятся на установленные стенки (переднюю, среднюю и заднюю). Работы производятся параллельно с одной и другой стороны.

Обшивка бочки с двух сторон (рис. 34)
После того, как доски установлены, конструкцию нужно стянуть металлическими обручами. Это обеспечит сооружению дополнительную жесткость. Вместо обручей нередко используют ленты, на концах которых делаются отверстия. Через них пропускается болт, плотно стягивается и закручивается гайкой.

Стягиваем конструкцию металлическими обручами (рис. 35)
Производится монтаж окон и дверей.
На заключительном этапе выполняются кровельные работы. Чаще всего на крышу устанавливается гибкая черепица и металлические листы. Очень эффектно смотрится двускатная крыша. Отделка скатов производится с помощью металлочерепицы или профнастила.

Покрытие из битумной черепицы (рис. 36)
Если проектом бани-бочки предусмотрена веранда, то самое время заняться ее обустройством и установкой скамеек.

Обустройство веранды (рис. 37)
Обустраиваем баню-бочку изнутри
Прежде чем обустраивать внутреннее пространство бани, стены покрываются специальным льняным составом. Масляная жидкость надежно защитит древесину от избыточной влаги, деформации ирастрескиваний.
Льняное масло — надежная защита древесины.

Льняное масло — надежная защита древесины (рис. 38)
Внимание! Обрабатывается не только стена, но и все деревянные элементы.
Обустройство бани-бочки
После того, как конструкция бани собрана, можно заняться ее обустройством:
- Удобные полки в такой постройке – немаловажный фактор.

Полочки предпочтительнее делать из липы и осины (рис. 39)
- Для циркуляции воздуха на поверхность пола кладется решетка из дерева (расстояние между досками -1 см).
- Такое решение значительно облегчит ходьбу по полукруглому полу. Кроме этого на поверхности настила не задерживается жидкость, доски быстро подсыхают со всех сторон
- Организация водоотвода. Если на вашем участке уже имеется система канализации, то достаточно организовать слив воды в отводок трубы. Иначе выкапывается сливная яма, куда и будет поступать вода.

Организация слива воды (рис. 40)
- Электромонтажные работы проводят на этапе сборки. Поскольку дело вы иметь будете с баней, то кабель выбирается с негорючей изоляцией, а светильники – разработанные специально для бань и саун.
- Утепление бани. Если вы намерены пользоваться баней-бочкой круглый год, то ее лучше утеплить современными теплоизоляционными материалами. При этом придется побеспокоиться о пароизоляции и задуматься о внутренней отделке помещения.
- Установка необходимых элементов: душа и поддона (в случае, если проектом это предусмотрено), столика.
- При выборе печи целесообразно рассмотреть два варианта: компактная дровяная печь иэлектрокаменка.

Монтаж печи и дымовой трубы (рис. 41)
Внимание! Все деревянные поверхности вблизи печи, а также зона выхода дымохода должны быть обработаны термоизоляцией.
- Нередко возле бани-бочки сооружается и наполняется прохладной водой купель.
Особенности водоотвода
Если вы планируете строить баню, где будет потребляться большое количество воды, то без надежной системы водоотвода не обойтись. Можно, конечно, просверлить в полу небольшие отверстия, через которые жидкость будет просачиваться в грунт. Но при частом использовании бани жидкость просто может скапливаться, что приведет к гнили и неприятному запаху сырости, затем доски пола станут ненадежными и в конце концов он попросту провалится. Именно по этой причине специалисты рекомендуют заранее побеспокоиться об организации качественной системы водоотвода.
Для этого баня-бочка монтируется под незначительным наклоном назад. В этом случае вода не будет скапливаться, а вся стечет в самый конец моечной, где будет заранее установлен слив – специальное отверстие с трубой, ведущей в сливную яму. Труба, подведенная к полу, обязательно утепляется. В противном случае она треснет от перепада температур в самый неподходящий момент.
Строительство бани-бочки займет у вас всего несколько дней, а радовать вас нескончаемым жаром будет годами. Это очень достойный вариант для загородного дома и дачи.
Видео — строительство бани бочки своими руками
banya-expert.com
Как построить баню бочку своими руками
Что делать, если на постройку полноценной бани не хватает ни сил, ни времени? В этом случае можно применить принципы модульного строительства. Именно они легли в основу технологии возведения бани-бочки. Сделать подобную конструкцию можно самостоятельно, а при должной сноровке и наличии инструментов – даже без напарника.
Содержание статьи
Особенности конструкции
Как видно из названия, корпус бани представляет собой цилиндрическую конструкцию из досок с пазовым соединением. Для ее усиления на поверхность устанавливаются стягивающие металлические пластины (аналог хомутов). На первый взгляд конструкция будет идеально подходить под функции бани. Недорогая стоимость возведения, возможность приобретения уже готовых модульных элементов и высокая скорость постройки говорят сами за себя.
Однако при более детальном анализе становятся видны следующие недостатки:
- Низкая теплоизоляция стен. В зимний период потери тепла могут свести «на нет» все попытки повысить температуру в помещении до нужного показателя.
- Небольшая площадь. Большинство заводских моделей и стандартных чертежей предусматривает в конструкции небольшой предбанник и парилку. Вместе их площадь может составлять до 12 м², т.е. фактически банные процедуры могут одновременно принимать до 3 человек.
- Подвод водопровода и подключение канализации. Выполнение этих процедур затруднительно, так как зимой возникает большая вероятность промерзания труб и образования ледяной пробки в них.

Если вспомнить, что помещение планируется как бюджетный вариант бани, можно не учитывать все эти недостатки. Важнейшим преимуществом конструкции является возможность ее транспортировки, что нельзя сделать со стандартной баней.
Составление проекта и выбор материалов
Сначала необходимо разработать хотя бы элементарную проектную документацию – чертеж здания и перечень материалов для его изготовления.

Сейчас можно найти множество стандартных чертежей бани бочки. Несмотря на кажущееся многообразие, все они включают следующие основные элементы:
Основание
Изготавливается из досок, толщина которых должна быть не менее 5-6 мм. На первом этапе на каждой из них делается углубление , в которые будут устанавливаться доски. Для усиления конструкции края обиваются фиксирующей опалубкой.
Сборочные элементы – обрезные доски с пазовым соединением
Лучше всего выбирать качественный материал – лиственницу или кедр. Их длина должна соответствовать общему размеру готовой конструкции. На поверхности делаются монтажные углубления для установки перегородок. Не рекомендуется делить составные части по длине, так как это приведет к потере теплоизоляционных свойств конструкции.

Перегородки
На деревянное основание набиваются доски, а затем обрезаются таким образом, чтобы в итоге получилась круглая конструкция. Ее диаметр должен быть меньше наружного бани на толщину настенных досок. Если изготавливается внутренняя перегородка и наружная входная, следует оставить место для дверного проема.
Дополнительные элементы
К ним относятся решетчатый половой настил и полати. Они также делаются из дерева.
Количество расходных материалов рассчитывается согласно чертежу – учитываются размеры конструкции и отходы на порезку. Перед началом работ все материалы нужно обработать антигрибковым составом во избежание возникновения процессов гниения в их волокнистой структуре.
Сборка: инструменты и порядок ее проведения
После выбора материала изготовления и его обработки можно приступать к процедуре сборки. Для этого понадобится стандартный набор столярных инструментов: рубанок, стамеска и шлифовальная машинка. Кроме этого потребуются рулетка и молоток. Расходные материалы должны включать в себя:
- Гвозди и шурупы.
- Металлическая лента с элементами ее стягивания.
- Изоляция (конопатка). Необходима, если доски не имеют монтажный паз.
Все конструктивные элементы изготавливаются заранее. Работы можно проводить в гараже или любом другом подсобном помещении. По завершении изготовления заготовки желательно пронумеровать согласно этапам сборки.

Далее оборудуют место установки конструкции. Для этого выбирается любое место на земельном участке, но рекомендуется монтировать баню на возвышенности. Роется небольшая яма глубиной до 0,5 м и габаритами, превышающими размеры бани на 40-50 см. На ее дно засыпается песчано-гравийная смесь, которая тщательно утрамбовывается. После окончательного выравнивания можно приступать к сборке.
На установленный каркас прибивается нижний ряд досок. Необходимо отслеживать расположение монтажных углублений – они должны составлять одну общую канавку. После этого устанавливают и крепят перегородки. Их плоскость должна быть строго перпендикулярна уровню песчаного настила.
После этого прибиваются остальные стеновые доски. Между первой и последней устанавливается корректирующая рейка. Она должна иметь форму клина. С ее помощью можно будет регулировать зазор в случае разбухания или температурного расширения досок. Далее вся конструкция стягивается металлической лентой. Для удаления воды на поверхности пола сверлятся отверстия. Делается это как минимум в 3-х местах. На этом возведение корпуса бани бочки завершено.

На заключительном этапе устанавливаются полати, настил на пол и двери. Особое внимание следует уделить технике безопасности при монтаже котла. Это место необходимо покрыть огнестойким материалом. Для удобства в стене бани делаются отверстия для подвода воды и электричества. Получившуюся конструкцию в случае надобности можно перевозить любым удобным способом – на автоприцепе или в грузовом автомобиле.
dearhouse.ru
Баня бочка своими руками чертежи
Попариться в баньке после тяжелого рабочего дня – это мечта практически любого человека. Но ехать куда-то в парилку, арендовать помещение и платить за это, к слову, действительно немалые деньги, обрадует далеко не каждого. Если вы построили собственный дом и думаете, как обустроить участок, то обязательно рассмотрите возможность создания собственной бани, посещать которую вы сможете в любое удобное для вас время с минимальными затратами на топливо. Кроме того, попариться можно будет и в компании друзей, которым также по нраву такой формат отдыха. Но если вы оценили эту идею, но не знаете с чего начать, то первым делом ознакомьтесь с существующими проектами сооружений и выберите среди них, тот, что вам больше всего по душе. В последнее время особой популярностью начали пользовать бани-бочки, которые имеют массу преимуществ, по миму очевидной доступности и практичности. В этой статье мы рассмотрим все особенности создания таких парилок, а также материалы, без которых вам не обойтись.
Баню собственными руками может построить каждыйПреимущества таких сооружений
Несомненно, на возведение капитального банного комплекса рядом с небольшим коттеджем или дачей, нецелесообразно, особенно, если вы живете в доме не круглый год, а только на протяжении лета. Кроме того, стоит отметить, что баня – это несколько недешевое удовольствие. Да, такая постройка довольно быстро себя окупит, но никто не отменял первоначальные траты, без которых, увы, не обойтись. Но что делать тем людям, которые не хотят отказываться от задумки создать баню, но при этом не располагают необходимыми средствами? В таком случае, рекомендуется обратить внимание на бюджетные варианты комплексов, которые по своей функциональности и долговечности ничем не уступают массивным пристройкам.
Схема расположения дверного проема для баниБаня бочка – это сооружение, которое без особого труда вы можете создать самостоятельно, потратив на это минимум финансов и своего драгоценного времени. Возвести парилку можно за считанные дни, а ее внешний вид при этом будет весьма привлекательным и завершенным благодаря проведению отделочных работ. Самое главное – это придерживаться выбранной схемы и советов специалистов в области строительства и проектирования.
Вид бани внутри
Длина такого сооружения может быть на ваше усмотрение – от двух до шести метров. Если ваш бюджет сильно урезан, вы можете создать компактную «бочку», в которой будет лишь место для парилки и непосредственно самой печи. Если говорить о хорошо оборудованных и больших банях, то в них может быть запланирована комната для отдыха, душевая, имитированная лоджия, а также практически любое другое помещение, которое пожелает ваша душа.
Кроме того, стоит отметить и следующие достоинства, а именно:
- оригинальный внешний вид;
- необходимо небольшое количество площади под создание сооружения;
- скоростные темпы выполнения работ;
- баня бочка имеет абсолютно такую же функциональность, как и капитальные сооружения, ничем не уступая им;
- не нужно массивное основание;
- создать парилку можно из материалов, которые остались, к примеру, после строительства дома;
- доступность и низкая цена;
- построить баню бочку по чертежам и схемам можно самостоятельно.
- при желании, вы можете создать индивидуальный проект сооружения и реализовать его, исходя из собственных пожеланий и предпочтений.
- Баня бочка своими руками чертежи которой вы без труда сможете найти в сети и выбрать среди них именно те, которые подойдут для вашего участка, и, разумеется, бюджета.
Выбираем строительный материал
Наиболее доступным и практичным вариантом являются шпунтованные доски
Чтобы создать баню бочку самостоятельно, без привлечения команды мастеров, разумеется, стоит использовать древесину. Выбрать породу вы можете на свое усмотрение, но самой безопасной для человеческого здоровья и окружающей среды будет сосна, ель и пихта. Но если речь идет о создании такого сооружения в условиях дачного участка, то обязательно стоит учитывать климатические условия, количество осадкой и запланированные сроки эксплуатации. Именно поэтому, для таких объектов лучше всего отдавать предпочтение кедру, а также лиственнице, которые хоть и стоят недешево, зато прослужат достаточно долго и порадуют своими эстетическими характеристиками.
Уделите особое внимание форме сооруженияОсобенно важно тщательно продумать форму, в которой будут изготавливаться деревянные заготовки для будущей бани. Отлично подойдет для этих целей обструганная обрезная доска, имеющая тип крепления «шип-паз».
Чтобы упростить процесс сборки, специалисты в области строительства настоятельно рекомендуют обрабатывать материал так, чтобы он обретал немного округлые формы. Для этого можно применять предварительно созданные шаблоны. Материал должен иметь небольшую толщину, и ширину, чтобы с ним было максимально удобно и просто работать, как на подготовительном, так и на завершающей этапе.
Баня бочка: нужен ли фундамент?
Импровизированный фундамент для бани бочки
Люди, которые задумались над строительством собственной бани бочки по упрощенным чертежам, первым делом задумываются, есть ли необходимости создавать основание под такого рода конструкцию? Зачастую, создавать фундамент не требуется. Все что нужно – подготовить территорию. Для этого следует убрать из нее весь мусор, растительность, а также прочие предметы, которые могут помешать монтажу. Важно также провести выравнивание поверхности. На нее следует разместить опорные элементы, которые и будут выполнять функции основания.
Опорой для бани бочки может быть:
- Территория, которая была предварительно забетонирована или же асфальтирована; ;
- Участок, на который была уложена плитка;
- Покрытие с хорошо зафиксированным щитком (как правило, из дерева).
Если провести такие работы у вас нет возможности, то можно с уверенностью сказать, что в качестве импровизированного фундамента может отлично применяться старая железобетонная плита необходимых вам габаритов.
Железобетонная площадка под баню
В момент создания фундамента из опор старайтесь придерживаться нескольких советов:
- Создавая основания, рекомендуется применять надежную обрезную доску, которая имеет толщину не меньше, чем 5 сантиметров, предварительно проведя обработку качественной пропиткой с целью предотвращения образования грибков и плесени.
- Следите за тем, чтобы между каждыми опорами должно не слишком большое расстояние. Наиболее оптимальным является полтора метра, а количество досок варьируется в зависимости от того, каких размеров будет баня бачка.
- Собирая конструкцию, делайте на поперечных досках небольшую выемку округлой формы, чтобы опора в точности повторяла контур бани (его следует создавать не с краю, а ближе к центру, оставляя минимум 10 сантиметров у свободного края).
- Чтобы фундамент был жестким, при создании конструкции применяются всевозможные металлические элементы, которые фиксируются по углам каждого составляющего основания.
Порядок сборки
Параметры крупной бани бочки
Процесс сборка самого корпуса сооружения стоит начинать с монтажа стенок- перегородок, которые закрепляются поперечно основанию. Обустраивая их, не забывайте о том, что любая баня должна иметь несколько дверных и оконных проемов, а также том, что данный материал следует дополнительно обрабатывать защитным раствором.
Процесс непосредственной сборки деревянной бочки
После этого, на готовый фундамент поочередно укладываются доски наиболее оптимальной длины (из расчета параметров будущей бани). Соединяются они по принципу «шип в паз» для того, чтобы придать сооружению округлую форму. По завершению данных работ, проводиться фиксация перегородок торца, которые монтируется на месте, обусловленном чертежом.
Оформление внутренних помещений бани
Необходимая жесткость такого сооружения обеспечивается за счет применения специальных обручей из металла. Чтобы обеспечить их надежное крепление, рекомендуется приобрести специальные хомуты, которые после полного высыхания бруса стянут конструкцию и предотвратят появление зазоров и щелей.
При желании вы можете оформить и внешний вид бани
Наружная отделка бани бочки выполняется по желанию. Если вы все-таки решили, что это вам необходимо, то для проведения работ вполне подойдет обычная мягкая кровля, которую устанавливают непосредственно на верхнюю часть сооружения. Сначала следует обработать поверхность специальным гидроизолирующим материалом (бюджетным вариантом является простая полиэтиленовая), и битумной черепицей. После того, как все готово, необходимо выждать несколько недель для того, чтобы древесина полностью просохла. Обустраивать всем необходимым и приступать к полномерной эксплуатации парилки можно будет уже через месяц. Разумеется, это правило выполнять не обязательно, но если вы хотите, чтобы баня вас порадовала своей практичностью и долговечностью, специалисты в строительной отрасли все-таки советуют учитывать данные рекомендации.
В этой статье мы рассмотрели все основные особенности, а также преимущества бань бочек. Такие сооружения являются действительно достойной альтернативой капитальным зданиям, поэтому, если у вас появилось желание построить сауну у себя дома, обязательно рассмотрите их.
jsnip.ru


