Чертеж пвх окна: Конструкционный чертеж окна | Эволюция окон
Оформление замерного листа
Прежде чем отправиться заказывать окно, необходимо перенести на бумагу результаты Ваших замеров, т.е. оформить эскиз изделия, причём сделать это нужно в том виде, в котором он будет понятен менеджеру любой оконной компании, в какую бы Вы не обратились. Чтобы Ваш чертёж выглядел профессионально, не хуже, чем у настоящего замерщика, и в результате Вы приобрели изделие именно той конфигурации, которая была задумана (например, не перепутаны местами глухая и открывная створка, были в точности соблюдены размеры и т.д.), необходимо знать некоторые правила оформления замерного листа.
Во-первых, на всех документах (замерный лист, договор) рисунок пластикового окна делается, как вид со стороны помещения. Это очень важно, чтобы не перепутать расположение створки и глухой части окна относительно друг друга.
Во-вторых, все размеры указываются в миллиметрах.
В-третьих, необходимо схематично изобразить наличие глухой части (если она есть) и створки (если она есть), а также тип её открывания.
| Поворотная | |
| Поворотно-откидная | |
| Фрамужная | |
Значок «+» в левой половине показывает, что в глухой части окна находится стеклопакет. В особых случаях вместо стеклопакета может устанавливаться непрозрачный элемент — сэндвич-панель. В этом случае вместо символа «+» напишите «сэндвич» или сокращённо « сэнд«.
Нетрудно догадаться, что с помощью треугольника указывается, с какой стороны находится петлевая сторона створки (навеска).
Кроме того, угол треугольника, противоположный петлевой стороне, показывает, откуда происходит открывание. На предыдущем примере створка открывается слева-направо.
Если нужно, петлевую сторону можно перенести на импост. В этом случае створка по-прежнему будет считаться правой, но её навеска станет левой, т.е. открываться она будет справа-налево. Схематично это будет выглядеть так:
Теперь Вы можете придумать своему окну любую конфигурацию и нарисовать это в виде схемы. Вот некоторые примеры:
Должен Вас предупредить, что существуют ограничения на максимальный и минимальный размеры створки, поэтому, увы, не любая Ваша фантазия в плане конфигурации окна может быть воплощена в реальность. Более конкретную информацию по этому поводу Вам дадут в офисе компании, куда Вы обратитесь при заказе окна.
Безусловно, одной лишь голой схемы окна будет недостаточно для изготовления изделия. Ваш чертёж должен быть дополнен конкретными цифрами: высота окна, ширина окна, размер створки, а также указанием типа профиля, типа уплотнителя (резинки), типа фурнитуры, толщины и прочих параметров стеклопакета.
Размеры окна, как уже говорилось, нужно указывать в миллиметрах. Выглядит это примерно так:
Ширина створки может быть выбрана любой, как Вам захочется, но не следует забывать, что слишком широкие створки более склонны к провисанию из-за большой тяжести. Существует два распространённых варианта деления окна импостом на смежные секции (глухую и открывную):
1 — «по геометрии«, когда вертикальный импост делит окно на равные по ширине части. При этом стеклопакет створки оказывается меньшей ширины, чем стеклопакет глухаря — часть просвета перекрывает рама створки. Зато при такой конфигурации уменьшается стоимость окна;
2 — «по просвету«, когда импост немного смещён от центра в сторону глухаря, но за счёт этого достигается равенство ширины стеклопакетов глухаря и створки.
Вы можете письменно указать в замерном листе любой из этих вариантов, либо цифрами на схеме прописать конкретную ширину створки, если предыдущие два варианта Вам не подходят:
В случае более сложной конструкции окна необходимо будет дополнительно указать высоту створки, как на следующем примере:
Кстати, если Вы специально не пометите, что указали высоту именно створки, то в компьютерной программе, выполняющей расчёт Вашего изделия, размер «1600» (из предыдущего примера) будет принят, как расстояние от нижнего края рамы до осевой линии горизонтального импоста.
Остальные параметры Вашего окна лучше обсудить непосредственно с менеджером компании, когда будете оформлять заказ, потому что типы ПВХ-профилей и возможные опции в конструкции окон у каждой фирмы могут быть разными. А перед тем, как Вы отправитесь заказывать окно, рекомендую почитать, как сэкономить при покупке пластиковых окон.
Поделитесь с друзьями
Комментарии (0)
Добавить комментарий
Ответ на комментарий:
№
Ваше имя:
*
Контактный email:
*
Ваш сайт:
Комментарий:
*
До 2000 символов
Защита от спама:2 умножить на 5 равно:
*
* Даю согласие на обработку моих персональных данных в соответствии с Политикой конфиденциальности
* — поля обязательные для заполнения
Комментарий успешно отправлен!
Он будет опубликован после проверки модератором
Конструкция и схема устройства пластиковых окон ПВХ
Оглавление
- Вступление
- Предназначение пластиковых окон
- Устройство пластиковых окон
- Особенности окон ПВХ
Вступление
Производство пластиковых окон — это технологический процесс, в котором непросто сразу разобраться.
Здесь используются не только специальные материалы и технологии, но и оборудование, которое можно приобрести у компании «Вега». Для облегчения понимания имеющихся особенностей, рекомендуется сперва обратить внимание на конструкционное исполнение пластиковых окон. Понимание устройства и составных компонентов даст возможность упростить восприятие прочих тем, затрагивающих производство.
Рис. 1. Конструкция и устройство пластиковых окон (фото)
Предназначение пластиковых окон
Очевидно для чего служат окна, однако в случае с пластиковыми моделями этот вопрос следует осветить отдельно. Поэтому среди основных функций, которые выполняют ПВХ окна можно выделить такие:
- Пропуск естественного света.
- Удержание тепла внутри помещения.
- Обеспечение проветривания в разных режимах.
- Защита внутренних помещений от попадания в них с улицы различных объектов, злоумышленников, а также животных, насекомых и т. п.
Различные вариации окон могут иметь модификации, которые расширяют функционал и обеспечивают дополнительные возможности.
Это может быть защита от чрезмерного воздействия ультрафиолетовых лучей или дополнительная прочность. Также окна могут снабжаться декоративными элементами, чтобы лучше вписаться в экстерьер здания или же украсить интерьер помещения изнутри.
Рис. 2. Устройство пластикового окна
Устройство пластиковых окон
Основное устройство пластиковых окон представлено следующими компонентами:
- Рама и створки.
- Стеклопакеты.
- Фурнитура.
Каждый из компонентов в равной степени важен и только при правильном подборе всех элементов, конструкция будет действительно долговечной и хорошо справляться со своим предназначением. Далее более подробно рассмотрим каждый из компонентов по отдельности.
Рама и створки
К производству данных элементов выдвигаются достаточно строгие требования, поскольку они не только создают каркас всей конструкции, но обеспечивают большую часть функционала. Их изготовление осуществляется из рамных и створочных профилей соответственно, обладающих специальной ячеистой структурой.
Такой подход позволяет эффективно отводить конденсат, накапливаемый во внутренних полостях створок. Благодаря специальной форме рамных профилей удаётся дополнительно сохранять тепло в помещении.
Во время производства окон, пластиковые профили дополнительно укрепляются при помощи стальных армирующих частей. В таком случае речь идёт уже конкретно о металлопластиковых окнах, что является более точным наименованием. Иногда в конструкцию окна могут быть включены так называемые импосты. Их предназначение в том, что они делят оконный блок на несколько светопрозрачных секций, которые могут быть открывающимися и не открывающимися. Профили створок отвечают рамным профилям, они снабжаются устройствами для закрепления стеклопакетов в виде штапиков и пазов для них.
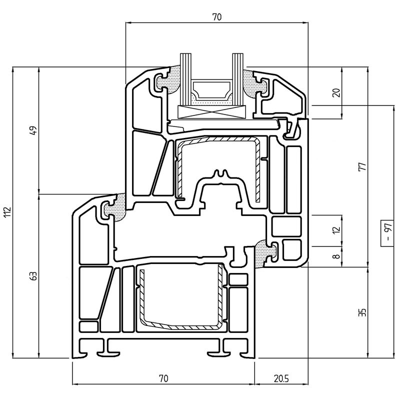
Рис. 3. Профильная схема окна ПВХ
Стеклопакеты
По определению стеклопакеты — это светопрозрачная энергосберегающая конструкция, которая является практически герметичной. Она состоит из двух или же более стёкол, которые разделяются между собой дистанционной алюминиевой рамкой.
Также здесь используются различного рода влагопоглотители и герметики. Они предназначены для полноценного устранения щелей, возникающих между створочным профилем и стеклопакетом. Также могут образовываться зазоры между самой створкой и рамой, как с внутренней, так и с внешней стороны. Непосредственно сам стеклопакет крепится в створке окна при помощи штапиков.
Стеклопакеты являются главным компонентом любого окна как светопрозрачной конструкции. Степень качества стеклопакетов влияет как на эстетические, так и на эксплуатационные характеристики всей конструкции. Качественное изделие поможет изготовить профессиональное оборудование, закупленное у компании «Вега».
Часто используются закалённые стекла, которые имеют высокие показатели, а ещё обеспечивают дополнительную защиту. Особенностью является то, что такое стекло крайне устойчиво к механическим повреждениям, а под действием давления оно лишь упруго деформируется. Закалённое стекло не сломается и не треснет, а для того, чтобы оно разбилось,потребуется масса усилий.
Даже если такое случится, то оно не оставит острые осколки, в отличие от стандартного стекла.
Рис. 4. Схема пластикового окна. Стеклопакет
Фурнитура
Фурнитура — это тоже немаловажный компонент в устройстве конструкции. Благодаря ей обеспечивается надёжность замыкающих механизмов, что в паре с закалёнными стеклами значительно повышает устойчивость к проникновениям. На раме устанавливаются ответные элементы, которые надёжно закрепляются и являются прочными. Если конструкция качественная, изготовлена из правильных материалов, то она сможет сдержать попытки проникновения снаружи.
Обвязка створки фурнитурой представляет собой достаточно сложную и комплексную систему. Недостатком является то, что при выходе из строя одного элемента, неисправной становится вся система. Поэтому, чтобы запорный механизм был долговечным и работал безотказно, рекомендуется выбирать качественную обвязочную фурнитуру из прочного металла.
Обвязочная фурнитура у ПВХ окон даёт возможность работать в различных режимах, а именно таких:
- Открытый/закрытый режим.

- Режим проветривания.
- Микропроветривание.
Окно не может и не должно работать одновременно в двух режимах, поэтому фурнитура действует таким образом, чтобы упредить ошибки пользователя, но не заклинить всю конструкцию. Ручки и петли оснащаются декоративными накладками, что объединяет в себе эстетичность и практичность.
Рис. 5. Схема окна ПВХ. Фурнитура
Особенности окон ПВХ
Выше была представлена базовая версия устройства пластиковых окон, которая используется в большинстве случаев. Но бывают и различные дополнения и модификации, к примеру жалюзи или антимоскитные сетки. Существуют и другие наименования, но все они представляют собой дополнительные элементы в конструкции металлопластиковых окон.
Sublime Windows — НПВХ
Чертежи САПР Тепловые характеристикиТройное изоляционное стекло толщиной 48 мм с двумя низкоэмиссионными покрытиями
Непластифицированный профиль ПВХ с сердцевиной из композитного стекловолокна
6-камерная рама с изоляционными вставками из пенополистирола
Три компрессионных уплотнителя защищают от сквозняков и влаги
Отличная звукоизоляция
Армированное волокном ядро для повышения энергоэффективности и снижения веса на 40 %
Идеально подходит как для жилых, так и для коммерческих помещений
Высокая теплоизоляция для пассивного дома и строительства с нулевым потреблением энергии
Чертежи САПР Тепловые характеристики Цветные ламинаты
Тройное изоляционное стекло толщиной 48 мм с двумя низкоэмиссионными покрытиями
Непластифицированный профиль ПВХ с сердцевиной из композитного стекловолокна
6-камерный каркас с изоляционными вставками из пенополистирола
Три компрессионных уплотнителя защищают от сквозняков и влаги
Отличная звукоизоляция
Армированное волокном ядро для повышения энергоэффективности и снижения веса на 40 %
Идеально подходит как для жилых, так и для коммерческих помещений
Высокая теплоизоляция для пассивного дома и строительства с нулевым потреблением энергии
Чертежи САПР
Тройное изоляционное стекло толщиной 48 мм с двумя низкоэмиссионными покрытиями
Непластифицированный профиль ПВХ для жесткой, прочной рамы, полностью пригодной для вторичной переработки
7 — Камерная рама, использующая изоляционные свойства мертвого воздуха
Три компрессионных уплотнителя защищают от сквозняков и влаги
Отличная звукоизоляция
Усиленная оцинкованной сталью створка и рама позволяют использовать окна больших размеров
Идеально подходит как для жилых, так и для коммерческих помещений
Высокая теплоизоляция для пассивного дома и строительства с нулевым потреблением энергии
Чертежи САПР Тепловые характеристики Цветные ламинаты
Тройное теплоизоляционное стекло толщиной 48 мм с двумя низкоэмиссионными покрытиями
Экструзия непластифицированного ПВХ для жесткой, прочной рамы, полностью пригодной для вторичной переработки
6 — Камерная рама, использующая изоляционные свойства мертвого воздуха
Три компрессионных уплотнения защищают от сквозняков и влаги снаружи
Отличная звукоизоляция
Усиленная оцинкованной сталью створка и рама позволяют использовать окна больших размеров
Идеально подходит как для жилых, так и для коммерческих помещений
Высокая теплоизоляция для пассивных Дом и строительство Zero Net Energy
Чертежи САПР Тепловые характеристики Цветные ламинаты
Тройное изоляционное стекло толщиной 42 мм с двумя низкоэмиссионными покрытиями
Непластифицированный профиль ПВХ для жесткой, прочной рамы, которая полностью пригодна для вторичной переработки
5-камерная рама, использующая изоляционные свойства мертвого воздуха
Две компрессионные прокладки защищают от сквозняков и влаги
Отличная звукоизоляция
Усиленная оцинкованной сталью створка и рама позволяют использовать окна больших размеров
Идеально подходит как для жилых, так и для коммерческих помещений
Высокая теплоизоляция подходит для строительства Zero Net Energy
PVCu Чертежи САПР | Eurocell
Сроки и условия
Пожалуйста, внимательно прочитайте положения и условия, изложенные ниже.
Если вы получаете доступ к материалам этого раздела веб-сайта, вы соглашаетесь с условиями, изложенными ниже. Если вы не согласны с условиями, не обращайтесь к этому разделу сайта или любым его материалам.
ЭЛЕКТРОННЫЕ ВЕРСИИ МАТЕРИАЛОВ, К КОТОРЫМ ВЫ ИЩЕТЕ ДОСТУП, ДОСТУПНЫ НА ЭТОМ ВЕБ-САЙТЕ КОМПАНИЕЙ EUROCELL PLC ДОСТУПНО И ПРЕДНАЗНАЧЕНЫ ТОЛЬКО В ИНФОРМАЦИОННЫХ ЦЕЛЯХ.
ИНФОРМАЦИЯ, ОТНОСЯЩАЯСЯ К ПРЕДЛОЖЕНИЮ АКЦИЙ EUROCELL PLC, ПРЕДОСТАВЛЯЕМАЯ НА ЭТОМ ВЕБ-САЙТЕ, ПРЕДНАЗНАЧЕНА ДЛЯ ДОСТУПНОСТИ ТОЛЬКО ДЛЯ ЛИЦ, НАХОДЯЩИХСЯ В СОЕДИНЕННОМ КОРОЛЕВСТВЕ. ЛИЦА, НАХОДЯЩИЕСЯ В СОЕДИНЕННОМ КОРОЛЕВСТВЕ, МОГУТ ПОЛУЧИТЬ ДОСТУП К ИНФОРМАЦИИ, ОТНОСЯЩЕЙСЯ К ПРЕДЛОЖЕНИЮ АКЦИЙ EUROCELL PLC, ПРЕДОСТАВИВ ИНФОРМАЦИЮ, ЗАПРОШЕННУЮ НИЖЕ.
ЭТИ МАТЕРИАЛЫ НЕ ПРЕДНАЗНАЧЕНЫ И НЕ ДОСТУПНЫ ДЛЯ ЛИЦ, НАХОДЯЩИХСЯ В США, ИЛИ РЕЗИДЕНТАХ ИЛИ НАХОДЯЩИХСЯ В АВСТРАЛИИ, КАНАДЕ, ЯПОНИИ, ИЛИ ЛИЦАХ В ЛЮБОЙ ДРУГОЙ ЮРИСДИКЦИИ, ГДЕ РАСШИРЕНИЕ РАСШИРЕНИЯ ВАС ДОСТУПНО ДЛЯ ОТДЕЛЕНИЯ НАРУШАЮТ ЛЮБОЙ ПРИМЕНИМЫЙ ЗАКОН ИЛИ ПОСТАНОВЛЕНИЕ ИЛИ ТРЕБУЮТ КАКОЙ-ЛИБО РЕГИСТРАЦИИ ИЛИ ЛИЦЕНЗИИ В ТАКОЙ ЮРИСДИКЦИИ ИЛИ ОТ ЛИЦ В ЛЮБОЙ ЮРИСДИКЦИИ ЗА ПРЕДЕЛАМИ СОЕДИНЕННОГО КОРОЛЕВСТВА (ИСКЛЮЧЕННАЯ ТЕРРИТОРИЯ).
Пожалуйста, внимательно прочитайте это уведомление, оно относится ко всем лицам, просматривающим эту веб-страницу. Обратите внимание, что заявление об отказе от ответственности, изложенное ниже, может быть изменено или обновлено. Вы должны читать его полностью каждый раз, когда посещаете сайт. Кроме того, содержимое этого сайта может быть изменено в любое время полностью или частично по собственному усмотрению Eurocell Plc.
Просмотр материалов, к которым вы хотите получить доступ, может быть незаконным в некоторых юрисдикциях. В других юрисдикциях только определенные категории лиц могут быть допущены к просмотру таких материалов. Любые лица, желающие просмотреть эти материалы, должны сначала убедиться, что на них не распространяются какие-либо местные требования, которые запрещают или ограничивают их в этом. Ни Eurocell Plc, ни [Canaccord Genuity или Peel Hunt] не несут никакой ответственности за любое нарушение применимых законов, положений или правил о ценных бумагах любым лицом в результате предоставления им ложной информации.
Информация на следующих страницах не предназначена и не должна предоставляться лицам на Исключенных территориях. Любые объявления о предложениях ценных бумаг или ссылки на предложения ценных бумаг, содержащиеся на этих страницах, не являются предложением этих ценных бумаг. Любое предложение ценных бумаг будет содержаться в проспекте, содержащем подробную информацию об эмитенте и предлагаемых ценных бумагах, включая описание рисков, деятельность эмитента и соответствующую финансовую информацию.
Эти материалы нельзя выпускать или иным образом пересылать, распространять или отправлять на Исключенной территории. Лица, получающие такие документы (включая хранителей, номинальных держателей и попечителей), не должны распространять или отправлять их на Исключенную территорию, на нее или с нее.
Любые ценные бумаги, упомянутые в этих материалах, не были и не будут зарегистрированы в соответствии с Законом США о ценных бумагах от 1933 года с поправками (Закон США о ценных бумагах) или в соответствии с законами о ценных бумагах какого-либо штата, провинции, территории, страны или юрисдикции Исключенной территории и не могут предлагаться, продаваться или доставляться, прямо или косвенно, на Исключенной территории или в нее, кроме как в соответствии с освобождением или в рамках сделки, не подпадающей под действие требований регистрации Закона США о ценных бумагах и/или любые другие законы о ценных бумагах и в соответствии с любым применимым законодательством о ценных бумагах.
В США не будет публичного предложения ценных бумаг.
Если вам не разрешено просматривать материалы на этом веб-сайте или вы сомневаетесь, разрешено ли вам просматривать эти материалы, покиньте эту веб-страницу.
Основа доступа
Доступ к материалам на этой веб-странице предоставляется компанией Eurocell Plc добросовестно и только в информационных целях. Любое лицо, желающее получить доступ к этой веб-странице, заявляет и гарантирует Eurocell Plc, что делает это только в информационных целях. Размещение объявлений для прессы и других документов, доступных на этой веб-странице, не является предложением о продаже или предложением о предложении купить ценные бумаги Eurocell Plc. Кроме того, это не является рекомендацией со стороны Eurocell Plc или любой другой стороны продавать или покупать ценные бумаги Eurocell Plc.
Подтверждение понимания и принятия отказа от ответственности
Нажав кнопку «Согласен», вы гарантируете, что являетесь резидентом Соединенного Королевства и не находитесь в Соединенных Штатах, или проживаете или находитесь на Исключенной территории, и вы соглашаетесь с тем, что вы не будет передавать или иным образом отправлять какие-либо материалы, содержащиеся на этом веб-сайте, любому лицу на Исключенной территории.
