Чертеж твердотопливного котла – Чертежи и схема твердотопливного котла. Сборка своими руками
Твердотопливный котел своими руками – чертежи и схемы
Собрав первый твердотопливный котел своими руками, чертежи можно отправлять на полку. Потому что, если вы выбрали жаротрубный теплообменник, процесс этот прост. Конечно, если вы пробуете собрать пиролизный твердотопливный котел своими руками, чертежи вам понадобятся снова и снова, и очень хорошего качества.
Что я подразумеваю, когда говорю про качество чертежей, да и документации по котлам вообще? Во-первых, документация должна быть составлена инженером, причем, профильным. А не «кулибиным» из местного гаража.
Во-вторых, собирая пиролизный твердотопливный котел своими руками, чертежи вы будете использовать не только для сборки, но и для подбора материала. А это значит, что к каждому чертежному листу у вас должна быть спецификация на деталь.
Взять хотя бы использование теплообменника, упомянутого выше. Чем проще вы используете схему, тем проще становится сварка и сборка котла. И дешевле. А то, что вы с одним теплообменником получите на 10 процентов больше КПД, чем с другим, право не важно.
Почему? Да потому что этот показатель будет нивелирован, например, бесплатностью топлива. И вместо того, чтобы неделю тратить на изучение чертежей и документации, а потом месяц вываривать теплообменник сложной конфигурации, лучше поищите условно-бесплатные дрова.
Съездите на ближайшие лесопилки, договоритесь с мебельным производством, начните забирать отходы упаковки со складов. И вы увидите, что вам простой твердотопливный котел даст в этой ситуации большую фору самому продвинутому и насыщенному электроникой пиролизнику или пеллетнику.
wikiteplo.ru
от чертежей и до реализации
Экология потребления. Усадьба: Твердотопливный котёл длительного горения — это большая топка, имеющая ограниченную зону сжигания твёрдого топлива и контролируемое поступление кислорода.
Описание и принцип действия твердотопливного котла
Твердотопливный котёл длительного горения — это большая топка, имеющая ограниченную зону сжигания твёрдого топлива и контролируемое поступление кислорода. Принцип работы устройства основывается на способности твердотопливных элементов тлеть в течение длительного времени с повышенной теплоотдачей. В процессе происходит полное прогорание вещества с минимальным образованием отходов.

Общий вид котла
Загрузка большого количества твёрдого топлива в топку происходит в среднем 1–2 раза в сутки, однако есть агрегаты, способные функционировать в течение нескольких дней. Путём регулирования притока кислорода в зону сгорания происходит замедленное тление при повышенной температуре. Дым выводится через специальную трубу. Она проходит сквозь теплообменник и прогревает воду для отопительной системы. Своевременная загрузка топки обеспечивает практически непрерывную работу устройства.
Сгорание топлива в котле длительного горения чаще происходит сверху вниз. В этом случае по мере прогорания верхней прослойки огонь перемещается ниже, на следующие слои. Такие тепловые агрегаты имеют множество достоинств, обеспечивающих их популярность среди всех групп населения:
- Увеличенный объём топки для загрузки топлива.
- Длительный срок работы на однократной загрузке.
- Большая теплоотдача.
- Экологичность. При работе отопительный прибор выбрасывает минимальное количество отработанных газов.
Стандартные котлы длительного сгорания различаются по виду используемого топлива:
- Устройства, функционирующие на одной разновидности топлива. Обычно в этом качестве выступают дрова, иногда — паллеты, полученные из отходов деревообрабатывающей промышленности.
- Универсальные агрегаты. Здесь есть возможность комбинировать несколько видов твердотельных элементов — дрова, опилки, паллеты.
По типу работы все существующие виды котлов длительного сгорания можно разделить на две крупные группы:
- Пиролизные. В работе подобных аппаратов используется принцип пиролиза. Твёрдые частицы топлива прогорают при большой температуре и слабой подаче кислорода. В процессе вырабатывается газ, направляемый в отдельный отсек, где и сгорает. Подобный принцип увеличивает КПД котла и время сжигания топлива.
- Классические. Имеют упрощённую конструкцию, различаются объёмом топки, способом сжигания, наличием водяной рубашки-контура и т. д. Простейший классический котёл без рубашки — это металлическая ёмкость, сделанная из трубы или бочки, где происходит сгорание твёрдых частиц по принципу «сверху вниз».
Область использования твердотопливных котлов обширна. Бытовые модели отапливают частные домовладения, магазины и подобные жилые и нежилые объекты. Крупные промышленные агрегаты, для размещения которых требуется отдельное оборудованное помещение, могут отапливать небольшой завод. Популярность котлов обусловлена небольшой стоимостью и простотой эксплуатации.
Устройство агрегата

Основные узлы отопительного устройства
Вкратце суть работы и устройство твердотопливного пиролизного котла длительного горения можно свести к следующему:
- Два металлических цилиндрических корпуса разного размера скрепляются между собой. Меньший — это топка, где происходит сгорание твёрдых частиц. Больший — внешняя оболочка котла.
- Оставшееся пространство между корпусами заполняется водой. Она исполняет функции теплоносителя.
- В малую трубу устанавливается воздухораспределитель и делит её на две части. В одном разделе происходит сжигание топливных частиц, в другом — дожигание пиролизного газа. Распределитель изготавливается в виде телескопической трубы, к одному концу которой прикреплён небольшой диск с лопастями. Это позволяет равномерно распределить газы, выделяемые в процессе сжигания топлива. Через воздухораспределитель в отсек сгорания подаётся кислород, необходимый для поддержания горения.
- По мере прогорания слоёв топлива распределитель переходит ниже и добавляет воздух на нижеследующие уровни.
- В том случае, если процесс контролируется автоматическими управляющими системами, необходимо обеспечить подключение устройств к электросети.

Несложный котел можно сделать и своими руками
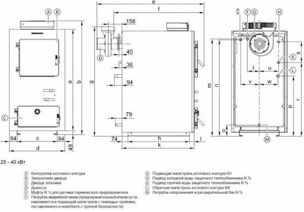
Для изготовления котла, работающего на твёрдом топливе, необходимо разработать чертёж или схему. На ней отображается примерный внешний вид агрегата с соблюдением всех пропорций, деталей и элементов.

Указаны все узлы и детали промышленного котла с размерами
Инструменты и материалы
Разберём подробнее создание пиролизного котла длительного горения своими руками. Он функционирует на газе, получаемом из высушенных дров либо спрессованных в паллеты отходов.
В процессе самостоятельного изготовления твердотопливного котла потребуется набор электроинструментов и материалов, а также чертёж или схема с отображением всех нужных частей и размеров.
Необходимая техника:
- Сварочный аппарат и несколько пачек рабочих электродов.
- Углошлифовальные машинки. Желательно иметь две — большую и малую. Если таковых нет, работу можно провести с помощью обычного электрического лобзика, однако увеличится время работы.
- Отрезные и шлифовальные круги диаметром 125 и 230 мм, при отсутствии шлифмашинок — пилки по металлу для электролобзика.
Необходимые материалы:
- Труба с большим диаметром (около 50 см). Длина — 130 см, толщина стенки — от 3 мм.
- Труба с меньшим диаметром, около 45 см. Длина — полтора метра, толщина стенки — от 3 мм. При отсутствии труб можно приобрести несколько металлических листов 1250*2500*2,5 мм, прокатать их в специализированной фирме и изготовить нужные трубы самостоятельно с помощью сварочного аппарата.
- Тонкая длинная труба. Диаметр — около 6 см, длина — 120 см.
- Металлический лист, из которого будет вырезаться загрузочная дверца и люк для удаления золы.
- Металлические кольца диаметром в полметра и шириной около 2,5 см.
- Дверная фурнитура — петли, задвижки и т. д.
- Асбестовое полотно. Оно закладывается в двери котла. Это исключает их перегрев и снижает теплопотери.
- Шнур из асбеста. Им уплотняются дверца топливного отсека и люк зольника.
Пошаговая инструкция по изготовлению
Процесс создания отопительного устройства достаточно прост и проходит в несколько последовательных этапов.
Вначале изготавливается корпус конструкции:
- Две трубы большого диаметра (50 и 45 см) вкладываются друг в друга и соединяются с помощью металлического кольца.
- Из заранее подготовленного листа вырезается круг металла диаметром 45 см, которым заваривается дно меньшей трубы, находящейся внутри конструкции. В итоге получаем бочку диаметром 45 см, с наваренной водогрейной рубашкой-контуром в 2,5 см шириной.
- Внизу «бочки» прорезается прямоугольное отверстие. Высота — до 10 см, ширина — около 15. Оно будет использоваться в качестве дверцы зольника. Вваривается люк, устанавливается дверь с приделанными петлями и задвижкой.

Дверца зольника прорезается внизу
- В верхней части контура режется прямоугольное отверстие для подачи твёрдого топлива. Размер подбирается индивидуально, главное условие — удобство загрузки дров. Вваривается люк. Устанавливается дверца, оборудованная петлями и задвижкой. Она делается двойной: между отдельными металлическими листами укладывается асбестовый слой, места прилегания уплотняются асбестовым шнуром. Благодаря таким манипуляциям снижаются теплопотери котла.
Размер должен быть достаточен для закладки дров
- На верхнем уровне обустраивается выпускной патрубок, выводящий отработанные газы в дымоход.

К патрубку приваривается труба для вывода дыма
- В двух местах (вверху и внизу) водяного контура привариваются патрубки диаметром 4–5 см, необходимые для подключения котла к дальнейшей отопительной системе. Нарезается резьба, для чего используется лерка.
- Проверка сварочных швов, в случае надобности — устранение огрехов.
После создания металлического корпуса твердотопливного котла можно приступать к изготовлению и установке распределителя воздуха:

Воздухораспределитель может быть выполнен в виде блина с приваренными швеллерами
- Вырезается металлический круг. Его диаметр должен быть на несколько сантиметров меньше внутреннего на котле. В центре круга режется круглое отверстие, по размерам соответствующее трубе воздухораспределителя (5–6 сантиметров).
- В прорезанное отверстие вставляется металлическая трубка.
- Снизу на «блин» навариваются швеллеры или уголки, расположенные в виде лопастей. При подходящей толщине лопастей, иногда используется крыльчатка от вентилятора.
- Сверху приваривается небольшая петля. С её помощью можно поднимать и опускать распределитель. Также оборудуется заслонка, регулирующая интенсивность подачи воздуха в зону огня.
- Монтаж воздушного распределителя к корпусу. Из металлического листа вырезается круг, диаметр которого равен внешнему корпусу. В центре режется отверстие 6–8 см. Нижняя часть воздухораспределителя вставляется в котёл, верхняя продевается сквозь проделанную дыру. После этого круг приваривается к котлу и в дальнейшем функционирует в качестве верхней крышки.

Количество лопастей и размеры могут меняться
Это один из простейших способов изготовления твердотопливного котла. Существуют усложнённые схемы, используемые в промышленных и бытовых моделях.
Видео: Сборка твердотопливного котла
Конструктивные особенности пиролизных агрегатов
Изготовление пиролизного твердотопливного котла длительного горения происходит по аналогичному шаблону: сварка корпуса, воздухораспределителя, установка фурнитуры и т. д. Основное отличие от классического устройства — наличие двух камер. В первой сгорает топливо, во второй догорают пиролизные газы. Для такого котла очень важно обеспечить постоянный приток кислорода. Это можно сделать при помощи вентилятора.
Твердотопливные пиролизные котлы с нижней камерой сжигания различаются по особенностям конструкции и сгорания топлива.
- В моделях с наддувом создаётся нагнетание воздуха вентилятором. В нижней камере возникает повышенное давление. В таком котле можно использовать любой бытовой вентилятор, вплоть до компьютерного кулера, главное — исключить очень сильный наддув.
- В котлах с дымососом устанавливается вытяжной вентилятор, создающий недостаточное давление. Обеспечивается максимально полное сгорание газов и оптимальная работа устройства.
Пиролизные агрегаты с верхней камерой считаются более продуктивными. Они обеспечивают медленное и равномерное прогорание топлива. Некоторые промышленные дровяные котлы могут работать около двух суток. При закладке такой же порции угля срок работы увеличивается до недели.
Видео: Особенности работы
Установка самодельного котла и разгонная топка
Для установки отопительной системы может потребоваться специально оборудованное место. В жилых помещениях ставить такую конструкцию не рекомендуется: увеличивается опасность пожаров, утечек. Соответствующие службы могут наложить штраф. Очень часто самодельные агрегаты устанавливаются в теплицах, технических и рабочих помещениях.
При установке твердотопливного котла следует руководствоваться некоторыми требованиями:
- Расстояние от котла до стен должно быть более 25 сантиметров. Это минимизирует риск возгорания и улучшает воздухообмен в помещении.
- Желательно оборудовать под котлом собственный негорючий фундамент. Можно уложить асбестовую или бетонную плиту.
- В помещении с установленным пиролизным твердотопливным котлом должна быть качественная вентиляционная система. Постоянный приток свежего воздуха необходим для работы отопительной системы этого типа.
- Во избежание утечек и возгораний дымоход, через который уходит отработанный газ, должен быть заизолирован. В качестве изолирующего материала можно использовать обычную фольгу или минеральную вату.
После сборки и установки твердотопливного котла необходимо совершить пробную загрузку, называемую разгонной топкой. Загружать топливо в первый раз следует до начала отопительного сезона. В случае выявления неисправностей останется некоторое время до приведения системы в должное состояние.
Твердотопливный котёл может работать практически на любом топливе. Для разгонной топки следует использовать тот вид топлива, который планируется для постоянной загрузки. Топка заполняется полностью, до выходной трубы. Чтобы топливо лучше прогорало, можно брызнуть немного стандартной жидкости для розжига.
Котёл зажигается с помощью длинной щепы или лучины, через открытую заслонку. Пока не началось тление загруженного топлива, заслонку нельзя закрывать. Затем её можно прикрыть. Если скорости сгорания недостаточно для оптимальной работы отопительного устройства, заслонка приоткрывается для улучшения тяги. При первой топке загруженное твёрдое топливо должно целиком прогореть. О том, что началось стабильное тление, можно узнать по дыму, появившемуся из дымохода. В процессе сгорания отдельных слоёв топлива труба воздухораспределителя будет опускаться, по ней также можно определить скорость тления.
Самостоятельное изготовление котла длительного горения — это реальность, которая доступна каждому вне зависимости от того, новичок вы в его изготовлении или нет. Главное, не забывать о пожарной безопасности: ведь каждый отопительный прибор — потенциально опасное устройство. опубликовано econet.ru
P.S. И помните, всего лишь изменяя свое потребление — мы вместе изменяем мир! © econet
econet.ru
Котел твердотопливный длительного горения своими руками чертежи
Итак, вы задумали сделать котел твердотопливный длительного горения своими руками, но чертежи отсутствуют. Мы облегчаем вам задачу – чертежи твердотопливного котла своими руками мы предоставляем совершенно бесплатно! Никаких перечислений денег, никаких сомнительных смс и всего прочего, к чему нас уже давно приучил интернет.
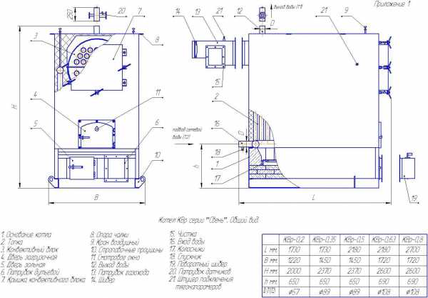
Чертежи твердотопливного котла шахтного типа, которые мы предлагаем скачать на нашем сайте, помогут вам изготовить отопительный прибор, который уже зарекомендовал себя весьма положительно. В том, что его возможно выполнить своими руками, вы убедитесь сами, просмотрев чертежи и внимательно изучив инструкцию.
Чертежи твердотопливного котла шахтного типа
Котел твердотопливный длительного горения своими руками имеет следующие параметры:
- Мощность: 6 (мин.) – 25 (макс.) кВт;
- Размеры: ширина – 500 мм, длина – 800 мм, высота – 1300 мм;
- Объём шахты: 150 л;
- Продолжительность горения: минимальный показатель 5 часов, максимальная продолжительность составляет 23 часа;
- Вид топлива: дрова.
Это самые главные показатели для ознакомления – более подробную информацию вы прочитаете в инструкции.
Твердотопливный котел своими руками: преимущества чертежей
Чертежи твердотопливного котла своими руками вам наверняка понравятся и придутся по душе:
- Вы получаете общие сведения по работе устройства;
- Рекомендации по чистке;
- Список необходимых материалов, которые понадобятся для изготовления твердотопливного котла шахтного типа;
- Перечень применяемого инструмента;
- Все необходимые размеры деталей и их количество;
- Подробную инструкцию по сборке твердотопливного котла своими руками;
- Рекомендации по улучшению и модернизации агрегата.
Важно! Чертежи твердотопливного котла шахтного типа содержат фото, которые помогут лучше понять конструкцию и принцип монтажа.
Взамен мы ничего не просим. Комментарий с благодарностью и одно нажатие на рекламный блок – этого вполне достаточно, если посчитаете данный отопительный прибор шахтного типа полезным и нужным для себя.
www.depstroi.ru
