Чертежи навесы – Расчеты и чертежи навесов своими руками
Расчеты и чертежи навесов своими руками
Предтечей строительства стационарного навеса являются расчеты. Расчет навеса необходим для того, чтобы конструкция была надежной, выдерживала собственный вес, а также нагрузки, создаваемыми ветром и снегом. В рамках данной публикации мы поговорим лишь о чертеже и расчетах различных частей конструкции на примере автомобильного навеса из поликарбоната. Весь пакет проектной документации куда больше и ему будет посвящена отдельная статья.
О чем нужно помнить, готовя проект?
Перед тем как изготовить чертеж навеса из поликарбоната, необходимо определиться с общей проектной и дизайнерской концепцией, а именно как будет выглядеть конструкция, какую она будет иметь форму, для чего будет предназначена. Далее нужно нарисовать эскиз сооружения, где указать общие размеры навеса из поликарбоната (длину, ширину и другие параметры) и его основных элементов. На следующем этапе можно готовить чертеж навеса для автомобиля из поликарбоната, при этом необходимо помнить.
- Сооружение должно быть достаточно габаритным, чтобы в нем помещался ваш автомобиль с некоторым запасом, это должен отражать эскиз.
- Автомобиль, находясь под навесом из поликарбоната не должен мешать человеку, свободно перемещаться вокруг него, также как и части конструкции навеса. Рассчитайте расстояние между авто, стоящим под навесом, и опорами конструкции, эти расчеты должен содержать эскиз.
- При определении местоположения конструкции, учитывайте, с какой стороны чаще дует ветер, и соотнесите эти данные с расположением кровли и ее формой (односкатная, двускатная, дуга), это должен отражать эскиз.
- При определении местоположения конструкции, учитывайте возможность свободного подъезда к ней. Лучше чтобы автомобиль подъезжал к навесу по прямой, без виражей и поворотов, ну а если нет такой возможности, то расположите конструкцию так, чтобы сложных участков было в минимуме.
- Эскиз, а потом и чертеж, как и расчеты, прилагаемые к ним, должны быть достаточно простыми и понятными, чтобы потом самому где-нибудь не ошибиться.
- Обязательно учтите, как строящийся навес будет соотноситься с другими зданиями и сооружениями, находящимися на территории участка. Даже в том случае, если вы не собираетесь данное сооружение оформлять.
- Определите (хотя бы приблизительно) сколько денежных средств потребуется на приобретение материала, после чего внесите коррективы в эскиз. Возможно, какие-то части конструкции можно сделать дешевле, подобрав достойную замену первоначально выбранным материалам.
К сведению! Готовя чертеж сооружения необходимо найти и приложить к нему технические данные об используемых материалах.
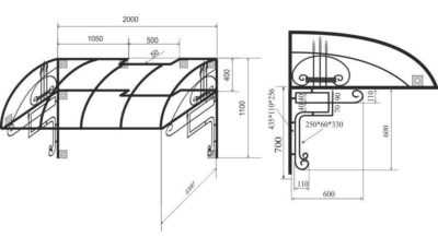
Рассчитываем ферму арочного типа
Мы имеем эскиз большого автомобильного навеса из металла, рассчитанного на 2 машины с крышей арочного типа (дуга) покрытой листами сотового поликарбоната. Ширина навеса от опоры до опоры составляет 5,8 метра, ширина арочной фермы (дуги) должна составлять 6 м. Давайте рассчитаем сечение профиля, который будет использоваться при изготовлении арочного перекрытия.
ɒпр=(ɒ2+4t2)0,5≥R/2, расшифруем данную формулу:
- ɒ — нормативное напряжение;
- R – крепость железа С235, около 2440 кгс/см2;
- t – напряжение по касательной.
Теперь последовательно подбирая показатели, мы можем вычислить профиль подходящего сечения, чтобы он мог выдержать искомые нагрузки. Берем квадратную профильную трубу 30х30х3,5 мм с сечением 35 мм2 с моментом инерции 3.98 см4, коэффициентом сопряжения нагрузки 0,5, предполагаемая нагрузка на замковую часть арки 914,82 кгс.

Все необходимые данные для вычисления собраны, формула есть, теперь остается подставить данные в формулу и получить расчет нагрузки на арочную ферму (дуга) автомобильного навеса из поликарбоната.
ɒ пр=((914,82/3,5)2+4(919,1*1,854/((0,35+0,35)3,98)2)0,5 =1250,96 кг/см2.
Что это значит? А это значит, что если мы сварим или скрутим шестиметровую арку из профиля 30х30х3,5 мм, она вполне выдержит собственный вес и вес кровельного материала, то есть сотового поликарбоната. Даже имеется приличный запас.
Рассчитываем опорную часть конструкции
Далее необходимо рассчитать какими будут опоры у автомобильного навеса из поликарбоната. Существует специальная методика, по которой принято рассчитывать стальные колонны, без нее адекватный расчет навеса невозможен. Применим формулу:
F=N/ϕRу. Расшифруем формулу:
- F – сечение квадратной трубы, которую можно использовать в качестве опоры;
- ϕ — коэффициент, определяющий продольный изгиб;
- N – нагрузка по центру тяжести столба;
- Rу – значение сопротивления материала.
Для того чтобы произвести расчеты, придется найти данные о сопротивлении материалов.
F=3000/(0,599*2050)
В результате получаем значение 2,44 см2, которое необходимо округлить в большую сторону. В итоге, значение на которое нам следует опираться при поиске подходящего профиля 2,5 см2. Этим показателям соответствует квадратная стальная труба 70х70х2 мм, даже имеется небольшой запас.
Нагрузки на крышу от снега и ветра
Ответить на вопрос, как рассчитать навес для авто можно только если произвести расчет несущих конструкций сооружения и нагрузки на крышу от снега и ветра. С расчетом несущих конструкций мы в общих чертах разобрались. Теперь нужно решить проблему с нагрузками от ветра и снега.
Чтобы получить необходимые для вычисления данные, нужно обратиться к показателям средней нагрузки от ветра и снега в вашем регионе. Найти такие сведения можно в соответствующем СНиПе.
Для примера возьмем значение ветровой нагрузки 23кг/м2. Но в нашем случае данная величина не подойдет потому что 23кг/м2 определена для зданий и сооружений у которых есть стены. У автомобильного навеса есть опоры, дуги, перемычки, прогон и кровля, поэтому давление будет оказываться лишь на них. Определяем среднее ветровое воздействие на навес получаем 0,34 при высоте опор свыше трех метров значение от 0,34 до 0,75 кг/м2. Вычисляем максимальную нагрузку создаваемую ветром на всю конструкцию: дуги, опоры, прогон, кровлю.
Wm=23*0,75*0,34. В результате получаем значение равное 5,9. Теперь вычислим нагрузку создаваемую снежным покровом. Эти нагрузки в разных регионах страны отличаются, причем отличаются значительно. В горных районах такая нагрузка может составлять более 600 кг/м2, но мы в качестве примера возьмем более скромный показатель 180 кг/м2 (Московская область).
Чтобы вычислить максимальную нагрузку на навес нужно 180 умножить на значение коэффициента перехода, которое еще предстоит получить. На рисунке ниже представлен расчет нагрузки снега на навес.

Максимальную нагрузку снега на навес вычислили. Теперь нам остается узнать показатель инерции для выбранного нами кровельного материала. Такие данные в обычном коммерческом описании материала не возьмешь, но в техническом описании это есть. Например, у сотового поликарбоната толщиной 12 мм, инерция 3,41 см4. Найдите материал с расчетным значением или больше такового и можете смело пускать его на кровлю автомобильного навеса. Подробнее о том из чего можно сделать кровлю для навеса вы можете прочитать в статье Материалы для навесов разных видов.
В заключение, отметим, конструкции навесов для автомобилей не так уж сложны, тем не менее, вольно к строительству подобных сооружений относиться нельзя. Вначале общее устройство навеса нужно нарисовать на эскизе, указав длину элементов конструкции, их диаметр и другие простые параметры. После этого можно приступать к расчетам и изготовлению чертежа. В процессе работы придется рассчитать параметры арочной фермы (дуги) и многое другое. Если вы чувствуете, что данная работа вам не по силам обратитесь к специалисту. Удачи!
besedov.ru
как составить схему конструкции как составить схему сооружения из поликарбоната
Понравилась статья? Следите за новыми идеями из мира дизайна интерьеров, а так же полезных советов в нашем канале. Подписывайтесь на нас в Яндекс.Дзене. Подписаться.

Такой чертеж поможет соорудить навес качественно.
Поликарбонат имеет много положительных свойств. Это удобный, легкий, светопрозрачный, достаточно прочный и эстетичный материал, цена которого сравнительно невысока. Грамотно составленные чертежи навесов из поликарбоната дают возможность без проблем сооружать их своими силами.
Правильный чертеж – залог долговечности сооружения
Следует учесть, что проектирование и создание схемы навеса лишь поначалу отнимет у вас некоторое количество времени. В ходе работ вы значительно сэкономите его, а также свои нервы, деньги и труд.
Почему важно грамотно составить схему
- Правильные проекты навесов из поликарбоната помогают выбрать для них оптимальное место на участке.
- Чертеж позволяет точно подсчитать количество нужных стройматериалов и тем самым сберечь деньги, т.к. вам не придется докупать что-либо или выкидывать ненужные остатки.

План даст четкое описание внешнего вида постройки.
- Схема определяет четкое представление о внешнем виде сооружения и позволит судить о том, эстетично ли оно и вписывается в экстерьер вашего участка.
- Качественной конструкция будет лишь тогда, когда вы правильно определите параметры его каркаса и верно подберете толщину поликарбоната. При этих условиях сооружение прослужит долго.
Данные, которые надо учесть, когда осуществляется проектирование навесов:
- назначение сооружения и в связи с этим — его размеры;
- учет климатических особенностей региона и свойств почвы на участке, исходя из этого – расчет нагрузок на конструкцию;
- подбор оптимальных строительных и облицовочных материалов.
Виды и размеры поликарбоната
Чтобы подобрать поликарбонат, нужно знать, какие его виды существуют.
- Монолитный материал выпускается в виде сплошных (не имеющих проемов) полупрозрачных листов. Исходя из его предназначения и условий эксплуатации, можно выбирать покрытие, имеющее различную толщину.
- Ячеистый или сотовый поликарбонат является пустотелым материалом. Два-три листа в нем сопрягаются перемычками (ребрами жесткости). Внутри покрытие похоже на пчелиные соты, которые не шестиугольные, а имеют обычно прямоугольное строение ячеек. Это обеспечивает материалу достаточную жесткость при очень малом весе.
Обратите внимание! Данный тип менее прочен, чем предыдущий. Однако он предназначен для небольших построек, поэтому данный факт не так важен. Вследствие сотовой структуры, толщина его больше, чем у монолитного материала.
- Гофрированный аналог не так распространен. Внешне он напоминает полупрозрачный шифер либо профилированный настил разных цветов. Высота его гофры может составлять до 5 см.
| Тип поликарбоната | Толщина, в миллиметрах | Ширина и длина, в метрах | Высота профиля, в сантиметрах |
| Монолитный | 2, 3, 4, 5, 6, 8, 10, 12 | 2,05×3,05 | × |
| Сотовый | 4, 6, 8, 10, 16, 25 и 32 | 2,1×6 и 2,1×12 | × |
| Профилированный | 1,2 | 1,26×2,24 | 5 |
Обратите внимание! Составляя проект, учтите условия погоды на местности и в связи с ними снеговые и ветровые нагрузки на сооружение. На схеме обязательно укажите размеры деталей конструкции. Они должны быть точно просчитаны и определены.
При вычислениях опирайтесь на стандартные габариты материалов для каркаса и кровли. Так вы получите меньше отходов при монтаже постройки.
Создавая проекты хозблоков с навесом, имеющие, например, мангал или барбекю, учтите, что пристройку надо планировать по нормам пожарной безопасности.
Проектирование конструкции
Проектные работы осуществляйте по нижеследующему плану.
- Выберите месторасположение навеса на участке, произведите там замеры.
- Определите, какой материал (деревянный брус, профильные стальные трубы и т.п.) будете применять для каркаса, кроме этого выберите тип и толщину поликарбоната для кровли.
- Далее непосредственно создаются чертежи и схемы навесов.
Каким образом обеспечить себя чертежами

На фото — профессиональный чертеж сооружения.
Определив, какие материалы будете применять и, выбрав местонахождение навеса, можете начинать проектирование. Где при этом взять чертежи? Существует три способа:
- начертить их своими руками на бумаге либо в компьютерной программе;
- заказать в проектном бюро;
- найти на одном из строительных сайтов в интернете.
При этом схемы могут быть объемными и простыми (плоскими).

Объемная схема.
- Объемный план даст наиболее достоверное представление, как будет выглядеть сооружение на самом деле. Однако чтобы создать такую схему, нужно иметь хорошие проектные навыки.
- Плоские схемы гораздо легче рисовать либо строить в программах. Их нетрудно распечатывать на принтере и использовать в качестве рабочего чертежа.

Точно рассчитанный узел крепления.
Обратите внимание! Обратившись в проектную организацию, вы получите документ, который будет составлен по всем техническим правилам и нормам. Будущая постройка будет рассчитана на долговечность, износостойкость, ударную прочность и т.д.
Вывод
Когда начнется монтаж навеса, инструкция рекомендует точно следовать его подробному чертежу. При грамотном его составлении, строительные работы не отнимут у вас много времени.
Отнеситесь к проектированию даже такого легкого сооружения с предельной серьезностью и в итоге получите надежное и качественное сооружение, которое прослужит вам многие годы. Видео в этой статье продолжит информировать вас о ее теме.
krovlyakryshi.ru
Навесы для автомобилей своими руками
Если вы запланировали построить дом с навесом для машины, то вам придется вложить в это дело кучу времени средств и нервов. С чего начать? А начать нужно с идеи и эскиза.
Проблема в том, что для одноэтажных домов сложно нарисовать на бумаге эскиз, который бы в равной степени отражал и внутреннюю планировку домов, и фасадную часть и прилегающие постройки. Про наглядность такого эскиза даже и говорить не приходится, а потом еще нужно будет делать чертеж. В рамках данной публикации мы посмотрим, как делают чертежи и проекты домов с навесами для автомобилей.
Проект дома: с чего начать?
Проекты домов обычно начинаются с идей и пожеланий хозяев. В данном случае речь идет о жилище, поэтому идей и пожеланий возникает очень много, не говоря уже о мыслях дизайнера которые должны в той или иной форме отразиться в эскизе. Эскиз в данном случае и нужен для того, чтобы ничего не забыть, когда придет время делать чертеж. Проект дома, переложенный в эскиз, довольно нагляден, но в настоящее время существуют инструменты, которые позволяют сделать нечто более наглядное, чем эскиз – это 3д проект.

3д проект жилого дома плюс хозблок можно создать в специальной бесплатной комьютерной программе Sweet Home 3D. 3д проект имеет очевидные преимущества перед любым эскизом:
- эскиз – это двухмерная модель дома, а 3д проект – трехмерная;
- 3д проекты домов можно создавать своими руками даже в том случае, если вы совершенно не умеете рисовать;
- Sweet Home 3D позволяет создавать модели домов с навесом для машины, которые будут состоять из сотен и даже тысяч элементов, включая и обстановку в будущем доме. При этом проект можно в любой момент разобрать на части и перекомпоновать, при этом, не теряя ничего. В случае с эскизом на бумаге, все пришлось бы перерисовывать.
- 3д проекты домов с навесом для машин можно как угодно крутить, создать внутри десятки слоев, предусмотрев расположение канализации и водопровода, электрических сетей и многого другого.
- 3д проекты домов создаются куда быстрее, чем эскиз, нарисованный на бумаге своими руками. При этом проект содержит несравнимо больше элементов, которые будут полезны в дальнейшем при изготовлении чертежа.
- 3д проект удивительно нагляден. Каждый элемент, как и все здание в целом, можно увеличивать, прорисовывая особенности каждого материала или частей конструкции.
О достоинствах 3д проекта домов с навесом для машин можно говорить долго, но многие, прочитав о них, возможно, подумают, что работа с таким софтом это удел профессионалов? Ничего подобного. Конкретно программа Sweet Home 3D интуитивно понятна и разработана специально для пользователей, не обладающих техническими знаниями. Как создавать проекты домов с навесом для машин в программе Sweet Home 3D?
- Нужно скачать, установить, а потом запустить программу или зарегистрироваться на официальном сайте программы и работать в режиме онлайн.
- Запускаем программу, и она нам сразу представит первый чистый рабочий лист имитирующий тетрадь в клетку с разметкой. Сверху будет находиться панель инструментов, слева каталоги элементов, а внизу демонстрационное поле готовой 3д модели.

- На рабочем листе нам нужно будет нарисовать схематичный план дома с расположением комнат или импортировать готовый план. Можно нажать кнопку «new home» и программа сама предложит готовый план по умолчанию. Готовый план можно отредактировать в меню «настройки».
- Теперь необходимо нарисовать своими руками стены дома с навесом для автомобилей. Выбираем инструмент Create walls. Чтобы произвести точную отрисовку всех стен, нужно пользоваться инструментом «увеличение фрагмента». Если нужно задать параметры стены (толщина, материал и прочее), нужно воспользоваться кнопкой Modify walls.

- В каталоге элементов слева выбираем окна и двери и просто перетаскиваем их в нужную точку, то же самое можно проделать с мебелью и другими элементами.
- На этом описание можно было бы закончить, но в нашем проекте есть еще хозблок, который находится за пределами жилого строения. Его мы будем рисовать отдельно.
Обратите внимание! Если хозблок будет пристроен к дому, то его можно включить в единую 3д модель вместе с жилым домом. Если это отдельностоящее сооружение, то и рисовать в программе его нужно на отдельном листе.

- Своими руками схематично отрисовываем опоры и кровлю навеса. К сожалению, программа не предоставляет возможности подробно отрисовать хозблок во всех подробностях, со всеми элементами, но для получения общего представления этого достаточно, как и для изготовления чертежа.
Делаем чертеж
Благодаря 3д модели мы получили наиболее полное представление о том, как будет выглядеть жилое строение с навесом для машины. Теперь нам необходимо определиться с расположением дома и прилегающих строений на земельном участке. Многие этим моментом пренебрегают, а потом пожинают плоды своей недальновидности, продумайте все до мелочей.
Переходим к изготовлению своими руками чертежа будущего жилого здания с навесом для автомобиля. Чертеж получится довольно сложный, поэтому есть резон воспользоваться компьютерной программой для изготовления чертежей Автокад. Действуем в следующем порядке.
- Открываем сразу обе программы в двух окнах Автокад и Sweet Home 3D. Так мы будем всегда иметь перед глазами 3д модель дома.
- В программе Автокад жмем кнопку новый проект и с помощью функции «отрезок» начертаем своими руками чертеж, на котором будет отражена фасадная часть здания и прилегающий к нему хозблок.
- Проставляем размеры каждого элемента фасада, добавляем краткое описание.
- Обозначаем элементы здания, указываем их точное расположение и размер.
- Теперь хозблок: определяем его габариты и размеры каждого элемента, опор, балок, прогона, кровли, фермы. Не забываем указывать, из какого материала будут состоять элементы, из дерева, металла, поликарбоната или еще из чего.
Важно! Конструкция отдельных важнейших элементов здания может быть начертана не только на общем, но и на отдельном чертеже. В частности отдельно можно начертить хозблок.
- Переходим к начертанию своими руками этажей жилого здания с навесом для машины. Данный чертеж будет выполнен сообразно ранее созданной 3д модели, только более схематично и с указанием размеров стен, перекрытий, габаритов комнат, градусов углов и прочего. Каждый этаж чертим отдельно, но в рамках единого чертежа, а затем сохраняем результат.
В результате должен получиться сводный чертеж, примерно такой же, как мы представили на картинке ниже. Отдельно фасад, отдельно этажи и отдельно важнейшие элементы жилого здания и прилегающих сооружений, все чертежи будут сведены в отдельный большой чертеж. Если вам интересно как сделать чертеж навеса из профильной трубы, можете прочитать об этом в одноименной статье.

Обзор проектов
Разумеется, вы не единственный, кто задумался над начертанием чертежа жилого здания с навесом для автомобиля. Существует довольно много готовых проектов, о которых бы мы хотели кратко поговорить в рамках данного пункта. Не поленитесь хотя бы бегло его посмотреть и ваш кругозор непременно расширится.

Перед вами два эскиза одноэтажных домов с навесами для машины. По планировки дома очень похожи, поэтому мы расположили эти эскизы рядом для сравнения. Навес для машины рассчитан на один автомобиль, так что хозблок и в первом, и во втором случае небольшой. Дом и навес изготовлены из дерева (и в первом, и во втором случае — брус). На плане отражена кухня, столовая, гостиная, холл, прихожая, котельная, терраса.

Особенностью следующего проекта загородного дома с навесом для автомобиля является расположение жилых комнат и хозяйственных построек. Конструкция в целом необычна, хозблок представлен не только навесом, но и гаражом, кладовой и дровником. Общая площадь хозблока больше, чем площадь жилых комнат. Примыкающий навес выполнен из дерева (брус), также как и все строение.

А в данном случае авторы представляют проект большого загородного дома с навесом для авто. Вы видите схематичное изображение фасадной части здания, прилегающих сооружений и архитектурных элементов. Конструкция весьма внушительная и дорогая, общая площадь больше 300 м2. Отдельно изображен первый этаж с расположением комнат и мансарда. Дом возведен из дерева (бревно).

Этот проект, хоть и не предполагает строительство навеса для машины нам показался интересным, поэтому мы его и добавили к нашему обзору. Загородный дом в данном случае интересно оформлен имеет общую площадь более 230 м2. Конструкция проекта представлена рисунком фасадной части здания, первым и вторым этажом. На первом этаже имеется гараж, столовая, комната отдыха, гостиная, холл, санузел и кухня. На втором этаже 4 спальни, 2 санузла и детская. Дом построен из дерева (брус) и отделан декоративным камнем.
В заключение, отметим, что чертеж, что проект жилого здания с навесом для машины лучше выполнить с применением компьютерных программ Sweet Home 3D и Автокад. Получится быстро и хорошо, на бумаге вы такого начертить не сможете.
besedov.ru
Чертежи навесов из поликарбоната для самостоятельной сборки
Каждый наверняка имеет представление о том, что собой представляет навес из поликарбоната. Такие установки используются как на жилых зданиях, так и на офисных. Особенно актуален такой навес на загородных участках. Он позволяет не только укрыть автомобиль или дорожку перед крыльцом от осадков, но и принести много другой пользы. Для того, чтобы произвести правильные расчёты для самостоятельного устройства навеса, нужно подробнее изучить чертежи и ознакомиться с подробным описанием самого процесса установки.
Поликарбонат для навеса: как сделать правильный выбор при определении толщины листов?

Поликарбонатные панели
Поликарбонат – иными словами полимерный пластик, имеет применение практически во всех областях человеческой жизнедеятельности. В строительстве же полимерный пластик нашёл своё применение во многих отраслях. Он используется для строительства беседок, гаражей, веранд, крылечных козырьков и так далее.
Особенную популярность поликарбонат приобрёл в строительстве навесов. За счёт лёгкости, практичности и пластичности, с материалом удобно работать и можно придать ему определённую форму и изгиб, вне зависимости от его толщины. Не говоря уже за цвет – яркие и сочные навесы всевозможных расцветок впишутся в любой ландшафтный дизайн.

Навес из полимерного пластика в ландшафтном дизайне
Для устройства навеса существует два вида поликарбоната:
- сотовый;
- монолитный.
С конца 1970 годов появившийся на рынке пластик всё сильнее и больше упрочняет свои позиции среди прочих аналогов. Сфера применения достаточно широка. Выбор же стоит исключительно за покупателем.
Сотовый полимерный пластик
Исходя из названия можно догадаться, что сотовый поликарбонат представляет собой материал, отдалённо напоминающий пчелиные соты. Многослойная конструкция пустотела. Единственное её наполнение – перемычки, которые также служат и рёбрами жёсткости. Сотовая структура насчитывает от 2 до 4 слоёв.

Сотовый пластик
Средняя толщина панели сотового поликарбоната варьируется в пределах 8-10 мм.
Несмотря на свою внешнюю хрупкость, сотовый поликарбонат достаточно упругий и гибкий. А за счёт «сот» низкая себестоимость, к тому же имеет маленький вес и выглядит в общей сложности достаточно лёгким и воздушным.
Монолитный полимерный пластик
Если у сотового поликарбоната главная визуальная задача – это визуальная воздушность, то с монолитным дела обстоят иначе. Монолитный пластик используется тогда, когда температура окружающей среды достигает критической отметки для сотового. Отличается высокой прочностью и не даёт трещин тогда, когда прочие виды пластмасс выстоять не в силах.

Полимерный монолит
За счёт своих механических функций, полимерный карбонат значительно выше в цене. Несмотря на свои свойства, вес монолитного листа меньше листа сотового практически в два раза. При этом заглушает общий шум. Такой вид строительного пластика используется для защиты веранды, теплиц или беседок с целью уменьшения громкости при выпадении осадков, прочих окружающих звуков.
Средняя толщина панели монолитного поликарбоната варьируется в пределах 6-8 мм.

Монолитный и сотовый полимерный пластик
Вне зависимости от разновидности поликарбоната, следует уделить внимание такому моменту, как выбор производителя. Несмотря на то, что Китай поставляет свои товары в любую точку мира, листы полимерного пластика китайского производства не отличаются особенной прочностью. К тому же, толщина материала, как правило, очень маленькая. Лучше всего отдать предпочтение отечественным или европейским производителям:
- Чехии;
- Германии;
- Польше;
- Франции;
- Израилю.
Примечание: Перед приобретением полимерных листов для навеса у производителя необходимо поинтересоваться о наличии толщины слоя ультрафиолетовой защиты. В противном случае пропускная способность материала солнечных лучшей будет высока. Что скажется на его долговечности.
Навес из поликарбоната: плюсы и минусы использования полимерного пластика для строительства навеса
Как уже говорилось ранее, гибкость, прочность, размер, долговечность и толщина листа – достаточно важные факторы, которые необходимо учитывать при выборе материала для навеса. Однако есть ряд побочных положительных моментов, на которые не стоит закрывать глаза:

Радуга цвета
- Пропускная способность света. В отличие от таких покрытий, как шифер или профнастил, поликарбонат способен пропускать световые лучи. Поэтому даже в самый пасмурный день двор не будет казаться хмурым и тёмным.
- Безопасность. В отличие от использования прочих строительных покрытий (шифер, стекло, профнастил), поликарбонат максимально безопасен. В случае удара высокой силы полимерный пластик не разобьётся на мелкие осколки, подобно стеклу. К тому же материал относится к слабогорючим. Однако следует помнить о том, что под воздействием высоких температур (открытый огонь), пластик начинает плавиться.
- Доступная цветовая палитра. Панели пластика выпускаются практически в любом цветовом варианте и различной толщины. В зависимости от толщины слоёв и насыщенности выбранного цвета свет будет проникать с большей или меньшей силой, на качестве отображения тени это также скажется.
Затронув положительные стороны поликарбоната, будет важно оговорить и о минусах его использования.
- Несмотря на высокую прочность покрытия, пластик остаётся пластиком. Поэтому любые механические воздействия будут оставлять на поверхности свои отпечатки.

Поликарбонат и осадки
- Осадки в виде града одинаково негативно сказываются на всём окружающем. В том числе и на поликарбонате. Поэтому при выборе материала стоит помнить не только о светопроницаемости и прозрачности, но и о его защите. Потому что, как уже говорилось ранее, любое механическое воздействие оставит свой отпечаток. Некоторые производители наносят на панели поликарбоната защитный слой от града. В случае, если листы полимера не защищены, стоит этим всерьёз обеспокоиться. Благо что в 21 веке существует огромное количество компаний, оказывающих услуги по реставрации и защите пластиковых навесов.

Пластиковый навес летом
- При установке каркаса следует помнить об игре температуры окружающей среды: при частых и резких изменениях шкалы температурного столбика поликарбонат может попросту треснуть.
- Со временем все вещи теряют свою былую привлекательность. То же касается и панелей поликарбоната. Пластик тускнеет со временем, выгорает. Но, к сожалению, изменить этого нельзя: никакие средства защиты не способны предотвратить неизбежное, лишь отсрочить.

Пластиковый навес над бассейном зимой
Классификация пластиковых навесов. Первые шаги по созданию чертежа
Конструкция каркаса пластикового навеса может быть как односкатной, так и двускатной. К тому же, навес может быть арочным или прямым. Помимо всего прочего защитные конструкции для крыши отличаются обрешёткой, стропильной системой и прочим моментам устройства крышной установки.
При самостоятельном проведении работ по разработке и установке каркаса навеса использование чертежей – залог успеха. Определившись с толщиной используемого материала, далее следует определиться с размером готовой конструкции. Для работы можно воспользоваться как имеющимися на различных Интернет-ресурсах схемами, так и разработать собственный чертёж будущего навеса.

Чертежи
При этом, навес может быть как самостоятельной строительной единицей, установленной на столбах, так и примыкающей к дому, бане, гаражу и прочим постройкам. Козырёк-навес из поликарбоната довольно-таки частое приспособление защитной конструкции, используемое как для жилых, та и для офисных зданий. Полимерный пластик – материал сравнительно недорогой и простой в работе.

Чертеж навеса-козырька
Такие конструкции наиболее популярны среди разного вида чертежей козырьков из поликарбоната. От предложенного можно отталкиваться при создании своего дизайна навеса.
Расчёты
Для расчёта длины и ширины размера будущего навеса потребуется определить, сколько позволяет место для его установки. Расположение окружающих зданий также следует учитывать. Потому как близко-стоящие бытовые конструкции могут помешать монтажу каркаса навеса, что существенно замедлит работу, либо же сделает её фактически невозможной.
Если есть возможность обратиться к ландшафтному проектировщику, дело двинется заметно быстрее. Либо же можно воспользоваться онлайн-системой расчёта оптимальных размеров навеса.

Онлайн-калькулятор
Разумеется, останавливаться на предложенных широко распространённых вариантах навесных конструкций не стоит. Можно дать полёт фантазии и создать действительно уникальные дизайнерские защитные установки различных размеров. Однако стандартные чертежи наименее сложны в монтаже. Поэтому, если до этого момента опыта в установке навесов не было, лучше остановиться на менее сложных чертежах, к которым уже имеются расчёты в сети Интернет.
Основные технические показатели структурированных поликарбонатных панелей
Толщина листов
При выборе панелей термопластика следует обратиться к данной таблице, в которой есть всё самое необходимое о том, какой толщины должна быть панель, какая у неё светопроницаемость, насколько хорошо пропускает шум и прочее.
Технология монтажа навеса своими руками

Каркасная установка
- Первое, что необходимо сделать, это заняться установкой металлического или деревянного каркаса. Металлический каркас будет заметно дешевле деревянного. Однако не стоит забывать, что дерево – это исключительное эстетическое удовольствие и экологичность.
- На основание каркаса панели полимерного пластика крепятся прочно и надёжно, главное, соблюдать ряд правил. Фиксируются они на трубах. Шаг труб должен равняться ширине полимерной панели.

Установка металлического каркаса
- Фиксация панелей производится на саморезы. В случае, если каркас металлический, берутся саморезы по металлу с пресс-шайбами.
- Стыковка. Для стыковки панелей разных размеров используется полоса пластика с двусторонним пазом. Такой соединитель представляет собой скрытый соединительный шов. Однако панели не должны плотно прилегать стыками. Из-за перепада температур он будет расширяться, поэтому необходимо оставить зазор.
Деревянный каркас для полимерных листов
- Защита торцов при возведении мини-укрытия обязательна: от пыли, грязи и прочего сора, которые могут попасть в зазоры. В противном случае внешний вид конструкции может пострадать.
Вконтакте
Google+
abgate.ru
Навес из поликарбоната своими руками
Содержание статьи:
При обустройстве загородного участка своими руками почти каждый пытается организовать и обустроить место отдыха на свежем воздухе. Для решения такой задачи существует множество вариантов, один из которых — построить навес из поликарбоната своими руками. Чертежи навесов, схемы могут быть самые разные. Поликарбонат — современный материал, который имеет большой выбор цветов. Благодаря этому конструкции из поликарбоната гармонично вписываются в ландшафтный дизайн участка.
Навес из поликарбоната можно установить как для защиты автомобиля от погодных условий, так и для создания беседки. Навесы из поликарбоната также многие делают на крыльце дома над входной дверью. Это создает отличную защиту от дождя, града и прочих осадков. Также козырек из поликарбоната отлично дополняет фасад дома. Навесы из поликарбоната очень легко установить своими руками, причем они могут быть самого разного размера и формы.
Преимущества навесов из поликарбоната
За счет своих уникальных свойств поликарбонат очень хорошо зарекомендовал себя как один из самых лучших материалов для создания прозрачных кровель. Этот материал во многом превосходит стекло и пластик. По краям он имеет ребра жесткости, за счет чего листы можно сгибать, что позволяет создавать самые разнообразные конструкции. Упругость и гибкость материала позволяют создавать практически все виды кровли.
Листы могут быть как прозрачными, так и иметь самые разнообразные цвета и оттенки. Прозрачные навесы дают прекрасное освещение, а навесы с оттенками позволяют получить защиту от солнечных лучей и создать приглушенный свет.
С помощью этого материала можно создать свою уникальную конструкцию. Если имеются трудности в выборе цвета, то лучше приобрести листы зеленого оттенка. Они отлично вписываются практически на любом загородном участке. Для накрытия бассейнов обычно используют синие оттенки. Если планируется выращивать живые растения под конструкцией, то лучше выбрать прозрачные листы.
Подготовка к созданию навеса из поликарбоната своими руками
В первую очередь следует выбрать и спланировать площадку под строительство. Если планируется строительство навеса для автомобиля, то следует помнить, что площадка должна быть бетонной. Она должна быть способной выдерживать вес навеса и автомобиля (Рис. 1).
На рисунку 1 изображено бетонная площадка для автомобиляУчасток очищают от травы, корней деревьев, мусора и хорошенько выравнивают. Из доски высотой 20-30 см своими руками по периметру делают опалубку. На основание укладывают слой песка и гравия. Затем площадку выравнивают и трамбуют, периодически увлажняя чистой водой. После этого укладывается арматура и заливается бетонная смесь.
Чертеж навеса, выбор схемы
Прежде чем начинать строительство конструкции из поликарбоната, необходимо разработать чертеж навеса. При планировании следует предусматривать уклон на площадке, чтобы осадки не застаивались. После возведения основания уже через 2-3 недели можно приступать к возведению навеса своими руками. Внешний вид навесов, схемы навесов могут быть самыми разными. Одну из схем навесов можно увидеть на рисунке 2. Чертеж должен быть выполнен с учетом ветровых и снеговых нагрузок, которые будут действовать на навес. На чертежах обязательно должны быть проставлены все размеры элементов конструкции.
На рисунке 2 изображена схема постройки навесаЕсли внутри навеса планируется установить мангал, то не стоит забывать о правилах пожарной безопасности. Крыша должна быть установлена на достаточной высоте. Все коммуникации следует подводить до начала строительства.
Инструменты и материалы, необходимые для создания навеса:
- Шуруповерт
- Электрический лобзик
- Электрическая дрель
- Строительный нож
- Листы поликарбоната
- Строительный уровень
- Рулетка
- Лопата
- Перфорированная и алюминиевая лента
- Профильная труба
- Гравий, цемент, песок (для создания основания)
- Профиль для поликарбоната
- Крепежи.
Технология создания навеса из поликарбоната своими руками
- Расчищается и выравнивается площадка.
- Размечается местоположение опорных стоек.
- В грунте с помощью бура (можно использовать лопату) просверливаются скважины. Их глубина должна быть не менее 50 см.
- В скважину устанавливаются столбы. Затем их выравнивают с помощью строительного уровня и заливают бетоном.
- Через 3 дня (когда раствор окончательно застынет) с помощью электросварки выполняют верхнюю обвязку.
- Выполняется крепление поперечных элементов конструкции. Сооружение начинает приобретать определенный вид. Конструкция может быть односкатной, двухскатной, арочной и горизонтальной в зависимости от выбранного проекта.
- Своими руками зачищаются и зашлифовываются все сварные швы.
- Полностью грунтуется и красится металлический каркас.
- Производится монтаж листов поликарбоната. Крепление листов к каркасу осуществляется при помощи специальных шайб и саморезов.
Более подробную информацию о навесе из поликарбоната вы сможете узнать просмотрев это видео:
Если строится навес из монолитного поликарбоната, то нет необходимости закрывать торцевые стыки. Если же используется другой материал, то стыки нужно закрыть с помощью специальных накладок или перфорированной ленты с микрофильтрами, которую используют для защиты нижних краев листов от попадания грязи, пыли и насекомых в каналы поликарбоната. К тому же перфорированная лента не допустит скопления излишней влаги внутри листа.
Верхние торцы листов закрывают алюминиевой герметизирующей лентой, а сверху монтируют торцевой профиль. Помимо хорошей герметизации, профиль придает навесу законченный вид. Если куполообразная конструкция строится из одного целого листа, то достаточно закрыть перфорированной лентой только торцы. При соблюдении технологии строительства и правильном уходе конструкция прослужит очень долго.
vashibesedki.ru
Чертежи навеса для автомобиля / Обустройство / Мои дачи
Чертежи навеса для автомобиля обязательно нужны, вне зависимости от того, какими навыками в строительстве вы обладаете. Они облегчают работу, и благодаря им вы точно не упустите никакой детали. К тому же, здесь всегда производится точный расчет, что уже говорит о том, что конструкция, выстроенная в соответствии с чертежом, будет безопасна.Правила создания чертежа
Некоторые считают, что экономят время, не делая предварительной схемы, тогда как она помогает достичь, помимо двух, озвученных выше, еще 3 важных функции:- Решить, как навес будет выглядеть внешне, привнести в него некоторые детали, которые выгодно впишут его в ландшафт;
- Экономит деньги, так как благодаря точному расчету не будет нужды закупать стройматериалы с запасом;
- Имея на руках чертеж, проще выбрать место для его размещения на дачном участке.

Выверенность каждой детали очень важна, поэтому расчет всегда производится с точностью до миллиметра.
Более популярен в интернете запрос «чертеж навеса для автомобиля из поликарбоната» и это неудивительно, так как материал обладает отличным качеством, а лояльная ценовая политика делает постройку конструкции очень выгодной.
Особенности проектирования и виды навесов
Если вы хотите сделать навес для автомобиля своими руками, чертеж можно либо заказать у специалиста, либо нарисовать самому, либо же отыскать в интернете. Если самостоятельная рисовка требует определенных навыков и умений, а его покупка стоит денег и, порой немалых, то последний прием не имеет практически никаких минусов. Вы всегда можете подобрать для себя сразу нескольких вариантов, среди которых может быть и чертеж навеса под поликарбонат на два автомобиля.Мы разберем самые популярные из схем, которые представлены в интернете, чтобы вам было легче выбрать именно то, что подойдет вам. В каждом отдельном случае вы сможете взять либо размеры, данные на рисунке, либо несколько подкорректировать их под себя.
- Объемный чертеж помогает получить общий вид конструкции, из-за чего очень легко представить, каким образом она будет смотреться на участке в том или ином месте. На фото вы можете увидеть арочный тип навеса, один лист поликарбоната на котором имеет размер 5,4х3,5 м. Его можно установить как отдельно, так и рядом с домом.

- Обычная схема. Здесь так же изображен арочный навес, однако в данном случае предусмотрены дополнительные опоры у крыши. Это делает ее более прочной и способной выдержать гораздо большие нагрузки, чем в предыдущем случае. Нарисовать подходящий чертеж вы вполне можете самостоятельно, что позволит, например, поменять размер навеса с 5,5х2,5 на размеры своего двора.

- Гараж + навес. При помощи таких рисунков можно быстро сделать навесы для машины из поликарбоната. Чертежи дают хорошее представление, что если вы вдруг собираетесь зимой часто приезжать на дачу, то можно просто прикрепить листы поликарбоната к сваренному железному каркасу и спокойно оставлять там автомобиль. А уже весной такие стенки можно снять, оставив вновь навес.

- Профессиональный чертеж. Он выполняется в соответствии со строгими требованиями и нормами. К сожалению, самостоятельно вычислить по таким схемам ударопрочность, износостойкость, а так же другие важные показатели не удастся. Если вам они важны, значит, придется заказывать выполнение работы у специалиста.

- Навес-карниз. Еще одно интересное решение, позволяющее прикрепить каркас к стене жилого дома и накрыть его каким-либо легким материалом, например, тем же поликарбонатом. Но в данном случае стоит учитывать нагрузку, которую она дополнительно будет производить на стены и, как следует, на фундамент. Стоит сказать, что такой тип навеса очень удобен, но большая его площадь все же потребует дополнительных опор.

Когда вы уже перейдете от создания чертежа непосредственно к делу, обязательно следуйте выполненной схеме. Обратите внимание, что если вы основательно подошли к расчетам, то вы сократите и время работы, затраченное на монтаж навеса для автомобиля. Относясь с ответственностью к каждому этапу, вы уже можете рассчитывать на то, что ваш навес будет прочным и долговечным, который отвечает так же и всем вашим пожеланиям.
moidachi.ru
назначение конструкций и общий технологический маршрут строительства

Свойства поликарбоната позволяет украсить любое подворье оригинальными конструкциями навесов.
Назначение навесов из поликарбоната
Навесы из поликарбоната для бассейнов
Открытые бассейны на придомовом участке сейчас не редкость. Они приносят владельцам не только удовольствие, но и множество хлопот по очистке: ветер постоянно что-нибудь роняет в воду – листья, пыль, и прочий мусор.
Большую часть летающих загрязнителей можно отсечь, если над бассейном устроить навес. Лучше его сделать из поликарбоната: он просто монтируется, легкий и прочный, и выглядит красиво.
Навесы для машины из поликарбоната

Если нет гаража, автомобиль можно защитить от дождя, града (такое явление бывает редко, но урон приносит огромный: кто видел машину, побитую градом, тот поймет), солнца и снега.
Размеры навеса для авто из поликарбоната зависят от его марки. Не стоит сооружать слишком высокую конструкцию: она не защитить машину от косого дождя или метели.
Самой подходящей высотой навеса для автомобиля считается 2200 мм. Для большинства марок легковых автомобилей подойдет навес шириной 3,6 метра и длиной 6,6 метра.
Навесы для дачи из поликарбоната

На дачу мы стремимся не для того, чтобы сидеть в домике. Куда приятнее провести время отдыха на открытом воздухе. А от жаркого солнца или летнего дождика можно укрыться под навесом. Разноцветные прозрачные конструкции из поликарбоната внесут веселую нотку в общий дизайн дачного участка.
Кстати, площадку для барбекю тоже можно укрыть поликарбонатом: тогда никакой дождь не прервет процесс приготовления вкуснейшего блюда.
Навес из поликарбоната над крыльцом

Вход в дом можно защитить от непогоды, установив козырек над крыльцом из поликарбоната, который не просто весьма функционален, но и великолепно вписывается в общий дизайн фасада здания.
По форме крыши он может быть односкатным или двускатным, дугообразным или купольным.
Но очень многие архитекторы в своих проектах закладывают навесы над крыльцом арочного типа. Это объясняется тем, что такая форма крыши из поликарбоната имеет ряд важных преимуществ.
Преимущества арочных навесов

- Навес, выполненный в форме арки, выглядит стильно. Он превосходно вписывается в любой архитектурный замысел
- Арочные фермы обладают более высокой прочностью по сравнению с другими формами несущих металлоконструкций
- С поликарбонатной крыши такой форм легко скатывается вода и снежный покров
Благодаря этим преимуществам, арочные навесы устраиваются при их любом назначении: над крыльцом, бассейном, автомобилем или детской площадкой.
Для уточнения эскизов навесов и просчета количества материалов необходимо знать размеры поликарбоната сотового, а именно ширину, длину и толщину. Также нужно понимать, что поликарбонат можно подобрать по определенным характеристикам для конкретной цели.Именно поэтому не менее важно ознакомиться с техническими характеристиками сотового поликарбоната в этой статье. Специалисты подскажут Вам, до какой величины угла лучше не сгибать листы поликарбоната, при какой температуре он может треснуть и много другой полезной информации.
Строительство навеса
Неважно, для какой цели строится навес из поликарбоната, разберем в целом как сделать навес из поликарбоната: работы выполняются по единому технологическому маршруту.
- Для начала следует определиться с необходимыми размерами навеса. Измерьте длину и ширину площадки, которую собираетесь спрятать под навесом. От ее величины зависит выбор поликарбоната по толщине и каркас конструкции навеса из поликарбоната (количество стоек, конструктивное исполнение ферм и пр.)
- На втором этапе следует разработать чертежи навеса из поликарбоната, или хотя бы его эскиз. На него наносятся все необходимые размеры: высота навеса, его длина и ширина, шаг расстановки опорных стоек
Эскиз можно выполнить в аксонометрической проекции. Следует отметить, что такого рода проект навеса из поликарбоната поможет более четко представить будущую конструкцию и позволит более точно подсчитать количество материалов. Однако он никак не поможет вам в выборе материала. То есть вы сможете увидеть, что, например, для стоек вам необходимо 4х3 (высота опоры) = 12 погонных метров.
Чертеж навеса из поликарбоната
Трубы диаметром 60 мм? А может быть и 20 мм подойдет? Ведь стоить-то она будет дешевле! Дело в том, что при разработке навеса учитываются ветровые и снеговые нагрузки на крышу и собственный вес конструкции. Не всем по плечу такой расчет. Какой же выход?
Решить эту задачу можно двумя путями:
- Заказать расчет специалисту
- Купить готовые фермы и стойки под поликарбонат. Производитель указывает, на какую нагрузку рассчитаны фермы и опоры навеса
Далее следуем технологическому маршруту:
- Необходимо также определить толщину поликарбоната для навеса. Этот параметр тоже подтверждается расчетом, но обычно навесы и козырьки изготавливаются из сотового листа толщиной от 6 до 8 мм
Решив проблему с выбором материала, можете приступать к подготовке площадки под строительные работы. В зависимости от назначения навеса, ее можно просто разровнять, а можно забетонировать- На подготовленном участке разметьте места для установки опорных стоек согласно вашему чертежу
- В местах расположения опор сделайте углубления в грунте (не менее 500 м в глубину). Эту работу можно легко проделать при помощи бура. Если же его нет, берите в руки лопату и выкопайте ямки
- В углубления погрузите стойки, контролируя их перпендикулярность к площадке строительным уровнем, и залейте их бетоном (можно бетон заменить на цементно-песчаный раствор в пропорции 1:3). Закончив этот этап, забудьте о навесе на трое суток. За это время раствор застынет и наберет достаточную прочность
- Через трое суток можете приступать к монтажу каркаса. Сборка его элементов может производиться при помощи разъемных соединений (болтов с гайками или саморезами), но надежнее все-таки проделать это при помощи сварки. По окончании сборки конструкции сварные швы зачистите, металл прогрунтуйте и покрасьте
- На готовую металлоконструкцию можно монтировать поликарбонат
- Выполните раскрой заготовок. Длина листа должна равняться длине фермы (арки) с припуском в 100 – 150 мм (защитную пленку с поликарбоната не снимайте: это можно сделать по окончанию монтажа)
Укладывайте листы поликарбоната неплотно: между ними должен соблюдаться термокомпенсационный зазор, равный 3-5 мм. Это предотвратит возможное коробление поликарбоната при его нагреве солнечными лучами. Обратите внимание на то, как крепить поликарбонат: крепежные элементы плотно не затягиваются, чтобы у листа была возможность движения при расширении и сжатии. Под саморезы подкладываются специальные термокомпенсационные шайбы
- Последний штрих – защита каналов сотового поликарбоната от попадания внутрь источников загрязнений. Это можно сделать либо при помощи специальных накладок, либо ленты перфорированной (с микрофильтрами)
Завершив работу, полюбуйтесь своим творением и начинайте использовать его по назначению.
Идеи и готовые примеры навесов на видео
Иногда на первый взгляд самые невероятные идеи становятся отличными примерами. Навесы из поликарбоната благодаря легкому монтажу, разнообразной цветовой гамме и возможности сочетаний с самыми разнообразными каркасами позволяют вдоволь пофантазировать. Уникальные примеры подобраны на видео.
megabeaver.ru
