Детская песочница своими руками фото и идеи – 80 фото идей поэтапного строительства
Строим детскую песочницу своими руками: описания, чертежи, фото
Собираясь отдыхать на дачном участке, многие владельцы берут с собой детей. Чтобы карапузам было не скучно, да и вам спокойней, отличным вариантом станет песочница для детей своими руками. В статье вы узнаете об особенностях строительства и тонкостях обустройства такого сооружения.
- Где и как разместить?
- Детская песочница своими руками – строим в несколько шагов
- Дополнительные элементы
- Какой песок лучше подойдет?
Где и как разместить?

Перед началом самого строительства необходимо учитывать некоторые особенности размещения:
- Малыши всегда должны быть в поле зрения взрослых, поэтому размещать песочницу следует таким образом, чтобы родители имели возможность следить за своими детьми;
- Важно соблюдать требования гигиены. Если обустроить конструкцию под деревьями, можно столкнуться с такими проблемами, как птичий помет, падающие листья и небольшие сучки;
- Также следует обеспечить защиту от солнечных лучей. Перегрев может крайне плохо сказаться на здоровье карапуза;
- Размер всего сооружения пропорционален количеству детей. При минимальных параметрах возникнут лишние проблемы и неприятные моменты.
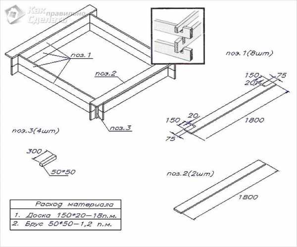
Чаще всего песочница своими руками возводится из дерева, потому как материал обладает необходимым уровнем безопасности и экологичности. Подобная конструкция имеет форму квадрата, каждая из сторон которого равняется 2-3 метрам. Материалом в данном случае являются доски из сосны от 25 до 30 миллиметров в толщину.
Детская песочница своими руками – строим в несколько шагов
Возведение любой дачной постройки происходит в несколько этапов. Сооружение для детских игр не исключение. Рассмотрим чуть подробнее все этапы строительства.
Территория для установки
Для того, чтобы разместить 2-3 детей, достаточно квадрата, каждая сторона из которых равна 170 сантиметров. Практически каждый владелец даже небольшого дачного участка найдет свободную территорию такой площади.
Далее подготавливаем саму площадку под строительство. Здесь понадобится обычная веревка и несколько колышков. Вкапываем колышки по углам, точно обозначая границы. Внутреннее пространство освобождаем от плодородного слоя. Он в дальнейшем отлично пригодится для садово-огородных работ.
Основание
Некоторые хозяева ограничиваются выкапыванием ямы и дальнейшим засыпанием туда песка. Такой вариант не самый рациональный. Песок весьма быстро станет грязным и придется постоянно менять его, а это дополнительные расходы и лишняя трата свободного времени. Самое оптимальное решение – продумать более плотную основу, которая избавит от вышеперечисленных проблем.

Для выравнивания поверхности можно использовать песчаную подушку толщиной в 5 сантиметров. Ее укладывают на дно образовавшейся ямы и как можно тщательней утрамбовывают. Сверху укладывается особый материал. Сейчас для этих целей применяют геотекстильное полотно, отлично пропускающее воду. Полиэтилен более дешевый вариант, однако, после первого же сильного дождя постройку придется разбирать. Также геотекстиль защищает от насекомых, мелких грызунов, сорняков и тому подобное.
Стенки
После подготовки фундамента переходим к устройству основной конструкции:
- Первым делом берем несколько брусков 450х50. Их следует расположить в углах.
- Их нужно обработать антисептическими составами, чтобы та часть, которая уходит в землю, долгое время оставалась невредима. Отличным вариантом будет обработка битумом. Устанавливаем 4 бруска, по одному на угол.
- Для каждой стороны строим своеобразную стену. Ее параметры: 30/2,5 (ширина/толщина). Поверхность обрабатывается специальными инструментами: удаляются сучки и зазубрины. В противном случае дети могут серьезно пораниться.
- Для удобства можно сделать так называемые бортики (здесь в качестве материала также выступают доски). Они устраиваются по периметру всей песочницы. Их можно использовать для того, чтобы сидеть, расставлять игрушки и так далее.

Дополнительные элементы
Помимо основных элементов, без которых сооружение не будет выполнять свои основные функции, существует дополнения. Рассмотрим их подробнее.
«Грибок»
Практически все в детстве играли в такой песочнице. Он выполняет не только эстетическую, но и защитную функцию – укрывает детей от дождя или палящих солнечных лучей. Около основания грибка обычно закрепляют небольшой столик, на который дети кладут ведерки, совки и другие предметы.
Песочница с грибком чаще всего выполняется из дерева:
- В качестве ножки подойдет обработанный антисептиком брус сечением 100х100 и длиной около трех метров;
- Для устойчивости его вкапывают в землю на глубину, при которой вся конструкция будет надежно закреплена;
- Для устройства «шляпки» сооружают треугольники (чаще из обычных досок). Ширина шляпки не должна превышать отметку в 2,5 метра.

Песочница с крышкой
Детская песочница с крышкой – удобный и практичный вариант. Такое приспособление дает возможность песку оставаться сухим, избавляет от большого мусора, не пускает внутрь животных. Она строится весьма просто. С помощью закрепления досок на брусьях строится своего рода деревянный щит. Его укладывают сверху, когда сооружение не используется, и снимают, когда дети собираются играть. Интересным решением будет сделать две створки, которые будут не сниматься, а открываться. Также к ним можно приделать удобные ручки с интересным дизайном.

Деревянную песочницу с крышкой выбирают прогрессивные и заботливые владельцы участков. О строительстве других малых дачных сооружений — например, дачной беседки — мы уже подробно писали.
Какой песок лучше подойдет?
Самым подходящим и безопасным для детей является речной песок. Он содержит минимальное количество вредных для здоровья примесей. Хотя кварцевый аналог также допустим к использованию для детской песочницы. Одно из важных правил: какой бы материал для заполнения вы не выбрали, его в обязательном порядке стоит просеивать.
На рынке существует специальная песчаная смесь с большим содержанием глины. Такое решение удобно для лепки фигурок и других подобных занятий. К тому же, в него добавляют вещества, запах которых отгоняет от постройки как кошек, так и собак.

Для придания большей эстетичности можно использовать безвредные лакокрасочные изделия и сделать настоящий шедевр. Детская песочница своими руками возводится достаточно быстро, стоит только проявить фантазию и потратить немного свободного времени!
Понравилась статья? Поделитесь ею с друзьями!
Смотрите также:
Комментировать
comments powered by HyperCommentsglavstroy365.ru
виды, материалы, схемы, как сделать, идеи
Песочница во дворе может стать любимым местом для детских игр. Здесь малыши с удовольствием будут проводить свободное время, находясь постоянно на виду у родителей. Не нужно покупать дорогие материалы и оборудование, тратить много усилий, чтобы самостоятельно обустроить песочницу. Для выполнения данного объекта подойдут доски, старые шины, бруски, которые, наверное, есть в каждом хозяйстве.
Содержание статьи
Виды детских песочниц
Вы можете обустроить обычную песочницу стандартной, прямоугольной формы. Это самый простой и дешёвый вариант. Но детям гораздо интереснее будет играть в домике, машинке или кораблике, в форме которых тоже можно сделать песочницу.
- Пластмассовые песочницы удобные, лёгкие и привлекательные для малышей. Такие конструкции транспортабельны, экологически безопасны, стойкие к износу и неблагоприятным погодным условиям. В магазине можно купить пластмассовую песочницу необычной формы, выполненную в ярких тонах;
- Песочница из натуральной древесины – безопасная, долговечная, практичная конструкция, которая изготавливается из отшлифованных досок. Чтобы продлить срок службы, следует обязательно покрыть готовую песочницу специальными средствами для защиты древесины от влаги и насекомых;
- Песочницы с крышкой отличаются своей функциональностью. Удобная конструкция может преобразовываться днём в скамейку, а вечером в защиту песка от мусора и влаги;

- Песочница-домик – интересный вариант для самых маленьких. При выборе этого типа конструкции нужно будет позаботиться об обустройстве навеса, который защитит малышей от палящего солнца и дождя;

- Песочница-кораблик – весьма необычная, креативная модель, которую тоже можно сделать своими руками. Игра в таком кораблике превращается в интересное приключение с любыми героями из мультфильмов о пиратах;

- Песочница-машинка. Чтобы сделать этот шедевр, придётся повозиться, но результат обязательно порадует детей, ведь как мальчики, так и девочки любят автомобили.

Если у вас нет времени или желания самостоятельно строить детскую песочницу, можете пойти более лёгким путём и приобрести готовую конструкцию. В интернете или магазинах представлен широкий ассортимент моделей разных форм, размеров и цветов.
Пошаговое строительство песочницы
Соорудить песочницу своими руками можно быстро и легко, если придерживаться определённых правил. Для начала следует определиться с размерами и формой конструкции, подготовить необходимые материалы и инструменты. Наиболее востребованными являются модели с крышками или навесом, изготовленные из дерева. Для строительства такой песочницы понадобятся отшлифованные доски, краска, материал для навеса, пила, гвозди, лопата.
Выбор и подготовка участка
Первый этап строительства песочницы для детей – выбор участка. Конструкция должна находиться на открытом, свободном, ровном месте на виду у родителей, но вдали от посторонних глаз.
Важно, чтобы вблизи не было колючих кустов, острых предметов, ограждений, деревьев. Выбранный участок нужно выровнять, очистить от сорняков, веток, камней и других сторонних предметов.
Теперь можно приступать к разметке песочницы. Если форма прямоугольная, разметить пространство не составит труда. Визуально нужно определить один из углов конструкции, вбить в землю деревянный колышек, от него провести две линии под углом 90 градусов, отмерить одинаковую длину и там тоже вбить колышки. Последний угол определяем таким же образом. Все колышки соединяем длинным шнуром, в результате должен получиться прямоугольник с ровными, прямыми углами.
Подготовка основания
На этом этапе по размеченному прямоугольнику роем котлован на глубину около 30 см. Нужно выбрать всю землю, выровнять поверхность, засыпать на 5 см мелким, просеянным песочком, утрамбовать. Это будет основание для детской песочницы.
Если планируете устанавливать пластмассовую конструкцию, рыть яму не придётся, песочница будет помещаться непосредственно на землю, очищенную предварительно от мусора.
Каркас и бортики
При изготовлении каркаса можно пойти двумя путями. Первый способ: четыре бруска длинною 45 см с заостренным одним концом забиваем по углам периметра будущей песочницы на 15 см в землю. К брусьям нужно закрепить доски при помощи саморезов. Другой вариант: сначала сбить весь каркас, затем установить его на постоянное место. Не забудьте поклеить уплотнитель между досками. После их обязательно нужно хорошо отшлифовать, обработать антисептическим средством и просушить.
Чтобы ребёнку было удобнее играть, по бокам песочницы устанавливают бортики, выполненные из досок шириной 20 см. Для крепления бортиков к стенкам используют саморезы, шляпки которых следует очень плотно вогнать в древесину, чтобы малыш не поранился. Бортики можно заменить угловыми лавочками.
Отделочные работы
После того как песочница изготовлена, необходимо позаботиться о придании ей привлекательного внешнего вида. Проще всего отделать обычную прямоугольную конструкцию. Для покраски выбирают яркие, контрастные краски. При помощи широкой кисти наносят фон, потом можно нарисовать интересные орнаменты.
Краска высохла, теперь можно засыпать песок. К его качеству выдвигают особые требования, ведь в нём будут играть дети, и не исключено, что малыш захочет попробовать на вкус смесь. Песок должен быть обязательно чистым, безо всяких примесей и посторонних предметов. Чтобы разнообразить площадку, можно подкрасить песок. Это обязательно понравится детям, только делать это нужно при помощи специальных красящих составов. А ещё материал должен быть мелким и однородным, чтобы ребёнку легко было лепить из него всякие фигурки.
Крышка для песочницы
Крышка – функциональная и практичная часть песочницы, которая не только защищает песок от проникновения мусора и грязи, но и при необходимости может превратиться в удобную лавочку. Как правило, крышку изготавливают из того же материала, что и саму песочницу, в нашем случае из деревянных досок. Удобнее всего монтировать этот элемент конструкции до того, как каркас установлен на постоянное место. Изготовление крышки проходит в несколько этапов.
- Подготавливаем материалы для крышки: обрезаем и шлифуем доски, грунтуем их и покрываем краской. Также необходимо покрасить петли, чтобы защитить их коррозии;
- На каркас песочницы крепим саморезами две доски, на них ещё две, но уже на петли. С другой стороны, проделываем то же самое. Для крепления петель лучше использовать болты.

Этот вариант очень удобный, так как крышка будет выполнять не только защитную функцию, она ещё и может стать комфортной лавочкой со спинкой. Чтобы упростить процесс, можно установить металлическую крышку, которая просто убирается на время, когда малыши играют. Популярны модели детских песочниц, где есть отдельный отсек для игрушек. Так дети могут прятать принадлежности для игры с песком.
Всего несколько окрашенных в разные цвета досок, немного стараний и времени, и обычная песочница может превратиться в машинку или домик. Это точно понравится детям.
Устанавливаем навес
Песочница с навесом – отличный вариант в тех случаях, когда нет возможности обустроить место для игр в полутени. Чтобы защитить малышей от палящего солнца и дождя, можно установить простой навес.
- Самый лёгкий способ сделать укрытие: по центру параллельных боковых стенок закрепить две стойки, соединить их сверху поперечной планкой, навес из влагоустойчивого материала перетянуть через эту поперечину и закрепить на петли, расположенные по углам песочницы;
- Если есть время и материалы, можно сделать настоящую крышу над песочницей. Для этого нужно поставить четыре стойки по углам песочницы, сверху соединить их планками, сделать верхнюю обвязку. Предварительно подготовить тент из не промокающего материала, натянуть его на каркас, закрепить декоративными гвоздями. Осенью желательно снять такое укрытие, чтобы под весом снега оно не повредилось. Если к такой конструкции добавить стропильную систему, получится песочница в виде домика.
Песочница на участке станет любимым местом для игр ваших детей. Чтобы поддерживать её функциональность, следует обеспечить ей правильный уход. Периодически нужно чистить песочницу, просеивать песок, в который могут попадать листья, насекомые, другие посторонние предметы, которые могут навредить вашему малышу. Два раза в год рекомендуется менять песок на свежий. Также необходимо весной покрывать краской деревянные или металлические конструкции, чтобы придать им свежего, привлекательного внешнего вида, защитить от гниения и ржавчины.
Как сделать детскую песочницу с крышкой своими руками? Пошаговая инструкция: размеры, материалы, последовательность работ.
В специализированных магазинах и на интернет-сайтах продаются уже готовые песочницы. Но если у вас есть время и желание, можно соорудить практичную и красивую конструкцию для своих деток самостоятельно.
Похожие статьи
guru-remonta.ru
Детская песочница для дачи своими руками: фото, идеи
На чтение 5 мин. Просмотров 5.3k. Опубликовано
Приветствуем всех профессиональных дачников и им сочувствующих!
Даже если у вас нет пока никакой дачи, и вы предпочитаете арендовать загородное жилье для летнего отдыха всей семьей, вопрос, чем занять детей на свежем воздухе, и как организовать для них безопасное и увлекательное игровое пространство стоит не на последнем месте.
- Детские песочницы своими руками: фото, идеи для пап и мам
- Мобильные версии для игры с песком
- Раскладная песочница трансформер
- Проще простого: старые автопокрышки вдело!
- Песочница, как игровая зона
- Песочница в ландшафтном дизайне
- Я в домике!
- По морям, по волнам!
Традиционным аттракционом, помимо надувного бассейна, разумеется, для младшей группы дачных юниоров является что? Правильно, песочница!
Простейший игровой вариант, развивающий образное мышление, мелкую моторику и творческую работу в коллективе, на котором выросло не одно поколение будущих строителей, инженеров, врачей и, не побоимся этого слова, педагогов.
Детские песочницы своими руками: фото, идеи для пап и мам
В те далекие времена, когда мы бегали в одних трусах по бабушкиной даче, эта незатейливая конструкция представляла собой прямоугольный короб, сколоченный из обычных досок. Гора песка, лопатки-ведерки и море удовольствия за лепкой куличиков, строительством башен, прокладкой дорог и рытья подземных тоннелей. За уши не оттащишь!
Готовые модульные конструкции из яркого пластика, которые нынче можно приобрести в любом садовом магазине нам и не снились. Для тех, кто арендует дачу на лето или часто практикует выезды на природу вместе с малышами – просто отличный вариант в плане транспортировки и простоты монтажа на временно занимаемой территории.
Но если подходить к данному вопросу основательно, с выдумкой и перспективой на будущее – тут, как ни крути, придется потрудиться своими собственными руками. Какой должна быть детская песочница для дачи – решать вам, а уж идеями для вдохновения мы вас обеспечим!
Мобильные версии для игры с песком
Удобные передвижные конструкции с емкостью для песка, снабженные скамейками, можно выставить где угодно, хоть во дворе, хоть на затененной от открытого солнца террасе. Много места не занимают, их легко передвинуть или убрать в случае необходимости.
Кухонную раковину, поставленную на деревянный каркас, так же можно приспособить для детских игр с водой и песком. Нет раковины – используйте пластиковый контейнер для рассады. Еще одна мобильная версия дачной песочницы – короб с поддоном на мебельных колесиках, позволяющий держать место забав ребенка в зоне постоянной видимости.
Раскладная песочница трансформер
Дети могут возиться в песке часами и посадочные места для отдыха ограничиваются не всегда удобными бортами песочницы. А как вам такой вариант?

Откидная крышка из досок, скрепленных петлями на счет «раз-два» трансформируется в пару удобных скамеек со спинками. По окончании игры песочница закрывается, что предохраняет песок от случайного попадания мусора и листвы, падающей с деревьев.
Проще простого: старые автопокрышки в дело!
Песочница на дачном участке из подручных средств? Легко! Старые шины могут еще послужить верой и правдой, главное – проявить смекалку.

Автопокрышки больших размеров отлично подходят на роль контейнера для песка – никаких острых углов и широкие мягкие борта,на которых удобно сидеть. Из стандартных шин от легковых авто можно соорудить бордюр для песочницы, или разрезав пополам соорудить просторную емкость для песка в виде сказочного цветика-семицветика.
Песочница, как игровая зона
Дети просто обожают обживать новое территории и обустраивать их по своему усмотрению. Жизнь для них – это игра, а наша задача помочь сделать ее увлекательной и безопасной, по крайней мере, в пределах дачного участка.

Малогабаритная песочница для подросших дошколят уже не так интересна. В этом случае лучше выделить им уютное местечко, где они вволю смогут проявить свои творческие способности.
Мальчишкам по душе гонки на игрушечных машинках по пересеченной местности? Соорудите им каменисто-песчаные декорации в духе «ралли Дакар», которые станут для них излюбленным дачным приключением.
Песочница в ландшафтном дизайне
Дачникам перфекционистам, которым важно не просто наличие песочницы, как таковой, а то, насколько она впишется в окружающий ландшафт, советуем присмотреться к этим простым, но вполне симпатичным идеям.
Они удачно совмещают общую зону отдыха и детские развлечения под присмотром взрослых, не нарушая гармонию всех присутствующих «в кадре» предметов и персонажей.
Дети, к сожалению, рано или поздно вырастают, и из песочниц, конечно же, в первую очередь. А такие вот достаточно серьезные и основательные сооружения в будущем можно с легкостью переформатировать в роскошный цветник.
Я в домике!
Песочница в виде маленького уютного домика – замечательное решение для организации игрового пространства малышей от 3 до 5 лет. Во-первых, крыша или тент, выполняющий роль навеса, защищают детвору от прямых солнечных лучей. А во-вторых, маленьким дачникам явно придется по душе такое сооружение с намеком на право собственности.
Достаточно вспомнить свое детство, когда мы с упоением своими руками строили шалаши и вигвамы, заявляя свое право на личную территорию.
Для детей постарше можно продумать и соорудить из подручных средств целые игровые комплексы с домиком, горкой и песочницей. Двух ярусные конструкции занимают на земле вдвое меньше места, зато удовольствия и возможностей для самых разнообразных игр – в два раза больше!
По морям, по волнам!
Почувствовать себя настоящим морским волком за штурвалом пусть небольшого, но своего собственного корабля под развевающимися парусами – прекрасный замысел для детской песочницы.

Сколотить ее собственноручно из деревянных досок или приспособить для этих целей старую лодку – дело ваше. Но то, что детвора будет просто в восторге, это уж точно!
Как видите, интересных и функциональных идей для сооружения дачной песочницы – хоть отбавляй! Выбирайте самое лучшее и тренируйте свои очумелые ручки над внедрением новых проектов. А мы желаем вам и вашим деткам чудесного лета и прекрасного отдыха на даче!
sait-pro-dachu.ru
Как сделать детскую песочницу своими руками: фото, схемы, чертежи
При выборе конструкции небольшой детской песочницы необходимо учитывать не только её прямое (функциональное) назначение, но также обратить внимание на то, насколько гармонично она будет «вписываться» в окружающий пейзаж.
Наиболее подходящим материалом для песочницы будет обычная древесина. Давайте рассмотрим как сделать песочницу своими руками.
Основные вопросы:
- какую конструкцию выбрать;
- сколько досок потребуется для её изготовления;
- как выбрать нужное цветовое решение.
Конструкция и размеры песочницы для детской площадки
Конструкция и размеры песочницы
Особых требований к размеру детских песочниц не предъявляется. Если на территории участка достаточно свободного места – вы можете выбирать любые удобные для вас габариты (в пределах разумного, конечно же). Чаще всего песочницу делаю квадратной, что заметно облегчает подготовительные работы, связанные с нарезкой заготовок одинакового размера.
Доски могут иметь длину 4, 5 или 6 метров при ширине около 12 см. Что касается высоты стенок всей конструкции, то здесь оптимальным считается размер порядка 24 см, что соответствует связке из двух досок. Таким образом, если в вашем распоряжении имеются пятиметровые доски – для сборки всей песочницы вам потребуется их восемь штук.
Толщина досок, идущих на её изготовление, выбирается обычно равной 30 мм. Заготовки такой толщины обеспечивают требуемую прочность и надежность конструкции и исключают возможность растрескивания. Глубина песчаного насыпного слоя, используемого для наполнения песочницы, выбирается равной 15 см.
Поскольку природная древесина не защищена от гниения и атак паразитов – весь используемый для сборки каркаса материал обязательно должен быть обработан антисептиком.
Основные этапы изготовления песочницы: порядок работ
Порядок изготовления
После того, как все доски приготовлены – вы можете переходить к сооружению каркаса. Для скрепления отдельных элементов конструкции между собой можно использовать заранее подготовленные металлические уголки, крепящиеся на досках посредством саморезов.
Можно, конечно, обойтись и без уголков; но тогда половина досок, используемых для сборки каркаса, должна быть на 6–7 мм длиннее. В этом случае часть сборных досок крепится на торцах смежных заготовок с помощью обычных саморезов по дереву, что позволяет получать достаточно надёжный и прочный каркас.
В условиях загородного участка обязательно нужно будет побеспокоиться о дне песочницы; причём подойти к этому вопросу необходимо со всей серьёзностью. Защитить игровую площадку от проникновения на неё грызунов, в частности, можно путём застилки дна специальным агроволокном, края которого закрепляются на досках с помощью обычного мебельного степлера.
Выбор места для размещения конструкции
Выбор места
При выборе подходящего места исходят из следующих соображений:
- место не должно быть открыто для ветров и солнца;
- место детских игр должно хорошо просматриваться со всех точек сада, т.е. было бы «на виду»;
- должен присутствовать «козырек».
Лучше всего расположить песочницу под кроной деревьев или же таким образом, чтобы на неё большую часть дня падала тень от ближайшей постройки.
Что касается цветового решения, то оно должно выбираться на ваше личное усмотрение (по вкусу). Палитра цветов должна быть достаточно разнообразной, а также по возможности яркой и насыщенной. По бокам деревянного каркаса можно нанести узоры или рисунки.
Советы специалиста
Ладошки
Приведём пару советов:
- Форма совсем не обязательно должна быть квадратной. Если попытаться отойти от шаблонов, то вполне можно представить себе треугольную, трапециевидную и даже многоугольную конструкцию.
- В самой песочнице можно подготовить какие-то лабиринты, проходы и канавки, в которых малышу будет интересно устраивать подвижные игры.
Видео
Фото песочниц: 14 необычных идей
С навесом
Песочница с избушкой
Песочница закрывающаяся
Оригинальная идея
Кораблик
Конструкция со столиком
Домик друзей и песочница
Песочница кораблик
Из бревен
Песочница лесенка
На детской площадке
Закрывающаяся тентом
Простая песочница
Закрытая песочница
Схемы и чертежи
Чертеж песочницы
Чертеж квадратной песочницы
Деталировка песочница
Конструкция песочницы
Основание для песочницы
Песочница ракушка
Песочница с откидной крышкой
Схема квадратной песочницы
Схема песочницы с навесом
С навесом и крышкой
Сборка песочницы
Установка крышки
kakpravilnosdelat.ru
Детская песочница своими руками | Строительный портал

Благоустроить детскую площадку у себя во дворе – не только полезный способ облагородить участок, но и возможность освободить массу времени по присмотру за детьми. Ухоженное место для игры детей немыслимо без песочницы и забавного, декора из пластиковых бутылок, лавочек и качелей. Оригинальная детская песочница своими руками доступна каждому домашнему мастеру, а идеи и секреты сооружения стоит обсудить подробнее.
Оглавление:
- Как оформить детскую площадку своими руками?
- Что важно учесть при создании детской песочницы своими руками?
- Фантазийные варианты песочниц
Как оформить детскую площадку своими руками?
Сколько бы родители не ждали, что придет добрый дядя и обустроит место для игр детей возле многоэтажного дома, гораздо быстрее сделать это своими силами. Теплый сезон проходит быстро, и не стоит терять время на дачном участке или в саду у загородного дома. Тем более что не разумно оставлять детей или внуков без такой увлекательной игры, как сооружение крепостей и «пасок» из песка. От общей концепции детской площадки зависит выбор родителей:
- дизайн песочницы;
- ее размеры и форма;
- материалы для изготовления;
- тип (закрытая или открытая песочница).

Для благоустройства площадки и детской песочницы своими руками из подручных материалов подойдет многое из того, что собрались выбрасывать. Некоторые материалы пылились в гараже или на балконе, что-то давно хотели отдать кому-то, но потом отложили. Какие-то предметы, ожидающие переработки, станут отличным материалом для облагораживания двора. Подойдут:
- пластиковые бутылки;
- лысые шины;
- тенты и сетки;
- обрезная доска;
- деревянные бруски и другие пиломатериалы.
Лабиринты, перекладины, горки, турники, батуты, столики для игры и лавочки – обязательные атрибуты благоустроенной площадки. Дети растут и развиваются, и каждый день наполнен новыми достижениями, которые они охотно демонстрируют друг другу, родителям, бабушками или няням. И ради здорового психического развития нельзя сравнивать детей друг с другом, лучше хвалить их за сегодняшние успехи. Пусть это будет первая аккуратная «паска» из песка на бортике детской песочницы своими руками – есть повод для похвалы малыша и лакомого угощения за старания.
Песочница может быть самодостаточным объектом на участке или органично вписываться в общий ландшафтный дизайн. Но гораздо важнее, насколько комфортно в ней будет детям. Летом слепит яркое солнце, и грамотно оформленная тень – половина успеха, поскольку занимательные игры детей и их головы должны быть защищены от палящего солнца.
Крышку для песочницы можно сделать из плотного полиэтилена, брезента или тента. Можно также приспособить готовую большую крышку, например, от надувного бассейна. Щиток из остатков доски тоже подойдет, но лучшее решение – раздвижные сидения у детской песочницы своими руками, фото:

Что важно учесть при создании детской песочницы своими руками?
Песочница – едва ли не самый важный атрибут для летних игр детей. Не столь важно, какая идея станет основой дизайна на придомовой территории, главное чтобы на площадке и в песочнице не было опасно для детей и красиво для всех.
1. Качество песка.
Чистый просеянный песок – гарантия безопасности детей. Закрытая детская песочница для дачи своими руками – наиболее подходящий вариант, хотя и самый трудоемкий. Крупный речной песок должен быть просеянным, в нем не должно быть фрагментов пресноводных раковин или стекол, чтобы дети не порезались.
Внимание: Если заметили, что в детской песочнице повадились гадить коты, то требуется продумать, как ее накрывать, а грязный песок придется заменить на свежий. В экскрементах уличных котов всегда есть глисты и другие паразиты!
Песок постепенно смешивается с уличной пылью и разносится из основного места. Запасы песочницы хотя бы раз за лето желательно пополнять. Лучше его полностью заменить новым и чистым, а пыльным песком отсыпать дорожки или детскую площадку.

2. Аллейка к песочнице.
Площадка, где находится любимое место детских игр, должно быть хорошо утрамбовано. Но лучше, когда к песочнице подведена дорожка, чтобы не пробираться к ней через грязь после дождя или заросли. Если это частное домовладение, то песочница должна быть частью ландшафтного дизайна, и когда ребенок подрастет, на этом месте можно сделать цветник. В обычном дворике песочницу лучше обустроить рядом с дорожкой или вымощенной площадкой.
3. Скамеечки и столики.
Дети не должны постоянно сидеть на холодном и мокром песке, и их надо приучать следить за своим здоровьем. Поэтому бортик песочницы делают достаточно широким, чтобы детям было удобно сидеть и рядом выкладывать из формочек фигурки из песка. Но лучше сделать благоустроенную лавочку и столик. Есть и другие идеи детской песочницы своими руками, например, с треугольными перекладинами по всем углам. Во многоугольной песочнице лавочки делают на 2-3 противоположных стенках.
Совет: Желательно рядом обустроить отдельное место для совков, формочек и ведерок, чтобы инвентарь не «тонул» в песке бесследно.

4. Навес от солнца.
Это обязательный атрибут классической песочницы «грибок». Но квадратная деревянная крыша на высоком столбе по центру песочницы удобна только частично. Она должна быть сделана выше уровня головы, чтобы входящие на песок дети и взрослые не переживали, что можно удариться головой. Но высокая крыша в течение дня отбрасывает тень в разные места песочницы. Во дворе частного дома делать стационарный деревянный навес не обязательно. Достаточно на время игры ребенка устанавливать с южного борта песочницы раскладной пляжный зонт на штативе или натянуть тент.

5. Местоположение песочницы
Если во дворе частного дома мало места, но выбор невелик, и песочницу приходится обустраивать прямо под окном или напротив порога. Дети на виду – это гораздо лучше, чем удаленная за хозпостройки песочница, за которой сложно наблюдать, выполняя работы по хозяйству. Лучше поставить большой короб с песком у высокого глухого забора, который дополнительно создаст тень. А сам забор над песочницей можно превратить в доску для рисунков цветными мелками. Боковые бортики оборудуют лавочками.
Готовую тень над песочницей создает высокое раскидистое дерево, но сухие ветки, соцветия и листья, а также падающие с него гусеницы не прибавят комфорта при игре. Такую песочницу приходится часто очищать от растительного мусора. Если дерево над песочницей обильно цветет, и его опыляют пчелы, то это может быть опасно для малышей. Неудобство будут создавать и падающие с дерева сладкие плоды, возле которых часто роятся осы. Если же дерево отцветает ранней весной «серёжками» и до осени не «мусорит», то такой вариант вполне приемлемый.
6. Готовая или покупная песочница?
Детские секции гипермаркетов предлагают все что угодно, включая бассейны и готовые пластиковые песочницы. Такое приобретение будет привлекать детей достаточно ярким островком. Готовое красочное изделие с детским дизайном остается закрепить на площадке и наполнить свежим песком. Однако синтетические материалы нельзя отнести в числу экологически чистых, а яркие краски при нагревании могут испарять химикаты. А сломанную песочницу вряд ли удастся починить. Но если в доме нет мужчины, способного соорудить даже обычную детскую песочницу, то отдают предпочтение покупной модели, которая привлекательна и вполне удобна.

Внимание: При покраске деревянной песочницы могут возникнуть те же проблемы – испарение на солнце летучих веществ. Желательно все работы и покраску завершить ранней весной или в отсутствие детей.
7. Краска для песочницы.
Если решили сделать детскую песочницу своими руками из дерева, то внимательно выбирайте лак или краску. В строительных супермаркетах есть безвредные быстросохнущие красители, а есть экокраска – на основе натуральных смол. Смотрите в инструкции время высыхания, и до ее полного отвердения не стоит допускать детей до игры в песке. Большинство красок после нанесения липнут к рукам, а дети склонны облизывать пальцы. То же самое относится и к сооружению песочницы из больших шин, которые выкрашивают яркими красками.
8. Размеры песочницы.
Если есть достаточно стройматериалов для сооружения любимого места для детских игр, то не стоит делать ее слишком большой. Песок постепенно разносится, его приходится убирать и завозить новый. Габариты и форма – произвольные, тут нет стандартов, и для малолетних детей хватает места 1,75х1,75 метров. И если детей несколько, то между ними часто возникают «собственнические» разногласия, и есть смысл сделать многосекционную детскую песочницу своими руками, составив чертеж.
9. Дно песочницы.
Родители часто упускают из виду, что в песок, засыпанный на открытый грунт, попадают черви и другие оргазмы из природной среды. Так делали в советские времена в детсадах и дворах. Сегодня есть возможность приобрести плотную пленку или агроволокно. Растянув и закрепив его на дне песочницы строительным степлером, проще всего изолировать свой прямоугольник.

Но есть один минус – если нет навеса, то сильный ливень быстро наполнит ее. Для такой системы необходим уклон и возможность слива воды, например, через отверстия внизу стенок песочницы или по углам. Дно защищенной песочницы наполняют щебнем для дренажа или выкладывают полым кирпичом.
10. Бортики самодельной квадратной песочницы: простейший вариант.
Обычно их делают деревянными – из бруса или обрезной доски. При минимуме стройматериалов достаточно 4 одинаковых доски, 4 уголка для скрепления, 2 или 4 доски для бортика в виде сидения плюс надежные бруски в виде колышек – для фиксации сооружения. Важно условие – все доски должны быть тщательно ошлифованы, чтобы дети не получили занозы. Перед покраской обрезанные доски или готовую конструкцию обрабатывают антисептиком от гниения и грибка и покрывают олифой пару раз. Красить лучше в любой жизнерадостный цвет.
11. Дизайн и декорирование песочницы.
Это самая интересная часть сооружения песочницы, где есть возможность применить свое творческое дарование и дать волю фантазии. Готовую песочницу и забор возле нее можно перекрасить и нанести рисунки в общем ключе:
- отпечатки детских ладошек по трафарету;
- забавные человечки в цветных одеждах;
- смайлики или мордашки животных;
- геометрические фигурки;
- буквы и цифры.
При должном оформлении песочницы, она способна стать не только благоустроенным местом для детских игр, но и достойным украшением ландшафтного дизайна.

Фантазийные варианты песочниц
Бортики песочницы не обязательно делать из деревянной доски, обработанные бруски, вбитые в землю штакетником – отличная идея. Их можно сделать разной высоты, подобно ступенькам, по которым дети охотно переступают или бегают. При таком дизайне величина и форма песочницы может иметь вариации по размерам и конфигурации, как при воплощении на идеи детской песочницы своими руками на фото:

Многоугольная песочница встречается не так часто, а во дворе 3-4 многоквартирных домов нередко делают несколько песочниц. Как вариант – сделать несколько разных цветных многоугольников с песком.
Есть немало других интересных идей, как сделать детскую песочницу своими руками. Заботливые родители понимают, что дети не просто проводят время в песочнице, но здесь развиваются их творческие задатки, формируются навыки. Песок – отличный материал для созидания, но эстетика окружающей среды формирует их вкус и тягу к красоте. Самый сложный вариант – круглая, вращающаяся песочница в виде трансформера, состоящая из нескольких секций.
В качестве емкости для песка используют широкие поддоны, деревянные каркасы, шины большегрузов и другие материалы. Наиболее популярное решение – оригинальная песочница из покрышек, которую выкладывают многоугольником и выкрашивают разным цветом.
Самое трудоемкое, но интересное решение – соорудить песочницу с мобильной крышкой в виде теремка, которая сдвигается, открывая песок. При этом задние ножки должны быть на колесах, а верхний бортик послужит направляющей.

В центре или сбоку большой песочницы можно поставить столик, а на бортиках соорудить лавочки. В таком случае детям будут проще работать с песком, набирая его под ногами и выкладывая на столике. Удобна для длительной игры детей детская песочница с крышкой своими руками в виде лавочки.
Самый интересный дизайнерский вариант – многоуровневая песочница. Ее несложно сделать из старой лодки, оформив в виде корабля и дополнить удобными сидениями. Тогда песок будет и в нижнем поддоне, и наверху в лодке. Тент в виде паруса защитит играющих детей от солнца.
Детям также интересны сооружения в виде узнаваемых объектов:
- ракета;
- теремок;
- машина;
- паровозик;
- горка или лабиринт с приземлением в песочницу.
Более подробный мастер-класс по сооружению детской песочницы своими руками – видео:
strport.ru
Как сделать детскую песочницу своими руками: фото и идеи для загородных участков
О детской игровой площадке на земельном участке находящемся в личном пользовании мечтают, пожалуй, все молодые мама и папа небольших непосед. Все знают о пользе нахождения деток на чистом воздухе, но когда мама и папа вывозят ребёнка за город, перед ними появляется вопрос: чем занять ребенка. Конкретно песочница занимает ребёнка и даст возможность расслабиться родителям, разовьёт его творческие способности и пространственное мышление. В данной статье мы побеседуем о том, как выполнить детскую песочницу собственными руками, рассмотрим разные фото и идеи подобных строений.
Кажется, в строительных работах песочницы сложностей нет: вырыть яму, засыпать песок, загородить бортами, и готово. Но здесь есть невидимые моменты, которые невозможно не предусматривать.
Детскую песочницу можно не прилагая больших усилий изготовить собственноручно
Начальный этап: подбор места
Подбирая место, где будет размещена грядущая песочница, предпочтение необходимо отдавать открытым участкам, где вы легко сумеете следить за ребёнком в процедуре игры. Песочница не должна находиться под прямыми лучами солнца, но также и в тени её делать нежелательно. Полутень — подходящий вариант. Постройте песочницу поблизости от большого дерева или поставьте её под зонтиком, чтобы не понадобилось волноваться про то, что ребенок перегреется на солнечных лучах. Но не располагайте её очень близко к дереву, так листья и плоды будут всегда падать и засорять песок.
Есть очень много хороших вариантов песочницы, которые можно выбрать
детскую песочницу лучше располагать недалеко от дома, на виду у мамы и папы
песочница из бруса
Второй этап: подготовка чертежей и инструментов
Класическая песочница для малышей до 5 лет имеет форму квадрата и размер 2хдва метра. Однако подбор размера и формы ограниченный лишь вашей фантазией. При большом желании, составьте чертёж или схему будущего игрового места и занесите туда размеры длины, ширины, высоты. Зарисуйте форму и добавочные детали (зонт, крыша, перегородки, сиденья). Потом вам будет намного легче высчитать кол-во необходимого стройматериала.
Чертеж простой летней песочницысовет: форма для песочницы не всегда должна быть в форме геометрических фигур. Разные парусники и корабли, цветы а также песочные лабиринты сделают краше участок даже лучше художественных вещей. Выберите к ним разные декорации для песочницы, которые завершат её образ.
Чтобы малыш не перегрелся, лучше выполнить песочницу с выступом крыши
любопытным вариантом будет выполнить целый песочный лабиринтподбирайте природные строительные строительные материалы уголочка для детей: берёзовые или доски из сосны будут прекрасным подбором. Еще вам потребуются бруски, защитная пропитка для защиты дерева, лаки или краска, нетканое полотно или агроволокно.
Песочница собственными руками в качестве парусника с выступом крыши от солнышкаинструменты запасите такие:
- Машинка для шлифовальных работ;
- Дрель или молоток;
- Шурупы или гвозди;
- Пила:
- Лопата.
3-ий этап: приготовление основы
В углах подобранного участка вбейте колья и натяните верёвку. В середине огороженного участка снимите верхний плодородный почвенный слой глубиной около 30 см.
Для песочницы следует подбирать хороший песочекпесок можно насыпать уже на земляную основу, но это сделает трудности в дальнейшем: песок будет оседать и загрязняться. Чтобы это не допустить, между землёй и песком делают прокладку из «дышащих» материалов. Чтобы это выполнить рекомендуют применять агроволокно или нетканое полотно, которые прекрасно пропускают влажность и будут защищать песочницу от растений и почвенных зверей. Для этого пойдёт и плёнка из полиэтилена или фанера, но применяя их, заблаговременно проделайте в них вентиляционные отверстия.
Чтобы не прорастали растения и не скапливалась влага, песок лучше ложить на нетканое полотнопотом подготовьте дерево: аккуратно зашлифуйте каждую доску, бруски (чтобы уменьшить риск получения занозы или царапины в последующем), накройте поверхность их пропиткой для защиты.
В углах ямы вбейте бруски на глубину 20-25 см и закрепите к ним вдоль периметра заранее отделанные доски. Они бывают и широкими, и узкими. При большом желании для прочности углы каркаса крепят останками бруса.
Детская песочница собственными руками закрывающийся убережет от осадкови для малышей, и для родителей удобно будет, если по краешкам к песочнице прибьют сиденья-бортики, как показано на рисунке. В последующем детки смогут лепить на них собственные шедевры и ставить их на витрину или посидеть и расслабиться.
Финишный этап: покраска
Окрашивание песочницы при большом желании легко преобразуется в реальный креативный процесс. Окрасьте её в комплекте с детьми всеми цветами радуги или обойдитесь строгим однотонным стилем. Окрас краски – дело вкуса, и все мама и папа решают данный вопрос, опираясь на собственные предпочтения.
Песочница собственными руками — великолепное дополнения для любой игровой площадкиэти владельцы подумали выдерживать с одним оттенком дизайн.
Вы можете выделить уже очень долго не выходящий из моды окрас настоящего дерева. Подобная песочница универсально подойдет к каждому дизайну участка и приятно приятно глазу.
Можно весьма интересно раскрасить песочницу светлыми рисунками, они особенно понравятся вашим малышамно самым интересным и неповторимым вариантом будет, разумеется, окрашивание песочницы всеми цветами радуги. Ребенок придёт в восторг от пестроты яркого цвета, а вас они зарядят хорошим настроением на весь день.
Борты и сиденья можно красиво оформить рисунками фигурок зверей, растений, любимых героев мультипликационных фильмов, геометрическими фигурками либо даже неповторимым рисунком. Такое оригинальное оформление приглянется ребенку, а вы будете развивать его познавательные способности. Он сам может разукрашивать игровое место, развивая творческие умения и фантазию.
Финишный этап: покраска песочницы
песочница из шины
песочницу из шины можно покрыть пленкой от дождя и мусора
Крышка для песочницы
Очень нужная деталь для игровой площадки — крышка. Она убережет песок от плохой погоды (дождя, снега, крепкого ветра), устранит его засорение самым разным мусором: веточки, листы, бутылки из платика и др. Немаловажен тот момент, что если песочница будет надёжна укрыта, то это исключит возможность проникания фекалий бродячих или животных живущих дома в песок, и вы сумеете спокойно отпускать ребенка гулять, не опасаясь за его здоровье.
Любопытный факт. Крышка исполняет не только функцию защиты, но и декоративную. Разные решения дизайнеров для её оформления дадут необычности конструкции.
Крышка для песочницы раскладывающаясясамый обычный вариант крышки для игровой площадки — тент, который натягивают, когда ребёнок закончил играть до следующей прогулки. Для этой цели можно использовать и плёнку из полиэтилена. Но у подобного укрытия есть недостаток: ненадёжность. И тент, и плёнка легко повреждаются, не стойки к атмосферным условиям.
Песочница собственными руками с крышкойнадёжным и популярным вариантом укрытия песочницы считается древесная крышка. Здесь есть три варианта:
- Крышка-щиток: на бруски прибивают начальные доски, аккуратно измеряя размер. Это упрощённая в применении конструкция, однако сам ребёнок не сможет собственными силами закрывать и открывать песочницу.
- Крышка-створка: изготавливают два щитка нужного размера определенно аналогичным способам, которые крепят к бортам песочницы при помощи петель, а поверх прибивают ручки. Данная конструкция выглядит необычно, и ребёнок сможет сам легко закрывать и открывать крышку.
- Крышка-трансформер. Оригинальное и хорошее решение, когда крышка при открывании образовывает скамью. Для этого начальные доски жёстко закрепляются к бортам песочницы, а дальнейшие фиксируются с помощью петель таким образом, чтобы при складывании образовывалось сиденье со спинкой. Подобная конструкция не просит большой расходы сил и энергии, а результат который получился вас приятно поразит и обрадует.
Песочница бывает в качестве стола
Выступ крыши для песочницы
Чтобы ребёнок удобно чувствовал себя во время игры, когда на улице жарко и жаркое солнце, в песочницу предлагается установить солнцезащитный выступ крыши. Как уже говорилось, площадку для игр лучше разместить в полутени, однако если это не представляется возможным выполнить, то выступ крыши станет отличным решением проблемы.
Песочница собственными руками с древесным выступом крышипростое и эффектное укрытие от прямых лучей солнца — зонтик. Это не стационарный выступ крыши, благодаря этому понадобится каждый день его убирать после прогулки и фиксировать и переместить по мере продвижения солнечного света во время игры.
Переносная песочницаещё одним вариант выступа крыши — брезентовый тент, укреплённый на древесных стойках. Но более надёжен стационарный древесный навес-крыша, установленная на древесных стойках. На данном фото мы по всей видимости совмещённый вариант: древесная крыша, покрытая тентом из брезента. Подобная конструкция легка и воздушна, но одновременно надёжна.
Выступ крыши — грибок для песочницыдекоративным решением будет выступ крыши в качестве «грибка», знаком нам с самого детства. Чтобы это сделать понадобиться одна древесная стойка, к которой делают фиксацию несколько треугольных фанерных листов таким образом, чтобы появился специфический зонт, напоминающий шляпку гриба. Окрашивая такой грибок, вы можете пофантазировать, и выйдет декоративное украшение для участка за городом.
Песочница собственными руками с тентовым выступом крыши
Подбор песка для детской песочницы
К подбору песка подойдут тщательно. Здесь есть три варианта:
- Песок речной, который по сей день считается самым лучшим. Он настоящий, не имеет плохих примесей и стороннего запаха, чистый. Все лепили морские замки в раннем возрасте, отдыхая на берегу реки. Ребёнок придёт в восторг от возможности выстраивать аналогичные строения, не ждя поездки к озеру.
- Кварц. Его приобретают в магазинах строительных материалов. Хороший вариант, но он не считается природным и содержит вредные ремонтные примеси у себя в составе.
- Пески с очень высоким содержанием глины. Это особые детские пески, которые подходят для лепки, благодаря особенному составу. К нему добавляют особые вещества, способны гнать бродячих зверей от песочниц.
Песок лучше подбирать без камней и примесейлюбопытный факт. Психологами доказали, что песок подавляет негативные впечатления, негативную энергию, действуя успокаивающе на человека и его нервную систему.
Сказкотерапия при помощи песочницыпрежде чем засыпать песок на площадку для игр, обязательно просейте его. Так вы уверены будете, что в песочнице нет инородних предметов. Вам понадобится около 1 тонны песка. Оговорите заблаговременно объём заказа, не волнуйтесь, если закажете больше, чем нужно. Не забывайте, что песок — это ещё и многофункциональный ремонтный материл.
Просеивание детского песка для песочницывыявите фантазию и сделайте запоминающимся уголок для детей на собственном участке! Он обрадует ребенка, сделает красивее дизайн участка за городом, и вы постоянно найдёте, чем занять ребёнка.
Песочница собственными руками
Детская песочница собственными руками 40 фото идей:
masterdom35.ru
этапы возведения и тонкости от мастеров
Счастливы те, чей сад наполнен не только цветами и всевозможными украшениями, но и задорным детским смехом. Дети – основные ценители дачных приключений. Именно их мы стараемся увезти подальше от городского шума и смога, чтобы они могли наслаждаться природой и дышать свежим воздухом. Но ребенка мало привести на дачу, его нужно чем-то занять. Песочница своими руками сооруженная в саду – отличное место для детских игр.
Создавая песочницу для своего ребенка и его друзей, необходимо руководствоваться основными принципами её размещения:
- Предусмотрительность. Дети должны находиться в поле зрения взрослых, поэтому размещать песочницу нужно так, чтобы она была хорошо видна и доступна.
- Гигиенические требования. Располагать место для игр под деревьями не стоит, иначе не только падающая листва, но и птичий помет создадут лишние проблемы.
- Защита. Прямые солнечные лучи приносят больше вреда, чем пользы, поэтому защиту от солнца непременно нужно учитывать.
- Удобство использования. Рассчитывая размеры сооружения, обязательно нужно учесть примерное количество детей, которые будут им пользоваться.
Существуют типовые нормы для детских сооружений. Конструкцию делают из древесины, как наиболее экологичного материала. Обычно это квадрат, сторона которого составляет от 2,5 до 3 м. Песка для заполнения подобного сооружения необходимо примерно 2 м³. Если делать стандартную песочницу, то в качестве материала для неё нужно взять сосновые доски 25-30 мм толщиной.

Важно соблюдать основные принципы размещения песочницы, тога ваш ребенок будет играть с удовольствием, но под присмотром и в защищенном от солнца и мусора месте

Достаточно стандартная на вид песочница, но в ней есть все, что нужно: ребенок находится под маминым присмотром, поверхность сооружения обработана, а бортики делают процесс игры удобнее
Размышляя, как сделать песочницу своими руками, следует изначально определить вид будущего сооружения. Если конструкция будет стандартной, то достаточно выделить в саду участок размером примерно 2х2 м, свободный от нависающих веток деревьев, и можно приступать к созданию будущего места для игр.
Подготавливаем место для установки конструкции
Будем реалистами и выберем сооружение с размерами 1,7х1,7 м. Для двух или даже трех малышей такая песочница не окажется мала, зато места в саду займет немного.

Разметить площадку под песочницу совсем несложно, необходимо иметь четыре колышка, несколько метров шпагата и рулетку, чтобы правильно измерить расстояние
Площадку под будущее сооружение необходимо подготовить. Для этой цели берём шнур и колышки. Размечаем периметр песочницы и внутри ограждения выкапываем яму глубиной в 25 см. Плодородный слой, который мы удалили, очень пригодится на других участках сада. Итак, получилась площадка 170х170х25 см.
Основание для песочницы
Можно ограничиться выкапыванием ямы, но земляное основание песочницы создаст в будущем проблемы: песок быстро потеряет первоначальный вид, будет грязным и его придётся часто менять. Лучше заранее подумать о том, как сделать садовую песочницу максимально чистой. Плотное основание, которое не допустит смешивания земли и песка – отличный выход из ситуации.
Выровнять поверхность почвы поможет подушка из песка. Насыпаем песок на дно ямы. Слоя в 5см будет достаточно. Песок нужно хорошо утрамбовать, после чего его укрывают специальным материалом.

В принципе, тротуарную плитку тоже можно использовать в качестве основания, но песок, укрытый геотекстилем, ничем не хуже, а хлопот с ним меньше
Геотекстиль или агроволокно – современные материалы, при помощи которых находится быстрое и изящное решение проблемы. Если взять, например, полиэтилен, то защита будет герметичной, но, после первого же дождика, сооружение придётся разбирать из-за скопившейся воды. Геотекстиль отлично пропускает влагу: вся вода просто уйдет в землю. Зато ни кроты, ни насекомые, которые живут в земле, пробиться наверх не смогут. Если и применять пленку или фанеру, то необходимо сделать в них дренажные отверстия.
Осталось немного: начать и закончить
Подготавливаем бруски 450х50х50 мм. Они будут располагаться по углам сооружения. Учитывая тот факт, что часть бруска на 15см длины будет находиться в земле, эти детали необходимо первоначально обработать антисептиком. В этом качестве чудесно подойдет битум. Бруски забиваем в землю по углам будущей песочницы.
Для каждой из четырех сторон конструкции сооружаем щит из сосновых досок. Ширина его составит 30 см, а толщина – 2,5 см. Можно взять одну широкую или несколько узких досок – это не принципиально. Гораздо важнее хорошенько обработать поверхность щитов, чтобы не было ни сучков, ни выпирающих щепок, ни зазубрин. Занозы и царапины нам точно не нужны!

Песочница практически готова, а бортики придают ей полностью законченный вид; остаётся только несколько последних штрихов, о которых мы расскажем ниже
Детям должно быть удобно играть, для этого в конструкции можно сделать бортики. По периметру сооружения укладываем 4 доски, которые тоже предусмотрительно обстругиваем и просматриваем. Бортики дети смогут использовать в качестве сидений, как витрины для куличиков или подставки для ведёрок, формочек и лопаток.
Маленькие, но полезные дополнения
Крышка – мера защиты
Немного модернизируем стандартный вариант и добавим крышку к готовой конструкции. Песочница с крышкой – вариант для предусмотрительных родителей. Зачем нужна такая непривычная деталь? Всё просто, используя крышку мы:
- защитим песок от дождя;
- не позволим ветру заносить сюда листья и прочий возможный мусор;
- не пустим в сооружение кошек и собак: пусть ищут себе другое место для туалета.
Итак, мы пришли к выводу, что крышка необходима, поэтому сделаем деревянный щит, закрепив несколько досок на брусках. Его нужно будет поднимать, и убирать перед игрой. Но малыш этого сделать самостоятельно не сможет. Стоит подумать о крышке-дверце, которая может состоять из двух частей. Для неё нужно сделать два щита соответствующих размеров и закрепить их на петлях. Снабженные ручками, такие дверцы могут быть открыты даже ребенком.

Вот такое креативное сооружение снабжено удобной крышкой: её сможет открыть даже ребенок, а ещё она может трансформироваться в лавочки
Если процедура сооружения крышки оказалась по какой-то причине невозможна, можно ограничиться тентом или пленкой. Закрепленные на резинке или просто кирпичами, эти полотна будут выполнять главную функцию – защитную.
Навес или грибок
Грибок – элемент, без которого не обходилось создание песочницы нашего детства. Эта достаточно декоративная деталь несет и определенную защитную функцию. Под грибком можно переждать внезапный дождь, и он хорошо защищает малышей от солнца. Часто к основанию грибка приделывали столик, который выполняет в сооружении ту же функцию, что и бортики.

Песочница с грибком – безопасное и удобное для игры сооружение, в котором нет ничего лишнего, и есть всё, что нужно
Остановим свой выбор на древесине в качества самого надежного материала для детских сооружений. Для ножки грибка возьмем брус 100х100 мм. Примерно 3 м длины бруса будет достаточно. Ведь для большей устойчивости ножка грибка должна быть вкопана в землю на глубину никак не менее метра. Не забудьте обработать ножку сооружения антисептиком. Для грибной шляпки заранее делаем треугольники из досок. Изнутри их следует прибить к ножке грибка, а снаружи обшить тонкой фанерой. Ширина для шляпки в пределах 2,5 м будет вполне достаточной.
Конечно, эта разновидность навеса не единственная, которую можно соорудить над песочницей. Фантазия человека безгранична, и можно придумать другие варианты, ничуть не хуже.
Обычно для детских игр выбирают речной песок. Считается, что он наиболее чистый и содержит минимум посторонних примесей. Купленный в магазине строительных материалов кварцевый песок тоже неплох. Любой песок требует просеивания. Мало ли что может попасть в него и испортить ребенку удовольствие.
Кстати, есть даже специальные пески для детских сооружения, из которых удобнее лепить фигурки: в них повышено содержание глины. В такой материал добавляют специальные отдушки, способные отпугивать нежелательных посетителей детских песочниц – кошек и собак.
Можно было бы ещё рассказать о всевозможных способах украшения песочницы, но пусть фантазия родителей дополнит эту статью оригинальными идеями. Теперь Вы знаете, как сделать уютную детскую песочницу. Вполне возможно, что именно сооружение в Вашем саду станет настоящей изюминкой последующих публикаций.
diz-cafe.com
