Детская площадка вид сверху чертеж – Детская площадка своими руками | Идеи, чертежи (+75 фото)
Детская площадка на даче: идея, чертеж, фото
Сегодня всё реже можно встретить детей играющих на улице. Основная масса дошкольников проводит время за компьютером или телевизором. Но физическая активность на свежем воздухе безмерно важна для формирования уравновешенной личности. Так чем же родителям заинтересовать своё чадо?
Всё просто – нужно создать детскую площадку для игр, например на даче перед которой не устоит даже самый искушенный ребенок.
Концепция игровой площадки
Начать нужно с идеи. Присмотритесь к своему ребенку – что ему близко? Может он мечтает быть космонавтом – тогда городок в виде звёздолета вряд ли оставит его равнодушным. А если он хочет путешествовать, то почему бы ему не стать капитаном пиратского корабля?
Когда концепция выбрана, продумайте, как вписать детали, которые поддержат выбранную атмосферу. В нашем случае форма детского городка будет напоминать морскую шхуну, заданное направление поддержат ограждения на капитанском мостике, в которых будут вырезаны фигуры.
Проектирование

Проект детского игрового комплекса для дачи.
Подготовка древесины
Все деревянные детали необходимо обстрогать. Затем покрыть двумя слоями лака, который подходит для уличных работ. После полного высыхания деталей можно переходить к сборке.
Капитанский мостик

Проект каркаса.
Эта часть строения является каркасом всей детской площадки. Для её сборки потребуются следующие детали:
|
№ |
Название |
Длина (см) |
Размеры дерева (мм) |
Количество (шт.) |
|
1 |
Стойка |
300 |
100*100 |
8 |
|
2 |
Обвязка |
160 |
100*50 |
9 |
|
3 |
Доски пола |
170 |
100*25 |
17 |
|
4 |
Стойка конька |
40 |
50*50 |
2 |
|
5 |
Конек |
170 |
50*50 |
1 |
|
|
Ограждение |
800*600 |
4 |
К нижнему краю каждой стойки необходимо прикрепить металлическую конструкцию, которая позволит избежать соприкосновения с землей. Такой прием убережет дерево от преждевременного гниения. Крепеж производится с помощью шпилек диаметром 10 мм и гаек, одна из которых приваривается к шпильке, чтобы избежать прокручивания.

Металлическая конструкция, которая крепится к стойкам.

Крепеж стойки к металлу.
Затем металлическая часть бетонируется на глубину около 70 см. После полного затвердевания бетона можно продолжать работы.
На следующем этапе работ собирается обвязка. Для этого в стойках делаются пазы. Для жесткости всей конструкции используются металлические уголки.

Паз в стойке, крепеж обвязки.

Соединение обвязки.
Следующим этапом идет сборка пола. Доски крепятся к основе с помощью саморезов по дереву.
Из влагостойкой фанеры необходимо приготовить ограждение для капитанского мостика. Оно помимо практической функции, будет нести ещё и декоративную. В фанере с помощью лобзика необходимо создать рисунки, которые поддержат морскую стилистику.

Тематические рисунки для дизайна игрового комплекса.
По окончанию работ необходимо прикрепить фанеру к стойкам. Следующим этапом будет сборка крыши. Конек вшивается в плащевую ткань и крепится к стойкам, которые закреплены на обвязке с помощью металлических уголков.

Устройство крыши.
Капитанский мостик готов. При желании можно добавить деталей, например, штурвал или флагшток с пиратским флагом.

Капитанский мостик.
Лестница

Проект лестницы для детской площадки.
Таблица элементов лестницы
|
№ |
Название |
Длина (см) |
Размеры дерева (мм) |
Количество (шт.) |
|
1 |
Тетива |
250 |
100*50 |
2 |
|
2 |
Опорные столбы |
60 |
100*100 |
2 |
|
3 |
Перила |
250 |
100*25 |
2 |
|
4 |
Ступенька |
60 |
150*25 |
10 |
|
5 |
Крепеж |
15 |
50*50 |
20 |
|
6 |
Декор |
6 |
К стойкам каркаса крепиться основа будущих ступеней. Нижний её край закрепляется на опорных столбах, которые предварительно забетонированы. На высоте 60 сантиметров закрепляются перила. Ступеньки крепятся к основе как на фото.

Способ крепления ступеней к основе.
Исходя из того, что пользоваться этой лестницей будут дети, высота ступени небольшая – 15 см. Лестница должна быть безопасной, поэтому между ступеньками и перилами необходимо сделать перемычку, к которой затем будет крепиться еще и декор.

Перемычка и декор.
Лестница готова к использованию.

Лестница для детского игрового комплекса — фото.
Детская горка для дачи
На очереди монтаж самого важного элемента – горки.

Проект горки.
Таблица элементов горки
|
№ |
Название |
Длина (см) |
Размеры дерева (мм) |
Количество (шт.) |
|
1 |
Основа |
350 |
100*25 |
6 |
|
2 |
Планка |
60 |
50*50 |
2 |
|
3 |
Перила |
350 |
100*25 |
2 |
|
4 |
Оцинкованный металл |
3500*600 |
1 |
Длина горки вычислялась исходя из высоты площадки. Необходимо было добиться небольшого уровня наклона, чтобы избежать несчастных случаев. Ширина горки равна ширине стартового участка. Для безопасного скольжения по всей длине крепится ограждение в виде перил, и планкой закрываются места крепления металла к дереву. Металл следует крепить внахлест, сверху вниз, чтобы стык при скатывании с горки был менее заметным.
Верхний край горки крепится к стойкам каркаса, нижний — опирается на забетонированную металлическую конструкцию.

Металлическая опора для горки.
Горка готова. Теперь на очереди работы по обустройству площадки вокруг комплекса. В качестве ограждения подойдут небольшие пеньки. Их необходимо расположить так, чтобы вся конструкция по форме напоминала корабль.
Внутренняя территория городка застилается тканью, которая будет препятствовать прорастанию сорняков. Затем площадка засыпается слоем песка в 10 см.

Обустройство площадки вокруг городка.
Песок позволит сделать приземление безопасным. А пеньки поддержат концепцию пиратской шхуны и отделят детскую территорию. На этом основные работы закончены, можно приглашать испытателей.

Детский городок на даче – фото общего вида.
Конечно создание подобного детского игрового комплекса дома или на даче потребует от родителей ребенка затрат – временных и финансовых. Но полученный результат оправдает потраченное время. Для детей подобная площадка станет местом постоянных игр, а, как известно, играя, дети познают мир и учатся к нему приспосабливаться.
buildip.ru
Детская площадка своими руками
С чего начинается строительство детских площадок? С идеи, конечно! А идея, как известно, в одиночку не ходит. К ней прилагаются: знания, старательность, время и некоторые средства (зависит от «аппетита» идеи). А для своих маленьких дачников так хочется придумать что-нибудь эдакое – от чего у детишек аж дух захватит! И (что уж греха таить) позволит нам с вами спокойно заняться своими делами, пока малыши играют сами. Если идея, как будет сооружаться детская площадка на даче своими руками, приобрела очертания, ознакомьтесь с этой статьёй — может быть, что-то возьмёте себе на заметку.

Запомните главное правило: детская площадка должна быть, в первую очередь, безопасна. «Эксклюзив» в виде столь популярного ныне цветного витража для оформления ландшафтного дизайна, глубокого водоёма с «золотыми» рыбками или декоративных электросветильников, расположенных в пределах доступности для детей, не допускается. Постройте площадку подальше от колючих кустов, парников и хозяйственных построек, расположив так, чтобы часть её на несколько часов в день уходила в тень, ведь постоянно находиться на солнышке малышам вредно. Кроме того, напомню: чем бы ни занимались наши чадушки, они всегда должны быть перед глазами, поэтому место, где будет обустраиваться детская площадка своими руками, выберите такое, чтобы хорошо видеть детей — например, напротив окна, а не где-то «на галёрке» сада.
С чего начать создание детской площадки своими руками?
Сперва нарисуйте план-схему детского участка. Вот вам для образца несколько идей — эскизы и чертежи детских площадок; может быть, что-то пригодится.



Вот еще несколько идей — как может быть обустроена детская площадка своими руками фото покажет еще более наглядно:


В качестве «спорткомплекса» для самых маленьких, превратите в сказочных персонажей старые брёвна, чурки, пенёчки, а для ребятишек старше 6 лет можно установить на площадке турничок, баскетбольные кольца и другие спортивные снаряды. Для «малышовской велотрассы» продумайте замкнутую дорожку и проложите её через весь участок. На схеме в масштабе отобразите все объекты будущих построек.
Немного о технике безопасности
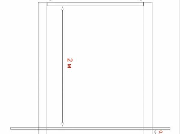
1. Спереди и сзади качелей необходимо оставлять не менее 2 метров свободного пространства.
2. «Парк развлечений» для малышей лучше закрыть мягким травяным покровом (газон, синтетическое покрытие и так далее). Дети много двигаются и часто падают, поэтому желательно обезопасить их от возможных травм.
3. Все закладные детали площадки (опоры для горки, качели, домика и прочих сооружений) углубляйте не менее чем на 0.5 м в грунт и хорошенько укрепляйте (бетонируйте, крепите металлическими «костылями» — подойдут любые надежные методы).
4. Каждая деревянная деталь на детской площадке должна быть тщательно отшлифована и покрыта зимостойкой краской или лаком.
5. Размеры сооружений для детей (качелей, горки, песочницы и прочих) учитывайте, соразмеряя их с возрастом ребёнка. Например, для малыша от 2 до 5 лет размер песочницы составляет 1.7 х 1.7 м, горки и качелей – до 1.5 м. Для детей младшего школьного возраста горку делают обычно высотою от 2.5 до 3.5 м, а качели — от 2.5 м.
Какие бы фантазии вы ни воплощали, сооружая детские площадки для дачи своими руками, вам не обойтись без устройства качелей, песочницы, горки и детского домика или избушки. Это обязательные атрибуты каждой площадки для детей. Надеюсь, на вашем плане нашлось для них местечко?
Качели для детей
Соорудим вот такие качели своими руками?

Их высота — 3.5 м. Подобная конструкция требует серьёзного укрепления опор — заглубите их в грунт на 0.5 – 0.7 м и залейте бетоном. Для несущих элементов качелей используйте брус (6 шт) размером не менее 5 х 5 см. В самом начале работ стяните болтами брусья-стойки по обеим сторонам качелей. У вас получатся две прочные опоры; соедините их сверху брусом. Гнёзда под соединения подготовьте заранее (см. рисунок). Боковая лестница вполне может служить не только для обслуживания качелей, но и для игр детей постарше, поэтому сделайте на ней удобные широкие ступеньки с шагом 20-25 см.
Песочница
Песочницу сделаем наипростейшую, например, такую, как на этом рисунке:

Как соорудить песочницу своими руками, я рассказывала в одной из предыдущих статей, поэтому сейчас лишь кратенько пробегусь по основным моментам. На месте постройки песочницы снимаем грунт на 25-30 см, делаем углубление в центре и засыпаем дно дренирующим материалом (можно использовать гальку или щебень). Для строительства песочницы, представленной на фото, потребуется 10 толстых (от 2 см толщиною) досок длиной 1.8 м.
На каждый бортик для песочницы уйдёт по две доски. Крепятся они просто: по краям выпиливаются пазы (как показано на рисунке), а для закрепления конструкции по торцам песочницы устанавливаются бруски высотой 30 см. Две оставшиеся доски крепятся к бортикам песочницы горизонтально – это будут удобные скамеечки для детей, а может быть, плита для «куличиков», поле боя или зимний сад — в зависимости от фантазии вашего малыша)) Раскрашиваем в яркие цвета. Всё! — песочница готова.
Горка
Наверное, ни одна детская площадка своими руками на даче не обойдется без удобной горки. Например, вот такой:


Замечу, что самому сделать безопасную детскую горку не так уж просто. Здесь необходимо учесть массу нюансов: тщательно отшлифовать поверхность, хорошо укрепить опоры, предусмотреть крепкие перила и бортики. Поэтому советую все же приобрести фабричную горку — благо, выбор их в магазине огромный! А если всё-таки решились построить горку своими руками, скат для неё лучше купить готовый, например, вот такой:

Скат для детской горки прямой
Или такой:

Скат для детской горки винтовой
Домик
Дети часто любят уединяться, поэтому детские площадки своими руками для дачи неплохо дополнить домиком, даже совсем маленьким. Например, таким, как на этом фото:

Или таким:

А соорудить подобные домики проще простого. Каркас для них сделан аналогично каркасам торговых палаток — подобные конструкции можно купить в готовом виде, красиво обшить, сделать окошки и дверцы… Вот и все, очаровательный домик для дачи и детских секретов готов! А как построить более солидный детский домик из дерева, читайте в статье «Детский домик своими руками».
Водоём
Дети любят плескаться в воде и пускать кораблики, поэтому, планируя любые детские площадки своими руками, продумайте место для мини-водоема! Сделать его просто: вкопайте в землю отслужившую свой век старую ванну, предварительно смазав её средством от ржавчины и заглушив слив.
Выкопайте яму нужного размера и «утопите» ванну в цемент или бетон. Дайте сооружению просохнуть 3-4 дня, после этого его можно смело наполнять водой. На «бережке» сделайте невысокую каменную кладку. Камни используйте только округлые, без острых краёв; можно раскрасить их яркими красками.

Или задекорируйте мини-водоём по-своему: плиткой, досками, фанерой, зелёными насаждениями. Но в любом случае, не забывайте менять воду в этом импровизированном прудике раз в две недели.
Несколько интересных идей для оформления детской площадки на даче
Посмотрите, как интересно могут быть оформлены площадки детские своими руками, какие симпатичные поделки можно для этого сделать из подручных материалов:

На детской площадке поселились жар-птицы

Лошадка, везущая клумбочки воз)

Симпатичный человечек-клумба

Я как папа — на машине!
Конечно, можно не заморачиваться с постройкой детской площадки своими руками, а приобрести готовую. Но ведь кроме денег, которых, конечно, не жалко для своего малыша, хочется дать простор собственному творчеству. Да и детям будет интересно принять участие в столь увлекательном деле)) А из подручного дачного материала получаются порою такие фантазии, что просто диву даёшься!
Может быть, и у вас есть идеи для красивого оформления детской площадки своими руками?
Вот еще несколько интересных статей про детскую площадку и сооружения для детей на даче своими руками:
- Домик для детей
- Ребенок на даче. Горка.
- Как построить деревянный игровой комплекс для детей на даче?
- Детская площадка на дачу
published on cemicvet.ru according to the materials 7dach.ru
cemicvet.mediasole.ru
Игровая площадка своими руками
Автор:29 июля 2014 08:23
Как говорится, «Если хочешь сделать что-то хорошо — сделай это сам». С эти известным утверждением просто нельзя не согласиться. Давайте посмотрим, как один молодой отец решил сделать для своего ребенка в саду загородного дома персональную игровую площадку. Получилось очень здорово. А вы что скажете, друзья?

fishki.net
Детская площадка вид сверху. Монтаж качелей и пластиковой горки. Что должна включать в себя спортивная площадка.
В интернете можно найти самые разнообразные проекты спортивных площадок для дач и загородных участков. Некоторые из них достаточно сложны, хотя их предлагается выполнить «своими руками». В этой статье мы предложим вам реалистичный и в то же время интересный вариант площадки для детей и взрослых. Он поможет занять детей и с пользой провести свободное время взрослым.
Что должна включать в себя спортивная площадка
Если исходить из того, что площадка нужна для детей и взрослых, можно остановиться на следующих основных элементах:
- Турник — неизменный атрибут любой спортплощадки. Это универсальный снаряд, на котором можно тренировать разные группы мышц. Нужен турник побольше для взрослых и поменьше — для детей.
- Брусья — ещё один снаряд, без которого площадка будет неполной. Их также можно сделать в двух вариантах — для детей и взрослых.
- Скамья для жима штанги (и сама штанга) — снаряд, который можно добавить по желанию, если вы занимаетесь силовыми упражнениями.
- Лестница, рукоход, качели, песочница — элементы, которые порадуют детей.
Всё перечисленное вполне возможно изготовить в домашних условиях. Конкретные элементы вы выбираете сами, учитывая размеры места под площадку. Далее нужно выбрать материалы, которые мы будем использовать, и определить размеры и расположение элементов.
Материалы, размеры, расположение спортплощадки
Расположить спортивную площадку нужно так, чтобы на ней было комфортно проводить время. Для этого придерживайтесь нескольких принципов:
- Идеальное расположение на участке — юго-западное. Так площадка будет в тени жаркую часть дня, но все же будет получать солнечный свет в умеренном количестве. Северное направление с этой точки зрения менее удачное. При необходимости дополнительное затенение можно обеспечить с помощью навеса.
- В целях безопасности рядом с площадкой не должно быть клумб и каких-либо огородных насаждений.
- Если возможно, её лучше разместить так, чтобы за игрой детей можно было наблюдать из дома.
- Следует продумать безопасное расстояние между спортивными снарядами, чтобы избежать столкновений и травм.
Когда подходящее место определено, нужно подготовить его. Для этого территорию нужно очистить от растительности, корней, мусора, выровнять бугры и ямы. Если вы планируете использовать площадку в тёмное время суток, нужно подвести к ней освещение.
Расчёт размеров и чертежи для спорт-комплекса
Теперь рассмотрим размеры и чертежи для каждого из перечисленных элементов площадки, а также материалы, которые понадобятся для их изготовления.
Опорные стойки простого турника можно изготовить из дерева или из металла. В первом случае вам понадобится брус сечением не менее 100 мм, во втором — стальные трубы такого же диаметра. Длина стоек видна на чертеже внизу. Она должна составлять не менее 2,7 м, чтобы их можно было углубить в землю.
Для перекладины используйте стальную трубу диаметром 30–35 мм. Подберите толщину, удобную для обхвата. Длина перекладины должна быть не меньше 1,4 м.
Красить турник лучше порошковой краской, которая хорошо справляется с агрессивным воздействием среды.
Опоры нужно вкопать в землю на глубину 0,5–0,7 м и залить их бетоном для максимальной устойчивости.
Детский турник изготавливается по такой же схеме с единственной разницей — высоту нужно уменьшить до удобной для детей, которые будут им пользоваться. Ширину также можно уменьшить до 1 м.

Чертёж турника
Для изготовления брусьев для нашей спортивной площадки нужны металлические трубы для опор диаметром 6 см, для перекладин — 4 см. На чертеже ниже указаны размеры снаряда. Расстояние между перекладинами должно быть 0,5–0,6 м. Опорные трубы вкапывают в землю на глубину до 0,6 м. Поэтому высоту стоек нужно взять с запасом. На чертеже указана высота до земли, следовательно, её нужно увеличить на 60 см.
Связи между опорами под одной перекладиной можно не делать, а вот связи, перпендикулярные перекладинам, придадут брусьям большую жёсткость и надёжность.

Чертёж брусьев
Скамья для жима штанги и штанга
Из подручных материалов при желании можно изготовить скамью для жима штанги и саму штангу. Как вариант — штангу можно купить. Для скамьи вам понадобятся доски, материал для обшивки, два обрезка бревна в качестве опор. Другие два обрезка повыше будут опорами для штанги. Высоту п
ruscos.ru
Детские площадки для дачи своими руками: схема и чертежи
Занимаясь обустройством дачного участка, садовод может столкнуться с проблемой отдыха детей. Так, имея дом и свободную территорию, хозяин может задуматься об обустройстве детской площадки. В таком случае дети будут заняты играми в тот момент, когда родители заняты садово-огородными работами. А имея свободный участок приличного размера, можно заняться обустройством целой зоны отдыха для приезжих гостей.

Для такой зоны отлично подойдет маленькая беседка с зоной барбекю. А если на участке часто бывают дети, то каждому дачнику вполне по силам оборудовать детскую площадка на даче своими руками. Такая конструкция не займёт много времени и сил при возведении, зато станет отличным местом отдыха для детей. Мм предлагаем вам несколько идей, которые помогут сделать схему обустройства и быстро возвести игровую зону. В помощь вам — описание монтажных работ по возведению площадки.
Самый простой способ получить красивую лужайку перед домом
Вы, конечно же, видели идеальный газон в кино, на аллее, а возможно, и на соседской лужайке. Те, кто хоть раз пытался вырастить зеленую площадку у себя на участке, без сомнений скажут, что это огромный труд. Газон требует тщательной посадки, ухода, удобрения, полива. Однако так думают только неопытные садоводы, профессионалы давно знают про инновационное средство — жидкий газон AquaGrazz.
Читать далее>>
Правила строительства
Учитывая то что детские площадки для дачи — это зона повышенной опасности для малышей, при их возведении необходимо придерживаться ряда правил, которые помогут обезопасить отдых. В первую очередь, зона под детские игровые площадки для дачи не должна иметь:
- глубоких бассейнов;
- колючих изгородей;
- открытого освещения.
По поводу последнего: учитывая негативное воздействие прямых солнечных лучей на организм, желательно разместить детскую площадку так, чтобы она находилась в полутени. Таким образом, отдыхающие дети не будут находиться под воздействием палящего солнца. Установив игровые элементы в тени, можно позаботиться о строительстве малого бассейна в солнечной части зоны отдыха, таким образом, вода будет прогреваться быстрее.

Ориентируясь на эти правила, не стоит забывать и о зрительном контроле за детьми. Площадку желательно разместить в непосредственной близости от дома. Тогда родители смогут быстро прийти на помощь ребенку в случае необходимости. Не стоит забывать, что неокрепший организм постоянно подвергается опасности падений во время бега, поэтому площадка должна быть ровной, свободной от сорных растений и мусора.
Если вы устанавливаете на детской площадке качели, карусели, разного вида тренажеры и прочие конструкции, следует их хорошо закрепить. Площадку с опорами желательно забетонировать. Но в таком случае выступающий наружу бетон будет также создавать опасность травмирования для детей. Чтоб исключить эту опасность, желательно производить установку опор не менее чем на полметра под земляную корку, а при использовании бетона – его необходимо закопать. И также не стоит забывать про радиус качелей: в ближайших паре метров не должно находиться абсолютно ничего. Кстати, о травмах: чтобы внезапно соскочивший с качелей ребёнок не ушибся, под ними следует оборудовать газон либо посыпать всю площадку песком.
Важно: слой песка должен быть не менее 10 сантиметров, иначе его просто размоет дождевой водой.

Конструируя деревянные детали, необходимо уделить время их шлифовке. Немаловажным действием будет удаление всех сучков и зазубрин, появившихся в процессе монтажа. Для придания оптимального вида сооружению и для продления срока службы дерева его необходимо покрыть краской либо олифой. Для строительства качелей нужно приобрести качественный металл и соответствующие крепежи.
Важно: крепления являются самой ненадёжной деталью качели, а значит — их необходимо проверять перед каждым сезоном либо даже несколько раз в году.
Готовя покрытие площадки для детского отдыха, необходимо помнить, что оно не должно быть слишком влажным, иначе дети могут простудиться. На рынке можно приобрести специальное покрытие, подходящее для детской площадки и для мест отдыха гостей. Популярным вариантом такого покрытия для спортивных и детских площадок является травмобезопасное покрытие из резиновой крошки.
Можно позаботиться о детях и вырастить газон своими руками либо приобрести его рулонный вариант. Хорошим вариантом для зоны отдыха детей считается комбинированный тип покрытия. Так, там, где дети подвергаются опасности (горки, гимнастические снаряды) необходимо рассыпать песок, а возле бассейна лучше будет смотреться газон. Да и вода не будет загрязняться песчаным составом.

Что можно возвести на детской площадке?
На детских площадках распространены:
- песочницы;
- декоративные сооружения в виде различных фигур: машинки, домики;
- качели;
- канаты и гамаки;
Теперь рассмотрим особенности подобных сооружений.

Песочница
Первым в списке и наиболее распространённым объектом на детских площадках считается песочница. В таком месте маленький ребёнок способен проводить по несколько часов в день. При этом он не только будет играть, строя замки, и копошиться в сыпучей смеси, но и развиваться — песок и мелкие сыпучие материалы — лучшее средство для развития мелкой моторики, так полезной для активизации головного мозга ребенка и развития его умственных способностей, о чем постоянно говорят врачи.
Немаловажным станет именно место песочницы, ведь увлечённый ребёнок не заметит палящего солнца и будет подвержен его влиянию. Чтобы избежать солнечного удара, не устанавливайте песочницу на открытом солнцу участке. При этом нежелательна и установка ее в полную тень, иначе низкая температура сделает своё дело, и ребёнок простудится. Идеальным вариантом становится полутень, чтобы утром участок прогревался солнцем, а к обеду на нем появлялась тень. Сооружая большие площадки своими руками, можно разделить их на несколько зон.
В случае, когда тени от деревьев недостаточно, либо деревья на участке отсутствуют, необходимо соорудить навес. Тем более что такая конструкция сможет защитить ребенка не только от жгучего солнца, но и от дождя.
Песочница может быть двух видов: в виде ямы с насыпанным песком либо надземная, возможно, переносная, которую с окончанием летнего сезона можно освободить от песка и отправить в сарай на хранение. Если вы выбираете первый вариант, то работы по обустройству детской песочницы включают в себя несколько этапов:
- выкапывание ямы;
- укладка дренажа;
- монтаж каркаса;
- завершающий этап.
После выбора места под песочницу необходимо выкопать яму. Такая конструкция позволяет сделать песочницу немного выше уровня земли, за счёт чего повышается её безопасность. Средние размеры ямы — около 4 квадратных метров, то есть 2*2 метра.

Для начала территория размещается колышками. Выкапывается яма под дренажный слой, и происходит его укладка. Необходимо позаботиться о быстром уходе дождевой воды, для этого монтажная яма должна иметь уклон к центру. После укладки дренажного слоя можно приступать к насыпи песка. А для того чтобы песок не перемешивался с гравием, между ними необходимо уложить полиэтиленовую плёнку. Главное — не забыть про отверстия для дренажа. Для этого в плёнке проделываются дырочки до 10 миллиметров. Теперь насыпается слой, который обезопасит детей от твёрдого дренажа, для этого достаточно будет насыпать около 5 сантиметров песка. Поверх него ложится плёнка.
Теперь можно заняться каркасом. Лучше использовать толстый брус. Но его необходимо предварительно обработать путём шлифовки и покраски. Монтаж каркаса заключается в установке угловых колышков, которые будут заглубляться в дренажный слой. Затем между ними монтируются балки. Следующим этапом становится бортик, его желательно сделать из доски, тогда ребёнок сможет безопасно облокотиться.
Следующим этапом становится возведение солнечного укрытия. Если таковое имеется – пропускаем этот этап и приступаем к заполнению песочницы. Важным станет качество песка, лучше использовать крупный речной песок, его потребуется около тонны. Перед засыпкой его желательно очистить от мусора и просеять.

В случае, когда в семье имеются домашние животные, необходимо позаботится о стерильности сооружения. Можно просто накрывать песочницу тентом либо сконструировать крышку. Тогда животные не смогут проникать на песок и устраивать там туалет.
Горка
Если вы решили построить своему малышу горку, необходимо знать, что её высота не должна превышать полутора метров. А конструируя лестницу, необходимо сделать ступени более широкими и устойчивыми. Ещё стоит позаботиться о качественных перилах, их следует сделать под рост ребёнка. Построив лестницу, можно сделать её менее травмоопасной, благодаря применению специального покрытия. К примеру, из резиновых накладок. Верхнюю площадку стоит также оборудовать устойчивым полом, немаловажными станут и перила на ней, ведь стоя наверху, ребёнок будет подвержен воздействиям порывистых ветров.
При конструировании горки обязательно возникнут вопросы со скатом. Можно приобрести пластмассовый вариант ската, можно склеить листы фанеры, а затем тщательно их прошлифовать. Следующим шагом станет покрытие ската лаком. Тогда коэффициент трения снизится, и ребёнок будет съезжать без проблем. При этом возможно сделать не просто пологий спуск, а придать фигурную ему форму, к примеру, винтовую.

Самым распространённым вариантом материала для горочного ската считается листовая нержавейка. Её плюсом является низкая цена, а также податливость к обработке. При этом изделие получает законченный вид сразу после монтажа. Ещё допустимо использовать отшлифованные доски, но для этого потребуется дорогая древесина, имеющая большую ширину.
Советы по возведению горки. Поручни должны иметь прочное основание и заканчиваться после последней ступени. Верхняя площадка должна быть просторной и иметь перила, за которые ребёнок будет держаться, находясь на высоте. Собрав горку, её необходимо тщательно отшлифовать и покрасить, тогда изделие прослужит дольше.

Качели
Перед тем, как заняться оборудованием качелей, необходимо произвести расчёты амплитуды раскачивания. Только после этого можно подбирать свободное место и монтировать качели. Наиболее распространены качели, сделанные своими руками, это не только сэкономит средства, но и при верном монтаже успокоит строителя, ведь он будет знать о надёжности сооружения. Простейшим вариантом качелей становится верёвочный. Часто такую конструкцию делают без опор: просто вешают на дерево, но следует знать, что в таком случае необходим уход за деревом.
В первую очередь, его необходимо постоянно прореживать, избавляясь от сухих ветвей. Иначе при раскачивании они могут упасть на ребёнка. Немаловажным будет и опорная ветка, её диаметр должен быть не менее 25 сантиметров.

Вторым вариантом служит установка качелей на опорные стойки. В таком случае их необходимо обработать антисептиком и вмонтировать в бетонное основание. Для завершения конструкции монтируют поперечную балку, а для большей прочности используют всяческие уголки и металлические полосы.
Можно сделать детские деревянные качели на пружине. При этом важно соорудить интересную конструкцию сидения. К примеру, машину или самолёт. Важно позаботиться о безопасности ребёнка и сделать ремни безопасности. Тогда при раскачивании ребёнок не выпадет из качелей. Говоря о безопасности, не стоит забывать, что дерево не является мягким материалом, а потому края сиденья качелей необходимо обить поролоном или резиной.
Домик
Детям, как и взрослым, необходим свой уютный, тайный уголок, а потому на участке можно соорудить домик. Там малыши будут прятаться и секретничать, а также играть в различные игры. В случае, если нет возможности соорудить деревянный домик, можно сделать его тканевый аналог. Да, такое сооружение не простоит долго, однако на первое время его вполне хватит.
Аналогом такого тайного места может служить шалаш, его и вовсе можно сделать из спиленных ветвей, но в таком случае необходимо позаботиться о безопасности и удалить все сучки. А вот имея хорошую фантазию и идеи, можно сделать одноэтажную постройку из бруса, высота её не будет превышать пары метров, но детям такое место очень понравится. Оригинальным вариантом, который вызовет у детей восторг, станет домик на дереве. Вот это настоящий штаб!
Площадка для детей постарше
Как было сказано ранее, игровая площадка должна находиться возле дома в прямой видимости родителей. Даже при сооружении конструкций, которые будут абсолютно безопасными, необходим зрительный контроль за детьми. Дети — это ещё неокрепшие организмы, а значит, травмы могут появиться в любой момент. В случае, когда на дачу приезжают дети более старшего возраста, можно позаботиться о них и соорудить спортплощадку.
Если позволяет место, можно построить настоящий небольшой театр со сценой. Дети будут просто в восторге, организуя концерты и спектакли для родителей и гостей. Качели можно установить несколько дальше от дома, но в таком случае необходимо оборудовать земляную поверхность противоударными материалами. Это могут быть резина или специальные коврики.

Детская площадка своими руками получится лучше, если заранее все идеи перенести на план. Эскизы помогут не только понять, что необходимо докупить, и с каким материалом работать, но и помогут скоординировать действия при постройке.
Что необходимо учитывать при строительстве
Перед тем, как делать чертежи детских площадок, необходимо обратить внимание на своего ребёнка и поинтересоваться, что именно ему будет по душе. В любом случае, его голова будет переполнена идеями, которые обязательно должны войти в проект. Возможно, ребёнок захочет не только песочницу, но и определённый шалаш, при постройке которого он с радостью поможет отцу. Многие дети предпочитают активный отдых, а значит, может потребоваться велосипедная трасса либо зона для катания на роликах. Но в таком случае необходимо позаботиться о безопасности и немного оградить территорию, чтоб случайный выезд с трека не стал причиной несчастного случая.
Занимаясь обустройством детской площадки, следует помнить, что её конструкция подразумевает игры детей, а не ландшафтных дизайнеров. Потому нет необходимости в соблюдении общего стиля участка. Даже лучше будет, если зона будет окрашена в яркие цвета, которые вызовут положительные эмоции у ребёнка. Естественно, необходимо позаботиться о здоровье детей и их безопасности, а значит — игровую зону желательно размещать в полутени либо предусмотреть навес. О покрытии такой площадки мы уже говорили ранее.

Ни дня без движения
Что необходимо учитывать при строительстве детской спортивной площадки для дачи?
Первым делом необходимо знать, что спортивная площадка на даче часто становится причиной для возникновения травм, а значит, её монтаж лучше производить на территории, которую хорошо видно из окна. В такой зоне желательно исключить наличие объектов повышенной опасности. Такими становятся: колодцы, глубокие бассейны, хозяйственные постройки.
Участок не должен иметь бугров, неровностей, иначе в процессе игры дети могут упасть, что, не исключает получение травм. Поскольку ребёнок подвержен постоянным заболеваниям, необходимо огородить зону от сильных ветров. А чтобы это не выглядело, как забор, можно использовать природные материалы либо вовсе высадить живую изгородь.

Важно: зачастую взрослые устраивают вечерние посиделки, и дети на участке могут заиграться, поэтому желательно позаботиться о качественном освещении площадки в вечернее время. Разумеется, оно должно быть безопасным для детей.
Чем дополнить игровую зону?
Сооружая детскую площадку, не стоит ограничиваться горкой и качелями. Если вы обладаете хорошей фантазией, возможно использовать подручные материалы и сделать внешний вид площадки необычным, даже сказочным. К примеру, отличным материалом для воплощения творческой мысли могут стать старые шины. Резина отлично подойдёт для отдельно стоящих клумб, тогда дети не поломают растения. Используя резину и строительный нож, можно вырезать из покрышки различных животных: лебедей, зайчиков, фантастические существа. Резная избушка на курьих ножках вызовет восторг не только у детей.
Отличным и доступным, а также безопасным материалом для различного рода поделок становятся пластиковые бутылки. Из них можно воссоздать замок для принцессы или рыцарский замок, обрамить ими, используя вместо бортиков, клумбы, отдельные участки.

Деревянные пеньки от спиленных деревьев, установленные на детской площадке, могут стать своеобразным тренажером для тренировки равновесия, из них можно соорудить своеобразные «стулья».
Самое главное — все, что находится на детской площадке, — должно быть безопасным. Ведь речь идет о ваших детях.
Проверьте надежность всех конструкций перед тем, как разрешить детям пользоваться ими. Не размещайте на площадке опасных аттракционов, которые могут нанести вред здоровью ребенка, травмировав его.
Заключение
Постройка детской площадки займёт немного усилий и времени, а ребёнок будет увлечён на протяжении всего дня. Детская площадка на даче своими руками сделает его отдых в летнее время на даче интересным: пусть подвижные игры на свежем воздухе заменят ему круглосуточное просиживание за компьютером или перед телевизором. Это принесет немалую пользу его здоровью, ведь летние дни пролетят быстро, и нужно успеть получить заряд бодрости, здоровья, закалку на оставшееся время года.
rozarii.ru
Оборудования для детских площадок | Планы и благоустройство
Горки/Горка Домик.dwg
Горки/Горка Жираф.dwg
Горки/Горка Заяц.dwg
Горки/Горка Кошка.dwg
Горки/Горка Мини.dwg
Горки/Горка Подводная лодка.dwg
Горки/Горка Ромашка.dwg
Горки/горка слоненок.dwg
Домики/Беседка малютка.dwg
Домики/Домик Башенка.dwg
Домики/Домик беседка одинарная.dwg
Домики/Домик из бруса.dwg
Домики/Домик из фанеры.dwg
Домики/Домик Карета.dwg
Домики/Домик-беседка.dwg
Домики/Лагуна1.dwg
Домики/Лагуна2.dwg
Домики/Лагуна3.dwg
Домики/Теремок.dwg
ИФ/Грузовик.dwg
ИФ/ИФ Лабиринт.dwg
ИФ/ИФ Машинка с горкой.dwg
ИФ/ИФ Машинка с двумя рулями.dwg
ИФ/Паровозик.dwg
ИФ/Экскаватор.dwg
Карусели/карусель 3-12 лет 1.dwg
Карусели/карусель 3-12 лет.dwg
Карусели/Карусель 4х местная с полом.dwg
Карусели/Карусель 4х местная.dwg
Карусели/Карусель 8-ми местная.dwg
Карусели/Карусель вертикальная.dwg
Карусели/Карусель детская.dwg
Карусели/Карусель с полом.dwg
Качалки на пружинах/
Качалки на пружинах/КП Божья коровка.dwg
Качалки на пружинах/КП Велосипед.dwg
Качалки на пружинах/КП Вертолет.dwg
Качалки на пружинах/КП Виндсерфинг.dwg
Качалки на пружинах/КП Дельфин.dwg
Качалки на пружинах/КП Джип.dwg
Качалки на пружинах/КП Лошадка.dwg
Качалки на пружинах/КП Мамонтенок.dwg
Качалки на пружинах/КП Машинка.dwg
Качалки на пружинах/КП Мотоцикл.dwg
Качалки на пружинах/КП Мультик.dwg
Качалки на пружинах/КП Пароходик.dwg
Качалки на пружинах/КП Петушок.dwg
Качалки на пружинах/КП Плот.dwg
Качалки на пружинах/КП Пчелка.dwg
Качалки на пружинах/КП Рыбка.dwg
Качалки на пружинах/КП Самолет.dwg
Качалки на пружинах/КП Слоник.dwg
Качалки на пружинах/КП Собачка.dwg
Качалки на пружинах/КП Цыпленок.dwg
Качели/качалка на пружине 3-10 лет.dwg
Качели/качалка на пружине пони 3-10 лет.dwg
Качели/качалка переносная 3-6 лет.dwg
Качели/Качели балансир деревянные.dwg
Качели/Качели балансир медвежонок.dwg
Качели/Качели балансир металлические.dwg
Качели/качели гнездо.dwg
Качели/качели двойные 3-12.dwg
Качели/Качели двухсекционные.dwg
Качели/Качели деревянные детские.dwg
Качели/Качели Лодочка.dwg
Качели/качели на стойках.dwg
Качели/Качели односекционные.dwg
Качели/Качели со скамейкой.dwg
КС/игровой комплекс 3-7.dwg
КС/Игровой комплекс 4-10.dwg
КС/Игровой комплекс 5-12.dwg
КС/игровой комплекс крепость 3-6.dwg
КС/игровой комплекс парусник 4-10 лет.dwg
КС/игровой комплекс с горкой 5-12 лет.dwg
КС/Игровой комплекс с мостиком 3-6 лет.dwg
КС/Комплекс с 14.DWG
КС/Спортивный городок 7-12 лет.dwg
Песочницы/Песочница Бригантина.dwg
Песочницы/Песочница Ветерок.dwg
Песочницы/Песочница Гардфилд.dwg
Песочницы/Песочница Горошина.dwg
Песочницы/Песочница Грибок.dwg
Песочницы/Песочница Дельфин.dwg
Песочницы/Песочница Ежик.dwg
Песочницы/Песочница из бруса.dwg
Песочницы/песочница кораблик (2).dwg
Песочницы/Песочница Кораблик.dwg
Песочницы/Песочница Море.dwg
Песочницы/Песочница Пароходик.dwg
Песочницы/Песочница Пароходик2.dwg
Песочницы/песочница полянка.dwg
Песочницы/Песочница радуга.dwg
Песочницы/Песочница Ромашка.dwg
Песочницы/Песочница с навесом.dwg
Песочницы/Песочница солнышко.dwg
Песочницы/Песочница-магазин.dwg
Песочницы/песочный дворик.dwg
Брусья разновысокие 7-12.dwg
Внедорожник.DWG
Детский рукоход с брусьями 7-12.dwg
качели гнездо…jpg
Луноход с прицепом.dwg
Мостики 3-10 лет.dwg
Полоса препятствий 6-12 лет.dwg
Рукоход и турники с 14.dwg
рукоход с брусьями.dwg
Турник тройной с 14.dwg
vmasshtabe.ru
видео-инструкция по изготовлению игрового комплекса, проект, чертежи, фото и цена
Все фото из статьи
Игра в становлении личности ребенка является едва ли не главным элементом. И обустройство места, которое будет принадлежать исключительно ребенку, является важной составляющей воспитания. Современные материалы — это хорошо, но изготовление детских площадок из дерева, это более доступный выход из положения.
Поэтому мы остановимся именно на древесине, ведь для сооружения деревянных качелей или песочницы не требуется фундаментальных знаний и дорогостоящего инструмента.

Фото городка на даче.
Создание проекта
Вспомните свое детство, когда все мы хотели иметь свой небольшой уголок. Совместное строительство «халабуды» или шалаша где ребенок может играть, подымет ваш авторитет как родителя и поможет сдружиться с вашим чадом. Но любые, даже такие технически несложные сооружения требуют планирования, а значит, начинать нужно с чертежей.
Чертежи детских площадок из дерева своими руками создать может практически каждый.
Не стоит сразу начинать с креатива, для этого у вас еще будет время, на данном этапе более важна грамотная компоновка и расположение всех составляющих частей комплекса.

Схема площадки.
- Прежде всего, следует позаботиться об ограждении. Деревянные площадки для дачи в этом плане занимают более выгодное положение. Дача, как правило, огорожена, и ребенок никуда не убежит. В черте города все несколько сложнее, здесь желательно обнести территорию сеткой. Так площадка будет хорошо просматриваться и вместе с тем ребенок, погнавшись за котенком, не выбежит на дорогу.

Площадка со спортивным уклоном.
- Каждая подвижная конструкция типа качели должна иметь свободное пространство вокруг минимум на 2м. Проект детской площадки из дерева должен учитывать, что дети сами по себе подвижны и соскользнув с горки, лучше приземлиться на землю, нежели удариться о край ограждения песочницы.
- Место не должно быть абсолютно открытым. Согласитесь, игры на полуденном солнцепеке занятие достаточно рискованное. В идеале, весь световой день территория должна быть затенена на 30 – 40%. Не столь важно будет это дерево или искусственный навес главное чтобы было, где укрыться. Оптимально, когда утреннее солнце заливает площадку полностью, а после обеда она затеняется.

Песочный городок.
Важно: от зеленой ограды лучше отказаться сразу. Ощутимой тени кустарник не даст, зато в его зарослях вы не сможете ненавязчиво контролировать своих детей. Плюс тонкие и жесткие веточки для маленьких детей потенциально травмаопасны.
- Не последнее значение имеет покрытие. Площадка, вымощенная тротуарной плиткой или закатанная другим подобным материалом, таит в себе опасность и разбитые коленки это еще самое малое, что может быть. Наиболее приемлемым вариантом является газонная трава или речной песок. Но если у вас нет времени ждать пока трава вырастет, можно застелить искусственный ковер из мягкого, прорезиненного пластика.
- Помимо общего плана, желательно сделать персональные чертежи всех элементов комплекса, с деталировкой по размерам. Причем все это лучше делать с привязкой к местности. Конечно, побегать с рулеткой придется, но без этого никак.

Варианты конструкций.
Распространенные элементы площадки
Количество и виды элементов комплекса зависит исключительно от вас. Если ребенок младшего детсадовского возраста, то нет смысла сразу строить домик. Вполне достаточно песочницы и пары простых качелей. Естественно, чем старше главный хозяин площадки, тем более сложные элементы потребуются.

Эскиз подвесной качели.
Важно: не нужно думать, что если ребенок маленький, то можно использовать тонкие планки и бруски. Все конструкции должны иметь серьезный запас прочности. Рассчитывается так чтобы изделие могло легко выдержать вес взрослого человека.
Песочница как обязательный элемент
Детские игровые площадки из дерева не мыслимы без элементарной песочницы. Это обязательный атрибут комплекса и вместе с тем самая простая и безопасная конструкция. Но обустройство песочницы также имеет некоторые особенности, без соблюдения которых ваше сооружение рискует после первого дождя превратиться в лужу.

Песочница с тентом.
Инструкция здесь не предусматривает, каких либо четких размеров. Как правило, это квадрат или круг правильной формы. Гораздо важнее обустроить дренаж сооружения.
Для этого изначально выкапывается небольшой котлован глубиной порядка 30 см. После чего дно котлована следует утрамбовать и засыпать гравием, на уровень около 100 мм. Он и будет исполнять роль дренажной подушки.
Важно: еще до обустройства подушки по углам котлована вбиваются колья из бруса сечением не менее чем 50х50 мм. Высота этих кольев над землей равна высоте будущего ограждения песочницы.
Ограждение по периметру не стоит делать выше, чем 200 мм, маленькому ребенку будет сложно перелазить через высокий борт. Толщина доски берется не менее 25 мм. Она должна быть хорошо остругана и отшлифована, дабы малыш не загнал занозу.
Сверху ограждения, по горизонту делается окантовка с площадкой примерно 150 мм. Она будет служить импровизированным столиком или сидением.

Верхняя площадка песочницы.
Теоретически, после этого можно наполнять сооружение песком. Но, исходя из опыта, мы советуем дополнительно застелить гравийную подушку слоем геотекстиля или подобного ему материала, пропускающего влагу.
Края полотна крепятся стиплером к деревянному ограждению. Дело в том, что со временем дети могут перемешать песок с гравием, и вы получите не совсем то, что желали, а такая мембрана воспрепятствует этому.
Основы сооружения горки
Многие считают, что классические деревянные детские игровые площадки должны иметь небольшую горку. Это конечно не песочница, но сделать горку своими руками также возможно.

Горка с домиком.
Каркас данного сооружения удобнее всего делать из мощного бруса сечением 50х100 мм, можно взять больше. Горка это высокая конструкция и она должна возводиться строго по уровню. Так как рельеф местности редко бывает идеальным, нам потребуется нижняя обвязка, на которой собственно и будет базироваться горка.
Обвязка собирается из мощного бруса и монтируется на 6 – 8 заранее вкопанных деревянных столбиках. После этого на обвязку устанавливаются 4 несущих бруса под верхнюю площадку.
Высота этих опор делается по уровню верхних перил. Далее устанавливаются промежуточные горизонтальные планки, на которых будет крепиться пол.

Домик под горкой.
В своих расчетах следует учесть, что угол наклона лестницы не должен превышать 45º. Сам спуск делается более пологим, в среднем около 30º. Основу как лестницы, так и спуска составляют по 2 мощных бруса. На лестнице они служат тетивой, на которую крепятся небольшие планки и монтируются ступени.
Спуск зашивается наглухо поперечными планками толщиной от 25 мм и более. Когда делаются деревянные детские площадки своими руками, обустроить скользящие поверхности горок из древесины проблематично, поэтому спуск на горке нужно обшить оцинкованным железом, оно достаточно гладкое и вместе с тем не будет ржаветь.
Лист оцинкованного железа должен быть монолитным, он берется четко по размерам спуска и крепится саморезами по краю. Причем чтобы крепление было более плотным, а ребенок не поранился о край листа, с обеих сторон спуска монтируется деревянный брус, через который насквозь самрезами дополнительно фиксируется лист. В конце спуска радиус закругления делается не менее 50 мм, не закругленный угол может привести к травме спины.

Каркас горки из бруса.
Важно: если строится детская площадка из дерева своими руками, то по окончании работ следует все острые края максимально скруглить и перед покраской отшлифовать.
Качели на площадке
Простейшие, качающиеся по противовесному принципу качели, сделать не составит большого труда. Проще всего опорную раму собрать из двух равносторонних деревянных треугольника, вершины, которых выполнены в виде металлической перекладины, на которой базируется несущая доска. Сам металлический качающийся узел лучше купить, цена у него небольшая.

Механизм качалки.
Несущая доска берется размерами не менее 50х150 мм. Каждое сидение должно иметь поручни, чтобы малышу было за что держаться. Плюс по краям доски снизу набивается небольшой опорный ограничитель.
Он обеспечит зазор и не даст травмировать ножку малыша, если она попадет под доску. Для этого хорошо подходит обрезок транспортерной ленты, свернутый кольцом.
Большие детские качели для дачи также собрать относительно несложно. За основу берется деревянный брус 100х100 мм, но гораздо более эффектно будет выглядеть сооружение из оцилиндрованного бревна диаметром порядка 200 мм. Если коротко, то это 2 опоры, собранные из 2 соединенных стропил и верхняя перекладина, на которой все навешивается.

Большие качели на даче.
Наземная часть стропил берется в районе 3м, плюс в грунт они вкапываются на глубину 60 – 80 см. Практика показывает, что самыми устойчивыми являются конструкции, где стропила перекрещиваются в верхней точке в виде неправильной литеры «Х». Сверху такого пересечения устойчиво ложиться несущая балка.

Детские качели из оцилиндрованого бревна.
Совет: дабы стропила держались не только на саморезах, в месте их пересечения делается выборка в полдерева, так мы получаем крепкую, взаимную сцепку и саморезы, в данном случае только фиксируют конструкцию.
Сидения подвешиваются на цепях, затянутых в пластиковые или резиновые шланги, чтобы малышу не зажало цепью ладошку. Сами цепи подвешиваются на ввинченные в перекладину ремболты. В зависимости от величины верхней перекладины, кроме собственно качели, сюда еще можно подвесить веревочную лестницу, канат или тарзанку.

Комплекс на стропилах.
На видео в этой статье даны наглядные пояснения по монтажу детских площадок.
Вывод
В завершении хочется отметить, что дерево, находящее в грунте, следует предварительно обрабатывать битумной мастикой. Кроме того, все деревянные детские игровые площадки лучше всего покрывать акриловыми красками или лаками для наружных работ, хотя цена у них выше средней, зато они экологически нейтральны, что очень важно для детских конструкций.

Авторский вариант городка.
rubankom.com
