Дизайн с перегородкой однокомнатной квартиры – Ой!
Дизайн однокомнатной квартиры с перегородкой: 22 идеи

Казалось бы, перегородка должна съедать площадь. Однако, несмотря на это, интерьер однокомнатной квартиры с перегородкой может выглядеть еще более стильно, чем без нее!
С ее помощью можно разделить единственную комнату на две уединенные спальни или же огородить гостиную зону или кухню от места сна. Перегородка может быть цельной, прозрачной или решетчатой. Все зависит от материала, выбирать который стоит, основываясь на преследуемой вами цели. Если вы хотите попросту визуально отгородить спальню от гостиной, отдавайте предпочтение более легким или даже прозрачным перегородкам. Если же стремитесь разделить детское и родительское место сна, перегородки из гипсокартона почти под самый потолок будут кстати.


Совет: Глухая перегородка под самый потолок будет препятствовать свободному перемещению воздуха по комнате. Другими словами, в отгороженной части, которая дальше от окна, скорее всего, будет душно.
Многофункциональные конструкции часто помогают сэкономить место. С той же целью можно использовать трансформируемую мебель. Планируя ремонт, важно учитывать габариты пространства и мебели. Четко сопоставленные по размеру, они создадут гармоничную атмосферу.


Создание студии с объединением кухни и спальни в одном пространстве является отличным решением для однокомнатной квартиры. Делать перепланировку стоит молодой паре или одиноко проживающему человеку. Но вот для семьи с ребенком такое решение создаст только неудобства. Если в квартире проживает более двоих членов семьи, лучше остановится на стандартной планировке.


















www.gd-home.com
Дизайн однокомнатной квартиры с перегородкой
Принятые дизайнером решения — разрезать квартиру по диагонали и отказаться от дверей — были необычными и достаточно смелыми. И, как ни удивительно, пошли квартире во благо!
На фото:
Спальное место в этой квартире благодаря «полосатой» стене визуально объединено с гостиной, но при желании его можно скрыть за легкой занавеской.
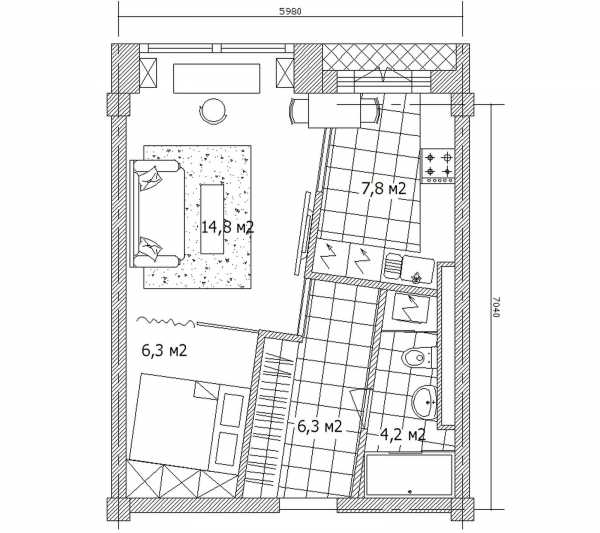
Сведения о квартире: однокомнатная квартира общей площадью 40 кв. м в ЖК «Пятая жемчужина» г. Одессы.
Владелица квартиры: женщина-дизайнер.
Пожелания клиентки: наличие отдельного рабочего уголка и объединение кухни и гостиной, бюджетный ремонт без излишеств.

План однокомнатной квартиры после перепланировки.
Эта квартира создавалась дизайнером для себя. Воплощать свои пожелания Наталье Цаплиной было просто — ведь никаких споров и недопониманий с клиентами не предвиделось. Автору проекта хотелось максимально реализовать свои идеи и выстроить уютный и просторный интерьер, отойдя от стереотипной планировки. Во-первых, организовать просторную зону кухни, во-вторых, изолированное место для сна, но при этом по возможности избавиться от большого количества дверей.
В итоге планировочное решение вылилось в диагональную разбивку всей жилой площади: с одной стороны расположились служебные помещения, с другой — жилые.
Спальное место дизайнер мягко отзонировала — часть проема закрыла небольшая перегородка, часть — полупрозрачная штора.
Дизайн однокомнатной квартиры с перегородкой выполнен в современном стиле, жилое пространство окрашено в теплые тона.
Прихожая. Входная зона максимально освобождена от предметов мебели. С одной стороны находится вход в ванную комнату, с другой — ряд гардеробных шкафов, способных вместить все необходимые вещи.

Гостиная. На территории общественной зоны расположен мягкий уголок и рабочее место. Одна из стен стала акцентной, ее покрыли обоями в вертикальную полоску, что визуально приподняло потолок.
На фото:
Кухня. Это помещение сверкает чистотой и свежестью — в молочную белизну окрашены не только пол, стены и потолок, но и кухонные фасады.
На фото:
Спальня. Хотя в спальной зоне предусмотрено необходимое количество систем хранения, сама спальня смотрится достаточно просторно.

Проект дизайнера Натальи Цаплиной — участник конкурса «Лучший 3D-проект квартиры до 70 кв. м» на сайте pinwin.ru. Ссылка на страницу проекта: http://www.pinwin.ru/konkurs.php?kact=2&knid=27&rbid=4886
www.4living.ru
Дизайн интерьера однокомнатной квартиры с перегородкой фото

Мы уже писали о том, как можно использовать перегородки в интерьере комнаты, какую перегородку подобрать между кухней и гостиной, и как в целом оформить дизайн перегородок в интерьере, но наиболее актуальным стоит вопрос использования перегородок в однокомнатной квартире, ведь именно здесь необходимо разделить пространство на несколько функциональных зон.
Перегородки удобны и прекрасны своим широким выбором, сегодня можно подобрать любые перегородки, прекрасно вписывающиеся в интерьер. Дизайн однокомнатной квартиры с перегородкой — не исключение! С помощью нее можно умело отделить гостиную от кухни, или кухню от спальной зоны. Перегородкой может служить что угодно — и стеновая панель, и выдвижные двери, и даже легкие шторы это тоже своего рода «перегородка». Перегородки в однокомнатной квартире, фото которых мы собрали в этой статье, наглядно демонстрируют большой выбор вариантов их использования.
Например, межкомнатная «перегородка» в однокомнатной квартире в виде легкой струящейся тюли.

Или перегородка в однокомнатной квартире в виде стеновой панели, на которой с одной стороны — удобно расположена плазменная панель, а с другой стороны — барная стойка.



А вот перегородка, разделяющая спальную зону с обеденно-гостиной. Такая перегородка совмещает в себе сразу две функции: помимо того, что она разделяет две зоны,она еще и оформлена ввиде стеллажа с открытыми полками, на которых можно разместить книги, сувениры и прочие мелкие детали.



Вариантов перегородок огромное множество, выбирайте наиболее подходящий вам вариант!





Следующие статьи:
Раздел: Статьи
Понравилась статья? Поделитесьinhomes.ru
Дизайн однокомнатной квартиры. |Mon Mari
Отзывов: 1Здравствуйте, дорогие читательницы
Перегородка в однокомнатной квартире
Самый главный вопрос – как разделить зону спальни, чтобы ничего не смущало Вас, и зону гостиной, где можно спокойно принимать гостей. Есть несколько вариантов решения этой проблемы. Во-первых, в однокомнатной квартире можно сделать перегородку! Такая перегородка может быть основательная, кирпичная, гипсокартоновая, или легкая, из шторы или ширмы!
Перегородка в однокомнатной квартире фото:
Ниша в однокомнатной квартире
Еще одним интересным решением будет обустройство спального места в нише. Это даст Вам возможность обустроить гостиную в полном соответствии. Спальное место можно обустроить на верхнем уровне, чтобы сделать такое место Вам потребуется немного потрудится, зато результат того стоит!
Ниша в однокомнатной квартире фото:
Условное разделение зон в однокомнатной квартире
Такое решение не совсем функционально, зато в квартире не будет лишних загорождений. Ощущение целого пространства сделает квартиру зрительно больше и просторнее.
Кровать и диван в комнате фото:
Цвета и материалы в декорировании однокомнатной квартиры
Самая главная задача – сделать помещение просторным и уютным. Поэтому используйте обои только светлых пастельных тонов, не стоит использовать крупный рисунок, он зрительно уменьшит комнату. Используйте светлую мебель, двери и окна. Также не забудьте про зеркало, большое зеркало может полностью изменить любую комнату!
Дизайн однокомнатной квартиры фото:
mon-mari.ru
Варианты Дизайна Перегородок Для Однокомнатных Квартиир
Однокомнатные квартиры активно продаются на рынке недвижимости, причем как в новостройках, так и на вторичном рынке. Однокомнатная квартира является промежуточным местом жительства для молодых только образовавшихся семей, которые хотят пожить в своей собственности, а не платить постоянную арендную плату хозяевам. Кроме того, доступность цен на однокомнатные квартиры определяет постоянный спрос на такое имущество. Купив такую квартиру, первое, что думают новые владельцы, это каким образом сделать ремонт в квартире и оформить ее дизайн, чтобы можно было комфортно и уютно себя чувствовать в новой собственности.

Каким образом можно оформить однокомнатную квартиру? Здесь все зависит от хозяев, от их желаний и возможностей. Да, конечно, однокомнатная квартира немного ограничивает ее владельцев, ведь особо в ней не развернешься. Тем не менее, наличие фантазии, а также четкое понимание того, что вы хотите получить в итоге, должны сыграть свою ключевую роль в этом вопросе. Если с ванной и балконом все достаточно очевидно, то вот комната и кухня – это раздолье для ваших идей.
Оформить свою квартиру лучше всего по принципу зонирования, выделив все необходимые вам элементы, такие как, например, спальное место, зона отдыха, рабочий уголок, при наличии ребенка — детская зона. Но самое сложное – это решить, каким образом провести границы между зонами. Какие использовать перегородки? И как они впишутся в дизайн?

Мобильные перегородки
Безусловно, существует множество способов разделить зоны в квартире, которые подойдут для того или иного интерьера. Можно по цветовому принципу разграничить территорию комнаты, можно сделать разные уровни пола и потолка в той или иной зоне. Но правильнее всего будет использовать перегородки, которые бывают двух типов: мобильные и стационарные. Мобильные ограждения могут в течение дня принимать две позиции, первая – раздвигаться, а вторая — задвигаться. За сутки позиции мобильных перегородок можно менять по несколько раз. К таким ограждениям относятся:
- Раздвижные двери. С их помощью можно отгородить любую зону в квартире, но чаще всего такого рода перегородки используются для визуальной границы между комнатой и кухней.
- Занавески. В качестве мобильных перегородок могут выступать и занавески. Большинство хозяев отделяют спальный уголок именно таким образом, чтобы придать этому месту уединенности и спокойствия. Многие девушки любят над своей кроватью устанавливать различные балдахины.
Следует сказать, что мобильные перегородки в своем закрытом состоянии придают однокомнатной квартире некоторую загадочность. И каждому гостю захочется разгадать тайну, открыв дверь или отодвинув занавеску.

Стационарные перегородки
Другим вариантом оформления дизайна в квартире могут стать стационарные перегородки. Из самого названия становится понятно, что в каком положении вы их сделаете, так они и будут стоять. Так что следует внимательно взвесить все варианты, дабы выбрать подходящий интерьер. Но выбор стационарных перегородок значительно шире, чем мобильных. Вот наиболее популярные стационарные перегородки:
- Стеллаж. Это оборудование, которое можно использовать не только для каких-то личных предметов, но и в качестве разделителя между, например, рабочим уголком и местом отдыха. Стеллажи бывают разными по высоте, по длине, можно заказать индивидуальный дизайн.
- Фальш-стенка. Вся суть в названии перегородки, с одной стороны – это стенка, с другой – это обманка. Такое ограждение тянется по всей высоте комнаты, то есть от пола до потолка, а за счет бокового и напольного крепежей, перегородка считается стационарной.
Как выбрать правильную перегородку
Следует не забывать, что ремонт любой квартиры — это кропотливый процесс, к его решению стоит подойти ответственно, заранее предусмотрев все возможные виды перегородок в вашей квартире. Безусловно, можно сделать это самостоятельно, решая, что где будет находиться. Также можно обратиться в профессиональную студию дизайна, представители которой имеют огромный опыт работы в данной сфере, и в кратчайшие сроки подберут оптимальный интерьер для вашей собственности.
*Фото с поиска Google.ru
roomplan.ru
Использование перегородок в однокомнатной квартире

При ремонте однокомнатной квартиры всегда нужно проявлять особую изворотливость фантазии, так как найти свободное место в этом помещении довольно сложно. Успех правильного распределения квадратных метров кроется в рациональном зонировании. В этом нам на помощь приходят перегородки. Именно разделение пространства перегородками помогает создавать идеальные комфортные жилища даже в самых маленьких однокомнатных квартирках.
Перегородки из гипсокартона
С помощью гипсокартоновой перегородки можно не только зонировать помещение, но и получить две полноценные раздельные комнаты. При этом процесс работы с гипсокартоном предельно просто. Впрочем, подобные перегородки не пользуются большой популярностью, так как имеют один весомый недостаток. Заключается он в отсутствии естественного освещения в новообразованной комнате.
Не стоит бояться использовать перегородки из гипсокартона для зонирования, так как решить вопрос с их недостатком можно двумя путями. Во-первых, вы можете компенсировать нехватку естественного света обильным количеством искусственного света. В этом случае световую схему нужно тщательно продумать до всех мелочей. Во-вторых, вы можете оставить в вашей гипсокартоновой перегородки небольшой оконный проем, через который будет поступать солнечный свет. Такой проем можно очень интересно обыграть, сделав его полноценной частью интерьера.

Монтируется гипсокартоновая перегородка с помощью металлического профиля, на который фиксируются листы гипсокартона. Если вам важно, чтобы звуки из одной комнаты не протекали в другую – положить между листами изолирующий материал. Это обеспечит вам полноценную звукоизоляцию.
Шкаф-купе в качестве перегородки
Использование шкафа-купе для разделения пространства – еще одна интересная идея для зонирования. В отличие от гипсокартоновой перегородки, шкаф выполняет не только функцию разделения, но и служит по своему прямому назначению. Кто-то может заметить, что шкаф-купе, стоящий посреди комнаты, занимает немало драгоценного места. Однако согласитесь, без шкафа вам все равно не обойтись, так почему бы не использовать его с максимальной пользой.

Подходить к выбору шкафа-купе, который будет использоваться для зонирования, нужно очень внимательно. Вам понадобится особенная конструкция шкафа, которым можно пользоваться сразу с обеих сторон. Кроме того, в шкафу должно быть большое количество самых разнообразных полочек и ящичков. Так вы сможете хранить в шкафу самые разнообразные вещи, а не только лишь одну одежду. Ну и, конечно же, чтобы придерживаться идеи полноценного зонирования, нужно выбирать шкаф до самого потолка.
Кстати, есть еще одна вариация на тему этой же идеи. Попробуйте использовать для зонирования не шкафы, а простые стеллажи. Безусловно, стеллажи не предусмотрены для хранения большого количество вещей, однако они прекрасно делят комнату на части, пропуская естественный свет во все ее уголки. Стеллаж всегда будет прекрасным декоративным дополнением интерьера, так как на его полках можно расставить книги, кухонную утварь, статуэтки и прочие аксессуары.

Стеклянные перегородки
Шкафы и гипсокартон для разделения пространства подходят далеко не всегда. В некоторых комнатах естественного света настолько мало, что его не хватает даже на одну комнату. Кроме того, иногда дальняя часть комнаты отводится под детскую, а малышу без естественного света никак не обойтись. В этом случае нужно искать другие идеи. Вот тут-то нам на помощь и приходит стекло.
Стеклянная раздвижная перегородка подходит для любой, даже самой маленькой комнаты. Она прекрасно выполняет все свои функции, не ворую при этом драгоценное свободное пространство и естественный солнечный свет. Особенно хороши такие перегородки для организации детской зоны в квартире. За стеклом малыш всегда будет под присмотром, он не будет ощущать одиночество, стеклянная перегородка отделит ребенка от опасностей кухни.

Обратите внимание, что выбирая стеклянную перегородку нужно брать только безопасное стекло. Такое стекло при разбивание не приносит вреда человеку. Пускай оно обойдется вам немного дороже, зато вы будете спокойны за свое здоровье и за здоровье своих детей.
Ширмы в интерьере
Если вы большой любитель частых перестановок и перемен в жилье, то идеальное решение для вас – это ширма. Ни шкаф, ни гипсокартоновую стенку так просто не передвинешь. Ширму же можно переставлять по своему желанию хоть каждый день. Кроме того, ширма – это очень стильный атрибут. Он способен превратить простую квартиру в роскошное жилище. Выбрать подходящую ширму очень просто. Современные мебельные и строительные магазины предлагают нам широчайшие ассортимент таких мобильный перегородок, так что можно подобрать вариант и под классическую стилистику и под современный стиль хай-тек.

Что же касается материала ширмы, то он также может быть абсолютно разнообразным. Например, идеальным дополнением комнаты в восточном стиле станет шелковая ширма. Также можно найти варианты из кожи, бамбука, древесины, стекла, зеркал, металлической сетки и прочих материалов. Кроме того, если в ширме три и больше секции, она может быть комбинированной, например, центральная секция выполнена из зеркала, а боковые – из дерева. Это очень функциональный и практичный вариант.

Оригинальные перегородки
- Зонирование комнаты с помощью растений – один из самых современных вариантов перегородок. Он великолепно впишется в эко-дизайн. Вариантов таких «живых» перегородок может быть уйма. Впрочем, это подходит только для тех, кто готов заботиться о растениях, ведь стена может просто завянуть.
- Текстиль – прекрасный вариант для легкой и воздушной перегородки. В этом случае простор для фантазии безграничен. Если вы хотите создать классический интерьер, разделите комнату тяжелой шторой с кисточками и бахромой. Если же вам по душе современный дизайн, пускай вашу комнату поделит простой прямоугольный отрез ткани с необычным принтом.
- Зонирование с помощью камина – не самый практичный, но очень интересный вариант. Современные электрокамины практически неотличимы от настоящих. Если установить такой камин посреди комнаты, она условно разделится на две части.

Советы по зонированию
Перегородки – это, пожалуй, лучшие идеи для зонирования. Увы, их можно использовать не всем и не всегда. Если вы никак не можете включить в свой интерьер даже самую небольшую перегородку, попробуйте использовать другие способы провести процедуру зонирования в вашей однокомнатной квартире:
- Используйте свет, чтобы подчеркнуть те или иные зоны. Например, в гостевой зоне пускай будет яркий центральный свет, в кухонной зоне – точечный, а в спальной – приглушенный и рассеянный.
- Не забывайте о возможности использования рельефов. Вы можете подчеркнуть спальню зону, расположив ее на небольшом возвышении относительно всей остальной квартиры. Реализовать это можно по средствам подиумов.
- Использование различных напольных покрытий – самый ненавязчивый способ зонирования квартиры.
- Точно также и с настенными покрытиями. Не бойтесь использовать весь спектр современных возможностей: красивые обои (бумажные обои, фотообои, шелкографию), декоративную штукатурку, краску, панели и прочее.
Обратите внимание, что все перечисленные выше идеи можно использовать как самостоятельно, так и компоновать со всевозможными перегородками.

okomnate.ru
Перегородки в однокомнатной квартире: варианты планировок
Перепланировка однокомнатной квартиры, на первый взгляд, может казаться невозможной. Площадь и количество комнат минимальные. Нет возможности совмещения. Но это только на первый взгляд. Люди летают в космос, а здесь — перегородки в однокомнатной квартире становятся проблемой?
Основной идеей перепланировки однокомнатной квартиры должна быть гармония функциональности и стиля. Сочетание этих составляющих позволит сделать из скучной однушки шикарный дворец в миниатюре.

Не стоит забывать, что любая перепланировка должна быть заранее согласована с соответствующими инстанциями. Не каждую стену можно безопасно убирать. В СМИ периодически появляются сообщения об авариях жилых домов из-за неправильно произведенных перепланировок.
Подход к осуществлению манипуляций с перегородками может различаться, если хозяином квартиры является холостой одинокий человек, или семейная пара.
Начало
Многих вводит в ступор самое начало любой необычной работы. Чтобы найти какую-то отправную точку нужно следовать определенному плану.
- Составить подробный план квартиры с указанием всех размеров.
- Затем на бумаге нарисовать несколько возможных вариантов. Не страшно, если они будут, на первый взгляд, абсурдными и нестандартными.
- Проанализировать эти варианты и выбрать наиболее приемлемый.
Чаще всего совмещаются жилая комната и вспомогательное помещение. Например, с кухней или коридором. Первый вариант не самый лучший, но самый распространенный. Запахи приготавливаемой пищи не характерны для воздуха жилой комнаты. Но тут нужно выбирать — или ограниченный объем или новые ощущения. В конце концов, запахи не такие уж и плохие.

Разработка зонирования пространства
После демонтажа перегородки между залом (гостиной) и кухней возникает вопрос визуального разделения этих территорий или зон. Для этого существует несколько вариантов:
- выделение дизайном и отделкой пола и потолка;
- разделение пространств мебелью — барная стойка, диван или обеденный стол;
- создание фальш-перегородок.
Рассмотрим эти варианты подробнее.
Дизайнерские решения
Зону кухни и жилую территорию можно визуально отделить разными уровнями потолков или полов. Красиво будет смотреться цветовое разделение этих пространств.
- Цветовая гамма — очень важный момент, который позволит визуально увеличить объем помещений. Для этого стоит делать упор на светлые оттенки.
- Различные варианты освещения. Используя кардинально отличающиеся системы освещения зон можно добиться отменного результата. Например, кухонная зона — точечные светильники, жилая зона — классическая невысокая люстра.
Мебель
Разделение при помощи мебели самый интересный вариант. Только стоит учесть, что использование для таких целей старых шкафов не приемлемо. Это современное жилье, а не студенческое общежитие.
Наиболее оптимальным видится применение нешироких кухонных столов, книжных полок, барных стоек или стеллажей. Это позволит не только разделить зоны, но и повысить функциональные свойства общего помещения. Например, стеллажи можно использовать и с жилой территории, и с кухонной.
Перегородка из мебели позволит сформировать собственную зону для ребенка. Маленькому человечку будет очень приятно иметь свою территорию. Он там может спокойно делать уроки или устроить мини-игровую площадку.
Сейчас в продаже можно встретить складной диван-шкаф. Применение его является идеальным в качестве перегородок для разделения зон. Такой диван в собранном виде не занимает место, и позволяет более эффективно использовать полезное пространство жилой территории.

Фальш-перегородки
В данном случае речь идет не о перегородках на всю высоту и ширину помещения. Это должны быть своеобразные ширмы. Возможен вариант использования штор. В малогабаритной однокомнатной квартире хорошо будут смотреться занавески светлого цвета на всю высоту, но не на всю ширину.
Интересным вариантом фальш-перегородки может являться стеклянная раздвижная конструкция. Только в таком случае целесообразным является применение жалюзи на перегородке.
Если высота потолка однокомнатной квартиры более 3 метров, то можно сделать фальш-перегородку с площадкой наверху. Там размещаются миниатюрный рабочий кабинет или библиотека. Обязательным атрибутом этой перегородки будет лестница, которую также можно использовать при разграничении зон.
Перегородка на балкон или лоджию
Увеличить пространство однокомнатной квартиры можно за счет этих помещений. Обычно площадь балкона не велика, но даже 2…3 квадратных метра могут быть использованы. В таком случае возникнут вопросы утепления балконного ограждения, но сейчас речь не об этом.
Санузел
Еще одно помещение, в котором имеется перегородка это санузел. Для увеличения площади квартиры можно и ее демонтировать. В этом случае полезный объем комнаты заметно увеличивается.
Для более рационального использования полученного помещения можно сместить в другую сторону унитаз или раковину. Замена габаритной ванны на более компактную душевую кабину позволит выиграть еще пару квадратов.
В некоторых случаях (все зависит от планировки однокомнатной квартиры), освободившуюся площадь санузла можно добавить к кухне. Для этого убирается часть перегородки между смежными помещениями. Получится неплохая ниша для холодильника или печки.

Чего не стоит делать
Все манипуляции с перегородками в однокомнатной квартире не будут иметь желаемого эффекта, если:
- в отделке зон преобладают темные тона;
- на потолке выполнена имитация грубого строительного перекрытия;
- на подоконниках стоят цветы или кухонные приборы;
- в центре жилой зоны выполнен потолок в нескольких уровнях;
Вывод
Если есть фантазия, то не сложно в скучной однокомнатной квартире при помощи разных вариантов перегородок добиться не только красоты, но и увеличения функциональных возможностей. В мире нет ничего невозможного. Главное, сильно захотеть что-то изменить.
vashastena.ru



