Два контура отопления от одного котла схема – Rmnt.ru
Схемы отопительных систем с двумя и более котлами
Включением в схему отопления двух и более котлов можно преследовать цель не только наращивания отопительной мощи, но и снижения энергопотребления. Как уже говорилось, система отопления изначально рассчитывается на работу в самую холодную пятидневку года, все остальное время котел работает вполсилы. Предположим, что энергоемкость вашей отопительной системы 55 кВт и вы подбираете котел такой мощности. Вся мощность котла будет задействована всего несколько дней в году, в остальное время для отопления нужна меньшая мощность. Современные котлы обычно снабжаются двухступенчатыми дутьевыми горелками, значит, обе ступени горелки будут работать лишь несколько дней в году, в остальное время будет работать только одна ступень, но и ее мощности может быть слишком много для межсезонья. Поэтому вместо одного котла мощностью в 55 кВт можно установить два котла, например, по 25 и 30 кВт или три котла: два по 20 кВт и один — 15 кВт. Тогда в любой день в году в системе могут работать менее мощные котлы, а при пиковой нагрузке включаться все. Если каждый из котлов имеет двухступенчатую горелку, то настройка работы котлов может быть значительно гибче: в системе могут одновременно функционировать котлы на разных режимах работы горелок. А это напрямую отражается на экономичности системы.
Кроме того, установка нескольких котлов вместо одного решает еще несколько задач. Котлы больших мощностей, это тяжелые агрегаты, которые сначала нужно привезти и занести в помещение. Использование нескольких маленьких котлов существенно упрощает эту задачу: маленький котел легко проходит в дверные проемы и значительно легче большого. Если вдруг при эксплуатации системы один из котлов выйдет из строя (котлы чрезвычайно надежны, но вдруг такое случится), то его можно выключить из системы и спокойно заняться ремонтом, при этом система отопления останется в рабочем режиме. Оставшийся рабочий котел может и не согреет в полной мере, но и замерзнуть не даст, во всяком случае, «сливать» систему не потребуется.
Включение в систему отопления нескольких котлов можно производить по параллельной схеме и по схеме первично-вторичных колец.
При работе в параллельной схеме (рис. 63) с выключенной автоматикой одного из котлов вода обратки прогоняется по неработающему котлу, что означает преодоление ею гидравлического сопротивления в контуре котла и расход электроэнергии циркуляционным насосом. Кроме этого, обратка (охлажденный теплоноситель), прошедшая через неработающий котел, смешивается с подачей (нагретым теплоносителем) от работающего котла. Этому котлу приходится наращивать нагревание воды для того, чтобы компенсировать подмешивание обратки от неработающего котла. Чтобы не допускать смешивание холодной воды от неработающего котла с горячей водой котла работающего, нужно вручную закрывать трубопроводы вентилями или снабжать их автоматикой и сервоприводами.
рис. 63. Схема отопления из двух полуколец с наращиванием мощности установкой второго котлаФирмой «Гидромонтаж» разработаны несколько типовых схем с использованием гидроколлекторов «ГидроЛого» для систем отопления с двумя и более котлами (рис. 65–67).
рис. 65. Схема отопления с двумя первичными кольцами с общим участком. Подходит для котельных любой мощности с резервными котлами, либо для котельных большой (свыше 80 кВт) мощности и малым числом потребителей.рис. 66. Двухкотловая отопительная схема с двумя первичными полукольцами. Удобна для большого числа потребителей с высокими требованиями к температуре подачи. Суммарные мощности потребителей «левого» и «правого» крыла не должны сильно отличаться. Мощности насосов котлов должны быть примерно одинаковыми.рис. 67. Универсальная комбинированная схема отопления с любым количеством котлов и любым числом потребителей (в распределительной группе используются обычные коллекторы или гидроколлекторы «ГидроЛого», во вторичных кольцах используются горизонтальные или вертикальные гидроколлекторы («ГидроЛого»)На рисунке 67 представлена универсальная схема для любого количества котлов (но не более четырех) и практически неограниченного числа потребителей. В ней каждый из котлов подключается к распределительной группе, состоящей из двух обычных коллекторов или коллекторов «ГидроЛого», установленных параллельно и замкнутых на бойлер горячего водоснабжения. На коллекторах каждое кольцо от котла до бойлера имеет общий участок. К распределительной группе подсоединяются маленькие гидроколлекторы типа «элемент–Микро» с миниатюрными смесительными узлами и циркуляционными насосами. Вся схема отопления от котлов до гидроколлекторов «элемент–Микро» это обычная классическая схема отопления, образующая несколько (по числу гидроколлекторов) первичных колец. К первичным кольцам подключаются вторичные кольца с потребителями тепла. Каждое из колец, находящееся на более высокой ступени, использует нижнее кольцо как собственный котел и расширительный бак, то есть забирает из него тепло и сбрасывает отработанную воду. Эта схема монтажа становится распространенным способом устройства «продвинутых» котельных и в небольших домах, и на крупных объектах с большим числом отопительных контуров, позволяющим производить тонкую качественную настройку каждого контура.
Чтобы было попонятней, в чем состоит универсальность данной схемы, давайте рассмотрим ее поподробней. Что такое обычный коллектор? По большому счету, это группа тройников, собранная в одну линию. Например, в отопительной схеме один котел, а сама схема направлена на приоритетное приготовление горячей воды. Значит, горячая вода, выйдя из котла, прямиком направляется в бойлер, отдав часть тепла на приготовление горячей воды, она возвращается в котел. Добавим в схему еще один котел, значит, на магистрали подачи и обратки нужно установить по одному тройнику и подключить к ним второй котел. А что, если этих котлов четыре? А все просто, нужно установить по три дополнительных тройника на подачу и обратку первого котла и подключить к этим тройникам три дополнительных котла либо не устанавливать в схему тройники, а заменить их коллекторами с четырьмя отводами. Вот и получилось, что все четыре котла мы подсоединяем подачей к одному коллектору, а обраткой — к другому. Сами коллекторы подключаем к бойлеру приготовления горячей воды. Получилось кольцо отопления с общим участком на коллекторах и трубах подключения бойлера. Теперь мы можем смело отключать или включать часть котлов, а система будет продолжать функционировать, в ней будет меняться только расход теплоносителя.
Однако в нашей системе отопления нужно предусмотреть не только нагревание хозяйственной воды, но еще и радиаторные системы отопления и «теплые полы». Поэтому для каждого нового контура отопления на подачу и обратку нужно установить по тройнику и тройников этих нужно столько, сколько мы задумали отопительных контуров. Зачем нам столько тройников, не лучше ли и их заменить коллекторами? Но у нас уже есть в системе два коллектора, поэтому просто нарастим их или сразу поставим коллекторы с таким количеством отводов, чтобы их хватило и на подключение котлов и на отопительные контуры. Находим коллекторы с нужным количеством отводов или собираем их из готовых частей либо применяем готовые гидроколлекторы. Для дальнейшего расширения системы, если потребуется, можем установить коллекторы с большим количеством отводов и временно заглушить их шаровыми кранами или пробками. Получилась классическая коллекторная система отопления, в которой подача заканчивается своим коллектором, обратка — своим, а от каждого коллектора пошли трубы на отдельные системы отопления. Сами коллекторы замыкаем бойлером, который в зависимости от скорости включения циркуляционного насоса может иметь жесткий или мягкий приоритет либо не иметь такового, так как он получается включенным в цепь параллельно с другими отопительными контурами.
Теперь пора вспомнить о системе отопления с первично-вторичными кольцами. Замкнем каждую пару труб, выходящих из коллекторов подачи и обратки, гидроколлектором типа «элемент–Мини» (или другими гидроколлекторами) и получим отопительные первичные кольца. Через насосно-смесительные узлы подсоединим к этим гидроколлекторам уже по первично-вторичной схеме отопительные кольца, те, что считаем нужным (радиаторные, теплых полов, конвекторные) и в необходимом нам количестве. Заметьте, что в случае отказов в запросах на тепло даже всех вторичных отопительных контуров, система продолжает работать потому, что в ней оказалось не одно первичное кольцо, а несколько — по числу гидроколлекторов. В каждом первичном кольце теплоноситель от котла (котлов) проходит через коллектор подачи, из него попадает в гидроколлектор и возвращается в коллектор обратки и в котел.
Как оказывается, сделать систему отопления хоть с одним котлом, хоть с несколькими и с любым количеством потребителей не так уж и сложно, главное подобрать необходимую мощность котла (котлов) и выбрать правильное сечение гидроколлекторов, но об этом мы уже достаточно подробно рассказали.
ostroykevse.com
Схемы обвязки котла отопления при различных видах циркуляции и контурах
При построении автономного отопления дома важно правильно продумать и выполнить обвязку газовых, твёрдотопливных и электрических котлов. Давайте рассмотрим возможные схемы и элементы обвязки, поговорим о классических, аварийных и специфических контурах, а также об основном оборудовании этих схем.

Основные принципы выполнения обвязки котла любой конструкции — это безопасность и эффективность, а также максимальный ресурс всех элементов отопительной системы. Рассмотрим различные варианты организации отопления, чтобы при индивидуальном строительстве принять взвешенное и наиболее подходящее для конкретного случая решение.
Подсоединение котла к источникам питания
Если котёл работает на газовом топливе, то к нему нужно организовать подачу газа. При магистральном газоснабжении это должен сделать работник газовой службы. Если отопление от баллонов, нужно заключить договор аренды с Газтехнадзором, а монтаж поручить компании, имеющей разрешение на данный вид работ. Все работы, связанные с газом, потенциально опасны и это не тот момент, когда стоит экономить и выполнять работу своими руками.
1. Подача отопления. 2. Горячая вода для бытовых нужд. 3. Газ. 4. Холодная вода к контуру ГВС. 5. Обратка отопления
При использовании баллонного газа обязательно используется редуктор, объединяющий группу баллонов
Электрокотёл нужно присоединить к сети. Котёл и клеммная коробка должны быть заземлены, все соединения выполняются медной проводкой с сечением не меньше указанного в техническом паспорте к оборудованию.

Котёл на твёрдом топливе всегда автономен и требует только присоединения труб отопления и горячего водоснабжения. Подключения к электрическим цепям питания требуют только блоки автоматического управления, если они задействованы.
Одно- и двухконтурные котлы
Одноконтурные котлы предназначены в первую очередь для отопления. Через них проходит только один контур, включающий автоматику, разводку труб и радиаторы. В контур может быть включён и бойлер косвенного нагрева для подачи горячей воды в смесители рукомойников, душа и ванны. Мощность котла подбирается с соответствующим запасом по мощности. Целесообразность такого подключения в большинстве случаев несколько сомнительна, так как нарушает стабильность функционирования системы отопления внезапным отбором тепла. Проблему можно решить, оборудовав контур сложной системой управления, которая в некоторых моделях может идти в комплекте с котлом.

Одноконтурный котёл с бойлером косвенного нагрева: 1. Котел. 2. Обвязка котла. 3. Радиатор. 4. Бойлер косвенного нагрева. 5. Ввод холодной воды
В двухконтурном котле горячее водоснабжение, наряду с отоплением, входит в функции котла и составляет один из двух его контуров циркуляции. Более стабильная работа обеих систем осуществляется при работе котлов, оборудованных двумя отдельными теплообменниками для двух контуров. Особенность системы: отсутствие бака-накопителя горячей воды.

Подключение двухконтурного котла: 1. Котел. 2. Обвязка котла отопления. 3. Отопительный контур. 4. Ввод холодной воды
Схема обвязки котла при естественной циркуляции
Естественная циркуляция основана на законах физики — температурном расширении теплоносителя и гравитации, поэтому обвязка котла не включает напорное оборудование.
Чтобы вода в контуре совершала непрерывное движение, нужно соблюсти несколько правил.
Котёл должен находиться в самой низкой точке дома, желательно в подвале или в специально оборудованном приямке.
Трубопровод от верхней точки к радиаторам отопления, и от них в «обратку» должен быть выполнен с уклоном не менее 0,5° для снижения гидравлического сопротивления системы.

Отопление с естественной циркуляцией. H — разница уровней линий подачи и обратки, определяет напор в контуре отопления
Диаметр труб разводки отопления должен обеспечивать скорость воды не ниже 0,1 м/с и не выше 0,25 м/с. Такие значения нужно принимать предварительно и проверять расчётом, исходя из разницы температур на входе и выходе (градиент) и разницы высоты по осям котла и радиаторов (не менее 0,5 м).
Гравитационные контуры котла могут быть открытого и закрытого типов. В первом случае в самой высокой точке системы (на чердаке или крыше) устанавливают расширительный бак открытого типа, он же выступает в роли воздухоотводчика.
Закрытая система оборудуется мембранным баком, расположенным на одном уровне с котлом. Так как закрытая система не имеет прямого контакта с атмосферой, она должна быть укомплектована группой безопасности (манометр, предохранительный клапан и воздухоотводчик). Располагается группа таким образом, чтобы воздушный клапан находился в наивысшей точке контура.

Системы с естественной циркуляцией являются независимыми от электропитания и наиболее распространены там, где электросети отсутствуют или работают ненадёжно.
Схема обвязки котла при принудительной циркуляции
Побудителем движения воды в контуре с принудительной циркуляцией является циркуляционный насос. Схемы также могут быть открытыми (с расширительным баком открытого типа) и закрытыми (с мембранным баком и группой безопасности).
Циркуляционный насос, как правило, устанавливают в месте, где температура воды имеет самое низкое значение — на её входе в котёл, и монтируют на той же площадке. Выбор насоса осуществляется на основании расчёта отопления, показывающего необходимый расход теплоносителя, и характеристик котла. Регулирование расхода теплоносителя осуществляется на основании температуры обратной воды по импульсу от установленного на входе в котёл датчика.

1. Котёл. 2. Группа безопасности. 3. Расширительный бак. 4. Циркуляционный насос. 5. Радиаторы отопления

Одно- и двухтрубная разводка системы отопления
Однотрубная система широко распространена в многоквартирных домах старой застройки. Температура воды от радиатора к радиатору постоянно понижается, что ведёт к неравномерному обеспечению теплом отдельных помещений. В двухтрубной системе теплоноситель распределяется равномерно по всем радиаторам, потерявший температуру, попадает во вторую трубу — «обратку». Таким образом, двухтрубная система обеспечивает дом теплом более равномерно.
1. Однотрубная схема разводки. 2. Двухтрубная схема разводки
Коллекторная схема разводки отопительной системы
При большом количестве радиаторов отопления, расположенных на разных этажах, или при подключении «тёплого пола», лучшей схемой разводки является коллекторная. В контуре котла устанавливают минимум два коллектора: на подаче воды — раздающий, и на «обратке» — собирающий. Коллектор представляет собой отрезок трубы, в который врезаются отводы с вентилями для возможности регулирования отдельных групп.

Коллекторная группа

Пример подключения контура отопления и системы «тёплый пол» с помощью коллекторной группы
Коллекторную разводку называют также лучевой, так как трубы лучами могут расходиться в разные стороны по всему дому. Такая схема в современных домах одна из наиболее распространённых и считается практичной.
Первично-вторичные кольца
Для котлов мощностью от 50 кВт или группы котлов, которые предназначены для отопления и горячего водоснабжения домов большой площади, применяется схема первично-вторичных колец. Первичное кольцо составляют котлы — генераторы тепла, вторичные кольца — потребители тепла. Причём потребители могут устанавливаться на прямой ветви и быть высокотемпературными, или на обратной — и называться низкотемпературными.
Для того чтобы в системе не было гидравлических перекосов и для разделения контуров, между первичным и вторичными кольцами циркуляции устанавливают гидроразделитель (стрелку). Он же защищает теплообменник котла от гидравлических ударов.

Если дом большой, то после разделителя устраивают коллектор (гребёнку). Чтобы система работала, нужно произвести расчёт диаметра стрелки. Выбор диаметра осуществляется на основании максимальной производительности (протока) воды и скорости потока (не выше 0,2 м/с) или как производная от мощности котла с учётом градиента температур (рекомендованное значение Δt — 10 °С).
Формулы для расчётов:
· G — максимальный расход, м3/ч;
· w — скорость воды через поперечное сечение стрелки, м/с.
· Р — мощность котла, кВт;
· w — cкорость воды через поперечное сечение стрелки, м/с;
· Δt — градиент температур, °С.

Аварийные контуры
В системах принудительной циркуляции насосы зависят от электропитания, которое может отключиться. Чтобы не произошёл перегрев котла, способный вывести оборудование из строя или даже привести к разгерметизации, котлы снабжают аварийными системами.
Первый вариант. Источник бесперебойного питания или генератор, которые будут питать циркуляционные насосы. По эффективности такой способ один из наиболее оптимальных.

Второй вариант. Обустраивается малое резервное кольцо, работающее по гравитационному принципу. При отключении циркуляционного насоса в систему включается контур с естественной циркуляцией, обеспечивая сброс тепла теплоносителя. Полноценного отопления дополнительный контур обеспечить не может.
Третий вариант. При строительстве закладываются два полноценных контура, один работает по гравитационному принципу, второй с помощью насосов. Системы должны иметь возможность тепломассообмена на аварийный период.
Четвертый способ. Если водоснабжение централизованное, то при отключении насосов холодную воду подают в контуры отопления через специальную трубу с запорным вентилем (перемычку между системами водоснабжения и отопления).
В заключение предлагаем посмотреть видео о правилах расчета однотрубной системы отопления частного дома.
http://www.rmnt.ru/ — сайт RMNT.ru
digest.wizardsoft.ru
наиболее приемлемые решения для вашего дома. Схемы обвязки котла отопления при различных видах циркуляции и контурах
При построении автономного отопления дома важно правильно продумать и выполнить обвязку газовых, твёрдотопливных и электрических котлов. Давайте рассмотрим возможные схемы и элементы обвязки, поговорим о классических, аварийных и специфических контурах, а также об основном оборудовании этих схем.
Основные принципы выполнения обвязки котла любой конструкции — это безопасность и эффективность, а также максимальный ресурс всех элементов отопительной системы. Рассмотрим различные варианты организации отопления, чтобы при индивидуальном строительстве принять взвешенное и наиболее подходящее для конкретного случая решение.
Подсоединение котла к источникам питания
Если котёл работает на газовом топливе, то к нему нужно организовать подачу газа. При магистральном газоснабжении это должен сделать работник газовой службы. Если отопление от баллонов , нужно заключить договор аренды с Газтехнадзором, а монтаж поручить компании, имеющей разрешение на данный вид работ. Все работы, связанные с газом, потенциально опасны и это не тот момент, когда стоит экономить и выполнять работу своими руками.
1. Подача отопления. 2. Горячая вода для бытовых нужд. 3. Газ. 4. Холодная вода к контуру ГВС. 5. Обратка отопления
При использовании баллонного газа обязательно используется редуктор, объединяющий группу баллонов
Электрокотёл нужно присоединить к сети. Котёл и клеммная коробка должны быть заземлены, все соединения выполняются медной проводкой с сечением не меньше указанного в техническом паспорте к оборудованию.

Котёл на твёрдом топливе всегда автономен и требует только присоединения труб отопления и горячего водоснабжения. Подключения к электрическим цепям питания требуют только блоки автоматического управления, если они задействованы.
Одно- и двухконтурные котлы
Одноконтурные котлы предназначены в первую очередь для отопления. Через них проходит только один контур, включающий автоматику, разводку труб и радиаторы. В контур может быть включён и бойлер косвенного нагрева для подачи горячей воды в смесители рукомойников, душа и ванны. Мощность котла подбирается с соответствующим запасом по мощности. Целесообразность такого подключения в большинстве случаев несколько сомнительна, так как нарушает стабильность функционирования системы отопления внезапным отбором тепла. Проблему можно решить, оборудовав контур сложной системой управления, которая в некоторых моделях может идти в комплекте с котлом.
Одноконтурный котёл с бойлером косвенного нагрева: 1. Котел. 2. Обвязка котла. 3. Радиатор. 4. Бойлер косвенного нагрева. 5. Ввод холодной воды
В двухконтурном котле горячее водоснабжение, наряду с отоплением, входит в функции котла и составляет один из двух его контуров циркуляции. Более стабильная работа обеих систем осуществляется при работе котлов, оборудованных двумя отдельными теплообменниками для двух контуров. Особенность системы: отсутствие бака-накопителя горячей воды.
Подключение двухконтурного котла: 1. Котел. 2. Обвязка котла отопления. 3. Отопительный контур. 4. Ввод холодной воды
Схема обвязки котла при естественной циркуляции
Естественная циркуляция основана на законах физики — температурном расширении теплоносителя и гравитации, поэтому обвязка котла не включает напорное оборудование.
Чтобы вода в контуре совершала непрерывное движение, нужно соблюсти несколько правил.
Котёл должен находиться в самой низкой точке дома, желательно в подвале или в специально оборудованном приямке.
Трубопровод от верхней точки к радиаторам отопления, и от них в «обратку» должен быть выполнен с уклоном не менее 0,5° для снижения гидравлического сопротивления системы.
Отопление с естественной циркуляцией. H — разница уровней линий подачи и обратки, определяет напор в контуре отопления
Диаметр труб разводки отопления должен обеспечивать скорость воды не ниже 0,1 м/с и не выше 0,25 м/с. Такие значения нужно принимать предварительно и проверять расчётом, исходя из разницы температур на входе и выходе (градиент) и разницы высоты по осям котла и радиаторов (не менее 0,5 м).
Гравитационные контуры котла могут быть открытого и закрытого типов. В первом случае в самой высокой точке системы (на чердаке или крыше) устанавливают расширительный бак открытого типа, он же выступает в роли воздухоотводчика.
Закрытая система оборудуется мембранным баком, расположенным на одном уровне с котлом. Так как закрытая система не имеет прямого контакта с атмосферой, она должна быть укомплектована группой безопасности (манометр, предохранительный клапан и воздухоотводчик). Располагается группа таким образом, чтобы
mirhat.ru
Схемы подключения котлов, радиаторов, обвязки в домашнем отоплении
Сделать систему отопления для дома можно самостоятельно в том случае, если имеются навыки ведения сантехнических и строительных работ. По другому сказать, — нужно уметь трубы паять, обрезать, соединять, а также закручивать гайки, знать назначение и технические характеристики применяемого оборудования, иметь представление о гидравлике и теплотехнике и еще много чего…
Тогда, воспользовавшись типовыми проверенными схемами и решениями, можно создать систему отопления для небольшого дома только лишь своими руками.
Но если навыков выполнения работ нет, то придется наблюдать за тем, как делают систему отопления специалисты. При этом крайне желательно также ознакомиться с основными правилами создания системы, схемами размещения оборудования и др., чтобы проконтролировать выполнение работ и вовремя устранить ошибки, если таковые будут допущены.
Ниже приведены отдельные нюансы создания системы отопления в частном доме, на которые стоит всегда обращать внимание в первую очередь. Начнем с подключения котла, так как в котельной зачастую допускается много ошибок.
Подключение настенного котла
Настенные котлы обычно автоматизированные, в них имеются два важных элемента системы отопления:
- группа безопасности, которая состоит обычно из воздушного клапана, манометра, аварийного клапана избыточного давления;
- циркуляционный насос, который обеспечивает движение жидкости в системе отопления;
Поэтому подключение настенного котла наиболее простое, оно должно выполняться по следующей схеме (рассматриваем направление «от котла»):

Подача:
– кран с американкой для подключения котла;
— переходной фитинг на трубы – американка.
Кран обязателен, ставится сразу перед котлом, чтобы можно было обслуживать котел без слива системы.
Обратка:
— кран с американкой для подключения котла;
— грязевой фильтр;
— кран;
— тройник с расширительным баком, вентилем отключения, вентилем слива и заливки системы.
— переходной фитинг на трубы – американка.
Грязевой фильтр является обязательным элементов любой системы отопления. Он устанавливается отстойником вниз, или, в крайнем случае, горизонтально. Грязь из системы будет скапливаться в фильтре, периодически удаляется из отстойника. При установке нужно соблюдать направленность относительно струи.
Краны возле фильтра обязательны, только закрыв оба крана можно обслуживать, очищать фильтр.
Далее рассмотрим обвязку напольного котла. Она более сложная, так как в напольном котле отсутствуют группа безопасности и насос. Поэтому они устанавливаются самостоятельно, как элементы котельной.
Группа безопасности, циркуляционный насос, расширительный бак
Для группы безопасности лучше приобрести специальный тройник и смонтировать на нем приборы, указанные выше. Важно подобрать приборы в соответствии с параметрами системы отопления, обычно максимальное давление – 4 МПа, рабочее — 1,5 – 2,0 Атм.
Насос приобретается по характеристикам системы. Для обычного небольшого дома (до 150 м кв.) в отопительную систему всегда будет достаточным циркуляционный насос с напором до 4 м (0,4 атм) (нередко для радиаторов и до 250 м кв.)
Соответственно маркировка насоса 25 – 40, где первая цифра указывает диаметр резьбы патрубков подключения, в данном случае 25 мм – 1 дюйм, но может быть и 32 мм и больше. Вторая цифра 40 является обозначением создаваемого давления – до 0,4 атм, а значит косвенно и мощности насоса. 
Каждый циркуляционный насос имеет регулировку скорости вращения, не менее чем в 3 положениях, которой будет определяться объем прокачиваемой жидкости и реальная потребляемая мощность.
В первом положении регулировки циркуляционный насос 25-40 будет потреблять не более 30 Вт электроэнергии. Чаще для правильно сделанной системы отопления в утепленном доме до 150 м кв. будет достаточно тепловой энергии, которая сможет подаваться этим насосом на первой скорости.

Часто повторяемой ошибкой при создании системы отопления является установка излишне мощных насосов, невзирая на то, что они стоят в разы дороже и больше потребляют электроэнергии. Там где оптимальным является насос 25 — 40м (в большинстве небольших домов), устанавливают насосы 25 — 60, и даже 25 – 80 и мощнее.
Объем расширительного бака можно подобрать по упрощенной формуле – 1/10 от объема теплоносителя в системе. Лучше чуть-чуть больше, но не меньше. Например, если в системе 200 литров, то лучше установить 35 литровый расширительный бак но не меньше чем 20 литров.
Подключение напольного неавтоматизированного котла
Рассмотрим схему, как должен подключаться напольный котел, не оборудованный автоматикой. (По направлению от котла.)

Подача:
— американка для подключения котла;
— группа безопасности или хотя бы аварийный клапан;
— кран;
— переходной фитинг на трубы – американка.
Обратка:
— кран с американкой для подключения котла;
— циркуляционный насос;
— грязевой фильтр;
— кран;
— тройник с расширительным баком, вентилем отключения, вентилем слива и заливки системы.
— переходной фитинг на трубы – американка.
Между котлом и группой безопасности не должно быть никаких кранов. Если такой кран, установлен и закрыт, то может произойти авария.
С аварийного клапана должен быть отводной трубопровод, чтобы вода при сбросе не попала на котел и другое оборудование.
Вал ротора циркуляционного насоса должен располагаться только горизонтально Установка ротора вертикально – грубая ошибка инструкции по установке, тем не менее, допускается часто.
Насос устанавливается в трубопровод в соответствии с направлением движения жидкости.
Клемная коробка насоса должна быть сверху для удобства подключения и обслуживания. Если она оказывается снизу (при установке насоса в соответствии с направлением жидкости), то ее вместе со статором необходимо развернуть вверх, что позволяет сделать конструкция насоса, при ослаблении специальных болтов.
Расширительный бак ставится всегда со стороны всаса насоса, т.е. перед насосом по ходу движения жидкости. Это обязательное правило.
Выбор схемы отопления и подключение радиаторов
Многие специалисты считают однотрубную систему (ленинградка) неудовлетворительной по многим параметрам. В первую очередь в ней весьма сложно добиться нужного распределения тепловой мощности между радиаторами, но ей присущи и другие недостатки. Рекомендуется использовать двухтрубные системы, чаще – тупиковую или попутную. Подробней узнать о данных схемах подключения радиаторов можно и на данном ресурсе.
Радиаторы к трубам необходимо подключать по диагональной схеме:
– с одной стороны радиатора сверху подача, с другой стороны снизу обратка.
Возможно подключение коротких (менее 1 метра длиной) радиаторов по односторонней схеме:
— с одной стороны сверху подача, снизу обратка.
Все другие схемы включения радиаторов, в том числе и «низ-низ» не желательны к применению из-за большой потери полезной мощности радиаторов.
Краны и раздельная регулировка тепловой мощности радиаторов
У каждого радиатора на его подаче и обратке должны быть установлены краны. Они обеспечивают отключение радиатора без слива всей системы с сохранением ее работоспособности. С помощью отдельных кранов можно регулировать мощность радиатора.
Возможна установка следующих видов кранов в системе отопления:
- Шаровые. Не предназначены для регулировки потока, должны работать только в двух положениях – «Открыто» или «Закрыто». Устанавливаются на отводах каждого радиатора, для снятия или отключения его от системы.
- Вентильные. Плавная регулировка потока крайне затруднительна, и на практике редко выполняется. При изменении положения штока на 5 – 95%, объем проходящей жидкости меняется всего лишь на 10%, поэтому подобрать нужное гидравлическое сопротивления затруднительно, краны склонны к заиливанию, на практике, в 95% случаев не работоспособны. К установке не рекомендуются.
- Клапана нажимного действия. Предназначены для регулировки тепловой мощности радиаторов совместно с тепловыми регулятороами (тепловыми головками). Они могут устанавливаться и работать только в системах с автоматизированными котлами. С твердотопливными котлами автоматические регуляторы мощности на трубопроводах не допускаются, так как закрытие всех радиаторов или их части приводит к перегреву системы и возможной аварийной ситуации.
Выше были рассмотрены несколько значимых вопросов создания системы отопления.
Выполнение указанных рекомендаций по монтажу системы отопления, а также правильный выбор мощности оборудования и подбор диаметра труб, позволит создать принципиально правильную систему отопления для небольшого дома.
teplodom1.ru
схема подключения двухконтурного котла в частном доме, фото и видео примеры
Содержание:1. Установка двухконтурных котлов
2. Расчет мощности котла и объема бойлера
3. Подключение газового оборудования в двухконтурной системе отопления
4. Монтаж газового оборудования
5. Установка радиаторов
6. Выбор труб
Далеко не все дома подключены к централизованному отоплению, поэтому часто хозяевам приходится задумываться о создании автономной системы. Чтобы в домовладении в холодное время года было комфортно, необходимо тщательно продумать организацию тепло- и водоснабжения. Двухконтурная система отопления является наиболее распространенной, поскольку она служит не только для обогрева дома, но и для подогрева воды для бытовых нужд. Как выглядит оборудование, используемое для таких систем, можно увидеть на фото.

Установка двухконтурных котлов
Современные приборы имеют автоматику, которая контролирует степень нагрева и поддерживает температуру теплоносителя. Двухконтурные котлы можно назвать настоящей домашней котельной, так как они способны не только поддерживать комфортную температуру воздуха в доме, но и обеспечить жильцов горячей водой. Тем не менее, такие устройства сложны, поэтому не застрахованы от поломок.
Природный газ – один из лучших видов топлива, но при его использовании необходимо следовать некоторым правилам, чтобы он не стал источником опасности.
При установке важно придерживаться следующих рекомендаций:
- Котел нужно устанавливать в отдельном помещении (его обычно называют котельной или топочной). Его площадь должна быть не менее 4-х «квадратов». В этом помещении должен быть достаточно широкий дверной проем. Также обязательным является наличие хотя бы одного окна (прочитайте: «Правила установки газового котла отопления — инструкция по установке и подключению»).
- При внутренней отделке котельной нельзя использовать горючие и пожароопасные материалы.
- В помещение должно поступать достаточное количество свежего воздуха, поэтому обязательно создается незакрываемая сквозная отдушина.
- Отдельный газоход нужен для выхлопа котла. Для этой цели нельзя использовать систему вентиляции, так как продукты сгорания проникнут в жилые помещения, что может привести к нежелательным проблемам со здоровьем.
- Выход газохода должен выступать над коньком крыши минимум на метр.
- На пол под котел укладывают прочный лист металла или другого негорючего материала, его площадь должна превышать габариты оборудования, но быть не менее 1 «квадрата».
- Двухконтурная система отопления частного дома должна выдерживать опрессовку под давлением минимум 1,8 бар.

Все эти требования нужно соблюдать, поскольку газ – топливо опасное. Недопустимо устанавливать котел в жилых помещениях. Обычно для него строят отдельную пристройку, чтобы он не занимал одну из комнат дома. Если котельная будет хорошо проветриваться, а при ее отделке не использовались горючие материалы, то система отопления окажется полностью безопасной.
Расчет мощности котла и объема бойлера
Мощность двухконтурного и одноконтурного оборудования при одинаковой отапливаемой площади отличается. Кроме того, на расчет мощности котла отопления влияет и то, что двухконтурные котлы используются еще и для подогрева воды для бытовых целей. Но стоит учитывать, что слишком большой мощность тоже не должна быть.
Если мощность котла рассчитана правильно, то температура в камере сгорания не будет превышать 90 градусов, при этом долговечность оборудования увеличится. Например, для дома площадью 100 «квадратов» мощность котла не должна быть выше 38 кВт.
Мощность бойлера для отопления зависит от условий его эксплуатации. Чаще всего на нем имеется две цифры, первая указывает на то, сколько энергии он потребляет в режиме отоплении, а вторая – при быстром нагреве воды.
Емкость бойлера также рассчитывают исходя от условий его использования. Так, 10 литров хватит для мытья посуды, 30 — достаточно для быстрого принятия душа, а 100 литров для стирки и купания в горячей ванне.

Подключение газового оборудования в двухконтурной системе отопления
Устанавливать систему отопления можно и самостоятельно, но подключение газа должен выполнять специалист. Даже если есть необходимые знания, все равно работать с газовым оборудованием без специального разрешения нельзя, так как при неправильно выполненной работе возникнет опасность для жизни жильцов дома. Если же сделать подключение самостоятельно и правильно, придется при вводе оборудования в эксплуатацию заплатить крупный штраф (прочитайте: «Правильная схема подключения двухконтурного газового котла»).
Для оформления разрешения нужно:
- Обратиться в БТИ для того, чтобы в техпаспорт дома были внесены изменения. На плане необходимо указать помещение, отведенное под котельную, и проставить соответствующие пометки.
- Подать заявление в газовую службу и приложить к нему техпаспорт купленного оборудования. К этому моменту уже нужно приобрести все, что потребуется для монтажа системы отопления.
- Установить оборудование, не выполняя подключение двухконтурного котла — схема указана в инструкции (прочитайте также: «Какая схема подключения радиаторов отопления оптимальна»).
- Пригласить специалиста из газовой службы для подключения устройства. Вместе с этим подается заявка на ввод оборудования в эксплуатацию.
- Получить разрешение от инспектора газовой службы. Перед этим он проверит правильность подключения, и затем выдаст требуемые документы. Только после этого в оборудование будет подаваться газ. Читайте также: «Как подключить газовый котел к системе отопления».
Счетчики устанавливают и пломбируют сразу, чтобы они начали работать сразу после ввода оборудования в эксплуатацию.

Монтаж газового оборудования
Когда устанавливается двухконтурная система отопления — схема должна соблюдаться в точности – только в этом случае оборудование будет работать правильно и эффективно.
Корпус теплоагрегата не должен примыкать к стене, также его нельзя устанавливать в ниши.
При обвязке подключают сразу три системы:
- электрическую;
- гидравлическую;
- газовую.
Электрическую и гидравлическую обвязку можно выполнить самостоятельно, а газовой занимается специалист (подробнее: «Обвязка настенного двухконтурного газового котла»). Многие газовые котлы имеют схожую систему подключения. Для этого используется средний патрубок, по бокам которого размещены трубки для холодного и горячего водоснабжения (прочитайте также: «Как сделать расчет мощности газового котла»).
Крайние патрубки необходимы для подключения оборудования к отопительной системе. По левому в батареи поступает горячая вода, а по правому возвращается остывшая вода для нагрева. Таким образом, подключение двухконтурного котла отопления производится достаточно просто, нужно только следовать рекомендациям специалистов.

Трубы подачи и обратки воды снабжают кранами, с помощью которых в случае поломки теплоагрегата можно перекрыть воду. Если этого не сделать, то перед началом ремонта придется сливать теплоноситель из отопительной системы, а это займет время.
Контур водоснабжения подключают примерно так же, на подачу холодной воды при этом ставится фильтр, предупреждающий забивание мусором устройства. Для отсечения контура трубопровода также необходима установка кранов.
Когда выполняется разводка двухконтурного котла отопления, нужно соблюдать несколько условий. Перед тем, как запускать систему, нужно убедиться в том, что не были перепутаны краны холодной и горячей воды. Ошибка в этом может привести к печальным последствиям – даже к взрыву газового котла, поэтому не стоит относиться к подключению оборудования легкомысленно.
Далее устанавливается расширительный бак. Он нужен для компенсации расширения отопительной системы из-за повышения давления. Объем бака должен быть примерно равен 10% количества теплоносителя во всей системе. Чаще всего бачок устанавливают между котлом и циркуляционным насосом, однако его можно разместить и в другом месте, где он не станет мешать. Пригодится он и в том случае, если падает давление в двухконтурном котле.
Установка радиаторов
Основными элементами отопительной системы в помещениях дома являются радиаторы. В настоящее время многие специалисты стали советовать: не приобретать традиционные чугунные батареи, поскольку они тяжелые и по свойствам значительно хуже изделий из биметаллического сплава. Кроме того, последние изделия выглядят гораздо эстетичнее и имеют хорошую теплоотдачу.
Чаще всего радиаторы устанавливают под окнами, обращая внимание на то, чтобы между ними и подоконниками оставалось свободное пространство. Перед этим демонтируют старые трубы и крепления, так как они для новых систем не подходят. Стену размечают при помощи карандаша с таким расчетом, чтобы от радиатора до пола оставалось не менее 10 сантиметров. Нормальный теплообмен между батареей и помещением обеспечивается в том случае, если она отходит от стены не менее чем на 5 сантиметров (читайте также: «Теплообмен между несколькими теплоносителями — делаем правильно»).
Разводка радиаторов бывает нескольких типов
Самым распространенным является боковое одностороннее подключение. При этом подводящую трубу подсоединяют к верхнему патрубку, а отводящую трубку – к нижнему. Благодаря этому достигается максимальная теплоотдача, а при обратном подключении мощность уменьшается примерно на 10%.
Основным преимуществом нижнего подключения является эстетичность – в этом случае обе трубы скрываются за плинтусом. Патрубки находятся внизу трубы и обращены в пол.
Диагональное подключение в основном используют для многосекционных радиаторов. В результате горячая вода подается с одной стороны в верхний патрубок, а с другой – выводится через нижний.
Радиаторы подключают двумя способами: последовательно и параллельно. При параллельном подключении вода движется под давлением внутри всей системы, а при поломке одной батареи все отопление выключают до завершения ремонта. При параллельном подключении радиаторы можно менять, не отключая отопительную систему.
Подсчет количества секций прибора приходится производить в зависимости от конкретной ситуации. Это во многом зависит от климата региона и качества утепления дома. Но по стандарту, 1 секция радиатора способна обогреть 2 «квадрата» площади в том случае, если высота потолков не более 2,7 м. Данную формулу можно считать условной, так как важно учитывать и другие параметры: толщину стен и их материал, тип и параметры утеплителя (детальнее: «Как выбрать утеплитель для труб отопления и нужен ли он»), мощность обогревателя, климатические особенности региона. Котлы для отопления двухконтурные должны выбираться с учетом площади помещения, но и от площади дома и типа радиаторов в немалой степени зависит эффективность отопления.
Выбор труб
В настоящее время самыми распространенными являются полипропиленовые и металлопластиковые трубы для отопления, так как они имеют немалые преимущества перед изделиями из других материалов.
Полипропилен считается одним из наиболее долговечных материалов, в случае правильного монтажа трубы из данного материала служат не один десяток лет. Стоимость их не велика, но для установки придется потратиться на специальные инструменты и крепления. Во время монтажа трубу нельзя перегревать, ее необходимо быстро зафиксировать в нужном положении. Для этой работы нужны особые умения, поэтому лучше пригласить специалиста.
Металлопластиковые трубы можно установить и самостоятельно, для их установки не требуется специальных элементов, кроме обжимных фитингов. Но в то же время, они служат меньше, а кроме того, серьезным недостатком металлопластиковых труб является резиновый уплотнитель, который быстро разрушается. Но они все же являются лучшим вариантом, чем медные и стальные, разрушающиеся еще быстрее (детальнее: «Полипропилен или металлопластик для отопления — сравнение труб»).
Газовые и дизельные котлы отопления двухконтурные в настоящее время пользуются значительной популярностью, но они являются опасными при неправильном подключении. Поэтому, не имея опыта в установке подобного оборудования, лучше обратиться за помощью к специалистам, которые смогут правильно выполнить все работы.
Двухконтурная система отопления из полипропилена на видео:
teplospec.com
видео-инструкция по монтажу своими руками, схема, фото и цена
Есть два важнейших условия комфортности жилья: наличие отопления и горячего водоснабжения. Для обеспечения этих условий можно использовать отдельные системы, а можно установить двухконтурный котел. Мы расскажем, чем отличается одноконтурная и двухконтурная система отопления, каковы особенности и преимущества двухконтурного отопления.

Двухконтурный котел легко отличить по четырем входящим трубам.
Отопление с двумя контурами
Принцип действия и устройство котла

На фото – пример обвязки газового котла.
В первую очередь мы хотим дать определение двухконтурной системы, а также рассмотреть принцип ее действия.
Важно! Двухконтурной называют такую систему, в которой совмещены функции отопления и горячего водоснабжения путем организации двух независимых контуров с разной температурой воды.

Желтая линия – газовая магистраль.
Надо понимать, что температура теплоносителя в системе отопления достигает 95 градусов, тогда как температура горячего водоснабжения согласно пункту 2.4 СанПиН 2.1.4.2496-09 составляет 60 градусов. Это значит, что теплогенератор будет работать в разных режимах.
Как правило, двухконтурный котел имеет один замкнутый теплообменник отопления и один проточный теплообменник горячего водоснабжения.

Схема на двухконтурное отопление с применением газовой горелки.
Итак, рассмотрим принцип действия устройства:
- Теплоноситель поступает в теплообменник (1), где нагревается от газовой горелки (2) и направляется в систему отопления под действием циркуляционного насоса (4), таким образом осуществляя круговое движение в замкнутом отопительном контуре;
- При включении горячего водоснабжения срабатывает трехходовой кран (6), и теплоноситель начинает циркулировать через теплообменник (5) внутри котла, при этом в систему отопления он не поступает;
- Водопроводная вода поступает в теплообменник (5), где нагревается от теплоносителя и направляется в систему горячего водоснабжения;
- Внутренний малый контур также замкнут и снабжен расширительным баком (3), компенсирующим расширение теплоносителя при нагреве.

При включении крана горячей воды аквасенсор фиксирует увеличение расхода воды и переключает трехходовой клапан.
Важно! Мы видим, что агрегат работает по принципу «или-или», то есть когда работает ГВС, теплоноситель не греет батареи отопительной системы. Длительное использование горячего водоснабжения может привести к заметному остыванию батарей и понижению температуры в доме.
Также возможен вариант битермического теплообменника, в котором совмещены два контура. По наружной рубашке циркулирует теплоноситель, а по внутренним трубкам – горячая вода ГВС. При этом вода с пламенем горелки не контактирует, и при закрытом кране не закипает.
Совмещенный теплообменник.
Важно! Применение битермического теплообменника позволяет использовать отопление и водоснабжение одновременно.
Наконец, существуют двухконтурные котлы со встроенным бойлером косвенного нагрева, однако они громоздки и требуют организации фундамента.
Отличия от одноконтурной системы

Одноконтурный агрегат также может обеспечивать ГВС.
Чем же отличается двухконтурная и одноконтурная система отопления, ведь одноконтурная схема также может обеспечить нагрев воды? Давайте посмотрим, как устроена работа одноконтурного котла с ГВС:

Для обеспечения ГВС к одноконтурному котлу подключают бойлер косвенного нагрева.
Как видим, здесь схема иная: котел греет теплоноситель, который циркулирует в системе отопления. Однако от общей сети трубопровода отведен отдельный контур, который питает бойлер косвенного нагрева.
Когда вода в бойлере остывает, термостат подает сигнал сервоприводу, который переключает трехходовой клапан, и теплоноситель начинает поступать не только в систему отопления, но и в теплообменник бойлера, где нагревается вода для ГВС. Это напоминает работу битермического теплообменника, только в этом случае он не совмещен, а разделен на две отдельные части.

Одноконтурный котел с бойлером косвенного нагрева воды.
Важно! Такая схема надежнее, однако цена котла с бойлером будет ощутимо выше, чем стоимость одного двухконтурного агрегата. В этом и состоит главное отличие, кроме того, для установки бойлера понадобится дополнительное место.
Правила установки оборудования в котельной

Котельная с установленным оборудованием.
Для правильной работы отопления необходимо организовать тепловой пункт или котельную.
Несмотря на системы автоматического управления и защиты, установленные в современных котлах, инструкция требует выполнения ряда правил при обустройстве котельной:
- Для установки оборудования необходимо выделить отдельное помещение площадью не менее 4 квадратных метров. В этом помещении должно быть хотя бы одно небольшое окно и нормальный дверной проем. Чаще всего котельную устраивают в подвале или хозяйственном помещении первого этажа, но можно вынести ее и в отдельную постройку;
- Отделка котельной должна быть изготовлена из негорючих материалов: плитки, штукатурки и т.д.;
- Для нормальной работы оборудования и безопасности истопника в котельной должен быть нормальный приток воздуха. Для этого в стене делают незакрываемый продух;
- Выход выхлопных газов осуществляется через отдельный дымоход, выводить его в вытяжку системы вентиляции недопустимо по технике безопасности;
- Пол под котлом накрывают стальным листом не менее 1 м2;
- Выход дымохода поднимают выше уровня конька крыши на метр.

Используйте негорючую отделку.
Важно! Правила обустройства теплового пункта следует выполнять неукоснительно для вашей же безопасности. В случае использования газового оборудования необходимо ознакомиться с техникой безопасности и правилами эксплуатации.
Преимущества и недостатки

Особого внимания к безопасности требуют деревянные дома.
Теперь рассмотрим плюсы и минусы использования системы с двойным контуром.
Начнем с положительных моментов:
- Достигается заметная экономия пространства в доме: за счет отсутствия дополнительного бойлера размеры котельной можно сделать меньшими. Это особенно актуально для небольших домов, где места и так мало. В случае строительства специальной пристройки для теплового пункта добавляется экономия средств и материалов;
- Стоимость двухконтурного агрегата ощутимо ниже стоимости котла с бойлером или двух котлов;
- Подключение второго котла или бойлера косвенного нагрева значительно усложняет монтажные работы, требует дополнительной арматуры и трубопровода, средств автоматики и контроля;
- В случае использования газа вам не понадобиться подключать два устройства с получением разрешений и пуско-наладочными работами, которые следует производить с помощью специалистов.

Компактные размеры и дешевизна – главные преимущества.
Важно! Основным критерием выбора таких устройств является экономия места и средств. В народе такие агрегаты прозвали «котлы для бедных», но, как известно, бедность – не порок.
Теперь обсудим отрицательные стороны данной схемы:
- Устройства с проточным нагревом воды не слишком удобны в эксплуатации: достаточно сложно регулировать температуру воды, особенно при изменении напора. Этот эффект знаком владельцам газовых колонок старого образца;
- Коаксиальный теплообменник может работать либо на обогрев, либо на отопление. Это приводит к тому, что при длительном использовании ГВС дом может заметно остыть;
- При поломке совмещенного теплообменника отопление работать не сможет до его замены;
- Нагрев проточной воды требует двукратного увеличения мощности, а это приводит к увеличению габаритов и массы изделия;
- Электрические котлы в режиме нагрева проточной воды будут также работать с двойной мощностью, а это потребует подключения к трехфазной сети 380 В, которая есть далеко не везде.

Для стабилизации температуры проточной воды можно использовать тепловой аккумулятор.
Важно! Очевидно, что схема достаточно противоречива, и решать здесь только вам. Конечно, если покупка более удобного и дорогого оборудования для вас непосильна, то выбор здесь предсказуем.
Способы повышения тепловой инерции системы

Чтобы батареи не остывали слишком быстро, следует повысить тепловую инерцию.
Если зимы в вашем регионе холодные и вы обеспокоены тем, что при использовании ГВС батареи будут остывать, мы дадим вам несколько советов, как этого избежать. Само собой, в первую очередь необходимо позаботиться о хорошей теплоизоляции стен и окон, кровли и пола, но речь не об этом.
Единственный способ приостановить остывание теплоносителя – это повышение его теплоемкости. Этого можно добиться увеличением объема теплоносителя за счет использования труб большего диаметра.

Трубы большего диаметра повышают инерционность.
Кроме того, можно использовать массивные чугунные батареи с напольной установкой. Такие отопительные приборы остывают очень долго, так как их масса может достигать 100 кг.

Массивные чугунные батареи остывают намного дольше.
Наконец, как уже было сказано, можно встроить в систему тепловой аккумулятор – бак на несколько сотен литров (до 2000), включенный между котлом и системой отопления. Однако это нивелирует все преимущества схемы: она станет дороже и будет занимать лишнее место.

Схема подключения теплоаккумулятора.
Важно! При рациональном использовании горячей воды проблема остывания батарей не очень актуальна, так как для того, чтобы дом сильно остыл, необходимо принимать душ несколько часов.
Подключение газового оборудования

Специалист газовой службы за работой.
Важно! Производить подключение газовой магистрали своими руками строго запрещено. Это чревато высокими штрафами и достаточно опасно. Поэтому для того, чтобы наладить работу газового котла, вам придется выполнить определенный порядок действий.
Сначала необходимо обратиться в БТИ и внести изменения в план дома с внесением соответствующих пометок и обозначением котельного помещения. Также изменения вносят в техпаспорт объекта.

Обращаемся в бюро технической инвентаризации по месту жительства.
Затем необходимо обратиться в газовую службу и подать заявление на подключение котла. Понадобиться предоставить технический паспорт устройства.
После этого следует произвести установку оборудования и монтаж всей системы, кроме подключения газовой магистрали. Счетчик газа должен быть также установлен и опломбирован.

Подключение производит специалист газовой службы.
Теперь приглашаем специалиста газовой службы, который подключает котел к магистрали. Параллельно подаем заявку инспектору на ввод оборудования в эксплуатацию.
Наконец, инспектор проверяет правильность подключения, оформляет разрешительные документы и в случае если претензий нет, пускает в систему газ.

Инспектор производит проверку и запускает котел в работу.
Вывод
Двухконтурная схема отопительной системы – это неплохое решение для экономных хозяев и владельцев небольших домов. Современные модели работают вполне удовлетворительно и надежно.
Видео поможет вам наглядно в этом убедиться.
gidroguru.com
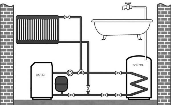
Схема подключения двух котлов в одну систему отопления
Два котла в одной системе отопления
Самой рациональной системой отопления является та, в которой теплоноситель становится горячим благодаря работе двух или трех котлов. При этом они могут быть одинаковыми по мощности и типу. Такая рациональность объясняется тем, что один теплогенератор работает на полную мощность лишь несколько недель в году. В другое время нужно уменьшать его производительность. А это приводит к падению его КПД и увеличению расходов на отопление.
Несколько объединенных в одну систему отопления котлов позволяют более гибко управлять работой обвязки без потери КПД, так как достаточно отключить одно или два устройства. Кроме этого, в случае поломки одного из них, система продолжает поднимать температуру в доме.
Виды подключения двух и более котлов
Использование большего количества одинаковых котлов требует особой схемы их подключения. Объединить их в одну систему можно:
- Параллельно.
- Каскадно или последовательно.
- По схеме первично-вторичных колец.
Особенности параллельного подключения

Существуют следующие особенности:
- Контуры подачи горячего теплоносителя обоих котлов присоединяются к одной линии. На этих контурах обязательно стоят группы безопасности и вентили. Последние могут перекрываться вручную или автоматически. Второй случай возможен только тогда, когда используются автоматика и сервоприводы.
- Контуры обратки двух котлов отопления присоединяются к другой линии. На этих контурах также имеются вентили, которыми может управлять вышеупомянутая автоматика.
- Циркуляционный насос расположен на обратной линии перед местом объединения труб обратки двух котлов.
- Обе магистрали всегда присоединяются к гидроколлекторам. На одном из коллекторов находится расширительный бачок. При этом к концу трубы, к которой подключен бачок, присоединена труба подпитки. Конечно, на месте соединения стоят обратный клапан и запорный вентиль. Первый не позволяет горячему теплоносителю попадать в трубу подпитки.
- От коллекторов отходят ветви к радиаторам, теплым полам, бойлеру косвенного нагрева. Каждая из них оснащена своим циркуляционным насосом и клапаном слива теплоносителя.
Использование такой схемы организации обвязки без автоматики является весьма проблематичным, поскольку надо вручную перекрывать вентили, размещенные на трубах подачи, и обратки одного котла. Если этого не делать, то теплоноситель будет двигаться через теплообменник выключенного котла. А это оборачивается:
- дополнительным гидравлическим сопротивлением в водогрейном контуре аппарата;
- увеличением «аппетита» циркуляционных насосов (они же должны преодолеть это сопротивление). Соответственно, растут расходы на электроэнергию;
- потерями тепла на нагрев теплообменника выключенного котла.
Поэтому необходимо правильно устанавливать автоматику, которая будет отсекать выключенный аппарат от системы отопления.
Каскадное подсоединение котлов
Концепция каскадирования котлов предусматривает распределение тепловой нагрузки между несколькими агрегатами, которые могут работать независимо и нагревать теплоноситель настолько, насколько этого требует ситуация.
Каскадировать можно как котлы со ступенчатыми газовыми горелками, так и с модулируемыми. Последние, в отличие от первых, позволяют плавно менять мощность нагрева. Стоит добавить, что если котлы имеют более двух ступеней регулировки подачи газа, то третья и остальные ступени делают их производительность меньше. Поэтому лучше пользоваться агрегатами с модулируемой горелкой.
При каскадном подключении основная нагрузка ложится на один из двух или трех котлов. Дополнительные два или три устройства включаются только тогда, когда нужно.
Особенности этого подключения следующие:
- Подводка и контроллеры выполнены так, что в каждом агрегате можно управлять циркуляцией теплоносителя. Это позволяет прекратить поток воды в отключенных котлах и избежать потерь тепла через их теплообменники или кожухи.
- Присоединение линий подачи воды всех котлов к одной трубе, а линий возврата теплоносителя – ко второй. По сути, присоединение котлов к магистралям происходит параллельно. Благодаря такому подходу теплоноситель на входе каждого агрегата имеет одинаковую температуру. Также это позволяет избежать движения нагретой жидкости между отключенными контурами.
Плюсом параллельного подключения является предварительный нагрев теплообменника перед включением горелки. Правда, такое преимущество имеет место тогда, когда используются горелки, которые зажигают газ с задержкой после включения насоса. Такой нагрев минимизирует перепад температуры в котле и позволяет избежать образования конденсата на стенках теплообменника. Это касается ситуации, когда один или два котла были выключены в течение длительного времени и успели остыть. Если же они недавно выключились, то движение теплоносителя перед включением горелки позволяет впитать остаточное тепло, которое сохранилось в топке.
Обвязка котлов при каскадном подключении
Ее схема такова:
- 2–3 пары труб, отходящих от 2–3 котлов.
- Циркуляционные насосы, обратные и запорные клапаны. Они находятся на тех трубках, которые предназначены для возвращения теплоносителя в котел. Насосы могут не использоваться, если конструкция агрегата включает их.
- Запорные краны на трубках подачи горячей воды.
- 2 толстые трубы. Одна предназначена для подачи теплоносителя в сеть, другая – для возврата. К ним присоединены соответственные трубки, отходящие от котельных устройств.
- Группа безопасности на магистрали подачи теплоносителя. Она состоит из термометра, гильзы поверочного термометра, термостата с ручной разблокировкой, манометра, прессостата с ручной разблокировкой, резервной заглушки.
- Гидравлический разделитель низкого давления. Благодаря ему насосы могут создавать надлежащую циркуляцию теплоносителя через теплообменники их котлов независимо от того, каков расход отопительной системы.
- Контуры отопительной сети с запорной арматурой и насосом на каждом из них.
- Многоступенчатый каскадный контроллер. Его задача заключается в измерении показателей теплоносителя на выходе каскада (часто термодатчики стоят в зоне группы безопасности). На основе полученной информации контроллер определяет, нужно ли включать/отключать и как должны работать котлы, объединенные в одну каскадную схему.

Без подключения такого контроллера к обвязке работа котлов в каскаде невозможна, потому что они должны работать как единое целое.
Особенности схемы первично-вторичных колец
Такая схема предусматривает организацию первичного кольца, по которому должен постоянно циркулировать теплоноситель. К этому кольцу подключаются котлы отопления и отопительные контуры. Каждый контур и каждый котел является вторичным кольцом.
Еще одной особенностью этой схемы является наличие циркуляционного насоса в каждом кольце. Работа отдельного насоса создает определенное давление в том кольце, в котором он установлен. Также узел оказывает определенное влияние на давление в первичном кольце. Та
www.teplo-ltd.ru
