Дверь откатная межкомнатная своими руками – Раздвижные двери своими руками – 2 варианта на разный бюджет
Откатные двери своими руками: рекомендации, особенности конструкции
На смену привычным межкомнатным дверям приходят сдвижные системы. Такая популярность обоснована главной характеристикой — они не занимают полезную площадь в комнате, поскольку при открывании они заходят на стену. Кроме того, такие системы можно использовать в качестве эргономичного разделителя пространства. Установить откатные двери своими руками довольно просто, главное — это понимание принципа действия сдвижной системы и умение использовать инструменты.

Для сдвижных дверей требуется дополнительное пространство на стене, чтобы они открывались.
Перед тем как принять решения об установке раздвижных систем в помещении, стоит ознакомиться с их основными характеристиками. У него есть свои преимущества и недостатки, которые нужно учитывать, делая выбор в пользу сдвижной двери.
Особенности сдвижной двери
Сдвижные межкомнатные двери:

Конструкция стеклянных раздвижных дверей.
- максимально сохраняют площадь;
- при наличии сквозняков они не будут закрываться и открываться;
- максимально легкое передвижение. Чтобы система легко двигалась по рельсе, стоит регулярно очищать роликовый механизм от различных загрязнений;
- используя современные технологии, конструкцию можно и автоматизировать;
- отсутствие каких-либо порогов.
Но есть также конструкции, установка которых предполагает монтирование нижней направляющей. Такой профиль должен быть расположен вровень с полом, чтобы не препятствовать безопасному передвижению между комнатами.
Негативные стороны в раздвижных системах:
- очень низкая звуко- и теплоизоляция;
- дорогостоящая фурнитура, которая по цене значительно превышает стоимость обычных замков и петель;
- невозможно поставить вплотную к стене мебель или технику, если дверь открывается именно на ту сторону.
Основные разновидности конструкций раздвижных дверей

Откатные двери обладают плохой звукоизоляцией, поэтому это стоит учитывать при их установке.
Принцип работы у всех откатных дверей одинаковый, различия могут быть только во внешнем виде. Вся система откатных дверей состоит из направляющей, дверного полотна и непосредственно роликового механизма. Дополнительными комплектующими раздвижной системы являются декоративные панели, которые закрывают механизмы, наличники и другие элементы фурнитуры. При большом количестве разновидностей откатных дверей стоит выделить такие:
- межкомнатные двери-купе;
- каскадные конструкции из нескольких полотен;
- конструкции, которые складываются гармошкой;
- конструкции из нескольких полотен;
- межкомнатные двери изогнутой формы.
Необходимая фурнитура и специальные механизмы для раздвижных систем
Исходя из того, что раздвижные системы отличаются от обычных распашных, их фурнитура тоже имеет свою специфику. Отличительной характеристикой ручек является то, что они утоплены в дверное полотно. Такое расположение необходимо для того, чтобы полотно могло беспрепятственно открываться и закрываться. Замки тоже имеют не горизонтальное, а вертикальное защелкивание. При покупке таких дверей фурнитура идет в комплекте. Но если делаются откатные двери своими руками, к выбору фурнитуры стоит отнестись очень внимательно. Если нет представления о том, какой вариант лучше выбрать, лучше обратиться за помощью к консультанту магазина.

Механизм откатной двери.
Механизм, с помощью которого двери будут двигаться, будет напрямую зависеть от типа конструкции. Также на вид механизма будет влиять вес конструкции в целом. К примеру, одностворчатое полотно из МДФ можно поставить на простой механизм, а для стеклянной двери конструкция механизма будет иметь более сложную конструкцию.
Для двери-гармошки также необходимо учесть количество роликов. Если в проеме будут устанавливаться двери типа купе или каскад, должно быть по одному желобу на полотно, это даст возможность раздвигать конструкцию в любом направлении.
Основные материалы и инструменты
Для того чтобы спокойно и без суеты установить межкомнатные двери своими руками, стоит заранее приобрести все комплектующие элементы и позаботиться о наличии всех необходимых инструментов.
Материалы:

Крепления для дверного полотна нужно выбирать в зависимости от того, с какого материала сделана сама дверь.
- полотно дверное;
- направляющий профиль. Количество зависит от конструкции двери;
- роликовые механизмы;
- фурнитура;
- крепления для полотна. Необходимо выбирать в зависимости от того, с какого материала выполнена дверь;
- наличники и декоративные планки.
Инструменты:
- перфоратор;
- шуруповерт;
- отвертка;
- уровень строительный;
- рулетка и карандаш для разметки.
Монтаж двери: рекомендации
Раздвижную межкомнатную дверь достаточно просто установить самостоятельно, главное, определиться с типом конструкции. Это позволит изучить основные нюансы в проведении работы. После того как куплены все необходимые комплектующие и приготовлены инструменты, можно смело приступать к монтажным работам.
Как и в любом виде работы, все начинается с разметки.
Разметка должна выполняться для точного и правильного закрепления направляющего профиля.
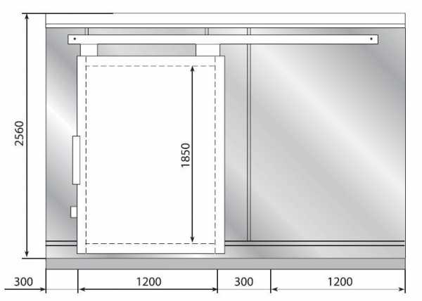
Она может быть выполнена двумя методами. Первый из них предполагает измерение дверного полотна и прибавку к нему 1,5-2 см (это будет зазор между дверью и полотном). К получившемуся размеру необходимо прибавить еще и высоту самого роликового механизма. В результате будет получена высота, на которой необходимо закрепить направляющий профиль. Второй вариант осуществляется подобным методом, только вместо измерения каждого размера по отдельности полотно прислоняется к проему и таким образом делается наметка.
Очень важно, чтобы профиль направляющий был расположен по строгой горизонтальной линии, в противном случае дверь будет плохо открываться и закрываться. А при большом уклоне есть вероятность того, что полотно будет скашивать в сторону.
После того как линия намечена, можно приступать непосредственно к креплению профиля. Для этого стоит использовать перфоратор и дюбеля. Метод крепления будет зависеть от типа направляющего профиля. Одни могут крепиться непосредственно к стене дюбелями. Для крепления вторых используются специальные кронштейны или деревянный брусок. Очень важно, чтобы профиль направляющий крепился на небольшом расстоянии от стены, в противном случае полотно будет цепляться за стену или наличники, что будет затруднять нормальное функционирование дверей. Если дверное полотно будет располагаться до самого потолка, то профили должны крепиться непосредственно к потолку и полу.
Направляющий профиль должен быть в два раза больше по длине, чем дверной проем, к нему добавляют еще около 4 см для запасного хода. Такая длина предотвратит выход полотна с петель.
После того как профиль закреплен, в его необходимо закрепить роликовую каретку. Количество таких роликов будет зависеть напрямую от типа конструкции и количества створок.

Варианты исполнения раздвижных дверей.
На дверное полотно закрепляются скобы, с их помощью будет осуществлено крепление с кареткой. Эти скобы необходимо крепить на полотно с отступом до 5 мм. Для установки стеклянной двери нужно использовать металлические лапы с подкладками, которые закрепляются на дверное полотно.
Крепление дверей с роликовым механизмом лучше всего осуществлять вдвоем. Один человек сможет держать дверь, второй в это время будет закручивать болты в каретке.
Для того чтобы скрыть роликовую каретку, необходимо использовать специальную декоративную планку, которая в большинстве случаев продается вместе с дверями. Дополнительно могут быть установлены наличники.
Отличительные моменты в установке дверей разных конструкций
Некоторые конструкции немного отличаются методом установки от простых одностворчатых. К примеру, системы с большим весом предполагают установку дополнительного профиля в полу. Для того чтобы его установить, с помощью перфоратора делается канавка, в которой профиль будет располагаться.
Второй вариант усложнения установки — межкомнатные двери, которые прячутся в специальную нишу. Такая ниша на стене может быть выполнена из гипсокартона.
Все просто — Откатные межкомнатные двери своими руками || STROIM-GRAMOTNO.RU | Строительный портал — «Строим Грамотно» |
Сегодня мы расскажем об откатных дверях и способе их установки. Раздвижные, или как их еще называют откатные двери, выглядят эффектно в любом интерьере, более экономно используя возможности помещения. Экономия пространства достигается благодаря створкам, которые бывают двух подвидов: параллельно-сдвижные и раздвижные-складные.
Материалом, из которого изготавливаются откатные двери межкомнатные, чаще всего выступает древесный массив или клееная комбинация дерева, ДСП и шпона. Створки дверей иногда выполняются из закаленного стекла, но наиболее часто встречается комбинация стекла и дерева.

Откатные двери
Материалом, из которого изготавливаются откатные двери межкомнатные, чаще всего выступает древесный массив или клееная комбинация дерева, ДСП и шпона. Створки дверей иногда выполняются из закаленного стекла, но наиболее часто встречается комбинация стекла и дерева.

Механизмы раздвижных дверей
Технические свойства откатных дверей
Фурнитура, которую использует откатная дверь межкомнатная, включает в себя:
- направляющие рельсы каретки;
- комплект креплений;
- ограничители хода полотна двери;
- ролики;
- створки дверей;
- планку;
- наличники;
- фиксаторы положения створок;
- дверные ручки;
- замки.
С целью уменьшения шумности во время движения створок используются ролики, которые покрыты силиконом, и внутри которых находятся бесшумные подшипники. Створки раздвижной двери оснащаются двумя роликами каждая — как минимум. В случае если вес створок более 75 килограмм, потребуется не менее чем по четыре ролика на каждую створку.
Преимущества и недостатки
Двери межкомнатные откатные обладают как положительными, так и некоторыми отрицательными чертами:
- экономят пространство;
- створки открываются очень легко;
- безразличны к порывам воздуха;
- межкомнатная откатная дверь поддается автоматизации.
Отрицательные характеристики:
- такие двери нельзя ставить в квартиру или санузлы — слабая звуко- и теплоизоляция;
- замки на такие двери стоят дороже, чем на распашные.
- Стены, вдоль которых устанавливаются межкомнатные двери откатные, должны быть свободны от электрофурнитуры и предметов интерьера.
Монтаж откатной двери

Схема крепления к стене
Важно! Направляющий рельс обязательно должен быть прямой, независимо от бруса. Выполнив замеры, закрепляем рельс.
- Ставим полотно двери к стене. Отмечаем верхний дверной уровень на стене.
- Откатная межкомнатная дверь устанавливается в проем, отмечаем верхний уровень створки еще раз.
- Убеждаемся в горизонтальном положении полотна двери. Отмечаем от нее семьдесят мм вверх, обозначаем горизонтальной линией. Здесь будет направляющая рельса.
- Крепим к стенке на саморезы брус деревянный (пятьдесят на пятьдесят мм). Его длина вдвое больше ширина проема двери. Брус прижимаем плотно к стене, используем саморезы. Брус должен быть строго горизонтален.
- Закрепляем рельс направляющей к торцу деревянного бруса. Определяем положение отверстия для крепежа сначала по одной стороне направляющей (делим толщину створки двери на два, прибавляем к полученному числу нужную дистанцию от стенки). Слегка закрепляем саморезом, затем повторяем замеры и крепим на саморез по другую сторону бруса.
- Ввинчиваем болты в каретки таким образом, чтобы концы немного торчали из отверстия. Заводим собранные каретки в рельс, смотрим на их свободное движение.
- Устанавливаем ограничители хода для рельса, по которому будут ходить двери откатные межкомнатные.
- Отступаем пятнадцать мм от края створки и по ее средней части высверливаем с каждой стороны по отверстию. Вырезаем паз для нижней направляющей, строго посредине створки. Для вырезки паза используем фрезер, электродрель или паркетную пилу.
- Устанавливаем крепления кареток на полотне двери. Строго посредине с 2 мм отступом от торцов створки. Крепления устанавливаем с расчетом, чтобы вырезы на скобах смотрели в стену.
- Навешиваем полотно. Подставляем полотно двери к рельсу, совмещаем вырез на правой скобе с болтом правой каретки. Гайка с шайбой должны быть вне скобы, а болт заведен в отверстие для крепежа в ней. Закрепляем скобы на болтах, но не затягиваем гайки до конца.
- Смещаем нижнюю часть двери от стены, устанавливаем направляющую снизу в вырез в нижнего торца полотна. Возвращаем нижнюю часть двери в горизонтальное положение и введенное в него лезвие направляющего ножа. Перемещаем его в положение двери «открыто». Настраиваем зазор между полотном и стенкой (до 5 мм): отклоняем нижнюю часть створки пока она до ее достижения, потом отмечаем положения ножа. Отвинчиваем гайки кареток, убираем полотно и закрепляем направляющую снизу на два самореза.
- Повторяем навешивание створки: заводим болты кареток в отверстия скоб, при этом гайки не откручиваем до конца. Регулируем зазор между створкой и полом. Добившись зазора в районе 5-7 мм, закрепляем гайки.
- Устанавливаем декоративный наличник поверх направляющей вверху. Расстояние от его нижнего края до торца створки 5-10 мм. Что бы при необходимости добраться к створке, наличник делаем откидным,
- Все, дверь межкомнатная откатная установлена.
Теперь вам не составит труда установить межкомнатные откатные двери собственноручно!
Интересные записи
stroim-gramotno.ru
Установка откатных дверей своими руками
Установка сдвижных дверей позволяет экономить свободное пространство в доме, украшает комнаты и делает проживание в нем более комфортным и удобным.

Виды межкомнатных дверей.
Сдвижные двери в отличие от обычных, монтируются не на петли, а сдвигаются или вдоль стены, или в полость внутри нее по специальному механизму.

Роликовый механизм откатной двери.
Откатные двери можно классифицировать:
- По материалу, из которого они изготовлены (массив дерева, МДФ, стеклянные, пластиковые, комбинированные).
- По количеству установленных полотен (однополотные, двухполотные, многополотные).
- По особенностям изготовления и монтажа:
- дверь-пенал. При открывании, она входит в полость внутри стены;
- дверь-купе. Полотно движется по специальной направляющей, установленной над проемом вдоль стены;
- дверь-перегородка. Разделяет одну комнату на два помещения.
Монтаж откатных дверей несколько сложнее, чем традиционных, но при наличии некоторых навыков и желания его можно выполнить своими руками.
Для этого требуется замерить размер дверного проема, проверить горизонтальность пола и потолка, приобрести необходимый комплект.
Монтаж комплекта-купе
Монтаж откатной двери.
Для их установки потребуются следующие инструменты:
- перфоратор;
- рулетка;
- отвес;
- уровень строительный;
- шуруповерт.
Порядок работ при монтаже двери-купе:
- Производится разметка места крепления верхней направляющей. Уровнем проверяем горизонтальность, не должно быть уклона, иначе может происходить самопроизвольное открывание дверей.
- Анкерными болтами верхний металлический профиль крепится к стене.
- В закрепленный профиль вставляется каретка механизма, затем по ее краям крепятся ограничители.
- На верхний торец двери устанавливаются крепежные скобы.
- Затем она подвешивается на направляющую, для чего правая и левая скоба поочередно продеваются на болт каретки. Гайки каретки заворачиваются до крепежных скоб.
- При помощи отвеса размечается место установки нижней направляющей.
- Устанавливается нижний профиль, по краям крепятся ограничители.
- Проверяется легкость перемещения полотна и работа замков.
- Собирается декоративный пенал.
Установка дверей-пеналов

Чертеж откатной двери.
- На капитальной стене крепится несущий каркас, в котором на специальных креплениях, позволяющих корректировать его положение, монтируется несущий деревянный брус.
- К брусу крепится верхний металлический профиль.
- К верхнему торцу полотна приворачиваются крепежные скобы.
- В верхний профиль вставляются каретки, и на него устанавливается полотно.
- По положению установленного полотна, проверяется отвесом ее вертикальность, намечается место установки нижней направляющей.
- Снимается полотно и монтируется нижний металлический профиль.
- Навешивается полотно, проверяется легкость хода, закрытие замков.
- Каркас обшивается гипсокартоном.
- Производится финишная отделка стены.
Правильно установленная откатная дверь украсит интерьер квартиры, позволит увеличить полезную площадь помещения и повысит комфортность проживания.
dekormyhome.ru
