Фото двери книжка – Складная межкомнатная дверь-книжка: нюансы использования, фото
фото и отзывы, виды и характеристики
Разделы статьи:
Владельцы маленьких квартир довольно часто завидуют тем, чья жилплощадь отличается приличным размером. В первую очередь — это связано с тем, что в небольшой квартире достаточно проблематично обустроить интерьер так, как хотелось бы. Ведь понравившаяся мебель может просто не подойти по размеру и в связи с этим приходится думать, как бы найти лишние свободные метры пространства. Но довольно часто люди не задумываются о том, что они могут получить больше свободного пространства если будут установлены межкомнатные складные двери, или как говорят иначе «книжка», которые в последние годы набирают все большую популярность, постепенно вытесняя стандартные межкомнатные двери. Ведь межкомнатные двери в виде книжки дают возможность выиграть примерно метр свободного пространства.

Уже давно было подмечено, что складывающаяся межкомнатная дверь-книжка является прекрасной альтернативой обычной распашной двери, к которой уже все привыкли. Ее конструкция в чем-то напоминает двери автобуса, ведь она имеет несколько створок, которые двигаются по направляющей. Подобная дверь отлично подойдет для любой комнаты, но чаще всего их устанавливают в ванной или на кухне.
Но тут следует брать во внимание и некоторые характеристики подобных дверей, такие как прочность и надежность крепления. Межкомнатные двери-книжки отличаются компактностью и мобильностью. Кроме того, они многофункциональны. Их можно эффективно использовать и для разграничения помещения в качестве перегородки-ширмы.

Благодаря большому выбору, межкомнатная дверь книжка без особых проблем может быть подобрана для любого, даже самого нестандартного проема. Кроме того, подобные двери отличаются еще и безопасностью, ведь они не могут закрыться из-за сквозняка, а случайно ударившись о дверь трудно получить травму.
Складная дверь будет очень удобна и при транспортировке, ведь ее полотна занимают значительно меньше места чем обычные двери. В продаже имеется большое количество моделей, которые отличаются цветом, способом открывания, стилем, конструктивными особенностями и внешним видом. Благодаря этому их можно устанавливать в любом помещении. Они помогут сделать его более современным и оригинальным.

Главное преимущество, которое можно получить при установке подобной двери – это экономия свободного пространства. Межкомнатная дверь-книжка набирает все большую популярность именно благодаря подобному свойству. Ее установка довольно проста и не потребует много времени и каких-либо особых навыков и инструментов. Давайте рассмотрим, что из себя представляет дверь книжка более подробно.
Межкомнатная дверь книжкой приводится в действие системой, которая отчасти напоминает жалюзи. Она состоит из вертикальных панелей, соединенных так, что перемещение всех частей конструкции происходит в возвратно-поступательном порядке. Это возможно и благодаря наличию специальной направляющей. Дверь-книжка состоит из одной или двух пар полотен, что делает складывание двери простой и практичной процедурой.

Виды дверей-книжек
Существует два варианта дверей-книжек – двух и четырехсекционные. Первый вид двери отличается наличием двух секций, которые способны одновременно складываться или раскладываться. Каждая секция имеет одинаковую ширину. Второй вариант подобной двери состоит из четырех секций. Благодаря этому, ширина каждой из них небольшая, что позволяет сохранить больше свободного пространства.
Вариант с двумя секциями.Основным критерием при выборе того или иного вида двери-книжки является размер проема. Если его размеры не более 1,7 метра, тогда вполне подойдет дверь из двух секций. Если же размеры больше чем 1,7 метра, тогда следует отдать предпочтение двери, состоящий из четырех секций. Но в последнем случае стоимость двери будет немного выше.
Чтобы межкомнатные двери «книжка» хорошо открывалась и закрывалась, потребуется качественный механизм направляющих. Но тут опять же, многое зависит от размеров проема и количества секций. Если дверь имеет их две, тогда направляющая потребуется лишь одна. Она должна устанавливаться сверху. В том случае, если дверь имеет четыре секции, направляющих должно быть две. Они должны устанавливаться в верхней и нижней части дверного проема.

Материалы изготовления
Для изготовления дверей-книжек используются различные материалы, которые имеют как свои достоинства, так и недостатки.
Чаще всего применяются такие материалы:
- Стекло;
- Алюминий;
- Дерево;
- Пластик;
- Сталь.
Давайте рассмотрим каждый из этих материалов более подробно, ведь это поможет вам при выборе конструкции.
Главное достоинство стеклянных межкомнатных дверей книжек – прекрасный внешний вид, который с легкостью способен вписаться практически в любой интерьер. Но тем не менее, такие двери не особо распространены, так как не позволяют почувствовать уединение в помещении. Кроме того, они отличаются немалым весом, который создает нагрузку на механизм. Стоимость подобных дверей также немалая. Если такие конструкции устанавливаются, то чаще всего на кухне или в гостиной. В спальне или детской комнате их устанавливать не стоит. Примеры того, как межкомнатные двери «книжка» смотрятся в интерьере вы можете увидеть на фото в нашей статье.

Одними из наиболее популярных материалов для дверей-книжек является алюминий. Это прежде всего связано с тем, что металл отличается прочностью и легкостью. Но у этого материала имеются и свои недостатки. Прежде всего – это невозможность создать хорошую шумо- и теплоизоляцию. Кроме того, стоимость двери из алюминия довольно высокая, а для использования термоизолирующих вставок она не подходит.

Дверь-книжка из дерева считается наиболее экологически чистой. Также она отличается прекрасной теплоизоляцией и красивым внешним видом. Она способна стать настоящим украшением любой комнаты. Кроме того, дверь-книжка из дерева может покрываться лаком. Но следует помнить, что дерево плохо переносит влагу и устанавливать ее в ванной комнате не рекомендуется.

Еще одним интересным материалом, который часто используется для двери-книжки, является пластик. Он дает возможность выбрать любой цвет, который позволит как можно гармоничнее вписать дверь в интерьер помещения. Кроме того, межкомнатные двери-книжки, изготовленные из пластика, имеют хорошие шумо- и теплоизоляционные свойства и небольшую стоимость. Но не следует устанавливать их на кухню. Это обусловлено тем, что пластик при регулярном воздействии высокой температуры может выделять вещества, вредные для здоровья человека.

Производство межкомнатных дверей-книжек может быть организованно из стали. Этот материал отличается прекрасной прочностью и долговечностью, но из-за своего немалого веса такая дверь потребует надежного крепления и не менее двух направляющих. Кроме того, тепло- и шумоизоляционные качества двери из стали не слишком высокие. Но, несмотря на это, популярность данного материала довольно велика.
Достоинства и недостатки
Межкомнатные двери-книжки стали особо популярными и распространенными в последние годы. Их все чаще устанавливают в квартире и частные дома в качестве межкомнатных дверей. Однако они имеют не только достоинства, но и недостатки. Ниже мы их и рассмотрим, ведь при выборе дверей следует учитывать все аспекты.

Достоинства дверей-книжек следующие:
- Необычность конструкции, которая всегда вызывает немалый интерес;
- Возможность эффективно сэкономить свободное пространство;
- Такая конструкция может применяться для разделения помещений, а также дает возможность отказаться от использования портьер;
- Дверь, при грамотном подборе материала, способна стать прекрасным украшением любого помещения.
Как мы видим, достоинств межкомнатных дверей-книжек немало. При правильном выборе материала, из которого она изготовлена, можно добиться отличного результата. Но эта конструкция имеет и некоторое число недостатков.
Межкомнатные двери-книжки имеют следующие недостатки:
- Плохая изоляция. Практически все модели такой двери неспособны эффективно удерживать шум, запахи и тепло;
- Подобные двери можно применять лишь в качестве межкомнатных, так как их защитные возможности невелики
При выборе двери следует учитывать все их положительные и отрицательные стороны. Тут нужно помнить, что материал, из которого изготовлена дверь, играет довольно важную роль. Кроме того, следует учитывать и то, в каком помещении вы планируете ее установить.
Известные производители дверей-книжек
Следует сказать несколько слов и об известных фирмах, которые занимаются производством межкомнатных дверей-книжек, в том числе и рассматриваемого нами типа. Их довольно много: как зарубежных, так и отечественных. При покупке следует выбирать двери известных брендов.

Так вы получите гарантию того, что дверь книжка будет качественной и будет долго вам служить. Стоимость зависит от многих факторов, в том числе и от используемого материала.
Наиболее популярные отечественные и иностранные бренды:
- Luxor;
- Мильяна;
- Loko;
- Valdo;
- Стендор;
- Verda;
- Радо;
- Альверо;
- Браво
Это лишь небольшой перечень фирм, которые занимаются изготовлением дверей-книжек. На деле их значительно больше, при выборе дверей следует ознакомиться с отзывами об их продукции.
Заключение
Можно подытожить из сказанного выше, что межкомнатные двери, открывающиеся как книжка, имеют лишь положительные отзывы и отлично подойдут для любого помещения. Они позволят эффективно сэкономить свободное пространство и способны вписаться в любой интерьер при их грамотном выборе. Несмотря на некоторые недостатки, подобные двери набирают все большую популярность. Они довольно просты в установке. Требуется лишь соблюдать инструкцию и их вполне можно установить самостоятельно в краткие сроки.
o-dveryah.ru
Двери-книжки межкомнатные + фото
Многообразие дизайнерских решений позволяет интересно обыграть интерьер квартиры, потратив приемлемую сумму на обустройство. Двери книжки межкомнатные – один из таких вариантов, когда оригинальная конструкция позволяет одновременно сэкономить свободную площадь и создать оригинальный антураж помещения. Складные двери отличаются по количеству составляющих элементов, материалу изготовления и другим элементам. Ознакомление с деталями поможет подобрать наиболее подходящую межкомнатную модель для собственного жилья.

Конструкция складной двери
Книжкой именуют дверь из одной или двух створок, которые делятся на секции. В момент движения секции перемещаются на роликах, расположенных в верхней направляющей. Конструкция дополнительно оснащена стопором и фиксатором, которые служат для закрепления межкомнатной двери в крайнем положении.
Соединение с дверной коробкой модели книжки проходит двумя способами. Когда полотно держится на традиционных петлях, между брусом дверной коробки и межкомнатной дверью зазор отсутствует. Второй вариант предполагает использование специальных опор, зафиксированных между полом и верхним брусом. Элементы полотна соединены между собой петлями.

Видовое разнообразие
Ассортимент раздвижных моделей чрезвычайно велик, для лучшей ориентации среди видового многообразия стоит провести условную классификацию изделий. В зависимости от количества секций различают двери:
- Книжка. Конструкция состоит из двух секций, которые при открытии складываются пополам.
- Гармошка. Отличительной особенностью межкомнатной конструкции является наличие большого количества секций, ширина которых варьируется в пределах 10 см. Модель обладает сходством с вертикальными жалюзи.

Помимо использования моделей гармошка и книжка в качестве межкомнатных дверей, встречаются оригинальные варианты оформления интерьера, где складные полотна выступают элементом зонирования пространства.
Для узкого дверного проема подойдет односторонняя межкомнатная конструкция, широкие проходы лучше оформить двухсторонней моделью. Также они делятся на симметричные и асимметричные изделия, когда ширина створок разнится между собой.

Помимо конструкции, значительные различия существуют и в типе используемого материала для производства межкомнатных полотен:
- Модели книжки изготавливают из одного материала (МДФ или ДСП, стекло или пластик, дерево или кожа).
- Эффектно смотрятся модели книжка в комбинированном варианте, при сочетании дерева и стекла и прочих вариантах.
В зависимости от фактуры материала, задействованного в изготовлении модели книжка, разнится и оформление покрытия. Оно бывает:
- окрашенное;
- тонированное;
- ламинированное;
- шпонированное.
Дверь книжка из различных материалов представлена на фото далее:



Характеристика моделей в зависимости от материала изготовления
Эксплуатационные характеристики и внешний вид межкомнатных конструкций во многом определяется материалом изготовления.
Дверь-книжка из дерева
Сосна относится к бюджетному классу при оформлении моделей из натурального дерева. Эффектный внешний вид – основное достоинство недорогой породы. Но недостаточная прочность древесины создает риск появления на полотне вмятин в результате механического воздействия. Клен, бук и дуб стоят на ступень выше по показателям плотности, но за надежность и крепость потребуется выложить большую сумму.
Оформление межкомнатных деревянных дверей проводится в различных направлениях. Модель книжку можно покрасить или пропитать мастикой и покрыть лаком. Отзывы потребителей едины в аспекте высокой эстетичности, безвредности и хороших теплоизоляционных свойств полотен из дерева.


Дверь-книжка из пластика
Эксплуатация межкомнатных дверей книжка в условиях агрессивной среды вынуждает обратить внимание на устойчивый пластик. Кухня и ванная комната – идеальное место для обустройства помещения раскладными пластиковыми полотнами. Среди достоинств решения:
- невосприимчивость к влаге и перепадам температур;
- легкое очищение от загрязнений без повреждения поверхности;
- широкий спектр цветового оформления;
- возможность имитации деревянной фактуры.
В зависимости от обработки поверхности, пластиковая модель книжки актуально впишется в современные направления интерьера, модерн, классику и нишу этнических стилей.


Дверь-книжка из стекла
Стеклянная межкомнатная дверь обладает множеством модельных решений. В одних случаях полотно полностью выполнено из стекла, в других оно органично дополняет дерево, алюминий или пластик. Обработка стеклянной поверхности также разнится. Встречаются следующие варианты оформления поверхности модели книжка:
- прозрачное;
- матовое;
- цветное;
- зеркальное;
- полировкой;
- пескоструйным рисунком;
- с фьюзингом.



Заключение
Учитывая пожелания, по индивидуальному заказу могут изготовить модель книжку из кожи или текстиля. Они используются как в форме межкомнатных дверей, так и перегородок для зонирования пространства. Выбор всегда остается за покупателем.
bouw.ru
фото и цена, разновидность и материал изготовления
Складные двери все больше пользуются популярностью. Поэтому распашные уступают им место в первых рядах. Но для входной двери модель «книжка» будет не подходящей, поэтому такой вариант больше подойдет для установки внутри помещения.
Межкомнатные двери «книжка» представляют собой разновидность раздвижных внутрикомнатных конструкций. Складная дверь бывает одностворчатой или двустворчатой. Как правило, это подвесная конструкция.
Дверное полотно может состоять из двух или более секций. Именно межкомнатная модель «книжка» и состоит из двух отделений. Когда дверь открывается, секции передвигаются благодаря верхним роликовым направляющим.
В результате конструкция складывается, как переплет книги. Поэтому такие изделия и получили название – «книжка». Каждая секция полотна оснащена одним роликом. При желании можно самостоятельными силами создать дверь «книжку», которая будет раздвигаться в разные стороны. Но для этого потребуются дополнительные запчасти и механизмы символической цены.
Основные преимущества книжки
Конструкция складывается. А это экономный вариант дверей, что касается не только цены, но и свободного места. Все объясняется тем, что им не требуется дополнительное пространство для открывания. Чего не скажешь, про распашные изделия. Главное, что секции в сложенном виде останутся в пределах дверного проема. Наружу выдвигается только одна половина. В отличие от гармошки, дверь «книжка» минимально загромождает сам проем. Все потому что «гармошка» предусматривает несколько секций. Их можно установить не только в маленькой квартире, но и просто в коридоре.- Межкомнатные изделия в виде книжки можно установить на любой дверной проем. А при наличии одной створки открытие может быть в разные стороны. Например, влево или вправо.
- Дверь совершенно безопасна для окружающих. Такой конструкцией невозможно случайно ударить животное или маленького ребенка. Также, если в доме будут сквозняки, дверь не будет шуметь хлопками.
- Что касается долговечности изделия, то складной двери нет равных. Даже если это двери-купе или конструкции, предусматривающие напольное размещение рельсы.
- Межкомнатные модели «книжка» полностью исключают использование напольной рельсы. Это дополнительное неудобство, особенно во время передвижения по квартире.
- Если сама конструкция качественная, а также и механизм, и установочные работы были выполнены профессионально, то передвижение секций не будет слышно. И что главное, механизм полностью исключает провисание полотна.
- Такой вид межкомнатной конструкции можно сделать управляемой дистанционно. Это особенно удобно и практично, доступно по цене, если в доме есть инвалиды или люди ограниченного передвижения.
- Обычно дверной проем создается стандартных размеров. Но всегда можно сделать изделия на заказ. Цена будет немного дороже.
- Скрытый раздвижной механизм делает конструкцию элегантной и органичной, которая впишется в любой интерьер авангардного или классического стиля.
Такие конструкции не в каждом доме стоят. Цена заставляет подумать. Но они станут настоящей изюминкой любого помещения и обязательно обратят на себя взор каждого человека.
Недостатки межкомнатных дверей «книжка»
Для изготовления дверного полотна используются различные материалы. Но это не обеспечивает полной теплоизоляции и звукоизоляции. Под самой конструкцией и между секциями остаются просветы и щели. Таким образом, шум и сквозняки проникают в помещение.- Что касается срока службы, то распашная модель выигрывает у книжки.
- Если конструкция предусматривает стеклянные или зеркальные вставки, тогда надо быть больше аккуратным в использовании таких дверей. В процессе открывания и совмещения створок стекло или зеркало может быть повреждено.
- Межкомнатная дверь книжка должна быть укомплектована доводчиком, чтобы плавно закрываться. А также замком, чтобы соблюдать все правила герметичности на стыках между секциями.
- Еще одним недостатком двери в виде книжки является цена. По сравнению с распашным вариантом, этот обойдется дороже. Но если хорошо поискать, то можно найти подходящие недорогие модели.
Разновидность межкомнатных дверей «книжка»
- Гладкие изделия.
- Однотонные конструкции.
- Складные двери, текстура которых похожа на дерево.
- Модель с эффектом 3D.
- Изделия со стеклянными или зеркальными вставками. Стекло может быть матовым или прозрачным. А также с нанесение рисунка пескоструйной технологией, тонированным или с металлическими деталями.
- Межкомнатные двери с витражами.
Из чего могут быть изготовлены «книжки»
Для производства межкомнатных конструкций книжного варианта используют качественные и прочные материалы. Как правило, это закаленное стекло или триплекс. Любой из этих материалов выдерживают физические воздействия. А если все-таки полотно повреждается, то не травмирует окружающих. Закаленное стекло распадется на отдельные осколки с тупыми краями. А триплекс останется приклеенным к пленке на поверхности полотна.
Кроме того, для изготовления может быть использовано качественное дерево. А обе половинки скрепляются специальными петлями. Одна секция закрепляется на верхний и нижний шарниры. Таким образом, изделие будет прочным. Вторую секцию закрепляют только на верхний ролик. Направляющую или рельсу закрепляют внутри дверной коробки сверху. По ней и будет двигаться ролик. В результате двери будут закрываться, и открываться внутри самого проема. И не будут занимать лишнее пространство.
Конструкция предусматривает три основных составляющих:
- Обвязка хвойной породой.
- Сотовый материал для наполнения.
- Обшивка с помощью МДФ.
А чтобы конструкция служила длительный период времени, необходимо правильно за ней ухаживать. Например, убрать грязь с полотна можно с помощью специальных бытовых жидкостей для пластика и мебели. Не рекомендуется использовать средства, в состав которых входят растворители или абразивы. Цена их использования — дверь быстро потеряет свой внешний вид.
Сегодня в каждой квартире стараются правильно использовать пространство. Каждый метр на счету. Особенно это касается небольшого помещения, жилой квартиры. Поэтому складные двери «книжка» станут настоящим открытием. Доступная цена, практично и надолго.
Межкомнатные двери книжка
vhod.guru
фото в интерьере, отзывы покупателей
Разделы статьи:
Двери, представленные на российском рынке, имеют огромное разнообразие. Сегодня же речь пойдёт о такой разновидности как складные межкомнатные двери, которые больше знакомы под названием «гармошка» и «книжка».

Данный тип дверей выгодно отличается от прочих. Ведь распашная дверь, пусть даже и незначительно, но предполагает наличие свободного пространства для открывания. А вот складная является очень компактным вариантом, что особенно актуально для помещений с ограниченным пространством.
Разновидности складных конструкций
При всех своих преимуществах, складная конструкция двери имеет и ряд недостатков. Это недостаточная шумо- и теплоизоляция. Сразу оговорим и то, что устанавливают такие двери только в качестве межкомнатных, а не в коем случае не входных.
Складная межкомнатная дверь – универсальный вариант, который способен вписаться в любой интерьер. Состоит она из панелей одинакового размера. В среднем их ширина может варьироваться в пределах от 10 до 15 см. Это необходимое конструкционное требование, поскольку в противном случае процесс складывания створок будет затруднительным.

По своей функциональности двери напоминают гофрированные жалюзи. Однако существуют определенные особенности их крепления. Направляющая, которая устанавливается либо сверху, либо снизу, позволяет без особых усилий приводить в движение всю конструкцию, складывая ламели (так называются створки двери) у стены. Крайняя створка крепиться непосредственно на проём двери, другие же снабжаются роликом.
Для фиксации складной межкомнатной двери в определённом месте используют специальные стопоры-флажки. Кроме того, параллельность движения ламелей возможна благодаря специальным синхронизаторам.
Популярность таких дверей обусловлена многими причинами, мы перечислим лишь некоторые из них.
Конструкция занимает очень мало места в помещении. Как правило, их устанавливают там, где имеется узкий коридор. Процесс установки занимает мало времени. Конструкция может открываться в любую из сторон.

Исключается случайное открытие двери, например, от сквозняка. На направляющейся рельсе есть защелка, которая и выполняет роль блокиратора. Любую из подобных дверей можно расширить или уменьшить. Добиться этого можно, если добавить или удалить нужное количество панелей.
Использующиеся складные раздвижные конструкции позволяют сделать межкомнатные двери данного типа бесшумными при их открывании/закрывании. Если установить специальные механизмы, то створки дверей можно открывать и закрывать автоматически, не путем нажатия кнопки. Такие двери не боятся сквозняков и соответственно не захлопываются от них.

Данные двери эффективно делят помещение на функциональные зоны. Кроме того, если панели сделаны из пластиковых ламелей, то их можно установить в ванной комнате или туалете.
Существует два типа подобных дверей: гармошка и книжка. Так называемая «книжка» вместо многочисленных мелких панелей оснащена лишь двумя частями полотна. В плане эксплуатации дверь-книжка практичнее и долговечнее «гармошек». Да и привлекательность подобной конструкции превосходит все ожидания.

Необходимо упомянуть, что существует и складная межкомнатная дверь, не обладающая встроенным механизмом раздвижения. Соединение створок представлено специальным петлями, позволяющими складывать дверь в необходимом порядке. Такой вариант в нашей стране встречается очень редко.

Что касается дизайна складных межкомнатных дверей, то здесь есть простор для творчества. В качестве декора можно использовать резьбу, роспись, покраску. Превосходный вид имеют витражные полотна либо же современные стеклянные модели.
Направляющую можно крепить как к верхней части, так и к нижней. Последнюю лучше всего приподнять над уровнем пола на несколько сантиметров. Однако, можно к нижней части створки прикрепить ролик, что позволит осуществлять движение двери непосредственно по полу. Тогда желательно обеспечить качественное напольное покрытие.

Материалы для изготовления складных дверей
Современные складные межкомнатные двери могут быть изготовлены из самых различных материалов. Изучив отзывы покупателей, мы можем дать характеристику каждого из них.
Массив дерева. Порода дерева не имеет значения. Это может быть и редкая, очень дорогая древесина, и дешёвая из хвойных пород. Натуральное, экологически чистое сырьё обязательно обрабатывается антисептическими средствами. Чтобы добиться требуемого оттенка, полотно покрывается морилкой и лакокрасочными материалами. Это необходимое мероприятие позволяет продлить срок службы готового изделия, ведь дерево очень чувствительно к влажности.

ДСП — бюджетный вариант. Данный материал делается из коры, опилок и прочих отходов деревопроизводства, которые прессуются и склеиваются между собой. Внешний вид такого полотна достаточно неплохой, однако имеются определённые недостатки. Часто открываемые двери из ДСП могут быстро выйти из строя. Да и процесс монтажа может вызвать определённые трудности. Крепёж будет держатся недостаточно крепко, так что качество покрытия определяет срок эксплуатации двери.

Пластик – не менее популярный вариант. Кроме того, покрытие ПВХ панелей может иметь вид, имитирующий не только натуральную древесину, но и мрамор. Богатый спектр цветовой гаммы таких панелей позволит создать дверное полотно, максимально подходящее под интерьер любой комнаты. При этом стоимость готовой конструкции будет невысокой.

Стекло – любители инноваций могут себе позволить заказать складную межкомнатную дверь, изготовленную из стекла. На выбор может быть установлено прозрачное либо же матовое стекло. Однако, стоимость такой конструкции будет очень высокой.

Кожа – используется реже, но имеет особенности крепления материала к механизму.
Типы покрытий дверей, имеющих деревянную основу
На сегодняшний день различают четыре основные способа создания декоративного покрытия на двери, имеющие в своей основе дерево в том или ином виде:
- Покраска;
- Тонирование;
- Отделка шпоном;
- Ламинирование.
Каждый вид покрытия имеет свои технические и эксплуатационные характеристики. Немаловажную роль играет и качество сырья, из которого в недалеком прошлом было изготовлено дверное полотно.

Самыми презентабельными все же считаются двери из натурального дерева. Их стоимость, безусловно, высокая, но внешняя привлекательность такой конструкции дорогого стоит. Однако важно правильно подойти к выбору массива, чтобы в дальнейшем конструкция под собственным весом не начала деформироваться.
Нюансы установки
От того, какие складные межкомнатные двери решено устанавливать, зависит выбор способа монтажа направляющих. Самым надежным и долговечным считается вариант с двумя направляющими.
Если собственного опыта в проведении подобных работ нет, то лучше всего доверить выполнение данного мероприятия настоящим профессионалам. Кроме того, у них в распоряжении имеется все необходимые для работы инструменты.

При грамотной установке складной двери будет исключена вероятность деформации полотен. Кроме того, пренебрежение правилами монтажа может привести к тому, что уже через некоторый промежуток времени двери начнут скрипеть. И чем дольше будет дверь эксплуатироваться, тем больше шансов дождаться, что полотно и вовсе перестанет плотно прикрываться.
Обычно в продаже представлены модели складных дверей стандартного размера. При необходимости можно оформить заказ на изготовление полотна по требованиям заказчика и индивидуальным размерам.
Если есть желание и хоть небольшой опыт подобных работы, то можно установить складную дверь самостоятельно, не прибегая к сторонней помощи. Однако стоит знать, что это мероприятие не из легких и требует наличия терпения и нужных строительных материалов, а именно:
- Дрели;
- Перфоратора;
- Рулетки;
- Уровня;
- Канцелярского ножа;
- Ножовки;
- Электрического лобзика;
- Карандаша.
Прежде всего стоит внимательно изучить тонкости проведения подобных работ, изучив идущую к приобретенному изделию инструкцию.
Четкое соблюдение этапов и последовательности выполнения сборки конструкции, а также ее последующей установки позволит добиться максимальной результативности, а, следовательно, и высокого качества монтажа складной двери.
Подытожим вышесказанное
Любая, даже самая качественная дверь придет в негодность если к ней относиться не бережно. Срок эксплуатации конструкции в таком случае сокращается вдвое. Движения створок при закрытии двери должны быть плавными и неторопливыми. С определенной периодичностью нужно проводить ревизию дверных петель и прочих элементов крепежа. Профилактика всегда обходится дешевле, чем проведение ремонтных работ.

При возникновении каких-либо сомнений на этапе выбора модели складных дверей для той или иной комнаты, лучше обратитесь за консультацией к специалисту. Имея четкое представление габаритных параметров ваших дверных проемов и свободного пространства вокруг, он сможет безошибочно подобрать оптимальный вариант дверного полотна, его конфигурацию и комплектацию.
Кроме того, установку выбранного дверного полотна в таком случае лучше также доверить профессионалам, чтобы потом не был мучительно больно за зря потраченные деньги на приобретение дорогой модели складной двери. Малейшее нарушение технологии монтажа может привести к непоправимым последствиям – деформации не только направляющей, но самого дверного полотна. Не стоит выбирать складные межкомнатные двери сугубо по фото в интернете – обязательно посмотрите изделие вживую, его цвет, фактуру и качество отдельных элементов. На качестве не стоит экономить. Наоборот, от этого может пострадать семейный бюджет. Ведь исправление поломки, порой, может стоить половину цены нового изделия, чего допускать категорически нельзя.
o-dveryah.ru
Складная ДВЕРЬ гармошка (КНИЖКА) своими руками 180+50 фото
Дверь гармошка своими рукамиВ данной статье мы рассмотрим как сделать и установить дверь гармошку своими руками. Дверь гармошка представляет собой межкомнатную раздвижную складную дверь (или дверь книжку, если у неё две ламели). Здесь вы увидите пошаговые инструкции с подробными мастер классами, а так же четкие чертежи и макеты. Отдельное внимание мы уделим установке складной двери, что бы разобрать как правильно поставить все элементы, чтобы произвести монтаж.
Меню статьи:
Итак, в данной же публикации я расскажу вам про один конкретный вид деревянной межкомнатной двери, а именно про складную дверь-гармошку.
Скажу сразу прямо – такой вариант двери, как говориться, на любителя, и подойдёт далеко не всем и не в любую комнату, всё дело в сложности установки и плохой изоляции. Но, конечно же, у складной двери-гармошки есть и положительные стороны, например, она позволяет сэкономить достаточно пространства и легко открывается. Многие люди считают, что, в целях экономии денежных средств, лучше купить такую дверь в разобранном состоянии и заниматься установкой самостоятельно, мол «так дешевле» раз не надо платить за установку… такое мнение ОШИБОЧНО. Объясню почему: всё дело в том, что, отказываясь от установки двери, вы действительно экономите, но совсем немного, так как всё-таки приходится переплачивать за уже готовую дверь, конструкция которой, кстати, очень простая и её легко сделать своими руками! Так вы не только сэкономите, но и получите удовольствие от процесса создания! «Но как же сделать складную дверь-гармошку,- или как её ещё называют «дверь-книжку»,- своими руками»,- спросите вы. Очень просто! Для того, чтобы вы смогли легко и быстро создать собственную раскладную дверь, я и пишу эту статью сейчас!
Дверь гармошка и дверь книжка.
В чем разница???

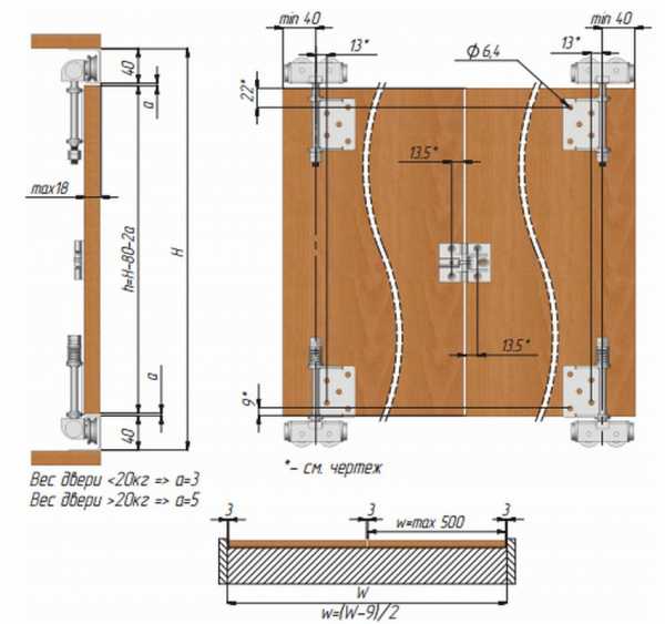
Механизм дверь-книжка
На представленной ниже схеме представлен механихм межкомнатной складной двери с двумя ламелями. Также на этом чертеже вы можете разглядеть требуюмую фурнитуру и её расположение при создании двери.

Источник фото: www.ekb.rusdver.net/findings/00000426-mehanizm_dver-knizhka.html


Схема установки складной двери
На черетеже ниже представлен схематично принцип установки складной двери книжки и её частей. Так сказать «что-куда»!!!

Источник фото:atlant66.ru/produkciya/dveri-spec/mehanizm_rezident_sdk-01_dlya_dverey_knizhka/
Простой план установки двери гармошки
Данный коллаж последовательно показывает нам процесс устанвки складной двери в проеме.

И так рассмотрим установку подробнее на примере:

Как установить дверь-гармошку своими руками.
(фотографии, видео мастер-класс)
Как-то слишком уж просто создать дверное полотно для раскладной межкомнатной двери-гармошки, согласитесь? Должен же быть какой-то подвох в этой двери. Давайте-ка подумаем, эта дверь:
- Удобная в использовании;
- Простая в создании;
- Компактная, вы экономите много свободного пространства;

Кроме того:
- Создание дверного полотна не занимает много времени;
- Можно использовать для этой цели любые материалы;
- Дизайн такой двери подойдёт практически к любому интерьеру.
Одни плюсы, если не считать низкую прочность и плохую тепло- и звукоизоляцию, но это вообще зависит от того какие материалы вы выберете и как установите данную дверь, так что тоже всё может быть хорошо. Так в чём же всё-таки подвох?
А подвох, как раз таки, заключается в установки данного типа дверей своими руками. Если вы читали статью «Раздвижная дверь своими руками», то, наверняка, вы должна понять, как нелегка установка межкомнатных дверей типа раздвижных. Так вот, установить дверь-гармошку (или дверь-книжку, называйте как хотите, смысл всё равно остаётся тот же) ещё сложнее. Поэтому именно этот этап создания собственной раскладной межкомнатной двери своими руками заслуживает отдельного, особого внимания. Давайте же поподробнее рассмотрим все этапы и нюансы установки такого типа дверей. Опять же проведу параллель для тех, кто читал статью «Раздвижная дверь своими руками», в этой статье вы найдёте достаточно совпадений в этапах установки, потому что данные типы дверей являются, можно сказать, родственными и основываются на раздвижном механизме. Ладно, без лишних слов, перейдём, собственно, к самой установке.
Пошаговый фото мастер класс по установке:
(для просмотра галереи просто кликните по любому фото)
Источник фото и ссылка на видео мастер-класс: https://youtu.be/XuQEeVSaIyk
Автор видео: bandq
Оригинальное название: How to fit an internal bi-fold door
Смотрите видео мастер класс:
Элементы системы складных дверей




Источник фото: http://www.dveripetli.ru/cistema-skladnyh-dverey
Конструкция полотна двери гармошки


Скрытая и петля бабочка для двери гармошка
Если вам удастся найти в магазине фурнитуры такие петли, то ваша дверь будет закрываться с особым изяществом.
| Это скрытая петля | А это петля бабочка |
|
|
![]() |
Плюсы:
Если выбирать из двух видов петель, то лучше ставить скрытые. В открытом состоянии они почти не оставляют щели между полотнами. К тому же они более мощные, могут выдержать солидные нагрузки.
Минусы:
Их минусы: сложнее установка и большая стоимость. Но если двери из МДФ или массива, то ставить нужно именно их. «Бабочки» подойдут к легкому дверному полотну или там, где сделать значительные выемки под тело скрытой петли не получится.
Наименование элементов конструкции двери гармошки

Установка складных межкомнатных дверей своими руками.
(фотографии, инструкция, видео мастер-класс)
Если вы покупаете раскладную межкомнатную дверь гармошку в магазине, то вам наверняка будут рекомендовать заплатить дополнительно за установку этих дверей, мол «так будет качественнее, доверье это дело профессионалам», не верьте этому, так, возможно, будет быстрее, в три раза дороже, но никак не качественнее. Установить дверь-книжку вполне под силу и обычному смертному человеку, вообще ничего не ведающему о «правильной» установке раскладных дверей. И если вы именно тот человек, о котором я говорю, поздравляю, вы сможете справиться с данной задачей, а поможет вам, как раз, в таком деле этот и последующие фрагменты статьи.
Хотя для установки как раскладной, так и раздвижных дверей не требуется создание дверной коробки, всё-таки следует подумать о том, как оформить дверной проём. В конце концов, не могут же оставаться голые стены между комнатами. Например, дверной проём можно заштукатурить и покрасить, или обклеить обоями, но чаще всего для этих целей используют декоративный фальш-короб. Это такого рода имитация настоящей дверной коробки, которая выполняет чисто декоративную роль и не предназначена не для чего больше, то есть дверь на такую коробку вешать НЕЛЬЗЯ. А представляет она из себя коробку из досок, скреплённых между собой шурупами, установленную в проём.

Источник фото: stroyday.ru/ (фотография сборки фальш-короба)
Соответственно, и начинать установку нужно с создания такой «дверной коробки», а перед тем, как её создавать, нужно тщательно измерить параметры самого дверного проёма (толщину стен, высоту и ширину проёма). О последующих действиях я расскажу далее в статье.
Источник фото и видео мастер-класс: https://youtu.be/bVREAzQTNhg
Оригинальное название: How to Install Folding Doors and Bi Fold Doors
Автор видео: DIY Doctor
Смотрите видео мастер класс:
Этапы установки раскладной двери книжки своими руками.
(фотографии, инструкция, видео мастер-класс)
Итак, давайте на примере конкретной модели разберём этапы установки раскладной межкомнатной двери, и поможет нам в этом, конечно же, видео мастер-класс! В прошлом фрагменте статьи я рассказывал, что лучше всего для раздвижной или раскладной двери создать декоративный фальш-короб, но я упомянул и о других методах оформления дверного проёма. В данном случае, как раз, создатель этой модели не стал пользоваться имитацией дверной коробки, а просто произвёл покраску оштукатуренного дверного проёма. Ну, допустим, вы, как следует, подготовили дверной проём для установки, и можно уже переходить к последующему этапу. А следующий этап это установка направляющей. Если вы купили дверь в разобранном состоянии в магазине, то в комплект будет входить направляющая, но в том же случае, когда вы целиком и полностью делаете дверь сами вы можете поступить следующим образом: купить отдельно алюминиевую направляющую и набор для установки складной двери, поверьте, таким образом удастся сэкономить гораздо больше средств, чем при покупке разобрано двери.
Для установки направляющей необходимо сначала измерить ширину дверного проёма. И тут уже появляется первая отличительная черта от установки раздвижной двери-купе. Направляющая для раскладной двери устанавливается не над дверным проёмом, а внутрь его, следовательно, если вы создали декоративный короб, то придётся учитывать его размеры, чтобы не ошибиться. Затем, после того как вы сделали направляющую необходимых размеров, просверлите в ней несколько отверстий и закрепите в проёме на один шуруп, по середине направляющей (это нужно сделать для того, чтобы потом можно было вставить в направляющую дверное полотно) готово, первая часть сделана.
Пошаговый мастер класс
Источник фото и видео мастер-класс: https://youtu.be/RYONGEDsjRM
Оригинальное название: монтаж двери гармошка
Автор видео: Наталья Пуховская
Смотрите видео мастер класс:
Разновидности складных дверей
Не можем утверждать в достоверности этого чертежа. Скорее всего он отражает разновидность лишь одного вида складных дверей. И перечень видов дверей довольно ограничен.

Из разных материалов
Складные двери гармошки, как и двери книжки можно сделать из разных материалов. Давайте рассмотрим их на представленных ниже фото галереях.
Дверь-гармошка из натуральной древесины
Натуральная древесина. Прочный материал при условии его грамотной обработки: древесину пропитывают антисептиком, покрывают морилкой и лаком. Со временем покрытие обновляют. Дверь из этого материала неустойчива к перепадам влажности.
Дверь-гармошка из МДФ
МДФ. Наиболее устойчивый материал, не подвержен разрушительному воздействию грибка и плесени. По сравнению с ДСП, материал в большей степени подходит для изготовления дверей сложной конструкции. ДСП достаточно прочно, имеет малый вес, экологически безопасно, влагоустойчиво и огнеупорно.
Дверь-гармошка из ДСП
ДСП. Дешевый, так как представляет из себя лист склеенных древесных опилок. Дверь из такого материала получится хлипкой. Поскольку он состоит из спрессованных и склеенных между собой опилок, шурупы держатся в нём не слишком крепко. Преимуществом материала является хорошая тепло- и звукоизоляция, однако конструкция двери-гармошки не позволяет материалу проявить эти качества в полноте. ДСП также обладает высокой влагоустойчивостью и биостойкостью, но всё же для складных дверей это далеко не лучший вариант.
Дверь-гармошка из пластика
Пластик. Дешевый, износостойкий и водостойкий материал. Идеален для душевой кабинки. Легок в обработке, не даёт сколов, царапин и трещин, не рассыхается. Для межкомнатных дверей обычно используют пластик с рисунком: под дерево, под цвет стен и т.п.
Как установить дверное полотно раскладной межкомнатной двери на направляющую.
(фотографии, инструкция, видео мастер-класс)
Итак, предположим, что вы подготовили дверной проём, установили направляющую и готовы устанавливать дверное полотно. Что же, тогда не будем тянуть, приступаем к установке прямо сейчас!
Для начала проверьте, всё ли соответствует необходимым размером, если да, то отлично.
Нужно установить на дверное полотно ролики – главную часть подвижного механизма, кстати говоря, вот ещё одно отличие раскладной межкомнатной двери-гармошки от раздвижной двери-купе: ролики у неё расположены не вертикально, а горизонтально, относительно земли, таким образом, они перемещаются по стенкам направляющей, кроме того, соответственно, вращающаяся ось направлена в другую сторону, и, кроме того, у роликов так же есть поворотный роликовый узел, нужен он, чтобы дверь можно было сложить.
В остальном же, этапы всё те же как и для установки раздвижной двери, то есть, к верхнему торцу дверного полотна устанавливаются на две части его по одному ролику. После того же, как ролики установлены, нужно установить нижнюю ось, на которую будет крепиться одна часть дверного полотна. Теперь можно вставлять ролики в направляющую.
Что нужно для этого сделать:
Вы же помните, что направляющую нужно было закрепить, пока что, лишь на один шуруп, который надо было разместить по центру дверного проёма? Так вот, теперь, за счёт такого нестабильного крепления, нужно развернуть направляющую и в сложенном виде установить на неё дверное полотно, затем, направляющая разворачивается вместе с дверным полотном, одна крайняя часть которого фиксируется на нижней оси. Ну, вот и всё, теперь осталось всего лишь закрепить алюминиевую направляющую ещё на несколько шурупов, и для лучшего скольжения роликов смазать её. Ваша раздвижная дверь готова, можете смело ей пользоваться!
Вот ещё что, я вам говорил, как важно подготавливать дверной проём и что лучше всего сделать это фальш-коробом, эта модель является ярчайшим доказательством моих слов, только взгляните на этот разбитый дверной проём!
Пошаговые фото установки
Ссылка на видео мастер-класс: https://youtu.be/w6vJZtGeR9Q
Оригинальное название: Дверь Гармошка. Установка своими руками
Автор видео: Школа Ремонтника
Смотрите видео мастер класс:
Как сделать раскладную дверь-гармошку своими руками.
(инструкция, фотографии)
Такой вид межкомнатных дверей хорош тем, что для него вы можете придумать абсолютно любой дизайн, придать любую форму, сделать любой размер, вас ничего не ограничивает!
Так как:
- Не нужно создавать короб, который «втиснул» бы дверное полотно в определённые рамки.
- Такую дверь создавать быстро и просто.
Вы можете сделать КАКУЮ УГОДНО, во всех смыслах этого словосочетания: двустворчатую, трёхстворчатую, четырёхстворчатую, пяти-… шести-… и так далее до бесконечности (ну, естественно в пределах рамок разумного и вашего свободного пространства в доме). Не получится сделать только одного: одностворчатую дверь-гармошку, по логичным причинам. И это всё, несомненно, плюсы данного типа дверей. УДОБСТВО В ИСПОЛЬЗОВАНИИ – вот главный критерий как при создании любой двери своими руками, так и при её покупке, не важно. Дверное полотно при создании раскладной двери-книжки это отнюдь не важный этап её создания, самое главное – это установка, про которую я расскажу намного подробнее, чуть-чуть позже, в продолжении статьи. Кстати, на счёт дверного полотна, оно тоже может быть любым, сделанным из абсолютно любого материала (конечно, из-за особенностей установки раздвижного механизма, чем легче будет дверное полотно, тем лучше, но всё зависит от того куда вы собираетесь устанавливать свою дверь и какими свойствами она должна будет обладать). Говоря про ЛЮБОЙ материал, я имею в виду не только различные породы древесины (хотя и их, в принципе, тоже), но и всё остальное: ПВХ, железо да даже картон, хотя нет, дверь из картона было бы делать глупо. Подождите-ка, ведь, многие дешёвые межкомнатные двери как раз таки и делают из картона и полой деревянной коробки, стоп, всё, ладно, значит, точно из ЛЮБЫХ материалов можно создать такую дверь.
Источник фотографий: www.inmyownstyle.com/2012/07/diy-how-to-make-a-decorative-folding-screen.html
В заключение хочется сказать об ещё одном преимуществе раскладных дверей, основанном на личном опыте:
Если в доме есть маленькие дети, то ни одна межкомнатная дверь (ни обычная, ни раздвижная) не останется в покое, так как на них периодически будут кататься пару десятков лишних килограммов…
Но с раскладной дверью-гармошкой такой трюк, ни у каких детей не пройдёт: ибо стоит на ней повиснуть, она сразу сложиться, имейте это в виду.
Надеюсь, что прочитанная вами информация, была хоть чем-нибудь полезна, спасибо, что дочитали до конца.
Кстати говоря, чуть не забыл, любому автору приятно, когда его текстами интересуются читатели, так вот, наш сайт рассчитан на обратную связь, поэтому, если возникнут вопросы по поводу этой или какой-либо другой моей статьи, можете смело их задавать в комментариях, я с радостью на всё отвечу!
www.novamett.ru
двустворчатая и складная. Покрытие пластик и шпон
Жилищный вопрос во все времена был и остается самым актуальным. По сей день нам часто приходится бороться за каждый метр пространства в малогабаритных квартирах. В такой битве найти дополнительные возможности для экономии полезной площади, могут помочь двери. Однако это не привычные одно- и двустворчатые межкомнатные двери, которым для открывания требуется как минимум метр драгоценного расстояния. Речь идет о более практичных раздвижных дверях. Отсутствие размаха дверных створок поможет планировать интерьер так, чтобы максимально использовать всю площадь комнаты.
Однако не всегда есть возможность и свободное место вдоль стены для отката полотна раздвижных дверей, к тому же, шумоизоляция у них значительно ниже, чем у распашных. Кроме того, установка двери-купе подразумевает демонтаж стены с дальнейшим монтированием короба. А это уже целая история, которая потребует дополнительного расхода времени и средств.
Еще одним экономным для пространства вариантом может стать дверь-гармошка. Удобство и эргономичность ее очевидны. Но и у этого варианта есть некоторые недостатки. Как правило, такие двери в основном производятся из пластика, их качество напрямую зависит от изготовителя. Шумоизоляция «гармошки» находится на самом низком уровне, а функция защиты весьма условна. Поэтому складная дверь – это скорее современный и удобный элемент декора, нежели «охранник» личного пространства.
Самым настоящим бестселлером малогабаритных квартир и помещений, где важна экономия пространства, является дверь книжка. С ее бесспорными преимуществами часто не может потягаться даже распашная дверь. Однако все по порядку.

Чем так знаменательна дверь книжка?
Складные двери-книжки, в простонародье «раскладушки», завоевали огромную популярность в США и европейских странах. И вот уже несколько десятков лет они спасают драгоценные квадратные метры в квартирах и домах на постсоветском пространстве. Уровень шумо- и теплоизоляции такие складные двери-книжки удерживают весьма впечатляющий: он не уступает распашным моделям, да и защитная функция выполняется безупречно. Дверь книжку тоже можно запирать на замок, но здесь стоит отметить, что лучше всего использовать магнитные замки.
Уникальность дверей-книжек заключается в их открывании: по своей функциональности они являются складными, то есть створки полотен при движении складываются в дверном проеме и плотно прижимаются к коробке. За счет этого образуется полноценный свободный проход – вроде двери нет вообще. «Книжка» в дверной индустрии появилась сравнительно недавно, поэтому, установив ее, вы не только сэкономите пространство, но и удивите оригинальным интерьерным решением близких и друзей.
Дверь книжка состоит, как минимум, из двух (а иногда трех и более) полотен. Она может складываться в вертикальном или в горизонтальном направлении.
Двери, ориентированные на вертикальное складывание, изначально имеют нестандартные размеры полотна, их еще называют «малышки». В среднем ширина одного полотна составляет 50 см.
Двери, которые создаются для горизонтального складывания,
в основном, состоят из двух полотен (изредка из трех или четырех). Форма сложенной двери напоминает букву «Г», но, несмотря на это, такие модели тоже называют «книжками». Они всегда актуальны в детской комнате любого дома: можно сложить нижнюю часть двери, и ребенок может свободно проезжать на машинке или велосипеде в свою комнату.
Но, возвращаясь к теме статьи – экономии пространства, стоит выделить двери вертикального складывания. Именно они как нельзя лучше отвечают жестким требованиям эргономики.
Дверь книга вертикального складывания состоит из небольших полотнищ нестандартного размера. Для того чтобы укомплектовать ваш дом оптимально подходящими дверьми, лучшим решением может стать индивидуальный заказ полотна нужного размера, к примеру, 350*2000 мм. Из двух таких полотен при помощи складного устройства можно соорудить дверь размером 700*2000 мм, которая закроет межкомнатный проем шириной 800 мм.
Для монтажа «книжки» понадобятся стойки коробки (боковые, 2 штуки) и доборная планка для верхней части проема. Ее ширина должна быть равной толщине стены, к которой при установке крепится салазка сдвижного устройства. Перед установкой необходимо выбрать направление складывания в проеме (левое или правое), после чего легко и быстро собрать всю конструкцию в единое целое.
Компания «ДверьЭкспо» специализируется на широком производстве большого ассортимента дверей, поэтому мы сможем изготовить для вас любые складные двери-книжки по индивидуальному заказу с учетом ваших требований:
- с размером полотна по ширине от 250 мм, высотой до 2400 мм;
- с любым оттенком, выбранным по цветовой палитре каталога RAL;
- ламинированные и шпонированные модели от класса «эконом» до высококлассного «люкса»,
- из ценных пород древесины, с филенкой или фрезой.
Несмотря на то, что «книжки» характеризуются небольшой шириной полотна, мы можем укомплектовать их стеклом. Также мы легко изготовим складную дверь книжку из пластика или покроем ее ПВХ. Для нас не будет проблемой создать по вашему заказу даже противопожарные «раскладушки».
Приобрести дверь книжку от производителя – значит не просто сэкономить деньги, но и получить гарантии высокого качества и надежности. Мы будем рады помочь вам в выборе самых лучших конструкций, которые будут красивы, удобны и оригинальны!
dverexpo.ru
Фото двери книжка
Анализ поисковых запросов, проведенный в сегменте ремонтных и отделочных работ показал, что одним из весьма популярных запросов
стал «фото двери книжка». Данный факт связан с тем, что всё больше и больше людей предпочитают складные межкомнатные двери в качестве альтернативы классическим распашным дверным перегородкам. Это связано со следующими факторами:
- Невысокая цена на данные модели дверей.
- Оригинальность конструкции перегородок.
- Высокие показатели надежности и качества.
- Экономичность в вопросе затрат полезного пространства в помещении.
- Простота установки двери книжкаустановки двери книжка и других вариантов конструкции.
Все эти и многие факторы позволили складным межкомнатным дверным перегородкам вырваться в лидеры в своём рыночном сегменте. За относительно небольшой промежуток времени их популярность резко подскочила и теперь почти в каждом доме можно найти такую конструкцию дверных перегородок в том или ином варианте.
Доступность приобретения складных межкомнатных дверей
После принятия решения о том, что складная межкомнатная дверная перегородка станет оптимальным вариантом для данного интерьера,
потребитель задумывается над вопросом: «где же приобрести такую дверь?». Здесь есть несколько вариантов. Во-первых, в любом регионе России можно найти огромное количество специализированных торговых площадок, на которых расположено огромнейшее разнообразие межкомнатных дверей на любой вкус. Побродив по рынкам строительных и отделочных материалов в своём городе, каждый сможет подобрать то, что ему подойдёт. Но далеко не у каждого есть время путешествовать по городу в поисках двери. Тут в силу вступает второй вариант, который стал возможен благодаря современным технологиям. В сети интернет появилось огромное количество онлайн-магазинов, в которых опираясь на фото двери книжка и других конструкций можно подобрать для себя дверную перегородку. Потребителю доставят ее домой и, как и в привычных нам магазинах, предоставят все необходимые гарантии качества и сервисного обслуживания.
Не нашлось подходящего варианта
Иногда случается так, что сколько ни бейся, подходящий вариант так и не нашелся. Выход есть и из этой ситуации. Существуют компании, которые, опираясь на фото двери книжка или любой другой складной межкомнатной перегородки и техническое задание, предоставленное заказчиком, выполнят складную дверь, которая обязательно подойдёт.
stroi-innovatsii.ru


