Фото терраса у бани – планировка дома-бани с зоной для барбекю, идеи двухэтажной конструкции с местом для отдыха, обустройство площади 3х6 и 5х6 м своими руками
Варианты террасы для бани – строим лучшую баню!

Терраса для бани представляет собой сооружение, которое в теплое время года дает возможность расположиться рядом с баней, при этом на свежем воздухе и в то же время с комфортом. При постройке бани с террасой ее владельцу, который, попарившись, желает посидеть снаружи, не потребуется располагаться просто в предбаннике или вовсе покидать строение. Существует целый ряд разновидностей таких сооружений, которые отличаются собственными достоинствами и недостатками.
Некоторые типы террас для бани
Угловая баня с террасой
Угловая баня с террасой предполагает, что данное строение в разрезе представляет собой прямой угол. В этом случае непосредственно терраса занимает одну из сторон этого угла. План данного строения может быть различным, однако в любом случае стандартный вариант предполагает, что проход на террасу производится через тамбур.

Преимущество такого варианта состоит в том, что экономится территория, в частности сама терраса оптимальным образом вписывается в профиль строения в целом, не отнимая дополнительного пространства у участка.
Террасу при бане имеет смысл возводить одновременно с основным строением. Подобный способ даст возможность добиться того, чтобы последующая усадка как самого дома, так и его пристройки была одинаковой. Таким образом, фундамент, относящийся к террасе, в этом случае не придется скреплять с фундаментом бани в целом, а вот если такую пристройку добавляют, то скрепить оба фундамента понадобится.

Но и при одновременном возведении бани и террасы следует предусмотреть для них именно отдельные фундаменты (а плюс именно в том, что их не надо будет скреплять). Создать впечатление, что данное строение едино, вполне несложно. Для этого потребуется просто-напросто установить террасу как можно ближе к бане. Рекомендуемый зазор составляет от 20 до 30 миллиметров, и его следует заполнить монтажной пеной.
Двухэтажная баня с террасой
Красивая баня с террасой, состоящая из двух этажей — это строение, которое оптимальным образом послужит, если в этом месте планируется собирать большие компании. На первом этаже в стандартном случае находятся собственно банные помещения, а на втором располагается крытая терраса.

Сама такая терраса может быть в различной степени отгорожена от окружающего мира. У нее может присутствовать только крыша на опорах, в таком случае это пространство оказывается открытым всем ветрам. Также распространен вариант, когда на подобной террасе обустраиваются стеклянные стены. Эти механизмы раздвижного типа гости могут по своему усмотрению сдвигать или раздвигать, регулируя степень обособленности данного помещения. Кроме того, такая баня двухэтажная с террасой может быть снабжена и собственным балконом.
Если хозяева приняли решение именно в пользу двухэтажного строения, то необходимо учесть, что для подобной конструкции необходимо предусмотреть также пространство для лестницы. И если проект бани с террасой предусматривает именно два этажа, то сэкономить на площади данного сооружения уже не получится, поскольку на такую лестницу уйдут дополнительный квадратные метры.
Существует два распространенных материала, из которых возводят террасы при банях. Это брус и кирпич.
Терраса у бани из бруса
В действительности материалы, из которых возводится основное строение с одной стороны и пристройка с другой, могут не совпадать. Так, баня из бруса может быть с такой же террасой, и это наиболее распространенный вариант, однако вполне допускается и возведение ее и из кирпича. В данном случае выбор на усмотрение владельца участка.

Терраса из бруса обладает целым рядом существенных достоинств:
- усадка самого бруса имеет сравнительно невысокий показатель, это особенно актуально в тех случаях, когда возведение данной пристройки идет, когда сама баня уже стоит, таким образом общее напряжение на конструкцию будет меньше;
- трудозатраты на возведение такой террасы сравнительно невелики, поскольку с брусом относительно несложно работать;
- также это объект будет возведен быстро по времени;
- брус— это дерево, то есть природный материал, в частности он пахнет натуральной древесиной и имеет узнаваемый запах леса;
- брус превосходно удерживает тепло.
Также стоит учитывать, что проекты бань из бруса с террасой в настоящее время весьма многочисленны. Вследствие распространенности этих сооружений такие проекты создаются во многих бюро, и хозяин бани непременно сможет подобрать себе что-нибудь подходящее.
При сооружении террасы из бруса при бане с соблюдением технологии это сооружение простоит весьма продолжительное время, в течение которого хозяин и гости могут прохлаждаться на свежем воздухе и угощаться барбекю.

Знаете ли вы? Качественный брус настолько хорошо выглядит, что при его использовании можно вовсе не выполнять внешнюю отделку террасы, и это сооружение все равно будет выглядеть весьма достойно.
Баня с террасой из кирпича
Баня с террасой из кирпича представляет собой альтернативное решение. Главное достоинство его очевидно. Кирпич — весьма долговечный материал и даже качественный брус в этом отношении не может с ним сравниться. Более спорный вопрос о том, какой из материалов лучше смотрится. С одной стороны, кирпич всегда выглядит привлекательно, но с другой дерево — природный материал.

Но существуют характеристики, по которым кирпич уступает брусу безусловно. Прогрев кирпича — существенно более длительная процедура, нежели прогрев бруса, также чтобы довести его до определенной температуры требуется потратить больше топлива. Также кирпич хуже вентилируется, таким образом в нем образуется избыток влаги, что приводит к размножению бактерий и появлению плесени. В этом случае ситуацию исправит вентиляционная система, однако ее монтаж предполагает дополнительные расходы.
И в целом несмотря на все написанное баня с большой террасой, которая возведена из кирпича — это более чем достойное решение. Но, разумеется, лишь для тех, кто готов нести дополнительные затраты.
В целом в России более распространены именно террасы из бруса (как и бани в целом). Причина этого как в цене, так и в том, что именно этот материал исторически использовался в нашей стране для возведения подобных сооружений.
Что можно устроить на террасе при бане
В общем случае терраса предполагает установку внутри такого пространства стола и стульев. Однако во многих случаях обустройство этой зоны не ограничивается только этими предметами обстановки. В частности, весьма распространенным вариантом является баня с террасой и барбекю. Такой вариант предполагает, что внутри этого помещения создают уголок, где будет установлен гриль, на котором хозяин с гостями будут готовить барбекю из мяса. Также в этой зоне может быть установлен мангал. Более продвинутые любители кулинарии могут также оборудовать в таком помещении уличную мини-кухню.

Терраса при бане также может иметь назначение, делающее возможным сравнение с комнатой. Она может быть чем-то вроде гостиной. В таком случае в ней можно разместить зону застолья. Также ее можно сделать подобием спальни. К примеру, на террасе вполне на своем месте будет гамак, на котором летом можно раскачиваться после пребывания в бане. Также можно устроить и зону отдыха с удобными шезлонгами или диванчиками.
Терраса и веранда: отличия
Веранда и терраса — вечные синонимы. В действительности, хотя эти понятия довольно близки, существует ряд общепринятых различий, которые дают возможность обозначить определенные строения как террасы, а другие — как веранды.
Терраса — это пристройка, которая имеет свой собственный фундамент, она приподнята над землей. У нее обязательно должно быть ограждение, но в общем случае она открытая. Также она не утеплена.
Веранда, в свою очередь, встроена в основной объект, ее фундамент един с фундаментом основного здания. Весьма часто веранда застеклена и ее нередко утепляют.
Разумеется, многим хочется написать слово терраса как терасса. И уж во всяком случае произносят его именно как терасса. Запомнить верное правописание несложно, если усвоить, что оно происходит от слова «терра», означающего земля.
Использование навеса в роли террасы
Вполне допустимым решением для владельца бани будет установить на лето навес или маркизу рядом с этим строением. Навес — это конструкция, которая выполняет часть функций террасы, но при этом обойдется хозяину бани в существенно меньшую цену. В этом случае потребуется позаботиться лишь в о том, чтобы поверхность пола в данном месте была ровная. Далее можно разместить на нем всю требуемую мебель или гриль для барбекю.
Само собой, обычная маркиза не спасет хозяина и гостей от какой-либо непогоды за исключением совсем мелкого дождика. Ее функция заключается в том, чтобы защищать находящихся под таким навесом людей от солнца.
В то же время существуют маркизы, которые включают в себя одновременно вертикальный и горизонтальный навес. Под подобной конструкцией посетители бани уже могут закрыться от любой непогоды.
alumdevelop.ru
Баня с террасой фото
Бани с террасой: проекты, фото, строительство террас своими руками
Терраса — это площадка с настилом, которая устроена на подготовленном основании. Видов и разновидностей этого архитектурного дополнения существует очень много:
- Может располагаться возле дома, а может быть совсем не связанной с ним, или соединяться дорожкой.
- Может быть без крыши — тогда говорят, что она открытая. Или с крышей — крытая.
- Может иметь стены или не иметь их. Стены могут быть цельными или в виде ограждения.
- Бывают одно- или многоуровневые.

Видов террас очень много: и по форме, и по количеству уровней, и по материалам
Если говорить о террасах, которые примыкают к дому, то они бывают боковыми и фронтальными, могут закрывать одну, две, три или четыре стороны. Иногда имеют неправильную форму. Могут находиться под одной крышей с основным зданием или иметь собственную.
Если учесть, что при изготовлении материалы могут использоваться самые разные, то понятно, что вариаций просто неисчислимое множество.
Проекты бань из бруса с террасой
Построить перед баней или рядом с ней террасу не так и сложно. Вообще, чаще всего затруднения вызывает отсутствие проекта. Если позволяют средства, лучше заказать его, подробно описав, что и как вы себе представляете, чего желаете достигнуть, и какие вещи вам категорически не нравятся. Если заказать изготовление персонального проекта невозможно, есть вариант подыскать один из готовых, немного подкорректировать под собственные нужды. Вот несколько проектов бань с разными террасами, которые несложно сделать своими руками.
Баня 4 на 4,5 с террасой
По проекту баня состоит из трех помещений, к ней пристроена терраса на отдельном несвязном фундаменте (об одном из вариантов его строительства читайте ниже). В здании бани е
superbany.ru
Проект бани с террасой и барбекю: фото вариантов постройки
Для многих людей баня является не только местом помывки, но и отдыха. В связи с этим владельцы загородных участков часто строят многофункциональные бани, в которых можно помыться, попариться, отдохнуть, сидя за столом в комнате отдыха или на террасе. Существует большое количество вариантов строительства таких объектов. Например, можно рассмотреть проект бани с террасой и барбекю: фото различных интересных решений говорят о большой популярности такого решения.

Баня дополнена небольшой террасой и барбекю
Проект бани с террасой и барбекю: фото вариантов
При проектировании бани, как объекта для организации активного отдыха, не каждый может позволить построить достаточно большое помещение, чтобы в нем, кроме парной и помывочной, уместилась бы еще и комната отдыха. Хорошим бюджетным вариантом в таком случае является баня с террасой и барбекю. Фото проектов таких бань поражают своим многообразием.

Проект бани с террасой и барбекю
Терраса – это открытое пространство возле основного строения с ограждениями и полом. Она может быть любого размера. Все зависит от кошелька и потребностей хозяев. Устройство террасы, на которой будет установлена тяжелая печь, требует определенных конструктивных особенностей. Лучший вариант, это сооружение ленточного монолитного фундамента не только под всеми стенами бани, но под тем местом, где будет печь для барбекю. Залит он должен быть на высоту пола, так как на нем будет выполняться кладка самой печи.

Небольшая баня в современном стиле
Если планируется применять мангал, то вполне достаточно свайного или столбчатого фундамента. Он связывается рамой из бруса сечением 150х150 мм, на который укладывается пол. Место под мангалом должно иметь покрытие из огнезащитного материала. В этом случае будет полностью безопасно готовить шашлык и барбекю. Проекты бань с террасой, фото которых можно чаще всего встретить, обязательно предполагают наличие надежного фундамента.

Баня, построенная из камня
Закрыта терраса сверху может быть общей крышей с баней. В этом случае стропильная система опирается на стойки, которые являются составляющими элементами каркаса террасы. К ним же могут крепиться и ограждения.

1 — терраса с барбекю, 2 — комната отдыха, 3 — коридор, 4 — санузел, 5 — душевая, 6 — парная
Построить баню можно из любого материала, но чаще всего это делают из древесины. Для этой цели лучше всего подходят хвойные породы дерева. Они меньше подвержены гниению и легче обрабатываются. Современная антигрибковая и противопожарная обработка делает дерево хорошо защищенным от всех неприятностей.

Сауна с террасой и печью для приготовления еды

Баня с террасой, барбекю и бассейном
Деревянные бани строят из цельных стволов деревьев. Для этого рубят сруб по специальной технологии, известной еще с древних времен. На бревне вырубается желоб, а на его концах делаются выемки для укладывания перпендикулярного бревна. Такие строения смотрятся красиво, если бревно берется калиброванное, то есть одинакового диаметра.

План бани с комнатой отдыха, террасой и барбекю
Существуют и проекты бань из бруса с террасой. Стоят такие бани несколько дешевле, так как производство бруса полностью механизировано. Для возведения стен достаточно только нарезать его необходимой длины и собрать в соответствии с приготовленным контуром фундамента. Для этого каждый очередной брус садят на деревянные штыри.

Проект бани 6х9 м
Проекты бань из профилированного бруса с террасой
Особенно привлекательны проекты бань из профилированного бруса с террасой. Такой брус обрабатывается на специальном станке и имеет фигурную гладкую поверхность. Его покрывают специальной морилкой, которая придает дереву красивый естественный оттенок и не дает чернеть со временем. Чаще всего проекты бань из профилированного бруса с террасой не предусматривают какой-либо внутренней декоративной отделки, так как в ней нет особой необходимости.

Проект бани из сруба
Терраса в таких проектах имеет ограждения, изготовленные из такого же бруса в сочетании с декоративными рейками. Смотрится это очень красиво и естественно. Сама терраса может являться общей для бани и дома. Если ее еще и застеклить, то получится прекрасный переход между этими двумя объектами, в котором можно расположить все необходимые принадлежности для отдыха за городом.
Существуют проекты бань из бруса с террасой, которая напоминает летнее кафе на открытом воздухе. Если площадь этого сооружения достаточно большая, то там можно разместить бильярд, что придаст еще больше комфорта загородному отдыху.

Баня из сруба с террасой и печью

Баня с зеленой кровлей
Проект бани с комнатой отдыха и террасой
Если и средства, и возможности позволяют построить сооружение больших размеров, то можно с успехом подобрать проект бани с комнатой отдыха и террасой. Такая конструкция более практична и пользуется большей популярностью. Ведь террасу по своему прямому назначению можно использовать только в теплое время года. Дополнительная комната внутри помещения, в тепле, позволяет пользоваться баней в любое время года с огромной пользой.
У такого проекта имеются следующие плюсы:
- возможность отдыха в тепле;
- нет назойливых мух и комаров;
- в комнате отдыха можно установить некоторую бытовую технику: холодильник, телевизор, музыкальный центр;
- здесь можно устроить минибар и барную стойку, если помещение используется для частого отдыха с друзьями.

Проект бани с комнатой отдыха и террасой
Больших недостатков в таких проектах нет, но можно отметить необходимость значительного увеличения площади всего строения, что влечет за собой большие энергозатраты.
Чтобы иметь возможность выделить часть площади на комнату отдыха, необходимо предусмотреть эту возможность сразу же при строительстве. Классическая баня состоит из парной, помывочной и предбанника. Раньше предбанник чаще всего являлся дощатым неотапливаемым помещением, служащим для переодевания. В нем еще хранили различную банную утварь: тазики, веники, ковши.

На террасе бани оборудована небольшая кухня
Сегодня вместо него устраивают комнату отдыха. Она имеет общие капитальные стены с основными помещениями бани. Взяв на себя функции предбанника, это помещение еще и играет роль места, где можно отдохнуть, посидеть за столом, выпить чай и поговорить с друзьями. В летнее время из комнаты отдыха можно выйти и на террасу, чтобы насладиться свежим дуновением воздуха после жаркой парной. Не удивительно, что проекты бани с комнатой отдыха и террасой пользуются наибольшей популярностью.

Пример бани из оцилиндрованных бревен
Проект бани с мансардой и террасой
Если участок небольшой, а хочется, чтобы в бане была комната отдыха, можно рассмотреть варианты проектов бань с мансардой и террасой. Такое строение занимает гораздо меньшую площадь, но не уступает по функциональности предыдущему варианту. Кроме того, в мансарде можно устроить даже жилую комнату, если на дачном участке кроме бани и сарая для инвентаря больше ничего нет.
В такой комнате можно переночевать не только при работе на земельном участке, обрабатывая грядки, но и зимой после отдыха и парилки, когда возвращаться в город так не хочется. Впрочем, такая возможность возникает в случае, если мансарда хорошо утеплена и отапливается. В качестве утеплителя можно использовать минеральную вату или пенопласт.

Проект бани с мансардным помещением и террасой
Мансарда располагается выше основного строения под ломаной двускатной крышей. Она может быть, как утепленной, так и летней. При постройке бани с мансардой и террасой, проект должен предполагать усиленные перекрытия, так как они должны выдерживать вес человека. Наличие красивой лестницы, делает интерьер такой бани еще более привлекательным.
У этого типа сооружения есть и один существенный недостаток: взбираться на верх по лестнице не очень хочется после парной, когда основное желание, это побыстрее сесть в кресло и расслабиться.

Стены бани облицованы декоративным камнем
Каждый волен выбрать любой из предложенных вариантов проектов бани на загородном участке. Все они, обладая индивидуальными особенностями, призваны обеспечить качественную организацию отдыха и релаксации человека. Поэтому перед строительством любого типа бани необходимо ознакомиться с правилами противопожарной безопасности, тем более, если на террасе предусмотрено приготовление барбекю.
Как построить баню своими руками (видео)
ibuildrussia.ru
ФОТО бани с террасой в деревне Алферово
Баня с террасой (на фото) построена по проекту Б-12 в Московской области Егорьевском районе деревне Алферово.

Как мы строили?
На свайно-винтовой фундамент возвели сруб из профилированного бруса диаметром сечения 140х140 мм. В дверные и оконные проемы установлены ройки.

Крыша покрыта ондулином.

Фотографии бани с террасой изнутри



Центром бани является печь Ермак. Топка из комнаты отдыха. В моечной комнате подвешен бак для горячей воды. Проект интересен большой летней террасой. Здесь можно установить стол и после банных процедур душевно пить чай, наслаждаясь хорошей погодой.


rus-bani.com
Проекты бань с террасой и барбекю, фото, строительство своими руками
Баня — это не только очищающая и оздоровительная процедура, но и клуб по интересам, место встречи друзей. И кроме посиделок в комнате отдыха иногда приятно провести время на улице. Для таких посиделок пристраивают к дому террасы. Они бывают открытые — если посиделки планируются только в теплое время года, или закрытыми — если иногда будете отдыхать там и зимой.
Содержание статьи
- 1 Проекты бань с террасой и барбекю
- 2 Какой проект выбрать
- 3 Какое основание будет под террасой
- 4 Как построить плиту под террасу с барбекю своими руками
- 4.1 Подсыпка
- 4.2 Гидроизоляция и утепление
- 4.3 Армирование и заливка плиты
- 4.4 Уход за бетоном
- 5 Свайный фундамент под террасу
- 5.1 Как крепить обвязку
Встреча друзей, беседа и отдых у нас накрепко связаны с шашлыками. Где шашлык — там мангал. А лучше переносного мангала может быть только стационарный барбекю. Вот и планируют часто бани с террасой и барбекю.

Большая терраса и вынесенная площадка для барбекю
В этом проекте бани терраса охватывает баню с трех сторон. Приличная площадь позволит расположиться с комфортом любой кампании. При желании часть террасы можно сделать закрытой. В ней можно будет отдыхать в прохладные дни. На отдельном выносе можно установить барбекю или сделать это в одном из глухих углов.
По внутренней планировке проекта бани. Обратите внимание на то, как установлена печь. Она греет сразу четыре примыкающих комнаты. Если планируется помещение бани и в зимнее время, придется предусмотреть еще отопление для комнаты отдыха, так что мощность потребуется большая. Но комната отдыха потребует отдельного источника тепла: она имеет приличные размеры, а банной печью не отапливается.
О том, как выбрать дровяную банную печь читайте тут.
В случае всесезонной бани необходимо будет часть комнаты отдыха выгородить под тамбур или прихожую. Чтобы холодный воздух не мешал отдыхать после бани.

Баня с барбекю и террасой
В этом проекте бани есть два входа — один с крыльца, второй с террасы. В здании предусмотрен отдельный санузел и довольно просторная кухня, но и площадь, занимаемая всем строением с пристройками немалая: 14*7 м. При входе с крыльца есть отдельный тамбур. Этот вход планировался как зимний. Летом можно открыть широкие раздвижные двери, сделав террасу еще больше.

Проект угловой бани с террасой и барбекю
Достаточно функционален вариант планировки угловой бани. Она занимает минимум пространства, имея все необходимые помещения. Душевая достаточно просторна для установки в ней двухместной деревянной купели. Печь топится из парилки, что при таких габаритах возможно. Сместив двери можно печь установить ближе к углу, и врезать ее в стену. Таким образом будет топиться она из душевой, что в некоторых случаях более удобно. Для остальных помещений необходимо будет продумывать систему отопления (если баня будет использоваться зимой).

Проект небольшой бани с крыльцом и террасой
Эта планировка имеет «болезнь» многих проектов: нет тамбура для зимнего использования. Но тут присутствует раздевалка, что несомненно, хорошо. Единственная проблема в том, что из моечной будет поступать влажный воздух, а влажная одежда — это недопустимо. Потому в этом помещении должна быть очень хорошая вентиляция. Обязательно требуется предусмотреть входное и выходное вентиляционное отверстие, а также на выходном поставить вытяжной вентилятор. Только в этом случае можно обеспечить быстрое удаление влаги.
Подробнее о том, какими должны быть размеры помещений и о планировке в парилке читайте тут.
Какой проект выбратьТерраса может находится совсем рядом с баней — примыкать одной или несколькими сторонами к стенам здания, а может быть вынесенной на некоторое расстояние от дома. Если еще один вариант — сделать большую площадку впритык к дому и небольшой вынос, соединенный дорожкой, под установку барбекю — чтобы дым не мешал.

Терраса с барбекю вынесена на некоторое расстояние от юани. Соединяется со зданием дорожкой
Кровля может быть у террасы и дома общей, а вот фундаменты делают обязательно независимыми. Между основанием дома и площадки, если они находятся совсем рядом, прокладывают слой утеплителя. Он служит разделителем. Благодаря такому варианту усадка бани и террасы может проходить независимо.

Готовый вариант террасы с барбекю: полторы стены выложены кирпичом, остальные открыты. Под такую террасу нужна армированная плита
Так как усадка может быть неравномерной, то при варианте планировки дома и барбекю под одной крышей, стропильную систему делают плавающую. Она имеет возможность до определенного уровня компенсировать неравномерность происходящих изменений.
Какое основание будет под террасойДля террас с деревянным настилом делают чаще столбчатый фундамент — он проще в изготовлении и дешевле. Для площадок, отделанных плиткой или кермогранитом нужна утепленная плита, если отделкой будет тротуарная плитка, ее можно класть на профилированную мембрану и подсыпку из щебня с песком. Это, пожалуй, самый недорогой и быстрый в исполнении вариант.

Свайный фундамент под террасу из дерева имеет не очень высокую стоимость и трудоемкость
Свайный фундамент требует меньших затрат, но предусматривает установку только деревянных опорных стоек, на которые будет опираться кровля. Такие террасы с барбекю часто имеют невысокое деревянной ограждение. Эти проекты хорошо «вписываются» в стиль традиционный: их пристраивают к стенам сложенным из бревна или бруса.
К баням, выполненным в современном стиле, чаще пристраивают открытые террасы с плиткой (керамической или тротуарной), выложенные отделочным камнем. Но под кирпичные или каменные столбы-опоры, делать необходимо мелкозаглубленный плитный фундамент с утеплением. Зимой, на пучнистых грунтах без утепления ни один отделочный материал не удержится, а плита может растрескаться (и, скорее всего, так и будет). Без утепления можно делать основание под террасу только на сухих супесчаных, не склонных к пучению грунтах.

Как такая терраса может выглядеть
Как построить плиту под террасу с барбекю своими рукамиУстройство любого основания начинается с земельных работ. Сначала выбирают грунт на ширину планируемой террасы, плюс пятьдесят сантиметров. Эти полметра идут на создание защитой утепленной отмостки. Она закрывает плиту сбоку и не дает ей промерзать.

Так схематически выглядит плитное основание для террасы
Глубина котлована зависит от региона, степени пучнистости грунтов, толщины финишной отделки.
В качестве утеплителя плитного основания рекомендуют использовать экструдированный пенополистирол (ЭППС) высокой плотности (не меньше 35 кг/м3). Он имеет отличные теплоизолирующие свойства, не гниет, не впитывает воду, не повреждается грызунами и насекомыми, на нем не развиваются грибки и плесень, кроме того он стоек к механическим воздействиям. Для средней полосы России толщина плит полистирола должна быть около 100 мм.
Примыкание террасы к дому
Как сделать примыкание основания террасы к фундаменту бани или дома показано на рисунке. Нужно учесть, что анкера СПА не являются обязательной деталью. При правильно выполненном утеплении плиты никаких сдвигов и подвижек не будет. Даже если всю террасу обложить кирпичом. Но для собственного спокойствия установить их можно.

Вариант с дренажной трубой для местностей с высоким уровнем грунтовых вод
ПодсыпкаВ котловане под террасу оставшийся грунт выравнивается и трамбуется. Засыпается подложка из щебня (средняя фракция) толщиной 10-15 см, трамбуется. Лучше не вручную, а виброплитой — лучше будет результат, меньше усадка. На этом этапе начинается формование уклона для создания отмостки. От края террасы, на тех самых 50 см, щебень разравнивают так, чтобы его слой становился тоньше к краю.

Щебень необходим для создания дренажного слоя
Если уровень грунтовых вод высокий, в щебне укладывают дренажную трубу. Находиться она должна на расстоянии 20-30 см о фундамента дома. Ее функция — отвод вод, которые попали под плиту. На утрамбованный щебень насыпают 10-15 см песка, разравнивают, проливают, тоже трамбуют до высокой плотности (когда след от сапога не остается). Тут уклон для отмостки тоже сохраняют.
Гидроизоляция и утепление
Это современный гидроизоляционный материал — профилированная мембрана. Имеет высокую надежность, заодно за счет неровной поверхности компенсирует силы пучения
Сверху укалывают гидроизоляционный материал. В бюджетном варианте это плотная полиэтиленовая пленка (плотность 200 мкн выше), но желательно использовать другие гидроизоляционные материалы, в частности, полимерные мембраны. Они намного прочнее и долговечнее, к тому же за счет неровной поверхности частично компенсируют нагрузки зимнего пучения.
Ширина гидроизоляции должна быть приличная: один ее край должен заводиться примерно на 10-15 см на стену здания, второй должен перекрывать отмостку на всю ширину (второй край не фиксируется, потом присыпается грунтом).
На гидроизоляцию укладываю
kamburg.ru
Проект бани с террасой и барбекю: фото вариантов постройки

Для многих людей баня является не только местом помывки, но и отдыха. В связи с этим владельцы загородных участков часто строят многофункциональные бани, в которых можно помыться, попариться, отдохнуть, сидя за столом в комнате отдыха или на террасе. Существует большое количество вариантов строительства таких объектов. Например, можно рассмотреть проект бани с террасой и барбекю: фото различных интересных решений говорят о большой популярности такого решения.

Баня дополнена небольшой террасой и барбекю
Содержание
- 1 Проект бани с террасой и барбекю: фото вариантов
- 2 Проекты бань из профилированного бруса с террасой
- 3 Проект бани с комнатой отдыха и террасой
- 4 Проект бани с мансардой и террасой
- 5 Как построить баню своими руками (видео)
Проект бани с террасой и барбекю: фото вариантов
При проектировании бани, как объекта для организации активного отдыха, не каждый может позволить построить достаточно большое помещение, чтобы в нем, кроме парной и помывочной, уместилась бы еще и комната отдыха. Хорошим бюджетным вариантом в таком случае является баня с террасой и барбекю. Фото проектов таких бань поражают своим многообразием.

Проект бани с террасой и барбекю
Терраса – это открытое пространство возле основного строения с ограждениями и полом. Она может быть любого размера. Все зависит от кошелька и потребностей хозяев. Устройство террасы, на которой будет установлена тяжелая печь, требует определенных конструктивных особенностей. Лучший вариант, это сооружение ленточного монолитного фундамента не только под всеми стенами бани, но под тем местом, где будет печь для барбекю. Залит он должен быть на высоту пола, так как на нем будет выполняться кладка самой печи.

Небольшая баня в современном стиле
Если планируется применять мангал, то вполне достаточно свайного или столбчатого фундамента. Он связывается рамой из бруса сечением 150х150 мм, на который укладывается пол. Место под мангалом должно иметь покрытие из огнезащитного материала. В этом случае будет полностью безопасно готовить шашлык и барбекю. Проекты бань с террасой, фото которых можно чаще всего встретить, обязательно предполагают наличие надежного фундамента.

Баня, построенная из камня
Закрыта терраса сверху может быть общей крышей с баней. В этом случае стропильная система опирается на стойки, которые являются составляющими элементами каркаса террасы. К ним же могут крепиться и ограждения.

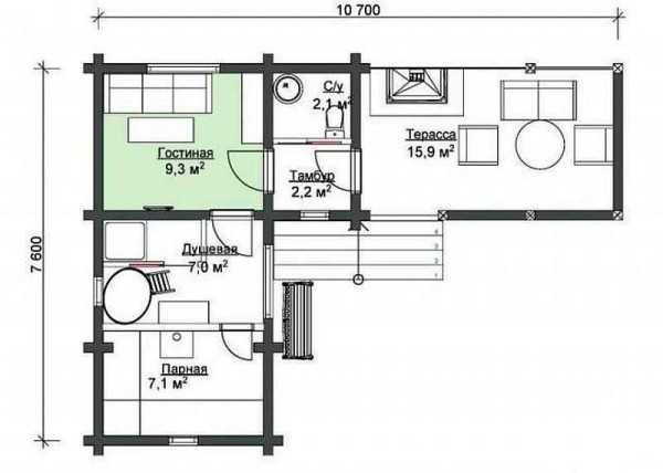
1 — терраса с барбекю, 2 — комната отдыха, 3 — коридор, 4 — санузел, 5 — душевая, 6 — парная
Построить баню можно из любого материала, но чаще всего это делают из древесины. Для этой цели лучше всего подходят хвойные породы дерева. Они меньше подвержены гниению и легче обрабатываются. Современная антигрибковая и противопожарная обработка делает дерево хорошо защищенным от всех неприятностей.

Сауна с террасой и печью для приготовления еды
Полезный совет! Для внутренней отделки парной использовать хвойную древесину нельзя. Под воздействием высоких температур из нее выделяется смола, которая может попасть в волосы или серьезно обжечь человека.

Баня с террасой, барбекю и бассейном
Деревянные бани строят из цельных стволов деревьев. Для этого рубят сруб по специальной технологии, известной еще с древних времен. На бревне вырубается желоб, а на его концах делаются выемки для укладывания перпендикулярного бревна. Такие строения смотрятся красиво, если бревно берется калиброванное, то есть одинакового диаметра.

План бани с комнатой отдыха, террасой и барбекю
Существуют и проекты бань из бруса с террасой. Стоят такие бани несколько дешевле, так как производство бруса полностью механизировано. Для возведения стен достаточно только нарезать его необходимой длины и собрать в соответствии с приготовленным контуром фундамента. Для этого каждый очередной брус садят на деревянные штыри.

Проект бани 6х9 м
Проекты бань из профилированного бруса с террасой
Особенно привлекательны проекты бань из профилированного бруса с террасой. Такой брус обрабатывается на специальном станке и имеет фигурную гладкую поверхность. Его покрывают специальной морилкой, которая придает дереву красивый естественный оттенок и не дает чернеть со временем. Чаще всего проекты бань из профилированного бруса с террасой не предусматривают какой-либо внутренней декоративной отделки, так как в ней нет особой необходимости.

Проект бани из сруба
Терраса в таких проектах имеет ограждения, изготовленные из такого же бруса в сочетании с декоративными рейками. Смотрится это очень красиво и естественно. Сама терраса может являться общей для бани и дома. Если ее еще и застеклить, то получится прекрасный переход между этими двумя объектами, в котором можно расположить все необходимые принадлежности для отдыха за городом.
Существуют проекты бань из бруса с террасой, которая напоминает летнее кафе на открытом воздухе. Если площадь этого сооружения достаточно большая, то там можно разместить бильярд, что придаст еще больше комфорта загородному отдыху.

Баня из сруба с террасой и печью
Полезный совет! Чтобы пол на террасе не выцветал, и краска на нем не отлуплялась, можно сделать его из специальной композитной доски. Такие доски не боятся солнечных лучей, дождя и снега. Они могут прослужить не один десяток лет.

Баня с зеленой кровлей
Проект бани с комнатой отдыха и террасой
Если и средства, и возможности позволяют построить сооружение больших размеров, то можно с успехом подобрать проект бани с комнатой отдыха и террасой. Такая конструкция более практична и пользуется большей популярностью. Ведь террасу по своему прямому назначению можно использовать только в теплое время года. Дополнительная комната внутри помещения, в тепле, позволяет пользоваться баней в любое время года с огромной пользой.
Статья по теме:
Особенности проектов бань из бруса с террасой. Варианты устройства террасы для бани из бруса. Строительство бани из бруса с примыкающей к ней террасой. Устройство фундамента, стен, пола и крыши.
У такого проекта имеются следующие плюсы:
- возможность отдыха в тепле;
- нет назойливых мух и комаров;
- в комнате отдыха можно установить некоторую бытовую технику: холодильник, телевизор, музыкальный центр;
- здесь можно устроить минибар и барную стойку, если помещение используется для частого отдыха с друзьями.

Проект бани с комнатой отдыха и террасой
Больших недостатков в таких проектах нет, но можно отметить необходимость значительного увеличения площади всего строения, что влечет за собой большие энергозатраты.
Чтобы иметь возможность выделить часть площади на комнату отдыха, необходимо предусмотреть эту возможность сразу же при строительстве. Классическая баня состоит из парной, помывочной и предбанника. Раньше предбанник чаще всего являлся дощатым неотапливаемым помещением, служащим для переодевания. В нем еще хранили различную банную утварь: тазики, веники, ковши.

На террасе бани оборудована небольшая кухня
Сегодня вместо него устраивают комнату отдыха. Она имеет общие капитальные стены с основными помещениями бани. Взяв на себя функции предбанника, это помещение еще и играет роль места, где можно отдохнуть, посидеть за столом, выпить чай и поговорить с друзьями. В летнее время из комнаты отдыха можно выйти и на террасу, чтобы насладиться свежим дуновением воздуха после жаркой парной. Не удивительно, что проекты бани с комнатой отдыха и террасой пользуются наибольшей популярностью.

Пример бани из оцилиндрованных бревен
Проект бани с мансардой и террасой
Если участок небольшой, а хочется, чтобы в бане была комната отдыха, можно рассмотреть варианты проектов бань с мансардой и террасой. Такое строение занимает гораздо меньшую площадь, но не уступает по функциональности предыдущему варианту. Кроме того, в мансарде можно устроить даже жилую комнату, если на дачном участке кроме бани и сарая для инвентаря больше ничего нет.
В такой комнате можно переночевать не только при работе на земельном участке, обрабатывая грядки, но и зимой после отдыха и парилки, когда возвращаться в город так не хочется. Впрочем, такая возможность возникает в случае, если мансарда хорошо утеплена и отапливается. В качестве утеплителя можно использовать минеральную вату или пенопласт.

Проект бани с мансардным помещением и террасой
Мансарда располагается выше основного строения под ломаной двускатной крышей. Она может быть, как утепленной, так и летней. При постройке бани с мансардой и террасой, проект должен предполагать усиленные перекрытия, так как они должны выдерживать вес человека. Наличие красивой лестницы, делает интерьер такой бани еще более привлекательным.
У этого типа сооружения есть и один существенный недостаток: взбираться на верх по лестнице не очень хочется после парной, когда основное желание, это побыстрее сесть в кресло и расслабиться.

Стены бани облицованы декоративным камнем
Полезный совет! Не стоит устраивать комнату отдыха в мансарде, если в вашей семье есть пожилые люди. Им не только неудобно будет подниматься, но и опасно.
Каждый волен выбрать любой из предложенных вариантов проектов бани на загородном участке. Все они, обладая индивидуальными особенностями, призваны обеспечить качественную организацию отдыха и релаксации человека. Поэтому перед строительством любого типа бани необходимо ознакомиться с правилами противопожарной безопасности, тем более, если на террасе предусмотрено приготовление барбекю.
Как построить баню своими руками (видео)
5639221.ru
