Фрезерный станок с чпу по дереву своими руками чертежи с размерами: Страница не найдена — Все о ЧПУ
чертежи и изготовление своими руками
В этой статье мы рассказываем о том, что построить своими руками фрезерный станок с ЧПУ — выполнимая задача. Подробно описывается весь процесс создания: от проектирования до применения станка.
В первом случае к покупным комплектующим добавлялись самодельные детали, сделанные на токарном станке, во втором проекте автор обошелся готовыми частями, третий — бонус, изготовление функционального стола для станка, совмещенного с полками для хранения материалов и инструментов.
X-Y-Z
Устанавливаем Z на Y.
Устанавливаем боковые стенки портала и клеммную коробочку для кабелей.
Устанавливаем портал на раму.
Вот и все. Станок получился удобный, стройный, я бы даже сказал поджарый, ничего не торчит, к рабочему полю хороший доступ со всех сторон, никаких кожухов, которые чего-то там прикрывают, нет «гусениц» для проводов, все провода спрятаны. Кстати, в моем экземпляре контроллер тоже спрятан под стол, к станку подходит только шнур питания и кабель LPT порта от компьютера.
Даже если вы все кривовато выпилили и не очень точно просверлили отверстия, вы все равно сможете доработать станок, довести его до ума и заставить нормально работать. Потому что в этой конструкции все определяется заведомо точными покупными направляющими и приемлемой геометрической точностью прессованных профилей (параллельность и перпендикулярность граней). Тут в принципе нет сложно выполнимых посадок и жестких допусков на линейные размеры. Однако, само собой разумеется, чем точнее вы сделаете детали, тем лучше и для станка и для тех изделий, которые вы будете на нем выпиливать.
Икс
Начнем с простого – со стола-основания. Элементарный геометрический расчет показывает, что при ходе по Х равному 1000 мм длина стола должна быть 1300 мм. По крайней мере, у меня так получилось. При ходе по Y больше 300 мм ширина стола должна быть не менее 460 мм.
Изучив сортамент стандартных прессованных прямоугольных труб (боксов) из алюминиевого сплава АД31 (других промышленность, к сожалению, не выпускает) выбираем бокс 80х40х4 мм.
Нарезаем из него несколько балок (1300 мм — 2 шт. и 460 мм -4шт.). Еще нам понадобятся два швеллера 50х30х4 длиной 1300 мм. В них отлично вписываются шариковые направляющие SBS15SL, которые я решил применить. В качестве ножек используем подходящие круглые ножки от дивана, купленные в магазине ОБИ. Сверлим во всем этом дырочки, кое-что красим, если есть такая возможность, и собираем каркас основания.
Получилось весьма крепко. Под нагрузкой швеллеры, в которые буду уложены рельсы слегка прогибаются, но ничего, поставим столешницу – будет совсем другое дело, основание по прочности и жесткости приобретет исключительную «дубовость».
Привинчиваем рельсы.
Они располагаются под столом и, как видите, относительно хорошо защищены от пыли и стружек. Не смотря на то, что шариковые блоки SBS снабжены скребками, предусмотреть дополнительную (пассивную) защиту рельс и блоков от прямого попадания стружек никогда не вредно.
Привинчиваем к шариковым блокам площадки, на которые впоследствии будет ставиться портал.
Площадки эти — просто прямоугольные пластинки из сплава Д16Т с отверстиями для крепления портала и кронштейна под шаговый мотор.
О кронштейне шагового мотора, и вообще о проводке зубчатого ремня поговорим отдельно.
Проводка зубчатого ремня
Да, шаговые моторы для перемещения портала по оси Х будут крепиться на самом портале! Почему-то когда говорят о приводе зубчатым ремнем, в мозгах рисуется ремень в виде кольца с мотором, установленным на раму, а натяжение ремня организуется на портале или каретке. Так делать можно, но лучший ли это способ? Не уверен. Мы пойдем другим путем. Устроим из ремня псевдо зубчатую рейку.
Концы ремня закрепим на раме. Одну прижимную планку зафиксируем жестко, а другая будет иметь возможность перемещаться для натяжения ремня в пределах расстояния между соседними зубьями, т.е. в пределах 5 мм. Зубчатое колесо, как обычно, насаживается на вал мотора. Ролики устанавливаются на том же кронштейне, что и мотор. В общем, все очевидно – мотор крутится и перемещает сам себя.
Чем же такой способ лучше кольцевого ремня? Да, хотя бы тем, что расход ремня в два раза меньше, натягивать проще, экономия на зубчатых колесах, которые дорогие и их надо покупать вместе с ремнем. Ролики с осями можно подобрать готовые. В общем есть в таком решении плюсы. А минусы? Не знаю…. Кабели от моторов таскать за порталом? Так их все равно таскать от осей Y и Z, плюс-минус несколько проводов – не принципиально. Вес портала увеличится? Увеличится. И это, наверно, единственный минус, о котором стоит говорить. Цена вопроса 1,5…2 кг (вес моторов) и/или 100 долларов США (длинный ремень и дополнительные зубчатые колеса). Я выбрал экономию денег, а не веса. При таких размерах портала экономия двух килограммов его массы существенного выигрыша не дает. В конце концов, при использовании зубчатых реек моторы стоят именно на каретках.
Ремень надо брать с относительно мелким зубом. Я выбрал любезный моему сердцу ремень от хвостовой балки модели вертолета «Раптор 50». Он имеет шаг зубьев 5 мм.
Зубчатое колесо тоже от этого вертолета. Его диаметр (по средней линии зубьев) 14 мм. Значит при включении двигателя в полушаговом режиме (400 шагов на оборот) перемещение каретки на один шаг будет 3,14*16/400 = 0,11 мм. Это больше, чем задумано. В микрошаге (1:6) перемещение на шаг получается 0,042 мм. То, что надо. И хотя «не тянущийся» ремень все равно чуть-чуть тянется, зато в ремне отсутствует накопленная ошибка, которая всегда присутствует в ходовом винте. В итоге, я думаю, мы уложимся в точность фрезерования 0,1 мм на длине 1000 мм. По крайней мере, по бальзе и четырехмиллиметровой фанере.
Что касается кронштейна шагового мотора, то это, как видите, простая пластина с дырками. Ничего особенного, выпиливаем точно так же, как и основание. Пока за рамки ножовки, дрели и напильника мы не вышли. Будем продолжать в том же духе.
Устанавливаем все это дело на раму и проверяем, как ездит. Ездит хорошо!
Собственно, это почти все с рамой. Осталось «причесать», придать изделию «товарный вид» и установить столешницу.
Товарный вид
«Made in дома» — не обязательно сикось-накось, коряво и неаккуратно. Меня удручают, закрепленные на уродских «курьих ножках» и торчащие во все стороны двигатели, пучки неубранных проводов, вывороченные наизнанку контроллеры и тому подобные «прелести» самодельных конструкций. Все бы ничего, в конце концов, каждый делает как может, пока автор очередного такого уродца не начинает всерьез рассуждать о серийном производстве своего детища для продажи, оправдывая неказистый вид станка, тем что это, дескать, опытный образец: «Тут подправим, там переделаем, кожухи понавесим, все покрасим, и будет это не станок, а конфетка». Не будет! Если для себя, любимого, автор не может сделать как надо, и ему не стыдно рекламировать свой недоделанный «товар» то и для покупателя он сделает тяп-ляп. Проверено, и не раз. Но это так, к слову….
Проложим пару дохленьких швеллеров, в которых будут размещаться петли кабелей от двигателей и концевых выключателей. Если контроллер большой и не лезет в подстольное пространство, то сделаем кронштейны для выходных соединителей.
И, наконец, установим заглушки на торцы несущих профилей, чтобы в них не скапливалась грязь.
Затраты труда на эти на первый взгляд необязательные мероприятия окупаются с лихвой.
Столешница
Станок планируется в основном для пиления бальзы, фанеры, пластиков, поэтому столешница может быть сделана из ламинированной панели для кухонной мебели толщиной 40 мм, т.е. той же толщины, что и алюминиевые боксы. Столешница крепится к двум несущим балкам рамы. Швеллеры, в которых проложены рельсы, также следует прикрепить саморезами к столешнице. В целом, конструкция получается ровная, прочная и жесткая. Можно спокойно встать на получившееся основание станка и походить по нему пешком – ничего не случится.
Некоторым «продвинутым» специалистам может понравиться наборная столешница из алюминиевого станочного профиля. Пожалуйста, принципиально ничего не изменится. Однако станок на зубчатых ремнях может пилить только то, на что рассчитан, а именно — фанеру, пластики и тонкий алюминий, и не более того, поэтому ужесточать столешницу – бессмысленно.
Принцип работы
Инновационные машины для фрезерования с блоками на компьютерном управлении предназначается для выполнения сложных рисунков на полуфабрикатах. Конструкция обязана обладать электронной составляющей. В комплексе это позволит по максимуму автоматизировать рабочие процессы.
Для моделирования фрезерных механизмов, первоначально требуется ознакомиться с основополагающими элементами. В роли исполнительного элемента выступает фреза, которая монтируется в шпиндель, расположенный на валу электрического мотора. Эта часть закрепляется на основе. Она способна выполнять перемещение в двух координатных осях: Х и Y. Для фиксирования заготовок сконструируйте и установите опорный стол.
Электрический блок регулировки сочленяется с электрическими маршевыми моторами. Они обеспечат перемещение каретки относительно обрабатываемых заготовок или полуфабрикатов. По подобной технологии выполняется 3D-графическое изображения на деревянных плоскостях.
Последовательность выполнения работ за счет данного механизма с ЧПУ:
- Написание рабочей программы, за счет которой будут выполняться перемещения рабочего органа.
Для данной процедуры лучше всего пользоваться специализированными электронными комплексами, призванные выполнить адаптацию в “кустарных” экземплярах. - Монтирование полуфабрикатов на столик.
- Вывод программного обеспечения на ЧПУ.
- Запуск механизмов, контролирование прохождения автоматических манипуляций оборудования.
Для получения максимального уровня автоматизации в 3D-режиме, корректно скомплектуйте схему и обозначьте определенные составляющие. Эксперты настоятельно советуют первоначально изучать производственные экземпляры перед началом построения фрезерной машины собственными руками.
Назначение фрезерных станков
Станки с числовым программным управлением получили широкое распространение не только в промышленном производстве, но и в частных мастерских. Они позволяют осуществлять плоскую и профильную обработку металла, пластмассы и дерева.
Кроме того, без них не обойтись при выполнении гравировальных и сверлильно-присадочных работах.
Практически любая задача, решаемая с использованием подобных устройств, выполняется на высоком уровне.
При необходимости что-то начертить на плате или деревянной плите, достаточно создать макет в компьютерной программе и с помощью CNC Milling перенести это на изделие. Выполнить подобную операцию вручную в большинстве случаев просто невозможно, особенно если речь идет о высокой точности.
Все профессиональное оборудование данного типа характеризуется высоким уровнем автоматизации и простотой работы. Необходимы лишь базовые навыки работы в специализированных компьютерных программах, чтобы решать несложные задачи обработки материалов.
В то же время даже самодельные станки с ЧПУ справляются с поставленными целями. При должной настройке и использовании качественных узлов, можно добиться от аппарата хорошей точности, минимального люфта и приемлемой скорости работы.
Зет
Ход по Z планируется сделать 90 мм. Почему 90? Потому что мне достаточно 90, а можно сделать и 150 мм.
Это не принципиально.
Каретка Z и все, что с ней связано, самая многодельная и трудоемкая часть нашего станка. Оно и понятно, привод по оси Z нельзя сделать на ремне. При каждом выключении станка под действием своего веса и веса шпинделя каретка будет съезжать вниз, и терять «0». Кроме того, от двигателя требуется значительный момент удержания, который должен компенсировать не только усилие фрезерования, но и вес шпинделя. Только винт с шагом не более 5 мм (лучше 3 мм) спасает положение. Итак, вот детали, которые надо изготовить.
Ходовой винт
Начнем с винта. Я уже писал подробно о ходовых винтах и гайках в статье «Механика самодельного станка ЧПУ», не буду повторяться. НО. Так ли уж необходим в данном случае на оси Z ходовой винт с гайкой, выполненный по всем правилам точной механики? Вряд ли. Станок предназначен для плоского фрезерования, по сути, это просто лобзик с ЧПУ – опустил фрезу на нужную глубину и – погнали выпиливать. Тут сгодится катаный винт. Да, чего там катаный, простой винт с метрической резьбой сгодится! И гайка капроновая сгодится! Другое дело, если планируется 3D фрезерование, например барельефов и медалей…, но такая задача плохо согласуется с ременным приводом остальных осей.
Так что, винт можно применить ЛЮБОЙ. Любой то любой, но я применил катаный винт Tr12х2 и бронзовую гайку с компенсацией люфта. Т.к. сегодня у меня это просто лобзик, а завтра я, возможно, захочу поставить винты на все оси. Конструкция позволяет.
Кстати, ходовой винт, переходная втулка для двигателя и опорные кольца подшипников – единственные детали, для изготовления которых нам потребуется токарный станок. Даже если вы купили резьбовую шпильку на рынке, концы такого винта нужно разделать.
Конструкция подшипникового узла ходового винта описана в вышеупомянутой статье. Она оказалась удачной, поэтому в новом станке сделаем точно также.
Отверстие в стенке под подшипники растачивать по посадке не обязательно, достаточно просто просверлить. Рабочие нагрузки направлены по оси винта, и если радиально-упорные подшипники будут слегка елозить в поперечном направлении, то ничего страшного, на точности работы оси это практически не скажется.
Сборка
Устанавливаем ходовой винт внутрь основания-швеллера, сделанного из профиля 60х40х5 мм, какого же, как и тот, который мы использовали для каретки Y.
К торцам основания привинчиваем рельсы.
Внимательный читатель скажет: «Ага! Деталь, на которую ставится двигатель, фрезерованная!!!». Необязательно. Ее можно сделать из двух плоских деталей и свинтить вместе. Например, так.
Устанавливаем уголки на шариковые блоки. Уголки сделаны из профиля 50х50х5 мм. Это единственный доступный профиль из сплава Д16Т.
Спереди на уголки ставится панель, которая, по сути, и есть каретка Z. Но перед этим установим перемычку, которая свяжет уголки с ходовой гайкой.
На первый взгляд эта деталь лишняя. Ходовую гайку можно закрепить сразу на передней панели. Но в этом случае, существенно возрастают требования к точности изготовления деталей, и монтаж гайки придется производить вслепую. Т.к. станок у нас «на скорую руку» и делаем мы его на кухне, то в данном случае такая переходная деталька может оказаться полезной. Впрочем, кто в себе уверен, может ее и не ставить.
Последний штрих. Устанавливаем переднюю панель и кронштейн для шпинделя.
Кронштейн может быть фрезерованный, а может быть и просто плоский. Это у кого как получится. Ходовой винт по оси Z оказался хорошо защищен от прямого попадания стружки. В целом, каретка Z получилась компактной, ее ширина 118 мм. Неплохой результат, если учесть, что основные детали сделаны из стандартных профилей.
Этот непростой процесс монтажа
Собрать самодельные ЧПУ станки, после подготовки комплектующих, лучше строго по чертежу, чтобы они работали. Процесс сборки, применяя ходовые винты, стоит выполнять в такой последовательности:
- знающий умелец начинает с крепления на корпусе первых двух ШД – за вертикальной осью оборудования. Один отвечает за горизонтальное перемещение фрезерной головки (рельсовые направляющие), а второй за перемещение в вертикальной плоскости;
- подвижной портал, перемещающийся по оси X, несет фрезерный шпиндель и суппорт (ось z). Чем выше будет портал, тем большую заготовку удастся обработать. Но у высокого портала, в процессе обработки, – снижается устойчивость к возникающим нагрузкам;
Комплекты и наборы для сборки фрезеров с ЧПУ своими руками
Да, есть доступные комплекты станков для ручной сборки, но я еще не видел ни одного, который можно было бы подстроить под определенные нужды.
Также нет возможности вносить изменения в конструкцию и тип станка, а ведь их много, и откуда вы знаете, какой из них подойдет именно вам? Независимо от того, насколько хороша инструкция, если конструкция продумана плохо, то и конечная машина будет плохой.
Вот почему вам нужно быть осведомленным относительно того, что вы строите и понимать какую роль играет каждая деталь!
Выбор конструктивных особенностей
Перечень действий при разработке, изготовлению мини устройства для фрезерования по дереву следующий:
- Первоначально нужно определиться о каких работах идёт речь. Это подскажет, какие габариты и толщины деталей можно будет на нём обрабатывать.
- Сделать компоновку и предполагаемый перечень деталей на самодельный настольный станочек для изготовления своими руками.
- Выбрать программное обеспечение по приведению его в рабочее состояние, чтобы он работал по заданной программе.
- Приобрести нужные компоненты, детали, изделия.
- Имея чертежи, сделать своими руками недостающие элементы, собрать и отладить готовое изделие.

Подбор комплектующих
Для направляющих применяют прутки из стали D = 12 мм. Для лучшего перемещения кареток они шлифуются. Длина их зависит от размера стола. Можно использовать закаленные стержни из стали от матричного принтера.
Шаговые двигатели можно использовать оттуда же. Их параметры: 24 В, 5 А.
Фиксацию фрез желательно обеспечить цангой.
На самодельный фрезерный мини станок лучше использовать блок питания заводского изготовления, так как от него зависит работоспособность.
В контроллере нужно использовать конденсаторы и резисторы в корпусах SMD для поверхностного монтажа.
Итог
Устройства для обработки дерева с числовым программным управлением имеют в своей конструкции различную электронику. Из-за этого, на первый взгляд, может показаться, что подобное оборудования очень трудно изготовить самостоятельно.
На самом деле сделать станок ЧПУ своими руками – посильная задача для каждого. Достаточно просто поверить в себя и в свои силы, и тогда можно стать обладателем надежного и эффективного фрезеровального станка, который станет гордостью любого мастера.
Фрезерный станок чпу своими руками чертежи
Итак, вы решили построить самодельный ЧПУ фрезерный станок или, может быть, вы просто над этим только задумываетесь и не знаете с чего начать? Есть много преимуществ в наличии машины с ЧПУ. Домашние станки могут производить фрезерование и резать практически все материалы. Будь вы любитель или мастер, это открывает большие горизонты для творчества. Есть много причин, по которым люди хотят построить собственный фрезерный станок ЧПУ своими руками. Как правило, это происходит потому, что мы просто не можем позволить себе купить его в магазине или от производителя, и в этом нет ничего удивительного, ведь цена на них немаленькая.
Поиск данных по Вашему запросу:
Схемы, справочники, даташиты:
Прайс-листы, цены:
Обсуждения, статьи, мануалы:
Дождитесь окончания поиска во всех базах.
По завершению появится ссылка для доступа к найденным материалам.

Содержание:
- Как собрать самодельный фрезерный станок с ЧПУ + Чертежи и схемы!
- фрезерный станок с чпу своими руками чертежи
- Мини гравировальный станок с ЧПУ своими руками
- Чертежи самодельный станок с ЧПУ, фрезерный, трех-координатный
- Создание ЧПУ станка своими руками
- Фрезерный станок с ЧПУ в домашних (гаражных) условиях
- Особенности фрезера ЧПУ, выбор конструкции, схемы и чертежи
ПОСМОТРИТЕ ВИДЕО ПО ТЕМЕ: Самодельный бюджетный ЧПУ станок это просто! Построен в 2008-2009г.
Как собрать самодельный фрезерный станок с ЧПУ + Чертежи и схемы!
Сайт помогает найти что-нибудь интересное в огромном ассортименте магазинов и сделать удачную покупку. Если Вы купили что-то полезное, то, пожалуйста, поделитесь информацией с другими. Также у нас есть DIY сообщество , где приветствуются обзоры вещей, сделанных своими руками.
Идеальный номер два? Делаем UPS для радиотелефона. Цена Микрофон, хороший звук, подсветка. Своими руками. Последний раз. Зарегистрироваться Логин или эл.
Напомнить пароль Пароль. Войти Запомнить меня. Войти или Зарегистрироваться. Добавить обзор. Блог AliExpress. RSS блога Подписка. Набор, с помощью которого можно собрать свой фрезерный станок с ЧПУ. В Китае продаются готовые станки, обзор одного из них на Муське уже публиковался. Мы же с Вами соберем станок сами. Добро пожаловать… UPD : ссылки на файлы Я все-таки приведу ссылку на обзор готового станка mysku.
Я же не буду повторяться, не буду цитировать его текст, напишем все с нуля. В заголовке указан только набор с двигателями и драйвером, будут еще части, постараюсь дать ссылки на всё. И это… Заранее извиняюсь перед читателями, фотографии в процессе специально не делал, так как в тот момент делать обзор не собирался, но подниму максимум фоток процесса и постараюсь дать подробное описание всех узлов.
Цель обзора — не столько похвастаться, сколько показать возможность сделать для себя помощника самому. Надеюсь этим обзором подать кому-то идею, и возможно не только повторить, но и сделать еще лучше. Поехали… Как родилась идея:. Так получилось, что с чертежами я связан давно. Но одно дело, когда ты делаешь чертеж, а после уже совсем другие люди воплощают объект проектирования в жизнь, и совсем другое, когда ты воплощаешь объект проектирования в жизнь сам.
И если со строительными вещами у меня вроде как нормально получается, то с моделизмом и другим прикладным искусством не особо.
Так вот давно была мечта из нарисованного в автокаде изображения, сделать вжжик — и оно вот в натуре перед тобой, можно пользоваться.
Идея эта время от времени проскакивала, но во что-то конкретное оформиться никак не могла, пока… Пока я не увидел года три-четыре назад REP-RAP. Ну что ж 3Д принтер это была очень интересная вещь, и идея собрать себе долго оформлялась, я собирал информацию о разных моделях, о плюсах и минусах разных вариантов.
В один момент перейдя по одной из ссылок я попал на форум, где сидели люди и обсуждали не 3Д принтеры, а фрезерные станки с ЧПУ управлением. И отсюда, пожалуй, увлечение и начинает свой путь. В двух словах о фрезерных станках с ЧПУ пишу своими словами намеренно, не копируя статьи, учебники и пособия. Фрезерный станок работает прямо противоположно 3Д принтеру. Для работы такого станка нужен необходимый минимум. База корпус с линейными направляющими и передающий механизм может быть винт или ремень 2.
Шпиндель я вижу кто-то улыбнулся, но так он называется — собственно двигатель с цангой, в которую устанавливается рабочий инструмент — фреза.
Шаговые двигатели — двигатели, позволяющие производить контролируемые угловые перемещения. Контроллер — плата управления, передающая напряжения на двигатели в соответствии с сигналами, полученными от управляющей программы. Компьютер, с установленной управляющей программой.
Базовые навыки черчения, терпение, желание и хорошее настроение. По пунктам: 1. По направляющим оси Х передвигается портал, на котором размещены направляющие оси Y, и перемещающийся по нему узел оси Z.
Со статическим порталом Такая конструкция представляет и себя корпус он же и является порталом, на котором размещены направляющие оси Y, и перемещающийся по нему узел оси Z, а ось Х уже перемещается относительно портала.
Такой станок конечно должен быть статичным не мобильным и тяжелым. Как видите — сама конструкция станка весьма схожа и с 3д принтером и с лазерными граверами. Я намеренно не пишу про конструкции 4, 5 и 6 -осевых фрезерных станков, так как на повестке дня стоит самодельный хоббийный станок.
Собственно, шпиндели бывают с воздушным и водяным охлаждением.
С воздушным охлаждением в итоге стоят дешевле, так как для них не надо городить дополнительный водяной контур, работают чуть громче нежели водяные. Охлаждение обеспечивается установленной на тыльной стороне крыльчаткой, которая на высоких оборотах создает ощутимый поток воздуха, охлаждающий корпус двигателя.
Чем мощнее двигатель, тем серьезнее охлаждение и тем больше воздушный поток, который вполне может раздувать во все стороны пыль стружку, опилки обрабатываемого изделия. С водяным охлаждением. Такой шпиндель работает почти беззвучно, но в итоге все-равно разницу между ними в процессе работу не услышать, поскольку звук обрабатываемого материала фрезой перекроет.
Сквозняка от крыльчатки, в данном случае конечно нет, зато есть дополнительный гидравлический контур. В таком контуре должны быть и трубопроводы, и помпа прокачивающая жидкость, а также место охлаждения радиатор с обдувом. Также шпиндели есть различных мощностей, и если маломощные можно подключить напрямую к плате управления, то двигатели мощностью от 1кВт уже необходимо подключать через блок управления, но это уже не про нас.
Да, еще частенько в самодельных станках устанавливают прямые шлифмашины, либо фрезеры со съемной базой.
Такое решение может быть оправдано, особенно при выполнении работ недолгой продолжительности. В моем случае был выбран шпиндель с воздушным охлаждением мощностью Вт. Шаговые двигатели. Наибольшее распространение получили двигатели 3 типоразмеров NEMA17, NEMA23, NEMA 32 отличаются они размерами, мощностью и рабочим моментом NEMA17 обычно применяются в 3д принтерах, для фрезерного станка они маловаты, так как приходится таскать тяжелый портал, к которому дополнительно прикладывается боковая нагрузка при обработке.
NEMA32 для такой поделки излишни, к тому же пришлось бы брать другую плату управления. Также люди используют шаговики от принтеров, но так как у меня и их не было и все равно приходилось покупать выбрал всё в комплекте. Контроллер Плата управления, получающая сигналы от компьютера и передающая напряжение на шаговые двигатели, перемещающие оси станка.
Компьютер Нужен комп отдельный возможно весьма старый и причин тому, пожалуй, две: 1.
Просто потому, что фрезерный станок — это громко и пыльно. Обычно станок либо в мастерской, либо в гараже лучше отапливаемом. У меня станок стоит в гараже, зимой преимущественно простаивает, так как нет отопления.
В силу малой мощности машины стараемся не ставить дополнительный софт, то есть только ось и управляющая программа. Тут в двух словах. Для работы станка нужна управляющая программа по сути текстовый файл содержащий координаты перемещений, скорость перемещений и ускорения , которая в свою очередь готовится в CAM приложении — обычно это ArtCam, в этом приложении готовиться сама модель, задаются ее размеры, выбирается режущий инструмент.
Похожие обзоры Другие обзоры от lumin. Огородничества пост. Сие не есть гудЪ. Я себе переходник из гофрированной сантехнической сливной трубы присобачил — она легкая, длинная и гнется легко.
Я знаю прекрасно про ее существование : и даже скажу больше она тут есть. Ее не видно, при пайке коннекторов использовалась. У меня проблема в другом — нет термофена, а покупать только ради термоусадки пока не готов.
Согласен, промышленный фен штука нужная, купил как-то на распродаже, до сих пор служит верой и првадой. Знаете, вот просто очень много нужной фигни вокруг : Я таким образом потихоньку оброс уже инструментом.
Хоть и не являюсь профессиональным мастером и не зарабатываю пока деньги, но практически весь инструмент для домашнего ремонта, а также столярки уже есть. Мне просто нравится его иметь, то есть иметь возможность просто сделать то, что нужно. А вот до фена как-то руки не дошли. Xiiz 05 июля , 0. Да я смотрел, просто нет необходимости пока.
Я даже не знаю куда мне его еще применить… Помню брал у человека попользоваться, чтобы снять краску со старого деревянного окна… всё. А зачем он еще? Nikodim 05 июля , 0. Demz 05 июля , 0.
фрезерный станок с чпу своими руками чертежи
Чпу своими руками на подшипниках Dumitru ODimSoft. Подшипники покупал тут — go2cut. Как сделать простой ЧПУ станок своими руками. Часть 1 Горящие Лайф. Всем привет! Чпу фрезерный станок нужен мне б..
Можно ли собрать фрезерный станок ЧПУ своими руками. Советы На чертеже изображена конструкция станка профессиональной категории.
Мини гравировальный станок с ЧПУ своими руками
Зная о том, что фрезерный станок с ЧПУ считается усложненным техническим и электронным оборудованием, многие мастера думают, что его просто нельзя сделать своими руками. Однако это мнение не соответствует действительности: своими руками сделать такое устройство можно, но для этого необходимо иметь не только его полный чертеж, но и набор определенных инструментов и подходящих комплектующих.
Решившись на создание самодельного специального станка с ЧПУ, помните, что на это может уйти много времени. Помимо этого, понадобится много денег. Чтобы изготовить фрезерный станок, который оснащается системой ЧПУ, можно воспользоваться 2 способами: приобрести готовый набор из специально выбранных деталей, из которых и собирается такое оборудование, либо отыскать все комплектующие и самостоятельно собрать устройство, полностью подходящее всем вашим требованиям. Если вы запланировали изготовить станок с ЧПУ самостоятельно, не применяя готового набора, то первое, что вам нужно будет сделать, — это остановиться на специальной схеме , по которой будет работать такое мини-устройство. Основанием собранного фрезерного оборудования может стать балка прямоугольного типа, которую надо крепко фиксировать на направляющих.
Чертежи самодельный станок с ЧПУ, фрезерный, трех-координатный
Ответ на этот вопрос не такой простой: всегда есть какие-либо детали, которые нужно сделать довольно точно и нет возможности просто распечатать их на 3d принтере.
Так же иногда хочется делать самому печатные платы, быстро размечать детали. Ну и конечно же на этом можно зарабатывать : начиная от сувенирной продукции и заканчивая изготовлением деталей на заказ. Процесс проектирования и расчетов занял около 2 месяцев.
Огромные возможности сделали фрезер ЧПУ желанным станком в мастерской. Область применения, выбор конструкции, схемы.
Создание ЧПУ станка своими руками
Запомнить меня. Скачать чертеж самодельного ЧПУ станка можно по ссылкам в конце статьи. В предлагаемом к скачиванию архиве лежит чертеж ЧПУ станка для сборки своими руками. Это достаточно распространенный тип ЧПУ станка с движущимся порталом. Данный чертеж отличается прежде всего тем, что в не только дана деталировка — когда каждая деталь станка вычерчена отдельно и имеет проставленные размеры, но и приведены сборочные чертежи каждого из узлов.
Фрезерный станок с ЧПУ в домашних (гаражных) условиях
Всем привет. Хочу поделится с вами как воспалённый мозг покоя не даёт… Как то пару месяцев назад пришёл ко мне друг с пивом но я ж не пью сидели мы смотрели видео на ютубе… угарали и тут наткнулись на видео с ЧПУ станком ну и через пару дней я уже поехал в воронеж за комплектующими долгое ожидание деталей и даже разборки, но всё таки все детали оказались у меня.
Очень понравился Ваш станок. Здравствуйте, вышлите мне пожалуйста чертежи вашего станка, и если есть, то пришлите мне спецификацию по использованного материала двигатели, винты, подшипники и т. Если у Вас будет время напишите мне на anubisroman yandex. C уважением, Роман. Добрый вечер! Меня заинтересовал ваш чпу станок!
Чертежи самодельный станок с ЧПУ, фрезерный, трех-координатный можно изготовить своими руками имея под руками простейшее описание его .
Особенности фрезера ЧПУ, выбор конструкции, схемы и чертежи
Самодельный ЧПУ фрезерный станок: подробности процесса сборки, обзор нужных комплектов и наборов, личный опыт. Откроем секреты сборки станка своими руками. Итак, вы решили построить самодельный ЧПУ фрезерный станок или, может быть, вы просто над этим только задумываетесь и не знаете с чего начать? Есть много преимуществ в наличии машины с ЧПУ.
Для изготовления объемного рисунка на деревянной поверхности применяются заводские фрезерные станки с ЧПУ по дереву.
Сделать аналогичную мини-модель своими руками в домашних условиях сложно, но возможно при детальном изучении конструкции. Для этого необходимо разобраться со спецификой, правильно подобрать комплектующие и выполнить их настройку. Современное деревообрабатывающее оборудование с блоком числового программного управления предназначено для формирования сложного рисунка по дереву.
В наше время всё более частым становится производство мелких деталей из древесины, для тех или иных конструкций. Также в магазинах можно встретить разнообразие красивых объёмных картин, выполненных на древесном полотне.
Сайт помогает найти что-нибудь интересное в огромном ассортименте магазинов и сделать удачную покупку. Если Вы купили что-то полезное, то, пожалуйста, поделитесь информацией с другими. Также у нас есть DIY сообщество , где приветствуются обзоры вещей, сделанных своими руками. Идеальный номер два? Делаем UPS для радиотелефона.
Тогда заходи и мы обязательно поможем! В связи с большим количеством обрашений мы переехали на новый VIP сервер Пожалуйста, подождите.
Если сайт долго не загружается, самостоятельно.
Станок чпу своими руками схема чертежи
Главная » Станок » Станок чпу своими руками схема чертежи
ЧПУ станок своими руками
В статье описан самодельный станок с ЧПУ. Главное достоинство данного варианта станка – простой метод подключения шаговых двигателей к компьютеру через порт LPT.
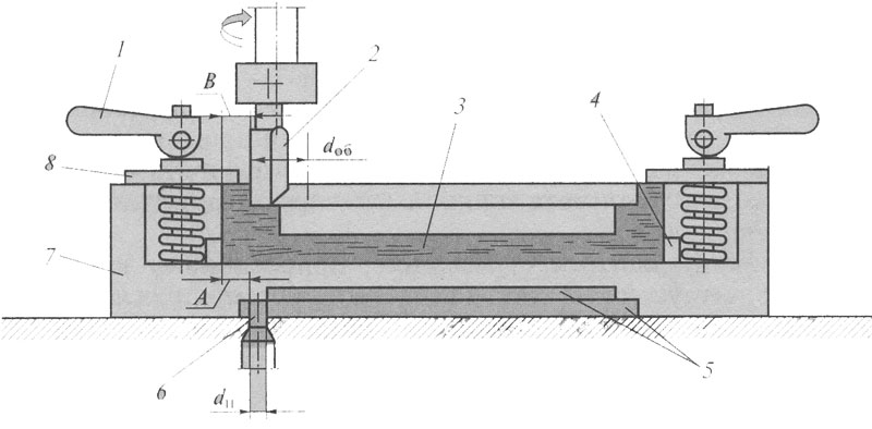
Механическая часть
Станина Станина нашего станка сделана из пластмассы толщиной 11-12мм. Материал не критичен, можно использовать алюминий, органическое стекло фанеру и любой другой доступный материал. Основные детали каркаса прикрепляются с помощью саморезов, при желании можно дополнительно оформить места креплений клеем, если используете древесину, то можно использовать клей ПВА.
Суппорта и направляющие В качестве направляющих использованы стальные прутки с диаметром 12мм, длина 200мм (на ось Z 90мм), две штуки на ось. Суппорта изготавливаются из текстолита размерами 25Х100Х45.
Текстолит имеет три сквозных отверстия, два из них для направляющих и одно для гайки. Направляющие части крепятся винтами М6. Суппорты Х и У в верхней части имеют 4 резьбовых отверстия для крепления стола и узла оси Z.
Суппорт Z Направляющие оси Z крепятся к суппорту Х через стальную пластину, которая является переходной, размеры пластины 45х100х4.
Шаговые двигатели устанавливаются на крепежи, которые можно изготовить из листовой стали с толщиной 2-3мм. Винт нужно соединить с осью шагового двигателя при помощи гибкого вала, в качестве которого может быть использован резиновый шланг. При использовании жесткого вала, система будет работать не точно. Гайку делают из латуни, которую вклеивают в суппорт.
Сборка Сборка самодельного ЧПУ станка, осуществляется в следующей последовательности:
- Для начала нужно установить в суппорта все направляющие компоненты и прикрутить их к боковинам, которые вначале не установлены на основание.
- Суппорт передвигаем по направляющим до тех пор, пока не добьемся плавного хода.

- Затягиваем болты, фиксируя направляющие части.
- К основанию крепим суппорт, узел направляющие и боковину, для крепления используем саморезы.
- Собираем узел Z и вместе с переходной пластиной прикрепляем его к суппорту X.
- Далее устанавливаем ходовые винты вместе с муфтами.
- Устанавливаем шаговые двигатели, соединяя ротор двигателя и винт муфтой. Обращаем строгое внимание на то, чтобы ходовые винты вращались плавно.
Рекомендации по сборке станка: Гайки можно изготовить также из чугуна, использовать другие материалы не стоит, винты можно купить в любом строительном магазине и обрезать под свои нужды. При использовании винтов с резьбой М6х1, длина гайки будет 10 мм.
Чертежи станка.rar
Переходим ко второй части сборки ЧПУ станка своими руками, а именно к электронике.
Электроника
Блок питания В качестве источника питания был использован блок на 12Вольт 3А. Блок предназначен для питания шаговых двигателей. Еще один источник напряжения на 5Вольт и с током 0.
3А был использован для запитки микросхем контролера. Источник питания зависит от мощности шаговых двигателей.
Приведем расчет блока питания. Расчет прост — 3х2х1=6А, где 3 — количество используемых шаговых двигателей, 2 — число запитанных обмоток, 1 — ток в Амперах.
Контролер управления Управляющий контроллер был собран всего на 3-х микросхемах серии 555TM7. Контроллер не требует прошивки и имеет достаточно простую принципиальную схему, благодаря этому, данный ЧПУ станок своими руками может сделать человек не особо разбирающийся в электронике.
Описание и назначение выводов разъема порта LPT.
| Выв. | Название | Направление | Описание |
| 1 | STROBE | ввод и вывод | Устанавливается PC после завершения каждой передачи данных |
| 2..9 | DO-D7 | вывод | Вывод |
| 10 | АСК | ввод | Устанавливается в «0» внешним устройством после приема байта |
| 11 | BUSY | ввод | Устройство показывает, что оно занято, путем установки этой линии в «1» |
| 12 | Paper out | ввод | Для принтеров |
| 13 | Select | ввод | Устройство показывает, что оно готово, путем установки на этой линии «1 » |
| 14 | Autofeed | ||
| 15 | Error | ввод | Индицирует об ошибке |
| 16 | Initialize | ввод и вывод | |
| 17 | Select In | ввод и вывод | |
18. .25 | Ground GND | GND | Общий провод |
Для эксперимента был использован шаговый двигатель от старого 5,25-дюймов. В схеме 7 бит не используется т.к. применено 3 двигателя. На него можно повесить ключ включение главного двигателя (фреза или сверло).
Драйвер для шаговых двигателей Для управления шаговым двигателем используется драйвер, который из себя представляет усилитель с 4-я каналами. Конструкция реализована всего на 4-х транзисторах типа КТ917.
Применять можно и серийные микросхемы, к примеру — ULN 2004 (9 ключей) с током 0,5-0.6А.
Для управления используется программа vri-cnc. Подробное описание и инструкция по использованию программы находится на официальном сайте.
Собрав данный ЧПУ станок своими руками, вы станете обладателем машины способной выполнять механическую обработку (сверление, фрезерование) пластмасс. Гравировку по стали. Также самодельный станок с ЧПУ может использоваться как графопостроитель, на нем можно рисовать и сверлить печатные платы.
По материалам сайта: vri-cnc.ru
Loading…
all-he.ru
Чпу своими руками чертежи
Зная о том, что фрезерный станок с ЧПУ является сложным техническим и электронным устройством, многие умельцы думают, что его просто невозможно изготовить своими руками. Однако такое мнение ошибочно: самостоятельно сделать подобное оборудование можно, но для этого нужно иметь не только его подробный чертеж, но и набор необходимых инструментов и соответствующих комплектующих.
Обработка дюралевой заготовки на самодельном настольном фрезерном станке
Решившись на изготовление самодельного фрезерного станка с ЧПУ, имейте в виду, что на это может уйти значительное количество времени. Кроме того, потребуются определенные финансовые затраты. Однако не побоявшись таких трудностей и правильно подойдя к решению всех вопросов, можно стать обладателем доступного по стоимости, эффективного и производительного оборудования, позволяющего выполнять обработку заготовок из различных материалов с высокой степенью точности.
Чтобы сделать фрезерный станок, оснащенный системой ЧПУ, можно воспользоваться двумя вариантами: купить готовый набор, из специально подобранных элементов которого и собирается такое оборудование, либо найти все комплектующие и своими руками собрать устройство, полностью удовлетворяющее всем вашим требованиям.
Инструкция по сборке самодельного фрезерного станка с ЧПУ
Ниже на фото можно увидеть сделанный собственными руками фрезерный станок с ЧПУ, к которому прилагается подробная инструкция по изготовлению и сборке с указанием используемых материалов и комплектующих, точными «выкройками» деталей станка и приблизительными затратами. Единственный минус — инструкция на английском языке, но разобраться в подробных чертежах вполне можно и без знания языка.
Скачать бесплатно инструкцию по изготовлению станка: Самодельный фрезерный станок с ЧПУ
Фрезерный станок с ЧПУ собран и готов к работе. Ниже несколько иллюстраций из инструкции по сборке данного станка
«Выкройки» деталей станка (уменьшенный вид) Начало сборки станка Промежуточный этап Заключительный этап сборки
Подготовительные работы
Если вы решили, что будете конструировать станок с ЧПУ своими руками, не используя готового набора, то первое, что вам необходимо будет сделать, — это остановить свой выбор на принципиальной схеме, по которой будет работать такое мини-оборудование.
Схема фрезерного станка с ЧПУ
За основу фрезерного оборудования с ЧПУ можно взять старый сверлильный станок, в котором рабочая головка со сверлом заменяется на фрезерную. Самое сложное, что придется конструировать в таком оборудовании, — это механизм, обеспечивающий передвижение инструмента в трех независимых плоскостях. Этот механизм можно собрать на основе кареток от неработающего принтера, он обеспечит перемещение инструмента в двух плоскостях.
К устройству, собранному по такой принципиальной схеме, легко подключить программное управление. Однако его основной недостаток заключается в том, что обрабатывать на таком станке с ЧПУ можно будет только заготовки из пластика, древесины и тонкого листового металла. Объясняется это тем, что каретки от старого принтера, которые будут обеспечивать перемещение режущего инструмента, не обладают достаточной степенью жесткости.
Облегченный вариант фрезерного станка с ЧПУ для работы с мягкими материалами
Чтобы ваш самодельный станок с ЧПУ был способен выполнять полноценные фрезерные операции с заготовками из различных материалов, за перемещение рабочего инструмента должен отвечать достаточно мощный шаговый двигатель.
Совершенно не обязательно искать двигатель именно шагового типа, его можно изготовить из обычного электромотора, подвергнув последний небольшой доработке.
Применение шагового двигателя в вашем фрезерном станке даст возможность избежать использования винтовой передачи, а функциональные возможности и характеристики самодельного оборудования от этого не станут хуже. Если же вы все-таки решите использовать для своего мини-станка каретки от принтера, то желательно подобрать их от более крупногабаритной модели печатного устройства. Для передачи усилия на вал фрезерного оборудования лучше применять не обычные, а зубчатые ремни, которые не будут проскальзывать на шкивах.
Узел ременной передачи
Одним из наиболее важных узлов любого подобного станка является механизм фрезера. Именно его изготовлению необходимо уделить особое внимание. Чтобы правильно сделать такой механизм, вам потребуются подробные чертежи, которым необходимо будет строго следовать.
Чертежи фрезерного станка с ЧПУ
Чертеж №1 (вид сбоку)
Чертеж №2 (вид сзади)
Чертеж №3 (вид сверху)
Приступаем к сборке оборудования
Основой самодельного фрезерного оборудования с ЧПУ может стать балка прямоугольного сечения, которую надо надежно зафиксировать на направляющих.
Несущая конструкция станка должна обладать высокой жесткостью, при ее монтаже лучше не использовать сварных соединений, а соединять все элементы нужно только при помощи винтов.
Узел скрепления деталей рамы станка посредством болтового соединения
Объясняется это требование тем, что сварные швы очень плохо переносят вибрационные нагрузки, которым в обязательном порядке будет подвергаться несущая конструкция оборудования. Такие нагрузки в итоге приведут к тому, что рама станка начнет разрушаться со временем, и в ней произойдут изменения в геометрических размерах, что скажется на точности настройки оборудования и его работоспособности.
Сварные швы при монтаже рамы самодельного фрезерного станка часто провоцируют развитие люфта в его узлах, а также прогиб направляющих, образующийся при серьезных нагрузках.
Установка вертикальных стоек
Во фрезерном станке, который вы будете собирать своими руками, должен быть предусмотрен механизм, обеспечивающий перемещение рабочего инструмента в вертикальном направлении.
Лучше всего использовать для этого винтовую передачу, вращение на которую будет передаваться при помощи зубчатого ремня.
Важная деталь фрезерного станка – его вертикальная ось, которую для самодельного устройства можно изготовить из алюминиевой плиты. Очень важно, чтобы размеры этой оси были точно подогнаны под габариты собираемого устройства. Если в вашем распоряжении есть муфельная печь, то изготовить вертикальную ось станка можно своими руками, отлив ее из алюминия по размерам, указанным в готовом чертеже.
Узел верхней каретки, размещенный на поперечных направляющих
После того как все комплектующие вашего самодельного фрезерного станка подготовлены, можно приступать к его сборке. Начинается данный процесс с монтажа двух шаговых электродвигателей, которые крепятся на корпус оборудования за его вертикальной осью. Один из таких электродвигателей будет отвечать за перемещение фрезерной головки в горизонтальной плоскости, а второй — за перемещение головки, соответственно, в вертикальной.
После этого монтируются остальные узлы и агрегаты самодельного оборудования.
Финальная стадия сборки станка
Вращение на все узлы самодельного оборудования с ЧПУ должно передаваться только посредством ременных передач. Прежде чем подключать к собранному станку систему программного управления, следует проверить его работоспособность в ручном режиме и сразу устранить все выявленные недостатки в его работе.
Посмотреть процесс сборки фрезерного станка своими руками можно на видео, которое несложно найти в интернете.
Шаговые двигатели
В конструкции любого фрезерного станка, оснащенного ЧПУ, обязательно присутствуют шаговые двигатели, которые обеспечивают перемещение инструмента в трех плоскостях: 3D. При конструировании самодельного станка для этой цели можно использовать электромоторы, установленные в матричном принтере. Большинство старых моделей матричных печатных устройств оснащались электродвигателями, обладающими достаточно высокой мощностью. Кроме шаговых электродвигателей из старого принтера стоит взять прочные стальные стержни, которые также можно использовать в конструкции вашего самодельного станка.
Закрепление шагового двигателя на верхней каретке
Чтобы своими руками сделать фрезерный станок с ЧПУ, вам потребуются три шаговых двигателя. Поскольку в матричном принтере их всего два, необходимо будет найти и разобрать еще одно старое печатное устройство.
Окажется большим плюсом, если найденные вами двигатели будут иметь пять проводов управления: это позволит значительно увеличить функциональность вашего будущего мини-станка. Важно также выяснить следующие параметры найденных вами шаговых электродвигателей: на сколько градусов осуществляется поворот за один шаг, каково напряжение питания, а также значение сопротивления обмотки.
Для подключения каждого шагового двигателя понадобится отдельный контроллер
Конструкция привода самодельного фрезерного станка с ЧПУ собирается из гайки и шпильки, размеры которых следует предварительно подобрать по чертежу вашего оборудования. Для фиксации вала электродвигателя и для его присоединения к шпильке удобно использовать толстую резиновую обмотку от электрического кабеля.
Такие элементы вашего станка с ЧПУ, как фиксаторы, можно изготовить в виде нейлоновой втулки, в которую вставлен винт. Для того чтобы сделать такие несложные конструктивные элементы, вам понадобятся обычный напильник и дрель.
Электронная начинка оборудования
Управлять вашим станком с ЧПУ, сделанным своими руками, будет программное обеспечение, а его необходимо правильно подобрать. Выбирая такое обеспечение (его можно написать и самостоятельно), важно обращать внимание на то, чтобы оно было работоспособным и позволяло станку реализовывать все свои функциональные возможности. Такое ПО должно содержать драйверы для контроллеров, которые будут установлены на ваш фрезерный мини-станок.
В самодельном станке с ЧПУ обязательным является порт LPT, через который электронная система управления и подключается к станку. Очень важно, чтобы такое подключение осуществлялось через установленные шаговые электродвигатели.
Схема подключения униполярных шаговых электродвигателей для 3-х координатного станка с ЧПУ (нажмите для увеличения)
Выбирая электронные комплектующие для своего станка, сделанного своими руками, важно обращать внимание на их качество, так как именно от этого будет зависеть точность технологических операций, которые на нем будут выполняться.
После установки и подключения всех электронных компонентов системы ЧПУ нужно выполнить загрузку необходимого программного обеспечения и драйверов. Только после этого следуют пробный запуск станка, проверка правильности его работы под управлением загруженных программ, выявление недостатков и их оперативное устранение.
Все вышеописанные действия и перечисленные комплектующие подходят для изготовления своими руками фрезерного станка не только координатно-расточной группы, но и ряда других типов. На таком оборудовании можно выполнять обработку деталей со сложной конфигурацией, так как рабочий орган станка может перемещаться в трех плоскостях: 3d.
Ваше желание своими руками собрать такой станок, управляемый системой ЧПУ, должно быть подкреплено наличием определенных навыков и подробных чертежей. Очень желательно также посмотреть ряд тематических обучающих видео, некоторые из которых представлены в данной статье.
Главная › Оборудование для обработки металла › Фрезерные станки
Похожие новости:
artemmian.
ru
Станок ЧПУ своими руками / Сделай сам / Коллективный блог
Сегодня станок с ЧПУ имеет широкий спектр применения. Среди основных операций, выполняемых на нем, можно отметить изготовление мебели, обработку камня, ремонтные, строительные работы и т.д.
Станок с ЧПУ, изготовленный в промышленных условиях, – удовольствие достаточно дорогое. Но, оказывается, сложный на первый взгляд механизм, очень прост и доступен в изготовлении в бытовых условиях своими руками.
Для первого опыта лучше всего остановить свой выбор на станке с движущимся порталом. Связано это с тем, что в нем отличным образом совмещаются простота и функциональность.
Рис.1
Для изготовления основных деталей станка возьмем МДФ плиты. Этот материал представляет собой мелкие дисперсные фракции, которые спрессованы под большим давлением и температурой в одну плиту. К основным характеристикам МДФ относится высокая плотность. Поэтому они отлично подходят для изготовления станков ЧПУ своими руками.
На оборудовании из МДФ можно проводить обработку пластика, дерева, делать гравировку, но обрабатывать металлические детали с высокой точностью не получиться. Связано это с низкой стойкостью данного материала к нагрузкам.
Для начала чертеж нашего станка распечатаем на принтере. Затем полученные шаблоны можно наклеить на МДФ. Так намного проще и удобнее вырезать детали будущего станка.
Рис.2
Фурнитуру, которая будет использовать в сборке, можно приобрести в любом строительном или строительном магазине.
Рис. 3
Кроме фурнитуры для изготовления станка потребуются следующие инструменты: дрель, отвертка и ножовка. Если у вас есть электролобзик, тогда лучше воспользоваться им. Это значительным образом упростит процесс выпиливания деталей.
Приступаем к изготовлению станка. Для этого распечатанные на принтере чертежи деталей наклеиваем на плиту МДФ, используя клеящий карандаш для бумаги. Выбирая его в магазине, остановите свой выбор на самом толстом.
Это позволит значительным образом ускорить процесс поклейки шаблонов.
Рис.4
Теперь можно заняться непосредственным выпиливанием заготовок. В данной модели все детали имеют практически прямые линии и максимально простые контуры.
Рис. 5
После того, как все шаблоны вырезаны, приступаем к просверливанию отверстий. Следует обратить внимание на то, что многие из них имею большой диаметр. Поэтому, чтобы поверхность этих отверстий была аккуратной и гладкой, лучше воспользоваться коронками или насадками для шлифовки. Таким образом, у вас будет возможность аккуратно растачивать отверстия до нужного диаметра.
Рис.6
Теперь можно приступать к сборке ЧПУ станка согласно имеющимся у нас чертежам.
Так как мы планируем использовать станок в домашних условиях, то обязательно необходимо установить ограждение. Это позволит избежать разлетания пыли и грязи от обрабатываемых деталей.
Для этих целей можно использовать пенопласт, стекловолокно, тонкую фанеру и т.
д. Не забудьте в ограждении сделать небольшое отверстие.
Рис.7
Через него можно будет подключить вытяжку от старого пылесоса. Это обеспечит максимальное улавливание пыли и стружки. Обратным эффектом использования подобного «грязеуловителя» является сильный шум.
Следующим важным этапом сборки станка ЧПУ своими руками является электроника. Ведь она важная, т.к. с ее помощью происходит процесс управления.
В этом случае можно воспользоваться двумя путями решения. Первый из них – собрать необходимую схему контролера самостоятельно, купив все необходимые детали.
Второй путь проще – купить готовый контролер в магазине или на радиорынке. Какой из предложенных путей выбрать – решать вам самим. Если вы не очень разбираетесь в радиотехнике и решите купить готовую деталь, тогда рекомендуется остановить выбор на ТВ6560.
Рис.8
За выбор этого элемента говорит его возможность подбора необходимого питания в зависимости от используемых шаговых двигателей, наличие защиты от перегрузки и перегрева, использование множества программных обеспечений и т.
д.
В случае если контроллер вы будет изготавливать самостоятельно, отлично подойдет старый сканер или МФУ. Из него выбирается микросхема ULN2003, стальные стержни и шаговый двигатель. Кроме этого вам понадобиться разъем DВ-25 с проводом, гнездо для питания самого контроллера. Если хотите иметь компьютерное управления своего станка, тогда необходим будет компьютер, к которому вы подключите полученное оборудование.
Для создания контроллера берем любую имеющуюся у нас плату. На нее аккуратно паяльником припаиваем микросхему ULN2003. При этом не забывайте о полярности.
Рис.9
На приведенной схеме видно, что имеют место две шины электропитания. Поэтому вывод микросхемы с отрицательным знаком мы припаиваем к одной, а с положительным — к другой. После этого к выводу 1 ULN2003 присоединяем вывод 2 коннектора параллельного порта. К выводу 2 ULN2003 мы присоединяем вывод 3 коннектора. Соответственно вывод схему ULN2003 4 мы соединим с 5 выводом коннектора и т.д. А вот вывод нуля с 25 выводом параллельного порта мы припаяем к отрицательной шине.
Рис.10
Следующий этап – припаивание шагового двигателя к управляющему устройству. Правильно сделать его можно только методом проб и ошибок, т.к. чаще всего документации на вывод имеющегося у вас электродвигателя нет. Поэтому рекомендуется провода двигателя оснастить зажимами-крокодилами. Таким образом, процесс пойдет быстрее и легче.
Следующий наш шаг – соединение проводов с выводами 13,14,15,16 микросхемы ULN2003. Теперь паять провода мы будем к шине питания со знаком плюс. В завершении устанавливаем гнездо электропитания.
Наш контроллер почти готов. Теперь мы устанавливаем его на стальные стержни и закрепляем в подготовленных ранее гнездах. Для того, чтобы в процессе эксплуатации не происходил облом проводов, их лучше зафиксировать с помощью термоклея.
44kw.com
Чертеж самодельного ЧПУ станка
Скачать чертеж самодельного ЧПУ станка можно по ссылкам в конце статьи.
В предлагаемом к скачиванию архиве лежит чертеж ЧПУ станка для сборки своими руками.
Это достаточно распространенный тип ЧПУ станка с движущимся порталом.
Данный чертеж отличается прежде всего тем, что в не только дана деталировка – когда каждая деталь станка вычерчена отдельно и имеет проставленные размеры, но и приведены сборочные чертежи каждого из узлов.
ЧПУ станок по такому чертежу можно изготовить практически из любого материала. Это может быть и дюралюминиевые пластины и многослойная фанера. Можно использовать и прочный пластик или оргстекло в конструкции самодельного ЧПУ станка.
Чертежи имеют векторный формат DXF и могут быть смасшабированны в любые размеры.
В самом простом случае можно взять двигатели от матричных принтеров типа Epson FX1000 формата A3, от этих же принтером взять и стальные направляющие вместе с узлом скольжения.
В качестве ходового винта в бюджетном варианте самодельного ЧПУ станка используется шпилька с резьбой М6 или М8. Ходовые гайки лучше заказать токарю и выточить их из бронзы. Бронзовая гайка может «ходить» 5-7 лет при ежедневном использовании ЧПУ станка по 8-10 часов.
Ходовые винты – это расходный материал, а ходовые гайки могут прослужить еще не на одном самодельном станке.
Впрочем, я не однократно читал о том как применяли ходовые гайки изготовленные из пластика или гетинакса.
Изготовленный из подручных средств самодельный ЧПУ станок позволит вам обрабатывать дерево, пластики и цветные металлы.
Для обработки металлов и стали такой станок становиться малопригодным в силу слабой жесткости конструкции.
Впрочем он может использоваться для гравировки или как сверлильный станок с ЧПУ управлением по металлам.
Но вот как фрезерный – маловероятно. При фрезеровке металлов возникают ударные нагрузки — например, при фрезеровании одного паза встретился другой паз и тогда возникает механический удар, который передается на конструкцию станка и ходовой винт.
Для домашних работ, например фрезеровки наборов для сборки авиамодели из бальзы – такой станок легко оправдает затраты на его изготовление!
Скачать чертежи самодельного ЧПУ станка можно здесь: Depositfiles или с нашего сайта
Самодельный ЧПУ станок
homecnc.
ru
Как сделать комплект фрезерного станка с ЧПУ дома? — Руководство «Сделай сам»
В этой статье мы расскажем вам, как сделать комплект фрезерного станка с ЧПУ в домашних условиях, включая сборку деталей станка, установку программного обеспечения Mach4 и настройку контроллера ЧПУ.
В соответствии со своими интересами и увлечениями, а также с духом DIY, который не купишь за деньги, я спотыкался весь путь, который длился 15 дней, и, наконец, закончил проект DIY фрезерного станка с ЧПУ дома.
На самом деле, я долго думал, прежде чем делать это, можно ли сделать каждую деталь самому, какая конструкция, аксессуары, настройка, работа и так далее. В этом процессе я также ссылался на информацию крупных технических форумов и хотел бы поблагодарить этих экспертов за их самоотверженную работу.
Прежде чем приступить к работе, вы должны сначала понять, как работает фрезерный станок с ЧПУ. Популярный на рынке самодельный фрезерный станок с ЧПУ на самом деле является типом системы числового управления, основанной на параллельном порте компьютера. Программное обеспечение на компьютере преобразует G-код в импульсы управления шаговыми двигателями каждой оси (обычно трех осей: X, Y, Z), а затем выводит их напрямую через параллельный порт.
Примечание. В настоящее время параллельный порт не используется для параллельного вывода данных, он выводит только импульсы. Таким образом, план фрезерного станка с ЧПУ своими руками включает в себя следующие четыре шага:
Шаг 1.
Проектные чертежи для фрезерного станка с ЧПУДля более эффективной работы своими руками и настройки, прежде всего, мы должны разработать чертежи и определить размер стола и технические характеристики каждой части станка с ЧПУ. Он в основном включает габаритный чертеж оптической оси, габаритный чертеж шарикового винта, габаритный чертеж левого и правого опорных рычагов, габаритный чертеж подвижной опорной плиты оси Y, габаритный чертеж моторного конца основания (задняя часть), габаритный чертеж передней части. конец основания, габаритный чертеж подвижного основания по оси X, размер подвижного основания по оси Z, габаритный чертеж верхней и нижней пластин по оси Z и габаритный чертеж посадки подшипника по оси Z.
Когда я разрабатываю чертежи, я всегда пересматриваю и изменяю их. Я разработал 3 набора рисунков, и размер рисунков сначала был больше. Позже я доработал эти 10 рисунков для своего плана «сделай сам».
Шаг 2.
Проектирование и тестирование частей схемыПосле разработки чертежей приступим к подготовке части схемы.
1. Три шаговых двигателя 2А 60, двигатель 6-ядерный, средний отвод не подключен, заменен на 4-х ядерный.
2. Плата управления МАЧ4.
3. Импульсный источник питания 24В6,5.
Подключил к компьютеру и проверил, все работает. Конечно, перед тестированием нужно понять, как установить и использовать МЧ4.
Как установить программу MACh4 для фрезерного станка с ЧПУ?
1. Откройте папку MACh4 в каталоге «MACh4 2.63» случайного компакт-диска
2. Запустите «MACh4 V2.63.EXE», чтобы начать установку, нажмите «ДАЛЕЕ» по умолчанию, пока установка не будет завершена.
3. Замените все файлы в «Перезаписать каталог установки» на путь установки программного обеспечения (по умолчанию C:\MACh4) и подтвердите перезапись.
4. Перезагрузите компьютер.
5. После правильной установки программного обеспечения вы должны увидеть соответствующий логотип в диспетчере устройств системы Windows, щелкните правой кнопкой мыши значок на рабочем столе «Мой компьютер», а затем выберите «Свойства», «Оборудование», «Диспетчер устройств» и вы увидите все устройства в списке.
Если вы видите «Драйвер MACh4», это правильно. Если нет, то вам следует переустановить программное обеспечение. Перед переустановкой вы должны удалить исходную и вручную удалить ее каталог и очистить реестр.
Как настроить и использовать контроллер МАЧ4 для фрезерного станка с ЧПУ?
После перезагрузки компьютера на рабочем столе появилось несколько новых значков, все, что мы можем использовать, это «MACh4MILL», дважды щелкните его мышью, чтобы войти в интерфейс системы управления ЧПУ. Подробную информацию о настройке и использовании контроллера MACh4 можно найти самостоятельно, и я не буду здесь вдаваться в подробности.
Этап 3. Проектирование и сборка механических частей
Больше всего времени занимает сборка механической части. Я купил сырье в этом порядке. Сначала я купил ползунок, подшипник и оптическую ось (так как боялся, что размер реального объекта и чертежа будут отличаться, поэтому я получил реальный объект.
Измерил его еще раз, а позже обнаружил, что это избыточно, потому что все ползунки стандартные), затем купите алюминиевый лист для обработки и, наконец, купите ходовой винт.
Вот краткое описание механической конструкции:
Алюминиевые листы изготовлены из алюминиевого сплава 6061 толщиной 12 мм. За исключением левого и правого рычагов, которые обрезаны, все остальные приобретаются в виде стандартных алюминиевых рядов, которые можно использовать при обрезке. Оптическая ось — это диаметр: ось Y — 20 мм, ось X — 16 мм, ось Z — 12 мм, все используют закаленную оптическую ось, ось X / Y использует линейный подшипник плюс ползунок, ось Z непосредственно использует расширенный линейный подшипник для фиксации на алюминиевом листе, используйте шариковый винт 1605.
Я тоже давно думал об обработке алюминиевых листов. Так как левое и правое плечо портала изогнуты, у меня нет подходящих инструментов, и их нелегко обрабатывать. Я могу только отнести его в ближайший магазин для лазерной резки, сверления и нарезания резьбы.
Если у вас есть оборудование для изготовления металла, его также можно изготовить самостоятельно, что сэкономит средства.
После вырезания оптической оси и алюминиевых деталей отшлифуйте их наждачной бумагой, затем промойте масляные пятна водой и подготовьтесь к сборке.
Сначала соберите компоненты оси Z, ходовой винт и ползунок на задней стороне оси Z.
Так как каждый блок готов, весь стеллаж также легко собрать, и ниже показана схема сборки осей X/Y.
Это сборочная конструкция шагового двигателя оси Z. Лично мне всегда кажется, что ставить шаговый двигатель прямо на вершину слишком высоко, и вся машина немного не скоординирована, поэтому я изменил ее на метод использования синхронного колеса и ремня.
Прибывает шпиндель фрезерного станка с ЧПУ E240, и начинается сборка.
Измените направление шагового двигателя, зафиксируйте его латунной трубкой и соберите шпиндель.
Это лучше выглядит?
Я был так взволнован этим шагом, что быстро нашел винты для временной сборки двигателя X/Y, а затем протестировал его с контроллером MACh4. Хорошо установите параметры высоты тона, а коэффициент обрезки очень точен. Пока станок с ЧПУ работает успешно.
Далее приступайте к изготовлению плинтуса своими руками
Алюминиевая пластина была выпилена при покупке, и я сам ее разметил и перфорировал.
После сверления отверстий отшлифуйте их, очистите и соберите.
На данный момент предварительная сборка станка с ЧПУ своими руками завершена.
Этап 4. Усовершенствование фрезерного станка с ЧПУ
Что нам нужно сделать для улучшения, так это изготовить прижимные пластины, организовать кабели и сделать электрические блоки управления.
Давайте начнем делать прижимную пластину, распилите алюминиевую пластину размером 8 мм X 300 мм до длины 100 мм, а затем проделайте отверстия, это проще всего.
Теперь я начинаю делать электрический блок управления. Купил готовую алюминиевую коробку прямо на рынке.
Спроектируйте панель управления в программе CAD/CAM, создайте траекторию движения инструмента и начните фрезерование.
Я использовал фрезу с остротой 0,3, 30 градусов, и считается, что для фрезерования лучше использовать 10 градусов.
Наденьте разъем, чтобы увидеть эффект.
Начать сборку схемы.
На данный момент проект фрезерного станка с ЧПУ полностью завершен. В процессе сборки я узнал много нового и получил массу удовольствия. Если вам интересно, вы действительно можете попробовать это. Вы обнаружите, что вам нужно продолжать на протяжении всего процесса создания.
Можно сказать, что знание и использование соответствующего программного обеспечения, аппаратного обеспечения и знаний ЧПУ является классом ЧПУ, который обеспечивает основу для более сложных планов DIY в будущем. Спасибо за внимание и ценные мнения, а также спасибо STYLECNC. Я готов общаться с вами и обсуждать то, что вас интересует, чтобы вместе совершенствоваться.
Часто задаваемые вопросы о комплектах фрезерных станков с ЧПУ своими руками
Стоит ли делать фрезерный станок с ЧПУ своими руками?
Если у вас есть свободное время, профессиональные знания станков с ЧПУ, достаточно терпения и доступный бюджет, стоит сделать фрезерный станок с ЧПУ своими руками. Если у вас нет возможности построить его самостоятельно, но вы все еще заинтересованы в нем, вы можете купить настольный мини-фрезерный станок с ЧПУ для любителей и домашнего использования на Amazon или купить лучший бюджетный китайский фрезерный станок с ЧПУ за границей по низкой цене.
Сколько стоит изготовить фрезерный станок с ЧПУ самостоятельно?
Средняя стоимость самостоятельного изготовления фрезерного станка с ЧПУ составляет около 800 долларов США, а некоторые из них могут стоить до 5160 долларов США, в зависимости от необходимых вам функций. Различные размеры стола фрезерного станка с ЧПУ (2×2, 2×3, 2×4, 4×4, 4×6, 4×8, 5×10, 6×12) приводят к разным затратам на оборудование. Различные контроллеры ЧПУ могут различаться по стоимости программного обеспечения.
сделай сам. Пошаговая инструкция по сборке станка с чпу своими руками Схемы для чпу
В наше время среди кустарей все чаще можно встретить новые станки, которые управляются не руками, как мы все привыкли, а компьютерное программное обеспечение и компьютеризированное оборудование. Это нововведение называется ЧПУ (числовое управление).
Данная технология используется во многих учреждениях, на крупных производствах, а также в мастерских мастерских.
Автоматизированное управление системой позволяет значительно сэкономить время, а также повысить качество выпускаемой продукции.
Автоматизированная система управляется программой с компьютера. В эту систему входят асинхронные двигатели с векторным управлением, имеющие три оси движения электрогравера: X, Z, Y. Ниже мы рассмотрим, какие бывают станки с автоматическим управлением и расчетами.
Как правило, на всех станках с ЧПУ используется электрический гравер, либо фрезер, на котором можно менять насадки. Станок с числовым программным управлением используется для добавления декоративных элементов к определенным материалам и не только. Станки с ЧПУ, благодаря достижениям в компьютерном мире, должны иметь множество функций. К таким признакам относятся:
Фрезерование
Механический процесс обработки материала, при котором режущий элемент (насадка, в виде фрезы) производит вращательные движения на поверхности заготовки.
Гравировка
Заключается в нанесении того или иного изображения на поверхность заготовки.
Для этого используют либо фрезы, либо гравер (стальной стержень с одним концом, заостренным под углом).
Сверление
Механическая обработка материала резанием, с применением сверла, благодаря чему получаются отверстия разного диаметра и отверстия с множеством граней различного сечения и глубины.
Лазерная резка
Способ раскроя и раскроя материала, при котором отсутствует механическое воздействие, сохраняется высокая точность заготовки, а деформации, производимые данным способом, имеют минимальные деформации.
Плоттер
Осуществляется высокоточное черчение самых сложных схем, чертежей, географических карт. Рисование осуществляется за счет пишущего блока, с помощью специализированной ручки.
Черчение и сверление печатных плат
Изготовление плат, а также нанесение электропроводящих схем на поверхность диэлектрической пластины. Также сверление небольших отверстий под радиодетали.
Какие функции будет выполнять ваша будущая запрограммированная машина, решать вам.
А затем рассмотрим конструкцию станка с ЧПУ.
Разновидности станков с ЧПУ
Технологические особенности и возможности этих станков приравниваются к универсальным станкам… Однако в современном мире существует три типа станков с ЧПУ:
Токарные станки
Назначение таких станков — создание деталей по типу тел вращения, заключающееся в обработке поверхности заготовки. Также производство внутренней и внешней резьбы.
Фрезерование
Автоматизированная работа этих станков заключается в обработке плоскостей и пространств различных кузовных заготовок. Фрезерование производится плоское, контурное и ступенчатое, под различными углами, а также с нескольких сторон. Выполняется сверление отверстий, нарезание резьбы, развертывание и растачивание заготовок.
Сверление-расточка
Выполняют развертывание, сверление отверстий, растачивание и развертывание, зенкерование, фрезерование, нарезание резьбы и многое другое.
Как мы видим, станки с ЧПУ имеют широкий спектр функций, которые они выполняют.
Поэтому их приравнивают к универсальным машинам. Все они очень дорогие и купить любое из вышеперечисленного оборудования просто невозможно из-за финансовой недостаточности. И можно подумать, что все эти действия придется выполнять вручную, на протяжении всей жизни.
Не стоит расстраиваться. Страны умелых рук, с момента появления первых заводских станков с ЧПУ, начали создавать самодельные прототипы, работающие не хуже профессиональных.
Все комплектующие для станков с ЧПУ можно заказать в Интернете, где они находятся в свободном доступе и стоят совсем недорого. Кстати, корпус станка-автомата можно сделать своими руками, а за правильными размерами можно поискать в интернете.
Совет: Прежде чем выбрать станок с ЧПУ, определитесь, какой материал вы будете обрабатывать. Этот выбор будет иметь первостепенное значение при построении машины, так как от него напрямую зависят размеры оборудования, а также стоимость его.
Конструкция станка с ЧПУ полностью зависит от вашего выбора.
Вы можете купить готовый стандартный набор всех необходимых деталей и просто собрать его в своем гараже или мастерской. Или закажите все аксессуары отдельно.
Рассмотрим стандартный набор деталей на фото :
- Сама рабочая зона, изготовленная из фанеры, представляет собой столешницу и боковую раму.
- Направляющие элементы.
- Держатели рельсов.
- Линейные подшипники и втулки скольжения.
- Опорные подшипники.
- Ходовые винты.
- Контроллер шагового двигателя.
- Блок питания контроллера.
- Электрический гравер или фрезер.
- Муфта, соединяющая вал ходового винта с валом шагового двигателя.
- Шаговые двигатели.
- Ходовая гайка.
Используя этот список деталей, вы можете смело создавать собственную машину с автоматизированной работой. Когда вы собрали всю конструкцию, можно смело приступать к работе.
Принцип действия
Пожалуй, самым важным элементом на этом станке является фрезер, гравер или шпиндель.
Это зависит от вашего выбора. Если у вас стоит шпиндель, то хвостовик фрезы, имеющий цангу для крепления, будет плотно входить в цангу.
Сам патрон крепится непосредственно к валу шпинделя. Режущая часть фрезы выбирается исходя из выбранного материала. Электродвигатель, который находится на подвижной каретке, вращает шпиндель с фрезой, что позволяет обрабатывать поверхность материала. Шаговые двигатели управляются с контроллера, на который посылаются команды из компьютерной программы.
Электроника Станок работает непосредственно на обеспечении компьютерного программного обеспечения, которое должно поставляться вместе с заказанной электроникой. Программа передает команды в виде G-кодов на контроллер. Таким образом, эти коды хранятся в оперативной памяти контроллера.
После выбора программы обработки на станке (чистовая, черновая, трехмерная) команды распределяются на шаговые двигатели, после чего производится обработка поверхности материала.
Совет: Перед началом работы необходимо протестировать станок специализированной программой и пропустить тестовую часть, чтобы убедиться в корректной работе ЧПУ.
Сборка
Сборка станка своими руками не займет у вас слишком много времени. Более того, в Интернете сейчас можно скачать много разных схем и чертежей. Если вы купили комплект для самодельного станка, то его сборка будет очень быстрой.
Итак, давайте посмотрим на один из чертежи собственно ручная машина.
Чертеж самодельного станка с ЧПУ.
Как правило, в первую очередь изготавливается каркас из фанеры толщиной 10-11 миллиметров. Столешница, боковые стенки и подвижный портал для установки фрезера или шпинделя изготавливаются только из фанерного материала. Столешницу делают подвижной, используют мебельные направляющие соответствующего размера.
В итоге у вас должна получиться вот такая рамка. После того, как конструкция каркаса готова, в дело вступают дрель и специальные коронки, с помощью которых можно проделать отверстия в фанере.
Каркас будущего станка с ЧПУ.
В готовой раме необходимо подготовить все отверстия для установки в них подшипников и направляющих болтов.
После этой установки можно установить весь крепеж, электроустановки и т.д.
После завершения сборки важной вехой становится настройка программного обеспечения станка и компьютерной программы. При настройке программы проверяется работа машины на правильность заданных размеров. Если все готово, можно приступать к долгожданной работе.
Совет: Перед началом работы необходимо проверить правильность крепления заготовки и надежность крепления рабочего органа. Также убедиться, что выбранный материал подходит для изготовленного станка.
Наладка оборудования
Наладка станка с ЧПУ осуществляется непосредственно с рабочего компьютера, на котором установлена программа для работы со станком. Именно в программу загружаются необходимые чертежи, графики, чертежи. Которые последовательно преобразуются программой в G-коды, необходимые для управления машиной.
Когда все загружено, выполняются пробные действия с выбранным материалом. Именно во время этих действий проверяются все необходимые предустановленные размеры.
Совет: Только после тщательной проверки работоспособности машины можно приступать к полноценной работе.
Техника безопасности
Правила и меры безопасности при работе с этой машиной ничем не отличаются от работы на всех других машинах. Самые основные из них будут представлены ниже:
- Перед работой проверить исправность машины.
- Одежда должна быть правильно заправлена, чтобы ничего не торчало и не могло попасть в рабочую зону станка.
- Следует носить головной убор, который будет сдавливать волосы.
- Должен быть резиновый коврик или низкий деревянный ящик, который защитит от утечки электричества.
- Доступ к машине для детей должен быть строго запрещен.
- Перед работой на машине проверьте затяжку всех креплений.
Совет: К работе на станке необходимо подходить с трезвой головой и пониманием того, что при неправильной работе можно нанести себе непоправимый вред.
Полные требования безопасности при работе с машиной вы можете найти во всемирной паутине, т.
е. в Интернете и ознакомиться с ними.
Видеообзор
Обзор сборки самодельного станка с ЧПУ
Видео обзор простого станка с ЧПУ
Обзор возможностей самодельного станка с ЧПУ
Обзор шаговых двигателей
Обзор видео драйвер многоканального шагового двигателя
Для большинства домашних мастеров изготовление сборки типа фрезерного станка с ЧПУ своими руками — что-то на уровне фантастического сюжета, ведь такие машины и механизмы сложны по конструкции, конструктиву и электронному пониманию устройства.
Однако, имея под рукой необходимую документацию, а также требуемые материалы, приспособления, мини-фрезерный самодельный аппарат, оснащенный ЧПУ, вполне можно сделать своими руками.
Этот механизм отличается точностью выполняемой обработки, простотой в управлении механическими и технологическими процессами, а также отличными эксплуатационными характеристиками и качеством продукции.
Принцип работы
Инновационный фрезерный станок с компьютерным управлением предназначен для сложных рисунков на полуфабрикатах.
В конструкции должна быть электронная составляющая. В совокупности это позволит максимально автоматизировать рабочие процессы.
Для моделирования фрезерных механизмов сначала необходимо ознакомиться с основными элементами. В качестве исполнительного элемента выступает фреза, которая установлена в шпинделе, расположенном на валу электродвигателя. Эта часть крепится к основанию. Он способен перемещаться по двум осям координат: X и Y. Для фиксации заготовок сконструировать и установить опорный стол.
Электрический блок управления сопряжен с гребными электродвигателями. Они обеспечат перемещение каретки относительно обрабатываемых заготовок или полуфабрикатов. По аналогичной технологии выполняются объемные графические изображения на деревянных плоскостях.
Последовательность работ благодаря этому механизму ЧПУ:
- Написание рабочей программы, благодаря которой будет осуществляться движение рабочего органа. Для этой процедуры лучше всего использовать специализированные электронные системы, предназначенные для адаптации в «кустарных» экземплярах.

- Монтаж полуфабрикатов на стол.
- Вывод ПО на ЧПУ.
- Пусковые механизмы, контролирующие прохождение манипуляций с автоматикой.
Чтобы получить максимальный уровень автоматизации в 3D-режиме, правильно соберите схему и определите определенные компоненты. Специалисты настоятельно советуют сначала изучить серийные экземпляры, прежде чем начинать сборку фрезерного станка своими руками.
Схема и чертеж
Схема фрезерного станка с ЧПУ
Самый ответственный этап в изготовлении самодельного аналога- поиск оптимального хода изготовления оборудования. Это напрямую зависит от общих характеристик обрабатываемых заготовок и необходимости достижения определенного качества обработки.
При необходимости получения всех необходимых функций оборудования оптимальным вариантом является изготовление мини-фрезерного станка своими руками. Таким образом, вы будете уверены не только в сборке и ее качестве, но и в технологических свойствах, и заранее будете знать, как за ней ухаживать.
Детали трансмиссии
Наиболее удачным вариантом является конструкция из 2-х кареток, движущихся по перпендикулярным осям X и Y. В качестве рамы лучше использовать металлические полированные стержни. На них «надеваются» подвижные передвижные тележки. Для правильного изготовления трансмиссии подготовьте шаговые двигатели, а также набор винтов.
Для улучшенной автоматизации рабочих процессов фрезерных станков с ЧПУ, сконструированных своими руками, нужно сразу до мелочей доделать электронную часть. Он делится на следующие компоненты:
- используется для проведения электрической энергии к шаговым двигателям и подачи питания на микросхему контроллера. Ходовой считается модификация 12В 3А;
- предназначен для отправки команд двигателям. Для правильного выполнения всех указанных операций фрезерного станка с ЧПУ достаточно будет простой схемы контроля работоспособности 3-х моторов;
- драйверы (программное обеспечение). Он также является регулировочным элементом для подвижного механизма.

Видео: фрезерный станок с ЧПУ своими руками.
Принадлежности для самодельного фрезерного станка
Следующим и ответственным этапом сборки фрезерного оборудования является подбор комплектующих для сборки самодельного агрегата. Лучший выход из этой ситуации – использование подручных деталей и приспособлений. За основу настольных копий 3D-машин можно взять твердую древесину (бук, граб), алюминий/сталь или оргстекло.
Для нормальной работы комплекса в целом требуется разработка конструкции суппортов. В момент их движения недопустимы вибрации, это приведет к неправильной фрезеровке. Поэтому перед сборкой комплектующие проверяются на надежность.
Практические советы по выбору комплектующих фрезерного станка с ЧПУ:
- направляющие — используются хорошо заточенные стальные стержни Ø12 мм. Длина оси X около 200 мм, оси Y 100 мм; Суппортный механизм
- , оптимальный материал-текстолит. Стандартные размеры платформы 30×100×50 мм; Шаговые двигатели
- — инженеры советуют использовать образцы от печатающего устройства 24в, 5А.
Они обладают довольно значительной мощностью; Блок - для крепления рабочего органа, также может быть построен с использованием текстолита. Конфигурация напрямую зависит от имеющегося инструмента.
Порядок сборки фрезерного станка с ЧПУ
Выполнив подбор всех необходимых комплектующих, вы можете совершенно свободно собрать собственный негабаритный фрезерный механизм, оснащенный ЧПУ. Прежде чем приступить к непосредственному проектированию, мы еще раз проверяем комплектующие, контролируем их параметры и качество изготовления. Это поможет в дальнейшем избежать преждевременного выхода из строя цепи механизма.
Для надежной фиксации элементов оборудования используются специализированные крепежные детали. Их дизайн и исполнение напрямую зависят от будущей схемы.
Перечень необходимых действий по сборке малогабаритного оборудования с ЧПУ для выполнения процесса фрезеровки:
- Монтаж направляющих осей опорного элемента, фиксация на крайних частях станка.

- Шлифовка суппортов. Требуется двигаться по направляющим до тех пор, пока не сформируется плавное движение.
- Затяните винты, чтобы зафиксировать суппорт.
- Крепление деталей к основанию рабочего механизма.
- Установка ходовых винтов и муфт.
- Установка маршевых двигателей. Они крепятся к стяжным болтам.
Электронные компоненты расположены в автономном шкафу. Это обеспечивает минимизацию операционных сбоев при выполнении технологических операций фрезой. Плоскость для установки рабочей машины должна быть без перепадов, т. к. в конструкции не предусмотрены винты регулировки уровня.
После выполнения вышеперечисленного приступайте к пробному тесту. Сначала вам нужно установить программу easy для выполнения фрезеровки. В процессе работы нужно непрерывно проверять все проходы рабочего органа (резцов). Параметры, которые подлежат постоянному контролю: глубина и ширина обработки. Особенно это относится к 3D-обработке.
Таким образом, ссылаясь на информацию, написанную выше, изготовление фрезерного оборудования своими руками дает целый перечень преимуществ перед обычными покупными аналогами.
Во-первых, такая конструкция подойдет для предполагаемых объемов и видов работ, во-вторых, обеспечена ремонтопригодность, так как она строится из подручных материалов и приспособлений и, в-третьих, стоит такой вид оборудования недорого.
Имея опыт проектирования такого оборудования дальнейший ремонт не займет много времени, время простоя будет сведено к минимуму. Такое оборудование может пригодиться вашим соседям по дачному участку для выполнения собственных ремонтных работ. Взяв такое оборудование в аренду, вы поможете товарищу по работе; в дальнейшем рассчитывайте на его помощь.
Разобравшись с конструктивными и функциональными особенностями фрезерного станка, а также с нагрузкой, которая будет на него приходиться, можно смело приступать к его изготовлению, опираясь на практические сведения, данные по ходу дела. Создавайте и выполняйте задания без проблем.
Видео: самодельный ЧПУ фрезерный станок по дереву.
Зная, что фрезерный станок с ЧПУ считается сложным техническим и электронным оборудованием, многие мастера думают, что его просто невозможно сделать своими руками.
Однако это мнение не соответствует действительности: сделать такое устройство своими руками можно, но для этого необходимо иметь не только его полный чертеж, но и набор определенных инструментов и подходящих комплектующих.
Станок с ЧПУ своими руками (чертежи)
Решив создать самодельный специальный станок с ЧПУ, помните, что это может занять много времени. Кроме того, на это уйдет много денег.
Для изготовления фрезерного станка, оснащенного системой ЧПУ, можно использовать 2 метода: приобрести готовый набор специально подобранных деталей, из которых собирается такое оборудование, либо найти все комплектующие и самостоятельно собрать устройство, которое полностью соответствует всем вашим требованиям.
Подготовка к работе
Если вы запланировали изготовить станок с ЧПУ самостоятельно, без использования готового набора, то первое, что вам нужно будет сделать, это остановиться на специальной схеме , согласно которой такой мини- устройство будет работать.
Сборка оборудования
Основой собранного фрезерного оборудования может быть балка прямоугольного типа, которую необходимо прочно зафиксировать на направляющих.
Несущая конструкция оборудования должна иметь большую жесткость … При его установке лучше не использовать сварные соединения, а все детали крепить только саморезами.
В фрезерном оборудовании, которое вы будете собирать самостоятельно, должен быть механизм, который будет перемещать рабочую насадку в вертикальном направлении. Лучше всего для него взять винтовую передачу, вращение на которую будет передаваться с помощью зубчатого ремня.
Основная часть станка
Важной частью такого станка является его вертикальная ось, которую для самодельного прибора можно изготовить из алюминиевой пластины. Не забудьте размеры такой оси точно соответствовали размерам создаваемого устройства .
Для изготовления объемного рисунка на деревянной поверхности используются заводские фрезерные станки с ЧПУ по дереву.
Сделать подобную мини-модель своими руками в домашних условиях сложно, но возможно при детальном изучении конструкции. Для этого нужно разобраться в специфике, правильно подобрать компоненты и настроить их.
Принцип работы фрезерного станка
Современное деревообрабатывающее оборудование с ЧПУ предназначено для формирования сложного рисунка древесины. В конструкции должна быть предусмотрена механическая электронная часть. Вместе они позволят максимально автоматизировать рабочий процесс.
Чтобы сделать настольную столярку своими руками, следует ознакомиться с основными комплектующими. Режущий элемент представляет собой фрезу, которая установлена в шпинделе, расположенном на валу двигателя. Эта конструкция крепится к кровати. Может перемещаться по двум координатным осям — x; у. Чтобы зафиксировать заготовку, нужно сделать опорный стол.
Электронный блок управления подключен к шаговым двигателям. Они обеспечивают смещение каретки относительно детали. С помощью этой технологии можно делать объемные рисунки на деревянной поверхности.
Последовательность работы мини-оборудования с ЧПУ, которое можно изготовить своими руками.
- Написание программы, по которой будет выполняться последовательность движений режущей части. Для этого лучше всего использовать специальные программные комплексы, предназначенные для адаптации в самодельных моделях.
- Размещение заготовки на столе.
- Вывод программы в ЧПУ.
- Включение оборудования, контроль выполнения автоматических действий.
Для достижения максимальной автоматизации работы в режиме 3D потребуется правильно составить схему и подобрать соответствующие компоненты. Специалисты рекомендуют изучить заводские модели, прежде чем делать мини-фрезерный станок своими руками.
Для создания сложных рисунков и рисунков на деревянной поверхности вам потребуются резцы нескольких видов. Некоторые из них можно сделать самостоятельно, но для тонкой работы следует приобрести на заводе.
Схема самодельного фрезерного станка с числовым программным управлением
Самый сложный этап — выбор оптимальной схемы изготовления.
Это зависит от размеров заготовки и степени ее обработки. Для домашнего использования целесообразно изготовить рабочий стол своими руками, который будет иметь оптимальное количество функций.
Оптимальный вариант изготовления двух кареток, которые будут перемещаться по оси х; у. В качестве основания лучше всего использовать шлифованные стальные стержни. На них будут установлены тележки. Шаговые двигатели и винты с подшипниками качения необходимы для создания трансмиссии.
Для максимальной автоматизации процесса при конструировании мини фрезерного станка с ЧПУ по дереву своими руками необходимо детально продумать электронную часть. Условно он состоит из следующих компонентов:
- блок питания. Нужен для питания шаговых двигателей и микросхемы контроллера. Часто используют модель 12v 3A; контроллер
- . Он предназначен для подачи команд электродвигателям. Для работы мини фрезерного станка с ЧПУ своими руками достаточно простой схемы управления работой трех моторов;
- драйвер.
Также он является элементом регулирования работы подвижной части конструкции.
Преимуществом данного комплекса является возможность импорта исполняемых файлов наиболее распространенных форматов. С помощью специального приложения можно составить трехмерный чертеж детали для предварительного анализа. Шаговые двигатели будут работать с определенной частотой хода. Но для этого необходимо внести технические задания в управляющую программу.
Комплектующие для фрезерного станка с ЧПУ
Следующим этапом является подбор комплектующих для сборки самодельного оборудования. Лучший вариант – использовать доступные инструменты. В качестве основы для настольных моделей 3D-машины можно использовать дерево, алюминий или оргстекло.
Для корректной работы всего комплекса необходимо разработать конструкцию суппортов. Во время их движения не должно быть колебаний, это может привести к неточному фрезерованию. Поэтому перед сборкой все комплектующие проверяются на совместимость друг с другом.
- направляющие. Использованы стальные шлифованные стержни диаметром 12 мм. Длина по оси абсцисс 200 мм, по оси у — 90 мм; Поддержка
- . Оптимальный вариант – текстолит. Обычный размер платформы 25*100*45 мм; Шаговые двигатели
- . Специалисты рекомендуют использовать модели от принтера 24В, 5А. В отличие от дисководов для гибких дисков, они более мощные; Блок фиксации фрезы
- . Он также может быть изготовлен из текстолита. Конфигурация напрямую зависит от имеющегося инструмента.
Блок питания лучше всего собирать на заводе. При самостоятельном изготовлении возможны ошибки, которые впоследствии отразятся на работе всего оборудования.
Порядок изготовления фрезерного станка с ЧПУ
После подбора всех комплектующих можно изготовить настольный мини фрезерный станок с ЧПУ по дереву своими руками. Все элементы предварительно еще раз проверяются, проверяются их размеры и качество.
Для крепления оборудования необходимо использовать специальные крепления.
Их конфигурация и форма зависят от выбранной схемы.
Порядок сборки мини настольного оборудования с ЧПУ по дереву с функцией 3D обработки.
- Установка направляющих суппорта, фиксация их на боковых частях конструкции. Эти блоки еще не установлены на базу.
- Притирочные суппорты. Их необходимо перемещать по направляющим до получения плавного хода.
- Затяните болты, чтобы закрепить суппорты.
- Крепление компонентов к основанию оборудования.
- Установка ходовых винтов вместе с муфтами.
- Установка гребных электродвигателей. Они крепятся к стяжным винтам.
Электронная часть находится в отдельном блоке. Это помогает снизить вероятность сбоев в работе роутера. Также важным моментом является выбор рабочей поверхности для установки оборудования. Он должен быть ровным, так как в конструкции нет болтов регулировки уровня.
После этого можно переходить к пробным испытаниям. Рекомендуется сначала ввести простую программу фрезеровки дерева.
Во время работы необходимо проверять каждый рез фрезы — глубину и ширину обработки, особенно в режиме 3D.
На видео показан пример сборки большого фрезерного станка с ЧПУ своими руками:
Примеры чертежей и самодельных конструкций
В наше время производство мелких деталей из дерева, для определенных конструкций. Также в магазинах можно найти разнообразные красивые объемные картины, выполненные на деревянном полотне. Такие операции выполняются на фрезерных станках с числовым программным управлением. Точность изготовления деталей или картин из дерева достигается за счет управления с компьютера, специализированной программы.
Фрезерный станок по дереву с числовым программным управлением — это высокопрофессиональный станок с новейшими технологиями.
Вся работа заключается в обработке специальным резцом по дереву, с помощью которого можно вырезать из древесного материала мелкие детали, создавая красивые рисунки. Работа осуществляется путем подачи сигналов на шаговые двигатели, которые, в свою очередь, перемещают фрезер по трем осям.
Благодаря этому происходит высокоточная обработка. Как правило, такие работы невозможно выполнить вручную с таким высоким качеством. Поэтому фрезерные станки с ЧПУ по дереву являются большой находкой для столяров.
Назначение
Долгое время фрезерование предназначалось для строгальных работ по дереву. Но двигатель прогресса движется строго вперед и в наше время для таких машин создано числовое управление. На данном этапе фрезерный станок может выполнять различные действия, которые касаются обработки дерева:
- Вырезание различных деталей из массива дерева.
- Отрезание лишних частей заготовки.
- Возможность выполнения канавок и отверстий различного диаметра.
- Нанесение сложных орнаментов резцом.
- 3D Объемные изображения на массиве дерева.
- Полное изготовление мебели и многое другое.
Какой бы ни была задача, она будет выполнена с высокой точностью и аккуратностью.
Совет: При работе на самодельном оборудовании с ЧПУ нужно плавно снимать толщину древесины, иначе ваша деталь будет повреждена или сожжена резаком!
Разновидность
В современном технологическом мире различают следующие типы деревофрезерных станков с числовым программным управлением:
Стационарные
Эти станки используются в производственных помещениях, так как имеют огромные размеры и вес.
Но такое оборудование способно изготавливать продукцию в больших объемах.
Руководство
Это самодельные устройства или устройства из готовых наборов. Эти машины можно смело устанавливать в своем гараже или собственной мастерской. К ним относятся следующие подвиды:
Портальное оборудование с числовым программным управлением
Непосредственно сама фреза способна перемещаться по двум декартовым осям X и Z. Этот тип станка обладает повышенной жесткостью при обработке гибов. Конструкция портального фрезерного станка с ЧПУ достаточно проста по своей конструкции. Многие плотники начинают свое знакомство со станками с ЧПУ именно с этого подвида. Однако в этом случае размер заготовки будет ограничен размером самого портала.
Передвижной портал с ЧПУ
Конструкция этого подтипа немного сложнее.
Мобильный портал
Именно этот тип перемещает фрезер по всем трем декартовым осям, по X, Z и Y. В этом случае необходимо будет использовать сплошную направляющую для оси X, так как все на него будет направлена большая нагрузка.
С подвижным порталом очень удобно создавать печатные платы. По оси Y можно обрабатывать длинные детали.
Фреза перемещается по оси Z.
Станок, на котором фрезерная часть может перемещаться в вертикальном направлении
Этот подтип обычно используется при ревизии производственных образцов или при переделке сверлильного оборудования в гравировально-фрезерное.
Рабочее поле, то есть сама столешница, имеет размеры 15х15 сантиметров, что делает невозможным обработку крупных деталей.
Этот тип не очень прост в использовании.
Беспортовый с числовым программным управлением
Этот тип станка очень сложен по своей конструкции, но он самый производительный и удобный.
Можно обрабатывать заготовки длиной до пяти метров, даже если длина оси X составляет 20 сантиметров.
Этот подтип крайне не подходит для первого опыта, так как требует навыков владения этим снаряжением.
Ниже рассмотрим конструкцию ручного фрезерного станка с ЧПУ по дереву, разберем принципы его работы.
Узнайте как сделать это детище и как такое оборудование настраивается.
Устройство и принцип действия
Основными частями фрезерного устройства являются следующие детали:
Станина
Непосредственно конструкция самой машины, на которой расположены все остальные детали.
Штангенциркули
Сборка, которая представляет собой опору для поддержки движения автоматического инструмента.
Рабочий стол
Зона, в которой выполняется вся необходимая работа.
Вал шпинделя или фрезер
Инструмент, выполняющий фрезерные работы.
Фреза деревообрабатывающая
Инструмент, а точнее приспособление для фрезера, различных размеров и форм, с помощью которого производится обработка древесины.
ЧПУ
Скажем так, мозг и сердце всей конструкции. Программное обеспечение осуществляет точный контроль всей работы.
Задание запрограммировано. На компьютер устанавливается специализированная программа, именно она преобразует загруженные в нее схемы в специальные коды, которые программа раздает на контроллер, а затем на шаговые двигатели.
Шаговые двигатели, в свою очередь, перемещают фрезер по осям координат Z, Y, X, за счет чего и происходит обработка древесины.
Выбор комплектующих
Основным этапом в изобретении самодельного фрезерного станка является подбор комплектующих. После выбора плохого материала может что-то пойти не так
Пример сборки из алюминиевой рамы.
сама работа. Обычно используют простые материалы, такие как: алюминий, дерево (массив, МДФ), оргстекло. Для правильной и точной работы всей конструкции важно разработать всю конструкцию суппортов.
Совет: Перед сборкой своими руками необходимо проверить все подготовленные детали на совместимость.
Проверьте, нет ли зацепок, которые будут мешать. И самое главное, не допускать разного рода вибраций, так как это напрямую приведет к некачественному фрезерованию.
Есть несколько заданий по подбору рабочих элементов, которые помогут в создании, а именно:
Направляющие
Схема ЧПУ направляющих для фрезера.
Для них используются стержни диаметром 12 миллиметров. Для оси X длина стержня составляет 200 миллиметров, а для оси Y длина составляет 90 миллиметров.
Использование направляющих позволит с высокой точностью разместить подвижные части
Штангенциркули
Опора фрезерного станка с ЧПУ.
Суппорт в сборе.
Для этих деталей можно использовать текстолитовый материал. Достаточно прочный материал своего рода. Как правило, размер текстолитовой площадки составляет 25х100х45 милли
Блок крепления фрезера
Пример рамки для крепления фрезера.
Также можно использовать текстолитовую рамку. Размеры напрямую зависят от имеющегося у вас инструмента.
Шаговые двигатели или серводвигатели
Источник питания
Контроллер
Электронная плата, распределяющая электроэнергию на шаговые двигатели для их перемещения вдоль осей.
Совет: При пайке платы необходимо использовать конденсаторы и резисторы в специальных SMD корпусах (для изготовления корпусов таких деталей используется алюминий, керамика, пластик).
Это уменьшит размер платы, а внутреннее пространство в конструкции будет оптимизировано.
Сборка
Схема самодельного станка с ЧПУ
Сборка не займет у вас много времени. Единственное, процесс кастомизации будет самым долгим во всем производственном процессе.
Для начала
Необходимо разработать схему и чертежи будущего станка с числовым программным управлением.
Если не хотите этого делать, то можете скачать чертежи из интернета. Для всех размер подготовьте все необходимые детали.
Сделайте все необходимые отверстия
Предназначены для подшипников и направляющих. Главное соблюдать все необходимые размеры, иначе работа машины будет нарушена. Представлена схема с описанием расположения механизмов. Она позволит вам получить общее представление, особенно если вы собираете ее впервые.
Когда у вас будут готовы все элементы и детали механизма, можно смело приступать к сборке. Первым шагом является сборка станины для снаряжения.
Рама
Должна быть собрана геометрически правильно. Все углы должны быть ровными и равными. Когда рама готова, можно монтировать направляющие оси, рабочий стол, суппорты. Когда эти элементы установлены, можно установить фрезер или шпиндель.
Остался последний шаг — электроника. Установка электроники является важным этапом сборки. К шаговым двигателям, установленным на машине, подключается контроллер, который будет отвечать за их работу.
Далее контроллер подключается к компьютеру, на котором уже должна быть установлена специальная управляющая программа. Широко используется торговая марка Arduino , которая занимается производством и поставкой оборудования.
Когда все подключено и находится в режиме готовности, пора запускать пробный образец. Для этого подойдет любая древесина, которая не будет выходить за пределы рабочего стола. Если ваша заготовка обработана и все в порядке, то можно приступать к полноценному изготовлению того или иного изделия фрезеровки.
Техника безопасности
Безопасность фрезерного оборудования является основой. Если не позаботиться о себе, можно попасть в больницу с серьезными травмами. Все правила безопасности одинаковы, но самые основные из них будут перечислены ниже:
- Ваше оборудование должно быть заземлено во избежание поражения электрическим током.
- Не подпускайте детей к машине.
- Ни есть, ни пить на рабочем столе.
- Следует выбрать подходящую одежду.
- Не брать в руки громоздкие детали, превышающие размеры рабочего стола, станочного оборудования.
- Не бросайте различные инструменты в рабочую зону станка.
- Не используйте материал (металл, пластик и т. д.).
Видеообзоры
Видеообзор деталей для станка и где их взять:
Видеообзор работы фрезерного станка по дереву:
Видеообзор электроники
Что такое ЧПУ? | Определение, процессы, компоненты и многое другое
CNC-обработка — это термин, обычно используемый в производстве и промышленности.
Но что такое ЧПУ? А что такое станок с ЧПУ?
Изображение предоставлено Дмитрием Калиновским, Shutterstock
Что такое обработка с ЧПУ?
CNC 101: термин CNC означает «цифровое программное управление», а определение обработки с ЧПУ состоит в том, что это субтрактивный производственный процесс, в котором обычно используются компьютеризированные элементы управления и станки для удаления слоев материала с заготовки, известной как заготовка. или заготовку — и производит деталь по индивидуальному заказу. Этот процесс подходит для широкого спектра материалов, включая металлы, пластмассы, дерево, стекло, пенопласт и композиты, и находит применение в различных отраслях промышленности, таких как крупногабаритная обработка с ЧПУ, обработка деталей и прототипов для телекоммуникаций и ЧПУ. обработка аэрокосмических деталей, для которых требуются более жесткие допуски, чем для других отраслей промышленности.
Обратите внимание, что существует разница между определением обработки с ЧПУ и определением станка с ЧПУ: одно представляет собой процесс, а другое — станок. Станок с ЧПУ (иногда неправильно называемый станком C и C) — это программируемый станок, способный автономно выполнять операции обработки с ЧПУ.
CNC-обработка как производственный процесс и услуга доступна по всему миру. Вы можете легко найти услуги по обработке с ЧПУ в Европе, а также в Азии, Северной Америке и других странах мира.
Субтрактивные производственные процессы, такие как обработка с ЧПУ, часто противопоставляются аддитивным производственным процессам, таким как 3D-печать, или формообразующим производственным процессам, таким как литье под давлением. В то время как субтрактивные процессы удаляют слои материала с заготовки для создания нестандартных форм и конструкций, аддитивные процессы собирают слои материала для получения желаемой формы, а формирующие процессы деформируют и смещают исходный материал в желаемую форму.
Автоматизированный характер обработки с ЧПУ позволяет производить высокоточные и высокоточные, простые детали и рентабельность при выполнении единичных и среднесерийных производственных циклов. Однако, хотя обработка с ЧПУ демонстрирует определенные преимущества по сравнению с другими производственными процессами, степень сложности и запутанности, достижимая для проектирования деталей, и рентабельность производства сложных деталей ограничены.
Несмотря на то, что у каждого типа производственного процесса есть свои преимущества и недостатки, в этой статье основное внимание уделяется процессу обработки с ЧПУ, излагаются основы процесса, а также различные компоненты и инструменты станка с ЧПУ. Кроме того, в этой статье рассматриваются различные операции механической обработки с ЧПУ и представлены альтернативы процессу обработки с ЧПУ.
Краткое описание этого руководства:
- Обзор процесса обработки с ЧПУ
- Типы операций обработки с ЧПУ
- Обрабатывающее оборудование и компоненты с ЧПУ
- Материалы для ЧПУ
- Рекомендации по размеру ЧПУ
- Альтернативы использованию станка с ЧПУ
- История обработки с ЧПУ
Вы сейчас в перерыве между работами или работодатель ищет новых сотрудников? Мы предоставим вам наши подробные коллекции ресурсов для соискателей работы в промышленности и работодателей, желающих заполнить вакансии.
Если у вас есть открытая вакансия, вы также можете заполнить нашу форму, чтобы иметь возможность разместить ее в информационном бюллетене Thomas Monthly Update.
Обзор процесса обработки с ЧПУ
Развиваясь из процесса обработки с числовым программным управлением (ЧПУ), в котором использовались карты с перфолентой, обработка с ЧПУ представляет собой производственный процесс, в котором используются компьютеризированные элементы управления для работы и манипулирования станком и режущими инструментами для придания формы исходному материалу, например, металлу, пластику, дереву, пене, композит и т. д. — в нестандартные детали и конструкции. Хотя процесс обработки с ЧПУ предлагает различные возможности и операции, основные принципы процесса остаются в основном одинаковыми для всех них. Базовый процесс обработки с ЧПУ включает следующие этапы:
- Разработка модели САПР
- Преобразование файла САПР в программу ЧПУ
- Подготовка станка с ЧПУ
- Выполнение операции обработки
Дизайн модели САПР
Процесс обработки с ЧПУ начинается с создания CAD-проекта 2D-векторной или 3D-детали в виде твердотельной детали либо собственными силами, либо с помощью компании, предоставляющей услуги по проектированию CAD/CAM.
Программное обеспечение для автоматизированного проектирования (САПР) позволяет дизайнерам и производителям создавать модели или визуализации своих деталей и продуктов вместе с необходимыми техническими характеристиками, такими как размеры и геометрия, для производства детали или продукта.
Конструкции деталей, обработанных с ЧПУ, ограничены возможностями (или неспособностью) станка с ЧПУ и инструментов. Например, большинство станков с ЧПУ имеют цилиндрическую форму, поэтому геометрия деталей, возможная в процессе обработки с ЧПУ, ограничена, поскольку инструменты создают изогнутые угловые участки. Кроме того, свойства обрабатываемого материала, конструкция инструмента и возможности крепления станка дополнительно ограничивают возможности проектирования, такие как минимальная толщина детали, максимальный размер детали, а также включение и сложность внутренних полостей и элементов.
После завершения проекта САПР дизайнер экспортирует его в формат файла, совместимый с ЧПУ, например STEP или IGES.
При спецификации деталей для механического цеха важно учитывать все необходимые допуски. Хотя станки с ЧПУ очень точны, они все же оставляют небольшую разницу между дубликатами одной и той же детали, обычно около + или — 0,005 дюйма (0,127 мм), что примерно вдвое превышает ширину человеческого волоса. Чтобы сэкономить на затратах, покупатели должны указывать допуски только в тех областях детали, которые должны быть особенно точными, поскольку они будут соприкасаться с другими деталями. Хотя существуют стандартные допуски для различных уровней обработки (как показано в таблицах ниже), не все допуски одинаковы. Если, например, деталь абсолютно не может быть больше размера, для нее может быть указан допуск +0,0/-0,5, чтобы показать, что она может быть немного меньше, но не больше в этой области.
Таблица 1: Линейные допуски при обработке с ЧПУ
Диапазон размеров (мм) | Тонкая (F) +/- | Средний (М) +/- | Грубая (C) +/- | Очень грубая (V) +/- |
. | .05 | .1 | .2 | — |
3-6 | .05 | .1 | .3 | .5 |
6-30 | .1 | .2 | .5 | 1,0 909:25 |
30-120 | .15 | .3 | .8 | 1,5 |
120-400 | .2 | .5 | 1,2 | 2,5 |
400-1000 | .3 | .8 | 2,0 | 4,0 |
1000-2000 | .5 | 1,2 | 3,0 | 6,0 |
2000-4000 | — | 2,0 | 4,0 | 8,0 |
Таблица 2: Угловые допуски при обработке с ЧПУ
Диапазон размеров (мм) | Тонкая (F) +/- | Средний (М) +/- | Грубая (C) +/- | Очень грубая (V) +/- |
0-10 | 1 о | 1 или | 1 или 30’ | 3 или |
10-50 | 0 или 30’ | 0 или 30’ | 1 или | 2 или |
50-120 | 0 о 20′ | 0 или 20’ | 0 или 30’ | 1 или |
120-400 | 0 или 10’ | 0 или 10’ | 0 или 15’ | 0 или 30’ |
400 | 0 или 5′ | 0 или 5′ | 0 или 10’ | 0 или 20’ |
Таблица 3: Допуски радиуса и фаски при обработке с ЧПУ
Диапазон размеров (мм) | Тонкая (F) +/- | Средний (М) +/- | Грубая (C) +/- | Очень грубая (V) +/- |
. | .2 | .2 | .4 | .4 |
3-6 | .5 | .5 | 1 909:25 | 1 |
6 | 1 | 1 | 2 | 2 |
Преобразование файлов САПР
Отформатированный файл проекта САПР проходит через программу, обычно программное обеспечение автоматизированного производства (CAM), для извлечения геометрии детали и создания цифрового программного кода, который будет управлять станком с ЧПУ и манипулировать инструментами для производства детали, разработанной по индивидуальному заказу.
Станки с ЧПУ использовали несколько языков программирования, включая G-код и М-код. Самый известный из языков программирования ЧПУ, общий или геометрический код, называемый G-кодом, контролирует, когда, где и как перемещаются станки — например, когда включать или выключать, как быстро перемещаться в заданную точку.
конкретное место, какие пути выбрать и т. д. — по заготовке. Код дополнительных функций, называемый М-кодом, управляет вспомогательными функциями машины, такими как автоматизация снятия и замены кожуха машины в начале и в конце производства соответственно.
После создания программы ЧПУ оператор загружает ее в станок с ЧПУ.
Настройка машины
Прежде чем оператор запустит программу ЧПУ, он должен подготовить станок ЧПУ к работе. Эти подготовительные работы включают в себя крепление заготовки непосредственно к станку, к шпинделям станка, к станочным тискам или аналогичным приспособлениям, а также к прикреплению необходимых инструментов, таких как сверла и концевые фрезы, к соответствующим компонентам станка.
После полной настройки станка оператор может запустить программу ЧПУ.
Выполнение операции обработки
Программа ЧПУ действует как инструкция для станка с ЧПУ; он передает команды станка, определяющие действия и движения инструмента, на встроенный в станок компьютер, который управляет инструментами станка и манипулирует им.
Запуск программы предлагает станку с ЧПУ начать процесс обработки с ЧПУ, и программа направляет станок на протяжении всего процесса, поскольку он выполняет необходимые машинные операции для производства детали или продукта, разработанного по индивидуальному заказу.
могут выполняться собственными силами — если компания инвестирует в приобретение и обслуживание собственного оборудования с ЧПУ — или отдаваться на аутсорсинг специализированным поставщикам услуг по обработке с ЧПУ.
Типы операций обработки с ЧПУ
CNC-обработка — это производственный процесс, подходящий для самых разных отраслей, включая автомобильную, авиакосмическую, строительную и сельскохозяйственную, и способный производить ряд продуктов, таких как автомобильные рамы, хирургическое оборудование, авиационные двигатели, шестерни, а также ручные и садовые инструменты. Этот процесс включает в себя несколько различных операций механической обработки, управляемых компьютером, включая механические, химические, электрические и термические процессы, которые удаляют необходимый материал из заготовки для производства детали или продукта, разработанного по индивидуальному заказу.
В то время как химические, электрические и термические процессы обработки рассматриваются в следующем разделе, в этом разделе рассматриваются некоторые из наиболее распространенных операций механической обработки с ЧПУ, включая:
- Сверление
- Фрезерование
- Токарная обработка
Сверление с ЧПУ
Сверление — это процесс механической обработки, в котором используются многогранные сверла для создания цилиндрических отверстий в заготовке. При сверлении с ЧПУ, как правило, станок с ЧПУ подает вращающееся сверло перпендикулярно плоскости поверхности заготовки, в результате чего получаются выровненные по вертикали отверстия с диаметром, равным диаметру сверла, используемого для операции сверления. Однако операции углового сверления также могут выполняться с использованием специализированных конфигураций станков и зажимных устройств. Операционные возможности процесса бурения включают зенкерование, зенкерование, развертывание и нарезание резьбы.
Фрезерование с ЧПУ
Фрезерование — это процесс механической обработки, в котором используются вращающиеся многогранные режущие инструменты для удаления материала с заготовки. При фрезеровании с ЧПУ станок с ЧПУ обычно подает заготовку к режущему инструменту в том же направлении, что и вращение режущего инструмента, тогда как при ручном фрезеровании станок подает заготовку в направлении, противоположном вращению режущего инструмента. Операционные возможности процесса фрезерования включают торцевое фрезерование — вырезание в заготовке неглубоких плоских поверхностей и полостей с плоским дном — и периферийное фрезерование — вырезание в заготовке глубоких полостей, таких как пазы и резьба.
Токарная обработка с ЧПУ
Токарная обработка с ЧПУ и многошпиндельная обработкаИзображение предоставлено: Buell Automatics
Токарная обработка — это процесс механической обработки, в котором используются одноточечные режущие инструменты для удаления материала с вращающейся заготовки.
При токарной обработке с ЧПУ станок — обычно токарный станок с ЧПУ — подает режущий инструмент линейным движением вдоль поверхности вращающейся заготовки, удаляя материал по окружности до тех пор, пока не будет достигнут желаемый диаметр, для производства цилиндрических деталей с внешними и внутренними элементами. , такие как прорези, конусы и резьба. Операционные возможности процесса токарной обработки включают растачивание, торцевание, нарезание канавок и нарезание резьбы. Когда дело доходит до фрезерного станка с ЧПУ по сравнению с токарным станком, фрезерование с его вращающимися режущими инструментами лучше работает для более сложных деталей. Однако токарные станки с вращающимися заготовками и стационарными режущими инструментами лучше всего подходят для более быстрого и точного создания круглых деталей.
Обработка | Характеристики |
Сверление |
|
Фрезерование |
|
Токарная обработка |
|
Близкие родственники токарных станков, вращающиеся токарные станки с ЧПУ включают токарный набор с заготовкой (металлический лист или труба), которая вращается с высокой скоростью, в то время как металлический вращающийся ролик придает заготовке желаемую форму.
В качестве «холодного» процесса формование металла с ЧПУ формирует предварительно сформированный металл — трение вращающегося станка, контактирующего с роликом, создает силу, необходимую для придания формы детали.
Швейцарская обработка, также известная как обработка швейцарским винтом, использует специальный тип токарного станка, который позволяет заготовке двигаться вперед и назад, а также вращаться, чтобы обеспечить более жесткие допуски и лучшую стабильность при резке. Заготовки обрезаются непосредственно рядом с удерживающей их втулкой, а не дальше. Это позволяет снизить нагрузку на изготавливаемую деталь. Швейцарская обработка лучше всего подходит для небольших деталей в больших количествах, таких как часовые винты, а также для приложений с критическими допусками прямолинейности или концентричности. Вы можете узнать больше об этой теме в нашем руководстве о том, как работают станки с швейцарским винтом.
Как работает 5-осевой станок с ЧПУ? 5-осевая обработка с ЧПУ описывает компьютеризированную производственную систему с числовым программным управлением, которая добавляет к традиционным 3-осевым линейным движениям станка (X, Y, Z) две оси вращения, чтобы обеспечить доступ станка к пяти из шести сторон детали в одиночная операция.
Добавляя к рабочему столу наклоняющееся вращающееся приспособление (или цапфу), фрезерный станок становится так называемым 3+2, индексным или позиционным станком, что позволяет фрезе приближаться к пяти из шести сторон рабочего стола. призматическая заготовка на 90° без необходимости повторной установки заготовки оператором.
Однако это не совсем 5-осевой фрезерный станок, потому что четвертая и пятая оси не двигаются во время операций обработки. Добавление серводвигателей к дополнительным осям, а также компьютеризированное управление ими — часть с ЧПУ — сделают это единым целым. Такой станок, способный к полной одновременной контурной обработке, иногда называют «непрерывным» или «одновременным» 5-осевым фрезерным станком с ЧПУ. Две дополнительные оси также могут быть встроены в обрабатывающую головку или разделены — одна ось на столе и одна на головке.
Обучение оператора токарного станка с ЧПУ Чтобы работать на токарном станке с ЧПУ, машинист должен пройти определенный объем курсовой работы и получить соответствующий сертификат от аккредитованной организации по обучению в сфере промышленности.
Программы обучения токарной обработке с ЧПУ обычно включают несколько классов или занятий, предлагая постепенный процесс обучения, разбитый на несколько этапов. Важность соблюдения протоколов безопасности усиливается на протяжении всего тренировочного процесса.
Начальные занятия по токарному станку с ЧПУ могут не включать практический опыт, но они могут включать ознакомление учащихся с кодами команд, перевод файлов САПР, выбор инструмента, последовательности резки и другие области. Курс начинающего токаря с ЧПУ может включать:
- Смазка и планирование технического обслуживания токарных станков
- Перевод инструкций в машиночитаемый формат и загрузка их в токарный станок
- Установление критериев выбора инструмента
- Установка инструментов и деталей для работы с материалом
- Изготовление образцов деталей
Последующее обучение работе на токарном станке с ЧПУ обычно включает реальную работу на токарном станке, а также настройку станка, редактирование программы и разработку нового синтаксиса команд.
Обучение работе на токарном станке этого типа может включать курсы по:
- Выяснение того, где необходимы правки, путем сравнения образцов деталей с их спецификациями
- Редактирование программ ЧПУ
- Создание нескольких циклов тестовых компонентов для уточнения результатов правок
- Регулировка подачи охлаждающей жидкости, очистка станка, ремонт и замена инструментов
Другие операции механической обработки с ЧПУ
Другие операции механической обработки с ЧПУ включают:
- Протяжка
- Распиловка
- Шлифование
- Хонингование
- Притирка
Обрабатывающее оборудование и компоненты с ЧПУ
Как указано выше, доступен широкий спектр операций обработки. В зависимости от выполняемой операции обработки в процессе обработки с ЧПУ используются различные программные приложения, машины и станки для получения желаемой формы или дизайна.
Типы программного обеспечения для обработки с ЧПУ
В процессе обработки с ЧПУ используются программные приложения для обеспечения оптимизации, точности и аккуратности изготовленной по индивидуальному заказу детали или продукта.
Используемые программные приложения включают:
- Канадский доллар
- САМ
- КАЕ
CAD : Программное обеспечение для автоматизированного проектирования (САПР) — это программы, используемые для создания чертежей и создания 2D векторных или 3D твердотельных изображений деталей и поверхностей, а также необходимой технической документации и спецификаций, связанных с деталью. Конструкции и модели, созданные в программе CAD, обычно используются программой CAM для создания необходимой машинной программы для производства детали с помощью метода обработки с ЧПУ. Программное обеспечение САПР также можно использовать для определения и определения оптимальных свойств деталей, оценки и проверки конструкции деталей, моделирования продуктов без прототипа и предоставления проектных данных производителям и мастерским.
CAM : Программное обеспечение автоматизированного производства (CAM) — это программы, используемые для извлечения технической информации из модели CAD и создания машинной программы, необходимой для запуска станка с ЧПУ и управления инструментами для производства детали, разработанной по индивидуальному заказу.
Программное обеспечение CAM позволяет станку с ЧПУ работать без помощи оператора и может помочь автоматизировать оценку готового продукта.
CAE : Программное обеспечение для автоматизированного проектирования (CAE) — это программы, используемые инженерами на этапах предварительной обработки, анализа и последующей обработки процесса разработки. Программное обеспечение CAE используется в качестве вспомогательных средств поддержки в приложениях инженерного анализа, таких как проектирование, моделирование, планирование, производство, диагностика и ремонт, чтобы помочь в оценке и изменении конструкции продукта. Доступные типы программного обеспечения CAE включают программное обеспечение для анализа методом конечных элементов (FEA), вычислительной гидродинамики (CFD) и программного обеспечения для динамики нескольких тел (MDB).
Некоторые программные приложения сочетают в себе все аспекты программного обеспечения CAD, CAM и CAE. Эта интегрированная программа, обычно называемая программным обеспечением CAD/CAM/CAE, позволяет единой программе управлять всем производственным процессом от проектирования до анализа и производства.
Что такое станок с ЧПУ? Типы станков с ЧПУ и станков
В зависимости от выполняемой операции обработки в процессе обработки с ЧПУ используются различные станки и станки с ЧПУ для производства детали или продукта по индивидуальному заказу. В то время как оборудование может различаться по другим параметрам от операции к операции и от приложения к приложению, интеграция компонентов компьютерного числового программного управления и программного обеспечения (как указано выше) остается неизменной для всего оборудования и процессов обработки с ЧПУ.
Сверлильный станок с ЧПУ Сверление использует вращающиеся сверла для создания цилиндрических отверстий в заготовке. Конструкция сверла позволяет металлическим отходам, т. е. стружке, отпадать от заготовки. Существует несколько типов сверл, каждый из которых используется для определенного применения. Доступные типы сверл включают центрирующие сверла (для изготовления неглубоких или направляющих отверстий), сверла с вертикальным сверлением (для уменьшения количества стружки на заготовке), сверла для винтовых станков (для изготовления отверстий без направляющего отверстия) и патронные развертки (для увеличения ранее изготовленные отверстия).
Обычно в процессе сверления с ЧПУ также используются сверлильные станки с ЧПУ, которые специально разработаны для выполнения операции сверления. Однако эту операцию можно выполнять и на токарных, резьбонарезных или фрезерных станках.
Фрезерное оборудование с ЧПУФрезерование использует вращающиеся многогранные режущие инструменты для придания формы заготовке. Фрезерные инструменты ориентированы либо горизонтально, либо вертикально и включают концевые фрезы, винтовые фрезы и фрезы для снятия фасок.
В процессе фрезерования с ЧПУ также используются фрезерные станки с ЧПУ, называемые фрезерными станками или мельницами, которые могут быть ориентированы горизонтально или вертикально. Базовые фрезы способны перемещаться по трем осям, а более продвинутые модели имеют дополнительные оси. Доступные типы мельниц включают ручные фрезерные, простые фрезерные, универсальные фрезерные и универсальные фрезерные станки.
Токарное оборудование с ЧПУ Токарная обработка использует одноточечные режущие инструменты для удаления материала с вращающейся заготовки.
Конструкция токарного инструмента варьируется в зависимости от конкретного применения, с инструментами, доступными для черновой, чистовой обработки, торцевания, нарезания резьбы, формовки, подрезки, отрезки и обработки канавок.
В процессе токарной обработки с ЧПУ также используются токарные станки или токарные станки с ЧПУ. Доступные типы токарных станков включают токарные станки с револьверной головкой, токарные станки с двигателями и токарные станки специального назначения.
Что такое настольный станок с ЧПУ? Компании, специализирующиеся на производстве станков с ЧПУ, часто предлагают настольные серии небольших и легких станков. Настольные станки с ЧПУ, хотя и медленнее и менее точны, хорошо обрабатывают мягкие материалы, такие как пластик и пенопласт. Они также лучше подходят для небольших деталей и легкого и среднего производства. Машины, представленные в настольной серии, напоминают более крупный отраслевой стандарт, но их размер и вес делают их более подходящими для небольших приложений.
Например, настольный токарный станок с ЧПУ, который имеет две оси и может обрабатывать детали диаметром до шести дюймов, был бы полезен для изготовления ювелирных изделий и форм. Другие распространенные настольные станки с ЧПУ включают лазерные резаки размером с плоттер и фрезерные станки.
При работе с токарными станками меньшего размера важно различать настольный токарный станок с ЧПУ и настольный токарный станок. Настольные токарные станки с ЧПУ, как правило, более доступны по цене, но также меньше по размеру и несколько ограничены в приложениях, с которыми они могут работать. Стандартный настольный токарный станок с ЧПУ обычно включает в себя контроллер движения, кабели и базовое программное обеспечение. Стандартный настольный токарный станок с ЧПУ с аналогичной базовой комплектацией стоит немного дороже.
Материалы для станков с ЧПУ
Процесс обработки с ЧПУ подходит для различных конструкционных материалов, в том числе:
- Металл (например, алюминий, латунь, нержавеющая сталь, легированная сталь и т.
д.) - Пластик (например, PEEK, PTFE, нейлон и т. д.)
- Дерево
- Пена
- Композиты
Выбор оптимального материала для производства с ЧПУ во многом зависит от конкретного производственного приложения и его спецификаций. Большинство материалов можно подвергать механической обработке при условии, что они выдерживают процесс обработки, т. е. обладают достаточной твердостью, прочностью на растяжение, прочностью на сдвиг, химической и температурной стойкостью.
Материал заготовки и его физические свойства используются для определения оптимальной скорости резания, скорости подачи и глубины резания. Измеряемая в поверхностных футах в минуту, скорость резания относится к тому, насколько быстро станок врезается или удаляет материал с заготовки. Скорость подачи, измеряемая в дюймах в минуту, является мерой того, насколько быстро заготовка подается к станку, а глубина резания показывает, насколько глубоко режущий инструмент врезается в заготовку.
Как правило, заготовка сначала проходит начальную фазу, на которой она грубо обрабатывается до приблизительных, специально разработанных формы и размеров, а затем проходит чистовую фазу, на которой она испытывает более медленные скорости подачи и меньшую глубину резания для достижения более точных и точных результатов. точные характеристики.
Рекомендации по размеру ЧПУ
Широкий спектр возможностей и операций, предлагаемых процессом обработки с ЧПУ, помогает ему найти применение в различных отраслях промышленности, включая автомобильную, аэрокосмическую, строительную и сельскохозяйственную, и позволяет производить ряд продуктов, таких как гидравлические компоненты, винты и валы. Несмотря на универсальность и настраиваемость процесса, изготовление некоторых деталей, например крупных или тяжелых компонентов, представляет более сложные задачи, чем другие. В таблице 1 ниже представлены некоторые проблемы обработки крупных деталей и тяжелых компонентов.
Таблица 2.
Проблемы обработки в зависимости от размера детали Размер детали | Проблемы обработки |
Большая часть |
|
Тяжелый компонент |
|
Альтернативы использованию станка с ЧПУ
Хотя обработка с ЧПУ демонстрирует преимущества по сравнению с другими производственными процессами, она может не подходить для каждого производственного применения, и другие процессы могут оказаться более подходящими и экономически эффективными.
Хотя в этой статье основное внимание уделяется процессам механической обработки с ЧПУ, в которых используются станки для производства детали или продукта, разработанного по индивидуальному заказу, элементы управления ЧПУ могут быть интегрированы в различные станки. Другие процессы механической обработки с ЧПУ включают ультразвуковую обработку, гидроабразивную резку и абразивно-струйную обработку.
Помимо механических процессов, также доступны процессы химической, электрохимической и термической обработки. Процессы химической обработки включают химическое фрезерование, вырубку и гравировку; процессы электрохимической обработки включают электрохимическое удаление заусенцев и шлифование; и процессы термической обработки включают электронно-лучевую обработку, лазерную резку, плазменно-дуговую резку и электроэрозионную обработку (EDM).
История обработки с ЧПУ (Видео)
Резюме
Выше изложены основы процесса обработки с ЧПУ, различные операции обработки с ЧПУ и необходимое для них оборудование, а также некоторые соображения, которые могут быть приняты во внимание производителями и механическими мастерскими при принятии решения о том, является ли обработка с ЧПУ наиболее оптимальным решением для их конкретных задач.
производственное приложение.
Чтобы найти более подробную информацию о местных коммерческих и промышленных поставщиках услуг и оборудования для производства на заказ, посетите платформу поиска поставщиков Thomas, где вы найдете информацию о более чем 500 000 коммерческих и промышленных поставщиков.
Источники
- Нетрадиционные процессы механической обработки и термической резки
- Обработка пластика с ЧПУ
- Отрасли, использующие высокоточную обработку с ЧПУ
- Токарно-фрезерные услуги с ЧПУ
- Швейцарская токарная обработка по сравнению с традиционной обработкой с ЧПУ
- 7 причин, по которым обработка с ЧПУ превосходит обычную обработку
- As the World (CNC) Turns — Эволюция токарной обработки с ЧПУ
- Типы и преимущества станков с ЧПУ
- Прототипирование с ЧПУ в современном виде
- Преимущества контракта на обработку с ЧПУ
- Все о станках с ЧПУ
- Компоненты, обработанные алюминием
- Обработка компонентов огнестрельного оружия
- Советы по отличному дизайну металлического прядения
- Важность деталей и компонентов трансмиссии для внедорожников
- Что такое швейцарская обработка с ЧПУ?
- Что нужно знать о швейцарском точении
- Самолет и аэрокосмическая промышленность в Ardel Engineering
- Связь в Ardel Engineering
- Токарно-фрезерные услуги с ЧПУ в Helander
- Обработка пластика с ЧПУ
- Фрезерные станки против.


.25
5-3
5-3