Гаражные кованые ворота фото – Кованые гаражные ворота + фото
105 фото интересных проектов художественной ковки
Выглядят достаточно оригинально ажурные калитки, ворота с оригинальными коваными элементами. Такие изделия выглядят действительно элегантно и привлекательно. Помимо этого, их основная задача – защита дворовой части успешно выполняется.

Подготовительный этап
Изделия такого плана помимо массы достоинств и презентабельного внешнего вида имеют некоторый весомый недостаток – это высокая стоимость. Этим фактором можно объяснить небольшой спрос на такие изделия. Для того чтобы в этом случае не растрачивать деньги зря, следует сделать кованые ворота своими руками.

Стоит уделить должное внимание подготовке. Важно взять необходимый набор инструментов. Для наиболее привлекательного и оптимального конечного результата стоит использовать эскизы кованых ворот. Создавая самостоятельно чертеж, вы учитываете свои потребности, пожелания. Также, такой чертеж можно приобрести в уже готовом виде.

Для самостоятельного изготовления вам потребуются набор инструментов. Это наковальня, горн. Для обретения ровных, гладких очертаний необходима шлиф машинка. Возьмите тиски, молотки, без которых нельзя представить рабочий процесс. Необходимо взять сварочный аппарат, а также надежные клещи для того, чтобы удерживать горячий металл.
Для создания уникальных фигуристых элементов необходим специальный станок.

Создавая кованые элементы для ворот, стоит помнить об источнике высокотемпературного очага огня. Этот критерий основной при выборе самостоятельного изготовления изделия.

Особенности изготовления
Толщина материала не должна превышать 1 мм. Сечение четырехгранника при этом составляет приблизительно 12-14 мм, не более того. Такие параметры считаются оптимальными для привлекательного внешнего вида и возможности проделать монтажные работы самостоятельным путем.

Обратите внимание! Для того чтобы процесс изготовления изделия прошел хорошо, следует заранее определится с количеством материала.

Важно подсчитать нужный вам материал на все элементы и добавить около 30%. Это та цифра листового металла, который понадобиться в дальнейшей работе.

Красивые кованые ворота состоят из некоторых элементов. Это каркасная часть, которая является базовой, именно от нее зависит жесткость и форма изделия. Совокупность металлических элементов составляют установочную часть. Именно она необходима для того, чтобы закрепить столбы, калитки в процессе установки.
Одним из ключевых элементов являются навесы. Открывать механизм, закрывать можно с помощью замка, или же защелки.

Своеобразные узоры, элементы ковки, обеспечивают жесткость оградки, придают изделию оригинальный внешний вид. Для защиты от вибраций хозяевам стоит предусмотреть установку на прочные, надежные столпы.

Рабочий процесс
Когда вы закупили необходимое количество материала, стоит приступать к азам, особенностям того, как сделать такое изделие самостоятельным образом.

Обратите внимание на то, что металлические элементы после выполнения основных работ увеличиваются в параметрах. Это можно объяснить следующими этапами. Материал важно отжечь, разогреть до необходимой температуры, затем остудить. После таких манипуляций с материалом будет достаточно легко работать, он становится в руках даже начинающего мастера податливым.

Для того чтобы столбы не провисали, стоит установить не только металлические элементы, но и соединить их с облицовочным кирпичом. В последнем случае важно обратить внимание на обложку трубы. Глубина ямы не должна быть меньше, чем 1 м.

Столбы следует поместить в яму, затем засыпать щебнем. При их помещении, обратите внимание на перпендикулярность. Несоответствие чревато тем, что конструкция будет выглядеть «косой».
Цементный раствор используют пропорционально 1 к 3. То есть цемента одна часть и три части песка, что подходит для М300.

После утрамбовки проверьте ровность установления столбов. Когда раствор высохнет полностью, тогда можно выкладывать кирпич.

Фигурные створки
Элементы следует выкладывать на ровную поверхность. Лучше всего подойдет более 2 метра. Строительный уровень пригодится для получения плоскости.

Как видно на фото кованых ворот на верхней части вырезается из профиля стойка. Поместите деталь на стол для сварки, удостоверьтесь в равенстве угловых частей.

Обратите внимание! Для получения правильных форм необходимо уделить внимание измерению диагонали перед началом сварочных работ. Мастера используют капроновую нить для этих целей.
Выводы
В целом, установка кованых ворот, создание оригинальных элементов можно сделать самостоятельно. Необходимо запастись необходимыми инструментами, сделать подобающий эскиз.

После выполнения всех работ, не лишним будет придать привлекательный внешний вид изделию.

Фото кованых ворот
















































Также рекомендуем посетить:
mojdominfo.ru
Гаражные ворота — 115 фото различных вариантов и советы по лучшему выбору
Автомобиль стал неотъемлемой частью повседневной жизни. Однако, наряду с множеством очевидных преимуществ, у владельцев авто имеется ряд проблем, решать которые приходиться тем или иным способом. В частности, автомобиль необходимо где-то оставлять и проводить его техническое обслуживание.

В городских условиях принято оставлять свои машины на стоянках либо парковках, в свою очередь, сельские жители, владельцы частных домов, дач и садовых участков, а в последнее время и городские жители, как правило, строят гаражи, оборудуя их всей необходимой инфраструктурой.

Одним из важных элементов любого гаража являются ворота. Если посмотреть на фото гаражных ворот, их в достаточном количестве можно найти на специализированных сайтах, необходимо отметить, при кажущейся простоте они являются достаточно сложной конструкцией со свойственными ей особенностями.

Давайте остановимся на ключевых моментах – они, несомненно, пригодятся при выборе или самостоятельном изготовлении ворот для вашего гаража.

Особенности
Ворота для гаража должны быть надежными, удобными, т.е. совмещать практичность, надежность, при этом их стоимость по возможности должна быть разумной и приемлемой.
Обычные распашные ворота
Это наиболее простой, от того популярный вариант. Главным преимуществом распашной конструкции необходимо считать простоту, соответственно – стоимость.

Такие ворота состоят из каркаса, сваренного из стального уголка, поверх которого навариваются или прикручиваются стальные листы. Для жесткости и для утепления, внутреннее пространство створок заполняется деревянными досками, которые крепятся к каркасу и листам посредством болтов.

При всей своей незамысловатости распашная система достаточно надежная и долговечная.

Откатные
В данном случае конструкция представляет собой одну створку и направляющую, по которой она перемещается параллельно стене. Недостатком необходимо считать достаточную сложность, что затрудняет их самостоятельное изготовление, а кроме того – для движения створки нужно свободное пространство вдоль стены.

В процессе эксплуатации необходимо следить за тем, чтобы в направляющей не было посторонних предметов и мусора.

Подъемные секционные
Представляют собой набор секций, посредством специального пружинного механизма собирающихся под потолком при открытии. Недостаток: сложность, от того – высокая цена.

Самостоятельно сделать такие ворота невозможно. Компактность и удобство использования в некой степени компенсируют недостатки, однако они требуют особого ухода и обслуживания.

Подъемные поворотные
Представляют собой створку, поднимающуюся параллельно полу вверх посредством специальных шарниров и фиксирующуюся под потолком.

Главное преимущество – нетребовательность к свободному пространству, при этом, они значительно дешевле и проще, в сравнении с подъемно-секционными, однако остаются достаточно сложными для самостоятельного повторения, при этом требовательны в обслуживании.

Роллеты
Роллетная конструкция, представляющая собой набор металлических пластин собирающихся в специальный короб, установленный под потолком. Главный недостаток – невысокая надежность и сложность. Сказать однозначно, какие гаражные ворота лучше очень трудно, поскольку многое зависит от конкретных условий и ваших возможностей.

Самостоятельное изготовление распашных ворот
Отвечая на вопрос – как сделать гаражные ворота своими руками, заметим: наиболее предпочтительными для повторения, являются распашные, а потому давайте рассмотрим основные особенностях технологии изготовления таких ворот.
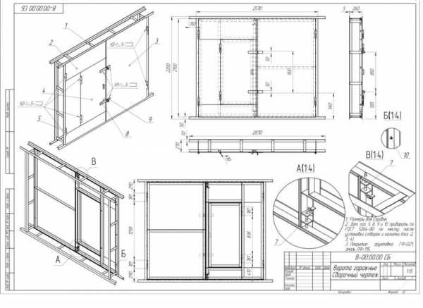
Прежде вам необходимо определить общие размеры гаражных ворот, их особенности. Под особенностями необходимо понимать наличие или отсутствие входной двери на створке, а также конструкцию запорного механизма и замков, внутренних и (или) внешних.

Предварительно подумайте о том, как все будет устанавливаться и крепится. Вы можете взять готовый чертеж и изменить его размеры либо сделать все самостоятельно.

После того, как у вас на руках будет чертеж, необходимо подготовить все материалы и инструменты, и только тогда можно приступать к работе.

Начинают всегда с изготовления каркаса ворот, для этого предварительно приготовленные уголки сначала прихватывают «точками» между собой, а после контроля размеров окончательно сваривают, а затем к ним приваривают внешние листы. Далее устанавливают навесы, все запорные механизмы, проушины для замков и другие дополнительные элементы.

После этого ворота собирают и устанавливают на месте. Предварительно укрепив, проверяют, как они открываются и закрываются, после чего окончательно фиксируют.

Когда раствор застынет, контролируют качество работы и покрывают внутреннюю сторону створок и каркас антикоррозионным покрытием, а после приступают к установке деревянных досок на внутренней поверхности створок. Когда эта работа будет завершена, ворота красят и устанавливают внутренние замки.

Естественно, указанный нами технологический процесс является самым общим, но он поможет представить вам предстоящий объем работы и обозначить примерный план действий.
Больше инструкций Вы найдете на этом сайте: http://clubsamodelok.ru
Фото гаражных ворот







































Также рекомендуем посетить:
mojdominfo.ru
Как сделать кованые гаражные ворота своими руками

Гаражные кованые ворота
Гаражные ворота кованые позволяют не только украсить гараж, но и сделать конструкцию более надежной. Производство кованых ворот – это достаточно сложный процесс, который проще будет понять после того, как технология их изготовления будет представлена по отдельным этапам. Как сделать кованые ворота на гараж, подскажет статья.
Особенности кованых ворот для гаража
Ворота, изготовленные методом ковки, известны с глубокой древности. Процесс ковки – это обработка металлов давлением.
Заборы, калитки, ворота – всегда были не только преградой от воров, но и украшали сооружения и участки, подчеркивали высокий статус их владельца. Ворота, на которых имеется кованый рисунок, всегда привлекает взгляды окружающих своей изысканностью и красотой, создает впечатление роскоши.
Изделия с элементами ковки отличаются высокой прочностью, что зависит от марки стали. В процессе обработки волокна не перерезаются, а только упрочняются. При ковке по определенной технологии может происходить поверхностное воронение металла, что значительно повышает твердость и долговечность ворот.
При ковке можно выполнить изделия любой формы и конфигурации, изготовленные по:
- Обычным проектам.
- Эскизам.
- Фотографиям.
- 3D-моделям, представленным заказчиком.
Наиболее востребованы типы кованых гаражных ворот:
Особенность гаражных кованых ворот заключается в том, что декорирующие элементы накладываются на обшивку или полотно створки, что значительно увеличивает массу изделия.
Совет: Из-за большого веса конструкции следует выбирать соответствующие шарниры для их крепления.
Как сделать кованые ворота для гаража
В домашних условиях своими руками кованые ворота можно сделать несколькими методами:
- При наличии базовых навыков кузнечного дела и необходимых инструментов, можно ворота сделать с самого начала. В этом случае все элементы узора понадобится выковать самим.
- Простой способ — использовать уже готовые металлические заготовки, которые понадобится лишь прикрепить по эскизу на лицевую часть изделия, применяя сварочный аппарат. А декоративные прутья можно подобрать в специализированном магазине.
Перед тем, как ковать ворота на гараж, понадобится приобрести набор инструментов:
- Металлические мощные тиски.
- Специализированная печь или горн.
- Несколько видов ударных молотков.
- Аппарат для шлифовки.
- Металлический квадратный прокат 10х10 миллиметров.
- Трубы и стальные круги.
- Стальные листы.
- Шарниры.
- Электрическую ножовку по металлу.
- Сварочный аппарат.
- Рулетку.
- Уровень строительный или метр.
После подготовки всех материалов и инструментов необходимо сделать замеры, которые понадобятся для изготовления конструкции, включая проем для ворот гаража. После получения всех необходимых данных создается чертеж с эскизами тех узоров, которые будут на воротах.

Схема ворот для гаража
Совет: Ворота с наличием элементов ковки — это металлические конструкции, для изготовления которых понадобятся не только навыки выполнения кузнечных работ, но и умение рисовать.
Сформировать декоративный рисунок можно собственными силами. А при отсутствии фантазии можно воспользоваться готовыми изображениями из художественного журнала.
Инструкция выполнения работ состоит в следующем:
- Изготавливается металлическая рама. Для этого берутся стальные профили, обрезаются ножовкой и по размерам раскладываются на ровной поверхности.
- Полученный квадрат или прямоугольник выравнивается по уровню, проверяются диагонали, прихватываются сваркой углы.
- Собираются створки ворот. При этом необходимо, чтобы они свободно входили в изготовленную заранее раму, а между ними оставался небольшой просвет в один миллиметр.
- Размечаются нужного размера металлические листы.
- Укладываются на каркасную основу, привариваются сплошным швом по всему периметру, катет шва равен толщине листа.
- Привариваются в намеченных местах нижние элементы шарниров к раме, а верхние детали крепятся к наружной части створок.
Совет: Для большей надежности крепления сверху на ушки петель следует приварить небольшие металлические пластинки, как показано на фото.

Приварка шарниров к воротам
Как сделать кованый декоративный узор
Выполнение этого процесса требует особого внимания и терпения. Для работы потребуются: ковальная печь и кузнечные специальные щипцы.
Совет: Перед началом работ следует надеть защитные очки, а на руки перчатки.
Далее порядок работы такой:
- Обрезаются ножовкой по металлу до нужного размера четырехгранные стальные прутья.
- Заготовки помещаются в горн, где они раскаляются до характерного для выполнения горячей ковки алого цвета.
- Прутья из печи вытаскиваются щипцами и можно приступать к ковке.

Использование щипцов для выполнения закругленных деталей
- Заготовка кладется на наковальню и при постоянном переворачивании ее по определенному принципу ударяется молотком в нужных местах до приобретения детали нужного изогнутого вида.

Процесс ковки детали
- Для обработки больших прутьев нужно пользоваться тисками, которыми металлические элементы можно удобно зажать, а затем и выгнуть.
- Готовые после ковки изделия размещаются на наружной стороне полотна ворот по соответствующему эскизу.
- Перед этим можно нанести на поверхность рисунок карандашом, так будет легче наложить деталь.
- Декоративные элементы привариваются к полотну. При этом необходимо внимательно следить, чтобы заготовка не сдвинулась с нужного места.
Совет: При сварке детали могут немного сдвинуться с нужного места. Поэтому предварительно следует каждый элемент лишь прихватить сваркой, а после окончательного выкладывания рисунка и контроля его качества, сварить окончательно.
- Все погрешности сварных швов зачищаются шлифовальным кругом.
- Все металлические детали покрываются специальной грунтовкой по металлу, что предотвращает коррозию.
- Ворота красятся.
- Монтируются по месту.
Подробно обо всех операциях изготовления кованых ворот для гаража расскажет видео. Кованые ворота, изготовленные по своему проекту, дают возможность реализовать свой творческий потенциал, при этом цена изделия будет значительно ниже готовых конструкций.
1pogarazham.ru
КАТАЛОГ ВОРОТА ЗАБОРЫ (K№4) | Металлические ворота гаражные въездные распашные фото
Заказать металлические ворота гаражные въездные распашные
любой оптовый и розничный заказчик может на нашем производстве
Каталог №4 »Кованые металлические ворота»
(всего фото металлических ворот с ковкой: 192)
(фото в каталоге №4: ВКВ61 — ВКВ80)
Сделать предзаказ на ворота
ВНИМАНИЕ! Изготовим полностью кованые и металлические ворота с ковкой любого размера или по Вашим эскизам на любой бюджет. Доступные цены «под ключ». 0% переплат!
❖ нажмите на фото для увеличения

МЕТАЛЛИЧЕСКИЕ ВОРОТА С КОВКОЙ (ВКВ№61)
Цена: 25 880 (руб/пм)

МЕТАЛЛИЧЕСКИЕ ВОРОТА С КОВКОЙ (ВКВ№62)
Цена: 19 730 (руб/пм)

МЕТАЛЛИЧЕСКИЕ ВОРОТА С КОВКОЙ (ВКВ№63)
Цена: 15 850 (руб/пм)

МЕТАЛЛИЧЕСКИЕ ВОРОТА С КОВКОЙ (ВКВ№64)
Цена: 16 810 (руб/пм)

МЕТАЛЛИЧЕСКИЕ ВОРОТА С КОВКОЙ (ВКВ№65)
Цена: 12 820 (руб/пм)

МЕТАЛЛИЧЕСКИЕ ВОРОТА С КОВКОЙ (ВКВ№66)
Цена: 16 830 (руб/пм)

МЕТАЛЛИЧЕСКИЕ ВОРОТА С КОВКОЙ (ВКВ№67)
Цена: 30 680 (руб/пм)

МЕТАЛЛИЧЕСКИЕ ВОРОТА С КОВКОЙ (ВКВ№68)
Цена: 26 250 (руб/пм)

МЕТАЛЛИЧЕСКИЕ ВОРОТА С КОВКОЙ (ВКВ№69)
Цена: 32 340 (руб/пм)

МЕТАЛЛИЧЕСКИЕ ВОРОТА С КОВКОЙ (ВКВ№70)
Цена: 11 130 (руб/пм)

МЕТАЛЛИЧЕСКИЕ ВОРОТА С КОВКОЙ (ВКВ№71)
Цена: 14 260 (руб/пм)

МЕТАЛЛИЧЕСКИЕ ВОРОТА С КОВКОЙ (ВКВ№72)
Цена: 19 400 (руб/пм)

МЕТАЛЛИЧЕСКИЕ ВОРОТА С КОВКОЙ (ВКВ№73)
Цена: 23 330 (руб/пм)

МЕТАЛЛИЧЕСКИЕ ВОРОТА С КОВКОЙ (ВКВ№74)
Цена: 10 010 (руб/пм)

МЕТАЛЛИЧЕСКИЕ ВОРОТА С КОВКОЙ (ВКВ№75)
Цена: 12 680 (руб/пм)

МЕТАЛЛИЧЕСКИЕ ВОРОТА С КОВКОЙ (ВКВ№76)
Цена: 16 440 (руб/пм)

МЕТАЛЛИЧЕСКИЕ ВОРОТА С КОВКОЙ (ВКВ№77)
Цена: 14 300 (руб/пм)

МЕТАЛЛИЧЕСКИЕ ВОРОТА С КОВКОЙ (ВКВ№78)
Цена: 23 140 (руб/пм)

МЕТАЛЛИЧЕСКИЕ ВОРОТА С КОВКОЙ (ВКВ№79)
Цена: 20 660 (руб/пм)

МЕТАЛЛИЧЕСКИЕ ВОРОТА С КОВКОЙ (ВКВ№80)
Цена: 19 290 (руб/пм)
‘Кованые металлические ворота’ • каталог №1 ‘Кованые металлические ворота’ • каталог №2 ‘Кованые металлические ворота’ • каталог №3 ‘Кованые металлические ворота’ • каталог №4 ‘Кованые металлические ворота’ • каталог №5 ‘Кованые металлические ворота’ • каталог №6 ‘Кованые металлические ворота’ • каталог №7 ‘Кованые металлические ворота’ • каталог №8 ‘Кованые металлические ворота’ • каталог №9 ‘Кованые металлические ворота’ • каталог №10
Стоимость въездных и гаражных распашных ворот
переход в наш прайс-лист въездных и гаражных ворот распашных
МЫ ПРОФЕССИОНАЛЫ!
Имея почти двадцатилетний опыт работы с ручной и холодной ковкой металла, мы изготавливаем на заказ любые кованые изделия для загородного дома, квартиры, офиса и магазина. Выполняем ковку по индивидуальному дизайн-проекту!
ЗВОНИТЕ ПРЯМО СЕЙЧАС И ЗАКАЗЫВАЙТЕ!
Профессионально выполним «под ключ» любой ваш заказ! Доступные цены без переплат!
Ваш заказ на гаражные или въездные ворота может быть просчитан нашими специалистами прямо сейчас! Позвоните нам!
www.dkovka.ru
Кованые калитки — 85 фото основных разновидностей и варианты украшений
Красивые кованые калитки всегда привлекали внимание прохожих. Уже на протяжении многих столетий для ограждений используются ворота с коваными элементами и кованые калитки.

Калитки своими руками?
Уже давно прошли времена, когда практически каждый знал как и умел держать в руках тяжелый молот. Благодаря современным технологиям появилась возможность производства кованых элементов для калиток без специального оборудования и знаний.

Для производства кованой калитки своими руками вам понадобится небольшая комната, где можно будет приступать к работе, наковальня, машинка для шлифовки, тиски, болгарка, а также сварочный аппарат, станки для холодной ковки.

Первоначально нужно определиться с дизайном будущей калитки и нарисовать эскиз либо чертеж. Постарайтесь с максимальной точностью передать все детали. Не забывайте про соблюдении масштабирования.
После этого можно при помощи болгарки вырезать необходимые детали. Раму нужно собрать на сварочном столе либо на полу, если такого стола у вас нет. Самое главное – не забывайте смотреть на эскизы кованых калиток, чтобы не ошибиться с размерами, рисунком и пропорциями.

Для ковки – нагрейте болванку примерно до 300 градусов и разогрейте до максимальной температуры. Вытащите из печи. При помощи ударов молотка – уплотните болванку. Во время обжимки удаляется окалина, которая появляется при нагреве.
Также рекомендуем посмотреть здесь еще больше полезных советов от профи

Калитка –это несколько элементов – каркас, навес, рисунок, опора и замки. Опора – это металлические элементы, которые нужны для того, чтобы закрепить калитку. Основной конструкцией – это каркас. Все навесы – это связующие элементы. При помощи кованых деталей вы можете украсить свое изделие.

Чтобы сделать небольшие завитки – необходимо немного крутить заготовки. Самое главное соблюдать симметричность завитков с двух сторон.

Рекомендация – не опускайте заготовку в холодную воду (обычно это делают, чтобы заготовка быстрее остыла). Оставьте остывать ее на воздухе.
Сделав все необходимые процедуры с ковкой, можно будет приступить к покраске изделий. Отнеситесь к этому с большой ответственностью. Непосредственно перед нанесением краски на ограду необходимо протереть калитку от осевшей на нее пыли. Обязательно обезжирьте все элементы. Нанесите хороший слой грунтовки.

Для того, чтобы покрасить изделие, используйте качественную краску для металла. Несмотря на то, что такие краски стоят дороже, будьте уверены – их срок эксплуатации окупит все вложенные в краску средства.

Не забывайте про места крепления хомутов и завитушек – такие места лучше «залить» краской. Если вы хотите, чтобы ваша калитка выглядела состаренной, можете нанести поверх краски патину. Такое изделие выглядит гораздо эффектнее. Патину наносите полусухую, небольшим слоем при помощи широкой кисти.

Калитку можно навешивать практически в самом конце. Для этого необходимо воспользоваться точечными навесами. Один из таких навесов должен быть оборудован штырем, другой – пазом. Сегмент со штырем соединяйте сваркой с вертикальным профилем основы.

Элемент с пазом нужно будет соединить с установочной частью калитки. Не забывайте, что все швы, которые появляются после использования сварки, нужно обязательно зачищать.

Если вам все эти процессы кажутся достаточно длительными и трудоемкими – вы можете воспользоваться более легким вариантом – приобретите все детали в магазине. Таким образом, все кованые элементы (завитушки или узоры) можно приобрести заранее. Далее их нужно будет прикрепить на каркас уже готовой калитки. Разложите все детали в нужном вам рисунке. Следите за симметричностью.

Все кованые изделия необходимо обязательно устанавливать на крепкую и надежную основу. Столбы лучше всего забетонировать. Это позволит укрепить их достаточно сильно.
Красивая ограда
Глядя на фото кованых калиток, мы всегда восхищаемся работой мастеров и красотой их изделий. Такие калитки и ворота помогут визуально облагородить участок, а также оградят его от нежелательных гостей.

При желании можно сделать разнообразные узоры на вашем заборе и калитке. Благодаря современным технологиям, вы можете нарисовать практически любой узор и выковать его.

Фото кованых калиток


























































Также рекомендуем посетить:
mojdominfo.ru
Кованые гаражные ворота, правила выбора
Нынешний рынок предлагает своему потребителю очень широкие возможности для того, чтобы выбрать надежные и красивые гаражные ворота. Сложившаяся ситуация имеет только один минус, часто при огромном выборе товара, покупатель теряется среди представленного ассортимента.

[sam id=»1″ codes=»true»]
Перед тем, как остановиться на каком-нибудь варианте, обратитесь к специалистам для получения детальной консультации по интересующим вопросам. Но подобрать необходимое полотно можно самостоятельно, достаточно лишь четко понимать какую задачу оно должно выполнять и для чего будет предназначаться. Прочитав эту статью, Вы сможете узнать еще несколько важных критериев, чтобы не ошибиться, выбирая кованые ворота, которые помогут сделать окончательный выбор.
В представлении большинства кованые металлические ворота — это обязательно громоздкое сооружение, не имеющее никакой эстетической ценности. На самом деле это совсем не так. Современный рынок предлагает практичные, красивые, роскошные модели, которые идеально впишутся в интерьер коттеджа или загородного особняка. Если Ваша цель — это престижные, эксклюзивные гаражные ворота, то кованые металлические — это то, что вам нужно.
Элитные конструкции
В наше время металлические изделия используются везде. Но так хочется, чтобы ваш гараж выглядел по-особенному богато! В таком случае кованые полотна, сделанные на заказ — это то, что нужно. Небольшие элементы ковки придадут изделию особенный шарм. Гаражные ворота не просто будут выделяться из серой массы других, но будут самым настоящим произведением искусства.
Процесс изготовления кованых изделий более трудоемок и требует от исполнителя не только знания своего дела, но и определенного творческого подхода к работе. Поэтому старайтесь выбирать только фирмы-производители, которые зарекомендовали себя в этой нише и имеют огромное количество довольных покупателей.
Гаражные кованые конструкции, конечно, будут стоить на порядок выше обычных металлических, но это того стоит, ведь изделие будет поистине эксклюзивным. Наиболее распространенные распашные ворота, украшенные ковкой, станут надежной защитой, так как для основы используется металл. Толщина его листа может колебаться в пределах 1-3 мм. Но для ворот под заказ мастера могут использовать и более толстый металл. Конструкция в таком случае будет достаточно простой: полотно из двух створок, рама и петли для крепления.

[sam id=»2″ codes=»true»]
Кованые элементы могут использоваться как декор и поддаваться окраске. Помимо основного полимерного покрытия для защиты от коррозии, они покрываются бронзовыми, золотыми или иными оттеночными цветами для придания эстетического вида.
Как производятся гаражные ворота?
Для производства конструкций элитного класса используются элементы художественной ковки, от геометрического рисунка до растительного орнамента. Они могут быть самостоятельным элементом декора или сочетаться со сварными элементами. Элементами ковки можно украшать полотно любой конструкции: от распашных до откатных систем, но только не секционные гаражные ворота. Ковкой можно украсить и полотно, сделанное из металлического прута, она придаст ему нарядный, декоративный вид. На решетчатое полотно также можно добавить кованые элементы, которые придадут воротам внешнюю и внутреннюю прочность.
При выборе таких изделий очень внимательно изучите эскизы и подберите необходимый вам, либо расскажите ваши предпочтения сотрудникам компании, а они сделают специальный эскиз. В этом направлении ряд компаний работают с привлечением современных технологий. Так проект будущих ворот можно сделать с помощью 3D-моделирования. Это не только наглядно покажет будущий вид кованого изделия, но и поможет более точно адаптировать конструкцию под размеры проема для ворот.
[sam id=»3″ codes=»true»]
vorotagate.ru
фото и немного об их изготовлении
Одной из уникальных деталей экстерьера загородного дома могут статьэлегантные кованые ворота — фото элитных особняков в ближайших пригородах
это с успехом подтверждают. Своей изящной вязью они украшают въезд в
поместье, и сразу говорят о высоком статусе владельца дома.
Действительно, среди других видов ограждающих конструкций они выделяются
особой декоративностью. При этом они выполняют свою прямую функцию –
защиту въезда на территорию – ничуть не хуже, чем, например, ворота
подъемно-секционные, которые можно назвать «рабочей лошадкой» среди
подобных устройств . Планируя строительство индивидуального жилого дома,
при разработке дизайна интерьера не следует забывать и о «внешности»:
украшенные ковкой ворота прекрасно вписываются в ландшафтный дизайн
загородного дома – фото это наглядно демонстрируют.

.

Подчеркнуть
элитный статус частного домовладения или целой компании смогут кованые
ворота, фото которых можно видеть и в домашних альбомах, и в рекламных
проспектах той или иной фирмы. Ворота – первое, что видит посетитель,
это своеобразная визитная карточка, по которой сразу становится ясно,
какого уровня жилой дом или офис скрывается за этой элегантной, но
надежной преградой. Существует несколько разновидностей кованых ворот:
- Распашные
- Откатные

Оба
вида ворот могут быть снабжены автоматикой, позволяющей дистанционно
управлять открыванием-закрыванием. Кроме того, по виду конструкции они
делятся на открытые и закрытые:
- Конструкция открытого типа состоит
из металлической рамы и решетки (ритма) из металлических вертикальных
прутьев, либо сплошного ажурного узора. - Закрытая конструкция
представляет собой металлический лист с рамой, на котором закреплены в
определенном порядке кованые декоративные элементы.

.
Что касается деталей ковки, то они могут быть совершенно различными: копья, листья, виноградные лозы и грозди, фамильный герб или инициалы владельца, логотип компании – пределов мастерству профессионалов кузнечного ремесла
практически нет.
Как же делаются эти уникально красивые кованые
ворота, фото которых заставляют восхищаться их изяществом и дивиться
мастерству их изготовителя?
Кузнечное ремесло было уважаемым и
востребованным на протяжении всей истории обработки железа. Опыт и
умение кузнеца передавались от отца к сыну, и были не менее дороги, чем
сундук с золотом. Богатство можно промотать, а вот уникальное мастерство
и знания, как говорится, не пропьешь… Каждая выкованная вещь в те
времена была настоящим произведением искусства, ведь делалась она
вручную, и мастер вкладывал в нее частичку своего опыта и эстетического
чувства. Даже обычная подкова или плуг были на вес золота! А уж те, кто
мог похвастаться уникальными знаниями и мастерством в изготовлении
оружия, вообще были прославляемы в веках. Сейчас, конечно, таких глобальных задач перед кузнецами не
стоит: в основном в их работе преобладает эстетическая составляющая.
Создать уникальные по красоте кованые ворота, фото которых заставит
восхищенно ахнуть – вот их основная задача.
Удивительно, но эти
тонкие и ажурные завитушки очень прочные! Однако во время их создания
раскаленный металл становится мягким и податливым, почти, как глина или
пластилин. Именно это позволяет добиваться таких впечатляющих
результатов. Ведь практически все детали ковки, такие необычные и
разные, делаются из одинаковых металлических заготовок в виде прутов. И
только умелые руки и художественный вкус кузнеца делают их уникальными и
необыкновенно изящными.

Чтобы из одинаковых кусков металла
сделать совершенно разные по форме и размеру изделия, кузнецы используют
множество приемов: вытяжка, осадка, рубка и разрубка, закручивание, гибка, насечка рисунка, набивание рельефа, пробивание отверстий. В
каждой из этих операций существует множество нюансов, позволяющих
добиться необходимого результата. То невероятное количество труда,
которые заложено мастером в каждые кованые ворота, фото, конечно, не
передаст, но создать представление о грандиозности приложенного умения и
физических усилий может. Например, осадка заготовки заключается в
изменении ее толщины. Заготовка, предварительно раскаленная докрасна,
ставится на наковальню вертикально или зажимается в тисках. Затем по
верхнему ее концу наносятся удары – таким образом, она сжимается,
делается короче и толще. Если же нагреть не всю заготовку, а только ее
середину, утолщение образуется в этом месте – так создаются реалистичные
узлы на стебле виноградной лозы. Естественно, каждая деталь затем
прорабатывается еще множеством способов, чтобы добиться полного сходства
с природным объектом. И все это – ради одного элемента! Можно себе
представить, сколько таких операций придется произвести кузнецу, чтобы
изготовить все декоративные детали на только одни кованые ворота, фото
которых хозяева с гордостью будут показывать восхищенным друзьям!
.
Да,
изысканная красота и признанное мастерство стоит многого. По-настоящему
качественная вещь ручной работы – это действительно произведение
искусства, пусть даже оно выполняет прикладную функцию. Если Вы –
настоящий ценитель изящества и таланта, изделия ручной ковки займут
достойное место в Вашем доме, и будут не только предметом гордости
обладателя, но и объектом восхищения искусством мастера.
postroika.biz
