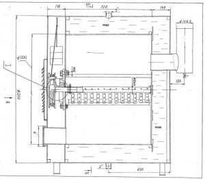
Гидролизная печь длительного горения – Пиролизные печи — принцип работы и особенности конструкции, преимущества и недостатки пиролизных печей, фото и видео.
Пиролизная печь длительного горения — принцип работы, плюсы и минусы
Хотя в последнее время стали появляться новые способы отопления, многие жители разных уголков России, Западной Европы и стран СНГ, в особенности те, кому не доступен природный газ, продолжают обогревать свои жилища наиболее распространённым топливом, а именно углём, дровами и торфом. На смену классическим печкам на твёрдом топливе приходят современные пиролизные печи, которые отличаются большей эффективностью и оснащением автоматикой. Новые высокомощные модели функционируют на практически целиком сгораемом твёрдом топливе, имеют высокий коэффициент полезного действия и в силах выдерживать круглосуточную работу на одной или двух загрузках.
Особенности и устройство пиролизной печи
Стоит разобраться, в чём отличие конструкции стандартной печи, работающей на твёрдом топливе, и благодаря чему происходит длительное горение топлива. Если вы когда-нибудь сталкивались с классическими устройствами, то, наверняка, в курсе, что дрова горят очень интенсивно. Чтобы сделать процесс медленнее, нужно либо добавлять больше дров, либо применять уголь, что будет отдавать намного больше теплоэнергии и при этом продлит время работы оборудования.
Принцип работы пиролизной печи длительного горения существенно отличается. Это обусловлено следующими параметрами:
- Имеют полностью герметичную топочную камеру, из-за которой подача кислорода становится намного медленнее и тем самым обеспечивается низкая интенсивность горения топлива.
- При контакте с высокими температурами древесный материал распадается сразу на две составляющих: кокс и пирогаз. В период работы отопительного оборудования они также сгорают и почти без отходов. Таким образом, пиролизная печь может функционировать от 6 до 36 часов на единичной топливной закладке (многое зависит от размера камеры cгорания).
Пиролиз – это разложение веществ органики (т.е. топлива) под воздействием температур на твёрдые остатки и пирогазы при нехватке воздуха.
Что касается конструктивных особенностей, пиролизная печь современного типа имеет верхнюю и нижнюю камеры. Камера сверху предусмотрена для топливной закладки и первичного горения, камера снизу необходима для сбора газа, который выделяется из тлеющего материала.

Принцип работы пиролизных печей с камерой сбора газа сверху
Скопленные газы в процессе горения отдают энергию теплообменнику оборудования. Горение в автоматическом режиме корректируется автоматикой – вентилятором, в функции которого входит нагнетание воздуха.
Поленья или другой вид топлива загружают чаще всего в верхнюю топку.
Виды печей пиролизного типа
Можно выделить следующие виды пиролизных печей:
- Одноконтурные устройства. Печи с одним контуром имеют две камеры сгорания, что разделены огнеупорной перегородкой.
- Двухконтурные устройства. Данные газогенераторные печи имеют такую же конструкцию, однако у них имеется дополнительный контур, который нагревает жидкость для горячего водоснабжения.
Также, исходя из материала изготовления теплового обменника, выделяют такие типы пиролизных печей:
- Устройства с теплообменником из чугуна. Срок эксплуатации — минимум два десятка лет, однако агрегат чувствителен в резким температурным перепадам в топочной камере. В таких агрессивных условиях чугунная пиролизная печь постепенно приходит в негодность.
- Устройства с теплообменником из стали. Срок службы — минимум 13 лет. Оборудование поддаётся процессам коррозии, однако не боится перепадов температур.
Пиролизная печь с водяным контуром в силах подогреть небольшой объём жидкости за короткий промежуток времени.
Владельцам недвижимости, желающим не приобретать печь пиролизного горения в специализированных магазинах, а сконструировать устройство своими руками, кстати станет мини пиролизная печь. Это та же печка, но небольших размеров, устанавливаемая в гаражах, банях или других помещений небольшого размера.
Особенности работы мини пиролизной печи представлено в видео.
Плюсы и минусы использования пиролизной печи
Пиролизная печь – это универсальное оборудование, имеющее ряд преимуществ, которые заслуживают рассмотрения:
- Экономность. С применением пиролиза можно добиться довольно экономного расходования топлива. Устройство функционирует на единичной закладке очень долгое время, что говорит о небольшом расходе топлива.
- Высокий КПД. Коэффициент полезного действия дровяной печи на пиролизе достигает 80 %. Это значение можно корректировать.
- Неприхотливость к топливу. В качестве топлива можно применять даже влажные поленья, однако содержание воды должно быть не более 20 %
- Высокая рабочая температура. Дерево перерабатывается при температуре +500 °C (сравните: пиролизное состояние нефти наступает при +800 °C!).
- Данная газогенераторная печь – это, наконец, прекрасный способ избавиться от различного мусора. В качестве топлива могут выступать древесные отходы и даже резина и полимеры!
- Экологичность – не менее важный параметр. Дым, поступающий в атмосферу в процессе горения, почти не содержит вредных веществ.
- Безопасность. Этот пункт обусловлен конструкцией пиролизной печи. Оборудование пожаробезопасно.
- Автономность процесса горения. Не требуется постоянно следить за конструкцией, устройство её простое, потому ей легко пользоваться.
- Минимальные отходы переработки. От функционирования пиролизной печи практически не остаётся копоти, также не требуется очень часто проводить чистку оборудования от сажи и золы.
- Долговечность. Печь пиролизного типа – это надёжная конструкция с долгим сроком службы.
Недостатки у пиролизных печей, как и у других отопительных оборудований, тоже имеются. Можно сказать, это даже скорее не недостатки, а особенности устройства:
- Главное требование к пиролизной печи является обустройство дымоходной трубы. Дымоход должен быть выполнен по строгим правилам, труба должна быть гладкой и прямой, достаточно высокой, с теплоизоляцией. Утепление дымоходной трубы требуется для того, чтобы дымоход не замерзал из-за образования конденсата при пониженных температурах в окружающей среде.
- Пиролизные устройства зависят от электрической энергии. Для их стабильного функционирования потребуется монтаж блока питания ИБП.
- Оборудование, безусловно, может работать на влажных поленьях, однако содержание в древесине воды более определённого значения способно снизить коэффициент полезного действия отопительной пиролизной печи.
- Из-за скопления паров воды процессы коррозии атакуют агрегат, поэтому обратную температуру жидкости не стоит опускать ниже 60 °C.
- Невозможность загрузки топлива в автоматическом режиме. Однако этот минус является не столь существенным для многих владельцев отопительных агрегатов.
- Высокая стоимость. Относительно высокая цена на пиролизную печь, по сравнению с классическими конструкциями обогрева, обусловлена положительными улучшенными характеристиками оборудования и наличием дополнительных функций.
Пиролизная печь на дровах – это оборудование современного типа, способное вырабатывать и одновременно сжигать печной газ при горении твёрдого топлива. Она не прихотлива к топливу, это могут быть дрова, уголь, пеллетные гранулы, опилки, в том числе различные отходы и мусор.
Пиролизная печь способна обеспечить вас и вашу семью надёжным и долговечным источником полноценного обогрева.
teplofan.ru
принцип работы, как сделать своими руками
Отличной альтернативой твердотопливным котлам является пиролизная печь. Это печь длительного горения, которая работает по особому принципу и позволяет значительно экономить топливо. В сравнении с другими видами отопительных устройств на заправке дровами такая печь может проработать гораздо дольше, при этом ничем не уступая в эффективности подачи тепла. Рассмотрим подробнее, как работает такая печь, а также о каких особенностях её эксплуатации и постройки нужно знать.
Что такое пиролизная печь
Такая печь работает по принципу пиролиза — органические вещества в процессе термической обработки при отсутствии достаточного количества кислорода раскладываются на твердые остатки и газы, которые в обычной печи выходят через дымоход, а в пиролизной становятся главным источником тепла. Чем сильнее нагревается топливо с минимальным количеством кислорода, тем идет больший процент выделения газа.
Эта технология разработана специально для нефтеперерабатывающей промышленности. Таким образом добывается топливо для автомобилей через переработку нефтепродуктов. В бытовых условиях процесс пиролиза для обогрева жилых помещений начал применяться недавно, однако его эффективность и экономичность уже успели подтвердить многие пользователи. Отличием является необходимая для переработки температура. Обработка нефтепродуктов происходит при 800-900 С, тогда как для дерева достаточно 500 С.
Схема подключения пиролизной печи к сети отопленияДобытый из дровяного топлива газ обладает отличной горючестью, и в процессе длительного сжигания выделяет достаточное количество тепла для обогрева.
Как устроена печь
Пиролизные печи длительного горения устроены по особому принципу. В корпус встраивается топочная камера с горелкой, куда закладываются дрова. Главное условие для топочной камеры — герметичность. Она устроена так, чтобы приток воздуха внутрь был минимальным. У топки должна быть плотная дверца и надежная задвижка, также должен присутствовать приточно-вытяжный вентилятор. После закладки и розжига дров топочную камеру ограничивают в доступе кислорода.
После того, как дрова обуглились и выделили газ, он поднимается по отдельному воздуховоду во вторую камеру сгорания, где в нужной пропорции смешивается с вторичным воздухом и сгорает. В процессе этого выделяется тепло.
Вторую камеру, как правило, совмещают с воздуховодом или началом дымохода. Воздух обеспечивается приточно-вытяжным вентилятором или отдельным вентилятором. Если система дымохода хорошо продумана, то будет достаточно и обычной тяги при герметичных заслонках.
Схема и размеры печиТакже в корпусе предусматривается реторта — округлая часть для извлечения твердых остатков прогоревших поленьев. Особенностью пиролизной печи является и то, что топливо сжигается практически полностью, лишь с небольшим остатком золы, которая удаляется раз в несколько дней.
Плюсы и минусы
Исходя из особенностей функционала, пиролизные печи для отопления дома обладают множеством преимуществ, однако и минусы у них тоже имеются. Рассмотрим подробнее, на чем базируется принцип работы пиролизной печи.
Преимущества:
- Экономия. Топливо сгорает дольше и качественнее, поэтому отопительное устройство, работающее на принципе пиролиза, требует меньшего расхода топливных материалов, чем обычная печка.
- Экология. Пиролизные печи не приносят вреда окружающей среде, потому что практически не выделяют вредных канцерогенов и других химических веществ. В выходящих из дымохода продуктах сгорания содержится совсем небольшой процент CO.
- Быстрый нагрев. Из-за отсутствия кислорода процесс горения начинает осуществляться достаточно быстро.
- КПД. Высокая температура долго держится в автономном режиме благодаря массивному объему топливника. Коэффициент полезного действия в правильно сконструированной пиролизной печи может достигать 85%.
- Мощность. Диапазон интервала тепловой мощности может варьироваться в пределах от 5 до 100%.
- Возможности. Позволяет подключать практически любой контур. Можно использовать не только для отопления, но и для отбора горячей воды, а также устанавливать контуры с естественной и принудительной циркуляцией.
- Топливо. Даже несмотря на то, что рекомендуется использовать не менее 70% древесины от общей массы топливных материалов, можно сжигать практически любые отходы, начиная от резины и строительного мусора, заканчивая полимерными пластмассами.
- Простота в эксплуатации. Работа печи нуждается в минимальном контроле человека, достаточно раз в сутки загружать топливо и раз в несколько дней выгружать золу.
- Сажа. Вырабатывается в минимальных количествах, из-за того что топливо перерабатывает материал несколько раз. Можно не переживать о загрязнениях и необходимости постоянной чистки дымохода.
Принцип работы пиролизной печиНедостатки:
- Цена. Несмотря на последующую экономию в расходе топлива, покупка такого агрегата обойдется в кругленькую сумму, поэтому намного выгоднее обойдется пиролизная печь своими руками.
- Массивность. У таких печей довольно крупные габариты по сравнению с другими отопительными конструкциями, поэтому для маленького помещения агрегат не подойдет. К тому же не следует забывать о площадке для хранения топлива.
- Запахи. Даже с учетом отсутствия вредных веществ, запахи при сжигании отходов будут присутствовать, поэтому нужно предусмотреть хорошую систему вентиляции.
- Электричество. Для осуществления корректной работы вентилятора необходимо беспрерывное энергоснабжение. Если устанавливается пиролизная печь для бани или другого нежилого помещения, нужно предусмотреть доступ для подключения к сети.
- Конденсат. На выходе отходящие газы имеют довольно низкую температуру, поэтому в дымоходе и выходном канале будет скапливаться конденсат. В конструкции должен быть предусмотрен накопитель, а выходная труба с дымоходом должна быть большого размера с утеплением снаружи помещения, иначе при морозах конденсат может застывать.
- Влажность. Топливо для печи должно быть сухим, иначе процесс пиролиза не будет осуществляться. Под тепловым воздействием влага будет испаряться и разбавлять пиролизные газы.
Примерная схема пиролизной печиКакие бывают пиролизные печи
На основе пиролиза могут работать довольно разнообразные конструкции, их построение в большей степени зависит от типа топлива, которое будет использоваться в дальнейшем. Поэтому прежде, чем планировать конструкцию для своих нужд, нужно разобраться, какие их виды существуют.
Материал
- Пиролизная печь из кирпича
- Пиролизная печь из металла
Назначение и способ использования
- Периодическое действие. Печь строится с учетом накапливающих тепло материалов и может долго отдавать энергию после окончания процесса топки.
- Постоянное действие. Конструкция отличается сравнительной легкостью и тонкими стенами, массив для накопления тепла отсутствует, а топливо сжигается непрерывно.
Способ передачи тепла:
- Присутствует водяной контур.
- Теплообменники для нагрева воздуха.
- Без теплообменников. Отопление будет осуществляться через тепловое излучение и конвективного нагрева воздуха при соприкосновении с горячими поверхностями устройства.
Взаимное расположение камер и тип тяги:
- Сверху располагается камера газификации, а снизу — камера дожига пиролизных газов. Такая печь работает на принудительной тяге, поэтому используются дутьевые вентиляторы и дымососы.
- На естественной тяге работают печи с расположением камер наоборот, газификация происходит снизу, а дожиг — сверху.
Составляющие печиТопливо
Оптимальным сырьём для пиролиза является древесина твёрдых лиственных пород, но успешно в качестве топлива используются и другие виды органического сырья.
- древесная стружка и щепы;
- пеллетные гранулы;
- солома или жмых;
- топливные брикеты;
- уголь, кокс.
Если в пиролизной печи проводится утилизация горючих отходов, важно, чтобы в закладке присутствовало не менее 70% органического топлива.
Схема устройства пиролизной печиТакже важны и физически характеристики древесины. Толстая кора или гнильможет оказать негативный эффект на пиролизный процесс, в несколько раз снижая выход газовыделений. Крупные бревна значительно увеличат длительность процесса, но и снизят энергоэффективность.
Делаем своими руками
Сделать самостоятельно пиролизную печь, работающую на дровах,также довольно затратное мероприятие, потому как нужны только дорогостоящие материалы. Несмотря на дороговизну, такой метод обойдется значительно дешевле, если сравнивать с покупкой готового пиролизного котла.
Печь из металла
Корпус будущей конструкции должен быть выполнен из особо прочного материала, идеальным выбором в данном случае будет легированная сталь. Также потребуются инструменты:
- сварочный аппарат;
- огнеупорные кирпичи —15 шт;
- электроды — 5 упаковок;
- дрель;
- угловая шлифовальная машинка — диаметр 230;
- лист метала — толщина — 4мм, размер — 7.5 кв. м;
- датчик для измерения температуры;
- колосники;
- круги для шлифовальной машинки — 10шт;
- вентилятор;
- дверцы —2 шт;
- трубы: сечение 57×3,5 мм, длина — 8 м, сечение — 15,9×4,5 мм, длина — 0,5м, сечение — сечение —32×3,2 мм и длина — 1 м;
- профилированные трубы: сечение — 2,0×30×60 мм 1,5 м, сечение —2,0×40×80 мм и длина — 1 м;
- стальные полосы: сечение 80×5 мм 1 м, сечение 20×4 мм 7,5 м, сечение 30×4 мм 1,5 м.
Схемы для металлических пиролизных печей разрабатываются с учетом индивидуальных характеристик помещения и потребностей владельцев, но общие положения одинаковы для всех.

Тонкости и полезные советы:
- Необходимо сварить корпус из легированной стали. Если используется другой металл, лучше делать конструкцию двухслойной.
- На местах расположения зольной и топочной камеры вырезаются проемы для дверей.
- Зольник необходимо отделить чугунным колосником.
- В камеру газификации устанавливается отдел подачи воздуха с заслонкой. Канал прохода пиролизных газов и систему подачи воздуха нужно делать на максимальном расстоянии друг от друга.
- В проделанные ранее проемы устанавливаются двери из жаропрочной стали, усиленные уголком или чугунные.
- Камеры изнутри выкладываются шамотным кирпичом.
- Для регулировки тяги в дымовой трубе устанавливается шибер. Дымоход нужно делать из утепленной трубы.
Кирпичная печь
Для печи мощностью в 30 кВт потребуется:
- керамический кирпич — 400шт;
- шамотный кирпич — 100шт;
- стальной лист размером 6×1,5 м., с толщиной стенки не менее 4мм;
- чугунные колосники — 3шт;
- вентилятор — мощность не менее 300 Вт;
- рычажный терморегулятор;
- дверцы для поддува и топочной — 2шт;
- сварочный аппарат;
- дрель;
- болгарки с разными диаметрами круга;
- трубы разного диаметра;
- профильная труба — 80×40;
- электроды;
- температурный датчик.
Подготовка
В первую очередь подготавливается место для установки. На выбранной площади необходимо демонтировать полы и вырыть яму для закладки фундамента, глубиной не менее метра. Чтобы избежать перекоса конструкции, фундамент должен быть с большей площадью, чем печь. Сначала укладываются слои из песка и щебня по 10 см каждый. Они плотно утрамбовываются и разравниваются, заливаются бетоном. Высота фундамента — на 8-10 см выше уровня пола.
Проводится разводка системы обогрева по комнатам. Если в качестве теплоносителя будет использоваться вода, то в проекте предусматривается наличие резервуара.

Кирпичи тоже необходимо подготовить, заранее замочив в воде на пару часов. Это исключит деформацию скрепляющего раствора в будущем. Швы будут затираться раствором сметанообразной консистенции из глины, разбавленной водой. Если в глину будет добавляться песок, то его нужно предварительно просеять, так в раствор не попадут крупные фракции. Доля песка в растворе не должна быть выше 30%.
Порядовка
Периметр печи выкладывается керамическим кирпичом, внутренние перегородки — шамотным.
- Первый ряд укладывается по всей площади фундамента.
- Следующий ряд укладывается под площадь печки.
- Дальше ряды выкладываются согласно подготовленному чертежу. После каждых 2-3 рядов делаются суточные перерывы для закрепления раствора.
- Металлические детали устанавливаются сразу при кладке соответствующего ряда. Между кладкой и деталями нужно хорошо заделывать щели, потому что при нагревании металл будет расширяться и может повредить швы.
- В топливник устанавливается колосниковая чугунная решетка, которая размещается с небольшим зазором.
- Топка укомплектовывается вентилятором.
- После обустройства топки печь выкладывается до конца, согласно выбранной схеме.
- Особое внимание необходимо уделить выкладке дымохода. Он просчитывается заранее и выкладывается с соблюдением параметров. Нарушение может привести к ухудшению тяги.
Единого механизма для выкладки пиролизных печей не существует, все пропорции должны быть рассчитаны с учетом пространства конкретного помещения. Мы подготовили несколько схем разных печей, однако лучше при проектировании будущей конструкции и проведении расчетов обратиться к специалисту печного дела.
kladempech.ru
Печь пиролизная своими руками: принцип работы
В данной статье мы постараемся как можно подробнее рассказать о том, может ли быть изготовлена качественная пиролизная печь своими руками для бытовых нужд. Это может быть мобильная походная модель или стационарная установка.

Пиролизная печь
Пиролиз – технологический процесс
Но чтобы в процессе работы было более понятно что и для чего, необходимо в первую очередь рассмотреть вопрос о том, как работает пиролизная печь. Ведь согласитесь, немногие могут похвастаться знаниями о процессах, происходящих в пиролизной печи. Знание теории о принципе работы этого отопительного агрегата пригодится, если будет строиться походная или стационарная пиролизная печь своими руками.
Стоит сразу отметить, что при работе такого агрегата используется принцип, при котором подготовка топлива производится с недостатком кислорода. Для многих специалистов печного дела данное заявление является абсурдным. Ведь, как известно, для нормальной работы обычного котла или печи, помимо самого топлива, необходим приток свежего воздуха, обогащенного кислородом. Эти два слагаемых, топливо и воздух, и обеспечивают правильную работу любой печи.
Пиролизный газ – новая страница обычных дров
Но давайте по порядку. Что происходит с топливом при его сжигании?
- Под воздействием высокой температуры из топлива выделяется газ. В обычных печах он удаляется через дымоход (см. Выбираем дымоход).
- Чем больше нагревается топливо с ограниченной подачей кислорода, тем больше газа вырабатывается.
К примеру, данный процесс в нефтепереработке называется крекингом. Крекинг, или пиролиз нефти, позволяет получать топливо для автомобилей и тракторов.
Но данный процесс можно использовать и с древесиной. При этом, если для нефтепродуктов температура переработки должна составлять 800 — 900°С, то для древесины будет достаточно и 450 — 500°С. При этом древесина образует ряд веществ, таких как:
- смола
- уксусная кислота
- древесный уголь
- ацетон
- метиловый спирт
Пиролизная печь – основные преимущества
Как видим, все вещества горючи. Именно это свойство выделяемых при тлении древесины газа использует пиролизная печь: сжигается полученный из топлива газ, поэтому второе название таких печей – газогенераторы.

Внутреннее устройство
В чем преимущество печей данного типа? Это в первую очередь:
- Высокий КПД, 80% и более
- Более экономный расход топлива
- Возможность регулирования КПД
- Утилизация отходов резины, полимеров, отходы древесной промышленности
- Почти полное отсутствие вредных веществ в выбросах
- Минимальная выработка сажи
Помимо этого, для работы пиролизных котлов можно использовать и другие виды топлива. К примеру, бытовой мусор. Выпускаемые в настоящее время брикеты из различных бытовых отходов и остатков древесины являются прекрасным топливом для пиролизных печей.
Недостатки
Основным недостатком таких печей можно назвать:
- Высокую стоимость
- Необходимость в постоянной подаче электроэнергии
- При использовании топлива с высокой степенью влажности пиролиз невозможен
Пиролизный котел – принцип работы
Как работает данный котел? Котел состоит из следующих элементов:
- Камера газификации
- Камера дожигания
- Система подачи воздуха (первичная, вторичная)
- Водяная рубашка
- Колосниковая решетка

Элементы котла
Принцип работы заключен в следующем:
- В камеру газификации загружается топливо и поджигается.
- Из топлива начинает вырабатываться газ.
- В камеру подается первичный воздух, и из-за избытка давления газ начинает поступать в нижнюю камеру дожигания.
- В камеру дожигания подается вторичный воздух, и образовавшаяся смесь горит при большой температуре.
- Вода, находящаяся в водяной рубашке котла, нагревается и подается в систему отопления, одновременно во входную часть рубашки подается обратка.
- Используемый теплоноситель служит одновременно охладителем котла.
Принцип понятен – что еще?
Это основной принцип работы. Но для правильного функционирования требуется соблюдать строгие пропорции воздушно-топливной смеси. В противном случае сгорание будет протекать неровно, с повышенной задымленностью. Итак, на вопрос, можно ли изготавливать пиролизные печи своими руками, ответим положительно. Но сразу стоит оговориться:
- Для изготовления такого агрегата мало иметь хорошие навыки в проведении сварочных работ или наличие на руках рабочих чертежей агрегата.
- Необходимо использование качественных материалов, многие из которых имеют высокую стоимость.
- В первую очередь это относится к металлу. Для изготовления потребуется хорошая легированная сталь.
- Потребуется соответствующая электроника. Если, конечно, вы не планируете нанять печника для постоянного контроля над котлом.
Пиролизная печь из хлама — можно, но нужно ли?
Кто-то может возразить, что слышал или видел, что пиролизный котел был изготовлен из подручных средств непосредственно во дворе и при этом он прекрасно работает. Все это верно, за одним маленьким исключением. Подобные котлы являются опытными образцами и в первую очередь способны продемонстрировать принцип работы. Говорить о применении подобного котла для основного обогрева жилья не приходится. Чтобы изготовить пиролизный котел, можно, конечно, взять старые бочки, куски труб и прочий железный хлам, который также используется для строительства железной печи. Но надо понимать, что процессы, происходящие в данном агрегате, требуют соблюдения определенных условий для его нормальной работы. Конечно, установив ручные регуляторы подачи первичного и вторичного воздуха, можно добиться устойчивой работы данного котла. Но вы, надеемся, не планируете все время находиться непосредственно возле него?
Нерегулируемый пиролиз – преимущества нет
Поэтому для его управления потребуется обязательная установка электронной начинки, которая будет регулировать процесс горения. В противном случае ваш пиролизный котел превратится в обыкновенную буржуйку. Впрочем, если строится походная печь, то такой вариант вполне приемлем.
Высокая температура горения вырабатываемых газов требует использования специальных материалов, предохраняющих котел от прогорания.
Температура горения газов в пиролизном котле достигает 1100 °С.
Комплектация – основные бытовые трудности
Многие умельцы выполняют футеровку топочной части котла шамотными кирпичами. А вот в промышленных образцах применяется шамотный, бесшовный «набрызг», что во многом определяет долговечность такого котла.
- Шамотный кирпич прослужит максимум сезон, и его придется менять.
- Даже используя металл в 5 – 6 мм для воздуховодов, вы не избавитесь от прогорания. Нужно использовать специальные стали.
Кстати, в котлах импортного производства воздуховоды изготавливают из керамики. Опыт показывает, что участки металла, в самодельном пиролизном котле не охлаждаемые водой и соприкасающиеся с горящими газами, очень скоро деформируются. Единственное, что может частник противопоставить этому, — это использование более толстого металла, от 10 мм. Наблюдая за огнем в камине, многие наверняка наблюдали процесс пиролиза, даже не зная об этом. Во время горения дров вы, наверное, замечали, что в отдельной части огня образуется небольшой участок пламени с синим оттенком, это горит дровяной газ. А ведь пиролизный котел в основном и работает на этом газе. Из этого стоит сделать вывод, что контроль данного процесса является важнейшей частью его эффективности. В противном случае об экономии стоит забыть.
Запуск не проблема – проблема контроль
Работая в высоком температурном режиме, пиролизный котел способен обогревать помещение большой площади. Если, к примеру, вам удалось самостоятельно построить данный агрегат и вы используете его для работы в котельной, работающей в круглосуточном режиме, это один вопрос. В такой котельной обязательно присутствует человек, следящий за работой отопительного оборудования. Ведь выработка газа происходит неравномерно, и поэтому необходимо следить за соотношением подачи газ – воздух. Мы говорим о котлах кустарного производства. Другое дело, если подобный котел используется для обогрева индивидуального жилья. Для обогрева жилья потребуется установка котла системы стоп – старт. Значит, потребуется установка системы, следящей за температурным режимом теплоносителя. Мало того, потребуется целая система, следящая за сгоранием топлива в камере дожигания, которая будет контролировать подачу воздуха.

Блок управления
- Тут не обойтись простым снижением или увеличением оборотов электродвигателя воздушного насоса. Ведь в данном котле имеются две воздушные системы.
- Одна создает давление в камере газификации, другая регулирует правильный состав топливовоздушной смеси в камере дожигания.
- Каждая из этих систем очень сильно влияет на правильную работу котла. Придется использовать комплекс заслонок и регуляторов.
Данной статьей мы ни в коем случае не пытаемся напугать умельцев и отговорить их от строительства пиролизной печи своими руками. Просто мы пытаемся предупредить, что изготовленная своими руками пиролизная печь вряд ли получится такой же долговечной и экономичной, как пиролизные печи, изготовленные на производстве.
Пиролизный котел может быть и таким
Зная характер и смекалку российских изобретателей самоучек, можно надеяться на то, что со временем они с успехом смогут изготавливать котлы, не уступающие промышленным образцам, особенно если это небольшая походная печь. Мы рассмотрели работу пиролизного котла с принудительной подачей воздуха и нижним расположением камеры сгорания. Но уже появились первые экземпляры котлов, выполненных в прямо противоположном исполнении. Другими словами, камера газификации у них находится внизу, а камера дожигания находится сверху. Хоть такие котлы еще являются «сырыми», но преимущества уже очевидны:
- Отсутствие необходимости использования электроэнергии
- Система использует естественную тягу. Такие котлы полностью независимы от электроэнергии. Их работа построена на особом устройстве воздушных каналов. Требования к устройству дымохода у данных котлов повышенны.
- Новая компоновка – возвращение с головы в ноги.
Радует то, что разработка чисто российская. На рисунке приведены устройство и схема работы данного котла.

Пиролизный котел с верхней камерой дожигания
- Из топки пиролизный газ поднимается в камеру дожигания, и к нему примешивается вторичный воздух.
- Воздух поступает в котел через нижние отверстия за счет разряжения. Пиролизный газ соединяется с кислородом. Происходит экзотермическая реакция окисления.
- Полученный горючий газ сгорает в камере дожигания чистым и ровным пламенем. Полученная таким образом энергия нагревает теплоноситель.

Камера дожигания
- Стенки котла изготавливаются из специальной жаропрочной стали. В результате данного процесса из дымохода вытягивается почти прозрачный дым.
- Правильно устроенная система дымохода и отопления способствует работе данного котла в течение 12 – 14 часов на одной заправке топлива. Зарядка котла осуществляется два раза в сутки.
Неоспоримое преимущество
Из-за полного сгорания дров и пиролизного газа удается добиться значительной экономии топлива в пиролизном котле естественной тяги по сравнению с обычными котлами, использующими также естественную тягу. На данных котлах возможна установка автоматической системы регулирования подачи воздуха, которая происходит без вмешательства человека. Достаточно просто выставить требуемый температурный режим, все остальное котел сделает сам. Подобный тип пиролизных котлов является отличным вариантом для организации отопления в различных помещениях. Ведь естественная тяга позволяет функционировать котлу без подключения электричества. Данные котлы просты в обслуживании и, самое главное, позволяют значительно сэкономить на топливе без потери эффективности.
sdelaikamin.ru
Печь долгого горения — принцип работы, плюсы и минусы

Печь Narwik
Производители отопительного оборудования сегодня предлагают такой огромный ассортимент, что каждый потребитель может без проблем выбрать для себя что-то определенное, точно подходящее под требования условий организации отопительной системы. Среди предложений свое достойное место занимают печи долгого горения. Если говорить о системе отопления дачи или небольшого коттеджа, то лучшего варианта сегодня вряд ли можно найти. Конечно, при условии, что в дачном поселке нет ни центрального отопления, ни газовой магистрали.
Сравнивать традиционные дровяные печи с печкой долгого горения даже и не стоит. Просто отметим, что у них совершенно разный коэффициент полезного действия. У первых он не превышает 60%, у вторых достигает показателя 95%. Вот вам и разница, вот вам и причина выбрать именно вторую конструкцию. В чем же причина такого эффекта?
- Все дело в конструкции агрегата, которая состоит из двух камер сгорания. В первой горят дрова или другой вид твердого топлива. Здесь процесс сжигания происходит с небольшой концентрацией кислорода. Во второй топке сгорают газы, которые выделяются при сжигании топлива.
- В первой топке на самом деле происходит горение, которое называется низкокалорийным. То есть, происходит выделение не очень большого количества тепла, но при этом температура достаточна, чтобы обогревать помещение, где печка долгого горения установлена. Кстати, в зоне горения температура достигает +1100С.
Принцип работы
Итак, давайте подробнее разберем, как работает печка долгого горения. По сути, выше уже было описано, в какой последовательности происходит отдача тепла. Но нас сейчас интересует процесс, происходящий в первой камере сгорания. Так вот специалисты называют его по-разному: пиролиз, гидролиз, газогенерация. По-простому это будет «тление», что, в принципе, и происходит, потому что гореть твердое топливо при низкой концентрации кислорода просто не может. Единственное остается – тлеть.
Давайте рассмотрим, как происходит процесс обогрева холодного дома. В печку долгого горения закладывается твердое топливо и зажигается. При этом заслонка поддувала открывается полностью. Здесь важно, чтобы топливо сразу же загорелось и начало выдавать максимальное значение тепловой энергии. Дом холодный, и наша задача быстро нагреть его до необходимой температуры. Кстати, с помощью этой печки нагреть небольшой дом можно за полчаса.
Итак, дом нагрелся, можно переходить к низкокалорийному процессу. То есть, заслонка поддувала практически закрывается, тем самым перекрывается доступ в камеру сгорания свежего воздуха, что нам и требуется. Оптимальный вариант, если печь заполнить новой партией топлива, тогда можно будет рассчитывать, что продолжительность его горения будет максимально долгой.
Хотелось бы добавить, что производители сегодня предлагают достаточно широкий модельный ряд печей длительного горения. И каждый потребитель может выбрать модель и по мощности, и по периодичности закладки топлива, и по внешним данным.
Достоинства и недостатки
Как и любой отопительный прибор, эти агрегаты длительного горения имеют и свои плюсы, и свои минусы. Поэтому, выбирая ту или другую модель, каждый из нас должен смириться с недостатками, которые будут присутствовать в выбранном вами отопительном приборе.
Преимущества

Самодельная конструкция
- Огромная экономия топлива. Это самое большое достоинство печей длительного горения. И что бы ни говорили приверженцы других моделей, с этим фактором не поспоришь. Экономия явная и настолько большая, что выбор не оставляет альтернатив.
- Коэффициент полезного действия. Об этом уже говорилось выше, просто отмечаем это, как данность.
- Выбор габаритов. В настоящее время производители предлагают небольшие модели и презентабельный внешний вид печек, которые впишутся в любой интерьер дома или дачи. Во всяком случае, стыдно за них не будет.
- Простота обслуживания. Печки долгого горения дают возможность проводить закладку топлива с большой периодичностью. Кстати, этот показатель варьируется в достаточно широком диапазоне от 5 часов до 2 суток.
- Возможность использовать в качестве топлива широкий ассортимент горючих материалов. Здесь не только твердое топливо, но и жидкое. Кстати, комбинированные котлы длительного горения сегодня уже появились на рынке.
Недостатки
Устройство «Сапфира»
- Высокие требования к конструкции дымохода. К примеру, невозможность использовать многоотводную трубу. В некоторых конструкциях предусмотрен дымоход горизонтального типа, к примеру, в печках длительного горения Страпува.
- Чтобы перейти на режим пиролизного горения топлива, необходимо сначала протопить сам дом до определенной температуры. На это уходит большое количество топлива, потому что печь будет работать в традиционном режиме полного сгорания.
Выбираем печь
Переходя к выбору печки длительного горения, необходимо определиться, какую площадь она будет отапливать. В настоящее время производители предлагают модели, с помощью которых можно будет поддерживать необходимую температуру в загородных частных домах площадью 80-250 м². Скажем прямо, очень даже неплохой диапазон, который дает возможность использовать эти отопительные агрегаты многим загородным жителям. Это первое.

Котел в интерьере
Второе – длительность тления топлива в первой камере сгорания. Здесь печка долгого горения делится на три группы:
- С минимальным временем: от 5 до 8 часов.
- Со средним: от 8 до 10 часов.
- С максимальным: свыше 10 часов.
Материал изготовления
Не менее важная составляющая выбора – материал, из которого печь будет изготавливаться. В настоящее время используют три основных материала: сталь, чугун и кирпич. И когда встает вопрос, а можно ли сделать печку длительного горения своими руками, жизнь уже сама за все ответила. Никаких проблем, можно и даже легко.
Что же выбрать? Если стоит вопрос изготовления печки своими руками, то с чугуном связываться не стоит, да и не получится. Слишком сложна технология отливки необходимых узлов, частей и деталей. Поэтому остается кирпич и сталь.

Принципиальная схема
Что можно сказать о кирпичной печке? Это традиционный вариант, который себя оправдывает во всех случаях жизни. Единственный минус – слишком долго придется нагревать помещение, чтобы добиться необходимого температурного режима. Кирпич обладает большой инерцией, так что прогреть кладку даже в один элемент будет непросто и долго. А на это уйдет большое количество топлива.
Поэтому остается только печка длительного горения, которую можно сделать своими руками. К примеру, из бочки. Давайте рассмотрим эту модель, у которой есть свое название – Бубафоня. Кстати, дровяные печи из бочки всегда были популярны. Они не требовали больших материальных затрат, их конструкция проста, своими руками сделать ее не проблема. Единственное, что хотелось бы отметить, это необходимость обладать навыками работы с электрической сваркой, болгаркой, измерительным инструментом.
Печь своими руками
Что еще понадобится кроме металлической бочки?
- Листы железа толщиною 4-5 мм.
- Труба диаметром 100 мм.
- Колосниковая решетка, лучше готовая, хотя и своими руками ее можно изготовить, к примеру, из уголка и проволоки.
- Асбестовый шнур.

Конструкция из бочки
Теперь последовательность проведения сборочных работ:
- У бочки вырезается крышка с припуском 40-50 мм. В ней же по центру делается отверстие чуть больше диаметра трубы 100 мм.
- В нижней части бочки вырезается прямоугольное отверстие под топку. Через нее будут проводиться закладка топлива.
- Чуть ниже делается прямоугольное отверстие меньшего размера для поддувала.
- Изнутри бочки между топкой и поддувалом привариваются направляющие из проволоки, на которые будет уложена колосниковая решетка.
- В верхней части сбоку вырезается отверстие под дымоход. К нему тут же приваривается труба диаметром 100 мм и длиною 20-40 см.
- Теперь из металлического листа вырезается блин диаметром чуть меньше диаметра бочки.
- В блине по центру делается отверстие и к нему приваривается труба диаметром 100 мм. Длина трубы должна быть больше высоты бочки на 20-50 см.
- Из этого же листа вырезаются прямоугольники шириною 50-80 мм, а вот их длина должна равняться расстоянию от края блина до края сквозного отверстия в центре. Эти куски равномерно привариваются по кругу ребром с обратной стороны от приваренной трубы. Этот узел называется прессом. С его помощью топливо будет придавливаться, чтобы не создавать большое пространство для зоны горения.
- Теперь надо провести частичную сборку. То есть, устанавливается колосниковая решетка, сверху опускается пресс. На него надевается крышка так, чтобы труба пресса вошла в отверстие крышки.
- Теперь крышка приваривается к корпусу печки по всему периметру. Здесь важно проварить шов очень герметично. В зазор между торчащей трубой и отверстием крышки необходимо заложить асбестовый шнур, он станет преградой для дыма и угарных газов.
- Навешивается дверца на отверстие топки.
- Устанавливается шибер на поддувало.
Все готово, остается лишь установить печь по месту назначения и присоединить к ней дымоход. Под такой агрегат обязательно заливается прочное и огнеупорное основание, это важно.
Закладка топлива
Вырезание отверстия
Теперь к вопросу, как провести закладку топлива? Для этого вам обязательно понадобится помощник. Он будет поднимать пресс за торчащую трубу. Поднять надо максимально вверх, чтобы полностью открыть камеру сгорания. Топливо же укладывается плотно с минимальным пространством между его частями. Чем меньше воздуха внутри топки, тем длительнее происходит процесс пиролиза.
Не все, наверное, поняли, для чего необходима труба, которая приварена к прессу. Это специальный канал, по которому свежий воздух будет подаваться в зону сгорания топлива. А ребра, приваренные снизу, будут создавать необходимое пространство для проникновения воздуха внутрь, плюс они придают дополнительный вес прессу.

Виды Булерьяна
Это одна из моделей печек длительного горения, которые можно сделать своими руками из двухсотлитровой металлической бочки. Скажем прямо, вариант не самый сложный, но и не самый красивый. Устанавливать бочку в жилое помещение никто не будет, поэтому такие печи чаще всего устанавливают в подсобных помещениях служебного назначения. К примеру, в гаражах, мастерских, в теплицах и так далее. Хотя некоторые дачники устанавливают их и внутри основного строения, облагораживая конструкцию дополнительными элементами. Например, можно установить перед печкой декоративный экран, или облицевать ее кирпичом. Кто хочет, тот найдет варианты, сделать печь красивой.
Заключение по теме
Итак, печки долгого горения сегодня все популярнее и популярнее. И причины – это их преимущества перед традиционными моделями. Не хотелось бы повторяться, но отметим всего лишь два достоинства: высокий КПД и низкое потребление топлива.
Похожие записиКомментарии и отзывы к материалу
У вас должен быть включен JavaScript для отображения комментариев.gidotopleniya.ru
Пиролизная печь своими руками из металла или кирпича: особенности устройства
Содержание статьи:
Так сложилось, что печи, работающие на твёрдом топливе, в основном используют там, где отсутствует возможность подключиться к магистральному газу. Факт остаётся фактом: многие пользователи выбирают дровяное отопление для своего загородного дома, скрипя сердцем. Эти отопительные устройства ценятся за автономность, простоту и дешевизну, доступность топлива. Но печи на дровах не блещут своим КПД, нужно часто закладывать топливо и убирать золу, контролировать положение задвижек, регулярно заниматься обслуживанием печки – вот что городского жителя отпугивает больше всего. Не так давно на постсоветском пространстве начали продавать газогенераторные пиролизные котлы «длительного горения». Инновационная технология была изучена и адаптирована – так появилась пиролизная печь, лишённая ряда недостатков, свойственных обычным моделям.

Пиролизный теплогенератор с естественной тягой
Принцип работы пиролизных отопительных устройств
Что такое пиролиз
Суть пиролиза заключается в том, что при температуре от 200 до 800 градусов (в условиях недостатка кислорода) происходит газификация древесины – она обугливается и тлеет, постепенно распадается на твёрдый углеводород (кокс), смолы и смесь неконденсируемых горючих газов. Выделяемый топливом пиролизный газ можно дожигать отдельно от твёрдого остатка, что даёт возможность получить дополнительную тепловую энергию. Используя уникальные свойства данного процесса, есть возможность создать полноценное отопительное устройство для обогрева крупного дома. По такому же принципу работают походные пиролизные минипечи, которые своими руками собирают туристы и любители активного отдыха на природе.

Это фабричная походная печка. Аналогичные по конструкции изделия собирают из жестяных банок и коробов
Фактическая теплота горения высвобождаемых газообразных продуктов может отличаться в разы (примерно от 3 до 15 МДж/м3), теплотворность дожига зависит от состава газовой смеси. В свою очередь, состав пиролизного газа определяется способом подвода тепла для нагрева топлива, скоростью и конечной температурой протекания процесса. От этих же условий будет зависеть процентное соотношение получаемых твёрдых и летучих компонентов.
Обратите внимание! Во время топки пиролизной печитвёрдый остаток (уголь) горит в штатном режиме. При этом его теплотворность в два с половиной раза выше, чем у древесины.
Топливо для пиролизных теплогенераторов
Дрова являются основным и самым эффективным сырьём для пиролиза, причём лучшим вариантом считаются твёрдые лиственные породы древесины. Но пиролизные печи способны работать и на других видах твёрдого топлива органического происхождения. Это может быть:
- торф;
- уголь/кокс;
- жмых, солома;
- стружка и щепа древесины;
- топливные брикеты;
- пеллетные гранулы.
Обратите внимание! В газогенераторных печках можно утилизировать полимеры, резину, вторичную древесину и другие горючие отходы. Главное, чтобы в каждой такой загрузке было не менее 75 процентов нормального органического топлива.
Физические характеристики топлива (и особенно его качество) сказываются на эффективности пиролизных печей. Например, если на дровах имеется толстая и плотная кора, выход продуктов пиролиза будет в полтора-два раза меньше номинального. Такой же негативный эффект наблюдается при сжигании древесины, поражённой гнилью. Многое зависит от размера дров: считается, что крупные поленья обеспечивают большую длительность процесса, но снижают общую энергоэффективность теплогенератора, хотя в некоторых конструкциях можно использовать даже нерубленные чурки.

Основные типы сырья для пиролиза
Обратите внимание! Для нормального функционирования пиролизной печи необходимо использовать хорошо высушенное топливо. Дело в том, что при термодеструкции влажной древесины выделяется большое количество водяных паров, которые смешиваются с пиролизными газами и препятствуют процессу горения.
Условия эффективного протекания процесса пиролиза для каждого вида сырья будут существенно отличаться, поэтому при изготовлении пиролизной печи своими руками чертежи необходимо корректировать, чтобы адаптировать конструкцию под конкретное топливо.
Типы газогенераторных печей
Есть много вполне рабочих конструкций печей, работающих на основе пиролиза. Для их классификации используются как традиционные для твердотопливных отопительных устройств критерии, так и уникальные параметры для этого класса теплогенераторов.

Самодельная пиролизная печка из стальной бочки
По материалу, из которого изготовлены:
- Металлическая печь.
- Кирпичная пиролизная печь.
По способу эксплуатации и назначению:
- Периодического действия (имеет накапливающие тепло материалы, долго отдаёт энергию после прекращения топки).
- Постоянного действия (лёгкая тонкостенная конструкция, нет накапливающего тепло массива, для обеспечения комфортного обогрева необходимо сжигать топливо непрерывно).
По способу передачи тепла:
- С водяным контуром отопления (также может нагреваться вода для ГВС).
- С теплообменниками для нагрева воздуха (для систем воздушного калориферного отопления).
- Теплообменники отсутствуют, отопление помещений осуществляется за счёт теплового излучения, а также конвективного нагрева воздуха при его контакте с горячими поверхностями пиролизной печи.

Эта модель рассчитана на сжигание мелкофракционного топлива (уголь, щепки, пеллеты), которое подаётся из бункера. Камера дожига пиролизных газов расположена над загрузочной, в ней установлен теплообменник водяного отопления
По взаимному расположению камер и типу тяги:
- Камера газификации расположена сверху, а камера дожига пиролизных газов – внизу (иногда они находятся в одном уровне). Тяга принудительная, используются дымососы и дутьевые вентиляторы.
- Камера газификации находится внизу, а пиролизные газы дожигаются в камере, расположенной выше. Тяга в таких печах может быть естественной.
Основные элементы пиролизных печей
Корпус
Кирпичные пиролизные печи по спецификации материалов ничем не отличаются от обычных дровяных моделей. Для возведения стенок здесь применяется керамический или облицовочный кирпич, выложенный на самодельный глиняно-песчаный раствор или на готовую заводскую смесь. Ядро футеруется шамотом, между ним и облицовкой прокладывают базальтовый картон.
Корпус металлических печей сваривают из высококачественного стального проката, как правило, собираются прямоугольные конструкции. Чтобы сделать пиролизную печь своими руками, также можно использовать цилиндрические заготовки, например, газовый баллон или металлическую 200-литровую бочку, установленную на ножках горизонтально.
Чтобы избежать опасного нагрева наружных поверхностей, металлические пиролизные печи делают с двойными стенками. В полученных полостях часто располагают змеевики-теплообменники, которые являются частью контура ГВС и в случае необходимости прокачкой холодной воды позволяют быстро охладить перегретый кожух. Для защиты металла от прогорания в уязвимых участках камер устанавливается огнеупорный камень.
Обратите внимание! Полости двойного корпуса иногда заполняют водой – получается своеобразная водяная рубашка, как правило, подключенная к системе ГВС. Иногда в пространство между металлическими стенками засыпается песок, играющий роль изолятора и одновременно аккумулятора тепла.

Самодельная пиролизная печь из газового баллона

Для разделки корпуса на камеры здесь используется подвижный нагруженный поршень, который имеет отверстия для прохода летучих элементов пиролиза
Камера сгорания
В любой пиролизной печи есть две камеры. Одна из них – это основная топка, которая предназначена для генерации газа и сжигания твёрдого угольного остатка. Именно в неё закладываются дрова (или подаётся измельчённое сырьё), которые после розжига продолжают тлеть при закрытых дверцах. В другой камере осуществляется смешивание летучих продуктов пиролиза с вторичным воздухом, что при наличии высокой температуры (около 1000 градусов) обеспечивает воспламенение газа и его стабильное горение.
Каким бы образом ни были взаимно ориентированы эти камеры, между ними всегда есть проём для перетока пиролизного газа. В конструкциях, где камера дожига расположена ниже топки, между ними устанавливается колосниковая решётка. В металлических печах с верхним расположением камеры сгорания газов разделка внутреннего пространства выполнена с помощью специальных горизонтальной пластин, которые могут быть полыми и являться также элементами теплообменника. В аналогичных по компоновке теплогенераторах, собранных из кирпича, между камерами создаётся кирпичная переборка с так называемым «газовым окном» или «форсункой».
Вентиляторы
Двухкамерная компоновка пиролизных печей создаёт повышенное аэродинамическое сопротивление, которое должны преодолевать дымовые газы. Кроме того, в теплогенераторах с нижним расположением камеры дожига естественная тяга невозможна, так как летучие продукты пиролиза необходимо направлять сверху вниз. Для решения этих проблем в конструкцию таких отопительных приборов часто включают дымососы (на отводящих каналах) и вентиляторы наддува на подаче вторичного воздуха.

Результат принудительного наддува пиролизного газа, при нижнем расположении камеры дожига
Дверцы
Процесс пиролиза может протекать только при ограниченном доступе воздуха в топку. Именно поэтому для каждой камеры и зольника необходимо использовать высококачественные герметичные дверцы.
Для подачи первичного и вторичного воздуха в камеры на дверцах могут устанавливаться клапаны-задвижки, иногда для воздуха создают отдельные проёмы с задвижками.
Автоматика
Продвинутые газогенераторные котлы, как правило, снабжаются электронными системами, контролирующими температуру горения топлива и нагрев теплоносителя. Они регулируют соотношение пиролизных газов и вторичного воздуха в смеси, изменяют мощность надувных вентиляторов. В печах настройки приходится осуществлять вручную, хотя в некоторых моделях можно установить рычажный терморегулятор, который с помощью цепи будет управлять клапаном подачи воздуха.
Потребительские характеристики пиролизных печей
Достоинства таких отопительных устройств неоспоримы:
- Процесс пиролиза обеспечивает длительное горение топлива в автономном режиме. С одной закладки дров можно получать тепло на протяжении 6-12 часов, а, например, уголь может «работать» несколько дней.
- КПД устройства повышается до 80-90%, что намного больше, чем у традиционных твердотопливных печей. Сокращается расход топлива, больше тепла остаётся внутри дома (об этом можно судить по малой температуре дымовых газов – порядка 160 градусов).
- Удаётся автоматизировать некоторые параметры работы теплогенератора.
- После топки остаётся очень мало золы, соответственно приходится намного реже производить её выборку.
- Продукты горения пиролизных генераторов тепла оказывают минимум влияния на экологию.

Принципиальная схема пиролизного теплогенератора с верхним дутьём
Есть и ряд недостатков:
- Большинство пиролизных печей являются энергозависимыми, так как принудительная тяга и наддувы предполагают использование электрических вентиляторов.
- Существуют жёсткие требования к качеству топлива, особенно по влажности.
- Пиролизный теплогенератор не может нормально эксплуатироваться на малой мощности, так как при нагрузке, близкой к 50%, газификация топлива становится нестабильной, а на элементах печи может скапливаться дёготь.
- Конструкция этих печей сложнее, а расходы на строительство выше.
Опыт использования пиролизных печей показывает, что это удобные и эффективные источники тепла. Но построить такое отопительное устройство своими руками всё же очень непросто. Мастер должен быть хорошо подготовлен технически (навыки, инструмент), понадобятся точные, грамотно разработанные чертежи.
Видео: пиролизная печь
Понравилась статья? Поделитесь с друзьями:
teploguru.ru
Пиролизная печь своими руками — принцип работы, устройство, плюсы и минусы

Пиролизная печь
Вряд ли стоит говорить о том, что в регионах, где самым доступным топливом были дрова или уголь, большой популярностью пользовались твердотопливные котлы и печи. Тот, кто хотя бы раз сталкивался с этим видом нагревательных приборов, знает, насколько они неудобны. Конечно, в любой момент их можно заменить, к примеру, электрическими аналогами, но это не выход из положения. Ведь электричество сегодня — самый дорогой энергоноситель. Все решилось, как всегда, достаточно просто. На рынке появились пиролизные печи и котлы. Каков принцип их работы, и как они устроены? Возможен ли такой вариант, как пиролизная печь своими руками?
Что такое пиролиз?
Начнем именно с этого вопроса, потому что он заложен в принципе работы такой печи. Пиролиз — это медленное сжигание топлива при не очень высоких температурах (200–800С) и малом количестве кислорода. Если рассмотреть, как сгорают те же дрова, то они практически не горят. Этот процесс правильнее назвать тлением.
Кстати, специалисты нередко называют такое горение сухой перегонкой. В процессе тления дрова разлагаются на два элемента — древесный кокс (это твердая часть) и пиролизный газ. Вся эта схема была задумана лишь для того, чтобы получить именно газ, который в дальнейшем по технологии смешивается с кислородом и сжигается в соседней камере. При этом создается очень высокая температура, которая и идет на обогрев помещения.
Удивительно то, что сам пиролизный газ связывается с углеродом, и этот химический элемент тоже участвует в процессе горения. А это приводит к тому, что выходящий из печи дым практически не содержит вредных для окружающей среды химических веществ. Заметим, что и кокс не является отходом производства. Он прекрасно горит, выделяя определенное количество тепловой энергии. Так что действие такой печи двойное.
Необходимо отметить еще один очень интересный факт. Процесс пиролиза является экзотермическим. Это значит, что выделяемое при сгорании топлива тепло идет не только на обогрев помещения, но и на просушку дров, а также пиролизного газа. А вы прекрасно осведомлены о том, что чем ниже влажность топлива, тем оно эффективнее выделяет тепловую энергию.
Достоинства и недостатки пиролизных печей
К сожалению, недостатков у этих агрегатов хватает, хотя они обладают достаточно весомыми преимуществами. С них и начнем.
Достоинства
- Высокий коэффициент полезного действия. По сути, это печи длительного горения. Если правильно разместить дрова в камере сгорания, то они могут тлеть там от 8 до 48 часов. Все зависит от размеров топки.
- Из первого следует второе — возможность длительной работы в автономном режиме. Этим качеством не отличаются обычные твердотопливные котлы.
- В угарных газах низкий процент канцерогенных веществ.
- В печах длительного горения можно вместо дров и угля использовать различные отходы. Примеру, куски ДСП или ДВП, пластик или резину, отходы сельского хозяйства — стебли и листву растений, початки и прочее.
Внимание! Очень важный момент при выборе вида топлива. В нем не должно быть большого количества различных негорючих примесей. 30% — это максимальный предел.
Недостатки
Печь в работе
Печи и котлы длительного горения заводского производства — слишком дорогое удовольствие. Вот почему многие домашние мастера изготавливают их своими руками. Кстати, качество самодельных агрегатов ничуть не ниже заводских. Конечно, внешний вид намного уступает, но КПД не ниже.
- Достаточно большие размеры отопительного прибора.
- Особые требования к топливу. Считается, что используемые дрова должны быть сухими, в противном случае пиролизный процесс не происходит. А это — снижение КПД. По сути, пиролизный газ смешивается с влажными парами, поэтому и не сгорает полностью. Он просто с угарными газами и дымом выходит через дымоход на улицу.
- К сожалению, печи и котлы такого типа привязаны к сети переменного тока. Самостоятельно обеспечить себя хорошей тягой они не могут, поэтому в конструкцию агрегата встраивается вентилятор.
Устройство пиролизной печи
Основная особенность конструкции печи длительного горения — это наличие двух топок. В первую топку закладываются дрова, которые там и тлеют, выделяя пиролизный газ. Последний поступает во вторую топку, куда принудительно подается свежий воздух. Полученная воздушно-газовая смесь там и сгорает.
Обе топки разделяет металлическая перегородка с зазором для прохождения газа и дыма. Как было сказано выше, для увеличения тяги в дымоход устанавливается вытяжной вентилятор. Есть и другая модель, в которой вентилятор устанавливается около второй камеры сгорания. Он обеспечивает подачу кислорода и вытяжку угарных газов в принудительном порядке.
Рабочая схема печи

Схема котла
Возвращаемся к теме нашей статьи. Самостоятельно собрать печь длительного горения пиролизного типа очень сложно. Для этого вам потребуется внушительный список материалов. Да и навыки работы с определенными инструментами также пригодятся. К примеру, вы должны быть профессиональным сварщиком. Добавим, что для изготовления такого котла вам придется изрядно раскошелиться. Но даже это будет в несколько раз дешевле, чем приобретение агрегата заводского исполнения.
Перед тем как приступать к реализации намеченного плана, рекомендуем найти в интернете схему конструкции, рассчитать ее мощность и только после этого переходить к подготовительным работам. Самая распространенная схема пиролизного котла — это агрегат Беляева мощностью 40 кВт. Он обеспечит теплом достаточно большой частный дом. Но это лишь один вариант. Даже котел Беляева можно немного видоизменить, чтобы снизить или увеличить производительность отопительного прибора. К примеру, можно немного уменьшить или расширить топку.
Следует отметить один интересный факт. Очень часто в печах длительного горения в качестве теплоносителя используется не жидкость, а воздух. Для этого по всем помещениям дома устраивается трубопровод, по которому и движется горячий воздух. Данная конструкция прокладывается или по потолку, или по стенам. Обратка располагается у пола, и в ней охлажденный воздух движется самотеком к печи. Очень даже эффективная схема, особенно, если хозяева редко посещают загородный дом. В таком варианте теплоноситель никогда не замерзает.
Установка пиролизного котла

Установка котла
Внушительный вес пиролизной печки требует прочного и надежного основания, на которое она будет устанавливаться. Поэтому хороший фундамент — главное требование монтажного процесса. Все остальное будет касаться правил пожарной безопасности, которые надо строго соблюдать.
Поэтому:
- Под печь длительного горения организуется отдельное нежилое помещение. Это будет котельная.
- На полу перед камерами сгорания укладывается металлический лист толщиной 2 мм.
- Зазор между стенами и котлом должен быть не меньше 20 см.
- Обязательно наличие в котельной окна минимальной площадью 100 см². Именно через него будет поступать свежий воздух.
Внимание! Дымоход, проложенный через неутепленный чердак, нужно обязательно утеплять. Если этого не сделать, на внутренних стенках дымоходной трубы начнет оседать конденсат. Смешавшись с сажей, он образует деготь. Все это снижает сроки эксплуатации дымохода и уменьшает его внутренний диаметр.
И еще один момент, на который нужно обратить внимание. Изготовление печи длительного горения своими руками требует точного определения коэффициента полезного действия. Если он невысокий, то гарантировать эффективную тепловую отдачу невозможно. Поэтому еще на стадии запуска необходимо обратить внимание на выходящий из дымохода дым. Вы уже по запаху сможете определить, сколько в нем угарных газов. Если их небольшое количество, то КПД вашего котла достаточно высок. Кстати, рекомендуем провести такое тестирование на всех мощностных режимах.
Печь или котел?

Выбираем отопление
Сегодня достаточно много споров вокруг, как нам кажется, пустякового дела. А вопрос ставится так — называть ли металлический пиролизный котел печью? Вообще, ситуация не самая тупиковая. Все зависит от того, как удобно вам. Хотя многие считают, что котел должен устанавливаться в систему водяного или воздушного отопления. А печь должна работать как отопительный прибор по типу радиатора. А что вы скажете про печи с водяным контуром? Ведь их тоже врезают в систему трубной разводки водяной отопительной схемы.
Но не будем зацикливаться на этом вопросе. Просто рассмотрим, как можно сделать своими руками кирпичную печь, работающую по пиролизному принципу.
Начнем с того, что производители пиролизных котлов считают проблемой изготовление агрегата мощностью меньше 15 кВт. Поэтому в продаже таких экземпляров вы не найдете. А что же делать хозяевам небольших дач и коттеджей? Вот тут-то приходит на помощь та самая пиролизная печь из кирпича длительного горения. По сути, это все тот же котел, только в виде печки, собранной из кирпича.
Важность данной конструкции состоит в том, что в ней необходимо не только выполнять требования принципа пиролиза, но и учитывать высокие тепловые нагрузки на кирпичные стенки. Поэтому правильно проведенная футеровка камер сгорания является основным и жестким требованием, которое увеличивает срок эксплуатации агрегата.
Сама печь длительного горения собирается, как обычная печка, только с двумя соседними топками. Они разделяются кирпичной перегородкой, в которой снизу установлены колосниковые решетки из чугуна. В одной камере сгорает древесина, а во второй — пиролизный газ, который затягивается в топку с помощью вентилятора. Здесь же происходит его обогащение кислородом, который поступает сюда через вентиляционный канал, установленный в полу камеры сгорания.
В перегородке меду камерами делается воздушный коллектор, по которому угарные газы и тепловая энергия поступают в еще одну камеру с теплообменником. А далее все оставшиеся продукты сгорания топлива направляются в дымоход.
Заключение по теме
К сожалению, твердотопливные котлы постепенно уходят из употребления. Многие жители городов и деревень в погоне за удобствами стараются использовать газовые или электрические отопительные агрегаты. Основная причина — автономность эксплуатации. Но с достоинствами этих приборов мы теряем большее. Уют и тепло дома всегда создавала печь, в которой потрескивали дрова. Да и явная экономия налицо, так что стоит еще раз задуматься над выбором. Тем более, выезжая за город в свой небольшой домик, мы стараемся найти в нем успокоение и уединение. А такие мелочи, как потрескивание дров, помогают в этом.
Похожие записиКомментарии и отзывы к материалу
У вас должен быть включен JavaScript для отображения комментариев.gidotopleniya.ru
чертежи, устройство и принцип работы, особенности конструкции
Как сделать качественную пиролизную печь своими руками? Чертежи могут помочь в этом. Если такую конструкцию изготовить самостоятельно, то можно хорошо сэкономить на этом.
Пиролизные печи пользуются особой популярностью в такой местности, где отсутствуют центральное отопление и газовые трубопроводы. В таких местах это сооружение обеспечивает теплом загородные дома или дачи.
Принцип работы пиролизной печи
В чем заключается принцип работы этой печки? Процессы, происходящие в ней, многим незнакомы, поэтому необходимо более подробно изучить принцип действия пиролизной печи.
Отличительной чертой пиролизной печи своими руками от обычной является то, что топливо в ней сгорает тогда, когда образуется недостаток кислорода. И это удивительно, потому что в обычных конструкциях топливо сгорает, если есть большое количество кислорода и это обеспечивает нормальное функционирование всей системы обогрева.
Как происходит процесс пиролиза? Когда сжигается углеводородное топливо, начинается процесс окисления и выделения тепла. Топливо под влиянием высокой температуры сгорает не до конца, выделяя при этом большое количество различных газов. Чем выше температура будет при недостатке кислорода, тем интенсивнее начинают выделяются эти газы.
К примеру, если сжигать древесное топливо, то будут выделяться такие газы, как уксусная кислота, ацетон, метиловый спирт. Вместе с ними в дымоход поступают различные смолистые соединения и частицы древесного угля. Эти несгоревшие остатки можно повторно сжигать, потому что они вполне горючи. Газы, не сгоревшие до конца, могут выделяться при сжигании любого топлива, такого как естественная органика или нефтепродукты. Различное топливо имеет разную температуру горения. Так, нефтепродукты могут гореть при температуре 800−900 градусов, а дрова сгорают при 500 градусов.
Таким образом, принцип работы пиролизной печи своими руками заключается в сжигании этих газов. Именно поэтому такие печи по-другому называются газогенераторами. Пиролиз – это процесс разложения топлива на составляющие части при его нагревании, с последующим их сжиганием и выделением тепла.
Достоинства и недостатки пиролизной печи
Такая конструкция имеет определенные преимущества перед обычными печами. К ним относятся:
- коэффициент полезного действия достигает 80%;
- топливо расходуется очень экономно;
- возможность регулировать процесс длительного горения;
- экологичность. Такая печь во время работы практически не дает выброса канцерогенных веществ.
Если пиролизная печь сделана правильно, то достоинств у нее не перечесть. Например, у нее практически не бывает сажи, что позволяет легче соблюдать чистоту и затрачивать небольшое количество времени на очистку печи. И таких небольших достоинств очень много.
Однако, пиролизная печь имеет и недостатки:
- высокая стоимость. Выгоднее сделать ее своими руками;
- большие размеры. Если помещение не слишком большое, лучше использовать другие отопительные конструкции;
- отапливаются такие печи только определенным видом топлива. Лучше всего подходит сухое топливо (древесина), потому что высокая влажность отрицательно сказывается на процессе пиролиза;
- для ее работы необходимо электроснабжение, причем постоянное. Для лучшей работы печи ее следует подключить к электрической сети.
Это основные недостатки пиролизной печи. Так что можно смело эксплуатировать такую печь, если для нее достаточно места, имеется в наличии сухое топливо и имеется доступ к электрической сети.
Технология изготовления пиролизного котла
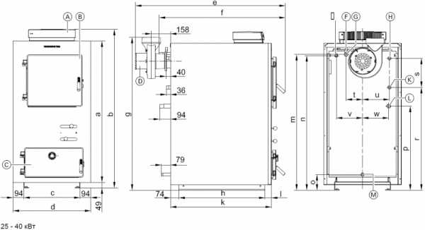
Чтобы изготовить мощный котел, надо уметь обращаться с болгаркой и сварочным аппаратом, а также разбираться в чертежах. Если самостоятельно изготавливают котел мощностью выше 25 кВт, необходимо все делать по чертежу, в противном случае котел не будет соответствовать требованиям безопасности.
Стенки котла следует делать из жаропрочной стали, только это будет гарантией того, что он прослужит довольно долго. Если такую сталь найти не получится, можно использовать обычную сталь, только в этом случае делают футеровку внутренних камер котла шамотным кирпичом.
Этапы изготовления котла.
- Корпус котла изготавливают из листовой стали. С помощью болгарки из листа металла вырезают детали котла, в стенках делают отверстия для дверцы зольника и загрузочной дверцы, а также для патрубков и дымососа. Самое главное — это придерживаться указанных в чертеже размеров. При помощи сварочного аппарата соединяют детали, после чего зачищают швы от окалины и шлифуют их.
- Затем приваривают патрубки так, чтобы между швами не было зазоров. Берется труба нужного диаметра и выполняют монтаж защитного теплообменника на задней стенке котла. После чего проверяют, не протекает ли теплообменник из-за повышенного давления от компрессора и только тогда устанавливают заднюю стенку камеры, изготовленной из жаропрочной стали.
- Затем приступают к монтажу перегородки, которая разделяет камеры газификации и сжигания газа, устанавливая чугунный колосник. Наверху камеры газификации делают воздуховод с заслонкой. Внизу камеры также делают воздуховод и одновременно с этим делают футеровку шамотным кирпичом нижних и боковых сторон.
- Дверцы котла изготавливают из жаропрочной стали, а для наибольшей герметичности их усиливают металлическими уголками.
- Котел следует устанавливать в нежилом помещении, присоединяя дымоход. Затем подключают к нему водный контур и устанавливают дымовой насос.
Технология изготовления пиролизной печи
Такой котел очень мощный и поэтому подходит для большого дома. Чтобы было тепло в гараже или дачном домике, можно построить пиролизную печь своими руками. Изготавливается она также из листа металла, но техника изготовления ее значительно проще.
Если камеру сгорания газа расположить выше камеры газификации, создавая естественную тягу, то нет необходимости использовать дымосос.
Печь не подключается к системе отопления.
Такая печь не автоматизирована и поэтому требует постоянного контроля и настройки режима горения.
Как изготовить пиролизную печь своими руками?
Технология изготовления пиролизной печи своими руками выполняется в такой последовательности.
- Берут корпус печи, имеющий отверстия для дверцы топки и дверцы зольника и сваривают его. Изготавливаться он должен из жаропрочной стали. Прямо над зольником устанавливают топочную камеру и отделяют от него чугунным колосником. Поступление воздуха в топку регулируется при помощи дверцы зольника.
- Над топкой располагают камеру сгорания газов, разделяя их пластиной из жаропрочной стали. В камере делают канал, обеспечивающий подачу воздуха.
- Металлические дверцы топки и зольника усиливают уголком.
- Внутри обе камеры обкладывают шамотным кирпичом, который защитит их от быстрого прогорания и улучшит теплораспределение. Если печь установлена в жилом помещении, то ее можно обложить и с внешней стороны, чтобы о нее случайно не обжечься.
- В дымовой трубе устанавливают шибер для регулировки тяги. Дымоход изготавливается из утепленной трубы, что повышает ее безопасность. Если труба не изолирована, в случае резких перепадов температур на ее внутренней поверхности скапливается конденсат, который способен разрушить металл.
Место установки пиролизной печи
Устанавливают пиролизную печь в помещении, соблюдая технику безопасности, чтобы исключить возникновение пожара. Нельзя устанавливать ее возле легко воспламеняемых предметов, под полками, в легко продуваемых местах. Около печки должно оставаться свободным пространство со всех сторон с расстоянием в полметра. Хорошо, если рядом будет стоять емкость с песком или висеть огнетушитель.
Чтобы пиролизная печь своими руками работала долго, необходимо вовремя удалять из нижней части кокс и нагар. Если в качестве топлива используется мазут или нефтяные масла, необходимо следить за тем, чтобы в него не попала вода. Если это произойдет, печь начнет «стрелять», выбрасывая большое количество искр, а это может привести к пожару.
Поэтому при соблюдении техники безопасности и правильной эксплуатации, такая печь может прослужить очень долго.
pechi.guru
