Гидролизная печь – Пиролизные печи — принцип работы и особенности конструкции, преимущества и недостатки пиролизных печей, фото и видео.
Виды пиролизных печей, их принцип работы и устройство, преимущества и недостатки
Одним из вариантов экономии топлива является применение печей или котлов длительного горения. На одной заправке топливом они работают гораздо дольше других видов отопительных устройств. К печам длительного горения относятся пиролизные печи. Рассмотрим их принцип действия пиролизных печей, их устройство, а так же преимущества и недостатки использования этих агрегатов для обогрева помещения и устройство.
Что такое пиролиз
В основе действия таких печей лежит принцип пиролиза— термического разложения органических веществ (в нашем случае топлива) на твердые остатки и пиролизные газы при недостатке кислорода. После чего полученный пиролизный газ при высокой температуре смешивается с воздухом (кислородом), что способствует почти полному сгоранию топлива и самого газа.
Если на промежуточном этапе отделить твердые остатки, то получится готовое производство угля (кокса) — углевыжигательная печь. Но нам это не нужно, мы рассмотрим данный процесс с точки зрения обогрева помещений.
А основной обогрев получается за счет выделения тепла при сгорании полученного газа, смешанного с воздухом. Далее рассмотрим, как достигается это конструктивно.
Устройство пиролизных печей
Классическое устройство пиролизной печи выглядит следующим образом. Имеется общий корпус. В него встроена топка с горелкой для закладки дров. Топка выполняется так, чтобы можно было обеспечить очень малый приток воздуха (герметичная, с плотной дверкой и хорошо работающей задвижкой, оборудованная приточно-вытяжным вентилятором). В нее закладываются дрова, поджигаются горелкой или вручную. После того, как они немного разгорятся, топка ограничивается в доступе кислорода.
Дрова обугливаются, получившийся при этом газ (наполовину азот и на половину — смесь водорода, угарного газа, метана и углекислого газа) снизу вверх по отдельному воздуховоду поступает во вторую камеру сгорания, где смешивается с воздухом (приток вторичного воздуха) в нужной пропорции и сгорает, выделяя тепло. Вторая камера сгорания конструктивно может быть совмещена с самим воздуховодом, или же с началом дымохода. Она может обслуживаться все тем же приточно-вытяжным вентилятором, может быть смонтирован отдельный вентилятор, а может работать только с помощью одних герметичных заслонок на естественной тяге (при хорошо продуманной системе дымохода).
Если твердые остатки от сгорания дров нужны — предусмотрено устройство для их извлечения. В кустарных или промышленных печах его роль, как правило, выполняет поворотная «реторта».
Реторта — это обычно круглая часть корпуса, в которую закладываются дрова, а потом снизу извлекается кокс, уголь.
От обычных печей пиролизная отличается тем, что фактически топливо в ней сгорает
Твердые остатки затем тоже сжигаются, тепло от них тоже используется для поддержания постоянства нужной температуры в первичной топке. Практически, дрова сжигаются полностью, от них остается очень мало золы — это еще одна особенность пиролизных печей. Обычно такие печи и котлы требуют удаления золы раз в несколько дней, а то и раз в неделю.
Достоинства и недостатки
У печей такого типа имеется ряд преимуществ. Перечислим основные.
- Высокая экономичность печи за счет более полного и длительного сгорания топлива.
- Экологически безопасная. В выходящих из дымохода продуктах сгорания очень мала доля вредных и грязных веществ. Практически, это небольшая доля CO и остальное — пар. Данные печи называются бездымные именно по этой причине. Как следствие — чистый дымоход и отсутствие сажи. Конечно, все это верно при использовании обычных дров или угля.
- Достаточно быстрый нагрев топлива.
- Более высокий КПД (до 85%), чем у обычных печей.
- Большой интервал тепловой мощности— печь может работать в диапазоне от 5 до 100% мощности.
- Возможность подключения любого контура отопления (с естественной и принудительной циркуляцией, для отопления и для отбора горячей воды для хозяйственных нужд).
- Возможно применение различных видов топлива, как твердого (вплоть до сырых дров, мусора и автомобильных покрышек), так и жидкого (существуют модели для сжигания машинного масла — отработки).
- Минимальный контроль человека — загрузка топливом раз в сутки и редкая выгрузка золы без останова печи.
Несмотря на многочисленные достоинства, у данных печей есть и ряд недостатков.
- Достаточно большие по размерам.
- Необходимо наличие площадки для складирования топлива.
- При сжигании мусора, различных отходов, все-таки присутствуют запахи и примеси при сжигании. Поэтому при планировании сжигания отходов следует продумать систему вентиляции в помещении с печью.
- Для наличия хорошо работающей системы желательна установка вентиляторов в печь (котел) и насосов (в систему отопления), а это влечет за собой зависимость от электросети.
- Скапливание конденсата в выходном канале и дымоходе. Обусловлено это низкой температурой выходящих отходящих газов. Как правило, для сбора конденсата в конструкции предусматривают накопитель. Из-за конденсата выходная труба с дымоходом должны быть большого диаметра или сечения, и утеплены на улице — во избежание застывания конденсата при морозах.
Общие выводы
Из перечисления сильных и слабых сторон видно, что печи данного типа могут вполне составить конкуренцию другим источникам тепла. После газа, «пиролиз» будет, пожалуй на втором месте по экономичности, наравне с пеллетным отоплением.
Нужно заметить, котлы обычно меньше по размерам, чем печи. Некоторые котлы и печи заводского изготовления могут работать как в обмуровке кирпичами, так и без нее. Единственное требование при любом варианте — обеспечение хорошего «теплого» дымохода.
Проведем краткий обзор одной из печей заводского изготовления.
Из отечественных серийных моделей популярностью пользуется пиролизная печь марки «Самогрейка». Это довольно функциональная конструкция. Ее можно использовать для обогрева помещений площадью от 100 до 400 кв. метров, отбора горячей бытовой воды (печь двухконтурная и оборудована накопительным 100-литровым баком), и для горячего копчения продуктов.
Данная печь работает с любым видом контура циркуляции. В качестве топлива используется любое твердое. Мало того, что она требует обслуживания раз в несколько суток, так еще имеет запасной электрический котел, что значительно увеличивает ее удобство и универсальность в пользовании. В ее электрической части смонтировано два ТЭНа (по 2,5 кВт каждый) для отопительного контура и один ТЭН (1,2 кВт) в накопительном баке для бытовых нужд. Диапазон работы печи на одной загрузке топливом колеблется от 16 до 82 часов (при максимальном режиме и при минимальном режиме). Внешне выглядит как прямоугольник с размерами 1800*900*600 мм и полным весом 276 кг.
От автора
В настоящее время выбор пиролизных печей и котлов все больше растет. Основные их функции такие же, как у вышеприведенной «Самогрейки». Можно сделать такую печь и самостоятельно. Существует множество самодельных кирпичных и металлических печей. Например, наша инструкция по самостоятельной постройке печи длительного горения.
Пиролизные устройства известны давно, но долгое время использовались в основном в промышленности для получения кокса. В довоенное и военное время прошлого века они даже на грузовые автомобили устанавливались, именуясь газогенераторными установками (это их второе название). Сейчас они начинают выходить из тени, и все чаще и чаще приходят для обогрева частных помещений. Там, где нет возможности подвести газ или задействовать пеллеты, они порой являются самым экономичным вариантом. По своей сути они являются источником своего, «местного» газа, который сразу же сжигается. Кстати, в качестве топлива для пиролизных печей, вполне можно использовать и разные пеллеты и брикеты. Конечно, при их использовании срок работы на одной заправке изменится, в какую сторону — зависит от топлива.
Оцените статью: Поделитесь с друзьями!для отопления дома, газ и гидролизный котел длительного горения, печи пиролиза на дровах
Пиролизные печи относятся к печам длительного горенияПиролизная печь сегодня имеет много преимуществ. Они-то и сделали ее установку настолько популярной. Печь, не требующая постоянной загрузки в нее топлива, и справляющаяся с обогревом даже не маленького дома, сейчас не мечта, а реальность. Такую печь можно сделать самостоятельно, если знать последовательную схему ее сборки, а можно и купить готовую в магазине.
Используем пиролизные печи для отопления дома или бани
Одним из вариантов экономного расходования топлива является использование печей или котлов долгого горения. На одном и том же количестве топлива они работают на много дольше, чем другие виды отопительных приборов. К печам длительного сгорания относятся и новые пиролизные печи.
Сейчас пиролизные печи начинают становиться более актуальными, и все чаще и чаще используются для обогрева частных домов
В основе действия этих печей состоит принцип процесса пиролиза – термического разложения любых органических веществ на пиролизные горючие газы и твердые остатки. После данного процесса, при высокой температуре, полученный пиролизный газ перемешивается с кислородом. Согласно законам химических реакций, это способствует практически полному сгоранию и самого газа, и топлива.
Если на каком-то этапе отделить от состава твердые остатки, то, как не странно, получится кокс, а оборудование можно назвать углевыжигательной печью. При отоплении же основной обогрев воздуха получается за счет выхода тепла при сгорании пиолизного газа, смешанного с воздухом.
Преимущества пиролизных печей:
- Высокая экономичность печи. Топлива здесь сгорает более тщательно, и тепла из него добывается на много больше.
- Экологическая безопасность. Она достигается за счет того, что в выходящих из дымохода газах очень присутствует очень маленькое количество вредных веществ.
- Достаточно быстрый разогрев.
- Высокий КПД (до 85%), Который выгодно отличается от обычных котлов.
- Большой интервал мощности (тепловой). Данная печь может работать и на 5 и на 100 процентов своей способности.
- Возможность подключения к устройству любого из контуров отопления.
- Дает возможность применения различных видов топлива, (вплоть до сырых дров, автопокрышек и мусора.
- Требует минимальное участие человека в своей работе
К недостаткам можно отнести достаточно большие размеры, наличие площадки для запасов топлива, присутствие посторонних запахов при сжигании мусора, необходимость в вентиляции помещения, скапливание в выходном канале, а также дымоходе конденсата.
Что такое пиролизный газ
Пиролиз древесины – это изменение структурного состава древесинного вещества при воздействии температуры. Этот процесс относится к изотермическим, то есть, высвобождающим тепло.
В результате пиролиза, древесина разлагается на:
Продукты пиролиза древесины в свою очередь горючие вещества. Именно эти вещества, сгорая, выделяют тепло, как конечную цель самого процесса их термообработки.
Пиролизные печи длительного горения
Среди всех металлических котлов и печей самой большой популярностью на сегодня пользуются отопительные приборы, имеющие функцию длительного сгорания. Данные устройства очень экономичны, а также особо просты в эксплуатации. Они идут и для небольших дачных помещений, и для домов с постоянным проживанием.
Одним из вариантов экономии топлива является применение печей или котлов длительного горения
На рынке сегодня есть множество разнообразных моделей пиролизных котлов и печей, в том числе и фирмы «Самогрейка», но вполне реально такой прибор сделать и самостоятельно.
К особенностям данного отопительного прибора относятся:
- Большой объем топки и увеличенных размеров дверка для закладки топлива. Это позволяет сразу уложить много дров или других материалов.
- Разделение топки на два отсека. Один из них предназначен для тления дров, в другом происходит процесс сжигания газов.
Наличие отбойника огня от дымохода. В простонародье он называется зубом и выглядит в виде пластины, которая приварена к верху топки. Она препятствует попаданию пламени в трубу.
У простого котла функция отопления состоит из повышения температуры самой печи и помещения, а также следующей за этим отдачей потом тепла с разогретой уже поверхности. Топливо здесь сгорает достаточно интенсивно. Если печка металлическая, это оказывается очень неудобным. Топливо не сгорает совсем все. Его нужно постоянно подбавлять, а температура в доме то поднимается, то падает. В печке длительного горения процесс происходит иначе. Простая печка поджигается снизу, а уже потом огонь в ней идет наверх и по сторонам. Пламя образовывается большое, дрова очень быстро прогорают, оставляя много углей. Так происходит потому, что в печь постоянно открытый доступ воздуха. Приборы же длительного горения работают иначе – дрова поджигаются сверху, а затем уже пламя распространяется вниз. И лишь на то место (горелка), где горят дрова, распространяется воздух. Процесс горения не слишком интенсивен, больше похож на тление. Одновременно выделяется намного меньше тепла. Тепло воздуха в помещении остается на одном уровне. Кроме самих дров, в печи сжигается и пиролизный газ, образующийся во время тления дров. Он перемещается во вторую камеру, где усиленно мешается с воздухом. В результате этого продукты вторичного сгорания можно сказать не содержат вредных веществ, а КПД печки значительно повышается, способствуя снижению расходов на отопление.
Самодельная бездымная печь своими руками
Способные и талантливые специалисты могут изготовить пиролизную печку своими руками. Однако, на практике, это требует больших знаний, умения и опыта. Кроме того, смельчакам, отважившимся на такое изобретение, следует знать, что на практике есть несколько подводных камней, о которые разбилось уже немало самодельных устройств.
Для выполнения работ вам необходимо наличие следующего инвентаря:
- Сварочного аппарата;
- Грамотно разработанного чертежа;
- Опыта работы непосредственно в печном деле.
Однако, даже наличие всего этого не даст полной гарантии успеха в выполнении задуманного. Для работы необходимы еще и хорошие, высококачественные материалы, а их стоимость сейчас довольно велика. Главным образом это касается металлической части, где обязательно должна использоваться хорошая легированная сталь. В добавок ко всему, данный агрегат имеет и электронную систему, без которой невозможен процесс управления устройством. А без него работа прибора не будет иметь смысла. Поэтому, прежде, чем принять решение об изготовлении пиролизной печи самостоятельно, стоит хорошенько обдумать все нюансы. Построить рабочую модель такой печи реально, вот только КПД у нее будет значительно ниже, чем у качественного промышленного образца, и ваше устройство не окупится затратами на топливо. Кроме того, если вы не сможете грамотно настроить электронную часть котла, то вам придется постоянно быть вблизи котла и следить за ним. Многие из неграмотно выполненных пиролизных печей превратились в еще одну разновидность буржуйки.
Можно ли сказать, что лучше: гидролизный котел или пиролизная печь
Гидролизные котлы отопления, как известно, это устройства, которые работают на твёрдом топливе. Для их работы используют дрова, солому, отходы древесины, уголь, пеллеты и многое другое. Данные котлы, работающие на дровах и угле, широкое распространение приобрели в системах отопления для производственных и бытовых помещений. К преимуществам таких котлов относятся экономичность, простота в использовании, высокая экологичность, и доступность. Гидролизные котлы есть возможность использовать даже там, где есть перебои в подаче электроэнергии, или ее нет вообще.
Процесс горения пиролизных газов легко поддается управлению и регулировке, что позволяет автоматизировать работу такого котла приблизительно в той же степени, что и работу газовых или жидкотопливных котлов
Длительные поиски новых энергосберегающих технологий нашли возможным качественно использовать знания органической химии.
Учеными замечено, что:
- При высокотемпературной среде, в условиях ограниченного доступа кислорода, процесс горения некоторых твердых природных веществ сопровождается постоянным выделением горючего газа;
- Образовавшийся газ пригоден к дальнейшему сжиганию;
- В процессе его сгорания выдается много тепла.
Иными словами, гидролизный котел можно назвать прародителем нового пиролизного котла. Но он незаменим там, где установка или обслуживание современной модели невозможно.
Как работает пиролизная печь (видео)
Много лет мы использовали домашние печи и котлы, даже не зная о том, что, усовершенствуя немного процесс горения, платить за топливо можно мы могли бы на много меньше, а тепла нам доставалось бы больше. Но благодаря новому открытию очень нас ждут великие изменения.
Добавить комментарий
teploclass.ru
принцип работы и изготовление своими руками
Пиролизная печь — это печь длительного горения, применение которой позволяет экономно использовать топливо и эффективно обогревать помещение. На одной заправке пиролизная печь может работать намного дольше, чем обычная буржуйка.
Что собой представляет такая печь
Пиролиз — это процесс горения, при котором топливо разлагается на твердые остатки и пиролизный газ. Проходит он при недостатке кислорода. Такой принцип работы имеет любая пиролизная печь. После того как получается пиролизный газ, он снова смешивается с кислородом. Это позволяет проходить процессу горения при более высоких температурах, благодаря чему топливо и полученный газ сгорают практически полностью.
Принцип работы пиролизной печки используется при производстве кокса. Для этого на специализированных производствах применяется углевыжигательная пиролизная печь. На промежуточном этапе горения проводится отделение твердых остатков. Но в данном случае рассмотрим, как такое устройство применяется для отопления дома.
Во время работы данного устройства основное количество тепла выделяется в процессе горения газа, который смешан с кислородом, тогда как обычная буржуйка не позволяет добиться такого результата.
Благодаря такому принципу работы, пиролизные печки пользуются большой популярностью и спросом.
Одним из условий эффективной работы такой конструкции является нормальная влажность топлива. Если дрова сырые, то полученный газ просто смешивается с паром и улетает в дымоход. Во второй камере пиролизной печки не происходит процесс горения газа, и она работает как обычная буржуйка с низким КПД.
Чтобы такого не происходило, загружать необходимо не менее 75% сухих дров или пеллет, влажность которых не больше 15%. Чтобы по звуку определить влажность дров, надо по ним постучать твердым предметом: если звук звонкий, значит, дрова сухие. Если пиролизная печка работает нормально, то из дымохода выходит практически бесцветный дым, которой не имеет запаха, чего нельзя сказать, когда работает обычная буржуйка.
Как устроены такие печи
Несмотря на то что такие конструкции работают с высокой эффективностью, схема их устройства не очень сложная. Имея определенные навыки выполнения строительных работ, любой домашний мастер сможет сделать пиролизную печку самостоятельно.
Ее основу составляет корпус, в который встраивается топка для закладки дров. Для того чтобы ограничить поступление кислорода в пиролизные печи необходимо, чтобы топка была сделана герметично, в ней должна плотно закрываться дверка, надежно работать задвижка.
После того как в пиролизные печи произведена закладка дров, их поджог может быть выполнен вручную или при помощи горелки, так же как поджигается и обычная буржуйка. Необходимо дать некоторое время, чтобы дрова хорошо разгорелись. Затем выполняется ограничение доступа кислорода.
При горении дров выделяется достаточно много газа, после чего он по специальным каналам направляется во вторую камеру сгорания. Здесь выполняется смешивание полученного газа с вторичным воздухом и происходит его сгорание при очень высоких температурах, с выделением большого количества тепла.
В зависимости от конструкции пиролизной печки вторая камера иногда совмещается с воздуховодом или входом в дымоход. Если система дымохода продумана хорошо, то при наличии герметичных заслонок вторая камера пиролизной печки может работать и при естественной тяге с верхним поступлением воздуха, при этом использовать приточно-вытяжной вентилятор необязательно. В некоторых конструкциях вторая камера может обеспечиваться основным вентилятором, а в некоторых для этого устанавливают дополнительный.
Если вам нужны остатки от сгорания дров, то на определенном этапе их можно извлекать из пиролизной печки, для этого как в печах кустарного, так и промышленного изготовления предусмотрена поворотная реторта. Она сделана в виде круглой части корпуса, в которую выполняется закладка дров, а после их сгорания снизу извлекают кокс или уголь.
Если буржуйка обеспечивает сгорание топлива за один этап, то пиролизные печки проводят это в два этапа: сначала сгорают твердые остатки, а потом газ. Во время сжигания газа происходит поддержание горения в первичной камере, что позволяет сжигать топливо практически без остатка. Это значительно облегчает процесс обслуживание пиролизной печки, так как золу надо чистить раз в 5-7 дней.
Преимущества и недостатки указанной конструкции
Любая печь, независимо от того, пиролизная она или буржуйка, имеет ряд достоинств и недостатков.
Преимущества пиролизной печки:
- происходит практически полное сгорание топлива, которое горит на протяжении длительного времени, за счет чего достигается высокая экономичность;
- в воздух после сгорания выделяется очень мало вредных веществ: это в основном пар и немного СО, поэтому она экологически безопасна;
- высокий КПД, который достигает 85%, а если установлена пиролизная печка Лачиняна, то до 95%;
есть возможность регулировать процесс горения, при этом печь может работать начиная от 5 и до 100% своей мощности;- есть возможность подключения контура отопления, который может быть как с естественной, так и с принудительной циркуляцией; в таком случае пиролизная печка Лачиняна сможет обогревать не одну комнату, а весь дом, а также можно брать воду для хозяйственных нужд;
- есть возможность использовать различные виды топлива: пиролизная печка может работать как на твердом, так и на жидком топливе;
- работает в автоматическом режиме, присутствие человека необходимо только для загрузки топлива, которая проводится в зависимости от модели приблизительно раз в сутки, а выгрузка золы раз в 5-7 дней.
Но не стоит думать, что такая конструкция имеет только преимущества. Есть у нее и свои недостатки:
- достаточно большие размеры, особенно если вы захотите сделать такую печь из кирпича;
- надо предусмотреть место для хранения дров, оно должно быть защищено от осадков, так как дрова необходимы только сухие;
- во время сжигания мусора все равно есть небольшой запах, поэтому в помещении должна быть установлена качественная и эффективная система вентиляции;
- чтобы увеличить эффективность работы пиролизной печки, надо устанавливать вентилятор, а если есть водяной контур, то и насос, а это требует наличия электросети;
- так как температура дыма достаточно низкая, происходит накопление в дымоходе конденсата. Для его сбора в дымоходе необходимо делать накопитель. Сечение дымохода должно быть большим, и его надо утеплить.
Подведение итогов
Если сравнить все преимущества и недостатки такой конструкции, то становится понятно, что она может достойно конкурировать с другими источника тепла. Наиболее эффективным способом обогрева является использование природного газа, а на втором месте стоят пиролизные печки.
Можно приобрести пиролизный котел промышленного производства. Его размер будет меньше, чем размер такой печки, изготовленной самостоятельно. Для эффективной работы в любом случае надо хорошо утеплять дымоход.
Так как такие конструкции сильно нагреваются, их нельзя устанавливать рядом с легковоспламеняющимися предметами, до ближайшей стены необходимо оставить зазор не менее чем в 50 см.
Такие конструкции могут использоваться как самостоятельно, так и вместе с водяным контуром. Их можно применять для горячего копчения продуктов, что делает их практически универсальными.
sdelaypechi.ru
Пиролизная печь своими руками — основные преимущества отопительного
Экологичная усадьба: Узнаем каков принцип работы пиролизных печей и как они устроены. Возможен ли такой вариант, как пиролизная печь своими руками?
Вряд ли стоит говорить о том, что в регионах, где самым доступным топливом были дрова или уголь, большой популярностью пользовались твердотопливные котлы и печи.
Тот, кто хотя бы раз сталкивался с этим видом нагревательных приборов, знает, насколько они неудобны. Конечно, в любой момент их можно заменить, к примеру, электрическими аналогами, но это не выход из положения. Ведь электричество сегодня — самый дорогой энергоноситель.
Все решилось, как всегда, достаточно просто. На рынке появились пиролизные печи и котлы. Каков принцип их работы, и как они устроены? Возможен ли такой вариант, как пиролизная печь своими руками?

Что такое пиролиз?
Начнем именно с этого вопроса, потому что он заложен в принципе работы такой печи. Пиролиз — это медленное сжигание топлива при не очень высоких температурах (200–800С) и малом количестве кислорода. Если рассмотреть, как сгорают те же дрова, то они практически не горят. Этот процесс правильнее назвать тлением.
Кстати, специалисты нередко называют такое горение сухой перегонкой. В процессе тления дрова разлагаются на два элемента — древесный кокс (это твердая часть) и пиролизный газ. Вся эта схема была задумана лишь для того, чтобы получить именно газ, который в дальнейшем по технологии смешивается с кислородом и сжигается в соседней камере. При этом создается очень высокая температура, которая и идет на обогрев помещения.
Удивительно то, что сам пиролизный газ связывается с углеродом, и этот химический элемент тоже участвует в процессе горения. А это приводит к тому, что выходящий из печи дым практически не содержит вредных для окружающей среды химических веществ. Заметим, что и кокс не является отходом производства. Он прекрасно горит, выделяя определенное количество тепловой энергии. Так что действие такой печи двойное.
Необходимо отметить еще один очень интересный факт. Процесс пиролиза является экзотермическим. Это значит, что выделяемое при сгорании топлива тепло идет не только на обогрев помещения, но и на просушку дров, а также пиролизного газа. А вы прекрасно осведомлены о том, что чем ниже влажность топлива, тем оно эффективнее выделяет тепловую энергию.
Достоинства и недостатки пиролизных печей
К сожалению, недостатков у этих агрегатов хватает, хотя они обладают достаточно весомыми преимуществами. С них и начнем.
Достоинства
- Высокий коэффициент полезного действия. По сути, это печи длительного горения. Если правильно разместить дрова в камере сгорания, то они могут тлеть там от 8 до 48 часов. Все зависит от размеров топки.
- Из первого следует второе — возможность длительной работы в автономном режиме. Этим качеством не отличаются обычные твердотопливные котлы.
- В угарных газах низкий процент канцерогенных веществ.
- В печах длительного горения можно вместо дров и угля использовать различные отходы. Примеру, куски ДСП или ДВП, пластик или резину, отходы сельского хозяйства — стебли и листву растений, початки и прочее.
Внимание! Очень важный момент при выборе вида топлива. В нем не должно быть большого количества различных негорючих примесей. 30% — это максимальный предел.
Недостатки
Печь в работе
Печи и котлы длительного горения заводского производства — слишком дорогое удовольствие. Вот почему многие домашние мастера изготавливают их своими руками. Кстати, качество самодельных агрегатов ничуть не ниже заводских. Конечно, внешний вид намного уступает, но КПД не ниже.
- Достаточно большие размеры отопительного прибора.
- Особые требования к топливу. Считается, что используемые дрова должны быть сухими, в противном случае пиролизный процесс не происходит. А это — снижение КПД. По сути, пиролизный газ смешивается с влажными парами, поэтому и не сгорает полностью. Он просто с угарными газами и дымом выходит через дымоход на улицу.
- К сожалению, печи и котлы такого типа привязаны к сети переменного тока. Самостоятельно обеспечить себя хорошей тягой они не могут, поэтому в конструкцию агрегата встраивается вентилятор.
Устройство пиролизной печи
Основная особенность конструкции печи длительного горения — это наличие двух топок. В первую топку закладываются дрова, которые там и тлеют, выделяя пиролизный газ. Последний поступает во вторую топку, куда принудительно подается свежий воздух. Полученная воздушно-газовая смесь там и сгорает.
Обе топки разделяет металлическая перегородка с зазором для прохождения газа и дыма. Как было сказано выше, для увеличения тяги в дымоход устанавливается вытяжной вентилятор. Есть и другая модель, в которой вентилятор устанавливается около второй камеры сгорания. Он обеспечивает подачу кислорода и вытяжку угарных газов в принудительном порядке.
Рабочая схема печи

Схема котла
Возвращаемся к теме нашей статьи. Самостоятельно собрать печь длительного горения пиролизного типа очень сложно. Для этого вам потребуется внушительный список материалов. Да и навыки работы с определенными инструментами также пригодятся. К примеру, вы должны быть профессиональным сварщиком. Добавим, что для изготовления такого котла вам придется изрядно раскошелиться. Но даже это будет в несколько раз дешевле, чем приобретение агрегата заводского исполнения.
Перед тем как приступать к реализации намеченного плана, рекомендуем найти в интернете схему конструкции, рассчитать ее мощность и только после этого переходить к подготовительным работам. Самая распространенная схема пиролизного котла — это агрегат Беляева мощностью 40 кВт. Он обеспечит теплом достаточно большой частный дом. Но это лишь один вариант. Даже котел Беляева можно немного видоизменить, чтобы снизить или увеличить производительность отопительного прибора. К примеру, можно немного уменьшить или расширить топку.
Следует отметить один интересный факт. Очень часто в печах длительного горения в качестве теплоносителя используется не жидкость, а воздух. Для этого по всем помещениям дома устраивается трубопровод, по которому и движется горячий воздух. Данная конструкция прокладывается или по потолку, или по стенам. Обратка располагается у пола, и в ней охлажденный воздух движется самотеком к печи. Очень даже эффективная схема, особенно, если хозяева редко посещают загородный дом. В таком варианте теплоноситель никогда не замерзает.
Установка пиролизного котла

Установка котла
Внушительный вес пиролизной печки требует прочного и надежного основания, на которое она будет устанавливаться. Поэтому хороший фундамент — главное требование монтажного процесса. Все остальное будет касаться правил пожарной безопасности, которые надо строго соблюдать.
Поэтому:
- Под печь длительного горения организуется отдельное нежилое помещение. Это будет котельная.
- На полу перед камерами сгорания укладывается металлический лист толщиной 2 мм.
- Зазор между стенами и котлом должен быть не меньше 20 см.
- Обязательно наличие в котельной окна минимальной площадью 100 см². Именно через него будет поступать свежий воздух.
Внимание! Дымоход, проложенный через неутепленный чердак, нужно обязательно утеплять. Если этого не сделать, на внутренних стенках дымоходной трубы начнет оседать конденсат. Смешавшись с сажей, он образует деготь. Все это снижает сроки эксплуатации дымохода и уменьшает его внутренний диаметр.
И еще один момент, на который нужно обратить внимание. Изготовление печи длительного горения своими руками требует точного определения коэффициента полезного действия. Если он невысокий, то гарантировать эффективную тепловую отдачу невозможно. Поэтому еще на стадии запуска необходимо обратить внимание на выходящий из дымохода дым. Вы уже по запаху сможете определить, сколько в нем угарных газов. Если их небольшое количество, то КПД вашего котла достаточно высок. Кстати, рекомендуем провести такое тестирование на всех мощностных режимах.
Печь или котел?

Выбираем отопление
Сегодня достаточно много споров вокруг, как нам кажется, пустякового дела. А вопрос ставится так — называть ли металлический пиролизный котел печью? Вообще, ситуация не самая тупиковая. Все зависит от того, как удобно вам. Хотя многие считают, что котел должен устанавливаться в систему водяного или воздушного отопления. А печь должна работать как отопительный прибор по типу радиатора. А что вы скажете про печи с водяным контуром? Ведь их тоже врезают в систему трубной разводки водяной отопительной схемы.
Но не будем зацикливаться на этом вопросе. Просто рассмотрим, как можно сделать своими руками кирпичную печь, работающую по пиролизному принципу.
Начнем с того, что производители пиролизных котлов считают проблемой изготовление агрегата мощностью меньше 15 кВт. Поэтому в продаже таких экземпляров вы не найдете. А что же делать хозяевам небольших дач и коттеджей? Вот тут-то приходит на помощь та самая пиролизная печь из кирпича длительного горения. По сути, это все тот же котел, только в виде печки, собранной из кирпича.
Важность данной конструкции состоит в том, что в ней необходимо не только выполнять требования принципа пиролиза, но и учитывать высокие тепловые нагрузки на кирпичные стенки. Поэтому правильно проведенная футеровка камер сгорания является основным и жестким требованием, которое увеличивает срок эксплуатации агрегата.
Сама печь длительного горения собирается, как обычная печка, только с двумя соседними топками. Они разделяются кирпичной перегородкой, в которой снизу установлены колосниковые решетки из чугуна. В одной камере сгорает древесина, а во второй — пиролизный газ, который затягивается в топку с помощью вентилятора. Здесь же происходит его обогащение кислородом, который поступает сюда через вентиляционный канал, установленный в полу камеры сгорания.
В перегородке меду камерами делается воздушный коллектор, по которому угарные газы и тепловая энергия поступают в еще одну камеру с теплообменником. А далее все оставшиеся продукты сгорания топлива направляются в дымоход.
Заключение
К сожалению, твердотопливные котлы постепенно уходят из употребления. Многие жители городов и деревень в погоне за удобствами стараются использовать газовые или электрические отопительные агрегаты. Основная причина — автономность эксплуатации. Но с достоинствами этих приборов мы теряем большее. Уют и тепло дома всегда создавала печь, в которой потрескивали дрова. Да и явная экономия налицо, так что стоит еще раз задуматься над выбором. Тем более, выезжая за город в свой небольшой домик, мы стараемся найти в нем успокоение и уединение. А такие мелочи, как потрескивание дров, помогают в этом. опубликовано econet.ru Если у вас возникли вопросы по этой теме, задайте их специалистам и читателям нашего проекта здесь.
P.S. И помните, всего лишь изменяя свое потребление — мы вместе изменяем мир! © econet
econet.ru
Пиролизная печь своими руками: чертежи и принцип работы
Здесь вы узнаете:
Твёрдотопливное отопительное оборудование будет востребовано всегда. Есть места, где газ может никогда и не появиться. В отдельных населённых пунктах проведение газа в планах на ближайшие 10-15 лет. Некоторым людям просто нравится топить дровами, а кто-то использует дровяные печки для обогрева бань. Пиролизная печь станет идеальным вариантом для обогрева помещений любого назначения. Её можно сделать из металла или кирпича. О процессе изготовления расскажет наш обзор-инструкция.
Как работает пиролизная печь
Для начала мы рассмотрим принцип работы пиролизной печи. В традиционных дровяных печках используется принцип прямого сгорания топлива. Загруженные в камеру сгорания (топку) дрова поджигаются и начинают испускать тепловую энергию. Эта энергия нагревает стенки агрегата, после чего проникает в обогреваемые помещения. Продукты сгорания сразу же улетают в дымоход. Вместе с этим туда улетают ещё 10-15% тепла.
Недостаток обычной печи заключается в больших тепловых потерях. Продукты сгорания улетают в дымоходную трубу раскалёнными, в них полно тепла, которое можно собрать и отправить на обогрев. В самом простом случае пользователи удлиняют трубу, делая горизонтальный участок более длинным – он проходит через всё помещение. Тем самым производится уменьшение тепловых потерь.
Пиролизные печи устроены несколько по-другому. В них две камеры – в первой осуществляется сгорание топлива, во второй производится дожигание продуктов сгорания. В процессе горения древесины выделяются продукты пиролиза – это горючие газы, сгорающие при высокой температуре. Для их сжигания требуется вторичный воздух – он поступает в камеру дожигания, смешивается с пиролизными газами, в результате чего происходит воспламенение данной смеси.

Пиролизные печи длительного горения – оптимальное оборудование для вашего дома, дачи или бани.
Преимущества пиролизных печей:
- Более высокая эффективность, по сравнению с традиционными печами – процесс пиролиза позволяет выделить из аналогичного количества древесины более высокое количество тепла.
- Возможность управления процессом сгорания – регулируя тягу или подачу воздуха через поддувало (и подачу вторичного воздуха), можно задать определённую интенсивность горения, выставляя нужный температурный режим.
- Длительное горение – обычно пиролизные печи оснащают большими топками, куда вмещается весомое количество дров. Продолжительность горения обеспечивает и возможность управления этим процессом (диапазон регулировки составляет от 10 до 100%, в зависимости от конструкции).
- Экономия топлива – при не самом сложном устройстве, пиролизные печи экономят до 10-15% дров.
- Широкий спектр применения – начиная от бань и заканчивая жилыми домами.
Основные виды печей
Пиролизные печи для отопления дома и бани подразделяются на две большие категории. В первую категорию входят металлические печки, изготавливаемые из листового металла или старых газовых баллонов. Ко второй категории относятся кирпичные агрегаты, более громоздкие, но и более эффективные в эксплуатации. Плюс металлических печей – лёгкость сборки. Плюс кирпичных печек – длительное сохранение тепла и его мягкая отдача.
Как изготовить пиролизную печь своими руками
Для начала мы разберёмся с процессом изготовления простой пиролизной буржуйки. В качестве основы возьмём следующий чертёж:

Это самая простая буржуйка с дымооборотами. Никакого пиролиза здесь нет, но это не проблема – для его организации нам нужно реализовать подачу в первый дымооборот вторичного воздуха.
Делается эта печь по следующей схеме:

Парочка металлических трубок для подачи воздуха – и обычная дровяная печка превращается в пиролизную.
Как сделать металлическую печку
Переносная пиролизная печь своими руками – это очень просто. Убедитесь в этом, ознакомившись с чертежами в нашем обзоре. Для её сборки вам потребуется листовое железо. Мы рекомендуем выбрать листы толщиной 3-4 мм, что необходимо для продления срока службы агрегата. Тонкое железо быстро прогорит, эффективность печки начнёт падать. Год-два такой эксплуатации – и её можно будет выбрасывать на свалку.
Кстати, если вам нужна пиролизная печь для бани, обратите внимание на следующую схему – здесь мы видим увеличенную камеру сгорания, всё те же дымообороты, только в самой верхней части располагается каменка.

Конструкцию печки необходимо доработать так, чтобы её топка выходила в соседнее помещение, а не в парилку (она выступает вперёд).
Приступая к сборке банной или пиролизной печи своими руками, подготовьте листы железа и разметьте их в соответствии с нашей первоначальной схемой. Корпус печи состоит из шести металлических пластин, ещё две образуют дымообороты. Также нужно собрать колосниковую решётку – для решения этой задачи воспользуйтесь арматурой диаметром 12-15 мм. Решётка крепится на расстоянии 80 мм от дна печи с помощью сварки.
Самая сложная задача – подготовить дверки. Вырежьте отверстия в листе, предназначенном для передней стенки, сохраните вырезанные куски. Приварите по периметру этих кусков отрезки листового металла шириной 2 см, приваривая их с наружной стороны. В результате мы получим плотно закрывающиеся дверки. Их останется оснастить петлями и простейшими крючками для фиксации.
Если не хочется возиться с самодельными дверцами, купите готовые дверки для изготовления дровяных печек.
Пиролизные печи для отопления дома должны отдавать максимум тепла. Именно для этого нужны дымообороты. Смонтируйте их в соответствии с вышеуказанной схемой. Теперь остаётся проделать в задней стенке отверстия и вварить в них трубки для подачи горячего воздуха. Заключительные этапы сборки:
- Вваривание отрезка трубы диаметром 100 мм в верхнюю крышку – к ней будет подключаться дымоход.
- Приваривание дверных петель к корпусу.
- Подготовка ножек – выполните их из отрезков дюймовой металлической трубы.
Наша самодельная пиролизная печь на дровах готова. Она получилась компактной – тем самым обеспечивается лёгкость её транспортировки с места на место. Установите её на негорючем основании, подключите дымоход и запускайте.
Банная модель делается следующим образом. Удлините топку, вынеся дверцы вперёд, а дымоборороты оставьте прежними. В верхней части сделайте ёмкость для каменки – сюда укладываются камни, удерживающие и отдающие тепло в парилку. Печка готова – теперь смонтируйте её в бане и приступайте к банным процедурам.
Как сделать кирпичную печку

Также вам потребуется подходящая по размерам и мощности порядовка. Отыскать нормальную порядовку в интернете – целая проблема, в открытом доступе присутствуют только традиционные печки. Рекомендуем заказать её разработку у специалистов или опытных людей.
Металлическая печь отличается лёгкостью в сборке. При наличии подходящего железа её раскрой и сборка займут максимум несколько часов. А вот пиролизная печь из кирпича не отличается лёгкостью в изготовлении. От вас понадобятся:
- Огнеупорный кирпич для выкладки отопительного агрегата.
- Специальная огнеупорная цементная смесь – она должна выдерживать до +1500 градусов.
- Опыт в кладке кирпича – если его нет, обратитесь за помощью к более опытным людям.
Кирпичная пиролизная печь представляет собой аналог обычной металлической печки. Только по размерам она получается большой и сложной. Чем больше кирпича, тем мягче и лучше теплоотдача. Никаких особых конструкционных особенностей здесь нет. Сгорание дров производится в основной камере сгорания (топке). Полученные продукты пиролиза отправляются в камеру дожигания. Для её работы в конструкции печи предусматриваются отверстия для подачи вторичного воздуха. Они оснащаются дверцами, регулировка их просвета позволяет отрегулировать интенсивность горения.
Некоторым спросом пользуются пиролизные агрегаты с нижним горением. Дрова горят/тлеют в основной камере сгорания, в продукты пиролиза вытягиваются через колосниковую решётку вниз, в камеру дожигания. Сюда же подаётся вторичный воздух, что вызывает интенсивное горение. Тяга реализуется естественным или искусственным путём. В первом случае печи оснащаются эффективными дымоходами, а во втором случае сюда ставятся дутьевые вентиляторы.
Внутренняя часть печи, где происходят горение и пиролизная реакция, создаются из шамотного кирпича. Он выдерживает нагревание до +1000 и более градусов, не трескаясь и не лопаясь от жара. Все остальные слои изготавливаются из обычного красного кирпича. Дымоход может быть кирпичным или металлическим. Дверцы приобретаются в специализированных магазинах. Эксплуатация кирпичной пиролизной печки порадует длительным горением и приятным теплом, сохраняющимся даже после её затухания.
Модернизация печки

Дутьевой вентилятор обеспечит стабильность температурного режима во всех обогреваемых помещениях.
Почти любую пиролизную печь можно превратить в котёл для водяного отопления. Для этого внутрь встраиваются готовые или самодельные (из металлических труб) теплообменники. В комнатах устанавливаются радиаторы, в систему заливается вода – полноценное отопление готово.
Для этих целей лучше всего приспособить пиролизную печь с дутьевым вентилятором – оснастите её внешним блоком управления, отслеживающим температуру и управляющим работой вентилятора.
Варочные панели и встроенные духовые шкафы – вот чем ещё можно оснастить любую печь. Энергии пиролизного горения хватит не только на обогрев, но и на приготовление еды. Варочные поверхности и коробки духовых шкафов приобретаются в специализированных магазинах. Духовку можно изготовить самостоятельно из листового железа. Что касается варочных поверхностей, то они делаются из чугуна – самому такое не сделать.
remont-system.ru
Из чего и как сделать пиролизную печь своими руками
Перед каждым владельцем загородного дома возникает вопрос о выборе отопительной системы.
Главным критерием отбора является энергоресурс, а также стоимость сооружения и обслуживания системы. Альтернативным вариантом на сегодняшний день являются пиролизные печи. С каждым годом популярность таких конструкций стремительно возрастает.
Особенность пиролизной печи заключается в том, что она работает на твердом топливе, которое признано самым экономичным энергоресурсом на сей день. Эти печи — подходящий вариант для отопления загородного или частного дома. К тому же, пиролизную печь можно легко соорудить своими руками.
Принцип работы и преимущества
Принцип работы пиролизной печи
В основе конструкции лежит пиролиз – процесс газогенераторного горения. При сгорании топлива осуществляется подогрев помещения.По принципу работы такие печи напоминают котел с сухой перегонкой. Тепловая энергия, выделяемая при сгорании топлива, используется для подогрева воздуха.
Твердое топливо поджигают и закрывают в печи. При этом в работу вводится вентилятор, в результате чего горение происходит при минимальном количестве кислорода.
Это приводит распаду топлива на древесный кокс и пиролизный газ. При соединении с кислородом газ начинает гореть интенсивно, в результате чего выделяется большое количество тепловой энергии. Ее достаточно будет как для обогрева помещения, так и для нагрева воды.
К преимуществам пиролизной печи относят:
- высокий КПД, что выражается в контроле силы и длительности горения;
- экономия топлива;
- использование в качестве топлива отходов древесной промышленности;
- отсутствие вредных веществ в продуктах горения.
Все эти достоинства и объясняют рост популярности современных пиролизных печей. Основным же достоинством конструкции является то, что ее можно изготовить собственными руками. Главное – иметь под рукой чертеж такой печи и определенные материалы. Каждый мастер сможет облагородить и отопить свой дом с помощью такой печи.
Схема и составляющие

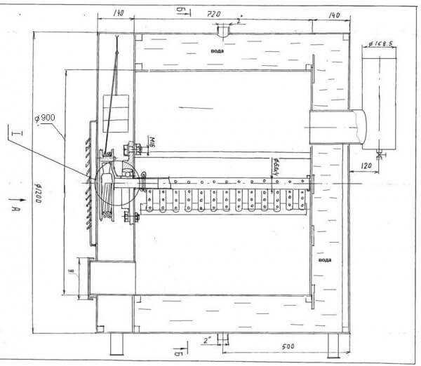
Устройство пиролизной печи. (Для увеличения нажмите)
Конструкция печи довольно проста. Она состоит из двух камер сгорания. С помощью этих камер поддерживается пиролиз в процессе горения.Первая камера используется для загрузки твердого топлива, она плотно закрывается, что позволяет предотвратить попадание кислорода в зону горения.
При горении топлива без участия кислорода выделяется пиролизный газ, который передается в следующую камеру. Именно в ней проводится дожигание газа. Чтобы улучшить процесс горения, во вторую камеру пускают вторичный газ.
Традиционная печь состоит из таких функциональных элементов и узлов:
- камеры газификации;
- колосниковой металлической решетки;
- камеры, в которой проводится дожигание топлива;
- системы подачи воздуха.
При сборке пиролизной печи своими руками стоит учесть наличие всех конструктивных элементов. Если в системе будет отсутствовать хоть один из перечисленных узлов и камер, то печь не будет работать, так как надо.
Варианты самостоятельной сборки
Пиролизная печь из металлической бочки
Пиролизные печи стоят довольно дорого, поэтому многие хозяева задумывают над тем, как изготовить ее собственными руками.Самодельные конструкции могут быть выполнены из различных материалов, таких как газовый баллон, консервные банки, бочки, кирпичи и многое другое.
В зависимости от материала производства, все печи условно делятся на:
- каменные;
- металлические.
Каменные или кирпичные печи используются крайне редко. Это связано с тем, что для ее сооружения понадобится немало капиталовложений и времени.
Конечно, за последнее время такие конструкции прошли некоторые модификации, что позволило значительно увеличить их эффективность. Что касается металлических печей, то они пользуются особой популярностью. Дело в том, что их можно изготовить даже из старого газового баллона или бочки.
Пиролизная печь Лачинянка
В зависимости от принципа работы, используемого топлива и материала все печи делятся на такие виды:- печь, работающая на обработанном масле;
- печь Кузнецова;
- Лачинянка;
- печь Булерьян;
- Бубафоня.
Принцип работы всех этих конструкций один – дожигание газа, который выделяется из топлива. Но, при выборе конструкции стоит учесть некоторые особенности каждого вида.
Так, печи, которые работают на отработанном масле, нежелательно использовать в бане и других жилых помещениях. Они оптимально подойдут для отопления гаража и других нежилых помещений.
Конечно, стоит учесть, что небольшие печи, работающие на отработанном масле, обладают высокой продуктивностью. Для работы понадобится всего лишь кружка масла.
Из кирпича
Для строительства кирпичной печки понадобится:
Имея под рукой такие материалы и инструменты, можно соорудить печь своими руками. Конечно, не стоит забывать о некоторых нюансах, от которых будет зависеть прочность и эффективность работы отопительной конструкции.
Если вы остановили свой выбор на кирпичной печи, то процесс сооружения будет выглядеть так:
- Расчистка места и установка фундамента. Оптимальным вариантом станет ленточный фундамент. Он должен обладать высокой прочностью.
- После того, как фундамент застынет, можно приступать к кладке кирпича. Для этого используют высококачественный огнеупорный кирпич, который обладает высокой прочностью.
- Внутри печь выкладывается шамотным кирпичом, который выдерживает высокие температуры.
- Установка дымохода. Лучше всего здесь использовать металлические вставки или же керамические конструкции.
- Все работы проводятся согласно предварительно начерченному плану, который лучше согласовать со специалистом.
Имейте в виду: к кладке дымохода нужно подойти с большой ответственностью и лучше заранее проконсультироваться с профессионалом печного хозяйства.
При необходимости можно провести декорирование конструкции. Для этого часто используют облицовочный кирпич, камень и другие материалы, которые способны выдерживать большие температуры.
Из газового баллона
Металлическую пиролизную печь часто изготавливают из старых газовых баллонов, и она имеет название Бубафоня.
Особенность печи Бубафоня заключается в том, что она может использоваться на разном топливе.
Чтобы изготовить такую конструкцию собственными руками, понадобятся инструменты:
- молоток;
- болгарка;
- сварочный аппарат и электроды;
- пассатижи.
Процесс изготовления печи Бубафоня проводится в такой последовательности:
- Срезать верхнюю выпуклую часть баллона.
- В центре устраивается отверстие для воздуховода.
- Вверху корпуса баллона, делается отверстие для дымохода.
- Изготовить газорассекатель с трубой, через которую во вторую камеру будет подаваться кислород.
- Приварить дымоход.
Будьте внимательны: срезайте верхнюю часть баллона ниже или выше сварочного шва, так как соединительный шов изнутри укреплен металлической пластиной, что может усложнить распил.
Как видно, изготовить печь из газового баллона можно легко своими руками. Но стоит особое внимание уделить резке баллона. Перед тем как приступать к работе с болгаркой, необходимо увериться в том, что в баллоне нет остатков газа, для этого баллон полностью заполняют водой.
Советы по эксплуатации
Чтобы обеспечить нормальное функционирование печи, необходимо следовать некоторым советам профессионалов:
- Для отопления используют твердое топливо, влажность которого не должна быть больше 20%.
- Дымоходная труба металлической печи должна быть съемной, что позволит легко произвести очистку от сажи и конденсата.
- В процессе эксплуатации печка нагревается до высоких температур, поэтому возле нее не должно быть горючих предметов и конструкций.
- Изучить режимы работы печки, что позволит выбрать оптимальный вариант.
Соблюдение всех этих советов даст возможность обеспечить длительный срок эксплуатации печи. И не забывайте о том, что особое внимание стоит уделить правилам пожарной безопасности.
Смотрите видео, в котором специалист разъясняет, как сделать небольшую пиролизную печь своими руками из консервных банок:
Вконтакте
Google+
Мой мир
6sotok-dom.com
Гидролизный котел отопления — характеристики, особенности и советы по выбору. Печи гидролизные
для отопления дома, газ и гидролизный котел длительного горения, печи пиролиза на дровах
Пиролизные печи относятся к печам длительного горенияПиролизная печь сегодня имеет много преимуществ. Они-то и сделали ее установку настолько популярной. Печь, не требующая постоянной загрузки в нее топлива, и справляющаяся с обогревом даже не маленького дома, сейчас не мечта, а реальность. Такую печь можно сделать самостоятельно, если знать последовательную схему ее сборки, а можно и купить готовую в магазине.
Используем пиролизные печи для отопления дома или бани
Одним из вариантов экономного расходования топлива является использование печей или котлов долгого горения. На одном и том же количестве топлива они работают на много дольше, чем другие виды отопительных приборов. К печам длительного сгорания относятся и новые пиролизные печи.
Сейчас пиролизные печи начинают становиться более актуальными, и все чаще и чаще используются для обогрева частных домов
В основе действия этих печей состоит принцип процесса пиролиза – термического разложения любых органических веществ на пиролизные горючие газы и твердые остатки. После данного процесса, при высокой температуре, полученный пиролизный газ перемешивается с кислородом. Согласно законам химических реакций, это способствует практически полному сгоранию и самого газа, и топлива.
Если на каком-то этапе отделить от состава твердые остатки, то, как не странно, получится кокс, а оборудование можно назвать углевыжигательной печью. При отоплении же основной обогрев воздуха получается за счет выхода тепла при сгорании пиолизного газа, смешанного с воздухом.
Преимущества пиролизных печей:
- Высокая экономичность печи. Топлива здесь сгорает более тщательно, и тепла из него добывается на много больше.
- Экологическая безопасность. Она достигается за счет того, что в выходящих из дымохода газах очень присутствует очень маленькое количество вредных веществ.
- Достаточно быстрый разогрев.
- Высокий КПД (до 85%), Который выгодно отличается от обычных котлов.
- Большой интервал мощности (тепловой). Данная печь может работать и на 5 и на 100 процентов своей способности.
- Возможность подключения к устройству любого из контуров отопления.
- Дает возможность применения различных видов топлива, (вплоть до сырых дров, автопокрышек и мусора.
- Требует минимальное участие человека в своей работе
К недостаткам можно отнести достаточно большие размеры, наличие площадки для запасов топлива, присутствие посторонних запахов при сжигании мусора, необходимость в вентиляции помещения, скапливание в выходном канале, а также дымоходе конденсата.
Что такое пиролизный газ
Пиролиз древесины – это изменение структурного состава древесинного вещества при воздействии температуры. Этот процесс относится к изотермическим, то есть, высвобождающим тепло.
В результате пиролиза, древесина разлагается на:
Продукты пиролиза древесины в свою очередь горючие вещества. Именно эти вещества, сгорая, выделяют тепло, как конечную цель самого процесса их термообработки.
Пиролизные печи длительного горения
Среди всех металлических котлов и печей самой большой популярностью на сегодня пользуются отопительные приборы, имеющие функцию длительного сгорания. Данные устройства очень экономичны, а также особо просты в эксплуатации. Они идут и для небольших дачных помещений, и для домов с постоянным проживанием.
Одним из вариантов экономии топлива является применение печей или котлов длительного горения
На рынке сегодня есть множество разнообразных моделей пиролизных котлов и печей, в том числе и фирмы «Самогрейка», но вполне реально такой прибор сделать и самостоятельно.
К особенностям данного отопительного прибора относятся:
- Большой объем топки и увеличенных размеров дверка для закладки топлива. Это позволяет сразу уложить много дров или других материалов.
- Разделение топки на два отсека. Один из них предназначен для тления дров, в другом происходит процесс сжигания газов.
Наличие отбойника огня от дымохода. В простонародье он называется зубом и выглядит в виде пластины, которая приварена к верху топки. Она препятствует попаданию пламени в трубу.
У простого котла функция отопления состоит из повышения температуры самой печи и помещения, а также следующей за этим отдачей потом тепла с разогретой уже поверхности. Топливо здесь сгорает достаточно интенсивно. Если печка металлическая, это оказывается очень неудобным. Топливо не сгорает совсем все. Его нужно постоянно подбавлять, а температура в доме то поднимается, то падает. В печке длительного горения процесс происходит иначе. Простая печка поджигается снизу, а уже потом огонь в ней идет наверх и по сторонам. Пламя образовывается большое, дрова очень быстро прогорают, оставляя много углей. Так происходит потому, что в печь постоянно открытый доступ воздуха. Приборы же длительного горения работают иначе – дрова поджигаются сверху, а затем уже пламя распространяется вниз. И лишь на то место (горелка), где горят дрова, распространяется воздух. Процесс горения не слишком интенсивен, больше похож на тление. Одновременно выделяется намного меньше тепла. Тепло воздуха в помещении остается на одном уровне. Кроме самих дров, в печи сжигается и пиролизный газ, образующийся во время тления дров. Он перемещается во вторую камеру, где усиленно мешается с воздухом. В результате этого продукты вторичного сгорания можно сказать не содержат вредных веществ, а КПД печки значительно повышается, способствуя снижению расходов на отопление.
Самодельная бездымная печь своими руками
Способные и талантливые специалисты могут изготовить пиролизную печку своими руками. Однако, на практике, это требует больших знаний, умения и опыта. Кроме того, смельчакам, отважившимся на такое изобретение, следует знать, что на практике есть несколько подводных камней, о которые разбилось уже немало самодельных устройств.
Для выполнения работ вам необходимо наличие следующего инвентаря:
- Сварочного аппарата;
- Грамотно разработанного чертежа;
- Опыта работы непосредственно в печном деле.
Однако, даже наличие всего этого не даст полной гарантии успеха в выполнении задуманного. Для работы необходимы еще и хорошие, высококачественные материалы, а их стоимость сейчас довольно велика. Главным образом это касается металлической части, где обязательно должна использоваться хорошая легированная сталь. В добавок ко всему, данный агрегат имеет и электронную систему, без которой невозможен процесс управления устройством. А без него работа прибора не будет иметь смысла. Поэтому, прежде, чем принять решение об изготовлении пиролизной печи самостоятельно, стоит хорошенько обдумать все нюансы. Построить рабочую модель такой печи реально, вот только КПД у нее будет значительно ниже, чем у качественного промышленного образца, и ваше устройство не окупится
rinnipool.ru
