Изготовление коптильни холодного копчения своими руками: Коптильня холодного копчения своими руками: чертежи и варианты
устройство и пошаговая инструкция для самостоятельного изготовления
Вряд ли найдется человек, который не любит копчености. Специфический аромат и вкус продуктов, прошедших подобную обработку, привлекает не только искушенных гурманов, но и самых неприхотливых людей. Многие владельцы дач или частных домов с удовольствием готовили бы продукты самостоятельно, но не имеют достаточных средств на покупку коптильни. Однако, эта проблема вполне решаемая, надо лишь изучить вопрос и запастись нужными материалами.
Что такое холодное копчение
Холодное копчение — это процедура обработки соленых или маринованных продуктов дымом от тлеющей щепы.
Холодное копчение отличается от горячего копчения более низкой температурой — около 30°, что требует более длительного времени для обработки. Для получения дыма с такими параметрами используется длинный дымовой канал или трубопровод. Во время прохождения по нему, дым теряет высокую температуру. Он поступает в шкаф с развешанными продуктами, имея заданную температуру.
Длина соединительного канала может достигать десятка метров, что представляет основную проблему холодных коптилен.
Традиционным вариантом конструкции являлся костер и неглубокая траншея в земле, ведущая к коптильному шкафу. Обычно, размеры дымохода определялись величиной штыка лопаты, как в глубину, так и в ширину. В костре тлела щепа. Его накрывали крышкой, траншею также закрывали любыми листовыми материалами. Дым проходил по ней в коптильный шкаф и обрабатывал продукты, развешанные внутри.
Мнение эксперта
Левин Дмитрий Константинович
Эта технология используется и поныне, так как для нее не требуется никаких особых материалов, а охлаждение дыма в грунте происходит весьма эффективно.
Современные конструкции дымогенераторов позволяют получить длительное и равномерное тление щепы. Длинный дымоход уже не требуется, поэтому используют относительно короткий соединительный шланг. Появляется возможность производить копчение в небольших помещениях с хорошей вентиляцией, вплоть до городских квартир.
Температурный режим
Температурный режим — предмет постоянных споров среди специалистов. Одни утверждают, что с увеличением температуры уменьшится время копчения. Другие возражают, что от этого изменится вкус и общее состояние продукта, он станет менее плотным, потеряет важные микроэлементы и витамины.
Разные продукты нуждаются в наличии определенных условий и времени для процедуры:
| Продукты | Температура копчения | Длительность обработки |
| Свинина | 22° | 4-5 суток |
| Домашняя колбаса | 20° | 3 суток |
| Сало | 23° | 2-3 суток |
| Рыба | 25° | 0,5 суток |
| Курица | 30° | 2-3 суток |
Время копчения является самым проблемным моментом, так как необходимо следить за ходом процесса, обеспечивать ровный режим подачи дыма, контролировать качество обработки. Большая длительность процедуры вынуждает людей на время отказываться от других работ, посещения каких-либо мероприятий. Поэтому стараются загружать в коптильню сразу большое количество продуктов, чтобы максимально увеличить эффективность затраченного времени.
Какой способ копчения Вам нравится больше?
ХолодногоГорячего
Преимущества и недостатки холодного копчения
К достоинствам холодного копчения принято относить:
- продукты приобретают отменный вкус, специфический аромат, приятный желтоватый цвет;
- копчености не теряют витамины и микроэлементы, которые разрушаются во время тепловой обработки или горячего копчения;
- плотность продуктов не уменьшается, они не разваливаются, как это происходит при горячем способе обработки;
- появляется возможность сохранять продукты в течение достаточно длительного времени.
Недостатки холодного копчения:
- большая длительность процесса;
- коптильня представляет собой громоздкое сооружение, которое требует места на участке;
- в течение всего времени обработки приходится находиться рядом и контролировать процесс, следить за равномерностью тления щепы и отсутствием конденсата.
Несмотря на некоторые недостатки, холодное копчение остается любимым и востребованным видом обработки мяса, рыбы, сала и других продуктов.
Устройство коптильни

Конструкция коптильни представляет собой комплекс, состоящий из трех основных элементов:
- камера для сжигания топлива или дымогенератор;
- коптильный шкаф;
- дымовой канал, соединяющий эти узлы.
Конструкция коптильного шкафа практически одинакова в любом варианте. Это любая емкость (закрытый ящик или металлическая бочка), в которой развешивают соленые или маринованные продукты. Размеры шкафа подбирают соответственно объемам обрабатываемых продуктов. Обычно стараются сократить количество процедур, чтобы сэкономить время, поэтому коптильные шкафы делаются довольно большими.
Мнение эксперта
Левин Дмитрий Константинович
Есть знатоки, которые утверждают, что материал коптильного шкафа влияет на вкусовые качества и аромат продуктов не меньше, чем качество и состав тлеющей щепы. Они рекомендуют обшивать емкость изнутри тонкими досками лиственных пород дерева. Максимальный эффект можно достичь, если использовать фруктовые породы.
Дымогенератор.
Для образования дыма используют жаровню, костер или дымогенератор. Последняя конструкция самая сложная, но позволяет организовать равномерную и весьма длительную подачу дыма — щепа в дымогенераторе способна тлеть по 9 часов и более.
Выбор подходящего варианта — прерогатива пользователя. Добиться хороших результатов можно при использовании любого способа, нужен только опыт копчения продуктов.
Дымоход, или дымовой канал — самый простой элемент. Как уже говорилось, это может быть траншея или труба определенной длины, подобранной опытным путем.
При необходимости ее увеличивают, добавляя отрезки трубы или увеличивая протяженность земляного рва. Более компактные коптильни, собранные на базе дымогенераторов, имеют короткую (около 1 м) соединительную трубу.
В продаже есть готовые комплекты, которые собраны из дымогенераторов и систем контроля. Некоторые комплектуются коптильной камерой, но большинство из них представляют собой только сам генератор, без дополнительных элементов. Предлагаются разные конструкции, но они довольно дорогие. Поэтому, большинство пользователей предпочитает самостоятельную сборку коптилен.
Как сделать своими руками

В первую очередь, необходимо определиться с размерами коптильни. Это поможет выбрать оптимальную конструкцию, решить все рабочие вопросы. Основным критерием выбора величины комплекса станет количество продуктов, которое требуется обработать. Чем больше семья, тем больше пищи надо коптить. Учитывая потребности, можно выбрать величину шкафа и производительность камеры сжигания.
Следующим действием станет выбор места для стационарной коптильни. Если нет желания (или возможностей) приобретать (изготавливать) дымогенератор, проще обойтись традиционной конструкцией с дымовым каналом в земле и обычным накрытым костром. Этот вариант значительно выигрывает перед более продвинутыми системами, поскольку для его реализации ничего не нужно, кроме самого шкафа. На участке всегда найдется, чем накрыть траншею и тлеющую щепу. Использование дымогенератора позволяет перевозить его с собой на рыбалку или на охоту, но потребует хранения и обслуживания.
Сборка коптильного шкафа
Если нужна стационарная коптильная камера, ее можно построить из досок или других подручных материалов. При этом, необходимо помнить, что внутри будут находиться пищевые продукты, поэтому качество материалов должно быть соответствующим.
Для изготовления деревянного шкафа понадобятся чистые оструганные доски. Поскольку высоких температур не ожидается, можно использовать древесину хвойных пород. Надо выбрать чистые доски, без синевы или смоляных карманов. Если есть возможность, лучше использовать березовые или осиновые доски.
Березу и осину не используют на подготовку щепы для копчения. Отходы от строительства придется утилизировать, вывезти или сжечь.
Для изготовления шкафа используют обычные инструменты:
- электропила, электролобзик или ручная ножовка;
- электродрель;
- отвертка, молоток, пассатижи;
- рулетка, линейка, угольник.
Кроме этого, нужны крепежные элементы — гвозди, шурупы, иногда используются резьбовые соединения.
Этапы строительства:
- Изготовление рабочего чертежа. Составляется эскиз, перечисляются все детали с размерами и примечаниями. Это важный этап, позволяющий обнаружить и заранее исправить массу ошибок.
- Подготовка деталей. По данным чертежа делают заготовки каркаса, стенок и верхней крышки шкафа.
- Сборка. Все детали соединяются с помощью гвоздей или шурупов.
- Установка шкафа. В земле выкапывают углубления, куда помещают опорные элементы шкафа. Затем они засыпаются грунтом и тщательно трамбуются. Ножки надо предварительно гидроизолировать, обернув их рубероидом или покрыв несколькими слоями горячего битума.
- Монтаж кровли шкафа. Для защиты от осадков делают скатную крышу, или накрывают его верхнюю часть куском рубероида. Некоторые пользователи на время простоя накрывают шкаф полиэтиленом, капроновой тканью или другими материалами.
Приведенная инструкция не является единственно возможной, каждый мастер волен вносить в нее изменения, которые ему покажутся необходимыми.
Изготовление жаровни

Обычно для получения дыма поджигают щепу. Емкость, куда ее загружают, накрывают специальным коробом или крышкой, уменьшающей способность активного горения. Щепа тлеет, выделяя большое количество дыма. Самый простой способ — сделать топку, заглубленную в грунт. Она невелика, но вполне эффективна для обработки продуктов. Главная задача — обеспечить свободный проход дыма к коптильному шкафу, для чего уровень топки делают ниже, чем высота нижней части коптильни.
- В земле делают углубление, размер которого зависит от величины топки.
- Укладывают огнеупорные кирпичи, формируя основание очага. Первый ряд ничем не скрепляют.
- Выкладывают стенки и крышу очага из огнеупорного кирпича. Для соединения используют глиняный раствор.
- Устанавливают чугунную дверцу топки (подойдет стандартная модель от обычной печи).
Остается только обустроить дымоход, и коптильня будет готова.
Строительство дымового канала

Это самый простой этап строительства. В земле делают ров, глубина которого составляет около 30-40 см (на штык лопаты). Затем стенки обкладывают кирпичом, в него укладывают трубу, или оставляют стенки как есть. Последний вариант самый простой, но ров каждый год придется подкапывать снова, так как стенки будут осыпаться. Если в регионе частые осадки, лучше накрыть траншею каким-нибудь материалом и засыпать грунтом. Хорошим вариантом станет укладка листов плоского шифера или подобного материала.
Необходимо следить, чтобы в закрытой траншее не обосновались мелкие грызуны или птицы.
Оба конца траншеи должны соединяться со шкафом и очагом. Дым от тлеющей щепы должен беспрепятственно поступать в коптильню.
Первый запуск процесса
Когда процедура строительства завершается, в топку загружают партию древесной щепы или небольших чурок, поджигают их и настраивают режим горения. Проверяют эффективность поступления дыма в шкаф. Если никаких проблем не обнаружено, в емкость развешивают продукты и приступают к обработке.
Самодельная коптильня позволяет получить изысканные продукты деликатесного качества. Если конструкция не слишком сложная, практически никаких затрат на ее сборку не понадобится. Эффективность таких коптилен ничем не уступает заводским аналогам, поэтому пользователи предпочитают не тратиться понапрасну, изготавливая собственные комплексы.
Читайте также другие полезные статьи:
- Как изготовить пилораму из бензопилы своими руками: виды, необходимые материалы, описание процесса, другие варианты
- Шлифовальный станок по дереву: как изготовить своими руками дисковый, ленточный или барабанный, рекомендации по подбору материала, обзор заводских моделей, советы по уходу и обслуживанию
- Как сделать дровокол своими руками: ручной механический, пружинный, морковкой, инструкция по изготовлению устройств, каркаса и ножей
- Как сделать парник своими руками: какой вариант конструкции лучше, определяемся с материалом, выбираем нужные параметры в зависимости от планируемой культуры, а также советы и рекомендации от опытных огородников
Видео-инструкция по изготовлению коптильни холодного копчения
Коптильня холодного копчения своими руками: чертежи с размерами, видео
Копчености всегда являлись самыми распространенными деликатесами. Они легкодоступны, и каждый может купить любой вид этого кулинарного изыска. Однако, как правило, промышленная копченая продукция оставляет желать лучшего и поэтому самостоятельное копчение продуктов – это наиболее предпочтительный вариант.
Заняться копчением может каждый, так как процесс копчения незамысловат по технологии, а коптильню можно сотворить из многих доступных материалов или банально купить.
Но самые высокие качества копченых продуктов даст только изготовленная коптильня холодного копчения своими руками, которая может быть создана по нескольким вариантам.
Особенности конструкции
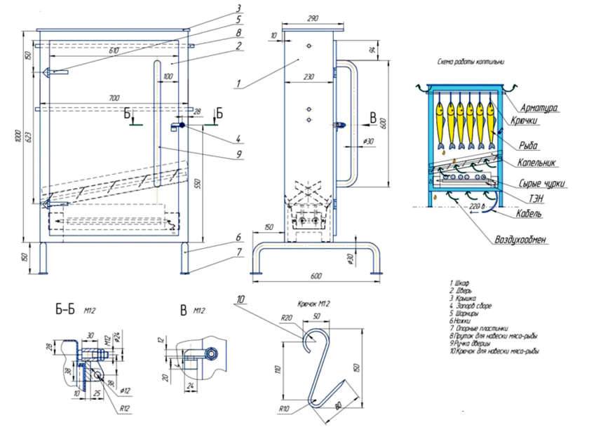
Принцип холодного варианта копчения немного отличается от технологии копчения горячего, хотя и имеет с ним много общего. Общая типовая схема коптилен холодного копчения представлена на следующем рисунке:

Этот упрощенный чертеж поясняет устройство подобных коптильных конструкций. Они состоят из следующих конструкционных элементов:
- Камера топочная. В ней непосредственно сжигаются дрова, тлеют опилки, и она является основной секцией своеобразного дымогенератора всей коптильной установки.
- Само сжигаемое топливо, то есть древесина лиственных или плодовых пород.
- Канал дымохода. Он предназначен для охлаждения дыма и подачи его в рабочую коптильную камеру.
- Основание камеры копчения. Его, как правило, сооружают из кирпича.
- Решетка из металла с мелкими ячейками в 3-5 мм. Ее предназначение – удерживать содержащуюся в дыме копоть.
- Рабочая коптильная камера. Это может быть сооружение из дерева, металла, кирпича, металлической бочки и так далее. Дно у коптильной камеры – полностью отсутствует.
- Предназначенные для копчения продукты. Их развешивают на крюках, которые в свою очередь размещаются на поперечных перекладинах.
- Перекладины для крюков.
- Крышка камеры копчения. Она должна быть с отверстиями для отвода «отработанного» дыма.
- Перфорированная крышка топочной камеры.
Важные моменты монтажа и конструирования
Проектируя коптильное устройство, необходимо учитывать определенные специфические факторы.

Кроме того, следует помнить что:
- Длина дымоходной траншеи или трубы должна находиться в пределах от min = 2 метра до max = 7 метров. Эти размеры обеспечивают наиболее оптимальную тягу и приемлемое охлаждение дыма.
- Для дымоходов меньшей длины необходимо применить принудительную тягу и дополнительную систему их охлаждения холодной водой.
- Если в качестве генератора дыма используется обычный костер, то яма для него должна быть глубиной min = 0,5 метра.
- Весь процесс копчения происходит при невысоких температурах, и поэтому продукты должны подвергаться тщательному контролю.
- В походных условиях крайне желательно коптить только горячим способом, так это занимает минимум времени и позволяет прокоптить продукты более качественно.

Ознакомившись с азами коптильного дела, можно приступить к выбору наиболее приемлемого варианта самодельной коптильни.
Варианты изготовления своими руками
Самый практичный и легко повторяемый вариант самодельной коптильни – это конструкция с использованием металлической бочки.
Коптильня из бочки
Такая коптильня является самым распространенным самодельным вариантом. Ее упрощенный чертеж представлен ниже:

Подобную конструкцию коптильни могут повторить многие, так как она абсолютно не требует специфических навыков и не содержит дефицитных материалов. Указанные размеры не критичны и могут быть выбраны совершенно произвольно.
Наиболее подходящая бочка – емкостью 200 литров.
Процесс созидания коптильной установки:
- Изначально определяется месторасположение коптильни, и выкапывается яма под топку. Ее глубина должна быть предельно максимальной, что обеспечит хорошую тягу. Стенки топки желательно выложить кирпичом иначе топочная камера явно долго не прослужит. На дно топки укладывается металлический лист, который необходим для равномерного тления щепы или опилок.
- Закончив с обустройством топочной камеры можно переходить к формированию устройства дымохода. Для этого выкапывается неглубокая траншея. Ее длина не должна превышать 7 метров, но и длина менее 2-х метров недопустима. Ширина траншеи составляет ~ 25 см. Она тоже обкладывается кирпичом, а верх закрывается любым негорючим листовым материалом, который присыпается землей для создания герметичности дымохода. Конструкцию дымохода можно упростить и усовершенствовать, если в выкопанную траншею положить трубу подходящего диаметра.
- Затем в конце дымохода выкладывают из кирпича основание для коптильной камеры.
- С бочкой, которая будет служить камерой копчения, необходимо произвести некоторые преобразования. Днище у нее удаляется, а вместо него закрепляется металлическая решетка с мелкими ячейками или аналогичная сетка. Это необходимо для фильтрации сажи, которая присутствует в дымовом потоке. В верхней части бочки закрепляется еще одна решетка для размещения продуктов копчения. Но присутствие такой решетки вовсе не обязательно, так как ее вполне заменят закрепленные горизонтально металлические прутья с крюками.
- Далее – подготовленную коптильную камеру из бочки устанавливают на предварительно сложенное кирпичное основание и закрепляют.
Вот и все. Полностью работоспособная коптильня холодного копчения самостоятельного изготовления готова.
Усовершенствованная коптильня из бочки
Рассмотренный выше вариант коптильни можно усовершенствовать. Схема улучшенного варианта не особо отличается от предыдущей версии коптильни:

Преимущества этой коптильни:
- Такая коптильная установка более компактна и имеет более эстетичный вид. Она прекрасно впишется в любой ландшафт участка.
- Отпадает необходимость в земляных работах.
- Основание коптильной камеры стало более легкой конструкции.
- Металлическая печка позволит установить в ней системы контроля и регулирования процессом горения.
- Дымоход из трубы можно снабдить дополнительными устройствами охлаждения дыма.
Недостатки усовершенствованной конструкции:
- Необходимы сварочные работы.
- Вполне возможно, что при недостаточной тяге придется применить принудительное нагнетание дыма в камеру копчения.
Процесс сборки этой коптильни в единое целое интуитивно понятен и не вызывает затруднений.
Полезные дополнения к конструкции
Для принудительного нагнетания дыма в коптильную камеру можно использовать любые маломощные вентиляторы, например: вентилятор от вытяжки или даже кулер для компьютера.
Слишком горячий дым в дымоходе можно охладить несколькими способами:
- Во-первых – холодная вода всегда позволит снизить температуру дыма до необходимых значений. Для этого трубу дымохода просто располагают под струей холодной воды.
- Во-вторых – можно использовать охлаждение с помощью дымохода-змеевика.
Конструкция такого модифицированного дымохода понятна из следующей схемы:

Так как температура в камере копчения не превышает значения в 40°, то вместо металлической бочки можно вполне использовать бочку деревянную.
Иные конструкции коптилен
Кирпичная стационарная коптильня
Этот стационарный вариант коптильни из кирпича является самым сложным для повторения. Но возведенная конструкция имеет самый эстетичный вид. Однако потребуется наличие определенных навыков в строительстве.

Отлично подойдет для приусадебных участков имеющих значительную площадь и максимально гармонично впишется в любой их ландшафтный дизайн
Простейшая коптильня из полиэтилена
Удивительно, но простейшую коптильню холодного копчения можно соорудить из банальной полиэтиленовой пленки. Схематический чертеж этой уникальной коптильни выглядит следующим образом:

Размеры такой простейшей коптильни не указаны, так как они могут быть совершенно произвольными.
Особенности коптильни:
- Скелет каркаса делается из жердей.
- Продукты копчения крепятся на поперечных прутьях или на натянутых отрезках шпагата.
- Источником тепла и дыма служат горячие угли от костра, которые прикрываются ветками с зеленой листвой и сырым хворостом.
- Угли помещают в ведро или просто в вырытую яму.
Следует заметить, что продукты, которые коптятся подобным способом, будут не совсем холодного копчения, так как все равно происходит дополнительная обработка парами. Но, тем не менее, такая обработка продуктов нравится значительному числу любителей отдыха на природе.
В заключение необходимо напомнить, что для каждого продукта копчения рекомендуется использовать определенный вид древесины.
Вот такие коптильни холодного копчения своими руками вполне можно изготовить самостоятельно и радовать окружающих копчеными изысками.
Коптильня холодного копчения своими руками: чертежи + фото
Мало кто способен отказаться от сочного куска копченого мяса или рыбы, но брать такие продукты в магазине – значит, довериться случаю. Напротив, если приготовить эти блюда собственными руками в домашней коптильне, результат всегда будет превосходным. В этой статье вы узнаете, как сделать коптильню своими руками, а пока рассмотрим некоторые особенности использования такого устройства.
Определение и особенности процесса
Копчение – это обработка еды дымом от тлеющих частиц древесины. Процесс предполагает, что блюдо подсушится, частично усохнет, но не потеряет своего жира и пропитается особым ароматом. Такой продукт прекрасно хранится в течение длительного времени.
Копчение может быть как холодным, так и горячим. Первое предполагает, что еда на протяжении нескольких дней или даже недель будет обрабатываться дымом при температуре от 20 до 25°C. При горячем копчении температура воздействия увеличивается в разы (в пределах от 45 до 120 °C), а блюдо можно будет подавать к столу уже через пару часов. Нужно знать, что холодное копчение продлевает срок хранения продуктов, но процесс изготовления такой коптильни более сложный.
Как сделать коптилку горячего копчения мы говорили ранее.
Безопасно и удобно
Сначала для будущей коптильни холодного копчения нужно выбрать подходящее место. Во-первых, оно не должно быть пожароопасным. Во-вторых, его нужно выбирать с точки зрения удобства: хорошо, когда рядом с коптилкой можно и присесть, и разместить продукты. Кроме того, нужно позаботиться и о месте для подземного дымохода: в длину – не менее 3 метров, в ширину – от 30 до 50 см, в высоту – от 25 до 27 см.
Не следует забывать и о том, что между камерой и очагом нужно будет сделать хорошую тягу. Большое влияние в этом случае оказывает разница температур между горячим дымом и окружающим воздухом, поэтому сделать ее не так-то просто. Для хорошей тяги можно использовать вентилятор, а для охлаждения дыма – коллектор.
Принцип работы
Во время холодного копчения в специальном туннеле, соединяющем топку и собственно коптильню (в нее и закладываются продукты), идет охлаждение дыма. Минимальное расстояние между двумя этими отделениями должно составлять не менее 2 метров, максимум – 7. От этой величины и будет зависеть длина трубы, через которую дым будет попадать в коптильню. Превышать расстояние между продуктовым отделением и топкой не рекомендуется: могут возникнуть проблемы с тягой. Сверху крышку камеры лучше придавить кирпичом или другим тяжелым предметом: после долгого горения металл может искривиться.
В такой коптильне еда обрабатывается в течение минимум 3 суток. Для получения наилучшего результата нужно соблюсти несколько простых правил:
- чтобы процесс шел равномерно, не рекомендуется одновременно коптить разные виды продуктов.
- Готовить нужно одним приемом, не докладывая еду в процессе копчения.
- Куски перед закладкой в продуктовое отделение лучше отсортировать по размеру. Нарушив одно из этих правил, нужно быть готовым к тому, что часть продуктов будет испорчена.
Ну а дальше вы узнаете, как сделать коптильню холодного копчения своими руками.
Коптильня из бочки
Для изготовления простой коптильни для холодного копчения своими руками нужно взять:
- металлическую бочку;
- металлическую сетку;
- лист из жести;
- решетку;
- мешковину;
- пару болтов;
- лопату и другие инструменты.
Выкопав под топку яму, нужно положить на дно жестяной лист: он нужен для равномерного тления опилок или щепок.
После того как подготовительный этап закончен, можно заняться устройством дымохода – неглубокой траншеей шириной 25 см и длиной от 2 до 7 метров. Для герметичности ее необходимо накрыть любым негорючим материалом, который находится под рукой (например, подойдет шифер), и присыпать грунтом.
Затем нужно заняться коптильной камерой. Проще всего сделать ее из металлической бочки, от которой нужно отделить дно и прикрепить внизу металлическую сетку. Для фильтрации сажи на нее нужно будет постелить мешковину. В нижней части бочки прикрепляется прочная решетка, на которой можно разметить фильтр.
Затем еще одну прочную решетку разместить в верхней части бочки, отступив от края примерно на 20 см. Именно на нее будут закладываться продукты для копчения.
В данном случае речь идет о простой коптилке, поэтому выбор в пользу решетки – самый рациональный вариант. В усложненной конструкции она может быть заменена на прутья с крюками.
Вот и все, получилась рабочая коптильня холодного копчения своими руками.
Холодильник превращается в коптильню
Коптильня холодного копчения своими руками может получиться даже из старых и ненужных предметов.
Для того чтобы дать старому холодильнику новую жизнь, нужно, прежде всего, убрать из него «начинку» и заклеить отверстия лейкопластырем. В верхней части корпуса делают отверстие для дыма, а при желании даже устанавливают вентилятор.
Вверху камеры нужно закрепить решетки для продуктов, а к самому холодильнику при помощи трубы из оцинковки (длина – от 3 до 4 метров) присоединить печку-буржуйку. Можно вместо нее использовать и любой другой закрытый контейнер соответствующего размера. Для того чтобы приступить к копчению продуктов, в него нужно поместить электрическую плитку, на которую следует положить опилки. Необходимо дождаться, пока опилки задымят, а затем отключить ее.
Походный вариант
Как сделать коптильню холодного копчения своими руками, чтобы конструкцию можно было брать с собой в длительные походы? На самом деле устройство для холодного копчения так просто изготовить, что сделать это можно даже в походных условиях. Для этого потребуется:
- кусок полиэтилена;
- колья или брус для каркаса;
- прутья с крюками, чтобы подвесить продукты.
Главное удобство такой коптильни заключается в том, что все необходимое для ее устройства легко вместится в багажник легкового автомобиля. Стоит обратить внимание на то, что трубу дымохода, крайне неудобную для транспортировки, легко заменить более простой альтернативой.
Для того чтобы ее соорудить, нужно найти участок местности с уклоном в 60 градусов, укрыть его ветками и брезентом, а также засыпать дерном. Это будет импровизированная труба. После этого в верхней части нужно будет поставить каркас из бруса или кольев и обмотать его куском полиэтилена. Внутри конструкции нужно будет установить стойку с крючками либо разместить прутья для копчения рыбы. После этого останется только развести под коптильней костер, чтобы подать дым и начать приготовление блюда.
Также, коптилку можно собрать по следующей схеме:
Для тех, кто не прочь полакомиться копченой рыбкой, переносная коптильня холодного копчения своими руками будет незаменима в долгом походе или туристической поездке.
Выбор готовой коптильни
Если технология изготовления коптильни кажется слишком сложной, можно купить и готовую. Для того чтобы не ошибиться с выбором, стоит учесть следующие характеристики устройства:
- металл, из которого сделана коптильня холодного копчения. В его составе не должно быть вредных примесей, а сам он должен быть достаточно прочным. Оптимальная толщина стенок – не менее 4 мм. Тонкий металл быстро прогорит и заржавеет, после чего у продуктов появится неприятный вкус и аромат;
- объем устройства. Бессмысленно брать для большой компании маленькую коптильню на пару колбасок, а для семьи из трех человек – большой «ящик», в котором легко уместится целый поросенок;
- наличие температурных датчиков и регулятора тяги. Благодаря этим опциям в коптильне удается поддерживать одинаковую температуру и контролировать процесс приготовления пищи;
- количество полок для продуктов в коптильне. Здесь работает принцип «чем больше – тем лучше»;
- универсальность устройства. Есть модели, в которых предусмотрен как холодный, так и горячий режим копчения блюд.
Кроме того, качественная коптильня должна иметь гарантийный срок службы, в течение которого ее можно будет вернуть производителю.
Секреты использования
- Под решеткой коптильни следует поместить неглубокий поддон для жира, выделяемого из мяса и рыба во время копчения. Он оставит опилки чистыми, и приготовленная еда сохранит свой аромат. При установке поддона нужно помнить о зазорах, которые необходимо оставить между его краями и стенками ящика.
- Для того чтобы задерживать пепел, над топкой натягивают влажную мешковину: такая завеса пропустит дым, но никак не загрязняющие вещества.
- Чтобы проверить температуру копчения, достаточно капнуть немного воды на крышку устройства. Сильное шипение говорит о высокой температуре копчения. Если такого звука нет, а вода просто испаряется с поверхности коптильни — температура оптимальна. По мере использования необходимость в таком тесте пропадет: те, кто часто готовят в коптильне, знают примерное время приготовления тех или иных продуктов.
Кроме того, в процессе копчения нужно соблюдать несколько важных правил:
- следить за температурой дыма в камере;
- дождаться сухой безветренной погоды;
- проявить терпение: постоянно приоткрывая дверцу и заглядывая в камеру, можно значительно увеличить время приготовления блюд;
- начинать подготовку к процессу нужно вечером, а коптить мясо или рыбу – утром;
- в начале или конце копчения в дрова хорошо добавить веточки вишни, можжевельника или винограда. Эти породы деревьев придадут блюдам неповторимый аромат, а вот смола хвойных пород, если такие попадут в дрова, плохо повлияет как на вкус, так и на запах готовых блюд;
- использовать в коптильне лишь сухие дрова: влажная древесина будет не гореть, а тлеть, и процесс приготовления блюд займет долгое время.
Необычное расположение коптилок в доме
Коптильня на чердаке Коптильня в дымоходной трубе печиПохожие статьи:
Коптилка холодного копчения своими руками: видео, фото-примеры
В продуктовых магазинах представлен широкий ассортимент копчёностей, но какого они качества и с какими добавками покупатели не знают. А ведь каждый человек хочет употреблять в пищу только свежие и натуральные продукты. Так как же выйти из ситуации? Легко, всё что вам понадобится — это коптилка холодного копчения своими руками. Видео, фото и подробные инструкции по реализации данного проекта вы найдёте в этой статье.
Виды коптиленЧитайте в статье
Суть работы аппарата для холодного копчения
В основе копчения блюд лежит использование обработки холодным дымом, который исходит от тлеющей древесины. В независимости от того, что вы коптите, мясо, птицу, рыбу, овощи или фрукты, процесс готовки всегда одинаковый. Короб в котором проходит процедура копчения может быть практически любого формообразования. Материалы корпуса также различны: металл, дерево, полиэтилен и другие нетоксичные материалы, которые не пропускают воздух.
Холодное копчение можно сравнить с консервацией, потому что дым, оседающий на продукты во время готовки, имеет температуру 20-25 градусов, время полной готовности занимает порядка 1-2 суток (иногда достигает 6 суток). За это время с копчёностей выходит вся вода, что позволяет хранить такие продукты более двух недель.
Примечание! Идеальное время года для использования коптилки холодного копчения считается зима. При низкой температуре воздуха, развитие бактерий в середине продуктов практически не происходит, что сводит на нет испорченность блюда в процессе копчения.
Как происходит процесс дымообразования для холодного копчения?
Получение холодного дыма практически не отличается от типа теплоносителя. Принцип всегда одинаковый, а конструкции для вырабатывания дымка отличаются.
- Если коптильня работает на дровах, то необходимо соорудить железный ящик для костра или просто вырыть яму и обложить её камнем. Сбоку присоединяется дымоходная труба, которая ведёт в короб самой коптилки. Длина трубы должна иметь порядка двух и более метров, чтобы идущий дым от костра успевал охладиться до 25 градусов перед попаданием к продуктам.
Дымообразование от костра- В случае использования газа или электричества, железный ящик для теплообменника делается с двумя горизонтальными уровнями. На нижнем происходит выделение тепла, которое нагревает верхний лист, на котором насыпана щепа или стружка из древесины. Дерево тлеет и образовывает дым, который идёт в коптильню. Дымообразование происходит независимо от того, как сделать коптилку холодного копчения.
Разновидности аппаратов для холодного копчения
В зависимости от места использования, объёмов обрабатываемой продукции, типа источника тепла и прочих обстоятельств, коптильни имеют разные модификации.
Материалы для корпуса коптилен
- Нержавеющая сталь. В основном её используют в фабричных моделях для домашнего использования. Реже, для самодельных конструкций. В самодельных вариантах сталь применяют при сборке конструкций для горячего копчения, так как они напрямую контактируют с огнём.
Коптильня из металла- Дерево. Популярный материал, благодаря своей лёгкости в обработке при сборке, приятному внешнему виду, небольшой стоимости. Некоторые смолистые породы добавляют продуктам дополнительный аромат, что является приятным дополнением.
Деревянная коптильня- Полиэтиленовая плёнка. Как ни странно, но отечественные кулибины умудрились приспособить плёнку для парников под корпус для коптильни. Быстрая сборка, дешевизна конструкции и хороший вкус приготовленных в таком ноу хау копчёностей, держат на уверенном плаву этот вид материала.
Полиэтиленовая коптилка- Камень и кирпич. Такой стройматериал используют для капитальных строений большого объёма. Хотя встречаются экземпляры и поменьше, но редко. Основное предназначение таких коптилен — коммерческое производство в домашних условиях.
Строение из кирпича- Любая железяка, которая имеет стенки, крышку и дно тоже обладает шансом стать коптилкой холодного копчения своими руками, видео+фото на этой странице — прямое тому доказательство (корпус от холодильника, бочка, ведро, сейф, газовый баллон и т. д.).
Коптильня из ненужных вещейИсточники тепла
Костёр для копчения- Газовая горелка. Более затратный вариант, но имеет свои преимущества. Возможность регулировки пламени и автономная работа, не требующая вмешательства (подкидки дров).
- Электрический прогрев. Применяется в коптильнях для закрытых помещений. В основном дымооброзование с помощью электричества используют в фабричных моделях, потому что построить электрокоптильню своими руками не дружа с электрикой достаточно опасно.
Электрическая коптильняМеста расположения коптилен
- На улице. Это основное место для таких конструкций. В силу того, что процесс горения дров выделяет дым и впитывающийся во всё окружающее запах, коптильни располагают вдали от жилых помещений, детских площадок на территории частного дома и подальше от общественных улиц. Нередко корпус коптильни располагают на возвышенности, чтобы запах улетучивался быстрее, не распространяясь по сторонам.
Уличный вариант конструкции. Мангал и коптильня- В закрытых помещениях. Либо у вас квартира, но очень хочется готовить копчёности, или вы владеете частной коптильней на фабричном уровне. Если в первом варианте можно использовать только электрические агрегаты, то второй позволяет применять любой вид топлива, ведь организовать отвод дыма в промышленном здании несложно.
Промышленная коптильняВажно! Какая бы вариация коптильни ни присутствовала в вашем расположении, всегда соблюдайте технику безопасности при установке и эксплуатации. Ящик с песком или огнетушитель, расположенный рядом с установкой, никогда не будет лишним.
Холодное копчение в домашних условиях. Конструкция коптильни
Независимо от формы и габаритов короба, конструктивные особенности и необходимые приспособления не отличаются.
Особенности конструкции
Коптильня домашняя своими руками должна иметь герметичные стенки, не выделяющие вредных веществ при нагревании. В крыше конструкции должен находиться дымоход, для отвода лишнего дыма. Доступ вовнутрь, необходимо организовать так, чтобы вы легко смогли работать с продуктами (дверца должна быть на всю лицевую часть конструкции). Наличие поддона на дне коптилки, облегчит уборку стекающей жидкости с продуктов, а присутствие всевозможных крючков, поперечных прутьев и сетчатых поддонов обеспечат рациональное расположение будущих копчёностей.
Коптилка изнутриПодготовка продуктов перед холодным копчением
Прежде чем приступать к копчению, нужно произвести подготовительные работы. Для овощей и фруктов подготовка заключается в промывании и извлечении семечек и косточек. Для таких продуктов, как мясо, птица и рыба, процесс подготовки немного сложнее.
- Мясные копчёности. Основная подготовка заключается в засолке заготовки. Но в зависимости от содержания жира в том или ином кусочке мяса, концентрация соли должна отличаться. Если вы подготавливаете балык, то лучше использовать мокрый посол (на один литр воды 130 грамм соли. Концентрат доводят до кипения, снимают шум и дают остыть). Причина, по которой балыки засаливают таким способом в том, что мясо без прослоек жира сильно высушивается при сухом посоле, а мокрый вариант не даёт мягким тканям расщепляться и продукт при копчении останется сочным. Если вы хотите закоптить балык или сало, то подойдёт вариант сухого посола, потому что в жир соль не может проникнуть полностью.
В обоих способах засоленный продукт должен пролежать от двух до 6 дней, после чего его кладут в чистую воду для отмачивания на 1-3 дня. Далее, мясо вывешивается в помещении с температурой 2-4 градуса, накрывается марлей от насекомых и оставляется вялиться на срок от 1 до 3 недель. Всё, продукт полностью готов для копчения.
Засоленное сало- Подготовка птицы. Тушку необходимо общипать, просмолить, выпотрошить и приступать к посолу. Подготовьте рассол добавив на 1 литр воды 100 грамм соли, две столовых ложки уксуса и специи. Погрузите птицу в рассол на три дня. После рассола нужно обсушить тушку полотенцем и подвесить для вяленья в прохладном месте на 3-4 дня. После этих процедур можно приступать к копчению.
Тушка курицы в рассоле- Рыбные копчёности. С рыбой нужно обходиться с осторожностью, от тщательности подготовки зависит её гастрономическое качество. Если у вас свежесловленная речная рыба, то её нужно распотрошить, очистить от шелухи и обильно натереть солью. В солевой корке рыбу держат около трёх суток (время увеличивается если рыба была заморожена). После соли нужно повесить тушки, накрытые марлей, в прохладном месте и вялить в течение одной недели (крупные экземпляры распирают шпажками в районе брюха). Теперь рыба готова к процессу холодного копчения.
Засоленная тушка рыбыПримечание! Составные части рассола или солевой натирки подбираются в зависимости от вкусовых предпочтений повара и могут состоять из огромного разнообразия специй и трав, ведь вы вправе сами определять что готовить в созданной вами коптильне холодного копчения своими руками.
Выбор щепы для холодного копчения
Сырьём для образования необходимого дыма является деревянная стружка или щепа. Главное, чтобы материал не был слишком мелкой структуры и не обладал повышенной сухостью. В противном случае древесина будет интенсивно гореть и придаст продуктам привкус гари. Оптимальным уровнем влажности щепы считается 65-70 процентов, такая структура будет создавать идеальные условия для создания дыма.
Типы древесины подходящей для копчения
Не все виды древесины подходят для копчёностей, потому что некоторые породы выделяют специфический запах и негативно влияют на продукты. Идеально подходят: вишня, черешня, абрикос, груша, яблоня, осина, бук, ольха, дуб и ясень. Нельзя использовать хвойные породы, они выделяют большое количество смолы.
Некоторые изготовители занимаются производством готовых щепок для копчения, но главный минус в том, что состав конечного сырья неизвестен потребителю. Недобросовестные производители могут добавлять химические элементы для улучшения образования дыма. Чтобы избежать неприятных моментов нужно изготавливать щепу самостоятельно.
Магазинная щепаЗаготовка щепы для холодного копчения своими руками
Древесину нужно собирать от обрезки фруктовых или лиственных деревьев, которые небыли предварительно обработаны химическими средствами. После сбора веток, нужно полностью снять кору, а затем это дерево измельчить. Для переработки в стружку или щепу используют специальный инструмент, по типу электрорубанка, но можно использовать и топор (занимает много времени). Нужно учитывать и то, что влажность породы всегда разная, по этому её нужно регулировать вручную. Если влаги очень много, то необходимо подсушить дерево, а если мало, то смочить. Главное, помните, что приготовленная щепа для копчения своими руками — это экологически чистое сырьё.
Коптилка холодного копчения своими руками. Видео, фото инструкция
Идея с собственноручным изготовлением коптильни имеет массу плюсов. Главное достоинство — это не ограниченные возможности в выборе габаритов, месте расположения и способа дымообразования. Устройство можно сделать как для уличного использования, так и для закрытого помещения.
Как сделать коптильню холодного копчения своими руками
Процесс сооружения конструкции будет изложен на примере стационарной коптильни во дворе частного дома.
Самодельная коптильня холодного копчения своими руками. ЧертёжПошаговая инструкция:
- Нужно распланировать место на участке для будущей коптильни. Вам понадобится примерно 1 метр в ширину и 4 метра в длину.
- С помощью лопаты необходимо вырыть траншею в половину метра глубиной, 0.3 метра шириной и на всю длину запланированного участка. В начале и в конце траншеи нужно организовать две ямы с габаритами 0.5×0.5×0.5 метра. Та сторона, с которой будет расположен очаг костра должна быть ниже по уровню чем противоположная, минимум на 20 сантиметров. Это обусловлено тем, что под таким углом дыму будет легче достигать самой коптильни.
Траншея для конструкции - Теперь, яму для костра нужно обложить огнеупорным кирпичом. Стенки из камня должны быть выше земли на 10 сантиметров, чтобы крышка для камеры сгорания плотно закрывала верх. В стене со стороны коптильни нужно организовать отверстие для трубы, верхний край которой должен находиться на уровне 5 см от верха почвы.
Яма для костра - Время прокладывать дымоход в траншею. Трубу можно использовать как асбестовую, так и металлическую. В котлован для костра дымоход должен входить на пару сантиметров, а со стороны коптилки труба должна иметь колено на 90 градусов, чтобы в горизонтальном положении войти в днище конструкции.
Фото прокладки дымохода - Подошла очередь самого короба установки. Какой формы и из каких материалов он будет — решать вам. Возьмите подготовленную коробку и расположите её над трубой для дыма так, чтобы она была по центру днища. Ножки сооружения необходимо надёжно закрепить к земле.
Корпус коптильни на своём месте
А теперь можно развешивать крючки, ставить противни и раскладывать продукты для копчения. Распаливайте костёр и ожидайте вкусных деликатесов.
Выводы
Домашняя коптилка холодного копчения своими руками (видео + фото) обязательно расширит ваш гастрономический кругозор и поможет удивить гостей изысканными блюдами из сочной курочки или шикарного карпа. Не отказывайте себе в удовольствии и коптите на здоровье.

ПОНРАВИЛАСЬ СТАТЬЯ? Поддержите нас и поделитесь с друзьями
Недорогая коптильня холодного копчения своими руками
В данной статье рассмотрим принцип работы, удачные самодельные конструкции и шаг за шагом разберем как делается коптильня холодного копчения своими руками, фото, видео отчеты.
Оглавление:
Далеко не каждый из нас откажется от кусочка копченого мяса, птицы, сала или рыбы. Но эту продукцию покупать не всегда охота, так как в магазинах цена на нее завышена, да и качество вызывает сомнения. Однако, выход есть.
Коптильня холодного копчения своими руками, устройство и принцип работы
Принцип холодного копчения заключается в том, что еда обрабатывается дымом, температура которого не превышает 32 °С. Так по какой же схеме нужно строить коптильню, чтобы грамотно организовать процесс холодного копчения?
Дым охлаждается в своеобразном туннеле, который соединяет топку и саму коптильню (отделение, в которое кладут продукты). Это отделение и топка, должны располагаться как минимуму в двух метрах друг от друга и как максимум – в семи. Это расстояние и определят длину дымохода, через который и происходит попадание дыма в коптильню.
Можно расположить топку и продуктовое отделение и на большем расстоянии, однако, тогда могут возникать проблемы с тягой.
Ниже представлен принцип работы такой коптильни
Продукты в коптильне могут обрабатываться не менее 3-х дней, а иногда и несколько недель. Чтобы копчение происходило равномерно, виды продуктов в коптильне не смешивают и готовят одним приемом, не докладывая еды в процессе. Так же стараются сортировать еду по размеру. В противном случае можно испортить часть продуктов.
Конструкция коптильни
Под топку потребуется вырыть яму примерно 50 на 50 см. Допускаются и большие размеры, ширина и глубина ямы могут достигать метра. Глубина топки делается тоже примерно метровой.
Если есть желание, то дно топки можно сделать кирпичным, но, не используя при этом раствор, кирпичи просто трамбуются друг к другу. Для этих целей пользуются огнеупорным кирпичом (хотя если огнеупорного нет, можно взять и обычный красный). Помимо этого, можно пользоваться и керамическим кирпичом, если, конечно, он у вас есть.
После этого, на дно кладут жестяной лист. Боковые стороны топки тоже можно вымостить кирпичом. Чтобы скрепить кирпичи в стенках, пользуются глиняным раствором.
Дымоход выкапывают в грунте, от топки, до места, где будет располагаться коптильная камера. Дымоход должен быть около 25 см в диаметре. Копаем траншею под дымоход, а сверху кладем листовой материал. В качестве листового материала можно использовать шифер, железо или другой прочный негорючий материал. Опять же, если есть желание, то и дымоход можно выложить кирпичом. Чтобы дым не просачивался, поверх листового материала насыпается земля.
Второй край дымохода должен заканчиваться коптильней. Там, где дымоход будет стыковаться с коптильной камерой, потребуется установка фильтра. Как основой для изготовления фильтра можно пользоваться металлической сеткой, имеющей небольшие ячейки. Поверх уложенной сетки производится укладка плотного сетчатого материала, чтобы на еду не попадала сажа. Продуктовая камера может быть выполнена из любого не токсичного материала, лучше всего использовать дерево.
Коптильня холодного копчения (своими руками) должна быть надежно укреплена, чтобы её никто случайно не опрокинул. В коптильной камере, вверху, устанавливают прутья из нержавейки толщиной примерно 8-10 мм, чтобы вешать на них продукты. Крепление продуктов к прутьям выполняют специальными крюками. Иногда прутья с крюками заменяют обычной решеткой.
Простая и надежная коптильня холодного копчения своими руками
Задача которую выполняет коптильня холодного копчения заключается в подаче охлажденного дыма к зоне, в которой расположены продукты. Для обеспечения подачи ровного и стабильного дыма в течение, к примеру, недели, не обязательно строить что-то вроде мавзолея. Давайте посмотрим, как быстро и не дорого изготавливается простая коптильня холодного копчения своими руками.
Для начала, так как дым должен быть холодным, то даже в простейшей коптильне холодного копчения камера с продуктами и камера с дровами должны находиться на расстоянии. Так как наша коптильня призвана сэкономить время и материалы, то будет достаточно расстояния в 2 м.
Для изготовления коптильни нам понадобиться:
- Жестяной лист;
- Металлическая бочка;
- Металлическая сетка;
- Решетка;
- Кусок мешковины топка;
- Несколько болтов;
- Лопата, и прочие инструменты.
Как ни странно, на этом список предметов, необходимых для изготовления простейшей коптильни холодного копчения, заканчивается. Теперь можно перейти, непосредственно, к процессу сооружения.
Для начала выкапываем яму под топку и укладываем на дне кусок жестяного листа. Это нужно для того, чтобы опилки, щепки или веточки тлели более равномерно.
Теперь, приступаем к дымоходу. Он должен представлять из себя неглубокую траншею, около 25 см шириной и длиной, описанной в начале. Теперь данную траншею нужно накрыть любыми подручными негорючими материалами (так как у нас все просто, то шифер вполне сгодится) и присыпать грунтом, чтобы обеспечить герметичность.
Теперь перейдем к коптильной камере. Самым простым её вариантом является обычная металлическая бочка. Отсоединяем дно бочки и монтируем внизу металлическую сетку, на которую будем слать мешковину. Эти материалы в паре отлично справятся с задачей фильтровки сажи. Снизу в бочке прикрепляют прочную сетку или решетку, на которую можно положить фильтр. Мешковина может быть заменена даже соломой, хотя уж что-что, а мешковину найти можно.
Теперь, заключительный этап, в верхней части бочки, при помощи болтов, закрепляют металлическую решетку на расстоянии примерно 20 см от края. Именно на этой решетке и будут коптиться продукты. Решетка может быть заменена прутьями с крюками, но так как речь идет о простейшей коптильне, то решетка будет более рациональным вариантом.
Коптильня холодного копчения своими руками видео инструкция
То, что при холодном копчении температура дыма не должна подниматься выше 30 °С, и приготавливаемые продукты должны находиться под воздействием дыма в течение длительного времени, говорилось уже неоднократно. Так же много написано и про то, как сделать коптильню. Но пока не увидишь своими глазами, сложно понять какой должна быть коптильня холодного копчения своими руками. Видео – вот отличный способ снять все лишние вопросы.
Но перед просмотром, все же, стоит вспомнить теорию. Итак, холодное копчение длится не менее 3-х дней. А если вы решили заняться копчением, к примеру, цельных говяжьих или свиных окороков, то коптить придется не менее недели, а то и более.
Холодное копчение подразумевает то, что продукты медленно теряют влагу, подсушиваются, а дым и его составляющие все боле глубоко приникают в продукты. В результате происходит хорошее обезвоживание сала, рыбы или мяса, без потери жира, и продукты обзаводятся прекрасным вкусом и ароматом.
Холодное копчение позволяет осуществлять хранение продуктов в течение длительного времени. Однако, если мясо было не особо жирным или животное было старым, то, в конечном итоге, продукт может получиться жестковатым. По этому, сперва, лучше опробуйте в деле проверенные рецепты в холодном копчении. А уже после этого, когда опыт уже будет набран, можно будет потихоньку экспериментировать с разными нововведениями для разнообразности в оттенках вкуса.
Ну а теперь, собственно, посмотрим на самодельную коптильню холодного копчения, о которой было столько сказано.
http://www.youtube.com/watch?v=ZevEPatNDhQ
Как выбрать коптильню холодного копчения
Итак, вы решили не самостоятельно строить коптильню, а купить готовую. Но перед вами открывается широкий выбор, и сам собой возникает вопрос: “А какая лучше?”. Коптильня холодного копчения – это тот товар, при выборе которого не нужно спешить, а следует разобраться в критериях выбора, важных именно для вас.
Чаще всего коптильня является закрытым ящиком, имеющим несколько решеток внутри (на которых готовятся продукты) и поддоном (в котором происходит тление топлива). Нужно выбирать коптильню с емким корпусом, так как в нем копчение мяса, рыбы, сала, сыра, овощей или фруктов происходит более равномерно.
Основная задача коптильни – это копчение. Однако, при выборе коптильни холодного копчения, не стоит забывать и о её весе (ящик с толщиной стенки 6 мм и габаритами 500 на 500 на 800 мм, весит примерно 60 кг – подумайте, насколько это вас устраивает).
Выбор коптильни во многом зависит от условий её использования. Если вы решили отправиться на затяжную рыбалку с палатками и там пользоваться коптильней, тогда лучше выбрать коптильню, металл которой равен 0,8 мм. Она легка, удобна, и компактна (40×27×17). Это очень удобно, зачем заниматься транспортировкой тяжестей? Поскольку, люди устраивают такой отдых не часто, то коптильня будет служить вам достаточно долго, пока стенки ящика не прогорят.
Если же вы будете устанавливать коптильню холодного копчения на даче или во дворе, тогда лучше брать более тяжелый и надежный вариант из нержавейки, с толщиной корпуса 2,0 мм.
Если для вас вес не имеет значения, а главное – это долговечность конструкции, то покупайте массивную коптильню холодного копчения из толстой нержавеющей стали. Она прослужит вам десятилетия. Лучше выбирать конструкцию с дополнительными ребрами жесткости, для укрепления корпуса.
Если вы покупаете коптильню, чтобы готовить копченые деликатесы дома, то обязательно покупайте агрегат, содержащий гидрозатвор, в этом случае проблемы отвода дыма будут решены. А если вы решите перевезти коптильню на дачу, то трубочку можно легко заткнуть подручными средствами.
Сделайте свой собственный бекон, Постройте коптильню
В качестве необходимого введения я сначала хотел бы немного рассказать о том, что такое холодное копчение, прежде чем я углублюсь в детали того, как приготовить коптильню. Холодное копчение не имеет ничего общего с курением на открытом воздухе зимой (просто подумал, что я это поясню!).
Что такое холодное копчение — это метод, который использовался многими людьми во многих различных частях мира для создания копченого продукта из чего-то, что не обязательно нужно готовить в процессе копчения.Как копченый лосось и копченый сыр, оба из которых развалялись бы (расплавились), если бы вы коптили их в горячем коптильне.
Продукты холодного копчения — это не только лосось и сыр. Конечно, есть много других продуктов холодного копчения, доступных на потребительском уровне, и их можно найти в вашем местном супермаркете или гастрономе. Есть бекон, ветчина, сыры, перец, лосось, треска и множество различных сортов вяленого мяса (говядина, оленина, кенгуру, эму и т. Д.), И это лишь некоторые из них.
Теперь вы (читатель) можете подумать: «Почему эти продукты нужно коптить холодным, а не горячим?» и ответ таков: большинство (не все) из этих продуктов уже подвергались некоторой консервации перед копчением или будут подвергнуты некоторой консервации после курения.Или это может быть случай, когда вы не можете противостоять жаре, такой как лосось и сыры.
Копчение — это метод сохранения продуктов, но его также можно использовать просто для улучшения вкуса определенных продуктов. Мне очень нравится неотразимый дымный вкус и аромат копченостей, и я часто сам делаю вяленое мясо из говядины холодного копчения, копченые сыры и копченые яйца.
Когда я впервые открыл для себя продукты холодного копчения, мне в голову пришел вопрос: «Как можно делать холодный дым, если мы все знаем, что дым является побочным продуктом огня, а огонь производит тепло?» Жара, которого мы не хотим! Вот что я хотел бы научить вас делать дальше.
Это очень просто сделать, а покупка необходимых вещей будет стоить всего несколько долларов. Некоторые из предметов, возможно, у вас уже есть, а другие вам придется купить ..
Вам понадобится;
Большая картонная коробка (лучше прямоугольная), или вы можете купить немного дерева и сделать деревянную коробку для дыма. Если вы решите купить древесину, убедитесь, что она не обработана. В картонной коробке вам нужно будет отрезать створки на одном конце, чтобы вы могли просто поднять ее и накрыть источником дыма и всем, что вы курите.Вам также понадобятся вентиляционные отверстия к верхнему краю ящика, чтобы дым мог выходить из ящика вверх. Постоянно создавайте постоянный поток нового чистого дыма.
Вам понадобятся решетчатые решетки, чтобы разместить на них продукцию. Сетка из нержавеющей стали подойдет идеально. Для курильщика я использую круглую решетку для охлаждения торта диаметром 30 см. Причина этого в том, что я также использую круглый терракотовый горшок (неглубокий), и круглая подставка для торта идеально помещается внутри горшка.
Источник дыма.Я использую для этого паяльник (убедитесь, что он новый, никогда раньше не использовался), и у меня есть банка для еды из нержавеющей стали, которую я наполовину заполняю своей дымовой стружкой (вишня), а затем вставляю паяльник в банку. Дальше просто воткнуть паяльник и бух! мгновенный холодный дым!
Из соображений безопасности лучше всего курить в хорошо проветриваемом помещении (на улице). Поместите терракотовый горшок на пару кирпичей и убедитесь, что паяльник не касается картонной коробки.Вам нужно будет коптить сыр и лосось около получаса или больше. Вяленое мясо необходимо коптить около 4 часов, а температура копчения должна быть не менее 70 градусов по Цельсию (150 F).
Для получения дополнительной информации о курении (горячем и холодном) существует множество отличных веб-сайтов, на которых есть вся необходимая информация.
А пока желаю Вам курения!
.Как приготовить лосось холодного копчения, идеально подходящий для воскресного бранча!
Процесс изготовления лосося холодного копчения требует терпения, знаний и специального оборудования. На приготовление и копчение этого лакомства нужно время, но при правильном приготовлении оно того стоит.

«Итак, что именно используется в холодном копчении лосося и сколько времени это занимает?»
Этот двусторонний вопрос был задан контактным лицом по кулинарии курильщиков. сформироваться.Читательница получила в подарок копченую семгу, и она ей так понравилась. много того, что ей нужно было больше.
Когда она пошла купить еще, она обнаружила что это стоит недешево, и решила, что сделать это сама возможно. Так что расслабьтесь, снимите обувь и сядьте заклинание, пока мы окунемся в мир лосося холодного копчения!
Филе атлантического лосося с рассолом Основы лосося холодного копчения
При приготовлении лосося в аппарате холодного копчения температура никогда не должна достигать более восьмидесяти градусов по Фаренгейту.Технически рыба сырая, но вяленая.
Длительная ванна в насыщенном солевом растворе приводит к денатурированию белков… изменяет структуру мякоти лосося. И в некотором смысле это «приготовление» с помощью химического процесса.
Курильщики лосося должны работать при низкой температуре
Чтобы приготовить лосось холодного копчения, вам сначала понадобится подходящее оборудование. Стандартный курильщик мяса обычно слишком горячий, чем холодный дым.
Если у вас есть дровяной курильщик или угольный курильщик, ему придется сидеть без дела.Если у вас есть немного времени и немного денег, вы можете построить собственный генератор холодного дыма, используя недорогие предметы и свой газовый или угольный гриль.
Коптильни для рыбы и коптильни для лосося
Филе лосося высокого качестваРазумно выбирайте курильщика. Многие «курильщики рыбы» слишком разогреваются для приготовления лосося холодного копчения, хотя они отлично подходят для лосося горячего копчения.
Коптильни Big Chief и Little Chief работают при температуре около 160F, и они не регулируются… это слишком жарко для лосося холодного копчения.
Курильщики Cookshack будут курить при температуре 100F, но это еще слишком тепло для того, что мы хотим делать.
Smokin ‘Tex предлагает дополнительную пластину для холодного копчения, которая подходит их курильщикам. Я не использовал Smokin ‘Tex с холодной пластиной, поэтому я не могу комментировать эффективность этой установки.
Лучшее, что я нашел, — это Bradley Smoker, который может холодно коптить, но имеет тенденцию к перегреву, если не принять меры для поддержания более низкой температуры. Помещение льда в коптильную камеру с лососем — одно из решений проблемы.
Еще одно исправление — разделение дымогенератора и коптильной камеры с помощью длинного воздуховода сушилки для одежды и большой картонной коробки. Коробка действует как охлаждающая камера для дыма.
А как насчет лосося?
Свежий лосось и ранее замороженный лосось не имеют себе равных, когда речь идет о лососе холодного копчения. Замораживание действительно приносит пользу лососю холодного копчения по нескольким причинам.
- Разрывы при замерзании клеточных мембран
- Замораживание убивает паразитов
Когда лосось замерзает, жидкость в клетках расширяется, вызывая разрыв клеточных стенок.При оттаивании жидкость легко стекает с мякоти, а это означает, что рассол может удалить меньше воды.
Замораживание также убивает паразитов. Одна неделя при минус десяти градусах по Фаренгейту убивает паразитов, которые в противном случае выжили бы в рассоле и холодном копчении. На всякий случай заморозьте лосось, который был подвергнут холодному копчению из свежей рыбы.
Выбор лосося для курильщика
Есть много видов лосося на выбор. Король, кижуч, нерка, кета и атлантический лосось — вот некоторые из общедоступных лососей.
Вы обнаружите, что разные виды лосося имеют разный уровень масла (и вкуса) в мясе. Также есть советы, как выбрать самый свежий лосось для курильщика.
Советы по приготовлению лосося, улучшающие качество
Филе лосося должно быть очищенным и без костей. На филе могут быть булавочные кости, проходящие по всей длине. Если они это сделают, для их снятия достаточно плоскогубцев. Вот как это сделать.
Слегка надавив, проведите пальцами по мякотной стороне филе.Если есть булавочные кости, вы почувствуете концы, равномерно расположенные между головным и хвостовым концом. Когда найдете их, вытащите их плоскогубцами… лучше всего подойдут плоскогубцы.
Бока можно оставить целыми, если в вашем курильщике есть место, или разрезать на более мелкие кусочки. Кусочки шириной от полутора до двух дюймов, вырезанные из филе, — хороший размер. В любом случае, оставьте кожу, чтобы все скрепить.
Кусочки меньшего размера рассыпаются и дымятся быстрее, так как открыта большая площадь каждой секции.Прокол кожи или тщательная надрезка ее лезвием бритвы обеспечат более равномерное засаливание и отверждение. Не надрезайте и не прокалывайте глубоко, но заходите достаточно глубоко, чтобы обнажить плоть.
Рассол с лососем холодного копчения
Филе лосося в рассоле перед холодным копчением Это рецепт рассола, по которому я готовлю лосося к холодному копчению.
- 1 и 1/2 стакана консервной соли или 2 стакана кошерной соли
- 2 стакана белого сахара
- 1/4 стакана кленового сиропа или патоки
- 2 измельченных зубчика чеснока
- 2 целых лавровых листа, сушеные или свежие
- 1 столовая ложка измельченного черного перца
- 1 галлон воды
Смешайте все ингредиенты в большой сковороде и нагрейте до кипения.Тушить пять минут, накрыть сковороду и охладить до комнатной температуры. Попробуйте опустить яйцо в рассол. Если он не всплывает, добавьте еще 1/4 стакана соли. Еще раз попробуйте с яйцом.
Опять же, если не всплывает, добавьте еще 1/4 стакана соли. Повторяйте, пока яйцо не всплывет. Перед добавлением лосося охладите рассол до 40 градусов или меньше.
Рассол лосося
Температура рассола должна быть от 35F до 40F. Слишком холодно, и это замедляет реакцию рассола, а если слишком тепло, то может позволить бактериям расти … более 40F попадает в опасную зону.Теперь лосось отправляется в рассол, где остается от 6 до 12 часов.
Время посола зависит от нескольких факторов… толщины и от того, был ли он заморожен ранее. Чем толще филе, тем дольше его нужно рассолить. Если ранее он был заморожен, уменьшите время посола.
Теперь нужно смыть излишки соли с лосося. Вылейте лосось в чистую емкость или повторно используйте промытую емкость для рассола. Семгу нужно промывать полчаса, чтобы удалить излишки соли.
Дайте воде постоянно стекать в емкость в течение получаса. Во время ополаскивания осторожно встряхивайте лосось каждые несколько минут и будьте осторожны с лососем, так как на этом этапе он может легко сломаться.
А теперь самое интересное … пора попробовать тест на соленость. Преуспевать! Попробуйте кусочек сырой! Но если не хочешь, не волнуйся. Отрежьте кусок и осторожно приготовьте его в микроволновой печи, прежде чем попробовать.
Если он все еще слишком солен, промойте его еще десять-пятнадцать минут, но не больше, иначе он начнет впитывать воду.
Отверждение и образование пленок
Теперь нужно дать лососю вылечиться. Положите рыбу на решетку и дайте ей постоять в холодильнике без крышки на 12 часов. В это время вы также можете добавить к лососю специи или травы для аромата и внешнего вида.
По мере того, как лосось заживает, оставшаяся соль в плоти равномерно перераспределяется, не позволяя получить лосось с соленым центром. Белки начинают связываться вместе, и лосось тоже немного обезвоживается, что должно произойти до того, как он ударит курильщика.
Это также когда формируется пленка. Пелликула представляет собой сухой тонкий слой белков, которые были разжижены во время засолки. Когда он сформируется, вы увидите полуглянцевое прозрачное покрытие на рыбе.
Пленка предотвращает просачивание большого количества жидкости из лосося во время курения, в результате чего на поверхности образуется беловатый творог… непривлекательный, но безвредный.
Копчение лосося
Так ты готов? Давай закурим! Убедитесь, что вокруг каждого кусочка лосося достаточно места для циркуляции воздуха и дыма.Оставьте также пространство вокруг внешних краев стойки.
Вставьте решетку в коптильню и запустите ее. При использовании коптильни Bradley обязательно отключите нагревательный элемент и используйте только дымогенератор.
Лосось будет готов через двенадцать-шестнадцать часов. Во время копчения лосось слегка подсохнет и станет немного тверже на ощупь. Продолжайте курить, если хотите более насыщенного аромата дыма.
Если у вас нет вакуумного упаковщика пищевых продуктов, обязательно найдите его.Вакуумное хранение — идеальный способ упаковки лосося холодного копчения. Закупорив копченого лосося, охладите его для кратковременного хранения или заморозьте, чтобы наслаждаться круглый год.
Для приготовления лосося холодного копчения в домашних условиях требуется специальное оборудование и знания. Имея это и проявляя терпение, вы можете приготовить полезный и вкусный лосось холодного копчения.
,
Траншея для конструкции
Яма для костра
Фото прокладки дымохода
Корпус коптильни на своём месте