Качели самодельные – Качели для дачи своими руками
Качели своими руками из металла: чертежи, фото и видео
Дети и взрослые обожают качели В чем же причина такой массовой любви? Качание на них является веселым времяпрепровождением, кроме того, такое качание довольно полезно. Еще в минувшем столетии известные врачи констатировали, что постоянное небольшое покачивание на таких сооружениях эффективно влияет на здоровье человека. И в частности, успокаивает нервы. Поэтому если у вас есть частный дом, в котором вы проводите много времени, то качели для дачи своими руками будут отличным решением для хорошего отдыха.
Для того чтобы сделать садовые качели, необходимо вначале найти место для строительства, затем покупаем все необходимые материалы для строительных работ, запасаемся инструментами, составляем чертежи будущих построек и далее переходим к самому процессу строительства.

Самый простой способ получить красивую лужайку перед домом
Вы, конечно же, видели идеальный газон в кино, на аллее, а возможно, и на соседской лужайке. Те, кто хоть раз пытался вырастить зеленую площадку у себя на участке, без сомнений скажут, что это огромный труд. Газон требует тщательной посадки, ухода, удобрения, полива. Однако так думают только неопытные садоводы, профессионалы давно знают про инновационное средство — жидкий газон AquaGrazz.
Читать далее>>
Какие качели лучше – металлические или деревянные?
Перед тем как приступить к строительным работам у себя на приусадебном участке, как это показано на видео ниже, необходимо определиться со следующим вопросом: выбрать детские качели из металла или из дерева. На фото вы можете посмотреть такие варианты. Тут нелегко сделать достойный выбор, поскольку в основном каркас и сиденья для качелей можно сделать как из металла, так и из дерева. Металл будет смотреться очень оригинально. Однако, если вы приняли решение сделать такую постройку своими руками, то лучший вариант из дерева.

Деревянные качели для дачного участка обладают следующими достоинствами:
- Легкость изготовления. Если вы решили своими руками сделать у себя в саду такую постройку, как на фото, то вы можете обойтись и без знаний профессионального сварщика либо художника по металлу. Необходимо всего лишь обладать минимальными способностями обращения с деревом. Любой обычный садовод может сделать такие сооружения своими руками, только вам заранее нужно составить чертежи;
- Стоимость. Детские постройки из металла довольно красивые внешне, однако, их стоимость очень высокая. Варианты из дерева обойдутся вам очень дешево;
- Универсальность. Из дерева можно соорудить любые постройки – как обыкновенные варианты, так и многоместные деревянные подвесные диваны. Варианты из металла совершенно нельзя использовать для детей до 4 лет. Вы можете посмотреть на видео процесс по изготовлению;
- Гармоничность. Деревянные качели необходимо расположить в тенистых участках сада, как на фото чуть ниже. Их также можно расположить возле декоративных водоемов. А вот садовые металлические варианты впишутся только в определенный стиль ландшафта;
- Безопасность. Деревянные садовые конструкции представляют собой натуральный материал. К тому же древесина является мягким материалом, то есть материал не так травмоопасен, как металлические конструкции.

Важный момент: довольно часто можно увидеть на рынке варианты из пластика. Их можно использовать для детей до 3 лет. При этом такие конструкции отличаются доступной ценой. Летом пластмасса может сильно нагреваться и выделять вредные вещества, которые отрицательно скажутся на здоровье ребенка.
Виды
Если вы решили, что садовые самодельные качели для своего ребенка вы сделаете сами, то можно уже начать. Но для начала необходимо определиться, какой именно вид дачных качелей вы хотите сделать для ваших детей. Если вы посмотрите на фото ниже, то поймете, какой это сложный выбор, поскольку существует масса различных вариантов для выбора.
Рассмотрим садовые постройки для детей.
Садовые
Они предназначены для детей. Конструкция таких садовых сооружений может быть без каркаса или с каркасом. Преимущество такой садовой конструкции – это доступная цена, несложный монтаж. Их устанавливают, в основном, стационарно, при этом фиксация у них надежная.
Яловицына
Качели Яловицына являются сооружением, которое предназначено как для взрослых, так и для детишек, для коррекции позвоночника. Качели Яловицына используются индивидуально для самостоятельной разгрузки тяжести с позвоночника. Кроме того, это отличный тренажер для улучшения обмена веществ, позволяющий к тому же получать массу положительных эмоций. Они и легки, и просты, и максимально полезны. Создатель качелей носит ту же фамилию, что и их название. У него также были проблемы со спиной, и поэтому он решил создать такую уникальную конструкцию. На такие дачные конструкции вы можете посмотреть на фото ниже.

Семейные
Такие дачные постройки предназначены для полноценного отдыха всех членов семьи. У них нет ножек, такие подвесные конструкции универсальны и просты. Эти подвесные конструкции имеют каркас в виде буквы А.
Этапы строительства
Рассмотрим основные этапы строительства качелей своими руками:
- Первый этап – выбор места.
Вначале необходимо найти место у вас на даче для постройки качелей. Первым делом определяемся с местом установки. Территорию, на которой вы хотите построить такие садовые сооружения, необходимо подбирать, принимая во внимание такие особенности, как:
- рельеф территории, который должен быть максимально ровным, таким образом, можно будет облегчить процесс постройки;
- их необходимо построить в таком месте, в котором ничто не будет мешать отдыху.

Учтите важный момент: такие конструкции должны находиться на достаточном расстоянии от дома, садовых дорожек и деревьев. Не следует их возводить возле гаража.
- Второй этап – какие необходимы материалы и инструменты.
Сейчас пришло время подобрать необходимые для строительства материалы и инструменты. Древесину можно выбрать любую, все зависит от ваших предпочтений. Только выбирать ее необходимо такую, чтобы она была максимально прочной и не деформировалась. вы можете подобрать, обычный брус, он отлично подойдет. Что касается породы древесины, лучше подобрать лиственницу либо ель.
Для постройки каркаса нам пригодится брус из кедра размерами 100 на 100 мм. Для того чтобы сделать скамейку в виде дивана, необходимо запастись кедровым брусом размерами 43 на 53 мм. Также по вашему желанию можно сделать подушки для садовых качелей. Пригодятся также подвесные системы и специальные крепления, включающие цепь, крюки для подвески и так далее.

Важный момент: детские конструкции обычно дополняют специальными крышами-навесами для того, чтобы защитить постройку от непогоды. В качестве покрытия для готовой постройки подойдет, к примеру, тонкая водостойкая фанера либо доски. Отлично смотрятся соломенные покрытия в этно стилистическом направлении. Их тоже можно сделать своими руками. Или, в крайнем случае, приобрести в обычном магазине.
- Третий этап – это сооружение боковых стоек.
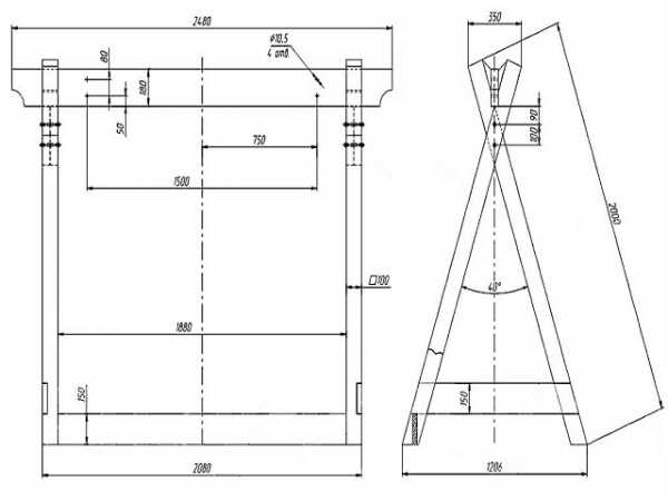
Чтобы правильно установить боковые стойки для конструкции, смотрим на в чертежи. У нас они имеют форму буквы «А».

Чертеж каркаса качелей
Чтобы конструкция дачных качелей, которые вы решили сделать своими руками, получилась максимально устойчивой, нужно следовать следующему правилу: основа их должно быть примерно на 50 см шире сидения. Осуществляется разметка. Соединяем брусья между собой и очень крепко фиксируем их с помощью саморезов. Затем, осуществляется разметка на три идентичные области. Стойки для качелей, сделанных своими руками, будут находиться на области трети. И в конце необходимо вырезать из доски 2 равнобедренные трапеции, высота которых 8 см и закрепить их с внутренней области брусьев на верхней части.
- Четвертый этап – это установка сидений.
Для изготовления скамейки для качелей своими руками, необходимо приготовить брусья с размерами 40 на 180 см – это будет сиденье, а для спинки подойдет брус с размерами 50 на 170 см. По внутренней области нашей конструкции необходимо крепить вертикально стоящие стойки. Затем необходимо соединить спинку вместе с сиденьем под углом примерно 110 градусов и затем обшить их с помощью облицовочной доски.

На данном этапе необходимо заняться изготовлением подлокотников. Стойку необходимо вырезать из бруса, а плоскость – из досок. В конце необходимо установить крепление для подвесок. Рым-болты нужно ввинтить в верхнюю часть бруса спинки, а вторую часть – в переднюю область сидения. Все готово.
- Пятый этап – это установка готовых конструкций и монтажные работы.
Устанавливаем несущие опоры. Берем лопату и начинаем копать. У нас должна получиться яма глубиной приблизительно 78 сантиметров. Далее, необходимо сделать на дне ямы подушку из щебня слоем примерно 18 сантиметров, укладываем в них опоры и верху заливаем раствор бетона. Их следует устанавливать на одну и ту же глубину и только в вертикальном положении. Фиксировать их следует с помощью веревочных растяжек. Дальше ждем, пока бетон отвердеет.
Автор: С. Диана
rozarii.ru
Как сделать качели для всей семьи своими руками
Качели всегда считались одним из лучших изделий для развлечения детей и взрослых, отличающихся простотой конструкции, экономностью затрачиваемых средств на покупку и минимальной площадью, необходимой для установки.
Тем не менее, в последнее время стоимость некоторых видов качелей стала неоправданно высокой. Поэтому многие предпочитают сделать для себя и своих детей качели самостоятельно.
Ваш ребенок будет просто в восторге, если вы сделаете для него детскую горку.Пластиковые бутылки — это не мусор. Из них можно сделать красивые клумбы. Подробнее читайте здесь.Какие виды бывают?
В зависимости от цели назначения существует несколько разновидностей качелей.
Для детей существуют как стандартные качели с деревянным или металлическим каркасом, так и интерпретации в виде седалища прикрепленного на различные опоры — ветку дерева, перекладину между домом и прочие.
Для взрослых существуют качели более прочные, комфортабельные и с меньшей амплитудой раскачивания. Встречаются качели в виде лавочек, кресел и даже диванов и кроватей.
В целом же качели можно подразделить на такие конкретные виды:
- миниатюрные детские качели. Такие качели предназначены для самых маленьких, выдерживают лишь небольшой вес, крепление может быть веревочным, посадочное место весьма мало и зачастую снабжено специальными ремнями безопасности.
- стандартные детские качели. Предназначены для более взрослых детей и подростков. Качели имеют устойчивый каркас, самое простое сиденье. Такие качели чаще всего имеют наибольшую амплитуду раскачивания по сравнению с остальными моделями качелей.
- садовые качели-лавочки. Сиденье данных качелей представляет собой лавочку с перилами и спинкой. Пользоваться такими качелями может до четырех-пяти человек одновременно, в зависимости от модели и размера.
- качели-диваны. Сиденье у таких качелей является мягким диваном, с мягкой спинкой. Обычно такие качели не имеют тенденции сильно раскачиваться. Во-первых, для этого потребуется много сил, во-вторых, зачастую такими качелями пользуются взрослые люди в целях отдохнуть и расслабиться.
Бывают также уникальные модели в виде кровати, где в прямом смысле этого слова, на них можно лечь, и лежа раскачиваться.



Выбор места
Качели, предназначенные для пользования детьми, размещают в саду в предположительном месте детской площадки. Если таковой нет, то тогда находят просторное место, чтобы дети, качаясь, не задевали предметы и им ничего не мешало.
С качелями-диванами и лавочками дело обстоит иначе. Тут играет большую роль ландшафтный дизайн вашего сада или двора. Обычно их ставят в наиболее удобном и уютном месте для пользователя, например, около беседки, в саду у виноградника и тому подобное.
Лучшим вариантом было бы поставить подобную модель качелей в защищенном от сквозняков и ветра месте для большего уюта и комфорта.
Материал для изготовления качелей
Самые простые детские качели могут быть сделаны из веревки, для крепления, и брезентового сиденья, которые не нуждаются в каркасе и могут вешаться на ветки деревьев.
Конструкции более сложные имеют основу — каркас, на котором непосредственно держится сиденье, оно может быть, как и пластиковым, так и деревянным или даже металлическим.
Самым дешевым вариантом будет пластиковое изделие, но оно обычно годится только для маленьких детей и не выносит больших нагрузок.
Распространенным материалом является дерево. Дерево легко в использовании, не требует дополнительной обработки и отделки.
Металлические качели
являются одним из самых дорогих вариантов, каркас их может быть не просто кованным, но и с элементами декоративной ковки. Такие качели очень трудно сделать самому, а на рынке их стоимость соответствующая.


Как сделать садовые качели-лавочки
Вам понадобиться:
- 5 деревянных колод диаметром около 15 см и длиной 1,6 метра;
- металлическая цепь;
- гвозди, 6 рымов.
- 4 колоды диаметром ок. 10 см длиной ок. 50 см;
- доски для конструкции лавочки:
- несущие доски (5 штук),
- доски для настила.
Первым делом сконструируйте лавочку. Длина несущей доски должна быть не более метра. Итак, расположите горизонтально на рабочем месте, возьмите 2 доски, которые предназначены для основы сиденья. Расположите их перпендикулярно к несущей доске по бокам. Желательно расположить их под главной доской. Соедините доски гвоздями соответствующего размера.
Прикрепите, таким образом ещё две доски для основы спинки. А теперь ровными, широкими, плотно прилегающими друг к другу досками или более тонкими и округлыми настелите их вдоль несущей доски и прикрепите гвоздями к доскам перпендикулярным несущей доски.
Мы получили лавочку элементарной конструкции без ножек.
Теперь во дворе найдем место, где собираемся разместить наши качели.
Отметим ширину в полтора метра и сделаем пометки на земле. Разместим две полутораметровые колоды в виде треугольника под углом 45 градусов на одной из пометки. То же самое сделаем и на другой пометке.
Затем сверху между двух вершин получившихся треугольников закрепите гвоздями последнюю пятую колоду. Теперь у вас есть каркас, на котором будет держаться лавочка.
Укрепим его конструкцию путем прикрепления поперечных колод на треугольнике и в месте соединения треугольников с несущей колодой.
Теперь в несущую колоду каркаса с внутренней стороны необходимо вкрутить два рыма на расстоянии длины лавочки друг от друга. Вдеваем в рымы два отрезка металлической цепи. По бокам сидения по периметру вкручиваем ещё четыре рыма.
Теперь остается поднять лавочку и зафиксировать её цепями, продев их в рымы. Получится два треугольника из цепи. С помощью цепи можно регулировать угол наклона самой лавочки. Так, например, если укоротить переднюю часть цепи, лавочка соответствующим образом наклонится так, что спинка будет немного откидываться назад.
В завершение, можно добавить, что всякую конструкцию, в итоге можно разбавить всяческим декором. Например, данную модель обшить поролоном, обтянуть тканью и застелить красивым пледом, и получится прекрасный диван-качели.
1decor.org
Самодельные качели на даче — Всё о терассах
Отдых на даче — это прекрасно, и вполне понятно желание разнообразить его и сделать еще приятнее. Для этого есть множество способов. Один из них — сооружение качелей в саду или на площадке, специально предусмотренной для этого. Они могут выполняться как в виде отдельного сооружения, так и в виде приспособления в игровом комплексе. Особой разницы здесь нет, главное, чтобы сооружение приносило как можно больше радости, позитивных эмоций.

Схема качелей с вариантами изготовления различных узлов:1 — стойка, 2 — покрышка, 3 — сварная калиброванная цепь, 4 — болт М12 с проушиной, 5 — отрезок швеллера № 14 длиной 200 мм, 6 — стальная пластина 140X200 мм толщиной 4 мм, 7 — болт М12.
Если у хозяина дачи есть опыт в обращении с разного рода инструментом, устроить садовые качели можно и своими руками, от покупных моделей они будут выгодно отличаться оригинальностью и эксклюзивной отделкой.
Выбор места установки и дизайна
Для начала необходимо выполнить эскиз будущего сооружения.
Определитесь, где именно качели будут установлены и для кого должны предназначаться.
После этого можно приблизительно определить финансовые затраты. Качели для дачи могут быть качественно и красиво выполнены даже из самых дешевых материалов, но выбор будет зависеть только от личных предпочтений хозяев.
Основной вид и размеры садовых качелей.
Изделия такого рода условно можно разбить на такие категории:
- качели для всей семьи. Сооружение, как правило, выполняется большое по размеру, сиденье обычно в виде скамьи с высокой спинкой, где могут поместиться несколько человек за один раз. Сиденье при помощи цепей подвешивается к прочной раме П-образной формы. На поперечной балке можно устроить небольшой навес, который позволит пользоваться качелями в любую погоду;
- качели для детей. Эта группа самая разнообразная: в нее входят и довольно крепкие сооружения, у которых сиденье выполнено в виде креслица, и бескаркасные изделия, составленные из сиденья и подвески, и конструкции наподобие лодочки. Самыми безопасными считаются каркасные модели. Если качели предназначены для совсем маленьких детей, на них непременно должны быть фиксирующие ремни независимо от типа конструкции;
- переносные качели — мобильного типа конструкции, которые чаще всего подвешивают в помещении. Они могут находиться в беседке, на веранде или в доме. При желании их в любую минуту можно снять и перевесить на другое место, которое представляется более подходящим.
У каждого из этих видов имеются собственные преимущества. На даче любые качели могут использоваться для развлечения или отдыха.
Вернуться к оглавлению
Пошаговая инструкция по изготовлению качелей-скамейки
Чертеж конструкции качелей.
В одиночку может быть скучно даже качаться на качелях. Вариант для веселой компании — самодельные качели в виде лавочки, где поместиться могут несколько человек.
Параметры, предложенные в качестве примера, можно изменять в соответствии с собственными предпочтениями. Например, сделать сиденье уже или шире, увеличить или уменьшить высоту спинки. Здесь главное, чтобы комфортно располагаться и расслабиться, откинувшись на спинку. Такие качели подойдут и для зоны отдыха, и для сада, ими могут пользоваться как взрослые, так и дети.
Качели на даче можно просто повесить на растущую горизонтально ветку любого дерева, но намного лучше, если специально для них установлены столбы с поперечной балкой между ними.
Вернуться к оглавлению
Материалы и инструменты
Деревянные детали садовой качели.
Для изготовления такой модели качелей больше всего подойдет дерево: материал достаточно мягкий для обработки, податливый, но в то же время достаточно прочный, чтобы выдерживать вес сразу нескольких людей. Если на дачном участке не так давно проводилось строительство, скорее всего, в материале недостатка не будет. Докупить потребуется разве что крепежные элементы.
Как по характеристикам, так и по стоимости из древесных материалов лучше всего подойдет сосна, ель или береза. Сама по себе установка будет несложная: качели для дачи должны быть хорошо зафиксированы, а на прочие их качества, вроде внешнего вида, внимание обращают не всегда.
Вам понадобятся:
- Сосновые доски 100Х25 мм, длина 2,5 м — 15 штук.
- Доска 150Х50 мм, длина 2,5 м — 1 штука.
- Саморезы 51х3,5 — 200 штук.
- Саморезы 80х4,5 — 40 штук.
- Карабины — 6 штук.
- Сварная цепь 5 мм — длина в зависимости от высоты качели.
- Винты с кольцами оцинкованные — 1 пара 12Х100 и 1 пара 12Х80.
Саморезы, детали из металла можно подбирать так, что по цвету они могут сочетаться с древесиной или быть контрастными, черными, например. Конечно, конструкцию можно и не окрашивать, но иногда в этой операции есть необходимость. Если садовые качели задуманы не только в качестве устройства для развлечений, но и в качестве элемента дизайна, их цвет может оказаться важен, для того чтобы не нарушать общую концепцию участка.
Для того чтобы выстроить садовые качели из дерева, отлично подойдут традиционные инструменты, которыми принято обрабатывать древесину. Это дрель с разными сверлами, пила циркулярная, молоток, ножовка или лобзик, рубанок. Карандаш, рулетка и угольник пригодятся для выполнения замеров.
Вернуться к оглавлению
Порядок выполнения работ
Качели под крышей: а – общий вид; б – схема монтажа деревянной конструкции; в – конструкция сиденья; 1 – стойка; 2 – поперечина; 3 – подкос; 4 – мауэрлат; 5 – стропила; 6 – коньковый брус; 7 – обрешетка; 8 – металлическая трубка; 9 – металлическая полоса; 10 – доски; 11 – шарикоподшипник; 12 – цепь; 13 – болт с гайкой.
От досок отпиливаем куски полтора метра длиной. У заготовок должны быть прямые углы.
У готовых планок толщина должна быть не меньше 20 мм. На спинку будет оказываться гораздо меньшая нагрузка — достаточно будет толщины 12-13 мм. Планок для сиденья примерно должно быть 17 штук, для спинки — 15 штук.
Чтобы избежать растрескивания древесины, отверстия под саморезы лучше просверлить при помощи дрели, установив тонкое сверло. Для самореза глубина отверстия будет — 2-2,5 мм.
Для того чтобы сиденье и спинка получились удобными, детали основы, куда должны прикрепляться планки, лучше сделать фигурными, а не прямыми. Для них надо выбирать толстые доски — 150Х50 мм. Получатся шесть деталей для каркаса.
Подбирается оптимальный угол, под которым будут соединяться сиденье и спинка. Детали сперва объединяют в раму, после чего фиксируют планки, соблюдая между ними одинаковые интервалы. Сперва надо укрепить концы деталей, потом — середину. Подлокотники выполняют из двух брусков, ширину для которых можно выбрать какую угодно. Один их конец фиксируется на сиденье, другой — на раме спинки.
Для крепления винта с кольцом самое удачное место — стойка подлокотника (нижняя часть). Чтобы гайки не входили в древесину полностью, следует применять шайбы. Такие же кольца прикручивают к балке, расположенной сверху, на которой должны висеть качели. Присоединять цепь к кольцам следует при помощи карабинов. Теперь место для отдыха готово, можно устраиваться поудобнее и наслаждаться процессом.
Если используются конструкции из металла, их края должны быть обработаны при помощи шлифмашинки, это делается, для того чтобы исключить возможность порезов.
Вернуться к оглавлению
Качели для дачи с разными вариантами сидений
Кресло-качели: 1 – горизонтальный элемент боковины; 2 – стержень соединительный; 3 – угольник усиливающий; 4, 11 – вертикальные элементы боковины; 5 – элемент каркаса сиденья; 6 – элемент решетки спинки и сиденья; 7 – элемент каркаса сиденья; 8 – направляющая шнура-подвески; 9 – штырь; 10 – фиксатор сиденья.
Одновременно простой и универсальный вариант — сооружение качелей на боковых стойках. На них можно подвесить самые разные виды сидений. Можно подробнее остановиться на установке удерживающей конструкции.
Инструменты и материалы можно использовать те же самые, что и для предыдущего варианта самоделки. Конструкция внешне выглядеть будет так: пара стоек, составленных в виде буквы «А», вверху соединены перекладиной. Чем ширина предполагаемого сиденья больше, тем шире надо расставлять стойки. Столбы или брусья наверху скрепляют при помощи болтов — так надежнее.
Чтобы вертикальные элементы не разошлись, их надо зафиксировать перекладинами, высота от грунта — примерно 1/3. Перекладины при установке надо располагать параллельно друг другу. Для них лучшими креплениями будут посаженные на саморезы уголки.
Как правило, для стяжки вполне хватает одной пары перекладин. Но иногда выполняют и вторую — наверху конструкции. При этом надо усилить и место крепления верхней перекладины: с внутренней стороны устанавливают трапециевидные накладки из дерева или металла.
На боковые стойки прикрепляют поперечную опорную балку, после чего сооружение устанавливается в грунт. Потребуется предварительно выкопать для этого две пары ям, глубиной не меньше 70 см, это необходимо для хорошей устойчивости. Та часть столбов, которая будет устанавливаться в землю, должна быть обработана антисептиком для предотвращения загнивания. На дне ям устраиваются подушки из щебня слоем 20 см, в ямы вставляются стойки, после чего производится заливка бетонного раствора. Чтобы проверить правильность расположения верхней балки, которое должно быть горизонтальным, применяют строительный уровень.
Перекладину, расположенную наверху, можно снабдить креплениями, которые установлены на разной ширине. В результате этого получается вполне надежная конструкция, на которую возможно повесить самые разные типы качелей: от обычных веревочных до широкого диванчика, где может разместиться вся семья.
Вернуться к оглавлению
Полезные советы
При установке качелей, предназначенных для детей, следует учитывать в первую очередь безопасность. Все детали необходимо как можно лучше отшлифовать при помощи наждачной бумаги. Деревянные элементы должны быть лишенными сучков: для несущих конструкций бракованная древесина не подойдет. При наличии острых углов необходимо их сгладить при помощи напильника.
О самом сооружении надо позаботиться следующим образом: обработать пропиткой, окрасить или выполнить отделку лаком. Это продлит качелям срок службы, а с использованием оцинкованного крепежа можно избежать внутренних разрушений древесины.
При натягивании цепи, на которой крепится сиденье качелей, надо подбирать правильную высоту. Предварительно должны быть выполнены замеры, хорошей высотой считается такая, при которой ноги сидящих на качелях людей без труда могут коснуться земли носками.
Устроенные таким образом дачные качели получатся несколько жесткими (если не считать вариантов, когда на нижнюю раму устанавливают ненужный диван). О полноценном отдыхе в этом случае вряд ли можно говорить. Поэтому для максимального комфорта лучше приобрести или сшить самостоятельно подушечки из любого мягкого материала. Если изготовить для них непромокаемые чехлы из полиэтилена, подушки прослужат довольно долго.
vashaterrasa.ru
