Качели своими – дачные, садовые, из металла (трубы круглой, профилированной), дерева (бруса, бревна)
дачные, садовые, из металла (трубы круглой, профилированной), дерева (бруса, бревна)
Помните детские ощущений от качелей? Это не только приятно, но еще и полезно — монотонные раскачивания тренируют вестибулярный аппарат, а еще — успокаивают нервную систему. Второе свойство в наше время очень полезно. Такое себе приятное лечение-расслабление после напряженного дня. Тем более, что сделать качели своими руками сможет любой человек с «прямыми» руками. Есть, конечно и сложные модели, но простых намного больше.
О конструкциях
Содержание статьи
Как и большую часть надворных построек, качели чаще всего делают из дерева. Стойки и перекладину — из бруса, бревна, сиденья — из дощечек и даже из частей домашней мебели.

Такие качели-диван со с стойками из бревен сделать самостоятельно легко: быстро, дешево, удобно
Немного о конструкциях. Есть три основных вида подвесных качелей, или как их еще называют — качели-лодочка, диван, скамейка и т.п. Основное отличие в типе опорной конструкции: есть А-образное и П-образное. Пример со стойками, сложенными в треугольную конструкцию вы видите выше, а на фото ниже пример с П-образной стойкой. Это уже скорее пергола с подвесной скамейкой и строится она по тому же типу, только еще с учетом раскачивающих нагрузок.
Есть третий вид — это уже сложное сооружение, которое требует определенных навыков — в его основе шарнирные соединения и раскачиваются они от упора ногами в пол. Сразу приведем и фото и схемы для желающих (можно развернуть во весь экран, если нажать на стрелки в правом верхнем углу картинки).
Как построить беседку из дерева своими руками читайте тут.
Делаем качели своими руками из дерева
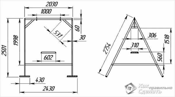
Чаще всего самостоятельно делают конструкцию в виде буквы «А». Она проще, требует меньшего расхода материалов. Более подробно разберем узлы, крепления, поговорим о материалах, защите от разрушения и устойчивости.
Материалы
Сразу о том, из чего сделать деревянные качели. Выбор сечения пиломатериалов зависит от планируемой нагрузки. Если предполагается, что сидеть будет один взрослый человек, стойки и верхняя перекладина по минимуму — 50*70 мм. Если предполагается большее количество «посадочных» мест — два или три, то сечение бруса не менее 100*100 мм, в лучше — 100*150 мм. Опытным путем установлено, что такая конструкция при использовании бруса 100*100 нормально выдерживает суммарную нагрузку около 200 кг. Если вам необходимо больше — берите большее сечение, или ставьте бревна))
О том, из чего изготавливают скамью/диванчик. На каркас пойдет брусок 70*40 мм, высота спинки не менее 600 мм, глубина сиденья не менее 480 мм. С глубиной сиденья и углом наклона спинки можно экспериментировать: есть варианты под «лежачее» положение. Соответственно, и длинна дивана и габариты конструкции от этого сильно меняются. Для крепления используют гвозди 200 или шпильки не менее 10 мм в диаметре.
Как расположить стойки
Схема с размерами и перечнем требуемого материала на фото ниже. Если откровенно, мало кто делает из таких материалов, как указано в спецификации. Чаще ставят брус.
- Перечень материалов для изготовления качели-скамьи
- Чертеж с размерами подвесной качели из дерева
Есть разновидности этой конструкции: с нижней рамой или без. Если качели устанавливаться будут на жесткой площадке и крепления сделать жесткими, на шпильки, без возможности люфта, то стоять такая конструкция будет без проблем. Если есть сомнения, можно сделать по низу стяжку из бруса, прибить ее шпильками к покрытию, или вогнать скобы в землю.
- Тут добавлена перекладина, разъезжаться нечему
- Самая простая конструкция, но «ноги» могут разъезжаться
- Эти просто стоят, не закопанные
Для тех, кто боится боковых нагрузок — конструкция в этой оси не самая надежная — можно предложить стойки ставить с уклоном. Площадь потребуется большая, но устойчивость будет высокой.

Стойки с уклоном сделают конструкцию более устойчивой
Если предполагается установка в грунт, части стоек, которые будут закапываться необходимо обработать био-защитой. Как дешевый вариант — поставить на несколько часов в сосуд с отработанным маслом. Высушить, потом закапывать. Зарывают на глубину не менее 50 см, на дно насыпают немного щебня, выставляют стойки и бетонируют. Если боитесь, что этого недостаточно, прикрепите крестообразно внизу несколько полос металла. Лунку придется копать большего размера, но площадь удержания будет больше.

Качели из бруса на грунте. Видны следы бетонирования
Как сделать пруд для дачи или возле дома читаем в этой статье. Возможно, вам будет интересно прочесть о бассейнах для дачи.
Способы крепления поперечины
Во всех качелях такого типа — с подпиленным вверху брусьями стоек — проблемным является узел крепления поперечины, к которой цепляют потом скамью. На фото выше он решен надежно, хоть и не совсем эстетично. Вся беда в том, что эстетичные способы сложны в исполнении. И, если вам не на продажу, быстрее сделать что-то неэлегантное, но надежное. Так вот, чтобы закрепить поперечину, ниже пересечения приделан накладной брус, притянутый к стойкам шпильками. На него и ложится поперечина, которая от боковых сдвигов удерживается стойками и крепежом — гвоздями и шипильками.
Еще один способ установки поперечины — крепить боковые стойки в виде буквы «Х». При таком варианте несущий брус отлично ложится. Его дополнительно крепят гвоздями, а стойки стягивают шпильками. Такой вариант смотрите на следующем фото.

Все хорошо, но длины диванчика не хватает…
По такому же принципу собраны качели своими руками из бревен: боковые скреплены накрест, а сверху уложено опорное бревно. Если брус иногда собирают на гвозди, то в случае с бревнами используют в основном шпильки.

Качели на цепях из бревна
Для тех, кто хорошо знаком с плотницким делом, есть еще варианты: в пол-дерева. Такой проект в фотогалерее ниже с крупным планом некоторых ключевых узлов.
О скамейках для сада и участка можно прочесть тут.
Фотогалерея самодельных качелей на цепях
И несколько фото разных качелей, сделанных на основе А-образной конструкции.
Как построить детский игровой домик на дачном участке или возле дома читайте тут.
Крепление качелей к перекладине
Еще требует разъяснений крепление для качелей, то есть не для всех очевидно, как подвесить скамейку-диванчик на перекладину. Сначала перекладина сверлится снизу-вверх насквозь. Через отверстие пропускается болт, к которому крепится рым-гайка. Под шляпку гайки укладывают одну-две широкие шайбы, чтобы она не продавливалась под весом.

Вместо обычной гайки на пропущенный через отверстие в перекладине болт накручивается рым-гайка
Получается, что кольцо рым-гайки расположено внизу. К нему можно крепить карабин, перекинуть канат или трос и т.п. Только обратите внимание, что карабин должен нормально, свободно висеть на кольце рым-гайке. А в карабине должны свободно помещаться два звена цепи. Потому желательно покупать все вместе в одном магазине: можно примерить весь узел сразу.

Как собирается крепление из цепей для качели. Потом этот карабин продевается в рым-гайку и закручивается страховочное кольцо
Кстати, в магазине такелажа можно наткнуться на другие приспособления, которые можно приспособить для крепления цепей или веревок от сиденья качели. Например, такие, как на фото ниже.

Еще варианты такелажа. Из них тоже можно сделать качельный узел для крепления к перекладине
Они рассчитаны на подъем груза от 0,5 тонны, так что для детских их использовать нет смысла, в вот на качели для взрослых — вполне.
У такого крепления есть существенный минус — при раскачивании слышен скрип. На время от него избавиться можно смазав узел, но операцию эту придется периодически повторять. Выход — сделать узел на подшипниках, но без сварки не обойтись.
Качели из металла своими руками
Конструкция у них точно такая же. Материал другой, и способ его крепления. Это — сварка. Тем, кто знаком со сварочными инверторами, не составит труда сварить нечто подобное. А для вдохновения фотоотчет.
Ниже есть чертеж этой качели с размерами. Требуются некоторые пояснения. На рисунке имеется приваренная по периметру труба (эта плоскость заштрихована). Она закопана и потому на фото не видна. Была сделана для того, чтобы повысить устойчивость: массы у друзей немалые. По той же причине наварены на торцы стоек пластины металла. Установку усложнили, но стоят качели намертво.

Чертеж качели из профильной трубы с размерами
Для изготовления ушло 22 метра профильной трубы 50*50 мм, для сиденья 25*25 мм — 10 мм, доски 2000*120*18 — 7 шт и остальное — крепеж, краска, антиржавчина.
Есть еще один способ крепления качели к перекладине. Он на фото.

Способ сделать крепление металлической качели к перекладине
Никто так не сможет объяснить, как автор произведения. Как сделать качели своими руками из металла смотрите в видео.
Оригинальной формы качели из профильной трубы — стойки нелинейные, а изогнутые. Такое с деревом сделать если и возможно, то только мастеру.
Несколько фото-идей от авторов и владельцев подобных конструкций.
- Такие металлические качели своими руками можно сделать при наличии трубогиба
- Это вариант из металла самой первой конструкции
- Классика жанра: все просто и без излишеств
О конструкциях и изготовлении металлических мангалов можно прочесть в этой статье.
Детские качели
Для детей можно сделать такие же по конструкции, но меньшего размера.

Примерные размеры качелей для детей. Высота, понятно, может быть и меньше
Есть несколько других моделей для детской площадки, а о том, как сделать песочницу можно прочесть тут. Вот первые — качели-весы или балансир.

Качеля для детей — балансир или весы
Все понятно, могут возникнуть вопросы только по узлу крепления. Ниже чертеж с указанием размеров. Для украпления верхней части внутри закрепляются стальные пластины. Чтобы они качались, сверлится отверстие, в которое продевается штырь. Улучшить «качение» можно вставив подшипники.

Стойки для качели-балансира
Быстро и просто можно сделать качели-гнездо из шины (автомобильной покрышки). В нее по четырем углам устанавливаются болты с рым-гайками, но меньшего диаметра (про шайбы не забудьте), к ним цепляются канаты или цепи, а их можно хоть на соответствующую ветку на дереве закинуть, хоть на турник повесить.

Как сделать качели-гнездо из покрышки
stroychik.ru
140 фото качелей для дачи своими руками
качели садовыеМеню статьи
Наверно нет никого, кто бы равнодушно относился к качелям, а уж о детях и говорить нечего. У всех иногда возникает желание побыть в подвешенном состоянии, поэтому качели, это не только обязательный атрибут детской площадки, их можно сделать во дворе, в саду, на веранде, даже дома. Здесь представлено несколько фотографий — выбор за вами.
Садовые качели своими руками
Вот, например вариант обычных садовых качелей, которые подойдут и детворе и взрослым любителям покачаться Незатейливая конструкция, которую сможет воплотить в жизнь, даже человек, далекий от плотницкого дела.
Качели на дереве
Делаем классические качели на дереве
А это классический вариант качелей из дощечки, подвешенной на двух тросах на ветке дерева. Самый-самый простой вариант!!! Подсмотрено на сайте wikihow.com
1 фото — нарисован самый безопасный узел. Используем нейлоновую веревку, что бы дерево меньше перетиралось.
2,3 и 4 фото — отпиливаем, шлифуем и сверлим симметричные отверстия.
Пошаговые фото
Советы:
- — Дуб — лучший вариант.
- — Осмотрите ветвь, на которую будете вешать качели на наличие трещин и признаков болезни.
- — Если используете цепи, то рекомендуем их обернуть в пластиковые трубы, для предотвращения попадания в них пальцев.
- — Проверяйте надежность ветви каждую неделю, т.к. использование качели может постепенно разрушать древесину.
- — Перед использованием качели детьми испытайте качели на самом крупном члене семьи.
Источник фото: wikihow.com
Качели для детей
Если делать детские качели, то можно добавить немного декора, в этом случае боковины сделали в виде машинок. Впрочем, не важно, можно хоть динозавров, главное, чтобы было ярко и весело. Карабины и перекладину тоже желательно подобрать понадежней, дети все-таки. Вряд ли они будут тихо качаться, и любоваться природой.
Детские комнатные качели для годовалого ребёнка

А-образные садовые деревянные качели своими руками. Чертеж. Схема. Пошаговые фото
Очень подробный проект деревянных качелей для сада.
Такие качели будут под силу даже самому неопытному мастеру.
Данные качели крепятся к земле, устанавливаясь в бетонные основания при заливке (см. фото 5). Проект скамейки для этих качелей смотрите на странице ниже.
Источник фото: www.howtospecialist.com
Делаем скамейку для качелей
Ниже приведены пошаговые фото, чертежи для изготовления деревянной скамейки для садовой качели, которую мы описали выше.
Данная скамья является универсальной и поэтому такую конструкцию можно подвесить не только на а-образных качелях, но и на других видах качелей, например, можно подвесить балке потолка в беседке.
Источник фото: www.howtospecialist.com
Варианты крепления верхней перекладины качелей
Подробное описание одного такого варианта крепления



Кресло качеля
Если захочется побыть в одиночестве и поразмышлять на природе о чем-то вечном, покачиваясь в уютном кресле, соорудите себе такое кресло-качель. Согласитесь, есть в нем что-то винтажное, а бахрома с кистями настраивает на поэтический лад.

Качели диван на веранду
Впрочем, зачем лишать себя удовольствия дома. Если у вас большая веранда с крепким перекрытием, можно сделать качели и там, например, в виде подвешенного дивана. Наверно приятно подремать на свежем воздухе на мягких подушках
Чертеж схема качелей с навесом
Что бы увеличить картинку кликните по ней
На иллюстрации подробно изображены все детали для изготовления таких качелей. Есть даже шаблоны для вырезания боковых стоек скамейки. К сожалению, нам не удалось найти изображение более высокого качества, и мы не смогли установить источник картинки.
Источник изображения установить не удалось.
Использовать качели диван можно и в такой беседке парголе. Сегодня они очень модные, хотя и не очень практичные. Если пойдет дождик, подушки придется спасать, но зато это так по европейски. На таком диванчике можно представить, что находишься на берегу Эгейского моря.
Чертеж скамейки качелей для беседки или крыльца
Такие качели можно повесить в не только в беседке, но и в любом помещении, главное что бы опорная балка была прочной. Ниже на пошаговых фото приведены подробные схемы создания. На одной иллюстрации имеется шаблон для выпиливания боковой стенки от каркаса скамейки.
Источник фото: www.howtospecialist.com
Как сделать скамью для качелей
Пошаговые фото


Кликните по фото для увеличения
Источник фото: buildeazy.com

Качели с навесом
Но для наших условий лучше делать качели с крышей. Вот такую скамеечку под небольшим накрытием сделать совсем не сложно Просто и со вкусом.
Качели в стиле пергола
Интересный вариант качелей мы нашли на сайте diynetwork.com. Ниже в галерее вы можете посмотреть пошаговые фото создания не только опор качелей, но и сиденки. Кстати, конструкция очень простая и симпатичная. Особую элегантность создают параллельнее бруски на крыше качелей, придающие конструкциям вид перголы.
Источник фото: diynetwork.com
Схема-чертеж качелей перголы своими руками
Посмотрите пошаговые фото постройки качелей пергола. На 3-ем фото изображен способ крепления опорных балок с бетонными основаниями. По причине множества деталей рекомендуется все промежутки между древесиной перголы заполнить специальным наполнителем. Чертеж скамейки смотрите ниже.
Источник фото: www.howtospecialist.com
Чертеж скамейки для качелей пергола
Здесь вы можете ознакомиться с пошаговыми фото инструкциями по созданию скамейки для перголы модели описанной выше в статье. Это довольно простая конструкция, справиться даже новичок.
Источник фото: www.howtospecialist.com
Из бревен…

Или такой дачный вариант. Надежная конструкция из бревен с небольшой крышей хорошо впишется в суровый быт российской глубинки.
Качели из бревен с двойными ножками. Пошаговые фото
Автор фото утверждает, что эти сказочные качели он сделал на 3 дня!!! Давайте разберем некоторые фото.
1 фото: мы имеем сосновые бревна от 2-3 метра, диаметром 10-15 см.
4 фото: изображен способ крепления. Это резьбовая спица диаметром 10 мм. Скрестив необходимые бревна в нужных местах, мы просверливаем отверстие и, вставив туда спицу, обрезаем её болгаркой. Накручиваем с обеих сторон гайки с шайбами на спицу и стягиваем. Неправда ли просто.
6 фото: мы видим что боковые стойки должны получиться симметричными
7 фото: скрепляем боковые стойки. Для этого кладем на верх бревно и прикручиваем его спицами.
9 фото: для придания прочности конструкции добавляем два наклонных упора.
11 фото: скамья с размерами. Каркас: бруса 5х7, доски — сороковка
Предпоследнее фото — покрашенные качели. На мой взгляд неудачный цвет. Не забудьте при покраске использовать специальные средства для обработки, что бы древесина служила дольше.
Последнее фото: к качелям прикрепили ещё одну скамью для ребенка. Зачёт!!!
Насчет фундамента. То в местах соприкосновения качели с землей заливаем цемент, в которые заодно вставляем металлические основания, к которым мы потом сможем прикрепить наши ножки.
Эти пошаговые фото мы нашли на сайте jawura.com.pl, автор которого является автором ниже приведенных фото.
А вот ещё одна фото конструкция качелей из бревен с навесом
На фото ниже Вы можете рассмотреть все детали креплений. Используются цепи, карабины, анкера. Угол между спинкой и сиденьем скамьи 100 градусов. Все бревна крепим тем же способом, что и в модели выше. Удивляет простота крепления навеса. Автор фото неизвестен

Необычные качели на двоих
Если тянет на что-то креативное, бывают и такие оригинальные качели на двоих. Конструкция, конечно, сложная, но, как говорится, было бы желание. Зато, как маленькая беседка, очень удобно разговаривать с глазу на глаз, слегка покачиваясь.
Чуть незаслуженно не забыли про старые покрышки. Каких только видов качелей из них не делают. А вот до такого кресла не каждый додумается.
Качели из покрышки своими руками. Пошаговые фото
Для создания такой качели нам понадобятся три U-образные болта, один карабин, три цепи и нейлоновый трос. Нейлоновый трос нам нужен, что бы не перетиралась кора дерева от цепи. На фото прекрасно видно как это все крепиться, комментарии излишни.




Источник фото: todayscreativelife.com, автор: Michele
Красивые качели с ковкой
Такие качели в ажурной беседке, конечно, роскошь, но зато как красиво. Правда, не всем по карману.
Металлические качели
А если вашим бюджетом расходы на качели не предусмотрены, то достаточно найти старый деревянный стеллаж и пару крепких цепей. Пожалуйста, бюджетный вариант качелей готовый.
Качели кровать из поддонов (пошаговые фото)
Вот один из самых распространенных вариантов изготовления качелей из паллет, который представлен в интернете почти на каждом сайте. Поэтому и мы не обойдём его стороной. Ниже вы можете посмотреть два фото блока с пошаговыми инструкциями по созданию. А ещё ниже вы можете ознакомиться с фотогалереей готовых качелей. Думаю ничего сложного
Соединяем два поддона брусками
Сверлим отверстия для канатов
Что бы увеличить фото нажмите на них
Источник фото: http://themerrythought.com
Качели из евро паллет
Просто отпиливаем половину от евро паллет. Заполняем пустые пространства между досками, что бы было удобнее сидеть. Подвязываем полученную скамейку за тросы указанным на фото способом. Качели готовы.
Для Вас мы подобрали уникальную подборку идей самых интересных фото качелей для вашего приусадебного участка. Материалы собраны со всего интернета, нашего и забугорного. Авторство многих фото установить, к сожалению, не удалось. Источники же определенных фото указаны в подвале статьи.
Деревянные качели. 30 фото
www.novamett.ru
Садовые качели своими руками: 249 фото, чертежи
Садовые качели своими рукамиМеню статьи
Представляем вашему вниманию нашу подборку идей садовых качелей для дачи. Ниже вы сможете ознакомиться с пошаговыми фото изготовления разнообразных качелей для дачи из следующих материалов: из метала, из дерева, из поддонов, из паллет, из железа и бревен.
Так же заканчивается наша статья ОГРОМНОЙ фотогаллерей идей качелей, которую мы собрали со всех просторов интернета. Поэтому обязательно пролистайте статью до конца и посмотрите нашу подборку
Садовые качели своими руками
Вот, например вариант обычных садовых качелей, которые подойдут и детворе и взрослым любителям покачаться Незатейливая конструкция, которую сможет воплотить в жизнь, даже человек, далекий от плотницкого дела.
Качели на дереве
Делаем классические качели на дереве
А это классический вариант качелей из дощечки, подвешенной на двух тросах на ветке дерева. Самый-самый простой вариант!!! Подсмотрено на сайте wikihow.com
1 фото — нарисован самый безопасный узел. Используем нейлоновую веревку, что бы дерево меньше перетиралось.
2,3 и 4 фото — отпиливаем, шлифуем и сверлим симметричные отверстия.
Пошаговые фото
Советы:
- — Дуб — лучший вариант.
- — Осмотрите ветвь, на которую будете вешать качели на наличие трещин и признаков болезни.
- — Если используете цепи, то рекомендуем их обернуть в пластиковые трубы, для предотвращения попадания в них пальцев.
- — Проверяйте надежность ветви каждую неделю, т.к. использование качели может постепенно разрушать древесину.
- — Перед использованием качели детьми испытайте качели на самом крупном члене семьи.
Источник фото: wikihow.com
Качели для детей
Если делать детские качели, то можно добавить немного декора, в этом случае боковины сделали в виде машинок. Впрочем, не важно, можно хоть динозавров, главное, чтобы было ярко и весело. Карабины и перекладину тоже желательно подобрать понадежней, дети все-таки. Вряд ли они будут тихо качаться, и любоваться природой.
Детские комнатные качели для годовалого ребёнка

А-образные садовые деревянные качели своими руками. Чертеж. Схема. Пошаговые фото
Очень подробный проект деревянных качелей для сада.
Такие качели будут под силу даже самому неопытному мастеру.
Данные качели крепятся к земле, устанавливаясь в бетонные основания при заливке (см. фото 5). Проект скамейки для этих качелей смотрите на странице ниже.
Источник фото: www.howtospecialist.com
Делаем скамейку для качелей
Ниже приведены пошаговые фото, чертежи для изготовления деревянной скамейки для садовой качели, которую мы описали выше.
Данная скамья является универсальной и поэтому такую конструкцию можно подвесить не только на а-образных качелях, но и на других видах качелей, например, можно подвесить балке потолка в беседке.
Источник фото: www.howtospecialist.com
Варианты крепления верхней перекладины качелей
Подробное описание одного такого варианта крепления



Кресло качеля
Если захочется побыть в одиночестве и поразмышлять на природе о чем-то вечном, покачиваясь в уютном кресле, соорудите себе такое кресло-качель. Согласитесь, есть в нем что-то винтажное, а бахрома с кистями настраивает на поэтический лад.

Качели диван на веранду
Впрочем, зачем лишать себя удовольствия дома. Если у вас большая веранда с крепким перекрытием, можно сделать качели и там, например, в виде подвешенного дивана. Наверно приятно подремать на свежем воздухе на мягких подушках
Чертеж схема качелей с навесом
Что бы увеличить картинку кликните по ней
На иллюстрации подробно изображены все детали для изготовления таких качелей. Есть даже шаблоны для вырезания боковых стоек скамейки. К сожалению, нам не удалось найти изображение более высокого качества, и мы не смогли установить источник картинки.
Источник изображения установить не удалось.
Использовать качели диван можно и в такой беседке парголе. Сегодня они очень модные, хотя и не очень практичные. Если пойдет дождик, подушки придется спасать, но зато это так по европейски. На таком диванчике можно представить, что находишься на берегу Эгейского моря.
Чертеж скамейки качелей для беседки или крыльца
Такие качели можно повесить в не только в беседке, но и в любом помещении, главное что бы опорная балка была прочной. Ниже на пошаговых фото приведены подробные схемы создания. На одной иллюстрации имеется шаблон для выпиливания боковой стенки от каркаса скамейки.
Источник фото: www.howtospecialist.com
Как сделать скамью для качелей
Пошаговые фото


Кликните по фото для увеличения
Источник фото: buildeazy.com

Качели с навесом
Но для наших условий лучше делать качели с крышей. Вот такую скамеечку под небольшим накрытием сделать совсем не сложно Просто и со вкусом.
Качели в стиле пергола
Интересный вариант качелей мы нашли на сайте diynetwork.com. Ниже в галерее вы можете посмотреть пошаговые фото создания не только опор качелей, но и сиденки. Кстати, конструкция очень простая и симпатичная. Особую элегантность создают параллельнее бруски на крыше качелей, придающие конструкциям вид перголы.
Источник фото: diynetwork.com
Схема-чертеж качелей перголы своими руками
Посмотрите пошаговые фото постройки качелей пергола. На 3-ем фото изображен способ крепления опорных балок с бетонными основаниями. По причине множества деталей рекомендуется все промежутки между древесиной перголы заполнить специальным наполнителем. Чертеж скамейки смотрите ниже.
Источник фото: www.howtospecialist.com
Чертеж скамейки для качелей пергола
Здесь вы можете ознакомиться с пошаговыми фото инструкциями по созданию скамейки для перголы модели описанной выше в статье. Это довольно простая конструкция, справиться даже новичок.
Источник фото: www.howtospecialist.com
Из бревен…

Или такой дачный вариант. Надежная конструкция из бревен с небольшой крышей хорошо впишется в суровый быт российской глубинки.
Качели из бревен с двойными ножками. Пошаговые фото
Автор фото утверждает, что эти сказочные качели он сделал на 3 дня!!! Давайте разберем некоторые фото.
1 фото: мы имеем сосновые бревна от 2-3 метра, диаметром 10-15 см.
4 фото: изображен способ крепления. Это резьбовая спица диаметром 10 мм. Скрестив необходимые бревна в нужных местах, мы просверливаем отверстие и, вставив туда спицу, обрезаем её болгаркой. Накручиваем с обеих сторон гайки с шайбами на спицу и стягиваем. Неправда ли просто.
6 фото: мы видим что боковые стойки должны получиться симметричными
7 фото: скрепляем боковые стойки. Для этого кладем на верх бревно и прикручиваем его спицами.
9 фото: для придания прочности конструкции добавляем два наклонных упора.
11 фото: скамья с размерами. Каркас: бруса 5х7, доски — сороковка
Предпоследнее фото — покрашенные качели. На мой взгляд неудачный цвет. Не забудьте при покраске использовать специальные средства для обработки, что бы древесина служила дольше.
Последнее фото: к качелям прикрепили ещё одну скамью для ребенка. Зачёт!!!
Насчет фундамента. То в местах соприкосновения качели с землей заливаем цемент, в которые заодно вставляем металлические основания, к которым мы потом сможем прикрепить наши ножки.
Эти пошаговые фото мы нашли на сайте jawura.com.pl, автор которого является автором ниже приведенных фото.
А вот ещё одна фото конструкция качелей из бревен с навесом
На фото ниже Вы можете рассмотреть все детали креплений. Используются цепи, карабины, анкера. Угол между спинкой и сиденьем скамьи 100 градусов. Все бревна крепим тем же способом, что и в модели выше. Удивляет простота крепления навеса. Автор фото неизвестен

Необычные качели на двоих
Если тянет на что-то креативное, бывают и такие оригинальные качели на двоих. Конструкция, конечно, сложная, но, как говорится, было бы желание. Зато, как маленькая беседка, очень удобно разговаривать с глазу на глаз, слегка покачиваясь.
Чуть незаслуженно не забыли про старые покрышки. Каких только видов качелей из них не делают. А вот до такого кресла не каждый додумается.
Качели из покрышки своими руками. Пошаговые фото
Для создания такой качели нам понадобятся три U-образные болта, один карабин, три цепи и нейлоновый трос. Нейлоновый трос нам нужен, что бы не перетиралась кора дерева от цепи. На фото прекрасно видно как это все крепиться, комментарии излишни.




Источник фото: todayscreativelife.com, автор: Michele
Красивые качели с ковкой
Такие качели в ажурной беседке, конечно, роскошь, но зато как красиво. Правда, не всем по карману.
Металлические качели
А если вашим бюджетом расходы на качели не предусмотрены, то достаточно найти старый деревянный стеллаж и пару крепких цепей. Пожалуйста, бюджетный вариант качелей готовый.
Качели кровать из поддонов (пошаговые фото)
Вот один из самых распространенных вариантов изготовления качелей из паллет, который представлен в интернете почти на каждом сайте. Поэтому и мы не обойдём его стороной. Ниже вы можете посмотреть два фото блока с пошаговыми инструкциями по созданию. А ещё ниже вы можете ознакомиться с фотогалереей готовых качелей. Думаю ничего сложного
Соединяем два поддона брусками
Сверлим отверстия для канатов
Что бы увеличить фото нажмите на них
Источник фото: http://themerrythought.com
Качели из евро паллет
Просто отпиливаем половину от евро паллет. Заполняем пустые пространства между досками, что бы было удобнее сидеть. Подвязываем полученную скамейку за тросы указанным на фото способом. Качели готовы.
Для Вас мы подобрали уникальную подборку идей самых интересных фото качелей для вашего приусадебного участка. Материалы собраны со всего интернета, нашего и забугорного. Авторство многих фото установить, к сожалению, не удалось. Источники же определенных фото указаны в подвале статьи.
Деревянные качели. 30 фото
novamett.ru
Детские качели своими руками — инструкция как сделать своими руками (80 фото-идей)
Уже много лет детские качели не теряют свою популярность. В современном мире, при появлении различных гаджетов, дети все больше времени проводят дома. Поэтому если двор или дача обустроены современными аттракционами, качелями — это лишний повод провести время на свежем воздухе.
Детские качели выполняют ряд важных функций, направленных на развития ребенка:
- скрашивают свободное время;
- закаляют вестибулярный аппарат;
- вырабатывают координацию движений тела;
- дарят положительные эмоции за счет выброса адреналина;
- снижают стресс в период плавных покачиваний.

Если нет возможности приобрести качели в магазине или есть переживания о безопасности малыша, то можно их смастерить самостоятельно. Это позволит сэкономить средства и придумать индивидуальную конструкцию. По фото и чертежам детских качелей, советам мастеров в интернете, можно сделать крепкую и надежную конструкцию.

Некоторые родители, желая сделать качели для своего ребенка используют подручные материалы — шины автомобилей, пластиковые трубы, веревки и прочее.

Однако, чтобы изготовить их правильно, для начала необходимо:
- выбрать тип конструкции;
- выполнить чертеж;
- закупить материалы;
- подготовить необходимые инструменты.
Краткое содержимое статьи:
Качели из металлических труб
Если появилась задумка сделать подвесные детские качели, сначала необходимо выкопать неглубокие ямки для несущих опор. Для этой работы можно использовать лопату или ручной бур. Если каркас для качелей металлический, то перед тем как поставить столб в яму, его низ нужно смазать веществами, которые препятствуют образованию коррозии металла.

На дно ямы насыпать щебень и песок и закопать опорные столбы, а поверх залить бетоном. После монтажа опорных столбов, сверху к ним необходимо приварить поперечную перекладину, к которой будет крепиться сидение. В центре ее нужно закрепить подшипники.

Сидение можно прикрепить приварив металлические трубы, подвесить на цепи или закрепить на канате. Сиденье — деревянные доски, старые стулья и прочие приспособления.

Качели из автомобильной покрышки
Конструируя качели на дачном участке необходимо проявить фантазию, особенно если участок засажен деревьями. Ведь именно толстый крепкий сук дерева можно использовать вместо конструкции из п-образной рамы. К нему на цепи или канате можно закрепить сиденье в виде автомобильной покрышки.

Чтобы ее закрепить, нужно сначала подготовить шину. Для этого наносим на нее разметку в виде прямоугольника, вырезаем этот кусок резины, выворачиваем покрышку протектором внутрь и крепим к ней цепь или веревку.

Автомобильная шина дает огромный простор творчеству, из нее можно вырезать ребенку лошадку, байк или же закрепить ее как тарзанку. Таким образом можно получить самую простую модель детских качелей для дачи, не требующую особых усилий.
Качели в помещении — как правильно закрепить
Подвесные качели имеют огромный спрос, нежели обыкновенные напольные, так как сделать их намного легче. Для того чтобы смастерить качели в помещении, понадобится следующее: крепкий канат, крючки, вкручивающиеся в стенку, сидение и подручные инструменты.

Важно понимать, что устанавливая качели в помещении, не каждая конструкция подойдет. И немаловажно, что вес, который они смогут выдержать ограничен, особенно если детские качели для дома будут закреплены в районе дверного проема.

Крючки присверливаем к верху проема, веревками закрепляем сидение и надеваем на крючки.

Качели-балансир — технология возведения
Кроме подвесных, среди уличных качелей на участке очень популярны наземные. Которые так же несложно сделать самостоятельно. Рассмотрим типичную схему для установки балансира, которые проще всего выполнить их из дерева.

Приспособления используют следующие: деревянный брус, бревно, доски, средства для обработки дерева и краска или лак. Сначала конструируют нижнюю раму длиной около одного метра. Затем к ней с помощью саморезов прикрепляют опорные стойки под углом или подкосы.

После этого по всей длине доски-балансира, длиной 2-3 м устанавливаются параллельно два бруса, а между ними закрепляются брусья поменьше — около одного метра.
Монтируется эта конструкция при помощи шурупов или клея для столярных работ. По краям балансира делаются сидения и ручки. А посередине сверлится отверстие для крепления ее к основанию.

Качели для самых маленьких
На площадке для игр детей должны присутствовать приспособления, которые соответствовали бы различному возрасту детей. Качели-маятник пользуются спросом у малышей. Смастерить пружинные качели для детской площадки самостоятельно просто. Вам необходимы будут автомобильные рессоры.

Основанием можно выбрать арматурную крестовину, к которой с помощью сварки крепится металлический анкер. Сначала так же выкапывается яма, подготавливается основание для установки металлической конструкции. Затем так же как и в предыдущих вариантах, все это заливается бетоном.

К пружине прикрепляется сидение, которое можно сделать, опираясь на фантазию мастера. Для девочки из досок можно смастерить лошадку, для мальчика — мотоцикл или машину.

Оптимальный выбор детской горки
Начиная конструировать горку, важно учитывать, что высота горки должна быть в два раза меньше ее длины. А на съезде с вертикального участка, необходимо обустроить ровную площадку торможения.

Так же важно сделать перила и ограждение. Это позволит уберечь ребенка от возможного падения и способствует подъему на саму горку.

А из чего будет выполнен вертикальный съезд — металл или пластмасса, выбирать мастеру. Если материалом детской горки для частного дома выбрано дерево, то понадобится несколько деревянных брусьев и досок.
Комплексное обустройство детской площадки
Для его создания понадобятся те же навыки, что и при создании горки. Только лишь стоит продумать как по отношению друг к другу будут расположены основные его элементы — турник, горка, канаты и прочее. Сначала стоит смонтировать горку, затем к ней постепенно пристраиваем остальные части.

Подготавливаем опоры, устанавливаем и бетонируем их. Затем при помощи саморезов монтируем к ним остальные поперечные и продольные несущие балки. И к ним уже крепим качели, ограждения, перила и прочее.

Важно не забыть учесть, чтобы детский игровой комплекс вписался в границы отводимого участка. Поэтому желательно сначала выполнить чертежи.

Можно создать этот комплекс на определенную тематику, в зависимости от фантазии. Смастерить сказочный домик или корабль со спуском вниз в виде горки и канатов.

Фото детских качелей своими руками



























landshaftdizajn.ru
Качели на даче своими руками
Качели всегда пользовались большим спросом. Да это и понятно, ведь на них очень любят кататься детки и взрослые. В статье мы расскажем как правильно сделать их на даче, рассмотрим различные материалы (металл, дерево), а также продемонстрируем фото и видео инструкции.
Сегодня есть много конструктивных вариаций данных сооружений. Мы разобьем их на 3 категории:
- Детские. В эту группу входят качели по типу кресла с подвесками и своеобразные лодочки. Каркас всегда делается в соответствии со схемой безопасности. Для совсем маленьких детей должны быть предусмотрены ремни безопасности.
Садовые качели
- Семейные. Чаще всего они представляют собой массивные конструкции по типу скамейки с большой спинкой. На таких сооружениях может поместиться сразу вся семья. Закрепляются они на П-образной раме, с использованием тросов или прочных цепей. Если над ними сделана крыша, то можно качаться даже во время дождя.
- Мобильные — легко и быстро переносить, а также устанавливать в удобном месте, например, на веранде, в беседке или доме.
Разнообразие
Качели-шезлонг
- Гамачный тип конструкций вешают на перекладину, например, на дерево. Такая конструкция позволяет парить над землей. Они придутся по душе людям, увлеченным чтением книг. Они выдерживают вес до 200 кг.
- Подвесные – это сидение с несколькими веревками, закрепленными по бокам. Сегодня их делают легкими, комфортными и прочными. Размеры и формы таких конструкций различны.
- Одиночные – это все вариации, не нуждающиеся в дополнительных перекладинах. Такие конструкции можно быстро установить в любом месте. Делаются они из самых разнообразных материалов.
- Качели-шезлонги могут вместить двух взрослых человек и одного ребенка. Их можно поместить даже в комнате, ведь они имеют всего одну точку, на которой крепятся. Делают их из специального металлического сплава. Внешне шезлонги воздушные, но на самом деле они весьма прочны.
Изготовления конструкции из металла

Чтобы сделать металлические конструкции, вам необходимо подготовить такой набор инструментов и материалов:
- Сварочный аппарат с электродами.
- Емкость для замеса раствора.
- Напильник/шкурка по металлу.
- Ингредиенты для замеса раствора: вода, цемент, щебень, песок.
- Болгарка для резки металлических элементов.
- Крепеж: болты и гайки.
- Ключи для закручивания болтов.
- Металлические трубы.
- Лопата.
Технологическая последовательность

Для начала нарежьте трубы:
- Боковые стойки длиной 2 м – 2 шт.
- Перекладина длиной 1,5–2 м – 1 шт.
- Для основания по 2 трубы с каждой стороны (длина произвольная).
После резки труб удалите заусеницы на них. Сделать это можно шкуркой по металлу/напильником. Трубы, образующие основание такого сооружения, нужно сварить под углом 45º, как показано на схеме. После под прямым углом к стойкам приварите перекладину.
Выкопайте 2 траншеи глубиной 80 см и шириной, соответствующей получившейся в нашем случае треноге. Расстояние между ними должно соответствовать ширине перекладины. В эти траншеи будут вставлены опоры (треноги). Перед тем как опорные столбы будут уложены в траншеи, сделайте песчаную подушку на 10–20 см, утрамбуйте песок. Установите треноги и залейте их бетонным раствором. Его нужно сделать исходя из пропорции 1:2:1 – цемент – песок – щебень. В эту смесь добавьте воду. У вас должна получиться однородная не слишком жидкая масса.
Бетон должен выстояться в течение недели.
После можно приварить к перекладине крючки, на которые будет закреплено сидение на тросах/металлических балках. Приварите сидение к балкам из металла, закрепите сидение. Готовую конструкцию можно покрасить.
Деревянные качели

Рассмотрим технологическую последовательность изготовления деревянной конструкции, на которую сможет сесть несколько детей. Размеры можно уменьшить/увеличить при необходимости. В качестве исходного материала может быть использована древесина сосны, ели или березы. Итак, вам понадобится:
- доски сечением 100×25 мм длиной 2, 5 м – 15 шт.;
- доска сечением 150×50 мм длиной 2 м – 1 шт.;
- саморезы 52×3,5 мм – 250 шт.;
- карабин – 6 шт.;
- сварная цепь толщиной 5 мм, длиной равной высоте;
- оцинкованные винты: 2 шт. – 12×100 мм и 2 шт. – 12×80 мм.
При выборе саморезов уделите внимание цвету. Если выбрать их в тон древесине, то их будет незаметно на готовой конструкции, а для придания особого эффекта лучше выбрать саморезы в контраст.
Из инструментов вам нужно запастись:
- угольником;
- дрелью с набором сверл;
- рулеткой;
- циркулярной пилой;
- карандашом;
- рубанком;
- ножовкой;
- молотком.
Пошаговая инструкция

Следуя плану, выполнить работу точно – легче. Поэтому перед началом изготовления качели подготовьте ее проект.
Если вам трудно определиться, то ознакомьтесь с чертежами и схемами, размещенными в конце статьи. Помните, что конструкция для детей и взрослых отличается.
Установка опор
Сделайте заготовки по 1,5 м, сделайте отрез под углом 90º. Для сидения используйте доску, имеющую толщину 20 мм. При этом толщина доски для спинки может быть в пределах 12–13 мм. Для предложенной нами конструкции нужно изготовить сидение, на которое вам понадобится 17 планом длиной по 50 см и 15 планок шириной по 45 см.
Чтобы древесина не растрескивалась при закручивании саморезов, предварительно просверливайте в соединяемых деталях тонкие отверстия.
Бетонирование опор
Если вам хочется сделать более удобную спинку, то сделайте ее фигурной. Для этого вам будет нужно использовать доску самой большей толщины — 150×50 мм. У вас должно получиться 6 заготовок. Карандашом/маркером нанесите контур формы заготовки.
Определите угол крепления спинки. Планки следует закрепить с одинаковым шагом. Для ровного их прикручивания, закрепите концы с двух сторон, а после – посередине. Чтобы качаться было более комфортно, изготовьте подлокотники. Для этих целей сгодится брус любой ширины. Один его конец нужно прикрутить к раме спинки, а другой – к сидению.
Крепление болтами
Затем можно прикрепить цепь к каркасу. Лучше всего сделать это к нижней части подлокотника, в месте его соединения с сидением. Другой конец цепи крепится к верхней части основы каркаса на спинке. Закрепляют цепь гайками с шайбами. В противном случае гайка может войти в древесину, чем испортит ее целостность. Специальный элемент с одной стороны с кольцом, а с другой – с резьбой, следует закрепить на каркас сидения и на перекладину.
После, вы сможете соединить кольца цепью. Закрепить качели скамейки лучше на А-образной стойке. Для опоры важно использовать прочные бревна или изготовить металлический каркас. Тут все зависит только от вас.
Изготовление опоры
Сборка каркаса
А-образная стойка или опора достаточно надежная и способна выдержать значительные нагрузки. Для работы вам будет нужен тот же набор инструментов, что и для изготовления сидения, если речь идет о стойке из дерева.
Изготовление крыши
Изготовьте две одинаковых стойки, имеющие одинаковый размер. В конечном счете они будут установлены на необходимом вам расстоянии, которое зависит от ширины сидения. Стойки/опоры соединяются перекладиной.
Точно высчитайте угол соединения вертикальных деталей стоек. В верхней части столбы должны быть надежно соединены. Со временем они не должны начать расходиться. Перекладину установите на 1/3 высоты опорных стоек. Для этих целей используйте металлические уголки и саморезы. Перекладина должна быть установлена на стойках на одной высоте.
Крепеж крыши
В верхней части стойки обычно устанавливается одна перекладина, но при желании упрочнить конструкцию, вы можете сделать две перекладины.
Сооружение следует установить в грунт. Выкопайте ямы до 80 см в глубину. Сделайте песчаную подушку из щебня на 20 см. Вставьте стойки и залейте их бетоном. Для предотвращения гниения стоек, их нужно изолировать перед заливкой. Сделать это можно пропиткой или обмотав древесину гидроизоляционным материалом, например, рубероидом.
Готовая качель
Если вы изготавливаете качели для детей, то сделайте их безопасными. Острые углы устраните, а деревянные элементы зашлифуйте.
Простые
Из деревянных паллет с матрасом
У вас остался деревянный поддон после подвоза строительных материалов, почему бы не использовать его как основу? Согласитесь, что это несложно, да и не стоит больших затрат! Все, что вам понадобится, это поддон, прочная веревка и ствол дерева, для подвешивания конструкции. Можно сделать опоры из крепких столбов. О том, как это осуществить, речь пойдет чуть позже.
Качели могут быть сделаны из цельного поддона, закрепленного по бокам на четыре веревки. Все, можно кататься. Если вам хочется больше уюта, то положите на поддон матрас и застелите его простыней, а сверху положите несколько подушек. Теперь вы можете приняться за чтение в тени дерева, кроме того, здесь можно отдохнуть от полуденной жары, полежать и даже поспать.
Простейшие качели на канатах
Если в вашем распоряжении есть 2 поддона, тогда вы сможете создать симпатичные конструкции со спинкой. Чтобы достичь большей эстетичности, предварительно очистите детали и ошкурите их, а после скрепите и покрасьте (покройте влагостойким лаком) готовую конструкцию. Теперь ваши невзрачные паллеты превратились в очень привлекательные дачные качели!
«Досочки» — это наиболее простая идея. По бокам досочки необходимо закрепить еще по одной доске, чтобы веревка меньше перетиралась, затем просверлить 4 дырки, просунуть в них веревки и завязать на крепкие узлы. Закрепить такую конструкцию можно на дерево или П-образную опору.
Еще одна идея – с веревкой. Для этого в досочке следует сделать 4 пазики: 2 в торце и 2 по краям поближе к углам. Доска может иметь прямоугольную форму или полукруглую. Хотя пазы и открыты, но веревка все же не выскакивает. Сила натяжения только закрепляет положение веревки, что делает конструкцию еще более надежной.
Из скейтборда
У вас есть непригодная доска для катания на снегу? Тогда используйте ее вместо сидения! Просверлите в ней отверстия и закрепите веревки. Теперь осталось повесить готовую конструкцию на надежную опору!
Еще один вариант качелей из покрышки
У вас есть старые шины? Не спешите их выбрасывать, ведь из них можно соорудить прекрасные качели для детей! Для этого вам понадобится шина и веревка. Если вы хотите создать какую-то особенную форму, усовершенствовать конструкции из шины, то вам понадобится острый режущий инструмент, например, строительный нож. Вы можете разрисовать шину, что сделает ее еще более веселой. Чтобы достичь лучших результатов, вы можете нарисовать модель конструкции на бумаге или пометить места надрезов на самой шине. Ниже представлены идеи реализации из шин.
Если в вашем дворе валяются 2 небольших круглых бревна, то выровняйте их, почистите и свяжите между собой прочной веревкой, а затем привяжите морским узлом к опоре.
Подбираем материал
На металлических цепях
Выше упомянутые вариации изготовления простейших качелей подразумевали использование подручных материалов. Но, если вам хочется создать более изысканную конструкцию, то вы можете использовать подходящую породу дерева и металл. Дополнить ее можно спинкой и перекладиной, размещенной спереди, что позволит обезопасить эксплуатацию.
Список материалов, необходимых для изготовления, может быть приблизительно таким:
- Лиственничные доски.
- Саморезы разных размеров.
- Карабины.
- Цепь для закрепления.
- Винты с кольцами.
Для создания конструкции вам потребуется типичный набор инструментов. В него входит дрель с различными размерами сверл. Может быть полезной ножовка и пила, рубанок, лобзик, молоток. Для измерений вам пригодится рулетка, угольник, мел, или, возможно, – карандаш, маркер.
Лучше, чтобы конструкции были установлены в тенистом месте, под крышей либо деревом. Если навес не предусмотрен, то в непогоду их необходимо прикрывать защитной пленкой.
Если вы хотите создать устойчивую опору, то вам следует обязательно вкопать в почву на глубину около 80 см четыре столба. Впоследствии их будет необходимо забетонировать, потом соединить стойки и перекладину. Если в качестве стоек вы выбрали металлические трубы, то их нужно соединять при помощи сварочного аппарата. Если вы используете деревянные опоры, то прежде, чем устанавливать их, следует обработать материал антисептическим препаратом. Соедините их при помощи болтов и гаек. Чтобы изготовить сидение подготовьте 2 рамы, которые будут служить в качестве спинки и сиденья. Прикрепите фанеру, а после соедините рамы под углом 120˚.
Крепление и монтаж
Теперь к сиденью необходимо прикрепить специальные крючки или скобы, что позволит провести через них цепи, трос либо веревки. В таком состоянии качели можно подвешивать к перекладине. Учтите, что ноги сидящего человека должны касаться земли носками. По сути, дачные качели могут быть самыми разнообразными, тут, пожалуй, все зависит от мощности полета вашей фантазии.
Главное, чтобы при создании этого садового предмета вы смогли обеспечить его безопасность, надежность и долговечность. Добавьте в изделие немного креатива: украсьте его, используйте необычный предмет в качестве сиденья.
Монтируем крепежный механизм
Используем старую автомобильную шину
Для того чтобы подвесить сиденье к перекладине, нужно прикрепить к ней специальные крюки или скобы. Если вы решили в качестве подвески использовать тросы, то вам понадобятся фиксаторы-зажимы. Сквозь отверстия протяните трос, веревку или же цепь. Лучше использовать цепи, имеющие большие звенья. Это обусловлено тем, что они долговечнее, не боятся непогоды и перепадов температур. Цепи, помимо прочего, отлично декорируют ландшафтный дизайн.
Лучше, конечно, чтобы сидение было со спинкой, в то время как подвес играет менее важную роль.
Место, на котором будет фиксироваться подвес, должно быть особенно укрепленным. Если ваше сидение будет деревянным, то декорируйте его подушками, натяните тент или положите матрас. Все эти детали лишь улучшат ваш отдых и отдых ваших деток.
Качели – это неотъемлемая часть досуга. Вы ни за что не пожалеете потраченных сил, ведь ваше сооружение будет радовать семью весь дачный сезон!
Вы уже работали над созданием такой консрукции? Какие идеи вам удалось воплотить в жизнь? Может быть, у вас возникали трудности в процессе изготовления? Что помогло вам с ними справиться? Пишите комментарии к статье, мы ценим ваш труд и опыт!
Рекомендуем прочитать:
Видео
Пример изготовления деревянных качелей вы можете увидеть ниже:
Фото
Качели-лошадка
Качели из покрышки
Из старой резины
Из необработанного дерева
Вкапывание опор
Вертикально-закрепленная шина
Стойки качелей
Разнообразие качелей из покрышек
Привязываем канат
Кресло-гамак

Как применить покрышку от Белаза
Схемы
Если вы решите сделать качели для дачи самостоятельно, то представленные чертежи и схемы помогут вам в этом:
Чертеж простой качели


Подробная схема изготовления качели
Схема балансир качели
Схема детской качели
Качели из дерева
Качели из колеса
Из металла
Качели кузнечик
Схема садовой качели
Схема сиденья
kakpravilnosdelat.ru
Качели садовые своими руками:материал, типы, виды, схемы
Отдых на даче дает возможность расслабиться от тяжелых трудовых будней, но что поможет сделать его по-настоящему легким и приятным? Справиться с этой задачей допустимо многими способами, самый простой из них – сделать садовые качели своими руками и установить их на приусадебном участке. Это сооружение не отнимет много свободного времени, но позволит выгодно отличаться от заводских моделей, свидетельствуя об оригинальности владельца и его талантах.
Садовые качели нельзя назвать показателем роскоши и финансовых возможности своих хозяев, теперь это необходимый предмет интерьера. С чем связана такая популярность качелей? Это легко объясняется ассоциациями с детством, в котором мы ощущали себя беззаботными и радостными, тогда удовольствие получалось благодаря чувству полета, сидя на качелях и отталкиваясь ногами от земли. Поэтому в магазинах и на интернет-ресурсах можно без труда отыскать разнообразные модели садовых качелей, которые изготовлены из всевозможного материала.
Садовые качели нельзя назвать показателем роскоши и финансовых возможности своих хозяев, теперь это необходимый предмет интерьераКакие типы и виды садовых качелей существуют?
Перед тем, как приступать к сооружению качелей, требуется определиться с выбором необходимой модели. Сооруженная конструкция должна выполнять многие функции, поэтому выбор нужно делать из соображений приоритетности. В магазинах представлены качели, которые разделены на две группы:
- Напольные. Модели подойдут для детей, они надежно закрепляются и отличаются высокой безопасностью.
- Подвесные. Представляют собой изысканный вариант, могут похвастаться самым широким модельным рядом.
Какие виды качелей приобрести или самостоятельно смастерить у себя на приусадебном участке? Различают детские, семейные, качели-гамаки, существуют качели-беседки, качели-диваны или качели-скамейки. Проявите фантазию и при наличии нужных аксессуаров преображайте конструкцию, видоизменяя ее. Например, качели-скамейки днем — местом детских игр и забав, а в вечернее время служат романтическим уголком для влюбленных, стоит лишь украсить сооружение мягкими подушками.

Самый предпочтительный материал для качелей
Модельный ряд качелей широк, наблюдается большое многообразие используемого материала для изготовления конструкций. Но какой материал лучше выбрать, чтоб в дальнейшем не испытать острое чувство разочарования. Перед покупкой качелей рекомендуется детально проанализировать финансовые возможности, наличие свободного времени и личные предпочтения. Если вы довольно обеспечены и загружены различными важными делами, то следует выбрать кованные изделия. Они долговечны и красивы, не требуют особо сложного ухода. Если вы арендуете дачу и не располагается большими деньгами, то остановите выбор на готовых конструкциях. Непоседливым детям лучше приобрести изделия из пластмассы, а для молодой семейной пары больше подойдут металлические качели, которые разбираются и перемещаются по желанию.
При тщательном анализе станет понятно, что качели возможно смастерить из материала, который предполагалось отнести на свалку за ненадобностью, это могут быть даже старые покрышки. Если вы хотите сделать садовые качели своими руками и надеетесь на долговечный результат, то соорудите изделие из дерева и металла. Понадобится какая-нибудь ткань для пошива чехлов и подушек, которые придадут уюта и позволят с комфортом пользоваться качелями. В случае отсутствия времени допустимо приобрести разборную конструкцию, она станет настоящим подарком. Ее можно переносить, устанавливать на новом месте и перевозить в автомобиле.
Как сделать самые простые садовые качели своими руками?
Большинство детей во времена беззаботного детства катались на качелях, сделанных из обычной доски или покрышки. Эти нехитрые материалы можно без труда найти в каждом сарае или гараже, они лежат там без дела и надобности. В качестве основы для конструкции подойдет только качественный материал, главное — без труда подвесить к ветке или перекладине. Качели закрепляются в любом месте сада, переносите их при желании. Но основное достоинство конструкции состоит в том, что не нужно тратить деньги, допустимо изготовить их из ненужных вещей и предметов. Финансы останутся нетронутыми, а удовольствие от качелей затмят ожидания. Если вы планируете катать на качелях маленького ребенка, то стоит побеспокоиться о сооружении спинки и перекладины, не дающим детям упасть и покалечиться.
Качели закрепляются в любом месте сада, переносите их при желанииКак сделать балансир своими силами?
Балансиром называют качели, которые выполнены из бревна и двух брусков, которые служат в качестве фиксаторов. Смастерить эти качели не сложно, требуется в основу вбить штырь и на него насадить доску или бревно длиной в три метра, дополните конструкцию ручками, тогда качели будут более надежными и удобными. При кажущейся простоте и легкости этих манипуляций следует обязательно учитывать несколько важных моментов, от которых зависит долговечность вашего сооружения.
- Заготовку нужно тщательно оглядеть со всех сторон, на ней не должно быть трещин или сучков, ведь это может привести к несчастному случаю, если нагрузка окажется слишком высокой.
- Чтобы предотвратить возникновение прогнивших мест, обработайте антисептической жидкостью те части, которые контактируют с землей.
- Саму доску рекомендуется отшлифовать и покрасить, тогда ваша конструкция приобретет привлекательный внешний вид.
Интересный факт — В качестве балансире рекомендуется выбирать определенный материал, на эту роль отлично подойдут дуб, кедр, береза, лиственница или ель.
При правильно совершаемых действиях конструкция не только принесет много удовольствия детям и гостям, но и дополнит ваш приусадебный участок, а также позволит испытать чувство гордости за свой труд и великолепный результат. Попробуйте и проверьте свои способности и таланты.
В качестве балансире рекомендуется выбирать определенный материалКак сделать садовые качели своими руками?
Садовые качели предназначаются для того, чтобы проводить время с удовольствием, но вдвойне приятно делать это в компании. Поэтому стоит смастерить конструкцию в виде лавочки или беседки, на которой смогут поместиться сразу несколько человек. Параметры ширины сидения и высоты спинки подгоняйте под собственные предпочтения, ведь вы постоянно будете кататься на качелях и они гарантировано должны вызывать чувство комфорта и удовлетворения. Взяв идею создания качелей-скамейки за основу, оформляйте вашу конструкцию в любом виде, полет фантазии ограничен только недостатком опыта и мастерства. Подвешивайте качели к горизонтальной основе, но безопаснее всего будет использовать в этих целях два столба с поперечной балкой.
Какие материалы и инструменты понадобятся для создания конструкции? Если вы в недавнем времени делали ремонтные работы, то поиск нужных инструментов не займет у вас много времени, ведь необходимые инструменты обнаружатся под рукой. Материал для изготовления понадобиться мягкий, но прочный, ему предстоит выдержать массу нескольких человек. Для этих целей рациональнее приобрести березу, ель или сосну, эта древесина отвечает необходимым требованиям и относительно недорого стоит. Перед тем, как начать работу, подготовьте следующие инструменты:
- Саморезы;
- Карабины;
- Сварную цепь;
- Оцинкованные винты с кольцами;
- Дрель со сверлами различного диаметра;
- Циркулярная пила;
- Молоток;
- Лобзик;
- Ножовка;
- Рубанок;
- Угольник;
- Рулетка;
- Карандаш.
Садовые качели предназначаются для того, чтобы проводить время с удовольствием, но вдвойне приятно делать это в компанииНекоторым умельцам дан талан от природы, они мастерят такие модели, которые относят к искусству, а не к привычному атрибуту садового ландшфта. Не каждый человек способен повторить эти изделия, главное, чтоб сделанные самостоятельно качели дарили удобство и функциональность, ведь на них члены семьи коротают время за душевными разговорами, делиться новостями с гостями, а дети веселиться и играют. Как же соорудить конструкцию, чтоб она радовала глаз и функционировала продолжительное время? Сначала приготовьте необходимые материалы и инструменты. Если у вас финансы ограничены и нет свободного времени, то допустимо использовать упрощенный вариант – купить готовую скамейку, отпилить ножки и прикрепить посредством веревки заготовку на прочной ветви дерева. Выберите подходящее место для изделия и наслаждайтесь полученным результатом.
При сооружении конструкции качелей нужно начать с подготовки опоры. Для этого собирают нижнюю раму, которая должна быть шире сиденья на полметра, так как это обеспечит прочность сооружения. Нижняя рамка соединяется за счет использования металлических уголков, затем устанавливаются вертикальные балки, а сверху перекладину. При монтаже сиденья проявите фантазию, важно лишь соблюдать соответствие нужных параметров. Составные части конструкции могут быть любого размера, это зависит от возраста детей, если они у вас есть. Доски соединяйте посредством винтов и клея, затем обработайте их с помощью наждачной бумагой и покрасьте краской. Полученное сиденье в дальнейшем оформляйте различными способами, нарисуйте любимых героев из мультфильмов, обтяните тканью, сделайте подушки из поролона. Реализуйте смелые идеи и фантазии, ничего вас не ограничивает, проявите собственное мастерство и удивите своих родственников результатом упорного труда.
Садовые качели станут волшебным уголком детей, их родители тоже хотят иногда почувствовать пьянящее чувство полета, покататься, вспомнить детство. Конструкция дает шанс проявить творческие способности и мастерство, а в результате вы получите комфортное место для досуга и развлечений.
Самодельные качели своими руками
Качели садовые своими руками 43 фото идеи и чертежа:
couo.ru
Детские качели для дачи своими руками — примеры, советы, фото и видео
Любые заботливые родители стремятся к тому, чтобы времяпрепровождение их чад было максимально насыщенным и интересным. Как можно разнообразить досуг ребенка во время отдыха на даче? Самый простой и ненакладный вариант — сделать детские качели своими руками. Тем более что это совсем не сложно, если проявить смекалку.
Как выбрать материал для изготовления качелей
Безусловно, для того чтобы самостоятельно изготовить дачные качели, вам необходимо обладать не только определенными строительными инструментами, но и навыками работы с ними. Поэтому, прежде чем решиться на строительство, здраво оцените свои силы. Качели для дачи из металла — это, безусловно, фундаментальная постройка.

Но для того, чтобы ее возвести, вы должны знать, как ведет себя металл в тех или иных условиях и нужно владеть сварочным аппаратом, болгаркой, ножовкой.
Если же вы не чувствуете себя достаточно уверенно для реализации такого глобального проекта, то, возможно, вам больше подойдут деревянные качели для дачи.

Дерево — это более простой в обработке материал, и справиться со строительством смогут даже непрофессионалы. Только выбирайте для постройки достаточно прочный сорт древесины. Подходит ель, кедр, береза, дуб. И следите, чтобы на нем не было дефектов — сучков, отверстий и т.д.: ведь от этого зависит не только комфорт, но и безопасность вашего малыша. Конечно, можно использовать в качестве материала для изготовления и пластик.

Однако единственным его достоинством является дешевизна. Он не относится к экологически чистым материалам. Кроме того, если вы хотите, чтобы ваши качели для сада выдерживали не только детишек, но и взрослых, пластик вам, однозначно, не подходит. Впрочем, часто качели на дачу можно соорудить буквально из того, что есть под рукой — в этом вы сами убедитесь.
>Простые идеи для создания качелей своими руками
1. Качели из палеты

Деревянная палета, оставшаяся у вас после строительных работ, может стать прекрасной основой для качелей. Вам также понадобится прочная веревка и достаточно крепкое дерево, на котором можно будет разместить качели. Если же подходящего дерева нет, можно будет вкопать столбы-опоры.
В самом простом виде можно банально укрепить веревку на палете и привязать ее к опоре. При желании можно усложнить концепцию, соединив между собой несколько палет, соорудив у качелей спинку, красиво разрисовав их.

2. Качели из сноуборда или скейтборда

Сноуборд сломался, а доска от него осталась? Она может стать прекрасной основой уличных качелей для дачи. Несмотря на кажущуюся хрупкость, сноуборд очень прочен и выдерживает большие нагрузки, поэтому идеально подходит на роль сиденья качелей. Главное — надежно прикрепить ее к веревкам и повесить на опору.
Если же на скейтборде остался роликовый механизм, это делает изготовление качелей своими руками еще более простой задачей. Вам будет достаточно соорудить из веревок петельки и продеть в них скейтборд: колесики будут фиксировать веревки и удерживать их от соскальзывания.

3. Качели из покрышки

Этот вид качелей можно отнести к классике жанра. Строительство все так же начинается с возведения брусьев-опор — деревянных или металлических, и поперечной балки между ними. В верхнюю балку ввинчиваются болты с кольцами. Один конец веревок крепится непосредственно в покрышке, а второй — продевается в кольца. Можно вместо веревок использовать цепочки.

В качестве опоры может служить все то же дерево, что существенно ускоряет процесс возвещения дачных качелей своими руками. Этот вариант напоминает, скорее, тарзанку, и не претендует на особую эстетичность.
Вообще, если нет особого желания затевать глобальное строительство, в качестве сподручного материала для изготовления детских качелей для дачи может сгодиться все что угодно:



- даже сиденье от стула или кресла.

Главное — дать волю креативу.
Фотографии различных качелей для дачи
























Посмотрите видео, о том как сделать качели для дачи своими руками.
home-ideas.ru




