Как обставить однокомнатную квартиру в новостройке – Интерьеры для студий: как обустроить малогабаритную квартиру :: Ваш дом :: РБК Недвижимость
Интерьеры для студий: как обустроить малогабаритную квартиру :: Ваш дом :: РБК Недвижимость
Пять креативных и стильных интерьеров, реализованных в небольших московских квартирах

Небольшая площадь квартиры — вызов для дизайнера. Разместить все, что необходимо для комфортной жизни, в современных студиях или малогабаритных хрущевках не в пример сложнее авторского интерьера в многокомнатной квартире. По просьбе «РБК-Недвижимости» архитектурное бюро «Победа дизайна» собрало пять интерьеров малогабаритных московских квартир, которые выполнены в соответствии с актуальными тенденциями западного дизайна. Метры остались прежними: это все те же тесные квартиры постсоветского пространства. При этом новое видение жилой зоны позволило превратить студии и «однушки» в стильные квартиры для удобного проживания.
Студия-трамвай
- Площадь: 32,3 кв. м
Длинное жилое пространство в новой квартире площадью 32 кв. м вызывает ассоциации с «трамвайными» комнатами советских времен. В этой студии современный застройщик совместил кухню и комнату в вытянутом прямоугольнике, освещенном с одной стороны: в жилой зоне находятся два окна, напротив — глухая стена. Для исправления неудачной планировки дизайнерам пришлось перенести санузел, выделить кухню в круглый «островок» в центре комнаты и декорировать пустую стену светильниками в духе ар-деко. Разграничить спальню и столовую помогло покрытие: в зоне кухни пол выложен шахматной плиткой. Вместо кровати дизайнеры поставили складной диван — так обитатели квартиры получили дополнительное пространство для рабочей зоны. Место освобождается только тогда, когда диван складывают — в остальное время он занимает почти всю территорию импровизированной спальни.
Японский минимализм
- Площадь: 46,2 кв. м
Для семейной пары, которая любит японский стиль, архитектурное бюро «Победа дизайна» превратило стандартную однокомнатную квартиру в функциональное и компактное жилище. Все началось с перепланировки: узкую прихожую объединили с кухней. Получившееся пространство стало столовой-гостиной: здесь уместились раковина, холодильник, обеденный стол, небольшой гарнитур и даже диван с журнальным столиком. По-японски рациональное использование места привело к тому, что кровать в спальне «утопили» в проем между стеной и шкафом. Фишкой интерьера стали три вращающиеся двери, которые разделили комнату и столовую. Если открыть их одновременно, у посетителей создается ощущение простора, несвойственное для скромной «однушки». Если же двери закрыть, то у комнат образуется глухая стена — оптимальное решение для тех, кому нужно разместить людей на ночлег и в гостиной, и в спальне. Сэкономленное место позволило не загромождать балкон и поставить на нем телескоп.
Квартира-трансформер
- Площадь: 25,7 кв. м
Антирекорд для малогабаритных квартир: площадь этой студии равна 25,7 кв. м с учетом прихожей и ванной. Единственным решением в такой ситуации оказалась трансформирующаяся мебель. Разложить здесь можно не только диван-кровать, но даже обеденный стол, который «выпадает» из шкафа по желанию владельцев. Крошечный санузел с собственным окном не позволил разместить полноценную ванну, поэтому на ее месте оказалась душевая кабина. Стиральную машинку дизайнеры поместили прямо под раковину, а для визуального увеличения габаритов санузла был использован проверенный метод — темный пол и светлые стены.
Типичный хостел
- Площадь: 44 кв. м
Настоящий великан по меркам своих конкурентов: квартира свободной планировки площадью 44 кв. м предназначена для одинокой девушки, которая увлекается танцами. Интерьер выполнен в хорошо узнаваемой стилистике хостелов. Яркие стулья, доски с меловыми надписями, кровать на подиуме и двери, украшенные буквами, создают ощущение номера в гостинице, а не постоянного жилья. Эстетику общежития развивает барная стойка, обустроенная на месте присоединенного балкона.
Из «двушки» в «однушку»
- Площадь: 44,7 кв. м
Нестандартную перепланировку хрущевки заказала семья с двумя детьми: двухкомнатную квартиру они решили переделать в «однушку» с большой гардеробной. Чтобы добиться нужного эффекта, дизайнерам пришлось сломать все ненесущие стены, а стандартные двери заменить на раздвижные. В результате в прихожей обосновались два массивных шкафа, а единственная комната получила сразу две кровати для школьников средних классов. Одну из кроватей можно сложить и убрать: так в помещении появится место для игры на синтезаторе. Детям придется делить один рабочий стол на двоих, а родителям останется только зал, совмещенный с кухней, — здесь сосредоточены основные удобства квартиры. Торжество перепланировки увенчал совмещенный санузел, где вместо ванны поставили душевую кабину из усиленного стекла.
Антон Погорельский
realty.rbc.ru
Как обустроить «однушку» в новостройке
Этот факт всегда будет являться ограничивающим, особенно если есть необходимость произвести перепланировку и более рационально распорядиться имеющимися метрами. Поэтому, при составлении проекта важно понимать, какие помещения можно использовать и в тёмной части квартиры, а какие не рекомендуется.
Ближе к свету Какие же помещения не рекомендуется располагать там, где отсутствует естественное освещение? В первую очередь это детские комнаты, а также и спальни. Все остальные помещения будут относительно комфортны без естественного солнечного освещения. А такие их них, как кладовки, ванные, санузлы, гардеробные и прихожие, совершенно прекрасно приспособлены для нахождения исключительно в тёмной части квартиры.
Практический пример Дизайнер Эльжбета Чегарова расскажет о своём проекте оформления однокомнатной квартиры общей площадью 57, 1 кв. м.
Однокомнатная квартира обычно имеет всего лишь 2 окна. Заказчики пожелали увидеть в своём новом доме – отдельную спальню, большую кухню с полноценной столовой группой, рабочее место и просторную кладовую. Проживать в этой квартире будет молодой человек.
— Планировать всё необходимое в тесном и ограниченном пространстве — это довольно увлекательное занятие, — говорит Эльжбета Чегарова.
Квартира делится на две части – общую (зоны кухни, гостиная-кабинет и прихожая) и приватную (спальню). Общая зона выдержана в единой цветовой гамме, искусно дополненной яркими акцентами, всё гармонично и естественно. Также, это позволяет избежать эффекта дробления небольшого пространства, способствует его зрительному увеличению. В тоже время, приватная зона – спальня имеет иное, отличное от общей зоны оформление, это полностью автономное помещение.
Спальня Спальня это самое спокойное по цветовому решению место в квартире. По просьбе заказчика спальня выдержана в тёмных тонах. Потолок декорирован панно с изображением схемы движения транспорта на Манхеттене, ниша в которой оно находится — располагается непосредственно над кроватью.
Для лучшей инсоляции помещений – прихожей и гостиной, которые в результате перепланировки полностью лишились естественного освещения, в стене устроено сквозное окно. Оно будет пропускать свет из спальни. В дальнейшем планируется установка на это окно жалюзи для того, чтобы спящему в спальне человеку не мешал свет из гостиной зоны, когда другой член семьи работает или смотрит телевизор. Для этой же цели установлены и стеклянные двери (в спальне и кухне).
Гостиная В небольшой гостиной расположились зона отдыха и рабочее место. Изюминкой оформления этой зоны стало использование интересных обоев в вертикальную полоску, декорированных растительным рисунком. Эта яркая акцентная стена визуально создаёт впечатление окна, как бы полностью закрытого шторой, что добавляет помещению уюта, камерности и теплоты.
Кухня Несмотря на уменьшение общей площади, кухня спроектирована как удобное и полноценное место для комфортного приготовления пищи и трапез. Заказчики выбрали кухонный гарнитур приглушённого зелёноватого цвета.
В кухне находится обеденный стол, за которым могут разместиться четыре человека. На стене около обеденного стола будет находится специальная ниша (её глубина 4 см), для размещения коллекции магнитов.
Потолок помещения частично опущен, это сделано для размещения вытяжки и организации освещения. Санузел Совмещённый санузел оснащён полноценной ванной, также в нём разместились стиральная и сушильная машины, расположенные в колонну.
Благодарим дизайнера Эльжбету Чегарову (г. Санкт-Петербург) за помощь в подготовке материала и предоставленные иллюстрации. Визуализация: Роман Вескер.
realty.mail.ru
Правильный дизайн однокомнатной квартиры 30 кв м — в новостройке и старом доме
Квартира общей площадью всего в 30 кв метров может казаться простым издевательством, но все не так страшно. Хуже, когда у владельцев апартаментов нет фантазии для того чтоб обставить свое жилище подобающе. Придумать дизайн однокомнатной квартиры 30 кв м, чтобы стало уютней и просторней, очень просто. Нужно лишь грамотно расставить акценты, и маленький метраж перестанет быть проблемой. Можно поэкспериментировать с игрой цветовых оттенков и расстановкой мебели при оформлении однокомнатной квартиры.
Дизайн квартиры 30 квадратов
К сожалению, не у всех получается самостоятельно придумать дизайн маленькой однокомнатной квартиры. Часто приходится обращаться за профессиональной помощью. Особенно это относится к разработке дизайна на стадии проекта. Ведь не так просто разместить все необходимое в ограниченном пространстве. На 30 кв метрах необходимо совместить место для работы, отдыха, еды, детей. Все это расположить желательно так, чтобы осталось свободное пространство.


В 1-комнатной квартире нельзя без:
- обеденной зоны;
- гостиной;
- спальни;
- рабочей зоны.

Дизайн в новостройке
В квартире в новостройке гораздо больше возможностей. Она построена в соответствии потребностям современного быта. Занимаясь дизайном новой 1 комнатной или 2-х комнатной квартиры, площадью до 30 кв м., можно воплотить в жизнь самые разные идеи.
В обеденную зону можно гармонично вписать барную стойку. Она поможет зрительно разделить 1 комнатное помещение на несколько частей. Стол лучше использовать раскладной. При необходимости его легко и быстро можно разложить, накормить большую компанию. В остальное время он не будет занимать большое пространство.
В гостевой зоне однокомнатной квартиры обычно стелют небольшой уютный ковер, вместо кресел раскладывают несколько мягких пуфов. Телевизор лучше прикрепить на стену, желательно, чтобы его можно было при необходимости повернуть. Тогда можно будет смотреть телевиденье из всех точек аппартаментов, в том числе кухни.

В спальне лучше поставить диван-трансформер. Спальное место отделить ширмой.

Специально для рабочей зоны по-новому приспосабливают подоконники. Старые подоконники нужно заменить новыми. В них могут быть удобные выдвижные ящички, в которых складывают необходимое для работы. При планировании рабочего места обязательно нужно учесть, что для работы понадобится несколько розеток.

Практически во всех 2-х комнатных, 1 комнатных квартирах в новостройках есть лоджии их можно грамотно обустроить, учитывая общий дизайн. Во-первых, нужно утеплить, провести отопление и застеклить. В квартире появится дополнительных 6 квадратных метров, на которых можно разместить рабочую зону либо перенести туда обеденную зону.
Дизайн в старых домах
В домах старой постройки возможностей поменьше. Большинство принципов дизайна помещения такие же, как и в новостройке, но с небольшими ограничениями. Балкон не получится переоборудовать под столовую или рабочий кабинет. Но и небольшой балкон можно утеплить и привести в нормальный вид. Там можно хранить все необходимое. Правда одежду хранить нельзя, в зимние месяцы она отсыреет. Но различные коробки, банки и прочее, можно держать именно там.

Зато практически в любой 1-комнатной старой квартире есть кладовка. Это дополнительно 4 кв метра. В ней можно устроить достаточно удобный шкаф, где будет храниться обувь, одежда и возможно, останется место для закруток на зиму.
Минимализм – лучший стиль для маленькой квартиры
Большинство ведущих мировых дизайнеров сходятся во мнении, что при оформлении помещений с маленькой площадью лучше всего придерживаться минимализма. Но это не означает, что вся мебель будет состоять только из дивана и стола. В действительности минимализм означает далеко не это. Правда при минимализме действительно мебели не много, но это не отражается на комфорте, поскольку каждый предмет совмещает в себе несколько отдельных функций.
Выбирая мебель для небольшой 1-комнатной квартире, стоит больше приглядываться к трансформирующейся мебели. Стол, ночью превращающийся в кровать или диван с вмонтированной в него столешницей вместо отдельного журнального столика. Если есть возможность, то лучше изготовить мебель на заказ под подготовленные идеи. Это может заметно сэкономить площадь и тогда мебель будет занимать только то пространство, что нужно.
Из 1 комнатной квартиры площадью 30 квадратных метров можно сделать студию. Объединяя кухню и комнату можно выиграть дополнительное пространство. Необходимо убрать разделяющую стену.
Совет! Вместо стены между комнатой и кухней или гостиной можно поставить раздвижные стеклянные двери или барную стойку.
Визуально увеличить пространство
За счет использования при оформлении интерьера светлых тонов можно визуально сделать помещение больше.
Рекомендуется использовать такие цвета как:
- древесный;
- белый;
- пастельные оттенки;
- цвет слоновой кости;
- охра.

Дизайнеры рекомендуют при оформлении однокомнатной квартиры в 30 кв метров ориентироваться на скандинавский стиль. Доминирование белого, мебель светлых оттенков, множество светильников заставят забыть об ограниченном пространстве.
Небольшая квартира должна быть как можно лучше освещена. Причем освещения должно быть действительно много. Оно сделает пространство однокомнатной квартиры визуально шире и уютней.
Не стоит останавливаться на одном источнике света. Лучше приобрести несколько дополнительных светильников. И расположить их равномерно по всей квартире. Светильники можно использовать для разделения помещения на зоны или акцентировать внимание на определенных деталях. Это все необходимо продумать на этапе разработки идеи дизайна.
Совет! Дополнительный свет не должен быть сильно ярким. Это будет быстро утомлять.
Интерьер «однушки» 30 кв (3 видео)
Варианты оформления квартиры 30 кв (43 фото)
dekormyhome.ru
Однокомнатные квартиры в новостройках
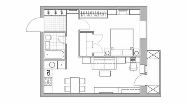
План однокомнатной квартиры в новостройке.
(Нажмите на изображение для увеличения)
Вопрос читателя
Здравствуйте! Очень надеемся на вашу помощь. У нас с мужем строится однокомнатная квартира. Ремонтом будем заниматься с нуля (дом сдается без отделки), хочется сделать все в едином современном стиле, в светлых тонах. Жилая комната узкая и длинная, хочется зонировать пространство, но как расставить мебель для нас вопрос. Хотелось бы иметь уголок для швейной машинки и стол для компьютера в какой-либо из комнат. Очень важна удобная система хранения вещей и всяких полезных мелочей. Не знаем также, куда пристроить стиральную машину, санузел не позволяет поставить ее туда.
Будем признательны видеть подходящий дизайн-проект квартиры.
Заранее спасибо! Токарева Марина.
Ответ дизайнера
План однокомнатной квартиры с расстановкой мебели.
(Нажмите на изображение для увеличения)
Однокомнатные квартиры в новостройках, как правило, не могут похвастаться большими размерами. Стандартная площадь однокомнатных квартир в новостройках зачастую не превышают 50 кв. м. Зоны определены существующей планировкой — прихожая, спальня, кухня и санузел.
Чтобы сделать однокомнатную квартиру читательницы комфортной для проживания, дизайнер Лидия Никитина предложила пренести кухню в большую комнату и совместить ее с гостиной, а под спальню отдать меньшее помещение. В качестве основных цветов дизайнер выбрала нейтральную гамму, которая не напрягает и не утомляет глаз, — белый (потолок, стены, мебель) и различные оттенки коричневого.
Главная концепция проекта — много света и воздуха — обозначена уже в прихожей. В ней нет ни вешалок, ни галошниц. Для хранения одежды и обуви предназначен узкий высокий шкаф. Зеркальные дверцы делают его незаметным и расширяют пространство.
Особое внимание дизайнер уделила балкону. Так как шкафов никогда не бывает много, она рекомендует разместить там дополнительные шкафы (например, для хранения сезонной одежды и обуви).
Интерьер кухни предельно лаконичен, вся бытовая техника (стиральная машина, электрическая плита и духовой шкаф) встроенная, холодильник спрятан в шкаф. Обеденный уголок расположился на границе двух зон — кухни и гостиной.
Еще недавно пластиковые стулья можно было увидеть только в дешевых столовых. Новые материалы и технологии изменили их вид, и они появились в наших кухнях.
Гостиная зона представлена мягким диваном и большим телевизором напротив. Комбинация шкафов вокруг дивана позволяет разместить большое количество вещей, что отвечает запросу нашей читательницы, при этом системы хранения не утяжеляют пространство. Возле окна дизайнер выделила место для компьютерного стола.
Как оформить ТВ-зону в современном стиле? Самый простой способ — повесить телевизионную плазму на стену, а рядом расположить модульную систему хранения.
В спальне дизайнер разместила несколько систем хранения — двухметровый шкаф и стеллажи, на которых можно разместить либо книги, либо какие-то сувениры. Согласно особому пожеланию хозяйки (у нее есть хобби — рукоделие, и она просила найти место для швейной машинки) в спальне была обустроена рабочая зона для кройки и шитья — она спрятана в нишу.
Между стеллажами встроен свечной камин, который создает в комнате ощущение уюта и умиротворенности.
В этом проекте использован потолочный светильник, спроектированный дизайнером Джузеппе Маурицио Скутелла. Его, как и его собратьев, можно легко найти в наших магазинах.
Чтобы оживить рабочее место, выберите цвет, который будет вас вдохновлять. Возможно использование ярких фотографий, доски для заметок или настенных органайзеров.
В роли контейнеров для хранения разных мелочей могут выступать и декоративные сундуки, и коробки из древесины или картона.
www.4living.ru
Дизайн и планировка однокомнатной квартиры
Если речь заходит о жилье, то обычно человек мечтает о собственном доме, в котором можно разместить все самое необходимое. Однако такая роскошь как просторный дом, для многих остается недоступной, поэтому большинство жителей ютится в малогабаритном жилье.
Правильный дизайн однокомнатной квартиры поможет скрасить недостатки скромного по площади жилья и подчеркнет его достоинства. Интерьер однокомнатной квартиры должен быть направлен на увеличение её функциональности, создание уникального стиля при сохранении уюта и красоты.
Главное преимущество маленькой квартиры — отсутствие лишних предметов и чтобы этого добиться нужно разработать дизайн-проект, представляющий собой единое решение для кухни, ванной, жилых комнат, коридора.
Дизайн однокомнатной квартиры
Планировка однокомнатной квартиры
Если вы хотите, чтобы интерьер однокомнатной квартиры был максимально эффективным, лучше начинать с планировки жилой площади, учитывая каждый квадратный сантиметр. Составьте подробный план интерьера с той мебелью, которая уже имеется в наличии, а в будущем постепенно замените её на новую, небольшую но функциональную.
Пример дизайн-проекта для маленькой квартиры 30 кв. м.
Зонирование комнаты
Важнейшая задача для однокомнатной квартиры — визуальное расширение существующего пространства и разделение его на зоны.
Поделите свою комнату на рабочий кабинет, гостиную и спальню. В каждый из секторов установите соответствующую мебель. В рабочую зону — стол, стул и компьютер, в спальню — диван кровать, в гостиную — кресла и столик. Разделить зоны комнаты можно при помощи освещения, подиума или самой мебели.
Зонирование однокомнатной квартиры
Задача усложняется когда в квартире проживает не один человек, а семья с детьми. В этом случаи, разделите комнату на две основные зоны — гостиную и детскую. Место для детей лучше расположить ближе к свету, это позволит создать уютную и обособленную атмосферу. Родительское место с диваном–кроватью, выполняющее функции гостиной, будет в центре комнаты.
Комната поделённая на детскую и гостиную
Перед диваном-кроватью установите легкий журнальный столик, а телевизор разместите напротив — в секции мебельной горки. В ней же можно отвести одну секцию для хранения одежды детей. В самом торце комнаты расположите гардероб и небольшое рабочее место.
Ширма как вариант перегородки
Для обозначения обозначения своего и личного пространства детей используйте раздвижные ширмы и прозрачные перегородки. Их удобство в том, что они с лёгкостью устанавливаются и складываются когда вам это необходимо.
В некоторых случаях под детскую комнату можно использовать помещение кухни, а зал превратить в студию.
Подиум
Ещё одной возможностью повысить функциональность комнаты при планировке квартиры, является изготовление одного или нескольких уровней подиума.
Подиум с выдвижной кроватью
Подиум способен не только обозначить ту или иную зону комнаты, но также в нем можно разместить выдвижную кровать или ящики для одежды, экономя при этом драгоценное пространство. Единственный недостаток подиума в том, что его не рекомендуется изготавливать в квартирах с низким потолком.
Раздвижные двери
Обычные створчатые двери в маленьких помещениях просто мешаются и занимают свободное пространство у стены, которое можно заполнить мебелью. Поэтому в место них лучше всего сделать раздвижные двери. Например, для ванной комнаты лучше всего установить раздвижную дверь в стене это позволит освободить место под стираную машину или ящик для грязного белья. А в зале подойдёт раздвижная дверь установленная на направляющие балки.
Раздвижная межкомнатная дверь
Замена обычных дверей на раздвижные позволит вам значительно повысить функциональность всей квартиры, за счёт использования дополнительного пространства, которое раньше предназначалось для открывания дверных полотен.
Цветовая гамма
Интерьер однокомнатной квартиры создают с правильным подбором цветовой палитры. Ведь в данном случае она играет важнейшую роль, а аксессуары с мебелью находятся на втором плане.
Гармонично подобранные цвета в интерьере спальни
Необходимо грамотно подойти к цветовому решению интерьера квартиры, ведь именно цвет оказывает психологическое воздействие на нас. Влияние цвета в интерьере на психологию человека показано на фото:
Психология цвета в интерьере
Ниже переведены несколько советов по цветовому дизайну квартиры:
- Чтобы обеспечить расслабляющий эффект, выбирайте коричневый, зеленый или голубой цвет.
- Желтые стены положительно действуют на нервную систему, укрепляя ее и принося радость домочадцам.
- Как известно, красный цвет и его оттенки будут возбуждать владельца квартиры, но также быстро его утомят.
- Хотя розовый цвет успокаивает человеческий организм, с ним советуют быть начеку, поскольку иногда он вызывает беспокойство и агрессию.
- Специалисты советуют остановить внимание на зеленом, песочном или кремовом цвете.
Шторы и жалюзи
К выбранному цветовому дизайну комнаты, необходимо подобрать шторы или жалюзи. Для удачного комбинирования оттенков цвета, рекомендуем вам пользоваться этой таблицей по сочетанию цветов в интерьере:
Таблица сочетания цветов в интерьере
Помните, что ткань хоть и придает уюта, но забирает драгоценные сантиметры пространства. Поэтому нужно акцентировать внимание на типе штор. Для небольшой комнаты хорошо подходят — римские, жалюзи или японские шторы из специальной бумаги «день−ночь».
Японские шторы
Интересные идеи по зонированию и планировке однокомнатной квартиры вы также можете узнать из представленного видеоролика:
Выбор мебели
Следующий этап — правильный выбор мебели, которая подчеркнёт подобранный вами дизайн интерьера квартиры.
Расстановка мебели в однокомнатной квартире
Очень важна правильная расстановка мебели. Очевидно, что при ограниченном пространстве квартиры следует забыть о громоздких и массивных кроватях и стенках, которые будут создавать лишь дискомфорт. Поэтому самое оптимальное решение — встроенная мебель, которая легко трансформируется и занимает меньше места после непосредственного использования.
Трансформирующаяся мебель
Неплохим и доступным каждому вариантом считается использование современных стенок-горок, о которых мы писали на нашем сайте.
Диван-кровать как спальное место
В складываемой мебели можно хранить некоторые вещи, поэтому вариант с диваном в качестве места для сна, выглядит едва ли не идеальным: после пробуждения в него можно складывать постельное белье. Необычным и удачным решением станет покупка кровати, встроенной непосредственно в шкаф.
Компактная прихожая
В маленькой прихожейвходная дверь в квартиру создает «мертвое» пространство, которое должно быть свободным и не загромождённым мебелью. По этой причине, рядом с дверью советуют организовывать кладовку или устанавливать гардероб, чтобы сэкономить пространство жилой комнаты.
Проанализируйте частоту приема пищи вне дома, если вы не так часто обедаете в своей квартире, то лучше приобрести складной обеденный столик и раскладывать его по мере необходимости. Что же касается работы с компьютером, то для экономии пространства целесообразнее купить ноутбук, которому не нужен громоздкий стол для монитора и процессора. Для хранения бумаги и книг используйте этажерки и настенные полки. Очень хорошо подходят для хранения вещей шкафы-купе с зеркалами, которые визуально будут расширять помещение.
Зеркальный шкаф-купе для визуального увеличения пространства
При наличии больших подоконников расставьте на них комнатные растения, чтобы по полной программе использовать свободные поверхности и придать интерьеру уютный вид.
Используйте все поверхности для украшения квартиры
Цвет мебели в однокомнатной квартире лучше выбирать светлый. Приятным сочетанием является белый цвет и оттенки бежевого или голубого. Темные или яркие цвета лучше применять в качестве акцентов, но не делать их фоном. При желании сделать стены темными нужно обязательно выбирать мебель белого цвета, чтобы хоть немного расширить пространство.
Светлая мебель для расширения пространства
Также мы рекомендуем вам прочитать нашу статью о выборе дизайна в комнате 18 кв. м., которая раскрывает многие нюансы маленьких интерьеров и дает полезные советы по их обустройству.
Освещение
Важным вопросом было и остается освещение в комнате — его должно быть не просто достаточно, а много. При скромных габаритах квартиры именно обилие света делает жилье более уютным и визуально широким.
Не используйте только одну лампу, чем больше источников света тем лучше
Не останавливайтесь на одной лампе, купите дополнительные светильники и разместите их в разных зонах квартира. Однако будьте осторожны, слишком яркий свет приводит к быстрому утомлению.
Точечные светильники
Используйте точечные светильники и потолки со светодиодной подсветкой для создания красивых градиентов и теней, а также для освещения нужных зон. Подробнее прочитать про освещение, выбор мебели и зонирование маленькой комнаты вы сможете в нашей статье – как обустроить маленькую комнату.
Санузел и кухня
Санузел в малогабаритной квартире обычно совмещённый, поэтому в нём не должно быть ничего, кроме унитаза, ванной и тумбочки для принадлежностей гигиены. При маленькой площади, вместо ванны имеет смысл установить душевую кабинку. Стиральную машинку можно установить на кухне и чтобы она не занимала место просто так, вы можете соорудить на ней столик, прикрепив столешницу.
Санузел в однокомнатной квартире
Эти и многие другие идеи описаны в нашей статье о ремонте маленькой ванной комнаты.
Стоит несколько слов сказать и о кухне, в ней должен быть минимальный набор в виде холодильника, плиты мойки и столика для приготовления пищи. Опять же — все зависит от человека, если вы любите печь, то вам не обойтись без духовки и кухонной вытяжки и стола для приготовления пищи.
Кухня в однокомнатной квартире
Если позволяет площадь кухни, то дополнительно можно поставить небольшой столик со стульями. Всю кухонную утварь постарайтесь разместить по стенам, на специальные крепления и полки.
Как сделать перепланировку санузла и кухни вы также можете узнать из видеоролика:
Окончательным штрихом в интерьере маленькой квартиры будет дополнение аксессуарами. Вы можете сделать красивое панно своими руками или купить симпатичный цветок из IKEA с горшочком, который будет радовать вас каждый день.
Главное, используйте все в меру, не переборщите с мелкими элементами, которые будут находиться на виду.
remboo.ru
Как обставить однокомнатную квартиру: фото расстановки мебели
Глядя на фото этого интерьера, не верится, что речь идет о стандартной однушке. Как из прямоугольной квартиры получилась круглая? Как стена выпадает из потолка? Как тут вообще все поместилось? И только разглядывая квартиру в плане, понимаешь, что Mеиржан Жусупбеков — большой оригинал, и что при реализации его проекта не пострадало ни одного метра.
На фото:
Как обставить однокомнатную квартиру оригинально и со вкусом — несколько смелых идей из дизайн-проекта «simple freedom».
Есть мнение, что в однокомнатной квартире дизайнеру не разгуляться. Открытая планировка, барная стойка, диван, телевизор, встроенный шкаф — как ни переставляй, вариантов немного. Меиржан Жусупбеков решил не просто обставить однокомнатную квартиру мебелью, а превратить ее в футуристическое пространство для жизни. В основу проекта положен круг, причем без эргономичных потерь. Отрезанные углы дизайнер заполняет функционалом — устраивает кабинет, гардеробную, душевую. Авторский почерк виден во всем — на стеклянном полу в кухне, свисающей стене, арт-холодильнике и т.д.

План квартиры.

Комната разделена на две основных зоны – кухню-столовую и спальню-гостиную. Разделителем работает не барная стойка, как обычно, а экран, встроенный в перегородку, свисающую с потолка. Необычный прием усилен верхней подсветкой — соединение стены и потолка выглядит так, как будто перегородка «проваливается» в комнату. Оригинальную конструкцию снизу завершает тумба с аппаратурой и декоративными статуэтками.
Барная стойка здесь тоже присутствует, она замыкает собой кухонную зону. Над обеденной зоной принято вешать дополнительные светильники, подчеркивая ее роль в пространстве. Дизайнер и здесь уходит от проверенного метода. Над барной стойкой он располагает гигантский «китайский колокольчик», напоминающий дождь.

Вторая сторона подвесной стены обращена в спальню-гостиную и тоже имеет встроенный телевизор — на этот раз работающий на диванную зону. Диван-кровать снабжен футуристичными столиками по бокам и помещен в нишу, отделанную деревом и бирюзовыми обоями. Вместо обычной люстры в гостиной дизайнер предлагает композицию из софитов на изогнутых ножках. За диванной зоной видна дверь гардеробной – дополнительное помещение образовалось в процессе «скругления» помещения.

Весь интерьер квартиры решен в сочетании белого и бирюзового цветов – свежая и не избитая колористика. Дополняет ее теплый цвет натурального светлого дерева – именно он придает уюта яркой, но холодной гамме.
Зона кухни выделена необычным стеклянным полом. Прочное закаленное стекло положено на толстую деревянную решетку, внутри которой насыпана белая галька. Встроенные светильники подсвечивают пол изнутри, снова создавая впечатление, что свет пробивает в помещение откуда-то извне. Рабочая зона кухни компактно встроена в нишу и не разрушает «круглую» динамику пространства.

Лоджию дизайнер объединил с основным помещением, получив огромные окна в пол. В образовавшейся нише разместилась зона для чтения и утреннего кофе – небольшое яркое кресло и легкий столик с видом в парк.

Еще в одном закоулке, не вписанном в центральный круг, уместился небольшой кабинет. Ради экономии места стол с одной стороны опирается на стену, а небольшие полки уместились в нише. Деревянная отделка делает уголок уютным, а окно – просторным и светлым. Плоский круглый светильник благодаря цвету «завис» над столом.

Уровень пола в прихожей ниже, чем в основном помещении, это очень практично – грязь не попадает в комнату. Длинные узкие полки позволяют расставить здесь разные мелочи, а многочисленные черно-белые фотографии в рамках делают эту зону жилой. Особого внимания заслуживает потолок – там использована такая же конструкция, что и на полу в кухне, только наоборот. Получились интересный визуальный эффект, расширяющий пространство и декоративная рифма.

Бирюзовый холодильник играет роль разделителя прихожей и комнаты. Вместо того, чтобы прятать громоздкий агрегат по углам и нишам, дизайнер ставит его прямо на проходе и превращает в арт-объект с помощью цвета и лаконичной надписи. Композицию дополняет голова лошади..

В просторной ванной с естественным освещением дизайнер возвращается к центральной теме интерьера. Круглая ванна на подиуме встроена в полукруглую нишу возле окна — светлое и элегантное решение. Романтичности добавляет люстра в стиле фьюжн и легкий тюль.

Унитаз и умывальник тоже округлой формы. Плитка в зоне туалета выложена необычным способом: линии утратили параллельность, и на всей площади нет ни одного прямого угла. В получившуюся трапецевидную сетку встроены ниша с полками и зеркало. Игра с линиями и так визуально деформирует пространство, но дизайнер идет дальше и крепит на стену еще одно зеркало, так, что они образуют угол.

Другая стена ванной, отделанная бирюзовой плиткой, напоминает растрескавшуюся поверхность льда. Трудно понять, зачем эта массивная конструкция появилась в ванной комнате, если не знать, что выступ – обратная сторона кухонной ниши, обыгранная дизайнером.
Между бирюзовой глыбой и скругленными углами зоны ванной образовалось пространство, ставшее душевой кабиной – его отгородили стеклянной перегородкой. На полу вместо плитки – все тот же мелкий гравий. Помимо прочего, это очень практичное решение – в такой душевой не поскользнешься, да и массаж стоп – полезная процедура. Потолочный душ-светильник встроен в потолок — можно устроить настоящий тропический ливень.

Это фото демонстрирует: красота не помеха функциональности. За оригинальным дизайном стен скрывается практичная начинка – встроенные шкафы.
Полностью проект смотрите на странице конкурса «Лучший 3D-интерьер однокомнатной квартиры» на сайте pinwin.ru. Ссылка на страницу проекта:http://www.pinwin.ru/konkurs.php?kact=2&knid=27&rbid=5456
www.4living.ru
10 простых советов от дизайнеров
Покупка квартиры в новостройке – приобретение определённо приятное. Серые стены и отсутствие стяжки помогает сконцентрироваться на долгой «черновой» работе, отгоняя прочь заманчивые мысли о выборе новых занавесок и дивана. Однако, есть большой плюс в такой «невзрачной» современной квартире – это, как правило, большая жилая площадь и улучшенная/свободная планировка. А это дает прекрасную возможность заранее продумать, как распределить пространство и превратить безликую квартиру в новостройке в свой неповторимый дом.
Семья дизайнеров Анна и Михаил Кошелевы дала 10 простых советов для молодой пары, желающей создать в своей квартире неповторимый уют. Удобство и комфорт жильцов выходит на первое место.
1. Зонирование
Представьте себе обычный вечер в новой квартире. Какие у вас развлечения/хобби и что для это нужно прежде всего: просторная кухня, большой диван и полноценное рабочее место, а может, даже два. Подумайте, сможете ли вы этим заниматься, не мешая при этом своему партнеру? Возможно, необходимость в массивном кожаном диване отпадет сама собой.
Если квартира маленькая, а вас двоих слишком много для одной комнаты, то есть простой выход – акцентное зонирование пространства. Если комната позволяет, попробуйте поставить диван в средине. Вы сразу поймете, как можно организовать зоны, образовавшиеся по бокам от него. Визуально разделить пространства можно разными способами. Наш наиболее любимый вариант – стеллажи. В магазинах представлено большое разнообразие стеллажей, отличающиеся высотой, толщиной, цветом, формой, фактурой. Но, поверьте, сделать самому стеллаж очень просто, тем более, что нарезать доски можно в самом строительном магазине. Из инструментов вам понадобится шуруповерт и рулетка. Различные занавески в качестве «разделителя» использовать не советуем: не модно и неудобно.
2. Освещение
Обратите внимание, что именно создает такой уют в гостиничных номерах. У них нет люстр, зато есть светильники и торшеры. Несколько источников света выгодно подчеркнут мебель, создав необходимую атмосферу. Любимые люстры можно заменить на металлические абажуры или вовсе отказаться от них. Света от этого меньше не станет, зато он будет включаться там, где это действительно нужно. К примеру, за рабочим столом или у кресла, когда вы соберетесь почитать любимую книгу. Еще один способ добавить уют – это использовать направленные светильники, которые несут важную функцию: спускают свет на уровень глаз.
3. Ванная комната
Утро редко бывает добрым, особенно, если вы проспали/не выспались/перепутали дни недели. И тут вы сталкиваетесь с большой проблемой лицом к лицу: одной ванной на двоих очень мало в таких жестких условиях. Конечно, лучший вариант – это два санузла. Но, если ванная комната одна, то ее нужно максимально оптимизировать. К примеру, оборудуйте даме место для макияжа и укладки в спальне. Или же организуйте в санузле две раковины. Не забывайте про вентиляцию и звукоизоляцию, чтобы реальность не разрушила ваши романтические отношения.
4. Гардероб
Одежды много не бывает, а вот места для вещей всегда не хватает. Заведите правило делить одежду по сезону. То, что сейчас вам не нужно, сложите в контейнеры, вынесите на утепленный балкон, если есть возможность. Отличное решение – это аренда дополнительного помещения (в подвале, на лестничных пролетах) для всех тех вещей, которым нет этой весной места в вашей уютно квартире. Высвободившееся место в шкафу используйте для того, что сейчас вы действительно будете носить. Развесьте кофты и футболки на вешалки: одежда будет всегда доступной для глаз и не мятой.

5. Изюминки
О выборе декора мы можем говорить долго. «Изюминки» в интерьере – секрет удачного решения. Но самое главное это то, что декор должен отражать вас, ваши вкусы и пристрастия, вашу жизненную позицию. Ни один дизайнер за вас эту задачу лучше вас не сможет решить. Любите музыку – повесьте на стену скрипку, байки – поставьте на пол шлем. Да, кто-то скажет, что это лишнее и не нужное, но эти «кто-то» так для вас важны? Именно вы будете проводить в этой квартире большую часть времени, поэтому делайте все в первую очередь для себя.

6. Стены
Может создаться ощущение, что мы любую проблему решаем дополнительной лампой. Но чуму современного дизайна интерьеров — пустую стену — одной лампой не победить. О том, что должно висеть на стене, можно долго спорить, но хотим вам привести один пример.
«Голые» стены – это скучно. Даже красивые обои не спасут положение. Сейчас в магазинах большое разнообразие картин, фотографий, постеров. Доверьтесь своему вкусу и настроению. В конце концов, экспозиции можно менять хоть каждый день. Можно украшать стены своими воспоминаниями – дорогими фотографиями, с которыми связаны важные момент в вашей жизни. А почему нет? Подберите стильные фото рамки и вашу мини-галерею оценят все.

7. Кухня
Мы привыкли с силу исторических особенностей к тому, что на кухне только готовят и принимают пищу. По замыслу правителей советского периода, люди должны были питаться в основном в столовых, а дома чай пить с блинами. Сейчас все изменилось и западные тенденции больших гостиных, совмещенных с кухней, становятся все более популярными. И действительно, часто мы начинаем готовить, когда гости уже на пороге. Да и кроме этого, просторная кухня-столовая станет незаменимым местом для приема гостей. Остальное все пространство в квартире не придется обустраивать с мыслями: «А вдруг гости придут».
В новостройках кухни, как правильно, позволяют отвести место для дивана. Воспользуйтесь этой возможностью. Пусть кухня будет маленькой, но зато с двумя зонами: для готовки и разговоров с любимыми людьми.
8. Цветы, коты
Заведите себе кота или цветы. В вашем доме обязательно должно быть что-то живое, помимо вас. Если забота о животных вас пугает, то задумайтесь о цветах в горшках. Сделайте ваши цветы полезными – выращивайте зелень для кулинарных поединков. Если присмотритесь, то обязательно найдете место, куда поставить прекрасные горшки с цветами.

9. Балкон
Балкон, лоджия – чудесное место для воплощения дизайнерских фантазий. Даже самый маленький невзрачный балкон можно удачно оптимизировать, сделав небольшую барную стойку вдоль окна, приставив пару высоких стульчиков. Свечи и бутылка вина теплым вечером превратит место для хранения хлама в изысканный ресторанчик с видом на город. Посадите виноград в кашпо, занесите на балкон плетеную мебель. Это будет любимое место для отдыха.
10. Спальня
Ну и напоследок. Повесьте зеркала рядом с кроватью. Забудьте про фэн-шуй. Просто повесьте зеркала, и не стоит благодарности.
metrsaratova.ru

