Как обустроить 1 комнатную квартиру – дизайн пространства для семьи с ребенком, как разделить перегородкой, как обустроить, идеи интерьера, какой ремонт
3 способа обустроить типичную однокомнатную квартиру
Что может быть приятнее, чем планировать расстановку сил и средств в своей собственной квартире? Даже факт наличия очень небольшого жилого пространства не может испортить впечатления от этого волнительного и ресурсозатратного процесса. Эта задача может стать как очень простой и забавной, так и максимально сложной, в зависимости от того, какие условия необходимо создать в доме. Проще всего будет холостяку, которому, по сути, необходимо лишь грамотно распределить места для хранения вещей дома. А вот семье с ребенком-школьником уже придется хорошо подумать, как правильно сделать пространство.

Для того чтобы грамотно все сделать, перед планировкой необходимо в буквальном смысле составить список планируемых работ, учитывая, сколько человек будет жить в доме, какой образ жизни они ведут и их бытовые привычки. Такой подход позволить оформить интерьер не только максимально уютно, но и сделать его очень функциональным, подходящим каждому члену семьи.
Изучите готовые планировки. Это сэкономит вам огромное количество времени и сил, кроме того, любой вариант можно будет подогнать под ваши конкретные нужды и желания. Например, любовь с частым дружеским посиделкам и собиранию дома большого количества гостей может легко коррелировать с заменой обычной кровати более практичным складным диваном.
Однокомнатная квартира очень стеснена в габаритах, однако, это не мешает сделать ее удобной и многофункциональной путем разделения на несколько отдельных зон. Так, место приема гостей по окончании веселья свободно раскладывается в спальный райончик, кухня переходит в режим комнаты отдыха с телевизором и прочими техническими средствами. В качестве декора стоит подобрать максимально нейтральные цвета и сдержанно расставлять цветовые акценты.
Сейчас один из распространенных вариантов работы с подобными помещениями — это создание так называемых квартир-студий. В этом варианте планировке стена между кухней и гостиной убирается, создавая, таким образом, единое большое пространство. Это прекрасный выход за границы суровой реальности жилья для одного или двоих человек. Однако стоит помнить, что в ряде домов эта поверхность является несущей стеной, то есть, от нее избавиться будет нельзя.

Речь идет о доме так называемой серии П-46, где стена между кухней и комнатой является нерушимой по причине того, что она несущая. Такие строение возводились еще в Советском Союзе и России в 1971–1998 годах. Сейчас им на смену пришли другие модификации. К особенностям этих домов относились различные цветовые решения для фасадов, а также вариативность в плане количества этажей.
Типовая расцветка для домов — это коричневый колер, но имеются многочисленные примеры бело-синих зданий. Площадь квартиры в одну комнату в таком инженерном чуде –

Способ первый: апгрейд для холостяка или двух человек
В случае с обустройством квартиры для холостого молодого человека или пары, еще не обзаведшейся детьми все достаточно просто. В этом случае надо предусмотреть, что квартира будет часто использоваться не только в качестве обычного жилого помещения, но и для проведения многочисленных встреч с друзьями, когда в квартиру приходит не один или два человека, а целая компания. Таким образом, комната должна стать еще одной зоной, где могут разместиться гости, чтобы не приходилось ютиться на кухне всем большим веселым табором.
Для того чтобы не нарушать интимности спального места стоит озаботиться грамотным зонированием гостиной комнаты. Спальную зону следует четко обозначить и скрыть от лишних глаз при помощи декоративных ширм. Для того чтобы не утяжелять пространство и не сужать его в восприятии, стоит выбирать зеркальные варианты. Это также будет оригинальным эстетическим ходом и будет очень полезно с точки зрения бытового использования, когда утром надо привести себя в порядок и собраться на работу.
Ванную и санитарное помещение лучше всего объединить и оборудовать большой душевой кабиной. Не экономьте на себе, обзаведитесь самой «навороченной» со встроенными техническими приспособлениями и возможностью получить водяной массаж, послушать любимую радиостанцию в процессе мытья или включить романтическую или максимально яркую подсветку. Вместо банального и некрасивого пластикового поддона оставьте сливное отверстие прямо в полу. Уберите двери или замените их прозрачными створками.
Стиральную машинку для экономии пространства можно убрать под раковину, при этом ее даже не придется закрывать декоративными панелями, поскольку она и так смотрится довольно завершено и эстетично. Лоджию оборудуем специальным местом для просушки вещей. Если же провести мероприятия по утеплению балкона, то можно там же завести:
- отельный рабочий кабинет;
- сделать там местечко, где можно предаваться хобби;
- отдельную зону отдыха.
Такая планировка не потребует от вас больших энергетических и материальных затрат, необязательна к буквальному исполнению (например, если у вас нет желания возиться с объединением ванной комнаты в единое помещение, то санузел и помывочную можно оставить в покое). Любые перегородки, обозначающие границы различных зон, монтируются довольно быстро и легко. Правда, в таком варианте не предусмотрено много места для хранения вещей, так что парам, которым есть что складировать дома, такая планировка не очень пригодна.

Способ второй: теплое гнездышко для пары
Второй вариант планировки помещения в однокомнатной квартире панельного дома предполагает проживание в ней молодой пары. Основное использование этого места — отдых после рабочего или учебного дня. Хозяева не слишком любят проводить многолюдные шумные посиделки, однако, им нужно много места для того, чтобы хранить свои вещи или спортивный инвентарь.
В этом случае прихожую и часть жилой комнаты можно превратить в гардеробное пространство. Спальня становится местом обитания габаритных комодов, позволяющих прятать в них огромное количество вещей. Кровать в этом случае выбирается более масштабная и комфортная, соответствующая представлениям о комфортном и удобном отдыхе.
В зоне совмещенного санузла главенствующую роль теперь играет большая удобная ванная. Стиральная машинка также убирается в пространство под раковиной, а место для просушки стираных вещей остается на балконе. Он утеплен и одновременно служит рабочей зоной. Такой вариант очень удобен из-за рационально организованного места хранения, которое ко всему прочему еще и становится скрытым от посторонних взглядов.
Также это лишает пару необходимости продумывать расстановку тяжелой объемной мебели по всему дому и оставляет спальню достаточно вместительной. Правда, в таком доме уже не будет полноценной гостиной. Для дружеских встреч остается только кухонная зона, где нельзя провести полноценную веселую вечеринку.
Эта планировка подходит паре, которая:
- предпочитает выбираться за пределы дома ради встреч с друзьями;
- в квартире любит полноценно и спокойно отдыхать.

Способ третий: жилье для пары с ребенком школьником
Вообще, это очень непростой вопрос, размещения семьи более чем из трех человек в однокомнатном жилище. Задача усложняется в несколько раз, если третий сожитель — это не младенец или совсем маленький ребенок, а стремительно растущий школьник. Готовьтесь находить компромиссы, выделять зоны для учебы и отдыха ребенка. Также надо максимально продумать удобство размещения зон сборов в школы и на место работы в условиях ограниченности времени утром.
При первоначальном разделении квартиры на зоны необходимо сразу определиться, что часть комнаты, расположенная у окна должна достаться ребенку — здесь встанет письменный стол для приготовления уроков. Уголок родителей сдвигаем к стене и отгораживаем шкафом, большим стеллажом или легкими перегородками. Более четко в визуальном плане разделение даст окрашивание разных зон в разные цвета. Можно применить такой прием, как использование отличных друг от друга и даже контрастных отделочных материалов.
Этот тип планировки предполагает наличие в доме двух полноценных спальных мест для взрослых людей и для ребенка. Для удобства и большей функциональности их можно заменить на два складных дивана. Если источник естественного света в комнате всего один, то о полноценности отдыха для каждой из сторон думать не приходится, но можно сделать гораздо более комфортными места общего пользования.
Например, установить еще одну раковину в ванной, немного потеснив коридор. Придется перенести вход в кухню, дополнительно укрепив новый дверной проем металлическими подпорками. Для проведения всех этих мероприятий, прежде всего, придется получить разрешение в органах БТИ.
В качестве плюсов вы обретаете сразу два полноценных санузла, под дополнительную раковину с комфортом спрячется стиральная машинка. Но полноценно отдохнуть при полном семейном комплекте дома в таких условиях не удастся. Кухонную зону стоит открывать только если имеется возможность оборудовать ее максимально качественной и мощной вытяжкой.

загрузка…
Понравилась статья, нашли полезную для себя информацию? Подписывайтесь на обновления сайта:
В Контакте, Facebook, или Twitter.Поделитесь с друзьями! Расскажите об этой статье друзьям в социальных сетях при помощи кнопок в панели слева. Спасибо!
moiinterier.com
10 реальных примеров — INMYROOM
Как обустроить маленькую квартиру для молодой хозяйки? Можно ли грамотно спланировать пространство однушки для пары или семьи с ребенком? Обязательна ли для комфортной жизни на ограниченном пространстве перепланировка или можно обойтись грамотным зонированием? Отвечаем на самые распространенные вопросы о дизайне однушек и делимся отличной подборкой российских реализованных проектов – уверенны, она вам пригодится.
1. Как бюджетно отремонтировать однушку для сдачи в аренду
Однокомнатную квартиру на юго-западе Москвы хозяева решили отремонтировать под сдачу. С помощью декоративных приемов дизайнер Анна Ковальченко создала привлекательный и универсальный интерьер. Благодаря геометрическому декору и текстилю в единственной комнате появились функциональные зоны. В прихожей Анна добавила цвета, а на кухне расширила пространство с помощью светлого фона стен.

2. Как выжать максимум из 29 квадратных метров
Разместить на 29 квадратных метрах просторную кухню-гостиную, рабочее место, изолированную спальню с большим встроенным гардеробом вовсе не невыполнимая задача. Дизайнер Мария Дадиани рассказала InMyRoom, как превратить малогабаритку в удобное жилье для
молодой семейной пары.

3. Как из типовой однушки сделать двушку
Дизайнеры Наталия Чайка и Александра Морозова доверились интуиции – демонтировали все стены в типовой однокомнатной квартире и частично возвели новые. Получилась светлая просторная студия, в которой предусмотрена отдельная комната для хозяйки и полноценное спальное место для гостей. В спальне продумали два входа: из гостиной и из гардеробной – получилась собственная «Нарния» в обычной московской однушке.

4. Как оформить однушку для молодой пары
Чтобы максимально задействовать полезные метры студии, дизайнеры
спроектировали подиумы-трансформеры. Системы одновременно выполняют роль
гардероба, спального места и уютной лаундж-зоны. Так на скромных 42 квадратах уместились еще два рабочих места и системы хранения не только для вещей, но и
спортивного снаряжения. Команде Space4life удалось тщательно
спланировать каждый метр, поэтому результат получился воздушным и даже слегка космическим.

5. Как грамотно зонировать однокомнатную квартиру
Правильно зонировать небольшую
комнату, превратив ее в две полноценные жилые зоны, – настоящее
искусство. Дизайнер Марина
Саркисян на 17,7 квадратах разместила спальню, гостиную, рабочее место и даже две небольшие гардеробные. Квартира в Восточном Измайлово получилась яркой, но при этом очень уютной.

6. Как оформить однушку с изолированной спальней
Ребята из Buro
Brainstorm обустроили в типовой однушке площадью всего 30 квадратных метров
современный интерьер с полноценным изолированным спальным местом и
гостеприимной гостиной. Возведение стеклянной стены в спальной зоне стало лишь началом
дизайнерских экспериментов – интересные решения в этой квартире на
каждом шагу.
7. Удачная переделка угловой однушки в хрущевке
Угловую однушку в типовой хрущевке площадью 30 квадратных метров
переделали в стильное помещение. Изначально хозяин планировал сдавать жилье
в аренду, однако результат проделанной работы настолько понравился ему,
что он решил поселиться здесь сам. Несмотря
на скромный бюджет, дизайнеру удалось поднять потолок на 15 сантиметров,
встроить большой и вместительный шкаф, который не бросается в глаза, а
также грамотно зонировать пространство.

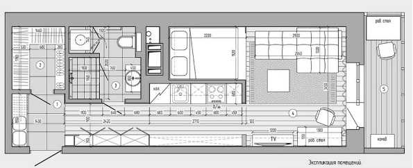
8. Как обустроить однушку для троих и не уйти в минус
Комфортно жить с ребенком на площади в 33 квадратных метра возможно – посмотрите на этот пример из Чертаново. От перепланировки тут отказались сразу. Во-первых, стена между кухней и комнатой – несущая; во-вторых, любая стройка мгновенно отражается на бюджете, который у молодой пары с ребенком был ограничен. Сделав ставку на зонирование и грамотный выбор отделочных материалов и мебели, Наталья Сытенкова обустроила комфортное пространство для троих и предусмотрела большое количество мест для хранения.

9. Как превратить однокомнатную квартиру в студию
Градус креатива в этой
однушке зашкаливает: нарисованное
от руки изголовье кровати, панно из книг от пола до потолка,
сделанные из садовых бочек мойка и плита… Дизайнер Наталья Анахина создала интерьер полностью для себя,
хотя и была ограничена в бюджете.
Грамотная перепланировка здесь
компенсирует скромный метраж; винтажные и антикварные предметы декора –
простую отделку; нестандартные дизайн-решения – типовую планировку.

10. Как оформить однушку для девушки
Квартира площадью 33 квадратных метра стала пространством для совместного творческого эксперимента хозяйки и дизайнеров. В итоге получился яркий и неординарный интерьер, который поднимает настроение и окружает домашним уютом. Стены насыщенного цвета, пестрые предметы мебели и изумрудный балкон в цвет сумки хозяйки – возможно, для кого-то мир и может быть серым, но только не для дизайнеров, которые оформили этот интерьер.

www.inmyroom.ru
Обустраиваем однокомнатную квартиру: как сделать жилище уютным и функциональным (59 фото)
Ищем авторов для нашего сайта, которые ОЧЕНЬ хорошо разбираются в дизайне интерьеров.Обращаться на почту [email protected].
09.12.2017
Обстановка однокомнатной квартиры задача сложная, но интересная. Необходимо не только сделать квартиру уютной и максимально просторной, но еще и функциональной. Создание интерьера в однокомнатной квартире включает в себя несколько ключевых моментов, которыми мы сегодня с вами и поделимся.





Что нужно знать
Уютная однокомнатная квартира изо дня в день будет радовать своих владельцев, особенно в хорошем дизайне. Вариантов создания интерьера достаточно много, но все они строятся по определенным правилам:
- Создание простора. Пожалуй, единственное, чего может не хватать в однокомнатной квартире это свободного места. И основной задачей при создании любого интерьера будет именно создание максимального простора.
- Зонирование. В однокомнатной квартире просто необходимо разделять рабочую зону и зону отдыха. При этом можно использовать как различные перегородки и занавески, так и простое визуальное разделение.
- Удобство и функциональность. Плоха та квартира, в которой отсутствует удобство. По этой причине не менее важной задачей, при создании интерьера, является создание удобства и уюта в квартире. Функциональность же позволит рационально подобрать и использовать мебель и бытовую технику.
- Правильный выбор интерьера. Хороший подбор интерьера будет способствовать созданию определенного настроения в вашей квартире. Гармонично подобранная гамма красок, аксессуаров и создание единого стиля обеспечат тепло и уют в вашей квартире.
- Грамотный подбор мебели. Выбор мебели для однокомнатной квартиры – задача, обеспечивающая в первую очередь оптимизацию всего пространства квартиры и, как следствие, создание большего простора. Если гармонично обставить квартиру, подобрав определенную мебель, получится настоящее произведение искусства.
Благоустройство комнаты
Пожалуй, самая сложная задача – благоустроить единственную комнату в квартире, сделать ее максимально просторной, уютной и удобной. Первое, с чего стоит начать это с планировки комнаты и подбора мебели.









Планировка комнаты во многом зависит от ее площади и количества проживающих человек, поэтому в каждом случае необходимо использовать индивидуальный подход. Но во всех случаях необходимо разделить рабочую зону и зону отдыха. Как и говорилось раньше, разделять можно путем использования различных перегородок и занавесок. Их основное преимущество – мобильность, за счет которой вы всегда сможете легко сделать перестановку. Можно использовать и визуальные разделители. К примеру, хорошо подойдет ковровое покрытие в зоне отдыха или многоуровневые потолки. Порой достаточно просто грамотно обставить квартиру мебелью, для того, чтобы четко разграничивать зоны, это уже скорее дело вкуса.
Подбор мебели во многом зависит от желаемого дизайна комнаты, но основной упор делается на оптимизацию и функциональность. Именно за счет правильного выбора комнатного гарнитура можно освободить большое количество пространства. В любой однокомнатной квартире важно рационально использовать каждый сантиметр пространства.









Покупая мебель, стоит отдавать предпочтения компактным и встроенным вариантам, которые легко трансформируются. Оптимальнее всего использовать стенку – она сочетает в себе несколько видов мебели, легко подобрать достаточно компактный вариант, а широкий выбор с легкостью впишет ее в любой интерьер. Хорошо подойдут к любому дизайну и современные небольшие полки. Их так же можно обставить не только повседневными вещами, но и различным декором, который поможет в создании определенного интерьера.
При выборе спального места нужно уделить внимание не только его удобству, но и функциональности. Можно использовать кровать, встроенная в шкаф. Хорошо подойдет и диван, внутри которого можно хранить постельное белье. По такому же принципу можно выбирать и небольшие кресла и пуфики.
Главное, никакой большой мебели быть не должно. В маленькой квартире это создаст ощущение тесноты. Выбирая стол, следует остановить свой выбор на складных вариантах, а вместо больших кресел использовать небольшие стулья, благо большой выбор и современный дизайн мебели легко впишут все в ваш интерьер.





roomplan.ru
Как обставить однокомнатную квартиру: 5 лучших фоторабот от высокопрофессиональных дизайнеров
Нынешние цены на жилплощадь не балуют доступностью, виду чего не все люди являются счастливыми хозяевами комфортабельных и роскошных апартаментов. Многим семьям всю жизнь приходится ютиться в крошечных квартирах, где каждый сантиметр ценится на вес золота. Поэтому владельцы малогабаритных жилищ часто недоумевают, как обставить однокомнатную квартиру. Фото помещений, интерьер для которых разрабатывали маэстро дизайнерского искусства, помогут создать обстановку, балующую красотой, комфортом, уютом и практичностью.
Рекомендации талантливых дизайнеров
Как же разместить необходимые предметы, и не перегрузить интерьер? Ведь хочется, чтобы было и просторно, и уютно, и красиво, и эргономично. Неужели это желание невозможно воплотить в реальность? Если следовать рекомендациям специалистов, однокомнатная квартира превратится в шикарные апартаменты!
- Цветовая гамма. Отдать предпочтение нужно светлым предметам интерьера, поскольку пастельные тона делают помещение воздушным. А вот от темной мебели следует отказаться, так как она «съедает» пространство.
- Поверхность. Чтобы визуально увеличить площадь, необходимо обратить внимание на предметы обстановки с прозрачной, зеркальной или глянцевой поверхностью.
- Стиль. Для однокомнатных квартир хороши многие направления и современные, и этнические, и исторические. Но мебель, вне зависимости от стиля жилища, должна отличаться простотой и функциональностью. Маэстро дизайнерского искусства советуют присмотреться к предметам обстановки в стиле минимализм.
- Компактность. Желательно обзавестись мебелью, отличающейся компактными размерами. Кроме того, отличное решение – это приобретение малогабаритной мебели или предметов на колесиках.
- Многофункциональность. Трансформируемая мебель влюблена в однокомнатные квартиры. Ведь кровать можно превратить в шкаф, кресла – в тумбу, а журнальный столик в пуф и т. д.
- Практичность. Очень часто хозяева квартир забывают о потолке, углах и стенах. То есть никак их не задействуют. А ведь потолок – идеальный участок для дополнительных мест хранения, стены – безупречны для полок, углы прекрасны для угловой мебели, а подоконник можно убрать, установив столешницу, а под ней тумбу или шкафчики.
- Стены. Сегодня очень популярны квартиры-студии, потому как стены занимают желанные квадратные метры, а их снос позволяет увеличить пространство. Понятно, что квартиру придется делить на функциональные зоны. Так вот, чтобы не занимать площадь перегородками, можно поставить мебель, служащую в качестве разделителей зон, что удобно и практично.
- Расстановка. Мебель рекомендуется расставлять вдоль стен, при этом оставляя свободными центральные места.
Таким образом, квартира порадует эргономичностью и эстетичностью с гармоничными нотками уюта и комфорта.
Фото-проекты для вдохновения
Фото – проект №1. Однокомнатная квартира с интригующей обстановкой
Однокомнатная квартира площадью 29,7 кв. м очаровывает простором, уютом и невесомостью. Казалось бы, столь прекрасного результата удалось достичь благодаря сносу стен, что значительно освободило пространство, но и грамотная расстановка мебели сыграла не последнюю роль. Ведь, глядя на фото квартиры, становится понятно, что в помещении нет ничего лишнего. В кухне, ванной, гостиной, спальне расположены исключительно необходимые предметы, отличающиеся светлой гаммой, компактностью, практичностью, лаконичностью, но и в то же время грациозностью. Кроме того, предметы интерьера расставлены вдоль стен, что позволило освободить центральные участки в каждой зоне, а этот трюк увеличил желанное пространство. Также в квартире можно без каких-либо вложений сменить обстановку, благодаря трансформируемой мебели. Антон Зайцев, г. Санкт – Петербург.








Фото – проект №2. Однокомнатная квартира с секретами
Однокомнатная квартира площадью всего лишь 20 кв. м балует теплом, домашним уютом и функциональностью. Несмотря на скромные размеры, удалось выделить кухню, спальню, гостиную и ряд дополнительных мест для хранения. Потрясающий результат подарили трансформируемая мебель и невидимые ниши. Например, обеденный стол прячется в щель под рабочей поверхностью (столешницей), стулья и кресла имеют складной механизм, а подиум скрывает современную бытовую технику. Кроме того, светлая гамма мебели прекрасно корректирует квартиру, сметая границы, а ее компактные размеры не перегружают интерьер. Ольга Ульянова, г. Москва.






Фото – проект №3. Комфортабельная и фешенебельная однокомнатная квартира
Бытует мнение: неоклассике не место в миниатюрных квартирах. На радость почитателям исторических стилей, дизайнеры доказывают обратное, что видно на фото. Квартира овита благородными и элегантными нотками, кроме того, дышит желанным простором, поскольку использованы предметы обстановки компактных размеров в светлой палитре с наличием множества мест для хранения. Также задействованы подоконники, которые исполняют роль дополнительных посадочных мест, где можно не только расслабиться с чашечкой ароматного чаю, но и поработать. Диана Валеева.







Фото – проект №4. Жизнерадостная однокомнатная квартира
Глядя на проект, просто не верится, что миниатюрная квартира вместила всю необходимую мебель, при этом выглядит воздушной. Предметы мебели расставлены у стен, что позволило освободить центральную часть комнаты, наполнив ее простором. Компактный диван, тумба под телевизором, стол на высоких ножках светлых тонов не загромождают пространство, кроме того, выглядят очень гармонично. Спальня представлена кроватью, под которой имеются дополнительные места для хранения. Если же захочется скрыть ее, достаточно опустить ширму. Внимания заслуживает кухня. Белый угловой гарнитур, миниатюрная барная стойка в паре со стульями на высоких ножках составляют отличную композицию. Студия MioDesign.









Фото – проект №5. Невесомая однокомнатная квартира
Небольшое помещение после манипуляций дизайнера захватывает дух свежестью и изысканностью. Центральное место занимает спальня, которая представлена огромной кроватью. Позади зоны сна расположен белоснежный кухонный гарнитур. Такое размещение позволило увеличить объем жилища. Гостиная утопает в просторе, поскольку предметы интерьера поставлены у стен. Пастельная палитра, компактные размеры и оригинальная планировка сделали свое дело, подарив квартире невесомое убранство. Андрей и Алена Тимонины.






Глядя на потрясающие фотоработы, в душу вселяется надежда и вера в то, что однокомнатная квартира это шаг навстречу бурным экспериментам. Все еще интересует вопрос, как обставить однокомнатную квартиру? Фото без слов докажут, что сделать это нетрудно!
harthaus.ru
Как обустроить однокомнатную квартиру? Дизайн однокомнатной квартиры: фото :: SYL.ru
Многие владельцы однокомнатных квартир знают, насколько тяжело использовать небольшое свободное пространство. Как обустроить однокомнатную квартиру для работы и отдыха одновременно?
Организация пространства

Маленькие квартиры – очень уютные, в их небольшом пространстве можно создать интимную атмосферу. Хитрость заключается в том, чтобы правильно выбрать и организовать другие необходимые элементы, такие как мебель, цвета и места для хранения вещей. Легко сделать небольшое пространство переполненным, если не обращать внимания на детали. Когда у вас нет такой роскоши, как обширное пространство, первое, что можно сделать – это разработать план зонирования, который объединит небольшие специальные места для отдыха и работы.
Перед тем как делать зонирование, нужно определить, где границы каждого пространства. Особенно это важно, если однокомнатная квартира с ребенком, дизайн в этом случае может стать проблемой. Небольшие выделенные участки в комнате необходимы, чтобы принять гостей, организовать спальное место, отдельное от области гостиной. Например, диван и двухместный диван можно установить в L-форме, чтобы они выступали в качестве заменителей отсутствующих стен.
Зонирование цветом
Как обустроить однокомнатную квартиру при помощи цвета? Можно начать с монохроматической палитры. Это сделает пространство зрительно больше, цвета не будут работать против других элементов дизайна.

Выберите одинаковые цвета или подобные оттенки для стен, ковров и драпировок, даже если вы любите яркие краски. Просто необходимо побаловать себя в выборе аксессуаров, украшений на стены и отделочных тканей.
Если однокомнатная квартира имеет углы или ниши, которые необходимо скрыть, они должны сливаться с фоном. Нейтральная палитра позволяет легче выполнять сезонные изменения, например, смену зимних ковриков вишневого цвета на зеленые пастельного оттенка весной.
Можно, наоборот, активно использовать краски для разделения пространства: покрасить стены спального места в другие цвета; использовать перегородки, такие как рулоны в японском стиле, ширмы и роллеты.
Место для отдыха
Спальня может стать проблемой в таком жилище. Как обустроить однокомнатную квартиру, чтобы выделить место для отдыха? На открытом пространстве трудно выделить спальные, рабочие зоны, место для гостей. Тем не менее с несколькими хорошими идеями можно решить проблемы частной жизни и создать отдельные области для конкретных целей.

Практика предлагает много вариантов зонирования.
- Один из способов выделить спальное место — при помощи островной установки модульной мебели, которая становится одновременно и стеной, и местом для хранения для вещей.
- Раздвижные панели или полупрозрачные экраны уже давно стали способом деления пространства на секции, особенно в азиатских культурах. Привлекательной экранную панель делает то, что она легкая и визуально приятная. Она легко отделяет жилые помещения, дает умеренное количество света, проникающее сквозь материал экрана. В качестве таких разделителей используют жестко закрепленные на потолке панели из ткани, пластика, стекла, различные модификации жалюзи.
- Бамбуковые жалюзи (панель) могут отдельно стоять или висеть на потолочных роликах. Это недорогой способ разделить пространство в случае однокомнатной квартиры.
- Складной экран или ширма – это один из самых универсальных предметов мебели.
- Основной деревянный экран бывает окрашенным в один цвет или по трафарету, чтобы соответствовать любому интерьеру. Его можно перекрашивать в любое время или менять в зависимости от сезона. Используется ширма в области рядом или перед спальным местом.
Места для хранения вещей
Мебель должна иметь двойную функцию — дизайн и хранение. Поэтому необходимо использовать стулья, столы и диваны со встроенными отделениями для хранения. Существуют кровати, разработанные со встроенным стеллажами, шкафами или ящиками, которые также являются хорошим дополнением для хранения вещей. Контейнеры позволят получить максимальную отдачу от шкафа. Мебель для однокомнатной квартиры позволяет правильно хранить одежду, обувь и документы в комодах, шкафах, столах, использовать корзины и ящики для хранения вещей.
Хорошо использовать стены и антресоли в качестве хранилища. Например, громоздкие шкафы от пола до потолка можно поменять на подвесные полки.
Прекрасное решение, которое может революционизировать крошечные пространства – это выдвижная система мебели с кроватью, стиральной машиной, рабочим местом.
Квартира с эффектом 3-D, или Добавим объема

Если перестать думать двухмерно и начать жить в трехмерном пространстве, что часто упускается из виду в однокомнатной квартире? Как обустроить маленькую квартиру, чтобы использовать ее для полноценной жизни? Квадратные метры маленькой квартиры составляют размер жилой площади, но не учитывают объем пространства над полом. Использование как можно больше этого пространства дает организация спального места в верхнем ярусе комнаты, а нижний ярус применяется для хранения вещей или как рабочее место. Такое вертикальное использование пространства очень важно, когда заселяется однокомнатная квартира с ребенком, — дизайн позволяет создать для него отдельный мир. Еще одним полезным вариантом является комбинированная, многофункциональная, двухъярусная мебель. А высокие потолки в квартире позволяют создавать настоящие спальные комнаты. Нужно смело преобразовать один тип пространства в другой, и сделать каждый предмет в квартире многофункциональным.
Маленькая кухня
Комфортный дизайн-проект однокомнатной квартиры позволяет размещать мебель и необходимый инвентарь вертикально, если кухня небольших размеров. Так, можно повесить кастрюли, сковородки и кухонную утварь на установленной под потолком полке — и она станет стильным украшением любого интерьера.

Это освободит не только пространство шкафов и ящиков, но и ценное место на кухонной столешнице, которую свободно можно использовать для приготовления пищи, а также расположить на ней комбайн или кофеварку.
Также можно повесить двери на полки или воспользоваться стильными стеклянными фартуками, чтобы расположить там необходимые запасы продуктов. Если продумать многофункциональность мебели или воспользоваться ее модульным вариантом, установить раздвижную дверь, которая тоже сохранит полезную площадь, то даже самая маленькая кухня станет приятным и стильным уголком.
Зеркала и аксессуары

Зеркала – это секретное оружие в небольших помещениях. Умный дизайн-проект однокомнатной квартиры позволяет просто повесить зеркала в местах, где они максимизируют внешний вид помещения. Большие зеркала на стене или мебели создают эффект увеличения пространства. Они открывают стены полностью.
Телевизор и музыкальный центр лучше установить на стене с помощью настенных креплений.
Использование напольных покрытий позволяет отделить пространство. Два больших ковра на полу в разных цветах будут выступать в качестве импровизированных границ между зонами в комнате. Наличие отдельных светильников в каждой зоне тоже создает некоторую обособленность.
Небольшие пространства требуют большого количества света. Поэтому стоит использовать прозрачные шторы и портьеры на окнах — это придает квартире воздушный и просторный вид. И поменьше драпировок, тяжелых портьер из жаккарда или бархата.
Тонкости обустройства санузла

В небольших квартирах ванная и туалет бывают совмещенными и раздельными. Как обустроить однокомнатную квартиру удобной ванной и санузлом? В любом варианте стоит использовать весь объем помещения, для этого применяются навесные полки или антресоли. А если потолки высокие, можно создать второй этаж для хранения вещей. Обычно в маленьких санузлах устанавливают душевые кабины – это освобождает место для стиральной машины и корзины для белья. Причем маленькое помещение можно сделать ярким и веселым, в любом стиле, используя современные материалы. Вертикальные пластиковые полки или шкафчики помогут расположить все моющие и чистящие средства, и даже косметику. Большое зеркало не только увеличит ванную, но и станет местом для макияжа или комфортного бритья.
Немного о прихожей

Не стоит забывать о прихожей. В некоторых однокомнатных квартирах это совершенно крошечные помещения, но им вполне можно придать функциональность. Дизайн однокомнатной квартиры (фото в статье демонстрируют различные варианты) предусматривает использование раздвижных дверей или двери-гармошки, что позволяет создавать стильные гардеробы для верхней одежды. Если в их нижней части расположить полки или выдвижные ящики для обуви, а вверху – полки для шляп, шарфов, перчаток, сумок, то останется некоторое пространство для небольшой банкетки с откидной крышкой, чтобы удобно было обуваться.
Использование пространства над входной дверью, если коридор неширокий, или другого пространства под потолком для антресолей позволит сохранять там сезонную обувь или одежду. Так, необходимое в коридоре зеркало лучше располагать прямо на стене, а нужные мелочи хранить на узеньких полочках около него. Главное при организации пространства коридора – это реально относиться к площади и приобретать туда соответствующую обстановку.

На вопрос: «Как обустроить однокомнатную квартиру?» (фото демонстрирует возможные варианты) ответ довольно простой, но практичный. Не стоит накапливать слишком много вещей и мебели – это является самым важным правилом малого пространства для жизни. Тогда самая маленькая квартира будет функциональной и красивой.
www.syl.ru
Как обустроить однокомнатную квартиру? (фото и видео)
Сегодня в нашей статье мы поговорим об обустройстве маленькой однокомнатной квартире, все советы мы составили специально для тех людей, которые совсем недавно завершили ремонт и хотят правильно облагородить своё маленькое жилище максимально рационально.
Всем известно, что судить о человеке можно не только по одежке, но и по его дому. Заходя в чей-то дом мы сразу делаем выводы о его хозяине, что вполне логично, ведь обстановка и дизайн говорят о чувстве вкуса или об его отсутствии. Увы, этим чувством может похвастаться не каждый, воплотить в реальность все задумки интерьера с мельчайшими деталями не всегда удается. Тогда на помощь приходят специалисты-дизайнеры, чья задача – создать эксклюзивный, интересный и стильный дизайн вашего помещения, сделав его при этом и многофункциональным. Последнее не всегда столь важно.
Далее статью мы разделил на два направления:

Советы по обустройству
Попадая куда-то впервые, мы сразу сталкиваемся с прихожей. Это как одежка для человека, от нее создается первое впечатление. Даже если далее у вас самый что ни на есть отличный ремонт, все будет испорчено отсутствием стильной и эффектной прихожей. Избежать этого помогут светлые тона, они придадут ей простор и уют, особенно это важно в однокомнатных квартирах. О темных тонах забудьте, тем более, если у вас городская квартира.
Громоздкую мебель на входе тоже лучше не ставить, ее эффект в данном пространстве потеряется, а вашим гостям будет некуда встать. Выбирайте мобильную, легкую, компактную мебель, светлую и не усложненную излишними деталями. Она будет идеально гармонировать со светлыми тонами прихожей. Тем более, что при обустройстве однокомнатной квартиры каждый квадратный метр – на вес золота!

В прихожей непременно должно быть зеркало, которое визуально увеличит комнату. Стены также не оставляйте пустыми, можно украсить их картинами или цветами. Всё это очередные способы расширения пространства собственного дома.
Итак, ваши гости миновали прихожую. Далее они попадают в кухню, столовую или гостиную (в зависимости от планировки). Это стандартная схема расположения помещений почти во всем мире. Все предельно просто, по логике, минуя прихожую, посетителей обычно угощают, соответственно, еда готовится на кухне, которая соседствует со столовой, где происходит угощение, а затем действие переходит в гостиную, где все отдыхают. Конечно, такая классическая картина сегодня встречается далеко не везде, во многих квартирах (домах) кухня совмещена со столовой или столовая совмещена с гостиной. Особенно это часто делают в однокомнатных квартирах, тем самым превращая обычную квартиру в студию.
При выборе той или иной мебели, обязательно учитывайте, что спальная зона должна легко превращаться в гостиную – например вместо полноценной кровати можно установить раскладной диван, или встроить кровать в шкаф (хотя такая задача обойдется в крупную сумму денег).

Иногда большую комнату делят перегородками, создавая отдельные зоны, тем самым превращая одну комнату в две. Но сути оформления это не меняет.
На кухне все должно быть рядом, чтобы хозяйке было удобно. Стиль практичный и эргономичный. Столовую и гостиную можно оформить по вкусу, с разным декором, это уже другое пространство. Они должны настраивать на отдых и легкие беседы. Поэтому во время ремонта или переделки квартиры нужно обратиться к дизайнеру, его советы сделают вашу задумку еще лучше. Иногда, задумываясь об эстетике, мы забываем о функциональности, а задача профессионала – объединить эти две составляющие, сделать из небольшой и некомфортной квартиры удобный и светлый дом.

Владельцам маленьких квартир
Остановимся на простых советах. Мебель надо брать красивую и удобную, ведь вам на ней отдыхать и проводить максимум свободного времени. То же касается и стульев, незачем брать с высокими спинками, неудобные или шаткие стулья, чтобы потом испытывать дискомфорт.
Отдайте предпочтение мягким диванам, а в сочетании со шторами, которые будут создавать легкий полумрак, ваша гостиная станет еще уютнее. Если у вас осталось много свободного места, то украсьте его милыми вещицами и элементами декора (аквариумы, вазу, статуэтки, декоративные поделки). Напольное покрытие может быть по вашему вкусу паркетным или ковровым, главное, чтобы оно сочеталось и гармонировало со всем остальным интерьером.
Можно однокомнатную квартиру обустроить, как личный кабинет, в котором Вы по большей части времени будете работать. Такой вариант тоже вполне приемлем для тех людей, которые работают на дому. Кабинет – помещение не для свободного доступа, а личное пространство хозяина. Это важно понимать при его обустройстве. Если вы хотите оформить наилучшим образом, сразу забудьте о ярких безделушках и ненужных элементах декора, это будет отвлекать и в итоге скажется на вашей работе. Создаваемая здесь атмосфера должна быть спокойная, без контрастов, располагающая в то же время к работе, а не ко сну. Для этого подойдет натуральное дерево или его подобие. Вещи располагайте с удобством, чтобы все необходимое было рядом с рабочим столом.

Конечно же, выгоднее всего сделать всё своими руками, однако для этого нужно иметь вкус, если же его нет, то многие крупные строительные компании на рынке с удовольствием Вам в этом помогут и предоставят услуги дизайнера. Но наш сайт не рекомендует общаться к таким компаниям, ведь они могут сделать ужасно, а денег затребуют очень много. Лучше прочтите наши статьи, и Вы сможете без проблем создать идеальной жилище, для себя и своей семьи, даже если проживаете в маленькой однокомнатной квартире. Вот статьи, которые Вам помогут уяснить нюансы:

Видеоролик с советами
Также хотим Вам предложить видеоролик, в котором даны очень интересные рекомендации по обустройству малогабаритной однокомнатной квартиры.
В следующем ролике даются рекомендации по практичному дизайну малогабаритного жилья.
Удачи!
1952
luckyfamilyman.ru
Как обустроить малогабаритную однокомнатную квартиру: описание и фото
Первые ассоциации со словосочетанием «однокомнатная квартира» – маленькая кухонька и неудобная планировка и в таких условиях вынуждены жить множество людей, более того множество семей. Как сделать такое малогабаритное жилье комфортабельным и максимально просторным?
Как обустроить однокомнатную квартиру: варианты расширения пространства
Создание модного и одновременно удобного интерьера на маленькой площади задача очень сложная, но вполне выполнимая, но без перепланировки здесь не обойтись. Лучший вариант перепланировки – совмещение всех помещений квартиры, за исключение санузла. Говоря другими словами в квартире нужно убрать все перегородки и создать единое целое пространство, где разместятся гостиная, спальня, детская и кухня.
Если же по каким то причинам вариант перепланировки не подходит, то пространство можно увеличить лишь визуально, используя игру свет и различные облицовочные материалы. Здесь замечательно подойдет глянцевый потолок с множеством светильников, он визуально сделает помещение больше. Еще один вариант двухуровневый гипсокартонный потолок с неоновой подсветкой по периметру углубления. Что касается стеновой отделки, то выбирать нужно светлые тона с мягкими линиями и переходами.
Зонирование однокомнатной квартиры. Вся площадь в обязательном порядке должна быть разделена на общую и приватную зоны. Такое деление сделает пространство комфортным и удобным в использовании. Зонирование подчеркивается материалом отделки стен и контрастными цветами. Для более понятного разделения можно смонтировать раздвижные перегородки.
Мебель в зонах должна быть сгруппирована в блоки, которые определят детскую зону, зону отдыха и досуга.
Санузел, кухня и зал
Тут как всегда вопрос объединять туалет с ванной или нет. И хотя современные веяния интерьерной моды дают определенный ответ соединять, то тут есть свои нюансы, на которые стоит обратить внимание. Во-первых подобная перепланировка потребует немалых дополнительных затрат, но станет больше места, например для стиральной машины, а во-вторых появится проблема – когда кто-то будет принимать ванну, другому члену семьи обязательно захочется в туалет. Так что на этот вопрос лучше ответить, взвесив все за и против.
В однокомнатной квартире зона зала имеет большую функциональную нагрузку, здесь хозяева спят, принимают гостей и тут же располагается рабочий кабинет. Именно поэтому нужно все тщательно спланировать. Первым делом должны быть спланированы две основные зоны: для работы и для отдыха. Рабочую часть комнаты лучше разместить у окна, а для отдыха подойдет более темный уголок. Главное правило не загромоздить пространство ненужными деталями и предметами мебели. Складная кровать, ниши со стеллажами и раскладной стол – идеальное решение.
Объединенные зал и кухня должны быть продолжением друг друга и ни в коем случае не диссонировать.
Прихожая-коридор и детский уголок
Пространство, в которое мы попадаем, заходя в квартиру, не должно остаться без внимания, так как оно является лицом жилища и именно оно формирует такое важное первое впечатление. И пусть это совсем маленький уголок, но его тоже нужно обустроить. Пастельные тона и зеркала сделают его визуально шире и просторнее. Оригинальный потолок с точечной подсветкой создаст приятную атмосферу и настроит входящих в дом на умиротворяющий лад.
Если в семье есть ребенок, то для него обязательно нужно выделить и оформить уголок, где он будет чувствовать себя хозяином. Это может быть простой стеллаж, где разместятся детские игрушки и маленький столик со стульчиком для различных занятий малыша.
Итак, подводя итоги можно выделить основные правила для обустройства однокомнатной квартиры: не загромождать пространство, разделить его на зоны и придерживаться одного стиля в отделке.
Рассмотрим как обустроить однокомнатную квартиру на видео
www.remontbp.com
