Как построить душ на даче своими руками – 8 советов по обустройству летнего душа на даче своими руками
Как сделать душ на даче своими руками: два возможных варианта
Наверх Перепланировки- Каталог домов
- Квартира
- Спальня
- Кухня
- Столовая
- Гостиная
- Ванная комната, санузел
- Прихожая
- Детская
- Мансарда
- Маленькие комнаты
- Рабочее место
- Гардеробная
- Библиотека
- Декорирование
- Мебель
- Аксессуары
- Загородный дом
- Ландшафт
- Системы хранения
- Коридор
- Уборка
- Фундамент
- Кровля
- Стены
- Окна
- Двери и перегородки
- Потолок
- Балконы и лоджии
- Внутренние конструкции
- Пол
- Водоснабжение и канализация
- Отопление
- Вентиляция и кондиционирование
- Газо- и энергоснабжение
- Освещение
- Сантехническое оборудование
- Безопасность и домашняя автоматика
- Бани, сауны, бассейны
- Строительные материалы
- Отделочные материалы
- Инструменты
Летний душ для дачи своими руками из подручных материалов: фото и видео
Пребывание на даче жарким летом доставит подлинное удовольствие только в том случае, если в любую минуту можно насладиться прохладой летнего душа.

Конечно, сегодня торговля предлагает буквально все, в том числе и переносной вариант, но обеспечить комфорт на приусадебном участке, построив летний душ для дачи своими руками, несложно. Необходимо только знать основы его устройства и соблюдать правила его создания.
Самый простой способ получить красивую лужайку перед домом
Вы, конечно же, видели идеальный газон в кино, на аллее, а возможно, и на соседской лужайке. Те, кто хоть раз пытался вырастить зеленую площадку у себя на участке, без сомнений скажут, что это огромный труд. Газон требует тщательной посадки, ухода, удобрения, полива. Однако так думают только неопытные садоводы, профессионалы давно знают про инновационное средство — жидкий газон AquaGrazz.
Читать далее>>
Варианты
Душевая установка — одна из самых простых дачных построек, которая обязательно требует продумывания варианта подачи воды и водостока.
Стандартный вариант — прямоугольное помещение, имеющее 3 закрытых стороны и входную дверь.
Перед постройкой необходимо определить, какой именно вариант является самым подходящим. Хозяева дачных участков могут использовать для его возведения разные материалы. Часто дачный душ устраивают как каркасное строение. В таком случае прочные боковые стены не предусматриваются, заменяясь легкими, закрывающими отпостороннихвзоров. Не менее актуальными являются более капитальные постройки с кирпичными или сложенными из блоков стенами.

Сегодня наиболее популярными у дачников стали следующие варианты:
- из дерева;
- из поликарбоната;
- из профнастила;
- из подсобных материалов;
- из кирпича.
Познакомимся подробнее с различными вариантами.
Подготовительный этап
Обустраивая душ на даче, прежде всего определяем удобное место для него. Предпочтительнее выбрать открытое место, позволяющее проветривать и просушивать, лучше всего — имеющее некоторое возвышение над остальными. Большинство используют воду, нагретую естественным образом — солнечными лучами. Именно поэтому тенистое место — не самый лучший вариант.
Продумывая конструкцию, не стоит ограничиваться площадью самого душа, необходимо предусмотреть место для переодевания.
Наиболее удобными при планировании постройки являются следующие размеры:
- ширина — 140 см;
- длина — 190 см;
- высота — от 200 до 300 см.

Подготовительные работы включают в себя не только создание схемы, но также приготовление ямы для сточной воды. Это позволит собирать мыльную воду, не допуская ее растекание по участку. Сточная яма может быть ориентировочно таких размеров: длина и ширина — по 100 см, глубина — 40 см. Дно ямы рекомендуется засыпать щебенкой.
При частом использовании душа большим количеством людей устраивают специальную сливную яму, которую соединяют трубами для стока воды, уложенными под наклоном в 3-5 градусов. Оптимальное расстояние до подобной ямы — от 5 до 8 м.
Из дерева
Чтобы построить душ из дерева, необходимо подготовить основание размером 1х1 м, закрепить к нему четыре боковые балки или брус и обшить их.
Каркасные балки должен быть прочными, поэтому выбираем для них брус 10х10 см. Стойки каркаса следует укрепить с помощью уголковых раскосов.
Устанавливать душ можно по-разному. Каркасные стойки можно укрепить в земле. При этом края бруса защищают от гниения с помощью машинного масла или битума, обертывают рубероидом в 2 слоя, помещают в вырытые ямы и бетонируют.

Можно также изготовить бетонные опоры в качестве фундамента. В эти опоры, находящиеся на 20-30 см выше поверхности, крепят каркасные брусья.
Еще один вариант каркаса — металлические трубы.
Следует обратить внимание на особую прочность каркаса потолка для душа или специальной рамы для водяного бака: емкость, наполненная водой, имеет значительный вес.
Важно: при обшивке стен душа необходимо оставлять между балками зазоры до 3 мм для их расширения под действием повышенной влажности.
В регионах с жарким климатом встречаются варианты не полного обрешечивания стен, а лишь частичного, закрывающего торс человека.
После обшивки стены следует, в первую очередь, обезопасить от грибка, использовав для этого противогрибковую пропитку. А затем строение покрывается водоразбавимым фасадным акриловым лаком в три слоя. Это позволит воде, легко скользя, скатываться, не задерживаясь на стенах.
Пол может быть сделан в виде решетки, позволяющей воде стекать в яму, или сплошным, в котором предусмотрен сток воды.
Последним этапом в устройстве душа становится навешивание двери.
Из поликарбоната
При строительстве летнего душа в последнее время все чаще применяется такой строительный материал как поликарбонат. Постройка душевой конструкции из него привлекает своей экономичностью, легкостью создания, прочностью и простотой ухода.
Листы поликарбоната от 8 мм до 15 мм толщиной, имеющие непрозрачный цвет, хорошо подходят для стен душевой постройки. При этом они обеспечивают хорошую прогреваемость в течение дня, а кроме того — в течение длительного времени сохраняют тепло.

Постройка начинается с устройства каркаса для будущего душа.
Важно: каркас душа из поликарбоната необходимо дополнительно укрепить с помощью вертикальных, горизонтальных и диагональных перемычек. Это поможет обеспечить большую устойчивость конструкции с учетом парусности поликарбоната.
Листы поликарбоната без особых проблем режутся обычным ножом до нужных размеров, края срезов обрабатываются наждачной бумагой.
Для крепления поликарбонатных листов необходимо использовать специальный крепеж: метизы, имеющие специальные шляпки, препятствующие проникновению воды, и термошайбы. При креплении крепеж не должен быть закручен до конца — это предотвратит деформацию листа.
Для защиты внутреннего слоя листа от образовавшегося конденсата необходимо просверлить в нем несколько отверстий. Они могут быть произвольно расположены на листе, достаточный расчет — 3 на 1 кв. м. При этом не следует сверлить отверстие ближе 3-4 см к краю листа, это убережет его от возможного скола.
Важно: обработка поликарбонатных стен душевой кабины специальным средством способствует дополнительной защите от ультрафиолетового излучения.
Для удобства дачников в последнее время производятся готовые души из поликарбоната. Продавец может укомплектовать все необходимое для самостоятельного монтажа конструкций: листы нужного размера в зависимости от задуманной модели , металлический каркас, анкерные крепления. При этом продавцы предоставляют покупателю возможность выбора цвета листов поликарбоната.
Из профнастила
Еще один удобный способ построения душевой на дачном участке предполагает использовать в качестве стен листы профнастила.
Строительство душевой кабины в этом случае выполняется аналогично уже рассмотренным вариантам, в качестве каркаса традиционно используются деревянный брус или металлические трубы. Но в любом случае построенный каркас также требует дополнительного укрепления поперечинами.
Крепеж для профнастила: оцинкованные саморезы, имеющие уплотнительную шайбу. Крепление выполняется через одну волну. Резка профнастила при необходимости выполняется ножницами или болгаркой со специальным диском с зубьями.

Из подсобных материалов
Если обустройство дачного участка только начато, и строительство душа еще впереди, но потребность в нем уже ощущается, можно устроить несложную конструкцию из подсобных материалов.
В таком случае к металлическому каркасу, который может в основании иметь не только прямоугольник, но и круг, в качестве стен крепится влагопрочный материал: плотная полиэтиленовая пленка или пленочная ширма, возможно также использование брезента.
После установки бака для воды душ практически готов. Полом в нем может послужить деревянная решетка и резиновый коврик.
При всей непритязательности данная конструкция имеет такие преимущества как:
- быстрота и легкость сооружения, для создания которого потребуется не более двух часов;
- мобильность, позволяющая при необходимости без проблем перенести сооружение с одного места на другое и разбирать на зиму.

Кирпичный душ
Более капитальное и долговечное сооружение, которое прекрасно впишется в интерьер дачного участка, — свой летний душ из кирпича.
В этом случае при строительстве соблюдаются все нормы и правила возведения кирпичного дома. При возведении кирпичного дома необходимо учитывать следующее:
летний душ, даже кирпичный,
— сооружение достаточно легкое, не требующее мощного фундамента. Достаточно залить бетоном траншею, глубина которой — до 40 см, ширина — 20 см.
Важно: при подготовке фундамента следует сразу установить трубу для слива, иначе при ее прокладке позже фундамент понадобится разбивать.
- при возведении кирпичных стен душа можно обойтись без штукатурки, но установка дверной коробки, а также брусков для дальнейшего крепления шифера в последний ряд кладки — обязательна.
Бак для воды
Выбирая конструкцию будущего летнего душа, нельзя не учитывать такой важной ее составляющей как емкость для воды. Обычно вода в душ подается из установленного на крыше душа металлического оцинкованного или пластикового бака.
При определении размеров бака исходят из возможного количества пользователей . Бак емкостью 200 л — удобный вариант, как показывает опыт многих дачников.
Важно: цвет емкости влияет на степень прогревания воды в ней. Чем темнее цвет бака для воды, тем лучше он прогревается солнцем, и потому быстрее нагревается вода в нем.
Иногда установленный на каркас бак сам выполняет функции крыши кабины.
В душах, имеющих стены и крышу из поликарбоната, емкость для воды целесообразнее установить под крышу.
До момента установки емкости на крыше необходимо укрепить душевую лейку, проделав в емкости отверстие.
Немаловажный момент, который необходимо также продумать заранее, — способ наполнения емкости водой. Самый удобный вариант — проведение к емкости специальной трубы или закрепление постоянного шланга для воды. Если вариант такой подводки невозможен, необходимо предусмотреть место для установки лестницы.
Важно: при использовании в качестве бака для воды приспособленной емкости, например, бочки, необходимо защитить ее от попадания мусора и испарения воды, использовав специальную крышку.
Возможно также соорудить летний душ для дачи с подогревом. Для этого требуется металлический бак для воды, в который заранее вмонтирован подогрев — ТЭН. Достаточная мощность устройства — 2 кВт.
Подключив прибор к системе электропитания, летний душ с подогревом можно использовать, находясь на даче, с ранней весны до поздней осени, практически в любую погоду.
Возможны варианты
Душ на даче — это не обязательно отдельно стоящее сооружение. В зависимости от дизайна участка, с учетом уже имеющихся построек, возможны варианты:
- имеющийся уголок возле дачного дома вполне можно обустроить . Этот вариант уже не потребует сооружения каркаса. Кроме того, появляется возможность вывести из дома трубу для подачи воды и оснастить ее душевой лейкой.

При решении вопроса, как сделать летний душ возле дома, необходимо выполнить следующее:
- облицовка внешней стены дома водостойким материалом;
- использование крупной гальки в качестве пола душевого уголка и одновременно — его дренажа.
Как боковые ограждения пристенного душа могут выступать естественные ширмы из сетки с плетущимися по ней растениями. Лучший выбор растений — вьющиеся, которые создадут надежную и экологичную зеленую ширму — вьюн, плющ, виноград.
- удобный вариант — в хозблоке. Многолетний опыт хозяйственных дачников подтверждает, что организация душа в специальной хозпостройке — выгодно и комфортно.
Планирование хозблока осуществляется с учетом размещения там душа. Хозблок строится из кирпича или специальных блоков, является капитальным сооружением. Отделение для душа потребует создания системы отводки воды и дренажа. Зато в хозблоке с его прочными стенами надежен: на его крыше можно установить баки для воды большого объема.
- еще один вариант обеспечения комфортного пребывания на даче — устройство душа в дачном доме.
Такой вариант возможен на участке с возводимыми домами большой площади, в которых находится место и для душевой. Для этого в специально отведенном месте монтируют приобретенную готовую душевую кабинку, имеющую специальный поддон из акрила. Вода будет отводиться с помощью гофрированного шланга, хозяевам дачного домика понадобится только подсоединить его к канализации.
Производители стройматериалов дают возможность дачникам выбрать варианты постройки с учетом любого бюджета. А умелые руки хозяина дачного участка смогут построить душ, который удачно впишется в интерьер участка и сделает пребывание на даче по-настоящему приятным для всех!
rozarii.ru
Как сделать душ на даче своими руками
Кто летом не мечтает о приятной прохладе и снятии усталости? Струи прохладной взбадривающей воды это то, что нужно в знойный летний день!В данной статье мы расскажем, как правильно сделать душ на даче своими руками.
Вам нужно рассмотреть все решения: покупные конструкции под ключ и составление схемы постройки, а также последующий монтаж летнего душа.
Рисуем проект
Схема летнего душаПрежде чем выбрать место для возведения душа, вам следует уделить внимание некоторым нюансам. Для того чтобы не тянуть шланг или трубу на большое расстояние, лучше расположить конструкцию недалеко от колодца или скважины. Также важно позаботиться о выводе стока, например, в септик или сточную канаву. Иначе стекающая вода просочится в почву, что может привести к ее попаданию в водоносный горизонт, питающий ваш колодец или соседский. Если вы планируете летний душ, обогревающийся солнечной энергией, то важно, чтобы он был возведен на солнечной стороне.
Лучше, чтобы душ располагался между деревьями или хозяйственными постройками, что закроет его от посторонних глаз и ветра.
Обратите внимание! Участок, на котором будет располагаться конструкция, должен быть рыхлым и ровным. Если на вашем участке нет возможности подвести сток грязных вод к канализации или септику, то позаботьтесь о том, чтобы под поддоном не было скоплений воды. Наилучшим вариантом будет возведение летнего душа на возвышенности, тогда вода точно не застоится.
Устройство сливаЧтобы улучшить этот процесс сделайте дренаж, используя для этого обычный щебень. Не располагайте такой душ впритык к забору соседей, потому что почва вокруг душа может часто быть сырой, что вызовет их недовольство.
Если вы спроектируете душ возле летней кухни, то при помощи металлопластиковых труб и фитингов к ним, можно сделать отвод воды с раковины на кухне и с уличного душа. Продумайте заранее все детали и создайте чертеж строения, указав при этом список необходимых материалов. Заранее подумайте, будет ли душ стационарным или же временным, с возможностью разбора на зимний период.
Готовый вариант летнего душа
Душевая кабинка из поликарбонатаПри выборе готового сооружения вы можете быть ограничены разве что размером финансовых возможностей или собственной фантазией. Наиболее популярным среди потребителей является летний душ, сделанный из профильной металлической трубы либо уголков. В качестве стен в такой вариации используется обыкновенная шторка из плотного полиэтилена либо сотовый поликарбонат.
Кроме того, у вас есть возможность приобрести деревянный или металлический каркас душевой кабины.
На современном рынке есть очень много моделей готовых душевых кабин, но вдаваться в обширный их обзор, пожалуй, не стоит. Менеджеры по продажам вряд ли дадут вам возможность растеряться. При покупке этого вида товара обращайте внимание на такие документы:
- гигиенические характеристики,
- сертификат пожарной безопасности,
- санитарно-эпидемиологические заключения,
- инструкцию по эксплуатации и паспорт конструкции.
Фундамент
Обустроенный сливДля придания устойчивости каркасу летнего душа вам необходимо подвести под него фундамент. Учтите, что при планировании основания вам следует позаботиться об обустройстве септика или подводке труб из душа к канализации, и лишь после этого вы сможете заняться остальными процессами. Чаще всего практикуется возведение свайного фундамента. Чтобы это осуществить, вам нужно прорыть в грунте садовым буром отверстия глубиной до 1,5 м, затем опустить в них трубы таким образом, чтобы их концы торчали на 30 см над поверхностью земли. Они будут служить своеобразными сваями. Оптимальным для этой цели будет использование асбестоцементных труб, имеющих диаметр 10 см, но подходящими будут и обычные металлические трубы такого же диаметра.
Обратите внимание! Конструкция должна удерживать вес наполненного водой резервуара, поэтому, если каркас будет деревянным, то сечение бруса должно быть не меньше 10х10 см. Кроме того, прежде чем делать основание душевой кабины из бруса, вам следует обработать материал специальными водоотталкивающими средствами. Такой подход продлит срок службы сооружения.
На фундамент вам следует установить обтесанный брус, после чего можно приступать к перевязыванию столбов, причем начинать процесс нужно сверху. Раму кабины вы должны собрать на земле и только потом ее можно закрепить к основанию болтами соответствующей длины. Теперь вы можете сделать перевязку брусьев, которая будет использована в качестве лаг для монтажа пола в кабине. Раньше этот вид был единственным вариантом устройства пола в летнем душе, но ныне есть возможность выбрать в специализированном магазине поддон, от которого слив может отводиться в траву или в септик, канализацию.
Основание для постройки Вы можете также сделать столбчатый фундамент, для которого следует вырыть 6 ям, имеющих размер 20х20 см и глубину около 50 см. Для каждой из них нужно изготовить опалубку из дерева с одинаковой шириной, глубиной и высотой, равной 20 см. Строительным уровнем ее нужно выровнять по горизонтали. Для упрочнения фундамента воткните в каждую яму 3 арматурных прута, а после свяжите их проволокой. Во избежание контакта фундамента с землей, уложите на дно свернутый кусок рубероида. Теперь заполните углубления раствором цемента, а после выровняйте его по опалубке. В центр каждого из них воткните металлические шпильки. Часть каждой из них должна остаться снаружи, а другая часть, равная 12 см, должна быть утоплена в цементный раствор. После затвердения бетона снимите опалубку. Начинайте с основания фундамента. Теперь можно приступать к монтажу выбранного вами и заранее подготовленного каркаса, который нужно соединить с выступающими шпильками.Сооружаем каркас
Деревянный каркасЗаранее определитесь с конечными размерами постройки. Для создания хорошего напора воды, вам нужно поднять бочку или иную емкость на 2,5 м. Пространство душевой кабины изнутри должно быть не меньше 100х100 см, чтобы человек, который моется, мог свободно нагнуться, а также поднять руки вверх, не натыкаясь при этом на стенки конструкции. Для создания большего комфорта, если позволяет размер участка, вам нужно будет предусмотреть раздевалку, размеры которой должны быть не менее 160х100 см. Итоговые размеры вашей постройки с учетом толщины стенок – 200х150 см. Таким способом вы сможете безотходно использовать стандартный размер досок, если ваша конструкция будет изготавливаться из дерева.
Если каркас вы планируете сделать из металлических труб или уголков, то вам нужно иметь навык работы со сварочным аппаратом. Основание для навеса, состоящее из труб или уголков, можно предварительно забетонировать в четырех углах фундамента, что лишь упрочнит всю будущую конструкцию.
Если вам предстоит сделать каркас из деревянных брусьев, то непременно сделайте перевязку каркаса сверху и снизу. Соберите раму на земле, скрепив ее болтами, а затем установите ее на фундамент. Для этого предварительно просверлите отверстия под арматуру в нижнем основании и насадите на нее каркас. Повысить устойчивость можно закрепив распорки по диагонали боковых рам.
Стенки можно обшить чем угодно, например, обычным непрозрачным полиэтиленом – это наиболее экономичный вариант, но и наименее долгосрочный. Если вам нужна более надежная конструкция, то обшейте стенки оргстеклом, шифером, асбоцементными плитами, листами металла, пластиковыми панелями, ДСП либо OSB и т.д. Если вы не владеете большими средствами, то зашторьте вход в душ обычной водонепроницаемой шторкой. Но, если вас интересует более эстетичный вариант душевой кабины, то обязательно сделайте для него дверь из того же материала, которым вы обшили каркас. В качестве крыши может служить плоский бак для воды. В противном случае вам придется укрепить перемычками основание крыши, а затем закрыть его материалом, выбранным для стен. Теперь можно установить бак.
Устанавливаем бак и организовываем подвод воды
Бак для душаСпециалисты в сфере обустройства уличного душа настоятельно рекомендуют использование плоского бака, а не круглой бочки. Почему? Тут все логично, ведь в плоской емкости вода быстрее нагреется солнцем, чем в круглой бочке. Укрепить плоский бак намного проще, чем круглый, да и его вес будет равномерно распределен по крыше. Более того, так вы сможете сэкономить средства на отдельном обустройстве крыши.
Подвод коммуникацийПрежде чем поднять емкость на крышу, вам нужно установить кран с насадкой и сделать отвод с резьбой, для уплотнения каждой резьбы вы можете использовать силикон. Вмонтируйте в емкость измеритель уровня воды либо специальный клапан, который будет перекрывать поток при ее наполнении. Теперь закрепите ее на крыше.
Обратите внимание! Для быстрого прогревания воды стоит предварительно окрасить бак черной краской.
Также оборудуйте вокруг бака своеобразную теплицу из пленки, для этого вам будет нужно покрыть емкость с северной стороны фольгой – это уменьшит теплоотдачу.
Утепляем душевую кабину
Если вы хотите создать душевую кабину, которую можно было бы использовать и весной, то вам нужно сделать специальный теплоизоляционный слой. В качестве теплоизоляции вы можете использовать пенопласт, пенополистирол или иной материал по своему усмотрению, ввиду того, что ассортимент такой продукции очень разнообразен.
Итак, для начала вам следует провести заполнение каркаса утеплителем, а затем обтянуть его полиэтиленом и закрепить при помощи скоб. Также следует обернуть пленкой брус, находящийся у основания конструкции. Это защитит внутренний материал от влаги. Во избежание продувания установите накладные утеплители на дверь. Теперь проведите внутреннюю обивку душевой кабины. В основном для этого используют прочную ПВХ-пленку, пластиковые панели или линолеум. Затем приступайте к облицовке. Для сохранения единого стиля лучше использовать для этого такой же материал, какой уже применялся при отделке других построек во дворе.
Если уж вы сделали утепленный душ, то продумайте и электрическую систему нагрева воды. Но, помните, что тут очень важно придерживаться всех мер безопасности, да, и если вы не электрик, то лучше воспользуйтесь услугами специалиста. Ведь в процессе выполнения этих работ нужно позаботиться о заземлении и об автоматическом включении и выключении обогревательного устройства для воды.
Хорошая подготовка и умелый подход к делу помогут вам творить близким в удовольствие и себе на радость! У вас есть опыт в том, как сделать душ на даче? Вы успешно справились с возникающими трудностями в процессе выполнения? Делитесь с нами опытом, пишите комментарии! Мы будем рады узнать от вас полезные и новые факты!
Видео
Самодельный душ на даче:
Фото
Схема коммуникаций
Примеры душа для дачи
Возможности внутреннего обустройстваstroysvoimirukami.ru
Как сделать душ на даче своими руками
Душ на загородном участке в жаркий день – не только приятная возможность освежиться и снять усталость, но и необходимость, если вы проводите много времени на грядках. К сожалению, не каждый садовод может похвастаться водопроводом с хорошим напором. Как сделать душ на даче своими руками и наслаждаться водными процедурами на открытом воздухе?
Легкая конструкция
Самый простой способ обзавестись им – установить ограждения и верхний резервуар для воды. Цена сооружения будет зависеть от материалов и конструкции сборки. В продаже можно найти разнообразные пластиковые кабинки, пригодные для монтажа душа. Но стоят они довольно дорого, да и вписать в окружающий ландшафт их не удастся. Самодельная постройка окажется выгоднее по деньгам и стилю.
Любой душ предпочтительнее ставить в закрытом от ветра месте, желательно на небольшой возвышенности и вдали от деревянных заборов и других строений, чтобы повышенная влажность не разрушала древесину. Поскольку для нагрева воды требуется солнце, участок должен быть хорошо освещенным.
Делаем поддон и слив для душа
Делаем поддон и слив
Почву в месте работы душа следует защитить от эрозии, установив твердое основание или поддон с отводом использованной воды. При этом убирается грунт примерно на 30 см и дно ямы устилается камнем, щебнем или булыжником. Для гидроизоляции поверх расстилается рубероид или полиэтиленовая пленка и заливается слой бетона. Чтобы стоки стекали, площадку выполняют слегка наклонной.
Сверху можно положить трап. Он сбивается из деревянных, предварительно отшлифованных брусьев сечением 40–50 мм. Древесину для лучшей сохранности необходимо покрыть составом от влаги и плесени.
Подойдет и сплошной металлический поддон с отверстием спуска.
Если на участке есть сточная канава, проще всего будет провести слив к ней. Сток выкладывается водостойкими материалами: полиэтиленом, рубероидом или заливается бетонный желоб. Сверху от попадания крупного мусора его поможет защитить декоративная сетка. Время от времени канавку надо чистить от сора и грязи. Это позволит избежать появления неприятных запахов.
При отсутствии канавы рядом с кабинкой придется устроить дренажный колодец — яму. Главное – соотнести его объем с размером резервуара, чтобы вода успевала уходить и колодец не переполнялся.
Собираем кабинку душа

Самым простой способ построить ограждение – установить по периметру деревянные или пластиковые стойки и натянуть на них полиэтиленовую пленку или закрепить ПВХ-панели. Такое сооружение можно рассматривать как временное, снежную зиму оно не переживет.
Душ из металлического каркаса
Для прочного и долговечного каркаса больше подойдут стальные трубы, укрепленные цементным основанием с обвязкой сверху и снизу. Под каждую опору выкапывается небольшая яма. В нее устанавливается труба и заливается бетонный раствор. Смесь полностью застынет за неделю, после этого можно навешивать ограждения.
Конструкция из дерева
Поверху приваривается рама как опора для водяного бака. Стены кабинки выполняются из досок, поликарбоната, шифера или профнастила. Если планируется разборная конструкция, то по углам каркаса можно прикрепить стаканы большего диаметра, в которые вставляются боковые ограждения. В случае стационарного душа листы крепятся стальным уголком.
Вешать деревянную дверь в условиях постоянной влажности нерационально – она будет разбухать и деформироваться. Лучше повесить штору на телескопической изогнутой штанге.
Устанавливаем бак для воды

Обычно в качестве емкости под воду применяют железную бочку на 100 или 200 л. При использовании тары большего размера придется подумать об укреплении конструкции, иначе она просто рухнет.
Чтобы замедлить появление ржавчины в металлической емкости изнутри, стенки покрывают водостойкой краской. Окрашивают поверхности и снаружи. Если взять черную краску, нагрев содержимого пойдет быстрее. А для длительного сохранения горячей воды над баком можно соорудить своего рода теплицу – купол, со всех сторон обшитый поликарбонатом.
Рассекатель
Пластиковая емкость весит меньше железной того же объема и ее проще укрепить на высоте. В продаже есть множество вариантов с уже вмонтированным выпускным патрубком. Цистерны с плоским днищем могут одновременно служить крышей. Единственное неудобство при эксплуатации пластика – он не переносит сильных морозов. На зиму тару придется убирать.
Более сложная душевая установка предполагает монтаж второго накопителя горячей воды с вмонтированным ТЭНом и смесителем внутри кабинки. При работе нагревателя надо уделить особое внимание защите изоляции от влаги и перегрузок.
Для наполнения накопителей водой подойдет обычный шланг, подсоединенный к магистрали или насосу колодца. Горячая и холодная емкости соединяются пластиковыми трубами и фитингами. Последний водоотвод должен заканчиваться распылительной насадкой. На зиму такую систему необходимо разбирать.
Душ из пластика
Вы узнали о нескольких вариантах строительства душевой кабины на даче. Выбор конструкции и используемого материала зависит от ваших финансовых возможностей и личного предпочтения. Если у вас есть опыт строительства душа, и вы желаете им поделиться с нашими читателями, оставляйте комментарий к статье.
Видео
Предлагаем посмотреть видео о строительстве душа на даче своими руками.
kakpravilnosdelat.ru
Самодельный летний садовый душ на даче
Душ на даче своими руками можно возвести, следуя простым инструкциям. В первую очередь, необходимо учитывать то, как будет проводиться дачный отдых от городской суеты. Длительный летний отпуск потребует установки глобальной стационарной постройки. При непродолжительном пребывании для полноценного отдыха на огороде или в саду лучшим вариантом станет более простая конструкция.
Основной целью постройки летнего душа своими руками является проведение комфортных водных процедур, которые крайне желательны в жаркое время года. Поэтому следует очень рационально подойти к разработке параметров конструкции.
Планирование душа на даче
Устанавливая летний душ своими руками, следует определиться с такими важными нюансами, как организация стока, метод подачи воды в резервуар и способ её подогрева.
При выборе местоположения рекомендуется обратить внимание на следующие показатели:
- расположение водопровода;
- наличие возвышенности;
- расстояние от жилой постройки;
- продуваемость.
Нормальная подача воды станет возможной при правильном учете укладки соединительного трубопровода. Быстрый отток отработанной воды обеспечивается небольшим углом уклона. Поэтому душевую на даче своими руками лучше всего возводить на возвышенности.
Видео:
Постройку не всегда ставить вплотную к жилому сооружению, но не рекомендуется и очень большое расстояние от него. Также следует отдавать предпочтение территории наиболее защищенной от сквозняков.
Можно самостоятельно разработать множество проектов, которые позволят легко возвести дачный душ своими руками. А наглядный чертёж более четко обрисует и определит выбор наиболее удачной планировки будущего сооружения.
Чертёж летнего душа на даче
Размеры дачного душа
Душ на даче не должен представлять собой узкую кабинку с бочкой для воды сверху. При вычислении размеров постройки, следует учесть свои собственные габариты, а также всех тех, кто будет регулярно пользоваться душем. Внутри должно быть комфортное пространство, позволяющее свободно находиться стоя, разворачиваться и легко нагибаться.
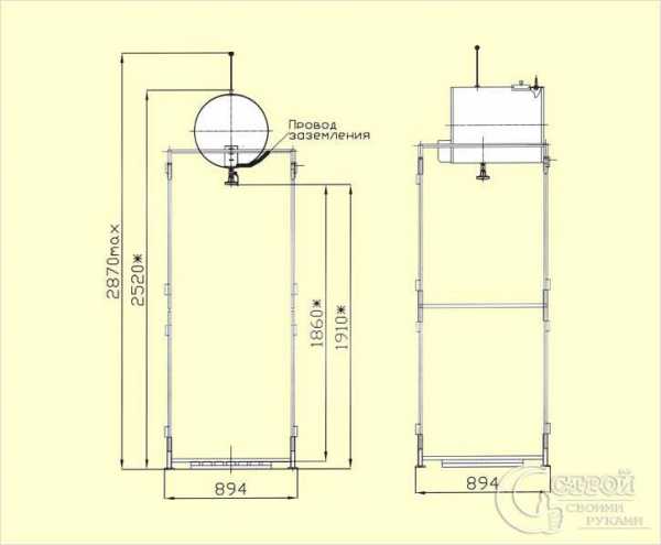
При возведении дачного душа своими руками стандартными размерами являются 190×140 см. При данных расчетах габариты самой душевой кабины – 100×100 см, а раздевалки – 90×40. Высота сооружения может варьироваться от 2 до 3 м.
Размечая место установки будущего душа, необходимо обратить внимание на толщину применяемого материала. Как правило, при данном типе постройки используется доска, стандартный размер которой составляет 10 см. Таким образом, из расчета, что габариты планировки 190×140 см следует отмечать на почве прямоугольник 200×150 см.
Установка фундамента летнего душа
Строительство душа в саду своими руками предполагает наличие фундамента, толщина которого имеет прямую зависимость от применяемого материала. При пучинистом виде почвы рекомендуется монолитный фундамент высотой 40 см. Перед его установкой необходимо создать песчаную подушку. Для других видов почвы следует отдавать предпочтение свайной технологии установки фундамента.
Как заложить фундамент летнего душа на даче.Для прокладки свайного фундамента необходимо:
- Проделать в почве отверстия глубиной в 1-1,5 м или вбить сваи в грунт.
- Установить асбестоцементные или металлические трубы, имеющие диаметр 90-100 мм, оставив выступающими над уровнем земли 20-30 см.
- Сделать углубление под углом для сливной трубы.
- Вставить сточную трубу.
- Залить сваи бетоном, предварительно приготовив бетонную смесь по инструкции.
- Выровнять поверхность.
- После высыхания следует покрыть фундамент пленкой ПВХ или двухслойным рубероидом.
Обустройство слива садового душа
Как организовать слив в душе на даче.Сливную систему необходимо устанавливать, учитывая выбранную технологию. Основное место занимает прокладка трубопровода, который подключается к общей канализационной системе.
При отсутствии поблизости канализационной сети или сточной канавы следует вырыть яму, соответствующую размерам бака. В среднем размеры сливной ямы составляют 2-3 м. Кроме этого необходимо продумать вентиляцию водостока.
Монтаж каркаса садового душа
Немаловажной ступенью в возведении дачного душа своими руками является монтаж каркаса будущей постройки. Для каркаса применяются металлические или деревянные балки. Установку каркаса следует осуществлять поэтапно. Для этого необходимо:
Возведение каркаса дачного душа.- Установить балки по углам и забетонировать их.
- После высыхания бетона провести нижнюю и верхнюю обвязку.
- Закрепить основы стен друг с другом при помощи жестких укосов.
- Произвести внутреннюю перевязку, служащую лагами для будущего пола.
Обустройство пола дачного душа
Приступая к обустройству пола, следует учитывать такие требования, как высокая степень гигиеничности поверхности, простота ухода и степень скольжения. Первым этапом оформления пола является формирование порога, который разделит раздевалку и отсек для мытья, а также исключит протекание воды. Далее, можно смонтировать дощатый настил или установить специальный поддон, предназначенный для душа.
При отделке брусьями должны отсутствовать щели, которые способствуют возникновению сквозняков. Поддон предполагает наличие сливного отверстия, от которого отводится шланг. Данная деталь избавляет от скапливания влаги на поверхности после мытья.
Установка водоснабжения садового душа
Основным этапом при возведении садового душа своими руками является установка водоснабжения. Отличным резервуаром для подачи воды служит металлическая бочка или пластиковый бак, выкрашенный в черный цвет. Стандартный объём — от 100 до 200 л. В резервуар следует вмонтировать измеритель уровня воды или клапан, который будет перекрывать поток воды при наполненности резервуара.
Лейку-рассекатель следует устанавливать выше уровня головы. Это поможет избежать перепадов давления при эксплуатации.
Для резервуара душа на даче своими руками необходимо создать теплицу, основанную на брусьях, обтянутых пленкой ПВХ. Бак можно обклеить фольгой, которая поможет ускорить процесс нагревания жидкости от солнечных лучей.
Схема водяного бака для садового душа.Резервуар необходимо монтировать наверху конструкции душа. Для осуществления подачи воды следует приварить водопроводную трубу или установить насосный шланг. Обогрев воды можно производить с помощью ТЭНа – термоэлектрического нагревателя. Этот способ показывает себя как самый практичный и экономичный.
ТЭНы разделяются на два вида – сухой и мокрый. Сухие работают без прямого контакта с водой, что устраняет возможность появления накипи на них. Поэтому такие устройства могут прослужить дольше. Однако мокрые ТЭНы стоят значительно дешевле, поэтому более распространены. При монтаже электронагревательного оборудования необходимо учитывать технику безопасности, обеспечить изоляцию воды от электричества, произвести заземление и установить узо защиты.
Утепление конструкции дачного душа
Для утепления дачного душа, как правило, применяются пенопласт, пенополистирол и другие изоляционные материалы. Для утепления конструкции следует:
- Заполнить пространство каркаса изоляционным материалом.
- Покрыть полиэтиленовой пленкой и закрепить при помощи степлера.
- На дверь также можно установить накладные утеплители.
Видео:
Облицовка дачного душа
Перед тем, как на даче сделать душ, следует определиться с внешней облицовкой. Чаще всего применяется материал аналогичный жилой постройке. Выбирая материал, следует отдавать предпочтение тому, который предоставляет легкость монтажа, а также обладает прочностью и устойчивостью к влаге. Наиболее лучшими вариантами являются шиферные листы, деревянные брусья, пластиковые панели.
Внутреннюю поверхность необходимо обшивать материалом устойчивым к влаге. Лучше всего подойдет вагонка ПВХ. Не рекомендуется древесина, которая в данном варианте будет обладать коротким сроком эксплуатации.
sdelalremont.ru
простые и сложные конструкции для вашего участка
Летний душ является необходимой постройкой на каждой даче, особенно если в непосредственной близости отсутствует водоем или другие места, где можно ополоснуться. В душе хорошо освежиться после жаркого дня, или смыть пыль и грязь после садово-огородных работ. Такую постройку можно попробовать соорудить своими руками. Советы и инструкции о том, как это осуществить с минимумом затрат денег и усилий, мы приводим в этой статье.
Немного о преимуществах
Основными преимуществами летнего душа являются:
- экономичность — чтобы нагреть воду для купания в самой простой конструкции, необходимо лишь солнце; можно мыться без затратного и трудоемкого проведения коммуникаций;
- удобство;
- доступность для изготовления собственными руками из подручных материалов;
- возможность приема водных процедур в любое время года при хорошей теплоизоляции;
- некоторые модели позволяют принимать душ в любом месте;
- минимальные расходы на обслуживание.

Знаете ли вы? Прообразом современных душевых кабин являются примитивные купальни, которые сооружали древние индийцы, египтяне и жители Месопотамии. Они представляли собой перегородки, за которыми люди окатывали себя водой, либо приказывали делать это слугам. А вот первые душевые, в которых вода поступала вверх, изобрели древние греки. Доказательством тому служат изображения, найденные на афинских вазах, датированных IV в. до н. э.
Возможные варианты
Существует множество вариантов постройки летнего душа. Есть очень простые и легкие сооружения, на оборудование которых уходит несколько часов; есть капитальные, которые будут служить долгие годы. Ознакомившись с различными вариантами, вы можете воспользоваться некоторыми идеями или взять за основу готовую инструкцию.
Простые способы обустройства летнего душа
Подвесная емкость. Наиболее простым вариантом купания на даче является переносной душ, который продается в магазинах. Он представляет собой резервуар для воды объемом в 20 литров со шлангом. Резервуар подвешивают на дерево или другую вертикальную поверхность в месте, которое хорошо освещается солнцем, и наполняют водой. После того как вода нагреется, подвесной душ можно использовать. Воды в нем хватит для принятия водных процедур в течение 10 минут. 
В качестве подвесной емкости можно также использовать бак, оборудованный краном. К нему крепится шланг, оканчивающийся душевой лейкой. Бак нужно будет прикрепить в солнечном месте на высоте, несколько превышающей человеческий рост (однако так, чтобы человек мог достать краник рукой).
Душевая панель. Еще одним простым способом обустройства места для купания является легкая душевая конструкция, которую можно прикрепить к стене какой-либо постройки. При этом стену нужно будет покрыть специальным материалом, защищающим ее от контакта с водой, например, кафелем или пленкой. Такой душ может быть как открытым, так и закрытым с помощью ширмы.
Стойка. Стойка удобна тем, что ее можно оборудовать в любом месте, куда достигает водопровод.
Общим недостаткам для первых трех вариантов является открытость для чужих глаз и ветров. Обычно под таким душем купаются лишь в купальнике и в очень теплую погоду. 
Топтун. Вариант, который набирает все больше популярности из-за своей простоты, компактности и доступности. Для его обустройства потребуется два гофрированных шланга, две резиновых педали с клапанами (резиновый коврик со встроенным насосом), емкость с водой, душевая лейка. Принцип заключается в том, что человек топчется по педалям или коврику ногами, тем самым качая воду из емкости, которая поступает в шланг.
Душ-топтун можно приобрести в готовом виде в магазине или сделать собственноручно, задействуя автомобильный насос. 
Каркасный. Данная конструкция предполагает вбивание в землю четырех деревянных (или из другого материала) стоек. На них нужно разместить пластиковый бак, в который будет наливаться вода. Он же одновременно послужит крышей конструкции. К крану в баке прикрепляется шланг, на который одевается лейка. Стойки обтягиваются влагопрочным материалом. Полом служит резиновый коврик.
Каркасный душ можно делать из различных материалов. Самый простой вариант строится за пару часов. Его можно делать временным, разборным. То есть на зимнее время можно убирать в помещение и доставать в начале нового дачного сезона. 
Важно! При постройке летнего душа следует выбирать емкости для воды черного цвета. Так вода будет прогреваться быстрее, поскольку этот цвет лучше всего притягивает солнечные лучи. К тому же, температура воды будет гораздо выше.
Стационарный. Наиболее сложный и серьезный вариант исполнения летнего душа без фундамента. Это готовая стационарная душевая кабинка с дверью, оборудованная баком для воды и поддоном. Она делается из дерева, поликарбоната, профлиста, пластика или брезента. Бак для воды может нагреваться как от солнца, так и от электричества. Кабинка может быть оборудована раздевалкой-тамбуром, в которой оставляются вещи и обувь. Также ее можно делать полностью закрытой или полузакрытой.
Кроме вышеописанных вариантов конструкции, есть множество идей дизайна летнего душа. Воспользовавшись ими, можно создать уголок для мытья на любой вкус и кошелек.

Капитальные постройки
В этом подразделе мы подобрали обзор моделей, которые делаются с заливкой фундамента. Их стенки изготавливаются из разных материалов:
- дерева,
- железа,
- шифера,
- пластика,
- поликарбоната,
- оргстекла,
- фанеры,
- профлистов,
- кирпича.

Основные принципы установки дачного душа
Чтобы построить качественный долговечный душ, необходимо соблюсти несколько условий:
- подобрать подходящее место;
- определиться с материалами, из которых будут выполнены бак, основание и фундамент;
- продумать, как будет устроен слив;
- прикинуть, будет ли душ состоять из одного помещения, или потребуется установка тамбура, туалета и т. п.;
- в зависимости от того, как планируется использовать душ, — в течение всего года, или лишь в летний период — предусмотреть возможность подогрева воды.

Выбор места
Первое, что необходимо осуществить, — это выбрать удачное место под постройку. На его выбор влияют следующие факторы:
- вода будет греться естественным способом, или автоматическим;
- ее налив в бак будет осуществляться ручным или автоматическим способом;
- из каких материалов планируется осуществление фундамента и стенок;
- размеры постройки.
Душевую нужно будет устанавливать недалеко от источника водоснабжения, чтобы не носить воду далеко, или чтобы до него легко доставал шланг.Выбор места также будет обусловлен тем, из каких материалов выполнен корпус, сколько места он будет занимать, нужно ли его прятать от людских глаз, или он способен гармонично и красиво вписаться в комплекс всего дачного участка. Если планируется установка бака с нагревательным ТЭНом, то душевую нужно будет располагать в непосредственной близости к электросети.
Выбор бака
Бак может быть пластиковым, металлическим, полимерным. Подобную емкость можно приобрести в специализированном магазине. Также можно использовать любую подходящую вещь — например, железную бочку и т. п., — которая найдется в хозяйстве. Объемы ее должны быть рассчитаны, исходя из требования минимум 40 л на одного человека. Предельный объем емкости — 200-250 л. Размеры подбираются согласно площади постройки. 
Что касается формы, то наиболее рациональным считается плоский бак — его легче установить на любую конструкцию, а нагрев воды осуществляется равномерно. Также на сегодня распространенными являются круглые и квадратные баки.
Если вы предпочитаете металлические баки, то должны обратить внимание, что их следует обрабатывать противокоррозионными средствами и краской (кроме нержавеющих). Срок эксплуатации металлических баков с правильной обработкой — около 10 лет. В магазинах обычно продаются емкости из оцинкованной, нержавеющей, углеродистой стали. Самым лучшим и наиболее дорогим вариантом является бак из нержавейки. Обычно они представляют собой прямоугольные емкости с вместимостью от 40 до 200 л.
Пластиковые емкости могут служить по 30-50 лет. Их преимущества в легкости, простоте при монтаже, эффективном нагреве воды, нетребовательности к уходу и недорогой стоимости. Без подогрева пластиковые емкости вмещают 100-200 л. Они оборудованы крышками в верхней части, в которые заливается вода. Баки без подогрева могут быть круглыми и квадратными. 
Под самодельный бак можно приспособить пластиковую или металлическую бочку, вырезав в нижней части отвод с резьбой. В дальнейшем туда можно вставить трубу или насос.
Варианты слива
Итак, вы определились с местом постройки, материалами, из которых он будет исполнен, типом бака. Теперь самое время продумать, куда будет выходить использованная вода.
- Дренаж. Наиболее простым вариантом является дренаж. В непосредственной близости от душевой кабинки следует вырыть яму, которая могла бы вмещать несколько ведер воды. Яму с душем нужно будет соединить трубой канализации. В сточную яму всыпать щебенку. Таким образом, использованная вода будет поступать через канализационную трубу в слой щебня, а затем впитываться грунтом. При нечастом пользовании душем возможна организация дренажа под душевой кабинкой.

- Поле фильтрации. Еще одним простым вариантом слива является поле фильтрации. Для его оборудования делаются отводящие канавки и каналы в сторону огорода или поля. Использованная вода будет уходить в землю, при этом еще и увлажняя ее. Подобный водоотвод можно сделать под землей.

- Септик. Слив в виде септика можно сделать в простом или в капитальном варианте. При этом он одновременно может быть предназначен как для душа, так и для туалета. Более подробно о том, как сделать данную конструкцию своими руками, мы расскажем ниже, в отдельном подразделе.

Важно! Если отвод будет организован неправильно, или не организован вовсе, то через некоторое время после эксплуатации в душевой кабинке могут появиться неприятный запах, гниль, плесень.
Основание и фундамент
Фундамент под постройку может быть разных типов. Основные из них:
- Ленточный — один из наиболее трудоемких и дорогих вариантов фундамента. Предусматривает оборудование классического ленточного основания в виде монолита.

- Плитный — подходит для не слишком большой кабинки любого типа из любого материала. Предусматривает осуществление бетонной заливки заранее расчищенного участка земли, которое в дальнейшем покрывается деревянной решеткой или плиткой.

- Свайный — наиболее оптимальный и распространенный вариант. Сваи делаются из металлических или асбоцементных труб, которые зарываются или бетонируются в землю на 1,5 м. На верхней их части, которая располагается над землей, делают и фиксируют обвязку из деревянных брусков или металлопроката, на которую в дальнейшем надстраивают каркас душевой кабины.

- Столбчатый — предусматривает изготовление бетонированных столбов, углубленных в землю, на которых в дальнейшем делается обвязка.

Наличие туалета
Дачный душ можно объединить под одной крышей с туалетом. Это позволит сэкономить место и материалы. Потребуется заливка лишь одного ленточного фундамента, а также оборудование лишь одного слива. К тому же это позволит не засорять участок мелкими постройками, ведь большинство дач не могут похвастаться обширными территориями. И это существенная экономия времени — построить одну компактную конструкцию будет гораздо быстрее, чем две.
Возможность подогрева воды
Если вы планируете пользоваться душем не только в теплые солнечные дни, нужно продумать возможность автоматического подогрева воды.
В бак с подогревом можно вставить нагревательный элемент мощностью 1,25-2 кВт. В такой конструкции вода будет нагреваться примерно около трех часов.
Нагревательный элемент для подогрева воды
Важно! Если вы планируете установить именно такой бак, то должны знать, что нужно будет постоянно контролировать наличие в нем воды — оголенный нагревательный элемент при включении сгорит. Поэтому в такую емкость должна быть налажена постоянная подача воды насосом или водопроводом.
Желательно также оборудовать ее датчиком, который будет показывать уровень воды.
Датчик
Как построить бюджетный летний душ
Бюджетный душ можно построить из металлических труб и деревянных досок. Понадобятся следующие материалы:
- металлические трубы (40 х 40 х 3000 мм) — шесть штук;
- доски из сосны (20 х 95 х 3000 мм) — 21 штука;
- пластиковый бак объемом 250 л;
- шурупы;
- песок;
- щебень;
- масло для дерева;
- эмаль для металлических труб;
- геотекстиль.

Из инструментов потребуются:
- дисковая пила;
- магнитный уголок для сварки;
- торцовочная пила;
- шуроповерт.
- На участок под постройку насыпается и утрамбовывается песок. Затем увлажняется с помощью шланга.
На участок под постройку насыпаем песок - Укладывается геотекстиль, четыре камня, которые будут держать конструкции, затем засыпается слой щебня.
Засыпаем слой щебня - Конструкция душевой кабинки изготавливается из металлического профиля, на который прикручиваются деревянные доски с зазором. Состоит из трех стен, пола и двери.
Прикручиваем деревянные доски - В качестве крыши используется бак для воды. Он может быть как с подогревом, так и без него.
Бак для воды
Капитальная постройка
Если вы планируете долговременную качественную постройку душа, которым можно пользоваться во все сезоны, предлагаем вам рассмотреть следующий вариант: на свайном фундаменте и со сливом в виде септика. Рекомендуемые размеры комфортной душевой с раздевалкой: высота — 2-2,5 м, ширина — 1,40 м, длина — 1,90 м. Для точных расчетов материалов и размеров потребуется чертеж.
Закладка фундамента
Свайный фундамент можно изготовить из металлических труб диаметром 100 мм и длиной 2 м каждая. Для фундамента отчерчивают прямоугольник, соответствующий размерам корпуса душевой. По углам нужно пробурить четыре отверстия глубиной 1,5 м для свай садовым либо ледовым буром, или выкопать их лопатой. Чтобы продлить срок службы металлических труб, их перед помещением в землю обрабатывают машинным маслом.
Закладываем свайный фундамент
После вкапывания труб над уровнем земли должно остаться не менее 30 см. Трубы необходимо залить бетоном.
После полного застывания бетона нужно будет установить брус и обвязку. Рама скрепляется длинными болтами.
Выкапывание септика
Для наиболее простого варианта септика в непосредственной близости от душевой выкапывается яма, согласованная с размерами приемной камеры, около 2 м в глубину. Стенки обшивают кирпичом или шлакоблоком. Под приемную камеру можно использовать бочку или другие емкости, закрывающиеся крышкой. К приемной камере подводят желоб и соединяют его со сливной трубой. Желоб для стока выкладывают гидроизоляционным материалом.
Септик
Монтаж каркаса
Каркас душевой — сварная конструкция из металлических труб сечением 40 х 40 или 50 х 50 мм. Данная конструкция позволит выдержать 200-литровый бак с водой. Саму кабинку можно изготовить из дерева, сайдинга, профлиста, вагонки. Следует продумать наличие в стенах, ближе к потолку, вентиляционных окошек.
Если нет сварки, то конструкция делается из деревянных брусьев 60 х 80 мм. В этом случае кабинка также будет деревянной. Такой душ выйдет более дешевым. Дерево обязательно нужно пропитать специальными водоотталкивающими средствами.
После установки вертикальных опор производят верхнюю обвязку. Боковые рамы закрепляют распорками.
Монтаж каркаса летнего душа
Пол делается из дерева. В таком случае он будет теплым, и на нем можно будет стоять без обуви. Доски в полу делаются с зазором, чтобы вода свободно вытекала.
В последнюю очередь устанавливается дверь.
Пластиковый бак помещается на крышу и фиксируется с помощью ремней. Выбирается нужная схема подачи воды.
Обустройство душа
В капитальный душ потребуется проводка электроосвещения. При этом необходимо придерживаться правил безопасности и произвести изоляцию проводки во избежание контакта с водой.
Электроосвещение в душе
Вся внутренняя отделка должна выполняться из влагостойких материалов. Для душевой, которую планируется использовать на протяжении всего года, потребуется утепление из пенопласта или других материалов.
Следует продумать расположение полочек для моющих средств, крючков для одежды и полотенец, внутреннего замка для дверей.
Еще один вариант капитальной постройки теплого дачного душа — на бетонной плите с каркасом из деревянных досок и листов ОСБ — можно посмотреть на видео https://www.youtube.com/watch?v=vwhv_668wwo.
Знаете ли вы? Останки древнего душевого комплекса, предположительно относящегося к началу II в. до н. э., были найдены археологами на территории современной Турции. Он состоял из семи установок, вода в которые поступала из магистральной системы, подавалась сверху, перетекала из установки в установку, а затем стекала в отводную систему.

Летний душ — необходимая хозяйственная постройка для дачников, которые предпочитают использовать дачный участок как с целью отдыха, так и с целью выращивания фруктов и овощей. Уличную душевую кабину несложно сделать собственными руками, не обладая специальными навыками. Однако даже для простого строения потребуется соблюдение некоторых условий: выбор наиболее подходящего места с длительным попаданием на него солнечных лучей, обеспечение беспрепятственного слива использованной воды. Для более сложных капитальных конструкций понадобится осуществить проектирование и закупить необходимые инструменты и материалы.
Видео: как сделать летний душ на даче своими руками
Отзывы пользователей сети о летнем душе
Не так давно купил дачу, да такую, что жить на ней можно. Летом, естественно, душ нужен каждый день и не по одному разу. Решил сделать быстренько и дешево, авось потом капитальный построю, но конструкция служит уже два года без нареканий. Для постройки взял сосновые стволы (принес упавшие из леса неподалеку), несколько досок и брусков для пола и крыши. Купить пришлось бак для воды, гидробарьер, как материал для стен :mrgreen:, ну и разное — кран и патрубок с гайками для врезки в бак. Собрал каркас будущего душа из кругляка и бруса. Что дольше не портились, прокрасил самой обычной краской, которую нашел в гараже. Пол сделал просто немного наклонным для слива воды в желоб. Гидробарьер закрепил на каркасе степлером и рейками. Система подачи воды видна на фотографии. В итоге, потратив один день и минимум средств, получил вполне сносный летний душ.
urbanoomix
http://farmerforum.ru/viewtopic.php?t=3556
От магистральной водопроводной трубы делается отвод к душевой кабине трубой 0.5 дюйма. Далее труба передкабиной раздваивается — холодная труба идет прямо в душевую кабину к смесителю. Вторая труба заводится в железный (стальной) короб , в котором эта труба делает 3-4 зигзага внутри короба и выходит из короба с другой стороны, и идет в душевую кабину к смесителю — это уже горячая. В коробе снизу сделаны выемки для доступа воздуха , и в нем разводится костер, на дровах (или угле) — труба зигзагообразная находится на такой высоте, чтобы под ней и над ней размещались дрова. Далее варианты : — Эта труба (горячая) может подходить сразу к смесителю и пока горит костер в коробе , вода нагревается и поступает в смеситель и далее в душ , вы регулируете температуру как в городской квартире. — Эта труба выходит на верх кабины и заполняет накопительный бак 100-200 литровгорячей водой. Причем, чем меньше вы приоткроете вентиль заполняющий этот бак тем горячее будет вода в баке, но тем медленнее будет происходить заполнение бака (за счет давления). 100-200 литров хватит на семью с гостями вместе. Когда бак заполнися или даже раньше можно идти мыться. В баке лучше установить поплавок замыкания заполнения как в бачке от туалета. Можно специально сварить короб с зигзагообразной трубой. Можно использовать отрезанную старую бочку просто положив на нее зигзагообразную трубу. Описанная Система работает, проверено многолетним опытом. Первая конструкция была испытана (30 лет назад)- так: просто жегся длинный костер через который проходила одна труба, на выходе вода нагревалась в октябре месяце до 45 градусов.
Gtorgi
http://forum.vashdom.ru/threads/letnij-dush-na-dache-samaja-prostaja-i-deshevaja-konstrukcija.8118/
Была ли эта статья полезна?
Спасибо за Ваше мнение!Напишите в комментариях, на какие вопросы Вы не получили ответа, мы обязательно отреагируем!
Вы можете посоветовать статью своим друзьям!
Вы можете посоветовать статью своим друзьям!
Да
Нет
3
раза уже
помогла
agronomu.com
Как сделать душ на даче своими руками (+фото)

Множество дачников имеет на своих участках садовый душ. Вполне понятно что после трудового дня необходимо помыться, да и принимать водные процедуры в летний зной гораздо приятней на свежем воздухе, нежели в ванной комнате. В этой статье мы рассмотрим, как сделать душ на даче своими руками.
Кабинка

Наиболее частым вариантом садового душа служит обычная кабинка, на крыше которой монтирован резервуар для воды. Такая конструкция очень проста в возведении, а собрать ее можно из подручных материалов. Однако, можно и не задумываться, как построить душ на даче, и приобрести уже готовую конструкцию, цена которой будет зависеть как от технологических, так и от конструктивных особенностей.

Перед тем как приступить к процессу возведения, следует ответить на несколько вопросов:
- Куда будет осуществляться сток использованной воды?
- Каким образом будет происходить наполнение основного резервуара водой?
- Если кабинка не предполагает электрического нагрева воды, то определите наиболее солнечное место на участке, чтобы вода в резервуаре согревалась максимально быстро.
Делаем слив

Начать нужно с оборудования слива. Если на вашем участке присутствует сточная канава, то нужно связать ее со сливом. Это оптимальный вариант. Если же канавы нет, то рядом с душем следует сделать ямку, где и будет собираться вся использованная вода. Глубину ямы нужно соотносить с емкостью резервуара, чтобы она не переполнялась.
Рассказывая о том, как сделать душ на даче, нельзя не упомянуть нюансы подготовки основания. Чтобы предотвратить размывание грунта, следует установить поддон. Устанавливается он в заранее выкопанную неглубокую ямку. Дно ямки можно выстлать камнями, выстелить рубероидным слоем или покрыть слоем бетона.
Делаем каркас

Невозможно представить дачный душ без каркаса. Самую простую конструкцию душа вполне можно соорудить из деревянных планок и полиэтиленовой пленки. Однако, лучше остановиться на сооружении более прочной конструкции. Для каркаса сгодятся металлические трубы, которые нужно поставить в ямы и забетонировать. Стенки же, которые могут быть из дерева или пластика, следует устанавливать когда цемент полностью затвердеет. Чтобы стены было проще ставить, между металлическими вертикальными трубами можно поместить балки из дерева, ведь на них мягкий материал стен закреплять значительно удобнее, кроме того они повысят общую прочность кабинки.
Выбираем резервуара для воды

Многие люди, думая о душе на даче, могут ошибиться с выбором резервуара для воды. В большинстве случаев, под резервуар приспосабливают железную бочку, имеющую объем в сто или двести литров. Однако лучше приобрести пластиковую емкость, гораздо более легкую. Кроме того, нагрев воды в пластике происходит многократно быстрее, особенно если стены резервуара черного цвета. Перед поднятием и установкой резервуара, следует закрепить отвод, к которому затем будет прикручен вентиль с душем.
На зиму стоит снимать бак с душа, чтобы пластиковая конструкция не разрушалась от морозов. Однако, избежать разрушения можно, выбрав бак, сделанный из особого морозоустойчивого пластика.
Заканчивать рассказ о строительстве дачного душа стоит разбором вопросов дизайна. Конечно, здесь стоит руководствоваться исключительно собственной фантазией: можно украсить душ ярким узором или, наоборот, выполнить его оформление в естественных цветах и добиться гармонии с убранством участка.
Рекомендуем прочитать:
Фото



www.stroitelstvosovety.ru
