Как правильно построить туалет на даче деревянный – Как построить туалет на даче своими руками
Туалет на даче своими руками
Неважно, где Вы проживаете – либо постоянно в собственном доме в сельской местности, либо сезонно в дачном домике, либо в доме за городом – физические потребности человека остаются неизменными на протяжении несколько тысяч лет.
Разве что изменялись степень комфорта и удобства, куда же без этого?

Так выглядит туалет про который пойдет речь в данной инструкции
Размышления по этому вопросу легли в основу «фундамента» предлагаемой ниже конструкции одной из самых популярных дачных и сельских построек – туалета.
Казалось бы обычный туалет… Однако важность этого простого сооружения невозможно переоценить.
Принципы удобства и функциональности здесь органично сочетаются с привлекательным и эстетичным внешним видом деревянной постройки, не теряя при этом конструктивной прочности и жёсткости.
В наше время современная деревообрабатывающая промышленность производит большое количество разнообразного погонажа, что даёт много возможностей для подобного творчества.
В сочетании с недорогими и вполне доступными в наше время электроинструментами, это может помочь Вам без особых усилий и затрат повторить подобную конструкцию.
Содержание статьи
Инструмент
Из ручного инструмента понадобится, прежде всего, измерительный и разметочный – рулетка, угольник, карандаш. Возможно меловой шнур, складной метр.
Из остального – хорошо наточенная острая ножовка по дереву, пара острых стамесок, киянка или молоток, ручной рубанок, стеклорез, стусло для ножовки…(см.рис. 2, 3, 4)
- Необходимые инструменты для постройки туалета
- Необходимые инструменты для постройки туалета
- Необходимые инструменты для постройки туалета
Из электроинструмента желательно иметь электролобзик (см.рис. 5), электродрель (см.рис. 7), аккумуляторный шуруповёрт (см.рис. 6), простейшую фрезерную машинку (см.рис. 8), набор фрез по дереву, набор свёрл по дереву, наиболее распространённые насадки для саморезов.
- необходимые электроинструменты
- необходимые электроинструменты
- необходимые электроинструменты
- необходимые электроинструменты
Подбор необходимого материала для строительства
При отборе пиломатериала нужно соблюдать несколько основных условий:
- Для каркаса подойдёт строганный сосновый брус сечением 45*105 мм, достаточно 7-8 штук длиной 3 метра каждый.
- Отбирать нужно как можно более ровный и сухой брус, с возможно меньшим количеством крупных сучков, без синевы и почернений.
- Для пола желательно отобрать ровные и крепкие обрезные строганные доски лиственницы, толщиной не менее 40 мм.
- Для обшивки стен была использована так называемая имитация бруса из лиственницы. Выбор лиственницы обусловлён её стойкостью к различным неблагоприятным атмосферным условиям. И, что немаловажно, декоративные свойства лиственницы по красоте и выразительности текстуры намного превосходят древесину таких популярных хвойных пород как сосна и ель.
Для этой цели также подойдёт так называемой блок-хаус – деревянные панели, имитирующие оцилиндрованное бревно.
- Подобный погонаж имеет различные стандартные длины. Это необходимо учесть на этапе определения размеров конструкции, чтобы при торцевании было как можно меньше неиспользуемых обрезков.
- Основа кровли – обрезные строганные сосновые доски сечением 30*150 мм. Критерии отбора – ровные, сухие, без синевы.
- Для окошек необходимо отобрать ровные и крепкие, без сучков, сосновые строганные бруски сечением 45*45 мм.
- При выборе металлического крепежа желательно избегать применения чёрных саморезов ввиду их недостаточной прочности. Для скрепления деревянных деталей желательно использовать жёлтые или белые саморезы по дереву диаметром не менее 4 мм.
Сборка каркаса туалета
Сборку каркаса наиболее удобно начать с изготовления нижней обвязки. Четыре бруса необходимой длины нужно соединить вполдерева (см. рис. 9) и скрутить так называемыми «глухарями» — мощными саморезами диаметром 8 мм и длиной 120-150 мм с шестигранными головками под ключ (см. рис. 10).

Рис.9. Нижняя обвязка каркаса

Рис.10. Саморезы
Линии вырезов размечаются угольником, по ним делаются два параллельных пропила ножовкой, а отход удаляется стамеской.
Главное условие при разметке брусков нижней обвязки – необходимо выдержать необходимое расстояние между внутренними углами. Так, в данном случае, ширина передней и задней стенки – 120 см, ширина боковых стенок – 90 см. Это обусловлено стандартной длиной деревянных панелей – 3 м. Такие размеры не дают обрезков при торцевании, так как от одной панели отрезаются две детали по 90 см и одна 120 см.
На всех углах фрезеруются фаски шириной 5-6 мм.
В результате получаем готовую деревянную раму-основание (см. рис. 11), к которой в дальнейшем будут крепиться стойки каркаса.
Рис. 11. Основание туалета
Стойки обрезаются с небольшим припуском по длине и раскладываются ровной поверхности для сбора передней стенки (см.рис. 12). Длина – 15 см для крепления к нижней обвязке и плюс 185 см в высоту, итого – 200 см.
Нижний горизонтальный брусок прикручивается временно – от его нижней стороны отсчитывается высота и он фиксирует форму.

Рисунок 12
Верхние наклонные бруски – это своеобразные стропила маленькой кровли. Свес кровли желательной сделать максимально возможным – в данном случае порядка 30 см (см.рис. 13). Это необходимое условие для защиты деревянных стен от дождевых осадков.

Рисунок 13
Длина верхних брусков подбирается экспериментально, с учётом ширины по передней стенке (120 см) и угла наклона крыши – около 25 градусов (см.рис. 14).

Рисунок 14
Места пересечения двух брусков отмечаются карандашом, чтобы сделать разметку для вырезания углов (см.рис. 15).

Рисунок 15
С помощью угольника соединяются отметки (см.рис. 16).
Рисунок 16
Ножовкой бруски отрезаются по разметке (см.рис. 17) и в результате получаются четыре одинаковые детали (см.рис. 18).

Рисунок 17

Рисунок 18
Аналогичным образом размечаются вертикальные стойки (см.рис. 19) и обрезаются в необходимый размер (200 см) и угол (см.рис. 20).

Рисунок 19

Рисунок 20
Карандашом размечаются фигурные вырезы на концах наклонных верхних брусков (см.рис. 21).

Рисунок 21
И с помощью электролобзика отрезается лишнее по сделанной разметке (см.рис. 22).

Рисунок 22
Аналогичным образом делаются вырезы на оставшихся брусках (см.рис. 23).
Рисунок 23
В результате получаются фигурные вырезы одинаковой формы на всех четырёх брусках (см.рис. 24).

Рисунок 24
На всех гранях верхних брусков и вертикальных стоек фрезеруются фаски глубиной 5-6 мм (см.рис. 25).

Рисунок 25
В результате получаются аккуратные детали одинаковой длины и одинаковой формы (см.рис.26 и 27).

Рисунок 26

Рисунок 27
Сборка осуществляется с помощью саморезов.
Для этого предварительно сверлятся отверстия в прикручиваемых брусках. Диаметр сверла – на 0,5-1 мм больше, чем диаметр резьбы самого самореза (см.рис. 28).

Рисунок 28
При помощи шуруповёрта с насадкой, соответствующей шляпке самореза, поочерёдно скрепляем две детали вместе (см.рис. 29).

Рисунок 29
Просверленное отверстие позволяет вкручиваемому саморезу крепко позиционировать две детали и, кроме того, помогает избежать в скручиваемых деталях трещин от раскалывания при вкручивании (см.рис. 30).

Рисунок 30
Аналогичным образом предварительно засверливаются отверстия в верхних брусках (см.рис. 31).

Рисунок 31
Для такой ширины прикручиваемой детали достаточно двух саморезов на каждый узел крепления (см.рис. 32).

Рисунок 32
Так как в передней стенке будет установлена дверь, то необходимо сделать проём для неё. Для этого в каркасе необходимо прикрепить симметрично две дополнительные стойки такого же сечения, как и угловые стойки. Кроме формирования дверного проёма, эти стойки позволят впоследствии без дополнительных усилий закрепить декоративные окошки.
Рулеткой размечаются необходимые расстояния (примерно 160 мм от внутреннего края угловых стоек) и прикручиваются две дополнительные стойки (см.рис. 33).

Рисунок 33
Выступающие верхние части обрезаются ножовкой по месту (см.рис. 34).

Рисунок 34
Для надёжности узел крепления верхних брусков можно усилить, прикрутив дополнительную накладку из обрезков бруса (см.рис. 35).

Рисунок 35
Чтобы задняя стенка была такой же по размерам, как и передняя стенка, используем собранную стенку в качестве шаблона. Закрепив на передней стенке детали каркаса при помощи струбцин, по таким же размерам собирается и задняя стенка (см.рис. 36).

Рисунок 36
После предварительной сборки основных частей их можно скреплять в единый каркас. Временные нижние бруски служат ограничителями, с помощью которых у всех стоек в каркасе будет одинаковая высота (см.рис. 37). Нижняя обвязка предварительно выставляется по уровню, чтобы впоследствии не было перекосов.

Рисунок 37
В стойках электродрелью засверливаются по два отверстия диаметром 8 мм (см.рис. 38). В обвязке сверлятся отверстия диаметром 6 мм.

Рисунок 38
После засверливания стойки прикручиваются к нижней обвязке саморезами-глухарями диаметром 8 мм и длиной 100 мм (см.рис. 39).

Рисунок 39
Чтобы выдержать одинаковое расстояние между двумя стенками в верхней части они временно скрепляются планками одинаковой длины.
На этом сборка каркаса – «скелета» всей конструкции – закончена (см.рис. 40).

Рисунок 40
Обшивка стен и пола туалета
Для обшивки пола используется обрезная доска из лиственницы. Для исключения щелей от усушки досок нужно использовать либо готовые шпунтованные доски, либо в обрезных досках прорезать пазы и вставить рейки в места стыковки досок.
Доски удобнее всего крепить параллельно боковым стенкам – так проще делать вырезы под стойки. Расстояние между внешними контурами нижней обвязки является необходимой длиной досок (см.рис. 41).

Рисунок 41
Для минимизации обрезков желательно подбирать такую стандартную длину, чтобы одна доска торцевалась без остатка. Разметка рулеткой и угольником будет способствовать ровным краям, что немаловажно (см.рис. 42).

Рисунок 42
Все размеченные доски разрезаются ножовкой по дереву (см.рис. 43).

Рисунок 43
После этого с помощью угольника необходимо тщательно разметить места вырезов в досках под стойки (см.рис. 44).
Для этого доска прикладывается вплотную к стойкам, и прочерчиваются линии по размерам стойки, глубина вырезов соответствует расстоянию, на которое доска не доходит до края.

Рисунок 44
Части с разметкой, которые подлежат удалению, помечаются штриховкой (см.рис. 45).

Рисунок 45
Ровно по линии доска аккуратно прорезается ножовкой, которую следует держать перпендикулярно линии реза (см.рис. 46).

Рисунок 46
После этого лёгкими ударами стамески удаляется отход (см.рис. 47).

Рисунок 47
Аналогичным образом делаются вырезы под остальные стойки (см.рис. 48).

Рисунок 48
На верхних торцевых частях всех досок и в местах вырезов фрезерной машинкой снимаются фаски.
В уложенных досках размечаются и сверлятся отверстия для крепления на одинаковом расстоянии от края досок (см.рис. 49).

Рисунок 49
Саморезами по дереву доски плотно и без зазоров прикручиваются к брускам нижней обвязки (см.рис. 50).

Рисунок 50
Таким образом получается ровный и аккуратный, без щелей, деревянный пол (см.рис. 51).

Рисунок 51
Обшивка каркаса дело несложное, но требует аналогичной аккуратности.
Деревянные панели тщательно размечаются по длине с помощью рулетки (см.рис. 52).

Рисунок 52
И угольника (см.рис. 53).

Рисунок 53
После разметки панели разрезаются на детали необходимой длины (см.рис. 54).

Рисунок 54
В результате получаются панели двух размеров – короткие для зашивки боковых стенок и длинные для зашивки задней стенки (см.рис. 55).

Рисунок 55
Так как данная доска имеет рабочую ширину 140 мм, то необходимо каждую сторону крепить на два самореза, максимально близко к краю доски – примерно 20-25 мм. Это будет в некоторой мере сдерживать деревянные панели от коробления.
Для исключения растрескивания панелей от закручиваемых саморезов и для плотности соединения, все детали перед креплением предварительно засверливаются по разметке (см.рис. 56).Для этого одна размеченная деталь накладывается на вторую и просверливаются отверстия во всех панелях по этому шаблону.

Рисунок 56
Подготовленные таким образом панели прикручиваются к стойкам каркаса саморезами по дереву, длиной около 50 мм (см.рис. 57).

Рисунок 57
Если гребень панели входит слишком плотно в ответный паз (или панель немного искривлённая), то необходимо аккуратно подбить панель сверху деревянной или резиновой киянкой, подложив под киянку такой же обрезок, чтобы не расколоть панель (см.рис. 58).

Рисунок 58
Таким образом крепятся все панели до верхней части каркаса, где, возможно, придётся урезать последние панели, чтобы они не выступали над плоскостью крыши (см.рис. 59).

Рисунок 59
Возводим кровлю в туалете
Перед укладкой кровельного материала на оба ската прикручиваются вплотную обрезные доски (см.рис. 60 и 61).

Рисунок 60

Рисунок 61
Если боковые свесы кровли были сформированы выносом стропил на 30 см от боковых стенок, то свесы кровли спереди и сзади формируются длиной досок – для этого нужно прибавить к ширине боковых стенок задний свес (около 20 см) и передний свес (около 30 см). Сложив три размера вместе, получается необходимая длина досок.
В качестве кровельного покрытия в данном случае используется металлочерепица. В наше время на рынке представлено множество вариантов кровельных покрытий различного типа и цветовой окраски, так что возможности выбора практически не ограничены.
Металлочерепица крепится к доскам кровельными саморезами (см.рис. 62).

Рисунок 62
После этого остаётся закрыть спереди и сзади торцевые части аккуратными досками, которые прикручиваются саморезами (см.рис. 63).
Делаем окна в туалете
Окошки используются не только в качестве декорации, поскольку в значительной степени формируют внешний вид всего деревянного строения. В некоторой степени они играют сугубо практичную роль, так как являются светопрозрачной конструкцией, что в некоторой степени придаёт своеобразный внутренний уют.
Для того, чтобы сделать такие окошки, понадобится несколько брусков сечением 45*45 мм и длиной __ мм (см.рис. 64).

Рисунок 64
Первым делом необходимо выпилить четверть в каждом бруске. Для этого нужно настроить вылет пильного диска на циркулярном станке на 20 мм (см.рис. 65).

Рисунок 65
После этого ненужная часть брусков аккуратно вырезается (см.рис. 66).

Рисунок 66
Подготовленные таким образом бруски раскладываются на ровной поверхности и размечаются внутренние габаритные размеры каждого окошка – сформированная четверть необходима для того, чтобы вставить окошко в проём между стойками (см.рис. 67).

Рисунок 67
Далее поперечные и продольные бруски обрезаются в необходимый размер с помощью ножовки и распиловочного стусла (см.рис. 68).

Рисунок 68
Детали скрепляются между собой саморезами, поэтому обязательно необходимо засверлить прикручиваемые детали (см.рис. 69).

Рисунок 69
Устанавливаем в фрезерную машинку фрезу для снятия фаски (см.рис. 70).

Рисунок 70
И снимаем фаски шириной 7-8 мм на всех продольных и поперечных рёбрах (см.рис. 71).

Рисунок 71
В результате фрезеровки получаются аккуратные детали (см.рис. 72).

Рисунок 72
Получившиеся детали скрепляются с помощью саморезов в рамки (см.рис. 73).

Рисунок 73
Выступающие уголки на внутренней части поперечных брусков обрезаются ножовкой (см.рис. 74).

Рисунок 74
Отход подрезается и зачищается стамеской (см.рис. 75).

Рисунок 75
Этой частью рамки вставляются в проём (см.рис. 76).

Рисунок 76
Для установки стёкол нужно внутри прорезать паз по всему периметру рамок. Для этого устанавливается дисковая фреза в фрезерную машинку (см.рис. 77).

Рисунок 77
И за несколько проходов фрезеруется внутренний паз шириной на 1-2 мм больше толщины стекла. Стандартная толщина рельефного стекла – 4 мм. Глубина паза – 10 мм (см.рис. 78).

Рисунок 78
Из более тонкого бруска нужно сделать перемычки, которые будут вставляться между стёклами. У них таким же образом сняты фаски и с двух сторон фрезерованы пазы под стекло. Такие короткие детали удобно делать из одной длинной заготовки – то есть сначала снять фаски и прорезать пазы вдоль длинных сторон потом отрезать необходимое количество деталей и снять фаски с торцевых частей (см.рис. 79).

Рисунок 79
После подготовки рам вырезаются стёкла (см.рис. 80). В зависимости от первоначального эскиза стоит рассчитать сразу их количество. На строительных рынках в настоящее время разнообразный выбор подобного стекла, которое на месте могут отрезать в нужный размер. Более бюджетный вариант – использовать старое стекло с двери или обычное оконное стекло, которое с одной стороны заматировать (зашлифовать) вибрационной шлифмашинкой, чтобы сделать его непрозрачным.

Рисунок 80
После подготовки стёкол собираются рамы (см.рис. 81).
Для этого откручивается одна из поперечин и в паз вставляются поочёрёдно стёкла и деревянные перемычки.

Рисунок 81
После этого нижняя поперечина прикручивается на своё место (см.рис. 82).

Рисунок 82
Паз под стёкла намеренно был сделан больше толщины стекла на 1-2 мм, чтобы заполнить теперь образовавшийся зазор прозрачным силиконовым герметиком (см.рис. 83).
Пластиковый носик у тубы срезается для получения валика толщиной 3-4 мм.

Рисунок 83
После заполнения зазоров герметик аккуратно разравнивается (см.рис. 84). Для высыхания герметика желательно подождать несколько часов.
Благодаря заполнению зазоров в рамы не будет попадать дождевая вода и кроме того стёкла будут прочно зафиксированы от вибраций.

Рисунок 84
Рамы фиксируются в подготовленных для них проёмах саморезами. Для этого с внутренней стороны стоек просверливаются отверстия, через которые и вкручиваются саморезы (см.рис. 85).
Предварительно в верхней и нижней частях проёмов прикручиваются короткие обрезки деревянных панелей.

Рисунок 85
Делаем дверь в дачный туалет
Дверь собирается из таких же деревянных панелей, только в вертикальном положении.
Для этого замеряются размеры проёма и набирается дверное полотно необходимой ширины и длины. Если полотно шире проёма – то оно обрезается в нужный размер симметрично – таким образом, чтобы крайние панели были одинаковой ширины.
К ширине проёма следует прибавить по 2 см справа и слева – поскольку дверь будет перекрывать стойки.
Верхняя часть обрезается под таким же углом, что и верхние бруски каркаса.
После обрезки в размер фрезеруются фаски по периметру (см.рис. 86).

Рисунок 86
Панели скрепляются друг с другом с помощью поперечин, которые вырезаются из обрезков панелей. За счёт ширины панелей можно обойтись без укосины – жёсткость полотна будет достигаться за счёт саморезов и нанесению силиконового герметика перед прикручиванием поперечин (см.рис. 87).
В поперечинах обязательно следует предварительно просверлить отверстия.

Рисунок 87
Навесы желательно выбрать с длинным плечом и прикручивать их в те места, где прикручены поперечины (см.рис. 88).

Рисунок 88
Чтобы выставить зазор в 4-5 мм между полом и дверью, достаточно подложить под дверь стамеску (см.рис. 89).

Рисунок 89
Один из важных элементов – дверные ручки – изготавливаются из обрезков изогнутых веток дерева (см.рис. 90). Ручки крепятся к двери саморезами.

Рисунок 90
Чтобы снаружи не было видно шляпок от саморезов, сначала следует прикрутить внутреннюю ручку, а после этого, закрыв ручкой шляпки саморезов, наружную.

Рисунок 91
Углы всей конструкции закрываются нащельниками шириной 70-80 мм и толщиной 12-15 мм. Они крепятся на саморезы (см.рис. 92 ).

Рисунок 92
Покраска туалета
Окончательный внешний вид всей деревянной конструкции определяется покраской. Покрытие желательно выбирать атмосферостойкое, рассчитанное для эксплуатации в уличных условиях (см.рис. 93).

Рисунок 93
Краска или пропитка наносятся кистью в один или два слоя. Для более явного выделения структуры древесины необходимо тщательно растирать кистью материал по всей окрашиваемой поверхности (см.рис. 94.)

Рисунок 94
После просушки покрытия, рекомендованного изготовителем в инструкции, работу можно считать законченной… (см.рис. 95, 96, 97 и 98)

Готовый дачный туалет — фото

Фотография туалета сбоку

Дачный туалет готов
stroyday.ru
Как сделать туалет для дачи своими руками: чертежи, фото, пошаговая инструкция
Чтобы обеспечить комфортное пребывание на загородном участке, нужно в первую очередь построить туалет, для возможности справлять естественные потребности. Поскольку система канализации, это редкость на наших дачных массивах, то туалет придётся делать с выгребной ямой. Поэтому, очень важно правильно выбрать расположение туалета, чтобы избежать неприятного запаха и проблем с соседями. Кроме этого, из-за суровой зимы, желательно сделать дачный туалет утеплённым.
Где расположить туалет? Как правильно сделать выгребную яму? Какие материалы использовать при строительстве? И наконец, как построить туалеты разных типов? Всё это вы сможете узнать, прочитав нашу статью.
Расположение туалета на участке
В первую очередь нужно узнать, – насколько близко к поверхности вашего участка находятся грунтовые воды. Если грунтовые воды находятся ближе чем 2,5 метра к поверхности, то по санитарным нормам, выгребную яму делать нельзя. Спасти положение в такой ситуации, поможет пластиковая ёмкость для нечистот, расположенная на небольшой глубине.
Во вторых не располагайте туалет в низинах, это может привести к быстрому заполнению выгребной ямы во время сильного дождя, или в период таяния снега.
В третьих учитывайте фактор запаха, как бы хорошо не был изолирован туалет, неприятные испарения всё равно будут просачиваться из выгребной ямы и портить воздух в округе. По этой причине, лучше всего расположить туалет вдали от жилья и мест отдыха.
В четвёртых выгребная яма любого туалета нуждается в очистке, поэтому при выборе места для туалета, продумайте возможность беспрепятственного подъезда к нему ассенизаторской техники.
Ассенизаторская машина
Изготовление выгребной ямы
Выгребные ямы могут изготавливаться из монолитного бетона, кирпича, пластиковых ёмкостей и бетонных колец. Использование для постройки выгребной ямы баков из металла, не рекомендуется, поскольку со временем, стенки железного бака подвергнутся коррозии и нечистоты начнут загрязнять почву.
Выгребная яма из монолитного бетона
Для изготовления вам понадобятся:
- Цемент.
- Песок.
- Мелкий щебень.
- Арматура.
- Жидкое стекло.
- Проволока для вязки арматуры.
- Опалубка.
- Бетономешалка или емкость для изготовления раствора и лопаты.
Выгребная яма из монолитного бетона
Правильный порядок работ для изготовления выгребной ямы из бетона, заключается в следующих действиях:
- Выройте котлован.
- Утрамбуйте дно котлована и засыпьте его песком.
- Установите прутья арматуры на дно и свяжите их проволокой.
- Изготовьте цементный раствор и залейте им дно котлована слоем 15-20 сантиметров.
- После высыхания цементного раствора, установите на стенки котлована, предварительно изготовленную арматурную решётку.
- После связывания арматуры, установите по периметру стенок котлована – опалубку. Устанавливая опалубку, учитывайте тот факт, что бетонные стенки ямы должны быть выше уровня грунта 10-20 сантиметров, это позволит избежать попадания дождевой или талой воды в яму.
- Залейте опалубку цементным раствором.
- Когда раствор полностью высохнет, снимите опалубку.
- Для дополнительной герметизации ямы, обработайте стенки и дно, жидким стеклом или битумной мастикой.
Выгребная яма из кирпича
Для ямы из кирпича понадобятся:
- Качественный кирпич.
- Цемент.
- Песок.
- Арматура.
- Битумная мастика.
Выгребная яма из кирпича
Чтобы изготовить выгребную яму из кирпича:
- Выройте котлован.
- Также как и в варианте с монолитным бетоном, произведите заливку и армирование дна ямы.
- Произведите кладку кирпича по периметру стенок ямы.
- После высыхания цементного раствора в кладке, произведите штукатурку стен ямы.
- Обработайте стены битумной мастикой.
Выгребная яма из бетонных колец
Выбрав вариант выгребной ямы из железобетонных колец, учтите, что для их перемещения вам понадобится специальная техника. Яма делается следующим образом:
- Выройте котлован круглой формы, размер котлована должен позволять свободно помещать в него бетонные кольца.
- С помощью крана установите в котлован кольца. Следите за тем, чтобы бетонные кольца вставали ровно, без перекосов и щелей.
- Заделайте зазоры между кольцами цементным раствором.
- Засыпьте грунтом пространство между стенками котлована и кольцами.
- Залейте дно котлована цементным раствором, для повышения прочности дна, можете предварительно провести армирование.
- Обработайте швы между кольцами жидким стеклом или битумной мастикой.
Выгребная яма из бетонных колецВыгребная яма из пластиковой емкости
Данный вариант выгребной ямы самый лёгкий в производстве, но требующий затрат на приобретение вместительной пластиковой ёмкости. Форма ёмкости должна позволять свободно откачивать из неё нечистоты.
Для установки пластикового бака вырывается яма. После помещения емкости в котлован пространство между стенками бака и котлована засыпается грунтом.
Выгребная яма из пластиковой ёмкости
Следует отметить, что все перечисленные варианты выгребных ям, можно делать без герметичного дна, только с фильтрующим слоем из щебня или песка. Этот способ устройства выгребной ямы позволяет снизить скорость накопления нечистот, за счёт ухода жидкости непосредственно в почву. Но не герметичные выгребные ямы, запрещены санитарными нормами.
Также при строительстве выгребной ямы не забывайте об отдушине для выхода горючих газов, образующихся при разложении органических веществ и при их значительном скоплении, создающих условия для возгорания.
Варианты туалета для дачи
Туалет из кирпича
Кирпичный туалет гораздо тяжелее по весу, чем деревянный, поэтому его лучше всего строить над выгребной ямой из монолитного бетона и использовать стенки ямы в качестве фундамента.
Туалет из красного кирпича
Этап первый – заливка основания
- Изготовьте опалубку с основным отверстием для поступления нечистот, расположенным по центру и дополнительным для отвода газов, расположенным за стенами туалета.
- Установите опалубку в выгребную яму и закрепите её на нескольких прутьях арматуры.
- Сделайте решётку из прутьев арматуры связанных проволокой и установите её на опалубку.
- Залейте опалубку цементным раствором, толщина слоя должна быть не менее 15 сантиметров.
Основание для кирпичного туалетаЭтап второй – кладка стен
- Произведите кладку первых рядов кирпичей. Во избежание перекосов и неровной кладки используйте уровень и отвес.
- Постепенно увеличивайте число кирпичных рядов, постоянно сверяясь с отвесом и уровнем, особенно это замечание касается, дверного проёма.
- Дойдя до конца дверного проёма, установите перемычку из железных уголков.
- Для устройства односкатной крыши, фронтальную стенку туалета следует делать выше задней на 20-30 сантиметров. Боковые стены делают с косым переходом – от фронтальной к задней стенке.
Кирпичная кладкаЭтап третий – изготовление крыши и установка двери
- Установите на стены продольные балки из брусков сечением 150х50 миллиметров.
- Набейте на балки поперечные рейки сечением 50х20 миллиметров.
- Прибейте к получившейся обрешётке лист шифера, металлочерепицы или профнастила.
- Установите дверную коробку, закрепив её на анкерные болты.
- Повесьте дверное полотно на навесы и установите ручки с замком.
Этап четвёртый – отделка стен, пола и потолка
Отделывать стены и потолок в туалете можно разными материалами. Вешние стены лучше всего отделать материалом, который использовался для отделки других строений на даче. Это позволит сохранить общий стиль участка. Для внутренней отделки, можно использовать панели ПВХ, штукатурку или деревянные рейки. Используя варианты с ПВХ панелями и рейками, у вас появится возможность дополнительного утепления стен и потолка туалета минеральной ватой или пенопластовыми панелями. Для отделки пола в туалете укладывают плитку или просто настилают линолеум.
Обшивка рейкамиЭтап пятый – обустройство туалета
Для более удобного пользования туалетом, на центральное отверстие устанавливают специальные унитазы, у которых отсутствует канализационное «колено». Чтобы не испытывать затруднений в зимний период, желательно провести в туалет отопление. Для полного комфорта, проведите в туалет электричество и сделайте освещение как внутри, так и снаружи.
Унитаз без “колена”
Инструкция в фотографиях по строительству кирпичного туалета, также доступна в ролике:
Деревянный туалет
Преимущество деревянного туалета перед кирпичным в том, что его можно изготовить отдельно от выгребной ямы. Также благодаря лёгкому весу, деревянный туалет можно устанавливать над любым видом выгребной ямы.
Туалет – «скворечник»
Это самый бюджетный вариант деревянного туалета. Туалет «скворечник» позволяет сэкономить финансовые затраты на своё строительство, но это сильно сказывается на его комфорте. Поэтому, данный тип туалета в основном используется как временное решение и при последующем обустройстве участка, заменяется на более основательные конструкции.
Ниже приведены чертежи, по которым вы сможете построить туалет своими руками:

Порядок выполнения работ при изготовлении туалета:
- Сверяясь с чертежом, изготовьте каркас.
- Нарежьте рейки для обшивки каркаса (размеры указаны в таблице).
- Обшейте каркас пол и крышу рейками.
- Изготовьте дверь и повесьте её на петли.
- Закройте крышу рубероидом или другим кровельным материалом.
- Установите туалет на выгребную яму.
- Обработайте каркас и рейки олифой, после этого, покрасьте туалет краской.
Туалет “скворечник”
Подробную инструкцию по изготовлению туалета – «скворечник», в можете посмотреть в ролике:
Туалет – «домик»
«Домик» – более комфортный и прочный вариант деревянного туалета, по сравнению со «скворечником». Для постройки туалета – «домик», требуется больше времени и затрат на стройматериалы, но это себя оправдывает более комфортной эксплуатацией. Ознакомьтесь с чертежами туалета:


Порядок выполнения работ почти такой же, как и при изготовлении туалета «скворечник», главное сверяйтесь чаще с чертежами.
Туалет “домик”
Туалет с душем
Объединение двух бытовых построек в одну, позволяет сэкономить место на дачном участке и сократить расходы на их строительство. Правда такое соседство будет иметь и свой минус, выраженный в виде неприятного запаха во время приёма душа. Поэтому душевую кабинку следует делать более изолированной, без щелей и зазоров.
Данный тип постройки состоит из двух кабин, объединённых под одной крышей и имеющих общую стену. Кабина – предназначенная под туалет, должна быть над выгребной ямой, а кабина для душа, должна иметь слив для воды. Ниже представлены примерные параметры туалета с душем:
Туалет с душем, можно изготовить из: кирпича, шлакоблоков, деревянных реек или досок.
Давайте рассмотрим вариант строительства из дерева. Для работы нам потребуются:
- Четыре бруса длиной по 2,75 метра и четыре бруса по 2 метра, сечением 10х10 сантиметров.
- Брусья сечением 5х10 сантиметров и длиной по 2 метра в количестве 24 штуки.
- Деревянные доски для обрешётки, сечением 1х10 сантиметров.
- Брусья сечением 5х10 сантиметров, длиной по 2 метра, в количестве 12 шт.
- Для пола в туалете, доски сечением 4х15 сантиметров в количестве 20 штук.
- Пластиковые трубы и слив.
- Цементный раствор в количестве полутора куба.
- Фанерные листы для опалубки.
- Песок и гравий, или щебень.
- Металлочерепица или другой кровельный материал.
Каркас туалета с душем
Как изготовить выгребную яму, написано выше, поэтому перейдем сразу к изготовлению каркаса:
- Сделайте нижнюю обвязку, используя бруски сечением 10х10 сантиметров.
- Для возведения каркасных стен, установите по углам брусья сечением 5х10 сантиметров. Для соединения их с нижней обвязкой используйте металлические пластины и уголки. Проверьте правильность положения брусьев с помощью уровня.
- Установите два бруска в каркасе для крепления будущей двери.
- Сделайте верхнюю обвязку, соединив с вертикальными опорами бруски сечением 10х10 сантиметров.
- На верхней обвязке установите три стойки с коньковой доской.
- Сделайте стропила для двускатной крыши с шагом 60 сантиметров, используя доски сечением 1х4 сантиметра.
- Изготовьте обрешётку из обрезных досок.
- Накройте крышу металлочерепицей.
- Перейдите к установке пола кабинке для туалета. Изготовьте каркас для постамента и обшейте его и пол доской толщиной 2 сантиметра.
- Обшейте стены туалета досками.
- Установите пенопластовые панели в каркас и заполните щели монтажной пеной.
- Произведите обшивку внутренних стен.
- Сделайте пол в душе из цементного раствора. Заливая пол, делайте уклон для слива воды.
- Поверх бетонного пола установите чистовой пол из досок.
- Обшейте стены досками и установите пенопластовые панели также как и в туалете.
- Установите двери в проёмы.
- Подведите трубу с водой и установите душ. Если на даче нет водопровода, то установите на крыше кабинки душа бак для нагрева воды на солнце.
- Проведите к кабинкам электричество и сделайте освещение.
Туалет с душем
Как изготовить туалет с душем на трубчатом фундаменте в можете узнать посмотрев видео:
Необычные варианты дачных туалетов
Туалет для дачи можно изготовить практически из любого материала и придать ему самый необычный дизайн. Ниже мы приведём вам фотографии необычных дачных туалетов:
- Туалет из брёвен. Изготовлен по старой технологии, способом укладки брёвен с подходящим диаметром, друг на друга.
Плюсы: красивый дизайн, прочность, долговечность.
Минусы: большой вес, слабая пожарная безопасность, насекомые-вредители. - Туалет из профилированного листа. Бюджетный вариант дачного туалета.
Плюсы: низкая стоимость.
Минусы: ужасный дизайн, ужасная жара внутри летом и сильный холод зимой. - Туалет – карета. Самый необычный дачный туалет на сегодняшний день.
Плюсы: красивый дизайн, оригинальность.
Минусы: сложность изготовления, отсутствие выгребной ямы (исправимо). - Туалет – мельница. Туалет из досок стилизованный под мельницу.
Плюсы: недорогая цена, необычный дизайн.
Минусы: дешёвый вид, слабая пожарная безопасность. - Каменный туалет. Оригинальный туалет из камня.
Плюсы: красивый дизайн, прочность, долговечность, пожарная безопасность.
Минусы: высокая цена, трудность изготовления. - Туалет из соломы. Очень оригинальное использование соломы.
Плюсы: красивый дизайн, экологическая безопасность.
Минусы: недолговечность, очень слабая пожарная безопасность.






Изготовление дачного туалета – непростое дело, требующее хотя бы минимальных навыков в строительстве, поэтому если вы не уверены что справитесь, обратитесь лучше к специалистам. Если же вы считайте, что сможете сделать туалет своими руками, то смело приступайте к работе!
remboo.ru
Построить туалет своими руками: чертежи, размеры
Главная » Туалет » Строим дачный туалет: проекты, чертежи, размеры
В этой статье представлены образцы дачных туалетов: чертежи кабинок, их средние размеры, некоторые рекомендации по строительству. Конструкция может быть разной: есть проекты прямоугольные, треугольные, ромбовидные. Выбираете форму, потом материал, и можно приступать к строительству. Чертежи есть, строение — не самое сложное. Только учтите, что размеры даны для людей среднего роста и комплекции. Их легко можно изменить, не особо меняя конструкцию.

Дизайн дачного туалета может быть простым или замысловатым
Схема уличного туалета
Содержание статьи
Наиболее распространенным вариантом дачного или садового туалета является прямоугольная постройка. Ее еще называют «скворечник» так как в варианте с односкатной крышей она очень его напоминает.

Проект дачного туалета из дерева типа «Скворечник» (чтобы увеличить размеры картинки, щелкните по ней левой клавишей мышки)
На чертеже туалета, представленном на фото выше, для отделки использовалась доска толщиной 40 мм. Сооружение получается совсем недорогим. Двери можно сделать из тех-же досок, скрепленных планками вверху, внизу и наискосок. Петли можно поставить наружные — амбарные, оформив строение в нарочито грубом стиле.

Образцы дачных туалетов: чертежи одинаковые, исполнение разное
Несмотря на то, что постройка утилитарная, при желании ей можно придать привлекательный вид и скворечник превратится во вполне привлекательное небольшое здание. Например, можно сделать из этой постройки маленькую мельницу.

Дачный туалет-мельница — немного фантазии и неприглядная постройка становится украшением участка (чтобы увеличить размеры картинки, щелкните по ней левой клавишей мышки)
Тот же скворечник, но из сруба — уже совсем другой вид. Особенно гармонично все будет смотреться, если здание на участке выстроено (или будет выстроено) тоже из бревна.

Даже самый простой туалет из бревна смотрится почти как экзотика. Причем, его можно использовать и как зимний вариант (чтобы увеличить размеры картинки, щелкните по ней левой клавишей мышки)
Для регионов, где древесина — роскошь, и расходовать ее на постройку туалета нерационально, ту же конструкцию можно обшить другим материалом. Например, каркас обшивается любым листовым материалом — фанерой, ДВП, ГВЛ. На них снаружи можно уложить отделочный материал — плитку или декоративный камень. Еще более бюджетный вариант — обшить профнастилом.

Туалет на даче своими руками строят из любого материала. Этот — из профнастила (чтобы увеличить размеры картинки, щелкните по ней левой клавишей мышки)
Это тот тип туалета, Который несложно построить из кирпича. Делают их обычно в полкирпича. Никаких сложностей даже для неопытного каменщика нет. Кладка со смещением, раствор — цементно-песчаный.

По тому же проекту и чертежу можно построить туалет из кирпича (чтобы увеличить размеры картинки, щелкните по ней левой клавишей мышки)
Пошаговая инструкция строительства уличного туалета тут.
Туалет типа «Шалаш» (треугольный)
Эта туалетная кабинка имеет вид треугольника. Боковые стенки одновременно являются скатом кровли. Построить такой туалет своими руками можно за несколько часов. Чертежи с примерными размерами даны на картинке ниже. В них можно и нужно вносить корректировки: все габариты даны для людей средней комплекции.

Чертеж дачного туалета типа «Шалаш» (чтобы увеличить размеры картинки, щелкните по ней левой клавишей мышки)
Если нужны более широкие двери, можно не раздвигать основание, которое в данном проекте и так немалое, а сделать двери нестандартной формы — как на рисунке справа.
Обшивка отделочными материалами в туалетах «Шалаш» проводится только впереди и сзади. На боковые поверхности укладывают кровельный материал. Можно использовать любой, но неплохо смотрится мягкая черепица или полимерный шифер.

Имея чертежи треугольный туалет на даче построить проще простого
На фото справа обрешетка сделана под листовой кровельный материал — использовали шифер из пластика — он есть разных цветов, стоит относительно недорого, монтируется просто — гвоздями с прокладками.
Если использовать планируете мягкий кровельный материал — рубероид, битумную черепицу или что-то похожее, обрешетку делайте сплошную — из листа влагостойкой фанеры, ДСП, ГВЛ. Их крепят к каркасу саморезами, сверху настилают кровельные материалы.
Про вентиляцию в уличном туалете и душе читайте тут. О том, как избавится от запахов написано в этой статье.
Чертеж туалета «Теремок»
Этот туалет имеет вид ромба. По сравнению с «Шалашом» строится он дольше, но и вид имеет более декоративный. При соответствующем оформлении он ничуть не испортит пейзаж.

Чертеж туалета «Теремок» с размерами (чтобы увеличить размеры картинки, щелкните по ней левой клавишей мышки)
Ромбовидный домик для туалета на дачном участке смотрится неплохо. Снаружи оббить каркас можно распиленным пополам кругляком небольшого диаметра, вагонкой большой толщины, блок-хаусом, обычной доской. Если используете доску, прибивайте ее не встык, а накладывая на пару сантиметров на нижнюю, по типу еловой шишки. Можно, конечно, и встык, но внешний вид будет уже не тот…
Второй вариант: дачный туалет «Теремок» сделан со скошенными боковыми стенками.

Дачный туалет «Теремок» — второй проект с размерами (чтобы увеличить размеры картинки, щелкните по ней левой клавишей мышки)
Основная загвоздка в любом небольшой деревянном туалете — хорошо закрепить двери. Дверная коробка — самая нагруженная часть, особенно с той стороны, где крепятся двери. Для скрепления стоек двери с брусьями каркаса используйте шпильки — так крепление будет надежным.

Фото-иллюстрации: строит туалет на даче своими руками. Чертежи представлены выше
Из этой несложной, в общем, конструкции можно сделать уборную в любом стиле. Например, в голландском. Отделка простая — светлый пластик, поверх которого набиты характерные балки, прокрашенные морилкой. Обратите внимание, на стеклянные вставки и на то, что крыша этого экземпляра сделана из поликарбоната. Если поликарбонат многослойный, жарко быть не должно)))

Дачный уличный туалет в виде голландского домика
Можно даже туалет «Теремок» превратить в царскую карету. Это не шутка…подтверждение на фото. Всего-то надо изменить форму и добавить несколько элементов декора, характерных для карет. Вот и получите туалет в виде кареты.

Уличный туалет-карета
Вот несколько фото процесса изготовления. В оригинале установлен биотуалет, потому постройка несложная: нет необходимости думать о яме и связанных с ней нюансах…но приспособить такую кабинку можно к любому типу…

Каркас характерной формы
Обратите внимание, форма достигнута благодаря установленным под углом доскам, а плавно сужающийся низ — подрезанными соответствующим образом опорам.

На подиуме устанавливают биотуалет
Короткими досками зашивают пол, затем начинают обшивку снаружи. Вверху карета имеет тоже плавный изгиб — вырезаете из коротких досок соответствующие направляющие, прибиваете их к уже имеющимся боковым стойкам и можно начинать наружную обшивку стен.

Обшивка стен
Внутри также обшивают вагонкой. Снаружи туалет-карета выбелен, изнутри древесина имеет естественный цвет. После остается декорирование и добавление характерных деталей — вензеля, раскрашенные золотом, фонари, «золотые» цепочки, колеса.

Покраска и декорирование
«Царские» занавески и цветы))) Поставлен даже рукомойник и небольшая раковина.

Вид изнутри на окна
После всех усилий имеем самый необычный в округе туалет. Мало кто может таким похвастаться…

Еще и чемоданы в багажнике))
Теплая уборная
Пользоваться туалетом со стенкой в одну доску летом вполне комфортно. Но не все дачи посещаются только в теплое время года. Для осенне-весеннего периода необходимо хоть какое-то утепление, которое перекроет сквозняки.
В этом случае конструкция туалета ничем не отличается. Только размеры увеличите на 5-10 см больше: обшивка будет двойная — снаружи и изнутри, а между обшивкой уложен утеплитель. Утеплить нужно будет и двери — двойные слишком тяжелые для такой постройки, но изнутри их можно оббить куском линолеума, дермантином и другим хорошо моющимся материалом.
О строительстве туалета своими руками (с фото-отчетом можно прочесть тут).
Комбинированный душ-туалет
Вторая по необходимости постройка на даче — душ. А если так, то зачем строить два отдельных сооружения, если их можно построить под одной крышей. Несколько чертежей дачных туалетов с душем для самостоятельной постройки опубликованы ниже.

Вариант комбинированного туалета для дачи душем (чтобы увеличить размеры картинки, щелкните по ней левой клавишей мышки)
Второй проект туалета и душа под одной крышей.

Внешний вид и чертеж туалета и душа для дачи в одном строении (чтобы увеличить размеры картинки, щелкните по ней левой клавишей мышки)

Вид и размеры туалет+душ спереди и сбоку (чтобы увеличить размеры картинки, щелкните по ней левой клавишей мышки)
Как вы догадались, строение просто увеличивают в два раза в ширину. Если захотите, сможете создать свой проект, под свои желания и потребности. Чертеж хозблока с туалетом будет точно таким. Возможно, вам нужно будет сделать одно из помещений чуть больше. Просто предусматриваете это при планировке и изготовлении опор под постройку.
stroychik.ru
Как построить деревянный туалет на даче

Деревянный дачный туалет своими руками
Как вы думаете, какая постройка на даче возводится первой, ну или, в крайнем случае, в числе первых? Правильно — дачный туалет и, как правило, это деревянный туалет. Частенько мы незаслуженно приуменьшаем значение строительства дачного туалета, полагая, что эта постройка не заслуживает особого внимания. И в общем то зря, особенно если речь идет о строительстве туалета с выгребной ямой. Достаточно неправильно учесть (или вообще не учитывать) господствующую розу ветров, и свежий дачный воздух будет подпорчен неприятными запахами.
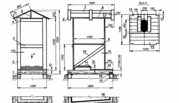
После того как расположение туалета определено, можно переходить к определению конструкции и размеров туалета, не забывая, что минимальные рекомендуемые размеры составляют 1 х 1,4 х 2,2 м. по ширине, глубине и высоте соответственно.
Строить дачный туалет начинают с обустройства выгребной ямы, глубина которой должна учитывать уровень грунтовых вод. Чем ниже уровень грунтовых вод, тем глубже можно сделать выгребную яму. От конструкции туалета с выгребной ямой придется отказаться, если уровень грунтовых вод очень высокий.
Ориентируясь на фотографии этапов строительства и пояснения к ним, вам не составит труда самостоятельно построить и свой дачный туалет.
Что бы еще почитать?
К записи оставлено комментариев — 3
Поделитесь ссылкой на статью в социальных сетях
Подпишитесь на e-mail рассылку о новых статьях
Вы можете оставить свой комментарий
Поделитесь своим мнением, что Вы думаете о прочитанном?Если Вам не понравилась статья, напишите в комментариях причину.
Возможно, Вы заметили ошибку или у Вас появились вопросы, напишите об этом.
Только зная Ваше мнение, можно будет улучшить и дополнить статью.
remstd.ru
Строим туалет на даче своими руками

Для того, чтобы благоустроить участок и сделать его пригодным для проживания, необходимо соорудить на нем туалет. После самостоятельного возведения туалета на дачном участке, хозяева могут заниматься там любыми делами: ухаживать за огородом или обустраивать дом. О поэтапной технологии изготовления туалета на даче, рассмотрим далее.
Оглавление:
- Как правильно строить туалет на даче: выбор места под туалет
- Строим туалет на даче чертежи
- Технология возведения туалета с выгребной ямой
- Строим туалет на даче своими руками фото
- Строим туалет на даче: особенности оформления туалета
Как правильно строить туалет на даче: выбор места под туалет
Существуют определенные стандарты, регламентирующие сооружение и место нахождения туалетов по отношению к жилым зданиям. В процессе сооружения туалета на дачном участке, должны учитываться не только индивидуальные, но и соседские потребности.

Выбирая место под туалет на даче, примите во внимание такие рекомендации:
- расстояние между туалетом и колодцем должно составлять минимум двадцать пять метров, а лучше тридцать метров, только в таком случае, удастся получить качественную и пригодную воду для питья;
- кроме того, туалет должен быть возведен за жилым домом или сбоку от него, место должно быть удаленным от дома, для комфортного использования постройки;
- интервал между туалетом и границей с соседями должен составлять минимум один метр;
- при наличии уклонов под участков, возведение туалета начинается с самой низкой местности;
- рекомендуется обустраивать туалет минимум в пяти метрах от дома;
- также, учитывайте ветер, вашего климатического региона, во избежание попадания неприятных запахов из туалета в дом.
Еще один важный момент — обустройство выгребной ямы, к которой должен быть обустроен легкий доступ для въезда специализированной техники.

Строим туалет на даче чертежи
Для того, чтобы туалет на дачном участке был чистым, гигиеничным и уютным, приступая к его возведению определитесь с такими параметрами:
- выберите систему слива отходов — местная канализационная, частная или отдельно стоящая;
- выберите место для туалета в соотношении со всеми санитарными нормами;
- выберите форму туалета — кабина, будка, материалы для ее сооружения и оббивку;
- определите тип декоративной отделки для туалета, старайтесь, чтобы он соответствовал общему стилю оформления участка;
- подведите итоги, подсчитайте расходы и определите количество материалов, используемых в процессе работ.
Изначально следует проверить пригодность почвы для сооружения туалета. В некоторых случаях несущие способности грунта насколько малы, что соорудить выгребную яму, не представляется возможным.

Минимальное значение несущей способности грунта на участке должно составлять семнадцать килограмм на один квадратный сантиметр. Туалетная кабина чаще всего имеет площадь не более четырех квадратных метров.
Если почва промерзает более чем на двенадцать процентов, то она считается пучинистой. В таком случае, необходимо полностью забетонировать выгребную яму, а также обеспечить ее гидроизоляцию.
Чаще всего, для установки кабины сооружают фундамент в виде кирпичных или бетонных опорных элементов. Они являются хорошей альтернативой фундаменту, легко устанавливаются у удерживают кабину в нужном положении.
В процессе работы над деревянной кабиной для дачного туалета, потребуется наличие:
- бруса — он послужит каркасом, рекомендуем остановиться на размерах 6х6 см;
- шпунтованной доски — с ее помощью выполняется обшивка пола и сиденья;
- обрезной доски — ею обшивают крышу и внешние стены туалета.
Обшивочная доска вполне заменяется фанерой с водостойкими характеристиками. Перед началом работ определите форму туалета. Чаще всего используются такие варианты:
1. Туалет в виде шалаша — отличается простой конструкцией, устойчивостью перед сильным ветром. Затраты на его возведение, значительно меньшие, нежели на сооружение туалета прямоугольной формы. Дизайн туалета отличается оригинальностью.

2. Туалет в виде скворечника — более простой по конструкции нежели шалаш, однако требует больших материальных вложений для его возведения. Конструкция такого плана отличается меньшей устойчивостью перед ветром, плохо удерживает тепло внутри помещения. Однако, установив на крыше такого туалета бак, который нагревает воду от солнца, он приобретает большую стойкость и дополнительные функции.
3. Туалет в виде небольшого дома — уютное место для расслабления. Материальные затраты такие же как и для возведения скворечника, однако преимуществ больше. Помещение хорошо удерживает тепло, на стенах можно выполнить любой тип отделки, кабина довольно устойчива перед неблагоприятными воздействиями окружающей среды.
4. Также, некоторые умельцы сооружают туалет в виде избушки — для ее изготовления потребуется много материальных и физических усилий. Из-за того, что форма туалета имеет определенные грани, он отличается прочностью и стойкостью к любым видам нагрузок. В таком небольшом домике можно также установить раковину для мытья рук.

Технология возведения туалета с выгребной ямой
Самый популярный вариант туалета для дачи, устанавливаемого а улице — туалет, у которого имеется выгребная яма. Данный туалет достаточно простой и легкий в использовании. Так как отходы находятся в специально организованной яме, а затем выкачиваются из нее специализированным оборудованием или вручную. Возможен вариант консервации объекта, его засыпки землей и сооружение нового туалета. Это актуально в том случае, если участок имеет внушительные размеры. В противном случае, рекомендуется всего лишь очистить яму.
Строительство туалета на даче начинается с сооружения ямы. По глубина она должна составлять минимум 200 см. При этом, рекомендуется обустраивать яму квадратной формы, со сторонами по 100 см.
Для предотвращения осыпания почвы в процессе эксплуатации ямы, рекомендуем позаботиться об укреплении ее стен. Для этого потребуется произвести установку готовых колец, выполненных из железобетона. Для обеспечения герметичности дна ямы, используйте бетонную стяжку или засыпьте их слоем щебенки. При наличии угрозы в загрязнении подземных вод, то рекомендуется забетонировать стены и дно ямы, покрыв их специальными влагоотталкивающими составами. В таком случае, яма для дачного туалета прослужит вам не один десяток лет.
Дальнейшие работы связаны с изготовлением домика под туалет. Отвечая на вопрос из чего лучше строить туалет на даче, остановимся на дереве. Ведь данный материал кроме своей экологической безопасности обладает также доступной стоимостью и легко поддается обработке.

Также, для изготовления туалета используется профлист. Однако, он создает в помещении парниковый эффект, зимой он с легкостью отдает тепло и принимает холод, а летом удерживает тепло внутри.
Возможен вариант отделки туалета вагонкой или сайдингом. Данные материалы отличаются привлекательным внешним видом и особо актуальны в том случае, если и основное здание также отделано с их помощью. Остановимся все же на деревянном варианте туалета.
Для фиксации прямоугольного каркаса под туалет, необходимо обустроить по периметру ямы мелкозаглубленный ленточный фундамент или столбчатый вариант фундамента. Для обеспечения гидроизоляции, воспользуйтесь рубероидом. Строим туалет на даче своими руками пошагово:
1. Все деревянные детали перед работой, следует покрыть специальными защитными составами. Рекомендуется также произвести их окрашивание.
2. После обработки бруса, он соединяется в прямоугольную каркасную рамную систему. Сооруженная конструкция устанавливается на столбы фундамента, ранее выполненные из кирпичей.
3. Далее производится фиксация отдельно стоящих стоек, для этого используют стальные пластины и крепежи в виде болтов. С помощью обычного уровня контролируйте вертикальность расположения стоек.
4. Установите стойки, на которых будут располагаться двери. Зафиксируйте балки для установки кровли. Если крыша будет односкатной, то для ее сооружения необходимо обустроить небольшой уклон для нормального стека воды.

5. На выгребную яму установите сиденье в виде подиума. Для его сооружения воспользуйтесь брусом, который далее обшивается досками.
6. Для отделки крыши туалета чаще всего используется шифер, устанавливаемый на предварительно обустроенные перекладины, покрытые рубероидом.
7. Дальнейшие действия по обустройству туалета связаны с выполнением его внутренней и внешней обшивки.
8. Для этих целей можно использовать материалы в виде дерева, вагонки, сайдинга, профилированного листа и т.д.
9. Далее в туалет устанавливаются двери, обустраивается освещение. Для организации дневного освещения, достаточно вырезать небольшое окно в верхней части туалета.
Для того, чтобы в туалете не скапливался неприятный аромат, необходимо правильно организовать в нем вентиляционную систему. Для этого, потребуется наличие пластиковой трубы диаметром около десяти сантиметров. Для фиксации трубы на стене туалета используют хомуты из жести.
Одна часть трубы устанавливается во внутрь выгребной ямы, а вторая через крышу выходит наверх. При этом, труба выходит за плоскость крыши приблизительно на двадцать сантиметров, а в выгребную яму она заходит на пятнадцать сантиметров. Для того, чтобы улучшить вентиляционную систему, рекомендуется на трубу установить насадку в виде рефлектора.

Строим туалет на даче своими руками фото
Если построить туалет с выгребной ямой нельзя, то рекомендуется установить временный туалет, называемый пудрклозетом. Данный вариант туалета имеет определенные особенности, среди которых прежде всего — это отсутствие необходимости в сооружении выгребной ямы.
В замену ей внутри туалета устанавливается емкость, которая после ее заполнения вынимается и опорожняется за участком. Также внутри такого туалета устанавливают ящик с разного рода сыпучими материалами такими как торф, песок или опилки. После посещения туалета, ими покрывают отходы.
Кроме того, обязательный элемент данного туалета — правильно обустроенная вентиляционная система, которая должна выводить запах из помещения.
Каркас такого туалета также сооружается при помощи дерева, металла или вагонки. При этом, необходимо в обязательном порядке соорудить короб под сиденье и установить емкость для сыпучих материалов.
Данный вариант туалета подходит в качестве временного приспособления, далее рекомендуется всего все же заменить на туалет с выгребной ямой.

Строим туалет на даче: особенности оформления туалета
В процессе строительства туалета для дачи, особое внимание следует уделить его внешнему виду. Выбирая дерево в качестве основы для туалета, следует его правильно обработать.
Прежде всего, все детали должны быть покрыты защитными составами с антисептическим действием, предотвращающими гниение и порчу дерева. Далее можно покрыть туалет лаком или краской нужного цвета.
Возможен вариант сооружения туалета из блок хауса. Такое строение подойдет к дому из сруба. Для его внутренней отделки подойдет вагонка. Для создания комфортных условий в таком туалете, рекомендуем установить утеплитель.
Выбирая материалы для кровли, руководствуйтесь покрытием основного здания на дачном участке. Довольно привлекательно смотрится туалет, покрытый битумной черепицей или профнастилом.
Возможен вариант индивидуального исполнения готового сруба под заказ. Конечно, стоимость готовой кабины обойдется дороже, чем ее самостоятельное изготовление, зато удастся сэкономить уйму времени.
Если основное здание выполнено из кирпича, то и для изготовления туалета рекомендуем использовать этот же материал. Такая кабина напоминает полноценную комнату. Она отличается привлекательным внешним видом и солидностью.

Если вы желаете совместить доступную стоимость кабинки для туалета с длительным сроком ее эксплуатации, то рекомендуем обратить внимание на пластиковые варианты. Они не нуждаются в дополнительной отделке, легко и быстро как монтируются, так и демонтируются. Возможен вариант транспортировки такого туалета с одного места на другое.
Если после выполнения строительных работ у вас на участке остался ненужный камень, то соорудите туалет из него. Такое помещение отличается основательностью, прочностью, хорошо будет удерживать тепло даже зимой.
Для дополнительного декорирования туалета, установите на его стенах цветы в вазонах или обустройстве вблизи его небольшую клумбу. Внутри туалета можно поклеить остатки старых обоев или нарисовать рисунок. В общем, главное — включить фантазию и начать действовать, и тогда обычный туалет превратиться в настоящее произведение искусства.
Как строить туалет на даче видео:
strport.ru
Как построить туалет на даче своими руками: инструкция и обзор методов
Дача – это место, где человек отдыхает от городской суеты и надоевшего быта. Многие люди мечтают иметь такое место для отдыха. Получая дачный участок, не всегда есть возможность построить домик со всеми удобствами, поэтому его строительство порой откладывается на долгое время. Но обойтись без туалета на даче нельзя. Его можно легко построить своими руками.

Естественно, уборную на даче нельзя строить в любом понравившемся месте. Существуют определенные нормы по его установке.
Выбор места для стройки
При выборе места для строительства надо учитывать в первую очередь, где расположены источники водозабора. При этом учитываются и те, которые расположены непосредственно на участке, и находящиеся на соседнем участке. До всех источников расстояние должно быть более двадцати пяти метров.

Кроме того, если на участке есть жилой дом, то он должен находится на расстоянии не меньше пятнадцати метров. Туалет нельзя устанавливать ближе одного метра к границе участка. При выборе места следует учитывать также розу ветров, чтобы исключить распространение неприятных запахов.
Если на участке есть уклон, то туалет лучше устанавливать в низине, при этом он должен находится ниже уровня колодца. Выгребную яму нужно хорошо изолировать, чтобы избежать попадания ее содержимого в грунтовые воды, а затем в близлежащие водоемы. Если до грунтовых вод менее трех метров, то яму для нечистот копать нельзя. В этом случае придется устанавливать либо пудр-клозет, либо современный биотуалет.
Если в уборной будет выгребная яма, то надо продумать место его строительства так, чтобы было удобно подъезжать ассенизаторской машине.
Типы и разновидности
Туалеты для дачи отличаются тем, что для них не нужно проводить канализацию. Есть разные виды таких туалетов. Наиболее популярным вариантом является уборная с выгребной ямой.

Она состоит из самой ямы глубиной около 2 метров, в которой скапливаются нечистоты, и домика, установленного сверху. Отходы, которые скапливаются в яме, разлагаются естественным путем. Если яма заполняется быстрее, то ее очищают ручным способом либо откачивают специальной машиной.
Пудр-клозет обычно устанавливают при близком нахождении грунтовых вод, либо если на даче появляются редко и на короткое время. Нечистоты собираются в ведро или какую-нибудь емкость. После посещения туалета нечистоты присыпаются сухими торфом наподобие пудры, отсюда и его название.
Когда емкость заполнится, ее содержимое выливается в компостную яму. В последствии из этого получается хорошее удобрение.

Люфт-клозеты устанавливают в домах, они оборудованы герметичной ямой для нечистот. Их устанавливают в доме, располагая ближе к внешней стене. Очищают яму путем откачивания нечистот специальной техникой. Поэтому яму располагают вне дома, в месте удобном для очистки.
Существует еще варианты готовых туалетов. К ним относятся биотуалеты и химические туалеты. В городе уже привыкли к биотуалетам. В них находится емкость, в которой содержатся активные микроорганизмы, благодаря которым перерабатываются нечистоты.

Биотуалеты изготавливаются разных размеров и могут использоваться как на улице, так и в доме. Химические туалеты похожи на биотуалеты, и отличаются от них тем, что вместо активных микроорганизмов применяют химические вещества, поэтому нечистоты, скопившиеся в них, невозможно применять в качестве удобрения, в отличие от содержимого биотуалетов.
Существует еще вариант туалета, который можно устанавливать в доме – это торфяной туалет. Выглядит он как обыкновенный унитаз. В его бачке находится не вода, а насыпан сухой торф, а на месте канализационных труб находится емкость для сбора нечистот. Трубы вентиляции выведены на улицу, поэтому он может устанавливаться в доме.
Таким образом, остается выбрать подходящий вариант туалета и выяснить, как построить туалет на даче. Далее рассмотрим строительство некоторых туалетов.
Строительство с выгребной ямой
Построить туалет на даче с выгребной ямой своими руками довольно просто. Сначала следует выкопать яму глубиной около 1,5 – 2 м.
Обычно она имеет квадратную форму, размерами метр на метр.
Стены можно укрепить кирпичом, досками, бутовым камнем. Дно бетонируют или утрамбовывают щебнем. Стены должны быть водонепроницаемыми, поэтому их покрывают штукатуркой или проконопачивают. Можно яму сделать из бетонных колец или из старой бочки.
Материалы и инструменты
Туалетный домик на даче можно построить своими руками, используя самые дешевые материалы. Если строить деревянный домик, то понадобится трехметровый брус сечением 10х10 см, доски, расходные материалы в виде гвоздей и саморезов, покрытие для крыши, утеплитель, если необходимо утепление.
Из инструментов следует запастись:
- ножовкой;
- молотком;
- шруповертом;
- рулеткой;
- строительным уровнем;
- дрелью.
Монтаж туалетного домика
Прежде всего следует нарисовать чертеж будущего домика, чтобы было легче строить. Сначала из заготовленного бруса делается каркас следующих размеров: шириной 1 м, высотой 2,1 м, и длиной 1,5 м.

Четыре стойки из бруса утапливается в землю и бетонируется. Их вертикальность проверяется с помощью уровня. Они скрепляются болтами и металлическими пластинами. Высота передних стоек должна быть выше задних, чтобы крыша имела наклон для свободного стекания воды.

Далее устанавливаются дверные стойки, одновременно укладываются и балки для крыши. Над ямой строится каркас для будущего сиденья. Настил пола делается из крепких досок, чтобы они могли выдержать вес человека.
Крыша покрывается рубероидом, а сверху кладется лист шифера. Она может покрываться тем же материалом, что и другие строения на участке, чтобы гармонично смотреться в общей композиции.
Обшивается туалет досками, которые крепятся вертикально. Они должны плотно прилегать друг к другу. Так как крыша имеет наклон, доски вверху должны быть обрезаны так, чтобы плотно заходить под крышу.
Обшивку туалета можно делать любым другим подходящим материалом, с которым легче и быстрее работать, но, чаще всего, такие стены плохо дышат, поэтому в них менее комфортно, чем в туалете, который обшит деревом.
После того, как обшит туалет, сбивают дверь своими руками и навешивают ее на петли. На число устанавливаемых петель влияет массивность двери. Внутри следует установить защелку. Следует также позаботиться об освещении для темного времени суток. Для этого подводится своими руками электричество и вешается обыкновенная лампочка или простой светильник. Для дневного использования обычно делается небольшое окошко.
Несколько примеров деревянного домика для дачи:
Монтаж вентиляции
Чтобы устранить неприятные запахи из выгребной ямы сиденье следует оборудовать крышкой, которая будет плотно прикрываться, и выполнить вентиляцию своими руками. Для ее устройства потребуется пластиковая труба диаметром 10 см, которая прикрепляется к задней стене постройки с помощью хомутов.

Один конец трубы надо опустить в выгребную яму на 10 см, второй следует вывести наружу через крышу, он должен выступать на 20 см из крыши. Герметизируют места выхода трубы с помощью пакли и битумной мастики.
Рекомендуем видео-инструкцию:
Установка пудр-клозета
Этот туалет можно построить своими руками всего за день. Основным его отличием является отсутствие выгребной ямы. С одной стороны, это плюс, так как не надо рыть яму, но с другой стороны, приходится часто освобождать емкость с нечистотами.

Для устройства пудр-клозета своими руками надо приготовить две емкости: для нечистот и для сухого торфа. Сухой торф можно заменить золой или опилками. Затем на выбранном месте сооружается туалетный домик.
Так как отсутствует выгребная яма, то уборная может устанавливаться независимо от нахождения источников воды. Он должен быть сантиметров на 20-25 шире. Внутри сооружается стульчак с крышкой, под ним устанавливается емкость для нечистот.
Возле стульчака ставят короб с сухим торфом. После каждого пользования туалетом нечистоты присыпаются торфом. Когда емкость полностью наполнится, ее содержимое выносится в компостную яму. Вентиляция в пудр-клозете обустраивается аналогично, как и для уборной с выгребной ямой.
Установка люфт-клозета
Этот туалет что-то среднее между заводским септиком и выгребной ямой. Выгребная яма должна быть герметизирована и очищаться должна только с помощью специальной техники, например, ассенизаторской машины.

Главная особенность люфт-клозета в том, что часть туалета находится в стенах дома, а выгребная яма вынесена за его пределы. Яма выкладывается кирпичом или заливается бетоном, дно делается с наклоном к люку, чтобы было удобнее ее очищать. Изнутри яма обмазывается глиной толщиной 20-25 см. Объем ямы должен быть в расчете 500 кубических метров на одного человека.
Яма оборудуется люком с двумя крышками. Крышка из чугуна устанавливается вровень с землей, а из дерева над перекрытием. Пространство между крышками заполняется теплоизоляцией. В туалетах типа люфт-клозет обязательно делается вентиляция, чтобы неприятные запахи не попали в дом.
Если есть желание и небольшой строительный опыт, то туалет на даче можно построить своими руками. Это обойдется дешевле, чем покупка готового туалета.
Смотрите видео-подборку по монтажным работам:
strojkarkas.com
