Как самому сделать мангал с крышей – фото, чертежи и схемы, варианты конструкций

фото, чертежи и схемы, варианты конструкций
Мангал – всегда востребованное сооружение на дачном участке или во дворе загородного дома. Для большего комфорта, практичности он должен иметь крышу. Соорудить мангал можно своими руками, пошагово выполняя четкие инструкции. Облегчить работу помогут готовые схемы конструкций, фото и видеоуроки.
Определитесь с материалом
Классический вариант мангала очень прост по своей конструкции. Самый надежный вариант дачного мангала – это модель из железа или стали. Металлическая конструкция всегда более практичная и надежная по сравнению со стационарным мангалом из кирпича. Важно, чтобы для металлического поддона использовался прочный лист. Чем толще стальной или железный лист, тем дольше прослужит ваш мангал с крышей. Преимущества модели из металла:
- Очень проста в изготовлении. Вам даже не понадобится помощь – такой мангал может сделать самостоятельно один человек.
- Способность к мобильности. В теплые сезоны года конструкция может находиться на улице, а на зиму металлический мангал с крышей прячется в помещение. Например, в гараж.

- Термостойкость и пожаробезопасность. Железо или сталь – самые надежные и безопасные материалы.
- Недорого. Для обустройства мангала вы обойдетесь минимумом материала, инструментов и подручных средств.
- Внешний вид не портят дождь, снег, солнце, град.
Определитесь с моделью
В зависимости от особенностей конструкции кровли вы можете сделать мангал с крышей стационарный либо мобильный – его можно будет переносить. Также возможны разнообразные дополнительные элементы в конструкции, которые добавят и нового функционала.
Типы конструкций:
- Переносной металлический мангал с крышей. В этом случае выбирается компактный размер, а кровля предусматривается съемной. Чтобы легкая конструкция не слетела в порывах ветра, ее ножки нужно установить на длинные металлические уголки и прикрутить с помощью болтов.
- Конструкция на колесиках. Такой мангал с крышей напоминает тележку. Две ножки у него на металлических уголках-опорах, а другие две – в виде колес. Конструкцию легко можно передвигать на новые участки.
- Мангал с купольной или высокой крышей. Если ваш дизайн предусматривает громоздкую кровлю, то в нее в обязательном порядке устанавливается вытяжная трубка. Это важно! Дым не будет клубиться под кровлей, а сможет вытягиваться через трубу.

- Стационарный вариант. Это конструкция громоздкого и непереносного мангала. Его можно использовать круглый год. Такие мангалы встраиваются в уличные беседки. Здесь предусмотрены столик, посадочные места и ниша для складирования дров.
Совет! Постройка мангала в беседке – трудоемкое занятие. Проще сделать переносной мангал, который будет устанавливаться под небольшим навесом с крышей.
Необходимые инструменты и материалы:
- Сварочный аппарат.
- Каска, очки и жаростойкие строительные перчатки (для защиты).
- Дрель.
- Рулетка.
- Болгарка.
- Строительный уровень.
- 4 уголка из металла.
- Металлические листы толщиной в 5 мм.
- 2 или 4 профтрубы 40 на 40 мм.
- Черепица или шифер – купить по желанию (для декорирования кровли).
Совет! Если вы решили не оставлять крышу конструкции металлической, то листы можно декорировать черепицей. Например, под цвет кровли вашего дома. Не используйте поликарбонат! Этот материал пожароопасный.
Пошаговая инструкция изготовления жаровни
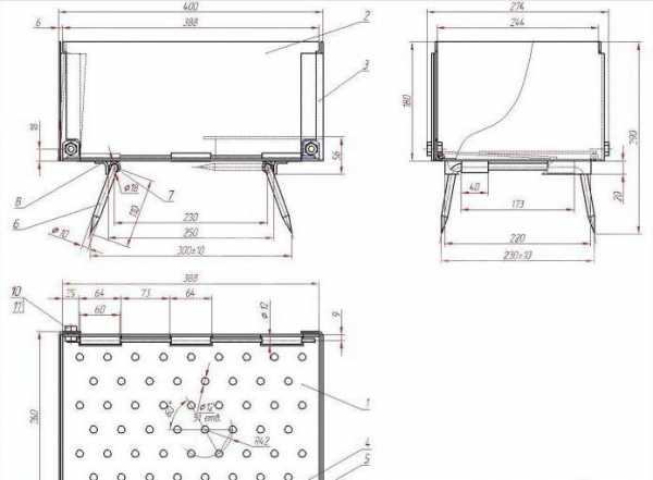
- Изготовление всегда нужно начинать с заготовки жаровни. Самые удачные размеры отсека для дров: по длине – от 40 до 50 см, по ширине – 25 см. Оптимальная высота жаровни – 20 см. Это стандартная разметка, которая позволяет хорошо держать жар внутри жаровни, но при этом шашлыки или гриль не сгорают. Если вы увеличиваете размеры отсека, то делайте это четко пропорционально.

- С помощью рулетки отметьте на стальных листах нужные величины. Соберите жаровню правильной прямоугольной формы и сварите с помощью сварочного аппарата.
- Теперь проделайте дрелью точные отверстия по длинной стороне жаровни на высоте 2 см. Дырочки должны быть симметричными друг другу. Расстояние между отверстиями – 7 см. Диаметр таких отверстий – 18-20 мм. Это дыры для вентиляции. Дрова будут тлеть, но при этом давать жар.
Пошаговая инструкция изготовления каркаса и крыши
- Приступите к сборке каркаса. Вам нужны 4 профильные трубы из металла. Они соответствуют количеству стоек. Если вам кажется такой мангал неудобным и он ограничивает ваши движения, то вертикально можно приварить не 4, а 2 трубы. Но для большей надежности внизу их нужно будет еще укрепить горизонтальными перегородками. На небольшом расстоянии друг от друга приварите 2-3 металлические рейки в промежутке от земли до основания жаровни.
- Теперь ножки профильных труб нужно укрепить металлическими углами. Это добавит стойкости.
- Когда сварочные работы по каркасу завершены, изготовьте крышу. Под ней делается основание в виде металлических прутьев. Они привариваются горизонтально или по диагоналям, чтобы надежно укрепить крышу. Максимально упрощенный вариант – это крыша без купола. Вам достаточно просто приварить ровный металлический козырек.
Совет! Делайте кованую кровлю с небольшими скатами, слегка наклоненную назад. Дождевая вода будет стекать только в одном направлении, не мешая приготовлению шашлыков.
Выше описанная схема позволит быстро и легко сделать простой вариант мангала для дачи. Если же у вас есть навыки ковки, то можете дополнительно украсить крышу и каркас витыми металлическими элементами. Под жаровней, над уровнем земли, можно предусмотреть и несколько металлических перекладин, на которые будет удобно складывать дрова. Также маленькие, но важные детали – это крючочки по периметру жаровни или каркас для фиксации прихваток, сетки для гриля, столовых приборов.

Данная конструкция не только не требует от вас особого умения, но и очень легка в уходе. Такой мангал можно легко переносить, разбирать или внедрять новые элементы.
Мангал своими руками: видео
dachadizain.ru
Мангалы для дачи с крышей: создание навеса своими руками
С приходом летнего сезона человеку трудно усидеть дома, особенно когда приближаются праздники. В это время он отправляется на дачу либо на открытую местность. Нужно согласиться, что никакое застолье, проводимое в этот промежуток времени, не обойдётся без традиционного блюда — шашлыка. Конечно же, природа не следует капризам человека, поэтому даже в летние праздники на улице может начаться дождь. В этой ситуации как нельзя лучше поможет мангал с крышей.
Мангал с навесом
Приготовить овощи, мясо, рыбу и другие вкусные блюда можно различными способами. Самым популярным считается — приготовление на мангале, оно помогает придать пище особенный запах и вкус.
Поездка за город на открытую местно чаще всего включает в себя установку переносного мангала небольшого размера. Но для использования в домашних условиях можно создать конструкцию более крупного размера, а именно мангал с крышей. Для создания такой конструкции можно использовать простой метал, а можно и другие материалы.
Мангалы для дачи с крышей, конечно же, считаются бесспорными лидерами среди других конструкций, которые созданы для приготовления шашлыка. Кроме привлекательного вида, они также считаются более практичными и удобными. Очень часто при производстве дополнительно применяют элементы отделки и ковки.
Конечно, простой мангал под крышей дома, чтобы защитить пищу от попадания влаги. Но такой вариант считается пожароопасным, и не во всех случаях кровля выступает настолько, чтобы послужить навесом.
Главным и наиболее весомым достоинствам мангала с дополнительной крышей — защита кулинара, а также продуктов питания при готовке от природных осадков и палящих солнечных лучей. При этом жарить шашлык на таком устройстве можно будет круглый год, несмотря на погоду.
Несмотря на весомые достоинства устройства, такие мангалы также обладают и своими недостатками:
- высокая цена, особенно в том случае, когда имеются дополнительные элементы ковки;
- такая конструкция считается совсем немобильной, поэтому взять её вместе с собой на природу будет невозможно. Основательный мангал в некоторых случаях сложно сдвинуть с места даже у дома.
Основные виды мангала с крышей
Выбор готового устройства с навесом не будет ограничиваться простой конструкцией. Есть множество видов мангала, среди которых можно будет выбрать именно тот, что будет максимально подходить к:
- предъявляемым требованиям с точки зрения использования и эстетичного вида;
- финансовым возможностям человека;
- вкусовым предпочтениям.
Существует множество моделей мангалов с навесом. Главными разновидностями устройств считаются:
- мангал-барбекю;
- с казаном;
- мангал-беседка;
- с печкой;
- с дополнительным столом.
Каждый описанный вид обладает своими характеристиками использования и выполняет особые функции при готовке. Приготовление продуктов в такой конструкции становится настоящим удовольствием
.Крыша может быть создана таким образом, чтобы весь дым, который поднимается вверх, выходил через своеобразную вытяжку. Хотя во многих случаях кровля создаётся покатого типа. Такая конструкция помогает осадкам не застаиваться, а дополнительно установленные желобки и сетка создают полноценный отвод лишней воды.
Создание своими руками
Многие предпочитают создавать мангал с крышей своими руками. В этом случае можно создать действительно хорошую модель, аналоги которой найти будет невозможно. Если вы обладаете определёнными строительными навыками, то создать такую конструкцию будет нетрудно.
Составлять чертёж конструкции в этом случае лучше всего будет профессионалам. Которые смогут с точностью определить все параметры устройства и учесть все требования хозяина. Это исключит возможность переделывания изделия в будущем
Постоянное расположение любого устройство будет предполагать создание крепкого фундамента. Мангал с крышей в этом случае не будет исключением. Ножки лучше всего будет глубоко погрузить в основание —это поможет придать особую надёжность и фиксацию конструкции.
Аккуратность проведения работ по сварке повлияет на качество и внешний вид готового изделия. Все швы нужно хорошо зачистить специальным препаратом, который не даст возникнуть коррозии.
При использовании мангала пользователь может выявить некоторые недочёты расчётов, которые можно легко исправить. Чтобы не допустить поломки устройства, в процессе создания конструкции следует использовать метал только лучшего качества, на котором не будет никаких дефектов.
Толщина металлического листа окажет влияние на время использования готовой конструкции. Такой металл при периодическом воздействии огня и перепадах температуры также может сильно ухудшить свои характеристики.
В самом мангале нужно обязательно создать отверстия определённого размера. Они помогут создать определённую тягу при горении дров. Помимо этого, можно сделать специальные прорези для создания более надёжного крепления шампуров при жарке пищи.
Следуя заранее нанесённой разметке, на металле нужно вырезать фрагмент будущей конструкции. При этом с каждой стороны нужно оставить по 3−4 дополнительных сантиметров стыков. С помощью специальных болтов сварочного устройства происходит сборка мангала с креплением главных частей друг к другу.
По окончании сборки можно начать крепление крыши на мангал, что предполагает применение дополнительных прутов и уголков для создания надёжного каркаса. Высота стоек будет определена индивидуально в зависимости от выбранного варианта конструкции. Наилучшей альтернативой простому мангалу станет устройство с монтированной крышей.
Строение крыши
Так как крыша будет устанавливаться на не совсем простом объекте, то ей придётся выдерживать особую нагрузку, например, высокие температуры либо обволакивание дыма.
Мангал, как главный атрибут для комфортного отдыха за городом, существует почти у каждого дачника. Он может покупаться по случаю либо создаваться по вдохновению. В любом из этих случаев вам останется лишь немного улучшить устройство, создав на нём надёжную крышу.
Для установки такого устройства лучше всего использовать лишь прочные материалы. Жар, идущий снизу, будет провоцировать процесс образования своеобразного конденсата сверху, поэтому приоритет нужно отдавать материала, которые будут обладать следующими качествами:
- влагостойкость;
- жаростойкость.
Лучше всего реагирует на перепады температуры и повышенную влажность профнастил. У листа из металла такого класса есть особое полимерное покрытие, которое не даёт ему ржаветь и добавляет особой красоты. Вы сможете найти профнастил именно в том цвете, который будет хорошо смотреться с общей стилистикой участка.
Опорный каркас для такой крыши можно создать, сварив металлический профиль и трубы. Хорошая крыша получится из:
- металлочерепицы;
- шифера;
- керамочерепицы.
Сотовой карбонат же для этого использовать не стоит. От воздействия высокой температуры он может просто загореться.
Какого размера создать крышу для мангала — решать только вам. Сам показатель будет зависеть от того, какие именно задачи на неё нужно возложить. В любом случае крыша должна превышать общую площадь оборудования. Только так она сможет полностью защитить угли, а также пищу от воздействия дождя и ветра. Лучше всего будет выбирать материал с некоторым запасом.
Какой именно использовать материал — можно рассчитать по специальному рабочему чертежу, если. Без создания плана все деньги могут быть потрачены просто так. Хотя на самом дачном участке всегда найдётся применение даже самым маленьким обрезкам современных кровельных материалов.
Если говорить о формах крыш над мангалом, то они могут быть самыми разными:
- односкатный;
- полукруглый;
- арочного вида;
- двускатный.
Каждый представленный вариант будет хорош в использовании по-своему. Крыша может создаваться капитальной либо облегочной, с трубой или же без неё. К созданию трубы стоит присмотреться тщательнее. Труба, находящаяся над жаровней, поможет улучшить качество тяги и защитит от слишком едкого дыма. Он не будет воздействовать на глаза готовящего пищу, и гостей, которые сидят поблизости. На создание пирамидального типа дымосборника хватит всего двух метров широкой трубы.
Решая, какую именно форму крыши выбрать, нужно помнить, что она должна хорошо смотреться в архитектурном строении самого участка. Особо важным этот факт становится для стационарных конструкций, которые будут находиться во дворе круглый год.
Как установить конструкцию
При особом желании можно создать стационарную конструкцию, не перемещая её по участку. Это является важным фактом, так как пространство возле мангала можно хорошо украсить, создав для этого неповторимый экстерьер, а именно:
- установить рядом с мангалом уютную беседку;
- выложить своеобразную дорожку из камней, кирпича либо плитки;
- установить дополнительные лавки для отдыха;
- посадить цветы и кустарники на некотором расстоянии.
В зависимости от того, какого размера будет установленное устройство, определяется участок его постоянного расположения. В непосредственной близости с самим домом такую конструкцию устанавливать не стоит. Дым при готовке может проникать в жилое помещение.
При определении с местом размещения мангала для готовки нужно помнить о том, что сырые продукты и уже готовую пищу переносить на дальние расстояния не следует. Запах от рыбы и мяса может выветриться ещё при переносе блюда на стол.
Мангал с крышей также должен обладать дворницей, где будут находиться запасы дровишек. Помимо этого, в такой конструкции есть все нужные полки, на которые можно поставить не только мясо, но и кухонную посуду и другую утварь, необходимую в приготовлении блюда. Сам мангал будет эксплуатироваться годами и не даст конструкции покрываться ржавчиной ранее установленного срока.
Как выбрать конструкцию
Есть несколько критериев, которые нужно в обязательном порядке учитывать при выборе устройства. При создании конструкции нужно учесть:
Количество человек. Если в вашей семье присутствует от двух до трёх человек, то подойдёт самая простая конструкция (может, даже портативная).- Вес. Если мангал планируется переносить с одного места на другое, то чем он будет меньше весить, тем лучше для пользователя. Если же он будет находиться на одном месте, то это может быть и довольно тяжёлое изделие, которое будет обладать сразу несколькими надёжными точками опоры. Так с ним будет намного проще работать.
- Вид прибора. Если вам важен такой фактор в устройстве, то лучше всего будет воспользоваться кованными мангалами, так как в этом случае ковка— это главный фактор.
Если же говорить о других критериях, то они будут не такими важными, так как не будут играть особой роли в конструкции и её использовании. Хотя выбирать предстоит самому пользователю, поэтому решать будут ли в конструкции дополнительные детали — только ему.
Установка ножек
Мангал, сделанный своими руками, хорош своей оптимальной высотой. При создании к жаровне можно будет прикрепить ножки совершенно любой высоты. При готовке с такими параметрами вам не придётся согинаться либо переворачивать шампуры присев на корточки. Определить оптимальную высоту ножек можно с помощью теста. Для этого берётся рулетка, одной ногой заступают на начало ленты, а после становятся прямо и сгибают руки в локтях почти под прямым углом. Такой показатель нужно зафиксировать.
От полученного показателя нужно и выбирать высоту жаровни, с помощью него вы получите нужную длину ножек. Установка лёгкого навеса на мобильном мангале будет лучшим вариантом. Такой навес хорошо защитит от воздействия внешней среды и не даст скапливаться едкому дыму поблизости с мангалом. У крыши навесного типа можно будет изменять угол наклона, а также регулировать общую высоту.
sotka.guru
чертежи и схемы для изготовления
Приготовить мясо, рыбу, овощи и много других вкусных блюд можно самыми разными методами. Один из популярных способов — это жарка продуктов на мангале, что придает блюду неповторимый вкус и аромат.
Поездка за город на природу обычно предполагает сооружение переносного мангала незначительных габаритов. Однако для пользования в домашних условиях можно сделать более основательную конструкцию, а именно мангал с крышей. Для изготовления подобной композиции используют обычно металл. Хотя возможны и вариации.

Классический вариант мангала с крышей и полочкой под дрова
Мангалы для дачи с крышей, несомненно, являются лидерами среди конструкций, предназначенных для жарки шашлыка. Помимо визуальной привлекательности они намного удобнее и практичнее аналогов. Нередко в процессе производства используют элементы ковки.

Элементы ковки придают конструкции особый шарм и неповторимость
Основные преимущества
Конечно же, можно расположить мангал под крышей ближайшего строения. Однако такой вариант пожароопасен, да и не всегда кровля настолько выступает, чтобы стать своеобразным навесом. Рекомендуем посмотреть проекты беседок с мангалом на нашем сайте.
Основным и достаточно весомым преимуществом мангала с крышей является защита кулинара и продуктов питания в процессе приготовления от природных осадков и палящего солнца. Жарить шашлык можно практически круглый год, невзирая на погоду.
Недостатки
Несмотря на имеющиеся преимущества, дачные мангалы с крышей имеют все же и ряд недостатков:
- высокая стоимость, особенно, если присутствуют элементы ковки;
- подобная конструкция совершенно немобильна. Взять ее с собой, например, в лес, просто нереально. Основательный мангал порой трудно сдвинуть с места даже дома.
Разновидности мангалов с крышей
Выбор готовых мангалов с крышей не ограничивается простейшей конструкцией. Существует огромное множество вариантов, среди которых можно подобрать именно ту модель, которая максимально будет соответствовать:
- предъявляемым требованиям с точки зрения эстетики и эксплуатации;
- вкусовым предпочтениям домочадцев;
- финансовым возможностям.
Советуем подробнее прочитать про выбор мангала из чугуна в дополнение к данной статье.
Выделяют следующие основные виды стационарных мангалов с крышей:
- мангал-барбекю;

Композиция мангала-барбекю
- мангал-беседка;

Беседка с встроенным мангалом позволит не только готовить, но и кушать шашлык сразу же с огня

Казан в комплекте с мангалом позволит приготовить не только шашлык, но и плов

Стол, расположенный вблизи с мангалом, предоставляет больше пространства для творения шедевров кулинарии

Печка и мангал — прекрасный дует
Каждый из перечисленных вариантов имеет свои эксплуатационные характеристики и выполняет особенную роль. Приготовление пищи в таких конструкциях становится неким праздником не только для души, но и тела.
Крыша может быть сконструирована таким образом, чтобы весь дым, подымаясь вверх, выходил через своеобразную вытяжку. Хотя в большинстве случаев кровля сооружается покатой. Это позволяет осадкам не застаиваться, а дополнительный монтаж желобков и стека обеспечит полноценный отвод воды.
Читатели считают данные материалы полезными:
- Изготовление чудо-печки для отопления своими руками: особенности работы печи из баллона
- Назначение муфельных печей: видео и фото-способ самостоятельного изготовления
Установка конструкции
При желании можно установить стационарную конструкцию, не перемещая ее по земельному участку. Это немаловажный фактор, поскольку пространство вокруг мангала можно облагородить, создав неповторимый экстерьер, а именно:
- выложить дорожку камнем, плиткой, кирпичом;
- возвести неподалеку беседку;
- установить лавки для отдыха;
- высадить кустарники и цветы на определенном расстоянии и т.п.

Оригинальный мангал с крышей способен украсить любую усадьбу
В зависимости от того, какие габаритные размеры будет иметь мангал с крышей, определяется место его постоянной дислокации. В непосредственной близости с домом конструкцию устанавливать не желательно. Ведь дым может проникать в жилое помещение.
Совет: При определении местоположения мангала не стоит забывать о том, что сырые продукты и уже готовые яства носить слишком далеко нежелательно. Сказочный аромат мяса или рыбы, жаренной на углях, может попросту выветриться еще по пути следования блюда к столу.
Мангал с крышей также должен быть с дровницей, где будет храниться запас дровишек. Более того, такие конструкции оснащены всевозможными полочками, где можно расположить не только мясо, но и кухонную утварь, и многое другое, что может понадобиться в процессе приготовления кулинарного шедевра. Сам мангал будет способен служить долгие годы, поскольку крыша не позволит конструкции преждевременно покрыться ржавчиной.
Самостоятельное изготовление
Многие предпочитают изготовить мангал с крышей своими руками. В этом случае предоставляется возможность создать действительно уникальную конструкцию, аналоги которой трудно будет отыскать. Если имеются определенные конструкторские способности, то воплощение в жизнь задумки не доставит особых проблем и хлопот.
Совет: Лучше составление чертежа доверить профессионалам, которые с точностью до миллиметра просчитают все необходимые параметры с учетом пожеланий хозяев. Это исключит вероятность переделывания конструкции в будущем.

Схематическое изображение классического мангала с крышей
Постоянное расположение любого сооружения предполагает обустройство фундамента. Исключением не является и мангал с крышей. Ножки желательно максимально глубоко погрузить в основание, что обеспечит надежность фиксации конструкции.
Важно знать: Аккуратность выполнения сварочных работ влияет на качество и привлекательность готовой конструкции. Все швы следует зачистить и покрыть специальными средствами, которые предотвратят образование коррозии.
В процессе эксплуатации мангала могут быть обнаружены недочеты расчетов, которые вполне исправимы. Чтобы не допускать поломки конструкции, в процессе изготовления нужно применять металл самого лучшего качества, без каких-либо дефектов.
Видео: обзор самодельного мангала с крышей
Толщина металлического листа оказывает непосредственное влияние на долговечность эксплуатации готовой конструкции. Ведь металл при периодическом воздействии огня и повышенных температур также имеет свойство ухудшать свои характеристики.
В самом мангале в обязательном порядке нужно проделать отверстия определенного размера. Они способствуют созданию тяги в процессе горения дров. Кроме того, можно сделать специальные прорези для создания надежной фиксации шампуров при жарке продуктов.

Детальная схема сборки металлического мангала своими руками
Согласно нанесенной разметке на металле вырезается заготовка каждого фрагмента будущей конструкции. При этом с каждой из сторон оставляется дополнительные 3-4 см для стыков. С помощью болтов либо же сварочного аппарата осуществляется сборка мангала с крепежом основных частей друг к другу.
После сборки мангала можно приступать к монтажу крыши над ним, что предполагает использование дополнительных уголков и прутов для сооружения каркаса кровли. Высота стоек определяется индивидуально, подбирая оптимальный вариант для конкретной конструкции.

Вариации кровли при изготовлении мангала могут быть следующие:
- полукруглые;
- двухскатные;
- облегченные;
- массивные;
- с трубой;
- без вытяжки и т.д.
Прекрасной альтернативой выступает мангал с крышкой. В отличие от варианта, описанного выше, данная конструкция также имеет ряд неоспоримых преимуществ. Однако об этом поговорим в другой раз.
kamin-maker.ru
Создаем мангал с крышей своими руками для дачи: чертежи и фото
Уберечь шашлык от дождя может мангал с крышей. Он может быть как металлическим, так и кирпичным. Правда, второй вариант мангала не слишком нуждается в крыше, ведь его строение таково, что камера для приготовления шашлыка защищена от дождя. Однако, все равно есть смысл размещать его под крышей, ведь повар также нуждается в защите от дождя.
Строение металлической конструкции
Создание металлического мангала под крышей является более простым, чем строительство кирпичной печки с мангалом, коптильней, а также панелью для казана. Ведь не нужно делать очень сложную конструкцию. А она должна состоять из:
- Каркаса.
- Самого мангала.
- Крыши.
- Дополнительных столиков.
Особенности (размеры, вид) этих элементов зависят от конкретной модели. А таких моделей много. Радует то, что есть большое количество фото и чертежей. В итоге, людям, которые хотят самостоятельно сделать профессиональный крытый металлический мангал, нужно заняться поисками и выбором самого подходящего чертежа. Выбранный чертеж позволит определить потребность в материалах.
Инструменты, материалы
Чтобы самостоятельно сделать стационарную конструкцию из металла, нужно взять следующие инструменты:
- Сварку.
- Болгарку.
- Уровень.
- Рулетку.
- Дрель.
В зависимости от особенностей конструкции, могут быть востребованы и другие инструменты, например, ножовка (на случай, если будет делаться своими руками деревянный столик).
Что касается материалов, то нужно запастись:
- Профильной трубой (размеры 40х40 мм.) или уголками.
- Кровельным железом (толщиной 4 мм. и более).
- Досками.
- Материалом для крыши.
Стоит сказать, что профильная труба позволяет создать наиболее простой в плане красоты мангал с крышей. Из нее будут сделаны стойки, полочка для дров, основание для закрепления крыши и жаровни. Эстетам стоит заменить трубу коваными прутьями. Они позволят создать более красивый каркас. Также можно докупить декоративные кованые изделия и приварить их к каркасу своими руками. Как видно, человек, который воплощает в жизнь увиденную на разных фото идею, имеет большой шанс реализовать свою фантазию.
Из кровельного железа будет создаваться жаровня.
Очень большое значение имеет правильный материал для крыши. Поскольку крыша будет находиться над мангалом, то ей придется «терпеть» дым, а также большую температуру. Большая температура снизу будет вызывать появление конденсата сверху. Из-за этого кровельный материал для мангалов с крышкой или без нее должен обладать такими качествами, как:
- устойчивость к огню и жаре;
- устойчивость к коррозии;
- устойчивость к перепадам уровня влажности и температуры.
Лучше таким требованиям соответствует профнастил с покрытием, защищающим его от коррозии. Красоту этого материала часто изображают на фото.
Также могут подойти металлочерепица, керамическая черепица, а также шифер. Над металлическим мангалом не стоит делать навес из поликарбоната. Этот материал не любит повышенных температур. Кроме этого, он имеет способность к возгоранию. Если и делать навес из поликарбоната, то только в случае создания кирпичной печки с мангалом и коптильней.
Создаем жаровню
Все работы начинаются с изготовления жаровни. Хотя ее размеры могут быть указаны в чертеже, не лишним будет напоминание оптимальных величин. Практика показала, что на шампур с 6-8 кусками мяса достаточно ширины 22-25 см. Также может подойти 26 см. При этом между кусками остается место для колец лука. Что касается длины, то ее можно делать любой. При этом соблюдают правило: 80-120 мм на порцию (шампур).
Что касается высоты жаровни, то она должна равняться 180-200 мм. При этом следует делать вырезы в боковых стенках. Глубина вырезов – 50 мм. Это необходимо для соблюдения оптимального пространства между углями и шашлыком. А оно зависит от вида топлива. К примеру, между древесным углем и шашлыками должно быть 30-70 мм. Изменять высоту размещения шампуров можно, вставляя в прорези палочки. Реализацию этой хитрости часто изображают на видео.
Придерживаясь этих нюансов, сваривают своими руками профессиональную жаровню. Перед этим огнестойкий кровельный металл разрезают на пластины. В дне жаровни делают своими руками дырочки диаметром 10-15 мм. Их размещают в шахматном порядке. Они нужны для притока воздуха к очагу.
Каркас и крыша
Каркас должен состоять из 4-6 вертикальных стоек, которые соединяются горизонтальными перегородками. Эти перегородки должны быть в трех местах: внизу, на уровне жаровни и вверху. При этом в передней части конструкции такие перегородки не делают. Исключение – перегородка под самой крышей. Средние боковые перегородки служат опорами для труб, на которые будет поставлена жаровня. Также на этих трубах можно сделать своими руками боковые столики. Они очень удобны, ведь можно ставить на них казан. Они бывают разные и, конечно, есть много их фото в Интернете.
Часто вертикальные стойки размещают по углам жаровни. Это не совсем хорошо, поскольку устойчивость конструкции с крышей становится плохой. Лучше сделать вертикальные опоры на углах крыши. В таком случае мангал с крышей будет стоять надежно. Он не перекинется от ветра.
Размеры крыши должны быть большими по сравнению с размерами жаровни. Чем они больше, тем лучше, ведь крыша должна защищать не только мясо, но и человека, который готовит его. Хорошо, если между краем мангала и крышей будет расстояние большее 50 см.
Некоторые хозяева также делают своими руками мангал со съемной крышей. Идея хорошая, но требует дополнительных усилий для снятия или монтажа крыши. Ситуацию может спасти профессиональный механизм. Его часто изображают на фото.
Дополнительные элементы
Целесообразно делать своими руками мангал с крышкой. Это улучшит защиту очага или шашлыка от бокового дождя. Также не лишней будет организация вытяжки и дымохода над мангалом с крышей и столом. Благодаря этому дым от огня не будет распространяться вокруг жаровни, а будет выведен подальше от профессионального повара и отдыхающих.
Если решено установить своими руками вытяжной колпак, то используют такой, высота которого равна 0,8 м. Эта величина является расстоянием от низа колпака до начала дымохода. По ширине и длине колпак должен быть на 0,6-1 метр больше, чем эти же параметры металлической коробки для очага. Такая особенность часто указывается на фото различных чертежей. Стоит позаботиться о том, чтобы можно было регулировать высоту вытяжки.
Также к каркасу можно приварить любые декоративные кованые изделия. Некоторые из них могут стать крючком для вспомогательных инструментов, например, лопатки для пепла. В результате получится очень удобный профессиональный мангал дачный с крышей МД 5.
Создаем кирпичную конструкцию
Строительство кирпичного мангала под крышей начинается с выбора места, на котором будет находиться конструкция и беседка, накрытая поликарбонатом. После проводится планирование размеров мангала из кирпича. Для этого стоит посмотреть различные фото и порядовки. Это позволит выбрать наиболее подходящий вариант. Хочется добавить, что в случае возведения кирпичных мангалов под крышей из поликарбоната, стоит делать такую печь, которая будет иметь коптильню и варочную панель для казана. В казане можно будет сварить много разных блюд.
Строительство мангала из кирпича начинается с заливки фундамента. Глубина бетонной стяжки должна соответствовать конструкции. Здесь есть правило: на каждый ряд кирпича должна быть стяжка в 1,5 см. То есть, если будет 26 рядов, то толщина размещенного в земле бетонного основания должна составлять 39 см. Этот фундамент должен быть длиннее и шире на 10 см., чем длина печи. Такую особенность обозначают на разных фото.
Для заливки фундамента роют котлован, засыпают на дно 7-10-сантиметровый слой песка и ставят арматурную сетку. Между ней и песком должно быть пространство. Далее своими руками заливают цементную смесь, ждут ее высыхания и стелют рубероид.
Отдельную бетонную стяжку нужно залить для беседки, которая будет накрыта поликарбонатом.
Особенности кладки
Сначала строят печь из кирпича, а затем беседку, которую накроют поликарбонатом. Печь с панелью для казана возводят так, как предусматривает выбранная порядовка. При этом важно соблюдать определённые правила.
Так, для строительства конструкции с коптильней, мангалом и топкой для казана используют глиняно-песчаный раствор. Гипсовые и цементные смеси не подходят. Жирность раствора должна быть нормальной. Для проверки этой характеристики мастерок нужно окунуть в смесь и вытянуть. Если на нем остался ровный 2-3-сантиметровый слой, то жирность нормальная. Более толстый слой говорит о чрезмерной жирности. Снижают ее добавлением песка или воды.
Швы между кирпичами стоит делать 3-4-миллиметровыми. Исключение составляет шов между шамотным и простым кирпичом. Его толщина должна равняться 6-13 мм. Ту часть печи, которая находится под мангалом, можно делать из пустотелого кирпича. Для остальной части конструкции с местом для казана используют цельный кирпич. При этом топку под казан и камеру-мангал, в которой будет очаг, обкладывают шамотным кирпичом.

Когда печь с мангалом и коптильней завершена, приступают к строительству беседки. Работы выполняют согласно выбранному чертежу. Столбы беседки можно сделать из кирпича, труб или дерева. В качестве кровельного материала можно выбрать поликарбонат с толщиной 26 мм. или любой другой материал. После создания крыши из поликарбоната проводят декоративные работы: выкладывают плиткой пол беседки и отделывают печь.
poluchi-teplo.ru
Как сделать мангал с крышей своими руками
В тёплое время года так хочется отдохнуть на свежем воздухе. Это желание еще больше укрепляется в праздники, когда огромное количество горожан устремляется на природу. А если у вас есть дача, то можно отдохнуть и на ее территории. Самым традиционным блюдом застолий в этот период становятся шашлыки. Но природные явления не подчиняются законам человека.
Иногда и на праздники идут дожди. Однако если на сердце солнечно, то дождь не станет помехой. Для того чтобы праздник не был испорчен, необходимо всё заранее продумать и сделать мангал с крышей своими руками. Если у вас на участке есть такая конструкция, то никакой праздник не будет испорчен, а мясо с румяной корочкой непременно украсит ваш стол.
Выбор материала для крыши

Если вы хотите сделать мангал, оснастив его крышей или навесом, то лучше для этого использовать листовое железо. Важно обратить особое внимание на свойства материала, который должен быть огнеупорным и жаростойким, не реагировать на уровни влажности и перепады температур, а также не бояться коррозии.
Обычно для навесов используется профнастил, который представляет собой лист металла с особым полимерным покрытием. Оно не позволяет полотну ржаветь и делает его эстетически привлекательным. Посетив магазин, вы сможете выбрать профнастил по цвету, который будет соответствовать общему стилю участка. А вот каркас можно изготовить из металлического профиля или труб, которые соединяются между собой сваркой.
Для крыши иногда используется и шифер, керамическая или металлочерепица. А вот от использования сотового поликарбоната лучше отказаться, так как он не подходит для этих целей. Под воздействием высоких температур он может изменить свои линейные размеры и даже загореться.
Если навес вы устанавливаете для защиты продуктов и угля от внешних факторов, то крыша должна быть длиннее и шире мангала. Конструкция с углями должна быть закрыта, поэтому материал следует приобретать с запасом. Изготавливая мангал с крышей своими руками, вы можете сделать последнюю полукруглой, ведь такая конструкция смотрится очень привлекательно. Арка выполняется таким образом, чтобы вода не задерживалась на ее поверхности, а стекала по сторонам вниз. Кроме того, вода не будет попадать в жаровню.
Вообще, крыше вы можете придать такую форму, которая вам нравится, иногда такие конструкции делаются одно- или двускатными, капитальными или легкими, полукруглыми и даже с выводом трубы. Дополняя конструкцию вытяжной трубой, вы получаете мангал, который будет защищен от непогоды и получит отличную тягу. Кроме того, такой подход исключает задымление места, где будет готовиться мясо.
Какую основу выбрать

Дачный мангал можно выполнить из 35-см трубы, которая станет основой. В качестве преимущества толстого металла выступает то, что через несколько лет активной эксплуатации он не потеряет своих характеристик, не проржавеет и не деформируется. Длина изделия будет зависеть от того, какой объем пищи вы планируете готовить. В качестве примера можно рассмотреть 95-см конструкцию.
Выполнение крышки мангала

Изготавливая мангал с крышей своими руками, вы должны будете изготовить крышку. Она необходима для экономии углей, ведь после завершения готовки их приходится заливать водой или оставлять догорать дотла. А ведь угли могут еще пригодиться. Крышка закрывается для поддува той части мангала, которая располагается сбоку. Это позволяет прекратить доступ кислорода к месту горения. Угли при этом не догорают до конца, потому ими можно будет еще пользоваться.
Вы можете оставить небольшую щель, чтобы угли тлели, но не гасли. Это требуется в том случае, если приготовление прерывается на некоторое время. При изготовлении мангала с крышей своими руками вы можете вырезать крышку с помощью углошлифовальной машины. Укрепляют крышку к основной части с помощью дверных петель. Открывать ее вы сможете с помощью ручки, поэтому хорошо предусмотреть ее наличие. Это может быть даже дверная ручка.
Изготовление ножек

Конструкция мангала может иметь ножки такой длины, которая будет удобна для повара. Человеку должно быть комфортно пользоваться жаровней, не сидя на корточках и не нагибаясь при этом, а также не задирая руки вверх. Если вы согнете их под прямым углом, то станет понятно, какую высоту необходимо придать ножкам.
Подготовка инструментов и материалов

Мангал с крышей своими руками, чертежи которого представлены в статье, изготавливается с использованием определенного набора инструментов, среди них следует выделить:
- сварочный аппарат;
- уровень;
- дрель;
- болгарку;
- рулетку.
В зависимости от того, какими особенностями будет обладать конструкция, могут понадобиться дополнительные инструменты, например, ножовка. Это верно в том случае, если вы планируете делать деревянный столик. Что касается материалов, то вам необходимо запастись:
- профильной трубой;
- досками;
- кровельным железом;
- материалом для крыши.
Профильную трубу следует выбирать с учетом того, что изделие должно иметь квадратное сечение со стороной в 40 мм. Заменить трубу можно уголком. Кровельное железо должно обладать толщиной в 4 мм и больше. Профильная труба позволит создать простой мангал с крышей. Она будет использоваться для полочки под дрова, а также стойки и основания, последнее служит для фиксации жаровни и крыши.
Если вы хотите сделать мангал более эстетически привлекательным, то дополнительно можно приобрести кованые изделия, которые привариваются к каркасу. Огромное значение имеет еще и материал для крыши. Так как она будет находиться над мангалом, а снизу покрытие станет подвергаться влиянию конденсата, то материал должен быть долговечным.
Создание жаровни

Если вы затеяли изготовление мангала с крышей из металла своими руками, то должны будете выполнить жаровню. Ее размеры указываются в чертеже, но лучше воспользоваться оптимальными величинами. Как показывает практика, для шампура с восемью кусками мяса достаточно ширины в пределах 25 см. Но вы можете увеличить это значение при необходимости. Между кусками будет оставаться пространство для колец лука. Что касается длины, то она может быть любой, но на порцию шампур следует брать в расчет предел от 80 до 120 мм. А высота жаровни обычно равна 180 мм. Это значение можно увеличить до 200 мм.
В боковых стенках проделываются вырезы, глубина которых должна составить 50 мм. Это условие объясняется необходимостью соблюдения оптимального пространства между шашлыком и углями. Оно будет зависеть от вида топлива. Например, между шашлыками и древесным углем следует выдержать расстояние в 70 мм. Высота размещения шампуров может изменяться методом установки палочек в прорези.
С помощью сварочного аппарата вы сможете соединить заготовки жаровни с вышеупомянутыми размерами. В качестве основы выступает кровельный огнестойкий материал, который предварительно раскраивается на пластины. На дне жаровни нужно проделать отверстия, диаметр которых составит от 10 до 15 мм. Расположить их необходимо в шахматном порядке, они нужны для притока воздуха к очагу.
Изготовление крыши и каркаса

Выполняя железный мангал с крышей своими руками, на следующем этапе вы можете приступать к изготовлению каркаса, который будет иметь в составе от 4 до 6 стоек, ориентированных вертикально. Они соединяются между собой горизонтальными перекладинами, которые располагаются в трёх местах:
- сверху;
- снизу;
- на уровне жаровни.
В передней части конструкции перегородки не нужны, в качестве исключения выступают перегородки под крышей. Боковые и средние горизонтальные элементы выполняют роль опор для труб, на которые устанавливается жаровня. На этих трубах могут быть выполнены боковые столики, которые очень удобны для установки казана.
Вертикальные стойки могут быть расположены по углам жаровни, однако это решение не является удачным, ведь устойчивость конструкции снижается. Лучше всего установить вертикальные опоры на углах крыши. При этом мангал будет стоять надежно и не опрокинется от ветра.
Крыша над мангалом своими руками выполняется из железа, а удалить этот элемент от конструкции необходимо на 50 см. Некоторые хозяева выполняют мангал со съемной крышей. Эта идея хоть и хороша, но требует дополнительных усилий для монтажа и снятия крыши.
Изготовление мангала из кирпича
Для мангала из кирпича понадобится фундамент. Он углубляется на 50 см. Для него подготавливается траншея, на дне которой располагается песчаная подушка. Поверх укладывается сетка из арматуры с диаметром прутьев в пределах 10 мм. Далее можно приступать к установке опалубки, которая формируется из листовой фанеры.
Методика проведения работ
На следующем этапе можно заняться заливкой раствора, а через 48 часов опалубка демонтируется, в это же время можно заняться устройством гидроизоляционного слоя. Он создается с помощью листового рубероида или обычной пленки.
Мангал с крышей из кирпича своими руками выполняется в определённой последовательности. На следующем этапе технология предусматривает создание цоколя. Наиболее простая конструкция – это цоколь, состоящий из отсека для дров. Высота цоколя должна подбираться под человека, который будет готовить шашлык.
Дополнительно о размерах
Ширина и длина не должны быть больше 35 см и 1 м соответственно. Далее можно заняться возведением стен и укладкой трубы, последняя из которых представляет собой довольно тяжелый элемент, поэтому устанавливать его необходимо на опорные колонны. Однако если возводить трубу из кирпича нет желания и времени, то можно установить металлический дымоход.
Описываемый стационарный мангал с крышей своими руками дополняется навесом, который устанавливается на монолитную стену. Для этого возводятся стойки из металлических опор или камня. Козырёк будет выполнен из жаропрочного железа, а внешнюю его часть покрывают гидроизоляционным слоем.
fb.ru
Мангал с крышей своими руками: пошаговое руководство.
Установив мангал с крышей своими руками, можно проводить досуг с комфортом на свежем воздухе. В летние дни трудно постоянно находиться в закрытом помещении. Многие предпочитают выезжать на дачи или приусадебные участки, чтобы приготовить шашлыки на мангале. Лучше, если устройство будет иметь крышу или навес, предохраняющие мангал от непогоды. Это позволит с комфортом провести время возле металлического или кирпичного мангала с крышей, приготавливая вкусные шашлыки.

Преимущества мангала с крышей
Наличие крыши — это признак, по которому можно различать открытые и закрытые устройства. Он не является обязательным атрибутом сооружения. Мангал без крыши, сделанный из кирпича, представляет собой открытую жаровню. Возле него может быть обустроена площадка, где будет осуществляться предварительная подготовка продуктов. Обустройство мангала под крышей на даче имеет массу преимуществ:
- очаг не гаснет при дожде и ветре;
- аккуратный внешний вид;
- комфортная эксплуатация;
- предполагается наличие дымохода.
Возле мангала на улице своими руками можно обустроить площадку с мойкой и столешницей. Если выбран вариант с трубой, то с приходом холодов из нее нужно будет сливать воду, иначе она может растрескаться. Вместе с тем мангал для дачи с крышей имеет внешний вид, заслуживающий особого внимания, поскольку он может основательно изменить дизайн ландшафта участка.
Если внимательно изучить чертежи дачных мангалов с крышей, то их можно подогнать по размерам своего участка. Они в большом разнообразии представлены на сайтах. Воспользовавшись чертежом, можно предварительно сделать эскиз мангала либо барбекю для дачи. Перед началом строительства сооружения потребуется ознакомиться с инструкцией по обустройству.
Удобной конструкцией является мангал с крышей разборный. Он должен быть не только функциональным, но и привлекательным по своему внешнему виду. Подготовка углей на таком устройстве не может не завораживать.
Соблюдение техники безопасности требует внимательного отношения к строительству и эксплуатации мангала на улице. Если требуется передвигать устройство, устанавливая его в наиболее подходящем месте, можно приобрести мангал на колесах. Такая конструкция походного типа может быть укрыта под навесом, а колеса позволят с удобством перемещать устройство с учетом собственных нужд.
Самостоятельную разработку чертежа следует выполнять с учетом масштаба сооружения. Если правильно подгонять все размеры будущего мангала с крышей, то не понадобится обрезать кирпичи в большом количестве. По чертежу можно рассчитать необходимый объем и кирпича, и других материалов.
Материал для крыши устройства
В большинстве случаев в качестве материала для навеса либо крыши на мангал из кирпича применяется листовой металл. Его можно заменить шифером или черепицей. Надежность и привлекательность внешнего вида крыши над мангалом зависит именно от выбора того или иного строительного материала, обладающего определенными техническими характеристиками. Стальной профилированный лист должен отличаться:
- жаростойкостью;
- огнестойкостью;
- корозийной стойкостью;
- термостойкостью;
- влагостойкостью.
Мангал из металла с крышей из профилированного стального листа обычно имеет аккуратный внешний вид. Устройство должно быть функциональным и комфортным в использовании. Мангал под крышей не должен иметь ничего лишнего, поскольку ненужные приспособления будут только мешать в процессе приготовления шашлыка.
Металлический мангал с крышей, изготовленной из профилированного листа, защищен от коррозии благодаря полимерному покрытию материала. Оно не позволяет ржаветь конструкции, делает ее привлекательной за счет цвета, подобранного по стилю участка. Различные цвета материала, броские или умеренные, способны удачно вписываться в любой дизайн ландшафта. Они идеально смотрятся в любом дворе, защищая конструкцию для копчения и жарки от непогоды.
Каркас для мангала с крышей или навесом можно сварить из труб либо металлопрофиля. Крышу можно сделать из шифера, глиняной либо металлочерепицы, а также из поликарбоната. Единственная проблема применения сотового карбоната состоит в том, что для этой цели материал не совсем подходит. Он не только разрушается от высоких температур, но и воспламеняется.
Если садовый мангал будет иметь навес либо крышу, которые защищают продукты и топливо от дождика и ветра, то лучше приобрести материал с небольшим запасом. Крыша, обладающая большими размерами, позволяет полностью закрыть всю конструкцию мангала с казаном, мойкой, столешницей, углем. Форма крыши может быть от простейшей до сложной (полукруглой).
Подготовка к созданию конструкции
Для правильного расчета потребности материала для строительства крыши над мангалом своими руками, следует сделать точный чертеж конструкции. Выбирая полукруглую крышу для мангала, можно обеспечить надежную защиту жаровни с мойкой, дровником и столиком. Арочная форма каркаса может быть изготовлена так, чтобы вода не задерживалась на крыше, а стекала по сторонам навеса. Другие формы зависят от того, какой тип крыши для мангала своими руками запланировано устроить:
- односкатный;
- двускатный;
- полукруглый;
- без трубы;
- с трубой.
Размеры крыши могут быть разными, они зависят от того, какие элементы будут входить в конструкцию.
Она может иметь железное, кирпичное или бетонное основание. Любой из проектов мангалов с крышей предполагает строительство фундамента отдельно, а само устройство может быть создано из кирпича либо из металла.
Своими руками можно установить и чугунный мангал, главное, чтобы на нем было удобно жарить
и коптить продукты, защищенные от дождя и ветра навесом, как и сам повар. Устанавливать металлические мангалы с крышей проще, чем выкладывать кирпичную печь под казан,
коптильню, барбекю. Проект предполагает обустройство конструкции, предполагающей наличие:
- каркаса;
- печи;
- крыши;
- столиков.
Инструменты и материалы, которые необходимо подготовить, должны быть следующими:
- сварочный аппарат;
- болгарка;
- уровень;
- рулетка;
- электрическая дрель;
- доски;
- кровельный материал;
- профильная труба.
Даже самый простой мангал либо барбекю с крышкой следует начинать обустраивать с жаровни.
Применение профильной трубы позволяет создавать наиболее простые в плане внешнего вида мангалы для дачи с крышей. Из нее можно сделать стойки, полочку для дров, каркас для укрепления жаровни и крыши.
Эстеты могут заменить трубу стальными прутьями, выполнив кованый мангал. Это позволит сделать каркас более красивым. Использование различных декоративных элементов в большей степени помогает реализовать фантазию, если требуется обустроить кованый мангал.
Выбор кровельного материала имеет большое значение, поскольку под крышей должна располагаться мангальница, которая будет функционировать при высоких температурах. Снизу они являются более высокими, что вызывает появление сверху конденсата. Лучше всего, если крышей из поликарбоната будет обустроена беседка, а не барбекю.
Изготовление конструкции с крышей своими руками
Перед тем как сделать мангал, следует определиться с размерами жаровни, указанными в чертеже.
Оптимальная ширина устройства для шампура с 6-8 кусками мяса и дополнительным местом для колец лука может составлять 22-26 см. Длина жаровни может быть любой. При ее выборе следует соблюдать основное правило, предусматривая 80-120 мм на шампур.
Высота жаровни должна быть равной 180-200 мм. Чтобы мангалом было удобно пользоваться, жаровня должна иметь специальные вырезы на боковых частях, глубина которых составляет — 50 мм.
Это правило должно обязательно соблюдаться, так как угли и шашлык обычно располагаются на оптимальном расстоянии друг от друга.
В целом оно выбирается в зависимости от вида используемого топлива. К примеру, между шашлыком и древесным углем должно быть около 30-70 мм. Для изменения высоты размещения шампуров потребуется вставить в прорези небольшие палочки. Если придерживаться этих тонкостей изготовления мангала под крышей для дачи, можно своими руками выполнить сварку профессиональной жаровни.
Крышка устройства сваривается из огнестойкого кровельного металла, который предварительно разрезан на пластины. Чтобы обеспечить приток воздуха к очагу, в дне жаровни своими руками необходимо проделать дырочки, диаметр которых должен составлять 10-15 мм. Они должны размещаться в шахматном порядке.
Если хозяин устройства пользуется специальным люком для поддува, находящимся в боковой части мангала, то он вместе с колосником под угли позволяет регулировать интенсивность пламени.
Для эффективного розжига необходимо открыть боковую заслонку, что обеспечит поступление воздуха в пространство под колосником через его отверстия.
Наличие кислорода должно стимулировать горение и повышать температуру готовки. Мангал с печью предусматривает наличие дополнительного устройства, которое дает возможность готовить различные блюда в казане. К примеру, в нем можно приготовить рассыпчатый и душистый плов. Конструкции мангалов отличаются друг от друга, поэтому крыши над ними устраиваются разного типа. При наличии специальной вытяжки вместо трубы навес или крыша нужны для защиты устройства от непогоды.
Как сделать фундамент своими руками
Если подготовлены все инструменты и материалы, позволяющие сделать мангал, печь или барбекю, можно начинать с выбора места, где будет заложен фундамент под них. Затем планируются размеры кирпичного мангала, которые обычно указаны в порядовках. Если соединения деталей из металла будут сварными, то необходимо обязательно соблюдать инструкцию по созданию конструкции пошагово.
Если для установки выбран кирпичный мангал барбекю, имеющий крышу из поликарбоната, то специалисты рекомендуют предусмотреть коптильню с варочной панелью для казана. Это обеспечит возможность приготовления различных блюд. Поскольку мангалы из металла или кирпича устанавливаются на отдельном фундаменте, то бетонная стяжка должна иметь соответствующую глубину.
Высота стяжки должна определяться количеством рядов: на каждый уложенный ряд кирпича
требуется залить 1,5 см бетонного раствора. Если рядов будет 26, то размещенное в земле бетонное основание должно иметь толщину 39 см. Чтобы залить фундамент, необходимо вырыть котлован, а затем засыпать на его дно песок слоем в 7-10 см. После этого ставится арматурная сетка с соблюдением пространства между ней и песчаным слоем.
Затем используется цементная смесь, после высыхания которой стелется слой рубероида для гидроизоляции. Возведение печи с панелью для казана осуществляется согласно порядовке с соблюдением определенных правил. Строительство печи с коптильней, топкой и мангалом для казана требует применения глиняно-песчаного раствора, так как использование гипсовых и цементных смесей здесь не подойдет.
Раствор должен иметь нормальную жирность. Чтобы проверить эту характеристику, мастерок следует окунуть в смесь, а затем вытянуть. Если на нем остается ровный слой в 2-3 см, то жирность смеси является нормальной. При наличии более толстого слоя взятой пробы смесь является чрезмерно жирной. Снизить ее уровень позволяет добавление песка либо воды.
Швы между кирпичами должны составлять 3-4-мм. Исключением является шов между обычным и шамотным кирпичом, толщина которого составляет 6-13 мм. Часть печи, находящаяся под мангалом, может быть изготовлена из пустотелого кирпича. Для остальной части конструкции используется цельный кирпич.
Обустройство каркаса и крыши
Мангалы с печкой обычно имеют каркас, включающий 4-6 вертикальных стоек, соединяемых с помощью горизонтальных перегородок. Они должны располагаться в 3 местах:
- внизу;
- на уровне жаровни;
- вверху.
Передняя часть конструкции не должна содержать перегородку, исключая ее местонахождение под самой крышей. Опоры для труб должны быть выполнены из средних боковых перегородок, на которые следует поставить жаровню. На трубах иногда предусматривается боковой столик, который может быть откидным. Пользоваться им очень удобно, поскольку на него можно поставить казан.
Столики для барбекю под одной крышей могут быть разных размеров. Размещение вертикальных стоек по углам жаровни не совсем удачный вариант, так как устойчивость мангала с крышей нарушается. Наилучшим вариантом является устройство вертикальных опор на углах крыши. В этом случае мангал с крышей займет устойчивое положение и не будет перекидываться от ветра.
Крыши должны иметь большие габариты по сравнению с параметрами жаровни, поскольку она должна
защищать не только продукты, но и самого повара. Хорошо, если между навесом и краем мангала расстояние будет составлять более 50 см. Некоторым хозяевам требуется устанавливать мангал со съемной крышей.
Хорошей идеей является мангал на колесах или казан с откидывающейся крышкой. Возможно, что они потребуют профессионального монтажа устройства. Мангал с крышкой позволяет улучшить защиту жаровни от бокового дождя. Не лишними являются вытяжка и дымоход, препятствующие распространению дыма от огня вокруг очага.
При установке вытяжного колпака своими руками следует учитывать его величину, которая должна составлять 0,8 м. Колпак по ширине должен быть больше размеров коробки для очага из металла. На каркасе зачастую укрепляются декоративные кованые элементы, которые могут представлять собой обычные крючки для инструментов повара.
domolist.ru
Мангал с крышей своими руками
Чтобы сделать мангал с крышей своими руками, можно использовать только прочный и жаростойкий металл, иначе Ваше сооружение прослужит всего несколько дней. Толщина листов металла не должна быть меньше 2-3 мм – тогда Ваша конструкция будет прочной, надежной и долговечной. Однако если металл будет иметь большую толщину, то это увеличит вес конструкции. Кстати, для создания мангала прекрасно подойдет старая металлическая кровать.

Соединить элементы мангала можно как сваркой, так и обычными болтами. Планируя конструкции, особого внимания заслуживает глубина каркаса. Важно, чтобы она была удобной. Не слишком маленький и не большой, чтобы Вам было удобно готовить на нем мясо.
От глубины каркаса напрямую зависит, как быстро будут прогорать дрова и сможет ли жара достать до готовки шашлыка. Нельзя забывать и о том, что помимо шашлыка, мангал позволяет готовить овощи и прочие вкусные вещи. Поэтому важно позаботиться об изготовлении специальной решетки (правда, ее можно купить отдельно).
Подготовительная работа
Перед тем как создать мангал своими руками, необходимо выполнить чертеж. Не пытайтесь создавать все на глаз, так как это ни к чему хорошему не приведет. Благодаря точному чертежу Вы сможете справиться с работой намного быстрее.

Чтобы сориентироваться с размерами мангала было проще, необходимо знать, что стандартный мангал имеет конструкцию размером 20х28х58 см. Такие размеры каркаса позволяют уместить шесть-семь шампуров с мясом. Дров вмещается столько, сколько нужно для приготовления такого количества мяса.
Рассчитать необходимый размер мангала можно и другим способом. Однако нужно учитывать, что расстояние между шампурами должно быть не меньше 6-8 см. Их можно умножить на то количество шампуров, которые Вы планируете размещать на мангале. Намного проще определяется ширина мангала, которая должна быть меньше длины шампура на 5-10 см.
Для создания мангала с крышей стандартного размера Вам потребуется металлический лист в 1 м2.С одного края необходимо отметить 58 см и провести линию, а с другого наметить линию на расстоянии 20 см. Так, Вы нанесете отметки, позволяющие сделать боковые части конструкции. Из такого же металлического листа необходимо вырезать другие части мангала: боковые части и дно, но сначала их необходимо вычертить в строгом соответствии с размерам. Для того чтобы разделить металл по линиям, Вам потребуется специальный инструмент (хорошо подойдет электроножовка).

Мангал с крышей своими руками: некоторые особенности и нюансы
Когда все части будут подготовлены, нужно поработать с дном мангала. Для этого на вырезанном листе необходимо сделать несквозные надрезы на 1 мм в глубину. Если Вы правильно выполнили все расчеты, то, в результате, у Вас получится конструкция, которая напоминает по форме букву П.

Если для соединения составляющих будущего мангала Вы планируете использовать сварочный аппарат, не забывайте, что главное в этом деле – правильная регулировка силы тока. Если она будет большей, чем требуется, то металл прожжется, если недостаточной – сварка не получится, поскольку электроды прилипнут к расплавившемуся металлу.
Для того чтобы закрепить боковые части мангала правильно, сделайте это в нескольких местах – вполне достаточно 3-4 точек крепления. С помощью сварки важно обработать все стыки по периметру.

После остывания сварки необходимо создать отверстия, предназначенные для циркуляции воздуха. Они должны находиться на боковых стенах мангала (по длине). Это лучше предусмотреть еще на этапе подготовки чертежа, чтобы позже не возникло никаких неожиданностей. Ненужные выступающие части можно легко удалить посредством болгарки. Чтобы придать конструкции еще большей прочности и надежности, в местах изгибов необходимо тоже сделать слой сварки.
Создание ножек для мангалаДля изготовления таких элементов конструкции прекрасно подойдет старая водосточная труба. Хотя Вы можете выбрать то, что у Вас есть в наличие, ведь основное условие при изготовлении этой детали – устойчивость и надежность. Ножки привариваются снаружи вдоль углов или прямо к днищу. Важно, чтобы они имели одинаковую длину, поскольку от нее непосредственно зависит устойчивость всей конструкции. На ¼ высоты, отмеряя от низа, ножки необходимо соединить попарно, выбирая пару по длинной стороне. Что касается их соединения между собой, то здесь удобнее всего использовать отрезки водопроводной трубы или все, что найдется у Вас под рукой. Такие связи тоже соединяются, а на них можно натянуть сетку, на которой бы просушивались дрова.

Изготовление крыши для мангала
Крыша является очень важной составляющей мангала, поскольку при ее наличии Вам не придется откладывать запланированный шашлык по причине непогоды. Поэтому лучше заняться ее обустройством сразу. Для ее создания Вам понадобятся:
- металлический лист;

- арматурные пруты (или прочие подходящие стойки).

Должно быть четыре арматурных прута, которые привариваются к самому каркасу мангала. Их длина должна отвечать высоте, на которой находится крыша. Для удобства стоит несколько согнуть пруты, дабы обеспечить большее пространство над мангалом. Безусловно, сгибать их необходимо одинаково.

Сам размер листа должен быть таким, чтобы закрывать не просто жарящийся шашлык, но и человека, который следит за его готовкой. Причем толщина листа не должна быть очень большой, иначе это может представлять опасность. Чтобы работать было проще, можно приварить к стойкам крышу, а потом заняться присоединением готовой конструкции к мангалу.
Полезные советы по изготовлению мангала с крышей своими руками
- Для того чтобы сделать мангал своими силами, необходимо заранее заготовить все инструменты, среди которых Вам понадобится: дрель, сварочный аппарат, сверла, болгарка.

- Покрасить мангал рекомендуется не только для придания эстетического внешнего вида, но и для увеличения срока его эксплуатации. Безусловно, нужно использовать термостойкую краску.

- Если Вы делаете мангал с крышей, то скорей всего, будет удобнее, если в качестве опоры и ножек будут использованы одни и те же стойки.

Чтобы приготовить барбекю, можно применять и обыкновенные кирпичи, положив их на решетку. Однако чтобы получить от приготовления и эстетическое удовольствие, без мангала, сделанного своими руками, просто не обойтись. Он доставит Вам еще больше радости от отдыха!
Возможно Вам будет также интерестно:
remontik.org




Количество человек. Если в вашей семье присутствует от двух до трёх человек, то подойдёт самая простая конструкция (может, даже портативная).