Как самостоятельно установить межкомнатную дверь пошаговая инструкция – Установка межкомнатных дверей своими руками: простая инструкция
Установка межкомнатных дверей: пошаговая инструкция, замена полотна
Для установки межкомнатных дверей понадобится инструмент и базовые строительные навыки. Качество проведённых работ зависит от точных измерений. Малейшие перекосы приведут к заклиниванию створки, образованию щелей. Дверные блоки продаются в собранном или разобранном состоянии. Во втором случае монтаж будет сложней из-за необходимости самостоятельной сборки лудки.
Материалы и инструменты
Начинается установка дверей с подготовки инструмента. Для монтажных работ понадобится:
- Чтобы ровно поставить дверь, нужен отвес и уровень. Для замеров, а также выполнения разметки используют рулетку с карандашом.
- Процесс сборки и установки межкомнатных дверей включает финальную отделку наличниками, а при необходимости доборами. Для резки планок пригодится ножовка с мелкими зубьями, стусло.
- Из электроинструмента нужна дрель с комплектом свёрл по бетону и дереву, а также шуруповёрт.
- Делать выборки под фурнитуру легче фрезой, но при отсутствии инструмента можно обойтись стамеской с молотком.

Из материалов используют саморезы, монтажную пену, а также много деревянных клиньев разной толщины для распорок. Сразу нужно решить, как поставить межкомнатные двери, чтобы не было видно крепежей.
Если предпочтение отдано скрытому монтажу, дополнительно приобретают подвесы. Можно лудку зафиксировать анкерами. Шляпки утопить в потайных отверстиях, зашпаклевать, а сверху закрасить.
Как установить межкомнатную дверь своими руками?
При умении пользоваться инструментом, монтаж дверей можно выполнить самостоятельно. Важно изначально сделать все точные замеры, чтобы избежать перекосов. В общих чертах порядок установки межкомнатной двери состоит из следующих процессов:
- Если рама продаётся в разобранном состоянии, её придётся собрать. Эта работа увеличивает время установки межкомнатной двери, а также усложняет процесс.
- Все элементы дверного блока оснащают фурнитурой: ручки, замки, щеколды. На раздвижную створку ставят систему, состоящую из роликов и направляющей рельсы. При установке распашной двери, полотно на лудку крепят петлями.
- После сборки конструкции установку дверей в квартире начинают с монтажа коробки. В проёме раму фиксируют анкерами или подвесами, а зазоры задувают пеной.
- На установленную лудку навешивают створку, осуществляют регулировку, ставят наличники с доборами.

Чтобы выполнить правильную установку межкомнатной двери своими руками, ещё до покупки дверного блока точно вымеряют проём. Габариты рамы должны быть меньше от прохода, иначе придётся его расширять. Оптимально выдержать зазоры при установке межкомнатной двери между лудкой и стеной – от 10 до 40 мм.
Наличники ставятся обязательно, а доборы нужны, если глубина проёма превышает размер рамы. Выступающие участки стены скрывают под декоративными планками. Лучше разобраться с процессом монтажа поможет пошаговая инструкция.
Сборка коробки
Начинают монтаж межкомнатной двери с распаковки купленного блока, осмотра всех комплектующих. Дверная лудка может продаваться в собранном виде или разобранная на отдельные элементы с крепёжными пазами.
Если приобретена лудка с готовыми крепежами, её нужно только собрать. Рама продаётся из распиленных по размеру элементов. Их может быть три: притворная и петельная стойка, а также притолочная верхняя планка. Если предусмотрен порожек, то в комплекте идёт четвёртый элемент.
Для сборки рамы из торцов стоек выбивают заглушки вместе с соединительными штырями. Края вертикальных и горизонтальных элементов рамы стыкуют так, чтобы совпали монтажные отверстия. Молотком забивают соединительные штыри, а отверстия закрывают заглушками.
Во время выбивания заглушек удары наносят через деревянные подкладки, чтобы предотвратить разрушение декоративного покрытия.
Намного сложнее собрать коробку, продающуюся в виде заготовок из фигурного облицованного бруса. Понадобится деревообрабатывающий инструмент, а также базовые знания столярного дела. Сборка лудки состоит из следующих шагов:
- Сначала замеряют створку. Длину элементов рамы рассчитывают так, чтобы между внутренней частью лудки и полотном по всему периметру образовался зазор 3 мм. Если предполагается установка уплотнительной резинки, размер зазора рассчитывают с учётом её толщины.

- Заготовки размечают, затем распиливают ножовкой по дереву с мелкими зубьями под углом 45 или 90 градусов. Прямая стыковка проще. Чтобы правильно отпилить угол, заготовку помещают в стусло. Соединяют подготовленные элементы коробки длинными саморезами, предварительно просверлив отверстия.

- Неопытному человеку проще заняться установкой дверей без порога, так как придётся соединить всего три элемента. Форма коробки изготавливается в виде буквы «П». Края верхней перемычки укладывают на торцы стоек. Каждый стык фиксируют двумя саморезами.

- Створку помещают в готовую раму. Вымеряют зазоры между дверью и коробкой с трёх сторон, придерживаясь нужных 3 мм. Стойки снизу будут опираться на пол. Длину рассчитывают так, чтобы между напольным покрытием и нижним торцом створки получился зазор 8–15 мм.
- Для установки порога межкомнатной двери коробка собирается из четырёх элементов. Нижнюю перемычку вставляют между стойками, затем фиксируют саморезами. Зазор между порожком и торцом створки выдерживают 3 мм.

После изготовления коробки укладывают дверное полотно. Отступив сверху и снизу 25 см, на петельной стойке, а также торце створки размечают места монтажа петель. Чтобы крепёжные пластины не выступали, в древесине стамеской или фрезой выбирают углубления.
Два способа установки коробки
Открытый способ предусматривает фиксацию коробки межкомнатной двери анкерами. Раму вставляют в проём. Выставляют по вертикали и горизонтали. Все измерения проводят уровнем, а также отвесом. Соблюдя зазор от 10 до 40 мм, между коробкой и стенами вбивают деревянные клинья. Подбиванием или ослаблением распорок добиваются идеальной ровности рамы.

С внутренней стороны коробки шагом 50–60 см сверлят сквозные отверстия с потайными выборками. В стене проделывают отверстия сверлом по бетону. Анкера вкручивают так, чтобы шляпка скрылась внутри потайной выборки. После контрольной проверки уровнем зазор между стеной и рамой задувают пеной. Потайные отверстия шпаклюют, а затем закрашивают.
Второй закрытый способ монтажа коробки предусматривает использование подвесов, применяемых при изготовлении каркаса для гипсокартона, или специальную монтажную систему. Металлическую планку прикручивают саморезами к изнаночной стороне рамы. Коробку вставляют в межкомнатный проём, расклинивают деревянными клиньями, лепестки подвеса загибают на стену, фиксируя саморезами с пластиковыми дюбелями.

Установка добора
При монтаже дверного блока в глубокий межкомнатный проём рама не способна закрыть всю стену. Если ширины коробки не хватает, то используют доборы. Декоративные планки устанавливают на продольный паз рамы, предварительно смазав клеем замок. Если дверная коробка не предусматривает замка для доборов, планки фиксируют через потайные отверстия саморезами. Оптимальный шаг крепежа – 60 см.

Установка дверного полотна
Прежде чем установить дверь, полотно оснащают фурнитурой. На рынке представлены навесы разных видов и цветов. Место для их крепления определяют ещё до монтажа коробки. Для межкомнатной створки популярна установка навесов бабочка, не требующих врезки.

На лёгкую створку устанавливают две петли, отступив сверху и снизу 25 см. Тяжёлое полотно усиливают по центру третьим навесом. При открытом способе фиксации коробки, анкера располагают так, чтобы они не мешали саморезами прикручивать петли. Если установка межкомнатных дверей производилась скрытым способом на подвесы, проблема с местом расположения крепежа отпадает.
Зазор между торцом створки и петельной стойкой рамы должен составлять 6 мм. Сначала размечают место для крепления на торце створки. Под монтажную пластину петли стамеской выбирают выемку. Навесы прикручивают саморезами.

Дверное полотно вместе с петлями вставляют в коробку. Клиньями распирают створку, чтобы по периметру образовались зазоры. На петельной стойке отмечают места для выборки выемок. Полотно вынимают из рамы, стамеской выбирают углубление, затем саморезами прикручивают вторые половинки навесов.
Установку ручки с замком осуществляют на высоте 90 см от пола. Корпус запорной фурнитуры прикладывают к створке на вымеренной высоте. Карандашом отмечают место расположения ручки, очерчивают границы замка. В торце полотна свёрлами или стамеской выбирают углубление. Для ручки просверливают сквозное отверстие. Гнездо обрабатывают лаком, устанавливают замок, корпус фиксируют саморезами, а затем вставляют ручки. На стойке коробки напротив замка делают выборку, ставят ответную пластину запорной фурнитуры.

Чтобы установить двери своими руками без дефектов, процесс навешивания створки осуществляют после полного затвердения монтажной пены.
Крепление наличников
Финалом установки дверного блока является крепление наличников. Декоративные планки ставят с обеих сторон межкомнатного проёма. Наличники продают деревянные, пластиковые или МДФ. Форма бывает простая плоская, со скосом или фигурная. Крепятся наличники к торцу межкомнатной коробки замковым соединением, прикручиваются саморезами или прибиваются гвоздями. Планки могут приклеиваться, но прилегающая стена должна быть идеально ровная, отделанная прочной облицовкой.
Чтобы выполнить простой монтаж наличников двери, сначала крепят горизонтальную планку по уровню. Края предварительно отпиливают под углом 45о. Вертикальные планки устанавливают от пола. Сверху отмечают линию отреза под аналогичным углом. Стык делают максимально плотным. В случае образования щели используют шпаклёвку. После застывания, огрехи закрашивают.

Наличники можно стыковать под прямым углом. Верхнюю планку заводят между вертикальными элементами или укладывают сверху на торец.
Установка упора
Открывающаяся на бегу детьми распашная межкомнатная створка рукоятками ударяется о стену. Портится декоративная отделка и даже сыпется штукатурка. Помогает установка ограничителя дверей, не дающего полотну полностью открываться.
Упор представляет собой бочонок с резиновой насадкой. Устанавливается ограничитель после монтажа дверного блока и всех отделочных работ. Межкомнатную створку распахивают до нужного положения. На полу отмечают место расположения упора. Электродрелью сверлят отверстие, вгоняют крепёжный винт и зажимают ограничитель.
Как поменять полотно?
Часто во время ремонта требуется только замена дверного полотна. Процедура намного проще, чем с нуля ставить межкомнатную дверь.
- Старое полотно снимают с петель. Навесы обычно состоят из двух разъёмных половинок. Чтобы снять межкомнатную створку, достаточно её снизу в открытом состоянии поддеть монтировкой. Если в петлях осевой стержень вставлен сверху, полотно не снимется. Сначала под шляпку стержня вставляют отвёртку, затем ударами молотка выбивают его из гнезда. Демонтаж начинают с нижней петли. После извлечения стержней створка легко снимется.
- Два полотна сравнивают по размеру, уложив друг на друга. Если новая сворка больше старой, карандашом отмечают границы. Лишние участки отрезают ручной циркулярной пилой. Срезы подгоняют рубанком, обрабатывают шлифмашиной.
- Подогнанное по размеру дверное полотно оснащают петлями, замком, рукояткой.
- Навешивание на петли происходит в обратной последовательности.
Если новое полотно подгонялось, места среза нужно замаскировать. Лакокрасочный материал подбирают близкий по цвету или полностью перекрашивают всё полотно.
dvernoiguru.ru
ставим коробку своими руками, видео-инструкция
Разделы статьи:
Успеха в самостоятельной установке межкомнатных дверей можно достичь, если правильно подойти к решению данной задачи. С одной стороны, такие работы произвести несложно, но с другой существует ряд нюансов, которые необходимо учесть в процессе монтажа. Перед установкой межкомнатной двери важно продумать алгоритм действий. В то же время, если производить работы не подготовившись, то это может сказаться на конечном результате. Большое значение имеет теоретическая подготовка в вопросе как ставить подобные дверные конструкции. Даже при отсутствии опыта можно установить межкомнатные двери грамотно и надежно.

Подготовительные работы
Перед тем, как изучить теорию установки межкомнатных дверей и приступать к монтажу конструкции, необходимо рассмотреть вопрос проведения подготовительных работ. Ни в коем случае нельзя игнорировать эту стадию, иначе простая и быстрая установка дверей может превратиться в настоящий кошмар. В первую очередь необходимо обратить внимание на два момента.

Для начала следует удостовериться в полном соответствии дверного блока проёму. Оптимальной ситуацией будет если после монтажа конструкции со всех его сторон останется зазор в 2-3 сантиметра. Это даст возможность без труда выставить дверную коробку в уровень одной плоскости с проемом.
Добиться этого несложно. Если проём слишком узкий относительно дверного блока, то его можно расширить с помощью перфоратора или ударной дрели. В случае, когда дверной проём слишком широкий, то имеется возможность используя деревянный брус уменьшить его габариты. В целом, нормальным считается зазор до пяти сантиметров.

Для идеальной установки дверного блока можно воспользоваться одним простым приспособлением. Требуется прикрепить поперёк коробки три ровные деревянные рейки. Одну снизу, вторую сверху, третью — посередине конструкции. Эти рейки позволят выставить дверной блок в одной плоскости с проемом.
Чтобы избежать повреждения поверхности дверной коробки можно зафиксировать рейки, подложив под них деревянные накладки. Их следует прикрутить к торцу коробки. Кроме того, длину реек необходимо выбирать таким образом, чтобы после установки дверной коробки в проём рейки упирались в стены. Будет кстати сказать, что есть ещё несколько нюансов, которые помогут выполнить установку без лишних трудностей.

Прежде всего, рейки требуется закреплять с той стороны дверного блока, в которую будет открываться дверь. Кроме того, фиксировать их необходимо после установки дверной коробки в проём и образования между луткой и проемом зазоров нужного размера.
Для фиксации коробки можно использовать сложенный вдвое плотный картон. Очень важно на этапе подготовительных работ выполнить описанные выше два действия. Без осуществления этих процедур приступать к монтажу дверного блока не рекомендуется, ведь в таком случае значительно возрастает риск возникновения перекоса всей конструкции. После осуществления этих манипуляций можно приступать непосредственно к самостоятельному монтажу межкомнатных дверей.
Самостоятельный монтаж межкомнатных дверей
После завершения подготовительных работ и заготовки всех необходимых инструментов, можно начинать осуществление установки межкомнатных дверей. Из инструментов понадобятся молоток, недлинный реечный уровень и фомка. Кроме того, необходимо приобрести баллон с монтажной пеной низкого давления при полимеризации. В качестве примера можно привести пену Макрофлекс 65. Также следует подготовить клинья из дерева. На сегодняшний день существует отработанная технология, как ставить межкомнатные двери правильно. С процессом монтажа можно ознакомиться на видео.
Первым делом необходимо поставить дверной блок в проём. В ходе этого процесса важно уделить особое внимание стороне, которой устанавливается конструкция. Желательно при выполнении монтажа находиться там, куда будет открываться дверь. Теперь следует выставить конструкцию по центру проёма. Передвигая дверной блок вправо или влево необходимо обеспечить одинаковые зазоры между конструкцией и стенами с двух сторон.

На следующем этапе потребуется удостовериться в правильности вертикального расположения стоек дверной коробки. Для этого можно использовать реечный уровень. Его необходимо приложить снизу верхней поперечной перемычки. Если уровень не соблюдается, потребуется воспользоваться фомкой, приподнимая с её помощью нужную стойку и подкладывая под неё деревянные клинья.
После этого следует закрепить дверной блок к перегородкам. Для этого необходимо просверлить отверстия диаметром 6 мм в выступающей части деревянных перемычек. Затем в эти отверстия забиваются дюбели. В процессе фиксации дверного блока необходимо время от времени проверять положение конструкции относительно боковых стен.

После этого следует намочить водой дверную коробку и проём. Такая процедура осуществляется с целью повышения полимеризации монтажной пены и её адгезии со стенками проёма. Затем необходимо ещё раз удостовериться в сохранении правильного положения дверной коробки. Для этого используют реечный уровень. Кроме того, необходимо проконтролировать наличие прокладок, сделанных из картона, между дверным полотном и лудкой. Если некоторые выпали в процессе выполнения работ, то их обязательно следует вернуть на место.
На следующем этапе необходимо с помощью монтажной пены заполнить зазоры между дверным блоком и перегородками. После этого требуется дать пене схватиться и подсохнуть. На это потребуется несколько часов. Как правило, монтажная пена полностью застывает за 6-10 часов. Будет кстати сказать, что монтажная пена является ядовитым материалом. Чтобы избежать неприятных последствий контакта кожи с ней можно использовать защитные перчатки. Кроме того, необходимо защитить поверхность изделий с помощью малярной ленты, обклеив ею дверной блок по периметру.

После этого необходимо удалить все вспомогательные средства. Теперь они больше не нужны. Так, с помощью отвёртки демонтируются дюбели и саморезы, которыми закреплены перемычки в дверной коробке. Затем необходимо снять сами рейки и открыть дверь. Картонные подкладки должны сами выпасть на пол после открытия двери.
Отделка дверных проемов
Вопрос как правильно ставить дверные блоки не ограничивается только лишь установкой самой конструкции. После того, как межкомнатные двери смонтированы, необходимо провести работы по отделке дверного проёма. Способ осуществления этой процедуры зависит от ширины дверного проёма, а также вида смонтированного дверного блока. В случае тонкого простенка, как, например, при входе в ванную комнату, можно произвести отделку с использованием одних лишь наличников. Такой вариант самый простой и нетрудоёмкий. Приобретённый комплект наличников фиксируется с обеих сторон дверной конструкции, закрывая собой заполненные пеной зазоры между коробкой и перегородками.

Если речь идёт о широких дверных проёмах, то их отделка осуществляется с помощью тех же наличников или доборных планок. Они могут отличаться от цвета дверного полотна, тем более в последнее время стали популярны контрастные решения. Дозорную планку можно вырезать необходимой ширины, а закреплять её следует с помощью строительного клея.
Кроме того, стоит подчеркнуть, что одним из способов осуществления отделки дверного проёма является оштукатуривание откосов. Такой способ особенно уместен при установке деревянных дверных блоков. Дело в том, что цементно-песчаный штукатурный раствор выгодно подчёркивает дверные конструкции из натуральной древесины. В то же время, такой вид отделки не рекомендуется использовать для дверных коробок из ДВП. Этот материал не совместим с повышенной влажностью материалов, которые используются при оштукатуривании.

После установки дверного блока монтаж наличников собственными руками не представляет особой трудности. Необходимо обрезать край каждого наличника под углом 45 градусов и закрепить их на дверной коробке. Для этих целей можно использовать клей, финишные гвоздики или саморезы. Шляпки гвоздиков впоследствии затираются, а саморезы прячутся с помощью декоративных заглушек из пластика.
Как показывает практика, установка межкомнатных дверей достаточно простая процедура. Но, только при условии соблюдения технологии монтажа и последовательности выполнения работ. Разумный подход к делу позволит выполнить все манипуляции без особых усилий и проблем.
Уход за межкомнатными дверями
Важно помнить, что технически грамотная и аккуратная установка межкомнатных дверей запросто может быть нивелирована отсутствием ухода за конструкцией и неправильной эксплуатацией. Межкомнатные двери рекомендуется использовать в помещениях при температуре от +15 до +35 С°. При этом влажность воздуха не должна превышать 70%. Важно, чтобы на дверной блок не воздействовали резкие температурные колебания и перепады влажности в квартире.

Будет кстати подчеркнуть, что особое внимание следует уделить эксплуатации межкомнатных дверей в помещениях, оборудованных герметичными окнами. Если не проветривать комнаты, в них может возникнуть избыточная влажность, что, вероятно, станет причиной порчи конструктивных элементов дверной конструкции. Так, дверь может разбухнуть, материал отделки отслоиться.
Кроме того, строго запрещается монтаж МДФ дверей в тех помещениях, в которых имеется постоянно повышенная температура воздуха и влажность. К числу таких объектов можно отнести бассейны, сауны и бани. Вместе с тем, не рекомендуется устанавливать такие конструкции в помещениях без отопления, с цементными или земляными полами. В то же время дозволяется эксплуатировать межкомнатных дверей при кратковременном воздействии влаги. При этом обязательным условием является проветривание помещений. В качестве примера такого объекта можно привести ванную комнату.

В ходе использования межкомнатных дверей открывание и закрывание полотна должно производиться исключительно способами, которые не влекут за собой повреждения конструкции и наличников. Кроме того, даже если дверь оснащена износостойким отелочным покрытием, следует избегать грубого механического воздействия на конструкцию. В противном случае вероятно появление сколов, трещин, заусенец и потёртостей. Такие дефекты значительно ухудшат эстетичный вид дверного блока.

Межкомнатная дверь, как и мебель в комнате или другие предметы интерьера, нуждается в бережном отношении и внимании. Чтобы сохранить эстетичный внешний вид конструкции достаточно периодически применять специальные средства по уходу. Чистить дверной блок от грязи и пыли необходимо с помощью мягкой ткани или влажной салфетки. Следует избегать контакта конструкции с различными растворителями, кислотными и щелочными соединениями. Если придерживаться таких простых правил, то межкомнатные двери будут радовать своих хозяев эстетичностью и долгим сроком службы.
В заключение целесообразно подчеркнуть, что весь процесс под названием «ставим межкомнатные двери самостоятельно», производимый с соблюдением технологии и рекомендаций профессионалов, займёт около трёх часов. Правда, это не считая времени, потраченного на подготовительные работы перед тем, как начать устанавливать конструкцию своими руками.
o-dveryah.ru
Как установить межкомнатную дверь самостоятельно: с коробкой, пошаговая инструкция
Одной из последних точек капитального ремонта или строительства дома является установка межкомнатных дверей. Они завершают оформление общего интерьера помещения. Поэтому от того, как установить межкомнатную дверь своими руками, зависит общее впечатление от всего ремонта.

Виды межкомнатных дверей.
Выбор готовых дверей огромен. Они изготавливаются из разных материалов и имеют различную конструкцию. Обычно вопрос о том, как установить межкомнатную дверь, решается достаточно быстро и просто. Необходимо только учесть некоторые нюансы монтажа и правильно выбрать подходящий экземпляр.
Межкомнатная дверь: особенности выбора
При выборе межкомнатной двери следует учитывать основные требования к ним. Такие двери не должны защищать от непрошеных гостей, то есть иметь повышенные прочностные и запорные свойства. Металлические или тяжелые монолитные экземпляры не используются для таких целей.
Основной задачей межкомнатных дверей является изолирование внутренних помещений друг от друга. Так как различные комнаты находятся в разных условиях, то и выбор двери зависит от их расположения. Все межкомнатные двери должны обеспечивать звукоизоляцию, иметь облегченную конструкцию и вписываться в интерьер.
Межкомнатные двери могут быть как цельной конструкцией, так и со стеклянными вставками.
Кроме того, к ним выдвигаются специфические требования: дверь с балкона (лоджии) должна иметь теплоизоляционные свойства, а дверь ванной — определенную влагостойкость. Некоторые варианты должны быть обязательно непрозрачными, а другие могут иметь прозрачные элементы.
При выборе необходимо учитывать условия монтажа. К основным установочным параметрам следует отнести размер дверного проема, толщину межкомнатной перегородки (стены), направление открывания дверного полотна. Дополнительно следует определиться с фурнитурой: ручки должны быть удобными, с защелкивающим (запирающим) механизмом.
Вернуться к оглавлению
Конструкция межкомнатной двери
Выбор двери во многом определяется ее конструкцией. Все типы межкомнатных дверей конструктивно состоят из дверной коробки, дверного полотна, фурнитуры и порожка (может входить в состав коробки). Крепление двери осуществляется через коробку, которая выполняет задачу каркаса. Коробка выполняется из деревянного бруса, скрепленного в П-образном виде. Размеры коробки выбираются строго по размерам дверного проема. Толщина коробки должна соответствовать толщине стены. На обеих лицевых сторонах коробки устанавливаются декоративные наличники.
Основным элементом, обеспечивающим функциональные свойства и внешний вид, является дверное полотно. Используется в основном три вида дверного полотна: массив, филенчатое и щитовое полотно. Массив изготавливается из монолитного листа (древесина, пластик, композит) или в виде плотно совмещенных брусьев. Филенчатая конструкция состоит из прямоугольной рамы, внутри которой расположены вставки (филенки) из ДСП или МДФ.
Конструкция межкомнатной двери.
Сверху рама закрыта декоративным покрытием (пластик, шпон и т.п.) в виде листа. В состав щитового дверного полотна входит деревянная рама из брусьев, наполнитель и внешнее покрытие из МДФ (ДВП) листов. Наполнитель может быть выполнен из сплошных ДСП плит или в виде ажурной сетки из ячеек (сот). В конструкцию межкомнатной двери может входить элемент из стекла любого размера и формы (прямоугольник, овал). Сам элемент может быть прозрачным, матовым, цветным, с рельефом или в виде витража.
В комплект обязательной фурнитуры входят шарнирные элементы для закрепления дверного полотна на дверной коробке, а также ручки для удобства открывания двери. Двери могут снабжаться запорной фурнитурой в виде защелок или замков. Обычно используется совмещенная ручка-защелка. Ручки совместно со своими накладками играют заметную роль во всем внешнем дизайне двери. Кроме того, при необходимости могут использоваться другие декорирующие элементы в виде накладок, планок и т.д.
Вернуться к оглавлению
Пошаговая инструкция: подготовительные работы
Межкомнатную дверь следует устанавливать только после завершения работ по ремонту или строительству до начала финишной отделки стен. Естественно, что стена, где следует установить межкомнатные двери самостоятельно, должна быть оштукатурена и зашпатлевана, причем хорошо высушена после этих операций.
Прежде чем установить межкомнатную дверь, необходимо завершить подготовку дверного проема. Прежде всего проверяется вертикальность стенок. Если отклонение от вертикали составляет более 1 см, целесообразно нанести слой цементной штукатурки и исправить положение. Все выпуклости снимаются долотом. Только после этого измеряются окончательные размеры проема и уточняются размеры дверной коробки. Габариты коробки должны быть на 2-3 см меньше размеров проема.
Вернуться к оглавлению
Подготовка дверной коробки
Установка дверной коробки в разрезе.
Для того чтобы установить межкомнатную дверь самостоятельно, надо прежде всего подготовить дверную коробку. Сборка коробки производится из стандартного дверного бруса, выбранного по ширине стены. Вначале отрезаются две вертикальные стойки длиной, равной высоте дверного проема, за вычетом толщины порожка и величины зазоров (примерно 15 мм), а также верхняя горизонтальная перемычка длиной, равной ширине проема за вычетом величины зазоров (3-4 см).
Верхняя часть стоек и оба конца перемычки срезаются под углом 45 градусов. Стойки и перемычка должны точно состыковаться по срезам. Перпендикулярно срезу в месте стыка просверливается сквозное отверстие (через стойку и перемычку) диаметром порядка 2,5-3 мм. Длинным шурупом детали коробки скрепляются в месте просверленного отверстия. Таких креплений должно быть два в каждом стыке. Между соединяемыми деталями рекомендуется поместить тонкий уплотнитель, например, картон.
Вернуться к оглавлению
Подготовка к монтажу
Рекомендуются некоторые условия, показывающие, как правильно установить межкомнатные двери. Прежде всего подготовка двери к монтажу проводится в горизонтальном положении на ровной площадке. Вначале на боковом торце дверного полотна делается два прямоугольных углубления по размеру створки петли (сверху и снизу). Углубления располагаются на расстоянии порядка 20 см от края дверного полотна. Для этого используется фрезер или стамеска. Соответствующие петли шурупами крепятся в углублениях.
Схема установки дверных петель.
С другой стороны полотна на высоте порядка 1 м делается вырез в торце и сверлится отверстие на плоскости полотна для установки ручки с защелкивающим механизмом. Производится сборка фурнитуры.
Затем дверное полотно устанавливается в коробку так, как оно будет располагаться после монтажа двери. Отмечается расположение ответных частей петли на стойке дверной коробки и место вхождения язычка защелки в противоположную стойку коробки. Дверное полотно извлекается. На стойках коробки делаются выемки для петли с запасом по 10-15 мм по длине петли для возможности регулировки при монтаже. Изготавливается выемка для установки планки защелки и фиксации язычка.
Вернуться к оглавлению
Монтаж дверной коробки
Процесс установки двери самостоятельно начинается с закрепления коробки в дверном проеме. Прежде всего устанавливается и крепится порожек. Он изготавливается из доски толщиной 20-25 мм длиной, равной ширине дверного проема. Верхняя часть боковин доски закругляется с обеих сторон.
Дверная коробка устанавливается в дверном проеме и расклинивается при помощи специально подготовленных клинышков вверху и внизу. В нижней части коробки устанавливается временная распорка, не позволяющая смещаться стойкам. Вертикальность стоек и горизонтальность перемычки проверяются уровнем и отвесом. В стойках коробки сверлятся отверстия для крепления на расстоянии до 30 см друг от друга. Через эти отверстия делаются отверстия в бетоне с помощью перфоратора или электродрели. Забиваются дюбели, и производится крепление коробки шурупами. Зазор между стенкой проема и коробкой заполняется монтажной пеной. Распорка снимается.
Вернуться к оглавлению
Подвеска дверного полотна
Инструменты для монтажа дверей.
Установить межкомнатную дверь самому — это правильно подвесить дверное полотно, чтобы оно открывалось и закрывалось без усилия, но при этом не делало это самопроизвольно. Вначале дверное полотно предварительно устанавливается в коробке, путем прокладывания тонких пластин обеспечивается одинаковый минимальный зазор между полотном и коробкой. Наибольший зазор может быть только внизу, у порожка. Это окончательное расположение дверного полотна фиксируется. Отмечается уточненное положение петель на стойке дверной коробки.
Дверное полотно снова извлекается из коробки. Обратные части петель закрепляются шурупами на стойке коробки по окончательным меткам. Только после этого дверное полотно навешивается на петли. Проверяется качество открывания и закрывания двери. В завершение срезаются все излишки монтажной пены, окончательно заглаживается зазор (если необходимо, то шпатлюется), и на коробку закрепляется наличник, представляющий собой деревянную или пластиковую планку, которая в месте стыка срезана на угол 45°. Крепление наличника производится шурупами.
Все обнаруженные зазоры, местные дефекты лучше сразу зашпатлевать и отшлифовать.
Установка всех декорирующих элементов фиксирует факт, что удалось установить дверь самому.
Вернуться к оглавлению
Необходимый инструмент
Прежде чем решить вопрос, как установить межкомнатные двери самостоятельно, необходимо приготовить следующий инструмент:
- перфоратор;
- электродрель;
- шуруповерт;
- болгарку;
- фрезер;
- ножовку;
- стамеску;
- уровень;
- отвес;
- шпатель;
- молоток;
- отвертку;
- плоскогубцы;
- тиски;
- клещи;
- струбцину;
- рулетку;
- линейку метровую.
Установка межкомнатной двери вполне доступна любому человеку.
moyagostinaya.ru
Установка межкомнатных дверей своими руками: рекомендации
Установка дверей межкомнатных своими руками производится в строгой последовательности, каждый момент, даже самый незначительный, оказывается важен. Если допустить мелкую оплошность, это выльется в крупные проблемы при дальнейшей эксплуатации строения. Основное условие при монтаже — это идеально ровное положение по вертикали и горизонтали.
Только при условии соблюдения этих параметров будет обеспечено нормальное открывание и закрывание дверей. Пошаговая инструкция по установке межкомнатных дверей поможет справиться с работой. Первое, на что нужно обратить внимание — это монтаж дверной коробки.
Комплектации межкомнатных конструкций
Монтаж межкомнатных дверей производится после окончания отделки потолка и стен. На этапе установки необходимо наличие чернового пола и чистового покрытия. Установка плинтусов производится после монтажа дверей. Комплектация дверей:
- Полотно без коробки и пиломатериалов. В этом случае все приобретается отдельно. Покупается пиломатериал, вырезаются планки по размерам дверного проема и запиливаются углы. В случае использования стандартной коробки применяется полотно аналогичного размера. Перед покупкой необходимо провести все замеры, чтобы не пришлось дорабатывать элементы. В этом случае установка межкомнатных дверей своими руками окажется максимально бюджетной.
- Коробка и полотно. В этом случае оба элемента подойдут друг к другу, нужно только докупить пиломатериалы, сделать планки и собрать конструкцию. Может потребоваться установка доборов на межкомнатные двери. Этот момент заранее нужно обдумать.
- Собранный блок. Все компоненты собраны и подогнаны, остается лишь установить блок в проем, выставить его по уровню и зафиксировать.
Если знать, как установить межкомнатную дверь своими руками, то можно приобрести любой комплект. Для новичков подойдет последний, так как он в монтаже самый простой. Для более опытных мастеров лучше всего первый, он же и самый экономичный. Дополнительной регулировке такие конструкции не подлежат.
Размеры дверных коробок
В каждой стране свои стандарты, они отличаются и порой существенно. Ширина распашных дверей по стандартам в России:
- 600 мм;
- 700 мм;
- 800 мм;
- 900 мм.
Такие же стандарты в некоторых европейских странах (в Испании, Италия). У французов отличаются на 1 см (690, 790, 890 мм). Выбор стандарта зависит от хозяина, но лучше всего использовать российские, так как у них явное преимущество — более широкий выбор.
Если довелось купить нестандартные двери, то впоследствии будет сложно поменять их. По ГОСТу ширина проема и полотна двери, устанавливаемого в нем, зависит от помещения, в котором производится монтаж:
- Для кухни высота должна быть 2000 мм, ширина 700 мм.
- В ванной высота 1900-2000 мм, ширина не менее 600 мм.
- Для жилых помещений ширина проема 600-1200 мм, в высоту 2000 мм.
Но это стандарты, в реальности же случается так, что нужно подстраиваться под определенное здание. Иногда лучше отдать предпочтение раздвижной двери. Для определения размеров коробки и полотна потребуется провести замер проема. После этого выбираются габариты блока. Размер должен быть немного меньше, чтобы была возможность смонтировать крепежи и распорки. Нужно учесть эти параметры перед тем как установить межкомнатную дверь самостоятельно.
На этапе проведения замеров необходимо внимательно осмотреть стены, при необходимости провести ремонт и укрепление. В этом случае дверная коробка намного лучше сможет держаться в проеме. Особенное внимание стоит уделить состоянию стен, если планируется монтаж тяжелых дверей. Нужно прикрепить деревянный брус к стене и оштукатурить его, если имеется такая возможность. Подобный подход позволит установить межкомнатные двери без особых трудностей в любом проеме. Толщина бруска должна быть 5 см. После такого усовершенствования установка дверной коробки своими руками окажется намного проще, повышается надежность конструкции.
Самостоятельно установить своими руками с нуля двери сможет каждый, если разберется в нюансах и параметрах конструкции. Один важный параметр коробок — это глубина. По ГОСТу стандарт 70-80 мм, но если в доме толщина стены превышает этот показатель (а это в большинстве случаев), то нужно схитрить. Монтаж дверной коробки без порога производится вровень с одной стеной, но с условием, что откосы и проем не будет мешать открыванию. Оставшаяся часть стены штукатурится и отделывается, как стены в комнате. Но можно сделать с доборами: монтируется планка в тон полотна и наличников. Как сделать сборку наличников, можно узнать из инструкции к ним.
Сборка дверных коробок
Как поставить межкомнатную дверь правильно? Горизонтальная планка — это притолока, вертикальные — это косяки (стойки). Это основные элементы дверных коробок. Если купили их отдельно, то нужно собрать воедино. Для этого на полу расстилается клеенка, бумага, картон, раскладываете планки. Все элементы соединяются.
Если коробка и полотно приобретены в сборе, то размеры все совпадут. В большинстве случаев установка порога межкомнатной двери не требуется. Но перепроверить нужно, чтобы не пришлось всю работу начинать заново. Все элементы укладываются на полу коробки, между ними полотно, правильную установку межкомнатных дверей нужно делать именно так.
В идеале по всему периметру полотна должен быть одинаковый зазор — около 3-4 мм. При таком зазоре будет обеспечено нормальное открывание и закрывание дверей. Аналогичные требования и для двухстворчатых межкомнатных дверей.
Отдельная история — это подгонка по высоте, независимо от того, проводите установку дверей в квартире или в бане. Косяки коробки больше полотна на 12-15 см. Для правильного монтажа стойки упирают в лаги. Но при строительстве такую установку используют крайне редко, поэтому дверные косяки укорачивают до необходимого размера. Установка коробки межкомнатной двери осуществляется при помощи саморезов.
Но обязательно перед вкручиванием крепежа сделать отверстие тонким сверлом. В случае, если планки запилены под 45 °, необходимо засверлить отверстия на боковой планке. Затем прикладываете ее к горизонтальному брусу и фиксируете при помощи саморезов. Аналогично делаете установку дверей в бане своими руками. Только нужно обращать внимание на материал — древесина должна выдерживать высокие температуры и влажность.
А как самому установить межкомнатную дверь, если в коробке под прямым углом запилены края? В этом случае вся работа намного упрощается. Но сверлить отверстия все равно нужно, особенно, если коробка изготовлена из МДФ. Приставляете к боковому брусу верхний, выравниваете края и проделываете два отверстия.
В верхнем брусе сквозное, в боковом отверстие в торец. После этого соединяете планки, получаете коробку. При строительстве нижняя планка используется крайне редко. Удостоверьтесь, что собранная коробка превышает размеры полотна по длине и ширине на 3-4 мм. Строители отдают предпочтение дверной коробке без порога, поэтому приходится стойки немного обрезать. При установке межкомнатных дверей без порога появляются небольшие преимущества.
Довольно часто случается так, что косяки больше, чем нужно. Измерьте высоту проема, вычтите 2 см (на заполнение монтажной пеной). Это значение и будет высотой коробки. Проведите замеры со всех сторон, откладываете значения на собранной конструкции и чертите линию, по которой будет производиться распил. Лишняя часть отрезается. Мало чем отличается установка межкомнатных дверей с добором. Различия лишь в мелочах, которые проявляются в нескольких моментах.
Выбор петель
Перед покупкой фурнитуры обязательно определитесь с тем, какой именно вид вам нужен — левый или правый. Встаньте возле проема, в котором планируется произвести монтаж (полотно должно открываться на вас). Это условие обязательное, старайтесь не перепутать стороны. Открываете на себя и смотрите, куда происходит движение — влево или вправо. Если влево, то нужны левые петли.
Если петли правые, то полотно должно открываться вправо. Старайтесь не перепутать петли, наметьте места их установки. Учитывайте, что в некоторых случаях может потребоваться снятие полотна (для выноса мебели), поэтому нужно быть уверенным, что эта процедура пройдет безболезненно и быстро. Установка петель на двери — это дело, которое требует особенной внимательности, так как небольшое отклонение может стоить того, что полотно окажется кривым.
При установке дверей из дерева нужно наметить контур петель и острым ножом снять слой. Обратите внимание на толщину петель. Чтобы было удобно оформить срез, нужно сделать вертикальный врез по контуру. В случае, если вы сделаете лишь горизонтальный, то лишние участки древесины будут плохо отделяться. Выполняется срез либо стамеской, либо специальной машинкой. Аналогично поступают и с полотном двери. Но иногда стамеской нельзя красиво оформить вырез. Если же навес попадает на сучок, необходимо произвести смещение в сторону. Установка дверей самостоятельно не вызовет трудностей, но работа эта кропотливая. Теперь нужно рассмотреть, как ставятся навесы.
Врезка петель
Отдельно нужно рассмотреть, как производится установка дверных петель. К ним требования не очень серьезные, достаточно выдержать расстояние от краев в 19 см. Нужно знать, как собрать межкомнатную дверь своими руками и какие инструменты для этого потребуются.
Чтобы произвести установку или демонтаж петель, потребуется следующий набор инструментов:
- Сверла диаметром 1-4 мм.
- Дрель и шуруповерт.
- Резак.
- Шило.
Для дверей МДФ достаточно 2 петель, так как они легкие. Для тяжелых нужно ставить 3 петли — дополнительную посередине. Все петли, независимо от типа и цены, состоят из 2 частей. Одна половинка них имеет штырь. Важное условие: установку производите таким образом, чтобы этот штырь был направлен вверх. Неправильно будет, если он окажется направленным вниз.
Врезку петель и дверных замков лучше всего производить непосредственно на полу, до установки. Крепеж фурнитуры делается после разметки и вырезки. Приставляете петлю, размечаете контур и стамеской проделываете выемки. Производите крепеж фурнитуры сначала на косяке, затем укладываете полотно и на нем размечаете положение второй части петли.
Установка межкомнатных дверей в деревянном доме упрощается за счет того, что крепеж можно производить даже гвоздями. Все выемки проделываются фрезером за считанные минуты, но за неимением такого инструмента можно использовать и стамески. При закрывании петли обеспечивают зазор в 4 мм. Установка ламинированных дверей практически ничем не отличается от монтажа деревянных, присутствуют только мелкие отличия.
Окончательный монтаж коробки
На практике оказывается, что сборка и установка межкомнатных дверей — это кропотливое дело. Стойки и притолока имеют форму буквы «П», устанавливаете собранную конструкцию в проеме. Используя уровень, устанавливаете всю конструкцию на ноль. Добиваетесь максимальной ровности по горизонтали и вертикали. Зафиксируйте положение коробки при помощи распорок и клиньев, пробивайте уровень время от времени. Обязательно следите за тем, чтобы косяки были параллельны друг другу, завала в любую сторону нужно избегать. От ровности зависит удобство пользования дверьми в дальнейшем.
После проверки всех параметров установки фиксируете при помощи саморезов или дюбель-гвоздей коробку в проеме. Расстояние между соседними креплениями должно быть 0,25-0,3 м. На притолоке должно быть примерно 2-3 крепежа, на косяках по 7-8 штук. В коробке нужно просверлить отверстия диаметром 4 мм, так как у саморезов шляпки обычно на 1-2 мм больше. В случае, если вы устанавливали брус между коробкой и стеной, монтаж намного упрощается. Сделать межкомнатные двери в этом случае просто, так как крепеж более надежный.
Если стены из ракушника, кирпича или блока, то монтаж сложнее — нужно устанавливать дюбель-гвозди. Обратите внимание, что они должны быть в кирпичах, а не в швах. Ставить двери на швы не рекомендуется. Сверлом 4 мм делаете отверстие в стойках, оставляете след на стенке. Закончив разметку всех отверстий, демонтируете коробку и проверяете, правильно ли попали. Чтобы не попадать в швы, обращайте внимание на открытые участки кладки, сделайте отметки на планках. Только после того, как удостоверитесь в точности, делаете отверстия под дюбель-гвозди. Именно так делают установку деревянных дверей своими руками. Аналогично делается монтаж и пластиковых конструкций, только работать с ними проще — все элементы максимально точно подогнаны.
Установка дверного проема своими руками производится в таком же порядке, поэтому руководство можно использовать и для этого случая. После выставляете коробку и добиваетесь, чтобы отверстия в ней совпали с дюбелями. Выставьте положение по горизонтали и вертикали, зафиксируйте клиньями и распорками, только после этого крепите коробку к стене. Слишком сильно тянуть не нужно, так как можно повредить древесину или согнуть косяк. Так как была заранее произведена установка навесов, дальнейшая установка полотна не вызовет трудностей.
Установка входных дверей своими руками значительно удешевит работу.
Запенивание зазоров
После окончательной фиксации подкладываете между косяком и полотном картон, нужно установить на пену. Закрываете дверь и устанавливаете распорки и клинья, чтобы коробка не выгнулась. Заполняете пеной промежутки между стенкой и коробкой на 1/3, так как в процессе высыхания происходит увеличение объема. Если пены окажется слишком много, то она выгнет планки. Для высыхания необходимо оставить на сутки.
После снимаете распорки, при помощи острого ножа отрезаете излишки пены и приступаете к дальнейшим работам — монтажу добора или наличников на межкомнатные двери. На пену можно нанести слой шпатлевки и прикрыть декоративными элементами. Установка наличников межкомнатных дверей своими руками не вызовет затруднений даже у малоопытного мастера, который столкнулся с такой процедурой впервые. Правильная установка дверей — залог долгой службы изделия.
Применение крепежа и тонкости врезки
Вместе с дверными петлями продаются саморезы. Именно с их помощью и производится крепление. Перед тем как их вкрутить, нужно сделать тонкие отверстия в древесине. Это позволит не расколоться дереву при вкручивании. Фурнитура бывает потайной, ее монтаж немного сложнее — необходимо делать более глубокие посадочные отверстия. Отверстие лучше всего вырезать при помощи фрезерного станка. Заранее определитесь, нужна ли установка добора межкомнатных дверей, своими руками сделать это под силу каждому.
При вкручивании саморезов следите за тем, чтобы петли не ушли в сторону, при необходимости выравнивайте. При правильной врезке петель они будут располагаться на одном уровне. В случае, если есть хоть небольшое выпирание, нужно углубить до необходимого уровня площадку под петлю. Используя линейку, проверяете, правильно ли посажен навес.
Прижимаете линейку к петле и оцениваете положение. Если она сильно выступает, то между полотном двери и коробкой будет слишком большая щель. При поставленных верно дверях обеспечивается нормальное открывание на угол в 180 °. При этом максимальная нагрузка на петли не должна превышать 50 кг. Далее производите вставку частей петель, приподняв полотно. Это позволит максимально точно определить точку, в которой совместятся оба навеса.
При выборе навесов лучше всего остановиться на скрытых. Они намного лучше смотрятся, а правила крепления те же. После монтажа обязательно проверьте ровность хода, сцепив защелку на косяке и запорную пластину. Если возникает необходимость, то переместите защелку. Это требуется в случае, если при закрывании двери возникает посторонний шум. Металлическую вкладку стоит немного подогнать, и шум исчезнет. В целом же установка петель на межкомнатные двери довольно проста, трудностей возникнуть не должно. Достаточно действовать строго по инструкции и пользоваться рекомендациями.
Преимущества и недостатки раздвижных межкомнатных дверей
Установка раздвижных дверей своими руками довольно проста и не требует значительных затрат, а конструкция намного привлекательнее, чем обычные распашные. Всего существует 2 типа конструкции межкомнатных дверей:
- Распашные, установка которых рассмотрена выше, крепятся к коробке при помощи подвижных навесов. Это традиционный вариант, ассортимент моделей на рынке очень широкий, вид богатый, но один недостаток — занимают много места. Установка пластиковых дверей своими руками не займет много времени, но применять их в маленькой комнате окажется проблематично: при открывании им нужно много места.
- Раздвижные намного удобнее, так как с их помощью пространство комнаты используется более рационально. А установка раздвижных межкомнатных дверей своими руками не займет много времени, если внимательно изучить особенности проведения работ.
В свою очередь раздвижные двери разделяются на 2 вида:
- Двери-купе, встраиваемые в стену, задвигаются в нее и утапливаются. В конструкции имеется механизм, который позволяет перемещать дверь параллельно стене. На полотне монтируются ролики, на проеме или сверху него направляющие. По направляющим движутся ролики, проем освобождается для прохода.
- Неплохим вариантом окажется и установка двери-гармошка своими руками. Конструктивно они выполнены из пластиковых или деревянных ламелей. Сдвигаясь, они складываются и освобождают проем. Но один недостаток — дешевые изделия крайне неудобные и непрактичные. Поэтому если выбор пал на такую конструкцию, то лучше приобрести дорогое и качественное изделие.
Независимо от конструкции у всех раздвижных дверей есть такие плюсы:
- Нестандартность и необычность, очень оригинальный внешний вид.
- Нет глухих зон, расстановке мебели в комнатах они не мешают.
- Полная безопасность, так как нет риска удариться об угол дверцы. Но стоит следить, чтобы дети не засовывали пальцы между дверью и стенкой.
- Огромный плюс — они не открываются сквозняками.
- Установка порога межкомнатной двери не требуется в большинстве случаев, только если нужно прикрыть направляющую внизу, ставится порог.
Но есть и существенные недостатки:
- Расценки на установку сдвижной двери у мастеров просто заоблачные. Но если делать все работы самостоятельно, то можно сократить расходы. Установка межкомнатных дверей-купе своими руками сведет на минимум затраты и сравняет их со стоимостью монтажа распашных дверей.
- Низкая степень изоляции. Приходится устанавливать на торце двери прокладку из войлока. Только так можно избавиться от проникновения в комнату посторонних запахов, звуков, света.
- За пеналом, в который уходит дверь, довольно сложно ухаживать. Но если ухитриться, можно при помощи пылесоса сделать работу. При монтаже обналичников, закрывающих отверстия, это делать проблематично.
- Ремонт такой конструкции достаточно сложный, поэтому, при покупке обязательно про запас возьмите несколько роликов. Установка подразумевает, что будут использоваться элементы, встречающиеся в продаже редко. Порой люди, установившие такие конструкции, приступают к ремонту через несколько лет и не находят в магазинах запасных частей. Приходится переделывать механизм.
Компоненты раздвижных дверей
Основное отличие раздвижных и распашных конструкций — это механизм их функционирования (ролики или навесы). Раздвижные межкомнатные двери могут быть оборудованы такими механизмами:
- Внутристенными, которые позволяют убирать полотно двери внутрь стены. Но есть один нюанс: систему нужно начинать делать в момент возведения стен, так как в них потребуется оставлять пустоты. При этом толщина стены будет больше. За счет этого площадь помещения станет немного меньше, но зато стены освободятся.
- Внешними, которые могут быть смонтированы в любой момент, перестройка стен не требуется. В такой конструкции полотно совершает движение параллельно стенке. Маленький недостаток: потребуется освободить небольшое расстояние от стен.
Направляющие — это один из важных элементов конструкции, полозья, по которым совершает движение на роликах полотно двери. Размещаются они сверху, снизу, либо с обеих сторон. Продажа и установка таких элементов осуществляется магазинами, но лучше монтаж сделать самому. Особенности вариантов расположения:
- Используются только верхние направляющие — самый распространенный способ. Применяется только при условии малого веса полотна двери. Преимущество в том, что риск сломать направляющие крайне низкий, а срок эксплуатации высокий.
- Если используются только нижние направляющие, то при эксплуатации высок риск повредить их. Плавности хода двери без верхней опоры добиться крайне сложно, да и постоянное засорение полозьев будет давать знать о себе.
- Комбинированные конструкции собирают при использовании дверей большой массы, либо для улучшения плавности хода.
Подготовка к монтажу раздвижных дверей
Так как наиболее популярный тип — это наружная конструкция, стоит заострить внимание именно на ней. Установка дверей своими руками подразумевает наличие следующих инструментов и материалов:
- Полотно двери, наличники, коробка.
- Фурнитура (ролики, направляющие, замки, ручки).
- Брусья размером 50х30 мм для крепежа направляющих.
- Метизы.
- Уровень, рулетка, при необходимости линейка.
- Дрель и шуруповерт.
- Ножовка.
- Стамески.
Если масса двери превышает 27 кг, нужно использовать 4 ролика. Для более легких конструкций хватит и 2. Для исключения деформации стены и порчи обоев ручками и замками, используйте скрытые, врезаемые в полотно двери.
В самом начале нужно определиться с местом установки и стороной открытия. В случае, если планируется монтаж 2 дверей, продумайте, насколько удобно будет ними пользоваться. При необходимости старая дверь убирается, монтируется новая коробка. В жилых комнатах зазор следует выдерживать порядка 10 мм. Если нет чистового пола, то в счет берется и ламинат, и стяжка, и нивелировка.
Далее нужно выполнить ряд действий:
- Измерить ширину и высоту двери-купе. Желательно это делать в нескольких точках (внизу, в середине и вверху). Высоту двери нужно измерять в открытом и закрытом состоянии.
- Производится установка бруса. Проводите ровную линию над верхней частью коробки. От линии до края коробки нужно выдержать расстояние, равное ширине направляющей. Брус крепится на этой линии. Один нюанс: середина бруска должна быть расположена над правой половиной коробки, если дверь выдвигается вправо.
- Производится монтаж верхних направляющих профилей. Крепеж полозьев к брусу осуществляется при помощи метизов. Проверьте, как скользят ролики по полозьям. При необходимости замените последние, иначе функционирование дверей в доме будет сопровождаться неудобствами.
- Нижние полозья могут быть установлены несколькими способами. Можно убрать часть напольного покрытия, но это для случаев, когда требуется установка конструкции с нижними направляющими. Можно смонтировать направляющую непосредственно на пол, только придется такую конструкцию использовать с порожками. Но строители активно применяют установку дверей без порога, хотя они и позволяют не разрушиться направляющей. Но намного чаще внизу ролики не ставят, используют лишь пакетный нож. С его помощью придерживается дверь и не отклоняется от направления движения.
Двери с порогом используются нечасто, без него намного проще. Причина — возможность реализации нормальной работы, сдвижные двери купе смогут работать без повреждения напольного покрытия. А это позволяет уменьшить время, необходимое для ухода за конструкцией.
Сдвижные двери: сборка и уход
На верхнем торце полотна навешиваются ролики, а на нижнем проделываются отверстия, между которыми выбивается паз. Он должен быть шириной 2 мм — чуть больше, чем у ножа. Глубина как высота ножа, в интервале 10-18 мм. Та часть, в которой нет паза, выполняет функцию ограничителя. Вставленную в пазы дверь при наличии ограничителя сложно вывести за его пределы.
Монтаж фурнитуры — это установка замка в межкомнатную дверь, своими руками выполнить это несложно. Достаточно наличие простого инструмента — отверток, плоскогубцев. После выполняется 1из важных моментов — установка ручек на межкомнатные двери своими руками. Вся работа выполняется аккуратно, чтобы не повредить внешний облик, иначе сдвижные двери-купе будут смотреться непривлекательно. Если нет опыта, то лучше доверить работу специалистам.
Окончательная установка раздвижных купейных дверей заключается в том, чтобы попасть в направляющие. В завершение ставятся резиновые ограничителя, которые позволят не выпадать дверям при работе и намного мягче сделают остановку. Эта конструкция намного лучше петель «бабочка», так как обеспечивает большую надежность и удобство.
Для красоты можно применить декоративные элементы — наличники, которые устанавливаются на коробке и верхних полозьях. Как правильно их смонтировать, можно прочесть на этикетке. Ставить обналички необязательно, так как сам механизм — это уже элемент декора. Для ухода за раздвижными дверьми необходимо:
- Не допускать, чтобы на полотно и механизм двери-купе попадала вода, особенно если все элементы выполнены из древесины.
- Внимательно следить за чистотой полозьев, своевременно удалять загрязнения. Если на них попадет мусор, то дверь будет плохо сдвигаться и раздвигаться.
- Старайтесь не дергать дверь-купе и не хлопать нею, прикладывать усилие не нужно, так как ролики сильнее изнашиваются, иногда возможен «вылет» за пределы ограничителя. Вставить их на место может быть проблематично.
- Проверяйте качество фурнитуры, меняйте своевременно ролики.
- Повторная установка дверных замков должна происходить максимально аккуратно.
Понятно, что установка межкомнатных дверей из МДФ своими руками или гармошки — это капля в море. Намного сложнее поддерживать их в нормальном состоянии, не допускать поломки и своевременно производить ремонт. В целом же они способны прослужить ничуть не меньше, чем простые распашные конструкции. Установка дверей-купе своими руками — это залог того, что в вашем доме будет присутствовать элемент новизны.
golddveri.ru
правильная и точная инструкция, варианты монтажа
Межкомнатные двери могут эксплуатироваться годами, однако иногда возникают ситуации, когда их необходимо заменить. Технология установки межкомнатных дверей не меняется со времен изобретения петель. Для того, чтобы установить двери, их владельцы часто обращаются за помощью к профессионалам, однако данную процедуру можно осуществить самому, а потратить деньги можно на что-то более полезное. Конечно, понадобятся определенные знания, терпение и труд, однако результат станет достойной наградой.

Разумеется, сама дверь не является какой-то высокотехнологичной системой, однако не является и простой доской, закрывающей вход в помещение. Полотно должно легко открываться и закрываться, не скрипеть, быть достаточно прочным для того, чтобы «держать удар».
Для обеспечения прочности конструкции мастер должен правильно собрать коробку, которая является основой всей конструкции, установить на полотно и коробку фурнитуру – петли, ручки, защелку, замок, закрепить коробку, ровно навесить полотно, отрегулировать механизм в целом, дополнить картину установкой доборов и наличников. Первые два этапа могут выполняться в любой последовательности, однако все остальные действия выполняются последовательно. От этого зависит правильная установка межкомнатных дверей.

Процедура установки
Варианты установки могут быть различными в зависимости от вида межкомнатных дверей. Некоторые пластиковые, а также металлопластиковые двери поставляются покупателю в полностью собранном виде. Не будем заострять на них внимание. Интересен вариант, когда коробка еще не собрана и представляет собой ряд деревянных брусков различной длины, полотно не украшено фурнитурой, планки для наличников не обрезаны.
Сборка коробки
Наиболее сложный и кропотливый процесс – сборка коробки. Любые погрешности и неточности в работе могут повлечь последующие сложности в эксплуатации, а в самых печальных случаях – необходимость покупки нового изделия. Не следует лениться, обязательно уделить должное внимание всем измерениям – «7 раз отмерь, 1 раз отрежь!»

Установка дверей полностью регламентирована, у хороших производителей межкомнатных полотен всегда есть подробная инструкция по проведению процедуры.
В первую очередь следует соединить коробку буквой П. Для этого берутся бруски (три штуки). Если необходимо соорудить порог, потребуется и нижняя брус планка. В этом случае коробка будет четырехсторонней.

Главной задачей является обеспечение точности измерений размера проема, а также полотна, стоек, притолоки с учетом всех зазоров, ровного запила брусков в местах их взаимного соединения, качественной сборки. Следует отметить, что толщина бруса не должна быть меньше толщины дверного полотна. Замеры следует выполнять с помощью рулетки, отдельно замерять правые и левые стороны проема и полотна (они могут не быть зеркальными). Все малейшие отклонения необходимо учитывать при дальнейших измерениях.
Обязательно необходимо оставить зазор с внешних сторон бруса для монтажной пены (не менее 10 мм). С внутренней стороны зазор может быть не таким значительным, до 5 мм. Важно обеспечить наличие зазора по всему периметру. Кроме того, следует оставить щель между полотном и полом в зависимости от вида напольного покрытия. Если это линолеум — то около 10 мм, если ковролин — 15 мм, для ламината 10 мм.

Технология установки межкомнатных дверей предполагает необходимость запила бруса для коробки. Чтобы правильно и ровно сделать запилы следует воспользоваться специальным станком (торцовочным). Если станка под рукой нет (как бывает в большинстве случаев самостоятельной установки), подойдет стусло с ручной ножовкой.
Рассмотрим два способа, позволяющих соединить части дверной коробки в одно целое.

Первый – запил под углом в 45 градусов. Не самый простой способ для непрофессионала. Он требует повышенного внимания к точности обреза. С другой стороны, повод выбрать именно такой вариант есть – хорошо состыкованная коробка, при таком виде запила, выглядит отлично. Для того, чтобы соединить составные части коробки, используют саморезы, отверстия для которых просверливаются насквозь. Сверлить необходимо перпендикулярно сделанному срезу. Необходимо отметить очень важный нюанс – отверстия просверливаются заранее для того, чтобы не допустить повреждения декоративной поверхности. Используется сверло, диаметр которого равен ¾ от диаметра саморезов. Нарезка на саморезах должна быть произведена по всей длине.

Второй вариант – запил под углом 90 градусов. Это очень простой, но менее эстетичный способ. Для завершения процедуры можно использовать обычную ножовку по дереву. Для крепления, также как и в первом варианте, используются саморезы. Исчисляя размер притолочной перекладины следует знать о том, что между притворным и петельным брусом обязательно необходимо оставить расстояние, которое равно сумме ширины полотна плюс 6мм для зазоров. Если дверь с порогом, брус следует запиливать только под прямым углом.
Сборку коробки следует осуществлять на ровной горизонтальной плоскости (можно на полу или в подъезде). На напольное покрытие кладется картон, либо фанера.
Монтаж фурнитуры
Следующим этапом необходимо установить фурнитуру на полотно и коробку. Правила пожарной безопасности предполагают необходимость открытия дверей наружу. Петли могут быть левыми или правыми, но чаще всего применяются универсальные. В наше время высоких технологий появились конструкции петель, которые не требуют срезать необходимую для их установки часть поверхности дверей.

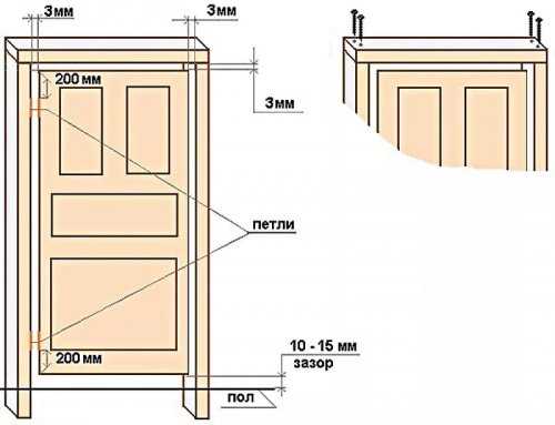
Отступ сверху и снизу измеряется рулеткой, он, как правило, составляет от 15 до 25 см. Если дверь оснащена третьей петлей — она устанавливается в 50 см. от верхней границы полотна. Учитывайте и зазоры, равные 0,3 мм.
Если необходимо вырезать посадочные места для петель следует знать, что вырез должен обеспечивать возможность установки флажка на одном уровне с коробкой и полотном (заподлицо). Вырез осуществляют с помощью фрезы, дорабатывают с использование стамески. Если фрезы нет, можно завершить работу с использованием только стамески.
Правильная установка петель для межкомнатных дверей запечатлена на видео.
Большинство людей считают, что намного удобнее закреплять фурнитуру на первоначальном этапе, до сборки коробки. Между тем, особой разницы в очередности этих действий нет.
То, где должна располагаться дверная ручка, решает хозяин помещения. В качестве стандарта используется расстояние от 90 до 120 см от пола. Крепится она в зависимости от ее типа и наличия либо отсутствия замка. Во всех случаях используется крепежный инструмент, который находится в комплекте с ручкой.

Закрепление дверной коробки
Для крепления достаточно трех добротных саморезов. Монтажная пена послужит хорошим дополнением для более прочного закрепления конструкции. Необходимо помнить о том, что перед тем, как завинчивать саморезы, следует предварительно просверлить под них отверстия.

Дверную коробку лучше крепить вдвоем. Она поднимается с пола и располагается в проеме с оставлением необходимых зазоров для монтажной пены. Дверь выравнивается с помощью клиньев как по горизонтали, так и вертикали. Для точности измерений используется уровень. Если все правильно и ровно — ввинчиваются саморезы для фиксации коробки.
После установки коробки навешивается полотно, проверяется ход двери. Не допускается неровных зазоров и перекосов. Коробка проклеивается скотчем, а в зазоры вокруг полотна вставляется картон. Далее дверь закрывается, а для заполнения зазоров используется монтажная пена. Не следует запенивать все пространство за один раз, лучше подойти в несколько подходов.

Нельзя трогать дверь пока пена не затвердеет окончательно. Если все получилось, можно считать, что процедура монтажа завершена. Последний штрих – уборка пространства от строительного мусора и установка наличников.
Итак, порядок установки межкомнатных дверей понятен. Самостоятельная установка – отличный опыт и экономия денежных средств. В любом мужчине ценят золотые руки, гордятся его умениями и знаниями. Самостоятельная установка дверей – способ доказать всем родным и близким свою компетентность и навыки!
o-dveryah.ru
инструкция по монтажу и порядку установки
Сегодня установка межкомнатных дверей своими руками производится в большинстве случаев. Производители стремятся максимально упростить монтаж своих изделий, поэтому с этим под силу справиться практически любому человеку. Далее подробно рассмотрим данную процедуру.
Изучаем разновидности и их особенности
Перед тем, как самому установить межкомнатную дверь, вы должны будете выбрать подходящую модель. По методу открывания они разделяются на следующие категории:
- Складные. Такие модели состоят сразу из нескольких створок, которые двигаются по направляющей. Их разделяют на две подгруппы: книжки (состоят из 2 секций и отличаются прочностью) и гармошки (альтернатива ширмам).
- Купе (раздвижные). Имеют наибольшее количество модификаций: 1 и 2 створчатые, открывающиеся внутрь или вдоль стены, лево- и правосторонние и т.д. Главное преимущество таких конструкций — экономия пространства. При правильном монтаже они также обеспечивают высокий уровень шумоизоляции.
- Распашные. Последняя разновидность является самой популярностью. Установка дверей такого типа значительно проще, и с ней справляются люди без плотницких навыков (чего нельзя сказать об иных категориях). К тому же их стоимость значительно ниже. Главный недостаток таких конструкций — они занимают много полезной площади.
Монтаж первых двух разновидностей производится по различным методикам, которые имеют существенные отличия. При этом от мастера потребуются навыки плотника, в противном случае невозможно будет добиться положительного результата. Поэтому наша пошаговая инструкция рассмотрит монтаж распашных дверей.

Несколько слов о выборе полотна и расчетах
Технические характеристики необходимо подбирать, исходя из условий помещения. Вначале определяемся с размерами полотна, поэтому измеряем проем. Не забываем про необходимость оставлять зазор. Между стойками и исходной поверхностью 10-12 мм, между полотном и брусом 3-5 мм. Это необходимо для того чтобы избежать заклинивания двери. Оно может появиться в связи с разбуханием полотна (от температурных колебаний и высокой влажности). Стандартная ширина колеблется в пределах 60-100 см, высота 180-220 см.
Помните: готовое полотно невозможно будет подкорректировать, а расширять (сужать) проем трудозатратное дело. Поэтому подбирайте размеры как можно точнее — от этого будет зависеть сложность монтажа.
От размера проема отнимают технические зазоры (12-15мм), ширину коробки и умножают на 2. Полученное число вычитают из ширины проема. Пример расчета:
- Имеем проем шириной 78,5 см.
- 78,5 — (1,2 + 2,5 + 0,3) *2 = 70,5.
- Значит, нам подходит модель шириной 70 см.
Стандартная длина двери — 200 см, поэтому придется подгонять проем под нее. Для вычисления необходимой высоты, к двум метрам (или другой цифре, если имеем дело с нестандартной моделью) прибавляем толщину коробки, размер технического зазор и 1 см (расстояние между полотном и полом). Если предполагается установка порога, то прибавляем и его толщину.

Кроме размеров, необходимо учитывать и особенности материала, из которого изготовлено полотно. Это не столь важно, но не стоит обходить вниманием данный аспект. Запомните несколько простых рекомендаций:
- В помещениях с повышенной влажностью не рекомендуется применение моделей из материалов, неустойчивых к сырости (ДСП, прессованные опилок и т.д.). Они за несколько лет взбухнут и утратят свой первоначальный облик. В таких случаях рекомендуется установка ламинированных дверей.
Совет: если возникла необходимость установки такой разновидности, оставьте технологический зазор в 2 раза больше, ибо такое полотно гораздо быстрее и сильнее будет разбухать.
- Если в доме есть маленькие дети или крупные животные, лучше отказаться от моделей со стеклянными вставками.
Еще один важный момент — для недавно построенных деревянных домов при установке коробки рекомендуется не до конца вкручивать саморезы. Это позволит ей с легкостью пережить усадку.
С чего начать — подготовительные манипуляции
Вначале потребуется произвести несколько трудоемких и важных операций.
Что нам понадобится — изучаем инструментарий
Инструменты для установки межкомнатных дверей не отличаются дороговизной и сложностью. Для выполнения всех манипуляций вам понадобится следующее:
- Ножовка со стуслом (оно должно быть подходящего размера — чтобы коробка полностью входила в его пазы, иначе будет очень неудобно пилить). Можно воспользоваться циркулярной пилой.
- Строительный уровень. В идеале лазерный — он дарует максимальную точность. Однако для разовой работы приобретать его нет смысла — стоит он довольно дорого.
- Дрель с фрезой.
- Карандаш (или маркер), рулетка.
- Молоток.
- Отвертка или мебельный шуруповерт.
- Монтажная пена с пистолетом.
- Крепежные материалы: финишные гвозди (обычно они прилагаются в комплекте), саморезы, дюбеля, шурупы (80×5), клинья.
- Два ватерпаса (180 и 50 см).

Первая процедура — демонтаж
Это самый тяжелый, а главное грязный этап работ. Самостоятельная установка межкомнатных дверей начинается с демонтажа старых. Рассмотрим все поэтапно:
- В ходе операций появится немыслимое количество грязи и пыли. Поэтому сразу убирайте всю мебель, ковры и другие предметы из помещения. Что нельзя передвинуть накрываем чем-нибудь. Не забывайте про СИЗ (очки, перчатки, респиратор).
- Снимаем старую дверь с петель. Для этого откручиваем шурупы, которые их держат. Если петли типа «папа-мама» (то есть когда одна часть вставляется в другую) то просто открываем дверь и под прямым углом тянем её вверх. Если петли не смазывали, придется приложить немало усилий, поэтому делаем работу с напарником.
Совет: если старое полотно вы больше не планируйте использовать, его можно просто оторвать при наличии достаточной силы. Это самый радикальный и быстрый способ.
- Далее необходимо демонтировать коробку. Первым делом снимаем раствор, который держит раму.
- Затем в верхних частях обеих стоек делаются пропилы. Это облегчат процесс извлечения: в сделанные отверстия вставляем монтировку и просто сильно дергаем в разные стороны.
- В итоге они расшатаются, и их легко можно будет вынуть из проема.

Подготавливаем исходную поверхность
Следующим шагом потребуется привести проем в надлежащий вид. Работа производится в такой последовательности:
- Демонтируем утеплитель (если таковой имеется). Делаем это в перчатках, ибо данная группа материалов раздражает кожу.
- Убираем строительный мусор, после чего проводим тщательную ревизию.
- Если наблюдаются материалы, которые легко отслаиваются, удаляем их. Также снимаем все крепежные элементы (петли, гвозди и т.д.).
- В итоге у нас должно получиться голый бетон (кирпич, брус — в зависимости из чего сделаны стены).
После таких процедур, скорее всего ровность и целостность поверхность нарушится. Поэтому потребуется произвести её выравнивание. Способов существует несколько, но самый простой это оштукатуривание.
Если после очистных манипуляций, ширина проема увеличилась (например, поверхностный слой штукатурки опал), то поможет установка доборов. Это такие деревянные (в большинстве случаев) планки шириной 6-30 мм. Их устанавливают в том случае, когда нужно «нарастить» размер проема. Более долговечный вариант — цементный раствор.

Основной фронт работ
Порядок установки межкомнатных дверей необходимо строго соблюдать, поэтому все дальнейшие манипуляции представлены в правильной последовательности.
Собираем коробку правильно
Еще раз, убедившись в ровности исходной поверхности, приступаем к сбору коробки. Она продается в виде брусков различной длины. Из них необходимо сделать П-образную конструкцию (если предполагается установка порога, то прямоугольную). Второй вариант используют в основном для туалетов и ванных комнат.
Если вы заказали короб вместе с дверью, то, скорее всего он будет готовым — понадобится его только собрать (с помощью длинных саморезов или гвоздей). При отдельной покупке его придется подогнать по размеру. Это наиболее сложный процесс, который потребует максимальной точности, ибо в случае малейших неточностей дверь получит уклон, что отразится на её эксплуатационных характеристиках.
Рассмотрим сборку П-образной конструкции:
- Укладываем две вертикальные стойки на пол, необходимо чтобы он были идеально ровным.
- Отмечаем на них высоту проема с внутренней стороны.
- От этих точек вниз производим распил под углом 45 градусов, в этом вам поможет стусло.
- На третьей стойке (горизонтальной) отмечаем ширину проема на внутренней стороне. От этих точек делаем распил на 45 градусов в разные стороны. Не перепутайте направление, эти три элемента должны собраться в единую конструкцию, поэтому при каждом новом распиле делайте примерку.
- Затем размечаем места под петли и замок. Это можно сделать позже.
- Собираем полученную конструкцию и соединяем крупными саморезами. Для каждого стыка используем не менее 3 крепежных элементов.
Внимание! Следите за вертикальным расположением самореза во время закручивания, ибо при малейшем отклонении он проткнет стойку.
Для прямоугольной конструкции сборка будет идентичной, только с добавлением второй горизонтальной стойки.

Как правильно выставить петли
От навесов будет зависеть, насколько комфортным будет закрывание и открывание, поэтому требуется идеальная точность. Большинство полагают, что достаточно двух петель для нормальной эксплуатации. Мы рекомендуем использовать три (одна ставится ровно посередине). В таком случае даже при длительной эксплуатации вы избежите перекосов. Итак, сделать потребуется следующее:
- К нанесенной разметке прикладываем петли и обводим их карандашом (маркером).
- По нанесенным линиям делаем две канавки (на двери и навесе) — на глубину навеса. В этом нам поможет стамеска. Петля должна встать «заподлицо» с основной поверхностью.
- Сделав подгонку, прикручиваем навесы на саморезы средней длины (не менее 3,5 см) сначала к полотну, а затем к стойкам.
- При необходимости делаем подгонку: кладем конструкцию на пол и начинаем открывать (закрывать) — если движение не плавно, подкручиваем саморезы.

Вставляем короб в проем
Следующий этап — установка дверной коробки. Делаем все в такой последовательности:
- Если петли типа «папа-мама», то вынимаем дверь — это облегчит работу. В противном случае оставляем как есть.
- Уровнем ровняем все три стойки. Добиваемся идеальной вертикальности!
- Верхнюю перекладину распираем деревянными клиньями.
- Еще раз ровняем и при необходимости используем подкладки.
- Просверливаем боковые стойки насквозь дрелью.
- В полученные отверстия в стене вставляем дюбеля.
- С помощью длинных саморезов закрепляем коробку.
- Проводим окончательную ревизию и выравнивание.
Финальные аккорды — ручки, наличники
Убедившись в идеальной ровности, производим финальные манипуляции. Вначале проводится установка ручки на дверь. Для этого в полотне просверливается сквозное отверстие соответствующего диаметра (Если вы приобретали полный комплект, то этого делать не придется). Затем две части ручки соединяются. В большинстве случаев это не составляет труда.
В конце выставляются наличники — декоративные элементы, скрывающие все неровности и образующие целостность конструкции. Их приклеивают по всему периметру на специальные жидкие гвозди. Стыки оформляются тоже с помощью стусла.
remontami.ru
Как правильно установить межкомнатную дверь самому — подробная инструкция
Межкомнатная дверь, оформляя границу между комнатами, является важным элементом интерьера квартиры. Монтаж ее символизирует окончание строительства (ремонта) дома. Поэтому решение вопроса, как самому установить межкомнатную дверь, можно рассматривать как завершающую точку долгих трудов.

Межкомнатные двери служат для разделения и звукоизоляции отдельных помещений.
На самом деле проблемы, как самому установить межкомнатную дверь, практически не существует. Она решается очень просто и быстро. Главное — определиться с выбором конструкции и вписать ее в общий интерьер дома.
Понятие о межкомнатной двери
Она предназначена для изолирования помещений друг от друга в одном доме (квартире). К ней не предъявляются повышенные требования прочности и запирающей способности. Ее роль скорее декоративная, чем защитная. Поэтому конструкция такой двери облегченная.
«Пирог» межкомнатной двери.
Конструкция межкомнатных дверей включает в себя дверную коробку, полотно, порог и фурнитуру. Нашли применение следующие основные типы таких дверей: массив, филенчатые и щитовые двери, отличающиеся конструкцией дверного полотна. Массив имеет дверное полотно из цельной древесины или из плотно собранных брусьев. Филенчатое полотно содержит раму, вставки (филенки из ДСП или МДФ) и листовое декоративное покрытие (шпон, пластик и т.д.). Щитовое полотно выполняются сплошным или полым и состоит из рамы, наполнителя и наружного покрытия.
В сплошных конструкциях наполнитель выполнен из ДСП. В полом полотне применен наполнитель в виде пустых ячеек (сот), а наружное покрытие — из МДФ (ДВП). В филенчатых дверях иногда используется частичное остекление. Стекло может быть разного размера и вида (матовое, цветное, рифленое и т.п.).
Дверная коробка исполняет роль силового каркаса, в который через шарниры закрепляется дверное полотно. Изготавливается она из трех прочных деревянных брусьев (два вертикальных и один горизонтальный вверху). Размеры коробки выбираются по дверному проему в стене. К фурнитуре, которой комплектуется межкомнатная дверь, можно отнести шарнирные элементы, запорные элементы и ручки.
Пошаговая инструкция: подготовка к установке двери
Устройство филенчатых и щитовых дверей.
Устанавливать межкомнатную дверь следует тогда, когда основные работы по строительству (ремонту) помещений до чистовой отделки будут завершены. Стены помещения должны быть уже оштукатурены и зашпатлеваны. Главное, чтобы были окончены работы, связанные с повышенной влажностью, а сырые элементы были просушены. Наличие повышенной влажности может отрицательно повлиять на деревянные детали двери. Для того чтобы не появилось несоответствия размера двери по высоте, должна быть полностью сформирована толщина напольного покрытия помещения. В противном случае трудно окончательно спланировать порог двери (низ рамы).
Важное значение имеет подготовка дверного проема в стене. Необходимо проверить вертикальность стенок проема — при отклонении более 1 см следует наложить необходимый слой цементного раствора и выправить положение стенки. Вертикальность следует проверить отвесом. Местные дефекты стенок в виде выпуклостей следует убрать с помощью долота. Стенки проема должны быть ровными, все небольшие неровности нужно устранить шпатлевкой. Только после окончания всех работ с дверным проемом можно замерить размеры для выбора межкомнатной двери. Размер двери должен быть на 2-3 см меньше во все стороны по сравнению с размером проема. При выборе двери необходимо учитывать толщину дверного проема.
Подготовка двери к установке
Схема сборки межкомнатной двери.
Межкомнатную дверь лучше приобрести в комплекте с дверной коробкой. Если приобретено только дверное полотно, то изготовить дверную коробку придется самостоятельно. Коробка изготавливается из коробчатого деревянного бруса, имеющего специфический профиль. Необходимые размеры определяются по замеру дверного проема.
Подготовка двери к установке в дверной проем производится на полу в горизонтальном положении. Вначале подготавливаются места для установки шарниров (петель). Для этого на боковом торце дверного полотна, отступив 20 см сверху и снизу, делают прямоугольные углубления для створки петли. Углубление делается стамеской. Створки петель закрепляются на полотне шурупами. Полотно помещается на свое место внутри дверной коробки и на вертикальной стойке коробки размечается местонахождение встречных полотен петли. С помощью стамески делаются углубления для петель в отмеченных местах на коробке. По длине углубления должны иметь запас 10-15 мм по сравнению с длиной полотна петли.
Далее следует разметить и установить запорную фурнитуру (обычно — ручка с защелкой). На высоте 100-120 см от низа на противоположной от петель стороне дверного полотна делается разметка для установки ручки с защелкой. С торца полотна вырезается стамеской выемка для установки запорного механизма. В полотне на нужном расстоянии просверливается отверстие для ручки. Проводится сборка и закрепление ручки с защелкой на дверном полотне. Полотно вставляется в коробку, на стойке коробки размечается гнездо для вхождения язычка защелки.
Изготовление дверной коробки
Разметка дверной коробки под петли.
Дверная коробка изготавливается из трех брусьев, образующих в сборе букву «П». Соединение боковых стоек вверху производится обычно одним из двух способов. Первый способ подразумевает соединение вертикального бруса с верхним горизонтальным брусом под углом в 45°. Скрепление брусьев производится шурупами. Для их установки просверливаются отверстия, перпендикулярные срезу бруса.
Другой вариант соединения — самый простой. Горизонтальный брус устанавливается между вертикальными брусьями перпендикулярно им, причем так, чтобы его грань совпадала с торцами стоек. Закрепляются брусья шурупами со стороны стоек. Предварительно в них просверливаются отверстия для шурупов.
Установка дверной коробки
Чтобы самому установить межкомнатную дверь, прежде всего надо установить дверную коробку в проем.
Установка дверной коробки в разрезе.
- Вначале проводится предварительное выставление коробки для двери в проеме. Коробка выравнивается отвесом и по уровню.
- Для выравнивания в зазоры между стойками коробки и стенкой вбиваются клинья и распорки с обеих сторон коробки.
- Снимается торцевая декоративная планка и просверливаются отверстия в брусьях коробки на расстоянии до 30 см друг от друга для последующего крепления к стенке проема.
- Через просверленные отверстия размечаются места для сверления отверстий в бетоне (кирпиче) стены.
- Короб извлекается из проема. В отмеченных местах сверлятся отверстия в стене диаметром 6 мм.
- Если стена кирпичная, то следует заранее предусмотреть, чтобы отверстие не попало между кирпичами. В эти отверстия вбиваются дюбели. После этого дверная коробка вновь устанавливается в проем.
- Короб окончательно выставляется по отвесу.
- С помощью шуруповерта коробка крепится к стенке проема шурупами.
- Внизу дверной коробки закрепляется порог в виде доски толщиной 15-20 мм.
Установка дверного полотна
Удалось ли правильно установить межкомнатную дверь самостоятельно, определяется окончательно по качеству навешивания дверного полотна. Установить межкомнатную дверь — это значит обеспечить то, чтобы двери сами не открывались и не закрывались, а также при их плотном закрывании не приходилось прикладывать усилие. В связи с этим к навешиванию дверного полотна следует подойти ответственно. После закрепления дверной коробки отрегулировать зазоры между полотном и коробкой можно только петлями.
Этот важный этап следует начинать с предварительной установки полотна внутри дверной коробки. С помощью различных подкладок и распорок производится выставление полотна относительно коробки. Зазоры сбоку и сверху должны быть минимальными, но позволять без нагрузки вхождение полотна в коробку. Если возникла необходимость, то увеличение зазора можно свести вниз, к порожку.
Расклиненное таким образом дверное полотно указывает на окончательное расположение петель в стойке дверного короба. Расположение петель по высоте точно фиксируется и отмечается в выемке стойки. Если возникает необходимость, то отмечается необходимость уменьшения глубины выемки за счет дополнительной прокладки. Делается окончательная разметка места установки планки для замка ручки в стойке дверной коробки.
Дверное полотно снова снимается. По уточненным разметкам в стойках коробки шурупами закрепляются петли и планка замка. Дверь навешивается на петли.
Дополнительные операции
Для того чтобы окончательно установить межкомнатную дверь самостоятельно, необходимо выполнить некоторые дополнительные операции. Сначала щель между коробкой и стеной надо заполнить монтажной пеной. Для этого все элементы двери закрываются малярным скотчем. Зазор обрабатывается водой из пульверизатора. С помощью монтажного пистолета производится заполнение щели монтажной пеной по всему периметру коробки. После отвердения пены излишки срезаются ножом.
На торцы дверной коробки закрепляются деревянные планки (наличники). Стыкуются планки между собой вверху под углом 45°.
Поверхность коробки в местах крепления планки целесообразно покрыть силикатным клеем.
Закрепляется наличник гвоздями или шурупами с маленькими шляпками. Проведение всех операций позволяет установить межкомнатную дверь самостоятельно.
Инструмент, необходимый, чтобы установить межкомнатную дверь:
- электродрель;
- шуруповерт;
- болгарка;
- уровень;
- отвес;
- плоскогубцы;
- долото;
- стамеска;
- молоток;
- отвертка;
- рулетка;
- линейка метровая;
- ножовка.
Вопрос, как установить межкомнатную дверь, решается достаточно просто. Необходимо правильно подобрать нужную дверь по размерам и ответственно подойти к делу.
dekormyhome.ru
