Как сделать стул из дерева со спинкой своими руками чертежи видео – Стул из дерева своими руками. 340 фото, чертежей и пошаговых мастер классов
Стул из дерева своими руками. 340 фото, чертежей и пошаговых мастер классов
Деревянный стул своими рукамиВ этой статье мы научимся изготовлению деревянных стульев (а так же табуретов, кресел, шезлонгов) своими руками. На примере пошаговых фото, схем и чертежей вы шаг за шагом узнаете рассмотрите весь процесс создания детских, складных, стульев со спинкой и без спинки для кухни, гостиной, спальни, гаража, дачи и садового участка.
Садовый стул своими руками. Размеры и чертежи деталей
Ниже вы можете ознакомиться с чертежами деталей садового стула. Вы можете изготовить деревянные детали самостоятельно, а можете заказать изготовление этих деталей по указанным чертежам на ближайшей мебельной фабрике, при этом вам останется только собрать стул из готовых деталей используя заранее подготовленные крепления и фурнитуру. Как видите из фото ниже, изменив размер планок для сиденья и спинки из садового стула может получиться садовая скамейка.
Чертежи и схема сборки
Источник фото: instructables.com/id/Garden-Chair. Автор: Mukaetov
Деревянный стул для дачной кухни
От обычного стула этот экземпляр, сделанный самостоятельно отличает то, что :
- Спинка кресла отклонена на 10 градусов, и поддерживающие планки выпилены не из одной доски, а склеены из двух, что уменьшает расходы древесины
- Сделано из одного куска дерева. Мастер поставил перед собой задачу сделать стул из цельного куска дерева 2х4. Схему распиловки куска вы найдете на фото ниже.
- В спинке стула горизонтальные планки имеют декоративные вырезы, которые вы можете прочертить на свой вкус. А так же торцы спинки имеют привлекательные скосы.
Пошаговый фото мастре класс. Чертежи
Источник фото: instructables.com/id/Dining-Chair-From-a-2×4. Автор: PKM
Мягкое кресло своими руками на колесиках
Вот такое очень мягкое, подвижное, а главное удобное кресло вы сможете сделать самостоятельно за выходные для своего домашнего офиса, а так же что бы сидеть перед телевизором или за компьютером и ноутбуком.
В принципе, нет ничего особо интересного что бы мы могли вам рассказывать об изготовление этого кресла, чего бы вы не смогли узнать самостоятельно из пошагового фото мастер класса, который расположен в фото галерее ниже.
Источник фото: www.instructables.com/id/Tub-chair-from-scratch-and-upholstered Автор: dezine
Стул из старых костылей

Как известно, костыль способен выдержать вес взрослого человека, поэтому использование его материалов дает ощутимую выгоду в соотношении веса стула к его прочности. Перед использованием древесины от костылей желательно все прошкурить, а после создания всех необходимых деталей покрасить краской или древесным лаком.
Пошаговый Мастер класс
Источник фото: instructables.com/id/Crutch-Chair. Автор: wholman
Стул в стиле модерн
Итак, если давайте сделаем сами стул в стиле модерн. Ниже мы разместили для вас настолько подробные фото, что считаем, что дополнительная информация здесь будет излишней. Можем лишь дать вам ссылку на видео ютуб, где автор этих фото снял некоторые моменты процесса создания этого стула. Вот сама ссылка на видео
Пошаговый Мастер класс
Источник фото: instructables.com/id/DIY-Modern-Chair. Автор: diycreators

Высокий Детский стульчик для кормления своими руками.
Чертежи. Размеры. Схемы
Такой стул стол для кормления детей вы можете изготовить своими руками их фанеры 24 мм, как советует автор. Посмотрите чертежи и размеры и пошаговый мастер класс изготовления такого стульчика ниже. Советуем вам заказать распилку деталей по указанным чертежам в ближайшей мебельной фабрике, что с экономить не мало времени. Не забудьте все тщательно отшлифовать и покрыть столешницу экологичным материалом.
Мастер класс
Источник фото: instructables.com/id/Toddlers-High-Chair/. Автор: Larsollerichter
Стул для детей в виде машинки эвакуатора Метра
Отличная идея сделать стул в виде персонажа Метра машины из мультика «Тачки» . Этот стул Адирондак вы можете сделать и досок от поддона. Ниже вы можете ознакомиться с фото сделанных их разных ракурсов.
Источник фото: instructables.com/id/Towmater-Adirondack-Chair. Автор: RayB3
Кресло качалка без гвоздей своими руками
Посмотрите по пошаговым фото ниже как сделать кресло-качалку без единого гвоздя самостоятельно. Автор купил лист фанеры, вырезал из него детали данного качающегося стула и склеил детали между собой. На фото в галереи приведены чертежи сделанные автором от руки для трех основных деталей, которые вы сами можете перенести в любой масштаб.
Мастер класс с пошаговыми фото изготовления
Источник фото: www.instructables.com/id/Childs-Rocking-Chair-Without-any-nails-or-screws. Автор: paracordbraider
Простое кресло качалка своими руками
Автор этого качающего стула нашел на улице деревянное основание от кровати и сделал из него креслок качалку. Как он это сделал вы можете посмотреть на пошаговых фото ниже.
Источник фото: www.instructables.com/id/Childs-Rocking-Chair-Without-any-nails-or-screws. Автор: paracordbraider
Кресло качалка из клена с плетенной спинкой и сиденьем.
Довольно сложный по изготовлению стул. Некоторые части автор вырезал на ЧПУ станке по самостоятельно нарисованным чертежам, а некоторые приходилось допиливать в ручную. Автор использовал клен, это довольно твердое дерево, поэтому для придания необходимых форм приходилось подолгу замачивать некоторые части в кипятке. Особой работы требует обмотка спинки и сиденья, как это сделать смотрите на пошаговых фото и в этом видео на ютубе
Источник фото: www.instructables.com/id/Grandpys-Rocking-Chair. Автор: Wood Crow
Кресло качалка из кабельной катушки
Если у вас есть никому кроме вас не принадлежащая катушка из под кабеля, то вы можете сделать из неё вот такое кресло качалку. Ниже вы можете посмотреть подробный пошаговый мастер класс как делается такое кресло качалка.
Как видите из фото, катушка разбирается, в кругах вырезается паз для досок, переставляются стержни вниз, под будущее сиденье и все скрепляется. Получается не очень сложно и довольно симпатичное кресло.
Источник фото: www.instructables.com/id/DIY-Cable-Drum-Rocking-Chair. Автор: libskie
Стул со спинкой из обрезков фанеры
Данный вариант стула со спинкой является прекрасным примеров изящного и недорого решения в домашнем столярном деле. При разработке данного стула, автор очень надеялся, что это поможет каждому мастеру сделать недорогую мебель из ненужных обрезков фанеры, которые обычно идут в мусор.
Скачать PDF файл с чертежами вы можете по этой ссылке
Источник фото: www.instructables.com/id/Rocking-chair Автор: zvika_v
Кресло из фанеры и ниток шпагата
Это кресло сделано из фанерных деталей вырезанных на лазерном ЧПУ станке и ниток, которыми стянуты эти фанерные элементы. Схемы и чертежи смотрите на фото ниже.
К удивлению автора, который разрабатывал это кресло, конструкция кресла оказалась довольно крепкой и не развалилась при первой попытке присесть на него. Оказалось что сетка из ниток, которыми обвязаны все элементы кресла из фанеры, стягивают каркас ещё сильнее, когда в кресле кто-нибудь сидит, и кресло становится крепче.
Источник фото: www.instructables.com/id/The-Chair-of-Terror Автор: Roundpegprops
Разборный стул — со спинкой сеткой из веревок своими руками
Здесь мы рассмотрим простой вариант легкого разборного деревянного стула со спинкой сплетенной из веревок или канатов. Ниже вы можете посмотреть как это все делается. Из оригинальной статьи не совсем понятно, но судя по фото можем предположить, что этот стул можно легко и быстро разобрать и компактно сложить спинкой к седушке, а потом заново сложить. Если это так, то это очень крутая идея.
Источник фото: www.instructables.com/id/CIVIL-WAR-CAMP-CHAIR-TIED-BACKREST Автор: irishmail
Делаем кресло (стул) из поддонов
с регулируемой спинкой
Вы можете без особых проблем сделать вот такой замечательный стул кресло из досок от поддона (паллетов). Спинка кресла имеет три положения, которые очень легко и изменяются
Заметим что мы уже не мало видели различных вариантов подобных конструкции в интернете. Ну что ж, это значит что и вы можете сделать свой неповторимый вариант стула подобной конструкции. Удачи!!!
Источник фото: www.instructables.com/id/pallet-wood-armchair Автор: cjose maria
Простой стул со спинкой из поддонов для открытого воздуха
(схемы чертежи и фото)
Данный вариант самодельного деревянного стула прекрасно подойдет для дачи. Их просто изготовить из досок от поддонов или паллетов. Что бы увеличить срок службы автор фото обычно прислоняет эти стулья к деревьям на своем участке и на зиму заносит в гараж, ножки стула обработаны специальным составом, который вы можете купить в любом магазине. По утверждению автора 8 таких стульчиков служат ему верой и правдой вот уже 8 лет.
Источник фото: www.instructables.com/id/A-Chair-for-the-Great-Outdoors Автор: TinkerJim
Простой стул из поддонов
Этот стул из досок от палет потребует от вас минимального количества инструментов и времени для его изготовления. Как видите из фото доски спинки не сколочены, а связаны друг с другом прочной ниткой, что делает его как бы немного шезлонгом.
Сам автор пишет, что при повторном создании этого стула, хотел бы изменить в нем две вещи. Первое, это сделать его больше в ширину, что бы он был более устойчивым и в нем было не так тесно. Второе, сделать его между скрещенными досками больше, что бы спинка не была столь вертикальной и на нем можно было разлечься. И тут уже получится настоящий шезлонг
Источник фото: www.instructables.com/id/Simple-Pallet-Chair Автор: Me2free
Самое простое кресло из цельных поддонов
Если надо сделать быстро….
Огромный плюс такого кресло в том, что вы можете сколотить его буквально за несколько минут при наличии двух поддонов, пилы, саморезов или гвоздей. Здесь уже не надо (как это обычно бывает) разбирать поддон на доски и вытаскивать все гвозди. На ваше усмотрении древесину можно ошкурить и покрыть лаком или краской. Так же автор советует после распилки и сборки кресла из поддонов, скрепить некоторые его части дополнительными дощечками для прочности, например, добавить ещё одну доску с обратной стороны спинки кресла.
Такое кресло может украсить не только какой-нибудь гараж или дачный сад, но и, при дизайнерской покраске и обработке древесины, может придать некоторую тонкость интерьеру вашей квартиру.
Источник фото: www.instructables.com/id/Pallet-Chair-1 Автор: Lindermann95
Стул со спинкой из реек без гвоздей
Как видите спинка это стула имеет дугообразную форму, дощечки как будто ложатся волной. Как сделать такой стул посмотрите по ниже представленным фото. Изготовление этого стула сулит сложность в том придется по вытачивать множество пазов долотом или специальным электро инструментов, т.к. данная технология предполагает использование врезного шипа. Так же придется поработать с клеем
novamett.ru
изготовление мебели на кухню, складных и детских стульчиков
Красота и надежность предметов мебели – это обязательное условие комфорта, вот только за все надо платить, а хорошая мебель стоит дорого. Есть простой и логичный выход, заключающийся в том, чтобы делать мебель самому. Инструмент, желание, трудолюбие – и все получится, надо только постараться.
Не стоит сразу браться за сложную корпусную мебель, начинать лучше с простого изделия, к примеру сделать стул из дерева своими руками. Мастерски изготовленный, он украсит собой интерьер и послужит толчком для новых свершений.
Не забудь поделиться с друзьями!Содержание статьи
Стул – это не табурет
Что такое стул, знают даже дети. Это предмет мебели, предназначенный для сидения и рассчитанный на одного человека. Основные части стула: ножки, сиденье (часто мягкое) и спинка. Именно спинка является тем, что отличает стул от табурета.
Но отличие не ограничивается исключительно внешним видом. В процессе эксплуатации на эти похожие между собой предметы мебели воздействует разные силы. Это можно описать крайне просто – если на табурете сидят, то на стуле «разваливаются».
Помимо механической составляющей, можно выделить и эстетическое отличие. Табурет – мебель утилитарная, не привносящая в интерьер ни комфорта, ни уюта. Табуретом можно пользоваться в мастерской, на даче, повседневно в качестве кухонной мебели, но не выставлять его в гостиную, это будет признаком дурного тона. В гостиной место только диванам и стульям. Красивые, мастерски изготовленные, они способны преобразить даже безвкусно декорированную комнату.
Виды
Мало какой предмет мебели может похвастаться таким обилием моделей, как обычный стул. Несмотря на широкий ассортимент, можно выделить два их основных типа: обеденные и гостиные. Внешне они очень похожи, тем не менее отличия есть. Обеденный стул несколько ниже и более устойчив, кроме того, он имеет зауженное в задней части сиденье. Это вызвано необходимостью обеспечить доступ к столу обслуживающему персоналу.

Стулья изготавливают из различного материала, чаще всего это:
- металл;
- дерево;
- пластмасса;
- композитные материалы.

Иногда можно встретить оригинальные дизайнерские модели, изготовленные из действительно уникальных материалов, к примеру стекло, камень или их комбинация с деревом. Подобные конструкции сложны, зато имеют своеобразный внешний вид и способны поразить самых искушенных ценителей красоты.
Лучшим же материалом для изготовления мебели в домашних условиях является древесина. Ее легко обрабатывать, она имеет достаточную прочность, привлекательный внешний вид.
Выбор древесины
Надежный и долговечный стул можно изготовить только из качественной древесины. Сразу надо отметить, что древесина хвойных пород ввиду своей прямослойной структуры не подойдет. Ножки из сосны могут в любой момент сломаться, не выдержав нагрузки.

Лучшим материалом для самодельных стульев из дерева можно считать лиственные породы с мелкослойной структурой. Какую именно породу древесины выбрать – решать мастеру, это зависит от собственных предпочтений и той суммы, которая выделена на приобретение материала.
Для изготовления стульев используют дуб, бук или граб. Дубовые стулья отличает высокая надежность и долговечность, но важно помнить, что дуб очень трудно обрабатывать. Бук и граб несколько уступают дубу в прочности, зато с ними легко работать, а готовое изделие выглядит ничуть не хуже.

Обратите внимание! Стулья, рассчитанные на небольшой вес, детские или складные, можно изготовить из березы.
В любом случае древесина должна быть сухой, не более 12% влажности, прямой, без видимых повреждений, потемнений, крупных сучков.
Желательно выбирать доску, предназначенную для декоративных работ, а не техническую или конструкционную, в ней заведомо меньше изъянов. Выбирая дерево для мебели, можно остановиться на досках с требуемыми размерами, но лучше и дешевле купить массив, а заготовки необходимой геометрии вырезать самостоятельно на циркулярке.
Соединение деталей стула
Красивые и надежные стулья из дерева собирают исключительно с использованием закрытых соединений. Прочность сборки обеспечивается столярным клеем. Если только стул не предназначен для мастерской, где важна надежность, а не эстетика, соединения на болтах, гвоздях, шурупах и тому подобных недопустимы.

Принцип скрепления крайне прост. На одной детали делается выемка – паз, на другой вытачивают под него шип. Данные элементы можно изготавливать вручную, но проще и точнее – с использованием фрезера.
Обратите внимание! Чтобы соединение было качественным, размеры шипа и паза должны в точности совпадать.

Отдельно стоит отметить технику расклиненного шипа, подобные соединения обеспечивают идеальную подгонку деталей и гарантируют высокую долговечность стыку, поскольку сопряженные части усыхают одновременно. В любом случае, прежде чем браться за изготовление стула, стоит попрактиковаться в создании шипов и пазов. Наверняка в домашней мастерской найдутся обрезки досок, которые подойдут для этой цели.
Изготовление деталей
После того как материал подготовлен, а навыки создания элементов шиповых соединений получены, можно переходить непосредственно к работе. Проще, особенно для начинающих мастеров, будет работать по готовым чертежам. Их легко найти в интернете или соответствующей литературе.

Согласно размерам вырезают заготовки. Каждая отдельная деталь стула должна быть цельной. Некоторые умельцы, желая сэкономить, собирают задние ножки из двух частей, это плохая практика – ножки скоро сломаются.
Спинка
Отличительной чертой стула является спинка. Она функциональна – на нее опирается человек, но она и украшение изделия, потому ее изготовлению надо уделить максимум внимания.

Существует несколько вариантов исполнения спинки:
- цельная жесткая;
- наборная из вертикальных или горизонтальных реек;
- мягкая.
Самой простой в исполнении является цельная жесткая спинка. Этот вариант стоит выбирать, изготавливая стулья со спинкой из дерева для кухни. Конструктивно такая спинка являет собой изогнутую планку, которая с помощью шипового соединения крепится между задними ножками изделия. Часто используют не одну перемычку, а сразу несколько. Это позволяет изготовить красивый и функциональный стул, не затратив много усилий и материала.

Наборная спинка также не отличается особой сложностью изготовления. Собственно, это жесткая спинка, в отверстия (или пазы) которой установлены рейки круглого или прямоугольного сечения.
Более привлекательно как в плане эстетики, так и удобства, выглядит мягкая спинка. Этот вариант дает широкий простор для фантазии, ведь, меняя форму и цветовую гамму обивки, можно создавать уникальные стулья под старину, как штучные, так и полноценные мебельные гарнитуры.

Несущая часть мягкой спинки – фанера толщиной 5-6 мм. В качестве набивки можно использовать войлок, поролон или ватин. Обивку шьют карманом и сшивают снизу.
Этапы сборки
Готовые детали стула собирают в единую конструкцию. Сначала это сборка насухую, без использования клея. Она позволяет убедиться в точности размеров и правильности изготовления элементов соединения. Каждый раз сборку начинают с фартука – это задние ножки, перемычка между ними и продольные царги (основа будущего сиденья). Порядок действий такой:
- собирают одну часть фартука, левую или правую;
- в пазы устанавливают спинку;
- завершают фартук установкой недостающей ножки;
- устанавливают передние ножки стула с перемычкой между ними;
- проверяют точность размеров, при необходимости выполняют подгонку;
- заново перебирают стул, но уже с проклейкой или расклиниванием стыков.

Последним будет установлено мягкое сиденье. В зависимости от выбранной конфигурации изделия оно может укладываться насухую и удерживаться трением или крепиться на клею. Во втором случае используется минимум клея, чтобы его излишки не испортили обивку.
Сиденье
Основная часть сиденья изготавливается из фанеры или доски толщиной 12-20 мм. Доска может быть сплошной или наборным щитом. В любом случае основа должна быть прочной и выдерживать вес взрослого человека.

На основе формируется подушка. Чаще всего мягкое сиденье изготавливают из поролона. Это достаточно хороший материал, к тому же недорогой. Чтобы обеспечить долговечность эксплуатации изделия, поверх поролона укладывают слой войлока или ватина, который будет впитывать пот.

В качестве обивки используется прочная ткань, кожа или замша. Она может быть той же расцветки, что и на спинке, или напротив, контрастировать с нею. При раскрое материала необходимо предусмотреть по краям рубчики, это обезопасит обивку от разрывов на углах. Крепится она с помощью строительного степлера или декоративных гвоздиков.
Складные стулья
Многообразие стульев из дерева не ограничивается классическими моделями. Нередко вместо эстетики от мебели требуется портативность. Дачникам и любителям отдыха на природе нужна мебель, которую легко перевозить в багажнике авто, – складные стулья.

Отличный вариант для начинающего мебельщика – изготовление складного стула своими руками из фанеры, чертежи подобного изделия несложно найти. Данная конструкция, помимо компактности и легкости, имеет существенный плюс – для ее изготовления достаточно небольшого куска фанеры и электролобзика.
Барные стулья
Стулья, которые стоят у стоек бара, имеют свои особенности. Прежде всего, они высокие. Они массивны, имеют круглое жесткое или мягкое сиденье. В большинстве случаев спинка не предусмотрена, но бывают модели с невысоким ограждением, играющим роль спинки и подлокотников. Данная мебель всегда отличалась высокой ценой, но при желании можно изготовить стул подобной конструкции в домашней мастерской.
Барные стулья – это вовсе не обязательно мебель для бара, они прекрасно подойдут для кухни-студии. Отличное решение для жилища в этом стиле – высокая стойка, отделяющая зону кухни, которая используется в качестве обеденного стола, и высокие стулья возле нее.
Простейший деревянный барный стул состоит из четырех ножек – досок, соединенных в верхней точке крест-накрест. На них установлено круглое сиденье из фанеры, для большей надежности в нижней части ножки дополнительно фиксируются деревянным кольцом, собранным из сегментных деталей.

Из-за большой высоты, собирая барный стул из дерева, стоит отойти от принципа исключительно клеевой сборки. Места склейки обязательно усиливать саморезами. Чтобы это не отразилось на потребительских качествах изделия, головки шурупов надо скрыть. Для этого сиденье собирают из двух дисков, к нижнему прикручивают ножки, верхний крепят на клею.
Детские стульчики
Отдельная тема изготовления мебели – детские стулья из дерева. Существует великое множество подобных изделий, которые можно сделать своими руками. В Сети можно найти чертежи разных моделей, начиная от функционального стульчика для кормления до полноценного ученического, который поможет сберечь осанку и превратит учебу в настоящее удовольствие.

Лучший материал для детской мебели – береза или березовая фанера. Хотя он не отличается высокой прочностью, в данном случае это некритично. Мебель для детей имеет меньшие размеры, соответственно, меньшую нагрузку на единицу площади.
Бревенчатая мебель
Чаще всего интерьер дачного домика формируется по остаточному принципу, в том смысле, что на дачу отвозят старые столы и стулья, которые попросту жалко выбросить. Это не совсем неправильный подход, ведь дачу можно обставить дешево и оригинально, используя в качестве материала обычное бревно.
Мебель из бревна имеет ряд существенных преимуществ, в сравнении с другими вариантами. Она доступна и дешева, прочна и надежна, проста в изготовлении.
Если на участке росло дерево и его спилили, – вопрос о материале снят. С одного дерева среднего размера можно запросто изготовить не просто стул, а целый дачный бревенчатый гарнитур, надо только постараться и дать волю фантазии. Дополнительный плюс от использования бревен при изготовлении мебели – изделием можно пользоваться как внутри помещения, так и за его пределами, надо только обезопасить древесину от атмосферных воздействий.

Дерево можно использовать практически любое, главное, чтобы оно не было трухлявым и в нем не присутствовали следы деятельности вредителей леса. Как будет выглядеть готовое изделие, зависит от воображения мастера и имеющихся в его распоряжении инструментов. В любом случае необходимо снять кору и пропитать древесину антисептиком, тогда самодельная мебель прослужит долго и будет радовать не одно поколение своих владельцев.
drevogid.com
Стулья своими руками. 700 фото. Схемы, макеты, чертежи и мастер классы
Стулья своими руками в разбореСадовый стул своими руками. Размеры и чертежи деталей
Ниже вы можете ознакомиться с чертежами деталей садового стула. Вы можете изготовить деревянные детали самостоятельно, а можете заказать изготовление этих деталей по указанным чертежам на ближайшей мебельной фабрике, при этом вам останется только собрать стул из готовых деталей используя заранее подготовленные крепления и фурнитуру. Как видите из фото ниже, изменив размер планок для сиденья и спинки из садового стула может получиться садовая скамейка.
По этой ссылке вы можете скачать PDF файл с подробными инструкциями на языке автора.
Чертежи и схема сборки
Источник фото: instructables.com/id/Garden-Chair. Автор: Mukaetov
Чертеж. Обычный Стул из дерева своими руками

Деревянный стул для дачной кухни
От обычного стула этот экземпляр, сделанный самостоятельно отличает то, что :
- Спинка кресла отклонена на 10 градусов, и поддерживающие планки выпилены не из одной доски, а склеены из двух, что уменьшает расходы древесины
- Сделано из одного куска дерева. Мастер поставил перед собой задачу сделать стул из цельного куска дерева 2х4. Схему распиловки куска вы найдете на фото ниже.
- В спинке стула горизонтальные планки имеют декоративные вырезы, которые вы можете прочертить на свой вкус. А так же торцы спинки имеют привлекательные скосы.
Пошаговый фото мастре класс. Чертежи
Источник фото: instructables.com/id/Dining-Chair-From-a-2×4. Автор: PKM
Чертеж: Стул со спинкой инструкция по сборке и обивке.
Разметка и выпиливание деталей деревянного стула

Простой стул своими руками
Стул можно сделать какой угодно, все зависит от вашей фантазии. Здесь показано, как с помощью простых инструментов и минимальных навыков сделать простой стул своими руками, это, так сказать, базовая модель. Если собираетесь и в дальнейшем практиковаться в изготовлении мебели, то сможете изменить форму и размеры на свое усмотрение. Итак, для работы нужно приготовить инструменты и материалы. Если собираетесь делать с нуля, то понадобится циркулярная пила. Конечно, проще купить готовые заготовки. Для сборки нужны дрель, лобзик, клей и шурупы, из материалов деревянные бруски и лист фанеры.
Затем, приготовив по размерам необходимые заготовки, просверливаете все нужные отверстия. Наносите клей и вставляете дюбеля, царги крепите на шурупы. Усилить конструкцию можно дополнительными царгами во внутренней части стула. Затем шлифуете поверхность и покрываете лаком, или красите.
Источник фото www.wikihow.com
Барный стул для дачи
Барные стойки уже давно не исключительная прерогатива ресторанов и кафешек, сегодня это обычная составляющая домашнего интерьера, особенно часто их ставят на дачах, где есть открытая терраса. Ну а если есть стойка, то нужен и барный стул для дачи. В магазине тяжело выбрать, как раз то, что нужно, тем более не имеет смысла выкладывать такие деньги, если вы покупаете мебель для дачи. Сделать барный стул своими руками совсем не сложно, ведь это обычная табуретка со спинкой, только на длинных ножках. В этом мастер классе как раз и представлен вариант простого барного стула с чертежами и размерами.
Источник фото www.diypete.com/how-to-make-bar-stools/
Как заменить обивку стула
В этой статье приведено много примеров, как сделать стул своими руками. Но если нет никакого опыта столярных работ, денег на новую мебель не хватает, а старая сильно износилась, единственный выход, попробовать ее отреставрировать. Конечно, ремонт шкафа или дивана, это дело серьезное, а например, заменить обивку стула под силу каждому. Для этого вовсе не надо нести его в мастерскую, все можно сделать своими руками.
Правда, модели стульев бывают разные, с некоторыми, возможно, придется и повозится, но зато появится бесценный опыт. Здесь показан способ замены обивки не какого-то конкретного стула, а так сказать стандартный метод.
Первый этап. Убираем крепежные детали.
Здесь все просто, ломать, не строить. Скобы легко повыдергивать с помощью молотка и стаместски. На пошаговых картинках даже мусорное ведро нарисовано, это чтобы не забыть сразу выбросить выдернутые скобы и гвозди, а то ведь по закону подлости обязательно на них кто-то наступит. Для других видов крепления используйте плоскогубцы. Снимать обшивку надо аккуратно, лучше не рвать, ее можно использовать, когда будете кроить ткань для новой обшивки. Чтобы не запутаться, можно пометить части маркером. Осмотрите набивку, если она в нормальном состоянии, то нет никакого смысла покупать новую. Обратите внимание, иногда обивку сажают на клей, тогда, чтобы ее аккуратно снять, вам понадобится длинный нож с зазубренным лезвием, резать надо осторожно и плавно, как бы соскабливая с сиденья.
Второй этап. Ремонт каркаса
Конечно, ремонт надо проводить, если в этом есть необходимость, поэтому тщательно осмотрите качество соединений. Чтобы проверить стул, просто покачайте его под давлением, если заметили движение в пазах, где детали соединены клеем, то, конечно, лучше переклеить. Для ремонта конструкцию необходимо полностью разобрать и очистить от остатков старого клея. Если необходимо, воспользовавшись дрелью, замените сломанные шпонки. Затем соберите каркас в обратном порядке и скрепите его зажимами, пока не высохнет клей.
Третий этап. Закрепление новой обивки
Используя детали старой обивки как образец, сделайте раскройку новой. Для этого заготовки тщательно выровняйте, лучше всего погладить утюгом. Наложите сверху старые кусочки и мелком очертите контур. Вырежьте из новой ткани детали будущей обивки, подпишите мелком, куда что идет, очень нужная мера, в различных кусочках очень легко запутаться. Когда все раскроите, еще раз проверти размеры, а то в процессе крепления устранять недостатки будет очень неудобно. Если выбрали очень плотную ткань, возможно, понадобятся услуги швейной мастерской чтобы сшить детали. Когда материал готов, приступайте к обивке. Что использовать, гвозди или мебельный степлер, зависит от способа, которым была закреплена старая обивка.
Источник фото wikihow.com
Простой стул из шины
Вот такой простой стул (или кресло) вы легко можете сделать из старой шины.
Автор отметил следующие моменты:
- отверстия для канатов следует делать параллельно друг другу, так что бы они соответствовали противоположным отверстиям
- красить лучше в яркие цвета, в несколько слоев
- с нижней стороны шины можно не красить, т.к. это абсолютно не заметно и меньше проблем с краской
- сразу запаситесь веревкой достаточной длинны, что бы вам хватило её на все колосо целиком
- веревку следует натягивать настолько туго, что бы было настолько плотно насколько вы хотите. (Веревку всегда можно успеть подтянуть даже после того как вы закончите плетение всех отверстий)
- стулья можно ставить один на другой, что бы при необходимости можно было сделать стул той высоты, которая вам нужна.
Пошаговый Мастер класс
Источник фото: instructables.com/id/Tire-Chair. Автор: mackderin
Раскладной стул своими руками из фанеры чертежи.
Вырезаем из фанеры


Источник фото: www.object.md-design.ru/en/furniture/plywood-chair
Мягкое кресло своими руками на колесиках
Вот такое очень мягкое, подвижное, а главное удобное кресло вы сможете сделать самостоятельно за выходные для своего домашнего офиса, а так же что бы сидеть перед телевизором или за компьютером и ноутбуком.
В принципе, нет ничего особо интересного что бы мы могли вам рассказывать об изготовление этого кресла, чего бы вы не смогли узнать самостоятельно из пошагового фото мастер класса, который расположен в фото галерее ниже.
Источник фото: www.instructables.com/id/Tub-chair-from-scratch-and-upholstered Автор: dezine
Простой стул со спинкой.
Чертежи и схема сборки
Посмотрите чертежи схему сборки простого деревянного стула для кухни ниже в галерее пошаговых фото. В этой модели мы можем отметить очень простое решение крепления задней спинки стула, при котором можно не заморачиваться о прочности соединения спинки с остальной частью стула и сохранении угла наклона спинки.
Источник фото: www.ana-white.com/2011/03/harriet-chair
Сборочный чертеж стула
Стул из старых костылей
Очень необычное решение сделать стул из пары старых костылей. Не смотря на это, стул получился воистину хорош. Браво автору, отличная работа. Ниже вы сможете ознакомиться с пошаговыми фото изготовления этого стула.
Как известно, костыль способен выдержать вес взрослого человека, поэтому использование его материалов дает ощутимую выгоду в соотношении веса стула к его прочности. Перед использованием древесины от костылей желательно все прошкурить, а после создания всех необходимых деталей покрасить краской или древесным лаком.
Пошаговый Мастер класс
Источник фото: instructables.com/id/Crutch-Chair. Автор: wholman
Чертеж стула со спинкой в полусобранном виде.
С подробным описанием всех деталей.
Стул в стиле модерн
Итак, если давайте сделаем сами стул в стиле модерн. Ниже мы разместили для вас настолько подробные фото, что считаем, что дополнительная информация здесь будет излишней. Можем лишь дать вам ссылку на видео ютуб, где автор этих фото снял некоторые моменты процесса создания этого стула. Вот сама ссылка на видео
Пошаговый Мастер класс
Источник фото: instructables.com/id/DIY-Modern-Chair. Автор: diycreators
Детский стульчик со спинкой из гнутой фанеры


Высокий Детский стульчик для кормления своими руками.
Чертежи. Размеры. Схемы
Такой стул стол для кормления детей вы можете изготовить своими руками их фанеры 24 мм, как советует автор. Посмотрите чертежи и размеры и пошаговый мастер класс изготовления такого стульчика ниже. Советуем вам заказать распилку деталей по указанным чертежам в ближайшей мебельной фабрике, что с экономить не мало времени. Не забудьте все тщательно отшлифовать и покрыть столешницу экологичным материалом.
Мастер класс
Источник фото: instructables.com/id/Toddlers-High-Chair/. Автор: Larsollerichter
Стул для детей в виде машинки эвакуатора Метра
Отличная идея сделать стул в виде персонажа Метра машины из мультика «Тачки» . Этот стул Адирондак вы можете сделать и досок от поддона. Ниже вы можете ознакомиться с фото сделанных их разных ракурсов.
Источник фото: instructables.com/id/Towmater-Adirondack-Chair. Автор: RayB3
Кресло качалка без гвоздей своими руками
Посмотрите по пошаговым фото ниже как сделать кресло-качалку без единого гвоздя самостоятельно. Автор купил лист фанеры, вырезал из него детали данного качающегося стула и склеил детали между собой. На фото в галереи приведены чертежи сделанные автором от руки для трех основных деталей, которые вы сами можете перенести в любой масштаб.
Мастер класс с пошаговыми фото изготовления
Источник фото: www.instructables.com/id/Childs-Rocking-Chair-Without-any-nails-or-screws. Автор: paracordbraider
Чертежи из фанеры кресло-качалки

Простое кресло качалка своими руками
Автор этого качающего стула нашел на улице деревянное основание от кровати и сделал из него креслок качалку. Как он это сделал вы можете посмотреть на пошаговых фото ниже.
Источник фото: www.instructables.com/id/Childs-Rocking-Chair-Without-any-nails-or-screws. Автор: paracordbraider
Кресло качалка для сада из фанеры. Чертежи

Кресло качалка из клена с плетенной спинкой и сиденьем.
Довольно сложный по изготовлению стул. Некоторые части автор вырезал на ЧПУ станке по самостоятельно нарисованным чертежам, а некоторые приходилось допиливать в ручную. Автор использовал клен, это довольно твердое дерево, поэтому для придания необходимых форм приходилось подолгу замачивать некоторые части в кипятке. Особой работы требует обмотка спинки и сиденья, как это сделать смотрите на пошаговых фото и в этом видео на ютубе
novamett.ru
Стул из дерева своими руками. 340 фото, чертежей и пошаговых мастер классов
Деревянный стул своими рукамиВ этой статье мы научимся изготовлению деревянных стульев (а так же табуретов, кресел, шезлонгов) своими руками. На примере пошаговых фото, схем и чертежей вы шаг за шагом узнаете рассмотрите весь процесс создания детских, складных, стульев со спинкой и без спинки для кухни, гостиной, спальни, гаража, дачи и садового участка.
Садовый стул своими руками. Размеры и чертежи деталей
Ниже вы можете ознакомиться с чертежами деталей садового стула. Вы можете изготовить деревянные детали самостоятельно, а можете заказать изготовление этих деталей по указанным чертежам на ближайшей мебельной фабрике, при этом вам останется только собрать стул из готовых деталей используя заранее подготовленные крепления и фурнитуру. Как видите из фото ниже, изменив размер планок для сиденья и спинки из садового стула может получиться садовая скамейка.
По этой ссылке вы можете скачать PDF файл с подробными инструкциями на языке автора.
Чертежи и схема сборки
Источник фото: instructables.com/id/Garden-Chair. Автор: Mukaetov
Деревянный стул для дачной кухни
От обычного стула этот экземпляр, сделанный самостоятельно отличает то, что :
- Спинка кресла отклонена на 10 градусов, и поддерживающие планки выпилены не из одной доски, а склеены из двух, что уменьшает расходы древесины
- Сделано из одного куска дерева. Мастер поставил перед собой задачу сделать стул из цельного куска дерева 2х4. Схему распиловки куска вы найдете на фото ниже.
- В спинке стула горизонтальные планки имеют декоративные вырезы, которые вы можете прочертить на свой вкус. А так же торцы спинки имеют привлекательные скосы.
Пошаговый фото мастре класс. Чертежи
Источник фото: instructables.com/id/Dining-Chair-From-a-2×4. Автор: PKM
Мягкое кресло своими руками на колесиках
Вот такое очень мягкое, подвижное, а главное удобное кресло вы сможете сделать самостоятельно за выходные для своего домашнего офиса, а так же что бы сидеть перед телевизором или за компьютером и ноутбуком.
В принципе, нет ничего особо интересного что бы мы могли вам рассказывать об изготовление этого кресла, чего бы вы не смогли узнать самостоятельно из пошагового фото мастер класса, который расположен в фото галерее ниже.
Источник фото: www.instructables.com/id/Tub-chair-from-scratch-and-upholstered Автор: dezine
Стул из старых костылей
Очень необычное решение сделать стул из пары старых костылей. Не смотря на это, стул получился воистину хорош. Браво автору, отличная работа. Ниже вы сможете ознакомиться с пошаговыми фото изготовления этого стула.
Как известно, костыль способен выдержать вес взрослого человека, поэтому использование его материалов дает ощутимую выгоду в соотношении веса стула к его прочности. Перед использованием древесины от костылей желательно все прошкурить, а после создания всех необходимых деталей покрасить краской или древесным лаком.
Пошаговый Мастер класс
Источник фото: instructables.com/id/Crutch-Chair. Автор: wholman
Стул в стиле модерн
Итак, если давайте сделаем сами стул в стиле модерн. Ниже мы разместили для вас настолько подробные фото, что считаем, что дополнительная информация здесь будет излишней. Можем лишь дать вам ссылку на видео ютуб, где автор этих фото снял некоторые моменты процесса создания этого стула. Вот сама ссылка на видео
Пошаговый Мастер класс
Источник фото: instructables.com/id/DIY-Modern-Chair. Автор: diycreators

Высокий Детский стульчик для кормления своими руками.
Чертежи. Размеры. Схемы
Такой стул стол для кормления детей вы можете изготовить своими руками их фанеры 24 мм, как советует автор. Посмотрите чертежи и размеры и пошаговый мастер класс изготовления такого стульчика ниже. Советуем вам заказать распилку деталей по указанным чертежам в ближайшей мебельной фабрике, что с экономить не мало времени. Не забудьте все тщательно отшлифовать и покрыть столешницу экологичным материалом.
Мастер класс
Источник фото: instructables.com/id/Toddlers-High-Chair/. Автор: Larsollerichter
Стул для детей в виде машинки эвакуатора Метра
Отличная идея сделать стул в виде персонажа Метра машины из мультика «Тачки» . Этот стул Адирондак вы можете сделать и досок от поддона. Ниже вы можете ознакомиться с фото сделанных их разных ракурсов.
Источник фото: instructables.com/id/Towmater-Adirondack-Chair. Автор: RayB3
Кресло качалка без гвоздей своими руками
Посмотрите по пошаговым фото ниже как сделать кресло-качалку без единого гвоздя самостоятельно. Автор купил лист фанеры, вырезал из него детали данного качающегося стула и склеил детали между собой. На фото в галереи приведены чертежи сделанные автором от руки для трех основных деталей, которые вы сами можете перенести в любой масштаб.
Мастер класс с пошаговыми фото изготовления
Источник фото: www.instructables.com/id/Childs-Rocking-Chair-Without-any-nails-or-screws. Автор: paracordbraider
Простое кресло качалка своими руками
Автор этого качающего стула нашел на улице деревянное основание от кровати и сделал из него креслок качалку. Как он это сделал вы можете посмотреть на пошаговых фото ниже.
Источник фото: www.instructables.com/id/Childs-Rocking-Chair-Without-any-nails-or-screws. Автор: paracordbraider
Кресло качалка из клена с плетенной спинкой и сиденьем.
Довольно сложный по изготовлению стул. Некоторые части автор вырезал на ЧПУ станке по самостоятельно нарисованным чертежам, а некоторые приходилось допиливать в ручную. Автор использовал клен, это довольно твердое дерево, поэтому для придания необходимых форм приходилось подолгу замачивать некоторые части в кипятке. Особой работы требует обмотка спинки и сиденья, как это сделать смотрите на пошаговых фото и в этом видео на ютубе
Источник фото: www.instructables.com/id/Grandpys-Rocking-Chair. Автор: Wood Crow
Кресло качалка из кабельной катушки
Если у вас есть никому кроме вас не принадлежащая катушка из под кабеля, то вы можете сделать из неё вот такое кресло качалку. Ниже вы можете посмотреть подробный пошаговый мастер класс как делается такое кресло качалка.
Как видите из фото, катушка разбирается, в кругах вырезается паз для досок, переставляются стержни вниз, под будущее сиденье и все скрепляется. Получается не очень сложно и довольно симпатичное кресло.
Источник фото: www.instructables.com/id/DIY-Cable-Drum-Rocking-Chair. Автор: libskie
Стул со спинкой из обрезков фанеры
Данный вариант стула со спинкой является прекрасным примеров изящного и недорого решения в домашнем столярном деле. При разработке данного стула, автор очень надеялся, что это поможет каждому мастеру сделать недорогую мебель из ненужных обрезков фанеры, которые обычно идут в мусор.
Скачать PDF файл с чертежами вы можете по этой ссылке
Источник фото: www.instructables.com/id/Rocking-chair Автор: zvika_v
Кресло из фанеры и ниток шпагата
Это кресло сделано из фанерных деталей вырезанных на лазерном ЧПУ станке и ниток, которыми стянуты эти фанерные элементы. Схемы и чертежи смотрите на фото ниже.
К удивлению автора, который разрабатывал это кресло, конструкция кресла оказалась довольно крепкой и не развалилась при первой попытке присесть на него. Оказалось что сетка из ниток, которыми обвязаны все элементы кресла из фанеры, стягивают каркас ещё сильнее, когда в кресле кто-нибудь сидит, и кресло становится крепче.
Источник фото: www.instructables.com/id/The-Chair-of-Terror Автор: Roundpegprops
Разборный стул — со спинкой сеткой из веревок своими руками
Здесь мы рассмотрим простой вариант легкого разборного деревянного стула со спинкой сплетенной из веревок или канатов. Ниже вы можете посмотреть как это все делается. Из оригинальной статьи не совсем понятно, но судя по фото можем предположить, что этот стул можно легко и быстро разобрать и компактно сложить спинкой к седушке, а потом заново сложить. Если это так, то это очень крутая идея.
Источник фото: www.instructables.com/id/CIVIL-WAR-CAMP-CHAIR-TIED-BACKREST Автор: irishmail
Делаем кресло (стул) из поддонов
с регулируемой спинкой
Вы можете без особых проблем сделать вот такой замечательный стул кресло из досок от поддона (паллетов). Спинка кресла имеет три положения, которые очень легко и изменяются
Заметим что мы уже не мало видели различных вариантов подобных конструкции в интернете. Ну что ж, это значит что и вы можете сделать свой неповторимый вариант стула подобной конструкции. Удачи!!!
Источник фото: www.instructables.com/id/pallet-wood-armchair Автор: cjose maria
Простой стул со спинкой из поддонов для открытого воздуха
(схемы чертежи и фото)
Данный вариант самодельного деревянного стула прекрасно подойдет для дачи. Их просто изготовить из досок от поддонов или паллетов. Что бы увеличить срок службы автор фото обычно прислоняет эти стулья к деревьям на своем участке и на зиму заносит в гараж, ножки стула обработаны специальным составом, который вы можете купить в любом магазине. По утверждению автора 8 таких стульчиков служат ему верой и правдой вот уже 8 лет.
Источник фото: www.instructables.com/id/A-Chair-for-the-Great-Outdoors Автор: TinkerJim
Простой стул из поддонов
Этот стул из досок от палет потребует от вас минимального количества инструментов и времени для его изготовления. Как видите из фото доски спинки не сколочены, а связаны друг с другом прочной ниткой, что делает его как бы немного шезлонгом.
Сам автор пишет, что при повторном создании этого стула, хотел бы изменить в нем две вещи. Первое, это сделать его больше в ширину, что бы он был более устойчивым и в нем было не так тесно. Второе, сделать его между скрещенными досками больше, что бы спинка не была столь вертикальной и на нем можно было разлечься. И тут уже получится настоящий шезлонг
Источник фото: www.instructables.com/id/Simple-Pallet-Chair Автор: Me2free
Самое простое кресло из цельных поддонов
Если надо сделать быстро….
Огромный плюс такого кресло в том, что вы можете сколотить его буквально за несколько минут при наличии двух поддонов, пилы, саморезов или гвоздей. Здесь уже не надо (как это обычно бывает) разбирать поддон на доски и вытаскивать все гвозди. На ваше усмотрении древесину можно ошкурить и покрыть лаком или краской. Так же автор советует после распилки и сборки кресла из поддонов, скрепить некоторые его части дополнительными дощечками для прочности, например, добавить ещё одну доску с обратной стороны спинки кресла.
Такое кресло может украсить не только какой-нибудь гараж или дачный сад, но и, при дизайнерской покраске и обработке древесины, может придать некоторую тонкость интерьеру вашей квартиру.
Источник фото: www.instructables.com/id/Pallet-Chair-1 Автор: Lindermann95
Стул со спинкой из реек без гвоздей
Как видите спинка это стула имеет дугообразную форму, дощечки как будто ложатся волной. Как сделать такой стул посмотрите по ниже представленным фото. Изготовление этого стула сулит сложность в том придется по вытачивать множество пазов долотом или специальным электро инструментов, т.к. данная технология предполагает использование врезного шипа. Так же придется поработать с клеем
www.novamett.ru
процесс изготовления конструкции с видео

В этой статье подробно с чертежами и инструкциями будет рассмотрена тема о том, как сделать стул своими руками. Вам непременно понравятся эти удобные стулья из дерева с высокой изогнутой спинкой и мягким сиденьем.
Независимо от того, сделаете ли пару таких изделий или целый комплект из шести стульев, вы сумеете оценить простоту и надежность конструкции.
Ножки
- Острогайте доски до толщины 38 мм для передних А и задних В ножек стула. Разметьте на доске ножки, а для уменьшения количества отходов располагайте их группами. Размер заготовок A — 38x38x419 — 2 шт., размер заготовок B до опиливания — 38x108x1032 мм — 2 шт.

Нажмите для увеличения
- Ленточной пилой опилите заготовки задних ножек до размеров, указанных в чертеже. Отшлифуйте по контуру задние и передние ножки. Обрежьте их верхние концы перпендикулярно передней стороне. Иначе изготовленный стул из дерева своими руками будет неустойчивым.
- Разметьте гнезда для шипов на передних и задних ножках. Убедитесь, что ножки симметричны и зеркальны. Ниже представлена небольшая инструкция, как самостоятельно изготовить гнезда.

Используйте сверло Форстнера 6 мм, зажмите его в патроне сверлильного станка или дрели. Высверлите древесину в гнездах

Направляя стамеску перпендикулярно выровняйте стенки и углы гнезда
- Снимите фаски 3 мм на обоих концах задних ножек B и на нижних концах передних ножек А, как указано на чертеже выше.
Царги, проножки, перекладины и планки спинки
В данном параграфе будет представлен большой раздел о том, как сделать стул, то есть производство основной конструкции. Будут представлены чертеж стула со всеми размерами, схема соединения элементов.
- Из материала толщиной 18 мм выпилите переднюю царгу С, переднюю и заднюю проножки D, боковые царги Е и боковые проножки F по следующим размерам: С — 18x76x419 — 1 шт., D — 18x38x419 — 2 шт., E — 18x76x406 — 2 шт., F — 18x38x406 — 3 шт.

Детальная схема стула
- Из доски толщиной 45 мм выпилите две заготовки 76×419 мм для верхней и нижней перекладин спинки G, Н. Сохраните обрезки заготовок, имеющих одинаковую с деталями толщину и ширину, для изготовления пробных шипов.
- Чтобы не испортить изготовление стульев из дерева, нужно немного потренироваться. С помощью пазового диска попробуйте выпилить пробные шипы на обрезках толщиной 18 мм по размерам, указанным ниже на рисунке.

- Если пункт 3 прошли успешно и вы проверили, как входят эти шипы в гнезда ножек, тогда выпилите шипы на самих деталях C, D, E, F и позже в детали I.
- Чтобы конструкция стула была красивой, разметьте дуги на нижних краях передней С и боковых F царг. Выпилите их ленточной пилой и отшлифуйте по контуру.
- Не меняя настройки пильного станка, выпилите плечики шипов глубиной 6 мм на заготовках перекладин спинки G, Н в местах, указанных на шаблоне перекладин. Выпилите такие же плечики на обрезках толщиной 45 мм для изготовления пробных шипов.

- Установите глубину пиления 10 мм и выпилите первую щечку шипа на передней стороне перекладин и обрезков толщиной 45 мм, как показано на шаблоне.
- Поднимите пазовый диск на высоту 29 мм и выпилите вторую щечку шипа на задней стороне обрезка. Проверьте, как входит шип в гнездо ножки, и измените настройки, если требуется. Затем выпилите вторую щечку шипа на заготовках перекладин.

Инфографика. Как сделать стулья для кухни своими руками из досок
- Сделайте четыре копии шаблона перекладин для узкой стороны и две копии шаблона для широкой стороны. Аэрозольным клеем приклейте узкие шаблоны к верхней стороне заготовки нижней перекладины G и к нижней стороне верхней перекладины Н, соединив половинки, как показано. Выпилите перекладины с небольшим отступом от линий контура и сохраните обрезки.
Примечание. Изготовление деревянных стульев производится из разных пород древесины, например, из массива дуба, сосны, березы. Часто используется фанера.
- Затем шлифовальным барабаном диаметром 76 мм или эксцентриковой шлифмашиной отшлифуйте детали до контурных линий.
- Чтобы сделать шаблон, поддерживающий изогнутые перекладины при сверлении гнезд для планок I, распилите поперек один из наружных обрезков перекладин на две половинки. Сверлом диаметром 6 мм высверлите в перекладинах гнезда, где указано на шаблоне. Обратите внимание, что гнезда нижней перекладины имеют длину 18 мм, а верхней — 38 мм.

Двухсторонним скотчем приклейте к упору сверлильного станка внешний обрезок перекладины спинки. Используя его как направляющую, высверлите гнезда в перекладинах спинки.
- Двухсторонним скотчем приклейте к упору сверлильного станка внешний обрезок перекладины спинки. Используя его как направляющую, высверлите гнезда в перекладинах спинки.

- Для выпиливания дуги на верхнем крае перекладины Н приклейте к ней двухсторонним скотчем наружные обрезки. Аэрозольным клеем приклейте к передней стороне перекладины копию переднего контурного шаблона. Затем выпилите дугу. Удалите обрезки и гладко отшлифуйте кромки распила. Удалите шаблоны с узкой стороны обеих перекладин.
- Для изготовления планок I острогайте материал до толщины 6 мм. Выпилите по указанным размерам планки. Выпилите плечико шипа глубиной 6 мм на верхнем конце планок, а также плечико шипа глубиной 16 мм на нижнем конце планок. (Плечико глубиной 16 мм уменьшится до 6 мм после придания планкам окончательной формы.) Опустите диск до высоты 3 мм. Выпилите щечки на обоих концах. Проверьте, как входят шипы в гнезда верхней и нижней перекладин спинки.
Видео о том, как сделать деревянные стулья своими руками. Оно очень подробное, обязательно посмотрите до конца. Представлены интересные фишки.
- Сделайте пять копий контурного шаблона для планок. Аэрозольным клеем приклейте шаблоны к планкам I, выравнивая их относительно выпиленных плечиков на верхнем конце. Продлите прямые линии шаблона до нижнего конца планки. Опилите детали по контуру, оставляя небольшой припуск для последующей шлифовки. Удалите шаблоны.
Сборка стула
- Приклейте и зафиксируйте струбцинами переднюю царгу С и переднюю проножку D между передними ножками А, а планки I между нижней и верхней перекладинами спинки G, Н. Проверьте плоскость и прямоугольность обеих сборок.
- Приклейте и зафиксируйте струбцинами заднюю проножку D и собранную спинку G/H/I между задними ножками. Проверьте прямоугольность сборки.

Стул со спинкой своими руками. Сборка основного элемента.
- Соедините переднюю сборку A/C/D с задней B/D/G/H/I, вклеив в гнезда боковые царги Е и боковые проножки F (смотрите детальную схему стула). Проверьте прямоугольность сборки измерением диагоналей. До высыхания оставьте склейку на ровной поверхности.

- Выпилите заднюю царгу J и подгоните ее длину к расстоянию между боковыми царгами Е. Вставьте заднюю царгу между боковыми, выровняв заподлицо верхние кромки. Просверлите монтажные отверстия в задние ножки В и вверните шурупы.
Видео о том, как дед сделал крутой стул со спинкой своими руками.
- Выпилите по указанным размерам угловые стяжки К. Сделайте на их концах скосы. Оперев стяжки плоскостью скоса на столик сверлильного станка, просверлите цекованные отверстия с монтажными отверстиями в центре. Затем поставьте детали кромкой вверх, зафиксируйте и сделайте посередине их длины и толщины раззенкованные монтажные отверстия.

Угловая стяжка. Размеры, вид сверху и в разрезе
- Установите угловые стяжки на 3 мм ниже верхних кромок царг С, Е, J. Через наклонные монтажные отверстия в стяжках просверлите направляющие отверстия в царгах и вверните шурупы.
Подходим к финишу
Ну вот мы почти закончили изготовление деревянного стула своими руками.
Отшлифуйте все детали наждачной бумагой зернистостью до 220 единиц и шлифовальной колодкой смягчите все острые ребра. Тщательно удалите пыль от шлифовки.
Если требуется, затонируйте древесину морилкой. Затем нанесите два слоя прозрачного лака.
Посмотрите видео о том, как еще можно сделать деревянный стул. 7 классных вариантов.
Добавьте сидушку
Чтобы собственными руками сделать сиденье L с мягкой обивкой, следуйте инструкциям ниже.
Закончив обивку сиденья, расположите его на стуле вплотную к задним ножкам В и посередине между боковыми царгами Е. Через раззенкованные монтажные отверстия в угловых стяжках К просверлите направляющие отверстия в сиденье L. Прикрепите сиденье к угловым стяжкам шурупами.
- Шаг 1. Аэрозольным клеем приклейте к сиденью кусок губки с боковыми припусками на обрезку. Обрежьте излишки, ведя лезвие ножа вдоль кромок сиденья. Старайтесь делать срез строго вертикально.

- Шаг 2. Чтобы края сиденья были закругленными, срежьте верхние острые ребра губки. Для этого с помощью маркера и линейки проведите линии с отступом 100 мм от края внутрь сиденья и 25 мм вниз.

- Шаг 3. Срежьте верхние углы по сделанной разметке. Выдерживайте постоянный угол наклона лезвия, совмещая его с линиями на верхней и боковой сторонах губки.

- Шаг 4. Положите на верстак кусок толстого синтепона размером 540×540 мм. Выровняйте сиденье с губкой по центру этого куска. Заверните края синтепона вокруг сиденья и прихватите их скобами. Обрежьте излишки синтепона на углах.

- Шаг 5. Выровняйте обтянутое синтепоном сиденье по центру куска обивочного материала размером 540×540 мм. Закрепите края обивки скобами в середине каждой стороны сиденья. Работая от середины сторон к углам, натягивайте края обивочного материала и закрепляйте их скобами.

- Шаг 6. Соберите материал в углах и обрежьте излишки, отступив от сиденья около 20 мм. Натягивая остаток обивки, равномерно распределяйте скобами. Обрежьте все излишки материала.

Список материалов

Примеры стульев

Кухонный табурет с резными ножками

Венский стул

Стулья из массива дерева с резьбой

Эскиз и чертежи еще одного самодельного стула
Просим вас писать свои вопросы или замечания в поле для комментариев. Наши эксперты на них ответят.
1pomebeli.ru
Как сделать стул своими руками
Если хочется комфортно провести время, то никак не обойтись без удобных стульев. Производители предлагают различные варианты такой мебели на любой вкус, но с целью экономии средств многие решают всё изготовить самостоятельно. В этой статье мы предлагаем вам рассмотреть несколько вариантов того, как сделать стул.
Выбор древесины

Для изготовления стула могут потребоваться следующие виды пиломатериалов:
- Доски.
- Массив.
- Бревна.
- Брусья.
Чаще всего одновременно используют несколько материалов. Почему в этом списке бревна? При наличии соответствующего оборудования, доски и другие заготовки можно изготовить самостоятельно. Также существуют оригинальные идеи, как из бревна сделать стул. Некоторые из таких идей, вы сможете увидеть в разделе фото, в конце статьи.
Что касается выбора пиломатериала, то он не должен иметь сучков, трещин и грибковых болезней.
Способы распила бревна
Будьте внимательны при выборе древесины, так как нередко ее подкрашивают для лучшего вида.
В целом же пиломатериал должен соответствовать таким параметрам:
- На брусках должны отсутствовать трещины, кромки должны быть ровными, а сам материал сухим. Допускаются небольшие отклонения по перекосу.
- Доски должны иметь толщину до 100 мм.
- Порода массива дерева должна быть подходящей для изготовления стула. Она должна быть достаточно прочной и выносливой. В большинстве случаев выбор падает на дуб или красное дерево. Они легко поддаются обработке и отличаются долговечностью и прочностью.
- Также используется сосна или бук. Эти породы дерева не менее востребованы и практичны.
При закупке не берите все материалы впритык. Обязательно возьмите с небольшим запасом.
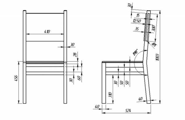
Стул со спинкой

Ознакомившись с тонкостями выбора древесины, посмотрим, как можно самостоятельно сделать деревянный стул со спинкой. Принцип изготовления похож на сборку табурета. Только в этом случае ещё изготавливается спинка. Кроме пиломатериала потребуется следующие материалы и инструменты:
- Шурупы.
- Столярный клей.
- Фреза.
- Стамеска.
- Молоток и другой столярный инструмент.
Теперь вы можете рассмотреть список наименования деталей для создания стула, а также поясняющий чертеж:
Наименование деталей стула и чертеж
Хотя деталей достаточно много, но в целом получится собрать качественный и долговечный стул из дерева.
Процесс работы состоит из указанных ниже этапов:
- В первую очередь выпиливаются ножки. Они будут иметь ширину 75 мм, толщину 38 мм, а высоту 1075 мм.
- Далее найдите точки прикрепления горизонтальных перемычек.
- В отличие от задних ножек, передние будут короче. Их высота равна 420 мм.
- Эти детали, как и последующие, необходимо тщательно обработать шлифовальной машиной.
- Теперь, используя фрезу, выберите пазы для стыковки ножек с перемычками. Предварительно все точно вымеряется.
- Для перемычек спинки должно быть 5 вертикальных и 2 горизонтальных стойки длиной 475 мм.
- В горизонтальных стойках сделайте пазы для крепления.
- Теперь, отталкиваясь от схемы, на деталях под номером 3,4,5 и 6 изготавливаем шипы. В детали №3 от середины к краю необходим скос верхней части.
- Произведите предварительную сборку, но без клея. Так, вы сможете исправить все неточности и проверить соединения шип/паз. Если все сходится точно, то разберите спинку, промажьте все компоненты клеем, соберите обратно и зажмите заготовку струбциной.
- На следующем этапе изготавливаются боковые вставки. Одни из них представляет собой арочную деталь №7, нижнюю перекладину 8 и 9, а также рейки 9 и 10.
- Далее, выпиливается заготовка под номером 11 для арочных перемычек.
- Чтобы упростить задачу по изготовлению этой детали, можно сделать шаблон из МДФ, т. к. все арочные элементы имеют равные размеры.
- Далее на арочных заготовках отмеряете и изготавливаете пазы, в которые будут вставляться планки с шипами 9 и 10. Соответственно в них делаются шипы.
- Верхние торцы детали следует подогнать фрезой строго по размеру. Для изготовления шипов на вершинах возьмите цилиндрическую фрезу для фальца.
Арочные элементы стула - Теперь, возьмите все детали, соответствующие номеру 12 и 13, на арочных заготовках срежьте шипы на ус.
- После черновой обработки все соединения промазываете клеем и скрепляете струбциной этот элемент стула.
- Когда клей высох, места соединения дополнительно следует усилить саморезами, шляпки которых закройте декоративными заглушками.
- На следующем этапе пойдет работа с планкой №16, которая предназначается для опоры сиденья. Эти планки прикручиваются саморезами к перекладине под номером 18.
- Теперь, когда все заготовки собраны, остается их собрать в одну конструкцию. Сперва к задней ножке приклейте детали 11, 12 и 19. После вставьте в пазы второй длинной ножки. Зафиксировав струбциной, можно закручивать саморезы.
- Дальше к готовой спинке приклеиваете боковые вставки и боковые элементы царги. Переднюю сторону царги с ножками и арочную перемычку склейте.
- Получившуюся конструкцию можно одеть на шипы боковин. Проверьте прямоугольность. Для этого используйте угольник. Если все ровно после измерений и визуально, то стяните изделие струбциной и закрутите саморезы.
Еще раз стоит напомнить о том, что каждую деталь следует тщательно отшлифовать. На ней должны отсутствовать острые углы и всевозможные неровности. Собранный стул покрывается морилкой и лаком (до трех слоев). При этом каждый слой лака наносится после полного высыхания предыдущего.
В заключение сидение обтягивается мягкой кожей, дерматином или другим подходящим материалом.
Чтобы не повредить полы, на тыльную часть ножек рекомендуется закрепить резиновые или фетровые накладки.
Складной стул

Теперь посмотрим, как можно сделать складной стул из дерева. Для него потребуется следующий набор материалов:
- Для длинных ножек 2 бруска по 900 мм.
- Для коротких ножек 2 бруска по 550 мм.
- Для опоры под сиденья 2 бруска по 290 мм.
- Для длинных ножек 2 поперечины из доски 400×50 мм и 340×50 мм.
- Для коротких ножек 2 поперечины из доски 280×50 мм.
- Деревянная рейка для основы спинки 400×70×150 мм.
- Для сиденья 6 реек 340×40×150 мм.
- Металлический прут Ø 10 мм и длиной 36 см.
Элементы складного стула
Брус во всех перечисленных случаях используется 30×30 мм, а доски толщиной в 20 мм. Чтобы собрать стул из этих комплектующих, придерживайтесь инструкции:
- В брусках, предназначенных для опоры сиденья, сверлите отверстия для металлического прута. От края 40 мм, а от опор 70 мм.
- После к ним саморезами фиксируются рейки сиденья с зазором между ними в 10 мм.
- Теперь с отступом в 110 мм на верхнем конце сверлите отверстия в брусках длинных ножек. В них же, отступив 40 мм от края, выполняете запилы для спинки. Внизу просверливаете по 2 отверстия. Так, вы сможете закрепить поперечины. К верхней части закрепляется спинка.
- В подготовленные отверстия продеваете металлический прут, который концами фиксируется в пазах ножек.
- Чтобы короткие соединить с длинными, посередине бруска для меньших ножек просверливаете отверстия. Ниже и выше середины на нагелях фиксируются поперечины.
- В завершение все детали скрепляются при помощи винтов.
Вот так просто изготавливается складной стул. Другие подробности и тонкости сборки вы сможете увидеть в представленных видеороликах.
Итак, мы рассмотрели различные варианты увлекательного процесса изготовления стула из дерева. Будьте уверены в том, что вам вполне по силам будет собрать подобное изделие. Если вы имеете другие идеи, то пишите комментарии к этой статье. Если вы хотите узнать об оригинальных решениях, то в фотогалерее представлено несколько идей.
Видео
Фото
Стулья из пней
Стулья из остатков древесины
Стул-стремянка
Стул из полипропиленовых труб
Стул для ребенка из пластиковых труб
Складной стул-табурет
Самодельный стул-качалка
Простые барные стулья
Оригинальный стул из пенька
Барные стулья
Схемы и чертежи
К некоторым из предложенных в фотогалерее стульям прилагаются схемы и чертежи, что поможет вам понять, как сделать выбранный стул самостоятельно:
Чертеж раскладного стула
Схема складного стула
Схема ножки стула
Схема деталировки стула
Схема барного стула
Эскизы стульев из фанеры
Чертеж стула стремянки
Чертеж стула со спинкой
kakpravilnosdelat.ru
Как сделать складной стул со спинкой: чертежи, фото схемы

Деревянный складной стул со спинкой своими руками два варианта изготовления.
Делаем сами складной стул со спинкой: чертежи с размерами, схема сборки, фото.
В прошлой статье мы занимались изготовлением раскладной табуретки, теперь мы сделаем складной стул, но уже со спинкой. Спинка позволяет при сидении опереться на неё и разгрузить спину, что более удобно, чем сидеть на табурете. В сложенном состоянии стул практически не занимает места и его можно убрать в кладовку. Самодельный раскладной стул отлично подойдёт для отдыха на балконе, при ненадобности его можно быстро сложить, его можно взять с собой на пикник или на дачу.
В этой статье мы сделаем деревянный складной стул со спинкой и для начала ознакомимся с чертежами.
Складной стул со спинкой чертежи (1 вариант).

Складной стул со спинкой фото.

Складной стул со спинкой чертежи (2 вариант).

1. — Передние ножки.
2. — Задние ножки.
3. — Опорные бруски сидения.
4. — Поперечины.
5 — 10. — Планки сидения.
11. — Спинка.
12. — Верхняя поперечина.
Складной стул со спинкой фото.

Как сделать складной стул со спинкой.
Теперь приступим к изготовлению раскладного стула, нам понадобится древесина твёрдых пород (берёза, дуб, тис, клён, вяз, грецкий орех, груша), можно использовать и сосну, но конструкция будет менее крепкой.
Для изготовления складного стула (1 вариант) нужно подготовить следующие материалы:
- Бруски длиной 740 мм – 2 шт. (передние ножки).
- Бруски длиной 470 мм – 2 шт. (задние ножки).
- Бруски длиной 320 мм – 5 – 8 шт. (рейки для сидения и спинки).
- Бруски длиной 430 мм – 3 шт. (перекладины для рам).
- Болты, шайбы, гайки.
- Саморезы.
Для начала нужно изготовить сидение для стула. К опорным брускам крепим саморезами рейки, в результате у нас получиться сидение.
Теперь собираем раму из передних ножек и спинки. К опорным ножкам в верхней части крепим рейки под спинку, в нижней части крепим перекладину.
Изготовим задние ножки. К задним ножкам крепим нижнюю и верхнюю перекладины.
Соединяем переднюю и заднюю рамы стула болтами и гайками.
Крепим сидение к передней раме, сверлим сквозные отверстия в раме и в опорных брусках сидения, соединяем болтовыми соединениями.
Шляпки болтов и гайки нужно утопить, для этого нужно просто рассверлить гнёзда и вкрутить болты заподлицо.
Сидение должно свободно вращаться в раме, в разложенном состоянии задняя часть сидения упирается в перекладину задней рамы, и конструкция принимает форму стула.
Чтобы сложить стул, достаточно приподнять сидение и сдвинуть рамы.
Складные стулья, изготовленные своими руками всегда пригодятся в домашнем хозяйстве.

sam-stroitel.com
