Как сделать своими руками шифоньер – замары и чертежи, пошаговая сборка
замары и чертежи, пошаговая сборка
Если нужно выгодно занять свободное место в помещении, можно установить шифоньер. Эта конструкция стала популярной благодаря своей функциональности.
Как сделать шифоньер своими руками
Содержание статьи
Установка шифоньера начинается с планировки. Необходимо размерять помещение. Следующий шаг – создание каркаса. Потом внутреннее наполнение (штанги, полки и ящики). Потом создаются двери. Последний шаг – создание необходимого фасада, чтобы конструкция вписывалась в помещение.
Подготовка инструментов и материалов
Шифоньер можно сделать из одного, из следующих материалов:
- Вагонка и древесина. Они прочные, надежные и экологичные. Но все же этот вариант не самый лучший. Если шкаф будет установлен в нишу, постоянные скопления влаги приведут к повреждению материала.
- Гипсокартон. Этот материал легко обрабатывать. Но его невозможно использовать в качестве опоры. Каркас необходимо делать из металла.
- Ламинат МДФ или ДВП. На данный момент эти материалы считаются самыми лучшими. Они смогли сохранить в себе все достоинства древесины (крепкость и прочность). А еще они устойчивы к повышенной влажности.
- ДСП. Преимущество в низкой цене материала. Но он плохо держит крепления и не является безопасным в плане экологии.
Для работы нужны следующие инструменты:
- Шуроповерт.
- Ножовка.
- Рулетка.
- Уровень.
- Нож.
- Штапели.
- Гладилка.
- Угольник.
Внимание! В некоторых случаях при сборке могут потребоваться и другие инструменты.

Как правильно сделать замеры
На этом этапе необходимо сделать чертежи. Но еще лучше сделать визуальную модель.
Для начала нужно размерять помещение. Если планируется монтированная конструкция, необходимо измерять ниши или стену. После этого приступаем к замерам внутренних отсеков.
Создание эскиза самый важный и трудный шаг сборки. Больше всего ошибок возникает именно здесь, ведь нужно максимально точно размерять помещение и габариты будущего шифоньера. Любая ошибка в этом шаге может привести к тому, что созданная конструкция не поместится на запланированном месте, или будет слишком маленькой.
Внимание! Если вы будете собирать шкаф на полу, необходимо учитывать дополнительные 10 см, иначе не получится установить его. Это расстояние между потоком и рамой помещения.
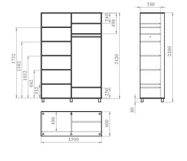
Существует множество готовых проектов, которые можно найти в интернете. Согласно им, средние значения шкафов такие:
- Высота 2,5 м.
- Глубина 50см.
- Ширина 1,5м.
Размеры шкафа будут зависеть от эго эксплуатации. Если нужна конструкция для хранения мелких бытовых предметов, подойдет небольшой шифоньер. Если в шкафу будет одежда и прочие вещи (возможно, бытовая техника), необходима большая конструкция. Согласно этому и делаются расчеты.
Как только мы определим глубину, высоту и ширину шкафа, нужно замерять двери. Здесь все зависит от расчета ширины шкафа. То есть если ширина 1,5 метров, а толщина материала 15 см, то нужно следовать этой формуле 1500 – 2 * 15 = 1470 – ширина дверей шкафа. Высоту дверей необходимо измерять также, но здесь учитывается цоколь.
Шифоньер самостоятельно: пошаговая инструкция
После того как мы сделаем все эскизы, и купим материалы, необходимо приступить к сборке каркаса. Сначала собирается цоколь. Дно нужно размечать так, чтобы на все ножки шифоньера была равномерная нагрузка. Для монтажа цоколя используются крепления, которые называются шканты. Чтобы конструкция была устойчивой, нужно, чтобы цоколь прилегал до стены.
Следующий шаг – установка боковых панелей. Нужно заранее отшлифовать торцы, чтобы обеспечить их прилегание к задней стене. Самое важное – обратить внимание на надежность шифоньера. Чтобы боковые стены разместились ровно, используйте уровень.
Теперь нужно сделать внутреннее наполнение шкафа. Устанавливаем штанги, полки и ящики. Обратите внимание. В процессе монтирования ящиков, сначала нужно установить направляющие механизмы, потом ответные. Фасады будут последними.
Последний шаг – установка двери. Можно купить уже готовый мебельный щит, а можно вырезать его самостоятельно из древесной плиты. Установка дверей – важный этап, ведь необходимо учитывать вес и габаритность дверей. Если вы сделаете их большими и тяжелыми, шкаф будет сложно использовать.
Сделать шифоньер своими руками достаточно просто. Необходимо уделить особое внимание выбору материала и созданию эскиза.
setafi.com
Как сделать шкаф своими руками пошагово, инструкция
В любом деле важна последовательность действий. От того, насколько четко и ясно представляется весь процесс, зависит и конечный результат. Понимание этого, осознание всех предстоящих сложностей позволяет не бросить сборку на середине из-за отсутствия каких-то комплектующих, запчастей, инструмента и фурнитуры. Инструкция, как сделать шкаф своими руками пошагово, позволит вам не упустить из внимания ни одну деталь.
Габаритные размеры
Изначально нужно определиться, где будет стоять шкаф. Это позволит решить, какими он будет габаритами.
- Высота. Под потолок технически можно реализовать только встроенные конструкции. Если шкаф корпусный, с боковыми стенками и крышей, отступ от потолка должен быть минимум 15-20 см. Иначе вы его просто не поднимете из-за диагонали боковин – ведь собирается любой шкаф «лежа». Съемная антресоль во многом облегчает сборку и позволяет сократить промежуток между крышей шкафа и потолком до 10 см.
- Глубина. Для гардеробного шкафа с распашными створками оптимальная глубина 50-55 см, с продольной штангой под плечики. В купе раздвижные двери «съедают» порядка 10 см, поэтому глубина увеличивается до 60-65 см. Для книжных шкафов и пеналов с полками обычно задают глубину 35-40 см. Шкафы поуже, 20-30 см необходимо крепить к стене, поскольку они будут неустойчивы.
- Ширина. Произвольный параметр, ограничивается только длиной стены. Для шкафов с распашными фасадами проще в сборке будут двухдверные, трехдверные и четырехдверные варианты.
Особенно важен первый шаг — замеры — на этапе проектирования встроенных и частично встроенных шкафов.
Шкафы-купе, как правило, устанавливаются от стены до стены, во всю длину помещения или в нишу. Тут важно учесть кривизну стен и завалы по горизонтали и вертикали. За основу берется меньший размер.
Шкаф на балкон также требует предельной вдумчивости и аккуратности при замерах. В условиях ограниченного пространства любые недочеты конструкции чреваты полной переделкой из-за невозможности установки.
Корпуса шкафов на балкон всегда сборные! Боковины делятся по высоте, по крайней мере, в двух местах — для антресоли или нижней тумбы. Иначе на узком балконе шкаф попросту не соберешь.
Конструкция и наполнение
После точных замеров места размещения, обдумывается внутреннее наполнение шкафа. Оно должно соответствовать функциональному предназначению и основным правилам эргономики хранения.

При планировании важно не упускать из внимания соотношение секций к фасадной части.
- Двери шкафа купе всегда одинаковой ширины. За каждой из них должна скрываться полноценное место хранения, без перекрытий и «мертвых» зон. Используемые подвижные механизмы (пантографы, корзины, ящики, брючницы и т.д.) должны свободно выдвигаться.
- Распашные фасады могут быть разной ширины и высоты, комбинироваться с выдвижными комодными ящиками и открытыми нишами с полками. Но в плане дизайна лучше смотрятся симметричные композиции, чередование одинаковых элементов.
Далее отрисовывается в масштабе общий и сборочный чертеж с размерами каждой секции и расстояниями между полками.
общий вид шкафа-купе
чертеж шкафа-купе с размерамиПо чертежу рассчитываются детали заготовок из ДСП (деталировка), составляются карты кроя и перечень фурнитуры. По этим данным уже можно судить о предстоящих расходах на изготовление шкафа своими руками.
расчет деталировки шкафа-купе
карты кроя ЛДСП на шкаф-купе
расчет затрат на шкаф-купеКакой понадобится ручной инструмент
Все зависит от того, что вы решили делать самостоятельно, а что делегировать.
- Распил деталей. Для нарезки ДСП и выравнивания торцов под наклейку кромки понадобится лобзик с пилкой по дереву, шлифмашинка или фрезер, наждачная бумага, рулетка, металлическая линейка и карандаш.
- Кромление. Меламиновая кромка наклеивается с помощью утюга, излишки срезаются канцелярским ножом и сошлифовываются наждачкой. Кромку ПВХ в домашних условиях приклеить сложно, тут потребуется специальный клей и фрезер.
- Засверловка деталей. Заготовки перед сборкой засверливаются под крепеж с помощью дрели или перфоратора. Понадобятся сверла диаметром 5, 7 мм, конфирматное сверло. А также сверла 10, 15, 20 мм, если используются эксцентрики (минификсы), 26/35 мм для установки петель распашных дверей. Тонкое шило для разметки.
- Сборка. Шуруповерт с насадками под крестовую и шестигранник, отвертка или трещотка для закручивания крепежа в узких местах.
- Вспомогательный инструмент. Самый обычный, имеющийся у любого мастера: набор отверток и гаечных ключей, тиски, плоскогубцы, кусачки, стамеска, ножовка по металлу, сапожный нож, угольник, маркер, точило.
Закупка крепежной фурнитуры
Ознакомиться с перечнем конструкционной фурнитуры можно здесь. Мебельный крепеж подсчитывается по числу отверстий и закупается с запасом. А вот функциональная и лицевая фурнитура приобретается в четком соответствии с нужным количеством.
Распил деталей корпуса и закатка торцов
В домашних условиях напилить листовой материал в размер заготовок профессионально и аккуратно вряд ли получится. Как и обработать торцы: наклейка меламиновой кромки утюгом больше вариант для дачной, бюджетной мебели.
Обычно распил и наклейку кромки ПВХ заказывают в соответствующих фирмах. Обычно эти услуги предлагаются там же, где реализуется ЛДСП, ДВП, кромочные материалы.
Цена за распил может рассчитываться по-разному:
- По длине всех резов, за м.п. Чем больше в конструкции шкафа мелких деталей в виде полочек, планок и выдвижных ящиков, тем дороже обойдется распил.
- За раскрой листа. Тут значение не имеет, сколько деталей, важно уложиться в лист. Поэтому по погонажу выгодней распил крупногабаритных вещей (например, шкафов-купе), а по листам – мелких (комодов, тумбочек и т.д.).
Закатка видимых торцов рассчитывается за п.м. Дешевле обходится ПВХ толщиной 0,4-1 мм, дороже – толщиной 2 мм. Поэтому внутренние части шкафа выгодней закатывать ПВХ потоньше.
Фасадная часть
Дизайн мебели определяет оформление фасадной части. Помимо дверей и способа их крепления к корпусу, могут оформляться:
- Козырек. Багетом (карнизом), встроенными светильниками, арочными конструкциями.
- Основание. Интересным цоколем, декоративными ножками, регулируемыми подпятниками.
- Боковины. Накладками в виде резных колонн, а также открытыми угловыми полками различных конструкций.
Распашные дверцы
В бюджетных вариантах фасады шкафа распиливаются вместе с корпусом, из ламинированного ДСП и закатываются ПВХ толщиной 2 мм. Иногда дизайн мебели предполагает контрастное сочетание, например, темный корпус и светлый фасад. Тогда под фасады приобретается отдельный лист ЛДСП нужного цвета.
Также двери шкафа можно изготовить из МДФ с облицовкой пленкой ПВХ, пластиком, шпоном, с покраской эмалью. Или заказать из массива.
Распашной фасад может быть накладным и внутренним, в зависимости от этого подбираются мебельные петли. Для стеклянных и угловых фасадов также есть «свои» петли.
Двери купе
Раздвижные системы для дверей купе могут быть опорными и подвесными. Но, как правило, состоят из:
- Трека, верхней и нижней направляющей.
- Комплекта роликов.
- Полотна двери.
Как рассчитать двери купе самостоятельно можно прочитать здесь. Также можно заказать уже собранные двери купе по размеру ниши для встраивания в шкаф, в комплекте с верхней и нижней направляющими нужной длины.
Подготовка деталей к сборке, засверловка
С помощью специальных мебельных программ можно составить спецификации на засверловку деталей для последующей сборки.

Это во многом облегчает процесс, делает его более точным и аккуратным. Сделать разметку под крепеж можно и вручную. Главное иметь пространственное представление.
Процесс засверловки деталей еще называют «присадка».
Под конфирмат нужно отверстие «в пасть» диаметром 8 мм с лицевой части детали и отверстие «в торец» диаметром 5 мм. Под шкант, как скрытый крепеж, засверловка «в пасть» делается с внутренней стороны и диаметром 5 мм. Эксцентриковая стяжка также имеет свои нюансы в разметке.
Размечаются и места крепления петель, направляющих ящиков и других механизмов, засверливаются отверстия под полкодержатели.
Сборка шкафа
Если присадка деталей была произведена правильно, то шкаф соберется просто и быстро, как конструктор.
- Процесс начинается с подготовки деталей для сборки. Прикручиваются подпятники, вбиваются полкодержатели, крепятся направляющие. Отдельно собираются ящики.
- Сама сборка шкафа начинается с крепления дна и крыши шкафа к боковинам.
- Далее прикручивается цоколь, подпятники к основанию или ножки.
- Устанавливаются ребра жесткости, несъемные полки.
- Крепится задняя стенка.
- Шкаф поднимается, перемещается в нужное место.
- Устанавливаются выдвижные ящики, штанги под одежду и другие элементы внутреннего наполнения.
- Завершающий этап – установка дверей и их регулировка.
Чем больше шкаф, тем тяжелее его собирать в одиночку. Поэтому лучше привлечь напарника – он будет поддерживать детали и комплектующие, чтобы вы могли их прикрутить ровно.
левая секция, сборка
центр, сборка
правая секция, сборкаВот в общих чертах и все описание процесса изготовления шкафа своими руками пошагово. Рекомендуем ознакомиться с другими материалами нашего сайта – они помогут вам в разработке дизайн-проекта мебели, расчете деталей и итоговой сборке с установкой по месту.
shkaf-info.ru
Шкаф своими руками, подробная инструкция с описанием всех этапов работ

В настоящее время многие жители сельской местности не могут себе позволить приобрести новую мебель для своего дома. Да и городские квартиры не всегда имеют большую площадь, где возможно было бы разместить предметы быта. Но, несмотря на это, народ все-же научился самостоятельно справляться с этими проблемами. Для этого можно сделать деревянный шкаф своими руками, без услуг специалистов. Выполнить такую конструкцию в домашних условиях не представляет особых сложностей, но, чтобы мебель имела долгий эксплуатационный срок, необходимо заранее ознакомиться с последовательностью и нюансами работ.
Что необходимо для изготовления
На сегодняшний день потребительский рынок предоставляет различные деревянные материалы для изготовления предметов быта. Поэтому, прежде чем приступить к рассмотрению такого вопроса, как самому сделать шкаф, сначала нужно определиться, из какого материала он будет изготавливаться. По отзывам специалистов, лучшими изделиями для этих работ считаются:
- фанера — этот многослойный материал обладает высокой износостойкостью и прочностью. Помимо этого, за счет экологичности, он абсолютно безвреден для здоровья человека. Выпускается фанера цельными плитами, что упрощает процесс сборки предметов быта;
- древесно-стружечные плиты — листы из ДСП считаются самыми востребованными изделиями для создания домашней мебели. Это обуславливается тем, что они сочетают неплохое качество по доступной цене. Данные изделия устойчивы к перепадам температуры и влаги, не деформируются под воздействием агрессивной среды и отличаются повышенной прочностью;
- цельные деревянные доски — материал из досок выпиливают из разных пород дерева. Выпускаются они разными размерами, отдельными видами обработок и качеством столярных работ. Для строительства мебели в основном подбирают доски из сосны, березы и дуба. Эти породы наделены высокой прочностью и устойчивостью к перепадам температуры и влажности воздуха.
Монтаж предметов быта из сосны своими руками — трудоемкий процесс, так как порода не является достаточно твердой. Но при выборе этого материала можно будет создать экстравагантный дизайн в любом помещении.

Деревянные доски

ДСП

Фанера
Итак, рассмотрев варианты материалов, которые понадобятся для изготовления мебели, стоит также ознакомиться с инструментами для выполнения работ. Изготовление шкафов выполняется следующим оборудованием:
- ручная пила для распиловки древесины;
- шлифовальная машина, для полировки поверхности дерева;
- угломер, для измерения угла наклона;
- линейка или метровая рулетка, для измерения размеров;
- деревянные дюбели, для крепежа изделия и наполнения;
- металлические уголки, для скрепления конструкции мебели;
- столярная плита, для изготовления стеллажа;
- мастика, для герметизации конструкции.
Помимо этого, чтобы оживить предмет быта желаемым оттенком, необходимо будет приобрести акриловую краску на водяной основе.

Нюансы работ с учетом вида конструкции
Соорудить шкаф из дерева своими руками можно несколькими способами.
Корпусный
Как видно по фото, корпусная мебель состоит из нескольких составляющих элементов, поэтому ее еще принято называть модульной. Особенностью такого шкафа является то, что владельцы по своему желанию могут дополнять его различными внутренними и наружными элементами. Первоначально конструкция изделия разрабатывается так, чтобы все детали сочетались между собой и корпусом. Для строительства корпуса потребуется наличие таких элементов, как крыша, дно, задняя и боковые стены. Все эти элементы могут быть выполнены в виде съемных прямых полок, на которых будут располагаться вещи. Также дополнительно можно будет соорудить выдвижной шкафчик для обуви.

Подготовка пазов для крепления полок

Собирать конструкцию лучше в горизонтальном положении

Верхнюю планку крепим в последнюю очередь

Вертикальные лицевые накладки
Встроенный
Отличительной особенностью встроенного шкафа является то, что он может быть выполнен из подручных материалов. Дело в том, что он в основном устанавливается в нишах помещения или в тех местах, где нет возможности расположить стандартную мебель. Для строительства шкафа не требуется цельный корпус. У него может отсутствовать одна или несколько стен, которые заменяются полом, потолком или стенами здания. Наполнительные элементы, как правило, могут быть выполнены так же, как у корпусной мебели. Но сконструировав такой шкаф своими руками из подручных материалов, потребитель должен быть готов к тому, что, в отличие от корпусного изделия, данную мебель нельзя будет перенести в другое место.
Конструкция каждого шкафа требует не только наличие корпуса и внутреннего наполнения, но и фасадную часть. Главным элементом фасадной части являются двери.

При изготовлении встроенного шкафа важно правильно разметить место под будущие полки

Полки должны быть прикреплены надежно

Специальные лаги необходимы для крепления дверей
Крепление дверей
На сегодняшний день потребительский рынок предлагает различные системы для крепления дверей мебели. Каждый элемент имеет свое определенное предназначение, которое зависит от способов открывания шкафа.
Распашные
Распашные двери – это самый распространенный вид конструкции мебели. В его состав входят деревянное полотно и оборудование для крепежа. Количество полотен для шкафа зависит от количества внутренних секций. Как правило, если шкаф имеет одну общую секцию, потребуется две створки. Если мебель будет состоять из одной узкой и одной широкой секции, соответственно потребуется три створки. Производство крепления дверей осуществляется на боковые стенки шкафа при помощи следующих петель:
- разъемные — устанавливается такое крепление с внутренней стороны стенки шкафа;
- универсальные — эти изделия можно установить в независимости от сторон шкафа. Крепятся петли одновременно на корпус и двери мебели.
После того, как на коробке изделия будут закреплены петли, на них навешиваются двери.

Подготовка отверстий

Выравнивание и установка петель

Купе
Двери купе – это раздвижная система, где при открытии шкафа одна дверца заходит на другую. Монтаж такой конструкции требует определенных знаний и навыков, поэтому прежде чем смонтировать раздвижной шкаф из фанеры своими руками, сначала нужно ознакомиться, с наименованием комплектующих и местом их расположения.
Комплект фурнитуры включает в себя:
- специальные колесики для передвижения дверей, устанавливаются в верхней и нижней их части;
- верхняя подвесная конструкция, для направления полотен;
- нижняя направляющая конструкция, по которой в пазах будут перемещаться колесики дверей;
- кассеты для установки деревянного полотна;
- замки и доводчик для легкого открывания дверей.
Такая конструкция предназначается для корпусной мебели с порогом. Если будет монтироваться встроенный шкаф, на полу можно будет не устанавливать нижние направляющие элементы.



Разметка и чертежи
Прежде чем сделать шкаф из вагонки своими руками, сначала нужно сделать разметку его расположения в помещении и составить чертеж конструкции. Такие предварительные процедуры помогут быстро собрать корпусную или встроенную мебель.
В схемах расположения шкафа, необходимо учесть его ширину и высоту. Для этого сначала рулеткой измеряется предполагаемое место его установки. При проведении измерительных работ, важно учитывать расстояние от плинтусов, подоконников, трубопроводов и разъемов для подключения электрических приборов. Если упустить эти моменты из вида, деревянный шкаф может не поместиться в отведенное место, либо в дальнейшем могут возникнуть препятствия при открытии дверок или подхода к источнику электропитания.
Для шкафа своими руками чертежи можно создать при помощи автоматизированной программы CAD или от руки. В первом случае схема шкафа составляется специальной компьютерной системой, во втором варианте выполняются чертежи шкафа своими руками. Как показала практика, второй вариант более прост, поэтому его выбирают чаще. Чтобы создать чертеж от руки, понадобятся лист бумаги и карандаш. Далее на листе рисуются эскизы шкафа.
Описание составления чертежа деревянного изделия:
- вид шкафа спереди — данный эскиз включает в себя ширину и высоту мебели, высоту цоколя, размер секций, удаленность полок друг от друга. При составлении чертежа важно учитывать толщину стенок мебели и его наполнения. Также нужно указать точки крепления полок и дверей;
- вид сверху и сбоку — в этом случае на лист бумаги наносится глубина мебели и полок. При нанесении значений глубины наполнения, важно учитывать крепление дверей. Чтобы полки не мешали установке крепежного оборудования, они должны располагаться на расстоянии 10 см от кромки фасадной стены мебели. Также на этом эскизе нужно указать скругление полок радиусом – R.
Помимо указанных значений корпуса мебели, на листе бумаги нужно нарисовать размеры элементов наполнения. Полки могут быть выполненными разной конфигураций и толщины, но они должны иметь соответствующий размер.




Изготовление деталей
Произведя чертеж конструкции шкафа своими руками и подготовив соответствующее оборудование, можно будет приступить к изготовлению его деталей. Для этого на лист из ДСП при помощи метра и карандаша переносятся размеры элементов мебели:
- верхняя часть шкафа в количестве – 1 шт;
- боковые стенки в количестве – 2 шт;
- днище в количестве – 1 шт;
- задняя стенка в количестве – 1 шт;
- полки мебели в количестве индивидуального предпочтения потребителя.
Далее с помощью пилы по намеченным линиям начинают поэтапное кроение деталей. При выполнении этих работ необходимо учесть толщину самой пилы, иначе элементы мебели после распиливания будут иметь меньший размер.
После того как детали будут готовы, их необходимо облицевать меламиновой пленкой. Для этого на элементы конструкции накладывается пленка, которая затем проутюживается. После того, как облицовка схватится на деталях, все ее лишние остатки отрезаются канцелярским ножом.

Подготовка деталей

Крепление кромки
Сборка
Сборку шкафа лучше осуществлять в намеченном месте его расположения. В этом случае можно будет предотвратить деформацию стен и пола помещения, при переноске готовой мебели. Изначально на намеченный пол укладываются листы картона, на которых будет последовательно собираться конструкция изделия.
Пошаговая инструкция сборки шкафа, осуществляется поэтапно:
- на полу располагается первый боковой лист;
- вертикально фиксируются крепежные элементы для соединения нижней и верхней стороны шкафа;
- по бокам устанавливаются и фиксируются верх и низ мебели;
- сверху располагается и закрепляется второй боковой лист шкафа;
- проверяется прочность крепежных элементов;
- шкаф переворачивается фасадной стороной на пол;
- укладывается и крепится задник мебели;
- шкаф поднимается, плотно устанавливается к стене, в отведенном месте.
Далее при помощи уровня необходимо создать ровное положение шкафа, после чего произвести крепление дверей, а также установку наполнения.
Итак, ознакомившись, как сделать шкаф своими руками, многие новички не совершат грубых ошибок при проектировании конструкции. Пошаговое руководство изготовления, поможет правильно выполнить детали мебели. А при соблюдении приведенной последовательности сборки, деревянные шкафы смогут простоять без деформации не один десяток лет.
Видео
mblx.ru
определяемся с шириной и глубиной, рисуем чертеж, выбираем материал, делаем в домашних условиях и храним верхнюю одежду правильно
Приняв решение обновить интерьер своего дома, стоит задуматься о смене мебельных предметов.
В каждом доме должен располагаться вместительный шкаф для одежды.
Его можно купить в готовом виде, заказать индивидуальное изготовление или сделать своими силами.
Отличительными чертами такого предмета станет его идеальное соответствие стилю дома и выражение вашего вкуса.
Материалы
Разнообразие подручных материалов на рынке, открывает перед потребителями безграничные возможности. Собрать мебель своими руками можно из:
- натурального дерева;
- вагонки;
- гипсокартона;
- ламината;
- МДФ или ДСП;
- ЛДСП.
От выбранного материала будет зависеть и внешний вид изделия, и его долговечность.
Дерево или вагонка являются самыми востребованными материалами. Они отличаются:
- натуральностью;
- эстетичностью;
- удобством в работе;
- длительным сроком эксплуатации;
- надежностью.
Важно. Во влажных помещениях, мебельные предметы их дерева могут слоиться или коробиться. Поэтому, их необходимо пропитывать водно–полимерной эмульсией или горячей олифой.
Гипсокартон легкий и удобный в работе. Он легко режется, пилится и обрабатывается разными подручными инструментами. Но конструкции из гипсокартона не слишком прочные.
Ламинат, ДСП, МДФ – устойчивы резким перепадам температуры. Они прекрасно пилятся, не трескаются и имеют безупречный внешний вид. Цветовая палитра данных материалов поражает разнообразными оттенками. Благодаря этому, мебель вписывается в разные стилистические направления.
Ширина и глубина

Прежде чем приступить к работе, необходимо тщательно рассчитать габариты изделия. На основе этих просчетов создается чертеж. Стандартными размерами являются:
- оптимальная глубина изделия составляет 60 см. В таком шкафу поместятся вешалки для одежды, ящики, корзины для белья. Для шкафов купе с раздвижными дверями, величину глубины стоит увеличить на 10 см;
- минимальная ширина изделия просчитывается в индивидуальном порядке. Чаще всего она составляет 40 см. Здесь стоит отталкиваться от размеров комнаты и личных предпочтений;
- высота платяного шкафа должна составлять 240 см. Но по желанию, ее можно увеличить или уменьшить.
Чертеж
Главной особенностью любого мебельного предмета должна являться его эргономичность и хорошая вместительность. Чтобы намного проще было собирать шкаф и просчитать необходимое количество расходных материалов, необходимо начертить его предварительный эскиз и схему.
Для корпусной мебели необходимо соорудить заднюю, боковые и верхние стенки. А для встраиваемой – боковые стенки и верхняя крышка не нужны. Шкаф монтируется непосредственно в нишу, а полки и другие элементы крепятся непосредственно к стенам в помещении.
Чертеж шкафа для верхней одежды составляется с помощью линейки, карандаша и листа бумаги. Если рисовать его от руки, на это уйдет приличное количество времени.
Совет. Для создания чертежа проще воспользоваться специальными программами на компьютере.

Инструменты и материалы
Для изготовления шкафа необходимо подготовить следующие инструменты:
- электролобзик и дрель с перфоратором;
- шуруповерт;
- торцовочную пилу;
- строительный уровень;
- молоток, рулетку, угольник;
- ножовку по металлу;
- строительный нож.
Что касается материалов, то его можно распилить своими силами или заказать в мебельной компании. Второй вариант более удобный.
Совет. Заказывая распил ЛСДП, вы в одном месте приобретаете необходимый вам дизайн и качество материала, и получаете уже полностью готовые к сборке распиленные и поторцованные детали.
Все что вам останется – наметить места для отверстий, для крепления фурнитуры и элементов крепежа.
Как сделать в домашних условиях?
После всех подготовительных работ, можно приступать к изготовлению и сборке каркаса. Если речь идет о встроенной мебели, то ее сборка начинается с одной стороны и продвигается по порядку:
- Сначала крепятся полки к боковой и задней стене с помощью уголков.
- Далее монтируется стойка, которая крепится к стене и к установленным элементам.
- После этого монтируются остальные полки к стенам и стойке.
Важно. При сборке каркаса шкафа, надо строго следовать чертежу, во избежание несоответствий. Следите, чтобы в процессе сборки не было перекосов.
Для сборки встроенного шкафа потребуются конфирматы и шканты. С помощью конфирматов между собой крепятся отдельные элементы. А шканты применяются для придания конструкции особой прочности и надежности.
Для сверления отверстий под конфирматы используется сверло, диаметром 5 мм. Заднюю стенку можно прикрепить маленькими гвоздиками или строительным степлером.
Внутренние полки и стенки можно закрепить мебельными уголками. Уголки крепятся саморезами. Для придания конструкции повышенной прочности применяются конфирматы.
Совет. Шкаф лучше собирать на месте его установки.
Завершающим этапом после сборки каркаса является – внутреннее расположение полочек, ящиков, штанг для одежды. Также стоит позаботиться о грамотном внутреннем освещении.
Финишная отделка
Финишная отделка мебели, изготовленной своими руками, напрямую зависит от выбранных материалов.
Изделие, построенное из МДФ, ЛДСП или натурального массива, в дополнительной финишной отделке не нуждается. А вот изделия из гипсокартона стоит декорировать, для придания эстетичности.
Внутренние поверхности шкафа красятся в тон стен. Это зрительно увеличивает помещение. А чтобы сделать мебельный предмет ярким пятном, можно применить насыщенный цвет краски. Гипсокартонные полки предварительно грунтуются и оклеиваются виниловыми обоями или самоклеющейся лентой.
Что касается дверей, то их чаще всего заказывают в готовом виде из листов ЛДСП или зеркал и в дополнительной отделке они не нуждаются. А боковые стены можно прогрунтовать, прошпаклевать, оклеить пленкой, обоями или покрасить стойкой краской.
Совет. Если творческий азарт не прошел, стоит заняться изготовлением шкафа для книг.Фото
После окончания работ у вас может получиться что-то в духе следующих фото:




Полезное видео
Основные этапы изготовления можно посмотреть на следующем видео:
Заключение
В заключение стоит отметить, что построить и собрать платяной шкаф своими руками – довольно легко. Главное, правильно подобрать расходные материалы, создать грамотные схемы и чертежи, и запастись свободным временем.
Вконтакте
Одноклассники
samodel.guru
Шифоньер своими руками
Решить проблему с множеством вещей и нехваткой мебели очень просто. Один вместительный шифоньер станет пристанищем для всех постоянно кочующих со стула на стул предметов одежды. Самый простой вариант — встроенный шкаф со множеством полок высотой под потолок. Ниже мы рассмотрим пошагово, как сделать шифоньер в такой конструкции своими руками.
Встроенный шифоньер своими руками
- Любая мебель начинается с самого простого проекта. Прежде чем собрать, как следует продумаем расположения каждой полки шифоньера, изготавливаемого своими руками, и его нужную высоту. Даже примитивный чертеж поможет рассчитать количество материала.
- А вот, собственно, и все наши заготовки: брус, готовые дверцы с зеркалом под шкафы купе, материал для зашивка каркаса. Здесь вы решаете сами, что именно станет лучшим материалом: гипсокартон, ДСП или другие варианты. Для оформления будем использовать штукатурку, краску в тон стенам комнаты и краску для отделки полок внутри.
- Прямо на полу начинаем собирать костяк шкафа. Сначала мы собираем боковые части, далее проверяем правильность сборки конструкции уже в вертикальном положении.
- Мы решили сделать своими руками встраиваемый тип, а значит, шифоньер придется буквально крепить к полу и стенам. Именно таким образом мы будем фиксировать каркас на свое место.
- В нашем варианте для зашивки корпуса будет использован гипсокартон. Чтобы отрезать нужную длину, мы сначала при помощи направляющей и ножа прорезаем не до конца кусок листа, затем аккуратно сгибаем его и отламываем нужную деталь.
- Пришло время сделать зашивку шифоньера, изготавливаемого своими руками, как можно более рациональнее. Не помешает даже так называемый раскрой. Если правильно расположить все детали на листе, хватит примерно двух-трех. Сначала зашили боковинки, затем верхнюю часть. Далее зашиваем передние стойки. Стараемся на несколько миллиметров перекрыть сам каркас, чтобы его не было видно при закрытых и открытых дверцах.
- Каркас зашили, далее его следует оформить. Все угловые части мы выравнивали при помощи профильного уголка, а значит, эту часть следует перекрыть, чтобы после финишного покрытия все вышло в один уровень.
- Осталось дело за малым. Внешняя часть шифоньера готова, осталось собрать своими руками внутреннюю, как она была спроектирована изначально. В нашем случае это полочки. Фиксируем сначала деревянные рейки. Каждая рейка — это основание для полки.
- Далее из деревянных досок нарезаем заготовки для полок, окрашиваем их, предварительно прибив передние опоры.
- Мы решили не занимать много места и сделать встраиваемую конструкцию, потому и дверцы выбрали по типу шкафа купе для максимальной экономии места и пространства. Разъезжаться они будут при помощи во таких реек, которые мы зафиксируем по верхнему и нижнему краю каркаса. Так как шкаф получился довольно большим, в нем установлена подсветка для удобства пользования.
- И наконец, последняя часть мастер класса сооружения шифоньера своими руками — оформление всего сделанного. Мы уже предварительно зашпаклевали все места с крепежом, выровняли поверхность. Далее осталось только нанести пару слоев интерьерной краски в тон стен в комнате.
- В самом конце устанавливаем готовые раздвижные дверцы с зеркалами и получаем почти невидимый, но очень вместительный шкаф.
Это очень хорошее решение для рационального использования незадействованного пространства, а также реальная экономия ваших средств, ведь купленные материалы не смогут догнать стоимость мебели хорошего качества. Кроме того, конструкция получилась компактной и почти незаметной.
womanadvice.ru
Встроенный шкаф купе своими руками, детальная инструкция с комментариями

Планировка российских квартир такова, что иногда в них можно обнаружить ниши, куда просто напрашивается шкаф. Такие пространства располагаются в коридорах, на кухнях или в спальне. Диван или кресла не поставишь, больно отстраненный угол, а вот смонтировать полки для хранения вещей было бы оптимальным решением. Нередко у владельцев возникает идея изготовить встроенный шкаф купе своими руками и это решение вполне оправданно. Благодаря подобной конструкции можно эффективно задействовать пространство ниши, а красивый фасад и фальшь панели могут не просто оживить комнату, но визуально даже сделать ее больше, например, если сделать дверки шкафа купе зеркальными. Итак, с чего начать, если желание лично приложить руки к благоустройству квартиры горит в душе. Предлагаем рассмотреть все этапы работы по пунктам.
Материалы и инструменты
Прежде чем самому приниматься за работу, для начала необходимо определиться, из какого материала планируется сделать встроенный шкаф, от этого зависит:
- как строить чертежи;
- какие инструменты необходимы для монтажа;
- какую схему сборки применять, чтобы встроить шкаф на отведенное ему место.
В зависимости от специфики материала процесс обустройства шкафов в ниши может отличаться кардинально.
| Материал | Степень соответствия задаче | Обоснование | Решение |
| Дерево | Не очень подходит для встроенного типа шкафа. | Влажность воздуха в нише выше относительно помещения в целом. Деревянные детали могут набухать, коробиться. Причина – перепады влажности от глухой стены по направлению к дверцам. При открывании шкафа влажность резко меняется, что запускает негативные процессы. | Взять прямослойную древесину, без сучков, свилей, трещин. Дерево должно быть выдержанным и максимально пропитано водно-полимерной эмульсией или горячей олифой. |
| Вагонка | Ограничено подходит. | Из-за того, что рамы створок нужно будет делать из дерева, которое чувствительно к влажности. | Использовать только в случае, когда того требует интерьерное решение. |
| Гипсокартонный лист (ГКЛ) | Непригоден в качестве основы, хоть и располагает широким потенциалом. | Тяжелый, хрупкий и малопрочный материал. Для изготовления несущих конструкций не годится. Может прогнуться под собственным весом. При вертикальной установке деформируется. | Используется только для отделки. Полки делаются в виде коробчатой пространственной конструкции на основе каркаса. Требуется шпаклевка и декоративная отделка. Для каркаса пригодны исключительно штатные C и U профили со штатным крепежом. |
| Ламинат, МДФ, ДВП | Отличный выбор. | Простое изготовление конструкции. Минимальные затраты. Материалы не чувствительны к перепадам влажности. | ДВП – средней, высокой плотности. Тонкую планку внутри ниши быстро поведет. |

Деревянная вагонка

Гипсокартон

Дерево

ДСП
Вам необходимо будет также приобрести:
- саморезы с дюбелями;
- направляющие и механизм для дверей шкафа купе;
- двусторонний скотч;
- спиртовые салфетки для обезжиривания поверхностей;
- фризы к направляющим;
- монтажные уголки;
- стойки вешало;
- штангодержатели.
Перед установкой соберите все необходимые для устройства шкафов инструменты:
- электронный дальномер или рулетка;
- уровень;
- электрический лобзик для выпиливания;
- шуруповерт;
- отвертку;
- электродрель для отверстий в стене;
- молоток.
Перед началом работ полезно посмотреть инструкции по монтажу встроенных шкафов купе.

Ролики и крепежи

Направляющие

Материалы
Разработка дизайна и чертежа
Прежде чем браться за чертежи шкафа, необходимо понять, как сделать замеры правильно. Далеко не всегда ниша, в которую планируется установить шкаф купе, будет иметь правильную геометрическую форму. Именно поэтому замеры в нише нужно проводить по правилам:
- сначала замеры производятся по задней стенке: по верху, на среднем уровне, по низу;
- потом также меряем с отступом «фронтальную часть»;
- измерение высоты также происходит по трем позициям с «тыла» и с «фронта».
Установка встроенного шкафа купе без таких измерений может привести к тому, что сделанный без учета погрешностей и перепадов корпус либо не войдет, либо при попытке собрать конструкцию будут обнаружены серьезные зазоры. Будет обидно, если выкроенная полка окажется меньше нужного размера и просто провалится. Перед тем как встроить тщательно просчитайте все погрешности, чтобы оставить припуск для монтажа. Иногда случается, что в итоге чертеж полок напоминает трапецию, а не ожидаемый прямоугольник. Все зависит от качества стен, плотности штукатурки на внутренних углах ниши.
Далее переходим к чертежу. Если навыков черчения у вас нет, лучше обратитесь к конструктору. На основании ваших данных и пожеланий относительно материала вам сделают чертеж будущего шкафа купе в нишу. В такой работе нужно не забыть учесть толщину материала, кромки, если хотите основательно закрыть места распила, и запас для механизма самого купе, на который тоже необходимо заложить порядка 10 см.
Имея на руках подробные схемы можно быть уверенным, что изготовление деталей шкафа будет более точным. Припуски, оставленные при учете погрешностей стен, позволят сделать встраивание более точным.
Теперь, что касается дизайна будущего шкафа: не имея большого опыта в составлении чертежей и монтаже откажитесь от сложных радиальный конструкций фасада. Здесь нужны не просто навыки, а хороший профессиональный опыт, чтобы просчитать, а потом грамотно собрать такую конструкцию. Ограничьтесь более простым вариантом шкафа, который гарантировано сможете контролировать во время сборки. Все декоративные элементы заказывайте строго в соответствии с чертежом.





Распиловка и фурнитура
Решив самостоятельно собирать встраиваемый шкаф купе, распиловку предоставьте профессиональному мебельному цеху. Построить качественный чертеж – полдела, другой вопрос хватит ли навыков выпиливать все необходимые детали и сколько времени у вас это займет. Привлечение помощников в данной ситуации более, чем оправдано:
- мебельщики закупают материалы по оптовой цене, вам придется делать тоже самое по розничной, а это переплата минимум на 20 процентов;
- по вашим чертежам специалисты с помощью компьютеризированного оборудования произведут распил деталей – быстро и с меньшим количеством дефектов. Распил на станке более качественный, чем делать это вручную, пусть и самой хорошей пилой;
- вам произведут кромкование срезов. Это поможет защитить части встраиваемого шкафа от воздействия влаги и чрезмерного разбухания материалов. Для деталей, которые будут на виду, это придаст дополнительный декоративный эффект. Кромка может быть простой и утолщенной с фасками.
Если для изделия берете ламинат или МДФ, то для корпуса толщина должна быть не менее 16 мм, а для дверок – 25 мм.
Что касается фурнитуры, то ее можно приобрести в специализированных мебельных магазинах. Прежде чем приступить к монтажу, убедитесь, что у вас в наличие все необходимое.

Подготовка деталей

Детали шкафа
Крепление каркаса
Прежде чем приступить к установке корпуса, полезно посмотреть пошаговое видео встроенного шкафа купе своими руками. Даже профессионалы периодически смотрят обучающие программы. Если у вас опыт базовый, то это поможет выстроить последовательный алгоритм действий. Подробное описание процедуры укажет на важные нюансы, которые подразумевает встроенная мебель. Инструкция установки позволит соблюсти порядок монтажных работ и получить функциональный результат.
Встроенные шкафы отличаются тем, что по факту не имеют собственного каркаса. Пол, стены и потолок шкафа создаются в самой нишей. Под каркасом в данном случае будет подразумеваться фальшь панель, к которой крепятся направляющие купе.
При креплении такой рамы очень важно компенсировать неровность, если потолок, пол или стены образуют уклон. Если этого не сделать, направляющая дверей купе получит крен и движение створок может оказаться невозможным.
Для компенсации имеющихся зазоров используются вкладки из МДФ или ламината. Рама выравнивается по уровню и закрепляется саморезами к стенам вместе с вкладками. Декорация щелей осуществляется при помощи фризов – декоративных планок, которые крепят на двусторонний скотч или клеят. Фриз предварительно выпиливается из ДСП одинакового тона с остальными деталями шкафа с припусками, которые подрезаются уже непосредственно в процессе монтажных работ.

Замеры и составление чертежа

Монтаж рам каркаса

Крепление каркаса
Подготовка дверей
Для встроенной мебели двери являются фасадом. Самая распространённая конфигурация купе – двери с устройством направляющих по внутреннему типу. Ведущие ролики могут располагаться как вверху (подвесные), так и внизу (упорные). Напольный вариант характеризуется бесшумностью и большей надежностью, но требуют ухода. Владельцам нужно будет регулярно чистить пазы от пыли. Верхняя конструкция встроенных роликов менее надежна по сравнению с первой, зато не требует особого присмотра, так как пазы не засоряются.
Собираем дверь, в зависимости от вашего выбора крепление роликов осуществляется непосредственно к полотну или с применением специальных рамок. Крепить к полотну можно только в случае, когда используется дерево или ДСП. Фасад может изготавливаться из пластика, стекла, плит, зеркал. Некоторые могут похвастаться шкафом со сборным фасадом.
Чаще всего установка дверей производится по двум или трем параллельным направляющим. Собрав таким образом рельсы вы получите несколько дверей, которые в процессе использования шкафа будут перемещаться перекрывая друг друга. Минимальный нахлест при такой установке в закрытом виду будет составлять 2 см.
Если количество дверных полотен четное, то и распределяют они в шахматном порядке по направляющим, а если количество четное, то можно оставить стыкующимися. Недостатком системы купе многие считают невозможность получить доступ сразу во всю встроенную конструкцию. Если по описанию шкаф имеет створки разного размера, велика вероятность возникновения труднодоступных мертвых зон.
Еще один вариант монтажа направляющих – внешний. Его используют гораздо реже, так как не часто встроенным шкафам остается место для прокладки направляющих вдоль стены. Такая встройка подходит для образцов встроенных в нишу, иначе полотна дверей будут провисать. При таком монтаже исключены мертвые зоны, но требуется оставлять свободное пространство для дверей. Если хотите, чтобы двери убирались, будет необходимо монтировать специальный короб. Озадачиваться такой идеей имеет смысл при планировании капитального ремонта.

Схема двери купе
Крепление полок
Установка полок шкафа осуществляется до того как будут закреплены двери. Когда соберете фальш панели рамы, приступайте к разметке внутреннего пространства для закрепления монтажных уголков. Рекомендуется пользоваться уровнем, чтобы полки шкафа установились строго горизонтально. Непосредственно при монтаже, благодаря оставленным припускам, полотна деталей подгоняются под внутреннее пространство шкафа. Это нормальная процедура, но действовать следует аккуратно, чтобы не спилить лишнего:
- если полка длиной более 800 мм, обязательно установите дополнительные крепления в районе центра. Дело в том, что такая длина при нагрузке способствует прогибу материала, поэтому конструкцию следует укрепить;
- если в планах установить сотовые полки (решетчатые), воспользуйтесь мебельными клипсами;
- для установки крестообразных конструкций при делении полок на секции используют шканты с дополнительным креплением на ПВА.
При сборке угловых моделей купе крепеж полок может осуществляться посредством стойки в угловой части. Такой вариант помогает максимально эффективно задействовать пространство в самом углу и не допустить образования мертвой зоны.

Установка полок

Вариант крепления полки
Покраска и установка дверей
Если в ваших планах покраска дверей шкафа, то займитесь колористикой до установки полок. Таким образом, у полотен дверей будет время просохнуть, пока вы занимаетесь монтажом внутренней составляющей шкафа. Для шкафов купе очень хороши акриловые эмали. Они придают красивый цвет, блестящую поверхность и при необходимости прекрасно моются. Это будет практичный выбор, ели ваш шкаф предназначается для хранения верхней одежды. Некоторые предпочитают покрывать конструкцию олифой. Перед покраской поверхность лучше прогрунтовать, тогда краска ляжет ровно и будет хорошо держаться.
Для покраски внутренних поверхностей шкафа также лучше выбрать краску, которая будет легко мыться и не оставит следов на вещах. Обязательно выбирайте качественный вариант, в противном случае придется перекрашивать шкаф совсем скоро.
После того как все детали шкафа просохли, можно установить двери на место. Если при монтаже направляющих не произошло перекоса, механизм будет двигаться плавно, без заедания.

Крепление направляющих

Установка двери
Свет и финишная отделка
После того как конструкция шкафа полностью собрана, необходимо позаботиться о финишной отделе и устройстве освещения. Убедитесь, что на внутренних поверхностях конструкции шкафа нет дефектов, которые в дальнейшем могли бы привести к порче вещей. Закройте все шляпки саморезов, устраните косметические недочеты.
Для большого шкафа необходимо освещение. Рекомендуется для подсветки использовать светодиодные устройства. Они экономят энергию, не накаляются и при нагревании не прожгут вещи. При этом они дают достаточно света, чтобы вы без проблем могли отыскать внутри шкафа нужную вещь.
Самостоятельное изготовление шкафа купе встроенного в нишу хорошая идея для любителей самостоятельной сборки конструкций, которые не только смогут произвести замеры и составить чертеж, но и прочитать его, когда получат от специалиста. При кажущейся простоте работа все же требует определенных навыков, поэтому к решению самостоятельного обустройства ниши шкафом стоит подойти ответственно. Иногда самостоятельная работа может выйти дешевле работы профессионалов и наоборот. Сделать такой встроенный шкафы купе своими руками видео поможет, а процесс встраивания не такой сложный, как может показаться.

Видео
mblx.ru
Как обновить старый шифоньер своими руками с фото
В качестве предисловия
Сегодня у очень многих людей дома стоит старая мебель. Вроде бы и выкинуть ее жалко, но и вид он портит. В действительности же нужно произвести простую реставрацию. Как это сделать? Давайте разбираться в данной статье.

Процесс работы
Допустим, у нас есть вот такой шкаф. После обновления он будет стоять в прихожей. Можно сказать, встречать гостей. Для начала нужно снять все, что можно. Это в первую очередь дверцу. Антресоль должна быть внизу. Здесь будет удобно хранить обувь. Под нее подкладываются бруски по краям, которые прикручиваются саморезами.

Шкаф сверху необходимо разделить при помощи перегородки. Обычно подходит любая доска соответствующих размеров.

На одной стороне следует поставить перекладину. Она отлично подойдет для пальто и прочей одежды. С другой стороны нужно поставить 2-3 полочки. Опять подойдет доски.

На данной фотографии вы сможете увидеть выключатель. Но для него возможно просто прорезать небольшое отверстие.

Низ мебели стал верхом. Здесь можно хранить зонтики и шляпы. Как правило, старая мебель не очень привлекательна. Но это изменить просто. Достаточно лишь перекрасить ее в белый цвет. Он является практически универсальным. Такая миниатюрная антресоль отлично впишется в то расстояние, которое есть между основным шкафом и стенкой. Для крепления используют саморезы и уголки.

Для начала следует ошкурить всю поверхность. Все перед покраской покрывается шпаклевкой. Тщательно покройте все краской. После обработайте поверхность лаком для стойкости.

Дверцы красятся в тот же цвет. Можно использовать узоры со старого шкафа. Только обязательно обработайте их золотой краской.

Из-за того, что дверцы от другого шкафа оказалась маленькой, пришлось использовать специальную вставку. Есть множество декоративных решений. Зато вы дополнительно сможете прикрутить приглянувшиеся вам ручки.

Полки можно оклеить пленкой, а остальное обработать акриловой эмалью, которая не имеет запаха. С левой стороны можно сделать специальный декоративный вырез. Посмотрите, как это здорово выглядит.

Как видите, осуществить такую реставрацию достаточно просто. Для этого не потребуется много денег и времени. Произвести это может практически каждый. Так можно обработать практически любую мебель. Естественно, вы можете произвести какие-то свои коррективы. Просто используйте свое воображение.

Мой мир
Вконтакте
Одноклассники
svoimirukami.mediasole.ru
